Crestron Electronic Green Light 120 Volt Users Manual Description
120 Volt to the manual 5ea83953-64ad-4ffe-8790-ef8308280f34
2015-02-05
: Crestron-Electronic Crestron-Electronic-Green-Light-120-Volt-Users-Manual-533510 crestron-electronic-green-light-120-volt-users-manual-533510 crestron-electronic pdf
Open the PDF directly: View PDF
.
Page Count: 16

CRESTRON GREEN LIGHT™ Architectural Dimming
Introduction
CRESTRON GREEN LIGHT architectural dimming cabinets come pre-configured with GLX architectural dimming
and switching modules already installed. In addition, branch circuit breakers come preinstalled and prewired to the
modules. The cabinets only require installation and wiring of feed and load circuits.
Industry Compliance
The cabinet and modules are Listed to applicable UL Standards and requirements by Underwriters Laboratories Inc.
(E227280 (cabinet) and E103692 (modules))
Application
The following diagram shows CRESTRON GREEN LIGHT architectural dimming cabinets in a lighting application
that is controlled by an IPAC system.
CRESTRON GREEN LIGHT Architectural Dimming Cabinets in a Typical Lighting Application
Crestron Electronics, Inc. Installation Guide – DOC. 6688A
15 Volvo Drive Rockleigh, NJ 07647 (2020963)
Tel: 888.CRESTRON 02.09
Fax: 201.767.7576 Specifications subject to
www.crestron.com change without notice.

Architectural Dimming CRESTRON GREEN LIGHT™
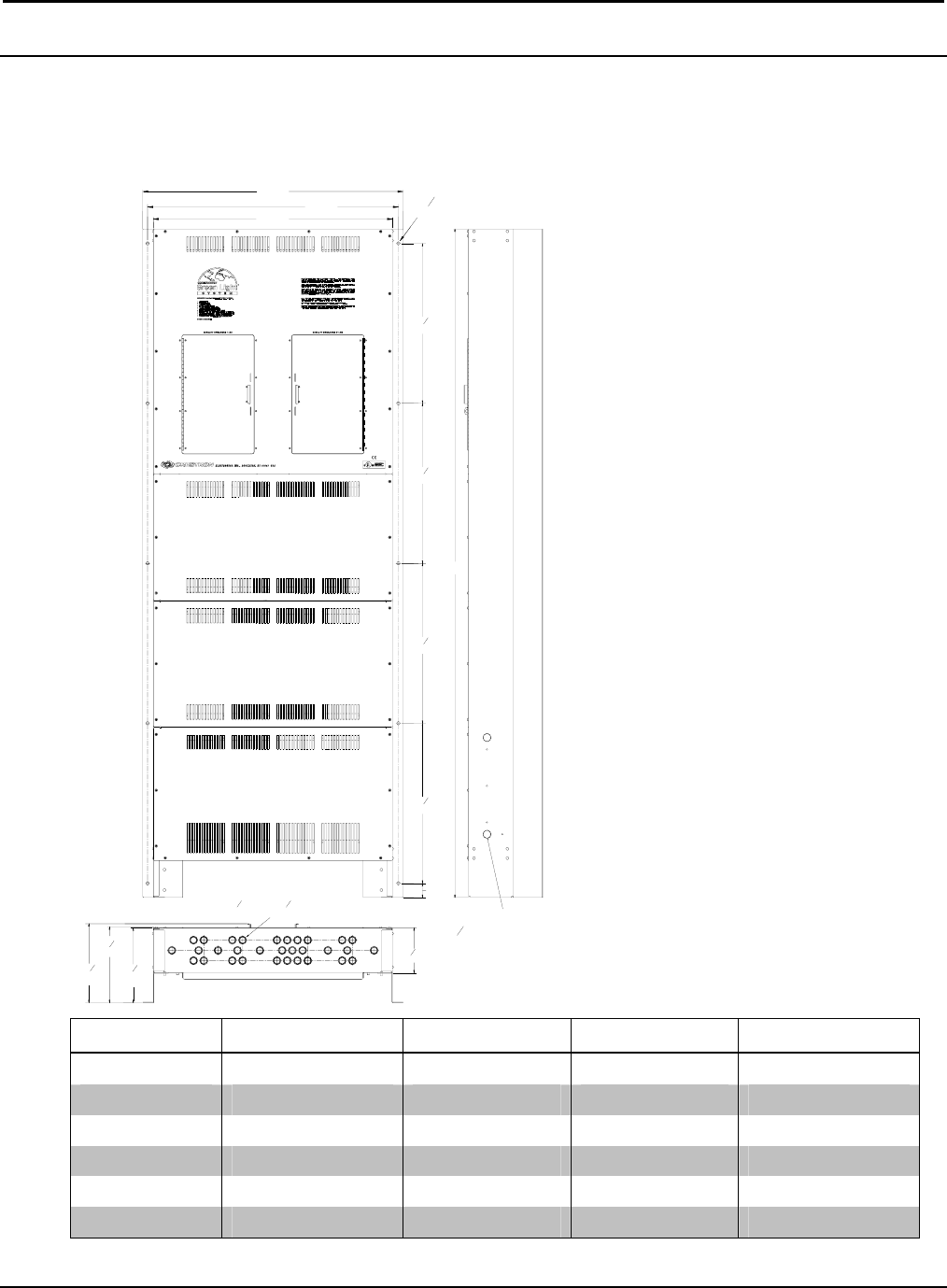
Physical Description
This section shows the exterior and interior dimensions of the CRESTRON GREEN LIGHT Architectural Dimming
cabinet.
External Dimensions of CRESTRON GREEN LIGHT Architectural Dimming Cabinets
W1 W2 Ø716" (11 mm) MOUNTING
HOLES
H1
6116"
(154 mm)
CONCENTRIC TECHNICAL KNOCKOUTS,
31 TOTAL (FOR 34" (19 mm) & 12" (13 mm) CONDUIT)
TYPICAL TOP AND BOTTOM
10 58"
(270 mm)
10 316"
(259 mm)
10 116"
(256 mm)
W3
H2
KNOCKOUTS, 4 TOTAL,
(FOR 34" (19 mm)CONDUIT) TYPICAL BOTH SIDES
21 12"
(547 mm)
21 12"
(547 mm)
21 12"
(547 mm)
21 12"
(547 mm)
DIMENSION GLE-*-2X2 GLE-*-3X2 GLE-*-2X4 GLE-*-3X4
Module Spaces 4 6 8 12
W1 22 7/8” (582 mm) 22 7/8” (582 mm) 35 1/16” (891 mm) 35 1/16” (891 mm)
W2 21 5/8” (550 mm) 21 5/8” (550 mm) 33 3/4” (858 mm) 33 3/4” (858 mm)
W3 20 1/16” (510 mm) 20 1/16” (510 mm) 32 3/16” (818 mm) 32 3/16” (818 mm)
H1 1 7/16” (37 mm) 5” (27 mm) 1 7/16” (37 mm) 1 15/16” (50 mm)
H2 67 13/16 (1723 mm) 96” (2439 mm) 67 7/8” (1725 mm) 89 13/16 (2282 mm)
2 • CRESTRON GREEN LIGHT Architectural Dimming Installation Guide – DOC. 6688A

CRESTRON GREEN LIGHT™ Architectural Dimming
Interior Dimensions of CRESTRON GREEN LIGHT Architectural Dimming Cabinets (GLE-XXX-Xx2, left; GLE-XXX-Xx4, right)
H1
W3W3
W2
W1
GROUND LUG
GROUND BARS
SERVICE
SCREWDRIVER
H1
W3W3W3W3
W1 W5
W4
W2
SERVICE SCREWDRIVER
GROUND LUG
GROUND BARS
Interior Dimensions of CRESTRON GREEN LIGHT Architectural Dimming Cabinets
GLE-120 GLE-277
DIMENSION 2X2 3X2 2X4 3X4 2X2 3X2 2X4 3X4
H1 14 7/8”
(378 mm) 18 1/4”
(464 mm) 14 7/8”
(378 mm) 14 7/8”
(378 mm) 11 11/16”
(297 mm) 15 1/16
(383 mm) 11 11/16”
(297 mm) 11 11/16”
(297 mm)
W1 8 3/16”
(208 mm) 8 3/16”
(208 mm) 6 13/16”
(174 mm) 6 13/16”
(174 mm) 8”
(204 mm) 8”
(204 mm) 6 11/16”
(170 mm) 6 11/16”
(170 mm)
W2 6 5/16”
(161 mm) 6 5/16”
(161 mm) 4 15/16”
(126 mm) 4 15/16”
(126 mm) 3 7/8”
(99 mm) 3 7/8”
(99 mm) 2 9/16”
(66 mm) 2 9/16”
(66 mm)
W3 1 7/8”
(48 mm) 1 7/8”
(48 mm) 1 7/8”
(48 mm) 1 7/8”
(48 mm) 2”
(51 mm) 2”
(51 mm) 2”
(51 mm) 2”
(51 mm)
W4 - - 21 5/8”
(550 mm) 21 5/8”
(550 mm - - 21 1/2”
(547 mm) 21 1/2”
(547 mm)
W5 - - 19 3/4”
(502 mm) 19 3/4”
(502 mm) - - 17 3/8”
(442 mm) 17 3/8”
(442 mm)
Installation Guide – DOC. 6688A CRESTRON GREEN LIGHT Architectural Dimming • 3

Architectural Dimming CRESTRON GREEN LIGHT™
Installation
Observe the following when installing the cabinet:
• The cabinet must be mounted by a licensed electrician in accordance with all national and local codes.
Refer to the diagram below for specific requirements.
• Allow adequate clearance in front of the cover for servicing.
• The cabinet is designed for surface mounting on a wall.
• Cabinets are intended for indoor use only.
• The ambient temperature range should be 32°F to 104°F (0°C to 40°C). The relative humidity should range
from 10% to 90% (non-condensing).
Mounting Location
MAXIMUM HEIGHT OF
HIGHEST BREAKER
(FROM GROUND)
3'
(0.9 m)
6'-7"
(2.01 m)
MINIMUM REQUIRED
CLEARANCE
WALL
4 • CRESTRON GREEN LIGHT Architectural Dimming Installation Guide – DOC. 6688A

CRESTRON GREEN LIGHT™ Architectural Dimming
Wiring
NOTE: All wiring must be installed in accordance with all local and national electrical codes.
NOTE: Refer to the torque settings specified on pages 6, 7 and 8.
CRESTRON GREEN LIGHT cabinets are shipped with GLX modules installed and prewired to the branch circuit
breakers. The following must be performed after installation:
• Connect incoming feed conductors to the breaker panel (section A of the following diagram)
• Connect load wiring to GLX module outputs (section B of the following diagram)
• Connect control wiring (section C of the following diagram)
FEED:
3-PHASE 4-WIRE
MAIN LUG ONLY TO LOADS:
2W + GND 16A (MAX)
CLASS 2
WIRING ONL
Y
CLASS 2
WIRING ONLY
A
B
C
Installation Guide – DOC. 6688A CRESTRON GREEN LIGHT Architectural Dimming • 5

Architectural Dimming CRESTRON GREEN LIGHT™
Feed Wiring (Section A)
Feed Wiring for MLO and MCB Applications MCB BREAKER DETAIL
MLO BREAKER DETAIL
"A"
PHASE
"B"
PHASE
"C"
PHASE
NEUTRAL LUG
NEUTRAL BUS
NEUTRAL BUS
"A"
PHASE
"B"
PHASE
"C"
PHASE
NEUTRAL LUG
GROUND LUG
GROUND BARS
GROUND LUG
GROUND BARS
Refer to the following table for information on wiring the feed to the panel.
Feed Wire Information
120 Volt Models 277 Volt Models
TERMINAL CONNECTOR MAX
WIRE RANGE TORQUE Max
Current CONNECTOR MAX
WIRE RANGE TORQUE Max
Current
Neutral and
Main Lugs 10-2/0 AWG (CU) or
6-2/0 AWG (AL)
6 - 300 kcmil (CU or AL)
15 lb-ft
(20.3 Nm)
21 lb-ft
(28.5 Nm)
6-350 kcmil (CU or AL)
1/0-750 kcmil (CU or AL) 275-300 lb-in
(31.1-33.9 Nm)
Neutral Bus 14-10 AWG(CU) or
12-10 AWG (AL)
8 AWG (CU or AL)
6-4 AWG (CU or AL)
20 lb-in
(2.3 Nm)
25 lb-in
(2.8 Nm)
35 lb-in
(4.0 Nm)
225
Amps 14-6 AWG (CU or AL)
14-2/0 AWG (CU or AL)
24-35 lb-in
(2.7-4.0 Nm)
40-50 lb-in
(4.5-5.6 Nm)
250
Amps
Use copper or aluminum conductors only – rated 75°C.
WARNING: Failure to properly tighten lugs may result in poor electrical connection and overheating of the terminals.
6 • CRESTRON GREEN LIGHT Architectural Dimming Installation Guide – DOC. 6688A

CRESTRON GREEN LIGHT™ Architectural Dimming
Load Wiring (Section B)
CAUTION: Bypass jumpers are provided on each output to allow testing and to protect the module during
installation. The jumper shorts the L, SW and DM terminals so that the load circuit is energized when the branch
breaker is on. Do not remove the bypass jumper until all feed and load wiring has been completed, and the circuits
have been tested for electrical faults.
NOTE: Use copper conductors only – rated 75°C.
Wire Gauge and Torque Values
TERMINAL CONNECTOR MAX WIRE RANGE TORQUE STRIP LENGTH
LOAD & DM OUTPUTS 26-10 AWG 5.31 lb-in (0.6 Nm) to
7.08 lb-in (0.8 Nm) max 3/8”
(9 mm)
DIM CONTROL
(GLX-DIMFLV8 only) 28-12 AWG 4.43 lb-in
(0.5 Nm) 5/16”
(8 mm)
GROUND BAR 14-10 AWG 35 lb-in
(4.0 Nm) 5/16”
(8 mm)
GROUND LUG 14-4 AWG 45-25 lb-in
(5.1-2.8 Nm) 3/4"
(19 mm)
1. Each output has a label with the number of the controlling circuit breaker printed on it. With the
corresponding circuit breaker turned off, connect the controlled circuit (LOAD) wires to the output per the
markings on the module as shown in the following diagrams. Terminals for load wiring accept one 10 – 14
AWG wire.
Load Wiring for GLX-DIM6, GLX-DIMFLV8, and GLX-HSW8 (Jumper Installed)
TO BRANCH BREAKER
(PREWIRED)
TO NEUTRAL BUS
(PREWIRED) TO LOAD
JUMPER
(INSTALLED)
GLX-DIM6
GLX-HSW8 AND GLX-DIMFLV8
TO BRANCH BREAKER
(PREWIRED)
TO LOAD
TO NEUTRAL BUS
(PREWIRED)
TO LOAD
(3-WIRE BALLASTS
ONLY)
JUMPER
(INSTALLED)
Installation Guide – DOC. 6688A CRESTRON GREEN LIGHT Architectural Dimming • 7

Architectural Dimming CRESTRON GREEN LIGHT™
The GLX-DIMFLV8 also requires wiring the terminals for 0-10 VDC control wire. Refer to the following
diagram when connecting the dimmable ballast. Each control wire terminal accepts one 12 – 28 AWG wire.
0-10 VDC Control Wiring for GLX-DIMFLV8 Only
TO "+" ON 4-WIRE LOADS (PURPLE)
TO "-" ON 4-WIRE LOADS (GRAY)
2. Test the circuit for electrical faults by turning on each circuit breaker, checking that the breakers do not
trip, and that power is delivered to the proper loads.
3. Turn off the circuit breaker(s) and remove all jumpers.
4. Turn on the circuit breakers.
Control Wiring (Section C)
The bottom of the cabinet contains Cresnet® connections for interfacing to the rest of the Crestron® control system.
It also provides an override input which can be tied to devices such as the GLS-PLS-120/277 phase-loss sensor, or
other devices that provide a dry contact closure (manual switch, fire alarm relay, etc.).
NOTE: Interface connectors for NET (x2), POWER (x3), and OVERRIDE (x3) ports are provided.
Wire Gauge and Torque Values
TERMINAL CONNECTOR MAX
WIRE RANGE TORQUE STRIP
LENGTH
NET 26-12 AWG 4.43 lb-in
(0.5 Nm) 1/4”
(6 mm)
POWER 26-12 AWG 4.43 lb-in
(0.5 Nm) 1/4”
(6 mm)
OVERRIDE 26-12 AWG 4.43 lb-in
(0.5 Nm) 1/4”
(6 mm)
8 • CRESTRON GREEN LIGHT Architectural Dimming Installation Guide – DOC. 6688A

CRESTRON GREEN LIGHT™ Architectural Dimming
Connector Wiring
RED
WHITE
BLUE
BLACK
RED
WHITE
BLUE
BLACK
OVERRIDE:
FROM OTHER CABINET;
FROM ALARM, ETC.
(OPTIONAL); TO OTHER
CABINET(S) IF NECESSARY
POWER:
24 VDC JUMPERED FROM NET
PORT or EXTERNAL SUPPLY.
PROVIDES CRESNET POWER
TO THE MODULES
NET:
TO CONTROL SYSTEM AND
OTHER CRESNET DEVICES
MODULES:
TO GLX MODULES
NET Port Wiring
When wiring the supplied NET connectors for connection to a Crestron control system or other device on the
Cresnet network, use Crestron certified wire such as CRESNET-NP or CRESNET-P.
To ensure optimum performance over the full range of your installation topology, use Crestron certified wire.
Failure to do so may incur additional charges if support is required to identify performance deficiencies because
of using improper wire.
When daisy-chaining connections between NET ports, strip the ends of the wires carefully to avoid nicking the
conductors. Twist together the ends of the wires that share a pin on the network connector, insert the connection
into the Cresnet connector, and tighten the retaining screw. Repeat the procedure for the other three conductors.
POWER Port Wiring
Low voltage (24 VDC) power must be supplied to the modules either internally via devices connected to the
NET port or externally via a Cresnet power supply connected to the POWER port.
To power the modules internally from line power, install a jumper from the INT pin on the supplied POWER
connector to the EXT pin on the POWER connector as shown in the following diagram.
Providing Cresnet Power Internally
When a lighting module is powered from line power, the module’s PWR LED will illuminate.
Installation Guide – DOC. 6688A CRESTRON GREEN LIGHT Architectural Dimming • 9

Architectural Dimming CRESTRON GREEN LIGHT™
To power the modules externally from a Cresnet 24 VDC power supply, connect the external power supply to
the EXT and G pins on the POWER supplied connector as shown in the following diagram.
Providing Cresnet Power Externally
When properly connected and receiving 24 VDC power externally, the green LED next to the MODULES port
will light.
Under normal operation, each lighting module will draw power from the line voltage on circuit 1. In this case
the green PWR LED on the module will be lit. If AC power to circuit 1 is interrupted for some reason (e.g.
because the breaker trips), the module will automatically draw power from the 24VDC supply, if available. In
this case, the PWR LED will flash.
OVERRIDE Port Wiring
Low-voltage input devices such as the Crestron GLS-PLS-120/277 phase-loss sensor or any device that
provides a dry contact closure can be connected to the supplied OVERRIDE connector on the bottom of the
cabinet.
When a dry contact closure is applied to the OVERRIDE terminals, all modules in the cabinet will enter into
Override mode. In this mode they will recall their override levels, and will ignore any external commands (e.g.
from keypads, touchpanels, or timeclock events) until the override contacts are removed.
For more details, refer to “Override Mode” on page 11.
10 • CRESTRON GREEN LIGHT Architectural Dimming Installation Guide – DOC. 6688A

CRESTRON GREEN LIGHT™ Architectural Dimming
Testing
Manual Control
A lighting module can be manually controlled from its front panel.
Switch Function
The GLX-HSW8 is a power switching module that can be used to turn loads on and off.
The GLX-DIM6 and the GLX-DIMFLV8 are dimming modules whose outputs can be set to operate as
dimmable or non-dimmable outputs. The state of each output can be manually controlled from the front panel.
To use a module’s switch function:
• Ensure that the output’s mode switch is set to NON-DIM (GLX-DIM6 and GLX-DIMFLV8 only).
The DIM LED will be off.
• Press the S button to turn the output on. The corresponding ON LED illuminates and the output state
is shown on the NET ID display (“On” for on) for two seconds after the button is released.
• Press the T button to turn the output off. The corresponding ON LED extinguishes and the output
state is shown on the NET ID display (“oF” for off) for two seconds after the button is released.
NOTE: The control system program may change the settings if the Override mode is not enabled.
Dimming Function (GLX-DIM6 and GLX-DIMFLV8 Only)
The lighting level of each of the outputs can be manually controlled from the front panel.
• Ensure that the output’s mode switch is set to DIM (GLX-DIM6 and GLX-DIMFLV8 only).
• Press the S button to turn the output on (100%). The corresponding ON and DIM LEDs illuminate
and the output state is shown on the NET ID display (“On” for on) for two seconds after the button is
released.
• Press the T button to turn the output off. The corresponding ON LED extinguishes and the output
state is shown on the NET ID display (“oF” for off) for two seconds after the button is released.
• To ramp the lighting level up or down (until it reaches 100% or turns off), press and hold the output’s
S or T button. The corresponding ON LED illuminates while the load is ON. The DIM LED
illuminates while the output level is less than 100%. The output level is shown on the NET ID display
as a percentage (01-99, “oF” for off, or “On” for on) for two seconds after the button is released.
NOTE: The control system program may change the settings if the Override mode is not enabled.
Override Mode
The Override mode overrides the control system program and sets all of the output states to the stored override
values. For instructions on saving override settings, refer to “Save Override Settings” on page 12.
To enable Override mode, press and release the OVR button. The OVR LED flashes slowly.
NOTE: If the Override mode was enabled from an external device (i.e. a contact closure is present on the
OVERRIDE terminals), the OVR LED will flash quickly. Pressing the OVR button has no effect.
To disable Override mode, press the OVR button again. The OVR LED extinguishes and the outputs return to the
states set by the control system program.
NOTE: If override states have not been stored, the factory default override state is all loads on.
Installation Guide – DOC. 6688A CRESTRON GREEN LIGHT Architectural Dimming • 11

Architectural Dimming CRESTRON GREEN LIGHT™
Save Override Settings
The state of each output can be saved as an override setting, which can be automatically recalled when the Override
mode is enabled.
NOTE: The control system program has a setting that can prevent locally saving the override state. If this setting is
enabled, the display shows “Er” when trying to save override states. For more information, refer to the SIMPL
Windows help file.
To save the state of all of the outputs as an override setting, press and hold the OVR button for three seconds. The
OVR LED blinks to indicate the new override settings have been stored.
System Operation and Commissioning
This cabinet has been designed as a component of a programmed Crestron system. System commissioning by an
authorized Crestron representative must be performed to ensure system operation.
Once the cabinet has been wired and the modules have been tested, contact Crestron at 1-888-CRESTRON
[1-888-273-7876] to schedule commissioning.
12 • CRESTRON GREEN LIGHT Architectural Dimming Installation Guide – DOC. 6688A

CRESTRON GREEN LIGHT™ Architectural Dimming
Problem Solving
Troubleshooting
The following table provides corrective action for possible trouble situations. If further assistance is required, please
contact a Crestron customer service representative.
Troubleshooting
TROUBLE POSSIBLE CAUSE(S) CORRECTIVE ACTION
Power not delivered to the
module. If the module is powered internally, verify that
the circuit breaker connected to the first
channel on the module is on and delivering
power to the module.
If module is powered externally, verify that the
POWER port is correctly wired and receiving
power.
Module(s) does not
function.
System commissioning not
complete. Arrange for system commissioning.
Module’s PWR LED is
flashing. AC power not present on L1. Check that the branch breaker feeding L1 has
not tripped. Note that unit will continue to
function, but will draw power from the backup
Cresnet power supply.
Unit cannot be taken out of
Override mode Short (contact closure) exists
between G and OVR terminals
on any of the OVERRIDE
terminals present at bottom of
the cabinet.
Determine the reason for the short. Remove or
remedy the short (e.g. GLS-PLS-120/277 phase-
loss sensor may not have been installed
properly, or actual phase-loss has been
detected).
Mode switch is set to
NON-DIM. Set switch to DIM.
Load does not dim.
Module is not wired correctly. Verify that module is wired for dimming.
Fluorescent lamps stay at
minimum intensity (0-10V
dimmable fluorescents only).
+ or - wires are reversed or
shorted. Verify polarity of + and - wires at ballasts and
GLXP-DIMFLV8.
Fluorescent lamps stay at
maximum intensity (0-10V
dimmable fluorescents only).
+ or - wires are not connected. Verify polarity of + and - wires at ballasts and
GLXP-DIMFLV8.
Further Inquiries
If you cannot locate specific information or have questions after reviewing this guide, please take advantage of
Crestron's award winning customer service team by calling Crestron at 1-888-CRESTRON [1-888-273-7876].
You can also log onto the online help section of the Crestron website (www.crestron.com/onlinehelp) to ask
questions about Crestron products. First-time users will need to establish a user account to fully benefit from all
available features.
Installation Guide – DOC. 6688A CRESTRON GREEN LIGHT Architectural Dimming • 13

Architectural Dimming CRESTRON GREEN LIGHT™
Appendix A: Setting Module Net IDs
The following procedure will normally be performed by an authorized Crestron representative as part of the System
Commissioning phase. For system wiring and basic testing as described on pages 5 and 11, it is not necessary to
perform this step. Only perform this step if instructed by an authorized Crestron representative, or when replacing
modules on a system that have already been commissioned (in the latter case the Net ID should be set to match the
Net ID of the module being replaced).
The Net ID of each module in the cabinet can be changed from the front panel of each module. The Net IDs of each
module in the system must be unique.
To set the Net ID using the front panel:
1. Press the recessed SETUP button to enter the Setup mode. The SETUP LED illuminates.
2. As shown in the following diagram, press the left button under the NET ID display to change the left digit
of the Net ID or press the right button under the NET ID display to change the right digit of the Net ID
number.
Changing the Net ID
3. When the desired Net ID is displayed, press the SETUP button to exit the Setup mode. The SETUP LED
extinguishes.
If the SETUP button is not pressed, the Setup mode will time out after one minute activity and the Net ID
will revert back to its original value.
14 • CRESTRON GREEN LIGHT Architectural Dimming Installation Guide – DOC. 6688A

CRESTRON GREEN LIGHT™ Architectural Dimming
Appendix B: Module Specifications
Specifications for the GLXP modules are listed in the following table.
GLXP Module Specifications
SPECIFICATION GLX-DIM6 GLX-HSW8 GLX-DIMFLV8
Description 6 Channel Dimming/Switching
Module 8 Channel High-Inrush Switch
Module 8 Channel 0-10V Fluorescent
Dimmer Module
Number of Outputs 6 8 8
Cresnet Power
Usage* 5 Watts 5 Watts 5 Watts
Input Voltage 100 – 277 VAC 50/60 Hz 100 – 277 VAC 50/60 Hz 100 – 277 VAC 50/60 Hz
Supported Load
Types Incandescent, magnetic low
voltage (MLV), electronic low
voltage (ELV), neon/cold
cathode, fluorescent ballast
Incandescent, magnetic low
voltage (MLV), electronic low
voltage (ELV), neon/cold
cathode, fluorescent ballast,
HID, motor
Dimmable Loads:
0-10 VDC dimmable
fluorescent ballasts (i.e.
Advance Mark 7 or other
ballasts that comply with the
specifications for control by DC
voltage in ANSI C82.11:2002
and IEC60929:2006)
Non-Dim Loads:
Incandescent, HID, magnetic
low voltage (MLV), electronic
low voltage (ELV), neon/cold
cathode, and fluorescent
ballasts, motor
Maximum Load
Lighting
Motor
16 A per output
N/A
16 A per output
½ HP @ 120V
1 HP @ 230V,
1 HP @ 277V
16 A per output
½ HP @ 120V
1 HP @ 230V,
1 HP @ 277V
Environmental
Temperature
Humidity
Heat Dissipation
32º to 104º F
(0º to 40º C)
10% to 90% RH
(non-condensing)
10 BTU/Hr
32º to 104º F
(0º to 40º C)
10% to 90% RH
(non-condensing)
10 BTU/Hr
32º to 104º F
(0º to 40º C)
10% to 90% RH
(non-condensing)
10 BTU/Hr
* Power usage will be zero whenever AC power is present on circuit 1 on the module. Use of Cresnet power is optional.
Installation Guide – DOC. 6688A CRESTRON GREEN LIGHT Architectural Dimming • 15

Architectural Dimming CRESTRON GREEN LIGHT™
Return and Warranty Policies
Merchandise Returns / Repair Service
1. No merchandise may be returned for credit, exchange or service without prior authorization from
CRESTRON. To obtain warranty service for CRESTRON products, contact an authorized
CRESTRON dealer. Only authorized CRESTRON dealers may contact the factory and request an
RMA (Return Merchandise Authorization) number. Enclose a note specifying the nature of the
problem, name and phone number of contact person, RMA number and return address.
2. Products may be returned for credit, exchange or service with a CRESTRON Return Merchandise
Authorization (RMA) number. Authorized returns must be shipped freight prepaid to
CRESTRON, 6 Volvo Drive, Rockleigh, N.J. or its authorized subsidiaries, with RMA number
clearly marked on the outside of all cartons. Shipments arriving freight collect or without an RMA
number shall be subject to refusal. CRESTRON reserves the right in its sole and absolute
discretion to charge a 15% restocking fee plus shipping costs on any products returned with an
RMA.
3. Return freight charges following repair of items under warranty shall be paid by CRESTRON,
shipping by standard ground carrier. In the event repairs are found to be non-warranty, return
freight costs shall be paid by the purchaser.
CRESTRON Limited Warranty
CRESTRON ELECTRONICS, Inc. warrants its products to be free from manufacturing defects in materials and
workmanship under normal use for a period of three (3) years from the date of purchase from CRESTRON,
with the following exceptions: disk drives and any other moving or rotating mechanical parts, pan/tilt heads and
power supplies are covered for a period of one (1) year; touchscreen display and overlay components are
covered for 90 days; batteries and incandescent lamps are not covered.
This warranty extends to products purchased directly from CRESTRON or an authorized CRESTRON dealer.
Purchasers should inquire of the dealer regarding the nature and extent of the dealer's warranty, if any.
CRESTRON shall not be liable to honor the terms of this warranty if the product has been used in any
application other than that for which it was intended or if it has been subjected to misuse, accidental damage,
modification or improper installation procedures. Furthermore, this warranty does not cover any product that
has had the serial number altered, defaced or removed.
This warranty shall be the sole and exclusive remedy to the original purchaser. In no event shall CRESTRON
be liable for incidental or consequential damages of any kind (property or economic damages inclusive) arising
from the sale or use of this equipment. CRESTRON is not liable for any claim made by a third party or made by
the purchaser for a third party.
CRESTRON shall, at its option, repair or replace any product found defective, without charge for parts or labor.
Repaired or replaced equipment and parts supplied under this warranty shall be covered only by the unexpired
portion of the warranty.
Except as expressly set forth in this warranty, CRESTRON makes no other warranties, expressed or implied,
nor authorizes any other party to offer any warranty, including any implied warranties of merchantability or
fitness for a particular purpose. Any implied warranties that may be imposed by law are limited to the terms of
this limited warranty. This warranty statement supersedes all previous warranties.
Trademark Information
All brand names, product names and trademarks are the sole property of their respective owners. Windows is a registered trademark of
Microsoft Corporation. Windows95/98/Me/XP/Vista and WindowsNT/2000 are trademarks of Microsoft Corporation.
16 • CRESTRON GREEN LIGHT Architectural Dimming Installation Guide – DOC. 6688A