Crestron Electronic Residential Lighting Users Manual Design Guide
Residential Lighting to the manual 3156ef4f-eb92-491c-98cd-45990e0bd5f3
2015-02-05
: Crestron-Electronic Crestron-Electronic-Residential-Lighting-Users-Manual-535473 crestron-electronic-residential-lighting-users-manual-535473 crestron-electronic pdf
Open the PDF directly: View PDF .
Page Count: 83

Crestron Green Light®
Residential Lighting Design Guide

© 2009
Crestron Electronics Inc.
15 Volvo Drive
Rockleigh, NJ 07647
800.237.2041
www.crestron.com
For Commercial Lighting Solutions, refer to Doc. 4775
All brand names, product names, and trademarks are the sole property of their respective owners.

Crestron Residential Lighting Design Guide
Contents
INTRODUCTION .................................................... 1
THE SINGLE SOLUTION CONTROL SYSTEM – A CRESTRON
EXCLUSIVE ............................................................ 1
CRESTRON CONTROL TECHNOLOGY ............................ 2
CRESTRON GREEN LIGHTTM ...................................... 2
SYSTEM DESIGN ................................................. 3
LIGHTING SYSTEM DESIGN TYPES .............................. 4
SPECIFYING A LIGHTING SYSTEM ................................ 8
REQUIRED LOAD SCHEDULE ITEMS .................................. 8
EXAMPLE LOAD SCHEDULE WITH PANEL TERMINATIONS ....... 9
RESIDENTIAL LIGHTING WIRING PLAN ............................ 10
EQUIPMENT LIST SPECIFICATION ................................... 10
ORDERING A CRESTRON RESIDENTIAL LIGHTING SYSTEM .... 10
GREEN LIGHT OPTIONS ....................................... 11
CAEN- SERIES ENCLOSURES .................................. 11
CAEN INSTALLATION ................................................. 13
CAEN ENCLOSURE FRAMING ....................................... 13
CAEN WIRING ......................................................... 14
UNIVERSAL MOUNTING PLATES .................................... 15
COVER EXTENSION KITS ............................................. 16
CLX LIGHTING CONTROL MODULES .............................. 17
TERMINAL BLOCKS AND MODULES ................................ 19
CRESNET® TERMINAL BLOCK FOR CAEN AUTOMATION
ENCLOSURES ........................................................... 21
CRESTRON DIN RAIL PRODUCTS .......................... 23
DIN-AP2 ............................................................... 25
DIN-1DIMU4 ......................................................... 26
DIN-8SW8 ............................................................ 27
DIN-4DIMFLV4...................................................... 27
DIN-2MC2 ............................................................ 27
DIN-AO8 ............................................................... 28
DIN-IO8 ................................................................ 28
DIN-BLOCK ........................................................... 29
DIN-PWS50 .......................................................... 29
DIN-HUB ............................................................... 30
INTERFACE EQUIPMENT ...................................... 31
WALL MOUNT TOUCHPANELS .................................. 32
TILT TOUCHPANELS ............................................... 34
TPMC SERIES ISYS I/O WIFI TOUCHPANELS .............. 35
WIRELESS TOUCHPANELS AND HANDHELDS ............... 36
KEYPADS ......................................................... 37
C2N-DB SERIES DECORATOR KEYPADS .................... 37
CNX DESIGNER SERIES KEYPADS ............................. 38
CAMEO™ ........................................................... 39
ILUX INTEGRATED LIGHTING CONTROL SYSTEM ....... 41
ILUX FEATURES ........................................................ 42
WIRELESS ILUX REMOTE ............................................ 42
MULTI-UNIT EXPANSION ............................................. 43
CONTROL SYSTEM INTEGRATION .................................. 44
ILUX EXPANSION MODULES ......................................... 45
WALL BOX DIMMERS AND SWITCHES .................... 47
CRESNET WALL BOX DIMMERS .................................... 48
CRESNET WALL BOX SWITCHES ................................... 49
INFINET™ WIRELESS TECHNOLOGY ..................... 50
CONTROL PROCESSORS ...................................... 53
PAC2 LIGHTING CONTROL PROCESSOR ..................... 53
PAC2M PROFESSIONAL AUTOMATION MINI CONTROL
SYSTEM .............................................................. 55
OCCUPANCY AND PHOTOCELL SENSORS ................. 58
GLS-ODT & GLS-OIR .......................................... 58
GLS-LOL & GLS-LCL .......................................... 58
INTEGRATED SHADE AND DRAPE CONTROLLERS ...... 59
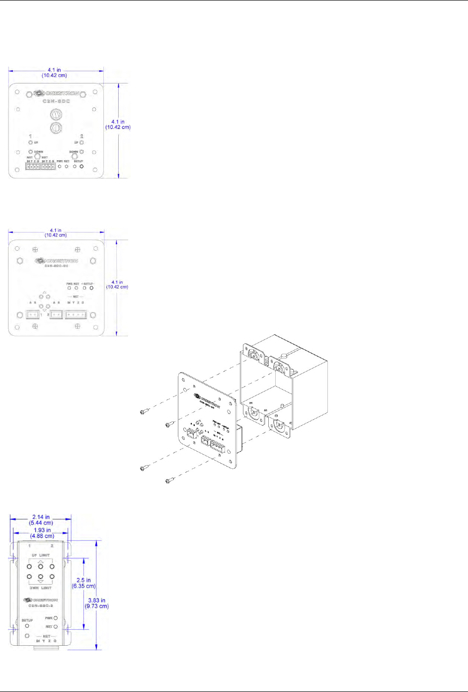
C2N-SDC .............................................................. 59
C2N-SDC-DC ........................................................ 59
C2N-SSC-2 .......................................................... 59
INTEGRATED PARTNER MODULES .......................... 60
APPENDIX A: EXAMPLE RESIDENTIAL LIGHTING
SYSTEM ........................................................... 61
APPENDIX B: TOUCHPANEL COMPARISON CHARTS ... 67
TILT TOUCHPANELS ............................................... 67
WALL MOUNT TOUCHPANELS .................................. 68
WIRELESS TOUCHPANELS & HANDHELD REMOTES ....... 69
APPENDIX C: GENERAL LIGHTING DESIGN
CONSIDERATIONS .............................................. 70
APPENDIX D: GLOSSARY OF LIGHTING TERMINOLOGY73

Crestron Residential Lighting Design Guide Introduction
Doc. 5999F 1
Introduction
Crestron is the world's leading manufacturer of advanced
control technologies. Our developments in combining
touchpanel technology with lighting control applications
were the very first of their kind.
Only Crestron brings the most comprehensive line of user-
interfaces to lighting and dimming control, plus the ability
to remotely monitor, manage and control over standard IP
networks.
Cresnet® low-voltage wiring and/or RF control can be used
throughout a wide range of system design possibilities,
including traditional wiring with local intelligence or
distributed, high-voltage wiring with centralized and/or
distributed intelligence systems.
The wide range of Crestron multi-function user interfaces
replaces large banks of traditional switches, dimmers, and
timers. In addition to lighting, these user interfaces can
also control security, HVAC, and audio/video systems. Only
Crestron provides a single control wiring bus to all of its
components, simplifying installation and connection.
Each unique lighting control system reflects the needs and
desires of the inhabitants. Designing and constructing a
lighting and automation system to fill the requirements of
your client is a challenging task, and Crestron offers the
equipment and flexibility of design required for every
one-of-a-kind solution.
Crestron interfaces provide manual and automatic controls;
turning on exterior lights based on an astronomical clock,
providing a single button press to turn all lights on,
illuminating safe exits in case of emergency, and many
other lighting possibilities.
Crestron products allow the designer to continually expand
and change any lighting system. Crestron infiNETTM
wireless devices provide a simple retrofit solution to
expand a existing systems. There is no limit to the number
or types of devices, the system can grow as needed to
accommodate any last minute changes or new additions.
Crestron streamlines and simplifies all home technology by
offering the ultimate in comfort and convenience. Whether
from an easy-to-use color touchpanel, remote or
customized keypad, Crestron eliminates the need to walk
from room to room to adjust drapes, lights, temperature,
and audio/video components- total control is always at
your fingertips.
Every Crestron lighting system is completely modular and
scalable, allowing virtually unlimited configuration and
expansion flexibility.
The Single Solution
Control System –
a Crestron Exclusive
Crestron connects people with technology. As products and
systems become more complex, our solutions streamline
and simplify technology so people can enjoy its benefits.
We understand that our touchpanels, keypads, and
handhelds are how people interact with and experience the
systems in their homes, offices, schools and churches. We
allow individuals to create a comfortable environment, set
a mood, and enjoy technology.
With our wide range of interface products, slim profile wall
mount keypads and decorative faceplates, our products
enhance a décor, complement a lifestyle, or personalize a
room. Crestron offers the most brilliant graphics and
intuitive, customized interfaces. We integrate more of the
technology that people want and use everyday into our
touchpanels; and provide ergonomically designed and
easy-to-use wireless controllers, and flush-mount
touchpanels of every size.
Tying all this technology together seamlessly is our
exclusive Cresnet® cable, connecting the user to a powerful
and flexible control system.

Introduction Crestron Residential Lighting Design Guide
Doc. 5999F 2
Crestron Control
Technology
View precise lighting levels, temperature and shade
positions in any room throughout the home, graphically
and quantitatively, from any touchpanel or PC.
Monitor and track current and historical device usage
and intelligently manage resources.
Ethernet connectivity enables LAN or web-based system
control and management, and sends email advisories about
pre-determined events such as devices going off-line
or automatic load shedding.
Crestron control processors provide the total integration of
Crestron devices, non-Crestron devices, and subsystems
in any environment, for any purpose, anywhere. Crestron
control processors can connect to any digital, serial, or
analog system, and control by RF, IR, or hardwiring,
making them the most flexible, powerful control systems
ever devised.
Underlying the hardware are powerful, graphical
programming tools, specifically designed to establish total
control over any technology and make the user experience
uncomplicated, intuitive, and easy to use.
Crestron also provides true feedback for essential control
monitoring, function response to controls, and user inputs.
Crestron offers design solutions for every situation.
Selecting the proper equipment often depends on the kind
of installation. New construction, major renovation, or minor
renovation each present different design challenges.
Crestron Green LightTM
Crestron Green Light is a complete line of lighting, HVAC, and
shade/drape control for both commercial and residential
applications, designed to maximize energy conservation and
cost savings.
Crestron Green Light solutions underscore the company's
ongoing commitment to environmental safety and energy
conservation. Only Crestron offers a fully integrated global
systems approach with the unique ability to monitor and
manage all environmental and AV systems on a single platform
that maximizes efficiencies and cost savings.
Crestron Green Light technology delivers total environmental
control throughout a home or commercial facility to conserve
energy and lower costs without sacrificing comfort and
convenience. Crestron systems provide users the flexibility of
both precise manual control of all systems and devices, and
customized levels of automation to achieve advanced features
such as daylight harvesting and load shedding. Only Crestron
can schedule, monitor and manage all technology centrally and
globally from touchpanels and PCs.
Crestron Green Light products meet ASHRAE standards and are
fully CEC Title 24 compliant. Crestron is a member of the U.S.
Green Building Council (USGBC), the organization responsible
for creating the LEED Green Building Rating System™. Crestron
Green Light solutions take a whole-building approach to
sustainability, and facilitate the efficient operation of high
performance green buildings. Additionally, all Crestron Green
Light products conform to the European Union (EU) Directive
202/95/EC Restriction of Hazardous Substances (RoHS).
For more information on Crestron Green Light, please visit
Crestron.com/gogreen

Crestron Residential Lighting Design Guide System Design
Doc. 5999F 3
System Design
The applied lighting control strategy determines the basic methods used to
control the environment. When formulating an overall strategy, there are some
basic considerations:.
New construction and major renovations provide the opportunity to
easily run control cables from user interfaces to the control processor
when the walls are open.
Existing construction or minor renovations often make the task of
running cables more difficult, time consuming, expensive, or even
impossible (in historic landmarks, etc.). In this case, you may choose
to install a partialyl or completely wireless system
Light level control is achieved through dimming controls and daylight
management, where applicable, to adjust the lighting to the
appropriate level for different occupant activities
Occupancy sensing is used to switch the lighting on and off,
independent of time intervals or scheduled periods. This allows the
space to be responsive to individual use, and conserves energy
Scheduled lighting is determined by time of day, day of week,
vacation, outdoor lighting, and safety lighting requirements. An
astronomical clock (programmed with sunrise and sunset information)
is often used to provide natural lighting transitions
HVAC control should be part of the overall control strategy, permitting
additional economic and convenience benefits

Crestron Residential Lighting Design Guide System Design
Doc. 5999F 4
Lighting System Design Types
There are many ways in which a Crestron lighting control
system can be organized. Construction type, client
requirements, architectural restrictions, and many other
factors determine the best solution. In general, retaining
Crestron control design flexibility produces the most
reliable results.
Wireless Systems
The groundbreaking Crestron infiNET wireless technology
provides reliable 2-way communications throughout a
home or commercial structure without the need for
physical control wiring. Crestron infiNET products offer a
unique solution for retrofit projects. By replacing existing
controls with infiNET switches and dimmers, provisions
for automatic shutoff and overall control can be
implemented with minimal changes to the existing wiring.
Employing a 2.4 GHz mesh network topology, every
infiNET device functions as an RF repeater, increasing
effective range and reinforcing the complete network by
providing multiple redundant signal paths within the mesh
network. Adding more infiNET devices or repeaters to the
network effectively increases the range, strength, and
reliability of the network.
Advantages of RF wireless control start with reduced
capital and operating expenses. Wireless control can save
as much as 30 to 40 percent on installation and material
costs compared to a wired control system, making this
option attractive for retrofit as well as new construction.
Installation costs are reduced because RF devices can
be replaced one to one without involving control wiring.
Crestron infiNET Wireless System

Crestron Residential Lighting Design Guide System Design
Doc. 5999F 5
Centralized Wired Systems
A centralized system is one in which all the high-voltage
circuits are terminated within a Crestron automation
enclosure and operate under a central control system. In a
centralized design, the high voltage lighting, fans, motors
and switch circuits are individually wired directly to the
control modules in the Crestron automation enclosure.
The modules are controlled by low voltage or RF user
interfaces in the living area. This greatly simplifies the
high voltage wiring while creating a flexible and efficient
design using keypad and touchpanel interfaces.
A central processor, connected via a local area network to
the lighting modules and the user interfaces, is dedicated
to lighting, fans, motors, HVAC, and security. Processors
that are dedicated to other control systems can
communicate via Ethernet, RS-232 or RS-422 to the
central controller. This eliminates the need for additional
control that separate safety and environmental systems
and is a flexible, fully integrated design solution.
A Centralized Wiring System

System Design Crestron Residential Lighting Design Guide
Doc. 5999F 6
Decentralized Wired Systems
A decentralized system is the traditional wiring system
of individual lighting circuits with local control. In the
traditional distributed design wiring method, Crestron wall
box dimmers can be retrofitted into a project after routine
high voltage wiring is completed.
In addition to the traditional high voltage wiring, a low
voltage communication wire can be run from the dimmer
to the nearest Cresnet® connection (or an RF wireless
control can be used). This design offers the end user the
familiarity of a traditional control coupled with the power
and flexibility of automation. In a distributed design, the
user has the ability to operate the lighting in the event of a
temporary control system interruption.
A Decentralized Wiring System

Crestron Residential Lighting Design Guide System Design
Doc. 5999F 7
Hybrid Systems
The most efficient and attractive lighting system designs
are a hybrid of centralized processing and distributed
dimmers. This provides the reliability of local control along
with sophisticated centralized control, and limits the
amount of wall clutter
A complete Crestron design is a blend of wireless and
wired, distributed and centralized design in which central
control intelligence and distributed local dimmers form a
reliable whole house lighting control solution.
Large rooms, stairways, and frequently used rooms are
often remotely controlled using the astronomical time
clock or whole house presets. This level of control
requires connection to a central dimming controller. Each
room is equipped with a low voltage or wireless keypad
for lighting preset selection and/or audio/video integration.
All of the dimmers in the system (grouped into the central
controller for wiring convenience) communicate with each
other through the Crestron control system, providing a
complete, integrated solution
A Hybrid Wiring System

Crestron Residential Lighting Design Guide Specifying a Lighting System
Doc. 5999F 8
Specifying a Lighting
System
The Load Schedule
A lighting system design begins with a collection of
complete information. This includes a detailed floor plan
identifying all of the required elements. The first element
of design, the load schedule, is developed from the floor
plan. The load schedule lists the information on each
electrical load connected to every circuit in an electrical
panel. This primary source of information determines all
of the overall requirements:
Lighting types, required voltage and current,
dimmed or switched, fluorescent ballast types,
circuit number, normal or emergency, and
locations
The location and types of user interfaces used
(i.e., dimmers, switches, keypads, iLux™,
infiNET™, and touchpanels)
The control processor details (larger systems
should use a dedicated lighting control processor)
The window treatment details, which include
shade/blind motors and relay control (consult
the window treatment manufacturer for control
details).
Required Load Schedule Items
1. Control zone: Controlled circuits that do not need
to be physically wired together, but always operate
in tandem. For example, perimeter lights, sconce
lights and overhead lights all operating together
2. Location of controlled lighting zone, relevant to
building site/drawings, floor designation, and room
name
3. Fixture and/or lamp type of controlled lighting
zone, including any information describing custom
fixtures, undetermined fixtures, dimmable
transformers or fluorescent ballasts, and circuit
breaker numbers. This information can also contain
the number assigned to the controlled circuit
4. Load type of the controlled lighting zone: load types
include incandescent, magnetic low voltage,
electronic low voltage, neon/cold cathode, HID,
dimmable/non-dimmable fluorescent ballast, ceiling
fans, and switched 3-wire motor circuits. This
information is especially important for selecting the
correct Crestron module power rating and type
5. Dimming requirement for the controlled lighting
zone (i.e. whether the lighting level of the
loads/fixtures needs to be ramped up/down or
simply switched on/off). Indicate: “Yes” for
Dimming, and “No” for Non-Dim
6. Emergency designation for the controlled lighting
zone (yes/no; i.e. when a load needs to be assigned
to a separate emergency power feed). These items
are assigned to their own separate dimmer, so they
can be fed with emergency power
7. Voltage rating for the controlled lighting zone tells
the designer the voltage of the electrical feeds
required for that zone, and hence the required
rating for the associated Crestron module.
8. Fixture wattage (watts or power rating per fixture)
with regard to the controlled lighting zone: this is
used to determine the number of fixtures that can
be powered per each Crestron Dimmer Module
channel, in order not to overload the dimmer
beyond its power rating
9. Quantity of fixtures for the controlled lighting zone:
this is useful, along with item #6, in calculating the
total power rating (watts) for that particular
controlled circuit (item #9)
10. Total wattage, or power rating, of the controlled
lighting zone: This is required in order to determine
the total number of Crestron Lighting Module
channels required for that particular zone,
especially if the load of the total number of fixtures
exceeds the rating of a single module channel
NOTE: National and local electrical codes and the
functionality of each user interface must be taken
into consideration. Always install electrical devices
according to the national Electrical Code (NEC), local
codes, and with safety in mind.

Crestron Residential Lighting Design Guide Specifying a Lighting System
Doc. 5999F 9
Example Load Schedule with Panel Terminations
Area Room
Controlled Ckt
Name
Controlled
Ckt No. Fixture Load Type Dim Emergency
Fixture
Watts
Fixture
Qty
Total
Watts Enclosure Slot Module Output
Main Floor Bathroom 1 Downlights 009 Downlights Incandescent yes no 100 1 100 Enclosure 1 2 CLX-1DIM8 1
Main Floor Bathroom 1 Downlights 2 008 Downlights Incandescent yes no 100 2 200 Enclosure 1 2 CLX-1DIM8 2
Main Floor Bathroom 1 Downlights 3 006 Downlights Incandescent yes no 100 2 200 Enclosure 1 2 CLX-1DIM8 3
Main Floor Bathroom 1 Drapes 019 Drapes 3-Wire Motor no no 200 1 200 Enclosure 1 4 CLX-1MC4 1
Main Floor Bathroom 1 Exhaust Fan 007 Exhaust Fan Switched no no 200 1 200 N / A N / A Interface 2 1
Main Floor Bathroom 2 Downlights 011 Downlights Incandescent yes no 100 1 100 Enclosure 1 2 CLX-1DIM8 4
Main Floor Bathroom 2 Downlights 2 010 Downlights Incandescent yes no 100 3 300 Enclosure 1 2 CLX-1DIM8 5
Main Floor Bathroom 2 Drapes 021 Drapes 3-Wire Motor no no 200 1 200 Enclosure 1 4 CLX-1MC4 2
Main Floor Bathroom 2 Exhaust Fan 012 Exhaust Fan Switched no no 200 1 200 N / A N / A Interface 4 1
Main Floor Bedroom Ceiling Fan 022 Ceiling Fan Ceiling Fan no no 100 1 100 Enclosure 1 6 CLX-1FAN4 1
Main Floor Bedroom Downlights 005 Downlights Incandescent yes no 250 2 500 Enclosure 1 2 CLX-1DIM8 7
Main Floor Bedroom Downlights 2 004 Downlights Incandescent yes no 100 4 400 Enclosure 1 3 CLX-1DIM4 1
Main Floor Bedroom Downlights 3 003 Downlights Incandescent yes no 100 1 100 N / A N / A Interface 6 1
Main Floor Bedroom Downlights 4 002 Downlights Incandescent yes no 100 1 100 N / A N / A Interface 5 1
Main Floor Bedroom Downlights 5 001 Downlights Incandescent yes no 100 2 200 Enclosure 1 3 CLX-1DIM4 2
Main Floor Bedroom Drapes 018 Drapes 3-Wire Motor no no 200 1 200 Enclosure 1 4 CLX-1MC4 3
Main Floor Bedroom Drapes 2 017 Drapes 3-Wire Motor no no 200 1 200 Enclosure 1 4 CLX-1MC4 4
Main Floor Bedroom Drapes 3 016 Drapes 3-Wire Motor no no 200 1 200 Enclosure 1 5 CLX-1MC4 1
Main Floor Foyer Downlights 013 Downlights Incandescent yes no 100 4 400 Enclosure 1 2 CLX-1DIM8 6
Main Floor Sauna Drapes 020 Drapes 3-Wire Motor no no 200 1 200 Enclosure 1 5 CLX-1MC4 2
*Calculation of load wattage includes transformer loss.
The complete diagram is available on line at:
http://www.crestron.com/dealer-tech_resources/application_diagrams.asp.

Specifying a Lighting System Crestron Residential Lighting Design Guide
Doc. 5999F 10
Residential Lighting Wiring Plan
The wiring plan includes all enclosures and the
interconnecting wiring. The designer determines the
location of the enclosure(s), the route of keypad and
touchpanel connections to the enclosure(s), the route
of the interconnecting cable from the processor to the
other enclosure(s), and the high voltage load routes
to the enclosure or dimmer.
Ensure there are enough connectors and power (PAC2 offers
50W) in the main enclosure for all user interfaces. Each
enclosure filled with dimmers is connected to the main
enclosure and processor using low voltage wire. Dimmer
enclosures are distributed as needed.
Equipment List Specification
The equipment list is based on the requirements collected for
the lighting system in the load schedule. This is a sequential
process. The information gathered in previous steps is
required to complete the next. Once all the steps are
completed, a complete Bill of Material for the system is
created.
Module selection – based on the number and type
of loads
Automation enclosure selection – based on the
number of modules and the available space in the
enclosure
User interface selection – based on the user control
requirements
Wiring plan – based on the previous steps and the
layout of the environment
Control processor – based on the size of the system
(large systems should have a dedicated processor)
Network block selection – based on the layout and
distribution of the loads and user interfaces
Accessories selection – based on the required
accessories (telephone and alarm systems, HVAC
control, intercom systems, occupancy sensors, etc.)
Ordering a Crestron Residential
Lighting System
These are the steps for ordering a Crestron Residential
lighting control system, regardless of the size.
Each system and module contains the appropriate installation
literature and operation guide.
Steps to order a lighting system:
STEP 1: Survey all controlled lights and loads. In hybrid
systems determine which loads are under local control and
which are to be wired to centralized modules
STEP 2: Determine the number and types of control modules
and terminal blocks needed to control lights and loads based
on the load schedule and wiring plan
STEP 3: Determine the number and type of automation
enclosures required
STEP 4: Determine the number of control processors and
related accessories required
STEP 5: Determine the number and types of keypads, wall
panels, iLux™ devices, infiNET™ wireless devices,
shade/drape controllers, and touchpanels
STEP 6: Determine the wiring accessories, cabling and
power supplies required
STEP 7: Place an order for identified Crestron items
Nearly all required documentation, such as load schedules
and wiring, equipment lists, engraving files and more can
be generated by using the Crestron D3 Pro Lighting and
Automation System Software.
Crestron ships all items to the job site for assembly and
wiring.
NOTE: If engraving is desired on infiNET devices, IT MUST BE
SPECIFIED UPON ORDER. Due to UL restrictions, the button
caps cannot be replaced in the field. Therefore, only new
units must be engraved before leaving the Crestron factory.

Crestron Residential Lighting Design Guide GreenLight Options–CAEN Enclosures
Doc. 5999F 11
Green Light Options
CAEN- Series Enclosures
The CAEN Series automation enclosures are designed to house
the Crestron CLX-series of lighting and motor control modules
and PAC2 or PAC2M control systems. CAEN enclosures are
available in an assortment of sizes, suitable for surface or flush
wall mount installation. Each model has been engineered to
provide a clean and manageable installation with abundant
provisions for wire termination and electrical knockouts.
CAEN automation enclosures are designed to use space
efficiently by supporting over a hundred possible circuits in the
largest model. Both centralized and distributed configurations
are possible. A single PAC2 control system installed in a
central enclosure can support numerous satellite extension
enclosures distributed throughout a residence or commercial
facility. Interconnection of the complete network of enclosures
requires just one circulating Cresnet® cable. Dozens of
keypads, touchpanels, wall box dimmers, shade controllers,
and other peripherals can also be terminated within an
enclosure, with separate compartments provided for high and
low voltage wiring.
Crestron lighting and automation systems are completely
convection cooled for silent and reliable operation. A vented
front cover is included with every enclosure.
All models are constructed of 16-gauge galvanized steel and
are pre-drilled for mounting of the PAC2, PAC2M, terminal
blocks, CLX modules, CLT power supplies, and CAEN-BLOCK
terminal block.
Additional non-CLX lighting modules and third-party contactors
may be installed using CAEN-UMP Crestron universal mounting
plates. Grounding blocks and low voltage partitions included.
CAEN enclosures are also well suited for all types of Class 2
and Class 3 applications including voice and data structured
wiring, security, and RF signal distribution (as permitted by
applicable codes).
CAEN enclosures are UL and C-UL listed. If you require a
complete UL listed panel, Crestron offers this service through
its UL508 listed panel shop, providing complete in-factory
system configuration and assembly.
NOTE: The PAC2 occupies two module spaces in a double-
wide enclosure and one module space in a single-wide.
NOTE: Four keyholes are located within the enclosure and
should be used if surface mounting.

CAEN Enclosures Crestron Residential Lighting Design Guide
Doc. 5999F 12
CAEN-Series Enclosure
Specifications
CAEN Model
7X2* 7X1 4X2* 4X1 2X1
Module Capacity 14 7 8 4 2
Required Flush Mount Opening
(Width) x (Height)
25 ½” x 62” 14 ⅜” x 62” 25 ½” x 38 ⅞” 14 ⅜” x 38 ⅞” 14 ⅜” x 23 ½”
Construction 16 gauge galvanized sheet metal
Cover is painted metal with ventilation holes
Regulatory Approvals UL and C-UL listed
Mounting Surface or flush mounted
*Double-width enclosures are either surface mounted or framed accordingly
CAEN-Series Dimensions (Front and Side Views)
CAEN Dimensions1 7X2 7X1 4X2 4X1 2X1
H1 62 38 ⅞ 23 ½
H2 2 11/16 2 ⅛
H3 56 32 ⅞ 34 18 ⅝
W1 26 ½ 15 ⅜ 26 ½ 15 ⅜
W2 25 ½ 14 ⅜ 25 ½ 14 ⅜
W3 2 ½ 1 ¾ 2 ½ 1 ¾
W4 20 ½ 10 ⅞ 20 ½ 10 ⅞
W55 20 ½ 9 ⅞ 20 ½ 9 ⅞
W6 2 ½ 2 ¾ 2 ½ 2 ¾
D1 4 ⅛
Cover Thickness 1/16
Cover Height 62 ¾ 39 ⅝ 24 ¼
Cover Width 27 ¼ 16 ⅛ 27 ¼ 16 ⅛
Weight2 Empty3 65 42 43 28 19
Weight Full4 155 88 95 55 31
1. Dimensions are in inches.
2. Weight is in pounds.
3. Weight Empty includes the cover.
4. Weight Full is with the maximum number of modules installed.
5. The lower keyholes are not symmetrically spaced in single-width enclosures.
DW
H
W
W
H
W
W
W
W
WH

Crestron Residential Lighting Design Guide GreenLight Options–CAEN Enclosures
Doc. 5999F 13
CAEN Installation
In accordance with all national and local codes a licensed
electrician must mount the enclosure. Special attention
must be made to NEC Article 110.26(A)(2) concerning
minimum work space requirements.
When choosing components to place in CAEN enclosures,
refer to the table on the previous page to ensure that the
maximum weight capacity is not exceeded. The weight of
each module is listed on the product page on the Crestron
website.
CAUTION: These enclosures house equipment that
requires air cooling. Therefore, mount in a well-ventilated
area. The ambient temperature range should be 32°F
to 104°F (0°C to 40°C). The relative humidity should
range from 0% to 90% (non-condensing). Furthermore,
allow adequate clearance in front of the vented cover
for servicing and ventilation.
NOTES: Unless otherwise indicated, the lighting system
specified in this guide is modular, requiring assembly in
the field by a licensed electrician in accordance with all
national and local codes. If you require a UL listed panel,
Crestron offers this service through its UL listed panel
shop. This includes complete in-factory system
configuration and assembly by Crestron for an additional
fee. All commercial lighting systems include factory
assembled, UL listed panels.
Install modules into the lowest available spaces and
continue toward the top of the enclosure.
Enclosures are intended for indoor use only.
When flush mounting, 5/8” drywall is preferred.
CAEN Enclosure Framing
CAEN enclosures 2X1, 4X1, and 7X1 fit between standard
wall stud spacing (16 inches on center).
CAEN 2X1, 4X1, and 7X1 Framing
CAEN enclosures 4X2 and 7x2 require framing
modification. The weight of the enclosure rests on a sill
plate, and does not distort the surrounding wallboard.
CAEN 4X2 Framing

GreenLight Options–CAEN Enclosures Crestron Residential Lighting Design Guide
Doc. 5999F 14
CAEN Wiring
CAUTION: All power feeds must be protected by 15 or 20
amp circuit breakers (supplied by others).
NOTES: Use copper conductors only – rated 75°C
All wiring must be installed in accordance with all local
and national electrical codes.
Two snap bushings are supplied. If required, insert into
knockouts at the bottom of the enclosure to prevent
damage to low voltage wiring.
Class 2 field wires must be kept separate. Refer to the
illustration showing singlewide and doublewide wiring
details. Areas for high voltage (Class 1) wiring are shown
along the top and side(s) of the unit. The lower area is
reserved for low voltage (Class 2) wiring.
Tighten all CLT-Series terminal block screws and
grounding terminal block screws to the torque specified in
the Torque Data table.
CAUTION: Failure to properly tighten the screws may
result in poor electrical connection and overheating of the
terminals.
Wire Range &
Torque Data
CLT
Terminal
Blocks
Grounding Terminal
Blocks
Wire Range 22 - 10 14 - 10 8 6 - 4
Torque (In-Lbs) 9 35 40 45

Crestron Residential Lighting Design Guide GreenLight Options–CAEN Enclosures
Doc. 5999F 15
Universal Mounting Plates
Crestron Universal Mounting Plates (CAEN-UMP Series) are a complete line of
accessory plates, which allow mounting of non-Crestron equipment to any Crestron
A
utomation Enclosure (CAEN Series). Third-party products such as phone and alarm
systems can be mounted to these plates. The advantage to using the CAEN-UMP is
that a variety of sizes are available and each plate occupies the same area as one, two
or four Crestron lighting modules (CLX-series).
The size corresponds to the number of module spaces and their arrangement within
the enclosure. For example, CAEN-UMP2X2 occupies four module positions and
CAEN-UMP1x1 occupies one module position. The others (CAEN-UMP2X1 and 1X2)
occupy two module positions. Refer to the illustration for an example of plate location
and orientation within a double-wide enclosure. The table below lists the dimensions
and weight for each CAEN-UMP model. The CAEN-UMP must be mounted in
accordance with all national and local codes.
Use the four supplied (8x1/4”) screws to attach a CAEN-UMP to an enclosure. Crestron
recommends that the keyholes on the plates be located toward the outer edge of the
enclosure,as shown in the illustration. As a result, the flanges of the plates do not
overlap each other when positioning any combination of
CAEN-UMP2X1s, CAEN-UMP1X1s, or lighting modules side-by-side in an enclosure.
NOTES: Adhere to Class 1 versus Class 2 wiring requirements when considering the
equipment attached to the CAEN-UMP in an enclosure.
Third-party equipment attached to a CAEN-UMP within a Crestron Automated
Enclosure should not be considered part of the Crestron system.
CAEN Universal
Mounting Plate
2X2 2X1 1X2 1X1
Weight 22.6 12.0 12.4 6.6
Height 15 1/8 15 1/8 7 7/16 7 7/16
Width 14 6
15/16 14 6
15/16
Depth 5/8
Dimensions are provided in inches, edge to edge.
Weight is provided in ounces.

GreenLight Options–CAEN Enclosures Crestron Residential Lighting Design Guide
Doc. 5999F 16
Cover Extension Kits
The Cover Extension Kits are designed to increase the overall depth of the
automation enclosures by 1.5 inches. Adding depth to these enclosures
accommodates excess wiring and third-party devices that may not normally fit
in the standard enclosure.
CAEN Cover
Extension Kit
CAEN-
CK-2X1
CAEN-
CK-4X1
CAEN-
CK-4X2
CAEN-
CK-7X1
CAEN-
CK-7X2
Height 23.5 38.9 38.9 62 62
Width 15.35 15.35 26.5 15.35 26.5
Depth 1.5
Dimensions are provided in inches.

Crestron Residential Lighting Design Guide GreenLight Options–CAEN Enclosures
Doc. 5999F 17
CLX Lighting Control Modules
Concealed in Crestron automation cabinets, the CLX-series devices are rigorously built using oversized heat sinks for ultimate
reliability.
Split-bobbin transformers and ground-referenced electronics deliver
superior performance
Lamp flicker is minimized through the innovative Crestron zero-crossing
detection technique, backed by proprietary firmware
Low-maintenance convection cooling assures quiet and trouble-free
operation
Noise suppression inductors and international 230V versions are
available
LEDs on the modules indicate communication to a Cresnet® network,
input power to the module, and output power to the load
A five-pin ribbon cable interconnects modules and the processor
NOTE: CLX modules and their associated CLT terminal blocks
must be installed into the lowest available spaces and continue
toward the top of the enclosure.
CAUTION: A bypass jumper is provided to allow testing and to
protect the module during installation. When properly secured
by nine screws, the jumper on the black and red section of the
terminal block shorts the LINE in to DIM out so that the circuit
is energized. Do not remove the bypass jumper until all feed
and load wiring has been completed, the circuit has been
tested for electrical faults, and the module has been installed.
Furthermore, the jumper on the white section of the terminal
block ties the neutral in to the neutral outs. This jumper should
never be removed.

GreenLight Options–CAEN Enclosures Crestron Residential Lighting Design Guide
Doc. 5999F 18
CLX-Series Lighting Control Modules
Model Load Rating
CLX-1DELV4
Four channels of dimming for
electronic low voltage and
incandescent loads
Each channel is rated for 1200 watts, with a total module rating of 1920
watts when fed from a 20A breaker. A total module rating of 1440 watts
when fed from a 15A breaker
NOTE: CLW series dimmers are not compatible with CLX-1DELV4
CLX-1DIM4
Four channels of dimming for
incandescent, magnetic low voltage,
neon/cold cathode, and dimmable
2-wire fluorescent loads
Each channel is rated for 1920 watts, with a total module rating of 1920
watts when fed from a 20A breaker. A total module rating of 1440 watts
when fed from a 15A breaker
CLX-1DIM8
Eight channels of dimming for
incandescent, magnetic low voltage,
neon/cold cathode, and dimmable
2-wire fluorescent loads
Each channel is rated for 1920 watts, with a total module rating of 1920
watts when fed from a 20A breaker. A total module rating of 1440 watts
when fed from a 15A breaker
CLX-2DIM2
Two independent channels of
dimming for incandescent, magnetic
low voltage, neon/cold cathode, and
dimmable 2-wire fluorescent loads.
Each channel is rated for 1920 watts; with a total module rating of 3840
watts when fed from two separate 20 A feeds, and a total module rating of
2880 watts when fed from two 15A breakers.
CLX-2DIM8
Eight channels of dimming for
incandescent, magnetic low -voltage,
neon/cold cathode, and dimmable
2-wire fluorescent loads, actually
composed of two independent four-
channel dimmers in a single module
Each channel is rated for 1920 watts; with a total module rating of 1920
watts when fed from a 20A breaker. A total module rating of 1440 watts
when fed from a 15A breaker
CLX-1FAN4
Capacitive-type speed control for up
to four ceiling fan motors
Each channel provides four preset speed settings plus off and is rated for 2
amps, with a total module rating of 8 amps
CLX-1MC4
Control of up to four bidirectional
motors for drapes, blinds, projection
screens, lifts, etc.
Each channel is rated for 10 amps or 1/2 HP, with a total module rating of
16 amps.
CLX-4HSW4
Four independent channels of
switching for high-inrush loads such
as motors, HID lighting, and
fluorescent ballasts, as well as
incandescent, low voltage, and
neon/cold cathode lighting
Each channel is rated for 16 amps or 1/2 HP; with a total module rating of
64 amps when fed from four separate 20 amp feeds.

Crestron Residential Lighting Design Guide GreenLight Options–CAEN Enclosures
Doc. 5999F 19
Terminal Blocks and Modules
The Crestron CLT terminal blocks and modules are considered a single
entity and must be used together. In field-assembled panels, they ship
separately to permit termination of the field wiring to the terminal block
prior to the installation of the module, and are mounted in any Crestron
Automation Enclosure (CAEN-series enclosures). The terminal block is
designed to terminate the circuit feed (HOT and NEUTRAL) and distribute
the controlled circuit (LOAD) to the fixture(s).
The module connects to the terminal block and performs dimming or
switching control of the loads, limited to 16A total per module. The unit
requires 120VAC 60 Hz, single phase input voltage.
An oversize heat sink dissipates heat efficiently. The LEDs on the module
indicate communication to a Cresnet® network, input power to the module,
and output power to the load.
Terminal Blocks, Rails, and Labels (Inverted, right side units shown)
NOTES: When connecting dimming loads to an arc fault breaker, the load should not exceed 1000 watts per breaker.
Each terminal block includes a terminal rail for mounting the terminal block in the enclosure. Terminal rails and blocks do not
occupy a module space within an enclosure.
Terminal blocks are installed along the left side of single-wide enclosures and along the outside edges (left and right sides) of
enclosures. Modules are installed along the right side of single-wide enclosures and side-by-side in the center of enclosures.
When installing modules and terminal blocks in a double-wide enclosure, be sure to invert units on the right side so that they
can be properly wired.

GreenLight Options–CAEN Enclosures Crestron Residential Lighting Design Guide
Doc. 5999F 20
Module Installation
In accordance with all national and local codes a licensed
electrician, , must mount the terminal blocks and modules
in field-assembled Crestron Automation Enclosures.
Terminal blocks are installed along the left side of single-
wide enclosures and along the outside edges (left and
right sides) of doublewide enclosures. Modules are
installed along the right side of singlewide enclosures and
side-by-side in the center of doublewide enclosures.
Refer to the illustrations when considering the location of
terminal blocks and modules within an enclosure.
CAUTIONS: This equipment is for indoor use only and
requires air cooling. Mount in a well-ventilated area.
The ambient temperature must be 32°F to 104°F
(0°C to 40°C). The relative humidity must be 0% to 90%
(non-condensing).
Modules contains electrostatic sensitive devices (ESDs)
and units must be handled from metal chassis – do not
touch PC board or components.
NOTES: Modules and terminal blocks must be installed
into the lowest available spaces and continue toward the
top of the enclosure.
Modules are installed after the enclosure has been
completely wired.
Single Width Enclosure Mounting
Module and associated terminal block installed in single
width enclosure are shown below. The PAC2 processor
occupies the lowest module position
Double Width Enclosure Mounting
Module and associated terminal block installed in double width
enclosure are shown below. The PAC2 processor occupies the
lowest module position.
Terminal Rail Bypass Jumpers
CAUTION: A bypass jumper is provided on the terminal rail to allow testing and to protect the module during installation.
When properly secured by nine screws, the jumper on the black and red section of the terminal block shorts the LINE in to
DIM out so that the circuit is energized. Do not remove the bypass jumper until all feed and load wiring has been completed,
the circuit has been tested for electrical faults, and the module has been installed. Furthermore, the jumper on the white
section of the terminal block ties the neutral in to the neutral outs. This jumper should never be removed.
NOTE: Use copper conductors only – rated 75°C.

Crestron Residential Lighting Design Guide DIN Rail Products
Doc. 5999F 21
Cresnet® Terminal Block for CAEN Automation Enclosures
The CAEN-BLOCK is a Cresnet terminal block designed specifically for
Crestron lighting and automation systems to link remote enclosures to
the central PAC2 or PAC2M control system. The CAEN-BLOCK mounts at
the bottom of each CAEN enclosure that does not contain a control
system to provide Cresnet and override signal connectivity for CLX-series
lighting control modules. The CAEN-BLOCK serves as a parallel
distribution block for multiple Cresnet cables, and especially provides for
connection of the Cresnet and override signal cables from the central
control system.
Crestron Network Block (CAEN-BLOCK) provides four termination ports
for Cresnet wiring. The unit has two 5-pin connections that provide
communication to the modules. Contact closure signals that produce an
emergency override of the modules are also sent through these
connections.
When a switch contact closure is received between the “G” connections
and the “L” or “R” connection (R is used in a double-wide enclosure only)
on the CAEN BLOCK, the respective left or right column of modules will
set the lights to the programmed emergency override state.
The CAEN-BLOCK unit is a pass-through device with a Cresnet power
factor of zero.
Network Block Dimensions and Weight
Height Width Depth Weight
2 in 6 in 1 ¾ in 3.4 oz
NOTES: A module terminal block (CLT-series device) must be ordered for each module. The corresponding CLT terminal block
is installed in the enclosure for high voltage wire termination. Each terminal block includes a terminal rail for mounting the
block in the enclosure. Terminal rails and blocks do not occupy a module space within an enclosure.
CAEN-series enclosures are required to install CLX-series lighting modules.

GreenLight Options–CAEN Enclosures Crestron Residential Lighting Design Guide
Doc. 5999F 22
NOTE: If more than 50 watts of power is drawn by connected devices, supplemental power supplies are required.

Crestron Residential Lighting Design Guide DIN Rail Products
Doc. 5999F 23
Crestron DIN Rail Products
Features
Popular in Europe and ideal for MDU applications
High voltage units rated for use up to 240VAC, 50/60Hz
Integrated Emergency Override Mode
Mix and match Crestron and 3
rd
party products in oOne enclosure
DIN Rail Installation
The Crestron DIN Rail products are designed to snap
onto a standard DIN Rail for installation in a wall
mount enclosure. Wiring connections are made using
screw terminals positioned along the bottom and/or
bottom, clearly accessible from the front for easy
installation and servicing. All setup controls and
indicators are positioned on the center front panel.
When installed in an enclosure utilizing 45 mm
cutouts, the front panel remains accessible while the
connections are concealed. DIN modules may be
mounted in CAEN enclosures or in DIN Rail cabinets
available from a number of 3
rd
party vendors.
Cabinets are available in many sizes.
DIN Rail devices may also be used
with Crestron CAEN Cabinets.

Crestron Residential Lighting Design Guide DIN Rail Products
Doc. 5999F 24
Example DIN Rail System

Crestron Residential Lighting Design Guide DIN Rail Products
Doc. 5999F 25
DIN-AP2
The DIN-AP2 is a 2-Series control processor designed for small to
medium-sized lighting and automation applications. DIN Rail mounting
enables modular installation alongside Crestron DIN Rail lighting and
automation control modules and other third-party DIN Rail mountable
devices.
Features
2-Series control engine
MMC memory expansion card slot
Cresnet port - master/slave selectable
10/100 Ethernet | SSL encryption
e-Control 2, SNMP and RoomView support
2 bidirectional RS-232 COM ports
4 IR/serial ports
8 Versiport I/O ports
4 Low-voltage relay ports
Configurable via Crestron D3 Pro software
2-Series Processor
Built upon the reliable Crestron 2-Series control engine,
the DIN-AP2 is extensively programmable using the suite
of powerful Crestron development software and vast
database of drivers and software modules. The DIN-AP2
works seamlessly with the entire line of Crestron lighting
dimmers and shade controls, keypads and touchpanels,
thermostats, wireless gateways, and expansion modules.
System Integration
The DIN-AP2 provides for the integration of non-Crestron
devices and subsystems through a host of control
interfaces. Four isolated relays and eight Versiport I/O
ports are built in to accommodate all kinds of sensors,
contactors, door strikes, and other low voltage controls.
Two bidirectional RS-232 COM ports and four IR/serial
ports allow for the integration of everything from simple
shade controllers to advanced security systems.
Cresnet®
Cresnet is the communications backbone for Crestron
lighting modules, wall box dimmers and shade controllers.
The DIN-AP2 includes a pair of Cresnet master ports
(paralleled) capable of supporting approximately 20
typical devices. Larger systems with more than 20
devices can be handled by adding the DIN-HUB Cresnet
Distribution Hub. Connectivity for multiple homeruns can
be facilitated using one or more DIN-BLOCK Cresnet
Distribution Blocks. Additionally, at least one DIN-PWS50
Cresnet Power Supply is required to power the DIN-AP2
and any connected Cresnet devices.
Memory Expansion
A memory card slot allows for easy expansion of the DIN-
AP2 internal memory using an MMC-compatible memory
card up to 2 GB.
Ethernet and e-Control®2
Built-in 10/100 Ethernet facilitates secure high speed
network connectivity, enabling extensive capabilities for
remote system maintenance and control, and providing an
interface to other Crestron control systems. Native
features include a built-in email client to report system
troubles and other functions to the owner or service
company via instant email notification. An onboard Web
server provides the foundation for the exclusive Crestron
e-Control 2 XPanel technology, providing secure IP-based
remote control.
RoomView® and SNMP
For large facilities utilizing multiple DIN-AP2s and other
control systems, exclusive Crestron RoomView Help Desk
software delivers a comprehensive solution for remote
monitoring and asset management. Also, built-in SNMP
support enables similar capability using third-party
network management software, allowing full control and
monitoring from the IT Help Desk or NOC in a format
that's familiar to IT personnel.
D3 Pro™ Software
Crestron D3 Pro software eliminates the need for custom
programming, providing a complete design, development,
and documentation solution for the lighting professional.

Residential Lighting Design Guide DIN Rail Products
Doc. 5999F 26
DIN-1DIMU4
The DIN-1DIMU4 is a 4-channel universal
lighting control module designed to support
dimming of both forward and reverse phase type
loads. A single model supports 120 and 220-240
volt electronic and magnetic low voltage,
incandescent, neon/cold cathode, 2-wire
dimmable fluorescent, and non-dimmable
lighting loads up to 5 amps per channel, 10
amps total.
Features
4 channels of forward or reverse phase dimming
Auto load detection
120 to 240 Volt 50/60 Hz operation (Not for 277 VAC
operation)
Selectable non-dim mode
Extreme stability in noisy environments
Short circuit and overload protection
Master air-gap relay
Setup via front panel or software
Programmable functionality via DIN-AP2
Auto Load Detection
Each channel of the DIN-1DIMU4 is capable of auto-
detecting the dimmable load type connected to it and
selecting the appropriate operating mode to control that
load. Reverse phase (trailing edge) mode supports
incandescent and electronic low-voltage load types, while
forward phase (leading edge) mode handles magnetic low
voltage, neon, and other inductive load types. A non-dim
mode is also selectable for switching of non-dimmable
lighting fixtures. Any channel may be set for any mode,
allowing one dimmer module to handle any combination
of lighting types on four separately controlled circuits.
Phase-Synchronous Detection Circuitry
Proprietary Crestron zero-cross filter technology provides
superior immunity to noise on the power line, reducing
lamp flicker and compensating for fluctuations in line
voltage and frequency.
Short Circuit Protection
Built-in OCP (over current protection) prevents failure of
the DIN-1DIMU4 caused by excessive loading or improper
wiring of the outputs.
Master Air-Gap Relay
When all four channels are turned fully off, the internal
master relay automatically opens, providing air-gap
isolation that allows safe servicing and changing of light
bulbs on all four controlled circuits.

Crestron Residential Lighting Design Guide DIN Rail Products
Doc. 5999F 27
DIN-8SW8
The DIN-8SW8 is an 8-channel high voltage lighting control
module designed to support switching of non-dimmable
lighting and fans. A single model supports both 120 and 220-
240 volt applications. Each channel handles incandescent
loads up to 10 amps, fluorescent loads up to 5 amps, and
also 1/2 HP motors.
Features
8 channels of power switching
Supports 120 to 240 volt 50/60 Hz (Not for 277
VAC operation)
Override input
Cresnet® communications
Setup via front panel or software
Programmable functionality via DIN-AP2
DIN-4DIMFLV4
The DIN-4DIMFLV4 is a 4-channel lighting control module
designed to support dimming of 4-wire 0-10 volt
fluorescent dimming ballasts. A single model supports both
120 and 220-240 volt applications. Each channel handles
up to 30 dimmable ballasts, and may also be used for
switching of non-dimmable lighting loads up to 5 amps,
as well as 1/2 HP motors.
Features
4 channels of 4-wire 0-10 volt fluorescent
dimming
Supports 120 to 240 Volt 50/60 Hz (Not for 277
VAC operation)
Also allows switching of lighting and exhaust fans
Setup via front panel or software
Programmable functionality via DIN-AP2
DIN-2MC2
The DIN-2MC2 is a 2-channel motor control module
designed to provide control of bidirectional motors for
drapes, shades, projection screens, lifts, skylights, and
gates. Each channel supports up/down or open/close
control of a conventional 3-wire bidirectional type motor up
to 1/2 HP at voltages up to 240 volts. Built-in timing and
interlock logic make it easy to program the DIN-2MC2 for
failsafe operation.
Features
Dual-channel bidirectional motor control
Supports 120 to 240 volt 50/60 Hz
Setup via front panel or software
Programmable functionality via DIN-AP2

Crestron Residential Lighting Design Guide DIN Rail Products
Doc. 5999F 28
DIN-AO8
The DIN-AO8 is a DIN Rail-mounted automation control module that provides
eight analog output ports for interfacing with third-party lighting and
heating/cooling systems.
Analog Outputs
Each analog output port provides a 0 to 10 volt DC control signal ideally suited
for controlling 0-10V lighting dimmers and heating/cooling valves. 10-bit
resolution ensures precise recall of lighting and climate control settings and
smooth ramping between levels.
Features
Eight 0-10V analog output control ports (Maximum sink current
20mA per channel)
Interface for 3rd-party lighting and heating/cooling
Fully programmable functionality via DIN-AP2 Setup via front panel
or software
DIN-IO8
The DIN-IO8 is a DIN Rail-mounted automation control module that provides
eight Versiport I/O ports for interfacing with a wide range of third-party devices
and systems. Each Versiport can be configured via software to function as
a digital or analog sensing input or as a digital trigger output.
Features
8 Versiport I/O ports
Interface for 3rd-party sensors, detectors, contact closures,
and alarms
Fully programmable functionality via DIN-AP2
Versiports
Configured as a digital input, the Versiport senses a contact closure or logic
level signal from devices such as motion detectors, partition sensors, alarm
panels, 12V triggers, and all types of switches and relays. As an analog input,
the Versiport can sense changes in a resistance or DC voltage level, working
with everything from temperature and light sensors to water level meters to
volume control potentiometers. As a digital output, the Versiport provides
a logic level closure signal to trigger control and alarm inputs on a variety
of external devices.

Crestron Residential Lighting Design Guide DIN Rail Products
Doc. 5999F 29
DIN-BLOCK
The DIN-BLOCK is a DIN Rail-mounted Cresnet® distribution block designed
to facilitate the termination of Cresnet wiring at a head end or distribution
point. DIN Rail mounting enables modular installation alongside Crestron
DIN Rail lighting and automation control modules and other third-party
DIN Rail mountable devices.
Features
12 port Cresnet distribution block
Detachable screw terminal blocks for easy termination and
troubleshooting
Split power bus for flexible 24V power distribution
Diagnostic LEDs for network power and data
Passive device — no programming required
Cresnet Distribution
Cresnet is the communications backbone for Crestron lighting modules, wall
box dimmers, shade controllers, thermostats, keypads, touchpanels, and many
other devices. This flexible 4-wire bus allows for combinations of homerun
and daisy-chain wiring, and the DIN-BLOCK provides a simple means for
connecting up to 12 separate Cresnet cables as part of any sized network.
Cresnet Power Distribution
In addition to data, Cresnet carries 24 volts DC for powering the devices
connected to it. The Cresnet ports on the DIN-BLOCK are arranged into two
separate power groups, providing an easy way to manage the distribution of
power for a complete Cresnet network. A separate power supply may be
dedicated to each group, or a single supply can be connected to both groups
as needed. Each group supports up to 75 watts.
DIN-PWS50
The DIN-PWS50 is a 50 watt Cresnet power supply module designed to
snap onto a standard DIN Rail installation. DIN Rail mounting enables
modular installation alongside Crestron DIN Rail lighting and automation
control modules and other third-party DIN Rail mountable devices. All
wiring connections are made using screw terminals positioned along the
top and bottom, clearly accessible from the front for easy installation and
servicing. Three Cresnet power ports are provided.
Features
50 watt Cresnet power supply module
Powers the DIN-AP2 Automation Processor and other Cresnet
devices
Includes 3 Cresnet power ports
Cresnet data passes through unaffected
Dual line power input terminals for easy daisy-chaining

Crestron Residential Lighting Design Guide DIN Rail Products
Doc. 5999F 30
DIN-HUB
The DIN-HUB is a DIN Rail-mounted Cresnet® hub designed to facilitate
the configuration of large Cresnet networks. DIN Rail mounting enables
modular installation alongside Crestron DIN Rail lighting and automation
control modules and other third-party DIN Rail mountable devices.
Features
3-segment Cresnet hub
32 Cresnet devices per segment
3-Segment Cresnet Hub
Cresnet is the communications backbone for Crestron lighting modules,
wall box dimmers, shade controllers, thermostats, keypads, touchpanels,
and many other devices. This flexible 4-wire bus normally supports
approximately 20 Cresnet devices without requiring a hub. Larger systems
are easily enabled by adding the DIN-HUB. The DIN-HUB features three
isolated Cresnet segments, each supporting an additional 20 devices,
allowing for systems of approximately 80 devices total (including the
"host" segment). More hubs may be added to allow up to a maximum
potential of 252 devices.
Cresnet Power Distribution
In addition to data, Cresnet carries 24 volts DC for powering the devices
connected to it. The DIN-HUB provides an easy way to manage the
distribution of power for a complete Cresnet network. Each segment can
be configured to receive its power from the "host" power source or from
another power supply. Separate power supplies may be dedicated to each
segment, or a single supply can be shared amongst multiple segments as
needed. Each segment supports up to 75 watts.

Interface Equipment Residential Lighting Design Guide
Doc. 5999F 31
Interface Equipment
Integrating your lighting with A/V controls, shade control,
security systems, and HVAC through a single system have
never been easier. Crestron provides the ultimate, fully
integrated lighting control solution for any application.
Dimming control
Switched control
Sensor activated control
Security
Astronomical clock control
Remote monitoring of any location
Crestron eliminates all system integration problems by
providing the single point control solution coupled with the
widest selection of control devices. Crestron products are
designed to operate efficiently, replacing several products
and drawing less power.
Crestron products and automation solutions help
designers meet ASHRAE (American Society of Heating,
Refrigeration, and Air-Conditioning Engineers) and LEED
(Leadership in Energy and Environmental Design)
standards. Crestron products are also in compliance with
the European Union (EU) Directive 202/95/EC Restriction
of Hazardous Substances (RoHS).
Additional Crestron product information and specifications
are available from the Crestron web site:
www.crestron.com
Crestron User Interfaces
Crestron offers a wide variety of types and styles to suit
the needs and tastes of your client.
User interfaces are prominently and strategically located
throughout a lighting design, providing the physical link
between the user and the controlled devices.
Touchpanels
Crestron touchpanels are the most elegant, efficient and
practical control solution, simplifying the most demanding
design and providing intuitive one-touch control of
lighting, AV, HVAC, and security.
With distinctive features for every application, the broad
range of Crestron touchpanels delivers maximum value.
There is a Crestron touchpanel for every room and every
budget.
Keypads
C2N-DB Decorator Series Keypads bring a
contemporary design to traditionally flat faceplates. They
are available in a wide selection of finishes and offer extra
large, backlit buttons for custom engraving. They also
play door chimes, voice prompts, button clicks and other
audible feedback, depending on programming. These
keypads use readily available Decora® style faceplates.
CNX Designer Series Keypads are an elegant option for
any décor. Extra large backlit buttons offer room for
custom engraving. They can also play door chimes, voice
prompts, button clicks and other audible feedback.
C2N-CBD and C2N-CBF Series Cameo™ Keypads
answer the need for a diverse selection of designer colors,
and dramatically reducing the standard keypad wall plate
size without comprising button size. Mounting options
include a choice of standard installation in a Decora®
style faceplate or using the Crestron exclusive flush-
mounting system. Cameo is offered in 10 designer colors,
plus three standard colors.. The installer can customize
and configure up to six buttons for 12 functions in total.
Wall Box Dimmers and Switches
These devices are functional as a stand-alone dimmers or
switches, and deliver greatly enhanced functionality as
part of a complete Crestron Control solution. Designed to
replace any standard in-wall dimmer or light switch, when
connected to a 2-Series control system via the Cresnet
network, extensive automation and control capability is
enabled.
CLW-Series components are available in white, black, and
almond and are designed for use with Decora® style
faceplates (not included). A dual purpose LED is included
to verify preset storage. and serve as a beacon to make
the dimmer easy to locate in the dark. Its connection to
the control system allows the functions of the CLW-DIM to
be controlled from touchpanels, keypads, wireless
remotes, and computers to support unlimited flexibility for
remote control and integration with other devices and
system
infiNET™ Wireless
A wide variety of wireless dimmers and switches are
available, making infiNET a perfect choice for locations
where physical wiring is difficult or expensive. Connection
to a control system allows the functions of the wireless
dimmers and switches to be controlled and support
unlimited flexibility for remote control and integration with
other devices and systems.

Residential Lighting Design Guide User Interfaces
Doc. 5999F 32
Wall Mount Touchpanels
TPS Series Isys®
Available in 12”(TPS-12L), 15”(TPS-15L) and 17”(TPS-17L)
widescreen
24-Bit Isys graphics | 1280 x 768 resolution
DNav dynamic menu objects
Full-motion video with gamma correction
Interactive annotation capability
Built-in biamplified speaker system and microphone
Backlit hard key pushbuttons
QuickMedia® and Crestron Home CAT5 AV connectivity
High-speed Ethernet and Cresnet® communications
Available in black or white
TPS Isys® G-Series with Crestron Home
or QuickMedia®
Available in 15”(TPS-15G-(QM or CH)-L) and 17”(TPS-17G-(QM or
CH)-L) widescreen
24-Bit Isys graphics | 1024 x 768 resolution
DNav dynamic menu objects
Dual-window full-motion video, HDTV and RGB display
Interactive annotation capability
Built-in biamplified speaker system and microphone
QuickMedia AV connectivity | audience presentation output
High-speed Ethernet and Cresnet communications
Backlit hard key pushbuttons
Available in black or white
TPMC Isys I/O with Crestron Home or
QuickMedia®
12" active matrix touchscreen display
24-bit Isys graphics | 800 x 600 resolution
DNav dynamic menu objects
Full-motion video with gamma correction
Interactive annotation capability
Windows XP Embedded operating system
Onboard PC applications for Web browsing, streaming media,
and remote access
Multi-format streaming video and audio
Direct panel-to-panel intercom over IP
Built-in amplified speakers and microphone
QuickMedia and Crestron Home CAT5 AV connectivity
High speed Ethernet and Cresnet communications
Available in black or white

User Interfaces Residential Lighting Design Guide
Doc. 5999F 33
TPS-4000L
10.4" active matrix touchscreen display
Isys® graphics engine with 640 x 480 resolution
High performance video with gamma correction
Built-in amplified speakers and microphone
5 engravable hardbuttons | Built-in light sensor
Stylish flush mount design | Optional rack mount
Cresnet® communications
TPMC-8L
8.4" active matrix touchscreen display
16-bit Isys i/O graphics with 800 x 600 resolution
DNav dynamic menu objects
Windows XP Embedded operating system
Onboard PC applications for Web browsing, streaming media,
conferencing, VoIP, remote computer access
Multi-format streaming video and audio | WAV file audio feedback
Built-in stereo speakers and dual microphones
Includes faceplate with 16 hard key pushbuttons
Button engraving available as solid or backlit text No-button blank
faceplate also provided
Built-in biometric fingerprint scanner and light sensor
10/100 fast Ethernet communications | Rear panel USB ports
Available in almond, black, white, or stainless steel
TPS-4L
3.6" active matrix color touchscreen display
16-bit Isys graphics | 320 x 240 resolution
Synapse Image Rendering Algorithm
10 white backlit pushbuttons and engravable faceplate
WAV file audio feedback
Ethernet and Cresnet communications
10 designer colors: Almond, Black, Butter, Cream, Ecru, Smoke,
Stone, White, and Wheat

Residential Lighting Design Guide User Interfaces
Doc. 5999F 34
Tilt Touchpanels
TPS Series Isys®
Available in 12"(TPS-12L), 15"(TPS-15L) and 17"(TPS-17L)
widescreen
24-bit Isys graphics | 1280 x 768 resolution
DNav dynamic menu objects
Full-motion video with gamma correction
Interactive annotation capability
Built-in biamplified speaker system and microphone
Backlit hard key pushbuttons
QuickMedia® and Crestron Home CAT5 AV connectivity
High-speed Ethernet and Cresnet® communications
Available in black or white
TPS Isys G-Series with Crestron Home or
QuickMedia
Available in 15"(TPS-15G-(QM or CH)-L) and 17"(TPS-17G-(QM or
CH)-L) widescreen
24-Bit Isys graphics | 1024 x 768 resolution
DNav dynamic menu objects
Dual-window full-motion video, HDTV and RGB display
Interactive annotation capability
Built-in biamplified speaker system and microphone
QuickMedia AV connectivity | audience presentation output
High-speed Ethernet and Cresnet communications
Backlit hard key pushbuttons
Available in black or white
TPMC Isys i/O with Crestron Home or
QuickMedia
12" active matrix touchscreen display
24-Bit Isys graphics | 800 x 600 resolution
DNav dynamic menu objects
Full-motion video with gamma correction
Interactive annotation capability
Windows XP Embedded operating system
Onboard PC applications for Web browsing, streaming media, and
remote computer access
Multi-format streaming video and audio
Direct panel-to-panel intercom over IP
WAV file audio feedback
Built-in amplified speakers and microphone
QuickMedia* and Crestron Home CAT5 AV connectivity
High-speed Ethernet and Cresnet communications
Available in black or white
TPS-4000
10.4" active matrix touchscreen display
Isys graphics engine with 640 x 480 resolution
High performance video with gamma correction
Built-in amplified speakers and microphone
5 engravable hardbuttons | Built-in light sensor
Stylish flush mount design | Optional rack mount
Cresnet communications

User Interfaces Residential Lighting Design Guide
Doc. 5999F 35
TPMC Series Isys i/O WiFi Touchpanels
TPMC-8T
8.4" active matrix touchscreen display
16-bit Isys i/O graphics | 800 x 600 resolution
Synapse image rendering algorithm
DNav dynamic menu objects
Windows XP Embedded operating system
Onboard PC applications for Web browsing, streaming media,
conferencing, VoIP, and remote computer access
Streaming video from network cameras and servers
Built-in microphone and stereo speakers
5-way thumbpad and 4 hard key buttons
Includes stylus with onboard storage slot
Built-in biometric fingerprint scanner
Built-in Bluetooth technology
Wired 10/100 Ethernet and 802.11a/b/g Wi-Fi
communications
TPMC-8X
Stylish and compact ergonomic design
8.4"active matrix touchscreen display
16-bit Isys i/O graphics | 800 x 600 resolution
Synapse image rendering algorithm
DNav dynamic menu objects
802.11a/b/g Wi-Fi 2-way wireless communications
Windows XP Embedded operating system
Onboard PC applications for Web browsing, streaming media,
conferencing, VoIP, and remote computer access
Wireless video from network cameras and servers
Built-in microphone and stereo speakers
5-way thumbpad and 4 hard key buttons
Includes stylus with onboard storage slot
Built-in biometric fingerprint scanner
Built-in Bluetooth technology
Internal Li-Ion battery pack included
External booster battery pack available
Optional desktop and wall mount docking stations
TPMC-4XG
Stylish and ergonomic handheld design
3.5" active matrix touchscreen display | 240 x 320 resolution
16-bit Isys i/O graphics | Synapse image rendering algorithm
Backlit hard buttons, thumbpad, and scroll wheel
Microsoft Windows CE .NET operating system
Windows SideShow-enabled
Wireless video from network cameras and servers
802.11b/g Wi-Fi 2-way wireless communications
Includes stylus with onboard storage slot
Includes docking station and Li-Ion battery pack

Residential Lighting Design Guide User Interfaces
Doc. 5999F 36
Wireless Touchpanels and Handhelds
TPS-6X
Elegant high gloss black or white, or matte black
finishes
Non-slip rubber grips on rear
Illuminated buttons and engravable backlit text
5.7" active matrix color touchscreen display
16-bit Isys® graphics | 640 x 480 resolution
Dynamic graphics and text capability
Synapse Image Rendering Algorithm
Windows SideShow-enabled
Displays full-motion video while docked
High-power, high-speed 2.4 GHz RF wireless
technology
Up to 200 feet RF range indoors
1-way IR wireless capability also built in
Includes tabletop tilt docking station, interface module,
and NiMH rechargeable battery pack
Wired Ethernet, Cresnet®, and Crestron Home CAT5
video connectivity
MT-1000C
Stylish and ergonomic handheld design
3.8" active-matrix color touchscreen
320 x 240 resolution | 16-bit Isys graphics
Synapse Image Rendering Algorithm
Backlit pushbuttons and 5-way thumbpad
WAV file audio feedback
Auto-shutoff and pick-up sensor
1-way RF or IR wireless communication
Programmable using Crestron VTPro-e software
Includes docking station and Li-Ion battery pack
ML-600
Ergonomic handheld design
Large programmable LCD screen flanked by 10 menu
buttons
3 LCD menu navigation buttons
27 programmable function buttons
2 programmable power buttons
5-way thumb pad for OSM navigation
EL backlighting of LCD screen and buttons
1-way RF or IR wireless communication
Operates on 4 AAA alkaline batteries
WPR-48
Waterproof handheld remote
Configurable for 9, 18, 27, or 48 function
Multi-function buttons allow single-press, 2-position or
3-position rocker action
Customizable labeling
Electroluminescent backlighting
1-way RF or IR wireless communication
Long-life lithium rechargeable batteries
Includes docking station/charger and lanyard

User Interfaces Residential Lighting Design Guide
Doc. 5999F 37
Keypads
C2N-DB Series Decorator Keypads
Crestron C2N-DB Decorator Series keypads deliver versatile keypad control
with contemporary styling to support a broad range of residential and
commercial applications from lighting to AV distribution.
A
vailable in configurations of 6, 8, or 12 buttons, Decorator keypads are
designed to allow installation in perfect harmony with non-Crestron devices
using readily available Decora® style faceplates (not included). Mountable in
a standard electrical gang box, multiple keypads can easily be ganged side-
by-side along with other wall mount devices. All button caps are engravable
and include integral red LED light pipe feedback indicators.
Features
Fits standard electrical gang boxes and Decora® faceplates
Available in 6, 8, and 12 button configurations
Replaceable, custom-engravable button caps
Programmable feedback LEDs
Available in black, white, and almond
Easy Cresnet® wiring
C2N-DB Mounting

Residential Lighting Design Guide User Interfaces
Doc. 5999F 38
CNX Designer Series Keypads
The CNX-B Designer series wall mount keypads are available in configurations of 2, 4, 6, 8,
or 12 buttons. Buttons are large for optimal ergonomics. Each model mounts in a standard
electrical gang box and includes a matching 1-gang faceplate. Optional 2 and 3-gang
faceplates are available to allow up to three keypads to be installed side-by-side. Optional
Designer and Architectural faceplates are offered in a variety of elegant finishes. Button caps
are engravable and include LED feedback indicators. Standard models are available in White,
Black or Almond. Backlit button caps are also available (black only).
CNX-B series keypads include built-in WAV sound file capability to enable customized audible
feedback. An onboard temperature sensor is also included for general monitoring of room
temperature. The product name corresponds to the number of keypad buttons. For example,
CNX-B6 is a six-button keypad and a CNX-B12 is a 12-button keypad.
The CNX-B series keypads have a uniquely stylish shape and faceplates are available for the
most common groupings; single, double, or three gang plate arrangements.
Features
Available with 2, 4, 6, 8, or 12 buttons
Colors include white, almond, or black
Metal faceplate options:
- Black Chrome - Brushed Gold
- Polished Black - Polished Gold
- Polished Brass - Stainless Steel
Primed faceplate available
All keypads can be custom engraved.
All keypad buttons are backlit capable and have an LED that serves as a user
feedback indicator. Status LEDs are controlled via SIMPL programming or the
Crestron D3 Pro software. The illumination of each LED is independently
addressable and programmable. Each LED can be programmed to dim at night and
return to full intensity during the day
Each keypad requires 3 watts of power
Crestron keypads can be ganged in one, two or three gang configurations and are mounted
in standard electrical junction boxes. Custom multi-gang plates are required.
Mounting in Single-Gang Box

User Interfaces Residential Lighting Design Guide
Doc. 5999F 39
Cameo™
Crestron Cameo presents a fresh, innovative concept in keypad design featuring an
incredibly small footprint and slim profile with versatile button configurations.
C
ameo Standard Moun
t
T
he C2N-CBD-TS is a standard mount model designed for installation in a
c
onventional electrical gang-box using a Decora® style faceplate (not included).
New smooth and textured finishes match perfectly with popular off-the-shelf
d
ecorator faceplates. Available in a variety of designer colors, the smooth finish has
a
slick, glossy appearance, while the textured finish achieves a softer, satiny look.
C
ameo Flush Moun
t
T
he Cameo unique flush mount design affords a very discreet appearance occupying
j
ust one-third the space of a conventional keypad. Employing a smart spring clamp
mounting system, the C2N-CBF-T Cameo Flush Mount model installs easily in
d
rywall without requiring a backbox. Five designer colors are available, each with a
s
atiny, textured finish.
C
ustomizable Buttons
Exquisitely simple yet highly customizable, a single Cameo keypad can be configured
easily by the installer to provide from two to six buttons. Each keypad is actually
f
urnished with an assortment of engravable button caps in three different sizes to
s
upport a variety of physical layouts. Their smoothly rounded shape and refined
pushbutton action give each button press a positive feel with subtle surface relief for
a
n excellent tactile response. Through programming, each button can be configured
t
o support up to three separate functions simply by tapping, double-tapping, or
holding the button. "Shift key" functionality is even possible, allowing any button to
be held while pressing another. The button caps feature an ergonomically tapered
s
hape for excellent tactile response. The taper of each button can be oriented
upward or downward, enabling two vertically adjacent buttons to emulate the feel
o
f a single rocker switch.
A
uto-dimming Backlight
Cameo's new high-quality backlit laser engraving provides customizable button text
t
hat's easy to read under any lighting condition. A built-in light sensor controls the
backlight intensity automatically to achieve a crisp, legible appearance in both
d
arkened and fully lit rooms.
Enhanced LED Feedback
Six pinhead-sized white LED light pipes provide elegant and versatile button
feedback. Ten different blink patterns are built in, enabling blinking LED feedback
while simplifying programming and minimizing traffic on the Cresnet® network.
Built-in bargraph logic allows the feedback LEDs to function as a 6-segment bar
graph display to provide a visible level indication when adjusting lighting and audio
settings. The overall LED intensity is auto-dimmable, adjusting automatically for
optimal visibility under varying lighting conditions.
Contact Closure Inputs
Two sensing inputs are included on the rear of the keypad to provide a simple and
convenient interface for low voltage contact-closure devices such as occupancy
sensors, door switches, and motion detectors.
Ambient Light Sensor
In addition to controlling Cameo's backlight and LED intensity, the built-in light
sensor can also be utilized by the control system to support daylight harvesting
and other programmatic functions.
A
vailable Colors and Textures
Black, White, Almond. Brown, Ivory, Brown, Dark Almond, and Dusk in smooth and
t
extured versions.

Residential Lighting Design Guide User Interfaces
Doc. 5999F 40
Cameo ™ Mounting Options
Cameo Flush Mount
Using the supplied template, carefully cut the hole for the Cameo
keypad. After the keypad is connected to Cresnet®, insert it in the hole.
The spring clip holds the keypad in place.
Cameo Standard Mount
Standard mount keypads fit in a standard single-gang box.
Finish the installation with a Decora® style faceplate.
Mud Ring Mount Kit
The Mud Ring Mount Kit (MMK-CBF-T) is the preferred mounting option
for the Crestron C2N-CB Series of Cameo keypads when cutouts in the
drywall (for the flush-mount keypad installation) are too large. This kit
provides support for additional plastering that can be applied to hide
irregularities in the cutout.
NOTE: This mounting option is intended for flush-mount keypads only.
Do not use the C2N-CB with the decorator-style keypads.
NOTE: A Crestron module in Crestron Database version 17.1.0, the C2N-
Cameo Bargraph Feedback v1.0, makes it possible to use the feedback
LEDs like a bar graph, for a function such as volume control, where the
switches are used to control the volume, the LEDs display its level.

iLux Integrated Lighting Control System Residential Lighting Design Guide
Doc. 5999F 41
iLux Integrated Lighting Control System
NOTE: CLW-series dimmers are compatible with CLS-C6,
CLS-C6M, CLSI-C6, and CLSI-C6M.
iLux is a complete, integrated lighting system designed for wall
mount installation in boardrooms, auditoriums, theaters, or
anywhere versatile and cost-effective control of lighting and
shades is required. The Crestron reputation for innovation and
reliability, combined with high quality integrated dimming, native
shade control, configurable rocker buttons, extensive integration
ability and many other advanced features make iLux the ideal
choice for all types of room lighting and shade control
applications.
iLux is compliant with ASHRAE Standard 90.1-2004- Energy
Standard for Buildings, and specifically the Mandatory Provisions
9.4.1.1 (b) and (c) regarding the use of an occupant sensor that
turns the lights off within 30 minutes after leaving the space, and
a control system that indicates that an area is unoccupied. iLux
also complies with Provision 9.4.1.4, which pertains to the
control of display, accent, task and demonstration lighting.
Six channels of dimming are available for incandescent, magnetic
low-voltage, neon/cold cathode, and 2-wire dimmable
fluorescent loads. Control of on/off switching of many non-
dimmable lighting loads is also possible. Each channel will
handle up to 800 watts individually, with a total rating of 1920
(1920 watts when fed from a 20A circuit breaker, 1440 watts
when fed from a 15A circuit breaker watts for the complete unit).
Larger loads and additional load types can also be supported
using add-on lighting expansion modules (sold separately).
Using the Crestron networked Shade and Drape Controllers (sold
separately), the iLux devices enables versatile control of a
roomful of motorized window treatments, screens and lifts in up
to six shade groups. Shade and drape control does not use a
lighting control channel.

Residential Lighting Design Guide iLux Integrated Lighting Control System
Doc. 5999F 42
iLux Features
Wireless iLux Remote
The CLS-IRHT8 is a compact IR wireless remote designed specifically for use with
Crestron iLux Integrated Lighting Systems. The CLS-IRHT8 provides buttons for
master up/down control, plus activation of scenes 1-4, ON, and OFF. The CLS-IRHT8
is non-programmable, and operates on two AA batteries (included).

iLux Integrated Lighting Control System Residential Lighting Design Guide
Doc. 5999F 43
Multi-Unit Expansion
One CLS-C6 master will support up to eight additional CLS-C6 (or CLS-C6M) units, enabling systems of up to 54 lighting
zones and 54 shade groups. Commands for typical functions like scene recall, scene off, master dimming, and occupancy
status are shared between the CLS-C6 units. Each individual unit can still support a complete assortment of local devices
including keypads, shade controllers, and motion detectors.
NOTE: Shade groups are independent of lighting control zones.
Stand-alone Master with Slave wiring Control system as master with slave wiring

Residential Lighting Design Guide iLux Integrated Lighting Control System
Doc. 5999F 44
Control System Integration
The CLS-C6 features two separate Cresnet® control networks, one for local devices
and one for connection to a 2-Series control system.
Connecting the CLS-C6 to a control system allows its functions to be controlled from
touchpanels, keypads, RF wireless remotes, and even computers.
The control system interface also enables extensive flexibility for integration with
other systems such as security, HVAC and energy management, plus remote
monitoring via SNMP and Crestron RoomView® applications.
NOTES: Dimmed outputs are not used to directly control outlets or other devices like
projectors or AC motor loads. Connecting more than three devices (keypads or shade
control modules) will require additional power supplies.

iLux Integrated Lighting Control System Residential Lighting Design Guide
Doc. 5999F 45
iLux Expansion Modules
All expansion modules are compatible with Crestron CLX-Series, CLW-Series, iLux, and infiNET™ in-wall dimmers.
Model Load Function
CLS-EXP-DIM Supports incandescent, magnetic low voltage,
neon/cold cathode, and 2-wire and 3-wire dimmable
fluorescent loads (16A per load)
120V, 230V, & 277V compatibility
Forward Phase Dimming
CLS-EXP-DIMU Supports incandescent, magnetic low voltage,
Electronic low voltage, and 2-wire and 3-wire
dimmable fluorescent loads (16A per load)
120V, 230V, & 277V compatibility
Forward and Reverse-Phase Dimming
Auto Load Type Detection
CLS-EXP-DIMFLV Supports 4-wire Fluorescent, Incandescent, MLV and
ELV loads (16A per load)
120V, 230V, & 277V compatibility
0-10V Fluorescent Dimming plus High
Inrush Switching
CLS-EXP-DIMFDB Supports 3-wire Fluorescent Fluorescent Dimming
UL2043 rated for use in air handling spaces.
Crestron CLS-EXP-DIM expansion modules are the only units on the market that are
code compliant for installation in air handling spaces. Mounting these in the ceiling
can save significant wiring costs on your projects.
NOTES: Refer to the wiring diagrams for expansion module connection details.
Each expansion module can control 120VAC /230/277 loads.
Up to four expansion modules of the same type can be controlled in a single zone.
Refer to the Crestron website for additional iLux example diagrams.

Residential Lighting Design Guide iLux Integrated Lighting Control System
Doc. 5999F 46
Expansion Modules Wiring Diagrams
NOTE: 230V feed is available on CLSI units only

iLux Integrated Lighting Control System Residential Lighting Design Guide
Doc. 5999F 47
Wall Box Dimmers and Switches
Although the following devices are functional as a
standalone dimmer or switch, they deliver greatly
enhanced functionality as part of a complete Crestron
control solution. Designed to replace any standard in-wall
dimmer or light switch, when connected to a Crestron
PAC2 or PAC2M automation control system (or any other
2-Series control system) via the Cresnet® network,
extensive automation and control capability is enabled.
Underwriters Laboratories (UL) safety regulations require
an air gap between the contacts. Building on this
requirement, Crestron has expanded the wall box dimmer
and switch products to include many new features.
CLW-Series components are available in white, black, and
almond and are designed for use with Decora® style
faceplates (not included). A dual purpose LED is included
to verify preset storage and serve as a beacon to make
the dimmer easy to locate in the dark. Its connection to
the control system allows the functions of the CLW-DIM
to be controlled from touchpanels, keypads, wireless
remotes, and computers to support unlimited flexibility
for remote control and integration with other devices
and systems.

Residential Lighting Design Guide Wall Box Dimmers and Switches
Doc. 5999F 48
Cresnet Wall Box Dimmers
Model Load Features
CLW-DIM
Wall Box Dimmer
(Stand-alone)
Supports incandescent
loads up to 1000 watts,
or magnetic low voltage
loads up to 1000VA/750 Watts
Four possible dimming level presets. The slide
switch selects between ADJUST, PRESET, and
OFF modes
CLW-DIM1
Wall Box Dimmer,
Single Button
(Stand-alone)
Supports incandescent
loads up to 1000 Watts,
or magnetic low voltage
loads up to 1000VA/750 Watts
Two possible dimming level presets. The slide
switch selects between ADJUST, PRESET, and
OFF modes
CLW-DIMS
Wall Box Master
Dimmer
(Master)
Supports incandescent
loads up to 1000 Watts,
or magnetic low voltage
loads up to 1000VA/750 Watts
Four possible dimming level presets. The slide
switch selects between ADJUST, PRESET, and
OFF modes. Serves as the master for multi-
point dimming control of a single load. Multi-
point dimming (similar to 3-way or 4-way
switching) is enabled using one CLW-DIMS
with one or more CLW-SLVD Slave Dimmers.
NOTE: In multipoint systems, only the master unit is connected to Cresnet. Slave units are connected by
the120V (Traveler) wire.
CLW-SLVD
Wall Box Slave
Dimmer
(Slave)
Supports incandescent
loads up to 1000 watts,
or magnetic low voltage
loads up to 1000VA/750 watts
One-gang wall mount slave dimmer designed
for use with the CLW-DIMS Wall Box Master
Dimmer to provide multi-point dimming control
of a single load.
The three pushbuttons on the CLW-SLVD
provide parallel functionality to those on the
CLW-DIMS
CLW-DIMS1
Wall Box Master
Dimmer, Single
Button
(Master)
Supports incandescent
loads up to 1000 Watts,
or magnetic low voltage
loads up to 1000VA/750 watts
Serves as the master for multi-point dimming
control of a single load. Multi-point dimming
(similar to 3-way or 4-way switching) is
enabled using one CLW-DIMS1 with one or
more CLW-SLVD1 Slave Dimmers
Two possible dimming level presets. The slide
switch selects between ADJUST, PRESET, and
OFF modes
CLW-SLVD1
Wall Box Slave
Dimmer, Single
Button
(Slave)
Supports incandescent
loads up to 1000 watts,
or magnetic low voltage
loads up to 1000VA/750 watts
One-gang wall mount slave dimmer designed
for use with the CLW-DIMS1 Wall Box Master
Dimmer to provide mult-point dimming control
of a single load
The single pushbutton on the CLW-SLVD1
provides parallel functionality to that on the
CLW-DIMS1
NOTE: In Multigang installation the inner tabs must be removed to fit and the load capacity must
be derated. See table below for derating information for various applications.
Derating Information for Incandescent and Tungsten Halogen Applications
Part Number No Side Removed One Side Removed Two sides removed
-DIM1 1000W 600W 400W
-DIMS1 1000W 600W 400W
-SLVD1 No Derating Necessary
Derating Information for Magnetic Low Voltage Applications
Part Number No Side Removed One Side Removed Two sides removed
-DIM1 1000VA/ 750W 600VA/450WW 400VA/300W
-DIMS1 1000VA/750W 600VA/450W 400VA/300W
-SLVD1 No Derating Necessary

Wall Box Dimmers and Switches Residential Lighting Design Guide
Doc. 5999F 49
Cresnet Wall Box Switches
Model Load Features
CLW-SW
Wall Box
Switch
(Stand-alone)
Supports incandescent and
electronic low voltage loads
up to 1000 watts, or
magnetic low-voltage and
neon/cold cathode loads up
to 1000VA/750 watts.
Fluorescent ballasts, high-
intensity discharge lighting,
and ceiling fans can also
be switched.
Large button provides instant on/off control of the load,
while the small button turns the load off following a preset
time delay. The slide switch selects between ADJUST,
PRESET, and OFF modes. PRESET mode is the normal
operating mode, and ADJUST mode is used for setting the
delay time.
NOTE: The wall box switches do not support fan speed
control. Use the CLX-1FAN4 for fan speed control.
CLW-SW1
Wall Box
Switch, Single
Button
(Stand-alone)
Supports incandescent and
electronic low voltage loads
up to 1000 watts, or
magnetic low voltage and
neon/cold cathode loads up
to 1000VA/750 watts.
Fluorescent ballasts, high-
intensity discharge lighting,
and ceiling fans can also
be switched.
Provides instant turn-on control of the load. Pressing the
button again turns the load off following a preset time
delay. The time delay can be overridden by tapping the
button a second time, turning the load off instantly. The
slide switch on the CLW-SW1 selects ADJUST, PRESET,
and OFF modes. PRESET mode is the normal operating
mode, and ADJUST mode is used for setting the delay
time.
CLW-SWS1
Wall Box
Master Switch,
Single Button
(Master)
Supports incandescent and
electronic low voltage loads
up to 1000 watts, or
magnetic low voltage and
neon/cold cathode loads
up to 1000VA/750 watts.
Fluorescent ballasts, high-
intensity discharge lighting,
and ceiling fans can also
be switched
Multiple units may be ganged side-by-side along with
other CLW-Series switches and dimmers or non-Crestron
devices. The single large button on the CLW-SWS1
provides instant turn-on control of the load. Pressing the
button again turns the load off following a preset time
delay. The time delay can be overridden by tapping the
button a second time, turning the load off instantly. The
slide switch on the CLW-SWS1 selects ADJUST, PRESET,
and OFF modes. PRESET mode is the normal operating
mode, and ADJUST mode is used for setting the delay
time.
CLW-SLVS1
Wall Box Slave
Switch, Single
Button
(Slave)
Supports incandescent and
electronic low voltage loads
up to 1000 watts, or
magnetic low-voltage and
neon/cold cathode loads
up to 1000VA/750 watts.
One-gang wall mount slave switch designed for use with
the CLW-SWS1 Wall Box Master Switch to provide
multipoint switching control of a single load. The single
pushbutton on the CLW-SLVS1 provides parallel
functionality to that on the CLW-SWS1.
CLW-SWS
Wall Box
Master Switch
(Master)
1000 watt electronic light
switch designed to mount in
a standard electrical gang
box
Serves as the master for multipoint switching control of a
single load. Multi-point switching functionality (similar to
3-way or 4-way switching) is enabled by using the CLW-
SWS with one or more CLW-SLVS Slave Switches. The
large button on the CLW-SWS allows for instant on/off
control of the load, the small button turns the load off
following a preset time delay. The slide switch selects
between ADJUST, PRESET, and OFF modes. PRESET mode
is the normal operating mode, and ADJUST mode is used
for setting the delay time.
NOTE: The wall box switches do not support fan speed
control. Use the CLX-1FAN4 for fan speed control.
CLW-SLVS
Wall Box Slave
Switch
(Multipoint
Slave)
1000-Watt electronic light
switch designed to mount in
a standard electrical gang
box
One-gang wall mount slave switch designed for use with
the CLW-SWS Wall Box Master Switch to provide
multipoint switching control of a single load. The
pushbuttons on the CLW-SLVS provide parallel
functionality to those on the CLW-SWS.
NOTE: In systems, only the master unit is connected to Cresnet®. Slave units are connected by the120V
(Traveler) wire.

Residential Lighting Design Guide infiNET Wireless Technology
Doc. 5999F 50
infiNET™ Wireless Technology

Residential Lighting Design Guide infiNET Wireless Technology
Doc. 5999F 51
infiNET Dimmers, Switches, and Thermostat
Model Load Function
CLW-DIM1RF
infiNET Wall Box
Dimmer
1000-watt
wall mount
dimmer
The single large rocker button provides access to three user presets. With each
selection, the lighting levels fade naturally between each preset level. Pressing and
holding the rocker button up or down allows manual adjustment of the lighting
level.
CLW-DIM4RF
infiNET Wall Box
Dimmer and
Keypad
1000-watt
wall mount
dimmer and
programmable
keypad
All four pushbuttons are software programmable for any Crestron system function,
enabling control over additional lighting circuits, fans, drapes, audio levels, etc.
CLW-DIMS1RF
infiNET Wall Box
Master Dimmer
1000-Watt
wall mount
dimmer
Multipoint dimming is enabled using one CLW-DIMS1RF master dimmer along with
one or more CLW-SLVD1RF slave dimmers. Multipoint dimming is similar to
conventional 3-way or 4-way switching, allowing dimming control of a single load
from multiple locations in the room.
CLW DIMS4RF
infiNET Wall Box
Master Dimmer
and Keypad
1000-watt
wall mount
dimmer and
programmable
keypad
Multi-point dimming is enabled using one CLW-DIMS4RF master dimmer along
with one or more CLW-SLVD1RF slave dimmers. Multipoint dimming is similar to
conventional 3-way or 4-way switching, allowing dimming control of a single load
from multiple locations in the room. All four pushbuttons are software
programmable for any Crestron system function, enabling control over additional
lighting circuits, fans, drapes, audio levels, etc.
CLW-SLVD1RF
infiNET Wall Box
Slave Dimmer
1000-watt
wall mount
slave dimmer
Slave dimmer designed for use with the CLW-DIMS1RF and CLW-DIMS4RF infiNET
master dimmers.
CLW-SW1RF
infiNET Wall Box
Switch
1000-watt
wall mount
switch
The single large rocker button provides simple on/off operation to control a range of
lighting or fan loads. An adjustable turn-off delay allows the user time to exit the
room before the lights shut off.
CLW-SWS1RF
infiNET Wall Box
Master Switch
1000-watt
wall mount
switch
Multi-point switching is enabled using one CLW-SWS1RF master switch along with
one or more CLW-SLVS1RF slave switches. Multipoint switching is similar to
conventional 3-way or 4-way switching, allowing control of a single load from
multiple locations in the room.
CLW-SW4RF
infiNET Wall Box
Switch and
Keypad
1000-watt
wall mount
switch and
programmable
keypad
An adjustable turn-off delay allows the user time to exit the room before the lights
shut off. All four pushbuttons are software programmable for any Crestron system
function, enabling control of additional lighting circuits, fans, drapes, audio levels,
etc.
CLW-SWS4RF
infiNET Wall Box
Master Switch
and Keypad
1000-watt
wall mount
switch and
programmable
keypad
All four pushbuttons are software programmable for any Crestron system function,
enabling control of additional lighting circuits, fans, drapes, audio levels, etc. Multi-
point switching is enabled using one CLW-SWS4RF master switch along with one
or more CLW-SLVS1RF slave switches. Multipoint switching is similar to
conventional 3-way or 4-way switching, allowing control of a single load from
multiple locations in the room.
CLW-SLVS1RF
infiNET Wall Box
Slave Switch
1000-watt
wall mount
slave switch
Slave switch designed for use with the CLW-SWS1RF and CLW-SWS4RF infiNET
master dimmers.
CLF-DIMRFB
infiNET Lamp
Dimmer
500 watts V/A
Dimmer
Freestanding dimmer module designed to sit on the floor to provide dimming
control of a conventional floor lamp or table lamp. It enables local dimming control
via a built-in footswitch, and remote control via infiNET.
HTT-B10X
infiNET Table
Top Controller
The HTT-B10X is a simple, convenient wireless controller. Two-way infiNET wireless operation supports
true-feedback. A clean array of 10 backlit pushbuttons with individual feedback LEDs affords easy,
tactile control of any custom function. The HTT-B10X is a fully-programmable controller designed to
operate as part of a complete Crestron automation system, communicating via the infiNET wireless
control network.
CHV-TSTATRF
Wireless
Networked
Thermostat
The CHV-TSTATRF is designed for heating and cooling control of baseboard, forced air, heat pump, and
dual-fuel heat pump HVAC systems. The large backlit LCD display provides a clear view of current
temperature, setpoint, system mode, fan status, and setup functions. Climate control features include
separate heating and cooling setpoints, and adjustable anticipators to prevent overshooting the desired
temperature. Continuous fan operation can be selected when needed for increased circulation.

Control Processors Crestron Residential Lighting Design Guide
Doc. 5999F 52
Example infiNET system

Residential Lighting Design Guide Control Processors
Doc. 5999F 53
Control Processors
PAC2 Lighting Control Processor
The PAC2 enables efficient control of lighting and other
systems such as HVAC and security, and has been
specifically designed for the Crestron automation
enclosure and the Crestron lighting system (although
other Crestron processors can also be used).
The PAC2 occupies one module space in single-width
enclosures and two module spaces in double-width
enclosures.
NOTE: Crestron recommends that the control processor
be mounted within a separate CAEN enclosure to create a
simplified low voltage wiring center.
Cresnet® Distribution
The built-in Cresnet Hub/Repeater serves as a repeater,
splitter, and wiring block. The hub allows for 252 or more
devices (touchpanels, keypads, etc.); 32 per segment (A-
H) and distribution up to 3000 feet of Cresnet cable run
per segment. There are eight independent segments,
each with four Cresnet connectors wired in parallel.
In addition, there is a master NET port on the bottom
panel. The eight NET (A-H) activity LEDs illuminate when a
device on the respective segment transmits data. When
powered by the internal power supply, a maximum of 50
watts (DC) is available for all connected network devices.
The LEDs indicate communication on the Cresnet link.
Memory Expansion
The on-board 36MB memory is enhanced with a 4GB
expansion slot that supports off-the-shelf Type II compact
flash memory and the IBM Microdrive hard disk drive, for
on-board storage of program and touchpanel files, room
and equipment profiles, upgrades, databases, and
schedules. Memory is non-volatile to protect against
power loss.
Ethernet and e-Control®2
The unique Crestron dual bus system, with its high speed
I/O bus architecture, provides blazing fast throughput,
system wide. The two 40Mb/s Y-BUS expansion slots
offer the option of installing any of the CNX-series cards
and all C2-series control cards listed in the Crestron
Product Catalog. The 300Mb/s Z-BUS expansion slot is
designed for super high speed control card applications
such as 10/100 Ethernet, available via the Crestron
single-port C2ENET-1 or dual-port C2ENET-2 cards.
The PAC2 also provides true secure network
communications, which is required for today's corporate
networks, automated residence systems, and the Internet.
The Dual Port 10/100BaseT Ethernet card (C2ENET-2)
supports dynamic and static IP addressing and full duplex
TCP/IP and UDP/IP. It offers a WAN port for Internet and
remote-location communications and a LAN port for local
in-home or in-office use. A built-in firewall delivers
network security with the Network Address Translator
(NAT) and router functions. The built-in Web server uses
memory storage on a compact flash card for remote
access and control.
Backup and Override
The PAC2 provides external connections for both a back-
up processor and emergency override closure signals. In
the absence of Cresnet, a signal is generated to switch
power and communication of the Cresnet system to the
back-up processor. When the override connection
receives a contact closure, a signal is passed to the
lighting modules via the fifth wire of the module
interconnect cable, and the lights are turned on to a
programmed preset emergency level. They remain at
this level until that contact closure is removed.
The Backup Net Input connector allows a backup control
system to automatically take control of the Cresnet
network in the unlikely event of an internal processor
failure. The exclusive, built-in Cresnet watchdog switches
over when the CPU fails.

Control Processors Crestron Residential Lighting Design Guide
Doc. 5999F 54
The Fault connector provides a dry contact closure fault
signal to notify an external control system when the PAC2
has a system fault. This output is connected to a digital
input of the backup computer. A fault is defined as the
CPU not interacting with Cresnet® for 10 seconds. The
watchdog switches back if the backup computer is
inactive for 10 seconds.
The PAC2 offers eight programmable analog and digital
inputs as well as digital outputs. There are eight normally
open relays, isolated with MOV suppression.
PAC2 Power Management & Requirements
When power requirements exceed 50 watts, additional
power supplies may be added. For example, each keypad
in the CNX-B series uses 3 watts, therefore only 15
keypads (allowing for a margin of safety) can be
connected without adding an additional power supply.
To ensure sufficient power to accommodate all the
Cresnet devices (keypads, touchpanels, shade/drape
controllers, thermostats, sensors, and other interfaces)
and to include voltage drops and wire runs, Crestron
recommends the CLX-PWS75 75-watt Cresnet power
supply module, or the C2N-SPWS300 300-watt system
power supply.
The 75-watt power supply is designed to mount in a CAEN
Automation Enclosure. A single CLX-PWS75 can
be installed in any single-width enclosure, or up to two
may be installed side-by-side in a double-width
enclosure. Four (4) Cresnet power ports are provided
on the CLX-PWS75, which may be used to supply power
directly to Cresnet devices, or connect to the external
power input ports of a PAC2 or PAC2M.
If the power needed for a hub segment exceeds the power
available from the internal supply (50 watts, maximum),
remove the jumper from the supplied 3-pin mini
connector to disconnect the internal power supply, then
connect the 24VDC and ground wires from an external
source (Crestron 24 VDC - regulated power supply) to the
EXT and G pins.
The 300-watt power supply, specifically designed for
large Cresnet control systems, operates with an input of
100 to 240 VAC, 4A (maximum) and a noise rating less
than 150mV. The C2N-SPWS300 provides regulated 24
VDC, 300-watts to Cresnet system components. The C2N-
SPWS300 is capable of delivering a nominal 75 watts of
power at 24 volts DC on any of its eight channels.
The CLX-PWS75 is a 75 watt Cresnet Power Supply
Module designed to mount in a CAEN Automation
Enclosure. A single CLX-PWS75 can be installed in any
single-width enclosure, or up to two may be installed
side-by-side in a double-width enclosure. Four (4) Cresnet
power ports are provided on the CLX-PWS75, which may
be used to supply power directly to Cresnet devices, or
connect to the external power input ports of a PAC2 or
PAC2M.
Additional power supplies should not be mounted on
CAEN-UMP plates in an enclosure that contains dimmer
units because this introduces low voltage in the high
voltage section of the enclosure. If required, an extra
power supply, attached to a CAEN-UMP plate, can be
added to a separate CAEN enclosure.
Mounting the PAC2 in a double-wide enclosure
Refer to the PAC2 Operations Guide (Doc. 5941) for more detailed information.

Crestron Residential Lighting Design Guide Control Processors
Doc. 5999F 55
PAC2M Professional Automation Mini Control System
The PAC2M is a compact, low-cost alternative to the
PAC2 designed for small lighting and automation
applications. At half the size of a PAC2, the PAC2M is
perfect for apartments and smaller homes as well as
individual meeting rooms and MDU applications.
2-Series Control System
Built upon the reliable Crestron 2-Series control engine,
the PAC2M is extensively programmable using the
Crestron suite of powerful development software and
vast database of drivers and software modules. The
PAC2M works seamlessly with the entire Crestron line of
lighting dimmers and shade controls, keypads and
touchpanels, thermostats, wireless gateways, and
expansion modules.
Whole House Integration
The PAC2M provides for the integration of non-Crestron
devices and subsystems through a host of control
interfaces. Four isolated relays and four digital input
ports are built in to accommodate motion sensors,
contactors, door strikes, and other low-voltage controls.
Additional relays, I/O ports, serial COM ports, DTMF
interfaces, and shade controllers can be added using
Crestron expansion modules at any location throughout a
residence or commercial facility.
Modular Enclosure or Wall Mount Installation
The PAC2M is designed to install in a CAEN automation
enclosure and provide a direct bus to a cabinet full of CLX-
Series lighting control modules. The PAC2M can also be
mounted directly to a suitable surface without an enclosure
where allowed.
NOTE: A separate supplemental power supply is required for
the PAC2M. It is recommended that power fed to the PAC2M
processor comes from a clean and uninterrupted source.
Ethernet and e-Control®2
Built-in 10/100 Ethernet facilitates secure high speed
network connectivity, enabling extensive capabilities for
remote system maintenance and control, and providing an
interface to other Crestron control systems. Native features
include a built-in email client to report system troubles and
other functions to a homeowner or maintenance/service
company via instant email notification. An onboard Web
server provides the foundation for the exclusive Crestron
e-Control 2 XPanel technology, providing secure IP-based
remote control using any Windows computer or
CE/PocketPC™ PDA device.
RoomView® and SNMP
For large facilities utilizing multiple PAC2M and other control
systems, the exclusive Crestron RoomView Help Desk
software delivers a comprehensive solution for remote
monitoring and asset management. Also, built-in SNMP
support enables similar capability using third-party network
management software, allowing full control and monitoring
from the IT Help Desk or NOC in a format that's familiar to IT
personnel.
Cresnet® Distribution
Cresnet is the communications backbone for Crestron lighting
modules, wall box dimmers, thermostats, keypads, and many
other devices. This flexible 4-wire bus streamlines the wiring
of a complete Crestron lighting system. The PAC2M provides
connectivity for numerous Cresnet devices on multiple
homeruns via 8 separate Cresnet ports. Its built-in Cresnet
hub provides two isolated segments, each supporting 3000
feet of cabling and approximately 25 Cresnet devices. The
Cresnet ports are arranged into two separate power groups
providing a clean, flexible 24 Volt DC power distribution
solution. An external power supply is required (sold
separately).

Residential Lighting Design Guide Control Processors
Doc. 5999F 56
Override
An override input is provided to allow an external
contact closure to bypass the PAC2M and activate
a preset override state in each connected lighting
module. A signal is passed to the lighting modules
via the fifth wire of the interconnect cable, and the
lights are turned on to a programmed preset
emergency level.
Memory Expansion
A memory card slot allows for easy expansion
of the PAC2M's internal memory using any
MMC-compatible memory card up to 1 GB.
Double Width Enclosure Mounting
Module and associated terminal block installed
in double width enclosure. The PAC2M processor
occupies the lowest module position in either the
single or double enclosure.
For additional information, refer to the PAC2M
Operations Manual, Doc. 6507.

Residential Lighting Design Guide Basic Lighting System Interconnections
Doc. 5999F 57
Basic Lighting System Interconnections
An example of a Crestron Lighting System that includes thermostat, shade control and interfaces

Residential Lighting Design Guide Occupancy and Photocell Sensors
Doc. 5999F 58
Occupancy and Photocell Sensors
GLS-ODT & GLS-OIR
Green Light Occupancy Sensors
Crestron Green Light™ sensors deliver a powerful and
cost-effective solution for reducing energy costs and
enhancing the functionality of lighting and environmental
systems. Crestron offers ceiling and wall mount occupancy
sensors for areas up to 2500 square feet.
Advanced self-adaptive motion sensing using a combination
of ultrasonic and passive infrared technologies affords
extreme reliability for control of lighting, climate control and
other devices in the room. A built-in photocell can be set to
override the occupancy sensor if the ambient light level is
above a set threshold, preventing lights from turning on when
there is sufficient daylight in the room.
Sensors are easily connected to the lighting control processor
via the Cresnet control network using a GLS-SIM Sensor
Integration Module. Alternately, they may be connected
directly via a digital input port. Please refer to the product
specification sheet for complete information.
Model Mount Type Coverage Area Coverage Pattern
GLS-OD T-C-500 Ceiling 500 sq ft 180 degrees
GLS-ODT-C-1000 Ceiling 1000 sq ft 360 degrees
GLS-ODT-C-2000 Ceiling 2000 sq ft 360 degrees
GLS-ODT-W-1200 Wall 1200 sq ft 110 degrees
GLS-OIR-C-450 Ceiling 450 sq ft 360 degrees
GLS-OIR-C-1500 Ceiling 1500 sq ft 360 degrees
GLS-OIR-W-2500 Wall 2500 sq ft 110 degrees
GLS-LOL & GLS-LCL
Green Light Photocell Light Sensors
Crestron Photocell Light Sensors are designed for daylight
harvesting applications to control the balance of natural and
artificial lighting in an indoor space. By harnessing natural
daylight from windows and skylights, electrical lighting can
be turned off or dimmed, reducing energy usage while
maintaining a consistent light level for a more efficient and
comfortable work space. Outdoor lighting may also be turn
off and on automatically using a photocell light sensor.
Please refer to the product specification sheet for complete
information.
Model Field of View Light Sensitivity
GLS-LCL 60 degree cone 0 to 70 foot candles
GLS-LOL 60 degree cone 3 to 6000 foot candles

Residential Lighting Design Guide Integrated Shade and Drape Controllers
Doc. 5999F 59
Integrated Shade and Drape Controllers
C2N-SDC
The C2N-SDC is a 2-channel shade and drape controller designed to provide a
convenient and cost-effective solution for controlling a variety of motorized window
treatments as well as motorized doors, sunroofs, lifts and projection screens.
The C2N-SDC is a Cresnet® device with two independently controlled 120V AC outputs.
Each output provides up/down or open/close control of a conventional 3-wire
bidirectional type motor. Built-in timing and interlock logic make it easy to program
the C2N-SDC for fail-safe operation.
The C2N-SDC mounts in the wall or ceiling using an off-the-shelf 4" square or 2-gang
electrical box. Pushbuttons on the front of the unit allow for manual operation of the
motors during installation and setup.
C2N-SDC-DC
The C2N-SDC-DC is a 2-channel shade and drape controller designed to provide a
convenient and cost-effective solution for controlling 24 volt DC motorized shades and
drapes. The C2N-SDC-DC is a Cresnet device with two independently controlled 24V DC
outputs, each designed to provide standard up/down or open/close control of a
conventional two-wire bidirectional type motor.
The C2N-SDC-DC mounts in the wall or ceiling using an off-the-shelf 4" square or
2-gang electrical box. Pushbuttons on the front of the unit allow for manual operation
of the motors during installation and setup.
C2N-SSC-2
The C2N-SSC-2 Somfy Shade Controller is a compact Cresnet device designed to
provide a bidirectional serial interface for up to two Somfy ILT Intelligent Shade Motors
(http://www.somfy.com/nam/index.cfm). Window treatments equipped with the Somfy
ILT motor offer enhanced capability compared to typical 3-wire models.
In addition to basic open/close commands, the C2N-SSC-2 allows for setting each
shade to a specific position and polling for its current position with 16-bit precision.
Feedback signals provide confirmation of each motor's activity to enable precise,
predictable control, even from a remote location. Limit adjustments are set
electronically using buttons provided on the face of the unit, and up to 20 presets for
each output can be saved onboard the C2N-SSC-2 for easy recall through the control
system. The C2N-SSC-2 mounts discreetly to any flat surface and requires a simple
Cresnet connection to the control system.

Residential Lighting Design Guide Integrated Partner Modules
Doc. 5999F 60
Integrated Partner Modules
Crestron Electronics, Inc. Integrated Partner Program allows partner
manufacturers' products to operate seamlessly in a Crestron systems
environment. Integrated Partner Modules offer the Crestron control
systems programmer a simplified, timesaving drag-and-drop solution
for integration of partner products.
The Crestron Integrated Partner Program initiative makes it easy to take
advantage of the enhanced functionality afforded by using a
manufacturer's serial, Ethernet, or other enhanced interface. Integrated
Partner Modules are created specifically for popular audio/video, security,
lighting, HVAC and other products that incorporate communications
protocol, relays, etc. We have created this collection of modules for our
dealers to easily incorporate Integrated Partner's products into a Crestron
network solution.
For a complete list of partners refer to:
http://www.crestron.com/tools_and_resources/programming_and_integr
ation_resources/integrated_partner_modules/default.asp?browseby=ma
nufacturers
Integrated Systems
Following are examples of the more common systems we integrate into both commercial and residential environments.
Audio/Video Lighting Systems HVAC Security
Integrated Partner
business or home
entertainment solutions
allow you to easily control
and enjoy your business
presentations, home
theater or audio
distribution systems. Want
to make a presentation,
watch a movie? Press the
appropriate icon and the
drapes close, lights dim,
projector turns on, audio
engages and the
experience begins... all
while the popcorn pops.
Integrated Partner lighting
systems work seamlessly in a
Crestron environment.
Depending on your lighting
system you may enjoy party
mode to brighten up the house
for your guests, integrate it into
“movie” mode, or set the
system to "vacation" mode, for
random lighting patterns giving
your home that live-in look
while you’re away.
Integrated Partner heating
and air-conditioning
systems, pools and spas
may also be incorporated
into a Crestron system.
Set the temperature and
humidity range you most
enjoy and live comfortably,
regardless of the season.
Integrated Partner security
companies trust Crestron to
control and monitor their
systems.
Peace of mind is a touch
away. Whether setting your
system before retiring for the
evening or receiving an e-mail
that your family forgot to set
the system before leaving for
the day, Crestron-controlled
security partners are there for
your protection.

Residential Lighting Design Guide Appendix A
Doc. 5999F 61
Appendix A: Example Residential Lighting
System
This example is based on the following typical residential wiring plan.

Residential Lighting Design Guide Appendix A
Doc. 5999F 62
Load Schedule Report Example
Load Schedule
Project: Example Residence Dealer: Crestron
Creator: Crestron D3 Pro v2.3.7 Description:
Date: 11/4/2003 System Number: 1
Area Room Controlled Ckt Name Controlled Ckt No. Fixture Load Type Dim Emergency Fixture Watts Fixture Qty Total Watts
Main Floor Bathroom 1 Downlights 009 Downlights Incandescent yes no 100 1 100
Main Floor Bathroom 1 Downlights 2 008 Downlights Incandescent yes no 100 2 200
Main Floor Bathroom 1 Downlights 3 006 Downlights Incandescent yes no 100 2 200
Main Floor Bathroom 1 Drapes 019 Drapes 3-Wire Motor no no 200 1 200
Main Floor Bathroom 1 Exhaust Fan 007 Exhaust Fan Switched no no 200 1 200
Main Floor Bathroom 2 Downlights 011 Downlights Incandescent yes no 100 1 100
Main Floor Bathroom 2 Downlights 2 010 Downlights Incandescent yes no 100 3 300
Main Floor Bathroom 2 Drapes 021 Drapes 3-Wire Motor no no 200 1 200
Main Floor Bathroom 2 Exhaust Fan 012 Exhaust Fan Switched no no 200 1 200
Main Floor Bedroom Ceiling Fan 022 Ceiling Fan Ceiling Fan no no 100 1 100
Main Floor Bedroom Downlights 005 Downlights Incandescent yes no 250 2 500
Main Floor Bedroom Downlights 2 004 Downlights Incandescent yes no 100 4 400
Main Floor Bedroom Downlights 3 003 Downlights Incandescent yes no 100 1 100
Main Floor Bedroom Downlights 4 002 Downlights Incandescent yes no 100 1 100
Main Floor Bedroom Downlights 5 001 Downlights Incandescent yes no 100 2 200
Main Floor Bedroom Drapes 018 Drapes 3-Wire Motor no no 200 1 200
Main Floor Bedroom Drapes 2 017 Drapes 3-Wire Motor no no 200 1 200
Main Floor Bedroom Drapes 3 016 Drapes 3-Wire Motor no no 200 1 200
Main Floor Foyer Downlights 013 Downlights Incandescent yes no 100 4 400
Main Floor Sauna Drapes 020 Drapes 3-Wire Motor no no 200 1 200
*Calculation of load wattage includes transformer loss.

Residential Lighting Design Guide Appendix A
Doc. 5999F 63
Load Schedule with Panel Terminations
Project: Example Residence Dealer: Crestron
Creator: Crestron D3 Pro v2.3.7 Description:
Date: 11/4/2003 System Number: 1
Area Room
Controlled Ckt
Name
Controlled
Ckt No. Fixture Load Type Dim Emergency
Fixture
Watts
Fixture
Qty
Total
Watts Enclosure Slot Module Output
Main
Floor
Bathroom
1
Downlights 009 Downlights Incandescent yes no 100 1 100 Enclosure 1 2 CLX-
1DIM8
1
Main
Floor
Bathroom
1
Downlights 2 008 Downlights Incandescent yes no 100 2 200 Enclosure 1 2 CLX-
1DIM8
2
Main
Floor
Bathroom
1
Downlights 3 006 Downlights Incandescent yes no 100 2 200 Enclosure 1 2 CLX-
1DIM8
3
Main
Floor
Bathroom
1
Drapes 019 Drapes 3-Wire Motor no no 200 1 200 Enclosure 1 4 CLX-
1MC4
1
Main
Floor
Bathroom
1
Exhaust Fan 007 Exhaust Fan Switched no no 200 1 200 N / A N / A Interface
2
1
Main
Floor
Bathroom
2
Downlights 011 Downlights Incandescent yes no 100 1 100 Enclosure 1 2 CLX-
1DIM8
4
Main
Floor
Bathroom
2
Downlights 2 010 Downlights Incandescent yes no 100 3 300 Enclosure 1 2 CLX-
1DIM8
5
Main
Floor
Bathroom
2
Drapes 021 Drapes 3-Wire Motor no no 200 1 200 Enclosure 1 4 CLX-
1MC4
2
Main
Floor
Bathroom
2
Exhaust Fan 012 Exhaust Fan Switched no no 200 1 200 N / A N / A Interface
4
1
Main
Floor
Bedroom Ceiling Fan 022 Ceiling Fan Ceiling Fan no no 100 1 100 Enclosure 1 6 CLX-
1FAN4
1
Main
Floor
Bedroom Downlights 005 Downlights Incandescent yes no 250 2 500 Enclosure 1 2 CLX-
1DIM8
7
Main
Floor
Bedroom Downlights 2 004 Downlights Incandescent yes no 100 4 400 Enclosure 1 3 CLX-
1DIM4
1
Main
Floor
Bedroom Downlights 3 003 Downlights Incandescent yes no 100 1 100 N / A N / A Interface
6
1
Main
Floor
Bedroom Downlights 4 002 Downlights Incandescent yes no 100 1 100 N / A N / A Interface
5
1
Main
Floor
Bedroom Downlights 5 001 Downlights Incandescent yes no 100 2 200 Enclosure 1 3 CLX-
1DIM4
2
Main
Floor
Bedroom Drapes 018 Drapes 3-Wire Motor no no 200 1 200 Enclosure 1 4 CLX-
1MC4
3
Main
Floor
Bedroom Drapes 2 017 Drapes 3-Wire Motor no no 200 1 200 Enclosure 1 4 CLX-
1MC4
4
Main
Floor
Bedroom Drapes 3 016 Drapes 3-Wire Motor no no 200 1 200 Enclosure 1 5 CLX-
1MC4
1
Main
Floor
Foyer Downlights 013 Downlights Incandescent yes no 100 4 400 Enclosure 1 2 CLX-
1DIM8
6
Main
Floor
Sauna Drapes 020 Drapes 3-Wire Motor no no 200 1 200 Enclosure 1 5 CLX-
1MC4
2
*Calculation of load wattage includes transformer loss.
The following three pages contain the complete application diagrams of this example
system, Circuits and Interfaces, Module Wiring, and PAC2 Connections, divided up to
fit the space available. The complete diagram is available on line at:
http://www.crestron.com/dealer-tech_resources/application_diagrams.asp.

Residential Lighting Design Guide Appendix A
Doc. 5999F 64
Circuits and Interfaces

Residential Lighting Design Guide Appendix A
Doc. 5999F 65
Module Wiring

Residential Lighting Design Guide Appendix A
Doc. 5999F 66
PAC2 Lighting Control Processor Connections

Residential Lighting Design Guide Appendix B
Doc. 5999F 67
Appendix B: Touchpanel Comparison Charts
Tilt Touchpanels
Isys Tilt Touchpanels Isys G-Series Isys i/O Tilt Touchpanel Media Centers
TPS-17B
(TPS-17W)
TPS-15B
(TPS-15W)
TPS-12B
(TPS-12W)
TPS-4000 TPS-3000 TPS-15G-
QM
TPS-12G-
QM
TPMC-17-QM TPMC-15-QM TPMC-17-CH TPMC-15-CH
Touchscreen Display
Display Size
17"
15"
12"
10.4"
6.4"
15"
12"
17"
15"
17"
15"
Aspect Ratio 15:9
WXGA 4:3 XGA 4:3 SVGA 4:3 VGA 4:3 VGA 4:3 XGA 4:3 SVGA 15:9 WXGA 4:3 XGA 15:9 WXGA 4:3 XGA
Resolution 1280 x 768 1024 x 768 800 x 600 640 x 480 640 x 480 1024 x
768 800 x 600 1280 x 768 1024 x 768 1280 x 768 1024 x 768
Color Depth 24-bit
16.7M 24-bit
16.7M 18-bit
16.7M 18-bit
256k 18-bit
256k 24-bit
16.7M 18-bit 256k 24-bit 16.7M 24-bit 16.7M 24-bit 16.7M 24-bit 16.7M
Touchpanel Graphics
Color Depth 24-bit
16.7M 24-bit
16.7M 24-bit
16.7M 16-bit 64k 16-bit 64k 24-bit
16.7M 18-bit 256k 24-bit 16.7M 24-bit 16.7M 24-bit 16.7M 24-bit 16.7M
8-bit Alpha Channel
Transparency ● ● ●
● ● ● ● ● ●
Synapse Image Rendering
and Multimode Objects ● ● ● ● ● ● ● ● ● ● ●
Dynamic Text and Animation ● ● ● ● ● ● ● ● ● ● ●
Dynamic Graphics and PNG
Translucency ● ● ●
● ● ● ● ● ●
Dynamic Menu Graphics ● ● ● ●
Memor
y
RAM 128MB 128MB 128MB 8MB 8MB 128MB 128MB 512MB 512MB 512MB 512MB
Flash 64MB 64MB 64MB 8MB 8MB 64MB 64MB 512MB 512MB 512MB 512MB
Memory Card Slot up to 4GB up to 4GB up to 4GB up to 4GB up to 4GB up to 4GB up to 4GB up to 4GB up to 4GB
Maximum Project Size 160MB 160MB 160MB 7MB 7MB 160MB 160MB 190MB 190MB 190MB 190MB
Annotation & PC
Windows XP Embedded OS ● ● ● ●
Embedded Applications and
Viewers4 ● ● ● ●
Annotation Live Only Live Only MediaMarker MediaMarker MediaMarker MediaMarker
Keyboard/Mouse Input
USB
Mouse USB Mouse USB USB USB USB
Touch-the-PC
● ● ● ●
V
ideo/RGB
Scalable Windows
1
1
1
1
1
2
2
2
2
2
2
Hardware Connections QM, CH,
BNC1 QM, CH,
BNC1 QM, CH,
BNC1 CH1,
BNC1 CH1,
BNC1 QM QM QM QM CH, BNC1 CH, BNC1
Composite ● ● ● ● ● ● ● ● ● ● ●
S-Video ● ● ● ● ● ● ● ● ● ● ●
Component ● ● ●
● ● ● ● ● ●
HDTV up to 1080i
● ● ● ● ● ●
RGB up to 1600 x 1200
● ● ● ● ● ●
Streaming Motion-JPEG ● ● ● ●
Media Player (Multiple
Formats) ● ● ● ●
Display Output
● ● ● ●
Audio
Amplified Speakers and
Microphone
● ● ● ● ● ● ● ● ● ● ●
WAV Sound File Audio
Feedback ● ● ● ● ● ● ● ● ● ● ●
Network
Cresnet ● ● ● ● ● ● ● ● ● ● ●
Ethernet ● ● ●
● ● ● ● ● ●
WiFi ● ● ● ●
Buttons
Backlit Softkeys
4
4
4
4
4
4
4
4
4
1 Connections via outboard IMC interface module (included)
2 Wireless NIC required
3 Accessory sold separately
4 Refer to the product specification for a complete list of embedded applications

Residential Lighting Design Guide Appendix B
Doc. 5999F 68
Wall Mount Touchpanels
Isys Wall Mount Touchpanels Isys G Series Isys i/O Media Centers
TPS-17L TPS-15L TPS-12L TPS-
4000L TPS-6L TPS-4L TPS-15G-
QM-L TPS-12G-
QM-L TPMC-
17-QM-L TPMC-15-
QM-L TPMC-17-
CH-L TPMC-15-
CH-L
Touchscreen Displa
y
Display Size
17"
15"
12"
10.4"
5.7”
3.6"
15"
12"
17"
15"
17"
15"
Aspect Ratio 15:9
WXGA 4:3 XGA 4:3 SVGA 4:3 VGA 4:3 SVGA 4:3 QVGA 4:3 XGA 4:3 SVGA 15:9
WXGA 4:3 XGA 15:9 WXGA 4:3 XGA
Resolution 1280 x
768 1024 x 768 800 x 600 640 x 480 640 x 480 320 x 240 1024 x
768 800 x 600 1280 x
768 1024 x 768 1280 x 768 1024 x 768
Color Depth 24-bit
16.7M 24-bit
16.7M 18-bit 256k 18-bit 256k 18-bit
256k 16-bit 64k 24-bit
16.7M 18-bit
256k 24-bit
16.7M 24-bit
16.7M 24-bit
16.7M 24-bit
16.7M
Touchpanel Graphics
Color Depth 24-bit
16.7M 24-bit
16.7M 24-bit
16.7M 16-bit 64K 16-bit 64K 16-bit 64K 24-bit
16.7M 24-bit
16.7M 24-bit
16.7M 24-bit
16.7M 24-bit
16.7M 24-bit
16.7M
8-bit Alpha Channel
Transparency ● ● ● ●● ● ● ● ●
Synapse Image Rendering
and Multimode Objects ● ● ● ● ● ● ● ● ● ● ●
Dynamic Text and
Animation ● ● ● ● ● ● ● ● ● ● ●
Dynamic Graphics and
PNG Translucency ● ● ● ● ● ● ● ● ● ●
Dynamic Menu Objects ● ● ● ●
Memor
y
RAM 128MB 128MB 128MB 8MB 32MB 16MB 128MB 128MB 512MB 512MB 512MB 512MB
Flash 64MB 64MB 64MB 8MB 32MB 8MB 64MB 64MB 512MB 512MB 512MB 512MB
Memory Card Slot up to 4GB up to 4GB up to 4GB
up to 4GB
up to 4GB up to
4GB up to 4GB up to 4GB up to 4GB
Maximum Project Size 160MB 160MB 160MB 7MB 28MB 7MB 160MB 160MB 190MB 190MB 190MB 190MB
Annotation & PC
Windows XP Embedded
OS6
● ● ● ●
Annotation ● ● ● ●
Keyboard/Mouse Input Live Only Live Only Media
Marker Media
Marker Media
Marker Media
Marker
Touch-the-PC USB USB USB USB
V
ideo/RGB
Scalable Windows 1 1 1 1 1 2 2 2 2 2 2
Hardware Connections QM, CH,
BNC1 QM, CH,
BNC1 QM, CH,
BNC1 CH, BNC QM QM QM QM CH, BNC1 CH, BNC1
Composite ● ● ● ● ● ● ● ● ● ●
S-Video ● ● ● ● ● ● ● ● ● ●
Component ● ● ● ● ● ● ● ● ●
HDTV up to 1080i ● ● ● ● ● ●
RGB up to 1600 x 1200 ● ● ● ●
Streaming Motion-JPEG ● ● ● ●
Media Player (Multiple
Formats) ● ● ● ●
Display Output ● ● ● ●
Audio
Amplified Speakers and
Microphone
● ● ● ● ● ● ● ● ● ● ●
WAV Sound File Audio
Feedback ● ● ● ● ● ● ● ● ● ● ● ●
Network
Cresnet ● ● ● ● ● ● ● ● ● ● ● ●
Ethernet ● ● ● ● ● ● ● ●
Wi-Fi3
Buttons
Backlit Softkeys 4 4 4 4 4 4 4 4 4
Programmable, Engravable
Hard Buttons
5 12 10
Finishes
White or Black ● ● ● ● ● ● ● ● ● ● ● ●
Almond ● ● ●
Additional Colors &
Finishes ● ●
1 Connections via outboard IMC interface module (included)
2 Also supports coaxial connection
3 Wireless NIC required
4 Appropriate mounting accessory(ies) required
5 Rack mount provided by others
6 See product specification for a complete list of embedded applications

Crestron Residential Lighting Design Guide Appendix B
Doc. 5999F 69
Wireless Touchpanels & Handheld Remotes
Isys Wireless Isys I/O WiFi MiniTouch Handheld Remotes
TPS-6X TPMC-8X TPMC-8T TPMC-4X MT-1000C MLX-2 ML-600 WPR-48 CNRFHT
Displa
y
Display Type TFT Active Matrix
Color
Touchscreen
TFT Active Matrix
Color
Touchscreen
TFT Active Matrix
Color
Touchscreen
TFT Active Matrix
Color
Touchscreen
TFT Active
Matrix
Color
Touchscreen
Backlit LCD Backlit LCD
Display Size 5.7" 8.4" 8.4" 3.5" 3.8" 1.5" W 2.1" H x 1.4" W
Resolution 640 x 480 VGA 800 x 600 SVGA 800 x 600 SVGA
240 x 320 QVGA
(portrait) 320 x 240
QVGA 102 x 120
7 lines 7 lines
Color Depth 18-bit 262k
Colors 18-bit 262k
Colors 18-bit 262k
Colors
16-bit 64k Colors
16-bit 64k
Colors Monochrome Monochrome
Buttons & Controls
Programmable Hard
Buttons 17 or 2 11 11 21
14
47 57 9 to 48 1 to 30
Thumb Pad ● ● ● ● ● ● ●
3-Way Toggle Wheel
●
Biometric Fingerprint
Scanner ● ●
Button Backlighting ●
● ● ● ● Label Inlay
Custom Engravable ●
Label Inlay ●
Touchpanel Graphics
Color Depth 16-bit 64k 16-bit 64k 16-bit 64k 16-bit 64k 16-bit 64k
Synapse Image Rendering ● ● ● ● ●
Multimode Objects ● ● ● ●
True Feedback, Dynamic
Text, & Animation ● ● ● ●
Dynamic Graphics & PNG
Translucency ● ● ● ●
DNav Dynamic Menu
Objects ● ●
Memor
y
Ram 32MB 512MB 512MB 64MB 16MB
Flash 32MB 1GB 1GB 32MB
Memory Card Slot up to 4GB up to 4GB
Maximum Project Size 28MB 190MB 190MB 12MB 16MB
Embedded PC
Operating System Windows XP Embedded
Windows XP
Embedded
Windows CE
.NET 4.2
Embedded Applications1 ● ●
Keyboard/Mouse Input USB USB
V
ideo
Wired via Docking Station ●
Streaming via Media Player ● ●
Streaming MJPEG ● ● ●
Audio
Integrated Speakers &
Microphone ● ●
WAV Sound File Audio
Feedback ● ● ●
Network
2-Way High-Powered RF
via CEN-HPRFGW ●
2-Way Wi-Fi RF via 3rd-
party 802.11x WAP 802.11a/b/g 802.11a/b/g 802.11b
2-Way infiNETTM EX RF via
CEN-RFGW-EX ●
1-Way RF 418 MHz via
CNRFGWA-418 or MC2W ● ● ●
1-Way RF 434 MHz via
CNRFGWA or MC2W
●●
1-Way IR 38 kHz RC5 via
C2N-IRGW or CNXRMIRD ● ● ● ●
1-Way IR 455 kHz via
CN-TVAV
●
Wired Ethernet via Docking
Station ● ● ●
Wired Cresnet via Docking
Station ●
Batteries
Internal Rechargable ● ● ● ●
●
External Booster Option ●
Disposable AAA (x4) AAA (x4) 9 Volt (x1)
Docking Station
Desktop ● ●2 Integrated ● ●
●
Wall Mount ●2 ●2
1 Refer to product specifications for a complete list of embedded applications
2 Accessory sold separately

Residential Lighting Design Guide Appendix C
Doc. 5999F 70
Appendix C: General Lighting Design
Considerations
Crestron provides many options for illumination control.
The following general lighting design information can help
you formulate a complete, energy efficient lighting design
plan.
Light plays an essential role in our ability to view the
world around us, and how we perceive a space it can
even influence how we act in that space. Lighting can
affect performance, mood, morale, safety, security and
decision making.
The first step in producing the right lighting design is
asking about the use of the space. The lighting designer
can then determine quantity of light, color quality,
brightness and direction.
There are two aspects of lighting design that go hand in
hand: the qualitative or aesthetic aspect, and the
quantitative or engineering aspect. The qualitative aspect
has to do with ensuring that the space has a pleasing feel
and ambiance. It is the artistic interspersing of light and
shadow, illumination and darkness, figure and form.
The quantitative aspect ensures that there is adequate
light for the task at hand. The Illuminating Engineering
Society (IES) of North America publishes guidelines of light
levels for many tasks and activities based on the nature of
the task, the size of objects handled, the detail required,
the average age of the people in that space, and so on.
For example, a typical office is lit to an illumination of 30
to 100 "footcandles". Light levels can also be expressed
in the metric unit "lux" 1 footcandle is approximately 10
lux.
The rate of energy consumption is called "power" and is
measured in watts. A 200 watt lamp is consuming energy
at twice the rate of a 100 watt lamp. The electric
company charges consumers for the total amount of
energy they consume. This is measured in kilowatt-hours
or kWh. A 200-watt lamp burning for 5 hours consumes
1,000 watt-hours of energy, which is a kilowatt-hour.
Note that burning a thousand watt lamp for one hour costs
the same as burning a hundred watt lamp for ten hours.
Static and Dynamic Elements
The lighting design requires you to define the building
envelope, electric lighting, façade features, and other
static elements that affect lighting. Window placement
and glazing, floor layout, building orientation, and fixture
placement are all static elements that define the building
space and lighting environment. Crestron control is
required for the dynamic elements, the elements that
change in response to environmental and human
variables. These static and dynamic elements are fully
integrated in a complete lighting design.
Simple Lighting Coverage Areas
In some rooms, one lighting fixture or a group of fixtures
provide all the illumination. These rooms include closets,
storage rooms, utility rooms and garages. In these areas,
the functionality of the fixtures outweighs style
consideration.
The greatest energy efficiency is achieved with compact
fluorescent downlights. The best performing systems use
a 32 watt "triple tube" downlight, providing more light
than a 100 watt incandescent lamp while consuming 1/3
the amount of energy.
For many spaces, such as garages and closets, a simple
lighting solution is the most appropriate. In storage rooms,
basements, and other places, basic lighting may be all
that is needed. These are excellent opportunities for
energy efficient lighting fixtures, especially if lights are left
on for extended periods of time.
Task Lighting for Specific Work
Areas
Task lights minimize reliance on overhead lighting and
provide directed lighting for countertop work in kitchens,
workshop, office, etc. Energy efficient CFL recessed can
lights or reflectorized CFLs are recommended for this
application. Recessed downlights are located over task
locations, especially in the kitchen, bath, shower, or at a
desk. One recessed light may be all that is needed in a
shower stall or tub, but in a kitchen, a group of downlights
often provides more flexible task lighting. It is best to
locate downlights directly over a task, but in the kitchen
keep in mind that the downlight must also illuminate into
the base cabinets, making fixture locations over the
center of the room equally important.
Under-cabinet lights are used whenever there is an
overhead cabinet above a counter, such as in a kitchen,
laundry room or home office. Fluorescent and LED
under-cabinet lights produce significantly more light
than incandescent strips, and use much less energy.

Residential Lighting Design Guide Appendix C
Doc. 5999F 71
Ambient Lighting for Mood and
Highlights
Ambient light is the general, overall light that fills in
shadows, reduces contrast, and lights vertical surfaces to
give the space a brighter feel. Ambient light is what you
need for casual activities in your rooms. Ambient lighting
sets a dramatic or subtle mood within a living space. Use
ambient lights to illuminate hallways, entryways, artwork
and architectural highlights in the home or office. The
nature and quality of ambient lighting determines the
overall feel of the room. Even if your design produces the
right amount of light for each task and display and you
have sconces or chandeliers, it is possible that more
ambient light is needed. Ambient light is intentionally
obscure, and as such it can be difficult to determine when
more is necessary. Often the best way to provide ambient
light is with hidden fixtures.
Ambient light is a primary concern in the kitchen, where
table lamps and floor lamps aren't welcome because they
get in the way. Some common ways to introduce ambient
light in the kitchen are:
Fluorescent uplights on top of cabinets
Central fluorescent lights on the ceiling
Wall sconces, especially those with uplight
Decorative lights with an open top that place most of
the light on the ceiling
Decorative Lighting
Decorative lighting includes chandeliers, sconces, and
table lamps, and is usually chosen based on style and
appearance. Generally, decorative lights produce only
modest amounts of illumination. A lighting design begins
with architecture, style and décor. Some things just look
right, feel right, and fit well with the overall design of the
room. Decorative lighting such as chandeliers, sconces,
and table lamps are part of our culture, and they provide
at least some portion of the light needed for certain tasks.
As a general rule, designers should choose the decorative
lighting that fits the space. Traditional locations include a
chandelier over the dining room table, a pendant light
over the breakfast table, a lamp on a side table in the
living room, or a lantern by the front door. Keep in mind
that other lighting may also be needed (to illuminate tasks
or displays), but due to the important role that decorative
lighting plays, it comes first. Accent lighting gives the
space a third dimension, adding to the quality of the
space.
Focal Lighting
Focal, or display lighting illuminates art, architecture,
collections and other displays. Determine whether you
want to highlight objects of art, memorabilia, bookcases,
or other things that you may wish to have stand out. For
many families, the fireplace mantel and the wall above
the mantel are primary locations for display items.
As a rule of thumb, mount the focal light 21 inches from
the wall with an 8-foot ceiling, 27 inches from the wall
with a 9-foot ceiling, 34 inches from the wall with a 10-
foot ceiling, and so on. One accent light will illuminate
anything from a small object (with a 10-15 degree spot
lamp) to a painting up to 3 feet wide (with a 35-35 degree
flood lamp). Add a second light for every 30-36 inches of
width of the object you are lighting.
Key Light
When shining a light on an object from a single point
source it is called key light. A key light highlights the
contours of an object and creates shadows. The exact
effect depends on the angle of the beam of light. Most of
the time we want to light the object so we can see its
front. In these cases, the light source may be best placed
in front of and to the side of the object at an angle of 45°.
Fill Light
A fill light can either be directional or diffused. Shining a
directional light on an object from the opposite direction of
the key light can soften or eliminate shadows, depending
on the strength of the fill light relative to the strength of
the key light. Fill light sources can be placed behind
objects to light the entire room evenly.
Uplighting
The effect of uplighting is either very desirable or very
undesirable because of unusual effects that can range
from intimate to eerie. A lot of landscape lighting includes
uplighting to accentuate bushes and trees.
Sparkle and Glitter Effects
To add an atmosphere of elegance, add little lighting
points of interest in the form of sparkle or glitter. This
effect can be produced by either producing sharp
reflections on reflective surfaces in the room (sparkle),
such as silverware in a restaurant, or by making the light
source itself a source of interest (glitter) such as with a
chandelier. Avoid glare in these cases by adjusting the
angle of the light source.

Residential Lighting Design Guide Appendix C
Doc. 5999F 72
Grazing and Washing Surfaces
On walls or on the surface of an object, changing the way
light is focused produces different effects. To emphasize a
rough textured brick wall, graze the surface with light
striking the surface at a sharp angle. To emphasize a
smooth wall, wash the surface with light by striking the
surface at a wider angle.
Switch and Dimmer Locations
The proper location for a switch or dimmer is a function of
code requirements (the National Electrical Code
establishes some specific locations where control devices
are required) and common sense. For example, the code
requires a wall switch adjacent to the door upon entry to a
room. but you can also add a switch in a preferred
location, such as next to the bed.
Another choice are motion sensors that automatically
switch lights off when the room is empty, and they are
especially efficient devices in spaces like garages, utility
rooms and other spaces where lights are only needed
occasionally and are often left on inadvertently.
Crestron offers the most technologically sophisticated
products that permit handheld remote dimming, whole
house master controls, and many other features.
Color Temperature
Color temperature is the color of the light source. By
convention, yellow-red colors (like the flames of a fire) are
considered warm, and blue-green colors (like light from
an overcast sky) are considered cool. Color temperature is
measured in Kelvin (K) temperature. Higher Kelvin
temperatures (3600–5500 K) are considered cool and
lower Kelvin color temperatures (2700–3000 K) are
considered warm. Cool light is preferred for visual tasks
because it produces a higher contrast than warm light.
Warm light is preferred for living spaces because it is
more flattering to skin tones and clothing. A warm color
temperature of 2700–3600 K is generally recommended
for most indoor general and task lighting applications.
Color Rendition
Color rendition is the appearance of colors when
illuminated by a light source. Color rendition is generally
considered to be a more important lighting quality than
color temperature. Most objects are not a single color, but
a combination of many colors. Light sources that are
deficient in certain colors may change the apparent color
of an object. The Color Rendition Index (CRI) is a 1–100
scale that measures a light source's ability to render
colors the same way sunlight does. The top value of the
CRI scale (100) is based on illumination by a 100 watt
incandescent light bulb. A light source with a CRI of 80 or
higher is considered acceptable for most indoor
residential applications.
Glare
Glare is primarily the result of relative placement of light
sources and the objects viewed. Often, it is excessive
brightness from a direct light source making it difficult to
see. A bright object in front of a dark background usually
causes glare. Bright lights reflecting off a television or
computer screen or even a printed page produces glare.
Intense light sources—such as bright incandescent
lamps—are likely to produce more direct glare than large
fluorescent lamps.

Residential Lighting Design Guide Appendix D
Doc. 5999F 73
Appendix D: Glossary of Lighting Terminology
A
AMPERE: The standard unit of measurement for electric current that
is equal to one coulomb per second. It defines the quantity of electrons
moving past a given point in a circuit during a specific period,
abbreviated amp.
ANSI: Abbreviation for American National Standards Institute
ARC TUBE: A tube enclosed by the outer glass envelope of a HID lamp
and made of clear quartz or ceramic that contains the arc stream
ASHRAE: American Society of Heating, Refrigerating and Air-Conditioning
Engineers
B
BAFFLE: A single opaque or translucent element used to control light
distribution at certain angles
BALLAST: A device used to operate fluorescent and HID lamps. The
ballast provides the necessary starting voltage, while limiting and
regulating the lamp current during operation
BALLAST CYCLING: Undesirable condition under which the ballast turns
lamps on and off (cycles) due to the overheating of the thermal switch
inside the ballast. This may be due to incorrect lamps, improper voltage
being supplied, high ambient temperature around the fixture, or the early
stage of ballast failure
BALLAST EFFICIENCY FACTOR: The ballast efficiency factor (BEF) is the
ballast factor (see below) divided by the input power of the ballast. The
higher the BEF (within the same lamp-ballast type) the more efficient the
ballast.
BALLAST FACTOR: The ballast factor (BF) for a specific lamp-ballast
combination represents the percentage of the rated lamp lumens that
will be produced by the combination
C
CANDELA: Unit of luminous intensity, describing the intensity of a light
source in a specific direction
CANDELA DISTRIBUTION: A curve, often on polar coordinates, illustrating
the variation of luminous intensity of a lamp or luminaire in a plane
through the light center
CANDLEPOWER: A measure of luminous intensity of a light source in a
specific direction, measured in candelas (see above)
CBM: Abbreviation for Certified Ballast Manufacturers Association.
CEC: Abbreviation for California Energy Commission
COEFFICIENT OF UTILIZATION: The ratio of lumens from a luminaire
received on the work plane to the lumens produced by the lamps alone.
(Also called "CU")
COLOR RENDERING INDEX (CRI): A scale of the effect of a light source on
the color appearance of an object compared to its color appearance
under a reference light source. Expressed on a scale of 1 to 100, where
100 indicates no color shift. A low CRI rating suggests that the colors of
objects will appear unnatural under that particular light source
COLOR TEMPERATURE: The color temperature is a specification of the
color appearance of a light source, relating the color to a reference
source heated to a particular temperature, measured by the thermal unit
Kelvin. The measurement can also be described as the "warmth" or
"coolness" of a light source. Generally, sources below 3200K are
considered "warm;" while those above 4000K are considered "cool"
sources
COMPACT FLUORESCENT: A small fluorescent lamp that is often used
as an alternative to incandescent lighting. The lamp life is about 10
times longer than incandescent lamps and is 3-4 times more efficacious.
Also called PL, Twin-Tube, CFL, or BIAX lamps
CONSTANT WATTAGE (CW) BALLAST: A premium type of HID ballast in
which the primary and secondary coils are isolated. It is considered a
high performance, high loss ballast featuring excellent output regulation
CONSTANT WATTAGE AUTOTRANSFORMER (CWA) BALLAST: A popular
type of HID ballast in which the primary and secondary coils are
electrically connected. Considered an appropriate balance between cost
and performance
CONTRAST: The relationship between the luminance of an object and its
background
CRI: (SEE COLOR RENDERING INDEX)
CUT-OFF ANGLE: The angle from a fixture's vertical axis at which a
reflector, louver, or other shielding device cuts off direct visibility of a
lamp. It is the complementary angle of the shielding angle
D
DALI: Digital Addressable Lighting Interface is a protocol set out in the
technical standard IEC 60929. A DALI system is self-contained. A ballast
and a multi-sensor, offer benefits such as constant light control, PIR
movement-detection and IR remote operation. Multiple DALI systems
can be connected together using gateways to building management
systems. Software programs offer more sophisticated programming
functionality for grouped systems, such as scene setting, time clock, and
partition control
DAYLIGHT COMPENSATION: A dimming system controlled by a photocell
that reduces the output of the lamps when daylight is present. As
daylight levels increase, lamp intensity decreases. An energy-saving
technique used in areas with significant daylight contribution
DERATING: Components can be treated in such a way as to enhance
their life expectancy. Derating is the name normally given to operating a
component well inside its normal operating limits to extend the life of a
component, and is a practical means of reducing failures. The National
Electrical Code and local electrical codes determine the amount of
available current based on a derating factor. A derating factor improves
reliability by reducing the upper limit of current carrying capacity to
compensate for electrical, mechanical and thermal stress
DIFFUSE: Term describing dispersed light distribution. Refers to the
scattering or softening of light
DIFFUSER: A translucent piece of glass or plastic sheet that shields the
light source in a fixture. The light transmitted throughout the diffuser will
be redirected and scattered
DIRECT GLARE: Glare produced by a direct view of light sources. Often
the result of insufficiently shielded light sources. (See GLARE)

Crestron Lighting Software Appendix D
Doc. 5999F 74
DOWNLIGHT: A type of ceiling luminaire, usually fully recessed, where
most of the light is directed downward. May feature an open reflector
and/or shielding device
E
EFFICACY: A metric used to compare light output to energy consumption.
Efficacy is measured in lumens per watt. Efficacy is similar to efficiency,
but is expressed in dissimilar units. For example, if a 100-watt source
produces 9000 lumens, then the efficacy is 90 lumens per watt
ELECTROLUMINESCENT: A light source technology used in exit signs that
provides uniform brightness, long lamp life (approximately eight years),
while consuming very little energy (less than one watt per lamp)
ELECTRONIC BALLAST: A ballast that uses semi-conductor components
to increase the frequency of fluorescent lamp operation (typically in the
20-40 kHz range. Smaller inductive components provide the lamp
current control. Fluorescent system efficiency is increased due to high
frequency lamp operation
ELECTRONIC DIMMING BALLAST: A variable output electronic fluorescent
ballast
ELECTRONIC LOW-VOLTAGE (ELV): Electronic low-voltage lighting uses
an electronic (solid-state technology) transformer to convert line voltage
(120 VAC) to low voltage (typically 12 VAC). This lower voltage is then
used power an incandescent low-voltage lamp. Track lights are usually
electronic low-voltage
EMI: Abbreviation for electromagnetic interference. EMI is the high
frequency interference (electrical noise) caused by electronic
components or fluorescent lamps that interferes with the operation of
electrical equipment. EMI is measured in micro-volts, and can be
controlled by filters. Because EMI can interfere with communication
devices, the Federal Communication Commission (FCC) has established
limits for EMI
ENERGY-SAVING BALLAST: A type of magnetic ballast designed so that
the components operate more efficiently, cooler and longer
than”standard magnetic" ballast. By US law, standard magnetic ballasts
can no longer be manufactured
ENERGY-SAVING LAMP: A lower wattage lamp, generally producing
fewer lumens
F
FC: (SEE FOOTCANDLE)
FLUORESCENT LAMP: A light source consisting of a tube filled with
argon, along with krypton or other inert gas. When electrical current
is applied, the resulting arc emits ultraviolet radiation that excites the
phosphors inside the lamp wall, causing them to radiate visible light
FOOTCANDLE (FC): The English unit of measurement of the illuminance
(or light level) on a surface. One footcandle is equal to one lumen per
square foot
FOOTLAMBERT: English unit of luminance. One footlambert is equal to
1/p candelas per square foot.
FORWARD PHASE DIMMING: Rather than attempting to restrict the
amplitude of the current flowing through a lamp, as in other forms of
dimming, forward phase control works by switching off the beginning
part of each cycle of the alternating current supply
FOUR-WIRE 10V ANALOG SIGNAL DIMMING: Two power wires (switched
hot and neutral) and two additional control wires that are connected to a
low-voltage circuit. Note: these ballasts do not turn on and off like DALI
ballasts, so in addition to the low-voltage-level control circuit, they must
also have a line-voltage switch. Zero to ten-volt control is a low-voltage
DC dimming method. Power wires are rated Class 1 and control wires
are rated Class 2. This separation allows multiple circuits to use the
same dimming signal without additional power equipment
G
GLARE: The effect of brightness or differences in brightness within the
visual field sufficiently high to cause annoyance, discomfort or loss of
visual performance
H
HALOGEN: (SEE TUNGSTEN HALOGEN LAMP)
HARMONIC DISTORTION: A harmonic is a sinusoidal component of a
periodic wave having a frequency that is a multiple of the fundamental
frequency. Harmonic distortion from lighting equipment can interfere
with other appliances and the operation of electric power networks. The
total harmonic distortion (THD) is usually expressed as a percentage of
the fundamental line current. THD for 4-foot fluorescent ballasts usually
range from 20% to 40%. For compact fluorescent ballasts, THD levels
greater than 50% are not uncommon
HID: Abbreviation for high intensity discharge. Generic term describing
mercury vapor, metal halide, high-pressure sodium, and (informally)
low-pressure sodium light sources and luminaires
HIGH BAY: Pertains to the type of lighting in an industrial application
where the ceiling is 20 feet or higher. Also describes the application
itself
HIGH OUTPUT (HO): A lamp or ballast designed to operate at higher
currents (800 mA) and produce more light.
HIGH POWER FACTOR: Ballast with a 0.9 or higher rated power factor,
which is achieved by using a capacitor.
HIGH PRESSURE SODIUM LAMP: A high intensity discharge (HID) lamp
whose light is produced by radiation from sodium vapor (and mercury)
HOT RESTART or HOT RESTRIKE: The phenomenon of re-striking the arc
in an HID light source after a momentary power loss. Hot restart occurs
when the arc tube has cooled a sufficient amount
I
IESNA: Abbreviation for Illuminating Engineering Society of North
America.
ILLUMINANCE: A photometric term that quantifies light incident on a
surface or plane. Illuminance is commonly called light level. It is
expressed as lumens per square foot (footcandles), or lumens per square
meter (lux)
INDIRECT GLARE: Glare produced from a reflective surface.
INSTANT START: A fluorescent circuit that ignites the lamp instantly with
a very high starting voltage from the ballast. Instant start lamps have
single-pin bases

Crestron Residential Lighting Design Guide Appendix D
Doc. 5999F 75
L
LAMP CURRENT CREST FACTOR (LCCF): The peak lamp current divided
by the RMS (average) lamp current. Lamp manufacturers require <1.7
for best lamp life. An LCCF of 1.414 is a perfect sine wave
LAMP LUMEN DEPRECIATION FACTOR (LLDF): A factor that represents
the reduction of lumen output over time. The factor is commonly used as
a multiplier to the initial lumen rating in illumination calculations, which
compensates for the lumen depreciation. The LLD factor is a
dimensionless value between 0 and 1
LAY-IN-TROFFER: A fluorescent fixture; usually a 2' x 4' fixture that sets
or "lays" into a specific ceiling grid
LED: Abbreviation for light emitting diode. An illumination technology
used for exit signs. Consumes low wattage and has a rated life of
greater than 80 years
LENS: Transparent or translucent medium that alters the directional
characteristics of light passing through it. Usually made of glass or
acrylic
LIGHT LOSS FACTOR (LLF): Factors that allow for a lighting system's
operation at less than initial conditions. These factors are used to
calculate maintained light levels. LLFs are divided into two categories,
recoverable and non-recoverable. Examples are lamp lumen
depreciation and luminaire surface depreciation
LIFE-CYCLE COST: The total costs associated with purchasing,
operating, and maintaining a system over the life of that system
LOUVER: Grid type of optical assembly used to control light distribution
from a fixture. Can range from small-cell plastic to the large-cell
anodized aluminum louvers used in parabolic fluorescent fixtures
LOW POWER FACTOR: Essentially, an uncorrected ballast power factor of
less than 0.9 (SEE NPF)
LOW-PRESSURE SODIUM: A low-pressure discharge lamp in which light
is produced by radiation from sodium vapor. Considered a
monochromatic light source (most colors are rendered as gray)
LOW-VOLTAGE LAMP: A lamp (typically compact halogen) that provides
both intensity and good color rendition. Lamp operates at 12V and
requires the use of a transformer. Common lamps are MR11, MR16, and
PAR36
LOW-VOLTAGE SWITCH: A relay (magnetically-operated switch) that
allows local and remote control of lights, including centralized time clock
or computer control
LUMEN: A unit of light flow, or luminous flux. The lumen rating of a lamp
is a measure of the total light output of the lamp
LUMINAIRE: A complete lighting unit consisting of a lamp or lamps, along
with the parts designed to distribute the light, hold the lamps, and
connect the lamps to a power source. Also called a fixture
LUMINAIRE EFFICIENCY: The ratio of total lumen output of a luminaire
and the lumen output of the lamps, expressed as a percentage. For
example, if two luminaires use the same lamps, more light will be
emitted from the fixture with the higher efficiency.
LUMINANCE: A photometric term that quantifies brightness of a light
source or of an illuminated surface that reflects light. It is expressed as
footlamberts (English units) or candelas per square meter (Metric units)
LUX (LX): The metric unit of measure for illuminance of a surface. One
lux is equal to one lumen per square meter. One lux equals 0.093
footcandles
M
MAINTAINED ILLUMINANCE: Refers to light levels of a space at other
than initial or rated conditions. This term considers light loss factors
such as lamp lumen depreciation, luminaire dirt depreciation, and room
surface dirt depreciation
MAGNETIC LOW-VOLTAGE (MLV): Magnetic low-voltage lighting uses a
magnetic (core and coil technology) transformer to convert line voltage
(120 VAC) to low voltage (typically 12 VAC). This lower voltage is then
used to power an incandescent low-voltage lamp. Recessed lights are
most often magnetic low-voltage. Magnetic low-voltage lights tend to be
larger and heavier than electronic low-voltage
MERCURY VAPOR LAMP: A type of high intensity discharge (HID) lamp in
which most of the light is produced by radiation from mercury vapor.
Emits a blue-green cast of light. Available in clear and phosphor-coated
lamps
METAL HALIDE: A type of high intensity discharge (HID) lamp in which
most of the light is produced by radiation of metal halide and mercury
vapors in the arc tube. Available in clear and phosphor-coated lamps
MR-16: A low-voltage quartz reflector lamp, only 2" in diameter.
Typically the lamp and reflector is one unit, which directs a sharp,
precise beam of light
N
NADIR: A reference direction directly below a luminaire, or "straight
down" (0 degree angle
NEMA: Abbreviation for National Electrical Manufacturers Association
NEON/COLD CATHODE: Highly inductive boost transformer for neon/cold
cathode lighting
NIST: Abbreviation for National Institute of Standards and Technology
NPF (NORMAL POWER FACTOR): A ballast/lamp combination in which no
components (e.g., capacitors) have been added to correct the power
factor, making it normal (essentially low, typically 0.5 or 50%)
O
OCCUPANCY SENSOR: Control device that turns lights off after the space
becomes unoccupied. May be ultrasonic, infrared or other type
OPTICS: A term referring to the components of a light fixture (such as
reflectors, refractors, lenses, louvers) or to the light emitting or light-
controlling performance of a fixture
P
PAR LAMP: A parabolic aluminized reflector lamp. An incandescent,
metal halide, or compact fluorescent lamp used to redirect light from the
source using a parabolic reflector. Lamps are available with flood or spot
distributions
PAR 36: A PAR lamp that is 36 one-eighths of an inch in diameter with a
parabolic shaped reflector (SEE PAR LAMP)
PARABOLIC LUMINAIRE: A popular type of fluorescent fixture that has a
louver composed of aluminum baffles curved in a parabolic shape. The

Crestron Lighting Software Appendix D
Doc. 5999F 76
resultant light distribution produced by this shape provides reduced
glare, better light control, and is considered to have greater aesthetic
appeal
PARACUBE: A metallic coated plastic louver made up of small squares.
Often used to replace the lens in an installed troffer to enhance its
appearance. The paracube is visually comfortable, but the luminaire
efficiency is lowered. Also used in rooms with computer screens
because of their glare-reducing qualities
PHOTOCELL: A light sensing device used to control luminaires and
dimmers in response to detected light levels
PHOTOMETRIC REPORT: A photometric report is a set of printed data
describing the light distribution, efficiency, and zonal lumen output of a
luminaire. This report is generated from laboratory testing
POWER FACTOR: The ratio of the AC Volts x Amps through a device to
the AC wattage of the device. A device such as a ballast that measures
120 Volts, 1 Amp, and 60 Watts has a power factor of 50% (Volts x Amps
= 120 VA, therefore 60 Watts/120 VA = 0.5). Some utilities charge
customers for low power factor systems
PREHEAT: A type of ballast/lamp circuit that uses a separate starter to
heat up a fluorescent lamp before high voltage is applied to start the
lamp
Q
QUAD-TUBE LAMP: A compact fluorescent lamp with a double twin tube
configuration
R
RADIO FREQUENCY INTERFERENCE (RFI): Interference to the radio
frequency band caused by other high frequency equipment or devices in
the immediate area. Fluorescent lighting systems generate RFI
RAPID START (RS): The most popular fluorescent lamp/ballast
combination used today. This ballast quickly and efficiently preheats
lamp cathodes to start the lamp. Uses a "bi-pin" base
ROOM CAVITY RATIO (RCR): A ratio of room dimensions used to quantify
how light will interact with room surfaces. A factor used in illuminance
calculations
REFLECTANCE: The ratio of light reflected from a surface to the light
incident on the surface. Reflectances are often used for lighting
calculations. The reflectance of a dark carpet is around 20%, and a
clean white wall is roughly 50% to 60%
REFLECTOR: The part of a light fixture that shrouds the lamps and
redirects some light emitted from the lamp
REFRACTOR: A device used to redirect the light output from a source,
primarily by bending the waves of light.
RECESSED: The term used to describe the doorframe of a troffer where
the lens or louver lies above the surface of the ceiling.
REGULATION: The ability of a ballast to hold constant (or nearly constant)
the output watts (light output) during fluctuations in the voltage feeding
of the ballast. Normally specified as +/- percent change in output
compared to +/- percent change in input.
RELAY: A device that switches an electrical load on or off based on small
changes in current or voltage. Examples: low voltage relay and solid
state relay
RETROFIT: Refers to upgrading a fixture, room, or building by installing
new parts or equipment
REVERSE PHASE DIMMING: Rather than attempting to restrict the
amplitude of the current flowing through a lamp, as in other forms of
dimming, reverse phase control works by switching off the end part of
each cycle of the alternating current supply
S
SELF-LUMINOUS EXIT SIGN: An illumination technology using phosphor-
coated glass tubes filled with radioactive tritium gas. The exit sign uses
no electricity and thus does not need to be hardwired
SEMI-SPECULAR: Term describing the light reflection characteristics of a
material. Some light is reflected directionally, with some amount of
scatter
SHIELDING ANGLE: The angle measured from the ceiling plane to the line
of sight where the bare lamp in a luminaire becomes visible. Higher
shielding angles reduce direct glare. It is the complementary angle of the
cutoff angle. (See: CUTOFF ANGLE)
SPACING CRITERION: A maximum distance that interior fixtures may be
spaced that ensures uniform illumination on the work plane. The
luminaire height above the work plane multiplied by the spacing criterion
equals the center-to-center luminaire spacing
SPECULAR: Mirrored or polished surface. The angle of reflection is equal
to the angle of incidence. This word describes the finish of the material
used in some louvers and reflectors
STARTER: A device used with a ballast to start (preheat) fluorescent
lamps
STROBOSCOPIC EFFECT: Condition where rotating machinery or other
rapidly moving objects appear to be standing still due to the alternating
current supplied to light sources. Sometimes called "strobe effect."
T
T12 LAMP: Industry standard for a fluorescent lamp that is 12 one-
eighths, one inch in diameter. Other sizes are T10 and T8 lamps
TANDEM WIRING: A wiring option in which a single ballast is shared by
two or more luminaires. This reduces labor, materials, and energy costs.
Also called "master-slave" wiring.
THERMAL FACTOR: A factor used in lighting calculations that
compensates for the change in light output of a fluorescent lamp due to
a change in bulb wall temperature. It is applied when the lamp-ballast
combination under consideration is different from that used in the
photometric tests.
THREE-WIRE ANALOG POWER DIMMING: Three-wire control is a line-
voltage phase-control dimming method. Along with Hot and Neutral, the
dimming signal is communicated via a third wire called Dimmed Hot. All
three wires are rated Class 1 and can be run within the same conduit.
TRIGGER START: Type of ballast commonly used with 15-watt and 20-
watt straight fluorescent lamps
TROFFER: The term used to refer to a recessed fluorescent light fixture
(combination of trough and coffer)

Crestron Residential Lighting Design Guide Appendix D
Doc. 5999F 77
TUNGSTEN HALOGEN LAMP: A gas-filled tungsten filament incandescent
lamp with a lamp envelope made of quartz to withstand the high
temperature. This lamp contains some halogens (namely iodine,
chlorine, bromine, and fluorine), which slow the evaporation of the
tungsten. Also, commonly called a quartz lamp
TWIN-TUBE: (SEE COMPACT FLUORESCENT LAMP)
TWO-WIRE ANALOG POWER DIMMING: Two-wire is a line-voltage phase-
control dimming method. The ballast receives the dimming signal
through the Dimmed Hot wire. Intended for small-scale retrofit
applications, the two-wire control method is often the easiest way to
implement dimming in existing fluorescent fixtures
U
ULTRA VIOLET (UV): Invisible radiation that is shorter in wavelength and
higher in frequency than visible violet light (literally beyond the violet
light)
UNDERWRITERS' LABORATORIES (UL): An independent organization
whose responsibilities include rigorous testing of electrical products.
When products pass these tests, they can be labeled (and advertised) as
"UL listed." UL tests for product safety only
V
VANDAL-RESISTANT: Fixtures with rugged housings, break-resistant
type shielding, and tamper-proof screws
VCP: Abbreviation for visual comfort probability. VCP is a rating system
for evaluating direct discomfort glare. This method is a subjective
evaluation of visual comfort expressed as the percent of occupants of a
space who will be bothered by direct glare. VCP allows for several
factors: luminaire luminances at different angles of view, luminaire size,
room size, luminaire mounting height, illuminance, and room surface
reflectivity. VCP tables are often provided as part of photometric reports
VERY HIGH OUTPUT (VHO): A fluorescent lamp that operates at a "very
high" current (1500 mA), producing more light output than a "high
output" lamp (800 mA) or standard output lamp (430 mA)
VOLT: The standard unit of measurement for electrical potential. It
defines the "force" or "pressure" of electricity
VOLTAGE: The difference in electrical potential between two points of an
electrical circuit
W
WALLWASHER: Describes luminaires that illuminate vertical surfaces.
WATT (W): The unit for measuring electrical power. It defines the rate of
energy consumption by an electrical device when it is in operation. The
energy cost of operating an electrical device is calculated as its wattage
times the hours of use. In single-phase circuits, it is related to volts and
amps by the formula: Volts x Amps x PF = Watts. (Note: For AC circuits,
PF must be included.)
WORK PLANE: The level at which work is done and at which illuminance
is specified and measured. For office applications, this is typically a
horizontal plane 30 inches above the floor (desk height)
Z
ZENITH: The direction directly above the luminaire

Crestron Electronics, Inc. Specifications subject
15 Volvo Drive to change without notice
Rockleigh, NJ 07647 Doc. 5999F
www.crestron.com 03.09