Dacor Range Er36D C Users Manual
ER36D-C to the manual 90c5d169-f495-460b-a9c0-59370df3077f
2015-02-02
: Dacor Dacor-Dacor-Range-Er36D-C-Users-Manual-425279 dacor-dacor-range-er36d-c-users-manual-425279 dacor pdf
Open the PDF directly: View PDF
.
Page Count: 24

Installation Instructions
Epicure
® Range
For Use with Models: ER36D, ER36D-C, ER48D, ER48D-C
Part No. 100843 Rev. R
THIS APPLIANCE HAS BEEN TESTED IN ACCORDANCE WITH THE LATEST EDITION OF
ANSI Z21.1 STANDARD FOR HOUSEHOLD GAS APPLIANCES.

Important Safety Instructions ..................................................1-3
Customer Service Information ....................................................3
Planning the Installation ...........................................................4-6
Electrical Requirements ..............................................................4
Gas Supply Requirements ..........................................................4
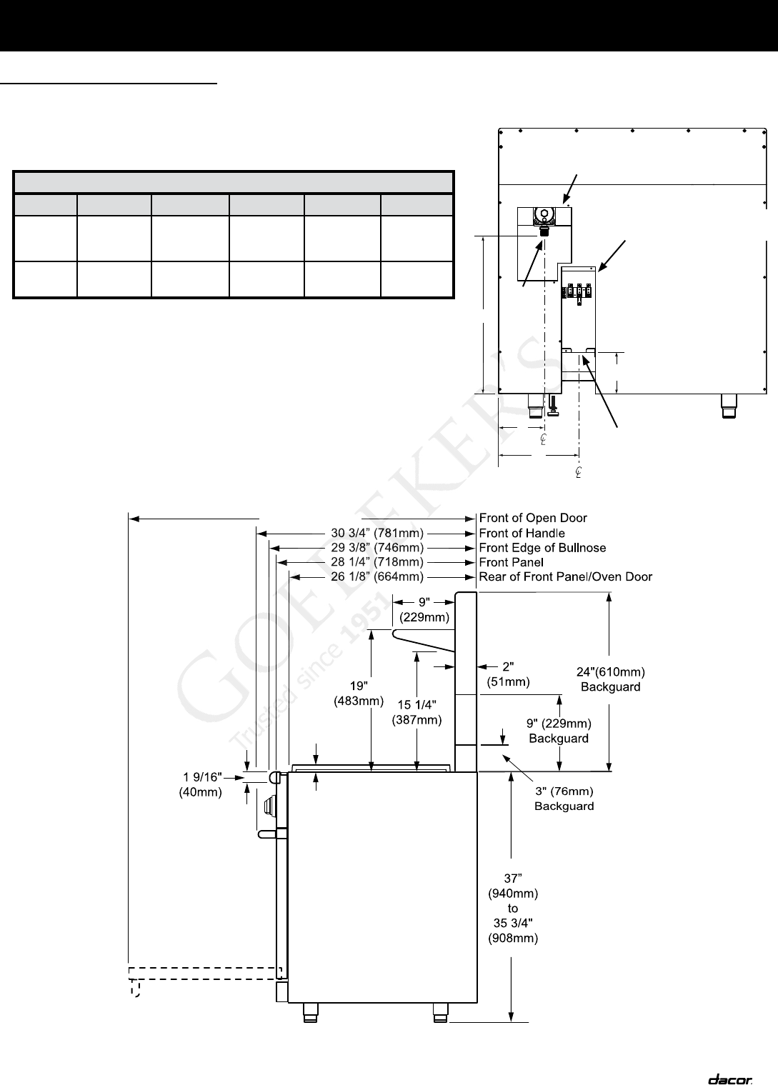
Product Dimensions ....................................................................5
Cabinet Layout ............................................................................6
Installation Instructions ..........................................................7-18
Preparing for Installation ..........................................................7-9
Electrical Connection ...........................................................10-15
Gas Supply Connection ............................................................15
Final Installation ........................................................................16
Installing the Burner Knobs .....................................................16
Installing the Burner Components ...........................................17
Verifying Proper Operation .......................................................18
Installation Checklist ................................................................18
Table of Contents
IMPORTANT:
INSTALLER: In the interest of safety, read these installation instructions completely, before you begin the installation process.
Leave these installation instructions with the homeowner.
CUSTOMER: Keep these installation instructions for future reference. Save them for the local electrical inspector’s use.
•
•
© 2007 Dacor, all rights reserved.
Specifications contained within are subject to change without notice.
No liability is assumed by Dacor ® for changes in specifications.

1
Important Information About Safety
Instructions
The Important Safety Instructions and warnings in this manual
are not meant to cover all possible conditions and situations
that can occur. Use common sense and caution when installing,
maintaining or operating this or any other appliance.
Always contact the Dacor Customer Service Team about problems
or situations that you do not understand.
Safety Symbols and Labels
DANGER
Immediate hazards that WILL result in severe personal injury or
death.
WARNING
Hazards or unsafe practices that COULD result in severe
personal injury or death.
CAUTION
Hazards or unsafe practices that COULD result in minor
personal injury or property damage.
Important Safety Instructions
DANGER
IMPORTANT: If you smell gas:
Do not use or light any appliance.
Do not touch any electrical switch or use any electrical devices, including the telephone, in your building.
From a neighbors phone, immediately call the gas supplier. Follow the gas supplier’s instructions.
If you cannot contact the gas supplier, call the fire department.
IMPORTANT: Do not store or use combustible, flammable or explosive vapors and liquids (such as gasoline) inside or in the
vicinity of this or any other appliance. Also keep items that could explode, such as aerosol cans, away from the burners and the
oven. Do not store flammable or explosive materials in adjacent cabinets or areas.
IMPORTANT: Child entrapment and suffocation are not problems of the past. Junked or abandoned appliances are still dangerous,
even if they sit out for “just a few days.” When taking an appliance out of service, please follow the instructions below to help
prevent accidents:
Take off the door.
Leave the racks in place so children cannot easily climb inside.
Cut the prongs off the power cable plug and discard them.
Cut the power cable off and discard it separately from the old appliance.
•
•
•
•
•
•
•
•
WARNING
NEVER use this appliance as a space heater to heat or warm
the room. Doing so may result in carbon monoxide poisoning
and overheating of the appliance.
WARNING
NEVER cover any slots, holes or passages in the oven bottom
or cover an entire rack with materials such as aluminum foil.
Doing so blocks air flow through the oven and may cause
carbon monoxide poisoning. Aluminum foil linings may also trap
heat, causing a fire hazard.
CALIFORNIA PROPOSITION 65 WARNING
The burning of gas cooking fuel generates some by-products
that are on the list of substances which are known by the State
of California to cause cancer or reproductive harm. California
law requires businesses to warn customers of potential
exposure to such substances. To minimize exposure to these
substances, always operate this unit according to the use
and care manual, ensuring you provide good ventilation when
cooking with gas.
READ AND SAVE THESE INSTRUCTIONS

2
Important Safety Instructions
WARNING
Read the accompanying use and care manual before operating this appliance.
Keep packaging materials away from children. Plastic sheets and bags can cause suffocation.
If you receive a damaged product, immediately contact your dealer or builder. Do not install or use a damaged appliance.
This range must be properly installed and grounded by a qualified installer according to these installation instructions prior to
use. The installer should show the customer the location of the gas shut off valve and the fuse or junction box so that they know
where and how to turn off the gas supply and electric power to the range.
If the wall behind the cooktop is constructed of combustible material, the optional 3”, 9” or 24” backguard must be installed on
the back of the range. Do not operate the range without the backguard in place if the back wall is made of combustible materi-
als. A fire may result.
Do not install, repair or replace any part of the range unless specifically recommended in the literature accompanying it. A quali-
fied service technician should perform all other service.
Do not connect this range to the gas supply without the supplied gas pressure regulator installed.
Before performing any type of service or installation, make sure that the gas supply and electric power to the range are turned
off.
NEVER block or cover any slots, holes or passages anywhere inside the oven or on the outside of the range or cover an oven
rack with materials such as aluminum foil. Doing so blocks airflow through the oven and cooktop and may cause carbon mon-
oxide poisoning or fire. See the Getting to Know Your Range section of the use and care manual for the location of the various
air holes (slots).
Only use the range for cooking tasks expected of a home appliance as outlined in the literature accompanying it. This range is
not intended for commercial use.
DO NOT TOUCH THE SURFACES OF THE OVEN OR COOKTOP DURING OR IMMEDIATELY AFTER USE.
Do not climb on any part of the appliance.
Do not leave children alone or unattended in the area around the range. Do not allow children to play with the controls, pull on
the handle or touch other parts of the range.
Do not store items of interest to children on top of or above the range. Children could be burned or injured while climbing on the
appliance.
Do not attempt to use this appliance in the event of a power failure.
Do not tamper with the controls. Do not adjust or alter any part of the range unless specifically instructed to do so in these
instructions.
To prevent the unit from tipping forward and to provide a stable installation, the unit must be secured in place with the anti-tip
device as specified in these instructions.
Clean the cooktop thoroughly before operating it for the first time.
Keep flammable items, such as paper, cardboard, plastic and cloth away from the burners and other hot surfaces. Do not place
such items in the oven. Do not allow pot holders to touch hot surfaces or gas burners.
Do not wear loose or hanging apparel while using the range. Do not allow clothing to come into contact with the interior of the
oven or the cooktop and surrounding areas during and immediately after use.
To avoid a fire hazard, do not hang flammable or heat sensitive objects over the range.
If the range is near a window, do not use long curtains as window treatment. The curtains could blow over the cooktop and cre-
ate a fire hazard.
Do not use the oven for storage.
Do not touch the burner assembly, grates or surrounding surfaces (including the backguard) or the interior surfaces of the oven
during use. After use, make sure these surfaces have had sufficient time to cool before touching them.
Do not touch the outside surfaces of the range during the self-clean cycle. They will be hot. Venting from the oven may cause
the cooktop and backguard to become hot.
•
•
•
•
•
•
•
•
•
•
•
•
•
•
•
•
•
•
•
•
•
•
•
•
•
To reduce the risk of fire, explosion, electric shock, serious injury or death when installing or using this appliance, follow
basic safety precautions, including the following:

3
Model Identification
ER36D-C-SCH/NG/H
SIZE (in inches)
COUNTRY CODE
C = Equipped for use in Canada
No Character = Equipped for use in U.S.A.
GAS TYPE
NG = Natural Gas
LP = Liquid Petroleum (Propane)
ALTITUDE
H = Equipped for High Altitude,
4000 feet (1219 m) and up
No Character = Equipped for low altitude operation
Model and serial
number label located
inside grill.
Model and Serial Number Location
If you have questions or problems with installation, contact your
Dacor dealer or the Dacor Customer Service Team. For repairs
to Dacor appliances under warranty call the Dacor Distinctive
Service line. Whenever you call, have the model and serial
number of the appliance ready. The serial number and rating
labels are inside the grate, inside the door.
Dacor Customer Service Team
(800) 793-0093 (U.S.A. and Canada)
Monday — Friday 6:00 a.m. to 5:00 p.m. Pacific Time
Web site: www.Dacor.com
Dacor Distinctive Service (for repairs under warranty only)
Phone: (877) 337-3226
Monday — Friday 6:00 a.m. to 4:00 p.m. Pacific Time
Customer Service Information
WARNING
Make sure that all the cooktop parts are dry before lighting a burner.
Turn the knobs to the “OFF” position prior to removing them from the valve stems.
The cooktop should never be operated without the knobs and trim rings in place.
For your safety, do not use the oven to cook without the convection filter(s) installed. When the filter is not installed, the spinning
fan blades at the back of the oven are exposed.
Non-stick coatings, when heated, can be harmful to birds. Remove birds to a separate, well-ventilated room during cooking.
•
•
•
•
•
Important Safety Instructions
To prevent damage, remove the meat probe from the oven when it is not being used.
Do not line the oven with aluminum foil or other materials. These items can melt or burn up during self-cleaning and cause
permanent damage to the oven.
Do not leave metal objects, such as aluminum foil, the meat probe, cookie sheets, etc. on the bottom of the oven. Objects left
on the bottom of the oven could damage the bake element. In addition, the objects themselves could be damaged.
On some ovens, the bake and broil elements are behind glass panels on the floor and ceiling of the oven chamber. Do not
cover these glass panels with cookie sheets, aluminum foil, pots, pans, etc. Covering them could cause the heating elements to
over-heat, damaging the oven.
Do not expose the knobs or trim rings to direct flame, hot utensils or other sources of heat.
Always ensure that the light fixture lens covers are in place when using the oven. The lens covers protect the light bulbs from
breakage caused by high oven temperatures or mechanical shock.
•
•
•
•
•
•
CAUTION

4
WARNING
IMPORTANT: Observe all governing codes and ordinances
during planning and installation. Contact your local building
department for further information.
Electrical Requirements - U.S.A.
IMPORTANT: The information below does not apply to units
equipped for use in Canada.
It is the owner’s responsibility to ensure that the electrical
connection of this appliance is performed by a licensed
electrician. The electrical installation, including minimum supply
wire size and grounding, must be in accordance with the National
Electric code ANSI/NFPA 70-1993* (or latest revision) and local
codes and ordinances. The standard is available from:
National Fire Protection Association
1 Batterymarch Park
Quincy, Massachusetts 02269-9101
The correct voltage, frequency and amperage must be
supplied to the appliance from a separate, grounded, circuit
that is protected by a properly sized circuit breaker or time
delay fuse. Refer to the data on the range rating label.
NOMINAL ELECTRIC CIRCUIT REQUIREMENTS - U.S.A.
Range
Model Circuit Required Total Connected
Load
ER36D 240 Vac*, 60 Hz, 30 Amp. (Min.)
40 Amp. (Recommended) 6.5 kW (28 Amp.)
ER48D 240 Vac*, 60 Hz, 50 Amp. 10.0 kW (42 Amp.)
* 4-wire, two 120 Vac hot (L1 and L2), one neutral, one ground
The ratings above are for reference only. Refer to the range
data label for exact specifications (see page 3 for location).
Consult local building codes for the type and minimum wire
gauge to use for the power requirements on the rating label.
Suggested wiring color code: Black, white, red and green.
The wiring needs to be long enough to allow the range
to be pulled out from the wall for service while remaining
connected. See page 10 for further details.
The wiring to the range must:
Have a minimum rating of 250 Volts @ 30 Amps for
model ER36D, 250 Volts @ 50 amps for model ER48D.
Include a strain relief
Be terminated by tinned leads, closed loop terminals or
open ended spade lugs with upturned ends
Where local code permits, a three (3) or four (4) wire
appliance cord may be used. The appliance cord must:
Be UL listed type SRD or SRDT
Be equipped with a NEMA 14-50P 4 wire plug or, where
local code permits, a NEMA 10-50P 3 wire plug.
Prior to range installation, have a licensed electrician install a
conduit junction box or electrical receptacle according to the
type of wiring used.
•
•
•
•
•
◊
◊
◊
•
◊
◊
•
Electrical Requirements - Canada
It is the owner’s responsibility to ensure that the required 4 wire
electrical outlet is installed by a licensed electrician as specified
below prior to range installation. The electrical outlet installation,
including minimum supply wire size and grounding, must be in
accordance with all governing codes and ordinances.
The correct voltage, frequency and amperage must be
supplied to the appliance from a separate, grounded, circuit
that is protected by a properly sized circuit breaker or time
delay fuse. Refer to the data on the range rating label.
NOMINAL ELECTRIC CIRCUIT REQUIREMENTS - CANADA
Range
Model Circuit Required Total Connected
Load
ER36D 240 Vac*, 60 Hz, 30 Amp. (Min.)
40 Amp. (Recommended) 6.5 kW (28 Amp.)
ER48D 240 Vac*, 60 Hz, 50 Amp. 10.0 kW (42 Amp.)
* 4-wire, two 120 Vac hot (L1 and L2), one neutral, one ground
The ratings above are for reference only. Refer to the range
data label for exact specifications (see page 3 for location).
Ranges equipped for use in
Canada come pre-wired with a
4 Wire appliance cord and
NEMA 14-50P plug.
Do not modify the factory wiring.
The plug is designed to insert
directly into a NEMA 14-50R
electrical receptacle installed by
a licensed electrician according
to the above specifications.
Gas Supply Requirements
Check your local building codes for the proper method of
installation. In the absence of local codes, this appliance
should be installed in accordance with the National Fuel Gas
Code ANSI Z223.1.
Be certain that the appliance being installed is correct for
the gas service provided (natural gas or LP gas). Also, if
operating the range at an altitude above 4000 feet. (1219 m)
make sure it is equipped for high altitude operation. Refer to
the range data plate and the table on page 3 to determine the
correct model.
See the table below for gas supply pressure requirements.
The regulator inlet accommodates a 3/4” gas line. The range
ships with a 1/2” to 3/4” adapter connected to the regulator.
GAS SUPPLY PRESSURE REQUIREMENTS*
Gas Type Minimum
Manifold Pressure
Minimum Gas
Supply Pressure**
Natural Gas 5” Water Column 6” Water Column
Liquid Propane (LP) 10” Water Column 11” Water Column
* The gas supply pressure for testing the regulator setting shall be
at least 1 inch water column (249Pa) above the specified manifold
pressure
** Maximum gas supply pressure for all models: 1/2 p.s.i.
The ratings above are for reference only. Refer to the range
data label for exact specifications (see page 3 for location).
•
•
•
•
•
•
•
Planning the Installation
NEMA 14-50P Plug NEMA 10-50P Plug
NEMA 14-50R Receptacle

5
48” (1219mm)
**
**
**
** Optional
1 1/16” (27mm) to cooking
surface (top of grates) from
top of trim
Finished Side
Panel
B
A
C
D
Gas Regulator Access,
Cover Removed
Range Electrical Access,
Cover Removed
E Electrical Connection
Hole in Bottom
Inlet
Back of Range
Planning the Installation
Product Dimensions
GAS - ELECTRICAL ACCESS DIMENSIONS
Model A B C D E*
ER36D 5 5/8”
(142.9mm)
18 3/8”
(466.7mm)
10 3/4”
(273.0mm)
13 11/16”
(347.7mm)
7/8”
(22.2mm)
ER48D 3 13/16”
(96.8mm)
18 11/16”
(474.7mm)
9 3/8”
(238.1mm)
13 3/4”
(349.3mm)
1 1/8”
(28.6mm)
* The diameter on models equipped for use in Canada is ¼” (6.4mm) larger
than those stated. Canadian units come from the factory pre-wired with
an appliance cord. When installing an appliance cord on models that are
not pre-wired, the hole size must be increased to 1 1/8” (1 3/8” for model
ER48D) by removing the conduit bracket inside the range electrical access
box.
All tolerances: ±1/16” (±1.6mm)
Width: ER36D - 35 7/8” (911mm)
ER48D - 47 7/8” (1216mm)

6
3
2, 5
F
G
3 Cabinet/countertop depth is at discretion of customer but
cabinet face MUST NOT protrude further than rear of front
panel, see product dimensions.
4 Consult local code for exact location requirements.
5 Not applicable for cabinets more than a horizontal
distance of 10” (254mm) from the edge of the range.
1 Vertical to combustibles directly above cooking surface;
if installing an overhead vent hood, also check the hood
specifications for minimum required clearances.
2 Measured from range top panel.
Non-combustible
surface along
back wall
recommended
30” (762mm)
Min.1
36 1/2”
(927mm)
Max.
13” (330mm)
Max.5
Suggested
location of
utilities4
Planning the Installation
Cabinet Layout
Carefully check the location where the range is to be
installed. For best performance, the range should be placed
away from drafts that may be caused by doors, windows and
heating and air conditioning outlets.
To reduce the risk of personal injury and to reduce
accumulated smoke in the room, Dacor strongly recommends
installing a range hood. A range hood should project
horizontally a minimum of 5 inches beyond the face of the
cabinets.
All maximum and minimum dimensions and clearances
shown in the diagrams below must be maintained for safe
operation.
The range may be installed flush to the rear wall.
Dacor strongly recommends installing a non-combustible
material on the rear wall above the range and up to the vent
hood or installation of a backguard. It is not necessary to
install non-combustible materials behind the range below the
countertop height.
Any openings in the wall behind the appliance or in the floor
underneath it must be sealed.
•
•
•
•
•
CUT-OUT DIMENSIONS
Range Model F G H
ER36D 42” (1067mm)*
36” (914mm)**
36 1/16”
(916mm)**
33 ½”
(848mm)
ER48D 54” (1372mm)*
48” (1219mm)**
48 1/16”
(1221mm)**
43 ½”
(1102mm)
* Recommended **Minimum
All tolerances: +1/16”, -0 (+1.6mm, -0)
Unless otherwise stated
Gas and Electrical Service
The shaded area shown denotes the location of the gas
inlet and the electrical junction box/receptacle. This is the
recommended location. For replacement purposes, the
location of the existing utilities may be utilized provided they
do not interfere with the sides or rear of the range. Check
local building codes for permissible gas valve locations.
An external manual shut-off valve must be installed between
the gas inlet and the range, for the purpose of turning on or
shutting off gas to the appliance.
The installation must allow for the following:
Access to the gas shut-off valve when the unit is installed.
Access to the remote circuit breaker panel/fuse box, when the
range is in place.
The gas supply piping and shut-off valve, and the electrical
junction box/receptacle must be located so they do not
interfere with the range when it is installed.
The junction box and gas shut off valve must be located
so that the range can be pulled out for service while the
appliance remains connected.
•
•
•
•
•
•
G
10" (254 mm) Min.
to combustible side
walls above the range
(both sides)
non-combustible
Minumum Countertop Height:
30 1/4” (768 mm)
Maximum Countertop Height:
36 1/2” (927 mm)
rear wall recommended
Backsplash
3/8" (10 mm)
Min. flat countertop
overhang
H
2 13/16"
(71.4 mm)
3
Cutout with Optional ERV Raised Vent (Top View)
Standard Cutout with
Range Hood
APPROVED RAISED VENT MODEL NUMBERS
Range Model ERV Raised Vent Model
ER36D ERV36-ER
ER48D ERV48-ER
IMPORTANT: See the raised vent installation instructions
for the duct and electrical installation requirements. Use
only the raised vent models specified below.

7
Preparing for Installation
WARNING
If the gas or electric service provided does not meet the
product specifications, do not proceed with the installation.
Call the dealer, the gas supplier or a licensed electrician.
Before installing the range, you must locate and secure the
anti-tip bracket to the floor.
•
•
IMPORTANT: Within the Commonwealth of Massachusetts, this
appliance must be installed by a licensed plumber or gas fitter.
Unpack the Range
Unpack the parts box and verify that all required components
have been provided. If any item is missing or damaged, please
contact your dealer immediately. Do not install a damaged or
incomplete appliance. The customer must report cosmetic issues
within 30 days of installation.
Parts List
3 Grates
2 Small Stack Burner Caps
2 Small Stack Burner Rings
2 Large Stack Burner Caps
2 Large Stack Burner Rings
2 Crown Burner Caps
2 Crown Burner Rings
2 Crown Burner Heads
1 GlideRack ™ Oven Rack
2 Standard Size Racks
3 18” Racks (ER48D only)
•
•
•
•
•
•
•
•
•
•
•
6 Knobs
Anti-tip Bracket w/Screws
Meat Probe
Griddle
Wok Ring
Stainless Steel Cleaner
Pry Stick
Literature Kit
Ignitor Cleaning Brush
Broiler Pan/Grill
•
•
•
•
•
•
•
•
•
•
See the use and care manual for a list of optional parts and
accessories.
NOTE: The range also includes a thread ring removal tool for the
crown burners (PN101539). It is taped in place behind the right
side of the kick panel when the range is shipped from the factory.
Leave it in place unless the spill trays need to be removed for
service. Return it after use so that it is available if needed in the
future.
Installation Instructions
WARNING
Do not connect the unit to gas or power before proceeding with
the following sections.
Level and Adjust the Range Height
Adjust the height by turning the bottom part of each leg
as shown. Raise or lower the range until the trim around
the cooktop area is slightly higher than the counter-top. If
installing with a raised vent, adjust the height so that the trim
matches the height of the vent’s top in the down position.
Use a level to make sure that the range does not tilt front to
back or side to side. Readjust the legs if necessary.
Install the Anti-Tip Bracket and Foot
Locate the anti-tip foot and lower it until it is 1/16" (2mm) off
the floor. See the bottom left diagram.
Locate the anti-tip bracket included in the parts box.
Install the anti-tip bracket on the floor using the four included
screws. The mounting location varies according to the model.
See the diagram below for location.
ANTI-TIP BRACKET PLACEMENT
Dimension ER36D ER48D
J 7 1/2” (191mm) 19” (483mm)
K 6 1/2” (165mm) 6 1/4” (159mm)
1.
2.
1.
2.
3.
J
K
Top View
Back of Range Range
Right Side
Panel
Back of Range
Anti-Tip Foot
(location varies)
1 1/4” *
down
up
Rear Leg
Thread Ring Removal
Tool Location
* Distance to floor: 4 1/16” to 5 5/16”

8
Installation Instructions
Installing an ERV Raised Vent (Optional)
Install the ERV raised vent before installing the range. See the
ERV installation instructions, part no. 103106.
IMPORTANT: The ERV series raised vent attaches to the narrow
back portion of the ERV style cutout. It is self-supporting in the
cutout and does not actually attach to the range itself.
Installing a Backguard (Optional)
WARNING
Do not operate the range without the island trim or a backguard
installed.
NOTES:
Install the backguard before making the range gas and
electrical connections.
Dacor recommends that the 24 inch backguard be installed
by at least two people.
To install a backguard:
Remove the thirteen (13) screws on the front and back of the
island trim and slide the trim off the unit.
Remove the backguard from its box.
24 inch backguard only: Use eight (8) hex screws from the
backguard kit to attach the support brackets to the range
chassis. Make sure the gas line is positioned under the
bracket as shown below.
•
•
1.
2.
3.
To avoid scratches, place small scraps of thin cardboard on
the rear of the side panels where the backguard will make
contact. Place the backguard over the back of the range.
Special attention should be given to the lower flange in front
of the backguard, which must fit between the stainless steel
side panels and over the existing stainless steel trim piece
(see range side detail below). On the 24 inch backguard:
The “C” channels on the backguard slide into the brackets on
the range chassis.
4.
Trim Removal
Front of
Range
Spill Tray
Cooktop
Chassis
Stainless Steel
Trim Piece
Range Back
Cover
Back of
Backguard
Front Flange
of Backguard
Range Side Detail
Sliding the Backguard into Place
Support Bracket Installation for 24 inch Backguard
Gas Line
Hex Screw,
8 Places

9
Fasten the backguard and the stainless steel trim piece in
place with the five (5) existing chrome plated screws.
Secure the rear of the backguard to the back of the range
with the eight (8) existing hex screws.
On the 24 inch backguard: Secure the “C” channels on the
24 inch backguard to the brackets mounted on the range
chassis using eight (8) hex screws from the kit. Insert the
screws through the holes in the back side of the backguard.
5.
6.
7.
Backguard
Backguard Installation
Chrome Plated
Screw, 5 Places
Hex Screw,
8 Places
Installation Instructions
Removing the Oven Door
WARNING
Do not attempt to disengage the hinge catches with the
door removed from the oven. The hinge springs could
release causing personal injury.
Do not lift or carry the oven door by the door handle.
•
•
NOTE: When installing a backguard, always install it before
sliding the range into place. See page 8.
To make the range easier to move, remove the door(s) to reduce
weight.
Open the door to its fully opened position.
Rotate the catch over the retaining arm on each hinge.
Lift the oven door to about a 15° angle from the vertical
position.
Hold the door with both hands just below the handle and pull
it away from the oven while continuing to lift.
1.
2.
3.
4.
Door Gripping Points
Retaining Arm
Catch
Releasing the Door Hinges
Installing a Backguard (Continued)
Hex Screw,
8 Places
Securing the Support Brackets on 24 inch Backguard

10
Electrical Connection
WARNING
Wire the range only in compliance with local ordinances.
Improper connection of the electrical wiring can cause an
electric shock hazard and damage the appliance. Dacor
is not responsible for damages resulting from improper
installation.
Connect the ground terminal (or lead) on the appliance to a
grounded, metallic, permanent wiring system or grounding
conductor.
Do not use an extension cord with this appliance. Such use
may result in fire, electric shock or other personal injury.
Do not install a fuse in the neutral or ground circuit. A fuse
in the neutral or ground circuit may result in an electric
shock hazard.
•
•
•
•
•
NOTE: Ranges equipped for use in Canada come from the
factory pre-wired. If installing a pre-wired range, skip to the Gas
Supply Connection section on page 15.
IMPORTANT:
Do not disconnect any of the wires inside the range electrical
box unless instructed to do so.
Make sure that the conduit or appliance cord is long enough
to allow the range to be pulled out for service without
disconnecting it from power.
For safety, replace the electrical access cover after
connecting the wiring.
•
•
•
Installation Instructions
Put slack in electrical
wiring and gas line
Refer to the range rating label (see page 3) for power
requirements.
There are four possible ways to wire the range:
4 Wire Conduit
3 Wire Conduit (where local codes permit)
4 Wire Appliance Cord (where local codes permit)
3 Wire Appliance Cord (where local codes permit)
The sections below and on the following pages give directions for
connecting each type of wiring harness.
WARNING
Do not connect the green appliance wire to the neutral (white)
supply wire unless local building codes permit.
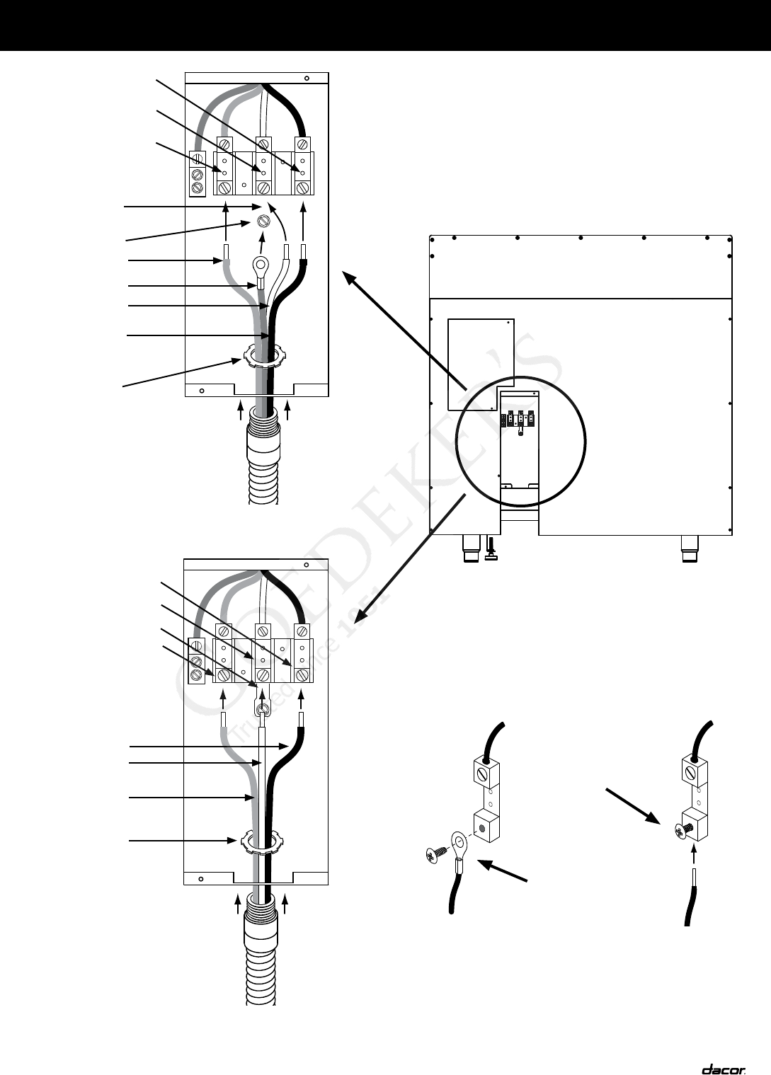
Connecting Conduit to the Range
NOTE: For connection of an appliance cord, see page 14.
Remove the range electrical access cover from the back of
the range.
If using a 4 Wire connection, loosen the grounding screw and
remove the neutral to ground jumper link.
Remove the nut from the conduit strain relief (not included).
Slide the wires and the end of the strain relief into the hole on
the bottom of the range electrical box.
Before connecting the wires, slide the strain relief nut over
the wires and thread it onto the conduit strain relief inside the
box. Tighten into place.
Connect the white wire to the neutral terminal in the box.
Connect the black wire to the L1 power supply terminal.
Connect the red wire to the L2 power supply terminal.
If using a 4 Wire connection, connect the green wire to the
grounding screw inside the box.
Replace the range electrical access cover.
•
•
•
•
1.
2.
3.
4.
5.
6.
7.
8.
9.
10.
Gas Regulator
Access Cover
Back of Range
Electrical Access Cover
Gas and Electrical Access Covers

11
Installation Instructions
Loop and
Spade Terminal
Connections
Bare Wire
Connections
Connecting 4 Wire Conduit to Range
Conduit Strain
Relief Nut
Red Wire
White Wire
Green Wire
Neutral Terminal
L1 Terminal
L2 Terminal
Jumper Removed
Black Wire
Grounding Screw
Connecting 3 Wire Conduit to Range -
Where Local Code Permits
Conduit Strain
Relief Nut
Red Wire
White Wire
Black Wire
Neutral Terminal
L1 Terminal
L2 Terminal
Jumper Link

12
Connection to
power supply
Wire Nut,
3 Places
Junction Box
Installation Instructions
Electrical Connection (continued)
Connecting the Conduit to the House
Electrical Junction Box
WARNING
Do not connect the green appliance wire to the neutral (white)
supply wire unless local building codes permit.
NOTES:
The power supply must be properly polarized. Reverse
polarity will result in continuous sparking of the electrodes,
even after flame ignition.
If there is any doubt as to whether the power supply is
properly polarized or grounded, have it checked by a licensed
electrician.
With the range positioned directly in front of the cabinet
cutout, feed the appliance wires into the junction box.
Depending upon local codes, utilize one of the three (3)
methods shown to connect the appliance to the junction box.
After connecting the conduit to the range (see page 10)
connect the white wire from the appliance to the neutral
(white) supply wire in the junction box.
Connect the black wire from the appliance to the black (L1)
power supply wire in the junction box.
Connect the red wire from the appliance to the red (L2) power
supply wire in the junction box.
If using a 4 Wire connection, connect the green wire to a
grounded supply wire in the junction box or to a grounded
cold water pipe. If connecting to a grounded cold water pipe:
Replace the cover on the junction box.
•
•
1.
2.
3.
4.
5.
6.
Wire Nut,
4 Places
Junction Box
Connection to
power supply
Connect to
appliance (page 10)
4 Wire Conduit Connection to Junction Box
3 Wire Conduit Connection to Junction Box
Connect to
appliance (page 10)
Use a separate copper grounding wire (No. 10 minimum)
to connect to the cold water pipe by means of a clamp
and an external grounding connector screw.
If there are any materials that isolate the cold water pipe
from ground, jumper it with a No. 4 copper wire, clamped
on both ends.
◊
◊

13
Installation Instructions
Junction Box - 4 Wire Connection with External Ground
Connection to
power supply Separate No. 10 (minimum
copper grounding wire
Junction Box
Fasten clamp tightly
on pipe
Wire Nut,
4 Places
Clamps
Metal
Water Pipe
No. 4
copper wire
Meter
Bare metal
Insulated Pipe Jumper
Connect to
appliance (page 10)

14
Slide the end of the appliance cord into the strain relief from
the bottom of the box
Connect the white (neutral) wire to the neutral terminal in the
box.
Connect the L1 wire to the L1 power supply terminal in the
box.
Connect the L2 wire to the L2 power supply terminal in the
box.
If using a 4 Wire connection, connect the ground wire to the
grounding screw inside the box.
Tighten the strain relief so that the appliance cord is held
snuggly in place.
Replace the range electrical access cover.
5.
6.
7.
8.
9.
10.
11.
Electrical Connection (continued)
Connecting an Appliance Wire to the
Range - Where Local Code Permits
WARNING
Do not connect the green appliance wire to the neutral (white)
supply wire unless local building codes permit.
Remove the range electrical access cover from the back of
the range.
If using a 4 wire connection, loosen the grounding screw and
remove the neutral to ground jumper link.
Remove the conduit bracket from the bottom of the range
electrical box.
Disassemble and remove the strain relief from the appliance
cord (not included). Insert the tabs on the two parts of
the strain relief into the hole on the bottom of the box and
reassemble it so that the tabs are below the box and the
strain relief itself is inside the box.
1.
2.
3.
4.
4 Wire Appliance
Cord Connection
Strain Relief
L2 Wire
White Wire
Green Wire
Neutral Terminal
L1 Terminal
L2 Terminal
Jumper Removed
L1 Wire
Grounding Screw
14-50P Plug
Neutral
L2
L1 Ground
Strain Relief
Reassemble with tabs
below and clamp above
Bottom of range electrical
box
Remove conduit bracket
before strain relief
installation
Remove jumper on
4 Wire installations
Electrical
Access
Installation Instructions

15
Gas Supply Connection
WARNING
Make sure the gas supply valve is off and that the power
to the range is turned off at the circuit breaker or fuse box
prior to connecting the gas line.
Do not apply excessive pressure when tightening gas
connections and fittings.
Do not use Teflon tape or plumber’s putty on gas flex line
connections.
For LP installations, the LP gas tank must have its own
high pressure regulator. This is in addition to the pressure
regulator provided with the range.
The maximum gas supply pressure to the regulator must
never exceed 1/2 pound per square inch (psi) or 3.5kPa.
The range and shut-off valve must be disconnected
from the gas supply piping during any pressure testing
exceeding 1/2 psi (3.5 kPa).
The range must be isolated from the gas supply piping by
closing the shut-off valve during any pressure testing at or
below 1/2 psi (3.5 kPa).
Check all gas lines for leaks as instructed to avoid a fire or
explosion hazard. Do not use a flame to check for leaks.
•
•
•
•
•
•
•
NOTE: The gas pressure regulator is pre-set at the factory for the
type of gas intended for use with the appliance. To verify that the
appliance is compatible with the type of gas available, check the
range data plate (see page 3 for location). Ranges intended for
use with LP gases will have “LP” as a part of the model number.
Consult your dealer if the range is not compatible with the type of
gas supplied.
Before sliding the range into the cabinet:
Make sure the gas supply valve is in the off position and that
power to the range is off.
Connect a flexible gas supply line to the gas shut-off valve
previously installed on the stub out. The gas line needs to be
long enough to allow the range to be pulled out for service.
Remove the gas regulator access cover.
Slide the end of the gas line under the back cover into the
regulator compartment from the bottom.
Connect the gas line to the regulator.
Turn all cooktop control valves to the “OFF” position. Turn on
the gas supply.
Check all lines
and connections
for leaks using a
soap and water
solution.
After verifying
that there are no
gas leaks, turn
off the gas supply
valve connected
to the range
to the “OFF”
position.
Replace the
regulator access
cover.
1.
2.
3.
4.
5.
6.
7.
8.
9.
Loop and
Spade Terminal
Connections
Bare Wire
Connections
10-50P Plug
L1
L2
Neutral
3 Wire Appliance
Cord Connection -
Where Local Code
Permits
Strain Relief
White Wire
L1 Wire
Neutral Terminal
L1 Terminal
L2 Terminal
L2 Wire
Jumper Link
Back Cover
Regulator
Connection
Gas Line
Installation Instructions

16
Installation Instructions
Final Installation
Peel the protective coating off of the range, including the
door.
Adjust the legs to the desired height.
Carefully slide the range into position in the cut-out. The rear
anti-tip leg should engage the anti-tip bracket.
Re-installing the Oven Door(s)
WARNING
To avoid personal injury or damage to the door from to it falling
off its hinges:
Make sure that the notch on the bottom of each hinge rests
on top of the lower lip of each hinge receptacle before
attempting to open the oven door.
Rotate the hinge locks toward the front of the range
immediately after installation of the door.
•
•
Grasp the oven door on opposite sides and hold it at a 15°
angle from the front of the oven. Slide the hinges into the
hinge openings, resting the bottom of the hinge arms on the
hinge receptacles. Continue to hold the door at a 15° angle
with one hand while pushing in on each of the bottom corners
of the door. Push until the notch on the bottom of each hinge
slips over the lower lip of each hinge receptacle.
Lower the door to the fully opened position.
Rotate the two hinge locks toward the oven.
Slowly and carefully open and close the door completely to
ensure that it is properly installed.
Remove any packaging from inside the oven(s).
1.
2.
3.
1.
2.
3.
4.
5.
Installing the Burner Knobs
CAUTION
Installing the range knobs in the wrong position may result
in damage to the griddle included with the range. The knobs
for the center burners are marked with the maximum griddle
settings.
NOTE: When installing the knobs,
align the “D-shaped” opening on
the back of the knob with the end
of the valve shaft. Carefully push
the knob on until it stops.
There are two (2) different types
of knobs supplied with the range.
The knobs for the center burners
have the words “MAX GRIDDLE”
on them.
Put the knobs with the words
“MAX GRIDDLE” on them
onto the inner (center burner) valve shafts.
Put the remaining knobs on the outer valve shafts.
•
•
Notch on bottom
of hinge
Lower lip of
hinge receptacle
Door Installation
Icons on Center Burner Knobs
Icons on Outer Burner Knobs

17
Installing the Burner Components
Installation Instructions
Stack Burner Installation
Burner Head
Crown Burner
Stack Burner
Spill Tray
Burner Ring
Ridge on bottom
of burner cap
STEP 1: Put burner ring
on top of the head.
STEP 2: Turn ring until
it drops into place. Twist
back and forth to assure
proper seating.
STEP 3: Install burner
caps. Ridge on cap must
surround top of ring.
Burner Head
Crown Burner Installation
Burner Base
Burner Ring
Ridge on bottom
of burner cap
STEP 1: Install
burner head. Put
locating tab in
keyed hole.
STEP 2: Install
burner ring. Line up
ring tabs with head
slots. Twist back
and forth to assure
proper seating.
STEP 3: Install burner
cap. Ridge on cap must
surround top of ring.
Keyed Hole
WARNING
Never attempt to operate the cooktop section of the range with
any of the burner rings, burner caps or grates removed.
Remove the burner rings, burner caps and grates from their
shipping packages.
Install the burners as shown. The location, type and size of
the burners varies with the range model number.
Gently set the grates on top of the spill tray. Put the legs
of each grate inside the corresponding dimples. On model
ER36D, the largest grate goes in the center.
•
•
•

18
Verifying Proper Operation
Prior to operating the cooktop or oven, please read the
accompanying use and care manual carefully. Important safety,
service and warranty information is contained within the use and
care manual.
Before beginning the test procedure, ensure that all cooktop
control valves are in the “OFF” position, and all burner
rings, burner caps and grates are properly positioned on the
cooktop frame. Turn on the gas supply at the shut-off valve.
Check for gas leaks.
Turn on power to the range.
Set the time of day:
- Press the clock key.
- Enter the time on the number keypad (within 6 seconds).
- Press START.
Press the BAKE key.
Enter the temperature of 350°F on the keypad.
Press START.
The display should show BAKE, and the preheating
temperature.
Press the CANCEL-SECURE key to stop the oven heating
process.
Test one of the burners by pushing the knob in and turning it
counterclockwise to the HIGH position. It may take up to four
seconds for ignition to occur, at which time the ignitor will stop
sparking. If ignition does not occur within four seconds, turn
off the knob, wait for at least five minutes to allow any gas to
dissipate, then repeat the ignition test. After ignition, rotate
the control knob counterclockwise from “HIGH” to “LOW”
to adjust the flame height
progressively. When the range
is installed properly, the flame
will be steady and quiet. It will
also have a sharp, blue inner
cone that will vary in length
proportional to the burner size.
Dacor’s Smart Flame™ feature
reduces the flame under the
grate fingers to increase grate
life. If the range is equipped for
use with LP gas, the ends of
the flame may be yellow at the
tips, which is normal.
Turn the control knob to the “OFF” position.
Repeat the ignition test for all remaining burners.
If the range does not operate properly, follow these
troubleshooting steps:
Verify that power and gas are supplied to the range.
Check the electrical connections and gas supply to ensure
that the installation has been completed correctly.
Repeat the above bake test or burner ignition test.
If the appliance still does not work, contact Dacor Distinctive
Service at (877) 337-3226. Do not attempt to repair the appliance
yourself. Be sure to have the model and serial numbers available
when you call. See page 3 for location.
Dacor is not responsible for the cost of correcting problems
caused by a faulty installation.
1.
2.
3.
4.
5.
6.
7.
8.
9.
10.
11.
12.
1.
2.
3.
Installation Checklist
WARNING
To ensure a safe and proper installation, the following
checklist should be completed by the installer to ensure that
no part of the installation has been overlooked.
Proper installation is the responsibility of the homeowner.
The importance of proper installation of your Dacor range
cannot be overemphasized.
•
•
Has the plastic coating been peeled off the outside of the
range? Have all packaging materials been removed from
inside the oven?
Are all leveling legs extended down to make contact with the
floor? Is the unit level? See page 7.
Is the range secured in place with the provided anti-tip
bracket and foot according to these instructions? See page 7.
If the wall in back of the cooktop is combustible, is a
backguard installed?
Is the range wired and grounded according to these
instructions and in accordance with all applicable electrical
codes? Has the electrical access cover been replaced? See
pages 4 and 10 - 15.
Has the gas supply inlet pressure been measured to ensure
that it does not exceed the maximums stated in these
instructions. See page 5.
Is the range connected to the gas supply according to these
instructions and in accordance with all applicable codes?
Did the installer check the gas supply for leaks? Has the gas
regulator cover been re-installed? See page 15.
Is the oven door properly installed according to these
instructions? See page 16.
Have the burner knobs been installed in the proper locations?
See page 17.
Are the burners and grates properly installed according to
these instructions? See page 17.
Has proper operation been verified?
Has the warranty been activated on-line or the warranty card
been filled out completely and mailed?
□
□
□
□
□
□
□
□
□
□
□
□
□
Installation Instructions
OFF Icon
Normal Flame

19
Notes

20
Notes


Dacor ● 1440 Bridge Gate Drive, Diamond Bar, CA 91765 ● Tel: (800) 793-0093 ● FAX: (626) 403-3130 ● www.Dacor.com