Dekolink Wireless BDA800BB50W90 Bi-Directional Amplifier User Manual INSTALLATION
Dekolink Wireless Ltd Bi-Directional Amplifier INSTALLATION
Manual

Dekolink WIRELESS Ltd.
16 Bazel St. Qiryat-Arieh Petah-Tikva, Israel, 49510
Tel- 972-3-9180-180 Fax-972-3- 190-9180
e-mail: marketing@dekolink com web www dekolink com
Page 1 of 14 50W rev 3 08/03
INSTALLATION
AND
OPERATING INSTRUCTIONS
FOR
HIGH POWER REPEATER
MODEL: MW-BDA-800BB-50W90

Dekolink WIRELESS Ltd.
16 Bazel St. Qiryat-Arieh Petah-Tikva, Israel, 49510
Tel- 972-3-9180-180 Fax-972-3- 190-9180
e-mail: marketing@dekolink com web www dekolink com
Page 2 of 14 50W rev 3 08/03
TABLE OF CONTENTS
PARAGRAPH PAGE No
REPEATER OVERVIEW 3
BLOCK DIAGRAM DESCRIPTION 3
REPEATER (BDA) CONNECTION 3
STEP ATTENUATOR & RF GAIN & SETTING 4
AGC FUNCTION 4
BDA MONITOR 5
BDA MONITOR FUNCTIONS 6
BDA INSTALLATION 8
BASE / DONOR ANTENNA INSTALLATION 8
REMOTE / MOBILE SERVICE ANTENNA INSTALLATION 8
ANTENNA ISOLATION 8
INSTALLATION STEPS 9
RF EXPOSURE WARNING 10
ELECTRICAL SPECIFICATIONS 11
MECHANICAL SPECIFICATIONS 11
ENVIRONMENTAL CONDITIONS 11
MECHANICAL LAYOUT 12
MECHANICAL OUTLINE 13
LIMITED WARRANTY 14
LIST OF DRAWINGS
DRAWING PAGE No
REPEATER(BDA) RF BLOCK DIAGRAM 4
BDA MONITOR 7
BDA MONITOR BLOCK DIAGRAM 7
MECHANICAL LAYOUT 13
MECHANICAL OUTLINE 13

Dekolink WIRELESS Ltd.
16 Bazel St. Qiryat-Arieh Petah-Tikva, Israel, 49510
Tel- 972-3-9180-180 Fax-972-3- 190-9180
e-mail: marketing@dekolink com web www dekolink com
Page 3 of 14 50W rev 3 08/03
REPEATER OVERVIEW:
The Bi-Directional Repeater assembly provides an exceptional repeater/booster
performance to extend the coverage area of radio communications in buildings
and RF shielded environments.
Features such as high linearity power amplifiers are contributing for the overall
improved system linearity performances. The unit is based on a duplexed path
configuration, having sharp out of band attenuation for improved isolation
between the receiving and transmitting paths.
BLOCK DIAGRAM DESCRIPTION:
The Repeater Downlink path receives the RF signals from base station,
amplifies them and transmits them to the subscriber. The Repeater Uplink path
receives the RF signals from the subscriber, amplifies them and transmits them
to the base station. Two duplexers frequency separate the signals to the proper
amplifying path and isolate the two signals.
For each path two amplifiers do the path signal amplification; a low noise
amplifier (LNA) and a high power amplifier. The low noise amplifier has a 30 dB
step attenuator to set the gain of the specific path.
REPEATER (BDA) CONNECTION
The RF connection is made via two type “N” female connectors. The RF
connector labeled “Base” must be connected to the antenna pointing to the base
station; usually a rooftop antenna. The RF connection labeled “Mobile” must be
connected to the antenna pointing into the area to be covered by the Repeater
such as inside a building or outdoor shaded area.

Duplexer
Downlink
Duplexer
Uplink
LNA
Attenuator
Power
Monitor
PA
AGC
LNA
Attenuator
Power
Monitor
PA
AGC
BDA RF BLOCK DIAGRAM
TO
BASE
TO
MOBILE
Page 4 of 14 50W rev 3 08/03
Dekolink WIRELESS Ltd.
16 Bazel St. Qiryat-Arieh Petah-Tikva, Israel, 49510
Tel- 972-3-9180-180 Fax-972-3- 190-9180
e-mail: marketing@dekolink com web www dekolink com
STEP ATTENUATOR AND RF GAIN SETTING
For proper operation of the Repeater, the isolation between the base station antenna
and the mobile antenna should exceed the Repeater gain by at least 12 dB. If the
Repeater gain were higher than the isolation between the antennas, oscillation would
start and would saturate the amplifier. Isolation few dB higher than the Repeater gain
cannot start oscillations but would cause gain ripple in the band.
The step attenuator on the low noise amplifier reduces the Repeater gain. The Repeater
gain can be stepped down by the amount indicated on the step attenuator.
AGC FUNCTION
The Repeater has AGC function on both paths that serve to prevent the saturation of
the power amplifier. When a high signal is received the AGC circuit detects the
amplitude and sends a feedback signal to a variable attenuator, which attenuates the
signal level so that the output power of the amplifier does not exceed the preset limit.
The green LED on the BDA monitor (AGC Range) illuminates when the power output of
the amplifier is within the set limit. An On/Off switch on the connection box enables the
AGC function. If the AGC is disabled then the amplifier gives maximum gain.

Dekolink WIRELESS Ltd.
16 Bazel St. Qiryat-Arieh Petah-Tikva, Israel, 49510
Tel- 972-3-9180-180 Fax-972-3- 190-9180
e-mail: marketing@dekolink com web www dekolink com
Page 5 of 14 50W rev 3 08/03
BDA MONITOR
The BDA monitor circuit monitors the following functions:
RF power transmitted by the power amplifiers.
For the downlink channel a red fault LED illuminates if the power is 10 dB below the
specified composite power. In normal use the downlink channel continuously transmits
RF signals and this LED should be on. When the donor reception from the base is bad
this LED turns on to warn that the repeater is not being used efficiently. Another green
LED illuminates when the power reaches or exceeds this power (10W). This is used to
set the repeater gain. This limit is the same as the AGC limit and is factory preset.
For the uplink channel a green indicator LED illuminates when the power reaches or
exceeds its composite power (1W). When the isolation between the antennas is bad this
LED lits permanently. This LED should turns on only when a near by cellular is used.
This limit is the same as the AGC limit and is factory preset.
DC voltage of the channels. The fault LED illuminates when the voltage is below or
above the specified limits.
DC current to each of the two LNAs and the uplink power amplifier. If the current is
below or above the specified limits then a LED illuminates.

Dekolink WIRELESS Ltd.
16 Bazel St. Qiryat-Arieh Petah-Tikva, Israel, 49510
Tel- 972-3-9180-180 Fax-972-3- 190-9180
e-mail: marketing@dekolink com web www dekolink com
Page 6 of 14 50W rev 3 08/03
BDA MONITOR FUNCTIONS
P.S. (Uplink & down link) Illuminates when the Power Supply voltage is below or above
its limits.
P.AMP. (Uplink) Illuminates when the uplink Power Amplifier current is above or below
its specified limits
P.AMP. (Downlink) Illuminates when the uplink RF Power is 10 dB below the specified
composite power.
L.N.A. (Uplink & Downlink) Illuminates when the Low Noise Amplifier current is above
or below its specified limits.
AGC Range. (Downlink) This green LED on the downlink path illuminates when the
transmitted power reaches or exceeds the AGC set power, which is the maximum
specified composite power. For best efficient use of repeater RF power this LED should
be on.
AGC Range. (Uplink) This green LED on the downlink path illuminates when the
transmitted power reaches or exceeds the AGC set power, which is the maximum
specified composite power. This LED should not lit permanently. It lights only when a
nearby mobile is transmitting.
The Pushbutton Switch on the BDA monitor turns on all the alarms. This is used to
test the alarm functions of the BDA.
REMOTE ALARM The BDA monitor has a dry contact relay arms output. These
contacts are short circuit at no fault and open circuit at any fault or at power loss. This
function can be used to operate a modem for remote alarm warning. The relay contacts
are connected to pins A and C (small pins) on the alarm connector at the front panel.

Dekolink WIRELESS Ltd.
16 Bazel St. Qiryat-Arieh Petah-Tikva, Israel, 49510
Tel- 972-3-9180-180 Fax-972-3- 190-9180
e-mail: marketing@dekolink com web www dekolink com
Page 7 of 14 50W rev 3 08/03
BDA
MONITOR
BLOCK
DIGRAM
DOWNLINK
CHANNEL
UPLINK
CHANNEL
RELAY ALARM
RELAY
VOLTAGE
SENSOR
LNA D.L/
SUPPLY
PS ALARM
CURRENT
SENSOR
LNA ALARM
POWER
SENSOR
P.AMP ALARM
POWER
SENSOR
AGC RANGE
INDICATOR
VOLTAGE
SENSOR
U.L. PA SUPPLY
(P.AMP)
CURRENT
SENSOR
LNA U.L.
SUPPLY
CURRENT
SENSOR
INPUT
SUPPLY
INPUT
SUPPLY
RF POWER
DETECTION
LOW POWER ALARM
(P.AMP)
HIGH POWER DETECTION
(AGC Range)
AGC RANGE
INDICATOR
PS ALARM
LNA ALARM
P.AMP ALARM
HIGH POWER DETECTION
(AGC Range)
POWER
SENSOR
RF POWER
DETECTION
P.S.
P.AMP.
L.N.A.
AGC
Range
P.S.
P.AMP.
L.N.A.
AGC
Range
ALARM TEST
PUSHBUTTON
DOWNLINK UPLINK

Dekolink WIRELESS Ltd.
16 Bazel St. Qiryat-Arieh Petah-Tikva, Israel, 49510
Tel- 972-3-9180-180 Fax-972-3- 190-9180
e-mail: marketing@dekolink com web www dekolink com
Page 8 of 14 50W rev 3 08/03
BDA INSTALLTION
Install the BDA Repeater in a shielded, ventilated and easy to reach area. Use low loss
cables to connect antennas to the BDA. Install the BDA close to the service area to
improve output power and noise figure.
The BDA Base/Donor connector port is connected to donor antenna, usually a Yagi
antenna, while the BDA Mobile/Remote connector port is connected to a mobile
antenna; outdoor indoor.
BASE / DONOR ANTENNA INSTALLTION
Typically this is a directional antenna such as Yagi or Dish antenna of 10 to 15 dB gain.
This antenna is pointed to the base station to get maximum input power. This antenna
should be in line of sight with the base site. Raise this antenna higher if no line of site is
achieved. The required Base signals should be the dominant signals; at least 6 dB
higher power than other signals.
Choose the antenna site to get the maximum isolation from the remote (mobile serving)
antenna.
REMOTE / SERVICE ANTENNA INSTALLTION
The remote antenna is an Omni antenna or a directional antenna according to the
coverage requirements.
For indoor applications covering a large building, the RF signals are split using power
dividers and distributed to many antennas each covering a floor or a small area.
For safety reasons, a minimum split of 5 antenna is required.
ANTENNA ISOLATION
For proper operation the isolation between these two antennas must be at least 12 dB
higher than the BDA gain. Lower isolation would lead to high in-band ripple. Oscillations
will build up when the isolation is lower than BDA gain.
The isolation between the antennas is critical for high gain outdoor repeaters.
In order to measure the isolation; inject a known signal into one antenna and measure
the power at the other antenna. This should be done across the frequency range of both
uplink and downlink bands.

Dekolink WIRELESS Ltd.
16 Bazel St. Qiryat-Arieh Petah-Tikva, Israel, 49510
Tel- 972-3-9180-180 Fax-972-3- 190-9180
e-mail: marketing@dekolink com web www dekolink com
Page 9 of 14 50W rev 3 08/03
INSTALLATION STEPS
1. Install all antennas and connect them to the BDA inputs.
2. Turn the AGC On. This AGC limits the output power of the BDA. The AGC on the
Downlink path guarantees constant downlink power when and if the Donor power
changes.
3. Set downlink gain to minimum; uplink gain to minimum.
4. Increase the downlink channel gain till the green LED turns from off to on. This is
the best gain setting giving highest usable power.
5. The green LED on the downlink power amplifier will illuminate if adequate donor
power has reached the BDA. If the donor power is low the LED will not lit and the
BDA usable power is not used efficiently. The red LED will illuminate if the donor
power is 10 dB or more below the maximum usable power indicating a fault.
6. Set the uplink gain to the same as the downlink gain.
7. Check that the uplink green LED on the BDA monitor does not lit permanently. This
LED would lit permanently If the isolation between antennas is low (BDA
oscillations) or the BDA is faulty. In such a case:
• Disconnect one of the cables from the BDA connectors and connect a load
at the connectors.
• If the LED on this amplifier illuminates permanently then the BDA is faulty
(oscillating) and needs replacing.
• If the LEDs stops illuminating then the isolation between the donor and
remote antennas is low. Either improve the isolation (e.g. increase
separation) or reduce BDA gain.
• To reduce gain, reconnect the antenna cables. Reduce the gain at both
uplink and downlink path until this LED stops illuminating. Reduce the gain
further by 10 dB. This is the maximum usable gain.

Dekolink WIRELESS Ltd.
16 Bazel St. Qiryat-Arieh Petah-Tikva, Israel, 49510
Tel- 972-3-9180-180 Fax-972-3- 190-9180
e-mail: marketing@dekolink com web www dekolink com
Page 10 of 14 50W rev 3 08/03
RF EXPOSURE WARNING
In order to satisfy the FCC RF exposure requirements, you must ensure that the
installation complies with the following:
One antenna is connected via cable that has typical 1~10 dB attenuation
(depends on the length of the cable) to the BDA base port. This antenna is
installed outdoor and has very sharp beam (Yagi type or similar) pointed to the
donor (BTS). This type of antenna has about 10 dBi gain. Typical specifications:
gain: 8 dBd (=10.1 dBi), VSWR: better than 1.5:1 , Impedance: 50 ohm. The
outdoor antenna must be installed to provide a minimum separation distance of
1 m (100 cm) from persons within the area.
The second antenna is connected to the BDA MOBILE port. There are two
applications: Outdoor and Indoor.
In the case of Outdoor the type of antenna is omnidirectional (isotropic) with 0 to
2 dBi typical gain, or wide beam with up to 8 dBi gain, and is installed on a mast
to cover shadowed, outdoor, area. This antenna must be installed to provide a
minimum separation distance of 2 m (200 cm) from persons within the area
In the case of Indoor coverage the power is split to several, omnidirectional
(isotropic) antenna with 0 to 2 dBi typical gain, and distributes to different indoor
areas (in building floors, tunnels, basements, parking lots, shopping centers
etc.). Typical specifications: gain: 2 dBi, VSWR: better than 2:1 , Impedance: 50
ohm. At least 5 such antenna must be connected to the BDA using cables and
splitters. In this case the max. EIRP from each antenna will not exceed 3W so
that the minimum required separation distance from persons within the area is
20cm.
Less separation is needed if the power is divided into more than 5 antenna
covering many floors or areas.

Dekolink WIRELESS Ltd.
16 Bazel St. Qiryat-Arieh Petah-Tikva, Israel, 49510
Tel- 972-3-9180-180 Fax-972-3- 190-9180
e-mail: marketing@dekolink com web www dekolink com
Page 11 of 14 50W rev 3 08/03
ELECTRICAL SPECIFICATIONS:
SPECIFICATIONS PARAMETER
Down Link Up Link
Frequency Range 880-894 MHz
835-849 MHz
Gain 90±4 dB
Pass Band ripple <3 dB p-p
Manual Attenuation Range 0 to 30dB in 2dB Step
Noise Figure ≤ 5dB
Output Power @ 1 dB compression 50W
12W
3rd order intercept point 62 dBm typ.
50 dBm typ.
Composite Power Output, max +40dBm
+31dBm
Down Link IMD @ two tone 37dBm each 50 dBc --------------------
Up Link IMD @ two tone
27dBm each
------------------- 44 dBc
AGC Factory set level (nom.) 40 dBm
31 dBm
AGC range 15 dB
20 dB
Impedance 50 Ohms
VSWR <1.5:1
Rx/Tx Isolation > 100 dB
Fault Monitoring LED indication for each fault
Remote Alarm Summarized alarm by dry contact
Power Supply AC 110/220V/50Hz Range: 176~264V, 45~65Hz
Option +28 VDC
Mechanical Specifications:
Size 400X400X300 mm approx.
RF Connectors N-type Female
Weight 30 kg. Approx.
Enclosure Type Weatherproof Enclosure for Wall Mounted
Installation
Environmental Conditions:
Operating temperature -30°C to +50°C
Humidity ≤ 95%
Weatherproof conditions Protected to IP65

Dekolink WIRELESS Ltd.
16 Bazel St. Qiryat-Arieh Petah-Tikva, Israel, 49510
Tel- 972-3-9180-180 Fax-972-3- 190-9180
e-mail: marketing@dekolink com web www dekolink com
Page 12 of 14 50W rev 3 08/03
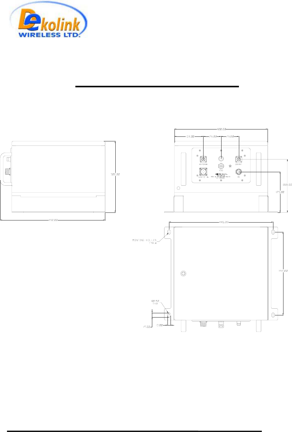
LAYOUT

Dekolink WIRELESS Ltd.
16 Bazel St. Qiryat-Arieh Petah-Tikva, Israel, 49510
Tel- 972-3-9180-180 Fax-972-3- 190-9180
e-mail: marketing@dekolink com web www dekolink com
Page 13 of 14 50W rev 3 08/03
MECHANICAL OUTLINE

Dekolink WIRELESS Ltd.
16 Bazel St. Qiryat-Arieh Petah-Tikva, Israel, 49510
Tel- 972-3-9180-180 Fax-972-3- 190-9180
e-mail: marketing@dekolink com web www dekolink com
DEKOLINK WIRELESS
LIMITED WARRANTY
Dekolink Wireless [Ltd.] (“Dekolink”), manufacturer of this product (the “Product”)
warrants to the original purchaser (“Purchaser”) that the Product is free from defects in
materials and workmanship for a term that ends on the earlier of twelve (12) months from
the date of activation of the Product or fifteen (15) months from the date of shipment of
the Product by Dekolink. The obligations of Dekolink under this warranty shall be limited
solely to the repair or exchange or giving credit for, at the option of Dekolink, any Product
that may prove defective in accordance with evidence satisfactory to Dekolink. Any repair
or replacement of the Product by Dekolink shall not extend the original warranty period.
This warranty is exclusive to the original Purchaser and is not assignable.
This warranty applies only upon the condition that the Product has been installed,
maintained and operated under conditions of normal use. The provisions of this warranty
shall not apply if, in Dekolink’s judgment, the Product has been subject to misuse or
neglect, damaged in an accident or by act of vandalism, or repaired or altered in any way
that adversely affects its performance or reliability.
To obtain warranty service, Purchaser may, upon the prior written authorization of
Dekolink or its authorizerd service representative, return the defective Product to
Dekolink’s authorized service center. All shipping and insurance charges are the sole
responsibility of Purchaser and are not included in this warranty.
Dekolink expressly excludes and disclaims all other warranties, including but not limited to
any warranties of merchantability or fitness for a particular purpose.
Dekolink shall in no event be liable for any special, indirect, incidental, consequential or
punitive damages or for loss, damage, or expense, including loss of use, profits, revenue, or
goodwill, directly or indirectly arising from purchaser’s use or inability to use the
merchandise, or for loss or destruction of other property or from any other cause, even if
Dekolink. has been advised of the possibility of such damage. some states do not allow the
exclusion or limitation of incidental or consequential damages so these limitations may not
apply under certain circumstances.
The liability of Dekolink shall in no event exceed an amount equivalent to the purchase price
paid by the purchaser for the defective product.
This warranty shall not be extended, altered or varied except by a written instrument duly
signed by Dekolink.
Page 14 of 14 50W rev 3 08/03