Dell Poweredge C6220 Hardware Owners Manual Owner’s
poweredge-c6220 Dell PowerEdge C6220 Hardware Owner’s Manual poweredge-c6220_owner%27s%20manual2_en-us
2015-01-05
: Dell Dell-Poweredge-C6220-Hardware-Owners-Manual-137994 dell-poweredge-c6220-hardware-owners-manual-137994 dell pdf
Open the PDF directly: View PDF
.
Page Count: 329 [warning: Documents this large are best viewed by clicking the View PDF Link!]

Regulatory Model B08S
Dell PowerEdge C6220
Systems
Hardware Owner’s
Manual

Notes, Cautions, and Warnings
NOTE: A NOTE indicates important information that helps you make
better user of your computer.
CAUTION: A CAUTION indicates potential damage to hardware or loss
of data if instructions are not followed.
WARNING: A WARNING indicates a potential for property damage,
personal injury, or death.
Information in this publication is subject to change without notice.
© 2013 Dell Inc. All rights reserved.
Reproduction of these materials in any manner whatsoever without the written permission of
Dell Inc. is strictly forbidden.
Trademarks used in this text: Dell™, the DELL logo, and PowerEdge™ are trademarks of Dell
Inc. Intel® and Intel® Xeon® are registered trademarks of Intel Corporation in the U.S. and
other countries.
Other trademarks and trade names may be used in this publication to refer to either the entities
claiming the marks and names or their products. Dell Inc. disclaims any proprietary interest in
trademarks and trade names other than its own.
Regulatory Model B08S
November 2013 Rev. A07
Contents | 3
Contents
1 About Your System ...................................................................... 12
Accessing System Features During Startup ................................................. 12
Front-Panel Features and Indicators .............................................................. 13
Hard-Drive Indicator Patterns ......................................................................... 18
Service Tag ........................................................................................................ 21
Back Panel Features and Indicators .............................................................. 24
System-Board Assembly Configurations ....................................................... 27
LAN Indicator Codes ......................................................................................... 29
Power and System Board Indicator Codes ................................................... 31
Power Supply Indicator Codes ....................................................................... 32
1400W ......................................................................................................... 32
1200W ......................................................................................................... 33
BMC Heart Beat LED ......................................................................................... 34
Post Error Code .................................................................................................. 35
Collecting System Event Log (SEL) for Investigation ........................... 35
System Event Log............................................................................................... 39
Processor Error ......................................................................................... 39
Memory ECC .............................................................................................. 40
PCI-E Error ................................................................................................. 41
IOH Core Error ........................................................................................... 42
SB Error ...................................................................................................... 43
POST Start Event ....................................................................................... 44
4 | Contents
POST End Event ......................................................................................... 44
POST Error Code Event ............................................................................ 45
BIOS Recovery Event ............................................................................... 46
ME Fail Event ............................................................................................. 47
SEL Generator ID ...................................................................................... 47
Sensor Data Record .......................................................................................... 48
Other Information You May Need ................................................................... 53
Fresh Air Support ...................................................................................... 53
Micro SD Card and SD Card Socket Location ...................................... 61
2 Using the System Setup Program ............................................ 62
Start Menu .......................................................................................................... 62
System Setup Options at Boot ......................................................................... 62
Boot Manager .................................................................................................... 63
Console Redirection ......................................................................................... 65
Enabling and Configuring Console Redirection .................................... 66
Main Menu ......................................................................................................... 70
Main Screen .............................................................................................. 70
Advanced Menu ................................................................................................ 72
Power Management ................................................................................. 73
Chassis Power Management .................................................................. 74
CPU Configuration .................................................................................... 82
Prefetch Configuration ............................................................................. 87
Memory Configuration ............................................................................. 88
SATA Configuration .................................................................................. 91
PCI Configuration ...................................................................................... 94
Contents | 5
Embedded Network Devices ................................................................... 96
ISCSI Remote Boot ................................................................................... 98
Active State Power Management Configuration.................................. 99
PCI Slot Configuration ............................................................................ 100
USB Configuration .................................................................................. 101
Security Menu ................................................................................................. 102
Server Menu ..................................................................................................... 105
Set BMC LAN Configuration .................................................................. 108
Remote Access Configuration .............................................................. 109
Boot Menu ........................................................................................................ 111
Exit Menu.......................................................................................................... 112
Command Line Interfaces for Setup options ............................................... 113
3 Installing System Components ............................................... 145
Safety Instructions .......................................................................................... 145
Recommended Tools ...................................................................................... 145
Inside the System ............................................................................................ 146
Hard Drives ....................................................................................................... 148
Removing a 3.5-inch Hard-Drive Blank ................................................ 148
Installing a 3.5-inch Hard-Drive Blank ................................................. 148
Removing a 2.5-inch Hard-Drive Blank ................................................ 149
Installing a 2.5-inch Hard-Drive Blank ................................................. 149
Removing a Hard-Drive Carrier ............................................................. 150
Installing a Hard-Drive Carrier .............................................................. 151
Removing a Hard Drive from a Hard-Drive Carrier............................. 151
Installing a Hard Drive into a Hard-Drive Carrier ............................... 153
6 | Contents
Power Supplies ............................................................................................... 153
Removing a Power Supply ..................................................................... 154
Installing a Power Supply ...................................................................... 155
System-Board Assembly ................................................................................ 156
Removing a System-Board Blank Tray ................................................ 156
Installing a System-Board Blank Tray ................................................. 157
Removing a System-Board Assembly .................................................. 157
Installing a System-Board Assembly ................................................... 158
Air Baffle .......................................................................................................... 159
Removing the Air Baffle ......................................................................... 159
Installing the Air Baffle .......................................................................... 160
Heat Sinks ........................................................................................................ 160
Removing the Heat Sink ......................................................................... 160
Installing the Heat Sink .......................................................................... 161
Processors........................................................................................................ 162
Removing a Processor ........................................................................... 162
Installing a Processor ............................................................................ 164
Interposer Extender for 2U Node .................................................................. 166
Removing the Interposer Extender for 2U Node ................................. 166
Installing the Interposer Extender for 2U Node .................................. 167
Removing the Interposer Extender Tray for 2U Node ........................ 168
Installing the Interposer Extender Tray for 2U Node Tray ................ 169
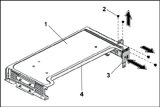
Expansion-Card Assembly and Expansion Card ........................................ 169
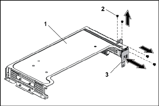
Removing the Expansion Card for 1U Node ........................................ 169
Installing the Expansion Card for 1U Node.......................................... 172
Contents | 7
Removing the Expansion Card for 2U Node ........................................ 173
Installing the Expansion Card for 2U Node.......................................... 177
RAID Card ......................................................................................................... 179
Summary of LSI 9265-8i with RAID Battery, LSI 9210-8i HBA
and LSI 9285-8e with RAID Battery ....................................................... 179
LSI 9265-8i Card ............................................................................................... 180
Removing the LSI 9265-8i Card for 1U Node ........................................ 180
Installing the LSI 9265-8i Card for 1U Node ......................................... 183
Cable Routing for LSI 9265-8i Card (1U Node) ..................................... 184
Removing the LSI 9265-8i Card for 2U Node ........................................ 186
Installing the LSI 9265-8i Card for 2U Node ......................................... 190
Cable Routing for LSI 9265-8i Card (2U Node) ..................................... 191
LSI 9265-8i RAID Battery................................................................................. 195
Removing the LSI 9265-8i raid battery Assembly................................ 195
Installing the LSI 9265-8i raid Battery Assembly ................................ 196
Removing the LSI 9265-8i RAID Battery ............................................... 197
Installing the LSI 9265-8i RAID Battery ................................................ 198
Riser card ......................................................................................................... 199
Optional Riser Cards ............................................................................... 199
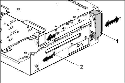
Removing the Riser card for 1U Node .................................................. 201
Installing the Riser card for 1U Node ................................................... 202
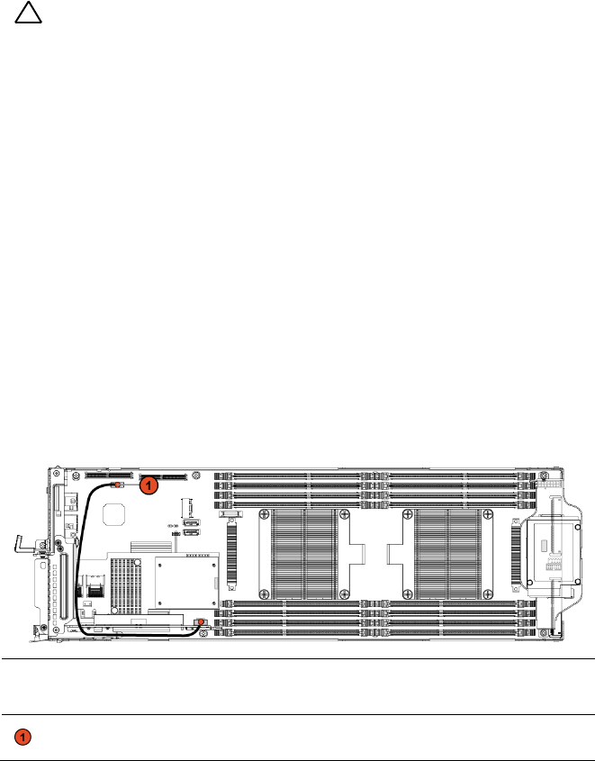
Cable Routing for Riser Card (1U Node) .............................................. 202
Removing the Riser card for 2U Node .................................................. 203
Installing the Riser card for 2U Node ................................................... 206
Cable Routing for Riser Card (2U Node) .............................................. 207
8 | Contents
Optional Mezzanine Cards ............................................................................. 208
Removing the LSI 2008 SAS Mezzanine Card ..................................... 208
Installing the LSI 2008 SAS Mezzanine Card ....................................... 209
Cable Routing for LSI 2008 SAS Mezzanine Card (1U Node) ............ 210
Cable Routing for LSI 2008 SAS Mezzanine Card (2U Node) ............ 211
Removing the 1GbE Mezzanine Card ................................................... 214
Installing the 1GbE Mezzanine Card..................................................... 216
Removing the 10GbE Mezzanine Card ................................................. 217
Installing the 10GbE Mezzanine Card ................................................... 220
Mezzanine-Card Bridge Board ...................................................................... 221
Removing the Mezzanine-Card Bridge Board .................................... 221
Installing the Mezzanine-Card Bridge Board ...................................... 222
System Memory ............................................................................................... 223
Memory Slot Features ............................................................................ 223
Supported Memory Module Configuration.......................................... 223
Removing the Memory Modules ........................................................... 225
Installing the Memory Modules ............................................................ 227
System Battery ................................................................................................. 229
Replacing the System Battery ............................................................... 229
System Board ................................................................................................... 231
Removing a System Board..................................................................... 231
Installing a System Board ...................................................................... 232
Opening and Closing the System .................................................................. 233
Opening the System................................................................................ 233
Closing the System ................................................................................. 234
Contents | 9
Cooling Fans ..................................................................................................... 235
Removing a Cooling Fan ......................................................................... 235
Installing a Cooling Fan .......................................................................... 237
Power Distribution Boards ............................................................................ 238
Removing a Power Distribution Board ................................................. 238
Installing a Power Distribution Board .................................................. 243
Cable Routing for Power Distribution Board ....................................... 245
Middle Planes .................................................................................................. 248
Removing the Middle Planes ................................................................. 248
Installing the Middle Planes .................................................................. 255
Cable Routing for Middle Plane to Direct Hard-Drive Backplane .... 257
Cable Routing for Middle Plane to 2.5” Hard-Drive Backplane
for Expander Configuration.................................................................... 262
Direct Backplanes .......................................................................................... 264
Removing the Direct Backplane ........................................................... 264
Installing the Direct Backplane ............................................................ 269
2.5-inch Hard Drive Expander Configuration .............................................. 271
Removing the 2.5-inch Hard Drive Backplane for Expander
Configuration ........................................................................................... 271
Installing the 2.5-inch Hard Drive Backplane for Expander Configuration
................................................................................................................... 279
Front Panels ..................................................................................................... 280
Removing the Front Panel ...................................................................... 280
Installing the Front Panel ....................................................................... 282
Sensor Boards ................................................................................................. 284
Removing the Sensor Board for 3.5” Hard-Drive System.................. 284
10 | Contents
Installing the Sensor Board for 3.5” Hard-Drive System ................... 285
Cable Routing for Sensor Board and Front Panel
for 3.5” Hard Drive System .................................................................... 286
Removing the Sensor Board for 2.5” Hard-Drive System.................. 288
Installing the Sensor Board for 2.5” Hard-Drive System ................... 290
Cable Routing for Sensor Board and Front Panel
for 2.5” Hard Drive System .................................................................... 291
4 Troubleshooting Your System ................................................. 293
Minimum Configuration to POST .................................................................. 293
Safety First – For You and Your System ....................................................... 293
Installation Problems ..................................................................................... 294
Troubleshooting System Startup Failure ..................................................... 294
Troubleshooting External Connections ....................................................... 294
Troubleshooting the Video Subsystem ........................................................ 295
Troubleshooting a USB Device ..................................................................... 295
Troubleshooting a Serial I/O Device ............................................................ 296
Troubleshooting a NIC .................................................................................... 296
Troubleshooting a Wet System ..................................................................... 297
Troubleshooting a Damaged System ........................................................... 298
Troubleshooting the System Battery ............................................................ 299
Troubleshooting Power Supplies ................................................................. 299
Troubleshooting System Cooling Problems ................................................ 300
Troubleshooting a Fan .................................................................................... 301
Troubleshooting System Memory ................................................................. 302
Troubleshooting a Hard Drive ....................................................................... 304
Contents | 11
Troubleshooting a Storage Controller ......................................................... 305
Troubleshooting Expansion Cards ................................................................ 306
Troubleshooting Processors ......................................................................... 307
IRQ Assignment Conflicts .............................................................................. 308
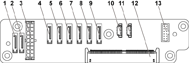
5 Jumpers and Connectors ......................................................... 309
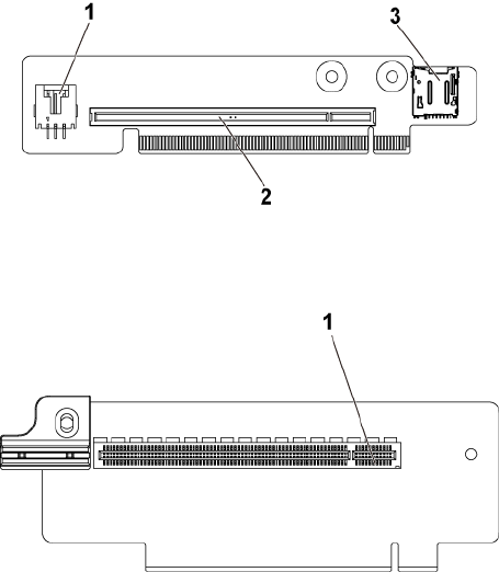
System Board Connectors .............................................................................. 309
Backplane Connectors ................................................................................... 310
3.5" Hard-Drive Direct Backplane ......................................................... 310
2.5" Hard-Drive Direct Backplane ......................................................... 312
2.5" Hard-Drive Expander Backplane .................................................. 314
Middle Plane Connectors .............................................................................. 315
Interposer Extender for 2U Node Connectors ............................................. 316
LSI 2008 SAS Mezzanine Card Connectors .................................................. 317
1GbE Mezzanine Card Connectors ................................................................ 318
10GbE Mezzanine Card Connectors .............................................................. 319
Power Distribution Board 1 Connectors ...................................................... 320
Power Distribution Board 2 Connectors ...................................................... 321
Sensor Board Connectors .............................................................................. 321
Jumper Settings .............................................................................................. 322
System Configuration Jumper Settings ............................................... 322
Direct Backplane Jumper Settings ...................................................... 323
6 Getting Help ................................................................................ 324
Contacting Dell ................................................................................................ 324
7 Index ............................................................................................ 325

1
12 | About Your System
About Your System
Accessing System Features During Startup
The following keystrokes provide access to system features during startup.
Note that the hot-keys of SAS/SATA card or PXE support are available in
BIOS boot mode only. There is no hot-key to boot through the UEFI.
Keystroke
Description
<F2>
Enters the System Setup program. See “Start Menu” on page 62.
<F11>
Enters the BIOS Boot Manager. See “Boot Manager” to select
boot device on page 63.
<F12>
Starts Preboot eXecution Environment (PXE) / iSCSI boot.
<Ctrl><C>
Enters the LSI 2008 SAS Mezzanine Card Configuration Utility.
For more information, see the SAS adapter documentation.
<Ctrl><H>
Enters the LSI 9265-8i Card Configuration Utility. For more
information, see the documentation for your SAS RAID card.
<Ctrl><Y>
Enters the MegaCLI SAS RAID Management Tool.
<Ctrl><S>
Enters the utility to configure onboard LAN settings for PXE
boot. For more information, see the documentation for your
integrated LAN.
<Ctrl><I>
Enters onboard SATA Controller’s Configuration Utility.
<Ctrl><D>
Enter the Intel iSCSI setup menu.

About Your System | 13
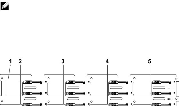
Front-Panel Features and Indicators
Figure 1-1. Front Panel−3.5” x12 Hard Drives With Four System Boards
Figure 1-2. Front Panel−3.5” x12 Hard Drives With Two System Boards
Figure 1-3. Front Panel−3.5” x6 Hard Drives With One System Board
NOTE: Figure 1-3 supports at most 6 hard drives.

14 | About Your System
Figure 1-4. Front Panel−2.5” x24 Hard Drives With Four System Boards
Figure 1-5. Front Panel−2.5” x8 Hard Drives With One System Board
Figure 1-6. Front Panel−2.5” x16 Hard Drives With Two System Boards
NOTE: Figure 1-2, Figure 1-3, Figure 1-5 and Figure 1-6 only support the 2U-node
system with the configurations of interposer extender and LSI9265-8i card (or LSI
2008 SAS mezzanine card).

About Your System | 15
Figure 1-8. Front Panel−2.5” x24 Hard Drives With Two System Boards
Figure 1-9. Front Panel−2.5” x24 Hard Drives With Three System Boards
Figure 1-10. Front Panel−2.5” x24 Hard Drives With Four System Boards
Figure 1-7. Front Panel−2.5” x24 Hard Drives With One System Board

16 | About Your System
Item
Indicator, Button
Or Connector
Icon
Description
1
Power-on indicator/
system state indicator/
power button for system
board 1
The power-on indicator turns to
green when the system power is
on.
The power-on indicator turns to
amber when the system critical
event occurs.
The power button controls the
DC power supply output to the
system.
NOTE: When powering on the
system, the video monitor can take
from several seconds to over 2
minutes to display an image,
depending on the amount of DIMM
installed in the system.
NOTE: On ACPI-compliant
operating systems, turning off the
system using the power button
causes the system to perform a
graceful shutdown before power to
the system is turned off.
NOTE: To force an ungraceful
shutdown, press and hold the
power button for 5 seconds.
3
Power-on indicator/
system state indicator/
power button for system
board 2
7
Power-on indicator/
system state indicator/
power button for system
board 4
9
Power-on indicator/
system state indicator/
power button for system
board 3
NOTE: Figure 1-7, Figure 1-8, Figure 1-9 and Figure 1-10 support the 2.5-inch Hard
Drive Expander Config, For more information on direction details, see the HDD
Zoning configuration tool at dell.com/support.

About Your System | 17
Item
Indicator, Button
Or Connector
Icon
Description
2
System identification
indicator/button for
system board 1
The identification button can be
used to locate a particular system
and system board within a chassis.
When the button is pushed, the
blue system status indicator on
the front and back blink until the
button is pushed again.
4
System identification
indicator/button for
system board 2
6
System identification
indicator/button for
system board 4
8
System identification
indicator/button for
system board 3
5
Hard Drives
Up to twelve hot-swappable 3.5-
inch hard drives.
Up to twenty four hot-swappable
2.5-inch hard drives.
*
Drive Cover
Applicable only for 2.5-inch hard
drive system. This is not a usable
drive slot.

18 | About Your System
Hard-Drive Indicator Patterns
Figure 1-11. 3.5-inch Hard Drive Indicators
1
hard-drive activity indicator
(green)
2
hard-drive status indicator (green
and amber)
Figure 1-12. 2.5-inch Hard Drive Indicators
1
hard-drive status indicator (green
and amber)
2
hard-drive activity indicator
(green)

About Your System | 19
Table 1-1. Hard-Drive Status Indicators−For 3.5"/2.5” Direct Hard-Drive Backplane
Controller
Hard
Drive Type
Function
Activity LED
Status LED
Green
Green
Amber
Onboard
Controller
SATA2
Drive on-line
Off/
Blinking
when active
On
Off
Fail
Off
On
Off
LSI 9265
/LSI 2008
/LSI 9210
SAS
/SATA2
Slot Empty
Off
Off
Off
Drive On-
line/Access
Blinking
when active
On
Off
Drive Fail
Off
Off
On 150 ms
Off 150 ms
Drive Rebuild
Blinking
when active
On 400 ms
Off 100 ms
Off
Drive Identify
Blinking
when active
On 250 ms
Off 250 ms
Off

20 | About Your System
Table 1-2. Hard-Drive Status Indicators−For 2.5” Hard-Drive Backplane for
Expander Configuration
Controller
Hard
Drive
Type
Function
Activity LED
Status LED
Green
Green
Amber
LSI 9265
/LSI 2008
/LSI 9210
SAS
/SATA2
Slot Empty
Off
Off
Off
Drive On-line
Blinking
when active
On
Off
Drive Identify /
Preparing for
Removal
Blinking
when active
On
250 ms
Off
250 ms
Off
Drive Rebuild
Blinking
when active
On
400 ms
Off
100 ms
Off
Drive Failed
Off
Off
On
150 ms
Off
150 ms
Predicted
Failure (SMART)
Blinking
when active
On
500 ms
Off
500 ms
Off
1000 ms
Off
500 ms
On
500 ms
Off
1000 ms
Rebuild Abort
Off
On
3000 ms
Off
9000 ms
Off
6000 ms
On
3000 ms
Off
000 ms

About Your System | 21
Service Tag
The Service Tag locations for 1U node, 2U node and chassis are as follows.
Figure 1-13 Service Tag Location for 1U Node
Figure 1-14 Service Tag Location for 2U Node

22 | About Your System
Figure 1-15 Service Tag Location on the Left Front Panel
Figure 1-16 Service Tag Location on the Chassis

About Your System | 23
The linkage of 12 hard drives for four system boards is presented as below.
Please refer to Front-Panel Features and Indicators on page 13 for other
configurations.
Figure 1-17 Service Tag Linkage
NOTE: HDD’s under warranty would be linked to the appropriate service tag of the
node.

24 | About Your System
Back Panel Features and Indicators
Figure 1-18 Back Panel with Four System Boards
Figure 1-19 Back Panel with Two System Boards
Item
Indicator, Button
Or Connector
Icon
Description
1
Power supply 2
1200 W/1400 W
2
Power supply 1
1200 W/1400 W
3
USB ports (2)
Connect USB devices to the
system. The ports are USB 2.0-
compliant.

About Your System | 25
Item
Indicator, Button
Or Connector
Icon
Description
4
System identification
indicator
Both the systems management
software and the identification
buttons located on the front can
cause the indicator to flash blue
to identify a particular system
and system board. Lights amber
when the system needs attention
due to a problem.
5
LAN connector 1
Embedded 10/100/1000 NIC
connectors.
6
LAN connector 2
Embedded 10/100/1000 NIC
connectors.
7
Management port
Dedicated management port.
8
Serial port
Connects a serial device to the
system.
9
VGA port
Connects a VGA display to the
system.

26 | About Your System
Item
Indicator, Button
Or Connector
Icon
Description
10
Power-on indicator/
system state indicator/
power button
The power-on indicator turns to
green when the system power is
on.
The power-on indicator turns to
amber when the system critical
event occurs.
The power button controls the
DC power supply output to the
system.
NOTE: When powering on the
system, the video monitor can take
from several seconds to over 2
minutes to display an image,
depending on the amount of
memory installed in the system.
NOTE: On ACPI-compliant
operating systems, turning off the
system using the power button
causes the system to perform a
graceful shutdown before power to
the system is turned off.
NOTE: To force an ungraceful
shutdown, press and hold the
power button for five seconds.

About Your System | 27
System-Board Assembly Configurations
Figure 1-20. Enumeration Four System Boards for 1U Node
Figure 1-21. Enumeration Three System Boards for 1U Node
Figure 1-22. Enumeration Two System Boards for 1U Node
Figure 1-23. Enumeration One System Boards for 1U Node

28 | About Your System
Figure 1-24. Enumeration Two System Boards for 2U Node
Figure 1-25. Enumeration One System Boards for 2U Node

About Your System | 29
LAN Indicator Codes
Figure 1-26. LAN Indicators
1
speed indicator
2
link/activity indicator
Component
Indicator
Condition
Speed
indicator
Solid amber
Linking at 100Mbps speed
Solid green
Linking at 1Gbps speed (maximum)
Blinking green
Linking at 1Gbps speed.
Activity is present:
- Pre OS POST
- OS without driver
- OS with driver
Blinking at speed relative to packet
density.
Off
Linking at 10Mbps speed
Link/activity
indicator
Solid green
No access
Blinking green
LAN accessing / Link up
Off
Idle

30 | About Your System
Figure 1-27. LAN Indicators (Management Port)
1
speed indicator
2
link/activity indicator
Component
Indicator
Condition
Speed indicator
Blinking green
Linking at 100Mbps speed (maximum)
Blinking amber
Linking at 10Mbps speed
Link/activity
indicator
Solid green
No access
Blinking green
LAN accessing / Link up
Off
Idle

About Your System | 31
Power and System Board Indicator Codes
The LEDs on the system front panel and back panel display status codes
during system startup. For location of the LEDs on the front panel, see
Figure 1-1 for 3.5” hard drive and Figure 1-4 for 2.5” hard drive systems. For
location of the LEDs on the back panel, see Figure 1-18 and Figure 1-19.
Table 1-3 lists the status associated with the status codes.
Table 1-3. Status Indicator Codes
Component
Indicator
Condition
Power-on
indicator
(A bi-color LED
on power button)
Green
Solid
Power On (S0)
Amber
Off
Green
Off
BMC critical condition event in Power
Off mode (S4/S5)
Amber
Solid
Green
Off
BMC critical condition event in Power
On mode (S0)
Amber
Solid
System
identification
indicator
Steady Blue
IPMI via Chassis Identify Command On
or ID Button Press ID On
Blinking Blue
Only IPMI via Chassis Identify
Command Blink On
Off
IPMI via Chassis Identify Command Off
or ID Button Press ID Off

32 | About Your System
Power Supply Indicator Codes
1400W
Figure 1-28. Power Supply Status Indicator
1
power supply
2
AC power indicator
Component
Indicator
Condition
AC power
indicator
Solid green
System is on.
Blinking green
System is off.
Off
AC off.

About Your System | 33
1200W
Figure 1-29. Power Supply Status Indicator
1
power supply
2
AC power Indicator
Component
Indicator
Condition
AC power
indicator
Solid green
AC on.
Yellow
Fault.
Off
AC off.

34 | About Your System
BMC Heart Beat LED
The system board provides BMC heart beat LED (LED17) for BMC debugs.
The BMC heart beat LED is green. When the system AC power is
connected, this LED lights. When BMC firmware is ready, the BMC heart
beat LED blinks.
Figure 1-30. BMC Heart Beat LED
1
BMC heart beat LED
2
system board

About Your System | 35
Post Error Code
Collecting System Event Log (SEL) for Investigation
Whenever possible, the BIOS will output the current boot progress codes on
the video screen. Progress codes are 32-bit quantities plus optional data. The
32-bit numbers include class, subclass, and operation information. The class
and subclass fields point to the type of hardware that is being initialized.
The operation field represents the specific initialization activity. Based on
the data bit availability to display progress codes, a progress code can be
customized to fit the data width. The higher the data bit, the higher the
granularity of information that can be sent on the progress port. The
progress codes may be reported by the system BIOS or option ROMs.
The Response section in the following table is divided into 3 types:
1 Warning or Not an error – The message is displayed on the screen. An
error record is logged to the SEL. The system will continue booting with
a degraded state. The user may want to replace the erroneous unit.
2 Pause – The message is displayed on the screen, an error is logged to the
SEL, and user input is required to continue or not depending on SETUP
option. The user can take immediate corrective action or choose to
continue booting.
3 Halt – The message is displayed on the screen, an error is logged to the
SEL, and the system cannot boot unless the error is resolved. The user
needs to replace the faulty part and restart the system.
Error Code
Error Message
Error Cause
Recovery Method
0010h
Local Console Resource
Conflict
Video device
initialization failed
Make sure video
device is well
0011h
Local Console Controller
Error
Video device
initialization failed
Make sure video
device is well

36 | About Your System
Error Code
Error Message
Error Cause
Recovery Method
0012h
Local Console Output Error
Video device
initialization failed
Make sure video
device is well
0013h
ISA IO Controller Error
ISA device's IO
initialization failed
Make sure ISA
device is well
0014h
ISA IO Resource Conflict
ISA device's IO
initialization failed
Make sure ISA
device is well
0015h
ISA IO Controller Error
ISA device's IO
initialization failed
Make sure ISA
device is well
0016h
ISA Floppy Controller Error
Floppy
initialization failed
Make sure floppy
device is well
0017h
ISA Floppy Input Error
Floppy
initialization failed
Make sure floppy
device is well
0018h
ISA Floppy Output Error
Floppy
initialization failed
Make sure floppy
device is well
0019h
USB Read Error
USB initialization
failed
Check USB port is
well
001Ah
USB Write Error
USB initialization
failed
Check USB port is
well
001Bh
USB Interface Error
USB port
initialization failed
Check USB port is
well
001Ch
Mouse Interface Error
Mouse device
initialization failed
Make sure mouse
device is well
001Eh
Keyboard not Detected
No keyboard be
detected
Install keyboard
001Fh
Keyboard Controller Error
KBC initialization
failed
Make sure KBC is
well
0020h
Keyboard Stuck Key Error
Keyboard Stuck
Key Error
Make sure PS2 KB
device is well

About Your System | 37
Error Code
Error Message
Error Cause
Recovery Method
0021h
Keyboard Locked Error
Keyboard Locked
Error
Make sure PS2
KB device is well
0023h
Memory Correctable Error
Memory
correctable error be
detected
Reset power or
change new
memory
0024h
Memory Uncorrectable
Error
Memory
uncorrectable error
be detected
Reset power or
change new
memory
0025h
Memory Non-Specific Error
Memory non-
specific error
Change new
memory
0026h
MP Service Self Test Error
MP service self test
error
Change processor
0027h
PCI IO Controller Error
PCI device
initialization failed
Make sure PCI
device is well
0028h
PCI IO Read Error
PCI device
initialization failed
Make sure PCI
device is well
0029h
PCI IO Write Error
PCI device
initialization failed
Make sure PCI
device is well
002Ah
Serial Port not Detected
Serial controller
initialization failed
Make sure serial
controller is well
002Bh
Serial Port Controller Error
Serial controller
initialization failed
Make sure serial
controller is well
002Ch
Serial Port Input Error
Serial controller
initialization failed
Make sure serial
controller is well
002Dh
Serial Port Output Error
Serial controller
initialization failed
Make sure serial
controller is well
002Eh
Microcode Update Error
Processor
microcode load
failed
Check microcode

38 | About Your System
Error Code
Error Message
Error Cause
Recovery Method
002Fh
No Microcode be Updated
Processor
microcode load
failed
Check processor
stepping and
microcode are
match
8018h
Sparing Mode is not be
Configured!!, Please check
Memory Configuration!!
Memory sparing
mode failed
Change memory
configuration for
sparing mode
8019h
Mirror Mode is not be
Configured!! Please check
Memory Configuration!!
Memory mirror
mode failed
Change memory
configuration for
mirror mode
8021h
CMOS Battery Fault!!
No CMOS battery
Install CMOS
battery
8100h
Memory Device disable by
BIOS.
Memory Device
Error.
Change memory
device

About Your System | 39
System Event Log
Processor Error
Message: “Processor Sensor, IERR error, Processor 1”
Byte
Field
Value
Description
1
NetFunLun
10h
2
Platform Event Command
02h
3
Generator ID
01h
Generated by BIOS
4
Event Message Format Version
04h
Event Message Format
Revision. 04h for this
specification
5
Sensor Type
07h
Processor
6
Sensor Number
04h
Processor Sensor Number
(depends on platform)
7
Event Direction Event Type
6Fh
Bit 7: 0 = Assert Event
Bit 6: 0 = Event Type Code
8
Event Data1
AXh
00h: IERR
01h: Thermal Trip
02h: FRB1/BIST Failure
03h: FRB2/Hang in POST
Failure
04h: FBR3/Processer
Startup/Initialization Failure
0Ah: Processor Automatically
Throttled
9
Event Data2
XXh
00h: Processor1
01h: Processor2
02h: Processor3
04h: Processor4
10
Event Data3
FFh
FFh: Not Present

40 | About Your System
Memory ECC
Message: “Memory Sensor, Correctable ECC error, SBE warning threshold,
CPU1 DIMM_A1”
Byte
Field
Value
Description
1
NetFunLun
10h
2
Platform Event Command
02h
3
Generator ID
01h
Generated by BIOS
4
Event Message
Format Version
04h
Event Message Format
Revision. 04h for this
specification (IPMI 2.0)
5
Sensor Type
0Ch
Memory
6
Sensor Number
60h
Memory Sensor Number
(depend on platform)
7
Event Direction
Event Type
6Fh
Bit 7: 0 = Assert Event
Bit 6: 0 = Event Type Code
8
Event Data1
AXh
00h: Correctable ECC Error
01h: Uncorrectable ECC Error
03h: Memory Scrub Failed
04h: Memory Device Disabled
08h: Spare
9
Event Data2
XXh
Bit 7:4
0x00: SBE warning threshold
0x01: SBE critical threshold
0x0F: Unspecified
Bit 3:0
0x00: CPU1 DIMM A1-8
slots (1~8)
0x01: CPU2 DIMM B1-8
slots (9~16)
0x02: CPU3 DIMM C1-8
slots (17~24)
0x03: CPU4 DIMM D1-8
slots (25~32) And so on…

About Your System | 41
10
Event Data3
XXh
DIMM bit-map locatation of
bits
Bit 0=1: DIMM1 error event
Bit 1=1: DIMM2 error event
…
Bit7=1: DIMM8 error event
PCI-E Error
Message: “Critical Interrupt Sensor, PCI PERR, Device#, Function#, Bus#
“
Byte
Field
Value
Description
1
NetFunLun
10h
2
Platform Event Command
02h
3
Generator ID
01h
Generated by BIOS
4
Event Message
Format Version
04h
Event Message Format
Revision. 04h for this
specification.
5
Sensor Type
13h
Critical Interrupt
6
Sensor Number
73h
PCI Sensor ID (depend on
platform)
7
Event Direction
Event Type
6Fh
Bit 7: 0 = Assert Event
Bit 6: 0 = Event Type Code
8
Event Data1
AXh
04h: PCI PERR
05h: PCI SERR
07h: Bus Correctable Error
08h: Bus Uncorrectable Error
0Ah: Bus Fatal Error
9
Event Data2
XXh
Bit 7:3Device Number
Bit 2:0Function Number
10
Event Data3
XXh
Bit 7:0 Bus Number

42 | About Your System
IOH Core Error
Message: “Critical Interrupt Sensor, Fatal Error, xxxx bit, QPI[0] Error”
Byte
Field
Value
Description
1
NetFunLun
10h
2
Platform Event Command
02h
3
Generator ID
01h
Generated by BIOS
4
Event Message
Format Version
04h
Event Message Format
Revision. 04h for this
specification.
5
Sensor Type
C0h
OEM Defined Interrupt
6
Sensor Number
XXh
71h: QPI Sensor ID (depend
on platform)
72h: INT Sensor ID (depend
on platform)
7
Event Direction
Event Type
6Fh
Bit 7: 0 = Assert Event
Bit 6: 0 = Event Type Code
8
Event Data1
AXh
07h: Core
08h: Non-Fatal
0Ah: Fatal
9
Event Data2
XXh
Local Error Bit
10
Event Data3
XXh
00h: QPI[0] Error
01h: QPI[1] Error
02h: QPI[2] Error
03h: QPI[3] Error
04h: QPI[0] Protocol Error
05h: QPI[1] Protocol Error
06h: QPI[2] Protocol Error
07h: QPI[3] Protocol Error
23h: Miscellaneous Error
24h: IOH Core Error

About Your System | 43
SB Error
Message: “Critical Interrupt Sensor, Correctable, MCU Parity Error”
Byte
Field
Value
Description
1
NetFunLun
10h
2
Platform Event Command
02h
3
Generator ID
01h
Generated by BIOS
4
Event Message
Format Version
04h
Event Message Format
Revision. 04h for this
specification.
5
Sensor Type
13h
Critical Interrupt
6
Sensor Number
77h
SB Sensor ID (depend on
platform)
7
Event Direction
Event Type
6Fh
Bit 7: 0 = Assert Event
Bit 6: 0 = Event Type Code
8
Event Data1
AXh
07h: Correctable
08h: Uncorrectable
9
Event Data2
XXh
Bit 7:5Reserved
Local error bit number (4 ~ 0)
00000b: HT Periodic CRC
Error
00001b: HT Protocol Error
00010b: HT Flow-Control
Buffer Overflow
00011b: HT Response Error
00100b: HT Per-Packet CRC
Error
00101b: HT Retry Counter
Error
00111b: MCU Parity Error
10
Event Data3
FFh
FFh: Not Present

44 | About Your System
POST Start Event
Message: “System Event, POST starts with BIOS xx.xx.xx”
Byte
Field
Value
Description
1
NetFunLun
10h
2
Platform Event Command
02h
3
Generator ID
01h
Generated by BIOS
4
Event Message
Format Version
04h
Event Message Format
Revision. 04h for this
specification.
5
Sensor Type
12h
System Event
6
Sensor Number
81h
POST Start (depend on
platform)
7
Event Direction
Event Type
6Fh
Bit 7: 0 = Assert Event
Bit 6: 0 = Event Type Code
8
Event Data1
AXh
01h: OEM System Boot Event
9
Event Data2
XXh
7~4: BIOS 1st Field Version
(0~15)
3~0: BIOS 2nd Field Version
higher 4bits (0~63)
10
Event Data3
XXh
7~6: BIOS 2nd Field Version
lower 2bits (0~63)
5~0: BIOS 3rd Field Version
(0~63)
POST End Event
Byte
Field
Value
Description
1
NetFunLun
10h
2
Platform Event Command
02h
3
Generator ID
01h
Generated by BIOS
4
Event Message
Format Version
04h
Event Message Format
Revision. 04h for this
specification.

About Your System | 45
5
Sensor Type
12h
System Event
6
Sensor Number
85h
POST End (depend on
platform)
7
Event Direction
Event Type
6Fh
Bit 7: 0 = Assert Event
Bit 6: 0 = Event Type Code
8
Event Data1
AXh
01h: OEM System Boot Event
9
Event Data2
XXh
Bit 7 = Boot Type
0b: PC Compatible Boot
(Legacy)
1b: uEFI Boot
Bit 3:0 = Boot Device
0001b: Force PXE Boot
0010b: NIC PXE Boot
0011b: Hard Disk Boot
0100b: RAID HDD Boot
0101b: USB Storage Boot
0111b: CD/DVD ROM Boot
1000b: iSCSI Boot
1001b: uEFI Shell
1010b: ePSA Diagnostic
Boot
10
Event Data3
FFh
FFh: Not Present
POST Error Code Event
Message: “System Firmware Progress, POST error code: UBLBh.”
Byte
Field
Value
Description
1
NetFunLun
10h
2
Platform Event Command
02h
3
Generator ID
01h
Generated by BIOS
4
Event Message
Format Version
04h
Event Message Format
Revision. 04h for this
specification.

46 | About Your System
5
Sensor Type
0Fh
System Firmware Progress
6
Sensor Number
86h
POST Error (depend on
platform)
7
Event Direction
Event Type
6Fh
Bit 7: 0 = Assert Event
Bit 6: 0 = Event Type Code
8
Event Data1
AXh
00: System Firmware Error
(POST Error)
9
Event Data2
XXh
Upper Byte
10
Event Data3
XXh
Lower Byte
BIOS Recovery Event
Byte
Field
Value
Description
1
NetFunLun
10h
2
Platform Event Command
02h
3
Generator ID
01h
Generated by BIOS
4
Event Message
Format Version
04h
Event Message Format
Revision. 04h for this
specification.
5
Sensor Type
12h
System Event
6
Sensor Number
89h
BIOS Recovery fail (depend
on platform)
7
Event Direction
Event Type
6Fh
Bit 7: 0 = Assert Event
Bit 6: 0 = Event Type Code
8
Event Data1
AXh
01h: OEM BIOS recovery
Event
9
Event Data2
XXh
01h:Start Recovery
02h:Recovery Success
03h:Load Image Fail
04h:Signed Fail
10
Event Data3
FFh
FFh: Not Present

About Your System | 47
ME Fail Event
Byte
Field
Value
Description
1
NetFunLun
10h
2
Platform Event Command
02h
3
Generator ID
01h
Generated by BIOS
4
Event Message
Format Version
04h
Event Message Format
Revision. 04h for this
specification.
5
Sensor Type
12h
System Event
6
Sensor Number
8Ah
ME fail (depend on platform)
7
Event Direction
Event Type
6Fh
Bit 7: 0 = Assert Event
Bit 6: 0 = Event Type Code
8
Event Data1
AXh
01h: OEM ME fail Event
9
Event Data2
XXh
01h:ME fail
10
Event Data3
FFh
FFh: Not Present
SEL Generator ID
Generator ID
BIOS
0x0001
BMC
0x0020
ME
0x002C
Windows 2008
0x0137

48 | About Your System
Sensor Data Record
Event Log Only: the sensor will be only used to explain event log, and will
show disable about sensor state.
Record
ID
Sensor
Numbe
r
Sensor
Name
Sensor
Type
Event/Reading
Type
Offset
0004h
0x01
SEL Fullness
Event Logging
Disabled (10h)
Sensor-specific (6Fh)
SI: 67h SC: 40h AM:
0035h DM: 0000h
RM: 0035h
0001h
0x02
P1
ThermalTrip
Processor (07h)
Sensor-specific (6Fh)
SI: 01h SC: 40h AM:
0002h DM: 0000h
RM: 0002h
0002h
0x03
P2
ThermalTrip
Processor (07h)
Sensor-specific (6Fh)
SI: 01h SC: 40h AM:
0002h DM: 0000h
RM: 0002h
0003h
0x04
CPU ERR2
Processor (07h)
Sensor-specific (6Fh)
SI: 01h SC: 40h AM:
0001h DM: 0000h
RM: 0001h
0005h
0x05
12V Standby
Voltage (02h)
Threshold (01h)
SI: 7Fh SC: 59h AM:
7A95h DM: 7A95h
TM: 3F3Fh
NOTE: The abbreviations used in the following table are:
SI: Sensor Initialization DM: Deassertion Mask
SC: Sensor Capabilities RM: Reading Mask
AM: Assertion Mask TM: Settable/Readable Threshold Mask

About Your System | 49
Record
ID
Sensor
Numbe
r
Sensor
Name
Sensor
Type
Event/Reading
Type
Offset
0007h
0x06
5V
Voltage (02h)
Threshold (01h)
SI: 7Fh SC: 59h AM:
7A95h DM: 7A95h
TM: 3F3Fh
0006h
0x07
5V Standby
Voltage (02h)
Threshold (01h)
SI: 7Fh SC: 59h AM:
7A95h DM: 7A95h
TM: 3F3Fh
0009h
0x08
3.3V
Voltage (02h)
Threshold (01h)
SI: 7Fh SC: 59h AM:
7A95h DM: 7A95h
TM: 3F3Fh
0008h
0x09
3.3V
Standby
Voltage (02h)
Threshold (01h)
SI: 7Fh SC: 59h AM:
7A95h DM: 7A95h
TM: 3F3Fh
001Ah
0x0A
Battery low
Battery (29h)
Sensor-specific (6Fh)
SI: 67h SC: 40h AM:
0001h DM: 0000h
TM: 0001h
000Bh
0x40
MEZZ1
TEMP
Temperature
(01h)
Threshold (01h)
SI: 7Fh SC: 68h AM:
0A95h DM: 7A95h
TM: 3838h
000Ch
0x41
CPU1 Temp
Temperature
(01h)
Threshold (01h)
SI: 7Fh SC: 68h AM:
0A95h DM: 7A95h
TM: 3838h

50 | About Your System
Record
ID
Sensor
Numbe
r
Sensor
Name
Sensor
Type
Event/Reading
Type
Offset
000Dh
0x42
CPU2 Temp
Temperature
(01h)
Threshold (01h)
SI: 7Fh SC: 68h AM:
0A95h DM: 7A95h
TM: 3838h
000Eh
0x43
DIMM
ZONE 1
Temp
Temperature
(01h)
Threshold (01h)
SI: 7Fh SC: 68h AM:
0A95h DM: 7A95h
TM: 3838h
000Fh
0x44
DIMM
ZONE 2
Temp
Temperature
(01h)
Threshold (01h)
SI: 7Fh SC: 68h AM:
0A95h DM: 7A95h
TM: 3838h
0012h
0x45
PCH Temp
Temperature
(01h)
Threshold (01h)
SI: 7Fh SC: 68h AM:
0A95h DM: 7A95h
TM: 3838h
0017h
0x60
Memory
Memory (0Ch)
Sensor-specific (6Fh)
SI: 01h SC: 40h AM:
0023h DM: 0000h
RM: 0023h
0013h
0xA0
Watchdog
Watchdog 2
(23h)
Sensor-specific (6Fh)
SI: 67h SC: 40h AM:
000Fh DM: 0000h
RM: 000Fh
0016h
0xA2
AC lost
(Event Log
Only)
Power Unit
(09h)
Sensor-specific (6Fh)
SI: 01h SC: 40h
AM: 0010h DM: 0000h
RM: 0010h

About Your System | 51
Record
ID
Sensor
Numbe
r
Sensor
Name
Sensor
Type
Event/Reading
Type
Offset
N/A
0x2F
Session
Audit
(Event Log
Only)
Session Audit
(2Ah)
N/A
N/A
0019h
0xA3
Sys Pwr
Monitor
System ACPI
Power State
(22h)
Sensor-specific (6Fh)
SI: 01h SC: 40h
AM: 0021h DM: 0000h
RM: 0021h
Dynamic
0xB6
PSU1 Status
Power Supply
(08h)
Sensor-specific (74h)
SI: 67h SC: 40h
AM: 000Bh DM: 000Bh
RM: 000Bh
Dynamic
0xB7
PSU2 Status
Power Supply
(08h)
Sensor-specific (74h)
SI: 67h SC: 40h
AM: 000Bh DM: 000Bh
RM: 000Bh
Dynamic
0xB8
PSU3 Status
Power Supply
(08h)
Sensor-specific (74h)
SI: 67h SC: 40h
AM: 000Bh DM: 000Bh
RM: 000Bh
Dynamic
0xB9
PSU4 Status
Power Supply
(08h)
Sensor-specific (74h)
SI: 67h SC: 40h
AM: 000Bh DM: 000Bh
RM: 000Bh
Dynamic
0xE1
PSU
Mismatch
Power Supply
(08h)
Sensor-specific
(0x6F)
SI: 67h SC: 40h AM:
0040h DM: 0040h
RM: 0040h

52 | About Your System
Record
ID
Sensor
Numbe
r
Sensor
Name
Sensor
Type
Event/Reading
Type
Offset
Dynamic
0xE2
PSU
Redundancy
Power Supply
(08h)
Discrete(0x0Bh)
SI: 67h SC: 00h AM:
002Fh DM: 000Bh
RM: 002Fh
Dynamic
0x64
12V
Voltage(02h)
Threshold(01h)
Variable
Dynamic
0xB1
Inlet Temp
Temperature
(01h)
Threshold(01h)
Variable
Dynamic
0xB3
Input
Voltage
Voltage(02h)
Threshold(01h)
Variable
Dynamic
0xB4
Input
Current
Current(03h)
Threshold(01h)
Variable
Dynamic
0xB5
SC FW
Status
Management
Subsystem
Health(28h)
Sensor-specific
(0x6F)
Variable
Dynamic
0xC7
HDD 1
Status
Drive Slot
(Bay)(0Dh)
Sensor-specific
(0x6F)
Variable
Dynamic
0xC8
HDD 2
Status
Drive Slot
(Bay)(0Dh)
Sensor-specific
(0x6F)
Variable
Dynamic
0xC9
HDD 3
Status
Drive Slot
(Bay)(0Dh)
Sensor-specific
(0x6F)
Variable
Dynamic
0xCA
HDD 4
Status
Drive Slot
(Bay)(0Dh)
Sensor-specific
(0x6F)
Variable
Dynamic
0xCB
HDD 5
Status
Drive Slot
(Bay)(0Dh)
Sensor-specific
(0x6F)
Variable
Dynamic
0xCC
HDD 6
Status
Drive Slot
(Bay)(0Dh)
Sensor-specific
(0x6F)
Variable
Dynamic
0xD3
FAN_1
Fan(04h)
Threshold (01h)
Variable
Dynamic
0xD4
FAN_2
Fan(04h)
Threshold (01h)
Variable
Dynamic
0xD5
FAN_3
Fan(04h)
Threshold (01h)
Variable
Dynamic
0xD6
FAN_4
Fan(04h)
Threshold (01h)
Variable
Dynamic
0xD7
FAN_5
Fan(04h)
Threshold (01h)
Variable
Dynamic
0xD8
FAN_6
Fan(04h)
Threshold (01h)
Variable

About Your System | 53
Other Information You May Need
WARNING: See the safety and regulatory information that shipped with your
system. Warranty information may be included within this document or as a
separate document.
The
Getting Started Guide
provides an overview of rack installation, system
features, setting up your system, and technical specifications.
NOTE: Always check for updates on support.dell.com/manuals and read the
updates first because they often supersede information in other documents.
Fresh Air Support
Expanded Operating Temperature
10% of annual
operating hours
5 °C to 40 °C, 5% to 85% RH with 26 °C max. dew point.
For temperatures between 35 °C and 40 °C, de-rate maximum
allowable dry bulb temperature by 1 °C/175 meters above 950
meters (1 °F per 319 feet).
1% of annual
operating hours
–5 °C to 45 °C, 5% to 90% RH with 26 °C dew point.
For temperatures between 40 °C and 45 °C, de-rate maximum
allowable dry bulb temperature by 1 °C/125 meters above 950
meters (1 °F per 228 feet).
NOTE: When operating in the expanded temperature range,
ambient temperature warnings may be reported in the System
Event Log.
NOTE: No cold start up below 5 °C.
NOTE: The operating temperature specification is for a
maximum altitude of 3050 meters (10,000 feet).
NOTE:
1U and 2U nodes support the 130W (8 core),
130W (4 core) and 135W processors with the specific
configurations of HDD, PCI-E and Mezzanine card.
Please refer to the following statements and matrixes of
Fresh Air Support for details.
The numbers of HDD in the tables below list the total
quantity supported per chassis.
No GPU support.

54 | About Your System
1U node can’t support PCI-E and Mezzanine card at the
same time.
2U node only can be installed one PCI-E and Mezzanine
card by each MB.
Matrix of Fresh Air Support of 1U node with 3.5” HDD configuration
10 ~ 30 °C
35 °C
40 °C
45 °C
60W
12*HDD
Full
configuration
10*HDD
Full
configuration
4*HDD
Full
configuration
4*HDD
16*DIMM, w/o
PCI-E card,
w/o mezzanine
card
70W
12*HDD
Full
configuration
12*HDD
Full
configuration
8*HDD
Full
configuration
4*HDD
16*DIMM, w/o
PCI-E card
w/ mezzanine
card,
80W
12*HDD
Full
configuration
12*HDD
Full
configuration
10*HDD
Full
configuration
4*HDD
16*DIMM, w/o
PCI-E card,
w/o mezzanine
card
95W
12*HDD
Full
configuration
12*HDD
Full
configuration
8*HDD
Full
configuration
4*HDD
16*DIMM, w/o
PCI-E card,
w/o mezzanine
card
NOTE: The full configuration includes two processors, sixteen DIMMs, one PCI-E
card for 1U node/two PCI-E cards for 2U node, and one mezzanine card.

About Your System | 55
115W
12*HDD
Full
configuration
12*HDD
Full
configuration
8*HDD
Full
configuration
4*HDD
16*DIMM,
w/o PCI-E card,
w/o mezzanine
card
130W (8 core)
12*HDD
Full
configuration
10 * HDD
Full
configuration
4*HDD
Full
configuration
4*HDD
16*DIMM,
w/o PCI-E card,
w/o mezzanine
card
130W (4 core)
8*HDD
Full
configuration
4*HDD
16*DIMM,
w/o PCI-E card,
w/o mezzanine
card
not support
not support
135W
4*HDD
Full
configuration
4*HDD,
16*DIMM,
w/o PCI-E card,
w/o mezzanine
card
not support
not support

56 | About Your System
Matrix of Fresh Air Support of 1U node with 2.5” HDD configuration
10 ~ 30 °C
35 °C
40 °C
45 °C
60W
24*HDD
Full
configuration
24*HDD
Full
configuration
8*HDD
Full
configuration
4*HDD
16*DIMM,
w/o PCI-E card,
w/o mezzanine
card
70W
24*HDD
Full
configuration
24*HDD
Full
configuration
16*HDD
Full
configuration
4*HDD
16*DIMM,
w/o PCI-E card,
w/o mezzanine
card
80W
24*HDD
Full
configuration
24*HDD
Full
configuration
24*HDD
Full
configuration
4*HDD
16*DIMM,
w/o PCI-E card,
w/o mezzanine
card
95W
24*HDD
Full
configuration
24*HDD
Full
configuration
16*HDD
Full
configuration
4*HDD
16*DIMM,
w/o PCI-E card,
w/o mezzanine
card
115W
24*HDD
Full
configuration
24*HDD
Full
configuration
16*HDD
Full
configuration
4*HDD
16*DIMM,
w/o PCI-E card,
w/o mezzanine
card
130W
(8 core)
24*HDD
Full
configuration
24*HDD
Full
configuration
8*HDD
Full
configuration
4*HDD
16*DIMM,
w/o PCI-E card,

About Your System | 57
w/o mezzanine
card
130W (4 core)
16*HDD
Full
configuration
4*HDD
16*DIMM,
w/o PCI-E card,
w/ 1* mezzanine
card
not support
not support
135W
8*HDD
Full
configuration
4*HDD
16*DIMM,
w/o PCI-E card,
w/o mezzanine
card
not support
not support

58 | About Your System
Matrix of Fresh Air Support of 2U node with 3.5” HDD configuration
10 ~ 30 °C
35 °C
40 °C
45 °C
60W
12*HDD
Full
configuration
12*HDD
Full
configuration
10*HDD
Full
configuration
4 * HDD
16*DIMM,
w/ 2*PCI-E card,
w/o mezzanine
card
70W
12*HDD
Full
configuration
12*HDD
Full
configuration
12*HDD
Full
configuration
8*HDD
Full
configuration
80W
12*HDD
Full
configuration
12*HDD
Full
configuration
12*HDD
Full
configuration
10*HDD
Full
configuration
95W
12*HDD
Full
configuration
12*HDD
Full
configuration
12*HDD
Full
configuration
8*HDD
Full
configuration
115W
12*HDD
Full
configuration
12*HDD
Full
configuration
10*HDD
Full
configuration
8*HDD
Full
configuration
130W (8 core)
12*HDD
Full
configuration
12*HDD
Full
configuration
8*HDD
Full
configuration
8*HDD
16*DIMM,
w/ 2*PCI-E card,
w/o mezzanine
card
130W (4 core)
12*HDD
Full
configuration
10*HDD
Full
configuration
8*HDD
Full
configuration
8*HDD
16*DIMM,
w/ 1*PCI-E card,
w/o mezzanine
card

About Your System | 59
135W
12*HDD
Full
configuration
8*HDD
Full
configuration
4 * HDD
16*DIMM,
w/ 2*PCI-E card,
w/o mezzanine
card
not support

60 | About Your System
Matrix of Fresh Air Support of 2U node with 2.5” HDD configuration
10 ~ 30 °C
35 °C
40 °C
45 °C
60W
24*HDD
Full
configuration
24*HDD
Full
configuration
24*HDD
Full
configuration
4*HDD
16*DIMM,
w/ 2*PCI-E card,
w/o mezzanine
card
70W
24*HDD
Full
configuration
24*HDD
Full
configuration
24*HDD
Full
configuration
16*HDD
Full
configuration
80W
24*HDD
Full
configuration
24*HDD
Full
configuration
24*HDD
Full
configuration
24*HDD
Full
configuration
95W
24*HDD
Full
configuration
24*HDD
Full
configuration
24*HDD
Full
configuration
16*HDD
Full
configuration
115W
24*HDD
Full
configuration
24*HDD
Full
configuration
24*HDD
Full
configuration
16*HDD
Full
configuration
130W (8 core)
24*HDD
Full
configuration
24*HDD
Full
configuration
16*HDD
Full
configuration
16*HDD
16*DIMM,
w/ 2*PCI-E card,
w/o mezzanine
card
130W (4 core)
24*HDD
Full
configuration
24*HDD
Full
configuration
16*HDD
Full
configuration
8*HDD
16*DIMM,
w/ 1*PCI-E card,
w/o mezzanine

About Your System | 61
135W
8*HDD
Full
configuration
16*HDD
Full
configuration
4*HDD
16*DIMM,
w/ 2*PCI-E card,
w/o mezzanine
card
not support
Micro SD Card and SD Card Socket Location
Micro SD Card Socket Location
Located on the 1U riser card, see Figure 3-33.
.
SD Card Socket Location
Located on the 2U riser card, see Figure 3-35.

2
62 | Using the System Setup Program |
Using the System Setup Program
Start Menu
The system employs the latest Insyde® BIOS, which is stored in Flash
memory. The Flash memory supports the Plug and Play specification, and
contains a System Setup program, the Power On Self Test (POST) routine,
and the PCI auto-configuration utility.
This system board supports system BIOS shadowing, enabling the BIOS to
execute from 64-bit onboard write-protected DRAM.
This Setup utility should be executed under the following conditions:
When changing the system configuration, configure items such as:
– Hard drives, diskette drives, and peripherals
– Password protection from unauthorized use
– Power management features
When a configuration error is detected by the system and you are
prompted to make changes to the Setup utility
When redefining the communication ports to prevent any
conflicts.
When changing the password or making other changes to the
security setup.
System Setup Options at Boot
<F2>
Initiate Setup during POST
<F8>
Load customized defaults
<F9>
Load optimal defaults in Setup menu.
<F10>
Save Settings and exit in BIOS Setup
NOTE: Only items in brackets [ ] can be modified. Items that are not in brackets
are display only.

Using the System Setup Program | 63
Boot Manager
During BIOS POST, press F11 can enter Boot Manager to select boot
device.

64 | Using the System Setup Program
If UEFI OS was installed, the UEFI OS partition will be present on the
boot option.
Boot Manager - UEFI Mode

Using the System Setup Program | 65
Boot Manager – Legacy Mode
Console Redirection
The console redirection allows a remote user to diagnose and fix problems
on a server, which has not successfully booted the OS. The centerpiece of
the console redirection is the BIOS Console. The BIOS Console is a Flash
ROM-resident utility that redirects input and output over a serial or
modem connection.
The BIOS supports console redirection to a serial port. If serial port based
headless server support is provided by the system, the system must provide
support for redirection of all BIOS driven console I/O to the serial port. The
66 | Using the System Setup Program
driver for the serial console must be capable of supporting the functionality
documented in the ANSI Terminal Definition.
After reconnecting the console, if the display is abnormal it is
recommended that you reflash the screen by pressing the <Ctrl><R>.
The following are different modes for Console Redirection:
1 External serial port.
2 Internal serial connector as Serial Over LAN (SOL).
3 BMC SOL.
Enabling and Configuring Console Redirection
External Serial Port
To enable SOL feature in the mode of external serial port, please perform
the following steps:
1 Connect the serial cable to the serial port and host system. For location
of the serial port on the back panel, see Figure 1-18 item 8.
2 Enter the server BIOS setup screen.
3 Enter Set BMC LAN Configuration screen and verify the following
settings:
Remote Access: enabled
Serial port number: COM1
Serial Port Mode: 115200 8,n,1
Flow Control: None
Redirection After BIOS POST: Always
Terminal Type: VT100
To do this, see “Remote Access Configuration” on page 109. Note that the
last four options need to sync with the host and client.
Internal Serial Connector as SOL
1 Connect the serial cable with internal serial connector and host system.
For the location of internal serial connector on the system board,
please see Figure 5-1 item 15.
2 Enter the server BIOS setup screen.
Using the System Setup Program | 67
3 Enter Set BMC LAN Configuration screen and verify the following
settings:
Remote Access: enabled
Serial port number: COM2 as SOL
Serial Port Mode: 115200 8,n,1
Flow Control: None
Redirection After BIOS POST: Always
Terminal Type: VT100
To do this, see “Remote Access Configuration” on page 109. Note that the
host and client need to have the same network section.
BMC Serial Over LAN
There are two modes of BMC LAN port configuration-Dedicated NIC and
Shared NIC to enable Serial Over LAN (SOL) feature. The following steps
show setup process about the LAN connection and BIOS setup settings for
Dedicated-NIC and Shared-NIC.
To enable SOL feature in the mode of Dedicated-NIC, please perform the
following steps:
1 Connect the LAN cable to management port. For location of
management port on the back panel, see Figure 1-18 item 7.
2 Enter the server BIOS setup screen.
3 Enter Set BMC LAN Configuration screen and verify the following
settings:
Remote Access: enabled
Serial port number: COM2 as SOL
Serial Port Mode: 115200 8, n, 1
Flow Control: None
Redirection After BIOS POST: Always
Terminal Type: VT100
To do this, see “Remote Access Configuration” on page 109. Note that the
last four options need to sync with the host and client.
4 Enter LAN Configuration screen and verify the following settings:
68 | Using the System Setup Program
BMC LAN Port Configuration: Dedicated-NIC
DHCP Enabled: Disabled or Enabled (Enabled if DHCP server
support)
IP Address: 192.168.001.003
Subnet Mask: 255.255.255.000
Gateway Address: 000.000.000.000
To do this, see “Set BMC LAN Configuration” on page 108. Note that the
host and client need to have the same network section.
To enable SOL feature in the mode of Shared-NIC, please perform the
following steps:
1 Connect the LAN cable to NIC connector 1. For location of NIC
connector 1 on the back panel, see Figure 1-18 item 5.
2 Enter the server BIOS setup screen.
3 Enter Set BMC LAN Configuration screen and verify the following
settings:
Remote Access: enabled
Serial port number: COM2
Serial Port Mode: 115200 8, n, 1
Flow Control: None
Redirection After BIOS POST: Always
Terminal Type: ANSI
To do this, see “Remote Access Configuration” on page 109. Note that the
last four options need to sync with the host and client.
4 Enter LAN Configuration screen and verify the following settings:
BMC LAN Port Configuration: Shared-NIC
DHCP Enabled: Disabled or Enabled (Enabled if DHCP server
support)
IP Address: 192.168.001.003
Subnet Mask: 255.255.255.000
Gateway Address: 000.000.000.000
To do this, see “Set BMC LAN Configuration” on page 108. Note that the
host and client need to have the same network section.

Using the System Setup Program | 69
Serial Port Connection List
Signal Type
Setup Option
OS
Setting
Output
Remote
Access
Serial
Port
Number
Serial Port
Address
Serial
Console
Redirection
Enabled
COM1
3F8h/2F8h
ttyS0
Serial Port
Enabled
COM1
2F8h/3F8h
ttyS1
BMC Serial
Over LAN
Enabled
COM2 as
SOL
3F8h/2F8h
ttyS1
Management
Port
Enabled
COM2 as
SOL
2F8h/3F8h
ttyS0
Scorpion
Serial Over
LAN
Enabled
COM2 as
SOL
3F8h/2F8h
ttyS1
Internal Serial
Connector
Enabled
COM2 as
SOL
2F8h/3F8h
ttyS0

70 | Using the System Setup Program
Main Menu
The main menu displays information about your system boards and BIOS.
Main Screen
NOTE: The options for the System Setup program change based on the system
configuration.
NOTE: The System Setup program defaults are listed under their respective
options in the following sections, where applicable.
Option
Description
System Date
Displays the current date.
System Time
Displays the current time.
Product Name
Displays the product name.

Using the System Setup Program | 71
BIOS Version
Displays the BIOS version.
BIOS Build Date
Displays the Build date.
Service Tag
Displays the service tag of the product. The service tag field
should match what is physically on the service tag of the node.
Asset Tag
Displays the asset tag of the product.
MRC Version
Displays the version of MRC.
ME Version
Displays the current ME version.
BMC Version
Displays the version of BMC.
Note: BMC version will not present if not detected.
VBIOS Version
Displays the current Video BIOS version.
Fan Control Board
FW
Displays the current fan control board firmware version. Note:
Fan Control Board FW version will not present if not
detected.
ePPID
Displays the eppid of the product.
NIC1 MAC Address
Displays the MAC address of NIC1.
NIC2 MAC Address
Displays the MAC address of NIC2.
BMC NIC MAC
Address
Displays the MAC address of BMC NIC.
Processor Type
Displays the processor type.
Processor Speed
Displays the processor speed.
Processor Core
Displays the processor core.
System Memory Size
Displays total memory size.
System Memory
Speed
Displays the current speed of the memory.
System Memory
Voltage
Displays total memory voltage.

72 | Using the System Setup Program
Advanced Menu
This option displays a table of items that defines advanced information
about your system.
CAUTION: Making incorrect settings to items on these pages may cause the
system to malfunction. Unless you have experience adjusting these items, we
recommend that you leave these settings at the default values. If making settings
to items on these pages causes your system to malfunction or prevents the
system from booting, open BIOS and choose Load Optimal Defaults in the Exit
menu to boot up normally.

Using the System Setup Program | 73
Power Management
Scroll to this item and press Enter to view the following screen:
Option
Description
Power Management
(OS Control default)
This field sets the System Power Management to
Maximum Performance mode, OS Control mode, or
Node Manager mode.
CPU Power Capping
(P-state 0 default)
This option can decide the highest performance P-state
in OS.
This setting only can be seen when “Power
Management” be selected to “OS Control” mode.
Chassis Power Management
This option indicates the different power management
options that control the system power consumption by
processor throttling and power capping.
Energy Efficient Policy
(Balanced default)
This field sets the Energy Efficient Policy to Maximum
Performance mode, Balanced mode, or Low Power
mode.

74 | Using the System Setup Program
Option
Description
This option works while the OS is not supported power
management control of processor only.
Chassis Power Management
Option
Description
Chassis PSU Configuration
The option provides management and monitoring of
PSUs and the minimum set of requirements that this
server must satisfy.
Power Capping
The setting controls PSU power, servers loading limited
in selected watts.
Emergency Throttling
This is the policy to take effect when the server detects
an emergency failure.

Using the System Setup Program | 75
Chassis PSU Configuration
1 Enter the server BIOS setup screen.
2 Enter Advanced/Power Management/Chassis Power Management/
Chassis PSU Configuration, and the following options are for Chassis
PSU Configuration functions:
Required Power Supplies -
Sets the number of power supplies that is required to run the
servers in the chassis.
Redundant Power Supplies -
Sets the number of power supplies that is redundant.
The Boundaries of PSU Configuration:
PSU Number
Required PSU
Redundant PSU
2
2
0
1
1
1
1
0

76 | Using the System Setup Program
Option
Description
Required Power Supplies
This is the number of power supplied that are required
to run the servers in the chassis
(The default is referring from FCB F/W thru BMC by
IPMI command)
Redundant Power Supplies
This is the number of power supplied that is
redundant. (The default is referring from BMC)
Using the System Setup Program | 77
Power Capping
1 Enter the server BIOS setup screen.
2 Enter Advanced/Power Management/Chassis Power Management/
Power Capping, and the following options are for Chassis PSU
Configuration functions:
Power Budget –
This is the power budget available. It is the summary of each
PSU’s capacity. (i.e. based on the number of PSUs and the max
capacity of each PSU) The max capacity of each PSU is 1100
Watt or 1400Watt supportable. Therefore Power Budget will not
exceed 2660 Watt in this system. (1400 * 2(max number of PSUs
in chassis) * 0.95 = 2660 Watt)
Chassis Level Capping -
Sets as chassis level or sled Level power capping. System
determines power consumption of the chassis and power
consumption of the sleds, and constantly attempts to maintain
the chassis’s power consumption below the cap.
Chassis Power Capping -
Determines the power consumption of the chassis. The
maximum value will not be over than the wattage of Power
Budget, and the minimum is 1500.
Sled Power Capping -
Determines the power consumption of the sled. (<0> means to
disable Power Capping Function.) The maximum value is 1000,
and the minimum is 100 if the Power Capping Function is
enabled.

78 | Using the System Setup Program

Using the System Setup Program | 79
Option
Description
Power Budget
Shows this chassis available power wattage
Chassis Level Capping
(Disabled default)
Enable/Disable Chassis Level Capping
(The default is referring from BMC)
Chassis Power Capping
The capping value range limits at power budget of PSU
design.
(These is no default value)
Sled Power Capping
(0 default)
The servers own capping infrastructure is able to
determine power consumption of the sleds.
80 | Using the System Setup Program
Emergency Throttling
When the power emergency process starts, an event will be generated by
FCB. And there is a record on the SELs. FCB monitors the error conditions
such as "PSU lost over than the number of Redundant PSU", "PSU fail
event (OC, UV, OT, …)", "Fan fail", "Ambient temp/Power abnormal",
"MIC card" etc.
1 Enter the server BIOS setup screen.
2 Enter Advanced/Power Management/Chassis Power Management/
Emergency Throttling, and the following options are for Emergency
Throttling functions:
Chassis Level Policy - This is the policy to take effect when the
FCB detects an emergency event. System base on this setting and
have valid actions below:
- Throttling: Power throttles the server until the emergency event
is cleared.
- Power off: Turns the servers off.
Sled Level Policy - System follows <Chassis Level> policy,
<Power Off>, <Throttling> or <Do Nothing> when an
emergency failure occurs. If Sled Level Policy is set with <Chassis
Level>, it will follow the chassis policy.

Using the System Setup Program | 81
Option
Description
Sled Power Policy
(Chassis Level default)
Sets the sled level policy when emergency throttling
event trigger.
Chassis Level: The option allows overriding
the chassis level policy for a specific server.
Throttling: The compute sled throttling
when emergency throttling event trigger.
Power Off: Turn off compute sled power
when emergency throttling event trigger.
Do Nothing: The compute sled do nothing
when emergency throttling event trigger.
Chassis Level Policy
(Throttling default)
Set chassis level policy when emergency throttling
event trigger. The option allows change while sled level
policy set as Chassis Level.
Throttling: The server throttling when
emergency throttling event trigger.

82 | Using the System Setup Program
Option
Description
Power Off: Turn off the server power when
emergency throttling event trigger.
CPU Configuration
Scroll to this item and press Enter to view the following screen:

Using the System Setup Program | 83

84 | Using the System Setup Program
Option
Description
Active Processor Cores
(All Cores default)
This field controls the number of enabled core in each
processor.
Frequency Ratio
(Auto default)
Sets frequency multiplier as maximum level.
Downgrade- set multiplier 1~3 levels.
Max CPUID Value Limit
(Disabled default)
Some OS, which is (NT4), fails if the value returned in
EAX is >3 when CPUID instruction is executed with
EAX=0.
Disabled - this setting disables the 3 or less.
Enabled - this setting limits CPUID function to 3
Virtualization Technology
(Disabled default)
Enabled (applicable processors) / Disabled (unusable
in any OS). This feature allows the users to set the VT
technology in applicable processors.
QPI Frequency
(Auto default)
Selects link speed: 6.4GTs/7.2GTs/8.0GTs
Turbo Mode
Enables processor Turbo Mode (requires EMTTM

Using the System Setup Program | 85
Option
Description
(Enabled default)
enabled too.)
C-States
(Enabled default)
Enabled - The processor can operate in all available
Power C States.
Disabled - There are no C States available for the
processor.
C1E State
(Enabled default)
Enabled - The C1-E is enabled by default.
Disabled - The C1-E is disabled by users in their own
liability.
There are warning messages in both the BIOS Setup
help text and the pop up message when the option is
changing.
C6 State
(Enabled default)
Enabled - The C6 is disabled by default.
Disabled - The C6 is disabled by user in their own
liability.
There will be warning message in both the BIOS Setup
help text and the pop up message when the option is
changing.
C7 State
(Enabled default)
Enabled-The C7 is enabled by default.
Disabled-The C7 is disabled by users in their own
liability.
There will be warning message in both the BIOS Setup
help text and the pop up message when the option is
changing.
XD Bit Capability
(Enabled default)
Intel processors that support the eXecute Disabled
(XD) feature will Enable/ Disable report the support to
the operating system.
If the operating system supports this extended paging
mechanism, it will provide sum.
Direct Cache Access
(Enabled default)
Enables/Disables the Direct Cache Access.
Hyper Threading Technology
(Enabled default)
Enables/Disables Hyper-Threading Technology.

86 | Using the System Setup Program
Option
Description
CPU RAPL Big Dial
(Scorpion, Nemo only)
(Off default)
Sets off to disable CPU RAPL feature. Power Limit
(Watt#)=CPU RAPL Big Dial – CPU RAPL Small
Dial.
CPU RAPL Small Dial
(Scorpion, Nemo only)
(0 default)
Power Limit (Watt#) = CPU RAPL Big Dial – CPU
RAPL Small Dial.
Prefetch Configuration
Configures Prefetch. (Invisible if CPU do not support.)

Using the System Setup Program | 87
Prefetch Configuration
Option
Description
Adjacent Cache Prefetch
(Enabled default)
Includes MLC Spatial Prefetcher.
Disabled - The processor will only fetch the cache line
that contains the data currently required by processor.
Enabled - Enables the processor to fetch the adjacent
cache line in the other half of the sector.
Hardware Prefetcher
(Enabled default)
Includes MLC Stremaer Prefetcher.
Enables/ Disables the Hardware Prefetcher.
DCU Streamer Prefetcher
(Enabled default)
This field enables/ disables the DCU Streamer
Prefetcher. (Invisible if CPU do not support.)
DCU IP Prefetcher
(Enabled default)
This field enables/ disables the DCU IP Prefetcher.
(Invisible if CPU do not support.)

88 | Using the System Setup Program
Memory Configuration
Scroll to this item and press Enter to view the following screen:
Option
Description
Memory Frequency
(Auto default)
Memory frequency selections in MHz.
Memory Throttling Mode
(Enabled default)
Enables or disables the memory to run in closed-loop
thermal throttling mode.
Memory Operating Mode
(Optimizer Mode default)
Selects the type of memory operation if a valid memory
configuration is installed.
Optimizer Mode: The two memory
controllers run in parallel 64-bit mode for
improved memory performance.
Spare Mode: Enables memory sparing. In
this mode, one rank per channel is reserved
as a spare. If persistent correctable errors are
detected on a rank, the data from this rank is
copied to the spare rank and the failed rank

Using the System Setup Program | 89
Option
Description
is disabled. With memory sparing enabled,
the system memory available to the
operating system is reduced by one rank per
channel.
Mirror Mode: Enables memory mirroring.
Advanced ECC Mode: Controllers are joined
in 128-bit mode running multi-bit advanced
ECC.
Demand Scrubbing
(Enabled default)
To disable or enable dram scrubbing is the ability to
write corrected data back to the memory once a
correctable error is detected on read transaction.
Patrol Scrubbing
(Enabled default)
To disable or enable patrol scrubbing proactively
searching the system memory, repairing correctable
error.
Memory Operating Voltage
(Auto default)
Auto – this setting indicates the memory operating
voltage will be set automatically by the memory
initialization code and depends upon the installed
DIMM’s capability and the memory configuration of
the system. This is the default setting and will set the
Memory Operating Voltage to the POR voltage.
1.5 V indicates all DIMMs in the system are operating
at 1.5 volts.
1.35 V indicates all DIMMs in the system are operating
at 1.35 volts.
1.25 V indicates all DIMMs in the system are operating
at 1.25 volts.
NOTE: BIOS will auto restrict selection if DIMM does not
support low voltage.
NUMA Support
(Enabled default)
Disabled – for BIOS setup to allow users enable the
node interleave option. This is for NUMA systems that
allow memory interleaving across all processor nodes.
Enabled – for BIOS setup to allow users disable the
node interleave option. This is for NUMA systems that
allows memory interleaving across all processor nodes.

90 | Using the System Setup Program
Option
Description
Memory-Mapped I/O
(Auto default)
Auto - Supports PCI-E 32-bit BAR (base address
register) in default and sets PCI-E 64-bit BAR
automatically while PowerEdge C410x or Knights
Corner GPU card are installed.
32-bit – Forced to support PCI-E 32-bit BAR.
64-bit – Forced to support PCI-E 64-bit BAR."
Memory Refresh Rate
(X1 default)
To disable or enable 2X refresh.

Using the System Setup Program | 91
SATA Configuration
Scroll to this item and press Enter to view the following screen:

92 | Using the System Setup Program
Option
Description
Embedded SATA Controller
(AHCI default)
Off – Disables the SATA controller. The token applies
to the first on-board SATA controller.
IDE – Enables the SATA controller. Sets the device
class code as IDE and uses PCI IRQ (referred as Native
mode). This token applies to the first on-board SATA
controller.
AHCI – Enables the SATA controller. Sets the device
class code as SATA and sets up the AHCI BARs and
registers. This token applies to the first on-board SATA
controller.
RAID – Enables the SATA controller. Sets the device
class code as RAID and executes the RAID Option
ROM. This token applies to the first on-board SATA
controller.

Using the System Setup Program | 93
Option
Description
Embedded SATA Link Rate
(Auto default)
Auto – Sets the SATA link rate at maximum.
1.5 Gbps – Sets the SATA link rate at minimum as 1.5
Gbps. For power consumption.
3.0 Gpbs – Sets the SATA link rate at minimum as 3.0
Gbps.
SATA Port 0
(Auto default)
Off – Sets the 1st Serial ATA drive controller to Off.
Auto – Sets the 1st Serial ATA drive controller to Auto
(enabled if present, POST error if not present).
SATA Port 1
(Auto default)
Off – Sets the 2nd Serial ATA drive controller to
Off.
Auto – Sets the 2nd Serial ATA drive controller to Auto
(enabled if present, POST error if not present).
SATA Port 2
(Auto default)
Off – Sets the 3rd Serial ATA drive controller to Off.
Auto – Sets the 3rd Serial ATA drive controller to Auto
(enabled if present, POST error if not present).
SATA Port 3
(Auto default)
Off – Sets the 4th Serial ATA drive controller to Off.
Auto – Sets the 4th Serial ATA drive controller to Auto
(enabled if present, POST error if not present).
SATA Port 4
(Auto default)
Off – Sets the 5th Serial ATA drive controller to off.
Auto –Sets the 6th Serial ATA drive controller to Auto
(enabled if present, POST error if not present).
SATA Port 5
(Auto default)
Off – Sets the 6th Serial ATA drive controller to off.
Auto –Sets the 6th Serial ATA drive controller to Auto
(enabled if present, POST error if not present).
Power Saving Features
(Enabled default)
This feature will allow users to disable/enable the
feature that allows SATA HDDs to initiate link power
management transitions.
HDD Security Erase
(Disabled default)
Sets/Unlocks the HDD Security Freeze Lock.

94 | Using the System Setup Program
PCI Configuration
Scroll to this item and press Enter to view the following screen:
NOTE: The PCI-E Gen2 x16 slot 1 and slot 2 are supported up to Gen2 5.0 Gigabits
bandwidth. If user inserts Gen3 .0 devices into the 2 slots that will only train at
Gen 2.0 speed, not Gen 3.0.
Option
Description
Embedded Network Devices
Configure embedded network devices.
NIC Enumeration
(Onboard default)
Onboard – Default. Sets PXE boot from on-board NIC
then Add-on NIC adapter.
Add-in – Sets PXE boot from Add-on NIC adapter
then on-board NIC.
Active State Power
Management Configuration
To control Active State Power Management (ASPM).
PCI Slot Configuration
Configures PCI add-in card.
PCIe Generation
(Gen3 default)
Sets the PCI signaling rate at Gen3 8.0/Gen2 5.0/Gen1
2.5 Gigabits bandwidth.

Using the System Setup Program | 95
VT for Direct I/O
(Disabled default)
Enables/Disables I/O VTd Error.
SR-IOV Global Enable
(Disabled default)
Enables/Disables BIOS support for SRIOV devices.
I/OAT DMA Engine
(Disabled default)
Enables/Disables the I/O Acceleration Technology
(I/OAT) DMA Engine option. This feature should be
enabled only if the hardware and software support
I/OAT.
Maximum Payload Size
(Auto default)
Auto – Auto detects the PCI-E maximum payload size.
128 Bytes – Sets the PCI-E maximum payload size to
128 Bytes.
256 Bytes – Sets the PCI-E maximum payload size to
256 Bytes.
Embedded Video Controller
(Enabled default)
Enabled - The embedded video controller is enabled,
and it is the primary video device.
Disabled - The embedded video controller is disabled.
Video Enumeration
(Onboard default)
Onboard - The onboard video controller is used for
boot-time messages. Add-in - The first add-in video
controller is used for boot-time messages. Depending
on the BIOS search order and system slot layout.
WHEA Support
(Disabled default)
Disables/Enables Windows Hardware Error
Architecture
Perfmon and DFX Devices
(Disabled default)
Selects enabled if devices 8 and 9, function2 and 6 if
CPUBUSN(0) are desired to be visible.
Reboot on WOL (ROW)
(Disabled default)
Reboot On WOL targeted at network controllers when
network controller receives a magic packet.
Note: Reboot on WOL feature is opened by
customized, need EEPORM supported.

96 | Using the System Setup Program
Embedded Network Devices
Option
Description
Embedded NIC1
(Enabled with PXE default)
Disabled – Disables the system’s primary embedded
network interface controller.
Enabled with PXE – Enables the system’s primary
embedded network interface controller (full-function),
including its PXE boot-ROM.
Enabled without PXE – Enables the system’s primary
embedded network interface controller, but don’t
enable the NIC’s associated PXE or RPL boot-ROM.
iSCSI Remote Boot – Enables NIC1 with iSCSI
Remote Boot.

Using the System Setup Program | 97
Option
Description
Embedded NIC2
(Enabled without PXE
default)
Disabled – Disables the system’s secondary embedded
network interface controller.
Enabled with PXE – Enables the system’s secondary
embedded network interface controller (full-function),
including its PXE boot-ROM.
Enabled without PXE – Enables the system’s
secondary embedded network interface controller, but
don’t enable the NIC’s associated PXE or RPL boot-
ROM.
iSCSI Remote Boot – Enables NIC2 with iSCSI
Remote Boot.

98 | Using the System Setup Program
ISCSI Remote Boot
Option
Description
iSCSI Initiator Name
The worldwide unique name if the unitiator. Only iqn
format is accepted.
Enable DHCP
(Disabled default)
Disables/Enables DHCP.
Initiator IP Address
Initiator Subnet Mask
Gateway
Enters IP address in dotted-decimal notation.
Target IP
Target IP Address
Target Port
Boot LUN
Targets Name
Enters IP address in dotted-decimal notation
Targets Port
Hexadecimal representation of LU number
CHAP Type
(None default)
None, one way CHAP or mutual CHAP.

Using the System Setup Program | 99
Active State Power Management Configuration
Option
Description
PCIe Slot ASPM
(Disabled default)
Disabled - Controls the level of ASPM supported on
the PCI-E Link of port 2. All entry is disabled.
L1 - Controls the level of ASPM supported on the
given PCI-E Link of port 2. L1 entry is enabled.
Onboard LAN ASPM
(Disabled default)
Disabled - Controls the level of ASPM supported on
the PCI-E Link of port4. All entry is disabled.
L1 - Controls the level of ASPM supported on the
given PCI-E Link of port4. L1 entry is enabled.
Mezzanine Slot
ASPM
Disabled - Controls the level of ASPM supported on
the PCI-E Link of port11. All entry is disabled.

100 | Using the System Setup Program
Option
Description
(Disabled default)
L1 - Controls the level of ASPM supported on the
given PCI-E Link of port11. L1 entry is enabled.
NB-SB Link ASPM
(L1 default)
Disabled - Controls the level of ASPM supported on
the NB-SB. All entry is disabled.
L1 - Controls the level of ASPM supported on the NB-
SB. L1 entry is enabled.
PCI Slot Configuration
Option
Description
PCIe Slot
(Enabled default)
This feature will allow user to enable/disable PCI-E
Slot and without option ROM initialization.

Using the System Setup Program | 101
USB Configuration
Scroll to this item and press Enter to view the following screen:
Option
Description
Embedded USB Controller
(Enabled default)
Causes the BIOS to enable/disable the built-in USB
controller at system startup.
USB Port with BMC
(Enabled default)
This feature allows the users to electrically disable /
enable the internal USB port which contacts to BMC.
External USB Port1
(Enabled default)
This feature allows the users to electrically disable /
enable the external USB port 1.
External USB Port2
(Enabled default)
This feature allows the users to electrically disable/
enable the external USB port 2.
Internal USB Connector
(Enabled default)
This field disables/enables the internal USB port.

102 | Using the System Setup Program
Security Menu
This page enables you to set the security parameters.
Scroll to this item and press Enter to view the following screen:
NOTE: A warning message popps up, which needs users to confirm the
requirement before enabling “Prevent Back-flash”.

Using the System Setup Program | 103
Option
Description
Supervisor Password
Indicates whether a supervisor password has been set.
If the password has been installed, Installed is
displayed. If not, Not Installed is displayed.
User Password
Indicates whether a supervisor password has been set.
If the password has been installed, Installed displays. If
not, Not Installed displays.
Change Supervisor Password
You can install a Supervisor password, and if you install
a supervisor password, you can then install a user
password. A user password does not provide access to
many of the features in the Setup utility. Note, the
Change User Password option only appears after a
Supervisor password has been set.
Select this option and press Enter to access the sub
menu, a dialog box appears which lets you enter a
password. You can enter no more than six letters or
numbers. Press Enter after you have typed in the
password. A second dialog box asks you to retype the

104 | Using the System Setup Program
Option
Description
password for confirmation. Press Enter after you have
retyped it correctly. If the password confirmation is
incorrect, an error message appears. The password is
stored in NVRAM after ezPORT completes. The
password is required at boot time, or when the user
enters the Setup utility.
Change User Password
Installs or changes the User password.
Prevent Back-flash
(Disabled default)
The field cannot be disabled once the field is enabled.
Enabled- Prohibits flashing BIOS version below ver.
2.1.0.
The warning message popping up when the “Prevent
Back-flash” option is changing from Disabled to
Enabled. It needs the user to confirm the required
before enabling.

Using the System Setup Program | 105
Server Menu
This page enables you to configure Server parameters.
Scroll to this item and press Enter to view the following screen:

106 | Using the System Setup Program
Option
Description
Status of BMC
Displays the BMC status.
IPMI Specification Version
Displays the IPMI specification version.
BMC Firmware Version
Displays the BMC firmware version.
NIC1 MAC Address
Displays the NIC1 MAC address.
NIC2 MAC Address
Displays the NIC2 MAC address.
BMC NIC MAC Address
Displays the MAC address for the BMC NIC
connector.
ACPI SPMI Table
(Enabled default)
Disabled – Disables the ACPI SPMI Table for BMC
ROM update.
Enabled – Enables the ACPI SPMI Table for IPMI
driver installation.

Using the System Setup Program | 107
Option
Description
Set BMC LAN Configuration
Inputs for Set LAN Configuration command. Each
item in this group may take considerable amount of
time.
Remote Access
Configuration
Configures Remote Access.
Restore on AC Power Loss
(Power On default)
Power Off - After an AC power loss, when AC power is
restored, the system will stay off.
Power On - After an AC power loss, when AC power is
restored, the system will power on.
Last State - After an AC power loss, when AC power is
restored, the system will return to the state which is
when power was lost.
Power Staggering AC
Recovery
(Immediate default)
Sets the Power Staggering AC Recovery time to
immediate/Random/User Defined mode.
Power Button
(Enabled default)
Enabled - Default, Enables Power Button to turn off
system.
Disabled - Disables Power Button to turn off system.
View System Event Log
Views all events in the BMC and BIOS event Log.
Event Logging
(Enabled default)
Disables/Enables BIOS to log system events to BMC,
errors include ECC/ PCI/ PCI-E/ HT…etc.
NMI on Error
(Enabled default)
Disables/Enables BIOS to generate NMI when PCI-E
uncorrectable errors occur.

108 | Using the System Setup Program
Set BMC LAN Configuration
Select Set BMC LAN Configuration to view the following submenu:
Option
Description
Channel Number
Displays the channel number.
Channel Number Status
Displays the channel number status.
BMC LAN Port
Configuration
(Shared-NIC default)
Sets BMC LAN Port to dedicated-NIC or shared-NIC.
BMC NIC IP Source
(DHCP default)
Sets BMC LAN to get LAN IP from Static/ DHCP
mode.
IP Address
Sets BMC LAN IP address.
Subnet Mask
Sets BMC LAN subnet mask.
Gateway Address
Sets BMC LAN Gateway address.
IPv6 Mode
(Disabled default)
Enables or disables IPv6 internet protocol support.

Using the System Setup Program | 109
Remote Access Configuration
Select Remote Access Configuration to view the following submenu:

110 | Using the System Setup Program
Option
Description
Remote Access
(Enabled default)
Disabled - Serial Console Redirection Off.
Enabled - Enables Serial Console Redirection.
Serial Port Number
(COM2 as SOL default)
COM1- serial Console Redirection On, output to
COM1. See also token D7h.
COM2 as SOL-serial Console redirection On, output
to COM2.
Serial Port Address
(3F8h/2F8h default)
3F8h/2F8h - By default, set rear serial port address as
0x3F8 and internal serial port address as 0x2F8.
2F8h/3F8h - Set rear serial port address as 0x2F8 and
internal serial port address as 0x3F8.
Serial Port Mode
(115200 8, n, 1 default)
Console Redirection baud rate will be set to 115,200/
57,600/ 38,400/ 19,200/ 9,600 bits per second.
Flow Control
(None default)
Remote access flowcontrols by none/ hardware/
software.
Redirection After BIOS
POST
(Always default)
Always - The BIOS console redirection, if enabled,
continues to operate after the OS boot hand-off.
Disabled - The BIOS console redirection, if enabled,
operates during the BIOS boot only and is disabled
prior to OS boot hand-off. See also tokens BFh, C0h,
D7h, 401Ah and 401Bh.
Terminal Type
(ANSI default)
The BIOS console redirection, if enabled, operates in
VT100/VT-UTF8/ANSI emulation model. See also
tokens BFh, C0h, and D7h.
VT-UTF8 Combo Key
Support
(Enabled default)
Enables or disables VT-UTF8 combination key support
for ANSI/VT100 terminals.

Using the System Setup Program | 111
Boot Menu
This page enables you to set POST boot parameters.
Scroll to this item and press Enter to view the following screen:
Option
Description
Quiet Boot
(Enabled default)
Enabled – Enables the display of the splash or
summary screen, rather than the detail of the POST
flow.
Disabled- Disables the display of the splash or
summary screen. The user is able to see the detail of
the POST messages.
Pause on Errors
(Disabled default)
Enables/Disables the BIOS from prompting for F1/F2
on error. BIOS pauses at F1/F2 prompt.
Force PXE Boot Only
(Disabled default)
Enables/Disables PXE to be the boot device only. The
system retrying to boot from PXE device.
Boot Mode
UEFI –Enables booting to Unified Extensible

112 | Using the System Setup Program
Option
Description
(BIOS default)
Firmware Interface (UEFI).
BIOS – Enables booting to Legacy mode, ensures
compatibility with operating systems that do not
support UEFI.
Boot Type Order
Configures Boot Type Order, Network/ Hard Disk/
RAID/ USB Storage/ CD/ DVD ROM.
Exit Menu
Scroll to this item and press Enter to view the following screen:

Using the System Setup Program | 113
Option
Description
Save Changes and Exit
Exits system setup after saving the changes. F10 key
can be used for this operation.
Discard Changes and Exit
Exist system setup without saving any changes. ESC
key can be used for this operation.
Save Changes
Saves changes done so far to any of the setup
questions.
Discard Changes
Saves Discards changes.
Load Optimal Defaults
Loads optimal default values for all the setup
questions.
Load Customized Defaults
Loads Customized default values for all the setup
questions.
Save Customized Defaults
Saves all setup questions’ current values as
Customized default.
Command Line Interfaces for Setup options
The options of SETUP menu allow the user to control by system
configuration utility (syscfg), the utility includes in Dell OpenManage
Deployment Toolkit (DTK).
Users can use the utility as following:
To change the SETUP option by D4 token:
./syscfg –t=D4_token_id
(Example: ./syscfg -t=0x002D to enable NIC1)
To check token active status:
./syscfg --istokenactive=D4_token_id
(Example: ./syscfg --istokenactive=0x002D to check the token
active status of NIC1)
To change the SETUP option thru BMC memory directly:
./ipmitool raw <command> <data>

114 | Using the System Setup Program
(Example: ./ipmitool raw 0xc 1 1 3 10 106 42 120 to set IP address
of BMC LAN port as 10.106.42.120)
Table 2-1. The D4 Token Table
Token
Setup option
Description
002D
Embedded
NIC1
Enables the system’s primary embedded network
interface controller (full-function), including its
PXE boot-ROM.
002E
Embedded
NIC1
Disables the system’s primary embedded network
interface controller.
0051
N/A
For the next system boot, set the IPL priority to: USB
storage, hard disk, CD/DVD-ROM, RAID, Network (if
the devices are available)
0052
N/A
For the next system boot, set the IPL priority to: hard
disk then option ROMs (if the devices are available)
0053
N/A
For the next system boot, set the IPL priority to:
Network, hard disk, RAID,USB storage, CD/DVD-
ROM (if the devices are available)
0054
N/A
For the next system boot, set the IPL priority to:
CD/DVD-ROM, USB Storage, hard disk, RAID,
Network (if the devices are available)
005C
N/A
Enables the BIOS remote update on the next reboot,
to search for an operating-system initiated
BIOS update image.
005D
N/A
Disables the BIOS remote update on the next reboot,
to search for an operating-system initiated
BIOS update image.
006E
Embedded
NIC1
Enable the system’s primary embedded network
interface controller, but don’t enable the NIC’s
associated PXE or RPL boot-ROM.
0087
Video
Enumeration
The onboard video controller is used for boot-time
messages.

Using the System Setup Program | 115
Token
Setup option
Description
0088
Video
Enumeration
The first add-in video controller is used for boot-time
messages. Depending on the BIOS search order and
system slot layout.
008C
Embedded USB
Controller
Causes the BIOS to enable the built-in USB controller at
system startup.
008D
Embedded USB
Controller
Causes the BIOS to disable the built-in USB controller at
system startup.
00A1
Restore on AC
Power Loss
After an AC power loss, when AC power is restored, the
system will stay off.
00A2
Restore on AC
Power Loss
After an AC power loss, when AC power is restored, the
system will return to the state was in when power was lost.
00A3
Restore on AC
Power Loss
After an AC power loss, when AC power is restored, the
system will power on.
00BA
Embedded NIC2
Disable the
system’s
secondary embedded network
interface controller.
00BB
Embedded NIC2
Enable the
system’s
secondary embedded network
interface controller, but
don’t
enable the NIC’s associated
PXE or RPL boot-ROM.
00BC
Embedded NIC2
Enable the
system’s
secondary embedded network
interface controller (full-function), including its PXE
boot-ROM.
00BF
Remote Access
Serial Console Redirection Off.
00C0
Serial port
number
Serial Console Redirection On, output to COM1. See also
token D7h.
00C1
Power Button
Default, Enables Power Button to turn off system.
00C2
Power Button
Disables Power Button to turn off system.
00D1
Hyper-Threadin
g Technology
Enables Hyper-Threading Technology.
00D2
Hyper-Threadin
g Technology
Disables Hyper-Threading Technology.

116 | Using the System Setup Program
Token
Setup option
Description
00D7
Serial port
Number
Serial Console redirection ON - output to COM2.
00D8
Load Optimal
Defaults
Requests a optimal default of SETUP values on the next
boot.
00FE
Legacy USB
Support
System does not provide legacy USB support for operating
system.
00FF
Legacy USB
Support
System provides legacy USB support for operating system.
0117
SATA Port0
Sets the 1st Serial ATA drive controller to OFF.
0118
SATA Port0
Sets the 1st Serial ATA drive controller to Auto (enabled if
present, POST error if not present).
0119
SATA Port1
Sets the 2nd Serial ATA drive controller to OFF.
011A
SATA Port1
Sets the 2nd Serial ATA drive controller to Auto (enabled
if present, POST error if not present).
011B
SATA Port2
Sets the 3rd Serial ATA drive controller to OFF.
011C
SATA Port2
Sets the 3rd Serial ATA drive controller to Auto (enabled if
present, POST error if not present).
011D
SATA Port3
Sets the 4th Serial ATA drive controller to OFF.
011E
SATA Port3
Sets the 4th Serial ATA drive controller to Auto (enabled if
present, POST error if not present).
011F
SATA Port4
Sets the 5th Serial ATA drive controller to OFF.
0120
SATA Port4
Sets the 5th Serial ATA drive controller to Auto (enabled if
present, POST error if not present).
0121
SATA Port5
Sets the 6th Serial ATA drive controller to OFF.
0122
SATA Port5
Sets the 6th Serial ATA drive controller to Auto (enabled if
present, POST error if not present).
0135
Embedded
SATA Controller
Disables the SATA controller. The token applies to the first
on-board SATA controller.

Using the System Setup Program | 117
Token
Setup option
Description
0137
Embedded
SATA Controller
Enables the SATA controller. Sets the device class code as
IDE and uses PCI IRQ (referred as Native mode). This
token applies to the first on-board SATA controller.
0138
Embedded
SATA Controller
Enables the SATA controller. Sets the device class code as
SATA and sets up the AHCI BARs and registers. This
token applies to the first on-board SATA controller.
0139
Embedded
SATA Controller
Enables the SATA controller. Sets the device class code as
RAID and executes the RAID Option ROM. This token
applies to the first on-board SATA controller.
013E
Memory
Remapping
(3GB~4GB)
Memory remapping relocates memory space behind PCI
hole to the space above 4G with this feature disabled.
013F
Memory
Remapping
(3GB~4GB)
Memory remapping relocates memory space 3G~4G to
the space above 4G with this feature enabled.
0140
Execute-Disable
(XD) Bit
Capability
When disabled, Intel processors that support the
eXecute Disable (XD) feature will not report the
support to the operating system.
0141
Execute-Disable
(XD) Bit
Capability
When enabled, Intel processors that support the eXecute
Disable (XD) feature will report the support to the
operating system. If the operating system supports this
extended paging mechanism, it will provide some
protection against software viruses that exploit buffer
overflows.
014A
Virtualization
Technology
This feature will allow the users to disable the VT
technology in applicable processors. If disabled, the VT
feature is unusable in any OS.
014B
Virtualization
Technology
This feature will allow the users to enable the VT
technology in applicable processors.
014E
External USB
PORT1
This feature will allow the users to electrically disable the
external USB port1.
014F
External USB
PORT1
This feature will allow the users to electrically enable the
external USB port1.
0168
Max CPUID
Value Limit
Some OS's (NT4) will fail if the value returned in EAX
is > 3 when CPUID instruction is executed with EAX=0.
This setting disables the 3 or less.

118 | Using the System Setup Program
Token
Setup option
Description
0169
Max CPUID
Value Limit
Some OS's (NT4) will fail if the value returned in EAX
is > 3 when CPUID instruction is executed with EAX=0.
This setting will limit CPUID function to 3.
016F
Embedded SAS
Controller
Disables the SAS controller. The token applies to on-board
SAS controller
0170
Embedded SAS
Controller
Enables the SAS controller. Sets the device class code as
AHCI/RAID and executes the RAID Option ROM. This
token applies to on-board SAS controller.
0171
Adjacent Cache
Line Prefetch
The processor will only fetch the cache line that contains
the data currently required by the processor.
0172
Adjacent Cache
Line Prefetch
Enables the processor to fetch the adjacent cache line in
the other half of the sector.
0173
Hardware
Prefetcher
Disables the processor's HW prefetcher.
0174
Hardware
Prefetcher
Enables the processor' HW prefetcher.
0178
Remote Access
Enables Serial Console Redirection.
0189
External USB
PORT2
This feature will allow the users to electrically disable the
external USB port2.
018A
External USB
PORT2
This feature will allow the users to electrically enable the
external USB port2.
0199
Power Saving
Features
This feature will allow users to disable the feature that
allows SATA HDDs to initiate link power management
transitions.
019A
Power Saving
Features
This feature will allow users to enable the feature that
allows SATA HDDs to initiate link power management
transitions.
01C4
NUMA Support
For BIOS Setup to allow user enable the node interleave
option. This is for NUMA systems that allow memory
interleaving across all processor nodes.
01C5
NUMA Support
For BIOS Setup to allow user disable the node interleave
option. This is for NUMA systems that allow memory
interleaving across all processor nodes.

Using the System Setup Program | 119
Token
Setup option
Description
01CF
I/OAT DMA
Engine
Enables the I/O Acceleration Te chnology (I/OAT) DMA
Engine option. This feature should be enabled only if the
hardware and software support I/OAT.
01D0
I/OAT DMA
Engine
Disables the I/O Acceleration Technology (I/OAT) DMA
Engine option. This feature should be disabled only if the
hardware and software support I/OAT.
01DA
Embedded NIC1
Enables NIC1 with iSCSI Remote Boot.
01DB
Embedded NIC2
Enables NIC2 with iSCSI Remote Boot.
01EA
Tu rbo Mode
Disables Intel's processor allows the processor core to
increase its frequency.
01EB
Tu rbo Mode
Enables Intel's processor allows the processor core to
increase its frequency.
01F0
Embedded NIC3
Disables the
system’s
third embedded network interface
controller.
01F1
Embedded NIC3
Enables the system
’
s third embedded network interface
controller, but
don’t
enable the NIC
’
s associated PXE or
RPL boot-ROM.
01F2
Embedded NIC3
Enables the system
’
s third embedded network interface
controller (full-function), including its PXE boot-ROM.
01F3
Embedded NIC3
Enables NIC3 with iSCSI Remote Boot.
0204
VT for Direct I/O
Disables Intel Virtualization Technology for Direct I/O
(VT-d) that enhances I/O support (DMA) when running a
Virtual Machine Monitor.
0205
VT for Direct I/O
Enables Intel Virtualization Technology for Direct I/O
(VT-d) that enhances I/O support (DMA) when running
a Virtual Machine Monitor.
0211
Internal USB
PORT
This field disables the internal USB port.
0212
Internal USB
PORT
This field enables the internal USB port.
021F
Maximum
Performance
This will set the Maximum Performance mode in the
system.
0221
OS Control
Allows OS to change the P-state.

120 | Using the System Setup Program
Token
Setup option
Description
0224
Embedded
Video Controller
The embedded video controller is enabled, and it is the
primary video device.
0225
Embedded
Video Controller
The embedded video controller is disabled.
022D
Boot Mode
Enables booting to Unified Extensible Firmware Interface
(UEFI) capable operating systems.
022E
Boot Mode
Enables booting to legacy mode, ensures compatibility
with operating systems that do not support UEFI.
0231
Active
Processor Cores
All four cores of the processor are enabled. This is
applicable for Quad-core processor only.
0232
Active
Processor Cores
Two cores of the processor are enabled. This is applicable
for Quad-core and Dual-core processors.
0233
Active
Processor Cores
Single core of the processor is enabled. This is applicable
for Quad-core and Dual-Core processors.
024B
C States
Sets to enable (default), the processor can operate in all
available Power C States.
024C
C States
Sets to disable, there are no C states available for the
processor.
024D
Pause on Errors
Enables the BIOS from prompting for F1/F2 on error.
BIOS pauses at F1/F2 prompt.
024E
Pause on Errors
Disables the BIOS from prompting for F1/F2 on error.
BIOS pauses at F1/F2 prompt
024F
Quiet Boot
Enables the display of the splash or summary screen,
rather than the detail of the POST flow.
0250
Quiet Boot
Disables the display of the splash or summary screen. The
user is able to see the detail of the POST messages.
0251
N/A
The first NIC is used for PXE boot, followed by NIC2.
0252
N/A
The second NIC is used for PXE boot, followed by NIC1.
0254
3F8h/2F8h
By default, set rear serial port address as 0x3F8 and
internal serial port address as 0x2F8.

Using the System Setup Program | 121
Token
Setup option
Description
0257
2F8h/3F8h
Set rear serial port address as 0x2F8 and internal serial port
address as 0x3F8.
025D
Optimizer Mode
Memory Operating Mode set to support Optimizer.
025E
Spare Mode
Memory Operating Mode set to support Sparing.
025F
Mirror Mode
Memory Operating Mode set to support Memory
mirroring.
0260
Advanced ECC
Mode
Memory Operating Mode set to support Advanced ECC,
i.e. Lockstep, Chipkill.
026A
Coherent HT
Link Speed
Sets to support HyperTransport 1 specification.
026B
Coherent HT
Link Speed
Sets to support HyperTransport 3 specification.
026E
Active
Processor Cores
This field controls the number of enabled all of cores in
each processor. By default, the maximum number of cores
per processor will be enabled.
026F
Active
Processor Cores
This field controls the number of enabled 6 cores in each
processor. By default, the maximum number of cores per
processor will be enabled.
0270
Active
Processor Cores
This field controls the number of enabled 8 cores in each
processor. By default, the maximum number of cores per
processor will be enabled.
0271
Active
Processor Cores
This field controls the number of enabled 10 cores in each
processor. By default, the maximum number of cores per
processor will be enabled.
0272
Active
Processor Cores
This field controls the number of enabled 12 cores in each
processor. By default, the maximum number of cores per
processor will be enabled.
027B
HT Assist
Allows user the ability to disable the Probe Filter
chipset option from BIOS setup. There are some
applications that may have lower performance with
the chipset feature enabled.
027C
HT Assist
Allows user the ability to enable the Probe Filter chipset
option from BIOS setup. There are some applications that
may have lower performance with the chipset feature
disabled.

122 | Using the System Setup Program
Token
Setup option
Description
02A1
C1E State
The C1-E is enabled by default.
02A2
C1E State
The C1-E is disabled by user in their own liability. There
will be warning message in both the BIOS Setup help text
and the pop up message when the option is changing.
02A9
DRAM
Prefetcher
Disables DRAM references from triggering DRAM
prefetch requests.
02AA
DRAM
Prefetcher
Tu rns on the DRAM prefetch unit in the Northbridge.
02AB
HW Prefetch
Training on SW
Disables hardware prefetcher from considering software
prefetches when detecting strides for prefetch requests.
02AC
HW Prefetch
Training on SW
Enables Hardware prefetcher considers software prefetches
when detecting strides for prefetch requests. (default)
02AD
SR-IOV Global
Enable
Enables BIOS support for SRIOV devices.
02AE
SR-IOV Global
Enable
Disables BIOS support for SRIOV devices.
02B6
Memory
Operating
Voltage
Indicates all DIMMs in the system are operating at 1.5
volts.
02B7
Memory
Operating
Voltage
Indicates all DIMMs in the system are operating at 1.35
volts.
02B8
Memory
Operating
Voltage
This setting indicates the memory operating voltage will
be set automatically by the Memory initialization code
and depends upon the installed DIMM's capability and
the memory configuration of the system. This is the
default setting and will set the Memory Operating voltage
to the POR voltage.
02C5
DCU Streamer
Prefetcher
This field enables (Default) the DCU Streamer Prefetcher.
02C6
DCU Streamer
Prefetcher
This field disables the DCU Streamer Prefetcher.

Using the System Setup Program | 123
Token
Setup option
Description
02C7
Data Reuse
Optimization
Sets to enable (Default) for HPC applications.
02C8
Data Reuse
Optimization
Sets to disable for energy efficiency.
02C9
QPI Bandwidth
Priority
Sets to Compute (Default) for computation-intensive
applications.
02CA
QPI Bandwidth
Priority
Sets to I/O for I/O-intensive applications.
02CE
DCU IP
Prefetcher
This field enables (Default) the DCU IP Prefetcher.
02CF
DCU IP
Prefetcher
This field disables the DCU IP Prefetcher.
401A
Terminal Type
The BIOS console redirection, if enabled, operates in
VT100 emulation model. See also tokens BFh, C0h, and
D7h.
401B
Terminal Type
The BIOS console redirection, if enabled, operates in
ANSI emulation model. See also tokens BFh, C0h, and
D7h.
401C
Redirection After
BIOS POST
The BIOS console redirection, if enabled, continues to
operate after the OS boot hand-off.
401D
Redirection After
BIOS POST
The BIOS console redirection, if enabled, operates
during the BIOS boot only and is disabled prior to OS
boot hand-off. See also tokens BFh, C0h, D7h, 401Ah
and 401Bh.
4022
1st Boot Device
Whenever the BIOS boots the system, the first PXE-
capable device is inserted as the first device in the boot
sequence. Enabling this feature causes the BIOS operation
to occur on the next and all subsequent boots and causes a
change in the system's defined boot sequence. The BIOS
chooses the first PXE-capable device as the system's
onboard network controller, if present and enabled, or the
first bootable network device found in the system's
standard PCI search order.
whichever comes first.

124 | Using the System Setup Program
Token
Setup option
Description
4026
Manufacturing
Mode
Enable the manufacturing mode to bypass POST
tasks/memory tests and F1/F2 prompts on specific
error messages. Used by Manufacturing; not for general
customer use.
4027
Manufacturing
Mode
Disable the manufacturing mode to bypass POST
tasks/memory tests and F1/F2 prompts on specific error
messages. Used by Manufacturing; not for general
customer use.
4033
Serial Port Mode
Console Redirection baud rate will be set to 115,200 bits
per second.
4034
Serial Port Mode
Console Redirection baud rate will be set to 57,600 bits
per second.
4035
Serial Port Mode
Console Redirection baud rate will be set to 19,200 bits
per second.
4036
Serial Port Mode
Console Redirection baud rate will be set to 9,600 bits per
second.
403F
Clear SMBIOS
System Event
Log
The system event log to be cleared on the next boot.
4800
Node Manager
Allows user to enable the Node Manager mode for Intel
CPUs.
4801
APML
Allows user to enable the Advanced Platform Management
Link mode for AMD CPUs.
4802
Processor Power
Capping
To decide the highest performance P-state in OS. (P0-
state)
4803
Processor Power
Capping
To decide the highest performance P-state in OS. (P1-
state)
4804
Processor Power
Capping
To decide the highest performance P-state in OS. (P2-
state)
4805
Processor Power
Capping
To decide the highest performance P-state in OS. (P3-
state)
4806
Processor Power
Capping
To decide the highest performance P-state in OS. (P4-
state)

Using the System Setup Program | 125
Token
Setup option
Description
480A
Cr6 State
The C6 is disabled by user in their own liability. There will
be warning message in both the BIOS Setup help text and
the pop up message when the option is changing.
480B
C6 State
The C6 is enabled by default.
480C
L3 Cache Power
Control
The clock to idle subcaches in the L3 is not stopped.
480D
L3 Cache Power
Control
The clock to idle subcaches in the L3 is stopped.
480E
C7 State
The C7 is disabled by user in their own liability. There will
be warning message in both the BIOS Setup help text and
the pop up message when the option is changing.
480F
C7 State
The C7 is enabled by default.
4810
Non Coherent
HT Link Width
Set HT Link to 8 bit width.
4811
Non Coherent
HT Link Width
Set HT Link 16 to bit width.
4812
Non Coherent
HT Link Speed
Set HT Link speed as 800MHz.
4813
Non Coherent
HT Link Speed
Set HT Link speed as 1000MHz.
4814
Non Coherent
HT Link Speed
Set HT Link speed as 1200MHz.
4815
Non Coherent
HT Link Speed
Set HT Link speed as 1600MHz.
4816
Non Coherent
HT Link Speed
Set HT Link speed as 2000MHz.
4817
Non Coherent
HT Link Speed
Set HT Link speed as 2600MHz.
4820
Memory Turbo
Mode
Disables memory turbo mode.
4821
Memory Turbo
Mode
Enables memory turbo mode.

126 | Using the System Setup Program
Token
Setup option
Description
4823
Memory
Frequency
Detects the memory running speed from H/W designed
(SPD, memory population).
4824
Memory
Frequency
Sets memory running speed ups to 800MHz.
4825
Memory
Frequency
Sets memory running speed ups to 1066MHz.
4826
Memory
Frequency
Sets memory running speed ups to 1333MHz.
4827
Memory
Frequency
Sets memory running speed ups to 1600MHz.
4828
Memory
Throttling Mode
Sets memory running as Open Loop Throughput
Throttling (OLTT)(Default).
4829
Memory
Throttling Mode
Sets memory running as Closed Loop Thermal Throttling
(CLTT).
482A
DRAM
Scrubbing
Disables Dram scrubbing is the ability to write corrected
data back to the memory once a correctable error is
detected on a read transaction.
482B
DRAM
Scrubbing
Enables Dram scrubbing is the ability to write corrected
data back to the memory once a correctable error is
detected on a read transaction.
482C
Demand
Scrubbing
Disables Demand scrubbing is the ability to write
corrected data back to the memory once a correctable error
is detected on a read transaction.
482D
Demand
Scrubbing
Enables Demand scrubbing is the ability to write corrected
data back to the memory once a correctable error is
detected on a read transaction.
482E
Patrol Scrubbing
Disables Patrol scrubbing proactively searches the system
memory, repairing correctable errors.
482F
Patrol Scrubbing
Enables Patrol scrubbing proactively searches the system
memory, repairing correctable errors.
4830
HDD Security
Erase
Sets the HDD Security Freeze Lock to all of HDDs.

Using the System Setup Program | 127
Token
Setup option
Description
4831
HDD Security
Erase
Unlocks the HDD Security Freeze Lock to all of HDDs.
4832
AHCI-AMD
Supports AMD inbox AHCI driver.
4833
AHCI-MS
Supports Microsoft inbox AHCI driver.
4834
Embedded
SATA Link Rate
Sets the SATA link rate at maximum.
4835
Embedded
SATA Link Rate
Sets the SATA link rate at minimum as 1.5 Gbps. For
power consumption.
4836
Embedded
SATA Link Rate
Sets the SATA link rate at minimum as 3.0 Gbps.
4840
PCI-E Slot
ASPM
Controls the level of ASPM supported on the PCI-E Link
of port. All entry disabled.
4841
PCI-E Slot
ASPM
Controls the level of ASPM supported on the given PCI-E
Link of port. L0s entry enabled.
4842
PCI-E Slot
ASPM
Controls the level of ASPM supported on the given PCI-E
Link of port. L1 entry enabled.
4843
PCI-E Slot
ASPM
Controls the level of ASPM supported on the given PCI-E
Link of port. L0s and L1 entry enabled.
4844
PCI-E Slot
ASPM
Controls the level of ASPM supported on the given PCI-E
Link of port. L0s entry downstream enabled.
4845
PCI-E Slot
ASPM
Controls the level of ASPM supported on the given PCI-E
Link of port. L0s entry downstream and L1 enabled.
4846
Onboard LAN
ASPM
Controls the level of ASPM supported to on-board LAN.
All entry disabled.
4847
Onboard LAN
ASPM
Controls the level of ASPM supported to on-board LAN.
L0s entry enabled.
4848
Onboard LAN
ASPM
Controls the level of ASPM supported to on-board LAN.
L1 entry enabled.

128 | Using the System Setup Program
Token
Setup option
Description
4849
Onboard LAN
ASPM
Controls the level of ASPM supported to on-board LAN.
L0s and L1 entry enabled.
484A
Onboard LAN
ASPM
Controls the level of ASPM supportedto on-board LAN.
L0s entry downstream enabled.
484B
Onboard LAN
ASPM
Controls the level of ASPM supported to on-board LAN.
L0s entry downstream and L1 enabled.
484C
Mezzanine Slot
ASPM
Controls the level of ASPM supported on Mezzanine Slot.
All entry disabled.
484D
Mezzanine Slot
ASPM
Controls the level of ASPM supported on Mezzanine Slot.
L0s entry enabled.
484E
Mezzanine Slot
ASPM
Controls the level of ASPM supported on Mezzanine Slot.
L1 entry enabled.
484F
Mezzanine Slot
ASPM
Controls the level of ASPM supported on Mezzanine Slot.
L0s and L1 entry enabled.
4850
Mezzanine Slot
ASPM
Controls the level of ASPM supported on Mezzanine Slot.
L0s entry downstream enabled.
4851
Mezzanine Slot
ASPM
Controls the level of ASPM supported on Mezzanine Slot.
L0s entry downstream and L1 enabled.
4852
NB-SB Link
ASPM
Controls the level of ASPM supported on the NB-SB. All
entry disabled.
4853
NB-SB Link
ASPM
Controls the level of ASPM supported on the NB-SB. L1
entry enabled.
4854
Maximum
Payload Size
Auto detects the PCI-E maximum payload size.
4855
Maximum
Payload Size
Sets the PCI-E maximum payload size to 128 Bytes.
4856
Maximum
Payload Size
Sets the PCI-E maximum payload size to 256 Bytes
4857
WHEA Support
Disables Windows Hardware Error Architecture.

Using the System Setup Program | 129
Token
Setup option
Description
4858
WHEA Support
Enables Windows Hardware Error Architecture.
4859
NIC
Enumeration
Default, Set PXE boot from on-board NIC then Add-on
NIC adapter.
485A
NIC
Enumeration
Set PXE boot from Add-on NIC adapter then on-board
NIC.
485B
PCI-E Generation
Set the PCI signaling rate at Gen3 8.0 Gigabits
bandwidth.
485C
PCI-E Generation
Set the PCI signaling rate at Gen2 5.0 Gigabits
bandwidth.
485D
PCI-E Generation
Set the PCI signaling rate at Gen1 2.5 Gigabits
bandwidth.
NOTE: The PCI-E Gen2 x16 slot 1 and slot 2 are supported up to Gen2 5.0 Gigabits
bandwidth. If user inserts Gen3 .0 devices into the 2 slots that will only train at Gen 2.0
speed, not Gen 3.0.
485E
Reboot on WOL
(ROW)
Disables the ROW in default, Reboot on WOL(ROW) is
a feature which repurposes the traditional Wake on LAN
(WOL) signal to reboot the motherboard. During system
is in S0/S3
state, when a WOL packet is received by the NIC, the
wake
‐
up signal generated by the NIC
shall cause a hardware reboot of the motherboard.
485F
Reboot on WOL
(ROW)
Enables the ROW, Reboot on WOL(ROW) is a feature
which repurposes the traditional Wake on LAN (WOL)
signal to reboot the motherboard. During system is in
S0/S3 state, when a WOL packet is received by the NIC,
the wake
‐
up signal generated by the NIC shall cause a
hardware reboot of the motherboard.
4860
USB PORT with
BMC
This feature will allow the users to electrically disable the
internal USB port which contacts to BMC.
4861
USB PORT with
BMC
This feature will allow the users to electrically enable the
internal USB port which contacts to BMC.
4870
Force PXE Boot
only
Disables PXE to be the boot device only.
4871
Force PXE Boot
only
Enables PXE to be the boot device only. The system
retrying to boot from PXE device.

130 | Using the System Setup Program
Token
Setup option
Description
4873
Active
Processor Cores
This field controls the number of enabled 16 cores in
each processor. By default, the maximum number of cores
per processor will be enabled.
4877
PCI-E Slot1
This feature will allow the users to electrically disable PCI-
E Slot1.
4878
PCI-E Slot1
This feature will allow the users to electrically enable PCI-
E Slot1.
4879
PCI-E Slot2
This feature will allow the users to electrically disable PCI-
E PCI-E Slot2.
487A
PCI-E Slot2
This feature will allow the users to electrically enable PCI-
E Slot2.
487B
PCI-E Slot3
This feature will allow the users to electrically disable PCI-
E Slot3.
487C
PCI-E Slot3
This feature will allow the users to electrically enable PCI-
E Slot3.
487F
Mezzanine Slot
This feature will allow the users to electrically disable
Mezzanine Slot.
4880
Mezzanine Slot
This feature will allow the users to electrically enable
Mezzanine Slot.
4881
1st Boot Device
Sets Hard Disk as first boot device.
4882
1st Boot Device
Sets RAID as first boot device.
4883
1st Boot Device
Sets USB Storage as first boot device.
4884
1st Boot Device
Sets CD/DVD ROM as first boot device.
4885
2nd Boot Device
Sets Network as 2nd boot device.
4886
2nd Boot Device
Sets Hard Disk as 2nd boot device.
4887
2nd Boot Device
Sets RAID as 2nd boot device.
4888
2nd Boot Device
Sets USB Storage as 2nd boot device.
4889
2nd Boot Device
Sets CD/DVD ROM as 2nd boot device.
488A
3rd Boot Device
Sets Network as 3rd boot device.
488B
3rd Boot Device
Sets Hard Disk as 3rd boot device.
488C
3rd Boot Device
Sets RAID as 3rd boot device.
488D
3rd Boot Device
Sets USB Storage as 3rd boot device.
488E
3rd Boot Device
Sets CD/DVD ROM as 3rd boot device.

Using the System Setup Program | 131
Token
Setup option
Description
488F
4th Boot Device
Sets Network as 4th boot device.
4890
4th Boot Device
Sets Hard Disk as 4th boot device.
4891
4th Boot Device
Sets RAID as 4th boot device.
4892
4th Boot Device
Sets USB Storage as 4th boot device.
4893
4th Boot Device
Sets CD/DVD ROM as 4th boot device.
4894
5th Boot Device
Sets Network as 5th boot device.
4895
5th Boot Device
Sets Hard Disk as 5th boot device.
4896
5th Boot Device
Sets RAID as 5th boot device.
4897
5th Boot Device
Sets USB Storage as 5th boot device.
4898
5th Boot Device
Sets CD/DVD ROM as 5th boot device.
48A0
ACPI SPMI
Table
Disables the ACPI SPMI Ta ble for BMC ROM update.
48A1
ACPI SPMI
Table
Enables the ACPI SPMI Table for IPMI driver installation.
48A2
BMC LAN Port
Configuration
Sets BMC LAN Port to Dedicated-NIC.
48A3
BMC LAN Port
Configuration
Sets BMC LAN Port to Shared-NIC.
48A4
BMC NIC IP
Source
Sets BMC LAN to get LAN IP from Static mode.
48A5
BMC NIC IP
Source
Sets BMC LAN to get LAN IP from DHCP mode.
48A6
IPv6 Mode
Disables IPv6 internet protocol support.
48A7
IPv6 Mode
Enables IPv6 internet protocol support.
48A8
IPv6 AutoConfig
Disables IPv6 auto configuration.
48A9
IPv6 AutoConfig
Enables IPv6 auto configuration.
48AA
Serial Port Mode
Console Redirection baud rate will be set to 3,8400 bits
per second.
48AB
Flow Control
Remote access flow controls by none.
48AC
Flow Control
Remote access flow controls by hardware.

132 | Using the System Setup Program
Token
Setup option
Description
48AD
Flow Control
Remote access flow controls by software.
48AE
Terminal Type
The BIOS console redirection, if enabled, operates in
VTUTF8 emulation model. See also tokens BFh, C0h,
and D7h.
48AF
VT-UTF8
Combo Key
Support
Disables VT-UTF8 Combination Key Support for
ANSI/VT100 terminals.
48B0
VT-UTF8
Combo Key
Support
Enables VT-UTF8 Combination Key Support for
ANSI/VT100 terminals.
48B1
Event logging
Disables BIOS to log system events to BMC, errors include
ECC/PCI/PCI-E/HT…etc.
48B2
Event logging
Enables BIOS to log system events to BMC, errors include
ECC/PCI/PCI-E/HT…etc.
48B3
NMI on Error
Disables BIOS to generate NMI when PCI-E
uncorrectable errors occur.
48B4
NMI on Error
Enables BIOS to generate NMI when PCI-E uncorrectable
errors occur.
48B5
Memory
Operating
Voltage
Indicates all DIMMs in the system are operating at 1.25
volts.
48C0
Frequency Ratio
Sets frequency multiplier as maximum level.
48C1
Frequency Ratio
Downgrades frequency multiplier one level.
48C2
Frequency Ratio
Downgrades frequency multiplier two levels.
48C3
Frequency Ratio
Downgrades frequency multiplier three levels.
48C8
QPI Frequency
Sets the QPI frequency runs at maximum speed.
48C9
QPI Frequency
Sets the QPI frequency runs at 4.800GT.
48CA
QPI Frequency
Sets the QPI frequency runs at 5.866GT.
48CB
QPI Frequency
Sets the QPI frequency runs at 6.400GT.
48CC
QPI Frequency
Sets the QPI frequency runs at 7.200GT.

Using the System Setup Program | 133
Token
Setup option
Description
48CD
QPI Frequency
Sets the QPI frequency runs at 8.000GT.
48D0
Energy Efficient
Policy
Controls the energy efficient policy as performance profile
to configure all necessary settings.
48D1
Energy Efficient
Policy
Default, controls the energy efficient policy as balance
profile to configure all necessary settings.
48D2
Energy Efficient
Policy
Controls the energy efficient policy as low power profile to
configure all necessary settings.
48D3
Direct Cache
Access
Disables the Direct Cache Access.
48D4
Direct Cache
Access
Enables the Direct Cache Access.
48D8
Load
Customized
Defaults
Requests a customized default of SETUP values on the
next boot.
48DA
Save
Customized
Defaults
Saves current settings to customized defaults of SETUP
on next boot.
48DB
N/A
Requests maximum performance settings of SETUP
values on the next boot.
48DC
N/A
Requests a energy efficiency settings of SETUP values on
the next boot.
48DD
N/A
Requests HPCC efficiency settings of SETUP values
on the next boot. Dell will provide the settings before
A-can BIOS.
48DE
EFI Shell
Requests the EFI Shell as first boot device on the next
boot.
48DF
Dell ePSA
Diagnostic Tool
Requests auto launchs ePSA diagnostic tool on the next
boot.
48E0
N/A
The NIC3 is used for 1st device of PXE boot on the next
boot, followed by NIC1.
48E1
N/A
The NIC4 is used for 1st device of PXE boot on the next
boot, followed by NIC1.

134 | Using the System Setup Program
Token
Setup option
Description
48E2
N/A
The NIC5 is used for 1st device of PXE boot on the next
boot, followed by NIC1.
48E3
N/A
The NIC6 is used for 1st device of PXE boot on the next
boot, followed by NIC1.
48E4
N/A
The NIC7 is used for 1st device of PXE boot on the next
boot, followed by NIC1.
48E5
N/A
The NIC8 is used for 1st device of PXE boot on the next
boot, followed by NIC1.
48E6
N/A
The HDD1 is used for 1st device of PXE boot on the next
boot.
48E7
N/A
The HDD2 is used for 1st device of PXE boot on the next
boot.
48E8
N/A
The HDD3 is used for 1st device of PXE boot on the next
boot.
48E9
N/A
The HDD4 is used for 1st device of PXE boot on the next
boot.
48EA
N/A
The HDD5 is used for 1st device of PXE boot on the next
boot.
48EB
N/A
The HDD6 is used for 1st device of PXE boot on the next
boot.
48EC
N/A
The RAID HDD1 is used for 1st device of PXE boot on
the next boot.
48ED
N/A
The RAID HDD2 is used for 1st device of PXE boot on
the next boot.
48EE
N/A
The RAID HDD3 is used for 1st device of PXE boot on
the next boot.
48EF
N/A
The RAID HDD4 is used for 1st device of PXE boot on
the next boot.
48F0
N/A
The RAID HDD5 is used for 1st device of PXE boot on
the next boot.
48F1
N/A
The RAID HDD6 is used for 1st device of PXE boot on
the next boot.

Using the System Setup Program | 135
Token
Setup option
Description
48F2
N/A
The RAID HDD7 is used for 1st device of PXE boot on
the next boot.
48F3
N/A
The RAID HDD8 is used for 1st device of PXE boot on
the next boot.
48F4
N/A
The RAID HDD9 is used for 1st device of PXE boot on
the next boot.
48F5
N/A
The RAID HDD10 is used for 1st device of PXE boot on
the next boot.
48F6
N/A
The RAID HDD11 is used for 1st device of PXE boot on
the next boot.
48F7
N/A
The RAID HDD12 is used for 1st device of PXE boot on
the next boot.
48F8
N/A
The RAID HDD13 is used for 1st device of PXE boot on
the next boot.
48F9
N/A
The RAID HDD14 is used for 1st device of PXE boot on
the next boot.
48FA
N/A
The RAID HDD15 is used for 1st device of PXE boot on
the next boot.
48FB
N/A
The RAID HDD16 is used for 1st device of PXE boot on
the next boot.
48FC
N/A
The HDD7 is used for 1st device of HDD boot on the
next boot.
48FD
N/A
The HDD8 is used for 1st device of HDD boot on the
next boot.
4900
PCI-E Slot1
This feature allows user to enable PCI-E Slot1 without
option ROM initialization.
4901
PCI-E Slot2
This feature allows user to enable PCI-E Slot2 without
option ROM initialization
4902
PCI-E Slot3
This feature allows user to enable PCI-E Slot3 without
option ROM initialization

136 | Using the System Setup Program
Token
Setup option
Description
4903
PCI-E Slot4
This feature allows user to enable PCI-E Slot4 without
option ROM initialization
4904
Mezzanine Slot
This feature allows user to enable Mezzanine Slot without
option ROM initialization.
4910
Chassis Level
Capping
This option allow user to disable chassis level capping
function.
4911
Chassis Level
Capping
Default, this option allow user to enable chassis level
capping function.
4912
Sled Level Policy
Default, set sled level policy to refer chassis level policy
when Emergency Throttling event trigger.
4913
Sled Level Policy
Set sled level policy as throttling when Emergency
Throttling event trigger.
4914
Sled Level Policy
Set sled level policy as throttling when Emergency
Throttling event trigger.
4915
Sled Level Policy
Set sled level policy as throttling when Emergency
Throttling event trigger.
4916
Chassis Level
Policy
Default, set chassis level policy as throttling when
Emergency Throttling event trigger.
4917
Chassis Level
Policy
Set chassis level policy as power off when Emergency
Throttling event trigger.
4918
N/A
Default, disables clock spread spectrum.
4919
N/A
Enables clock spread spectrum.
491A
PCI 64 BIT
DECODE
Disable pci 64 bit decode
491B
PCI 64 BIT
DECODE
Enable pci 64 bit decode
491C
PCI 64 BIT
DECODE
Auto config pci 64 bit decode

Using the System Setup Program | 137
Token
Setup option
Description
4875
Perfmon and DFX
Devices
Disable Perfmon and DFX Devices
4876
Perfmon and DFX
Devices
Enable Perfmon and DFX Devices
4B00h
Prevent Back-flash
This feature prohibits the system downgrading below BIOS
2.1.0, the field cannot be disabled once the field is
enabled.
4B01h
Prevent Back-flash
This field is default disabled for the compliance of BIOS
updating. The token working with Password Jumper is
enabled only, Once disabled, the system BIOS could be
changed to any revision that contains a valid digital
signature.

138 | Using the System Setup Program
Table 2-2. The IPMI Command Table
Name
NetFn
Code
IPMI2.0
BMC
IPMI Device Global Commands
Get Device ID
App (0x06)
0x01
M
Y
Broadcast Get Device ID
App (0x06)
0x02
M
Y
Cold Reset
App (0x06)
0x03
O
Y
Warm Reset
App (0x06)
0x04
O
Get Self Test Results
App (0x06)
0x05
M
Y
Manufacturing Test On
App (0x06)
0x06
O
Y
Get ACPI Power State
App (0x06)
0x07
O
Y
Get Device GUID
App (0x06)
0x08
O
Y
Get NetFn Support
App (0x06)
0x09
O
Y
Get Command Support
App (0x06)
0x0A
O
Y
Get Command Sub-function Support
App (0x06)
0x0B
O
Y
Get Configurable Commands
App (0x06)
0x0C
O
Y
Get Configurable Command
Sub-functions
App (0x06)
0x0D
O
Y
Set Command Enables
App (0x06)
0x60
O
Y
Get Command Enables
App (0x06)
0x61
O
Y
Set Command Sub-function Enables
App (0x06)
0x62
O
Y
Get Command Sub-function Enables
App (0x06)
0x63
O
Y
Get OEM NetFn IANA Support
App (0x06)
0x64
O
Y
BMC Watchdog Timer Commands
Reset Watchdog Timer
App (0x06)
0x22
M
Y
Set Watchdog Timer
App (0x06)
0x24
M
Y
Get Watchdog Timer
App (0x06)
0x25
M
Y
BMC Device and Messaging Commands
Set BMC Global Enables
App (0x06)
0x2E
M
Y
Get BMC Global Enables
App (0x06)
0x2F
M
Y
Clear Message Flags
App (0x06)
0x30
M
Y
Get Message Flags
App (0x06)
0x31
M
Y
Enable Message Channel Receive
App (0x06)
0x32
O
Y
Get Message
App (0x06)
0x33
M
Y

Using the System Setup Program | 139
Send Message
App (0x06)
0x34
M
Y
Read Event Message Buffer
App (0x06)
0x35
O
Y
Get BT Interface Capabilities
App (0x06)
0x36
M
Get System GUID
App (0x06)
0x37
O
Y
Set System Info Parameters
App (0x06)
0x58
O
Y
Get System Info Parameters
App (0x06)
0x59
O
Y
Get Channel Authentication
Capabilities
App (0x06)
0x38
O
Y
Get Session Challenge
App (0x06)
0x39
O
Y
Active Session
App (0x06)
0x3A
O
Y
Set Session Privilege Level
App (0x06)
0x3B
O
Y
Close Session
App (0x06)
0x3C
O
Y
Get Session Info
App (0x06)
0x3D
O
Y
Get AuthCode
App (0x06)
0x3F
O
Y
Set Channel Access
App (0x06)
0x40
O
Y
Get Channel Access
App (0x06)
0x41
O
Y
Get Channel Info
App (0x06)
0x42
O
Y
Set User Access
App (0x06)
0x43
O
Y
Get User Access
App (0x06)
0x44
O
Y
Set User Name
App (0x06)
0x45
O
Y
Get User Name
App (0x06)
0x46
O
Y
Set User Password
App (0x06)
0x47
O
Y
Activate Payload
App (0x06)
0x48
O
Y
Deactivate Payload
App (0x06)
0x49
O
Y
Get Payload Activation Status
App (0x06)
0x4A
O
Y
Get Payload Instance Info
App (0x06)
0x4B
O
Y
Set User Payload Access
App (0x06)
0x4C
O
Y
Get User Payload Access
App (0x06)
0x4D
O
Y
Get Channel Payload Support
App (0x06)
0x4E
O
Y
Get Channel Payload Version
App (0x06)
0x4F
O
Y
Get Channel OEM Payload Info
App (0x06)
0x50
O
Y
Master Write-Read
App (0x06)
0x52
O
Y
Get Channel Cipher Suites
App (0x06)
0x54
O
Y
Suspend/Resume Payload Encryption
App (0x06)
0x55
O
Y

140 | Using the System Setup Program
Set Channel Security Keys
App (0x06)
0x56
O
Y
Get System Interface Capabilities
App (0x06)
0x57
O
Chassis Device Commands
Get Chassis Capabilities
Chassis (0x00)
0x00
M
Y
Get Chassis Status
Chassis (0x00)
0x01
M
Y
Chassis Control
Chassis (0x00)
0x02
O
Chassis Reset
Chassis (0x00)
0x03
O
Chassis Identify
Chassis (0x00)
0x04
O
Set Front Panel Button
Chassis (0x00)
0x0A
O
Set Chassis Capabilities
Chassis (0x00)
0x05
O
Y
Set Power Restore Policy
Chassis (0x00)
0x06
O
Set Power Cycle Interval
Chassis (0x00)
0x0B
O
Get System Restart Cause
Chassis (0x00)
0x07
O
Set System Boot Options
Chassis (0x00)
0x08
O
Get System Boot Options
Chassis (0x00)
0x09
O
Get POH Counter
Chassis (0x00)
0x0F
O
Event Commands
Set Event Receiver
S/E (0x04)
0x00
M
Y
Get Event Receiver
S/E (0x04)
0x01
M
Y
Platform Event (or Event Message)
S/E (0x04)
0x02
M
Y
PEF and Alerting Commands
Get PEF Capabilities
S/E (0x04)
0x10
M
Y
Arm PEF Postpone Timer
S/E (0x04)
0x11
M
Y
Set PEF Configuration Parameters
S/E (0x04)
0x12
M
Y
Get PEF Configuration Parameters
S/E (0x04)
0x13
M
Y
Set Last Processed Event ID
S/E (0x04)
0x14
M
Y
Get Last Processed Event ID
S/E (0x04)
0x15
M
Y
Alert Immediate
S/E (0x04)
0x16
O
Y
PET Acknowledge
S/E (0x04)
0x17
O
Y
Sensor Device Commands
Get Device SDR Info
S/E (0x04)
0x20
O
Get Device SDR
S/E (0x04)
0x21
O
Reserve Device SDR Repository
S/E (0x04)
0x22
O

Using the System Setup Program | 141
Get Sensor Reading Factors
S/E (0x04)
0x23
O
Y
Set Sensor Hysteresis
S/E (0x04)
0x24
O
Y
Get Sensor Hysteresis
S/E (0x04)
0x25
O
Y
Set Sensor Threshold
S/E (0x04)
0x26
O
Y
Get Sensor Threshold
S/E (0x04)
0x27
O
Y
Set Sensor Event Enable
S/E (0x04)
0x28
O
Y
Get Sensor Event Enable
S/E (0x04)
0x29
O
Y
Re-arm Sensor Events
S/E (0x04)
0x2A
O
Y
Get Sensor Event Status
S/E (0x04)
0x2B
O
Y
Get Sensor Reading
S/E (0x04)
0x2D
M
Y
Set Sensor Type
S/E (0x04)
0x2E
O
Get Sensor Type
S/E (0x04)
0x2F
O
Set Sensor Reading And Event Status
S/E (0x04)
0x30
O
Y
FRU Device Commands
Get FRU Inventory Area Info
Storage (0x0A)
0x10
M
Y
Read FRU Data
Storage (0x0A)
0x11
M
Y
Write FRU Data
Storage (0x0A)
0x12
M
Y
SDR Device Commands
Get SDR Repository Info
Storage (0x0A)
0x20
M
Y
Get SDR Repository Allocation Info
Storage (0x0A)
0x21
O
Reserve SDR Repository
Storage (0x0A)
0x22
M
Y
Get SDR
Storage (0x0A)
0x23
M
Y
Add SDR
Storage (0x0A)
0x24
M
Partial Add SDR
Storage (0x0A)
0x25
M
Y
Delete SDR
Storage (0x0A)
0x26
O
Clear SDR Repository
Storage (0x0A)
0x27
M
Y
Get SDR Repository Time
Storage (0x0A)
0x28
O/M
Y
Set SDR Repository Time
Storage (0x0A)
0x29
O/M
Y
Enter SDR Repository Update Mode
Storage (0x0A)
0x2A
O
Exit SDR Repository Update Run
Initialization Agent
Storage (0x0A)
0x2B
O
Run Initialization Agent
Storage (0x0A)
0x2C
O
Y
SEL Device Commands
Get SEL Info
Storage (0x40)
0x40
M
Y

142 | Using the System Setup Program
Get SEL Allocation Info
Storage (0x40)
0x41
O
Reserve SEL
Storage (0x40)
0x42
O
Y
Get SEL Entry
Storage (0x40)
0x43
M
Y
Add SEL Entry
Storage (0x40)
0x44
M
Y
Partial Add SEL Entry
Storage (0x40)
0x45
M
Delete SEL Entry
Storage (0x40)
0x46
O
Clear SEL
Storage (0x40)
0x47
M
Y
Get SEL Time
Storage (0x40)
0x48
M
Y
Set SEL Time
Storage (0x40)
0x49
M
Y
Get Auxiliary Log Status
Storage (0x40)
0x5A
O
Set Auxiliary Log Status
Storage (0x40)
0x5B
O
Get SEL Time UTC Offset
Storage (0x40)
0x5C
O
Set SEL Time UTC Offset
Storage (0x40)
0x5D
O
LAN Device Commands
Set LAN Configuration Parameters
Transport (0x0C)
0x01
M
Y
Get LAN Configuration Parameters
Transport (0x0C)
0x02
M
Y
Suspend BMC ARPs
Transport (0x0C)
0x03
O
Get IP/UDP/RMCP Statistics
Transport (0x0C)
0x04
O
Serial/Modem Device Commands
Set Serial/Modem Configuration
Transport (0x0C)
0x10
M
Y
Get Serial/Modem Configuration
Transport (0x0C)
0x11
M
Y
Set Serial/Modem Mux
Transport (0x0C)
0x12
O
Y
Get TAP Response Codes
Transport (0x0C)
0x13
O
Set PPP UDP Proxy Transmit Data
Transport (0x0C)
0x14
O
Get PPP UDP Proxy Transmit Data
Transport (0x0C)
0x15
O
Send PPP UDP Proxy Packet
Transport (0x0C)
0x16
O
Get PPP UDP Proxy Receive Data
Transport (0x0C)
0x17
O
Serial/Modem Connection Active
Transport (0x0C)
0x18
M
Y
Callback
Transport (0x0C)
0x19
O
Set User Callback Options
Transport (0x0C)
0x1A
O
Get User Callback Options
Transport (0x0C)
0x1B
O
Set Serial Routing Mux
Transport (0x0C)
0x1C
O
Y
SOL Activating
Transport (0x0C)
0x20
O
Y
Set SOL Configuration Parameters
Transport (0x0C)
0x21
O
Y

Using the System Setup Program | 143
Get SOL Configuration Parameters
Transport (0x0C)
0x22
O
Y
Command Forwarding Commands
Forwarded Command
Transport (0x0C)
0x30
O
Y
Set Forwarded Commands
Transport (0x0C)
0x31
O
Y
Get Forwarded Commands
Transport (0x0C)
0x32
O
Y
Enable Forwarded Commands
Transport (0x0C)
0x33
O
Y
Firmware Update Commands
Firmware Update Phase 1
Firmware (0x08)
0x10
O
Y
Firmware Update Phase 2
Firmware (0x08)
0x11
O
Y
Firmware Update Phase 3
Firmware (0x08)
0x21
O
Y
Get Firmware Update Status
Firmware (0x08)
0x12
O
Y
Get Firmware Version
Firmware (0x08)
0x13
O
Y
Set Firmware Update Status
Firmware (0x08)
0x16
O
Y
Table 2-3. The Power Management Settings
Setup Menu Setting
Maximum
Performance (48DB)
Energy Efficiency
(48DC)
Setup Page
Setting
Option
D4
Token
Option
D4
Token
Power
Management
Power Management
Max.
Performance
021F
Node
Manager
4800
Energy Efficiency
Policy
Performance
48D0
Low
Power
48D2
Processor
Configuration
Active Processor
Cores
All
026E
1/2
0233
/0232
Frequency Ratio
Auto
48C0
3
48C3
QPI Frequency
Auto
48C8
4.80GT/s
48C9
Turbo Mode
Enabled
01E8
Disabled
01EA
C State
Disabled
024C
Enabled
024B
C1E State
Disabled
02A2
Enabled
02A1
C6 State
Disabled
480A
Enabled
480B
C7 State
Disabled
480E
Enabled
480F
Direct Cache Access
Enabled
48D4
Disabled
48D3
Hyper-Threading
Technology
Enabled
00D1
Disabled
00D2
Adjacent Cache Line
Prefetch
Enabled
0172
Disabled
0171

144 | Using the System Setup Program
Hardware Prefetcher
Enabled
0174
Disabled
0173
DCU Streamer
Prefetcher
Enabled
02C5
Disabled
02C6
DCU IP Prefetcher
Enabled
02CE
Disabled
02CF
Memory
Configuration
Memory Frequency
Auto
4823
800 MHz
4824
Memory Turbo Mode
Enabled
4821
Disabled
4820
Memory Throttling
Mode
Disabled
4828
Enabled
4829
Memory Operating
Voltage
1.5 V
02B6
1.35V
/1.25V
02B7
/48B5
SATA
Configuration
Embedded SATA
Link State
Auto
4834
1.5 Gbps
4835
Power Saving Features
Disabled
0199
Enabled
019A
PCI
Configuration
PCI-E Slot ASPM
Disabled
4840
L0s & L1
4843
Onboard LAN ASPM
Disabled
4846
L0s & L1
4849
Mezzing Slot ASPM
Disabled
484C
L0s & L1
484F
NB-SB Link ASPM
Disabled
4852
L1
4853
PCI-E Generation
Gen3/Gen2
485B/4
85C
Gen1
485D
NOTE: The PCI-E Gen2 x16 slot 1 and slot 2 are supported up to Gen2 5.0 Gigabits
bandwidth. If user inserts Gen3 .0 devices into the 2 slots that will only train at
Gen 2.0 speed, not Gen 3.0.

3
Installing System Components | 145
Installing System Components
Safety Instructions
WARNING: Working on systems that are still connected to a power supply can be
extremely dangerous.
CAUTION: System components and electronic circuit boards can be damaged by
discharge of static electricity.
CAUTION: Many repairs may only be done by a certified service technician. You
should only perform troubleshooting and simple repairs as authorized in your
product documentation, or as directed by the online or telephone service and
support team. Damage due to servicing that is not authorized by Dell is not
covered by your warranty. Read and follow the safety instructions that came with
the product.
To avoid injury to yourself or damage to system, follow these guidelines:
Always disconnect the system from the power outlet whenever you are
working inside the system.
If possible, wear a grounded wrist strap as you work inside the system.
Or discharge any static electricity by touching the bare metal chassis of
system case, or the bare metal body of any other grounded appliance.
Hold electronic circuit boards by the edges only. Do not touch the
components on the board unless it is necessary to do so. Do not flex or
stress the circuit board.
Leave all components inside the static-proof packaging until you are
ready to use the component for the installation.
Recommended Tools
#1 Phillips screwdriver
#2 Phillips screwdriver
Tox #T20 screwdriver

146 | Installing System Components
Inside the System
CAUTION: Many repairs may only be done by a certified service technician. You
should only perform troubleshooting and simple repairs as authorized in your
product documentation, or as directed by the online or telephone service and
support team. Damage due to servicing that is not authorized by Dell is not
covered by your warranty. Read and follow the safety instructions that came with
the product.
CAUTION: This system must be operated with the system cover installed to
ensure proper cooling.
NOTE: The illustration in this section shows a system with 12 x3.5-inch hard drives
as an example.
Figure 3-1. Inside the System with 1U Node
1
system board assembly (4)
2
power supply (2)
3
power distribution board (2)
4
cooling fan (4)
5
hard-drive bay
6
hard drive (12)

Installing System Components | 147
Figure 3-2. Inside the System with 2U Node
1
system board assembly (2)
2
power supply (2)
3
power distribution board (2)
4
cooling fan (4)
5
hard-drive bay
6
hard drive (12)

148 | Installing System Components
Hard Drives
Removing a 3.5-inch Hard-Drive Blank
CAUTION: To maintain proper system cooling, all empty hard-drive bays must
have drive blanks installed.
NOTE: This section is applicable to systems with hot-swappable hard drives only.
1 Pull the hard-drive blank out of the hard-drive bay. See Figure 3-3.
Figure 3-3. Removing or Installing a 3.5-inch Hard-Drive Blank
1
3.5-inch hard-drive blank
Installing a 3.5-inch Hard-Drive Blank
1 Slide the hard-drive blank into the drive bay until the hard-drive blank
is seated in place. See Figure 3-3.

Installing System Components | 149
Removing a 2.5-inch Hard-Drive Blank
CAUTION: To maintain proper system cooling, all empty hard-drive bays must
have drive blanks installed.
NOTE: This section is applicable to systems with hot-swappable hard drives only.
3 Pull the handle to remove the 2.5-inch hard-drive blank out of the
hard-drive bay. See Figure 3-4.
Figure 3-4. Removing or Installing a 2.5-inch Hard-Drive Blank
1
2.5-inch hard-drive blank
2
handle
3
latch
Installing a 2.5-inch Hard-Drive Blank
1 With the latch side facing up, slide the latch into the hard-drive bay
first.
2 Push the 2.5-inch hard-drive with a slight inclination into the hard-
drive bay until the hard-drive blank is seated in place. See Figure 3-4.

150 | Installing System Components
Removing a Hard-Drive Carrier
The installation and removal procedures for the 3.5-inch hard drive and the
2.5-inch hard drive are similar. Following is an example showing the
replacement procedure of a 3.5-inch hard drive.
CAUTION: Many repairs may only be done by a certified service technician. You
should only perform troubleshooting and simple repairs as authorized in your
product documentation, or as directed by the online or telephone service and
support team. Damage due to servicing that is not authorized by Dell is not
covered by your warranty. Read and follow the safety instructions that came with
the product.
CAUTION: To maintain proper system cooling, all empty hard-drive bays must
have drive blanks installed.
1 Turn the lock lever counterclockwise until it points to the unlock
symbol.
2 Slide the release button to open the release handle. See Figure 3-5.
3 Using the release handle, pull the hard-drive carrier out of the hard-
drive bay.
Figure 3-5. Removing and Installing a Hard-Drive Carrier
1
release button
2
lock lever
3
release handle
4
hard-drive carrier

Installing System Components | 151
Installing a Hard-Drive Carrier
CAUTION: Many repairs may only be done by a certified service technician. You
should only perform troubleshooting and simple repairs as authorized in your
product documentation, or as directed by the online or telephone service and
support team. Damage due to servicing that is not authorized by Dell is not
covered by your warranty. Read and follow the safety instructions that came with
the product.
CAUTION: To maintain proper system cooling, all empty hard-drive bays must
have drive blanks installed.
1 With the lever on the hard-drive carrier open, slide the hard-drive
carrier into the drive bay until the hard-drive connector engages with
the backplane. See Figure 3-5.
2 Close the release handle to lock the hard drive in place.
3 Turn the lock lever clockwise to the lock symbol. See Figure 3-5.
Removing a Hard Drive from a Hard-Drive Carrier
CAUTION: Many repairs may only be done by a certified service technician. You
should only perform troubleshooting and simple repairs as authorized in your
product documentation, or as directed by the online or telephone service and
support team. Damage due to servicing that is not authorized by Dell is not
covered by your warranty. Read and follow the safety instructions that came with
the product.
CAUTION: Ability to mix SAS, SATA and SSD.
Only 2 drive types can be mixed per node.
Drives 0 and 1 must be of same type.
The remaining drives must all be the same type.
SAS hard drive support will be based on the add-on card and the
onboard configuration supports SATA hard drive only.
CAUTION: Use only hard drives that have been tested and approved for use with
the SAS/SATA backplane.

152 | Installing System Components
CAUTION: When installing a hard-drive carrier, ensure that the adjacent drives are
fully installed. Inserting a hard-drive carrier and attempting to lock its handle next
to a partially installed carrier can damage the partially installed carrier's shield
spring and make it unusable.
CAUTION: To prevent data loss, ensure that your operating system
supports hot-swappable drive installation. See the documentation supplied with
the operating system.
1 Remove the four screws. See Figure 3-6.
2 Lift the hard drive out of the hard-drive carrier.
Figure 3-6. Removing and Installing a Hard Drive from the Hard-Drive Carrier
1
hard drive
2
screw (4)
3
hard-drive carrier

Installing System Components | 153
Installing a Hard Drive into a Hard-Drive Carrier
CAUTION: Many repairs may only be done by a certified service technician. You
should only perform troubleshooting and simple repairs as authorized in your
product documentation, or as directed by the online or telephone service and
support team. Damage due to servicing that is not authorized by Dell is not
covered by your warranty. Read and follow the safety instructions that came with
the product.
1 Place the hard drive into the hard-drive carrier. See Figure 3-6.
2 Secure the hard drive to the hard-drive carrier with four screws. See
Figure 3-6.
Power Supplies
NOTE: The following table lists the maximum supported configuration where
power supply redundancy is guaranteed.
NOTE: Configurations higher than indicated in the table may change the
power supply mode to non-redundant. In non-redundant mode if the power
requirement exceeds the installed system power capacity, the BIOS will
throttle the processors. Also, if Processor Power Capping is enabled, then
processor throttling occurs on configurations that exceed the cap value.
NOTE: Both of these two PSUs are swappable, and they can support hot
swap in any condition if system has power throttling feature.
Table 3-1. PSU and System Board Support Matrix
PSU
Two System Boards
Four System Boards
1400 W
Up to two 130W processors / MB
three hard drives / MB
eight memory modules / MB
Up to one 130 W processor / MB,
two hard drives / MB
two memory modules / MB
1200 W
Up to two 130W processors / MB
three hard drives / MB
four memory modules / MB
Up to one 95W processors / MB
one hard drive / MB
three memory modules / MB

154 | Installing System Components
Removing a Power Supply
CAUTION: Many repairs may only be done by a certified service technician. You
should only perform troubleshooting and simple repairs as authorized in your
product documentation, or as directed by the online or telephone service and
support team. Damage due to servicing that is not authorized by Dell is not
covered by your warranty. Read and follow the safety instructions that came with
the product.
CAUTION: The System requires at least one power supply to operate normally.
1 It is recommended to turn off the system, including any attached
peripherals, and disconnect the system from the electrical outlet.
2 Disconnect the power cable from the power source and the power
supply.
3 Press the release lever and using the handle, slide the power supply out
of the system. See Figure 3-7.
NOTE: Removing the power supply may require considerable force.
Figure 3-7. Removing and Installing a Power Supply
1
power supply
2
release lever
3
handle

Installing System Components | 155
Installing a Power Supply
CAUTION: Many repairs may only be done by a certified service technician. You
should only perform troubleshooting and simple repairs as authorized in your
product documentation, or as directed by the online or telephone service and
support team. Damage due to servicing that is not authorized by Dell is not
covered by your warranty. Read and follow the safety instructions that came with
the product.
CAUTION: The System requires at least one power supply to operate normally.
1 Verify that both power supplies are of the same type and have the same
maximum output power.
NOTE: The maximum output power is printed on the power supply label.
2 Slide the new power supply into the chassis until the power supply is
fully seated and the release lever snaps into place. See Figure 3-7.
3 Connect the power cable to the power supply and plug the cable into a
power outlet.
NOTE: When installing a new power supply in a system with two power
supplies, allow several seconds for the system to recognize the power
supply and determine its status.

156 | Installing System Components
System-Board Assembly
Removing a System-Board Blank Tray
CAUTION: Many repairs may only be done by a certified service technician. You
should only perform troubleshooting and simple repairs as authorized in your
product documentation, or as directed by the online or telephone service and
support team. Damage due to servicing that is not authorized by Dell is not
covered by your warranty. Read and follow the safety instructions that came with
the product.
1 Remove the screw that secures the retaining latch. See Figure 3-8.
2 Press the retaining latch and slide the system-board blank tray out of
the chassis. See Figure 3-8.
Figure 3-8. Removing and Installing a System-Board Blank Tray
1
retaining latch
2
screw
3
system-board blank tray

Installing System Components | 157
Installing a System-Board Blank Tray
CAUTION: Many repairs may only be done by a certified service technician. You
should only perform troubleshooting and simple repairs as authorized in your
product documentation, or as directed by the online or telephone service and
support team. Damage due to servicing that is not authorized by Dell is not
covered by your warranty. Read and follow the safety instructions that came with
the product.
1 Slide the system-board blank tray into the chassis until it snaps into
place. See Figure 3-8.
2 Replace the screw that secures the retaining latch. See Figure 3-8.
Removing a System-Board Assembly
CAUTION: Many repairs may only be done by a certified service technician. You
should only perform troubleshooting and simple repairs as authorized in your
product documentation, or as directed by the online or telephone service and
support team. Damage due to servicing that is not authorized by Dell is not
covered by your warranty. Read and follow the safety instructions that came with
the product.
NOTE: The illustration in this section shows a system with 1U node as an example.
1 It is recommended to turn off the system board by pressing the power
button on the back panel, and any attached peripherals.
2 Disconnect all the external cables from the system board.
3 Remove the screw that secures the retaining latch. See Figure 3-9.
4 Press the retaining latch and using the handle, slide the system-board
assembly out of the chassis. See Figure 3-9.

158 | Installing System Components
Figure 3-9. Removing and Installing a System-Board Assembly
1
retaining latch
2
screw
3
handle
4
system-board assembly
Installing a System-Board Assembly
CAUTION: Many repairs may only be done by a certified service technician. You
should only perform troubleshooting and simple repairs as authorized in your
product documentation, or as directed by the online or telephone service and
support team. Damage due to servicing that is not authorized by Dell is not
covered by your warranty. Read and follow the safety instructions that came with
the product.
1 Slide the system-board assembly into the chassis until it snaps into
place. See Figure 3-9.
2 Reconnect all the external cables to the system board.
3 Replace the screw that secures the retaining latch. See Figure 3-9.
4 Turn on the system board by pressing the power button on the back
panel, and the attached peripherals.
NOTE: Contact technical support to add the service tag of the system board to
match the service tag of the physical node.

Installing System Components | 159
Air Baffle
Removing the Air Baffle
CAUTION: Many repairs may only be done by a certified service technician. You
should only perform troubleshooting and simple repairs as authorized in your
product documentation, or as directed by the online or telephone service and
support team. Damage due to servicing that is not authorized by Dell is not
covered by your warranty. Read and follow the safety instructions that came with
the product.
1 Remove the system-board assembly. See “Removing a System-Board
Assembly" on page 157.
2 When removing the air baffle for 2U node, the expansion-card
assembly for 2U node must be removed first. See Figure 3-17.
3 Lift the two air baffles out of the system-board assembly. See Figure 3-
10.
Figure 3-10. Removing and Installing the Air Baffles
1
air baffle (2)
2
system-board assembly
3
hook (4)

160 | Installing System Components
Installing the Air Baffle
CAUTION: Many repairs may only be done by a certified service technician. You
should only perform troubleshooting and simple repairs as authorized in your
product documentation, or as directed by the online or telephone service and
support team. Damage due to servicing that is not authorized by Dell is not
covered by your warranty. Read and follow the safety instructions that came with
the product.
1 Replace the two air baffles into the system-board assembly. Make sure
that the hooks are properly engaged with the heat sink bases. See
Figure 3-10.
2 Replace the system-board assembly. See "Installing a System-Board
Assembly" on page 158.
Heat Sinks
Removing the Heat Sink
CAUTION: Many repairs may only be done by a certified service technician. You
should only perform troubleshooting and simple repairs as authorized in your
product documentation, or as directed by the online or telephone service and
support team. Damage due to servicing that is not authorized by Dell is not
covered by your warranty. Read and follow the safety instructions that came with
the product.
NOTE: Please place the foolproof pins of two processor heatsinks facing inside.
1 Remove the system-board assembly. See “Removing a System-Board
Assembly" on page 157.
WARNING: The heat sink may be hot to touch for some time after the system has
been powered down. Allow the heat sink to cool before removing it.
CAUTION: Never remove the heat sink from a processor unless you intend to
remove the processor. The heat sink is necessary to maintain proper thermal
conditions.

Installing System Components | 161
2 Using a Phillips screwdriver, loosen one of the heat-sink retention
screws. See Figure 3-11.
Wait for 30 seconds for the heat sink to loosen from the processor.
3 Remove the other three heat-sink retention screws.
4 Gently lift the heat sink off the processor and set the heat sink aside
with thermal grease side facing up.
Figure 3-11. Removing and Installing the Heat Sink
1
screw (4)
2
heat sink
Installing the Heat Sink
CAUTION: Many repairs may only be done by a certified service technician. You
should only perform troubleshooting and simple repairs as authorized in your
product documentation, or as directed by the online or telephone service and
support team. Damage due to servicing that is not authorized by Dell is not
covered by your warranty. Read and follow the safety instructions that came with
the product.
1 Using a clean lint-free cloth, remove the thermal grease from the heat
sink.

162 | Installing System Components
2 Apply new thermal grease evenly to the center of the top of the new
processor.
CAUTION: Using excess thermal grease can cause grease to contact the
processor shield, which can cause contamination of the processor socket.
3 Place the heat sink on the processor. See Figure 3-11.
4 Using a Phillips screwdriver, tighten the four heat-sink retention screws.
5 Replace the system-board assembly. See "Installing a System-Board
Assembly" on page 158.
Processors
This system board supports dual Intel E5-2600 processor series, which is up
to 135W, 3.5GHz and 12 cores, based on Intel Patsburg PCH chipset.
Removing a Processor
CAUTION: Many repairs may only be done by a certified service technician. You
should only perform troubleshooting and simple repairs as authorized in your
product documentation, or as directed by the online or telephone service and
support team. Damage due to servicing that is not authorized by Dell is not
covered by your warranty. Read and follow the safety instructions that came with
the product.
1 Remove the system-board assembly. See “Removing a System-Board
Assembly" on page 157.
2 Remove the heat sink, see "Removing the Heat Sink" on page 160.
CAUTION: The processor is held in its socket under strong pressure. Be aware
that the release lever can spring up suddenly if not firmly grasped.

Installing System Components | 163
3 Position your thumb firmly over the processor socket-release lever and
release the lever from the locked position. Rotate the lever 90 degrees
upward until the processor is released from the socket. See Figure 3-12.
4 Rotate the processor shield upward and out of the way. See Figure 3-12.
5 Lift the processor out of the socket and leave the socket-release lever
up so that the socket is ready for the new processor. See Figure 3-12.
CAUTION: Be careful not to bend any of the pins on the C socket when removing
the processor. Bending the pins can permanently damage the system board. Be
sure to properly align the process or notch to the socket and insert straight down.
Do not move from side to side.
Figure 3-12. Removing and Installing a Processor
1
processor shield
2
processor
3
notch in processor (4)
4
socket key (4)
5
socket-release lever (2)
6
CPU socket

164 | Installing System Components
Installing a Processor
CAUTION: Many repairs may only be done by a certified service technician. You
should only perform troubleshooting and simple repairs as authorized in your
product documentation, or as directed by the online or telephone service and
support team. Damage due to servicing that is not authorized by Dell is not
covered by your warranty. Read and follow the safety instructions that came with
the product.
NOTE: When installing only one processor, the processor must be installed in the
processor 0 (for the socket location, see “System Board Connectors” on page
309).
NOTE: If you are upgrading your processors, prior to upgrading your system,
download and install the latest system BIOS version from support.dell.com. Follow
the instructions included in the file download to install the update on your system.
1 Unpack the processor if it has not been used previously.
If the processor has already been used, remove any thermal grease from
the top of the processor using a lint-free cloth.
2 Align the processor with the socket keys on the CPU socket. See Figure
3-12.
CAUTION: Positioning the processor incorrectly can permanently damage the
system board or the processor. Be careful not to bend the pins in the CPU socket.
3 With the release lever on the processor socket in the open position,
align the processor with the socket keys and set the processor lightly in
the socket. See Figure 3-12.
CAUTION: Do not use force to seat the processor. When the processor is
positioned correctly, it engages easily into the socket.
4 Close the processor shield.
5 Rotate the socket release lever down until it snaps into place.
6 Using a clean lint-free cloth, remove the thermal grease from the heat
sink.
7 Apply thermal grease evenly to the center of the top of the new
processor.

Installing System Components | 165
CAUTION: Using excess thermal grease can cause grease to contact the
processor shield, which can cause contamination of the processor socket.
8 Place the heat sink on the processor. See Figure 3-11.
9 Using a Phillips screwdriver, tighten the heat-sink retention screws. See
Figure 3-11.
10 Replace the system-board assembly. See "Installing a System-Board
Assembly" on page 158.
11 Reconnect the system to its electrical outlet and turn on the system,
including any attached peripherals.
12 Press <F2> to enter the System Setup program, and check that the
processor information matches the new system configuration. See
"System Setup Options at Boot" on page 62.

166 | Installing System Components
Interposer Extender for 2U Node
CAUTION: Many repairs may only be done by a certified service technician. You
should only perform troubleshooting and simple repairs as authorized in your
product documentation, or as directed by the online or telephone service and
support team. Damage due to servicing that is not authorized by Dell is not
covered by your warranty. Read and follow the safety instructions that came with
the product.
NOTE: This section is applicable to systems with 2U node only.
Removing the Interposer Extender for 2U Node
1 Remove the system-board assembly. See “Removing a System-Board
Assembly" on page 157.
2 Disconnect all the cables from the interposer extender. See Figure 5-10.

Installing System Components | 167
3 Remove the screws that secure the interposer extender to the
interposer-extender tray. See Figure 3-13.
4 Lift the interposer extender out of the interposer-extender tray. See
Figure 3-13.
Figure 3-13. Removing and Installing the Interposer Extender for 2U Node
1
screw (5)
2
interposer extender
3
interposer-extender tray
Installing the Interposer Extender for 2U Node
CAUTION: Many repairs may only be done by a certified service technician. You
should only perform troubleshooting and simple repairs as authorized in your
product documentation, or as directed by the online or telephone service and
support team. Damage due to servicing that is not authorized by Dell is not
covered by your warranty. Read and follow the safety instructions that came with
the product.
1 Place the interposer extender into the interposer-extender tray.
2 Replace the screws that secure the interposer extender to the
interposer-extender tray.
3 Reconnect all the cables to the interposer extender. See Figure 5-10.
4 Replace the system-board assembly. See "Installing a System-Board

168 | Installing System Components
Assembly" on page 158.
Removing the Interposer Extender Tray for 2U Node
CAUTION: Many repairs may only be done by a certified service technician. You
should only perform troubleshooting and simple repairs as authorized in your
product documentation, or as directed by the online or telephone service and
support team. Damage due to servicing that is not authorized by Dell is not
covered by your warranty. Read and follow the safety instructions that came with
the product.
NOTE: This section is applicable to systems with 2U node only.
1 Remove the system-board assembly. See “Removing a System-Board
Assembly" on page 157.
2 Remove the interposer extender. See Figure 3-13.
3 Remove the screws that secure the interposer-extender tray to the
system board. See Figure 3-14.
4 Lift the interposer-extender tray out of the system-board assembly. See
Figure 3-14.
Figure 3-14. Removing and Installing the Interposer-Extender Tray
1
screw (4)
2
interposer-extender tray
3
system-board assembly

Installing System Components | 169
Installing the Interposer Extender Tray for 2U Node Tray
CAUTION: Many repairs may only be done by a certified service technician. You
should only perform troubleshooting and simple repairs as authorized in your
product documentation, or as directed by the online or telephone service and
support team. Damage due to servicing that is not authorized by Dell is not
covered by your warranty. Read and follow the safety instructions that came with
the product.
1 Place the interposer-extender tray into the system board. See Figure 3-
14.
2 Replace the screws that secure the interposer extender tray to the
system board. See Figure 3-14.
3 Replace the interposer extender. See Figure 3-13.
4 Connect all the cables to the interposer extender. See Figure 5-10.
5 Replace the system-board assembly. See "Installing a System-Board
Assembly" on page 158.
Expansion-Card Assembly and Expansion Card
Removing the Expansion Card for 1U Node
CAUTION: Many repairs may only be done by a certified service technician. You
should only perform troubleshooting and simple repairs as authorized in your
product documentation, or as directed by the online or telephone service and
support team. Damage due to servicing that is not authorized by Dell is not
covered by your warranty. Read and follow the safety instructions that came with
the product.
1 Remove the system-board assembly. See “Removing a System-Board
Assembly" on page 157.

170 | Installing System Components
2 Remove the four screws that secure the expansion-card assembly. See
Figure 3-15.
3 Lift the expansion-card assembly out of the system-board assembly.
See Figure 3-15.
Figure 3-15. Removing the Expansion-Card Assembly for 1U Node
1
expansion-card assembly
2
screw (4)
3
system-board assembly

Installing System Components | 171
4 Remove the screw securing the expansion card. See Figure 3-16.
5 Grasp the expansion card by its edges, and carefully remove it from the
riser card. See Figure 3-16.
If you are removing the card permanently, install an expansion-card
slot cover over the empty expansion slot opening, and close the
expansion-card latch. See. Figure 3-16
NOTE: You must install a filler bracket over an empty expansion slot to
maintain Federal Communications Commission (FCC) certification of the
system. The brackets also keep dust and dirt out of the system and aid in
proper cooling and airflow inside the system.
Figure 3-16. Removing the Expansion Card for 1U Node
1
expansion-card slot cover
2
screw
3
expansion card
4
riser card

172 | Installing System Components
Installing the Expansion Card for 1U Node
CAUTION: Many repairs may only be done by a certified service technician. You
should only perform troubleshooting and simple repairs as authorized in your
product documentation, or as directed by the online or telephone service and
support team. Damage due to servicing that is not authorized by Dell is not
covered by your warranty. Read and follow the safety instructions that came with
the product.
CAUTION: Expansion cards can only be installed in the slots on the expansion-
card riser. Do not attempt to install expansion cards directly into the riser
connector on the system board.
1 Unpack the expansion card and prepare it for installation. For
instructions, see the documentation accompanying the card.
2 Remove the system-board assembly. See “Removing a System-Board
Assembly" on page 157.
3 Remove the four screws that secure the expansion-card assembly.
4 Lift the expansion-card assembly away from the system-board assembly.
5 Remove the screw securing the filler bracket.
6 Grasp the filler bracket by its edges, and carefully remove it from the
riser card.
NOTE: Keep this bracket in case you need to remove the expansion card.
Filler brackets must be installed over empty expansion-cards slots to
maintain FCC certification of the system. The brackets also keep dust and
dirt out of the system and aid in proper cooling and airflow inside the
system.
7 Holding the card by its edges, position the card so that the card-edge
connector aligns with the riser card on the expansion-card assembly.
8 Insert the card-edge connector firmly into the riser card until the card
is fully seated.
9 Replace the screw securing the expansion card.
10 Place the expansion-card assembly into the system-board assembly.
11 Replace the four screws that secure the expansion-card assembly.
12 Replace the system-board assembly. See "Installing a System-Board

Installing System Components | 173
Assembly" on page 158.
Removing the Expansion Card for 2U Node
CAUTION: Many repairs may only be done by a certified service technician. You
should only perform troubleshooting and simple repairs as authorized in your
product documentation, or as directed by the online or telephone service and
support team. Damage due to servicing that is not authorized by Dell is not
covered by your warranty. Read and follow the safety instructions that came with
the product.
1 Remove the system-board assembly. See “Removing a System-Board
Assembly" on page 157.
2 Remove the five screws that secure the expansion-card assembly. See
Figure 3-17.
3 Lift the expansion-card assembly out of the system-board assembly.
See Figure 3-17.
Figure 3-17. Removing the Expansion-Card Assembly for 2U Node
1
expansion-card assembly
2
screw (5)
3
system-board assembly
4 Remove the four screws securing the expansion-card lock cover. See

Installing System Components | 175
6 Remove the screw securing the expansion card. See Figure 3-19.
7 Grasp the expansion card by its edges, and carefully remove it from the
riser card. See Figure 3-19.
If you are removing the card permanently, install a metal filler bracket
over the empty expansion slot opening, and close the expansion-card
latch. See Figure 3-19.
NOTE: You must install a filler bracket over an empty expansion slot to maintain
Federal Communications Commission (FCC) certification of the system. The
brackets also keep dust and dirt out of the system and aid in proper cooling and
airflow inside the system.
Figure 3-19. Removing the Expansion Card for 2U Node
1
expansion card
2
screw
3
riser card

Installing System Components | 177
9 Install the expansion-card lock cover and screws securing to the
expansion card bracket. See Figure 3-21.
Figure 3-21. Installing the Expansion-card Lock Cover for 2U Node
1
expansion-card bracket
2
screw (4)
3
expansion-card lock cover
Installing the Expansion Card for 2U Node
CAUTION: Many repairs may only be done by a certified service technician. You
should only perform troubleshooting and simple repairs as authorized in your
product documentation, or as directed by the online or telephone service and
support team. Damage due to servicing that is not authorized by Dell is not
covered by your warranty. Read and follow the safety instructions that came with
the product.
CAUTION: Expansion cards can only be installed in the slots on the expansion-
card riser. Do not attempt to install expansion cards directly into the riser
connector on the system board.
1 Unpack the expansion card and prepare it for installation. For
instructions, see the documentation accompanying the card.
2 It is recommended to turn off the system, including any attached
peripherals, and disconnect the system from its electrical outlet.
3 Remove the system-board assembly. See “Removing a System-Board

178 | Installing System Components
Assembly" on page 157.
4 Remove the four screws that secure the expansion-card assembly.
5 Lift the expansion-card assembly away from the system-board assembly.
6 Remove the screw securing the filler bracket.
7 Grasp the filler bracket by its edges, and carefully remove it from the
riser card.
NOTE: Keep this bracket in case you need to remove the expansion card.
Filler brackets must be installed over empty expansion-cards slots to
maintain FCC certification of the system. The brackets also keep dust and
dirt out of the system and aid in proper cooling and airflow inside the
system.
8 Holding the expansion card by its edges, position the card so that the
card-edge connector aligns with the riser card.
9 Insert the card-edge connector firmly into the riser card until the card
is fully seated.
10 Install the expansion slot lock cover by securing the four screws.
11 Place the expansion-card assembly into the system-board assembly.
12 Replace the screws that secure the expansion-card assembly.
13 Replace the system-board assembly. See "Installing a System-Board
Assembly" on page 158.

Installing System Components | 179
RAID Card
The installation and removal procedures and cable routing for the Raid
Cards including LSI 9265-8i with BBU, LSI 9210-8i HBA and LSI 9285-8e
with BBU are similar; please refer to the indications for details.
Summary of LSI 9265-8i with RAID Battery, LSI 9210-8i HBA and LSI
9285-8e with RAID Battery
Card Removal
and Installation
BBU Removal
and Installation
Cable Plan
LSI 9265-8i
with RAID
Battery
See “LSI 9265-8i
Card”
See “LSI 9265-8i
RAID Battery”
Cable required for 1U Node:
Mini-SAS cable
Mini-SAS /SGPIO cable
RAID battery cable
Cable required for 2U Node:
Mini-SAS /SGPIO cable
Mini-SAS cable
RAID battery cable
Power cable
LSI 9210-8i
HBA
Same as LSI
9265-8i, see “LSI
9265-8i Card”
No RAID Battery
Cable required for 1U Node:
Mini-SAS cable
Mini-SAS /SGPIO cable
Cable required for 2U node:
Mini-SAS cable
Mini-SAS /SGPIO cable
Power cable
LSI 9285-8e
with RAID
Battery
Same as
Expansion-Card,
see Figure 3-16
and Figure 3-19
Same as LSI
9265-8i, See “LSI
9265-8i RAID
Battery”
Cable required for 1U Node:
RAID battery cable
Cable required for 2U Node:
RAID battery cable
Power cable
Cable Routing
For cable routing inside 1U node, see “Cable Routing for LSI 9265-
8i Card (1U Node)”.
For cable routing inside 2U node, see “Cable Routing for LSI 9265-
8i Card (2U Node)”

180 | Installing System Components
LSI 9265-8i Card
NOTE: The LSI 9265-8i card assembly should include the BBU interposer card
which is connected to the RAID battery. The illustrations in this section are just
for your removal and installation reference. For more information of the RAID
battery, see
“
LSI 9265-8i RAID Battery” on page 193.
Removing the LSI 9265-8i Card for 1U Node
CAUTION: Many repairs may only be done by a certified service technician. You
should only perform troubleshooting and simple repairs as authorized in your
product documentation, or as directed by the online or telephone service and
support team. Damage due to servicing that is not authorized by Dell is not
covered by your warranty. Read and follow the safety instructions that came with
the product.
1 Remove the system-board assembly. See “Removing a System-Board
Assembly" on page 157.
2 Disconnect the two SAS/SGPIO cables connecting to the LSI 9265-8i
card assembly.

Installing System Components | 181
3 Remove the screws that secure the LSI 9265-8i card assembly. See
Figure 3-22.
4 Lift the LSI 9265-8i card assembly out of the system-board assembly.
See Figure 3-22.
Figure 3-22. Removing the LSI 9265-8i Card Assembly for 1U Node
1
LSI 9265-8i-card assembly
2
screw (4)
3
system-board assembly

182 | Installing System Components
5 Remove the screw securing the LSI 9265-8i card. See Figure 3-23.
6 Grasp the LSI 9265-8i card by its edges, and carefully remove it from
the riser card. See Figure 3-23.
If you are removing the card permanently, install an expansion-card
slot cover over the empty expansion slot opening, and close the
expansion-card latch.
NOTE: You must install a filler bracket over an empty expansion slot to
maintain Federal Communications Commission (FCC) certification of the
system. The brackets also keep dust and dirt out of the system and aid in
proper cooling and airflow inside the system.
Figure 3-23. Removing the LSI 9265-8i Card
1
expansion-card slot cover
2
screw
3
LSI 9265-8i card
4
riser card

Installing System Components | 183
Installing the LSI 9265-8i Card for 1U Node
CAUTION: Many repairs may only be done by a certified service technician. You
should only perform troubleshooting and simple repairs as authorized in your
product documentation, or as directed by the online or telephone service and
support team. Damage due to servicing that is not authorized by Dell is not
covered by your warranty. Read and follow the safety instructions that came with
the product.
CAUTION: Expansion cards can only be installed in the slots on the expansion-
card riser. Do not attempt to install expansion cards directly into the riser
connector on the system board.
CAUTION: Not to apply any pressure to heat sinks on expansion cards.
1 Unpack the LSI 9265-8i card and prepare it for installation. For
instructions, see the documentation accompanying the card.
2 Remove the system-board assembly. See “Removing a System-Board
Assembly" on page 157.
3 Connect the RAID battery cable to the BBU interposer card. See
Figure 3-24.
4 Remove the screw securing the filler bracket. Grasp the filler bracket by
its edges, and carefully remove it from the riser card.
NOTE: Keep this bracket in case you need to remove the expansion card. Filler
brackets must be installed over empty expansion-cards slots to maintain FCC
certification of the system. The brackets also keep dust and dirt out of the system
and aid in proper cooling and airflow inside the system.
5 Connect the mini-SAS/SGPIO cables to the LSI 9265-8i card assembly.
See Figure 3-24.
6 Holding the card by its edges, position the card so that the card-edge
connector aligns with the riser card.
7 Insert the card-edge connector firmly into the riser card until the card
is fully seated.
8 Replace the screw securing the LSI 9265-8i card.
9 Place the LSI 9265-8i card assembly into the system-board assembly.

184 | Installing System Components
10 Replace the four screws that secure the LSI 9265-8i card assembly.
11 Install the system-board assembly. See "Installing a System-Board
Assembly" on page 158.
Cable Routing for LSI 9265-8i Card (1U Node)
1 Connect the mini-SAS cable to the LSI 9265-8i card, and connect the
other end of the cable to the corresponding connector on the system
board.
2 Connect the mini-SAS&SGPIO cable to the LSI 9265-8i card, and
connect the other end of the cable to the corresponding connectors on
the system board. Ensure the cables should go through the cable clip
ring. See Figure 3-24.
3 Connect the RAID battery cable to the BBU interposer card on the LSI
9265-8i card, and connect the other end of the cable to the
corresponding connector on the RAID battery.
NOTE: When connecting the RAID battery cable, the BBU interposer card
should be installed on the LSI 9265-8i card. The BBU interposer card in the
figure below is just for you reference.

Installing System Components | 185
Figure 3-24. Cable Routing for LSI 9265-8i Card (1U Node)
Item
Cable
From
(LSI 9265-8i Card)
To
(RAID Battery and
System Board)
Mini-SAS
cable
Mini-SAS connector
0~3(J2B1)
Mini-SAS connector 0
Mini-SAS
/SGPIO cable
Mini-SAS connector
4~7 (J2B2)
Onboard SATAII
connectors 4&5 and
SGPIO 2
RAID battery
cable
RAID battery connector
(J4)
RAID battery
connector

186 | Installing System Components
Removing the LSI 9265-8i Card for 2U Node
NOTE: The LSI 9265-8i card assembly should include the BBU interposer card
which is connected to the LSI 9265-8i RAID battery. The illustrations in this section
are just for your removal and installation reference. For more information of the
LSI 9265-8i RAID battery, see “LSI 9265-8i RAID Battery” on page 195.
CAUTION: Many repairs may only be done by a certified service technician. You
should only perform troubleshooting and simple repairs as authorized in your
product documentation, or as directed by the online or telephone service and
support team. Damage due to servicing that is not authorized by Dell is not
covered by your warranty. Read and follow the safety instructions that came with
the product.
NOTE: The LSI 9265-8i card can be supported only on the 1.5U riser card. For the
information of the riser card, see “Removing the Riser card for 2U Node” on page
203.
1 Remove the system-board assembly. See “Removing a System-Board
Assembly" on page 157.
2 Disconnect the two SAS/SGPIO cables connecting to the LSI 9265-8i
card assembly.

Installing System Components | 187
3 Remove the five screws that secure the LSI 9265-8i card assembly. See
Figure 3-25.
4 Lift the LSI 9265-8i card assembly out of the system-board assembly.
See Figure 3-25.
Figure 3-25. Removing the LSI 9265-8i Card Assembly for 2U Node
1
LSI 9265-8i-card assembly
2
screw (5)
3
system-board assembly

188 | Installing System Components
5 Remove the four screws securing the LSI 9265-8i card lock cover. See
Figure 3-26.
6 Remove the LSI 9265-8i card lock cover. See Figure 3-26.
Figure 3-26. Removing the LSI 9265-8i Card Lock Cover
1
LSI 9265-8i-card assembly
2
screws (4)
3
expansion-card lock cover

Installing System Components | 189
7 Remove the screw securing the LSI 9265-8i card. See Figure 3-27.
8 Grasp the LSI 9265-8i card by its edges, and carefully remove it from
the riser card. See Figure 3-27.
If you are removing the card permanently, install a metal filler bracket
over the empty expansion slot opening, and close the expansion-card
latch.
NOTE: You must install a filler bracket over an empty expansion slot to
maintain Federal Communications Commission (FCC) certification of the
system. The brackets also keep dust and dirt out of the system and aid in
proper cooling and airflow inside the system.
Figure 3-27. Removing the LSI 9265-8i Card
1
LSI 9260-8i card
2
screw
3
riser card
4
card holder

190 | Installing System Components
Installing the LSI 9265-8i Card for 2U Node
CAUTION: Many repairs may only be done by a certified service technician. You
should only perform troubleshooting and simple repairs as authorized in your
product documentation, or as directed by the online or telephone service and
support team. Damage due to servicing that is not authorized by Dell is not
covered by your warranty. Read and follow the safety instructions that came with
the product.
CAUTION: Expansion cards can only be installed in the slots on the expansion-
card riser. Do not attempt to install expansion cards directly into the riser
connector on the system board.
1 Unpack the LSI 9265-8i card and prepare it for installation. For
instructions, see the documentation accompanying the card.
2 Remove the system-board assembly. See “Removing a System-Board
Assembly" on page 157.
3 Connect the RAID battery cable to the BBU interposer card. See
Figure 3-28.
4 Remove the screw securing the filler bracket. Grasp the filler bracket by
its edges, and carefully remove it from the riser card.
NOTE: Keep this bracket in case you need to remove the expansion card.
Filler brackets must be installed over empty expansion-cards slots to
maintain FCC certification of the system. The brackets also keep dust and
dirt out of the system and aid in proper cooling and airflow inside the
system.
5 Connect the mini-SAS/SGPIO cables to the LSI 9265-8i card assembly.
See Figure 3-28.
6 Holding the card by its edges, position the card so that the card-edge
connector aligns with the riser card.
7 Insert the card-edge connector firmly into the riser card until the card
is fully seated.
8 Install the expansion slot lock cover by securing the three screws.
9 Place the LSI 9265-8i card assembly into the system-board assembly.
10 Replace the four screws that secure the LSI 9265-8i card assembly.
Installing System Components | 191
11 Install the system-board assembly. See “Installing a System-Board
Assembly” on page 158.
Cable Routing for LSI 9265-8i Card (2U Node)
1 Connect the mini-SAS&SGPIO cable to the LSI 9265-8i card, and
connect the other end of the cable to the corresponding connectors on
the interposer extender. Ensure the cables should go through the cable
clip ring. See Figure 3-28.
2 Connect the mini-SAS cable to the LSI 9265-8i card, and connect the
other end of the cable to the corresponding connector on the system
board. Ensure the cables should go through the cable clip ring. See
Figure 3-28.
3 Connect the RAID battery cable to the BBU interposer card on the LSI
9265-8i card, and connect the other end of the cable to the
corresponding connector on the RAID battery. See Figure 3-28.
4 Connect the power cable to the interposer extender for 2U node, and
connect the other end of the cable to the corresponding connector on
the system board. See Figure 3-28.

192 | Installing System Components
NOTE: When connecting the RAID battery cable, the BBU interposer card
should be installed on the LSI 9265-8i card. The BBU interposer card in the
figure below is just for you reference.
Figure 3-28. Cable Routing for LSI 9265-8i Card
Item
Cable
From
(LSI 9265-8i Card)
To
(RAID Battery and Hard
Drive to Backplane
SATAII Connectors)
Mini-SAS
/SGPIO cable
Mini-SAS connector
0~3 (J2B1)
SATAII connectors
0~3 and SGPIO 1 on
the interposer
extender for 2U node
Mini-SAS
cable
Mini-SAS connector
4~7 (J2B2)
Mini-SAS connector 0
on the system board
RAID battery
cable
RAID battery connector
(J4)
RAID battery
connector on the
RAID battery
power cable
Control connector (J3)
on the interposer
extender
Front panel connector
1 on the system board

Installing System Components | 193
5 Press down on the cables, and ensure the cables are routed lower than
the height of the expansion card assembly for the 2U node.
Figure 3-29. Cable Routing Down (2U Node)

194 | Installing System Components
When securing the cable tie, make the cable tie go through the second air
hole (from the bottom to the top) and then tighten it to encircle one of the
mini-SAS cables. And meanwhile ensure the other mini-SAS cable is held
by the cable-tie clip.
Figure 3-30. Cable Tie for 2U Node

Installing System Components | 195
LSI 9265-8i RAID Battery
Removing the LSI 9265-8i raid battery Assembly
CAUTION: Many repairs may only be done by a certified service technician. You
should only perform troubleshooting and simple repairs as authorized in your
product documentation, or as directed by the online or telephone service and
support team. Damage due to servicing that is not authorized by Dell is not
covered by your warranty. Read and follow the safety instructions that came with
the product.
NOTE: The information in this section applies only to systems intalled with the LSI
9265-8i card.
1 Remove the system-board assembly. See “Removing a System-Board
Assembly" on page 157.
2 When removing the LSI 9265-8i RAID battery assembly for 1U node,
skip to step 5; for 2U node, continue the steps.
3 Remove the interposer extender. See “Removing the Interposer
Extender” on page 166.
4 Remove the interposer extender tray. See “Removing the Interposer
Extender Tray” on page 168.
5 Disconnect the cable connecting to the LSI 9265-8i card.
6 Remove the screws that secure the LSI9265-8i RAID battery assembly
to the system board. See Figure 3-31.
7 Lift the LSI 9265-8i RAID battery assembly away from the system
board. See Figure 3-31.

196 | Installing System Components
Figure 3-31. Removing and Installing the LSI 9265-8i RAID Battery Assembly
1
screws (2)
2
LSI 9265-8i RAID battery assembly
3
system-board assembly
Installing the LSI 9265-8i raid Battery Assembly
1 Attach the LSI9265-8i RAID battery assembly onto the system board.
See Figure 3-31.
2 Replace the screws securing the LSI9265-8i RAID battery assembly.
See Figure 3-31.
3 Connect the cable connecting to the LSI 9265-8i card.
4 When replacing the LSI9265-8i RAID battery assembly for 1U node,
skip to step 7; for 2U node, continue the steps.
5 Replace the interposer-extender tray. See “Removing the Interposer
Extender Tray” on page 168.
6 Replace the interposer extender for 2U node. See “Removing the
Interposer Extender for 2U Node” on page 166
7 Install the system-board assembly. See “Installing a System-Board
Assembly” on page 158.

Installing System Components | 197
Removing the LSI 9265-8i RAID Battery
CAUTION: Many repairs may only be done by a certified service technician. You
should only perform troubleshooting and simple repairs as authorized in your
product documentation, or as directed by the online or telephone service and
support team. Damage due to servicing that is not authorized by Dell is not
covered by your warranty. Read and follow the safety instructions that came with
the product.
NOTE: The information in this section applies only to systems with the optional
RAID controller card.
1 Remove the system-board assembly. See “Removing a System-Board
Assembly" on page 157.
2 Disconnect the cable connecting to the LSI 9265-8i card.
3 When removing the LSI 9265-8i RAID battery for 1U node, skip to
step 6; for 2U node, continue the steps.
4 Remove the interposer extender. See “Removing the Interposer
Extender” on page 166.
5 Remove the interposer-extender tray. See “Removing the Interposer
Extender Tray” on page 168.
6 Remove the LSI 9265-8i RAID battery assembly. See “Removing the
LSI 9265-8i raid battery Assembly” on page 195.

198 | Installing System Components
7 Remove the screws securing the LSI 9265-8i RAID battery to the
LSI9265-8i RAID battery carrier. See Figure 3-32.
Lift the LSI 9265-8i RAID battery carrier away from the LSI9265-8i
RAID battery carrier. See Figure 3-32.
Figure 3-32. Removing and Installing the LSI 9265-8i RAID Battery
1
LSI 9265-8i RAID battery
2
screw (3)
3
LSI 9265-8i RAID battery carrier
4
RAID battery connector
Installing the LSI 9265-8i RAID Battery
1 Place the LSI 9265-8i RAID battery in position on the LSI 9265-8i
RAID battery carrier. See Figure 3-32.
2 Replace the screws securing the LSI 9265-8i RAID battery to the LSI
9265-8i RAID battery carrier. See Figure 3-32.
3 Install the LSI 9265-8i RAID battery into the LSI 9265-8i RAID battery
carrier. See “Installing the LSI 9265-8i raid Battery” on page 196.
4 Reconnecting the cable connecting to the LSI 9265-8i card.
5 When replacing the LSI 9265-8i RAID battery for 1U node, skip to step
9; for 2U node, continue the steps.
6 Replace the interposer-extender tray. See “Removing the Interposer

Installing System Components | 199
Extender Tray” on page 168.
7 Replace the interposer extender. See “Removing the Interposer
Extender” on page 166.
8 Install the system-board assembly. See “Installing a System-Board
Assembly” on page 158.
Riser card
Optional Riser Cards
Figure 3-33. 1U Riser card for 1U Node
1
USB connector
2
PCI-E Gen 3 x16
3
micro SD card socket
Figure 3-34. 1.5U Riser card for 2U Node
1
PCI-E Gen 3 x16

200 | Installing System Components
1
PCI-E Gen 3 x16
2
USB connector
3
SD card socket
Figure 3-35. 2U Riser card for 2U Node

Installing System Components | 201
Removing the Riser card for 1U Node
CAUTION: Many repairs may only be done by a certified service technician. You
should only perform troubleshooting and simple repairs as authorized in your
product documentation, or as directed by the online or telephone service and
support team. Damage due to servicing that is not authorized by Dell is not
covered by your warranty. Read and follow the safety instructions that came with
the product.
1 Remove the system-board assembly. See “Removing a System-Board
Assembly" on page 157.
2 Remove the expansion card. See “Removing the Expansion Card for
1U Node” on page 169.
3 Remove the two screws securing the riser card to the expansion-card
bracket. See Figure 3-36.
4 Pull the riser card away from the expansion-card bracket. See Figure 3-
36.
Figure 3-36. Removing and Installing the Riser card
1
screw (2)
2
riser card
3
expansion-card bracket

202 | Installing System Components
Installing the Riser card for 1U Node
CAUTION: Many repairs may only be done by a certified service technician. You
should only perform troubleshooting and simple repairs as authorized in your
product documentation, or as directed by the online or telephone service and
support team. Damage due to servicing that is not authorized by Dell is not
covered by your warranty. Read and follow the safety instructions that came with
the product.
1 Place the riser card into the expansion-card bracket. See Figure 3-36.
2 Replace the two screws securing the riser card to the expansion-card
bracket. See Figure 3-36.
3 Install the expansion card. See “Installing the Expansion Card for 1U
Node” on page 172.
4 Replace the system-board assembly. See “Installing a System-Board
Assembly” on page 158.
Cable Routing for Riser Card (1U Node)
1 Connect the USB cable to the 1U riser card, and connect the other end
of the cable to the corresponding connectors on the system board. See
Figure 3-37.
Figure 3-37. Cable Routing for 1U Riser Card USB Cable
1
Item
Cable
From
(Riser Card)
To
(System Board)
USB cable
USB connector
internal USB
connector

Installing System Components | 203
Removing the Riser card for 2U Node
CAUTION: Many repairs may only be done by a certified service technician. You
should only perform troubleshooting and simple repairs as authorized in your
product documentation, or as directed by the online or telephone service and
support team. Damage due to servicing that is not authorized by Dell is not
covered by your warranty. Read and follow the safety instructions that came with
the product.
NOTE: Both 1.5U riser card and 2U riser card can be supported in the 2U-node
system.
1 Remove the system-board assembly. See “Removing a System-Board
Assembly" on page 157.
2 Remove the expansion card. See “Removing the Expansion Card for
2U Node” on page 173.

204 | Installing System Components
3 Turn the expansion-card bracket upward as shown in Figure 3-38 and
Figure 3-39.
4 Remove the two screws securing the 1.5U riser card to the expansion-
card bracket. See Figure 3-38.
5 Pull the 1.5U riser card away from the expansion-card bracket. See
Figure 3-38.
Figure 3-38. Removing and Installing the 1.5U Riser card
1
screw (2)
2
expansion-card bracket
3
card holder
4
1.5U riser card

Installing System Components | 205
6 Remove the four screws securing the 2U riser card to the expansion-
card bracket. See Figure 3-39.
7 Pull the 2U riser card away from the expansion-card racket. See Figure
3-39.
Figure 3-39. Removing and Installing the 2U Riser card
1
screw (4)
2
expansion-card bracket
3
2U riser card

206 | Installing System Components
Installing the Riser card for 2U Node
CAUTION: Many repairs may only be done by a certified service technician. You
should only perform troubleshooting and simple repairs as authorized in your
product documentation, or as directed by the online or telephone service and
support team. Damage due to servicing that is not authorized by Dell is not
covered by your warranty. Read and follow the safety instructions that came with
the product.
2 Place the 2U riser card into the expansion-card bracket. See Figure 3-
39.
3 Replace the four screws securing the 2U riser card to the expansion-
card bracket. See Figure 3-39.
4 Place the 1.5U riser card into the expansion-card bracket. See Figure 3-
38.
5 Replace the two screws securing the 1.5U riser card to the expansion-
card bracket. See Figure 3-38.
6 Install the expansion card. See “Installing the Expansion Card for 2U
Node” on page 177.
7 Replace the system-board assembly. See “Installing a System-Board
Assembly” on page 158.

Installing System Components | 207
Cable Routing for Riser Card (2U Node)
1 Connect the USB cable to the 1U riser card, and connect the other end
of the cable to the corresponding connectors on the system board. See
Figure 3-40.
Figure 3-40. Cable Routing for 2U Riser Card USB Cable
8
Item
Cable
From
(Riser Card)
To
(System Board)
USB cable
USB connector
internal USB
connector

208 | Installing System Components
Optional Mezzanine Cards
Removing the LSI 2008 SAS Mezzanine Card
NOTE: The LSI 2008 SAS mezzanine card is seated in PCI-E Gen3 x8 mezzanine
slot 3 on the system board, which is not active in 1-processor configuration. See
“System Board Connectors” on page 309 for the location.
CAUTION: Many repairs may only be done by a certified service technician. You
should only perform troubleshooting and simple repairs as authorized in your
product documentation, or as directed by the online or telephone service and
support team. Damage due to servicing that is not authorized by Dell is not
covered by your warranty. Read and follow the safety instructions that came with
the product.
1 Remove the system-board assembly. See “Removing a System-Board
Assembly" on page 157.
2 Disconnect all the cables from the LSI 2008 SAS mezzanine card.
3 Remove the three screws that secure the LSI 2008 SAS mezzanine card.
See Figure 3-41.
4 Lift the LSI 2008 SAS mezzanine card out of the system-board
assembly. See Figure 3-41.

Installing System Components | 209
Figure 3-41. Removing and Installing the LSI 2008 SAS Mezzanine Card
1
screw (3)
2
LSI 2008 SAS mezzanine card
3
card bridge card
4
system-board assembly
Installing the LSI 2008 SAS Mezzanine Card
CAUTION: Many repairs may only be done by a certified service technician. You
should only perform troubleshooting and simple repairs as authorized in your
product documentation, or as directed by the online or telephone service and
support team. Damage due to servicing that is not authorized by Dell is not
covered by your warranty. Read and follow the safety instructions that came with
the product.
1 Place the LSI 2008 SAS mezzanine card on the system-board assembly.
See Figure 3-41 and Figure 5-11.
2 Replace the three screws that secure the LSI 2008 SAS mezzanine card.
See Figure 3-41.
3 Reconnect all the cables to the LSI 2008 SAS mezzanine card.
4 Replace the system-board assembly. See “Installing a System-Board
Assembly” on page 158.

210 | Installing System Components
Cable Routing for LSI 2008 SAS Mezzanine Card (1U Node)
1 Connect the mini-SAS&SGPIO cable to the LSI 2008 SAS Mezzanine
card, and connect the other end of the cable to the corresponding
connectors on the system board. See Figure 3-42.
2 Connect the mini-SAS cable to the LSI 2008 SAS Mezzanine card, and
connect the other end of the cable to the corresponding connector on
the system board. See Figure 3-42.
Figure 3-42. Cable Routing for LSI 2008 SAS Mezzanine Card (1U Node)
Item
Cable
From
(LSI 2008 SAS
Mezzanine Card)
To
(System Board)
Mini-SAS
/SGPIO cable
Mini-SAS connector
4~7 (J4)
Onboard SATAII
connectors 4&5 and
SGPIO 2
Mini-SAS
cable
Mini-SAS connector
0~3 (J3)
Mini-SAS connector 0

Installing System Components | 211
Cable Routing for LSI 2008 SAS Mezzanine Card (2U Node)
1 Connect the mini-SAS cable to the LSI 2008 SAS mezzanine card, and
connect the other end of the cable to the corresponding connector on
the system board. See Figure 3-43.
2 Connect the mini-SAS&SGPIO cable to the LSI 2008 SAS mezzanine
card, and connect the other end of the cable to the corresponding
connectors on the interposer extender. See Figure 3-43.
3 Connect the power cable to the interposer extender for 2U node, and
connect the other end of the cable to the corresponding connector on
the system board. See Figure 3-43.
Figure 3-43. Cable Routing for LSI 2008 SAS Mezzanine Card (2U Node)
Item
Cable
From
(LSI 2008 SAS
Mezzanine Card)
To
(System Board and Hard
Drive to Backplane
SATAII Connectors)
Mini-SAS
cable
Mini-SAS connector
4~7 (J4)
Mini-SAS connector 0
on the system board
Mini-SAS
/SGPIO cable
Mini-SAS connector
0~3 (J3)
SATAII connectors
0~3 and SGPIO 1
connector on the
interposer extender for
2U node
Power cable
Control connector
(J3) on the interposer
extender for 2U node
Front panel connector
1 on the system board

212 | Installing System Components
4 Press down on the cables, and ensure the cables are routed lower than
the height of the expansion card assembly for the 2U node.
Figure 3-44. Cable Routing Down for LSI 2008 SAS Mezzanine Card (2U Node)

Installing System Components | 213
When securing the cable tie, make the cable tie go through the second air
hole (from the bottom to the top) and then tighten it to encircle one of the
mini-SAS cables. Ensure the other mini-SAS cable is held by the cable-tie
clip.
Figure 3-45. Cable Tie for 2U Node

214 | Installing System Components
Removing the 1GbE Mezzanine Card
NOTE: The 1GbE mezzanine card is seated in PCI-E Gen3 x8 mezzanine slot 3 on
the system board, which is not active in 1-processor configuration. See “System
Board Connectors” on page 309 for the location.
CAUTION: Many repairs may only be done by a certified service technician. You
should only perform troubleshooting and simple repairs as authorized in your
product documentation, or as directed by the online or telephone service and
support team. Damage due to servicing that is not authorized by Dell is not
covered by your warranty. Read and follow the safety instructions that came with
the product.
1 Remove the system-board assembly. See “Removing a System-Board
Assembly" on page 157.
2 Disconnect all the cables from the 1GbE mezzanine card.
3 Remove the screws that secure the expansion-card bracket. See Figure
3-46 for 1U node. See Figure 3-17 for 2U node.
4 Lift the expansion-card bracket out of the system-board assembly. See
Figure 3-46 for 1U node. See Figure 3-17 for 2U node.
Figure 3-46. Removing and Installing the Expansion-Card Bracket
1
screw (3)
2
expansion-card bracket
3
system-board assembly

Installing System Components | 215
5 Remove the screws that secure the 1GbE mezzanine card assembly.
See Figure 3-47.
6 Lift the 1GbE mezzanine card assembly away from the card bridge
board on the system board. See Figure 3-47.
Figure 3-47. Removing and Installing the 1GbE mezzanine card assembly
1
screw (4)
2
1GbE mezzanine card assembly
3
card bridge board
4
system-board assembly

216 | Installing System Components
7 Remove the two screws that secure the 1GbE mezzanine card to the
bracket. See Figure 3-48.
8 Remove the 1GbE mezzanine card from the bracket. See Figure 3-48.
Figure 3-48. Removing and Installing the 1GbE Mezzanine Card
1
screw (2)
2
mezzanine card bracket
3
1GbE mezzanine card
Installing the 1GbE Mezzanine Card
CAUTION: Many repairs may only be done by a certified service technician. You
should only perform troubleshooting and simple repairs as authorized in your
product documentation, or as directed by the online or telephone service and
support team. Damage due to servicing that is not authorized by Dell is not
covered by your warranty. Read and follow the safety instructions that came with
the product.
1 Attach the 1GbE mezzanine card to the bracket by aligning the four
ports to the corresponding port slots on the bracket. See Figure 3-48.
2 Install the two screws to secure the 1GbE mezzanine card to the
bracket. See Figure 3-48.
3 Install the 1GbE mezzanine card assembly to the card bridge board on
the system-board assembly. See Figure 3-47.
4 Install the four screws to secure the 1GbE mezzanine card assembly to

Installing System Components | 217
the system-board assembly. See Figure 3-47.
5 Place the expansion-card bracket into the system-board assembly. See
Figure 3-46 for 1U node. See Figure 3-17 for 2U node.
6 Replace the screws that secure the expansion-card bracket.
7 Reconnect all the cables to the 1GbE mezzanine card.
8 Replace the system-board assembly. See "Installing a System-Board
Assembly" on page 158.
Removing the 10GbE Mezzanine Card
NOTE: The 10GbE mezzanine card is seated in PCI-E Gen3 x8 mezzanine slot 3 on
the system board, which is not active in 1-processor configuration. See “System
Board Connectors” on page 309 for the location.
CAUTION: Many repairs may only be done by a certified service technician. You
should only perform troubleshooting and simple repairs as authorized in your
product documentation, or as directed by the online or telephone service and
support team. Damage due to servicing that is not authorized by Dell is not
covered by your warranty. Read and follow the safety instructions that came with
the product.
1 Remove the system-board assembly. See “Removing a System-Board
Assembly" on page 157.
2 Disconnect all the cables from the 10GbE mezzanine card.

218 | Installing System Components
3 Remove the screws that secure the expansion-card bracket. See Figure
3-49 for 1U node. See Figure 3-17 for 2U node.
4 Lift the expansion-card bracket out of the system-board assembly. See
Figure 3-49 for 1U node. See Figure 3-17 for 2U node.
Figure 3-49. Removing and Installing the Expansion-Card Bracket
1
screw (3)
2
expansion-card bracket
3
system-board assembly

Installing System Components | 219
5 Remove the screws that secure the 10GbE mezzanine card assembly.
See Figure 3-50.
6 Lift the 10GbE mezzanine card assembly away from the card bridge
board on the system board. See Figure 3-50.
Figure 3-50. Removing and Installing the 10GbE mezzanine card assembly
1
screw (4)
2
10GbE mezzanine card assembly
3
card bridge board
4
system-board assembly

220 | Installing System Components
7 Remove the two screws that secure the 10GbE mezzanine card to the
bracket. See Figure 3-51.
8 Remove the 10GbE mezzanine card from the bracket. See Figure 3-51.
Figure 3-51. Removing and Installing the 10GbE Mezzanine Card
1
screw (2)
2
mezzanine card bracket
3
10GbE mezzanine card
Installing the 10GbE Mezzanine Card
CAUTION: Many repairs may only be done by a certified service technician. You
should only perform troubleshooting and simple repairs as authorized in your
product documentation, or as directed by the online or telephone service and
support team. Damage due to servicing that is not authorized by Dell is not
covered by your warranty. Read and follow the safety instructions that came with
the product.
1 Attach the 10GbE mezzanine card to the bracket by aligning the four
ports to the corresponding port slots on the bracket. See Figure 3-51.
2 Install the screws to secure the 10GbE mezzanine card to the bracket.
See Figure 3-51.
3 Install the 10GbE mezzanine card assembly to the card bridge board on
the system-board assembly. See Figure 3-50.

Installing System Components | 221
4 Install the screws to secure the 10GbE mezzanine card assembly to the
system-board assembly. See Figure 3-50.
5 Place the expansion-card bracket into the system-board assembly. See
Figure 3-49 for 1U node. See Figure 3-17 for 2U node.
6 Replace the screws that secure the expansion-card bracket.
7 Reconnect all the cables to the 10GbE mezzanine card.
8 Replace the system-board assembly. See "Installing a System-Board
Assembly" on page 158.
Mezzanine-Card Bridge Board
Removing the Mezzanine-Card Bridge Board
CAUTION: Many repairs may only be done by a certified service technician. You
should only perform troubleshooting and simple repairs as authorized in your
product documentation, or as directed by the online or telephone service and
support team. Damage due to servicing that is not authorized by Dell is not
covered by your warranty. Read and follow the safety instructions that came with
the product.
1 It is recommended to turn off the system, including any attached
peripherals, and disconnect the system from its electrical outlet.
2 Remove the system-board assembly. See “Removing a System-Board
Assembly" on page 157.
3 Remove the mezzanine card. See “Removing the LSI 2008 SAS
Mezzanine Card” on page 208, “
4 Pull the mezzanine-card bridge board away from the mezzanine slot on
the system board. See Figure 3-52.

222 | Installing System Components
Figure 3-52. Removing and Installing the Mezzanine-Card Bridge Board
1
card bridge board
2
system-board assembly
Installing the Mezzanine-Card Bridge Board
CAUTION: Many repairs may only be done by a certified service technician. You
should only perform troubleshooting and simple repairs as authorized in your
product documentation, or as directed by the online or telephone service and
support team. Damage due to servicing that is not authorized by Dell is not
covered by your warranty. Read and follow the safety instructions that came with
the product.
1 Install the mezzanine-card bridge board into the mezzanine slot on the
system board. See Figure 3-52.
2 Install the mezzanine card. See "Installing the LSI 2008 SAS
Mezzanine Card" on page 209, “Installing the 1GbE Mezzanine Card”
on page 216 and "Installing the 10GbE Mezzanine Card" on page 220.
3 Install the system-board assembly. See "Installing a System-Board
Assembly" on page 158.
4 Reconnect the system to its electrical outlet and turn on the system,
including any attached peripherals.
Installing System Components | 223
System Memory
Each system board has sixteen DDR3 memory module slots for the
installation of up to sixteen unbuffered or registered DDR3-1333MHz
(1600MHz @2 memory modules per channel) memory modules to support
processor 1 and processor 2. See “System Board Connectors” on page 309
for the location of the memory modules.
Memory Slot Features
Support 8 channels, 16 UDIMMs/RDIMMs of DDR3
Speed up to 1600MT/s
Max. capacity: 512GB with 32GB RDIMM, LRDIMM
Support DDR3/DDR3L
Support ECC
Supported Memory Module Configuration
For the sequence of the sixteen memory-module slots, see Figure 3-53. The
system requires at least one memory module installed on processor 1’s
DIMM slot 1 in order to be booted up. When you insert the memory
module(s), always start with CHA_A1. The optimized memory module
installation sequence is 1/2/3/4/5/6/7/8.
See Table 3-2 and Table 3-3 for possible memory configurations.

224 | Installing System Components
Figure 3-53. DIMM Slot Locations
1
DIMM_A3
2
DIMM_A7
3
DIMM_A4
4
DIMM_A8
5
DIMM_B1
6
DIMM_B5
7
DIMM_B2
8
DIMM_B6
9
DIMM_B3
10
DIMM_B7
11
DIMM_B4
12
DIMM_B8
13
DIMM_A1
14
DIMM_A5
15
DIMM_A2
16
DIMM_A6
Table 3-2. Memory Module Configurations for Single Processor
Memory
Module
Processor 1
CHA
CHB
CHC
CHD
A1
A5
A2
A6
A3
A7
A4
A8
1
√
−
−
−
−
−
−
−
2
√
−
√
−
−
−
−
−
3
√
−
√
−
√
−
−
−
4
√
−
√
−
√
−
√
−
6
√
√
√
√
√
−
√
−
8
√
√
√
√
√
√
√
√

Installing System Components | 225
Table 3-3. Memory Module Configurations for Dual Processors
Memory
Module
Processor 1
CHA
CHB
CHC
CHD
A1
A5
A2
A6
A3
A7
A4
A8
2
√
−
−
−
−
−
−
−
6
√
−
√
−
√
−
−
−
8
√
−
√
−
√
−
√
−
12
√
√
√
√
√
−
√
−
16
√
√
√
√
√
√
√
√
Memory
Module
Processor 2
CHA
CHB
CHC
CHD
B1
B5
B2
B6
B3
B7
B4
B8
2
√
−
−
−
−
−
−
−
6
√
−
√
−
√
−
−
−
8
√
−
√
−
√
−
√
−
12
√
√
√
√
√
−
√
−
16
√
√
√
√
√
√
√
√
Removing the Memory Modules
WARNING: The memory modules are hot to the touch for some time after the
system has been powered down. Allow time for the memory modules to cool
before handling them. Handle the memory modules by the card edges and avoid
touching the components on the memory module.
CAUTION: Many repairs may only be done by a certified service technician. You
should only perform troubleshooting and simple repairs as authorized in your
product documentation, or as directed by the online or telephone service and
support team. Damage due to servicing that is not authorized by Dell is not
covered by your warranty. Read and follow the safety instructions that came with
the product.
1 Remove the system-board assembly. See “Removing a System-Board
Assembly" on page 157.
2 Remove the air baffle for 1U node. See “Removing the Air Baffle ” on
page 159; Remove the expansion card assembly for 2U node. See

226 | Installing System Components
“Removing the Expansion Card for 2U Node” on page 173.
3 When removing the memory module from the system equipped with
the RAID battery assembly, remove the RAID battery assembly first.
See “Removing the LSI 9265-8i raid battery Assembly” on page 195.
Locate the memory module sockets. See Figure 3-54.
CAUTION: Handle each memory module only on either card edge, making sure not
to touch the middle of the memory module. To avoid damaging components on the
memory module, remove only one memory module at a time.
4 Simultaneously press down and out on the ejectors at both ends of the
memory module socket until the memory module is released from the
socket. See Figure 3-54.
5 Lift the memory module out of the socket by contact only at the ends
of the module. See Figure 3-54.
Figure 3-54. Removing a Memory Module
1
memory module
2
memory module socket ejector
(2)

Installing System Components | 227
Installing the Memory Modules
WARNING: The memory modules are hot to the touch for some time after the
system has been powered down. Allow time for the memory modules to cool
before handling them. Handle the memory modules by the card edges and avoid
touching the components on the memory module.
CAUTION: Many repairs may only be done by a certified service technician. You
should only perform troubleshooting and simple repairs as authorized in your
product documentation, or as directed by the online or telephone service and
support team. Damage due to servicing that is not authorized by Dell is not
covered by your warranty. Read and follow the safety instructions that came with
the product.
1 Press down and out on the ejectors on each end of the memory module
socket. See Figure 3-55.
2 Align the memory module correctly with the alignment key of the
memory module socket. See Figure 3-55.
3 Press down firmly on the memory module with your thumbs until the
module snaps into place. See Figure 3-55.
CAUTION: Even pressure during insertion must be applied at both ends of the
module simultaneously to prevent damage to the socket. No pressure should be
applied to the center of the module.
Complete the latching of the module into the socket by applying
inward pressure to the socket ejectors to assure that the ejectors are in
a locked position. When the memory module is properly seated in the
socket, the ejectors on the memory module socket align with the
ejectors on other identical sockets that have memory modules installed.

228 | Installing System Components
Figure 3-55. Installing a Memory Module
1
memory module
2
alignment key
3
memory module socket ejector (2)
4 Replace the air baffle for 1U node. See “Installing the Air Baffle ” on
page 160; Replace the expansion card assembly for 2U node. See
“Installing the Expansion Card for 2U Node” on page 177.
5 Replace the system-board assembly. See “Installing a System-Board
Assembly” on page 158.

Installing System Components | 229
System Battery
Replacing the System Battery
WARNING: There is a danger of a new battery exploding if it is incorrectly
installed. Replace the battery only with the same or equivalent type
recommended by the manufacturer. See your safety information for additional
information.
CAUTION: Many repairs may only be done by a certified service technician. You
should only perform troubleshooting and simple repairs as authorized in your
product documentation, or as directed by the online or telephone service and
support team. Damage due to servicing that is not authorized by Dell is not
covered by your warranty. Read and follow the safety instructions that came with
the product.
1 Remove the system-board assembly. See “Removing a System-Board
Assembly" on page 157.
2 Remove the expansion card assembly. See “Removing the Expansion
Card for 1U Node“on page 169. Locate the battery location. See
“System Board Connectors” on page 309.
CAUTION: To avoid damage to the battery connector, you must firmly support the
connector while installing or removing a battery.
3 Gently lift the battery out of the connector. See Figure 3-56.
4 Hold the new battery with the “+” facing the positive side of battery
connector. See Figure 3-56.
5 Insert the battery into the battery holder until it is seated in place. See
Figure 3-56.

230 | Installing System Components
Figure 3-56. Replacing the System Battery
1
system battery
2
positive side of battery connector
3
negative side of battery connector
6 Replace the system-board assembly. See “Installing a System-Board
Assembly” on page 158.
7 Enter the System Setup program to confirm that the battery is
operating properly. See “Using the System Setup Program” on page 62.
8 Enter the correct time and date in the System Setup program’s Time
and Date fields.
9 Exit the System Setup program.

Installing System Components | 231
System Board
Removing a System Board
CAUTION: Many repairs may only be done by a certified service technician. You
should only perform troubleshooting and simple repairs as authorized in your
product documentation, or as directed by the online or telephone service and
support team. Damage due to servicing that is not authorized by Dell is not
covered by your warranty. Read and follow the safety instructions that came with
the product.
1 Remove the system-board assembly. See “Removing a System-Board
Assembly" on page 157.
2 Remove the air baffle for 1U node. See “Removing the Air Baffle ” on
page 159.
3 Remove the expansion-card assembly. See “Removing the Expansion
Card” on page 169.
4 Remove the heat sink. See “Removing the Heat Sink” on page 160.
5 Remove the memory modules. See “Removing the Memory Modules”
on page 225.
6 If installed, remove the SAS mezzanine card or 1GbE mezzanine card
or 10GbE mezzanine card. See “Removing the LSI 2008 SAS
Mezzanine Card” on page 208,”Removing the 1GbE Mezzanine Card”
on page 212 and “Removing the 10GbE Mezzanine Card” on page 217.
7 Disconnect all the cables from the system board.
8 Remove the eight screws and then slide the system board. See Figure 3-
57
CAUTION: Do not lift the system board by grasping a memory module, processor,
or other components.
9 Grasp the system board by the edges and lift the system board away
from the system-board assembly. See Figure 3-57.

232 | Installing System Components
Figure 3-57. Removing and Installing the System Board
1
screw (8)
2
system board
3
system-board assembly
Installing a System Board
1 Unpack the new system board.
2 Holding the system board by the edges, slide the system board into the
system-board assembly.
3 Replace the eight screws to secure the system board to the system-
board assembly.
4 Transfer the processors to the new system board. See “Removing a
Processor” on page 162 and “Installing a Processor” on page 164.
5 Remove the memory modules and transfer them to the same locations
on the new board. See “Removing the Memory Modules” on page 225
and “Installing the Memory Modules” on page 227.
6 Replace the heat sinks. See “Installing the Heat Sink” on page 161.
7 Install the expansion-card assembly. See “Installing the Expansion
Card” on page 172.

Installing System Components | 233
8 If applicable, install the SAS mezzanine card or 1GbE mezzanine card
or 10GbE mezzanine card. See “Installing the LSI 2008 SAS
Mezzanine Card” on page 209, “Installing the 1GbE Mezzanine Card”
on page 216 and “Installing the 10GbE Mezzanine Card” on page 220.
9 Connect all the cables to the system board.
10 Replace the air baffle for 1U node. See “Installing the Air Baffle ”on
page 160.
11 Replace the system-board assembly. See “Installing a System-Board
Assembly” on page 158.
Opening and Closing the System
WARNING: Whenever you need to lift the system, get others to assist you. To
avoid injury, do not attempt to lift the system by yourself.
CAUTION: This system must be operated with the system cover installed to
ensure proper cooling.
CAUTION: Many repairs may only be done by a certified service technician. You
should only perform troubleshooting and simple repairs as authorized in your
product documentation, or as directed by the online or telephone service and
support team. Damage due to servicing that is not authorized by Dell is not
covered by your warranty. Read and follow the safety instructions that came with
the product.
Opening the System
1 It is recommended to turn off the system, including any attached
peripherals, and disconnect the system from the electrical outlet.
2 Remove the securing screw from the system cover. See Figure 3-58.
3 Press the cover release latch lock. See Figure 3-58.
4 Grasp cover on both the sides with your palm on the traction pad, slide
out and lift the cover away from the system. See Figure 3-58.

234 | Installing System Components
Figure 3-58. Opening and Closing the System
1
traction pad
2
system cover
3
securing screw
4
cover release latch lock
Closing the System
1 Place the cover on the chassis and slide it to the front of the chassis
until it snaps into place. See Figure 3-58.
2 Secure the cover with the securing screw. See Figure 3-58.

Installing System Components | 235
Cooling Fans
Removing a Cooling Fan
WARNING: Do not attempt to operate the system without the cooling fans.
WARNING: The cooling fan can continue to spin for some time after the system
has been powered down. Allow time for the fan to stop spinning before removing
it from the system.
CAUTION: Many repairs may only be done by a certified service technician. You
should only perform troubleshooting and simple repairs as authorized in your
product documentation, or as directed by the online or telephone service and
support team. Damage due to servicing that is not authorized by Dell is not
covered by your warranty. Read and follow the safety instructions that came with
the product.
1 It is recommended to turn off the system, including any attached
peripherals, and disconnect the system from its electrical outlet.
2 Open the system. See “Opening the System” on page 233.
3 Disconnect the fan’s power cable from the power distribution board 1.
Note the routing of the cable through the cable tie as you remove them
from the system. You must route these cables properly when you
replace them to prevent the cables from being pinched or crimped.

Installing System Components | 237
5 Disconnect the fan cable from the fan connector on the cooling-fan
cage. See Figure 3-60.
6 Lift the cooling fan with the sponge out of the cooling-fan cage. See
Figure 3-60.
Figure 3-60. Removing and Installing a Cooling Fan
1
cooling-fan cage
2
cooling fan 1
3
cooling fan 2
4
sponge
5
cooling fan 3
6
cooling fan 4
Installing a Cooling Fan
CAUTION: Many repairs may only be done by a certified service technician. You
should only perform troubleshooting and simple repairs as authorized in your
product documentation, or as directed by the online or telephone service and
support team. Damage due to servicing that is not authorized by Dell is not
covered by your warranty. Read and follow the safety instructions that came with
the product.
1 Align the cooling fan with sponge and slide it in the cooling-fan cage
until the cooling fan is firmly seated. See Figure 3-60.
NOTE: The fan blades should face the front panel of the system.

238 | Installing System Components
2 Connect the fan cable to the connector on the cooling-fan cage.
3 Align the cooling-fan cage with the locating pins on the chassis and
place it into the chassis until it’s firmly seated in place. See Figure 3-59.
4 Connect the fan’s power cable to the connector on the power
distribution board 1. See Figure 3-59.
You must route these cables properly through the ties to prevent them
from being pinched or crimped.
5 Close the system. See “Closing the System” on page 234.
6 Reconnect the system to its electrical outlet and turn on the system,
including any attached peripherals.
Power Distribution Boards
Removing a Power Distribution Board
CAUTION: Many repairs may only be done by a certified service technician. You
should only perform troubleshooting and simple repairs as authorized in your
product documentation, or as directed by the online or telephone service and
support team. Damage due to servicing that is not authorized by Dell is not
covered by your warranty. Read and follow the safety instructions that came with
the product.
NOTE: This system has two power distribution boards. The procedure to remove
and install both the power distribution boards is similar. To access the power
distribution board 2 at the bottom, remove the power distribution board at the top.
1 It is recommended to turn off the system, including any attached
peripherals, and disconnect the system from its electrical outlet.
2 Open the system. See “Opening the System” on page 233.
3 Remove the power supply. See “Removing and Installing a Power
Supply” on page 154.

Installing System Components | 239
4 Disconnect all the cables from the first power distribution board. See
Figure 3-66.
Note the routing of the cable on the chassis as you remove them from
the system. You must route these cables properly when you replace
them to prevent the cables from being pinched or crimped.
5 Remove the screw that secure the power cable cover to the power
distribution board 1. See Figure 3-61.
6 Lift it up straightly from the locking hole on the power distribution
board 1. Then, lift it completely out of the power distribution board 1.
See Figure 3-61.
Figure 3-61. Removing and Installing the Power Cable Cover
1
screw
2
power cable cover

Installing System Components | 241
8 Remove the screws securing the first power distribution board to the
system. See Figure 3-63.
9 Lift the first power distribution board out of the system. See Figure 3-
63.
Figure 3-63. Removing and Installing the Power Distribution Board 1
1
power distribution board 1
2
screw (8)

242 | Installing System Components
10 Lift the power distribution board connector from the system. See
Figure 3-64.
Figure 3-64. Removing and Installing the Power Distribution Board Connector
1
power distribution board connector
2
power distribution board 2
11 Disconnect all the cables from the power distribution board 2. See
Figure 3-61.
12 Remove the power cable cover from the power distribution board 2.
See Figure 3-61.
13 Remove the four power cables from the power distribution board 2. See
Figure 3-62.

Installing System Components | 243
14 Remove the screws securing the power distribution board 2 to the
system. See Figure 3-65.
15 Lift the power distribution board 2 out of the system. See Figure 3-65.
NOTE: To remove the power distribution board 2 that is below the first
power distribution board, remove the power distribution board connector
and angle the board before lifting.
Figure 3-65. Removing and Installing a Power Distribution Board 2
1
screw (4)
2
2nd power distribution board
Installing a Power Distribution Board
CAUTION: Many repairs may only be done by a certified service technician. You
should only perform troubleshooting and simple repairs as authorized in your
product documentation, or as directed by the online or telephone service and
support team. Damage due to servicing that is not authorized by Dell is not
covered by your warranty. Read and follow the safety instructions that came with
the product.

244 | Installing System Components
CAUTION: If removed, you must replace the power distribution board 2 at the
bottom and the power distribution board-connector before replacing the first
power distribution board at the top.
1 If removed, first place the power distribution board 2 in the system.
See Figure 3-65. Otherwise skip to step 5.
NOTE: To install the power distribution board 2 that is below the first power
distribution board, angle the board during installation.
2 Replace the screws securing the power distribution board 2 to the
system. See Figure 3-65.
3 Replace the power distribution board-connector. See Figure 3-64.
4 Connect all the cables to the power distribution board 2. See Figure 3-
67.
You must route these cables properly through the tabs on the chassis to
prevent them from being pinched or crimped.
5 Replace the first power distribution board to the system. See Figure 3-
63.
6 Replace the screws securing the first power distribution board to the
system. See Figure 3-63.
7 Connect all the cables to the first power distribution board. See Figure
3-66.
You must route these cables properly through the tabs on the chassis to
prevent them from being pinched or crimped.
8 Replace the power supply. See “Installing a Power Supply” on page 155.
9 Close the system. See “Closing the System” on page 234.
10 Reconnect the system to its electrical outlet and turn on the system,
including any attached peripherals.

Installing System Components | 245
Cable Routing for Power Distribution Board
Cable routings for power distribution board 1 (top) and power distribution
board 2 (bottom) in the 1U node system and 2U node system are the same.
The following figure shows an example using 1U node system.
Figure 3-66. Cable Routing−Power Distribution Board 1 (Top)

246 | Installing System Components
Item
Cable
From
(Power Distribution
Boards)
To
Hard-drive
backplane
power cable
Hard-drive backplane
power connector (J84)
Backplane
Hard-drive
backplane
power cable
Hard-drive backplane
power connector (J29)
Backplane
Power
distribution
board cable
Control connector (J31)
Power distribution
board 2
I2C cables
System board control
connectors (J5&J6)
Middle planes
Backplane
control cable
Hard-drive backplane
control connector (J17)
Backplane
System fan
cable
System fan connector
(J9)
System fans
12V power
cables
Power distribution board
1/2
Middle planes
Ground
power cables
Power distribution board
1/2
Middle planes

Installing System Components | 247
Figure 3-67. Cable Routing−Power Distribution Board 2 (Bottom)
Item
Cable
From
(Power Distribution Board
2)
To
Ground
power cables
Power distribution board
1/2
Middle planes
12V power
cables
Power distribution board
1/2
Middle planes

248 | Installing System Components
Middle Planes
Removing the Middle Planes
CAUTION: Many repairs may only be done by a certified service technician. You
should only perform troubleshooting and simple repairs as authorized in your
product documentation, or as directed by the online or telephone service and
support team. Damage due to servicing that is not authorized by Dell is not
covered by your warranty. Read and follow the safety instructions that came with
the product.
1 It is recommended to turn off the system, including any attached
peripherals, and disconnect the system from its electrical outlet.
2 Open the system. See “Opening the System” on page 233.
3 Remove the system-board assemblies. See “Removing a System-Board
Assembly" on page 157.
4 Remove the cooling-fan cage. See “Removing a Cooling Fan” on page
235.

Installing System Components | 249
5 Remove the screws that secure the middle-wall bracket to the chassis.
See Figure 3-68.
6 Lift the middle-wall bracket out of chassis. See Figure 3-68.
Figure 3-68. Removing and Installing the Middle-Wall Bracket
1
middle-wall bracket
2
screw (6)
7 Disconnect all the cables from the upper middle plane.
Note the routing of the cable on the chassis as you remove them from
the system. You must route these cables properly when you replace
them to prevent the cables from being pinched or crimped.

250 | Installing System Components
8 Remove the screw that secure the power cable cover to the upper
middle plane. See Figure 3-69.
9 Lift it up straightly from the locking hole on the upper middle plane.
Then, lift it completely out of the upper middle plane. See Figure 3-69.
Figure 3-69. Removing and Installing the Power Cable Cover
1
screw
2
power cable cover

Installing System Components | 253
13 Remove the screws that secure the mid-plane holder support to the
chassis. See Figure 3-72.
14 Lift the mid-plane holder support out of the chassis. See Figure 3-72.
Figure 3-72. Removing and Installing the Mid-plane Holder Support
1
screw (3)
2
mid-plane holder support

254 | Installing System Components
15 Remove the screws that secure the mid-plane holder to the chassis.
Figure 3-73.
16 Lift the mid-plane holder out of the chassis. See Figure 3-73.
Figure 3-73. Removing and Installing the Mid-plane Holder
1
screw (6)
2
mid-plane holder
17 Disconnect all the cables from the lower middle plane.
Note the routing of the cable on the chassis as you remove them from
the system. You must route these cables properly when you replace
them to prevent the cables from being pinched or crimped.
18 Remove the power cable cover from the lower middle plane. See Figure
3-69.
19 Remove the four power cables from the lower middle plane. See Figure
3-70.

Installing System Components | 255
20 Remove the screws that secure the lower middle plane to the chassis.
Figure 3-74.
21 Lift the lower middle plane out of the chassis. See Figure 3-74.
Figure 3-74. Removing and Installing the Lower Middle Plane
1
screw (8)
2
lower middle plane
Installing the Middle Planes
CAUTION: Many repairs may only be done by a certified service technician. You
should only perform troubleshooting and simple repairs as authorized in your
product documentation, or as directed by the online or telephone service and
support team. Damage due to servicing that is not authorized by Dell is not
covered by your warranty. Read and follow the safety instructions that came with
the product.
1 Place the lower middle plane into the chassis. See Figure 3-74.
2 Replace the screws that secure the lower middle plane to the chassis.
See Figure 3-74.
3 Connect all the cables to the lower middle plane.
You must route these cables properly on the chassis to prevent them
from being pinched or crimped.
256 | Installing System Components
4 Secure the screws that secure the power cables to the lower middle
plane.
5 Replace the power cable cover to the lower middle plane.
6 Place the middle plane holder into the chassis. See Figure 3-73.
7 Replace the screws that secure the middle plane holder to the chassis.
See Figure 3-73.
8 Place the mid-plane holder support into the chassis. See Figure 3-72.
9 Replace the screws that secure the mid-plane holder support to the
chassis. See Figure 3-72.
10 Place the upper middle plane on the mid-plane holder. See Figure 3-71.
11 Replace the screws that secure the middle plane to the middle plane
holder. See Figure 3-71.
12 Connect all the cables to the upper middle plane.
You must route these cables properly on the chassis to prevent them
from being pinched or crimped.
13 Secure the screws that secure the power cables to the upper middle
plane.
14 Replace the power cable cover to the upper lower middle plane.
15 Place the middle-wall bracket into the chassis. See Figure 3-68.
16 Replace the screws that secure the middle-wall bracket to the chassis.
Figure 3-68.
17 Replace the cooling-fan cage. See Figure 3-59.
18 Replace the cooling fans. See “Installing a Cooling Fan” on page 237.
19 Replace the system-board assemblies. See “Installing a System-Board
Assembly” on page 158.
20 Close the system, see “Closing the System” on page 234.
21 Reconnect the system to its electrical outlet and turn on the system,
including any attached peripherals.

Installing System Components | 257
Cable Routing for Middle Plane to Direct Hard-Drive Backplane
Figure 3-75. Cable Routing−Top Middle Plane to Direct Backplane for 12 x3.5”
Hard-Drive Configuration
Item
Cable
From
(Top Middle Plane)
To
(Direct Backplane)
Hard-drive
backplane
cable
mini-SAS connector for
system board 1 and 2
(hard drive 1,2,3 and 4)
(J1)
SATA2 hard drive
connectors 1,2, and 3
for system board 1
(from top to bottom)
Hard-drive
backplane
cable
mini-SAS connector for
system board 3 and 4
(hard drive 1,2,3 and 4)
(J3)
SATA2 hard drive
connectors 1,2, and 3
for system board 3
(from top to bottom)

258 | Installing System Components
Figure 3-76. Cable Routing−Bottom Middle Plane to Direct Backplane for 12 x3.5”
Hard-Drive Configuration
Item
Cable
From
(Bottom Middle Plane)
To
(Direct Backplane)
Hard-drive
backplane
cable
mini-SAS connector for
system board 1 and 2
(hard drive 1,2,3 and 4)
(J1)
SATA2 hard drive
connectors 1,2, and 3
for system board 2
(from top to bottom)
Hard-drive
backplane
cable
mini-SAS connector for
system board 3 and 4
(hard drive 1,2,3 and 4)
(J3)
SATA2 hard drive
connectors 1,2, and 3
for system board 4
(from top to bottom)

Installing System Components | 259
Figure 3-77. Cable Routing−Top Middle Plane to Direct Backplane for 24 x2.5”
Hard-Drive Configuration
Item
Cable
From
(Top Middle Plane)
To
(Direct Backplane)
Hard-drive
backplane
cable
Mini-SAS connector for
system board 1 and 2
(hard drive 1, 2, 3 and 4)
(J1)
SATA2 hard drive
connectors 1 to 4 for
system board 1 (from
right to left)
Hard-drive
backplane
cable
Mini-SAS connector for
system board 1 and 2
(hard drive 5 and 6) (J2)
SATA2 hard drive
connectors 5 to 6 for
system board 1 (from
right to left)
Hard-drive
backplane
cable
Mini-SAS connector for
system board 3 and 4
(hard drive 1, 2, 3 and 4)
(J3)
SATA2 hard drive
connectors 1 to 4 for
system board 3 (from
right to left)

260 | Installing System Components
Item
Cable
From
(Top Middle Plane)
To
(Direct Backplane)
Hard-drive
backplane
cable
Mini-SAS connector for
system board 3 and 4
(hard drive 5 and 6) (J4)
SATA2 hard drive
connectors 5 to 6 for
system board 3 (from
right to left)
Item
Cable
From
(Bottom Middle Plane)
To
(Direct Backplane)
Hard-drive
backplane
cable
mini-SAS connector for
system board 1 and 2
(hard drive 1,2,3 and 4)
(J1)
SATA2 hard drive
connectors 1 to 4 for
system board 2 (from
right to left)
Figure 3-78. Cable Routing−Bottom Middle Plane to Direct Backplane for 24 x2.5”
Hard-Drive Configuration

Installing System Components | 261
Item
Cable
From
(Bottom Middle Plane)
To
(Direct Backplane)
Hard-drive
backplane
cable
mini-SAS connector for
system board 1 and 2
(hard drive 5 and 6) (J2)
SATA2 hard drive
connectors 5 to 6 for
system board 2 (from
right to left)
Hard-drive
backplane
cable
mini-SAS connector for
system board 3 and 4
(hard drive 1,2,3 and 4)
(J3)
SATA2 hard drive
connectors 1 to 4 for
system board 4 (from
right to left)
Hard-drive
backplane
cable
mini-SAS connector for
system board 3 and 4
(hard drive 5 and 6) (J4)
SATA2 hard drive
connectors 5 to 6 for
system board 4 (from
right to left)

262 | Installing System Components
Cable Routing for Middle Plane to 2.5” Hard-Drive Backplane for
Expander Configuration
Figure 3-79. Cable Routing−Top Middle Plane to 2.5” Hard Drive for Expander
Configuration
Item
Cable
From
(Top Middle Plane)
To
(Expander Card)
Hard-drive
backplane
cable
mini-SAS connector for
system board 1 (J1)
mini-SAS connector
( 0~3) for system
board 1
Hard-drive
backplane
cable
mini-SAS connector for
system board 3 (J3)
mini-SAS connector
(8~11) for system
board 3

Installing System Components | 263
Figure 3-80. Cable Routing−Bottom Middle Plane to 2.5” Hard Drive for Expander
Configuration
Item
Cable
From
(Bottom Middle Plane)
To
(Expander Card)
Hard-drive
backplane
cable
mini-SAS connector for
system board 1 (J1)
mini-SAS connector
( 4~7) for system
board 1
Hard-drive
backplane
cable
mini-SAS connector for
system board 3 (J3)
mini-SAS connector
(12~15) for system
board 3

264 | Installing System Components
Direct Backplanes
NOTE: Following is the replacement procedure of SATA2 and SAS Direct
Backplane for 3.5-inch hard drive systems. Replacement procedure for 2.5-inch of
SATA2 and SAS Direct Backplane is similar to the Direct Backplane for 3.5-inch
hard drive systems.
Removing the Direct Backplane
CAUTION: Many repairs may only be done by a certified service technician. You
should only perform troubleshooting and simple repairs as authorized in your
product documentation, or as directed by the online or telephone service and
support team. Damage due to servicing that is not authorized by Dell is not
covered by your warranty. Read and follow the safety instructions that came with
the product.
1 It is recommended to turn off the system, including any attached
peripherals, and disconnect the system from its electrical outlet.
2 Remove all the hard drives. See “Removing a Hard-Drive Carrier” on
page 150.
3 Open the system. See “Opening the System” on page 233.
CAUTION: To prevent damage to the drives and backplane, you must remove the
hard drives from the system before removing the backplane.
CAUTION: You must note the number of each hard drive and temporarily label
them before removal so that you can replace them in the same locations.

Installing System Components | 265
4 Disconnect all the cables from the backplane. See Figure 3-81 for 3.5-
inch hard drives and Figure 3-82 for 2.5-inch hard drives.
Note the routing of the cable on the chassis as you remove them from
the system. You must route these cables properly when you replace
them to prevent the cables from being pinched or crimped.
Figure 3-81. Back View of the 3.5” Direct Backplane
1
backplane power connector for
power supply 1
2
1x8pin fan controller board
connector
3
SGPIO connector 4 for system board
4
4
SGPIO connector 3 for system
board 3
5
SGPIO connector 2 for system board
2
6
SGPIO connector 1 for system
board 1
7
backplane jumper
8
SATA2 hard drive connectors 1,2,
and 3 for system board 1 (from top
to bottom)
9
SATA2 hard drive connectors 1,2,
and 3 for system board 2 (from top to
bottom)
10
SATA2 hard drive connectors 1,2,
and 3 for system board 3 (from top
to bottom)
11
SATA2 hard drive connectors 1,2,
and 3 for system board 4 (from top to
bottom)
12
backplane power connector for
power supply 2

266 | Installing System Components
Figure 3-82. Back View of the 2.5” Direct Backplane
1
backplane power connector for
power supply 1
2
system fan board connector
3
SATA2 hard drive connectors 1 to 6
for system board 4 (from right to left)
4
SATA2 hard drive connectors 1 to 6
for system board 3 (from right to
left)
5
SATA2 hard drive connectors 1 to 6
for system board 2 (from right to left)
6
SATA2 hard drive connectors 1 to 6
for system board 1 (from right to
left)
7
SGPIO connector A for system
board 1
8
SGPIO connector B for system
board 1
9
SGPIO connector A for system
board 2
10
SGPIO connector B for system
board 2
11
SGPIO connector A for system
board 3
12
SGPIO connector B for system
board 3
13
SGPIO connector A for system
board 4
14
SGPIO Connector B for system
board 4
15
backplane power connector for
power supply 2

Installing System Components | 267
5 Disconnect front panel cables from the power distribution board. See
Figure 3-66.
Note the routing of the cable on the chassis as you remove them from
the system. You must route these cables properly when you replace
them to prevent the cables from being pinched or crimped.
6 Remove the screws that secure the hard-drive cage to the chassis. See
Figure 3-83.
Figure 3-83. Removing and Installing the Direct Backplane
1
hard-drive cage
2
screw (2)

268 | Installing System Components
7 Remove the screws that secure the front-panel assemblies to the chassis.
See Figure 3-84.
8 Remove the hard-drive cage from the chassis. See Figure 3-84.
Figure 3-84. Removing and Installing the Hard-Drive Cage Cable Routing for Middle
Plane to Direct Backplane
1
hard-drive cage
2
front-panel assembly (2)
3
screw (2)

Installing System Components | 269
9 Remove the screws that secure the backplane to the hard-drive cage.
See Figure 3-85.
10 Remove the backplane from the hard-drive cage. See Figure 3-85.
Figure 3-85. Removing and Installing the Direct Backplane From the Hard-Drive
Cage
1
hard-drive cage
2
3.5-inch Direct Backplane
3
screw (10)
Installing the Direct Backplane
CAUTION: Many repairs may only be done by a certified service technician. You
should only perform troubleshooting and simple repairs as authorized in your
product documentation, or as directed by the online or telephone service and
support team. Damage due to servicing that is not authorized by Dell is not
covered by your warranty. Read and follow the safety instructions that came with
the product.
1 Install the backplane into the hard-drive cage. See Figure 3-85.
2 Replace the screws that secure the backplane to the hard-drive cage.
See Figure 3-85.
3 Replace the hard-drive cage into the chassis. See Figure 3-84.
270 | Installing System Components
4 Replace the screws that secure the front-panel assemblies to the chassis.
See Figure 3-84.
5 Connect all the cables to the backplane. See Figure 3-81 for 3.5-inch
hard drives and Figure 3-82 for 2.5-inch hard drives.
You must route these cables properly through the tabs on the chassis to
prevent them from being pinched or crimped.
6 Connect front panel cables to the power distribution board. See Figure
3-96. You must route these cables properly on the chassis to prevent
them from being pinched or crimped.
7 Replace the screws that secure the hard-drive cage. See Figure 3-83.
8 Close the system, see “Closing the System” on page 234.
9 Replace the hard drives. See “Installing a Hard Drive into a Hard-Drive
Carrier” on page 153.
10 Reconnect the system to its electrical outlet and turn on the system,
including any attached peripherals.

Installing System Components | 271
2.5-inch Hard Drive Expander Configuration
NOTE: Following is the replacement procedure of SATA2 and SAS backplane for
2.5-inch hard drive expander configuration. The configuration can apply to 1 ~ 4
System-Boards and support up to 24 hard drives. For more information on the
direction details, see the HDD Zoning configuration tool at dell.com/support.
Removing the 2.5-inch Hard Drive Backplane for Expander
Configuration
CAUTION: Many repairs may only be done by a certified service technician. You
should only perform troubleshooting and simple repairs as authorized in your
product documentation, or as directed by the online or telephone service and
support team. Damage due to servicing that is not authorized by Dell is not
covered by your warranty. Read and follow the safety instructions that came with
the product.
1 It is recommended to turn off the system, including any attached
peripherals, and disconnect the system from its electrical outlet.
2 Remove all the hard drives. See “Removing a Hard-Drive Carrier” on
page 150.
3 Open the system. See “Opening the System” on page 233.
CAUTION: To prevent damage to the drives and backplane, you must remove the
hard drives from the system before removing the backplane.
CAUTION: You must note the number of each hard drive and temporarily label
them before removal so that you can replace them in the same locations.

272 | Installing System Components
4 Disconnect all the cables from the backplane and expander card. See
Figure 3-86 and Figure 3-87 for 2.5-inch hard drives expander
configuration.
Note the routing of the cable on the chassis as you remove them from
the system. You must route these cables properly when you replace
them to prevent the cables from being pinched or crimped.
Figure 3-86. Back View of the 2.5” Hard-Drive Backplane for Expander
Configuration
1
backplane power connector for
power supply 1
2
Expander-card connector 1
3
Expander-card connector 2
4
backplane power connector for
power supply 2

Installing System Components | 273
Figure 3-87. Top View of the Expander Card
1
Power control connector
2
mini-SAS connector (4~7)
3
mini-SAS connector (12~15)
4
mini-SAS connector (8~11)
5
mini-SAS connector (0~3)
5 Disconnect front panel cables from the power distribution board. See
Figure 3-96.
Note the routing of the cable on the chassis as you remove them from
the system. You must route these cables properly when you replace
them to prevent the cables from being pinched or crimped.

Installing System Components | 275
7 Remove the screws that secure the front-panel assemblies to the chassis.
See Figure 3-89.
8 Remove the hard-drive cage from the chassis. See Figure 3-89.
Figure 3-89 Removing and Installing the 2.5” Hard-Drive Cage for Expander
Configuration
1
hard-drive cage
2
front-panel assembly (2)
3
screw (2)

278 | Installing System Components
11 Remove the screws that secure the backplane for expander
configuration to the hard-drive cage. See Figure 3-92
12 Remove the backplane for expander configuration from the hard-drive
cage. See Figure 3-92
Figure 3-92. Removing and Installing the Backplane for Expander Configuration
From the Hard-Drive Cage
1
hard-drive cage
2
2.5-inch hard-drive backplane
for Expander Configuration
3
screw (11)

Installing System Components | 279
Installing the 2.5-inch Hard Drive Backplane for Expander
Configuration
CAUTION: Many repairs may only be done by a certified service technician. You
should only perform troubleshooting and simple repairs as authorized in your
product documentation, or as directed by the online or telephone service and
support team. Damage due to servicing that is not authorized by Dell is not
covered by your warranty. Read and follow the safety instructions that came with
the product.
1 Replace the backplane for expander configuration to the hard-drive
cage. See Figure 3-92
2 Replace the screws securing the backplane for expander configuration
to the hard-drive cage. See Figure 3-91
3 Install the expander card assembly to the hard-drive cage. See Figure 3-
90.
4 Replace the screws that secure the expander card assembly to the hard-
drive cage. See Figure 3-90.
5 Replace the hard-drive cage into the chassis. See Figure 3-89
6 Replace the screws that secure the front-panel assemblies to the chassis.
See Figure 3-89.
7 Connect all the cables to the backplane for expander configuration and
expander card. See Figure 3-86 and Figure 3-87 for 2.5-inch hard drives
expander configuration.
You must route these cables properly through the tabs on the chassis to
prevent them from being pinched or crimped.
8 Connect front panel cables to the power distribution board. See Figure
3-96. You must route these cables properly on the chassis to prevent
them from being pinched or crimped.
9 Replace the screws that secure the hard-drive cage. See Figure 3-88..
10 Close the system, see “Closing the System” on page 234.
11 Replace the hard drives. See “Installing a Hard Drive into a Hard-Drive
Carrier” on page 153.

280 | Installing System Components
12 Reconnect the system to its electrical outlet and turn on the system,
including any attached peripherals.
Front Panels
Removing the Front Panel
CAUTION: Many repairs may only be done by a certified service technician. You
should only perform troubleshooting and simple repairs as authorized in your
product documentation, or as directed by the online or telephone service and
support team. Damage due to servicing that is not authorized by Dell is not
covered by your warranty. Read and follow the safety instructions that came with
the product.
1 It is recommended to turn off the system, including any attached
peripherals, and disconnect the system from the electrical outlet.
2 Remove all the hard drives. See “Removing a Hard-Drive Carrier” on
page 150.
3 Open the system. See “Opening the System” on page 233.
4 Disconnect all the cables from the backplane. See Figure 3-81 for 3.5-
inch hard drives and Figure 3-82 for 2.5-inch hard drives.
Note the routing of the cable on the chassis as you remove them from
the system. You must route these cables properly when you replace
them to prevent the cables from being pinched or crimped.
5 Disconnect front panel cables from the power distribution board. See
Figure 3-96 or Figure 3-99.
Note the routing of the cable on the chassis as you remove them from
the system. You must route these cables properly when you replace
them to prevent the cables from being pinched or crimped.
6 Remove the screws that secure the hard-drive cage to the chassis. See
Figure 3-83.
7 Remove the screws that secure the front-panel assemblies to the chassis.
See Figure 3-84.
8 Remove the hard-drive cage from the chassis. See Figure 3-84.

Installing System Components | 281
9 Remove the screws that secure the front-panel assembly to the hard-
drive cage. See Figure 3-93.
10 Remove the front-panel assembly from the hard-drive cage. See Figure
3-93.
Figure 3-93. Removing and Installing a Front Panel Assembly
1
front-panel assembly
2
screw (2)

282 | Installing System Components
11 Push aside the retention hooks on the front-panel assembly. See Figure
3-94.
12 Remove the front panel from the front-panel assembly. See Figure 3-94
Figure 3-94. Removing and Installing a Front Panel
1
front-panel assembly
2
front panel
3
retention hooks
Installing the Front Panel
CAUTION: Many repairs may only be done by a certified service technician. You
should only perform troubleshooting and simple repairs as authorized in your
product documentation, or as directed by the online or telephone service and
support team. Damage due to servicing that is not authorized by Dell is not
covered by your warranty. Read and follow the safety instructions that came with
the product.
1 Push aside the retention hooks on the front-panel assembly and place
the front panel into the front-panel assembly. See Figure 3-94.
2 Replace the front-panel assembly into the hard-drive cage. See Figure
3-93.
3 Replace the screws that secure the front-panel assembly to the hard-
Installing System Components | 283
drive cage. See Figure 3-93.
4 Replace the hard-drive cage into the chassis. See Figure 3-84.
5 Replace the screws that secure the front-panel assemblies to the chassis.
See Figure 3-84.
6 Replace the screws that secure the hard-drive cage to the chassis. See
Figure 3-83.
7 Connect front panel cables to the power distribution board. See Figure
3-96 or Figure 3-99.
You must route these cables properly on the chassis to prevent them
from being pinched or crimped.
8 Connect all the cables to the backplane. See Figure 3-81 for 3.5-inch
hard drives and Figure 3-82 for 2.5-inch hard drives.
You must route these cables properly on the chassis to prevent them
from being pinched or crimped.
9 Close the system. See “Closing the System” on page 234.
10 Replace the hard drives. See “Installing a Hard Drive into a Hard-Drive
Carrier” on page 153.
11 Reconnect the system to its electrical outlet and turn on the system,
including any attached peripherals.

284 | Installing System Components
Sensor Boards
Removing the Sensor Board for 3.5” Hard-Drive System
CAUTION: Many repairs may only be done by a certified service technician. You
should only perform troubleshooting and simple repairs as authorized in your
product documentation, or as directed by the online or telephone service and
support team. Damage due to servicing that is not authorized by Dell is not
covered by your warranty. Read and follow the safety instructions that came with
the product.
1 It is recommend to turn off the system, including any attached
peripherals, and disconnect the system from the electrical outlet.
2 Remove all the hard drives. See “Removing a Hard-Drive Carrier” on
page 150.
3 Open the system. See “Opening the System” on page 233.
4 Disconnect all the cables from the backplane. See Figure 5-3 for 3.5-
inch hard drives.
Note the routing of the cable on the chassis as you remove them from
the system. You must route these cables properly when you replace
them to prevent the cables from being pinched or crimped.
5 Disconnect front panel cables from the power distribution board. See
Figure 3-96 or Figure 3-99.
Note the routing of the cable on the chassis as you remove them from
the system. You must route these cables properly when you replace
them to prevent the cables from being pinched or crimped.
6 Remove the hard drive cage from the chassis. See Figure 3-84.
7 Disconnect the cable from the sensor board. See Figure 3-96.

Installing System Components | 285
8 Remove the screw that secure the sensor board to the hard drive cage.
See Figure 3-95.
9 Remove the sensor board from the hard drive cage. See Figure 3-95.
Figure 3-95. Removing and Installing the Sensor Board
1
sensor board
2
screw
Installing the Sensor Board for 3.5” Hard-Drive System
CAUTION: Many repairs may only be done by a certified service technician. You
should only perform troubleshooting and simple repairs as authorized in your
product documentation, or as directed by the online or telephone service and
support team. Damage due to servicing that is not authorized by Dell is not
covered by your warranty. Read and follow the safety instructions that came with
the product.
1 Replace the sensor board into the hard drive cage. See Figure 3-95.
2 Replace the screw that secure the sensor board to the hard drive cage.
See Figure 3-95.
3 Connect the sensor board cable to the sensor board. See Figure 3-96.
4 Replace the hard drive cage into the chassis. See Figure 3-84.
286 | Installing System Components
5 Replace the screws that secure the hard-drive cage to the chassis. See
Figure 3-83.
6 Connect all the cables to the backplane. See Figure 3-81 for 3.5-inch
hard drives.
You must route these cables properly on the chassis to prevent them
from being pinched or crimped.
7 Connect front panel cables to the power distribution board. See Figure
3-96 or Figure 3-99.
You must route these cables properly on the chassis to prevent them
from being pinched or crimped.
8 Close the system. See “Closing the System” on page 234.
9 Replace the hard drives. See “Installing a Hard Drive into a Hard-Drive
Carrier” on page 153.
10 Reconnect the system to its electrical outlet and turn on the system,
including any attached peripherals.
Cable Routing for Sensor Board and Front Panel for 3.5” Hard Drive
System
1 Connect the Y-shaped cable for sensor board and front panel 2 to the
connector on the power distribution board 1, and connect the other
two ends of the cable to the connectors on the sensor board and the
front panel 2 separately.
2 Connect the front panel cable to the connector on the power
distribution board 1, and connect the other end of the cable to the
connector on the front panel 1.

Installing System Components | 287
Figure 3-96. Cable Routing−Sensor Board and Front Panel
Item
Cable
From
(Power Distribution Board)
To
(Sensor Board and Front
Panels)
Sensor board
cable
Sensor board power
connector (J1)
Sensor Board
Front panel
cable
Front panel connector
(J16)
Front Panel 2
Front panel
cable
Front Panel connector
(J18)
Front panel 1

288 | Installing System Components
Removing the Sensor Board for 2.5” Hard-Drive System
CAUTION: Many repairs may only be done by a certified service technician. You
should only perform troubleshooting and simple repairs as authorized in your
product documentation, or as directed by the online or telephone service and
support team. Damage due to servicing that is not authorized by Dell is not
covered by your warranty. Read and follow the safety instructions that came with
the product.
1 It is recommended to turn off the system, including any attached
peripherals, and disconnect the system from the electrical outlet.
2 Remove all the hard drives. See “Removing a Hard-Drive Carrier” on
page 150.
3 Open the system. See “Opening the System” on page 233.
4 Disconnect all the cables from the backplane. See Figure 5-5 for 2.5-
inch hard drives.
Note the routing of the cable on the chassis as you remove them from
the system. You must route these cables properly when you replace
them to prevent the cables from being pinched or crimped.
5 Disconnect front panel cables from the power distribution board. See
Figure 3-96 or Figure 3-99.
Note the routing of the cable on the chassis as you remove them from
the system. You must route these cables properly when you replace
them to prevent the cables from being pinched or crimped.
6 Remove the hard drive cage from the chassis. See Figure 3-84.
7 Disconnect the cable from the sensor board assembly. See Figure 3-99.

Installing System Components | 289
8 Remove the screw that secures the sensor board assembly to the hard
drive cage. See Figure 3-97.
9 Remove the sensor board assembly from the hard drive cage. See
Figure 3-97.
Figure 3-97. Removing and Installing the Sensor Board Assembly
1
sensor board assembly
2
screw (2)

290 | Installing System Components
10 Remove the screw that secures the sensor board to the sensor-board
holder. See Figure 3-98.
11 Remove the sensor board from the sensor-board holder. See Figure 3-
98.
Figure 3-98. Removing and Installing the Sensor Board
1
screw
2
sensor board
3
sensor-board holder
Installing the Sensor Board for 2.5” Hard-Drive System
CAUTION: Many repairs may only be done by a certified service technician. You
should only perform troubleshooting and simple repairs as authorized in your
product documentation, or as directed by the online or telephone service and
support team. Damage due to servicing that is not authorized by Dell is not
covered by your warranty. Read and follow the safety instructions that came with
the product.
1 Replace the sensor board into the sensor-board holder. See Figure 3-98.
2 Replace the sensor board assembly into the hard drive cage. See Figure
3-97.
Installing System Components | 291
3 Replace the screw that secure the sensor board to the hard drive cage.
See Figure 3-97.
4 Connect the sensor board cable to the sensor board. See Figure 3-99.
5 Replace the hard drive cage into the chassis. See Figure 3-84.
6 Replace the screws that secure the hard-drive cage to the chassis. See
Figure 3-83.
7 Connect all the cables to the backplane. See Figure 3-82 for 2.5-inch
hard drives.
You must route these cables properly on the chassis to prevent them
from being pinched or crimped.
8 Connect front panel cables to the power distribution board. See Figure
3-96 or Figure 3-99.
You must route these cables properly on the chassis to prevent them
from being pinched or crimped.
9 Close the system. See “Closing the System” on page 234.
10 Replace the hard drives. See “Installing a Hard Drive into a Hard-Drive
Carrier” on page 153.
11 Reconnect the system to its electrical outlet and turn on the system,
including any attached peripherals.
Cable Routing for Sensor Board and Front Panel for 2.5” Hard Drive
System
1 Connect the Y-shaped cable for sensor board and front panel 2 to the
connector on the power distribution board 1, and connect the other
two ends of the cable to the connectors on the sensor board and the
front panel 2 respectively.
2 Connect the front panel cable to the connector on the power
distribution board 1, and connect the other end of the cable to the
connector on the front panel 1.

292 | Installing System Components
Figure 3-99. Cable Routing−Sensor Board and Front Panel
Item
Cable
From
(Power Distribution Board)
To
(Sensor Board and Front
Panels)
Sensor board
cable
Sensor board power
connector (J1)
Sensor Board
Front panel
cable
Front panel connector
(J16)
Front Panel 2
Front panel
cable
Front Panel connector
(J18)
Front panel 1

4
Troubleshooting Your System | 293
Troubleshooting Your System
Minimum Configuration to POST
One Power Supply
One Processor (CPU) in socket CPU1 (minimum for troubleshooting)
One Memory Module (DIMM) installed in the socket A1
NOTE: The three items above are the minimum configuration to POST. When the
PCI-E slot 1 and slot 2 are to be used, the processor 1 must be installed;
when the PCI-E slot 3 is to be used, both the processor 1 and processor 2 must be
installed.
Safety First – For You and Your System
WARNING: Whenever you need to lift the system, get others to assist you. To
avoid injury, do not attempt to lift the system by yourself.
WARNING: Before removing the system cover, disconnect all power, then unplug
the AC power cord, and then disconnect all peripherals, and all LAN lines.
CAUTION: Many repairs may only be done by a certified service technician. You
should only perform troubleshooting and simple repairs as authorized in your
product documentation, or as directed by the online or telephone service and
support team. Damage due to servicing that is not authorized by Dell is not
covered by your warranty. Read and follow the safety instructions that came with
the product.
294 | Troubleshooting Your System
Installation Problems
Perform the following checks when you troubleshoot installation problems:
Check all cable and power connections (including all rack cable
connections).
Unplug the power cord and wait for one minute. Then reconnect the
power cord and try again.
If the network is reporting an error, verify that the system has enough
memory and disk space.
Remove all added peripherals, one at a time, and try to turn on the
system. If after removing a peripheral the system works, it may be a
problem with the peripheral or a configuration problem between the
peripheral and the system. Contact the peripheral vendor for assistance.
If the system does not power on, check the LED display. If the power
LED is not on, you may not be receiving AC power. Check the AC
power cord to make sure that it is securely connected.
Troubleshooting System Startup Failure
If your system halts during startup, especially after installing an operating
system or reconfiguring your system’s hardware, check for invalid memory
configurations. These could cause the system to halt at startup without any
video output.
For all other startup issues, note any system messages that appear onscreen.
See “Using the System Setup Program” on page 62 for more information.
Troubleshooting External Connections
Ensure that all external cables are securely attached to the external
connectors on your system before troubleshooting any external devices. See
Figure 1-1 to Figure 1-6, and Figure 1-18, Figure 1-19 for the front- and
back-panel connectors on your system.
Troubleshooting Your System | 295
Troubleshooting the Video Subsystem
1 Check the system and power connections to the monitor.
2 Check the video interface cabling from the system to the monitor.
Troubleshooting a USB Device
Use the following steps to troubleshoot a USB keyboard and/or mouse.
For other USB devices, go to step 5.
1 Disconnect the keyboard and mouse cables from the system briefly and
reconnect them.
2 Connect the keyboard/mouse to the USB port(s) on the opposite side
of the system.
3 If the problem is resolved, restart the system, enter the System Setup
program, and check if the nonfunctioning USB ports are enabled.
4 Replace the keyboard/mouse with another working keyboard/mouse.
If the problem is resolved, replace the faulty keyboard/mouse.
If the problem is not resolved, proceed to the next step to begin
troubleshooting the other USB devices attached to the system.
5 Power down all attached USB devices and disconnect them from the
system.
6 Restart the system and, if your keyboard is functioning, enter the
system setup program. Verify that all USB ports are enabled. See “USB
Configuration” on page 101.
If your keyboard is not functioning, you can also use remote access. If
the system is not accessible, see “Jumper Settings” on page 322 for
instructions on setting the NVRAM_CLR jumper inside your system
and restoring the BIOS to the default settings.
7 Reconnect and power on each USB device one at a time.
8 If a device causes the same problem, power down the device, replace
296 | Troubleshooting Your System
the USB cable, and power up the device.
If the problem persists, replace the device.
If all troubleshooting fails, see “Getting Help” on page 324.
Troubleshooting a Serial I/O Device
1 Turn off the system and any peripheral devices connected to the serial
port.
2 Swap the serial interface cable with another working cable, and turn on
the system and the serial device.
If the problem is resolved, replace the interface cable.
3 Turn off the system and the serial device, and swap the device with a
comparable device.
4 Turn on the system and the serial device.
If the problem is resolved, replace the serial device.
If the problem persists, see “Getting Help” on page 324.
Troubleshooting a NIC
1 Restart the system and check for any system messages pertaining to the
NIC controller.
2 Check the appropriate indicator on the NIC connector. See “LAN
Indicators (Management Port)” on page 30.
If the link indicator does not light, check all cable connections.
If the activity indicator does not light, the network driver files
might be damaged or missing.
Remove and reinstall the drivers if applicable. See the NIC’s
documentation.
Change the auto-negotiation setting, if possible.
Use another connector on the switch or hub.
If you are using a NIC card instead of an integrated NIC, see the
documentation for the NIC card.

Troubleshooting Your System | 297
3 Ensure that the appropriate drivers are installed and the protocols are
bound. See the NIC’s documentation.
4 Enter the System Setup program and confirm that the NIC ports are
enabled. See “Using the System Setup Program” on page 62.
5 Ensure that the NICs, hubs, and switches on the network are all set to
the same data transmission speed. See the documentation for each
network device.
6 Ensure that all network cables are of the proper type and do not exceed
the maximum length.
If all troubleshooting fails, see “Getting Help” on page 324.
Troubleshooting a Wet System
CAUTION: Many repairs may only be done by a certified service technician. You
should only perform troubleshooting and simple repairs as authorized in your
product documentation, or as directed by the online or telephone service and
support team. Damage due to servicing that is not authorized by Dell is not
covered by your warranty. Read and follow the safety instructions that came with
the product.
1 Turn off the system and attached peripherals, and disconnect the
system from the electrical outlet.
2 Open the system. See “Opening the System” on page 233.
3 Disassemble components from the system. See “Installing System
Components” on page 145.
Hard drives
SAS backplane
Expansion-card
Power supplies
Fans
Processors and heat sinks
Memory modules

298 | Troubleshooting Your System
4 Let the system dry thoroughly for at least 24 hours.
5 Reinstall the components you removed in step 3.
6 Close the system. See “Closing the System” on page 234.
7 Reconnect the system to the electrical outlet, and turn on the system
and attached peripherals.
If the system does not start properly, see “Getting Help” on page 324.
8 If the system starts properly, shut down the system and reinstall the
expansion card that you removed. See “Installing the Expansion Card”
on page 172.
9 If the system fails to start, see “Getting Help” on page 324.
Troubleshooting a Damaged System
CAUTION: Many repairs may only be done by a certified service technician. You
should only perform troubleshooting and simple repairs as authorized in your
product documentation, or as directed by the online or telephone service and
support team. Damage due to servicing that is not authorized by Dell is not
covered by your warranty. Read and follow the safety instructions that came with
the product.
1 Turn off the system and attached peripherals, and disconnect the
system from the electrical outlet.
2 Open the system. See “Opening the System” on page 233.
3 Ensure that the following components are properly installed:
Expansion-card assembly
Power supplies
Fans
Processors and heat sinks
Memory modules
Hard-drive carriers
4 Ensure that all cables are properly connected.
5 Close the system. See “Closing the System” on page 234.
6 If the system fails to start, see “Getting Help” on page 324.

Troubleshooting Your System | 299
Troubleshooting the System Battery
NOTE: If the system is turned off for long periods of time (for weeks
or months), the NVRAM may lose its system configuration
information. This situation is caused by a defective battery.
1 Re-enter the time and date through the System Setup program. See
“System Setup Options at Boot” on page 62.
2 Turn off the system and disconnect it from the electrical outlet for at
least one hour.
3 Reconnect the system to the electrical outlet and turn on the system.
4 Enter the System Setup program.
If the date and time are not correct in the System Setup program,
replace the battery. See “Replacing the System Battery” on page 229.
CAUTION: Many repairs may only be done by a certified service technician. You
should only perform troubleshooting and simple repairs as authorized in your
product documentation, or as directed by the online or telephone service and
support team. Damage due to servicing that is not authorized by Dell is not
covered by your warranty. Read and follow the safety instructions that came with
the product.
If the problem is not resolved by replacing the battery, see “Getting
Help” on page 324.
NOTE: Some software may cause the system time to speed up or slow down. If
the system seems to operate normally except for the time kept in the System
Setup program, the problem may be caused by software rather than by a
defective battery.
Troubleshooting Power Supplies
1 Identify the faulty power supply by the power supply’s fault indicator.
See “Power and System Board Indicator Codes” on page 31.

300 | Troubleshooting Your System
CAUTION: At least one power supply must be installed for the system to operate.
Operating the system with only one power supply installed for extended periods of
time can cause the system to overheat.
2 Reseat the power supply by removing and reinstalling it. See “Power
Supplies” on page 153.
NOTE: After installing a power supply, allow several seconds for the system
to recognize the power supply and to determine if it is working properly. The
power indicator turns green to signify that the power supply is functioning
properly.
If the problem persists, replace the faulty power supply.
3 If all troubleshooting fails, see “Getting Help” on page 324.
Troubleshooting System Cooling Problems
CAUTION: Many repairs may only be done by a certified service technician. You
should only perform troubleshooting and simple repairs as authorized in your
product documentation, or as directed by the online or telephone service and
support team. Damage due to servicing that is not authorized by Dell is not
covered by your warranty. Read and follow the safety instructions that came with
the product.
Ensure that none of the following conditions exist:
System cover, cooling shroud, drive blank, power supply blank, or
front or back filler panel is removed.
Ambient temperature is too high.
External airflow is obstructed.
Cables inside the system obstruct airflow.
An individual cooling fan is removed or has failed. See
“Troubleshooting a Fan” on page 301.

Troubleshooting Your System | 301
Troubleshooting a Fan
CAUTION: Many repairs may only be done by a certified service technician. You
should only perform troubleshooting and simple repairs as authorized in your
product documentation, or as directed by the online or telephone service and
support team. Damage due to servicing that is not authorized by Dell is not
covered by your warranty. Read and follow the safety instructions that came with
the product.
1 Locate the faulty fan indicated by the diagnostic software.
2 Turn off the system and all attached peripherals.
3 Open the system. See “Opening the System” on page 233.
4 Reseat the fan’s power cable.
5 Restart the system.
If the fan functions properly, close the system. See “Closing the System”
on page 234.
6 If the fan does not function, turn off the system and install a new fan.
See “Cooling Fans” on page 235.
7 Restart the system.
If the problem is resolved, close the system. See “Closing the System”
on page 234.
If the replacement fan does not operate, see “Getting Help” on page
324.

302 | Troubleshooting Your System
Troubleshooting System Memory
CAUTION: Many repairs may only be done by a certified service technician. You
should only perform troubleshooting and simple repairs as authorized in your
product documentation, or as directed by the online or telephone service and
support team. Damage due to servicing that is not authorized by Dell is not
covered by your warranty. Read and follow the safety instructions that came with
the product.
NOTE: Invalid memory configurations can cause your system to halt at startup
without video output. See “System Memory” on page 223 and verify that your
memory configuration complies with all applicable guidelines.
1 If the system is not operational, turn off the system and attached
peripherals, and unplug the system from the power source. Wait at
least 10 seconds and then reconnect the system to power.
2 Turn on the system and attached peripherals and note the messages on
the screen.
Go to step 10 if an error message appears indicating a fault with a
specific memory module.
3 Enter the System Setup program and check the system memory
settings.
See “Main Screen” on page 70. Make any changes to the memory
settings, if needed.
If the memory settings match the installed memory but a problem is
still indicated, go to step 10.
4 Turn off the system and attached peripherals, and disconnect the
system from the electrical outlet.
5 Remove the system-board assembly. See “Removing a System-Board
Assembly” on page 157.
6 Reseat the memory modules in their sockets. See “Installing the
Memory Modules” on page 227.
7 Install the system-board assembly. See “Installing a System-Board
Assembly” on page 158.
Troubleshooting Your System | 303
8 Reconnect the system to its electrical outlet, and turn on the system
and attached peripherals.
9 Enter the System Setup program and check the system memory
settings. See “Main Screen” on page 70.
If the problem is not resolved, proceed with the next step.
10 Turn off the system and attached peripherals, and disconnect the
system from the power source.
11 Remove the system-board assembly. See “Removing a System-Board
Assembly” on page 157.
12 If a diagnostic test or error message indicates a specific memory
module as faulty, swap or replace the module.
13 To troubleshoot an unspecified faulty memory module, replace the
memory module in the first memory module socket with a module of
the same type and capacity. See “Installing the Memory Modules” on
page 227.
14 Install the system-board assembly. See “Removing a System-Board
Assembly” on page 157.
15 Reconnect the system to its electrical outlet, and turn on the system
and attached peripherals.
16 As the system boots, observe any error message that appears and the
diagnostic indicators on the front of the system.
17 If the memory problem is still indicated, repeat step 10 through step 16
for each memory module installed.
If the problem persists after all memory modules have been checked,
see “Getting Help” on page 324.

304 | Troubleshooting Your System
Troubleshooting a Hard Drive
CAUTION: Many repairs may only be done by a certified service technician. You
should only perform troubleshooting and simple repairs as authorized in your
product documentation, or as directed by the online or telephone service and
support team. Damage due to servicing that is not authorized by Dell is not
covered by your warranty. Read and follow the safety instructions that came with
the product.
CAUTION: This troubleshooting procedure can destroy data stored on the hard
drive. Before you proceed, back up all files on the hard drive.
1 If your system has a RAID controller and your hard drives are
configured in a RAID array, perform the following steps:
a. Restart the system and enter the host adapter configuration utility
program by pressing <Ctrl><H> for LSI 9265 or <Ctrl><C>
for a LSI SAS 2008 mezzanine card.
See the documentation supplied with the host adapter for
information about the configuration utility.
b. Ensure that the hard drive(s) have been configured correctly for
the RAID array.
c. Take the hard drive offline and reseat the drive. See “Removing a
System-Board Assembly” on page 157.
d. Exit the configuration utility and allow the system to boot to the
operating system.
2 Ensure that the required device drivers for your controller card are
installed and are configured correctly. See the operating system
documentation for more information.
3 Restart the system, enter the System Setup program, and verify that
the controller is enabled and the drives appear in the System Setup
program.
See “Using the System Setup Program” on page 62.
If the problem persists, see “Getting Help” on page 324.

Troubleshooting Your System | 305
Troubleshooting a Storage Controller
NOTE: When troubleshooting a SAS RAID controller, also see the
documentation for your operating system and the controller.
1 Enter the System Setup program and ensure that the SAS controller is
enabled. See “Using the System Setup Program” on page 62.
2 Restart the system and press the applicable key sequence to enter the
configuration utility program.
<Ctrl><C> for a LSI SAS 2008 mezzanine card
<Ctl><H> for a LSI 9265-8i SAS RAID Card
See the controller’s documentation for information about
configuration settings.
3 Check the configuration settings, make any necessary corrections, and
restart the system.
CAUTION: Many repairs may only be done by a certified service technician. You
should only perform troubleshooting and simple repairs as authorized in your
product documentation, or as directed by the online or telephone service and
support team. Damage due to servicing that is not authorized by Dell is not
covered by your warranty. Read and follow the safety instructions that came with
the product.
4 Turn off the system and attached peripherals, and disconnect the
system from its electrical outlet.
5 Remove the system-board assembly. See “Removing a System-Board
Assembly” on page 157.
6 Ensure that the controller card is firmly seated into the system board
connector. See “Installing the Expansion Card” on page 172.
7 If you have a battery-cached SAS RAID controller, ensure that the
RAID battery is properly connected and, if applicable, the memory
module on the RAID card is properly seated.
8 Ensure that the cables are firmly connected to the storage controller

306 | Troubleshooting Your System
and the SAS backplane board.
9 Install the system-board assembly. See “Installing a System-Board
Assembly” on page 158.
10 Reconnect the system to its electrical outlet, and turn on the system
and attached peripherals.
If the problem persists, see “Getting Help” on page 324.
Troubleshooting Expansion Cards
NOTE: When troubleshooting an expansion card, see the documentation for your
operating system and the expansion card.
CAUTION: Many repairs may only be done by a certified service technician. You
should only perform troubleshooting and simple repairs as authorized in your
product documentation, or as directed by the online or telephone service and
support team. Damage due to servicing that is not authorized by Dell is not
covered by your warranty. Read and follow the safety instructions that came with
the product.
1 Turn off the system and attached peripherals, and disconnect the
system from the electrical outlet.
2 Remove the system-board assembly. See “Removing a System-Board
Assembly” on page 157.
3 Ensure that each expansion card is firmly seated in its connector. See
“Installing the Expansion Card” on page 172.
4 Install the system-board assembly. See “Installing a System-Board
Assembly” on page 158.
5 Reconnect the system to the electrical outlet, and turn on the system
and attached peripherals.
6 If the problem is not resolved, see “Getting Help” on page 324.

Troubleshooting Your System | 307
Troubleshooting Processors
CAUTION: Many repairs may only be done by a certified service technician. You
should only perform troubleshooting and simple repairs as authorized in your
product documentation, or as directed by the online or telephone service and
support team. Damage due to servicing that is not authorized by Dell is not
covered by your warranty. Read and follow the safety instructions that came with
the product.
1 Turn off the system and attached peripherals, and disconnect the
system from the electrical outlet.
2 Remove the system-board assembly. See “Removing a System-Board
Assembly” on page 157.
3 Ensure that each processor and heat sink are properly installed. See
“Installing a Processor” on page 164.
4 Install the system-board assembly. See “Installing a System-Board
Assembly” on page 158.
5 Reconnect the system to the electrical outlet, and turn on the system
and attached peripherals.
6 If the problem persists, turn off the system and attached peripherals,
and disconnect the system from the electrical outlet.
7 Remove the system-board assembly. See “Removing a System-Board
Assembly” on page 157.
8 Remove processor 2. See “Removing a Processor” on page 162.
9 Install the system-board assembly. See “Installing a System-Board
Assembly” on page 158.
10 Reconnect the system to the electrical outlet, and turn on the system
and attached peripherals.
If the problem persists, the processor is faulty. See “Getting Help” on
page 324.
11 Turn off the system and attached peripherals, and disconnect the

308 | Troubleshooting Your System
system from the electrical outlet.
12 Remove the system-board assembly. See “Removing a System-Board
Assembly” on page 157.
13 Replace processor 1 with processor 2. See “Installing a Processor” on
page 164.
14 Repeat step 9 through step 11.
If you have tested both the processors and the problem persists, the
system board is faulty. See “Getting Help” on page 324.
IRQ Assignment Conflicts
Most PCI devices can share an IRQ with another device, but they cannot
use an IRQ simultaneously. To avoid this type of conflict, see the
documentation for each PCI device for specific IRQ requirements.
Table 4-1. Assignment Specific IRQ Requirements
IRQ Line
Assignment
IRQ0
8254 timer
IRQ1
Keyboard controller
IRQ2
Cascade for IRQ9
IRQ3
Serial port (COM2) or PCI_IRQ_POOL_DEFINITION
IRQ4
Serial port (COM1) or PCI_IRQ_POOL_DEFINITION
IRQ5
PCI_IRQ_POOL_DEFINITION
IRQ6
PCI_IRQ_POOL_DEFINITION
IRQ7
RESERVE
IRQ8
RTC
IRQ9
PCI_IRQ_POOL_DEFINITION
IRQ10
PCI_IRQ_POOL_DEFINITION
IRQ11
PCI_IRQ_POOL_DEFINITION
IRQ12
Mouse controller
IRQ13
Processor
IRQ14
Primary IDE controller
IRQ15
Secondary IDE controller
NOTE: PCI_IRQ_POOL_DEFINITION means BIOS code assign in runtime.

5
Jumpers and Connector | 309
Jumpers and Connectors
System Board Connectors
This section provides specific information about the system jumpers. It also
provides some basic information on jumpers and switches and describes the
connectors on the various boards in the system.
Figure 5-1. System Board Connectors
1
PCI-E Gen3 x8 mezzanine slot 3
2
internal USB connector
3
internal SAS mezzanine slot
4
service mode jumper
5
NVRAM clear jumper
6
mini-SAS connector 0
7
onboard SATA connector 4
8
onboard SATA Connector 5
9
system battery
10
DIMM slots for processor 1
11
DIMM slots for processor 2
12
main power connector
13
middle plane connector
14
SGPIO connector 2
15
internal serial connector
16
front panel connector 1
17
PCI-E Gen3 x16 slot 4
18
processor 2

310 | Jumpers and Connector
19
DIMM slots for processor 2
20
processor 1
21
DIMM slots for processor 1
22
BIOS recovery jumper
23
PWRD_EN jumper
24
ME firmware recovery jumper
25
MEDBG1 jumper
26
LAN LED connector
27
PCI-E Gen2 x16 slot 1
28
SGPIO connector 1
29
PCI-E Gen2 x16 slot 2
30
power button pass jumper
31
power button/power & system LED
32
VGA port
33
serial port
34
BMC console connector
35
management port
36
LAN management port
37
LAN connector 2
38
LAN connector 1
39
ID LED
40
dual USB port
NOTE: The PCI-E Gen2 x16 slot 1 and slot 2 are supported up to Gen2 5.0 Gigabits
bandwidth. If user inserts Gen3 .0 devices into the 2 slots that will only train at
Gen 2.0 speed, not Gen 3.0.
Backplane Connectors
3.5" Hard-Drive Direct Backplane
Figure 5-2. Front View of the Backplane
1
3.5” backplane
2
hard drive connectors 1, 2 and 3 for
system board 1 (from top to
bottom)
3
hard drive connectors 1, 2 and 3 for
system board 2 (from top to bottom)
4
hard drive connectors 1, 2 and 3 for
system board 3 (from top to
bottom)
5
hard drive connectors 1, 2 and 3 for
system board 4 (from top to bottom)

Jumpers and Connector | 311
Figure 5-3. Back View of the Backplane
1
backplane power connector for
power supply 1
2
1x8pin fan controller board
connector
3
SGPIO connector 4 for system board
4
4
SGPIO connector 3 for system
board 3
5
SGPIO connector 2 for system board
2
6
SGPIO connector 1 for system
board 1
7
backplane jumper
8
SATA2 hard drive connectors 1,2,
and 3 for system board 1 (from top
to bottom)
9
SATA2 hard drive connectors 1,2,
and 3 for system board 2 (from top to
bottom)
10
SATA2 hard drive connectors 1,2,
and 3 for system board 3 (from top
to bottom)
11
SATA2 hard drive connectors 1,2,
and 3 for system board 4 (from top to
bottom)
12
backplane power connector for
power supply 2

312 | Jumpers and Connector
2.5" Hard-Drive Direct Backplane
Figure 5-4. Front View of the Backplane
1
SATA2 and SAS connectors 1 to 6
for system board 1 (from left to right)
2
SATA2 and SAS connectors 1 to 6
for system board 2 (from left to
right)
3
SATA2 and SAS connectors 1 to 6
for system board 3 (from left to right)
4
SATA2 and SAS connectors 1 to 6
for system board 4 (from left to
right)
5
2.5” backplane

Jumpers and Connector | 313
Figure 5-5. Back View of the Backplane
1
backplane power connector for
power supply 1
2
system fan board connector
3
SATA2 hard drive connectors 1 to 6
for system board 4 (from right to left)
4
SATA2 hard drive connectors 1 to 6
for system board 3 (from right to
left)
5
SATA2 hard drive connectors 1 to 6
for system board 2 (from right to left)
6
SATA2 hard drive connectors 1 to 6
for system board 1 (from right to
left)
7
SGPIO connector A for system
board 1
8
SGPIO connector B for system
board 1
9
SGPIO connector A for system
board 2
10
SGPIO connector B for system
board 2
11
SGPIO connector A for system
board 3
12
SGPIO connector B for system
board 3
13
SGPIO connector A for system
board 4
14
SGPIO Connector B for system
board 4
15
backplane power connector for
power supply 2

314 | Jumpers and Connector
2.5" Hard-Drive Expander Backplane
Figure 5-6. Front View of the Backplane
1
SATA2 and SAS connectors 1 to 24
(from left to right)
2
2.5” backplane for expander
configuration
Figure 5-7. Back View of the Backplane
1
backplane power connector for
power supply 1
2
Expander-card connector 1
3
Expander-card connector 2
4
backplane power connector for
power supply 2

Jumpers and Connector | 315
Figure 3-8. Top View of the 2.5” Hard-Drive Expander Card
1
Power control connector
2
mini-SAS connector (4~7)
3
mini-SAS connector (12~15)
4
mini-SAS connector (8~11)
5
mini-SAS connector (0~3)
Middle Plane Connectors
Figure 5-9. Middle Plane Connectors
1
2x17pin control connector for PDB1
2
mini-SAS connector for system
board 3 and 4 (hard drive 5 and 6)
3
mini-SAS connector for system
board 3 and 4 (hard drive 1,2,3 and 4)
4
mini-SAS connector for system
board 1 and 2 (hard drive 5 and 6)
5
mini-SAS connector for system
board 1 and 2 (hard drive 1,2,3 and 4)

316 | Jumpers and Connector
Interposer Extender for 2U Node Connectors
Figure 5-10. Interposer Extender Connectors
1
SATA2 and SAS connectors
connector 6
2
SATA2 and SAS connectors
connector 7
3
2x9pin power connector
4
SATA2 and SAS connectors
connector 5
5
SATA2 and SAS connectors 4
6
SATA2 and SAS connectors
connector 3
7
SATA2 and SAS connectors 2
8
SATA2 and SAS connectors
connector 1
9
SATA2 and SAS connectors 0
10
SGPIO Connector 2
11
SGPIO Connector 1
12
middle plane connector
13
2x6pin control connector

Jumpers and Connector | 317
LSI 2008 SAS Mezzanine Card Connectors
Figure 5-11. LSI 2008 SAS Mezzanine Card Connectors
1
mezzanine card connector
2
LSI 2008 mezzanine card
3
mini-SAS connector (port 4-7)
4
mini-SAS connector (port 0-3)

318 | Jumpers and Connector
1GbE Mezzanine Card Connectors
Figure 5-12. 1GbE Mezzanine Card Connectors
1
1GbE mezzanine card
2
mezzanine card connector
3
NIC connector 4
4
NIC connector 3
5
NIC connector 2
6
NIC connector 1

Jumpers and Connector | 319
10GbE Mezzanine Card Connectors
Figure 5-13. 10GbE Mezzanine Card Connectors
1
SFP + port 0
2
10GbE mezzanine card
3
mezzanine card connector
4
SFP + port 1

320 | Jumpers and Connector
Power Distribution Board 1 Connectors
Figure 5-14. Power Distribution Board 1 Connectors
1
front panel connector for system
board 1 and 2
2
system fan connector
3
hard drive backplane power
connector 1
4
hard drive backplane power
connector 2
5
1x10pin control connector
6
2x17pin control connector for
system board 2 and 4
7
2x17pin control connector for
system board 1 and 3
8
1x8pin control connector to hard
drive backplane
9
front panel connector for system
board 3 and 4

Jumpers and Connector | 321
Power Distribution Board 2 Connectors
Figure 5-15. Power Distribution Board 2 Connectors
1
bridge card connector
2
1x10pin control connector
Sensor Board Connectors
Figure 5-16. Sensor Board Connectors
1
power connector
2
sensor board

322 | Jumpers and Connector
Jumper Settings
CAUTION: Many repairs may only be done by a certified service technician. You
should only perform troubleshooting and simple repairs as authorized in your
product documentation, or as directed by the online or telephone service and
support team. Damage due to servicing that is not authorized by Dell is not
covered by your warranty. Read and follow the safety instructions that came with
the product.
System Configuration Jumper Settings
The function of system configuration jumper installed on each system
board is shown below:
Figure 5-17. System Configuration Jumpers
Table 5-1. System Configuration Jumper
Jumper
Function
Off
On
Service Mode
*Disable
Enable
NVRAM Clear
*Disable
Enable
BIOS Recovery
*Disable
Enable
ME Firmware Recovery
*Disable
Enable
MEDBG1
*Disable
Enable
Power Button Pass
*Disable
Enable
Jumper
Function
Pin1-2
Pin2-3
PWRD_EN
*Enable
Disable

Jumpers and Connector | 323
NOTE: The * in the table of system configuration jumper describes the default
status and the default state is not active state.
Direct Backplane Jumper Settings
CAUTION: Many repairs may only be done by a certified service technician. You
should only perform troubleshooting and simple repairs as authorized in your
product documentation, or as directed by the online or telephone service and
support team. Damage due to servicing that is not authorized by Dell is not
covered by your warranty. Read and follow the safety instructions that came with
the product.
The function of jumpers installed on 3.5" HDD Direct Backplane and 2.5"
HDD Direct Backplane is the same. Following is an example using the
jumpers installed on 3.5" HDD Direct Backplane.
Figure 5-18. Jumper Installed on Direct Backplane
Table 5-2. Jumpers Installed on Direct Backplane
Jumper
Function
Off
On
SW1 (pin1-2)
Reserved
*Disable
Enable
SW2 (pin3-4)
Reserved
*Disable
Enable
SW3 (pin5-6)
SGPIO I2C Select
*Disable
Enable
SW4 (pin7-8)
MFG Test
*Disable
Enable
NOTE: The * in the table of Direct Backplane jumper describes the default status
and the default state is not active state.

6
324 | Getting Help
Getting Help
Contacting Dell
For customers in the United States, call 800-WWW-DELL (800-999-3355).
NOTE: If you do not have an active Internet connection, you can find contact
information on your purchase invoice, packing slip, bill, or Dell product catalog.
Dell provides several online and telephone-based support and service
options. Availability varies by country and product, and some services may
not be available in your area. To contact Dell for sales, technical support, or
customer service issues:
1 Visit support.dell.com. Click your country/region at the bottom of the
page. For a full listing of country/region, click All. Click All Support
from Support menu.
2 Select the appropriate service or support link based on your need.
3 Choose the method of contacting Dell that is convenient for you.
7
Index | 325
Index
A
about your system, 12
B
back panel features, 24
backplane
installing direct BP, 260
removing 2.5-inch hard drive
backplane for expander
configuration, 262
removing direct BP, 255
backplane
installing 2.5-inch hard drive
backplane for expander
configuration, 270
backplane jumper settings, 314
batteries
troubleshooting, 290
battery (system)
replacing, 220
blank
hard drive, 139, 140
C
cable routing
LSI 9265-8i card (1U node),
175
LSI 9265-8i card (2U node),
182
power distribution board, 236,
249, 253, 277, 282
Riser card, 198
SAS mezzanine card (1U
node), 201
SAS mezzanine card (2U
node), 202
collecting system event log, 35,
47
contacting dell, 315
cooling fans
installing, 228
removing, 226
troubleshooting, 292
D
damaged systems
troubleshooting, 289
Dell
contacting, 315
drive blank
installing, 139, 140
removing, 139, 140
E
expander card
installing expander card for
2.5-inch hard drive
backplane, 269
removing expander card from
2.5-inch hard drive
326 | Index
backplane, 269
expansion card
troubleshooting, 297
expansion card connector for 1U
node
installing, 193
removing, 192
expansion card connector for 2U
node
installing, 197
removing, 194
expansion card for 1U node
installing, 163
removing, 160
expansion card for 2U node
installing, 168
removing, 164
F
features and indicators
front panel, 13
fresh air
support, 53
front panel features, 13
front panel installing, 273
front panel removing, 271
H
hard drive
installing hot-swap hard drive,
142
removing hot-swap hard drive,
141
troubleshooting, 295
heat sink installing, 152
heat sink removing, 150, 151
heat sinks
installing, 152
removing, 150, 151
I
indicator codes
AC power, 32
hard-drive indicator, 18
NIC, 29
NIC (management port), 30
power and system board, 31
indicators
back panel, 24
front panel, 13
installing
2.5-inch hard drive backplane
for expander configuration,
270
cooling fans, 228
direct BP, 260
expander card for 2.5-inch
hard drive backplane, 269
expansion card connector for
1U node, 193
expansion card connector for
2U node, 197
expansion card for 1U node,
163
expansion card for 2U node,
168
front panel, 273
hard drive blank, 139, 140
heat sink, 152
hot-swap hard drive, 142
interposer extender, 158
Index | 327
interposer extender tray, 160
LSI 9265-8i card for 1U node,
174
LSI 9265-8i card for 2U node,
181
mezzanine card (10GbE), 211
mezzanine card (1GbE), 207
middle planes, 246
power distribution board, 234
power supply, 146
processor, 155
SAS Mezzanine card, 200
sensor board, 276
system board, 223
system board assembly, 149
installing the LSI 9265-8i raid
battery, 189
installing the LSI 9265-8i raid
battery assembly, 187
Installing the mezzanine-card
bridge board, 213
interposer extender
installing, 158
removing, 157
interposer extender tray
installing, 160
removing, 159
K
keyboards
troubleshooting, 286
L
LEDs
BMC heart beat, 34
LSI 9265-8i card for 1U node
installing, 174
removing, 171
LSI 9265-8i card for 2U node
installing, 181
removing, 177
LSI 9265-8i raid battery assembly
removing, 186
M
memory
troubleshooting, 293
memory modules
removing, 216
memory modules (DIMMs)
configuring, 214
mezzanine card (10GbE)
installing, 211
removing, 208
mezzanine card (1GbE)
installing, 207
removing, 205
Micro SD card
socket location, 61
middle planes
installing, 246
removing, 239
N
NICs
troubleshooting, 287
P
phone numbers, 315
328 | Index
POST
accessing system features, 12
power distribution board
installing, 234
removing, 229
power supplies
installing, 146
removing, 145
processor
installing, 155
removing, 153
processors
troubleshooting, 298
R
removing
cooling fans, 226
direct BP, 255
expander card for 2.5-inch
hard drive backplane, 269
expansion card connector for
1U node, 192
expansion card connector for
2U node, 194
expansion card for 1U node,
160
expansion card for 2U node,
164
front panel, 271
hard drive blank, 139, 140
heat sink, 150, 151
hot-swap hard drive, 141
interposer extender, 157
interposer extender tray, 159
LSI 9265-8i card for 1U node,
171
LSI 9265-8i card for 2U node,
177
LSI 9265-8i raid battery
assembly, 186
memory modules (DIMMs),
216
mezzanine card (1GbE), 205
mezzanine card(10GbE), 208
middle planes, 239
power distribution board, 229
power supply, 145
processor, 153
SAS Mezzanine card, 199
sensor board, 275
system board, 222
system board assembly, 147,
148
removing the LSI 9265-8i RAID
battery, 188
Removing the mezzanine-card
bridge board, 212
replacing
system battery, 220
S
safety, 136
SAS controller daughter card
troubleshooting, 296
SAS Mezzanine card
installing, 200
removing, 199
SAS raid controller daughter card
troubleshooting, 296
startup
accessing system features, 12
support
Index | 329
contacting Dell, 315
fresh air, 53
system
closing, 225
opening, 224
system board
connectors, 300
installing, 223
jumper settings, 313
removing, 222
system board assembly
installing, 149
removing, 147, 148
system cooling
troubleshooting, 291
system features
accessing, 12
system setup
LAN configuration, 99
memory configuration, 81
PCI configuration, 86
power management, 73
processor configuration, 75
remote access configuration,
100
SATA configuration, 83
USB configuration, 93
T
telephone number, 315
troubleshooting
cooling fans, 292
damaged system, 289
expansion card, 297
external connections, 285
hard drive, 295
keyboard, 286
memory, 293
NIC, 287
processors, 298
SAS raid controller daughter
card, 296
sequence, 285
system battery, 290
system boot issues, 35, 47
system cooling, 291
wet system, 288
W
warranty, 53
wet system
troubleshooting, 288








