Dell Poweredge C8000 C8220 硬件用户手册 使用手册 Power Edge Owner's Manual3 Zh Cn
使用手册: Dell poweredge-c8000 Dell PowerEdge C8000 硬件用户手册
Open the PDF directly: View PDF
.
Page Count: 238 [warning: Documents this large are best viewed by clicking the View PDF Link!]

Dell PowerEdge C8220
硬件用户手册
管制型号:B05B
管制类型:B05B001

注、小心和警告
注:“注”表示可以帮助您更好地使用计算机的重要信息。
小心:“小心”表示如果不遵循说明,就有可能损坏硬件或导致数据丢失。
警告:“警告”表示可能会导致财产损失、人身伤害甚至死亡。
____________________
本文中的信息如有更改,恕不另行通知。
© 2014 Dell Inc. 保留所有权利。
未经 Dell Inc. 书面许可,严禁以任何形式复制这些材料。
本文中使用的商标:Dell™、DELL 徽标、和 PowerEdge™ 是 Dell Inc. 的商标。 Intel™ 是
Intel Corporation 在美国和其他国家 /地区的注册商标。
本出版物中可能使用其它商标和商品名称来指拥有相应商标和商品名称的公司或其产品。
Dell Inc. 对不属于自己的商标和商品名称不拥有任何专有权益。
管制型号 B05B
管制类型:B05B001
2014 - 01 P/N XXXXX Rev. A07

目录 3
目录
1关于系统 . . . . . . . . . . . . . . . . . . . . . . . . . 11
在启动过程中访问系统功能. . . . . . . . . . . . . . 11
前面板功能部件和指示灯 . . . . . . . . . . . . . . . 12
NIC 指示灯代码 . . . . . . . . . . . . . . . . . . . . . 14
管理界面. . . . . . . . . . . . . . . . . . . . . . . . . 16
非中央独立模式 . . . . . . . . . . . . . . . . . . 16
非中央综合模式 . . . . . . . . . . . . . . . . . . 17
电源和系统板指示灯代码 . . . . . . . . . . . . . . . 20
BMC 信跳指示灯代码 . . . . . . . . . . . . . . . . . 21
Service Tag (服务标签) . . . . . . . . . . . . . . . 22
开机自测错误代码 . . . . . . . . . . . . . . . . . . . 23
收集系统事件日志用于调查 . . . . . . . . . . . 23
System Event Log (系统事件日志)
. . . . . . . . . . 30
处理器错误 . . . . . . . . . . . . . . . . . . . . 30
内存 Ecc . . . . . . . . . . . . . . . . . . . . . . 31
PCIe 错误 . . . . . . . . . . . . . . . . . . . . . . 33
IOH 核心错误 . . . . . . . . . . . . . . . . . . . 34
SB 错误 . . . . . . . . . . . . . . . . . . . . . . . 35
POST 开始事件. . . . . . . . . . . . . . . . . . . 36
POST 结束事件. . . . . . . . . . . . . . . . . . . 37
POST 错误代码事件 . . . . . . . . . . . . . . . . 38
BIOS 恢复事件 . . . . . . . . . . . . . . . . . . . 39

4目录
ME 失败事件 . . . . . . . . . . . . . . . . . . . . 40
SEL 生成器 ID . . . . . . . . . . . . . . . . . . . 40
BMC . . . . . . . . . . . . . . . . . . . . . . . . . . . 41
可能需要的其他信息 . . . . . . . . . . . . . . . . . . 46
2使用系统设置程序. . . . . . . . . . . . . . . . . 47
系统设置菜单 . . . . . . . . . . . . . . . . . . . . . . 47
引导时的系统设置选项. . . . . . . . . . . . . . . . . 48
使用系统设置程序导航键 . . . . . . . . . . . . . . . 48
一般帮助 . . . . . . . . . . . . . . . . . . . . . . . . . 48
控制台重定向 . . . . . . . . . . . . . . . . . . . . . . 49
启用和配置控制台重定向 . . . . . . . . . . . . 49
串行端口连接列表. . . . . . . . . . . . . . . . . 53
Main (主屏幕)菜单 . . . . . . . . . . . . . . . . . 54
主屏幕 . . . . . . . . . . . . . . . . . . . . . . . 54
系统设置 . . . . . . . . . . . . . . . . . . . . . . 55
Advanced (高级)菜单 . . . . . . . . . . . . . . . . 57
电源管理 . . . . . . . . . . . . . . . . . . . . . . 58
CPU 配置 . . . . . . . . . . . . . . . . . . . . . . 68
内存配置 . . . . . . . . . . . . . . . . . . . . . . 72
SATA 配置. . . . . . . . . . . . . . . . . . . . . . 75
PCI 配置. . . . . . . . . . . . . . . . . . . . . . . 77
USB 配置 . . . . . . . . . . . . . . . . . . . . . . 84
Security (安全保护)菜单 . . . . . . . . . . . . . . 86
Server Menu (服务器菜单)
. . . . . . . . . . . . . . 88
查看系统日志 . . . . . . . . . . . . . . . . . . . 95

目录 5
Boot (引导)菜单 . . . . . . . . . . . . . . . . . . . 96
Exit (退出)菜单 . . . . . . . . . . . . . . . . . . . 97
系统设置选项的命令行界面. . . . . . . . . . . . . . 99
IPMI 命令列表. . . . . . . . . . . . . . . . . . . . . . 130
电源管理设置 . . . . . . . . . . . . . . . . . . . . . . 139
3安装系统组件 . . . . . . . . . . . . . . . . . . . . 143
安全说明. . . . . . . . . . . . . . . . . . . . . . . . . 143
图示说明. . . . . . . . . . . . . . . . . . . . . . . . . 143
建议使用的工具 . . . . . . . . . . . . . . . . . . . . 143
系统内部组件 . . . . . . . . . . . . . . . . . . . . . . 144
底座配置. . . . . . . . . . . . . . . . . . . . . . . . . 145
底座 . . . . . . . . . . . . . . . . . . . . . . . . . . . 146
卸下底座 . . . . . . . . . . . . . . . . . . . . . . 146
安装底座 . . . . . . . . . . . . . . . . . . . . . . 147
底座挡片. . . . . . . . . . . . . . . . . . . . . . . . . 147
卸下单幅底座挡片 . . . . . . . . . . . . . . . . 147
安装单幅底座挡片 . . . . . . . . . . . . . . . . 148
卸下双幅底座挡片 . . . . . . . . . . . . . . . . 149
安装双幅底座挡片 . . . . . . . . . . . . . . . . 149
MicroSD 卡 . . . . . . . . . . . . . . . . . . . . . . . 150
卸下 MicroSD 卡. . . . . . . . . . . . . . . . . . 150
安装 MicroSD 卡. . . . . . . . . . . . . . . . . . 151

6目录
底座盖 . . . . . . . . . . . . . . . . . . . . . . . . . 151
卸下正面机盖 . . . . . . . . . . . . . . . . . . 151
安装正面机盖 . . . . . . . . . . . . . . . . . . 152
卸下背面机盖 . . . . . . . . . . . . . . . . . . 153
安装背面机盖 . . . . . . . . . . . . . . . . . . 154
冷却导流罩 . . . . . . . . . . . . . . . . . . . . . . 154
卸下冷却导流罩 . . . . . . . . . . . . . . . . . 154
安装冷却导流罩 . . . . . . . . . . . . . . . . . 155
散热器 . . . . . . . . . . . . . . . . . . . . . . . . . 156
卸下散热器. . . . . . . . . . . . . . . . . . . . 156
安装散热器. . . . . . . . . . . . . . . . . . . . 157
散热器挡片 . . . . . . . . . . . . . . . . . . . . . . 158
卸下散热器挡片 . . . . . . . . . . . . . . . . . 158
安装散热器挡片 . . . . . . . . . . . . . . . . . 159
处理器 . . . . . . . . . . . . . . . . . . . . . . . . . 160
卸下处理器. . . . . . . . . . . . . . . . . . . . 160
安装处理器. . . . . . . . . . . . . . . . . . . . 161
系统内存 . . . . . . . . . . . . . . . . . . . . . . . . 162
内存模块安装原则. . . . . . . . . . . . . . . . 162
支持的 DIMM 配置. . . . . . . . . . . . . . . . 163
卸下内存模块 . . . . . . . . . . . . . . . . . . 165
安装内存模块 . . . . . . . . . . . . . . . . . . 166
扩展卡 . . . . . . . . . . . . . . . . . . . . . . . . . 167
卸下扩展卡. . . . . . . . . . . . . . . . . . . . 167
安装扩展卡. . . . . . . . . . . . . . . . . . . . 168
卸下 RAID 控制器卡 . . . . . . . . . . . . . . . 169
安装 RAID 控制器卡 . . . . . . . . . . . . . . . 170

目录 7
RAID 电池 . . . . . . . . . . . . . . . . . . . . . . . . 171
卸下 RAID 电池 . . . . . . . . . . . . . . . . . . 171
安装 RAID 电池 . . . . . . . . . . . . . . . . . . 172
卸下 RAID 电池座 . . . . . . . . . . . . . . . . . 173
安装 RAID 电池座 . . . . . . . . . . . . . . . . . 174
扩展卡提升板 . . . . . . . . . . . . . . . . . . . . . . 175
卸下扩展卡提升板 . . . . . . . . . . . . . . . . 175
安装扩展卡提升板 . . . . . . . . . . . . . . . . 176
夹层卡 . . . . . . . . . . . . . . . . . . . . . . . . . . 176
卸下 Infiniband 夹层卡 . . . . . . . . . . . . . . 176
安装 Infiniband 夹层卡 . . . . . . . . . . . . . . 179
卸下 10 GbE 夹层卡 . . . . . . . . . . . . . . . . 180
安装 10 GbE 夹层卡 . . . . . . . . . . . . . . . . 182
MicroSD 卡读取器 . . . . . . . . . . . . . . . . . . . 183
卸下 MicroSD 卡读取器 . . . . . . . . . . . . . . 183
安装 MicroSD 卡读取器 . . . . . . . . . . . . . . 184
卸下 MicroSD 卡读取器支撑架. . . . . . . . . . 185
安装 MicroSD 卡读取器支撑架. . . . . . . . . . 186
内部硬盘驱动器 . . . . . . . . . . . . . . . . . . . . 187
卸下硬盘驱动器托盘 . . . . . . . . . . . . . . . 187
安装硬盘驱动器托盘 . . . . . . . . . . . . . . . 188
从硬盘驱动器托盘中卸下硬盘驱动器 . . . . . 188
将硬盘驱动器安装到硬盘驱动器托盘中 . . . . 189
卸下硬盘驱动器托架 . . . . . . . . . . . . . . . 190
安装硬盘驱动器托架 . . . . . . . . . . . . . . . 191
插入器延长器 . . . . . . . . . . . . . . . . . . . . . . 191
卸下插入器延长器 . . . . . . . . . . . . . . . . 191
安装插入器延长器 . . . . . . . . . . . . . . . . 192

8目录
BMC 管理电缆 (可选) . . . . . . . . . . . . . . . 193
拔下 BMC 管理电缆 . . . . . . . . . . . . . . . 193
安装 BMC 管理电缆 . . . . . . . . . . . . . . . 194
节点配电板 . . . . . . . . . . . . . . . . . . . . . . 195
卸下节点配电板 . . . . . . . . . . . . . . . . . 195
安装节点配电板 . . . . . . . . . . . . . . . . . 196
系统电池 . . . . . . . . . . . . . . . . . . . . . . . . 197
卸下系统电池 . . . . . . . . . . . . . . . . . . 197
安装系统电池 . . . . . . . . . . . . . . . . . . 198
系统板 . . . . . . . . . . . . . . . . . . . . . . . . . 198
卸下系统板. . . . . . . . . . . . . . . . . . . . 199
安装系统板. . . . . . . . . . . . . . . . . . . . 202
4故障排除 . . . . . . . . . . . . . . . . . . . . . . . . 205
安全第一 — 为您和您的系统着想 . . . . . . . . . 205
安装问题 . . . . . . . . . . . . . . . . . . . . . . . . 205
系统启动失败故障排除. . . . . . . . . . . . . . . . 205
外部连接故障排除 . . . . . . . . . . . . . . . . . . 206
视频子系统故障排除 . . . . . . . . . . . . . . . . . 206
USB 设备故障排除 . . . . . . . . . . . . . . . . . . 206
串行 I/O 设备故障排除 . . . . . . . . . . . . . . . . 207
NIC 故障排除 . . . . . . . . . . . . . . . . . . . . . 207
受潮机柜故障排除 . . . . . . . . . . . . . . . . . . 208
受损机柜故障排除 . . . . . . . . . . . . . . . . . . 209

目录 9
电源底座故障排除 . . . . . . . . . . . . . . . . . . . 209
系统内存故障排除 . . . . . . . . . . . . . . . . . . . 210
硬盘驱动器故障排除 . . . . . . . . . . . . . . . . . . 211
存储控制器故障排除 . . . . . . . . . . . . . . . . . . 212
扩展卡故障排除 . . . . . . . . . . . . . . . . . . . . 213
处理器故障排除 . . . . . . . . . . . . . . . . . . . . 214
识别系统板型号 . . . . . . . . . . . . . . . . . . . . 215
系统板故障排除 . . . . . . . . . . . . . . . . . . . . 215
系统电池故障排除 . . . . . . . . . . . . . . . . . . . 216
IRQ 分配冲突 . . . . . . . . . . . . . . . . . . . . . . 216
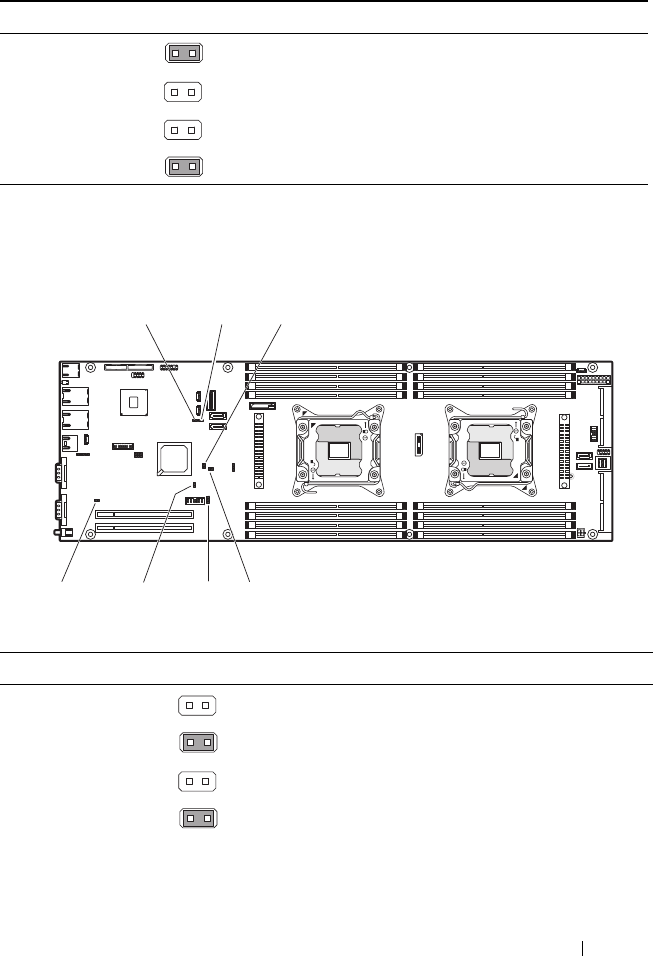
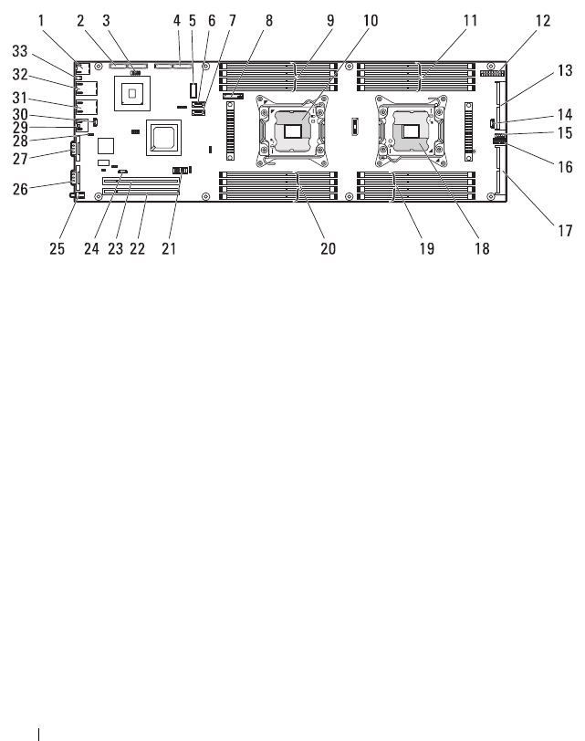
5跳线和连接器 . . . . . . . . . . . . . . . . . . . . 219
系统板类型 . . . . . . . . . . . . . . . . . . . . . . . 219
系统板跳线设置 . . . . . . . . . . . . . . . . . . . . 220
系统板 V1.0 跳线设置 . . . . . . . . . . . . . . . 220
系统板 V1.1 跳线设置 . . . . . . . . . . . . . . . 221
系统板 V1.2 跳线设置 . . . . . . . . . . . . . . . 222
系统板连接器 . . . . . . . . . . . . . . . . . . . . . . 224
系统板 V1.0 连接器 . . . . . . . . . . . . . . . . 224
系统板 V1.1 连接器 . . . . . . . . . . . . . . . . 225
系统板 V1.2 连接器 . . . . . . . . . . . . . . . . 227
扩展卡提升板连接器 . . . . . . . . . . . . . . . . . . 229

10 目录
插入器延长器连接器 . . . . . . . . . . . . . . . . . 230
插入器延长器类型. . . . . . . . . . . . . . . . 230
插入器延长器 V1.0 连接器 . . . . . . . . . . . 230
插入器延长器 V1.1 连接器 . . . . . . . . . . . 231
MicroSD 卡读取器连接器 . . . . . . . . . . . . . . 231
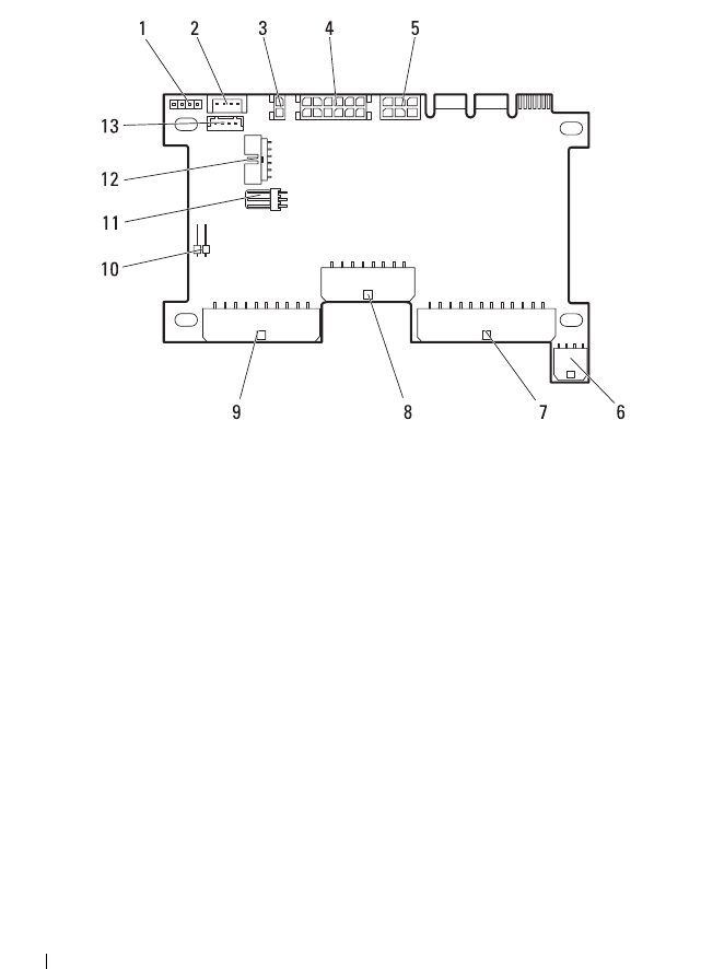
节点配电板连接器 . . . . . . . . . . . . . . . . . . 232
6获得帮助 . . . . . . . . . . . . . . . . . . . . . . . . 233
联系 Dell . . . . . . . . . . . . . . . . . . . . . 233
索引 . . . . . . . . . . . . . . . . . . . . . . . . . . . . . . . 235

关于系统 11
关于系统
在启动过程中访问系统功能
在启动期间,可以使用下列击键功能访问系统功能。SAS/SATA 卡或 PXE
热键支持仅可用于 BIOS 引导模式。统一可扩展固件接口 (UEFI) 引导模
式不可使用热键功能。
注:在本手册中, PowerEdge C8000 服务器机柜即 “服务器机柜”或
“机箱”。
击键 说明
<F2> 进入系统设置程序。请参阅第 47 页上 “系统设置菜单”。
<F11> 进入 BIOS 引导管理器或统一可扩展固件接口 (UEFI) 引导管理
器,视系统的引导配置而定。
<F12> 启动预引导执行环境 (PXE) 引导。
<Ctrl><C> 进入 LSI 2008 SAS 夹层卡配置公用程序。有关详情,请参阅
SAS 适配器说明文件。
<Ctrl><H> 进入 LSI 2008 SAS 夹层卡配置公用程序。有关更多信息,请参
阅 SAS RAID 卡的说明文件。
<Ctrl><S> 进入公用程序,为 PXE 引导配置板载 NIC 设置。有关更多信
息,请参阅集成 NIC 的说明文件。
<Ctrl><I> 进入板载 SAS 和 SATA 控制器的配置公用程序。

12 关于系统
前面板功能部件和指示灯
图 1-1. 前面板功能部件和指示灯
项指示灯、按钮或连
接器
图标 说明
1USB 连接器 将 USB 设备连接至系统。这些端口符合
USB 2.0 标准。
2夹层卡扩展槽 安装一个 I/O 模块夹层卡。
3小型 PCIe 扩展槽 安装一个小型 PCI Express x16 卡。
4释放闩锁 按下此处可从机柜松开底座。
1
2
3
4
5
6
7
8
9
10
11
12

关于系统 13
5通电指示灯 /电源
按钮
当底座接通电源时,通电指示灯将亮
起。出现系统严重事件时,通电指示灯
将呈琥珀色亮起。
注:通电指示灯将在确认出现严重系统
错误日志 (SEL) 时呈琥珀色亮起。若在传
感器监测暂停时 (例如,系统电源关闭
期间风扇监测暂停), SEL 已满或出现取
消确认事件,则通电指示灯将呈琥珀色
亮起。要关闭琥珀色 LED 并重设通电指
示灯,使其恢复正常 (稳定绿色),可
执行 BMC 冷重设或将底座重新放入服务
器机柜中。
电源按钮可开启计算底座。
注:
•
打开底座电源时,视频显示器可能需
要几秒钟至 2 分钟才能显示图像,
这取决于系统中安装的内存容量。
•
对于兼容
ACPI
的操作系统,使用电源
按钮关闭底座可以在底座电源关闭前
执行正常有序的关机操作。
•
强制执行非正常关机,请按住电源按
钮五秒钟。
6VGA 连接器 用于将 VGA 显示屏连接至系统。
7串行连接器 用于将串行设备连接至系统。
8BMC 管理端口 专用管理端口。
9以太网连接器 2 嵌入式 10/100/1000 Mbit NIC 连接器。
10 以太网连接器 1 嵌入式 10/100/1000 Mbit NIC 连接器。
11 底座标识指示灯 呈蓝色亮起以识别特定系统和系统板。
12 手柄 按住此处可从机柜中拉出底座。
项 指示灯、按钮或连
接器
图标 说明
2
1

14 关于系统
NIC 指示灯代码
图 1-2. NIC 指示灯
1链路指示灯 2活动指示灯
指示灯 状况 指示灯代码
链路指示灯
呈琥珀色稳定亮起
端口速率为 100 Mbps 时链接
稳定绿色 端口速率为 1 Mbps (最大)时链接
呈绿色闪烁 端口速率为 1 Mbps 时链接
存在网络活动
•
操作系统开机自测前
•
无驱动程序的操作系统
•
有驱动程序的操作系统
在与数据包密度相关的速率下闪烁
关闭 端口速率为 10 Mbps 时链接
活动指示灯 稳定绿色 没有活动
呈绿色闪烁 传输或接收活动
关闭 空闲

关于系统 15
图 1-3. NIC 指示灯 (BMC 管理端口)
1链路指示灯 2活动指示灯
指示灯 状况 指示灯代码
链路指示灯 呈琥珀色闪烁 端口速率为 10 Mbps 时链接
呈绿色闪烁 端口速率为 100 Mbps (最大)时链接
活动指示灯 稳定绿色 没有活动
呈绿色闪烁 传输或接收活动
关闭 空闲

16 关于系统
管理界面
该底座包含 BMC,它通过与系统板、节点配电板上的各种传感器进行通
信来负责监测底座是否发生严重事件,如果 BMC 安装在 PowerEdge
C8000 服务器机柜中,它还可与机柜的风扇控制器板进行通信,并在某些
参数超出其预置阈值时发送警报和日志事件。
您可以使用两种操作模式访问 BMC:非中央独立模式或非中央综合模
式。在非中央独立模式中,可以使用该底座的 BMC 管理端口通过专用
NIC 访问 BMC。在非中央综合模式中,可以使用 PowerEdge C8000 服务
器机柜的 BMC 管理端口或以太网端口通过共享 NIC 访问 BMC。
非中央独立模式
要使用非中央独立模式设置 BMC 连接:
1
在设置
BMC
之前,您必须先连接底座到本地控制台,并配置必要的系
统
BIOS
、网络和串行连接设置,以启用对
BMC
的访问。请参阅
第
51
页上
“通过
BMC SOL
启用和配置控制台重定向”。
2
使用小平口螺丝刀拆下该底座的
BMC
管理端口上的端口盖,并撬下该
底座的
BMC
管理端口的端口盖。请保存好此端口盖以备将来使用。请
参阅
图
1-4
。
3
连接网络电缆的一端到该底座的
BMC
管理端口。
4
连接网络电缆的另一端到以太网交换机上的一个可用端口。
注: 请确保在 PowerEdge C8000 服务器机柜的 BMC 管理端口和以太网端口中
安装端口盖。请参阅 图 1-4。

关于系统 17
图 1-4. 非中央独立模式
5
在受管底座上配置
BMC
。您可以使用
BMC
管理公用程序从远程管理
站管理该底座的
BMC
。
有关
BMC
管理公用程序的更多信息,请参阅
dell.com/support/manuals
上的 “使用底板管理控制器指南”。
非中央综合模式
对于此模式有两种设置选项可用,可以使用服务器机柜的以太网连接器或
BMC 管理端口来连接到以太网交换机。
要使用服务器机柜的以太网连接器来设置 BMC 连接:
注: 不要将服务器机柜的正面以太网连接器和背面 BMC 管理端口连接到同
一个以太网交换机。
1
在设置
BMC
之前,您必须先在底座中连接
BMC
管理电缆。请参阅
第
194
页上
“安装
BMC
管理电缆”。
1底座的端口盖上的平口螺丝刀 2底座上的网络电缆
3交换机上的网络电缆
3
21

18 关于系统
2
卸下端口护盖,方法是使用小平口螺丝刀将端口护盖从服务器机柜的
正面以太网连接器上撬起。请保存好此端口盖以备将来使用。请参阅
图
1-5
。
3
将网络电缆的一端连接到以太网交换机上的可用端口,将网络电缆的
另一端连接到服务器机柜正面上的以太网连接器上。
注: 请确保在该底座的 BMC 管理端口中安装端口盖。请参阅 图 1-5。
图 1-5. 非中央综合模式 —以太网连接器
4
在受管底座上配置
BMC
。您可以使用
BMC
管理公用程序从远程管理
站管理该底座的
BMC
。
有关
BMC
管理公用程序的更多信息,请参阅
dell.com/support/manuals
上的 “使用底板管理控制器指南”。
要使用服务器机柜的 BMC 管理端口来设置 BMC 连接:
注: 不要将服务器机柜的正面以太网连接器和背面 BMC 管理端口连接到同
一个以太网交换机。
1服务器机柜的端口盖上的平口螺
丝刀
2服务器机柜上的网络电缆
3交换机上的网络电缆
2
3
1

关于系统 19
1
在设置
BMC
之前,您必须先在底座中连接
BMC
管理电缆。请参阅
第
194
页上
“安装
BMC
管理电缆”。
2
卸下端口护盖,方法是使用小平口螺丝刀将端口护盖从服务器机柜的
背面
BMC
管理端口上撬起。请保存好此端口盖以备将来使用。请参阅
图
1-6
。
3
将网络电缆的一端连接到以太网交换机上的可用端口,将网络电缆的
另一端连接到服务器机柜背面上的
BMC
管理端口上。
注: 请确保在该底座的 BMC 管理端口中安装端口盖。
图 1-6. 非中央综合模式 — BMC 管理端口
4
在受管底座上配置
BMC
。您可以使用
BMC
管理公用程序从远程管理
站管理该底座的
BMC
。
有关
BMC
管理公用程序的更多信息,请参阅
dell.com/support/manuals
上的 “使用底板管理控制器指南”。
1服务器机柜的端口盖上的平口螺
丝刀
2服务器机柜上的网络电缆
3交换机上的网络电缆
1
2
3

20 关于系统
电源和系统板指示灯代码
系统启动时底座正面的指示灯显示状态代码。有关前面板指示灯的位置信
息,请参阅图 1-1。
表 1-1. 电源和系统板指示灯代码
指示灯 颜色 状况 指示灯代码
通电指示灯 绿色 稳定
底座电源打开 (S0)
琥珀色 关闭
绿色 稳定 BMC 在断电模式下发生严重状况事件
(S4/S5)
琥珀色 闪烁
绿色 关闭 BMC 在开机模式下发生严重状况事件 (S0)
琥珀色 闪烁
系统识别指
示灯
蓝色 稳定 生成通过机箱识别命令开启的 IPMI,或通过
按下识别按钮开启的 IPMI
蓝色 闪烁 仅生成通过机箱识别命令闪烁开启的 IPMI
关闭 生成通过机箱识别命令关闭的 IPMI,或通过
按下识别按钮关闭的 IPMI

关于系统 21
BMC 信跳指示灯代码
系统板上有一个 BMC 信跳指示灯 (LED17) 用于调试底板管理控制器
(BMC)。当底座通电时 BMC 信跳指示灯呈绿色亮起,当 BMC 固件就绪
时呈绿色闪烁。
图 1-7. BMC 信跳指示灯
1系统板 2BMC 信跳指示灯

22 关于系统
Service Tag (服务标签)
下图提供 C8220 单幅计算底座上的服务标签编号的位置。
图 1-8. C8220 单幅计算底座的服务标签位置

关于系统 23
开机自测错误代码
收集系统事件日志用于调查
系统 BIOS 将尽可能在视频屏幕上输出当前引导进度代码。进度代码是
32 位数量加可选数据。 32 位数字包括类、子类和操作信息。类和子类字
段指向正在初始化的硬件类型。操作字段表示特定初始化活动。根据数据
位可用性以显示进度代码,进度代码可自定义以适合数据宽度。数据位越
高,可通过进度端口发送的信息粒度就越高。进度代码可能由系统 BIOS
或选项 ROM 报告。
下表中的 “响应”部分可分为 3 个类型:
•Warning
(警告)或
Not an error
(不是错误)
-
此信息显示在屏幕上。
但错误记录将记录到
SEL
。系统将在降级状态下继续引导。用户可能
要更换错误单元。
•Pause
(暂停)
-
此信息显示在屏幕上,但错误会记录到
SEL
,并且需
要用户输入一些内容才能继续。用户可以立即采取纠正措施,也可以
选择继续引导。
•Halt
(中止)
-
此信息显示在屏幕上,但错误会记录到
SEL
,并且除非
解决错误,否则系统无法引导。用户需要更换有故障的部件并重新启
动系统。
错误
代码
错误信息 响应 错误原因 纠正措施
0010h Local Console
Resource Conflict
(本地控制台资
源冲突)
Pause
(暂停)
视频设备初始
化失败
请参阅第 206 页上 “视频
子系统故障排除”。
如果问题仍然存在,请参阅
第 233 页上 “获得帮助”
。
0011h Local Console
Controller Error
(本地控制台控
制器错误)
Pause
(暂停)
视频设备初始
化失败
请参阅第 206 页上 “视频
子系统故障排除”。
如果问题仍然存在,请参阅
第 233 页上 “获得帮助”
。
0012h Local Console
Output Error
(本地控制台输
出错误)
Pause
(暂停)
视频设备初始
化失败
请参阅第 206 页上 “视频
子系统故障排除”。
如果问题仍然存在,请参阅
第 233 页上 “获得帮助”
。

24 关于系统
0013h ISA IO Controller
Error (ISA IO
控制器错误)
Pause
(暂停)
ISA 设备初始
化失败
请参阅第 213 页上 “扩展
卡故障排除”。
如果问题仍然存在,请参阅
第 233 页上 “获得帮助”
。
0014h ISA IO Resource
Conflict(ISA IO
资源冲突)
Pause
(暂停)
ISA 设备初始
化失败
请参阅第 213 页上 “扩展
卡故障排除”。
如果问题仍然存在,请参阅
第 233 页上 “获得帮助”
。
0015h ISA IO Controller
Error (ISA IO
控制器错误)
Pause
(暂停)
ISA 设备初始
化失败
请参阅第 213 页上 “扩展
卡故障排除”。
如果问题仍然存在,请参阅
第 233 页上 “获得帮助”
。
0016h ISA Floppy
Controller Error
(ISA 软盘控制器
错误)
Pause
(暂停)
软盘设备初始
化失败
请参阅第 206 页上 “USB
设备故障排除”。
如果问题仍然存在,请参阅
第 233 页上 “获得帮助”
。
0017h ISA Floppy Input
Error (ISA 软盘
输入错误)
Pause
(暂停)
软盘设备初始
化失败
请参阅第 206 页上 “USB
设备故障排除”。
如果问题仍然存在,请参阅
第 233 页上 “获得帮助”
。
0018h ISA Floppy
Output Error
(ISA 软盘输出
错误)
Pause
(暂停)
软盘设备初始
化失败
请参阅第 206 页上 “USB
设备故障排除”。
如果问题仍然存在,请参阅
第 233 页上 “获得帮助”
。
0019h USB Read Error
(
USB
读取错误)
Pause
(暂停)
USB 端口初始
化失败
请参阅第 206 页上 “USB
设备故障排除”。
如果问题仍然存在,请参阅
第 233 页上 “获得帮助”
。
001Ah USB Write Error
(USB 写入错误)
Pause
(暂停)
USB 端口初始
化失败
请参阅第 206 页上 “USB
设备故障排除”。
如果问题仍然存在,请参阅
第 233 页上 “获得帮助”
。
错误
代码
错误信息 响应 错误原因 纠正措施

关于系统 25
001Bh USB Interface
Error (USB 接口
错误)
Pause
(暂停)
USB 端口初始
化失败
请参阅第 206 页上 “USB
设备故障排除”。
如果问题仍然存在,请参阅
第 233 页上 “获得帮助”
。
001Ch Mouse Interface
Error (鼠标接口
错误)
Pause
(暂停)
鼠标设备初始
化失败
要启用 USB 设备,请参阅
第 84 页上 “USB 配置”
。
请参阅第 206 页上 “USB
设备故障排除”。
如果问题仍然存在,请参阅
第 233 页上 “获得帮助”
。
001Eh Keyboard Not
Detected
(未检测到键盘)
Pause
(暂停)
未检测到键盘 要启用 USB 设备,请参阅
第 84 页上 “USB 配置”
。
请参阅第 206 页上 “USB
设备故障排除”。
如果问题仍然存在,请参阅
第 233 页上 “获得帮助”
。
001Fh Keyboard
Controller Error
(键盘控制器
错误)
Pause
(暂停)
键盘控制器初
始化失败
请参阅第 206 页上 “USB
设备故障排除”。
如果问题仍然存在,请参阅
第 233 页上 “获得帮助”
。
0020h Keyboard Stuck
Key Error
(键盘上的键被
卡住错误)
Pause
(暂停)
键盘上的键被
卡住
断开然后重新连接键盘到计
算底座。
如果问题仍然存在,请参阅
第 233 页上 “获得帮助”
。
0021h Keyboard Locked
Error
(键盘锁定错误)
Pause
(暂停)
键盘锁定 断开然后重新连接键盘到计
算底座。
如果问题仍然存在,请参阅
第 233 页上 “获得帮助”
。
错误
代码
错误信息 响应 错误原因 纠正措施

26 关于系统
0023h Memory
Correctable Error
(内存可纠正
错误)
Pause
(暂停)
检测到内存可
纠正错误
断开系统的交流电源 10 秒,
然后重新启动系统。
请参阅第 210 页上 “系统
内存故障排除”。
如果问题仍然存在,请参阅
第 233 页上 “获得帮助”
。
0024h Memory
Uncorrectable
Error (内存不可
纠正错误)
Pause
(暂停)
检测到内存不
可纠正错误
请参阅第 210 页上 “系统
内存故障排除”。
如果问题仍然存在,请参阅
第 233 页上 “获得帮助”
。
0025h Memory Non-
Specific Error
(内存非特定
错误)
Pause
(暂停)
检测到内存非
特定错误
请参阅第 210 页上 “系统
内存故障排除”。
如果问题仍然存在,请参阅
第 233 页上 “获得帮助”
。
0026h MP Service Self
Test Error (MP
服务自检错误)
Pause
(暂停)
检测到 MP 服
务自检错误
请参阅第 214 页上 “处理
器故障排除”。
如果问题仍然存在,请参阅
第 233 页上 “获得帮助”
。
0027h PCI IO Controller
Error (PCI IO
控制器错误)
Pause
(暂停)
PCI 设备初始
化失败
请参阅第 213 页上 “扩展
卡故障排除”。
如果问题仍然存在,请参阅
第 233 页上 “获得帮助”
。
0028h PCI IO Read
Error (PCI IO
读取错误)
Pause
(暂停)
PCI 设备初始
化失败
请参阅第 213 页上 “扩展
卡故障排除”。
如果问题仍然存在,请参阅
第 233 页上 “获得帮助”
。
0029h PCI IO Write
Error (PCI IO
写入错误)
Pause
(暂停)
PCI 设备初始
化失败
请参阅第 213 页上 “扩展
卡故障排除”。
如果问题仍然存在,请参阅
第 233 页上 “获得帮助”
。
错误
代码
错误信息 响应 错误原因 纠正措施

关于系统 27
002Ah Serial Port Not
Detected
(未检测到串行
端口)
Pause
(暂停)
串行设备初始
化失败
请参阅第 207 页上 “串行
I/O 设备故障排除”。
如果问题仍然存在,请参阅
第 233 页上 “获得帮助”
。
002Bh Serial Port
Controller Error
(串行端口控制
器错误)
Pause
(暂停)
串行设备初始
化失败
请参阅第 207 页上 “串行
I/O 设备故障排除”。
如果问题仍然存在,请参阅
第 233 页上 “获得帮助”
。
002Ch Serial Port Input
Error
(串行端口输入
错误)
Pause
(暂停)
串行设备初始
化失败
请参阅第 207 页上 “串行
I/O 设备故障排除”。
如果问题仍然存在,请参阅
第 233 页上 “获得帮助”
。
002Dh Serial Port Output
Error
(串行端口输出
错误)
Pause
(暂停)
串行设备初始
化失败
请参阅第 207 页上 “串行
I/O 设备故障排除”。
如果问题仍然存在,请参阅
第 233 页上 “获得帮助”
。
002Eh Microcode
Update Error
(微代码更新
错误)
Pause
(暂停)
处理器微代码
更新错误
检查微代码。需更新 BIOS。
如果问题仍然存在,请参阅
第 233 页上 “获得帮助”
。
002Fh No Microcode Be
Updated
(未更新微代码)
Pause
(暂停)
处理器微代码
载入失败
请确保您的处理器与系统的
《使用入门指南》中概述的
处理器技术规格所述的型号
相符并匹配。
8012h SATA 0 Device
Not Found
(未找到 SATA 0
设备)
Pause
(暂停)
未找到 SATA 0
设备
检查是否启用 SATA 端口 0。
请参阅第 75 页上 “SATA
配置”。将 SATA 设备安装
到 SATA 端口 0。
如果问题仍然存在,请参阅
第 233 页上 “获得帮助”
。
错误
代码
错误信息 响应 错误原因 纠正措施

28 关于系统
8013h SATA 1 Device
Not Found
(未找到 SATA 1
设备)
Pause
(暂停)
未找到 SATA 1
设备
检查是否启用 SATA 端口 1。
请参阅第 75 页上 “SATA
配置”。将 SATA 设备安装
到 SATA 端口 1。
如果问题仍然存在,请参阅
第 233 页上 “获得帮助”
。
8014h SATA 2 Device
Not Found
(未找到 SATA 2
设备)
Pause
(暂停)
未找到 SATA 2
设备
检查是否启用 SATA 端口 2。
请参阅第 75 页上 “SATA
配置”。将 SATA 设备安装
到 SATA 端口 2。
如果问题仍然存在,请参阅
第 233 页上 “获得帮助”
。
8015h SATA 3 Device
Not Found
(未找到 SATA 3
设备)
Pause
(暂停)
未找到 SATA 3
设备
检查是否启用 SATA 端口 3。
请参阅第 75 页上 “SATA
配置”。将 SATA 设备安装
到 SATA 端口 3。
如果问题仍然存在,请参阅
第 233 页上 “获得帮助”
。
8016h SATA 4 Device
Not Found
(未找到 SATA 4
设备)
Pause
(暂停)
未找到 SATA 4
设备
检查是否启用 SATA 端口 4。
请参阅第 75 页上 “SATA
配置”。将 SATA 设备安装
到 SATA 端口 4。
如果问题仍然存在,请参阅
第 233 页上 “获得帮助”
。
8017h SATA 5 Device
Not Found
(未找到 SATA 5
设备)
Pause
(暂停)
未找到 SATA 5
设备
检查是否启用 SATA 端口 5。
请参阅第 75 页上 “SATA
配置”。将 SATA 设备安装
到 SATA 端口 5。
如果问题仍然存在,请参阅
第 233 页上 “获得帮助”
。
错误
代码
错误信息 响应 错误原因 纠正措施

关于系统 29
8018h Sparing Mode is
not be
Configured!!,
Please check
Memory
Configuration!!
(备用模式未配
置!!请检查内
存配置!!)
Pause
(暂停)
内存备用模式
失败
检查内存配置是否设置为备
用模式。请参阅第 72 页上
“内存配置”。
如果问题仍然存在,请参阅
第 233 页上 “获得帮助”
。
8019h Mirror Mode is
not be
Configured!!,
Please check
Memory
Configuration!!
(镜像模式未配
置!!请检查内
存配置!!)
Pause
(暂停)
内存镜像模式
失败
检查内存配置是否设置为备
用模式。请参阅第 72 页上
“内存配置”。
如果问题仍然存在,请参阅
第 233 页上 “获得帮助”
。
8020h Supervisor and
User Passwords
have been cleared
(管理员和用户
密码已清除)
Pause
(暂停)
Supervisor and
User Passwords
have been
cleared (管理
员和用户密码
已清除)
重设密码。有关详情,请参
阅第 220 页上 “系统板跳
线设置”
。
如果问题仍然存在,请参阅
第 233 页上 “获得帮助”
。
8021h CMOS Battery
Error (CMOS
电池错误)
Pause
(暂停)
无
CMOS
电池
请参阅第 216 页上 “系统
电池故障排除”
。
8100h Memory device
disabled by BIOS
(BIOS 禁用内存
设备)
Pause
(暂停)
内存设备错误 请参阅第 210 页上 “系统
内存故障排除”。
如果问题仍然存在,请参阅
第 233 页上 “获得帮助”
。
错误
代码
错误信息 响应 错误原因 纠正措施

30 关于系统
System Event Log (系统事件日志)
处理器错误
信息:“Processor Sensor, IERR error, Processor 1”(处理器传感器, IERR
错误,处理器 1)
表 1-2. 处理器错误
字节 字段 值说明
1NetFunLun 10h
2Platform Event Command
(平台事件命令)
02h
3Generator ID (生成器 ID)01h 由 BIOS 生成
4
Event Message Format Version
(事件信息格式版本)
04h
事件信息格式版本。此规格为
04h
5传感器类型07h 处理器
6传感器号04h
处理器传感器编号 (取决于平台)
7Event Direction Event Type
(事件方向事件类型)
6Fh 位 7: 0 = 声明事件 位 6: 0 = 事件
类型代码
8Event Data1 (事件数据 1)AXh 00h:IERR 01h:热断路
02h:FRB1/BIST 故障
03h:FRB2/ 开机自检时挂起故障
04h:FBR3/ 处理器启动 /初始化
失败
0Ah:处理器自动节流
9Event Data2 (事件数据 2)XXh 00h:处理器 1
01h:处理器 2
02h:处理器 3
04h:处理器 4
10 Event Data3 (事件数据 3)FFh FFh:不存在

关于系统 31
内存 Ecc
信息:“Memory Sensor, Correctable ECC error, SBE warning threshold,
CPU1 DIMM_A1”(内存传感器,可纠正 ECC 错误, SBE 警告阈值,
CPU1 DIMM_A1)
表 1-3. 内存 ECC
字节 字段 值说明
1NetFunLun 10h
2Platform Event Command
(平台事件命令)
02h
3Generator ID (生成器 ID)01h 由 BIOS 生成
4
Event Message Format Version
(事件信息格式版本)
04h
事件信息格式版本。此规格为
04h
5传感器类型0Ch 内存
6传感器号60h 内存传感器编号 (取决于平台)
7Event Direction Event Type
(事件方向事件类型)
6Fh 位 7: 0 = 声明事件
位 6: 0 = 事件类型代码
8Event Data1 (事件数据 1)AXh 00h:可纠正 ECC 错误
01h:不可纠正 ECC 错误
03h:内存清理失败
04h:内存设备禁用
08h:备用

32 关于系统
9Event Data2 (事件数据 2)XXh 位 7:4
0x00
:
SBE
警告阈值
0x01
:
SBE
严重阈值
0x0F
:未指定
位 3:0
0x00
:
CPU1 DIMM A1-8
插槽
(1~8)
0x01
:
CPU2 DIMM B1-8
插槽
(9~16)
0x02
:
CPU3 DIMM C1-8
插槽
(17~24)
0x03
:
CPU4 DIMM D1-8
插槽
(25~32)
等等…
10 Event Data3 (事件数据 3)XXh 位的 DIMM 位图位置
位 0=1:DIMM1 错误事件
位 1=1:DIMM2 错误事件 …
位 7=1:DIMM8 错误事件
表 1-3. 内存 ECC (续)
字节 字段 值 说明

关于系统 33
PCIe 错误
信息:“Critical Interrupt Sensor, PCI PERR, Device#, Function#, Bus#”
(严重中断传感器, PCI PERR,设备 #,功能 #,总线 #)
表 1-4. PCIe 错误
字节 字段 值说明
1NetFunLun 10h
2Platform Event Command
(平台事件命令)
02h
3Generator ID (生成器 ID)01h 由 BIOS 生成
4
Event Message Format Version
(事件信息格式版本)
04h
事件信息格式版本。此规格为
04h
5传感器类型13h 严重中断
6传感器号73h PCI 传感器 ID (取决于平台)
7Event Direction Event Type
(事件方向事件类型)
6Fh 位 7: 0 = 声明事件
位 6: 0 = 事件类型代码
8Event Data1 (事件数据 1)AXh 04h:PCI PERR
05h:PCI SERR
07h:总线可纠正错误
08h:总线不可纠正错误
0Ah:总线严重错误
9Event Data2 (事件数据 2)XXh 位 7:3 设备编号
位 2:0 功能编号
10 Event Data3 (事件数据 3)XXh 位 7:0 总线编号

34 关于系统
IOH 核心错误
信息:“Critical Interrupt Sensor, Fatal Error, xxxx bit, QPI[0] Error”
(严重中断传感器,严重错误, xxxx 位, QPI[0] 错误)
表 1-5. IOH 核心错误
字节 字段 值说明
1NetFunLun 10h
2Platform Event Command
(平台事件命令)
02h
3Generator ID (生成器 ID)01h 由 BIOS 生成
4
Event Message Format Version
(事件信息格式版本)
04h
事件信息格式版本。此规格为
04h
5传感器类型C0h OEM 定义的中断
6传感器号XXh
71h
:
QPI
传感器
ID
(取决于平台)
72h
:
INT
传感器
ID
(取决于平台)
7Event Direction Event Type
(事件方向事件类型)
6Fh 位 7: 0 = 声明事件 位 6: 0 = 事件类
型代码
8Event Data1 (事件数据 1)AXh 07h:核心
08h:非严重
0Ah:严重
9Event Data2 (事件数据 2)XXh 本地错误位
10 Event Data3 (事件数据 3)XXh 00h:QPI[0] 错误
01h:QPI[1] 错误
02h:QPI[2] 错误
03h:QPI[3] 错误
04h:QPI[0] 协议错误
05h:QPI[1] 协议错误
06h:QPI[2] 协议错误
07h:QPI[3] 协议错误
23h:其它错误
24h:IOH 核心错误

关于系统 35
SB 错误
信息:“Critical Interrupt Sensor, Correctable, MCU Parity Error”
(严重中断传感器,可纠正, MCU 奇偶校验错误)
表 1-6. SB 错误
字节 字段 值说明
1NetFunLun 10h
2Platform Event Command
(平台事件命令)
02h
3Generator ID (生成器 ID)01h 由 BIOS 生成
4
Event Message Format Version
(事件信息格式版本)
04h
事件信息格式版本。此规格为
04h
5传感器类型13h 严重中断
6传感器号77h SB 传感器 ID (取决于平台)
7Event Direction Event Type
(事件方向事件类型)
6Fh 位 7: 0 = 声明事件
位 6: 0 = 事件类型代码
8Event Data1 (事件数据 1)AXh 07h:可纠正
08h:不可纠正
9Event Data2 (事件数据 2)XXh
位
7:5
保留的本地错误位数
(4 ~ 0)
00000b:HT 定期 CRC 错误
00001b:HT 协议错误
00010b:HT 流控制缓冲区溢出
00011b:HT 响应错误
00100b:HT 每个信息包 CRC
错误
00101b:HT 重试计数错误
00111b:MCU 奇偶校验错误
10 Event Data3 (事件数据 3)FFh FFh:不存在

36 关于系统
POST 开始事件
信息:“
System Event, POST starts with BIOS xx.xx.xx
”(系统事件,
POST
开始且
BIOS xx.xx.xx
)
表 1-7. POST 开始事件
字节 字段 值说明
1NetFunLun 10h
2Platform Event Command
(平台事件命令)
02h
3Generator ID (生成器 ID)01h 由 BIOS 生成
4
Event Message Format Version
(事件信息格式版本)
04h
事件信息格式版本。此规格为
04h
5传感器类型12h 系统事件
6传感器号81h POST 开始 (取决于平台)
7Event Direction Event Type
(事件方向事件类型)
6Fh 位 7: 0 = 声明事件
位 6: 0 = 事件类型代码
8Event Data1 (事件数据 1)AXh 01h:OEM 系统引导事件
9Event Data2 (事件数据 2)XXh 7~4:BIOS 第 1 字段版本
(0~15)
3~0:BIOS 第 2 字段版本高 4 位
(0~63)
10 Event Data3 (事件数据 3)XXh 7~6:BIOS 第 2 字段版本低 2 位
(0~63)
5~0:BIOS 第 3 字段版本
(0~63)

关于系统 37
POST 结束事件
表 1-8. POST 结束事件
字节 字段 值说明
1NetFunLun 10h
2Platform Event Command
(平台事件命令)
02h
3Generator ID (生成器 ID)01h 由 BIOS 生成
4
Event Message Format Version
(事件信息格式版本)
04h
事件信息格式版本。此规格为
04h
5传感器类型12h 系统事件
6传感器号85h POST 结束 (取决于平台)
7Event Direction Event Type
(事件方向事件类型)
6Fh 位 7: 0 = 声明事件
位 6: 0 = 事件类型代码
8Event Data1 (事件数据 1)AXh 01h:OEM 系统引导事件
9Event Data2 (事件数据 2)XXh 位 7 = 引导类型
0b
:
PC
兼容的引导 (传统)
1b
:
uEFI
引导
位 3:0 = 引导设备
0001b
:强制
PXE
引导
0010b
:
NIC PXE
引导
0011b
:硬盘引导
0100b
:
RAID HDD
引导
0101b
:
USB
存储设备引导
0111b
:
CD/DVD ROM
引导
1000b
:
iSCSI
引导
1001b
:
uEFI Shell
1010b
:
ePSA
诊断引导
10 Event Data3 (事件数据 3)FFh FFh:不存在

38 关于系统
POST 错误代码事件
信息:“System Firmware Progress, POST error code: UBLBh.”(系统固件进程,
POST 错误代码:UBLBh。)
表 1-9. POST 错误代码事件
字节 字段 值说明
1NetFunLun 10h
2Platform Event Command
(平台事件命令)
02h
3Generator ID (生成器 ID)01h 由 BIOS 生成
4
Event Message Format Version
(事件信息格式版本)
04h
事件信息格式版本。此规格为
04h
5传感器类型0Fh 系统固件进程
6传感器号86h POST 错误 (取决于平台)
7Event Direction Event Type
(事件方向事件类型)
6Fh 位 7: 0 = 声明事件
位 6: 0 = 事件类型代码
8Event Data1 (事件数据 1)AXh
00
:系统固件错误 (
POST
错误)
9Event Data2 (事件数据 2)XXh 上字节
10 Event Data3 (事件数据 3)XXh 下字节

关于系统 39
BIOS 恢复事件
表 1-10. BIOS 恢复事件
字节 字段 值说明
1NetFunLun 10h
2Platform Event Command
(平台事件命令)
02h
3Generator ID (生成器 ID)01h 由 BIOS 生成
4
Event Message Format Version
(事件信息格式版本)
04h
事件信息格式版本。此规格为
04h
5传感器类型12h 系统事件
6传感器号89h BIOS 恢复失败 (取决于平台)
7Event Direction Event Type
(事件方向事件类型)
6Fh 位 7: 0 = 声明事件 位 6: 0 = 事件
类型代码
8Event Data1 (事件数据 1)AXh 01h:OEM BIOS 恢复事件
9Event Data2 (事件数据 2)XXh 01h:开始恢复
02h:恢复成功
03h:载入映像失败
04h:签署失败
10 Event Data3 (事件数据 3)FFh FFh:不存在

40 关于系统
ME 失败事件
SEL 生成器 ID
表 1-11. BIOS 恢复事件
字节 字段 值说明
1NetFunLun 10h
2Platform Event Command
(平台事件命令)
02h
3Generator ID (生成器 ID)01h 由 BIOS 生成
4
Event Message Format Version
(事件信息格式版本)
04h
事件信息格式版本。此规格为
04h
5传感器类型12h 系统事件
6传感器号8Ah ME 失败 (取决于平台)
7Event Direction Event Type
(事件方向事件类型)
6Fh 位 7: 0 = 声明事件
位 6: 0 = 事件类型代码
8Event Data1 (事件数据 1)AXh 01h:OEM ME 失败事件
9Event Data2 (事件数据 2)XXh 01h:ME 失败
10 Event Data3 (事件数据 3)FFh FFh:不存在
表 1-12. SEL 生成器 ID
Generator ID (生成器 ID)
BIOS 0x0001
BMC 0x0020
ME 0x002C
Windows 2008 0x0137

关于系统 41
BMC
下表包括系统传感器概述。
在 “偏差值”列中:
•SI =
传感器初始化
•SC =
传感器功能
•AM =
确认掩码
•DM =
未确认掩码
•RM =
读取掩码
•TM =
可设置
/
可读取阈值掩码
表 1-13. 传感器摘要
传感
器号
传感器名称传感器类型 事件 /读取类型 偏差值
01h SEL Fullness 事件记录禁用 (10h) 特定于传感器
(6Fh)
SI:67h
SC:40h
AM:0035h
DM:0000h
RM:0035h
02h P1 Thermal Trip 处理器 (07h) 特定于传感器
(6Fh)
SI:01h
SC:40h
AM:0002h
DM:0000h
RM:0002h
03h P2 Thermal Trip 处理器 (07h) 特定于传感器
(6Fh)
SI:01h
SC:40h
AM:0002h
DM:0000h
RM:0002h

42 关于系统
表 1-13. 传感器摘要 (续)
传感
器号
传感器名称传感器类型 事件 /读取类型 偏差值
04h CPU ERR2 处理器 (07h) 特定于传感器
(6Fh)
SI:01h
SC:40h
AM:0001h
DM:0000h
RM:0001h
05h 12V Standby 电压 (02h) 阈值 (01h) SI:7Fh
SC:59h
AM:7A95h
DM:7A95h
TM:3F3Fh
06h 5V 电压 (02h) 阈值 (01h) SI:7Fh
SC:59h
AM:7A95h
DM:7A95h
TM:3F3Fh
07h 5V Standby 电压 (02h) 阈值 (01h) SI:7Fh
SC:59h
AM:7A95h
DM:7A95h
TM:3F3Fh
08h 3.3V 电压 (02h) 阈值 (01h) SI:7Fh
SC:59h
AM:7A95h
DM:7A95h
TM:3F3Fh

关于系统 43
表 1-13. 传感器摘要 (续)
传感
器号
传感器名称传感器类型 事件 /读取类型 偏差值
09h 3.3V Standby 电压 (02h) 阈值 (01h) SI:7Fh
SC:59h
AM:7A95h
DM:7A95h
TM:3F3Fh
0Ah Battery low 电池 (29h) 特定于传感器
(6Fh)
SI:67h
SC:40h
AM:0001h
DM:0000h
RM:0001h
41h MEZZ1 TEMP 温度 (01h) 阈值 (01h) SI:7Fh
SC:68h
AM:0A80h
DM:0A80h
TM:3838h
41h CPU1 Temp 温度 (01h) 阈值 (01h) SI:7Fh
SC:68h
AM:0A80h
DM:0A80h
TM:3838h
42h CPU2 Temp 温度 (01h) 阈值 (01h) SI:7Fh
SC:68h
AM:0A80h
DM:0A80h
TM:3838h

44 关于系统
表 1-13. 传感器摘要 (续)
传感
器号
传感器名称传感器类型 事件 /读取类型 偏差值
43h DIMM ZONE 1
Temp
温度 (01h) 阈值 (01h) SI:7Fh
SC:68h
AM:0A80h
DM:0A80h
TM:3838h
44h DIMM ZONE 1
Temp
温度 (01h) 阈值 (01h) SI:7Fh
SC:68h
AM:0A80h
DM:0A80h
TM:3838h
45h PCH Temp 温度 (01h) 阈值 (01h) SI:7Fh
SC:68h
AM:0A80h
DM:0A80h
TM:3838h
60h 内存 内存 (0Ch) 特定于传感器
(6Fh)
SI:01h
SC:40h
AM:0023h
DM:0000h
RM:0023h
A0h Watchdog 监护程序 2 (23h) 特定于传感器
(6Fh)
SI:67h
SC:40h
AM:000Fh
DM:0000h
RM:000Fh

关于系统 45
表 1-13. 传感器摘要 (续)
传感
器号
传感器名称传感器类型 事件 /读取类型 偏差值
A1h Soft Reset 系统引导 /
重新启动已初始化
(1Dh)
特定于传感器
(6Fh)
SI:01h
SC:40h
AM:0004h
DM:0000h
RM:0004h
A2h AC lost 电源单元 (09h) 特定于传感器
(6Fh)
SI:01h
SC:40h
AM:0010h
DM:0000h
RM:0010h
A3h 电源关闭 电源单元 (09h) 特定于传感器
(6Fh)
SI:01h
SC:40h
AM:0002h
DM:0000h
RM:0002h

46 关于系统
可能需要的其他信息
警告:请参阅系统随附的安全与管制信息。保修信息可能包括在该说明文
件中,也可能作为单独的说明文件提供。
•《使用入门指南》概述了机架安装、系统功能、系统设置以及技术
规格。
• PowerEdge C8000 Hardware Owner's Manual
(
PowerEdge C8000
硬件
用户手册)提供有关服务器机柜功能、故障排除和组件更换的信息。
该说明文件可从
dell.com
/
support
/
manuals
联机获取。
• Baseboard Management Controller Guide (底座管理控制器指南)
提供有关安装和使用系统管理公用程序的信息。请参阅
dell.com/support/manuals 上的 Using the Baseboard Management
Controller Guide (使用 Baseboard Management Controller 指南)。
注:请经常访问 dell.com/support/manuals 以获得更新,并首先阅读这些更
新,因为这些更新通常用于替代其他说明文件中的信息。

使用系统设置程序 47
使用系统设置程序
系统设置程序是一种 BIOS 程序,使您可以管理系统硬件和指定 BIOS 级
的选项。通过系统设置程序,您可以:
•
在添加或删除硬件后更改
NVRAM
设置
•
查看系统硬件配置
•
启用或禁用集成设备
•
设置性能和电源管理阈值
•
管理系统安全
系统设置菜单
系统采用最新的 Insyde® BIOS,该 BIOS 存储在快擦写存储器中。快擦写
存储器支持即插即用规范,其中包含系统设置程序、开机自测 (POST) 例
行程序和 PCI 自动配置公用程序。
此系统支持系统 BIOS 映射,可在 64 位板载写保护 DRAM 上执行 BIOS。
可配置的项目包括:
•
硬盘驱动器、软盘驱动器和外围设备
•
密码保护
•
电源管理功能
出现以下情况时,应执行此设置公用程序:
•
更改系统配置时
•
系统检测到配置错误并提示您对设置公用程序进行更改时
•
为防止冲突而重定义通信端口时
•
更改密码或对安全设置进行其它更改时
注:仅可对方括号 [ ] 中的项目进行修改,不在方括号中的项目仅可显示。
注:PowerEdge C8000 服务器机柜在本手册中称为 “服务器机柜”或
“机箱”。

48 使用系统设置程序
引导时的系统设置选项
可在开机自测 (POST) 期间按相应的按键启动设置:
使用系统设置程序导航键
下表列出了图例栏中的键及其相应的备用键和功能:
一般帮助
除 Item Specific Help (特定项目帮助)窗口外,设置公用程序还提供
General Help (一般帮助)屏幕。按 <F1> 可从任何菜单调出此屏幕。
General Help (一般帮助)屏幕列出了图例键及其相应的备用键和功能。
要退出帮助窗口,按 <Enter> 键或 <Esc> 键。
击键 说明
<F2> 进入系统设置程序
<F8> 加载自定义默认设置
<F9> 加载 Setup (设置)菜单中的最佳默认设置
<F10> 保存并退出系统设置程序
键功能
F1 一般帮助
←或→选择屏幕
↑或↓选择项目
←更改选项 /字段
Tab 选择字段
Esc 退出
Enter 转至子屏幕
Home 转至屏幕顶部
End 转至屏幕底部

使用系统设置程序 49
控制台重定向
控制台重定向允许远程用户对未成功引导操作系统 (OS) 的服务器进行诊
断并对问题进行修复。控制台重定向的核心部分是 BIOS 控制台。BIOS
控制台是一个驻留在快擦写 ROM 中的公用程序,可对通过串行连接或调
制解调器连接的输入和输出进行重定向。
BIOS 支持控制台重定向至串行端口。若系统提供了对基于串行端口的无
外设服务器的支持,则系统必须为将所有 BIOS 驱动的控制台 I/O 重定向
至串行端口提供支持。串行控制台的驱动程序必须能支持 ANSI Terminal
Definition (ANSI 终端定义)所记载的功能。
控制台重定向行为显示字符串显示更改,其降低串行端口的数据传输速率
并导致 POST 屏幕缺失或不完整。
如果在连接到控制台后看到异常 POST
屏幕,则建议按 <Ctrl><R> 重新刷新屏幕。
启用和配置控制台重定向
控制台重定向通过系统设置程序配置。有三种选项可用于在系统上建立控
制台重定向。
•
外部串行端口
•
内部串行连接器作为
LAN
上串行
(SOL)
•BMC SOL
通过 COM1 启用和配置控制台重定向
要通过 COM1 启用控制台重定向,必须配置以下设置:
1
将串行电缆连接至串行端口和主机系统。请参阅
图 1-1 了解底座上串
行端口的位置。
2
开机或重新引导后立即按
<F2>
进入系统设置程序。
3
在
System Setup
(系统设置)屏幕中,选择
Server
(服务器)菜单并
按
<Enter>
。
4在 Server (服务器)屏幕中,选择 Remote Access Configuration
(远程访问配置)并按 <Enter>。
5在 Remote Access Configuration (远程访问配置)屏幕中,验证以下
设置:
• Remote Access
(远程访问):
Enabled
(启用)
• Serial port number
(串行端口号):
COM1

50 使用系统设置程序
•Serial Port Mode
(串行端口模式):
115200 8,n,1
•Flow Control
(流控制):
None
(无)
• Redirection After BIOS POST
(在
BIOS
开机自测后重定向):
Always
(始终)
•Terminal Type
(终端类型):
ANSI
有关详情,请参阅第
92
页上
“远程访问配置”。确保最后四个选项与
主机和客户端同步。
6按 <Esc> 返回 System Setup (系统设置)屏幕。再次按 <Esc>,
将出现一则信息,提示您保存更改。
通过 COM2 SOL 启用和配置控制台重定向
要通过 COM2 SOL 启用控制台重定向,必须配置以下设置:
1
将串行电缆连接至串行端口和主机系统。请参阅
图 1-1 了解底座上串
行端口的位置。
2
开机或重新引导后立即按
<F2>
进入系统设置程序。
3
在
System Setup
(系统设置)屏幕中,选择
Server
(服务器)菜单并
按
<Enter>
。
4在 Server (服务器)屏幕中,选择 Remote Access Configuration
(远程访问配置)并按 <Enter>。
5
在
Remote Access Configuration
(远程访问配置)屏幕中,验证以下
设置:
• Remote Access
(远程访问):
Enabled
(启用)
• Serial port number (串行端口号):COM2 as SOL (COM2 作
为 SOL)
•Serial Port Mode
(串行端口模式):
115200 8,n,1
•Flow Control
(流控制):
None
(无)
• Redirection After BIOS POST
(在
BIOS
开机自测后重定向):
Always
(始终)
•Terminal Type
(终端类型):
ANSI
有关详情,请参阅第
92
页上
“远程访问配置”。确保主机和客户端处
于同一网络。
6按 <Esc> 返回 System Setup (系统设置)屏幕。再次按 <Esc>,
将出现一则信息,提示您保存更改。

使用系统设置程序 51
通过 BMC SOL 启用和配置控制台重定向
使用
BMC
管理端口时,有两个选项可用于连接和管理服务器:
Dedicated-
NIC
(专用
NIC
)模式和
Shared-NIC
(共享
NIC
)模式。以下步骤显示
通过
Dedicated-NIC
(专用
NIC
)或
Shared-NIC
(共享
NIC
)的
BMC
管
理端口的设置选项。
要通过专用 BMC 管理端口启用控制台重定向,必须配置以下设置:
1
使用
BMC
电缆来连接底座系统板和节点配电板。
2
将网络电缆连接至
BMC
管理端口。请参阅
图 1-1 了解底座上 BMC 管
理端口的位置。
3
开机或重新引导后立即按
<F2>
进入系统设置程序。
4
在
System Setup
(系统设置)屏幕中,选择
Server
(服务器)菜单并
按
<Enter>
。
5在 Server (服务器)屏幕中,选择 Remote Access Configuration
(远程访问配置)并按 <Enter>。
6在 Remote Access Configuration (远程访问配置)屏幕中,验证以下
设置:
• Remote Access
(远程访问):
Enabled
(启用)
• Serial port number (串行端口号):COM2 as SOL (COM2 作
为 SOL)
•Serial Port Mode
(串行端口模式):
115200 8,n,1
• Flow Control
(流控制):
None
(无)
• Redirection After BIOS POST
(在
BIOS
开机自测后重定向):
Always
(始终)
•Terminal Type
(终端类型):
ANSI
有关详情,请参阅第
92
页上
“远程访问配置”。确保最后四个选项与
主机和客户端同步。
7
在
Server
(服务器)屏幕中,选择
BMC LAN Configuration
(
BMC LAN
配置)并按
<Enter>
。

52 使用系统设置程序
8
在
BMC LAN Configuration
(
BMC LAN
配置)屏幕中,验证以下
设置:
• BMC LAN Port Configuration
(
BMC LAN
端口配置):
Dedicated-
NIC
(专用
NIC
)
• BMC NIC IP Source
(
BMC NIC IP
源):
DHCP
或
Static
(静态)
(如果网络服务器使用
IP
地址的自动分配,则使用
DHCP
)
• IP Address
(
IP
地址):
192.168.001.003
• Subnet Mask
(子网掩码):
255.255.255.000
• Gateway Address
(网关地址):
000.000.000.000
有关详情,请参阅第
90
页上
“设置
BMC LAN
配置”。确保主机和客
户端处于同一网络
9按 <Esc> 返回 System Setup (系统设置)屏幕。再次按 <Esc>,
将出现一则信息,提示您保存更改。
要通过共享 BMC 管理端口启用控制台重定向,必须配置以下设置:
1
使用
BMC
电缆来连接底座系统板和节点配电板。
2
将网络电缆连接至以太网连接器
1
。请参阅
图 1-1 了解底座上以太网连
接器 1 的位置。
3
开机或重新引导后立即按
<F2>
进入系统设置程序。
4
在
System Setup
(系统设置)屏幕中,选择
Server
(服务器)菜单并
按
<Enter>
。
5在 Server (服务器)屏幕中,选择 Remote Access Configuration
(远程访问配置)并按 <Enter>。
6
在
Remote Access Configuration
(远程访问配置)屏幕中,验证以
下设置:
• Remote Access
(远程访问):
Enabled
(启用)
• Serial port number
(串行端口号):
COM2
•Serial Port Mode
(串行端口模式):
115200 8,n,1
•Flow Control
(流控制):
None
(无)
• Redirection After BIOS POST
(在
BIOS
开机自测后重定向):
Always
(始终)
•Terminal Type
(终端类型):
ANSI
有关详情,请参阅第
92
页上
“远程访问配置”。确保最后四个选项与
主机和客户端同步。

使用系统设置程序 53
7
在
Server
(服务器)屏幕中,选择
BMC LAN Configuration
(
BMC LAN
配置)并按
<Enter>
。
8
在
BMC LAN Configuration
(
BMC LAN
配置)屏幕中,验证以下
设置:
• BMC LAN Port Configuration
(
BMC LAN
端口配置):
Shared-NIC
(共享
NIC
)
• BMC NIC IP Source
(
BMC NIC IP
源):
DHCP
或
Static
(静态)
(如果网络服务器使用
IP
地址的自动分配,则使用
DHCP
)
• IP Address
(
IP
地址):
192.168.001.003
• Subnet Mask
(子网掩码):
255.255.255.000
• Gateway Address
(网关地址):
000.000.000.000
有关详情,请参阅第
90
页上
“设置
BMC LAN
配置”。确保主机和客
户端处于同一网络
9按 <Esc> 返回 System Setup (系统设置)屏幕。再次按 <Esc>,
将出现一则信息,提示您保存更改。
串行端口连接列表
信号类型 设置选项 操作系
统设置
输出
远程访问 Serial Port
Number
(串行端口号)
Serial Port
Address
(串行端口
地址)
串行控制台重
定向
Enabled
(启用)
COM1 3F8h/2F8h ttyS0 串行端口
Enabled
(启用)
COM1 2F8h/3F8h ttyS1
BMC LAN
上串行
Enabled
(启用)
COM2 作为
SOL
3F8h/2F8h ttyS1 管理端口
Enabled
(启用)
COM2 作为
SOL
2F8h/3F8h ttyS0

54 使用系统设置程序
Main (主屏幕)菜单
Main (主屏幕)菜单显示了系统板和 BIOS 的相关信息。
主屏幕
注:按 <Alt><H> 进入 BIOS 调试模式并将 BIOS 重设为默认设置。
注:系统设置程序的选项会基于系统配置发生变化。
注:在以下几节中,系统设置程序的默认设置将在各自选项下列出 (如果
适用)。

使用系统设置程序 55
系统设置
选项 说明
System Date
(系统日期)
滚动至此项目可调整日期。使用 <Enter>、<Tab> 或
<Shift><Tab> 可选择字段。使用 [+] 或 [-] 可配置系
统日期。
System Time
(系统时间)
滚动至此项目可调整时间。使用 <Enter>、<Tab> 或
<Shift><Tab> 可选择字段。使用 [+] 或 [-] 可配置系
统时间。
Product Name
(产品名称)
显示系统产品名称。
BIOS Version
(BIOS 版本)
显示 BIOS 版本。
注:从制造商处更新 BIOS 时,请检查此版本号。
BIOS Build Date
(BIOS 构建日期)
显示 BIOS 的创建日期。
Service Tag
(服务标签)
显示系统服务标签号码。 Service Tag (服务标签)字段
应与系统服务标签上的实际内容相匹配。
Asset Tag (资产标签) 显示系统资产标签号码。
MRC Version
(MRC 版本)
显示内存引用代码 (MRC) 固件版本。
ME Version
(
ME
版本)
显示管理引擎 (ME) 固件版本。
BMC Version
(BMC 版本)
显示底板管理控制器 (BMC) 固件版本。
FAN Control Board FW
(风扇控制板固件)
显示风扇控制器板 (FCB) 固件版本。
ePPID 显示电子零件标识符 (ePPID) 标签上的信息。
NIC1 MAC Address
(NIC1 MAC 地址)
显示 NIC1 连接器的介质访问控制 (MAC) 地址。
NIC2 MAC Address
(NIC2 MAC 地址)
显示 NIC2 连接器的 MAC 地址。
BMC NIC MAC Address
(
BMC NIC MAC
地址)
显示 BMC 管理端口的 MAC 地址。
Processor Type
(处理器类型)
显示处理器类型。

56 使用系统设置程序
Processor Speed
(处理器速度)
显示处理器的当前速度。
Processor Core
(处理器内核)
显示处理器内核。
System Memory Size
(系统内存大小)
显示系统板上安装的总内存大小。
System Memory Speed
(系统内存速度)
显示系统内存的最大速度。
System Memory Voltage
(系统内存电压)
显示系统内存的最大电压。
选项 说明

使用系统设置程序 57
Advanced (高级)菜单
Advanced (高级)菜单以表格形式显示用于定义系统相关高级信息的项
目。滚动到此项目并按 <Enter> 键可查看以下屏幕。
小心:
对这些页面上的项目设置
不当,可能会造成系统故障。除非您有调整
这些项目的经验,否则建议您将这些设置保留默认值。如果对这些页面上的项
目进行设置后导致系统出现故障或无法引导,请打开
BIOS
并选择
Exit
(退出)
菜单中的
Load Optimal Defaults
(加载最佳默认设置)以进行正常引导。

58 使用系统设置程序
电源管理
滚动到此项目并按 <Enter> 键可查看以下屏幕。
Power Management (电源管理)
选项 说明
Power Management
(电源管理)
(默认为 OS Control
[操作系统控制 ])
选择系统电源管理模式。
• Maximum Performance
(最佳性能):将系统电源管理
设置为最佳性能。
•OS Control
(操作系统控制):允许操作系统控制电源
管理。
• Node Manager
(节点管理器):启用
Node Manager
(节点管理器)以缓和计算底座中处理器的功耗和性
能。节点管理器为单个计算底座提供电源报告和功率
上限功能。

使用系统设置程序 59
CPU Power Capping
(CPU 功率上限)
(默认为 P-State 0)
选择处理器性能状态 (P-state)。选项包括 [P-State 0]、
[P-State 1]、[P-State 2]、[P-State 3] 和 [P-state 4]。
注:当 Power Management (电源管理)设置为 OS
Control (操作系统控制)模式时启用此选项。
机箱电源管理 按 <Enter> 键设置机箱电源管理。
此选项指示不同的电源管理选项,用于通过处理器节流
和功率上限来控制系统功耗。
Energy Efficient Policy
(能效策略)
(默认为
Balanced
(平衡))
选择电源策略选项。
•Max Performance
(最佳性能):设置处理器始终处于
最佳性能状态。
• Balanced
(平衡):通过在非活动期间降低系统功耗来
提供全性能并省电。
•Low Power(低功率):使用不同处理器省电模式
(C 状态)降低系统功耗。
注:当操作系统不支持处理器电源管理控制时此选项发
挥作用。
选项 说明

60 使用系统设置程序
机箱电源管理
滚动到此项目并按 <Enter> 键可查看以下屏幕。
Chassis Power Management (机箱电源管理)
选项 说明
Chassis PSU
Configuration
(机箱 PSU 配置)
按 <Enter> 配置机箱电源设备。
此选项用于管理和监测电源设备,并提供此服务器必须
满足的最低要求集。
Power Capping
(功率上限)
按 <Enter> 键设置功率上限值。
此选项按节点管理器控制系统电源,通过处理器来限制
底座的功耗 (瓦数)。
注:底座的总功耗不包括机柜风扇的电能使用。该机柜
风扇以最大 280W 的功率运行。

使用系统设置程序 61
Emergency Throttling
(紧急节流)
按 <Enter> 键配置计算底座和机箱紧急节流功能。
此选项将策略设置为在底座检测到系统紧急故障时生效
(例如检测到风扇错误、机箱严重电源事件、 PSU 严重
电源事件、异常环境温度等)
。
注:当活动电源设备无法满足最高 PSU 配置或者排气温
度控制 PWM 输出高于 100% 时, FCB 启动紧急节流。
选项 说明

使用系统设置程序 63
PSU 配置边界
PSU 配置所需的电源数量由以下公式确定:X + N,其中 X 是所需的 PSU,而 N 是冗余 PSU。
PSU 编号 所需的 PSU (X) 冗余 PSU (N)
4 4 0
3 1
2 2
3 2 1
2 2 0
1 1

64 使用系统设置程序
功率上限
滚动到此项目并按 <Enter> 键可查看以下屏幕。
Power Capping (功率上限)
选项 说明
Power Budget
(电源预算)
显示机柜可用电源瓦数。
此为每个 PSU 容量的摘要 (即基于 PSU 数目和每个
PSU 的最大容量)。每个 PSU 支持的最大输出功率为
1100 瓦或 1400 瓦。机柜中的电源预算不能超过 2660
瓦。
功率预算由以下公式确定:功率预算 = (已安装 PSU
最大输出瓦数 x 机柜中 PSU 总数) x 0.95。例如,在包
含两个 PSU 的机柜中,电源预算为 (1400 瓦 x 2 个
PSU)x 0.95 = 2660 瓦。
Chassis Level Capping
(机箱级别上限)
(默
认为 Disabled [ 禁用 ])
设置为机箱级别或底座级别功率上限。(默认设置引用
自 BMC。) 系统确定机柜和底座的功耗,并持续尝试将
机柜的功耗维持在上限以下。

使用系统设置程序 65
Sled Power Capping
(底座功率上限)
(默认为 0)
注: 当 Chassis Level Capping (机箱级别上限)设置为
Disabled (禁用)时,启用此选项。
底座本身的功率上限基础结构能够确定底座的功耗。设
置为 0 时,功率上限功能被禁用。最低额定功率不应低
于 100 瓦,最高额定功率不应超过电源预算值。设置范
围从 100 至 1000 瓦。
选项 说明

66 使用系统设置程序
功率上限
选项 说明
Power Budget (电源预
算)
显示机柜可用电源瓦数。
此为每个 PSU 容量的摘要 (即基于 PSU 数目和每个
PSU 的最大容量)。每个 PSU 支持的最大输出功率为
1100 瓦或 1400 瓦。机柜中的电源预算不能超过 2660
瓦。
功率预算由以下公式确定:功率预算 = (已安装 PSU
最大输出瓦数 x 机柜中 PSU 总数) x 0.95。例如,在包
含两个 PSU 的机柜中,电源预算为 (1400 瓦 x 2 个
PSU)x 0.95 = 2660 瓦。
Chassis Level Capping
(机箱级别上限)
(默
认为 Disabled [ 禁用 ])
设置为机箱级别或底座级别功率上限。(默认设置引用
自 BMC。) 系统确定机柜和底座的功耗,并持续尝试将
机柜的功耗维持在上限以下。
机箱功率上限
(默认为 0)
注: 当 Chassis Level Capping (机箱级别上限)设置为
Enabled (启用)时,启用此选项。
确定机箱的功耗。最低额定功率不应低于 1500 瓦,最
高额定功率不应超过电源预算值。设置范围从 1500 至
9000 瓦。

使用系统设置程序 67
紧急节流
滚动到此项目并按 <Enter> 键可查看以下屏幕。
紧急节流 (Emergency Throttling)
选项 说明
Sled Level Policy
(底座级别策略)
(默认为 Chassis Level
[机箱级别 ])
触发紧急节流事件时选择底座级别策略。
•
Chassis Level
(机箱级别):覆盖特定服务器的机箱级
别策略。
•Throttling
(节流):触发紧急节流事件时允许计算底
座节流。
•
Power Off
(关闭电源):触发紧急节流事件时关闭计
算底座。
•
Do Nothing
(不采取任何措施):触发紧急节流事件
时计算底座将不采取任何措施。

68 使用系统设置程序
CPU 配置
滚动到此项目并按 <Enter> 键可查看以下屏幕。
Chassis Level Policy
(机箱级别策略)
(默认为 Throttling
[节流 ])
触发紧急节流事件时选择机箱级别策略。当 Sled Level
Policy (底座级别策略)设置为 Chassis Level (机箱级
别)时,可配置此选项。
•Throttling
(节流):触发紧急节流事件时允许机箱底
座节流。
•
Power Off
(关闭电源):触发紧急节流事件时服务器
电源关闭。
选项 说明

使用系统设置程序 69
CPU 配置
选项 说明
Active Processor Cores
(活动处理器内核)
(默认为 All Cores
[所有内核 ])
允许您控制每个处理器中的已启用内核数量。选项为
[1]
、
[2]
、
[4]
、
[6]
、
[8]
、
[10]
和
[All Cores]
(所有
内核)。(选项取决于处理器内核。)
Frequency Ratio
(频率比率)
(默认为 Auto [自动 ])
将频率系数设置为最大级别。
Max CPUID Value Limit
(最大
CPUID
值限制)
(默认为
Disabled
[
已禁用
]
)
如果使用 EAX=0 执行 CPUID 指令时 EAX 中返回的
值 >3,则某操作系统即 (NT4) 将失败。
启用时,此设置将 CPUID 功能限制为 3。
禁用时,此设置禁用 3 或更少。
Virtualization
Technology (虚拟化
技术) (默认为
Disabled [ 已禁用 ])
允许您设置适用 CPU 中的虚拟化技术。
启用 (适用
CPU
)
/
禁用 (在任何操作系统中都不可用)。
QPI Frequency
(QPI [Quick Path
Interconnect,快速路
径互联 ] 频率)
(默认为 Auto [自动 ])
选择链接速度。选项包括 [6.4GT
s]、[7.2GTs] 和
[8.0GTs]。
Tur bo M o d e (Tu r b o
模式) (默认为
Enabled [ 已启用 ])
启用或禁用处理器 Tu r bo 模式。
C-States (C 状态)
(默认为 Enabled
[已启用 ])
启用时,处理器在所有可用电源 C 状态下均可操作。
禁用时,用户电源 C 状态不可用于处理器。
C1E State
(
C1E
状态)
(默认为 Enabled
[已启用 ])
启用或禁用增强挂起 (Enhanced Halt, C1E) 状态。
注:禁用此选项的风险由使用者承担。禁用此选项时,
屏幕上将显示弹出消息,系统设置程序帮助中将显示
警告。
C6 State (C6 状态)
(默认为 Enabled
[已启用 ])
启用或禁用处理器 C6 状态。
注:禁用此选项的风险由使用者承担。禁用此选项时,
屏幕上将显示弹出消息,系统设置程序帮助中将显示
警告。

70 使用系统设置程序
C7 State (C7 状态)
(默认为 Enabled
[已启用 ])
启用或禁用处理器 C7 状态。
注:只有当处理器支持 C7 状态时,此功能才可见。
注:禁用此选项的风险由使用者承担。禁用此选项时,
屏幕上将显示弹出消息,系统设置程序帮助中将显示
警告。
XD Bit Capability(XD
位能力) (默认为
Enabled [ 已启用 ])
启用或禁用处理器的执行禁用 (XD) 内存保护技术功能。
Direct Cache Access
(直接高速缓存访问)
(默认为 Enabled
[已启用 ])
启用或禁用直接高速缓存访问。
Hyper-Threading
Technology (超线程技
术)(默认为 Enabled
[已启用 ])
启用或禁用超线程技术。
预先访存配置 按 <Enter> 配置预先访存设置。
注:此功能在处理器支持时才可用。
选项 说明

使用系统设置程序 71
预先访存配置
滚动到此项目并按 <Enter> 键可查看以下屏幕。
预先访存配置
选项 说明
Adjacent Cache Line
Prefetch (相邻的高速
缓存行预先访存)
(默认为 Enabled
[已启用 ])
对顺序内存访问启用或禁用系统优化。
Hardware Prefetcher
(硬件预先访存技术)
(默认为 Enabled
[已启用 ])
启用或禁用处理器内部的随机设备。

72 使用系统设置程序
内存配置
滚动到此项目并按 <Enter> 键可查看以下屏幕。
DCU Streamer
Prefetcher (DCU 流转
化器预先访存技术)
(默认为 Enabled
[已启用 ])
启用或禁用数据高速缓存设备 (DCU) 流转化器预先访
存技术。
注:此功能在处理器支持时才可用。
DCU IP Prefetcher
(DCU IP 预先访存技
术) (默认为 Enabled
[已启用 ])
启用或禁用 DCU IP 预先访存技术。
注:此功能在处理器支持时才可用。
选项 说明

使用系统设置程序 73
内存配置
选项 说明
Memory Frequency
(内存频率) (默认为
Auto [自动 ])
选择操作系统频率。选项包括 [Auto] (自动)、
[800]、[1066]、[1333]、[1600] 和 [1866]。
Memory Turbo Mode
(内存 Tur bo 模式)(默认
为 Disabled [ 已禁用 ])
启用或禁用内存 turbo 模式。
注:此功能对 Intel Xeon E5-2600 v2 处理器不可用。
Memory Throttling Mode
(内存节流模式)
(默认为
Enabled [ 已启用 ])
启用或禁用内存以在闭合回路热节流模式下运行。
Memory Operating Mode
(内存运行模式)
(默认为 Optimizer Mode
[优化器模式 ])
如果系统安装了有效内存配置,则选择内存运行类型。
• Optimizer Mode
(优化器模式):两个内存控制器
将在
64
位模式下并行运行,从而提高内存性能。
•Spare Mode
(备用模式):启用内存备用。在此模
式中,每个通道将一列保留为一个备用列。
如果在某列上持续检测到可纠正的错误,则会将来
自该列的数据复制到备用列,并禁用故障列。
在启用内存备用的情况下,可用于操作系统的系统
内存将每个通道减少一列。
例如,在带有十六个
32 GB
四列
DIMM
的双处理
器配置中,可用系统内存为:
32 GB x 16 (DIMM) -
32/4
(列大小)
x 8
(通道)
= 448 GB
。
对于使用
Rank Multiplication(RM)=4
的十六个
64 GB 8
列
LRDIMM
,可用的系统内存为:
64 GB x 16(DIMM) - 64/8x4
(列大小)
x 8
(通道)
= 768 GB
。
• Mirror Mode
(镜像模式):启用内存镜像
• Advanced ECC Mode
(高级
ECC
模式):控制器
在
128
位模式下运行多位高级
ECC
。
Demand Scrubbing
(请求清理) (默认为
Enabled [ 已启用 ])
启用或禁用 DRAM 清理。
DRAM 清理是一种能力,即一旦在读取事务处理时
检测到可纠正错误,即可将纠正的数据写回内存。
Patrol Scrubbing
(轮询清理) (默认为
Enabled [ 已启用 ])
启用或禁用轮询清理。
轮询清理主动搜索系统内存,修复可纠正错误。

74 使用系统设置程序
Memory Operating Voltage
(内存操作电压)
(默认为 Auto [自动 ])
如果设置为
Auto
(自动),则系统会根据安装的内
存模块的容量将电压设置为最佳的值。如果内存模块
支持多种电压,您还可以将模块的电压设置为更高的
值
(1.5 V)
。选项包括
[Auto]
(自动)、
[1.5 volts]
(
1.5
伏)和
[1.35 volts]
(
1.35
伏)。
注:
如果
DIMM
不支持低电压,
BIOS
将自动限制
选择。
NUMA Support
(NUMA 支持)
(默认为
Enabled [ 已启用 ])
启用或禁用非一体化内存体系结构 (NUMA) 支持以
提高处理器性能。
注:此选项适用于 NUMA 系统,其允许内存在所有
处理器节点上交叉存取。
Memory Mapped I/O
(内存映射 I/O) (默认为
Auto [自动 ])
为 PCIe 内存空间选择基址寄存器。选项包括 [Auto]
(自动)、 [32-bit] (32 位)和 [64-bit] (64 位)。
Memory Refresh Rate
(内存刷新速率)
(默认为 X1)
启用或禁用 2X 内存刷新速率。
选项 说明

使用系统设置程序 75
SATA 配置
滚动到此项目并按 <Enter> 键可查看以下屏幕。
SATA 配置
选项 说明
Embedded SATA
Controller (嵌入式
SATA 控制器)
(默认为 AHCI)
为板载 SATA 控制器选择运行模式。
•Off
(关):禁用
SATA
控制器。此令牌适用于首个板
载
SATA
控制器。
•IDE
:启用
SATA
控制器在
IDE
模式下运行。将设备分
类代码设置为
IDE
并使用
PCI IRQ
(称为本机模式)。
此令牌适用于首个板载
SATA
控制器。
•AHCI
:启用
SATA
控制器在
AHCI
模式下运行。将设
备分类代码设置为
SATA
并设置
AHCI BAR
和寄存器。
此令牌适用于首个板载
SATA
控制器。
•RAID
:启用
SATA
控制器在
RAID
模式下运行。将设
备分类代码设置为
RAID
并执行
RAID
选项
ROM.
此令
牌适用于首个板载
SATA
控制器。这可提供在系统引导
期间对
RAID
设置公用程序的访问权限。

76 使用系统设置程序
Embedded SATA Link
Rat (嵌入式 SATA 链
接速率)(默认为 Auto
[自动 ])
选择 SATA 链接速度。
•Auto
(自动):将
SATA
链接速度设置为最大
6.0 Gbps
。
• 1.5 Gbps:将 SATA 链接速度设置为 1.5 Gbps。针对
功耗。
• 3.0 Gbps
:将
SATA
链接速度设置为
3.0 Gbps
。
SATA Port 0 (默认为
Auto [自动 ])
设置为
off
(关)时,关闭第
1
个串行
ATA
驱动器控制器。
设置为 auto (自动)时,针对第 1 个串行 ATA 驱动器
控制器启用 BIOS 支持 (如果存在则启用,否则出现
POST 错误)。
SATA Port 1 (默认为
Auto [自动 ])
设置为
off
(关)时,关闭第
2
个串行
ATA
驱动器控制器。
设置为 auto (自动)时,针对第 2 个串行 ATA 驱动器
控制器启用 BIOS 支持 (如果存在则启用,否则出现
POST 错误)。
SATA Port 2 (SATA 端
口 2) (默认为 Auto
[自动 ])
设置为
off
(关)时,关闭第
3
个串行
ATA
驱动器控制器。
设置为 auto (自动)时,针对第 3 个串行 ATA 驱动器
控制器启用 BIOS 支持 (如果存在则启用,否则出现
POST 错误)。
SATA Port 3 (SATA 端
口 3) (默认为 Auto
[自动 ])
设置为
off
(关)时,关闭第
4
个串行
ATA
驱动器控制器。
设置为 auto (自动)时,针对第 4 个串行 ATA 驱动器
控制器启用 BIOS 支持 (如果存在则启用,否则出现
POST 错误)。
SATA Port 4 (SATA 端
口 4) (默认为 Auto
[自动 ])
设置为
off
(关)时,关闭第
5
个串行
ATA
驱动器控制器。
设置为 auto (自动)时,针对第 5 个串行 ATA 驱动器
控制器启用 BIOS 支持 (如果存在则启用,否则出现
POST 错误)。
SATA Port 5 (SATA 端
口 5) (默认为 Auto
[自动 ])
设置为
off
(关)时,关闭第
6
个串行
ATA
驱动器控制器。
设置为 auto (自动)时,针对第 5 个串行 ATA 驱动器
控制器启用 BIOS 支持 (如果存在则启用,否则出现
POST 错误)。
Power Saving Features
(省电功能) (默认为
Auto [自动 ])
启用或禁用允许 SATA 硬盘驱动器启动链接电源管理转
换的功能。
HDD Security Erase
(HDD 安全擦除)
(默认为 Disabled
[已禁用 ])
启用或禁用硬盘驱动器安全冻结锁定功能。
选项 说明

使用系统设置程序 77
PCI 配置
滚动到此项目并按 <Enter> 键可查看以下屏幕。
PCI 配置
选项 说明
嵌入式网络设备 按 <Enter> 配置可用网络驱动器。
NIC Enumeration (NIC
枚举) (默认为 Onboard
[板载 ])
选择 LAN 引导 ROM 选项。
•Onboard
(板载):使用
NIC
上的
PXE
引导以引导
系统。
• Add-in
(添加项):使用添加式网络适配器上的
PXE
引导以引导系统。
活动状态电源管理配置 按 <Enter> 配置 PCI Express 设备的电源管理。
PCI 插槽配置 按 <Enter> 配置 PCI Express 设备。
注:在 C8220X 底座中安装 Intel Xeon Phi 卡时, BIOS
将自动启用 PCI 内存 64 位译码选项。

78 使用系统设置程序
PCIe Generation (PCIe
版本)(默认为 Gen3)
选择 PCI 信号传输速率。
• Gen1
:
2.5 GT/s
• Gen2
:
5 GT/s
• Gen3
:
8 GT/s
VT for Direct I/O (直接
I/O 虚拟技术)(默认为
Disabled [ 已禁用 ])
启用或禁用 Intel 硬件虚拟化支持。
SR-IOV Global Enable
(
SR-IOV
全局启用)(默认
为
Disabled
[
禁用
]
)
启用或禁用单根 I/O 虚拟化 (SR-IOV) 设备的 BIOS
配置。
I/OAT DMA Engine
(I/OAT DMA 引擎)(默
认为 Disabled [ 禁用 ])
设置为 Enabled (启用)时,将对支持此技术的网
络控制器启用 I/O 加速技术 (I/OAT) 功能。
Maximum Payload Size
(最大载荷大小)
(默认为
Auto [ 自动 ])
设置 PCI Express 控制器的最大载荷大小。选项包括
Auto (自动)、 128 bytes (128 位)和 256 bytes
(256 位)。
Embedded Video Controller
(嵌入式视频控制器)
(默认为 Enabled [ 启用 ])
启用或禁用板载视频控制器。
注:此选项应始终设置为 Enabled (启用)。如果设
置为禁用,远程 KVM 功能无法正常使用。
Video Enumeration (视频
枚举)
(默认为 Onboard
[板载 ])
选择视频控制器枚举类型。
•Onboard
(板载)
-
板载视频控制器用于引导时显
示信息。
•Add-in
(添加项)
-
第一个添加式视频控制器用于
引导时显示信息。具体取决于
BIOS
搜索顺序和系
统插槽布局。
WHEA Support (WHEA
支持) (默认为 Disabled
[已禁用 ])
启用或禁用 Windows Hardware Error Architecture
(WHEA) (Windows 硬件错误体系结构)功能。
Perfmon and DFX Devices
(Perfmon 和 DFX 设备)
(默认为
Disabled [
禁用
]
)
启用或禁用安装在系统中的 Perfmon 设备 (例如,
磁盘使用、内存占用和 CPU 负载)和 DFX 设备
(如 USB 适配器)。
选项 说明

使用系统设置程序 79
嵌入式网络设备
滚动到此项目并按 <Enter> 键可查看以下屏幕。
Reboot on WOL (ROW)
(
WOL
上重新引导)(默认
为
Disabled [
禁用
]
)
启用或禁用通过 LAN 唤醒上重新引导功能。
Reboot On WOL (WOL 上重新引导)功能在网络
控制器收到 Magic 信息包时针对网络控制器。当网
络芯片支持 Reboot on WOL (WOL 上重新引导)
功能时,显示此选项。
选项 说明

80 使用系统设置程序
嵌入式网络设备
选项 说明
Embedded NIC1 (嵌
入式 NIC1)
(默认为
Enabled with PXE
[通过 PXE 启用 ])
启用或禁用板载 NIC1 控制器。
• Enabled with PXE
(通过
PXE
启用):允许您启用系统
主嵌入式
NIC
(完整功能),包括其
PXE
引导
ROM
。
• Enabled without PXE
(不通过
PXE
启用):允许您仅
启用系统主嵌入式
NIC
。
NIC
关联
PXE
或
RPL
引导
ROM
在此选项中禁用。
• iSCSI Remote Boot
(
iSCSI
远程引导):允许您配置
iSCSI
目标和启动器变量以支持
iSCSI
远程引导。所做
更改将在系统重新引导之后生效。
•Disabled
(禁用):允许您禁用系统主嵌入式
NIC
。
Embedded NIC2
(嵌入式
NIC2
)(默认
为
Enabled without PXE
[
不通过
PXE
启用
]
)
启用或禁用板载 NIC2 控制器。
• Enabled with PXE
(通过
PXE
启用):允许您启用系统
次嵌入式
NIC
(完整功能),包括其
PXE
引导
ROM
。
• Enabled without PXE
(不通过
PXE
启用):允许您仅
启用系统次嵌入式
NIC
。
NIC
关联
PXE
或
RPL
引导
ROM
在此选项中禁用。
• iSCSI Remote Boot
(
iSCSI
远程引导):允许您配置
iSCSI
目标和启动器变量以支持
iSCSI
远程引导。所做
更改将在系统重新引导之后生效。
•Disabled
(禁用):允许您禁用系统主嵌入式
NIC
。

使用系统设置程序 81
iSCSI Remote Boot (iSCSI 远程引导)
在 Embedded NIC1/NIC2 (嵌入式 NIC1/NIC2)选项中选择 iSCSI
Remote Boot (iSCSI 远程引导)并按 <Enter> 查看以下屏幕。
iSCSI Remote Boot (iSCSI 远程引导)
选项 说明
iSCSI Initiator Name
(iSCSI 启动器名称)
显示启动器的全球唯一名称。仅接受 iqn 格式。
Enable DHCP (启用
DHCP)
(默认为
Disabled [ 已禁用 ])
启用或禁用 DHCP 网络设置。
Initiator IP Address
(启动器 IP 地址)
设置启动器的静态 IP 地址。
Initiator Subnet Mask
(启动器子网掩码)
设置静态 IP 地址的子网掩码。
网关 设置静态 IP 地址的 IP 网关。

82 使用系统设置程序
活动状态电源管理配置
滚动到此项目并按 <Enter> 键可查看以下屏幕。
Targe t Name
(目标名称)
设置目标 IP 的名称。
Target IP Address
(目标 IP 地址)
设置目标的 IP 地址。
Targe t Por t
(目标端口)
设置目标端口。
Boot LUN
(引导 LUN)
设置 LU 号码的十六进制表示。
CHAP Type
(CHAP 类型)
(默认为 None [ 无])
选择 CHAP 类型。选项包括 [None] (无)、 [One Way
CHAP] (单项 CHAP)和 [Mutual CHAP] (交互
CHAP)。
选项 说明

使用系统设置程序 83
活动状态电源管理配置
PCI 插槽配置
滚动到此项目并按 <Enter> 键可查看以下屏幕。
选项 说明
PCIe Slot ASPM (PCIe 插
槽 ASPM) (默认为
Disabled [ 已禁用 ])
为 PCI Express 插槽选择活动状态电源管理 (ASPM)
协议。选项包括 [Disabled] (禁用)和 [L1]。
Onboard LAN ASPM
(板载 LAN ASPM)( 默 认
为 Disabled [ 已禁用 ])
为板载网络控制器选择 ASPM 协议。选项包括
[Disabled] (禁用)和 [L1]。
Mezzanine Slot ASPM
(夹层卡插槽
ASPM
)
(默认为
Disabled [
禁用
]
)
为夹层卡插槽选择 ASPM 协议。
NB-SB Link ASPM
(NB-SB 链接 ASPM)
(默认为 L1)
为北桥和南桥芯片集选择 ASPM 协议。

使用系统设置程序 85
USB 配置
选项 说明
Embedded USB
Controller (嵌入式
USB 控制器)
(默认为 Enabled
[已启用 ])
系统启动时启用或禁用板载 USB 控制器。
USB Port with BMC
(USB 端口 [BMC])
(默认为 Enabled
[启用 ])
启用或禁用带 BMC 支持的内部 USB 端口。
External USB Port1
(外部 USB 端口 1)
(默认为 Enabled
[启用 ])
启用或禁用外部 USB 端口 1。
External USB Port2
(外部 USB 端口 2)
(默认为 Enabled
[启用 ])
启用或禁用外部 USB 端口 2。
Internal USB Connector
(内部 USB 连接器)
(默认为 Enabled
[启用 ])
启用或禁用内部 USB 端口。

86 使用系统设置程序
Security (安全保护)菜单
Security (安全保护)菜单可让您设置安全保护参数。滚动到此项目并按
<Enter> 键可查看以下屏幕。
安全保护设置
选项 说明
Supervisor Password
(管理员密码)
指明是否已设置管理员密码。如果已安装密码,将显示
Installed (已安装)。如果没有安装,则显示 Not
Installed (未安装)。
User Password
(用户密码)
指明是否已设置管理员密码。如果已安装密码,将显示
Installed (已安装)。如果没有安装,则显示 Not
Installed (未安装)。

使用系统设置程序 87
Change Supervisor
(更改管理员)
您可以安装管理员密码,如果安装管理员密码,则可安
装用户密码。用户密码不提供对设置公用程序的访问权
限。注:Change User Password (更改用户密码)选项
仅在已设置管理员密码后显示。
选择此选项并按 <Enter> 键可访问子菜单,将出现一
个对话框,可让您输入密码。最多可输入六个字母或数
字。输入密码后按 <Enter> 键。将出现另一个对话
框,让您重新输入密码以进行确认。在重新正确输入密
码后,按 <Enter> 键。如果密码确认不正确,将出现
错误信息。完成 ezPORT 后,密码存储在 NVRAM 中。
在引导时或用户进入设置公用程序时需要密码。
Change User Password
(更改用户密码)
安装或更改用户密码。
Prevent Back-flash (防
止回闪)
(默认为 Disabled [ 已
禁用 ])
启用此选项后,将禁止系统 BIOS 降级到 2.1.0 或更早
版本。
警告: 一旦启用此功能,您将无法更改该设置。除非
绝对必要,否则强烈建议不要启用此功能。
注: 启用后,您 将 无法使用 NVRAM 清除跳线将 Prevent
Back-flash (防止回闪)设置更改为禁用。
选项 说明

88 使用系统设置程序
Server Menu (服务器菜单)
Server (服务器)菜单可让您配置计算底座参数。滚动到此项目并按
<Enter> 键可查看以下屏幕。
服务器设置
选项 说明
Status of BMC
(BMC 状态)
显示 BMC 的状态。
IPMI Specification Version
(IPMI 规格版本)
显示智能平台管理接口 (IPMI) 固件版本号。
BMC Firmware Version
(BMC 固件版本)
显示 BMC 固件版本号。
NIC1 MAC Address
(NIC1 MAC 地址)
显示 NIC1 连接器的 MAC 地址。
NIC2 MAC Address
(NIC2 MAC 地址)
显示 NIC2 连接器的 MAC 地址。

使用系统设置程序 89
BMC NIC MAC Address
(BMC NIC MAC 地址)
显示 BMC NIC 连接器的 MAC 地址。
ACPI SPMI Table
(ACPI SPMI 表)
(默认为 Enabled
[已启用 ])
启用时,
BIOS
为
IPMI
驱动程序安装启用高级配置和
电源接口
(ACPI)
服务处理器管理接口
(SPMI)
表。
禁用时,
BIOS
为
BMC ROM
更新禁用
ACPI SPMI
表。
设置 BMC LAN 配置 按 <Enter> 设置 BMC 网络。
Remote Access
Configuration
(远程访问配置)
按 <Enter> 配置与控制台重定向相关的串行端口
设置。
Restore on AC Power Loss
(交流电源掉电后恢复)
(默认为 Power On
[打开电源 ])
恢复交流电源时选择电源状态。
•Power Off
(关闭电源):按下电源按钮前系统保持
关闭。
• Last State
(最近状态):系统在掉电前恢复为最近
电源状态。
•Power On
(打开电源):系统在交流电源掉电后重
新打开。
Power Staggering AC
Recovery (电源错开交流
电源恢复)
(默认为 Immediate
[立即])
设置恢复电源后系统从交流电源掉电重新打开的时
间段。
•Immediate
(立即):
Power On (No Delay)
(打开
电源
[
无延迟
]
)
•Random
(随机):
Auto
(自动)
• User Defined
(用户定义):用户定义的延迟时间。
Power Button (电源按钮)
(默认为 Enabled
[已启用 ])
启用时,电源按钮可关闭系统电源。
禁用时,电源按钮仅可打开系统电源。
View System Event Log
(查看系统事件日志)
按 <Enter> 查看 BMC 系统事件日志。
Event Logging
(事件记录) (默认为
Enabled [ 已启用 ])
启用或禁用 BIOS 记录系统事件。
NMI On Error (发生错误
时 NMI) (默认为
Enabled [ 已启用 ])
启用或禁用 BIOS,在发生不可纠正的 PCI Express
错误时生成非屏蔽中断 (NMI)。
选项 说明

90 使用系统设置程序
设置 BMC LAN 配置
滚动到此项目并按 <Enter> 键可查看以下屏幕。
设置 BMC LAN 配置
选项 说明
Channel Number
(通道号)
显示用于 BMC LAN 的通道号。
Channel Number Status
(通道号状态)
显示 BMC 通道号状态。
BMC LAN Port
Configuration (BMC
LAN 端口配置)
(默认为 Shared-NIC
[共享 NIC])
将 BMC 管理端口设置为专用或共享 NIC 端口。选项包
括 [Dedicated NIC] (专用 NIC)和 [Shared NIC]
(共享 NIC)。
BMC NIC IP Source
(BMC NIC IP 源)
(默认为 DHCP)
设置 BMC 为使用 DHCP 获取其 IP 地址或建立静态 IP
地址。
IP Address (IP 地址) 设置静态 IP 地址。

使用系统设置程序 91
IPv6 Mode (IPv6 模式)
在 IPv6 Mode (IPv6 模式)选项中选择 Enabled (启用)并按 <Enter>
查看以下屏幕。
Subnet Mask
(子网掩码)
设置静态 IP 地址的子网掩码。
Gateway Address
(网关地址)
设置静态 IP 地址的 IP 网关。
Gateway MAC Address
(网关 MAC 地址)
设置静态 IP 地址的 MAC 地址。
BMC NIC MAC
Address (BMC NIC
MAC 地址)
设置 BMC 管理端口的 MAC 地址。
IPv6 Mode
(IPv6 模式)
(默认为 Disabled
[已禁用 ])
启用或禁用 IPv6 Internet 协议支持。
如果设置为启用,则配置 IPv6 前缀、IP 和网关地址。
选项 说明

92 使用系统设置程序
IPv6 Mode (IPv6 模式)
远程访问配置
选项 说明
IPv6 AutoConfig
(IPv6 自动配置)
启用或禁用 IPv6 自动配置。
IPv6 Prefix Length
(IPv6 前缀长度)
设置 IPv6 地址的前缀长度。
IPv6 IP Address
(IPv6 IP 地址)
将 BMC 管理端口设置为专用或共享 NIC 端口。选项包
括 [Dedicated NIC] (专用 NIC)和 [Shared NIC]
(共享 NIC)。
IPv6 IP Address
(IPv6 IP 地址)
设置 BMC IPv6 地址。
IPv6 Gateway Address
(IPv6 网关地址)
设置静态 IPv6 地址的 MAC 地址。

使用系统设置程序 93
滚动到此项目并按 <Enter> 键可查看以下屏幕。
Remote Access Configuration (远程访问配置)
选项 说明
Remote Access
(远程访问)
(默认为 Enabled
[已启用 ])
启用或禁用串行控制台重定向。
Serial port number
(串行端口号)
(默认为 COM1)
选择串行端口用于控制台重定向。
•COM1
:通过
COM1
启用控制台重定向。
请参阅令牌
D7h
。
•COM2 as SOL
(
COM2
作为
SOL
):通过
COM2
启用控制台重定向。

94 使用系统设置程序
Serial Port Address
(串行端口地址)(默认为
3F8h/2F8h)
指定串行端口的基本 I/O 端口地址。
•
3F8h/2F8h
:将前串行端口地址设置为
0x3F8
,
将内部串行端口地址设置为
0x2F8
。
•COM2 as SOL
(
COM2
作为
SOL
):将前串行端
口地址设置为
0x2F8
,将内部串行端口地址设置为
0x3F8
。
Serial Port Mode
(串行端口模式)
(
115200 8,n,1
为默认设置)
为串行端口选择波特率。选项包括 [115200 8,n,1]、
[57600 8,n,1]、[38400 8,n,1]、[192008,n,1] 和
[9600 8,n,1]。
Flow Control (流控制)
(默认为 None [ 无])
针对控制台重定向选择流量控制。选项包括 [None]
(无)和 [Software] (软件)。
Redirection After BIOS
POST (BIOS 开机自测后
重定向)
(默认为 Always
[始终 ])
如果设置为 Always (始终)
,控制台重定向将始终
为活动状态。设置为 Disabled (禁用)时,控制台
重定向在开机自测后关闭。
Ter minal Type
(终端类型)
(默认为
ANSI)
为控制台重定向选择目标终端类型。选项包括
[ANSI]、[VT100] 和 [VT-UTF8]。
VT-UTF8 Combo Key
Support (VT-UTF8 组合
键支持)(默认为 Enabled
[已启用 ])
启用或禁用 ANSI/VT100 终端的 VT-UTF8 组合键
支持。
选项 说明

使用系统设置程序 95
查看系统日志
滚动到此项目并按 <Enter> 键可查看以下屏幕。
查看系统日志
选项 说明
View BMC SEL Event
Log(查看 BMC SEL
事件日志)
查看 BMC 系统事件日志中的所有事件。
Clear BMC SEL Event
Log(清除 BMC SEL
事件日志)
删除 BMC 系统事件日志中的所有记录。

96 使用系统设置程序
Boot (引导)菜单
Boot (引导)菜单可让您设置 POST 引导参数。滚动到此项目并按
<Enter> 键可查看以下屏幕。
Boot Settings (引导设置)
选项 说明
Quiet Boot (静默引导)
(默认为 Enabled
[已启用 ])
启用此项可显示启动或摘要屏幕,而非 POST 流的
详细信息。禁用时,将出现正常的开机自测 (POST)
信息。
Pause on Errors
(发生错误时暂停)
(默认为 Disabled
[已禁用 ])
启用或禁用 BIOS 在 POST 期间出错时提示您按
<F1> 或 <F2> 键。
Force PXE Boot only
(仅强制 PXE 引导)
(默认为
Disabled [
禁用
]
)
启用或禁用 PXE 为唯一引导设备。

使用系统设置程序 97
Exit (退出)菜单
滚动到此项目并按 <Enter> 键可查看以下屏幕。
Boot Mode (引导模式)
(默认为 BIOS)
选择系统引导模式。
•
BIOS
:
标准的 BIOS 级引导接口
•UEFI
:
基于一体化可扩展固件接口规格 (UEFI)
(高于系统 BIOS)的增强 64 位引导接口。
Boot Type Order
(引导类型顺序)
按 <Enter> 从可用设备设置首选引导顺序。
Legacy Boot Device
(传统引导设备)
按
<Enter>
从可用传统
USB
设备设置首选引导顺序。
选项 说明

98 使用系统设置程序
Exit (退出)选项
选项 说明
Save Changes and Exit
(保存更改并退出)
突出显示此项目并按 <Enter> 键可保存您在设置公
用程序中所做的任何更改并退出设置公用程序。出
现 Save Changes and Exit (保存更改并退出)对话
框时,按 [Y] 保存更改并退出,或按 <N> 返回设置
主菜单。
Discard Changes and Exit
(放弃更改并退出)
突出显示此项目并按 <Enter> 键可放弃您在设置公
用程序中所做的任何更改并退出设置公用程序。出
现 Discard Changes and Exit (放弃更改并退出)对
话框时,按 [Y] 放弃更改并退出,或按 <N> 返回设
置主菜单。
Save Changes (保存更改)选择此项目并按 <Enter> 可保存所作的任何更改,
而不离开设置公用程序。
Discard Changes
(放弃更改)
选择此项目并按 <Enter> 键可放弃所做的任何更
改,而不离开设置公用程序。
Load Optimal Defaults
(加载最佳默认设置)
如果突出显示此项目并按 <Enter> 键,将出现一个
对话框,询问是否为设置公用程序中的所有项目安
装最佳设置。按 <Y> 键表示 Yes(是), 然后按
<Enter> 键安装最佳设置。
最佳设置默认值要求十分苛刻,若使用较慢的内存
芯片或其它类型的低性能组件,系统可能无法正常
工作。
Load Customized Defaults
(加载自定义默认设置)
为所有设置参数从 NVRAM 加载第 2 个默认值。
Save Customized Defaults
(保存自定义默认设置)
将所有设置参数作为第 2 个默认值保存至 NVRAM。

使用系统设置程序 99
系统设置选项的命令行界面
系统设置菜单中的选项可让您控制系统配置公用程序 (syscfg)。此公用程
序包含在 Dell OpenManage Deployment Toolkit (DTK) 中。
请参阅 《Deployment Toolkit 版本 1.3 用户指南》以了解有关安装和使用
DTK 公用程序的详情,参阅 《Deployment Toolkit 版本 1.3 命令行界面参
考指南》以了解使用 BMCCFG.EXE 配置和管理 BMC 所需要的有效选
项、子选项和参数的完整列表。
在以下条件下可使用系统配置公用程序:
•
通过
D4
令牌更改系统设置选项:
./syscfg
–
t=D4_token_id
(示例:
./syscfg -t=0x002D
以启用
NIC1 Option ROM [NIC1
选项
ROM]
)
•
检查令牌活动状态:
./syscfg --istokenactive=D4_token_id
(示例:
./syscfg --istokenactive=0x002D
以检查
NIC1 Option ROM
[NIC1
选项
ROM]
的令牌活动状态)
•
通过
BMC
内存直接更改系统设置选项:
./ipmitool raw <
命令
> <
数据
>
(示例:
./ipmitool raw 0xc 1 1 3 10 106 42 120
以将
BMC
管理端口的
IP
地址设置为
10.106.42.120
)
表 2-1. D4 令牌表
令牌 设置选项 说明
002D Embedded NIC1
(嵌入式 NIC1)
启用板载 NIC1 控制器 (完整功能),包括其 PXE
引导 ROM。
002E Embedded NIC1
(嵌入式 NIC1)
禁用板载 NIC1 控制器。
0051 不适用在下一次系统引导时,将 IPL 优先级设置为:USB
存储、硬盘、CD/DVD-ROM、RAID、网络 (如果
设备可用)。

100 使用系统设置程序
0052 不适用
在下一次系统引导时,将
IPL
优先级设置为:硬盘,
然后是选项
ROM
(如果设备可用)。
0053 不适用在下一次系统引导时,将 IPL 优先级设置为:网
络、硬盘、RAID、USB 存储、CD/DVD-ROM
(如果设备可用)。
0054 不适用在下一次系统引导时,将 IPL 优先级设置为:
CD/DVD-ROM、USB 存储、硬盘、RAID、网络
(如果设备可用)。
005C 不适用启用下次重新引导时 BIOS 远程更新,以搜索操作
系统启动的 BIOS 更新映像。
005D 不适用禁用下次重新引导时 BIOS 远程更新,以搜索操作
系统启动的 BIOS 更新映像。
006E Embedded NIC1
(嵌入式 NIC1)
启用板载 NIC1 控制器,但禁用 NIC 关联的 PXE 或
RPL 引导 ROM。
0087 Video
Enumeration
(视频枚举)
允许 BIOS 对引导时信息使用板载视频控制器。
0088 Video
Enumeration
(视频枚举)
允许 BIOS 对引导时信息使用首个添加式视频控制
器。具体取决于 BIOS 搜索顺序和系统插槽布局。
008C Embedded USB
Controller
(嵌入式 USB 控
制器)
允许 BIOS 在系统启动时启用内置 USB 控制器。
008D Embedded USB
Controller
(嵌入式 USB 控
制器)
允许 BIOS 在系统启动时启用内置 USB 控制器。
00A1 Restore on AC
Power Loss
(交流电源掉电
后恢复)
按下电源按钮前系统保持关闭。
表 2-1. D4 令牌表 (续)
令牌 设置选项 说明

使用系统设置程序 101
00A2 Restore on AC
Power Loss
(交流电源掉电
后恢复)
系统在掉电前恢复为最近电源状态。
00A3 Restore on AC
Power Loss
(交流电源掉电
后恢复)
系统在交流电源掉电后重新打开。
00BA Embedded NIC2
(嵌入式 NIC2)
禁用板载 NIC2 控制器。
00BB Embedded NIC2
(嵌入式 NIC2)
启用板载 NIC2 控制器,但禁用 NIC 关联的 PXE 或
RPL 引导 ROM。
00BC Embedded NIC2
(嵌入式 NIC2)
启用板载 NIC2 控制器 (完整功能),包括其 PXE
引导 ROM。
00BF 远程访问 禁用串行控制台重定向。
00C0 Serial port
number
(串行端口号)
通过 COM1 启用控制台重定向。请参阅令牌 D7h。
00C1 Power Button
(电源按钮)
启用电源按钮以关闭系统电源。
(默认设置)
00C2 Power Button
(电源按钮)
禁用电源按钮以关闭系统电源。
00D1 Hyper-Threading
Technology
(超线程技术)
启用超线程技术。
00D2 Hyper-Threading
Technology
(超线程技术)
禁用超线程技术。
00D7 Serial port
number
(串行端口号)
通过 COM2 启用控制台重定向。
表 2-1. D4 令牌表 (续)
令牌 设置选项 说明

102 使用系统设置程序
00D8 Load Optimal
Defaults (加载
最佳默认设置)
下次引导时为设置公用程序中的所有项安装最佳默
认设置。
00FE Legacy USB
Support (传统
USB 支持)
禁用系统为操作系统提供传统 USB 支持。
00FF Legacy USB
Support (传统
USB 支持)
启用系统为操作系统提供传统 USB 支持。
0117 SATA Port0
(SATA 端口 0)
关闭第 1 个串行 ATA 驱动器控制器。
0118 SATA Port0
(SATA 端口 0)
针对第 1 个串行 ATA 驱动器控制器启用 BIOS 支持
(如果存在则启用,否则出现 POST 错误)。
0119 SATA Port1
(SATA 端口 1)
关闭第 2 个串行 ATA 驱动器控制器。
011A SATA Port1
(SATA 端口 1)
针对第 2 个串行 ATA 驱动器控制器启用 BIOS 支持
(如果存在则启用,否则出现 POST 错误)。
011B SATA Port2
(SATA 端口 2)
关闭第 3 个串行 ATA 驱动器控制器。
011C SATA Port2
(SATA 端口 2)
针对第 3 个串行 ATA 驱动器控制器启用 BIOS 支持
(如果存在则启用,否则出现 POST 错误)。
011D SATA Port3
(SATA 端口 3)
关闭第 4 个串行 ATA 驱动器控制器。
011E SATA Port3
(SATA 端口 3)
针对第 4 个串行 ATA 驱动器控制器启用 BIOS 支持
(如果存在则启用,否则出现 POST 错误)。
011F SATA Port4
(SATA 端口 4)
关闭第 5 个串行 ATA 驱动器控制器。
0120 SATA Port4
(SATA 端口 4)
针对第 5 个串行 ATA 驱动器控制器启用 BIOS 支持
(如果存在则启用,否则出现 POST 错误)。
0121 SATA Port5
(SATA 端口 5)
关闭第 6 个串行 ATA 驱动器控制器。
表 2-1. D4 令牌表 (续)
令牌 设置选项 说明

使用系统设置程序 103
0122 SATA Port5
(SATA 端口 5)
针对第 6 个串行 ATA 驱动器控制器启用 BIOS 支持
(如果存在则启用,否则出现 POST 错误)。
0135 Embedded SATA
Controller
(嵌入式 SATA
控制器)
禁用 SATA 控制器。此令牌适用于首个板载 SATA
控制器。
0137 Embedded SATA
Controller
(嵌入式 SATA
控制器)
启用
SATA
控制器在
IDE
模式下运行。将设备分类
代码设置为
IDE
并使用
PCI IRQ
(称为本机模式)。
此令牌适用于首个板载
SATA
控制器。
0138 Embedded SATA
Controller
(嵌入式 SATA
控制器)
启用 SATA 控制器。将设备分类代码设置为 SATA
并设置 AHCI BAR 和寄存器。此令牌适用于首个板
载 SATA 控制器。
0139 Embedded SATA
Controller
(嵌入式 SATA
控制器)
启用 SATA 控制器。将设备分类代码设置为 RAID
并执行 RAID 选项 ROM. 此令牌适用于首个板载
SATA 控制器。
013E Memory
Remapping
(内存重新映射)
(3GB~4GB)
禁用时,内存重新映射将 PCI 孔后面的内存空间重
新定位为超过 4 GB 的空间。
013F Memory
Remapping
(内存重新映射)
(3GB~4GB)
启用时,内存重新映射将内存空间 (3GB - 4 GB) 重
新定位为超过 4 GB 的空间。
0140 Execute-Disable
(XD) Bit
Capability
(执行 -禁用
[XD] 位功能)
禁用时,支持 XD 功能的 Intel 处理器报告对操作系
统的支持。
表 2-1. D4 令牌表 (续)
令牌 设置选项 说明

104 使用系统设置程序
0141 Execute-Disable
(XD) Bit
Capability
(执行 -禁用
[XD] 位功能)
启用时,支持
XD
功能的
Intel
处理器报告对操作系
统的支持。如果操作系统支持此扩展的分页机制,
它将提供一些保护,避免软件病毒利用缓冲区溢出。
014A Virtualization
Technology
(虚拟化技术)
允许您禁用适用处理器中的 VT 技术。如果禁用,
VT 功能将在任何操作系统中均无法使用。
014B Virtualization
Technology
(虚拟化技术)
允许您启用适用处理器中的 VT 技术。
014E External USB
PORT1 (外部
USB 端口 1)
允许您以电子方式禁用外部 USB 连接器 1。
014F External USB
PORT1 (外部
USB 端口 1)
允许您以电子方式启用外部 USB 连接器 1。
0168 Max CPUID
Value Lim it
(最大 CPUID
值限制)
如果使用 EAX=0 执行 CPUID 指令时 EAX 中返回
的值 >3,则某操作系统即 (NT4) 将失败。此设置
禁用 3 或更少。
0169 Max CPUID
Value Limit
(最大 CPUID
值限制)
如果使用 EAX=0 执行 CPUID 指令时 EAX 中返回
的值 >3,则某操作系统即 (NT4) 将失败。此设置
将 CPUID 功能限制 为 3。
016F Embedded SAS
Controller
(嵌入式 SAS 控
制器)
禁用 SAS 控制器。此令牌适用于板载 SAS 控制器。
0170 Embedded SAS
Controller
(嵌入式 SAS 控
制器)
启用 SAS 控制器。将设备分类代码设置为
AHCI/RAID 并执行 RAID 选项 ROM。此令牌适用
于板载 SAS 控制器。
表 2-1. D4 令牌表 (续)
令牌 设置选项 说明

使用系统设置程序 105
0171 Adjacent Cache
Line Prefetch
(相邻的高速缓
存行预先访存)
对顺序内存访问禁用系统优化。处理器将获取包含
其当前所需数据的高速缓存行。
0172 Adjacent Cache
Line Prefetch
(相邻的高速缓
存行预先访存)
对顺序内存访问启用系统优化。处理器将获取另一
半扇区中的相邻高速缓存行。
0173 Hardware
Prefetcher (硬件
预先访存技术)
禁用处理器的硬件预先访存技术。
0174 Hardware
Prefetcher (硬件
预先访存技术)
禁用处理器的硬件预先访存技术。
0178 远程访问 启用串行控制台重定向。
0189 External USB
PORT2 (外部
USB 端口 2)
允许您以电子方式禁用外部 USB 连接器 2。
018A External USB
PORT2 (外部
USB 端口 2)
允许您以电子方式启用外部 USB 连接器 2。
0199 Power Saving
Features
(省电功能)
禁用允许 SATA 硬盘驱动器启动链接电源管理转换
的功能。
019A Power Saving
Features
(省电功能)
启用允许 SATA 硬盘驱动器启动链接电源管理转换
的功能。
01C4 NUMA Support
(NUMA 支持)
禁用 NUMA 支持以提高处理器性能。此选项适用
于 NUMA 系统,其允许内存在所有处理器节点上
交叉存取。
01C5 NUMA Support
(NUMA 支持)
启用 NUMA 支持以提高处理器性能。此选项适用
于 NUMA 系统,其允许内存在所有处理器节点上
交叉存取。
表 2-1. D4 令牌表 (续)
令牌 设置选项 说明

106 使用系统设置程序
01C4 Node Interleave
(节点交叉存取)
禁用节点交叉存取选项。此选项适用于 NUMA 系
统,其允许内存在所有处理器节点上交叉存取。
01C5 Node Interleave
(节点交叉存取)
启用节点交叉存取选项。此选项适用于 NUMA 系
统,其允许内存在所有处理器节点上交叉存取。
01CF I/OAT DMA
Engine (I/OAT
DMA 引擎)
启用 I/O 加速技术 (I/OAT) DMA 引擎功能。仅在硬
件和软件支持 I/OAT 时设置为 Enabled (启用)。
01D0 I/OAT DMA
Engine (I/OAT
DMA 引擎)
禁用 I/OAT DMA 引擎功能。应仅当硬件和软件支
持 I/OAT 时方可禁用此选项。
01DA Embedded NIC1
(嵌入式 NIC1)
启用具有 iSCSI 远程引导的 NIC1。
01DB Embedded NIC2
(嵌入式 NIC2)
启用具有 iSCSI 远程引导的 NIC2。
01EA Tu r b o M o de
(Tu r b o 模式)
禁用内存 turbo 模式。此选项禁用处理器内核以提
高其频率。
01EB Tu r b o M o de
(Tur b o 模式)
启用内存 turbo 模式。此选项允许处理器内核提高
其频率。
01F0 Embedded NIC3
(嵌入式 NIC3)
启用板载 NIC3 控制器。
01F1 Embedded NIC3
(嵌入式 NIC3)
启用板载 NIC3 控制器,但禁用 NIC 关联的 PXE 或
RPL 引导 ROM。
01F2 Embedded NIC3
(嵌入式 NIC3)
启用板载 NIC3 控制器 (完整功能),包括其 PXE
引导 ROM。
01F3 Embedded NIC3
(嵌入式 NIC3)
启用具有 iSCSI 远程引导的 NIC3。
0204 VT for Direct I/O
(直接 I/O 虚拟
技术)
禁用 Intel 直接 I/O 虚拟技术 (VT-d),该技术在运行
虚拟机监视器时可增强 I/O 支持 (DMA)。
0205 VT for Direct I/O
(直接 I/O 虚拟
技术)
启用 Intel 直接 I/O 虚拟技术 (VT-d),该技术在运行
虚拟机监视器时可增强 I/O 支持 (DMA)。
表 2-1. D4 令牌表 (续)
令牌 设置选项 说明

使用系统设置程序 107
0211 Internal USB
PORT (内部
USB 端口)
禁用内部 USB 连接器。
0212 Internal USB
PORT(内部
USB 端口)
启用内部 USB 连接器。
021F 最佳性能 将系统电源管理设置为最佳性能。
0221 OS Control
(操作系统控制)
允许操作系统更改 P-state。
0224 Embedded Video
Controller
启用板载视频控制器作为主视频设备。
0225 Embedded Video
Controller
禁用板载视频控制器。
022D Boot Mode
(引导模式)
启用引导至支持统一可扩展固件接口 (UEFI) 的操
作系统。
022E Boot Mode
(引导模式)
启用引导至传统模式,确保与不支持 UEFI 的操作
系统的兼容性。
0231 Active Processor
Cores (活动处
理器内核)
处理器的四个内核启用。这仅适用于四核处理器。
0232 Active Processor
Cores (活动处
理器内核)
处理器的两个内核启用。这适用于四核和双核处
理器。
0233 Active Processor
Cores (活动处
理器内核)
处理器的单个内核启用。这适用于四核和双核处
理器。
024B C States
(C 状态)
启用时,处理器在所有可用电源 C 状态下均可操
作。
(默认设置)
024C C States
(C 状态)
禁用时,处理器没有 C 状态可用。
024D Pause on Errors
(发生错误时
暂停)
启用 BIOS 在发生错误时 F1/F2 提示。F1/F2 提示时
BIOS 暂停。
表 2-1. D4 令牌表 (续)
令牌 设置选项 说明

108 使用系统设置程序
024E Pause on Errors
(发生错误时
暂停)
禁用 BIOS 在发生错误时 F1/F2 提示。F1/F2 提示时
BIOS 暂停。
024F Quiet Boot
(静默引导)
启用启动或摘要屏幕显示,而非 POST 流的详细
信息。
0250 Quiet Boot
(静默引导)
禁用启动或摘要屏幕显示。用户能够看到 POST 信
息的详细信息。
0251 不适用NIC1 用于 PXE 引导,后跟 NIC2。
0252 不适用NIC2 用于 PXE 引导,后跟 NIC1。
0254 3F8h/2F8h 将后串行端口地址设置为 0x3F8,将内部串行端口
地址设置为 0x2F8
0257 2F8h/3F8h 将后串行端口地址设置为 0x2F8,将内部串行端口
地址设置为 0x3F8。
025D Optimizer Mode
(优化器模式)
选择优化器模式作为内存操作模式。
025E Spare Mode
(备用模式)
选择备用模式作为内存操作模式。
025F Mirror Mode
(镜像模式)
选择镜像模式作为内存操作模式。
0260 Advanced ECC
Mode (高级
ECC 模式)
选择 Advanced ECC (高级 ECC)( 即 Lockstep、
Chipkill)作为内存操作模式。
026A Coherent HT
Link Speed
(相干性 HT 链
接速度)
设置为支持 HyperTransport 1 规格。
026B Coherent HT
Link Speed
(相干性 HT 链
接速度)
设置为支持 HyperTransport 3 规格。
026E Active Processor
Cores (活动处
理器内核)
此字段控制每个处理器中已启用的内核总数。默认
情况下,将启用每个处理器的最大内核数。
表 2-1. D4 令牌表 (续)
令牌 设置选项 说明

使用系统设置程序 109
026F Active Processor
Cores (活动处
理器内核)
此字段控制每个处理器中已启用的 6 个内核。默认
情况下,将启用每个处理器的最大内核数。
0270 Active Processor
Cores (活动处
理器内核)
此字段控制每个处理器中已启用的
8
个内核。默认
情况下,将启用每个处理器的最大内核数。
0271 Active Processor
Cores (活动处
理器内核)
此字段控制每个处理器中已启用的
10
个内核。默认
情况下,将启用每个处理器的最大内核数。
0272 Active Processor
Cores (活动处
理器内核)
此字段控制每个处理器中已启用的
12
个内核。默认
情况下,将启用每个处理器的最大内核数。
027B HT Assist 禁用系统设置程序中的 Probe Filter (探测器过滤
器)芯片集选项。启用此选项时,有些应用程序可
能会降低芯片集性能。
027C HT Assist 启用系统设置程序中的 Probe Filter (探测器过滤
器)芯片集选项。禁用此选项时,有些应用程序可
能会降低芯片集性能。
02A1 C1E State
(C1E 状态)
启用处理器增强挂起 (C1E) 状态。
(默认设置)
02A2 C1E State
(C1E 状态)
禁用处理器 C1-E 状态。操作风险由使用者承担。
禁用此选项时, BIOS Setup (BIOS 设置)的帮助
文本中出现警告,而更改此选项时出现弹出信息。
02A9 DRAM Prefetcher
(DRAM 预先访
存技术)
禁用
DRAM
引用,避免触发
DRAM
预先访存请求。
02AA DRAM Prefetcher
(DRAM 预先访
存技术)
打开北桥中的 DRAM 预先访存单元。
02AB HW Prefetch
Training on SW
(基于软件的硬件
预先访存培训)
检测到预先访存请求的跨步时,禁用硬件预先访存
考虑软件预先访存。
表 2-1. D4 令牌表 (续)
令牌 设置选项 说明

110 使用系统设置程序
02AC HW Prefetch
Training on SW
(
基于软件的硬件
预先访存培训
)
检测到预先访存请求的跨步时,启用硬件预先访存
考虑软件预先访存。
(默认设置)
02AD SR-IOV Global
Enable (SR-IOV
全局启用)
对 SRIOV 设备启用 BIOS 支持。
02AE SR-IOV Global
Enable (SR-IOV
全局启用)
对 SRIOV 设备禁用 BIOS 支持。
02B6 Memory
Operating Voltage
(内存操作电压)
表示系统中的所有 DIMM 都在 1.5 V 电压下操作。
02B7 Memory
Operating Voltage
(内存操作电压)
表示系统中的所有 DIMM 都在 1.35 V 电压下操作。
02B8 Memory
Operating Voltage
(内存操作电压)
此设置表示内存操作电压将由内存初始化模式自动
设置,并取决于安装的 DIMM 的功能和系统的内
存配置。这是默认设置,会将内存操作电压设置为
POR 电压。
02C5 DCU Streamer
Prefetcher
(DCU 流转化器
预先访存技术)
启用 DCU 流转化器预先访存。
(默认设置)
02C6 DCU Streamer
Prefetcher
(DCU 流转化器
预先访存技术)
禁用 DCU 流转化器预先访存。
02C7 Data Reuse
Optimization
(数据重用优化)
对 HPC 应用设置为启用。
(默认设置)
02C8 Data Reuse
Optimization
(数据重用优化)
设置为禁用以实现能效。
表 2-1. D4 令牌表 (续)
令牌 设置选项 说明

使用系统设置程序 111
02C9 QPI Bandwidth
Priority (QPI 带
宽优先级)
对计算密集型应用设置为 compute (计算)
。
(默认设置)
02CA QPI Bandwidth
Priority (QPI 带
宽优先级)
对 I/O 密集型应用设置为 I/O。
02CE DCU IP
Prefetcher
(DCU IP 预先访
存技术)
启用 DCU IP 预先访存。
(默认设置)
02CF DCU IP
Prefetcher
(DCU IP 预先访
存技术)
禁用 DCU IP 预先访存。
401A Terminal Type
(终端类型)
BIOS 控制台重定向,若启用,则在 VT100 仿真模
式下操作。请参阅令牌 BFh、C0h 和 D7h。
401B Terminal Type
(终端类型)
BIOS 控制台重定向,若启用,则在 ANSI 仿真模式
下操作。另请参阅令牌 BFh、C0h 和 D7h。
401C Redirection After
BIOS POST
(在 BIOS 开机自
测后重定向)
BIOS 控制台重定向,若启用,则在操作系统引导
切换后继续操作。
401D Redirection After
BIOS POST
(在 BIOS 开机自
测后重定向)
BIOS 控制台重定向,若启用,则仅在 BIOS 引导期
间操作,而在操作系统引导切换前禁用。另请参阅
令牌 BFh、C0h、D7h、401Ah 和 401Bh。
4022 1st Boot Device
(第一引导设备)
每当 BIOS 引导系统时,第一个支持 PXE 的设备就
会作为引导顺序中的第一个设备插入。启用此功能
会在下一次引导及所有后续引导时操作 BIOS,并
更改系统定义的引导顺序。BIOS 选择第一个支持
PXE 的设备作为系统的板载网络控制器 (若存在并
启用),或选择在系统标准 PCI 搜索顺序中找到的
第一个可引导网络设备。
表 2-1. D4 令牌表 (续)
令牌 设置选项 说明

112 使用系统设置程序
4026 Manufacturing
Mode
(生产模式)
启用生产模式绕过 POST 任务/内存检测和发生特
定错误信息时 F1/F2 提示。仅供制造商使用,不用
于一般用途。
4027 Manufacturing
Mode
(生产模式)
禁用生产模式绕过 POST 任务/内存检测和发生特
定错误信息时 F1/F2 提示。仅供制造商使用,不用
于一般用途。
4033 Serial Port Mode
(串行端口模式)
控制台重定向波特率设置为每秒 115,200 位。
4034 Serial Port Mode
(串行端口模式)
控制台重定向波特率设置为每秒 57,600 位
4035 Serial Port Mode
(串行端口模式)
控制台重定向波特率设置为每秒 19,200 位。
4036 Serial Port Mode
(串行端口模式)
控制台重定向波特率设置为每秒 9,600 位。
403F Clear SMBIOS
System Event Log
(清除 SMBIOS
系统事件日志)
下次引导时删除
BMC
系统事件日志中的所有记录。
4800 Node Manager
(节点管理器)
对 Intel 处理器启用 Node Manager (节点管理器)
模式。
4801 APML 对 AMD 处理器启用 Advanced Platform
Management Link (高级平台管理链接)模式。
4802 CPU Power
Capping (CPU
功率上限)
决定操作系统中的最高处理器性能状态。
(P0 状态)
。
4803 CPU Power
Capping (CPU
功率上限)
决定操作系统中的最高处理器性能状态。
(P1 状态)
。
4804 CPU Power
Capping (CPU
功率上限)
决定操作系统中的最高处理器性能状态。
(P2 状态)
。
表 2-1. D4 令牌表 (续)
令牌 设置选项 说明

使用系统设置程序 113
4805 CPU Power
Capping (CPU
功率上限)
决定操作系统中的最高处理器性能状态。
(P3 状态)
。
4806 CPU Power
Capping (CPU
功率上限)
决定操作系统中的最高处理器性能状态。
(P4 状态)
。
480A C6 State
(C6 状态)
禁用处理器
C6
状态。操作风险由使用者承担。禁用
此选项时,
BIOS Setup
(
BIOS
设置)的帮助文本中
出现警告,而更改此选项时出现弹出信息。
480B C6 State
(C6 状态)
启用处理器 C6 状态。
(默认设置)
480C L3 Cache Power
Control
(L3 高速缓存电
源控制)
禁用空闲子高速缓存的时钟停止。
480D L3 Cache Power
Control
(L3 高速缓存电
源控制)
启用空闲子高速缓存的时钟停止。
480E C7 State
(C7 状态)
禁用处理器
C7
状态。操作风险由使用者承担。禁用
此选项时,
BIOS Setup
(
BIOS
设置)的帮助文本中
出现警告,而更改此选项时出现弹出信息。
480F C7 State
(C7 状态)
启用处理器 C7 状态。
(默认设置)
4810 Non Coherent
HT Link Width
(非相干性 HT
链接宽度)
将 HT 链接设置为 8 位宽。
4811 Non Coherent
HT Link Width
(非相干性 HT
链接宽度)
将 HT 链接设置为 16 位宽。
表 2-1. D4 令牌表 (续)
令牌 设置选项 说明

114 使用系统设置程序
4812 Non Coherent
HT Link Speed
(非相干性 HT
链接速度)
将 HT 链接速度设置为 800MHz。
4813 Non Coherent
HT Link Speed
(非相干性 HT
链接速度)
将 HT 链接速度设置为 1000MHz。
4814 Non Coherent
HT Link Speed
(非相干性 HT
链接速度)
将 HT 链接速度设置为 1200MHz。
4815 Non Coherent
HT Link Speed
(非相干性 HT
链接速度)
将 HT 链接速度设置为 1600MHz。
4816 Non Coherent
HT Link Speed
(非相干性 HT
链接速度)
将 HT 链接速度设置为 2000MHz。
4817 Non Coherent
HT Link Speed
(非相干性 HT
链接速度)
将 HT 链接速度设置为 2600MHz。
4820 Memory Turbo
Mode (内存
Tu r b o 模式)
禁用内存 turbo 模式。
4821 Memory Turbo
Mode (内存
Tu r b o 模式)
启用内存 turbo 模式。
4822 NUMA Support
(NUMA 支持)
启用 SLES11 的节点交叉存取选项。这适用于允许
内存交叉存取跨所有处理器节点的 NUMA 系统。
4823 Memory
Frequency
(内存频率)
检测硬件设计的内存运行速度 (
SPD
,内存安装)。
表 2-1. D4 令牌表 (续)
令牌 设置选项 说明

使用系统设置程序 115
4824 Memory
Frequency
(内存频率)
设置内存运行速度,最高为 800MHz。
4825 Memory
Frequency
(内存频率)
设置内存运行速度,最高为 1066MHz。
4826 Memory
Frequency
(内存频率)
设置内存运行速度,最高为 1333MHz。
4827 Memory
Frequency
(内存频率)
设置内存运行速度,最高为 1600MHz。
4960 Memory
Frequency
(内存频率)
设置内存运行速度,最高为 1866 MHz。
4828 Memory
Throttling Mode
(内存节流模式)
设置内存作为开环吞吐量节流 (OLTT) 运行。
(默认设置)
4829 Memory
Throttling Mode
(内存节流模式)
设置内存作为闭环热节流 (CLTT) 运行。
482A DRAM Scrubbing
(DRAM 清理)
禁用 DRAM scrubbing (DRAM 清理),这样,一
旦在读取事务处理时检测到可纠正错误,可将纠正
的数据写回内存。
482B DRAM Scrubbing
(DRAM 清理)
启用 DRAM scrubbing (DRAM 清理),这样,一
旦在读取事务处理时检测到可纠正错误,可将纠正
的数据写回内存。
482C Demand
Scrubbing
(请求清理)
禁用 Demand scrubbing (请求清理)
,这样,一旦
在读取事务处理时检测到可纠正错误,可将纠正的
数据写回内存。
482D Demand
Scrubbing
(请求清理)
启用 Demand scrubbing (请求清理)
,这样,一旦
在读取事务处理时检测到可纠正错误,可将纠正的
数据写回内存。
表 2-1. D4 令牌表 (续)
令牌 设置选项 说明

116 使用系统设置程序
482E Patrol Scrubbing
(轮询清理)
禁用 Patrol scrubbing (轮询清理)以主动搜索系统
内存,从而修复可纠正错误。
482F Patrol Scrubbing
(轮询清理)
启用 Patrol scrubbing (轮询清理)以主动搜索系统
内存,从而修复可纠正错误。
4830 HDD Security
Erase (HDD 安
全擦除)
对所有硬盘驱动器设置安全冻结锁定。
4831 HDD Security
Erase (HDD 安
全擦除)
解除所有硬盘驱动器上的安全冻结锁定。
4832 AHCI-AMD 支持 AMD 内置 AHCI 驱动程序。
4833 AHCI-MS 支持 Microsoft 内置 AHCI 驱动程序。
4834 Embedded SATA
Link Rate
(嵌入式 SATA
链接速率)
设置 SATA 链接速率为最大速度 6.0 Gbps。
4835 Embedded SATA
Link Rate
(嵌入式 SATA
链接速率)
设置 SATA 链接速率为最小速度 1.5 Gbps。针对
功耗。
4836 Embedded SATA
Link Rate
(嵌入式 SATA
链接速率)
设置 SATA 链接速率为最小速度 3.0 Gbps。
4840 PCIe Slot ASPM
(PCIe 插槽
ASPM)
控制端口 PCI Express 链路上支持的 ASPM 级别。
禁用所有条目。
4841 PCIe Slot ASPM
(PCIe 插槽
ASPM)
控制端口给定 PCI Express 链路上支持的 ASPM 级
别。启用 L0s 条目。
4842 PCIe Slot ASPM
(PCIe 插槽
ASPM)
控制端口给定 PCI Express 链路上支持的 ASPM 级
别。启用 L1 条目。
表 2-1. D4 令牌表 (续)
令牌 设置选项 说明

使用系统设置程序 117
4843 PCIe Slot ASPM
(PCIe 插槽
ASPM)
控制端口给定 PCI Express 链路上支持的 ASPM 级
别。启用 L0s 和 L1 条目。
4844 PCIe Slot ASPM
(PCIe 插槽
ASPM)
控制端口给定 PCI Express 链路上支持的 ASPM 级
别。启用 L0s 条目下游。
4845 PCIe Slot ASPM
(PCIe 插槽
ASPM)
控制端口给定 PCI Express 链路上支持的 ASPM 级
别。启用 L0s 条目下游和 L1
4846 Onboard LAN
ASPM (板载
LAN ASPM)
控制板载 LAN 支持的 ASPM 级别。禁用所有条目。
4847 Onboard LAN
ASPM (板载
LAN ASPM)
控制板载 LAN 支持的 ASPM 级别。启用 L0s 条目。
4848 Onboard LAN
ASPM (板载
LAN ASPM)
控制板载 LAN 支持的 ASPM 级别。启用 L1 条目。
4849 Onboard LAN
ASPM (板载
LAN ASPM)
控制板载 LAN 支持的 ASPM 级别。启用 L0s 和 L1
条目。
484A Onboard LAN
ASPM (板载
LAN ASPM)
控制板载 LAN 支持的 ASPM 级别。启用 L0s 条目
下游。
484B Onboard LAN
ASPM (板载
LAN ASPM)
控制板载 LAN 支持的 ASPM 级别。启用 L0s 条目
下游和 L1。
484C Mezzanine Slot
ASPM (夹层卡
插槽 ASPM)
控制夹层卡插槽上支持的 ASPM 级别。禁用所有
条目。
484D Mezzanine Slot
ASPM (夹层卡
插槽 ASPM)
控制夹层卡插槽上支持的 ASPM 级别。启用 L0s
条目。
表 2-1. D4 令牌表 (续)
令牌 设置选项 说明

118 使用系统设置程序
484E Mezzanine Slot
ASPM (夹层卡
插槽 ASPM)
控制夹层卡插槽上支持的 ASPM 级别。启用 L1
条目。
484F Mezzanine Slot
ASPM (夹层卡
插槽 ASPM)
控制夹层卡插槽上支持的 ASPM 级别。启用 L0s 和
L1 条目。
4850 Mezzanine Slot
ASPM (夹层卡
插槽 ASPM)
控制夹层卡插槽上支持的 ASPM 级别。启用 L0s 条
目下游。
4851 Mezzanine Slot
ASPM (夹层卡
插槽 ASPM)
控制夹层卡插槽上支持的 ASPM 级别。启用 L0s 条
目下游和 L1。
4852 NB-SB Link
ASPM (NB-SB
链接 ASPM)
控制 NB-SB 支持的 ASPM 级别。禁用所有条目。
4853 NB-SB Link
ASPM (NB-SB
链接 ASPM)
控制 NB-SB 支持的 ASPM 级别。启用 L1 条目。
4854 Maximum
Payload Size
(最大载荷大小)
自动检测 PCIe 最大载荷大小。
4855 Maximum
Payload Size
(最大载荷大小)
将 PCIe 最大载荷大小设置为 128 字节。
4856 Maximum
Payload Size
(最大载荷大小)
将 PCIe 最大载荷大小设置为 256 字节。
4857 WHEA Support
(WHEA 支持)
禁用 Windows Hardware Error Architecture
(Windows 硬件错误体系结构)。
4858 WHEA Support
(WHEA 支持)
启用 Windows Hardware Error Architecture
(Windows 硬件错误体系结构)。
4859 NIC
Enumeration
(NIC 枚举)
将 PXE 引导从板载 NIC 设置为添加式 NIC 适配
器。
(默认设置)
表 2-1. D4 令牌表 (续)
令牌 设置选项 说明

使用系统设置程序 119
485A NIC
Enumeration
(NIC 枚举)
将 PXE 引导从添加式 NIC 适配器设置为板载 NIC。
485B PCIe Generation
(PCIe 版本)
设置 PCI 信号传输速率为 Gen3 8.0 千兆位带宽。
485C PCIe Generation
(PCIe 版本)
设置 PCI 信号传输速率为 Gen2 5.0 千兆位带宽。
485D PCIe Generation
(PCIe 版本)
设置 PCI 信号传输速率为 Gen1 2.5 千兆位带宽。
485E Reboot on WOL
(ROW) (WOL
上重新引导)
禁用 ROW。
(默认设置)
ROW 改变通过 LAN 唤醒 (WOL) 信号以在系统处
于 S0/S3 状态时重新引导系统板。
485F Reboot on WOL
(ROW) (WOL
上重新引导)
启用 ROW。
ROW 改变 WOL 信号以在系统处于 S0/S3 状态时
重新引导系统板。当 NIC 接收到 WOL 数据包时,
NIC 生成的唤醒信号应导致系统板硬件重新引导。
4860 USB PORT with
BMC (USB 端
口 [BMC])
允许您以电子方式禁用连接到 BMC 的内部 USB
端口。
4861 USB PORT with
BMC (USB 端
口 [BMC])
允许用户以电子方式启用连接至 BMC 的内部 USB
端口。
4870 Force PXE Boot
only (仅强制
PXE 引导)
禁用 PXE 仅为引导设备。
4871 Force PXE Boot
only (仅强制
PXE 引导)
启用 PXE 仅为引导设备。系统重新尝试从 PXE 设
备引导。
4873 Active Processor
Cores (活动处
理器内核)
此字段控制每个处理器中已启用的
16
个内核。默认
情况下,将启用每个处理器的最大内核数。
4877 PCIe Slot1
(PCIe 插槽 1)
允许您以电子方式禁用
PCIe Slot1
(
PCIe
插槽
1
)。
表 2-1. D4 令牌表 (续)
令牌 设置选项 说明

120 使用系统设置程序
4878 PCIe Slot1
(PCIe 插槽 1)
允许您以电子方式启用 PCIe Slot1 (PCIe 插槽 1)
和选项 ROM 初始化。
4879 PCIe Slot2
(PCIe 插槽 2)
允许您以电子方式禁用
PCIe Slot2
(
PCIe
插槽
2
)。
487A PCIe Slot2
(PCIe 插槽 2)
允许您以电子方式启用 PCIe Slot2 (PCIe 插槽 2)
和选项 ROM 初始化。
487B PCIe Slot3
(PCIe 插槽 3)
允许您以电子方式禁用
PCIe Slot3
(
PCIe
插槽
3
)。
487C PCIe Slot3
(PCIe 插槽 3)
允许您以电子方式启用 PCIe Slot3 (PCIe 插槽 3)
和选项 ROM 初始化。
487F Mezzanine Slot
(夹层卡插槽)
允许您以电子方式禁用 Mezzanine Slot (夹层卡
插槽)。
4880 Mezzanine Slot
(夹层卡插槽)
允许您以电子方式启用 Mezzanine Slot (夹层卡
插槽)和选项 ROM 初始化。
4881 1st Boot Device
(第一引导设备)
将硬盘驱动器设置为第一引导设备。
4882 1st Boot Device
(第一引导设备)
将 RAID 设置为第一引导设备。
4883 1st Boot Device
(第一引导设备)
将 USB 存储设备设置为第一引导设备。
4884 1st Boot Device
(第一引导设备)
将 CD/DVD ROM 设置为第一引导设备。
4885 2nd Boot Device
(第二引导设备)
将网络设备设置为第二引导设备。
4886 2nd Boot Device
(第二引导设备)
将硬盘驱动器设置为第二引导设备。
4887 2nd Boot Device
(第二引导设备)
将 RAID 设置为第二引导设备。
4888 2nd Boot Device
(第二引导设备)
将 USB 存储设备设置为第二引导设备。
4889 2nd Boot Device
(第二引导设备)
将 CD/DVD ROM 设置为第二引导设备。
表 2-1. D4 令牌表 (续)
令牌 设置选项 说明

使用系统设置程序 121
488A 3st Boot Device
(第三引导设备)
将网络设备设置为第三引导设备。
488B 3st Boot Device
(第三引导设备)
将硬盘驱动器设置为第三引导设备。
488C 3st Boot Device
(第三引导设备)
将 RAID 设置为第三引导设备。
488D 3st Boot Device
(第三引导设备)
将 USB 存储设备设置为第三引导设备。
488E 3st Boot Device
(第三引导设备)
将 CD/DVD ROM 设置为第三引导设备。
488F 4th Boot Device
(第四引导设备)
将网络设备设置为第四引导设备。
4890 4th Boot Device
(第四引导设备)
将硬盘驱动器设置为第四引导设备。
4891 4th Boot Device
(第四引导设备)
将 RAID 设置为第四引导设备。
4892 4th Boot Device
(第四引导设备)
将 USB 存储设备设置为第四引导设备。
4893 4th Boot Device
(第四引导设备)
将 CD/DVD ROM 设置为第四引导设备。
4894 5th Boot Device
(第五引导设备)
将网络设备设置为第五引导设备。
4895 5th Boot Device
(第五引导设备)
将硬盘驱动器设置为第五引导设备。
4896 5th Boot Device
(第五引导设备)
将 RAID 设置为第五引导设备。
4897 5th Boot Device
(第五引导设备)
将 USB 存储设备设置为第五引导设备。
4898 5th Boot Device
(第五引导设备)
将 CD/DVD ROM 设置为第五引导设备。
48A0 ACPI SPMI Table
(
ACPI SPMI
表)
禁用 ACPI SPMI 表用于 BMC ROM 更新。
表 2-1. D4 令牌表 (续)
令牌 设置选项 说明

122 使用系统设置程序
48A1 ACPI SPMI Table
(
ACPI SPMI
表)
启用 ACPI SPMI 表用于 IPMI 驱动程序安装。
48A2 BMC LAN Port
Configuration
(BMC LAN 端口
配置)
设置
BMC LAN
端口为
Dedicated-NIC
(专用
NIC
)。
48A3 BMC LAN Port
Configuration
(BMC LAN 端口
配置)
设置 BMC LAN 端口为 Shared-NIC (共享 NIC)。
48A4 BMC NIC IP
Source (BMC
NIC IP 源)
设置 BMC LAN 以从静态模式获取 LAN IP。
48A5 BMC NIC IP
Source (BMC
NIC IP 源)
设置 BMC LAN 以从 DHCP 模式获取 LAN IP。
48A6 IPv6 Mode
(IPv6 模式)
禁用 IPv6 Internet 协议支持。
48A7 IPv6 Mode
(IPv6 模式)
启用 IPv6 Internet 协议支持。
48A8 IPv6 AutoConfig
(
IPv6
自动配置)
禁用 IPv6 自动配置。
48A9 IPv6 AutoConfig
(
IPv6
自动配置)
启用 IPv6 自动配置。
48AA Serial Port Mode
(串行端口模式)
将控制台重定向波特率设置为每秒 3,8400 位。
48AB Flow Control
(流控制)
选择 none (无)作为控制台重定向的流控制。
48AC Flow Control
(流控制)
选择
hardware
(硬件)作为控制台重定向的流控制。
48AD Flow Control
(流控制)
选择
software
(软件)作为控制台重定向的流控制。
表 2-1. D4 令牌表 (续)
令牌 设置选项 说明

使用系统设置程序 123
48AE Terminal Type
(终端类型)
BIOS 控制台重定向,若启用,则在 VTUTF8 仿真
模式下操作。另请参阅令牌 BFh、C0h 和 D7h。
48AF VT-UTF8 Combo
Key Support
(VT-UTF8 组合
键支持)
禁用 ANSI/VT100 终端的 VT-UTF8 组合键支持。
48B0 VT-UTF8 Combo
Key Support
(VT-UTF8 组合
键支持)
启用 ANSI/VT100 终端的 VT-UTF8 组合键支持。
48B1 Event logging
(事件记录)
禁用 BIOS 将系统事件记录到 BMC 中,错误包括
ECC/PCI/PCIe/HT…等
48B2 Event logging
(事件记录)
启用 BIOS 将系统事件记录到 BMC 中,错误包括
ECC/PCI/PCIe/HT…等
48B3 NMI On Error
(发生错误时
NMI)
禁用
BIOS
以在发生
PCIe
不可纠正错误时生成
NMI
。
48B4 NMI On Error
(发生错误时
NMI)
启用
BIOS
以在发生
PCIe
不可纠正错误时生成
NMI
。
48B5 Memory
Operating Voltage
(内存操作电压)
表示系统中的所有 DIMM 都在 1.25 V 电压下操作。
48C0 Frequency Ratio
(频率比率)
将频率系数设置为最大级别。
48C1 Frequency Ratio
(频率比率)
将频率系数降一级。
48C2 Frequency Ratio
(频率比率)
将频率系数降两级。
48C3 Frequency Ratio
(频率比率)
将频率系数降三级。
表 2-1. D4 令牌表 (续)
令牌 设置选项 说明

124 使用系统设置程序
48C8 QPI Frequency
(
QPI [Quick Path
Interconnect
,
快速路径互联
]
频率)
设置 QPI 频率以最大速率运行。
48C9 QPI Frequency
(
QPI [Quick Path
Interconnect
,
快速路径互联
]
频率)
设置 QPI 频率以 4.800GT 运行。
48CA QPI Frequency
(
QPI [Quick Path
Interconnect
,
快速路径互联
]
频率)
设置 QPI 频率以 5.866GT 运行。
48CB QPI Frequency
(
QPI [Quick Path
Interconnect
,
快速路径互联
]
频率)
设置 QPI 频率以 6.400GT 运行。
48CC QPI Frequency
(
QPI [Quick Path
Interconnect
,
快速路径互联
]
频率)
设置 QPI 频率以 7.200GT 运行。
48CD
QPI Frequency
(
QPI [Quick Path
Interconnect
,
快速路径互联
]
频率)
设置 QPI 频率以 8.000GT 运行。
48D0 Energy Efficient
Policy
(能效策略)
控制能效策略作为性能配置文件以配置所有必需设
置。此选项支持独立于整个操作系统的处理器电源
管理。
48D1 Energy Efficient
Policy
(能效策略)
控制能效策略作为平衡配置文件以配置所有必需设
置。此选项支持独立于整个操作系统的处理器电源
管理。
(默认设置)
表 2-1. D4 令牌表 (续)
令牌 设置选项 说明

使用系统设置程序 125
48D2 Energy Efficient
Policy
(能效策略)
控制能效策略作为低功率配置文件以配置所有必需
设置。此选项支持独立于整个操作系统的处理器电
源管理。
48D3 Direct Cache
Access (直接高
速缓存访问)
禁用 Direct Cache Access (直接高速缓存访问)。
48D4 Direct Cache
Access (直接高
速缓存访问)
启用 Direct Cache Access (直接高速缓存访问)。
48D8 Load Customized
Defaults
(加载自定义默
认设置)
下次引导时请求 SETUP 值的自定义默认设置。
48DA Save Customized
Defaults
(保存自定义默
认设置)
下次引导时将当前设置保存至 SETUP 的自定义默
认设置。
48DB 不适用 下次引导时请求 SETUP 值的最大性能设置。
48DC 不适用 下次引导时请求 SETUP 值的节能设置。
48DD 不适用 下次引导时请求 SETUP 值的 HPCC 效率设置。
Dell 将在 A-can BIOS 前提供设置。
48DE Shell (外壳) 下次引导时请求 EFI Shell 作为第一引导设备。
48DF Dell ePSA
Diagnostic Tool
(Dell ePSA 诊断
工具)
下次引导时请求自动启用 ePSA (高级预引导系统
评估)诊断工具。
48E0 不适用 下次引导时使用 NIC3 作为第一个 PXE 引导设备,
然后是 NIC1。
48E1 不适用 下次引导时使用 NIC4 作为第一个 PXE 引导设备,
然后是 NIC1。
48E2 不适用 下次引导时使用 NIC5 作为第一个 PXE 引导设备,
然后是 NIC1。
表 2-1. D4 令牌表 (续)
令牌 设置选项 说明

126 使用系统设置程序
48E3 不适用 下次引导时使用 NIC6 作为第一个 PXE 引导设备,
然后是 NIC1。
48E4 不适用 下次引导时使用 NIC7 作为第一个 PXE 引导设备,
然后是 NIC1。
48E5 不适用 下次引导时使用 NIC8 作为第一个 PXE 引导设备,
然后是 NIC1。
48E6 不适用 下次引导时使用 HDD1 作为第一 HDD 引导设备。
48E7 不适用 下次引导时使用 HDD2 作为第一 HDD 引导设备。
48E8 不适用 下次引导时使用 HDD3 作为第一 HDD 引导设备。
48E9 不适用 下次引导时使用 HDD4 作为第一 HDD 引导设备。
48EA 不适用 下次引导时使用 HDD5 作为第一 HDD 引导设备。
48EB 不适用 下次引导时使用 HDD6 作为第一 HDD 引导设备。
48EC 不适用 下次引导时使用 RAID HDD1 作为第一 RAID 引导
设备。
48ED 不适用 下次引导时使用 RAID HDD2 作为第一 RAID 引导
设备。
48EE 不适用 下次引导时使用 RAID HDD3 作为第一 RAID 引导
设备。
48EF 不适用 下次引导时使用 RAID HDD4 作为第一 RAID 引导
设备。
48F0 不适用 下次引导时使用 RAID HDD5 作为第一 RAID 引导
设备。
48F1 不适用 下次引导时使用 RAID HDD6 作为第一 RAID 引导
设备。
48F2 不适用 下次引导时使用 RAID HDD7 作为第一 RAID 引导
设备。
48F3 不适用 下次引导时使用 RAID HDD8 作为第一 RAID 引导
设备。
48F4 不适用 下次引导时使用 RAID HDD9 作为第一 RAID 引导
设备。
表 2-1. D4 令牌表 (续)
令牌 设置选项 说明

使用系统设置程序 127
48F5 不适用 下次引导时使用 RAID HDD10 作为第一 RAID 引导
设备。
48F6 不适用 下次引导时使用 RAID HDD11 作为第一 RAID 引导
设备。
48F7 不适用 下次引导时使用 RAID HDD12 作为第一 RAID 引导
设备。
48F8 不适用 下次引导时使用 RAID HDD13 作为第一 RAID 引导
设备。
48F9 不适用 下次引导时使用 RAID HDD14 作为第一 RAID 引导
设备。
48FA 不适用 下次引导时使用 RAID HDD15 作为第一 RAID 引导
设备。
48FB 不适用 下次引导时使用 RAID HDD16 作为第一 RAID 引导
设备。
48FC 不适用 下次引导时使用 HDD7 作为第一引导设备。
48FD 不适用 下次引导时使用 HDD8 作为第一引导设备。
4900 PCIe Slot1
(PCIe 插槽 1)
在不执行选项 ROM 初始化的情况下启用 PCIe 扩展
槽 1。
4901 PCIe Slot2
(PCIe 插槽 2)
在不执行选项 ROM 初始化的情况下启用 PCIe 扩展
槽 2。
4902 PCIe Slot3
(PCIe 插槽 3)
在不执行选项 ROM 初始化的情况下启用 PCIe 扩展
槽 3。
4903 PCIe Slot4
(PCIe 插槽 4)
在不执行选项 ROM 初始化的情况下启用 PCIe 扩展
槽 4。
4904 Mezzanine Slot
(夹层卡插槽)
在不执行选项 ROM 初始化的情况下启用夹层卡扩
展槽。
4910 Chassis Level
Capping (机箱
级别上限)
禁用机箱级别上限功能。
4911 Chassis Level
Capping (机箱
级别上限)
启用机箱级别上限功能。(默认设置)
表 2-1. D4 令牌表 (续)
令牌 设置选项 说明

128 使用系统设置程序
4912 Sled Level Policy
(底座级别策略)
触发紧急节流事件时选择机箱级别作为底座级别策
略。
(默认设置)
4913 Sled Level Policy
(底座级别策略)
触发紧急节流事件时选择节流作为底座级别策略。
4914 Sled Level Policy
(底座级别策略)
触发紧急节流事件时选择关闭电源作为底座级别
策略。
4915 Sled Level Policy
(底座级别策略)
将底座级别策略设置为在触发紧急节流事件时不采
取任何措施。
4916 Chassis Level
Policy (机箱级
别策略)
触发紧急节流事件时选择节流作为机箱级别策略。
(默认设置)
4917 Chassis Level
Policy (机箱级
别策略)
触发紧急节流事件时选择关闭电源作为机箱级别
策略。
4918 不适用禁用时钟扩频。
(默认设置)
4919 不适用启用时钟扩频。
491A 禁用 PCIe 内存 64 位译码选项。
491B 启用 PCIe 内存 64 位译码选项。
491C 自动配置为 PCIe 内存 64 位译码选项。
4875 Perfmon and
DFX Devices
(Perfmon 和
DFX 设备)
禁用 Perfmon 和 DFX 设备。
4876 Perfmon and
DFX Devices
(Perfmon 和
DFX 设备)
启用 Perfmon 和 DFX 设备。
4B00h
Prevent Back-flash
(防止回闪)
启用时,将禁止系统
BIOS
降级到
2.1.0
或更早版本。
注: 一旦启用此功能,您将无法更改该设置。
4B01h Prevent Back-
flash (防止回
闪)
默认情况下,此功能设置为禁用,以符合系统
BIOS 更新规定。当跳线设置为启用时,此令牌处
理密码跳线。禁用该设置后,系统 BIOS 无法更新
到任何包含有效数字签名的修订版。
表 2-1. D4 令牌表 (续)
令牌 设置选项 说明

使用系统设置程序 129
4961h PCIe 插槽 5 允许您以电子方式禁用 PCIe 插槽 5。
4962h PCIe 插槽 5 允许您以电子方式启用 PCIe 插槽 5 和选项 ROM 初
始化。
4964h PCIe 插槽 6 允许您以电子方式禁用 PCIe 插槽 6。
4965h PCIe 插槽 6 允许您以电子方式启用 PCIe 插槽 6 和选项 ROM 初
始化。
4963h PCIe 插槽 5 在不执行选项 ROM 初始化的情况下启用 PCIe 扩展
槽 5。
4966h PCIe 插槽 6 在不执行选项 ROM 初始化的情况下启用 PCIe 扩展
槽 6。
表 2-1. D4 令牌表 (续)
令牌 设置选项 说明

130 使用系统设置程序
IPMI 命令列表
下表包含 IPMI v2.0 规格中定义的所有命令。支持所有强制性命令和一些
可选功能。超出 IPMI v2.0 范围的特殊功能作为原始设备制造商 (OEM)
命令实施。
在 O/M 列中:
•M =
在
IPMI
规格中为必需并实施。
•O =
此实施中支持的可选命令。
•N =
此实施中不支持。
请参阅 《Deployment Toolkit 版本 1.3 用户指南》以了解有关安装和使用
DTK 公用程序的详情,参阅 《Deployment Toolkit 版本 1.3 命令行界面参
考指南》以了解使用 BMCCFG.EXE 配置和管理 BMC 所需要的有效选
项、子选项和参数的完整列表。
注:有关标准 IPMI 工具命令的详情,请参阅
ipmitool.sourceforge.net/manpage.html。
表 2-2. IPMI 设备全局命令 (NetFn:0x06H)
命令
NetFn
代码 IPMI 2.0 BMC
Get Device ID
应用程序
0x01h M是
Broadcast Get Device ID
应用程序
0x02h M是
Cold Reset
应用程序
0x03h O是
Warm Reset
应用程序
0x04h O否
Get Self Test Results
应用程序
0x05h M是
Manufacture Test On
应用程序
0x06h O是
Get ACPI Power State
应用程序
0x07h O是
Get Device GUID
应用程序
0x08h O是
Get NetFn Support
应用程序
0x09h O是
Get Command Support
应用程序
0x0Ah O 是
Get Command Sub-function Support
应用程序
0x0Bh O是

使用系统设置程序 131
表 2-2. IPMI 设备全局命令 (NetFn:0x06H)(续)
命令
NetFn
代码 IPMI 2.0 BMC
Get Configurable Commands
应用程序
0x0C O是
Get Configurable Command Sub-functions
应用程序
0x0Dh O 是
Set Command Enables
应用程序
0x60h O是
Get Command Enables
应用程序
0x61h O是
Set Command Sub-function Enables
应用程序
0x62h O是
Get Command Sub-function Enables
应用程序
0x63h O是
Get OEM NetFn IANA Support
应用程序
0x64h O是
表 2-3. BMC 监护程序计时器命令 (NetFn:0x06H)
命令
NetFn
代码 IPMI2.0 BMC
Reset Watchdog Timer
应用程序
0x22h M是
Set Watchdog Timer
应用程序
0x24h M是
Get Watchdog Timer
应用程序
0x25h M是
表 2-4. BMC 设备和信息发送命令 (NetFn:0x06H)
命令
NetFn
代码 IPMI 2.0 BMC
Set BMC Global Enables
应用程序
0x2Eh M是
Get BMC Global Enables
应用程序
0x2Fh M是
Clear Message Buffer Flags
应用程序
0x30h M是
Get Message Buffer Flags
应用程序
0x31h M是
Enable Message Channel Receive
应用程序
0x32h O是
Get Message
应用程序
0x33h M是
Send Message
应用程序
0x34h M是
Read Event Message Buffer
应用程序
0x35h O是

132 使用系统设置程序
表 2-4. BMC 设备和信息发送命令 (NetFn:0x06H)(续)
命令 NetFn 代码 IPMI2.0 BMC
Get BT Interface Capabilities
应用程序
0x36h M否
Get System GUID
应用程序
0x37h M是
Set System Info Parameters
应用程序
0x58h O是
Get System Info Parameters
应用程序
0x59h O是
Get Channel Authentication Capabilities
应用程序
0x38h O是
Get Session Challenge
应用程序
0x39h O是
Activate Session Command
应用程序
0x3Ah O是
Set Session Privilege Level Command
应用程序
0x3Bh O是
Close Session
应用程序
0x3Ch O 是
Get Session Information
应用程序
0x3Dh O 是
Get Authentication Code Command
应用程序
0x3Fh O是
Set Channel Access Commands
应用程序
0x40h O是
Get Channel Access Commands
应用程序
0x41h O是
Get Channel Info Command
应用程序
0x42h O是
Set User Access Commands
应用程序
0x43h O是
Get User Access Commands 应用程序 0x44h O是
Set User Name Commands 应用程序 0x45h O是
Get User Name Commands 应用程序 0x46h O是
Set User Password Commands 应用程序 0x47h O是
Active Payload Command 应用程序 0x48h O是
Deactivate Payload Command 应用程序 0x49h O是
Get Payload Activation Status 应用程序 0x4Ah O是
Get Payload Instance Info Command 应用程序 0x4Bh O是
Set User Payload Access 应用程序 0x4Ch O 是
Get User Payload Access 应用程序 0x4Dh O 是
Get Channel Payload Support 应用程序 0x4Eh O是

使用系统设置程序 133
表 2-4. BMC 设备和信息发送命令 (NetFn:0x06H)(续)
命令
NetFn
代码 IPMI2.0 BMC
Get Channel Payload Version
应用程序
0x4Fh O是
Get Channel OEM Payload Info
应用程序
0x50h O是
Master Write-Read I2C
应用程序
0x52h M是
Get Channel Cipher Suites
应用程序
0x54h O是
Suspend/Resume Payload Encryption
应用程序
0x55h O是
Set Channel Security Keys
应用程序
0x56h O是
Get System Interface Capabilities
应用程序
0x57h O否
表 2-5. 机箱设备命令 (NetFn:0x00H)
命令 NetFn 代码 IPMI2.0 BMC
Get Chassis Capabilities 机箱 0x00h M是
Get Chassis Status 机箱 0x01h M是
Chassis Control 机箱 0x02h M是
Chassis Reset 机箱 0x03h O否
Chassis Identify 机箱 0x04h O是
Set Chassis Capabilities 机箱 0x05h O是
Set Power Restore Policy 机箱 0x06h O是
Get System Restart Cause 机箱 0x07h O是
Set System Boot Options 机箱 0x08h O是
Get System Boot Options 机箱 0x09h O是
Set Front Panel Button Enable 机箱 0x0Ah O是
Set Power Cycle Interval 机箱 0x0Bh O是
Get POH Counter 机箱 0x0Fh O否

134 使用系统设置程序
表 2-6. 事件命令 (NetFn:0x04H)
命令 NetFn 代码 IPMI2.0 BMC
Set Event Receiver S/E 0x00h M是
Get Event Receiver S/E 0x01h M是
平台事件 S/E 0x02h M是
表 2-7. PEF/PET 警报命令 (NetFn:0x04H)
命令 NetFn 代码 IPMI2.0 BMC
Get PEF Capabilities S/E 0x10h M是
Arm PEF Postpone Timer S/E 0x11h M是
Set PEF Configuration Parameters S/E 0x12h M是
Get PEF Configuration Parameters S/E 0x13h M是
Set Last Processed Event ID S/E 0x14h M是
Get Last Processed Event ID S/E 0x15h M是
Alert Immediate S/E 0x16h O是
PET Acknowledge S/E 0x17h O是
表 2-8. 敏感设备命令 (NetFn:0x04H)
命令 NetFn 代码 IPMI2.0 BMC
Get Device SDR Info S/E 0x20h O否
Get Device SDR S/E 0x21h O否
Reserve Device SDR Repository S/E 0x22h O否
Get Sensor Reading Factors S/E 0x23h O是
Set Sensor Hysteresis S/E 0x24h O是
Get Sensor Hysteresis S/E 0x25h O是
Set Sensor Threshold S/E 0x26h O是
Get Sensor Threshold S/E 0x27h O是
Set Sensor Event Enable S/E 0x28h O 是

使用系统设置程序 135
表 2-8. 敏感设备命令 (NetFn:0x04H)(续)
命令 NetFn 代码 IPMI2.0 BMC
Get Sensor Event Enable S/E 0x29h O是
Set Sensor Reading and Event Status S/E 0x30h O是
Re-arm Sensor Events S/E 0x2Ah O是
Get Sensor Event Status S/E 0x2Bh O是
Get Sensor Reading S/E 0x2Dh M是
Set Sensor Type S/E 0x2Eh O否
Get Sensor Type S/E 0x2Fh O否
表 2-9. FRU 库存设备命令 (NetFn:0x0AH)
命令 NetFn 代码 IPMI2.0 BMC
Get FRU Inventory Area Info 存储0x10h M是
Read FRU Inventory Data 存储0x11h M是
Write FRU Inventory Data 存储0x12h M是
表 2-10. SDR 存储库命令 (NetFn:0x0AH)
命令 NetFn 代码 IPMI2.0 BMC
Get SDR Repository Info 存储0x20h M是
Get SDR Repository Allocation Info 存储0x21h O是
Reserve SDR Repository 存储0x22h M是
Get SDR 存储0x23h M是
Add SDR 存储0x24h M是
Partial ADD SDR 存储0x25h O是
Delete SDR 存储0x26h O是
Clear SDR Repository 存储0x27h M是
Get SDR Repository Time 存储0x28h O是

136 使用系统设置程序
* 支持 Add SEL (添加 SEL)时,不需要支持 Partial Add SEL (部分添加 SEL)。
表 2-10. SDR 存储库命令 (NetFn:0x0AH)(续)
命令 NetFn 代码 IPMI2.0 BMC
Set SDR Repository Time 存储0x29h O是
Enter SDR Repository Update Mode 存储0x2Ah O否
Exit SDR Repository Update Mode 存储0x2Bh O否
Run Initialization Agent 存储0x2Ch O是
表 2-11. SEL 命令 (NetFn:0x40H)
命令 NetFn 代码 IPMI2.0 BMC
Get SEL Info 存储0x40h M是
Get SEL Allocation Info 存储0x41h O是
Reserve SEL 存储0x42h O是
Get SEL Entry 存储0x43h M是
Add SEL Entry 存储0x44h M是
Partial Add SEL Entry 存储0x45h M否*
Delete SEL Entry 存储0x46h O是
Clear SEL 存储0x47h M是
Get SEL Time 存储0x48h M是
Set SEL Time 存储0x49h M是
Get Auxiliary Log Status 存储0x5Ah O否
Set Auxiliary Log Status 存储0x5Bh O否
Get SEL Time UTC Offset 存储0x5Ch O否
Set SEL Time UTC Offset 存储0x5D O否

使用系统设置程序 137
表 2-12. LAN 设备命令 (NetFn:0x0CH)
命令 NetFn 代码 IPMI2.0 BMC
Set LAN Configuration Parameters
(注:不支持参数 9 和 25。)
传输0x01h M是
Get LAN Configuration Parameters
(注:不支持参数 9 和 25。)
传输0x02h M是
Suspend BMC ARP 传输0x03h O是
Get IP/UDP/RMCP Statistics 传输0x04h O否
表 2-13. 串行 /调制解调器设备命令 (NetFn:0x 0CH)
命令 NetFn 代码 IPMI2.0 BMC
Set Serial/Modem Configuration 传输0x10h M是
Get Serial/Modem Configuration 传输0x11h M是
Set Serial/Modem Mux 传输0x12h O是
Get TAP Response Codes 传输0x13h O否
Set PPP UDP Proxy Transmit Data 传输0x14h O否
Get PPP UDP Proxy Transmit Data 传输0x15h O否
Send PPP UDP Proxy Packet 传输0x16h O否
Get PPP UDP Proxy Receive Data 传输0x17h O否
Serial/Modem Connection Active 传输0x18h M是
Callback 传输0x20h O否
SOL Activating 传输0x19h O是
Set SOL Configuration 传输0x20h O是
Get SOL Configuration 传输0x21h O是
Set User Callback Options 传输0x1Ah O否
Get User Callback Options 传输0x1Bh O否
Set Serial Routing Mux 传输0x1Ch O 是

138 使用系统设置程序
表 2-14. 命令传送命令 (NetFn:0x0CH)
命令 NetFn 代码 IPMI2.0 BMC
Forwarded Command 传输0x30h O是
Set Forwarded Commands 传输0x31h O是
Get Forwarded Commands 传输0x32h O是
Enable Forwarded Commands 传输0x33h O是
表 2-15. 固件更新命令 (NetFn:0x08H)
命令 NetFn 代码 IPMI2.0 BMC
Firmware Update Phase 1 固件 0x10h O是
Firmware Update Phase 2 固件 0x11h O是
Get Firmware Update Status 固件 0x12h O是
Get Firmware Version 固件 0x13h O是
Set Firmware Update Status 固件 0x16h O是
Firmware Update Phase 3 固件 0x21h O是
表 2-16. GPGPU 设置命令 (NetFn:0x30H)
命令 NetFn LUN CMD 权限
Set GPGPU ID 0x30h 0h 32h 管理员
Get GPGPU ID 0x30h 0h 33h 管理员
表 2-17. 新鲜空气模式设置命令 (NetFn:0x30H)
命令 NetFn CMD O/M 支持
Enable Fresh Air Mode 固件 43h O 是
Get Fresh Air Status 固件 44h O 是
Disable Fresh Air Mode 固件 43h O 是

使用系统设置程序 139
电源管理设置
系统 BIOS 提供各种电源设置选项以帮助您节能,从而最大化系统性能。下表提
供电源管理设置指南。
表 2-18. 电源管理设置
系统设置 菜单设置 最佳性能 (48DB) 节能 (48DC)
设置页面 设置 选项 D4 令牌 选项 D4 令牌
Power
Management
(电源管理)
Power Management
(电源管理)
Max.
Performance
(性能)
021F Node
Manager
(节点管
理器)
4800
Energy Efficiency Policy
(节能策略)
Performance
(性能)
48D0 Low
Power
(低功耗)
48D2

140 使用系统设置程序
CPU 配置 Active Processor Cores
(活动处理器内核)
All
(全部)
026E 1/2 0233/
0232
Frequency Ratio
(频率比率)
Auto
(自动)
48C0 348C3
QPI Frequency
(QPI [Quick Path
Interconnect,快速路径
互联 ] 频率)
Auto
(自动)
48C8 4.80GT/s 48C9
Tu r bo Mo d e
(Tu r b o 模式)
Enabled
(启用)
01E8 Disabled
(禁用)
01EA
C State (C 状态) Disabled
(禁用)
024C Enabled
(启用)
024B
C1E State
(
C1E
状态)
Disabled
(禁用)
02A2 Enabled
(启用)
02A1
C6 State (C6 状态) Disabled
(禁用)
480A Enabled
(启用)
480B
C7 State (C7 状态) Disabled
(禁用)
480E Enabled
(启用)
480F
Direct Cache Access
(直接高速缓存访问)
Enabled
(启用)
48D4 Disabled
(禁用)
48D3
Hyper-Threading
Technology
(超线程技术)
Enabled
(启用)
00D1 Disabled
(禁用)
00D2
Adjacent Cache Line
Prefetch (相邻的高速缓
存行预先访存)
Enabled
(启用)
0172 Disabled
(禁用)
0171
Hardware Prefetcher
(硬件预先访存技术)
Enabled
(启用)
0174 Disabled
(禁用)
0173
DCU Streamer Prefetcher
(DCU 流转化器预先访
存技术)
Enabled
(启用)
02C5 Disabled
(禁用)
02C6
DCU IP Prefetcher
(
DCU IP
预先访存技术)
Enabled
(启用)
02CE Disabled
(禁用)
02CF
表 2-18. 电源管理设置 (续)
系统设置 菜单设置 最佳性能 (48DB) 节能 (48DC)
设置页面 设置 选项 D4 令牌 选项 D4 令牌

使用系统设置程序 141
内存配置 Memory Frequency
(内存频率)
Auto
(自动)
4823 800 MHz 4824
Memory Turbo Mode
(内存 Tu r bo 模式)
Enabled
(启用)
4821 Disabled
(禁用)
4820
Memory Throttling Mode
(内存节流模式)
Disabled
(禁用)
4828 Enabled
(启用)
4829
Memory Operating
Voltage
(内存操作电压)
1.5 V
02B6 1.35V/
1.25V
02B7/
48B5
SATA 配置 Embedded SATA Link
State (嵌入式 SATA 链
接状态)
Auto
(自动)
4834 1.5 Gbps 4835
Power Saving Features
(省电功能)
Disabled
(禁用)
0199 Enabled
(启用)
019A
PCI 配置 PCIe Slot ASPM
(PCIe 插槽 ASPM)
Disabled
(禁用)
4840 L0s & L1
(
L0s
和
L1
)
4843
Onboard LAN ASPM
(板载 LAN ASPM)
Disabled
(禁用)
4846 L0s & L1
(L0s 和
L1)
4849
Mezzanine Slot ASPM
(夹层卡插槽 ASPM)
Disabled
(禁用)
484C L0s & L1
(L0s 和
L1)
484F
NB-SB Link ASPM
(NB-SB 链接 ASPM)
Disabled
(禁用)
4852 L1 4853
PCIe Generation
(PCIe 版本)
Gen3/Gen2
485B/
485C
Gen1
(第
1
代)
485D
表 2-18. 电源管理设置 (续)
系统设置 菜单设置 最佳性能 (48DB) 节能 (48DC)
设置页面 设置 选项 D4 令牌 选项 D4 令牌

142 使用系统设置程序

安装系统组件143
安装系统组件
安全说明
警告:在仍未断开电源的系统上进行操作将极其危险。
小心:静电释放可能会对系统组件和电路板造成损坏。
小心:多数维修只能由经认证的维修技术人员进行。您只能根据产品说明
文件中的授权,或者在联机或电话服务和支持小组的指导下,进行故障排除
和简单的维修。未经 Dell 授权的维修所造成的损坏不在保修范围之内。请阅
读并遵循产品附带的安全说明。
为避免造成人身伤害或损坏系统,请遵守以下准则:
•
在系统内部操作时,务必断开系统与电源插座间的连接。
•
如果可能,在系统内部进行操作时还应佩带接地腕带。此外,也可通
过触摸系统外壳裸露的金属机箱或其它任何接地设备的裸露金属体以
释放静电。
•
仅持拿电路板边缘,
尽可能不接触板上的组件。请勿对电路板进行弯
曲或施压。
•
除非准备开始使用组件进行安装,否则均应将其存放于防静电包装内。
•
某些电缆的连接器带有锁定卡舌;如果要断开此类电缆的连接,请在
拔下此类电缆前先向内按锁定卡舌。在拔出接头时,应将其两边同时
拔出,以避免弄弯接头上的插针。此外,连接电缆之前,请确保两个
连接器的朝向正确并对齐。
图示说明
本章所使用的图示仅用于识别零部件,并未显示组件的逐步拆卸或更换过程。
建议使用的工具
•1
号梅花槽螺丝刀
•2
号梅花槽螺丝刀
•Torx
螺丝刀
•
镊钳起子

144 安装系统组件
系统内部组件
小心:多数维修只能由经认证的维修技术人员进行。您只能根据产品说明
文件中的授权,或者在联机或电话服务和支持小组的指导下,进行故障排除
和简单的维修。未经授权的维修所造成的损坏不在保修范围之列。请阅读并
遵循产品附带的安全说明。
小心:为确保正常冷却,在对本系统进行操作时必须安装底座或底座挡片。
图 3-1. 底座内部组件
1系统板 2散热器 /处理器 (2 个)
3内存 (16) 4冷却导流罩
5插入器延长器 6内部 2.5 英寸硬盘驱动器 (2 个)
123456

146 安装系统组件
底座
卸下底座
小心:多数维修只能由经认证的维修技术人员进行。您只能根据产品说明
文件中的授权,或者在联机或电话服务和支持小组的指导下,进行故障排除
和简单的维修。未经授权的维修所造成的损坏不在保修范围之列。请阅读并
遵循产品附带的安全说明。
小心:为确保系统中适当通风,如果卸下了模块,应立即使用另一底座或
底座挡片更换。
小心:长期运行未安装底座挡片的系统可导致 PowerEdge C8000 服务器机柜
过热。请参阅第 148 页上 “安装单幅底座挡片”。
1
使用操作系统命令或底板管理控制器关闭底座电源,并确保底座电源
已关闭。
切断底座电源后,其前面板电源指示灯不亮。
2
拔起底座底部的计算底座释放闩锁,使底座松离服务器机柜。请参阅
图
3-4
。
3
使用手柄将底座滑出机柜。请参阅图
3-4
。
图 3-4. 卸下和安装底座
1释放闩锁 2手柄
1
2

安装系统组件147
安装底座
小心:多数维修只能由经认证的维修技术人员进行。您只能根据产品说明
文件中的授权,或者在联机或电话服务和支持小组的指导下,进行故障排除
和简单的维修。未经授权的维修所造成的损坏不在保修范围之列。请阅读并
遵循产品附带的安全说明。
1
定位底座,使释放闩锁位于底座的底部。请参阅图
3-4
。
2
将新底座滑入机柜,直至底座完全就位,并且释放闩锁卡入到位。
请参阅图
3-4
。
底座挡片
小心:为确保系统中适当通风,如果卸下了模块,应立即使用另一底座或
底座挡片更换。
此部分中的信息包括单幅和双幅底座挡片的更换过程。
卸下单幅底座挡片
1
拔起底座底部的底座挡片闩锁,使底座松离服务器机柜。请参阅
图
3-5
。
2
使用手柄将底座滑出机柜。请参阅图
3-5
。

安装系统组件151
安装 MicroSD 卡
介质存储卡通常用一个标记 (例如三角形或箭头)或一个标签说明应将
哪一端插入插槽。 PC 卡采用锁定式设计,可以防止插接不正确。如果
PC 卡没有标明插入方向,请参阅随 PC 卡附带的说明文件。
注:要在底座中使用 MicroSD 卡,请确保已在系统设置程序中启用 MicroSD
卡插槽。请参阅第 47 页上 “使用系统设置程序”
。
1
标签面朝右,握着
MicroSD
卡。请参阅图
3-7
。
2
将卡按入插槽,锁定到位。请参阅图
3-7
。
如果遇到太大的阻力,请勿强行插入卡。请检查卡的方向并再试一次。
3
将底座滑入服务器机柜,直至底座完全就位,并且释放闩锁卡入到位。
请参阅图
3-7
。
底座盖
卸下正面机盖
小心:为确保正常冷却,在对底座进行操作时必须安装底座护盖。
小心:多数维修只能由经认证的维修技术人员进行。您只能根据产品说明
文件中的授权,或者在联机或电话服务和支持小组的指导下,进行故障排除
和简单的维修。未经授权的维修所造成的损坏不在保修范围之列。请阅读并
遵循产品附带的安全说明。
注:拆装系统内部组件时,建议始终使用防静电垫和防静电腕带。
1
卸下用于固定正面机盖的四颗螺钉。请参阅图
3-8
。
2
从底座托架中提起正面机盖。请参阅图
3-8
。
3
从扩展卡上拔下所有电缆 (如果已安装)。

154 安装系统组件
安装背面机盖
注:拆装系统内部组件时,建议始终使用防静电垫和防静电腕带。
1
将机盖放在底座托架上,并朝底座托架正面滑动,使背面机盖上的螺
孔对准底座托架。请参阅图
3-9
。
2
装回用于将背面机盖固定到底座托架的两颗螺钉。请参阅图
3-9
。
冷却导流罩
卸下冷却导流罩
小心:多数维修只能由经认证的维修技术人员进行。您只能根据产品说明
文件中的授权,或者在联机或电话服务和支持小组的指导下,进行故障排除
和简单的维修。未经授权的维修所造成的损坏不在保修范围之列。请阅读并
遵循产品附带的安全说明。
小心:请勿在卸下冷却导流罩的情况下运行系统。系统可能会迅速变得过
热,这会导致系统关闭和数据丢失。
1
从机柜中卸下底座。请参阅第
146
页上
“卸下底座”。
2
卸下用于将冷却导流罩固定至底座托架的两颗螺钉。请参阅图
3-10
。
3
拔起定位卡舌,使冷却导流罩脱离散热器。请参阅图
3-10
。
4
提起冷却导流罩并将其从底座托架中提出。请参阅图
3-10
。

安装系统组件155
图 3-10. 卸下和安装冷却通风罩
安装冷却导流罩
小心:多数维修只能由经认证的维修技术人员进行。您只能根据产品说明
文件中的授权,或者在联机或电话服务和支持小组的指导下,进行故障排除
和简单的维修。未经授权的维修所造成的损坏不在保修范围之列。请阅读并
遵循产品附带的安全说明。
小心:请勿在卸下冷却导流罩的情况下运行系统。系统可能会迅速变得过
热,这会导致系统关闭和数据丢失。
1
将冷却导流罩向下放入底座托架。请参阅图
3-10
。
2
轻轻地按压冷却导流罩,直至定位卡舌牢牢卡入到位。请参阅
图
3-10
。
3
装回用于将冷却导流罩固定至底座托架的两颗螺钉。请参阅图
3-10
。
4
装回底座。请参阅第
147
页上
“安装底座”。
1M3 螺钉(2 颗)2冷却导流罩
3定位卡舌
1
2
3

156 安装系统组件
散热器
卸下散热器
小心:多数维修只能由经认证的维修技术人员进行。您只能根据产品说明
文件中的授权,或者在联机或电话服务和支持小组的指导下,进行故障排除
和简单的维修。未经授权的维修所造成的损坏不在保修范围之列。请阅读并
遵循产品附带的安全说明。
1
从机柜中卸下底座。请参阅第
146
页上
“卸下底座”。
2
卸下冷却导流罩。请参阅第
154
页上
“卸下冷却导流罩”。
警告:在关闭系统电源后的一段时间内,散热器摸上去可能会很烫。在卸
下散热器之前,请先将其冷却。
小心:切勿从处理器上卸下散热器,除非您要卸下处理器。必须配备散热
器才能维持适当的温度条件。
3
使用梅花槽螺丝刀拧松一对将散热器固定到系统板的对角线固定螺钉。
请参阅图
3-11
上指示的螺钉顺序。
4
拧松另一对固定螺钉。请参阅图
3-11
。
图 3-11. 散热器螺钉拧松顺序
CPU1
CPU2
1458
6
7
2
3

安装系统组件157
5
将散热器轻轻提离处理器,并将其倒置以放置在一侧 (导热油脂面
朝上)。请参阅图
3-12
。
图 3-12. 卸下和安装散热器
安装散热器
小心:多数维修只能由经认证的维修技术人员进行。您只能根据产品说明
文件中的授权,或者在联机或电话服务和支持小组的指导下,进行故障排除
和简单的维修。未经授权的维修所造成的损坏不在保修范围之列。请阅读并
遵循产品附带的安全说明。
注:在安装散热器时,确保定位散热器,使散热器标签上的 KEY 图标面朝
邻近的散热器。
1
使用干净、不起毛的软布擦去散热器上的导热油脂。
2
将新的导热油脂均匀地涂抹在新处理器顶部中心处。
3
定位散热器,使散热器上的
KEY
图标面朝邻近散热器的
KEY
图标。
请参阅图
3-12
。
1螺钉(4 颗)2CPU1 插槽散热器
3散热器 KEY 图标4CPU2 插槽散热器
5散热器 KEY 图标
1
2
3
4
5

158 安装系统组件
4
用梅花槽螺丝刀按对角线顺序拧紧四个散热器固定螺钉。请参阅
图
3-11
。
5
装回冷却导流罩。请参阅第
155
页上
“安装冷却导流罩”。
6
装回底座。请参阅第
147
页上
“安装底座”。
散热器挡片
卸下散热器挡片
小心:多数维修只能由经认证的维修技术人员进行。您只能根据产品说明
文件中的授权,或者在联机或电话服务和支持小组的指导下,进行故障排除
和简单的维修。未经授权的维修所造成的损坏不在保修范围之列。请阅读并
遵循产品附带的安全说明。
1
从机柜中卸下底座。请参阅第
146
页上
“卸下底座”。
2
卸下冷却导流罩。请参阅第
154
页上
“卸下冷却导流罩”。
3
如果要在之前未用过的插槽中安装第二个处理器,则需从闲置的处理
器插槽中卸下散热器挡片和插槽保护器。
4
使用梅花槽螺丝刀拧松将散热器挡片固定到系统板的对角线固定螺钉。
请参阅图
3-13
。
5
将散热器挡片轻轻提离处理器插槽。保留散热器挡片以备将来使用。
请参阅图
3-13
。

安装系统组件159
图 3-13. 卸下和安装散热器挡片
安装散热器挡片
小心:多数维修只能由经认证的维修技术人员进行。您只能根据产品说明
文件中的授权,或者在联机或电话服务和支持小组的指导下,进行故障排除
和简单的维修。未经授权的维修所造成的损坏不在保修范围之列。请阅读并
遵循产品附带的安全说明。
小心:散热器挡片仅安装在插槽 CPU2 上。
1
如果要从插槽
CPU2
永久性卸下处理器,则必须安装插槽保护器和散
热器挡片,以确保正常的系统冷却。
2
将散热器挡片放到处理器插槽上。
3
拧紧散热器挡片上的两颗固定螺钉。请参阅图
3-13
。
4
装回冷却导流罩。请参阅第
155
页上
“安装冷却导流罩”。
5
装回底座。请参阅第
147
页上
“安装底座”。
1螺钉(2 颗)2散热器挡片
1
2
CPU2
CPU1

160 安装系统组件
处理器
请使用以下步骤进行:
•
安装一个附加处理器
•
更换处理器
卸下处理器
小心:多数维修只能由经认证的维修技术人员进行。您只能根据产品说明
文件中的授权,或者在联机或电话服务和支持小组的指导下,进行故障排除
和简单的维修。未经授权的维修所造成的损坏不在保修范围之列。请阅读并
遵循产品附带的安全说明。
1
从机柜中卸下底座。请参阅第
146
页上
“卸下底座”。
2
卸下冷却导流罩。请参阅第
154
页上
“卸下冷却导流罩”。
3
卸下散热器。请参阅第
156
页上
“卸下散热器”。
小心:留在插槽中的处理器承受着强大的压力。请注意,如果抓得不紧,
释放拉杆可能会突然弹起。
4
用拇指牢牢按住处理器挂勾形的插槽释放拉杆,然后从锁定位置松开
拉杆。请勿强行将拉杆拉至完全打开位置。请参阅图
3-14
。
5
用拇指牢牢按住弯曲载入拉杆,然后从锁定位置松开拉杆。向上转动
拉杆
90
度,提起处理器护盖。请参阅图
3-14
。
6
向上转动处理器护盖,直至其不影响处理器的取出。请参阅图
3-14
。
7
提起处理器,将其从插槽中取出,并使插槽释放拉杆竖直向上,以便
在插槽中安装新的处理器。请参阅图
3-14
。
小心:留在插槽中的处理器承受着强大的压力。请注意,如果抓得不紧,
释放和载入拉杆可能会突然弹起。
如果要永久性卸下处理器,则必须在闲置的插槽中安装插槽保护盖,
以保护插针和防止插槽进灰。
注:在单处理器配置中,必须将处理器安装在插槽 CPU1 中。仅在插槽
CPU2 中安装挡片。

安装系统组件161
图 3-14. 卸下和安装处理器
安装处理器
小心:多数维修只能由经认证的维修技术人员进行。您只能根据产品说明
文件中的授权,或者在联机或电话服务和支持小组的指导下,进行故障排除
和简单的维修。未经授权的维修所造成的损坏不在保修范围之列。请阅读并
遵循产品附带的安全说明。
注:在单处理器配置中,必须将处理器安装在插槽 CPU1 中。
注:
如果要升级处理器,在升级系统之前,请先从
dell.com/support
下载并安
装最新的系统
BIOS
版本。按照文件下载中附带的说明在系统上安装更新。
1
如果要在之前未用过的插槽中安装第二个处理器,则需从闲置的处理
器插槽中卸下散热器挡片和插槽保护盖。请参阅第
158
页上
“卸下散
热器挡片”。
2
如果处理器尚未使用过,请打开处理器包装。
1处理器对齐标记 (三角形)2处理器
3处理器护盖4挂勾形的插槽释放拉杆
5处理器插槽6插槽卡锁(4 个)
7弯曲载入拉杆 8定位槽口
2
3
4
5
6
8
1
7

162 安装系统组件
3
如果处理器是已经用过的,则用不起毛的软布擦去处理器顶部的所有
导热油脂。
4
将处理器与处理器插槽中的插槽卡锁对准。请参阅图
3-14
。
小心:处理器放置不正确会永久性地损坏系统板或处理器。请注意不要弯
曲处理器插槽上的插针。
5
将挂勾形的释放和弯曲载入拉杆放在处理器插槽的打开位置,使处理
器与对齐标记指示符和插槽卡锁对齐,并将处理器轻轻地置入插槽中。
请参阅图
3-14
。
小心:在插入处理器时,切勿用力过猛。如果处理器的位置正确,它会顺
利卡入插槽。
6
合上处理器护盖。
7
向下转动弯曲载入拉杆,直至其卡入到位。
8
向下转动挂勾形插槽释放拉杆,直至其卡入到位。请参阅图
3-14
。
9
装回散热器。请参阅第
157
页上
“安装散热器”。
10
装回冷却导流罩。请参阅第
155
页上
“安装冷却导流罩”。
11
装回底座。请参阅第
147
页上
“安装底座”。
12
按
<F2>
键进入系统设置程序,并检查处理器信息是否与新的系统配
置相匹配。
系统内存
每个系统板有 16 个内存模块插槽用于安装 DDR3 非缓冲 ECC DIMM
(ECC UDIMM)、已注册的 DIMM (RDIMM) 和负载减少的 DIMM
(LRDIMM) 以支持处理器 1 和处理器 2。有关内存模块的位置信息,请参
阅第 224 页上 “系统板连接器”。
内存模块安装原则
在底座系统板上安装内存模块时,请遵循以下原则。
•仅使用经 Dell 认证的容量为 2 GB、 4 GB、8 GB、16 GB 和 32 GB 的
R/LR/UDIMM DDR3 内存模块。 DIMM 类型 (R/LR/UDIMM) 不能
混用。
•DIMM
插槽编号为
1
至
8
,由两个通道表示。使用的通道数和允许的
配置取决于在系统设置程序中选择的内存模式。

安装系统组件163
•
必须从距离处理器最远的
DIMM
插槽开始,在每个通道中安装
DIMM
(按照表
3-1
)。
•
底座系统板上支持内存优化模式。
•
底座系统板上支持内存备用和内存镜像。内存备用要求所有
DIMM
同
等安装在所有
4
个通道中。一个通道将为备用通道,并不可作为系统
内存访问,直到将其联机以更换出现故障的通道。对于内存镜像,两
个通道相互镜像,相同
DIMM
必须安装在跨两个通道的相同插槽中。
支持的 DIMM 配置
有关 16 个 DIMM 插槽的顺序信息,请参阅图 3-15。请始终从 DIMM_A1
开始插入 DIMM。有关单处理器配置,优化的内存模块安装顺序为
A1/A2/A3/A4/A5/A6/A7/A8。有关双处理器配置,请参阅表 3-1。
图 3-15. 内存插槽位置
1DIMM_A3 2DIMM_A7
3DIMM_A4 4DIMM_A8
5DIMM_B1 6DIMM_B5
7DIMM_B2 8DIMM_B6
9DIMM_B8 10 DIMM_B4
11 DIMM_B7 12 DIMM_B3
13 DIMM_A6 14 DIMM_ A2
15 DIMM_A5 16 DIMM_A1
12345678
910
11
12
13
14
15
16
CPU1
CPU2

164 安装系统组件
注:空 DIMM 插槽标记为“⎯”。 为 实现最佳性能,所安装的所有内存模块
必须具有相同的速度、容量且出自同一制造商。
表 3-1. 内存模块配置—单处理器
DIMM
数量
处理器 1
通道 A 通道 B 通道 C 通道 D
DIMM DIMM DIMM DIMM
A1 A5 A2 A6 A3 A7 A4 A8
1√ ⎯⎯⎯⎯⎯⎯⎯
2√ ⎯√ ⎯⎯⎯⎯⎯
3√⎯√⎯√⎯⎯⎯
4√⎯√⎯√⎯√⎯
6√√√√√⎯√⎯
8√√√√√√√√
表 3-2. 内存模块配置—双处理器
DIMM
数量
处理器 1 处理器 2
通道 A 通道 B 通道 C 通道 D 通道 A 通道 B 通道 C 通道 D
DIMM DIMM DIMM DIMM DIMM DIMM DIMM DIMM
A1 A5 A2 A6 A3 A7 A4 A8 B1 B5 B2 B6 B3 B7 B4 B8
2√ ⎯⎯⎯⎯⎯⎯⎯√ ⎯⎯⎯⎯⎯⎯⎯
6√⎯√⎯√⎯⎯⎯√⎯√⎯√⎯⎯⎯
8√⎯√⎯√⎯√⎯√⎯√⎯√⎯√⎯
12 √√√√√⎯√⎯√√√√√⎯√⎯
16 √√√√√√√√√√√√√√√√

安装系统组件165
卸下内存模块
小心:多数维修只能由经认证的维修技术人员进行。您只能根据产品说明
文件中的授权,或者在联机或电话服务和支持小组的指导下,进行故障排除
和简单的维修。未经授权的维修所造成的损坏不在保修范围之列。请阅读并
遵循产品附带的安全说明。
警告:在关闭系统电源后的一段时间内,内存模块摸上去会很烫。在操作
内存模块之前,先等待一段时间以使其冷却。抓住内存模块卡的边缘,避免
碰触内存模块上的组件。
1
从机柜中卸下底座。请参阅第
146
页上
“卸下底座”。
2
卸下冷却导流罩。请参阅第
154
页上
“卸下冷却导流罩”。
3
找到内存模块插槽的位置。请参阅图
3-16
。
小心:仅抓住内存模块卡的两边,确保不要触碰内存模块中间。为避免损
坏内存模块上的组件,请一次仅拆下一个内存模块。
4
同时向下并向外按压内存模块插槽两端的弹出卡舌,直至模块从插槽
中释放。请参阅图
3-16
。
5
从插槽中提出模块。请参阅图
3-16
。
图 3-16. 卸下内存模块
1内存模块 2内存模块插槽弹出卡舌(2 个)
12

166 安装系统组件
安装内存模块
1
向下并向外按压内存模块插槽各端的弹出卡舌。请参阅图
3-17
。
2
将内存模块与内存模块插槽的定位卡锁正确对齐。请参阅图
3-17
。
3
用大拇指用力向下按压内存模块,直到模块卡入到位。请参阅
图
3-17
。
小心:在插入过程中,必须在模块两端同时施加均匀的压力,以防损坏插
槽。不得对模块中央施加压力。
对插槽的弹出卡舌向内施加压力,确保弹出卡舌处于锁定位置,完成
模块到插槽的锁定。如果内存模块已在插槽中正确就位,则内存模块
插槽上的弹出卡舌应与已安装内存模块的其它相同插槽上的弹出卡舌
对准。
图 3-17. 安装内存模块
4
装回冷却导流罩。请参阅第
155
页上
“安装冷却导流罩”。
5
装回底座。请参阅第
147
页上
“安装底座”。
1内存模块 2内存模块插槽弹出卡舌(2 个)
3定位卡锁
1
2
3

安装系统组件167
扩展卡
底座支持扩展卡提升板中安装的小型 PCIe x16 扩展卡。要定位扩展卡提
升板,请参阅图 3-24。
卸下扩展卡
小心:多数维修只能由经认证的维修技术人员进行。您只能根据产品说明
文件中的授权,或者在联机或电话服务和支持小组的指导下,进行故障排除
和简单的维修。未经授权的维修所造成的损坏不在保修范围之列。请阅读并
遵循产品附带的安全说明。
小心:扩展卡仅能安装在扩展卡提升板上的插槽中。请勿尝试将扩展卡直
接安装到系统板上的提升板连接器中。
1
从机柜中卸下底座。请参阅第
146
页上
“卸下底座”。
2
卸下正面机盖。请参阅第
151
页上
“卸下正面机盖”。
3
分离正面机盖后,将其翻转以露出扩展卡侧。请参阅图
3-18
。
4
从扩展卡上拔下所有电缆 (如果适用)。
5
拧下用于固定扩展卡的螺钉。请参阅图
3-18
。
6
抓住扩展卡的边缘,小心地将其从扩展卡提升板中卸下。请参阅
图
3-18
。
7
如果卸下卡后不打算再装回,则请在闲置的扩展槽开口处安装金属填
充挡片,然后用螺钉固定。
注:您必须在闲置的扩展槽中安装填充挡片,以维护美国联邦通信委员会
(FCC) 对本系统的认证。挡片还可以防止灰尘进入系统,并有助于底座内部
的正常冷却和通风。

168 安装系统组件
图 3-18. 卸下和安装扩展卡
安装扩展卡
小心:扩展卡仅能安装在扩展卡提升板上的插槽中。请勿尝试将扩展卡直
接安装到系统板上的提升板连接器中。
1打开扩展卡的包装并准备安装。有关说明,请参阅该卡附带的说明
文件。
2
握住卡的边缘,调整卡的位置,使卡边缘连接器与扩展卡提升板上的
扩展卡连接器对齐。请参阅图
3-18
。
3
将卡边缘连接器稳固地插入提升板连接器,直至插卡完全就位。
4
拧回用于固定扩展卡的螺钉。请参阅图
3-18
。
5
将所有电缆连接至扩展卡 (如果适用)。
6
装回正面机盖。请参阅第
152
页上
“安装正面机盖”。
7
装回底座。请参阅第
147
页上
“安装底座”。
1扩展卡 2M3 螺钉(1 颗)
2
1

安装系统组件169
卸下 RAID 控制器卡
小心:多数维修只能由经认证的维修技术人员进行。您只能根据产品说明
文件中的授权,或者在联机或电话服务和支持小组的指导下,进行故障排除
和简单的维修。未经授权的维修所造成的损坏不在保修范围之列。请阅读并
遵循产品附带的安全说明。
小心:扩展卡仅能安装在扩展卡提升板上的插槽中。请勿尝试将扩展卡直
接安装到系统板上的提升板连接器中。
1
从机柜中卸下底座。请参阅第
146
页上
“卸下底座”。
2
卸下正面机盖。请参阅第
151
页上
“卸下正面机盖”。
3
一旦正面盖断开,将其翻转以露出
RAID
控制器卡的一面。请参阅
图
3-19
。
4
从
RAID
控制器卡上断开所有电缆连接 (如果适用)。
5
拧下用于固定
RAID
控制器卡的螺钉。请参阅图
3-19
。
6抓住 RAID 控制器卡的边缘,小心地将其从扩展卡提升板中卸下。
请参阅图 3-19。
7
如果卸下卡后不打算再装回,则请在闲置的扩展槽开口处安装金属填
充挡片,然后用螺钉固定。
注:您必须在闲置的扩展槽中安装填充挡片,以维护美国联邦通信委员会
(FCC) 对本系统的认证。挡片还可以防止灰尘进入系统,并有助于底座内部
的正常冷却和通风。

170 安装系统组件
图 3-19. 卸下和安装 RAID 控制器卡
8
卸下
RAID
电池(如果适用)。请 参 阅第
171
页上
“卸下
RAID
电池”。
安装 RAID 控制器卡
小心:扩展卡仅能安装在扩展卡提升板上的插槽中。请勿尝试将扩展卡直
接安装到系统板上的提升板连接器中。
1
打开
RAID
控制器卡的包装并准备安装。有关说明,请参阅该卡附带
的说明文件。
2
握住
RAID
控制器卡的边缘,调整卡的位置,使卡边缘连接器与正面
机盖上的扩展卡提升板连接器对齐。请参阅图
3-19
。
3
将卡边缘连接器稳固地插入提升板连接器,直至插卡完全就位。
4
装回用于固定
RAID
控制器卡的螺钉。请参阅图
3-19
。
5
将所有电缆连接至
RAID
控制器卡 (如果适用)。
6
对于具有高速缓存电池的
RAID
控制器卡,请安装
RAID
电池。
请参阅第
172
页上
“安装
RAID
电池”。
7
装回正面机盖。请参阅第
152
页上
“安装正面机盖”。
8
装回底座。请参阅第
147
页上
“安装底座”。
1RAID 控制器卡 2M3 螺钉(1 颗)
2
1

安装系统组件171
RAID 电池
本节中的信息仅适用于带有可选电池缓存的 RAID 控制器 (例如,
MegaRAID SAS 9285CV-8e)卡的系统。
卸下 RAID 电池
小心:多数维修只能由经认证的维修技术人员进行。您只能根据产品说明
文件中的授权,或者在联机或电话服务和支持小组的指导下,进行故障排除
和简单的维修。未经授权的维修所造成的损坏不在保修范围之列。请阅读并
遵循产品附带的安全说明。
1
从机柜中卸下底座。请参阅第
146
页上
“卸下底座”。
2
卸下正面机盖。请参阅第
151
页上
“卸下正面机盖”。
3
断开连接到
RAID
控制器卡的
RAID
电池电缆的连接。请参阅图
3-20
。
4
拧下将
RAID
电池部件固定至底座托架的两颗螺钉。请参阅图
3-20
。
5
从底座托架中提起
RAID
电池部件。请参阅图
3-20
。
图 3-20. 卸下和安装 RAID 电池部件
1M3 螺钉(2 颗)2RAID 电池部件
3RAID 控制器卡 4RAID 电池电缆
1
2
3
4

172 安装系统组件
6
撬下
RAID
电池的一端,然后将电池直接从电池座中拉出。请参阅
图
3-21
。
图 3-21. 卸下和安装 RAID 电池
安装 RAID 电池
小心:多数维修只能由经认证的维修技术人员进行。您只能根据产品说明
文件中的授权,或者在联机或电话服务和支持小组的指导下,进行故障排除
和简单的维修。未经授权的维修所造成的损坏不在保修范围之列。请阅读并
遵循产品附带的安全说明。
1
适当调整新
RAID
电池在电池座中的方向并将电池稳固地推入电池座,
直至卡入到位。请参阅图
3-21
。
2
向下放置
RAID
电池部件至底座托架。请参阅图
3-20
。
3
装回将
RAID
电池部件固定至底座托架的两颗螺钉。请参阅图
3-20
。
4
将
RAID
电池电缆连接至
RAID
控制器卡。请参阅图
3-20
。
5
装回正面机盖。请参阅第
152
页上
“安装正面机盖”。
6
装回底座。请参阅第
147
页上
“安装底座”。
1电池座 2RAID 电池
1
2

安装系统组件173
卸下 RAID 电池座
小心:多数维修只能由经认证的维修技术人员进行。您只能根据产品说明
文件中的授权,或者在联机或电话服务和支持小组的指导下,进行故障排除
和简单的维修。未经授权的维修所造成的损坏不在保修范围之列。请阅读并
遵循产品附带的安全说明。
1
从机柜中卸下底座。请参阅第
146
页上
“卸下底座”。
2
卸下正面机盖。请参阅第
151
页上
“卸下正面机盖”。
3
卸下
RAID
电池。请参阅第
171
页上
“卸下
RAID
电池”。
4
拧下将电池座固定到安装板的三颗螺钉和六角螺母。请参阅图
3-22
。
5
卸下电池座。请参阅图
3-22
。
图 3-22. 卸下和安装电池座
6
拧下将安装板固定到支架的三颗螺钉。请参阅图
3-23
。
7
将安装板从支架中提出。请参阅图
3-23
。
1安装板 2M2 六角螺母(3 颗)
3M3 螺钉(3 颗)4电池座
12
3
4

174 安装系统组件
图 3-23. 卸下和安装安装板
安装 RAID 电池座
小心:多数维修只能由经认证的维修技术人员进行。您只能根据产品说明
文件中的授权,或者在联机或电话服务和支持小组的指导下,进行故障排除
和简单的维修。未经授权的维修所造成的损坏不在保修范围之列。请阅读并
遵循产品附带的安全说明。
1
将安装板与支架上的螺孔对齐。请参阅图
3-23
。
2
装回将安装板固定到支架的三颗螺钉。请参阅图
3-23
。
3
将电池座与安装板上的螺孔对齐。请参阅图
3-22
。
4
使用三颗螺钉和六角螺母将电池座固定至安装板。请参阅图
3-22
。
5
装回
RAID
电池。请参阅第
172
页上
“安装
RAID
电池”。
6
装回正面机盖。请参阅第
152
页上
“安装正面机盖”。
7
装回底座。请参阅第
147
页上
“安装底座”。
1M3 螺钉(3 颗)2安装板
3支架
1
2
3

安装系统组件175
扩展卡提升板
小心:多数维修只能由经认证的维修技术人员进行。您只能根据产品说明
文件中的授权,或者在联机或电话服务和支持小组的指导下,进行故障排除
和简单的维修。未经授权的维修所造成的损坏不在保修范围之列。请阅读并
遵循产品附带的安全说明。
卸下扩展卡提升板
1
从机柜中卸下底座。请参阅第
146
页上
“卸下底座”。
2
卸下正面机盖。请参阅第
151
页上
“卸下正面机盖”。
3
如果已安装扩展卡或
RAID
控制器卡,请将其卸下。请参阅第
167
页上
“卸下扩展卡”或第
169
页上
“卸下
RAID
控制器卡”。
4
卸下用于将扩展卡提升板固定到正面机盖的两颗螺钉。请参阅
图
3-24
。
5
将扩展卡提升板拉离正面机盖。请参阅图
3-24
。
图 3-24. 卸下和安装扩展卡提升板
1扩展卡提升板 2M3 螺钉(2 颗)
1
2

176 安装系统组件
安装扩展卡提升板
1
将扩展卡提升板放入正面机盖。请参阅图
3-24
。
2
装回用于固定扩展卡提升板的两颗螺钉。请参阅图
3-24
。
3
如果适用,装回扩展卡或
RAID
控制器卡。请参阅第
168
页上
“安装
扩展卡”或第
170
页上
“安装
RAID
控制器卡”。
4
装回正面机盖。请参阅第
152
页上
“安装正面机盖”。
5
装回底座。请参阅第
147
页上
“安装底座”。
夹层卡
底座支持各种可选的夹层卡。
• Mellanox QDR ConnectX-2 Infiniband
夹层卡
• Mellanox FDR ConnectX-3 Infiniband
夹层卡
• Intel 82599
双端口
10 GbE
夹层卡
卸下 Infiniband 夹层卡
小心:多数维修只能由经认证的维修技术人员进行。您只能根据产品说明
文件中的授权,或者在联机或电话服务和支持小组的指导下,进行故障排除
和简单的维修。未经授权的维修所造成的损坏不在保修范围之列。请阅读并
遵循产品附带的安全说明。
双端口和单端口 Infiniband 夹层卡的安装和卸下步骤类似。下例显示双端
口 Infiniband 夹层卡的更换步骤。
1
从机柜中卸下底座。请参阅第
146
页上
“卸下底座”。
2
卸下正面机盖。请参阅第
151
页上
“卸下正面机盖”。
3
卸下用于将
Infiniband
夹层卡部件固定至底座托架的两颗螺钉。请参
阅图
3-25
。
4
将
Infiniband
夹层卡部件从底座托架中提出。请参阅图
3-25
。

安装系统组件179
图 3-27. 卸下和安装 Infiniband 夹层卡
安装 Infiniband 夹层卡
小心:多数维修只能由经认证的维修技术人员进行。您只能根据产品说明
文件中的授权,或者在联机或电话服务和支持小组的指导下,进行故障排除
和简单的维修。未经授权的维修所造成的损坏不在保修范围之列。请阅读并
遵循产品附带的安全说明。
1
将
Infiniband
夹层卡与支架上的螺孔对齐。请参阅图
3-27
。
2
装回用于将
Infiniband
夹层卡固定到支架的三颗螺钉。请参阅图
3-27
。
3
将夹层卡桥接板安装到
Infiniband
夹层卡的夹层卡插槽中。请参阅
图
3-26
。
4
装回用于将夹层卡桥接板固定至支架的螺钉。请参阅图
3-26
。
5
将
Infiniband
夹层卡部件放低到底座托架。
6
装回用于将
Infiniband
夹层卡部件固定至底座托架的两颗螺钉。请参
阅图
3-25
。
1Infiniband 夹层卡 2M3 螺钉(3 颗)
3夹层卡桥接板连接器 4QSFP 固定框架 1
5QSFP 固定框架 2
2
1
3
4
5

180 安装系统组件
7
装回正面机盖。请参阅第
152
页上
“安装正面机盖”。
8
装回底座。请参阅第
147
页上
“安装底座”。
卸下 10 GbE 夹层卡
小心:多数维修只能由经认证的维修技术人员进行。您只能根据产品说明
文件中的授权,或者在联机或电话服务和支持小组的指导下,进行故障排除
和简单的维修。未经授权的维修所造成的损坏不在保修范围之列。请阅读并
遵循产品附带的安全说明。
1
从机柜中卸下底座。请参阅第
146
页上
“卸下底座”。
2
卸下正面机盖。请参阅第
151
页上
“卸下正面机盖”。
3
卸下用于将
10 GbE
夹层卡部件固定至底座托架的两颗螺钉。请参阅
图
3-28
。
4
将
10 GbE
夹层卡部件从底座托架中提出。请参阅图
3-28
。
图 3-28. 卸下和安装 10 GbE 夹层卡部件
5
卸下用于将夹层卡桥接板固定至支架的螺钉。请参阅图
3-29
。
6
将夹层卡桥接板拉离夹层卡插槽。请参阅图
3-29
。
1M3 螺钉(2 颗)210 GbE 夹层卡部件

182 安装系统组件
图 3-30. 卸下和安装 10 GbE 夹层卡
安装 10 GbE 夹层卡
小心:多数维修只能由经认证的维修技术人员进行。您只能根据产品说明
文件中的授权,或者在联机或电话服务和支持小组的指导下,进行故障排除
和简单的维修。未经授权的维修所造成的损坏不在保修范围之列。请阅读并
遵循产品附带的安全说明。
1
将
10 GbE
夹层卡与支架上的螺孔对齐。请参阅图
3-30
。
2
装回用于将
10 GbE
夹层卡固定到支架的三颗螺钉。请参阅图
3-30
。
3
将夹层卡桥接板装入
10 GbE
夹层卡上的夹层卡插槽。请参阅图
3-29
。
4
装回用于将夹层卡桥接板固定至支架的螺钉。请参阅图
3-29
。
5
将
10 GbE
夹层卡部件放低到底座托架。请参阅图
3-28
。
6
装回用于将
10 GbE
夹层卡部件固定至底座托架的两颗螺钉。请参阅
图
3-28
。
7
装回正面机盖。请参阅第
152
页上
“安装正面机盖”。
8
装回底座。请参阅第
147
页上
“安装底座”。
110 GbE 夹层卡 2M3 螺钉(3 颗)
3夹层卡桥接板连接器 4SFP + 端口 1
5SFP + 端口 0
2
1
3
4
5

安装系统组件183
MicroSD 卡读取器
卸下 MicroSD 卡读取器
小心:多数维修只能由经认证的维修技术人员进行。您只能根据产品说明
文件中的授权,或者在联机或电话服务和支持小组的指导下,进行故障排除
和简单的维修。未经授权的维修所造成的损坏不在保修范围之列。请阅读并
遵循产品附带的安全说明。
1
从机柜中卸下底座。请参阅第
146
页上
“卸下底座”。
2
卸下正面机盖。请参阅第
151
页上
“卸下正面机盖”。
3
卸下
RAID
电池(如果适用)。请参阅第
171
页上
“卸下
RAID
电池”
4
卸下夹层卡(如果适用)。请参阅第
176
页上
“卸下
Infiniband
夹层
卡”或第
180
页上
“卸下
10 GbE
夹层卡”。
5
如果已安装
MicroSD
卡,请将其卸下。找到
MicroSD
卡读取器中的
MicroSD
卡插槽,向内按压卡以将其从插槽中释放出来,然后取出。
请参阅图
3-31
。
图 3-31. 卸下和安装 MicroSD 卡
1MicroSD 卡2MicroSD 卡插槽
12

184 安装系统组件
6
从
MicroSD
卡读取器中拔下
MicroSD
卡读取器电缆。请参阅图
3-32
。
7
卸下用于固定
MicroSD
卡读取器的两颗螺钉。请参阅图
3-32
。
8
从
MicroSD
卡读取器支撑架提起
MicroSD
卡读取器。请参阅图
3-32
。
图 3-32. 卸下和安装 MicroSD 卡读取器
安装 MicroSD 卡读取器
小心:多数维修只能由经认证的维修技术人员进行。您只能根据产品说明
文件中的授权,或者在联机或电话服务和支持小组的指导下,进行故障排除
和简单的维修。未经授权的维修所造成的损坏不在保修范围之列。请阅读并
遵循产品附带的安全说明。
1
将
MicroSD
卡读取器放在
MicroSD
卡读取器支撑架上。请参阅
图
3-32
。
2
装回用于固定
MicroSD
卡读取器的两颗螺钉。请参阅图
3-32
。
3
将
MicroSD
卡读取器电缆连接至
MicroSD
卡读取器。请参阅图
3-32
。
1MicroSD 卡读取器电缆 2M3 螺钉(2 颗)
3MicroSD 卡插槽4MicroSD 卡读取器
5MicroSD 卡读取器连接器
1
2
3
4
5

安装系统组件185
4
安装
MicroSD
卡(如果适用)。标签面朝右握住
MicroSD
卡,将卡按
入插槽以锁定到位。请参阅图
3-31
。
5
装回夹层卡(如果适用)。请参阅第
179
页上
“安装
Infiniband
夹层
卡”或第
182
页上
“安装
10 GbE
夹层卡”。
6
装回
RAID
电池(如果适用)。请参阅第
172
页上
“安装
RAID
电
池”。
7
装回正面机盖。请参阅第
152
页上
“安装正面机盖”。
8
装回底座。请参阅第
147
页上
“安装底座”。
卸下 MicroSD 卡读取器支撑架
1
从机柜中卸下底座。请参阅第
146
页上
“卸下底座”。
2
卸下正面机盖。请参阅第
151
页上
“卸下正面机盖”。
3
卸下
RAID
电池(如果适用)。请参阅第
171
页上
“卸下
RAID
电池”
4
卸下夹层卡(如果适用)。请参阅第
176
页上
“卸下
Infiniband
夹层
卡”或第
180
页上
“卸下
10 GbE
夹层卡”。
5卸下 MicroSD 卡读取器。请参阅第 183 页上 “卸下 MicroSD 卡读
取器”。
6
卸下用于固定
MicroSD
卡读取器支撑架的两颗螺钉。请参阅图
3-33
。
7
将支撑架从底座托架中提出。请参阅图
3-33
。

186 安装系统组件
图 3-33. 卸下和安装 MicroSD 卡读取器支撑架
安装 MicroSD 卡读取器支撑架
1
将
MicroSD
卡读取器支撑架与底座托架的螺孔对齐。请参阅图
3-33
。
2
装回用于固定
MicroSD
卡读取器支撑架的两颗螺钉。请参阅图
3-33
。
3装回 MicroSD 卡读取器。请参阅第 184 页上 “安装 MicroSD 卡读
取器”。
4
装回夹层卡 (如果适用)。请参阅第
179
页上
“安装
Infiniband
夹层
卡”或第
182
页上
“安装
10 GbE
夹层卡”。
5装回 RAID 电池 (如果适用)。请参阅第 172 页上 “安装 RAID 电
池”。
6
装回正面机盖。请参阅第
152
页上
“安装正面机盖”。
7
装回底座。请参阅第
147
页上
“安装底座”。
1M3 螺钉(2 颗)2MicroSD 卡读取器支撑架
1
2

安装系统组件187
内部硬盘驱动器
该底座最多支持两个已内部连接至底座托架的 2.5 英寸硬盘驱动器。
卸下硬盘驱动器托盘
小心:多数维修只能由经认证的维修技术人员进行。您只能根据产品说明
文件中的授权,或者在联机或电话服务和支持小组的指导下,进行故障排除
和简单的维修。未经授权的维修所造成的损坏不在保修范围之列。请阅读并
遵循产品附带的安全说明。
小心:不支持在同一个底座配置中结合使用 SATA 和 SAS 硬盘驱动器。
1
从机柜中卸下底座。请参阅第
146
页上
“卸下底座”。
2
卸下背面机盖。请参阅第
153
页上
“卸下背面机盖”。
3
拧松将硬盘驱动器托盘固定至硬盘驱动器支架的指旋螺钉。请参阅
图
3-34
。
4
滑动硬盘驱动器托盘并从底座托架中提出。请参阅图
3-34
。
图 3-34. 卸下和安装硬盘驱动器托盘
1指旋螺钉2硬盘驱动器托盘
1
2

188 安装系统组件
安装硬盘驱动器托盘
小心:多数维修只能由经认证的维修技术人员进行。您只能根据产品说明
文件中的授权,或者在联机或电话服务和支持小组的指导下,进行故障排除
和简单的维修。未经授权的维修所造成的损坏不在保修范围之列。请阅读并
遵循产品附带的安全说明。
小心:不支持在同一个底座配置中结合使用 SATA 和 SAS 硬盘驱动器。
1
将硬盘驱动器托盘放入底座托架并滑入到位。请参阅图
3-34
。
2
拧紧指旋螺钉以将硬盘驱动器托盘固定到位。请参阅图
3-34
。
3
装回背面机盖。请参阅第
154
页上
“安装背面机盖”。
4
装回底座。请参阅第
147
页上
“安装底座”。
从硬盘驱动器托盘中卸下硬盘驱动器
小心:多数维修只能由经认证的维修技术人员进行。您只能根据产品说明
文件中的授权,或者在联机或电话服务和支持小组的指导下,进行故障排除
和简单的维修。未经授权的维修所造成的损坏不在保修范围之列。请阅读并
遵循产品附带的安全说明。
1
卸下固定硬盘驱动器的四颗螺钉。请参阅图
3-35
。
2
将硬盘驱动器从硬盘驱动器托盘中取出。请参阅图
3-35
。

190 安装系统组件
卸下硬盘驱动器托架
小心:多数维修只能由经认证的维修技术人员进行。您只能根据产品说明
文件中的授权,或者在联机或电话服务和支持小组的指导下,进行故障排除
和简单的维修。未经授权的维修所造成的损坏不在保修范围之列。请阅读并
遵循产品附带的安全说明。
1
从机柜中卸下底座。请参阅第
146
页上
“卸下底座”。
2
卸下背面机盖。请参阅第
153
页上
“卸下背面机盖”。
3
卸下内部硬盘驱动器。请参阅第
187
页上
“卸下硬盘驱动器托盘”。
4
卸下用于固定硬盘驱动器托架的三颗螺钉。请参阅图
3-36
。
5
以一定角度提起硬盘驱动器托架,将硬盘驱动器托架上的定位器孔从
底座托架定位器中滑出。请参阅图
3-36
。
图 3-36. 卸下和安装硬盘驱动器托架
1M3 螺钉(3 颗)2硬盘驱动器托架
3硬盘驱动器托架定位器孔(2 个)
12
3

安装系统组件191
安装硬盘驱动器托架
小心:多数维修只能由经认证的维修技术人员进行。您只能根据产品说明
文件中的授权,或者在联机或电话服务和支持小组的指导下,进行故障排除
和简单的维修。未经授权的维修所造成的损坏不在保修范围之列。请阅读并
遵循产品附带的安全说明。
1
将底座托架的定位器孔插入底座托架定位器。请参阅图
3-36
。
2
装回用于固定硬盘驱动器托架的三颗螺钉。请参阅图
3-36
。
3
装回内部硬盘驱动器。请参阅第
188
页上
“安装硬盘驱动器托盘”。
4
装回背面机盖。请参阅第
154
页上
“安装背面机盖”。
5
装回底座。请参阅第
147
页上
“安装底座”。
插入器延长器
下表列出了特定的系统板型号所支持的插入器延长器。
注:
有关识别底座系统板型号的信息,请参阅第
215
页上
“识别系统板
型号”。
卸下插入器延长器
小心:多数维修只能由经认证的维修技术人员进行。您只能根据产品说明
文件中的授权,或者在联机或电话服务和支持小组的指导下,进行故障排除
和简单的维修。未经授权的维修所造成的损坏不在保修范围之列。请阅读并
遵循产品附带的安全说明。
1
从机柜中卸下底座。请参阅第
146
页上
“卸下底座”。
2
卸下背面机盖。请参阅第
153
页上
“卸下背面机盖”。
3
卸下内部硬盘驱动器。请参阅第
187
页上
“卸下硬盘驱动器托盘”。
4
卸下硬盘驱动器托架。请参阅第
190
页上
“卸下硬盘驱动器托架”。
5
按下电缆锁定卡舌并从插入器延长器上拔下电源电缆。请参阅
图
3-37
。
系统板 插入器延长器
V1.0 V1.0
V1.1 V1.1
V1.2 V1.1

192 安装系统组件
6
卸下用于将插入器延长器固定至底座托架的两颗螺钉。请参阅
图
3-37
。
7
抓住插入器延长器边缘,小心地将其从系统板连接器上卸下。
8
将插入器延长器从底座托架中提出。请参阅图
3-37
。
图 3-37. 卸下和安装插入器延长器
安装插入器延长器
小心:多数维修只能由经认证的维修技术人员进行。您只能根据产品说明
文件中的授权,或者在联机或电话服务和支持小组的指导下,进行故障排除
和简单的维修。未经授权的维修所造成的损坏不在保修范围之列。请阅读并
遵循产品附带的安全说明。
1
抓住卡的边缘,调整插入器延长器的位置,使边缘连接器与系统板连
接器对齐。请参阅图
3-37
。
2
将卡边缘连接器稳固地插入系统板的连接器,直至插卡完全就位。
3
装回用于将插入器延长器固定至底座托架的两颗螺钉。请参阅
图
3-37
。
1M3 螺钉(2 颗)2插入器延长器
3电源电缆
12
3

安装系统组件193
4
将电源电缆连接至插入器延长器。按下锁定卡舌以固定电源电缆。请
参阅图
3-37
。
5
装回硬盘驱动器托架。请参阅第
191
页上
“安装硬盘驱动器托架”。
6
装回内部硬盘驱动器。请参阅第
188
页上
“安装硬盘驱动器托盘”。
7
装回背面机盖。请参阅第
154
页上
“安装背面机盖”。
8
装回底座。请参阅第
147
页上
“安装底座”。
BMC 管理电缆 (可选)
要启用底座上的 BMC 支持,您必须连接 BMC 管理电缆至系统板以及节
点配电板。根据要求,您可以使用管理电缆在两个不同的模式中配置底
座:Dedicated-NIC (专用 NIC)模式和 Shared-NIC (共享 NIC)模
式。有关详情,请参阅第 90 页上 “设置 BMC LAN 配置”。
拔下 BMC 管理电缆
小心: 多数维修只能由经认证的维修技术人员进行。您只能根据产品说明
文件中的授权,或者在联机或电话服务和支持小组的指导下,进行故障排除
和简单的维修。未经授权的维修所造成的损坏不在保修范围之列。请阅读并
遵循产品附带的安全说明。
1
从机柜中卸下底座。请参阅
第
146
页上
“卸下底座”。
2
卸下背面机盖。请参阅
第
153
页上
“卸下背面机盖”。
3
卸下内部硬盘驱动器。请参阅
第
187
页上
“卸下硬盘驱动器托盘”。
4
卸下硬盘驱动器托架。请参阅
第
190
页上
“卸下硬盘驱动器托架”。
5
找到节点配电板上的
LAN
直通连接器。请参阅
第
232
页上
“节点配
电板连接器”。
6
找到系统板上的综合
BMC
电缆连接器。
请参阅
第
220
页上
“系统板跳线设置”。
7
断开系统板和节点配电板上的
BMC
管理电缆。请参阅
图
3-38
。

194 安装系统组件
图 3-38. 拔下和安装 BMC 管理电缆
安装 BMC 管理电缆
小心: 多数维修只能由经认证的维修技术人员进行。您只能根据产品说明
文件中的授权,或者在联机或电话服务和支持小组的指导下,进行故障排除
和简单的维修。未经授权的维修所造成的损坏不在保修范围之列。请阅读并
遵循产品附带的安全说明。
1
找到系统板上的综合
BMC
电缆连接器。请参阅
第
220
页上
“系统板
跳线设置”。
2
找到节点配电板上的
LAN
直通连接器。请参阅
第
232
页上
“节点配
电板连接器”。
3
将
BMC
管理电缆的一端连接至
NPDB
上的
LAN
直通连接器,而把该
电缆的另一端连接至系统板上的综合
BMC
电缆连接器。请参阅
图
3-38
。
4
正确地布线,以免压住或卷曲电缆。
5
装回硬盘驱动器托架。请参阅
第
191
页上
“安装硬盘驱动器托架”。
6
装回内部硬盘驱动器。请参阅
第
188
页上
“安装硬盘驱动器托盘”。
7
装回背面机盖。请参阅
第
154
页上
“安装背面机盖”。
1系统板上的 BMC 管理电缆 2节点配电板上的 BMC 管理电缆
12

安装系统组件195
8
装回底座。请参阅
第
147
页上
“安装底座”。
节点配电板
卸下节点配电板
小心:多数维修只能由经认证的维修技术人员进行。您只能根据产品说明
文件中的授权,或者在联机或电话服务和支持小组的指导下,进行故障排除
和简单的维修。未经授权的维修所造成的损坏不在保修范围之列。请阅读并
遵循产品附带的安全说明。
1
从机柜中卸下底座。请参阅第
146
页上
“卸下底座”。
2
卸下背面机盖。请参阅第
153
页上
“卸下背面机盖”。
3
卸下内部硬盘驱动器。请参阅第
187
页上
“卸下硬盘驱动器托盘”。
4
卸下硬盘驱动器托架。请参阅第
190
页上
“卸下硬盘驱动器托架”。
5
卸下插入器延长器。请参阅第
191
页上
“卸下插入器延长器”。
6
从节点配电板
(NPDB)
上断开所有电缆。请参阅图
3-39
。断开电源电
缆时,按下电缆锁定卡舌并从
NPDB
断开电源电缆。
从底座托架卸下电缆时,留意底座上的电缆布线。装回这些电缆时,
必须正确布线,以免压住和卷曲电缆。
7
卸下用于将
NPDB
固定到底座托架的四颗螺钉。请参阅图
3-39
。
8
将
NPDB
从底座托架中提出。请参阅图
3-39
。

196 安装系统组件
图 3-39. 卸下和安装节点配电板
安装节点配电板
小心:多数维修只能由经认证的维修技术人员进行。您只能根据产品说明
文件中的授权,或者在联机或电话服务和支持小组的指导下,进行故障排除
和简单的维修。未经授权的维修所造成的损坏不在保修范围之列。请阅读并
遵循产品附带的安全说明。
1
以
45
度角将新配电板插入右固定夹,然后将配电板的另一端按入左
固定夹,将配电板固定到位。确保将新配电板与支架上的螺孔对齐。
请参阅图
3-39
。
2
装回用于固定
NPDB
的四颗螺钉。请参阅图
3-39
。
3
将所有电缆连接至
NPDB
。请参阅图
3-39
。
4
必须将电缆正确布线在底座托架上,以防止其被夹紧或出现卷曲。
5
装回插入器延长器。请参阅第
192
页上
“安装插入器延长器”。
6
装回硬盘驱动器托架。请参阅第
191
页上
“安装硬盘驱动器托架”。
1电源电缆 2系统板控制电缆
3M3 螺钉(4 颗)4I2C 电缆
5节点配电板
5
3
1
2
4

安装系统组件197
7
装回内部硬盘驱动器。请参阅第
188
页上
“安装硬盘驱动器托盘”。
8
装回背面机盖。请参阅第
154
页上
“安装背面机盖”。
9
装回底座。请参阅第
147
页上
“安装底座”。
系统电池
卸下系统电池
警告:未正确安装的新电池可能有爆炸的危险。请仅使用制造商建议的相
同或相当类型的电池进行更换。有关附加信息,请参阅安全信息。
小心:多数维修只能由经认证的维修技术人员进行。您只能根据产品说明
文件中的授权,或者在联机或电话服务和支持小组的指导下,进行故障排除
和简单的维修。未经授权的维修所造成的损坏不在保修范围之列。请阅读并
遵循产品附带的安全说明。
1
从机柜中卸下底座。请参阅第
146
页上
“卸下底座”。
2
卸下正面机盖。请参阅第
151
页上
“卸下正面机盖”。
3
找到系统板上的电池插槽。请参阅第
224
页上
“系统板连接器”。
小心:为避免损坏电池连接器,在安装或卸下电池时必须稳固支撑连接器。
4
向外按电池的“
-
”端,使电池从插槽中弹出。
5
从连接器中提出电池。请参阅图
3-40
。
图 3-40. 卸下和安装系统电池
1系统电池 2连接器

198 安装系统组件
安装系统电池
警告:未正确安装的新电池可能有爆炸的危险。请仅使用制造商建议的相
同或相当类型的电池进行更换。有关附加信息,请参阅安全信息。
小心:多数维修只能由经认证的维修技术人员进行。您只能根据产品说明
文件中的授权,或者在联机或电话服务和支持小组的指导下,进行故障排除
和简单的维修。未经授权的维修所造成的损坏不在保修范围之列。请阅读并
遵循产品附带的安全说明。
1
将新电池的“
+
”朝向电池连接器上的固定夹。请参阅图
3-40
。
2
插入电池的“
-
”端,然后推动正极端
3
朝连接器正极端轻拉固定夹,将电池滑入连接器,直至固定夹卡入到
位。请参阅图
3-40
。
4
装回正面机盖。请参阅第
152
页上
“安装正面机盖”。
5
装回底座。请参阅第
147
页上
“安装底座”。
6
将系统重新连接至电源插座,并打开系统和所有连接的外围设备。
7
进入系统设置程序,以确认电池是否可以正常运行。请参阅第
47
页上
“使用系统设置程序”。
8
在系统设置程序的
Time
(时间)和
Date
(日期)字段中输入正确的
时间和日期。
9
退出系统设置程序。
系统板
下表列出了底座中支持的不同类型的系统板,包括型号。
注:
有关识别底座系统板型号的信息,请参阅第
215
页上
“识别系统板
型号”。
系统板 系统板型号
V1.0
CN0W6W6G
(对于装有
Intel Xeon E5-2600
系列处理器的底座)
V1.1
CN0TND55
(对于装有
Intel Xeon E5-2600
系列处理器的底座)
V1.2
CN09N44V
(对于装有
Intel Xeon E5-2600V2
系列处理器的底座)

安装系统组件199
卸下系统板
小心:多数维修只能由经认证的维修技术人员进行。您只能根据产品说明
文件中的授权,或者在联机或电话服务和支持小组的指导下,进行故障排除
和简单的维修。未经授权的维修所造成的损坏不在保修范围之列。请阅读并
遵循产品附带的安全说明。
1
从机柜中卸下底座。请参阅第
146
页上
“卸下底座”。
2
卸下正面机盖。请参阅第
151
页上
“卸下正面机盖”。
3
卸下背面机盖。请参阅第
153
页上
“卸下背面机盖”。
4
卸下冷却导流罩。请参阅第
154
页上
“卸下冷却导流罩”。
5
卸下散热器。请参阅第
156
页上
“卸下散热器”。
6
卸下处理器。请参阅第
160
页上
“卸下处理器”。
7
卸下内存模块。请参阅第
165
页上
“卸下内存模块”。
8
如果已安装
RAID
控制器卡,请将其卸下。请参阅第
169
页上
“卸下
RAID
控制器卡”。
9
如果已安装
RAID
电池,请将其卸下。请参阅第
171
页上
“卸下
RAID
电池”。
10
如果已安装夹层卡,请将其卸下。请参阅第
176
页上
“卸下
Infiniband
夹层卡”或第
180
页上
“卸下
10 GbE
夹层卡”。
11
卸下
MicroSD
卡读取器。请参阅第
183
页上
“卸下
MicroSD
卡读
取器”。
12
卸下
MicroSD
卡读取器支撑架。请参阅第
185
页上
“卸下
MicroSD
卡
读取器支撑架”。
13
卸下内部硬盘驱动器。请参阅第
187
页上
“卸下硬盘驱动器托盘”。
14
卸下硬盘驱动器托架。请参阅第
190
页上
“卸下硬盘驱动器托架”。
15
卸下插入器延长器。请参阅第
191
页上
“卸下插入器延长器”。
16
卸下节点配电板。请参阅第
195
页上
“卸下节点配电板”。
17
断开以下电缆与系统板的连接。
从底座托架拔下电缆时,留意电缆的布线。装回这些电缆时,必须正
确布线,以免压住和卷曲电缆。
•
电源电缆
断开电源电缆时,按下电缆锁定卡舌并从系统板断开电源电缆。请参
阅图
3-41
。

200 安装系统组件
图 3-41. 卸下和安装电源电缆
•SATA
电缆
图 3-42. 卸下和安装 SATA 电缆
1,2电源电缆
1,2SATA 电缆
1
2
1
2

安装系统组件201
•
系统板控制电缆
图 3-43. 卸下和安装系统板控制电缆
•I2C
电缆
图 3-44. 卸下和安装 I2C 电缆
1系统板控制电缆
1I2C 电缆
1
1

安装系统组件203
4
将以下电缆连接至系统板。
–I2C
电缆。请参阅图
3-44
。
–
系统板控制电缆。请参阅图
3-43
。
–SATA
电缆。请参阅图
3-42
。
–
电源电缆。请参阅图
3-41
。
5
必须将电缆正确布线在底座托架上,以防止其被夹紧或出现卷曲。
6
安装节点配电板。请参阅第
196
页上
“安装节点配电板”。
7将插入器延长器安装到新板上。请参阅第 192 页上 “安装插入器延
长器”。
8
安装硬盘驱动器托盘。请参阅第
191
页上
“安装硬盘驱动器托架”。
9
安装硬盘驱动器。请参阅第
188
页上
“安装硬盘驱动器托盘”。
10
安装
MicroSD
卡读取器支撑架。请参阅第
186
页上
“安装
MicroSD
卡
读取器支撑架”。
11
安装
MicroSD
卡读取器。请参阅第
184
页上
“安装
MicroSD
卡读
取器”。
12
将处理器转移至新的系统板。请参阅第
160
页上
“卸下处理器”和
第
161
页上
“安装处理器”。
13
卸下内存模块,然后将其转移至新板上的相同位置。请 参 阅 第
165
页上
“卸下内存模块”和第
166
页上
“安装内存模块”。
14
装回冷却导流罩。请参阅第
155
页上
“安装冷却导流罩”。
15 如果可用,另请安装夹层卡。请参阅第 179 页上 “安装 Infiniband
夹层卡”或第 182 页上 “安装 10 GbE 夹层卡”
。
16
安装
RAID
控制器卡和
RAID
电池(如果适用)。请参阅第
170
页上
“安装
RAID
控制器卡”和第
172
页上
“安装
RAID
电池”。
17
安装扩展卡。请参阅第
168
页上
“安装扩展卡”。
18
装回正面机盖。请参阅第
152
页上
“安装正面机盖”。
19
装回背面机盖。请参阅第
154
页上
“安装背面机盖”。
20
装回底座。请参阅第
147
页上
“安装底座”。

204 安装系统组件

故障排除 205
故障排除
安全第一 — 为您和您的系统着想
警告:如需抬高系统时,请让别人帮您。为避免受伤,请勿尝试独自提起
系统。
警告:卸下系统护盖之前,请先切断所有电源,然后拔下交流电源线,
最后断开所有外围设备和所有 LAN 缆线的连接。
小心:多数维修只能由经认证的维修技术人员进行。您只能根据产品说明
文件中的授权,或者在联机或电话服务和支持小组的指导下,进行故障排除
和简单的维修。未经 Dell 授权的维修所造成的损坏不在保修范围之内。请阅
读并遵循产品附带的安全说明。
安装问题
如果您要排除安装问题,请执行以下检查:
•
检查所有电缆和电源连接 (包括所有机架电缆连接)。
•
拔下电源线并等待一分钟。然后重新连接电源线并再试一次。
•
如果网络报告错误,请验证系统是否拥有足够的内存和硬盘空间。
•
请卸下连接的所有外围设备,每次卸下一个,并尝试再次打开系统电
源。如果在卸下某个外围设备后,系统可以正常工作,则可能是该外
围设备有问题,或者是该外围设备与系统间的配置有问题。请与外围
设备厂商联络以寻求帮助。
•
如果无法接通系统电源,请检查
LED
显示。如果电源
LED
未亮起,
则可能未接收交流电源。检查交流电源线,确保已连接稳固。
系统启动失败故障排除
如果系统在启动过程中停机(尤其是在安装操作系统或重新配置系统硬
件之后发生这种故障), 请 检查是否存在无效的内存配置。这些无效配置
可能导致系统在启动时停机,并且无任何视频输出。
对于所有其启动问题,请注意屏幕上显示的任何系统信息。有关详情,
请参阅第 47 页上 “使用系统设置程序”。

206 故障排除
外部连接故障排除
对任何外部设备进行故障排除之前,请确保所有外部电缆均已牢固地连接
至底座上的外部连接器。
有关底座上的前面板连接器,请参阅图 1-1。
视频子系统故障排除
1
检查显示器与底座和电源的连接。
2
检查底座到显示器之间的视频接口连线。
USB 设备故障排除
使用下列步骤对 USB 键盘和 /或鼠标进行故障排除。对于其它 USB
设备,请转至步骤 5。
1
确保底座已开启。
2
从底座中暂时拆除键盘和鼠标电缆,然后再重新连接。
3
如果问题得以解决,请重新启动底座,进入系统设置程序,检查是否
已启用不工作的
USB
端口。
4
换用能正常工作的键盘
/
鼠标。
5
如果安装了另一底座,则将
USB
设备连接到该底座。如果
USB
设备能
够与其它底座配合使用,则第一个底座可能出现故障。
如果问题得以解决,请更换有故障的键盘
/
鼠标。
如果问题仍然存在,请继续执行下一步骤,开始对与系统相连的其它
USB
设备进行故障排除。
a
关闭所有连接的
USB
设备,并断开其与底座的连接。
b
重新启动底座,如果键盘正常工作,则进入系统设置程序。验证是
否启用了所有
USB
端口。请参阅第
84
页上
“
USB
配置”。
c
如果键盘不能正常工作,还可以使用远程访问。如果无法访问系
统,请参阅第
220
页上
“系统板跳线设置”中关于设置系统内
NVRAM
清除跳线并将
BIOS
恢复至默认设置的信息。
d
重新连接,逐次打开
USB
设备的电源。
6
如果某一设备造成同一问题,请关闭该设备的电源,更换
USB
电缆,
然后再开启该设备的电源。
如果问题仍然存在,请更换此设备。
如果所有故障排除均失败,请参阅第
233
页上
“获得帮助”。

故障排除 207
串行 I/O 设备故障排除
1
关闭底座和所有已连接至此串行端口的外围设备。
2
将串行接口电缆更换为另一条可正常工作的电缆,并打开底座和串行
设备。
如果问题得以解决,则请更换接口电缆。
3
关闭底座和串行设备,将该设备更换为同类设备。
4
打开底座和串行设备。
如果问题得以解决,请更换串行设备。
如果问题仍然存在,请参阅第
233
页上
“获得帮助”。
NIC 故障排除
1
重新启动底座,并检查与
NIC
控制器相关的任何系统信息。
2查看 NIC 连接器上的相应指示灯。请参阅第 14 页上 “NIC 指示灯
代码”。
•
如果链路指示灯不亮,请检查所有电缆的连接。
•
如果活动指示灯不亮,则网络驱动程序文件可能已损坏或缺失。
•
删除并重新安装驱动程序 (如果适用)。请参阅
NIC
的说明文件。
•
如果可能,请更改自适应设置。
•
使用交换机或集线器上的另一个连接器。
如果使用的是
NIC
卡而不是集成的
NIC
,请参阅
NIC
卡说明文件。
3
确保安装了相应的驱动程序并捆绑了协议。请参阅
NIC
的说明文件。
4
进入系统设置程序,确认已启用
NIC
端口。请参阅第
47
页上
“使用
系统设置程序”。
5
确保将网络上的
NIC
、集线器和交换机均设置为同一数据传输速率。
请参阅每个网络设备的说明文件。
6
确保所有网络电缆的类型无误,并且未超出最大长度限制。
如果所有故障排除均失败,请参阅第
233
页上
“获得帮助”。

208 故障排除
受潮机柜故障排除
小心:多数维修只能由经认证的维修技术人员进行。您只能根据产品说明
文件中的授权,或者在联机或电话服务和支持小组的指导下,进行故障排除
和简单的维修。未经 Dell 授权的维修所造成的损坏不在保修范围之内。请阅
读并遵循产品附带的安全说明。
1
关闭底座和已连接的外围设备。
2
断开机柜与电源插座或
PDU
的连接。
小心:等待直至所有电源设备上的指示灯均熄灭后再继续。
3
从机柜上卸下所有底座。请参阅第
146
页上
“卸下底座”。
4
打开底座。请参阅第
151
页上
“底座盖”。
5
拆除底座上的组件。请参阅第
143
页上
“安装系统组件”。
•
硬盘驱动器
•
冷却导流罩
•
处理器和散热器
•
内存模块
•
扩展卡
/RAID
控制器卡
•
夹层卡
•
插入器延长器
•
节点配电板
• MicroSD
卡读取器
6
卸下所有服务器机柜组件。有关更多信息,请参阅 《
PowerEdge
C8000
系统硬件用户手册》。
7
使底座彻底干燥至少
24
小时。
8
重新安装所有服务器机柜组件。有关更多信息,请参阅 《
PowerEdge
C8000
系统硬件用户手册》。
9
重新安装在步骤
5
中卸下的所有底座组件。
10
合上底座。请参阅第
151
页上
“底座盖”。
11
重新安装底座。请参阅第
147
页上
“安装底座”。
12
重新连接服务器机柜与电源插座或
PDU
。
13
打开底座和已连接的外围设备。
14
如果系统无法启动,请参阅第
233
页上
“获得帮助”。

故障排除 209
受损机柜故障排除
小心:多数维修只能由经认证的维修技术人员进行。您只能根据产品说明
文件中的授权,或者在联机或电话服务和支持小组的指导下,进行故障排除
和简单的维修。未经 Dell 授权的维修所造成的损坏不在保修范围之内。请阅
读并遵循产品附带的安全说明。
1
关闭底座和已连接的外围设备。
2
断开机柜与电源插座或
PDU
的连接。
3
确保以下组件正确安装在机柜中:
•
电源底座
•
风扇模块
•
底座
4
确保以下组件正确安装在底座中:
• MicroSD
卡读取器
•
节点配电板
•
插入器延长器
•
夹层卡
•
扩展卡
/RAID
控制器卡
•
内存模块
•
处理器和散热器
•
冷却导流罩
•
硬盘驱动器
5
确保所有电缆均已正确连接。
6
确保所有组件均已正确安装并且没有任何损坏。
7
如果系统无法启动,请参阅第
233
页上
“获得帮助”。
电源底座故障排除
小心:一次卸下和更换一个 PSU 模块。将出现故障的 PSU 模块留在电源底
座内,直至您准备好进行更换。在卸下电源底座的情况下,长时间运行系统
可能会导致系统过热。
注:电源底座中的 1400 W 电源设备模块需要 200-240 V 电源才能运行。

210 故障排除
1
找到要卸下的电源底座或包含出故障的
PSU
模块的电源底座。
PSU
模块的状态指示灯将呈绿色或琥珀色亮起。如果
PSU
模块出现故障,
状态指示灯将呈琥珀色亮起。
2更换电源底座中出现故障的 PSU 模块。
有关更多信息,请参阅
《
PowerEdge C8000
系统硬件用户手册》。
注:在新的 PSU 模块中安装完电源底座后,请等待几秒钟,以便系统识别
电源设备并确定其是否可以正常工作。状态指示灯呈绿色亮起,表示模块可
以正常工作。
如果没有
PSU
模块显示故障
LED
,并且底座也没有打开电源,则登录
到
BMC Web
界面,检查状态信息。有关更多信息,请参阅 《使用底
板管理控制器指南》。
如果所有故障排除均失败,请参阅第
233
页上
“获得帮助”。
系统内存故障排除
小心:多数维修只能由经认证的维修技术人员进行。您只能根据产品说明
文件中的授权,或者在联机或电话服务和支持小组的指导下,进行故障排除
和简单的维修。未经 Dell 授权的维修所造成的损坏不在保修范围之内。请阅
读并遵循产品附带的安全说明。
注:无效的内存配置可能导致系统启动时停机,并且无任何视频输出。
请参阅第 162 页上 “系统内存”,并验证您的内存配置是否符合所有适
用的原则。
1
如果系统无法运行,请关闭底座和已连接的外围设备。
2
10
秒后,打开底座和已连接的外围设备,并留意屏幕上的信息。
如果系统显示特定内存模块出现故障的错误信息,请转至步骤
13
。
3
进入系统设置程序并检查系统内存设置。请参阅第
54
页上
“
Main
(主屏幕)菜单”。 请 视需要对内存设置进行更改。
如果内存设置符合所安装的内存,但仍指示存在问题,请转至步骤
13
。
4
关闭底座和已连接的外围设备。
5
从机柜中卸下底座。请参阅第
146
页上
“卸下底座”。
6
卸下冷却导流罩。请参阅第
154
页上
“卸下冷却导流罩”。
7
检查内存通道,确保内存插装无误。请参阅第
163
页上
“支持的
DIMM
配置”。

故障排除 211
8
在各自插槽中重置内存模块。请参阅第
165
页上
“卸下内存模块”
和第
166
页上
“安装内存模块”。
9
装回冷却导流罩。请参阅第
155
页上
“安装冷却导流罩”。
10
将底座重新安装到机柜中。请参阅第
147
页上
“安装底座”。
11
打开底座和已连接的外围设备。
12
进入系统设置程序并检查系统内存设置。请参阅第
54
页上
“
Main
(主屏幕)菜单”。
如果问题未解决,请继续执行下一步。
13
关闭底座和已连接的外围设备。
14
从机柜中卸下底座。请参阅第
146
页上
“卸下底座”。
15
卸下冷却导流罩。请参阅第
154
页上
“卸下冷却导流罩”。
16
如果诊断检测程序或错误信息指示特定内存模块出现故障,请更换该
模块。
17
要对未指定的故障内存模块进行故障排除,请用相同类型和容量的内
存模块更换第一个
DIMM
插槽中的模块。请参阅第
166
页上
“安装
内存模块”。
18
装回冷却导流罩。请参阅第
155
页上
“安装冷却导流罩”。
19
将底座重新安装到机柜中。请参阅第
147
页上
“安装底座”。
20
打开底座和已连接的外围设备。
21
在系统进行引导时,注意观察所有显示的错误信息以及系统前面的诊
断指示灯。
22 如果仍然指示内存问题,则对安装的每个内存模块重复步骤 13 至步
骤 21。
23
如果检查所有内存模块后,问题仍然存在,请参阅第
233
页上
“获得
帮助”。
硬盘驱动器故障排除
小心:多数维修只能由经认证的维修技术人员进行。您只能根据产品说明
文件中的授权,或者在联机或电话服务和支持小组的指导下,进行故障排除
和简单的维修。未经 Dell 授权的维修所造成的损坏不在保修范围之内。请阅
读并遵循产品附带的安全说明。

212 故障排除
小心:此故障排除步骤可能会破坏
硬盘驱动器上存储的数据。进行故障排除之前,请备份硬盘驱动器上存储的
所有文件。
1
如果底座存在
RAID
控制器且在
RAID
阵列中配置了硬盘驱动器,则执
行下列步骤:
a
重新启动底座,并进入主机适配器配置公用程序:如果是
RAID
控
制器,则按下
<Ctrl> <H>
组合键;如果是
SAS
夹层卡,则按下
<Ctrl><C>
组合键;如果是板载
RAID
控制器,则按下
<Ctrl><I>
组合键。
有关配置公用程序的信息,请参阅主机适配器附带的说明文件。
b
确保已正确配置
RAID
阵列的硬盘驱动器。
c
将硬盘驱动器置于离线状态并重置驱动器。请参阅第
187
页上
“卸下硬盘驱动器托盘”。
d
退出配置公用程序并允许系统引导至操作系统。
2
确保已正确安装和配置控制器卡所需的设备驱动程序。有关更多信息,
请参阅操作系统说明文件。
3
重新启动底座,进入系统设置程序,并验证控制器是否已启用,以及
驱动器是否在系统设置程序中出现。请参阅第
47
页上
“使用系统设
置程序”。
如果问题仍然存在,请参阅第
233
页上
“获得帮助”。
存储控制器故障排除
注:SAS RAID 控制器进行故障排除时,另请参阅操作系统和控制器的说明
文件。
1进入系统设置程序并确保已启用 SAS 控制器。请参阅第 47 页上
“使用系统设置程序”。
2
重新启动底座并按住相应的按键组合进入配置公用程序。
• <Ctrl><C>
(对于
LSI SAS 2008
夹层卡)
• <Ctl><H>
(对于
LSI 9265-8i SAS RAID
卡)
有关配置设置的信息,请参阅控制器的说明文件。
3
检查配置设置,进行必要的纠正,然后重新启动系统。

故障排除 213
小心:多数维修只能由经认证的维修技术人员进行。您只能根据产品说明
文件中的授权,或者在联机或电话服务和支持小组的指导下,进行故障排除
和简单的维修。未经 Dell 授权的维修所造成的损坏不在保修范围之内。请阅
读并遵循产品附带的安全说明。
4
关闭底座和已连接的外围设备。
5
从机柜中卸下底座。请参阅第
146
页上
“卸下底座”。
6
打开底座。请参阅第
151
页上
“底座盖”。
7确保控制器卡已在系统板连接器中稳固就位。请参阅第 170 页上
“安装 RAID 控制器卡”。
8
如果使用电池缓存
SAS RAID
控制器,请确保
RAID
电池已正确连接且
RAID
卡上的内存模块已正确就位 (如果可用)。
9
确保电缆已稳固连接到存储控制器。
10
合上底座。请参阅第
151
页上
“底座盖”。
11
将底座重新安装到机柜中。请参阅第
147
页上
“安装底座”。
12
打开底座和已连接的外围设备。
13
如果问题仍然存在,请参阅第
233
页上
“获得帮助”。
扩展卡故障排除
注:进行扩展卡故障排除时,请参阅操作系统和扩展卡的说明文件。
小心:多数维修只能由经认证的维修技术人员进行。您只能根据产品说明
文件中的授权,或者在联机或电话服务和支持小组的指导下,进行故障排除
和简单的维修。未经 Dell 授权的维修所造成的损坏不在保修范围之内。请阅
读并遵循产品附带的安全说明。
1
关闭底座和已连接的外围设备。
2
从机柜中卸下底座。请参阅第
146
页上
“卸下底座”。
3
打开底座。请参阅第
151
页上
“底座盖”。
4确保每个扩展卡均已在其连接器中牢固就位。请参阅第 170 页上
“安装 RAID 控制器卡”。
5
合上底座。请参阅第
151
页上
“底座盖”。
6
将底座重新安装到机柜中。请参阅第
147
页上
“安装底座”。
7
打开底座和已连接的外围设备。
8
如果问题仍未解决,请参阅第
233
页上
“获得帮助”。

214 故障排除
处理器故障排除
小心:多数维修只能由经认证的维修技术人员进行。您只能根据产品说明
文件中的授权,或者在联机或电话服务和支持小组的指导下,进行故障排除
和简单的维修。未经 Dell 授权的维修所造成的损坏不在保修范围之内。请阅
读并遵循产品附带的安全说明。
1
关闭底座和已连接的外围设备。
2
从服务器机柜中卸下底座。请参阅第
146
页上
“卸下底座”。
3
卸下冷却导流罩。请参阅第
154
页上
“卸下冷却导流罩”。
4
请确保已正确安装每个散热器。请参阅第
157
页上
“安装散热器”。
5
确保在散热器和处理器上涂抹导热油脂。
6
请确保已正确安装每个处理器。请参阅第
161
页上
“安装处理器”。
7
装回冷却导流罩。请参阅第
155
页上
“安装冷却导流罩”。
8
将底座重新安装到机柜中。请参阅第
147
页上
“安装底座”。
9
打开底座和已连接的外围设备。
10
如果问题仍然存在,请关闭底座和已连接的外围设备。
11
从机柜中卸下底座。请参阅第
146
页上
“卸下底座”。
12
卸下冷却导流罩。请参阅第
154
页上
“卸下冷却导流罩”。
13
卸下处理器
2
。请参阅第
160
页上
“卸下处理器”。
14
装回冷却导流罩。请参阅第
155
页上
“安装冷却导流罩”。
15
将底座重新安装到机柜中。请参阅第
147
页上
“安装底座”。
16
打开底座和已连接的外围设备。
如果问题仍然存在,则表示处理器出现故障。请参阅第 233 页上
“获得帮助”。
17
关闭底座和已连接的外围设备。
18
从机柜中卸下底座。请参阅第
146
页上
“卸下底座”。
19
卸下冷却导流罩。请参阅第
154
页上
“卸下冷却导流罩”。
20
用处理器
2
替换处理器
1
。请参阅第
161
页上
“安装处理器”。
21
重复步骤
13
至步骤
16
。
如果在检测了两个处理器之后问题仍然存在,则说明系统板出现故障。
请参阅第
233
页上
“获得帮助”。

故障排除 215
识别系统板型号
1
开机或重新引导后立即按
<F2>
进入系统设置程序。
2
在“主屏幕”菜单中,查找
ePPID
条目。
3
ePPID
号的前
8
位
(
CN09N44V)
表示系统板型号,其余
14
位表示系统零
件标识码。
系统板故障排除
小心:多数维修只能由经认证的维修技术人员进行。您只能根据产品说明
文件中的授权,或者在联机或电话服务和支持小组的指导下,进行故障排除
和简单的维修。未经 Dell 授权的维修所造成的损坏不在保修范围之内。请阅
读并遵循产品附带的安全说明。
1
从机柜中卸下底座。请参阅第
146
页上
“卸下底座”。
2
打开底座。请参阅第
151
页上
“底座盖”。
3
找到系统板上的
NVRAM
清除跳线。
4
清除
NVRAM
。

216 故障排除
5
合上底座。请参阅第
151
页上
“底座盖”。
6
如果计算底座仍有问题,请卸下并重新安装底座。请参阅第
147
页上
“安装底座”。
如果问题仍然存在,请参阅第
233
页上
“获得帮助”。
系统电池故障排除
注:如果系统长期 (几个星期或几个月)关闭,则 NVRAM 可能会丢失系统
配置信息。这种情况是由有故障的电池引起的。
1
通过系统设置程序重新输入时间和日期。请参阅第
48
页上
“引导时的
系统设置选项”。
2
关闭底座,将其从机柜中卸下至少一小时。
3
将底座重新连接至服务器机柜并打开底座。
4
进入系统设置程序。
如果系统设置程序中的日期和时间不正确,请更换电池。请 参阅 第
197
页上
“卸下系统电池”。
小心:您只能根据产品说明文件中的授权,或者在联机或电话服务和支持
小组的指导下,进行故障排除和简单的维修。未经 Dell 授权的维修所造成的
损坏不在保修范围之内。请阅读并遵循产品附带的安全说明。
如果更换电池后问题仍未解决,请参阅第
233
页上
“获得帮助”。
注:某些软件可能会导致系统时间加快或减慢。如果除了系统设置程序中
的时间不正确外,系统看起来运行正常,则问题可能是由软件而不是由有故
障的电池引起的。
IRQ 分配冲突
大多数 PCI 设备均可与其它设备共享同一 IRQ,但无法同时使用一个
IRQ。要避免此类冲突,请参阅各 PCI 设备的说明文件以了解特定的
IRQ 要求。

故障排除 217
PCI IRQ 池定义是运行时分配的 BIOS 代码。
IRQ 线路 分配 IRQ 线路 分配
IRQ0 8254 计时器 IRQ8 实时时钟
IRQ1 键盘控制器 IRQ9 PCI IRQ 池定义
IRQ2 IRQ9 的级联 IRQ10 PCI IRQ 池定义
IRQ3 串行端口 (COM2) 或
PCI IRQ 池定义
IRQ11 PCI IRQ 池定义
IRQ4 串行端口 (COM1) 或
PCI IRQ 池定义
IRQ12 鼠标控制器
IRQ5 PCI IRQ 池定义 IRQ13 处理器
IRQ6 PCI IRQ 池定义 IRQ14 主 IDE 控制器
IRQ7 保留 IRQ15 次 IDE 控制器

218 故障排除

220 跳线和连接器
系统板跳线设置
本节介绍系统板 1.0、1.1 和 1.2 版上可用的跳线选项和设置。
系统板 V1.0 跳线设置
图 5-1. 系统板 V1.0 跳线设置
表 5-1. 系统板跳线设置
项跳线 设置 说明
1
维修模式 (默认设置) 已启用快擦写安全设置。
已禁用快擦写安全和
NVRAM
清除信号。
2NVRAM
清除 (默认设置) 系统引导时保留配置设置。
下一次系统引导时清除配置设置。
3ME
固件恢复 (默认设置) 已禁用
ME
固件恢复跳线。
ME
固件恢复跳线启用
ME
固件恢复模式。
4BIOS
恢复 (默认设置) 已禁用
BIOS
恢复跳线。
BIOS
恢复跳线启用
BIOS
闪存特殊恢复
模式。

跳线和连接器 221
系统板 V1.1 跳线设置
图 5-2. 系统板 V1.1 跳线设置
5
密码启用 (默认设置) 已启用密码功能。
已禁用密码功能。
6
电源按钮通过 (默认设置)
BMC
触发电源按钮信号。
触发电源按钮直通信号。
表 5-2. 系统板跳线设置
项跳线 设置 说明
1
维修模式 (默认设置) 已启用快擦写安全设置。
已禁用快擦写安全和
NVRAM
清除信号。
2NVRAM
清除 (默认设置) 系统引导时保留配置设置。
下一次系统引导时清除配置设置。
表 5-1. 系统板跳线设置
项跳线 设置 说明
123
4
75
6

222 跳线和连接器
系统板 V1.2 跳线设置
图 5-3. 系统板 V1.2 跳线设置
3ME
固件恢复 (默认设置) 已禁用
ME
固件恢复跳线。
ME
固件恢复跳线启用
ME
固件恢复
模式。
4BIOS
恢复 (默认设置) 已禁用
BIOS
恢复跳线。
BIOS 恢复跳线启用 BIOS 闪存特殊恢复
模式。
5
密码启用 (默认设置) 已启用密码功能。
已禁用密码功能。
6
快擦写描述符
安全覆盖
(默认设置) 已启用快擦写描述符安全覆盖。
已禁用快擦写描述符安全覆盖。
7
电源按钮通过 (默认设置)
BMC
触发电源按钮信号。
触发电源按钮直通信号。
表 5-2. 系统板跳线设置
项跳线 设置 说明
234
56
1

跳线和连接器 223
表 5-3. 系统板跳线设置
项跳线 设置 说明
1
维修模式 (默认设置) 已启用快擦写安全设置。
已禁用快擦写安全和
NVRAM
清除信号。
2NVRAM
清除 (默认设置) 系统引导时保留配置设置。
下一次系统引导时清除配置设置。
3ME
固件恢复 (默认设置) 已禁用
ME
固件恢复跳线。
ME 固件恢复跳线启用 ME 固件恢复
模式。
4BIOS
恢复 (默认设置) 已禁用
BIOS
恢复跳线。
BIOS
恢复跳线启用
BIOS
闪存特殊恢复
模式。
5
密码启用 (默认设置) 已启用密码功能。
已禁用密码功能。
6
快擦写描述符
安全覆盖
(默认设置) 已启用快擦写描述符安全覆盖。
已禁用快擦写描述符安全覆盖。

224 跳线和连接器
系统板连接器
本节介绍系统板 1.0、1.1 和 1.2 版上可用的连接器。
系统板 V1.0 连接器
图 5-4. 系统板 V1.0 连接器
1USB 连接器 (2) 2PCIe x8 插槽 3 (夹层卡插槽)
3MicroSD 卡读取器 (内部 USB)
连接器
4内部 SAS 夹层卡插槽
5小型 SAS 连接器 0 6板载 SATA 连接器 4
7板载 SATA 连接器 5 8系统电池
9用于 CPU1 的 DIMM 插槽
DIMMA3 插槽
DIMMA4 插槽
DIMMA7 插槽
DIMMA8 插槽
10 CPU1 插槽
11 用于 CPU2 的 DIMM 插槽
DIMMB1 插槽
DIMMB2 插槽
DIMMB5 插槽
DIMMB6 插槽
12 主电源连接器
13 内部硬盘驱动器插入器 14 SGPIO 连接器 2
15 内部串行连接器 16 前面板连接器 1

跳线和连接器 225
系统板 V1.1 连接器
图 5-5. 系统板 V1.1 连接器
17 PCIe x16 插槽 4 (背面 GPGPU)18 CPU2 插槽
19 用于 CPU2 的 DIMM 插槽
DIMMB3 插槽
DIMMB4 插槽
DIMMB7 插槽
DIMMB3 插槽
20 用于 CPU1 的 DIMM 插槽
DIMMA1 插槽
DIMMA2 插槽
DIMMA5 插槽
DIMMA6 插槽
21 LAN LED 连接器 22 PCIe x16 插槽 1
23 PCIe x16 插槽 2 24 SGPIO 连接器 1
25 电源按钮 /开机指示灯 26 VGA 连接器
27 串行连接器 28 内部 BMC 串行控制台连接器
29 BMC 管理端口 30 整合的 BMC 电缆连接器
31 NIC1 连接器 (RJ45) 32 NIC0 连接器 (RJ45)
33 系统识别指示灯
1USB 连接器 (2)2PCIe x8 插槽 3 (夹层卡插槽)
3MicroSD 卡读取器 (内部 USB)
连接器
4低引脚数 (LPC) 调试连接器
5SGPIO 连接器 2 6SGPIO 连接器 1
7小型 SAS 连接器 0 8板载 SATA 连接器 4
12347910 11 13
12 15
16
17
18
2425262728293031
32
33
35
36
37
38
39
34
22
19
20
21
23
65 14
8

226 跳线和连接器
9板载 SATA 连接器 5 10 系统电池
11 用于 CPU1 的 DIMM 插槽
DIMMA3 插槽
DIMMA4 插槽
DIMMA7 插槽
DIMMA8 插槽
12 CPU1 插槽
13 用于 CPU2 的 DIMM 插槽
DIMMB1 插槽
DIMMB2 插槽
DIMMB5 插槽
DIMMB6 插槽
14 I2C 连接器
15 主电源连接器 16 内部硬盘驱动器插入器
17 前面板连接器 1 18 内部串行连接器
19 小型 SAS 连接器 1 20 板载 SATA_IN 连接器 5
21 板载 SATA_IN 连接器 4 22 PCIe x16 插槽 4 (背面 GPGPU)
23 电源连接器插入器 24 CPU2 插槽
25 用于 CPU2 的 DIMM 插槽
DIMMB3 插槽
DIMMB4 插槽
DIMMB7 插槽
DIMMB3 插槽
26 用于 CPU1 的 DIMM 插槽
DIMMA1 插槽
DIMMA2 插槽
DIMMA5 插槽
DIMMA6 插槽
27 LAN LED 连接器 28 PCIe x16 插槽 1
29 PCIe x16 插槽 2 30 NCSI 连接器
31 电源按钮 /开机指示灯 32 VGA 连接器
33 串行连接器 34 内部 BMC 串行控制台连接器
35 BMC 管理端口 36 整合的 BMC 电缆连接器
37 NIC1 连接器 (RJ45) 38 NIC0 连接器 (RJ45)
39 系统识别指示灯

跳线和连接器 227
系统板 V1.2 连接器
图 5-6. 系统板 V1.2 连接器
1USB 连接器 (2)2PCIe x8 插槽 3 (夹层卡插槽)
3MicroSD 卡读取器 (内部 USB)
连接器
4低引脚数 (LPC) 调试连接器
5SGPIO 连接器 2 6SGPIO 连接器 1
7小型 SAS 连接器 0 8板载 SATA 连接器 4
9板载 SATA 连接器 5 10 系统电池
11 用于 CPU1 的 DIMM 插槽
DIMMA3 插槽
DIMMA4 插槽
DIMMA7 插槽
DIMMA8 插槽
12 CPU1 插槽
13 用于 CPU2 的 DIMM 插槽
DIMMB1 插槽
DIMMB2 插槽
DIMMB5 插槽
DIMMB6 插槽
14 I2C 连接器
15 主电源连接器 16 内部硬盘驱动器插入器
17 前面板连接器 1 18 内部串行连接器
19 小型 SAS 连接器 1 20 板载 SATA 连接器 5
21 板载 SATA 连接器 4 22 PCIe x16 插槽 4 (背面 GPGPU)
12347910 11 13
12 15
16
17
18
24252628293031
32
33
35
36
37
38
39
22
19
20
21
23
65 14
8
34
27

228 跳线和连接器
23 电源连接器插入器 24 CPU2 插槽
25 用于 CPU2 的 DIMM 插槽
DIMMB3 插槽
DIMMB4 插槽
DIMMB7 插槽
DIMMB3 插槽
26 用于 CPU1 的 DIMM 插槽
DIMMA1 插槽
DIMMA2 插槽
DIMMA5 插槽
DIMMA6 插槽
27 LAN LED 连接器 28 PCIe x16 插槽 1
29 PCIe x16 插槽 2 30 NCSI 连接器
31 电源按钮 /开机指示灯 32 VGA 连接器
33 串行连接器 34 内部 BMC 串行控制台连接器
35 BMC 管理端口 36 整合的 BMC 电缆连接器
37 NIC1 连接器 (RJ45) 38 NIC0 连接器 (RJ45)
39 系统识别指示灯

跳线和连接器 229
扩展卡提升板连接器
图 5-7. 扩展卡提升板连接器
1PCIe x16 插槽 5
1

跳线和连接器 231
插入器延长器 V1.1 连接器
图 5-9. 插入器延长器 V1.1 连接器
MicroSD 卡读取器连接器
图 5-10. MicroSD 卡读取器连接器
1SATA 连接器 4 2 2 针电源连接器
3SATA 连接器 5 4IPMB 连接器
5SGPIO 连接器
1MicroSD 卡读取器电缆连接器 2MicroSD 卡连接器
13
4
5
2
12

232 跳线和连接器
节点配电板连接器
图 5-11. 节点配电板连接器
1电源 /节流连接器 2I2C 连接器
312V S2 电源连接器 4HDD1 电源连接器
5电源连接器 6HDD3 电源连接器
7HDD2 电源连接器 8系统板电源连接器
912V S1 电源连接器 10 远程传感器连接器
11 硬盘驱动器 LED 指示灯连接器 12 系统板控制连接器
13 LAN 直通连接器

获得帮助 233
获得帮助
联系 Dell
注:如果没有可用的 Internet 连接,您可以在购货发票、装箱单、帐单或
Dell 产品目录上查找联系信息。
Dell 提供了几种联机以及电话支持和服务选项。可用性会因所在国家和地
区以及产品的不同而有所差异,您所在的地区可能不提供某些服务。有关
销售、技术支持或客户服务问题,请与 Dell 联系:
1
请访问
dell.com/support
。
2
选择您的支持类别。
3
在页面顶部的 “
Choose A Country/Region
”(选择国家
/
地区)下拉式
菜单中,确认您所在的国家或地区。
4
根据您的需求,选择相应的服务或支持链接。

234 获得帮助

ŒƒºžŒª÷У½ E:\!Projects\!DELL\2014\!C40370220\DTP\ZH-CN_ok\C8220_HOM_bk0IX.fm
索引 235
索引
B
BMC 操作模式
非中央独立模式 , 16
非中央综合模式 , 17
BMC 管理电缆
安装 , 194-195
卸下 , 193-194
D
Dell
联系 , 233
I
Infiniband 夹层卡
安装 , 179
卸下 , 176-179
IPMI 命令列表 , 130
M
MicroSD 卡
安装 , 151
卸下 , 150
MicroSD 卡读取器
安装 , 184-185
卸下 , 183-184
MicroSD 卡读取器支架
安装 , 186
卸下 , 185
N
NPDB
安装 , 196
卸下 , 195
R
RAID 电池
安装 , 172
卸下 , 171
RAID 控制器卡
安装 , 170
卸下 , 169
Z
安全 , 205
安装
BMC 管理电缆 , 194-195
Infiniband 夹层卡 , 179
MicroSD 卡, 151
MicroSD 卡读取器 , 184-185
MicroSD 卡读取器支架 , 186
NPDB, 196

ŒƒºžŒª÷У½ E:\!Projects\!DELL\2014\!C40370220\DTP\ZH-CN_ok\C8220_HOM_bk0IX.fm
236 索引
RAID 电池 , 172
RAID 控制器卡 , 170
背面机盖 , 154
插入器延长器 , 192
处理器 , 161-162
单幅底座挡片 , 148
底座 , 147
扩展卡 , 168
扩展卡提升板 , 176
冷却导流罩 , 155
内存模块 , 166
散热器 , 157
散热器挡片 , 159
双幅底座挡片 , 149
系统板 , 202
系统电池 , 198
以太网夹层卡 , 182
硬盘驱动器 , 189
硬盘驱动器托架 , 191
硬盘驱动器托盘 , 188
正面机盖 , 152
背面机盖
安装 , 154
卸下 , 153
插入器延长器
安装 , 192
类型 , 230
连接器 , 230
卸下 , 191
处理器
安装 , 161-162
卸下 , 160-161
单幅底座挡片
安装 , 148
卸下 , 147
底座
安装 , 147
卸下 , 146
正面功能部件 , 12
底座正面功能部件 , 12
电源管理设置 , 139
服务标签 , 22
功能部件
前面板 , 12
故障排除
RTC 电池 , 216
USB 设备 , 206
处理器 , 214
串行设备 , 207
存储控制器 , 212
电源底座 , 209
扩展卡 , 213
视频 , 206
受潮机柜 , 208
受损机柜 , 209
外部连接 , 206
系统板 , 215
系统板型号 , 215
系统内存 , 210
硬盘驱动器 , 211
关于系统 , 11
管理界面 , 16
开机自测错误代码 , 23
控制台重定向
配置 , 49
扩展卡
安装 , 168
卸下 , 167

ŒƒºžŒª÷У½ E:\!Projects\!DELL\2014\!C40370220\DTP\ZH-CN_ok\C8220_HOM_bk0IX.fm
索引 237
扩展卡提升板
安装 , 176
连接器 , 229
卸下 , 175
冷却导流罩
安装 , 155
卸下 , 154
连接器
插入器延长器 , 230
扩展卡提升板 , 229
系统板 , 224
命令行界面 , 99
内存模块 (DIMM)
安装 , 166
安装原则 , 162
配置 , 163-164
卸下 , 165
散热器
安装 , 157
卸下 , 156
散热器挡片
安装 , 159
卸下 , 158
双幅底座挡片
安装 , 149
卸下 , 149
系统板
安装 , 202
类型 , 219
连接器 , 224
跳线设置 , 220
卸下 , 199
系统传感器概览 , 41
系统电池
安装 , 198
卸下 , 197
系统功能
访问 , 11
系统日志
请参阅系统设置屏幕
系统设置
BMC LAN 配置 , 90
CPU 配置 , 68
iSCSI 远程引导 , 81, 91
PCI 插槽配置 , 83
PCI 配置 , 77
PSU 配置边界 , 63
SATA 配置 , 75
USB 配置 , 84
安全保护设置 , 86
电源管理 , 58
功率上限 , 64
活动状态电源管理配置 , 82
机箱 PSU 配置 , 62
机箱电源管理 , 60
紧急节流 , 67
内存配置 , 72
嵌入式网络设备 , 79
预先访存配置 , 71
远程访问配置 , 92
系统设置程序
进入 , 48
系统设置菜单 , 47
一般帮助 , 48
系统设置屏幕
安全保护 , 86
服务器 , 88

ŒƒºžŒª÷У½ E:\!Projects\!DELL\2014\!C40370220\DTP\ZH-CN_ok\C8220_HOM_bk0IX.fm
238 索引
高级 , 57
退出 , 97
引导 , 96
主, 54
卸下
BMC 管理电缆 , 193-194
Infiniband 夹层卡 , 176-179
MicroSD 卡, 150
MicroSD 卡读取器 , 183-184
MicroSD 卡读取器支架 , 185
NPDB, 195
RAID 电池 , 171
RAID 控制器卡 , 169
背面机盖 , 153
插入器延长器 , 191
处理器 , 160-161
单幅底座挡片 , 147
底座 , 146
扩展卡 , 167
扩展卡提升板 , 175
冷却导流罩 , 154
内存模块 , 165
散热器 , 156
散热器挡片 , 158
双幅底座挡片 , 149
系统板 , 199
系统电池 , 197
以太网夹层卡 , 180-182
硬盘驱动器 , 188
硬盘驱动器托架 , 190
硬盘驱动器托盘 , 187
正面机盖 , 151
以太网夹层卡
安装 , 182
卸下 , 180-182
硬盘驱动器
安装 , 189
卸下 , 188
硬盘驱动器托架
安装 , 191
卸下 , 190
硬盘驱动器托盘
安装 , 188
卸下 , 187
正面机盖
安装 , 152
卸下 , 151
指示灯
NIC, 14
电源 , 13
前面板 , 12
系统标识 , 13
指示灯代码
电源和系统板 , 20














