Desa Tech 80 Fac Owners Manual 80fac
2014-07-19
: Desa-Tech Desa-Tech-80-Fac-Owners-Manual desa-tech-80-fac-owners-manual desa-tech pdf
Open the PDF directly: View PDF
.
Page Count: 11

STOP
QUESTIONS?
MISSING / DAMAGED PARTS
Please do not return this product to the store.
If a part is damaged or missing, simply e-mail us at
php@allpro-heaters.com, or visit our website at
http://allpro-heaters.com, or call our Customer
Service Department at (888) 619-7060.
We will be happy to assist you!
You can register your heater on line at
http://allpro-heaters.com/warranty.
© 2002 Scheu Products Company
OWNERS MANUAL
FORCED AIR PROPANE CONSTRUCTION HEATERS
Model
80-FAC
RETAIN THESE INSTRUCTIONS FOR FUTURE REFERENCE
TABLE OF CONTENTS
HEATER SPECIFICATIONS................................................................................................................ 2
WARNINGS .................................................................................................................................. 2
OPERATING PRECAUTIONS ............................................................................................................. 3
SAFETY PRECAUTIONS .................................................................................................................... 3
ODOR FADE WARNING ...................................................................................................................... 4
OPERATING INSTRUCTIONS ............................................................................................................ 5
SERVICING ......................................................................................................................................... 5
SIZE AND CAPACITY OF PROPANE CYLINDERS REQUIRED ....................................................... 6
WIRING DIAGRAMS ............................................................................................................................ 7
80-FAC - PARTS .................................................................................................................................. 8
WARRANTY......................................................................................................................................... 9
SERVICE CENTERS .......................................................................................................................... 9
INSTRUCTIONS FOR ORDERING PARTS ........................................................................................ 9
WARRANTY REGISTRATION ...........................................................................................................10

Page -3-
GENERAL HAZARD WARNING:
FAILURE TO COMPLY WITH THE PRECAUTIONS AND INSTRUCTIONS PROVIDED WITH THIS HEATER, CAN RESULT IN
DEATH, SERIOUS BODILY INJURY AND PROPERTY LOSS OR DAMAGE FROM HAZARDS OF FIRE, EXPLOSION, BURN,
ASPHYXIATION, CARBON MONOXIDE POISONING, AND/OR ELECTRICAL SHOCK.
ONLY PERSONS WHO CAN UNDERSTAND AND FOLLOW THE INSTRUCTIONS SHOULD USE OR SERVICE THIS HEATER.
IF YOU NEED ASSISTANCE OR HEATER INFORMATION SUCH AS AN INSTRUCTIONS MANUAL, LABELS, ETC. CONTACT
THE MANUFACTURER.
WARNING: FIRE, BURN, INHALATION, AND EXPLOSION HAZARD. KEEP SOLID COMBUSTIBLES, SUCH AS
BUILDING MATERIALS, PAPER OR CARDBOARD, A SAFE DISTANCE AWAY FROM THE HEATER AS RECOMMENDED
BY THE INSTRUCTIONS NEVER USE THE HEATER IN SPACES WHICH DO OR MAY CONTAIN VOLATILE OR AIRBORNE
COMBUSTIBLES, OR PRODUCTS SUCH AS GASOLINE, SOLVENTS, PAINT THINNER, DUST PARTICLES OR UNKNOWN
CHEMICALS.
HEATER SPECIFICATIONS
Type of Gas: For use with Propane Only
Gas Supply Pressure
to regulator Maximum: Bottle Pressure Minimum: 5 psig (34.5 kPa)
regulator out 11"WC (2.74 kPa)
Electrical Input: 115V, 60 Hz, 1Ø, 3a Minimum Operating Voltage: 100V
Ignition: Direct Spark, interrupted type
Primary Flame Control: Solid State, 10-15 Second Timing
High Temperature Control: 240°F (116°C) Minimum Ambient Temp. Rating 0°F (-17.8°C)
Model: 80-FAC
Rating: 80,000 BTU/hr
(23.4 kW)
Fuel Consumption: 3.7 #/hr
(1.68 kg/hr)
Fuel Orifice Port No.: 18
Fuel Orifice Port Size: #69 Drill
Heated Air Output: 350 cfm
(9.91cmm)
Average Air Temp. Rise:
WARNING: NOT FOR HOME OR RECREATIONAL VEHICLE USE
WARNINGS
YOUR SAFETY IS IMPORTANT TO YOU AND TO OTHERS, SO PLEASE
READ THESE INSTRUCTIONS BEFORE YOU OPERATE THIS HEATER.
Scheu Products Company, Incorporated
Mail: P.O. Box 250, Upland, CA 91785
Plant: 8855 Baker Ave., Rancho Cucamonga, CA 91730
Telephone: 800-325-7057
www.scheuco.com
customerservice@scheuco.com 8694
September 2002ANSI Z83.7/CGA 2.14-2000
MODEL
80-FAC

Page -4-
OPERATING PRECAUTIONS
This is a propane, direct-fired, forced air heater. It's intended
use is primarily temporary heating of buildings under
construction, alteration or repair.
Propane is heavier than air. If propane leaks from a connection
or fitting, it sinks to the floor, collecting there with the
surrounding air, forming a potentially explosive mixture.
Obviously, propane leaks should be avoided, so set up the
propane supply with utmost care. Read enclosed Odor Fade
and Propane Sheet for additional information about detecting
propane leaks. Leak check new connections or reconnections
with a soap and water solution and follow all connection
instructions herein. Also, ask your propane dealer for advice on
the propane application and supply installation and ask him to
check it if there are any questions.
This heater was designed and certified for use as a
construction heater in accordance with ANSI Standard Z83.7/
CGA 2.14-2000. Check with your local fire safety authority if you
have any questions about your applications. Other standards
govern the use of fuel gases and heat producting products in
specific applications. Your local authority can advise you about
these.
Direct-Fired means that all of the combustion products enter the
heated space. Even though this heater operates very close to
100 percent combustion efficiency, it still produces small
amounts of carbon monoxide. Carbon monoxide (called CO) is
toxic. We can tolerate small amounts but not a lot. CO can build
up in a heated space and failure to provide adequate ventilation
could result in death. The symptoms of inadequate ventilation
are: headache dizziness
burning eyes and nose nausea
dry mouth or sore throat
So, be sure to follow advice about ventilation in these operating
instructions.
Forced Air means that a blower or fan pushes the air through
the heater. Proper combustion depends upon this air flow;
therefore, the heater must not be revised, modified or operated
with parts removed or missing. Likewise, safety systems must
not be circumvented or modified in order to operate the heater.
When the heater is to be operated in the presence of other
people the user is responsible for properly acquainting those
present with the safety precautions and instructions, and of
the hazards involved.
SAFETY PRECAUTIONS
1.Check the heater thoroughly for damage. DO NOT operate a
damaged heater.
2.DO NOT modify the heater or operate a heater which has
been modified from its original condition.
3.Use only propane gas.
4.Use only VAPOR WITHDRAWAL propane supply. If there is
any question about vapor withdrawal, ask your propane
dealer.
5.Mount the propane cylinders vertically (shutoff valve up).
Secure them from falling or being knocked over and protect
them from damage.
6.Locate propane containers at least (USA) 7 ft. (2.13m),
(Canada) 10 ft. (3m) from the heater and do not direct
exhaust toward containers.
7.IMPORTANT Use only the hose and regulator assembly
provided with the heater. Match the color stripe on the
hangtag attached to the hose assembly with the color on the
label located near the propane inlet fitting on the heater.
Inspect hose assembly before each use of the heater. If
there is excessive abrasion or wear, or hose is cut, replace
with hose assembly listed on parts list before using heater.
8.For indoor use only. Area must be well ventilated. Figure 1.
(also see "Operating Precautions").
9.If at any time gas odor is detected, IMMEDIATELY
DISCONTINUE operation until the source of gas has been
located and corrected. Read enclosed Odor fade and
Propane Sheet for additional information about detecting
propane leaks.
10. Install the heater such that is is not directly exposed to water
spray, rain and/or dripping water.
11. Maintain minimum clearance from normal combustible
material (like paper). Figure 2.
12. Due to the high surface and exhaust temperatures, adults
and children must observe clearances to avoid burns or
clothing ignition.
13. Operate only on a stable, level surface.
14. Do not use with ductwork. Do not restrict inlet or exit.
15. Use only the electrical power specified. The electrical
connection and grounding must comply with National
Electrical Code - ANSI/NFPA 70 (USA) and CSA C22.1
Canadian Electrical Code, Part 1 (Canada).
16. Use only a properly grounded 3-prong receptacle or
extension cord.
17. Do not move, handle or service while hot or burning.
18. Use only in accordance with local codes or, in the absence
of local codes, with the Standard for the Storage and
Handling of Liquefied Petroleum Gases ANSI/NFPA 58 and
CSA B149.1, Natural Gas and Propane Installation Code.
Figure 1
VENTILATION: Minimum openings required
Opening Opening
Heater near floor near ceiling
Infrared ............................................................... 1 ft2..................... 1 ft2
Convection (25-VC) ........................................... 1 ft2..................... 1 ft2
Convection (All others) ...................................... 2 ft2..................... 2 ft2
Radiant ................................................................ 2 ft2..................... 2 ft2
Forced air (30K-125K BTU/HR).......................... 1 ft2..................... 1 ft2
Forced air (150-FAST, SPC-150T) .................... 2 ft2..................... 2 ft2
Forced air (3500-FACV, SPC-350) .................... 3 ft2..................... 3 ft2
Forced air (7000-FACV) .................................... 4 ft2..................... 4 ft2
Figure 2
MINIMUM CLEARANCE: From normal combustible material
Radiant Forced Air
Clearance Infrared Convection Forced Air 7000-FACV
From floor ........................................................... 0 ft .............. 0 ft
From outlet .......................................................... 6 ft .............. 10 ft
From sides ................ 3 ft ............ 4 ft ............... 2 ft .............. 3 ft
From top ....................................... 6 ft ............... 3 ft .............. 5 ft
From front ................. 6 ft
From rear .................. 2 ft
Locate 10 ft. from canvas or plastic tarpaulins or similar coverings and
secure them to prevent flapping or movement due to wind action.
MODEL
80-FAC

Page -5-
ODOR FADE WARNING
FUEL GAS ODOR
LP gas and natural gas have man-made odorants added specifically for detection of fuel gas leaks.
If a gas leak occurs you should be able to smell the fuel gas. Since Propane (LP) is heavier than air you should smell for the gas
odor low to the floor. ANY GAS ODOR IS YOUR SIGNAL TO GO INTO IMMEDIATE ACTION!
• Do not take any action that could ignite the fuel gas. Do not
operate any electrical switches. Do not pull any power
supply or extension cords. Do not light matches or any other
source of flame. Do not use your telephone.
• Get everyone out of the building and away from the area
immediately.
• Close all propane (LP) gas tank or cylinder fuel supply
valves, or the main fuel supply valve located at the meter if
you use natural gas.
• Propane (LP) gas is heavier than air and may settle in low
areas. When you have reason to suspect a propane leak,
keep out of all low areas.
• Use your neighbor’s phone and call your fuel gas supplier
and your fire department. Do not re-enter the building or
area.
• Stay out of the building and away from the area until
declared safe by the firefighters and your fuel gas supplier.
• FINALLY, let the fuel gas service person and the firefighters
check for escaped gas. Have them air out the building and
area before you return. Properly trained service people must
repair any leaks, check for further leakages, and then relight
the appliance for you.
ODOR FADING - NO ODOR DETECTED
• Some people cannot smell well. Some people cannot smell
the odor of the man-made chemical added to propane (LP)
or natural gas. You must determine if you can smell the
odorant in these fuel gases.
• Learn to recognize the odor of propane (LP) gas and natural
gas. Local propane (LP) gas dealers will be more than
happy to give you a scratch and sniff pamphlet. Use it to
become familiar with the fuel gas odor.
• Smoking can decrease your ability to smell. Being around
an odor for a period of time can affect your sensitivity to that
particular odor. Odors present in animal confinement
buildings can mask fuel gas odor.
•The odorant in propane (LP) gas and natural gas is
colorless and the intensity of its odor can fade under
some circumstances.
• If there is an underground leak, the movement of gas
through the soil can filter the odorant.
• Propane (LP) gas odor may differ in intensity at different
levels. Since Propane (LP) gas is heavier than air, there
may be more odor at lower levels.
• Always be sensitive to the slightest gas odor. If you
continue to detect any gas odor, no matter how small, treat it
as a serious leak. Immediately go into action as discussed
previously.
ATTENTION - CRITICAL POINTS TO REMEMBER!
• Propane (LP) gas has a distinctive odor. Learn to recognize
these odors. (Reference Fuel Gas Odor and Odor Fading
sections above.
• Even If you are not property trained in the service and repair
of the heater, ALWAYS be consciously aware of the odors of
propane (LP) gas and natural gas.
• If you have not been properly trained in repair and service of
propane (LP) gas then do not attempt to light heater,
perform service or repairs, or make any adjustments to the
heater on the propane (LP) gas fuel system.
heater dataplate, or contact the Scheu Products Company to
determine combustion air ventilation requirements of the
heater.
• Lack of proper ventilation air will lead to improper
combustion.
• Improper combustion can lead to carbon monoxide
poisoning leading to serious injury or death. Symptom of
carbon monoxide poisoning can include headaches
dizziness and difficulty in breathing.
WARNING
Asphyxiation Hazard
• Do not use this heater for heating human living quarters.
• Do not use in unventilated areas.
• The flow of combustion and ventilation air must not be
obstructed.
• Proper ventilation air must be provided to support the
combustion air requirements of the heater being used.
• Refer to the specification section of the heater’s manual,
• A periodic sniff test around the heater or at the heater’s
joints; i.e. hose, connections, etc., is a good safety practice
under any conditions. If you smell even a small amount of
gas, CONTACT YOUR FUEL GAS SUPPLIER IMMEDIATELY.
DO NOT WAIT!
Page -6-
OPERATING INSTRUCTIONS
PREPARING FOR OPERATION
1.Check the heater for possible shipping damage. If any is
found, immediately notify the factory.
2.Follow all of the "Precautions".
3.Connect the POL fitting of hose and regulator assembly to
the propane cylinder by rotating the POL nut
counterclockwise into the propane cylinder's valve outlet and
securely tighten with a wrench.
4.Connect the hose to the heater by rotating the hose fitting
clockwise.
5.Securely tighten all gas connections.
6.Open the cylinder's gas valve and check all gas connections
with a soap and water solution. DO NOT USE A FLAME.
7.Connect power cord to well-grounded 115V, 60 Hz, 1Ø
source of power.
8.When using an extension cord, make certain that it is a 3-
wire (grounded) cord of proper wire size.
START
1.Slowly open the main valve at propane cylinder.
2.Turn the toggle switch to the "on" position and heater will
ignite automatically.
STOP
1.Securely close valve on the propane cylinder.
2.Continue to operate heater until all fuel in the hose has
burned.
3.Turn the toggle switch to the "off" position.
RESTART AFTER SAFETY SHUTDOWN
1.Securely close valve at propane cylinder. Unplug heater.
2.Wait 5 minutes.
3.Restart following "Start" procedure.
MAINTENANCE AND STORAGE
1.The heater should be inspected before each use, and at
least annually by a qualified person.
2.Before each use, check the soft "O" ring seat at the bullnose
of the POL fitting. If the "O" ring is cut, scuffed, or otherwise
damaged, replace it with part number 6681.
3.Turn off the gas at the LP-gas supply cylinder(s) when the
heater is not in use.
4.When the heater is to be stored indoors, the connection
between the LP-gas supply cylinder(s) and the heater must
be disconnected and the cylinder(s) removed from the
heater and stored out of doors and in accordance with
Chapter 5 of the standard for Storage and Handling of
Liquefied Petroleum Gases ANSI/NFPA 58 and CSA B149.1,
Natural Gas and Propane Installation Code.
SERVICING
A hazardous condition may result if a heater is used that has
been modified or is not functioning properly. When the heater is
working properly:
* The flame is contained within the heater.
* The flame is essentially blue with perhaps some yellow
tipping.
* There is no strong disagreeable odor, eye burning or other
physical discomfort.
* There is no smoke or soot internal or external to the heater.
* There are no unplanned or unexplained shut downs of the
heater.
The parts lists and wiring diagram show the heater as it was
constructed. Do not use a heater which is different from that
shown. In this regard, use only the hose, regulator and cylinder
connection fitting (called a POL fitting) supplied with the heater.
IMPORTANT Match the color stripe on the hangtag attached to
the hose assembly with the color on the label located near the
propane inlet fitting on the heater. Do not use alternates. For
this heater, the regulator must be set as shown in
"specifications". If there is any uncertainty about the regulator
setting, have it checked.
A heater which is not working right must be repaired, but only by
a trained, experienced service person. To find the service center
closest to you, visit our website at www.scheuco.com.or call
(888) 619-7060.
You may also obtain in-warranty or out-of-warranty service by
taking the product to your local service center.
In-warranty products will be repaired with no charge for either
parts or labor. Please include a brief statement indicating date,
place of purchase, the nature of the problem and proof of
purchase.
Out-of-warrranty products will be repaired with a charge for
parts and labor.
MODEL
80-FAC

Page -7-
TECHNICAL INFORMATION
HOW MUCH HEAT DO I REQUIRE?
For economy, it is important to match input to that
required. But heat requirements often vary. For example,
it usually takes a lot more heat to get things warm than it
does to keep them that way. Likewise, outside air
temperature ususally changes during the day so you may
need more heat at night than you do in the daytime. An
approximation of the heat required can be found by using
the chart below.
Cubic feet Temperature Rise Required (oF)*
of space to
be heated 20o30o40o50o
5,000 14,000 20,000 27,999 34,000
7,000 19,000 28,000 38,000 47,000
10,000 27,000 40,000 54,000 67,000
15,000 40,000 60,000 80,000 100,000
20,000 54,000 80,000 107,000 133,000
30.000 80,000 120,000 160,000 200,000
50,000 133,000 200,000 266,000 333,000
WARNING: When using a thermostat the heater exit area
should be protected from personnel and warnings posted
of sudden startup.
Recommended Minimum Gauge for Cord Extensions
BTU'S PER HOUR REQUIRED
MODEL
80-FAC
Wire Gauge Chart A.W.G.
Name
Plate 120V Cord Length in Feet
Amps. 25 50 100 150
5-6 18 16 14 12
6-8 18 16 12 10
8-12 18 14 12 10
10-12 16 14 10 8
12-14 16 12 10 8
SIZE AND CAPACITY
OF PROPANE CYLINDERS
The chart below shows the approximate size of the
cylinder required for this heater. To use the chart:
1. Select the lowest air temperature expected
(at the bottom of the chart).
2. Move straight up to time of operation desired
(left side of the chart).
3. Read the cylinder size required.
All heaters should have: Full cylinders
Good air circulation
No frost on cylinders

Page -8-
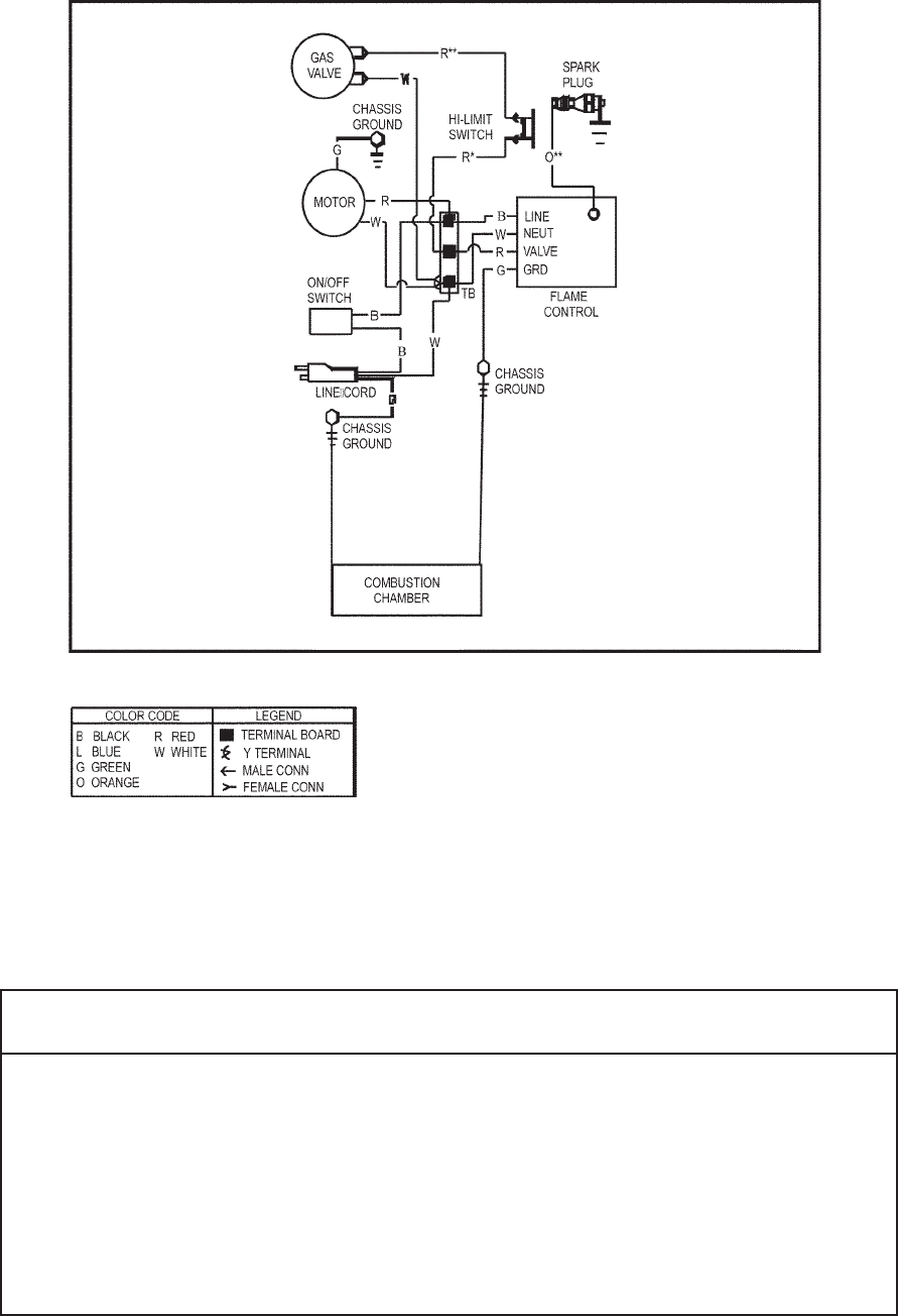
Wiring Diagram
If any original wiring as supplied with the heater must be replaced, it must be replaced with type AWG 105° C
wire or its equivalent except as indicated (*type SF2-200, **SGI 250° C).
WIRING CHART
PART
NO. COLOR LENGTH FROM TO
1100 White 7" Valve Terminal Block
1040 Black 6" On/Off Switch Terminal Block
1226 Red (Hi-Temp) 16 1/2" High Limit Switch Valve
1226 Red (Hi-Temp) 16 1/2" High Limit Switch Terminal Block
1070 Orange 11" Flame Control (Ignition) Spark Plug
1959 Green 7" Flame Control (Harness) Ground
1959 Red 7" Flame Control (Harness) Terminal Block
1959 White 6" Flame Control (Harness) Terminal Block
1959 Black 6" Flame Control (Harness) Terminal Block
MODEL
80-FAC

Page -9-
Item Part No. Description Qty.
80-FAC - PARTS
Item Part No. Description Qty.
1 1671 Grill, Motor Mounting 1
2 1551 Motor Assembly 1
3 6086 Fan, 7" 1
4 7094 Handle Mounting Clip 2
5 7095 Handle, SPC Heaters 1
6 6383 Label, Universal Logo 2
7 1730 Cylinder, Outer Assembly 1
8 1550 Hi-Limit Control Assembly 1
9 1755 Orifice, LP Assembly 1
10 1674 Cylinder, Middle Assembly 1
11 6152 Hose Assembly, LP 1
12 6122 Fitting, Male Connector 1
13 6100 Solenoid Valve 1
14 6143 Fitting, Male Connector 1
15 1742 Fuel Assembly Tube 1
16 6170 Toggle Switch 1
17 1083 Spark Plug 1
18 3037 Spark Plug Nut 3
19 7808 Flame Control 1
20 7433 Fitting, Male Elbow 1
21 3038 Orifice Mounting Nut 1
22 1750 Flame Holder Assembly 1
23 6255 Regulator, 11" W.C. 1
24 6433 POL, Excess Flow Check Valve 1
25 1036 Power Cord 1
26 6223 Strain Relief Bushing 1
27 1744 Control Box Assembly 1
* 8694 Manual, Operating Instructions 1
* 7500 Label, Model, Operating Instructions 1
* 7065 Label, BTU Rating 80,000 2
* 6422 Label, On/Off Switch 1
* 6374 Label, Electric Ground 1
* 7295 Label, Wiring Diagram 1
* 7510 Label, Model 1
* 7505 Parts List/Wiring Diagram 1
*Not shown on exploded view

Page -10-
WARRANTY
We are pleased that you have selected our product and take
this opportunity to assure you that qualified service facilities are
available if required. With the cooperation of independent
dealers, a nationwide network of authorized servicing dealers is
available for your servicing requirements.
Should your product require servicing, read the section of the
manual entitled “Servicing”.
Who gets the warranty? The warranty is limited to the consumer
who originally purchases the product.
What is covered? This limited warranty covers all imperfections
in workmanship and material.
What is not covered? This limited warranty does not cover
damage resulting from accident, misuse or abuse, lack of
proper maintenance, affixing of any attachments not provided
with the products, or loss of parts. IN NO EVENT SHALL
SCHEU PRODUCTS COMPANY BE LIABLE FOR ANY SPECIAL,
INCIDENTAL OR CONSEQUENTIAL DAMAGES NOR FOR ANY
DAMAGES RESULTING FROM MISUSE OR MODIFICATION OF
THIS PRODUCT.
Registering this heater within 10 days of date of purchase
ensures the buyer the protection as stated on our limited
warranty form.
LIMITED WARRANTY
The company warrants this product to be free from
imperfections in material or workmanship, under normal and
proper use in accordance with instructions of The Company, for
a period of one year from the date of delivery to the buyer. The
Company, at its option, will repair or replace (f.o.b. factory,
California) products returned by the buyer to the factory,
California, transportation prepaid within said one year period
and found by the Company to have imperfections in material or
workmanship.
If a part is damaged or missing, simply e-mail us at
php@scheuco.com, visit our website at scheuco.com, or call
our Technical Support Department at (888) 619-7060.
Address any Warranty Claims to the Customer Service
Department, Scheu Products Company, Incorporated, P.O. Box
250, Upland, California 91785, or e-mail us at
php@scheuco.com. Include your name, address and telephone
number and include details concerning the claim. Also, supply
us with the purchase date and the name and address of the
dealer from whom you purchased our product.
The foregoing is the full extent of the responsibility of the
Company. There are no other warranties, express or implied.
Specifically there is no warranty of fitness for a particular
purpose and there is no warranty of merchantability. In no event
shall the Company be liable for delay caused by imperfections,
for consequential damages, or for any charges of the expense
of any nature incurred without its written consent. The cost of
repair or replacement shall be the exclusive remedy for any
breach of warranty. There is no warranty against infringement of
the like and no implied warranty arising from course of dealing
or usage of trade. This warranty will not apply to any product
which has been repaired or altered outside of the California
factory in any respect which in our judgment affects its condition
or operation.
Some states do not allow the exclusion or limitation of
incidental or consequential damages, so the above limitation or
exclusion may not apply to you. This Warranty gives you specific
legal rights, and you may have other rights which vary from state
to state.
SERVICE CENTERS
Scheu Products Company has over 1,000 service centers
throughout North America. Call (888) 619-7060 or email
php@scheuco.com to request the service center nearest you.
Include the Make and model of your heater in any emails.
INSTRUCTIONS FOR ORDERING PARTS
We recommend that only parts supplied by the manufacturer be
used on this unit. A locally purchased part may appear to be
identical, although in reality it might endanger the heater or the
persons operating the heater.
The heater should be serviced only by a trained, experienced
service person.
Read the section on "Servicing" before ordering parts.
For parts orders, call 888-619-7060 or e-mail us at
php@scheuco.com. Please have the model number of your
heater and the replacement part number when placing your
order.
MODEL
80-FAC

Page -11-
Warranty Registration
First Name
Hand print only. Use black or blue ink pen to fill in this form. Cross or check inside the circle.
Your Information
Last name
Postal code
State
City
Mailing Address
E-mail Address
Product Information
State
Date of Purchase (MM/DD/YY)
Store Name City
Cost of Heater ($)
-
/ /
Annual house hold income before tax <$9,999 $10,000 to $19,999 $20,000 to $34,999 $20,000 to $34,999 >$50,000
Age of Purchaser 20-29 years 30-39 years 40-49 years 50-59 years >60 years<20 years
S/N (Located on a silver label on heater)
-
Model Number (Located on a black and white label on heater)
Brand Name All Pro Universal National Riverside
Store Information where heater was purchased
Type of Store Hardware Home Center Warehouse Retailer Discount Store Farm Supply Contractor’s Supply Other
Your Preferences
How did you learn
about our heater?
Advertising Relative/friend
Store display Previously owned heater
Other
What prompted you to
buy your heater?
Sudden cold weather Emergency backup heat
Heater on sale
Replaces old model Hard to heat location
Construction project
Other
Where will you use the
heater?
Construction site Warehouse
Shop Patio
Other
Who selected the heater? Male Female Both
Heater will be used by? Individual Business
In choosing your heater the following categories
were:
Important
Somewhat
Important Very
Important
Features
Portability
Price
Quality
Heat Output
Warranty
Serviceability
Ease of use
Fuel economy
Size
Registering this heater within 10 days of purchase ensures the buyer the protection as stated on our limited warranty form.
Fold Here
Fold Here

Page -12-
Visit our website for product information, technical support, customer service, and warranty registration at:
WWW.ALLPRO-HEATERS.COM for All-Pro products or WWW.UNVERISAL-HEATERS.COM for Universal products.
SCHEU PRODUCTS COMPANY, INC
ATTN: MARKETING DEPARTMENT
8855 BAKER AVENUE
RANCHO CUCAMONGA, CA 91730