Desa Fsdvbnc Users Manual 107304 01
(F)SDVBNC to the manual 752610b1-bf43-0b14-cdec-f77662c84910
2015-02-04
: Desa Desa-Fsdvbnc-Users-Manual-512826 desa-fsdvbnc-users-manual-512826 desa pdf
Open the PDF directly: View PDF
.
Page Count: 42
- TABLE OF CONTENTS
- Safety information
- Product identification
- local codes
- product Features
- glossary of terms
- Pre-Installation Preparation
- Cast Iron Stove and Direct-Vent
- general venting
- Venting Installation
- Stove and Direct-Vent Burner System
- OPERATIng STove With Burner System
- INSPECTING BURNERS
- CLEANING AND MAINTENANCE
- TROUBLESHOOTING
- REPLACEMENT PARTS
- TECHNICAL SERVICE
- WIRING DIAGRAM
- SERVICE HINTS
- specifications
- accessories
- ILLUSTRATED PARTS BREAKDOWN and
- PARTS LIST

NATURAL GAS BURNER SYSTEM MODEL (F)SDVBNC
PROPANE/LP GAS BURNER SYSTEM MODEL (F)SDVBPC
REMOTE READY
FOR YOUR SAFETY
WHAT TO DO IF YOU SMELL GAS
• Do not try to light any appliance.
• Do not touch any electrical switch
• Do not use any phone in your building.
• Immediately call your gas supplier from a neighbor’s
phone. Follow the gas supplier’s instructions.
• If you cannot reach your gas supplier, call the fire
department.
WARNING: Improper installation,
adjustment, alteration, service, or
maintenance can cause injury or
property damage. Refer to this
manual for correct installation and
operational procedures. For assis-
tance or additional information con-
sult a qualified installer, service
agency, or the gas supplier.
WARNING: If the information in this manual is not fol-
lowed exactly, a fire or explosion may result causing
property damage, personal injury, or loss of life.
FOR YOUR SAFETY
Do not store or use gasoline or other flammable vapors
and liquids in the vicinity of this or any other appliance.
— Installation and service must be
performed by a qualified installer,
service agency, or the gas supplier.
IMPORTANT: This direct-vent burner system must be installed into approved cast iron stove
bodies, models SCIVFC/PSCIVFC series and PFC series ONLY.
This appliance may be installed in an aftermarket*, permanently located manufactured (mo-
bile) home, where not prohibited by state or local codes.
—
This appliance is only for use with
the type of gas indicated on the rating
plate. This appliance is not convertible
for use with other gases, unless a
certified kit is used.
* Aftermarket: Completion of sale, not for purpose of resale, from the manufacturer.
TM
CAST IRON STOVE AND DIRECT-VENT
(FREESTANDING FIREPLACE HEATER)
BURNER SYSTEM
OWNER’S OPERATION AND INSTALLATION MANUAL
Save this manual for future reference.
Save this manual for future reference.
For more information, visit www.desatech.com
For more information, visit www.desatech.com
SCIVFC/PSCIVFC
SERIES STOVE PFC SERIES
STOVE

107304
For more information, visit www.desatech.com
For more information, visit www.desatech.com
2
SAFETY INFORMATION
IMPORTANT: Read this owner’s manual carefully
and completely before trying to assemble, operate, or
service this stove and burner system. Improper use
of this stove and burner system can cause serious
injury or death from burns, fire, explosions, electrical
shock, and carbon monoxide poisoning.
WARNINGS
1. This appliance is only for use with the type of gas indicated on
the rating plate. This appliance is not convertible for use with
other gases unless a certified kit is used.
2. For propane/LP burner system, do not place propane/LP supply
tank(s) inside any structure. Locate propane/LP supply tank(s)
outdoors. To prevent performance problems, do not use pro-
pane/LP fuel tank of less than 100 lbs. capacity.
3. If you smell gas
• shut off gas supply
• do not try to light any appliance
• do not touch any electrical switch; do not use any phone in
your building
• immediately call your gas supplier from a neighbor’s phone.
Follow the gas supplier’s instructions
• if you cannot reach you gas supplier, call the fire department.
4. Never install the stove
• in a recreational vehicle
• where curtains, furniture, clothing, or other flammable ob-
jects are less than 42" from the front, top, or sides of the stove
• in high traffic areas
• in windy or drafty areas
5. This stove reaches high temperatures. Keep children and adults
away from hot surfaces to avoid burns or clothing ignition. Stove
will remain hot for a time after shut-down. Allow surfaces to
cool before touching.
6. Carefully supervise young children when they are in the room
with stove.
WARNING: Any change to this stove or burner
system or its controls can be dangerous.
DANGER: Carbon monoxide poisoning may lead
to death!
This appliance complies with the current ANSI Z21.88 and CSA 2.33
as a Vented Gas Fireplace Heater and is listed and tested by the
Canadian Standards Association to the above test standards. This stove
with burner system is a vented product. This stove with burner system
will not produce any gas leakage into your home if properly installed.
This stove with burner system must be properly installed by a qualified
service person. The glass door must be properly seated and sealed. If this
unit is not properly installed by a qualified service person with glass
door properly seated and sealed, gas leakage can occur.
Carbon Monoxide Poisoning: Early signs of carbon monoxide poison-
ing resemble the flu, with headaches, dizziness, or nausea. If you have
these signs, the stove may not have been installed properly. Get fresh air
at once! Have stove inspected and serviced by a qualified service person.
Some people are more affected by carbon monoxide than others. These
include pregnant women, people with heart or lung disease or anemia,
those under the influence of alcohol, and those at high altitudes.
Propane/LP gas and natural gas are both odorless. An odor-making
agent is added to each of these gases. The odor helps you detect a gas
leak. However, the odor added to these gases can fade. Gas may be
present even though no odor exists.
TABLE OF CONTENTS
SAFETY INFORMATION
TABLE OF CONTENTS
SAFETY INFORMATION ........................................................... 2
PRODUCT IDENTIFICATION ..................................................... 3
LOCAL CODES........................................................................... 4
PRODUCT FEATURES .............................................................. 4
GLOSSARY OF TERMS ............................................................. 4
PRE-INSTALLATION PREPARATION ........................................ 4
CAST IRON STOVE AND DIRECT-VENT
BURNER SYSTEM ASSEMBLY ................................................. 5
GENERAL VENTING ................................................................ 10
VENTING INSTALLATION ........................................................ 12
STOVE AND DIRECT-VENT BURNER SYSTEM
INSTALLATION ......................................................................... 20
OPERATING STOVE WITH BURNER SYSTEM ...................... 26
INSPECTING BURNERS.......................................................... 28
CLEANING AND MAINTENANCE ............................................ 29
TROUBLESHOOTING .............................................................. 30
REPLACEMENT PARTS .......................................................... 33
TECHNICAL SERVICE ............................................................. 33
WIRING DIAGRAM ................................................................... 33
SERVICE HINTS....................................................................... 33
SPECIFICATIONS .................................................................... 34
ACCESSORIES ........................................................................ 35
ILLUSTRATED PARTS BREAKDOWN AND PARTS LIST ....... 36
WARRANTY INFORMATION ....................................... Back Page
Make certain you read and understand all warnings. Keep this
manual for reference. It is your guide to safe and proper operation
of this stove and burner system.

107304
For more information, visit www.desatech.com
For more information, visit www.desatech.com
3
3
P
I
L
O
T
L
O
H
I
OFF
ON
SAFETY INFORMATION
Continued
PRODUCT IDENTIFICATION
Figure 1 - DESA Direct-Vent Burner System Shown Installed in
Approved Cast Iron Stove Body (Vanguard Models SCIVFC/
PSCIVFC Series Shown)
7. Do not modify the burner or stove under any circumstances. Any
parts removed for servicing must be replaced prior to operating
stove or burner system.
8. Turn burner system off and let cool before servicing, installing, or
repairing. Only a qualified service person should install, service, or
repair the stove or burner system. Have burner system inspected
annually by a qualified service person.
9. You must keep control compartments, burners, and circulat-
ing air passages clean. More frequent cleaning may be needed
due to excessive lint and dust from carpeting, bedding mate-
rial, pet hair, etc. Turn off the gas valve and pilot light before
cleaning stove or burner system.
10. Have venting system inspected annually by a qualified service
person. If needed, have venting system cleaned or repaired.
See Cleaning and Maintenance, page 29.
11. Keep the area around your stove clear of combustible materi-
als, gasoline, and other flammable vapor and liquids. Do not
run burner system where these are used or stored. Do not place
items such as clothing or decorations on or around stove.
12. Do not use this stove to cook food or burn paper or other objects.
13. Never place anything on top of stove.
14. Do not use any solid fuels (wood, coal, paper, cardboard, etc.)
in this stove. Use only the gas type indicated on burner system
nameplate.
15. This appliance, when installed, must be electrically grounded
in accordance with local codes or, in the absence of local codes,
with the National Electrical Code, ANSI/NFPA 70, or the Ca-
nadian Electrical Code, CSA C22.1.
16. Do not obstruct the flow of combustion and ventilation air in
any way. Provide adequate clearances around air openings into
the combustion chamber along with adequate accessibility
clearance for servicing and proper operation.
17. Do not install stove directly on carpeting, vinyl tile, or any com-
bustible material other than wood. The stove must set on a metal
or wood panel extending the full width and depth of the stove.
18. Do not use stove or burner system if any part has been ex-
posed to or under water. Immediately call a qualified service
person to arrange for replacement of the unit.
19. Do not operate burner system if any log is broken.
20. Do not use a blower insert, heat exchanger insert, or other ac-
cessory not approved for use with this stove.
21. Do not operate burner system with glass door removed, cracked,
or broken.
22. Provide adequate clearances to air openings.
SAFETY INFORMATION
PRODUCT IDENTIFICATION
Cast Iron
Stove Body
Piezo Ignitor Control Valve
Log Set
Blower with
Adjustment
Knob (Optional
Installation)
Lava Rock
Pilot
Assy
Burner
Vent
Opening
Glass
Door Assy
Glowing
Embers
Grate Assembly
Rear
Cover
Cast Iron
Stove Body
ON/OFF
Switch
(Other
Side)

107304
For more information, visit www.desatech.com
For more information, visit www.desatech.com
4
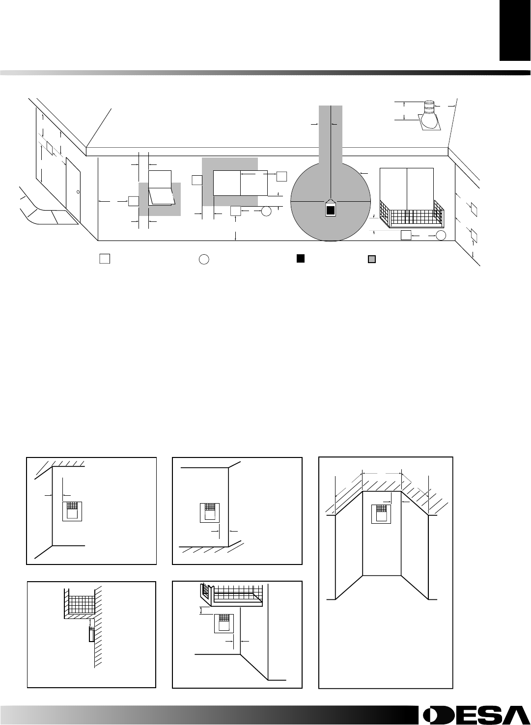
LOCATION AND SPACE REQUIREMENTS
Determine the safest and most efficient location for your cast iron
stove. Make sure that rafters and wall studs are not in the way of the
venting system. Choose a location where the heat output is not
affected by drafts, air conditioning ducts, windows, or doors. Figure
2 shows some common locations. Read all venting information in this
manual. Be aware of all restrictions and precautions before deciding
the exact location for your stove.
When deciding the location of your stove, follow these rules:
1. Do not connect this stove and burner system to a chimney flue
serving a separate solid-fuel burning fireplace or appliance.
2. Due to high temperatures, do not locate this stove in high traf-
fic areas or near furniture or draperies.
PRE-INSTALLATION
PREPARATION
On Wall with
Horizontal Termination
On Wall with Vertical
Termination Through Ceiling Corner Installation
Figure 2 - Common Stove Locations
WARNING: A qualified service person must in-
stall stove and burner system. Follow all local codes.
CAUTION: This stove creates warm air currents.
These currents move heat to wall surfaces next to
stove. Installing stove next to vinyl or cloth wall
coverings or operating stove where impurities (such
as, but not limited to, tobacco smoke, aromatic
candles, cleaning fluids, oil or kerosene lamps, etc.)
in the air exist, may discolor walls or cause odors.
LOCAL CODES
Install and use stove and burner system with care. Follow all local
codes. In the absence to local codes, use the current National Fuel
Gas Code ANS Z223.1/NFPA 54* (USA) or the current CSA-
B149[.1 or .2] Installation Codes (Canada).
*Available from:
American National Standards Institute, Inc.
1430 Broadway
New York, NY 10018
National Fire Protection Association, Inc.
Batterymarch Park
Quincy, MA 02269
PRODUCT FEATURES
OPERATION
This cast iron stove with burner system is clean burning and vents
easily through outside walls or vertically using outside air for
combustion. Heat is generated by both realistic flames and glowing
embers. When used without the blower accessory, the stove with
burner system requires no electricity making it ideal for emergency
backup heat.
PIEZO IGNITOR
This burner system has a piezo ignitor. This system requires no
matches, batteries, or other sources to light burner system.
GLOSSARY OF TERMS
Chase - A box-like enclosure to protect venting from the elements
when the venting run is on the outside of a structure.
Mastic - A pliable sealant for use around the vent terminal.
Snorkel Termination - A box that raises the horizontal termination
above ground level clearances.
Vent Termination - Mounted on an outside wall or roof to separate
the inlet and outlet of the vent system and protect it from weather.
Vinyl Siding Standoff - A metal box that separates the vent cap from
vinyl siding.
Wall Thimble/Firestop - A metal plate used to secure the vent pipe
when it passes through a wall or ceiling.
LOCAL CODES
PRODUCT FEATURES
Operation
Piezo Ignitor
GLOSSARY OF TERMS
PRE-INSTALLATION PREPARATION
Location and Space Requirements

107304
For more information, visit www.desatech.com
For more information, visit www.desatech.com
5
5
6
"
4
"
Front
4"
36"
from
Front
42"
Ceiling
Floor
from
Back
Wall
29"
4"
4"
Figure 3 - Clearances for Standard Installation
Figure 4 - Clearance for Corner Installation
Figure 5 - Stove With Burner System Bottom Dimensions
26 1/4"
19 1/2"
Front
3. Proper clearances must be maintained, see Figures 3 and 4.
4. This stove is a freestanding unit designed to set directly on the
floor. If your stove is to be installed directly on carpeting, vi-
nyl tile, or any combustible material other than wood, it must
be installed on a metal or wood panel extending the full width
and depth of the stove. See Figure 5.
PRE-INSTALLATION
PREPARATION
Continued
STOVE BODY ASSEMBLY
1. Lift off corrugated box enclosing stove body crating.
2. Remove all screws fastening the wood frame enclosure. Spread
wood frame open and lift away from plastic-bagged stove body.
The bottom pieces of pallet wood will remain bolted to the
stove body.
3. Remove plastic bag from stove body.
4. Locate the product identification label on the back panel (see
figure 6) and record the model number and 7 digit serial num-
ber in the space provided in the back of this owner’s manual.
Retain this operation and installation manual for future refer-
ence and warranty.
5. Remove the six (6) bolts on the back stove panel with an ad-
justable wrench or a 10 mm socket. Discard the back panel
and retain the bolts and washers to attach the rear cover pro-
vided with the burner system.
Figure 6 - Removing Back Panel
Bolt
Product
Identification
Label
Back Stove
Panel
CAST IRON STOVE AND
DIRECT-VENT BURNER
SYSTEM ASSEMBLY
PRE-INSTALLATION PREPARATION
Location and Space Requirements (Cont.)
CAST IRON STOVE AND DIRECT-VENT BURNER SYSTEM ASSEMBLY
Stove Body Assembly (Cont.)
27"

107304
For more information, visit www.desatech.com
For more information, visit www.desatech.com
6
Figure 10 - Attaching Stove Legs
Bottom Of
Stove Unit
Leg
Bolt
Washers
6. Remove all contents from inside stove cavity. Contents include:
(1) - Stove bottom (Discard - Not used with this application)
(4) - Legs with leg leveler bolts
(1) - Bottom door
(3) - Top grates
(1) - Hardware kit bag with fasteners
7. Carefully lay stove body on back to attach bottom components to
stove body (see Figure 7). Rest stove on drop cloth or blanket to
avoid scratching stove edges.
8. Remove remaining pallet wood attached to bottom of stove
body (see Figure 8). Use an adjustable wrench to remove bolts.
9. Fasten each leg to stove with four (4) M8 x 1.25 - 20mm bolts.
Use a flat washer and lock washer with each bolt. Tighten bolts
into threaded holes on stove body (see Figures 9 and 10). Use
an adjustable wrench or a 12mm and 6mm socket.
10. Attach stove door by inserting step bolt through door hinge pivot
hole and into threaded hole in stove body (Figure 11 on page 7
and Figure 9). Use an adjustable wrench or a 12mm socket to
fasten step bolt. Tighten step bolt until snug. Make sure door
moves freely.
11. Install door catch bolt (M8 x 1.25-55mm with two M8 hex nuts)
into threaded hole on stove body (see Figure 9). Use an adjust-
able wrench or a 12mm socket. The catch bolt has two hex nuts
attached to it (see Figure 12, page 7). The top nut is a bolt stop
and the bottom nut is for door leveling adjustment.
12. Check general catch bolt alignment with door claw. Make
final adjustment and door leveling after stove is in normal
standing position.
13. Carefully lift stove back up on its four attached legs.
14. Remove 2 bolts from bottom of stove and discard. Remove
bolt from the top of the stove to remove the front panel assem-
bly (see Figure 13, page 7).
CAST IRON STOVE AND
DIRECT-VENT BURNER
SYSTEM ASSEMBLY
Continued
Figure 7 - Laying Down Stove On Side
Figure 8 - Removing Pallet Wood From The Bottom of The Stove
Pallet
Wood
Bolt
Pallet
Wood
Bottom Of
Stove Unit
Front
Pallet
Wood
Bolted to
Bottom of
Stove Body
Front of
Stove
Unit
Top of Stove Unit
Front of
Stove Unit
Top of
Stove
Unit
Drop
Cloth/
Blanket
Figure 9 - Locating Threaded Holes for Legs and Door Attachment
Door Hinge Step
Bolt Hole
Door Catch Bolt
With Adjustable
Hex Nuts Hole
Leg Hole
Leg Hole
Leg Hole
Front
Bottom of
Stove Unit
CAST IRON STOVE AND DIRECT-VENT BURNER SYSTEM ASSEMBLY
Stove Body Assembly (Cont.)

107304
For more information, visit www.desatech.com
For more information, visit www.desatech.com
7
7
CAST IRON STOVE AND
DIRECT-VENT BURNER
SYSTEM ASSEMBLY
Continued
Adjusting Nut
Bolt Stop
Catch Bolt
Door Claw
Door
Figure 12 - Catch Bolt and Door Claw Orientation
14. Lay the front panel assembly face down on a protected sur-
face. Remove the two screws that hold the front plate onto the
front surround plate (see Figure 14). Save these screws.
15. Optional: Remove the seven screws and washers that hold the
screen onto the front surround plate. Discard these screws, wash-
ers, and screen. They are for vent-free use only (see Figure 14).
16. Replace the two screws from step 14 to reassemble the front
plate and the front surround plate. Set this assembly aside un-
til burner system has been installed, logs have been placed
inside of burner system, and glass door to burner system insert
has been replaced.
Figure 11 - Attaching Lower Stove Door Panel
Stove Door
Panel
Door Hinge
Step Bolt
Threaded
Hole
Bolt
Shoulder
Figure 13 - Removing Front Assembly
Front
Assembly
Bolt
Stove
Body
Figure 14 - Removing Screen from Front Assembly
Screws
Front Surround
Plate
Front Plate
Screen
Screw with
Washer
CAST IRON STOVE AND DIRECT-VENT BURNER SYSTEM ASSEMBLY
Stove Body Assembly (Cont.)

107304
For more information, visit www.desatech.com
For more information, visit www.desatech.com
8
NOTICE: If installing blower in an existing stove
burner system with gas connections, shut off gas
supply and disconnect heater from gas supply. Con-
tact a qualified service person to do this.
INSTALLING OPTIONAL BLOWER
ACCESSORY
INSTALLING THE BLOWER
1. Remove 4 hex screws securing rear cover to back of stove body
(see Figure 16).
2. Separate bottom cover from rear cover by loosening the 8
mounting screws (see Figure 16).
3. Align the holes in the top mounting tabs of blower with the
holes in wall of rear cover. Using the 4 screws provided, mount
blower and tighten screws securely (see Figure 17).
Figure 17 - Blower Assembly, Speed Control, and Thermal
Switch Locations
Figure 16 - Removing Rear Cover and Bottom Cover from Stove
Body
Speed
Control
Blower
Control
Knob Locknut
Blower
Assembly
Thermal
Switch and
Bracket
Control
Shaft
TOP VIEW
Stove Body
Rear Cover
Bottom Cover
Hex
Screws
Mounting
Screws
Mounting
Screws
Hex Screws Mounting
Screws
Mounting Holes
Screws
Mounting
Holes
INSTALLING DIRECT-VENT BURNER
SYSTEM INTO STOVE BODY
1. Carefully lift burner system and place into stove body from
the rear of stove.
2. Place the left and right grate tops into the top of stove body. Dis-
card center grate top of stove and replace with center grate top
provided with burner system.
Figure 15 - Installing Burner System Into Cast Iron Stove Body
L
O
H
I
P
I
L
O
T
OFF
ON
Cast Iron
Stove Body
Burner
System
Right Top
Grate
Center Top Grate
(Included with
Burner System)
Left Top
Grate
CAST IRON STOVE AND
DIRECT-VENT BURNER
SYSTEM ASSEMBLY
Continued
CAST IRON STOVE AND DIRECT-VENT BURNER SYSTEM ASSEMBLY
Installing Direct-Vent Burner System Into Stove Body
Installing Optional Blower Accessory

107304
For more information, visit www.desatech.com
For more information, visit www.desatech.com
9
9
CAST IRON STOVE AND
DIRECT-VENT BURNER
SYSTEM ASSEMBLY
Continued
4. Thermostat Blower Only: Attach thermal switch and bracket
to inside rear cover wall with two hex head screws provided as
shown in Figure 17, page 8. After securing bracket to rear cover,
carefully bend along existing bend line on bracket to almost a
90° angle (see Figure 17, page 8). This will allow thermal switch
to be positioned against stove rear wall and sense temperature
when in operating mode.
5. Place speed control on left inside of rear cover and push the
plastic control shaft through opening (see Figure 17, page 8).
6. While supporting speed control, secure control shaft with lock nut
by pushing and turning lock nut with pliers clockwise until tight
against the side of rear cover. Place control knob provided onto shaft.
7. Place the green ground wire between the bottom hole on the
blower assembly and the hex screw and tighten (see Figure 18).
8. Connect the blue wire on the blower assembly to one side of
the thermal switch (see Figure 18).
9. Connect the black wire to the other side of the thermal switch
(see Figure 18).
10. Connect the white wire to the other terminal on the blower mo-
tor assembly (see Figure 18). Make sure the thermal switch has
been properly installed to fit against back of fireplace insert af-
ter the rear cover assembly has been reinstalled.
11. Make sure all wire connections to terminals on blower motor
and thermal switch are securely attached and that the screw
retaining the green ground wire is tight.
Green Ground Wire
Wiring
Diagram
Decal
Speed
Control
Black
Wire
White
Wire
Blue Wire
Power Cord (Route Through
Plastic Bushing in Bottom
Cover When Assembled)
Screw
Thermal
Switch
WARNING: Never touch the blower wheel while in
operation.
WARNING: Failure to position the parts in accor-
dance with supplied diagrams or failure to use only
parts specifically approved with this heater may result
in damage or personal injury.
Figure 18 - Blower Wiring Layout (Thermostat Blower Shown)
12. Check to make sure that the power cord is completely clear of the
blower wheel and that there are no foreign objects in blower wheel.
13. Peel off the backing paper and stick the supplied wiring dia-
gram decal on the inside of rear cover as shown (see Figure 18).
14. Reattach bottom cover to rear cover with 8 screws (see Figure
16, page 8). Make sure that you don’t pinch any wires during
reassembly. Route power cord through plastic bushing in bot-
tom of rear cover.
CAST IRON STOVE AND DIRECT-VENT BURNER SYSTEM ASSEMBLY
Installing Optional Blower Accessory (Cont.)
Installing Rear Cover
INSTALLING REAR COVER
1. Place rear cover behind stove body. Rear cover will rest on the
bottom ledge of the stove body.
2. Place wire harness from ON/OFF switch under the cast of
stove body.
3. Using hex screws provided, attach rear cover to back of stove
body. See Figure 19.
IMPORTANT:
This rear cover must be
securely in place before venting pipes are installed.
Rear Cover
(Shown with
Optional
Blower)
Hex Screws
Blower
Power
Cord
ON/OFF
Switch Wire
Harness
ON/OFF Switch
Figure 19 - Installing Rear Cover (Shown with Optional Blower
Accessory)

107304
For more information, visit www.desatech.com
For more information, visit www.desatech.com
10
LOCATION OF VENT TERMINATION
When locating vent termination, it is important to observe the
minimum clearances shown in Figure 21, page 11.
*Check with local codes or with the current CAN/CSA B149[.1 or
.2] Installation Codes for Canada or the USA Installations follow
the current National Fuel Gas Code, ANSI Z223.1/NFPA 54.
Your stove with burner system is approved to be vented either
through the side wall, or vertically using the following guidelines:
• Use only venting components or kits specifically approved for
use with this stove and burner system (see Parts Lists for Vent-
ing Kits and Components, page 19).
IMPORTANT:
Do not mix venting components made by differ-
ent manufacturers.
• Minimum clearance between vent pipes and combustible mate-
rials is 1" (25 mm), except where stated otherwise.
• Do not recess venting terminations into a wall or siding.
• Install horizontal venting with a 1/4" rise for every 12" of
run toward the termination.
• You may paint the vent termination with 450ºF (232ºC) heat-
resistant paint to coordinate with the exterior finish.
• There must not be any obstruction such as bushes, garden sheds,
fences, decks, or utility buildings within 24" from the front of
the termination cap.
• Do not locate termination cap where excessive snow or ice build
up may occur. Be sure to clear vent termination area after snow
falls to prevent accidental blockage of venting system. When
using snow blowers, do not direct snow towards vent termina-
tion area.
• You must maintain minimum wall and ceiling clearances shown
in Figures 3 and 4, page 5.
• If installing horizontal vent termination cap on an exterior wall
with siding, you must us a vinyl siding standoff (see Figure 27,
page 14).
GENERAL VENTING
Figure 20 - Control Valve Terminals
To Control
Switch
CAST IRON STOVE AND
DIRECT-VENT BURNER
SYSTEM ASSEMBLY
Continued
CAST IRON STOVE AND DIRECT-VENT BURNER SYSTEM ASSEMBLY
Installing Rear Cover (Cont.)
GENERAL VENTING
Location of Vent Termination
4. Open lower door panel. The valve is attached to the underside
of the burner system assembly.
5. Connect one terminal of the wire from ON/OFF switch to the
THTP terminal on the valve. Connect remaining wire terminal to
the TH terminal on the valve. Make sure that the wire terminals
are in the positions on the unit as pictured in Figure 20. If wires
are not connected as shown, the ON/OFF switch will not work.
14. Connect or reconnect gas supply, see Connecting Stove/Burner
System to Gas Supply on page 21.
WARNING: A qualified installer or service per-
son must connect fireplace to gas supply. Follow all
local codes.

107304
For more information, visit www.desatech.com
For more information, visit www.desatech.com
11
11
Fixed
Closed Openable Fixed
Closed
Openable
V
V
V
V
VV
V
V
X
X
VX
G
G
J
F
B
B
K
N
H
I
A
N
E
L
D
B
M
A
C
B
V
V
A
G
G
B
TERMINATION CAP AIR SUPPLY INLET GAS METER RESTRICTED AREA
(TERMINATION PROHIBITED)
A = clearance above grade, veranda, porch, deck, or balcony
[*12 inches (305mm) minimum]
B = clearance to window or door that may be opened
[12 inches (305mm) minimum]
C = clearance to permanently closed window [minimum 12 inches
(305mm) recommended to prevent condensation on window]
D = vertical clearance to ventilated soffit located above the terminal
within a horizontal distance of 24 inches (610mm) from the
center-line of the terminal [18 inches (457mm) minimum]
E = clearance to unventilated soffit [12 inches (305mm) minimum]
F = clearance to outside corner (see below)
G = clearance to inside corner (see below)
H = *not to be installed above a meter/regulator assembly within
36 inches (914mm) horizontally from the center-line of the regulator
I = clearance to service regulator vent outlet [*72 inches (1829mm)
minimum]
J = clearance to non-mechanical air supply inlet to building or the
combustion air inlet to any other fireplace [*12 inches (305mm)
minimum]
K = clearance to a mechanical air supply inlet [*72 inches (1829mm)
minimum]
L = † clearance above paved side-walk or a paved driveway located on
public property [*84 inches (2133mm) minimum]
M = clearance under veranda, porch, deck [*12 inches (305mm) minimum ‡]
N = clearance above a roof shall extend a minimum of 24 inches (610mm)
above the highest point when it passes through the roof surface and
any other obstruction within a horizontal distance of 18 inches (457mm)
† vent shall not terminate directly above a side-walk or paved driveway which is located between two
single family dwellings and serves both dwellings*
‡ only permitted if veranda, porch, deck or balconey is fully open on a minimum of 2 sides beneath the floor*
* as specified in CAN/CSA B149 (.1 or .2) Installation Codes (1991) for Canada and U.S.A.
Note
: Local codes or regulations may require different clearances
A = 6" (152mm)
Inside Corner
V
B
E
V
B = 6" (152mm)
C = Maximum depth of 48" (1219mm) for
recessed location
D = Minimum width for back wall of
recessed location -
Combustible - 38" (965mm)
Noncombustible - 24" (610mm)
E = Clearance from corner in
recessed location-
Combustible - 6" (152mm)
Noncombustible - 2" (51mm)
Outside Corner Recessed Location
G
H
G = 12" (305mm) minimum clearance
Balcony with No Side Wall
V
J
Combustible &
Noncombustible
H = 24" (610mm)
J = 20" (508mm)
Balcony with Perpendicular Side Wall
C
D
C
Termination Clearances for Buildings with Combustible and Noncombustible Exteriors
Figure 21 - Minimum Clearances for Vent Terminations
GENERAL VENTING
Continued
GENERAL VENTING

107304
For more information, visit www.desatech.com
For more information, visit www.desatech.com
12
WARNING: Read all instructions completely and
thoroughly before attempting installation. Failure to
do so could result in serious injury, property damage
or loss of life. Operation of improperly installed and
maintained venting system could result in serious
injury, property damage or loss of life.
WARNING: Seal all vent connections. Seal only
the outer pipe connections with high temperature
silicone (600°F/316° C). Before joining elbows and
pipes, apply a bead of high temperature silicone
sealant (GE RTV 106/Loctite RTV 81585) to the male
end of the elbow or pipe. High temperature silicone
must also be used to re-seal any connections after
maintenance to venting system.
NOTICE: Failure to follow these instructions will void
the warranty.
INSTALLATION PRECAUTIONS
Consult local building codes before beginning the installation. The
installer must make sure to select the proper vent system for installa-
tion. Before installing vent kit, the installer must read this stove and
burner system manual and vent kit instructions.
Only a qualified service person should install venting system. The
installer must follow these safety rules:
• Wear gloves and safety glasses for protection
• Use extreme caution when using ladders or when on roof tops
• Be aware of electrical wiring locations in walls and ceilings
The following actions will void the warranty on your venting system:
• Installation of any damaged venting component
• Unauthorized modification of the venting system
• Installation of any component part not manufactured or approved
by DESA International
• Installation other than as instructed by these instructions
VENTING INSTALLATION
WARNING: This stove with burner system and vent
assembly must be vented directly to the outside. The
venting system must NEVER be attached to a chimney
serving a separate solid fuel burning appliance. Each
gas appliance must use a separate vent system. Do not
use common vent systems.
WARNING: Horizontal sections of this vent system
require a minimum clearance of 2" from the top of the
pipe and 1" minimum to the sides and bottom. Vertical
sections of this system require a minimum of 1" clear-
ance to combustible materials on all sides of the pipe.
INSTALLATION PLANNING
There are two basic types of direct-vent installation:
• Horizontal Termination
• Vertical Termination
It is important to select the proper length of vent pipe for the type of
termination you choose. It is also important to note the wall thickness.
For Horizontal Termination: Select the amount of vertical rise
desired. The horizontal run of venting must have 1/4" rise for every
12" of run towards the termination.
You may use up to two 90° elbows on any single horizontal run of
vent pipe in this confuguration. See Horizontal Termination Con-
figurations on page 15.
For Vertical Termination: Measure the distance from the burner
system flue outlet to the ceiling. Add the ceiling thickness, the vertical
rise in an attic or second story, and allow for sufficient vent height
above the roofline. You may use one or two 90° elbows in this vent
configuration. See Vertical Termination Configurations on pages 17
and 19.
Note:
You may use two 45° elbows in place of a 90° elbow. You
must follow rise to run ratios when using 45° elbows.
For two-story applications, firestops are required at each floor level (see
Figure 33, page 16). If an offset is needed in the attic, additional pipe and
elbows will be required.
You may use a chase with a vent termination with exposed pipe on the
exterior of the house. See Installing Vent System in a Chase, page 13.
Your stove with direct-vent burner system has been tested for a
maximum horizontal run of 20' with 8' vertical rise (see Installation
for Horizontal Termination, pages 13 through 15). The maximum
vertical run is 40' (see Installation for Vertical Termination, pages
16 through 19).
It is very important that the venting system maintain its balance
between the combustion air intake and the flue gas exhaust. Certain
limitations apply to vent configurations and must be strictly followed.
WARNING: Never run the vent pipe downward as
this may cause excessive temperatures which could
cause a fire.
VENTING INSTALLATION
Installation Precautions
Installation Planning

107304
For more information, visit www.desatech.com
For more information, visit www.desatech.com
13
13
INSTALLATION FOR HORIZONTAL
TERMINATION
1. Determine the route your horizontal venting will take.
Note:
The location of the horizontal vent termination on the exterior
wall must meet all local and national building codes and must
not be easily blocked or obstructed.
Snorkel terminations are available for terminations requiring a
vertical rise on the exterior of the building (see Figures 22 and
23). Snorkel kit VKS-47-K is also available (see page 19). Fol-
low the same installation procedures used for standard horizon-
tal termination with the exception of the external wall firestop.
The snorkel termination does not require the use of the exter-
nal wall firestop. If installing the snorkel termination below
grade (basement applications), you must provide proper drain-
age to prevent water from entering the snorkel termination (see
Figure 23). Do not back fill around the snorkel termination.
2. Vent pipes and fittings have special twist-lock connections. As-
semble the desired combination of pipe and elbows to the appli-
ance adaptor with pipe seams oriented towards the wall or floor.
Twist-lock Procedure: The female ends of the pipes and fit-
tings have four locking lugs (indentations). These lugs will
slide straight into matching slots on the male ends of adjacent
pipes and fittings. (All connections must be sealed with high
temperature silicone sealant as specified in the second warn-
ing statement on page 12.) Push the pipe sections together and
twist one section clockwise approximately one-quarter turn
until the sections are fully locked. See Figure 24.
Note:
Hori-
zontal runs of vent must be supported every three feet. Use
wall straps for this purpose.
VENTING INSTALLATION
Continued
WARNING: Do not recess vent terminal into a wall
or siding.
Figure 22 - Snorkel Termination
Snorkel
Figure 23 - Snorkel Termination with Drainage Pipe
12" Minimum
(305mm)
NOTICE: Treatment of firestops and construction of
the chase may vary from building type to building
type. These instructions are not substitutes for the
requirements of local building codes. You must fol-
low all local building codes.
Note:
When installing in a chase, you should insulate the chase as
you would the outside walls of your home. This is especially
important in cold climates. Minimum air space clearance between
vent pipes and combustible materials and/or insulation is 1".
Installing Vent System in a Chase
A chase is a vertical box-like structure built to enclose venting that runs
along the outside of a building. A chase is not required for such venting.
Snorkel
Adequate
drainage
12" Minimum
(305mm)
Figure 24 - Vent Pipe Connections
Female
Locking Lugs
Male
Slots
Vent Pipe
VENTING INSTALLATION
Installation Planning (Cont.)
Installation for Horizontal Termination

107304
For more information, visit www.desatech.com
For more information, visit www.desatech.com
14
VENTING INSTALLATION
Continued
Figure 26 - Installing Horizontal Vent Cap with Exterior Wall
Firestop (Combustible Exterior)
WARNING: Do not recess vent termination in to
any wall. This will cause a fire hazard.
Figure 27 - Installing Vinyl Siding Standoff
Cut Vinyl Siding
Away to Fit
Standoff
Vinyl Siding Standoff
(Apply Mastic to All
Four Sides)
7
1
/
2
"
(190mm)
Vent Opening
Noncombustible Wall
(Framing
Detail)
10"
(254mm)
10"
(254mm)
Vent Opening
Combustible Wall
Vent O
p
ening
Figure 28 - Interior Wall Firestop
Interior Wall
Firestop
Exterior Wall Firestop
(Apply Mastic to All
Four Sides)
Vent
Termination
Vent
Termination
Interior Wall
Firestop
Interior Wall
Firestop
Vent
Termination Horizontal
Vent Pipe
3. Attach vent pipe assembly to the burner system. Set stove in
front of it’s permanent location to insure minimum clearances.
Mark the wall for a 10" square hole (for noncombustible ma-
terial such as masonry block or concrete, a 7 1/2" diameter hole
is acceptable). See Figure 25. The center of the hole should
line up with the center-line of the horizontal vent pipe. Cut a
10"x10" (254mm x 254mm) square hole through combustible
exterior wall (7 1/2" [190mm] diameter hole if noncombustible).
Frame as necessary (see Figure 25).
4. For Combustible Exterior: Apply a bead of non-hardening mas-
tic around the outside edge of the exterior wall firestop. Posi-
tion the external wall firestop within the 10" square opening on
the exterior wall with firestop flanges inside the opening. At-
tach using screws provided as shown in Figure 26. Position
the vent termination in the center of exterior wall firestop with
arrow on termination pointing up.
For Noncombustible Exterior: Apply a bead of non-harden-
ing mastic around the outside edge of the vent termination.
The exterior wall firestop will not be necessary for this appli-
cation. Position the termination cap in the center of the 7 1/2"
hole on exterior wall with arrow on termination pointing up.
Attach the vent termination with four wood screws supplied
(see Figure 26).
Note
: Replace the wood screws with appropri-
ate fasteners for stucco, brick, concrete, or other types of siding.
5. Use of a vinyl siding standoff is required when vinyl siding,
cedar shake, or other painted wood surfaces could melt, peel,
or discolor from trapped or wind driven flue exhaust (exces-
sive heat) near vent termination. The vinyl siding standoff re-
places the outer firestop between the vent termination and the
exterior wall to protect these exterior wall treatments. Bolt the
vent cap to the standoff. Apply non-hardening mastic around
outside edge of the standoff. Position standoff within the 10"
square opening on the exterior wall. Use wood screws provided
to attach the standoff. See Figure 27.
6. Slide the interior wall firestop over the vent pipe before con-
necting the horizontal run to the vent cap (see Figure 28).
7. Carefully move the stove with vent assembly attached toward
the wall and insert the vent pipe into the horizontal termina-
tion. The pipe overlap should be a minimum of 1 1/4". Apply
silicone to the outer pipe connection. Fasten all vent connec-
tions with screws provided.
8. Slide the interior wall firestop against the interior wall surface
and attach with screws provided (see Figure 28).
Figure 25 - Vent Opening Requirements
VENTING INSTALLATION
Installation for Horizontal Termination (Cont.)

107304
For more information, visit www.desatech.com
For more information, visit www.desatech.com
15
15
Venting with Two 90° Elbows
Vertical (V) Horizontal (H1) +
Horizontal (H2)
6' min. 4' max.
7' min. 6' max.
8' min. 10' max.
20' max. 12' max.
Figure 31 - Horizontal Termination Configuration for Venting
Using Two 90
°
Elbows with Termination at 90
°
with Stove
Figure 29 - Horizontal Termination Configuration
for Venting Using One 90
°
Elbow
Horizontal Venting
Vertical (V) Horizontal (H)
52" min. 26" max.
63" min. 49" max.
86" min. 96" max.
91" min. 20' max.
.
Horizontal Termination Configurations
Figures 29 through 31 show different configurations for venting
with horizontal termination. Each figure includes a chart with
vertical minimum/maximum and horizontal maximum dimensions
which must be met. Seal all connections with high temperature
silicone sealant (outer pipe only) as specified in the second warning
statement on page 12. All horizontal piping runs require 1/4" rise per
12" of horizontal run.
Venting with Two 90° Elbows
Vertical (V) Horizontal (H1) Horizontal (H1) +
Horizontal (H2)
6' min. 4' max. 8' max.
7' min. 6' max. 12' max.
8' min. 8' min. 20' max.
20' max. 8' max. 20' max.
Figure 30 - Horizontal Termination Configuration for Venting Using Two 90
°
Elbows
VENTING INSTALLATION
Continued
P47-12
P47-12
VENTING INSTALLATION
Installation for Horizontal Termination (Cont.)

107304
For more information, visit www.desatech.com
For more information, visit www.desatech.com
16
1. Determine the route your vertical venting will take. If ceiling
joists, roof rafters, or other framing will obstruct the venting
system, consider an offset (see Figure 32) to avoid cutting
loadbearing members.
Note:
Pay special attention to these in-
stallation instructions for required clearances (air space) to com-
bustibles when passing through ceilings, walls, roofs, enclosures,
attic rafters, etc. Do not pack air spaces with insulation. Also
note maximum vertical rise of the venting system and any maxi-
mum horizontal offset limitations. Offsets must fall within the
parameters shown in Figures 36 through 38, pages 17 and 18.
2. Set the stove in desired location. Drop a plumb line down from
the ceiling to the position of the burner system exit flue. Mark
the center point where the vent will penetrate the ceiling. Drill
a small locating hole at this point.
Drop a plumb line from the inside of the roof to the locating
hole in the ceiling. Mark the center point where the vent will
penetrate the roof. Drill a small locating hole at this point.
Flat Ceiling Installation
1. Cut a 10" square hole in the ceiling using the locating hole as a
center point. The opening should be framed to 10"x10" (254mm
x 254mm) inside dimensions, as shown in Figure 25 on page
14 using framing lumber the same size as the ceiling joists. If
the area above the ceiling is an insulated ceiling or a room, nail
firestop from the top side. This prevents loose insulation from
falling into the required clearance space. Otherwise, install
firestop below the framed hole. The firestop should be installed
with no less than three nails per side (see Figure 33).
2. Assemble the desired lengths of pipe and elbows necessary
to reach from the burner system flue up through the firestop.
All connections must be sealed with high temperature sili-
cone sealant as specified in the second warning statement on
page 12. Be sure all pipe and elbow connections are fully
twist-locked (see Figure 24, page 13).
3. Cut a hole in the roof using the locating hole as a center point.
(Cover any exposed open vent pipes before cutting hole in roof.)
The 10"x10" hole must be measured on the horizontal; actual
length may be larger depending on the pitch of the roof. There
must be a 1" clearance from the vent pipe to combustible mate-
rials. Frame the opening as shown in Figure 25 on page 14.
4. Connect a section of pipe and extend up through the hole.
Note:
If an offset is needed to avoid obstructions, you must
support the vent pipe every 3 feet. Use wall straps for this
purpose (see Figure 32). Whenever possible, use 45° elbows
instead of 90° elbows. The 45° elbow offers less restriction
to the flow of the flue gases and intake air.
5. Place the flashing over the pipe section(s) extending through
the roof. Secure the base of the flashing to the roof and fram-
ing with roofing nails. Be sure roofing material overlaps the
top edge of the flashing as shown in Figure 32. There must be
a 1" clearance from the vent pipe to combustible materials.
6. Continue to add pipe sections until the height of the vent cap
meets the minimum building code requirements described in
Figure 21 on page 11.
Note
: You must increase vent height
for steep roof pitches. Nearby trees, adjoining rooflines, steep
pitched roofs, and other similar factors may cause poor draft
or down-drafting in high winds. Increasing the vent height
may solve this problem.
Figure 32 - Offset with Wall Strap and 45
°
Elbows
INSTALLATION FOR VERTICAL
TERMINATION
NOTICE: Use rigid pipe only. Flex venting is not to be
used with a vertical termination.
VENTING INSTALLATION
Continued
Figure 33 - Installing Firestop
If area above is not a
room, install firestop below
framed hole.
If area above is a room, install
firestop above framed hole.
45° Elbow
Wall Strap
Roof
Flashing
Ceiling Firestop
VENTING INSTALLATION
Installation for Vertical Termination

107304
For more information, visit www.desatech.com
For more information, visit www.desatech.com
17
17
Vertical Termination Configurations
Figure 36 through 39 show four different configurations for vertical
termination. All connections must be sealed with high temperature
silicone sealant as specified in the second warning statement on
page 12.
Venting with One 90° Elbow
Vertical (V) Horizontal (H)
5' min. 2' max.
6' min. 4' max.
7' min. 6' max.
8' min. 8' max.
20' max. 8' max.
Figure 36 - Vertical Venting Configuration Using One 90
°
Elbow
Note:
Install restrictor
into 4" collar of burner
system as shown.
VENTING INSTALLATION
Continued
Figure 34 - Cathedral Ceiling Support Box Installation
Non-hardening Mastic
under all edges of support
box before nailing
Figure 35 - Installed Cathedral Ceiling Support Box
Cut hole 1/8" larger than support
box when projected onto roofline
2" minimum below
finished ceiling
Cathedral ceiling
support box
Level
7. Twist-lock the vent cap onto the last section of vent pipe and
seal outer pipe connection with high temperature silicone seal-
ant as specified in the second warning statement on page 12.
Note:
If the vent pipe passes through any occupied areas above the first
floor, including storage spaces and closets, you must enclose pipe. You
may frame and sheetrock the enclosure with standard construction
material. Make sure and meet the minimum allowable clearances to
combustibles. Do not fill any of the required air spaces with insulation.
Cathedral Ceiling Installation
1. Remove shingles or other roof covering as necessary to cut the
rectangular hole for the support box. Mark the outline of the
cathedral ceiling support box on the roof sheathing using the
locating hole as a center point.
2. Cut the hole 1/8" larger than the support box outline (see
Figure 34).
3. Lower the support box through the hole in the roof until the
bottom of the box extends at least 2" below the ceiling (see
Figure 34). Align the support box vertically and horizontally
using a level. Temporarily tack the support box in place through
the inside walls and into the roof sheathing.
4. Using tin snips, cut the support box from the top corners down
to the roofline and fold the resulting flaps over the roof sheath-
ing (see Figure 35). Apply a bead of non-hardening mastic around
the top edges of the support box to make a seal between the box
and the roof. Nail in place with roofing nails. Remove any com-
bustible material that might be inside of the support box.
5. Complete the cathedral ceiling installation by following the same
procedures outlined in steps 2 through 7 for Flat Ceiling Instal-
lation, page 16
.
VENTING INSTALLATION
Installation for Vertical Termination (Cont.)
PA-47

107304
For more information, visit www.desatech.com
For more information, visit www.desatech.com
18
Venting with Two 90° Elbows
Vertical (V1) Horizontal (H)
5' min. 6' max.
6' min. 12' max.
7' min. 18' max.
8' min. 20' max.
Note:
Vertical (V1) +
Vertical (V2) = 20' max.
Figure 38 - Vertical Venting Configuration Using Two 90
°
Elbows
VENTING INSTALLATION
Continued
Venting with Two 90° Elbows
Vertical (V) Horizontal (H1) +
Horizontal (H2)
5' min. 2' max.
6' min. 4' max.
7' min. 6' max.
8' min. 8' max.
20' max. 8' max.
Figure 37 - Vertical Venting Configuration Using Two 90
°
Elbows
with Two Horizontal Runs
Note:
Install
restrictor into 4"
collar of burner
system as shown.
Note:
Install
restrictor into 4"
collar of burner
system as shown.
PA-47
VENTING INSTALLATION
Installation for Vertical Termination (Cont.)
PA-47

107304
For more information, visit www.desatech.com
For more information, visit www.desatech.com
19
19
VENTING INSTALLATION
Continued
HIGH ALTITUDE INSTALLATION
Your cast iron stove and direct-vent burner system has been AGA
tested and approved for elevations from 0-2000 feet and CSA
certified for elevations from 0-4500 feet.
When installing this stove at an elevation above 2000 feet (in the
USA), you may need to decrease the input rating by changing the
existing burner orifice to a smaller size. Reduce input 4% for each
1000 feet above sea level. Check with your local gas company for
proper orifice size identification.
When installing this stove at an elevation above 4500 feet (in
Canada), check with local authorities.
Figure 39 - Vertical Venting Configuration With No
Horizontal Run
Vertical Venting
V = 40' max.
Note:
Install restrictor
into 4" collar of burner
system as shown.
PARTS LISTS FOR VENTING KITS AND
COMPONENTS
Number Description
VKG-47-K Ground Floor Vent Kit, Black
Includes: Horizontal Square Termination, 90° Elbow, 7"-
12" Adjustable Coaxial Pipe, 6" Pipe Adaptor, 2' Coaxial
Pipe, Wall Firestop, Decorative Trim Plate and 18 Screws
VKB-47-K Basement Vent Kit
Includes: Horizontal Square Termination, 90° Elbow, 7"-
12" Adjustable Coaxial Pipe, 6" Pipe Adaptor, 4' Coaxial
Pipe, Wall Firestop, Decorative Trim Plate and 18 Screws
VKS-47-K Snorkel Vent Kit
Includes: 36" Snorkel Termination, 90° Elbow, 7"-12"
Adjustable Coaxial Pipe, 6" Pipe Adaptor, 4' Coaxial
Pipe, Wall Firestop, Decorative Trim Plate and 18 Screws
VKR-47-K Roof Vent Kit
Includes: Vertical High Wind Termination, Flue Restrictor,
7"-12" Adjustable Coaxial Pipe, 6" Pipe Adaptor, 12"
Coaxial Pipe, 4' Coaxial Pipe, Firestop Decorative Trim
Plate, Roof Flashing, Storm Collar and 18 Screws
P-47-12-K 12" Black Coaxial Pipe (1 pk)
P-47-24-K 24" Black Coaxial Pipe (1 pk)
P-47-48-K 48" Black Coaxial Pipe (1 pk)
PA47-712-K 7"-12" Black Coaxial Pipe (1 pk)
P-47-6-K 6" Black Coaxial Pipe (1 pk)
E47-90-K 90° Elbow (1 pk)
E47-45-K 45° Elbow (1 pk)
PA-47-6-K 6" Adaptor Collar, Black (1 pk)
WS-47 Wall Strap (1 pk)
SC-47 Storm Collar (1 pk)
VT-47 Vertical Round Termination (1 pk)
WF-47 Wall Firestop (1 pk)
VR-47 Vertical Restrictor (1 pk)
FP-47 Firestop Plate (1 pk)
HTS-47 Horizontal Square Termination (1 pk)
CS-47 Cathedral Ceiling Support Box (1 pk)
RF-47-6 Roof Flashing 0 to 6/12 Pitch (1 pk)
RF-47-12 Roof Flashing 6/12 to 12/12 Pitch (1 pk)
S-47 Vinyl Siding Standoff (1 pk)
TP-47 Trim Plate, Black (1 pk)
HT-47 Horizontal Round Termination (1 pk)
ST-47-14 14" Snorkel Termination (1 pk)
ST-47-36 36" Snorkel Termination (1 pk)
Consult your local gas company to help determine the proper orifice
for your location.
For assistance with any high altitude installation contact DESA
International’s Technical Service Department at 1-866-672-6040
PA-47
VENTING INSTALLATION
Installation for Vertical Termination (Cont.)
High Altitude Installation
Parts List for Venting Kits and Components

107304
For more information, visit www.desatech.com
For more information, visit www.desatech.com
20
CAUTION: Use only new, black iron or steel pipe.
Internally-tinned copper tubing may be used in cer-
tain areas. Check your local codes. Use pipe of 1/2"
diameter or greater to allow proper gas volume to
burner system. If pipe is too small, undue loss of
volume will occur.
Installation must include an equipment shutoff valve, union, and
plugged 1/8" NPT tap. Locate NPT tap within reach for test gauge hook
up. NPT tap must be upstream from burner system (see Figure 41).
IMPORTANT:
Install main gas valve (equipment shutoff valve) in
an accessible location. The main gas valve is for turning on and
shutting off the gas to the appliance.
Check your building codes for any special requirements for locating
equipment shutoff valve to stoves.
STOVE AND DIRECT-VENT
BURNER SYSTEM
INSTALLATION
INSTALLING GAS PIPING TO STOVE/
BURNER SYSTEM LOCATION
Installation Items Needed
Before installing stove and burner system, make sure you have the
items listed below.
• external regulator (supplied by installer)
• piping (check local codes)
• sealant (resistant to propane/LP gas)
• equipment shutoff valve *
• test gauge connection *
• sediment trap
• tee joint
• pipe wrench
• approved flexible gas line with gas connector (if allowed by lo-
cal codes) (not provided)
* A CSA design-certified equipment shutoff valve with 1/8" NPT tap
is an acceptable alternative to test gauge connection. Purchase the
CSA design-certified equipment shutoff valve from your dealer.
For propane/LP connections only, the installer must supply an
external regulator. The external regulator will reduce incoming gas
pressure. You must reduce incoming gas pressure to between 11 and
14 inches of water. If you do not reduce incoming gas pressure,
burner system regulator damage could occur. Install external regu-
lator with the vent pointing down as shown in Figure 40. Pointing
the vent down protects it from freezing rain or sleet.
WARNING: A qualified installer or service person
must connect burner system to gas supply. Follow all
local codes.
CAUTION: For propane/LP units, never connect
burner system directly to the propane/LP supply. This
burner system requires an external regulator (not
supplied). Install the external regulator between the
burner system and propane/LP supply.
Figure 40 - External Regulator with Vent Pointing Down
(Propane/LP Only)
Propane/LP
Supply Tank
External
Regulator
Vent Pointing
Down
CHECK GAS TYPE
Use proper gas type for the burner system unit you are installing. If
you have conflicting gas types, do not install burner system. See
dealer where you purchased the stove and burner system for proper
burner system according to your gas type. Conversion kits are also
available for these models, see Accessories on page 35.
Figure 41 - Gas Connection
* The CSA design-certified equipment shutoff valve may be sup-
plied with the appliance or you can purchase it from your dealer.
CSA Design-Certified
Equipment Shutoff Valve with
1/8" NPT Tap*
3" Minimum
Approved Flexible
Gas Line
Pipe Nipple Cap Tee Joint
Sediment Trap/Drip Leg
Propane/LP - From
External Regulator
(11" W.C. to 14"
W.C. Pressure)
Natural - From
Gas Meter (5"
W.C. to 10.5"
W.C. Pressure )
STOVE AND DIRECT-VENT BURNER SYSTEM INSTALLATION
Check Gas Type
Installing Gas Piping to Stove/Burner System Location

107304
For more information, visit www.desatech.com
For more information, visit www.desatech.com
21
21
CAUTION: Use pipe joint sealant that is resistant
to liquid petroleum (LP) gas.
We recommend that you install a sediment trap/drip leg in supply
line as shown in Figure 41, page 20. Locate sediment trap/drip leg
where it is within reach for cleaning. Install in piping system
between fuel supply and burner system. Locate sediment trap/drip
leg where trapped matter is not likely to freeze. A sediment trap traps
moisture and contaminants. This keeps them from going into burner
system gas controls. If sediment trap/drip leg is not installed or is
installed wrong, burner system may not run properly.
Apply pipe joint sealant lightly to male NPT threads. This will
prevent excess sealant from going into pipe. Excess sealant in pipe
could result in clogged burner system valves.
To Flare Fitting on
Control Valve
Flexible Gas Line from
Equipment Shutoff Valve
Provided by Installer
Equipment
Shutoff Valve
Natural - To
Gas Supply
Propane/LP -
To External
Regulator
Figure 42 - Flexible Gas Line
CONNECTING STOVE/BURNER SYSTEM TO
GAS SUPPLY
Installation Items Needed
• 5/16" hex socket wrench or nut-driver
• sealant (resistant to propane/LP gas, not provided)
1. Open lower door panel.
2. Route flexible gas line (provided by installer, see Figure 42)
from equipment shutoff valve to burner system. Route flex-
ible gas supply line and attach to valve.
3. Check all gas connections for leaks. See Checking Gas
Connections.
STOVE AND DIRECT-VENT
BURNER SYSTEM
INSTALLATION
Continued
Test Pressures Equal To or Less Than 1/2 PSIG (3.5 kPa)
1. Close equipment shutoff valve (see Figure 43).
2. Pressurize supply piping system by either opening propane/
LP supply tank valve for propane/LP gas burner system or
open-
ing main gas valve located on or near gas meter for natural gas
burner system
,
or using compressed air.
Figure 43 - Equipment Shutoff Valve
Pressure Testing Gas Supply Piping System
Test Pressures In Excess Of 1/2 PSIG (3.5 kPa)
1.
Disconnect
appliance with its appliance main gas valve (control
valve) and equipment shutoff valve from gas supply piping
systems.
Pressures in excess of 1/2 psig (3.5 kPa) will damage
burner system
gas regulator.
2. Cap off open end of gas pipe where equipment shutoff valve
was connected.
3. Pressurize supply piping system by either opening propane/LP
supply tank valve for propane/LP gas burner system or opening
main gas valve located on or near gas meter for natural gas burner
system, or using compressed air.
4. Check all joints of gas supply piping system. Apply noncor-
rosive leak test solution to all gas joints. Bubbles forming
show a leak. Correct all leaks at once.
5. Reconnect burner system and equipment shutoff valve to gas
supply. Check reconnected fittings for leaks.
CHECKING GAS CONNECTIONS
WARNING: Test all gas piping and connections
for leaks after installing or servicing. Correct all
leaks at once.
WARNING: Never use an open flame to check for
a leak. Apply noncorrosive leak test solution to all
gas joints. Bubbles forming show a leak. Correct all
leaks at once.
ON
POSITION
OFF
POSITION
Open
Closed
Equipment
Shutoff
Valve
STOVE AND DIRECT-VENT BURNER SYSTEM INSTALLATION
Installing Gas Piping to Stove/Burner System Location (Cont.)
Connecting Stove/Burner System to Gas Supply
Checking Gas Connections

107304
For more information, visit www.desatech.com
For more information, visit www.desatech.com
22
Figure 46 - Control Valve Terminals
To Control
Switch or
Optional
Accessory
INSTALLING OPTIONAL WALL MOUNT
SWITCH - GWMS2
1. Connect one terminal of 25 ft. wire for the wall switch to the
TPTH terminal on the valve. Connect remaining wire terminal
to the TH terminal on the valve. Make sure that the wire termi-
nals are in the positions on the unit as pictured in Figure 46. If
wires are not connected as shown the switch will not work.
2. Route the 25 ft. wire through openings provided on the sides of
the burner system to a convenient location to mount your switch.
3. Connect one bare wire end to each of the terminals of the
GWMS2 wall switch.
4. Install the wall switch and cover in the wall.
STOVE AND DIRECT-VENT
BURNER SYSTEM
INSTALLATION
Continued
Continued
3. Check all joints from propane/LP supply tank or gas meter to
equipment shutoff valve (see Figure 44 for propane/LP or Figure
45 for natural). Apply noncorrosive leak test solution to all gas
joints. Bubbles forming show a leak. Correct all leaks at once.
Pressure Testing Burner System Gas
Connections
1. Open equipment shutoff valve (see Figure 43, page 21).
2. Open propane/LP supply tank valve for propane/LP burner
system or main gas valve located on or near gas meter for natu-
ral gas burner system.
3. Make sure control knob of burner system is in the OFF position.
4. Check all joints from equipment shutoff valve to thermostat gas
valve (see Figure 44 for propane/LP or Figure 45 for natural).
Apply noncorrosive leak test solution to all gas joints. Bubbles
forming show a leak. Correct all leaks at once.
5. Light burner system (see Operating Stove with Burner System,
pages 26 through 28). Check all other internal joints for leaks.
6. Turn off burner system (see To Turn Off Gas to Appliance,
page 26).
Propane/LP
Supply Tank
Equipment
Shutoff
Valve
Gas Valve
Figure 44 - Checking Gas Joints for Propane/LP Gas Burner
System
Equipment
Shutoff
Valve
Gas Valve
Gas Meter
Figure 45 - Checking Gas Joints for Natural Gas Burner System
STOVE AND DIRECT-VENT BURNER SYSTEM INSTALLATION
Checking Gas Connection (Cont.)
Installing Optional Wall Mount Switch - GWMS2

107304
For more information, visit www.desatech.com
For more information, visit www.desatech.com
23
23
STOVE AND DIRECT-VENT
BURNER SYSTEM
INSTALLATION
Continued
INSTALLING OPTIONAL WALL MOUNTED
THERMOSTAT - GWMT1
WARNING: Installation must be done by a qualified
installer familiar with low voltage wiring procedures.
WARNING: Do not connect this thermostat to any
electrical source! Electrical shock and/or fire hazard
will occur.
1. Open lower door panel. The valve is attached to the underside
of the burner system assembly.
2. Disconnect from the valve the wires running from the ON/
OFF switch.
3. Connect one terminal of the wire for the wall thermostat to the
THTP terminal on the valve. Connect remaining wire terminal to
the TH terminal on the valve. Make sure that the wire terminals
are in the positions on the unit as pictured in Figure 46, page 22. If
wires are not connected as shown the thermostat will not work.
4. Route the wire to a convenient location to mount your thermo-
stat (no outside wall).
IMPORTANT:
The wire must not ex-
ceed 25 feet in length.
The thermostat should be mounted 54" above the floor in a
location where there is good air circulation. Avoid heat sources
such as lamps, direct sunlight, fireplace, or heat and air con-
ditioning ducts.
5. Gently remove the cover of the thermostat from the base. Grasp
the sides of the cover firmly and pull to separate from the base.
6. Feed the electrical wires through the rectangular slots (from
the back) on each side of the base (see Figure 47).
WARNING: Do not connect this thermostat to a
power source. Electrical shock and/or fire hazard
will occur.
Figure 47 - Back View of
Thermostat Base
Feed wires through
rectangular slots
Figure 48 - Thermostat
Base Terminal “W” and “R”
W
R
Terminal “W”
Terminal “R”
7. Connect one bare wire end to each terminal (“W” and “R”) of
the thermostat base (see Figure 48).
8. Install the base to the wall with screws provided with thermostat.
9. Move the temperature adjustment back and forth to insure the
bi-metal is free from restrictions.
10. Replace the cover onto the base. (Upon installation, the ther-
mostat must be allowed to stabilize at room temperature for
a minimum of 30 minutes for proper operation.)
11. Set the temperature adjustment to the desired setting. This ther-
mostat has been electronically calibrated at the factory. No ad-
justment or leveling is necessary.
INSTALLING OPTIONAL WIRELESS HAND-
HELD REMOTE CONTROL ACCESSORIES -
GHRC AND GHRCTA SERIES
NOTICE: Use only alkaline batteries (not included).
Installing Remote Receiver and 9-volt Alkaline
Battery
1. Open bottom door on stove body.
2. Disconnect wires from THTP and TH on control valve that
lead to the switch (see Figure 46, page 22). Discard switch
plate, screws, and nuts.
3. Install 9-volt battery (not included) into receiver battery clip
and connect to terminals (see Figure 49).
Figure 49 - Installing Battery in Receiver
9-Volt
Battery
Receiver
Battery
Clip
Terminal
Wires
STOVE AND DIRECT-VENT BURNER SYSTEM INSTALLATION
Installing Optional Wall Mounted Thermostat - GWMT1
Installing Optional Wireless Hand-Held Remote Control Accessories - GHRC and GHRCTA Series

107304
For more information, visit www.desatech.com
For more information, visit www.desatech.com
24
REMOVING/REPLACING GLASS DOOR
You must remove glass door to install logs, lava rock, and ember
material. To remove glass door, you must first remove the front
panel on stove body.
CAUTION: Do not operate this burner system with
a broken glass door panel or without the glass door
panel securely in place. For replacement part infor-
mation see
Replacement Parts
, page 33.
Figure 54 - Removing Glass Door from Burner System
STOVE AND DIRECT-VENT
BURNER SYSTEM
INSTALLATION
Continued
Figure 53 - Removing Front Panel from Stove
Figure 51 - Installing Battery in Hand-Held Remote Control Unit
(GHRC Series)
Installing 9-Volt Alkaline Battery in Hand-Held
Remote Control Unit
1. Remove battery cover on back of remote control unit
2. Attach terminal wires to a 9-volt battery (not included). Place
battery into the battery housing.
3. Replace battery cover onto remote control unit.
Terminal
Wires
Battery
Cover
9-Volt
Battery
Remote
Control Unit
Battery
Housing
L
O
H
I
P
I
L
O
T
OFF
ON
Figure 50 - Installing Remote Receiver
Figure 52 - Installing Battery in Hand-Held Remote Control Unit
(GHRCTA Series)
Terminal
Wires
Battery
Cover
9-Volt
Battery Remote
Control
Unit
Battery Housing
1. Remove 2 bolts from bottom of stove (if still installed) and one
from the top of stove to remove front panel (see Figure 53).
2. Remove the screws from the 2 tabs at the top of the glass door
while holding door securely keeping it from falling forward
(see Figure 54).
3. Grasp door by both sides and ease it upward off of the lower
bracket (see Figure 54).
4. To replace glass door, follow the above instructions in reverse.
4. Place receiver into valve bracket and align holes (see Figure 50).
5. Use push-in fasteners included with receiver to secure to
bracket.
6. Connect the wires from the receiver to the valve at TH and
THTP (see Figure 46, page 22).
Bolt
Bolt
Stove Front
Panel
Screw
Glass
Door
STOVE AND DIRECT-VENT BURNER SYSTEM INSTALLATION
Installing Optional Wireless Hand-Held Remote Control Accessories - GHRC and GHRCTA Series (Cont.)
Removing/Replacing Glass Door

107304
For more information, visit www.desatech.com
For more information, visit www.desatech.com
25
25
It is very important to install these logs exactly as instructed in
Figures 55 through 58. Do not modify logs. Only use logs supplied
with freestanding burner system. Do not use if any log(s) are broken
(see Replacement Parts, page 33).
1. Remove glass door. See Removing/Replacing Glass Door, page 24.
2. Place log #1 (back log) on top of grate. Make sure the notches
in the bottom of the log fit over the grate (see Figure 55).
2. Rest log #2 (large front log) on the pins on the front part of the grate
(see Figure 56).
3. Place log #3 (crossover log) onto the rear and front logs. Make
sure it is seated properly into the notch on the front log and
over the raised triangular portion of the rear log as shown in
Figure 57.
4. Place log #4 (small log) onto the front left part of the grate making
sure the notches fits over the prong of the grate. See Figure 58.
5. Lava rock may be placed along sides and front inside burner
system bottom. This may not be visible when you have re-
placed the front of the stove. It is not necessary to use all of
the lava rock provided.
WARNING: Failure to position the parts in accor-
dance with these diagrams or failure to use only parts
specifically approved with this burner system may result
in property damage or personal injury.
INSTALLING LOGS, LAVA ROCK AND
GLOWING EMBERS
STOVE AND DIRECT-VENT
BURNER SYSTEM
INSTALLATION
Continued
1
2
3
4
Figure 55 - Installing Log
No. 1 Figure 56 - Installing Log
No. 2
Figure 57 - Installing Log
No. 3 Figure 58 - Installing Log
No. 4
WARNING: The glass door must be securely in
place before running this burner system. Do not run
this burner system if glass is missing or broken.
NOTICE: Do not put lava rock on burner or under
burner. Placing lava rock on burner could cause
performance problems.
6. Pull ember material apart into pieces no larger than a dime.
Place these pieces loosely and sparingly directly onto the ex-
posed section of the front burner and along the space between
the burner and grate prongs (see Figure 59). This will create
the glowing ember appearance as the flame touches the ember
material. Do not block air slots by using too much ember ma-
terial in one area. It is not necessary to use all of the ember
material provided.
7. Replace the glass door and stove front. See Removing/Re-
placing Glass Door, page 24.
Figure 59 - Placing Ember Material on Burner
STOVE AND DIRECT-VENT BURNER SYSTEM INSTALLATION
Installing Logs, Lava Rock and Glowing Embers

107304
For more information, visit www.desatech.com
For more information, visit www.desatech.com
26
TO TURN OFF GAS
TO APPLIANCE
1. Turn ON/OFF switch, located on side of rear cover, to
“OFF”.
2a. Open lower door panel.
2b. If Using Optional Hand-Held Remote: Set selector switch,
located on side of rear cover, in the OFF position to pre-
vent draining battery.
3. Turn off all electrical power to the appliance if service is to
be performed.
4. Push in gas control knob slightly and turn clockwise
to “OFF”.
5. Close lower panel.
Shutting Off Burners Only (pilot stays lit)
You may shut off the burners and keep the pilot lit by doing one
of the following:
1. Turn gas control knob clockwise to the PILOT
position.
2. Set selector switch in the OFF position.
OPERATING STOVE WITH
BURNER SYSTEM
WARNING: If you do not follow these instructions
exactly, a fire or explosion may result causing prop-
erty damage, personal injury or loss of life.
A. This appliance has a pilot which must be lighted by hand.
When lighting the pilot, follow these instructions exactly.
B. BEFORE LIGHTING smell all around the appliance area
for gas. Be sure to smell next to the floor because some gas
is heavier than air and will settle on the floor.
WHAT TO DO IF YOU SMELL GAS
• Do not try to light any appliance.
• Do not touch any electric switch; do not use any phone in
your building.
• Immediately call your gas supplier from a neighbor’s
phone. Follow the gas supplier’s instructions.
C. Use only your hand to push in or turn the gas control knob.
Never use tools. If the knob will not push in or turn by hand,
don't try to repair it, call a qualified service technician. Force
or attempted repair may result in a fire or explosion.
D. Do not use this appliance if any part has been under water.
Immediately call a qualified service technician to inspect
the appliance and to replace any part of the control system
and any gas control which has been under water.
FOR YOUR SAFETY
READ BEFORE LIGHTING
LIGHTING INSTRUCTIONS
1. STOP! Read the safety information above.
2. Turn ON/OFF switch, located on side of rear cover, to
“OFF”.
3. Open lower door panel.
4. Turn off all electric power to the burner system.
5. Push in gas control knob slightly and turn clockwise
to “OFF”.
6. Wait five (5) minutes to clear out any gas. Then smell for
gas, including near the floor. If you smell gas, STOP! Fol-
low “B” in the safety information above. If you don't smell
gas, go to the next step.
7. The pilot is located by the main burner and should not re-
quire accessing for lighting.
8. Turn gas control knob counterclockwise to “PILOT”.
Figure 60 - Control Valve
L
O
H
I
OFF
ON
P
I
L
O
T
Gas Control
Knob
Variable
Control Knob
Piezo
Ignitor
9. Push in gas control knob all the way and hold. Immedi-
ately light the pilot by repeatedly depressing the piezo spark
ignitor until a flame appears. Continue to hold for about
one (1) minute after the pilot is lit. Release gas control knob
and it will pop back. Pilot should remain lit. If it goes out,
repeat steps 5 through 8.
• If gas control knob does not pop up when released, stop
and immediately call your service technician or gas
supplier.
• If the pilot will not stay lit after several tries, turn the gas
control knob to “OFF” and call your service technician
or gas supplier.
10. Turn gas control knob counterclockwise to “ON”.
11. Turn on all electric power to the burner system.
12. Turn the ON/OFF switch to ON position.
13. This valve is equipped with a HI/LO feature. Set burner
system input as desired.
14. Close lower panel.
OPERATING STOVE AND BURNER SYSTEM
For Your Safety Read Before Opening
Lighting Instructions
To Turn Off Gas To Appliance

107304
For more information, visit www.desatech.com
For more information, visit www.desatech.com
27
27
1. After lighting, let pilot flame burn for about one minute.
Turn gas control knob on the control valve to ON position.
Turn variable control knob anywhere between HI and LO.
Slide the selector switch to the REMOTE position.
Note:
The burners may light if hand-held remote ON button was
on when selector switch was last turned off. You can now
turn the burners on and off with either optional hand-held
remote control unit.
IMPORTANT:
Do not leave the selector switch in the REMOTE
position when the pilot is not lit. This will drain the battery.
IMPORTANT:
Be sure to press the ON/OFF buttons on the
hand-held remote control unit for up to 3 seconds to assure
proper operation.
GHRC Series Operation:
2a. Press the ON/OFF button to turn the burners on and off.
When turning burners off, the pilot will remain lit.
OPTIONAL REMOTE
OPERATION
Note:
All remote control accessories must be purchased sepa-
rately (See Accessories on page 35). Follow instructions in-
cluded with the remote control.
Thermostat Control Operation
(Optional GHRCTA Only) The thermostat control setting on the
remote control unit can be set to any comfort level between
WARMER and COOLER. The burners will turn on and off
automatically to maintain the comfort level you select. The ideal
comfort setting will vary by household depending upon the amount
of space to be heated, the output of the central heating system, etc.
NOTICE: You must light the pilot before using the
hand-held remote control unit. See
Lighting Instruc-
tions,
page 26.
OPERATING STOVE WITH
BURNER SYSTEM
Continued
GHRCTA Series Operation:
2b. Press the AUTO/ON/OFF button on the hand-held remote
control (see Figure 62). The lights to the left of the button
will show AUTO, ON, or OFF.
• In the ON mode, the burners will ignite. The heater is in
manual mode when ON is lit.
• In the AUTO mode, the thermostat in the hand-held re-
mote unit controls the room temperature. To increase the
room temperature, press the top arrow of the TEMP but-
ton. To lower the room temperature, press the bottom ar-
row of the TEMP button. At higher settings the heater
will run longer.
IMPORTANT:
This remote control has been specially en-
gineered to take an air temperature sample every 5.5 min-
utes in the auto mode. It will not respond immediately to
the temperature setting being turned up or down.
IMPORTANT:
The hand-held remote control unit must
be near the heater. Do not keep the hand-held remote
control unit too close to the heater. The thermostat on
the hand-held remote control unit will heat up too quickly
and turn the heater off.
3. To turn the burner off, press the AUTO/ON/OFF button un-
til OFF lights. The pilot will remain lit.
IMPORTANT:
To turn the pilot off, manually turn the con-
trol knob on the heater to the OFF position.
Figure 61 - Setting the Selector Switch, Gas Control Knob, and
Variable Control Knob for Remote Operation
ON
OFF
REMOTE
L
O
H
I
OFF
ON
P
I
L
O
T
Selector Switch in Remote
Position (Optional Remote
Control)
Variable
Control Knob Gas Control Knob
in On Position
Figure 62 - Hand-Held Thermostat Remote Control Unit
Selections (GHRCTA Only)
Shows Temperature
Setting
The Log Heater will
Automatically Cycle
between Pilot and the
Heat Setting that has
been Selected
MANUAL LIGHTING
PROCEDURE
1. Remove glass door (see Removing/Replacing Glass Door,
page 24).
2. Follow steps 1 through 8 under Lighting Instructions, page 26.
3. Depress gas control knob and light pilot with match.
4. Keep gas control knob pressed in for 30 seconds after lighting
pilot. After 30 seconds, release gas control knob. Now follow
steps 10 through 14 under Lighting Instructions, page 26.
5. Replace glass door (see Removing/Replacing Glass Door,
page 24).
Increases Room
Temperature in
AUTO Mode
Decreases Room
Temperature in
AUTO Mode
Turns Burner On
or Off and Allows
You to Choose
the Auto Setting
OPERATING STOVE AND BURNER SYSTEM
Manual Lighting Procedure
Optional Remote Operation

107304
For more information, visit www.desatech.com
For more information, visit www.desatech.com
28
INSPECTING BURNERS
Check pilot flame pattern and burner flame patterns often.
PILOT ASSEMBLY
The pilot assembly is factory preset for the proper flame height.
Alterations may have occurred during shipping and handling. Call
a qualified service person to readjust the pilot if necessary.
The height of the thermopile must be 3/8" to 1/2" above the pilot flame
as shown in Figure 63. The thermocouple must be at a height of about
1/8" above the pilot flame. The flame from the pilot burner must
extend beyond both the thermocouple and thermopile.
If your pilot assembly does not meet these requirements:
• turn burner system off (see To Turn Off Gas to Appliance, page 26)
• see Troubleshooting, pages 30 through 32
BURNER FLAME PATTERN
Burner flames will be steady; not lifting or floating. Flame patterns
will be different from unit to unit and will vary depending on
installation type and weather conditions.
If the vent configuration is installed incorrectly, the flames will lift
or “ghost”. This can be dangerous. Inspect the flames after instal-
lation to ensure proper installation and performance.
Figure 64 shows a typical flame pattern. If burner flame pattern differs
from that described:
• turn burner system off (see To Turn Off Gas to Appliance, page 26)
• see Troubleshooting, pages 30 through 32
Figure 63 - Pilot Assembly
OPERATING STOVE WITH
BURNER SYSTEM
Continued
OPERATING OPTIONAL
BLOWER ACCESSORY
Blower controls are located on left side of rear cover (when
standing in front of stove).
The CDA3620TB thermostatically-controlled blower has an
ON setting and an OFF setting. The blower will only run when
the switch is in the ON position. In the OFF position, the blower
will not operate.
If you are using CDA3620TB blower with optional thermostat
(wall mount or remote control) for the burner system, your
burner system and blower will not turn on and off at the same
time. The burner system may run for several minutes before the
blower turns on. After the burner system modulates to the pilot
position, the blower will continue to run. The blower will shut off
after the burner system temperature decreases.
The blower helps distribute heated air from the burner system.
Periodically check the air passageways of the burner system and
remove any dust, dirt, or other obstructions that will hinder the
flow of air.
OPERATING OPTIONAL
GWMT1 WALL MOUNTED
THERMOSTAT
Light the
burner system
as instructed in Lighting Instructions on
page 26. Set wall thermostat to desired temperature.
This thermostat has been electronically calibrated at the factory
and requires no adjustment or leveling.
Upon installation, the thermostat must be allowed to stabilize at
room temperature for a minimum of 30 minutes for proper
operation.
To turn the burner system off, adjust thermostat to the lowest
setting and turn the gas control knob back to PILOT. The pilot
will remain lit.
IMPORTANT:
To turn the pilot off, turn the gas control knob
on the burner system to the OFF position.
WARNING: Do not connect the thermostat to a
power source. Electrical shock and/or a fire hazard
will occur.
Thermopile Pilot Burner
Thermocouple
Piezo Ignitor
1/8"
3/8" to 1/2"
Figure 64 - Typical Flame Pattern
OPERATING STOVE AND BURNER SYSTEM
Operating Optional Blower Accessory
Operating Optional GWMT1 Wall Mounted Thermostat
INSPECTING BURNERS
Pilot Assembly
Burner Flame Pattern

107304
For more information, visit www.desatech.com
For more information, visit www.desatech.com
29
29
CLEANING AND MAINTENANCE
WARNING: Turn off burner system and let cool
before cleaning.
CAUTION: You must keep control areas, burners,
and circulating air passageways of burner system
and stove clean. Inspect these areas of burner sys-
tem and stove before each use. Have burner system
and stove inspected yearly by a qualified service
person. Burner system and stove may need more
frequent cleaning due to excessive lint from carpet-
ing, bedding material, pet hair, etc.
WARNING: Do not use abrasive cleaners as this
may damage glass. Use a non-abrasive household
glass cleaner to clean glass. Do not clean glass
when hot.
WARNING: Handle glass door panel with care.
Do not strike, slam, or otherwise abuse glass. Do not
operate burner system with the glass door removed,
cracked, or broken.
GLASS DOOR
Glass must be cleaned periodically. During start-up it is normal for
condensation to form on the inside of the glass causing lint, dust, and
other airborne particles to cling to the glass surface. During initial
start-up a slight film may form on the glass due to paint curing. The
glass should be cleaned several times with a non-ammonia, non-
abrasive household cleaner and warm water after the first two weeks
of operation. Thereafter, clean the glass two or three times during
each heating season, depending on the usage and circumstances
present. Refer to Removing/Replacing Glass Door on page 24 of this
manual when removing glass door for cleaning.
PILOT AND BURNERS
• Remove ember material before cleaning burners and replace
when cleaning is complete.
• Burner and controls should be cleaned with compressed air to
remove dust, dirt, or lint.
• Use a vacuum cleaner or small, soft bristled brush to remove
excess dust, dirt, or lint.
LOGS
• If you remove logs for cleaning, refer to Installing Logs, Lava
Rock, and Glowing Embers, page 25, to properly replace logs.
• Use a vacuum cleaner to remove any carbon build-up on logs.
• Replace log(s) if broken. See Replacement Parts on page 33.
• Replace ember material periodically as needed. See Replacement
Parts on page 33.
WARNING: Only parts supplied by the manufac-
turer should be used when replacing broken or dam-
aged glass door panel (see
Replacement Parts
, page
33). This glass door panel is a complete unit. No
substitute materials may be used.
If glass has been broken, carefully remove glass door (see Remov-
ing/Replacing Glass Door, page 24). Vacuum all glass pieces with
a shop vac.
CAUTION: Wear gloves and safety glasses while
handling or removing broken glass. Do not remove if
glass is hot. Keep children and pets away from glass.
WARNING: Do not operate burner system with the
glass door removed, cracked, or broken.
Use only the ceramic glass door replacement intended for this
burner system (see Replacement Parts, page 32 for detail on
ordering). No substitutions may be made. See Removing/Replacing
Glass Door, page 23 for instructions for replacing glass door.
CAUTION: Do not vacuum if pieces are hot.
VENTING SYSTEM
Conduct annual inspection of the venting system following these
guidelines:
1. Check areas of venting system that are exposed to the
weather for corrosion (rust spots or streaks and, in extreme
cases, holes). Have these items replaced immediately by a
qualified service person.
2. Remove the vent cap and shine a flashlight into the vent.
Remove any foreign material.
3. Check for evidence of excessive condensation. Continuous
condensation can cause corrosion of caps, pipes, and fittings
and can be caused by having excessive lateral runs, too many
elbows, or exterior portions of the system being exposed to
cold weather.
4. Inspect joints to verify that no pipe section or fitting has been
disturbed and loosened. Check mechanical supports such as
wall straps for rigidity.
CLEANING AND MAINTENANCE
Glass Door
Pilot and Burners
Logs
Venting System

107304
For more information, visit www.desatech.com
For more information, visit www.desatech.com
30
TROUBLESHOOTING
Note:
All troubleshooting items are listed in
order of operation.
WARNING: Turn off burner
system and let cool before ser-
vicing. Only a qualified service
person should service and repair
burner system or stove.
CAUTION: Never use a wire,
needle, or similar object to clean
pilot. This can damage pilot unit.
POSSIBLE CAUSE
1. Ignitor electrode not connected to igni-
tor cable
2. Ignitor cable pinched or wet
3. Piezo ignitor nut is loose
4. Broken ignitor cable
5. Bad piezo ignitor
6. Ignitor electrode broken
7. Ignitor electrode positioned wrong
1. Gas supply turned off or equipment
shutoff valve closed
2. Gas control knob not in PILOT position
3. Gas control knob not pressed in while
in PILOT position
4. Air in gas lines when installed
5. Depleted gas supply (propane/LP models
only)
6. Pilot is clogged
7. Gas regulator setting is not correct
1. Gas control knob not fully pressed in
2. Gas control knob not pressed in long
enough
3. Equipment shutoff valve not fully open
4. Pilot flame not touching thermocouple,
which allows thermocouple to cool,
causing pilot flame to go out. This prob-
lem could be caused by one or both of
the following:
A) Low gas pressure
B) Dirty or partially clogged pilot
5. Thermocouple connection loose at con-
trol valve
6. Thermocouple damaged
7. Control valve damaged
REMEDY
1. Reconnect ignitor cable
2. Free ignitor cable if pinched by any
metal or tubing. Keep ignitor cable dry
3. Tighten nut holding piezo ignitor. Nut
is located behind the mounting bracket
4. Replace ignitor cable
5. Replace piezo ignitor
6. Replace piezo ignitor
7. Replace piezo ignitor
1. Turn on gas supply or open equipment
shutoff valve
2. Turn gas control knob to PILOT position
3. Press in gas control knob while in PILOT
position
4. Continue holding down gas control
knob. Repeat igniting operation until air
is removed
5. Contact local propane/LP gas company
6. Clean pilot (see Cleaning and Mainte-
nance, page 29) or replace pilot assembly
7. Replace gas control
1. Press in gas control knob fully
2. After pilot lights, keep gas control knob
pressed in 30 seconds
3. Fully open equipment shutoff valve
4. A) Contact local gas company
B) Clean pilot (see Cleaning and
Maintenance, page 29) or replace pilot
assembly
5. Hand tighten until snug, then tighten
1/4 turn more
6. Replace thermocouple
7. Replace control valve
OBSERVED PROBLEM
When ignitor button is pressed, there is no
spark at pilot
When ignitor button is pressed, there is
spark at pilot but no ignition
Pilot lights but flame goes out when control
knob is released
Note:
For additional help, visit DESA
International’s technical service web
site at www.desatech.com.
TROUBLESHOOTING

107304
For more information, visit www.desatech.com
For more information, visit www.desatech.com
31
31
OBSERVED PROBLEM
Burner does not light after pilot is lit
Delayed ignition burner
Burner backfiring during combustion
Slight smoke or odor during initial operation
Burner system produces a whistling noise
when burner is lit
Glass soots
Burner system produces a clicking/ticking
noise just after burners are lit or shut off
Remote does not function
REMEDY
1. Clean burner (see Cleaning and
Maintenance, page 29) or replace burner
orifice
2. Contact local propane/LP or natural gas
company
3. Reconnect leads (see Wiring Diagram,
page 33)
4. Replace thermopile
5. Replace gas valve
1. Contact local propane/LP or natural gas
company
2. Clean burner (see Cleaning and Main-
tenance, page 29) or replace burner orifice
1. Clean burner (see Cleaning and
Maintenance, page 29) or replace burner
orifice
2. Replace damaged burner
3. Replace gas control
1. Problem will stop after a few hours of
operation
1. Turn gas control knob to LO position and
let warm up for a minute
2. Operate burner until air is removed from
line. Have gas line checked by local pro-
pane/LP or natural gas company
3. Clean burner (see Cleaning and
Maintenance, page 29) or replace burner
orifice
1. Adjust the log set so that the flame does
not excessively impinge on it
2. Inspect the opening at the base of the
burner to see that it is NOT packed with
any type of material
3. Follow venting configuration instructions
in owner’s manual
1. This is common. If noise is excessive,
contact qualified service person
1. Replace 9-volt batteries in receiver and
remote control
TROUBLESHOOTING
Continued
POSSIBLE CAUSE
1. Burner orifice clogged
2. Inlet gas pressure is too low
3. Thermopile leads disconnected or im-
properly connected
4. Thermopile is defective
5. Gas valve is defective
1. Manifold pressure is too low
2. Burner porting or orifice clogged
1. Burner orifice is clogged or damaged
2. Damaged burner
3. Gas regulator defective
1. Residues from manufacturing processes
and logs curing
1. Turning gas control knob to HI position
when burner is cold
2. Air in gas line
3. Dirty or partially clogged burner orifice
1. Flame impingement on logs
2. Debris around burner air mixer
3. Improper vent configuration
1. Metal expanding while heating or con-
tracting while cooling
1. Battery is not installed or battery power
is low
TROUBLESHOOTING

107304
For more information, visit www.desatech.com
For more information, visit www.desatech.com
32
TROUBLESHOOTING
Continued
WARNING: If you smell gas
•Shut off gas supply.
•Do not try to light any appliance.
•Do not touch any electrical switch; do not use any phone in your building.
•Immediately call your gas supplier from a neighbor’s phone. Follow the gas
supplier’s instructions.
•If you cannot reach your gas supplier, call the fire department.
IMPORTANT:
Operating burner system where impurities in air exist may create odors. Cleaning
supplies, paint, paint remover, cigarette smoke, cements and glues, new carpet or textiles, etc., create
fumes. These fumes may mix with combustion air and create odors. These odors will disappear over time.
POSSIBLE CAUSE
1. Gas leak. See Warning statement
above
1. High or gusting winds
2. Low line pressure
3. Pilot is partially clogged
4. Inner vent pipe leaking exhaust gasses
into system
5. Glass too loose and air tight gasket leaks
in corners after usage
6. Bad thermopile or thermocouple
7. Improper vent cap installation
1. Gas leak. See Warning statement
above
2. Control valve defective
1. Gas leak. See Warning statement
above
1. Improper log placement
2. Air holes at burner inlet blocked
3. Burner flame holes blocked
4. Improper vent configuration
OBSERVED PROBLEM
Burner system produces unwanted odors
Burner system shuts off in use
Gas odor even when control knob is in OFF
position
Gas odor during combustion
Dark residue on logs or inside of burner
system
REMEDY
1. Locate and correct all leaks (see Check-
ing Gas Connections, pages 21 and 22)
1. Burner system has been tested for up to
40mph winds. However, extreme con-
ditions may occur. See Lighting Instruc-
tions on page 26
2. Contact local propane/LP or natural gas
company
3. Clean pilot (see Cleaning and Mainte-
nance, page 29)
4. Locate and correct all leaks in venting
pipe
5. Tighten glass door
6. Replace faulty component
7. Check for proper installation and free-
dom from debris or blockage
1. Locate and correct all leaks (see Check-
ing Gas Connections, pages 21 and 22)
2. Replace control valve
1. Locate and correct all leaks (see Check-
ing Gas Connections, pages 21 and 22)
1. Properly locate logs (see Installing Logs,
Lava Rock, and Glowing Embers, page 25)
2. Clean out air holes at burner inlets. Pe-
riodically repeat as needed
3. Remove blockage or replace burner
4. Follow vent configuration instructions
in owner’s manual
TROUBLESHOOTING

107304
For more information, visit www.desatech.com
For more information, visit www.desatech.com
33
33
SERVICE HINTS
When Gas Pressure Is Too Low
• pilot will not stay lit
• burners will have delayed ignition
• burner system will not produce specified heat
• propane/LP gas supply might be low (propane/LP units only)
If you feel your gas pressure is too low, contact your local natural
or propane/LP gas supplier.
TECHNICAL SERVICE
You may have further questions about installation, operation, or
troubleshooting. If so, contact DESA International’s Technical
Service Department at 1-866-672-6040.
You can also visit DESA International’s technical service web site
at www.desatech.com.
REPLACEMENT PARTS
Figure 65 - Blower Wiring Diagram for Thermostat-Controlled
Models
WIRING DIAGRAM
CAUTION: Label all wires prior to disconnection
when servicing controls. Wiring errors can cause
improper and dangerous operation. Verify proper
operation after servicing.
Note:
Use only original replacement parts. This will protect your
warranty coverage for parts replaced under warranty.
PARTS UNDER WARRANTY
Contact authorized dealers of this product. If they can not supply
original replacement part(s), call DESA International’s Technical
Service Department at 1-866-672-6040.
When calling DESA International, have ready
• your name
• your address
• model and serial numbers of your burner system and stove
• how burner system or stove was malfunctioning
• type of gas used (propane/LP or natural gas)
• purchase date
Usually, we will ask you to return the part to the factory.
PARTS NOT UNDER WARRANTY
Contact authorized dealers of this product. If they can not supply original
replacement part(s), call DESA International at 1-866-672-6040 for
referral information.
When calling DESA International, have ready
• model number of your burner system and stove
• the replacement part number
Blue
Variable
Fan Switch Fan Switch
(N.O.)
Green
White
On
110/115
V.A.C. Blower
Motor
Black
Off
1
2
Black
REPLACEMENT PARTS
Parts Under Warranty
Parts Not Under Warranty
TECHNICAL SERVICE
WIRING DIAGRAM
SERVICE HINTS

107304
For more information, visit www.desatech.com
For more information, visit www.desatech.com
34
SPECIFICATIONS
(F)SDVBNC (F)SDVBPC
21,000-30,000 Btu/h 20,000-28,000 Btu/h
Gas Type Natural Propane/LP
Ignition Piezo Piezo
Manifold Pressure 3.5" w.c. 10.0" w.c.
Minimum Inlet Supply Pressure 4.5" w.c. 11.0" w.c.
Thermal Efficiency 70% 70%
Dimension, Inches/mm (HxWxD)
Stove and Burner System* 27" x 26 1/4" x 26 1/8" 27" x 26 1/4" x 26 1/8"
685.8 x 666.7 x 663.4mm 685.8 x 666.7 x 663.4mm
Carton (Insert Only) 23 1/4" x 33 1/4" x 23 1/2" 23 1/4" x 33 1/4" x 23 1/2"
590.5 x 844.5 x 596.9mm 590.5 x 844.5 x 596.9mm
Weight, lbs/kg
Burner System 70 lbs/31.8 kg 70 lbs/31.8 kg
Shipping 75 lbs/34 kg 75 lbs/34 kg
* When installed in a model SCIVF/PSCIVF series or PFC series cast iron stove body.
SPECIFICATIONS

107304
For more information, visit www.desatech.com
For more information, visit www.desatech.com
35
35
ACCESSORIES
Purchase these stove and burner system accessories from your
local dealer. If they can not supply these accessories, call DESA
International’s Sales Department at 1-866-672-6040 for informa-
tion. You can also write to the address listed on the back page of
this manual.
WALL MOUNTED THERMOSTAT CONTROL
KIT - GWMT1 (Not Shown)
For all models. Allows easy wall access to the operation of your
burner system. This will allow you thermostatic control with the
convenience of a wall switch.
WALL MOUNTED ON/OFF SWITCH - GWMS2
(Not Shown)
For all models. Allows burner system to be turned on and off with
a wall switch.
NC-DVBPA CONVERSION KIT
(Not Shown)
For propane/LP gas models. Allows burner system to be con-
verted from propane/LP gas to natural gas.
PC-DVBNA CONVERSION KIT
(Not Shown)
For natural gas models. Allows burner system to be converted
from natural gas to propane/LP gas.
THERMOSTATICALLY- CONTROLLED
BLOWER KIT - CDA3620TB
For all models. Provides better heat distribution. Blower turns off
and on automatically, as needed. Complete installation and opera-
tion instructions included in this manual.
AUTO
ON
OFF
COOLER
WARMER
TEMP
RECEIVER AND HAND-HELD REMOTE
CONTROL KIT - GHRC
For all models. Allows the burner system to be turned on and off
conveniently.
RECEIVER AND HAND-HELD THERMOSTAT
REMOTE CONTROL KIT - GHRCTA
For all models. Allows the burner system to be operated in a
manually or thermostatically-controlled mode. You can adjust your
heat settings and turn the burner system on or off without leaving the
comfort of your easy chair. (Requires part no. 103284-04 wire
harness included with burner system.)
ACCESSORIES
MANUAL BLOWER KIT - GA3750A
For all models. Provides better heat distribution. Blower turns off
and on manually. Complete installation and operation instructions
included in this manual.

107304
For more information, visit www.desatech.com
For more information, visit www.desatech.com
36
L
O
H
I
P
I
L
O
T
OFF
ON
24
4
19
20
21
23
26-1
26-4
26-2
26-3
29
24
4
25
4
1
28
4
7
8
9
10
11
13
12
15
16
17 22
4
2
3
6
22
27
14
4
5
4
31
33
30
32
18
4
ILLUSTRATED PARTS
BREAKDOWN
(F)SDVBNC
(F)SDVBPC
ILLUSTRATED PARTS BREAKDOWN
(F)SDVBNC/(F)SDVBPC

107304
For more information, visit www.desatech.com
For more information, visit www.desatech.com
37
37
KEY SDVBNC FSDVBNC
NO. SDVBPC FSDVBPC DESCRIPTION QTY.
1 106790-01 106840-01 Firebox Assembly 1
2 105776-01 106854-01 Glass Door 1
3 106831-01 106859-01 Rear Cover 1
4 M11084-46 —Screw, Hex 11
—M11084-46 Screw, Hex 21
5 107191-01 107191-01 Baffle 1
6 099998-01 099998-01 On/Off Switch 1
7 103284-07 103284-07 Wire Harness 1
8 104491-01 104491-01 Relief Cover 1
9 104518-01 104518-01 Relief Cover Gasket 1
10 104527-01 104527-01 Relief Spring 2
11 104528-01 104528-01 Relief Washer 2
12 H5C4-20B H5C4-20B Hex Head Cap Screw 2
13 NTC-4C NTC-4C Locknut 2
14 105468-01 105468-01 Valve Bracket 1
15 14563 14563 Valve, Natural 1
14564 14564 Valve, Propane/LP 1
16 14561 14561 Pilot Assembly, Natural 1
14562 14562 Pilot Assembly, Propane/LP 1
17 102445-01 102445-01 Ignitor, Piezo 1
18 107014-01 107012-01 Center Cast Stove Top Grate 1
19 106036-01 106036-01 Burner, Natural 1
106036-02 106036-02 Burner, Propane/LP 1
20 104506-16 104506-16 Orifice, Natural 1
104506-17 104506-17 Orifice, Propane/LP 1
21 14528 14528 Brass Elbow 1
22 901063-01 901063-01 Brass Elbow 2
23 101628-04 101628-04 Flex Tubing 2
24 106794-01 106794-01 Grate Assembly 1
25 105325-01 105325-01 Air Deflector 1
26 105491-01 105491-01 Log Set 1
26-1 105774-01 105774-01 Rear Log 1
26-2 105774-02 105774-02 Front Log 1
26-3 105774-03 105774-03 Crossover Log 1
26-4 105774-04 105774-04 Log Piece 1
27 098304-03 098304-03 Screw 2
28 M12461-50 M12461-50 Screw 3
29 11200 11200 Screw 2
30 —106865-01 6" Connector Gasket 1
31 —106827-01 4" Connector Gasket 1
32 —107008-01 7" Outer Connector 1
33 —107496-01 4" Inner Connector 1
GA6060 GA6060 Lava Rock 1
14250 14250 Ember Material 1
M11084-26 M11084-26 Hex Screw for Blower Bracket 4
PARTS LIST
(F)SDVBNC
(F)SDVBPC
This list contains replaceable parts used in your burner system. When ordering parts, follow the
instructions listed under Replacement Parts on page 33 of this manual.
PARTS AVAILABLE - NOT SHOWN
PARTS LIST
(F)SDVBNC/(F)SDVBPC

107304
For more information, visit www.desatech.com
For more information, visit www.desatech.com
38
ILLUSTRATED PARTS
BREAKDOWN
AMITY™ STOVE CHASSIS
SCIVFC(*) SERIES
PSCIVFC(*) SERIES
(* Indicates Color Suffix Designation)
2
5
8
7-4
6
5
5
7-1
7-2
5
4
7-3
1R
1C
1L
3
ILLUSTRATED PARTS BREAKDOWN
Amity™ Stove Chassis (P)SCIVFC Series

107304
For more information, visit www.desatech.com
For more information, visit www.desatech.com
39
39
PARTS LIST
AMITY™ STOVE
CHASSIS
SCIVFC(*) SERIES
PSCIVFC(*) SERIES
(* Indicates Color Suffix
Designation)
This list contains replaceable parts used in your stove. When ordering parts, follow the instructions
listed under Replacement Parts on page 33 of this manual.
* Included In Hardware Kit
KEY PART
NO. NO. DESCRIPTION QTY.
1C 104171-08 Top Grate with Screen-Center (Black Only) 1
1L 104171-11 Top Grate with Screen-Left (Black Only) 1
1R 104171-12 Top Grate with Screen-Right (Black Only) 1
2 104172-01 Stove Back Panel (Black Only) 1
3 104173-01 Bottom Door (Charcoal) 1
104173-02 Bottom Door (Azure Blue) 1
104173-03 Bottom Door (Hunter Green) 1
104173-04 Bottom Door (Burgundy Red) 1
104173-05 Bottom Door (Forest Green) 1
104173-06 Bottom Door (Metallic Charcoal) 1
104173-07 Bottom Door (Porcelain Enamel Red) 1
104173-08 Bottom Door (Porcelain Enamel Teal Green) 1
104173-09 Bottom Door (Porcelain Enamel Sand) 1
4 104174-01 Stove Dropped Bottom 1
5 104175-01 One Leg (Charcoal) (4 Total Per Stove) 1
104175-02 One Leg (Azure Blue) (4 Total Per Stove) 1
104175-03 One Leg (Hunter Green) (4 Total Per Stove) 1
104175-04 One Leg (Burgundy Red) (4 Total Per Stove) 1
104175-05 One Leg (Forest Green) (4 Total Per Stove) 1
104175-06 One Leg (Metallic Charcoal) (4 Total Per Stove) 1
104175-07 One Leg (Porcelain Enamel Red) (4 Total Per Stove) 1
104175-08 One Leg (Porcelain Enamel Teal Green) (4 Total Per Stove) 1
104175-09 One Leg (Porcelain Enamel Sand) (4 Total Per Stove) 1
6 104176-01 Leg Leveler bolt M8 x 1.25 - 55mm Long (4 Total Per Stove) 1
7 104177-01 Hardware Kit 1
7-1 * Door Hinge Step Bolt With Shoulder (1 Per Unit) 1
7-2 * Door Catch Bolt M8 x 1.25 - 55mm Long With Two M8
Hex Nuts (1 Per Unit) 1
7-3 * Bottom Floor Bolts M6 x 1 - 25mm Long With Flat Washer
And Lock Washer (4 Per Unit) 1
7-4 * Leg Bolts M6 x 1.25 - 20mm Long With Flat Washer And
Lock Washer (4 Per Unit) 1
8 104178-01 Back Panel Bolts M6 x 1 - 20mm Long With Flat Washer
And Lock Washer (6 Per Unit) 1
PARTS AVAILABLE — NOT SHOWN
104108-01 Touch-up Spray Paint 12 oz Can (Charcoal) 1
104108-02 Touch-up Spray Paint 12 oz Can (Azure Blue) 1
104108-03 Touch-up Spray Paint 12 oz Can (Green) 1
104108-04 Touch-up Spray Paint 12 oz Can (Burgundy Red) 1
104108-06 Touch-up Spray Paint 12 oz Can (Metallic Charcoal) 1
104807-01 Touch-up Paint Bottle with Brush (Porcelain Enamel Red) 1
104807-02 Touch-up Paint Bottle with Brush (Porcelain Enamel Teal Green) 1
104807-03 Touch-up Paint Bottle with Brush (Porcelain Enamel Sand) 1
PARTS LIST
Amity™ Stove Chassis (P)SCIVFC Series

107304
For more information, visit www.desatech.com
For more information, visit www.desatech.com
40
ILLUSTRATED PARTS
BREAKDOWN
STOVE CHASSIS
(P)FC SERIES
1R
1C
1L
5
8
8
7-4
6
5
5
7-1
7-2
5
4
7-3
2
3
(Discarded
During Assembly)
ILLUSTRATED PARTS BREAKDOWN
Stove Chassis (P)FC Series

107304
For more information, visit www.desatech.com
For more information, visit www.desatech.com
41
41
PARTS LIST
STOVE CHASSIS
(P)FC SERIES
This list contains replaceable parts used in your stove. When ordering parts, follow the
instructions listed under Replacement Parts on page 33 of this manual.
* Included In Hardware Kit
KEY PART
NO. NO. DESCRIPTION QTY.
1C 104171-02 Top Grate with Screen (Center) (Black Only) 1
1L 104171-03 Top Grate with Screen (Left) (Black Only) 1
1R 104171-04 Top Grate with Screen (Right) (Black Only) 1
2 104172-02 Stove Back Panel (Black Only) 1
3 104173-10 Bottom Door (Metallic Black) 1
104173-11 Bottom Door (Porcelain Enamel Black) 1
104173-14 Bottom Door (Porcelain Enamel Green) 1
104173-15 Bottom Door (Porcelain Enamel Red) 1
4 104174-04 Stove Dropped Bottom 1
5 104175-10 One Leg (Metallic Black) (4 Total Per Stove) 1
104175-11 One Leg (Porcelain Enamel Black) (4 Total Per Stove) 1
104175-14 One Leg (Porcelain Enamel Green) (4 Total Per Stove) 1
104175-15 One Leg (Porcelain Enamel Red) (4 Total Per Stove) 1
6 104176-01 Leg Leveler bolt M8 x 1.25 - 55mm Long (4 Total Per Stove) 1
7 104177-02 Hardware Kit 1
7-1 * Door Hinge Step Bolt With Shoulder (1 Per Unit) 1
7-2 * Door Catch Bolt M8 x 1.25 - 55mm Long With Two M8
Hex Nuts (1 Per Unit) 1
7-3 * Bottom Floor Bolts M6 x 1 - 25mm Long With Flat Washer
And Lock Washer (4 Per Unit) 1
7-4 * Leg Bolts M6 x 1.25 - 20mm Long With Flat Washer And
Lock Washer (4 Per Unit) 1
8 104178-01 Back Panel Bolts M6 x 1 - 20mm Long With Flat Washer
And Lock Washer (6 Installed Per Unit) 1
PARTS AVAILABLE — NOT SHOWN
104108-06 Touch-up Spray Paint 12 oz Can (Metallic Black) 1
104807-04 Touch-up Paint Bottle with Brush (Porcelain Enamel Black) 1
104807-07 Touch-up Paint Bottle with Brush (Porcelain Enamel Green) 1
104807-08 Touch-up Paint Bottle with Brush (Porcelain Enamel Red) 1
106057-01 Back Panel Extension, Left (Included) 1
106057-02 Back Panel Extension, Right (Included) 1
104178-01 Back Panel Bolts M6 x 1 - 20mm Long With Flat Washer
And Lock Washer (6 Installed Per Unit) 1
PARTS LIST
Stove Chassis (P)FC Series

107304
For more information, visit www.desatech.com
For more information, visit www.desatech.com
42
WARRANTY INFORMATION
DESA LIMITED WARRANTY
DIRECT-VENT BURNER SYSTEM AND AMITY™ STOVE CHASSIS
DESA International warrants this product to be free from defects in materials and components for four (4) years from the date of first purchase,
provided that the product has been properly installed, operated and maintained in accordance with all applicable instructions. To make a claim
under this warranty the Bill of Sale or cancelled check must be presented.
This warranty is extended only to the original retail purchaser. This warranty covers the cost of part(s) required to restore this stove and burner
system to proper operating condition and an allowance for labor when provided by a DESA Authorized Service Center. Warranty part(s) MUST
be obtained through authorized dealers of this product and/or DESA International who will provide original factory replacement parts. Failure to
use original factory replacement parts voids this warranty. The stove and burner system MUST be installed by a qualified installer in accordance
with all local codes and instructions furnished with the unit.
This warranty does not apply to parts that are not in original condition because of normal wear and tear, or parts that fail or become damaged as a result
of misuse, accidents, lack of proper maintenance or defects caused by improper installation. Travel, diagnostic cost, labor, transportation and any and
all such other costs related to repairing a defective stove and burner system will be the responsibility of the owner.
TO THE FULL EXTENT ALLOWED BY THE LAW OF THE JURISDICTION THAT GOVERNS THE SALE OF THE PRODUCT; THIS
EXPRESS WARRANTY EXCLUDES ANY AND ALL OTHER EXPRESSED WARRANTIES AND LIMITS THE DURATION OF ANY
AND ALL IMPLIED WARRANTIES, INCLUDING WARRANTIES OF MERCHANTABILITY AND FITNESS FOR A PARTICULAR
PURPOSE TO FOUR (4) YEARS ON ALL COMPONENTS FROM THE DATE OF FIRST PURCHASE; AND DESA INTERNATIONAL’S
LIABILITY IS HEREBY LIMITED TO THE PURCHASE PRICE OF THE PRODUCT AND DESA INTERNATIONAL SHALL NOT BE
LIABLE FOR ANY OTHER DAMAGES WHATSOEVER INCLUDING INDIRECT, INCIDENTAL OR CONSEQUENTIAL DAMAGES.
Some states do not allow a limitation on how long an implied warranty lasts or an exclusion or limitation of incidental or consequential damages,
so the above limitation on implied warranties, or exclusion or limitation on damages may not apply to you.
This warranty gives you specific legal rights, and you may also have other rights that vary from state to state.
For information about this warranty write:
2701 Industrial Drive
P.O. Box 90004
Bowling Green, KY 42102-9004
www.desatech.com
TM
KEEP THIS WARRANTY
Burner System Model No. ________________
Serial No. ____________________________
Date Purchased _______________________
Always specify model and serial numbers when communicating with the factory.
We reserve the right to amend these specifications at any time without notice. The only warranty applicable is our standard written warranty. We make
no other warranty, expressed or implied.
107304-01
Rev. B
03/02
NOT A UPC
107304 01
Cast Stove Model No. ___________________
Serial No. ____________________________
Date Purchased _______________________