Detroit Electric Gas Heater V 5 05 Users Manual AG 2 Insert 9 03
2015-02-04
: Detroit-Electric Detroit-Electric-Detroit-Electric-Gas-Heater-V-5-05-Users-Manual-513007 detroit-electric-detroit-electric-gas-heater-v-5-05-users-manual-513007 detroit-electric pdf
Open the PDF directly: View PDF .
Page Count: 12

Warranty registration options:
1. Register online at www.reverberray.com/warranty
2. Complete the information above and fax to Detroit Radiant Products Co.
3. Complete the information above and mail to Detroit Radiant Products Co.
Printed in U.S.A.
© 2005 Detroit Radiant Products Co.
21400 Hoover Rd., Warren, MI 48089
T. (586) 756-0950 F. (586) 756-2626
Form# LIOAG2-2M-9/05 (ID)
Replaces Form# LIOAG2-1M-03/01
AG2 Series
ENGLISH
Project: _______________________________ Date: ____________________
Customer Name: __________________________________________________
Location: ________________________________________________________
City: ___________________________ State: __________ Zip: _____________
Contractor: _______________________________________________________
Engineer: ________________________________________________________
Address: ________________________________________________________
City: ____________________________ State: _________ Zip: _____________
Serial #: _______________________________ Phone#: __________________
Local Representative: _______________________________________________
Date of Installation: ________________________________________________
Notes: __________________________________________________________
** Model requires 5EA-SUB accessory package.
• AGAO-SS - Upgrade burner box from coated steel to 304 Series Stainless.
• ALUM-AO - Upgrade hot rolled steel radiant tubes to black coated 16ga. aluminized steel for maximum efficiency and longevity.
Highly recommended in any contaminated or moisture laden environment (ex. poultry applications). See chart above for quantity needed.
*For complete installation instructions, see the General Manual that accompanied this piece.
Additional literature on this and other products are available at www.detroitradiant.com.
AG2 Series V.5/05 - 4” Tube Heater Installation, Operation, Maintenance and Parts Manual*
WARNING: This heater must be installed and serviced by trained gas installation and service personnel only!
Improper installation, adjustment, alteration, service or maintenance can cause property damage, injury or death.
Read the installation, operating and maintenance instructions thoroughly before installing or servicing this equipment.
Protect yourself and others by observing all safety information. Retain instructions for future reference.
!
Model V.5/05
Swine Arena Dairy Poultry
Polebarns &
Shops
AG2-20-65 N or LP 65,000 50,000 No Yes No Yes Yes 21'-7" 13'-0" 120# - 2 6' - 9' Aluminized 4" Hot Rolled Qty. 1 5
AG2-20-75 N or LP 75,000 50,000 No Yes Yes Yes Yes 21'-7" 13'-0" 120# - 2 7' - 10' Aluminized 4" Hot Rolled Qty. 1 5
AG2-30-65 N or LP 65,000 50,000 No Yes No Yes Yes 31'-3" **17'-8" 160# - 2 6' - 9' Aluminized 4" Hot Rolled Qty. 2 5
AG2-30-75 N or LP 75,000 50,000 No Yes Yes Yes Yes 31'-3" **17'-8" 160# - 2 7' - 10' Aluminized 4" Hot Rolled Qty. 2 5
AG2-30-100 N or LP 100,000 65,000 No Yes Yes Yes Yes 31'-3" **17'-8" 160# - 2 8' - 14' Aluminized 4" Hot Rolled Qty. 2 6
AG2-40-65 N or LP 65,000 50,000 No Yes No Yes Yes 40'-11" 22'-8" 190# - 2 6' - 9' Aluminized 4" Hot Rolled Qty. 3 5
AG2-40-75 N or LP 75,000 50,000 No Yes Yes Yes Yes 40'-11" 22'-8" 190# - 2 7' - 10' Aluminized 4" Hot Rolled Qty. 3 5
AG2-40-100 N or LP 100,000 65,000 No Yes Yes Yes Yes 40'-11" 22'-8" 190# - 2 7' - 11' Aluminized 4" Hot Rolled Qty. 3 5
AG2-40-125 N or LP 125,000 95,000 No Yes Yes Yes Yes 40'-11" 22'-8" 190# - 2 9' - 14' Aluminized 4" Hot Rolled Qty. 3 5
AG2-40-150 N or LP 150,000 100,000 No Yes Yes No Yes 40'-11" 22'-8" 190# - 2 10' - 14' Titanium 4" Hot Rolled Qty. 3 5
AG2-50-100 N or LP 100,000 65,000 No Yes No Yes Yes 50'-7" **27'-4" 235# - 2 8' - 11' Aluminized 4" Hot Rolled Qty. 4 5
AG2-50-125 N or LP 125,000 95,000 No Yes Yes Yes Yes 50'-7" **27'-4" 235# - 2 9' - 14' Aluminized 4" Hot Rolled Qty. 4 5
AG2-50-150 N or LP 150,000 100,000 No Yes Yes No Yes 50'-7" **27'-4" 235# - 2 10' - 14' Titanium 4" Hot Rolled Qty. 4 5
AG2-60-150 N or LP 150,000 100,000 No Yes Yes No Yes 60'-3" 32'-4" 270# - 3 10' - 14' Titanium 4" Hot Rolled Qty. 5 5
BTU/H
Low Fire
Uncoated
Combustion
Chamber
Radiant
Emitter Tube
Alum.
Add On
Baffle
Pieces
Applications
Straight
Length
Weight -
Pcs.
Suggested
Mounting
Height
U-Tube
LengthQty. Model #
Gas Type
(circle one)
BTU/H
High Fire
VTable of Contents
Page
Models 1
Warnings 2
Clearances to Combustibles 2
Product Summary 3
Product Instructions 3
Heater Requirements 4
Theory of Operation 4
Wiring Diagrams 5-7
Flowchart 8-9
Parts Listing 10-11
Series Kit Contents 12

AG2 Series - 4” Tube Heater Installation, Operation, Maintenance and Parts Manual
AG2 Series
2
FRONT BELOW
AG2 (20,30,40) - 65 [N,P] 0º 9 9 6 60
45º 39 8 10 60
W/1 side shield 0º 29 8 6 60
W/2 side shields 0º 9 9 6 60
20 ft from burner 0º 7 7 6 30
AG2 (20,30,40) - 75 [N,P] 0º 9 9 6 60
45º 39 8 10 60
W/1 side shield 0º 29 8 6 60
W/2 side shields 0º 9 9 6 60
20 ft from burner 0º 7 7 6 30
AG2 (30,40,50) - 100 [N,P] 0º 14 14 6 66
45º 39 8 10 66
W/1 side shield 0º 29 8 6 66
W/2 side shields 0º 16 16 6 66
20 ft from burner 0º 7 7 6 30
AG2 (40,50,60)-125 [N,P] 0º 20 20 6 76
45º 58 8 10 76
W/1 side shield 0º 42 8 6 76
W/2 side shields 0º 20 20 6 76
20 ft from burner 0º 7 7 6 30
AG2 (40,50,60) - 150 [N,P] 0º 24 24 6 81
45º 58 8 10 81
W/1 side shield 0º 42 8 6 81
W/2 side shields 0º 23 23 6 81
20 ft from burner 0º 11 11 6 44
CLEARANCES TO COMBUSTIBLES (IN.)
MODEL NO. MOUNTING
ANGLE
SIDE TOP BELOW
Failure to comply with the stated clearances
to combustibles could result in personal injury,
death and/or property damage.
This heater should be installed so that the
minimum clearances to vehicles, as marked
on the heater, will be maintained. If vehicle
lifts are present, ensure that these clearances
will be maintained from the highest raised
vehicle.
!WARNING!
!WARNING!
!WARNING!
!WARNING!
!WARNING!
This heater must be installed and serviced by
trained gas installation and service personnel
only. Read and understand these instructions
thoroughly before attempting to install, operate
or service this heater. Failure to comply could
result in personal injury, asphyxiation, death,
fire, and/or property damage. Retain these
instructions for future reference.
NOT FOR RESIDENTIAL USE!
Do not use in the home, sleeping quarters,
attached garages, etc.
In locations used for the storage of combustible
materials, signs must be posted to specify the
maximum permissible stacking height to
maintain the required clearances from the heater
to the combustibles. Signs must either be posted
adjacent to the heater thermostats or inthe
absence of such thermostats, in a conspicuous
location.
This is not an explosion-proof heater. Where
there is the possibility of exposure to flammable
vapors, consult the local fire marshal, the fire
insurance carrier and other authorities for
approval of the proposed installation.
!WARNING!
0° MOUNTING ANGLE 45° MOUNTING ANGLE
0° W/1 SIDE SHIELD 0° W/2 SIDE SHIELDS

3
AG2 Series - 4” Tube Heater Installation, Operation, Maintenance and Parts Manual
AG2 Series Mechanical Instructions
This supplement is designed to address the specifics of the AG2 Series - see page 12 for product features.
Burner
Curtain
Wall
1/4” Bird
Screen
BCombustion Chamber
Combustion Chamber
Combustion Chamber
Combustion Chamber
Combustion Chamber
*
*
*
*
*
B
B
B
B
B = Burner location = Baffle location
*
Aluminized
(65-75 MBTU/H)
Aluminized
(65-100 MBTU/H)
Aluminized or Titanium
(65-125 MBTU/H) (150 MBTU/H)
Aluminized or Titanium
(100-125 MBTU/H) (150 MBTU/H)
Titanium
(150 MBTU/H)
Uncoated Hot-rolled
Uncoated Hot-rolled
Uncoated
Hot-Rolled or Aluminized
(65-125 MBTU/H) (150 MBTU/H)
Uncoated Aluminized
(150 MBTU/H)
Tube Installation Sequence
The AG2 Series has a 4" uncoated combustion chamber (identified by an orange sticker) and 4" uncoated hot rolled steel
(HRT) heat exchangers, following the combustion chamber and every tube there after. 150,000 BTU/H models incorporate an
aluminized tube to be placed directly following the combustion chamber. Tube packages with the ALUM-AO upgrade will have
4” black coated aluminized heat exchangers replacing the uncoated hot rolled steel. See the Tube Installation Sequence chart
below for an illustration.
Operational Features
Outside air for combustion is required in all agricultural applications. Place air inlet in a non-contaminated area, away from any
steam or moisture sources.
Product Summary
AG2 Series heaters are available from 20 to 60 foot, 65,000 to 150,000 BTU’s, natural or LP gas. AG2 Series are positive
pressure, two stage heaters and feature uncoated hot rolled steel for it’s radiant pipes.
Combustion Air
The combustion air intake collar is also a factory-preset air orifice.
Non-contaminated air for combustion must be ducted to the heater
in all agricultural applications.
Do not take combustion air from positively or negatively
pressurized attic spaces, except in broiler houses.
Locate intake away from any steam source. Use caution when
placing intake above curtain walls, as they leak .
See adjacent figure. Use light gauge, 4 inch PVC air intake
material from curtain sidewall to heater. Do not exceed 25 feet.
With elbow, drop below curtain top, one foot in length. Cap with
1/4 inch birdscreen.
Uncoated
Hot-Rolled or Aluminized
(100-125 MBTU/H) (150 MBTU/H)
Uncoated Hot-rolled
Uncoated Hot-rolled
Uncoated Hot-rolledUncoated Hot-rolled
Uncoated Hot-rolled
Uncoated Hot-rolled
Uncoated Hot-rolledUncoated Hot-rolled
Uncoated Hot-rolled
Uncoated Hot-rolled
Air Intake through attic
for broiler houses.

4
AG2 Series - 4” Tube Heater Installation, Operation, Maintenance and Parts Manual
AG2 Series
Electrical Requirements
•120 Volt - 60 Hz GRD, 3-wire.
•24V thermostat connection.
•Starting current 4.8 amps
•Running current 1.1 amps
Gas Requirements
•Manifold Pressure
- Nat. 3.5’’ - LP. 10.0’’
•Minimum Inlet Pressure
- Nat. 5.0’’ - LP. 11.0’’
•Maximum Inlet
- Nat. 14.0’’ - LP. 14.0’’
Allowances must be made for the system to expand. Consult
installation manual for further gas supply instructions.
Ventilation Requirements
•In agricultural applications, these heaters are generally
unvented.
•Consult the generic supplement for venting instructions.
•For unvented operation, there must be a positive air
displacement of at least 4.0 CFM per 1000 BTU/H for natural
gas or 4.5 CFM per 1000 BTU/H for LP gas. WVE-4
termination cap must also be used.
Theory of Operation
Standby:
The Micro 60U24 control continually checks for internal faults,
safety circuit integrity, and relay contact positioning.
Starting Circuit:
Upon a call for heat, the control will verify that the differential
pressure switch is in the proper position. The fan relay
energizes the fan, an operational static pressure is achieved
and the normally open differential pressure switch will close,
initiating the ignition sequence. The glow-bar is powered and
after 45 seconds the main gas valve opens. If flame is not
established the heater will attempt to re-ignite for a total of
three trials for ignition and then proceed to lockout.
First Stage Running Circuit:
After ignition the flame-rod monitors the main burner flame. If
flame is lost, the control acts to close the gas valve within one
second and a new trial sequence, identical to the start up
sequence, is initiated. If proof is not established within 8.5
seconds, the unit will retry 2 additional ignition sequences and
then proceed to hard lock-out. The control can be reset by
interrupting the power source or at the thermostat.
Second Stage Running Circuit:
Stage two on the gas valve is powered directly from the second
stage of the controller or thermostat. In order for the second
stage to flow the higher output, the first stage has to be
energized as well. The controller or thermostat will determine
which stage is required to maintain the desired comfort level.
Shut Down:
When the controller or thermostat is satisfied the fan will enter
into a 2 minute post-purge cycle.
Soft Lockout:
In the event of an external interruption (wind, gas, etc.) the
heater will go into a “soft-lockout” feature. In this mode the
heater will attempt a normal start-up after approximately 30
seconds. In the event of continued problems, the heater will
go into a hard lock-out mode.
Lockout Codes:
In event of a component failure, a red LED diagnostic light
located on the burner box end panel will flash a code identifying
the fault. Lockout codes are summarized in the table below.
Some fault codes have a time delay before the LED will flash.
Refer to the FAULT CODE DELAY on the chart to see the
approximate time delay.
NOTE: Hard lockout LED CODE will appear upon completion
of the soft lockout sequence of operation.
LED CODE FAULT STATUS FAULT CODE DELAY
Initial flash on power up,
then stead
y
off Normal operation Immediate
Steady on Module failure / Internal fault Immediate
1 flash Ignition failure 30-32 minutes
2 or 3 flashes APS - Note: fan / intake / exhaust 10-12 minutes
4 flashes Solenoid valve fault / Leaky valve /
Flame am
p
lifier fault Immediate
No flash on 117V start up Transformer fault Immediate

5
AG2 Series - 4” Tube Heater Installation, Operation, Maintenance and Parts Manual
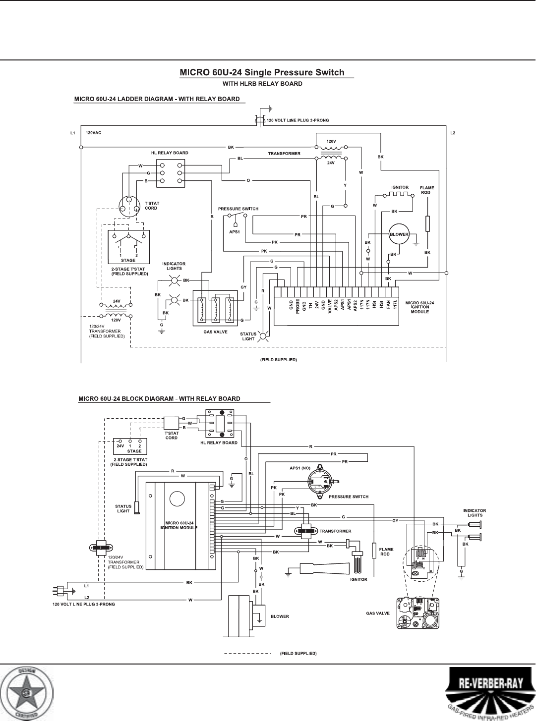
AG2 Series Wiring Diagrams

6
AG2 Series - 4” Tube Heater Installation, Operation, Maintenance and Parts Manual
AG2 Series
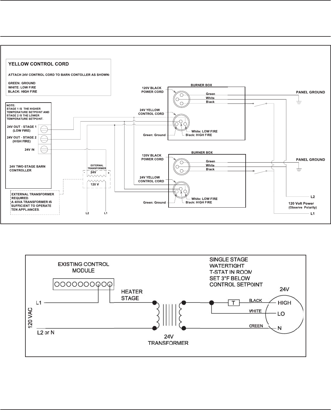
Field Wiring Diagrams
ELECTRICIAN: 24V must be field supplied to each unit’s yellow cord. Supply 120V to black cord. Observe polarity. Confirm
proper two stage electrical wiring by cycling heaters between stages. Proper operation of high fire, low fire and off should be
confirmed on all two stage AG2 Heaters. AG2 model heaters require a 24-volt two-stage thermostat / controller to operate.
TWO-STAGE CONTROL WIRING WITH SINGLE STAGE BARN CONTROLLER
TYPICAL WIRING DIAGRAM TO BARN CONTROLLER
** This wiring diagram may be used if a two-stage barn controller is not available. Two-stage barn controllers are always preferred.
AG2 FIELD WIRING WITH INTERNAL RELAY

7
AG2 Series Sample Brooder Installation Diagrams
AG2 Series - 4” Tube Heater Installation, Operation, Maintenance and Parts Manual
CENTER HOUSE INSTALLATION
NOTE: Utilize CH hangers on houses 60 feet or more with center house mounting
SIDE WALL INSTALLATION
NOTE: Mount Reflector at a 45° angle toward center.
30’, 40’ and 50’ TRUSS INSTALLATION

AG2 Troubleshooting Flow Chart
8
Is the power at the heater
120V?
Check power across the
green and white wires of the
yellow control cord. Is the
power 24V?
Is the power across the 24V
terminal on the circuit board
and ground on the circuit
board 24V?
Find the source of the electrical
problem between panel & heater.
YES
YES
NO
Is the power across the TH
terminal on the circuit board
and ground on the circuit
board 24V?
YES
Is the inlet or the outlet of the unit
obstructed? I.e. ice, birds nest, dirt, etc.
Remove obstruction.
YES
Check for loose wiring or restrictions in hose
connections to the pressure switch. Are they
ok?
NO
Repair wiring or hose
connections.
NO
After 30 minutes of non-operation has
passed, is there a flash code for ASP-1 or
ASP-2 failure (2 or 3 flashes)?
YES Replace the switch after verifying the
following:
* Baffle(s) is in the tube(s) farthest
from the burner.
* Heater, fan blower, squirrel cage,
intake and exhaust are clean and free
from dirt and obstructions.
* The 4” air intake pipe does not
exceed 20 feet and/or 2 elbows.
* There is not a negative pressure
experienced at the area of air intake
(i.e. attic space, high-winds, very tight
building).
YES
During the first 45 seconds of power
up, is there 120 Volts going to the
ignitor?
NO
Replace ignitor.
YES
Turn up thermostat
NO
YES
NO
Is there 120V on the primary side
of the external transformer?
NO
Find the source of the electrical
problem between panel &
external transformer.
NO
Is there 120V on the primary
side of the internal transformer?
NO
Transformer is faulty and
must be replaced.
The internal
transformer is faulty
and must be replaced.
NO
The relay board is
faulty and must be
replaced.
Does the fan
blower turn on?
NO
Is the circuit board
sending 120V to
the fan?
Does the ignitor warm
up and glow red?
Is the ignitor
physically damaged?
NO Replace ignitor.
YES
NO
Check voltage at ignitor during the
ignition sequence (usually 30-45 seconds
after power to heater). Is it 120V?
NO
Is the resistance through
the ignitor45-400 ohms?
YES
YES
YES
Is there 24V on the secondary
side of the external transformer?
Is there 24V to the
thermostat?
YES
The circuit board is faulty
and must be replaced.
NO
YES
NO
Find source of electrical
problem between transformer
and thermostat.
YES The thermostat or wiring is
faulty and should be replaced
or repaired.
The circuit board is
faulty and must be
replaced.
Remove obstruction.
YES
NO
Is the fan obstructed?
NO YES
The Fan is faulty and
must be replaced.
Replace circuit board.
NO
Is there a fault
flash code? See
page 7 for chart.
NO YES
YES
Replace faulty wiring.
YES

9
After ignitor is
warmed up, does gas valve
open?
YES
NO
Test for 24V at valve
during valve opening
period (usually 30-45
seconds after power to the
heater). Is there 24V to
valve for 8 seconds?
NO
Possibly, the circuit board
and/or wiring harness is
faulty. These should be
replaced.
Check to make sure gas pressure is within
minimum and maximum inputs, as indicated
on AGA burner rating label. Is gas pressure
OK?
YES
Correct
problem.
NO
Replace gas
valve.
YES
YES
Does the burner light? NO Is the gas cock in the
ON position? YES
Correct
problem.
NO
Make sure gas lines were purged
of air.
YES
YES
Does the burner stay
on? NO Does the burner stay on for
approx. 8 seconds and then shut
off?
YES Is the heater properly grounded?
Is the heater’s polarity correct?
YES With microammeter, check DC
voltage at flame rod. Is it greater
than 0.7 microamps?
YES
Check to make sure
flame sensor wire is OK
and then replace circuit
board.
NO
Sensing rod is faulty or flame is weak.
Check to make sure heater is
operating at proper gas pressure as
indicated on AGA burner rating label
and then replace sensing rod if
needed.
NO
Correct problem.
NO
Does the burner come
on and then turn off
immediately (1 or 2
seconds).
YES
Check to make sure that the gas pressure is
within minimum and maximum inputs as
indicated on the AGA burner rating label. Is
gas pressure OK?
Correct
problem.
NO
Exhaust pressure
switch may be faulty
or there is a restriction
in the exhaust.
YES
YES
NO
The following can cause the
heater to shut down:
* Improper grounding.
* High winds.
* Taking combustion air from the
attic.
* Dirty environment.
* Baffle improperly positioned.
* Fluctuating gas pressure.
Does heater stay on until
call for heat ends?
YES
Troubleshooting ends.
Check to make sure gas pressure is within
minimum and maximum inputs, as indicated
on AGA burner rating label. Is gas pressure
OK?
If heater does not go into high-fire mode, check the following:
Check power across the green and black
wires of the yellow control cord. Is the
power 24V?
NO
Repair or replace faulty
wiring or thermostat.
The relay board is
faulty and must be
replaced.
Measure the voltage
across the red wire
on the relay board
and GND on the
circuit board. It
there 24V?
The valve is faulty and
must be replaced.
YES
NOTE: To confirm the heater is not in high-fire mode, check the manifold
pressure. If 3.5” natural or 10” propane, the light is faulty and should be
replaced. If approximately 2.0” to 2.5” natural or 5.0” to 6.5” propane,
the heater is in low-fire mode and the troubleshooting steps described
here should be followed.
NO
YES
*
WARNING:
Bypassing any switch
is for testing purposes
only. Do not leave
switch bypassed during
normal operation or
heater’s built-in safety
mechanisms will be
compromised.
*
*See page 7 for fault
flash code signals.
NO

AG2 Series - 4” Tube Heater Installation, Operation, Maintenance and Parts Manual
AG2 Series
10
Parts Breakdown

11
AG2 Series - 4” Tube Heater Installation, Operation, Maintenance and Parts Manual
AG2 Series Basic Parts List
AG2 SERIES PARTS LISTING
** 6' TOTAL NEEDED TO COVER OUTER EDGES OF A BURNER BOX.
PART # DESCRIPTION PART # DESCRIPTION
TP-1 CONTROL BOX COVER TP-200 BURNER (50 TO 100 MBTU/H)
TP-5 FLANGE GASKET TP-201B BURNER (125 MBTU/H TO 150 MBTU/H)
TP-9 CONDUIT COUPLING TP-202 16" BURNER TUBE W/ FLANGE
TP-10 CONDUIT 4" X 1/2" TP-204 GAS ORIFICE - CONSULT FACTORY
TP-11 GLO-BAR IGNITOR BOX TP-205 GLO-BAR HOLDER
TP-12 GLO-BAR IGNITOR BOX COVER TP-207 V.5/05 PRESSURE SWITCH MOUNTING BRACKET
TP-14 SIGHT GLASS GASKET TP-208 "Z" MOUNTING BRACKET
TP-15 SIGHT GLASS TP-211 MARK 17X-24 CIRCUIT BOARD
TP-16 SIGHT GLASS WASHER TP-211A MARK 17U-24 CIRCUIT BOARD (REMOTE SENSE)
TP-17 SIGHT GLASS KIT TP-212 1/2" X 3" PIPE NIPPLE
TP-19B WIRE HANGER TP-214 GLO-BAR WIRING HARNESS
TP-20C 120" REFLECTOR TP-217 PRESSURE BARB FITTING
TP-21B TUBE CLAMP TP-218 EXHAUST PRESSURE TUBE (VINYL)
TP-26A 10 FT. RADIANT TUBE STRAIGHT TP-221 GLO-BAR HOLDER GASKET
TP-26B 10 FT. RADIANT TUBE STRAIGHT (AL-TI) TP-222 FLAME ROD
TP-26C 10 FT. UNCOATED HOT ROLLED STEEL RADIANT TUBE TP-222A FLAME ROD WIRE
TP-31B CONTROL BOX HANGING BRACKET TP-223 GAS MANIFOLD
TP-33B 1/2" GAS COCK TP-303 END PANEL - RIGHT
TP-44 AIR ORIFICE W/SCREEN (CONSULT FACTORY) TP-825 HLRB RELAY BOARD
TP-50 GLO-BAR IGNITOR TP-826 40VA TRANSFORMER (OLD TP219)
TP-54 BURNER BOX DIVIDER TP-827 RED LED DISPLAY DIAGNOSTIC LIGHT
TP-55A FAN BLOWER TP-828 YELLOW OPERATIONAL IND. LIGHT (OLD TP216)
TP-65 33" INTERLOCKING HEAT DIFFUSER (BAFFLE) TP-840 36E96-224 TWO STAGE GAS VALVE-NAT (OLD TP210)
TP-68A STRAIN RELIEF BUSHING TP-841 36E96-226 TWO STAGE GAS VALVE-LP (OLD TP210P)
TP-70 CONTROL BOX COVER GASKET (PER FOOT**) TP-933 6' BLACK 120V THREE PRONG PLUG
TP-76 RUBBER GROMMET TP-934 6' YELLOW 24V CONTROL WIRE
TP-82 REFLECTOR CENTER SUPPORT TP-1402 END PANEL - LEFT
TP-83 STAINLESS STEEL FLEX CONNECTOR TP-1404 CONTROL BOX
TP-97 1/4" X 1/4" BRASS INT./EXT. ATMOS.BARB FITTING TP-NOPS NORMALLY OPEN DIFFERENTIAL SWITCH
TP-105 REFLECTOR END CAP (TP-264B) N.O. Differential Pressure Switch (65 TO 75MBTU/H)
TP-106 REFLECTOR CLIP (TP-264E) N.O. Differential Pressure Switch (100 TO 125MBTU/H)
TP-122 GASKET FOR AIR ORIFICE & AIR COLLAR (TP-264D) N.O. Differential Pressure Switch (150MBTU/H)

Kit Contents & Product Features
AG2 Series - 4” Tube Heater Installation, Operation, Maintenance and Parts Manual
12
PRODUCT FEATURES
Kit contents for the AG2 Series are shown below. Reference the proper column for your particular models length.
APPROVALS
• IAS, CSA.
• Indoor / outdoor approval.
• Commercial / agricultural approval.
BURNER SIGHT GLASS
• For burner inspection.
COMBUSTION AIR INLET & VENT
• 4” Male duct.
WATERPROOFED CONTROL BOX
• Outside air collar (4”) attached.
• Totally enclosed components.
GAS CONNECTION
• 1/2” gas cock included.
• 7/8” flare-2’ S.S. flex included.
CONTROLS
• 100% safety shut off.
• Differential pressure switch.
• Stainless steel flame swirl burner.
• Silicon carbide hot surface igniter.
• Flame rod sensing.
• Pre and post purge controls.
• Microprocessor circuit board provides
soft lockout and self-diagnostic
features.
EMITTER & COMBUSTION TUBES
• Black coated aluminized steel combustion
chamber (first 10’ section) 65-125
MBTU/H models only.
• Black coated titanium treated combustion
chamber (first 10’section) 150 MBTU/H
models only.
coated with high temperature, corrosion
resistant black coating .95 emissivity.
• Uncoated aluminized combustion
chamber (second 10’ section) 150
MBTU/H models only.
• 16ga. 4” O.D. uncoated hot-rolled steel
radiant tubes.
• Slip fit connection.
OPERATIONAL LIGHTS
• Light #1 - Indicates high fire.
• Light #2 - Indicates low fire.
• Light #3 (red) - Indicates diagnostic
fault code (see status chart on page 4).
WARRANTY
1 year - Burner box components.
3 years - Combustion and radiant tubes.
5 years - Burner.
OTHER
• One reflector center support per
heater.
• Turbulator baffle included.
• Stainless steel upgrades available.
• Made in U.S.A
• Visit www.detroitradiant.com
Generic IOM
(LIOGT)
AND
AG2 Series Insert
(LIOAG2)
Reflector End Caps
TP-105
Bag of Reflector
End Cap Clips.
TP-106
24" SS Flex
Connect TP-83
4” Hanger
TP-19B
4” Butt Clamp
TP-21B
1/2” Gas Cock
TP-33B
4” Reflector Center
Support - TP-82
TP# DESCRIPTION 20 FOOT 30 FOOT 40 FOOT 50 FOOT 60 FOOT
TP-19B 4" Hangers 34567
TP-21B 4" Tube Clamps 23456
TP-33B1/2" Gas Cock 11111
TP-824" Refl. Cntr. Sprt. 11111
TP-8324" SS Flex Line 11111
TP-105Refl. End caps 22222
TP-106Refl. End cap Clips 88888
IOM Install / Op Manual 11111
FILLED BY: AG2 SERIES KIT CONTENTS