Digital Monitoring PC0190 Wireless Control Panel User Manual
Digital Monitoring Products Inc Wireless Control Panel Users Manual
Users Manual

iComLNC CONTROL PANEL
Installation and Programming Guide
DESCRIPTION
The iComLNC Control Panel
provides alarm communication
using the on-board hardwired
network connection with the option
of using cell back-up over the
Verizon LTE network.
The iComLNC is used for
multi-family applications and
interfaces with Z-WaveTM sensor
devices. It provides four hardwired
zones and up to fifteen Z-Wave
zones. The iComLNC also allows
you to program Outputs in Output
Options.
The iComLNC is a stand-alone panel
that is powered by a 12 V plug-in
power supply.
What is Included?
• One iComLNC Control Panel
• One Model 388 Antenna
• One Model 372-500-W DC
Plug-In Power Supply
Figure 1: iComLNC
Control Panel
1
PROGRAM THE COMMUNICATION TYPE
The iComLNC comes defaulted with Net as the primary and
DHCP set to Yes and comes with the central station IP address
already programmed. Reference the iComLNC Programming
Sheet (LT-1783) for any other adjustments you would like to
make.
If using the iComLNC for cellular communication, use the Dealer
AdminTM site (DMPDealerAdmin.com) or call DMP Customer
Service at 866.266.2826 to activate the cellular communicator.
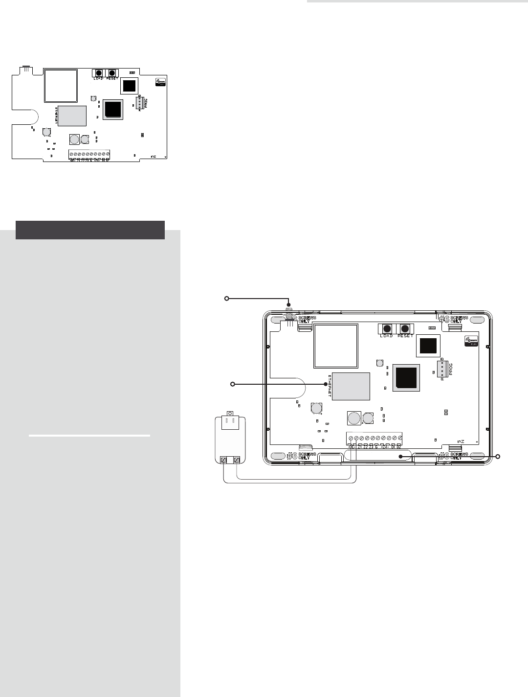
INSTALL THE iComLNC
When selecting a location to mount the panel, first mount the panel
to a surface and then route all wires and connectors to it. Be sure
to mount the panel within 100 feet of a wall outlet using 18-22 AWG
wire. Use the following steps to install the iComLNC:
1. Remove the housing cover and mount the iComLNC base to
a surface using the included #6 screws. It is not necessary to
remove the panel from the base when mounting it.
2. Connect the panel + DC terminal to the positive terminal
on the power supply and connect the - DC terminal to the
negative terminal on the power supply. Be sure to route all
wires through the wire cut-out shown in Figure 2.
3. Plug the network cable in to the ETHERNET port.
4. Place the antenna onto the SMA connector and twist until
secure.
5. Replace the housing cover onto the base.
6. Plug the power supply into a 120 VAC 60 Hz dedicated outlet
not controlled by a switch.
+
_
SMA
Connector
Wiring
Cut-out
Figure 2: Housing Features
Ethernet
Port
2

2 iComLNC Installation Guide
TAMPER Z-WAVE DEVICES
Once all Z-Wave devices have been added to the panel, they will need to be tampered to become active.
Follow the directions below to tamper the Z-Wave devices and check each Z-Wave device’s status.
1. Go to each Z-Wave device and tamper it according to the device’s instructions.
2. Once all Z-Wave devices have been tampered, it could take up to five minutes for
associations to take place.
3. After tampering the devices and associations have taken place, go to the keypad and
access ZWAVE SETUP.
4. Select LIST then press CMD to advance through the list of Z-Wave devices and ensure each device
displays an OKAY status. If there are devices that do not display an OKAY status, remove the device
and return to PROGRAM Z-WAVE DEVICES to start the process over.
PROGRAM Z-WAVE DEVICES
1. At the keypad, press CMD until MENU? NO YES displays.
2. Select YES.
3. Enter a user code and press CMD.
4. Press CMD until ZWAVE SETUP displays and then press any select key or area.
5. Select ADD when ADD LIST REMOVE displays.
6. At PRESS BUTTON ON DEVICE TO ADD, press the button on the Z-Wave device.
The keypad beeps once and displays DEVICE FOUND. After a few moments, the keypad beeps again
and displays the type of device found and then displays ADD LIST REMOVE.
7. From here, ADD another Z-Wave device or press the back arrow until ZWAVE SETUP displays to save
Z-Wave programming.
Use the iComLNC Control Panel Programming Sheet (LT-1783) to program the module and then follow the
directions below to program the Z-Wave devices into the module using a keypad.
3
1. Navigate to the Dealer Admin site (DMPDealerAdmin.com).
2. Click Customers in the right-side menu and select a customer.
3. Click Add System.
4. Enter a System Name.
5. Select iComLNC from the System Type drop-down menu.
6. Select either Cellular or EASYconnect + Cell Backup as the Connection Type.
7. Enter the SIM number found on the iComLNC label and click Get Status.
8. Enter the Account Number.
9. Select a Rate Plan for the iComLNC.
10. Click Activate Cellular Device.
Cellular Activation
4

iComLNC Installation Guide 3
FCC INFORMATION
This device complies with Part 15 of the FCC Rules. Operation is subject to the following two conditions:
1. This device may not cause harmful interference, and
2. this device must accept any interference received, including interference that may cause undesired operation.
The antenna used for this transmitter must be installed to provide a separation distance of at least 20 cm (7.874 in.) from all persons. It
must not be located or operated in conjunction with any other antenna or transmitter.
Changes or modifications made by the user and not expressly approved by the party responsible for compliance could void the user’s
authority to operate the equipment.
Note: This equipment has been tested and found to comply with the limits for a Class B digital device, pursuant to part 15 of the
FCC Rules. These limits are designed to provide reasonable protection against harmful interference in a residential installation.
This equipment generates, uses and can radiate radio frequency energy and, if not installed and used in accordance with the
instructions, may cause harmful interference to radio communications. However, there is no guarantee that interference will not
occur in a particular installation. If this equipment does cause harmful interference to radio or television reception, which can be
determined by turning the equipment o and on, the user is encouraged to try to correct the interference by one or more of the
following measures:
• Reorient or relocate the receiving antenna.
• Increase the separation between the equipment and receiver.
• Connect the equipment into an outlet on a circuit dierent from that to which the receiver i connected.
• Consult the dealer or an experienced radio/TV technician for help.
Industry Canada Information
This device complies with Industry Canada Licence-exempt RSS standard(s). Operation is subject to the following two conditions:
1. This device may not cause interference, and
2. this device must accept any interference, including interference that may cause undesired operation of the device.
Le présent appareil est conforme aux CNR d’Industrie Canada applicables aux appareils radio exempts de licence. L’exploitation est
autorisée aux deux conditions suivantes:
1. l’appareil ne doit pas produire de brouillage, et
2. l’utilisateur de l’appareil doit accepter tout brouillage radioélectrique subi, même si le brouillage est susceptible d’en
compromettre le fonctionnement.
This system has been evaluated for RF Exposure per RSS-102 and is in compliance with the limits specified by Health Canada Safety
Code 6. The system must be installed at a minimum separation distance from the antenna to a general bystander of 7.87 inches (20 cm)
to maintain compliance with the General Population limits.
L’exposition aux radiofréquences de ce système a été évaluée selon la norme RSS-102 et est jugée conforme aux limites établies par le
Code de sécurité 6 de Santé Canada. Le système doit être installé à une distance minimale de 7.87 pouces (20 cm) séparant l’antenne
d’une personne présente en conformité avec les limites permises d’exposition du grand public.

iComLNC CONTROL
PANEL
Specifications
Output 12VDC
Housing Material Flame Retardant ABS
Housing Color White
Housing Dimensions 5.5”W x 3.75”H x 1”D
Accessories
One Model 388 Antenna
One Model 372-500-W DC Plug-In Power Supply
Certifications
Cellular
FCC Part 15: RI7ME910C1NV
Industry Canada: 5131A-ME910C1NV
Z-Wave
FCC Part 15: CCKPC0190
IC: 5251A-PC0190
Underwriters Laboratory (UL) Listed
• ANSI/UL 294 Access Control System Units
• ANSI/UL 636 Holdup Alarm Units and System
Accessory
• ANSI/UL 1023 Household Burglar
• ANSI/UL 1076 Proprietary Burglar
• ANSI/UL 1610 Central Station Burglar
• ANSI/UL 1635 Digital Burglar
• ANSI/UL 985 Household Fire Warning
• ANSI/UL 864 Fire Protective Signaling 9th Edition.
• ANSI/UL 365 Police Sta. Connected Burg Alarm Units
& Systems
• ANSI/UL 609 Local Burg Alarm Units & Systems
LT-1784 18181