05 Schematic Diagram
User Manual:
Open the PDF directly: View PDF
.
Page Count: 74

8-1
- 이 문서는 삼성전자의 기술 자산으로 승인자만이 사용할 수 있습니다 -
- This Document can not be used without Samsung's authorization -
8-1
Samsung
Confidential
SRP Sheet Number: 1 of 73
Intel PENRYN
EXCEPT AS AUTHORIZED BY SAMSUNG.
3
A
SAMSUNG PROPRIETARY
EXCEPT AS AUTHORIZED BY SAMSUNG.
4
SAMSUNG ELECTRONICS CO’S PROPERTY.
PCB Code :
Model Name :
Owner :
00
D
1
C
CPU :
SEC Mobile R & D
T.R. Date :
13
MAIN
TPT : BA41-00919A
DRAW
D
Montevina Platform (NB9M)
ISTANBUL
SAMSUNG ELECTRONICS CO’S PROPERTY.
ISTANBUL
4
APPROVAL
4
A
Remarks :
THIS DOCUMENT CONTAINS CONFIDENTIAL
Revision :
THIS DOCUMENT CONTAINS CONFIDENTIAL
4
DO NOT DISCLOSE TO OR DUPLICATE FOR OTHERS
2
1
Intel CANTIGA PM + ICH9M
PV
ELECTRONICS
NAN : BA41-00921A
Chip Set :
C
Dev. Step :
1
X
DO NOT DISCLOSE TO OR DUPLICATE FOR OTHERS
SAMSUNG
4
PROPRIETARY INFORMATION THAT IS
GCE : BA41-00920A
2
2008.07.18
2
CHECK
2
BB
PBA Name :
3
3
PROPRIETARY INFORMATION THAT IS
Signature :
SAMSUNG PROPRIETARY
8. Block Diagram and Schematic

8-2
- 이 문서는 삼성전자의 기술 자산으로 승인자만이 사용할 수 있습니다 -
- This Document can not be used without Samsung's authorization -
8. Block Diagram and Schematic
Samsung
Confidential
Samsung
Confidential
Samsung
Confidential
SRP Sheet Number: 2 of 73
PG 18,19
OPTION
2
Bluetooth
PG 57
Dual channel
PG 50
PG 33
C
LCD
PG 47
ON BOARD
USB 0,1,2
Touch
SAMSUNG
HP
SATA 1
SPDIF.
PG 56
HDAUDIO
2 IN 1
Camera
PG 48
SPKR L
CPU
USB X
DDR III Power
Cantiga-PM
C
ODD
L2 Cache : 6/3MB
CRT
PG 50
PG 28
PG 42
Express Card
SPI
DC/DC
PG 53
D
FSB 1067
SAMSUNG ELECTRONICS CO’S PROPERTY.
PG 18
B
PG 20 - 24
CLINK
1
PCIE x1
PG 13 - 17
OPTION
PG 8 PG 55
LED
MICOM
SAMSUNG PROPRIETARY
Direct Media Interface
Battery
USB X
ALC262
HDD
PG 27
PG 49
12P
PG 48
IMVP-6
EXCEPT AS AUTHORIZED BY SAMSUNG.
USB 6
D
Mini Card 2
PCIE x1
PM975
Lane 3
3
PG 43
DDR III
CRT
PG 48
SATA
ICH9-M
MCH-M
3
A
LCD Ext. PEG
PG 50
External Graphics
USB 5
PEG x16
(TBD)
x4, 1.5V
Channel A (Reverse)
SPI ROM
Modem
NB9X
PCIE x1
RJ45
PG 39
Lane 1
1
PG 43
TMKBC (TBD)
FSB
Thermistor
Channel B (Reverse)
Lane X
AMP
SATA
2P
HDMI
LPC
PAD
KBD
VCCP / DC-DC
ANT
PROPRIETARY INFORMATION THAT IS
SODIMM 1
Penryn-6M
1299 FCBGA
PG 10,11,12
478pin
DO NOT DISCLOSE TO OR DUPLICATE FOR OTHERS
MIC-IN
4
4
DDR III 1067/800
Mobile Processor
A
Circuit
USB 7
SPKR R
PG 30
High Definition Audio
CK-505
Lane 4
OPTION
2P
Aud.
Module
PG 41
52P
80 Port
PG 45
Termination
FAN
DDR III
SODIMM 0
PCIE x1
3.3V LPC, 33MHz
PG 41
PG 9
SATA 0
H8S-2110B
HD Secondary
PG 55
M/S(SD...)
ELECTRONICS
Mini Card 1
AU6371
DDR III 1067/800
Clocking
PG 25
PG 40
PG 50
ANT
Audio
PG 54
CardBus
DC/DC
PG 19
PG 40
RJ11
Charging
CPU
MDC
Smart
THIS DOCUMENT CONTAINS CONFIDENTIAL
PG 9
676 BGA
PG 30
667/800 MT/S
PG 51
HD Primary
PG 25
USB 0,1,2
PG 39
52P
PG 48
B
8055
2

- 이 문서는 삼성전자의 기술 자산으로 승인자만이 사용할 수 있습니다 -
- This Document can not be used without Samsung's authorization -
8. Block Diagram and Schematic
Samsung
Confidential
Samsung
Confidential
Samsung
Confidential
SRP Sheet Number: 3 of 73
P3.3V
P5.0V
USB
Hub to PCI
Crystal
s
s
e
r
d
dAs
e
c
i
v
e
D
SMBUS Master
ELECTRONICS
A
SODIMM1
Master
0111 101x
1010 000x
-
-
-
-
3
2
A4h
D2h
NC
SAMSUNG PROPRIETARY
-
k
n
i
L
C
A B
-
PANNEL_DETECT_0
C C
See rev notes for more information.
PCI Devices
ASSIGNED TO
SYSTEM PORT 0
TYPE
Bluetooth
Interrupts
LCD Pannel Detect
USAGE
Resolution
Cardbus
Crystal / Oscillator
P1.8V
AD29(internal)
AD30(internal)
AD31(internal)
AD24(internal)
Crystal
DO NOT DISCLOSE TO OR DUPLICATE FOR OTHERS
EXCEPT AS AUTHORIZED BY SAMSUNG.
A,B,C
USB2.0 #0 (USB0) : A
0
612
/
961
2
F46
D
H
M
O
C
I
M
USB2.0 #3 (USB5) : E
25MHz
SODIMM0
LAN
PCI Express Assign
14.318MHz
USB2.0 #2 (USB4) : C
CLOCK-Generator
NC
-
I C / SMB Address
USB2.0 #4 (EHCI) : H
3
(TBD)
A0h
PORT #
Mini Card 1 (WLAN)
NC
-
0
D
Hex
Voltage Rails
7Ah
NC
Bus
SCHEMATIC ANNOTATIONS AND BOARD INFORMATION
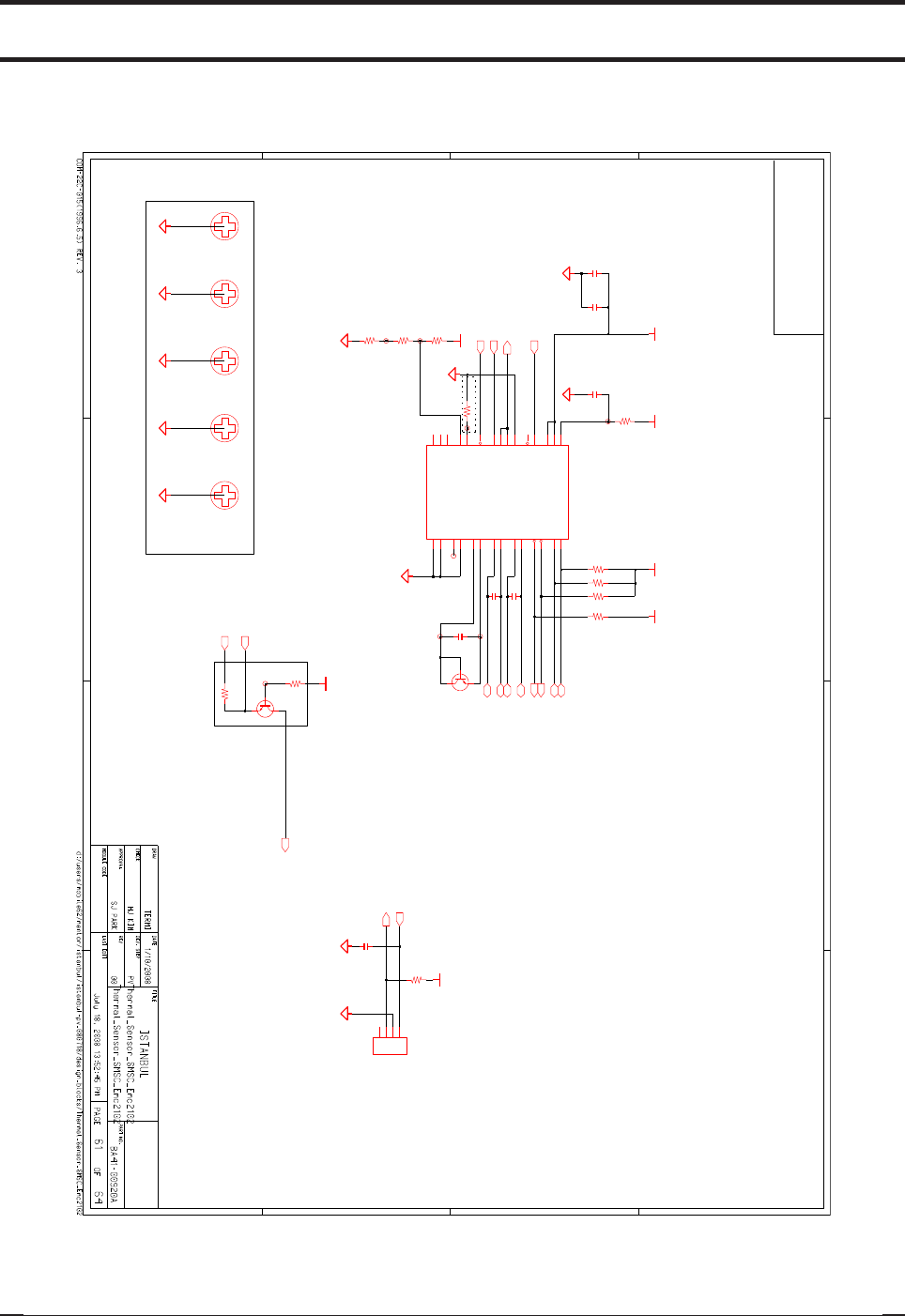
Thermal Sensor
0011 000x
-
Clock, Unused Clock Output Disable
-
Thermal Sensor on SODIMM1
Mini PCI Express 2
SYSTEM PORT 1
-
VCC_CORE
Thermal Sensor on SODIMM0
Devices
0011 010x
3.3V switched on power rail (off in S4-S5)
PORT #
AD25
Primary DC system power supply (7 to 21V)
P1.8V_AUX
VDC
DEVICE
P1.5V
THIS DOCUMENT CONTAINS CONFIDENTIAL
Core Voltage for CPU
10MHz
3.3V switched power rail (off in S3-S5)
5.0V switched power rail (off in S3-S5)
Crystal
FREQUENCY
Core Voltage for GPU
ICH8-M
Intel LAN
Real Time Clock
5.0V always power rail
Crystal
-
5.0V switched on power rail (off in S4-S5)
GFX_CORE
Camera
3.3V always power rail (for Micom)
P5.0V_ALW
ASSIGNED TO
SYSTEM PORT 2
F
NC
1010 010x
NC
E
-
SAMSUNG
1
2
NC
Mini Card 2 (ROBSON or DVB-T)
2
5
30h
LOM
A
GLAN
USB PORT Assign
D
4
4
3
P1.05V (VCCP)
#L
ES
D
I
s
ec
iv
e
D
1
1
34h -
32.768KHz
CK-505M (Clock Generator) 1101 001x
BB
1.5V switched power rail (off in S3-S5)
REQ/GNT#
3
1.8V power rail for DDR (off in S4-S5)
P3.3V_AUX
0.9V power rail for DDR (off in S3-S5)
B
USB2.0 #1 (USB1) : D
P3.3V_MICOM
P0.9V
VTT for CPU, Crestline & ICH8-M
1.8V switched power rail (off in S3-S5)
CK-505
LPC bridge/IDE/AC97/SMBUS
Internal MAC
PROPRIETARY INFORMATION THAT IS
SAMSUNG ELECTRONICS CO’S PROPERTY.
P5.0V_AUX
ICH8-m
CPU Thermal Sensor
REVISION HISTORY
4
BOARD INFORMATION
8-3

8-4
- 이 문서는 삼성전자의 기술 자산으로 승인자만이 사용할 수 있습니다 -
- This Document can not be used without Samsung's authorization -
8. Block Diagram and Schematic
Samsung
Confidential
Samsung
Confidential
Samsung
Confidential
SRP Sheet Number: 4 of 73
ICH8-M
ON
+V* (CORE)
MEROM
S3
ON
ON
DDR III-Termination
P1.8V_LAN
P3.3V_ALW
+V*LAN
AC Adapter
OPTION FOR ME
(CHP3_S4_STATE*)
+V*AUX
nVidia (TBD)
CRESTLINE
P1.8V
P5.0V_ALW
LAN
It should be updated
P3.3V_MICOM
PROPRIETARY INFORMATION THAT IS
Battery DC
S5-S4
SAMSUNG ELECTRONICS CO’S PROPERTY.
P1.05V_AUX
D
ON
+0.9V
CRESTLINE
P1.5V_AUX
ON
Rail
CRESTLINE
P1.2V
4
DDR II-Termination
1
LCD
C
SPI
4
Thermal Sensor
SODIMM (DDR III)
A
KBC3_PWRON
ELECTRONICS
KBC3_VRON
B
KBC3_SUSPWR
THIS DOCUMENT CONTAINS CONFIDENTIAL
PCMCIA
M_PCI
MDC
ON
HEATSINK
ON
(VCCP)
SAMSUNG PROPRIETARY
ICH8-M
P1.25V
P5.0V
C
P3.3V
USB
1
PEG
DO NOT DISCLOSE TO OR DUPLICATE FOR OTHERS
BT
EXCEPT AS AUTHORIZED BY SAMSUNG.
Rev 0.1
SAMSUNG
P5V_AUX
MEROM
3
POWER DIAGRAM
D
P1.5V
ICH8-M HDD
MICOM
2
LAN
A
VCC_CORE
P1.5V_AUX
B
CRT
3
S0
ON
ICH9-M
S3
FDD
ON
M_PCI
S4
MDC
S5
PCMCIA
ON
ICH8-M
PEG
S0
LEDs
FAN CIRCUIT
ICH8-M
(CHP3_SLPS3*)
+V*A(LWS)
Cantiga
2
SODIMM
Power On/Off Table by S-state
PEG
P0.9V
MDC
IGFX_CORE
MICOM
P2.5V_LAN
VDC
P12.0V_ALW
P1.05V
LAN
GDDR-3 for PEG
+1.8V_AUX
EGFX_CORE
P3.3V_AUX
P1.2V_LAN
P0.9V
+V
CRESTLINE
MICOM
PEG
State
ICH8-M
AUX DISPLAY
CRESTLINE

8-5
- 이 문서는 삼성전자의 기술 자산으로 승인자만이 사용할 수 있습니다 -
- This Document can not be used without Samsung's authorization -
8. Block Diagram and Schematic
Samsung
Confidential
Samsung
Confidential
Samsung
Confidential
SRP Sheet Number: 5 of 73
Battery
3.3V
1
5V
1.5V
VGA CORE (TBD A)
1.05V ( TBD A )
SAMSUNG ELECTRONICS CO’S PROPERTY.
3.3V ( TBD A )
B
( ~ 2.0 W )
0.08 A (TBD)
Value by Datasheet/Application notes
0.01 A (TBD)
SATA
2 A (TBD)
0.5 A (TBD)
1.5 A (TBD)
2
P1.2V_LAN
( 35 W )
3.3V (LCD 3V)
3.3V
3.3V
MICOM 3V
A
5V
5.0V_AUX ( TBD A )
3.3V
C
VDC INV ( TBD A )
5V
5V
19V (VDC INV)
FAN
3
1.5 A (TBD)
B
Audio AMP
HD Audio
SAMSUNG PROPRIETARY
0.08 A (TBD)
CPU CORE ( TBD A )
Penryn-6M
5.0V ( TBD A )
0.13 A (TBD)
2
1.05V (VCCP)
A
0.2 A (TBD)
EXCEPT AS AUTHORIZED BY SAMSUNG.
0.9V( TBD A )
0.1 A (TBD)
0.9V
ITP
GDDR
3.3V_AUX ( TBD A )
RTC_Battery
3
MICOM 3V
3.3V
LAN (88E8055)
3.3V
0.15 A (TBD)
LAN
Adapter
0.75 A (TBD)
1
0.001 A (TBD)
3.3V_AUX
ELECTRONICS
SD Card
0.125 A (TBD)
RTC_Battery
0.33 A (TBD)
1.8V ( TBD A )
6.53 A (TBD)
DO NOT DISCLOSE TO OR DUPLICATE FOR OTHERS
0.5 A (TBD)
4
3.3V
1.13 A (TBD)
0.374 A (TBD)
220V
7.7 A (TBD)
5V
PROPRIETARY INFORMATION THAT IS
1.5 A (TBD)
D
5V_AUX
SAMSUNG
PEG
PEX IO (TBD A)
1.05V (MCH CORE)
P3.3V_AUX
Thermal
P1.8V/2.5V_LAN
0.015 A (TBD)
3.3V
4
POWER RAILS ANALYSIS
USB (x 3)
1.05V
0.25 A (TBD)
3.79 A (TBD)
3.3V
1 A (TBD)
THIS DOCUMENT CONTAINS CONFIDENTIAL
ICH9-M
KeyBoard
1.75 A (TBD)
KBD LED
0.209 A (TBD)
C
1.05V (VCCP)
D
3.3V
3.3V
0.67 A (TBD)
Cantiga
LCD
17.75 A (TBD)
KBC
5V
1.8V_AUX ( TBD A )
1.0V-1.1V (EGFX CORE)
MICOM 3V ( TBD A )
3.3V_AUX
1.25V ( TBD A )
1.5V
MDC
Rev. 0.6 (060920)
5V
CPU CORE
(Value by measurement)
1.5V
(Dual slots)
1.8V
1.05V
1.5V
0.08 A (TBD)
4.48 A (TBD)
4.5 A (TBD)
1.8V
(8 - 8.5 W )
0.006 A (TBD)
( ~ 5.0 W )
3.1 A (TBD)
0.29 A (TBD)
0.67 A (TBD)
0.16 A (TBD)
1.8V_AUX
3.1 A (TBD)
3.3V_AUX
41 A (TBD)
0.75A (TBD)
0.1 A (TBD)
0.1 A (TBD)
0.07 A (TBD)
GMCH
5V
5V
0.6 A (TBD)
2.43A (TBD)
1.8V_AUX
SATA HDD
1.5V ( TBD A )
Mini Card X 2
Touch Pad
1.25V
0.2 A (TBD)
1.2V (PEX IO)
Sensor
2.4A (TBD)
1.8V
0.06 A (TBD)
3.3V_AUX
0.22 A (TBD)
PWR LED
3.3V
0.5 A (TBD)
DDR-3
3.3V_AUX
0.001 A (TBD) 3.3V
CLOCK
SPI
ODD

8-6
- 이 문서는 삼성전자의 기술 자산으로 승인자만이 사용할 수 있습니다 -
- This Document can not be used without Samsung's authorization -
8. Block Diagram and Schematic
Samsung
Confidential
Samsung
Confidential
Samsung
Confidential
SRP Sheet Number: 6 of 73
PROPRIETARY INFORMATION THAT IS
4
DO NOT DISCLOSE TO OR DUPLICATE FOR OTHERS
PRTC
SC486
MAX 1909
PRTC
LOM
11) VCCP3_PWRGD (GM-model)
12
SAMSUNG ELECTRONICS CO’S PROPERTY.
17) KBC3_PWRGD
10-1) P1.2V
Need to be updated!!
10-1) P3.3V
17) KBC3_PWRGD
6
3
CPU
C
4
Rev. 0.7
10-1) P1.05V C
D
19
Sheet 20-21
KBC
(Test Option)
10-1) P3.3V
SC4435
10
9) KBC3_PWRON
Sheet 15-19
D
9) KBC3_PWRON
10-1) P3.3V
P5.0V_ALW
Host S5 / ME Boot
2
(SLPS4* = SLPM*) > S4_STATE* > SLPS3*
7
9-1
ADP3209
ICH8-M
THIS DOCUMENT CONTAINS CONFIDENTIAL
ELECTRONICS
7) P1.5V_AUX
FDS6680A
M-2) KBC3_ME_PWRON = 15) KBC3_PWRON
PEG
11) VCCP3_PWRGD
14) VCC_CORE
Devices
LAN100_SLP
13) KBC3_VRON
6-1) P1.8V/P2.5V_LAN
6) P1.8V_AUX
9-1) KBC3_PWRON_INV#
(SLPS4* = S4_STATE*) > SLPM* > SLPS3*
CL_PWROK
6) P1.8V_AUX
15)VRM3_CPU_PWRGD
PWROK
PCIe
P3.3V_MICOM
2) VDC
P3.3V_AUX & P5V_AUX
10) P1.5V
3
15) VRM3_CPU_PWRGD
20) CPU1_CPURST*
B
SAMSUNG
9
1
6) P3.3V_AUX
CL_PWROK
18
19) PCI3_RST*
19) PCI3_RST*
17) KBC3_PWRGD
TPS51124
Sheet 22-25
8
M-1) KBC3_DDR_PWRON (TBD) = 8) KBC3_SUSPWR
CPU
5) KBC3_SUSPWR
9-1
17) KBC3_PWRGD
17
7) P1.05V_AUX
10) P5.0V
Adapter
10) P1.25
19
Host Boot / ME Off
13
10) P1.05V (IGFX_CORE)
POWER SEQUENCE
SAMSUNG PROPRIETARY
3
FDC653N
SC486
20
Sheet 40
2
10-1) P1.8V
11
12)GCORE_PWRGD
9) KBC3_PWRON
13) KBC3_VRON (Back-up)
2-1) P12.0V_ALW
2) VDC
DC/DC B’d
16) CLK3_PWRGD
1
18) CPU1_PWRGDCPU
10-1) P3.3V
6) P1.8V_AUX
15)VRM3_CPU_PWRGD
10-1) P1.5V
10-1) P1.25 10-2) P0.9V
1
Sheet 46-47
17) KBC3_PWRGD
10-1) P1.8V
A
Sheet 46
16-1) Clock Running
B
12)GCORE3_PWRGD (PM-model)
Sheet 8
10) P1.5V
FDS6680A
8) CHP3_SLPS5#/4#/3#
110ms Delay
10) P1.05V (IGFX_CORE)
BCP69
CK-505
4
16
Sheet 10-12
15
6
INTVRMEN
ISL6227
10-1) P1.8V
12) P1.5
6) MEM1_VREF
Host / ME Boot
A
GMCH
PWROK
(SLPS4* = S4_STATE*) > (SLPM* = SLPS3*)
2
VRM
5) KBC3_SUSPWR
6) P3.3V_AUX
CHP3_RTCRST#
VRMPWRGD
6) P1.8V_AUX
2) VDC
10) P5.0V
Marvell
14
11-1) GFX_CORE
10-1) P1.2V
6) P5.0V_AUX
7) KBC3_RSMRST#
4) POWER_SW*
19) PLT3_RST*
5
2) VDC
DDR2 POWER
Memory
10-1) ICH_CORE (P1.05V)
PRTC_BAT
Sheet 50
6-1) P1.2V_LAN
2) VDC
EXCEPT AS AUTHORIZED BY SAMSUNG.
POWER
Sheet 40
10-1) P3.3V
S/W
9-1) KBC3_PWRON_INV#
DDR3
6) P3.3V_AUX
19) PLT3_RST*
10) P1.5V
8) KBC3_SUSPWR
10-2) 0.9V
P3.3V_MICOM
MAX 8734
Battery
Devices
PCI
RTC
12) P1.05V_M
Sheet 40
11) KBC3_PWRON
Battery
AC_DC / Battery
3
PM-model only

8-7
- 이 문서는 삼성전자의 기술 자산으로 승인자만이 사용할 수 있습니다 -
- This Document can not be used without Samsung's authorization -
8. Block Diagram and Schematic
Samsung
Confidential
Samsung
Confidential
Samsung
Confidential
SRP Sheet Number: 7 of 73
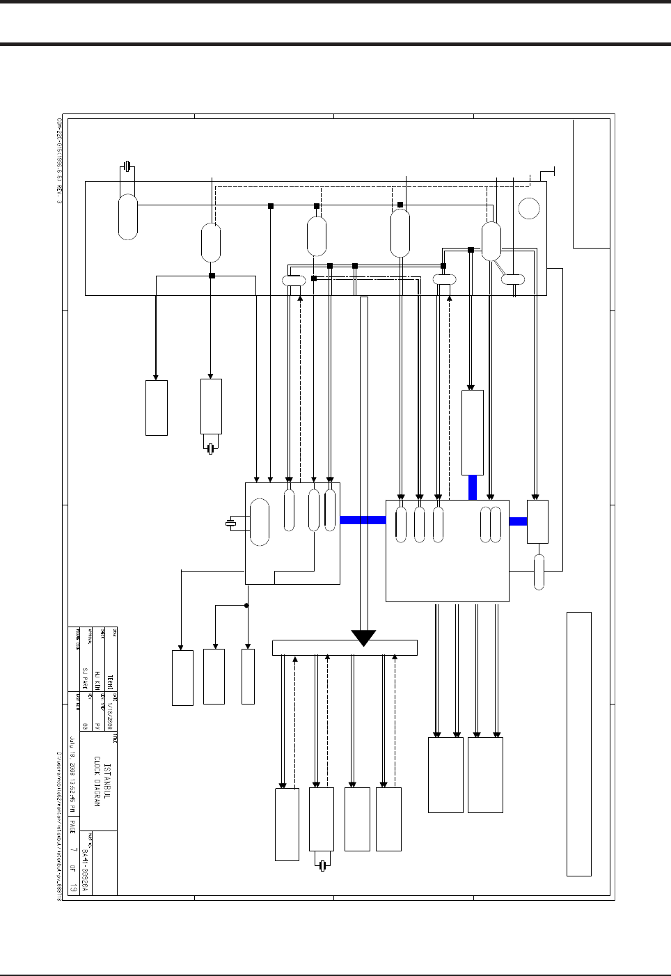
CLK0_HOST_GMCH/GMCH*
100 MHz (SRC4)
HD 24 MHz
CPU
Main PLL
48MHz PLL
SSC
Need to be updated!!
A
SAMSUNG
D
4
CLK1_PEG/PEG*
CLK1_MINI2PCIE/PCIE*
1
SPI3_CLK
HPLL
DPLLA
DPLLB
CLK1_MCLK3/3#
CLK1_MCLK4/4#
CLK1_MCLK0/0#
1
CLK1_MCLK1/1#
USBPLL
32.768 KHz
Cantiga
3
2
EXP3_CLKREQ*
EXCEPT AS AUTHORIZED BY SAMSUNG.
B
PCIE LAN
(Marvell)
CLK3_USB48
CLK1_SATA/SATA*
CLK3_ICH14
CHP3_SATACLKREQ*
33 MHz
200 MHz
33 MHz
CLK0_HOST_CPU/CPU*
CLK3_PCLKPORT80
200 MHz
33 MHz
MCH
CLK3_PCLKMICOM
KBC
BSEL
14.318 MHz
14 MHz
CK-505M (w/ CLKREQ* & SSDC)
D
xSLG8SP513r05)
100 MHz
CLK1_DREFCLK/CLK*
Buffer
MUX
FSB
DMI
CPU_STP*
SS(96/100) SEL
P3.3V
10 MHz
CLK3_PWRGD*
Page 8
100 MHz (SRC 6,8,9)
MCH3_CLKREQ*
MINI PCIE
CLOCK DISTRIBUTION
CARD 1
Rev. 0.1
CLK1_MINIPCIE/PCIE*
1067/800 MHz
MIN3_CLKREQ*
17.86 MHz
PCIE PLL
MPLL
ICH9-M
SATAPLL
PCIEPLL
PCI Express Gfx
100 MHz (SRC0)
OSC
C
HD Audio
B
MDC
A
MINI PCIE
SAMSUNG ELECTRONICS CO’S PROPERTY.
CARD 2
3
533/400 MHz
ELECTRONICS
533/400 MHz
DO NOT DISCLOSE TO OR DUPLICATE FOR OTHERS
533/400 MHz
4
100 MHz (SRC 2)
14.318 MHz
CLK3_PCLKICH
CLK1_DREFSSC/SSC*
CLK1_MCH3GPLL/3GPLL*
AUD3_BCLK
SODIMM #0
SODIMM #1
533/400 MHz
CLK1_EXPCARD#
EXPRESS CARD
OSC
SSC
PLL3
33 MHz
MUXMUX
PEG
2
32.768 KHz
SAMSUNG PROPRIETARY
RTC Clock
25 MHz
1
FS(2:0)
ITP_EN
PCI_STP*
100 MHz (SRC 6)
100 MHz (SRC 8)
SPI
96 MHz
CLK1_PCIEICH/ICH*100 MHz (SRC 10)
CLK1_PCIELOM/LOM*100 MHz (SRC 9)
MDC3_BCLK
THIS DOCUMENT CONTAINS CONFIDENTIAL
PROPRIETARY INFORMATION THAT IS
C
LOM3_CLKREQ*
PORT 80
48 MHz

8-8
- 이 문서는 삼성전자의 기술 자산으로 승인자만이 사용할 수 있습니다 -
- This Document can not be used without Samsung's authorization -
8. Block Diagram and Schematic
Samsung
Confidential
Samsung
Confidential
Samsung
Confidential
SRP Sheet Number: 8 of 73
A
THIS DOCUMENT CONTAINS CONFIDENTIAL
1
C
3
EXCEPT AS AUTHORIZED BY SAMSUNG.
B
2
A
DO NOT DISCLOSE TO OR DUPLICATE FOR OTHERS
SAMSUNG PROPRIETARY
SAMSUNG
4
B
1
D
2
ELECTRONICS
SAMSUNG ELECTRONICS CO’S PROPERTY.
PROPRIETARY INFORMATION THAT IS
D
C
34
MEM1_CKE3
MEM1_CS0#
MEM1_CS1#
MEM1_CS2#
MEM1_CS3#
MEM1_ODT0
MEM1_ODT1
MEM1_ODT2
MEM1_ODT3
MEM1_VREF
SMB3_CLK
SMB3_DATA
MEM1_ARAS#
MEM1_AWE#
MEM1_BBS(0)
MEM1_BBS(1)
MEM1_BBS(2)
MEM1_BCAS#
MEM1_BDM(7:0)
MEM1_BDQ(63:0)
MEM1_BDQS#(7:0)
MEM1_BDQS(7:0)
MEM1_BMA(14:0)
MEM1_BRAS#
MEM1_BWE#
MEM1_CKE0
MEM1_CKE1
MEM1_CKE2
CLK1_MCLK1#
CLK1_MCLK2
CLK1_MCLK2#
CLK1_MCLK3
CLK1_MCLK3#
MCH3_EXTTS0#
MCH3_EXTTS1#
MEM1_ABS(0)
MEM1_ABS(1)
MEM1_ABS(2)
MEM1_ACAS#
MEM1_ADM(7:0)
MEM1_ADQ(63:0)
MEM1_ADQS#(7:0)
MEM1_ADQS(7:0)
MEM1_AMA(14:0)
MEM1_ODT0
MEM1_ODT1
MEM1_ODT2
MEM1_ODT3
MEM1_VREF
PEG1_RXN(15:0)
PEG1_RXP(15:0)
PEG1_TXN(15:0)
PEG1_TXP(15:0)
PLT3_RST#
SODIMM_DDR2
CLK1_MCLK0
CLK1_MCLK0#
CLK1_MCLK1
MEM1_BCAS#
MEM1_BDM(7:0)
MEM1_BDQ(63:0)
MEM1_BDQS#(7:0)
MEM1_BDQS(7:0)
MEM1_BMA(14:0)
MEM1_BRAS#
MEM1_BWE#
MEM1_CKE0
MEM1_CKE1
MEM1_CKE2
MEM1_CKE3
MEM1_CS0#
MEM1_CS1#
MEM1_CS2#
MEM1_CS3#
MCH1_HVREF
MCH1_HXSWING
MCH3_CLKREQ#
MCH3_EXTTS0#
MCH3_EXTTS1#
MCH3_ICHSYNC#
MEM1_ABS(2:0)
MEM1_ACAS#
MEM1_ADM(7:0)
MEM1_ADQ(63:0)
MEM1_ADQS#(7:0)
MEM1_ADQS(7:0)
MEM1_AMA(14:0)
MEM1_ARAS#
MEM1_AWE#
MEM1_BBS(2:0)
DMI1_RXN_1
DMI1_RXN_2
DMI1_RXN_3
DMI1_RXP_0
DMI1_RXP_1
DMI1_RXP_2
DMI1_RXP_3
DMI1_TXN_0
DMI1_TXN_1
DMI1_TXN_2
DMI1_TXN_3
DMI1_TXP_0
DMI1_TXP_1
DMI1_TXP_2
DMI1_TXP_3
KBC3_PWRGD
CPU1_DSTBN3#
CPU1_DSTBP0#
CPU1_DSTBP1#
CPU1_DSTBP2#
CPU1_DSTBP3#
CPU1_HIT#
CPU1_HITM#
CPU1_LOCK#
CPU1_REQ#(4:0)
CPU1_RS0#
CPU1_RS1#
CPU1_RS2#
CPU1_SLP#
CPU1_THRMTRIP#
CPU1_TRDY#
DMI1_RXN_0
CPU1_BSEL1
CPU1_BSEL2
CPU1_CPURST#
CPU1_D#(63:0)
CPU1_DBI0#
CPU1_DBI1#
CPU1_DBI2#
CPU1_DBI3#
CPU1_DBSY#
CPU1_DEFER#
CPU1_DPRSTP#
CPU1_DPWR#
CPU1_DRDY#
CPU1_DSTBN0#
CPU1_DSTBN1#
CPU1_DSTBN2#
CLK1_MCLK0
CLK1_MCLK0#
CLK1_MCLK1
CLK1_MCLK1#
CLK1_MCLK2
CLK1_MCLK2#
CLK1_MCLK3
CLK1_MCLK3#
CPU1_A#(35:3)
CPU1_ADS#
CPU1_ADSTB0#
CPU1_ADSTB1#
CPU1_BNR#
CPU1_BPRI#
CPU1_BREQ#
CPU1_BSEL0
LOM3_CLKREQ#
MCH3_CLKREQ#
MIN3_CLKREQ#
SMB3_CLK
SMB3_DATA
MCH_CANTIGA_GM_DDR2
CHP3_CL_CLK_0
CHP3_CL_DATA_0
CHP3_CL_RST_0#
CHP3_DPRSLPVR
CHP3_PM_SYNC#
CLK0_HCLK1
CLK0_HCLK1#
CLK1_MCH3GPLL
CLK1_MCH3GPLL#
CLK1_PEG#
CLK1_SATA
CLK1_SATA#
CLK3_DBGLPC
CLK3_FM48
CLK3_GFX_27M
CLK3_GFX_27M_SS
CLK3_ICH14
CLK3_PCLKICH
CLK3_PCLKMICOM
CLK3_PWRGD
CLK3_USB48
CPU1_BSEL0
CPU1_BSEL1
CPU1_BSEL2
EXP3_CLKREQ#
CHP3_SATACLKREQ#
CLK0_HCLK0
CLK0_HCLK0#
CLK0_HCLK1
CLK0_HCLK1#
CLK1_EXPCARD
CLK1_EXPCARD#
CLK1_MCH3GPLL
CLK1_MCH3GPLL#
CLK1_MINIPCIE
CLK1_MINIPCIE#
CLK1_PCIEICH
CLK1_PCIEICH#
CLK1_PCIELOM
CLK1_PCIELOM#
CLK1_PEG
CPU3_THRMTRIP#
FAN3_FDBACK#
FAN5_VDD
GFX3_THERM#
GFX3_THERMDN
GFX3_THERMDP
KBC3_PWRGD
KBC3_THERM_SMCLK
KBC3_THERM_SMDATA
THM3_ALERT#
THM3_STP#
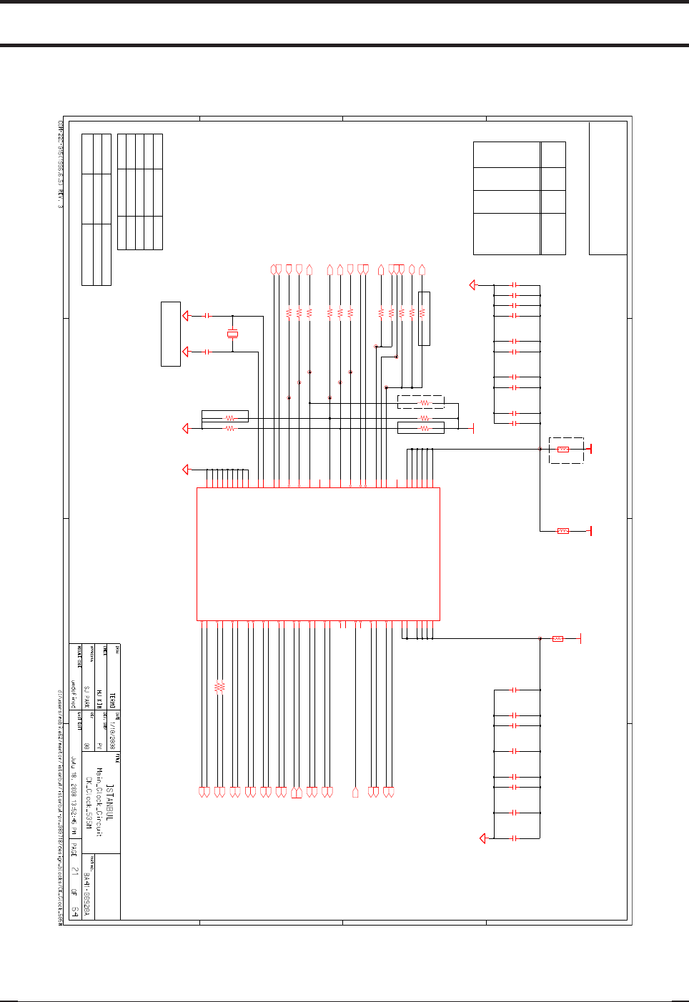
CK_Clock_505M
CHP3_CPUSTP#
CHP3_PCISTP#
CPU1_TDI
CPU1_THRMTRIP#
CPU1_TMS
CPU1_TRDY#
CPU1_TRST#
CPU1_VCCSENSE
CPU1_VID(6:0)
CPU1_VSSSENSE
CPU2_THERMDA
CPU2_THERMDC
ITP3_DBRRESET#
Thermal_Sensor_SMSC_Emc2102
CPU1_THRMTRIP#
CPU2_THERMDA
CPU2_THERMDC
CPU1_HITM#
CPU1_IGNNE#
CPU1_INIT#
CPU1_INTR
CPU1_LOCK#
CPU1_NMI
CPU1_PSI#
CPU1_PWRGDCPU
CPU1_REQ#(4:0)
CPU1_RS0#
CPU1_RS1#
CPU1_RS2#
CPU1_SLP#
CPU1_SMI#
CPU1_STPCLK#
CPU1_TCK
CPU1_DBSY#
CPU1_DEFER#
CPU1_DPRSTP#
CPU1_DPSLP#
CPU1_DPWR#
CPU1_DRDY#
CPU1_DSTBN0#
CPU1_DSTBN1#
CPU1_DSTBN2#
CPU1_DSTBN3#
CPU1_DSTBP0#
CPU1_DSTBP1#
CPU1_DSTBP2#
CPU1_DSTBP3#
CPU1_FERR#
CPU1_HIT#
CPU1_ADSTB1#
CPU1_BNR#
CPU1_BPRI#
CPU1_BREQ#
CPU1_BSEL0
CPU1_BSEL1
CPU1_BSEL2
CPU1_CPURST#
CPU1_D#(15:0)
CPU1_D#(31:16)
CPU1_D#(47:32)
CPU1_D#(63:48)
CPU1_DBI0#
CPU1_DBI1#
CPU1_DBI2#
CPU1_DBI3#
CLK3_GFX_27M
CLK3_GFX_27M_SS
PEG1_RXN(15:0)
PEG1_RXP(15:0)
PEG1_TXN(15:0)
PEG1_TXP(15:0)
GFX3_THERMDN
GFX3_THERMDP
GFX3_THERM#
CPU_Penryn_MV_SV
CLK0_HCLK0
CLK0_HCLK0#
CPU1_A#(16:3)
CPU1_A#(35:17)
CPU1_A20M#
CPU1_ADS#
CPU1_ADSTB0#
MEM1_CKE0
MEM1_CKE1
MEM1_CKE2
MEM1_CKE3
MEM1_CS0#
MEM1_CS1#
MEM1_CS2#
MEM1_CS3#
MEM1_ODT0
MEM1_ODT1
MEM1_ODT2
MEM1_ODT3
MEM1_VREF
SMB3_CLK
SMB3_DATA
CLK1_PEG
CLK1_PEG#
MEM1_ABS(1)
MEM1_ABS(2)
MEM1_ACAS#
MEM1_ADM(7:0)
MEM1_ADQ(63:0)
MEM1_ADQS#(7:0)
MEM1_ADQS(7:0)
MEM1_AMA(14:0)
MEM1_ARAS#
MEM1_AWE#
MEM1_BBS(0)
MEM1_BBS(1)
MEM1_BBS(2)
MEM1_BCAS#
MEM1_BDM(7:0)
MEM1_BDQ(63:0)
MEM1_BDQS#(7:0)
MEM1_BDQS(7:0)
MEM1_BMA(14:0)
MEM1_BRAS#
MEM1_BWE#
CPU3_THRMTRIP#
FAN3_FDBACK#
FAN5_VDD
KBC3_PWRGD
KBC3_THERM_SMCLK
KBC3_THERM_SMDATA
THM3_ALERT#
THM3_STP#
CLK1_MCLK0
CLK1_MCLK0#
CLK1_MCLK1
CLK1_MCLK1#
CLK1_MCLK2
CLK1_MCLK2#
CLK1_MCLK3
CLK1_MCLK3#
MCH3_EXTTS0#
MCH3_EXTTS1#
MEM1_ABS(0)
CPU1_IGNNE#
CPU1_INIT#
CPU1_INTR
CPU1_LOCK#
CPU1_NMI
CPU1_PSI#
CPU1_PWRGDCPU
CPU1_REQ#(4:0)
CPU1_RS0#
CPU1_RS1#
CPU1_RS2#
CPU1_SLP#
CPU1_SMI#
CPU1_STPCLK#
CPU1_TCK
CPU1_TDI
CPU1_THRMTRIP#
CPU1_TMS
CPU1_TRDY#
CPU1_TRST#
CPU1_VCCSENSE
CPU1_VID(6:0)
CPU1_VSSSENSE
CPU2_THERMDA
CPU2_THERMDC
ITP3_DBRRESET#
CPU1_THRMTRIP#
CPU2_THERMDA
CPU2_THERMDC
CPU1_DEFER#
CPU1_DPRSTP#
CPU1_DPSLP#
CPU1_DPWR#
CPU1_DRDY#
CPU1_DSTBN0#
CPU1_DSTBN1#
CPU1_DSTBN2#
CPU1_DSTBN3#
CPU1_DSTBP0#
CPU1_DSTBP1#
CPU1_DSTBP2#
CPU1_DSTBP3#
CPU1_FERR#
CPU1_HIT#
CPU1_HITM#
CLK0_HCLK0#
CPU1_A#(16:3)
CPU1_A#(35:17)
CPU1_A20M#
CPU1_ADS#
CPU1_ADSTB0#
CPU1_ADSTB1#
CPU1_BNR#
CPU1_BPRI#
CPU1_BREQ#
CPU1_BSEL0
CPU1_BSEL1
CPU1_BSEL2
CPU1_CPURST#
CPU1_D#(15:0)
CPU1_D#(31:16)
CPU1_D#(47:32)
CPU1_D#(63:48)
CPU1_DBI0#
CPU1_DBI1#
CPU1_DBI2#
CPU1_DBI3#
CPU1_DBSY#
CLK1_SATA#
CLK3_DBGLPC
CLK3_FM48
CLK3_ICH14
CLK3_PCLKICH
CLK3_PCLKMICOM
CLK3_PWRGD
CLK3_USB48
CPU1_BSEL0
CPU1_BSEL1
CPU1_BSEL2
EXP3_CLKREQ#
LOM3_CLKREQ#
MCH3_CLKREQ#
MIN3_CLKREQ#
SMB3_CLK
SMB3_DATA
CLK0_HCLK0
CLK1_EXPCARD
CLK1_EXPCARD#
CLK1_MCH3GPLL
CLK1_MCH3GPLL#
CLK1_MINIPCIE
CLK1_MINIPCIE#
CLK1_PCIEICH
CLK1_PCIEICH#
CLK1_PCIELOM
CLK1_PCIELOM#
CLK1_SATA
MEM1_BDM(7:0)
MEM1_BDQ(63:0)
MEM1_BDQS#(7:0)
MEM1_BDQS(7:0)
MEM1_BMA(14:0)
MEM1_BRAS#
MEM1_BWE#
MEM1_CKE0
MEM1_CKE1
MEM1_CKE2
MEM1_CKE3
MEM1_CS0#
MEM1_CS1#
MEM1_CS2#
MEM1_CS3#
MEM1_ODT0
MEM1_ODT1
MEM1_ODT2
MEM1_ODT3
MEM1_VREF
PLT3_RST#
CHP3_CPUSTP#
CHP3_PCISTP#
CHP3_SATACLKREQ#
CLK0_HCLK0
CLK0_HCLK0#
CLK0_HCLK1
CLK0_HCLK1#
DMI1_TXP_0
DMI1_TXP_1
DMI1_TXP_2
DMI1_TXP_3
KBC3_PWRGD
MCH1_HVREF
MCH1_HXSWING
MCH3_CLKREQ#
MCH3_EXTTS0#
MCH3_EXTTS1#
MCH3_ICHSYNC#
MEM1_ABS(2:0)
MEM1_ACAS#
MEM1_ADM(7:0)
MEM1_ADQ(63:0)
MEM1_ADQS#(7:0)
MEM1_ADQS(7:0)
MEM1_AMA(14:0)
MEM1_ARAS#
MEM1_AWE#
MEM1_BBS(2:0)
MEM1_BCAS#
DMI1_RXN_1
DMI1_RXN_2
DMI1_RXN_3
DMI1_RXP_0
DMI1_RXP_1
DMI1_RXP_2
DMI1_RXP_3
DMI1_TXN_0
DMI1_TXN_1
DMI1_TXN_2
DMI1_TXN_3
CPU1_BSEL2
CPU1_CPURST#
CPU1_D#(63:0)
CPU1_DBI0#
CPU1_DBI1#
CPU1_DBI2#
CPU1_DBI3#
CPU1_DBSY#
CPU1_DEFER#
CPU1_DPRSTP#
CPU1_DPWR#
CPU1_DRDY#
CPU1_DSTBN0#
CPU1_DSTBN1#
CPU1_DSTBN2#
CPU1_DSTBN3#
CPU1_DSTBP0#
CPU1_DSTBP1#
CPU1_DSTBP2#
CPU1_DSTBP3#
CPU1_HIT#
CPU1_HITM#
CPU1_LOCK#
CPU1_REQ#(4:0)
CPU1_RS0#
CPU1_RS1#
CPU1_RS2#
CPU1_SLP#
CPU1_THRMTRIP#
CPU1_TRDY#
DMI1_RXN_0
CHP3_CL_CLK_0
CHP3_CL_DATA_0
CHP3_CL_RST_0#
CHP3_DPRSLPVR
CHP3_PM_SYNC#
CLK0_HCLK1
CLK0_HCLK1#
CLK1_MCH3GPLL
CLK1_MCH3GPLL#
CLK1_MCLK0
CLK1_MCLK0#
CLK1_MCLK1
CLK1_MCLK1#
CLK1_MCLK2
CLK1_MCLK2#
CLK1_MCLK3
CLK1_MCLK3#
CPU1_A#(35:3)
CPU1_ADS#
CPU1_ADSTB0#
CPU1_ADSTB1#
CPU1_BNR#
CPU1_BPRI#
CPU1_BREQ#
CPU1_BSEL0
CPU1_BSEL1

8-9
- 이 문서는 삼성전자의 기술 자산으로 승인자만이 사용할 수 있습니다 -
- This Document can not be used without Samsung's authorization -
8. Block Diagram and Schematic
Samsung
Confidential
Samsung
Confidential
Samsung
Confidential
SRP Sheet Number: 9 of 73
SAMSUNG
ELECTRONICS
A
B B
C C
D D
4
4
3
3
2
2
1
1
SAMSUNG PROPRIETARY
PROPRIETARY INFORMATION THAT IS
SAMSUNG ELECTRONICS CO’S PROPERTY.
DO NOT DISCLOSE TO OR DUPLICATE FOR OTHERS
THIS DOCUMENT CONTAINS CONFIDENTIAL
EXCEPT AS AUTHORIZED BY SAMSUNG.
A
USB3_P6+
USB3_P6-
USB3_P8+
USB3_P8-
VRM3_CPU_PWRGD
Bluetooth_IF_Conn
USB3_P5+
USB3_P5-
SPI3_CS0#
SPI3_MISO
SPI3_MOSI
THM3_ALERT#
USB3_P0+
USB3_P0-
USB3_P10+
USB3_P10-
USB3_P2+
USB3_P2-
USB3_P3+
USB3_P3-
USB3_P4+
USB3_P4-
USB3_P5+
USB3_P5-
PEX1_MINITXP1
PEX3_WAKE#
PLT3_RST#
PLT3_RST_ORG#
SAT1_RXN0
SAT1_RXN1
SAT1_RXP0
SAT1_RXP1
SAT1_TXN0
SAT1_TXN1
SAT1_TXP0
SAT1_TXP1
SMB3_ALERT#
SMB3_CLK
SMB3_DATA
SPI3_CLK
KBC3_WAKESCI#
LPC3_LAD(3:0)
LPC3_LFRAME#
MCH3_ICHSYNC#
PCI3_CLKRUN#
PEX1_EXPCARDRXN3
PEX1_EXPCARDRXP3
PEX1_EXPCARDTXN3
PEX1_EXPCARDTXP3
PEX1_GLAN_RXN4
PEX1_GLAN_RXP4
PEX1_GLAN_TXN4
PEX1_GLAN_TXP4
PEX1_MINIRXN1
PEX1_MINIRXP1
PEX1_MINITXN1
HDA3_HDMI_SDI2
HDA3_HDMI_SDO
HDA3_HDMI_SYNC
HDA3_MDC_BCLK
HDA3_MDC_RST#
HDA3_MDC_SDI1
HDA3_MDC_SDO
HDA3_MDC_SYNC
ITP3_DBRRESET#
KBC3_A20G
KBC3_CPURST#
KBC3_EXTSMI#
KBC3_PWRBTN#
KBC3_PWRGD
KBC3_RSMRST#
KBC3_RUNSCI#
DMI1_RXP_3
DMI1_TXN_0
DMI1_TXN_1
DMI1_TXN_2
DMI1_TXN_3
DMI1_TXP_0
DMI1_TXP_1
DMI1_TXP_2
DMI1_TXP_3
HDA3_AUD_BCLK
HDA3_AUD_RST#
HDA3_AUD_SDI0
HDA3_AUD_SDO
HDA3_AUD_SYNC
HDA3_HDMI_BCLK
HDA3_HDMI_RST#
CPU1_FERR#
CPU1_IGNNE#
CPU1_INIT#
CPU1_INTR
CPU1_NMI
CPU1_PWRGDCPU
CPU1_SMI#
CPU1_STPCLK#
CPU1_THRMTRIP#
DMI1_RXN_0
DMI1_RXN_1
DMI1_RXN_2
DMI1_RXN_3
DMI1_RXP_0
DMI1_RXP_1
DMI1_RXP_2
CHP3_SERIRQ
CHP3_SLPS3#
CHP3_SLPS4#
CHP3_SLPS5#
CHP3_SUSSTAT#
CLK1_PCIEICH
CLK1_PCIEICH#
CLK1_SATA
CLK1_SATA#
CLK3_ICH14
CLK3_PCLKICH
CLK3_PWRGD
CLK3_USB48
CPU1_A20M#
CPU1_DPRSTP#
CPU1_DPSLP#
CHP3_BIOSWP#
CHP3_BIOS_CRI#
CHP3_CL_CLK_0
CHP3_CL_DATA_0
CHP3_CL_RST_0#
CHP3_CPUSTP#
CHP3_DPRSLPVR
CHP3_GPIO18
CHP3_GPIO20
CHP3_INTRUDER#
CHP3_ME_RTCRST#
CHP3_PCISTP#
CHP3_PM_SYNC#
CHP3_RTCRST#
CHP3_SATACLKREQ#
CHP3_SATALED#
HDD_IF_Conn
SAT1_RXN0
SAT1_RXP0
SAT1_TXN0
SAT1_TXP0
ODD_IF_Conn
SAT1_RXN1
SAT1_RXP1
SAT1_TXN1
SAT1_TXP1
ICH_9M_B
AUD3_SPKR
USB3_P8-
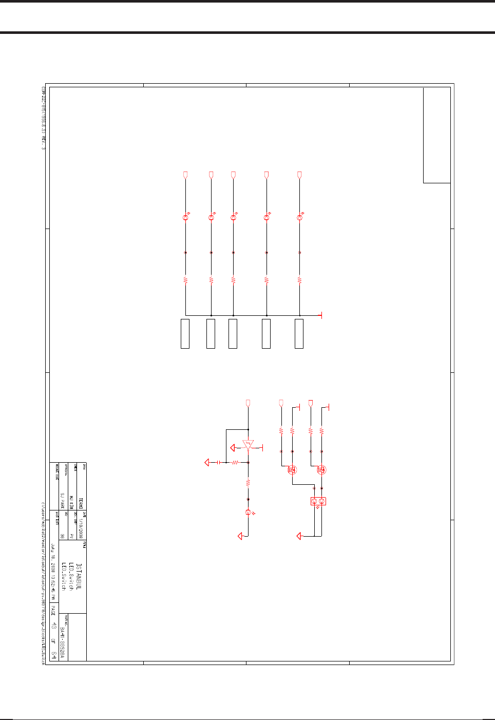
LED_Switch
CHP3_SATALED#
KBC3_CAPSLED#
KBC3_LED_ACIN#
KBC3_LED_CHARGE#
KBC3_LED_POWER#
KBC3_NUMLED#
KBC3_SCLED#
WLON_LED#
LID_Switch
LID3_SWITCH#
USB3_P2+
USB3_P2-
USB_2Port
KBC3_USBPWRON#
USB3_P0+
USB3_P0-
USB3_P6+
USB3_P6-
MIO_Switch
KBC3_PWRSW#
Camera_IF_Conn
USB3_P8+
KBD_IF_Conn
KBC5_KSI(0:7)KBC5_KSO(0:15)
Other_Debug_80
CLK3_DBGLPC
LPC3_LAD(0)
LPC3_LAD(1)
LPC3_LAD(2)
LPC3_LAD(3)
LPC3_LFRAME#
PLT3_RST#
USB_1Port
KBC3_USBPWRON#
LPC3_LAD(0:3)
LPC3_LFRAME#
PCI3_CLKRUN#
PEX3_WAKE#
PLT3_RST#
THM3_ALERT#
THM3_STP#
VRM3_CPU_PWRGD
Touchpad_IF_Conn
KBC5_TCLK
KBC5_TDATA
T_L_BUTTON#
T_R_BUTTON#
KBC3_SCLED#
KBC3_SMCLK#
KBC3_SMDATA#
KBC3_SPKMUTE
KBC3_SUSPWR
KBC3_THERM_SMCLK
KBC3_THERM_SMDATA
KBC3_USBPWRON#
KBC3_VRON
KBC3_WAKESCI#
KBC5_KSI(0:7)
KBC5_KSO(0:7)
KBC5_KSO(8:15)
KBC5_TCLK
KBC5_TDATA
LID3_SWITCH#
KBC3_CHKPWRSW#
KBC3_CPURST#
KBC3_EXTSMI#
KBC3_LED_ACIN#
KBC3_LED_CHARGE#
KBC3_LED_POWER#
KBC3_NUMLED#
KBC3_PRECHG
KBC3_PWRBTN#
KBC3_PWRGD
KBC3_PWRON
KBC3_PWRSW#
KBC3_RFOFF#
KBC3_RSMRST#
KBC3_RST#
KBC3_RUNSCI#
MICOM_Renesas2110_100p
ADT3_SEL#
BAT3_DETECT#
CHP3_SERIRQ
CHP3_SLPS3#
CHP3_SLPS4#
CHP3_SLPS5#
CHP3_SUSSTAT#
CLK3_PCLKMICOM
KBC3_A20G
KBC3_BKLTON
KBC3_BLCKPWRSW#
KBC3_CAPSLED#
KBC3_CHG4.2V
KBC3_CHGEN
PLT3_RST#
USB3_P5+
USB3_P5-
ADT3_SEL#
KBC3_PRECHG
KBC3_SMCLK#
KBC3_SMDATA#
KBC3_USBPWRON#
KBC3_USBPWRON#
KBC3_USBPWRON#
KBC3_CHG4.2V
SPI_BIOS_ROM
CHP3_BIOSWP#
SPI3_CLK
SPI3_CS0#
SPI3_MISO
SPI3_MOSI
SAT1_RXN1
SAT1_RXP1
SAT1_TXN1
SAT1_TXP1
USB3_P8+
USB3_P8- T_R_BUTTON#
T_L_BUTTON#
KBC5_TDATA
KBC5_TCLK
CHP3_BIOSWP#
SPI3_CLK
SPI3_CS0#
SPI3_MISO
SPI3_MOSI
CLK3_DBGLPC
LPC3_LAD(0)
LPC3_LAD(1)
LPC3_LAD(2)
LPC3_LAD(3)
LPC3_LFRAME#
KBC3_SUSPWR
KBC3_THERM_SMCLK
KBC3_THERM_SMDATA
KBC3_VRON
KBC3_WAKESCI#
KBC5_KSI(0:7)
KBC5_KSO(0:7)
KBC5_KSO(8:15)
KBC5_TCLK
KBC5_TDATA
LID3_SWITCH#
LPC3_LAD(0:3)
LPC3_LFRAME#
PCI3_CLKRUN#
PEX3_WAKE#
PLT3_RST#
THM3_ALERT#
THM3_STP#
VRM3_CPU_PWRGD
CHP3_SATALED#
KBC3_CAPSLED#
KBC3_LED_ACIN#
KBC3_LED_CHARGE#
KBC3_LED_POWER#
KBC3_NUMLED#
KBC3_SCLED#
WLON_LED#
KBC5_KSI(0:7)KBC5_KSO(0:15)
LID3_SWITCH#
KBC3_PWRSW#
SAT1_TXP0
BAT3_DETECT#
CHP3_SERIRQ
CHP3_SLPS3#
CHP3_SLPS4#
CHP3_SLPS5#
CHP3_SUSSTAT#
CLK3_PCLKMICOM
KBC3_A20G
KBC3_BKLTON
KBC3_BLCKPWRSW#
KBC3_CAPSLED#
KBC3_CHGEN
KBC3_CHKPWRSW#
KBC3_CPURST#
KBC3_EXTSMI#
KBC3_LED_ACIN#
KBC3_LED_CHARGE#
KBC3_LED_POWER#
KBC3_NUMLED#
KBC3_PWRBTN#
KBC3_PWRGD
KBC3_PWRON
KBC3_PWRSW#
KBC3_RFOFF#
KBC3_RSMRST#
KBC3_RST#
KBC3_RUNSCI#
KBC3_SCLED#
KBC3_SPKMUTE
USB3_P3+
USB3_P3-
USB3_P4+
USB3_P4-
USB3_P5+
USB3_P5-
USB3_P6+
USB3_P6-
USB3_P8+
USB3_P8-
VRM3_CPU_PWRGD
USB3_P2+
USB3_P2-
USB3_P6-
SAT1_RXN0
SAT1_RXP0
SAT1_TXN0
PEX1_MINITXP1
PEX3_WAKE#
PLT3_RST#
PLT3_RST_ORG#
SAT1_RXN0
SAT1_RXN1
SAT1_RXP0
SAT1_RXP1
SAT1_TXN0
SAT1_TXN1
SAT1_TXP0
SAT1_TXP1
SMB3_ALERT#
SMB3_CLK
SMB3_DATA
SPI3_CLK
SPI3_CS0#
SPI3_MISO
SPI3_MOSI
THM3_ALERT#
USB3_P0+
USB3_P0-
USB3_P10+
USB3_P10-
USB3_P2+
USB3_P2-
KBC3_PWRBTN#
KBC3_PWRGD
KBC3_RSMRST#
KBC3_RUNSCI#
KBC3_WAKESCI#
LPC3_LAD(3:0)
LPC3_LFRAME#
MCH3_ICHSYNC#
PCI3_CLKRUN#
PEX1_EXPCARDRXN3
PEX1_EXPCARDRXP3
PEX1_EXPCARDTXN3
PEX1_EXPCARDTXP3
PEX1_GLAN_RXN4
PEX1_GLAN_RXP4
PEX1_GLAN_TXN4
PEX1_GLAN_TXP4
PEX1_MINIRXN1
PEX1_MINIRXP1
PEX1_MINITXN1
DMI1_TXN_2
DMI1_TXN_3
DMI1_TXP_0
DMI1_TXP_1
DMI1_TXP_2
DMI1_TXP_3
HDA3_AUD_BCLK
HDA3_AUD_RST#
HDA3_AUD_SDI0
HDA3_AUD_SDO
HDA3_AUD_SYNC
HDA3_HDMI_BCLK
HDA3_HDMI_RST#
HDA3_HDMI_SDI2
HDA3_HDMI_SDO
HDA3_HDMI_SYNC
HDA3_MDC_BCLK
HDA3_MDC_RST#
HDA3_MDC_SDI1
HDA3_MDC_SDO
HDA3_MDC_SYNC
ITP3_DBRRESET#
KBC3_A20G
KBC3_CPURST#
KBC3_EXTSMI#
CLK3_USB48
CPU1_A20M#
CPU1_DPRSTP#
CPU1_DPSLP#
CPU1_FERR#
CPU1_IGNNE#
CPU1_INIT#
CPU1_INTR
CPU1_NMI
CPU1_PWRGDCPU
CPU1_SMI#
CPU1_STPCLK#
CPU1_THRMTRIP#
DMI1_RXN_0
DMI1_RXN_1
DMI1_RXN_2
DMI1_RXN_3
DMI1_RXP_0
DMI1_RXP_1
DMI1_RXP_2
DMI1_RXP_3
DMI1_TXN_0
DMI1_TXN_1
USB3_P0+
USB3_P0-
USB3_P6+
AUD3_SPKR
CHP3_BIOSWP#
CHP3_BIOS_CRI#
CHP3_CL_CLK_0
CHP3_CL_DATA_0
CHP3_CL_RST_0#
CHP3_CPUSTP#
CHP3_DPRSLPVR
CHP3_GPIO18
CHP3_GPIO20
CHP3_INTRUDER#
CHP3_ME_RTCRST#
CHP3_PCISTP#
CHP3_PM_SYNC#
CHP3_RTCRST#
CHP3_SATACLKREQ#
CHP3_SATALED#
CHP3_SERIRQ
CHP3_SLPS3#
CHP3_SLPS4#
CHP3_SLPS5#
CHP3_SUSSTAT#
CLK1_PCIEICH
CLK1_PCIEICH#
CLK1_SATA
CLK1_SATA#
CLK3_ICH14
CLK3_PCLKICH
CLK3_PWRGD

8-10
- 이 문서는 삼성전자의 기술 자산으로 승인자만이 사용할 수 있습니다 -
- This Document can not be used without Samsung's authorization -
8. Block Diagram and Schematic
Samsung
Confidential
Samsung
Confidential
Samsung
Confidential
SRP Sheet Number: 10 of 73
SAMSUNG
ELECTRONICS
A
B B
A
C C
D D
4
4
3 1
13
2
2
SAMSUNG PROPRIETARY
THIS DOCUMENT CONTAINS CONFIDENTIAL
PROPRIETARY INFORMATION THAT IS
SAMSUNG ELECTRONICS CO’S PROPERTY.
DO NOT DISCLOSE TO OR DUPLICATE FOR OTHERS
EXCEPT AS AUTHORIZED BY SAMSUNG.
WDQSA(4)
WDQSA(5)
WDQSA(6)
WDQSA(7)
WEA#
MCLKA1
MCLKA1#
ODT
RASA#
RDQSA(0)
RDQSA(1)
RDQSA(2)
RDQSA(3)
RDQSA(4)
RDQSA(5)
RDQSA(6)
RDQSA(7)
WDQSA(0)
WDQSA(1)
WDQSA(2)
WDQSA(3)
DQMA(0)
DQMA(1)
DQMA(2)
DQMA(3)
DQMA(4)
DQMA(5)
DQMA(6)
DQMA(7)
MAA(12:0)
MAB(2)
MAB(3)
MAB(4)
MAB(5)
MCKEA
MCLKA0
MCLKA0#
PEX1_MINITXN1
PEX1_MINITXP1
PEX3_WAKE#
PLT3_RST#
WLON_LED#
Graphics_Memory_Nvidia
BAA0
BAA1
BAA2
CASA#
CSA0#
DQA(15:0)
DQA(31:16)
DQA(47:32)
DQA(63:48)
HDA3_AUD_SDO
HDA3_AUD_SYNC
KBC3_SPKMUTE
SPK5_L+
SPK5_L-
SPK5_R+
SPK5_R-
PCIE_Minicard_Slot
CLK1_MINIPCIE
CLK1_MINIPCIE#
KBC3_RFOFF#
MIN3_CLKREQ#
PEX1_MINIRXN1
PEX1_MINIRXP1
AUD5_HP_O_RIGHT
AUD5_LINE_O_LEFT
AUD5_LINE_O_RIGHT
AUD5_MIC1_LEFT
AUD5_MIC1_RIGHT
AUD5_MIC1_VREF_LEFT
AUD5_MIC1_VREF_RIGHT
AUD5_MIC2_LEFT
AUD5_MIC2_RIGHT
AUD5_MIC2_VREF
AUD5_SENS_A
AUD5_SENS_HP#
AUD5_SENS_MIC#
HDA3_AUD_BCLK
HDA3_AUD_RST#
HDA3_AUD_SDI0
PEG3_TX1P_HDMI
PEG3_TX2N_HDMI
PEG3_TX2P_HDMI
PEG3_TXCN_HDMI
PEG3_TXCP_HDMI
PEG5_HDMI_CLK
PEG5_HDMI_DATA
HDA_Codec_Alc262
AUD3_BEEP
AUD3_GPIO0#
AUD3_GPIO1#
AUD3_SHDN#
AUD3_SPKR
AUD5_HP_O_LEFT
LCD1_BCLK#
LCD1_BDATA0
LCD1_BDATA0#
LCD1_BDATA1
LCD1_BDATA1#
LCD1_BDATA2
LCD1_BDATA2#
LCD3_BKLTON
LCD3_BRIT
LCD3_EDID_CLK
LCD3_EDID_DATA
PEG3_BKLTEN
PEG3_HPD_HDMI
PEG3_LCDVDDON
PEG3_TX0N_HDMI
PEG3_TX0P_HDMI
PEG3_TX1N_HDMI
CRT3_VSYNC
CRT5_DDCCLK
CRT5_DDCDATA
CRT5_HSYNC
CRT5_VSYNC
KBC3_BKLTON
LCD1_ACLK
LCD1_ACLK#
LCD1_ADATA0
LCD1_ADATA0#
LCD1_ADATA1
LCD1_ADATA1#
LCD1_ADATA2
LCD1_ADATA2#
LCD1_BCLK
WEA#
HDA_Modem
HDA3_MDC_BCLK
HDA3_MDC_RST#
HDA3_MDC_SDI1
HDA3_MDC_SDO
HDA3_MDC_SYNC
Graphics_IF_CRT
CRT3_BLUE
CRT3_DDCCLK
CRT3_DDCDATA
CRT3_GREEN
CRT3_HSYNC
CRT3_RED
PEG3_HPD_HDMI
PEG3_LCDVDDON
PEG3_TX0N_HDMI
PEG3_TX0P_HDMI
PEG3_TX1N_HDMI
PEG3_TX1P_HDMI
PEG3_TX2N_HDMI
PEG3_TX2P_HDMI
PEG3_TXCN_HDMI
PEG3_TXCP_HDMI
PEG5_HDMI_CLK
PEG5_HDMI_DATA
PLT3_RST#
RASA#
RDQSA(0:7)
WDQSA(0:7)
MAB(2)
MAB(3)
MAB(4)
MAB(5)
MCKEA
MCLKA0
MCLKA0#
MCLKA1
MCLKA1#
ODT
PEG1_RXN(15:0)
PEG1_RXP(15:0)
PEG1_TXN(15:0)
PEG1_TXP(15:0)
PEG3_BKLTEN
LCD1_BDATA2#
LCD3_BRIT
LCD3_EDID_CLK
LCD3_EDID_DATA
MAA(0)
MAA(1)
MAA(10)
MAA(11)
MAA(12)
MAA(2)
MAA(3)
MAA(4)
MAA(5)
MAA(6)
MAA(7)
MAA(8)
MAA(9)
HDA3_HDMI_SYNC
LCD1_ACLK
LCD1_ACLK#
LCD1_ADATA0
LCD1_ADATA0#
LCD1_ADATA1
LCD1_ADATA1#
LCD1_ADATA2
LCD1_ADATA2#
LCD1_BCLK
LCD1_BCLK#
LCD1_BDATA0
LCD1_BDATA0#
LCD1_BDATA1
LCD1_BDATA1#
LCD1_BDATA2
GFX3_I2CSDATA
GFX3_ROMSCLK
GFX3_ROMSI
GFX3_ROMSO
GFX3_STRAP0
GFX3_STRAP1
GFX3_STRAP2
GFX3_THERM#
GFX3_THERMDN
GFX3_THERMDP
GFX3_VOLTID_0
GFX3_VOLTID_1
HDA3_HDMI_BCLK
HDA3_HDMI_RST#
HDA3_HDMI_SDI2
HDA3_HDMI_SDO
CRT3_DDCCLK
CRT3_DDCDATA
CRT3_GREEN
CRT3_HSYNC
CRT3_RED
CRT3_VSYNC
CSA0#
DQA(63:0)
DQMA(7:0)
GFX3_HCLK
GFX3_HDATA
GFX3_I2CBCLK
GFX3_I2CBDATA
GFX3_I2CECLK
GFX3_I2CEDATA
GFX3_I2CSCLK
LCD1_BDATA1
LCD1_BDATA1#
LCD1_BDATA2
LCD1_BDATA2#
Gfx_External_Nvidia_Nb9x_64bit
BAA0
BAA1
BAA2
CASA#
CLK1_PEG
CLK1_PEG#
CLK3_GFX_27M
CLK3_GFX_27M_SS
CRT3_BLUE
CRT3_HSYNC
CRT3_GREEN
CRT3_DDCDATA
CRT3_DDCCLK
CRT3_BLUE
CLK3_GFX_27M_SS
CLK3_GFX_27M
CLK1_PEG#
CLK1_PEG
CASA#
BAA2
BAA1
BAA0
LCD1_BCLK
LCD1_BCLK#
LCD1_BDATA0
LCD1_BDATA0#
LCD1_BDATA1
LCD1_BDATA1#
LCD1_BDATA2
LCD1_BDATA2#
LCD1_BCLK
LCD1_BCLK#
LCD1_BDATA0
LCD1_BDATA0#
HDA3_HDMI_SYNC
HDA3_HDMI_SDO
HDA3_HDMI_SDI2
HDA3_HDMI_RST#
HDA3_HDMI_BCLK
GFX3_VOLTID_1
GFX3_VOLTID_0
GFX3_THERMDP
GFX3_THERMDN
GFX3_THERM#
GFX3_STRAP2
GFX3_STRAP1
GFX3_STRAP0
GFX3_ROMSO
GFX3_ROMSI
GFX3_ROMSCLK
GFX3_I2CSDATA
GFX3_I2CSCLK
GFX3_I2CEDATA
GFX3_I2CECLK
GFX3_I2CBDATA
GFX3_I2CBCLK
GFX3_HDATA
GFX3_HCLK
DQMA(7:0)
DQA(63:0)
CSA0#
CRT3_VSYNC
CRT3_RED
MAA(11)
MAA(10)
MAA(1)
MAA(0)
LCD3_EDID_DATA
LCD3_EDID_CLK
LCD3_BRIT
LCD1_ADATA2#LCD1_ADATA2LCD1_ADATA1#LCD1_ADATA1LCD1_ADATA0#LCD1_ADATA0
LCD1_ACLK#
LCD1_ACLK
PEG3_BKLTEN
PEG1_TXP(15:0)
PEG1_TXN(15:0)
PEG1_RXP(15:0)
PEG1_RXN(15:0)
ODT
MCLKA1#
MCLKA1
MCLKA0#
MCLKA0
MCKEA
MAB(5)
MAB(4)
MAB(3)
MAB(2)
MAA(9)
MAA(8)
MAA(7)
MAA(6)
MAA(5)
MAA(4)
MAA(3)
MAA(2)
MAA(12)
WDQSA(1)
WDQSA(2)
WDQSA(3)
WDQSA(4)
WDQSA(5)
WDQSA(6)
WDQSA(7)
WEA#WEA#
WDQSA(0:7)
RDQSA(0:7)
RASA#
PLT3_RST#
PEG5_HDMI_DATA
PEG5_HDMI_CLK
PEG3_TXCP_HDMI
PEG3_TXCN_HDMI
PEG3_TX2P_HDMI
PEG3_TX2N_HDMI
PEG3_TX1P_HDMI
PEG3_TX1N_HDMI
PEG3_TX0P_HDMI
PEG3_TX0N_HDMI
PEG3_LCDVDDON
PEG3_HPD_HDMI
MCKEA
MCLKA0
MCLKA0#
MCLKA1
MCLKA1#
ODT
RASA#
RDQSA(0)
RDQSA(1)
RDQSA(2)
RDQSA(3)
RDQSA(4)
RDQSA(5)
RDQSA(6)
RDQSA(7)
WDQSA(0)
CSA0#
DQA(15:0)
DQA(31:16)
DQA(47:32)
DQA(63:48)
DQMA(0)
DQMA(1)
DQMA(2)
DQMA(3)
DQMA(4)
DQMA(5)
DQMA(6)
DQMA(7)
MAA(12:0)
MAB(2)
MAB(3)
MAB(4)
MAB(5)
SPK5_L-
SPK5_R+
SPK5_R-
CLK1_MINIPCIE
CLK1_MINIPCIE#
KBC3_RFOFF#
MIN3_CLKREQ#
PEX1_MINIRXN1
PEX1_MINIRXP1
PEX1_MINITXN1
PEX1_MINITXP1
PEX3_WAKE#
PLT3_RST#
WLON_LED#
PEG3_BKLTEN
PEG3_HPD_HDMI
PEG3_LCDVDDON
BAA0
BAA1
BAA2
CASA#
AUD3_SPKR
AUD5_HP_O_LEFT
AUD5_HP_O_RIGHT
AUD5_LINE_O_LEFT
AUD5_LINE_O_RIGHT
AUD5_MIC1_LEFT
AUD5_MIC1_RIGHT
AUD5_MIC1_VREF_LEFT
AUD5_MIC1_VREF_RIGHT
AUD5_MIC2_LEFT
AUD5_MIC2_RIGHT
AUD5_MIC2_VREF
AUD5_SENS_A
AUD5_SENS_HP#
AUD5_SENS_MIC#
HDA3_AUD_BCLK
HDA3_AUD_RST#
HDA3_AUD_SDI0
HDA3_AUD_SDO
HDA3_AUD_SYNC
KBC3_SPKMUTE
SPK5_L+
PEG3_TX0P_HDMI
PEG3_TX1N_HDMI
PEG3_TX1P_HDMI
PEG3_TX2N_HDMI
PEG3_TX2P_HDMI
PEG3_TXCN_HDMI
PEG3_TXCP_HDMI
PEG5_HDMI_CLK
PEG5_HDMI_DATA
HDA3_MDC_BCLK
HDA3_MDC_RST#
HDA3_MDC_SDI1
HDA3_MDC_SDO
HDA3_MDC_SYNC
AUD3_BEEP
AUD3_GPIO0#
AUD3_GPIO1#
AUD3_SHDN#
CRT3_BLUE
CRT3_DDCCLK
CRT3_DDCDATA
CRT3_GREEN
CRT3_HSYNC
CRT3_RED
CRT3_VSYNC
CRT5_DDCCLK
CRT5_DDCDATA
CRT5_HSYNC
CRT5_VSYNC
KBC3_BKLTON
LCD1_ACLKLCD1_ACLK#
LCD1_ADATA0
LCD1_ADATA0#
LCD1_ADATA1
LCD1_ADATA1#
LCD1_ADATA2
LCD1_ADATA2#
LCD3_BKLTON
LCD3_BRIT
LCD3_EDID_CLK
LCD3_EDID_DATA
PEG3_TX0N_HDMI

8-11
- 이 문서는 삼성전자의 기술 자산으로 승인자만이 사용할 수 있습니다 -
- This Document can not be used without Samsung's authorization -
8. Block Diagram and Schematic
Samsung
Confidential
Samsung
Confidential
Samsung
Confidential
SRP Sheet Number: 11 of 73
C
D D
B
4
4
3
3
2
2
1
1
SAMSUNG PROPRIETARY
THIS DOCUMENT CONTAINS CONFIDENTIAL
PROPRIETARY INFORMATION THAT IS
SAMSUNG ELECTRONICS CO’S PROPERTY.
DO NOT DISCLOSE TO OR DUPLICATE FOR OTHERS
EXCEPT AS AUTHORIZED BY SAMSUNG.
SAMSUNG
ELECTRONICS
A A
B
C
GCORE3_PWRGDGFX3_VOLTID_0
GFX3_VOLTID_1
KBC3_PWRON
P1.1V_PWRGD
VCCP3_PWRGD
CPU1_VID(3)
CPU1_VID(4)
CPU1_VID(5)
CPU1_VID(6)
CPU1_VSSSENSE
GCORE3_PWRGD
KBC3_VRON
P1.1V_PWRGD
VRM3_CPU_PWRGD
VRM_ISEN1
VRM_ISEN2
VRM_PRM
VRM_VSUM
PWR_Gfx_MV_Ext
BAT3_SMDATA#
KBC3_CHG4.2V
KBC3_CHGEN
KBC3_PRECHG
KBC3_SMCLK#
KBC3_SMDATA#
VDC_SGATE
PWR_CPU_MV_ISL6262
CHP3_DPRSLPVR
CPU1_DPRSTP#
CPU1_PSI#
CPU1_VCCSENSE
CPU1_VID(0)
CPU1_VID(1)
CPU1_VID(2)
PWR_MV_3V_5V
AUX_PGKBC3_SUSPWR
PWR_MV_MeMory
AUX_PG
KBC3_SUSPWR
MEM1_VREF
PWR_MV_Charger_ISL6256
ADT3_SEL#
BAT3_DETECT#
BAT3_SMCLK#
KBC3_PRECHG
KBC3_SMCLK#
KBC3_SMDATA#
KBC3_PWRON_INV#
KBC3_SUSPWR
GCORE3_PWRGD
KBC3_PWRON
VCCP3_PWRGD
GFX3_VOLTID_0
GFX3_VOLTID_1
GCORE3_PWRGD
VDC_SGATE
P1.1V_PWRGD
KBC3_CHG4.2V
P1.1V_PWRGD
PWR_MV_DisCharger
KBC3_PWRON_INV#
KBC3_SUSPWR
PWR_MV_Cantiga
KBC3_PWRON VCCP3_PWRGD
AUX_PG
KBC3_SUSPWR
MEM1_VREF
CHP3_DPRSLPVR
CPU1_DPRSTP#
CPU1_PSI#
CPU1_VCCSENSE
CPU1_VID(0)
CPU1_VID(1)
CPU1_VID(2)
CPU1_VID(3)
CPU1_VID(4)
CPU1_VID(5)
CPU1_VID(6)
CPU1_VSSSENSE
KBC3_VRON
VRM3_CPU_PWRGD
VRM_ISEN1
VRM_ISEN2
VRM_PRM
VRM_VSUM
KBC3_PWRON VCCP3_PWRGD
AUX_PGKBC3_SUSPWR
ADT3_SEL#
BAT3_DETECT#
BAT3_SMCLK#
BAT3_SMDATA#
KBC3_CHGEN

8-12
- 이 문서는 삼성전자의 기술 자산으로 승인자만이 사용할 수 있습니다 -
- This Document can not be used without Samsung's authorization -
8. Block Diagram and Schematic
Samsung
Confidential
Samsung
Confidential
Samsung
Confidential
SRP Sheet Number: 12 of 73
X
EXCEPT AS AUTHORIZED BY SAMSUNG.
2
A
THIS SIDE UP
34.00 mm W
INSERT
75.00 mm L
SAMSUNG ELECTRONICS CO’S PROPERTY.
D
4
2
B
PROPRIETARY INFORMATION THAT IS
3
Type 2 module
EXPRESS CARD
34.00 mm 54.00 mm
75.00 mm
SAMSUNG
SAMSUNG PROPRIETARY
1
Type 1 module
EXPRESS CARD
EXPRESS CARD
A
4
3
THIS DOCUMENT CONTAINS CONFIDENTIAL
D
X
C
DO NOT DISCLOSE TO OR DUPLICATE FOR OTHERS
5.00 mm H
54.00 mm W
X
B
75.00 mm
INSERT
THIS SIDE UP
C
75.00 mm L
X
5.00 mm H
1
ELECTRONICS
100nF
C729
10V
10V
C773
100nF
P3.3V_EXP
P3.3V_AUX_EXP
100nF
C774
10V
100nF
C772
10V
OC*
8
PERST*
18 RCLKEN
20 SHDN*
STBY*
1
SYSRST*
6
THERMAL 21
P1.5V_EXP
P3.3V
1.5VIN_1
12
14 1.5VIN_2
11
1.5VOUT_1
1.5VOUT_2 13
23.3VIN_1
3.3VIN_2
43.3VOUT_1 3
5
3.3VOUT_2
17 AUXIN
AUXOUT 15
CPPE* 10
9
CPUSB*
7
GND
16
NC_5
19
R710 0
U519
R5538D001-TR-F
1205-002807
nostuff
10V
C770
100nF
nostuff
0
R669
100nF
C769
10V
1MNT1
2MNT2
EXPRESS-26P-FRAME
J10
3709-001491
R670 0
nostuff
SHORT503 0
P3.3V_AUX P1.5V_EXP
10V
C771
100nF
P1.5V
22
PERST#
13
PETN0
24
PETP0
25
REFCLK+
19 REFCLK-
18
RESERVED_1 5
RESERVED_2 6
SMB_CLK
7
SMB_DATA
8
USB_D+
3USB_D-
2
WAKE#
11
+1.5V_1 10
+1.5v_2 9
+3.3V_1 14
+3.3V_2 15
+3.3V_AUX 12
CLKREQ#
16
CPPE#
17
CPUSB#
4
GND_1 1
GND_2 20
GND_3 23
GND_4 26
MNT1 27
28
MNT2
PERN0
21
PERP0
P3.3V_EXP
P3.3V_AUX_EXP
3711-006496
J9
EDGE-XPRESS-26P
PEX1_EXPCARDTXP3
SMB3_CLK
P3.3V
R709
10K
PEX1_EXPCARDRXN3
PEX1_EXPCARDRXP3
PEX1_EXPCARDTXN3
EXP3_CPPE#
EXP3_CPUSB#
EXP3_PERST#
CHP3_SLPS3#
PLT3_RST#
EXP3_CLKREQ#
EXP3_CPPE#
EXP3_CPUSB#
EXP3_PERST#
CLK1_EXPCARD
CLK1_EXPCARD#
SMB3_DATA
USB3_P4+
USB3_P4-
PEX3_WAKE#

8-13
- 이 문서는 삼성전자의 기술 자산으로 승인자만이 사용할 수 있습니다 -
- This Document can not be used without Samsung's authorization -
8. Block Diagram and Schematic
Samsung
Confidential
Samsung
Confidential
Samsung
Confidential
SRP Sheet Number: 13 of 73
A
PROPRIETARY INFORMATION THAT IS
Add for AU6372
(2008.02.29)
40mil trace
EMC Solution(’07.10.18)
ELECTRONICS
EXCEPT AS AUTHORIZED BY SAMSUNG.
D
Place the resistor as close as possible
to prevent 48MHz stub
2-in-1 Socket
SAMSUNG ELECTRONICS CO’S PROPERTY.
4
4
THIS DOCUMENT CONTAINS CONFIDENTIAL
3
SAMSUNG
SAMSUNG PROPRIETARY
3
B
A
C
2 IN 1 CARD
1
DO NOT DISCLOSE TO OR DUPLICATE FOR OTHERS
100nF
C476
10V
0
R296
nostuff
0.022nF
C467
50V
nostuff
P3.3V_MCD
100nF
C482
10V
R290
10K
1%
R295 330
10V
C481
100nF 100nF
C480
10V
50V
nostuff
nostuff
1000nF
C876
6.3V
C468
0.022nF
0
R298
100nF
C474
10V
C485
0.018nF
50V
nostuff
33
R279
0.018nF
C483
50V
nostuff
6.3V
C831
10000nF
P3.3V_MCD
MNT1
12
13 MNT2
VDD
4VSS1
3
6VSS2
11 WRITE_PROTECT
3709-001492
J515
EDGE-SD-9P
CARD_DETECT
10
1CD_DAT3
CLK
5
CMD
2
7DAT0
8DAT1
DAT2
9
P3.3V
100nF
C475
10V
1000nF
C484
6.3V
1
VDDH
14
VDD_U
10
XDCD# 22
XI
7
XO
8
MS_INS 18
NC_1
11
NC_2
12
READER_EN
16
RESET#
47
REXT
2
SDCD# 21
SMCD# 19
V18
13
VCC
3
VDD
CFRD#_XDCE# 25
CFRESET_XDWR# 23
CFWR#_XDRD# 24
CFWT# 46
DM
5DP
4
GND
6
GNDH
17
GND_U
9
GND_VDD
48
GPON6
29
44
CFD15_XDD7 45
CFD1_MSD1_XDWP# 31
CFD2_MSD2_SDWP 32
CFD3_MSD3_XDRB# 33
CFD4_SDD0 34
CFD5_SDD1 35
CFD6_SDD2 36
CFD7_SDD3 37
CFD8_SDD4_XDD0 38
CFD9_SDD5_XDD1 39
CARD_POWER 15
CFAD0_SDCLK_MSBS 28
CFAD1_MSCLK_XDCLE 27
CFAD2_XDALE 26
CFCD# 20
CFD0_MSD0_SDCMD 30
CFD10_SDD6_XDD2 40
CFD11_SDD7_XDD3 41
CFD12_XDD4 42
CFD13_XDD5 43
CFD14_XDD6
0904-002225
AU6371
U15
49.9
R864 1%
R297 1M
nostuff
R863 49.9
49.9
R862 1%
1%
R861 49.9
R289 47K
1%
Y4
2801-004666
12MHz
nostuff
1
2
PLT3_RST#
MCD3_SDCLK
CLK3_FM48
MCD3_SDCMD0
MCD3_SDCD#
MCD3_SDDATA2
MCD3_SDWP
MCD3_SDDATA3
MCD3_SDDATA1
MCD3_SDDATA0
MCD3_SDCMD0
MCD3_SDCLK
MCD3_SDCD#
USB3_P10-
USB3_P10+
MCD3_SDWP
MCD3_SDDATA1
MCD3_SDDATA2
MCD3_SDDATA0
MCD3_SDDATA3

8-14
- 이 문서는 삼성전자의 기술 자산으로 승인자만이 사용할 수 있습니다 -
- This Document can not be used without Samsung's authorization -
8. Block Diagram and Schematic
Samsung
Confidential
Samsung
Confidential
Samsung
Confidential
SRP Sheet Number: 14 of 73
A
D
Need at least 2.5mm or more clearance
1
2
C
NO_STUFF @ 88E8040
4
It must be placed on bottom side
NO_STUFF @ 88E8040
B
STUFF @ 88E8040
A
C
3
3
4
B
EXCEPT AS AUTHORIZED BY SAMSUNG.
SAMSUNG PROPRIETARY
88E8040: 2Kohm
88E8055: 4.99Kohm
SAMSUNG ELECTRONICS CO’S PROPERTY.
SAMSUNG
THIS DOCUMENT CONTAINS CONFIDENTIAL
2
D
Place nearby LOM chip
88E8040: 2.5V
88E8055: 1.8V
Place Nearby Pin39, Pin64
1
ELECTRONICS
Pin Compatible with 88E8040 (1205-003399)
4.7uF @ 88E8040
NO_STUFF @ 88E8040
DO NOT DISCLOSE TO OR DUPLICATE FOR OTHERS
PROPRIETARY INFORMATION THAT IS
NO_STUFF @ 88E8040
from conductive material
100nF
C43
10V
10V
C15
4700nF
RD+
3
6RD-
RING
10
TD+
1
2TD-
4TERM1
5TERM2
TERM3
7
8TERM4
9TIP
10V
100nF
C37
JACK-MODULE-10P
J502
3722-001692
C41
100nF
10V
R17 0
10000nF
C532
3KV
C6
1nF
6.3V
10V
100nF
C44
R519 4.7K
0.015nF
C16
4.7K
R518
49.9
R516 1%
50V
100nF
C61
10V
C515 100nF
1
2 4
3
P1.8V_P2.5V_LAN
10V
U507
BCP69-16
B4
CIC21J601NE
10V
100nF
C36
CIC21J601NE
B3
10V
100nF
C39
C529
100nF
10V
B8
BLM18PG181SN1
49.9
R514 1%
P1.8V_P2.5V_LAN
10V
C534
4700nF
C35
10V
100nF
C40
10V
100nF
10V
1%
R515 49.9
R24
nostuff
C21
100nF
100nF
C516
10V
4.7K
100nF
C514
10V
0
R23
VDD_5
13
7VDD_6
VDD_7
2
VDD_8
58
VMAIN_AVLBL 47
VPD_CLK
38
VPD_DATA
41
WAKE#
6
XTALI 15
XTALO 14
49 TX+_PCIE_TXP
50 TX-_PCIE_TXN
VAUX_AVLBL 12
VDDO_TTL_1
45
40 VDDO_TTL_2
VDDO_TTL_3
1
VDDO_TTL_4
61
48 VDD_1
VDD_2
44
39 VDD_3
33 VDD_4
16
RX+_PCIE_RXP
54
53 RX-_PCIE_RXN
37 SPI_CLK_NC
36 SPI_CS#_NC
SPI_DI_NC
35
34 SPI_DO_NC
SWITCH_VAUX 9
SWITCH_VCC 11
TESTMODE 46
THERMAL 65
31
MDI-3_NC
32 NC_AVDDL_1
NC_AVDDL_2
57
52 NC_AVDDL_3
51 NC_AVDDL_4
NC_VDD25
64
PERST#
5
55 REFCLK+
REFCLK-
56
RESERVED_HSDACN 25
24
RESERVED_HSDDACP
RESERVED_PU_VDDO_TTL
43
RESERVED_TSTPT 29
RSET
63
LED_LINK1000#_NC 62
60
LED_LINK10_100#_LED_SPEED#
LOM_DISABLE_DISABLE# 10
17
MDI+0_TXP
20
MDI+1_RXP
MDI+2_NC 26
MDI+3_NC 30
18
MDI-0_TXN
MDI-1_RXN 21
MDI-2_NC 27
23 AVDD
8AVDDH_VDDO_TTL
AVDD_AVDDL_1
28
AVDD_AVDDL_2
22
19 AVDD_AVDDL_3
42 CLKREQ#_PU_VDDO_TTL
CTRL12 3
CTRL18_CTRL25 4
LED_ACTIVE# 59
LED_LINK#
P1.2V_LAN
U503
88E8055
1205-003091|sqfn64e-therm
10V
C517 100nF
P3.3V
49.9
R510 1%
R4 75 1%
50V
0.015nF
C17
A1 3
A2
GND 4
6SCL
SDA
5
VCC
8
7WP
P3.3V_AUX
1103-001333
AT24C08AN-10SU-2.7
U504
A0 1
2
100nF
C42
10V
P3.3V_AUX
P3.3V
P3.3V_AUX
1%
P3.3V_AUX
100nF
C528
10V
R513 49.9
49.9
R512
U2
BCP69-16
1
2 4
3
1%
6.3V
C530
10000nF
P3.3V_AUX
3711-000541
1
2
6.3V
20%
22000nF-X5R
C33
100nF
C533
HDR-2P-SMD
J504
10V
4700nF
C34
10V 6.3V
C14
10000nF
C19
100nF
10V
B505
BLM18PG181SN1
1%
R517 49.9
10V
P3.3V_AUX
4.7K
R18
C13
100nF
R16 4.99K
P1.2V_LAN
75
R5
1%
10000nF
1%
10V
100nF
C63
6.3V
C23
17
16
MX3-
14
MX4+
MX4- 13
1TCT1
TCT2
4
7TCT3
TCT4
10
TD1+
2
3TD1-
5TD2+
TD2-
6
TD3+
8
9TD3-
11 TD4+
TD4-
12
2603-000107
24
MCT1
MCT2 21
18
MCT3
MCT4 15
MX1+ 23
22
MX1-
20
MX2+
MX2- 19
MX3+
4.7K
R533
LFE9261A-R
LT500
4.7K
R21
1nF
C7
3KV
P1.8V_P2.5V_LAN
1%75
R7
100nF
C24
1nF
C8
3KV
100nF
C38
10V10V
100nF
C18 10V
10V
C20
100nF
10V
C25
100nF
100nF
C22 10V
1%
R6 75
25MHz
2801-004668
Y1
1 2
1%
R511 49.9
R22 4.7K
C531
4700nF
10V
LAN3_VPDDATA
LAN3_VPDCLK
LAN3_VPDDATA
CTRL_12
CTRL18_25
LAN3_MDI0P
LAN3_MDI1P
LAN3_MDI3P
LAN3_MDI2P
LAN3_MDI0N
LAN3_MDI1N
LAN3_MDI2N
LAN3_MDI3N
PEX3_WAKE#
LAN3_VPDCLK
PLT3_RST#
PEX1_GLAN_RXP4
PEX1_GLAN_RXN4
PEX1_GLAN_TXN4
PEX1_GLAN_TXP4
CTRL_12 CTRL18_25
LOM3_CLKREQ#
CLK1_PCIELOM#
CLK1_PCIELOM

8-15
- 이 문서는 삼성전자의 기술 자산으로 승인자만이 사용할 수 있습니다 -
- This Document can not be used without Samsung's authorization -
8. Block Diagram and Schematic
Samsung
Confidential
Samsung
Confidential
Samsung
Confidential
SRP Sheet Number: 15 of 73
Switched Power On (P3.3V & 1.8V)
C
Audio Power (nostuff)
Add for EMI(2008.04.29)
LAST EDIT
Add for SI(2008.03.07)Add for SI(2007.12.6)
3
MODULE CODE
12
Add for EMC(’08.01.16)
5th Layer
Add for EMI(2008.04.26)
B
1
Place near to
D
SAMSUNG PROPRIETARY
DO NOT DISCLOSE TO OR DUPLICATE FOR OTHERS
2
THIS DOCUMENT CONTAINS CONFIDENTIAL
D:/users/mobile62/mentor/istanbul/istanbul-pv_080718
ELECTRONICS
DRAW
PROPRIETARY INFORMATION THAT IS
SAMSUNG ELECTRONICS CO’S PROPERTY.
APPROVAL
CHECK
A
3
Place near to
SAMSUNG
Switched Power On (P5.0V)
4
PART NO.
B
EXCEPT AS AUTHORIZED BY SAMSUNG.
C
A
D
4
COM-22C-015(1996.6.5) REV. 3
undefined
EGFX_CORE
C888
1nF
50V
C404
10V
C400
10V
100nF
50V
P1.1V
100nF100nF
C550
C889
1nF
P5.0V_AUD
P5.0V_AUX
P5.0V_AUX_USB
10V
P1.8V
10V
C883
100nF
P1.1V
EGFX_CORE
100nF
C882
10V10V
C881
100nF100nF
C880
10V
P1.1V
Q20
RHU002N06
3
D
G
1
S
2
P3.3V
P3.3V
10V
C879
100nF
470K
R203
1%
10V
C549
100nF
100nF
C535
10V
P1.1V
P1.8V
C892
1nF
50V 50V
1nF
C885
100nF
C884
10V
P1.8V
50V
1nF
C891
P1.1V
C523
10V
P1.1V
P1.8V
P5.0V_AUX
P12.0V_ALW
100nF
C854
2200nF
10V
P1.1V
B506
HU-1M2012-121JT
100nF
C878
10V
P1.1V
10nF
C853
25V
R806
0
P1.1V
P1.8V
P1.8V_AUX
3
S3
P5.0V_AUX_USB
P5.0V
50V
C800
1nF
AP6680AGM
Q19
D1
5 6
D2
7
D3
8
D4
4
G
S1
1
S2
2
50V
1nF
C890
P5.0V_AUX_USB
P1.1V
EGFX_COREP1.8V
SHORT514
0
10V
C285
100nF
1nF
C504
50V
P1.8V_AUX
2
S
B509
HU-1M2012-121JT
nostuff
RHU002N06
Q523
D
3
1
G
C832
10V
nostuff
100nF
P5.0V_AUX
6.3V
C804
10000nF
P5.0V_AUX_USB
P5.0V_AUX
EGFX_CORE
nostuff
P1.1V
EGFX_CORE
P1.8V
10V
C893
100nF
50V
1nF
C887
50V
C341
22nF
50V
10V
C415
100nF
P1.8V
P1.8V_AUX
EGFX_CORE
C886
1nF
2S2
3S3
50V
C509
1nF
D1 8
7
D2
D3 6
D4 5
G
4
S1
1
P5.0V_AUX_USB
AP4435GM
Q535
P5.0V_AUX_USB
25V
C803
10nF
RHU002N06
Q530
D
3
1
G
2
S
P5.0V_AUX_USB
nostuff
1%
R200
50V
C507
1nF
200K
1%
P5.0V_AUX_USB
470K
R199
100K
R758
1%
nostuff
30.1K
nostuff
0
R201
0
1%
R802
P3.3V
R808
3
1
G
2
S
100nF
C512
10V
EGFX_CORE
P5.0V_AUX_USB
RHU002N06
Q21
D
5
D1 D2
6
D3
7
D4
8
G
4
1
S1
2
S2 S3
3
EGFX_CORE
P1.8V_AUX
100nF
C342
10V
Q28
AP6680AGM
10nF
C830
50V
P12.0V_ALW
100nF
C895
10V
P5.0V_AUX
R809
1%
200K
0
P3.3V_AUX
R801
100nF
10V
C810
RHU002N06
Q29
D
3
1
G
2
S
P5.0V_AUX
470K
R278
1%
100nF
1
D1
D2 2
D3 5
6
D4G
3
4S
P5.0V_AUX
C809
10V
P12.0V_ALW
nostuff
Q524
FDC653N
10V
C674
100nF
P1.8V_AUX
P12.0V_ALW
10V
C464
2200nF
1nF
C511
50V
50V
C508
1nF
Q527
D
3
1
G
2
S
P3.3V
P5.0V_AUX_USB
P1.8V
P5.0V_AUX_USB
RHU002N06
P5.0V_AUX
R202
0
P5.0V_AUD
10V
C896
100nF100nF
C894
10V
P5.0V_AUX
10V
C506
100nF
KBC3_PWRON
KBC3_PWRON_INV#
KBC3_PWRON_INV#
KBC3_PWRON
P1.1V_PWRGD
VCCP3_PWRGD

8-16
- 이 문서는 삼성전자의 기술 자산으로 승인자만이 사용할 수 있습니다 -
- This Document can not be used without Samsung's authorization -
8. Block Diagram and Schematic
Samsung
Confidential
Samsung
Confidential
Samsung
Confidential
SRP Sheet Number: 16 of 73
PROPRIETARY INFORMATION THAT IS
SAMSUNG ELECTRONICS CO’S PROPERTY.
System
Board
Add for EMC (’08.03.05)
A
B
4
4
SAMSUNG PROPRIETARY
3 2
B
ELECTRONICS
ICT PORT
Add for EMC (’08.06.09)
4th Layer
Add for EMC (’08.06.09)
Bottom Side
1
DO NOT DISCLOSE TO OR DUPLICATE FOR OTHERS
D
COM-22C-015(1996.6.5) REV. 3
Add for EMC (’08.01.16)
5th Layer
Add for EMC (’08.04.22)
For Debugging
SAMSUNG
A
C C
3
D
Top Side
Add for EMC (’08.01.16)
Keyboard
Bottom Side
Add for EMC (’08.01.16)
THIS DOCUMENT CONTAINS CONFIDENTIAL
EXCEPT AS AUTHORIZED BY SAMSUNG.
2
10V
C577
100nF
P1.8V_AUX
100nF
C565
10V
P3.3V
10V
C83
100nF
P3.3V
RMNT-30-100-1P
MT2
P5.0V
P1.8V_AUX
P5.0V
10V
C906
100nF
P1.8V_AUX
10V
C132
100nF
1
3
2
RMNT-30-100-1P
MT501
nostuff
MMBT3904
U8
100nF
C548
10V
VDC
25V
C910
100nF
100nF
C899
10V
P1.5V
100nF
C909
25V
C409
10V
100nF
C91
10V
P3.3V
100nF
50V
1%
VDC
C616
1nF
RMNT-30-100-1P
MT7
nostuff
1K
R794
C898
10V
P1.5V P1.5V
VDC
P1.5V
100nF
P5.0V_AUX
VDC
10V
C897
100nF
100nF
C51
25V
100nF
C907
10V
P5.0V
100nF
C66
10V
MT3
P3.3V
1nF
C31
P3.3V
RMNT-30-100-1P
CONTACT-PLATE-EMI
EMI503
EMI
50V
8
9
MNT1
11
12
MNT2
10V
C78
100nF
3711-005753
J13
HDR-10P-1R-SMD
1
10
2
3
4
5
6
7
VDC
P5.0V_AUX
nostuff
MT8
RMNT-30-100-1P
P5.0V
10V
C905
100nF
100nF
C912
25V
100nF
C904
10V
100nF
VDC
C107
100nF
VDC
25V
C911
1
3
2
P1.05V
10V
nostuff
MMBT3904
Q12
P5.0V_AUX
10V
C581
100nF
P3.3V P3.3V
VDC
MT1
RMNT-30-100-1P
100nF
C679
25V
10V
C556
100nF
100nF
C903
10V
100nF
C609
10V
P1.5VP1.5V
10V
C902
100nF
P1.5V
10V
C901
100nF
P3.3V
P5.0V_AUX
10V
C900
100nF
P3.3V
10V
C212
100nF
MT502
C654
1nF
50V
C289
1nF
RMNT-30-100-1P
RMNT-25-70-1P
MT2004
50V
MT500
RMNT-35-100-1P
VDC
100nF
C138
10V
P3.3V
P3.3V
MT6
RMNT-30-100-1P
100nF
C94
10V
MMBT3904
U9
1
3
2
P5.0V_AUX
25V
C57
100nF
nostuff
VDC
P1.8V_AUX
P3.3V
P5.0V_AUX
EMI
EMI504
CONTACT-PLATE-EMI
50V
C68
1nF
100nF
C405
10V
VDC
VDC
1nF
C88
50V
P1.05V
VDC
100nF
C554
10V
1nF
C388
50V
100nF
C537
10V
50V
C56
1nF
P1.8V_AUX
P5.0V_AUX
VDC
10V
C603
100nF
VDC
25V
C92
100nF
P5.0V_AUX
50V
C93
1nF
50V
1nF
C665
P3.3V
C617
1nF
50V
10V
C286
100nF
RMNT-25-90-1P
MT4 MT5
RMNT-25-90-1P
100nF
C340
10V
100nF
C578
10V
P1.05V
P3.3V
P1.8V
10V
C536
100nF
P5.0V
nostuff
1K
R795
1%
AUX_PG
VRM3_CPU_PWRGD
CPU1_PWRGDCPU
CPU1_CPURST#
VCCP3_PWRGD
MT9
RMNT-30-100-1P

8-17
- 이 문서는 삼성전자의 기술 자산으로 승인자만이 사용할 수 있습니다 -
- This Document can not be used without Samsung's authorization -
8. Block Diagram and Schematic
Samsung
Confidential
Samsung
Confidential
Samsung
Confidential
SRP Sheet Number: 17 of 73
10 1-2-3
REVISION STEP
N.C.
1-2
2-3
3-1
2-3
NO CONNECTION
5
DATE(YY/MM/DD)
4
3
2
1
6
7
8
9
N.C.
1-2
PCB REVISION CONTROL ( ICT )
3-1
1-2-3
SAMSUNG
ELECTRONICS
A A
B
Sub Board Connector (Istanbul Only)
B
C C
D D
4
4
3
3
2
2
EXCEPT AS AUTHORIZED BY SAMSUNG.
DO NOT DISCLOSE TO OR DUPLICATE FOR OTHERS
SAMSUNG ELECTRONICS CO’S PROPERTY.
1
1
SAMSUNG PROPRIETARY
THIS DOCUMENT CONTAINS CONFIDENTIAL
PROPRIETARY INFORMATION THAT IS
REV1
1
2 3
B525
HU-1M2012-121JT
P5.0V_AUX
1
2
3
4
5MNT1
MNT2
6
HDR-4P-SMD
J3
3711-000922
50V50V
C575
0.0033nF
50V
C573
0.027nF
0.047nF
C103
C570
0.018nF
R851
1K
nostuff
1%
50V50V
0.022nF
C102
50V
0.5pF
C101
0.01nF
RHU002N06
Q544
nostuff
3
D
1
G
2
S
nostuff
1K
R850
1%
BSS84
Q545
nostuff
D
3
1
G
2
S
100nF
C869
10V
50V
EN1*
EN2*
4 1
GND
IN
2
OC1*
8
5OC2*
OUT1 7
6
OUT2
C574
0.1nF
1205-002596
TPS2062
U528
3
C571
0.047nF
50V
50V
0.0033nF
C100
0.027nF
C99
C576
0.022nF
50V
0.01nF
C572
0.5pF
50V
50V50V
0.018nF
C104
1%
50V
0.1nF
C105
P5.0V_AUX
KBC3_USBPWRON#
KBC3_USBPWRON#
USB3_P3+
USB3_P3-
nostuff
100K
R855

8-18
- 이 문서는 삼성전자의 기술 자산으로 승인자만이 사용할 수 있습니다 -
- This Document can not be used without Samsung's authorization -
8. Block Diagram and Schematic
Samsung
Confidential
Samsung
Confidential
Samsung
Confidential
SRP Sheet Number: 18 of 73
SAMSUNG
ELECTRONICS
A A
C
SATA Signal
B B
C
2
1
D D
4
4
3
3
2
1
SAMSUNG ELECTRONICS CO’S PROPERTY.
DO NOT DISCLOSE TO OR DUPLICATE FOR OTHERS
EXCEPT AS AUTHORIZED BY SAMSUNG.
Sub Board (Istanbul only)
Main board side ODD side
ODD I/F Board
SAMSUNG PROPRIETARY
THIS DOCUMENT CONTAINS CONFIDENTIAL
PROPRIETARY INFORMATION THAT IS
Right side USB Board
100nF
C870
AD
6.3V
100uF
EC527
10V
MT2006
RMNT-25-65-1P
G_ODD
50V
C871
0.047nF
MT2005
RMNT-25-65-1P
G_USB
G_USB
G_ODD
RMNT-25-65-1P
MT2007
RX-
S3
TX+
S6 TX-
S5
G_ODD
G_USB
G_USB
G_USB G_USB
G_ODD
P3
DP
P1
GND_1
S1
GND_2
S4
GND_3
S7
GND_4
P5
GND_5
P6
MD
P4
MNT1
14
MNT2
15
RX+
S2
3
4
MNT1 5
6
MNT2
3710-002634
J517
CDROM-SATA-13P
5V_1
P2
5V_2
P5.0V_SUB
P5.0V_AUX_SUB
P5.0V_SUB
HDR-4P-SMD
J518
3711-000922
1
2
P5.0V_AUX_SUB
nostuff
R854 0
GND_5
P4
MD
14
MNT1 15
MNT2
S2
RX+ S3
RX-
S6
TX+
S5
TX-
nostuff
0
R853
CDROM-SATA-13P
J519
0191882900
P2
5V_1 P3
5V_2
P1
DP
S1
GND_1
S4
GND_2
S7
GND_3
P5
GND_4 P6
100nF
C872
10V
1
nostuff
nostuff
21
PGB1010603NR
D523
nostuff
2
B524
ACM2012-900-2P-T
2
1
3
4
D522
PGB1010603NR
3722-002729
J516
JACK-USB-4P
DATA+
2
DATA-
3
1GND
5MNT1
MNT2
6
MNT3
7
8MNT4
4PWR
USB3_P3+_SUB
USB3_P3-_SUB
USB3_P3-_SUB
USB3_P3+_SUB
G_ODD

8-19
- 이 문서는 삼성전자의 기술 자산으로 승인자만이 사용할 수 있습니다 -
- This Document can not be used without Samsung's authorization -
8. Block Diagram and Schematic
Samsung
Confidential
Samsung
Confidential
Samsung
Confidential
SRP Sheet Number: 19 of 73
ELECTRONICS
SAMSUNG
B B
AA
C C
4
DD
4 3
3 2
2
1
1
SAMSUNG PROPRIETARY
THIS DOCUMENT CONTAINS CONFIDENTIAL
PROPRIETARY INFORMATION THAT IS
SAMSUNG ELECTRONICS CO’S PROPERTY.
DO NOT DISCLOSE TO OR DUPLICATE FOR OTHERS
EXCEPT AS AUTHORIZED BY SAMSUNG.
P5.0V
P1.5V
P1.5V
TP2515
P5.0V
P5.0V_AUX_USB
VDC
VDC
P5.0V_AMP
P4.75V_AUD
P1.5V
P0.9V
G_P1.05V
VDC_INV
G_CPU
P1.5V_EXP
EGFX_CORE
P3.3V
TP2516
GROUND
GROUND
VDC_ADPT
VREF
P3.3V_AUX GROUND
P3.3V_AUX_EXP
GROUND
VREF
GROUND
TP2518
P3.3V_AUX
P3.3V_AUX
P3.3V_MICOM
P5.0V
P1.8V_AUX
P3.3V_AUX
V5FILT
P5.0V_AUD
P1.8V_AUX
GROUND
P5.0V_AUX
P0.9V
P5.0V_AUX
VDC
CPU_CORE
CPU_CORE
VCC_CRT
P1.05V
VDC
P1.05V_PEG
GROUND
GROUND
VDC_INV
P1.05V
VDC_INV
P1.05V
G_P3.3V
VDC_CHG
VDC_INV
P1.2V_LAN
P3.3V
TP2507
P1.8V_P2.5V_LAN
P1.2V_LAN
P1.1V
P3.3V
P1.1V
GROUND
TP2505
VREF
TP2514
GROUND
P1.5V_EXP
P12.0V_ALW
P1.5V
P1.8V
P5.0V_AUX
P1.1V
G_CHG
P1.1V
P3.3V
P1.2V_LAN
PRTC_BAT
TP2509
P5.0V
P1.05V
P5.0V_ALW
P1.8V
P1.2V_LAN
P3.3V_EXP
TP2504
G_MIC
P0.9V
P3.3V_MCD
P1.8V
TP2506
TP2525
P1.8V_AUX
TP2502
EGFX_CORE
TP2527
EGFX_CORE
TP2508
G_AUD
P1.5V_EXP
P1.5V_EXP
P1.8V
TP2503
VREF
TP2526
EGFX_CORE
P1.8V_AUX
G_DDR
LCD_VDD3V
P0.9V
TP2517
CPU_CORE
P5.0V_AUX
CPU_CORE
CHP3_INTRUDER#
CLK3_PCLKMICOM
CPU1_THRMTRIP#
CPU3_THRMTRIP#
HDA3_HDMI_BCLK
HDA3_HDMI_RST#
HDA3_HDMI_SDI2
HDA3_HDMI_SYNC
ITP3_DBRRESET#
KBC3_CHKPWRSW#
KBC3_LED_ACIN#
LCD3_EDID_DATA
PEG5_HDMI_DATA
VRM3_CPU_PWRGD
AUD5_HP_O_RIGHT
AUD5_MIC1_RIGHT
AUD5_MIC2_RIGHT
CHP3_ME_RTCRST#
KBC3_BLCKPWRSW#
KBC3_LED_POWER#
KBC3_PWRON_INV#
AUD5_LINE_O_LEFT
CHP3_SATACLKREQ#
KBC3_LED_CHARGE#
KBC3_THERM_SMCLK
AUD5_LINE_O_RIGHT
KBC3_THERM_SMDATA
AUD5_MIC1_VREF_LEFT
AUD5_MIC1_VREF_RIGHT
CPU1_DPSLP#
CPU1_DEFER#
CHP3_SUSSTAT#
CPU1_PWRGDCPU
CPU1_VCCSENSE
CPU1_VSSSENSE
HDA3_AUD_BCLK
HDA3_AUD_RST#
HDA3_AUD_SDI0
HDA3_AUD_SYNC
HDA3_HDMI_SDO
HDA3_MDC_BCLK
HDA3_MDC_RST#
HDA3_MDC_SDI1
HDA3_MDC_SYNC
KBC3_CAPSLED#
KBC3_WAKESCI#
LCD3_EDID_CLK
PEG5_HDMI_CLK
MCH3_ICHSYNC#
PEG3_LCDVDDON
PEG5_HDMI_CLK
PLT3_RST_ORG#
PEG3_HPD_HDMI
AUD5_HP_O_LEFT
AUD5_MIC1_LEFT
AUD5_MIC2_LEFT
AUD5_MIC2_VREF
AUD5_SENS_MIC#
CHP3_BIOS_CRI#
CHP3_CL_DATA_0
CHP3_CL_RST_0#
KBC3_RUNSCI#
KBC3_SMDATA#
KBC3_SPKMUTE
KBC5_KSO(10)
KBC5_KSO(11)
KBC5_KSO(12)
KBC5_KSO(13)
KBC5_KSO(14)
KBC5_KSO(15)
LAN3_VPDDATA
LID3_SWITCH#
LOM3_CLKREQ#
LPC3_LFRAME#
MCD3_SDDATA0
MCD3_SDDATA1
MCD3_SDDATA2
MCD3_SDDATA3
MCH1_HXSWING
MCH3_CLKREQ#
MCH3_EXTTS0#
MCH3_EXTTS1#
MIN3_CLKREQ#
PCI3_CLKRUN#
AUD5_SENS_HP#
CHP3_CL_CLK_0
CHP3_DPRSLPVR
CHP3_PM_SYNC#
CHP3_SATALED#
AUD3_SHDN#
WLON_LED#
VRM_ISEN2
VRM_ISEN1
LPC3_LAD(2)
LPC3_LAD(3)
MCD3_SDCMD0
PEG3_BKLTEN
SMB3_ALERT#
THM3_ALERT#
T_L_BUTTON#
T_R_BUTTON#
VCCP3_PWRGD
BAT3_DETECT#
BAT3_SMDATA#
CHP3_BIOSWP#
CHP3_CPUSTP#
CHP3_PCISTP#
CHP3_RTCRST#
CLK3_PCLKICH
CPU1_CPURST#
CPU1_DPRSTP#
CPU1_STPCLK#
CPU2_THERMDA
CPU2_THERMDC
CRT3_DDCDATA
CRT5_DDCDATA
EXP3_CLKREQ#
FAN3_FDBACK#
HDA3_AUD_SDO
HDA3_MDC_SDO
KBC3_CPURST#
KBC3_EXTSMI#
KBC3_NUMLED#
KBC3_PWRBTN#
KBC3_RSMRST#
CRT5_DDCCLK
EXP3_CPUSB#
EXP3_PERST#
KBC3_BKLTON
KBC3_PRECHG
KBC3_PWRSW#
KBC3_RFOFF#
KBC3_SCLED#
KBC3_SMCLK#
KBC3_SUSPWR
KBC5_KSI(0)
KBC5_KSI(1)
KBC5_KSI(2)
KBC5_KSI(3)
KBC5_KSI(4)
KBC5_KSI(5)
KBC5_KSI(6)
KBC5_KSI(7)
KBC5_KSO(0)
KBC5_KSO(1)
KBC5_KSO(2)
KBC5_KSO(3)
KBC5_KSO(4)
KBC5_KSO(5)
KBC5_KSO(6)
KBC5_KSO(7)
KBC5_KSO(8)
KBC5_KSO(9)
LAN3_VPDCLK
LCD3_BKLTON
LPC3_LAD(0)
LPC3_LAD(1)
CRT3_VSYNC
CRT5_HSYNC
CRT5_VSYNC
EXP3_CPPE#
KBC3_CHGEN
KBC3_PWRGD
KBC3_PWRON
KBC5_TDATA
MCD3_SDCD#
MCD3_SDCLK
MCH1_HVREF
PEX3_WAKE#
AUD3_GPIO0#
AUD3_GPIO1#
AUD5_SENS_A
BAT3_SMCLK#
CHP3_GPIO18
CHP3_GPIO20
CHP3_SERIRQ
CHP3_SLPS3#
CHP3_SLPS4#
CHP3_SLPS5#
CLK3_DBGLPC
CPU1_IGNNE#
CPU1_VID(0)
CPU1_VID(1)
CPU1_VID(2)
CPU1_VID(3)
CPU1_VID(4)
CPU1_VID(5)
CPU1_VID(6)
CRT3_DDCCLK
KBC3_A20G
KBC3_RST#
KBC3_VRON
KBC5_TCLK
LCD3_BRIT
MCD3_SDWP
MEM1_VREF
PLT3_RST#SMB3_DATA
SPI3_CS0#
SPI3_MISO
SPI3_MOSI
THM3_STP#
CLK3_ICH14
CLK3_PWRGD
CLK3_USB48
CPU1_A20M#
CPU1_BPRI#
CPU1_BREQ#
CPU1_BSEL0
CPU1_BSEL2
CPU1_DBSY#
CPU1_DPWR#
CPU1_DRDY#
CPU1_FERR#
CPU1_HITM#
CPU1_INIT#
CPU1_LOCK#
CPU1_TRDY#
CPU1_TRST#
CRT3_GREEN
CRT3_HSYNC
AUX_PG
CTRL_12
SPK5_L+
SPK5_L-
SPK5_R+
SPK5_R-
VRM_PRM
CPU1_NMI
CPU1_TCK
CPU1_TDI
CPU1_TMS
CRT3_RED
FAN5_VDD
SMB3_CLK
SPI3_CLK
VRM_VSUM
ADT3_SEL#
AUD3_BEEP
AUD3_SPKR
CLK3_FM48
CPU1_ADS#
CPU1_BNR#
CPU1_HIT#
CPU1_INTR
CPU1_PSI#
CPU1_RS0#
CPU1_RS1#
CPU1_RS2#
CPU1_SLP#
CPU1_SMI#
CRT3_BLUE
CTRL18_25

8-20
- 이 문서는 삼성전자의 기술 자산으로 승인자만이 사용할 수 있습니다 -
- This Document can not be used without Samsung's authorization -
8. Block Diagram and Schematic
Samsung
Confidential
Samsung
Confidential
Samsung
Confidential
SRP Sheet Number: 20 of 73
2
ELECTRONICS
RSVD
SRC4
CLK REQ E
BSEL2
SAMSUNG PROPRIETARY
DO NOT DISCLOSE TO OR DUPLICATE FOR OTHERS
1
A
VDD_PCI
0
1
FSB
PROPRIETARY INFORMATION THAT IS
0
100 MHz
266 MHz
0
A
0
27M & 27M_SS
166 MHz
SRC8
CLK REQ A
GMCH
Silego : 1205-003156
Spectra Linear : 1205-003533
1
0
FSC
VDD_SRC_IO
C
Place 14.318MHz within
500mils of CK-505
1
DOT_96/DOT_96#
SAMSUNG
27MHz
DEVICE
VDD_CPU_IO
Pin 24/25
SRC_0/SRC_0#
LOM3_CLKREQ#
CLK REQ
SEL_LCDCLK*
BSEL0
1
SATA
D
0
C
4
VDD_CPU
VDD_IO
CLK REQ B
VDD_48
400 MHz
4
SRC6
EXCEPT AS AUTHORIZED BY SAMSUNG.
THIS DOCUMENT CONTAINS CONFIDENTIAL
LOW
VDD_SRC
1
1
1
1
100MHz
HOST CLK
200 MHz
BSEL1
Pin 20/21
1
IDT : 1205-003159
333 MHz
SRC PORT
VDD_PLL3
SRC2
1
0
3 2
133 MHz0
MINI CARD
B
HIGH
VDD_PLL3_IO
PEG_CLK/PEG_CLK#
0
D
0
VDD_REF
SAMSUNG ELECTRONICS CO’S PROPERTY.
3
FSA
1
This part is 64pin QFN package.
B
0
1
CLK REQ F
0
1
1%
nostuff
R266 10K
10V
C730
4700nF
33
R267
nostuff
10000nF
C410
1%
6.3V
2.2K
R268
1VSS_REF
30 VSS_SRC1
36 VSS_SRC2
49 VSS_SRC3
3XTAL_IN
XTAL_OUT
2
27
4
VDD_REF
46
VDD_SRC
33 VDD_SRC_IO1
43 VDD_SRC_IO2
52 VDD_SRC_IO3
VSS_48
18
59 VSS_CPU
22 VSS_IO
15 VSS_PCI
26 VSS_PLL3
54
SRC8_ITP
37
SRC9 38
SRC9#
17 USB_FS_A
16
VDD_48
62
VDD_CPU
56 VDD_CPU_IO
19 VDD_IO
9
VDD_PCI 23
VDD_PLL3
VDD_PLL3_IO
SRC2 29
SRC2#
32
SRC3#_CLKREQD#
31
SRC3_CLKREQC#
SRC4 34
SRC4# 35
48
SRC6 47
SRC6#
50
SRC7#_CLKREQE#
51
SRC7_CLKREQF#
53
SRC8#_ITP#
13 PCI_4_SEL_LCDCLK#
5REF_FS_C_TEST_SEL
7SCL
6SDA
21
SRC0#_DOT96#
20
SRC0_DOT96
41
SRC10 42
SRC10#
39
SRC11#_CLKREQG#
40
SRC11_CLKREQH#
28
44 CPUSTOP#
64 FSB_TESTMODE
25
LCDCLK#_27M_SS
24
LCDCLK_27M
55 NC
14 PCIF_5_ITP_EN
45 PCISTOP#
8PCI_0_CLKREQ_A#
10 PCI_1_CLKREQ_B#
11 PCI_2
12 PCI_3
U14
1205-003159
IDTCV179BNLG
63 CLKPWRGD_PWRDN#
61
CPU0 60
CPU0#
58
CPU1_MCH 57
CPU1_MCH#
R271 22.6 1%
10000nF
C445
2801-004667
1
2
6.3V
100nF
C440
Y3
14.31818MHz
10V
10V100nF
C425
P3.3V
1%
P1.5V
33
R260
475
R262 1%
0
R259
R265 10K 1%
100nF
C442
10V
R275 10K
nostuff
R270 22.6
1%
R273 10K
1%
B34
BLM18PG181SN1
1%
R269 33 1%
nostuff
C424
10V100nF
1%10K
R276
10V100nF
C731
R261 475
R263 22.6
1%
BLM18PG181SN1
B521
1%
C734
10000nF
6.3V
P3.3V
10V
C441
100nF
C444
100nF 10V
10V
C443
100nF
10V
R264 22.6 1%
C438
100nF
P3.3V
50V
C462
0.018nF
4700nF
C437
50V
C463
0.018nF
10V
BLM18PG181SN1
B32
C422
10000nF
6.3V
10V100nF
C732
R274 10K 1%
10V100nF
C423
nostuff
1%22.6
R277
10V100nF
C439
CLK3_GFX_27M
CLK3_GFX_27M_SS
CLK1_PEG#
CLK1_PEG
CLK3_48MHZ_R
EXP3_CLKREQ#
CLK3_PCI2_R
CLK1_PCIEICH#
CLK1_PCIEICH
CLK3_PCI4_R
CLK3_14MHZ_R
CLK1_EXPCARD
CLK1_EXPCARD#
LOM3_CLKREQ#
CLK1_PCIELOM#
CLK1_MCH3GPLL#
CLK1_MCH3GPLL
CHP3_SATACLKREQ#
CLK3_PCLKMICOM
MCH3_CLKREQ#
CLK3_DBGLPC
MIN3_CLKREQ#
CLK1_PCIELOM
CLK0_HCLK1
CLK0_HCLK0#
CLK0_HCLK0
CLK3_USB48
SMB3_CLK
SMB3_DATA
CLK3_PWRGD
CHP3_CPUSTP#
CHP3_PCISTP#
CPU1_BSEL2
CPU1_BSEL0
CLK3_ICH14
CLK3_PCLKICH
CLK3_FM48
CLK1_MINIPCIE
CLK1_MINIPCIE#
CLK1_SATA
CLK1_SATA#
CPU1_BSEL1
CLK3_PCIF_R
CLK0_HCLK1#

8-21
- 이 문서는 삼성전자의 기술 자산으로 승인자만이 사용할 수 있습니다 -
- This Document can not be used without Samsung's authorization -
8. Block Diagram and Schematic
Samsung
Confidential
Samsung
Confidential
Samsung
Confidential
SRP Sheet Number: 21 of 73
DO NOT DISCLOSE TO OR DUPLICATE FOR OTHERS
PROPRIETARY INFORMATION THAT IS
External : stuff
1
A
Opposite side of CPU.
THERMAL SENSOR & FAN CONTROL
R2
10mil width and 10mil spacing.
EXCEPT AS AUTHORIZED BY SAMSUNG.
C
M6
RHE Support (Top)
THIS DOCUMENT CONTAINS CONFIDENTIAL
B
C
4
TRIP_SET pin voltage = (T-75)/21
2
Line Width = 20 mil
SAMSUNG ELECTRONICS CO’S PROPERTY.
D
SAMSUNG PROPRIETARY
1
A
Internal : nostuff
SMBUS Address 7Ah
R1
3
3.3 * [R2/(R1+R2)] = (T-75)/21
D
3
B
SAMSUNG
2
ELECTRONICS
4
93 degree C
50V
2.2nF
C564
1%
R70 10K
P3.3V_AUXP3.3V_AUX
TP2475
TP2477
P3.3V_AUX
TP2497
49.9
R53
1%
P1.05V
DIA
HEAD
LENGTH
M1
DIA
HEAD
LENGTH
R56 10K
M2
BA61-01090A
1%
MMBT3904
Q510
1
3
2
2
nostuff
MMBT3904
Q11
1
3
R71
20K
6.3V
C64
10000nF
1%
R54
10K
P3.3V
1% HDR-4P-1R-SMD
J507
3711-000456
1
2
3
4
TP2473
P5.0V
TP2476
TP2472
50V
0.47nF
C81
1%
1%
51.1K
R69
50V
200K
R68
C80
2.2nF
27 VDD_5V_2
M6
BA61-01090A
DIA
HEAD
LENGTH
16 RESET#
9SHDN_SEL
SMCLK 23
22
SMDATA
12
SYS_SHDN#
28 TACH
13 THERMTRIP#
THRM_PAD 29
11 TRIP_SET
1VDD_3V
24 VDD_5V_1
DP1
5
DP2
7
DP3
25 FAN_1
26 FAN_2
10 FAN_MODE
20
GND
8NC_1
15 NC_2
NC_3
21
14 POWER_OK
19
ALERT#
CLK_IN 18
17
CLK_SEL
2
DN1
4
DN2
6
DN3
3
100nF
C82
U7
EMC2102
1209-001718
10V
nostuff
0
R67
6.3V
C62
10000nF
10K
R55 1%
nostuff
C79
100nF
10V
R58 0
M4
BA61-01090A
DIA
HEAD
LENGTH
P3.3V
M3
DIA
HEAD
LENGTH
R57 10K
nostuff
1%
R72
2K
1%
KBC3_PWRGD
FAN5_VDD
FAN3_FDBACK#
CPU1_THRMTRIP#
CPU3_THRMTRIP#
FAN5_VDD
FAN3_FDBACK#
THM3_ALERT#
CPU2_THERMDC
CPU2_THERMDA
KBC3_THERM_SMCLK
KBC3_THERM_SMDATA
THM3_STP#
CPU3_THRMTRIP#
GFX3_THERMDP
GFX3_THERMDN
GFX3_THERM#

8-22
- 이 문서는 삼성전자의 기술 자산으로 승인자만이 사용할 수 있습니다 -
- This Document can not be used without Samsung's authorization -
8. Block Diagram and Schematic
Samsung
Confidential
Samsung
Confidential
Samsung
Confidential
SRP Sheet Number: 22 of 73
1 / 4
ADDR GROUP
ICH
0
ADDR GROUP
1
CONTROL
2 / 4
DATA GRP 0
DATA GRP 2
DATA GRP 1
DATA GRP 3
DO NOT DISCLOSE TO OR DUPLICATE FOR OTHERS
D
BB
A
ELECTRONICS
A
3
D
4
C
2
4
CPU Mount
2 1
C
PROPRIETARY INFORMATION THAT IS
SAMSUNG PROPRIETARY
31
THIS DOCUMENT CONTAINS CONFIDENTIAL
EXCEPT AS AUTHORIZED BY SAMSUNG.
CPU Socket : 3704-001153
SAMSUNG ELECTRONICS CO’S PROPERTY.
SAMSUNG
23
11
8
37
19
0
20
62
5
30
44
48
39
3
21
34
17
33
9
54
29
9
14
16
32
30
16
21
4
22
43
36
28
3
15
0
45
19
32
M5
SUPLECODE
1
MNT1
MNT2 2
3
MNT3
MNT4 4
F4
RS2# G3
SMI# A3
STPCLK# D5
TRDY# G2
41
46
C6
LINT1 B4
LOCK# H4
K3
REQ0# H2
REQ1# K2
REQ2# J3
REQ3# L1
REQ4#
RESET# C1
RS0# F3
RS1#
BR0# F1
DBSY# E1
DEFER# H5
DRDY# F21
FERR# A5
HIT# G6
HITM# E4
IERR# D20
IGNNE# C4
INIT# B3
LINT0
A4#
L5
A5#
L4
A6#
K5
A7#
M3
A8#
N2
A9#
J1
ADS# H1
ADSTB0#
M1
ADSTB1#
V1
BNR# E2
BPRI# G5
T3
A27#
W2
A28#
W5
A29#
Y4
A3#
J4
A30#
U2
A31#
V4
A32#
W3
A33#
AA4
A34#
AB2
A35#
AA3
A17#
Y2
A18#
U5
A19#
R3
A20#
W6
A20M# A6
A21#
U4
A22#
Y5
A23#
U1
A24#
R4
A25#
T5
A26#
0143854500
CPU500-1
PENRYN
A10#
N3
A11#
P5
A12#
P2
A13#
L2
A14#
P4
A15#
P1
A16#
R1
2
60
35
33
5624
63
53
4
R177
56
13
7
5
52
3134
12
27
31
2
14
27
28
47
13
P1.05V
6
57
29
26 55
1
58
15
11
3
50
18
59
38
10
25 22
4
23
10
42
40
20
26
8
6
24
51
DSTBN1#
L26
DSTBN2# Y26
DSTBN3# AE25
DSTBP0#
H26
DSTBP1#
M26
DSTBP2# AA26
DSTBP3# AF24
17
AD23
D62# AF22
D63# AC23
D7#
E23
D8#
K24
D9#
G24
DINV0#
H25
DINV1#
N24
DINV2# U22
DINV3# AC20
DSTBN0#
J26
D52# AB21
D53# AC26
D54# AD20
D55# AE22
D56# AF23
D57# AC25
D58# AE21
D59# AD21
D6#
E25
D60# AC22
D61#
D42# Y23
D43# W24
D44# W25
D45# AA23
D46# AA24
D47# AB25
D48# AE24
D49# AD24
D5#
G25
D50# AA21
D51# AB22
Y22
D33# AB24
D34# V24
D35# V26
D36# V23
D37# T22
D38# U25
D39# U23
D4#
F23
D40# Y25
D41# W22
D23#
M23
D24#
P25
D25#
P23
D26#
P22
D27#
T24
D28#
R24
D29#
L25
D3#
G22
D30#
T25
D31#
N25
D32#
D13#
F26
D14#
K22
D15#
H23
D16#
N22
D17#
K25
D18#
P26
D19#
R23
D2#
E26
D20#
L23
D21#
M24
D22#
L22
0143854500
CPU500-2
PENRYN
D0#
E22
D1#
F24
D10#
J24
D11#
J23
D12#
H22
TP2496
35
18
49
12
7
61
25
CPU1_DSTBN2#
CPU1_DSTBN3#
CPU1_DSTBP2#
CPU1_DSTBP3#
1
CPU1_DBI2#
CPU1_DBI3#
CPU1_SMI#
CPU1_STPCLK#
CPU1_TRDY#
CPU1_NMI
CPU1_LOCK#
CPU1_CPURST#
CPU1_RS0#
CPU1_RS1#
CPU1_RS2#
CPU1_BNR#
CPU1_BPRI#
CPU1_BREQ#
CPU1_DBSY#
CPU1_DEFER#
CPU1_DRDY#
CPU1_FERR#
CPU1_HIT#
CPU1_HITM#
CPU1_IGNNE#
CPU1_INIT#
CPU1_INTR
CPU1_DBI0#
CPU1_A20M#
CPU1_ADS#
CPU1_DSTBP1#
CPU1_DSTBN1#
CPU1_D#(47:32)
CPU1_D#(63:48)CPU1_D#(31:16)
CPU1_D#(15:0)
CPU1_DSTBP0#
CPU1_DSTBN0#
CPU1_DBI1#
CPU1_A#(16:3)
CPU1_REQ#(4:0)
CPU1_A#(35:17)
CPU1_ADSTB1#
CPU1_ADSTB0#

8-23
- 이 문서는 삼성전자의 기술 자산으로 승인자만이 사용할 수 있습니다 -
- This Document can not be used without Samsung's authorization -
8. Block Diagram and Schematic
Samsung
Confidential
Samsung
Confidential
Samsung
Confidential
SRP Sheet Number: 23 of 73
3 / 4
RSVD
THERMAL H CLK
XDP/ITP SIGNALS
0
1
1
266M
166M
0
0
0
0
1
CPU Socket : 3704-001153
0
1
1
0
1
FSC
10.1000 V
1
0
1
0
1
1
0
1
1
0
1
0
0
1
0
1
1
0
0
0
0
1
0
0
0
0
0
1
0
0
0.7250 V
Route the VCC/VSSsense as a Zo=55ohm traces with equal length.
0.9750 V
1
1
0
0
0
1
1
0
1
0.1875 V
0.1750 V
1
1
FSA
200M
00
0.8625 V
1
0
DPRSTP*
1
FRQ
1
1
0
0
0
1.4250 V
1
1
0.1250 V
0
0
1
1
*Yonah Processor (2.33 GHz / 800 MHz : TBD)
1.3375 V
DPRSLPVR
0.6625 V
1
Voltage
0
1
1
1.1750 V
1
1
1
0
0
1
0
1
1
0
1
1
0
1.0625 V
1.3500 V
0
1
1
0
1
0
0
1
0
0
1
1
1
1
0
FSB
0
0
1
0
1
1
11
0
1
0
0
0
0
0
0.9500 V
0
0
0.7500 V
1
0
THIS DOCUMENT CONTAINS CONFIDENTIAL
0
1
0
0
1
1
0
0
1
0
0
1
1
0
SAMSUNG PROPRIETARY
0
0
0
1
0
1
1
0
1
0
1
0
0
1
0
0
0
1
0
1
0
0
0.2000 V
0
CPU Core Voltage Table
1
1
DPRSLPVR
1
of the first GTLREF0 pin with Zo=55ohm trace.
1
1
1
0
1.3750 V
1
1
0
0.4375 V
1
1
1
1
GND test points within 100mil of the VCC/VSSsense at the end of the line.
0
0
1
VID(6:0)
1
0
10
1
1
0
0
1
0
0
0
0
1
0
Voltage
0.0000 V
trace shorter than 1/2" to their respective Banias socket pins.
1
0
1
1 1
0.8000 V
0
1
1
1
1
0
DO NOT DISCLOSE TO OR DUPLICATE FOR OTHERS
0
1
1.2000 V
1
0
0
0
0
0.0000 V
1
1 0.4875 V
1
1
1
1
3
0.5625 V
VID(6:0)
0 0.2125 V
1
0
1
1
1
1
0
0
0
1.2375 V
0
0
0
1
1
1
1
1
0
1
0
0
1
0.9250 V
1.3875 V
1
1
0.0000 V
0
1
1
1
0
1
1
1
1
1
1
0
0
0.6750 V
1
0
1
1
0
0
0
0
1
1.1000 V
0
0
1
from each of the VCC/VSS test point vias.
0
1
0
1
0
EXCEPT AS AUTHORIZED BY SAMSUNG.
0
1
1
0
0
0.4250 V
0
0
1
1
0 or 1
0
1
0
0
0
0.9000 V
1
0
0
1 0.9875 V
1
1
0
0
1
1
1
1.2875 V
1
0
0
0
1
1
0
0
1
1
1
0
Dual Mode Region
1
0
1
0
4
0
1
0
1
1
1
1
1
0
1
1
0
0
1
1
1
1
1 0.3000 V
0
1
1
1
0
1
0
1
1.3250 V
1
1
0
0.9625 V
1
1
0
0
0
1.2500 V
0
1
1
0
1
1
1.4000 V
0.0500 V
0.3625 V
1
0
1
0
1
0
A
0
0
1
00.7375 V
0
11
1
1
1
1
1.0125 V
11
0
0
1
1.3625 V
1
0.5750 V
1
0
0
1.0000 V
0
1
1
0
0
1
1.0250 V
0
1
1
0
0
0
1
0
0
0
1
1
GTLREF : Keep the Voltage divider within 0.5"
1
1
1
0
1.4750 V
1
1
0
1
1.1125 V
1
1
1
0
0.3375 V
1.4500 V
11
D
PROPRIETARY INFORMATION THAT IS
0 1
D
00
0
1
1
1
1
Active/Deeper Sleep
C
0
1.1250 V
1
0
1
0
0.3125 V
0
1
1
IMVP-6
0
1
0
1
0
1
0
1
1
0
1
0
PSI2*
1
1
1
0
1.4125 V
Deeper Slp
1
0
0.1125 V
0
0
0.3875 V0
1
0
0
1
0.4625 V
1
1
0.5875 V
0
1.1375 V
0
1
B
1
0
1.2125 V
0
10.6250 V
1
0
0
0
0
1
0
1
1
1.4375 V
1
0
1.4875 V 0
0
0
1
1
0
0
1
0.7875 V
1
1
0
0
0
0 1
0
1
0
1.0500 V
0
1
0
0
0
1
1
0.9375 V
0
0
1
1
0
1
1
0
0
1
0
1
1
0.7750 V
1
0
0
1
1
0
1 1.1500 V
1.0875 V
Active Mode
0
1
0
1
C
0
1
0
1.2625 V
0
0
0
1
0
0
0.3250 V
1
0.0625 V
0.9125 V
1
0
1
1
1
0
1
1.0750 V
0
0.7625 V
0
1
0.0125 V
Deeper Sleep/Extended Deeper Sleep
1
1
0
0
0
1
0.0875 V
1
1
0
0
0
1
0
0
0
1
0
1
0
0
1
0
0
0
0
1
0
0
0.1375 V
1
0.0000 V
1
1
0.0000 V
0
0.4000 V
1
0.0000 V
1
0
0
0
0
1
1
1
DPRSTP*
1
1
1
1
0.2750 V
1
0
0
1
1
0.7000 V
1
0
0
1
0
0.6875 V
1.2750 V
0
1
0
1
2
0
0.0000 V
0
1
0
1
1
0
0
1
0
0.6500 V
1
0.8375 V
0
01
0
0
1
1
0
Dual Mode Region
0
1
0
0
4
0
1
1
1
0
0.3500 V
1
1
0
0
0
0
0
1
1
1
0.4500 V
0
0.2625 V
0
0
1
0
1.0375 V 0.0250 V
0
1.1875 V
1
1
1
0
PSI2*
1
1
1
1
1
0
1
0
0.2250 V
1
0.1500 V
1
0
Voltage
0
0
1
1
1
0
0
1
0
0
0
1
0
1
0
1
0
0
1
1
0
1
0.1625 V0
0
0.6000 V
1
1
1
1
0
1
0
0
0.7125 V
1
0
1
0
0.8500 V
1
0
0
1
0
1
0 or 1
0
1
1
0
0
0
0
1
1
SAMSUNG
0
0
0
0
0
0
1
1
0
0
1
0
0.6375 V
1
0
0
0.5250 V
0
1
1
1.2250 V
0
1
0
0
1
1
1
0
(preferred 50mil) from any other signal. And GND via 100mil away
0
0.4750 V
0
near the CPU
0
0
1
0
0
0
0
0
1
1
0
0
0
0
1
1
0
0
0
1
1
0
0.8125 V
0
0
1
1
1
0
1
0
0
1
0
0.0750 V
1
1
1
1
0
1
1
1
1
1
0.5000 V
1
1
1
0.6125 V
1
0.2375 V
1
0
0.0000 V
0
1
0
1
1
1
1
1
0.5125 V1
0
1
0
0.2500 V
0
1
1
Active
1
1
1
A
0
COMP0,2(COMP1,3) should be connected with Zo=27.4ohm(55ohm)
1
1
0
1
1
0
0
0
1
0
1
Minimize coupling of any switching signals to this net.
0
0
0
0
0
0
0
1
1
0
0
1
1
0.5500 V
0
1
0.0375 V
0
0
1
0
1
0
1
0
0
0
0
0
1
0.8875 V
1
0
0
0
0
1
1
1
0
0.8250 V
1
1.5000 V
1
1
SAMSUNG ELECTRONICS CO’S PROPERTY.
1
0
1
1
3
0
0
1
1
0
1
0
1
0
0
0
1
1
0
1
1
0
0
1
0
0
0
1
1
1
0
Observe 3:1 spacing b/w VCC/VSSsense lines and 25mil away
0
0
1
2
0
1
1
0
0
1
0
1
0
0
1
ELECTRONICS
0
0
0
1
0.4125 V
1.3000 V
1
0
1
0
0
1
0.2875 V
1
1
1
1
0
0.8750 V
0.5375 V
0
0
0.3750 V
1
0
0
0
VID(6:0)
*"1111111" : 0V power good asserted.
0
1
1
1.3125 V
1
1.4625 V
0
1
1.1625 V
1
0
1
0
1
1
1
0
EC12
220uF
2.5V
AD
#311-D38-C1
10V
C244
100nF
TP2495
P1.05V
6
P1.5V
4
56
R176
R244 1%27.4
P1.05V
0
5
27.4 1%
R165
100nF
C243
10V
P1.05V
R590 54.9 1%
P1.05V
1%
R592 54.9
2
6.3V
1
C586
10000nF
1%
R162
1K
100nF
C245
10V
8-C1 11-C3 #3
R589 54.9 1%
R591 54.9
nostuff
R167 1K 1%
10V
C360
100nF
1%
R245 54.9
25V
C587
10nF
1%54.9
AE7 VSSSENSE
R164
J21
VCCP_8 M21
VCCP_9
AF7 VCCSENSE
VID_0
AD6 VID_1
AF5 VID_2
AE5 VID_3
AF4 VID_4
AE3 VID_5
AF3 VID_6
AE2
R21
VCCP_12 V21
VCCP_13 W21
VCCP_14 V6
VCCP_15 G21
VCCP_16
J6
VCCP_2 M6
VCCP_3 N6
VCCP_4 T6
VCCP_5 R6
VCCP_6 K21
VCCP_7
C7 THERMTRIP#
THRMDA
A24
THRMDC
B25
AB5
TMS AB6
TRST#
B26
VCCA_1 C26
VCCA_2
K6
VCCP_1
N21
VCCP_10 T21
VCCP_11
AA6
TDI AB3
TDO
C23 TEST1
TEST2
D25
C24 TEST3
AF26 TEST4
AF1 TEST5
A26 TEST6
C3 TEST7
RSVD_1 M4
RSVD_2 N5
RSVD_3 T2
RSVD_4 V3
RSVD_5 B2
RSVD_6 D2
RSVD_7 D22
RSVD_8 D3
RSVD_9 F6
D7 SLP#
AC5
TCK
DBR# C20
E5 DPRSTP#
B5 DPSLP#
D24 DPWR#
AD26 GTLREF
PRDY# AC2
PREQ# AC1
D21 PROCHOT#
AE6 PSI#
D6 PWRGOOD
AD3
BPM2# AD1
BPM3# AC4
BSEL0
B22 BSEL1
B23 BSEL2
C21
R26 COMP0
U26 COMP1
COMP2
AA1
Y1 COMP3
0143854500
CPU500-3
PENRYN
BCLK0
A22
BCLK1
A21
BPM0# AD4
BPM1#
35-C1
1%
R163
2K
nostuff
1%1K
R166
3
100nF
C359
10V
CPU1_TCK
CPU1_TDI
CPU1_TMS
CPU1_TRST#
ITP3_DBRRESET#
CPU1_TCK
CPU1_TDI
CPU1_TMS
CPU1_TRST#
CPU1_BSEL0
CPU1_BSEL1
CPU1_BSEL2
10V
C358
100nF
CPU1_VCCSENSE
CPU1_PSI#
CPU1_DPWR#
CPU1_THRMTRIP#
CPU2_THERMDC
CPU2_THERMDA
CPU1_DPRSTP#
CPU1_VSSSENSE
CPU1_SLP#
CPU1_DPSLP#
CPU1_PWRGDCPU
CLK0_HCLK0#
CLK0_HCLK0
CPU1_VID(6:0)

8-24
- 이 문서는 삼성전자의 기술 자산으로 승인자만이 사용할 수 있습니다 -
- This Document can not be used without Samsung's authorization -
8. Block Diagram and Schematic
Samsung
Confidential
Samsung
Confidential
Samsung
Confidential
SRP Sheet Number: 24 of 73
4 / 4
4
D
PROPRIETARY INFORMATION THAT IS
4
2
3 1
CPU Socket : 3704-001153
D
SAMSUNG PROPRIETARY
SAMSUNG
3
2
THIS DOCUMENT CONTAINS CONFIDENTIAL
EXCEPT AS AUTHORIZED BY SAMSUNG.
SAMSUNG ELECTRONICS CO’S PROPERTY.
DO NOT DISCLOSE TO OR DUPLICATE FOR OTHERS
ELECTRONICS
A
B
C
A
C
1
B
6x 330 uF : CPU VR side
6.3V
20%
C304
22000nF-X5R
6.3V
20%
C295
22000nF-X5R
nostuff
6.3V
20%
C362
22000nF-X5R
22000nF-X5R
C356
20%
6.3V
1%100
R588
22000nF-X5R
C365
20%
6.3V
6.3V
20%
C361
22000nF-X5R
20%
C357
22000nF-X5R
nostuff
22000nF-X5R
C246
20%
6.3V
6.3V
22000nF-X5R
C294
20%
6.3V
6.3V
20%
C292
22000nF-X5R
6.3V
20%
C242
22000nF-X5R
CPU_CORE
20%
nostuff
6.3V
C364
22000nF-X5R
20%
nostuff
6.3V
C302
22000nF-X5R
6.3V
20%
C363
22000nF-X5R
CPU_CORE
22000nF-X5R
C296
20%
6.3V
6.3V
20%
C293
22000nF-X5R
22000nF-X5R
C298
20%
6.3V
22000nF-X5R
C297
20%
6.3V
E14
VSS_91
E16
VSS_92
VSS_93 E19
E21
VSS_94
E24
VSS_95
E3
VSS_96
E6
VSS_97
VSS_98 E8
F11
VSS_99
VSS_81
D11
VSS_82
D13
VSS_83
D16
VSS_84
D19
VSS_85
D23
VSS_86
D26
VSS_87
D4
VSS_88
D8
VSS_89
A8 VSS_9
E11
VSS_90
C11
VSS_72
C14
VSS_73
C16
VSS_74
C19
VSS_75
C2
VSS_76
C22
VSS_77
C25
VSS_78
C5
VSS_79
A4 VSS_8
C8
VSS_80
D1
AF6
VSS_62
AF8
VSS_63
VSS_64 B11
B13
VSS_65
VSS_66 B16
B19
VSS_67
B21
VSS_68
B24
VSS_69
A25 VSS_7
B6
VSS_70
B8
VSS_71
VSS_52
AE4 VSS_53
AE8 VSS_54
AF11 VSS_55
AF13 VSS_56
AF16 VSS_57
AF19 VSS_58
AF2 VSS_59
A23 VSS_6
AF21 VSS_60 AF25
VSS_61
AD25 VSS_43
AD5 VSS_44
AD8 VSS_45
AE1 VSS_46
AE11 VSS_47
AE14 VSS_48
AE16 VSS_49
A2 VSS_5
AE19 VSS_50
AE23 VSS_51
AE26
AC3 VSS_33
AC6 VSS_34
VSS_35
AC8
AD11 VSS_36
AD13 VSS_37
AD16 VSS_38
AD19 VSS_39
A19 VSS_4
AD2 VSS_40
AD22 VSS_41
AB23 VSS_42
VSS_23
AB26 VSS_24
AB4 VSS_25
AB8 VSS_26
AC11 VSS_27
AC14 VSS_28
AC16 VSS_29
A16 VSS_3
AC19 VSS_30
AC21 VSS_31
AC24 VSS_32
Y24 VSS_161
Y3 VSS_162
Y6 VSS_163
AA5 VSS_17
AA8 VSS_18
AB1 VSS_19
A14 VSS_2
AB11 VSS_20
AB13 VSS_21
AB16 VSS_22
AB19
U6 VSS_151
V2 VSS_152
VSS_153
V22
V25 VSS_154
V5 VSS_155
W1 VSS_156
W23 VSS_157
W26 VSS_158
W4 VSS_159
AA25 VSS_16
Y21 VSS_160
VSS_141
R25 VSS_142
R5 VSS_143
T1 VSS_144
T23 VSS_145
T26 VSS_146
T4 VSS_147
U21 VSS_148
U24 VSS_149
AA22 VSS_15
U3 VSS_150
N1
VSS_132 N23
VSS_133 N26
VSS_134 N4
VSS_135 P21
VSS_136 P24
VSS_137 P3
VSS_138 P6
VSS_139
AA2 VSS_14
R2
VSS_140 R22
K26
VSS_122 K4
VSS_123
VSS_124 L21
L24
VSS_125
VSS_126 L3
L6
VSS_127 M2
VSS_128 M22
VSS_129
AA19 VSS_13
M25
VSS_130 M5
VSS_131
VSS_112
H24
VSS_113
H3
VSS_114
H6
VSS_115
J2
VSS_116
J22
VSS_117
J25
VSS_118
J5
VSS_119
AA16 VSS_12
K1
VSS_120
K23
VSS_121
F2
VSS_103
F22
VSS_104
F25
VSS_105
F5
VSS_106
F8
VSS_107
G1
VSS_108
G23
VSS_109
AA14 VSS_11 G26
VSS_110
G4
VSS_111
H21
F14
VCC_94 F15
VCC_95
VCC_96 F17
F18
VCC_97 F20
VCC_98 F7
VCC_99
A11 VSS_1
AA11 VSS_10
F13
VSS_100
F16
VSS_101
F19
VSS_102
VCC_84 E13
VCC_85 E15
VCC_86 E17
VCC_87 E18
VCC_88 E20
VCC_89
A9 VCC_9
E7
VCC_90 E9
VCC_91 F10
VCC_92 F12
VCC_93
C9
VCC_75 D10
VCC_76 D12
VCC_77 D14
VCC_78 D15
VCC_79
A7 VCC_8
D17
VCC_80 D18
VCC_81 D9
VCC_82 E10
VCC_83 E12
B18
VCC_65 B20
VCC_66
VCC_67 B7
B9
VCC_68 C10
VCC_69
A20 VCC_7
C12
VCC_70 C13
VCC_71 C15
VCC_72 C17
VCC_73 C18
VCC_74
VCC_55 AF17
VCC_56 AF18
VCC_57 AF20
VCC_58 AF9
VCC_59
A18 VCC_6
B10
VCC_60 B12
VCC_61 B14
VCC_62 B15
VCC_63 B17
VCC_64
AE13 VCC_46
AE15 VCC_47
AE17 VCC_48
AE18 VCC_49
A17 VCC_5
AE20 VCC_50
AE9
VCC_51 AF10
VCC_52 AF12
VCC_53 AF14
VCC_54 AF15
AD10 VCC_36
AD12 VCC_37
VCC_38
AD14
AD15 VCC_39
A15 VCC_4
AD17 VCC_40
AD18 VCC_41
AD7 VCC_42
AD9 VCC_43
AE10 VCC_44
AE12 VCC_45
VCC_26
AB9 VCC_27
AC10 VCC_28
AC12 VCC_29
A13 VCC_3
AC13 VCC_30
AC15 VCC_31
AC17 VCC_32
AC18 VCC_33
AC7 VCC_34
AC9 VCC_35
AA7 VCC_17
AA9 VCC_18
AB10 VCC_19
A12 VCC_2
AB12 VCC_20
AB14 VCC_21
AB15 VCC_22
AB17 VCC_23
AB18 VCC_24
AB20 VCC_25
AB7
VCC_1
A10
AA10 VCC_10
F9
VCC_100
AA12 VCC_11
AA13 VCC_12
AA15 VCC_13
AA17 VCC_14
AA18 VCC_15
AA20 VCC_16
0143854500
CPU500-4
PENRYN
1%100
R593
CPU1_VCCSENSE
CPU1_VSSSENSE
CPU_CORE
22000nF-X5R
C299
20%
6.3V

8-25
- 이 문서는 삼성전자의 기술 자산으로 승인자만이 사용할 수 있습니다 -
- This Document can not be used without Samsung's authorization -
8. Block Diagram and Schematic
Samsung
Confidential
Samsung
Confidential
Samsung
Confidential
SRP Sheet Number: 25 of 73
1 OF 5
VTT
HOST DATA BUS
VTTLF
NC
HOST CONTROL HOST ADDRESS BUS
VCC CORE
CFG
SAMSUNG PROPRIETARY
SAMSUNG
Only(def.)
A
SDVO and PCIE X1
DMIx4 (def.)
CFG(16)
CFG(19)
Dynamic ODT Disabled
*POCAFEB-12 Only (Remove in MP Model)
ME Crypto confidentiality (def.)
CFG(10)
DO NOT DISCLOSE TO OR DUPLICATE FOR OTHERS
1608
SAMSUNG ELECTRONICS CO’S PROPERTY.
1
1
CFG(5)
SDVO or PCIE X1
CFG(6)
3
Current Setting
PCIE Loop Back Disable(def)
iTPM Host Interface Disable (def.)
Dynamic ODT
DMI Lane Normal (def.)
Normal
(def. : default Option)
C
D
4
THIS DOCUMENT CONTAINS CONFIDENTIAL
C
iTPM option
B
2
Enabled (def.)
CFG# Low
3
High
CFG(9) PEG Reversal (def.)
CFG(7)
PCIE Loop Back Enable
PROPRIETARY INFORMATION THAT IS
2
iTPM Host Interface Enable
4
B
CFG(20)
DMIx2
ME Crypto no confidentiality
Simultaneously
EXCEPT AS AUTHORIZED BY SAMSUNG.
ELECTRONICS
DMI Lane Reversal
A
D
17
7
28
26
16
4700nF
C114
10V
63
2
20
21
12
18
23
57
1
15
39
7
19
49
AD
2.5V
220uF
EC5
3
15
30
11
4
38
R81
24.9 1%
1%
2K
R77
52
6
4
30
62
1%
35
26
18
R557
100
P1.05V
27
EC2
220uF
2.5V
AD
0
31
24
8
10
8
42
32
44
10V
C128
100nF
25
220nF
C183
3
14
10V
5
34
4
59
R78
221
1%
VTT_6 T6
VTT_7 T7
VTT_8 T8
VTT_9
61
16
T11
VTT_2
U7
VTT_20 U8
VTT_21 U9
VTT_22
VTT_23 V1
VTT_24 V2
VTT_25 V3
T12
VTT_3 T13
VTT_4 T2
VTT_5 T5
T10
VTT_1
T9
VTT_10 U1
VTT_11 U10
VTT_12 U11
VTT_13 U12
VTT_14 U13
VTT_15 U2
VTT_16 U3
VTT_17 U5
VTT_18 U6
VTT_19
Y29
VCC_NCTF_43
Y30
VCC_NCTF_44
Y32
VCC_NCTF_5
AC29
VCC_NCTF_6
AC30
VCC_NCTF_7
AC32
VCC_NCTF_8
AE29
VCC_NCTF_9
AE30
A8 VTTLF_1
AB2 VTTLF_2
L1 VTTLF_3
AL32
VCC_NCTF_33
AM30
VCC_NCTF_34
AM32
VCC_NCTF_35
U30
VCC_NCTF_36
U32
VCC_NCTF_37
V29
VCC_NCTF_38
V30
VCC_NCTF_39
W29
VCC_NCTF_4
AB30
VCC_NCTF_40
W30
VCC_NCTF_41
W32
VCC_NCTF_42
VCC_NCTF_23
AK26
VCC_NCTF_24
AK28
VCC_NCTF_25
AK29
VCC_NCTF_26
AK30
VCC_NCTF_27
AK32
VCC_NCTF_28
AL26
VCC_NCTF_29
AL28
VCC_NCTF_3
AA32
VCC_NCTF_30
AL29
VCC_NCTF_31
AL30
VCC_NCTF_32
AG30
VCC_NCTF_14
AG32
VCC_NCTF_15
AH29
VCC_NCTF_16
AH30
VCC_NCTF_17
AH32
VCC_NCTF_18
AJ29
VCC_NCTF_19
AJ32
VCC_NCTF_2
AA30
VCC_NCTF_20
AK23
VCC_NCTF_21
AK24
VCC_NCTF_22
AK25
Y34
AB34
VCC_4 AC26
VCC_5 AC28
VCC_6 AC33
VCC_7 AC34
VCC_8 AE26
VCC_9
VCC_NCTF_1
AA29
VCC_NCTF_10
AE32
VCC_NCTF_11
AF30
VCC_NCTF_12
AG29
VCC_NCTF_13
VCC_26 AK33
VCC_27 AM33
VCC_28 T32
VCC_29 U33
AA34
VCC_3
VCC_30 U34
VCC_31 V33
VCC_32 V34
VCC_33 W33
VCC_34 Y33
VCC_35
AG25
VCC_17 AG26
VCC_18 AG33
VCC_19 AG34
AA33
VCC_2
VCC_20 AH23
VCC_21 AH25
VCC_22 AH28
VCC_23 AJ23
VCC_24 AJ26
VCC_25 AJ33
F12
H_RS#_2 C8
C5 H_SWING
H_TRDY# C9
AA28
VCC_1
AE33
VCC_10 AF23
VCC_11 AF25
VCC_12 AF28
VCC_13
VCC_14 AF33
VCC_15 AG24
VCC_16
H_HIT# H9
H_HITM# E12
H_LOCK# H11
E3 H_RCOMP
H_REQ#_0 B15
H_REQ#_1 K13
H_REQ#_2 F13
H_REQ#_3 B13
H_REQ#_4 B14
H_RS#_0 B6
H_RS#_1
J11
H_DRDY# F9
H_DSTBN#_0 L10
H_DSTBN#_1 M7
H_DSTBN#_2 AA5
H_DSTBN#_3 AE6
H_DSTBP#_0 L9
H_DSTBP#_1 M8
H_DSTBP#_2 AA6
H_DSTBP#_3 AE5
B11 H_DVREF
AG2
H_D#_63
AD6
H_D#_7
F6
H_D#_8
D4
H_D#_9
H3
H_DBSY# B10
H_DEFER# E9
H_DINV#_0 J8
H_DINV#_1 L3
H_DINV#_2 Y13
H_DINV#_3 Y1
H_DPWR#
H_D#_53
AD3
H_D#_54
AD7
H_D#_55
AE14
H_D#_56
AF3
H_D#_57
AC1
H_D#_58
AE3
H_D#_59
AC3
H_D#_6
H2
H_D#_60
AE11
H_D#_61
AE8
H_D#_62
AA9
H_D#_44
AA11
H_D#_45
AD11
H_D#_46
AD10
H_D#_47
AD13
H_D#_48
AE12
H_D#_49
AE9
H_D#_5
H6
H_D#_50
AA2
H_D#_51
AD8
H_D#_52
AA3
AD14
H_D#_34
Y6
H_D#_35
Y10
H_D#_36
Y12
H_D#_37
Y14
H_D#_38
Y7
H_D#_39
W2
H_D#_4
G2
H_D#_40
AA8
H_D#_41
Y9
H_D#_42
AA13
H_D#_43
H_D#_24
R1
H_D#_25
N5
H_D#_26
N6
H_D#_27
P13
H_D#_28
N8
H_D#_29
L7
H_D#_3
E6
H_D#_30
N10
H_D#_31
M3
H_D#_32
Y3
H_D#_33
N12
H_D#_15
J6
H_D#_16
P2
H_D#_17
L2
H_D#_18
R2
H_D#_19
N9
H_D#_2
F8
H_D#_20
L6
H_D#_21
M5
H_D#_22
J3
H_D#_23
N2
A9
H_BPRI# F11
H_BREQ# G12
H_CPURST#
C12
H_CPUSLP#
E11
H_D#_0
F2
H_D#_1
G8
H_D#_10
M9
H_D#_11
M11
H_D#_12
J1
H_D#_13
J2
H_D#_14
H_A#_4 C15
H_A#_5 F16
H_A#_6 H13
H_A#_7 C18
H_A#_8 M16
H_A#_9 J13
H_ADS# H12
H_ADSTB#_0 B16
H_ADSTB#_1 G17
A11 H_AVREF
H_BNR#
L16
H_A#_27 C21
H_A#_28 J17
H_A#_29 H20
H_A#_3 A14
H_A#_30 B18
H_A#_31 K17
H_A#_32 B20
H_A#_33 F21
H_A#_34 K21
H_A#_35 L20
P17
H_A#_16 F17
H_A#_17 G20
H_A#_18 B19
H_A#_19 J16
H_A#_20 E20
H_A#_21 H16
H_A#_22 J20
H_A#_23 L17
H_A#_24 A17
H_A#_25 B17
H_A#_26
CFG_7
M24
CFG_8
E21
CFG_9
C23
AH7
HPLL_CLK
HPLL_CLK# AH6
H_A#_10 P16
H_A#_11 R16
H_A#_12 N17
H_A#_13 M13
H_A#_14 E17
H_A#_15
M20
CFG_16
L21
CFG_17
H21
CFG_18
P29
CFG_19
R28
CFG_2
P25
CFG_20
T28
CFG_3
P20
CFG_4
P24
CFG_5
C25
CFG_6
N24
CFG_0
T25
CFG_1
R25
CFG_10
C24
CFG_11
N21
CFG_12
P21
CFG_13
T21
CFG_14
R20
CFG_15
33
0904-002376
EB88CTPM
U509-1
100nF
C580
10V
20
1
10V
C127
2200nF
21
31
54
27
41
45
55
32
24
20%
6.3V
22-D2
37
C190
22000nF-X5R
3
11
34
2
C131
220nF
10V
56
25
13
35
40
16V
470nF
C579
C108
470nF
16V
19
51
nostuff
29
6
58
17
2.2K
R87
47
46
1%
R80
1K
470nF
C112
36
29
16V
13
48
0
50
22
9
9
28
10
43
5
22
10V
C113
4700nF
12
P1.05V
P1.05V
60
23
14
33
P1.05V
53
16V
C126
470nF
MCH1_HVREF
CPU1_CPURST#
P1.05V
CPU1_DSTBN1#
CPU1_DSTBN3#
CPU1_DSTBP1#
CPU1_DSTBP3#
CPU1_HITM#
CPU1_RS1#
CPU1_TRDY#
CLK0_HCLK1
CPU1_BSEL2
CPU1_BSEL0
CPU1_BSEL1
MCH1_HXSWING
CPU1_D#(63:0)
CPU1_A#(35:3)
CPU1_ADSTB0#
CPU1_BNR#
CPU1_BREQ#
CPU1_SLP#
CPU1_DEFER#
CPU1_DBI0#
CPU1_DBI2#
CPU1_DSTBN0#
CPU1_DSTBN2#
CPU1_DSTBP0#
CPU1_DSTBP2#
CPU1_HIT#
CPU1_LOCK#
CPU1_RS0#
CPU1_RS2#
CPU1_REQ#(4:0)
CPU1_DPWR#
MCH1_HXSWING
CLK0_HCLK1#
MCH1_HVREF
CPU1_ADS#
CPU1_ADSTB1#
CPU1_BPRI#
CPU1_DBSY#
CPU1_DBI1#
CPU1_DBI3#
CPU1_DRDY#

8-26
- 이 문서는 삼성전자의 기술 자산으로 승인자만이 사용할 수 있습니다 -
- This Document can not be used without Samsung's authorization -
8. Block Diagram and Schematic
Samsung
Confidential
Samsung
Confidential
Samsung
Confidential
SRP Sheet Number: 26 of 73
2 OF 5
LVDSHDA
NC RSVD
GFX VCC NCTF
GFX VCC NCTF
GFX VCC
TV VGA
PCIE GFX PCIE GFX
DMICLKMEPMMISC
0603 component (2203-006423)
ME Debug Port
C803, C804, C807, C809, C810
C823, C825, C826, C829, C830
A
3
SAMSUNG ELECTRONICS CO’S PROPERTY.
1608
at the opposite side of PIP components
THIS DOCUMENT CONTAINS CONFIDENTIAL
C
D
B
3 2
PROPRIETARY INFORMATION THAT IS
ELECTRONICS
EXCEPT AS AUTHORIZED BY SAMSUNG.
D
DO NOT DISCLOSE TO OR DUPLICATE FOR OTHERS
C
A
1
RSVD13
B
RSVD10
RSVD12
1
RSVD11
1005 component (2203-005482)
SAMSUNG
4
C813, C814, C816, C819, C820
C832
4
0603 component must be placed
2
SAMSUNG PROPRIETARY
12
#4
8
6.3V
C269
100nF
100nF
C274
12
11
6.3V
1
100nF
10V
C595
100nF
C623
10V
7
14
R79 56
100nF
C236
6.3V
6.3V
C262
100nF
C630
1
14
10V100nF
11
100nF
C627
10V
6.3V
100nF
C250
9
4
7
2
3
P1.05V
10V
C631
100nF
10V
C602
100nF
R130 49.9 1%
C273
6.3V
100nF
10V
C628
100nF
10V
C625
100nF
7
10V
C186
100nF
6
10V
C629
100nF
15
13
0
3
0
11
4
2
5
P1.05V
6.3V
C272
100nF
100nF
C261
6.3V
1
6.3V
100nF
C223
100nF
C267
10
15
6.3V
P1.05V_PEG
R86 0
1%
R133 10K
6.3V
C221
100nF
15
3
8
7
nostuff
5
12
R137 0
1% 100
R85
1%
9
2
10K
R138
1%
9
1K
R140
6.3V
C251
100nF
6
R132 10K
5
4
6
15
10V
C599
100nF
6.3V
C275
100nF
12
10
100nF
C596
14
5
10V
13
6.3V
C224
100nF
R141
499
1%
1
P3.3V
0
6.3V
C235
100nF
10V100nF
C632
10V100nF
C601
R135 0
nostuff
10
8
P3.3V
100nF
13
3
10V
C624
11
8
10
13
100nF
C600
14
100nF
C626
10V
6.3V
100nF
C222
10V
4
2
9
6
0
VCC_AXG_NCTF_55
W25
VCC_AXG_NCTF_56
W26
VCC_AXG_NCTF_57
W28
VCC_AXG_NCTF_58
Y16
VCC_AXG_NCTF_59
Y17 VCC_AXG_NCTF_6 AC16
VCC_AXG_NCTF_60
Y19 VCC_AXG_NCTF_7 AC17
VCC_AXG_NCTF_8
AE16
VCC_AXG_NCTF_9
AE17
VCC_AXG_NCTF_45
V26 VCC_AXG_NCTF_46
VCC_AXG_NCTF_47
V28
VCC_AXG_NCTF_48
W16
VCC_AXG_NCTF_49
W17
VCC_AXG_NCTF_5 AB19
VCC_AXG_NCTF_50
W19
VCC_AXG_NCTF_51
W20
VCC_AXG_NCTF_52
W21
VCC_AXG_NCTF_53
W23
W24 VCC_AXG_NCTF_54
VCC_AXG_NCTF_36
U19
VCC_AXG_NCTF_37
U20
VCC_AXG_NCTF_38
U21
VCC_AXG_NCTF_39
V16
VCC_AXG_NCTF_4 AB17
VCC_AXG_NCTF_40
V17
VCC_AXG_NCTF_41
V19
VCC_AXG_NCTF_42
V21
VCC_AXG_NCTF_43
V23
VCC_AXG_NCTF_44
V24
V25
VCC_AXG_NCTF_26
AK21
VCC_AXG_NCTF_27
AL16
VCC_AXG_NCTF_28
AL19
VCC_AXG_NCTF_29
AL21
VCC_AXG_NCTF_3 AB16
VCC_AXG_NCTF_30
AM16
VCC_AXG_NCTF_31
AM17
VCC_AXG_NCTF_32
AM19
VCC_AXG_NCTF_33
AM20
VCC_AXG_NCTF_34
AM21
VCC_AXG_NCTF_35
U16
VCC_AXG_NCTF_16
AH16 VCC_AXG_NCTF_17
VCC_AXG_NCTF_18
AH17
VCC_AXG_NCTF_19
AH19
VCC_AXG_NCTF_2 AA19
VCC_AXG_NCTF_20
AJ16
VCC_AXG_NCTF_21
AJ19
VCC_AXG_NCTF_22
AK16
VCC_AXG_NCTF_23
AK17
VCC_AXG_NCTF_24
AK19
AK20 VCC_AXG_NCTF_25
VCC_AXG_7 AB15
VCC_AXG_8 AB20
VCC_AXG_9 AB23
VCC_AXG_NCTF_1 AA16
VCC_AXG_NCTF_10
AE19
VCC_AXG_NCTF_11
AF16
VCC_AXG_NCTF_12
AF17
VCC_AXG_NCTF_13
AF19
VCC_AXG_NCTF_14
AG16
VCC_AXG_NCTF_15
AG17
AG19
T17
U14
VCC_AXG_36 U15
VCC_AXG_37 V15
VCC_AXG_38 Y15
VCC_AXG_39
VCC_AXG_4 AA23
Y21
VCC_AXG_40 Y24
VCC_AXG_41 Y26
VCC_AXG_42
VCC_AXG_5 AA24
VCC_AXG_6 AA25
VCC_AXG_25 AH20
VCC_AXG_26
VCC_AXG_27 AJ15
VCC_AXG_28 AJ21
VCC_AXG_29 AL15
VCC_AXG_3 AA21
VCC_AXG_30 AM14
VCC_AXG_31 AM15
VCC_AXG_32 AN14
VCC_AXG_33 T14
T16
VCC_AXG_34
VCC_AXG_35
VCC_AXG_16 AE20
VCC_AXG_17 AE21
VCC_AXG_18 AE23
VCC_AXG_19 AE24
VCC_AXG_2 AA20
VCC_AXG_20 AE25
VCC_AXG_21 AF15
VCC_AXG_22 AF20
VCC_AXG_23 AG15
VCC_AXG_24 AG21
AH15
TVC_DAC
K25
TV_DCONSEL_0
C31
TV_DCONSEL_1
E32
TV_RTN
H24
VCC_AXG_1 AA15
VCC_AXG_10 AB25
VCC_AXG_11 AC20
VCC_AXG_12 AC21
VCC_AXG_13 AC23
VCC_AXG_14 AC24
VCC_AXG_15 AE15
RSVD_6
AL34
AM35 RSVD_7
AN35 RSVD_8
RSVD_9
AY21
G36
SDVO_CTRLCLK E36
SDVO_CTRLDATA
T20
THERMTRIP#
B12
TSATN#
TVA_DAC
F25
H25 TVB_DAC
K12 RSVD_16
RSVD_17
M1
M36 RSVD_18
N36 RSVD_19
RSVD_2
AH12
RSVD_20
R33
RSVD_21
T24
RSVD_22
T33
RSVD_3
AH13
RSVD_4
AH9
RSVD_5
AK34
PM_EXT_TS#_1
R29
PM_SYNC#
AT40
PWROK
RSTIN# AT11
RSVD_1
AH10
RSVD_10
B2
RSVD_11
B31
RSVD_12
BF18
RSVD_13
BF23
RSVD_14
BG23
RSVD_15
BH18
PEG_TX_15
M48
PEG_TX_2 M39
PEG_TX_3 M43
PEG_TX_4
PEG_TX_5 R47
N37
PEG_TX_6 T39
PEG_TX_7
PEG_TX_8 U36
U39
PEG_TX_9
B7
PM_DPRSTP#
N33
PM_EXT_TS#_0 P32
T40
PEG_TX#_7 U37
PEG_TX#_8 U40
PEG_TX#_9
PEG_TX_0 J42
L46
PEG_TX_1
Y39
PEG_TX_10 Y46
PEG_TX_11 AA36
PEG_TX_12 AA39
PEG_TX_13 AD42
PEG_TX_14 AD46
PEG_TX#_10 AA46
PEG_TX#_11 AA37
PEG_TX#_12
PEG_TX#_13 AA40
PEG_TX#_14 AD43
AC46
PEG_TX#_15
M47
PEG_TX#_2
PEG_TX#_3 M40
M42
PEG_TX#_4 R48
PEG_TX#_5 N38
PEG_TX#_6
PEG_RX_15
L43
PEG_RX_2 L41
PEG_RX_3 N40
PEG_RX_4
PEG_RX_5 P47
N43
PEG_RX_6 T42
PEG_RX_7
PEG_RX_8 U42
Y42
PEG_RX_9
J41
PEG_TX#_0 M46
PEG_TX#_1
Y40
T43
PEG_RX#_7 U43
PEG_RX#_8 Y43
PEG_RX#_9
PEG_RX_0 H43
J44
PEG_RX_1
W47
PEG_RX_10 Y37
PEG_RX_11 AA42
PEG_RX_12 AD36
PEG_RX_13 AC48
PEG_RX_14 AD40
PEG_RX#_10 Y36
PEG_RX#_11 AA43
PEG_RX#_12
PEG_RX#_13 AD37
PEG_RX#_14 AC47
AD39
PEG_RX#_15
L44
PEG_RX#_2
PEG_RX#_3 L40
N41
PEG_RX#_4 P48
PEG_RX#_5 N44
PEG_RX#_6
NC_6
A6
NC_7
B4
NC_8
B45
B47 NC_9
PEG_CLK F43
E43
PEG_CLK#
T37
PEG_COMPI
PEG_COMPO T36
H44
PEG_RX#_0 J46
PEG_RX#_1
Y48
C3 NC_35
C46 NC_36
C48 NC_37
D2 NC_38
D47 NC_39
NC_4
A47
E1 NC_40
E48 NC_41
NC_42
F1
F48 NC_43
NC_5
A5
BG47
BG48 NC_26
BH2 NC_27
BH3 NC_28
BH43 NC_29
NC_3
A46
NC_30
BH44
NC_31
BH46
BH47 NC_32
BH5 NC_33
BH6 NC_34
NC_16
BE47
BF1 NC_17
BF3 NC_18
NC_19
BF46
NC_2
A44
BF48 NC_20
BG1 NC_21
BG2 NC_22
BG4 NC_23
BG45 NC_24
NC_25
L_CTRL_DATA
M33
K33 L_DDC_CLK
L_DDC_DATA
J33
L_VDD_EN
M29
NC_1
A43
NC_10
B48
NC_11
BC1
NC_12
BC48
BD1 NC_13
NC_14
BD48
NC_15
BE2
LVDSB_DATA_0
G38 LVDSB_DATA_1
F37 LVDSB_DATA_2
K37 LVDSB_DATA_3
LVDS_IBG
C44
B43 LVDS_VBG
LVDS_VREFH
E37
LVDS_VREFL
E38
L_BKLT_CTRL
L32 L_BKLT_EN
G32
L_CTRL_CLK
M32
LVDSA_DATA#_3
H48 LVDSA_DATA_0
D45 LVDSA_DATA_1
F40 LVDSA_DATA_2
B40 LVDSA_DATA_3
A37 LVDSB_CLK
LVDSB_CLK#
B37
A41 LVDSB_DATA#_0
H38 LVDSB_DATA#_1
G37 LVDSB_DATA#_2
LVDSB_DATA#_3
J37
B42
B30 HDA_RST#
B29 HDA_SDI
C29 HDA_SDO
HDA_SYNC
A28
H36
ICH_SYNC#
LVDSA_CLK
C40
C41 LVDSA_CLK#
H47 LVDSA_DATA#_0
E46 LVDSA_DATA#_1
LVDSA_DATA#_2
G40
A40
DPLL_REF_CLK#
DPLL_REF_SSCLK E41
F41
DPLL_REF_SSCLK#
R32
DPRSLPVR
GFX_VID_0 B33
GFX_VID_1 B32
GFX_VID_2 G33
GFX_VID_3 F33
E33
GFX_VID_4
GFX_VR_EN C34
B28 HDA_BCLK
DMI_RXP_3 AH40
DMI_TXN_0 AE35
DMI_TXN_1 AE43
DMI_TXN_2 AE46
DMI_TXN_3 AH42
DMI_TXP_0 AD35
DMI_TXP_1 AE44
DMI_TXP_2 AF46
DMI_TXP_3 AH43
DPLL_REF_CLK B38
A38
CRT_TVO_IREF
E29
CRT_VSYNC
L29
N28
DDPC_CTRLCLK M28
DDPC_CTRLDATA
DMI_RXN_0 AE41
DMI_RXN_1 AE37
DMI_RXN_2 AE47
DMI_RXN_3 AH39
AE40
DMI_RXP_0
DMI_RXP_1 AE38
DMI_RXP_2 AE48
AH36
CL_DATA AN36
CL_PWROK AJ35
CL_RST#
AH34
CL_VREF
CRT_BLUE
E28
CRT_DDC_CLK
H32
CRT_DDC_DATA
J32
CRT_GREEN
G28
CRT_HSYNC
J29
G29 CRT_IRTN
CRT_RED
J28
U509-2
EB88CTPM
0904-002376
K36
CLKREQ#
CL_CLK AH37
MCH3_CLKREQ#
CPU1_THRMTRIP#
MCH3_EXTTS1#
MCH3_EXTTS0#
MCH3_ICHSYNC#
PEG1_RXN(15:0) PEG1_RXP(15:0) PEG1_TXN(15:0) PEG1_TXP(15:0)
MCH3_CLKREQ#
PLT3_RST#
KBC3_PWRGD
CHP3_PM_SYNC#
CPU1_DPRSTP#
CLK1_MCH3GPLL#
CLK1_MCH3GPLL
CHP3_DPRSLPVR
DMI1_RXP_3
DMI1_RXP_2
DMI1_RXP_1
DMI1_RXP_0
DMI1_RXN_3
DMI1_RXN_2
DMI1_RXN_1
DMI1_RXN_0
DMI1_TXP_3
DMI1_TXP_2
DMI1_TXP_1
DMI1_TXP_0
DMI1_TXN_3
DMI1_TXN_2
DMI1_TXN_1
DMI1_TXN_0
CHP3_CL_RST_0#
KBC3_PWRGD
CHP3_CL_DATA_0
CHP3_CL_CLK_0

8-27
- 이 문서는 삼성전자의 기술 자산으로 승인자만이 사용할 수 있습니다 -
- This Document can not be used without Samsung's authorization -
8. Block Diagram and Schematic
Samsung
Confidential
Samsung
Confidential
Samsung
Confidential
SRP Sheet Number: 27 of 73
3 OF 5
SYSTEM MEMORY A
SYSTEM MEMORY A
SYSTEM MEMORY B
SYSTEM MEMORY B
PROPRIETARY INFORMATION THAT IS PLACE EACH CAP NEAR AV42 PIN
2
B
SM_RCOMP : 20 ohm to VSS
4
Cantiga
2
DDR2 : GND
DDR3 : Connect to VRM.
SM_PWROK
SM_RCOMP# : 80 ohm to VSS
EXCEPT AS AUTHORIZED BY SAMSUNG.
SM_RCOMP : 80 ohm to P1.5V_AUX
1
B
DO NOT DISCLOSE TO OR DUPLICATE FOR OTHERS
SM_RCOMP# : 20 ohm to P1.8V_AUX
4
SAMSUNG ELECTRONICS CO’S PROPERTY.
C
SAMSUNG PROPRIETARY
THIS DOCUMENT CONTAINS CONFIDENTIAL
1
D
C
D
3
Route as short as possible
3
Teenah
ELECTRONICS
A A
SAMSUNG
11
6
54
3 46
0
1
7
9
8
7
10
312
14
62
27
14 39
5
21 37
P1.8V_AUX
1 8
31 34
233 24
45 58562921
47
4238
18
7
0
1
29
0
39
42
5
19
10nF
C195
25V
8 59
1%
R558 499
1
11
6
5
52
7
4
47
R143
1%
3.01K
25V
C135
10nF
5
41
3
2
2
33
5
10
16
2
7
3
4327
43
7
12
22
2
34
1
25 61
6
17 40
100nF
C238
48
14
1
nostuff
10V
4
3
BG22
BH21 SM_RCOMP#
BF28 SM_RCOMP_V_OH
BH28 SM_RCOMP_V_OL
BF17
SM_REXT AV42
SM_VREF
AU28
SB_MA_6 AW28
SB_MA_7 AT33
SB_MA_8 BD33
SB_MA_9
BF15
SB_ODT_0 AY13
SB_ODT_1
AU17
SB_RAS# BF14
SB_WE#
BC36
SM_DRAMRST# AR36
SM_PWROK
SM_RCOMP
AV17
SB_MA_0 BA25
SB_MA_1
BB16
SB_MA_10 AW33
SB_MA_11 AY33
SB_MA_12 BH15
SB_MA_13 AU33
SB_MA_14
BC25
SB_MA_2 AU25
SB_MA_3 AW25
SB_MA_4 BB28
SB_MA_5
SB_DQ_57
AJ1 SB_DQ_58
AH1 SB_DQ_59
AM48 SB_DQ_6
AM2 SB_DQ_60
AM3 SB_DQ_61
AH3 SB_DQ_62
AJ3 SB_DQ_63
AP48 SB_DQ_7
AU47 SB_DQ_8
AU46 SB_DQ_9
AV2 SB_DQ_48
AU3 SB_DQ_49
AJ48 SB_DQ_5
AR3 SB_DQ_50
AN2 SB_DQ_51
AY2 SB_DQ_52
AV1 SB_DQ_53
AP3 SB_DQ_54
AR1 SB_DQ_55
AL1 SB_DQ_56
AL2
BF8 SB_DQ_38
BG7 SB_DQ_39
AJ46 SB_DQ_4
BC5 SB_DQ_40
BC6 SB_DQ_41
AY3 SB_DQ_42
AY1 SB_DQ_43
BF6 SB_DQ_44
BF5 SB_DQ_45
BA1 SB_DQ_46
BD3 SB_DQ_47
SB_DQ_28
BG39 SB_DQ_29
AP46 SB_DQ_3
BG34 SB_DQ_30
BH34 SB_DQ_31
BH14 SB_DQ_32
BG12 SB_DQ_33
BH11 SB_DQ_34
BG8 SB_DQ_35
BH12 SB_DQ_36
BF11 SB_DQ_37
BF43 SB_DQ_19
AP47 SB_DQ_2
BE45 SB_DQ_20
BC41 SB_DQ_21
BF40 SB_DQ_22
BF41 SB_DQ_23
BG38 SB_DQ_24
BF38 SB_DQ_25
BH35 SB_DQ_26
BG35 SB_DQ_27
BH40
AK47 SB_DQ_0
AH46 SB_DQ_1
BA48 SB_DQ_10
AY48 SB_DQ_11
AT47 SB_DQ_12
AR47 SB_DQ_13
BA47 SB_DQ_14
BC47 SB_DQ_15
BC46 SB_DQ_16
BC44 SB_DQ_17
BG43 SB_DQ_18
SB_DQS#_5 AT2
SB_DQS#_6 AN5
SB_DQS#_7
AL47
SB_DQS_0 AV48
SB_DQS_1 BG41
SB_DQS_2 BG37
SB_DQS_3 BH9
SB_DQS_4 BB2
SB_DQS_5 AU1
SB_DQS_6 AN6
SB_DQS_7
BF35
SB_DM_3 BG11
SB_DM_4 BA3
SB_DM_5 AP1
SB_DM_6 AK2
SB_DM_7
AL46
SB_DQS#_0 AV47
SB_DQS#_1 BH41
SB_DQS#_2 BH37
SB_DQS#_3 BG9
SB_DQS#_4 BC2
AU24
SB_CK#_0
AV20
SB_CK#_1
AY36
SB_CKE_0 BB36
SB_CKE_1
AV24
SB_CK_0
AU20
SB_CK_1
AV16
SB_CS#_0 AR13
SB_CS#_1
AM47
SB_DM_0 AY47
SB_DM_1 BD40
SB_DM_2
SA_MA_7
BF25 SA_MA_8
AW24 SA_MA_9
BD17 SA_ODT_0
AY17 SA_ODT_1
BB20 SA_RAS#
AY20 SA_WE#
BC16
SB_BS_0 BB17
SB_BS_1 BB33
SB_BS_2
BG16
SB_CAS#
BC21 SA_MA_10
BG26 SA_MA_11
BH26 SA_MA_12
BH17 SA_MA_13
AY25 SA_MA_14
BG24 SA_MA_2
BH24 SA_MA_3
BG25 SA_MA_4
BA24 SA_MA_5
BD24 SA_MA_6
BG27
AJ8
SA_DQ_59
AM44
SA_DQ_6
AN12
SA_DQ_60 AM13
SA_DQ_61 AJ11
SA_DQ_62 AJ12
SA_DQ_63
AM42
SA_DQ_7 AN43
SA_DQ_8 AN44
SA_DQ_9
BA21 SA_MA_0
BC24 SA_MA_1
SA_DQ_49
AJ40
SA_DQ_5
AT9
SA_DQ_50 AN8
SA_DQ_51 AU5
SA_DQ_52 AU6
SA_DQ_53 AT5
SA_DQ_54 AN10
SA_DQ_55 AM11
SA_DQ_56 AM5
SA_DQ_57 AJ9
SA_DQ_58
AJ36
SA_DQ_4
BB9
SA_DQ_40 BA9
SA_DQ_41 AU10
SA_DQ_42 AV9
SA_DQ_43 BA11
SA_DQ_44 BD9
SA_DQ_45 AY8
SA_DQ_46 BA6
SA_DQ_47 AV5
SA_DQ_48 AV7
AM38
SA_DQ_3
AV36
SA_DQ_30 AW36
SA_DQ_31 BD13
SA_DQ_32 AU11
SA_DQ_33 BC11
SA_DQ_34 BA12
SA_DQ_35 AU13
SA_DQ_36 AV13
SA_DQ_37 BD12
SA_DQ_38 BC12
SA_DQ_39
SA_DQ_2
AV41
SA_DQ_20 AY43
SA_DQ_21 BB41
SA_DQ_22 BC40
SA_DQ_23 AY37
SA_DQ_24 BD38
SA_DQ_25 AV37
SA_DQ_26 AT36
SA_DQ_27 AY38
SA_DQ_28 BB38
SA_DQ_29
AU40
SA_DQ_10 AT38
SA_DQ_11 AN41
SA_DQ_12 AN39
SA_DQ_13 AU44
SA_DQ_14 AU42
SA_DQ_15 AV39
SA_DQ_16 AY44
SA_DQ_17 BA40
SA_DQ_18 BD43
SA_DQ_19
AN38
AM8 SA_DQS#_7
AJ44 SA_DQS_0
AT44 SA_DQS_1
BA43 SA_DQS_2
BC37 SA_DQS_3
AW12 SA_DQS_4
BC8 SA_DQS_5
AU8 SA_DQS_6
AM7 SA_DQS_7
AJ38
SA_DQ_0 AJ41
SA_DQ_1
SA_DM_4
AY6 SA_DM_5
AT7 SA_DM_6
AJ5 SA_DM_7
AJ43 SA_DQS#_0
AT43 SA_DQS#_1
BA44 SA_DQS#_2
BD37 SA_DQS#_3
AY12 SA_DQS#_4
BD8 SA_DQS#_5
AU9 SA_DQS#_6
SA_CK#_1
BC28 SA_CKE_0
AY28 SA_CKE_1
AP24 SA_CK_0
AT21 SA_CK_1
BA17 SA_CS#_0
AY16 SA_CS#_1
AM37 SA_DM_0
AT41 SA_DM_1
AY41 SA_DM_2
AU39 SA_DM_3
BB12
BD21 SA_BS_0
BG18 SA_BS_1
AT25 SA_BS_2
BD20 SA_CAS#
AR24 SA_CK#_0
AR21
19
0904-002376
EB88CTPM
U509-3
13
3
13 40
60
4
4636
53
0
6
0
12
4
49 51
57
5
54
3
0
1
0
5526
1
6
7
1%
R142
1K
5932 53
4
1%
R89
80.6
C196
2200nF
10V
10
10
7
10V
nostuff
C192
100nF
6
2
33
44
5
63
2
20
6
60
4
10V
2200nF
C136
0
35
0
23
28
44
57
26
58
1
1K
R144
1%
14
165
30
62
45
0
3813
2
4
615524257 9 30
3
7
4
80.6
R90
1%
15
3
56
22
5250
20
0
63
8
9
11
4832
35
6
17
13
3
49
2
2 41 51
9
28
P1.8V_AUX
4
1815 370
6
1
3611
5
6
12
1
2
12
5
2
50
1
4
MEM1_CKE2
MEM1_VREF
MEM1_CS1#
MEM1_CS0#
CLK1_MCLK1
CLK1_MCLK0
MEM1_CS2#
MEM1_AMA(14:0)
MEM1_BMA(14:0)
MEM1_ABS(2:0)
MEM1_BBS(2:0)
MEM1_ADQ(63:0)
MEM1_ADQS#(7:0)
MEM1_ADQS(7:0)
MEM1_ADM(7:0)
MEM1_BDM(7:0)
MEM1_BDQS#(7:0)
MEM1_BDQS(7:0)
MEM1_BDQ(63:0)
MEM1_CKE0
CLK1_MCLK0#
MEM1_BWE#
CLK1_MCLK2#
CLK1_MCLK2
MEM1_ODT1
MEM1_CKE3
MEM1_CKE1
MEM1_ODT2
MEM1_ODT0
MEM1_VREF
MEM1_ARAS#
MEM1_ACAS#
MEM1_AWE#
MEM1_BCAS#
CLK1_MCLK3#
CLK1_MCLK3
MEM1_CS3#
MEM1_BRAS#
CLK1_MCLK1#
MEM1_ODT3

8-28
- 이 문서는 삼성전자의 기술 자산으로 승인자만이 사용할 수 있습니다 -
- This Document can not be used without Samsung's authorization -
8. Block Diagram and Schematic
Samsung
Confidential
Samsung
Confidential
Samsung
Confidential
SRP Sheet Number: 28 of 73
VCCA_SMVCCA_SM_CKVCCA_SM_CK_NCTF
VCC AXGCRT / TV POWERLVDS POWER
4 OF 5
VCC_SM
VCC HADVCC_HVPEG POWER
AXG SENSE
VCC_SM_CKVCC_SM_LF
VCC AXG
PLL POWER
1
2A routing
Cantiga : 1.5V
A
THIS DOCUMENT CONTAINS CONFIDENTIAL
1
D
4
A
3
DO NOT DISCLOSE TO OR DUPLICATE FOR OTHERS
2
D
SAMSUNG ELECTRONICS CO’S PROPERTY.
PROPRIETARY INFORMATION THAT IS
SAMSUNG PROPRIETARY
4
C
EXCEPT AS AUTHORIZED BY SAMSUNG.
SAMSUNG
2
3
B B
ELECTRONICS
C
C237
1000nF
SHORT2
INSTPAR
6.3V
P1.05V
10V100nF
C119
0
R88
nostuff
R82 0
nostuff
6.3V
10000nF
TP2585
TP2580
C181
1
R83
P1.05V
C124
100nF
P3.3V
10V
1000nF
C122
6.3V
20%
6.3V
C178
22000nF-X5R
10V
C118
220nF
R91
1
P1.05V
R84
1
10V
C129
P1.5V
4700nF
AD
2.5V
220uF
EC8
100nF
C134
10V
P1.05V
C125
10nF
25V
10000nF
C137
6.3V
P1.05V
TP2590
10V
C115
100nF
10V
4700nF
C177
10V
100nF
C194
P1.8V_AUX
INSTPAR
SHORT3
BA37
VCC_SM_LF_6
BB13
VCC_SM_LF_7
AT13
VCC_SM_NC_1
VCC_SM_NC_2 AW13
AW16
VCC_SM_NC_3
VCC_SM_NC_4 BA36
VCC_SM_NC_5 BB21
VCC_SM_NC_6 BB24
VCC_SM_NC_7 BD16
K47 VCC_TX_LVDS VSS_AXG_SENSE AH14
VCC_SM_8
AT32
VCC_SM_9
VCC_SM_CK_1
BF20
BF21
VCC_SM_CK_2
BG20
VCC_SM_CK_3
BH20
VCC_SM_CK_4
AM10
VCC_SM_LF_1
AM40
VCC_SM_LF_2
AV21
VCC_SM_LF_3
AV44
VCC_SM_LF_4
AY5
VCC_SM_LF_5
BG30
VCC_SM_30
BG31
VCC_SM_31
BG32
VCC_SM_32
BH29
VCC_SM_33
VCC_SM_34
BH31
BH32
VCC_SM_35
AP32
VCC_SM_4
AP33
VCC_SM_5
AR29
VCC_SM_6
AR32
VCC_SM_7
AT29
BB29
VCC_SM_20
BB32
VCC_SM_21
BC29
VCC_SM_22
BC32
VCC_SM_23
BD29
VCC_SM_24
BD32
VCC_SM_25
BF29
VCC_SM_26
BF31
VCC_SM_27
BF32
VCC_SM_28
BG29
VCC_SM_29
AP29
VCC_SM_3
VCC_SM_10
AU32
VCC_SM_11
VCC_SM_12
AV29
AV32
VCC_SM_13
AW29
VCC_SM_14
AW32
VCC_SM_15
AY29
VCC_SM_16
AY32
VCC_SM_17
BA29
VCC_SM_18
BA32
VCC_SM_19
AN33
VCC_SM_2
VCC_HDA A32
A35
VCC_HV_1 B35
VCC_HV_2
VCC_HV_3 C35
U46
VCC_PEG_1 U47
VCC_PEG_2 U48
VCC_PEG_3 V47
VCC_PEG_4 V48
VCC_PEG_5
AN32
VCC_SM_1
AU29
AA47
VCCD_PEG_PLL
L28 VCCD_QDAC
M25 VCCD_TVDAC
VCC_AXF_1
A21
B21 VCC_AXF_2
VCC_AXF_3
B22
VCC_AXG_SENSE AJ14
VCC_DMI_1
AF48
VCC_DMI_2
AG47
VCC_DMI_3
AH47
VCC_DMI_4
AH48
AL25
VCCA_SM_CK_NCTF_4
AM23
VCCA_SM_CK_NCTF_5
AM24
VCCA_SM_CK_NCTF_6
AM25
AM26 VCCA_SM_CK_NCTF_7
VCCA_SM_CK_NCTF_8
AM28
VCCA_TV_DAC_1
A24
VCCA_TV_DAC_2
B24
AF1
VCCD_HPLL
L37 VCCD_LVDS_1
M38 VCCD_LVDS_2
AR17 VCCA_SM_7
AR20 VCCA_SM_8
AT16 VCCA_SM_9
AN24 VCCA_SM_CK_1
AN25 VCCA_SM_CK_2
VCCA_SM_CK_3
AN28
VCCA_SM_CK_4
AP25
VCCA_SM_CK_5
AP28
VCCA_SM_CK_NCTF_1
AL23
VCCA_SM_CK_NCTF_2
AL24
VCCA_SM_CK_NCTF_3
AD1
VCCA_HPLL
J48 VCCA_LVDS
AE1
VCCA_MPLL
AD48
VCCA_PEG_BG
AA48
VCCA_PEG_PLL
AN17 VCCA_SM_1
AN20 VCCA_SM_2
AP16 VCCA_SM_3
AP17 VCCA_SM_4
AP20 VCCA_SM_5
AR16 VCCA_SM_6
U509-4
EB88CTPM
0904-002376
B27 VCCA_CRT_DAC_1
A26 VCCA_CRT_DAC_2
A25 VCCA_DAC_BG
F47
VCCA_DPLLA
L48
VCCA_DPLLB
AD
2.5V
220uF
EC7
nostuff
0
R134
R136
0
P1.05V
22000nF-X5R
20%
6.3V
C111
P1.05V
10V
C182
100nF
nostuff
P1.05V
P1.05V_PEG
C121
10000nF
6.3V
220nF
C133
10V
10V
C584
100nF
16V
C188
470nF
R139
BLM18PG181SN1
B10
1
10V
C583
100nF
6.3V
20%
22000nF-X5R
C184
EC6
220uF
2.5V
AD
6.3V
C130
1000nF
6.3V
20%
22000nF-X5R
C198
C106
22000nF-X5R
20%
6.3V
100nF
C116
10V
100nF
C109
10V
B9
10V
0
C117
100nF
10V
C187
100nF
R559 12.1
1%
nostuff
10V
C191
100nF
P1.05V_PEG
2200nF
C185
10V
C123
10V
BLM18PG181SN1
B11
100nF
2
6.3V
20%
22000nF-X5R
C189
nostuff
D510
BAT54A
3
1
nostuff
L4
1.0uH
B18
BLM18PG181SN1
P1.8V_AUX
1000nF
C193
4700nF
C110
10V
6.3V
P1.5V
C197
22000nF-X5R
20%
6.3V

8-29
- 이 문서는 삼성전자의 기술 자산으로 승인자만이 사용할 수 있습니다 -
- This Document can not be used without Samsung's authorization -
8. Block Diagram and Schematic
Samsung
Confidential
Samsung
Confidential
Samsung
Confidential
SRP Sheet Number: 29 of 73
5 OF 5
VSS
VSS
VSS
VSS
VSS
VSS SCB VSS NCTF VSS
TV & LVDS
VSS
1
ELECTRONICS
A
B
EXCEPT AS AUTHORIZED BY SAMSUNG.
C
4
PROPRIETARY INFORMATION THAT IS
3
A
D
SAMSUNG PROPRIETARY
1
D
B
3
SAMSUNG ELECTRONICS CO’S PROPERTY.
DO NOT DISCLOSE TO OR DUPLICATE FOR OTHERS
4
2
C
2
SAMSUNG
THIS DOCUMENT CONTAINS CONFIDENTIAL
VSS_NCTF_4
AC19
VSS_NCTF_5
AF29
VSS_NCTF_6
AF32
VSS_NCTF_7
AJ17
VSS_NCTF_8
AJ30
VSS_NCTF_9
AL17
VSS_SCB_1
A3
VSS_SCB_2
A48
VSS_SCB_3
BH1
VSS_SCB_4
BH48
VSS_SCB_5
C1
AN40
VSS_NCTF_1
AA17
VSS_NCTF_10
AL20
VSS_NCTF_11
AM29
VSS_NCTF_12
U17
VSS_NCTF_13
U23
VSS_NCTF_14
U26
VSS_NCTF_15
V20
VSS_NCTF_16
V32
VSS_NCTF_2
AB29
VSS_NCTF_3
AB32
VSS_9
AA1
VSS_90 AM46
AM6
VSS_91
VSS_92 AM9
VSS_93 AN11
VSS_94 AN13
VSS_95 AN16
VSS_96 AN21
VSS_97 AN29
VSS_98 AN37
VSS_99
VSS_8
A34
VSS_80 AL3
VSS_81 AL33
VSS_82 AL48
VSS_83 AM1
VSS_84 AM12
VSS_85 AM34
VSS_86 AM36
VSS_87 AM39
VSS_88 AM41
VSS_89 AM43
A31
VSS_70
AJ24
VSS_71 AJ25
VSS_72 AJ28
VSS_73 AJ34
VSS_74 AJ37
VSS_75 AJ39
VSS_76 AJ42
VSS_77 AJ47
VSS_78 AJ7
VSS_79 AK15
VSS_60
AH35
VSS_61
AH38
AH41 VSS_62
VSS_63
AH44
VSS_64
AH5
VSS_65
AH8
VSS_66
AJ10
VSS_67
AJ13
VSS_68
AJ2
VSS_69
AJ20
VSS_7
VSS_50
AF47
VSS_51
AG20
VSS_52
AG23
VSS_53
AG28
VSS_54
AH11
VSS_55
AH2
VSS_56
AH21
VSS_57
AH24
VSS_58
AH26
VSS_59
AH33
VSS_6
A29
AE34
VSS_41
AE36
VSS_42
AE39
VSS_43
AE42
VSS_44
AE7
VSS_45
AF2
VSS_46
AF21
VSS_47
AF24
VSS_48
AF26
VSS_49
AF34
VSS_5
A23
Y47
VSS_346 Y5
VSS_347 Y8
VSS_348
VSS_349
AJ6
VSS_35
AD9
VSS_36
AE10
VSS_37
AE13
VSS_38
AE2
VSS_39
AE28
VSS_4
A20
VSS_40
Y11
VSS_336 Y2
VSS_337 Y20
VSS_338 Y23
VSS_339
VSS_34
AD5
Y25
VSS_340 Y28
VSS_341 Y35
VSS_342 Y38
VSS_343 Y41
VSS_344 Y44
VSS_345
VSS_326 U28
VSS_327 U29
VSS_328 U35
VSS_329
VSS_33
AD47
U38
VSS_330 U41
VSS_331 U44
VSS_332 V46
VSS_333 W15
VSS_334 W34
VSS_335
R3
VSS_317 R46
VSS_318 T29
VSS_319VSS_32
AD44
T35
VSS_320 T38
VSS_321 T41
VSS_322 T44
VSS_323 T47
VSS_324 U24
VSS_325 U25
VSS_307 N7
VSS_308 P1
VSS_309 P28
VSS_31
AD41
P3
VSS_310
VSS_311 P33
VSS_312 P36
P46
VSS_313 R17
VSS_314 R21
VSS_315 R24
VSS_316
N13
VSS_299 N16
VSS_3
A18
VSS_30
AD38
VSS_300 N20
VSS_301 N25
VSS_302 N29
VSS_303 N32
VSS_304 N39
VSS_305 N42
VSS_306 N47
VSS_289
L8
VSS_29
AD2
VSS_290
M10
VSS_291
M17
VSS_292
M2
VSS_293
M21
VSS_294
M41
VSS_295 M44
VSS_296 M6
VSS_297 N11
VSS_298
VSS_279
L12
VSS_28
AD12
VSS_280
L13
VSS_281
L24
L25 VSS_282
VSS_283
L33
VSS_284
L36
VSS_285
L39
VSS_286
L42
VSS_287
L47
VSS_288
L5
J43
VSS_27
AC25
VSS_270
J5
VSS_271
J7
VSS_272
K16
VSS_273
K2
VSS_274
K20
VSS_275
K24
VSS_276
K28
VSS_277
K29
VSS_278
K32
VSS_26
AC2
VSS_260
H40
VSS_261
H46
VSS_262
H5
VSS_263
J12
VSS_264
J21
VSS_265
J24
VSS_266
J25
VSS_267
J36
VSS_268
J38
VSS_269
VSS_25
AC15
VSS_250
G25
VSS_251
G41
VSS_252
G47
G9 VSS_253
VSS_254
H1
VSS_255
H17
VSS_256
H28
VSS_257
H29
VSS_258
H33
VSS_259
H37
AB47
VSS_240
F36
VSS_241
F38
VSS_242
F44
VSS_243
F46
VSS_244
F5
VSS_245
G11
VSS_246
G13
VSS_247
G16
VSS_248
G21
VSS_249
G24
VSS_230
E24
VSS_231
E25
VSS_232
E40
VSS_233
E8
VSS_234
F20
VSS_235
F24
VSS_236
F28
VSS_237
F29
VSS_238
F3
VSS_239
F32
VSS_24
VSS_220
C20
VSS_221
C26
VSS_222
C28
VSS_223
C32
C37 VSS_224
VSS_225
C38
VSS_226
C43
VSS_227
C6
VSS_228
E13
VSS_229
E16
VSS_23
AB33
BG40
VSS_211
BG42
VSS_212
BG6
VSS_213
BH23
VSS_214
BH25
VSS_215
BH38
VSS_216
BH8
VSS_217
C11
VSS_218
C14
VSS_219
C17
VSS_22
AB28
VSS_201 BG13
VSS_202 BG14
VSS_203 BG15
VSS_204 BG17
VSS_205 BG19
VSS_206
BG21
VSS_207
BG28
VSS_208
BG33
VSS_209
BG36
VSS_21
AB26
VSS_210
VSS_192 BE4
VSS_193 BF12
VSS_194 BF24
VSS_195 BF26
BF34
VSS_196
VSS_197 BF37
VSS_198 BF44
VSS_199 BF9
VSS_2
A15
VSS_20
AB24
VSS_200 BG10
BC38
VSS_183 BC43
VSS_184 BC9
VSS_185 BD11
VSS_186 BD25
VSS_187 BD28
VSS_188 BD36
VSS_189 BD41
VSS_19
AB21
VSS_190 BD46
VSS_191 BD6
VSS_173 BB37
VSS_174 BB40
VSS_175 BB47
VSS_176 BB8
VSS_177 BC13
VSS_178 BC17
VSS_179 BC20
VSS_18
AA7
VSS_180 BC3
VSS_181 BC33
VSS_182
VSS_163 BA16
VSS_164 BA2
VSS_165 BA20
VSS_166 BA28
BA33
VSS_167
VSS_168 BA38
VSS_169 BA46
VSS_17
AA44
VSS_170 BA5
VSS_171 BB11
VSS_172 BB25
AY7
VSS_154 B23
VSS_155 B26
VSS_156 B34
VSS_157 B36
VSS_158 B39
VSS_159 B41
VSS_16
AA41
VSS_160 B8
VSS_161 B9
VSS_162 BA13
VSS_144 AW2
VSS_145 AW20
VSS_146 AW21
VSS_147 AW37
VSS_148 AW47
VSS_149 AY11
VSS_15
AA38
VSS_150 AY24
VSS_151 AY42
VSS_152 AY46
VSS_153
VSS_134 AV25
VSS_135 AV28
VSS_136 AV3
VSS_137 AV33
AV40
VSS_138
VSS_139 AV43
VSS_14
AA35
VSS_140 AV46
VSS_141 AV6
VSS_142 AV8
VSS_143 AW17
AU2
VSS_125 AU21
VSS_126 AU36
VSS_127 AU38
VSS_128 AU41
VSS_129 AU43
VSS_13
AA26
VSS_130 AU48
VSS_131 AU7
VSS_132 AV10
VSS_133 AV12
VSS_115 AT20
VSS_116 AT24
VSS_117 AT28
VSS_118 AT37
VSS_119 AT39
VSS_12
AA14
VSS_120 AT42
VSS_121 AT6
VSS_122 AT8
VSS_123 AU16
VSS_124
VSS_105 AP21
VSS_106 AR2
VSS_107 AR25
VSS_108 AR28
AR33
VSS_109
VSS_11
AA12
VSS_110 AR46
VSS_111 AR48
VSS_112 AT10
VSS_113 AT12
VSS_114 AT17
VSSA_DAC_BG
B25
VSSA_LVDS
J47
VSS_1
A12
VSS_10
AA10
VSS_100 AN42
VSS_101 AN47
VSS_102 AN7
VSS_103 AN9
VSS_104 AP2
U509-5
EB88CTPM
0904-002376

8-30
- 이 문서는 삼성전자의 기술 자산으로 승인자만이 사용할 수 있습니다 -
- This Document can not be used without Samsung's authorization -
8. Block Diagram and Schematic
Samsung
Confidential
Samsung
Confidential
Samsung
Confidential
SRP Sheet Number: 30 of 73
2/2
1/2
A
Tyco/Foxcn : 3709-001341
SAMSUNG
Place one cap close to every 2 pull-up resistors terminated to P0.9V
4
Height : 5.2mm (Reverse)
ELECTRONICS
SAMSUNG PROPRIETARY
PROPRIETARY INFORMATION THAT IS
ME POWER RAIL UNDER ME ENABLE
B
DDR SO-DIMM #0
1
Place near SO-DIMM0
3 1
SAMSUNG ELECTRONICS CO’S PROPERTY.
Suyin : 3709-001502
C
4
Place one cap close to every 2 pull-up resistors terminated to P0.9V
A
THIS DOCUMENT CONTAINS CONFIDENTIAL
B
2
3
EMC Solution(’07.10.18)
DO NOT DISCLOSE TO OR DUPLICATE FOR OTHERS
D
2
58
D
C
EXCEPT AS AUTHORIZED BY SAMSUNG.
ME POWER RAIL UNDER ME ENABLE
C147
100nF
57
10V
nostuff
10V
11
nostuff
100nF
C150
10V
C151
100nF
10
100nF
C145
10V
nostuff
7
nostuff
56
R110
10V
C149
100nF
2200nF
C140
10V
21
22
23
24
39
4
5
100nF
C141
10V
37
10V
C204
100nF
38
R104 56
56
R102
56
R94
nostuff
100nF
C148
10V
VSS47
VSS48 15
27
VSS49
12 VSS5
39
VSS50 149
VSS51 161
VSS52 28
VSS53 40
VSS54
VSS55 138
150
VSS56 162
VSS57
48 VSS6
184 VSS7
78 VSS8
71 VSS9
VSS32
VSS33 177
187
VSS34 178
VSS35 190
VSS36 9
VSS37 21
VSS38 33
VSS39
77 VSS4
VSS40 155
34
VSS41 132
VSS42 144
VSS43 156
VSS44 168
VSS45 2
VSS46 3
VSS18
VSS19 53
133 VSS2
42
VSS20 54
VSS21 59
VSS22 65
VSS23 60
VSS24 66
VSS25
VSS26 127
139
VSS27 128
VSS28 145
VSS29
183 VSS3
165
VSS30 171
VSS31 172
VDD5
VDD6
118
81 VDD7
82 VDD8
87 VDD9
199 VDDSPD
1VREF
47 VSS1
72 VSS10
VSS11
121
122 VSS12
196 VSS13
193 VSS14
8VSS15
18
VSS16 24
VSS17 41
201 GND0
202 GND1
83 NC1
120 NC2
50 NC3
69 NC4
163 NCTEST
VDD1
112
103 VDD10
88 VDD11
104 VDD12
111 VDD2
117 VDD3
96 VDD4
95
27
28
3709-001341
DDR500-2
DDR2-SODIMM-200P-RVS
25
26
2200nF
P0.9V
10V
C96
100nF
C200
10V
10V
C146
100nF100nF
C144
10V
47
14
46
2200nF
10V
C344
11
12
R106 56
5
6
R101 56
14
P0.9V
P1.8V_AUX
56
R146
R96 56
4
5
9
10
7
0
3
4
56
R145
56
R152
12
13
13
0
33
34
40
41
C345
100nF
10V
54
55
R150 56
R97 56
5
6
2
5
6
R105 56
1
R98 56
17
18
R93 56
4
R148 56
3
56
R109
R95 56
1
2
100nF
10V
C95
R151 56
R108 56
4
62
63
7
3
1
7
0
0
2200nF
C152
10V 10V
C199
2200nF
44
45
53
56
R103
9
10
52
10K
56
6
R73 1%
56
R92
R107
11
7
8
7
8
nostuff
3
4
EMI
EMI502
CONTACT-PLATE-EMI
nostuff
CONTACT-PLATE-EMI
EMI500
EMI
2
3
5
6
3
15
1
9
31
32
2
8
10K
R74
48
49
1%
19
20
59
35
36
56
R100
10V
C139
2200nF
220uF
EC3
2.5V
AD
P1.8V_AUX
P3.3V
10V
C142
100nF
2
100nF
C143
10V
50
51
1
10V
C201
100nF100nF
C203
10V
0
1
56
R147
0
10V
C205
2200nF
10V
C154
100nF
56
R99
12
56
R149
56
13
14
nostuff
10V
C202
100nF
16
29
30
RAS*
108
S0*
110
S1*
115
SA0
198
SA1
200
SCL
197
SDA
195
WE*
109
DQS*2
49
DQS*3
68
DQS*4
129
DQS*5
146
DQS*6
167
DQS*7
186
DQS0
13
DQS1
31
DQS2
51
DQS3
70
DQS4
131
DQS5
148
DQS6
169
DQS7
188
ODT0
114
ODT1
119
DQ54 174
DQ55 176
DQ56 179
DQ57 181
DQ58 189
DQ59 191
DQ6 14
DQ60 180
DQ61 182
DQ62 192
DQ63 194
DQ7 16
DQ8 23
DQ9 25
DQS*0
11
DQS*1
29
DQ4 4
DQ40 141
DQ41 143
DQ42 151
DQ43 153
DQ44 140
DQ45 142
DQ46 152
DQ47 154
DQ48 157
DQ49 159
DQ5 6
DQ50 173
DQ51 175
DQ52 158
DQ53 160
DQ25 63
DQ26 73
DQ27 75
DQ28 62
DQ29 64
DQ3 19
DQ30 74
DQ31 76
DQ32 123
DQ33 125
DQ34 135
DQ35 137
DQ36 124
DQ37 126
DQ38 134
DQ39 136
DQ10 35
DQ11 37
DQ12 20
DQ13 22
DQ14 36
DQ15 38
DQ16 43
DQ17 45
DQ18 55
DQ19 57
DQ2 17
DQ20 44
DQ21 46
DQ22 56
DQ23 58
DQ24 61
CK0
30
CK0*
32
CK1
164
CK1*
166
CKE0
79
CKE1
80
DM0
10
DM1
26
DM2
52
DM3
67
DM4
130
DM5
147
DM6
170
DM7
185
DQ0 5
DQ1 7
A12
89
A13
116
A14
86
A15
84
A16_BA2
85
A2
100
A3
99
A4
98
A5
97
A6
94
A7
92
A8
93
A9
91
BA0
107
BA1
106
CAS*
113
DDR2-SODIMM-200P-RVS
3709-001341
DDR500-1
A0
102
A1
101
A10_AP
105
A11
90
61
42
43
6
MEM1_VREF
MCH3_EXTTS0#
2
60
MEM1_ABS(1)
MEM1_AWE#
MEM1_ACAS#
MEM1_ARAS#
MEM1_ABS(2)
CLK1_MCLK0#
CLK1_MCLK1#
MEM1_ABS(2)
MEM1_AMA(14:0)
MEM1_CS0#
MEM1_CS1#
MEM1_CKE0
MEM1_CKE1
MEM1_ODT0
MEM1_ODT1
MEM1_ABS(0)
MEM1_ADQS(7:0)
MEM1_CKE1
CLK1_MCLK0
CLK1_MCLK1
MEM1_ADM(7:0)
MEM1_ADQS#(7:0)
MEM1_CKE0
MEM1_ODT0
MEM1_ODT1
MEM1_CS0#
MEM1_CS1#
MEM1_ABS(0)
MEM1_ABS(1)
MEM1_AWE#
MEM1_ACAS#
MEM1_ARAS#
SMB3_CLK
SMB3_DATA
MEM1_ADQ(63:0)
MEM1_AMA(14:0)

8-31
- 이 문서는 삼성전자의 기술 자산으로 승인자만이 사용할 수 있습니다 -
- This Document can not be used without Samsung's authorization -
8. Block Diagram and Schematic
Samsung
Confidential
Samsung
Confidential
Samsung
Confidential
SRP Sheet Number: 31 of 73
2/2
1/2
SAMSUNG ELECTRONICS CO’S PROPERTY.
SAMSUNG
C
A
Suyin : 3709-001503
Foxcn : 3709-001529
DO NOT DISCLOSE TO OR DUPLICATE FOR OTHERS
ELECTRONICS
2
D
PROPRIETARY INFORMATION THAT IS
B
EXCEPT AS AUTHORIZED BY SAMSUNG.
3
D
SAMSUNG PROPRIETARY
4
THIS DOCUMENT CONTAINS CONFIDENTIAL
Place one cap close to every 2 pull-up resistors terminated to P0.9V
2
DDR SO-DIMM #1
Place near SO-DIMM1
ME POWER RAIL UNDER ME ENABLE
Height : 9.2mm (Reverse)
B
1
A
C
3
4
1
56
R118
14
R112
56
C155
10V
2200nF
56
R124
15
10V
C158
100nF
5
63
54
56
R116
103
C157
10V
2200nF
R114
56
100nF
C164
10V
nostuff
13
C206
10V
2200nF
7
R158
56
56
R117
R155
56
8
P0.9V
25
9
7
7
100nF
C169
10V
100nF
C165
10V
12
7
0
61
6
57
R125
56
56
R153
R111
56
C156
10V
2200nF
35
1
R123
56
10V
0
45
6
C167
100nF
R122
8
56
2200nF
2200nF
C353
10V
49
C153
10V
58
56
60
17
nostuff
10V
C209
100nF
39
AD
2.5V
EC4
220uF
14
36
48
3
11
R119
56
R159
56
C170
10V
100nF
R161
56
C208
100nF
29
184
VSS8
78
VSS9
71
27
10V
156
VSS45 168
VSS46 2
VSS47 3
VSS48 15
27
VSS49
VSS5
12
VSS50 39
VSS51 149
VSS52 161
VSS53 28
VSS54 40
VSS55 138
VSS56 150
VSS57 162
VSS6
48
VSS7
183
VSS30 165
VSS31 171
VSS32 172
VSS33 177
187
VSS34
VSS35 178
VSS36 190
VSS37 9
VSS38 21
VSS39 33
VSS4
77
VSS40 155
VSS41 34
VSS42 132
VSS43 144
VSS44
8
VSS16 18
VSS17 24
VSS18 41
VSS19 53
133 VSS2
VSS20 42
VSS21 54
VSS22 59
VSS23 65
VSS24 60
VSS25 66
VSS26 127
VSS27 139
VSS28 128
VSS29 145
VSS3
111
VDD3
117
VDD4
96
VDD5
95
VDD6
118
81 VDD7
VDD8
82
VDD9
87
VDDSPD
199
VREF
1
VSS1
47
VSS10
72
VSS11
121
VSS12
122
VSS13
196
VSS14
193
VSS15
DDR2-SODIMM-200P-RVS
DDR501-2
GND0
201
GND1
202
NC1
83
NC2
120
NC3
50
NC4
69
NCTEST
163
VDD1
112
VDD10
103
VDD11
88
VDD12
104
VDD2
13
3709-001529
16
56
R156
3
2
R126
56
C163
10V
100nF
50
59
1
10V
C98
56
R157
2200nF
56
51
P3.3V
7
R128
22
56
R120
40
56
R121
56
R115
441
2
31
4
33
28
10
nostuff
100nF
C161
10V
R154
56
nostuff
100nF
C160
10V
62
4
21
nostuff
nostuff
10V
C162
100nF
41
46
100nF
C166
10V
7
3
34
56
R127
47
13
P0.9V
2
26
8
4
44
5
9
1
100nF
C159
10V
12
6
2
10
10V
C207
100nF
2
P3.3V
42
5
20
56
R160
2
0
R113
56
6
12
P1.8V_AUX
0
55
38
0
5
23
1%10K
R76
6
100nF
C210
10V
52
53
10V
C168
100nF
11
114 ODT0
119 ODT1
108 RAS*
110 S0*
115 S1*
198 SA0
200 SA1
SCL
197
SDA
195
109 WE*
11 DQS*0
29 DQS*1
49 DQS*2
68 DQS*3
129 DQS*4
146 DQS*5
DQS*6
167
186 DQS*7
13 DQS0
31 DQS1
51 DQS2
70 DQS3
131 DQS4
148 DQS5
169 DQS6
188 DQS7
158
DQ52 160
DQ53 174
DQ54 176
DQ55 179
DQ56 181
DQ57 189
DQ58 191
DQ59
14
DQ6
180
DQ60 182
DQ61 192
DQ62 194
DQ63
16
DQ7 23
DQ8 25
DQ9
134
DQ38 136
DQ39
DQ4 4
141
DQ40 143
DQ41 151
DQ42 153
DQ43 140
DQ44 142
DQ45 152
DQ46 154
DQ47 157
DQ48 159
DQ49
6
DQ5
173
DQ50 175
DQ51
58
DQ23 61
DQ24 63
DQ25 73
DQ26 75
DQ27 62
DQ28 64
DQ29
19
DQ3
74
DQ30 76
DQ31 123
DQ32 125
DQ33 135
DQ34 137
DQ35 124
DQ36 126
DQ37
5
DQ0 7
DQ1
DQ10 35
37
DQ11 20
DQ12 22
DQ13 36
DQ14 38
DQ15 43
DQ16 45
DQ17 55
DQ18 57
DQ19
17
DQ2
44
DQ20 46
DQ21 56
DQ22
106 BA1
113 CAS*
30 CK0
32 CK0*
164 CK1
166 CK1*
79 CKE0
80 CKE1
10 DM0
26 DM1
52 DM2
67 DM3
130 DM4
147 DM5
170 DM6
185 DM7
105 A10_AP
90 A11
89 A12
116 A13
86 A14
84 A15
85 A16_BA2
100 A2
99 A3
98 A4
97 A5
94 A6
92 A7
93 A8
91 A9
107 BA0
9
3709-001529
DDR501-1
DDR2-SODIMM-200P-RVS
102 A0
101 A1
4
1
43
37
19
6
P1.8V_AUX
5
11
32
24
30
10V
C97
100nF
10V
100nF
C352
14
3
18
3
5
R75
0
1
1%10K
MEM1_BBS(2)
MEM1_CKE3
MEM1_CKE2
CLK1_MCLK3#
CLK1_MCLK3
CLK1_MCLK2#
CLK1_MCLK2
MEM1_BCAS#
MEM1_BBS(1)
MEM1_BBS(0)
MEM1_BRAS#
MEM1_ODT3
MEM1_ODT2
MEM1_BWE#
SMB3_DATA
SMB3_CLK
MEM1_CS3#
MEM1_CS2#
MEM1_BDQ(63:0)
MEM1_BMA(14:0)
MEM1_BDQS#(7:0)
MEM1_BDM(7:0)
MEM1_BDQS(7:0)
MEM1_VREF
MCH3_EXTTS1#
MEM1_BMA(14:0)
MEM1_CS2#
MEM1_CS3#
MEM1_CKE2
MEM1_CKE3
MEM1_ODT2
MEM1_ODT3
MEM1_BBS(0)
MEM1_BBS(1)
MEM1_BWE#
MEM1_BCAS#
MEM1_BRAS#
MEM1_BBS(2)

8-32
- 이 문서는 삼성전자의 기술 자산으로 승인자만이 사용할 수 있습니다 -
- This Document can not be used without Samsung's authorization -
8. Block Diagram and Schematic
Samsung
Confidential
Samsung
Confidential
Samsung
Confidential
SRP Sheet Number: 32 of 73
1 / 5
IHDA LAN / GLAN RTCSATA
CPU LPCSATA
THIS DOCUMENT CONTAINS CONFIDENTIAL
D
RTC Battery Holder
1
VccSus1_05, VccSus1_5, VccCL1_5
3
PROPRIETARY INFORMATION THAT IS
Internal VR Strap
For RTC Reset
Pull up
VccLAN1_05, VccCL1_05
4
SAMSUNG PROPRIETARY
B
INTVRMEN
DO NOT DISCLOSE TO OR DUPLICATE FOR OTHERS
SAMSUNG ELECTRONICS CO’S PROPERTY.
4
Place 56 ohm resistor within 2" of ICH9M
C
B
C
ELECTRONICS
A
1608
2
A
CR203 : 4301-000108
distance b/w the ICH9-M & cap on the "N" signal same pair.
3
1
Place PU resistor within 2" of 56ohm res.
Distance b/w the ICH9-M & cap on the "P" signal should be identical
EXCEPT AS AUTHORIZED BY SAMSUNG.
2
D
SAMSUNG
SATA Cap. Place ment :
C783
10nF
P3.3V
25V
18-B39-D4
C733
1000nF
1%22.6
R762
1
0
R641
1000nF
C708
nostuff
6.3V
1%
R726
24.9
R642
54.9 1%
1%22.6
R764
1%
20K
R632
AH7
AJ7
SATARBIAS#
SATA_CLKN AH18
SATA_CLKP AJ18
AF24
SMI#
F20 SRTCRST#
AH27
STPCLK#
AG26
THRMTRIP#
SATA1TXP
AF14
AH11
SATA4RXN AJ11
SATA4RXP AG12
SATA4TXN AF12
SATA4TXP
AH9
SATA5RXN AJ9
SATA5RXP AE10
SATA5TXN AF10
SATA5TXP
AG8 SATALED#
SATARBIAS
RCIN#
A25 RTCRST#
RTCX1
C23
RTCX2
C24
SATA0RXN
AJ16
SATA0RXP
AH16
SATA0TXN
AF17
SATA0TXP
AG17
SATA1RXN
AH13
SATA1RXP
AJ13
SATA1TXN
AG14
LAN_RTCSYNC
LAN_RXD0
F14
LAN_RXD1
G13
LAN_RXD2
D14
LAN_TXD0
D13
LAN_TXD1
D12
LAN_TXD2
E13
J3
LDRQ0# J1
LDRQ1#_GPIO23
NMI AF23
AG27
PECI
L3
HDA_SDIN2
AH3
HDA_SDIN3
AE5
HDA_SDOUT
AG5
HDA_SYNC
AH4
AF25
IGNNE#
AE22
INIT# AG25
INTR
C22 INTRUDER#
B22 INTVRMEN
LAN100_SLP
A22
C13
FWH4_LFRAME#
GLAN_CLK
E25
GLAN_COMPI
B28
GLAN_COMPO
B27
B10 GLAN_DOCK#_GPIO56
HDA_BIT_CLK
AF6
AG7 HDA_DOCK_EN#_GPIO33
AE8 HDA_DOCK_RS#_GPIO34
AE7 HDA_RST#
HDA_SDIN0
AF4
HDA_SDIN1
AG4
N7
A20GATE AJ27
A20M#
AD22
CPUPWRGD
AJ25
DPRSTP# AE23
DPSLP#
AJ26
FERR#
FWH0_LAD0 K5
FWH1_LAD1 K4
FWH2_LAD2 L6
FWH3_LAD3 K2
K3
0904-002378
NH82801IBM
U517-1
25V10nF
C782
22.6
R760
1%
1K
R671
R722
22.6 1%
10nF
C740
25V
1%10K
R770
R775
10K
1%
18-C2 9-D4
10M
R253
C709
1000nF
6.3V
R684
330K
5%
10nF
0.007nF
C421
25V
C739
P1.05V
22.6 1%
1%22.6
R765
P1.05V
R723
18-C29-D4
PRTC_BAT
1%
10K
R727
R640
56
0
R763
22.6 1%
14
23
32.768KHz
Y2
2801-003856
R731
22.6 1%
R633
0
C420
0.007nF
1%22.6
R724
PRTC_BAT
P1.5V
R761
22.6 1%
10000nF
C659
6.3V
9-D4 18-B4
56
R639
nostuff
BATT500
GND 3
PWR1 1
2
PWR2
3
4309-001022
C99203-1030N-L
3
1%22.6
R730
D515
BAT54C
1 2
R643
56
C744
10nF 25V
2
25V10nF
C784
25V
C743
10nF
P3.3V
R725
22.6 1%
25V10nF
C742
R631
20K 1%
nostuff
P3.3V_MICOM
R672
1M
1%
R646
24.9
18-B3 9-D4
9-D418-B4
CHP3_ME_RTCRST#
KBC3_CPURST#
CPU1_DPSLP#
CPU1_PWRGDCPU
CPU1_DPRSTP#
CPU1_STPCLK#
CPU1_SMI#
HDA3_HDMI_SDO
HDA3_HDMI_BCLK
HDA3_HDMI_SYNC
HDA3_HDMI_RST#
HDA3_HDMI_SDI2
KBC3_CPURST#
KBC3_A20G
CPU1_THRMTRIP#
HDA3_MDC_SDI1
CHP3_SATALED#
CPU1_A20M#
CPU1_INTR
CPU1_NMI
KBC3_A20G
CLK1_SATA
CHP3_ME_RTCRST#
CHP3_INTRUDER#CHP3_INTRUDER#
HDA3_MDC_BCLK
SAT1_RXP1
SAT1_RXN1
SAT1_TXN1
SAT1_TXP1
CPU1_INIT#
CPU1_FERR#
CLK1_SATA#
HDA3_AUD_SYNC
LPC3_LAD(3:0)
LPC3_LFRAME#
CPU1_IGNNE#
SAT1_RXN0
HDA3_AUD_RST#
HDA3_AUD_SDO
HDA3_MDC_RST#
HDA3_MDC_SYNC
HDA3_AUD_BCLK
SAT1_TXP0
SAT1_TXN0
SAT1_RXP0
CHP3_RTCRST#
HDA3_MDC_SDO
HDA3_AUD_SDI0
CHP3_RTCRST#

8-33
- 이 문서는 삼성전자의 기술 자산으로 승인자만이 사용할 수 있습니다 -
- This Document can not be used without Samsung's authorization -
8. Block Diagram and Schematic
Samsung
Confidential
Samsung
Confidential
Samsung
Confidential
SRP Sheet Number: 33 of 73
Interrupt I/F
PCI - Express
SPI
2/5
PCI
C C
Boot BIOS Select
4
PCI
SPI
4
SAMSUNG PROPRIETARY
AC caps : PCIE need to be within 250mils of the driver
B
HIGHLPC
Resistor for Test : Place Stuffing Option to minimize stubs
LOW
3
A
1
DO NOT DISCLOSE TO OR DUPLICATE FOR OTHERS
3
EXCEPT AS AUTHORIZED BY SAMSUNG.
SPI3_CS1#PCI3_GNT0#
HIGH
SAMSUNG ELECTRONICS CO’S PROPERTY.
ELECTRONICS
LOW
HIGH
iTPM Disable
HIGH
DD
BIOS
PROPRIETARY INFORMATION THAT IS
2
THIS DOCUMENT CONTAINS CONFIDENTIAL
A
SAMSUNG
12
LPC option ; These are used with LPC
B
10K
R779
C418 10V
100nF
TRDY#
REQ0#
B6
REQ1#_GPI050
F13
REQ2#_GPIO52
E6
REQ3#_GPIO54
J4
SERR#
D23
SPI_CLK D24
SPI_CS0# F23
SPI_CS1#_GPIO58_CLGPIO6
E23
SPI_MISO
D25
SPI_MOSI
A4
STOP# F5
E1 PIRQB#
J6 PIRQC#
C4 PIRQD#
H4
PIRQE#_GPIO2 K6
PIRQF#_GPIO3 F2
PIRQG#_GPIO4
PIRQH#_GPIO5 G2
C2
PLOCK#
C14
PLTRST#
R2
PME#
F1
K27
PETN4
H27
F27
PETN5
D27
PETN6_GLAN_TXN
PETP1
P26
PETP2
M26
K26 PETP3
PETP4
H26
F26
PETP5
D26
PETP6_GLAN_TXP
J5 PIRQA#
PERN5
C29
PERN6_GLAN_RXN
PERP1
N28
PERP2
L28
PERP3
J28
PERP4
G28
E28
PERP5
C28
PERP6_GLAN_RXP
E4
PERR#
P27 PETN1
PETN2
M27
PETN3
F12
GNT2#_GPIO53
F6
GNT3#_GPIO55
D3
IRDY#
PAR E3
D4
PCICLK
R1
PCIRST#
PERN1
N29
PERN2
L29
PERN3
J29
PERN4
G29
E29
B7
AD8
C7
AD9
C5 D8
C_BE0# B4
C_BE1# D6
C_BE2#
C_BE3# A5
C6
DEVSEL#
D7
FRAME#
G4
GNT0#
A7
GNT1#_GPIO51
AD26
H7
AD27
D1
AD28
G5
AD29
H6
AD3
E12
AD30
G1
AD31
H3
AD4
E9
AD5
C9
E10 AD6
AD7
AD16
F10
AD17
D5
AD18
D10
AD19
B3
D9 AD2
AD20
F7
AD21
C3
AD22
F3
F4 AD23
AD24
C1
G7 AD25
U517-2
NH82801IBM
D11 AD0
AD1
C8
AD10
G11
F8 AD11
AD12
F11
AD13
E7
AD14
A3
AD15
D2
0904-002378
100nF C719 10V
10K
R790
10K
R772
R741 0
C718100nF 10V
R786
100nF
10K
10V
C717
10K
R785
P3.3V_AUX
10K
R773
P3.3V
10K R782
R787 10K
P3.3V
P3.3V
R784 10K
10K
R780
P3.3V
4
nostuff
U521
7SZ08
5
+
-
3
1
2
R252
10K
R644
1K
nostuff
1%
10K
R788
100nF
10V
C419
R778 10K
10K
R789
10K
R783
10V
100nFC716
100K
R740
1%
R647 12.1 1%
1%
10K
R737
1%
R681 12.1
12.1
R645
1%
R781
1K
PEX1_GLAN_TXN4
PEX1_GLAN_RXP4
PEX1_GLAN_RXN4
SPI3_MOSI
SPI3_CS0#
SPI3_CLK
P3.3V
CHP3_SERIRQ
PCI3_CLKRUN#
PLT3_RST_ORG#
PEX1_EXPCARDTXP3
PEX1_EXPCARDTXN3
PEX1_EXPCARDRXP3
PEX1_EXPCARDRXN3
PEX1_MINITXP1
PEX1_MINITXN1
PEX1_MINIRXP1
PEX1_MINIRXN1
PLT3_RST_ORG#
CLK3_PCLKICH
SPI3_MISO
PLT3_RST#
PEX1_GLAN_TXP4

8-34
- 이 문서는 삼성전자의 기술 자산으로 승인자만이 사용할 수 있습니다 -
- This Document can not be used without Samsung's authorization -
8. Block Diagram and Schematic
Samsung
Confidential
Samsung
Confidential
Samsung
Confidential
SRP Sheet Number: 34 of 73
GPIO Clocks Power MGT
Controller LinkUSB Direct Media Interface
3 / 5
SYS GPIO SMBGPIOMISC
SATA
Ext GFX Select
EXCEPT AS AUTHORIZED BY SAMSUNG.
PROPRIETARY INFORMATION THAT IS
A
PLACE NEAR KEYBOARD
EHCI1
2
USB4 : Express USB
USB5 : Bluetooth
USB10 : 2-in-1
iTPM Disable
1
4
DO NOT DISCLOSE TO OR DUPLICATE FOR OTHERS
( Put it a debugger connector)
EHCI0
PU : No Reboot Mode
D
1
2
D
SAMSUNG
connected with external ports
4
3
USB2 : Left Port
USB3 : Right Port(Sub board)
CHP3_WOL_EN
ELECTRONICS
A
SATA_PWR_EN0#
B
SATA_PWR_EN1#
BIOS CRISIS RECOVER STRAP
USB8 : Camera
C
USB0, 6 : Rear Port
THIS DOCUMENT CONTAINS CONFIDENTIAL
SAMSUNG PROPRIETARY
3
B
C
1608
KBC3_AC_PRESENT
CHP3_SUSPWR_ACK
SAMSUNG ELECTRONICS CO’S PROPERTY.
USB0 and 6 ports should be
P3.3V
10K
R683
1%
C720
100nF
10V
nostuff
R677
0
1%
nostuff
10K
R776
P3.3V_AUX
R738
1%
10K
47-C318-D3
9-B4
10K
1%
R258
1%
453
R648
R682
1%
10K
1%
R678
10K
nostuff
1%
R255
10K
1%
24.9
R249
1%
R689
10K
10K
R735
1%
nostuff
nostuff
R771
10K 1%
P3.3V_AUX
nostuff
2.2K
R742
P1.5V
P3.3V_AUX
P3.3V
1%
R732
10K
nostuff
0
R685
P3.3V_AUX
10K
R768
1%
1%1K
R791
P3.3V_AUX
2
R774
1%
10K
nostuff
BAV99LT1
D516
1
3
nostuff
1%10K
R679
1%100
R687
P3.3V
P3.3V_AUX
R769
1K 1%
4.7K
R272
R777
10K
nostuff
R734
2.2K
1%
WAKE#
C20
WOL_EN_GPIO9
USBP6P W4
USBP7N Y3
Y2
USBP7P
USBP8N W1
USBP8P W2
V2
USBP9N V3
USBP9P
AG2
USBRBIAS AG1
USBRBIAS#
VRMPWRGD
D21
E20
AD3
USBP1N
USBP1P AD2
USBP2N AC1
USBP2P AC2
USBP3N AA5
USBP3P AA4
USBP4N AB2
USBP4P AB3
USBP5N AA1
USBP5P AA2
USBP6N W5
AH21
TACH3_GPIO7
AG21
AJ23 THRM#
TP3
B21
A20 TP8
USBP0N AC5
USBP0P AC4
USBP10N U5
U4
USBP10P U1
USBP11N U2
USBP11P
SMLINK0
C17
SMLINK1
B18
SPKR
M7
STP_CPU#_GPIO25
E19
A14 STP_PCI#_GPIO15
SUSCLK
P1
R4 SUS_STAT#_LPCPD#
G19 SYS_RESET#
TACH0_GPIO17
AE18
TACH1_GPIO1
AG19
TACH2_GPIO6
SDATAOUT0_GPIO39
AG22
SDATAOUT1_GPIO48
AF21
SERIRQ
M5
SLOAD_GPIO38
AE19
B16 SLP_M#
C16 SLP_S3#
E16 SLP_S4#
G17 SLP_S5#
A17 SMALERT#_GPIO11
G16 SMBCLK
SMBDATA
A13
A9
QRT_STATE1_GPIO28
D19
F19 RI#
D22 RSMRST#
C10 S4_STATE#_GPIO26
SATA0GP_GPIO21
AH23
AF19 SATA1GP_GPIO19
AE21 SATA4GP_GPIO36
AD20 SATA5GP_GPIO37
L1 SATACLKREQ#_GPIO35
SCLOCK_GPIO22
AJ22
M4
OC6#_GPIO30 M3
OC7#_GPIO31 N3
OC8#_GPIO44 N1
OC9#_GPIO45
M6 PMSYNC#_GPIO0
AH20 PWM0
AJ20 PWM1
AJ21 PWM2
PWRBTN#
R3
PWROK
G20
QRT_STATE0_GPIO27
AJ24 MCH_SYNC#
A16
MEM_LED_GPIO24
C11
NETDETECT_GPIO14
N4
OC0#_GPIO59 N5
OC1#_GPIO40
P5
OC10#_GPIO46 P3
OC11#_GPIO47
N6
OC2#_GPIO41 P6
OC3#_GPIO42 M1
OC4#_GPIO43
OC5#_GPIO29 N2
DMI_ZCOMP
DPRSLPVR_GPIO16
M2
C21 ENGDET_GPIO13
GPIO18
K1
GPIO20
AF8
AH24 GPIO49
A8 GPIO57_CLGPIO5
GPIO8
A21
C12 LANPHYPC_GPIO12
D20 LAN_RST#
LINKALERT#_GPIO60_CLGPIO4
E17
DMI2RXP AB26
DMI2TXN AA29
DMI2TXP AA28
AD27
DMI3RXN AD26
DMI3RXP AC29
DMI3TXN AC28
DMI3TXP
DMI_CLKN T26
DMI_CLKP T25
DMI_IRCOMP AF28
AF29
CL_VREF0 C25
CL_VREF1 A19
DMI0RXN V27
DMI0RXP V26
DMI0TXN U29
DMI0TXP U28
DMI1RXN Y27
Y26
DMI1RXP
DMI1TXN W29
DMI1TXP W28
DMI2RXN AB27
CK_PWRGD
H1 CLK14
CLK48
AF3
L4 CLKRUN#_GPIO32
CLPWROK
R6
CL_CLK0 F24
CL_CLK1 B19
CL_DATA0 F22
CL_DATA1 C19
F21
CL_RST0# D18
CL_RST1#
U517-3
0904-002378
NH82801IBM
C18
ALERT#_GPIO10
B13 BATLOW#
R5
4.7K
R688
nostuff
1%
1%
nostuff
10K
R729
10K
R254
P3.3V_AUX
P3.3V
R257
4.7K
nostuff
10K
R256
1%
10K
R736
3.24K
R686
Q517
nostuff
1
3
2
1%
MMBT3906LT1
47nF
C787
P3.3V
nostuff
50V
P3.3V_AUX
R728
10K
nostuff
1%
TP2493
10K
R680
1
3
2
nostuff
D518
BAV99LT1
P3.3V
P3.3V
1%22.6
R766
USB3_P2-
USB3_P2+
USB3_P3-
USB3_P6-
2.2K
R733
PEX3_WAKE#
CHP3_CL_RST_0#
KBC3_PWRGD
CHP3_SATACLKREQ#
CHP3_SATACLKREQ#
CHP3_PCISTP#
CHP3_CPUSTP#
USB3_P10-
KBC3_RSMRST#
CHP3_SLPS3#
CHP3_SLPS5#
CHP3_BIOSWP#
CHP3_BIOS_CRI#
CHP3_GPIO18
CHP3_GPIO20
CHP3_BIOS_CRI#
SMB3_ALERT#
PEX3_WAKE#
CHP3_BIOSWP#
AUD3_SPKR
SMB3_DATA
SMB3_CLK
USB3_P0-
USB3_P0+
SMB3_ALERT#
AUD3_SPKR
SMB3_DATA
SMB3_CLK
CHP3_SERIRQ
CHP3_DPRSLPVR
PCI3_CLKRUN#
USB3_P8+
THM3_ALERT#
KBC3_PWRBTN#
USB3_P8-
CHP3_GPIO18
USB3_P3+
USB3_P4-
CHP3_GPIO20
KBC3_EXTSMI#
KBC3_WAKESCI#
KBC3_PWRGD
USB3_P4+
CHP3_PM_SYNC#
CHP3_SLPS4#
USB3_P10+
ITP3_DBRRESET#
VRM3_CPU_PWRGD
CHP3_CL_DATA_0
CHP3_CL_CLK_0
CLK3_PWRGD
MCH3_ICHSYNC#
DMI1_TXP_3
DMI1_TXN_3
DMI1_RXP_3
DMI1_RXN_3
DMI1_TXP_2
DMI1_TXN_2
DMI1_RXP_2
DMI1_RXN_2
DMI1_TXP_1
DMI1_TXN_1
DMI1_RXP_1
DMI1_RXN_1
KBC3_RUNSCI#
CHP3_SUSSTAT#
CLK1_PCIEICH
CLK1_PCIEICH#
DMI1_TXP_0
DMI1_TXN_0
DMI1_RXP_0
DMI1_RXN_0
USB3_P6+
USB3_P5+
USB3_P5-
CLK3_USB48
CLK3_ICH14

8-35
- 이 문서는 삼성전자의 기술 자산으로 승인자만이 사용할 수 있습니다 -
- This Document can not be used without Samsung's authorization -
8. Block Diagram and Schematic
Samsung
Confidential
Samsung
Confidential
Samsung
Confidential
SRP Sheet Number: 35 of 73
GLAN POWER
VCCPUSB
CONTROL LINK VCCPSUS PCI VCCP CORE CORE
LOGIC_IO
LAN
DMIHDA
4/5
VCCA3GP
ARXATXUSB CORE
4
Need switched P5V_ALW controled by alws_on
1
EXCEPT AS AUTHORIZED BY SAMSUNG.
ELECTRONICS
A
D
B
2
PROPRIETARY INFORMATION THAT IS
1
C
3
D
SAMSUNG PROPRIETARY
B
SAMSUNG ELECTRONICS CO’S PROPERTY.
SAMSUNG
2
DO NOT DISCLOSE TO OR DUPLICATE FOR OTHERS
THIS DOCUMENT CONTAINS CONFIDENTIAL
3
C
4
A
330ohm@100MHz
10V
C427
100nF
B522
BLM18PG181SN1
10V
100nF
C426
10V
100nF
C458
BLM18PG181SN1
B33
1%
B519
BLM18PG181SN1
R739
100
100nF
C453
10V
10V
100nF
C746
P1.5V
10V
2200nF
C695
10V
P3.3V_AUX
100nF
C451
nostuff
AD
2.5V
220uF
EC512
P3.3V
10V
C432
100nF
C414
100nF
10uHL508
nostuff
10V
nostuff
P3.3V
100nF
C433
10V
100nF
C428
10V
P1.5V
B520
BLM18PG181SN1
10V
P5.0V
P1.5V
nostuff
C452
100nF
100nF
C455
10V
P3.3V
6.3V
10000nF
C738
C713
10nF
25V
C694
22000nF-X5R
20%
6.3V
C436
22nF
P5.0V_AUX
25V
nostuff
C459
100nF
10V
C712
6.3V
10000nF
P3.3V_AUX
P1.05V
22nF
C435
25V
P1.5V
P1.5V
C448
100nF
10V
C450
100nF
P3.3V
10V
100nF
C460
10V
PRTC_BAT
10V
100nF
C745
1000nF
C785
1%
12.1
R767
nostuff
1.0uH
L507
10V
100nF
C434
4700nF
C429
10V
10V
C461
100nF
C457
100nF
10V
10V
C430
4700nF
C449
100nF
P3.3V_AUX
10V
C465
100nF
10V
P3.3V_AUX
6.3V
1000nF
C447
P3.3V
P1.5V
C456
100nF
10V
BAT54A
D517
3
1 2
6.3V
P1.05V
C741
1000nF
6.3V
P1.05V
P1.5V
C446
1000nF
1000nF
C431
nostuff
C805
100nF
6.3V
C786
100nF
10V
10V
P3.3V
C454
100nF
BAT54A
D14
3
1 2
C699
22000nF-X5R
20%
6.3V
AJ19
AB23
V_CPU_IO_1 AC23
V_CPU_IO_2
P3.3V
P3.3V
V7 VCCSUS3_3_15
W6 VCCSUS3_3_16
W7 VCCSUS3_3_17
Y6 VCCSUS3_3_18
Y7 VCCSUS3_3_19
VCCSUS3_3_20
T7
AJ3
VCCSUSHDA
AJ5 VCCUSBPLL
W23
VCC_DMI_1 Y23
VCC_DMI_2
VCSATAPLL
E22
VCCSUS3_3_05
AF1 VCCSUS3_3_06
T1 VCCSUS3_3_07
T2 VCCSUS3_3_08
T3 VCCSUS3_3_09
T4
T5 VCCSUS3_3_10
T6 VCCSUS3_3_11
VCCSUS3_3_12
U6
U7 VCCSUS3_3_13
V6 VCCSUS3_3_14
A11
A12 VCCLAN3_3_1
B12 VCCLAN3_3_2
A23 VCCRTC
AC8
VCCSUS1_05_1 F17
VCCSUS1_05_2
AD8
VCCSUS1_5_1 F18
VCCSUS1_5_2
VCCSUS3_3_01 A18
VCCSUS3_3_02 D16
VCCSUS3_3_03 D17
VCCSUS3_3_04
B24
VCCCL3_3_2
R29
VCCDMIPLL
D28 VCCGLAN1_5_1
D29 VCCGLAN1_5_2
E26 VCCGLAN1_5_3
E27 VCCGLAN1_5_4
A26 VCCGLAN3_3
A27 VCCGLANPLL
VCCHDA AJ4
VCCLAN1_05_1
A10
VCCLAN1_05_2
AC10
VCC3_3_08 B9
VCC3_3_09 F9
G3
VCC3_3_10 G6
VCC3_3_11 J2
VCC3_3_12 J7
VCC3_3_13 K7
VCC3_3_14
VCCCL1_05 G22
VCCCL1_5 G23
A24
VCCCL3_3_1
VCC1_5_B_45
W25 VCC1_5_B_46
VCC1_5_B_47
K23
VCC1_5_B_48
Y24
VCC1_5_B_49
Y25
VCC3_3_01 AG29
VCC3_3_02 AJ6
VCC3_3_03 AD19
VCC3_3_04 AF20
VCC3_3_05 AG24
VCC3_3_06 AC20
VCC3_3_07
R27 VCC1_5_B_35
T24 VCC1_5_B_36
VCC1_5_B_37
T27
T28 VCC1_5_B_38
T29 VCC1_5_B_39
U24 VCC1_5_B_40
U25 VCC1_5_B_41
V24 VCC1_5_B_42
V25 VCC1_5_B_43
U23 VCC1_5_B_44
W24
L25 VCC1_5_B_24
M24 VCC1_5_B_25
M25 VCC1_5_B_26
N23 VCC1_5_B_27
N24 VCC1_5_B_28
N25 VCC1_5_B_29
P24 VCC1_5_B_30
P25 VCC1_5_B_31
R24 VCC1_5_B_32
R25 VCC1_5_B_33
R26 VCC1_5_B_34
VCC1_5_B_13
F25
VCC1_5_B_14
G25
VCC1_5_B_15
H24
VCC1_5_B_16
H25 VCC1_5_B_17
J24 VCC1_5_B_18
J25 VCC1_5_B_19
K24 VCC1_5_B_20
K25 VCC1_5_B_21
L23 VCC1_5_B_22
L24 VCC1_5_B_23
VCC1_5_B_03 AB24
VCC1_5_B_04 AB25
VCC1_5_B_05 AC24
VCC1_5_B_06 AC25
VCC1_5_B_07 AD24
VCC1_5_B_08 AD25
VCC1_5_B_09 AE25
AE26
VCC1_5_B_10
AE27
VCC1_5_B_11
AE28
VCC1_5_B_12
AE29
G9 VCC1_5_A_22
AC12 VCC1_5_A_23
AC13 VCC1_5_A_24
VCC1_5_A_25
AC14
VCC1_5_A_26
AA7
VCC1_5_A_27
AB6
VCC1_5_A_28
AB7
VCC1_5_A_29
AC6
VCC1_5_A_30
AC7
VCC1_5_B_01 AA24
VCC1_5_B_02 AA25
VCC1_5_A_11
AF11 VCC1_5_A_12
AG10 VCC1_5_A_13
AG11 VCC1_5_A_14
AH10 VCC1_5_A_15
AJ10 VCC1_5_A_16
AC9 VCC1_5_A_17
AC18 VCC1_5_A_18
AC19 VCC1_5_A_19
AC21 VCC1_5_A_20
G10 VCC1_5_A_21
VCC1_5_A_01
AC16
VCC1_5_A_02
AD15
VCC1_5_A_03
AD16
VCC1_5_A_04
AE15
VCC1_5_A_05
AF15
VCC1_5_A_06
AG15
VCC1_5_A_07
AH15
VCC1_5_A_08
AJ15
VCC1_5_A_09
AC11
AD11 VCC1_5_A_10
AE11
P18
VCC1_05_16 T11
VCC1_05_17 T18
VCC1_05_18 U11
VCC1_05_19 U18
VCC1_05_20 V11
VCC1_05_21 V12
VCC1_05_22 V14
VCC1_05_23 V16
VCC1_05_24 V17
VCC1_05_25 V18
VCC1_05_26
E15
VCC1_05_06 F15
VCC1_05_07 L11
VCC1_05_08 L12
VCC1_05_09 L14
L16
VCC1_05_10 L17
VCC1_05_11 L18
VCC1_05_12 M11
VCC1_05_13 M18
VCC1_05_14 P11
VCC1_05_15
0904-002378
NH82801IBM
U517-4
V5REF
A6
AE1 V5REF_SUS
VCC1_05_01 A15
VCC1_05_02 B15
VCC1_05_03 C15
VCC1_05_04 D15
VCC1_05_05

8-36
- 이 문서는 삼성전자의 기술 자산으로 승인자만이 사용할 수 있습니다 -
- This Document can not be used without Samsung's authorization -
8. Block Diagram and Schematic
Samsung
Confidential
Samsung
Confidential
Samsung
Confidential
SRP Sheet Number: 36 of 73
GND
5/5
SAMSUNG PROPRIETARY
4
3
3
DO NOT DISCLOSE TO OR DUPLICATE FOR OTHERS
2
EXCEPT AS AUTHORIZED BY SAMSUNG.
PROPRIETARY INFORMATION THAT IS
D
C
D
A
1
A
2
SAMSUNG ELECTRONICS CO’S PROPERTY.
SAMSUNG
ELECTRONICS
B
14
THIS DOCUMENT CONTAINS CONFIDENTIAL
B
C
VSS_NCTF_07 AJ1
VSS_NCTF_08 AJ2
VSS_NCTF_09 AJ28
VSS_NCTF_10 AJ29
VSS_NCTF_11 B1
VSS_NCTF_12 B29
VSS_194 Y5
VSS_195 AG28
VSS_196 AH6
VSS_197 AF2
VSS_198 B25
VSS_NCTF_01 A1
A2
VSS_NCTF_02
VSS_NCTF_03 A28
VSS_NCTF_04 A29
VSS_NCTF_05 AH1
VSS_NCTF_06 AH29
V29
VSS_184
VSS_185 V4
VSS_186 V5
VSS_187 W26
VSS_188 W27
VSS_189 W3
VSS_190 Y1
VSS_191 Y28
VSS_192 Y29
VSS_193 Y4
U16
VSS_173 U17
VSS_174 AD23
VSS_175 U26
VSS_176 U27
VSS_177 U3
VSS_178
VSS_179 V1
V13
VSS_180 V15
VSS_181 V23
VSS_182 V28
VSS_183
VSS_162 T14
VSS_163 T15
VSS_164 T16
VSS_165 T17
VSS_166 T23
VSS_167 B26
VSS_168 U12
VSS_169 U13
VSS_170 U14
VSS_171 U15
VSS_172
R11
VSS_152 R12
VSS_153 R13
VSS_154 R14
VSS_155 R15
VSS_156 R16
VSS_157 R17
VSS_158 R18
VSS_159 R28
VSS_160 T12
VSS_161 T13
P13
VSS_141 P14
VSS_142 P15
VSS_143 P16
VSS_144 P17
VSS_145 P2
VSS_146
VSS_147 P23
P28
VSS_148 P29
VSS_149 P4
VSS_150 P7
VSS_151
VSS_130 N12
VSS_131 N13
VSS_132
N14
VSS_133 N15
VSS_134 N16
VSS_135 N17
VSS_136 N18
VSS_137 N26
VSS_138 N27
VSS_139 P12
VSS_140
L7
VSS_120 M12
VSS_121 M13
VSS_122 M14
VSS_123 M15
VSS_124 M16
VSS_125 M17
VSS_126 M23
VSS_127 M28
VSS_128 M29
VSS_129 N11
J26
VSS_109 J27
VSS_110 AC22
VSS_111 K28
VSS_112 K29
VSS_113 L13
VSS_114
VSS_115 L15
L2
VSS_116 L26
VSS_117 L27
VSS_118 L5
VSS_119
VSS_098
G24 VSS_099
G26 VSS_100
G27 VSS_101
G8 VSS_102
H2 VSS_103
H23 VSS_104
H28 VSS_105
H29
VSS_106 H5
VSS_107 J23
VSS_108
VSS_087
E21 VSS_088
E24 VSS_089
E5 VSS_090
E8 VSS_091
F16 VSS_092
F28 VSS_093
F29 VSS_094
G12 VSS_095
G14 VSS_096
G18 VSS_097
G21
B2 VSS_077
B20 VSS_078
B23 VSS_079
B5 VSS_080
B8 VSS_081
C26 VSS_082
VSS_083
C27
E11 VSS_084
E14 VSS_085
E18 VSS_086
E2
VSS_066
AH28 VSS_067
AH5 VSS_068
AH8 VSS_069
AJ12 VSS_070
AJ14 VSS_071
VSS_072
AJ17
AJ8 VSS_073
B11 VSS_074
B14 VSS_075
B17 VSS_076
VSS_055
AG23 VSS_056
AG3 VSS_057
AG6 VSS_058
AG9 VSS_059
AH12 VSS_060
AH14 VSS_061
AH17 VSS_062
AH19 VSS_063
AH2 VSS_064
AH22 VSS_065
AH25
AF22 VSS_045
AH26 VSS_046
AF26 VSS_047
AF27 VSS_048
AF5 VSS_049
AF7 VSS_050
VSS_051
AF9
AG13 VSS_052
AG16 VSS_053
AG18 VSS_054
AG20
VSS_034
AE2 VSS_035
AE20 VSS_036
AE24 VSS_037
AE3 VSS_038
AE4 VSS_039
VSS_040
AE6
AE9 VSS_041
AF13 VSS_042
AF16 VSS_043
AF18 VSS_044
VSS_023
AD29 VSS_024
AD4 VSS_025
AD5 VSS_026
AD6 VSS_027
AD7 VSS_028
AD9 VSS_029
AE12 VSS_030
AE13 VSS_031
AE14 VSS_032
AE16 VSS_033
AE17
AC27 VSS_013
AC3 VSS_014
AD1 VSS_015
AD10 VSS_016
AD12 VSS_017
AD13 VSS_018
VSS_019
AD14
AD17 VSS_020
AD18 VSS_021
AD21 VSS_022
AD28
VSS_002
AA3 VSS_003
AA6 VSS_004
AB1 VSS_005
AA23 VSS_006
AB28 VSS_007
VSS_008
AB29
AB4 VSS_009
AB5 VSS_010
AC17 VSS_011
AC26 VSS_012
U517-5
NH82801IBM
0904-002378
AA26 VSS_001
AA27

8-37
- 이 문서는 삼성전자의 기술 자산으로 승인자만이 사용할 수 있습니다 -
- This Document can not be used without Samsung's authorization -
8. Block Diagram and Schematic
Samsung
Confidential
Samsung
Confidential
Samsung
Confidential
SRP Sheet Number: 37 of 73
B
0A INIT CPU.REG
54 SET KEYCLICK IF ENABLED
70 DISPLAY ERROR MESSAGE
1A 8237 DMA CONTROLLER INIT.
4
18 8254 TIMER INIT.
A
EXCEPT AS AUTHORIZED BY SAMSUNG.
26 ENABLE A20
42 INIT. INTERRUPT VECTOR
13 PCI BUS MASTER RESET
38 SHADOW SYSTEM BIOS ROM
89 ENABLE NMI
4A INIT. ALL VIDEO BIOS ROM
A8 ERASE F2 PROMPT
- SPI ROM LIST -
C
DA EXTENDED BLOCK MOVE
91 INIT. LOCAL BUS HDD CONTROLLER
46 CHECK ROM COPYRIGHT NOTICE
B4 ONE BEEP
90 INIT. HDD CONTROLLER
B6 CHECK PASSWORD (OPTION)
96 CLEAR HUGE ES SEGMENT REG.
28 AUTO SIZING DRAM
80 DISABLE ON-BOARD I/O PORT
A
08 INIT. CHIPSET REG.
98 SEARCH FOR OPTION ROMS
WITH INITIAL POST VALUE
D4 PENDING INTERRUPT ERROR
THIS DOCUMENT CONTAINS CONFIDENTIAL
24
DO NOT DISCLOSE TO OR DUPLICATE FOR OTHERS
DC SHUTDOWN 10
47 INIT. I20 SUPPORT IF INSTALLED
74 TEST REAL-TIME CLOCK
7E TEST COPROCESSER IF PRESENT
D2 UNKNOWN INTERRUPT ERROR
60 TEST EXTENDED MEMORY
D8 SHUTDOWN ERROR
BA DMI INIT
7C SETUP HARDWARE INTERRUPT VECTOR
5A DISPLAY " PRESS ...... SETUP"
32 COMPUTE THE CPU SPEED
9E ENABLE H/W INTERRUPT
24 SET ES SEGMENT REG. TO 4GB
D6 SHUTDOWN 5
SAMSUNG
3
52 TEST KEYBOARD
6A DISPLAY EXTERNAL CACHE SIZE
D
OE INIT. I/O VALUE
72 CHECK FOR CONFIGURATION ERROR
76 CHECK FOR KEYBOARD EERROR
3
0F ENABLE THE L-BUS IDE
0C INIT.CACHE TO POST
1C RESET INTERRUP CONTROLLER
D
44 INIT. BIOS INTERRUPT
82 DETECT AND INSTALL EXT.RS232C
88 INIT. BIOS DATA ROM
6C DISPLAY SHADOW MESSAGE
1
34 TESET CMOS RAM
8A INIT.EXTENDED BIOS DATA AREA
B2 POST DONE-PREPARE TO BOOT O/S
C
03 DISABLE NMI
84 DETECT AND INSTALL EXT.PARALLEL
B
62 TEST EXTENDED MEMORY ADDRESS LINE
ELECTRONICS
06 INIT. SYSTEM H/W
56 ENABLE KEYBOARD
AC ENTER SETUP
11 LOAD ALTERNATE REG.
49 INIT. PCI BUS AND DEVICE
AA SCAN FOR F2 KEY STROKE
PROPRIETARY INFORMATION THAT IS
3C CONFIGURE ADVANCED CHIPSET REG.
10 INIT. POWER MANAGER
2
50 DISPLAY CPU TYPE AND SPEED
3D LOAD ALTER REG. WITH CMOS VALUE
66 CONFIGURE ADVANCE CACHE REG.
SAMSUNG ELECTRONICS CO’S PROPERTY.
8C INIT. FDD CONTROLLER
0B CPU CACHE ON
B7 ACPI INIT
20 TEST DRAM REFRESH
AE CLEAR IN POST FLAG
09 SET IN POST FLAG
22 TEST 8742 KEYBOARD CONTROLLER
48 CHECK VIDEO CONFIGURE AGAINST CMOS
14 INIT. KEYBOARD CONTROLLER
9A SHADOW OPTION ROMS
9C SETUP POWER MANAGEMENT
B0 CHECK FOR ERRORS
3A AUTO SIZING CACHE
02 VERIFY REAL MODE
64 JUMP TO USER PATCH 1
5C TEST RAM GETWEEN 512K AND 640K
04 GET CPU TYPE
92 JUMP TO USER PATCH 2
2MB(16Mbit)
SAMSUNG PROPRIETARY
16 CHECK CHECKSUM
1
D0 INTERRUPT HANDLER ERROR
C0 TRY BOOT WITH INT19
A4 INIT. TYPEMATIC RATE
86 RE-INIT. ON-BOARD I/O PORT
A0 SET TIME OF DAY
BE CLEAR SCREEN
6E DISPLAY NON-DISPOSABLE SEGMENT
94 DISABLE A20 ADDRESS LINE
4C SHADOW VIDEO BIOS ROM
58 TEST FOR UNEXPECTED INTERRUPTS
TP2500
1%
R651
100K
1%
12.1
R649
P3.3V
R650 0
10K
R690 1%
10V
100nF
C747
CE*
1
HOLD* 7
SCK 6
5
SI
2SO
8
VDD
VSS
4
3WP*
1107-001600
SST25VF016B-504CS2AF
U514
SPI3_MISO
SPI3_CS0#
CHP3_BIOSWP#
SPI3_MOSI
SPI3_CLK

8-38
- 이 문서는 삼성전자의 기술 자산으로 승인자만이 사용할 수 있습니다 -
- This Document can not be used without Samsung's authorization -
8. Block Diagram and Schematic
Samsung
Confidential
Samsung
Confidential
Samsung
Confidential
SRP Sheet Number: 38 of 73
GPIO I2C
LVDSTMDS
TEST AUDIO
1/4
PCI EXPRESS
C C
D D
1
4
4
3
3
2
SAMSUNG PROPRIETARY
2
0603 component must be placed
at the opposite side of PIP components
1
THIS DOCUMENT CONTAINS CONFIDENTIAL
PROPRIETARY INFORMATION THAT IS
SAMSUNG ELECTRONICS CO’S PROPERTY.
DO NOT DISCLOSE TO OR DUPLICATE FOR OTHERS
EXCEPT AS AUTHORIZED BY SAMSUNG.
To maintain Voff voltage under 10mV
by blocking current path.(2008.05.02)
1005 component (2203-005482)
C850, C866
0603 component (2203-006423)
SAMSUNG
ELECTRONICS
A A
Place near to NB9M
B
To reduce HDMI
audio noise
Close to Gfx chip
B
2
7
6.3V
C218
100nF
9
6.3V
C231
100nF
2
15
5
100
R852
1%
nostuff
R608 10
2.2K
R584
10K
R217
1%
1%
R179
40.2
0
8
10
1%
100nF
C268
6.3V
10K
R224
6
0
1
1%10K
R573
100nF
C227
6.3V
3
D
G
1
S
2
4
Q16
BSS138
100nFC652
10V10V
C653 100nF
100nFC615
10V
10
3
12
6.3V
C271
100nF
6.3V
C234
100nF
1%
R188 499
8
P3.3V
R171 499 1%
6.3V
C229
100nF
R194 1K
1%
1%
R569 124
40.2
R178
1%
P3.3V
1
6
10K
14
15
0
9
1%
R223
100nF
C598
10V
R168 150 1%
7
1%
R182 150
R229 40.2K 1%
C650
10V
100nF
10V
C613
3
C612 100nF
10V
100nF
nostuff
0
R191
14
15
13
100nF
C253
6.3V
100
R563 1%
6.3V
C260
100nF
499
1%
1%
R189
R187 1%499
3
499
R190
nostuff
1%
R225 10K
nostuff
6
100
R180
1%
100nF
C220
6.3V
C248
0.012nF
50V
1K
R183 1%
nostuff
XTAL_OUT
XTAL_OUTBUFF E9
D11
XTAL_SSIN
R181 1%150
C10
SPDIF
F9
STRAP0
C7
STRAP1
B9
STRAP2
A9
STRAP_REF_3V3
F11 STRAP_REF_MIOB
F10
AD25 TESTMODE
THERMDN
D8
THERMDP
D9
D10
XTAL_IN E10
PEX_TX6#
AD16
AD17 PEX_TX7
PEX_TX7#
AD18
AC18 PEX_TX8
PEX_TX8#
AB18
AB19 PEX_TX9
PEX_TX9#
AB20
ROM_CS#
B10
ROM_SCLK
C9
ROM_SI
A10
ROM_SO
PEX_TX15
PEX_TX15#
AE26
AB11 PEX_TX2
PEX_TX2#
AB12
AD13 PEX_TX3
PEX_TX3#
AD14
AD15 PEX_TX4
PEX_TX4#
AC15
AB14 PEX_TX5
PEX_TX5#
AB15
PEX_TX6
AC16
AC12
PEX_TX10
AD19
PEX_TX10#
AD20
AD21 PEX_TX11
PEX_TX11#
AC21
AB21 PEX_TX12
PEX_TX12#
AB22
AC22 PEX_TX13
PEX_TX13#
AD22
AD23 PEX_TX14
PEX_TX14#
AD24
AE25
AF19 PEX_RX8
PEX_RX8#
AE19
AE21 PEX_RX9
PEX_RX9#
AF21
AG10 PEX_TERMP
AF10 PEX_TSTCLK_OUT
PEX_TSTCLK_OUT#
AE10
AD10 PEX_TX0
PEX_TX0#
AD11
AD12 PEX_TX1
PEX_TX1#
AE13
AE15 PEX_RX3
PEX_RX3#
AF15
AG15 PEX_RX4
PEX_RX4#
AG16
AF16 PEX_RX5
PEX_RX5#
AE16
AE18 PEX_RX6
PEX_RX6#
AF18
AG18 PEX_RX7
PEX_RX7#
AG19
PEX_RX11
PEX_RX11#
AE22
AE24 PEX_RX12
PEX_RX12#
AF24
AG24 PEX_RX13
PEX_RX13#
AF25
AG25 PEX_RX14
PEX_RX14#
AG26
AF27 PEX_RX15
PEX_RX15#
AE27
AF13 PEX_RX2
PEX_RX2#
JTAG_TMS
AF4
AB10 PEX_REFCLK
PEX_REFCLK#
AC10
PEX_RST#
AD9
AE12 PEX_RX0
PEX_RX0#
AF12
AG12 PEX_RX1
PEX_RX1#
AG13
AG21 PEX_RX10
PEX_RX10#
AG22
AF22
IFPE_L1
IFPE_L1# D5
C3
IFPE_L2
IFPE_L2# C4
B3
IFPE_L3
IFPE_L3# B4
IFPE_RSET M6
JTAG-TRST#
AG3
JTAG_TCK
AF3
JTAG_TDI
AG4
JTAG_TDO
AE4
IFPC_L1
IFPC_L1# M4
L4
IFPC_L2
IFPC_L2# K4
H4
IFPC_L3
IFPC_L3# J4
IFPC_RSET R5
D3
IFPE_AUX
IFPE_AUX# D4
F5
IFPE_L0
IFPE_L0# F4
E4
W3
IFPB_TXD5
IFPB_TXD5# W2
AA2
IFPB_TXD6
IFPB_TXD6# AA3
AB1
IFPB_TXD7
IFPB_TXD7# AA1
G4
IFPC_AUX
IFPC_AUX# G5
P4
IFPC_L0
IFPC_L0# N4
M5
V4
AA5
IFPA_TXD1
IFPA_TXD1# AA4
W4
IFPA_TXD2
IFPA_TXD2# Y4
AB4
IFPA_TXD3
IFPA_TXD3# AB5
AB3
IFPB_TXC
IFPB_TXC# AB2
IFPB_TXD4 W1
IFPB_TXD4# V1
N3
I2CE_SCL Y6
I2CE_SDA W6
I2CH_SCL
A3
I2CH_SDA
A4
I2CS_SCL
T1
I2CS_SDA
T2
AB6
IFPAB_RSET
AC4
IFPA_TXC
IFPA_TXC# AD4
V5
IFPA_TXD0
IFPA_TXD0#
HDA_SDI
A6
HDA_SDO
B6
HDA_SYNC
B7 I2CA_SCL R1
I2CA_SDA T3
I2CB_SCL R2
I2CB_SDA R3
I2CC_SCL A2
I2CC_SDA B1
I2CD_SCL N2
I2CD_SDA
F2
GPIO2 C1
GPIO3 M2
GPIO4 M3
GPIO5 K3
GPIO6 K2
GPIO7 J2
GPIO8 C2
GPIO9 M1
HDA_BCLK
A7
HDA_RST#
C6
N1
GPIO1 G1
GPIO10 D2
GPIO11 D1
GPIO12 J3
GPIO13 J1
GPIO14 K1
GPIO15 F3
GPIO16 G3
GPIO17 G2
GPIO18 F1
GPIO19
D6
DACB_CSYNC
E7
DACB_GREEN
F7
DACB_RED
F8
DACB_RSET
R4
DACC_BLUE
T4
DACC_GREEN
DACC_HSYNC U6
T5
DACC_RED
V6
DACC_RSET
U4
DACC_VSYNC
GPIO0
BUFRST_N
N5
AD3
DACA_BLUE
AE3
DACA_GREEN
AD2
DACA_HSYNC
AE2
DACA_RED
AE1
DACA_RSET
AD1
DACA_VSYNC
E6
DACB_BLUE
4
5
0904-002375
NB9M-GE-S-U2/H
U510-1
2.2K
R580
1
R581 2.2K
2K
R564
1%
6
7
13
1
7
11
4
100nF
C259
6.3V
6.3V
C225
100nF
499
R174
6.3V
C256
100nF
1%
1%499
R172
6.3V
C255
100nF
40.2K
R226 1%
4
5
6.3V
C217
100nF
15
8
100nF
10V
C651
10
100nF
C232
6.3V
8
100nF
C226
6.3V
10V
C597
100nF
5
100nF
C257
6.3V
2
12
13
1%
R572 499
6.3V
C264
100nF
50V
0.012nF
C249
14
6.3V
C276
100nF
50V
0.012nF
C214
100nF
C233
6.3V
R583 2.2K
3
100nF
C277
6.3V
R195 2.2K
100nF
C230
6.3V
11
C228
100nF
0
10
6.3V
R218 33 1%
12
33
R219 1%
20K
100nF
C216
6.3V
nostuff
1%
R867
14
10V
C614 100nF
1%
R173 499
R571
1%
100nF
C215
6.3V
100
12
13
100nF
C270
6.3V
2
11
11
R570
10K
1%
6.3V
C219
100nF
2.2K
R197
6.3V
C266
100nF
9
100nF
C265
6.3V
LCD1_BCLK
LCD1_BCLK#
LCD1_BDATA0
LCD1_BDATA0#
LCD1_BDATA1
LCD1_BDATA1#
LCD1_BDATA2
LCD1_BDATA2#
HDA3_HDMI_SDO
9
GFX3_I2CBDATA
GFX3_I2CECLK
GFX3_I2CEDATA
GFX3_I2CSCLK
GFX3_I2CSDATA
GFX3_THERMDN
CRT3_VSYNC
CRT3_HSYNC
PEG3_TXCP_HDMI
PEG3_TXCN_HDMI
PEG3_TX0P_HDMI
PEG3_TX0N_HDMI
PEG3_TX1P_HDMI
PEG3_TX1N_HDMI
PEG3_TX2P_HDMI
PEG3_TX2N_HDMI
PEG3_TXCN_HDMI
PEG3_TXCP_HDMI
PEG3_TX0P_HDMI
PEG3_TX1N_HDMI
PEG3_TX1P_HDMI
PEG3_TX2N_HDMI
PEG3_TX2P_HDMI
PEG3_TX0N_HDMI
PEG1_TXP(15:0)
PEG1_TXN(15:0)
PEG1_RXN(15:0)
PEG1_RXP(15:0)
LCD3_EDID_CLK
LCD3_EDID_DATA
HDA3_HDMI_SDI2
GFX3_STRAP0 GFX3_THERMDP
GFX3_I2CBCLK
CRT3_DDCCLK
CRT3_DDCDATA
GFX3_I2CBCLK
GFX3_I2CBDATA
PEG5_HDMI_CLK
PEG5_HDMI_DATA
GFX3_I2CECLK
GFX3_I2CEDATA
GFX3_HCLK
GFX3_HDATA
GFX3_I2CSCLK
GFX3_I2CSDATA
LCD1_ACLK#
LCD1_ADATA0#
LCD1_ADATA1#
LCD1_ADATA2#
CLK1_PEG#
PLT3_RST#
GFX3_ROMSCLK
GFX3_ROMSI
GFX3_ROMSO
GFX3_STRAP1
GFX3_STRAP2
LCD1_ACLK
CRT3_RED
CRT3_GREEN
CRT3_BLUE
CLK1_PEG
LCD1_ADATA0
LCD1_ADATA1
LCD1_ADATA2
CLK3_GFX_27M_SS
CLK3_GFX_27M
PEG3_HPD_HDMI
LCD3_BRIT
PEG3_LCDVDDON
PEG3_BKLTEN
GFX3_VOLTID_0
GFX3_VOLTID_1
GFX3_THERM#
HDA3_HDMI_BCLK
HDA3_HDMI_RST#
HDA3_HDMI_SYNC

8-39
- 이 문서는 삼성전자의 기술 자산으로 승인자만이 사용할 수 있습니다 -
- This Document can not be used without Samsung's authorization -
8. Block Diagram and Schematic
Samsung
Confidential
Samsung
Confidential
Samsung
Confidential
SRP Sheet Number: 39 of 73
2/4
SAMSUNG
A
D
3 1
60.4ohm
B
24
DO NOT DISCLOSE TO OR DUPLICATE FOR OTHERS
3
C
SAMSUNG PROPRIETARY
A
30ohm
30ohm
C
2 1
ELECTRONICS
D
4
B
EXCEPT AS AUTHORIZED BY SAMSUNG.
PROPRIETARY INFORMATION THAT IS
SAMSUNG ELECTRONICS CO’S PROPERTY.
THIS DOCUMENT CONTAINS CONFIDENTIAL
61
27
25
56
2
4
22
10
2
R227 30.1 1%
1/16W
50
59
1
52
0
42
8
4
15
32
3
3
47
R616 30.1 1/16W
1%
51
0
63
P1.8V
40
39
1
33
36
29
11
12
1%
2
38
7 49
10K
R620
7
0
1
R228
28
60.4 1%
26
1
57
55
30
6
53
23
3
45
464
18
60
6
1%
R246
10K
5
7
24
58
21
43
14
100nF
nostuff
17
5
C687
10V
P1.8V
5
41
10K
R198
1%
1%
1K
nostuff
31
62
13
R618
9
3
R617
1K
1%
nostuff
20
54
37
6
0
35
C25
FBA_DQS_WP2
E19
FBA_DQS_WP3
A19
FBA_DQS_WP4
T22
FBA_DQS_WP5
T27
FBA_DQS_WP6
AA24
FBA_DQS_WP7
AA26
FB_CAL_PD_VDDQ B15
FB_CAL_PU_GND A15
FB_CAL_TERM_GND B16
FB_VREF
A16
FBA_DQM7
AB27
FBA_DQS_RN0
B24
FBA_DQS_RN1
D25
FBA_DQS_RN2
E18
FBA_DQS_RN3
A18
FBA_DQS_RN4
R22
FBA_DQS_RN5
R27
FBA_DQS_RN6
Y24
FBA_DQS_RN7
AA27
FBA_DQS_WP0
A24
FBA_DQS_WP1
A26
FBA_D8 D22
FBA_D9 E22
FBA_DEBUG
M22
FBA_DQM0
D23
FBA_DQM1
C26
FBA_DQM2
D19
FBA_DQM3
B19
FBA_DQM4
T24
FBA_DQM5
T26
FBA_DQM6
AA23
AB24
FBA_D55 AC24
FBA_D56 W25
FBA_D57 W26
FBA_D58 W27
FBA_D59 AA25
FBA_D6 A25
FBA_D60 AB25
FBA_D61 AB26
FBA_D62 AD26
FBA_D63 AD27
FBA_D7
FBA_D45 V26
FBA_D46 V25
FBA_D47 V27
FBA_D48 V22
FBA_D49 W22
FBA_D5 B25
FBA_D50 W23
FBA_D51 W24
FBA_D52 AA22
FBA_D53 AB23
FBA_D54
R24
FBA_D36 T23
FBA_D37 U24
FBA_D38 V23
FBA_D39 V24
FBA_D4 C24
FBA_D40 N25
FBA_D41 N26
FBA_D42 R25
FBA_D43 R26
FBA_D44 T25
B18
FBA_D26 C18
FBA_D27 D18
FBA_D28 C19
FBA_D29 C21
FBA_D3 A22
FBA_D30 B21
FBA_D31 A21
FBA_D32 P22
FBA_D33 P24
FBA_D34 R23
FBA_D35
FBA_D16 D16
FBA_D17 E16
FBA_D18 D17
FBA_D19 F18
FBA_D2 B22
FBA_D20 D20
FBA_D21 F20
FBA_D22 E21
FBA_D23 F21
FBA_D24 C16
FBA_D25
J25
FBA_CMD8
J27
FBA_CMD9
G23
FBA_D0 D21
FBA_D1 C22
FBA_D10 E24
FBA_D11 D24
FBA_D12 D26
FBA_D13 D27
FBA_D14 C27
FBA_D15 B27
H24
FBA_CMD23
F27
FBA_CMD24
J26
FBA_CMD25
G24
FBA_CMD26
G27
FBA_CMD27
M24
FBA_CMD28
K22
FBA_CMD3
M23
FBA_CMD4
N27
FBA_CMD5
M27 FBA_CMD6
K26
FBA_CMD7
FBA_CMD13
K27
FBA_CMD14
G25
FBA_CMD15
L24
FBA_CMD16
K23
FBA_CMD17
K24
FBA_CMD18
G22
FBA_CMD19
K25
FBA_CMD2
F25
FBA_CMD20
H22
FBA_CMD21
M26
FBA_CMD22
FBA_CLK
F24
FBA_CLK#
F23
FBA_CLK1
N24
FBA_CLK1#
N23
FBA_CMD0
F26
FBA_CMD1
J24
FBA_CMD10
G26
FBA_CMD11
J23
FBA_CMD12
M25
44
0904-002375
NB9M-GE-S-U2/H
U510-2
7
48
4
P1.8V
34
6
5
19
2
MAA(10)
WEA#
MAA(12)
BAA0
ODT
MAA(0)
MAA(1)
RASA#
BAA1
MCKEA
16
WDQSA(0:7)
MAA(3)
MAA(2)
MAA(6)
MAA(11)
MAA(8)
CASA#
MAA(5)
MAA(4)
MAA(7)
MAA(9)
MAB(2)
MAB(3)
MAB(4)
MAB(5)
CSA0#
BAA2
DQMA(7:0)
RDQSA(0:7)
MCLKA0
MCLKA0#
MCLKA1
MCLKA1#
DQA(63:0)

8-40
- 이 문서는 삼성전자의 기술 자산으로 승인자만이 사용할 수 있습니다 -
- This Document can not be used without Samsung's authorization -
8. Block Diagram and Schematic
Samsung
Confidential
Samsung
Confidential
Samsung
Confidential
SRP Sheet Number: 40 of 73
3/4
EXCEPT AS AUTHORIZED BY SAMSUNG.
C C
SAMSUNG
ELECTRONICS
A
THIS DOCUMENT CONTAINS CONFIDENTIAL
SAMSUNG PROPRIETARY
D D
SAMSUNG ELECTRONICS CO’S PROPERTY.
PROPRIETARY INFORMATION THAT IS
B B
4
4
3
A
2
PEX_PLL_VDD IFPAB_PLLVDD
3 2
1
1
PEX_IOVDD
PEX_IOVDDQ
PLL_VDD
IFPE_PLLVDD
VDD33
DO NOT DISCLOSE TO OR DUPLICATE FOR OTHERS
VDD5
L9
M9 VDD6
VDD7
M11
VDD8
M17
VDD9
N9
VDD_SENSE
W15
VID_PLLVDD K6
T11
VDD35
T17
VDD36
U9
VDD37
U19
VDD38
W9
VDD39
W10
VDD4
J13
VDD40
W12
VDD41
W13
VDD42
W18
VDD43
W19
J12
VDD30
R15
R16 VDD31
VDD32
R17
VDD33
T9
VDD33_1 A12
VDD33_2 B12
VDD33_3 C12
VDD33_4 D12
VDD33_5 E12
VDD33_6 F12
VDD34
VDD20
P13
P14 VDD21
VDD22
P15
VDD23
P16
VDD24
P17
VDD25
R9
VDD26
R11
VDD27
R12
VDD28
R13
VDD29
R14
VDD3
N11
VDD11
N12
VDD12
N13
VDD13
N14
VDD14
N15
VDD15
N16
VDD16
N17
VDD17
N19
VDD18
P11
VDD19
P12
VDD2
J10
AD7
PEX_IOVDD3
AD8
AE7 PEX_IOVDD4
PEX_IOVDD5
AF7
PEX_IOVDD6
AG7
PEX_IOVDD7
AB7
PEX_IOVDD8
AB8
PEX_IOVDD9
AB9
PLLVDD K5
SP_PLLVDD L6
VDD1
J9
VDD10
PEX_IOVDD10
AB13
AB16 PEX_IOVDD11
PEX_IOVDD12
AB17
PEX_IOVDD13
AC7
PEX_IOVDD14
AC13
PEX_IOVDD15
AD6
PEX_IOVDD16
AE6
PEX_IOVDD17
AF6
PEX_IOVDD18
AG6
PEX_IOVDD19
AF9
PEX_IOVDD2
F15
FB_DLLAVDD T19
FB_PLLAVDD R19
IFPAB_PLLVDD AD5
IFPA_IOVDD V3
IFPB_IOVDD V2
IFPC_IOVDD J6
IFPC_PLLVDD P6
IFPE_IOVDD H6
IFPE_PLLVDD N6
PEX_IOVDD1
AC9
L26
FBVDDQ23 M19
N22
FBVDDQ24
FBVDDQ25 U22
FBVDDQ26 Y22
FBVDDQ3 C13
FBVDDQ4 D13
FBVDDQ5 D14
FBVDDQ6 E13
FBVDDQ7 F13
FBVDDQ8 F14
FBVDDQ9
FBVDDQ13 F22
H23
FBVDDQ14
FBVDDQ15 H26
FBVDDQ16 J15
FBVDDQ17 J16
FBVDDQ18 J18
FBVDDQ19 J19
FBVDDQ2 B13
FBVDDQ20 L19
FBVDDQ21 L23
FBVDDQ22
U510-3
NB9M-GE-S-U2/H
DACA_VDD AG2
DACA_VREF AF1
D7
DACB_VDD
DACB_VREF G6
DACC_VDD W5
DACC_VREF R6
FBVDDQ1 A13
FBVDDQ10 F16
FBVDDQ11 F17
FBVDDQ12 F19
100nF
0904-002375
10V
C399
100nF
10V
C252
100nF
C398
10V
EGFX_CORE
1%
10K
R582
50V
C307
0.47nF
100nF
C412
10V 6.3V
C411
1000nF
C327
100nF
10V 6.3V
C333
1000nF
4700nF
16V
C319
470nF
P1.1V
0.47nF
C309
50V
10V
C338
P1.1VP1.1V_IFPE_VDD
nostuff
10V
C366
4700nF
100nF
C334
10V 10V
C369
100nF
25V
C179
4.7nF
10nF
50V
C180
0.47nF
P1.8V
B512
BLM18PG181SN1
25V
C591
6.3V
C367
1000nF
R196 10K
1%
P1.1V_PLLVDD
25V
C330
4.7nF
22000nF-X5R
C641
6.3V
20%
4.7nF
C396
25V
6.3V
50V
0.47nF
C593
P1.1V_PLLVDD
P1.8V_IFPE_PLL
C317
1000nF
4700nF
C393
10V
P1.1V_PEXIO_VDD
P1.1V
10000nF
C392
6.3V
P1.1V
BLM18PG181SN1
B26
FB_PLLVDDQ
25V
C318
10nF
P1.8V_IFPAB_PLL
PEX_PLLVDD
10V
C397
100nF
10V
C370
100nF
100nF
C395
10V
16V
C620
470nF
FB_PLLVDDQ
P1.8V_FBVDDQ
16V
C621
470nF
10000nF
C391
6.3V 6.3V
C684
10000nF
P1.8V
BLM18PG181SN1
B27
4700nF
C589
10V
BLM18PG181SN1
B511
100nF
C368
10V
P3.3V_DACA
P3.3V_DACA
P1.1V_IFPE_VDD BLM18PG181SN1
B29
P3.3V
P1.8V
P3.3V
P1.8V_FBVDDQ
100nFC622 10V
10V
100nF
C320
B510
BLM18PG181SN1
nostuff
4.7nF
C329
25V
25V
C592
4.7nF
10nF
C322
25V
100nF
C323
10V
25V
C413
22nF
10V
C335
100nF
25V
C683
22nF
0.47nF
C321
P1.8V
B23
BLM18PG181SN1
C325
100nF
10V
nostuff
50V
100nF
C263
10V
P1.8V_IFPAB_PLL
10V
C258
100nF
C213
4700nF
10V
1000nF
C594
6.3V
P3.3V
PEX_PLLVDD
10nF
C394
25V
B513
BLM18PG181SN1
P1.1V
BLM18PG181SN1
B28
6.3V
C590
1000nF
10V
C644
4700nF
100nF
C314
10V
6.3V
C619
1000nF
10V
1000nF
C311
6.3V
1000nF
C618
6.3V
4700nF
C643
EGFX_CORE
P1.8V
B17
BLM18PG181SN1
10V
C582
100nF
4700nF
C685
10V
10V
C588
4700nF
10V
C686
4700nF
25V
C305
4.7nF
20%
6.3V
C640
22000nF-X5R
nostuff
4700nF
C310
10V
6.3V
C312
1000nF
4700nF
4.7nF
C313
25V
4.7nF
C308
25V 10V
C306
100nF
C254
10V
nostuff
P1.1V_PEXIO_VDD P1.1V_PEXIO_VDD
10V
100nF
C328
1000nF
C324
P1.8V_IFPE_PLL
16V
C711
470nF
100nF
C332
10V
6.3V
10V
C331
100nF
R222 10K 1%
1%10K
R193
25V
C316
4.7nF
50V
C315
0.47nF
470nF
C326
16V
4700nF
C339
10V

8-41
- 이 문서는 삼성전자의 기술 자산으로 승인자만이 사용할 수 있습니다 -
- This Document can not be used without Samsung's authorization -
8. Block Diagram and Schematic
Samsung
Confidential
Samsung
Confidential
Samsung
Confidential
SRP Sheet Number: 41 of 73
4/4
Rb
gDDR2 Cap. RbRa
1Gbit
512Mbit
stuff
nostuff
1111
1
0011
Bit 1
XCLK_27
GPIO(11)
GPIO(0)
GPIO(12)
GPIO(6)
Pin
Bit0
Strap1
High
512Mbit (gDDR2)
NC
9M-GS
9M-GE
0
30K ohm
ELECTRONICS
A
nostuff
stuff
SAMSUNG
TVMODE[2]
GPIO(4)
1
0
AC Power dection input
1100
1
GPIO(3)
GPIO(15)
1101
1
NC
SLI Rater sync
PADCFG[3:0]=0001 of NP
LOW
0
25K ohm
0110
0101
High = 1.0V, Low = 1.1V
NC
0
1Gb (gDDR2)
1
Strap0
0 0
EMI request
NB9P-GE2:0x0??? (0????)
HDCP
High
High
GPU VID2 or Mem VID
Ra
Bit2
0000
PU is for I2C ROM (AT24C16B, A0~A2 = 000)
GPIO(9)
GPIO(2)
GPIO(10)
GPIO(8)
STRAP0
USER[3:0]=1111 for EDID
VENID
ROMSO
TVMODE[0]
DEVID[4]
TVMODE[1]
PD is for Crypto ROM
RAMCFG[1] RAMCFG[0]
1 1 1
SI 0 1
A
B
0 0 0
35K ohm
D
1110
2
1 1
GPIO(5)
Description
SCLK
Fan control
Memory VREF switch
0
NB9M-GS:0x06E9 (01001)
NB9M-GE:0x06E8 (01000)
GPIO(16)
1000
1011
0100
NC
Power supply control
0111
XCLK27 = 1 27MHz
1
0011 512Mbit
NB9P-GS:0x0649 (01001)
NB9P-GE:0x0406 (00110)
DP Detect
Strap option
3
4
Bit3
ROM_SCLK
Bit 2
ROM_SI
GPIO(7)
15K ohm
Bit 0
STRAP2
0111 1Gbit
STRAP1
EXCEPT AS AUTHORIZED BY SAMSUNG.
DO NOT DISCLOSE TO OR DUPLICATE FOR OTHERS
USER[3]
CLK_CFG PLL_TERM
RAMCFG[3] RAMCFG[2]
Backlight on/off
GPU VID0
DEVID[3] DEVID[2]
0
DEVID[0]
GPIO(1)
PADCFG[3] PADCFG[2] PADCFG[1]
B
C C
D
0
PD to GND
1
Low
GPIO(14)
20K ohm
45K ohm
NC
0 1
ROM_SO
High
USER[1] USER[0]
Activate
GPIO(13)
High
HDMI Detect
NC
1
Power supply control
HIGH
RAM CFG (SEC)
NC
SAMSUNG ELECTRONICS CO’S PROPERTY.
PROPRIETARY INFORMATION THAT IS
THIS DOCUMENT CONTAINS CONFIDENTIAL
SAMSUNG PROPRIETARY
2
Bit1
0001
4
3
Strap2
High
LCD VDD on enable
0
Resistor value
5K ohm
PADCFG[0]
PWM Brigtness control
DVI detect
TV detect
GPU VID1
Thermal diode Alert
DEVID[1]
1010 0010
10 Kohm 1001
Bit 3
1 0
PU to VDD
USER[2]
1
1
nostuff
2.2K
R606R607
2.2K
1%
10K
R605
P3.3V
10V
C390
100nF
nostuff
1%
30.1K
R613
P3.3V
R614
10K
1%
6SCL
SDA
5VCC 8
WP 7
MGE-model
4.99K
R611
1%
BA11-00049A
AT24C16BN-SH-T
U12
1A0
2A1
3
A2
GND 4
15K
R612
1%
AC19
NC_11 AE9
NC_12 AG9
NC_2 D15
NC_3 E15
NC_4 F6
NC_5 J5
NC_6 J22
NC_7 L22
NC_8 T6
NC_9 AA6
AF5
GND_83 AF8
GND_84 AF11
GND_85 AF14
GND_86 AF17
GND_87 AF20
GND_88 AF23
GND_89 AF26
GND_9
B26
GND_SENSE W16
NC_1 C15
NC_10
GND_73 AC6
GND_74 AC8
GND_75 AC11
GND_76 AC14
GND_77 AC17
GND_78 AC20
GND_79 AC23
GND_8
B23
GND_80 AC26
GND_81 AF2
GND_82
V19
GND_64 W11
GND_65 W14
GND_66 W17
GND_67 Y2
GND_68 Y5
GND_69 Y23
GND_7
B20
GND_70 Y26
GND_71 AC2
GND_72 AC5
U11
GND_54 U12
GND_55 U13
GND_56 U14
GND_57 U15
GND_58 U16
GND_59 U17
GND_6
B17
GND_60 U23
GND_61 U26
GND_62 V9
GND_63
GND_44
P23
GND_45
P26
GND_46
T12
GND_47
T13
GND_48
T14
GND_49
T15
GND_5
B14
GND_50
T16
GND_51
U2
GND_52
U5
GND_53
L17
GND_35
M12
GND_36
M13
GND_37
M14
GND_38
M15
GND_39
M16
GND_4
B11
GND_40
P2
GND_41
P5
GND_42
P9
GND_43
P19
K9
GND_25
K19
GND_26
L2
GND_27
L5
GND_28
L11
GND_29
L12
GND_3
B8
GND_30
L13
GND_31
L14
GND_32
L15
GND_33
L16
GND_34
GND_15
E17
GND_16
E20
GND_17
E23
GND_18
E26
GND_19
H2
GND_2
B5
GND_20
H5
GND_21
J11
GND_22
J14
GND_23
J17
GND_24
U510-4
NB9M-GE-S-U2/H
0904-002375
GND_1
B2
GND_10
E2
GND_11
E5
GND_12
E8
GND_13
E11
GND_14
E14
10K
R610
1%
1%
MGS-model
B30
BLM18PG181SN1
TP2523
R638
30.1K
1%
1%
15K
R619
30.1K
R220
1%
1%
R221
15K
GFX3_STRAP1
GFX3_STRAP0
GFX3_STRAP2
GFX3_ROMSO
GFX3_ROMSCLK
GFX3_ROMSI
P3.3V
P3.3V
10K
R609
GFX3_HCLK
GFX3_HDATA

8-42
- 이 문서는 삼성전자의 기술 자산으로 승인자만이 사용할 수 있습니다 -
- This Document can not be used without Samsung's authorization -
8. Block Diagram and Schematic
Samsung
Confidential
Samsung
Confidential
Samsung
Confidential
SRP Sheet Number: 42 of 73
THIS DOCUMENT CONTAINS CONFIDENTIAL
1
SAMSUNG ELECTRONICS CO’S PROPERTY.
PROPRIETARY INFORMATION THAT IS
A
2
LOWER SUB PARTITION
Close to VDD
Close to VDDQ
Close to VDD
Close to VDDQ
D
4
4
3
3 2 1
B B
DO NOT DISCLOSE TO OR DUPLICATE FOR OTHERS
EXCEPT AS AUTHORIZED BY SAMSUNG.
SAMSUNG
D
A
Close to the Memory Module
C
SAMSUNG PROPRIETARY
ELECTRONICS
C
7
C376
1000nF
6.3V
C401
1000nF
6.3V
3
5
1%
1K
R251
1
1
12
3
10V
C416
100nF
D8
VSSQ_6
E7
VSSQ_7
F2
VSSQ_8
F8
VSSQ_9
H2
VSS_1
A3
VSS_2
E3
J3 VSS_3
VSS_4
N1
VSS_5
P9
WE*
K3
9
10
E9
VDDQ_7 G1
VDDQ_8 G3
VDDQ_9 G7
VDD_1 A1
VDD_2 E1
VDD_3 J9
VDD_4 M9
R1
VDD_5
VREF
J2
VSSDL
J7
VSSQ_1
A7
VSSQ_10
H8
VSSQ_2
B2
VSSQ_3
B8
VSSQ_4
D2
VSSQ_5
E2
NC_3 R3
NC_4 R7
NC_5 R8
K9 ODT
RAS*
K7
B3 UDM
B7 UDQS
A8 UDQS*
J1
VDDL
VDDQ_1 A9
VDDQ_10 G9
VDDQ_2 C1
VDDQ_3 C3
VDDQ_4 C7
VDDQ_5 C9
VDDQ_6
D1
DQ13
D9
DQ14
B1
DQ15
B9
DQ2
H7
DQ3
H3
DQ4
H1
DQ5
H9
DQ6
F1
DQ7
F9
DQ8
C8
DQ9
C2
LDM
F3
LDQS
F7
E8 LDQS*
NC_1 A2
NC_2
N7
A7 P2
P8
A8
A9 P3
BA0 L2
BA1 L3
BA2 L1
CAS*
L7
J8 CK
CK*
K8
CKE
K2
CS*
L8
DQ0
G8
DQ1
G2
D7 DQ10
DQ11
D3
DQ12
U13
K4N1G164QQ-HC25
1105-001915
A0 M8
A1 M3
A10_AP M2
A11 P7
R2
A12
A2 M7
A3 N2
A4 N8
N3
A5
A6
100nF
C714
10V
7
1000nF
C697
5
1
3
6.3V
8
20
12
22
14
9
2
100nF
C667
10V
P1.8V
13
P1.8V
15
5
2
P1.8V
1000nF
C374
11
1000nF
C403
9
6.3V
C402
1000nF
6.3V
7
6.3V
C375
1000nF
6.3V
24
C378
1000nF
6.3V
C696
1000nF
6.3V
C283
1000nF
6.3V
1%
1K
6
18
10
C671
31
R594
6.3V
1000nF
10V
C635
100nF
1000nF
C698
4
6.3V
2
100nF
C280
10V
1000nF
C672
0
26
0
11
6.3V
4
16
8
P1.8V
17
10
19
12
21
6.3V
29
P1.8V
27
6
30
0
C373
1000nF
6.3V
1000nF
C377
VSSQ_2
B2
VSSQ_3
B8
VSSQ_4
D2
VSSQ_5
D8
VSSQ_6
E7
VSSQ_7
F2
VSSQ_8
F8
H2 VSSQ_9
VSS_1
A3
E3 VSS_2
J3 VSS_3
VSS_4
N1
VSS_5
P9
WE*
K3
11
VDDQ_3 C3
VDDQ_4 C7
VDDQ_5 C9
E9
VDDQ_6
VDDQ_7 G1
VDDQ_8 G3
G7
VDDQ_9
A1
VDD_1
VDD_2 E1
VDD_3 J9
VDD_4 M9
VDD_5 R1
VREF
J2
VSSDL
J7
VSSQ_1
A7
VSSQ_10
H8
LDQS
F7
LDQS*
E8
NC_1 A2
E2
NC_2
NC_3 R3
R7
NC_4
NC_5 R8
K9 ODT
RAS*
K7
B3 UDM
B7 UDQS
UDQS*
A8
J1
VDDL
A9
VDDQ_1
VDDQ_10 G9
VDDQ_2 C1
DQ1
G2
DQ10
D7
DQ11
D3
DQ12
D1
DQ13
D9
DQ14
B1
B9 DQ15
DQ2
H7
H3 DQ3
DQ4
H1
H9 DQ5
DQ6
F1
DQ7
F9
DQ8
C8
DQ9
C2
LDM
F3
A3 N2
A4 N8
N3
A5
A6 N7
A7 P2
P8
A8
A9 P3
BA0 L2
BA1 L3
BA2 L1
L7 CAS*
J8 CK
CK*
K8
CKE
K2
L8 CS*
G8 DQ0
U513
K4N1G164QQ-HC25
1105-001915
A0 M8
A1 M3
A10_AP M2
A11 P7
R2
A12
A2 M7
R250
1K
1%
1000nF
C668
23
28
6
6.3V
C669
1000nF
6.3V6.3V
C282
1000nF
10V
C417
100nF
8
6.3V
1000nF
C670
6.3V
1000nF
C673
P1.8V
25
R248
475
R595
1K
1%
1%
P1.8V
4
BAA1
DQA(15:0)
BAA2
MAA(12:0)
MCLKA0#
MCLKA0
MAA(12:0)
BAA2
RASA#
ODT
ODT
MCLKA0#
MCLKA0
P1.8V
CASA#
MCKEA
CSA0#
WEA#
DQA(31:16)
WDQSA(1)
WDQSA(0)
RDQSA(1)
RDQSA(0)
MCLKA0#
RASA#
CASA#
MCLKA0
DQMA(1)
MCKEA
WEA#
CSA0#
DQMA(0)
WDQSA(3)
WDQSA(2)
RDQSA(3)
RDQSA(2)
DQMA(3)
DQMA(2)
BAA0
BAA1
BAA0

8-43
- 이 문서는 삼성전자의 기술 자산으로 승인자만이 사용할 수 있습니다 -
- This Document can not be used without Samsung's authorization -
8. Block Diagram and Schematic
Samsung
Confidential
Samsung
Confidential
Samsung
Confidential
SRP Sheet Number: 43 of 73
DO NOT DISCLOSE TO OR DUPLICATE FOR OTHERS
THIS DOCUMENT CONTAINS CONFIDENTIAL
2
CC
4
SAMSUNG
Close to VDD
Close to VDDQ
SAMSUNG PROPRIETARY
Close to VDDQ
3
D
EXCEPT AS AUTHORIZED BY SAMSUNG.
SAMSUNG ELECTRONICS CO’S PROPERTY.
ELECTRONICS
AA
3 12
1
Close to the Memory Module
D
UPPER SUB PARTITION
4
Close to VDD
B
PROPRIETARY INFORMATION THAT IS
B
52
37
48
62
50
11
6.3V
35
6.3V
1000nF
C642
6.3V
63
C284
1000nF
P1.8V
34
C691
1000nF
6.3V
1000nF
C336
6.3V
1000nF
C634
9
6.3V
1000nF
C658
6
12
R231
1K
1%
47
11
100nF
C666
10V
6.3V
6.3V
C690
1000nF
5539
C655
1000nF
58
60
9
53
54
56
49
43
51
6.3V
32
10V
C637
100nF
C279
1000nF
C281
1000nF
6.3V
1%
1K
R230
C692
1000nF
6.3V
1000nF
C688
6.3V
1
P1.8V
5741
P1.8V
6
8
1000nF
C278C657
45
6.3V
7
6.3V
1000nF
P1.8V
P1.8V
1
100nF
C371
10V
100nF
C693
10V
10
10V
C638
100nF
R575
1K
1%
36
A3 VSS_1
E3 VSS_2
J3 VSS_3
N1 VSS_4
P9 VSS_5
K3 WE*
61
0
10
E1
VDD_2 J9
VDD_3 M9
VDD_4 R1
VDD_5
J2 VREF
J7 VSSDL
A7 VSSQ_1
H8 VSSQ_10
B2 VSSQ_2
B8 VSSQ_3
D2 VSSQ_4
D8 VSSQ_5
E7 VSSQ_6
F2 VSSQ_7
F8 VSSQ_8
H2 VSSQ_9
K7 RAS*
UDM
B3
UDQS
B7
A8 UDQS*
VDDL J1
A9
VDDQ_1
G9
VDDQ_10
C1
VDDQ_2 C3
VDDQ_3 C7
VDDQ_4 C9
VDDQ_5 E9
VDDQ_6 G1
VDDQ_7 G3
VDDQ_8 G7
VDDQ_9
A1
VDD_1
H3 DQ3
H1 DQ4
H9 DQ5
F1 DQ6
F9 DQ7
C8 DQ8
C2 DQ9
F3 LDM
F7 LDQS
E8 LDQS*
A2
NC_1 E2
NC_2 R3
NC_3 R7
NC_4 R8
NC_5
ODT
K9
L3
BA1
L1
BA2
L7 CAS*
CK
J8
K8 CK*
K2 CKE
L8 CS*
G8 DQ0
G2 DQ1
D7 DQ10
D3 DQ11
D1 DQ12
D9 DQ13
B1 DQ14
B9 DQ15
H7 DQ2
K4N1G164QQ-HC25
U10
M8
A0 M3
A1
M2
A10_AP P7
A11
A12 R2
M7
A2 N2
A3 N8
A4 N3
A5 N7
A6 P2
A7
A8 P8
P3
A9
L2
BA0
59
1105-001915
33
0
1%
1K
R574
6.3V
1000nF
C636
42
P1.8V
12
P1.8V
J3
N1 VSS_4
P9 VSS_5
K3 WE*
10V
C372
100nF
VDD_4 R1
VDD_5
J2 VREF
J7 VSSDL
A7 VSSQ_1
H8 VSSQ_10
B2 VSSQ_2
B8 VSSQ_3
D2 VSSQ_4
D8 VSSQ_5
E7 VSSQ_6
F2 VSSQ_7
F8 VSSQ_8
VSSQ_9
H2
A3 VSS_1
VSS_2
E3
VSS_3
B7
A8 UDQS*
VDDL J1
VDDQ_1 A9
G9
VDDQ_10
C1
VDDQ_2 C3
VDDQ_3 C7
VDDQ_4 C9
VDDQ_5
VDDQ_6 E9
G1
VDDQ_7 G3
VDDQ_8
VDDQ_9 G7
VDD_1 A1
E1
VDD_2 J9
VDD_3 M9
H9
F1 DQ6
F9 DQ7
C8 DQ8
C2 DQ9
F3 LDM
F7 LDQS
E8 LDQS*
A2
NC_1
NC_2 E2
R3
NC_3
NC_4 R7
R8
NC_5
ODT
K9
K7 RAS*
UDM
B3
UDQS
L7
CK
J8
K8 CK*
K2 CKE
CS*
L8
DQ0
G8
G2 DQ1
D7 DQ10
D3 DQ11
D1 DQ12
D9 DQ13
B1 DQ14
DQ15
B9
H7 DQ2
DQ3
H3
H1 DQ4
DQ5
A0 M3
A1
M2
A10_AP P7
A11
A12 R2
M7
A2 N2
A3 N8
A4
A5 N3
N7
A6 P2
A7
A8 P8
P3
A9
L2
BA0
L3
BA1
L1
BA2
CAS*
6.3V
1105-001915
K4N1G164QQ-HC25
U511
M8
40
C715
1000nF
38
6.3V
1000nF
C633
6.3V
1000nF
C639
44
1%
R184
475
7
6.3V
P1.8V
6.3V
C656
1000nF
46
C689
1000nF
8
BAA1
BAA0
BAA1
DQA(63:48)
MAA(12:0)
BAA2
MCLKA1#
MCLKA1
MAA(12:0)
MAB(5)
MAB(4)
MAB(3)
MAB(2) MAB(2)
MAB(3)
MAB(4)
MAB(5)
ODT ODT
MCLKA1
MCLKA1#
CASA#
MCKEA
MCLKA1#
CSA0#
RASA#
WEA#
DQA(47:32)
MCLKA1
WDQSA(5)
WDQSA(4)
RDQSA(5)
RDQSA(4)
RASA#
CASA#
DQMA(5)
BAA2
MCKEA
WEA#
CSA0#
DQMA(4)
WDQSA(7)
WDQSA(6)
RDQSA(7)
RDQSA(6)
DQMA(7)
DQMA(6)
BAA0

8-44
- 이 문서는 삼성전자의 기술 자산으로 승인자만이 사용할 수 있습니다 -
- This Document can not be used without Samsung's authorization -
8. Block Diagram and Schematic
Samsung
Confidential
Samsung
Confidential
Samsung
Confidential
SRP Sheet Number: 44 of 73
Molex/Aces : 3709-001498
EXCEPT AS AUTHORIZED BY SAMSUNG.
4mm
SAMSUNG PROPRIETARY
B
1
48.05 mm
THIS DOCUMENT CONTAINS CONFIDENTIAL
30.00 mm
D
50.95 mm
Mini PCI Express Card
C
Top
Even Pins : Bottom Side
A
2
D
B
3
34
DO NOT DISCLOSE TO OR DUPLICATE FOR OTHERS
SAMSUNG ELECTRONICS CO’S PROPERTY.
C
WLAN
2
Odd Pins : Top side
(Top)
PROPRIETARY INFORMATION THAT IS
SAMSUNG
ELECTRONICS
1.5mm
Tyco/Amp : 3709-001401
For full size minicard
Pin 1
4 1
A
P3.3V
17 SIM_RSVD_C8
8
SIM_VCC_C1
16
SIM_VPP_C6
SMB_CLK 30
32
SMB_DATA
38
USB_D+
36
USB_D-
1WAKE*
W_DISABLE* 20
REFCLK+
13
11 REFCLK-
3RSVD_1
37 RSVD_11
39 RSVD_12
41 RSVD_13
43 RSVD_14
45 RSVD_15
47 RSVD_16
49 RSVD_17
51 RSVD_18
RSVD_2
5
12
SIM_CLK_C3
10
SIM_DATAIO_C7
14
SIM_RESET_C2
19 SIM_RSVD_C4
LED_WLAN* 44
46
LED_WPAN*
42
LED_WWAN*
MNT1 53
MNT2 54
P1.5V_1 6
P1.5V_2 28
P1.5V_3 48
P3.3V_1 2
P3.3V_2 52
P3.3V_AUX 2423 PERN0
25 PERP0
22
PERST*
31 PETN0
33 PETP0
CLKREQ*
7
4
GND_1
35 GND_10
40
GND_11
50
GND_12
9GND_2
15 GND_3
18
GND_4
21 GND_5
26
GND_6
27 GND_7
29 GND_8
34
GND_9
P1.5V
3709-001498
J11
EDGE-MINIPCI-E-52P
100nF
C748
3
D
G
1
S
2
Q525
RHU002N06
10V
C749
100nF
nostuff
P3.3V P3.3V
DIA
BA61-01090A
M7
P3.3V
LENGTH
HEAD
P3.3V_AUX
10V
100nF
C788
C806
100nF
6.3V
C750
10000nF
R793
10K
1%
R691
0
nostuff
MIN3_CLKREQ#
PEX1_MINIRXN1
PEX1_MINIRXP1
PEX1_MINITXN1
PEX1_MINITXP1
KBC3_RFOFF#
WLON_LED#
KBC3_RFOFF#
PEX3_WAKE#
CLK1_MINIPCIE#
CLK1_MINIPCIE
PLT3_RST#

8-45
- 이 문서는 삼성전자의 기술 자산으로 승인자만이 사용할 수 있습니다 -
- This Document can not be used without Samsung's authorization -
8. Block Diagram and Schematic
Samsung
Confidential
Samsung
Confidential
Samsung
Confidential
SRP Sheet Number: 45 of 73
PC BEEP
B
PROPRIETARY INFORMATION THAT IS
THIS DOCUMENT CONTAINS CONFIDENTIAL
A
D
43
Place these R-Short on just opposite side of the CODEC.
A
EXCEPT AS AUTHORIZED BY SAMSUNG.
3
SAMSUNG
SAMSUNG PROPRIETARY
C
D
ALL TYPE IS 1608
BOTTOM
DO NOT DISCLOSE TO OR DUPLICATE FOR OTHERS
2 1
MIC_B
1
SAMSUNG ELECTRONICS CO’S PROPERTY.
ELECTRONICS
2
C
H/P_A
4
B
10V
nostuff
P1.5V
1000nF
C822
6.3V
C844
100nF
R821
1K
1%
P4.75V_AUD
R819 20K 1%
P5.0V_AUD P4.75V_AUD
G_AUD
G_AUD
1%1K
R817
25V
4.7nF
33
R823
G_AUD
C842
1%
R797 2K 1%
1000nF
C812
100nF
C818
10V
6.3V
10nF
C840
25V
0.015nF
C845
C815
100nF
10V
nostuff
50V
10000nF
C848
6.3V
C813
1000nF
6.3V
SHORT506 INSTPAR
RESET#
11
8SDATA_IN
SDATA_OUT
5
13 SENSE_A
SENSE_B
34
48 SPDIFO
SPDIF_EAPD
47
SYNC
10
27
VREF
LINE_OUT_L_D 35
36
LINE_OUT_R_D
MIC1_L_B 21
22
MIC1_R_B
28
MIC1_VREFO_L
MIC1_VREFO_R 32
16
MIC2_L_F
MIC2_R_F 17
MIC2_VREFO 30
37
MONO_OUT
45
NC0
44
3GPIO3
39
HP_OUT_L_A
HP_OUT_R_A 41
40 JDREF
LINE1_L_C 23
24
LINE1_R_C
LINE1_VREFO 29
14
LINE2_L_E
15
LINE2_R_E
31
LINE2_VREFO
CD_L
18
CD_R
20
DCVOL
33
46
DMIC_CLK
2DMIC_DATA
DVDD_CORE0
1
9DVDD_CORE1
DVSS_CORE0
4
7DVSS_CORE1
43 GPIO0
GPIO1
1205-003404
ALC262-VC2-GR
U523
AVDD1 25
38
AVDD2
26
AVSS1
AVSS2 42
6BCLK
BEEP
12
19 CD_GND
SHORT6 INSTPAR
INSTPAR
SHORT515
G_AUD G_AUD
C839
10nF 25V
1%
R818 39.2K
0
R697
10000nF
C850
6.3V
1%2K
R796
10V
C846
100nF
10V
C849
100nF
nostuff
6.3V
C841
1000nF
10-C218-C2
0
R698
10000nF
G_AUD
C824
6.3V
INSTPAR
SHORT507
6.3V
BYPASS 4
EN
3
2GND
1IN OUT 5
C843
1000nF
U524
MIC5252-4.75BM5
1203-003344
INSTPAR
SHORT5
18-C2 10-C2
G_AUD
G_AUD
1%
20K
R799
R820
20K
1%
P4.75V_AUD
D
3
1
G
2
S
G_AUD
P3.3V
RHU002N06
Q534
100nF
0
R824
C823
10V
C664
G_AUD
25V10nF
10000nF
C816
6.3V
SHORT516
INSTPAR
G_AUD
G_AUD
10V
100nF
C847
6.3V
1000nF
C814
G_AUD
nostuff
0
R822
AUD5_HP_O_LEFT
AUD5_HP_O_RIGHT
AUD5_LINE_O_LEFT
AUD5_LINE_O_RIGHT
AUD5_MIC1_VREF_LEFT
AUD5_MIC1_VREF_RIGHT
AUD5_MIC2_VREF
AUD3_SPKR
AUD3_BEEP
AUD5_MIC1_RIGHT
AUD5_MIC1_LEFT
AUD5_MIC1_VREF_RIGHT
AUD5_MIC1_VREF_LEFTHDA3_AUD_BCLK
HDA3_AUD_SDO
HDA3_AUD_SDI0
HDA3_AUD_SYNC
HDA3_AUD_RST#
AUD5_SENS_A
AUD3_BEEP
AUD3_GPIO0#
AUD3_GPIO1#
AUD5_SENS_HP#
AUD5_SENS_MIC#
AUD5_MIC2_RIGHT
AUD5_MIC2_LEFT
AUD5_SENS_A

8-46
- 이 문서는 삼성전자의 기술 자산으로 승인자만이 사용할 수 있습니다 -
- This Document can not be used without Samsung's authorization -
8. Block Diagram and Schematic
Samsung
Confidential
Samsung
Confidential
Samsung
Confidential
SRP Sheet Number: 46 of 73
21.6dB
GAIN0
0
SAMSUNG PROPRIETARY
A
C
4
0
C
INTERNAL STEREO SPEAKERS
SAMSUNG ELECTRONICS CO’S PROPERTY.
GAIN
4
ELECTRONICS
1
B
0
15.6dB1
1
DO NOT DISCLOSE TO OR DUPLICATE FOR OTHERS
2 13
EXCEPT AS AUTHORIZED BY SAMSUNG.
1
6dB
10dB
D
B
D
3
0
1
2
A
THIS DOCUMENT CONTAINS CONFIDENTIAL
PROPRIETARY INFORMATION THAT IS
SAMSUNG
10dB
GAIN1
nostuff
nostuff
100K
R692 1%
R693 100K0
R695
100nF
C761
10V
nostuff
1%
1%
1K
R746
100nF
10V
G_AUD
C819
P5.0V_AUD
G_AUD
INSTPAR
SHORT509
C756 100nF
10V
BLM18PG181SN1B13
B12 BLM18PG181SN1
100nFC755
10V
50V nostuff50V
1nF
C171
nostuff
C172
1nF
1
2
S
nostuff
6.3V
C820
10000nF
RHU002N06
Q518
D
3
G
P5.0V_AMP
R694 0
P5.0V_AMP
10V
100nFC760
6.3V
10000nF
C762
LIN-
5
LOUT+
4
LOUT-
8
12
NC
6
PVDD1
15
PVDD2
7
RIN+
RIN-
17
18
ROUT+
14
ROUT-
SHDN*
19
THERM
21
VDD
16
1201-001991
TPA6017A2
U518
10
BYPASS
2
GAIN0
GAIN1
3
GND1
1
GND2
11
GND3
13
20
GND4
LIN+
9
6.3V
C821
10000nF
BLM18PG181SN1B15
B14 BLM18PG181SN1
G_AUD
P5.0V_AMP
4
5MNT1
MNT2
6
SHORT508 INSTPAR
3711-000922
J4
HDR-4P-SMD
1
2
3
G_AUD
10V
C757
100nF
C758 100nF 10V
100nF
C759
C754 100nF 10V
nostuff
10V
16V
1nF
C173
G_AUD
C753
470nF
1nF
50V nostuff50V
R696 10K
1%
G_AUD
nostuff
C174
AUD3_SHDN#
SPK5_R+
AUD5_LINE_O_RIGHT
AUD5_LINE_O_LEFT
SPK5_R-
SPK5_L+
SPK5_L-
AUD3_SHDN#
AUD3_GPIO0#
KBC3_SPKMUTE
SPK5_L-
SPK5_R-
SPK5_L+
SPK5_R+

8-47
- 이 문서는 삼성전자의 기술 자산으로 승인자만이 사용할 수 있습니다 -
- This Document can not be used without Samsung's authorization -
8. Block Diagram and Schematic
Samsung
Confidential
Samsung
Confidential
Samsung
Confidential
SRP Sheet Number: 47 of 73
C
3
3
Internal MIC
4
PROPRIETARY INFORMATION THAT IS
SAMSUNG PROPRIETARY
EXCEPT AS AUTHORIZED BY SAMSUNG.
1
4 1
A
THIS DOCUMENT CONTAINS CONFIDENTIAL
DO NOT DISCLOSE TO OR DUPLICATE FOR OTHERS
2
SAMSUNG ELECTRONICS CO’S PROPERTY.
D
B
ELECTRONICS
DO NOT make a testpint in this net
B
2
SAMSUNG
C
A
D
It should be placed near the codec
SHORT505
INSTPAR
U522-2
LMV358M
+
5
6
-
4
G
OUT
7
V
8
LMV358M
U522-1
3
+
-
2
G
4
1
OUT
8
V
nostuff
1000nF
C798
6.3V
nostuff
6.3V
C795
1000nF
nostuff
P4.75V_AUD
nostuff
nostuff
1%
20K
R748
nostuff R750
20K
1%
nostuff
2K
R747
1%
R816 0
25V
10nF
C175
nostuff
1000nF
C797
6.3V
P4.75V_AUD
G_MIC
G_MIC
G_MIC
G_AUD G_MIC
3711-000541
J5
HDR-2P-SMD
1
2
330
R129
0.1nF
C176
B16
50V
25V
C793
BLM18PG181SN1
R743 0
10nF
10V
nostuff
nostuff
C796
100nF
G_MIC
6.3V
C817
10000nF
nostuff 47K
R749
R798
2.2K
G_MIC
P4.75V_AUD
P4.75V_AUD
G_MIC
INSTPAR
SHORT504
1%
4.7K
R745
nostuff R744
1K
50V
C794
2.2nF
nostuff
AUD5_MIC2_RIGHT
AUD5_MIC2_LEFT
AUD5_MIC2_VREF
nostuff

8-48
- 이 문서는 삼성전자의 기술 자산으로 승인자만이 사용할 수 있습니다 -
- This Document can not be used without Samsung's authorization -
8. Block Diagram and Schematic
Samsung
Confidential
Samsung
Confidential
Samsung
Confidential
SRP Sheet Number: 48 of 73
L
R
L
R
The traces led to Audio Jacks have the width over 10mil
3
THIS DOCUMENT CONTAINS CONFIDENTIAL
MIC JACK
C
HP depop circuit
SAMSUNG
Connect to Mount-hole.
D
EXCEPT AS AUTHORIZED BY SAMSUNG.
1
D
B
2
PROPRIETARY INFORMATION THAT IS
C
SAMSUNG ELECTRONICS CO’S PROPERTY.
4
ELECTRONICS
1
A
DO NOT DISCLOSE TO OR DUPLICATE FOR OTHERS
HEADPHONE
2
A
B
SAMSUNG PROPRIETARY
3
4
0.1nF
50V
C662
B514 BLM18PG181SN1
C680
0.1nF
50V
R587
330
50V
C661
0.1nF
1%1K
R652
R604
20K
P3.3V
1
3
2
1
3
2
MMBT3904
Q27
G_AUD
Q26
MMBT3904
G2
J512
3722-002365
1
2
3
4
5
6
G1
JACK-PHONE-6P-PINK
G_AUD
R603 56
C703
1nF
50V
R623
1K
1%
B518 BLM18PG181SN1
D
3
1
G
2
S
BLM18PG181SN1
B517
BLM18PG181SN1
RHU002N06
Q515
B515
20K
R602
AS
1
2
3
4
5
6
G1
G2
G_AUD
EC516 100uF 16V
JACK-PHONE-6P-LIME
J513
3722-002416
1
3
2
50V
0.1nF
C681
DTA114YUA
Q514
56R621
B31
BLM18PG181SN1B523
BLM18PG181SN1
330
R586
50V
1nF
C663
R653
1%
AS
100uFEC515 16V
G_AUD
10K
1%
1K
R622
BAT54A
D514
3
12
AUD5_HP_O_LEFT
AUD5_HP_O_RIGHT
AUD5_MIC1_RIGHT
AUD5_MIC1_LEFT
AUD3_GPIO1#
KBC3_SPKMUTE
AUD5_SENS_HP#
AUD5_SENS_MIC#
nostuff

8-49
- 이 문서는 삼성전자의 기술 자산으로 승인자만이 사용할 수 있습니다 -
- This Document can not be used without Samsung's authorization -
8. Block Diagram and Schematic
Samsung
Confidential
Samsung
Confidential
Samsung
Confidential
SRP Sheet Number: 49 of 73
B
A
3 2
DO NOT DISCLOSE TO OR DUPLICATE FOR OTHERS
1
D
Condition: P90=P91=P92=High(MICOM_P3V)
THIS DOCUMENT CONTAINS CONFIDENTIAL
D
C
1
POWER SWITCH BLOCK WHILE MICOM UPDATE
B
ELECTRONICS
MICOM Crisis Update
To support Micom Crisis
To support Micom Crisis
MICOM RESET
PROPRIETARY INFORMATION THAT IS
To support Micom Crisis
SAMSUNG PROPRIETARY
EXCEPT AS AUTHORIZED BY SAMSUNG.
Place nearby touchpad connector
A
SAMSUNG ELECTRONICS CO’S PROPERTY.
2
SAMSUNG
34
Serial Port: P84 & P85
MD0=MD1=Low(0V)
To measure leakage
C
4
2
5
10K
R714
7
D
3
1
G
2
S
P3.3V_MICOM
13
Q516
RHU002N06
1%
nostuff
6
7
1
470K
R711
11
P3.3V_MICOM
1%
R635
100K
P3.3V_MICOM
R753
100K
10V
C710
330nF
1%
4.7K
R715
0
100nF
C781
10V
Q520
BSS84
3
D
G
1
S
2
1%
R673
300K
100
R869
1%
2
RESET*
3VDD
14
P3.3V_MICOM
12
U520
TPS3809
1203-002364
GND 1
nostuff
0
R720
R712 10K
P3.3V_MICOM
R752
4.7K
0
R636
1
25V
C799
10nF
nostuff
nostuff
3
R718
C777
100nF
1%
10K
2
2
P3.3V_MICOM
P3.3V_AUX
10K
R676
1%
nostuff
VDC P3.3V_MICOM
47K
R754
10V
100nF
C737
15
100nF
C778
1%
R675 10K
VCCB 4
36
VCC_1
VCC_2 37
59
VCC_3
9
VCL
VSS_1
15
46 VSS_2
VSS_3
70
71 VSS_4
VSS_5
92
2XTAL
4
PA3
30
21 PA4
PA5
20
PA6
11
10 PA7
91 PB0
PB1
90
PB2
81
80 PB3
PB4
69
68 PB5
58 PB6
PB7
57
RES* 1
100
RESO*
STBY* 8
P82 95
96
P83
P84 97
98
P85 99
P86
25
P90
P91 24
P92 23
22
P93
P94 19
18
P95 17
P96
P97 16
PA0
48
47 PA1
31 PA2
P62 28
29
P63
P64 32
33
P65 34
P66
P67 35
P70 38
39
P71 40
P72
P73 41
42
P74
P75 43
P76 44
45
P77
93
P80
P81 94
87 P35
88 P36
P37
89
P40 49
50
P41 51
P42
P43 52
53
P44
P45 54
P46 55
56
P47
14
P50 13
P51
P52 12
26
P60
P61 27
74 P15
73 P16
P17
72
P20
67
66 P21
65 P22
P23
64
63 P24
P25
62
P26
61
60 P27
82 P30
P31
83
P32
84
85 P33
P34
86
U516
H8S-2110B
0903-001439
EXTAL
3
MD0 6
5
MD1
7
NMI
79 P10
P11
78
P12
77
76 P13
P14
75
47K
nostuff
4
R713
3
D
G
1
S
2
1
Q521
RHU002N06
9
5
1%
R637
10K
C776
100nF
P3.3V
P5.0V
C775
100nF
25V
nostuff
C780
0.018nF
0.018nF
C779
10
R716 4.7K
1%10K
R674
1%
10K
R719
0
R717
C735
10V
100nF
0
3
P3.3V_MICOM
150K
R751
1%
nostuff
P3.3V
TP2499
10MHz
2801-004665
Y500
1
2
S
P3.3V_MICOM
RHU002N06
Q519
nostuff
D
3
1
G
2
nostuff
R721
100K
6
P5.0V
10V
C736
100nF
3
1%
10K
R634
0
THM3_STP#
KBC3_PRECHG
KBC3_CHKPWRSW#
KBC3_USBPWRON#
KBC3_CHG4.2V
KBC3_RFOFF#
KBC3_SPKMUTE
KBC3_RST#
8
PCI3_CLKRUN#
KBC3_RSMRST#
ADT3_SEL#
CHP3_SUSSTAT#
CHP3_SLPS5#
KBC3_BKLTON
KBC3_THERM_SMDATA
KBC3_THERM_SMCLK
KBC3_LED_ACIN#
CHP3_SLPS3#
CHP3_SLPS4#
VRM3_CPU_PWRGD
KBC3_VRON
KBC3_PWRBTN#
KBC3_LED_CHARGE#
LID3_SWITCH#
THM3_ALERT#
KBC3_SUSPWR
KBC3_CHKPWRSW#
KBC3_CHKPWRSW#
KBC5_TCLK
KBC5_TDATA
KBC3_SCLED#
KBC3_NUMLED#
KBC3_CAPSLED#
ADT3_SEL#
KBC3_SMDATA#
KBC3_SMCLK#
KBC5_TCLK
KBC5_TDATA
KBC3_BLCKPWRSW#
KBC3_PWRSW#
BAT3_DETECT#
KBC3_RST#
KBC3_CPURST#
KBC3_BLCKPWRSW#
KBC3_PWRGD
KBC3_PWRON
KBC3_EXTSMI#
KBC3_RUNSCI#
KBC5_KSO(0:7)
KBC5_KSO(8:15)
KBC5_KSI(0:7)
KBC3_LED_POWER#
PEX3_WAKE#
LPC3_LAD(0:3)
KBC3_SMDATA#
KBC3_CHGEN
KBC3_A20G
KBC3_SMCLK#
LPC3_LFRAME#
PLT3_RST#
CLK3_PCLKMICOM
CHP3_SERIRQ
KBC3_WAKESCI#

8-50
- 이 문서는 삼성전자의 기술 자산으로 승인자만이 사용할 수 있습니다 -
- This Document can not be used without Samsung's authorization -
8. Block Diagram and Schematic
Samsung
Confidential
Samsung
Confidential
Samsung
Confidential
SRP Sheet Number: 50 of 73
4
3 2
D
1
1
SAMSUNG ELECTRONICS CO’S PROPERTY.
B
2
Main to HDD
SAMSUNG
A
3
4
SAMSUNG PROPRIETARY
THIS DOCUMENT CONTAINS CONFIDENTIAL
C
EXCEPT AS AUTHORIZED BY SAMSUNG.
B
DO NOT DISCLOSE TO OR DUPLICATE FOR OTHERS
ELECTRONICS
D
C
A
PROPRIETARY INFORMATION THAT IS
4700nF
C752
10V
nostuff
P3
P4
P5
P6
P7
P8
P9
S1
S2
S3
S4
S5
S6
S7
3710-002471
J514
SOCK-22P-1R
M1
M2
P1
P10
P11
P12
P13
P14
P15
P2
4700nF
C751
10V
P5.0V
100nF
C792
10V
C807
100nF
10V
nostuff
10V
C790
100nF
6.3V
C811
10000nF
nostuff
10V
100nF
C808
nostuff
P3.3V
SAT1_TXN0
SAT1_TXP0
SAT1_RXP0
SAT1_RXN0
100nF
C791
10V

8-51
- 이 문서는 삼성전자의 기술 자산으로 승인자만이 사용할 수 있습니다 -
- This Document can not be used without Samsung's authorization -
8. Block Diagram and Schematic
Samsung
Confidential
Samsung
Confidential
Samsung
Confidential
SRP Sheet Number: 51 of 73
ELECTRONICS
D
C
1
2
B
SATA ODD
3 14
SAMSUNG PROPRIETARY
A
23
SAMSUNG ELECTRONICS CO’S PROPERTY.
PROPRIETARY INFORMATION THAT IS
D
A
SAMSUNG
THIS DOCUMENT CONTAINS CONFIDENTIAL
4
C
EXCEPT AS AUTHORIZED BY SAMSUNG.
B
DO NOT DISCLOSE TO OR DUPLICATE FOR OTHERS
14
MNT2
15
RX+
S2
RX-
S3
TX+
S6 TX-
S5
P2 5V_1
5V_2
P3
DP
P1
GND_1
S1
GND_2
S4
GND_3
S7
GND_4
P5
GND_5
P6
MD
P4
MNT1
10000nF
C646
6.3V
3710-002634
J511
CDROM-SATA-13P
nostuff
6.3V
C645
10000nF
P5.0V
10V
C648
100nF
10V
C647
100nF
SAT1_RXP1
SAT1_RXN1
SAT1_TXN1
SAT1_TXP1
100nF
C649
10V

8-52
- 이 문서는 삼성전자의 기술 자산으로 승인자만이 사용할 수 있습니다 -
- This Document can not be used without Samsung's authorization -
8. Block Diagram and Schematic
Samsung
Confidential
Samsung
Confidential
Samsung
Confidential
SRP Sheet Number: 52 of 73
4
SAMSUNG PROPRIETARY
1
D
1
C
Need 2A Routing
D
DO NOT DISCLOSE TO OR DUPLICATE FOR OTHERS
B
A
3
4
THIS DOCUMENT CONTAINS CONFIDENTIAL
SAMSUNG
EXCEPT AS AUTHORIZED BY SAMSUNG.
2
C
3
ELECTRONICS
SAMSUNG ELECTRONICS CO’S PROPERTY.
1 PORT USB CONNECTOR
2
PROPRIETARY INFORMATION THAT IS
A
B
OC2*
5
7
OUT1
OUT2 6
U500
TPS2062
1205-002596
EN1*
3
4EN2* 1
GND
2IN
8OC1*
1GND
5MNT1
MNT2
6
MNT3
7
8MNT4
4PWR
P5.0V_AUX_USB
3722-002729
J501
JACK-USB-4P
DATA+
2
DATA-
3
2
1
3
4
TP2489
B500
ACM2012-900-2P-T
P5.0V_AUX_USB
R501
1%
1%
R503
100K
nostuff
1K
1%
R502
1K
nostuff
nostuff
Q501
RHU002N06
3
D
G
1
S
2
nostuff
nostuff
Q500
BSS84
3
D
G
1
S
2
PGB1010603NR
D1
nostuff
21
C2
100nF
10V
C501 100nF
10V
D2
PGB1010603NR
nostuff
21
EC1
68uF
25V
AL
USB3_P2+
KBC3_USBPWRON#
KBC3_USBPWRON#
USB3_P2+_R
USB3_P2-
USB3_P2-_R
0.047nF
C1
50V

8-53
- 이 문서는 삼성전자의 기술 자산으로 승인자만이 사용할 수 있습니다 -
- This Document can not be used without Samsung's authorization -
8. Block Diagram and Schematic
Samsung
Confidential
Samsung
Confidential
Samsung
Confidential
SRP Sheet Number: 53 of 73
DO NOT DISCLOSE TO OR DUPLICATE FOR OTHERS
D
3
C
A
4
THIS DOCUMENT CONTAINS CONFIDENTIAL
SAMSUNG
SAMSUNG ELECTRONICS CO’S PROPERTY.
ELECTRONICS
Need 4A Routing
2
EXCEPT AS AUTHORIZED BY SAMSUNG.
C
2 PORT USB CONNECTOR
3 2
41
B
A
1
SAMSUNG PROPRIETARY
PROPRIETARY INFORMATION THAT IS
B
D
PGB1010603NR
D501
nostuff
21
TPS2062
U502
3EN1*
EN2*
4GND 1
IN
2
OC1*
8
5OC2*
OUT1 7
OUT2 6
P5.0V_AUX_USB
1205-002596
AS
16V
100uF
EC500
50V
C505
0.047nF
MNT1
MNT2
10
MNT3
11
12 MNT4
PWR0
1
5PWR1
3USB0+
2USB0-
USB1+
7USB1-
6
JACK-8P-LED-MNT
J503
3722-002601
GND1
4
8GND2
9
10V
100nF
C500
nostuff
RHU002N06
Q503
D
3
1
G
2
S
P5.0V_AUX_USB
ACM2012-900-2P-T
B502
2
1
3
4
ACM2012-900-2P-T
2
1
3
4
B501
R504
1K
nostuff
1%
10V
100nFC551
nostuff
100K
R506
1%
S
nostuff
1K
R507
1%
nostuff
BSS84
Q502
D
3
1
G
2
nostuff
21
PGB1010603NR
D3
nostuff
21
PGB1010603NR
nostuff
21
D4
PGB1010603NR
USB3_P0+
USB3_P6-
USB3_P6+
KBC3_USBPWRON#
KBC3_USBPWRON#
USB3_P0+_R
USB3_P0-
USB3_P0-_R
USB3_P1+_R
USB3_P1-_R
D500

8-54
- 이 문서는 삼성전자의 기술 자산으로 승인자만이 사용할 수 있습니다 -
- This Document can not be used without Samsung's authorization -
8. Block Diagram and Schematic
Samsung
Confidential
Samsung
Confidential
Samsung
Confidential
SRP Sheet Number: 54 of 73
1
ELECTRONICS
(Bottom)
PROPRIETARY INFORMATION THAT IS
DO NOT DISCLOSE TO OR DUPLICATE FOR OTHERS
D
C
B
3
A
MDC Connecter
C
3
SAMSUNG
THIS DOCUMENT CONTAINS CONFIDENTIAL
4
SAMSUNG ELECTRONICS CO’S PROPERTY.
EXCEPT AS AUTHORIZED BY SAMSUNG.
2
4
A
2 1
D
SAMSUNG PROPRIETARY
B
M501
DIA
HEAD
LENGTH
EMI
M500
P3.3V_AUX
33 1%
R59
10V
C84
100nF
6.3V
C85
10000nF
2
3 4
5 6
7 8
9
MNT1
13
14 MNT2
15 MNT3
MNT4
16
MNT5
17
18 MNT6
HDA3_MDC_SDI1
HDA3_MDC_SYNC
HDA3_MDC_SDO
HDA3_MDC_RST# HDA3_MDC_BCLK
3710-002133
SOCK-12P-2R-SMD
J508
1
10
11 12

8-55
- 이 문서는 삼성전자의 기술 자산으로 승인자만이 사용할 수 있습니다 -
- This Document can not be used without Samsung's authorization -
8. Block Diagram and Schematic
Samsung
Confidential
Samsung
Confidential
Samsung
Confidential
SRP Sheet Number: 55 of 73
4
D D
B
4 2
A
DO NOT DISCLOSE TO OR DUPLICATE FOR OTHERS
SAMSUNG ELECTRONICS CO’S PROPERTY.
2
SAMSUNG PROPRIETARY
C
ELECTRONICS
THIS DOCUMENT CONTAINS CONFIDENTIAL
SAMSUNG
1
C
3
3 1
A
80H DECODER CONNECTOR
EXCEPT AS AUTHORIZED BY SAMSUNG.
B
PROPRIETARY INFORMATION THAT IS
11
12
MNT2
P5.0V
1
10
2
3
4
5
6
7
8
9
MNT1
3711-000386
J509
HDR-10P-1R-SMD
PLT3_RST#
LPC3_LAD(1)
LPC3_LAD(0)
CLK3_DBGLPC
LPC3_LFRAME#
LPC3_LAD(3)
LPC3_LAD(2)
P3.3V

8-56
- 이 문서는 삼성전자의 기술 자산으로 승인자만이 사용할 수 있습니다 -
- This Document can not be used without Samsung's authorization -
8. Block Diagram and Schematic
Samsung
Confidential
Samsung
Confidential
Samsung
Confidential
SRP Sheet Number: 56 of 73
2
CRT CONNECTOR
PROPRIETARY INFORMATION THAT IS
SAMSUNG PROPRIETARY
THIS DOCUMENT CONTAINS CONFIDENTIAL
1
1
SAMSUNG ELECTRONICS CO’S PROPERTY.
EXCEPT AS AUTHORIZED BY SAMSUNG.
DO NOT DISCLOSE TO OR DUPLICATE FOR OTHERS
SAMSUNG
ELECTRONICS
B
A
B
C
A
C
D D
4
4
3
3
2
50V
0.1nF
C9
50V
0.1nF
100nF
C513
10V
BLM18PG181SN1
B503
C11
0
R529
R530 0
1%
1%
R15 150
R13 150
150
R14
Q504
RHU002N06
nostuff
3
D
G
1
S
2
1%
RHU002N06
Q505
nostuff
D
3
1
G
2
S
C12
50V
270pF
L3 82nH
P3.3V
L2 82nH
P3.3V
C28
0.022nF
VCC_CRT
P3.3V VCC_CRT
P3.3V
50V
VCC_CRT
D508
MMBD4148
13
P5.0V
C527
10V
100nF
4
1
OE*
VCC_CRT
SN74AHCT1G125DCKR
U506
+
5
3
-
2
40.2
R526 5%
nostuff
2 1
PGB1010603NR
D507
nostuff
2 1
nostuff
2 1
D506
PGB1010603NR
82nH
PGB1010603NR
D505
14
15
16
17
2
3
4
5
6
7
8
9
L1
3701-001403
J505
DSUB-15-3R-F
1
10
11
12
13
3
2
nostuff
D502
BAV99LT1
1
3
2
nostuff
BAV99LT1
D504
1
D503
MMBD4148
1
3
P5.0V
2 4
OE*
1
SN74AHCT1G125DCKR
U505
5
+
-
3
R525 40.2 5%
10V
100nF
C526
2.2K
R532
R528
2.2K
nostuff
nostuff
2.2K
R531
R527
2.2K
50V
0.022nF
C29 C32
0.022nF
50V
50V
0.022nF
C30
C27
0.022nF
50V50V
0.022nF
C26
CRT3_DDCCLK CRT5_DDCCLK
CRT5_DDCDATA
270pF
C10
50V
CRT3_VSYNC CRT5_VSYNC
CRT3_HSYNC CRT5_HSYNC
CRT5_VSYNC
CRT3_RED
CRT3_GREEN
CRT3_BLUE
CRT5_DDCDATA
CRT5_DDCCLK
CRT5_HSYNC
CRT3_DDCDATA

8-57
- 이 문서는 삼성전자의 기술 자산으로 승인자만이 사용할 수 있습니다 -
- This Document can not be used without Samsung's authorization -
8. Block Diagram and Schematic
Samsung
Confidential
Samsung
Confidential
Samsung
Confidential
SRP Sheet Number: 57 of 73
Istanbul : 2channel
Lyon : 1channel
SAMSUNG
ELECTRONICS
A
B
C
A
C
B
4
DD
3
4
2
13
1
2
PROPRIETARY INFORMATION THAT IS
EXCEPT AS AUTHORIZED BY SAMSUNG.
SAMSUNG PROPRIETARY
SAMSUNG ELECTRONICS CO’S PROPERTY.
THIS DOCUMENT CONTAINS CONFIDENTIAL
DO NOT DISCLOSE TO OR DUPLICATE FOR OTHERS
1%
R508
100K
1%
R25
200K
3
D
G
1
S
2
LCD_VDD3V
SI2315BDS-T1
3
D
G
1
S
2
Q2
RHU002N06
Q1
100nF
C518
1%
VDC_INV
1%
100K
LCD_VDD3V
P3.3V
10K
R46
R45
150K
R29
1%
nostuff
5 6
7 8
9
31
MNT1 32
MNT2
P3.3V
VDC_INV
18
19
2
20
21 22
23 24
25 26
27 28
29
3
30
4
3710-002498
J2
SOCK-30P-2R-SMD-MNT
1
10
11 12
13 14
15 16
17
R28
51.1K
1%
nostuff
6.3V
C519
1000nF
2.2K
R521
R30 0
R26
30.1K 1%
VDC
R509
100K
1%
3
1
G
2
S
25V
C46
100nF
nostuff
P3.3V
SI2307BDS-T1-E3
U3
nostuff
D
RHU002N06
Q3
nostuff
D
3
1
G
2
S
R520 2.2K
P3.3VP5.0V_ALW
10V
0
R31
C520
100nF
1%
R505 1K
330nF
C45
10V
U501
7SZ08
+
5
-
3
1
24
1%
10K
R27
nostuff
25V
C47
100nF
nostuff
LCD1_BDATA2#
LCD1_BDATA0#
LCD1_BDATA1
LCD1_BCLK
P3.3V
VDC_INV
PEG3_LCDVDDON
LCD1_ACLK
LCD1_ACLK# LCD1_ADATA2
LCD1_ADATA2#
LCD1_ADATA1
LCD1_ADATA1#
LCD1_ADATA0
LCD1_ADATA0#
LCD3_EDID_DATA
LCD3_EDID_CLK
LCD3_BKLTON
LCD3_BRIT
KBC3_BKLTON
PEG3_BKLTEN
LCD3_BKLTON
LCD1_BDATA0
LCD1_BDATA1#
LCD1_BDATA2
LCD1_BCLK#

8-58
- 이 문서는 삼성전자의 기술 자산으로 승인자만이 사용할 수 있습니다 -
- This Document can not be used without Samsung's authorization -
8. Block Diagram and Schematic
Samsung
Confidential
Samsung
Confidential
Samsung
Confidential
SRP Sheet Number: 58 of 73
SAMSUNG ELECTRONICS CO’S PROPERTY.
DO NOT DISCLOSE TO OR DUPLICATE FOR OTHERS
SAMSUNG
EXCEPT AS AUTHORIZED BY SAMSUNG.
A A
SAMSUNG PROPRIETARY
THIS DOCUMENT CONTAINS CONFIDENTIAL
1
B B
D
4
4
3
3
PROPRIETARY INFORMATION THAT IS
2
C C
1
D
ELECTRONICS
Add for EMC(’08.01.16)
2
miniSMDC110-2
TH500
0.01nF
C611
0.5pF
50V
nostuff
50V
0.5pF
C239
0.01nF
nostuff
R567
0
nostuff
B19
BLM18PG181SN1
nostuff
nostuff
0
R568
R566
0
nostuff
0
R565
R579
0
nostuff
nostuff
nostuff
0
R576
R578
0
nostuff
0
R577
1
2
B20
BLM18PG181SN1
2
1
3
4
CRS06
D511
B21
ACM2012H-900-2P
P5.0V
MMBT3904
Q13
1
3
2
P3.3V
R170
47K
1%
R169
100K
R185
2.2K
1nF
C764C825
1nF
50V
P3.3V
50V
P3.3V
10V
100nF
C610
TMDS_CLOCK_SHIELD
11
TMDS_DATA0
7
TMDS_DATA0#
9
8TMDS_DATA0_SHIELD
4TMDS_DATA1
6TMDS_DATA1#
TMDS_DATA1_SHIELD
5
TMDS_DATA2
1
TMDS_DATA2#
3TMDS_DATA2_SHIELD
2
13 CEC
17 DDC_GROUND
19 HOT_PLUG_DETECT
20
MNT1
MNT2 21
MNT3 22
MNT4 23
14 RESERVED
SCL
15
SDA
16
10 TMDS_CLOCK
12 TMDS_CLOCK#
47408-0001
J510
3701-001391
18 5V_POWER
1
3
4
2.2K
R186
2
1
3
4
ACM2012H-900-2P
B22
2
2
1
3
4
B25
ACM2012H-900-2P
nostuff
1
3
2
ACM2012H-900-2P
B24
nostuff
1
3
2
BAV99LT1
D11
PEG3_TX2P_HDMI
PEG3_TX2N_HDMI
PEG3_TX1P_HDMI
PEG3_TX1N_HDMI
D12
BAV99LT1
PEG5_HDMI_DATA
PEG5_HDMI_CLK
PEG3_TXCP_HDMI
PEG3_TXCN_HDMI
PEG3_TX0P_HDMI
PEG3_TX0N_HDMI
PEG3_HPD_HDMI

8-59
- 이 문서는 삼성전자의 기술 자산으로 승인자만이 사용할 수 있습니다 -
- This Document can not be used without Samsung's authorization -
8. Block Diagram and Schematic
Samsung
Confidential
Samsung
Confidential
Samsung
Confidential
SRP Sheet Number: 59 of 73
C
EXCEPT AS AUTHORIZED BY SAMSUNG.
1
4
PROPRIETARY INFORMATION THAT IS
SAMSUNG
To FCT Test (3 X 4mm pad)
D
Power On LED
ELECTRONICS
A
B
3
D
SAMSUNG PROPRIETARY
2
3
SAMSUNG ELECTRONICS CO’S PROPERTY.
THIS DOCUMENT CONTAINS CONFIDENTIAL
C
DO NOT DISCLOSE TO OR DUPLICATE FOR OTHERS
2
B
4
A
1
Power LED, Blue color
Put this LED located near PWRSW from ME recommedation
3
2
P3.3V_MICOM
P3.3V
D10
BAV99LT1
nostuff
1
LED1 LTST-C193TBKT-AC
1
2
475
R12 1%
KBC3_PWRSW#
3404-001311
SW1
SW-TACT-4P 1
2
3
4

8-60
- 이 문서는 삼성전자의 기술 자산으로 승인자만이 사용할 수 있습니다 -
- This Document can not be used without Samsung's authorization -
8. Block Diagram and Schematic
Samsung
Confidential
Samsung
Confidential
Samsung
Confidential
SRP Sheet Number: 60 of 73
B
KEYBOARD
SAMSUNG PROPRIETARY
1
D
DO NOT DISCLOSE TO OR DUPLICATE FOR OTHERS
A
2
B
3
D
C
THIS DOCUMENT CONTAINS CONFIDENTIAL
1
A
PROPRIETARY INFORMATION THAT IS
SAMSUNG ELECTRONICS CO’S PROPERTY.
2
4
4
EXCEPT AS AUTHORIZED BY SAMSUNG.
SAMSUNG
3
ELECTRONICS
C
3
2
1
0
0
7
6
5
4
20
21
22
23
24
25
3
4
5
6
7
8
9
26 MNT1
MNT2
27
3708-002166
J8
FPC-KBD-25P
1
10
11
12
13
14
15
16
17
18
19
2
11
12
13
14
15
6
7
8
9
10
KBC5_KSO(0:15)
1
2
3
4
5
KBC5_KSI(0:7)

8-61
- 이 문서는 삼성전자의 기술 자산으로 승인자만이 사용할 수 있습니다 -
- This Document can not be used without Samsung's authorization -
8. Block Diagram and Schematic
Samsung
Confidential
Samsung
Confidential
Samsung
Confidential
SRP Sheet Number: 61 of 73
EXCEPT AS AUTHORIZED BY SAMSUNG.
4
ELECTRONICS
C
Bluetooth Interface
3
B
SAMSUNG
2
DO NOT DISCLOSE TO OR DUPLICATE FOR OTHERS
SAMSUNG PROPRIETARY
D
1
A
D
Straight Type
C
1
B
A
3
PROPRIETARY INFORMATION THAT IS
THIS DOCUMENT CONTAINS CONFIDENTIAL
2
SAMSUNG ELECTRONICS CO’S PROPERTY.
4
C789
100nF
10V
3711-000456
J12
HDR-4P-1R-SMD
1
2
3
4
USB3_P5-
USB3_P5+
P3.3V

8-62
- 이 문서는 삼성전자의 기술 자산으로 승인자만이 사용할 수 있습니다 -
- This Document can not be used without Samsung's authorization -
8. Block Diagram and Schematic
Samsung
Confidential
Samsung
Confidential
Samsung
Confidential
SRP Sheet Number: 62 of 73
1
PROPRIETARY INFORMATION THAT IS
SAMSUNG ELECTRONICS CO’S PROPERTY.
24
EXCEPT AS AUTHORIZED BY SAMSUNG.
3
4
ELECTRONICS
C
SAMSUNG
B
1
TOUCHPAD
D
DO NOT DISCLOSE TO OR DUPLICATE FOR OTHERS
SAMSUNG PROPRIETARY
2
A
B
3
A
D
C
THIS DOCUMENT CONTAINS CONFIDENTIAL
3708-002402
J7
CONN-6P-FPC
1
2
3
4
5
6
MNT1
7
8MNT2
0.01nF
C604
0.5pF
50V
50V
1nF
C606
50V50V
1nF
C607 C605
1nF
C608
100nF
10V
P5.0V
3404-001311
SW-TACT-4P
SW2
1
2
3
4
3404-001311
SW-TACT-4P
SW3
1
2
3
4
P5.0V
D15
1
3
2
P5.0V
2
nostuff
BAV99LT1
nostuff
D521
BAV99LT1
1
3
T_L_BUTTON#
T_R_BUTTON#
KBC5_TDATA
T_R_BUTTON#
T_L_BUTTON#
KBC5_TCLK

8-63
- 이 문서는 삼성전자의 기술 자산으로 승인자만이 사용할 수 있습니다 -
- This Document can not be used without Samsung's authorization -
8. Block Diagram and Schematic
Samsung
Confidential
Samsung
Confidential
Samsung
Confidential
SRP Sheet Number: 63 of 73
Straight Type
4
EXCEPT AS AUTHORIZED BY SAMSUNG.
3
SAMSUNG
4
ELECTRONICS
C
B
2
D
DO NOT DISCLOSE TO OR DUPLICATE FOR OTHERS
SAMSUNG PROPRIETARY
1
A
CAMERA
B
3
D
C
THIS DOCUMENT CONTAINS CONFIDENTIAL
1
A
PROPRIETARY INFORMATION THAT IS
SAMSUNG ELECTRONICS CO’S PROPERTY.
2
2
1
3
4
1
2
3
4
P5.0V
B504
ACM2012-900-2P-T
3711-000456
J1
HDR-4P-1R-SMD
100nF
C522 C521
100nF
10V10V
USB3_P8-
USB3_P8+

8-64
- 이 문서는 삼성전자의 기술 자산으로 승인자만이 사용할 수 있습니다 -
- This Document can not be used without Samsung's authorization -
8. Block Diagram and Schematic
Samsung
Confidential
Samsung
Confidential
Samsung
Confidential
SRP Sheet Number: 64 of 73
G
R
3
3
D
SAMSUNG PROPRIETARY
DO NOT DISCLOSE TO OR DUPLICATE FOR OTHERS
2
B
SAMSUNG ELECTRONICS CO’S PROPERTY.
THIS DOCUMENT CONTAINS CONFIDENTIAL
C
4
Have to adjust R value
A
1
C
EXCEPT AS AUTHORIZED BY SAMSUNG.
1
4
ELECTRONICS
WLAN ON
HDD LED
SCRLLOCK
D
PROPRIETARY INFORMATION THAT IS
SAMSUNG
A
B
CAPSLOCK
NUMLOCK
ADAPTERIN/CHARGING LED
2
1 2
C867
6.3V
LTST-C193TBKT-AC
LED8
1000nF
3
-
2 4
P3.3V_AUX
1M
R845
7SZ14
U527
+
5
10K
R837
R838 475
P3.3V_MICOM
R842 10K
P3.3V_MICOM
1%
150
R841
R836
P3.3V
475 1%
475
R835 475 1%
475
R834 1%
R832
R833 1%
1
2
1%475
LTST-C193TBKT-AC
1
2
LED6 LTST-C193TBKT-AC
LED4
LTST-C193TBKT-AC
1
2
LED5
LTST-C193TBKT-AC
LED3
1
2
LTST-C193TBKT-AC
LED2
1
2
3
4
LED7
LTST-C195KGJRKT
1
2
3
D
1
G
S
2
475
R846
BSS84
Q539
D
3
G
12
S
Q538
BSS84
CHP3_SATALED#
WLON_LED#
KBC3_LED_ACIN#
KBC3_LED_CHARGE#
KBC3_LED_POWER#
KBC3_NUMLED#
KBC3_CAPSLED#
KBC3_SCLED#

8-65
- 이 문서는 삼성전자의 기술 자산으로 승인자만이 사용할 수 있습니다 -
- This Document can not be used without Samsung's authorization -
8. Block Diagram and Schematic
Samsung
Confidential
Samsung
Confidential
Samsung
Confidential
SRP Sheet Number: 65 of 73
EXCEPT AS AUTHORIZED BY SAMSUNG.
4
C
3
4
ELECTRONICS
SAMSUNG
B
2
1
D
SAMSUNG PROPRIETARY
DO NOT DISCLOSE TO OR DUPLICATE FOR OTHERS
B
A
LID_SWITCH
C
3
D
PROPRIETARY INFORMATION THAT IS
THIS DOCUMENT CONTAINS CONFIDENTIAL
1
A
SAMSUNG ELECTRONICS CO’S PROPERTY.
2
P3.3V
3GND
OUTPUT 2
1SUPPLY
10V
100nF
C3
P3.3V
1009-001010
A3212ELH/HED55XXU12
U1
LID3_SWITCH#
1%
R1
20K

8-66
- 이 문서는 삼성전자의 기술 자산으로 승인자만이 사용할 수 있습니다 -
- This Document can not be used without Samsung's authorization -
8. Block Diagram and Schematic
Samsung
Confidential
Samsung
Confidential
Samsung
Confidential
SRP Sheet Number: 66 of 73
C
D
1
D
4
Add for EMC solution (080305)
CPU VRM [INTERSIL]
1
3
2
SAMSUNG PROPRIETARY
SAMSUNG
ELECTRONICS
Snubber (2008.01.16, 03.07)
THIS DOCUMENT CONTAINS CONFIDENTIAL
Snubber (2008.01.16, 03.07)
PROPRIETARY INFORMATION THAT IS
SAMSUNG ELECTRONICS CO’S PROPERTY.
DO NOT DISCLOSE TO OR DUPLICATE FOR OTHERS
EXCEPT AS AUTHORIZED BY SAMSUNG.
Place near to L704
C
A A
2
3
B B
4
nostuff
VDC
1K
R868
1%
P5.0V
0
R708
1%
P3.3V
R662
499
VDC
2.21k
R655
1nF
C241
1%
B340A
D513
12
nostuff
50V
nostuff
C407
1nF
50V
nostuff
C406
1nF
50V
R216
4.7
C354
0.47nF
50V
0.47nF
C291
R192
50V
1000nF
C704
4.7
R659
3.24K
1%
6.3V
220nF
C408
25V
G_CPU
1%
11K
R703
C765
0.068nF
50V
R663
150K
1%
10
R658 1%1%
R657 10
1%
1K
R701
1%49.9
R700
1nF
C387
50V
D1
5 6
D2 D3
7 8
D4
4
G
1
S1 S2
2 3
S3
G_CPU
D2 D3
7 8
D4
4
G
1
S1 S2
2 3
S3
TPC8032-H
Q23
SI4686DY-T1-E3
Q22
D1
5 6
1%
20K
R214
R247 3.3
AL
25V
10uF
EC514
CPU_CORE
P3.3V
R625
0
R627
0
1000nF
C707
6.3V
P5.0V
18-C4 52-C111-D3
G_CPU
R630 1
0.47nF
C389
G_CPU
G_CPU
50V
0.39uH
L504
MPO104-R39
R668 0
nostuff
R628
0
VDC
50V
C288
1nF
D512
B340A
12
10V
C706
100nF
C726
15nF
50V
25V
C705
220nF
1%
EC13
330uF
2V
AL
39.2K
R661
AL
2V
330uF
EC11
AL
2V
330uF
EC10
1%11K
R654
1%
R215
3.3K
10K
R665
47nF
C290
50V
C725
2.2nF
50V
1%
R702
100K
1%
R706
4.99K
6.3V
C728
1000nF
1%
R699
1K
470K
R705
1%
nostuff
C355
1nF
50V
R560
3.3K
EC9
330uF
2V
AL
1%
nostuff
20K
R561
100nF
C682
25V
AL
25V
10uF
EC509
EC510
10uF
25V
AL
4.7
R243
Q25
TPC8032-H
5
D1 D2
6 7
D3 D4
8
G
4
S1
1 2
S2 S3
3
1nF
C724
50V
5
D1 D2
6 7
D3 D4
8
G
4
S1
1 2
S2 S3
3
Q24
SI4686DY-T1-E3
R562
12
C763
0.22nF
NTCG163JF103HT
50V
D1
5 6
D2 D3
7 8
D4
4
G
1
S1 S2
2 3
S3
SHORT4 0
R624
10 1%
SI4686DY-T1-E3
Q17
1nF
C727
50V
5
D1 D2
6 7
D3 D4
8
G
4
S1
1 2
S2 S3
3
D4
8
G
4
S1
1 2
S2 S3
3
Q18
TPC8032-H
Q14
SI4686DY-T1-E3
5
D1 D2
6 7
D3
nostuff
EXF-0023-05
EMI501
6302-001057
EMI
G_CPU
220nF
C721 18 VO 44
VR_ON
5VR_TT#
14 VSEN
21 VSS
VSUM
19
VW
9
25V
27
UGATE2
22 VDD
38
VDI1
39
VDI2
40
VDI3
41
VDI4
42
VDI5
43
VDI6
VDIFF
13
37
VID0
VIN
20
29
PGOOD
1
34
PHASE1
28
PHASE2
3PMON
2PSI#
31
PVCC
4RBIAS
15 RTN
7SOFT
UGATE1 35
11 FB
FB2
12
24 ISEN1
ISEN2
23
LGATE1 32
LGATE2 30
25
NC
NTC
6
8OCSET
PGND1 33
PGND2
48
3V3
BOOT1 36
26
BOOT2
47
CLK_EN#
10 COMP
DFB
17 45
DPRSLPVR
46
DPRSTP#DROOP
16
49
EP
1203-005009
ISL6266AHRZ-T
U515
nostuff
EC517
10uF
25V
AL
11-D3 52-C118-C4
100nF
C287
25V
50V
47nF
C585
C766
0.22nF
50V
100nF
C877 25V
G_CPU
4.7nF
C767
MPO104-R39
L503
0.39uH
25V
R707 0
1%
R660 1K
11K
R704
1%
D1
5 6
D2 D3
7 8
D4
4
G
1
S1 S2
2 3
S3
TPC8032-H
Q15
0.47nF
50V
C723
10nF
25V
R175
4.7
C240
50V
C768
1nF
R656 10
1%
0
R667
nostuff
nostuff
R666 0
G_CPU
25V
C722
100nF
R629 3.3
nostuff
0
R626
R664 499
CPU1_VID(6)
CPU1_VID(0)
P1.1V_PWRGD
VRM_PRM
VRM_VSUM
1% VRM_VSUM
VRM_VSUM
VRM_ISEN2
GCORE3_PWRGD
CHP3_DPRSLPVR
CPU1_DPRSTP#
VRM_ISEN1
VRM_ISEN2
CPU1_VID(1)
CPU1_VID(2)
CPU1_VID(3)
CPU1_VID(4)
CPU1_VID(5)
VRM_ISEN1
VRM_ISEN1
VRM_ISEN2
VRM3_CPU_PWRGD
CPU1_PSI#
KBC3_VRON
VRM_PRM
CPU1_VCCSENSE
CPU1_VSSSENSE
VRM_PRM

8-67
- 이 문서는 삼성전자의 기술 자산으로 승인자만이 사용할 수 있습니다 -
- This Document can not be used without Samsung's authorization -
8. Block Diagram and Schematic
Samsung
Confidential
Samsung
Confidential
Samsung
Confidential
SRP Sheet Number: 67 of 73
SAMSUNG PROPRIETARY
THIS DOCUMENT CONTAINS CONFIDENTIAL
PROPRIETARY INFORMATION THAT IS
ELECTRONICS
EXCEPT AS AUTHORIZED BY SAMSUNG.
A
(1.1075V)
3
A
C
B B
D
C
D
34
4 2
P1.1V
DO NOT DISCLOSE TO OR DUPLICATE FOR OTHERS
SAMSUNG ELECTRONICS CO’S PROPERTY.
2
SAMSUNG
1
1
1%
50V
1nF
C660
6.3V
20%
1K
R236
1%
22000nF-X5R
C380
2.2uH
L505
SIQ1048-2R2
G_P1.1V
20K
R597
R205 27.4K
R206 51.1K
1%
SYNC_EN
21
THERM
5VCC_1 12
VCC_2
P5.0V_AUX
1%
NC_2
9
NC_3
15
PGND1 16
PGND2
6PGOOD
17 PH1
18 PH2
PH3
19
1
PVIN1 20
PVIN2
3
SS
14
1203-004723
SC4624MLTRT
U512
13
AGND
10 COMP
11 FB
4
FS
2
ISET
7NC_1
8
R596 0
G_P1.1V
B516
BLM18SG260TN1
nostuff
1K
R237 1%
nostuff
G_P1.1V
R207
10
6.3V
20%
22000nF-X5R
C873
R234 43.2K
nostuff
1%
P1.1V 1%
50V
1K
R232
P5.0V_AUX
C381
1nF
220uF
C379
50V
1nF
C382
AD
2.5V
22K
R235
1%
C348
6.3V
G_P1.1V
27.4K
R233
1%
50V
1000nF
50V
C384 0.47nF
P3.3V
C383 0.068nF
50V
G_P1.1V
50V
C347 22nF
KBC3_PWRON
VCCP3_PWRGD
P1.1V_PWRGD
47nF
C346
nostuff

8-68
- 이 문서는 삼성전자의 기술 자산으로 승인자만이 사용할 수 있습니다 -
- This Document can not be used without Samsung's authorization -
8. Block Diagram and Schematic
Samsung
Confidential
Samsung
Confidential
Samsung
Confidential
SRP Sheet Number: 68 of 73
18 mohm
(5.5A)
4
3
SAMSUNG
ELECTRONICS
PROPRIETARY INFORMATION THAT IS
SAMSUNG PROPRIETARY
EXCEPT AS AUTHORIZED BY SAMSUNG.
THIS DOCUMENT CONTAINS CONFIDENTIAL
A A
B
C
D D
4
B
C
2
1
P3.3V_AUX & P5.0V_AUX
18 mohm
3
2
(4.5A)
1
SAMSUNG ELECTRONICS CO’S PROPERTY.
DO NOT DISCLOSE TO OR DUPLICATE FOR OTHERS
R282
3.3
AL
25V
C470
100nF
68uF
EC518
25V
C479
0.047nF
50V
10K
R840
1%
nostuff
R756
30.1K
R844
0
1%
1%
nostuff
27.4K
R293
C864
1nF
50V
25V
nostuff
P12.0V_ALW
SI4804BDY-T1-E3
Q526-2
D1
56
D2
4
G
3S
P5.0V_AUX
C478
10nF
AL
P3.3V_MICOM
10000nF
C471
6.3V
25V
EC520
68uF
25V
1nF
C865
nostuff
P3.3V_AUX
C466
100nF
50V
VDC
10000nF
C827
6.3V
D1
5 6
D2 D3
7 8
D4
G
4
S1
1 2
S2 S3
3
TP2575
AP6680AGM
Q30
10000nF
C802
25V
VDC
3.9uH
G_P3.3V
G_P3.3V
R292
13K
1%
nostuff
SIQ1048-3R9
L510
R288
6
VFB2
22 VIN
1
VO1
8
VO2
4
VREF2
VREG3
19
21 VREG5
5%3.3
PAD
24 PGND1
17 PGND2
PGOOD1 30
11 PGOOD2
32
SKIPSEL 31
TONSEL
20 V5FILT
VBST1 28
13 VBST2
3
VFB1
DRVH2
14
25
DRVL1
DRVL2
16
29
EN1
EN2
12
EN3
10
9EN5
5
GND
LL1 26
15 LL2
33
1203-004687
TPS51120RHBR
U525
2
COMP1
7
COMP2
23 CS1
18 CS2
27
DRVH1
SI4804BDY-T1-E3
Q526-1
D1
78
D2
2
G
1S
R284
13K
25V
C473
100nF
1%
100nF
C826
25V
31.6K
R294
G_P3.3V
1%
10V
C862
100nF
1 3
R825
47K
ZD500
BZX84C12L
10000nF
nostuff
R800
5.1
1%
nostuff
VDC
C828
25V
1%
R843
10K
1%
R291
30.1K
nostuff
AL
6.3V
330uF
EC521
4700nF
C874
25V
11K
R860
1%
nostuff
V5FILT
V5FILT
1nF
C866
nostuff
10V
C829
100nF
50V
R286
8.2K
25V
C852
100nF
SHORT7
INSTPAR
Q31
AP6680AGM
5
D1 D2
6 7
D3 D4
8
4
G
1
S1 S2
2 3
S3
nostuff
G_P3.3V
R285
0
R839
0
V5FILT
1%
100K
R287
50V
nostuff
AL
6.3V
330uF
EC524
nostuff
50V
1nF
C801
C863
1nF
P5.0V_ALW
Q522
MMBT3904
1
3
2
6.3V
C851
1000nF
L509
3.9uH
SIQ1048-3R9
R283
0
C472
1nF
50V
G_P3.3V
0
SHORT517
AL
25V
AUX_PG
EC519
68uF
KBC3_SUSPWR

8-69
- 이 문서는 삼성전자의 기술 자산으로 승인자만이 사용할 수 있습니다 -
- This Document can not be used without Samsung's authorization -
8. Block Diagram and Schematic
Samsung
Confidential
Samsung
Confidential
Samsung
Confidential
SRP Sheet Number: 69 of 73
EXCEPT AS AUTHORIZED BY SAMSUNG.
CHIPSET POWER ( P1.05V & P1.5V )
D
B
2
THIS DOCUMENT CONTAINS CONFIDENTIAL
(3A)
ELECTRONICS
(8A)
2
4
PROPRIETARY INFORMATION THAT IS
SAMSUNG ELECTRONICS CO’S PROPERTY.
COM-22C-015(1996.6.5) REV. 3
3
AA
3
4
SAMSUNG
SAMSUNG PROPRIETARY
B
1
C C
15mohm
D
DO NOT DISCLOSE TO OR DUPLICATE FOR OTHERS
d:/users/mobile62/mentor/istanbul/istanbul-pv_080718/design_blocks/PWR_MV_Cantiga
nostuff
10V
C568
100nF
L501
2.2uH
100nF
C89
SIQ1048-2R2
25V
AL
2.5V
330uF
EC508
25V
C563
100nF
R555
20K
1%
EC504
68uF
25V
AL
1%
nostuff
R554
2K
R62
G_P1.05V G_P1.05V
1%
200K
VDC
100nF
C558
10V
G_P1.05V
10nF
C75
25V
R856
0
G_P1.05V
G_P1.05V
nostuff
20K
R66
1%
10V
C70
100nF
1nF
C73
50V
D509
BAT54A
3
1 2
G_P1.05V
3.01K
R550
1%
G_P1.05V
10V
C569
100nF
G_P1.05V
R553
TP2182
G_P1.05V
1%
20K
0.47nF
C567
P5.0V_AUX
50V
C86
0.47nF
50V
R60
4.7
VDC
1%
R64
10K
10V
100nF
C74
S2 S3
3
0
R65
AP6680AGM
Q10
D1
5 6
D2 D3
7 8
D4
G
4
S1
1 2
nostuff
G_P1.05V
100nF
C566
50V
1nF
C87
10V
1%
80.6K
10000nF
C557
6.3V
R552
100nF
C76
10V
25V
4.7nF
C71
25V
C90
100nF
D1
D2
8
G
2
S
1
G_P1.05V
Q509-1
SI4804BDY-T1-E3
7
R1608-SHORT
SHORT500
G_P1.05V
4.7
R556
AL
P1.5V
EC506
68uF
25V
10K
R51
1%
5
D1 D2
6 7
D3 D4
8
4
G
1
S1 S2
2 3
S3
6.3V
C560
10000nF
Q9
AP6680AGM
5
D1
D2
6
G
4
S
3
Q509-2
SI4804BDY-T1-E3
EC507
220uF
2.5V
AD
7VOUT2 12
10K
R63
1%
1LX2 18
PAD 25
PGD1
22 PGD2 21
RTN
9
SS1
6SS2 13
TON
10
VDD1
3VDD2 16
VOUT1
DH1
24 DH2 19
DL1
4DL2 15
EN1
5EN2 14
FB1
8FB2 11
ILIM1
23 ILIM2 20
LX1
U6
1203-004685
SC415MLTRT
2BST1 BST2 17
AL
SIQ1048-3R9
3.9uH
L502
R61
EC505
68uF
25V
1%
3.3
7.5K
R551
25V
100nF
C77
SHORT501
0
VDC
P3.3V
3.3
R52
nostuff
50V
C559
0.047nF
100nF
P1.05V
10V
C561
300K
1%
100nF
C72
R49
10K
nostuff
10V
1%
R48
1%
0.047nF
C562
50V
nostuff
750K
R50
KBC3_PWRON
VCCP3_PWRGD
KBC3_PWRON

8-70
- 이 문서는 삼성전자의 기술 자산으로 승인자만이 사용할 수 있습니다 -
- This Document can not be used without Samsung's authorization -
8. Block Diagram and Schematic
Samsung
Confidential
Samsung
Confidential
Samsung
Confidential
SRP Sheet Number: 70 of 73
(1.26V)
2
VCHG=12.906V
Add for EMC(2008.1.16)
Add for EMC(2008.1.16)
B
2.39V
ILIMIT=2.97A
(1.26V)
Ra
A
SAMSUNG ELECTRONICS CO’S PROPERTY.
150K(2007-007489)
4
4
(5.075V)
1
EXCEPT AS AUTHORIZED BY SAMSUNG.
20k(2007-007312)
D
2.97A
2
C
To enhance
C
3
1.784V@VCELL to 4.302V
B
Rb
90W
Rb(R38)
CHARGER & POWER MANAGEMENT
D
DO NOT DISCLOSE TO OR DUPLICATE FOR OTHERS
ICHG=2.6A FOR 6 & 9 CELLS
60W
Ra(R40)
(ACTIVE LOW)
SAMSUNG PROPRIETARY
Add for EMC(2008.1.16)
Add for EMC(2008.1.16)
4.526A
0.256V@2.501A
Iaclim
COM-22C-015(1996.6.5) REV. 3
A
3
SAMSUNG
15.15V@1.264V
THIS DOCUMENT CONTAINS CONFIDENTIAL
DMB performance (060310)
PROPRIETARY INFORMATION THAT IS
ELECTRONICS
1
20K (2007-007312)
d:/users/mobile62/mentor/istanbul/istanbul-pv_080718/design_blocks/PWR_MV_Charger_ISL6256
0.553V@3.08A
(5V)
150K(2007-007489)
22
R547
JACK-DC-POWER-3P
J500
3722-002191
2
3
4
MNT1
MNT2
D2
6D3
D4
5G4
S1 1
2
S2 3
S3
U4
AP4435GM
D1
8
7
12
HU-1M2012-121JT
B1
TP2491
B340A
D524
nostuff
25V
C538
1000nF
20K
R542
1%
P3.3V_MICOM
nostuff
nostuff
D7
B340A
1
2
C52
1nF
50V
VDC_ADPT
AL
25V
68uF
EC503
100K
R32
1%
nostuff
VDC_CHG
G_CHG
G_CHG
25V
10000nF
C555
1%
R866
39.2K
1%
R859
300K
VDC
C875
10nF
25V
VDC
1%
R858
300K
50V
0.47nF
C54
VDC_ADPT
1%
R44
100
25V
C59
1000nF
50V
C543
1nF
B2
HU-1M2012-121JT
Vref
51.1K
R865
1%
100nF
C553
25V
0.1nF
50V
C547
100
R537
100nF
C69
25V
1%
Vref
nostuff
1%
300K
R534
nostuff
C53
1000nF
25V
50V
47nF
C552
R857
0
22
R546
SI2307BDS-T1-E3
Q506
nostuff
D
3
1
G
2
S
25V
C542
100nF
25V
10nF
C4
nostuff
1nF
C55
nostuff
5
D1 D2
6 7
D3 D4
8
4
G
1
S1 S2
2 3
S3
50V
Q6
AP6680AGM
nostuff
G_CHG
G_CHG
C503
10000nF
25V
25V
EC501
68uF
nostuff
G_CHG G_CHGG_CHG
AL
1%
1W
0.02
R35
HU-1M2012-121JT
B5
P3.3V_MICOM
R544
0
G_CHG
G_CHG
0.1nF
50V
1%
R522
200K
BAV99LT1
D9
1
3
2
C60
C545
10000nF
25V
1%
R524
10K
100nF
C49
25V
Vref
C540
0.1nF
50V
nostuff
0.02
R549
1%
1W
AL
G_CHG
EC502
25V
68uF
150K
R38
1%
G_CHG
100nF
C120
25V
D2
6 7
D3 D4
8
4
G
1
S1 S2
2 3
S3
100nF
C67
25V
Q8
AP6680AGM
5
D1
G_CHG
G_CHG
G_CHG
1%
150K
R523
HU-1M2012-121JT
B6
3.3
R539
BLM18PG181SN1
B508
100nF
C510
25V
7
D3 6
5
D4
4G
1S1
S2
2
S3
3
26
13 VDDP
6
VREF
AP4435GM
Q4
8
D1
D2
GND
5ICM
3ICOMP
12
LGATE 11
PGND
16
PHASE
18 SGATE
29
THERM
15
UGATE
9VADJ
4VCOMP
VDD
2
CELLS
7CHLIM
CSIN 2019 CSIP
22
CSON
21
CSOP
25 DCIN
24 DCPRN
28 DCSET
1
EN
10
U508
ISL6256AHRZ-T
1203-004471
8ACLIM
23 ACPRN
27 ACSET
17
BGATE
14
BOOT
3
D
G
1
S
2
Q507
RHU002N06
1%
R535
27.4K
R541
100 1%
100nF
C50
25V
50V
1nF
C502
G_CHG
1%
R40
20K
1/10W
0.1%
R42
100K
100K
R33
1%
100nF
C539
25V
100nF
C211
25V
nostuff
1000nF
C48
25V
BAT54A
D6
3
12
100nF
C65
25V
Vref
25V
C525
10nF
25V
C5
100nF
R536
1%
1%
10K
470K
R20
1%
C546
50V
0.1nF
300K
R34
1%
1K
R39
R548
2.2
C524
6.8nF
50V
4.7
R43
25V
C544
10000nF
SHORT1
INSTPAR
L500
8.2uH
RHU002N06
Q5
D
3
1
G
2
S
Q7
RHU002N06
3
D
G
1
S
2
470K
R540
1%
B507
BLM18PG181SN1
BLM18PG181SN1
B7
100K
R538
1%
nostuff
0
R543
25V
VDC
nostuff
C541
10nF
5
6
7
22
R545
G_CHG
J506
BATT-CONN-7P
3711-006059
1
2
3
4
R19
10K
8
D1
D2 7
D3 6
5
D4
4G
1S1
S2
2
S3
3
G_CHG
AP4435GM
U5
0.1%
1/10W
1nF
C58
50V
30.1K
R41
R36
5.1
1%
D8
BAV99LT1
1
3
2
1%
G_CHG
43.2K
R47
R500
10
1%
nostuff
KBC3_CHG4.2V
VDC_SGATE
ADT3_SEL#
KBC3_CHGENKBC3_PRECHG
BAT3_SMDATA# KBC3_SMDATA#
BAT3_SMCLK# KBC3_SMCLK#
BAT3_DETECT#
BAT3_SMCLK#
BAT3_SMDATA#
VDC_SGATE

8-71
- 이 문서는 삼성전자의 기술 자산으로 승인자만이 사용할 수 있습니다 -
- This Document can not be used without Samsung's authorization -
8. Block Diagram and Schematic
Samsung
Confidential
Samsung
Confidential
Samsung
Confidential
SRP Sheet Number: 71 of 73
DO NOT DISCLOSE TO OR DUPLICATE FOR OTHERS
SAMSUNG PROPRIETARY
EXCEPT AS AUTHORIZED BY SAMSUNG.
B
A
D
B
A
C C
3
4
4
D
SAMSUNG
23 1
1
SAMSUNG ELECTRONICS CO’S PROPERTY.
2
ELECTRONICS
1
G
S
2
THIS DOCUMENT CONTAINS CONFIDENTIAL
POWER DISCHARGER
PROPRIETARY INFORMATION THAT IS
Q528
RHU002N06
3
D
3
D
1
G
S
2
nostuff
1%
10
R807
nostuff
Q533
RHU002N06
1%
1K
R805
RHU002N06
Q529
nostuff
D
3
1
G
2
S
nostuff
1%
R803
10
P1.05V
nostuff
RHU002N06
Q532
D
3
1
G
2
S
P3.3V_AUX
P1.5V
nostuff
P5.0V
P1.8V_AUX
1%
10
R847
1%
R848
49.9
nostuff
1%
R827
1K
nostuff
R826
100K
nostuff
R792 10K
nostuff
1%
nostuff
1%
3
D
1
G
S
2
P5.0V_ALW
D
3
G
1
2
S
Q540
RHU002N06
nostuff
G
1
S
2
RHU002N06
Q543
nostuff
S
Q542
RHU002N06
nostuff
3
D
RHU002N06
Q541
nostuff
D
3
1
G
2
P5.0V_AUX
P3.3V
R804
10
1%
RHU002N06
Q531
D
3
G
1
2
S
nostuff
P1.8V
TP2626
nostuff
KBC3_SUSPWR
KBC3_PWRON_INV#
1%
49.9
R757

8-72
- 이 문서는 삼성전자의 기술 자산으로 승인자만이 사용할 수 있습니다 -
- This Document can not be used without Samsung's authorization -
8. Block Diagram and Schematic
Samsung
Confidential
Samsung
Confidential
Samsung
Confidential
SRP Sheet Number: 72 of 73
ELECTRONICS
2
C
A
DDR2 Power
(8A)
SAMSUNG
B B
A
OCP : 10.7A
(321 ~ 359KHz)
C
Rtop 0ohm , Rbot Open : 1.5V
D
4
3
SAMSUNG ELECTRONICS CO’S PROPERTY.
1
1
PROPRIETARY INFORMATION THAT IS
SAMSUNG PROPRIETARY
THIS DOCUMENT CONTAINS CONFIDENTIAL
2
DO NOT DISCLOSE TO OR DUPLICATE FOR OTHERS
EXCEPT AS AUTHORIZED BY SAMSUNG.
D
3
4
3
G_DDR
nostuff
D520
MMBD4148
1
25V
68uF
EC522
AL
1nF
C835
50V
10000nF
6.3V
C859
10K
TP2592
nostuff
R759
P1.8V_AUX
G_DDR
P0.9V
VDC
25V
68uF
EC523
AL
G_DDR
P1.8V_AUX
P5.0V_AUX
P5.0V_AUX
3.3
R828
nostuff
1%
R812
100K
0
R810
6.3V
C857
1000nF
P5.0V_AUX
C477
1000nF
6.3V
G_DDR
1%
R280
100K
1nF
50V
nostuff
C860
C861
nostuff
50V
1nF
G_DDR
6.3V
10000nF
C858
1%13K
R829
C834
50V
2.2nF
G_DDR
G_DDR
C833
100nF
25V
nostuff
P1.8V_AUX
1%
P0.9V
R830
10
10
1%
R813
50Vnostuff
R849
4.7
50V
C855
1nF
C868
0.47nF
R811
1%
750K
P5.0V
C837
6.3V
1000nF
R814
10
1%
R831
0
nostuff
EC525
330uF
2.5V
AL
6.3V
C838
1000nF
1%
VTTIN_1
13
VTTIN_2
12
10 VTTS
15 VTT_1
14 VTT_2
P5.0V_AUX
20K
R281
EN_PSV 1
6FB
21
ILIM
LX 22
7
PGD
18
PGND_1
17 PGND_2
PGND_3
16
REF
8
THERM 25
2TON
VCCA
5
20
VDDP
3VDDQS
VSSA
4
11 VTTEN
SC486IMLTRT
U526
1203-003765
24
BSTCOMP
9
DH 23
DL 19
BAT54A
D519
3
1 2
1nF
6.3V
50V
C469
C836
1000nF
G_DDR
10
1%
R815
SHORT8
INSTPAR
330uF
2.5V
AL
G_DDR
EC526
D4
G
4
1
S1
2
S2 S3
3
VDC
AP6680AGM
Q537
D1
5 6
D2 D3
7 8
AP6680AGM
5
D1 D2
6 7
D3 D4
8
4
G
1
S1 S2
2 3
S3
100nF
C856
25V
Q536
2.2uH
G_DDR
MEM1_VREF
KBC3_SUSPWR
AUX_PG
L511
SIQ1048-2R2

8-73
- 이 문서는 삼성전자의 기술 자산으로 승인자만이 사용할 수 있습니다 -
- This Document can not be used without Samsung's authorization -
8. Block Diagram and Schematic
Samsung
Confidential
Samsung
Confidential
Samsung
Confidential
SRP Sheet Number: 73 of 73
2
A
13
C
D
1
1
0
0
0
PROPRIETARY INFORMATION THAT IS
1
0.9V (0.9??V)
1.09V (1.093V)
DDR2 11.57A@TDP for NB9M-GE
A
SAMSUNG
ELECTRONICS
Graphic Core Power
GFX3_VOLTID
RESERVE
3
SAMSUNG PROPRIETARY
1
B
D
4
EXCEPT AS AUTHORIZED BY SAMSUNG.
SAMSUNG ELECTRONICS CO’S PROPERTY.
DO NOT DISCLOSE TO OR DUPLICATE FOR OTHERS
0
C
1.17V (1.175V)
THIS DOCUMENT CONTAINS CONFIDENTIAL
B
24 1
10nF
C349
25V
P3.3V
INSTPAR
SHORT502
100nF
C675
10V
R585 0
nostuff
G_EGFX
VCC 3
VOUT
10
50V
0.47nF
C350
4
EN
12
FB
9
G0
14
G1
15
GND 5
ILIM 13
LX 1
PGOOD 11
6RTN
17 THERM
1203-004943
SC471MLTRT
U11
BST 2
D0
8D1
7DH 16
DL
1%
53.6K
1%
R211
1%
7.5K
1K
R210
R599 150K
1%
R238
R600
2.2K
nostuff
P5.0V VDC
1%
R213
10K
2.2nF
C386
G_EGFX
C678
10000nF
25V
50V
TPC8032-H
Q513
D1
5 6
D2 D3
7 8
D4
G
4
S1
1 2
S2 S3
3
nostuff
AL
2.5V
330uF
EC15
10V
100nF
C676
1.0uH
C702
G_EGFX
L506
6 7
D3 D4
8
4
G
1
S1 S2
2 3
S3
100nF
25V
1%
Q512
TPC8032-H
5
D1 D2
25V
C385
100nF
30.1K
R241
2.2K
R598
R240
10K
1%
13K
R212
P5.0V
1%
EGFX_CORE
EGFX_CORE
1%
S3
3
P3.3V
7.5K
R242
SI4686DY-T1-E3
Q511
D1
5 6
D2 D3
7 8
D4
G
4
1
S1
2
S2
C908
0.47nF
50V
4.7
R870
R209
330K
6.3V
1000nF
C677
50V
C351
0.033nF
51.1K
R208
1%
nostuff
AL
EC513
68uF
25V
50V
1%
nostuff
C701
0.47nF
EC14
330uF
2.5V
AL
20K
R601
BAT54A
D13
3
1 2
G_EGFX
G_EGFX
0
R239
AL
25V
68uF
EC511
10V
KBC3_PWRON
GFX3_VOLTID_1
GFX3_VOLTID_0
VCCP3_PWRGD
GCORE3_PWRGD
C700
100nF

8-74
- 이 문서는 삼성전자의 기술 자산으로 승인자만이 사용할 수 있습니다 -
- This Document can not be used without Samsung's authorization -
8. Block Diagram and Schematic
Samsung
Confidential
Index_Page
07/18/108
18:39:04 1
Sheet1 --------------- Root[sheet1]
Sheet2 --------------- Root[sheet2]
Sheet3 --------------- Root[sheet3]
Sheet4 --------------- Root[sheet4]
Sheet5 --------------- Root[sheet5]
Sheet6 --------------- Root[sheet6]
Sheet7 --------------- Root[sheet7]
Sheet8 --------------- Root[sheet8]
Sheet9 --------------- Root[sheet9]
Sheet10 --------------- Root[sheet10]
Sheet11 --------------- Root[sheet11]
Sheet12 --------------- Root[sheet12]
Sheet13 --------------- Root[sheet13]
Sheet14 --------------- Root[sheet14]
Sheet15 --------------- Root[sheet15]
Sheet16 --------------- Root[sheet16]
Sheet17 --------------- Root[sheet17]
Sheet18 --------------- Root[sheet18]
Sheet19 --------------- Root[sheet19]
Sheet20 --------------- CK_Clock_505M[sheet1]
Sheet21 --------------- Thermal_Sensor_SMSC_Emc2102[sheet1]
Sheet22 --------------- CPU_Penryn_MV_SV[sheet1]
Sheet23 --------------- CPU_Penryn_MV_SV[sheet2]
Sheet24 --------------- CPU_Penryn_MV_SV[sheet3]
Sheet25 --------------- MCH_CANTIGA_GM_DDR2[sheet1]
Sheet26 --------------- MCH_CANTIGA_GM_DDR2[sheet2]
Sheet27 --------------- MCH_CANTIGA_GM_DDR2[sheet3]
Sheet28 --------------- MCH_CANTIGA_GM_DDR2[sheet4]
Sheet29 --------------- MCH_CANTIGA_GM_DDR2[sheet5]
Sheet30 --------------- SODIMM_DDR2[sheet1]
Sheet31 --------------- SODIMM_DDR2[sheet2]
Sheet32 --------------- ICH_9M_B[sheet1]
Sheet33 --------------- ICH_9M_B[sheet2]
Sheet34 --------------- ICH_9M_B[sheet3]
Sheet35 --------------- ICH_9M_B[sheet4]
Sheet36 --------------- ICH_9M_B[sheet5]
Sheet37 --------------- SPI_BIOS_ROM[sheet1]
Sheet38 --------------- Gfx_External_Nvidia_Nb9x_64bit[sheet1]
Sheet39 --------------- Gfx_External_Nvidia_Nb9x_64bit[sheet2]
Sheet40 --------------- Gfx_External_Nvidia_Nb9x_64bit[sheet3]
Sheet41 --------------- Gfx_External_Nvidia_Nb9x_64bit[sheet4]
Sheet42 --------------- Graphics_Memory_Nvidia[sheet1]
Sheet43 --------------- Graphics_Memory_Nvidia[sheet2]
Sheet44 --------------- PCIE_Minicard_Slot[sheet1]
Sheet45 --------------- HDA_Codec_Alc262[sheet1]
Sheet46 --------------- HDA_Codec_Alc262[sheet2]
Sheet47 --------------- HDA_Codec_Alc262[sheet3]
Sheet48 --------------- HDA_Codec_Alc262[sheet4]
Sheet49 --------------- MICOM_Renesas2110_100p[sheet1]
Sheet50 --------------- HDD_IF_Conn[sheet1]
Sheet51 --------------- ODD_IF_Conn[sheet1]
Sheet52 --------------- USB_1Port[sheet1]
Sheet53 --------------- USB_2Port[sheet1]
Sheet54 --------------- HDA_Modem[sheet1]
Sheet55 --------------- Other_Debug_80[sheet1]
Sheet56 --------------- Graphics_IF_CRT[sheet1]
Sheet57 --------------- Graphics_IF_CRT[sheet2]
Sheet58 --------------- Graphics_IF_CRT[sheet3]
Sheet59 --------------- MIO_Switch[sheet1]
Sheet60 --------------- KBD_IF_Conn[sheet1]
Sheet61 --------------- Bluetooth_IF_Conn[sheet1]
Sheet62 --------------- Touchpad_IF_Conn[sheet1]
Sheet63 --------------- Camera_IF_Conn[sheet1]
Sheet64 --------------- LED_Switch[sheet1]
Sheet65 --------------- LID_Switch[sheet1]
Sheet66 --------------- PWR_CPU_MV_ISL6262[sheet1]
Sheet67 --------------- PWR_Gfx_MV_Ext[sheet1]
Sheet68 --------------- PWR_MV_3V_5V[sheet1]
Sheet69 --------------- PWR_MV_Cantiga[sheet1]
Sheet70 --------------- PWR_MV_Charger_ISL6256[sheet1]
Sheet71 --------------- PWR_MV_DisCharger[sheet1]
Sheet72 --------------- PWR_MV_MeMory[sheet1]
Sheet73 --------------- PWR_Gfx_MV_Ext[sheet2]