28HW53E Service Manual, 00 Version
User Manual: 28HW53E
Open the PDF directly: View PDF .
Page Count: 44

1
28HW-53E
CONTENTS
SHARP CORPORATION
PAL B/G, I / SECAM L/L’, B/G, D/K SYSTEM COLOUR TELEVISION
SEJB28HW53E00
SERVICE MANUAL
In the interests of user safety (required by safety
regulations in some countries) the set should restored
to its original condition and only parts identical to
those specified should be used.
Issued: 17th Dec 2001
This document has been published to
be used for after sales service only.
DA-50W CHASSIS
ELECTRICAL SPECIFICATIONS......................3
IMPORTANT SERVICING NOTES....................4
ADJUSTMENTS PROCEDURES......................5
LED FLASHING CODES..................................10
PRINTED WIRING BOARDS............................11
COMPONENT LOCATION TABLES.................18
SCHEMATIC DIAGRAMS.................................24
BLOCK DIAGRAM............................................32
PARTS LISTING...............................................33
PACKING OF THE SET & ACCESSORIES.....42
CONTROLS &TERMINALS..............................43
MODEL
28HW-53E
ES/F/IT/SE

2
28HW-53E
Use this page to keep any special servicing information as Technical Report (Bulletin), Technical Information, etc.
If only part number changes are required, just change part number directly the part number in the Parts Listing Section.
If you need more information, please refer to the Technical Report (Bulletin).
SERVICE MANUAL UPDATE LOG SHEET
Part No.
Technical Report No.
Technical Bulletin No. Cause / Solution Page No. Application
Data /Serial No.

3
28HW-53E
ELECTRICAL SPECIFICATIONS
•Picture Intermediate frequency
L’..................................................33.9MHz
L, B/G, D/K,I................................38.9MHz
•Sound Carrier Trap
L’..................................................40.4MHz
L, D/K...........................................32.4MHz
B/G..............................................33.4MHz
I....................................................32.9MHz
•Adjacent Sound Carrier Trap
L’...................................................32.4MHz
L, D/K, B/G..................................40.4MHz
I....................................................40.9MHz
•Adjacent Picture Carrier Trap
L’..........................................................41.9MHz
L, D/K,I.........................................30.9MHz
B/G..............................................31.9MHz
•Aerial Input Impedance
VHF/UHF ................. 75 ohm Unbalanced
•Tuning Ranges ..... 45.75MHz thru 855.25 MHz
VHF: IR A - J / S1 - S41 CH (Hiperband)
UHF: I21 - I69 CH
CATV Special Channels
•White Level
Set brightness control to get total picture tube cathode current of 600 microampere under no
signal condition. Maximum necessary correction of each picture tube cathode current to get 8550
degrees K+1 MPCD screen temperature should not exceed 15% of its original value.
X=0.290 Y=0.300
•Power Input ...................... 220V-240 Volts AC 50Hz
•Power Consumption
Normal Operation ...................................88W
Stand-by Operation .............................. 1.3W
•Audio Power Output Rating (MPO) / Impedance
Internal Left Speaker ...................... 10W, 7Ω
Internal Right Speaker .................... 10W, 7Ω
•Speakers
Left / Right ....................................... 6 x 12cm
•Convergence
Static (Centre) between any two colours...........
..................................................... 0.12 cm max.
Dynamic after static equals zero... 0.28cm max.
•Focus ......................... High Bi-Potential Electrostatic
•Sweep Deflection ........................................ Magnetic
WARNING
The chassis in this receiver is partially hot. Use an isolation transformer between the line cord plug
and power receptacle, when servicing this chassis.
To prevent electric shock, do not remove cover. No user-serviceable parts inside. Refer servicing to
qualified service personnel.
Specifications are subject to change without prior notice.
MODEL DESTINATION (Operation Manual languages).
28HW-57EES: Portuguese and Spanish.
28HW-5EF: French.
28HW-57EIT: Italian.
28HW-57ESE: Danish, English, Finnish, Norwegian and Swedish.

4
28HW-53E
IMPORTANT SERVICING NOTES
Only qualified service personnel are allowed to carry out maintenance and repair of this receiver.
SERVICING OF HIGH VOLTAGE SYSTEM AND CRT
It is important that the static charge is removed from the high voltage system when carrying out work
on the receiver. This can be achieved by connecting a 10K resistor (with a suitably insulated lead) from
the CRT cavity connector to the CRT ground tag. This must be carried out with the AC supply discon-
nected from the receiver.
Note the following:
• The CRT in this receiver employs Integral Implosion Protection.
• If the CRT has to be changed it MUST be replaced with the correct type for continued safe
working
• DO NOT lift the CRT by its neck.
• When handing the CRT, ensure that shatterproof goggles are worn.
• Ensure that the CRT is discharge before handling.
X-RAY
This receiver is designed to keep any x-ray emission to an absolute minimum. Some fault conditions
and servicing procedures may produce potentially hazardous x-ray radiation levels. This is a problem
when in close proximity to the receiver for long periods of time. To reduce any risks associated with
this, please observe the following precautions:
1. When undertaking any servicing on this chassis, DO NOT increase the EHT to more than 32 KV,
(at a instantaneous beam current of 1500µΑ).
2. Ensure that during normal operation the EHT does not exceed 30KV±1.5KV (at a beam current of
1300µΑ). This level has been preset in the factory. Always check that this level has not been ex-
ceeded after carrying out any repair on the receiver..
3. DO NOT replace the CRT with any other type than that specified in the parts listing as this may
cause excessive x-ray radiation.
BEFORE RETURNING THE RECEIVER TO THE CUSTOMER
In addition to the above checks, the following should also be carried out before returning the receiver
to the customer.
1. Inspect all the leads to ensure that they are dressed correctly and that they are not obstructed or
pinched by any other parts.
2. Ensure that all protective devices are in good condition. These will include nonmetallic control
knobs, insulating fish papers, cabinets backs, compartment covers or shields, mechanical insulators,
etc.

5
28HW-53E
ADJUSTMENT PROCEDURES
All adjustments to this chassis, except for focus, are carried out in the service mode.
••
••
• SERVICE MODE
The service mode is provided to enable the engineer to correctly set up the receiver to the CRT fitted in the set.
Note that these adjustments may vary from one receiver to another.
To enter the service mode, carry out the following procedure.
1. Connect a test pattern to the antenna terminal.
2. Tune the receiver to this signal.
3. Turn the receiver off using the mains switch.
4. Press volume down and channel up buttons on the
front of the receiver at the same time.
5. Keeping these buttons pressed, turn the mains on.
6. When the set starts up it will be in service mode.
7. Release the two buttons.
••
••
• Use the channel up and down buttons to move between the options.
••
••
• Use the volume control buttons to change the data.
••
••
• To store the data, use the stand-by button on the remote control.
••
••
• To exit the service mode, turn the receiver off using the mains switch.
When the service mode is entered the following On Screen Display appears
-SERVICE SOFTWARE AND HEXADECIMAL COUNTER DISPLAY:
SW ON XXXX SW OFF XXXX HOURS ON XXXX
The figures displayed in the XXXX locations are hexadecimal representations of the number of times that particular
function has been executed. For example if the hexadecimal number displayed after SW ON was 0E4A, this would
correspond to the receiver being turned on 3658 times.
Adjustment menu:
The following adjustments can be carried out in the service mode.
• Horizontal Shift
• East West Width
• Pin Phase
• Pin Amp
• Corner Amplitude
• Corner Symmetry
• Vertical Linearity
• Vertical Angle
• Vertical Bow
• Vertical Amplitude
• S Correction
• Vertical Shift
• Red Gain
• Green Gain
• Blue Gain
• Red Cut Off
• Green Cut Off
• Blue Cut Off
• Alter NVM Page
• Alter NVM Position
• Alter NVM Value
• Teletext Mix Mode Contrast
• Teletext Contrast
• OSD Contrast
• DVCO Adjustment (Only PAL)
• DVCO Adjustment (Only NTSC)
• AGC Adjustment
• AFT Adjustment
• AFT Adjustment for L’
• OPC Value
• Auto Installation On/Off
Geometry Adjustments
All geometry adjustments are based on an internally generated test pattern as shown
in figure 1. When carrying out any of the above geometry adjustments, use the inter-
nally generated test pattern for guidance.
Fig.1
CH
4
5

6
28HW-53E
Note that the receiver should be set to FULL MODE before carrying out any geometry adjustments. This can be
achieved by pressing the widescreen mode button on the remote control until FULL MODE appears on the OSD. This
can only be done out of the service mode.
The following geometry adjustments can be carried out. Detailed instructions on how to execute these are given on
the following pages
Horizontal
• Horizontal Shift
• E-W Width
• Pin Phase
• Pin Amp
• Corner Amplitude
• Corner Symmetry
Vertical
• Vertical Amplitude
• Vertical Shift
• Vertical Bow
• Vertical Angle
• S Correction
• Vertical Linearity
Just in case the the TV set requires a full geometries adjustment, please proceed first with
Vertical according to the above order, and after that, adjust Horizantal according to the
above order.
Horizontal Shift
Adjust the horizontal shift so that the picture is centred.
The effect of this adjustment is shown in figure 2.
• When the volume up button is pressed, the picture moves to the right.
• When the volume down button is pressed, the picture moves to the left.
• Press the stand-by button on the remote control to store.
E-W Width
Adjust the E-W Width so that 9% over-scan is achieved.
The effect of this adjustment is shown in figure 3.
• When the volume up button is pressed, horizontal scanning increases.
• When the volume down button is pressed, horizontal scanning decreases.
• Press the stand-by button on the remote control to store.
Pin Phase
Adjust the Pin Phase so that the picture is symmetrical top and bottom.
The effect of this adjustment is shown in figure 4.
• When the volume up button is pressed, side pincushion changes.
• When the volume down button is pressed, side pincushion changes.
• Press the stand-by button on the remote control to store.
Pin Amp
Adjust the Pin Amplitude so that the picture is centred.
The effect of this adjustment is shown in figure 5.
• When the volume up button is pressed, side pincushion changes from pincushion to
barrel shape.
• When the volume down button is pressed, side pincushion changes from pincush-
ion to barrel shape.
• Press the stand-by button on the remote control to store.
Corner Amplitude
Adjust the Corner Amplitude so that the picture is centred.
The effect of this adjustment is shown in figure 6.
Note: This adjustment affects to upper and lower sides.
• When the volume up button is pressed, side pincushion changes from pincushion to
Fig.2
Fig.3
Fig.4
Fig.5
Fig.6

7
28HW-53E
barrel shape.
• When the volume down button is pressed, side pincushion changes from pincushion to
barrel shape.
• Press the stand-by button on the remote control to store.
Corner Symmetry
Adjust the Corner Symmetry so that the picture is centred.
The effect of this adjustment is shown in figure 7.
Note: This adjustment affects to upper and lower sides.
• When the volume up button is pressed, side pincushion changes from pincushion to
barrel shape.
• When the volume down button is pressed, side pincushion changes from pincushion to
barrel shape.
• Press the stand-by button on the remote control to store.
Vertical Linearity
Adjust the Vertical Linearity so that the upper and lower parts of the picture are symmetrical.
The effect of this adjustment is shown in figure 8.
• When the volume up button is pressed, the upper picture scanning decreases and the
lower picture scanning increases.
• When the volume down button is pressed, the upper picture scanning increases and the
lower picture scanning decreases.
• Press the stand-by button on the remote control to store.
Vertical Angle
Adjust the Vertical Angle so that the picture is centred.
The effect of this adjustment is shown in figure 9.
• When the volume up button is pressed, side pincushion changes, specially the lower
picture.
• When the volume down button is pressed, side pincushion changes, specially the lower
picture.
• Press the stand-by button on the remote control to store.
Vertical Bow
Adjust the Vertical Amplitude so that the picture is centred.
The effect of this adjustment is shown in figure 10.
• When the volume up button is pressed, side pincushion changes from pincushion to
barrel shape, specially the lower picture.
• When the volume down button is pressed, side pincushion changes from pincushion to
barrel shape, specially the lower picture.
• Press the stand-by button on the remote control to store.
Vertical Amplitude
Adjust the Vertical Amplitude so that the picture is over-scanned.
The effect of this adjustment is shown in figure 9.
• When the volume up button is pressed, the vertical size of the picture increases.
Fig.8
Fig.9
Fig.10
Fig.11
Fig.7

8
28HW-53E
Colour Adjustments
The following adjustments should only be carried out when
the CRT or IC801 are replaced.
G2, Cut Off and Gain Adjustments
1. Follow the procedure below to set the G2
1.1 Tune the set to the output of a signal generator
(cross hatch pattern).
1.2 In the user menu, set contrast to 80/100 and
brightness to 40/100.
1.3 Connect the oscilloscope to the red cathode and
adjust G2 to read 140V on the sensor pulse as
in the drawing:
NOTE:
Oscilloscope should be adjusted for vertical TV field trigger
and synchronized with video signal.
2. Follow the procedure below to set the Cut Off.
2.1 Adjust G2.
2.2 Tune a white card.
2.3 Adjust colour to minimum.
2.4 Position colorimeter in the centre of screen.
2.5 Adjust brightness and contrast to obtain a lumi-
nance of ≈20 NITS.
2.6 Operate in Service Mode and select location RED
CUT OFF, GREEN CUT OFF and BLUE CUT
OFF, to obtain colour coordinates:
X=0.290 ± 0.015 Y=0.300 ± 0.015
To increase press volume-up button and to decrease press
volume down button.
RED CUT OFF alter «X» coordinate.
GREEN CUT OFF alter «Y» coordinate.
BLUE CUT OFF alter «X» and «Y» coordinate.
3. Follow the procedure below to set the GAIN.
3.1 Using brightness and contrast buttons, select a
luminance of ≈120 NITS.
3.2 Operate in Service Mode and select location RED
GAIN, GREEN GAIN and BLUE GAIN, to obtain
colour coordinates:
X=0.290 ± 0.015 Y=0.300 ± 0.015
To increase press volume-up button and to decrease
press volume down button.
RED CUT OFF alter «X» coordinate.
GREEN CUT OFF alter «Y» coordinate.
BLUE CUT OFF alter «X» and «Y» coordinate.
3.3 Exit Service Mode and check colour coordinates
«X» and «Y» at 20 and 120 NITS. It may be nec-
essary to repeat procedure 2 and 3 of Colour
Adjustments.
Fig.12
Fig.13
• When the volume down button is pressed, the vertical size of the picture decreases.
• Press the stand-by button on the remote control to store.
S Correction
Adjust the S Correction so that the picture symmetrical between the top, centre and bottom.
The effect of this adjustment is shown in figure 12.
• When the volume up button is pressed, the top and bottom scanning increases and the
centre scanning decreases.
• When the volume down button is pressed the top and bottom scanning decreases and
the centre scanning increases.
• Press the stand-by button on the remote control to store.
Vertical Shift
Adjust the Vertical Shift so that the picture is centred.
The effect of this adjustment is shown in figure 13.
• When the volume up button is pressed, the picture moves down.
• When the volume down button is pressed, the picture moves up.
• Press the stand-by button on the remote control to store.
140 V
CH1 gnd

9
28HW-53E
G2, Cut Off and Gain Adjustments (alternative method).
In the event off a Colorimeter not being available, please follow the following procedures to obtain correct G2 and Grey
scale settings.
1. Tune the set to the output of a RF signal generator (cross hatch pattern).
2. In the user menu, set the picture levels to the FACTORY settings.
3. In the user menu, set the tint control to its central position.
4. Enter the service mode.
5. Set the ABL levels in the NVM by adjusting positions 60, 61, 62, 63, 64 and 65 on page 00 to read 80. Store each
location by pressing the stand-by button on the remote control.
6. Adjust the G2 and grey scale as below.
When adjusting the grey scale the following boxes will appear on the screen.
(RED) (GREEN) (BLUE)
(GAIN) ** ** **
(CUT OFF) e.g. 70 ** **
i. Using cross hatch pattern set the G2 so that the display in the Red cut off box reads between 60 and 80 as above.
NB. When adjusting the grey scale, the figures displayed in the boxes are an indication of the CRT’s performance
only. The data to be adjusted is contained in the box at the bottom right corner of the picture.
ii. Select a grey scale signal, then set the Red Cut-off level to 32 and the Red-Gain to 50.
iii.Leave the Red Cut-off and Gain as above and adjust Green and Blue Cut-off and Gain to achieve correct grey scale
tracking. As with all grey scale adjustments it will be necessary to readjust the settings to achieve good tracking.
Changing NVM Data
To change the data contained within the Non Volatile Memory, it is necessary to first select the page the data is stored in,
then the position and finally to change the data itself. The procedure below outlines this process.
1. While on ALTER NVM PAGE, use the volume up/down buttons to change this data (data is shown in hexadecimal
format).
2. Press the channel up button and ALTER NVM POSITION appears, use the volume up/down buttons to change this data
(data is shown in hexadecimal format).
3. Press the channel up button and ALTER NVM VALUE appears, use the volume up/down buttons to change this data
(data is shown in hexadecimal format).
4. Once this data has been set, press the standby button to store.
5. If another NVM value has to be changed, use the channel down button to select the page or position and repeat as
necessary.
Note:
DO NOT change any NVM data, unless you have been advised to do so by a Sharp representative. If data is incorrectly
changed, serious damage may occur to the receiver.
Contrast Adjustments
Three types of contrast levels can be varied as listed below:
• TELETEXT MIX MODE CONTRAST
• TELETEXT CONTRAST
• OSD CONTRAST
Use the volume up/down buttons to adjust to a suitable level, then press the standby button to store.

10
28HW-53E
DVCO Adjustment (PAL)
Carry out the DVCO Adjustment (PAL) as shown below:
1. Receive a Phillips pattern signal.
2. While in the DVCO ADJUSTMENT (PAL) menu, press
the standby button.
3. The adjustment will be carried out automatically and
stored.
DVCO Adjustment (NTSC)
No adjustment required.
Auto Installation On/Off
To return the receiver to the original Auto Installation mode,
using the volume up or down button, set the Auto Installa-
tion On/Off to On. This setting is automatically stored and
when the receiver is turned on the next time it will start up in
Auto Installation mode.
AGC Adjustment
To correctly align the Automatic Gain Control, follow the
procedure outlined below:
1. Tune the set into a pattern generator on CH10.
2. Adjust the signal strength of the pattern generator to 57uV
3. Enter the service mode.
4. Enter the AGC Adjustment menu.
5. Press the standby button on the remote control.
6. The adjustment will be carried out and stored
automatically.
AFT Adjustment (BG-I, SECAM L)
To correctly align the Automatic Fine Tune, follow the
procedure outlined below:
1. Tune the set into a pattern generator on CH69.
2. Enter the service mode.
3. Enter the AFT Adjustment menu.
4. Press the standby button on the remote control.
5. The adjustment will be carried out and stored
automatically.
AFT Adjustment (SECAM L’)
To correctly align the Automatic Fine Tune, follow the
procedure outlined below:
1. Tune the set into a pattern generator on F04.
2. Enter the service mode.
3. Enter the AFT Adjustment menu.
4. Press the standby button on the remote control.
5. The adjustment will be carried out and stored
automatically.
LED FLASHING CODES
This model is not provided with stereo led, so to let “flashing
codes” for IC failures detection when the TV set does not
work, we have answered with the next solution:
• The detection of failure will be made with an external LED.
• The output of the flashing code will be via AV1 (pin 12).
• Insert a generic led diode between pin 12 and ground (i.e.
pin 5, 13 or 21) as shows the below picture.
Follow the sequence according to the information below, as
a guide to fault finding.
1. Unable to read or write into NVM: 66% ON, 33% OFF
twice and OFF for a second.
2. MSP failure: 66% ON, 33% OFF for three times and
OFF for a second.
3. VDP failure: 66% ON, 33% OFF for four times and OFF
for a second.
NOTE:
If you want to check that the system is working, open resis-
tor R307 to avoid I2C comunication with MSP. The TV set
will flash three times and OFF for a second, showing MSP
failure.
Then the system is working properly.
21
21 19 17 15 13 11 9 7 5 3 1
20 18 16 14 12 10 8 6 4 2
On Off
On Off
On Off

11
28HW-53E
22
23
24
25
17
18
19
20
21
11
12
13
14
15
16
1
2
3
4
5
6
7
8
9
10
Y
X
012345678
R6701
C6701
(CC) (FV)
C6428
L6318
(SS)
31
(HD)
R6317
R6316
L6317
CN4
J401
S6702S6703S6704S6705
1
2
3
4
C6746
(A)
1
2
C6429
C6337
C6336
JF3
R6449
JF2
JF1
3
2
1
(H)
F6701
C6702C6703C6704C6705
(SW1)
(SW2)
(RC)
LP6701
R6702
L6701
A
S6701
F7342BMN1
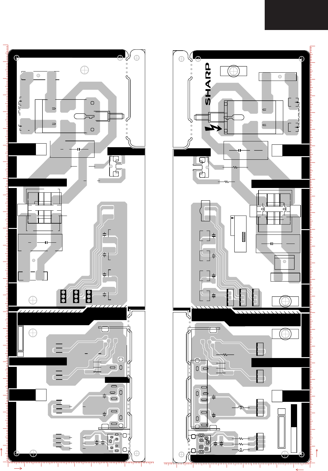
FRONTAL POWER SWITCH / AV UNIT (F7342N1A) PWB.
Component SideCopper Side
Y
X
22
23
24
25
17
18
19
20
21
11
12
13
14
15
16
1
2
3
4
5
6
7
8
9
10
0
9
876 54 3 21
R6701
C6701
(CC)(FV)
C6428
L6318
(SS)
(HD)
R6317
R6316
L6317
71 35
624
CN4
J401
T3.15AH
ESPA¥A
IC6701
S6702 S6703 S6704 S6705
12
34
C6746
1
2
(A)
C6429
C6337
C6336
JF3
R6449
JF2
JF1
(H)
3
2
1
F6701
C6702 C6703 C6704 C6705
(SW1)
(SW2)
(RC)
LP6701
1
3
(AA)
R6702
L6701
K7342BM
F7342BMN1 A
THE " " SYMBOL
CAUTION
THE ACTIVE SECTION
IS INDICATED WITH
S6701

12
28HW-53E
Page 13
MOTHER UNIT (F7240N7A) PRINTED WIRING BOARD. Component side.
22
23
24
25
17
18
19
20
21
11
12
13
14
15
16
1
2
3
4
5
6
7
8
9
10
Y
X
010 11 12 13 14 15 16
1234 56 789
JL40.
E
Q718
B
C748
IC704
C651
C652
A
F7241BMN7
K7241
JF63
J363
+
C1823
C
Q912
E
+
C1807
JF65
(H).
C1826
J362
C1825
+
C1824
D1815
D1813
D1814
R1833
R1831
R1835
R1801
JF64
JF66
ESPA¥A
1
9
IC1801
(K).
+
C1811
+
C703
D701
C704
R564
JF61
R703
R563
R518
C648
FB603
R604
JF55
D611
(EW)
JF56
JF57
L703
C746
D708
+
C724
D707
C702
(G)
2
1
JF54JF53
L705
FB705
JF28
J86
J85
R727
D714
F601
F602
C618
C611A
JL17
R763
D516
J288
J300
1
(MO)
4
(L5)
FB701
R713
R730
(L4)
(ST)(OPC)
(RC)
(SW2)
(SW1)
R628
R608
J320
J100
JL1
R611A
D719
R610
C619
+
+
C620
+
C528
R606
R617
C607
+
D612
(AV).
R408
JL14.
J284
1
3
(PW)
C504
R553
L604
R603
J316
JF29
C634
D609
JF8
JF9
D608
M1000
R792
J10
R741
C616
+
J101
J134
D610
R616
J174
J175
J176
J177
R533
+
C
J4
CF701 1
THE " "SYMBOL
CAUTION
THE ACTIVE SECTION
IS INDICATED WITH
E
Q711 C
T3.15AH
C615
J173
C610
R613
+
C719
R728
J99
J33
C718
+
R624
J172
R609
R641
D606
R623
D621
L606
J171
Q605
JF1
QKI
DIP
(L2)
IC1008
J6
J5
R714
C705
D712
R716
J178
JF10 J211
C613
D613
R612
FB601
D603
C601
D604
D605
1
(CW)
1
2
3
4
S701
S
D
G
20
21
21
20
S705
S704
D1001 D1002
LP701
S703
S702
18
10
9
1
T701
1
2
3
4
5
6
7
8
9
10
11
12
T601
MODULO_DIGITAL
6
12
Q701
L701
B
Q602
E
Q601
B
C
E
(F)
12345
J208
J209
J210
R791
R790
C706
+
IC706
R742
R1036
IC501
20
J69
D711
FB702
C711
C714
L603
R50
L609
J207
L609A
C770
D718
L502
TP601
TP602
K7240BM
+
C707
+
C526
123
(A)
+
C509
R643
R503
FB501
C642
C611
C641
+
C723
+
C501
JL2
C631
C720
+
D720
C713
FB1002
JF48
J326
5
(H)
R536
C638
L612
C637
R614
L611
(AA)
31
C701
F701
FB704
FB703
D722
J321
C721
+
J317
R619
JF51
JF50 L605
(STB2)
1
5
POR701
L702
IC701
J17
D731
D734
R721
R778
R771
J344
+
C739
R770
D623
J133
D735
J358
R651
J306
D702
(L6)
R715
C710 D716
R723
J68
J67
IC705
D703D704
F702
IC703
J366
C632
JF73
VR1801

13
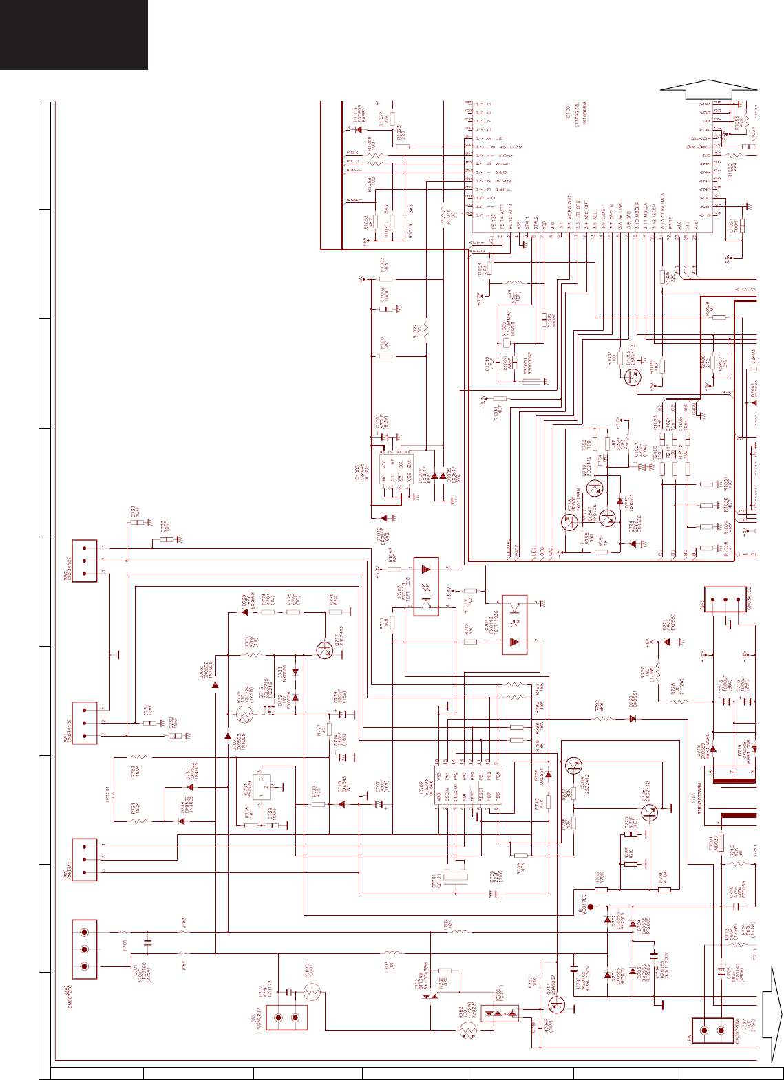
28HW-53E
MOTHER UNIT (F7240N7A) PRINTED WIRING BOARD. Component side.
Page 12
Y
X
22
23
24
25
17
18
19
20
21
11
12
13
14
15
16
1
2
3
4
5
6
7
8
9
10
29 30 31 32 3320 21 22 23 24 25 26 27 2817 18 19
J368
+
C815
(STB1)
JL17.
E
Q502
B
R565
K7241BM
C1826
2
5
+
C1824
D1809
5
1813
1814
1833
1831
1835
(L3)
5
6
789
10
11
12
GND
TRC
L1801
C1812
+
R1832
R1834
R1836
C1814(G2)
GND
JL12.
1
+
C415
JL12
(CV1)
C426
+
L203
(CC)
1
R471
R653
J136
R534
R508
J359
R563
JL14
(K)
91
R815
J228
J234
+
C804
R814 JL27
JL26
JL28
JL10
C305
+
+
C306
C381
C356
R650
A
A
1
(VS)
3
+
C377
JL11.
X1002
J288
J300
C353
J62
+
C1027
JL1.
C1032
+
J24
JL12,,
C644
+
R530
J183
D622
R234
X301
J170
1
(SS)
3
+
C229
J271
R1055
J44
L1002
L1001
J309
J201
J199
IC302
10
11
R526
R550
J90
R1008
J91
JF31 J60
L316
L315
J27
R1050
R618
J297
J116
J94
GND
GND
FB302
JL15
+
C437
C812 1
+
C818
+
R230
J303
JL11..
C1031
+
JL6.
R436
J177
R533
J249
J64
J314
+
C511
C524
C821
R231
C820
J221
J222
J241
J242
J32
J305
J31
R1047
J45
J46
L301
J14
J13
J12
C332
+
J301
C205
+
C204
J225
C209
+
R232
R233
C228
J280
R426
R419
J216
15
+
JF19
C514
J137
C365
+
J401
J47
C376
KITP7240BMN7
ESPA¥A
F7240BMN7
(YA)
(YB)
(YC)
J141
J143
J144
J153
J154
J155
J142
C431
C430
J145
J189
+
C210
J160
J161
J162
J151
L803
C343
+
R455
J246
L317
J9
J8
J191
+
C313
+
C314
+
C311
L201
J169
C324
C325
C315
+
C326
+
C329
IC1002
12
61
(SA) (SB)
16
L351
L350
IC203
C215
+
J275
J278
51
SF203
+
C206
CF202 1
J230
J131
+
IC301
1
10
20
52
27 26
1
IC2401
J274
J178
L503
J179
211
R425
R424
1
2
2
1
(AV)
CN3
4
2
6
5
317
TH201
AGC
TU
AS
CL
DA
B+
33V
IF1
IF2
1
612 61 12 61
L501
FB301
J265
J266
+
C218
64
33
32 1
IC305
J129
J128
8
1
IC304
C358
IC801
132
33 64
J232
J231
51
SF201
SF202
15
R306
R307
C220
+
J168
J167
J166 J165
J164
J147
J146
+
C211
J163
JF14
JF6
C322
C323
J157
J48
J49
J50
R501
+
C520
D510
J156
J152
J253
+
C219
J63
J251
J236
R451
J250
J74
J118
J95
J92
J41
J40
R1027
FB303
J252
TP701
TP201
1(FV)
(FV).
1
J203
J223
C362
J39
J117
J61
J72
J75 JL7
J243
J206
R420
J312
J138
J139
JF32
JF33
JF34
JF35
J318
J113
J114
J115
L2401
L2402 J88
J106
J194
J193
J192
(RGB)
J42
J28
J224
C501
JL12,
C822
J322
JL2.
J159
+
C342
J71
J311
J119
J140
R229
R620
X2401
J212
R519
J190
J185
J180
JL11
C1001
+
+
C825
J248
J260
C536
+
J87
R359
C361
+
C363
L352
+
C351
C352
+
C372
JL6
J78
J79
J80
J81
J82
IC1005
13
J93
L318
J130
R315
C341
1
(HD)
3
4
(S)
1
J255
C422
+
R418
R464
+
C433
J331
1
AV
(RT)
J304
R1022
J270
J269
J323
J343
JL2..
50Hz
50Hz
1
(STB3)
R1058
R1059
R1018
(L2)
JL19
R1064
D623
C368
L353
+
C378
C382
C370
J30
C373
D206
JL18
J347
J348
J349
JL29
JL29.
JL27.
JL26.
JL28.
J307
J214
L801
+
C802
J319
D803
JL31.
JL31
R379
R380
R381
R382
F702
JF40
JL7.
JL10.
R541
J150
J187
JF67
L804
JL40
JF73
1801
J43
J121
J122
J120
(SC) (CENTRAL)
J357
J127
J367
X801
JL2
J83

14
28HW-53E
MOTHER UNIT (F7240N7A) PRINTED WIRING BOARD. Copper side.
Page 15
X
22
23
24
25
17
18
19
20
21
11
12
13
14
15
16
1
2
3
4
5
6
7
8
9
10
Y
19 18 1729 28 27 26 25 24 23 22 21 20
33 32 31 30
C542
JF68
C828
JF74
C383
J353
J368
J339
R1019
R1020
J338
R1042
C1036
Q1007
C1018
C1035
KD617
C617
+
C815
KD426
R472
(STB1)
R505 R504
R547
JF41
Q502
R506
K
D1012
C1826
C18
C1811
C182
D1809
D1
D1
D1
GND
5
6
7
8
9
10
11
12
TRC
F7241BMN7
L1801
C1812
+
R1837
R1832
R1834
R1836
C1814
A
J303
JL12.
1
+
C415
JL12
R416
R410
K
D417
R462
R417
K
D405
JF60
(CV1)
C443
R466
R461
JF11
R459
C426
+
R251
R252
Q209
L203
(CC)
C451
J360
J361
R1003
J350
C521
Q507
R528
Q505
R514
R548
C523
J136
R534
R508
J359
C507
C502
R259
R210
C227
J354
D205 K
R215
C541
J356
C231
R563
R626
R1057
R1056
R1026
J302
C535
C359
C1034
C1033
C1028
C1026
C1021
C1005
J65
J51
J352
J351
J345
J342
J341
J336
J335
J332
J325
J324
J310
J294
J289
J286
J283
J279
J240
J220
J2
C826
C824
C819
C817
C811
C808
C807
C803
C801
D415
K
KD422
(K)
D804
K
Q805
Q804
R815 J228
J234
+
C804
Q803
Q802
R814
J146
IC503
K
D302
D304
K
K
D305
+
C305
+
C306
C381
C356
Q305
Q306
(VS)
+
C377Q303
Q302
KD1009
K
D1003
FB1001
X1002
D416
K
J288
J300
C353
J62
+
C1027
Q1001
C1032
+
J24
C644
+
R530
J183
D622
R234
X301
J170
(SS)
+
C229
J271
R258
Q210
R1055
J44
KD802
J309
J201
J199
IC302
11
20
K
D303
R526
R550
K
D2403
J90
R1008
J91
JF31 J60 K
D2401
L316
L315
J27
R1050
R618
Q608
J297
J116
J94
FB302
+
C437
JL14
+
C818
+
L204
R230
+
IC1004
IC1006
IC1007
IC1003
R436
J177
R533
J249
J64
J314
C511
+
C524
+
D419 K
Q408
C821
R231
C820
J221
J222
J241
J242
J32
J305
J31
Q607
R1047
J45
J46
L301
J14
J13
J12
C332
+
J301
C205
+
C204
J225
C209
+
R232
R233
C228
Q501
J280
R426
R419
J216
IC1001
1
25
26
75
C615
+
JF19
C514
Q503
J137
C365
+
D42
K
J401
J47
L202
C376
D410
K
(YA) (YB)
J141
J143
J144
J153
J154J155
J142
C431
C430
J145
J189
C210
J160
J161
J162
J151
L803
C343
+
R455
J246
L317
J8
J191
+
C313
+
C314
+
C311
L205
L201
J169C324
C325
C315
+
C326
+
C329
32
17
1
IC1002
(SA)
(SB)
L351
L350
IC203
C215
+
J275
J278
SF203
+
C206
CF202
J230
J131
C362
+
IC301
11
20
IC2402
14
13
5
52
27
26
1
J274
IC401
J178
L503
J179
J211
D411
K
IC201
1
28
R425
R424
D409
K
IF2
IF1
B+
DA
CL
AS
TU
TH201
MODULO_DIGITAL
Q404
Q405
FB301
J265
J266
D414
K
Q406
K
D203
+
C218
64
1
IC305
J129
J128
8
IC304
C358
IC801
1
32
64
J232
J231
SF201
SF202
11
R306
R307
C220
+
85
4
1
IC202
J168
J167
J166
J165
J164
J147
+
C211
J163
JF14
JF6
QKITP7240BMN7
IC2401
C322
C323
J157
J48
J49
J50
R501
+
C520
D510
J156
J152
J253
+
C219
J63
J251
J236
R451J250
L5
J74
J118
J95
J92
J41
J40
R1027
FB303
R449
J252
TP701
TP201
(FV)
(FV).
J203
J223
J307
D601
K
J39
J117
J61
J72
J75
J243
J206
R420
J312
J138
J139
JF32
JF33
JF34
JF35
J318
J113
J114
J115
L2401
L2402
J88
J106
J194
J193
J192
J42
J28
J224
C501
C822
J322
J159
+
C342
K
D1008
Q207
Q208
J71
J311
J119
J140
R229
R620
K
D618
X2401
J212
R519
J190
J185
J180
+
C1001
+
C825
J248
KD418
R467
J260
C536
+
J87
R359
Q304
C361
+
C363
L352
C351
+
C352
+
C372
K
D1005
J78
J79
J80
J81
J82
IC1005
D1010
K
J93
Q1006
L318
Q606
J130
D204
R315
C341
(HD)
(S)
41
D301
K
J9
J255
Q403
C422
+
R418
R464
+
C433
Q201
J331
AV
(RT)
D2402
K
D2404
K
J304
Q1005
R1022
KD1004
J270
J269
J323
J343
FB801
(STB3)
R1058
R1059
R1018 D1011
K
Q2401
D623
C368
L353
+
C378
C382
C370
J30
C373
J347
J348
J349
K
D407
K
D408
K
D406
D412
K
D413
K
D801
K
K
D1007
J214
L801
C802
+
J319
D803
C447
C1002
C1017
C1019
C1020
C1022
C1023
C1024
C1025
C1029
C1030
C203
C207
C208
C212
C213
C214
C216
C217
C221
C222
C223
C224
C225
C226
C230
C2401
C2402
C2403
C2404
C2405
C2406
C2407
C2408
C2409
C317
C318
C321
C327
C328
C330
C331
C333
C334
C335
C336
C337
C340
C350
C354
C357
C360
C364
C366
C367
C369
C371
C374
C375
C379
C401
C403
C405
C409
C410
C411
C412
C413
C414
C416
C417
C418
C419
C420
C421
C427
C428
C429
C432
C434
C435
C436
C438
C439
C440 C441 C
C444
C445
C446
C503
C512
C515
C51
C529
C531
C532
C533
C606
C636
C643
J98
JF12
JF2
JF20
JF21
JF22
JF3
JF30
JF37
JF38
JF39
JF4
JF44
JF5
JF52
JF7
R1001
R1002
R1004
R1005
R1021
R1024
R1028
R1029
R1030
R1031
R1032
R1033
R1035
R1041
R1044
R1046
R1051
R1052
R1054 R1060
R1061
R203
R204
R205
R208
R209
R211
R216
R217
R218
R219
R220
R225
R226
R227
R228
R235
R236
R237
R238
R239
R240
R2401
R2402
R2403
R2404
R2405
R2406
R2407
R2408
R2409
R241
R2410
R2411
R2412
R242
R243
R244
R245
R246
R247
R248
R249
R253
R254
R255
R256
R257
R301
R302 R303
R304
R309
R316
R317
R318
R319
R320
R321
R322
R323
R350
R351
R352
R353
R354
R355
R356
R357
R358
R360
R361
R362
R363
R372
R373
R374
R375
R376
R377
R378
R404
R406
R4
R411
R412
R413
R414
R415
R421
R422
R423
R427
R428
R429
R430
R431
R432
R433
R434
R437
R445
R447
R448
R450
R452
R453
R454
R456
R457
R458
R460
R463
R465
R468
R469
R470
R502
R507
R510
R511
R512
R515
R516
R517
R521
R522
R532
R535
R542
R544
R545
R549
R551
R552
R554
R622
R644
R6
R801
R802
R803
R804
R811
R813 R816
R817
R818
R312
R314
C338
R308
C387
R310
C319
R311
C339
C320
C386
R313
J
K
D425
C402
R403
C404
R405
D423 K
C406
D424
K
F702
C1031
JF40
K
D507
K
D508
R809
R541
J150
J187
JF67
Q801
R810
R808
D615
K
L804
K
D1006
R807
C823
C816
JF71
C809
R805
JF73 C1813
R1839
J43
R1043
J122
J126
R1023
J120
(SC)
(CENTRAL)
J357
C380
C316
J127
C312
C310
C309
J367
J218
J219
J369
J370
R812
X801
FB802
C813
C814
R806
C827
J371
R1053
R1049
R1045
C1037
JF75
C1040
J372
JF78
J83
C1038
Q1004
C1039
C1014
R1025
JF77
JF76
J121
JF79
JF70
JF69
JF80

15
28HW-53E
MOTHER UNIT (F7240N7A) PRINTED WIRING BOARD. Copper side.
Page 14
Y
X
22
23
24
25
17
18
19
20
21
11
12
13
14
15
16
1
2
3
4
5
6
7
8
9
10
0
10 9 876 54 3 21
1
716 1514 1312 11
Q712
Q718
E
B
R754
R758
JF46
Q1003
R1037
J355
D1811
K
L1802
JF62
C653
IC704
D1805
K
C1827
D1812
K
Q913
R1844
R1843
R1842
R1841
K
D1804
C1805
R1830
R1812
C1815
R1816
R1811
C651
C652
JF63JF64
C1806
J363
Q907
Q912
C1807
R1814
Q908
C1820R1815
R1813
Q909
R1809 R1807
Q905
R1808
Q906
JF65
Q904
1
(H).
J362
C1825
C1811
+
C1824
D1815
D1813
D1814
R1833
R1831
R1835
C1821R1810
Q901
R1801
R1804
R1802
C1822
C1801
K
D1810
Q902
R1803
Q903
JF66
R1806
IC1801
9
(K).
2
+
R1805
+
C703
D701
C704
502
JF61
R703
R518
C525
C517
J340
J313
J281
C743
C742
C741
C740
C738
C737
C735
C733 C732 C731 C730
C728
C725
C722
C715
C712
C646
D415
K
422
C648
03
Q506
Q603
FB603
JF55
D611
(EW)
K
D624JF56
JF57
C746
C745
D708
Q715
+
C724
D707
C702
21
(G)
A
A
JF54
JF53
L705
FB705
JF28
J86
J85
R727
D714
16 9
81
IC707
C618
C611A
R763
IC708
1
34
6
Q709
D516
8
0
D503
K
K
D515
D506
K
(MO)
FB701
R713
R730
R627
L601
R625
R628
R608
D619 K
KD728
C528
KD421
J320
J100
R611 R611A
D719
R610
C619
+
D504 K
+
C620
+
R606
D614
K
R617
C607
+
D612
1
(AV).
D401
K
K
D402
R408
JL14.
J284
C504
R553
L604
R603
J316
R718
JF29
C634
D609 JF8
JF9
D608
M1000
L702
L703
R792
J10
T702
R741
C616
+
J101
J134
D610
R616
J174
J175
J176
J177
R533
D620
K
C511
+
J4
CF701
THE " " SYMBOL
CAUTION
THE ACTIVE SECTION IS INDICATED WITH
Q711
+
J173
R613
D420
K
C719
R728
J99
J33
C718
J172
R609
R641
D606
R623
Q604
D621
L606
J171
BE
Q605
JF1
D403 K
(YC)
J209
Q1002
J6
J5
D713
K
R714
C705
J178
JF10
11
C613
D613
R612
FB601 D603
C610
C601
D604
D605
1
(CW)
1
2
3
4
S701
(AV)
S705
S704
D1001
D1002 LP701
S703
S702
18
10
9
1
T701
T601
1
2
3
45
67
8
9
10
11
12
IGITAL
Q404
Q701
L701
Q602
Q601
(F)
12
J208
J210
L501
IC502
IC702
18
9
R791
R790
C706
+
IC706
R742
R1036
IC501
1
J69
D711
FB702
C711
C714
L603
E
B
L609
J207
L609A
C770
R743
L502
TP601
TP602
+
C707
+
C526
R744
(A)
12
3
+
C509
R643
R503
FB501
C642
C611
C641
K
D721
+
C723
+
C501
K
D727
R762
C631
+
C720
D720
Q702
C713
D730
K
Q703
R716
D712
FB1002
D502
K
JF48
J326
(H)
R536
C638
L612
C637
R614
L611
C701
F701
FB704
FB703
D722
J321
C721
+
J317
R619
JF51
JF50
L605
(STB2)
5
POR701
Q714
K
D706 IC701
J17
D731
D734
R721
R778
R771
J344
Q708
+
Q717
R770
D732K
D733
K
R774
D710
K
C739
K
D404
D509K
C1015
C408
C442
C505
C506
C508
C510
C513
C515
C516
C518
C522
C527
C529
C530
C534
C537
C538
C539
C540
C633
C635
C639
C640
C645
J701
JF1001
JF1002
JF1003
JF1004
JF1005
JF1006
JF1007
JF1008
JF15
JF16
JF24
JF47
R1012
R1017
R1038
R1039
R1040
R401
R402
R407
R409
R435
R447R450
R502
R509
10
R511
R513
R520
R524
R525
R527
32
R537
R538
R539
R540
R555
R556
R557
R558
R559
R560
R561
R562
R601
R605
R607
R615
R634
R642
R646
R647
R648
R706
R707
R708
R711
R712
R717
R719
R720
R732
R733
R735
R736
R737
R738
R739
R740
R745
R746
R747
R748
R750
R752
R767
R769
R776
R777
R787
R788
R789
J133
D735
J358
R651
J306
D625
K
D702
R715
C710
J365
IC703
R1048
R765
R766
D716
J68
J67
C716
C717
R722
D715
K
R768
D726 K
R749
IC705
R724
D703 D704
R775
C749
K
D729
C748
R723
D718
F7240BMN7
J366
C632
R751
R755
D724K
K
D725
Q710
JF73 C1813
R1839

16
28HW-53E
C1708
T1701
R1707
D1702
K
K
D1701
R1703
FB1701
C1704
R1705
R1706
R1708
C1702
R1702 R1701
R1709
C1701
IS INDICATED WITHTHE ACTIVE SECTION
CAUTION
THE " " SYMBOL
D1703
C1707
R1715
R1714 R1713
R1712
C1705
J12
C1703
+
R1710
IC1701
13
(PWA) (PWB)
31
R1711
C1706
R1704
D1601
(EW)
D1602
+
C1604
R1602
R1601
Q6101
.
FOCO
GND DYN.INPUT
F7314BMN3
C1603
R1603
T1602
54 32 1
(F)
54321
(FF)
C1602 C1601
DYNAMIC FOCUS & PFC UNIT (F7314N3) PWB
C1708
T1701
FB1701
C1704
C1702
R1709
Q1701
C1701
D1703
C1707
J12
C1703
+
R1710
(L6)
(PWA) 3113(PWB)
THE " " SYMBOL
CAUTION
THE ACTIVE SECTION
IS INDICATED WITH
PRDAR5534
D1601
1
(EW)
D1602
+
C1604
R1602
R1601
EB
C
Q1601
F7314BMN3 .
FOCO
DYN.INPUT GND
K7314BM
C1603
R1603
T1602
54321
(F)
54321
(FF)
C1602
C1601
ESPA¥A
(L5)
0123456 7
22
23
24
25
17
18
19
20
21
11
12
13
14
15
16
1
2
3
4
5
6
7
8
9
10
X
Y765Å3 1
1
0
Y
X
22
23
24
25
17
18
19
20
21
11
12
13
14
15
16
2
3
4
5
6
7
8
9
10
Component Side
Copper Side

17
28HW-53E
CRT MODULE UNIT (F7273N3) PWB.
Comp. Side
1
2
3
4
5
6
7
8
Y
0123456789
X
C1609
+
JL20.
C5413
+
C1825
+
C1812
(L2)
L1603
+
C1608
3
(PU)
1
R5421
C5417
J73
Q5408
BE
R5420
D5404
IC1801
15
1
2
14
C5408
(MO)
+
C5412
L1801
1
(K)
9
(H)
5
R1841
D1804
E
Q912
C
C1823
+
J327
R1820
C1811
+
(L3)
EB
Q5407
R5425
D5405
C5414
R1836
G2
C1814
R1832
R1822
R1821
D1809
J70
(B)
1
J72
+
C1613
C1612
+
(L2)
R5422
R5428
R5423
5
7
6
8
9
12
11
10
4
CRT (RT)
R1834
L1604
C5405
R5426
ESPA¥A
C1824
+
C1807
K7273BM F7273BMN3
R1621
D5411
D5412
1
(Q)
R1623
J78
.
C5415
JL20
Copper Side
C1806
C1805
C1804
C1609
+
K
D1607
1
IC1601
R1843
+
C1825
+
C1812
Q5411
L1603
+
C1608
31
(PU)
R5421
K
D5403
C5417
Q5406
J73
Q5408
B
E
R5420
D5404
D5410
K
C5408
(MO)
+
C5412
L1801
1
(K)
9
(H)
5R1841
E
C
Q912 C1823
+
J327
Q906
Q905
Q902
Q901
Q909
Q908
+
Q903
EBQ5407
R5425
D5405
C5414
R1836
C1814
R1832
R1822
R1821
D1809
J70
(B)
K
D1810
+
C1613
+
R5422
R5428
R5423
4
5
6
7
8910
11
12
CRT
R1834
L1604
.
C5405
Q5410
F7273BMN3
R5426
C1824
+
C1807
(Q)
Q5405
Q1604
Q1603
J78
Q907
Q904
Q5412
C5415
J4
K
D1805
J5
C1610
C1611
C1801
C1802
C1803
C1808
C1809
C1810
C1813
C1815
C1820
C1821
C1822
C5409
C5410
C5411
J71
J74
J75
J76
J77
J79
R1615
R1618
R1619
R1620
R1622
R1624
R1801
R1802
R1803
R1804
R1805
R1806
R1807
R1808
R1809
R1810R1811
R1812
R1813
R1814
R1815
R1816
R1817
R1818
R1819
R1823
R1824
R1825
R1830
R1831
R1833
R1835
R1837
R1839
R1840
R5412
R5413
R5414
R5415
R5416
R5417
R5418
R5419
R5424
R5431
R5432 R5433
R1617
C1830
R1616
R5435R5434
Y
0
8
7
6
5
4
3
2
1
1235678
9
X
4

18
28HW-53E
MOTHER UNIT (F7240N7A) PWB COMPONENT LOCATION TABLES.
Component Side.
5HI1R ;XP <XP
$
$$
$9
$9
&&
&9
&:
(:
)
)9
)9
*
*
+
+
+'
.
.
/
/
/
02
3:
5*%
57
6
6$
6%
6&
66
67%
67%
67%
96
$9
&
&
&
&
&
&
&
&
&
&
&
&
&
&
&
&
&
&
&
&
&
&
5HI1R ;XP <XP
&
&
&
&
&
&
&
&
&
&
&
&
&
&
&
&
&
&
&
&
&
&
&
&
&
&
&
&
&
&
&
&
&
&
&
&
&
&
&
&
&
&
&
&
&
&
&
&
&
&
&
&
&
&
&
&
&
5HI1R ;XP <XP
&
&$
&
&
&
&
&
&
&
&
&
&
&
&
&
&
&
&
&
&
&
&
&
&
&
&
&
&
&
&
&
&
&
&
&
&
&
&
&
&
&
&
&
&
&
&
&
&
&
&)
&)
&1
'
'
'
'
'
5HI1R ;XP <XP
'
'
'
'
'
'
'
'
'
'
'
'
'
'
'
'
'
'
'
'
'
'
'
'
'
'
'
'
'
'
'
'
'
'
)
)
)%
)%
)%
)%
)%
)%
)%
)%
)%
)%
)%
)%
)%
,&
,&
,&
,&
,&
,&
,&
,&
5HI1R ;XP <XP
-
-
-
-
-
-
-
-
-
-
-
-
-
-
-
-
-
-
-
-
-
-
-
-
-
-
-
-
-
-
-
-
-
-
-
-
-
-
-
-
-
-
-
-
-
-
-
-
-
-
-
-
-
-
-
-
-
5HI1R ;XP <XP
-
-
-
-
-
-
-
-
-
-
-
-
-
-
-
-
-
-
-
-
-
-
-
-
-
-
-
-
-
-
-
-
-
-
-
-
-
-
-
-
-
-
-
-
-
-
-
-
-
-
-
-
-
-
-
-
-

19
28HW-53E
MOTHER UNIT (F7240N7A) PWB COMPONENT LOCATION TABLES.
Component Side.
5HI1R ;XP <XP
5
5
5
5
5
5
5
5
5
5
5
5
5
5
5
5
5
5
5
5
5
5
5
5
5
5
5
5
5
5
5
5
5
5
5
5
5
5
5
5
5
5
5
5
5
5
5$
5
5
5
5
5
5
5
5
5
5
5HI1R ;XP <XP
5
5
5
5
5
5
5
5
5
5
5
5
5
5
5
5
5
5
5
5
5
5
5
5
5()
5()$
5()
6
6
6
6
6
6)
6)
6)
7
7
7+
;
;
;
;
5HI1R ;XP <XP
-
-
-
-
-
-
-
-
-
-
-
-
-
-
-
-
-
-
-
-
-
-
-
-
-
-
-
-
-
-
-
-
-
-
-
-
-
-
-
-
-
-
-
-
-
-
-
-
-
-
-
-
-
-
-
-
-
5HI1R ;XP <XP
-)
-)
-)
-)
-)
-)
-)
-)
-)
-)
-)
-)
-)
-)
-)
-)
-)
-)
-)
-)
-)
-)
-)
-/
-/
-/
-/
-/
-/
-/
-/
-/
-/
-/
-/
-/
-/
-/
-/
-/
-/
-/
-/
-/
-/
-/
-/
-/
-/
-/
-/
-/
-/
-/
/
/
/
5HI1R ;XP <XP
-)
-)
-)
-)
-)
-)
-)
-)
-)
-)
-)
-)
-)
-)
-)
-)
-)
-)
-)
-)
-)
-)
-)
-/
-/
-/
-/
-/
-/
-/
-/
-/
-/
-/
-/
-/
-/
-/
-/
-/
-/
-/
-/
-/
-/
-/
-/
-/
-/
-/
-/
-/
-/
-/
/
/
/
5HI1R ;XP <XP
/
/
/
/
/
/
/
/
/
/
/
/
/
/
/
/$
/
/$
/
/
/
/$
/
/
/
/$
/
/
/
/
/
/
/3
0
325
4
4
4
4
4
4
4$
4
4
4
5
5
5
5
5
5
5
5
5
5
5
5

20
28HW-53E
MOTHER UNIT (F7240N7A) PWB COMPONENT LOCATION TABLES.
Copper Side.
5HI1R ;XP <XP
&
&
&
&
&
&
&
&
&
&
&
&
&
&
&
&
&
&
&
&
&
&
&
&
&
&
&
&
&
&
&
&
&
&
&
&
&
&
&
&
&
'
'
'
'
'
'
'
'
'
'
'
'
'
'
'
'
5HI1R ;XP <XP
'
'
'
'
'
'
'
'
'
'
'
'
'
'
'
'
'
'
'
'
'
'
'
'
'
'
'
'
'
'
'
'
'
'
'
'
'
'
'
'
'
'
'
'
'
'
'
'
'
'
'
'
'
'
'
'
'
5HI1R ;XP <XP
'
'
'
'
'
'
'
'
'
'
'
'
'
'
)%
)%
)%
,&
,&
,&
,&
,&
,&
,&
,&
,&
,&
,&
,&
,&
-
-
-
-
-
-
-
-
-
-
-
-
-
-
-
-
-
-
-
-
-
-
-
-
-
-
-
5HI1R ;XP <XP
&
&
&
&
&
&
&
&
&
&
&
&
&
&
&
&
&
&
&
&
&
&
&
&
&
&
&
&
&
&
&
&
&
&
&
&
&
&
&
&
&
&
&
&
&
&
&
&
&
&
&
&
&
&
&
&
&
5HI1R ;XP <XP
&
&
&
&
&
&
&
&
&
&
&
&
&
&
&
&
&
&
&
&
&
&
&
&
&
&
&
&
&
&
&
&
&
&
&
&
&
&
&
&
&
&
&
&
&
&
&
&
&
&
&
&
&
&
&
&
&
5HI1R ;XP <XP
&
&
&
&
&
&
&
&
&
&
&
&
&
&
&
&
&
&
&
&
&
&
&
&
&
&
&
&
&
&
&
&
&
&
&
&
&
&
&
&
&
&
&
&
&
&
&
&
&
&
&
&
&
&
&
&
&

21
28HW-53E
MOTHER UNIT (F7240N7A) PWB COMPONENT LOCATION TABLES.
Copper Side.
5HI1R ;XP <XP
-
-
-
-
-
-
-
-
-
-
-
-
-
-
-
-
-
-)
-)
-)
-)
-)
-)
-)
-)
-)
-)
-)
-)
-)
-)
-)
-)
-)
-)
-)
-)
-)
-)
-)
-)
-)
-)
-)
-)
-)
-)
-)
-)
-)
-)
-)
-)
-)
-)
-)
-)
5HI1R ;XP <XP
-)
-)
-)
/
/
/
/
/
4
4
4
4
4
4
4
4
4
4
4
4
4
4
4
4
4
4
4
4
4
4
4
4
4
4
4
4
4
4
4
4
4
4
4
4
4
4
4
4
4
4
4
4
4
4
4
4
4
5HI1R ;XP <XP
4
4
4
4
4
4
4
4
5
5
5
5
5
5
5
5
5
5
5
5
5
5
5
5
5
5
5
5
5
5
5
5
5
5
5
5
5
5
5
5
5
5
5
5
5
5
5
5
5
5
5
5
5
5
5
5
5
5HI1R ;XP <XP
5
5
5
5
5
5
5
5
5
5
5
5
5
5
5
5
5
5
5
5
5
5
5
5
5
5
5
5
5
5
5
5
5
5
5
5
5
5
5
5
5
5
5
5
5
5
5
5
5
5
5
5
5
5
5
5
5
5HI1R ;XP <XP
5
5
5
5
5
5
5
5
5
5
5
5
5
5
5
5
5
5
5
5
5
5
5
5
5
5
5
5
5
5
5
5
5
5
5
5
5
5
5
5
5
5
5
5
5
5
5
5
5
5
5
5
5
5
5
5
5
5HI1R ;XP <XP
5
5
5
5
5
5
5
5
5
5
5
5
5
5
5
5
5
5
5
5
5
5
5
5
5
5
5
5
5
5
5
5
5
5
5
5
5
5
5
5
5
5
5
5
5
5
5
5
5
5
5
5
5
5
5
5
5

22
28HW-53E
MOTHER UNIT (F7240N7A) PWB
COMPONENT LOCATION TABLES.
Copper Side.
5HI1R ;XP <XP
5
5
5
5
5
5
5
5
5
5
5
5
5
5
5
5
5
5
5
5
5
5
5
5
5
5
5
5
5
5
5
5
5
5
5
5
5
5
5
5
5
5
5
5
5
5
5
5
5
5
5
5
5
5
5
5
5
5HI1R ;XP <XP
5
5
5
5
5
5
5
5
5
5
5
5
5
5
5
5
5
5
5
5
5
5
5
5
5
5
5
5
5
5
5
5
5
5
5
5
5
5
5
5
5
5
5
5
5
5
5
5
5
5
7
5HIB1R ;XP <XP
$
$$
&&
)9
+
+'
5&
66
6:
6:
&
&
&
&
&
&
&
&
&
&
&1
)
,&
-
-)
-)
-)
/
/
/
/
/3
5
5
5
5
5
6
6
6
6
6
POWER / AV UNIT (F7342N1A)
PWB COMPONENT
LOCATION TABLES
Component side:
Copper side:
No parts

23
28HW-53E
5HI1R ;XP <XP
&
&
&
&
&
&
&
&
&
&
&
&
&
&
&
&
&
&
&
&
'
'
'
'
'
,&
-
-
-
-
-
-
-
-
4
4
4
4
4
4
4
4
4
4
4
4
4
4
4
4
5
5
5
5
5
5
5
5HI1R ;XP <XP
5
5
5
5
5
5
5
5
5
5
5
5
5
5
5
5
5
5
5
5
5
5
5
5
5
5
5
5
5
5
5
5
5
5
5
5
5
5
5
5
5
5
5
5
5
5HI1R ;XP <XP
%
+
.
/
02
38
4
57
&
&
&
&
&
&
&
&
&
&
&
&
&
&
&
&
&
&
&57
'
'
'
'
'
'
))
*
,&
-
-
-
-
-
-/
-/
/
/
/
4
4
4
5
5
5
5
5
5
5
5
5HI1R ;XP <XP
5
5
5
5
5
5
5
5
5
5()
CRT UNIT (F7273N3) PWB COMPONENT LOCATION
TABLES:
Component Side. Copper Side.
Copper side:
DINAMIC FOCUS & PFC UNIT
(F7314N3) PWB COMPONENT
LOCATION TABLES:
Ref No Xum Yum
(EW) 101600 46736
(F) 130048 38862
(FF) 121158 38862
(L5) 83566 56134
(L6) 30226 54102
(PWA) 66294 57150
(PWB) 52070 57150
C1601 170688 12192
C1602 174498 12192
C1603 176276 20574
C1604 198628 38100
C1701 14732 52832
C1702 33782 9144
C1703 41402 39116
C1704 56134 20066
C1707 58928 46482
C1708 68326 40132
D1601 194818 45212
D1602 202438 45212
D1703 61214 28956
FB1701 56642 10922
FOCO 213995 32512
J12 48514 33020
Q1601 183007 32512
Q1701 43840 16510
R1601 190754 45212
R1602 131826 53848
R1603 171196 45466
R1709 38100 24130
R1710 53086 31750
T1602 151384 27432
T1701 18034 29718
Component side:
Ref No Xum Yum
C1705 54864 29718
C1706 46482 38100
D1701 24638 33274
D1702 27432 33274
IC1701 47752 30226
R1701 15494 45974
R1702 21844 45974
R1703 21844 40132
R1704 36322 54102
R1705 40894 51562
R1706 41402 46990
R1707 22352 25146
R1708 36068 25400
R1711 46482 40132
R1712 58674 30988
R1713 60452 27178
R1714 67056 28702
R1715 67056 35052

24
28HW-53E
SERVICE PRECAUTION:
THE AREA ENCLOSED BY THIS LINE ( )
IS DIRECTLY CONNECTED WITH AC MAINS
VOLTAGE.
WHEN SERVICING THE AREA, CONNECT AN
ISOLATING TRANSFORMER BETWEEN TV
RECEIVER AND AC LINE TO ELIMINATE HAZ-
ARD OF ELECTRIC SHOCK.
DESCRIPTION OF SCHEMATIC DIAGRAM
NOTE:
1. The unit of resistance «ohm»is omitted (K=1000
ohms. M= Megaohm).
2. All resistors are SMD, 1/16 watt. unless
otherwise noted.
3. All resistors are 1/8 watt. unless other-
wise noted.
4. All capacitors are mF, unless otherwise noted
(P= mmF).
5. The capacitor with Part No. RC-FZ9XXXBMNJ
is designed to with stand 63V.
6. The capacitor with Part No. RC-FZ4XXXBMNJ
is designed to with stand 50V.
SAFETY NOTE:
1. DISCONNECT THE AC PLUG FROM THE AC
OUTLET BEFORE REPLACING PARTS.
2. SEMICONDUCTOR HEAT SINKS SHOULD BE
REGARDED AS POTENTIAL SHOCK HAZARDS
WHEN THE CHASSIS IS OPERATING.
IMPORTANT SAFETY NOTE:
PARTS MARKED WITH « » ( ) ARE
IMPORTANT FOR MAINTAINING THE SAFETY
OF THE SET. BE SURE TO REPLACE THESE
PARTS WITH SPECIFIED ONES FOR MAINTAIN-
ING THE SAFETY AND PERFORMANCE OF THE
SET.
CAUTION
This circuit diagram is original one, therefore
there may be light difference from yours.
215 Vp-p 50Hz
45 Vp-p 113 KHz FM
WAVEFORM MEASUREMENT CONDITION:
Colour bar generator signal of 70 dB from RF input.
910 11 12
13
580V 1.3 KV 15.625KHz 4 Vp-p 15.625KHz
41 Vp-p 15.625KHz 1.8 Vp-p 50Hz 3.3V 50Hz
19V 50Hz 20.5 Vp-p 50Hz 400Hz1.15 Vp-p
15.625KHz
400Hz
!
1234
8
7
6
5

25
28HW-53E
1
I
H
G
F
E
D
C
B
A
234567
SCHEMATIC DIAGRAM OF CRT SOCKET UNIT (F7273N3, 00 Version)
R
G
B
H.V.
27.5 KV
1
2
3
1
2
3
4
5
6
7
8
1
3
4
5
2
+10V
+10V
+10V
FOCUS
+175V
+13V
+150V
+175V
+12V
SCREEN
R1806
220
R1811
220
R1816
220
C1801
100nF
C1805
220nF
C1806
10nF
C5405
220nF
Q5411
2SC2412
Q5412
2SA1037
Q5410
2SC2412
R1802
390 R1803
75
R1804
100
Q902
2SC2412
Q903
2SA1037
R1805
1K
C1822
22pF
R1801
220
Q901
2SC2412
R1807
390
R1808
75
R1835
1K
C1810
1nF
R1833
1K
C1802
15pF
R1817
1K2
C1803
15pF
R1818
1K2
R1819
1K2
C1804
15pF
Q905
2SC2412
R1810
1K
C1809
1nF
Q906
2SA1037
Q904
2SC2412
R1809
100
C1821
22pF
R1813
75
R1815
1K
Q908
2SC2412
Q909
2SA1037
R1812
390
R1814
100
C1820
22pF
Q907
2SC2412
C1811
10uF
(250V)
R1830
4K7
R5412
47
R5431
390
R5432
33
R1823
2K2
R1824
2K2
R1825
2K2
R5435
330
R5434
1K
R5433
100
R1839
10
R1820
82K
(1/2W)
R1821
82K
(1/2W)
R1822
82K
(1/2W)
D1809
1N4004
DX0501
D1805
C12
EX0554
C1812
2,2uF
(250V)
C1815
100nF
C1807
1000uF
(16V)
R1832
680
(1/2W)
R1834
680
(1/2W)
R1836
680
(1/2W)
C1808
1nF
R1831
1K
(H)
(PU)
N0341
C5415
22uF
(160V)
C5410
10nF
C5407
10nF
R5413
22
C5408
4n7
500V
R5415
1K2
R5420
56
(1/4W)
C5414
22uF
(160V)
R5422
2.7
(1/4W)
C5412
100uF
(16V)
R5424
220
Q5407
A1837
R5423
2.7
(1/4W)
R5416
68K
R5417
12K
R5418
68K
R5419
1K2
C5411
10nF
C5409
4n7
R5414
22
R5428
100
(1/4W)
R5421
56
(1/4W)
C5413
100uF
(16V)
Q5408
C4793
R5425
470
1W
D5403
DX0551
D5410
DX0551
Q5406
2SA1037
Q5405
2SC2412
D5404
DX0501
1N4004
D5405
DX0501
1N4004
D1804
DX0505
Q912
TX0218
C1825
10nF
250V
C1824
4,7nF
(K)
IC1801
STV5109
IX1803
4
3
1
14
13
11
10
12
6
7
9
15
2
5
8
TRC
VB76ERF3113*N
1
9
10
6
11
5
7
1
1
6
11
5
7
R1837
2M2
C1813
10nF
8
10
9
L1801
C1814
.
SHARP
ELECTRONICA ESPANA S.A.
NOMBRE CODIGO
ESCALA
MODELO
FECHA REVISIONES N
2
3
4
5
6
FECHA
A-3
20-09-2001
MODULE C.T.R.
28HW53E
REALIZADO VERIFICADO APROBADO
1
QPWBF7273BMN3
Digitally signed by Castillo, Fco.
cn=Castillo, Fco., ou=SEES, o=Engineering Dept., c=ES
Date: 2001.09.20 12:20:58 Z
Reason: <none>
Digitally signed by Castillo, Fco.
cn=Castillo, Fco., ou=SEES, o=Engineering Dept., c=ES
Date: 2001.09.20 12:21:14 Z
Reason: <none>
Digitally signed by Adolfo Fernandez
cn=Adolfo Fernandez, ou=CAD GLOBAL NETWORK, o=SHARP, c=ES
Date: 2001.09.20 12:24:46 Z
Reason: This document is ready for approval

26
28HW-53E
SCHEMATIC DIAGRAM OF MOTHER UNIT (K7240N7, 00 Version)
1
I
H
G
F
E
D
C
B
A
234567
Page 27
Page 28

27
28HW-53E
Digitally signed by Adolfo Fernandez
cn=Adolfo Fernandez, ou=CAD GLOBAL NETWORK, o=SHARP, c=ES
Date: 2001.07.23 17:34:06 Z
Reason: This document is ready for approval
Castillo,
Fco.
Digitally signed
by Castillo, Fco.
DN: cn=Castillo,
Fco.,
o=Engineering
Dept.,
ou=SEES, c=ES
Date:
2001.07.24
14:06:26 +01'00'
La firma puede ser válida
(Off-line warnings)
Digitally signed
by Castillo, Fco.
DN: cn=Castillo,
Fco.,
o=Engineering
Dept.,
ou=SEES, c=ES
Date:
2001.07.24
14:07:43 +01'00'
Reason: I have
reviewed this
document
SCHEMATIC DIAGRAM OF MOTHER UNIT (K7240N7, 00 Version)
8910 11 12 13 14
I
H
G
F
E
D
C
B
A
Page 26
Page 29

28
28HW-53E
1 2 34 567
R
Q
P
O
N
M
L
K
J
SCHEMATIC DIAGRAM OF MOTHER UNIT (K7240N7, 00 Version)
Page 29
Page 26

29
28HW-53E
8 9 10 11 12 13 14
R
Q
P
O
N
M
L
K
J
SCHEMATIC DIAGRAM OF MOTHER UNIT (K7240N7, 00 Version)
Page28
Page 27

30
28HW-53E
1
I
H
G
F
E
D
C
B
A
234567
SCHEMATIC DIAGRAM OF PFC UNIT (F7314N3, 00 Version)
DUNTK7314BMW4
+325V
(L6)
R1715
330K
(TQ)
(1%)
R1714
330K
(TQ)
(1%)
R1713
330K
(TQ)
(1%)
R1712
6K2
(1%)
R1711
10K
C1706
10nF
IC1701
L6561D
INV
1
COMP
2
MULT
3
CS
4
VCC 8
GD 7
GND 6
ZCD 5
C1705
1uF
R1709
10
Q1701
TX0231BM
C1703
22uF
C1704
220pF
2KV
R1708
68K
R1706
560K
(TQ)
R1705
560K
(TQ)
R1704
560K
(TQ)
R1703
560K
(TQ)
R1702
560K
(TQ)
R1701
560K
(TQ)
C1701
22nF
(630V)
FZ0186
D1701
DX0551
D1702
C18
EX0558BM
R1707
100
C1702
10nF
R1710
.47
(1W)
(PWA)
CM0672FC
FB1701
LN0080CE
T1701
Z0587BM
1
2
3
4
C1707
22nF
(630V)
FZ0186
D1703
BYV28-600
20-09-2001
Module Foco
28HW53E
SHARP
ELECTRONICA ESPANA S.A.
NOMBRE CODIGO
ESCALA
MODELO
FECHA REVISIONES N
2
3
4
5
6
FECHA
A-4
REALIZADO VERIFICADO APROBADO
1
4BMN3
QK I TP 7 3 1
Digitally signed by Castillo, Fco.
cn=Castillo, Fco., ou=SEES, o=Engineering Dept., c=ES
Date: 2001.09.20 12:19:34 Z
Reason: <none>
Digitally signed by Castillo, Fco.
cn=Castillo, Fco., ou=SEES, o=Engineering Dept., c=ES
Date: 2001.09.20 12:19:49 Z
Reason: <none>
Digitally signed by Adolfo Fernandez
cn=Adolfo Fernandez, ou=CAD GLOBAL NETWORK, o=SHARP, c=ES
Date: 2001.09.20 12:23:51 Z
Reason: This document is ready for approval

31
28HW-53E
1
I
H
G
F
E
D
C
B
A
234567
SCHEMATIC DIAGRAM OF POWER SWITCH UNIT (F7342N1, 00 Version)
1231212
OUT R
OUT L
GND
GND
CHROMA IN
GND
LUMA IN
M6701
112233 123
RC
+5V
GND
GND
OUT R
OUT L
321
DUNTK7342BMV3
L318
3.3uH
(DF)
J6401
QJAKZ0015CE
R6449
75
(1/4W)
(SS)
GN0341
(CC)
GN0241
(FV)
GN0241
(H)
GN0304
R6701
120K
1/2W
R6702
120K
1/2W
S6701
P0613BM
F6701
FS-C3226
LP6701
P0001
3
2
CU0203BM
1
(SW1)
GN0341
(SW2)
GN0341
S6702
KZ0079
S6703
KZ0079
S6704
KZ0079
S6705
KZ0079
(RC)
GN0341
CN4
QJAKJ0047CEZZ
1
5
4
3
2
6
7
(HD)
GN0341
L6317
3.3uH
(DF)
L6701
F0108BM
C6746
330nF
FZ0192
(275V)
C6701
FZ0160BM
(275V)
470nF
C6336
10nF
R6316
390
C6337
10nF
R6317
390
C6428
1nF C6429
1nF
(A)
GN0207
SHARP
ELECTRONICA ESPANA S.A.
NOMBRE CODIGO
ESCALA
MODELO
FECHA REVISIONES N
2
3
4
5
6
FECHA
A-3
PWB F 7 B M N
20-09-2001
42 1
SWITCH A / V
28HW53E
REALIZADO VERIFICADO APROBADO
Q
1
3
1
2
3
4
5
6
A
Digitally signed by Castillo, Fco.
cn=Castillo, Fco., ou=SEES, o=Engineering Dept., c=ES
Date: 2001.09.20 12:20:10 Z
Reason: <none>
Digitally signed by Castillo, Fco.
cn=Castillo, Fco., ou=SEES, o=Engineering Dept., c=ES
Date: 2001.09.20 12:20:25 Z
Reason: <none>
Digitally signed by Adolfo Fernandez
cn=Adolfo Fernandez, ou=CAD GLOBAL NETWORK, o=SHARP, c=ES
Date: 2001.09.20 12:24:23 Z
Reason: This document is ready for approval

32
28HW-53E
BLOCK DIAGRAM.
1
I
H
G
F
E
D
C
B
A
234567
A
A
B
B
C
C
D
D
E
E
1 1
2 2
3 3
4 4
+16V AUDIO
-16V AUDIO
+5V DIGITAL
T 701
POR 701
ON/ST-BY
POWER ST-BY
CONTROL
+5V
Micro Proc. COMUNICATION
Micro Proc. COMUNICATION
MAIN POWER
M 6701
IR
DETECTOR
+ CH - + VOL -
TH 201 A
TUNER
SAW
SF 202
IF
IC 201
TDA 4470
IC 401
HEF 4053 B
SWITCH
IC 1001
ST 10 R 272 L
Micro Proc.
IC 1002
EPROM
IC 2401
SDA 5273
MT TEXT
IC 801
VIDEO PROCESSOR
VDP 3130 Y
+16V
-16V
+16V
-16V
Q 304
Q 303
Q 302 AUDIO
PROTECTOR
Q 305
Q 306
MUTE
21 PINS
21 PINS
21 PINS
AV-FRONT
RGB
AV-2
AV-1
MSP 3410 G
IC 305
Q 901
Q 902
Q 903
Q 905
Q 904
Q 906
Q 908
Q 907
Q 909
R
G
B
Q 5410
Q 5411
Q 5412
IC 1801
STV5109
C.R.T.
H.V.
VERT.
DEFLEX.
COIL
HORIZ.
DEFLEX.
COIL
R
G
B
BA 4558
DRIVER TDA 7480
VERTICAL
POWER
Q 502
Q 503
VERTICAL
FLYBACK
+13V
-13V
H.V.
+145 V
H
HEATER
SVM
IF
FM AUDIO
CVBS
PERIPHERICS
AUDIO L/R
RGB
V
V
V
M3L
SVM
SVM
RGB
RGB
V. OUT
Q 506
E/W
EMULATOR
Q 601
POWER
UNIT
Q602
Q603
H. DRIVE
Q 501 E/W
DRIVE
H. OUT
H.OUT
HORIZ. DEFLECTION
+13 V
-13 V
FOCUS
FOCUS
SCREEN
T 601
F.B.T.
E/W
OUT
H.OUT
E/W
OUT
E/W
OUT
CRT UNIT
28/32HW-53E BLOCK DIAGRAM
SF 201
SF 203
SAW
SAW
+140V
DRIVER
28/32HW-53E 01503SG00 00
BLOCK DIAGRAM 28/32HW-53E
A2
11
Wednesday, December 12, 2001
Title
Size Document Number Rev
Date: Sheet of
IC 705
IC 706
IC 707
IC 701
IC 704
IC 703
IC 702
Micro Proc. ST6203
D 701...D 704
S6701
17
12
15
14
PTC
C770
R741
SENSOR
8
7
3
4
5
6
1
2
Q703
Q702
Q701
C 705
ADG COIL
F6701
IC 301
3
26
74
IC 302
3
26
74
AUDIO OUT L
AUDIO OUT R
IC 304
HEADPHONE CONECTOR
IC 501
IC 502
IC 503
R742
D 604
D 603
D710
I2C
IC2
I2C
I2C
IC2

33
28HW-53E
MARK *: SPARE PARTS DELIVERY SECTION
REF No. PARTS DESCRIPTION * SN CODE EX CODE
PICTURE TUBE
VB66EGV2381*N 28"SF50HZSingleF W66EGV023X815+DYCO NNEC S CC CW
RCILG0417BMZZ DEGUSS.COIL ATN01121951 28"16:9 NUCTOR S AQ AX
PRINTED WIRING BOARDS (Not replacement items)
PWB-A DUNTK7240CJZ3 MOTHER UNIT 28HW53E S -- --
PWB-B DUNTK7273BMZ3 CRT UNIT 28HW53E S AA BE
PWB-C DUNTK7314BMW4 PFC MODULE 32/28HW53E 28HW57E S AQ BB
PWB-D DUNTK7342BMV3 FRONTAL SWITCH/AV 28HW53E S AA BE
PWB-A MOTHER UNIT
TUNER
TH 0201 RTUNH0139BMZZ TUNER CTT5020E THOMSON S AP BA
INTEGRATED CIRCUITS
IC 0201 RH-IX1671BMZZ IC TDA4470-MFL TEMIC SMD S AF AQ
IC 0202 RH-IX1556BMZZ IC BA10393 S0P8 SMD ROHM S AC AD
IC 0203 RH-IX0037CEZZ IC UPC574J 33V NEC S AF AD
IC 0301 VHITDA7480/-1 IC TDA7480 THOMSON S AF AK
IC 0302 VHITDA7480/-1 IC TDA7480 THOMSON S AF AK
IC 0304 VHIM5218L//-1 IC M5218L S AA AD
IC 0305 RH-IX1789BMZZ CI MSP3410D-PP-C5 MICRONA S AS BD
IC 0401 RH-IX1602BMZZ IC HEF4053 SMD S AA AD
IC 0501 RH-IX1786BMZZ C.I. TDA 7480L THOMSON S AD AL
IC 0502 VHIBA4558F/-1 IC BA4558F-E2 ROHM OP-AMP S AA AC
IC 0503 RH-IX1556BMZZ IC BA10393 S0P8 SMD ROHM S AC AD
IC 0701 VHIPST529C2-1 IC PST529C2 MITSUMI S AD AD
IC 0702 RH-IX1646BMZZ IC ST6203B SMD SGS-THOMSON S AF AL
IC 0703 RH-FX0113BMZZ OPTOCOUPLER TCET1103G VISHAY S AA AC
IC 0704 RH-FX0113BMZZ OPTOCOUPLER TCET1103G VISHAY S AA AC
IC 0705 RH-FX0113BMZZ OPTOCOUPLER TCET1103G VISHAY S AA AC
IC 0706 RH-IX1674BMZZ IC KA431AZ SAMSUNG S AA AD
IC 0707 RH-IX1704BMZZ IC L4978 THOMSON S AD AK
IC 0708 RH-FX0111BMZZ OPTOCOUPLER TLP165J TOSHIBA S AB AE
IC 0801 RH-IX1858BMZZ IC VDP 3130Y-PP-B2 MICRONAS S AT BE
IC 1001 RH-IX1686BMZZ IC ST10R272L THOMSON S AK AW
IC 1002 CH-IX1841CJE0 EPROM SET 4M 3V FLASH 32/28HW53E S -- --
IC 1003 RH-IX1603BMZZ NVM X24645S8 XICOR SMD S AS AV
IC 1005 VHIPST529C2-1 IC PST529C2 MITSUMI S AD AD
IC 2401 RH-IX1673BMZZ IC SDA5273-2 SIEMENS S AT BE
TRANSISTORS
Q 0201 VS2SA1037KQ-1 TRT BC807 SMD S AA AA
Q 0208 VS2SC2412KQ-1 TRT 2SC2412 ROHM S AA AA
Q 0209 VS2SC2412KQ-1 TRT 2SC2412 ROHM S AA AA
Q 0210 VS2SC2412KQ-1 TRT 2SC2412 ROHM S AA AA
Q 0302 VS2SC2412KQ-1 TRT 2SC2412 ROHM S AA AA
Q 0303 VS2SC2412KQ-1 TRT 2SC2412 ROHM S AA AA
Q 0304 VS2SA1037KQ-1 TRT BC807 SMD S AA AA
Q 0305 VS2SC2412KQ-1 TRT 2SC2412 ROHM S AA AA
Q 0306 VS2SC2412KQ-1 TRT 2SC2412 ROHM S AA AA
Q 0403 VS2SC2412KQ-1 TRT 2SC2412 ROHM S AA AA
Q 0404 VS2SC2412KQ-1 TRT 2SC2412 ROHM S AA AA
!
!
!
!
!
PARTS LISTING
REPLACEMENT PARTS
Replacement parts which have special safety characteristics are identified
in this manual. Electrical components having such features are identified
by
!
in the Replacement Part List.
The use of a substitute replacement part which does not have the same
safety characteristics as the factory recommended is not permitted.
Replacement parts not shown in this service manual may create shock
fire, or other hazards.
HOW TO ORDER REPLACEMENT PARTS
To have your order completed promptly and correctly please supply the
following information.
1. MODEL NUMBER
3. PART NO.
5. CODE
2. REF. NO.
4. DESCRIPTION
6. QUANTITY
REF No. PARTS DESCRIPTION * SN CODE EX CODE
Q 0405 VS2SA1037KQ-1 TRT BC807 SMD S AA AA
Q 0406 VS2SA1037KQ-1 TRT BC807 SMD S AA AA
Q 0408 VS2SC2412KQ-1 TRT 2SC2412 ROHM S AA AA
Q 0501 VS2SC2412KQ-1 TRT 2SC2412 ROHM S AA AA
Q 0502 RH-TX0201BMZZ TRT KSA928A SAMGUNG S AA AC
Q 0503 RH-TX0239BMZZ TRT SUD15N06-90L SILICONIX S AA AE
Q 0505 VS2SC2412KQ-1 TRT 2SC2412 ROHM S AA AA
Q 0506 RH-TX0151BMZZ TRT 2SD2391Q SMD ROHM S AC AD
Q 0507 RH-TX0203BMZZ TRT 2SB852 ROHM S AA AB
Q 0601 RH-TX0144BMZZ TRT BUH 515 THOMSON S AH AK
Q 0602 RH-TX0192BMZZ TRT KSC2500 SAMSUNG S AB AC
Q 0603 VS2SC2412KQ-1 TRT 2SC2412 ROHM S AA AA
Q 0606 VS2SC2412KQ-1 TRT 2SC2412 ROHM S AA AA
Q 0607 VS2SC2412KQ-1 TRT 2SC2412 ROHM S AA AA
Q 0608 VS2SC2412KQ-1 TRT 2SC2412 ROHM S AA AA
Q 0701 RH-TX0198BMZZ TRT S5F10N80A SAMSUNG S AM AU
Q 0702 RH-TX0182BMZZ TRT 2PD602AR PHILIPS S AA AB
Q 0703 RH-TX0151BMZZ TRT 2SD2391Q SMD ROHM S AC AD
Q 0708 VS2SC2412KQ-1 TRT 2SC2412 ROHM S AA AA
Q 0709 VS2SC2412KQ-1 TRT 2SC2412 ROHM S AA AA
Q 0710 VS2SC2412KQ-1 TRT 2SC2412 ROHM S AA AA
Q 0711 RH-TX0106BMZZ TRT BC547 S AA AB
Q 0714 VS2SA1037KQ-1 TRT BC807 SMD S AA AA
Q 0715 RH-TX0215BMZZ MOSFET 2SK2715 ROHM S AA AE
Q 0717 VS2SC2412KQ-1 TRT 2SC2412 ROHM S AA AA
Q 0718 RH-TX0118BMZZ TRT BC635-16 BETA > 100 S AC AC
Q 0801 VS2SA1037KQ-1 TRT BC807 SMD S AA AA
Q 0802 VS2SC2412KQ-1 TRT 2SC2412 ROHM S AA AA
Q 1001 VS2SC2412KQ-1 TRT 2SC2412 ROHM S AA AA
Q 1004 VS2SA1037KQ-1 TRT BC807 SMD S AA AA
Q 1005 VS2SC2412KQ-1 TRT 2SC2412 ROHM S AA AA
Q 1006 VS2SC2412KQ-1 TRT 2SC2412 ROHM S AA AA
Q 1007 VS2SC2412KQ-1 TRT 2SC2412 ROHM S AA AA
Q 2401 VS2SC2412KQ-1 TRT 2SC2412 ROHM S AA AA
DIODES
D 0203 RH-DX0551BMZZ DIODE LL4148 TFK SMD S AA AA
D 0204 RH-DX0548BMZZ DIODE VARICAP BBY40 S AC AE
D 0206 RH-DX0045BMZZ DIODE 1N4148 S AA AA
D 0301 RH-DX0551BMZZ DIODE LL4148 TFK SMD S AA AA
D 0302 RH-EX0549BMZZ ZENER DIODE TZMC7V5 TFK SMD S AA AA
D 0303 RH-EX0549BMZZ ZENER DIODE TZMC7V5 TFK SMD S AA AA
D 0304 RH-EX0549BMZZ ZENER DIODE TZMC7V5 TFK SMD S AA AA
D 0305 RH-EX0549BMZZ ZENER DIODE TZMC7V5 TFK SMD S AA AA
D 0401 RH-EX0549BMZZ ZENER DIODE TZMC7V5 TFK SMD S AA AA
D 0402 RH-EX0549BMZZ ZENER DIODE TZMC7V5 TFK SMD S AA AA
D 0403 RH-EX0549BMZZ ZENER DIODE TZMC7V5 TFK SMD S AA AA
D 0404 RH-EX0549BMZZ ZENER DIODE TZMC7V5 TFK SMD S AA AA
D 0405 RH-EX0549BMZZ ZENER DIODE TZMC7V5 TFK SMD S AA AA
D 0406 RH-EX0549BMZZ ZENER DIODE TZMC7V5 TFK SMD S AA AA
D 0407 RH-EX0549BMZZ ZENER DIODE TZMC7V5 TFK SMD S AA AA
D 0408 RH-EX0549BMZZ ZENER DIODE TZMC7V5 TFK SMD S AA AA
D 0409 RH-EX0549BMZZ ZENER DIODE TZMC7V5 TFK SMD S AA AA
D 0410 RH-EX0549BMZZ ZENER DIODE TZMC7V5 TFK SMD S AA AA
D 0411 RH-EX0546BMZZ ZENER DIODE TZMC5V6 TFK SMD S AA AA
D 0412 RH-DX0551BMZZ DIODE LL4148 TFK SMD S AA AA
D 0413 RH-EX0584BMZZ ZENER DIODE TZMB6V2 TFK SMD 2% S AA AA
D 0414 RH-DX0551BMZZ DIODE LL4148 TFK SMD S AA AA
D 0415 RH-EX0547BMZZ ZENER DIODE TZMC6V2 TFK SMD S AA AA
D 0416 RH-EX0547BMZZ ZENER DIODE TZMC6V2 TFK SMD S AA AA
D 0417 RH-EX0547BMZZ ZENER DIODE TZMC6V2 TFK SMD S AA AA
D 0419 RH-DX0551BMZZ DIODE LL4148 TFK SMD S AA AA
D 0420 RH-EX0546BMZZ ZENER DIODE TZMC5V6 TFK SMD S AA AA
D 0421 RH-EX0544BMZZ ZENER DIODE TZMC4V7 TFK SMD S AA AA
D 0422 RH-EX0556BMZZ ZENER DIODO TZMC15 TFK SMD S AA AA
D 0424 RH-EX0551BMZZ ZENER DIODE TZMC9V1 TFK SMD S AA AA
D 0425 RH-EX0551BMZZ ZENER DIODE TZMC9V1 TFK SMD S AA AA
D 0502 RH-DX0551BMZZ DIODE LL4148 TFK SMD S AA AA
D 0503 RH-DX0551BMZZ DIODE LL4148 TFK SMD S AA AA
D 0504 RH-DX0551BMZZ DIODE LL4148 TFK SMD S AA AA
D 0506 RH-DX0551BMZZ DIODE LL4148 TFK SMD S AA AA
D 0507 RH-EX0554BMZZ ZENER DIODE TZMC12 TFK SMD S AA AA
D 0508 RH-DX0551BMZZ DIODE LL4148 TFK SMD S AA AA
D 0509 RH-DX0551BMZZ DIODE LL4148 TFK SMD S AA AA

34
28HW-53E
REF No. PARTS DESCRIPTION * SN CODE EX CODE
D 0510 RH-DX0505BMZZ DIODE 1N4935 S AB AE
D 0515 RH-EX0544BMZZ ZENER DIODE TZMC4V7 TFK SMD S AA AA
D 0516 RH-EX0837BMZZ ZENER DIODE BZT03C47 PHILIPS S AA AD
D 0601 RH-DX0551BMZZ DIODE LL4148 TFK SMD S AA AA
D 0603 RH-DX0299BMZZ DIODE BY 228-20 S AC AE
D 0604 RH-DX0302BMZZ DIODO RGP30MT FAGOR (GLASS PASSIVATED) S AA AC
D 0608 RH-DX0505BMZZ DIODE 1N4935 S AB AE
D 0609 RH-DX0505BMZZ DIODE 1N4935 S AB AE
D 0610 RH-DX0503BMZZ DIODE 1N4933 S AB AB
D 0611 RH-DX0505BMZZ DIODE 1N4935 S AB AE
D 0613 RH-DX0506BMZZ DIODE 1N4936 S AB AB
D 0615 RH-DX0551BMZZ DIODE LL4148 TFK SMD S AA AA
D 0617 RH-EX0561BMZZ ZENER DIODE TZMC24 TFK SMD S AA AA
D 0618 RH-EX0544BMZZ ZENER DIODE TZMC4V7 TFK SMD S AA AA
D 0621 RH-DX0506BMZZ DIODE 1N4936 S AB AB
D 0623 RH-EX0425BMZZ ZENER DIODE BZX79C27V S AA AA
D 0701 RH-DX0555BMZZ DIODE RF2005 FAGOR S AA AB
D 0702 RH-DX0555BMZZ DIODE RF2005 FAGOR S AA AB
D 0703 RH-DX0555BMZZ DIODE RF2005 FAGOR S AA AB
D 0704 RH-DX0555BMZZ DIODE RF2005 FAGOR S AA AB
D 0706 RH-DX0551BMZZ DIODE LL4148 TFK SMD S AA AA
D 0707 RH-DX0502BMZZ DIODE 1N4005 S AB AA
D 0708 RH-DX0502BMZZ DIODE 1N4005 S AB AA
D 0710 RH-EX0545BMZZ ZENER DIODE TZMC5V1 TFK SMD S AA AA
D 0711 RH-DX0539BMZZ DIODE BYT52M TFK S AA AC
D 0712 RH-EX0419BMZZ ZENER DIODE BZX79C15V 0,4W S AA AB
D 0713 RH-DX0551BMZZ DIODE LL4148 TFK SMD S AA AA
D 0714 RH-DX0605BMZZ DIODE MBR340RL MOTOROLA S AA AE
D 0715 RH-DX0551BMZZ DIODE LL4148 TFK SMD S AA AA
D 0716 RH-EX0411BMZZ ZENER DIODE BZX79C6V8 S AA AA
D 0718 RH-DX0589BMZZ DIODE MBR3100RL MOTOROLA S AC AF
D 0719 RH-DX0589BMZZ DIODE MBR3100RL MOTOROLA S AC AF
D 0720 RH-DX0587BMZZ DIODE MR826 PREFORM C6.3 S AH AP
D 0721 RH-EX0550BMZZ ZENER DIODE TZMC8V2 TFK SMD S AA AA
D 0722 RH-DX0504BMZZ DIODE 1N4934 S AB AB
D 0724 RH-EX0538BMZZ ZENER DIODE TZMC2V7 TFK SMD S AA AA
D 0725 RH-DX0551BMZZ DIODE LL4148 TFK SMD S AA AA
D 0726 RH-EX0554BMZZ ZENER DIODE TZMC12 TFK SMD S AA AA
D 0727 RH-DX0551BMZZ DIODE LL4148 TFK SMD S AA AA
D 0728 RH-EX0544BMZZ ZENER DIODE TZMC4V7 TFK SMD S AA AA
D 0729 RH-EX0568BMZZ ZENER DIODE TZMC47 TFK SMD S AA AA
D 0730 RH-DX0551BMZZ DIODE LL4148 TFK SMD S AA AA
D 0731 RH-DX0502BMZZ DIODE 1N4005 S AB AA
D 0732 RH-EX0556BMZZ ZENER DIODO TZMC15 TFK SMD S AA AA
D 0733 RH-DX0551BMZZ DIODE LL4148 TFK SMD S AA AA
D 0734 RH-DX0502BMZZ DIODE 1N4005 S AB AA
D 0735 RH-EX0875BMZZ DIODE BZW04-145=170V FAGOR S AA AD
D 0801 RH-EX0549BMZZ ZENER DIODE TZMC7V5 TFK SMD S AA AA
D 0802 RH-EX0549BMZZ ZENER DIODE TZMC7V5 TFK SMD S AA AA
D 1003 RH-DX0606BMZZ DIODE BAS85 PHILIPS SMD S AA AB
D 1004 RH-EX0547BMZZ ZENER DIODE TZMC6V2 TFK SMD S AA AA
D 1005 RH-EX0547BMZZ ZENER DIODE TZMC6V2 TFK SMD S AA AA
D 1006 RH-EX0546BMZZ ZENER DIODE TZMC5V6 TFK SMD S AA AA
D 1007 RH-EX0546BMZZ ZENER DIODE TZMC5V6 TFK SMD S AA AA
D 1008 RH-EX0546BMZZ ZENER DIODE TZMC5V6 TFK SMD S AA AA
D 1009 RH-DX0551BMZZ DIODE LL4148 TFK SMD S AA AA
D 1012 RH-EX0547BMZZ ZENER DIODE TZMC6V2 TFK SMD S AA AA
D 2401 RH-EX0539BMZZ ZENER DIODE TZMC3V0 TFK SMD S AA AA
PACKAGED CIRCUITS
POR0701 RMPTP0001BMZZ PTC B59250-C1080-B70 S AA AD
X 0301 RCRSB0203BMZZ CRYSTAL 18,432 MHZ S AD AG
X 0801 RCRSB0219BMZZ CRYSTAL 20.25 HMZ S AG AH
X 1002 RCRSB0200BMZZ CRYSTAL 17,734 MHZ S AD AG
X 2401 RCRSB0214BMZZ CRYSTAL 20.48 MHZ SEL S AD AH
COILS
L 0201 VP-DF120K0000 PEAK COIL 12UH 10% S AA AA
L 0202 VP-NM150KR63N COIL 15UH SMD S AB AC
L 0203 VP-CF6R8K0000 PEAK COIL 6.8UH 10% S AA AA
L 0204 RCILP0229BMZZ COIL SMD 610NH LQN1HR61J S AA AD
L 0205 RCILP0229BMZZ COIL SMD 610NH LQN1HR61J S AA AD
L 0301 VP-DF100K0000 PEAK COIL 10UH 10% S AA AA
L 0315 VP-CF3R3K0000 PEAK COIL 3.3UH 10% S AB AB
L 0316 VP-CF3R3K0000 PEAK COIL 3.3UH 10% S AB AB
REF No. PARTS DESCRIPTION * SN CODE EX CODE
L 0318 VP-DF3R3K0000 PEAK COIL 3,3UH 10% S AB AB
L 0350 VP-CF3R3K0000 PEAK COIL 3.3UH 10% S AB AB
L 0351 VP-CF3R3K0000 PEAK COIL 3.3UH 10% S AB AB
L 0352 RCILP0278BMZZ COIL A823LY-680K TOKO S AA AD
L 0353 RCILP0278BMZZ COIL A823LY-680K TOKO S AA AD
L 0501 RCILP0271BMZZ COIL BC-400/K DIEMEN S AD AG
L 0502 VP-CF3R3K0000 PEAK COIL 3.3UH 10% S AB AB
L 0503 VP-CF3R3K0000 PEAK COIL 3.3UH 10% S AB AB
L 0601 VP-NM3R3MR19N COIL 3,3UH SMD S AA AC
L 0603 RCILP0286BMZZ COIL BR-0602/A DIEMEN S AB AG
L 0604 RCILP0284BMZZ COIL HR-18015-01 DIEMEN S AB AG
L 0605 RCILZ0599CEZZ DL (DELAY LINE) S AG AG
L 0606 RCILP0237BMZZ COIL AR621LY-151K=R TOKO S AC AD
L 0705 RCILP0285BMZZ COIL PCV1620-500K DIONIX S AB AF
L 0801 VP-CF3R3K0000 PEAK COIL 3.3UH 10% S AB AB
L 0804 VP-CF3R3K0000 PEAK COIL 3.3UH 10% S AB AB
L 2401 VP-DF3R3K0000 PEAK COIL 3,3UH 10% S AB AB
L 2402 VP-DF100K0000 PEAK COIL 10UH 10% S AA AA
LA 0609 VP-CF1R2K0000 PEAK COIL 1.2UH 10% S AA AB
CERAMIC FILTERS
CF 0202 RFILC0020CEZZ FILTER SIF TRAP (TAPED) S AE AE
CF 0701 RFILC0121GEZZ FILTER CST8.00MTW MURATA S AC AD
SF 0201 RFILC0278BMZZ SAW FILTER K3953M SIEMENS S AK AM
SF 0202 RFILC0286BMZZ FILTER K9356M SIEMENS S AC AG
SF 0203 RFILC0289BMZZ SAW FILTER L9354M SIEMENS S AC AK
TRANSFORMERS
T 0601 RTRNF2069BMZZ FBT HR-8014-02 DIEMEN S AP AZ
T 0701 RTRNZ0578BMZZ CHOPPER TG-0601A DIEMEN S AF AT
T 0702 RH-SX0003BMZZ TRIAC BT134W-600 PHILIPS S AA AE
CAPACITORS
C 0203 VCKYTV1HB104K CERAM C 100NF 50V 2125SMD S AA AA
C 0204 VCEAGA1HW225M ELEC C 2,2UF 20% 50V S AA AB
C 0205 RC-FZ4474BMNJ POL FILM C 470nF 50V 5% ECQ-V PANASONIC S AA AC
C 0206 VCEAGA1HW225M ELEC C 2,2UF 20% 50V S AA AB
C 0207 VCKYTV1HF103Z CERAM C 10NF 50V 2125SMD S AA AA
C 0208 VCKYTV1HF223Z CERAM C 22NF 50V 2125SMD S AA AA
C 0209 VCEAGA1CW107M ELEC C 100UF 20% 16V S AA AA
C 0211 VCEAGA1HW106M ELEC C 10UF 20% 50V S AA AA
C 0212 VRS-TV1JD000J 2125 0 OHM 5% 1/10W SMD S AA AA
C 0213 VRS-TV1JD000J 2125 0 OHM 5% 1/10W SMD S AA AA
C 0214 VCKYTV1HF104Z CERAM C 100NF 50V 2125SMD S AA AA
C 0215 VCEAGA1AW477M ELEC C 470UF 20% 10V S AA AB
C 0216 VCCCTV1HH270J CERAM C 27PF 50V 2125SMD S AA AA
C 0217 VCCCTV1HH221J CERAM C 220PF 50V 2125SMD S AA AA
C 0218 VCEAGA1CW107M ELEC C 100UF 20% 16V S AA AA
C 0219 VCEAGA1CW106M ELEC C 10UF 20% 16V S AA AA
C 0220 VCEAGA1CW106M ELEC C 10UF 20% 16V S AA AA
C 0221 VCCCTV1HH270J CERAM C 27PF 50V 2125SMD S AA AA
C 0222 VCCCTV1HH270J CERAM C 27PF 50V 2125SMD S AA AA
C 0223 VCKYTV1HB333K CERAM C 33NF 50V 2125SMD S AA AA
C 0224 VCKYTV1HF104Z CERAM C 100NF 50V 2125SMD S AA AA
C 0225 VCKYTV1HF104Z CERAM C 100NF 50V 2125SMD S AA AA
C 0226 VCKYTV1HB103K CERAM C 10NF 50V 2125SMD S AA AA
C 0227 VCKYTV1HB103K CERAM C 10NF 50V 2125SMD S AA AA
C 0228 VCCWPA2HL8R2C C 8,2PF 0,25 N1500 500V S AA AB
C 0229 VCEAGA1CW226M ELEC C 22UF 20% 16V S AA AA
C 0230 VCCCTV1HH220J CERAM C 22PF 50V 2125SMD S AA AA
C 0305 VCEAGA1CW106M ELEC C 10UF 20% 16V S AA AA
C 0306 VCEAGA1CW106M ELEC C 10UF 20% 16V S AA AA
C 0309 VCKYTV1HB102K CERAM C 1NF 50V 2125SMD S AA AA
C 0310 VCKYTV1HB102K CERAM C 1NF 50V 2125SMD S AA AA
C 0311 VCEAGA1AW337M ELEC C 330UF 20% 10V S AA AA
C 0312 VCKYTV1HF104Z CERAM C 100NF 50V 2125SMD S AA AA
C 0313 VCEAGA1CW106M ELEC C 10UF 20% 16V S AA AA
C 0314 VCEAGA1CW106M ELEC C 10UF 20% 16V S AA AA
C 0315 VCEAGA1HW335M ELEC C 3,3UF 20% 50V S AA AA
C 0316 VCKYTV1HF104Z CERAM C 100NF 50V 2125SMD S AA AA
C 0317 VCKYTV1EF334Z CERAM C 330NF 25V 2125SMD S AA AB
C 0318 VCKYTV1EF334Z CERAM C 330NF 25V 2125SMD S AA AB
C 0319 VCKYTV1HB102K CERAM C 1NF 50V 2125SMD S AA AA
C 0320 VCKYTV1HB102K CERAM C 1NF 50V 2125SMD S AA AA
!
!

35
28HW-53E
REF No. PARTS DESCRIPTION * SN CODE EX CODE
C 0321 VCKYTV1HF104Z CERAM C 100NF 50V 2125SMD S AA AA
C 0322 RC-FZ4334BMNJ POL FILM C 330nF 50V 5% ECQ-V PANASONIC S AA AB
C 0323 RC-FZ4334BMNJ POL FILM C 330nF 50V 5% ECQ-V PANASONIC S AA AB
C 0324 RC-FZ4334BMNJ POL FILM C 330nF 50V 5% ECQ-V PANASONIC S AA AB
C 0325 RC-FZ4334BMNJ POL FILM C 330nF 50V 5% ECQ-V PANASONIC S AA AB
C 0326 VCEAGA1CW106M ELEC C 10UF 20% 16V S AA AA
C 0327 VCKYTV1HF104Z CERAM C 100NF 50V 2125SMD S AA AA
C 0328 VCKYTV1HF104Z CERAM C 100NF 50V 2125SMD S AA AA
C 0329 VCCCPA1HH470J CERAM C 47PF 5% 50V S AA AA
C 0330 VCCCTV1HH470J CERAM C 47PF 50V 2125SMD S AA AA
C 0331 VCKYTV1HF104Z CERAM C 100NF 50V 2125SMD S AA AA
C 0332 VCEAGA1AW337M ELEC C 330UF 20% 10V S AA AA
C 0333 VCCCTV1HH470J CERAM C 47PF 50V 2125SMD S AA AA
C 0334 VCCCTV1HH5R0C CERAM C 5PF 50V 2125SMD S AA AA
C 0335 VCCCTV1HH5R0C CERAM C 5PF 50V 2125SMD S AA AA
C 0336 VCCCTV1HH471J CERAM C 470PF 50V 2125SMD S AA AA
C 0337 VCCCTV1HH471J CERAM C 470PF 50V 2125SMD S AA AA
C 0338 VCKYTV1HF104Z CERAM C 100NF 50V 2125SMD S AA AA
C 0339 VCKYTV1HF104Z CERAM C 100NF 50V 2125SMD S AA AA
C 0340 VCKYTV1EF224Z CERAM C 220NF 25V 2125SMD S AA AA
C 0341 RC-FZ4224BMNJ POL FILM C 220nF 50V 5% ECQ-V PANASONIC S AA AC
C 0342 VCEAGA1HW106M ELEC C 10UF 20% 50V S AA AA
C 0343 VCEAGA1HW106M ELEC C 10UF 20% 50V S AA AA
C 0350 VCKYTV1HF104Z CERAM C 100NF 50V 2125SMD S AA AA
C 0351 VCEAGA1EW227M ELEC C 220UF 20% 25V S AA AA
C 0352 RC-FZ4104BMNJ POL FILM C 100nF 50V 5% ECQ-V PANASONIC S AA AB
C 0353 RC-FZ4104BMNJ POL FILM C 100nF 50V 5% ECQ-V PANASONIC S AA AB
C 0354 VCCCTV1HH101J CERAM C 100PF 50V 2125SMD S AA AA
C 0356 RC-FZ4153BMNJ POL FILM C 15nF 50V 5% ECQ-B PANASONIC S AA AB
C 0357 VCKYTV1HB102K CERAM C 1NF 50V 2125SMD S AA AA
C 0358 RC-FZ4104BMNJ POL FILM C 100nF 50V 5% ECQ-V PANASONIC S AA AB
C 0359 VCKYTV1HB472K CERAM C 4,7NF 50V 2125SMD S AA AA
C 0360 VCCCTV1HH561J CERAM C 560PF 50V 2125SMD S AA AA
C 0361 RC-FZ4474BMNJ POL FILM C 470nF 50V 5% ECQ-V PANASONIC S AA AC
C 0362 VCEAGA1HW225M ELEC C 2,2UF 20% 50V S AA AB
C 0363 VCEAGA1EW227M ELEC C 220UF 20% 25V S AA AA
C 0364 VCKYTV1HF104Z CERAM C 100NF 50V 2125SMD S AA AA
C 0365 VCEAGA1EW227M ELEC C 220UF 20% 25V S AA AA
C 0366 VCKYTV1HF104Z CERAM C 100NF 50V 2125SMD S AA AA
C 0367 VCKYTV1HF104Z CERAM C 100NF 50V 2125SMD S AA AA
C 0368 RC-FZ4104BMNJ POL FILM C 100nF 50V 5% ECQ-V PANASONIC S AA AB
C 0369 VCCCTV1HH101J CERAM C 100PF 50V 2125SMD S AA AA
C 0370 RC-FZ4153BMNJ POL FILM C 15nF 50V 5% ECQ-B PANASONIC S AA AB
C 0371 VCKYTV1HB102K CERAM C 1NF 50V 2125SMD S AA AA
C 0372 VCEAGA1HW225M ELEC C 2,2UF 20% 50V S AA AB
C 0373 RC-FZ4104BMNJ POL FILM C 100nF 50V 5% ECQ-V PANASONIC S AA AB
C 0374 VCKYTV1HB472K CERAM C 4,7NF 50V 2125SMD S AA AA
C 0375 VCCCTV1HH561J CERAM C 560PF 50V 2125SMD S AA AA
C 0376 RC-FZ4474BMNJ POL FILM C 470nF 50V 5% ECQ-V PANASONIC S AA AC
C 0377 VCEAGA1HW106M ELEC C 10UF 20% 50V S AA AA
C 0378 VCEAGA1EW227M ELEC C 220UF 20% 25V S AA AA
C 0379 VCKYTV1HF104Z CERAM C 100NF 50V 2125SMD S AA AA
C 0380 VCKYTV1HF473Z CERAM C 47NF 50V 2125SMD S AA AA
C 0401 VCCCTV1HH101J CERAM C 100PF 50V 2125SMD S AA AA
C 0403 VCCCTV1HH221J CERAM C 220PF 50V 2125SMD S AA AA
C 0404 VCCCTV1HH101J CERAM C 100PF 50V 2125SMD S AA AA
C 0405 VCCCTV1HH221J CERAM C 220PF 50V 2125SMD S AA AA
C 0408 VCKYTV1HF103Z CERAM C 10NF 50V 2125SMD S AA AA
C 0409 VCCCTV1HH101J CERAM C 100PF 50V 2125SMD S AA AA
C 0410 VCCCTV1HH391J CERAM C 390PF 50V 2125SMD S AA AA
C 0411 VCCCTV1HH101J CERAM C 100PF 50V 2125SMD S AA AA
C 0412 VCCCTV1HH101J CERAM C 100PF 50V 2125SMD S AA AA
C 0413 VCCCTV1HH101J CERAM C 100PF 50V 2125SMD S AA AA
C 0414 VCCCTV1HH391J CERAM C 390PF 50V 2125SMD S AA AA
C 0415 RC-FZ4684BMNJ POL FILM C 680nF 50V 5% ECQ-V PANASONIC S AA AC
C 0416 VCCCTV1HH101J CERAM C 100PF 50V 2125SMD S AA AA
C 0417 VCCCTV1HH101J CERAM C 100PF 50V 2125SMD S AA AA
C 0418 VCCCTV1HH391J CERAM C 390PF 50V 2125SMD S AA AA
C 0419 VCCCTV1HH391J CERAM C 390PF 50V 2125SMD S AA AA
C 0420 VCCCTV1HH101J CERAM C 100PF 50V 2125SMD S AA AA
C 0421 VCCCTV1HH101J CERAM C 100PF 50V 2125SMD S AA AA
C 0422 VCEAGA1AW476M ELEC C 47UF 20% 10V S AA AA
C 0427 VRS-TV1JD000J 2125 0 OHM 5% 1/10W SMD S AA AA
C 0430 RC-FZ4334BMNJ POL FILM C 330nF 50V 5% ECQ-V PANASONIC S AA AB
REF No. PARTS DESCRIPTION * SN CODE EX CODE
C 0431 RC-FZ4334BMNJ POL FILM C 330nF 50V 5% ECQ-V PANASONIC S AA AB
C 0432 VCKYTV1CF105Z CERAM C 1UF 16V 2125SMD S AA AA
C 0433 VCEAGA1HW476M ELEC C 47UF 20% 50V S AA AA
C 0434 VCKYTV1EF224Z CERAM C 220NF 25V 2125SMD S AA AA
C 0435 VRS-TV1JD000J 2125 0 OHM 5% 1/10W SMD S AA AA
C 0436 VRS-TV1JD000J 2125 0 OHM 5% 1/10W SMD S AA AA
C 0438 VCCCTV1HH101J CERAM C 100PF 50V 2125SMD S AA AA
C 0443 VCCCTV1HH101J CERAM C 100PF 50V 2125SMD S AA AA
C 0447 VCCCTV1HH680J CERAM C 68PF 50V 2125SMD S AA AA
C 0451 VCKYTV1HB103K CERAM C 10NF 50V 2125SMD S AA AA
C 0501 VCEAGA1EW477M ELEC C 470UF 20% 25V S AA AB
C 0502 VCKYTV1HF104Z CERAM C 100NF 50V 2125SMD S AA AA
C 0503 VCCCTV1HH101J CERAM C 100PF 50V 2125SMD S AA AA
C 0504 RC-FZ4684BMNJ POL FILM C 680nF 50V 5% ECQ-V PANASONIC S AA AC
C 0505 VCKYTV1HF104Z CERAM C 100NF 50V 2125SMD S AA AA
C 0506 VCKYTV1HF104Z CERAM C 100NF 50V 2125SMD S AA AA
C 0507 VCKYTV1HB472K CERAM C 4,7NF 50V 2125SMD S AA AA
C 0508 VCCCTV1HH561J CERAM C 560PF 50V 2125SMD S AA AA
C 0509 VCEAGA1EW227M ELEC C 220UF 20% 25V S AA AA
C 0510 VCKYTV1HF104Z CERAM C 100NF 50V 2125SMD S AA AA
C 0511 VCEAGA1HW225M ELEC C 2,2UF 20% 50V S AA AB
C 0512 VCKYTV1EF224Z CERAM C 220NF 25V 2125SMD S AA AA
C 0514 RC-FZ4473BMNJ POL FILM C 47nF 50V 5% ECQ-B PANASONIC S AA AA
C 0515 VCCCTV1HH681J CERAM C 680PF 50V 2125SMD S AA AA
C 0516 VCCCTV1HH271J CERAM C 270PF 50V 2125SMD S AA AA
C 0518 VCCCTV1HH100D CERAM C 10PF 50V 2125SMD S AA AA
C 0520 VCEAGA1VW477M ELEC C 470UF 20% 35V S AA AB
C 0521 VCKYTV1HB683K CERAM C 68NF 50V 2125SMD S AA AA
C 0522 VCKYTV1HF104Z CERAM C 100NF 50V 2125SMD S AA AA
C 0524 RC-FZ4104BMNJ POL FILM C 100nF 50V 5% ECQ-V PANASONIC S AA AB
C 0525 VRS-TV1JD562J 2125 5,6KOHM 5% 1/10W SMD S AA AA
C 0526 VCEAGA1HW106M ELEC C 10UF 20% 50V S AA AA
C 0527 VCKYTV1HF104Z CERAM C 100NF 50V 2125SMD S AA AA
C 0528 VCEAGA1JW106M ELEC C 10UF 20% 63V S AA AA
C 0530 VCKYTV1HF103Z CERAM C 10NF 50V 2125SMD S AA AA
C 0531 VCKYTV1HB103K CERAM C 10NF 50V 2125SMD S AA AA
C 0532 VCCCTV1HH101J CERAM C 100PF 50V 2125SMD S AA AA
C 0534 VCKYTV1HB102K CERAM C 1NF 50V 2125SMD S AA AA
C 0536 VCEAGA1AW476M ELEC C 47UF 20% 10V S AA AA
C 0537 VCKYTV1HB472K CERAM C 4,7NF 50V 2125SMD S AA AA
C 0540 VCKYTV1HF104Z CERAM C 100NF 50V 2125SMD S AA AA
C 0601 RC-FZ0171BMZZ C MKP 15NF 1700V PHILIPS S AA AE
C 0606 VCKYTV1HB104K CERAM C 100NF 50V 2125SMD S AA AA
C 0607 VCEAHA1AN337M ELEC 330UF 20% 10V 105ºC S AA AB
C 0610 RC-FZ0172BMZZ C MKP 33NF 850V PHILIPS S AF AR
C 0611 RC-FZ6105BMNJ PP FILM C 1UF 5% 200V S AA AE
C 0613 RC-FZ6564BMNJ PP FILM C 560NF 5% 250V S AC AF
C 0615 VCEAGA1EW477M ELEC C 470UF 20% 25V S AA AB
C 0616 VCEAGA1VW477M ELEC C 470UF 20% 35V S AA AB
C 0617 VCKYTV1HF104Z CERAM C 100NF 50V 2125SMD S AA AA
C 0619 VCEA4A2CN225M C UVZ2C2R2MEH1TA NICHICON S AA AB
C 0620 VCEA4A2CN225M C UVZ2C2R2MEH1TA NICHICON S AA AB
C 0632 RC-FZ4224BMNJ POL FILM C 220nF 50V 5% ECQ-V PANASONIC S AA AC
C 0642 RC-FZ4683BMNJ POL FILM C 68nF 50V 5% ECQ-B PANASONIC S AA AB
C 0643 VCKYTV1HF103Z CERAM C 10NF 50V 2125SMD S AA AA
C 0644 VCEAGA1CW227M ELEC C 220UF 20% 16V S AA AA
C 0645 VCKYTV1HF104Z CERAM C 100NF 50V 2125SMD S AA AA
C 0701 RC-FZ0219BMZZ C 470NF 275V X2 B81130-C1474-M SIEMENS S AA AD
C 0702 RC-FZ0173BMZZ POL C 47NF 400V PHIL.365 S AN AZ
C 0703 RC-KZ0165BMZZ CERAM C DE0905-979E332ZAC250 S AA AB
C 0704 RC-KZ0165BMZZ CERAM C DE0905-979E332ZAC250 S AA AB
C 0705 RC-EZ0141BMZZ ELEC C 68UF 450V S AD AL
C 0706 VCEAGA1CW226M ELEC C 22UF 20% 16V S AA AA
C 0707 VCEAGA1CW107M ELEC C 100UF 20% 16V S AA AA
C 0710 RC-FZ0156BMZZ C B32529-B6473K 47nF 400V SIEMENS S AD AE
C 0711 RC-KZ0036CEZZ CERAM C 330PF 2KV S AA AB
C 0712 VCCCTV1HH101J CERAM C 100PF 50V 2125SMD S AA AA
C 0713 RC-FZ4683BMNJ POL FILM C 68nF 50V 5% ECQ-B PANASONIC S AA AB
C 0714 RC-FZ4823BMNJ POL FILM C 82nF 50V 5% ECQ-B PANASONIC S AA AB
C 0715 VCCCTV1HH331J CERAM C 330PF 50V 2125SMD S AA AA
C 0716 VCKYTV1HB332K CERAM C 3,3NF 50V 2125SMD S AA AA
C 0717 VCKYTV1HB153K CERAM C 15NF 50V 2125SMD S AA AA
C 0718 VCEAGA1EW108M ELEC C 1000UF 20% 25V S AD AD
C 0719 VCEAGA1EW108M ELEC C 1000UF 20% 25V S AD AD
!

36
28HW-53E
REF No. PARTS DESCRIPTION * SN CODE EX CODE
C 0720 RC-EZ0258CEZZ ELEC C 100MF 200V S AC AK
C 0721 RC-EZ0132BMZZ C UVX1V471MPA1CA NICHICON S AA AC
C 0722 VCKYTV1HB104K CERAM C 100NF 50V 2125SMD S AA AA
C 0723 VCEAGA1AW228M ELEC C 2200UF 20% 10V S AA AD
C 0724 VCEAGA1CW227M ELEC C 220UF 20% 16V S AA AA
C 0725 VCKYTV1HB472K CERAM C 4,7NF 50V 2125SMD S AA AA
C 0728 VCKYTV1HF104Z CERAM C 100NF 50V 2125SMD S AA AA
C 0730 VCKYTV1HF103Z CERAM C 10NF 50V 2125SMD S AA AA
C 0731 VCKYTV1HF103Z CERAM C 10NF 50V 2125SMD S AA AA
C 0732 VCKYTV1HF103Z CERAM C 10NF 50V 2125SMD S AA AA
C 0733 VCKYTV1HF103Z CERAM C 10NF 50V 2125SMD S AA AA
C 0735 VCKYTV1HB272K CERAM C 2,7NF 50V 2125SMD S AA AB
C 0737 VCKYTV1CF105Z CERAM C 1UF 16V 2125SMD S AA AA
C 0738 VCCCTV1HH560J CERAM C 56PF 50V 2125SMD S AA AA
C 0739 VCEAGA1CW227M ELEC C 220UF 20% 16V S AA AA
C 0740 VCKYTV1HF223Z CERAM C 22NF 50V 2125SMD S AA AA
C 0741 VCKYTV1HF104Z CERAM C 100NF 50V 2125SMD S AA AA
C 0742 VCKYTV1HB683K CERAM C 68NF 50V 2125SMD S AA AA
C 0743 VCKYTV1HF104Z CERAM C 100NF 50V 2125SMD S AA AA
C 0749 VCKYTV1CF474Z CERAM C 470NF 16V 2125SMD S AA AA
C 0770 RC-KZ0106GEZZ CERAM C DE1410 E332M-KX S AB AC
C 0801 VCKYTV1HF104Z CERAM C 100NF 50V 2125SMD S AA AA
C 0802 VCEAGA1HW106M ELEC C 10UF 20% 50V S AA AA
C 0803 VCKYTV1HF104Z CERAM C 100NF 50V 2125SMD S AA AA
C 0804 VCEAGA1HW335M ELEC C 3,3UF 20% 50V S AA AA
C 0807 VCKYTV1EF224Z CERAM C 220NF 25V 2125SMD S AA AA
C 0808 VCKYTV1EF224Z CERAM C 220NF 25V 2125SMD S AA AA
C 0809 VCKYTV1HB102K CERAM C 1NF 50V 2125SMD S AA AA
C 0811 VCKYTV1HF104Z CERAM C 100NF 50V 2125SMD S AA AA
C 0812 VCEAGA1HW226M ELEC C 22UF 20% 50V S AA AA
C 0813 VCCCTV1HH3R3C CERAM C 3,3PF 50V 2125SMD S AA AA
C 0814 VCCCTV1HH6R8D CERAM C 6,8PF 50V 2125SMD S AA AA
C 0815 VCEAGA1HW226M ELEC C 22UF 20% 50V S AA AA
C 0816 VCKYTV1HF104Z CERAM C 100NF 50V 2125SMD S AA AA
C 0817 VCKYTV1HB104K CERAM C 100NF 50V 2125SMD S AA AA
C 0818 VCEAGA1CW107M ELEC C 100UF 20% 16V S AA AA
C 0819 VCKYTV1HB102K CERAM C 1NF 50V 2125SMD S AA AA
C 0820 RC-FZ4684BMNJ POL FILM C 680nF 50V 5% ECQ-V PANASONIC S AA AC
C 0821 RC-FZ4684BMNJ POL FILM C 680nF 50V 5% ECQ-V PANASONIC S AA AC
C 0822 RC-FZ4684BMNJ POL FILM C 680nF 50V 5% ECQ-V PANASONIC S AA AC
C 0823 VCCCTV1HH821J CERAM C 820PF 50V 2125SMD S AA AA
C 0825 VCEAGA1CW106M ELEC C 10UF 20% 16V S AA AA
C 1001 VCEAGA0JW477M ELEC C 470UF 20% 6,3V S AA AA
C 1002 VCKYTV1HF104Z CERAM C 100NF 50V 2125SMD S AA AA
C 1005 VCKYTV1HF104Z CERAM C 100NF 50V 2125SMD S AA AA
C 1014 VCKYTV1HF104Z CERAM C 100NF 50V 2125SMD S AA AA
C 1017 VCKYTV1HB104K CERAM C 100NF 50V 2125SMD S AA AA
C 1018 VCKYTV1HF104Z CERAM C 100NF 50V 2125SMD S AA AA
C 1019 VCCCTV1HH470J CERAM C 47PF 50V 2125SMD S AA AA
C 1020 VCCCTV1HH680J CERAM C 68PF 50V 2125SMD S AA AA
C 1021 VCKYTV1HF104Z CERAM C 100NF 50V 2125SMD S AA AA
C 1022 VCKYTV1HF104Z CERAM C 100NF 50V 2125SMD S AA AA
C 1023 VCKYTV1HF153Z CERAM C 15NF 50V 2125SMD S AA AA
C 1024 VCKYTV1HF153Z CERAM C 15NF 50V 2125SMD S AA AA
C 1025 VCKYTV1HF153Z CERAM C 15NF 50V 2125SMD S AA AA
C 1026 VCKYTV1HF103Z CERAM C 10NF 50V 2125SMD S AA AA
C 1027 VCEAGA1AW477M ELEC C 470UF 20% 10V S AA AB
C 1028 VCKYTV1HF104Z CERAM C 100NF 50V 2125SMD S AA AA
C 1030 VCCCTV1HH331J CERAM C 330PF 50V 2125SMD S AA AA
C 1032 VCEAGA1AW476M ELEC C 47UF 20% 10V S AA AA
C 1033 VCKYTV1HF683Z CERAM C 68NF 50V 2125SMD S AA AA
C 1034 VCCCTV1HH100D CERAM C 10PF 50V 2125SMD S AA AA
C 1038 VCCCTV1HH101J CERAM C 100PF 50V 2125SMD S AA AA
C 1039 VCCCTV1HH101J CERAM C 100PF 50V 2125SMD S AA AA
C 1041 VCCSPA1HL101J CERAM C 100PF 5% 50V S AA AA
C 1042 VCCSPA1HL101J CERAM C 100PF 5% 50V S AA AA
C 1043 VCCSPA1HL101J CERAM C 100PF 5% 50V S AA AA
C 1044 VCCSPA1HL101J CERAM C 100PF 5% 50V S AA AA
C 1045 VCCSPA1HL101J CERAM C 100PF 5% 50V S AA AA
C 2401 VCCCTV1HH220J CERAM C 22PF 50V 2125SMD S AA AA
C 2402 VCCCTV1HH220J CERAM C 22PF 50V 2125SMD S AA AA
C 2403 VCKYTV1HF104Z CERAM C 100NF 50V 2125SMD S AA AA
C 2404 VCKYTV1HF104Z CERAM C 100NF 50V 2125SMD S AA AA
C 2405 VCKYTV1EF224Z CERAM C 220NF 25V 2125SMD S AA AA
!
REF No. PARTS DESCRIPTION * SN CODE EX CODE
C 2407 VCKYTV1EF224Z CERAM C 220NF 25V 2125SMD S AA AA
C 2408 VCKYTV1HF104Z CERAM C 100NF 50V 2125SMD S AA AA
RESISTORS
R 0203 VRS-TV1JD102J 2125 1KOHM 5% 1/10W SMD S AA AA
R 0204 VRS-TV1JD102J 2125 1KOHM 5% 1/10W SMD S AA AA
R 0205 VRS-TV1JD391J 2125 390 OHM 5% 1/10W SMD S AA AA
R 0208 VRS-TV1JD102J 2125 1KOHM 5% 1/10W SMD S AA AA
R 0209 VRS-TV1JD332J 2125 3.3KOHM 5% 1/10W SMD S AA AA
R 0210 VRS-TV1JD152J 2125 1.5KOHM 5% 1/10W SMD S AA AA
R 0211 VRS-TV1JD102J 2125 1KOHM 5% 1/10W SMD S AA AA
R 0215 VRS-TV1JD103J 2125 10KOHM 5% 1/10W SMD S AA AA
R 0216 VRS-TV1JD151J 2125 150 OHM 5% 1/10W SMD S AA AA
R 0217 VRS-TV1JD102J 2125 1KOHM 5% 1/10W SMD S AA AA
R 0219 VRS-TV1JD473J 2125 47KOHM 5% 1/10W SMD S AA AA
R 0220 VRS-TV1JD473J 2125 47KOHM 5% 1/10W SMD S AA AA
R 0226 VRS-TV1JD000J 2125 0 OHM 5% 1/10W SMD S AA AA
R 0229 VRD-RA2HD822J RES 8,2KOHM 5% 1/2W S AA AA
R 0230 VRD-RA2HD822J RES 8,2KOHM 5% 1/2W S AA AA
R 0231 VRD-RA2HD822J RES 8,2KOHM 5% 1/2W S AA AA
R 0232 VRD-RA2BE561J RES 560 OHM 5% 1/8W S AA AA
R 0233 VRD-RA2BE561J RES 560 OHM 5% 1/8W S AA AA
R 0234 VRD-RA2BE101J RES 100 OHM 5% 1/8W S AA AA
R 0235 VRS-TV1JD153J 2125 15KOHM 5% 1/10W SMD S AA AA
R 0236 VRS-TV1JD562J 2125 5,6KOHM 5% 1/10W SMD S AA AA
R 0237 VRS-TV1JD221J 2125 220 OHM 5% 1/10W SMD S AA AA
R 0238 VRS-TV1JD221J 2125 220 OHM 5% 1/10W SMD S AA AA
R 0239 VRS-TV1JD103J 2125 10KOHM 5% 1/10W SMD S AA AA
R 0240 VRS-TV1JD224J 2125 220KOHM 5% 1/10W SMD S AA AA
R 0241 VRS-TV1JD104J 2125 100KOHM 5% 1/10W SMD S AA AA
R 0242 VRS-TV1JD104J 2125 100KOHM 5% 1/10W SMD S AA AA
R 0243 VRS-TV1JD104J 2125 100KOHM 5% 1/10W SMD S AA AA
R 0244 VRS-TV1JD333J 2125 33KOHM 5% 1/10W SMD S AA AA
R 0245 VRS-TV1JD152J 2125 1.5KOHM 5% 1/10W SMD S AA AA
R 0246 VRS-TV1JD224J 2125 220KOHM 5% 1/10W SMD S AA AA
R 0247 VRS-TV1JD102J 2125 1KOHM 5% 1/10W SMD S AA AA
R 0248 VRS-TV1JD000J 2125 0 OHM 5% 1/10W SMD S AA AA
R 0251 VRS-TV1JD823J 2125 82KOHM 5% 1/10W SMD S AA AA
R 0252 VRS-TV1JD183J 2125 18KOHM 5% 1/10W SMD S AA AA
R 0253 VRS-TV1JD102J 2125 1KOHM 5% 1/10W SMD S AA AA
R 0254 VRS-TV1JD123J 2125 12KOHM 5% 1/10W SMD S AA AA
R 0255 VRS-TV1JD101J 2125 100 OHM 5% 1/10W SMD S AA AA
R 0256 VRS-TV1JD223J 2125 22KOHM 5% 1/10W SMD S AA AA
R 0257 VRS-TV1JD221J 2125 220 OHM 5% 1/10W SMD S AA AA
R 0258 VRS-TQ2BD220J OX RE 22 OHM 5% 1/8W SMD S AA AA
R 0259 VRS-TV1JD472J 2125 4.7KOHM 5% 1/10W SMD S AA AA
R 0301 VRS-TV1JD104J 2125 100KOHM 5% 1/10W SMD S AA AA
R 0302 VRS-TV1JD104J 2125 100KOHM 5% 1/10W SMD S AA AA
R 0303 VRS-TV1JD101J 2125 100 OHM 5% 1/10W SMD S AA AA
R 0304 VRS-TV1JD101J 2125 100 OHM 5% 1/10W SMD S AA AA
R 0306 VRD-RA2BE101J RES 100 OHM 5% 1/8W S AA AA
R 0307 VRD-RA2BE101J RES 100 OHM 5% 1/8W S AA AA
R 0308 VRS-TV1JD101J 2125 100 OHM 5% 1/10W SMD S AA AA
R 0309 VRS-TV1JD223J 2125 22KOHM 5% 1/10W SMD S AA AA
R 0310 VRS-TV1JD102J 2125 1KOHM 5% 1/10W SMD S AA AA
R 0311 VRS-TV1JD104J 2125 100KOHM 5% 1/10W SMD S AA AA
R 0312 VRS-TV1JD223J 2125 22KOHM 5% 1/10W SMD S AA AA
R 0313 VRS-TV1JD102J 2125 1KOHM 5% 1/10W SMD S AA AA
R 0314 VRS-TV1JD104J 2125 100KOHM 5% 1/10W SMD S AA AA
R 0315 VRD-RA2BE101J RES 100 OHM 5% 1/8W S AA AA
R 0316 VRS-TV1JD000J 2125 0 OHM 5% 1/10W SMD S AA AA
R 0317 VRS-TV1JD000J 2125 0 OHM 5% 1/10W SMD S AA AA
R 0318 VRS-TV1JD104J 2125 100KOHM 5% 1/10W SMD S AA AA
R 0319 VRS-TV1JD101J 2125 100 OHM 5% 1/10W SMD S AA AA
R 0320 VRS-TV1JD101J 2125 100 OHM 5% 1/10W SMD S AA AA
R 0321 VRS-TV1JD104J 2125 100KOHM 5% 1/10W SMD S AA AA
R 0322 VRS-TV1JD104J 2125 100KOHM 5% 1/10W SMD S AA AA
R 0323 VRS-TV1JD104J 2125 100KOHM 5% 1/10W SMD S AA AA
R 0350 VRS-TV1JD103J 2125 10KOHM 5% 1/10W SMD S AA AA
R 0351 VRS-TV1JD273J 2125 27KOHM 5% 1/10W SMD S AA AA
R 0352 VRS-TV1JD123J 2125 12KOHM 5% 1/10W SMD S AA AA
R 0353 VRS-TV1JD151J 2125 150 OHM 5% 1/10W SMD S AA AA
R 0354 VRS-TV1JD103J 2125 10KOHM 5% 1/10W SMD S AA AA
R 0355 VRS-TV1JD273J 2125 27KOHM 5% 1/10W SMD S AA AA

37
28HW-53E
REF No. PARTS DESCRIPTION * SN CODE EX CODE
R 0356 VRS-TV1JD103J 2125 10KOHM 5% 1/10W SMD S AA AA
R 0357 VRS-TV1JD151J 2125 150 OHM 5% 1/10W SMD S AA AA
R 0358 VRS-TV1JD104J 2125 100KOHM 5% 1/10W SMD S AA AA
R 0359 VRD-RA2BE104J RES 100KOHM 5% 1/8W S AA AA
R 0360 VRS-TV1JD103J 2125 10KOHM 5% 1/10W SMD S AA AA
R 0361 VRS-TV1JD103J 2125 10KOHM 5% 1/10W SMD S AA AA
R 0362 VRS-TV1JD472J 2125 4.7KOHM 5% 1/10W SMD S AA AA
R 0363 VRS-TV1JD472J 2125 4.7KOHM 5% 1/10W SMD S AA AA
R 0372 VRS-TV1JD103J 2125 10KOHM 5% 1/10W SMD S AA AA
R 0373 VRS-TV1JD103J 2125 10KOHM 5% 1/10W SMD S AA AA
R 0374 VRS-TV1JD473J 2125 47KOHM 5% 1/10W SMD S AA AA
R 0375 VRS-TV1JD473J 2125 47KOHM 5% 1/10W SMD S AA AA
R 0376 VRS-TV1JD472J 2125 4.7KOHM 5% 1/10W SMD S AA AA
R 0401 VRS-TV1JD750J 2125 75 OHM 5% 1/10W SMD S AA AA
R 0402 VRS-TV1JD750J 2125 75 OHM 5% 1/10W SMD S AA AA
R 0403 VRS-TV1JD271J 2125 270 OHM 5% 1/10W SMD S AA AA
R 0404 VRS-TV1JD271J 2125 270 OHM 5% 1/10W SMD S AA AA
R 0405 VRS-TV1JD271J 2125 270 OHM 5% 1/10W SMD S AA AA
R 0406 VRS-TV1JD271J 2125 270 OHM 5% 1/10W SMD S AA AA
R 0407 VRS-TV1JD750J 2125 75 OHM 5% 1/10W SMD S AA AA
R 0408 VRD-RA2EE750J RES 75 OHM 5% 1/4W S AA AA
R 0409 VRS-TV1JD750J 2125 75 OHM 5% 1/10W SMD S AA AA
R 0410 VRS-TV1JD223F 2125 22KOHM 1% 1/10W SMD S AA AA
R 0412 VRS-TV1JD271J 2125 270 OHM 5% 1/10W SMD S AA AA
R 0413 VRS-TV1JD271J 2125 270 OHM 5% 1/10W SMD S AA AA
R 0414 VRS-TV1JD271J 2125 270 OHM 5% 1/10W SMD S AA AA
R 0415 VRS-TV1JD271J 2125 270 OHM 5% 1/10W SMD S AA AA
R 0416 VRS-TV1JD223F 2125 22KOHM 1% 1/10W SMD S AA AA
R 0418 VRD-RA2HD680J RES 68 OHM 5% 1/2W S AA AA
R 0419 VRD-RA2EE750J RES 75 OHM 5% 1/4W S AA AA
R 0420 VRD-RA2BE102J RES 1KOHM 5% 1/8W S AA AA
R 0421 VRS-TV1JD151J 2125 150 OHM 5% 1/10W SMD S AA AA
R 0422 VRS-TV1JD151J 2125 150 OHM 5% 1/10W SMD S AA AA
R 0423 VRS-TV1JD151J 2125 150 OHM 5% 1/10W SMD S AA AA
R 0424 VRD-RA2BE750J RES 75 OHM 5% 1/8W S AA AA
R 0425 VRD-RA2EE750J RES 75 OHM 5% 1/4W S AA AA
R 0426 VRD-RA2BE750J RES 75 OHM 5% 1/8W S AA AA
R 0427 VRS-TV1JD820J 2125 82 OHM 5% 1/10W SMD S AA AA
R 0428 VRS-TV1JD271J 2125 270 OHM 5% 1/10W SMD S AA AA
R 0429 VRS-TV1JD271J 2125 270 OHM 5% 1/10W SMD S AA AA
R 0430 VRS-TV1JD271J 2125 270 OHM 5% 1/10W SMD S AA AA
R 0431 VRS-TV1JD271J 2125 270 OHM 5% 1/10W SMD S AA AA
R 0432 VRS-TV1JD104J 2125 100KOHM 5% 1/10W SMD S AA AA
R 0433 VRS-TV1JD104J 2125 100KOHM 5% 1/10W SMD S AA AA
R 0434 VRS-TV1JD102J 2125 1KOHM 5% 1/10W SMD S AA AA
R 0435 VRS-TV1JD102J 2125 1KOHM 5% 1/10W SMD S AA AA
R 0436 RR-XZ0112BMZZ FUS RES 10R TAP 5% 1/3W S AA AB
R 0437 VRS-TV1JD471J 2125 470 OHM 5% 1/10W SMD S AA AA
R 0445 VRS-TV1JD104J 2125 100KOHM 5% 1/10W SMD S AA AA
R 0447 VRS-TV1JD221J 2125 220 OHM 5% 1/10W SMD S AA AA
R 0448 VRS-TV1JD221J 2125 220 OHM 5% 1/10W SMD S AA AA
R 0450 VRS-TV1JD220J 2125 22 OHM 5% 1/10W SMD S AA AA
R 0451 VRD-RA2HD102J RES 1KOHM 5% 1/2W S AA AA
R 0452 VRS-TV1JD223F 2125 22KOHM 1% 1/10W SMD S AA AA
R 0453 VRS-TV1JD183F 2125 18KOHM 1% 1/10W SMD S AA AA
R 0454 VRS-TV1JD332J 2125 3.3KOHM 5% 1/10W SMD S AA AA
R 0455 VRD-RA2BE103J RES 10KOHM 5% 1/8W S AA AA
R 0456 VRS-TV1JD153J 2125 15KOHM 5% 1/10W SMD S AA AA
R 0458 VRS-TV1JD102J 2125 1KOHM 5% 1/10W SMD S AA AA
R 0459 VRS-TV1JD102J 2125 1KOHM 5% 1/10W SMD S AA AA
R 0460 VRS-TV1JD183F 2125 18KOHM 1% 1/10W SMD S AA AA
R 0461 VRS-TV1JD104J 2125 100KOHM 5% 1/10W SMD S AA AA
R 0462 VRS-TV1JD183F 2125 18KOHM 1% 1/10W SMD S AA AA
R 0463 VRS-TV1JD101J 2125 100 OHM 5% 1/10W SMD S AA AA
R 0464 VRD-RA2BE221J RES 220 OHM 5% 1/8W S AA AA
R 0465 VRS-TV1JD103J 2125 10KOHM 5% 1/10W SMD S AA AA
R 0466 VRS-TV1JD221J 2125 220 OHM 5% 1/10W SMD S AA AA
R 0467 VRS-TQ2BD333J OX RE 33KOHM 5% 1/8W SMD S AA AA
R 0468 VRS-TV1JD000J 2125 0 OHM 5% 1/10W SMD S AA AA
R 0471 VRD-RA2BE392J RES 3,9KOHM 5% 1/8W S AA AA
R 0472 VRS-TV1JD750J 2125 75 OHM 5% 1/10W SMD S AA AA
R 0501 VRD-RA2HD101J RES 100 OHM 5% 1/2W S AA AA
R 0502 VRS-TV1JD332J 2125 3.3KOHM 5% 1/10W SMD S AA AA
R 0503 VRD-RA2BE102J RES 1KOHM 5% 1/8W S AA AA
REF No. PARTS DESCRIPTION * SN CODE EX CODE
R 0504 VRS-TV1JD393J 2125 39KOHM 5% 1/10W SMD S AA AA
R 0505 VRS-TV1JD222J 2125 2,2KOHM 5% 1/10W SMD S AA AA
R 0506 VRS-TQ2BD121J OX RE 120 OHM 5% 1/8W SMD S AA AA
R 0507 VRS-TV1JD822J 2125 8,2KOHM 5% 1/10W SMD S AA AA
R 0508 VRD-RA2BE681J RES 680 OHM 5% 1/8W S AA AA
R 0509 VRS-TV1JD393J 2125 39KOHM 5% 1/10W SMD S AA AA
R 0510 VRS-TV1JD822J 2125 8,2KOHM 5% 1/10W SMD S AA AA
R 0511 VRS-TV1JD151J 2125 150 OHM 5% 1/10W SMD S AA AA
R 0512 VRS-TV1JD332J 2125 3.3KOHM 5% 1/10W SMD S AA AA
R 0513 VRS-TV1JD224J 2125 220KOHM 5% 1/10W SMD S AA AA
R 0514 VRS-TV1JD331J 2125 330 OHM 5% 1/10W SMD S AA AA
R 0515 VRS-TV1JD821J 2125 820 OHM 5% 1/10W SMD S AA AA
R 0516 VRS-TV1JD102J 2125 1KOHM 5% 1/10W SMD S AA AA
R 0517 VRS-TV1JD153J 2125 15KOHM 5% 1/10W SMD S AA AA
R 0518 VRN-VV3DB1R5J MET FILM R 1,5 OHM 5% 2W S AA AA
R 0519 VRD-RA2HD104J RES 100KOHM 5% 1/2W S AA AA
R 0521 VRS-TV1JD183J 2125 18KOHM 5% 1/10W SMD S AA AA
R 0522 VRS-TV1JD222J 2125 2,2KOHM 5% 1/10W SMD S AA AA
R 0524 VRS-TV1JD102J 2125 1KOHM 5% 1/10W SMD S AA AA
R 0525 VRS-TV1JD103J 2125 10KOHM 5% 1/10W SMD S AA AA
R 0526 VRD-RA2BE472J RES 4,7KOHM 5% 1/8W S AA AA
R 0527 VRS-TV1JD102J 2125 1KOHM 5% 1/10W SMD S AA AA
R 0528 VRS-TV1JD563J 2125 56KOHM 5% 1/10W SMD S AA AA
R 0530 RR-XZ0212BMZZ FUS RES 10R TAP 5% 1/2W S AA AB
R 0532 VRS-TV1JD682J 2125 6.8KOHM 5% 1/10W SMD S AA AA
R 0533 VRD-RA2EE821J RES 820 OHM 5% 1/4W S AA AA
R 0534 VRD-RA2BE273J RES 27KOHM 5% 1/8W S AA AA
R 0535 VRS-TV1JD822J 2125 8,2KOHM 5% 1/10W SMD S AA AA
R 0536 VRS-LU3DB222J SET MET OX R 2,2KOHM 5% 2W LW S AA AB
R 0537 VRS-TV1JD822J 2125 8,2KOHM 5% 1/10W SMD S AA AA
R 0538 VRS-TV1JD273J 2125 27KOHM 5% 1/10W SMD S AA AA
R 0539 VRS-TV1JD332J 2125 3.3KOHM 5% 1/10W SMD S AA AA
R 0540 VRS-TV1JD472J 2125 4.7KOHM 5% 1/10W SMD S AA AA
R 0541 VRD-RA2BE333J RES 33KOHM 5% 1/8W S AA AA
R 0542 VRS-TV1JD822J 2125 8,2KOHM 5% 1/10W SMD S AA AA
R 0544 VRS-TV1JD102J 2125 1KOHM 5% 1/10W SMD S AA AA
R 0545 VRS-TV1JD104J 2125 100KOHM 5% 1/10W SMD S AA AA
R 0547 VRS-TV1JD392J 2125 3.9KOHM 5% 1/10W SMD S AA AA
R 0548 VRS-TV1JD822J 2125 8,2KOHM 5% 1/10W SMD S AA AA
R 0549 VRS-TV1JD273J 2125 27KOHM 5% 1/10W SMD S AA AA
R 0550 VRD-RA2BE123J RES 12KOHM 5% 1/8W S AA AA
R 0552 VRS-TV1JD000J 2125 0 OHM 5% 1/10W SMD S AA AA
R 0553 RR-XZ0100BMZZ FUS RES 1R0 TAP 5% 1/3W S AA AB
R 0554 VRS-TV1JD152J 2125 1.5KOHM 5% 1/10W SMD S AA AA
R 0555 VRS-TV1JD334J 2125 330KOHM 5% 1/10W SMD S AA AA
R 0556 VRS-TV1JD103J 2125 10KOHM 5% 1/10W SMD S AA AA
R 0558 VRS-TV1JD000J 2125 0 OHM 5% 1/10W SMD S AA AA
R 0561 VRS-TV1JD472J 2125 4.7KOHM 5% 1/10W SMD S AA AA
R 0562 VRS-TV1JD472J 2125 4.7KOHM 5% 1/10W SMD S AA AA
R 0564 VRS-LU3DB102J SET MET OX R 1KOHM 5% 2W LW S AA AB
R 0601 VRS-TV1JD392J 2125 3.9KOHM 5% 1/10W SMD S AA AA
R 0603 VRD-RA2BE331J RES 330 OHM 5% 1/8W S AA AA
R 0605 VRS-TV1JD471J 2125 470 OHM 5% 1/10W SMD S AA AA
R 0607 VRS-TV1JD123J 2125 12KOHM 5% 1/10W SMD S AA AA
R 0608 VRD-RA2EE102J RES 1KOHM 5% 1/4W S AA AA
R 0610 RR-XZ0200BMZZ FUS RES 1R0 TAP 5% 1/2W S AA AB
R 0612 RR-XZ0116BMZZ FUS RES 22R TAP 5% 1/3W S AA AB
R 0613 VRS-LU3LB332J SET MET OX R 3,3KOHM 5% 3W LW S AA AB
R 0614 VRD-RA2HD103J RES 10KOHM 5% 1/2W S AA AA
R 0615 VRS-TV1JD561J 2125 560 OHM 5% 1/10W SMD S AA AA
R 0616 VRN-VV3AB2R7J MET FILM R 2.7 OHM 5% 1W S AA AA
R 0617 RR-XZ0216BMZZ FUS RES 22R TAP 5% 1/2W S AA AB
R 0618 VRD-RA2BE102J RES 1KOHM 5% 1/8W S AA AA
R 0619 VRD-RA2HD561J RES 560 OHM 5% 1/2W S AA AA
R 0620 VRD-RA2BE102J RES 1KOHM 5% 1/8W S AA AA
R 0622 VRS-TV1JD103J 2125 10KOHM 5% 1/10W SMD S AA AA
R 0623 VRN-VV3DB1R0J MET FILM R 1 OHM 5% 2W S AA AA
R 0624 VRN-LU3DB5R6J SET MET FILM 5,6 OHM 5% 2W LW S AA AB
R 0625 VRS-TQ2BD181J OX RE 180 OHM 5% 1/8W SMD S AA AA
R 0626 VRS-TV1JD472J 2125 4.7KOHM 5% 1/10W SMD S AA AA
R 0627 VRS-TQ2BD181J OX RE 180 OHM 5% 1/8W SMD S AA AA
R 0628 VRD-RA2EE102J RES 1KOHM 5% 1/4W S AA AA
R 0642 VRS-TV1JD471J 2125 470 OHM 5% 1/10W SMD S AA AA
R 0643 RR-XZ0200BMZZ FUS RES 1R0 TAP 5% 1/2W S AA AB
!
!
!
!

38
28HW-53E
REF No. PARTS DESCRIPTION * SN CODE EX CODE
R 0644 VRS-TV1JD221J 2125 220 OHM 5% 1/10W SMD S AA AA
R 0646 VRS-TV1JD824J 2125 820KOHM 5% 1/10W SMD S AA AA
R 0647 VRS-TV1JD153J 2125 15KOHM 5% 1/10W SMD S AA AA
R 0650 VRD-RA2BE562J RES 5,6KOHM 5% 1/8W S AA AA
R 0703 VRD-RA2HD154J RES 150KOHM 5% 1/2W S AA AA
R 0706 VRS-TV1JD203J 2125 20KOHM 5% 1/10W SMD S AA AA
R 0707 VRS-TV1JD912J 2125 9.1KOHM 5% 1/10W SMD S AA AA
R 0708 VRS-TV1JD102J 2125 1KOHM 5% 1/10W SMD S AA AA
R 0711 VRS-TV1JD122J 2125 1,2KOHM 5% 1/10W SMD S AA AA
R 0712 VRS-TV1JD331J 2125 330 OHM 5% 1/10W SMD S AA AA
R 0713 VRC-MA2HG564J SOLID R 560KOHM 5% 1/2W S AA AA
R 0714 VRC-MA2HG564J SOLID R 560KOHM 5% 1/2W S AA AA
R 0715 VRW-KS3HC473J WOUND RES 47KOHM 5% 5W S AA AE
R 0716 VRN-VV3DBR18K MET FILM R .18 OHM 10% 2W S AA AB
R 0717 VRS-TV1JD223J 2125 22KOHM 5% 1/10W SMD S AA AA
R 0718 VRS-TQ2BD000J 3216 0 OHM 5% 1/8W SMD S AA AA
R 0719 VRS-TV1JD221J 2125 220 OHM 5% 1/10W SMD S AA AA
R 0720 VRS-TV1JD103J 2125 10KOHM 5% 1/10W SMD S AA AA
R 0721 VRD-RA2HD154J RES 150KOHM 5% 1/2W S AA AA
R 0722 VRS-TV1JD330J 2125 33 OHM 5% 1/10W SMD S AA AA
R 0723 VRS-VV3AB271J MET OX RES 270 OHM 5% 1W S AA AA
R 0724 VRS-TQ2BD221J OX RE 220 OHM 5% 1/8W SMD S AA AA
R 0727 VRD-RA2HD181J RES 180 OHM 5% 1/2W S AA AA
R 0728 VRD-RA2HD181J RES 180 OHM 5% 1/2W S AA AA
R 0730 VRS-VV3DB151J MET OX RES 150 OHM 5% 2W S AA AA
R 0733 VRS-TV1JD473J 2125 47KOHM 5% 1/10W SMD S AA AA
R 0735 VRS-TV1JD474J 2125 470KOHM 5% 1/10W SMD S AA AA
R 0736 VRS-TV1JD474J 2125 470KOHM 5% 1/10W SMD S AA AA
R 0737 VRS-TV1JD184J 2125 180KOHM 5% 1/10W SMD S AA AA
R 0738 VRS-TV1JD473J 2125 47KOHM 5% 1/10W SMD S AA AA
R 0739 VRS-TV1JD473J 2125 47KOHM 5% 1/10W SMD S AA AA
R 0740 VRS-TV1JD473J 2125 47KOHM 5% 1/10W SMD S AA AA
R 0741 VRC-UA2HG825K SOLID R 8,2MOHM 10% 1/2W S AA AA
R 0742 VRC-UA2HG825K SOLID R 8,2MOHM 10% 1/2W S AA AA
R 0743 VRS-TQ2BD473F OX RE 47KOHM 1% 1/8W S AA AA
R 0744 VRS-TQ2BD473F OX RE 47KOHM 1% 1/8W S AA AA
R 0745 VRS-TV1JD182F 2125 1,8KOHM 1% 1/10W SMD S AA AA
R 0746 VRS-TV1JD223J 2125 22KOHM 5% 1/10W SMD S AA AA
R 0747 VRS-TV1JD272J 2125 2,7KOHM 5% 1/10W SMD S AA AA
R 0748 VRS-TV1JD472J 2125 4.7KOHM 5% 1/10W SMD S AA AA
R 0750 VRS-TV1JD334J 2125 330KOHM 5% 1/10W SMD S AA AA
R 0751 VRS-TV1JD102J 2125 1KOHM 5% 1/10W SMD S AA AA
R 0754 VRS-TV1JD2R7J 2125 2,7 OHM 5% 1/10W SMD S AA AA
R 0755 VRS-TV1JD331J 2125 330 OHM 5% 1/10W SMD S AA AA
R 0758 VRS-TV1JD101J 2125 100 OHM 5% 1/10W SMD S AA AA
R 0762 VRS-TQ2BD221J OX RE 220 OHM 5% 1/8W SMD S AA AA
R 0763 RR-XZ0224BMZZ FUS RES 100R TAP 5% 1/2W S AA AB
R 0765 VRS-TQ2BD101J OX RE 100 0HM 5% 1/8W SMD S AA AA
R 0766 VRS-TQ2BD101J OX RE 100 0HM 5% 1/8W SMD S AA AA
R 0767 VRS-TV1JD103J 2125 10KOHM 5% 1/10W SMD S AA AA
R 0768 VRS-TQ2BD221J OX RE 220 OHM 5% 1/8W SMD S AA AA
R 0769 VRS-TV1JD821J 2125 820 OHM 5% 1/10W SMD S AA AA
R 0770 RR-XZ0229BMZZ FUS RES 270R TAP 5% 1/2W S AA AA
R 0771 VRS-VV3AB474J MET OX RES 470KOHM 5% 1W S AA AA
R 0774 VRS-TQ2BD474J OX RE 470KOHM 5% 1/8W SMD S AA AA
R 0775 VRS-TQ2BD474J OX RE 470KOHM 5% 1/8W SMD S AA AA
R 0776 VRS-TV1JD823J 2125 82KOHM 5% 1/10W SMD S AA AA
R 0777 VRS-TV1JD470J 2125 47 OHM 5% 1/10W SMD S AA AA
R 0787 VRS-TV1JD473J 2125 47KOHM 5% 1/10W SMD S AA AA
R 0788 VRS-TV1JD183J 2125 18KOHM 5% 1/10W SMD S AA AA
R 0789 VRS-TV1JD183J 2125 18KOHM 5% 1/10W SMD S AA AA
R 0790 VRD-RA2BE183J RES 18KOHM 5% 1/8W S AA AA
R 0791 VRD-RA2BE183J RES 18KOHM 5% 1/8W S AA AA
R 0792 VRD-RA2BE682J RES 6,8KOHM 5% 1/8W S AA AA
R 0801 VRS-TV1JD103J 2125 10KOHM 5% 1/10W SMD S AA AA
R 0803 VRS-TV1JD122J 2125 1,2KOHM 5% 1/10W SMD S AA AA
R 0804 VRS-TV1JD271J 2125 270 OHM 5% 1/10W SMD S AA AA
R 0805 VRS-TV1JD222J 2125 2,2KOHM 5% 1/10W SMD S AA AA
R 0806 VRS-TV1JD102J 2125 1KOHM 5% 1/10W SMD S AA AA
R 0807 VRS-TV1JD333J 2125 33KOHM 5% 1/10W SMD S AA AA
R 0808 VRS-TV1JD103J 2125 10KOHM 5% 1/10W SMD S AA AA
R 0809 VRS-TV1JD103J 2125 10KOHM 5% 1/10W SMD S AA AA
R 0810 VRS-TV1JD103J 2125 10KOHM 5% 1/10W SMD S AA AA
R 0811 VRS-TV1JD103J 2125 10KOHM 5% 1/10W SMD S AA AA
!
!
REF No. PARTS DESCRIPTION * SN CODE EX CODE
R 0812 VRS-TV1JD222J 2125 2,2KOHM 5% 1/10W SMD S AA AA
R 1001 VRS-TV1JD332J 2125 3.3KOHM 5% 1/10W SMD S AA AA
R 1002 VRS-TV1JD332J 2125 3.3KOHM 5% 1/10W SMD S AA AA
R 1003 VRS-TV1JD332J 2125 3.3KOHM 5% 1/10W SMD S AA AA
R 1004 VRS-TV1JD332J 2125 3.3KOHM 5% 1/10W SMD S AA AA
R 1005 VRS-TV1JD472J 2125 4.7KOHM 5% 1/10W SMD S AA AA
R 1008 VRD-RA2BE332J RES 3,3KOHM 5% 1/8W S AA AA
R 1017 VRS-TV1JD102J 2125 1KOHM 5% 1/10W SMD S AA AA
R 1018 VRD-RA2BE101J RES 100 OHM 5% 1/8W S AA AA
R 1019 VRS-TV1JD332J 2125 3.3KOHM 5% 1/10W SMD S AA AA
R 1020 VRS-TV1JD332J 2125 3.3KOHM 5% 1/10W SMD S AA AA
R 1021 VRS-TV1JD472J 2125 4.7KOHM 5% 1/10W SMD S AA AA
R 1022 VRD-RA2BE101J RES 100 OHM 5% 1/8W S AA AA
R 1023 VRS-TV1JD221J 2125 220 OHM 5% 1/10W SMD S AA AA
R 1024 VRS-TV1JD822J 2125 8,2KOHM 5% 1/10W SMD S AA AA
R 1025 VRS-TV1JD822J 2125 8,2KOHM 5% 1/10W SMD S AA AA
R 1026 VRS-TV1JD221J 2125 220 OHM 5% 1/10W SMD S AA AA
R 1027 VRD-RA2BE103J RES 10KOHM 5% 1/8W S AA AA
R 1028 VRS-TV1JD102J 2125 1KOHM 5% 1/10W SMD S AA AA
R 1029 VRS-TV1JD472J 2125 4.7KOHM 5% 1/10W SMD S AA AA
R 1030 VRS-TV1JD472J 2125 4.7KOHM 5% 1/10W SMD S AA AA
R 1031 VRS-TV1JD472J 2125 4.7KOHM 5% 1/10W SMD S AA AA
R 1032 VRS-TV1JD273J 2125 27KOHM 5% 1/10W SMD S AA AA
R 1033 VRS-TV1JD103J 2125 10KOHM 5% 1/10W SMD S AA AA
R 1035 VRS-TV1JD472J 2125 4.7KOHM 5% 1/10W SMD S AA AA
R 1040 VRS-TV1JD101J 2125 100 OHM 5% 1/10W SMD S AA AA
R 1041 VRS-TV1JD472J 2125 4.7KOHM 5% 1/10W SMD S AA AA
R 1042 VRS-TV1JD822J 2125 8,2KOHM 5% 1/10W SMD S AA AA
R 1043 VRS-TV1JD822J 2125 8,2KOHM 5% 1/10W SMD S AA AA
R 1044 VRS-TV1JD103J 2125 10KOHM 5% 1/10W SMD S AA AA
R 1045 VRS-TV1JD822J 2125 8,2KOHM 5% 1/10W SMD S AA AA
R 1046 VRS-TV1JD182J 2125 1,8KOHM 5% 1/10W SMD S AA AA
R 1047 VRD-RA2BE103J RES 10KOHM 5% 1/8W S AA AA
R 1048 VRS-TV1JD821J 2125 820 OHM 5% 1/10W SMD S AA AA
R 1049 VRS-TV1JD103J 2125 10KOHM 5% 1/10W SMD S AA AA
R 1050 VRD-RA2BE221J RES 220 OHM 5% 1/8W S AA AA
R 1051 VRS-TV1JD223J 2125 22KOHM 5% 1/10W SMD S AA AA
R 1052 VRS-TV1JD472J 2125 4.7KOHM 5% 1/10W SMD S AA AA
R 1053 VRS-TV1JD104J 2125 100KOHM 5% 1/10W SMD S AA AA
R 1054 VRS-TV1JD104J 2125 100KOHM 5% 1/10W SMD S AA AA
R 1055 VRD-RA2BE473J RES 47KOHM 5% 1/8W S AA AA
R 1056 VRS-TV1JD000J 2125 0 OHM 5% 1/10W SMD S AA AA
R 1057 VRS-TV1JD102J 2125 1KOHM 5% 1/10W SMD S AA AA
R 1058 VRD-RA2BE101J RES 100 OHM 5% 1/8W S AA AA
R 1059 VRD-RA2BE101J RES 100 OHM 5% 1/8W S AA AA
R 1061 VRS-TV1JD472J 2125 4.7KOHM 5% 1/10W SMD S AA AA
R 2401 VRS-TV1JD471J 2125 470 OHM 5% 1/10W SMD S AA AA
R 2402 VRS-TV1JD472J 2125 4.7KOHM 5% 1/10W SMD S AA AA
R 2403 VRS-TV1JD152J 2125 1.5KOHM 5% 1/10W SMD S AA AA
R 2404 VRS-TV1JD560J 2125 56 OHM 5% 1/10W SMD S AA AA
R 2405 VRS-TV1JD104J 2125 100KOHM 5% 1/10W SMD S AA AA
R 2406 VRS-TV1JD222J 2125 2,2KOHM 5% 1/10W SMD S AA AA
R 2407 VRS-TV1JD222J 2125 2,2KOHM 5% 1/10W SMD S AA AA
R 2408 VRS-TV1JD332J 2125 3.3KOHM 5% 1/10W SMD S AA AA
R 2409 VRS-TV1JD000J 2125 0 OHM 5% 1/10W SMD S AA AA
R 2410 VRS-TV1JD101J 2125 100 OHM 5% 1/10W SMD S AA AA
R 2411 VRS-TV1JD101J 2125 100 OHM 5% 1/10W SMD S AA AA
R 2412 VRS-TV1JD101J 2125 100 OHM 5% 1/10W SMD S AA AA
RA 0611 RR-XZ0242BMZZ FUS RES 3K3 TAP 5% 1/2W S AA AB
MISCELLANEOUS PARTS
(AA) QCNCM0672FCZZ CONN B2P3-VH JST S AA AB
(AV) QCNW-2736BMZZ WIRE 1 WAY S AA AF
(CC) QPLGN0241CEZZ PLUG S AA AA
(F) QPLGN0505CEZZ PLUG S AA AB
(FV) QPLGN0241CEZZ PLUG S AA AA
(G) QPLGN0207CEZZ PLUG S AA AA
(H) QPLGN0541CEZZ PLUG S AA AA
(HD) QPLGN0341CEZZ PLUG S AA AA
(K) QPLGN0841CEZZ PLUG S AA AB
(PW) QCNCM0672FCZZ CONN B2P3-VH JST S AA AB
(RC) QPLGN0341CEZZ PLUG S AA AA
(SP) QPLGN0441CEZZ PLUG 4PIN S AA AA
(SS) QPLGN0341CEZZ PLUG S AA AA

39
28HW-53E
REF No. PARTS DESCRIPTION * SN CODE EX CODE
CN 0001 QSOCZ2109BMZZ TWIN SCART HR-DG1311G-0 S AG AK
CN 0002 QSOCZ2107BMZZ SOCKET S AF AE
F 0601 QFS-J2521CEZZ FUSE 2,5A/125V LITTELFUSE S AC AD
F 0602 QFS-J2521CEZZ FUSE 2,5A/125V LITTELFUSE S AC AD
FB 0301 RBLN-0037CEZZ BALUN FBA04HA90088-00 T/Y S AB AB
FB 0302 RBLN-0037CEZZ BALUN FBA04HA90088-00 T/Y S AB AB
FB 0303 RBLN-0037CEZZ BALUN FBA04HA90088-00 T/Y S AB AB
FB 0501 RBLN-0020CEZZ BALUNE S AA AB
FB 0701 RBLN-0037CEZZ BALUN FBA04HA90088-00 T/Y S AB AB
FB 0702 RBLN-0037CEZZ BALUN FBA04HA90088-00 T/Y S AB AB
FB 0703 RBLN-0037CEZZ BALUN FBA04HA90088-00 T/Y S AB AB
FB 0705 RBLN-0020CEZZ BALUNE S AA AB
FB 0801 VP-NM3R3MR19N COIL 3,3UH SMD S AA AC
FB 0802 RCORF0003GEZZ SMDFERRIT HF50ACB322513 S AA AC
FB 1001 RCORF0003GEZZ SMDFERRIT HF50ACB322513 S AA AC
FB 1002 RBLN-0037CEZZ BALUN FBA04HA90088-00 T/Y S AB AB
J 0002 VRS-TV1JD000J 2125 0 OHM 5% 1/10W SMD S AA AA
J 0039 VP-DF3R3K0000 PEAK COIL 3,3UH 10% S AB AB
J 0062 VP-DF3R3K0000 PEAK COIL 3,3UH 10% S AB AB
J 0098 VRS-TV1JD000J 2125 0 OHM 5% 1/10W SMD S AA AA
J 0126 VRS-TV1JD000J 2125 0 OHM 5% 1/10W SMD S AA AA
J 0152 QFS-J1023CEZZ FUSE 492001 T1 LITTELFUSE S AA AA
J 0212 VRD-RA2HD101J RES 100 OHM 5% 1/2W S AA AA
J 0218 VRS-TV1JD000J 2125 0 OHM 5% 1/10W SMD S AA AA
J 0219 VRS-TV1JD000J 2125 0 OHM 5% 1/10W SMD S AA AA
J 0220 VRS-TV1JD000J 2125 0 OHM 5% 1/10W SMD S AA AA
J 0240 VRS-TV1JD000J 2125 0 OHM 5% 1/10W SMD S AA AA
J 0248 VRD-RA2HD102J RES 1KOHM 5% 1/2W S AA AA
J 0279 VRS-TV1JD000J 2125 0 OHM 5% 1/10W SMD S AA AA
J 0281 VRS-TV1JD000J 2125 0 OHM 5% 1/10W SMD S AA AA
J 0283 VRS-TV1JD000J 2125 0 OHM 5% 1/10W SMD S AA AA
J 0286 VRS-TV1JD000J 2125 0 OHM 5% 1/10W SMD S AA AA
J 0289 VRS-TV1JD000J 2125 0 OHM 5% 1/10W SMD S AA AA
J 0294 VRS-TV1JD000J 2125 0 OHM 5% 1/10W SMD S AA AA
J 0302 VRS-TV1JD000J 2125 0 OHM 5% 1/10W SMD S AA AA
J 0310 VRS-TV1JD000J 2125 0 OHM 5% 1/10W SMD S AA AA
J 0313 VRS-TV1JD000J 2125 0 OHM 5% 1/10W SMD S AA AA
J 0324 VRS-TV1JD000J 2125 0 OHM 5% 1/10W SMD S AA AA
J 0325 VRS-TV1JD000J 2125 0 OHM 5% 1/10W SMD S AA AA
J 0332 VRS-TV1JD000J 2125 0 OHM 5% 1/10W SMD S AA AA
J 0335 VRS-TV1JD000J 2125 0 OHM 5% 1/10W SMD S AA AA
J 0336 VRS-TV1JD000J 2125 0 OHM 5% 1/10W SMD S AA AA
J 0338 VRS-TV1JD000J 2125 0 OHM 5% 1/10W SMD S AA AA
J 0339 VRS-TV1JD000J 2125 0 OHM 5% 1/10W SMD S AA AA
J 0341 VRS-TV1JD000J 2125 0 OHM 5% 1/10W SMD S AA AA
J 0342 VRS-TV1JD000J 2125 0 OHM 5% 1/10W SMD S AA AA
J 0354 VRS-TQ2BD000J 3216 0 OHM 5% 1/8W SMD S AA AA
J 0355 VRS-TV1JD000J 2125 0 OHM 5% 1/10W SMD S AA AA
J 0360 VRS-TV1JD000J 2125 0 OHM 5% 1/10W SMD S AA AA
J 0361 VRS-TV1JD000J 2125 0 OHM 5% 1/10W SMD S AA AA
J 0365 VRS-TV1JD000J 2125 0 OHM 5% 1/10W SMD S AA AA
J 0369 VRS-TV1JD000J 2125 0 OHM 5% 1/10W SMD S AA AA
J 0370 VRS-TV1JD000J 2125 0 OHM 5% 1/10W SMD S AA AA
J 0371 VRS-TV1JD000J 2125 0 OHM 5% 1/10W SMD S AA AA
J 0372 VRS-TV1JD000J 2125 0 OHM 5% 1/10W SMD S AA AA
J 0701 VCKYTV1HB104K CERAM C 100NF 50V 2125SMD S AA AA
JF 0003 VRS-TV1JD000J 2125 0 OHM 5% 1/10W SMD S AA AA
JF 0015 VRS-TV1JD000J 2125 0 OHM 5% 1/10W SMD S AA AA
JF 0016 VRS-TV1JD000J 2125 0 OHM 5% 1/10W SMD S AA AA
JF 0020 VRS-TV1JD000J 2125 0 OHM 5% 1/10W SMD S AA AA
JF 0021 VRS-TV1JD000J 2125 0 OHM 5% 1/10W SMD S AA AA
JF 0022 VRS-TV1JD000J 2125 0 OHM 5% 1/10W SMD S AA AA
JF 0038 VRS-TV1JD000J 2125 0 OHM 5% 1/10W SMD S AA AA
JF 0041 VRS-TV1JD000J 2125 0 OHM 5% 1/10W SMD S AA AA
JF 0052 VRS-TV1JD000J 2125 0 OHM 5% 1/10W SMD S AA AA
JF 0068 VRS-TV1JD000J 2125 0 OHM 5% 1/10W SMD S AA AA
JF 0070 VRS-TV1JD000J 2125 0 OHM 5% 1/10W SMD S AA AA
JF 0075 VRS-TV1JD000J 2125 0 OHM 5% 1/10W SMD S AA AA
JF 0076 VRS-TV1JD000J 2125 0 OHM 5% 1/10W SMD S AA AA
JF 0077 VRS-TV1JD000J 2125 0 OHM 5% 1/10W SMD S AA AA
JF 1002 VRS-TV1JD000J 2125 0 OHM 5% 1/10W SMD S AA AA
JF 1003 VRS-TV1JD000J 2125 0 OHM 5% 1/10W SMD S AA AA
JL 0012 QCNW-2736BMZZ WIRE 1 WAY S AA AF
L 0002 QTIPM0017CEFM TIP S AA AA
!
!
REF No. PARTS DESCRIPTION * SN CODE EX CODE
L 0006 QTIPM0017CEFM TIP S AA AA
SW 0001 QPLGN0341CEZZ PLUG S AA AA
SW 0002 QPLGN0341CEZZ PLUG S AA AA
IC 1002 QSOCZ2051SC32 32 PIN IC SOCKET S AC AC
PWB-B CRT UNIT
INTEGRATED CIRCUITS
IC 1801 RH-IX1803BMZZ IC STV5109 ST S AD AN
TRANSISTORS
Q 0901 VS2SC2412KQ-1 TRT 2SC2412 ROHM S AA AA
Q 0902 VS2SC2412KQ-1 TRT 2SC2412 ROHM S AA AA
Q 0903 VS2SA1037KQ-1 TRT BC807 SMD S AA AA
Q 0904 VS2SC2412KQ-1 TRT 2SC2412 ROHM S AA AA
Q 0905 VS2SC2412KQ-1 TRT 2SC2412 ROHM S AA AA
Q 0906 VS2SA1037KQ-1 TRT BC807 SMD S AA AA
Q 0907 VS2SC2412KQ-1 TRT 2SC2412 ROHM S AA AA
Q 0908 VS2SC2412KQ-1 TRT 2SC2412 ROHM S AA AA
Q 0909 VS2SA1037KQ-1 TRT BC807 SMD S AA AA
Q 0912 RH-TX0218BMZZ TRT BC337-40 PHILIPS S AA AA
Q 5405 VS2SC2412KQ-1 TRT 2SC2412 ROHM S AA AA
Q 5406 VS2SA1037KQ-1 TRT BC807 SMD S AA AA
Q 5407 VS2SA1837//-1 TRT A1837 TOSHIBA S AB AE
Q 5408 VS2SC4793//-1 TRT C4793 TOSHIBA S AB AE
Q 5410 VS2SC2412KQ-1 TRT 2SC2412 ROHM S AA AA
Q 5411 VS2SC2412KQ-1 TRT 2SC2412 ROHM S AA AA
Q 5412 VS2SA1037KQ-1 TRT BC807 SMD S AA AA
DIODES
D 1804 RH-DX0505BMZZ DIODE 1N4935 S AB AE
D 1805 RH-EX0554BMZZ ZENER DIODE TZMC12 TFK SMD S AA AA
D 1809 RH-DX0501BMZZ DIODE 1N4004 S AA AA
D 1811 RH-DX0638BMZZ DIODE BAV21 S AA AA
D 1812 RH-DX0638BMZZ DIODE BAV21 S AA AA
D 1813 RH-DX0638BMZZ DIODE BAV21 S AA AA
D 5403 RH-DX0551BMZZ DIODE LL4148 TFK SMD S AA AA
D 5404 RH-DX0501BMZZ DIODE 1N4004 S AA AA
D 5405 RH-DX0501BMZZ DIODE 1N4004 S AA AA
D 5410 RH-DX0551BMZZ DIODE LL4148 TFK SMD S AA AA
CAPACITORS
C 1801 VCKYTV1HF104Z CERAM C 100NF 50V 2125SMD S AA AA
C 1802 VCCCTV1HH5R0C CERAM C 5PF 50V 2125SMD S AA AA
C 1803 VCCCTV1HH150J CERAM C 15PF 50V 2125SMD S AA AA
C 1804 VCCCTV1HH150J CERAM C 15PF 50V 2125SMD S AA AA
C 1805 VCKYTV1HF224Z CERAM C 220NF 50V 2125SMD S AA AA
C 1806 VCKYTV1HB103K CERAM C 10NF 50V 2125SMD S AA AA
C 1807 VCEAGA1CW108M ELEC C 1000UF 20% 16V S AA AB
C 1808 VCKYTV1HB102K CERAM C 1NF 50V 2125SMD S AA AA
C 1809 VCKYTV1HB102K CERAM C 1NF 50V 2125SMD S AA AA
C 1810 VCKYTV1HB102K CERAM C 1NF 50V 2125SMD S AA AA
C 1811 VCEAGA2EW106M ELEC C 10UF 20% 250V S AA AC
C 1812 VCEAGA2EW105M ELEC C 1UF 20% 250V S AA AB
C 1813 VCKYTV1HB103K CERAM C 10NF 50V 2125SMD S AA AA
C 1814 VCKYPB3DE472Z C DE1110-1E472Z2K MURATA S AA AC
C 1815 VCKYTV1HF104Z CERAM C 100NF 50V 2125SMD S AA AA
C 1820 VCCCTV1HH220J CERAM C 22PF 50V 2125SMD S AA AA
C 1821 VCCCTV1HH220J CERAM C 22PF 50V 2125SMD S AA AA
C 1822 VCCCTV1HH220J CERAM C 22PF 50V 2125SMD S AA AA
C 1824 VCKYPA2HB472K CERAM C 4,7NF 10% 500V S AA AB
C 1825 RC-KZ0029CEZZ CERAM C 10NF 80,20% 250V S AC AC
C 5405 RC-FZ4224BMNJ POL FILM C 220nF 50V 5% ECQ-V PANASONIC S AA AC
C 5408 VCKYPA2HB472K CERAM C 4,7NF 10% 500V S AA AB
C 5409 VCKYTV1HB472K CERAM C 4,7NF 50V 2125SMD S AA AA
C 5410 VCKYTV1HB103K CERAM C 10NF 50V 2125SMD S AA AA
C 5411 VCKYTV1HB103K CERAM C 10NF 50V 2125SMD S AA AA
C 5412 VCEAGA1CW107M ELEC C 100UF 20% 16V S AA AA
C 5413 VCEAGA1CW107M ELEC C 100UF 20% 16V S AA AA
C 5414 VCEAGA2CW226M ELEC C 22UF 20% 160V S AA AC
C 5415 VCEAGA2CW226M ELEC C 22UF 20% 160V S AA AC
RESISTORS
R 1801 VRS-TV1JD221J 2125 220 OHM 5% 1/10W SMD S AA AA
R 1802 VRS-TV1JD391J 2125 390 OHM 5% 1/10W SMD S AA AA

40
28HW-53E
REF No. PARTS DESCRIPTION * SN CODE EX CODE
R 1803 VRS-TV1JD750J 2125 75 OHM 5% 1/10W SMD S AA AA
R 1804 VRS-TV1JD101J 2125 100 OHM 5% 1/10W SMD S AA AA
R 1805 VRS-TV1JD102J 2125 1KOHM 5% 1/10W SMD S AA AA
R 1806 VRS-TV1JD221J 2125 220 OHM 5% 1/10W SMD S AA AA
R 1807 VRS-TV1JD391J 2125 390 OHM 5% 1/10W SMD S AA AA
R 1808 VRS-TV1JD750J 2125 75 OHM 5% 1/10W SMD S AA AA
R 1809 VRS-TV1JD101J 2125 100 OHM 5% 1/10W SMD S AA AA
R 1810 VRS-TV1JD102J 2125 1KOHM 5% 1/10W SMD S AA AA
R 1811 VRS-TV1JD221J 2125 220 OHM 5% 1/10W SMD S AA AA
R 1812 VRS-TV1JD391J 2125 390 OHM 5% 1/10W SMD S AA AA
R 1813 VRS-TV1JD750J 2125 75 OHM 5% 1/10W SMD S AA AA
R 1814 VRS-TV1JD101J 2125 100 OHM 5% 1/10W SMD S AA AA
R 1815 VRS-TV1JD102J 2125 1KOHM 5% 1/10W SMD S AA AA
R 1816 VRS-TV1JD221J 2125 220 OHM 5% 1/10W SMD S AA AA
R 1817 VRS-TV1JD122J 2125 1,2KOHM 5% 1/10W SMD S AA AA
R 1818 VRS-TV1JD122J 2125 1,2KOHM 5% 1/10W SMD S AA AA
R 1819 VRS-TV1JD122J 2125 1,2KOHM 5% 1/10W SMD S AA AA
R 1820 VRD-RA2HD823J RES 82KOHM 5% 1/2W S AA AA
R 1821 VRD-RA2HD823J RES 82KOHM 5% 1/2W S AA AA
R 1822 VRD-RA2HD823J RES 82KOHM 5% 1/2W S AA AA
R 1823 VRS-TV1JD222J 2125 2,2KOHM 5% 1/10W SMD S AA AA
R 1824 VRS-TV1JD222J 2125 2,2KOHM 5% 1/10W SMD S AA AA
R 1825 VRS-TV1JD222J 2125 2,2KOHM 5% 1/10W SMD S AA AA
R 1830 VRS-TV1JD472J 2125 4.7KOHM 5% 1/10W SMD S AA AA
R 1831 VRS-TV1JD471J 2125 470 OHM 5% 1/10W SMD S AA AA
R 1832 VRC-MA2HG681J SOLID R 680 OHM 5% 1/2W S AA AB
R 1833 VRS-TV1JD471J 2125 470 OHM 5% 1/10W SMD S AA AA
R 1834 VRC-MA2HG681J SOLID R 680 OHM 5% 1/2W S AA AB
R 1835 VRS-TV1JD471J 2125 470 OHM 5% 1/10W SMD S AA AA
R 1836 VRC-MA2HG681J SOLID R 680 OHM 5% 1/2W S AA AB
R 1837 VRS-TV1JD225J 2125 2,2MOHM 5% 1/10W SMD S AA AA
R 1839 VRS-TV1JD100J 2125 10 OHM 5% 1/10W SMD S AA AA
R 1840 VRS-TV1JD822J 2125 8,2KOHM 5% 1/10W SMD S AA AA
R 1841 VRD-RA2BE220J RES 22 OHM 5% 1/8W S AA AA
R 1843 VRS-TV1JD220J 2125 22 OHM 5% 1/10W SMD S AA AA
R 5412 VRS-TV1JD470J 2125 47 OHM 5% 1/10W SMD S AA AA
R 5413 VRS-TV1JD220J 2125 22 OHM 5% 1/10W SMD S AA AA
R 5414 VRS-TV1JD220J 2125 22 OHM 5% 1/10W SMD S AA AA
R 5415 VRS-TV1JD122J 2125 1,2KOHM 5% 1/10W SMD S AA AA
R 5416 VRS-TV1JD683J 2125 68KOHM 5% 1/10W SMD S AA AA
R 5417 VRS-TV1JD123J 2125 12KOHM 5% 1/10W SMD S AA AA
R 5418 VRS-TV1JD683J 2125 68KOHM 5% 1/10W SMD S AA AA
R 5419 VRS-TV1JD122J 2125 1,2KOHM 5% 1/10W SMD S AA AA
R 5420 VRD-RA2EE560J RES 56 OHM 5% 1/4W S AA AA
R 5421 VRD-RA2EE560J RES 56 OHM 5% 1/4W S AA AA
R 5422 VRD-RA2EE2R7J RES 2,7 OHM 5% 1/4W S AA AA
R 5423 VRD-RA2EE2R7J RES 2,7 OHM 5% 1/4W S AA AA
R 5425 VRS-VV3AB471J MET OX RES 470 OHM 5% 1W S AA AA
R 5426 VRS-VV3DB221J MET FILM R 220 OHM 5% 2W S AA AB
R 5428 VRD-RA2EE101J RES 100 OHM 5% 1/4W S AA AA
R 5431 VRS-TV1JD391J 2125 390 OHM 5% 1/10W SMD S AA AA
R 5432 VRS-TV1JD330J 2125 33 OHM 5% 1/10W SMD S AA AA
R 5433 VRS-TV1JD101J 2125 100 OHM 5% 1/10W SMD S AA AA
R 5434 VRS-TV1JD102J 2125 1KOHM 5% 1/10W SMD S AA AA
R 5435 VRS-TV1JD221J 2125 220 OHM 5% 1/10W SMD S AA AA
MISCELLANEOUS PARTS
SC 1801 QSOCV0103BMZZ SOCK HPS1521-014408 HOSHI S AD AG
(H) QPLGN0541CEZZ PLUG S AA AA
(K) QPLGN0841CEZZ PLUG S AA AB
(PU) QPLGN0341CEZZ PLUG S AA AA
J 0004 VRS-TV1JD000J 2125 0 OHM 5% 1/10W SMD S AA AA
J 0005 VRS-TV1JD000J 2125 0 OHM 5% 1/10W SMD S AA AA
J 0071 VRS-TV1JD000J 2125 0 OHM 5% 1/10W SMD S AA AA
J 0072 VRD-RA2BE102J RES 1KOHM 5% 1/8W S AA AA
J 0074 VRS-TV1JD000J 2125 0 OHM 5% 1/10W SMD S AA AA
J 0075 VRS-TV1JD000J 2125 0 OHM 5% 1/10W SMD S AA AA
J 0076 VRS-TV1JD000J 2125 0 OHM 5% 1/10W SMD S AA AA
J 0079 VRS-TV1JD000J 2125 0 OHM 5% 1/10W SMD S AA AA
L 0003 QTIPM0017CEFM TIP S AA AA
VR 1801 RH-VX0035BMZZ VARISTOR 510V/25A PHILIPS S AA AD
PWB-C PFC UNIT
INTEGRATED CIRCUITS
!
REF No. PARTS DESCRIPTION * SN CODE EX CODE
IC 1701 RH-IX1801BMZZ IC L6561D ST S AC AH
TRANSISTORS
Q 1701 RH-TX0231BMZZ TRT 2SK2662 TOSHIBA S AB AG
DIODES
D 1701 RH-DX0551BMZZ DIODE LL4148 TFK SMD S AA AA
D 1702 RH-EX0558BMZZ ZENER DIODE TZMC18 TFK SMD S AA AA
D 1703 RH-DX0618BMZZ DIODE BYV28-600 VISHAY PREFOR 17.5MM S AA AE
TRANSFORMERS
T 1701 RTRNZ0587BMZZ BOOST INDUCTOR PFC HR-275N-15021-00 S AG AS
CAPACITORS
C 1701 RC-FZ0186BMZZ C 22NF 630V 222237514223 PHILIPS S AA AD
C 1702 RC-FZ4103BMNJ POL FILM C 10nF 50V 5% ECQ-B PANASONIC S AA AA
C 1703 VCEAGA1EW226M ELEC C 22UF 20% 25V S AA AA
C 1704 RC-KZ0035CEZZ CERAM C 220PF 2KV S AA AC
C 1705 VCKYTV1CF105Z CERAM C 1UF 16V 2125SMD S AA AA
C 1706 VCKYTV1HB103K CERAM C 10NF 50V 2125SMD S AA AA
C 1707 RC-FZ0186BMZZ C 22NF 630V 222237514223 PHILIPS S AA AD
RESISTORS
R 1701 VRS-TQ2BD564J RE OX 560KOHM 5% 1/8W SMD S AA AA
R 1702 VRS-TQ2BD564J RE OX 560KOHM 5% 1/8W SMD S AA AA
R 1703 VRS-TQ2BD564J RE OX 560KOHM 5% 1/8W SMD S AA AA
R 1704 VRS-TQ2BD564J RE OX 560KOHM 5% 1/8W SMD S AA AA
R 1705 VRS-TQ2BD564J RE OX 560KOHM 5% 1/8W SMD S AA AA
R 1706 VRS-TQ2BD564J RE OX 560KOHM 5% 1/8W SMD S AA AA
R 1707 VRS-TV1JD101J 2125 100 OHM 5% 1/10W SMD S AA AA
R 1708 VRS-TV1JD683J 2125 68KOHM 5% 1/10W SMD S AA AA
R 1709 VRD-RA2BE100J RES 10 OHM 5% 1/8W S AA AA
R 1710 VRN-VV3ABR47J MET FILM R .47 OHM 5% 1W S AA AA
R 1711 VRS-TV1JD103J 2125 10KOHM 5% 1/10W SMD S AA AA
R 1712 VRS-TV1JD622F 2125 6.2KOHM 1% 1/10W SMD S AA AA
R 1713 VRS-TQ2BD334F OX RE 330KOHM 1% 1/8W SMD S AA AA
R 1714 VRS-TQ2BD334F OX RE 330KOHM 1% 1/8W SMD S AA AA
R 1715 VRS-TQ2BD334F OX RE 330KOHM 1% 1/8W SMD S AA AA
MISCELLANEOUS PARTS
(PWA) QCNCM0672FCZZ CONN B2P3-VH JST S AA AB
FB 1701 RBLN-0080CEZZ BALUNE S AA AE
L 0006 QTIPM0017CEFM TIP S AA AA
PWB-D POWER SWITCH UNIT
COILS
L 6317 VP-DF3R3K0000 PEAK COIL 3,3UH 10% S AB AB
L 6318 VP-DF3R3K0000 PEAK COIL 3,3UH 10% S AB AB
L 6701 RCILF0108BMZZ COIL 472839.00 THOMSON S AF AL
CAPACITORS
C 6336 VCKZPA1HF103Z CERAM C 10NF % 50V S AA AA
C 6337 VCKZPA1HF103Z CERAM C 10NF % 50V S AA AA
C 6428 VCKZPA1HB102K CERAM C 1NF 10% 50V S AA AA
C 6429 VCKZPA1HB102K CERAM C 1NF 10% 50V S AA AA
C 6701 RC-FZ0219BMZZ C 470NF 275V X2 B81130-C1474-M SIEMENS S AA AD
C 6746 RC-FZ0192BMZZ C 330NF 275V X2 222233820334 PHILIPS S AA AC
RESISTORS
R 6316 VRD-RA2BE391J RES 390 OHM 5% 1/8W S AA AA
R 6317 VRD-RA2BE391J RES 390 OHM 5% 1/8W S AA AA
R 6449 VRD-RA2EE750J RES 75 OHM 5% 1/4W S AA AA
R 6701 VRD-RA2HD124J RES 120KOHM 5% 1/2W S AA AA
R 6702 VRD-RA2HD124J RES 120KOHM 5% 1/2W S AA AA
MISCELLANEOUS PARTS
RCORF0002BMZZ FERRITE CORE TFC-16816EX S AF AK
(A) QCNW-2826BMZZ WIRE (AA) 2 WAYS S AA AE
(A)0000 QPLGN0207CEZZ PLUG S AA AA
(CC) QCNW-2801BMZZ WIRE 2 WAYS (CC) S AA AF
(CC) QPLGN0241CEZZ PLUG S AA AA
(FV) QCNW-2802BMZZ WIRE 2 WAYS (FV) S AA AF
(FV) QPLGN0241CEZZ PLUG S AA AA
(H) QPLGN0304CEZZ PLUG S AA AB
!
!

41
28HW-53E
REF No. PARTS DESCRIPTION * SN CODE EX CODE
(HD) QCNW-2849BMZZ WIRE 3 WAYS HD S AA AE
(HD) QPLGN0341CEZZ PLUG S AA AA
(RC) QCNW-2839BMZZ WIRE 3 WAYS PROTECTED S AA AE
(RC) QPLGN0341CEZZ PLUG S AA AA
(SS) QCNW-2792BMZZ WIRE 3 WAYS (SS) S AA AE
(SS) QPLGN0341CEZZ PLUG S AA AA
(SW1) QCNW-2839BMZZ WIRE 3 WAYS PROTECTED S AA AE
(SW2) QCNW-2839BMZZ WIRE 3 WAYS PROTECTED S AA AE
CN 0004 QJAKJ0101SEZZ MINIATURE PHONE JACK MORNING STAR S AA AD
F 6701 QFS-C3226CEZZ FUSE T3.15AH 250V S AC AE
J 6401 QJAKZ0015CEZZ JACK S AH AM
LP 6701 RLAMP0001BMZZ NEON TYPE 4/30HB NEOTRONIC S AB AC
M 6701 RRMCU0203BMZZ R/C RECEIVER TS0P1738 TFK S AD AG
S 6701 QSW-P0613BMZZ SWITH S95 GDE S AB AG
S 6702 QSW-K0079GEZZ TACTILE SWITCH S AA AA
S 6703 QSW-K0079GEZZ TACTILE SWITCH S AA AA
S 6704 QSW-K0079GEZZ TACTILE SWITCH S AA AA
S 6705 QSW-K0079GEZZ TACTILE SWITCH S AA AA
SW 0001 QPLGN0341CEZZ PLUG S AA AA
SW 0002 QPLGN0341CEZZ PLUG S AA AA
QFSHD1001BMZZ FUSE HOLD.EYF52BC=PANASON S AA AA
QFSHD1002BMZZ FUSE HOLD.EYF52BC=PANASON S AA AA
MISCELLANEOUS PARTS
QACCZ2100BMSA AC CORD S AH AR
RCORF2064XHZZ FERRIT TRA31 S AA AD
RRMCG1070BMSA R/C WIDE MODEL HOSHIDEN S AK AW
UBATU0247AJZZ BATTERY R6(X2) S AE AH
XTBSB30P13000 SCREW S AA AA
(F) CSOCN0661BMV0 CABLE SET (F) THOMSON SF CRT S AA AH
(PU) QCNW-2795BMZZ WIRE 3 WAYS S AA AD
VSP1206PB617A SPAEAKER 7 OHM 12x6CM SEA TRADE ELECTRON S AE AN
(S)0000 QCNW-2862BMZZ WIRE SPEAKERS FOR 32" FLAT S AA AG
LCHSM1011BMZZ CHASSIS FRAME S AA AL
(H) QCNW-2783BMZZ WIRE (KA) 5 WAYS S AA AF
(K) QCNW-2831BMZZ WIRE (K) S AA AL
(PW) QCNW-2868BMZZ POWER SUPPLIER WIRE PFC PWA S AB AF
L 0006 QCNW-2861BMZZ WIRE WROUND DOUBLE AISOLATION S AA AD
QEARC0022BMZZ C.ERATH DA-50W S AP AZ
OWNERS MANUALS
TINS-7150BMN0 OWNERS MANUAL 28HW53ESE S -- --
TINS-7151BMN0 OWNERS MANUAL 28HW53EF S -- --
TINS-7153BMN0 OWNERS MANUAL 28HW53EES S -- --
TINS-7160BMN0 OWNERS MANUAL 28HW53EIT S -- --
CABINET PARTS
1 CCABA1362BMV1 CABINET SET + ELEC ASS 28HW53E S -- --
1.1 GDORF1063BMSA DOOR S AA AE
1.2 PKAI-1083BM00 DOOR RATCH S AC AF
1.3 HINDP5122BMSA INDICATOR S -- --
1.4 HBDGB3141CESA SHARP BADGE S AB AG
1.5 HDECQ0067BMSA DECORATION S AA AC
1.6 JBTN-1080BMSA UP/DOWN BUTTON S AA AD
1.7 JBTN-1079BMSA POWER BUTTON S AA AC
2 GCABB1126BMKA REAR CABINET S AS BD
3 XTASB40P2000 REAR CABINET SCREWS S AA
4 XTBSB30P13000 AV SCREWS S AA
!
!
!
!
1.3
1
1.1
1.4
1.6
1.7 1.5 1.2
2
3 3
4

42
28HW-53E
PACKING OF THE SET
Operation Manual Set
Batteries
UBATU0247AJZZ
Remote Control
RRMCG1070BMSA
FRONT
SPAKC5495BMZZ
Carton Box
Wrapper
SPAKP2006BMZZ
Pack-ad
SPAKX4077BMZZ
FRONT
Carton Box

43
28HW-53E
TV 1. Stand-by ON/OFF switch (TV)
Video 2. Power ON / OFF switch (VCR)
TV 3. Digit buttons 0 ∼ 9
4. Flashback button
Teletext 5. Colour button (green)
6. Colour button (red)
TV 7. Volume DOWN/Cursor control
LEFT
8. Menu button
Teletext 9. Reveal button
10. List selector
11. Store button
12. Cancel button
13. Half page button
14. Cursor button
TV 14. Sub-titles button
Video 15. Rewind/picture search/reverse
16. Play button
17. Pause / Still button
18. Stop button
TV 19. TV / VIDEO selector
20. Call button
21. Single/Double entry
Teletext 22. Colour button (yellow)
23. Colour button (cyan)
TV 24. Channel UP/Cursor control UP
25. Volume UP/Cursor control RIGHT
26. Channel DOWN/Cursor control
DOWN
27. Wide Mode selector
TV /Teletext 28. Time button
TV 29. Sound mode selector
Teletext 30. Hold button
TV 31. Sound Mute button
Teletext 32. Text/Mix/Picture button
33. Index button
Video 34. Channel Up
selector
35. Fast forward/picture search/forward
36. Channel Down selector
37. Record button
8
?
Ii
LIST
X
TV / VCR / TEXT REMOTE CONTROL
G1065SA
TV/VIDEO
0
MENU
CH
VCR
S
I/II/I+II
TV VCR
TV
CH
CH
2
5
1
4
7 9
6
3
32.
34.
33.
31.
35.
36.
37.
30.
29.
27.
28.
25.
26.
24.
23.
20.
19.
21.
22.
2.
3.
1.
4.
5.
6.
7.
8.
9.
10.
11.
13.
14.
15.
16.
17.
18.
12.
FRONT TV
1. Main Power On/Off Switch
2. Power Indicator
3. Remote Control Sensor
4. Volume Button (DOWN)
5. Volume Button (UP)
6. Program Selector (DOWN)
7. Program Selector (UP)
8. Door
HOW TO OPEN THE DOOR
Press the top of the door, opening it slightly
hook your finger inside and pull open.
Behind the door
10. Headphone Socket (3.5mm / 16~600 ohms)
11. S-Video input terminal
12. Video Input Terminal (PAL/SECAM/NTSC)
13. Audio Input Terminal (left)
14. Audio Input Terminal (right)
REAR TV
21-pin In/Out
1. 21-pin Audio/Video (AV-2)
With PAL/SECAM/NTSC Video Input
2. 21-pin Audio/Video (AV-1)
With PAL/SECAM/NTSC/S-Video Input
3. 21-pin Euro SCART (RGB)
With PAL/SECAM/NTSC Video Input
RF Input
4. Aerial terminal
2 3 4 5 6 7 1 8
12 13 14
11
L/S/G/I
R/D/D/D
AUDIO
S-VIDEO
VIDEO
10
FRONT
REAR
R
R
L
L
WOOFER
AV-2
AV/TERMINAL
AV-1
AV/TERMINAL
RGB
SCART
PERITELEVI SION
4
2 3
1
CONTROLS & TERMINALS
REMOTE CONTROL

44
28HW-53E
PRINTED BY: ON:
No part of this publication may be reproduced,
stored in a retrieval system, or transmitted in any
form or by any means, electronic, mechanical,
photocopying, recording, or otherwise, without
prior written permission of the publisher.
SHARP ELECTRONICA ESPAÑA S.A.
TV Division
Engineering Dept.
Polígono Industrial Can Sant Joan
Sant Cugat del Vallès
Barcelona
Spain
Think Ecology, please use
RECYCLED PAPER