309718C ST, STX Airless Paint Sprayers Parts 309639 309718EN C
User Manual: 309639
Open the PDF directly: View PDF  .
.
Page Count: 10

309718
Rev. C
PARTS
STtSTXt
240V
234175, A, B
234177, A, B
246993, A, B
110V
234187, A, B
Airless Paint Sprayers
3000 psi (207 bar, 20.7 MPa) Maximum Working Pressure
GRACO INC. P.O. BOX 1441 MINNEAPOLIS, MN 55440–1441
ECOPYRIGHT 2003, GRACO INC.
Graco Inc. is registered to I.S. EN ISO 9001
234175
309060. . . . . . . 
Related manuals
309710. . . . . . . 
309665. . . . . . . 
309097. . . . . . .  309055. . . . . . . 
309053. . . . . . . 
309639. . . . . . . 
ti6072a

2309718
*Parts Drawing – Sprayer
ti3423a
7
10
128
71
9
12
9b
1
74
9a
10a
59
62
84 Ref
112
85 13
10b
3
87
92
31
77
63
Ref 19
42
19
49
82
78
65
68
45
58
57
56
55
53
84
38 Ref 84
Ref 78
47
69
22
22
113
67
70
86
2
75
18
18
62
126
126
22
67
PARTS, PAGE 8
114
46
48
32
61
130 131
132
134
133
Series A
3309718
Parts List – Sprayer
Series A
REF 
NO. PART NO. DESCRIPTION QTY
REF 
NO. PART NO. DESCRIPTION QTY
1 242009‡ 110V 1
242013‡ 240V 1
2 115525 1
3 243219 1
7 243218 1
9 243221 9 + 9a,  9b 1
9a 195175 1
9b 195512 1
10 243220 10 + 10a, 10b 1
10a 195099 1
10b 115492 2
12 195150 1
13 246426 Manual 309053 1
243187 Manual 309060 (246993) 1
18 115492 4
19 241926 1
22 115495 8
31 195847 2
32 104984 1
38 116150 1
42 115523 1
45 195157 1
46 196773 1
47 104361 1
48 243080 1
49 195139 1
53 111699 1
55 187615 1
56 235014 56 +53, 55 1
57 224807 1
58 111600 1
59 187625 1
61 157350 1
62 162453 2
63 245221 1
65 195177 2
67 107310 4
68 115506 1
69 195425 1
70 100016 1
71 116139 1
74 243217 74 + 18, 126, 127 1
75 195503 1
77 115509 2
78 244353 1
82 235004 1
84 244040 1
85 241920 1
86 195186 1
87 114958 1
92 206994 1
112 246539 Manual 309639 1
243238 Manual 309097 (246993) 1
113 240794 1
114 195811 1
126 243308Y1
128 115491 1
130 115762 2
131 103546 1
132 243645 240V 1
243415 110V 1
133 195936 1
134 195937 1
YExtra Danger and Warning tags and labels available free.
‡ Motor Brush Kit 245894 is available

4309718
*Parts Drawing – Sprayer
Series B
ti6071a
7
10
128
71
9
12
9b
1
74
9a
10a
59
62
84 Ref
112
85 13
10b
3
87
92
60
77
63
Ref 19
42
19
49
82
78
65
68
45
58
57
56
55
53
84
Ref 84
Ref 78
47
69
22
22
113
67
70
86
2
75
18
18
126
126
22
67
PARTS, PAGE 8
114
46
48
32
130 131
132
134
133
61
5309718
Parts List – Sprayer
Series B
REF 
NO. PART NO. DESCRIPTION QTY
REF 
NO. PART NO. DESCRIPTION QTY
1 242009‡ 110V 1
242013‡ 240V 1
2 115525 1
3 243219 1
7 243218 1
9 243221 9 + 9a,  9b 1
9a 195175 1
9b 195512 1
10 243220 10 + 10a, 10b 1
10a 195099 1
10b 115492 2
12 195150 1
13 246426 Manual 309053 1
243187 Manual 309060 (246993) 1
18 115492 4
19 241926 1
22 115495 8
32 15E540 1
42 115523 1
45 15E180 1
46 15E288 1
47 104361 1
48 243080 1
49 15E289 1
53 111699 1
55 187615 1
56 235014 56 +53, 55 1
57 224807 1
58 111600 1
59 187625 1
60 15E539 1
61 111763 1
62 162453 1
63 245221 1
65 195177 2
67 107310 4
68 115506 1
69 195425 1
70 100016 1
71 116139 1
74 243217 74 + 18, 126, 127 1
75 195503 1
77 115509 2
78 244353 1
82 235004 1
84 244240 1
85 241920 1
86 276888 1
87 114958 1
92 206994 1
112 246539 Manual 309639 1
243238 Manual 309097 (246993) 1
113 240794 1
114 195811 1
126 243308Y1
128 115491 1
130 115762 2
131 103546 1
132 243645 240V 1
243415 110V 1
133 195936 1
134 195937 1
YExtra Danger and Warning tags and labels available free.
‡ Motor Brush Kit 245894 is available

6309718
Parts Drawing – Sprayer
TI3456a
22
52
29
21
18
25 24
51
28
22
23
33
27
60
39
36 35
26
Ref 1
Ref 45
34
37
100
40
240V 234175; 234177; 246993
Series A & B
30
93
109

7309718
Parts List – Sprayer
240V 234175; 234177; 246993
Series A & B
REF 
NO. PART NO. DESCRIPTION QTY
REF 
NO. PART NO. DESCRIPTION QTY
18 115492 4
21 276539 1
22 115495 5
23 115810 1
24 105658 1
25 195428 1
26 236352 1
27 116167 1
28 195423 1
29 15C219 (234175) 1
242000 (234177) 1
15B470 (246993) 1
30 114421 1
32 193072 1
33 112382 1
34 115498 1
35 241991 1
36 115494 5
37 115756 1
39 195147 (234175, 234177, 234187) 1
15B790 (246993) 1
40 241994 1
51 111457 1
52 243222 52+51 1
60 193072 1
93 242001 CEE 7/7 (234177) 1
287121 (234177) (Italy, Denmark, Switzerland) 1
100 195551 (234177) 1
109 15B792 (234175, 234177, 234187) 1
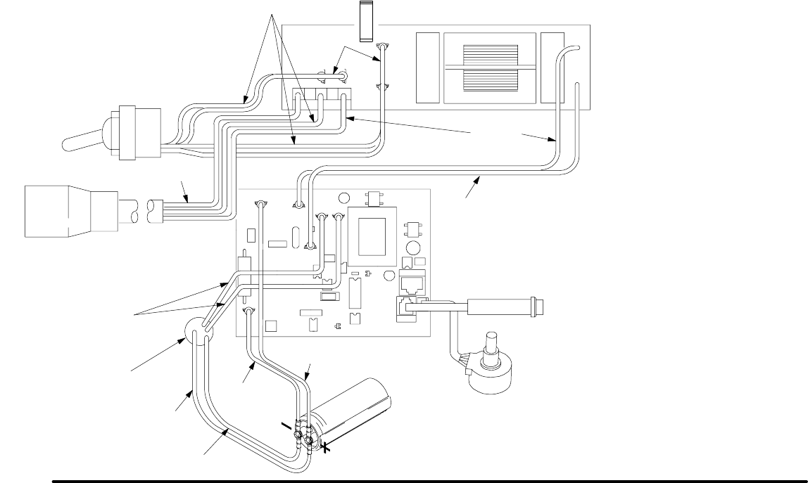
Fig. 1
240V Wiring Diagram
Pressure
Transducer
ON/OFF
Switch
Power 
Plug
Potentiometer
from Motor
Filter Board
Red (+)
Yellow
Brown
Blue
Capacitor
Blue
Red/Write (+)
Black (–)
Brown
Blue
Green/Yellow
TI0151A
Black/White (–)

8309718
Parts Drawing – Sprayer
22
52
29
21
18
25 24
51
28
22
23
33
27
60
39
36 35
26
Ref 1
Ref 45
34
37
100
40
110V 234187
Series A & B
30
36
TI0147A
109

9309718
Parts List – Sprayer
110V 234187
Series A & B
REF 
NO. PART NO. DESCRIPTION QTY
REF 
NO. PART NO. DESCRIPTION QTY
18 115492 4
21 195528 1
22 115495 5
23 115810 1
24 105658 1
25 195428 1
26 236352 1
27 116167 1
28 195423 1
29 241996 1
30 114064 1
33 112382 1
34 115498 1
35 241989 1
36 115494 5
37 115756 1
39 195147 1
40 241993 1
41 243539 1
51 111457 1
52 243222 52 + 51 1
60 193072 1
100 115632 1
109 15B792 1
Fig. 2
110V Wiring Diagram
TI0148A
ON/OFF
Switch
Power
Plug Potentiometer
from Motor
Red (+)
Yellow
Blue
Capacitor
Green/
Yellow
Pressure Transducer
Filter Board
Blue
Brown
Brown
Brown
Blue
Black (–)
41
10 309718
TO PLACE AN ORDER OR FOR SERVICE, 
contact your Graco distributor, or call 1–800–690–2894 to identify the nearest distributor.
All written and visual data contained in this document reflect the latest product information available at the time of publication.
Graco reserves the right to make changes at any time without notice.
Sales Office: Minneapolis
International Offices: Belgium, Korea, Hong Kong, Japan
GRACO INC. P.O. BOX 1441 MINNEAPOLIS, MN 55440–1441
www.graco.com
PRINTED IN USA 309718 2/2003, Revised 11/2004