48TJE 48TJ C1PD
User Manual: 48TJE
Open the PDF directly: View PDF
.
Page Count: 44

Single-Package Rooftop Units with:
• Alumagard™ heat exchanger
coating
• Induced-draft fan for gas
combustion
• Tubular-dimpled heat exchangers
• Exclusive integrated gas control
board with diagnostics
• Galvanized prepainted steel
cabinet
• Fifty-one mm (2-in.) return-air
filters
• Commercial strength base rails
• Exclusive tool-less filter access
panel
• Corrosion-resistant sloped conden-
sate pan
• Single power entry to unit
• Commercial duty motors with per-
manently lubricated bearings
• Standard cooling operation at out-
door ambient temperatures as low
as −4 C (25 F)
• Meets ASHRAE Standard 62 for
indoor air quality
Features/Benefits
Compact, vertical discharge
units convert to horizontal
discharge, combining instal-
lation flexibility with effi-
cient performance and easy
maintenance.
Easy installation and
conversion
All units are shipped in the vertical
discharge configuration for fit-up
to standard roof curbs. The contractor
can order and install the roof curb
early in the construction stage, before
decisions on size requirements are
made.
Product
Data
48TJ008-014
Single-Package Rooftop Units
Electric Cooling/Gas Heating
50 Hz
Nominal Capacity: 21.5 kW to 35.9 kW
(6.1 to 10.2 Tons)
Copyright 1996 Carrier Corporation Form 48TJ-C1PD

All units feature roll-formed baserail
design with forklift slots on all
3 sides and rigging holes for easier
maneuvering. Durable packaging
protects all units during shipment and
storage.
The units can be easily converted
from a vertical to a horizontal dis-
charge configuration by interchanging
the panels supplied with the unit.
All units feature a non-corrosive
sloped condensate drain pan in accor-
dance with ASHRAE (American So-
ciety of Heating, Refrigeration and Air
Conditioning Engineers) Standard
62. Also, the new, sloped condensate
pan permits either an external side
condensate drain (outside the roof
curb) or an internal bottom drain
(inside the roof curb). Both options
require a field-supplied P-trap. Plus,
the new condenser coil grille (available
as a field-installed accessory) pro-
vides a metal plate as an alternate loca-
tion for the field-supplied disconnect,
if desired.
In addition, the units have a stand-
ard filter access door, which per-
mits tool-less filter changes.
Efficient, dependable gas heat
operation
Dimpled heat exchangers optimize
heat transfer for improved efficiency.
The tubular design permits hot gases
to make multiple passes across the
path of the supply air. In addition,
dimpled heat exchanger tubes act as
baffles, forcing the hot gases to stay in
close contact with the cell walls to
maximize heat transfer and efficiency.
The induced draft combustion sys-
tem eliminates the unsightly
appearance of flue stacks, and
diminishes the effects of winds on
heating operation. The inducer fan
draws hot combustion gas through the
heat exchanger at the optimum rate
for the most effective heat trans-
fer. The induced draft also prevents
contaminants from entering the supply
air if a leak in the heat exchanger
occurs.
Dual-stage gas heat on all size units
maximizes efficiency and customizes
comfort.
The direct spark ignition system
saves operating expense when com-
pared to old-style pilot ignition sys-
tems. No crossover tube is required,
therefore no sooting or pilot foul-
ing problems can occur.
Standard units are designed for
natural gas. An LP (liquid propane)
Conversion Kit is available as an
accessory, if required. Installation of
the accessory LP kit simply involves
changing the gas orifices to accommo-
date liquid propane gas.
Simple electrical connections
Terminal boards, located in the base
unit control box, facilitate connections
to room thermostat, outdoor ther-
mostat(s), economizer, and electric
heat. Service panels are quickly
removed, permitting easy servicing.
Thru-the-bottom service connection
capability allows power and control
wiring to be routed through the unit
basepan, minimizing roof penetra-
tions. Both power and control connec-
tions are made on the same side of
the unit to simplify installation. In
addition, color-coded wires permit easy
tracing and diagnostics.
Proven compressor reliability
Design techniques feature computer-
programmed balance between com-
pressor, condenser, and evaporator.
Carrier-specified hermetic compressors
are equipped with compressor over-
current and overtemperature pro-
tection to ensure dependability.
Carrier’s exclusive Acutrol™ meter-
ing device precisely controls refrig-
erant flow, preventing slugging and
flood-back, while maintaining optimum
unit performance.
Durable, dependable
construction
Designed for durability in any climate,
the weather-resistant cabinets are
manufactured using prepainted steel.
The cabinet is constructed of galva-
nized steel and bonderized, and all
exterior panels are coated with a pre-
painted baked enamel finish. The
paint finish is non-chalking, and is ca-
pable of withstanding Federal (U.S.A.)
Test Method Standard No. 141
(Method 6061) 500-hour salt spray
test. All internal cabinet panels are
primed, permitting longer life and
a more attractive appearance for the
entire unit. In addition, the units
are designed with a single, continuous
top piece to eliminate any possible
leaks. Totally-enclosed condenser-fan
motors and permanently-lubricated
bearings provide additional unit
dependability.
Integrated economizers and
outdoor air
During a first stage call for cooling, if
the outdoor-air temperature is be-
low the control set point, the leaving-
air sensor modulates the economizer
outdoor-air damper open to achieve
the set point. When second-stage
cooling is called for, the compressor is
energized in addition to the econo-
mizer. If the outdoor-air temperature
is above the set point, the first stage
of compression is activated and the
economizer stays at minimum vent
position. Economizer operation is
controlled by Accusensor™ I dry-bulb
thermostat that senses outdoor-air
temperature. Accessory upgrade kits
include solid-state enthalpy control
and differential enthalpy sensor.
Table of contents Page
Features/Benefits .................................................1-3
Model Number Nomenclature ........................................4
Capacities ........................................................4
Physical Data ....................................................5,6
Options and Accessories ...........................................7,8
Base Unit Dimensions ..............................................9
Accessory Dimensions .............................................10
Selection Procedure ..............................................11,12
Performance Data ...............................................13-31
Electrical Data ....................................................32
Typical Piping and Wiring ..........................................33
Typical Wiring Schematic ..........................................34
Controls ........................................................35-39
Application Data ..................................................40
Guide Specifications .............................................41-43
2

Features/Benefits (cont)
The newly designed Durablade
economizer has a reliable sliding plate
damper which is easily adjusted for
100% outdoor air, 100% return air, or
any proportions of mixed air.
Quiet, efficient operation and
dependable performance
Compressors have vibration isolators
for extremely quiet operation. Efficient
fan and motor design permits opera-
tion at very low sound levels, and
all units are mounted on independent
mounting rails.
The 48TJ units offer high energy
efficiency and lower utility costs
through part load operation using 2
stages of cooling.
Quiet and efficient operation is pro-
vided by belt-driven evaporator fans
(standard). The belt-driven evaporator-
fan motor allows adjustment to avail-
able static pressure to meet the job
requirements of even the most
demanding applications.
Integrated gas unit controller
(IGC)
All ignition components are contained
in the compact IGC which is easily
accessible for servicing. The IGC con-
trol board, designed and manufac-
tured exclusively for Carrier rooftop
units, provides built-in diagnostic
capability. An LED (light-emitting di-
ode) simplifies troubleshooting by pro-
viding visual fault notification and
system status confirmation.
The IGC also contains an exclusive
anti-cycle protection for gas heat
operation. After 4 continuous cycles
on the unit high-temperature limit
switch, the gas heat operation is dis-
abled, and an error code is issued.
This feature greatly improves reliability
of the rooftop unit.
The IGC also contains burner con-
trol logic for accurate and depend-
able gas ignition. The LED is visible
without removing the unit control box
access panel. This LED fault-
notification system reduces service
person troubleshooting time and mini-
mizes service costs. The IGC also
maximizes heating efficiency by con-
trolling evaporator-fan on and off
delays.
Safety is built in
All 48TJ units have a flame rectifica-
tion sensor to quickly sense the
burner flame and ignite burners al-
most immediately. Fast shutdown is a
certainty since the sensor reacts
quickly to any flame outage or system
failure. In the event of a shutdown,
an error code is issued at the IGC
board.
Safety is also assured due to the
heating safety controls which will shut
down the unit if there is a problem.
If excessive temperatures develop,
limit switches shut off the gas valve.
After 4 continuous short cycles of the
high-temperature limit switch, the
IGC board locks out the gas heat
cycle to prevent any further short
cycles. This safety feature is provided
exclusively on Carrier rooftop units.
The rollout switch also deenergizes
the gas valve in the event of a flame
rollout.
Carrier Apollo controls add
reliability, efficiency, and
simplification
Apollo direct digital controls are or-
dered as a factory-installed option.
Designed and manufactured exclusively
by Carrier, the controls can be used
to actively monitor and control all
modes of operation, as well as to
monitor evaporator-fan status, filter
status, indoor-air quality (humidity and
carbon dioxide), supply-air tempera-
ture, and outdoor-air temperature.
The Apollo communicating control
is factory-installed into the rooftop
unit control box, and comes equipped
with built-in diagnostic capabilities.
Light-emitting diodes (LEDs) simplify
troubleshooting by indicating ther-
mostat commands for both stages of
heating and cooling, evaporator-fan
operation, and economizer operation.
The Apollo communicating control
is designed to work specifically with
the Carrier TEMP and VVTt
(variable volume and temperature)
thermostats. The Apollo control com-
bined with Carrier thermostats
incorporate a 5-minute recycle delay
timer between modes of operation
to prevent short cycling.
The standard rooftop control sys-
tem is readily adaptable to all conven-
tional and programmable thermostats.
In addition, units with Apollo con-
trols are suitable for integration into
building monitor control systems if
required. This system gives the 48TJ
units the flexibility to communicate
with almost any thermostat or building
control system.
Indoor-air quality begins with
Carrier rooftops
Sloped condensate pans minimize
biological growth in rooftop units in
accordance with ASHRAE Stand-
ard 62. Two-in. filters with accessory
dirty filter indicator switch provide
for greater particle reduction in the
return air. The face-split evapora-
tor coils improve the dehumidification
capability of the standard units, and
standard enthalpy controls provided
with the optional or accessory econo-
mizers maximize building humidity
control. The 48TJ units also have an
accessory, 100% open, two-position
damper to meet all your fresh outdoor
air requirements.
For units without economizer, year-
round ventilation can be enhanced
by a manual outdoor-air damper (or-
dered as an accessory.) The damper
can be preset to admit up to 25% out-
door air.
In addition, the barometric relief
damper can be utilized to help main-
tain proper building pressure.
3

Model number nomenclature
Capacities
HEATING CAPACITIES AND EFFICIENCIES
UNIT HEATING INPUT
kW (Btuh)
First Stage/Second Stage
OUTPUT CAPACITY
kW (Btuh)
First Stage/Second Stage
TEMPERATURE
RISE
°C (°F)
AFUE
(%) STEADY STATE
EFFICIENCY (%)
48TJD008 21.1/31.4
(72,000/107,000) 17.3/25.7
(59,000/87,700) −6 to 10
(20 to 50) 82 82
48TJE008 31.9/50.4
(109,000/172,000) 25.5/40.3
(87,200/137,600) 2to18
(35 to 65) 80 80
48TJF008 39.8/59.8
(136,000/204,000) 31.9/47.8
(108,800/163,200) 7to24
(45 to 75) 80 80
48TJD012 31.9/50.4
109,000/172,000) 25.5/40.3
(87,200/137,600) 2to18
(35 to 65) 80 80
48TJE012 39.8/59.8
(136,000/204,000) 31.9/47.8
(108,800/163,000) 7to24
(45 to 75) 80 80
48TJF012 43.9/65.6
(150,000/224,000) 35.2/52.5
(120,000/179,200) 4to21
(40 to 70) 80 80
48TJD014 39.8/59.8
(136,000/204,000) 31.9/47.8
(108,800/163,000) 7to24
(45 to 75) 80 80
48TJE014 43.9/65.6
(150,000/224,000) 35.2/52.5
(120,000/179,200) 4to21
(40 to 70) 80 80
AFUE — Annual Fuel Utilization Efficiency
LEGEND
Al — Aluminum
Cu — Copper
FIOP — Factory-Installed Option
*Refer to 48TJ Product Ordering Data or contact your local Carrier repre-
sentative for 48TJ FIOP code table.
†All coils have copper tubes.
4

Physical data — 48TJ008-014 (SI)
UNIT SIZE D/E/F008 D/E/F012 D/E014
NOMINAL CAPACITY (kW) 21.5 29.2 35.9
OPERATING WEIGHT (kg)
Unit 395 469 476
Economizer (Durablade) 20 20 20
Roof Curb* 65 65 65
COMPRESSOR Hermetic
Quantity 222
Oil (ml) 1479 ea 1479 ea 1922 ea
REFRIGERANT TYPE R-22
Operating Charge (kg)
Circuit 1 2.10 2.49 4.22
Circuit 2 2.13 2.55 3.90
CONDENSER COIL Enhanced Copper Tubes, Aluminum Lanced Fins
Rows...Fins/m 1...669 2...669 2...669
Total Face Area (sq m) 1.90 1.62 2.30
CONDENSER FAN Propeller Type
Nominal L/s 2880 3050 3050
Quantity...Diameter (mm) 2...559 2...559 2...559
Motor BkW...r/s .19...15.5 .19...15.5 .19...15.5
EVAPORATOR COIL Enhanced Copper Tubes, Aluminum Double-Wavy Fins, Acutrol™ Feed Device
Rows...Fins/m 3...590 3...590 4...590
Total Face Area (sq m) 0.74 0.93 1.03
EVAPORATOR FAN Centrifugal Type
Quantity...Size (mm x mm) 1...381 x 381 1...381 x 381 1...381 x 381
Type Drive Belt Belt Belt
Nominal L/s 1230 1700 1980
Motor kW 1.12 1.50 2.24
Maximum Continuous BkW 1.79 1.79 2.76
Motor Frame Size 56 56 56
Fan r/s Range 8.2-11.7 9.5-13.0 12.0-15.0
Motor Bearing Type Ball Ball Ball
Maximum Allowable r/s 26.7 26.7 26.7
Motor Pulley Pitch Diameter Min/Max (mm) 61/86 86/112 102/127
Nominal Motor Shaft Diameter (mm) 16 16 22
Fan Pulley Pitch Diameter (mm) 140 178 203
Nominal Fan Shaft Diameter (mm) 25 25 25
Belt, Quantity...Type...Length (mm) 1...A...1219 1...A...1219 1...A...1448
Pulley Center Line Distance (mm) 406 495 495
Speed Change per Full Turn of
Movable Pulley Flange (r/s) .70 .70 .60
Movable Pulley Maximum Full Turns
From Closed Position 555
Factory Setting 555
Factory Speed Setting (r/s) 8.2 9.5 12.0
Fan Shaft Diameter at Pulley (mm) 25 25 25
FURNACE SECTION
Rollout Switch Cutout (Temp C) 90.6 90.6 90.6
Burner Orifice Diameter (mm)
Natural Gas — Std 3.05 3.05 3.05
Liquid Propane — Alt 2.44 2.44 2.44
Thermostat Heat Anticipator Setting (amps)
400 v Stage 1 .14 .14 .14
Stage 2 .20 .20 .20
Gas Input (kW) Stage 1 21.1/31.9/39.8 31.9/39.8/43.9 39.8/43.9
Stage 2 31.4/50.4/59.8 50.4/59.8/65.6 59.8/65.6
Efficiency (Steady State) (%) 82/80/80 80/80/80 80/80
Temperature Rise Range (C) -6-10/2-18/7-24 2-18/7-24/4-21 7-24/4-21
Manifold Pressure (kPa)
Natural Gas — Std 8.3 8.3 8.3
Liquid Propane — Alt 8.3 8.3 8.3
Field Gas Connection Size (NPT) .50/.75/.75 .75/.75/.75 .75/.75
HIGH-PRESSURE SWITCH (kPa)†
Standard Compressor Internal Relief
(Differential) 3103 ± 345 3448 ± 345
Cutout 2951
Reset (Auto.) 2206
LOW-PRESSURE SWITCH (kPa)†
Cutout 48±21
Reset (Auto.) 152±48
FREEZE PROTECTION THERMOSTAT†
Opens (C) −1
Closes (C) 7
OUTDOOR-AIR INLET SCREENS Cleanable
Quantity...Size (mm) 1...508 x 635 x 25
1...406 x 635 x 25
RETURN-AIR FILTERS Throwaway
Quantity...Size (mm) 4...406 x 508 x 51 4...508 x 508 x 51 4...508 x 508 x 51
LEGEND
Bhp — Brake Horsepower
BkW — Fan Input Watts x Motor Efficiency
*Weight of 356 mm (14-in.) roof curb.
†Requires the accessory/optional controls upgrade kit.
NOTE: The 48TJ units have a loss-of-charge/low-pressure switch (option or
accessory) located in the liquid line.
5

Physical data — 48TJ008-014 (English)
UNIT SIZE 008 012 014
NOMINAL CAPACITY (tons) 6.1 8.3 10.2
OPERATING WEIGHT (lb)
Unit 870 1035 1050
Economizer (Durablade) 44 44 44
Roof Curb* 143 143 143
COMPRESSOR Hermetic
Quantity 222
Oil (oz) 50 ea 50 ea 65 ea
REFRIGERANT TYPE R-22
Operating Charge (lb-oz)
Circuit 1 4-10 5-8 9-5
Circuit 2 4-11 5-10 8-7
CONDENSER COIL Enhanced Copper Tubes, Aluminum Lanced Fins
Rows...Fins/in. 1...17 2...17 2...17
Total Face Area (sq ft) 20.50 17.42 25.00
CONDENSER FAN Propeller Type
Nominal Cfm 6100 6500 6500
Quantity...Diameter (in.) 2...22 2...22 2...22
Motor Hp...Rpm
1
⁄
4
...930
1
⁄
4
...930
1
⁄
4
...930
EVAPORATOR COIL Enhanced Copper Tubes, Aluminum Double-Wavy Fins, Acutrol™ Feed Device
Rows...Fins/in. 3...15 3...15 4...15
Total Face Area (sq ft) 8.0 10.0 11.1
EVAPORATOR FAN Centrifugal Type
Quantity...Size (in.) 1...15 x 15 1...15 x 15 1...15 x 15
Type Drive Belt Belt Belt
Nominal Cfm 2600 3500 4200
Motor Hp 1
1
⁄
2
23
Maximum Continuous Bhp 2.40 2.40 3.70
Motor Frame Size 56 56 56
Fan Rpm Range 492-700 571-779 717-900
Motor Bearing Type Ball Ball Ball
Maximum Allowable Rpm 1600 1600 1600
Motor Pulley Pitch Diameter Min/Max (in.) 2.4/3.4 3.4/4.4 4.0/5.0
Nominal Motor Shaft Diameter (in.)
5
⁄
85
⁄
87
⁄
8
Fan Pulley Pitch Diameter (in.) 5.5 7.0 8.0
Nominal Fan Shaft Diameter (in.) ———
Belt, Quantity...Type...Length (in.) 1...A...48 1...A...48 1...A...51
Pulley Center Line Distance (in.) 16 19.5 19.5
Speed Change per Full Turn of
Movable Pulley Flange (rpm) 41 41 36
Movable Pulley Maximum Full Turns
From Closed Position 555
Factory Setting 555
Factory Speed Setting (rpm) 492 571 717
Fan Shaft Diameter at Pulley (in.) 111
FURNACE SECTION
Rollout Switch Cutout
Temp (F) 195 195 195
Burner Orifice Diameter
(in. ...drill size)
Natural Gas Std .120...31 .120...31/.120...31/.129...30 .120...31/.129...30
Liquid Propane Alt .096...41 .096...41/.096...41/.102...38 .096...41/.102...38
Thermostat Heat Anticipator
Setting (amps)
400 v Stage 1 .14 .14 .14
Stage 2 .20 .20 .20
Gas Input (Btuh) Stage 1 72,000/109,000/136,000 109,000/136,000/150,000 136,000/150,000
Stage 2 107,000/172,000/204,000 172,000/204,000/224,000 204,000/224,000
Efficiency (Steady
State) (%) 80 80 80
Temperature Rise Range 20-50/35-65/45-75 35-65/45-75/40-70 45-75/40-70
Manifold Pressure (in. wg)
Natural Gas Std 3.5 3.5 3.5
Liquid Propane Alt 3.5 3.5 3.5
Gas Valve Quantity 111
Gas Valve Pressure Range
Psig 0.180-0.487 0.180-0.487 0.180-0.487
in. wg 5.0-13.5 5.0-13.5 5.0-13.5
Field Gas Connection
Size (in.)
1
⁄
2
/
3
⁄
4
/
3
⁄
43
⁄
4
/
3
⁄
4
/
3
⁄
43
⁄
4
/
3
⁄
4
HIGH-PRESSURE SWITCH (psig)†
Standard Compressor Internal Relief
Differential) 450±50 500±50
Cutout 428
Reset (Auto.) 320
LOW-PRESSURE SWITCH (psig)†
Cutout 7±3
Reset (Auto.) 22±7
FREEZE PROTECTION THERMOSTAT†
Opens 30±5
Closes 45±5
OUTDOOR-AIR INLET SCREENS Cleanable
Quantity...Size (in.) 1...20 x 25 x 1
1...16 x 25 x 1
RETURN-AIR FILTERS Throwaway
Quantity...Size (in.) 4...16 x 20 x 2 4...20 x 20 x 2 4...20 x 20 x 2
LEGEND
Bhp — Brake Horsepower
BkW — Fan Input Watts x Motor Efficiency
*Weight of 356 mm (14-in.) roof curb.
†Requires the accessory/optional controls upgrade kit.
NOTE: The 48TJ units have a loss-of-charge/low-pressure switch (option or ac-
cessory) located in the liquid line.
6

Options and accessories
ITEM OPTION* ACCESSORY†
Apollo Communicating Controls X
Durablade Integrated Economizer (Includes Hood) XX
Manual Outdoor-Air Damper X
Controls Upgrade Kit X** X
Condenser Coil Grille X
Electronic Programmable Thermostat X
25% Open Two-Position Damper X
100% Open Two-Position Damper X
Roof Curbs (Vertical and Horizontal Discharge) X
Remote Control Panel X
Thermostats and Subbases X
MotormasterTHead Pressure Control X
Time GuardTII Control Circuit X
Thru-the-Bottom Service Connections X
Accusensor™ II Enthalpy Control X
Accusensor III Enthalpy Sensor X
Condenser Coil Hail Guard Assembly X
LP (Liquid Propane) Conversion Kit X
NO
x
Reduction Kit X
Flue Discharge Deflector X
Flue Shield X
Fan/Filter Status X
Salt Spray Protection Grille X
*Factory installed.
†Field installed.
**Includes high-pressure, loss of charge/low pressure, and freeze protection switches.
HEAD PRESSURE CONTROL
The 48TJ standard units are designed to operate in cooling at outdoor tem-
peratures down to 25 F. With accessory Motormaster control (condenser-fan
speed modulation), −20 F low-ambient kit, units can operate at outdoor tem-
peratures down to −20 F. The head pressure controls, which mount in the con-
denser section, control the condenser-fan motor to maintain correct condens-
ing temperature. Refer to Product Ordering Data or contact your local Carrier
representative for appropriate accessory combinations for desired outdoor am-
bient temperature operation.
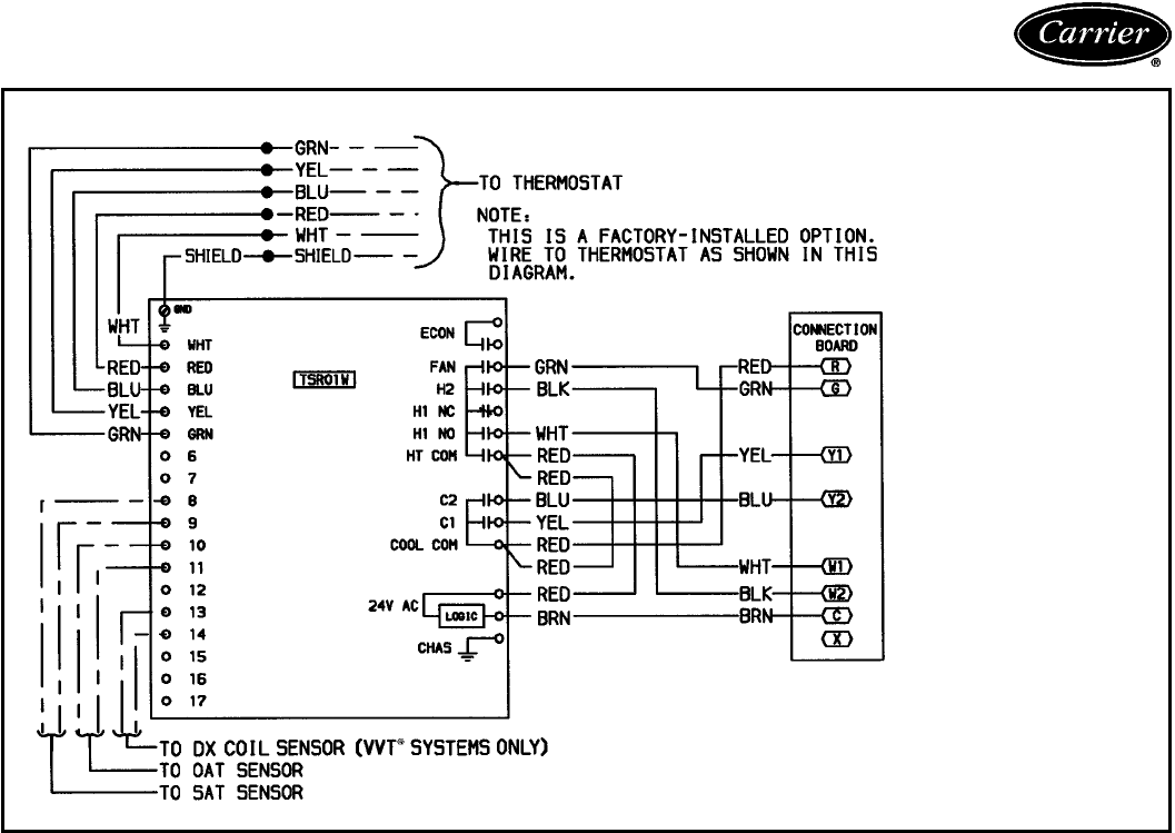
FACTORY-INSTALLED APOLLO COMMUNICATING CONTROLS
The Apollo direct digital controls are designed exclusively by
Carrier, and are used to actively monitor and control all modes of
operation as well as to monitor evaporator-fan status, filter status,
supply-air temperature, outdoor-air temperature, and indoor-air qual-
ity. They are designed to work in conjunction with Carrier TEMP and
VVTTsystem thermostats.
7

Options and accessories (cont)
ELECTRONIC PROGRAMMABLE
THERMOSTAT
Carrier’s electronic programmable thermostat pro-
vides efficient temperature control by allowing you
to program heating and cooling setbacks and set-
ups with provisions for weekends and holidays.
Accessory remote sensing package is also avail-
able to provide tamperproof control in high traffic
spaces. Used in conjunction with factory-installed
Apollo control, this thermostat provides a 5-minute
recycle timer between modes of operation for short-
cycle protection.
DURABLADE ECONOMIZER
Exclusive Durablade economizer damper design saves en-
ergy while providing economical and reliable cooling. A slid-
ing plate on the face of the economizer controls the amount
of outdoor air entering the system. Closed, it provides a leak-
proof seal which prevents ambient air from seeping in or con-
ditioned air from seeping out. It can be adjusted easily for
100% outdoor air or any proportions of mixed air. Like the
base unit, the economizer is converted easily for horizontal
discharge applications.
THERMOSTAT
H
C
Zone thermostat (24 v) provides one- or 2-stage cooling for
control of unit. Matching subbases are available with or with-
out tamperproof switches and automatic changeover.
TIME GUARDtII CONTROL
Time Guard II control automatically prevents compressor from re-
starting for at least 5 minutes after a shutdown. Accessory prevents
short cycling of compressor if thermostat is changed rapidly. Time
Guard II control mounts in the control compartment of unit.
ACCUSENSOR™ II
CONTROLS
MINIMUM
POSITION
OPEN
3
1
T
P
P1
T1
4
2
5
S
S
O
D
C
TR
B
REV. B
198818A
%
H
U
M
I
D
I
T
Y
90
70
60
30
10
DCBA
60 65 70
75
55
50 85
80
DAMPER
DAMPER
CLOSED
OPEN
OUTDOOR TEMP. °F
REV.
97-3672
CW–SETPOINTS–CCW
CONTACTS SHOWN IN HIGH ENTHALPY
RUSH AT 24VAC
3 mA MIN. AT 11 VDC
CONTACT RATINGS: 1.5A RUN, 3.5A IN
OR UNPOWERED STATE
1
2
3
TR
TR1
24VAC
ENTHALPY CONTROL
Accusensor economizer controls help provide efficient, economical econo-
mizer operation. Accusensor II solid-state enthalpy control includes
the logic and one sensor to calculate both dry- and wet-bulb of the
outdoor air to provide an accurate enthalpy reading. It then decides
when to energize the economizer based on this reading. A second Accu-
sensor III sensor compares outdoor temperature and humidity to return-
air temperature and humidity and determines the most economical mix-
ture of air (purchased in addition to first solid-state enthalpy sensor for
differential enthalpy sensing).
ACCUSENSOR III
CONTROLS
+
8

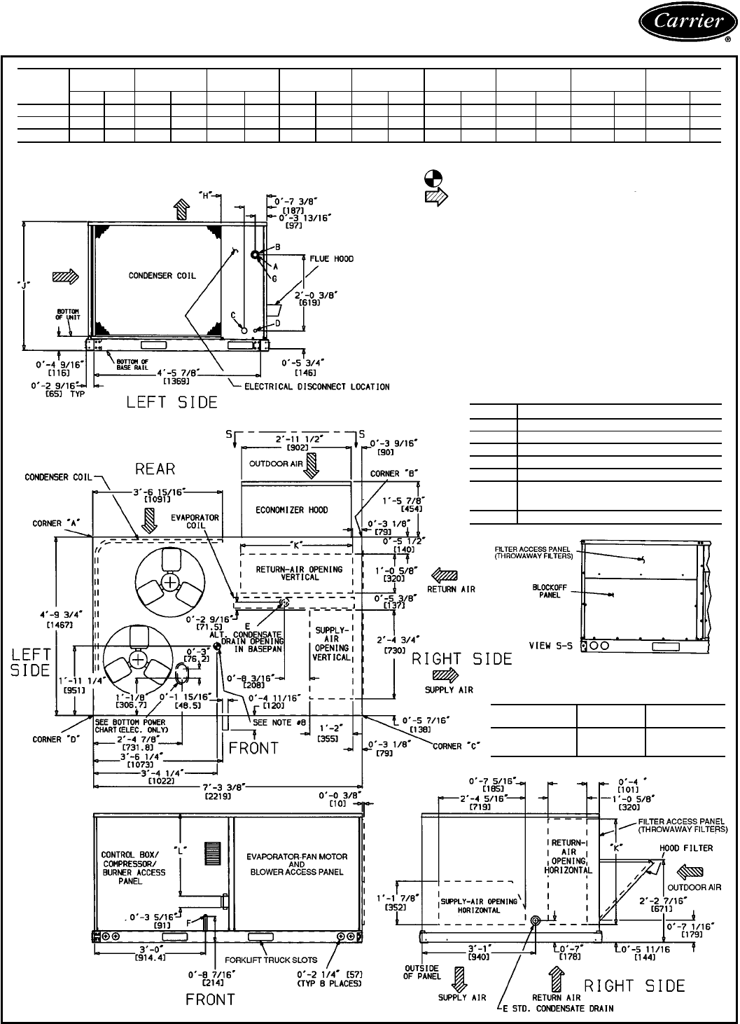
Base unit dimensions — 48TJ008-014
UNIT
48TJ
STD UNIT
WEIGHT CORNER
WEIGHT (A) CORNER
WEIGHT (B) CORNER
WEIGHT (C) CORNER
WEIGHT (D) ‘‘H’’ ‘‘J’’ ‘‘K’’ ‘‘L’’
Lb Kg Lb Kg Lb Kg Lb Kg Lb Kg Ft-in. mm Ft-in. mm Ft-in. mm Ft-in. mm
D/E/F008 870 395 189 86 161 73 239 109 280 127 1-2
7
⁄
8
378 3-5
5
⁄
16
1050 2-9
11
⁄
16
856 2- 2
7
⁄
16
672
D/E/F012 1035 469 225 102 192 87 285 129 333 151 2-5
7
⁄
8
759 4-1
5
⁄
16
1253 3-0
3
⁄
8
924 2-10
7
⁄
16
875
D/E014 1050 476 228 103 195 88 289 131 338 153 1-2
7
⁄
8
378 4-1
5
⁄
16
1253 3-0
3
⁄
8
924 2-10
7
⁄
16
875
CONNECTION SIZES
A1
3
⁄
8
9Dia [35] Field Power Supply Hole
B2
1
⁄
2
9Dia [64] Power Supply Knockout
C1
3
⁄
4
9Dia [44] Charging Port Hole
D
7
⁄
8
9[22] Field Control Wiring Hole
E
3
⁄
4
9— 14 NPT Condensate Drain
F
1
⁄
2
9— 14 NPT Gas Connection 48TJD008
3
⁄
4
9— 14 NPT Gas Connection 48TJE/F008
48TJD/E012,014, 48TJF012
G29Dia [51] Power Supply Knockout
NOTES:
1. Dimensions in [ ] are in millimeters.
2. Center of gravity.
3. Direction of airflow.
4. On vertical discharge units, ductwork to be attached to accessory roof curb only.
For horizontal discharge units field-supplied flanges should be attached to hori-
zontal discharge openings, and all ductwork should be attached to the flanges.
5. Minimum clearance (local codes or jurisdiction may prevail):
a. Between unit (flue side) and combustible surfaces, 48 inches.
b. Bottom of unit to combustible surfaces (when not using curb) 1 inch. Bottom of
base rail to combustible surfaces (when not using curb) 0 inches.
c. Condenser coil, for proper airflow, 36 in. one side, 12 in. the other. The side
getting the greater clearance is optional.
d. Overhead, 60 in. to assure proper condenser fan operation.
e. Between units, control box side, 42 in. per NEC (National Electrical Code U.S.A.).
f. Between unit and ungrounded surfaces, control box side, 36 in. per NEC.
g. Between unit and block or concrete walls and other grounded surfaces, con-
trol box side, 42 in. per NEC.
h. Horizontal supply and return end, 0 inches.
6. With the exception of the clearance for the condenser coil and combustion side
as stated in Notes 5a, b, and c, a removable fence or barricade requires no clear-
ance.
7. Units may be installed on combustible floors made from wood or class A, B, or C
roof covering material if set on base rail.
8. The vertical center of gravity is 18-7
1
⁄
2
9[483] up from the bottom of the base rail.
Horizontal center of gravity is shown.
BOTTOM POWER CHART: THESE HOLES
REQUIRED FOR USE WITH ACCESSORY PACKAGES —
CRBTMPWR001A00 (
1
⁄
2
(,
3
⁄
4
()OR
CRBTMPWR002A00 (
1
⁄
2
(,1
1
⁄
4
()
THREADED
CONDUIT SIZE WIRE USE REQ’D HOLE
SIZES (MAX.)
1
⁄
2
(24 V
7
⁄
8
9[22.2]
3
⁄
4
(Power* 1
1
⁄
8
9[28.4]
1
1
⁄
4
(Power* 1
3
⁄
4
9[44.4]
*Select either
3
⁄
4
9or 1
1
⁄
4
9for power, depending on wire size.
9

Accessory dimensions — 48TJ008-014
ROOF CURB — 48TJ008-014
ROOF CURB
ACCESSORY ‘‘A’’ UNIT SIZE
CRRFCURB003A00 18-29[356] 48TJ008-014
CRRFCURB004A00 28-09[610]
UNIT SIZE ‘‘B’’ ‘‘C’’ ‘‘D’’ ALT
DRAIN
HOLE
‘‘E’’
GAS POWER CONTROL CONNECTOR
PKG ACY
48TJ008-014 28-8
7
⁄
16
9
[827] 18-10
15
⁄
16
9
[583] 1
3
⁄
4
9[45]
3
⁄
4
9NPT
3
⁄
4
9NPT
1
⁄
2
9NPT CRBTMPWR001A00
(THRU-THE-BOTTOM)
3
⁄
4
9NPT 1
1
⁄
4
9NPT
1
⁄
2
9NPT CRBTMPWR002A00
(THRU-THE-BOTTOM)
NOTES:
1. Roof curb accessory is shipped unassembled.
2. Insulated panels.
3. Dimensions in [ ] are in millimeters.
4. Roof curb: galvanized steel.
5. Attach ductwork to curb (Flanges of duct rest on curb).
6. Service clearance 4 ft on each side.
7. Direction of airflow.
10

Selection procedure
(with 48TJD012 example) — SI
I Determine cooling and heating requirements at
design conditions.
Given:
Required Cooling Capacity (TC) ...........27kW
Sensible Heat Capacity (SHC) .............18kW
Required Heating Capacity ................35kW
Condenser Entering-Air Temperature ........36C
Evaporator Entering-Air Temperature ....28Cedb,
20 C ewb
Evaporator Air Quantity ...............1520 L/s
External Static Pressure (ESP) .............300Pa
Electrical Characteristics ................400-3-50
Based on the above requirements, a 48TJD012 verti-
cal discharge unit is chosen to best fit the design
conditions.
II Select unit based on required cooling capacity.
Enter the 48TJD012 Cooling Capacities table on
page 14 with a condenser entering temperature of
36 C, evaporator air entering at 1520 L/s, 28 C db
(dry bulb) and 20 C wb (wet bulb). The 48TJD012 unit
will provide a cooling capacity of 30.1 kW and a sen-
sible heat capacity of 21.2 kW. For evaporator-air tem-
perature other than 26.7 C edb, calculate the sensible
heat capacity correction, as required, using the for-
mula found in the notes following the Cooling Capac-
ity table on page 15. The corrected SHC is 23.4 kW.
NOTE: Unit ratings are gross capacities and do not in-
clude the effect of evaporator-fan motor heat. To cal-
culate net capacities, see Step V.
III Select heating capacity of unit to provide design
condition requirements.
In Heating Capacities and Efficiencies table on
page 4, note that unit 48TJD012 will provide output
heating capacity of 40.3 kW which is adequate for the
given application.
IV Determine fan speed and power requirements
at design conditions.
Before entering the Fan Performance tables, calculate
the total static pressure required based on unit
components. From the given and Pressure Drop tables
(page 31), find:
External static pressure 300 Pa
Durablade economizer 9 Pa
Total static pressure 309 Pa
Enter the Fan Performance table for the 48TJD012
vertical discharge unit on page 19. Find the fan r/s and
BkW at 309 Pa and 1520 L/s (interpolation required).
Note that the fan speed is 15.0 r/s and power required
is1.20 kW.The standard1.5 kW powerwill adequately
handle the job requirements (field-supplied drive is re-
quired).
To determine the input power of the motor, use the
Evaporator-Fan Motor Efficiency table found on
page 30. BkW
IFM Watts = Motor Efficiency
1.20
=.80
= 1.5 kW
V Determine net capacities.
Capacities are gross and do not include the effect of
evaporator-fan motor heat.
Determine net cooling capacity as follows:
Net capacity = gross capacity − IFM Heat
= 30.1 kW − 1.5 kW
= 28.6 kW
Net Sensible Capacity = 23.4 kW − 1.5 kW
= 21.9 kW
Determine net heating capacity as follows:
Net Capacity = gross capacity + IFM heat
= 40.3 kW + 1.5 kW
= 41.8 kW
11

Selection procedure
(with 48TJD012 example) — English
I Determine cooling and heating requirements at
design conditions.
Given:
Required Cooling Capacity (TC) ......95,000 Btuh
Sensible Heat Capacity (SHC) .......68,000 Btuh
Required Heating Capacity .........110,000 Btuh
Condenser Entering-Air Temperature ........95F
Evaporator Entering-Air Temperature ....80Fedb,
67 F ewb
Evaporator Air Quantity ...............3200 cfm
External Static Pressure (ESP) .........1.10 in. wg
Electrical Characteristics ................400-3-50
Based on the above requirements, a 48TJD012 verti-
cal discharge unit is chosen to best fit the design
conditions.
II Select unit based on required cooling capacity.
Enter the 48TJD012 Cooling Capacities table on
page 16 with a condenser entering temperature of
95 F, evaporator air entering at 3200 cfm, 80 F db
(dry bulb) and 67 F wb (wet bulb). The 48TJD012 unit
will provide a cooling capacity of 102,500 Btuh and a
sensible heat capacity of 76,000 Btuh. For evaporator-
air temperature other than 80 F edb, calculate the sen-
sible heat capacity correction, as required, using the
formula found in the notes following the Cooling
Capacity table on page 16.
NOTE: Unit ratings are gross capacities and do not in-
clude the effect of evaporator-fan motor heat. To cal-
culate net capacities, see Step V.
III Select heating capacity of unit to provide design
condition requirements.
In Heating Capacities and Efficiencies table on
page 4, note that unit 48TJD012 will provide output
heating capacity of 137,600 Btuh which is adequate
for the given application.
IV Determine fan speed and power requirements
at design conditions.
Before entering the Fan Performance tables, calculate
the total static pressure required based on unit com-
ponents. From the given and Pressure Drop tables
(page 31), find:
External static pressure 1.10 in. wg
Durablade economizer 0.04 in. wg
Total static pressure 1.14 in. wg
Enter the Fan Performance table for the 48TJD012
vertical discharge unit on page 25. Find the fan rpm
and Bhp at 1.14 in. wg and 3200 cfm (interpolation
required).Notethat thefanspeedis 886 rpmandpower
required is 1.72 Bhp. The standard 2 hp power will
adequately handle the job requirements (field-supplied
drive is required).
To determine the input power of the motor, use the
Evaporator-Fan Motor Efficiency table found on
page 30. Bhp x 746
IFM Watts = Motor Efficiency
1.72 x 746
=.80
1283
=.80
IFM Watts = 1604 Watts
V Determine net capacities.
Capacities are gross and do not include the effect of
evaporator-fan motor heat.
Determine net cooling capacity as follows:
Net capacity = gross capacity − IFM Heat
= 102,500 − (1604 Watts x 3.413
Btuh/Watt)
= 97,026 Btuh
Net Sensible Capacity = 76,000 Btuh − 5474 Btuh
= 70,526 kW
Determine net heating capacity as follows:
Net Capacity = gross capacity + IFM heat
= 137,600 Btuh+ 5474 Btuh
= 143,074 Btuh
12

Performance data
COOLING CAPACITIES — SI
48TJ008 (21.5 kW)
Temp (C)
Air Entering
Condenser
(Edb)
Air Entering Evaporator — L/s BF
850/0.05 1130/0.075
Air Entering Evaporator — Ewb (C)
14 16 18 20 22 14 16 18 20 22
20 TC 19.5 20.9 22.5 24.3 26.0 21.6 22.3 23.7 25.3 27.0
SHC 19.4 18.0 16.2 14.3 12.3 21.4 20.5 18.5 16.1 13.4
kW 5.02 5.16 5.34 5.54 5.72 5.28 5.37 5.52 5.70 5.88
24 TC 19.1 20.4 21.9 23.7 25.4 21.0 21.7 23.1 24.7 26.4
SHC 18.9 17.7 16.0 14.1 12.1 21.0 20.2 18.3 15.9 13.3
kW 5.25 5.38 5.56 5.76 5.96 5.51 5.58 5.74 5.92 6.12
28 TC 18.6 19.8 21.3 23.0 24.8 20.5 21.1 22.4 24.1 25.9
SHC 18.4 17.3 15.7 13.9 11.9 20.5 19.8 18.0 15.7 13.1
kW 5.49 5.61 5.78 5.98 6.19 5.74 5.8 5.96 6.15 6.36
32 TC 18.0 19.1 20.6 22.2 23.9 19.9 20.3 21.5 23.2 25.0
SHC 17.8 16.9 15.4 13.6 11.6 19.8 19.4 17.7 15.4 12.9
kW 5.77 5.88 6.04 6.25 6.47 6.03 6.07 6.22 6.43 6.64
36 TC 17.3 18.2 19.6 21.3 23.0 18.2 19.4 20.6 22.3 24.0
SHC 17.2 16.4 15.0 13.2 11.3 19.1 18.9 17.3 15.0 12.5
kW 6.09 6.18 6.34 6.55 6.77 6.33 6.37 6.61 6.73 6.94
40 TC 16.6 18.3 18.7 20.3 22.0 18.4 18.6 19.6 21.3 23.0
SHC 16.6 15.9 14.6 12.8 10.9 18.4 18.3 16.9 14.7 12.3
kW 6.40 6.48 6.63 6.84 7.07 6.65 6.67 6.81 7.02 7.24
44 TC 15.9 16.4 17.7 19.4 21.0 17.7 17.7 18.7 20.2 21.9
SHC 15.9 15.4 14.2 12.5 10.6 17.7 17.6 16.4 14.3 11.9
kW 6.71 6.77 6.92 7.13 7.36 6.97 6.97 7.10 7.30 7.53
48 TC 15.2 15.5 16.7 18.3 19.9 16.9 16.9 17.7 19.1 20.7
SHC 15.2 14.9 13.8 12.1 10.2 16.9 16.9 15.8 13.9 11.5
kW 7.02 7.05 7.20 7.41 7.64 7.27 7.27 7.39 7.57 7.81
52 TC 14.4 14.5 15.6 17.3 18.8 16.1 16.1 16.8 18.0 19.6
SHC 14.4 14.3 13.3 11.7 9.9 16.1 16.1 15.2 13.5 11.2
kW 7.33 7.33 7.47 7.67 7.91 7.56 7.57 7.67 7.85 8.08
48TJ008 (21.5 kW) (cont)
Temp (C)
Air Entering
Condenser
(Edb)
Air Entering Evaporator — L/s BF
1180/0.075 1400/0.095
Air Entering Evaporator — Ewb (C)
14 16 18 20 22 14 16 18 20 22
20 TC 21.8 22.5 23.9 25.5 27.1 22.9 23.1 24.3 26.1 27.7
SHC 21.8 20.9 18.9 16.4 13.6 22.8 22.4 20.5 17.7 14.5
kW 5.33 5.41 5.55 5.73 5.91 5.49 5.51 5.65 5.83 5.99
24 TC 21.3 21.9 23.3 24.9 26.5 22.4 22.5 23.7 25.4 27.0
SHC 21.2 20.6 18.7 16.2 13.5 22.3 22.0 20.2 17.5 14.3
kW 5.55 5.62 5.77 5.96 6.14 5.72 5.73 5.86 6.05 6.22
28 TC 20.8 21.2 22.5 24.2 25.9 21.8 21.9 23.1 24.7 26.4
SHC 20.7 20.2 18.4 16.0 13.3 21.8 21.7 20.0 17.3 14.1
kW 5.78 5.84 5.98 6.17 6.38 5.94 5.96 6.08 6.28 6.46
32 TC 20.2 20.5 21.7 23.4 25.2 21.2 21.2 22.2 23.8 25.6
SHC 20.2 19.8 18.1 15.7 13.0 21.2 21.0 19.5 17.0 13.9
kW 6.07 6.11 6.25 6.45 6.66 6.23 6.23 6.36 6.54 6.74
36 TC 19.5 19.6 20.7 22.4 24.1 20.4 20.4 20.7 22.8 24.6
SHC 19.4 19.2 17.7 15.3 12.7 20.4 20.4 19.0 16.6 13.6
kW 6.39 6.41 6.55 6.75 6.96 6.54 6.54 6.66 6.84 7.05
40 TC 18.7 18.7 19.8 21.3 23.1 19.6 19.6 20.4 21.7 23.4
SHC 18.7 18.6 17.2 15.0 12.4 19.6 19.6 18.4 16.3 13.3
kW 6.69 6.70 6.83 7.04 7.26 6.86 6.86 6.95 7.12 7.34
44 TC 17.9 17.9 18.8 20.3 22.0 18.8 18.8 19.4 20.6 22.3
SHC 17.9 17.9 16.7 14.6 12.1 18.8 18.8 17.8 15.9 13.0
kW 7.01 7.01 7.13 7.33 7.55 7.16 7.16 7.25 7.41 7.64
48 TC 17.1 17.1 17.9 19.2 20.8 17.9 17.9 18.5 19.5 21.2
SHC 17.1 17.1 16.1 14.2 11.7 17.9 17.9 17.2 15.5 12.7
kW 7.31 7.31 7.42 7.59 7.83 7.46 7.47 7.54 7.69 7.92
52 TC 16.3 16.3 16.9 18.0 19.6 17.1 17.1 17.4 18.3 19.9
SHC 16.3 16.3 15.4 13.9 11.4 17.1 17.1 16.5 15.1 12.3
kW 7.61 7.61 7.70 7.87 8.1 7.76 7.77 7.82 7.95 8.18
See Legend and Notes on page 15.
13

Performance data (cont)
COOLING CAPACITIES — SI (cont)
48TJ012 (29.2 kW)
Temp (C)
Air Entering
Condenser
(Edb)
Air Entering Evaporator — L/s BF
1140/0.08 1520/0.105
Air Entering Evaporator — Ewb (C)
14 16 18 20 22 14 16 18 20 22
20 TC 26.6 28.2 30.5 33.1 34.7 30.5 31.4 32.7 34.3 36.3
SHC 26.4 24.8 22.8 20.3 17.3 30.4 29.3 26.2 22.2 18.7
kW 6.82 6.98 7.17 7.35 7.42 7.09 7.17 7.27 7.39 7.60
24 TC 25.8 27.0 29.4 32.1 33.8 29.6 30.4 31.8 33.5 35.3
SHC 25.6 24.2 22.3 19.9 16.8 29.5 28.7 25.9 22.2 18.4
kW 7.20 7.34 7.54 7.73 7.82 7.47 7.53 7.65 7.80 7.99
28 TC 24.7 25.8 28.2 30.8 32.8 28.5 29.1 30.7 32.6 34.4
SHC 24.6 23.5 21.7 19.4 16.4 28.5 27.9 25.4 21.9 18.2
kW 7.61 7.93 8.11 8.32 8.45 8.09 8.12 8.26 8.46 8.64
32 TC 23.6 24.5 26.6 29.4 31.8 27.3 27.7 29.4 31.5 33.3
SHC 23.5 22.7 21.1 18.8 16.1 27.3 27.0 24.8 21.6 17.8
kW 8.03 8.13 8.31 8.53 8.67 8.30 8.32 8.47 8.67 8.85
36 TC 22.4 23.0 25.0 27.9 30.7 26.1 26.3 27.9 30.1 32.0
SHC 22.3 21.8 20.3 18.2 17.8 26.0 26.0 24.1 21.2 17.4
kW 8.47 8.53 8.73 8.96 9.15 8.74 8.74 8.89 9.11 9.30
40 TC 21.1 21.5 23.4 26.2 29.5 24.7 24.7 26.4 28.7 30.8
SHC 21.1 20.9 19.6 17.5 15.3 24.7 24.7 23.3 20.7 17.2
kW 8.95 8.97 9.15 9.40 9.64 9.20 9.20 9.34 9.56 9.80
44 TC 20.0 20.1 21.7 24.4 27.9 23.1 23.1 24.4 26.6 29.4
SHC 20.0 19.9 18.7 16.8 14.8 23.1 23.1 22.0 20.0 16.7
kW 9.40 9.40 9.60 9.86 10.11 9.70 9.71 9.82 10.03 10.29
48 TC 19.1 19.1 20.3 22.6 26.0 21.5 21.5 22.4 24.3 27.6
SHC 10.1 19.1 17.9 16.2 14.2 21.5 21.5 20.7 19.1 16.2
kW 9.89 9.89 10.06 10.32 10.59 10.22 10.22 10.31 10.50 10.79
52 TC 18.3 18.3 19.1 20.9 24.0 20.0 20.0 20.4 21.9 25.5
SHC 18.3 18.3 17.2 15.5 13.5 20.0 20.0 18.4 18.1 15.5
kW 10.37 10.37 10.52 10.77 11.07 10.74 10.74 10.81 10.98 11.28
48TJ012 (29.2 kW) (cont)
Temp (C)
Air Entering
Condenser
(Edb)
Air Entering Evaporator — L/s BF
1800/0.125 1880/0.13
Air Entering Evaporator — Ewb (C)
14 16 18 20 22 14 16 18 20 22
20 TC 31.5 31.9 33.3 35.3 37.2 31.7 23.1 33.5 35.3 37.3
SHC 31.4 30.6 27.8 24.0 19.9 31.7 31.1 28.3 24.4 20.2
kW 7.12 7.16 7.30 7.50 7.70 7.15 7.18 7.32 7.51 7.71
24 TC 30.8 31.0 32.4 34.2 36.2 31.0 31.2 32.5 34.4 36.2
SHC 30.8 30.1 27.4 23.6 19.6 31.0 30.5 27.9 24.0 19.7
kW 7.53 7.54 7.68 7.88 8.10 7.54 7.57 7.71 7.90 8.09
28 TC 30.0 30.1 31.4 33.2 35.2 30.3 30.4 31.6 33.3 35.0
SHC 30.0 29.6 27.2 23.4 19.3 30.2 30.1 27.6 23.7 19.5
kW 7.95 7.97 8.11 8.30 8.51 7.99 7.99 8.13 8.31 8.51
32 TC 29.1 29.1 30.3 32.1 34.0 29.4 29.4 30.5 32.2 34.0
SHC 29.1 29.0 26.7 23.1 18.9 29.4 29.4 27.1 23.5 19.2
kW 8.40 8.41 8.54 8.73 8.95 8.44 8.44 8.56 8.75 8.95
36 TC 28.1 28.0 29.1 30.8 32.8 28.3 28.3 29.3 31.0 32.9
SHC 27.9 28.0 26.1 22.8 18.5 28.3 28.3 26.5 23.3 18.9
kW 8.87 8.87 8.89 9.17 9.40 8.91 8.91 9.01 9.19 9.42
40 TC 26.5 26.5 27.7 29.5 31.5 27.0 27.0 28.0 29.7 31.6
SHC 14.7 26.5 25.1 22.5 18.3 26.9 27.0 25.6 23.0 18.6
kW 9.37 9.36 9.46 9.64 9.88 9.41 9.40 9.50 9.66 9.89
44 TC 24.8 24.8 25.7 27.5 30.0 25.2 25.2 26.1 27.7 30.1
SHC 24.8 24.8 23.8 21.8 18.0 25.2 25.2 24.4 22.3 18.2
kW 9.87 9.87 9.96 10.12 10.36 9.92 9.92 9.99 10.13 10.38
48 TC 23.0 23.0 23.7 25.3 28.3 23.4 23.4 24.0 25.5 28.4
SHC 23.0 23.0 22.4 20.9 17.5 23.4 23.4 23.0 21.4 17.8
kW 10.39 10.39 10.45 10.59 10.86 10.43 10.43 10.49 10.61 10.90
52 TC 21.3 21.3 21.6 22.8 26.5 21.6 21.6 21.8 23.0 26.7
SHC 21.3 21.3 21.0 19.9 17.0 21.6 21.6 21.4 20.4 17.4
kW 10.93 10.93 10.95 11.07 11.38 10.97 10.97 10.99 11.10 11.41
14

COOLING CAPACITIES — SI (cont)
48TJ014 (35.9 kW)
Temp (C)
Air Entering
Condenser
(Edb)
Air Entering Evaporator — L/s BF
1500/0.13 2000/0.17 2500/0.22
Air Entering Evaporator — Ewb (C)
13 16 19 22 13 16 19 22 13 16 19 22
20 TC 34.7 38.0 41.4 44.4 37.0 40.0 43.2 46.3 36.7 40.1 43.7 46.9
SHC 34.7 33.8 28.1 22.0 37.0 39.9 31.7 24.0 36.7 40.1 34.2 25.4
kW 8.92 8.99 9.08 9.13 9.00 9.06 9.13 9.22 8.85 8.97 9.12 9.26
24 TC 32.1 35.8 39.6 43.0 34.8 38.2 41.6 44.9 35.8 38.9 42.3 45.6
SHC 32.1 32.8 27.4 21.6 34.8 38.2 31.1 23.7 35.8 38.9 33.7 25.2
kW 9.34 9.46 9.60 9.70 9.47 9.57 9.68 9.80 9.40 9.55 9.69 9.85
28 TC 29.4 33.6 37.9 41.6 32.9 36.3 40.0 43.4 35.0 37.8 40.9 44.3
SHC 29.4 31.9 26.7 21.1 32.9 36.3 30.5 23.3 35.0 37.8 33.3 25.1
kW 9.78 9.94 10.12 10.27 9.95 10.08 10.22 10.39 9.98 10.11 10.26 10.43
32 TC 26.7 31.5 36.2 40.2 30.8 34.5 38.3 42.0 34.0 36.7 39.5 43.0
SHC 26.7 30.9 26.0 20.7 30.8 34.5 29.9 22.9 34.0 36.7 32.8 24.9
kW 10.20 10.42 10.64 10.85 10.40 10.59 10.76 10.96 10.53 10.68 10.84 11.03
35 TC 24.7 29.9 34.9 39.1 29.2 33.1 37.0 40.9 33.3 35.8 38.4 42.0
SHC 24.7 29.7 25.5 20.3 29.2 33.1 29.4 22.7 33.3 35.8 32.4 24.8
kW 10.52 10.80 11.03 11.30 10.77 11.00 11.18 11.40 10.95 11.10 11.27 11.50
40 TC 21.1 26.8 32.3 37.1 26.9 30.8 34.7 38.8 32.0 34.1 36.3 39.9
SHC 21.1 26.8 24.4 19.7 26.9 30.8 28.3 22.1 32.0 34.1 31.6 24.4
kW 11.10 11.40 11.71 12.00 11.42 11.64 11.88 12.13 11.73 11.86 11.99 12.23
44 TC 20.5 25.3 30.2 35.2 25.7 28.8 32.2 36.9 30.5 32.0 33.9 37.9
SHC 20.5 25.3 23.5 19.1 25.7 28.8 27.1 21.5 30.5 32.0 30.4 23.9
kW 11.62 11.93 12.25 12.58 12.05 12.24 12.44 12.73 12.35 12.44 12.56 12.82
48 TC 20.4 24.1 27.9 33.2 24.5 26.9 29.6 34.9 29.0 29.9 31.3 35.7
SHC 20.4 24.1 27.9 33.2 24.5 26.9 25.8 21.0 29.0 29.9 29.1 23.3
kW 12.15 12.45 12.78 13.17 12.68 12.84 13.00 13.33 12.96 13.03 13.14 13.41
52 TC 20.1 22.8 25.8 31.3 23.3 24.9 27.0 33.1 27.5 27.8 28.7 33.6
SHC 20.1 22.8 21.4 17.8 23.3 24.9 24.5 20.3 27.1 27.7 27.7 22.8
kW 12.67 12.98 13.31 13.75 13.34 13.43 13.56 13.93 13.56 13.63 13.71 13.99
LEGEND AND NOTES FOR COOLING CAPACITY TABLES — SI
LEGEND
BF — Bypass Factor
Edb — Entering Dry Bulb Temperature (C)
Ewb — Entering Wet Bulb Temperature (C)
kW — Compressor Input (kW)
SHC — Sensible Heat Capacity (kW)
TC — Total Capacity (kW)
NOTES:
1. Ratings are gross, and do not account for the effects of the evaporator-
fan motor power and heat.
2. Direct interpolation is permissible. Do not extrapolate.
3. SHC is based on 26.7 C db temperature of air entering the unit. At any
other temperature, correct the SHC read from the table of cooling capaci-
ties as follows:
Corrected SHCkW
= SHC 1[1.23 x 1023x(12BF)x(C
db 226.7) x L/s]
Observe the rule of sign. Above 26.7 C, SHC correction will be positive;
add it to SHC. Below 26.7 C, SHC correction will be negative; subtract it
from SHC.
4. Formulas:
SHCkW x 1000
Cldb =C
edb 21.23 x L/s
Leaving wet bulb = wet bulb temperature corresponding to enthalpy of air
leaving coil (hlwb).
TCkW x 1000
hlwb =h
ewb 21.20 x L/s
Where hewb is enthalpy of air entering evaporator coil (kJ/kg).
15

Performance data (cont)
COOLING CAPACITIES — ENGLISH
48TJ008 (6.1 TONS)
Temp (F)
Air Entering
Condenser
(Edb)
Air Entering Evaporator — Cfm/BF
1950/0.06 2400/0.075 2500/0.075 3000/0.095
Air Entering Evaporator — Ewb (F)
62 67 72 62 67 72 62 67 72 62 67 72
75 TC 71.9 80.1 88.3 74.9 83.0 90.9 75.3 83.6 91.3 77.4 85.2 92.9
SHC 56.3 46.6 55.1 62.3 50.5 57.0 63.6 51.2 60.4 69.1 55.3 23.7
kW 5.47 5.73 6.02 5.60 5.86 6.14 5.64 5.90 6.14 5.74 6.00 6.24
85 TC 69.0 77.1 85.4 71.7 79.8 88.2 72.2 80.2 88.5 74.3 82.0 90.0
SHC 59.7 50.5 40.6 66.6 55.6 43.6 68.0 56.6 44.1 73.8 62.0 47.0
kW 5.77 6.04 6.34 5.90 6.17 6.47 5.93 6.19 6.49 6.05 6.31 6.57
95 TC 64.9 72.7 80.8 67.4 75.2 83.5 67.8 75.6 83.8 70.7 77.1 85.5
SHC 57.9 48.8 39.1 64.6 54.0 42.1 65.8 55.1 42.7 70.5 60.2 45.9
kW 6.32 6.61 6.54 6.45 6.75 6.60 6.48 6.76 6.69 6.60 6.86 3.46
105 TC 60.4 68.1 76.2 63.0 70.4 78.6 63.5 70.8 78.8 66.7 72.0 80.1
SHC 55.7 47.2 37.5 62.2 52.4 40.8 63.2 53.4 41.3 66.7 58.6 44.1
kW 6.59 6.86 7.19 6.71 7.00 7.32 6.74 7.02 7.34 6.90 7.11 7.40
115 TC 55.9 63.4 71.1 59.0 65.4 73.2 59.7 65.6 73.5 62.5 66.8 75.0
SHC 53.2 45.4 35.9 59.0 50.6 39.0 59.7 51.6 39.6 62.7 56.8 43.0
kW 6.99 7.26 7.58 7.13 7.39 7.71 7.17 7.41 7.72 7.34 7.49 7.83
125 TC 51.1 58.4 65.8 55.1 60.0 67.7 55.8 60.3 57.9 58.7 61.3 69.0
SHC 50.4 43.5 34.1 55.0 48.6 37.3 55.8 49.8 37.9 58.6 54.8 41.3
kW 7.37 7.63 7.95 7.54 7.75 8.08 7.58 6.77 8.10 7.75 7.87 8.20
48TJ012 (8.3 TONS)
Temp (F)
Air Entering
Condenser
(Edb)
Air Entering Evaporator — Cfm/BF
2500/0.09 3200/0.105 3800/0.12 4000/0.13
Air Entering Evaporator — Ewb (F)
62 67 72 62 67 72 62 67 72 62 67 72
75 TC 95.1 108.3 116.7 104.5 112.8 121.4 106.2 114.9 124.4 107.0 115.8 124.2
SHC 77.4 64.2 77.2 87.6 70.1 82.0 101.9 74.6 84.7 95.0 75.9 32.4
kW 7.39 7.69 7.83 7.55 7.74 8.00 7.50 7.81 8.10 7.56 7.84 8.10
85 TC 88.9 102.3 112.0 98.5 108.3 116.9 101.8 110.3 119.2 102.7 110.8 119.0
SHC 79.9 69.3 55.1 93.5 77.7 60.0 100.3 83.4 63.7 102.2 85.1 64.4
kW 7.91 8.24 8.42 8.08 8.34 8.60 8.10 8.39 8.69 8.15 8.41 8.67
95 TC 81.8 94.7 107.2 91.2 102.5 110.9 96.8 104.4 113.7 98.0 105.0 114.2
SHC 76.4 66.2 53.8 89.5 76.0 58.1 96.7 82.1 61.4 98.0 83.9 63.2
kW 8.64 8.94 8.85 8.77 9.08 8.96 8.80 9.15 9.03 8.91 9.17 4.60
105 TC 74.2 86.4 101.8 83.4 95.2 105.3 89.7 98.2 107.6 91.3 98.7 108.0
SHC 72.1 62.8 51.8 83.4 73.4 56.9 89.7 80.5 60.8 91.3 82.6 61.7
kW 9.06 9.42 9.74 9.26 9.56 9.88 9.40 9.65 9.96 9.48 9.66 9.98
115 TC 67.4 77.2 94.2 75.6 83.8 99.0 81.3 87.4 100.6 82.8 88.4 101.0
SHC 67.3 59.1 49.5 75.6 68.9 55.1 81.2 76.3 59.0 82.7 78.7 60.1
kW 9.71 10.04 10.42 9.97 10.19 10.59 10.10 10.28 10.66 10.19 10.31 10.68
125 TC 63.2 69.2 84.4 68.5 71.8 88.8 73.1 75.0 92.3 74.2 76.0 93.0
SHC 63.2 56.0 46.0 68.5 64.3 51.9 73.0 70.9 56.9 74.2 73.0 58.4
kW 10.37 10.68 11.09 10.69 10.85 11.27 10.90 10.95 11.37 10.93 10.97 11.41
See Legend and Notes on page 17.
16

COOLING CAPACITIES — ENGLISH (cont)
48TJ014 (10.2 TONS)
Temp (F)
Air Entering
Condenser
(Edb)
Air Entering Evaporator — Cfm/BF
3150/0.13 4200/0.17 5250/0.22
Air Entering Evaporator — Ewb (F)
62 67 72 62 67 72 62 67 72
75 TC 125.1 137.3 147.5 133.0 143.5 154.1 135.4 145.9 156.4
SHC 107.5 90.6 71.7 125.8 101.9 78.7 135.4 111.0 83.8
kW 9.48 9.60 9.69 9.58 9.67 9.79 9.56 9.69 9.84
85 TC 115.4 129.6 140.9 124.4 135.9 147.3 129.6 139.0 150.3
SHC 103.1 87.7 69.8 120.8 99.8 77.0 129.6 110.1 83.0
kW 10.15 10.33 10.49 10.29 10.43 10.61 10.35 10.49 10.67
95 TC 105.5 122.0 134.4 115.8 128.2 140.4 123.8 132.0 144.1
SHC 98.9 84.8 67.8 115.7 97.8 75.3 123.8 109.2 82.2
kW 10.83 11.06 11.30 11.01 11.20 11.41 11.13 11.28 11.48
105 TC 94.1 112.2 126.9 106.5 118.9 132.4 116.6 123.2 136.4
SHC 92.7 81.2 65.3 106.5 94.8 73.2 116.5 107.4 80.4
kW 11.54 11.83 12.10 11.76 11.98 12.22 11.95 12.07 12.33
115 TC 86.9 100.4 117.9 96.5 105.3 123.7 105.9 109.9 126.6
SHC 86.8 76.4 62.5 96.5 89.8 70.5 105.9 102.2 78.3
kW 12.26 12.55 12.91 12.58 12.74 13.07 12.76 12.85 13.15
125 TC 79.9 88.5 108.8 86.4 91.7 115.0 95.4 96.7 116.8
SHC 79.9 71.7 59.6 96.3 84.8 67.8 95.4 96.2 76.0
kW 13.00 13.29 13.72 13.40 14.49 13.91 13.57 13.64 13.97
LEGEND AND NOTES FOR COOLING CAPACITY TABLES — ENGLISH
LEGEND
BF — Bypass Factor
Edb — Entering Dry Bulb Temperature (F)
Ewb — Entering Wet Bulb Temperature (F)
kW — Compressor Motor Power Input
SHC — Sensible Heat Capacity (1000 Btuh)
TC — Total Capacity (1000 Btuh)
NOTES:
1. Ratings are gross, and do not account for the effects of the evaporator-
fan motor power and heat.
2. Direct interpolation is permissible. Do not extrapolate.
3. SHC is based on 80 F db temperature of air entering the unit. At any other
temperature, correct the SHC read from the table of cooling capacities as
follows:
Corrected SHCBtuh
= SHC 1[1.10 x (1 2BF)x(F
db 280) x cfm]
Observe the rule of sign. Above 80 F, SHC correction will be positive; add
it to SHC. Below 80 F, SHC correction will be negative; subtract it from
SHC.
4. Formulas:
SHCBtuh
Fldb =F
edb 21.09 x cfm
Leaving wet bulb = wet bulb temperature corresponding to enthalpy of air
leaving coil (hlwb).
TCBtuh
hlwb =h
ewb 24.50 x cfm
Where hewb is enthalpy of air entering evaporator coil (Btu/lb).
17

Performance data (cont)
FAN PERFORMANCE (SI) — VERTICAL DISCHARGE UNITS
48TJ008 (21.5 kW) — STANDARD MOTOR (BELT DRIVE)
Airflow
(L/s)
External Static Pressure (Pa)
50 100 150 200
R/s BkW R/s BkW R/s BkW R/s BkW
1150 8.8 0.45 10.1 0.62 11.2 0.79 12.2 0.96
1200 9.0 0.47 10.3 0.65 11.4 0.82 12.4 1.02
1275 9.3 0.53 10.5 0.70 11.6 0.89 12.6 1.08
1300 9.6 0.58 10.8 0.78 11.9 0.96 12.8 1.17
1400 9.9 0.63 11.1 0.85 12.1 1.02 13.1 1.26
1450 10.1 0.68 11.3 0.86 12.3 1.09 13.2 1.29
1500 10.4 0.78 11.5 0.96 12.6 1.18 13.5 1.38
1550 10.7 0.81 11.8 1.06 12.8 1.25 13.7 1.48
1600 11.0 0.90 12.0 1.10 13.0 1.35 14.0 1.56
1650 11.3 0.99 12.4 1.22 13.3 1.43 14.2 1.67
1700 11.5 1.06 12.6 1.30 13.6 1.54 14.4 1.78
1750 11.8 1.16 12.9 1.38 13.8 1.65 14.7 1.88
1800 12.2 1.24 13.2 1.49 14.1 1.75 14.9 2.00
1850 12.4 1.35 13.4 1.60 14.4 1.84 15.1 2.10
1900 12.8 1.47 13.7 1.70 14.6 1.97 15.4 2.24
48TJ008 (21.5 kW) — STANDARD MOTOR (BELT DRIVE)
Airflow
(L/s)
External Static Pressure (Pa)
250 300 350 400
R/s BkW R/s BkW R/s BkW R/s BkW
1150 13.2 1.15 14.1 1.39 15.1 1.73 15.8 1.96
1200 13.3 1.21 14.1 1.41 15.2 1.76 15.9 2.00
1275 13.5 1.28 14.3 1.46 15.3 1.76 16.1 2.17
1300 13.8 1.37 14.6 1.55 15.2 1.72 16.3 2.17
1400 14.0 1.45 14.7 1.65 15.5 1.84 16.5 2.10
1450 14.1 1.53 14.9 1.73 15.6 1.88 16.7 2.10
1500 14.4 1.61 15.2 1.84 15.8 2.04 16.4 2.18
1550 14.5 1.72 15.4 1.95 16.1 2.15 16.7 2.34
1600 14.8 1.80 15.6 2.07 16.3 2.29 17.0 2.49
1650 15.0 1.92 15.8 2.15 16.6 2.42 17.2 2.66
1700 15.2 2.01 16.0 2.27 16.7 2.56 17.5 2.80
1750 15.5 2.14 16.2 2.41 16.9 2.65 17.6 2.92
1800 15.7 2.24 16.4 2.52 17.2 2.82 — —
1850 15.9 2.37 16.7 2.66 17.4 2.92 — —
1900 16.2 2.51 16.9 2.78 — — — —
LEGEND
BkW — Fan Input kW × Motor Efficiency
R/s — Revolutions Per Second of Blower Wheel
NOTES:
1. Boldface indicates field-supplied drive required. (See Note 5.)
2. indicates field-supplied motor and drive required.
3. Values include losses for filters, unit casing, and wet coils.
4. Use of a field-supplied motor may affect wire sizing. Contact your
Carrier representative to verify.
5. Standard drive range is 8.2 to 11.7 r/s. All other speeds require a
field-supplied drive.
6. Maximum continuous BkW is 1.79. Extensive motor and electrical
testing on these units ensures that the full range of the motor can be
utilized with confidence. Using the fan motors up to the ratings shown
will not result in nuisance tripping or premature motor failure. Unit
warranty will not be affected.
7. Interpolation is permissible. Do not extrapolate.
18

FAN PERFORMANCE (SI) — VERTICAL DISCHARGE UNITS (cont)
48TJ012 (29.2 kW) — STANDARD MOTOR (BELT DRIVE)
Airflow
(L/s)
External Static Pressure (Pa)
50 100 150 200 250
R/s BkW R/s BkW R/s BkW R/s BkW R/s BkW
1500 9.8 0.55 10.9 0.67 12.0 0.79 12.9 0.92 13.8 1.04
1550 10.0 0.60 11.2 0.74 12.2 0.86 13.1 0.98 13.9 1.11
1600 10.3 0.66 11.4 0.80 12.4 0.92 13.3 1.05 14.2 1.18
1650 10.6 0.72 11.7 0.86 12.6 0.98 13.6 1.12 14.4 1.25
1700 10.9 0.78 12.0 0.93 12.8 1.06 13.7 1.20 14.6 1.34
1750 11.1 0.86 12.2 1.00 13.1 1.14 14.0 1.28 14.8 1.42
1800 11.4 0.93 12.5 1.08 13.3 1.22 14.2 1.36 15.0 1.52
1850 11.7 1.00 12.7 1.15 13.6 1.31 14.4 1.44 15.2 1.60
1900 12.0 1.08 12.9 1.23 13.8 1.40 14.6 1.53 15.4 1.70
1950 12.2 1.16 13.2 1.31 14.1 1.49 14.8 1.63 15.6 1.79
2000 12.5 1.25 13.4 1.40 14.3 1.59 15.1 1.74 15.9 1.90
2050 12.8 1.34 13.7 1.50 14.6 1.69 15.3 1.85 16.1 2.00
2100 13.1 1.44 13.9 1.60 14.9 1.80 15.6 1.97 16.3 2.12
2150 13.3 1.53 14.2 1.71 15.1 1.91 15.8 2.09 16.5 2.24
2200 13.6 1.64 14.5 1.82 15.3 2.02 16.1 2.21 16.8 2.37
2250 13.9 1.75 14.7 1.94 15.6 2.13 16.3 2.34 — —
2300 14.2 1.86 15.0 2.06 15.8 2.25 16.6 2.47 — —
2400 14.5 1.98 15.3 2.19 16.1 2.38 ————
2450 14.8 2.10 15.6 2.32 ——————
48TJ012 (29.2 kW) — STANDARD MOTOR (BELT DRIVE) (cont)
Airflow
(L/s)
External Static Pressure (Pa)
300 350 400 450 500
R/s BkW R/s BkW R/s BkW R/s BkW R/s BkW
1500 14.6 1.15 15.3 1.26 16.1 1.38 16.9 1.45 17.7 1.68
1550 14.8 1.23 15.5 1.35 16.2 1.47 17.1 1.60 17.8 1.81
1600 15.0 1.30 15.7 1.44 16.4 1.55 17.1 1.68 17.9 1.86
1650 15.1 1.39 15.9 1.52 16.6 1.65 17.3 1.77 18.0 1.91
1700 15.3 1.47 16.1 1.61 16.8 1.74 17.4 1.88 18.1 2.00
1750 15.5 1.56 16.3 1.70 17.0 1.85 17.6 1.98 18.2 2.11
1800 15.8 1.66 16.4 1.80 17.2 1.95 17.8 2.09 18.4 2.22
1850 16.0 1.75 16.6 1.90 17.3 2.05 18.0 2.20 18.6 2.34
1900 16.2 1.86 16.9 2.01 17.5 2.16 18.2 2.31 — —
1950 16.4 1.96 17.1 2.12 17.7 2.27 18.4 2.43 — —
2000 16.6 2.07 17.3 2.24 17.9 2.39 ————
2050 16.8 2.18 17.5 2.36 ——————
2100 17.0 2.30 ————————
2150 17.2 2.41 ————————
2200 ——————————
2250 ——————————
2300 ——————————
2400 ——————————
2450 ——————————
LEGEND
BkW — Fan Input kW × Motor Efficiency
R/s — Revolutions Per Second of Blower Wheel
NOTES:
1. Boldface indicates field-supplied drive required. (See Note 5.)
2. indicates field-supplied motor and drive required.
3. Values include losses for filters, unit casing, and wet coils.
4. Use of a field-supplied motor may affect wire sizing. Contact your
Carrier representative to verify.
5. Standard drive range is 9.5 to 13.0 r/s. All other speeds require a
field-supplied drive.
6. Maximum continuous BkW is 1.79. Extensive motor and electrical
testing on these units ensures that the full range of the motor can be
utilized with confidence. Using the fan motors up to the ratings shown
will not result in nuisance tripping or premature motor failure. Unit
warranty will not be affected.
7. Interpolation is permissible. Do not extrapolate.
19

Performance data (cont)
FAN PERFORMANCE (SI) — VERTICAL DISCHARGE UNITS (cont)
48TJ014 (35.9 kW) — STANDARD MOTOR (BELT DRIVE)
Airflow
(L/s)
External Static Pressure (Pa)
50 100 150 200 250
R/s BkW R/s BkW R/s BkW R/s BkW R/s BkW
1900 12.5 1.10 13.5 1.27 14.4 1.42 15.3 1.63 16.1 1.81
1950 12.7 1.18 13.7 1.36 14.6 1.52 15.5 1.73 16.4 1.92
2000 13.0 1.27 14.0 1.46 14.9 1.62 15.7 1.81 16.6 2.02
2050 13.3 1.36 14.3 1.56 15.1 1.72 16.0 1.91 16.8 2.14
2100 13.6 1.46 14.5 1.66 15.4 1.84 16.2 2.01 17.0 2.25
2150 13.9 1.56 14.8 1.78 15.7 1.95 16.5 2.13 17.3 2.37
2250 14.2 1.67 15.1 1.89 15.9 2.07 16.7 2.24 17.5 2.48
2300 14.5 1.78 15.4 2.00 16.2 2.19 17.0 2.37 17.7 2.60
2350 14.8 1.89 15.7 2.13 16.4 2.32 17.2 2.51 18.0 2.72
2400 15.0 2.01 15.9 2.25 16.7 2.46 17.5 2.64 18.2 2.85
2450 15.4 2.16 16.2 2.38 17.0 2.60 17.7 2.79 18.5 2.99
2500 15.7 2.28 16.5 2.52 17.3 2.75 18.0 2.95 18.7 3.13
2550 15.9 2.43 16.8 2.65 17.5 2.90 18.2 3.10 18.9 3.29
2600 16.2 2.58 17.1 2.81 17.8 3.05 18.5 3.26 19.2 3.47
2650 16.5 2.72 17.3 2.95 18.1 3.22 18.8 3.43 19.4 3.64
2700 16.8 2.89 17.6 3.12 18.4 3.39 19.0 3.60 19.7 3.83
2750 17.1 3.05 17.9 3.28 18.7 3.56 19.3 3.80 20.0 4.01
2800 17.4 3.21 18.2 3.45 18.9 3.74 19.6 3.98 20.2 4.19
2850 17.7 3.40 18.5 3.64 19.2 3.93 19.9 4.18 20.5 4.41
2900 18.0 3.57 18.8 3.81 19.5 4.11 20.2 4.37 — —
2950 18.3 3.76 19.1 4.02 19.8 4.29 ————
3000 18.6 3.96 19.4 4.21 20.1 4.51 ————
3050 18.9 4.15 19.6 4.40 ——————
3100 19.2 4.38 ————————
48TJ014 (35.9 kW) — STANDARD MOTOR (BELT DRIVE) (cont)
Airflow
(L/s)
External Static Pressure (Pa)
300 350 400 450 500
R/s BkW R/s BkW R/s BkW R/s BkW R/s BkW
1900 17.0 2.00 17.9 2.21 18.7 2.39 19.4 2.58 20.1 2.74
1950 17.2 2.11 18.0 2.31 18.8 2.51 19.6 2.71 20.3 2.88
2000 17.4 2.22 18.2 2.43 19.0 2.63 19.8 2.84 20.5 3.02
2050 17.6 2.33 18.4 2.54 19.2 2.76 19.9 2.97 20.7 3.17
2100 17.8 2.45 18.6 2.66 19.3 2.89 20.1 3.10 20.8 3.32
2150 18.0 2.59 18.8 2.79 19.5 3.01 20.3 3.24 21.0 3.46
2250 18.2 2.71 19.0 2.93 19.7 3.15 20.4 3.37 21.2 3.60
2300 18.5 2.85 19.2 3.05 19.9 3.29 20.6 3.52 21.3 3.76
2350 18.7 2.99 19.4 3.21 20.1 3.43 20.8 3.67 21.5 3.92
2400 18.9 3.12 19.6 3.36 20.3 3.59 21.0 3.82 21.7 4.08
2450 19.2 3.27 19.8 3.53 20.5 3.74 21.2 3.99 — —
2500 19.4 3.38 20.1 3.67 20.7 3.93 21.4 4.15 — —
2550 19.6 3.54 20.3 3.83 21.0 4.09 21.6 4.33 — —
2600 19.9 3.69 20.5 4.01 21.2 4.27 ————
2650 20.1 3.86 20.8 4.16 21.4 4.44 ————
2700 20.4 4.03 21.0 4.32 ——————
2750 20.6 4.21 ————————
2800 20.9 4.40 ————————
2850 ——————————
2900 ——————————
2950 ——————————
3000 ——————————
3050 ——————————
3100 ——————————
LEGEND
BkW — Fan Input kW × Motor Efficiency
R/s — Revolutions Per Second of Blower Wheel
NOTES:
1. Boldface indicates field-supplied drive required. (See Note 5.)
2. indicates field-supplied motor and drive required.
3. Values include losses for filters, unit casing, and wet coils.
4. Use of a field-supplied motor may affect wire sizing. Contact your
Carrier representative to verify.
5. Standard drive range is 12.0 to 15.0 r/s. All other speeds require a
field-supplied drive.
6. Maximum continuous BkW is 2.76. Extensive motor and electrical
testing on these units ensures that the full range of the motor can be
utilized with confidence. Using the fan motors up to the ratings shown
will not result in nuisance tripping or premature motor failure. Unit
warranty will not be affected.
7. Interpolation is permissible. Do not extrapolate.
20

FAN PERFORMANCE (SI) — HORIZONTAL DISCHARGE UNITS
48TJ008 (21.5 kW) — STANDARD MOTOR (BELT DRIVE)
Airflow
(L/s)
External Static Pressure (Pa)
50 100 150 200 225
R/s BkW R/s BkW R/s BkW R/s BkW R/s BkW
1075 8.1 0.34 9.5 0.49 10.7 0.66 11.8 0.81 12.4 0.92
1125 8.4 0.39 9.7 0.53 10.9 0.71 12.0 0.89 12.5 0.98
1150 8.6 0.42 9.9 0.58 11.1 0.76 12.2 0.96 12.7 1.05
1200 8.9 0.46 10.2 0.64 11.3 0.81 12.4 1.02 12.8 1.11
1250 9.1 0.51 10.4 0.70 11.5 0.87 12.6 1.08 13.0 1.19
1300 9.4 0.56 10.7 0.75 11.7 0.93 12.7 1.14 13.2 1.25
1400 9.7 0.62 10.9 0.82 12.0 0.99 12.9 1.22 13.4 1.33
1450 10.0 0.67 11.2 0.88 12.2 1.07 13.2 1.27 13.6 1.40
1500 10.2 0.74 11.4 0.94 12.4 1.15 13.4 1.36 13.8 1.48
1550 10.5 0.80 11.7 1.02 12.7 1.23 13.6 1.44 14.0 1.56
1600 10.8 0.88 11.9 1.09 12.9 1.32 13.8 1.53 14.2 1.65
1650 11.1 0.97 12.2 1.17 13.2 1.41 14.0 1.63 14.4 1.75
1700 11.4 1.04 12.4 1.25 13.4 1.51 14.3 1.73 14.7 1.85
1750 11.7 1.12 12.7 1.35 13.7 1.61 14.5 1.85 14.9 1.97
1800 12.0 1.23 13.0 1.45 13.9 1.70 14.8 1.95 15.1 2.07
1850 12.2 1.33 13.2 1.54 14.2 1.81 15.0 2.08 15.4 2.20
1900 12.5 1.42 13.5 1.65 14.4 1.92 15.2 2.20 15.6 2.34
48TJ008 (21.5 kW) — STANDARD MOTOR (BELT DRIVE) (cont)
Airflow
(L/s)
External Static Pressure (Pa)
250 300 350 400
R/s BkW R/s BkW R/s BkW R/s BkW
1075 12.9 1.03 13.9 1.29 15.0 1.60 15.7 1.89
1125 13.0 1.08 14.0 1.34 15.1 1.68 15.9 1.92
1150 13.1 1.13 14.1 1.38 15.2 1.69 16.0 1.96
1200 13.3 1.21 14.3 1.42 15.2 1.74 16.1 2.01
1250 13.5 1.29 14.4 1.48 15.3 1.78 16.2 2.06
1300 13.7 1.37 14.5 1.56 15.4 1.81 16.3 2.09
1400 13.9 1.44 14.7 1.66 15.5 1.84 16.4 2.19
1450 14.1 1.52 14.9 1.77 15.7 1.97 16.5 2.18
1500 14.3 1.60 15.1 1.86 15.9 2.08 16.6 2.29
1550 14.2 1.68 15.3 1.94 16.1 2.21 16.8 2.43
1600 14.8 1.77 15.5 2.04 16.3 2.31 17.0 2.55
1650 14.9 1.86 15.7 2.13 16.5 2.42 17.2 2.70
1700 15.1 1.97 15.9 2.24 16.6 2.52 17.4 2.82
1750 15.3 2.08 16.1 2.35 16.8 2.64 17.6 2.94
1800 15.5 2.20 16.3 2.45 17.0 2.76 17.7 3.05
1850 15.8 2.32 16.5 2.58 17.2 2.87 17.9 3.19
1900 16.0 2.46 16.7 2.70 17.5 2.99 18.1 3.31
LEGEND
BkW — Fan Input kW × Motor Efficiency
R/s — Revolutions Per Second of Blower Wheel
NOTES:
1. Boldface indicates field-supplied drive required. (See Note 5.)
2. indicates field-supplied motor and drive required.
3. Values include losses for filters, unit casing, and wet coils.
4. Use of a field-supplied motor may affect wire sizing. Contact your
Carrier representative to verify.
5. Standard drive range is 8.2 to 11.7 r/s. All other speeds require a
field-supplied drive.
6. Maximum continuous BkW is 1.79. Extensive motor and electrical
testing on these units ensures that the full range of the motor can be
utilized with confidence. Using the fan motors up to the ratings shown
will not result in nuisance tripping or premature motor failure. Unit
warranty will not be affected.
7. Interpolation is permissible. Do not extrapolate.
21

Performance data (cont)
FAN PERFORMANCE (SI) — HORIZONTAL DISCHARGE UNITS (cont)
48TJ012 (29.2 kW) — STANDARD MOTOR (BELT DRIVE)
Airflow
(L/s)
External Static Pressure (Pa)
50 100 150 200 250
R/s BkW R/s BkW R/s BkW R/s BkW R/s BkW
1500 9.1 0.49 10.5 0.63 11.6 0.77 12.6 0.89 13.5 0.99
1550 9.4 0.54 10.7 0.68 11.8 0.82 12.8 0.96 13.7 1.06
1600 9.6 0.59 10.9 0.73 12.0 0.88 13.0 1.02 13.9 1.14
1650 9.8 0.65 11.1 0.80 12.2 0.95 13.2 1.09 14.1 1.22
1700 10.1 0.71 11.3 0.86 12.4 1.01 13.4 1.16 14.2 1.30
1750 10.3 0.77 11.5 0.92 12.6 1.07 13.5 1.23 14.4 1.38
1800 10.6 0.84 11.7 0.98 12.8 1.14 13.7 1.30 14.6 1.47
1850 10.8 0.92 11.9 1.04 13.0 1.21 13.9 1.39 14.8 1.55
1900 11.1 1.00 12.1 1.14 13.2 1.29 14.1 1.47 15.0 1.64
1950 11.3 1.09 12.3 1.22 13.4 1.38 14.3 1.55 15.2 1.72
2000 11.6 1.18 12.6 1.31 13.6 1.47 14.5 1.64 15.3 1.82
2050 11.9 1.28 12.8 1.40 13.8 1.56 14.7 1.73 15.5 1.92
2100 12.1 1.38 13.0 1.50 14.0 1.64 14.9 1.82 15.8 2.02
2150 12.4 1.49 13.2 1.60 14.2 1.73 15.1 1.93 15.9 2.13
2200 12.7 1.61 13.4 1.70 14.4 1.83 15.3 2.04 16.1 2.24
2300 12.9 1.74 13.7 1.81 14.6 1.93 15.5 2.15 — —
2350 13.2 1.86 13.9 1.93 14.8 2.03 15.7 2.27 — —
2400 13.5 2.00 14.2 2.05 15.0 2.14 ————
2500 — — 14.4 2.14 15.2 2.25 ————
48TJ012 (29.2 kW) — STANDARD MOTOR (BELT DRIVE) (cont)
Airflow
(L/s)
External Static Pressure (Pa)
300 350 400 450 500
R/s BkW R/s BkW R/s BkW R/s BkW R/s BkW
1500 14.5 1.13 15.2 1.22 16.1 1.40 16.8 1.54 17.7 1.82
1550 14.6 1.20 15.4 1.30 16.2 1.43 16.9 1.60 17.8 1.86
1600 14.8 1.26 15.6 1.40 16.3 1.50 17.1 1.68 17.9 1.91
1650 14.9 1.33 15.7 1.48 16.5 1.60 17.2 1.72 18.0 1.97
1700 15.0 1.42 15.9 1.56 16.7 1.70 17.3 1.81 18.0 1.97
1750 15.2 1.51 16.0 1.64 16.8 1.79 17.5 1.91 18.2 2.04
1800 15.4 1.61 16.2 1.73 17.0 1.89 17.7 2.03 18.3 2.15
1850 15.6 1.71 16.3 1.84 17.1 1.98 17.8 2.15 18.5 2.27
1900 15.8 1.80 16.5 1.94 17.2 2.07 18.0 2.24 18.7 2.40
1950 16.0 1.91 16.7 2.06 17.4 2.19 ————
2000 16.2 2.01 16.9 2.17 17.6 2.31 ————
2050 16.3 2.10 17.1 2.29 ——————
2100 16.5 2.21 ————————
2150 16.7 2.32 ————————
2200 16.9 2.43 ————————
2300 ——————————
2350 ——————————
2400 ——————————
2500 ——————————
LEGEND
BkW — Fan Input kW × Motor Efficiency
R/s — Revolutions Per Second of Blower Wheel
NOTES:
1. Boldface indicates field-supplied drive required. (See Note 5.)
2. indicates field-supplied motor and drive required.
3. Values include losses for filters, unit casing, and wet coils.
4. Use of a field-supplied motor may affect wire sizing. Contact your
Carrier representative to verify.
5. Standard drive range is 9.5 to 13.0 r/s. All other speeds require a
field-supplied drive.
6. Maximum continuous BkW is 1.79. Extensive motor and electrical
testing on these units ensures that the full range of the motor can be
utilized with confidence. Using the fan motors up to the ratings shown
will not result in nuisance tripping or premature motor failure. Unit
warranty will not be affected.
7. Interpolation is permissible. Do not extrapolate.
22

FAN PERFORMANCE (SI) — HORIZONTAL DISCHARGE UNITS (cont)
48TJ014 (35.9 kW) — STANDARD MOTOR (BELT DRIVE)
Airflow
(L/s)
External Static Pressure (Pa)
50 100 150 200 250
R/s BkW R/s BkW R/s BkW R/s BkW R/s BkW
1900 11.5 0.96 12.7 1.14 13.7 1.32 14.7 1.49 15.6 1.71
1950 11.8 1.04 12.9 1.22 13.9 1.40 14.9 1.57 15.8 1.80
2000 12.1 1.12 13.2 1.29 14.2 1.49 15.1 1.65 16.0 1.89
2050 12.3 1.18 13.4 1.38 14.4 1.59 15.3 1.75 16.2 1.96
2100 12.6 1.27 13.6 1.46 14.6 1.68 15.5 1.86 16.4 2.05
2150 12.8 1.36 13.9 1.56 14.9 1.78 15.7 1.96 16.6 2.15
2200 13.1 1.44 14.1 1.66 15.1 1.88 16.0 2.07 16.8 2.26
2250 13.3 1.53 14.4 1.75 15.3 1.99 16.2 2.20 17.0 2.36
2325 13.6 1.63 14.6 1.87 15.5 2.10 16.4 2.30 17.2 2.50
2400 13.9 1.74 14.9 1.98 15.8 2.20 16.6 2.44 17.4 2.64
2450 14.1 1.84 15.1 2.10 16.0 2.31 16.8 2.56 17.6 2.77
2500 14.4 1.95 15.4 2.22 16.2 2.44 17.1 2.69 17.8 2.90
2550 14.7 2.07 15.6 2.34 16.5 2.56 17.3 2.83 18.1 3.05
2600 14.9 2.18 15.8 2.47 16.7 2.69 17.5 2.96 18.3 3.20
2650 15.2 2.32 16.1 2.60 16.9 2.83 17.8 3.11 18.5 3.34
2700 15.4 2.44 16.4 2.74 17.2 2.96 18.0 3.26 18.7 3.51
2750 15.7 2.57 16.6 2.89 17.4 3.11 18.2 3.38 19.0 3.67
2800 15.9 2.71 16.9 3.03 17.7 3.27 18.4 3.55 19.2 3.84
2850 16.2 2.86 17.1 3.18 17.9 3.46 18.7 3.70 — —
2900 16.5 2.98 17.3 3.32 18.2 3.57 18.9 3.85 — —
2950 16.7 3.11 17.6 3.46 18.4 3.72 ————
3000 17.0 3.25 17.8 3.60 18.7 3.87 ————
3050 17.3 3.38 18.1 3.74 ——————
3100 17.5 3.52 18.3 3.89 ——————
48TJ014 (35.9 kW) — STANDARD MOTOR (BELT DRIVE) (cont)
Airflow
(L/s)
External Static Pressure (Pa)
300 350 400 450 500
R/s BkW R/s BkW R/s BkW R/s BkW R/s BkW
1900 16.6 1.91 17.5 2.11 18.2 2.29 18.9 2.44 19.3 2.55
1950 16.7 2.00 17.6 2.21 18.4 2.41 19.1 2.58 19.6 2.71
2000 16.9 2.11 17.8 2.31 18.6 2.52 19.3 2.71 19.9 2.87
2050 17.1 2.20 17.9 2.42 18.7 2.64 19.5 2.84 20.1 3.02
2100 17.2 2.30 18.1 2.53 18.9 2.76 19.6 2.97 20.3 3.17
2150 17.4 2.42 18.2 2.64 19.0 2.88 19.8 3.10 20.5 3.31
2200 17.6 2.52 18.4 2.76 19.2 2.99 20.0 3.23 20.7 3.45
2250 17.8 2.61 18.6 2.88 19.4 3.11 20.1 3.37 20.9 3.60
2325 18.0 2.71 18.8 3.00 19.5 3.26 20.3 3.49 21.0 3.75
2400 18.2 2.83 18.9 3.13 19.7 3.39 20.5 3.64 21.2 3.89
2450 18.4 2.97 19.1 3.24 19.9 3.52 20.6 3.77 — —
2500 18.6 3.09 19.3 3.35 20.0 3.66 20.8 3.93 — —
2550 18.8 3.25 19.5 3.49 20.2 3.81 ————
2600 19.0 3.42 19.7 3.63 20.4 3.95 ————
2650 19.2 3.58 19.9 3.81 ——————
2700 19.4 3.73 20.1 3.92 ——————
2750 19.7 3.91 ————————
2800 ——————————
2850 ——————————
2900 ——————————
2950 ——————————
3000 ——————————
3050 ——————————
3100 ——————————
LEGEND
BkW — Fan Input kW × Motor Efficiency
R/s — Revolutions Per Second of Blower Wheel
NOTES:
1. Boldface indicates field-supplied drive required. (See Note 5.)
2. indicates field-supplied motor and drive required.
3. Values include losses for filters, unit casing, and wet coils.
4. Use of a field-supplied motor may affect wire sizing. Contact your
Carrier representative to verify.
5. Standard drive range is 12.0 to 15.0 r/s. All other speeds require a
field-supplied drive.
6. Maximum continuous BkW is 2.76. Extensive motor and electrical
testing on these units ensures that the full range of the motor can be
utilized with confidence. Using the fan motors up to the ratings shown
will not result in nuisance tripping or premature motor failure. Unit
warranty will not be affected.
7. Interpolation is permissible. Do not extrapolate.
23

Performance data (cont)
FAN PERFORMANCE (ENGLISH) — VERTICAL DISCHARGE UNITS
48TJ008 (6.1 TONS) — STANDARD MOTOR (BELT DRIVE)
Airflow
Cfm
External Static Pressure (in. wg)
0.2 0.4 0.6 0.8
Rpm Bhp Rpm Bhp Rpm Bhp Rpm Bhp
2200 506 0.52 586 0.72 656 0.95 718 1.18
2250 514 0.55 593 0.76 662 0.99 724 1.22
2300 521 0.57 600 0.79 668 1.02 730 1.26
2400 536 0.63 613 0.85 680 1.09 741 1.34
2500 551 0.69 626 0.93 693 1.17 753 1.43
2550 559 0.72 634 0.97 700 1.21 759 1.48
2600 567 0.75 641 1.00 706 1.25 764 1.52
2700 582 0.83 655 1.08 719 1.34 776 1.61
2800 598 0.90 670 1.17 732 1.43 789 1.71
2900 614 0.98 684 1.25 745 1.53 802 1.81
3000 630 1.07 699 1.35 759 1.63 815 1.92
3100 646 1.16 714 1.45 773 1.74 828 2.04
3200 662 1.26 729 1.55 787 1.86 841 2.16
3300 679 1.36 744 1.66 801 1.98 854 2.29
3400 695 1.47 759 1.78 816 2.10 867 2.42
3500 712 1.59 774 1.90 830 2.23 881 2.56
3600 729 1.71 790 2.03 845 2.37 895 2.71
3700 745 1.84 805 2.17 860 2.52 909 2.87
3750 754 1.91 813 2.24 868 2.59 917 2.95
48TJ008 (6.1 TONS) — STANDARD MOTOR (BELT DRIVE) (cont)
Airflow
Cfm
External Static Pressure (in. wg)
1.0 1.2 1.4 1.6
Rpm Bhp Rpm Bhp Rpm Bhp Rpm Bhp
2200 776 1.43 838 1.78 898 2.21 935 2.58
2250 781 1.78 841 1.81 902 2.25 939 2.60
2300 786 1.50 843 1.83 905 2.28 943 2.62
2400 796 1.59 849 1.88 910 2.31 952 2.74
2500 808 1.69 859 1.96 912 2.31 963 2.81
2550 814 1.74 864 2.01 915 2.34 968 2.81
2600 819 1.79 869 2.06 918 2.37 973 2.81
2700 831 1.89 880 2.17 927 2.47 976 2.84
2800 842 2.00 892 2.29 938 2.58 983 2.92
2900 854 2.11 903 2.42 949 2.71 993 3.03
3000 866 2.23 915 2.54 961 2.85 1003 3.17
3100 878 2.35 926 2.67 972 3.00 1015 3.32
3200 891 2.48 938 2.81 983 3.14 1026 3.47
3300 904 2.61 950 2.95 995 3.30 — —
3400 917 2.75 963 3.10 1007 3.45 — —
3500 930 2.90 976 3.25 ————
3600 943 3.05 988 3.41 ————
3700 956 3.22 — —————
3750 963 3.30 — —————
LEGEND
Bhp — Brake Horsepower at Motor Shaft
Rpm — Revolutions Per Minute of Blower Wheel
NOTES:
1. Boldface indicates field-supplied drive required. (See Note 5.)
2. indicates field-supplied motor and drive required.
3. Values include losses for filters, unit casing, and wet coils.
4. Use of a field-supplied motor may affect wire sizing. Contact your
Carrier representative to verify.
5. Standard drive range is 492 to 700 rpm. All other rpms require a
field-supplied drive.
6. Maximum continuous bhp is 2.4. Extensive motor and electrical test-
ing on these units ensures that the full range of the motor can be
utilized with confidence. Using the fan motors up to the ratings shown
will not result in nuisance tripping or premature motor failure. Unit
warranty will not be affected.
7. Interpolation is permissible. Do not extrapolate.
24

FAN PERFORMANCE (ENGLISH) — VERTICAL DISCHARGE UNITS (cont)
48TJ012 (8.3 TONS) — STANDARD MOTOR (BELT DRIVE)
Airflow
Cfm
External Static Pressure (in. wg)
0.2 0.4 0.6 0.8 1.0
Rpm Bhp Rpm Bhp Rpm Bhp Rpm Bhp Rpm Bhp
3000 592 0.76 661 0.93 722 1.09 779 1.26 829 1.42
3100 607 0.83 676 1.01 734 1.17 791 1.34 840 1.51
3200 622 0.90 690 1.09 746 1.25 803 1.43 852 1.60
3300 638 0.98 705 1.17 759 1.33 815 1.52 864 1.70
3400 653 1.06 719 1.26 772 1.43 826 1.62 876 1.81
3500 669 1.15 733 1.35 786 1.53 838 1.72 888 1.91
3600 684 1.24 747 1.44 800 1.64 850 1.82 900 2.03
3700 700 1.33 760 1.54 814 1.75 863 1.92 912 2.14
3800 715 1.43 774 1.64 828 1.86 875 2.04 924 2.26
3900 731 1.54 787 1.74 843 1.98 888 2.16 936 2.38
4000 747 1.64 801 1.85 857 2.10 902 2.30 948 2.51
4100 763 1.76 816 1.97 872 2.23 916 2.44 960 2.64
4200 778 1.88 831 2.10 886 2.36 929 2.58 972 2.78
4300 794 2.00 846 2.23 900 2.50 943 2.73 985 2.93
4400 810 2.13 861 2.37 913 2.64 958 2.89 999 3.09
4500 826 2.27 876 2.52 927 2.78 973 3.04 1012 3.26
4600 842 2.41 892 2.67 940 2.92 987 3.21 — —
4700 858 2.55 907 2.83 954 3.08 1002 3.38 — —
4800 874 2.70 922 2.99 968 3.24 ————
4900 890 2.86 938 3.16 — —————
5000 906 3.03 953 3.33 — —————
48TJ012 (8.3 TONS) — STANDARD MOTOR (BELT DRIVE) (cont)
Airflow
Cfm
External Static Pressure (in. wg)
1.2 1.4 1.6 1.8 2.0
Rpm Bhp Rpm Bhp Rpm Bhp Rpm Bhp Rpm Bhp
3000 880 1.58 924 1.73 970 1.89 1019 2.00 1066 2.30
3100 890 1.68 935 1.84 977 2.00 1026 2.17 1070 2.44
3200 900 1.77 946 1.95 987 2.11 1029 2.28 1075 2.51
3300 910 1.88 957 2.06 998 2.23 1037 2.40 1082 2.58
3400 921 1.98 967 2.17 1009 2.35 1047 2.53 1087 2.70
3500 933 2.10 976 2.29 1020 2.48 1058 2.66 1095 2.84
3600 945 2.22 986 2.41 1030 2.61 1069 2.80 1106 2.98
3700 957 2.34 998 2.54 1039 2.74 1081 2.94 1117 3.13
3800 969 2.47 1010 2.67 1049 2.87 1091 3.08 1128 3.29
3900 981 2.60 1022 2.81 1060 3.02 1100 3.23 — —
4000 993 2.74 1034 2.96 1072 3.17 1110 3.38 — —
4100 1005 2.88 1046 3.11 1084 3.32 ————
4200 1016 3.03 1058 3.26 ——————
4300 1028 3.17 ————————
4400 1040 3.32 ————————
4500 ——————————
4600 ——————————
4700 ——————————
4800 ——————————
4900 ——————————
5000 ——————————
LEGEND
Bhp — Brake Horsepower at Motor Shaft
Rpm — Revolutions Per Minute of Blower Wheel
NOTES:
1. Boldface indicates field-supplied drive required. (See Note 5.)
2. indicates field-supplied motor and drive required.
3. Values include losses for filters, unit casing, and wet coils.
4. Use of a field-supplied motor may affect wire sizing. Contact your
Carrier representative to verify.
5. Standard drive range is 571 to 779 rpm. All other rpms require a
field-supplied drive.
6. Maximum continuous bhp is 2.4. Extensive motor and electrical test-
ing on these units ensures that the full range of the motor can be
utilized with confidence. Using the fan motors up to the ratings shown
will not result in nuisance tripping or premature motor failure. Unit
warranty will not be affected.
7. Interpolation is permissible. Do not extrapolate.
25

Performance data (cont)
FAN PERFORMANCE (ENGLISH) — VERTICAL DISCHARGE UNITS (cont)
48TJ014 (10.2 TONS) — STANDARD MOTOR (BELT DRIVE)
Airflow
Cfm
External Static Pressure (in. wg)
0.2 0.4 0.6 0.8 1.0
Rpm Bhp Rpm Bhp Rpm Bhp Rpm Bhp Rpm Bhp
3700 729 1.36 790 1.58 847 1.79 902 2.06 955 2.29
3800 745 1.46 805 1.69 861 1.89 915 2.17 967 2.41
3900 761 1.56 820 1.80 875 2.01 928 2.29 979 2.55
4000 777 1.67 836 1.92 889 2.14 941 2.40 991 2.68
4100 793 1.79 851 2.05 904 2.27 955 2.52 1004 2.82
4200 810 1.91 867 2.18 918 2.41 968 2.65 1017 2.96
4300 826 2.04 883 2.32 933 2.55 982 2.79 1030 3.11
4400 842 2.17 898 2.46 948 2.70 996 2.93 1043 3.25
4500 859 2.31 914 2.60 962 2.85 1010 3.09 1056 3.40
4600 876 2.46 930 2.76 977 3.01 1024 3.26 1070 3.55
4700 892 2.60 945 2.91 992 3.18 1039 3.43 1083 3.71
4800 909 2.77 961 3.07 1008 3.36 1053 3.61 1097 3.88
4900 926 2.93 977 3.24 1024 3.54 1068 3.80 1111 4.06
5000 942 3.11 993 3.41 1039 3.73 1080 3.90 1126 4.25
5100 959 3.29 1009 3.60 1055 3.92 1097 4.19 1139 4.46
5200 976 3.47 1025 3.78 1071 4.12 1112 4.40 1153 4.67
5300 993 3.67 1041 3.98 1086 4.33 1127 4.61 1168 4.90
5400 1010 3.87 1057 4.18 1102 4.54 1142 4.84 1182 5.13
5500 1027 4.07 1073 4.39 1118 4.76 1157 5.07 1197 5.36
5600 1043 4.29 1090 4.61 1133 4.99 1173 5.31 1211 5.61
5700 1060 4.51 1106 4.83 1149 5.22 1189 5.55 — —
5800 1077 4.74 1122 5.07 1165 5.46 ————
5900 1094 4.98 1139 5.31 1181 5.70 ————
6000 1111 5.22 1155 5.55 ——————
6100 1128 5.48 ————————
6200 1145 5.74 ————————
48TJ014 (10.2 TONS) — STANDARD MOTOR (BELT DRIVE) (cont)
Airflow
Cfm
External Static Pressure (in. wg)
1.2 1.4 1.6 1.8 2.0
Rpm Bhp Rpm Bhp Rpm Bhp Rpm Bhp Rpm Bhp
3700 1008 2.55 1060 2.80 1108 3.05 1152 3.27 1190 3.46
3800 1019 2.67 1070 2.94 1118 3.19 1163 3.44 1203 3.65
3900 1029 2.80 1079 3.07 1128 3.34 1173 3.60 1214 3.83
4000 1040 2.94 1089 3.22 1137 3.49 1183 3.76 1225 4.00
4100 1052 3.08 1100 3.36 1147 3.65 1193 3.93 1236 4.19
4200 1064 3.23 1110 3.51 1157 3.81 1202 4.09 1245 4.38
4300 1076 3.40 1121 3.67 1167 3.97 1212 4.27 1255 4.56
4400 1088 3.56 1133 3.84 1178 4.14 1222 4.44 1265 4.74
4500 1101 3.73 1144 4.00 1188 4.31 1232 4.62 1274 4.93
4600 1114 3.90 1157 4.19 1199 4.49 1242 4.81 1284 5.13
4700 1126 4.07 1169 4.38 1210 4.68 1252 5.00 1294 5.33
4800 1140 4.25 1181 4.58 1222 4.87 1263 5.20 — —
4900 1153 4.41 1194 4.77 1234 5.09 1274 5.40 — —
5000 1166 4.59 1207 4.97 1247 5.30 1286 5.62 — —
5100 1180 4.78 1220 5.18 1259 5.52 ————
5200 1194 4.98 1233 5.38 1272 5.74 ————
5300 1208 5.19 1246 5.58 ——————
5400 1221 5.41 ————————
5500 1235 5.64 ————————
5600 ——————————
5700 ——————————
5800 ——————————
5900 ——————————
6000 ——————————
6100 ——————————
6200 ——————————
LEGEND
Bhp — Brake Horsepower at Motor Shaft
Rpm — Revolutions Per Minute of Blower Wheel
NOTES:
1. Boldface indicates field-supplied drive required. (See Note 5.)
2. indicates field-supplied motor and drive required.
3. Values include losses for filters, unit casing, and wet coils.
4. Use of a field-supplied motor may affect wire sizing. Contact your
Carrier representative to verify.
5. Standard drive range is 717 to 900 rpm. All other rpms require a
field-supplied drive.
6. Maximum continuous bhp is 3.7. Extensive motor and electrical test-
ing on these units ensures that the full range of the motor can be
utilized with confidence. Using the fan motors up to the ratings shown
will not result in nuisance tripping or premature motor failure. Unit
warranty will not be affected.
7. Interpolation is permissible. Do not extrapolate.
26

FAN PERFORMANCE (ENGLISH) — HORIZONTAL DISCHARGE UNITS
48TJ008 (6.1 TONS) — STANDARD MOTOR (BELT DRIVE)
Airflow
Cfm
External Static Pressure (in. wg)
0.2 0.4 0.6 0.8 0.9
Rpm Bhp Rpm Bhp Rpm Bhp Rpm Bhp Rpm Bhp
2200 499 0.50 580 0.70 652 0.94 717 1.17 748 1.30
2250 507 0.53 586 0.73 658 0.97 722 1.22 752 1.34
2300 513 0.55 592 0.76 663 1.00 727 1.26 756 1.38
2400 528 0.60 606 0.83 674 1.06 738 1.34 766 1.46
2500 542 0.66 619 0.90 686 1.13 748 1.41 777 1.55
2550 550 069 627 0.94 692 1.17 754 1.45 783 1.60
2600 557 0.72 634 0.97 698 1.21 759 1.49 787 1.64
2700 573 0.79 648 1.05 711 1.29 770 1.58 798 1.73
2800 588 0.86 662 1.13 723 1.38 782 1.66 809 1.82
2900 604 0.94 676 1.21 737 1.48 794 1.76 821 1.92
3000 620 1.02 690 1.30 750 1.58 806 1.86 832 2.02
3100 636 1.11 704 1.39 764 1.69 818 1.97 844 2.13
3200 652 1.21 718 1.49 778 1.80 831 2.09 856 2.25
3300 668 1.31 732 1.59 793 1.92 844 2.21 869 2.37
3400 684 1.41 747 1.70 807 2.04 857 2.35 882 2.51
3500 701 1.53 762 1.82 821 2.16 871 2.48 895 2.64
3600 717 1.65 777 1.94 835 2.29 885 2.63 908 2.79
3700 733 1.77 792 2.07 849 2.42 899 2.78 922 2.95
3750 742 1.84 800 2.14 856 2.49 907 2.86 929 3.03
48TJ008 (6.1 TONS) — STANDARD MOTOR (BELT DRIVE) (cont)
Airflow
Cfm
External Static Pressure (in. wg)
1.0 1.2 1.4 1.6
Rpm Bhp Rpm Bhp Rpm Bhp Rpm Bhp
2200 779 1.43 839 1.78 905 2.21 951 2.57
2250 783 1.46 843 1.81 908 2.25 955 2.59
2300 786 1.49 846 1.84 910 2.25 959 2.61
2400 795 1.58 853 1.88 912 2.31 967 2.68
2500 806 1.68 859 1.94 919 2.37 971 2.73
2550 812 1.74 864 1.99 920 2.39 974 2.76
2600 816 1.79 868 2.04 921 2.41 976 2.78
2700 827 1.88 878 2.16 928 2.45 983 2.88
2800 837 1.98 889 2.29 937 2.57 986 2.91
2900 848 2.08 900 2.41 947 2.70 993 3.01
3000 849 2.18 910 2.52 958 2.85 1002 3.15
3100 870 2.29 920 2.64 968 2.99 1012 3.30
3200 882 2.40 931 2.76 979 3.13 1023 3.47
3300 894 2.53 942 2.89 989 3.26 1034 3.63
3400 907 2.66 954 3.02 1000 3.40 1044 3.79
3500 919 2.80 966 3.15 1011 3.55 1054 3.94
3600 932 2.95 978 3.30 1022 3.69 1065 4.10
3700 945 3.11 990 3.45 1034 3.84 1076 4.28
3750 952 3.20 997 3.54 1040 3.93 1082 5.27
LEGEND
Bhp — Brake Horsepower at Motor Shaft
Rpm — Revolutions Per Minute of Blower Wheel
NOTES:
1. Boldface indicates field-supplied drive required. (See Note 5.)
2. indicates field-supplied motor and drive required.
3. Values include losses for filters, unit casing, and wet coils.
4. Use of a field-supplied motor may affect wire sizing. Contact your
Carrier representative to verify.
5. Standard drive range is 492 to 700 rpm. All other rpms require a
field-supplied drive.
6. Maximum continuous bhp is 2.4. Extensive motor and electrical test-
ing on these units ensures that the full range of the motor can be
utilized with confidence. Using the fan motors up to the ratings shown
will not result in nuisance tripping or premature motor failure. Unit
warranty will not be affected.
7. Interpolation is permissible. Do not extrapolate.
27

Performance data (cont)
FAN PERFORMANCE (ENGLISH) — HORIZONTAL DISCHARGE UNITS (cont)
48TJ012 (8.3 TONS) — STANDARD MOTOR (BELT DRIVE)
Airflow
Cfm
External Static Pressure (in. wg)
0.2 0.4 0.6 0.8 1.0
Rpm Bhp Rpm Bhp Rpm Bhp Rpm Bhp Rpm Bhp
3000 552 0.68 632 0.87 701 1.05 761 1.22 816 1.36
3100 565 0.74 644 0.93 711 1.12 772 1.31 825 1.45
3200 578 0.81 656 1.00 723 1.20 782 1.39 835 1.55
3300 591 0.88 668 1.08 734 1.28 793 1.47 845 1.65
3400 605 0.96 680 1.16 745 1.36 803 1.56 856 1.75
3500 519 1.04 691 1.23 755 1.44 813 1.65 867 1.86
3600 633 1.13 703 1.31 766 1.52 824 1.74 877 1.97
3700 648 1.23 714 1.39 777 1.61 835 1.85 887 2.07
3800 662 1.33 726 1.51 789 1.72 846 1.95 897 2.18
3900 677 1.44 738 1.61 801 1.82 857 2.06 908 2.29
4000 692 1.55 750 1.73 813 1.94 868 2.17 918 2.40
4100 707 1.67 762 1.84 825 2.05 878 2.28 929 2.53
4200 722 1.80 775 1.97 837 2.16 889 2.40 941 2.66
4300 737 1.94 787 2.09 848 2.27 900 2.52 952 2.80
4400 752 2.08 800 2.21 860 2.39 912 2.66 962 2.93
4500 768 2.24 814 2.35 871 2.51 924 2.80 973 3.07
4600 783 2.40 827 2.50 883 2.64 937 2.95 983 3.21
4700 799 2.56 841 2.64 894 2.77 949 3.10 994 3.36
4800 814 2.74 855 2.80 906 2.91 961 3.26 — —
4900 — — 868 2.90 918 3.05 972 3.40 — —
5000 — — 883 3.10 931 3.21 ————
48TJ012 (8.3 TONS) — STANDARD MOTOR (BELT DRIVE) (cont)
Airflow
Cfm
External Static Pressure (in. wg)
1.2 1.4 1.6 1.8 2.0
Rpm Bhp Rpm Bhp Rpm Bhp Rpm Bhp Rpm Bhp
3000 871 1.54 918 1.67 967 1.89 1010 2.09 1063 2.46
3100 879 1.63 928 1.78 973 1.94 1018 2.17 1070 2.51
3200 887 1.71 937 1.90 981 2.04 1026 2.26 1075 2.57
3300 895 1.80 946 2.00 991 2.16 1032 2.32 1080 2.64
3400 904 1.91 953 2.10 1000 2.29 1041 2.44 1083 2.65
3500 914 2.03 961 2.20 1009 2.41 1051 2.57 1090 2.74
3600 924 2.15 970 2.32 1017 2.53 1061 2.72 1099 2.88
3700 935 2.28 980 2.45 1024 2.64 1069 2.87 1109 3.03
3800 946 2.40 989 2.58 1033 2.76 1077 2.99 1118 3.20
3900 956 2.53 1000 2.73 1042 2.91 1085 3.12 1127 3.36
4000 967 2.66 1010 2.87 1052 3.06 1093 3.24 — —
4100 977 2.78 1021 3.02 1062 3.22 1102 3.41 — —
4200 987 2.91 1032 3.17 1072 3.38 ————
4300 999 3.04 1042 3.32 ——————
4400 1008 3.19 ————————
4500 1019 3.34 ————————
4600 ——————————
4700 ——————————
4800 ——————————
4900 ——————————
5000 ——————————
LEGEND
Bhp — Brake Horsepower at Motor Shaft
Rpm — Revolutions Per Minute of Blower Wheel
NOTES:
1. Boldface indicates field-supplied drive required. (See Note 5.)
2. indicates field-supplied motor and drive required.
3. Values include losses for filters, unit casing, and wet coils.
4. Use of a field-supplied motor may affect wire sizing. Contact your
Carrier representative to verify.
5. Standard drive range is 571 to 779 rpm. All other rpms require a
field-supplied drive.
6. Maximum continuous bhp is 2.4. Extensive motor and electrical test-
ing on these units ensures that the full range of the motor can be
utilized with confidence. Using the fan motors up to the ratings shown
will not result in nuisance tripping or premature motor failure. Unit
warranty will not be affected.
7. Interpolation is permissible. Do not extrapolate.
28

FAN PERFORMANCE (ENGLISH) — HORIZONTAL DISCHARGE UNITS (cont)
48TJ014 (10.2 TONS) — STANDARD MOTOR (BELT DRIVE)
Airflow
Cfm
External Static Pressure (in. wg)
0.2 0.4 0.6 0.8 1.0
Rpm Bhp Rpm Bhp Rpm Bhp Rpm Bhp Rpm Bhp
3700 677 1.20 748 1.43 810 1.65 869 1.89 928 2.17
3800 691 1.28 761 1.52 822 1.75 880 1.98 937 2.28
3900 705 1.37 773 1.62 834 1.86 891 2.08 947 2.39
4000 720 1.47 786 1.71 847 1.97 902 2.19 957 2.50
4100 734 1.56 800 1.82 860 2.09 914 2.31 967 2.60
4200 749 1.66 813 1.92 873 2.21 926 2.44 978 2.71
4300 764 1.77 826 2.04 886 2.33 938 2.57 989 2.83
4400 779 1.88 840 2.16 899 2.46 951 2.71 1000 2.96
4500 793 1.99 854 2.28 912 2.59 963 2.86 1012 3.09
4600 808 2.11 868 2.42 925 2.73 975 3.00 1024 3.25
4700 822 2.24 882 2.56 937 2.86 988 3.16 1036 3.42
4800 837 2.37 896 2.71 950 3.00 1001 3.32 1048 3.59
4900 852 2.51 910 2.86 963 3.15 1014 3.48 1060 3.76
5000 867 2.65 924 3.01 977 3.30 1027 3.65 1073 3.94
5100 882 2.79 938 3.17 990 3.46 1040 3.82 1085 4.12
5200 896 2.95 952 3.33 1003 3.63 1053 4.00 1098 4.30
5300 911 3.11 967 3.50 1017 3.80 1066 4.18 1111 4.50
5400 926 3.27 981 3.68 1030 3.98 1079 4.35 1124 4.70
5500 940 3.44 995 3.86 1044 4.17 1092 4.54 1137 4.91
5600 955 3.62 1010 4.04 1058 4.38 1105 4.73 1150 5.12
5700 970 3.80 1024 4.23 1072 4.59 1118 4.93 1163 5.34
5800 985 3.99 1039 4.42 1086 4.80 1131 5.14 1176 5.56
5900 1000 4.18 1053 4.62 1100 5.02 1144 5.36 — —
6000 1015 4.39 1068 4.83 1114 5.25 1158 5.58 — —
6100 1030 4.59 1083 5.04 1128 5.48 ————
6200 1046 4.81 1097 5.26 1142 5.71 ————
48TJ014 (10.2 TONS) — STANDARD MOTOR (BELT DRIVE) (cont)
Airflow
Cfm
External Static Pressure (in. wg)
1.2 1.4 1.6 1.8 2.0
Rpm Bhp Rpm Bhp Rpm Bhp Rpm Bhp Rpm Bhp
3700 984 2.43 1036 2.68 1080 2.90 1114 3.07 1135 3.17
3800 993 2.55 1046 2.81 1092 3.05 1129 3.25 1156 3.39
3900 1002 2.66 1055 2.94 1102 3.20 1143 3.42 1174 3.59
4000 1011 2.79 1064 3.07 1112 3.34 1155 3.59 1190 3.80
4100 1021 2.91 1072 3.20 1121 3.49 1165 3.76 1203 3.99
4200 1030 3.04 1081 3.34 1130 3.64 1175 3.92 1215 4.18
4300 1040 3.18 1090 3.48 1139 3.79 1185 4.08 1226 4.36
4400 1050 3.31 1100 3.63 1148 3.94 1194 4.25 1236 4.54
4500 1061 3.43 1109 3.78 1157 4.09 1203 4.42 1246 4.72
4600 1071 3.56 1119 3.93 1166 4.26 1212 4.58 1255 4.91
4700 1082 3.70 1129 4.09 1175 4.43 1221 4.76 1264 5.09
4800 1093 3.86 1139 4.24 1185 4.60 1230 4.93 1273 5.28
4900 1105 4.02 1150 4.38 1194 4.77 1239 5.12 1282 5.47
5000 1117 4.20 1161 4.54 1204 4.95 1248 5.31 1291 5.66
5100 1129 4.40 1172 4.71 1214 5.13 1257 5.61 — —
5200 1141 4.60 1183 4.91 1225 5.29 1267 5.70 — —
5300 1153 4.80 1194 5.08 1236 5.47 ————
5400 1166 5.01 1206 5.29 1247 5.65 ————
5500 1178 5.22 1218 5.52 ——————
5600 1190 5.44 1230 5.75 ——————
5700 1203 5.67 ————————
5800 ——————————
5900 ——————————
6000 ——————————
6100 ——————————
6200 ——————————
LEGEND
Bhp — Brake Horsepower at Motor Shaft
Rpm — Revolutions Per Minute of Blower Wheel
NOTES:
1. Boldface indicates field-supplied drive required. (See Note 5.)
2. indicates field-supplied motor and drive required.
3. Values include losses for filters, unit casing, and wet coils.
4. Use of a field-supplied motor may affect wire sizing. Contact your
Carrier representative to verify.
5. Standard drive range is 717 to 900 rpm. All other rpms require a
field-supplied drive.
6. Maximum continuous bhp is 3.7. Extensive motor and electrical test-
ing on these units ensures that the full range of the motor can be
utilized with confidence. Using the fan motors up to the ratings shown
will not result in nuisance tripping or premature motor failure. Unit
warranty will not be affected.
7. Interpolation is permissible. Do not extrapolate.
29

Performance data (cont)
EVAPORATOR-FAN MOTOR PERFORMANCE
UNIT
48TJ UNIT RATED
VOLTAGE
MAXIMUM
ACCEPTABLE
CONTINUOUS
BkW*
MAXIMUM
ACCEPTABLE
CONTINUOUS
BHP*
MAXIMUM
ACCEPTABLE
OPERATING
WATTS
MAXIMUM
AMP DRAW
008 400 1.79 2.40 2120 2.7
012 400 1.79 2.40 2120 2.7
014 400 2.76 3.70 3326 5.7
LEGEND
Bhp — Brake Horsepower
BkW — kW x Motor Efficiency
*Extensive motor and electrical testing on these units ensures that
the full range of the motors can be utilized with confidence. Using
your fan motors up to the ratings shown in this table will not result
in nuisance tripping or premature motor failure. Unit warranty will
not be affected.
FAN R/s AT MOTOR PULLEY SETTINGS (SI)
UNIT
48TJ MOTOR PULLEY TURNS OPEN
0
1
⁄
2
11
1
⁄
2
22
1
⁄
2
33
1
⁄
2
44
1
⁄
2
5
008 11.70 11.35 11.00 10.65 10.30 9.95 9.60 9.25 8.90 8.55 8.20
012 13.00 12.65 12.30 11.95 11.60 11.25 10.90 10.55 10.20 9.85 9.50
014 15.00 14.70 14.40 14.10 13.80 13.50 13.20 12.90 12.60 12.30 12.00
FAN RPM AT MOTOR PULLEY SETTINGS (ENGLISH)
UNIT
48TJ MOTOR PULLEY TURNS OPEN
0
1
⁄
2
11
1
⁄
2
22
1
⁄
2
33
1
⁄
2
44
1
⁄
2
5
008 700 681 660 639 618 597 576 555 534 513 492
012 779 760 739 718 697 676 655 634 613 592 571
014 900 883 865 843 825 807 789 771 753 735 717
EVAPORATOR-FAN MOTOR EFFICIENCY
MOTOR EFFICIENCY (%)
48TJD/TJE/TJF008 80
48TJD/TJE/TJF012 80
48TJD/TJE014 85
NOTE: Convert watts to bhp using the following formula:
watts input × motor efficiency
bhp = 746
30

ACCESSORY/FIOP STATIC PRESSURE DROP (Pa) —
48TJ008-014
UNIT
48TJ RATED
VOLTAGE L/s
DURABLADE
ECONOMIZER
PRESSURE
DROP
008-014 All
1100 5
1200 6
1300 7
1400 8
1500 9
1600 10
1700 11
1800 12
1900 13
2000 14
2100 15
2200 16
2300 17
FIOP — Factory-Installed Option
ACCESSORY/FIOP STATIC PRESSURE DROP (in. wg) —
48TJ008-014
UNIT
48TJ RATED
VOLTAGE CFM
DURABLADE
ECONOMIZER
PRESSURE
DROP
008-014 All
2200 .02
2500 .02
3000 .03
3500 .04
4000 .05
4500 .06
5000 .07
5500 .08
6000 .09
FIOP — Factory-Installed Option
DURABLADE ECONOMIZER BAROMETRIC RELIEF DAMPER CHARACTERISTICS
L/s
0.00 200 400 600 800 1000 1200
CFM
0.70
0.60
0.50
0.40
0.30
0.20
0.10
PRESSURE DROP (in. wg)
0 100 200 300 400 500 570
175
150
125
100
75
50
25
0
PRESSURE DROP (Pa)
31

Electrical data — 48TJ008-014
UNIT
48TJ
NOMINAL
VOLTAGE
(50 Hz)
VOLTAGE
RANGE COMPR
(ea) OFM
(ea) IFM COMBUSTION
FAN
MOTOR POWER SUPPLY MINIMUM
UNIT
DISCONNECT
Min Max RLA LRA FLA FLA FLA MCA MOCP* FLA LRA
008 400
(3 phase) 360 440 6.2 37.7 0.8 2.6 .22 18.0 25 19 99
012 400
(3 phase) 360 440 8.6 55.0 0.8 3.4 .22 23.4 30 24 134
014 400
(3 phase) 360 440 9.6 72.0 0.8 6.2 .22 29.6 35 31 190
LEGEND
FLA — Full Load Amps
HACR — Heating, Air Conditioning and
Refrigeration
IFM — Indoor (Evaporator) Fan Motor
LRA — Locked Rotor Amps
MCA — Minimum Circuit Amps
MOCP — Maximum Overcurrent Protection
NEC — National Electrical Code (U.S.A.)
OFM — Outdoor (Condenser) Fan Motor
RLA — Rated Load Amps
*Fuse or HACR circuit breaker.
NOTES:
1. In compliance with NEC requirements (U.S.A. Standard) for multi-
motor and combination load equipment (refer to NEC Articles 430
and 440), the overcurrent protective device for the unit shall be fuse
or HACR breaker. The Canadian units may be fuse or circuit breaker.
2. Unbalanced 3-Phase Supply Voltage
Never operate a motor where a phase imbalance in supply voltage is
greater than 2%.
Use the following formula to determine the percent
of voltage imbalance.
% Voltage imbalance
max voltage deviation from average voltage
= 100 x average voltage
EXAMPLE: Supply voltage is 400-3-50.
AB = 393 v
BC = 403 v
AC = 396 v 393 + 403 + 396
Average Voltage = 3
1192
=3
= 397
Determine maximum deviation from average voltage:
(AB) 397 – 393 = 4 v
(BC) 403 – 397 = 6 v
(AC) 397 – 396 = 1 v
Maximum deviation is 6 v.
Determine percent voltage imbalance.
6
% Voltage imbalance = 100 x 397
= 1.5%
This amount of phase imbalance is satisfactory as it is below the
maximum allowable 2%.
IMPORTANT: If the supply voltage phase imbalance is more
than 2%, contact your local electric utility company immediately.
32

Typical piping and wiring — 48TJ008-014
VERTICAL DISCHARGE DUCTING
HORIZONTAL DISCHARGE DUCTING
OR
LOCAL CODES
FIELD-SUPPLIED
NEC — National Electrical Code (U.S.A. Standard)
33

Typical wiring schematic
LEGEND
AHA — Adjustable Heat Anticipator
BR — Blower Relay
C—Contactor, Compressor
CB — Circuit Breaker
CC — Cooling Compensator
COMP — Compressor Motor
CR — Combustion Relay
D—Diode
EC — Enthalpy Control
ECON — Economizer
EPS — Emergency Power Supply
(Nine Volt Battery)
EQUIP — Equipment
ER — Economizer Relay
FPT — Freeze Up Protection Thermostat
FSS — Filter Status Sensor
GND — Ground
GVR — Gas Valve Relay
HS — Hall Effect Sensor
HPS — High-Pressure Switch
I—Ignitor
IDM — Induced-Draft Motor
IFC — Indoor-Fan Contactor
IFM — Indoor-Fan Motor
IGC — Integrated Gas Unit Controller
LPS — Low-Pressure Switch
LS — Limit Switch
MGV — Main Gas Valve
MTR — Motor
OAT — Outdoor-Air Thermostat
OFM — Outdoor-Fan Motor
P—Plug
PL — Plug Assembly
QT — Quadruple Terminal
R—Relay
RS — Rollout Switch
SAT — Supply Air Thermostat
SEN — Sensor
SW1 — Switch Fully Open
SW2 — Switch Fully Closed
SW3 — Switch Min. Vent Position
SW4 — Switch Max. Vent Position
TC — Thermostat-Cooling
TH — Thermostat-Heating
TRAN — Transformer
Field Splice
Marked Wire
Terminal (Marked)
Terminal (Unmarked)
Terminal Block
Splice
Splice (Marked)
Factory Wiring
Field Control Wiring
Field Power Wiring
Accessory or Optional Wiring
To indicate common potential
only; not to represent wiring.
NOTES:
1. If any of the original wire furnished must be replaced, it must
be replaced with Type 90 C wire or its equivalent.
2. Three phase motors are protected under primary single phas-
ing conditions.
3. Thermostat:
HH07AT170,172,174 & P272-2783
Subbase:
HH93AZ176,178 & P272-1882,1883
4. Set heat anticipator for first stage at 0.14 amp, second stage
at 0.2 amp, except for 008 low heat, set both first and sec-
ond stage at 0.14 amp.
5. Use copper conductors only.
6. TRAN is wired for 230v unit. If unit is to be run with 208v
power supply disconnect BLK wire from 230v tap (ORN) and
connect to 200v tap (RED). Insulate end of 230v tap.
34

Controls
Operating sequence
Cooling, units without economizer — When thermo-
stat calls for cooling, terminals G and Y1 are energized. The
indoor (evaporator) fan contactor (IFC), and compressor
contactor no. 1 (C1) are energized and evaporator-fan mo-
tor, compressor no. 1, and condenser fans start. The
condenser-fan motor runs continuously while unit is cool-
ing. If the thermostat calls for a second stage of cooling by
energizing Y2, compressor contactor no. 2 (C2) is ener-
gized and compressor no. 2 starts.
Heating, units without economizer — When the ther-
mostat calls for heating, terminal W1 is energized. In order
to prevent thermostat short-cyling, the unit is locked into
the Heating mode for at least 1 minute when W1 is ener-
gized. The induced-draft motor (IDM) is then energized and
the burner ignition sequence begins. The indoor (evapora-
tor) fan motor (IFM) is energized 45 seconds after a flame is
ignited. On units equipped for two stages of heat, when ad-
ditional heat is needed, W2 is energized and the high-fire
solenoid on the main gas valve (MGV) is energized. When
the thermostat is satisfied and W1 is deenergized, the IFM
stops after a 45-second time-off delay.
Cooling, units with Durablade economizer — When
the outdoor-air temperature is above the outdoor-air ther-
mostat (OAT) setting and the room thermostat calls for cool-
ing, compressor contactor no. 1 is energized to start com-
pressorno. 1and thecondenser-fanmotor.The evaporator-
fan motor is energized and the economizer damper moves
to the minimum position. Upon a further call for cooling,
compressor contactor no. 2 will be energized, starting com-
pressor no. 2. After the thermostat is satisfied, the damper
moves to the fully closed position.
When the outdoor-air temperature is below the OAT set-
ting and the thermostat calls for cooling, the economizer
dampers move to the minimum position. If the supply-air
temperature is above 13.9 C (57 F), the damper continues
to open until it reaches the fully open position or until the
supply-air temperature drops below 13.9 C (57 F).
When the supply-air temperature falls to between
13.9 C (57 F) and 11.1 C (52 F), the damper will remain at
an intermediate open position. If the supply-air tempera-
ture falls below 11.1 C (52 F), the damper will modulate
closed until it reaches the minimum position or until the
supply-air temperature is above 11.1 C (52 F). When the
thermostat is satisfied, the damper will move to the fully
closed position.
If the outdoor air alone cannot satisfy the cooling require-
ments of the conditioned space, economizer cooling is in-
tegrated with mechanical cooling, providing second-stage
cooling. Compressor no. 1 and the condenser fan will be
energized and the position of the economizer damper will
be determined by the supply-air temperature. Compressor
no. 2 is locked out.
When the second stage of cooling is satisfied, the com-
pressor and condenser-fan motor will be deenergized. The
damper position will be determined by the supply-air
temperature.
When the first stage of cooling is satisfied, the damper
will move to fully closed position.
Heating, units with economizer — When the thermo-
stat calls for heating, terminal W1 is energized. In order to
prevent thermostat short-cyling, the unit is locked into the
Heating mode for at least 1 minute when W1 is energized.
The induced-draft motor is then energized and the burner
ignition sequence begins. The indoor (evaporator) fan mo-
tor (IFM) is energized 45 seconds after a flame is ignited
and the damper moves to the minimum position. On units
equipped for two stages of heat, when additional heat is
needed, W2 is energized and the high-fire solenoid on the
main gas valve (MGV) is energized. When the thermostat
is satisfied and W1 is deenergized, the IFM stops after a
45-second time-off delay. The economizer damper then
moves to the fully closed position. When using continuous
fan, the damper will remain in the minimum position.
35

Controls (cont)
THERMOSTAT AND APOLLO CONTROL WIRING
LEGEND
C—Contactor
NOTE: Refer to Product Support Bulletin No. 93-005 or contact your
local Carrier representative for shielded wire applications when wiring
the thermostat to the Apollo control and for all communication bus wir-
ing connections.
MS(T)-01ES TEMP SYSTEM THERMOSTAT
36

APOLLO COMMUNICATING CONTROL WIRING SCHEMATIC
LEGEND
C—Contactor
CHAS — Ground
COM — Common
DX — Direct Expansion
ECON — Economizer
GND — Ground
HT — Heat
NC — Normally Closed
NO — Normally Open
OAT — Outdoor-Air
Thermostat
SAT — Supply-Air
Temperature
VVT — Variable Volume/
Variable Temperature
37

Controls (cont)
TEMP systems
A TEMP System is a network of communicating Carrier
TEMP System Thermostats and rooftop, factory-mounted
Apollo direct digital controls, each serving its own zone and
heating/cooling unit. Networking allows your building man-
ager to easily access each of your systems from a single
location...whether they are in the same building or located
throughout town.
The TEMP System’s inherently flexible, modular base de-
sign supports the exact number of independent, single zone
systems you require...no more, no less, no compromises.
Ideal for department stores, small office buildings,
fast food chains, schools and hotels, a TEMP System is a
cost-effective way to maintain comfortable building
environments.
38

Variable Volume/Variable Temperature
(VVTt) Systems
Carrier’s VVT Systems are dedicated to total building com-
fort. Carrier thermostats, zone dampers, and HVAC equip-
ment with factory-mounted direct digital controls continu-
allymonitorandadjust their operationtoensureuninterrupted
and personalized comfort for all occupants.
Through the use of communicating electronic controls,
VVT Systems are able to provide the comfort of a multiple
zonesystem whileusing the installation,operating andmain-
tenance economics of single zone equipment...virtually put-
ting an end to the cost vs comfort compromise.
39

Application data
Outdoor installation — Units approved for outdoor
installation only.
Ductwork — Secure vertical discharge ductwork to roof
curb. For horizontal discharge applications, either attach
ductwork to unit, or use field-supplied flanges attached to
the horizontal discharge openings and attach all ductwork
to flanges.
Horizontal discharge — To convert from vertical dis-
charge to horizontal discharge:
1. Remove economizer or two-position damper to gain
access to return duct opening.
2. Move the horizontal-discharge duct opening covers to
the vertical discharge openings.
3. Rotate economizer or two-position damper 90 degrees.
4. Rotate the barometric relief damper 90 degrees.
5. Install block-off plate over the opening on the access
panel.
Thru-the-curb service connections — Roof curb con-
nections allow field power wires, control wires, and gas sup-
ply to enter through the roof curb opening.
Thru-the-bottom service connections — Power con-
nections made through the bottom of the unit must utilize
anaccessory Carrier roofcurband accessorythru-the-bottom
power connection accessory kit.
Thermostat — Use of 2-stage heating and cooling ther-
mostat is recommended for all units. A 2-stage cooling
thermostat is required on units with accessory economizer
to provide integrated cooling.
Heating-to-cooling changeover — All units are auto-
matic changeover from heating to cooling when automatic
changeover thermostat and subbase are used.
Airflow — Units are draw-thru on cooling and blow-thru
on heating.
Maximum airflow — To minimize the possibility of con-
densate blow-off from evaporator, airflow through units
should not exceed 236 L/s per kW (500 cfm/ton).
Minimum airflow — For cooling minimum airflow is
142 L/s per kW (300 cfm/ton).
Minimum ambient cooling operating temperature —
The minimum temperature for standard units is −4 C
(25 F). With accessory Motormastertcontrol, units can
operate at outdoor temperatures down to −29 C (−20 F).
Internal unit design — Due to Carrier’s internal unit
design (draw-thru over the motor), air path, and specially
designed motors, the full kW horsepower (maximum con-
tinuous bkW and bhp) listed in the Physical Data tables and
the notes following each Fan Performance table can be uti-
lized with confidence.
Using Carrier motors with the values listed in the Physi-
cal and Fan Performance Data tables will not result in nui-
sance tripping or premature motor failure. The unit war-
ranty will not be affected.
Apollo direct digital controls — The Apollo direct digi-
tal controls must be used with either a Carrier master or
monitor thermostat.
40

Guide specifications — 48TJ008-014
Packaged Rooftop Gas Heating, Electric
Cooling Unit — Constant Volume
Application
HVAC Guide Specifications
Size Range: 21.5 to 35.9 kW (6.1 to 10.2 Tons)
Nominal Cooling
Carrier Model Number: 48TJ
Part 1 — General
1.01 SYSTEM DESCRIPTION
A. Outdoor rooftop- or slab-mounted, electrically con-
trolledheating andcooling unit utilizinghermetic com-
pressors for cooling duty and gas combination for
heating duty. Unit shall discharge supply air vertically
or horizontally as shown on contract drawings.
1.02 QUALITY ASSURANCE
A. Unit shall be rated in accordance with ARI Standards
210/240 or 360 and 270 (U.S.A.).
B. Unit shall be designed to conform to ASHRAE 15,
latest revision, and in accordance with UL 1995.
(U.S.A. Standards).
C. Unit shall be manufactured in a facility registered to
ISO 9002/BS5750, Part 2.
D. Roof curb shall be designed to conform to NRCA
Standards (U.S.A.).
E. Insulation and adhesive shall meet NFPA 90A require-
ments (U.S.A. Standard) for flame spread and smoke
generation.
F. Unit casing shall be capable of withstanding Federal
Test Method (U.S.A. Standard) Standard No. 141
(Method 6061) 500-hour salt spray test.
G. Unit shall comply with ASHRAE 62 (U.S.A. Stand-
ard) for indoor air quality.
1.03 DELIVERY, STORAGE, AND HANDLING
A. Unit(s) shall be stored and handled per manufactur-
er’s recommendations.
Part2—Products
2.01 EQUIPMENT (STANDARD)
A. General:
Factory-assembled, single-piece heating and cooling
unit. Contained within the unit enclosure shall be all
factory wiring, piping, controls, refrigerant charge
(R-22), and special features required prior to field
start-up.
B. Unit Cabinet:
1. Unitcabinet shall beconstructedof galvanized steel,
bonderized and coated with a baked enamel finish
on all externally exposed surfaces.
2. Evaporator fan cabinet interior shall be insulated
with a minimum 13-mm (
1
⁄
2
-in.) thick flexible
fiberglass insulation coated on the air side. Alumi-
num foil-faced fiberglass insulation shall be used
in the gas heat compartment.
3. Cabinet panels shall be easily removable for
servicing.
4. Holes shall be provided in the base rails for rig-
ging shackles to facilitate overhead rigging, and
forklift slots shall be provided to facilitate
maneuvering.
5. Unit shall have a factory-installed, sloped conden-
sate drain pan made of a non-corrosive material,
providing a minimum 19-mm (
3
⁄
4
-in.) connection
with both vertical and horizontal drains and shall
comply with ASHRAE 62 (U.S.A. Standard).
6. Unit shall have factory-installed filter access panel
to provide filter access with tool-less removal.
7. Unit shall have standard thru-the-bottom power
connection capability.
C. Fans:
1. Indoor blower (evaporator fan) shall be of the belt-
driven, double inlet, forward-curved centrifugal
type. Belt drive shall include an adjustable-pitch
motor pulley.
2. Indoor blower (evaporator-fan) shall be made from
steel with a corrosion-resistant finish and shall be
dynamically balanced.
3. Bearings shall be of the sealed, permanently lu-
bricated, ball-bearing type for longer life and lower
maintenance.
4. Condenser fan shall be of the direct-driven pro-
peller type and shall discharge air vertically.
5. Condenser fan shall have aluminum blades riveted
to corrosion-resistant steel spiders and shall be dy-
namically balanced.
D. Compressor(s):
1. Fully hermetic type, internally protected.
2. Factory spring-mounted and internally spring
mounted for vibration isolation.
3. On independent mounting circuits.
E. Coils:
1. Condensercoils shallhave aluminumplate fins me-
chanically bonded to enhanced copper tubes with
all joints brazed.
2. Tubesheet openingsshall bebelled to preventtube
wear.
3. Evaporator coil shall be of the full face active
design.
F. Heating Section:
1. Induced-draft combustion type with energy saving
direct-spark ignition system and redundant main
gas valve.
2. The heat exchanger shall be of the tubular-section
type constructed of a minimum of 20-gage steel
coated with a nominal 1.2 mil aluminum-silicone
alloy for corrosion resistance.
3. Burners shall be of the in-shot type constructed of
aluminum-coated steel.
4. All gas piping shall enter the unit cabinet at a single
location.
5. The integrated gas controller (IGC) board shall in-
clude gas heat operation fault notification using an
LED (light-emitting diode).
41

Guide specifications — 48TJ008-014 (cont)
6. Unit shall be equipped with anti-cycle protection
with one short cycle on unit flame rollout switch
or4continuousshortcyclesonthehigh-temperature
limit switch. Fault indication shall be made using
an LED.
7. TheIGC boardshallcontain algorithmsthatmodify
evaporator-fan operation to prevent future cycling
on high-temperature limit switch.
8. The LED shall be visible without removal of con-
trol box access panel.
G. Refrigerant Components:
Refrigerant circuit components shall include:
1. Acutrol™ feed system.
2. Refrigerant strainer.
3. Service gage connections on suction, discharge,
and liquid line.
H. Filter Section:
1. Standard filter section shall consist of factory-
installed low-velocity, throwaway 51-mm (2-in.)
thick fiberglass filters of commercially available
sizes.
2. Filter face velocity shall not exceed 1.64 m/s
(320 fpm) at nominal airflows.
3. Filter section shall use only one size filter.
4. Filters shall be accessible through an access panel
with ‘‘no-tool’’ removal.
I. Controls and Safeties:
1. Unit Controls:
Unit shall be complete with self-contained low-
voltage control circuit.
2. Standard Safeties:
a. Unit shall incorporate compressor overtem-
peratureandovercurrent safety devicestoshut
off compressor.
b. Heatingsection shallbe providedwith the fol-
lowing minimum protections:
1) High-temperature limit switches.
2) Induced-draft motor speed sensor.
3) Flame rollout switch.
4) Flame proving controls.
J. Operating Characteristics:
1. Unit shall be capable of starting and running at
46.1 C (115 F) ambient outdoor temperature,
meeting maximum load criteria of ARI Standard
210/240 or 360 (U.S.A. Standard) at ±10%
voltage.
2. Compressor with standard controls shall be ca-
pable of operation down to −4 C (25 F) ambient
outdoor temperature.
K. Electrical Requirements:
Allunit powerwiring shallenter unit cabinetat asingle
factory-predrilled location.
L. Motors:
1. Compressor motors shall be cooled by refrigerant
passingthrough motorwindings and shallhave line
break thermal and current overload protection.
2. Indoor blower (evaporator-fan) motor shall have
permanently lubricated bearings and inherent
automatic-reset thermal overload protection.
3. Totally-enclosed condenser-fan motor shall have
permanently lubricated bearings, and inherent
automatic-reset thermal overload protection.
M. Special Features:
Certain features are not applicable when the features
designatedby *are specified.For assistance inamend-
ing the specifications, your local Carrier Sales Office
should be contacted.
* 1. Direct Digital Controls:
a. Shall be available as a factory-installed op-
tion.
b. Shall actively monitor all modes of opera-
tion, as well as evaporator-fan status, filter
status, indoor-air quality, supply-air tempera-
ture, and outdoor-air temperature.
c. Shall work with Carrier TEMP and VVTt
systems.
d. Shall have built-in diagnostics for thermostat
commands for both staged heating and cool-
ing, evaporator-fan operation, and econo-
mizer operation.
e. Shall be equipped with a 5-minute time de-
lay between modes of operation.
2. Roof Curbs: (Horizontal and Vertical)
a. Formedgalvanized steelwithwood nailer strip
and capable of supporting entire unit weight.
b. Allows for installing and securing ductwork
to curb prior to mounting unit on the curb.
* 3. Integrated Economizer:
a. Integrated integral-modulating type capable
of simultaneous economizer and compressor
operation.
b. Includes all hardware and controls to provide
cooling with outdoor air.
c. Equipped with low-leakage dampers not to
exceed3% leakage,at 249Pa (1 in.wg) pres-
sure differential.
d. Capable of introducing up to 100% outdoor
air in both minimum and fully-open posi-
tions.
e. Equipped with a gravity relief sliding plate
damper. Damper shall close upon unit
shutoff.
f. The economizer shall be equipped with 30%
of return-air relief.
g. Designed to close damper during loss-of-
power situations with emergency power sup-
ply.
h. Dry bulb outdoor-air thermostat shall be pro-
vided as standard.
i. Economizer shallhaveaguillotine-styledamper.
42

* 4. Manual Outdoor-Air Damper:
Manual damper package shall consist of damper,
birdscreen, and rainhood which can be preset to
admit up to 50% outdoor air for year-round
ventilation.
* 5. 100% Two-Position Damper:
a. Two-position damper package shall include
single blade damper and motor. Admits up
to 100% outdoor air.
b. Damper shall close upon indoor (evaporator)
fan shutoff.
c. Designed to closedamperduringlossof power
situations.
d. Equipped with barometric relief damper.
* 6. 25% Two-Position Damper:
a. Two-position damper package shall include
single blade damper and motor. Admits up
to 25% outdoor air.
b. Damper shall close upon indoor (evaporator)
fan shutoff.
c. Designed to closedamperduringlossof power
situations.
d. Equipped with barometric relief damper.
* 7. Solid-State Enthalpy Control:
a. For use with economizer package.
b. Capable of sensing outdoor-air enthalpy
content (temperature and humidity) and con-
trolling economizer cut-in point to have
minimum heat content air passing over the
evaporator coil for most efficient system
operation.
* 8. Differential Enthalpy Sensor:
a. For use with economizer package.
b. Capable of comparing enthalpy content
(temperature and humidity) of outdoor and
indoor air and controlling economizer cut-in
point at the most economical level.
* 9. Head Pressure Control Package:
Consists of solid-state control and condenser-coil
temperature sensor to maintain condensing tem-
perature between 32.2 C and 43.3 C (90 F and
110 F) at outdoor ambient temperatures down
to −28.9 C (−20 F) by condenser-fan speed
modulation.
* 10. Remote Control Panel:
Panel shall be a decorative, indoor, wall-mounted
panel consisting of:
a. Two-stage heat/2-stage cool thermostat.
b. Automatic changeover.
c. System switch with HEAT-COOL-AUTO.-
OFF settings.
d. Fan switch with ON-AUTO. settings.
e. Ventilation control for remote variation of the
amount of outdoor-air intake.
f. Indicator lights for HEAT-COOL-FAN
operation.
g. Three unused indicator lights for field use.
* 11. Thermostat and Subbase:
Provides staged cooling and heating automatic
(or manual) changeover, fan control, and indica-
tor light.
* 12. Thru-The-Bottom Service Connectors:
Kit shall provide connectors to permit electrical
connections to be brought to the unit through
the basepan.
13. Electronic Programmable Thermostat:
Capable of using deluxe full-featured electronic
thermostat. Shall use built-in compressor cycle
delay control for both heating and cooling duty.
Capable of working with Carrier direct digital
controls.
14. Condenser Coil Hail Guard Assembly:
Hail guard shall protect against damage from hail
and flying debris.
* 15. Controls Upgrade Kit:
Kit shall contain high-pressure, loss-of-charge/
low-pressure, and freeze protection switches. It
shall mount on factory-installed Schrader fittings.
16. Condenser Coil Grille:
The grille protects the condenser coil from dam-
age by large objects without increasing unit
clearances.
17. Compressor Cycle Delay:
Unitshall beprevented fromrestarting for amini-
mum of 5 min. after shutdown.
18. Salt Spray Protection Package:
Coil guard protects coil from corrosion in coastal
areas and in areas with high sulfur emissions.
19. Fan/Filter Status Switch:
Provides status of indoor fan (ON/OFF) or filter
(CLEAN/DIRTY). Status shall be displayed over
communication bus when used with direct
digital controls or with an indicator light at the
thermostat.
20. NO
x
Reduction Kit:
Package shall contain all necessary hardware and
instructions to convert a standard natural gas unit
to reduce the nitrous oxide (NO
x
) emissions to a
level of 40 nanograms/joule.
21. Flue Discharge Deflector:
Flue discharge deflector directs unit exhaust ver-
tically instead of horizontally.
22. LP (Liquid Propane) Gas Conversion Kit:
Package shall contain all the necessary hardware
and instructions to convert a standard natural gas
unit for use with liquefied propane gas.
23. Flue Shield:
Provides protection from the hot sides of the gas
flue hood.
43

Carrier Corporation • Syracuse, New York 13221 7-96
Manufacturer reserves the right to discontinue, or change at any time, specifications or designs without notice and without incurring obligations.
Book 1 4
Tab 1a 6a
Page 44 Catalog No. 004-801 Printed in U.S.A. Form 48TJ-C1PD
Replaces: New