Undercounter Diswasher Avenger HT 490avengerht
User Manual: Undercounter Diswasher Avenger HT
Open the PDF directly: View PDF
.
Page Count: 50

AVENGER SERIES
UNDERCOUNTER
DISHMACHINES
INSTALLATION, OPERATION
& SERVICE MANUAL
FOR JACKSON MODEL(S):
AVENGER HT-E
AVENGER HT-E Technical Manual • Revision G • P/N 07610-004-04-18 • Issued 01-01-2014 • Revised 02-04-15
MANUFACTURERS WARRANTY
ONE YEAR LIMITED PARTS & LABOR WARRANTY
ALL NEW JACKSON DISHWASHERS ARE WARRANTED TO THE ORIGINAL PURCHASER TO BE FREE FROM DEFECTS IN
MATERIAL OR WORKMANSHIP, UNDER NORMAL USE AND OPERATION FOR A PERIOD OF (1) ONE YEAR FROM DATE OF
PURCHASE, BUT IN NO EVENT TO EXCEED (18) EIGHTEEN MONTHS FROM DATE OF SHIPMENT FROM THE FACTORY.
Jackson WWS agrees under this warranty to repair or replace, at its discretion, any original part which fails under normal use
due to faulty material or workmanship during the warranty period, providing the equipment has been unaltered, and has been
properly installed, maintained and operated in accordance with applicable factory instruction manual furnished with the machine
and failure is reported to the authorized service agency within the warranty period. This includes the use of factory specied genuine
replacement parts, purchased directly from a Jackson authorized parts distributor or service agency. Use of generic replacement parts
may create a hazard and void warranty certication.
The labor to repair or replace such failed part will be paid by Jackson WWS, within the continental United States, Hawaii and Canada,
during the warranty period provided a Jackson WWS authorized service agency, or those having prior authorization from the factory,
performs the service. Any repair work by persons other than Jackson WWS authorized service agency is the sole responsibility of the
customer. Labor coverage is limited to regular hourly rates; overtime premiums and emergency service charges will not be paid by
Jackson WWS.
Accessory components not installed by the factory carry a (1) one year parts warranty only. Accessory components such as table
limit switches, pressure regulators, pre-rinse units, etc. that are shipped with the unit and installed at the site are included. Labor to
repair or replace these components is not covered by Jackson WWS.
This warranty is void if failure is a direct result from shipping, handling, re, water, accident, misuse, acts of God, attempted repair by
authorized persons, improper installation, if serial number has been removed or altered, or if unit is used for purpose other than originally
intended.
TRAVEL LIMITATIONS
Jackson WWS limits warranty travel time to (2) two hours and mileage to (100) one hundred miles. Jackson WWS will not pay for
travel time and mileage that exceeds this, or any fees such as those for air or boat travel without prior authorization.
WARRANTY REGISTRATION
To register your product go to www.jacksonwws.com or call 1-888-800-5672. Failure to register your product will void the warranty.
REPLACEMENT PARTS WARRANTY
Jackson replacement parts are warranted for a period of 90 days from date of installation or 180 days from the date of shipment
from the factory, whichever occurs rst.
PRODUCT CHANGES AND UPDATES
Jackson WWS reserves the right to make changes in design and specication of any equipment as engineering or necessity
requires.
THIS IS THE ENTIRE AND ONLY WARRANTY OF JACKSON WWS. JACKSON’S LIABILITY ON ANY CLAIM OF ANY KIND,
INCLUDING NEGLIGENCE, WITH RESPECT TO THE GOODS OR SERVICES COVERED HEREUNDER, SHALL IN NO CASE
EXCEED THE PRICE OF THE GOODS OR SERVICES OR PART THEREOF WHICH GIVES RISE TO THE CLAIM.
THERE ARE NO WARRANTIES, EXPRESSED OR IMPLIED, INCLUDING FOR FITNESS OR MERCHANTABILITY, THAT ARE
NOT SET FORTH HEREIN, OR THAT EXTEND BEYOND THE DURATION HEREOF. UNDER NO CIRCUMSTANCES WILL
JACKSON WWS BE LIABLE FOR ANY LOSS OR DAMAGE, DIRECT OR CONSEQUENTIAL, OR FOR THE DAMAGES IN THE
NATURE OF PENALTIES, ARISING OUT OF THE USE OR INABILITY TO USE ANY OF ITS PRODUCTS.
ITEMS NOT COVERED
THIS WARRANTY DOES NOT COVER CLEANING OR DELIMING OF THE UNIT OR ANY COMPONENT SUCH AS, BUT NOT
LIMITED TO, WASH ARMS, RINSE ARMS OR STRAINERS AT ANYTIME. NOR DOES IT COVER ADJUSTMENTS SUCH AS,
BUT NOT LIMITED TO TIMER CAMS, THERMOSTATS OR DOORS, BEYOND 30 DAYS FROM THE DATE OF INSTALLATION. IN
ADDITION, THE WARRANTY WILL ONLY COVER REPLACEMENT WEAR ITEMS SUCH AS CURTAINS, DRAIN BALLS, DOOR
GUIDES OR GASKETS DURING THE FIRST 30 DAYS AFTER INSTALLATION. ALSO, NOT COVERED ARE CONDITIONS
CAUSED BY THE USE OF INCORRECT (NON-COMMERICAL) GRADE DETERGENTS, INCORRECT WATER TEMPERATURE
OR PRESSURE, OR HARD WATER CONDITIONS.

ii
Revision
Letter
Revision
Date Made By Applicable ECNs Details
A 04/17/13 RLC ECR 8259 Release to Production
B 02/20/14 MHH QOF NDB 229 Update control, wash and strainer assemblies.
Update schematic.
C 06/27/14 MHH 8301 Update Schematic
D 07/02/14 RC QOF-NDB-266 Removed Ventilation Requirements
E 07/30/14 KAP QOF 386 Update Schematic
F 10/14/14 KAP ECR-8318 pg. 28. Added:
480V Heater Gasket P/N - 05330-004-13-19
480V Heater P/N - 04540-004-12-29
pg. 31-32 Added:
480V Control Box and Legend
pg. 40 Added:
480V Units P/N - 05330-011-47-79
480V Units P/N - 05700-004-13-25
480V P/N - 04540-004-13-30
pg. 41 Added:
480V Units P/N - 06105-004-07-54
G 02/04/15 KAP N/A Updated water pressure info on pg's 4 & 5.
REVISION HISTORY

iii
AVENGER HT-E
High temperature, hot water sanitizing, with a booster tank
Detergent & rinse aid chemical feeder pumps
Model:
Serial No.:
Installation Date:
Service Rep. Name:
Phone Number:
NOMENCLATURE
Jackson WWS, Inc. provides
technical support for all of
the dishmachines detailed
in this manual. We strongly
recommend that you refer to
this manual before making a call
to our technical support staff.
Please have this manual with
you when you call so that our
staff can refer you, if necessary,
to the proper page. Technical
support is not available on
holidays. Contact technical
support toll free at
1-888-800-5672.
Technical support is available
for service personnel only.

iv
TABLE OF CONTENTS
SPECIFICATIONS ................................................................................................ 1
Machine Dimensions ................................................................................................................. 1
Operating Parameters ............................................................................................................... 2
Electrical Requirements ............................................................................................................ 3
INSTRUCTIONS .................................................................................................. 4
Installation ................................................................................................................................ 4
Operating ................................................................................................................................. 10
Delime ...................................................................................................................................... 11
MAINTENANCE ................................................................................................. 12
Preventative Maintenance ....................................................................................................... 12
Cleaning ........................................................................................................................
Troubleshooting ....................................................................................................................... 13
PLC Troubleshooting ........................................................................................................... 16
PARTS ................................................................................................................ 26
Machine Assembly ................................................................................................................... 26
Terminal Block Box Assembly .................................................................................................. 27
Control Panel ........................................................................................................................... 28
Control Kick Panel .................................................................................................................... 30
208/230V Control Box ...............................................................................................................31
408V Control Box ..................................................................................................................... 32
Chemical Feeder Pump Assembly ...........................................................................................33
Door Assembly ......................................................................................................................... 34
Wash Motor Assembly ..............................................................................................................36
Rinse Manifold Assembly ......................................................................................................... 38
Plumbing Assembly .................................................................................................................. 39
Rinse Tank Assembly ............................................................................................................... 40
Wash Pump Assembly .............................................................................................................. 41
SCHEMATICS .................................................................................................... 42
208/230 Volt Electrical Diagram ............................................................................................... 42
408 Volt Electrical Diagram ...................................................................................................... 43

1
LEGEND
A: Water Inlet–½” female pipe
thread, 2 ½” AFF (Connect to a
true ½” ID water line)
B: Electrical Connection
C: Drain Connection–10’ coiled
drain hose. Shipped inside
machine. Must be installed
no more than 24” AFF.
All dimensions from oor can
be increased 1” with
adjustable feet supplied.
NOTE: All dimensions are for
reference only and are subject
to change without notice.
MACHINE DIMENSIONS SPECIFICATIONS
BACK
C
B
10
[254 mm] 8 ⅛
[208 mm] 6 ¾
[173 mm]
10
[254 mm]
10 ½
[267 mm]
14 ¾
[375 mm]
FRONT
24 ³⁄16
[615 mm]
33 5⁄16
[846 mm]
14
[356 mm]
Dish
Clearance
Wall Clearance
¼ [7mm]
AB
2 5⁄16
[59 mm]
26 ⅛
[662 mm]
16 ¾
[424 mm]
0.09903
Door Open
TOP

2
Model Designation: AVENGER HT-E
Operating Capacity:
Racks per Hour 26
Dishes per Hour 468
Glasses per Hour 936
Tank Capacity (Gallons):
Wash Tank 3
Rinse Tank 2.12
Electrical Loads (as applicable):
Wash Motor HP 0.75
Wash Heater KW 4
Rinse Heater KW 4
NOTE: Always refer to the machine data plate for specic electrical and water
requirements. The material provided on this page is for reference only and is
subject to change without notice.
HOT WATER SANITIZING
Water Temperatures (Fahrenheit):
Minimum Wash Temperature 155
Minimum Rinse Temperature 180
Minimum Incoming Water Temperature 110
Other Water Requirements:
Water Flow Pressure (PSIG) 10
Flow Rate Minimum (GPM) 5.16
Water Line Size (NPT) 1/2"
Drain Line Size (NPT) 1-3/8"
Minimum Chlorine Required (PPM) N/A
OPERATING PARAMETERS
SPECIFICATIONS

3
NOTE 1: MCA (Minimum Circuit Ampacity) = 125% x Largest Motor +FLA of all other
motors + all other loads.
NOTE 2: MOP (Maximum Overcurrent Protective Device) = 225% x Largest Motor +
FLA of all other motors + all other loads.
All electrical ratings provided in this manual are for reference only. Always refer to
the machine data plate to get exact electrical information for this machine. All elec-
trical work performed on machines should be done in accordance with applicable
local, state, territorial and national codes. Work should only be performed by quali-
ed electricians and authorized service agents. A list of authorized service agencies
is located in the back of this manual.
Note that all electrical wiring used in the AVENGER series of machines must be
rated, at a minimum, for 100°C (212°F). Furthermore, use copper conductors only.
Where applicable, heating element amperage draws have been adjusted for the
assumed input voltage. Jackson assumes incoming voltages will be either 208 or 230
volts. Some heating elements used in the machines are rated for other voltages,
such as 240 volts. Always verify the amperage draw of the machine in operation
when sizing circuit protection.
If the dishmachine is equipped with the optional rinse heater, note the rinse heater
may have its own electrical connection and therefore require a separate service. Am-
perage loads for motors and heaters are indicated on the machine data plate.
The electrical congurations of the AVENGER series of machines are as follows:
Available Electrical Characteristics:
• 208 volt, 60 Hz, single phase
• 230 volt, 60 Hz, single phase
Available Wash Tank Heaters:
• 4KW (standard for AVENGER HT-E)
Available Rinse Tank Heaters:
• 2KW for top tank (standard for AVENGER HT-E)
• 2KW for bottom tank (standard for AVENGER HT-E)
AVENGER HT-E
Electrical Characteristics
ELECTRICAL REQUIREMENTS SPECIFICATIONS
VOLTS 208 230
PHASE 1 1
FREQ 60 60
WASH
MOTOR
AMPS
6.6 A 6.6 A
DRAIN
PUMP 0.6 A 0.6 A
WASH
HEATER
AMPS
15.9 A 17.4 A
RINSE
HEATER
AMPS
15.9 A 17.4 A
FLA 38.4 A 41.4 A
MCA 41.35 A 44.35 A
MOP 50 A 60 A

4
Before installing unit, check container and machine for damage. A damaged container
may be an indication of damage to the machine. If there is any type of damage to
both container and unit, do not throw away the container. The dishmachine has
been inspected at the factory prior to shipping and is expected to arrive in new,
undamaged condition. However, rough handling by carriers or others may result in
damage to the unit while it is in transit. If such a situation occurs, do not return the
unit to the manufacturer. Instead, contact the carrier and ask them to send a
representative to the site to inspect the damage, and request that an inspection
report be completed.
Contact the carrier within 48 hours of receiving the machine (to report possible
freight damage) and the dealer from whom the unit was purchased.
The machine should be unboxed and removed from the pallet prior to installing. Open
the front door and remove all of the materials from the inside. Once unpacked, verify
there are no missing parts. If a part is missing, contact manufacturer immediately.
The dishmachine is designed to operate while level. This is important to prevent any
damage to the machine during operation and to ensure the best results possible.
The unit comes equipped with adjustable bullet feet which can be turned using a
pair of pliers. Verify the unit is level from front to back and side to side before
making any electrical or plumbing connections.
All plumbing connections must be made to adhere to local, state, territorial and
national codes. The installing plumber is responsible for ensuring the incoming
water lines are ushed of debris prior to connecting to the machine. Note that chips
and materials from cutting processes can become lodged in the solenoid valves
and prevent them from opening or closing. Any valves that are found to be fouled or
defective because of foreign matter left in the water line, and any subsequent water
damage, are not the responsibility of the manufacturer.
A water hardness test must be performed to determine if the HTS-11 (scale
prevention & corrosion control) needs to be installed. A hardness test kit can be
found on the warning tag that is attached to the incoming plumbing connection on
the back of the machine. If water hardness is higher than 5 GPG, the HTS-11 will
need to be installed. Please contact manufacturer to purchase the HTS-11.
INSTRUCTIONS
INSTALLATION
VISUAL INSPECTION
DO NOT THROW AWAY
CONTAINER IF DAMAGE
IS EVIDENT
LEVEL THE
DISHMACHINE
UNPACKING THE
MACHINE
PLUMBING THE
DISHMACHINE
A water hardness test
must be performed.

5
INSTRUCTIONS INSTALLATION
WATER SUPPLY
CONNECTIONS:
WATER HARDNESS
GREATER THAN
5 GPG
Take care not to confuse
static pressure with
ow pressure.
WATER SUPPLY
CONNECTION:
WATER HARDNESS
OF 5 GPG OR LESS
PRESSURE
REGULATOR
SHOCK ABSORBER
CONNECTING THE
DRAIN LINE
PLUMBING CHECK
If water hardness tests at greater than 5 GPG, install the HTS-11 into the water line
(1/2” ID pipe size minimum) before the dishmachine’s incoming water connection
point using copper pipe. Observe proper inlet/outlet water directions. Flow directions
are molded into the top of the head. It is recommended that a water shut-off valve
be installed prior to installation of the HTS-11 to allow access for servicing. Plumb
from the HTS-11 outlet to the incoming water connection point using copper pipe (or
order the 1/2” ID exible hose kit offered by manufacturer). The water supply must
be capable of a minimum of 10 PSI “ow” pressure at the recommended tempera-
ture indicated on the data plate. See “Shock Absorber” section.
If water hardness tests at 5 GPG or less, install the water supply line (1/2” ID pipe
size minimum) to the dishmachine’s incoming water connection point using copper
pipe (or order the 1/2” ID exible hose kit offered by manufacturer). It is recommended
that a water shut-off valve be installed in the water line between the main supply and
the machine to allow access for service. The water supply line must be capable of a
minimum of 10 PSI “ow” pressure at the recommended temperature indicated on
the data plate.
The manufacturer has a optional water pressure regulator to accommodate areas
where water pressure uctuates or is lower than the recommended pressure. In
some cases the regulator is not needed and can be removed. Take care not to
confuse static pressure with ow pressure: Static pressure is line pressure in a “no
ow” condition (all valves and services are closed); ow pressure is the pressure in
the ll line when the valve is opened during the cycle.
It is suggested that a shock absorber (not supplied) be installed on the incoming
water line. This prevents water hammer (hydraulic shock)—induced by the solenoid
valve as it operates—from causing damage to the equipment.
The dishmachine has a pumped (pressure) drain capable of pumping waste water
to a height of 24” above the oor to the kitchen’s drain system. Each dishmachine is
supplied with a ten foot long hose. This ships installed on the unit. When installed, it
will extend from the rear side of the machine. There must be an air gap between the
machine drain line and the oor sink or drain. If a grease trap is required by code, it
should have a ow capacity of 12 GPM (Gallons Per Minute).
Slowly turn on the water supply to the machine after installing the incoming ll line
and the drain line. Check for any leaks and repair as required. All leaks must be
repaired prior to placing the machine into operation.

6
INSTRUCTIONS
INSTALLATION
ELECTRICAL POWER
CONNECTIONS
Electrical and grounding conductors must comply with the applicable portions of the
National Electric Code ANSI/NFPA 70 (latest edition) and/or other electrical codes.
The data plate is located at the left front side of the dishmachine. Refer to the data plate
for machine operating requirements, machine voltage, total amperage & serial number.
Remove the back panel to install the incoming power lines. This will require removing
the screw at the bottom of the back panel with a Phillips head screw driver. Remove
the back panel and set aside. Install 3/4” conduit into the pre-punched holes in the
back of the control box. Route power wires and connect to power block and grounding
lug. Install the service wires (L1and L2) to the appropriate terminals as they are
marked on the terminal block. Install the grounding wire into the lug provided. It is
recommended that “DE-OX” or another similar anti-oxidation agent be used on all
power connections.
Ensure that the power button is in the off position and apply power to dishmachine.
Check the incoming power at the terminal block and ensure it corresponds with the
voltage listed on the data plate. If not, contact a qualied service agency (listed at
the end of this manual) to examine the problem. Do not run dishmachine if voltage
is too high or too low. Shut off the service breaker and advise all proper personnel
of the location of the breaker and any problems. Replace the control box cover and
tighten down the screws.
The dishmachine should be located with provisions for venting into an adequate
exhaust hood or ventilation system. This is essential to permit efcient removal of
the condensation exhaust. Ensure the exhaust system is acceptable in accordance
with applicable codes and standards. Note: Any damage that is caused by steam
and/or moisture due to improper ventilation is not covered under the warranty.
This is a commercial dishmachine and reaches temperatures that can exceed those
generated by a residential machine. Therefore, any surrounding countertops, cabinets,
ooring material & suboor material must be designed and/or selected with these
higher temperatures in mind. Note: Any damage to surrounding area that is caused
by heat and/or moisture to materials that are not recommended for higher temperatures
will not be covered under warranty or by Jackson WWS, INC.
The thermostats on this Avenger unit have been set at the factory. They should only
be adjusted by an authorized service agent.
DISCONNECT ELECTRICAL
POWER SUPPLIES & TAG
OUT IN ACCORDANCE
WITH APPROPRIATE
PROCEDURES & CODES
AT THE DISCONNECT
SWITCH TO INDICATE
THE CIRCUIT IS BEING
SERVICED.
THERMOSTAT
SURROUNDING
AREA
DISHMACHINE
VENTILATION
VOLTAGE CHECK

7
INSTRUCTIONS INSTALLATION
CHEMICAL FEEDER
EQUIPMENT
PRIMING CHEMICAL
FEEDER PUMPS
WARNING: Some of the
chemicals used in
dishwashing may cause
chemical burns if they
come in contact with skin.
Wear protective gear when
handling these chemicals.
If any skin comes in
contact with these
chemicals, immediately
follow the instructions
provided with the
chemicals for treatment.
TO PREPARE
CHEMICAL FEEDER
PUMPS FOR
OPERATION
WARNING!
CHLORINE-BASED SANITIZERS CAN BE DETRIMENTAL TO THIS MACHINE
IF THE CHEMICAL SOLUTION IS TOO STRONG. SEE A CHEMICAL
PROFESSIONAL TO ENSURE THE DISPENSER IS SET UP CORRECTLY.
This equipment is not recommended for use with deionized water or other aggressive uids.
Use of deionized water or other aggressive uids will result in corrosion and failure of
materials and components and will void the manufacturer's warranty.
The bottom of the chemical container cannot be located any higher than 8” from the
oor. If the unit is equipped with the 6” or 18” table stand, the highest position will
respectively be 14” or 26” from the oor.
The AVENGER HT-E dishmachine is supplied with integral detergent and rinse aid
chemical feeder pumps. Locate the open ends of the chemical tubes with the tube
stiffeners and place each one in the appropriate container.
A. Red Tubing = Detergent B. Blue Tubing = Rinse Aid
Chemical feeder pumps need priming when the machine is rst installed or if the
chemical lines have been removed and air is allowed to enter. CAUTION! Water
must be in the sump and wash tank prior to the dispensing of chemicals. Sanitizer in
concentration is caustic and may cause damage without dilution.
1. Verify that the proper chemical tube stiffener inlet is in the proper container.
2. Use the prime buttons located on the control panel at the bottom of the unit to
prime each pump. The buttons are clearly marked as to which chemical feeder
pump they are assigned to.
3. To prime the pumps, press the button until the chemical can be observed entering
the pump.
4. Detergent is dispensed as required during the wash cycle by the timer. The
amount of detergent may need to be increased or decreased depending upon water
quality and type of detergent.
5. Rinse additive is dispensed as required into the nal rinse. The amount of rinse
additive may need to be adjusted depending upon water hardness & results.
6. Please refer to "Programming Instructions for Chemical Feeder Pumps" for
instruction on adjusting the chemical feeder pumps on the Programmable Logic
Controller (PLC).

8
PROGRAMMING
INSTRUCTIONS
FOR CHEMICAL
FEEDER PUMPS
(INSTALLATION
TECHNICIAN ONLY)
The chemical feeder pump timers are located on screens 3, 4 & 5. To access the
programming mode follow the process detailed below.
INSTRUCTIONS
INSTALLATION
1. Press “A” to cycle
through screens until
reaching the "Fill Cycle
Timers" screen (#3).
2. Press “+” or “-” to
highlight the timer in need
of adjustment and press
“OK” to enter edit mode
for that timer.
3. Press “+” or “-” to make
needed adjustments and
press “OK” to conrm.
4. Press “A” and continue
to the “Wash Cycle Timers”
screen (#4). Follow steps
2 & 3 to conrm any
adjustments.
5. Press “A” and continue
to the “Wash Cycle Timers”
screen (#5). Follow steps
2 & 3 to conrm any
adjustments.
6. Press “A” & “B”
simultaneously to return
to the home screen (#1).
Run the machine through
several cycles to
verify changes.
Fill CYCLE TIMERS:
Fill Timer: s
Det Timer:
R/A Timer: 0012.0s
s
Millenium 3
Crouzet
0010.0
WASH CYCLE TIMERS:
Det Timer:
R/A Timer: 00008s
s
Millenium 3
Crouzet
0005.0
WASH CYCLE TIMERS:
Wash Time: 00075s
Rinse Time:
Drain Time: 00008s
s
Millenium 3
Crouzet

9
INSTRUCTIONS INSTALLATION
Detergent usage and water hardness are two factors that contribute greatly to how
efciently this dishmachine will operate. Using detergent in the proper amount can
become a source of substantial savings. A qualied water treatment specialist can
relate what is needed for maximum efciency from the detergent.
1. Hard water greatly affects the performance of the dishmachine, causing the
amount of detergent required for washing to increase. If the machine is installed
in an area with hard water, the manufacturer recommends the installation of water
treatment equipment.
2. Deposited solids from hard water can cause spotting that will not be removed with
a drying agent. Treated water will reduce this occurence.
3. Treated water may not be suitable for use in other areas of operation and it may
be necessary to install a water treatment unit for the water going to the dishmachine
only. Discuss this option with a qualied water treatment specialist.
4. Dishmachine operators should be properly trained in how much detergent is to
be used per cycle. Meet with a water treatment specialist and detergent vendor to
discuss a complete training program for operators.
5. Certain dishmachine models require that chemicals be provided for proper operation
and sanitization. Some models may require the installation of third-party chemical
feeders to introduce those chemicals to the machine. The manufacturer does not
recommend or endorse any brand name of chemicals or chemical dispensing
equipment. Contact a chemical distributor for questions.
6. Some dishmachines come equipped with integral solid detergent dispensers.
These dispensers are designed to accommodate detergents in a certain-sized
container. If applicable, relate this to a chemical distributor upon rst contacting them.
7. Water temperature is an important factor in ensuring that the dishmachine functions
properly, and the machine's data plate details what the minimum temperatures must
be for the incoming water supply, the wash tank and the rinse tank. If minimum
requirements are not met, there is a possibility that dishes will not be clean or sanitized.
8. Instruct dishmachine operators to observe the required temperatures and to report
when they fall below the minimum allowed. A loss of temperature can indicate a
larger problem—such as a failed heater—or could indicate that the hot water heater
for the operation is not up to capacity and a larger one may need to be installed.
DETERGENT
CONTROL

10
OPERATING INSTRUCTIONS
INSTALLATION
Before proceeding with the start-up of the unit, verify the following:
1. Strainers are in place and clean.
2. Wash and rinse arms are screwed securely into place and end caps are tight.
3. Wash and rinse arms rotate freely.
4. Chemical levels for machine chemical feed pumps are correct.
To energize the unit, turn on the power at the service breaker. The voltage should
have been previously veried as being correct. If not, the voltage must be veried
before energizing the unit.
For the initial ll, verify the standpipe is installed correctly (seated vertically in the
center of the wash sump), close the door and press the power button. The unit will
automatically begin the ll cycle and ll to the proper level before allowing a wash
cycle to start.
The water level is controlled by the standpipe. Verify that there are no leaks on the
unit before proceeding any further. The wash sump must be completely lled before
operating the wash pump to prevent damage to the component. Once the wash tub
is lled, the unit is ready for operation.
The machine runs a complete cycle to drain and ll. If the machine fails to drain, the
water will build up inside the tub. After the initial ll, the rinse water for the current
cycle will mix with the wash water for the next cycle.
Proper preparation of ware is essential for the smooth and efcient operation of the
dishmachine, resulting in fewer rewashes and using less detergent. Any ware loaded
inside the machine should have all solid food waste and scraps removed. It is
recommended that the wares are sprayed down before placing in the dishmachine.
Place cups and glasses upside down in racks so they do not hold water during the
cycle. Presoak atware in warm water to assist in removal of stuck-on material.
Load plates and saucers in the same direction.
For a typical daily start-up, it is recommended to run the machine through 3 cycles
to ensure that all cold water is out of the system and to verify that the unit is operating
correctly. To cycle the machine, ensure that the power is on and that the tub has
lled to the correct level. Push the start button: The unit will start, run through the
cycle, and shut off automatically. Repeat this two more times. The unit should now
be ready to proceed with the washing of ware.
PREPARATION
POWER UP
WARE
PREPARATION
FILLING THE
WASH TUB
WARM-UP CYCLES

11
OPERATING INSTRUCTIONS INSTALLATION
To wash a rack, open the door completely and slide the rack into the unit. Close the
door, press the start button and the unit will start. After the machine has drained and
the cycle light turns off, the cycle is complete.
As the workday progresses, operators should regularly inspect the pan strainer to
ensure it has not become clogged. If the strainer becomes clogged, it will reduce the
washing capability of the machine. Instruct operators to clean out the pan strainer at
regular intervals or as required by work load.
At the end of the workday, open the door and remove the standpipe. Close the door
and push the power button. This will drain the tub completely and prevent the
machine from cycling. When the tub is empty, remove and clean the pan strainers
and set aside. Unscrew the wash and rinse arms from their manifolds, remove the
end caps and ush the arms with water. Use a brush to clean the inside of the arms.
If the nozzles appear to be clogged, use a toothpick to remove the obstruction.
Wipe the inside of the unit out, removing all soil and scraps. Reassemble the wash
and rinse arms and place them and the strainers in the unit. The arms should be
screwed on hand-tight; do not use tools to tighten them down.
In order to maintain the dishmachine at its optimum performance level, it is required
to remove lime and corrosion deposits on a frequent basis. A deliming solution will
be available from a detergent supplier. Read and follow all instructions on the label
of the deliming solution.
To proceed with the deliming operation, ll the dishmachine and add the correct amount
of deliming solution as recommended by the solution manufacturer. The water capacity of
the tank can be veried on the specication sheet(s) of this manual.
Perform the following operations to delime the dishmachine:
1. Verify standpipe is in place, turn the unit on and allow to complete a ll cycle.
2. Verify water level. If low, switch the unit off then immediately back on
(this will start a second ll cycle).
3. Open the door and verify water level is above standpipe. Add deliming
solution per the solution manufacturer’s recommendation.
4. Close the door and push the delime button on the front of the control panel.
5. Run the machine for the recommended period of time.
6. Press the delime button again and the pump will stop.
7. Open the door and remove the standpipe.
8. Press the power button to drain the machine and turn the unit off.
9. Wait ve minutes, then inspect the inside of the machine. If the machine is
not delimed, run another time cycle as per the deliming solution’s instructions.
10. When clean, drain and rell the machine (steps 1 and 2).
11. Run delime mode for 10 minutes to remove residual deliming solution.
12. Drain and rell the machine.
WASHING A RACK
OF WARE
OPERATIONAL
INSPECTION
DELIMING
OPERATIONS
SHUTDOWN &
CLEANING
NOTE: If this machine is
equipped with an
HTS-11, scale prevention
and corrosion control
device, and lime is
becoming a frequent
problem, the cartridge
needs to be replaced.
To order a replacement
cartridge, call the
manufacturer to
have one shipped.

12
PREVENTATIVE MAINTENANCE
MAINTENANCE
The manufacturer of this dishmachine highly recommends that any maintenance and
repairs not specically discussed in this manual should be performed by qualied service
personnel only. Performing maintenance on the dishmachine may void a warranty.
By following the operating and cleaning instructions in this manual, users should get
the most efcient results from the dishmachine. As a reminder, here are some steps
to ensure that the dishmachine is used properly:
1. Ensure that the water temperatures match those listed on the machine data plate
(on the front left of machine).
2. Remove as much soil as possible from dishes before loading into racks.
3. Ensure that all strainers are in place, laying at in tub and free of soil and debris
before operating the machine. To clean strainers, wipe them out with a rag and
rinse under a faucet. For stubborn debris, a toothpick can be used to dislodge any
obstructions from the perforations. Do not beat strainers on waste cans; once bent
they will not work properly.
4. If hard water is present, install an HTS-11 into the water line connecting to the
dishmachine (see section "Plumbing the Dishmachine").
5. Ensure that all wash and/or rinse arms are secure in the machine before operating.
6. Ensure that drains are closed/sealed before operating.
7. Do not overll racks.
8. Ensure that glasses are placed upside down in the rack.
9. Ensure that all chemicals being injected into machine have been veried as
being at the correct concentrations.
9. Clean out the machine at the end of every workday as per the instructions in the
manual (see section on "Shutdown & Cleaning").
10. Always contact a qualied service agency whenever a serious problem arises.
11. Follow all safety procedures, whether listed in this manual or put forth by local,
state or national codes/regulations.
PREVENTATIVE
MAINTENANCE
FIND QUALIFIED
SERVICE AGENCIES
IN THE BACK
OF THIS MANUAL.

13
TROUBLESHOOTING MAINTENANCE
PROBLEM POSSIBLE CAUSE REMEDY
Water overow
from bottom of
door.
1. Clogged drain.
2. Machine not level.
3. Excessive inlet pressure.
4. Detergent foaming.
5. Wash or rinse arm end plug missing.
6. Top oat failure.
1. Remove obstruction.
2. Level machine or increase height to the front.
3. Install pressure reducing valve or adjust if one is present.
Ensure ow meets data plate specication.
4. Reduce detergent quantity.
5. Replace.
6. Verify inputs on I/O (diagnostics) screen.
Wash motor
doesn’t
operate on
delime wash.
1. Loose or broken wires.
2. Defective manual wash switch.
3. Defective motor starting relay.
4. Machine in FAULT mode and locked out.
1. Reconnect or replace wires in motor.
2. Verify delime switch triggers input on PLC. If not, check
wiring/replace membrane.
3. Replace.
4. Review fault screen for active faults.
Motor operates
on delime
wash but not
on automatic.
1. Defective start switch
2. Defective circuit in manual wash switch.
3. Loose or broken wires.
1a. Check fault screens to verify no faults would prevent
the machine from running a cycle
1b. Verify start button triggers input on PLC. If not, check
wiring/replace membrane.
2. Replace switch.
3. Tighten and/or replace.
Little or no water
coming through
the rinse
assemblies.
1. Limed up rinse heads or piping.
2. Low water pressure.
1. Delime rinse heads.
2. Increase pipe size to machine.
Adjust pressure regulator.
Rinse water runs
continuously
with breaker
turned off.
1. Defective plunger in solenoid valve.
2. Defective diaphragm in solenoid valve.
1. Replace.
2. Replace diaphragm.

14
PROBLEM POSSIBLE CAUSE REMEDY
Wash
temperature
not at required
reading on
home screen.
1. Water level low.
2. RTD set point too slow.
3. Defective RTD.
4. Wash heater defective.
5. Defective heater contactor R1.
1. Check water level. If low, run new ll cycle.
2. Check fault screen.
3. Adjust wash temperature set point. Replace
4. Replace heater element.
5. Replace.
Rinse water
not at
required
temperature
range.
1. RTD is defective.
2. Incoming rinse water does not
meet minimum criteria indicated
machine data plate.
3. Rinse heaters damaged.
4. Setpoint screens set low.
1. Replace if necessary.
2. Adjust as required.
3. Check amperages. Replace if necessary.
4. Adjust rinse tank differential.
Machine
doesn’t drain
when power
button is
pressed.
1. Drain clogged.
2. Standpipe not removed prior to drain.
3. Defective drain valve.
1. Remove obstruction.
2. Remove standpipe and run drain cycle again.
3. Replace.
No indication of
pressure.
1. Water turned off.
2. Transducer disconnected.
3. Pressure transducer defective.
1. Turn water on.
2. Verify wiring.
3. Replace pressure transducer.
TROUBLESHOOTING
MAINTENANCE

15
WASH
TEMPERATURE
TEMERATURA
DEL LAVADO
RINSE
TEMPERATURE
TEMPERATURA
DE ACLARADO
RINSE
PRESSURE
ENJUAGUE
PRESIÓN
F/C
R
I
N
S
E
A
I
D
P
R
I
M
E
D
E
L
I
M
E
D
E
T
E
R
G
E
N
T
P
R
I
M
E
P
O
W
E
R
F
L
U
S
H
TROUBLESHOOTING MAINTENANCE
The "Flush" light will activate after the unit has completed a predetermined number
of cycles. When this light activates it is recommended that the user complete a ush
cycle as detailed in the steps below.
1. Open the machine door.
2. Remove the standpipe and set aside.
3. Close the door.
4. Press the power button.
• When the power button is pressed the machine will start draining.
5. Once the drain cycle is complete, open the door and verify that the wash
tank is empty.
• If the wash tank is not empty, close the door and press the power
button twice to start a second drain cycle.
6. When the machine is fully drained, reinstall the standpipe, close the door
and press the power button.
• Once the ll cycle is complete, the machine will be ready for regular use.
If the machine sees a fault*, the delime and "Flush" light will start to ash. Faults will
generally clear through completion of a drain or wash cycle, but some faults indicate a
serious issue in the dishmachine and may require additional support.
*See PLC Troubleshooting section for more information on faults.
FLUSH CYCLE
FAULT INDICATION

16
The Avenger HT-E comes equipped with a PLC programmed to make troubleshooting
and diagnostics more user-friendly. The following pages detail each screen associated
with the Avenger HT-E PLC display.
PLC TROUBLESHOOTING
MAINTENANCE
SCREEN 1:
HOME
The home screen will be displayed when the machine is powered on and is intended
to show the technician the status of the machine, any faults that may be present,
and the wash and rinse temperatures.
1. Line A shows the status of the machine: Power On, Power Off or Delime.
2. Line B shows the action of the machine and will show one of the following options:
• Fill: The machine is in the initial ll cycle.
• Ready: The machine has completed the initial ll cycle and is ready to wash.
• Wash: The machine is in the wash cycle.
• Rinse: The machine is in the rinse cycle.
• Drain: The machine has been turned off and is draining.
3. Line C will display the wash tank temperature and “!!FAULT!!” if a fault is present.
• If “!!FAULT!!” is displayed the operator should continue to screen #2 to identify
the issue.
4. Line D will display the rinse injector temperature and the rinse pressure.
5. Pressing “A” and “B” simultaneously will return user to screen #1.
6. Pressing “A” will proceed to the next screen.
7. Pressing “B” will return to the previous screen.
Millenium 3
Crouzet
STATUS: POWER OFF
ACTION: READY
00156F !!FAULT!!
008182F 00012psi
A
B
C
D

17
Millenium 3
Crouzet
FAULTS:
6
The “Faults” screen will be displayed when the operator has pressed “A” or “B” to cycle
through screens and is intended to show the technician any faults that have occurred.
A
B
C
D
PLC TROUBLESHOOTING MAINTENANCE
SCREEN 2:
FAULTS
Line C will show any fault observed from previous cycles. The faults will be identied
as 1-6 and are detailed below (multiple faults may be active at the same time):
Fault 1: Indicates the oat switch did not close during the initial ll.
• Open the door and check the water level. If low, turn machine off then
back on to start an additional ll cycle.
Fault 2*: Indicates the top oat switch has activated and the machine is overlled.
• To clear this fault verify the water level and remove the standpipe.
• Attempt to drain the machine by cycling power on then off.
• If the machine is not overlled, manually trigger the oat switch and verify
status of input on PLC.
Fault 3: Indicates the oat switch opened for more than 5 seconds.
• Allow cycle to complete to determine if fault 3 clears.
• If not, open the door and verify the standpipe is fully seated, strainers are
in place, and water level is low.
Fault 4: Indicates Sanisure was active for the maximum wash cycle time.
• Verify incoming water meets minimum temperature and pressure specication.
• Adjustment of rinse tank differential set point may be needed (see screen #7).
Fault 5: Indicates fault 4 has been activated for 5 consecutive cycles.
• If fault #5 is active contact technical service for assistance.
Fault 6: Indicates the drain cycle has completed and the oat switch is still active.
• Verify standpipe is removed prior to turning machine off.
• Verify water level. If high and standpipe is removed verify there are no
clogs in drain line.
* Faults 2 and 5 will prevent the unit from cycling.

18
Fill CYCLE TIMERS:
Fill Timer: s
Det Timer:
R/A Timer: 0012.0s
s
Millenium 3
Crouzet
0010.0
The “Fill Cycle Timers” screen allows the user to edit the ll, detergent and rinse aid
timers for the initial ll cycle.
A
B
C
D
PLC TROUBLESHOOTING
MAINTENANCE
SCREEN 3:
FILL CYCLE TIMERS
1. Line B displays the ll time.
• Press + or - to highlight line B.
• Press OK to enter highlight mode for line B.
• Press + or - to make any adjustments needed.
* Fill Time: 5 to 20 seconds.
• Press OK to conrm adjustments.
2. Line C shows the detergent time.
• Press the + or - to highlight line C.
• Press “OK” to enter highlight mode.
• Press + or - to make any adjustments needed.
* Detergent Time: 5 to 10 seconds.
• Press “OK” to conrm adjustments.
3. Line D displays the rinse aid time.
• Press + or - to highlight line D.
• Press OK to enter highlight mode.
• Press + or - to make any adjustments needed.
* Rinse Aid Time: 8 to 12 seconds.
• Press OK to conrm adjustments.

19
WASH CYCLE TIMERS:
Wash Time: 00075s
Rinse Time:
Drain Time: 00008s
s
Millenium 3
Crouzet
Screen 4 is the rst “Wash Cycle Timers” screen and allows the user to edit the wash,
rinse and drain timers for the initial wash cycle.
A
B
C
D
PLC TROUBLESHOOTING MAINTENANCE
SCREEN 4:
WASH CYCLE
TIMERS 1
1. Line B shows the wash time.
• Press + or - to highlight line B.
• Press OK to enter highlight mode.
• Press + or - to make any adjustments needed.
* Wash Time: 75 to 268 seconds.
• Press OK to conrm adjustments.
2. Line C shows the rinse time.
• Press + or - to highlight line C.
• Press OK to enter highlight mode.
• Press + or - to make any adjustments needed.
* Rinse Time: 8.5 to 13 seconds.
• Press OK to conrm adjustments.
3. Line D shows the drain time.
• Press + or - to highlight line D.
• Press OK to enter highlight mode.
• Press + or - to make any adjustments needed.
* Drain Time: 8 to 15 seconds.
• Press OK to conrm adjustments.

20
WASH CYCLE TIMERS:
Det Timer:
R/A Timer: 00008s
s
Millenium 3
Crouzet
0005.0
Screen 5 is the second "Wash Cycle Timers" screen and allows the user to edit the
detergent and rinse aid timers for the initial wash cycle.
A
B
C
D
PLC TROUBLESHOOTING
MAINTENANCE
SCREEN 5:
WASH CYCLE
TIMERS 2
1. Line B shows the detergent time.
• Press + or - to highlight line B.
• Press OK to enter highlight mode.
• Press + or - to make any adjustments needed.
* Detergent Time: 5 to 10 seconds.
• Press OK to conrm adjustments.
2. Line C shows the rinse aid time.
• Press + or - to highlight line C.
• Press OK to enter highlight mode.
• Press + or - to make any adjustments needed.
* Rinse Aid Time: 8 to 12 seconds.
• Press OK to conrm adjustments.

21
Screen 6 is the "Temperature Setpoints" screen and allows the user to edit the wash
tank, top rinsetank and bottom rinse tank temperatures.
PLC TROUBLESHOOTING MAINTENANCE
SCREEN 6:
TEMPERATURE
SETPOINTS
1. Line B shows the wash tank temperature.
• Press + or - to highlight line B.
• Press OK to enter highlight mode.
• Press + or - to make any adjustments needed.
* Wash Tank Temperature: 155°F to 175°F (68°C to 79°C).
• Press OK to conrm adjustments.
2. Line C shows the top rinse tank temperature.
• Press + or - to highlight line C.
• Press OK to enter highlight mode.
• Press + or - to make any adjustments needed.
* Top Rinse Tank Temperature: 180°F to 190°F (82°C to 88°C).
• Press OK to conrm adjustments.
3. Line D shows the bottom rinse tank temperature.
• Press + or - to highlight line D.
• Press OK to enter highlight mode.
• Press + or - to make any adjustments needed.
* Bottom Rinse Tank Temperature: 160°F to 175°F (71°C to 80°C).
• Press OK to conrm adjustments.
TEMP SETPOINTS:
WASH: 00155F
TOP RINSE: 00183F
BTM RINSE: 00165F
Millenium 3
Crouzet
A
B
C
D

22
SANISURE SELECT:
0=F
1=ON
Millenium 3
Crouzet
HYSTEREISIS
SETPOINTS:
HYSTERESIS: 00003F
Millenium 3
Crouzet
1. Line B shows the off option.
• Press + or - to highlight line B.
• Press OK to turn SaniSure off
and reset fault 5.
2. Line C shows the on option.
• Press + or - to highlight line C.
• Press OK to turn SaniSure on.
3. Line D will display the SaniSure status.
A
B
C
D
1. Line D shows the hysteresis.
• Press + or - to highlight line D.
• Press OK to enter highlight mode.
• Press + or - to make any adjustments needed.
* Hysteresis range: 3°F to 10°F
• Press OK to conrm adjustments.
A
B
C
D
PLC TROUBLESHOOTING
MAINTENANCE
SCREEN 8:
SANISURE SELECT
SCREEN 7:
HYSTERESIS
The “Hysteresis” screen allows the user to edit the Hysteresis Setpoint.
The "SaniSure Select" screen allows the user to turn SaniSure on or off. SaniSure
ensures the rinse temperatures are high enough to achieve sanitization.

23
RINSE TANK TEMPS:
TOP: 00187F
BOTTOM: 00178F
Millenium 3
Crouzet
1. Line C shows the current temperature reading of the top booster tank.
2. Line D shows the current temperature reading of the bottom booster tank.
A
B
C
D
1. Line C displays the number of cycles since the last "ush" or complete tub drain.
2. Line D shows the number of cycles that perform before the "ush" light activates.
• Press + or - to highlight line D.
• Press OK to enter highlight mode.
• Press + or - to make any adjustments needed.
* Flush Setpoint: 5 to 30
• Press OK to conrm adjustments.
• When ush light is activated, user should remove the standpipe and drain the tub.
PLC TROUBLESHOOTING MAINTENANCE
SCREEN 10:
WASH CYCLE COUNT
SCREEN 9:
RINSE TANK
TEMPERATURES
The "Rinse Tank Temperatures" screen allows the user to see the temperature
readings in the top and bottom rinse tanks.
The "Wash Cycle Count" screen allows the user to see the number of cycles since
the last complete tub drain and edit the number of cycles that perform before the
"ush" light activates.
WASH CYCLE COUNT:
CURRENT COUNT: 01
FLUSH SETPOINT: 05
Millenium 3
Crouzet
A
B
C
D

24
123456789ABCDEFG
123456789A
23:59
Millenium 3
Crouzet
FAHRENHEIT/CELUIS
SELECTl
0=CELSIUS
1=FAHRENHEIT
Millenium 3
Crouzet
1. Line A (inputs) will highlight when the connected component sends a signal to the
PLC. Multiple inputs may be highlighted at the same time.
2. Line C (outputs) will highlight when the PLC closes specic relays. Multiple
outputs may be highlighted at the same time.
1. Line C shows the celsius option.
• Press + or - to highlight line C.
• Press OK to allow display to read temperatures in celsius.
2. Line D shows the fahrenheit option.
• Press + or - to highlight line D.
• Press OK to allow display to read temperatures in fahrenheit.
A
B
C
D
A
B
C
D
PLC TROUBLESHOOTING
MAINTENANCE
24
SCREEN 12:
INPUT/OUTPUT
SCREEN 11:
TEMPERATURE
SELECT
The temperature select screen allows the user to select how temperatures are read,
either in celsius or fahrenheit.
The input/output screen shows inputs and outputs that are active.

25
1. Line A shows a reading of the wash RTD.
2. Line B shows a reading of the rinse injector RTD.
3. Line C shows a reading from the pressure transducer.
4. Line D shows if temperature is displaying in celsius (1) or fahrenheit (0).
1. Press OK for 10 seconds on screen 14 to reset timer to default settings.
PLC TROUBLESHOOTING MAINTENANCE
25
SCREEN 14:
RESET TO FACTORY
SCREEN 13:
WASH,
RINSE INJECTOR,
PRESSURE &
TEMPERATURE
READINGS
Screen 13 shows the wash, rinse injector, pressure and temperature readings.
The "Reset to Factory" screen allows user to reset the machine to
factory default settings.
Reset to Factory
Default Set-points
Press OK for 10
seconds to reset
Millenium 3
Crouzet
00154
00179
00011
00001
Millenium 3
Crouzet
A
B
C
D
A
B
C
D

26
43
2
1
5
4
3
6
7
8
8
9
10
ITEM QTY DESCRIPTION PART NUMBER
1 1 Left, Shroud 05700-003-37-04
2 1 Kick Panel Assembly (see pg. 28) 05700-004-05-62
3 1 Door Assembly (see pg. 32) 05700-004-04-21
41Shroud Top 05700-003-37-06
5 1 Shroud Right 05700-003-37-05
6 1 Sump (see pg. 34) 05700-004-02-94
7 1 Drain Pump (see pg. 34) 04730-003-91-41
8 1 Wash Motor Assembly (see pg. 34) 05700-004-04-04
9 1 Terminal Block Box Cover (see pg. 26) 05700-003-27-70
10 1 Booster Assembly 05700-004-01-15
MACHINE ASSEMBLY
PARTS

27
ITEM QTY DESCRIPTION PART NUMBER
1 1 Decal, Power Connection 09905-011-47-35
2 1 Terminal Block Box 05700-003-27-69
1 Terminal Box Cover (not shown) 05700-003-27-70
3 1 Strain Relief 05975-003-37-56
4 1 Terminal Block Track 05700-000-43-60
5 2 Terminal Block 05940-500-02-19
6 2 10-24 Lock Nut 05310-373-01-00
7 1 Decal, Copper Conductors 09905-011-62-72
8 1 Ground Lug 05940-200-76-00
6
7
5
4
8
1
3
2
TERMINAL BLOCK BOX ASSEMBLY PARTS

28
1
67
9
3
2
4 5
CONTROL PANEL
PARTS
8

29
ITEM QTY DESCRIPTION PART NUMBER
1 1 Wash Heater 4kW 04540-003-99-44
1 **480V Heater 04540-004-12-29
2 3 Heater Gasket 05330-100-01-10
1 **480V Heater Gasket 05330-004-13-19
3 1 Rinse Booster (see page 40, Rinse Tank Assembly) 05700-004-01-15
4 1 Pump Cover, Rinse Aid 04320-004-10-38
5 1 Control Box (see page 31 & 32) 05700-004-09-05
6 1 Terminal Board 05940-021-94-65
7 1 Kick Panel (see page 30) 05700-004-04-28
8 1 Float Switch 05930-011-48-98
9 1 Start Button 05930-004-04-22
CONTROL PANEL PARTS
** Models with 480V Control Box

30
CONTROL KICK PANEL
PARTS
PART NUMBER
DESCRIPTIONQTY
ITEM
05700-004-00-10A-CONTROL PANEL, AVENGER HT ES11
05700-004-04-28
W-KICK PANEL, AVENGER HT ES
19
05310-373-01-00NUT, LOCK10-24 S/S HEX W/NYLON IN163
05700-004-06-12
COVER, CONTROL DIELECTRIC
14
05950-004-11-16PWR SUPPLY, 100-240VAC 12VDC 1.2A
15WATT
25
05945-004-01-05PLC, CROUZET 88974561 M3 LOGIC
CONTROLLER XD26RBT
16
05700-004-09-42DIN RAIL, 8" LONG17
05940-021-94-85
TERMINAL BOARD,4POS JM96054
22
05700-004-05-08TERMINALS,88970317 M3 MA SET XD26 RBT18
05700-004-11-27
F-COVER, KICKPANEL
110
NUM REVISION CONTROL# ORIG DRWN
BY DATE PARTS LIST
REV:
PART NO:
SCALE:
TITLE:DRAWN BY:
DATE:
DATE:
DATE:
CHECKED BY:
APPROVED BY:
PART TO BE FREE FROM ALL BURRS AND SHARP EDGES
DO NOT SCALE DRAWING THIS PRINT IS THE PROPERTY OF JACKSON WWS,INC. AND IS SUBJECT TO RECALL AND
RETURN ON DEMAND. ANY USE, DISCLOSURE, REPRODUCTION, DUPLICATION, TRACING,
OR USE OF INFORMATION CONTAINED HEREIN IN ANY MANNER DETRIMENTAL TO THE
INTEREST OF JACKSON WWS,INC. IS FORBIDDEN. ALL RIGHTS OF DESIGN RESERVED.
R.M.I. NO:
GAUGE:
MATERIAL:
USED ON:
NEXT ASSM:
3D MODEL?
TOLERANCES
UNLESS OTHERWISE SPECIFIED
DIMENSIONS IN INCHES
3 PL DECIMALS
2 PL DECIMALS
FRACTIONS 1/32
ANGLES 1/2
LET REVISION CONTROL# ORIG DRWN
BY DATE
05700-004-05-62
A-CONTROL,KICK PANEL AVENGERHT-E
RCox
5/30/2013
Yes C
C
WO#;
9
3
4
NOTE:
DIELECTRIC COVER HIDDEN
FOR CLARITY
RELEASE TO PRODUCTION RC RC
ECR 8259
A 7/19/13
ADDED DIELECTRIC SHEET RC RC
ECR 8301
B 09/19/13
1
6
2
7
8
5
10
ADDED SECOND TERMINAL BOARD RC RC
QOF 386
C 11/14/14
ITEM QTY DESCRIPTION PART NUMBER
1 1 A-Control Panel, Avenger HT-ES 05700-004-00-10
2 2 Terminal Board, 4 POS JM96054 05940-021-94-85
3 16 Nut, Lock 10-24 S/S Hex w/ Nylon Insert 05310-373-01-00
4 1 Cover, Control Dielectric 05700-004-06-12
5 2 Power Supply, 100-240VAC 12 DC 1.2A 15 Watt 05700-004-17-68
6 2 PLC, Crouzet 88974561 M3 Logic Controller XD26RBT 05945-004-01-05
7 2 Din Rail, 8" Long 05700-004-09-42
8 2 Terminals, 88970317 M3 MA SET XD26 RBT 05940-021-94-85
9 1 W- Kick Panel, Avenger HT ES 05700-004-04-28
10 1 F-Cover, Kick Panel 05700-004-11-27

31
ITEM QTY DESCRIPTION PART NUMBER
1 2 Peripump, 36 RPM, 24VDC 04320-004-09-56
2 1 Control Box 05700-004-09-04
3 1 Wear Button, .50 Diameter 05700-011-88-01
4 1 Control Box Rest Bracket 05700-004-09-28
5 1 Strain Relief 05975-003-37-56
6 1 Fitting .3219, .25/.546 05975-011-65-51
7 1 Block 05945-002-42-24
8 4 Relay 05945-004-10-48
1 Clamp (not shown) 04730-011-39-01
1 Control Box Cover (not shown) 05700-004-09-45
1
2
8
7
34
5
6
208/230 CONTROL BOX PARTS

AVENGER HT-E Technical Manual • P/N 07610-004-04-18 • Issued 01-01-2014 • Revised 02-20-2014
32
PART NUMBER
DESCRIPTIONQTY
ITEM
04320-004-09-56PERIPUMP, 36 RPM 24VDC21
05945-003-75-22
CONTACTOR, 24VDC, 460V MAX, 5HP
42
05945-003-75-17OVERLOAD, 10-14A, 600VAC MAX, (MTO3P)13
05940-200-76-00
LUG,LAMA214Q/PANDUIT GROUND
14
05920-011-72-89HOLDER, BM6031SQ SINPO FUSE BUSSMAN17
05310-373-01-00
NUT, LOCK10-24 S/S HEX W/NYLON IN
78
05920-011-72-88FUSE, 1/2 AMP FNQ-R-1/2 BUSSMAN110
05940-002-31-31 111
05940-002-31-33
CONNECTOR, 2060364A SQ RECEPTACLE112
05305-171-02-00
SCREW 3/8 PAN HEAD
413
05975-011-65-51FITG.3219 .25/.546 LIQTITE114
05975-003-37-56
STRAIN RELIEF,1857 HEYCO RDD201
115
05700-004-09-28F-BRACKET, CTRL BOX REST116
05700-011-88-01
WEAR BUTTON, .50 DIA UHMW
117
05305-002-74-99SCREW, 6-32X1/2" SST FHMS818
04730-011-39-01CLAMP, 5/8 NYLON W6NY-625-9-M T&B119
05305-173-26-00SCREW, 10-32 X 3/8 PHILLIPS PAN HD1820
05700-004-11-34W-INNER PANEL, AVENGER HT-E CONT. BOX121
05700-004-11-32W-CONTROL BOX, AVENGER HT-E-480V122
05700-004-11-37F-DIN RAIL, AVENGER HT-E 2"123
05700-004-11-36F-DIN RAIL, AVENGER HT-E 5-3/4"124
05700-004-11-39W-COVER, CONT. BOX U-COUNTER 480V125
05950-011-50-70TRANSFORMER 150 VA 50/80 H z126
NUM REVISION CONTROL# ORIG DRWN
BY DATE PARTS LIST
REV:
PART NO:
SCALE:
TITLE:DRAWN BY:
DATE:
DATE:
DATE:
CHECKED BY:
APPROVED BY:
PART TO BE FREE FROM ALL BURRS AND SHARP EDGES
DO NOT SCALE DRAWING THIS PRINT IS THE PROPERTY OF JACKSON WWS,INC. AND IS SUBJECT TO RECALL AND
RETURN ON DEMAND. ANY USE, DISCLOSURE, REPRODUCTION, DUPLICATION, TRACING,
OR USE OF INFORMATION CONTAINED HEREIN IN ANY MANNER DETRIMENTAL TO THE
INTEREST OF JACKSON WWS,INC. IS FORBIDDEN. ALL RIGHTS OF DESIGN RESERVED.
R.M.I. NO:
GAUGE:
MATERIAL:
USED ON:
NEXT ASSM:
3D MODEL?
TOLERANCES
UNLESS OTHERWISE SPECIFIED
DIMENSIONS IN INCHES
3 PL DECIMALS
2 PL DECIMALS
FRACTIONS 1/32
ANGLES 1/2
LET REVISION CONTROL# ORIG DRWN
BY DATE
05700-004-11-35
A-CONTROL BOX, SLIDE 480V
B.GAMBREL
2/10/2014
N/A
N/A
N/A
AVENGER HT-E
05700-004-11-40
Yes A
C
WO#;
2
3
26
27
10
1
1
1
1
23
4
2
5
6
480V CONTROL BOX
PARTS
ITEM QTY DESCRIPTION PART NUMBER
1 2 Peripump, 36 RPM 24VDC 04320-004-09-56
2 4 Contactor, 24 VDC, 460V Max, 5HP 05945-003-75-22
3 1 Holder, BM6031SQ SINPO Fuse Bussman 05920-011-72-89
4 1 Fuse, 1/2 Amp FNQ-R-1/2 Bussman 05920-011-72-88
5 1 Overload, 10=14A, 600VAC Max, 5HP 05945-003-75-17
6 1 Transformer 150 VA 50/80 Hz 05950-011-50-70

AVENGER HT-E Technical Manual • P/N 07610-004-04-18 • Issued 01-01-2014 • Revised 02-20-2014 33
CHEMICAL FEEDER PUMP ASSEMBLY PARTS
ITEM QTY DESCRIPTION PART NUMBER
1 2 Pump Cover, Blue 04320-004-10-39
2 2 Peri-Pump Mounting Plate, Blue 04320-004-10-37
3 2 Peri-Pump Motor, 36 RPM 06105-004-10-35
3
2
1

34
DOOR ASSEMBLY
PARTS
8
12
16
15
14
13
11
4
10
9
7
17
18
6
5
4
3
2
1

35
DOOR ASSEMBLY PARTS
ITEM QTY DESCRIPTION PART NUMBER
1 1 Flush Mount Plug 05975-004-04-36
2 12 10-32 x 1/2” Phillips Pan Head Screw N/A
3 1 Door Channel Seal 05700-003-55-49
4 2 Left & Right Door Gasket 05330-003-55-49
5 1 Top Door Gasket 05330-003-58-35
6 1 Inner Door 05700-003-33-21
7 1 Start Button 05930-004-04-22
8 1 Door Handle 05700-003-26-62
9 2 1/4-20 x 3/8” Hex Head Bolt N/A
10 1 Outer Door Weldment 05700-003-33-37
11 1Door Bafe 05700-003-33-38
12 2 Retaining Plate 05700-011-44-37
13 2 Hinge Spacer 05700-003-33-42
14 1 Left Hinge Weldment 05700-003-32-71
15 6 1/4-20 x 1-1/2” Hex Head Screw N/A
16 2 Door Hinge Stop 05700-003-32-55
17 1 Door Magnet 05930-002-88-42
18 2 6/32 Locknut N/A
1 Right Hinge Weldment (not shown) 05700-003-32-72
2 10-32 x 1/4” Screw (not shown) N/A
2 Washer (not shown) 05311-174-01-00

36
WASH MOTOR ASSEMBLY
PARTS
10
11
12
13
1
2
3
4
5
9
8
6
7

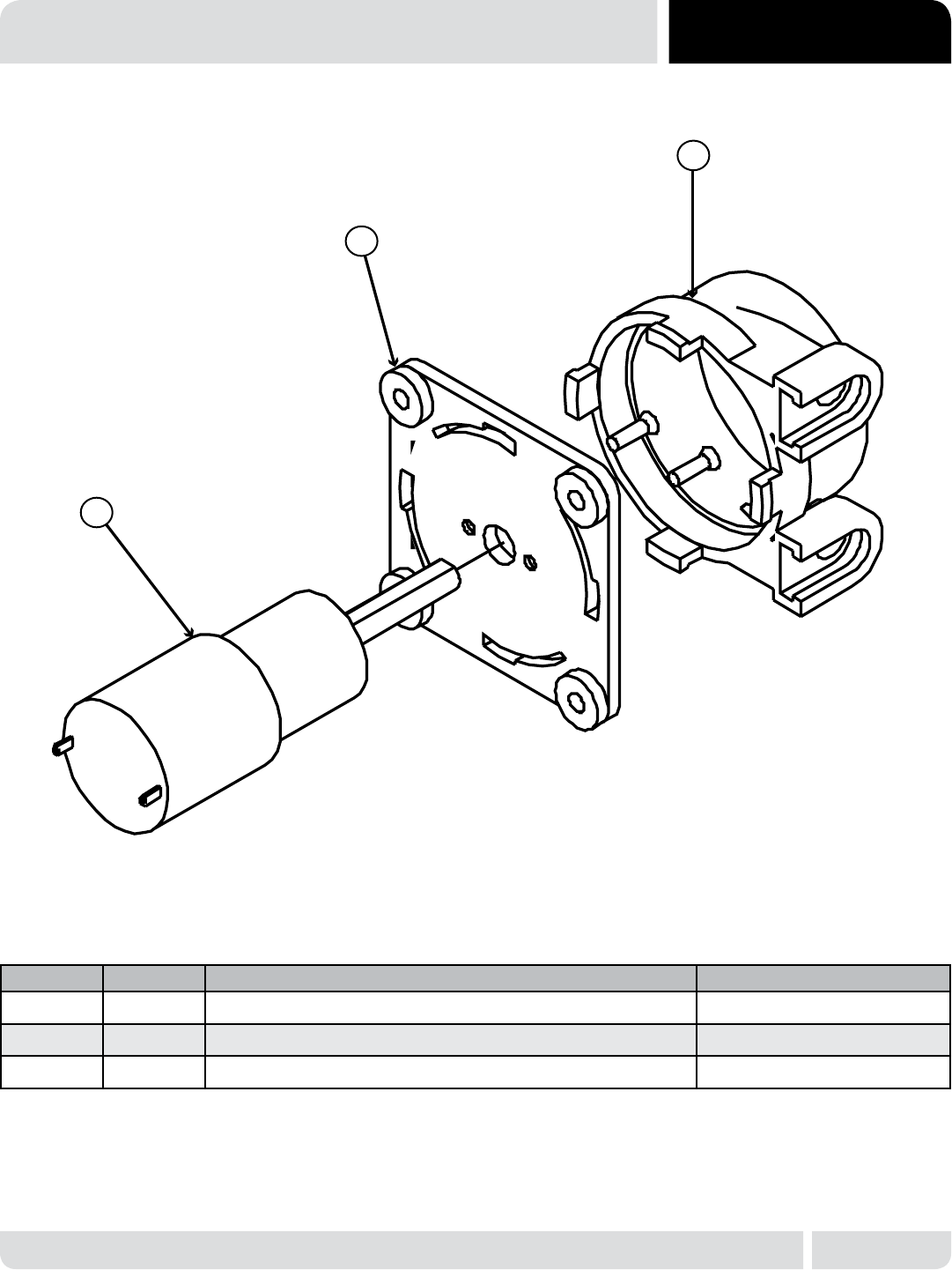
37
WASH MOTOR ASSEMBLY PARTS
ITEM QTY DESCRIPTION PART NUMBER
1 1 Sump 05700-004-02-94
2 1 Sump Strainer 05700-004-03-73
3 1 Stand Pipe 05700-004-04-40
4 1 Manifold Gasket 05330-002-34-77
52Wash Arm Assembly 05700-021-39-23
6 2 Wash Arm Plug, ES2000 05700-011-35-92
7 1 Wash Halo 05700-004-03-22
8 41 Locknut, 1/4-20 Hex w/Nylon Insert N/A
9 1 Wash Manifold 05700-004-08-96
10 1 Bracket, Motor Mount Assembly 05700-004-04-04
11 1 Drain Pump 04730-003-91-41
12 1 Drain Hose 05700-004-08-21
13 3 Clamp, Reg. Range 1-1/16 to 2 HS24 04730-719-18-00

38
RINSE MANIFOLD ASSEMBLY
PARTS
ITEM QTY DESCRIPTION PART NUMBER
12Rinse Arm Washer 05330-011-42-10
2 1 Rinse Head Bushing Retaining Ring 05340-112-01-11
3 1 O-Ring, Silicon 05330-002-60-69
4 4 Nozzle 04730-004-01-07
51Rinse Arm w/Plugs Assembly 05700-004-05-23
6 1 Rinse Head Bushing 05700-002-81-56
7 1 Rinse Hub 05700-004-03-77
5
3
5
6
1
5
1
2
7
4
5

39
PLUMBING ASSEMBLY PARTS
ITEM QTY DESCRIPTION PART NUMBER
1 6 Vavle, 1/2" 8210G094HW 208/60 04810-003-71-56
2 1 A-Plumbing, Inc to Reg, AVG HT ES 05700-004-04-44
3 1 Union, 1/2” (C/C) (733CAST) 04730-412-05-01
4 1 Adapter, Male (CU to MSPS) 04730-401-03-01
5 1 Transducer, Pressure 0-50 PSIG 05945-004-08-89
6 1 Elbow, 1/2 S. CU to FTG. 04730-406-31-01
7 1 F-Tube, Copper 1/2” x 7” Long 05700-002-13-81
8 1 Tee, 1/2” Brass 04730-211-27-00
9 1 Reducer, 1/2” x 1/4” Brass 04730-003-62-16
10 1 Hardness, PTD Connection 05999-004-10-50
11 1 F-Tubing, Copper 1/2 x 3 05700-001-05-21
12 1 F-Tube,1/2 x 7 Copper 05700-001-04-66
13 1 F-Copper Pipe, 4.75" Long 04820-004-09-37
14 1 Elbow, 1/2 NPT90 Brass 05700-002-91-02
2
2
10
5
9
8
4
11
47
3
6
4
12 4
1
413
4
14
4
11
14
4

40
RINSE TANK ASSEMBLY
PARTS
ITEM QTY DESCRIPTION PART NUMBER
1 2 Booster Heater, 2kW 04540-003-98-38
1 ** 408V Unit Only 04540-004-13-30
2 2 Heater Gasket 05330-100-01-10
1 ** 408V Heater Gasket 05330-011-47-79
3 8 Lockwasher, Split 5/16" S/S N/A
4 8 Nut, Hex 5/16-18 S/S N/A
5 1 W-Booster 05700-004-04-16
1 ** 408V Booster 05700-004-13-25
6 2 Fitting, 1/4", 61HD-4 Brass Nut/Sleeve 05310-924-02-05
72Probe, Temperature 06680-002-16-80
8 2 Insulation, Booster Tank Wrap 05700-004-09-57
87
6
5
2
3
4
1
** Models with 480V Control Box

41
WASH PUMP ASSEMBLY PARTS
4
3
2
1
8
7
6
5 8
ITEM QTY DESCRIPTION PART NUMBER
1 1 Wash Pump 06105-002-16-29
1 ** 480V Wash Pump 06105-004-07-54
2 2 Lockwasher, 3/8” N/A
3 2 Nut, Hex 3/8-16 S/S N/A
4 1 Motor Mount 05700-004-01-64
5 1 Elbow, Pump to Wash Manifold 04720-004-02-73
6 2 Bolt, Hex 3/8-16 x 1 Long S/S N/A
7 1 Bottom Wash Discharge Hose 05700-001-22-92
8 2 Clamp, Reg. Range 1-1/16 to 2 HS24 04730-719-18-00
** Models with 480V Control Box

42
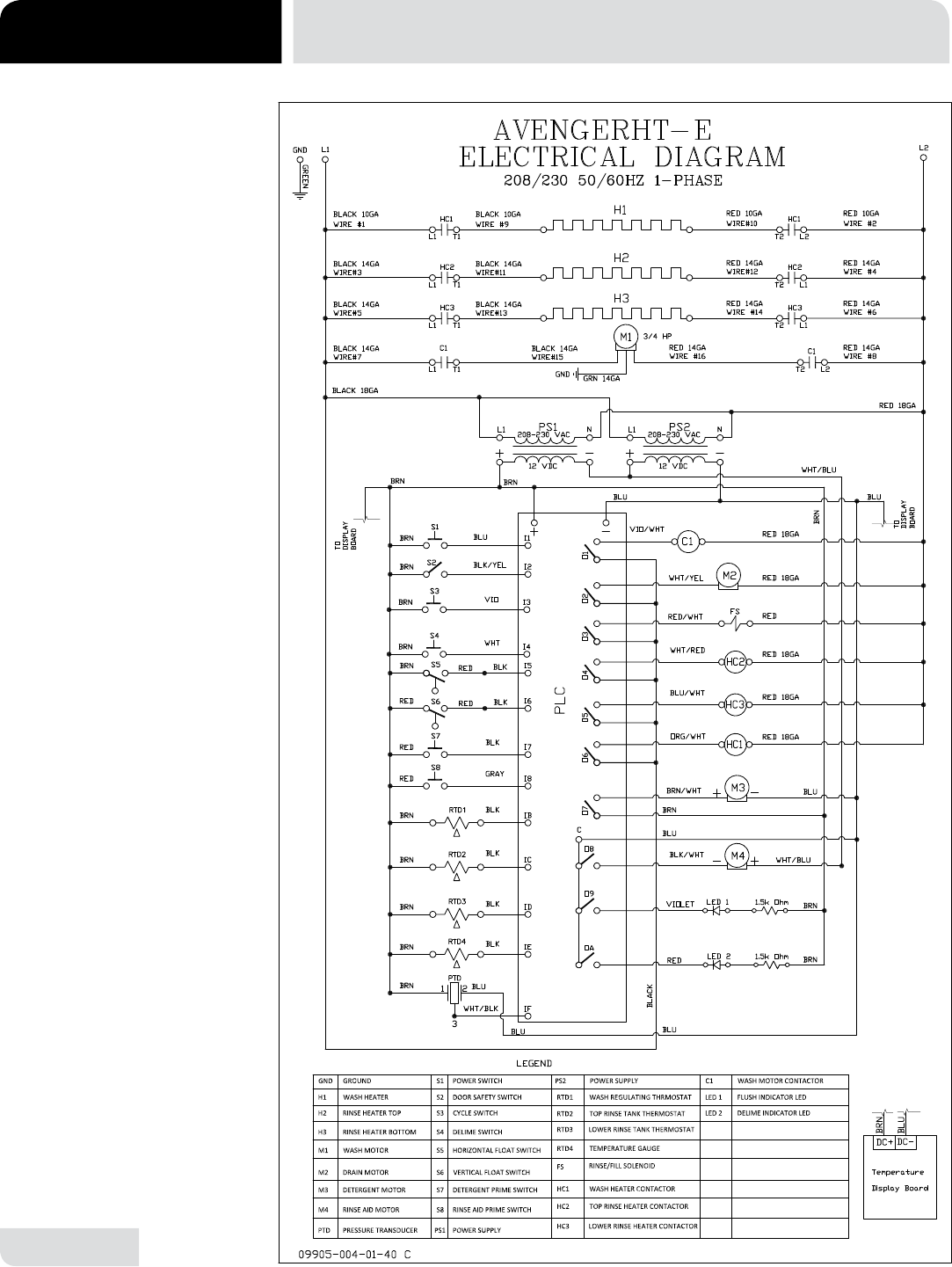
208/230 VOLT ELECTRICAL DIAGRAM
SCHEMATICS

43
480 VOLT ELECTRICAL DIAGRAM SCHEMATICS

44 AVENGER HT-E Technical Manual • P/N 07610-004-04-18 • Issued 01-01-2014 • Revised 10-14-2014
Jackson WWS, Inc. • 6209 N. US Hwy 25E • Gray, KY 40734 USA
1.888.800.5672 • www.jacksonwws.com