Manual For The 63620 Commander Stick Welder 225A AC / 150A DC, 230 Volt Input
User Manual: Manual for the 63620 Commander Stick Welder 225A AC / 150A DC, 230 Volt Input Commander Stick Welder 225A AC / 150A DC, 230 Volt Input
Open the PDF directly: View PDF
.
Page Count: 20

!"#"$%&'(%)*+#"$*%,$-%.$$/-00)))1.,(+&(2(*"3.$14&5
%65,"7%&'(%$*4.8"4,7%#'//&($%,$-%/(&9'4$#'//&($:.,(+&(2(*"3.$14&5
Owner’s Manual & Safety Instructions
Save This Manual%Keep this manual for the safety warnings and precautions, assembly,
operating, inspection, maintenance and cleaning procedures. Write the product’s serial number in the
back of the manual near the assembly diagram (or month and year of purchase if product has no number).
Keep this manual and the receipt in a safe and dry place for future reference. 17e
When unpacking, make sure that the product is intact
and undamaged. If any parts are missing or broken,
please call 1-888-380-0318 as soon as possible.
Copyright© 2017 by Harbor Freight Tools®. All rights reserved.
No portion of this manual or any artwork contained herein may be reproduced in
any shape or form without the express written consent of Harbor Freight Tools.
Diagrams within this manual may not be drawn proportionally. Due to continuing
improvements, actual product may differ slightly from the product described herein.
Tools required for assembly an d se rv ic e may n ot b e in cl uded.
;*,9%$."#%5,$*(",7%+*2&(*%'#"83%$."#%/(&9'4$1%
<,"7'(*%$&%9&%#&%4,8%(*#'7$%"8%#*("&'#%"8='(>1%
?@!6%ABC?%D@EF@G1

Page 2 <&(%$*4.8"4,7%H'*#$"&8#I%/7*,#*%4,77%JKLLLKMLNKNMJL1 Item 63620
?@<6AO D@CEA6E@EP6Q@?CP%R6GSCET R6GSCET%ACU?SETUP
A,+7*%&2%P&8$*8$#
Safety ......................................................... 2
Specifications ............................................. 7
Setup .......................................................... 8
Basic Welding ............................................. 9
Welding Tips .............................................. 13
Maintenance and Service .......................... 17
Parts List and Diagrams ............................ 18
Warranty .................................................... 20
R@;ECET%?ODQVG?%@ES%S6<CECACVE?
This is the Safety alert symbol. It is used to alert you to potential
personal injury hazards. Obey all Safety messages that
follow this symbol to avoid possible injury or death.
Indicates a hazardous situation which, if not avoided,
will result in death or serious injury.
Indicates a hazardous situation which, if not avoided,
could result in death or serious injury.
Indicates a hazardous situation which, if not avoided,
could result in minor or moderate injury.
Addresses practices not related to personal injury.
CDUV;A@EA%?@<6AO%CE<V;D@ACVE
;*,9%,77%?,2*$>%),(8"83#%,89%"8#$('4$"&8#1%%
<,"7'(*%$&%2&77&)%$.*%),(8"83#%,89%"8#$('4$"&8#%5,>%(*#'7$%"8%*7*4$("4%#.&4WI%2"(*%,890&(%#*("&'#%"8='(>1%%%
?,X*%,77%),(8"83#%,89%"8#$('4$"&8#%2&(%2'$'(*%(*2*(*84*1
T*8*(,7%?,2*$>
U;VA6PA%>&'(#*72%,89%&$.*(#1%%;*,9%,89%'89*(#$,89%$."#%"82&(5,$"&81
1. Q*2&(*%'#*I%(*,9%,89%'89*(#$,89%
manufacturer′s instructions,
Material Safety Data Sheets (MSDS′s),
employer′s Safety practices, and ANSI Z49.1.
2. Y**/%&'$%&2%(*,4.%&2%4."79(*81%%%
Keep children and bystanders away while operating.
3. U7,4*%$.*%)*79*(%&8%,%#$,+7*%7&4,$"&8%+*2&(*%'#*1%%%
If it falls while plugged in, severe injury,
electric shock, or fire may result.
4. S&%8&$%&X*((*,4.1%%%
Y**/%/(&/*(%2&&$"83%,89%+,7,84*%,$%,77%$"5*#1
5. ?$,>%,7*($I%),$4.%).,$%>&'%,(*%9&"83%,89%'#*%
4&55&8%#*8#*%).*8%&/*(,$"83%,%)*79*(1%%
S&%8&$%'#*%,%)*79*(%)."7*%>&'%,(*%$"(*9%&(%'89*(%
$.*%"827'*84*%&2%9('3#I%,74&.&7%&(%5*9"4,$"&81
A moment of inattention while operating welders
may result in serious personal injury.
6. @X&"9%'8"8$*8$"&8,7%#$,($"831%%Make sure you are
prepared to begin work before turning on the Welder.
7. E*X*(%7*,X*%$.*%R*79*(%'8,$$*89*9%)."7*%
*8*(3"Z*91%Turn power off if you have to leave.
8. A.*%),(8"83#I%/(*4,'$"&8#I%,89%"8#$('4$"&8#%
9"#4'##*9%"8%$."#%"8#$('4$"&8%5,8',7%4,88&$%
4&X*(%,77%/&##"+7*%4&89"$"&8#%,89%#"$',$"&8#%
$.,$%5,>%&44'(1%%It must be understood by the
operator that common sense and caution are
factors which cannot be built into this product,
but must be supplied by the operator.

Page 3<&(%$*4.8"4,7%H'*#$"&8#I%/7*,#*%4,77%JKLLLKMLNKNMJL1Item 63620
?@<6AOD@CEA6E@EP6 Q@?CP%R6GSCETR6GSCET%ACU? SETUP
<'5*%,89%T,#%?,2*$>
INHALATION HAZARD:%
R*79"83%,89%U7,#5,%P'$$"83%/(&9'4*%$&["4%2'5*#1
1. 6[/&#'(*%$&%)*79"83%&(%4'$$"83%*[.,'#$%
2'5*#%4,8%"84(*,#*%$.*%("#W%&2%9*X*7&/"83%
4*($,"8%4,84*(#I%#'4.%,#%4,84*(%&2%$.*%
7,(>8[%,89%7'83%4,84*(1 Also, some diseases
that may be linked to exposure to welding
or plasma cutting exhaust fumes are:
• Early onset of Parkinson’s Disease
• Heart disease
• Ulcers
• Damage to the reproductive organs
• Inflammation of the small intestine or stomach
• Kidney damage
• Respiratory diseases such as
emphysema, bronchitis, or pneumonia
Use natural or forced air ventilation and wear
a respirator approved by NIOSH to protect
against the fumes produced to reduce the
risk of developing the above illnesses.
2. S&%8&$%'#*%8*,(%9*3(*,#"83%&(%
/,"8$"83%&/*(,$"&8#1
3. Y**/%.*,9%&'$%&2%2'5*#1%%
Do not breathe exhaust fumes.
4. F#*%*8&'3.%X*8$"7,$"&8I%*[.,'#$%,$%,(4I%&(%
+&$.I%$&%W**/%2'5*#%,89%3,#*#%2(&5%+(*,$."83%
Z&8*%,89%3*8*(,7%,(*,1%%If engineering controls
are not feasible, use an approved respirator.
5. R&(W%"8%,%4&82"8*9%,(*,%&87>%"2%"$%
"#%)*77KX*8$"7,$*9I%&(%)."7*%)*,("83%
,8%,"(K#'//7"*9%(*#/"(,$&(1
6. B,X*%,%(*4&38"Z*9%#/*4",7"#$%"8%
C89'#$(",7%B>3"*8*%&(%68X"(&85*8$,7%?*(X"4*#%
4.*4W%$.*%&/*(,$"&8%,89%,"(%H',7"$>%
,89%5,W*%(*4&55*89,$"&8#%
2&(%$.*%#/*4"2"4%)*79"83%#"$',$"&81%%
Follow OSHA guidelines for
Permissible Exposure Limits (PEL’s) and
the American Conference of Governmental
Industrial Hygienists recommendations for
Threshold Limit Values (TLV’s) for fumes and gases.
@(4%;,>%?,2*$>
@;P%;@O?%4,8%"8='(*%*>*#%,89%+'(8%#W"81
1. R*,(%@E?CK,//(&X*9%)*79"83%*>*%/(&$*4$"&8%
2*,$'("83%,$%7*,#$%,%8'5+*(%JN%#.,9*%7*8#%(,$"831
2. R*,(%7*,$.*(%7*33"83#I%2"(*%(*#"#$,8$%#.&*#%
&(%+&&$#%9'("83%'#*1%%Do not wear pants with
cuffs, shirts with open pockets, or any clothing
that can catch and hold molten metal or sparks.
3. Y**/%47&$."83%2(**%&2%3(*,#*I%&"7I%
#&7X*8$#I%&(%,8>%27,55,+7*%#'+#$,84*#1%%
Wear dry, insulating gloves and protective clothing.
4. R*,(%,8%,//(&X*9%.*,9%4&X*("83%$&%/(&$*4$%
$.*%.*,9%,89%8*4W1%Use aprons, cape, sleeves,
shoulder covers, and bibs designed and
approved for welding and cutting procedures.
5. R*,(%,8%,//(&X*9%)*79"83%=,4W*$%&(%7&83%#7**X*#%
$&%/(&$*4$%2&(*,(5#%2(&5%(,9",$"&8%+'(8#1%
6. R.*8%)*79"8304'$$"83%&X*(.*,9%&(%"8%4&82"8*9%
#/,4*#I%)*,(%27,5*%(*#"#$,8$%*,(%/7'3#%&(%
*,(%5'22#%$&%W**/%#/,(W#%&'$%&2%*,(#1

Page 4 <&(%$*4.8"4,7%H'*#$"&8#I%/7*,#*%4,77%JKLLLKMLNKNMJL1 Item 63620
?@<6AO D@CEA6E@EP6Q@?CP%R6GSCET R6GSCET%ACU?SETUP
67*4$("4,7%?,2*$>
6G6PA;CP%?BVPY%4,8%YCGG1
1. A'(8%&22I%9"#4&88*4$%/&)*(I%,89%
9"#4.,(3*%67*4$(&9*%$&%3(&'89%+*2&(*%#*$$"83%
9&)8%$&(4.067*4$(&9*%.&79*(%,89%+*2&(*%#*(X"4*1
2. S&%8&$%$&'4.%*8*(3"Z*9%*7*4$("4,7%/,($#1%%
Wear dry, insulating gloves. Do not touch Electrode
holder, Electrode, welding torch, or welding wire with
bare hand. Do not wear wet or damaged gloves.
3. P&88*4$%$&%3(&'89*9I%T<PCK/(&$*4$*9%
/&)*(%#'//7>%&87>1
4. S&%8&$%'#*%8*,(%),$*(%&(%9,5/%&+=*4$#1
5. U*&/7*%)"$.%/,4*5,W*(#%#.&'79%4&8#'7$%$.*"(%
physician(s) before use. Electromagnetic fields
in close proximity to heart pacemaker could cause
pacemaker interference or pacemaker failure.
6. S&%8&$%*[/&#*%)*79*(#%$&%(,"8%&(%)*$%4&89"$"&8#1%%%
Water entering a welder will increase
the risk of electric shock.
7. S&%8&$%,+'#*%$.*%4&(91%%E*X*(%'#*%$.*%4&(9%
2&(%4,((>"83I%/'77"83%&(%'8/7'33"83%$.*%)*79*(1%%
Y**/%4&(9%,),>%2(&5%.*,$I%&"7I%#.,(/%*93*#%
&(%5&X"83%/,($#1%%Damaged or entangled
cords increase the risk of electric shock.
8. S&%8&$%'#*%&'$9&&(#1
9. C8#'7,$*%>&'(#*72%2(&5%$.*%)&(W/"*4*%,89%
3(&'891%Use nonflammable, dry insulating
material if possible, or use dry rubber mats,
dry wood or plywood, or other dry insulating
material large enough to cover your full
area of contact with the work or ground.
<"(*%?,2*$>
@;P%@ES%BVA%?G@T%4,8%4,'#*%2"(*1
1. P7*,(%,),>%&(%/(&$*4$%27,55,+7*%&+=*4$#1%%%
Remove or make safe all combustible materials for a
radius of 35 feet (10 meters) around the work area.
Use a fire resistant material to cover
or block all open doorways, windows,
cracks, and other openings.
2. Y**/%@QPK$>/*%2"(*%*[$"83'"#.*(%8*,(%
)&(W%,(*,%,89%W8&)%.&)%$&%'#*%"$1
3. D,"8$,"8%,%#,2*%)&(W"83%*8X"(&85*8$1%%%
Keep the work area well lit.
Make sure there is adequate
surrounding workspace. Keep the work area free
of obstructions, grease, oil, trash, and other debris.
4. S&%8&$%&/*(,$*%)*79*(#%"8%,$5&#/.*(*#%
4&8$,"8"83%9,83*(&'#7>%(*,4$"X*%&(%
27,55,+7*%7"H'"9#I%3,#*#I%X,/&(#I%&(%9'#$1%%
Provide adequate ventilation in work areas
to prevent accumulation of such substances.
Welders create sparks which may ignite flammable
substances or make reactive fumes toxic.
5. C2%)&(W"83%&8%,%5*$,7%),77I%4*"7"83I%*$41I%
/(*X*8$%"38"$"&8%&2%4&5+'#$"+7*#%&8%$.*%
&$.*(%#"9*%+>%5&X"83%$.*%4&5+'#$"+7*#%$&%,%
#,2*%7&4,$"&81 If relocation of combustibles is
not possible, designate someone to serve as
a fire watch, equipped with a fire extinguisher,
during the cutting process and for at least one
half hour after the cutting is completed.
6. S&%8&$%)*79%&(%4'$%&8%5,$*(",7#%.,X"83%
,%4&5+'#$"+7*%4&,$"83%&(%4&5+'#$"+7*%
"8$*(8,7%#$('4$'(*I%,#%"8%),77#%&(%4*"7"83#I%)"$.&'$%
,8%,//(&X*9%5*$.&9%2&(%*7"5"8,$"83%$.*%.,Z,(91
7. S&%8&$%9"#/&#*%&2%.&$%#7,3%"8%4&8$,"8*(#%
.&79"83%4&5+'#$"+7*%5,$*(",7#1
8. @2$*(%)*79"83I%5,W*%,%$.&(&'3.%*[,5"8,$"&8%
2&(%*X"9*84*%&2%2"(*1%%Be aware that easily
visible smoke or flame may not be present
for some time after the fire has started.
9. S&%8&$%,//7>%.*,$%$&%,%4&8$,"8*(%$.,$%.,#%.*79%
,8%'8W8&)8%#'+#$,84*%&(%,%4&5+'#$"+7*%
5,$*(",7%).&#*%4&8$*8$#I%).*8%.*,$*9I%
4,8%/(&9'4*%27,55,+7*%&(%*[/7&#"X*%X,/&(#1%%
Clean and purge containers before applying heat.
Vent closed containers, including castings,
before preheating, welding, or cutting.

Page 5<&(%$*4.8"4,7%H'*#$"&8#I%/7*,#*%4,77%JKLLLKMLNKNMJL1Item 63620
?@<6AOD@CEA6E@EP6 Q@?CP%R6GSCETR6GSCET%ACU? SETUP
R*79*(%F#*%,89%P,(*
1. S&%8&$%'#*%$.*%)*79*(%"2%$.*%#)"$4.%9&*#%8&$%$'(8%
"$%&8%,89%&221%%Any welder that cannot be controlled
with the switch is dangerous and must be repaired.
2. S"#4&88*4$%$.*%/7'3%2(&5%$.*%/&)*(%
#&'(4*%+*2&(*%5,W"83%,8>%,9='#$5*8$#I%
4.,83"83%,44*##&("*#I%&(%#$&("83%)*79*(#1%%
Such preventive Safety measures reduce the
risk of starting the welder accidentally.
3. U(*X*8$%'8"8$*8$"&8,7%#$,($"831%
68#'(*%$.*%#)"$4.%"#%"8%$.*%&22K
/&#"$"&8%+*2&(*%4&88*4$"83%$&%/&)*(%
#&'(4*%&(%5&X"83%$.*%)*79*(1 Carrying
or energizing welders that have the
switch on invites accidents.
4. ?$&(*%"97*%)*79*(#%&'$%&2%$.*%(*,4.%&2%
4."79(*8%,89%9&%8&$%,77&)%/*(#&8#%'82,5"7",(%
)"$.%$.*%)*79*(%&(%$.*#*%"8#$('4$"&8#%$&%
&/*(,$*%$.*%)*79*(1%%Welders are dangerous
in the hands of untrained users.
5. F#*%$.*%)*79*(%,89%,44*##&("*#%"8%
,44&(9,84*%)"$.%$.*#*%"8#$('4$"&8#I%$,W"83%
"8$&%,44&'8$%$.*%)&(W"83%4&89"$"&8#%,89%
$.*%)&(W%$&%+*%/*(2&(5*91 Use of the welder
for operations different from those intended
could result in a hazardous situation.
6. S&%8&$%'#*%$.*%)*79*(%2&(%/"/*%$.,)"831
D,"8$*8,84*
1. D,"8$,"8%)*79*(#1%%P.*4W%2&(%5"#,7"385*8$%&(%
+"89"83%&2%5&X"83%/,($#I%+(*,W,3*%&2%/,($#%
,89%,8>%&$.*(%4&89"$"&8%$.,$%5,>%,22*4$%$.*%
)*79*(\#%&/*(,$"&81%%C2%9,5,3*9I%.,X*%$.*%
)*79*(%(*/,"(*9%+*2&(*%'#*1 Many accidents
are caused by poorly maintained welders.
2. B,X*%>&'(%)*79*(%#*(X"4*9%+>%,%H',7"2"*9%
(*/,"(%/*(#&8%'#"83%&87>%"9*8$"4,7%
(*/7,4*5*8$%/,($#1%%This will ensure that
the Safety of the welder is maintained.
3. D,"8$,"8%7,+*7#%,89%8,5*/7,$*#%&8%$.*%R*79*(1%%%
These carry important information.
If unreadable or missing, contact
Harbor Freight Tools for a replacement.
4. F8/7'3%+*2&(*%5,"8$*8,84*1%%Unplug the Welder
from its electrical outlet before any inspection,
maintenance, or cleaning procedures.
%?@!6%AB6?6%CE?A;FPACVE?1

Page 6 <&(%$*4.8"4,7%H'*#$"&8#I%/7*,#*%4,77%JKLLLKMLNKNMJL1 Item 63620
?@<6AO D@CEA6E@EP6Q@?CP%R6GSCET R6GSCET%ACU?SETUP
T(&'89"83
AV%U;6!6EA%6G6PA;CP%?BVPY%@ES%S6@AB%%
<;VD%CEPV;;6PA%T;VFESCET%RC;6%PVEE6PACVE-%
P.*4W%)"$.%,%H',7"2"*9%*7*4$("4",8%"2%>&'%,(*%"8%9&'+$%,#%$&%).*$.*(%$.*%&'$7*$%"#%
/(&/*(7>%3(&'89*91%%%
S&%8&$%'#*%$.*%)*79*(%"2%$.*%/&)*(%4&(9%&(%/7'3%"#%9,5,3*91%%C2%9,5,3*9I%.,X*%"$%(*/,"(*9%+>%,%#*(X"4*%
2,4"7"$>%+*2&(*%'#*1%%C2%$.*%/7'3%)"77%8&$%2"$%$.*%&'$7*$I%.,X*%,%/(&/*(%&'$7*$%"8#$,77*9%+>%,%H',7"2"*9%*7*4$("4",8I%
9&%8&$%'#*%,9,/$*(%/7'3#1
1. The green wire inside the cord is connected to
the grounding system in the welder. The green
wire in the cord must be the only wire connected
to the welder’s grounding system and must never
be attached to an electrically “live” terminal.
Never leave the grounding wire disconnected
or modify the Power Cord Plug in any way.
2. Make sure the tool is connected to an outlet having
the same configuration as the plug. If the tool must
be reconnected for use on a different type of electric
circuit, the reconnection should be made by qualified
service personnel; and after reconnection, the tool
should comply with all local codes and ordinances.
6[$*8#"&8%P&(9#
S&%8&$%'#*%,8%*[$*8#"&8%4&(9%&8%$."#%)*79*(1
;*/7,4*5*8$%P&(9#
1. F#*%&87>%$.*%#'//7"*9%/&)*(%4&(9%2&(%$."#%
)*79*(%&(%,8%"9*8$"4,7%(*/7,4*5*8$%4&(91
2. S&%8&$%"8#$,77%,%$."88*(%&(%7&83*(%
4&(9%&8%$."#%)*79*(1
3. S&%8&$%/,$4.%4&(9#%&2%,8>%7*83$.%
$&3*$.*(%2&(%$."#%"$*51%%U,$4.*#%5,>%,77&)%
5&"#$'(*%$&%/*8*$(,$*%$.*%"8#'7,$"&8I%
(*#'7$"83%"8%*7*4$("4%#.&4W1

Page 7<&(%$*4.8"4,7%H'*#$"&8#I%/7*,#*%4,77%JKLLLKMLNKNMJL1Item 63620
?@<6AOD@CEA6E@EP6 Q@?CP%R6GSCETR6GSCET%ACU? SETUP
?>5+&7&3>
Workpiece Ground Cable
Electrode Cable
Overheat Shutdown Indicator
Cooling Fan
Housing Ground Point
Single, Dual AC or DC Power
Electrode Holder
Single Phase AC Power Supply
Frequency: 60 Hz
!@PVolts Alternating Current
@Amperes
VP! Open Circuit Voltage
Y!@ Kilovolt Amperes
(Volts / 1000 * Amperes)
@RTAmerican Wire Gauge
]Duty Cycle
I ^Conventional Welding Current
F^Conventional Load Voltage
Electric Shock Hazard.
Do not touch energized parts.
Inhalation Hazard.
Keep head out of fumes and
use proper ventilation.
Read manual before
setup and/or use.
Fire Hazard.
Keep flammable materials
away during welding. Spatter
can cause accidental fires.
Arc Ray Hazard.
Wear welding helmet with
properly rated filter lens.
Pacemaker Hazard.
Welding processes may
interfere with pacemakers.
Consult doctor before use.
?/*4"2"4,$"&8#
AC DC
Power Input at Output 59 A at 225 A 49 A at 150 A
Welding Current Range 40 A –225 A 30 A –150 A
Rated Duty Cycles 20% @ 225 A
100% @ 100 A
20% @ 150 A
100% @ 67 A
Maximum OCV 64 V / 78 V110 V
Weldable Materials Mild Steel, Stainless Steel, Cast Iron

Page 8 <&(%$*4.8"4,7%H'*#$"&8#I%/7*,#*%4,77%JKLLLKMLNKNMJL1 Item 63620
?@<6AO D@CEA6E@EP6Q@?CP%R6GSCET R6GSCET%ACU?SETUP
?*$'/
% ;*,9%$.*%6EAC;6%CDUV;A@EA%?@<6AO%CE<V;D@ACVE%#*4$"&8%,$%$.*%+*3"88"83%&2%$."#%
5,8',7%"847'9"83%,77%$*[$%'89*(%#'+.*,9"83#%$.*(*"8%+*2&(*%#*$%'/%&(%'#*%&2%$."#%/(&9'4$1
AV%U;6!6EA%?6;CVF?%CE_F;O%<;VD%@PPCS6EA@G%VU6;@ACVE-%
A'(8%$.*%U&)*(%?)"$4.%&22%,89%'8/7'3%$.*%)*79*(%+*2&(*%#*$%'/1
Place the Welder on a level surface that can bear its weight near the work
area. Leave space around the Welder for proper air flow.
P&8$(&7#
U&7,("$>%
?)"$4.
U&)*(%
?)"$4.
A.*(5,7%
VX*(7&,9%
C89"4,$&(
@5/*(,3*%
P&8$(&7%
Y8&+
R*79"83%
P,+7*%)"$.%
67*4$(&9*%
B&79*(`
T(&'89%
P,+7*%)"$.%
P7,5/`
DO NOT TURN SWITCH
UNDER LOAD
*Welding Cable and Ground Cable not shown.

Page 9<&(%$*4.8"4,7%H'*#$"&8#I%/7*,#*%4,77%JKLLLKMLNKNMJL1Item 63620
?@<6AOD@CEA6E@EP6 Q@?CP%R6GSCETR6GSCET%ACU? SETUP
Q,#"4%R*79"83
% ;*,9%$.*%6EAC;6%CDUV;A@EA%?@<6AO%CE<V;D@ACVE%#*4$"&8%,$%$.*%+*3"88"83%&2%$."#%
5,8',7%"847'9"83%,77%$*[$%'89*(%#'+.*,9"83#%$.*(*"8%+*2&(*%#*$%'/%&(%'#*%&2%$."#%/(&9'4$1
%
AV%U;6!6EA%?6;CVF?%CE_F;O-%
U(&$*4$"X*%3*,(%5'#$%+*%)&(8%).*8%'#"83%$.*%R*79*(a%5"8"5'5%#.,9*%8'5+*(%JN%2'77%2,4*%#."*79%
(or welding mask), ear protection, welding gloves, sleeves and apron, NIOSH-approved respirator, and fire
(*#"#$,8$%)&(W%47&$.*#%)"$.&'$%/&4W*$#%#.&'79%+*%)&(8%).*8%)*79"831%%%
G"3.$%2(&5%$.*%,(4%4,8%4,'#*%/*(5,8*8$%9,5,3*%$&%$.*%*>*#%,89%#W"81%%
S&%8&$%+(*,$.*%,(4%2'5*#1
• Stick Welding is used to weld mild
steel and stainless steel using a
Stick Electrode without shielding gas.
Good welding takes a degree of skill and experience.
Practice a few sample welds on scrap before
welding your first project. Additional practice
periods are recommended whenever you weld:
• a different thickness of material
• a different type of material
• a different type of connection
• using a different process
D,W*%/(,4$"4*%)*79#%&8%/"*4*#%&2%#4(,/%$&%/(,4$"4*%
$*4.8"H'*%+*2&(*%)*79"83%,8>$."83%&2%X,7'*1
AV%U;6!6EA%?6;CVF?%
CE_F;OI%<C;6%@ES%QF;E?-%
Y**/%67*4$(&9*%B&79*(%
47*,(%&2%3(&'89*9%&+=*4$#%
).*8*X*(%'8"$%"#%/7'33*9%"8%
,89%$'(8*9%&81
U&)*(%
V8
b
DO NOT TURN SWITCH
UNDER LOAD
U(,4$"4*%>&'(%)*79"83%
$*4.8"H'*%&8%#4(,/%
/"*4*#%+*2&(*%)*79"83%
,8>$."83%&2%X,7'*1

Page 10 <&(%$*4.8"4,7%H'*#$"&8#I%/7*,#*%4,77%JKLLLKMLNKNMJL1 Item 63620
?@<6AO D@CEA6E@EP6Q@?CP%R6GSCET R6GSCET%ACU?SETUP
?*$$"83%'/%$.*%R*79
47,5/#
)&(W/"*4*#
P.,52*(%$."4W%)&(W/"*4*#1
P7*,8%#'(2,4*#%
$&%+,(*%5*$,71
EVA6- %D,W*%/(,4$"4*%)*79#%&8%/"*4*#%&2%#4(,/%
$.*%#,5*%$."4W8*##%,#%>&'(%"8$*89*9%)&(W/"*4*%$&%
/(,4$"4*%$*4.8"H'*%+*2&(*%)*79"83%,8>$."83%&2%X,7'*1
1. Clean the weld surfaces thoroughly with
a wire brush or angle grinder; there must
be no rust, paint, oil, or other materials on
the weld surfaces, only bare metal.
2. Use clamps (not included) to hold the workpieces
in position so that you can concentrate on
proper welding technique. The distance
(if any) between the two workpieces must be
controlled properly to allow the weld to hold
both sides securely while allowing the weld
to penetrate fully into the joint. The edges of
thicker workpieces may need to be chamfered
(or beveled) to allow proper weld penetration.
NOTICE: When welding equipment on a vehicle,
disconnect the vehicle battery power from both the
positive connection and the ground before welding.
This prevents damage to some vehicle electrical
systems and electronics due to the high voltage
and high frequency bursts common in welding.
T(&'89%R&(W/"*4*
Attach Ground Clamp to bare metal on the
workpiece near the weld area, or to metal work
bench where the workpiece is clamped.
Duty Cycle (Duration of Use)
@X&"9%9,5,3*%$&%$.*%R*79*(%+>%8&$%)*79"83%2&(%
5&(*%$.,8%$.*%/(*#4("+*9%9'$>%4>47*%$"5*1 The Duty
Cycle defines the number of minutes, within a 10 minute
period, during which a given welding process can
produce a particular welding current without overheating.
For example, a welder with a 20% duty cycle at 225 A
welding current must be allowed to rest for at least
8 minutes after every 2 minutes of continuous welding.
Failure to carefully observe duty cycle limitations
can easily over-stress a welder’s power generation
system contributing to premature welder failure.
This Welder has an internal thermal protection system to
help prevent this sort of over-stress. When the Welder
overheats, it automatically shuts down and the Overload
Indicator lights. The Welder automatically returns to
service after cooling off. Rest the Electrode Holder on
an electrically non-conductive, heat-proof surface, such
as a concrete slab, well clear of the ground clamp.
@77&)%$.*%R*79*(%$&%4&&7%)"$.%$.*%U&)*(%?)"$4.%&8I%
#&%$.,$%$.*%"8$*(8,7%<,8%)"77%.*7/%4&&7%$.*%R*79*(1
When the Overload Indicator is no longer lit and the
Welder can be used again, use shorter welding periods
and longer rest periods to prevent needless wear.
JNNc%P&8$"8'&'#%F#*%,$%de
@
20% Use at 150 A
<&(%JN%P&8$"8'&'#%D"8'$*#
^%
D"8'$*#%
R*79"83
L
D"8'$*#%
;*#$"83
JNNc%P&8$"8'&'#%F#*%,$%JNN
@
20% Use at 225 A
<&(%JN%P&8$"8'&'#%D"8'$*#
^%
D"8'$*#%
R*79"83
L
D"8'$*#%
;*#$"83
DO NOT TURN SWITCH
UNDER LOAD
R&(W/"*4*
T(&'89%
P7,5/
P7*,8%
#'(2,4*%$&%
+,(*%5*$,71

Page 11<&(%$*4.8"4,7%H'*#$"&8#I%/7*,#*%4,77%JKLLLKMLNKNMJL1Item 63620
?@<6AOD@CEA6E@EP6 Q@?CP%R6GSCETR6GSCET%ACU? SETUP
Q,#"4%?$"4W%R*79"83
AV%U;6!6EA%?6;CVF?%CE_F;O%@ES%S6@AB-%%%
S&%8&$%)*79%)"$.&'$%T(&'89"83%P7,5/1%%
R.*8%$.*%&/*(,$&(%"#%8&$%.&79"83%$.*%67*4$(&9*%B&79*(I%"$%5'#$%+*%
#"$$"83%&8%,%8&84&89'4$"X*I%8&827,55,+7*%#'(2,4*1%%
1. Place the Welder on a level surface that
can bear its weight near the work area.
2. Secure the Grounding Clamp to a clean, exposed
metal part of the workpiece, or to metal work
bench where the workpiece is clamped.
3. Set polarity using the Polarity Switch. Refer
to electrode package for correct polarity.
EVA6- Ensure Welder is turned OFF
whenever polarity settings are adjusted.
DO NOT TURN SWITCH
UNDER LOAD
U&7,("$>%
?)"$4.
4. Turn the Amperage Control Knob to
adjust the welding current.
@5/*(,3*%
P&8$(&7%Y8&+
V(,83*%
?4,7*
R."$*%
?4,7* Q7,4W%
?4,7*
Set amperage according to Stick
Settings Chart below.
EVA6- Settings are approximate. Adjust as necessary.
?$"4W%?*$$"83#%P.,($%
67*4$(&9*%A>/* 67*4$(&9*%
S",5*$*(
@5/*(,3*%
;,83*
6dNJN%SPf
E6011 AC / DC+
M0M^g 40 –70
J0Lg 75 –130
h0M^g 90 –175
M0Jdg 140 – 225
e0M^g 200 – 275
E6013 DC+ / AC
J0Jdg 25 – 40
M0M^g 40 – 90
J0Lg 75 –125
h0M^g 105 –175
M0Jdg 150 – 225
E7014 DC+ / AC
M0M^g 75 –110
J0Lg 105 –160
h0M^g 150 – 200
M0Jdg 200 – 275
E7018 DC+ / AC
M0M^g 70 –110
J0Lg 90 –160
h0M^g 130 – 210
M0Jdg 200 – 275
E7024 DC+ / AC
M0M^g 100 –145
J0Lg 110 –175
h0M^g 160 – 215
M0Jdg 220 – 280
The approximate current setting can be read
on the Amperage Control Indicator. Refer
to the portion of the Indicator scale that
corresponds to the selected polarity setting:
• For DC welding, use the Orange Scale.
• For AC welding with the Polarity Switch
set to 40 –170 A, use the White Scale.
• For AC welding with the Polarity Switch
set to 150 – 225 A, use the Black Scale.

Page 12 <&(%$*4.8"4,7%H'*#$"&8#I%/7*,#*%4,77%JKLLLKMLNKNMJL1 Item 63620
?@<6AO D@CEA6E@EP6Q@?CP%R6GSCET R6GSCET%ACU?SETUP
R@;ECETi%%AV%U;6!6EA%?6;CVF?%CE_F;O-%%
U(&$*4$"X*%3*,(%5'#$%+*%)&(8%).*8%'#"83%$.*%
R*79*(a%5"8"5'5%#.,9*%8'5+*(%JN%2'77%2,4*%#."*79%
(or welding mask), ear protection, welding gloves,
#7**X*#%,89%,/(&8I%ECV?BK,//(&X*9%(*#/"(,$&(I%
,89%2"(*%(*#"#$,8$%)&(W%47&$.*#%)"$.&'$%/&4W*$#%
#.&'79%+*%)&(8%).*8%)*79"831%%G"3.$%2(&5%$.*%
,(4%4,8%4,'#*%/*(5,8*8$%9,5,3*%$&%$.*%*>*#%
,89%#W"81%%S&%8&$%+(*,$.*%,(4%2'5*#1
After practice welding on scrap, stop,
and check your progress. Perform
Strike Test, then clean and compare your
weld’s appearance with the diagrams and
descriptions in the R*79"83%A"/# section
starting on the next page. After making any
necessary adjustments, continue to weld
while carefully following the DUTY CYCLE
guidelines as explained on page 10.
5. Place the bare metal end of the Stick
Electrode (sold separately) inside the
jaws of the Electrode Holder.
6. Turn the Power Switch to the OFF position, then
plug the Welder into a properly grounded 230 V
receptacle that matches the plug.
The circuit must be equipped with delayed
action-type circuit breaker or fuses.
7. Set Electrode Holder down on
nonconductive, nonflammable surface
away from any grounded objects.
8. Turn the Power Switch ON.
R@;ECETi AV%U;6!6EA%?6;CVF?%CE_F;O%
@ES%S6@AB- R.*8%U&)*(%?)"$4.%"#%$'(8*9%
VEI%R*79*(%"#%*8*(3"Z*9%,89%V/*8%P"(4'"$%
!&7$,3*%"#%/(*#*8$1 C2%$.*%&/*(,$&(%"#%8&$%.&79"83%
$.*%67*4$(&9*%B&79*(I%"$%5'#$%+*%#"$$"83%&8%,%
8&84&89'4$"X*I%8&827,55,+7*%#'(2,4*1
9. Stroke the workpiece lightly to ignite the arc.
Tips for igniting the arc:
a. Tap the surface with the Electrode.
b. Stroke the surface with the Electrode.
c. Strike the surface like a match with the Electrode.
10. After the arc ignites:
a. Lift the Electrode off workpiece the same
distance as the diameter of the bare metal end.
b. Tilt Electrode back 10 to 20 degrees.
c. Drag Electrode to the back end of the weld
puddle to deposit material as needed.
11. When finished welding, lift the Electrode from
the workpiece, then set Electrode Holder
down on nonconductive, nonflammable
surface away from any grounded objects.
12. Turn the Power Switch OFF.
13. To prevent accidents, after use:
• Allow Welder to cool down.
• Unplug Welder’s power cord from outlet.
• Remove Ground Clamp.
• Clean, then store Welder and its accessories
indoors out of children’s reach.

Page 13<&(%$*4.8"4,7%H'*#$"&8#I%/7*,#*%4,77%JKLLLKMLNKNMJL1Item 63620
?@<6AOD@CEA6E@EP6 Q@?CP%R6GSCETR6GSCET%ACU? SETUP
R*79"83%A"/#
A good way to test welding technique is to examine a weld’s appearance after it has cooled and the slag has been
removed. Then, better welding can be learned by adjusting your weld technique to remedy any problems found.
@2$*(%/(,4$"4*%)*79"83%,%4&'/7*%
&2%)*79"83%+*,9#I%?AVU%,89%
*[,5"8*%>&'(%)*79%'#"83%
$.*%2&77&)"83%3'"9*7"8*#1
?$("W*%A*#$
@%$*#$%)*79%&8%,%UC6P6%V<%?P;@U%4,8%+*%
$*#$*9%+>%'#"83%$.*%2&77&)"83%/(&4*9'(*1
R6@;%@E?CK@UU;V!6S%?@<6AO%TVTTG6?%
SF;CET%ABC?%U;VP6SF;61
R@;ECETi A."#%$*#$%RCGG%9,5,3*%$.*%)*79%"$%"#%
/*(2&(5*9%&81%%A."#%$*#$%"#%VEGO%,8%"89"4,$&(%&2%)*79%
$*4.8"H'*%,89%"#%8&$%"8$*89*9%$&%$*#$%)&(W"83%)*79#1
1. After two scraps have been welded together and the
weld has cooled, clamp one side in a sturdy vise.
2. Stay clear from underneath while you strike
the opposite side with a heavy hammer,
preferably a dead-blow hammer.
3. A TVVS%R6GS will deform but not break, as shown
on top.
A UVV;%R6GS will be brittle and snap
at the weld, as shown on bottom.
!"#*
?P;@U%
R&(W/"*4*
TVVS%R6GS%%
Q*89#%,89%"#%E&$%Q("$$7*
S*,9KQ7&)%B,55*(
!"#*
?P;@U%
R&(W/"*4*
UVV;%R6GS%%
?8,/#%&(%P(,4W#
S*,9KQ7&)%B,55*(
P7*,8"83%?$"4W%R*79
AV%U;6!6EA%?6;CVF?%CE_F;O-%
R*,(%@E?CK,//(&X*9%#,2*$>%3&337*#%
,89%/(&$*4$"X*%)*,(%).*8%47*,8"83%,%
)*791%%
?/,(W#%&(%4."/#%5,>%27>%).*8%47*,8"831
1. A weld from Stick welding will be covered
by slag. Use a chipping hammer to knock
this off. Q*%4,(*2'7%8&$%$&%9,5,3*%
$.*%)*79%&(%+,#*%5,$*(",71
2. Use a wire brush to further clean the weld
or use an angle grinder (sold separately) to
shape the weld.
P."//"83%
B,55*(
R"(*%Q('#.

Page 14 <&(%$*4.8"4,7%H'*#$"&8#I%/7*,#*%4,77%JKLLLKMLNKNMJL1 Item 63620
?@<6AO D@CEA6E@EP6Q@?CP%R6GSCET R6GSCET%ACU?SETUP
Weld Diagnosis – Workpiece Heat Control / Weld Penetration
6]P6??%U6E6A;@ACVE%V;%
QF;EKAB;VFTB
U;VU6;%U6E6A;@ACVECE@S6jF@A6%U6E6A;@ACVE
E&$%.&$%*8&'3. A&&%.&$C9*,7%.*,$
B&)%$&%"84(*,#*%)&(W/"*4*%.*,$%%
,89%"84(*,#*%/*8*$(,$"&8-%%
k$&%)*79%ABCPY6; workpieces properly)
a. Increase current. b. Weld more slowly.
B&)%$&%(*9'4*%)&(W/"*4*%.*,$%%
,89%7"5"$%/*8*$(,$"&8-%%
k$&%)*79%ABCEE6; workpieces properly)
a. Decrease current. b. Weld more quickly.
R*79%6[,5/7*%S",3(,5#
PG6@E%R6GS?%<C;?Ai
?$"4W%)*79#%)"77%.,X*%,%4&,$%&2%#7,3%&X*(%$.*5%'8$"7%47*,8*91
T&&9%
R*79
P'((*8$%%
A&&%G&)%
AV%PV;;6PA-%
Increase the
current
AV%PV;;6PA-%
Decrease
the current
P'((*8$%%
A&&%B"3.
AV%PV;;6PA-
Weld slower
R*79%?/**9%
A&&%<,#$
AV%PV;;6PA-
Weld faster
R*79%?/**9%
A&&%?7&)
@(4%G*83$.%%
A&&%?.&($%
AV%PV;;6PA-
Increase
distance
@(4%G*83$.%%
A&&%G&83%
AV%PV;;6PA-
Decrease
distance

Page 15<&(%$*4.8"4,7%H'*#$"&8#I%/7*,#*%4,77%JKLLLKMLNKNMJL1Item 63620
?@<6AOD@CEA6E@EP6 Q@?CP%R6GSCETR6GSCET%ACU? SETUP
Weld Penetration (Workpiece Heat Control)
6]P6??%U6E6A;@ACVE%V;%
QF;EKAB;VFTB
R*79%9(&&/#%&8%$&/%,89%
'89*(8*,$.%&(%2,77#%$.(&'3.%
*8$"(*7>I%5,W"83%,%.&7*1
U;VU6;%U6E6A;@ACVE
R*79%"#%X"#"+7*%'89*(8*,$.%,89%
+'73*#%#7"3.$7>%&8%$&/1
CE@S6jF@A6%U6E6A;@ACVE
R*79%9&*#%8&$%4&8$,4$%$.*%=&"8$%
2'77>I%='#$%&8%$.*%#'(2,4*1
PROFILE VIEWS
UV??CQG6%P@F?6?%@ES%?VGFACVE?%<V;%
1. R&(W/"*4*%&X*(.*,$"83-%
Reduce current.
2. R*79"83%#/**9%$&&%#7&)-
Increase welding speed and ensure
that welding speed is kept steady.
UV??CQG6%P@F?6?%@ES%?VGFACVE?%<V;
1. C84&((*4$%)*79"83%$*4.8"H'*-
Keep arc on leading edge of weld puddle.
Hold torch at proper angles.
2. C8#'22"4"*8$%)*79%.*,$-%
Slow down so fill material has time to melt
into the weld location. Increase current.
3. R&(W/"*4*#%$&&%$."4W047&#*-
Bevel thick workpieces, allow slight
gap, and weld in several passes.
4. C8#'22"4"*8$%)*79%5,$*(",7-%
Increase amount of fill material.
R*79%E&$%@9.*("83%U(&/*(7>%
T,/#%/(*#*8$%+*$)**8%)*79%,89%/(*X"&'#%+*,9%&(%+*$)**8%)*79%,89%)&(W/"*4*1%%?**%,(*,#%+*7&)1
UV??CQG6%P@F?6?%@ES%?VGFACVE?
PROFILE
VIEW
1. C84&((*4$%)*79"83%$*4.8"H'*-
Place stringer bead at correct place in joint.
Adjust workpiece position or weld angle to permit
proper welding to bottom of piece.
Keep arc on leading edge of weld puddle.
Hold Electrode and fill material at proper angles.
2. C8#'22"4"*8$%)*79%.*,$-%
Increase current.
3. S"($>%)&(W/"*4*-
Clean workpiece down to bare metal.
4. C8#'22"4"*8$%)*79%5,$*(",7-%
Increase amount of fill material.
5. S"#$,84*%+*$)**8%)&(W/"*4*#%$&%7,(3*-%
Decrease distance and increase bevel.
Q*89%,$%_&"8$%
UV??CQG6%P@F?6?%@ES%?VGFACVE?
PROFILE
VIEW
1. C5/(&/*(%47,5/"83-
Clamp workpieces securely.
Make tack welds to hold workpieces.
2. 6[4*##"X*%.*,$-
Weld a small portion and allow to cool before
proceeding.
Increase weld speed.

Page 16 <&(%$*4.8"4,7%H'*#$"&8#I%/7*,#*%4,77%JKLLLKMLNKNMJL1 Item 63620
?@<6AO D@CEA6E@EP6Q@?CP%R6GSCET R6GSCET%ACU?SETUP
P&,$%&2%?7,3%VX*(%R*79%
TOP
VIEW
PARTIALLY CHIPPED AWAY TO SHOW WELD
?7,3%"#%,%8*4*##,(>%/,($%&2%,%#$"4W%)*791%%C$%#."*79#%
$.*%)*79%2(&5%"5/'("$"*#1%%P7*,8%&22%$.*%#7,3%)"$.%$.*%
P."//"83%B,55*(%,89%R"(*%Q('#.%,2$*(%)*79"831
U&(&#"$>%l%?5,77%4,X"$"*#%&(%.&7*#%"8%$.*%+*,91
UV??CQG6%P@F?6?%@ES%?VGFACVE?
TOP
VIEW
1. S"($>%)&(W/"*4*%&(%2"77%5,$*(",7-
Clean workpiece down to bare metal.
Make certain that fill material and Electrode are
clean and free from oil, coatings, and other residues.
2. C84&8#"#$*8$%)*79"83%#/**9-%
Maintain steady weld speed.
P(&&W*90R,X>%Q*,9%
UV??CQG6%P@F?6?%@ES%?VGFACVE?
TOP
VIEW
1. C8,44'(,$*%)*79"83-
Use two hands or rest hand on steady surface.
2. C84&8#"#$*8$%)*79"83%#/**9-%
Maintain steady weld speed.
6[4*##"X*%?/,$$*(%
UV??CQG6%P@F?6?%@ES%?VGFACVE?
TOP
VIEW
<"8*%#/,$$*(%"#%8&(5,71%?/,$$*(%$.,$%"#%
3(,"8>%,89%7,(3*%"#%,%/(&+7*51%
S"($>%)&(W/"*4*%&(%2"77%5,$*(",7-
Clean workpiece down to bare metal.
Make certain that fill material and Electrode are
clean and free from oil, coatings, and other residues.
Q'(8KA.(&'3.%l%Q,#*%5,$*(",7%5*7$#%,),>I%7*,X"83%,%.&7*%"8%$.*%)*791
UV??CQG6%P@F?6?%@ES%?VGFACVE?
TOP
VIEW
1. R&(W/"*4*%&X*(.*,$"83-%
Reduce current.
2. R*79"83%#/**9%$&&%#7&)-
Increase welding speed and ensure
that welding speed is kept steady.
3. 6[4*##"X*%5,$*(",7%,$%)*79-%
Reduce amount of fill material.

Page 17<&(%$*4.8"4,7%H'*#$"&8#I%/7*,#*%4,77%JKLLLKMLNKNMJL1Item 63620
?@<6AOD@CEA6E@EP6 Q@?CP%R6GSCETR6GSCET%ACU? SETUP
D,"8$*8,84*%,89%?*(X"4*
AV%U;6!6EA%?6;CVF?%CE_F;OI%<C;6%@ES%QF;E?-%
F8/7'3%$.*%R*79*(I%(*#$%$.*%67*4$(&9*%B&79*(%&8%,%.*,$K/(&&2I%*7*4$("4,77>%8&8K4&89'4$"X*%
#'(2,4*I%,89%,77&)%,77%/,($#%&2%$.*%R*79*(%$&%4&&7%$.&(&'3.7>%+*2&(*%#*(X"4*1%
1. Q6<V;6%6@PB%F?6I inspect the general
condition of the welder. Check for:
• loose hardware
• misalignment or binding of moving parts
• damaged cord/electrical wiring
• frayed or damaged cables
• cracked or broken parts
• any other condition that may
affect its safe operation.
2. U6;CVSCP@GGOI have a qualified technician unplug
the Welder, remove the Top Cover Panel, and using
compressed air, blow out all dust from the interior.
3. @<A6;%6!6;O%F?6I store in a
clean and dry location.
A(&'+7*#.&&$"83%
CDUV;A@EAi
Q*%P6;A@CE%$&%#.'$%&22%$.*%R*79*(I%9"#4&88*4$%"$%2(&5%/&)*(I%,89%9"#4.,(3*%$.*%
*7*4$(&9*%$&%3(&'89%+*2&(*%,9='#$"83I%47*,8"83I%&(%(*/,"("83%$.*%'8"$1
U(&+7*5 U&##"+7*%P,'#*# G"W*7>%?&7'$"&8#
No Welder Output
When Switched On
1. Tripped thermal protection
device.
2. Ground Clamp not
attached to workpiece.
1. Reduce duration or frequency of welding periods
to help reduce wear on the welder. Refer to
Duty Cycle (Duration of Use) on page 10.
2. Attach Ground Clamp to workpiece.
Welder Does Not
Function When
Switched On
1. Unit is not connected
to outlet properly.
2. Outlet is unpowered.
3. Circuit supplies insufficient
input voltage or amperage.
1. Verify the voltage at the outlet and
the connection to the outlet.
2. Check circuit breaker/GFCI devices;
if any are tripped, determine and
remedy cause before resetting.
3. Verify that the circuit is designed to supply
the required input amperage as detailed
in Specifications on page 7.
Weak Arc Strength 1. Incorrect line voltage.
2. Improper gauge or length of cord.
1. Check the line voltage and, if insufficient, have
a licensed electrician remedy the situation.
2. Do not use an extension cord on this Welder.
Use only the supplied power cord for this
Welder or an identical replacement cord.
Welding Arc
Not Stable.
1. Loose electrode cable
or ground cable.
2. Damaged electrode holder
or loose connection within
electrode holder.
3. Adjust current setting.
1. Check to ensure that all connections are tight.
2. Have a qualified technician inspect and repair/
replace as necessary.
3. Make sure setting matches
recommended setting on chart.
% <&77&)%,77%?,2*$>%/(*4,'$"&8#%).*8*X*(%9",38&#"83%&(%#*(X"4"83%$.*%$&&71%%%
S"#4&88*4$%/&)*(%#'//7>%+*2&(*%#*(X"4*1

Page 18 <&(%$*4.8"4,7%H'*#$"&8#I%/7*,#*%4,77%JKLLLKMLNKNMJL1 Item 63620
?@<6AO D@CEA6E@EP6Q@?CP%R6GSCET R6GSCET%ACU?SETUP
;*4&(9%U(&9'4$\#%?*(",7%E'5+*(%B*(*-%
E&$*- If product has no serial number, record month and year of purchase instead.
E&$*- Some parts are listed and shown for illustration purposes only,
and are not available individually as replacement parts.
U,($#%G"#$%,89%S",3(,5#
UG6@?6%;6@S%AB6%<VGGVRCET%P@;6<FGGO
THE MANUFACTURER AND/OR DISTRIBUTOR HAS PROVIDED THE PARTS LIST AND ASSEMBLY DIAGRAM
IN THIS MANUAL AS A REFERENCE TOOL ONLY. NEITHER THE MANUFACTURER OR DISTRIBUTOR
MAKES ANY REPRESENTATION OR WARRANTY OF ANY KIND TO THE BUYER THAT HE OR SHE IS
QUALIFIED TO MAKE ANY REPAIRS TO THE PRODUCT, OR THAT HE OR SHE IS QUALIFIED TO REPLACE
ANY PARTS OF THE PRODUCT. IN FACT, THE MANUFACTURER AND/OR DISTRIBUTOR EXPRESSLY
STATES THAT ALL REPAIRS AND PARTS REPLACEMENTS SHOULD BE UNDERTAKEN BY CERTIFIED AND
LICENSED TECHNICIANS, AND NOT BY THE BUYER. THE BUYER ASSUMES ALL RISK AND LIABILITY
ARISING OUT OF HIS OR HER REPAIRS TO THE ORIGINAL PRODUCT OR REPLACEMENT PARTS
THERETO, OR ARISING OUT OF HIS OR HER INSTALLATION OF REPLACEMENT PARTS THERETO.
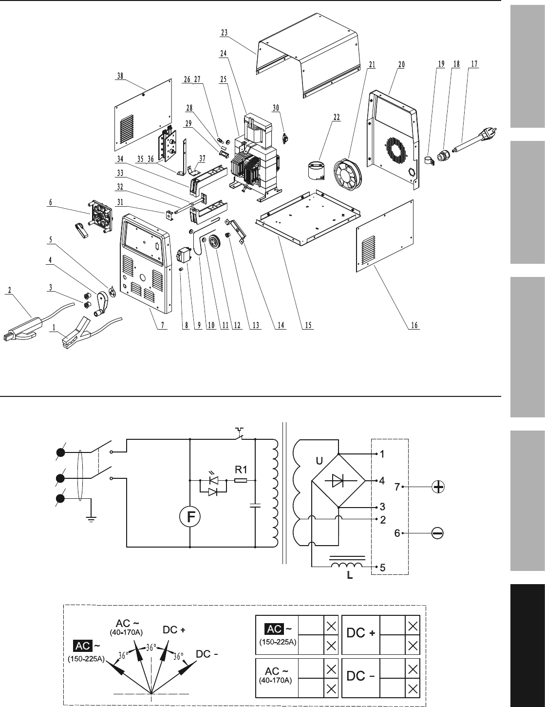
U,($#%G"#$
U,($ S*#4("/$"&8 j$>
1 Ground Cable with Clamp 1
2 Welding Cable with Electrode Holder 1
3 Cable Clamp 2
4 Current Handle 1
5 Pointer 1
6 Polarity Switch 1
7 Front Panel 1
8 Thermal Protection Indicator 1
9 Breaker 1
10 Steel Cable 1
11 Pulley 3
12 Current Adjustment Disk 1
13 Screw Rod Sleeve 1
14 Support Welding 1
15 Bottom Plate 1
16 Right Panel 1
17 Power Cord 1
18 Power Cord Clamp 1
19 Clip 1
U,($ S*#4("/$"&8 j$>
20 Back Panel 1
21 Fan 1
22 Filter Capacitor 1
23 Top Cover Panel 1
24 Inductor 1
25 Transformer 1
26 Hex Bolt M8 x 45 4
27 Hex Nut M8 4
28 Pointer Support 1
29 Moveable Core Keeper 1
30 Thermal Relay 1
31 Slide Splint 1
32 Screw Rod 2
33 Moveable Core Adjustment Nut 1
34 Moveable Core Slide 1
35 Rectier Bracket 1
36 Rectier 1
37 Pointer Support 1
38 Left Panel 1

Page 19<&(%$*4.8"4,7%H'*#$"&8#I%/7*,#*%4,77%JKLLLKMLNKNMJL1Item 63620
?@<6AOD@CEA6E@EP6 Q@?CP%R6GSCETR6GSCET%ACU? SETUP
@##*5+7>%S",3(,5
R"("83%S",3(,5
AC & DC Change-Over Switch
6-2
7-1
6-3
7-1
6-5
7-4
6-4
7-5
Output
Input
QF
C
KH
T1 AC & DC
Change-Over Switch

3491 Mission Oaks Blvd. • PO Box 6009 • Camarillo, CA 93011 • 1-888-380-0318
G"5"$*9%V8*%O*,(%R,((,8$>
Harbor Freight Tools Co. makes every effort to assure that its products meet high quality and durability standards,
and warrants to the original purchaser that this product is free from defects in materials and workmanship for the
period of one year from the date of purchase. This warranty does not apply to damage due directly or indirectly,
to misuse, abuse, negligence or accidents, repairs or alterations outside our facilities, criminal activity, improper
installation, normal wear and tear, or to lack of maintenance. We shall in no event be liable for death, injuries
to persons or property, or for incidental, contingent, special or consequential damages arising from the use of
our product. Some states do not allow the exclusion or limitation of incidental or consequential damages, so the
above limitation of exclusion may not apply to you. THIS WARRANTY IS EXPRESSLY IN LIEU OF ALL OTHER
WARRANTIES, EXPRESS OR IMPLIED, INCLUDING THE WARRANTIES OF MERCHANTABILITY AND FITNESS.
To take advantage of this warranty, the product or part must be returned to us with transportation charges
prepaid. Proof of purchase date and an explanation of the complaint must accompany the merchandise.
If our inspection verifies the defect, we will either repair or replace the product at our election or we may
elect to refund the purchase price if we cannot readily and quickly provide you with a replacement. We will
return repaired products at our expense, but if we determine there is no defect, or that the defect resulted
from causes not within the scope of our warranty, then you must bear the cost of returning the product.
This warranty gives you specific legal rights and you may also have other rights which vary from state to state.