MRXBOX95 LH1/LH2 Mechanical Ventilation Unit With Heat Recovery For Loft Mounting Installation And Maintenance LH2 671496
User Manual: LH2
Open the PDF directly: View PDF
.
Page Count: 8

Unit must not be switched off during normal operation, the
product is designed to run continuously.
1.0 Introduction
MRXBOX95LH1/LH2 is designed to provide mechanical
supply and extract ventilation with heat recovery.
The unit has the facility to commission the supply and extract
fans independently on minimum speed (continuous background
ventilation), boost control will control both fans to the same
volume.
To recover heat from the extract air the heat exchanger block
is utilised. This heat exchanger can recover up to 95% of the
normally wasted heat.
2.0 Installation
Installation must be carried out by competent personnel in
accordance with the appropriate authority and conforming
to all statutory governing regulations.
All mains wiring must be in accordance with the current I.E.E.
Regulations, or the appropriate standards. Ensure that the
mains supply (Voltage, Frequency and Phase) complies with
the rating label.
Please note a clear working space is required around the
installed unit to allow the cover to be removed and provide
sufficient access for maintenance such as filter change.
The fan must be installed indoors, away from direct sources of
frost, heat, water spray or moisture generation.
The unit is designed for mounting on the roof joists in the loft
space using four “L shape” metal brackets and four A.V.
mounts supplied with the unit. Please note that various
positions for the brackets are available to suit different joist
centres.
Connect the four ‘L’ shape fixing brackets to the unit with the
M4 screws (provided) they can be attached to the long, or
short sides of the unit depending on requirements. Each pair of
brackets should be mounted at different heights so the fall is
towards the drip tray end of the unit. (see figures 2a, 2b and
2c for fixing details). Lower the unit with the “L” shape fixing
brackets attached onto the joists. Mark through the brackets
and drill four clearance holes into the top surface of joists.
Locate anti-vibration mounts (supplied) above and below each
bracket fixing point hole and, using 4 suitable screws (not
provided) and washers, fix the unit to the joists (see fig 2b).
Do not overtighten the fixings. The distance from the top
washer on the A.V. mount to the joist when installed must
not be less than 30mm.
Nuaire Limited Western Industrial Estate Caerphilly United Kingdom CF83 1NA
T: 029 2085 8400 F: 029 2085 8444 E: info@nuaire.co.uk W: www.nuaire.co.uk
114. 02. 14. Leaflet Number 671496
MRXBOX95-LH1/LH2
Mechanical Ventilation Unit with
Heat Recovery for Loft Mounting
Installation and Maintenance
Spigot 2.
Spigot 4.
Spigot 3.
Spigot 1.
21.5mm Condensate drain
outlet. Optional either side.
M20 & M16 cable
glands mains entry &
blanking gland.
Controls.
Figure 1. Airflow through unit.
The EMC Directive
2004/108/EC
The Low Voltage
Directive
2006/95/EC
Two fixing brackets
should be attached
on the non-control
end of the unit via
the two lower hole
positions.
(see figure 2b).
Two fixing brackets
should be attached
on the control end of
the unit via the two
upper hole positions.
(see figure 2b).
Figure 2a. Mounting MRXBOX95-LH1/LH2 onto roof joists using the ‘L’ shaped fixing
brackets and AV mounts on the long side of unit.
Spigot Location and Ducting references
Spigot 1. Extract air from kitchen/bathroom.
Spigot 2. Intake air from outside.
Spigot 3. Outside air to house.
Spigot 4. Extract air to outside.
Washer Woodscrew
A. V. mount
Ceiling joist
Metal bracket
attached to unit
Higher and lower
mounting hole positions
Figure 2b. Side and front view example of
an ‘L’ shaped fixing bracket and AV mount
attached to ceiling joist.
Side view Front view

214. 02. 14. Leaflet Number 671496
Installation and Maintenance MRXBOX95-LH1/LH2 Mechanical Ventilation with Heat Recovery
Installation cont.
Figure 2c. Mounting MRXBOX95-LH1/LH2 onto roof joists using the ‘L’ shaped fixing
brackets and AV mounts with four suitable screws on the short side of the unit.
Unit shown with MVHR-DRAIN condensate drain, running to SVP.
2.1 Condensate Drain installation
1. Remove top cover and remove heat exchanger.
The condensate outlet can then be seen at the base of
the unit. Using a 90 Deg bend and suitable length of
¾” / 21.5mm diameter overflow pipe (not supplied) take
the condensate to the outside of the unit (can be taken
to either side of the unit as required).
Suitable adhesive should be used for all connections.
2. The drain should run through a secondary trap before
being discharged into the waste water system.
3. If using a U-trap please ensure the U-trap has been filled to
a suitable level of water to avoid any air locks.
4. If the condensation pipe is fitted in an unheated space the
pipe should be in insulated to prevent freezing.
Nuaire recommend MVHR-DRAIN be used as the primary
condensate take-off. (see figures 2c and 3a).
Fixing MVHR-DRAIN
Offer up the MVHR-DRAIN inlet to the threaded tail of the
appliance waste outlet or MVHR-DRAIN knuckle or running
adaptor, and tighten the threaded cap sufficiently hand-tight to
provide a water-tight seal (check that the cap screws on square
and does not ‘cross-thread’). When the screwed cap is tight, the
MVHR-DRAIN body is secure.
1. Cut the pipe to length, allowing for the full compression
socket depth (using an appropriate pipe cutter, such as a
Hepworth rachet pipe cutter).
2. Remove any ‘swarf’ from the end of the plastic pipe.
Ream the copper pipe end to remove any ‘burr’, and file if
necessary to remove any external sharp edges. Mark the
socket depth on the pipe, and check that the pipe section to
be jointed is free of any surface damage which may affect
the joint seal.
3. Unscrew the cap from the MVHR-DRAIN outlet, and slide the
cap and rubber seal onto the pipe.
4. Insert the pipe end fully into the socket.
5. Slide the rubber seal and screwed cap up against the face of
the socket, and tighten the cap sufficiently hand-tight (check
that the cap is square to the body and does not ‘cross-
thread’). Hand tight should be adequate to form a proper seal.
Figure 3b. Plan view of unit showing drip tray and condensate
drain position.
Figure 3c. Condensate pipe connection to unit and a typical example
of a “U” trap drainpipe.
21.5mm dia. condensate pipe.
5oDrop
Side view of unit Front view
21.5mm dia. condensate drain
21.5mm dia. condensate drain
alternative position
Drain Tray
Two fixing brackets
should be attached
on the non-control
end of the unit via
the two lower hole
positions.
(see figure 2b).
Two fixing brackets
should be attached
on the control end of
the unit via the two
upper hole positions.
(see figure 2b).
Condensate drain,
insulated drain pipe with
100 fall running to SVP.
(Part no. MVHR-DRAIN).
Figure 3a. MVHR-DRAIN correct installation.
RIGHT WRONG
Flow
Side elevation
When installed horizontally the ribs must be at the bottom to
ensure correct operation.
Figure 2d. Unit viewed from the front
mounted at a slight angle.

314. 02. 14. Leaflet Number 671496
Installation and Maintenance MRXBOX95-LH1/LH2 Mechanical Ventilation with Heat Recovery
2.2 Installing Nuaire CONTRAP
In ducted ventilation systems, condensation will occur when
warm, humid air extracted from your bathroom, shower, kitchen
or utility room hits the cooler surface of the ventilation duct.
If the extracted air is sufficiently cooled, the moisture will
condense back to water and become trapped in the ducting,
potentially causing damage to the fan.
Nuaire’s CONTRAP is simply connected to the system as part
of the vertical duct run and an internal gutter within the trap
collects the moisture and then drains it out through a standard
overflow pipe to the outside. This ensures that the moisture
cannot enter a potentially hazardous area.
Use insulated ducting
By using insulated ducting, the inner duct layer stays warmer,
and therefore keeps the extracted air at a higher temperature.
This allows the water to condense outside the building and not
in the ducting.
Any air intake terminal MUST be installed in accordance
with the appropriate regulation.
As a guide, the BS5440 series of British Standards
deals with this issue and currently states that an air
intake must be at a minimum distance of 300mm from
a gas boiler balanced flue. Installers are advised to
be aware of the requirements of this standard when
installing ‘through the wall’ supply air ducting.
Similarly, supply and extract air grilles should be at
least 300mm apart.
Figure 4. Typical MVHR ducted arrangement for a loft mounted unit using the Nuaire condensation trap 125mm dia. (CONTRAP 125).
2.3 Extract/input areas
The unit is designed to extract air from all wet rooms
e.g. bathroom, kitchen, en-suite, utility room (with sink).
WC’s do not need to be ventilated if openable windows are
fitted. Supply air should be to all habitable rooms e.g. bedrooms
and lounge. Extract / input grilles should be adjustable valve
types (not supplied).
2.4 Ducting
1. If the unit has been specified as SAP appendix Q installation
the use of flexible is prohibited. If flexible ducting is to be
used it should be kept to a minimum and should always be
pulled taught.
2. The unit is supplied with 125mm dia. outlets.
To prevent any condensation on the ducting it should be
insulated externally vapour-proof as far as the unit.
3. Ducting layout plans should be adhered to if available.
4. It is recommended that 125mm dia. or 204 x 60mm ducting be
used and the number of 90 Deg bends be kept to a minimum.
5. Ducting joints must be sealed with duct tape and/or silicone
sealant.
For further information refer to Building Regulations Part F and
BRE appendix Q website.
Nuaire
CONTRAP
condensation
trap.
To soil stack
or soffit vent.
Insulated.
Tile Vent.
Condensed water
forming inside
the duct
Insulated.
Insulated.
IMPORTANT: When using a “T” Piece to connect the CONTRAP
drainage and the MVHR drain pipework the MVHR drain must
always be fitted before the “T” Piece to prevent condensate
from feeding back into the MVHR system.
To SVP
“T” piece
MVHR Drain
To unit
To CONTRAP

414. 02. 14. Leaflet Number 671496
Installation and Maintenance MRXBOX95-LH1/LH2 Mechanical Ventilation with Heat Recovery
840
430
VIEW FROM FRONT 4 X 125mm spigots SIDE VIEW (no controls)
450
VIEW FROM TOP
Condensate
Drain
21.5mm dia.
condensate
drain
21.5mm dia.
condensate
drain alternative
position
SIDE VIEW (controls)
3.0 Dimensions (mm) Figure 6.
Figure 5. Main unit components shown with front and lid removed.
G4 removable filter.
G4 removable filter.
Adjustment
potentiometers
and indication
lights.
Heat exchanger.
Lid.
Condensate Drain
outlet.
M20 & M16 Cable Glands.
Mains Entry & Blanking Gland.

514. 02. 14. Leaflet Number 671496
Installation and Maintenance MRXBOX95-LH1/LH2 Mechanical Ventilation with Heat Recovery
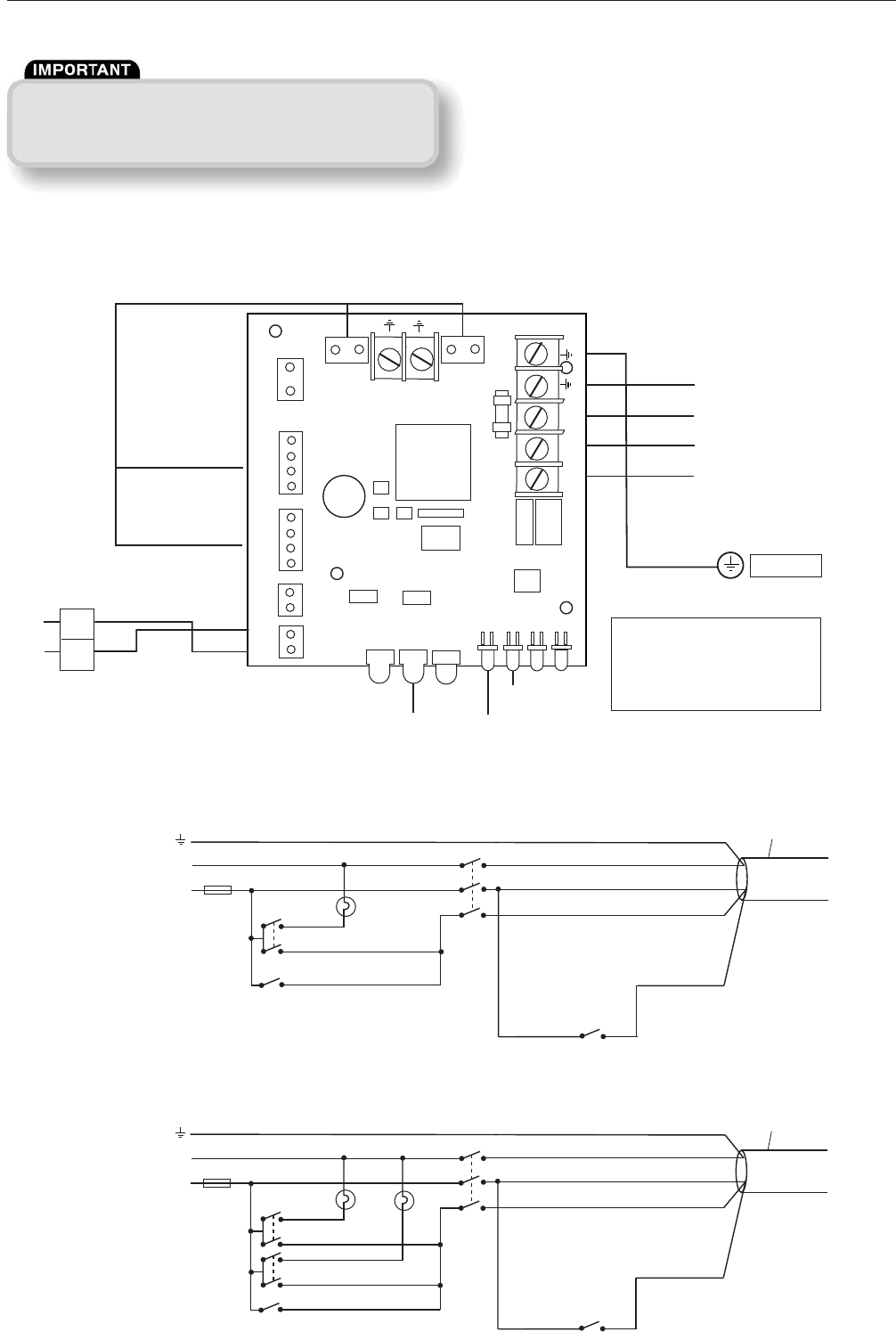
See fuse
rating
MAINS
230V
50Hz
Room
light
Light
switch
(Double
Pole)
N
L
3 Pole
isolator
Kitchen switch
Green/yellow
Blue
Brown
Black
Summer
bypass
switch
Grey (only used
on bypass unit)
Supply cord
from unit
Unit serving kitchen and bathroom
Unit serving kitchen and two bathrooms
MAINS
230V
50Hz
Room
lights
N
L
3 Pole
isolator
Kitchen switch
Green/yellow
Blue
Brown
Black
Summer
bypass
switch
Grey (only used
on bypass unit)
Supply cord
from unit
See fuse
rating
Light
switches
(Double
Pole)
Figure 8.
Figure 9.
For good EMC engineering practice, any sensor cables
or switched live cables should not be
placed within 50mm of other cables or on the same
metal cable tray as other cables.
4.0 Electrical Connection
Please note: the electrical connection of the unit must be be carried
out by a qualified electrician.
The unit is supplied with a flexible cord for connection to the mains
supply.
Electrical details:-
Voltage: 240V 1ph 50Hz
Consumption: LH1 - 1.3 Amp
LH2 - 2.2 Amp
Fuse rating: LH1 - 3A Amp
LH2 - 5A Amp
NOTE This unit must be earthed.
The three core cable from the mains power supply should be
connected to a fixed wiring installation, via a fused isolator, in
accordance with current IEE wiring regulations.
SWL
Fan Failure
Indicator
SUPPLY EXTRACT
RED
YEL
WHI
BLU
RED
YEL
WHI
BLU
FAN 1
SUPPLY
L N
SUPPLY
TEMP FAIL
Fan
Connections
Connection to
Remote Fail
Indicator
(See 5.0) Speed Control
Pots (See 6.0)
Connection to supply cord
230V IN
50Hz Mains
Note: Wiring is for reference
purposes only as the connections
above are factory fitted.
The unit is pre-wired with a
2 metre fly lead.
Earth point
L N
N L
FAN 2
SUPPLY
BYPASS
Power
Indicator
3
2
Figure 7.

Isolation - Before commencing work make sure that the unit,
switched live and Nuaire control are electrically isolated
from the mains supply and switched live supply.
5.0 Ancillaries
Remote Fail Indicator: MRXBOX95LH-RFI
Loft Stand: MVHR-LOFT-STAND (see figure 10).
If the unit needs to be raised in the loft space, then a stand
should be used.
The four ‘L’ shape brackets should be fitted to the main unit and
this in turn should be bolted to the stand. Place the additional
AV pads on to the stand before bolting to the stand using the
pre inserted holes (Please refer to section 2 to ensure the
correct fitting of the ‘L’ shaped brackets).
6.0 Commissioning
1. For the required airflow rates refer to the design
specification for the property or refer to Building
Regulations Part F.
2. The unit is supplied with control of both the normal
airflow and boost airflow. (see figure below).
3. Commissioning should be carried out using a moving
vane anemometer in conjunction with a hood.
4. Once commissioned the house owner / tenant should
be informed that the unit should not be adjusted as it
will have a detrimental effect on the indoor air quality
and could result in condensation and mould growth.
7.0 Maintenance/Cleaning
Please allow 300mm each side of the unit to allow access for
maintenance purposes.
1. Replace filters every 5 years. Remove the top cover and
slide out the two G4 filters fitted either side of the heat
exchanger. Replace with new filters.
2. Inspect heat exchanger every 5 years. Generally check for
damage and security of components. Refit top cover.
3. Inspecting motors. Motors can be accessed through
removal side panels.
8.0 Replacement of Parts
Should any component need replacing Nuaire keep extensive
stocks for quick delivery. Ensure that the unit is electrically
isolated, before carrying out any work.
When ordering spare parts, please quote the serial number of
the unit and the ARC number of the purchase if possible.
(This information will be available on the fan label).
9.0 Warranty
The 5 year warranty starts from the day of delivery and
includes parts and labour for the first year and parts only for
the remaining 4 years. This warranty is conditional on planned
maintenance being undertaken.
10.0 Service Enquiries
Nuaire can assist you in all aspects of service. Our service
department will be happy to provide any assistance required,
initially by telephone and If necessary arrange for an
engineer to call.
Technical Support
029 2085 8400
614. 02. 14. Leaflet Number 671496
Figure 11. Detail of unit control on side panel.
Boost
Extract
Fan
Supply
Fan
Fan
Failure
+_+_+_
For commissioning
refer to user manualVentilation controls
Continuous
background
Power
Figure 12. Removing filters.
Installation and Maintenance MRXBOX95-LH1/LH2 Mechanical Ventilation with Heat Recovery
Technical or commercial considerations may, from time to time,
make it necessary to alter the design, performance and
dimensions of equipment and the right is reserved to make such
changes without prior notice.
Figure 10. MVHR-LOFT-STAND.

We declare that the machine named below conforms to the requirements of
EC Council Directives relating to Electromagnetic Compatibility and Safety
of Electrical Equipment.
Designation of machinery: MRXBOX95-LH1/LH2
I & M Serial No.: 671 496
Machinery Types: Mechanical Ventilation with
Heat Recovery
Relevant EC Council Directives: 2004/108/EC (EMC), 2006/95/EC
(Low Voltage Directive)
Applied Harmonised Standards: EN55014-1, EN55014-2, EN61000-3-2,
EN61000-3-3, EN60335-2-80
Basis of Self Attestation: Quality Assurance to BS EN ISO 9001
BSI Registered Firm Certificate No. FM 149
Signature of manufacture representatives:
Name: Position: Date:
1) C. Biggs Technical Director 26. 01. 11
2) A. Jones Manufacturing Director 26. 01. 11
Nuaire Ltd,
Western Industrial Estate,
Caerphilly CF83 1NA.
Note: All standards used were current and valid at the date of signature.
714. 02. 14. Leaflet Number 671496
We declare that the machinery named below is intended to be assembled
with other components to constitute a system of machinery. All parts
except for moving parts requiring the correct installation of safety guards
comply with the essential requirements of the Machinery Directive. The
machinery shall not be put into service until the system has been
declared to be in conformity with the provisions of the EC Machinery
Directive.
Designation of machinery: MRXBOX95-LH1/LH2
Machinery Types: Mechanical Ventilation with
Heat Recovery
Relevant EC Council Directives: 2006/42/EC (Machinery Directive)
Applied Harmonised Standards: BS EN ISO 12100-1, BS EN ISO 12100-2,
EN60204-1, BS EN ISO 9001,
BS EN ISO 13857
Applied National Standards: BS848 Parts 1, 2.2 and 5
Signature of manufacture representatives:
Name: Position: Date:
1) C. Biggs Technical Director 26. 01. 11
2) A. Jones Manufacturing Director 26. 01. 11
Note: All standards used were current and valid at the date of signature.
To comply with EC Council Directives 2006/42/EC Machinery Directive and
2004/108/EC (EMC).
To be read in conjunction with the relevant Product Documentation (see 2.1)
1.0 GENERAL
1.1 The equipment referred to in this Declaration of Incorporation is supplied by
Nuaire to be assembled into a ventilation system which may or may not include
additional components.
The entire system must be considered for safety purposes and it is the
responsibility of the installer to ensure that all of the equipment is installed in
compliance with the manufacturers recommendations and with due regard to
current legislation and codes of practice.
2.0 INFORMATION SUPPLIED WITH THE EQUIPMENT
2.1 Each item of equipment is supplied with a set of documentation which provides
the information required for the safe installation and maintenance of the
equipment. This may be in the form of a Data sheet and/or Installation and
Maintenance instruction.
2.2 Each unit has a rating plate attached to its outer casing. The rating plate
provides essential data relating to the equipment such as serial number, unit
code and electrical data. Any further data that may be required will be found
in the documentation. If any item is unclear or more information is required,
contact Nuaire.
2.3 Where warning labels or notices are attached to the unit the instructions given
must be adhered to.
3.0 TRANSPORTATION, HANDLING AND STORAGE
3.1 Care must be taken at all times to prevent damage to the equipment. Note that
shock to the unit may result in the balance of the impeller being affected.
3.2 When handling the equipment, care should be taken with corners and edges and
that the weight distribution within the unit is considered. Lifting gear such as
slings or ropes must be arranged so as not to bear on the casing.
3.3 Equipment stored on site prior to installation should be protected from the
weather and steps taken to prevent ingress of contaminants.
4.0 OPERATIONAL LIMITS
4.1 It is important that the specified operational limits for the equipment are
adhered to e.g. operational air temperature, air borne contaminants and unit
orientation.
4.2 Where installation accessories are supplied with the specified equipment eg.
wall mounting brackets. They are to be used to support the equipment only.
Other system components must have separate provision for support.
4.3 Flanges and connection spigots are provided for the purpose of joining to
duct work systems. They must not be used to support the ductwork.
4.4 In the event of RF interference the fan may change speed. This is normal and will
have no adverse effect on the fan. The speed will return to normal once the
interference has subsided.
5.0 INSTALLATION REQUIREMENTS
In addition to the particular requirements given for the individual product, the
following general requirements should be noted.
5.1 Where access to any part of equipment which moves, or can become electrically
live are not prevented by the equipment panels or by fixed installation detail
(eg ducting), then guarding to the appropriate standard must be fitted.
5.2 The electrical installation of the equipment must comply with the requirements
of the relevant local electrical safety regulations.
5.3 For EMC all control and sensor cables should not be placed within 50mm or on
the same metal cable tray as 230V switched live, lighting or power cables and
any cables not intended for use with this product.
6.0 COMMISSIONING REQUIREMENTS
6.1 General pre-commissioning checks relevant to safe operation consist of the
following:
Ensure that no foreign bodies are present within the fan or casing.
Check electrical safety. e.g. Insulation and earthing.
Check guarding of system.
Check operation of Isolators/Controls.
Check fastenings for security.
6.2 Other commissioning requirements are given in the relevant product documentation.
7.0 OPERATIONAL REQUIREMENTS
7.1 Equipment access panels must be in place at all times during operation of the
unit, and must be secured with the original fastenings.
7.2 If failure of the equipment occurs or is suspected then it should be taken out of
service until a competent person can effect repair or examination. (Note that
certain ranges of equipment are designed to detect and compensate for fan failure).
8.0 MAINTENANCE REQUIREMENTS
8.1 Specific maintenance requirements are given in the relevant product documentation.
8.2 It is important that the correct tools are used for the various tasks required.
8.3 If the access panels are to be removed for any reason the electrical supply to the
unit must be isolated.
8.4 A minimum period of two minutes should be allowed after electrical disconnection
before access panels are removed. This will allow the impeller to come to rest.
NB: Care should still be taken however since airflow generated at some
other point in the system can cause the impeller to “windmill” even when
power is not present.
8.5 Care should be taken when removing and storing access panels in windy
conditions.
INFORMATION FOR SAFE INSTALLATION, OPERATION AND MAINTENANCE
OF NUAIRE VENTILATION EQUIPMENT
DECLARATION OF INCORPORATION AND INFORMATION
FOR SAFE INSTALLATION, OPERATION AND MAINTENANCE
DECLARATION OF CONFORMITY

814. 02. 14. Leaflet Number 671496
Western Industrial Estate
Caerphilly United Kingdom
CF83 1NA
T: 029 2085 8400
F: 029 2085 8444
E: info@nuaire.co.uk
W: www.nuaire.co.uk
Technical or commercial considerations may, from time to time, make it necessary to alter the design, performance and
dimensions of equipment and the right is reserved to make such changes without prior notice.