65101010 890
User Manual: 890
Open the PDF directly: View PDF
.
Page Count: 2

Morsetti verso il posto esterno
TUscita nota elettronica / autoaccensione.
A
Uscita 13Vac per attivazione serratura e illuminazione cartellini (serie 800)
+8 Uscita +8Vdc per alimentazione portiere elettrico e climatizzazione
telecamera (Serie 800)
FAlimentazione 0V portiere elettrico.
EComune pulsanti, chiamata con ronzatore.
I+20Vdc temporizzata per alimentazione telecamera.
G2 Fonia dal posto esterno verso il posto interno.
H1 Fonia dal videocitofono verso il posto esterno.
F1 Alimentazione 0V telecamera.
F2 0V per lampade cartellini.
SE 0V per apertura serratura elettrica.
+12
Uscita +12Vdc per i portieri elettrici e moduli pulsantiera serie 4000.(solo 890N)
Art.890/890N
Installation Instructions
Istruzioni di Installazione
65101010 - 06/07/05
Factory - Office
(All countries support)
VIDEX ELECTRONICS S.p.A. Via del lavoro,1 63020 MONTEGIBERTO (AP) - ITALY
Phone: (+39) 0734 - 631669 Fax: (+39) 0734 - 632475 www.videx.it e-mail: info@videx.it
Northern UK Office
(Only UK support)
VIDEX LTD Unit 5-7 Chillingam Industrial Estate Chapman Street NEWCASTLE UPON TYNE Ne6 2XX
Phone: 0191 2243174 Fax: 0191 2241559 www.videx-security.com
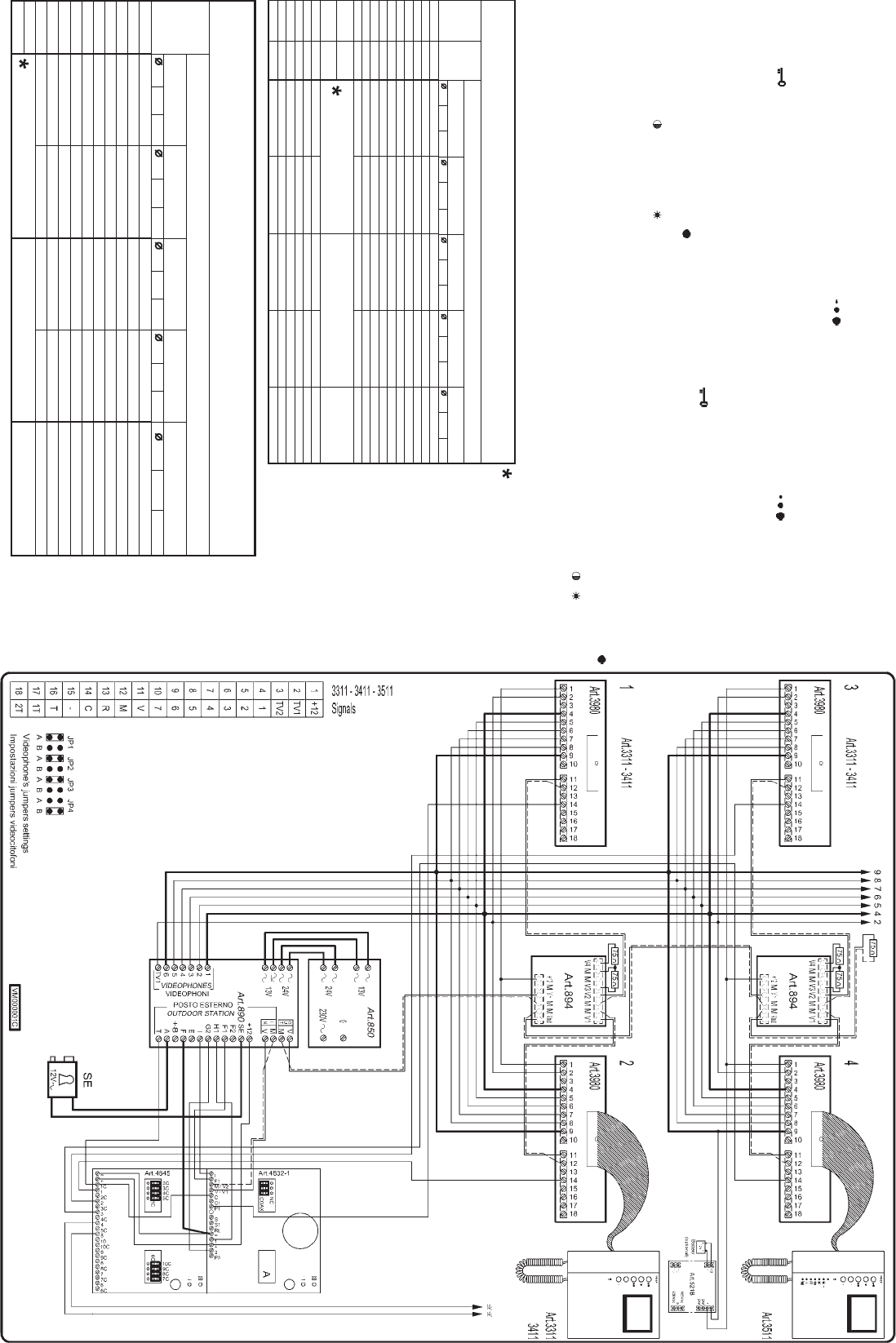
Impianto videocitofonico per “n” utenti con
cavo coassiale
Coax video door entry system for “n” user
Il centralino Art.890/890N, in abbinamento all'Art.850, fornisce
l'alimentazione ai componenti del sistema videocitofonico in cui
viene impiegato, genera i segnali di chiamata e garantisce il
segreto audio e video. Il circuito è alloggiato in contenitore “DIN”
tipo A-9 moduli (157.50mm) e può essere installato su barra DIN o
direttamente a muro (tramite le due viti ed i relativi tasselli ad
espansione forniti a corredo); è completo di coperchi di protezione
per i morsetti.
L'elettronica dell'Art.890/890N comprende:
I circuiti rettificatori e di filtro delle tensioni prelevate dall'Art.850;
Un circuito stabilizzatore, protetto in corrente, che permette di
erogare 20Vdc sul morsetto “1” per l'alimentazione dei
videocitofoni e sul morsetto “I” per l'alimentazione della
telecamera (che può essere incorporata nel posto esterno o
addizionale Art.988). L'erogazione della tensione sui morsetti
sopraindicati è controllata da un circuito temporizzato che la
fornisce alla ricezione di ogni chiamata per poi toglierla nei
seguenti casi:
dopo un intervallo (regolabile) di tempo compreso tra 15-50
sec. se non c'é stata risposta da parte dell'utente chiamato;
dopo un intervallo di tempo compreso tra 45-150 sec. se c'é
risposta da parte dell'utente chiamato;
a fine conversazione dopo aver riagganciato la cornetta;
se c'é sovraccarico di corrente.
Una uscita 8Vdc per l'alimentazione dell'amplificatore audio e la
climatizzazione del modulo telecamera (serie 800).
Un circuito di chiamata su ronzatore e di avvio temporizzazione.
Un generatore di nota modulata per la chiamata elettronica su
altoparlante ed avvio temporizzazione.
Un circuito di “auto-accensione” (TV1) che si disabilita quando la
temporizzazione è già avviata.
Un relè di asservimento per la serratura elettrica (la sua
attivazione causa il temporaneo spegnimento delle lampade di
illuminazione cartellini).
Una uscita +12Vdc per l’alimentazione dei
portieri elettrici e dei moduli pulsantiera (LED d’illuminazione
cartellini) della serie 4000.
!
!
?
?
?
?
!
!
!
!
!
!(solo su Art.890N)
This unit together with the transformer Art. 850 supplies all circuits
of the Video-Intercom System. It generates the call signal, selects
the calls, guarantees the audio and video privacy to n. ... users. It
incorporates an adjustable timer for the video and speech time
which triples automatically if the call is answered. The pc board is
supplied in a standard 9 modules A type DIN box (157,50 mm) and
can be fixed to either a DIN bar or directly to the wall using two
expansion type screws. The box comes complete with two plastic
covers to protect the terminals.
The pc board includes the following:
Rectifiers and filters for AC voltages coming from the transformer
Art.850.
Regulated power circuit electronically protected. It gives +20V
DC on terminal 1 (to supply max two videophones in parallel) and
on terminal I (to supply the camera module). Its operation is
controlled by an adjustable timer which starts when a call is
placed and stops automatically as follows:
After a time of 15-50 secs in case of no answer.
After a time of 45-150 secs when the call is answered.
Replacing handset when conversation is finished.
In case of current overload.
A +8V DC to supply the audio amplifiers and climatize the camera
module (800 Series).
Circuit to start the timer in case of call by electronic call.
Circuit to start the time in case of call by buzzer (in case of
intercommunicating systems).
Circuit for the “recall” facility (TV1). This function is disabled
when system is in operation.
Enslavement relay to activate the electric lock (during this
operation it switches off the lamps illuminating the name cards).
A 12Vdc output to supply 4000 series speaker
units and push button modules.
!
!
?
?
?
?
!
!
!
!
!
!(only on Art.890N)
Terminals for power input
Power input 24Vac.
Power input 13Vac.
Terminals towards the videophones
1Output +20V DC (timed).
2Command for electric lock.
3Speech from videophones to the outdoor station.
4Speech from outdoor station to the videophones.
5Ground for speech circuits.
6Ground.
TV1 “Recall” command.
Video signal terminals
Coaxial Video System Balanced Video System
V
MVideo input V1
V2 Balanced video input
M
VVideo output V2
V1 Balanced video output
Morsetti video
Sistema Video Coassiale Sistema Video Bilanciato
V
MIngresso segnale video V1
V2 Ingresso segnale video bil.
M
VUscita segnale video V2
V1 Uscita segnale video bil.
Morsetti da e verso i videocitofoni
1Uscita 20Vdc temporizzata.
2Comando azionamento serratura elettrica.
3Fonia dal videocitofono verso il posto esterno.
4Fonia dal posto esterno verso il videocitofono.
5Massa del circuito audio.
6Alimentazione 0V.
TV1 Ingresso comando per “auto-accensione”.
Morsetti di alimentazione (in ingresso)
Ingresso alimentazione 24Vac – 1,6A
Ingresso alimentazione 13Vac – 1,6A
Terminals towards the outdoor station
TElectronic call tone output / recall command
A
13Vac for electric lock activation and name plate illumination lamps (800 series).
+8 Output +8V DC to supply speech amplifiers and climates the
camera unit (800 Series).
FNegative supply for door unit amplifiers.
ECommon push buttons (for call on buzzer).
IPositive supply +20V DC for camera unit.
G2 Speech from outdoor station to the videophones.
H1 Speech from videophones to the outdoor station.
F1 Negative supply for camera unit.
F2 Negative supply for the name plate illumination lamps.
SE Electric lock.
+12
+12Vdc output (only 890N) to supply 4000 series speaker unit and push button modules

Systems with Coax Video Signal
(Wires sections table for different distances between control unit Art.890 and videophones)
Sistemi con Segnale Video COASSIALE
(Tabella delle sezioni dei fili per differenti distanze tra l’unità di controllo Art.890 ed i videocitofoni)
Wires Section
Sezione dei Fili
up to 50mt
fino a 50m
up to 100mt
fino a 100m
up to 200mt
fino a 200m
up to 300mt
fino a 300m
up to 400mt
fino a 400m
*Art.3980
Terminals
*Morsetti
Art.3980
Signals
Segnali
mm mm2AWG mm mm2AWG mm mm2AWG mm mm2AWG mm mm2AWG
1 +12 7/10 0,35 22 7/10 0,35 22 8/10 0,50 20 10/10 0,75 18 12/10 1,00 17
2 TV1 7/10 0,35 22 7/10 0,35 22 8/10 0,50 20 10/10 0,75 18 12/10 1,00 17
3 TV2 7/10 0,35 22 7/10 0,35 22 8/10 0,50 20 10/10 0,75 18 12/10 1,00 17
41
7/10 0,35 22 8/10 0,50 20 12/10 1,00 17 14/10 1,50 15 16/10 2,00 14
52
7/10 0,35 22 7/10 0,35 22 8/10 0,50 20 10/10 0,75 18 12/10 1,00 17
63
7/10 0,35 22 7/10 0,35 22 8/10 0,50 20 10/10 0,75 18 12/10 1,00 17
74
7/10 0,35 22 7/10 0,35 22 8/10 0,50 20 10/10 0,75 18 12/10 1,00 17
85
7/10 0,35 22 7/10 0,35 22 8/10 0,50 20 10/10 0,75 18 12/10 1,00 17
96
7/10 0,35 22 8/10 0,50 20 12/10 1,00 17 14/10 1,50 15 16/10 2,00 14
10 7 7/10 0,35 22 7/10 0,35 22 8/10 0,50 20 10/10 0,75 18 12/10 1,00 17
11 V
12 M
Standard quality coax cable
Cavo coassiale qualità standard
Medium quality coax cable
Cavo coassiale di qualità media
High Quality
Coax Cable
Cavo coassiale di
alta qualità
13 R 7/10 0,35 22 7/10 0,35 22 8/10 0,50 20 10/10 0,75 18 12/10 1,00 17
14 C 7/10 0,35 22 7/10 0,35 22 8/10 0,50 20 10/10 0,75 18 12/10 1,00 17
15 - 7/10 0,35 22 7/10 0,35 22 8/10 0,50 20 10/10 0,75 18 12/10 1,00 17
16 T 7/10 0,35 22 7/10 0,35 22 8/10 0,50 20 10/10 0,75 18 12/10 1,00 17
17 1T 7/10 0,35 22 7/10 0,35 22 8/10 0,50 20 10/10 0,75 18 12/10 1,00 17
18 2T 7/10 0,35 22 7/10 0,35 22 8/10 0,50 20 10/10 0,75 18 12/10 1,00 17
Table1Tabella 1
Systems with Coax Video Signal
(Wires sections table for different distances between outdoor station and control unit Art.890)
Sistemi con Segnale Video COASSIALE
(Tabella delle sezioni dei fili per differenti distanze tra il posto esterno e l’unità di controllo Art.890)
Wires Section
Sezione dei Fili
up to 50mt
fino a 50m
up to 100mt
fino a 100m
up to 200mt
fino a 200m
up to 300mt
fino a 300m
up to 400mt
fino a 400m
*Art.890
Terminals
*Morsetti
Art.890 mm mm2AWG mm mm2AWG mm mm2AWG mm mm2AWG mm mm2AWG
T/E 7/10 0,35 22 7/10 0,35 22 8/10 0,50 20 10/10 0,75 18 12/10 1,00 17
A8/10 0,50 20 12/10 1,00 17 14/10 1,50 15 16/10 2,00 14 18/10 2,50 13
+8 7/10 0,35 22 8/10 0,50 20 10/10 0,75 18 12/10 1,00 17 14/10 1,50 15
F7/10 0,35 22 8/10 0,50 20 10/10 0,75 18 12/10 1,00 17 14/10 1,50 15
I7/10 0,35 22 8/10 0,50 20 12/10 1,00 17 14/10 1,50 15 16/10 2,00 14
G2 7/10 0,35 22 7/10 0,35 22 8/10 0,50 20 10/10 0,75 18 12/10 1,00 17
H1 7/10 0,35 22 8/10 0,50 20 10/10 0,75 18 12/10 1,00 17 14/10 1,50 15
F1 7/10 0,35 22 8/10 0,50 20 10/10 0,75 18 12/10 1,00 17 14/10 1,50 15
F2 7/10 0,35 22 8/10 0,50 20 10/10 0,75 18 12/10 1,00 17 14/10 1,50 15
SE 8/10 0,50 20 12/10 1,00 17 14/10 1,50 15 16/10 2,00 14 18/10 2,50 13
V
M
Medium quality coax cable
Cavo coassiale di media qualità
Good quality coax cable
Cavo coassiale di buona qualità
High quality coax cable
Cavo coassiale di alta qualità
Table 2Tabella 2
SYSTEM TEST
Make sure that all connections are well made and there is power to
the system. Check the outdoor station: The lamps to illuminate the
cards name are lit.
Press one call button and check corresponding indoor station:
the electronic call tone; after a few seconds the videophone will
light up and a picture will appear. Before picking up the handset,
adjust the call tone volume by moving the relevant slide
present on the videophone lower side (move slide control right to
increase or left to decrease);
pick up the handset and talk;
press button to operate the lock release;
the videophone will switch off when the handset is replaced on its
cradle or after max 100 secs. of conversation;
verify that if the handset is not lifted the system will switch off after
50;
verify that the videophone which is in conversation it is switched
off when another videophone is called from the outdoor station;
from each indoor station press recall button . Videophone will
light up: move slide controls present on the videophone lower
side to adjust contrast and brightness (move slide controls
right to increase or left to decrease). The recall button works only
when system is in stand by (privacy).
In case of intercommunicating videophones check also check the
internal calls and audio lines.
?
?
?
?
?
?
?
COLLAUDO IMPIANTO
Dare alimentazione all'impianto solo dopo aver verificato la
correttezza dei collegamenti in base allo schema di installazione.
Controllare l'accensione delle lampade di illuminazione dei
cartellini porta-nome.
Per ciascun utente del sistema premere il relativo pulsante di
chiamata dal posto esterno e nel rispettivo interno, dal
videocitofono, verificare:
la ricezione della chiamata che si manifesta con una nota
elettronica seguita dall'accensione del monitor con il video
proveniente dal posto esterno. Provvedere, prima di rispondere,
alla regolazione del volume della nota elettronica agendo sul
relativo controllo a slitta presente alla base del
videocitofono (verso destra per incrementare, verso sinistra per
diminuire);
la qualità della fonia sollevando la cornetta e conversando con il
posto esterno;
il corretto azionamento della serratura elettrica premendo il
pulsante ;
lo spegnimento dell'impianto riagganciando la cornetta. Lo
spegnimento deve avvenire anche nei seguenti casi:
dopo circa 100sec di conversazione;
dopo circa 50sec se non c'è risposta alla chiamata.
lo spegnimento del videocitofono dal quale si sta conversando e
l'accensione dell'ultimo chiamato, se dal posto esterno è stato
premuto un diverso pulsante di chiamata.
la corretta accensione dell'impianto su pressione del tasto
(auto-accensione). Provvedere alla regolazione del contrasto e
della luminosità, agendo sui rispettivi controlli e presenti alla
base del videocitofono. Il pulsante di “auto-accensione” funziona
solo ad impianto spento.
Negli impianti intercomunicanti, testare le chiamate anche tra gli
interni e verificare la fonia tra due di essi per volta.
?
?
?
?
0
0
?
?
Impianto videocitofonico coassiale per “n”
utenti con portiere elettrico Serie 4000
Coax video door entry system for “n” users
using 4000 Series Speaker Unit
When using Art.3311N, 3411N or 3511N
set to work with balanced video signal
where V=V1 and M=V2, use two wires with
the size specified for speech line wires
(signals 3 and 4). If possible use two wire
twisted pair cable.
Note: we suggest to not exceed 300
meters.
Utilizzando videocitofoni Art.3311N, 3411N
o 3511N configurati per il segnale video
bilanciato dove V=V1 e M=V2, utilizzare 2
fili della stessa sezione prevista per i fili di
fonia (segnali 3 e 4). Se possibile, utilizzare
un cavo con 2 fili intrecciati.
Attenzione: si suggerisce di non
eccedere la distanza di 300 metri.