Front A Practical Guide To Noise And Vibration Control For HVAC Systems
User Manual:
Open the PDF directly: View PDF .
Page Count: 236 [warning: Documents this large are best viewed by clicking the View PDF Link!]
- figures
- Introduction
- Chapter 1
- Chapter 2
- Chapter 3
- Chapter 4
- Chapter 5
- Chapter 7
- Chapter 8
- Appendix A
- Appendix B
- Appendix C
- tables
- Chapter 1
- Chapter 2
- Chapter 3
- Chapter 5
- Chapter 7
- Appendix A
- Appendix B
- Appendix C
- A Typical Approach
- A Better Approach
- Summary of This Guide
- Main.pdf
- System Type Determination
- Preliminary Equipment Selection
- Mechanical Room Sizing
- Figure 1-1 Guideline for duct chase, shaft, and enclosure sizing.
- Space Planning
- Figure 1-3 Guidelines for the preliminary selection of mechanical room walls.
- Slab Selection
- Mechanical Equipment Rooms and Outdoor Equipment Areas
- Central Plants
- Figure 1-7 Downward noise control using an auxiliary ceiling.
- Figure 1-10 Electrical conduit routing into a mechanical room.
- Air-Handling Unit Rooms
- Figure 1-11 Pipe lagging for noise control includes a compressible spacer layer and a heavy barrier layer.
- Figure 1-12 Examples of rumbly and quieter parallel fan installations.
- Built-Up Air-Handling Systems
- Figure 1-13 Guidelines for a basement built-up fan system.
- Figure 1-14 Typical duct silencer arrangement at vane-axial fan.
- Equipment Room Walls and Slabs
- Wall Selection
- Figure 1-15 Reflected and refracted equipment sound at a building perimeter. Do not locate noisy equipment near a roof perimeter where this can happen.
- Wall Penetrations
- Duct Chases · Shafts · Enclosures · Laggings
- Location
- Figure 1-18 Duct and pipe penetrations through walls.
- Sizing
- Construction
- Figure 1-19 Plan view of return air shaft with supply duct takeoffs obstructing return airflow.
- Figure 1-20 Acoustical comparison of several duct chase, shaft, and enclosure constructions.
- Figure 1-21 Two typical duct laggings.
- Figure 1-22 Noise control duct enclosure.
- Figure 1-2 Acoustical comparison of various building core area layouts.
- Figure 1-4 Sample mechanical penthouse equipment layout.
- Table 1-1. Maximum Mid-Span Deflections for Above-Grade Structures that Support Vibration-Isolated HVAC Equipment
- Table 1-2. Selection Guidelines for Slabs Separating Mechanical Equipment Rooms from Noise-Sensitive Occupied Spaces
- Figure 1-5 Labyrinth air path used for sound attenuation at an equipment room ventilation opening.
- Figure 1-6 Upward noise control for mechanical rooms.
- Figure 1-8 Section views through two types of floating floor assemblies.
- Figure 1-9 Sound transmission at perimeter mechanical rooms.
- Figure 1-16 Structural support of rooftop equipment for vibration control.
- Figure 1-17 Guidelines for mechanical room wall selection.
- Fans
- Centrifugal Fans
- Figure 2-1 Inlet and discharge octave band LW values for a 925 mm plenum fan.
- Inline Fans
- Mixed Flow Fans
- Figure 2-2 Sound power level comparison for three types of centrifugal fans.
- Plenum Fans
- Figure 2-9 Inlet side of a direct- drive plenum fan.
- Power Roof Ventilators
- Panel Fans
- Figure 2-11 Power roof ventilators (mushroom fans) mounted on intake duct silencers and roof curbs.
- Ceiling Exhaust and Cabinet Fans
- Figure 2-12 Mushroom type exhaust fan on vibration-isolated roof curb.
- Air-Handling Units (AHU) and Fan-coil Units (FCU)
- Air-Handling Units (Draw-Through and Blow-Through)
- Air-Handling Units Using Plenum Fans
- Figure 2-19 Minimum clearance at AHU and cabinet fan inlet.
- Fan-coil Units
- Terminal Units (CAV, VAV, and Fan-powered VAV Boxes)
- Figure 2-22 Guidelines for VAV unit installation.
- Figure 2-23 Laboratory air valve and its “noise flow” directions.
- Laboratory Air Valves
- Grilles, Registers, and Diffusers (Air Devices)
- Duct System Components
- In-Duct Attenuation
- Figure 2-24 Good inlet duct connection to a supply air ceiling diffuser. With a straight flex duct path, the diffuser will produce the manufacturer’s cataloged noise levels.
- Figure 2-26 The effect of installing a damper behind a grille.
- Breakout Transmission Loss (BTL)
- Figure 2-27 Attenuation for lined and unlined sheet metal ductwork.
- Self-Noise
- Figure 2-28 Breakout transmission loss for three types of sheet metal ductwork.
- Duct and Plenum Linings
- Figure 2-33 In-duct attenuation for various duct liner thicknesses.
- Fiberglass Ductboard
- Elbows and Takeoffs
- Flexible Ducts
- Duct Silencers, Plenums, and Acoustical Louvers
- Duct Silencers (Also Called Sound Traps, Duct Attenuators, Mufflers)
- Acoustical Plenums
- Acoustical Louvers
- Figure 2-50 Basis for fan selection in a VAV system.
- Special Variable-Air-Volume (VAV) System Concerns
- Fans and AHUs
- Control System
- Raised floor air distribution
- Figure 2-3 Guidelines for centrifugal fan installations.
- Figure 2-4 Inline fan airflow patterns.
- Figure 2-5 Cutaway view into a mixed flow fan.
- Figure 2-6 Inline fan sound power level comparison.
- Figure 2-7 Guidelines for ducted axial flow fan installations.
- Figure 2-8 Guidelines for unducted axial flow fan installations.
- Figure 2-13 Inlet octave band LW comparison for three propeller fans.
- Figure 2-14 Propeller fan with a 12-socket aluminum hub and plastic blades. This fan can be selected for use with 2, 3, 4, 6, 8, 9, or 12 blades of any custom length or blade twist to optimize airflow and acoustical performance.
- Figure 2-15 Ultra-low-noise propeller fan with backswept airfoil blades. Versions of this fan are available with 2, 3, or 4 blades of adjustable blade twist and diameters up to 12.3 m for very large capacities.
- Figure 2-16 Lined hood for propeller fan noise control.
- Figure 2-17 Vibration isolation suspension for propeller fans.
- Figure 2-18 Noisy and quiet installations of ceiling-mounted exhaust fans.
- Figure 2-20 Plenum AHU with supply ducts attached to the top of discharge plenum.
- Figure 2-21 Cutaway sketch of a plenum fan air-handling unit.
- Table 2-1. Suggested Maximum Airflow Velocities for Various Ductwork Installations
- Table 2-2. Suggested Maximum Airflow Velocities in Elbows for Rectangular Ductwork
- Figure 2-29 Guidelines for minimizing regenerated noise in elbows.
- Figure 2-30 Guidelines for minimizing regenerated noise in takeoffs.
- Figure 2-34 The speaking tube (cross-talk) problem.
- Figure 2-31 Guidelines for minimizing regernated noise in transitions and offsets.
- Figure 2-32 Guidelines for minimizing regenerated noise in duct tees.
- Figure 2-35 Attenuation of rectangular elbows with and without turning vanes (lined and unlined).
- Figure 2-36 Attenuation of rectangular and radius elbows (lined and unlined).
- Figure 2-37 Flexible duct with spunbond nylon inner liner.
- Table 2-3. Acoustical Characteristics of the Various Types of Ductwork
- Figure 2-40 Cutaway view of a reactive (“packless,” “no-fill,” or “no-media”) duct silencer.
- Figure 2-41 Cutaway view of an elbow duct silencer.
- Figure 2-46 General guidelines for sound-attenuating plenum design.
- Figure 2-47 Acoustical louver cutaway.
- Figure 2-48 Sound transmission loss of acoustical and weatherproof louvers.
- Figure 2-49 Acoustical louver in a parking garage ventilation shaft.
- Figure 2-38 Cutaway view into a dissipative duct silencer.
- Figure 2-39 Cutaway view of a duct silencer with film-lined baffles.
- Figure 2-44 Guidelines for duct silencer placement near fans and duct fittings.
- Figure 2-42 In-duct attenuation of duct silencers and lined ductwork.
- Figure 2-43 Comparative insertion loss of dissipative, film-lined, and reactive duct silencers.
- Figure 2-45 Duct silencer placement near a mechanical room wall.
- Figure 2-51 Nested inlet vanes obstruct airflow.
- Figure 2-52 Variable-frequency drive.
- Chillers
- Figure 3-1 Water-cooled screw chiller with several noise and vibration control treatments.
- Figure 3-2 ARI-370 LW values for a 875 kW air-cooled chiller with and without factory noise reduction options.
- Cooling Towers · Evaporative Coolers· Air-Cooled Condensing Units
- Figure 3-3 ATC-128 octave band LP values at 15 m from the air inlet side of three types of 2800 kW cooling towers.
- Figure 3-4 ATC-128 octave band LP values for cooling towers of the same fabrication series but with fans of different diameters.
- Figure 3-7 ATC-128 octave band LP values for cooling towers with “standard” and wide-chord fan blades.
- Figure 3-12 Low-noise control sequence for a two-cell cooling tower.
- Boilers
- Figure 3-13 Pump impeller sizing guideline for minimizing the strength of the blade passage frequency tone.
- Pumps
- Figure 3-14 Proper installation of an end-suction pump.
- Piping Systems
- Figure 3-15 Proper installation of an inline pump.
- Table 3-1. Maximum Recommended Waterflow Rates
- Figure 3-5 View of “standard” cooling tower induced-draft fan.
- Figure 3-6 View of an induced-draft fan with wide-chord blades. This fan type can be as much as 12 dBA quieter than a “standard” fan of the same diameter.
- Figure 3-8 Cooling tower basin with free-falling condenser water.
- Figure 3-9 Honeycomb water basin silencers installed several centimeters above the water surface to reduce the velocity of the falling water before it hits the basin.
- Figure 3-10 Outdoor noise control barrier installation.
- Figure 3-11 Close-up view of a sample of a sound-absorbing, outdoor noise barrier panel. The perforated front layer faces the noise source. Noise penetrates through the perforations and is absorbed by the fibrous fill material. The solid back layer c...
- Figure 3-16 Vibration isolation for piping riser. The use of neoprene pads under the steel load-distributing plates indicates that the nearby occupancy was not very noise-sensitive. For more critical cases, steel spring isolators would be used.
- Figure 3-17 Duct and pipe penetrations through walls.
- Figure 3-18 Sealing pipe penetrations for sound isolation.
- Rooftop Package Units (Air-Conditioning and Air-Handling Versions)
- Water-source Heat Pumps
- Wall-mounted Package Units
- Small Commercial and Residential Split Systems (under 35 kW)
- Figure 4-7 Small condensing unit noise control.
- Standby, Emergency, and Distributed Energy Generator Sets
- Figure 4-11 Outdoor condensing unit typically used with ductless split systems; it can also be used with ducted fan coil units.
- Figure 4-12 Remote radiator for engine-generator sets can be quiet with an oversized, variable-speed cooling fan.
- Figure 4-1 Very noisy rooftop unit installation.
- Figure 4-2 Moderately noisy rooftop unit intallation.
- Figure 4-3 Moderately quiet rooftop unit installation.
- Figure 4-4 Quietest rooftop unit installation.
- Figure 4-5 Guidelines for suspended heat pump units.
- Figure 4-6 Guidelines for floor-mounted heat pumps.
- Figure 4-8 Guidelines for fan coil unit installations.
- Figure 4-9 Guidelines for vibration isolation of split systems.
- Figure 4-10 Indoor fan coil section of a ductless split system. This type of equipment with a variable-speed tangential fan can be very quiet.
- Isolator Types
- Type 1—Ribbed or Waffled Neoprene Pad or Compressed Fiberglass Pad
- Figure 5-1 Elastomeric pads. The elastomeric bushing inserted in the metal load-distributing plate prevents metal-to-metal contact between the plate and its thru-bolt.
- Type 2—Neoprene-in-Shear or Compressed Fiberglass Floor Mount
- Figure 5-2 Elastomeric or compressed fiberglass isolation mounts are used where a static deflection less than 10 mm is needed.
- Type 3—Steel Spring Floor Mounts and Hangers
- Figure 5-5 Spring hanger installation with proper spring compression and hanger rod centered through hole at bottom of hanger box.
- Type 4—Restrained Spring Isolator
- Base Types
- Other Isolator Types
- Figure 5-6 Two types of spring floor mounts with seismic/wind-loading standby restraints. The mount on the left is for low loads and static deflections under 25 mm. The mount on the right is for larger loads and static deflections greater than 25 mm.
- Figure 5-9 Thrust restraint at mid-height of fan inlet panel prevents contact between the panel and the equipment housing framework. An identical restraint is installed on the opposite side of the fan.
- Figure 5-12 Floor mount spring isolator under a height-saving bracket with a separate seismic restraint.
- Special Concerns with Seismic and Wind-Loading Restraints
- Figure 5-13 Pump mounted on combination isolator/restraint under height- saving bracket. This type of isolator is not recommended because it is prone to short-circuiting.
- The Importance of the Supporting Structure
- Table 5-1. Vibration Isolation Selection Guide
- Figure 5-3 Seismically rated elastomeric mounts. The mount on the left (75 mm tall) has a nominal load rating of about 40 kg. The mount on the right (165 mm tall) has a nominal load rating of as much as 700 kg.
- Figure 5-4 Two types of spring floor mounts. The mount on the left is for low loads and static deflections of less than 25 mm. The mount on the right is for larger loads and static deflections greater than 25 mm.
- Figure 5-7 Pneumatic isolators (“air bags”) supporting a rooftop air-cooled chiller. Thin metal tubing connects 700 kPa compressed air to each isolator.
- Figure 5-8 Cast-metal floor mount is prone to “short-circuiting” and should never be used. Instead, use a floor mount like that shown in Figure 5-6.
- Figure 5-10 Flanged and threaded flexible pipe (pump) connectors.
- Figure 5-11 Braided metal pump connector is not an effective vibration isolator.
- SAMPLE SPECIFICATIONS
- Fans
- Air-Handling Units and Fancoil Units
- Chillers
- Duct Silencers
- Vibration Isolators
- Duct and Plenum Liners
- Terminal Units
- EXAMPLES OF HOW “NOT” TO SPECIFY
- VALUE ENGINEERING (COST-CUTTING)
- SUBMITTALS and SHOP DRAWING REVIEWS
- Fans, Air-Handling Units (AHU), and Fancoil Units (FCU)
- Table 7-1. Common Value Engineering Proposals and Their Potential Acoustical Impacts
- Table 7-2. Procedure for Converting from A-Weighted LW Values to Unweighted LW Values
- Terminal Units and Lab Air Valves
- Air Devices
- Water-Source Heat Pumps
- Cooling Towers and Evaporative Coolers
- Water-Cooled Chillers
- Air-Cooled Chillers
- SHOP DRAWINGS
- Figure 7-1 Overhead plan views of AHU rooms showing the effects of a duct offset.
- SITE INSPECTIONS
- Figure 7-2 Properly installed dual-duct variable air volume unit. The unit is installed high in the plenum cavity and the two inlet ducts are straight for several duct diameters upstream of the unit. Airflow is from right to left.
- Figure 7-3 Check of large duct elbow verifying screw attachment of turning vanes.
- Figure 7-4 Conduit debris short-circuiting isolator effectiveness. The small piece of flexible conduit forms a rigid contact path between the equipment frame and the slab, allowing equipment vibration to bypass the spring. Also note that the spring i...
- Figure 7-9 Taut outdoor “flexible” conduit forms a vibration “short-circuit” at cooling tower. The grillage under the cooling tower is resting on spring isolators, but the short conduit between the disconnect and the roof penetration transmit...
- Figure 7-10 Pipe risers without vibration isolation. The pipe clamps transmit pipe vibration to the slab.
- Figure 7-5 Overloaded spring hanger.
- Figure 7-6 Overloaded free-standing floor mount. The overloading allowed the gussets welded to the side of the equipment frame to rest on top of the isolator baseplate. The lower right corner of the gusset was burned off to eliminate the gusset/basep...
- Figure 7-7 Short-circuited floor mount isolator whose shipping shims have not been removed.
- Figure 7-8 Faulty spring hanger installation with hanger rod touching the hanger box. This allows pipe vibration to bypass the spring and enter the building structure above.
- GENERAL APPROACH
- Figure 8-1 Frequency ranges of the most likely sources of common acoustical complaints.
- SPECIFIC COMPLAINTS
- Buzz
- Click—Intermittent
- Drumming: “It sounds like a drum roll or a machine gun”
- Hiss
- Hum
- Roar: “It's as noisy as when I'm driving on the freeway”
- Rumble: “I can see the walls shaking and can almost hear/feel the air vibrating around me”
- Figure 8-2 Example of poor fan discharge duct design. The mitered elbow with turning vanes and steep transition downstream of the fan outlet cause fan instability and accompanying noise and rumble. A better installation would have used a horizontal d...
- Figure 8-3 Fan installation with poor discharge duct system aerodynamics. The close-coupled discharge damper and reverse-direction elbow create extremely high turbulence that creates rotating fan stall, performance reduction, and rumble.
- Squeal
- Surge: “The roar or hum comes and goes about once every second or so”
- Tap
- Throb
- Whine
- Whistle
- Figure 8-4 Restrained spring isolator with a “short circuit” between its baseplate and equipment mounting plate. This type of isolator has become obsolete and is not recommended for any type of HVAC equipment.
- SITE INSPECTION PHOTOGRAPHS
- Figure 8-5 View into the fan section of a rooftop unit; the tight cabinet clearance and airflow obstructions at the fan inlet cause excessive turbulence, pressure drop, and noise.
- Figure 8-6 Excellent rooftop package unit installation; the unit is resting on spring isolators and an elevated frame, thereby avoiding contact with the roof.
- Figure 8-7 Improperly installed fan-powered variable-air-volume unit. The unit is resting on the ceiling grid. This allows unit vibration to transmit directly into the partition below. The partition then acts as a sounding board, radiating noise into...
- Figure 8-8 Proper installation of an indoor self-contained packaged HVAC unit. Note the dual radius supply duct split on top of the unit; the return air sound traps to the left of the supply duct, the black plenum liner on the mechanical room wall, a...
- Figure 8-9 Closely spaced circular duct fittings produce turbulence and noise. This duct run does not follow the guideline recommending 3 duct diameters between adjacent fittings. It has five fittings within 8 m.
- Figure 8-10 Closely spaced rectangular duct fittings produce turbulence and noise. A better offset around the pipes could have been made with a duct section on a 45° slope between the vertical and horizontal sections.
- Figure 8-11 Improper duct transition at fan inlet. The high-velocity airflow in the short, abrupt transition between the fan outlet and the vertical duct causes turbulence and rumble.
- Figure 8-12 Vane-axial fan intakes too close to wall. Airflow through the restricted area between the fans and the wall causes turbulence, surging, and rumble.
- Figure 8-13 Duct split using radius elbows. This design is preferred because it produces less pressure drop and noise than a bullhead tee.
- Figure 8-14 Faulty installation of a large equipment isolator with stanchion restraints. The spring top plate is touching the near stanchion and the equipment mounting plate is resting on the stanchions. Both conditions allow equipment vibrations to ...
- Figure 8-15 Proper installation of a large equipment isolator with stanchion restraints. Note that the springs are centered between the stanchions and are properly compressed and that the equipment mounting plate is floating about 6 mm above the stan...
- Figure 8-16 Braided metal pump connectors do not provide significant vibration isolation.
- Figure 8-17 Neoprene pump connectors provide better isolation of pump vibration from attached piping.
- Figure 8-18 Incomplete vibration isolation at cooling tower. Even though the tower is isolated, the condenser water pipe supports are mounted rigidly to the roof. This allows some tower vibration to enter the roof structure.
- Figure 8-19 Taut “flexible” conduit forms a vibration short-circuit at vane-axial fan. Spring isolators under the vane-axial fan perform as expected, but the tight conduit arc transmits fan vibration into the disconnect, which is rigidly supporte...
- Figure 8-20 Correctly installed flexible conduit between electrical disconnect and motor. The flexible installation reduces fan and motor vibration in the floor slab.
- Figure 8-21 View of pipe penetration from below roof. The pipe on the right is contacting the left edge of its penetration. This installation allowed pipe vibration to excite the roof slab, which radiated the energy as noise.
- Figure 8-22 Non-isolated pipe penetration. Rigid contact allows pipe vibration to enter the wall, which radiates the energy as noise.
- Figure 8-23 Improperly placed neoprene hanger. The drywall assembly forms a vibration transmission bridge across the isolator. This type of interference can be identified and corrected in pre-construction coordination meetings.
- AIRBORNE and STRUCTUREBORNE SOUND
- Figure A-1 Airborne and structure-borne sound transmission.
- BASIC TERMINOLOGY
- Figure A-2 Airborne and structure-borne sound transmission from equipment.
- Decibel
- Figure A-3 Chart for adding decibel values.
- Frequency
- Figure A-4 Everyday sound sources—their frequencies and wavelengths.
- Octave Bands
- Sound Pressure Level
- Figure A-6 Sound pressure levels of some everyday activities.
- Table A-2. Subjective Impressions of Sound Level Differences
- Sound Power Level
- CHARACTERISTICS OF HVAC NOISE
- Figure A-5 Frequencies at which various types of HVAC equipment generally control their sound spectra.
- Table A-1. Octave Band Center Frequencies and Their Frequency Ranges
- A-WEIGHTED SOUND LEVEL (dBA)
- Figure B-1 Frequency weighting curves. Effects of linear, A-weighting, and C- weighting filters.
- C-WEIGHTED SOUND LEVEL (dBC)
- LOUDNESS LEVEL (SONES)
- ROOM CRITERIA (RC) and RC Mark II
- NOISE CRITERIA (NC) AND BALANCED NOISE CRITERIA (NCB)
- Which Rating Method is Best?
- ACCEPTABILITY CRITERIA
- Indoor Sound Criteria
- Table B-1. Recommended Indoor Sound Criteria
- Outdoor Sound Criteria
- Speech Communication in a Noisy Environment
- Table B-2. Industrial Noise Levels Requiring Employer Action
- Table B-3. Sample Municipal Code Limits
- Figure B-7 Quality of speech communication in background noise.
- Figure B-2 Blank RC chart.
- Figure B-3 Blank RC mark II chart.
- Figure B-4 Blank NC chart.
- Figure B-5 Octave band spectrum rated at NC-45.
- Figure B-6 Blank NCB chart.
- Instrumentation
- Measurement Plan
- Figure C-1 Sound level meter with a foam windscreen protecting its microphone.
- Figure C-2 Sound measurement plan.
- Vibration Measurements
- Table C-1. Adjustment Values for Determining Equipment Sound Levels in the Presence of Constant Background Noise
- Figure C-3 Blank sound measurement data sheet.
- Figure C-4 Completed sound measurement data sheet.
- DEFINITIONS
- ABBREVIATIONS
- BOOKS
- INDUSTRY MANUALS, HANDBOOKS, AND BULLETINS
- INDUSTRY PERIODICALS
- JOURNALS

http://boilersinfo.com/
A Practical Guide to
Noise and Vibration Control
for HVAC Systems
Front.book Page i Monday, June 13, 2011 11:25 AM
© 2011 American Society of Heating, Refrigerating and Air-Conditioning Engineers, Inc. (www.ashrae.org).
For personal use only. Additional reproduction, distribution, or transmission in either print or
digital form is not permitted without ASHRAE's prior written permission.
--``,,`,``,```,,`,,```````,,`,,,-`-`,,`,,`,`,,`---
http://boilersinfo.com/
http://boilersinfo.com/

The first edition of this book was prepared under ASHRAE Research Project
RP-526, sponsored by TC 2.6, Sound and Vibration.
ABOUT THE AUTHOR
Mark E. Schaffer, PE, Member ASHRAE, is president of Schaffer Acoustics Inc.,
a southern California acoustical consulting and testing firm. He has been an acous-
tical consultant for 34 years and an HVAC subcontractor for 5 years. He is an active
member of ASHRAE Technical Committee 2.6, Sound and Vibration, and a co-
presenter of the ASHRAE Professional Development Seminar on HVAC noise and
vibration control. He has participated in the development of ASHRAE Handbook
chapters in that area.
Updates/errata for this publication will be posted on the
ASHRAE Web site at www.ashrae.org/publicationupdates.
Front.book Page ii Monday, June 13, 2011 11:25 AM
© 2011 American Society of Heating, Refrigerating and Air-Conditioning Engineers, Inc. (www.ashrae.org).
For personal use only. Additional reproduction, distribution, or transmission in either print or
digital form is not permitted without ASHRAE's prior written permission.
http://boilersinfo.com/

American Society of Heating, Refrigerating
and Air-Conditioning Engineers, Inc.
A Practical Guide to
Noise and Vibration Control
for HVAC Systems
SECOND EDITION
Mark E. Schaffer
RP-526
Front.book Page iii Monday, June 13, 2011 11:25 AM
© 2011 American Society of Heating, Refrigerating and Air-Conditioning Engineers, Inc. (www.ashrae.org).
For personal use only. Additional reproduction, distribution, or transmission in either print or
digital form is not permitted without ASHRAE's prior written permission.
http://boilersinfo.com/

ISBN 978-1-936504-02-2
© 2011 American Society of Heating, Refrigerating and Air-Conditioning Engineers, Inc.
1791 Tullie Circle, N.E., Atlanta, GA 30329
www.ashrae.org
All rights reserved.
First edition 1991; Second edition 2011
Printed in the United States of America
Cover design by Tracy Becker.
ASHRAE has compiled this publication with care, but ASHRAE has not investigated, and ASHRAE
expressly disclaims any duty to investigate, any product, service, process, procedure, design, or the like that
may be described herein. The appearance of any technical data or editorial material in this publication does
not constitute endorsement, warranty, or guaranty by ASHRAE of any product, service, process, procedure,
design, or the like. ASHRAE does not warrant that the information in the publication is free of errors, and
ASHRAE does not necessarily agree with any statement or opinion in this publication. The entire risk of the
use of any information in this publication is assumed by the user.
No part of this publication may be reproduced without permission in writing from ASHRAE, except by a
reviewer who may quote brief passages or reproduce illustrations in a review with appropriate credit, nor may
any part of this publication be reproduced, stored in a retrieval system, or transmitted in any way or by any
means—electronic, photocopying, recording, or other—without permission in writing from ASHRAE.
Requests for permission should be submitted at www.ashrae.org/permissions.
Library of Congress Cataloging-in-Publication Data
Schaffer, Mark E., 1949-
A practical guide to noise and vibration control for HVAC systems / Mark E. Schaffer. -- 2nd ed.
p. cm.
Includes bibliographical references.
Summary: "A guide that presents rules for controlling the noise and vibration of HVAC Systems"--
Provided by publisher.
ISBN 978-1-936504-02-2 (softcover)
1. Heating--Equipment and supplies--Noise. 2. Ventilation--Equipment and supplies--Noise. 3. Air
conditioning--Equipment and supplies--Noise. 4. Noise control. I. American Society of Heating, Refriger-
ating and Air-Conditioning Engineers. II. Title.
TH7015.S33 2011
697--dc22
2011002509
ASHRAE STAFF
SPECIAL PUBLICATIONS
Mark Owen
Editor/Group Manager of
Handbook and Special Publications
Cindy Sheffield Michaels
Managing Editor
Matt Walker
Associate Editor
Elisabeth Parrish
Assistant Editor
Heather Medlock
Assistant Editor
Michshell Phillips
Editorial Coordinator
PUBLISHING SERVICES
David Soltis
Group Manager of Publishing Services
and Electronic Communications
Tracy Becker
Graphics Specialist
Jayne Jackson
Publication Traffic Administrator
PUBLISHER
W. Stephen Comstock
Front.book Page iv Monday, June 13, 2011 11:25 AM
© 2011 American Society of Heating, Refrigerating and Air-Conditioning Engineers, Inc. (www.ashrae.org).
For personal use only. Additional reproduction, distribution, or transmission in either print or
digital form is not permitted without ASHRAE's prior written permission.
http://boilersinfo.com/

Contents
Preface xv
Acknowledgments xvii
Introduction xix
Chapter 1—General Design Guidelines 1
Chapter 2—Airside Equipment 25
Chapter 3—Water-Side Equipment 73
Chapter 4—Packaged and Unitary Equipment 89
Chapter 5—Vibration Isolation 101
Chapter 6—Specifications 117
Chapter 7—Construction Phase Tasks 125
Chapter 8—Troubleshooting Noise and Vibration Complaints 143
Appendix A—Some Basics of HVAC Acoustics 167
Appendix B—Acoustical Rating Systems and Criteria 177
Appendix C—Measuring HVAC System Noise 191
Appendix D—Using Manufacturers’ Sound Data 197
Appendix E—Definitions and Abbreviations 201
Appendix F—Addresses of Agencies and Associations 207
Appendix G—Bibliography and Selected References 209
Front.book Page v Monday, June 13, 2011 11:25 AM
© 2011 American Society of Heating, Refrigerating and Air-Conditioning Engineers, Inc. (www.ashrae.org).
For personal use only. Additional reproduction, distribution, or transmission in either print or
digital form is not permitted without ASHRAE's prior written permission.
http://boilersinfo.com/
Front.book Page vi Monday, June 13, 2011 11:25 AM
© 2011 American Society of Heating, Refrigerating and Air-Conditioning Engineers, Inc. (www.ashrae.org).
For personal use only. Additional reproduction, distribution, or transmission in either print or
digital form is not permitted without ASHRAE's prior written permission.
--``,,`,``,```,,`,,```````,,`,,,-`-`,,`,,`,`,,`---
http://boilersinfo.com/

Illustrations
FIGURES
Introduction
A Example of an air-handling unit room with several acoustical problems. xx
B Example of an air-handling unit room with optimal acoustical features. xxii
Chapter 1
1-1 Guideline for duct chase, shaft, and enclosure sizing. 4
1-2 Acoustical comparison of various building core area layouts. 5
1-3 Guidelines for the preliminary selection of mechanical room walls. 6
1-4 Sample mechanical penthouse equipment layout. 7
1-5 Labyrinth air path used for sound attenuation at an equipment room ventilation
opening. 10
1-6 Upward noise control for mechanical rooms. 10
1-7 Downward noise control using an auxiliary ceiling. 11
1-8 Section views through two types of floating floor assemblies. 12
1-9 Sound transmission at perimeter mechanical rooms. 12
1-10 Electrical conduit routing into a mechanical room. 13
1-11 Pipe lagging for noise control. 14
1-12 Examples of rumbly and quieter parallel fan installations. 15
1-13 Guidelines for a basement built-up fan system. 16
1-14 Typical duct silencer arrangement at vane-axial fan. 17
Front.book Page vii Monday, June 13, 2011 11:25 AM
© 2011 American Society of Heating, Refrigerating and Air-Conditioning Engineers, Inc. (www.ashrae.org).
For personal use only. Additional reproduction, distribution, or transmission in either print or
digital form is not permitted without ASHRAE's prior written permission.
http://boilersinfo.com/
Illustrations
1-15 Reflected and refracted equipment sound at a building perimeter. 18
1-16 Structural support of rooftop equipment for vibration control. 19
1-17 Guidelines for mechanical room wall selection. 20
1-18 Duct and pipe penetrations through walls. 21
1-19 Plan view of return air shaft with supply duct takeoffs obstructing return
airflow. 22
1-20 Acoustical comparison of several duct chase, shaft, and enclosure
constructions. 23
1-21 Two typical duct laggings. 24
1-22 Noise control duct enclosure. 24
Chapter 2
2-1 Inlet and discharge octave band LW values for a 925 mm plenum fan. 27
2-2 Sound power level comparison for three types of centrifugal fans. 28
2-3 Guidelines for centrifugal fan installations. 29
2-4 Inline fan airflow patterns. 30
2-5 Cutaway view into a mixed flow fan. 31
2-6 Inline fan sound power level comparison. 31
2-7 Guidelines for ducted axial flow fan installations. 32
2-8 Guidelines for unducted axial flow fan installations. 33
2-9 Inlet side of a direct-drive plenum fan. 34
2-10 Discharge side of a belt-drive plenum fan. 34
2-11 Power roof ventilators (mushroom fans) mounted on intake duct silencers and
roof curbs. 35
2-12 Mushroom type exhaust fan on vibration-isolated roof curb. 36
2-13 Inlet octave band LW comparison for three propeller fans. 37
2-14 Propeller fan with a 12-socket aluminum hub and plastic blades. 37
2-15 Ultra-low-noise propeller fan with backswept airfoil blades. 38
2-16 Lined hood for propeller fan noise control. 38
2-17 Vibration isolation suspension for propeller fans. 39
2-18 Noisy and quiet installations of ceiling-mounted exhaust fans. 39
2-19 Minimum clearance at AHU and cabinet fan inlet. 41
2-20 Plenum AHU with supply ducts attached to the top of discharge plenum. 42
2-21 Cutaway sketch of a plenum fan air-handling unit. 42
Front.book Page viii Monday, June 13, 2011 11:25 AM
© 2011 American Society of Heating, Refrigerating and Air-Conditioning Engineers, Inc. (www.ashrae.org).
For personal use only. Additional reproduction, distribution, or transmission in either print or
digital form is not permitted without ASHRAE's prior written permission.
http://boilersinfo.com/
A Practical Guide to Noise and Vibration Control for HVAC Systems
2-22 Guidelines for VAV unit installation. 43
2-23 Laboratory air valve and its “noise flow” directions. 45
2-24 Good inlet duct connection to a supply air ceiling diffuser. 47
2-25 Poor inlet duct connection to a supply air ceiling diffuser. 47
2-26 The effect of installing a damper behind a grille. 48
2-27 Attenuation for lined and unlined sheet metal ductwork. 49
2-28 Breakout transmission loss for three types of sheet metal ductwork. 50
2-29 Guidelines for minimizing regenerated noise in elbows. 52
2-30 Guidelines for minimizing regenerated noise in takeoffs. 52
2-31 Guidelines for minimizing regenerated noise in transitions and offsets. 53
2-32 Guidelines for minimizing regenerated noise in duct tees. 53
2-33 In-duct attenuation for various duct liner thicknesses. 54
2-34 The speaking tube (cross-talk) problem. 55
2-35 Attenuation of rectangular elbows with and without turning vanes (lined and
unlined). 57
2-36 Attenuation of rectangular and radius elbows (lined and unlined). 57
2-37 Flexible duct with spunbond nylon inner liner. 58
2-38 Cutaway view into a dissipative duct silencer. 59
2-39 Cutaway view of a duct silencer with film-lined baffles. 59
2-40 Cutaway view of a reactive (“packless,” “no-fill,” or “no-media”) duct
silencer. 61
2-41 Cutaway view of an elbow duct silencer. 61
2-42 In-duct attenuation of duct silencers and lined ductwork. 62
2-43 Comparative insertion loss of dissipative, film-lined, and reactive duct
silencers. 62
2-44 Guidelines for duct silencer placement near fans and duct fittings. 63
2-45 Duct silencer placement near a mechanical room wall. 64
2-46 General guidelines for sound-attenuating plenum design. 66
2-47 Acoustical louver cutaway. 66
2-48 Sound transmission loss of acoustical and weatherproof louvers. 67
2-49 Acoustical louver in a parking garage ventilation shaft. 67
2-50 Basis for fan selection in a VAV system. 68
2-51 Nested inlet vanes obstruct airflow. 70
2-52 Variable-frequency drive. 70
Front.book Page ix Monday, June 13, 2011 11:25 AM
© 2011 American Society of Heating, Refrigerating and Air-Conditioning Engineers, Inc. (www.ashrae.org).
For personal use only. Additional reproduction, distribution, or transmission in either print or
digital form is not permitted without ASHRAE's prior written permission.
--``,,`,``,```,,`,,```````,,`,,,-`-`,,`,,`,`,,`---
http://boilersinfo.com/
Illustrations
Chapter 3
3-1 Water-cooled screw chiller with several noise and vibration control
treatments. 74
3-2 ARI-370 LW values for a 875 kW air-cooled chiller with and without factory
noise reduction options. 75
3-3 ATC-128 octave band LP values at 15 m from the air inlet side of three types
of 2800 kW cooling towers. 76
3-4 ATC-128 octave band LP values for cooling towers of the same fabrication
series but with fans of different diameters. 77
3-5 View of “standard” cooling tower induced-draft fan. 78
3-6 View of an induced-draft fan with wide-chord blades. This fan type can be as
much as 12 dBA quieter than a “standard” fan of the same diameter. 78
3-7 ATC-128 octave band LP values for cooling towers with “standard” and wide-
chord fan blades. 79
3-8 Cooling tower basin with free-falling condenser water. 80
3-9 Honeycomb water basin silencers installed several centimeters above the
water surface. 80
3-10 Outdoor noise control barrier installation. 81
3-11 Close-up view of a sample of a sound-absorbing, outdoor noise barrier
panel. 81
3-12 Low-noise control sequence for a two-cell cooling tower. 82
3-13 Pump impeller sizing guideline for minimizing the strength of the blade
passage frequency tone. 83
3-14 Proper installation of an end-suction pump. 84
3-15 Proper installation of an inline pump. 85
3-16 Vibration isolation for piping riser. 87
3-17 Duct and pipe penetrations through walls. 87
3-18 Sealing pipe penetrations for sound isolation. 88
Chapter 4
4-1 Very noisy rooftop unit installation. 90
4-2 Moderately noisy rooftop unit installation. 90
4-3 Moderately quiet rooftop unit installation. 91
4-4 Quietest rooftop unit installation. 91
4-5 Guidelines for suspended heat pump units. 94
4-6 Guidelines for floor-mounted heat pumps. 94
Front.book Page x Monday, June 13, 2011 11:25 AM
© 2011 American Society of Heating, Refrigerating and Air-Conditioning Engineers, Inc. (www.ashrae.org).
For personal use only. Additional reproduction, distribution, or transmission in either print or
digital form is not permitted without ASHRAE's prior written permission.
A Practical Guide to Noise and Vibration Control for HVAC Systems
4-7 Small condensing unit noise control. 96
4-8 Guidelines for fan coil unit installations. 97
4-9 Guidelines for vibration isolation of split systems. 98
4-10 Indoor fan coil section of a ductless split system. 98
4-11 Outdoor condensing unit typically used with ductless split systems; it can also
be used with ducted fan coil units. 99
4-12 Remote radiator for engine-generator sets can be quiet with an oversized,
variable-speed cooling fan. 100
Chapter 5
5-1 Elastomeric pads. 106
5-2 Elastomeric or compressed fiberglass isolation mounts. 107
5-3 Seismically rated elastomeric mounts. 108
5-4 Two types of spring floor mounts. 108
5-5 Spring hanger installation. 109
5-6 Two types of spring floor mounts with seismic/wind-loading standby
restraints. 110
5-7 Pneumatic isolators (“air bags”) supporting a rooftop air-cooled chiller. 111
5-8 Cast-metal floor mount. 111
5-9 Thrust restraint at mid-height of fan inlet panel. 112
5-10 Flanged and threaded flexible pipe (pump) connectors. 113
5-11 Braided metal pump connector is not an effective vibration isolator. 113
5-12 Floor mount spring isolator under a height-saving bracket with a separate
seismic restraint. 114
5-13 Pump mounted on combination isolator/restraint. 115
Chapter 7
7-1 Overhead plan views of AHU rooms showing the effects of a duct
offset. 132
7-2 Properly installed dual-duct variable air volume unit. 135
7-3 Check of large duct elbow verifying screw attachment of turning vanes. 136
7-4 Conduit debris short-circuiting isolator effectiveness. 137
7-5 Overloaded spring hanger. 138
7-6 Overloaded free-standing floor mount. 138
7-7 Short-circuited floor mount isolator whose shipping shims have not been
removed. 139
Front.book Page xi Monday, June 13, 2011 11:25 AM
© 2011 American Society of Heating, Refrigerating and Air-Conditioning Engineers, Inc. (www.ashrae.org).
For personal use only. Additional reproduction, distribution, or transmission in either print or
digital form is not permitted without ASHRAE's prior written permission.
--``,,`,``,```,,`,,```````,,`,,,-`-`,,`,,`,`,,`---
Illustrations
7-8 Faulty spring hanger installation with hanger rod touching the hanger
box. 139
7-9 Taut outdoor “flexible” conduit forms a vibration “short-circuit” at cooling
tower. 141
7-10 Pipe risers without vibration isolation. 141
Chapter 8
8-1 Frequency ranges of the most likely sources of common acoustical
complaints. 144
8-2 Example of poor fan discharge duct design. 150
8-3 Fan installation with poor discharge duct system aerodynamics. 151
8-4 Restrained spring isolator with a “short circuit” between its baseplate and
equipment mounting plate. 155
8-5 View into the fan section of a rooftop unit. 156
8-6 Excellent rooftop package unit installation. 156
8-7 Improperly installed fan-powered variable-air-volume unit. 157
8-8 Proper installation of an indoor self-contained packaged HVAC unit. 157
8-9 Closely spaced circular duct fittings produce turbulence and noise. 158
8-10 Closely spaced rectangular duct fittings produce turbulence and noise. 158
8-11 Improper duct transition at fan inlet. 159
8-12 Vane-axial fan intakes too close to wall. 159
8-13 Duct split using radius elbows. 160
8-14 Faulty installation of a large equipment isolator with stanchion
restraints. 160
8-15 Proper installation of a large equipment isolator with stanchion
restraints. 161
8-16 Braided metal pump connectors do not provide significant vibration
isolation. 161
8-17 Neoprene pump connectors provide better isolation of pump vibration from
attached piping. 162
8-18 Incomplete vibration isolation at cooling tower. 162
8-19 Taut “flexible” conduit forms a vibration short-circuit at vane-axial fan. 163
8-20 Correctly installed flexible conduit between electrical disconnect and
motor. 163
8-21 View of pipe penetration from below roof. 164
8-22 Non-isolated pipe penetration. 164
8-23 Improperly placed neoprene hanger. 165
Front.book Page xii Monday, June 13, 2011 11:25 AM
© 2011 American Society of Heating, Refrigerating and Air-Conditioning Engineers, Inc. (www.ashrae.org).
For personal use only. Additional reproduction, distribution, or transmission in either print or
digital form is not permitted without ASHRAE's prior written permission.
A Practical Guide to Noise and Vibration Control for HVAC Systems
Appendix A
A-1 Airborne and structure-borne sound transmission. 168
A-2 Airborne and structure-borne sound transmission from equipment. 169
A-3 Chart for adding decibel values. 170
A-4 Everyday sound sources—their frequencies and wavelengths. 171
A-5 Frequencies at which various types of HVAC equipment generally control
their sound spectra. 172
A-6 Sound pressure levels of some everyday activities. 173
Appendix B
B-1 Frequency weighting curves. 178
B-2 Blank RC chart. 180
B-3 Blank RC mark II chart. 181
B-4 Blank NC chart. 183
B-5 Octave band spectrum rated at NC-45. 184
B-6 Blank NCB chart. 185
B-7 Quality of speech communication in background noise. 189
Appendix C
C-1 Sound level meter. 192
C-2 Sound measurement plan. 193
C-3 Blank sound measurement data sheet. 194
C-4 Completed sound measurement data sheet. 195
TABLES
Chapter 1
1-1 Maximum Mid-Span Deflections for Above-Grade Structures that Support
Vibration-Isolated HVAC Equipment 7
1-2 Selection Guidelines for Slabs Separating Mechanical Equipment Rooms
from Noise-Sensitive Occupied Spaces 9
Chapter 2
2-1 Suggested Maximum Airflow Velocities for Various Ductwork
Installations 51
2-2 Suggested Maximum Airflow Velocities in Elbows for Rectangular
Front.book Page xiii Monday, June 13, 2011 11:25 AM
© 2011 American Society of Heating, Refrigerating and Air-Conditioning Engineers, Inc. (www.ashrae.org).
For personal use only. Additional reproduction, distribution, or transmission in either print or
digital form is not permitted without ASHRAE's prior written permission.
Illustrations
Ductwork 51
2-3 Acoustical Characteristics of the Various Types of Ductwork 58
Chapter 3
3-1 Maximum Recommended Waterflow Rates 86
Chapter 5
5-1 Vibration Isolation Selection Guide 102
Chapter 7
7-1 Common Value Engineering Proposals and Their Potential Acoustical
Impacts 126
7-2 Procedure for Converting from A-Weighted LW Values to Unweighted LW
Values 127
Appendix A
A-1 Octave Band Center Frequencies and Their Frequency Ranges 172
A-2 Subjective Impressions of Sound Level Differences 174
Appendix B
B-1 Recommended Indoor Sound Criteria 187
B-2 Industrial Noise Levels Requiring Employer Action 188
B-3 Sample Municipal Code Limits 189
Appendix C
C-1 Adjustment Values for Determining Equipment Sound Levels in the Presence
of Constant Background Noise 196
Front.book Page xiv Monday, June 13, 2011 11:25 AM
© 2011 American Society of Heating, Refrigerating and Air-Conditioning Engineers, Inc. (www.ashrae.org).
For personal use only. Additional reproduction, distribution, or transmission in either print or
digital form is not permitted without ASHRAE's prior written permission.

Preface
xv
Since the publication of the 1991 edition of this guide, building owners and
managers have been paying more attention to occupant comfort, and municipal
codes have become more attentive to property-to-property noise emissions. As a
result, the HVAC community has become much more sensitive to the acoustical
design of its products and systems. Many equipment manufacturers are producing
quieter products and sometimes use the acoustical benefit as the primary marketing
feature. Increased attention to product acoustical performance is evidenced by the
fact that the number of HVAC acoustical testing laboratories has almost doubled
since 1991. Also, increased internationalization has permitted access to low-noise
HVAC products from Europe and Asia.
System designers are paying closer attention to the acoustical performance of
the products and systems that they specify, and many building owners now require
acoustical consultants on project design teams.
Unfortunately, not all industry changes have been for the quieter. Energy-efficient
screw (rotary) compressors have been the source of many noise and vibration
complaints, and the momentum to remove internal acoustical liner from ductwork, or
to cover it with solid sheet metal in air-handling units and terminal boxes, has reduced
the palette of noise reduction strategies that can be used in system designs. These and
other factors increase the importance of system design in the form of more careful
attention to vibration isolation and the airflow aerodynamics in air distribution
systems. Therefore, the main theme of this guide has not changed over the past 20
years—that is, most HVAC system noise and vibration problems are system problems
that are due to the improper selection, design, or installation of the components into
a complete system. More careful attention to these factors will greatly reduce the
number and severity of noise and vibration complaints.
Front.book Page xv Monday, June 13, 2011 11:25 AM
© 2011 American Society of Heating, Refrigerating and Air-Conditioning Engineers, Inc. (www.ashrae.org).
For personal use only. Additional reproduction, distribution, or transmission in either print or
digital form is not permitted without ASHRAE's prior written permission.
--``,,`,``,```,,`,,```````,,`,,,-`-`,,`,,`,`,,`---
Front.book Page xvi Monday, June 13, 2011 11:25 AM
© 2011 American Society of Heating, Refrigerating and Air-Conditioning Engineers, Inc. (www.ashrae.org).
For personal use only. Additional reproduction, distribution, or transmission in either print or
digital form is not permitted without ASHRAE's prior written permission.

Acknowledgments
xvii
The information in this guide was taken from hundreds of publications and was
produced with the help of dozens of people. The author wishes to particularly thank
the following people:
The authors of the many articles, manuals, bulletins, and books from which many
of the guidelines and figures were taken;
The members of ASHRAE Technical Committee 2.6, Sound and Vibration, for
their direct contributions, review comments, encouragement, and patience;
The staff of Gary Davis & Associates, Santa Monica, CA, for much of the artwork;
The staffs of the acoustical consulting firms of McKay Conant Brook, Westlake
Village, CA, and Paul S. Veneklasen & Associates, Santa Monica, CA, for their
assistance;
Ms. Barbara A.J. Schaffer for her unending patience and support;
Mr. Eli Schaffer of Schaffer Mechanical, Inc., for his help in understanding HVAC
systems;
Mr. David Peters of Southland Industries, Long Beach, CA, for his review
comments of the original publication;
Messrs. Jerry Lilly, Karl Peterman, Rob Lilkendey, John Paulauskis and Mark Fly
for their very helpful and thorough reviews of the second edition;
Front.book Page xvii Monday, June 13, 2011 11:25 AM
© 2011 American Society of Heating, Refrigerating and Air-Conditioning Engineers, Inc. (www.ashrae.org).
For personal use only. Additional reproduction, distribution, or transmission in either print or
digital form is not permitted without ASHRAE's prior written permission.
--``,,`,``,```,,`,,```````,,`,,,-`-`,,`,,`,`,,`---
xviii
Dr. David T. Blackstock of the Applied Research Laboratories, Austin, TX, for his
insistence on the correct usage of the English language; and
The entire membership of ASHRAE for its support of technical research in all areas
of HVAC system design.
Front.book Page xviii Monday, June 13, 2011 11:25 AM
© 2011 American Society of Heating, Refrigerating and Air-Conditioning Engineers, Inc. (www.ashrae.org).
For personal use only. Additional reproduction, distribution, or transmission in either print or
digital form is not permitted without ASHRAE's prior written permission.

Introduction
xix
Over the past few decades, building design teams have become more aware of
the potential noise and vibration problems from HVAC systems. Mechanical engi-
neers are specifying sound traps (duct silencers), acoustical louvers, sound-absorb-
ing duct liners, and vibration isolators, while architects are designing mechanical
room walls and slabs with high sound transmission class (STC) ratings. Despite the
addition of these noise and vibration control features in more and more building
designs, complaints of excessive HVAC system noise and vibration are still
common. Investigations into these complaints by acoustical professionals have
found that, in many cases, the correct equipment and materials were used, but they
were not properly integrated into a quiet system, or some seemingly insignificant
detail was omitted that negated the expected acoustical benefit.
A TYPICAL APPROACH
Figure A shows a typical air-handling unit (AHU) mechanical room in which
some of the most common system-related acoustical faults are noted. Of the 12
faults noted, very few have to do with the specific equipment or materials used.
Most of the faults are system related; that is, the individual components are not
designed and installed as if they were part of a whole system. Airflow through the
AHU/ductwork layout shown in the figure would generate excessive turbulence,
noise, and rumble. The small mechanical room would have restricted airflow in
places, resulting in locally turbulent airflow and unexpected noise and rumble in the
tenant space. The vibration isolators would not perform as expected because they
are resting on a flexible floor structure. The designers of this hypothetical system
did not consider all of the system (interactive) effects of the various components
and how they would control the amount of noise and vibration that enters the build-
ing’s occupied spaces.
Front.book Page xix Monday, June 13, 2011 11:25 AM
© 2011 American Society of Heating, Refrigerating and Air-Conditioning Engineers, Inc. (www.ashrae.org).
For personal use only. Additional reproduction, distribution, or transmission in either print or
digital form is not permitted without ASHRAE's prior written permission.

Introduction
xx
Figure A Example of an air-handling unit room with several acoustical
problems.
1. AHU panel vibration “couples” to the lightweight, flexible gypsum wall just a few centimeters
away. This coupling lets low frequency noise pass easily through the wall.
2. The counterclockwise rotation of the fan’s discharge airstream is forced to change its spin
direction at the downstream elbow. The turbulence generatred at the change can produce
unstable flow with a very high, fluctuating pressure drop, thereby resulting in fan instability
that is heard as rumble.
3. Problem 2 is aggravated if the elbow’s turning vances do not have long trailing edges to
straighten the airflow and control the turbulence.
4. The duct silencer is too close to the elbow. This compounds the turbulence problem.
5. Rectangular ductwork and duct silencers do not control the rumble produced by turbulent
airflow.
6. The AHU’s air inlet is too close to the wall. This causes two acoustical problems: unstable
fan operation leading to surge and rumble, and direct exposure of the inlet noise to the
mechanical room wall.
7. The lack of a duct silencer in a mechanical room return air opening allows fan noise to travel
into the ceiling cavity, then through the lightweight acoustical ceiling into the occupied space.
8. The unit is resting on thin cork/neoprene isolation pads that are too stiff to adequately isolate
the fan vibration.
9. The poorly isolated unit is resting on a relatively flexible floor slab without sufficient struc-
tural support. This arrangement allows unit vibration to enter the slab.
10. The chilled water piping is rigidly attached to the slab above, thereby letting unit vibration
enter the slab.
11. Ductwall vibration in the duct silencer (or any other part of the trunk duct system) touching
the drywall partition can cause the partition to act as a sounding board and radiate low
frequency noise into the occupied space.
12. Suspending ceiling from supply duct causes ceiling to be a sound radiator.
Front.book Page xx Monday, June 13, 2011 11:25 AM
© 2011 American Society of Heating, Refrigerating and Air-Conditioning Engineers, Inc. (www.ashrae.org).
For personal use only. Additional reproduction, distribution, or transmission in either print or
digital form is not permitted without ASHRAE's prior written permission.
A Practical Guide to Noise and Vibration Control for HVAC Systems
xxi
A BETTER APPROACH
Correcting a noise or vibration problem usually costs much more than prevent-
ing one. The real costs include not only the direct payments to the retrofitting
contractor but also the time required to coordinate the investigation and retrofit and
the loss of goodwill from the complaining tenants. Therefore, in most cases the
slight extra cost for prevention (usually about 1% to 2% of the total HVAC system
cost) is money well spent.
Specifying quiet equipment and adding noise control materials to an HVAC
system design are necessary initial steps of the design process. Calculations during
the initial steps can be used to estimate the sound levels in a room or to select noise
control materials to achieve a design goal. Comparing equipment sound data for
competing products can help in the selection of quiet equipment. However, design
decisions based on such work lose their value if the equipment and materials are
not integrated into a properly designed system or if certain system detailing is
ignored.
Figure B shows one version of a typical AHU room in which basic construction
materials are integrated into a quiet system. The AHU and ductwork are selected
and laid out for the best aerodynamics possible (this also reduces pressure drop and,
therefore, fan horsepower). The AHU room is large enough for good aerodynamics
in the room and for adequate clearance between the unit and the walls. The support-
ing structure has been stiffened with a housekeeping pad and beam to permit better
vibration isolation.
SUMMARY OF THIS GUIDE
This guide presents information that will help engineers, architects, contrac-
tors, and others with little acoustical experience to develop project designs that
avoid the kinds of problems shown in Figure A. Chapter 1 includes general noise
control design guidelines to be addressed during the various design phases and
includes some information on the architectural and structural aspects of HVAC
system design. Chapter 2 addresses the selection and use of airside system compo-
nents. Chapter 3 looks at the selection and use of waterside and central plant equip-
ment.
Packaged and unitary equipment are addressed in Chapter 4. Guidelines for
selecting and using vibration isolation systems are included in Chapter 5. Sample
specifications for acoustical materials and the acoustical performance of HVAC
equipment are given in Chapter 6, along with some examples of poorly written
specifications. Reviewing submittals and making site inspections are addressed in
Chapter 7. Chapter 8 gives suggestions for troubleshooting HVAC noise and vibra-
tion complaints.
Front.book Page xxi Monday, June 13, 2011 11:25 AM
© 2011 American Society of Heating, Refrigerating and Air-Conditioning Engineers, Inc. (www.ashrae.org).
For personal use only. Additional reproduction, distribution, or transmission in either print or
digital form is not permitted without ASHRAE's prior written permission.

Introduction
xxii
The appendices present background information, including some basics of
HVAC system acoustics, the use of criteria and manufacturer’s published sound
data, and how to make sound level measurements. Appendices with definitions of
acoustical terminology, abbreviations, and addresses of relevant agencies and asso-
ciations are also included.
Figure B Example of an air-handling unit room with optimal acoustical
features.
1. Keeping a minimum 600 mm clearance reduces coupling between AHU and wall. Masonry
wall provides excellent low frequency sound isolation.
2. Use of a horizontal discharge AHU eliminates the need for a turbulence-producing airflow.
3. Gradual transition at AHU outlet minimizes turbulence.
4. Duct silencer is far enough away from AHU outlet to avoid excessive regenerated noise and
turbulence.
5. Circular ductwork controls the transmission of low frequency noise and rumble into the
occupied space.
6. The large clearance at the AHU inlet keeps the unit away from the wall and avoids excessive
inlet turbulence.
7. The return air duct silencer controls AHU noise via the return air path.
8. The unit is resting on high-deflection, steel spring vibration isolators.
9. The floor assembly supporting the unit has a housekeeping pad and at least one major beam
under the unit. Additional stiffness and mass help to control the transmission of unit vibration
into the slab.
10. The chilled water pipes are suspended by vibration isolation hangers.
11. The supply trunk duct does not touch the wall. A 13 mm gap surrounding the duct is filled
with a non-hardening sealant.
12. Ceiling not suspended from supply duct.
Front.book Page xxii Monday, June 13, 2011 11:25 AM
© 2011 American Society of Heating, Refrigerating and Air-Conditioning Engineers, Inc. (www.ashrae.org).
For personal use only. Additional reproduction, distribution, or transmission in either print or
digital form is not permitted without ASHRAE's prior written permission.

1
General Design Guidelines
1
Virtually every survey on office comfort finds that, after temperature prob-
lems, excessive HVAC system noise levels are responsible for more complaints
than any other aspect of the office environment. Some of the many causes of the
excessive noise can be traced to one of more of the following:
• Incorrect design of the HVAC systems and their equipment area walls and
slabs
• Cost-cutting without regard for the noise and vibration implications
• Improper installation
• Improper start-up or commissioning
• Ignoring the selection and/or installation guidelines published by HVAC
equipment and noise/vibration control product manufacturers
To minimize the possibility that design decisions could cause noise or vibra-
tion problems, a project’s design team must consider the acoustical impacts of all
design decisions, whether they are part of the schematic, design development,
construction documents, value engineering, or construction administration phases
of a project. The team members should also follow the selection and installation
guidelines that are published by most equipment and noise/vibration control prod-
uct manufacturers.
All too often the area of HVAC acoustical design is limited to the addition of
duct silencers, duct lining, plenum lining, and vibration isolators at the end of the
Construction Documents (Working Drawings) phase, after the mechanical engi-
neer has virtually completed the HVAC system design and long after the structural
system has been designed. These “add-on” acoustical treatments may control the
© 2011 American Society of Heating, Refrigerating and Air-Conditioning Engineers, Inc. (www.ashrae.org).
For personal use only. Additional reproduction, distribution, or transmission in either print or
digital form is not permitted without ASHRAE's prior written permission.
General Design Guidelines
2
noise and vibration, but if they are not properly integrated into the system, they can
reduce the system’s performance and energy efficiency. If selected or installed
improperly, they can even cause noise or vibration problems. Therefore, noise and
vibration control design should begin during the project’s Schematic Design phase
and continue throughout the entire design process. This is even more critical if the
use of fibrous materials, such as fiberglass and mineral wool, is not permitted.
Some “add-on” acoustical treatments may be required no matter how well a
system is designed, but the use of some, such as duct liner and duct silencers, can
sometimes be minimized if the HVAC system is designed with noise and vibration
control in mind from the start.
The more noise and vibration control you DESIGN IN, the less you have to
ADD ON.
The design phase of a new facility occurs in sub-phases with titles such as Pre-
schematic Design, Schematic Design (SD), Design Development (DD), and
Construction Documents (CD). The placement and sizing of mechanical equip-
ment rooms and duct shafts are typically set during the Schematic Design phase.
Therefore, many critical decisions for HVAC system noise and vibration control are
needed in this early design phase. More detailed noise and vibration control deci-
sions can wait until the DD and CD phases.
One crucial SD phase milestone is the completion of the structural system
design. Delaying the acoustical design until after the structural system design is
essentially complete sometimes leaves the design team with little flexibility in
selecting and locating cost-effective noise and vibration control treatments. Trou-
bleshooting investigations into HVAC system acoustical problems often find that
the locations of shear walls, beams, columns, and cross-bracing make effective
retrofit solutions either very expensive or, in some cases, impossible. Good acous-
tical design decisions made in cooperation with the structural engineer can avoid
this kind of problem and minimize the cost of noise and vibration control treat-
ments.
Proper acoustical design requires broad cooperation in the areas of architec-
ture, structural engineering, mechanical engineering, electrical engineering, and
acoustics. To that end, the design team should begin by working together in the
areas of (1) system type determination, (2) preliminary equipment selection, (3)
mechanical room and duct shaft sizing, and (4) space planning.
© 2011 American Society of Heating, Refrigerating and Air-Conditioning Engineers, Inc. (www.ashrae.org).
For personal use only. Additional reproduction, distribution, or transmission in either print or
digital form is not permitted without ASHRAE's prior written permission.
A Practical Guide to Noise and Vibration Control for HVAC Systems
3
SYSTEM TYPE DETERMINATION
Each type of HVAC system has its own set of layout and operating features that
determine which noise and vibration control measures are most cost-effective.
Therefore, the choice of one system type over another should not be made without
considering the cost of controlling noise and vibration. For example, a built-up
rooftop penthouse HVAC system would generate almost all of its noise and vibra-
tion in the penthouse and would, therefore, require most attention there to prevent
complaints from the occupants below the equipment rooms and near the duct
shafts. On the other hand, a system using water-source heat pump units distributed
throughout the building’s ceiling plenums would require much less concern for
noise and vibration control at the central plant but much more care in the selection,
placement, and installation of the dozens of noise and vibration sources (the heat
pump units) that are scattered throughout the building. It is, therefore, essential that
the acoustical properties of all potential system types be considered before final-
izing the selection.
PRELIMINARY EQUIPMENT SELECTION
After determining the type of system, the mechanical engineer should make
preliminary equipment selections as soon as possible to allow for a preliminary
noise analysis and to determine the probable sizes of the mechanical equipment
rooms and duct shafts. The primary acoustical guideline is to select the quietest
equipment possible, which usually means selecting the most efficient equipment
(i.e., the lowest kilowatt rating at the maximum operating duty point). Since the
original publication of this guide, virtually all of the major equipment manufac-
turers have updated their equipment selection procedures to include acoustical data
that have been determined in accordance with internationally recognized testing
procedures. Therefore, obtaining the acoustical information necessary for compar-
ing equipment alternatives is much easier than it was in the past.
MECHANICAL ROOM SIZING
Economic pressure to maximize a building’s usable/rentable space has
resulted in less space being available for the HVAC systems and other building
services. This reduction in equipment room size often forces the mechanical engi-
neer to either select small, inefficient equipment or to shoehorn properly sized
equipment into a restricted space. A similar problem occurs at duct shafts, which
often contain either undersized ducts with excessive air velocities or properly sized
ducts that are too close to the shaft walls. All such cases can lead to excessive noise.
To minimize the possibility of this problem, mechanical rooms and duct shafts
should be sized as follows:
© 2011 American Society of Heating, Refrigerating and Air-Conditioning Engineers, Inc. (www.ashrae.org).
For personal use only. Additional reproduction, distribution, or transmission in either print or
digital form is not permitted without ASHRAE's prior written permission.

General Design Guidelines
4
1. All HVAC equipment rooms should have a floor area large enough to allow a
clearance of at least 610 mm around all equipment. Building codes and equip-
ment maintenance requirements may necessitate larger clearances in some cases.
2. Ductwork should be sized for the proper air velocity (see the section titled “Duct
System Components” in Chapter 2) and shafts should be sized to provide suffi-
cient clearances around the ducts (see Figure 1-1 for guidelines).
SPACE PLANNING
The primary acoustical goal of space planning is to locate the noisy equipment
as far as possible from the building’s noise and vibration-sensitive areas. For HVAC
system design, this is most important in the location of chiller rooms, fan/AHU
rooms, cooling towers, and rooftop package units.
A common space-planning problem involves the placement of an AHU room
in the core area on a typical floor of a multistory office building. The best core area
plans surround the AHU room with buffer zones such as toilet and storage rooms,
as well as elevator, stair, and duct shafts as shown in Figure 1-2.
Effective space planning can also help minimize the construction costs of
mechanical room walls and slabs. For instance, if a mechanical equipment room is
adjacent to a non-sensitive room, then the construction of the common wall is not
Figure 1-1 Guideline for duct chase, shaft, and enclosure sizing.
© 2011 American Society of Heating, Refrigerating and Air-Conditioning Engineers, Inc. (www.ashrae.org).
For personal use only. Additional reproduction, distribution, or transmission in either print or
digital form is not permitted without ASHRAE's prior written permission.
--``,,`,``,```,,`,,```````,,`,,,-`-`,,`,,`,`,,`---

A Practical Guide to Noise and Vibration Control for HVAC Systems
5
Figure 1-2 Acoustical comparison of various building core area layouts.
© 2011 American Society of Heating, Refrigerating and Air-Conditioning Engineers, Inc. (www.ashrae.org).
For personal use only. Additional reproduction, distribution, or transmission in either print or
digital form is not permitted without ASHRAE's prior written permission.

General Design Guidelines
6
critical, so lightweight gypsum board walls are typically acceptable. However, if the
adjacent room is a conference room or private office, then a double-studded parti-
tion, or perhaps even a fully grouted masonry wall, may be needed. Figure 1-3 shows
the concept.
After the preliminary space plans for the HVAC equipment areas has been deter-
mined, the mechanical engineer should distribute equipment layouts to the rest of the
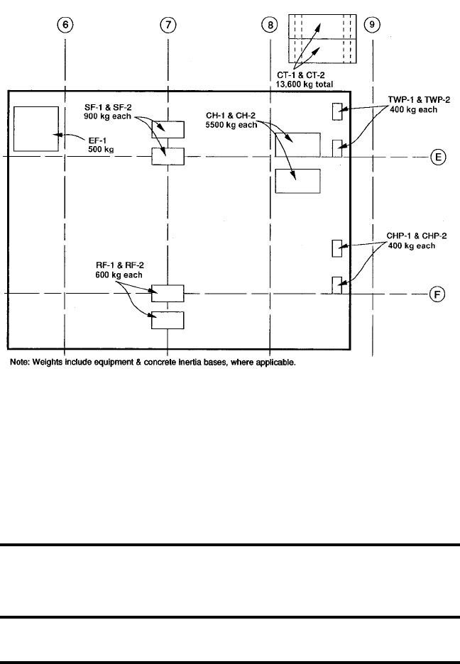
design team showing approximate weights and sizes of all equipment. A sample
layout is shown in Figure 1-4. The structural engineer should use this information
to select beams with maximum loaded deflections as listed in Table 1-1. The recom-
mended deflection limits may be somewhat smaller than structural engineers would
Figure 1-3 Guidelines for the preliminary selection of mechanical room walls.
© 2011 American Society of Heating, Refrigerating and Air-Conditioning Engineers, Inc. (www.ashrae.org).
For personal use only. Additional reproduction, distribution, or transmission in either print or
digital form is not permitted without ASHRAE's prior written permission.

A Practical Guide to Noise and Vibration Control for HVAC Systems
7
Table 1-1. Maximum Mid-Span Deflections for Above-Grade Structures
that Support Vibration-Isolated HVAC Equipment
Equipment to be Mounted
on Vibration Isolators
Maximum Structural Deflection
due to Equipment Load
(Composite Action for Concrete/
Metal Deck Floor Systems)
Cooling towers 8 mm
All other HVAC equipment 6 mm
Figure 1-4 Sample mechanical penthouse equipment layout.
© 2011 American Society of Heating, Refrigerating and Air-Conditioning Engineers, Inc. (www.ashrae.org).
For personal use only. Additional reproduction, distribution, or transmission in either print or
digital form is not permitted without ASHRAE's prior written permission.
General Design Guidelines
8
typically select for floor and roof beams. The equipment sizes and manufacturer-
recommended maintenance clearances should be given to the architect, who can
allocate equipment rooms of the proper size.
Slab Selection
The schematic design phase is also the proper time to determine the thicknesses
(and, therefore, the weights) of the slabs that provide sound isolation between equip-
ment rooms and any occupied spaces that are either above or below the equipment
room. Table 1-2 gives preliminary slab thickness suggestions for various types of
equipment.
MECHANICAL EQUIPMENT ROOMS
AND OUTDOOR EQUIPMENT AREAS
Central Plants
Some of the noisiest equipment in a commercial HVAC system is located in the
central plant. The most frequently used chillers—centrifugal, rotary, and screw—
produce enough noise in some rooms to require hearing protection per OSHA
requirements. Air compressors and vacuum pumps can also generate high noise
levels. The ventilation openings that serve these rooms are acoustical “holes” that
let equipment noise transfer to nearby areas that may be noise-sensitive.
Noise and Vibration Control Guidelines for Central Plants
1. For a large enough building site, locate the central plant away from any building
with perimeter noise-sensitive areas.
2. Treat ventilation passages with acoustical louvers, duct silencers, or acousti-
cally lined plenums to control the noise that escapes to the community (see
Figure 1-5 and the section titled “Duct Silencers, Plenums, and Acoustical
Louvers” in Chapter 2 for more information).
3. If the central plant is in an occupied building, install all equipment and piping
with vibration isolators in accordance with the “Vibration Isolation Selection
Guide” table in Chapter 5.
4. Make electrical connections to all central plant equipment with slack, flexible
conduits.
5. For noise control to noise-sensitive areas, either above or below, consider the
following options:
a. For upward noise control, use a building standard slab and a noise con-
trol enclosure around the chillers and air compressors (see Figure 1-6).
© 2011 American Society of Heating, Refrigerating and Air-Conditioning Engineers, Inc. (www.ashrae.org).
For personal use only. Additional reproduction, distribution, or transmission in either print or
digital form is not permitted without ASHRAE's prior written permission.

A Practical Guide to Noise and Vibration Control for HVAC Systems
9
Table 1-2. Selection Guidelines for Slabs Separating
Mechanical Equipment Rooms from Noise-Sensitive Occupied Spaces
Equipment Type
Total Size or Total Motor
Kilowatt (kW) Rating in
Equipment Room
Slab Thickness in Millimeters (2300 kg/m3 concrete)*
Over a Noise-Sensitive
Occupancy
(e.g., NC-35)
Over Somewhat Sensitive
Occupancy
(e.g., NC-40)
Reciprocating chiller All sizes 200** 200
Centrifugal chiller Up to 1000 kW 200 150
1000 kW and larger 200** 200
Screw chiller All sizes 200** 200
Unducted fan or AHU
(either side unducted)
Up to 7.5 kW 100 75
7.5 to 22.5 kW 160 100
Over 22.5 kW 200** 150
Ducted fan or AHU
(both sides ducted)
Up to 22.5 kW 100 75
22.5 kW and larger 150** 100
Pump
Up to 18.5 kW 100 75
18.5 kW to 75 kW 150 100
Over 75 kW 200 160
Cooling Tower,
Evaporative Cooler,
Air-cooled Condenser,
Air-cooled Chiller
Up to 22.5 kW 150 100
22.5 kW to 75 kW 200** 150
Over 75 kW 200** 200
* For mechanical equipment rooms housing multiple pieces of equipment and different types of equipment, deter-
mine the slab thickness for each equipment type and use the largest value for the entire equipment room. Increases
slab thickness by 33% if 110 pcf concrete is used.
** Some installations of this type, and equipment rooms with several types of equipment, each requiring a 200 mm
thick slab, will require a “floating floor” assembly per Figure 1-10.
Note: Do not locate mechanical equipment adjacent to room with a criteria rating of NC-30 or less.
© 2011 American Society of Heating, Refrigerating and Air-Conditioning Engineers, Inc. (www.ashrae.org).
For personal use only. Additional reproduction, distribution, or transmission in either print or
digital form is not permitted without ASHRAE's prior written permission.
--``,,`,``,```,,`,,```````,,`,,,-`-`,,`,,`,`,,`---

General Design Guidelines
10
Figure 1-5 Labyrinth air path used for sound attenuation at an equipment
room ventilation opening.
Figure 1-6 Upward noise control for mechanical rooms.
© 2011 American Society of Heating, Refrigerating and Air-Conditioning Engineers, Inc. (www.ashrae.org).
For personal use only. Additional reproduction, distribution, or transmission in either print or
digital form is not permitted without ASHRAE's prior written permission.
--``,,`,``,```,,`,,```````,,`,,,-`-`,,`,,`,`,,`---

A Practical Guide to Noise and Vibration Control for HVAC Systems
11
b. For downward noise control, use a building standard slab with a gyp-
sum board ceiling suspended below using spring hangers (see
Figure 1-7). The suspended ceiling is also an alternative to an equip-
ment enclosure for upward noise control, but it can be difficult to
implement where the room has a lot of suspended piping and conduits.
c. For both upward and downward noise control, consider a monolithic
slab weighing at least 500 kg/m2.
d. In the most critical cases, including screw chiller and vane axial
installations, use a 500 kg/m2 floating floor assembly. Figure 1-8
shows section views of two types of floating floors.
6. For rooftop or mid-level central plants, consider the following additional guide-
lines:
a. Do not extend the central plant to the edge of the slab. This lets
equipment noise leak through the small gap between the slab edge
and the building skin. See Figure 1-9 for a suggested noise control
method.
Figure 1-7 Downward noise control using an auxiliary ceiling.
© 2011 American Society of Heating, Refrigerating and Air-Conditioning Engineers, Inc. (www.ashrae.org).
For personal use only. Additional reproduction, distribution, or transmission in either print or
digital form is not permitted without ASHRAE's prior written permission.

General Design Guidelines
12
Figure 1-8 Section views through two types of floating floor assemblies.
Figure 1-9 Sound transmission at perimeter mechanical rooms.
© 2011 American Society of Heating, Refrigerating and Air-Conditioning Engineers, Inc. (www.ashrae.org).
For personal use only. Additional reproduction, distribution, or transmission in either print or
digital form is not permitted without ASHRAE's prior written permission.
--``,,`,``,```,,`,,```````,,`,,,-`-`,,`,,`,`,,`---

A Practical Guide to Noise and Vibration Control for HVAC Systems
13
b. Electrical conduits serving central plant equipment should not pene-
trate a floor or ceiling slab that is common to a noise-sensitive area.
These conduits should penetrate the slab in non-sensitive areas and
enter the plant through wall penetrations (see Figure 1-10).
c. If the central plant is located next to a stair, duct, or elevator shaft, the
common wall should be either masonry or a multi-layer gypsum
board construction, depending on the noise levels of the central plant
equipment.
d. In critical installations, the extensions of floor drains beneath the
central plant floor (above an occupied space ceiling) may require
either a gypsum board enclosure or pipe lagging. Figure 1-11 shows
a photo of a pipe lagging product. The effectiveness of pipe lagging
depends on the thickness of the compressible spacer layer, available
from 13 to 50 mm thick (thicker is better), and the surface density
of the outer barrier material, usually barium-loaded vinyl that is
available in surface-densities that range from 2.5 to 10 kg/m2
(denser is better).
Figure 1-10 Electrical conduit routing into a mechanical room.
© 2011 American Society of Heating, Refrigerating and Air-Conditioning Engineers, Inc. (www.ashrae.org).
For personal use only. Additional reproduction, distribution, or transmission in either print or
digital form is not permitted without ASHRAE's prior written permission.
--``,,`,``,```,,`,,```````,,`,,,-`-`,,`,,`,`,,`---

General Design Guidelines
14
Air-Handling Unit Rooms
The system aspect of HVAC noise and vibration control is most important in
the design of air-handling unit (AHU) rooms. Figures A and B in this guide’s intro-
duction compare noisy and quieter AHU room installations. Consider the following
guidelines for AHU equipment rooms.
Noise and Vibration Control Guidelines for AHU Rooms
1. The room’s floor area should be at least 1 m2 per 340 L/s of total maximum fan
airflow. For example, an AHU with a pair of 9400 L/s fans would need an equip-
ment room floor area of at least 55 m2. A larger floor area would be needed for
a unit with an oversized cabinet that houses special filters or a humidifier.
2. The placement of the unit and ductwork in the room should allow smooth airflow
from the return air openings to the AHU inlet.
3. The type of unit and the location of its discharge opening(s) should allow the use
of a supply duct system that meets the requirements of SMACNA for smooth
airflow from the AHU discharge and through the supply ducts.
4. In VAV systems, fan capacity should be controlled with a variable frequency
drive (VFD) motor speed controller.
5. Where possible, allow for a vestibule between the AHU room and the occupied
space. The doors serving the vestibule should each weigh at least 34 kg/m2 and
Figure 1-11 Pipe lagging for noise control includes a compressible spacer layer
and a heavy barrier layer.
© 2011 American Society of Heating, Refrigerating and Air-Conditioning Engineers, Inc. (www.ashrae.org).
For personal use only. Additional reproduction, distribution, or transmission in either print or
digital form is not permitted without ASHRAE's prior written permission.
--``,,`,``,```,,`,,```````,,`,,,-`-`,,`,,`,`,,`---

A Practical Guide to Noise and Vibration Control for HVAC Systems
15
have airtight, full-perimeter seals and automatic door bottoms. The doors should
hinge outward so that the negative room pressure will help pull the door tight to
the jamb seals.
6. If a vestibule is not possible, then specify a sound-rated door assembly (including
door, frame, and seals) whose Sound Transmission Class (STC) rating is equal to
that of the wall, typically STC-50 or higher.
7. Specify a duct silencer at all AHU room wall openings above the ceiling used to
collect common plenum return air.
Built-Up Air-Handling Systems
Because built-up air-handling systems typically use large, noisy equipment
and handle very large air quantities, attention to noise and vibration control is
required in all of the design phases, especially the early phases.
General Guidelines for Built-Up Basement and Rooftop AHU Installations
1. Arrange the equipment and duct shaft locations for smooth airflow at the recom-
mended velocity and pressure drop.
2. When two supply fans (centrifugal or vane-axial) are to operate in parallel, arrange
them in a “Y” discharge arrangement as shown in Figure 1-12.
Figure 1-12 Examples of rumbly and quieter parallel fan installations.
© 2011 American Society of Heating, Refrigerating and Air-Conditioning Engineers, Inc. (www.ashrae.org).
For personal use only. Additional reproduction, distribution, or transmission in either print or
digital form is not permitted without ASHRAE's prior written permission.

General Design Guidelines
16
3. Equipment and piping should be suspended or supported with vibration isolators
according to the “Vibration Isolation Selection Guide” table in Chapter 5.
4. Electrical connections to equipment should be made using slack, flexible
conduits.
5. Acoustical louvers, or duct silencers behind standard louvers, may be required at
fresh air intakes and exhaust air outlets to control noise transmission to the
outside.
6. If the equipment room is directly above a noise-sensitive space, consider using
either an auxiliary equipment enclosure or a floating floor (refer to Figures 1-8
and 1-9).
7. If the equipment room is directly below a noise-sensitive space, consider using an
upgraded cabinet construction or an auxiliary enclosure around the entire built-
up assembly, as shown in Figure 1-13.
8. In general, when vane-axial fans are used, duct silencers are required on both the
inlet and discharge sides of the fans (see Figure 1-14). Extreme cases will require
an auxiliary sheet metal housing around the fan to control its case-radiated noise.
Figure 1-13 Guidelines for a basement built-up fan system.
© 2011 American Society of Heating, Refrigerating and Air-Conditioning Engineers, Inc. (www.ashrae.org).
For personal use only. Additional reproduction, distribution, or transmission in either print or
digital form is not permitted without ASHRAE's prior written permission.

A Practical Guide to Noise and Vibration Control for HVAC Systems
17
Additional Guidelines for All Above-Grade Equipment Rooms:
1. Do not locate the equipment adjacent to a noise-sensitive area. For example,
don’t place the equipment at the roof perimeter where sound can refract around
the edge of the building and enter through the perimeter glass (see Figure 1-16).
2. If the equipment must be over a noise-sensitive area, then the equipment room
floor construction and the interior ceiling assembly, if any, must provide adequate
sound isolation. See Table 1-2 for general slab selection guidelines.
3. The floor structure supporting the equipment must be very stiff. Figure 1-16
shows various support methods. For all methods, the supporting structure should
deflect less than 6 mm due to the combination of the dead and operating equip-
ment loads.
4. Select vibration isolators for the equipment and its attached piping in accordance
with the “Vibration Isolation Selection Guide” table in Chapter 5.
EQUIPMENT ROOM WALLS AND SLABS
Wall Selection
Mechanical room walls should not be selected solely on the basis of their STC
ratings. The STC rating system was developed to rate the ability of walls, doors, and
Figure 1-14 Typical duct silencer arrangement at vane-axial fan.
© 2011 American Society of Heating, Refrigerating and Air-Conditioning Engineers, Inc. (www.ashrae.org).
For personal use only. Additional reproduction, distribution, or transmission in either print or
digital form is not permitted without ASHRAE's prior written permission.

General Design Guidelines
18
windows to control the transmission of speech and other noises that have very little
low-frequency sound energy. It does not rate the acoustical performance in the low-
frequency range that is prevalent in HVAC system noise spectra. Low-frequency
performance is determined by a wall’s mass and stiffness, and masonry walls are
much more massive and stiff than gypsum board walls. Therefore, where low-
frequency noise is a potential problem, use masonry construction. Figure 1-17
includes guidelines for mechanical room wall selections.
Wall Penetrations
Where ductwork or piping penetrates a wall, the penetration should be made
with the duct or pipe floating inside a sleeve, and with a resilient sealant filling the
gap (see Figure 1-18).
DUCT CHASES · SHAFTS · ENCLOSURES · LAGGINGS
Duct chases and shafts are required for a variety of architectural purposes.
Enclosures and laggings are add-on elements that are used strictly for noise control.
Keep these distinctions in mind when reviewing the guidelines given below.
Figure 1-15 Reflected and refracted equipment sound at a building perimeter.
Do not locate noisy equipment near a roof perimeter where this
can happen.
© 2011 American Society of Heating, Refrigerating and Air-Conditioning Engineers, Inc. (www.ashrae.org).
For personal use only. Additional reproduction, distribution, or transmission in either print or
digital form is not permitted without ASHRAE's prior written permission.
--``,,`,``,```,,`,,```````,,`,,,-`-`,,`,,`,`,,`---

A Practical Guide to Noise and Vibration Control for HVAC Systems
19
Figure 1-16 Structural support of rooftop equipment for vibration control.
© 2011 American Society of Heating, Refrigerating and Air-Conditioning Engineers, Inc. (www.ashrae.org).
For personal use only. Additional reproduction, distribution, or transmission in either print or
digital form is not permitted without ASHRAE's prior written permission.
--``,,`,``,```,,`,,```````,,`,,,-`-`,,`,,`,`,,`---

General Design Guidelines
20
Figure 1-17 Guidelines for mechanical room wall selection.
© 2011 American Society of Heating, Refrigerating and Air-Conditioning Engineers, Inc. (www.ashrae.org).
For personal use only. Additional reproduction, distribution, or transmission in either print or
digital form is not permitted without ASHRAE's prior written permission.
--``,,`,``,```,,`,,```````,,`,,,-`-`,,`,,`,`,,`---

A Practical Guide to Noise and Vibration Control for HVAC Systems
21
Location
Locate shafts and chases, especially those whose ducts are large and carry
high-velocity airflow, as far as possible from noise-sensitive areas.
Sizing
To be effective at the low frequencies where noise control is usually needed,
chases, shafts, and enclosures should be sized so that there is a minimum clearance
around each enclosed duct of at least 10% of its larger dimension or 150 mm,
whichever is larger. Figure 1-1 shows an example.
Return air shafts that also contain supply air ducts and their branch takeoffs
should be sized for no more than 2.5 to 5 m/s return air velocity. The 5 m/s upper limit
applies where the supply duct riser and its takeoffs are localized restrictions to the
return airflow, as shown in Figure 1-19.
Figure 1-18 Duct and pipe penetrations through walls.
© 2011 American Society of Heating, Refrigerating and Air-Conditioning Engineers, Inc. (www.ashrae.org).
For personal use only. Additional reproduction, distribution, or transmission in either print or
digital form is not permitted without ASHRAE's prior written permission.

General Design Guidelines
22
Construction
Figure 1-20 generically compares the sound isolation performance of several
shaft, chase, and enclosure constructions. In general, higher wall mass and larger
clearances around ducts provide better sound isolation. The higher stiffness of a
masonry shaft provides excellent low-frequency sound isolation.
In installations where shaft walls are used for architectural masking, but not for
fire protection, the shaft construction sometimes extends only a few centimeters
above the ceiling, leaving the ductwork exposed to the ceiling plenum. Verify that
in such a situation, the shaft wall is not needed for noise control purposes. If it is,
make sure that the shaft wall construction extends from slab to slab.
Figure 1-21 shows typical duct lagging assemblies. Laggings provide good
mid and high frequency noise reduction but provide only small amounts of low-
frequency noise reduction. Instead of lagging, use an airtight gypsum board enclo-
sure where significant low-frequency noise reduction is needed.
Figure 1-22 shows a section through a gypsum board duct enclosure. Note that
the figure caption shows that the enclosure framing does not touch the duct. This
is very important because contact between a duct and any part of its enclosure can
allow duct wall vibration to be amplified by the enclosure, which then uses the
“sounding board effect” to convert the vibration into noise that is then radiated into
the adjacent area.
An enclosure for low-frequency noise control may not be necessary if circular,
instead of rectangular, ductwork is used.
Figure 1-19 Plan view of return air shaft with supply duct takeoffs obstructing
return airflow.
© 2011 American Society of Heating, Refrigerating and Air-Conditioning Engineers, Inc. (www.ashrae.org).
For personal use only. Additional reproduction, distribution, or transmission in either print or
digital form is not permitted without ASHRAE's prior written permission.

A Practical Guide to Noise and Vibration Control for HVAC Systems
23
Figure 1-20 Acoustical comparison of several duct chase, shaft, and enclosure
constructions.
© 2011 American Society of Heating, Refrigerating and Air-Conditioning Engineers, Inc. (www.ashrae.org).
For personal use only. Additional reproduction, distribution, or transmission in either print or
digital form is not permitted without ASHRAE's prior written permission.

General Design Guidelines
24
Figure 1-21 Two typical duct laggings.
Figure 1-22 Noise control duct enclosure.
© 2011 American Society of Heating, Refrigerating and Air-Conditioning Engineers, Inc. (www.ashrae.org).
For personal use only. Additional reproduction, distribution, or transmission in either print or
digital form is not permitted without ASHRAE's prior written permission.

2
Airside Equipment
25
FANS
Because most HVAC noise complaints are associated with fans, selecting and
integrating them properly with the air distribution system will preclude a large
percentage of possible noise problems. A fan can be used as the central element in
a ventilation system or as a component in a piece of packaged equipment, such as
an air-handling unit (AHU), cooling tower, air-cooled chiller, generator radiator,
etc. This section of the guide deals specifically with the selection of fans in all of
their likely applications. The acoustical performance of AHUs is addressed later in
this chapter.
The first step in selecting a fan for a noise-sensitive application is to select the
quietest equipment available for the most likely operating condition. In a constant
volume system, this is simply the set of design operating conditions, e.g., airflow
and system static pressure. In variable air volume (VAV) systems, the selection
should be made for the most likely range of part-load operating conditions (typi-
cally in the range from 60% to 85% of full capacity).
All of the major fan manufacturers offer fan selection computer programs that
include octave band sound power level (LW) values based on laboratory measure-
ments conducted in accordance with AMCA Standard 300, Reverberant Room
Method for Sound Testing of Fans. The LW values are typically given for the octave
bands with center frequencies from 63 to 8000 hertz, inclusive. (Refer to Appendix
D for more information on the use of manufacturers’ published and submitted
acoustical data.) There is no longer a need to use the LW estimating procedures that
were included in early editions of the ASHRAE Handbook. Those early estimating
procedures have been proven to be inaccurate, with errors as large as 30 dB in some
© 2011 American Society of Heating, Refrigerating and Air-Conditioning Engineers, Inc. (www.ashrae.org).
For personal use only. Additional reproduction, distribution, or transmission in either print or
digital form is not permitted without ASHRAE's prior written permission.
Airside Equipment
26
cases. Only LW values measured in accordance with AMCA 300 should be used in
calculations and specifications.
In general, fan noise at a particular operating condition correlates loosely with
energy usage at that condition, so when comparing fans of the same type, the selec-
tion that operates at the lowest motor kW rating will usually be the one that
produces the least noise.
All fans produce both broadband noise as well as tonal noise at the fan’s funda-
mental blade passage frequency (BPF) and its first few integer multiples, which are
referred to as “overtones” or “harmonics.” The fundamental BPF is easily calcu-
lated from the following equation:
where RPM is the fan rotation rate and N = the number of fan blades.
For instance, a 1000 rpm fan with nine blades would have a fundamental BPF of
150 hertz, which is in the 125 hertz octave band. This fan would also produce BPF over-
tones at 300 hertz, 450 hertz, 600 hertz, etc., but the overtones’ LW values are generally
lower than those of the fundamental BPF. In general, the strength of a fan’s BPF tone
is proportional to its total pressure performance, so a fan that operates at a high pressure
will usually have a louder BPF tone than if it were operating at a lower pressure.
Most fan manufacturers measure only inlet LW values, but a few also measure the
discharge LW values for some of their product lines. The difference between the inlet
and discharge LW values can be as large as 10 dB in some octave bands, depending on
the fan’s operating conditions; discharge values are typically higher, as shown in Figure
2-1, which compares the inlet and discharge LW values for a 925 mm diameter plenum
fan operating at 11,750 L/s at 1250 Pa total pressure. Each fan type and operating condi-
tion will have its own unique pair of inlet and discharge acoustical spectra. Therefore,
always request both the inlet and discharge LW values for a fan and assume that, unless
otherwise noted, any submitted values are valid for only the inlet side of the fan.
Centrifugal Fans
Centrifugal fans discharge their air at an angle of 90 degrees relative to its inlet
flow direction. These fans are either single or dual inlet, with several possible blade
shapes, each with its own set of acoustical characteristics. Of the three blade shapes
used in fans in most commercial systems, the forward-curved (FC) blades are the
most cost-effective in systems with low airflow and low static pressure, whereas
fans with backward-inclined (BI) and airfoil (AF) blades are more efficient and
quieter where higher airflow and static pressure performance are needed. Industrial
fans and material transfer fans are very noisy because their blade shapes are
designed for very high pressure performance that is not needed in commercial and
residential systems.
BPF RPM N 60⁄⋅=
© 2011 American Society of Heating, Refrigerating and Air-Conditioning Engineers, Inc. (www.ashrae.org).
For personal use only. Additional reproduction, distribution, or transmission in either print or
digital form is not permitted without ASHRAE's prior written permission.
--``,,`,``,```,,`,,```````,,`,,,-`-`,,`,,`,`,,`---

A Practical Guide to Noise and Vibration Control for HVAC Systems
27
Figure 2-2 compares the inlet LW values of three commercial 925 mm diameter
fans operating at 9400 L/s and 750 Pa total pressure of similar motor kW rating, each
of which has a different blade shape. The 125 hertz octave band “spikes” in the BI and
AF spectra are due mainly to the strengths of their BPF tones. The FC fan’s LW spec-
trum does not show a strong BPF tone, but its higher 63 hertz band LW value can be
a problem because of the expense required to control noise in that frequency band.
Centrifugal fans of all types will produce unexpectedly high noise levels if duct
fittings or other airflow obstructions are too close to the fan inlet or discharge. The
amount of excessive noise cannot be quantified; ongoing ASHRAE-sponsored
research is attempting to quantify the effect for all types of fans. Figure 2-3 shows
the current “best practice” guidelines for inlet clearance and discharge ductwork
configurations for centrifugal fans.
Inline Fans
Inline fans do not change the direction of airflow and are typically used in
ducted applications and include the vane-axial, tube-axial, propeller, and inline
centrifugal types, as well as others. Each type of inline fan is best for a specific
range of operating conditions. They all produce significant BPF tones, with vane-
axial and tube axial fans producing the strongest, while the tones from inline
centrifugal fans are not as prominent.
Figure 2-1 Inlet and discharge octave band LW values for a 925 mm plenum fan.
© 2011 American Society of Heating, Refrigerating and Air-Conditioning Engineers, Inc. (www.ashrae.org).
For personal use only. Additional reproduction, distribution, or transmission in either print or
digital form is not permitted without ASHRAE's prior written permission.
--``,,`,``,```,,`,,```````,,`,,,-`-`,,`,,`,`,,`---

Airside Equipment
28
Mixed Flow Fans
Mixed flow fans are inline fans, but the airflow direction through them is
midway between axial and centrifugal flow. Figure 2-4 compares the airflow paths
through typical inline fans and a mixed flow fan. Figure 2-5 shows a cutaway
rendering of a mixed flow fan, whose main acoustical benefit is the relatively low
strength of its BPF tones. Figure 2-6 compares the inlet LW spectra of vane-axial,
inline centrifugal, and mixed flow fans of equal physical size and motor kW oper-
ating at 23,500 L/s and 1000 Pa total pressure.
Figures 2-7 and 2-8 show recommendations for ducted and unducted inline
fans of all types, keeping in mind that these fans are very sensitive to distorted inlet
airflows.
Plenum Fans
Plenum fans are single-inlet centrifugal fans whose impeller designs have been
optimized for maximum efficiency in a discharge plenum. Their discharge air
leaves the impeller in a 360 degree radial pattern. They are typically used in custom
Figure 2-2 Sound power level comparison for three types of centrifugal fans.
© 2011 American Society of Heating, Refrigerating and Air-Conditioning Engineers, Inc. (www.ashrae.org).
For personal use only. Additional reproduction, distribution, or transmission in either print or
digital form is not permitted without ASHRAE's prior written permission.

A Practical Guide to Noise and Vibration Control for HVAC Systems
29
Figure 2-3 Guidelines for centrifugal fan installations.
© 2011 American Society of Heating, Refrigerating and Air-Conditioning Engineers, Inc. (www.ashrae.org).
For personal use only. Additional reproduction, distribution, or transmission in either print or
digital form is not permitted without ASHRAE's prior written permission.

Airside Equipment
30
Figure 2-4 Inline fan airflow patterns.
Sketches courtesty of the Greenheck Fan Corporation.
© 2011 American Society of Heating, Refrigerating and Air-Conditioning Engineers, Inc. (www.ashrae.org).
For personal use only. Additional reproduction, distribution, or transmission in either print or
digital form is not permitted without ASHRAE's prior written permission.
--``,,`,``,```,,`,,```````,,`,,,-`-`,,`,,`,`,,`---

A Practical Guide to Noise and Vibration Control for HVAC Systems
31
Figure 2-5 Cutaway view into a mixed flow fan.
Rendering courtesy of the Greenheck Fan Corporation.
Figure 2-6 Inline fan sound power level comparison.
© 2011 American Society of Heating, Refrigerating and Air-Conditioning Engineers, Inc. (www.ashrae.org).
For personal use only. Additional reproduction, distribution, or transmission in either print or
digital form is not permitted without ASHRAE's prior written permission.

Airside Equipment
32
Figure 2-7 Guidelines for ducted axial flow fan installations.
© 2011 American Society of Heating, Refrigerating and Air-Conditioning Engineers, Inc. (www.ashrae.org).
For personal use only. Additional reproduction, distribution, or transmission in either print or
digital form is not permitted without ASHRAE's prior written permission.

A Practical Guide to Noise and Vibration Control for HVAC Systems
33
Figure 2-8 Guidelines for unducted axial flow fan installations.
© 2011 American Society of Heating, Refrigerating and Air-Conditioning Engineers, Inc. (www.ashrae.org).
For personal use only. Additional reproduction, distribution, or transmission in either print or
digital form is not permitted without ASHRAE's prior written permission.
--``,,`,``,```,,`,,```````,,`,,,-`-`,,`,,`,`,,`---

Airside Equipment
34
and semi-custom (modular) air-handling units (see Chapter 4 titled “Packaged and
Unitary Equipment”). Figures 2-9 and 2-10 show inlet and discharge views, respec-
tively, of direct-drive and belt-drive plenum fans. These fans are typically available
with either 9, 10, or 12 blades.
Power Roof Ventilators
Power roof ventilators (mushroom fans) are usually used for exhaust applica-
tions but are sometimes used for supply or makeup air. Because they use centrifugal
impellers, they can tolerate moderate amounts of static pressure, so duct silencers
can be used with these fans where no other noise control mitigation is feasible and
care is taken to have two to three equivalent diameters of straight duct between the
fan and the silencer. Figure 2-11 shows a fan installation with a duct silencer
inserted between the fans and their curbs. Large mushroom fans installed near
noise-sensitive or vibration-sensitive areas may be mounted on roof curbs with
internal isolation. A sketch of such a curb is shown in Figure 2-12.
Panel Fans
Panel fans, which use propeller fan wheels, are typically selected for unducted,
low static pressure applications. There are several propeller blade shapes (e.g.,
stamped steel, cast aluminum, backswept airfoil, etc.), so be sure to consider them
all when selecting a propeller fan for a noise-sensitive application.
Figure 2-9 Inlet side of a direct-
drive plenum fan.
Figure 2-10 Discharge side of a
belt-drive plenum fan.
Photos courtesy of Energy Labs Inc.
© 2011 American Society of Heating, Refrigerating and Air-Conditioning Engineers, Inc. (www.ashrae.org).
For personal use only. Additional reproduction, distribution, or transmission in either print or
digital form is not permitted without ASHRAE's prior written permission.

A Practical Guide to Noise and Vibration Control for HVAC Systems
35
Since “add-on” noise control products, such as duct silencers or even duct-
work, are often not feasible because of the static pressure losses that they create,
selection of the quietest propeller fan available is often needed for a noise-sensitive
application. Figure 2-13 compares the inlet LW values of three 1200 mm propeller
fans operating at 9400 L/s and 125 Pa static pressure. The noisiest of these fans uses
cast aluminum blades, while the quietest uses backswept, airfoil-shaped, fiberglass
blades that are either form-cast or handmade. Figures 2-14 and 2-15 show two types
of propeller fans that can be optimized for high performance and low noise in a
panel fan arrangement.
If the quietest panel fan selection still creates excessive outdoor noise levels,
for instance, at a nearby residential property line, a sound-attenuating hood simi-
lar to that shown in Figure 2-16 can be used to provide attenuation in the range
of 3–5 dBA.
Few panel fans are fabricated with sufficient vibration isolation for noise-
sensitive applications. For those cases, the panel fan may be suspended from four
isolation hangers in arrangement similar to that shown in Figure 2-17.
Figure 2-11 Power roof ventilators (mushroom fans) mounted on intake duct
silencers and roof curbs.
© 2011 American Society of Heating, Refrigerating and Air-Conditioning Engineers, Inc. (www.ashrae.org).
For personal use only. Additional reproduction, distribution, or transmission in either print or
digital form is not permitted without ASHRAE's prior written permission.

Airside Equipment
36
Ceiling Exhaust and Cabinet Fans
Ceiling exhaust and cabinet fans used to be standard in conference rooms to
remove cigarette and cigar smoke; however, with many fewer buildings permitting
smoking, the dominant use for these fans is now in residential bathrooms, kitchens,
and utility rooms. These fans are typically rated in terms of sones, where 1 sone is
roughly equivalent to a sound level in the 35 to 40 dBA range. Doubling the number
of sones is roughly equivalent to adding 10 dBA to the sound level, so 2 sones is
typically in the 45 to 50 dBA range, 4 sones is in the 55 to 60 dBA range, etc. Most
of these fans have ratings of several sones, but some manufacturers have recently
developed low-capacity fans that are as quiet as 1 sone. For rooms with cabinet fans,
Figure 2-18 shows noisy and quieter installations of this fan type.
Figure 2-12 Mushroom type exhaust fan on vibration-isolated roof curb.
© 2011 American Society of Heating, Refrigerating and Air-Conditioning Engineers, Inc. (www.ashrae.org).
For personal use only. Additional reproduction, distribution, or transmission in either print or
digital form is not permitted without ASHRAE's prior written permission.

A Practical Guide to Noise and Vibration Control for HVAC Systems
37
Figure 2-13 Inlet octave band LW comparison for three propeller fans.
Figure 2-14 Propeller fan with a 12-socket aluminum hub and plastic blades.
This fan can be selected for use with 2, 3, 4, 6, 8, 9, or 12 blades
of any custom length or blade twist to optimize airflow and
acoustical performance.
Photo courtesy of Multi-Wing America.
© 2011 American Society of Heating, Refrigerating and Air-Conditioning Engineers, Inc. (www.ashrae.org).
For personal use only. Additional reproduction, distribution, or transmission in either print or
digital form is not permitted without ASHRAE's prior written permission.

Airside Equipment
38
Figure 2-15 Ultra-low-noise propeller fan with backswept airfoil blades.
Versions of this fan are available with 2, 3, or 4 blades of adjustable
blade twist and diameters up to 12.3 m for very large capacities.
Figure 2-16 Lined hood for propeller fan noise control.
© 2011 American Society of Heating, Refrigerating and Air-Conditioning Engineers, Inc. (www.ashrae.org).
For personal use only. Additional reproduction, distribution, or transmission in either print or
digital form is not permitted without ASHRAE's prior written permission.

A Practical Guide to Noise and Vibration Control for HVAC Systems
39
Figure 2-17 Vibration isolation suspension for propeller fans.
Figure 2-18 Noisy and quiet installations of ceiling-mounted exhaust fans.
© 2011 American Society of Heating, Refrigerating and Air-Conditioning Engineers, Inc. (www.ashrae.org).
For personal use only. Additional reproduction, distribution, or transmission in either print or
digital form is not permitted without ASHRAE's prior written permission.

Airside Equipment
40
General Guidelines for Controlling Fan Noise and Vibration
1. Select the most efficient type and size of fan for the application. This will also, in
most cases, be the least noisy. Low discharge velocity is also preferred. For fans
in VAV applications, see the fan selection guidelines given in the section titled
“Special Variable-Air-Volume (VAV) System Concerns” later in this chapter.
2. Select the fan to operate on the right side of the fan curve, safely away from the
stall region and near the peak of the kilowatt curve.
3. Allow a clearance of at least 1 fan wheel diameter at all unducted fan inlets and
1.5 wheel diameters at all unducted fan outlets.
4. Use vibration isolation mounts or hangers, with auxiliary bases, if required, for
all fans over 0.75 kW located near noise-sensitive areas.
5. Attach ductwork to fans with canvas or elastomeric flexible connectors.
6. Inlet and discharge duct transitions should be gradual to minimize pressure drop
and maximize static regain. The total included angle within the transition should
be no more than 15 degrees (1:4 slope) for discharge transitions and 45 degrees
(1:1 slope) for inlet transitions.
7. In ducted discharge installations, the nearest downstream damper, duct silencer,
elbow, offset, transition, or takeoff should be at least three equivalent duct diam-
eters from the fan outlet. The equivalent duct diameter, De, for a rectangular duct
is found from the equation
where A and B are the rectangular duct’s cross-section dimensions.
8. All duct system fittings, especially near a fan inlet or discharge, should be
designed for the lowest practical pressure drop.
9. Because noise travels upstream and downstream from a fan, duct silencers and/or
acoustical duct liner are sometimes required in both the inlet and discharge air
paths.
10. Refer to the section titled “Duct System Components” later in this chapter for
additional guidelines.
AIR-HANDLING UNITS (AHU)
AND FAN-COIL UNITS (FCU)
Air-Handling Units (Draw-Through and Blow-Through)
All of the general guidelines and special guidelines for centrifugal fans apply
to air-handling units with one variation: the distance between the unit intake and the
nearest wall should be at least the height of the unit (see Figure 2-19). Also note that
factory acoustical data for AHUs should be determined in accordance with the most
De4AB⋅⋅
π
-------------------=
© 2011 American Society of Heating, Refrigerating and Air-Conditioning Engineers, Inc. (www.ashrae.org).
For personal use only. Additional reproduction, distribution, or transmission in either print or
digital form is not permitted without ASHRAE's prior written permission.
--``,,`,``,```,,`,,```````,,`,,,-`-`,,`,,`,`,,`---

A Practical Guide to Noise and Vibration Control for HVAC Systems
41
recent revision of AHRI 260—not an obsolete revision and not per AMCA 300,
which is for fans only.
Air-Handling Units Using Plenum Fans
Systems with this type of AHU can sometimes be designed with short supply
air path duct silencers, or sometimes without any silencers. Originally, plenum fans
were simply single-inlet, single-width centrifugal fans without a fan scroll. Their
designs are now optimized for use in open plenums, such that these fans are now
quieter and more efficient than before. The quietest variation of a plenum fan AHU
uses a fan that is selected for the lowest possible Lw values, and has 100 mm thick
sound-absorbing insulation behind perforated cabinet liner in all cabinet sections.
This unit’s discharge plenum can be outfitted with several discharge duct openings
to help minimize the number of duct fittings in and near the mechanical room.
Figure 2-20 shows an external view of a plenum AHU with two top outlets with
radius elbows that direct the supply air in opposite directions. This arrangement
precludes the need for a T-split discharge fitting. Figure 2-21 shows a cutaway
sketch of a blow-through plenum AHU.
Fan-coil Units
Motor hum from single-phase motors is a common noise problem in fan-coil units
because this kind of motor is prone to high internal vibration, and because this type of
motor is typically attached directly to the unit housing, which acts a sounding board
for the motor’s vibration. Therefore, a fan-coil unit in a noise-sensitive application
should be specified with a three-phase motor and a fan-motor sub-assembly that is
Figure 2-19 Minimum clearance at AHU and cabinet fan inlet.
© 2011 American Society of Heating, Refrigerating and Air-Conditioning Engineers, Inc. (www.ashrae.org).
For personal use only. Additional reproduction, distribution, or transmission in either print or
digital form is not permitted without ASHRAE's prior written permission.

Airside Equipment
42
Figure 2-20 Plenum AHU with supply ducts attached to the top of discharge
plenum.
Figure 2-21 Cutaway sketch of a plenum fan air-handling unit.
© 2011 American Society of Heating, Refrigerating and Air-Conditioning Engineers, Inc. (www.ashrae.org).
For personal use only. Additional reproduction, distribution, or transmission in either print or
digital form is not permitted without ASHRAE's prior written permission.

A Practical Guide to Noise and Vibration Control for HVAC Systems
43
mounted on spring isolators within the unit housing. An electronically commutated
motor (ECM) will provide additional noise and vibration reduction because these
motors produce less vibration than other low-kW motors.
TE R M I N A L U N I T S
(CAV, VAV, AND FAN-POWERED VAV BOXES)
Experience has shown that the problems with this type of equipment typically
occurs because of excessive inlet static pressure, excessive inlet air velocity, incor-
rect installation, or a misunderstanding of the acoustical performance data given in
manufacturers’ catalogs. Past ASHRAE research has shown that the acoustical test-
ing and rating procedures used for this equipment has resulted in published Noise
Criteria (NC) rating estimates that are almost impossible to achieve in a real-world
installation. Therefore, the specifying engineer should understand how to use the
cataloged ratings for a specific application. Refer to Appendix D, “Using Manu-
facturer’s Sound Data.” The guidelines shown in Figure 2-22 and in the checklist
below will help minimize the chances of excessive terminal unit noise. The guide-
lines apply to single-duct, dual-duct, and induction units, as well as parallel and
series fan-powered units.
Figure 2-22 Guidelines for VAV unit installation.
© 2011 American Society of Heating, Refrigerating and Air-Conditioning Engineers, Inc. (www.ashrae.org).
For personal use only. Additional reproduction, distribution, or transmission in either print or
digital form is not permitted without ASHRAE's prior written permission.
--``,,`,``,```,,`,,```````,,`,,,-`-`,,`,,`,`,,`---
Airside Equipment
44
Terminal Unit Selection and Application Checklist
1. Establish the Room Criteria (RC), Noise Criteria (NC), or Balanced Noise
Criteria (NCB) rating for each room with the help of the table in Table B-1 (see
Appendix B).
2. Use the manufacturers’ published octave band discharge and radiated LW data for
a static pressure difference of 250 Pa to select the quietest unit that will meet the
design objectives; this will typically occur for a maximum inlet velocity of about
9 m/s for single-duct and dual-duct boxes and 6 m/s for fan-powered boxes.
3. For a terminal unit in a return air ceiling plenum with distributed return air grilles
in a mineral tile or fiberglass ceiling:
a. Verify that the unit’s 125 hertz radiated octave band LW value is no
more than 32 points above the NC, RC, or NCB rating that was
selected for the room below the terminal unit. For instance, the 125
hertz radiated octave band LW value for a terminal unit above a room
with an NC/RC/NCB rating of 40 should not exceed 72 dB.
b. Locate the unit as high in the plenum space as possible and at least
1.5 m from any return air grille.
c. If a unit must be located less than 1.5 m from a return air grille, it
may be necessary to install a fiberglass-lined sheet metal elbow on
top of the grille with its discharge opening aimed away from the ter-
minal unit.
4. If the terminal unit is installed above a room with a gypsum board ceiling having
no openings, its 125 hertz radiated octave band LW value can be as much as 40
points higher than the room’s NC/RC/NCB rating. For instance, a terminal unit
above a room with a solid gypsum board ceiling may produce a 125 hertz radiated
sound power level of 80 dB if it is installed above a room with an NC-40 design
criteria rating.
5. Do not locate a terminal unit over a space with an NC, RC, or NCB rating less
than 35 (e.g., private offices, conference rooms, classrooms, etc.).
6. Do not locate a fan-powered terminal unit over a space with an NC, RC, or NCB
rating less than 40. Instead, locate it over a nearby nonsensitive space, such as a
corridor, toilet, or storage room.
7. The high- or medium-pressure ductwork entering the terminal unit should be
straight, with no fittings or dampers, for at least three equivalent duct diameters
upstream of the unit.
8. Connect high- or medium-pressure ductwork to the unit’s inlet with a short, flex-
ible, canvas duct connector, not a length of flexible ductwork.
© 2011 American Society of Heating, Refrigerating and Air-Conditioning Engineers, Inc. (www.ashrae.org).
For personal use only. Additional reproduction, distribution, or transmission in either print or
digital form is not permitted without ASHRAE's prior written permission.
--``,,`,``,```,,`,,```````,,`,,,-`-`,,`,,`,`,,`---

A Practical Guide to Noise and Vibration Control for HVAC Systems
45
9. The low-pressure discharge duct should be fiberglass-lined sheet metal, not
unlined sheet metal or fiberglass ductboard.
10. Duct taps into the unit’s discharge plenum should be at least 1200 mm down-
stream from the unit outlet.
Terminal units that are exposed in occupied areas without ceilings are common
sources of noise complaints. Ceilings are almost always needed to control terminal
unit radiated noise.
LABORATORY AIR VALVES
Cylindrical venturi air valves with plunger valve assemblies are often used in
laboratory makeup and exhaust air duct systems. A photo of such an air valve is
shown in Figure 2-23. These valves have no particular acoustical advantage over
traditional terminal units, and their selection and installation guidelines are similar
to those for terminal units with the additional warning that any acoustical analysis
should consider the valve’s discharge, radiated, and exhaust LW performance
ratings. Discharge noise travels in the direction of airflow, while exhaust noise trav-
els in the direction opposite to the airflow.
Figure 2-23 Laboratory air valve and its “noise flow” directions.
Photo courtesty of Phoenix Controls Corporation.
© 2011 American Society of Heating, Refrigerating and Air-Conditioning Engineers, Inc. (www.ashrae.org).
For personal use only. Additional reproduction, distribution, or transmission in either print or
digital form is not permitted without ASHRAE's prior written permission.
Airside Equipment
46
GRILLES, REGISTERS, AND DIFFUSERS (AIR DEVICES)
Because air devices are directly exposed to the occupied space, noise reduction
treatments cannot be added between them and the space occupants. Therefore, they
must be selected with the appropriate acoustical ratings.
Air Device Selection and Application Checklist
1. Establish the NC, RC, or NCB ratings for all noise-sensitive areas in the building
with the help of Table B-1 (see Appendix B).
2. Select each supply and return air device to have a manufacturer’s NC rating at
least five points below the room’s established NC, RC, or NCB rating. Lower NC
ratings will be needed if the room is served by several devices.
3. The ductwork serving a supply air device should be straight for at least three
equivalent duct diameters upstream of the device’s duct collar. Wavy ductwork
will cause uneven airflow into the device, creating extra pressure drop and noise.
See Figures 2-24 and 2-25 for a comparison of good and bad airflow entry condi-
tions.
4. The ductwork serving a supply air diffuser or return air grille should be at least
the same size as the device’s inlet collar. Using a short collar transition to adapt
the device’s collar to either a larger or smaller duct can result in unexpectedly high
noise due to turbulence at the transition adapter. If a transition is needed to match
a duct to its air device, the transition should conform to the guidelines given in the
section below titled “Duct System Components.”
5. Do not attach a balancing damper to a device’s duct collar. It should be at least
three equivalent duct diameters away from the device. Figure 2-26 shows the
effect of adding a balancing damper close to a supply outlet’s duct collar.
Pay close attention to the catalog data when selecting a linear diffuser. If the
diffusers will be installed with close-fitting inlet plenums, verify that the catalog
data used to make the selection are based on the same inlet plenum configuration.
DUCT SYSTEM COMPONENTS
While duct systems must be designed to deliver air within a given space and
at a reasonable cost, they must not be allowed to generate or transmit excessive
noise in the process. The excessive turbulence that often results from an inefficient
duct layout causes excess pressure drop and can lead to roar and rumble that can
be difficult and expensive to control. Also, the use of improper duct materials for
a given application can allow excessive levels of other system noises (usually from
fans or variable-volume terminal units) to be transmitted into occupied spaces.
© 2011 American Society of Heating, Refrigerating and Air-Conditioning Engineers, Inc. (www.ashrae.org).
For personal use only. Additional reproduction, distribution, or transmission in either print or
digital form is not permitted without ASHRAE's prior written permission.
--``,,`,``,```,,`,,```````,,`,,,-`-`,,`,,`,`,,`---

A Practical Guide to Noise and Vibration Control for HVAC Systems
47
The main acoustical characteristics of duct system components are in-duct
attenuation, breakout attenuation, and self-noise generation. All of these charac-
teristics should be considered when selecting, sizing, and routing ductwork.
In-Duct Attenuation
In-duct attenuation refers to the reduction of sound as it travels in the airstream
inside of a duct. Unlined metal ducts provide limited amounts of low-frequency in-duct
Figure 2-24 Good inlet duct connection to a supply air ceiling diffuser. With a
straight flex duct path, the diffuser will produce the manufacturer’s
cataloged noise levels.
Figure 2-25 Poor inlet duct connection to a supply air ceiling diffuser. The
winding flex duct path causes excessive air turbulence and noise at
the diffuser’s inlet collar. This diffuser could produce noise levels as
much as 15 dB higher than the manufactuerer’s catalog data.
© 2011 American Society of Heating, Refrigerating and Air-Conditioning Engineers, Inc. (www.ashrae.org).
For personal use only. Additional reproduction, distribution, or transmission in either print or
digital form is not permitted without ASHRAE's prior written permission.
--``,,`,``,```,,`,,```````,,`,,,-`-`,,`,,`,`,,`---

Airside Equipment
48
attenuation and almost no in-duct attenuation at high frequencies. Adding an internal
fibrous or foam liner that conforms with all of the NFPA Standard 90A limits for smoke
and combustibility will have little effect on low-frequency attenuation but will greatly
improve the attenuation at mid and high frequencies. Figure 2-27 shows a sample
comparison of the in-duct attenuation in lined and unlined sheet metal ductwork. Fiber-
glass ductboard and flexible ducts exhibit very high in-duct attenuation performance at
all frequencies because of their breakout transmission loss characteristics. See the
section on breakout transmission loss below.
Some publications, including early versions of the ASHRAE Handbook, stated
that external thermal insulation increases the low-frequency in-duct attenuation of
metal ductwork. That statement was never corroborated, and recent testing has
shown that external wrapping has no significant effect on the in-duct attenuation of
metal ductwork.
Breakout Transmission Loss (BTL)
Breakout transmission loss (BTL) refers to the reduction of noise that is trans-
mitted through a duct wall. The BTL at all frequencies increases with ductwall mass,
Figure 2-26 The effect of installing a damper behind a grille.
© 2011 American Society of Heating, Refrigerating and Air-Conditioning Engineers, Inc. (www.ashrae.org).
For personal use only. Additional reproduction, distribution, or transmission in either print or
digital form is not permitted without ASHRAE's prior written permission.

A Practical Guide to Noise and Vibration Control for HVAC Systems
49
i.e., lower gauge number means that less noise will break out of the ductwork.
However, such improvements quickly reach a point of diminishing returns. The best
way to improve low-frequency breakout performance is to increase the duct’s stiffness.
Spiral-wound circular ductwork is very stiff, so it is the preferred duct type where low-
frequency breakout noise control is needed. Longitudinal-seam circular ductwork is
slightly less stiff, so it provides somewhat less breakout transmission loss. Flat-oval
ducts are significantly less stiff than either spiral-wound or long-seam circular and,
therefore, provide much less low-frequency breakout noise control. The relative flex-
ibility of rectangular duct walls makes them even more prone to poor duct breakout
noise control. Figure 2-28 shows a sample comparison of breakout transmission loss
through rectangular, spiral-wound circular, and flat-oval ductwork. Higher values of
BTL will result in lower sound levels outside of the ductwork.
Self-Noise
Self-noise (also called self-generated or regenerated noise) refers to the turbulence-
induced noise that is produced in duct fittings and other duct system components that
Figure 2-27 Attenuation for lined and unlined sheet metal ductwork.
© 2011 American Society of Heating, Refrigerating and Air-Conditioning Engineers, Inc. (www.ashrae.org).
For personal use only. Additional reproduction, distribution, or transmission in either print or
digital form is not permitted without ASHRAE's prior written permission.
--``,,`,``,```,,`,,```````,,`,,,-`-`,,`,,`,`,,`---

Airside Equipment
50
obstruct or divert airflow, e.g., elbows, takeoffs, transitions, dampers, duct silencers, etc.
The amount of noise generated at each duct system component depends on the duct
type, localized airflow velocity, and type of fitting. Self-noise is not usually a problem
where the trunk duct velocity is below 7.5 m/s and if diffuser branch ducts are sized to
match the diffuser’s duct collar. Following the guidelines given in the SMACNA
“HVAC Duct Construction Standards—Metal and Flexible” (1995) and designing the
duct system for the lowest possible airflow velocities and pressure drop will avoid most
self-generated noise and rumble problems. Tables 2-1 and 2-2 give recommended
maximum airflow velocities for various types of ductwork. Figures 2-29 through 2-32
compare the scale of self-generated noise produced by various types of elbows, take-
offs, transitions, tees, and offsets.
Duct and Plenum Linings
Duct and plenum linings are semi-rigid fibrous or foam boards that are
attached to the inner walls of ducts and plenums to attenuate sound. They also
provide thermal insulation. The typical 25 mm thick liner provides good high-
frequency sound attenuation but has almost no effect on low-frequency sound.
Better low-frequency attenuation occurs with an increase in the lining thickness to
50 or 100 mm because the lining occupies a larger percentage of the cross section
Figure 2-28 Breakout transmission loss for three types of sheet metal
ductwork.
© 2011 American Society of Heating, Refrigerating and Air-Conditioning Engineers, Inc. (www.ashrae.org).
For personal use only. Additional reproduction, distribution, or transmission in either print or
digital form is not permitted without ASHRAE's prior written permission.

A Practical Guide to Noise and Vibration Control for HVAC Systems
51
Table 2-1. Suggested Maximum Airflow Velocities
for Various Ductwork Installations
Duct
Location
RC or NC Rating
in Adjacent
Occupancy
Max. Airflow Velocity
in m/s
Rectangular Circular
In shaft or above
solid drywall
ceiling
45
35
25 or less
17.5
12.5
7.5
25
22.5
12.5
Above suspended
acoustical ceiling 45
35
25 or less
12.5
8.5
5
22.5
17.5
10
Table 2-2. Suggested Maximum Airflow Velocities
in Elbows for Rectangular Ductwork
© 2011 American Society of Heating, Refrigerating and Air-Conditioning Engineers, Inc. (www.ashrae.org).
For personal use only. Additional reproduction, distribution, or transmission in either print or
digital form is not permitted without ASHRAE's prior written permission.

Airside Equipment
52
Figure 2-29 Guidelines for minimizing regenerated noise in elbows.
Figure 2-30 Guidelines for minimizing regenerated noise in takeoffs.
© 2011 American Society of Heating, Refrigerating and Air-Conditioning Engineers, Inc. (www.ashrae.org).
For personal use only. Additional reproduction, distribution, or transmission in either print or
digital form is not permitted without ASHRAE's prior written permission.

A Practical Guide to Noise and Vibration Control for HVAC Systems
53
Figure 2-31 Guidelines for minimizing regernated noise in transitions and
offsets.
Figure 2-32 Guidelines for minimizing regenerated noise in duct tees.
© 2011 American Society of Heating, Refrigerating and Air-Conditioning Engineers, Inc. (www.ashrae.org).
For personal use only. Additional reproduction, distribution, or transmission in either print or
digital form is not permitted without ASHRAE's prior written permission.

Airside Equipment
54
of the duct’s sheet metal face area. Figure 2-33 compares the sound attenuation in
a 610 by 610 mm duct for various lining thicknesses.
Duct lining is very effective in controlling the “cross-talk” or “speaking tube”
effect between rooms that share a common duct. For this use, a lined elbow can have
the same acoustical effect as 600 to 2400 mm of straight, lined ductwork or up to
30 m of straight, unlined duct. Figure 2-34 shows how the “speaking tube” problem
can occur and how to mitigate it.
Fiberglass Ductboard
Fiberglass ductboard is rigid fiberglass board with a thin external aluminum
vapor barrier. It is typically used in residential construction because it is relatively
inexpensive and is easy to modify in the field with a knife. Due to its very low
density it can permit breakout noise transmission problems, a feature that also
results in high in-duct attenuation.
Figure 2-33 In-duct attenuation for various duct liner thicknesses.
© 2011 American Society of Heating, Refrigerating and Air-Conditioning Engineers, Inc. (www.ashrae.org).
For personal use only. Additional reproduction, distribution, or transmission in either print or
digital form is not permitted without ASHRAE's prior written permission.
--``,,`,``,```,,`,,```````,,`,,,-`-`,,`,,`,`,,`---

A Practical Guide to Noise and Vibration Control for HVAC Systems
55
Figure 2-34 The speaking tube (cross-talk) problem.
© 2011 American Society of Heating, Refrigerating and Air-Conditioning Engineers, Inc. (www.ashrae.org).
For personal use only. Additional reproduction, distribution, or transmission in either print or
digital form is not permitted without ASHRAE's prior written permission.
Airside Equipment
56
Elbows and Takeoffs
Elbows and takeoffs provide in-duct attenuation, especially at mid and high
frequencies, due to reflection from the duct walls and other mechanisms. Figure 2-35
compares the in-duct attenuation of square elbows with and without internal duct liner.
Radius elbows provide less attenuation because they guide the air (and the noise) more
smoothly through the turn. Figure 2-36 compares the attenuation of square and radius
elbows.
Flexible Ducts
Flexible ducts are typically used for duct connections to ceiling diffusers. They
provide significant amounts of in-duct attenuation, mainly because their light-
weight construction provides substantial breakout (i.e., they are very poor for
controlling breakout sound transmission). Flexible ducts with a spunbond nylon
inner liner provide higher in-duct attenuation than flex ducts with polyethylene
liner. Figure 2-37 shows a flex duct with spunbond nylon liner.
Table 2-3 can help you select the best type of ductwork as a function of its
required acoustical properties. For example, if low-frequency breakout noise
control is important, the table would suggest using either lined or unlined circular
ductwork; however, note that the lined version would be needed if mid-frequency
in-duct attenuation is also important.
DUCT SILENCERS, PLENUMS,
AND ACOUSTICAL LOUVERS
Duct Silencers
(Also Called Sound Traps, Duct Attenuators, Mufflers)
Duct silencers are prefabricated sections of ductwork with internal baffles
made of light gauge, perforated sheet metal. Their acoustical performance depends
mainly on their baffle design. Each type of duct silencer has a unique material fill-
ing its baffles, as follows:
•Dissipative: The baffles are filled with a sound-absorptive medium, such as
fiberglass, mineral wool, or treated cotton. Specially designed open-cell
foams that conform with all of the NFPA 90A requirements have a very large
cost premium but can be used in duct silencers where fibrous materials are not
permitted. Figure 2-38 shows a view into a dissipative silencer before its final
fabrication step.
•Film-Lined: Similar to dissipative, except that the acoustic fill in the baffles
is encapsulated in thin film bags to control moisture absorption and prevent
erosion of the fibers into the airstream (see Figure 2-39). The film lining
© 2011 American Society of Heating, Refrigerating and Air-Conditioning Engineers, Inc. (www.ashrae.org).
For personal use only. Additional reproduction, distribution, or transmission in either print or
digital form is not permitted without ASHRAE's prior written permission.

A Practical Guide to Noise and Vibration Control for HVAC Systems
57
Figure 2-35 Attenuation of rectangular elbows with and without turning vanes
(lined and unlined).
Figure 2-36 Attenuation of rectangular and radius elbows (lined and unlined).
© 2011 American Society of Heating, Refrigerating and Air-Conditioning Engineers, Inc. (www.ashrae.org).
For personal use only. Additional reproduction, distribution, or transmission in either print or
digital form is not permitted without ASHRAE's prior written permission.
--``,,`,``,```,,`,,```````,,`,,,-`-`,,`,,`,`,,`---

Airside Equipment
58
Table 2-3. Acoustical Characteristics of the Various Types of Ductwork
Ductwork
Ty p e
In-Duct Attenuation Breakout Attenuation
Low
Frequency
Mid and
High
Frequencies
Low
Frequency
Mid and
High
Frequencies
Rectangular, unlined Fair Poor Fair Excellent
Rectangular, lined Fair Excellent Fair Excellent
Circular, unlined Poor Poor Excellent Good
Circular, lined Poor Excellent Excellent Good
Fiberglass ductboard Excellent Excellent Poor Fair
Flexible acoustical duct Excellent Excellent Poor Fair
Unlined elbow, all duct types Poor Fair — —
Lined elbow, all duct types Poor Excellent — —
Figure 2-37 Flexible duct with spunbond nylon inner liner.
© 2011 American Society of Heating, Refrigerating and Air-Conditioning Engineers, Inc. (www.ashrae.org).
For personal use only. Additional reproduction, distribution, or transmission in either print or
digital form is not permitted without ASHRAE's prior written permission.

A Practical Guide to Noise and Vibration Control for HVAC Systems
59
Figure 2-38 Cutaway view into a dissipative duct silencer.
Photo courtesy of Dynasonics, a division of PCI Industries Inc.
Figure 2-39 Cutaway view of a duct silencer with film-lined baffles.
Photo courtesy of Vibro-Acoustics, a division of BVA Systems Ltd.
© 2011 American Society of Heating, Refrigerating and Air-Conditioning Engineers, Inc. (www.ashrae.org).
For personal use only. Additional reproduction, distribution, or transmission in either print or
digital form is not permitted without ASHRAE's prior written permission.
Airside Equipment
60
reduces the silencer’s acoustical performance at mid and high frequencies
and may also affect low-frequency performance, depending on the type of
film and how it is installed in the baffles. Care must be taken when specify-
ing the film material, as many films do not conform with the flame spread
and smoke rating limits given in NFPA Standard 90A.
•Reactive: Also called “no fill,” “packless,” or “no media;” the baffles are
empty but are formed from sheet metal with special perforation patterns that
provide moderate amounts of insertion loss over a narrow frequency range
using the Helmholtz resonator effect (see Figure 2-40).
Duct silencers can be built in any shape that can be fabricated using sheet
metal. Figure 2-41 shows an “elbow silencer,” a combination duct silencer/duct
elbow. Double-elbow, T-shaped, and transition silencers are also available.
Because its internal baffles obstruct airflow, a duct silencer also generates
airflow turbulence that can lead to significant self-noise and static pressure loss if
it is not incorporated properly into the air distribution system. Silencers are avail-
able in many different configurations whose acoustical and aerodynamic perfor-
mance depend on the size, shape, and length of the baffles. Long, wide baffles
provide more attenuation than short, narrow ones. High sound insertion loss perfor-
mance usually requires either a silencer that is very long or a shorter one that has
a high static pressure drop and self-noise. Since silencers should generally be
selected for a static pressure loss of no more than about 70 Pa, proper silencer selec-
tion is an iterative process in which silencers of various lengths and baffle widths
are compared to find the one(s) that will provide the required sound insertion loss
at an acceptable static pressure loss. Typically, higher velocity systems will require
longer silencers with narrower baffles to provide acceptable performance. Ulti-
mately, silencer selection is an optimization process that considers (1) the insertion
loss required to meet the specified acoustical criteria, (2) the space available, and
(3) the maximum permissible pressure drop (including aerodynamic system
effects).
Figure 2-42 compares the insertion loss performance of two types of dissipa-
tive duct silencers with that for 3 m of lined ductwork. The duct silencers’ insertion
losses shown as the upper and lower curves in the figure bracket the wide range of
insertion loss values that are typically available. Note the correlation of insertion
loss and pressure drop (PD). Figure 2-43 compares the insertion loss performance
of 1.5 m long duct silencers of the dissipative, film-lined, and packless types.
To perform at or near the ratings given in manufacturers’ catalogs, duct silenc-
ers should be installed in accordance with the guidelines given in Figures 2-44 and
2-45. Closer proximity to a fan, AHU, or duct fitting can cause excess turbulence
that can lead to higher self-noise and higher pressure drop and could force the fan
to operate in rotating stall, thereby creating a low-frequency rumble that the
© 2011 American Society of Heating, Refrigerating and Air-Conditioning Engineers, Inc. (www.ashrae.org).
For personal use only. Additional reproduction, distribution, or transmission in either print or
digital form is not permitted without ASHRAE's prior written permission.

A Practical Guide to Noise and Vibration Control for HVAC Systems
61
Figure 2-40 Cutaway view of a reactive (“packless,” “no-fill,” or “no-media”)
duct silencer.
Photo courtesy of Vibro-Acoustics, a division of BVA Systems Ltd.
Figure 2-41 Cutaway view of an elbow duct silencer.
Photo courtesy of Vibro-Acoustics, a division of BVA Systems Ltd.
© 2011 American Society of Heating, Refrigerating and Air-Conditioning Engineers, Inc. (www.ashrae.org).
For personal use only. Additional reproduction, distribution, or transmission in either print or
digital form is not permitted without ASHRAE's prior written permission.

Airside Equipment
62
Figure 2-42 In-duct attenuation of duct silencers and lined ductwork.
Figure 2-43 Comparative insertion loss of dissipative, film-lined, and reactive
duct silencers.
© 2011 American Society of Heating, Refrigerating and Air-Conditioning Engineers, Inc. (www.ashrae.org).
For personal use only. Additional reproduction, distribution, or transmission in either print or
digital form is not permitted without ASHRAE's prior written permission.
--``,,`,``,```,,`,,```````,,`,,,-`-`,,`,,`,`,,`---

A Practical Guide to Noise and Vibration Control for HVAC Systems
63
Figure 2-44 Guidelines for duct silencer placement near fans and duct fittings.
© 2011 American Society of Heating, Refrigerating and Air-Conditioning Engineers, Inc. (www.ashrae.org).
For personal use only. Additional reproduction, distribution, or transmission in either print or
digital form is not permitted without ASHRAE's prior written permission.

Airside Equipment
64
Figure 2-45 Duct silencer placement near a mechanical room wall.
© 2011 American Society of Heating, Refrigerating and Air-Conditioning Engineers, Inc. (www.ashrae.org).
For personal use only. Additional reproduction, distribution, or transmission in either print or
digital form is not permitted without ASHRAE's prior written permission.
A Practical Guide to Noise and Vibration Control for HVAC Systems
65
silencer will not attenuate. The author was recently called to a resolve a complaint
of excessive rumble in a college library where a silencer with a catalogued PD of
70 Pa generated an actual PD of more than 250 Pa because it was “shoehorned”
between an AHU outlet and a duct elbow. The silencer’s extra PD threw the AHU’s
fan into rotating stall, thereby causing rumble complaints in the library. A complete
reconfiguration of the duct system was needed to eliminate the rotating stall condi-
tion and resolve the complaint.
Acoustical Plenums
If space is available, a plenum with an interior sound-absorbing lining (50- to
400-mm-thick) can provide significant fan noise reduction at all frequencies.
Recently completed ASHRAE-sponsored research shows that the plenum attenu-
ation equation in the 2003 ASHRAE Handbook—Applications is conservative at
low frequencies. Later editions of the Handbook will include a more accurate
method for estimating the insertion loss as a function of plenum dimensions and
interior wall surface finish. Figure 2-46 gives some general guidelines for maxi-
mizing plenum insertion loss.
Acoustical Louvers
Acoustical louvers are used primarily in equipment rooms and air shafts where
noise control is needed at a ventilation opening. These louvers use fiberglass-filled
baffles and are available in thicknesses from 100 to 600 mm. The upper surface of
each baffle is solid, while the lower surface is perforated. Figure 2-47 shows a
cutaway view of an acoustical louver with airfoil-shaped baffles. Parallelogram-
shaped baffles with flat upper and lower surfaces and herringbone “sightproof”
blades are also available. Figure 2-48 compares the octave band sound transmission
loss performance of a typical 300 mm thick acoustical louver with that of a standard
weatherproof louver with a 50% net open area. Figure 2-49 shows a photo of an
acoustical louver in a garage ventilation system.
Because the free area of an acoustical louver can be as small as 15% of its face area,
care must be taken when sizing these louvers since a face area velocity of 2.5 m/s could
create a free area velocity of as much as 15 m/s, which would generate a high static pres-
sure loss and high levels of self-generated noise and would entrain rain at an intake
louver. Controlling water entrainment and excessive air pressure drop often requires
selecting acoustical louvers for face velocities in the 1 to 1.5 m/s range.
Don’t confuse a louver’s Transmission Loss (TL) ratings with its Noise Reduc-
tion (NR) ratings, which are always 6 dB higher than the TL values. The TL values
indicate the attenuation of the louver if it is installed in an opening between two
adjacent rooms that are both very reverberant. The NR values are calculated from
the TL values and assume that the “quiet” side of the louver opens to the outdoors.
Conservative acoustical calculations typically use TL values since the exterior
© 2011 American Society of Heating, Refrigerating and Air-Conditioning Engineers, Inc. (www.ashrae.org).
For personal use only. Additional reproduction, distribution, or transmission in either print or
digital form is not permitted without ASHRAE's prior written permission.
--``,,`,``,```,,`,,```````,,`,,,-`-`,,`,,`,`,,`---

Airside Equipment
66
Figure 2-46 General guidelines for sound-attenuating plenum design.
Figure 2-47 Acoustical louver cutaway.
© 2011 American Society of Heating, Refrigerating and Air-Conditioning Engineers, Inc. (www.ashrae.org).
For personal use only. Additional reproduction, distribution, or transmission in either print or
digital form is not permitted without ASHRAE's prior written permission.

A Practical Guide to Noise and Vibration Control for HVAC Systems
67
Figure 2-48 Sound transmission loss of acoustical and weatherproof louvers.
Figure 2-49 Acoustical louver in a parking garage ventilation shaft.
© 2011 American Society of Heating, Refrigerating and Air-Conditioning Engineers, Inc. (www.ashrae.org).
For personal use only. Additional reproduction, distribution, or transmission in either print or
digital form is not permitted without ASHRAE's prior written permission.

Airside Equipment
68
landscape often has nearby reflective surfaces of some kind (e.g., the ground, other
buildings).
SPECIAL VARIABLE-AIR-VOLUME (VAV)
SYSTEM CONCERNS
Fans and AHUs
In an earlier section, this guide recommended that fans should be selected to
operate at maximum efficiency at the design airflow rate. That guideline holds true
for constant-volume systems. But for VAV systems, following this guideline can
result in low-frequency noise problems due to fan stall when operating at partial
load. Figure 2-50 compares the operation of two fans: a large one selected for opti-
mum efficiency at 100% design airflow and a smaller fan that is optimized at about
80% of design airflow. The figure shows how operation of the system at about 40%
of design airflow (not unusual in VAV systems) can bring the system close to the
large fan’s stall region. Since the small fan would not operate near its stall region
at 40% of design airflow, it is a better selection even though its LW values may be
slightly higher at the full-capacity design operating point.
Figure 2-50 Basis for fan selection in a VAV system.
© 2011 American Society of Heating, Refrigerating and Air-Conditioning Engineers, Inc. (www.ashrae.org).
For personal use only. Additional reproduction, distribution, or transmission in either print or
digital form is not permitted without ASHRAE's prior written permission.
A Practical Guide to Noise and Vibration Control for HVAC Systems
69
The method chosen for controlling a fan’s capacity can affect its noise. Each
type of capacity control device has its unique effect on fan noise. Inlet vanes, scroll
dampers, scroll curtains, and other similar devices result in higher fan noise
because they add turbulence to the airstream by obstructing the airflow. This is
shown in Figure 2-51, where a set of adjustable guide vanes are nested inside the
bellmouth inlet of an airfoil centrifugal fan. The airflow obstruction caused by the
vanes can raise a fan’s LW values by as much as 15 dB, depending on the octave
band of concern and the fan’s operating conditions. On the other hand, variable-
frequency drive (VFD) motor speed controllers reduce a fan’s capacity by slowing
it down, which gives the dual benefits of lower noise and lower energy consump-
tion. Figure 2-52 shows a VFD mounted on the side of a large air-handling unit. The
concept of system must be remembered, because it is the combined effect of the fan
and its control method that determines how much noise is generated.
VFD motor controllers are the most desirable method of capacity control.
However, even their use requires following certain system-related guidelines:
1. The fan’s vibration isolators should be selected on the basis of the fan’s lowest
practical rpm rate; for a 1000 rpm fan in a typical commercial system, the lowest
practical rate might be as low as 500 rpm.
2. The VFD controller should have a feature called “critical frequency band jump.”
This feature allows a user to program the controller to “jump” over certain fan/
motor rpm settings that might excite sympathetic vibrations in the building struc-
ture. The more advanced VFDs permit “jumping” over several frequencies.
Control System
Some VAV system noise problems have been traced to control system prob-
lems. While most of the problems are due to poor installation, some are caused by
design team neglect. The mechanical engineer must be sure to specify high-quality
equipment that will operate in its optimal range and not near the edge of its spec-
ification range where tolerances can lead to inaccurate fan control. Also, the in-duct
static pressure sensor must be placed in a section of duct having the lowest possible
turbulence, i.e., at least three equivalent duct diameters from any elbow, takeoff,
transition, offset, damper, etc., to ensure that it transmits accurate static pressure
readings to the control system.
VAV system noise problems have often been traced to improper air balancing.
For example, downstream dampers are often set up to require higher-than-design
static pressure delivery from a fan. This causes the fan to operate at an inefficient
(and, therefore, noisy) point on its curve, perhaps even in its stall region. The air
balance specification should require that the contractor perform the air balance with
the specific requirement that the final system static pressure should be as low as
possible.
© 2011 American Society of Heating, Refrigerating and Air-Conditioning Engineers, Inc. (www.ashrae.org).
For personal use only. Additional reproduction, distribution, or transmission in either print or
digital form is not permitted without ASHRAE's prior written permission.
--``,,`,``,```,,`,,```````,,`,,,-`-`,,`,,`,`,,`---

Airside Equipment
70
Figure 2-51 Nested inlet vanes obstruct airflow.
Figure 2-52 Variable-frequency drive.
© 2011 American Society of Heating, Refrigerating and Air-Conditioning Engineers, Inc. (www.ashrae.org).
For personal use only. Additional reproduction, distribution, or transmission in either print or
digital form is not permitted without ASHRAE's prior written permission.
--``,,`,``,```,,`,,```````,,`,,,-`-`,,`,,`,`,,`---
A Practical Guide to Noise and Vibration Control for HVAC Systems
71
RAISED FLOOR AIR DISTRIBUTION
All of the guidelines presented above also apply to the design of raised floor
air distribution systems, with the addition of three very important additional
concerns:
1. If the supply air reaches the underfloor plenum via a shaft that is served by a roof-
top air-handling unit or packaged unit, verify that the velocity of air that exits the
discharge openings at the bottom of the shaft does not exceed 7.5 m/s. This may
be difficult in installations where the underfloor plenum height is small, and it
may require multiple openings at the bottom of the shaft.
2. Office partitions in areas that use raised floor air distribution typically rest on top
of the raised floor and do not extend to the structural floor below. In such cases
the continuous underfloor plenum can be a sound leakage path between adjacent
rooms. One way to provide moderate speech privacy between adjacent rooms is
to install a short duct elbow with 50-mm-thick acoustical liner in the floor plenum
space under each floor diffuser, making sure that the elbow openings in adjacent
rooms are not facing each other.
3. Because the air velocities in an underfloor plenum and through floor diffusers are
very low, the system is often too quiet. Increasing the discharge air velocity of the
floor diffuser could raise the room sound level, but such velocities would create
undesirable drafts near the floor. Therefore, an electronic background noise
masking system may be needed to provide speech privacy in open plan and
private offices where a raised floor air distribution system is used.
© 2011 American Society of Heating, Refrigerating and Air-Conditioning Engineers, Inc. (www.ashrae.org).
For personal use only. Additional reproduction, distribution, or transmission in either print or
digital form is not permitted without ASHRAE's prior written permission.
--``,,`,``,```,,`,,```````,,`,,,-`-`,,`,,`,`,,`---
© 2011 American Society of Heating, Refrigerating and Air-Conditioning Engineers, Inc. (www.ashrae.org).
For personal use only. Additional reproduction, distribution, or transmission in either print or
digital form is not permitted without ASHRAE's prior written permission.

3
Water-Side Equipment
73
CHILLERS
After fans and air-handling units, chillers are the most significant sources of
noise and vibration in HVAC systems. Their noise signatures include high levels
of broadband sound, but complaints of chiller noise and vibration are usually asso-
ciated with the tones generated by their compressors, so treating these tones will
go a long way toward reducing the number of complaints.
Each compressor type—centrifugal, reciprocating, scroll, screw (rotary), and
magnetic bearing—has its own characteristic tonal structure that is related to the
speeds of its rotating components. Chilled-water systems that use absorption chill-
ers also generate tones, but they are typically caused by the chiller’s associated
pumps. Like the blade passage frequency (BPF) tones in fans, chiller tones include
a fundamental tone and one or more harmonics, which are integer multiples of the
fundamental. The relative strengths of the fundamental and harmonic tones vary
with operating point.
Screw compressors have become very popular because of their low cost and
energy efficiency, but the mid-frequency tones (in the 250 to 1000 hertz octave
bands) produced by dual-screw compressors can be particularly troublesome
because the tones are very strong. Single-screw compressors generate tones that are
somewhat quieter than dual-screw compressor tones.
Factory noise-reduction options for chillers typically include heavy insulated
blankets that can be wrapped around the compressors and other noise-radiating
components. Figure 3-1 shows a photo of a water-cooled screw chiller with blan-
kets wrapped around its compressor (foreground) and oil separator (background).
The blankets do not provide any significant low-frequency noise reduction, but they
reduce the strength of the compressor tones by about 3 dB. Some manufacturers
© 2011 American Society of Heating, Refrigerating and Air-Conditioning Engineers, Inc. (www.ashrae.org).
For personal use only. Additional reproduction, distribution, or transmission in either print or
digital form is not permitted without ASHRAE's prior written permission.

Water-Side Equipment
74
offer sheet metal compressor enclosures, which reduce the compressor tones by
about 5 to 7 dB. Additional noise reduction requires a complete chiller enclosure
like that shown in Figure 1-7.
Several factory noise control options are available for air-cooled chillers,
including compressor blankets, sheet metal compressor enclosures, and low-noise,
low-rpm condenser fans. The chart in Figure 3-2 shows the effectiveness of a
factory-option noise reduction package for an 875 kW air-cooled screw chiller. The
package includes acoustically-lined sheet metal compressor enclosures and low-
noise condenser fans.
Compressor vibration is often as troublesome as compressor noise, so proper
vibration isolation of the chiller and its associated pumps and piping is typically neces-
sary. Figure 3-1 shows spring floor mounts (background near bottom right corner) and
flexible pipe connectors at the condenser water connection (left foreground) and
Figure 3-1 Water-cooled screw chiller with several noise and vibration
control treatments.
© 2011 American Society of Heating, Refrigerating and Air-Conditioning Engineers, Inc. (www.ashrae.org).
For personal use only. Additional reproduction, distribution, or transmission in either print or
digital form is not permitted without ASHRAE's prior written permission.
--``,,`,``,```,,`,,```````,,`,,,-`-`,,`,,`,`,,`---

A Practical Guide to Noise and Vibration Control for HVAC Systems
75
rupture disk discharge piping (top background). Flexible pipe connectors should also
be used at the chilled water piping connections (under the insulation in the photo).
See the section entitled “Mechanical Equipment Rooms and Outdoor Equip-
ment Areas” in Chapter 1 for guidelines related to the design of chiller rooms.
COOLING TOWERS · EVAPORATIVE COOLERS·
AIR-COOLED CONDENSING UNITS
The dominant noise source for this type of equipment is the fan, which can be
either a centrifugal fan in a forced-draft arrangement or a propeller fan in either a
forced-draft or induced-draft arrangement. Both fan types produce high levels of
low-frequency noise that can be difficult and costly to control. Since “add-on” noise
control treatments usually interfere with equipment efficiency, it is best to select the
quietest unit that conforms with the application’s space and cost parameters and
consider adding such acoustical treatments as barriers or close-coupled duct silenc-
ers only if absolutely necessary. The noise ratings of cooling towers, evaporative
coolers, and air-cooled condensers are obtained in accordance with the Cooling
Technology Institute’s Acceptance Test Code ATC-128. Consider the following
equipment selection and placement guidelines.
Figure 3-2 ARI-370 LW values for a 875 kW air-cooled chiller with and
without factory noise reduction options.
© 2011 American Society of Heating, Refrigerating and Air-Conditioning Engineers, Inc. (www.ashrae.org).
For personal use only. Additional reproduction, distribution, or transmission in either print or
digital form is not permitted without ASHRAE's prior written permission.
--``,,`,``,```,,`,,```````,,`,,,-`-`,,`,,`,`,,`---

Water-Side Equipment
76
Guidelines for Cooling Towers, Evaporative Coolers,
and Air-Cooled Condensing Units
1. Compare the ATC-128 acoustical data for various types of equipment that will
serve the required function. For example, Figure 3-3 compares the ATC-128
octave band sound levels at a distance of 15 m from the air inlet for three types
of 2800 kW cooling towers. Note that the tower with the forced-draft propeller
fan is much noisier than the other types.
2. Compare the ATC-128 acoustical data for equipment with standard-sized fans
and oversized fans (larger diameter). Increasing a fan diameter by one size typi-
cally yields a lower fan rpm and provides a reduction of about 3 dB at all frequen-
cies. Figure 3-4 compares the octave band sound levels for fans of two different
diameters.
3. Compare the ATC-128 acoustical data for equipment with narrow blades and
wide-chord blades. The wide-chord blades usually result in lower fan RPM rates
and lower noise levels. Figures 3-5 and 3-6 show views of standard blades and
Figure 3-3 ATC-128 octave band LP values at 15 m from the air inlet side of
three types of 2800 kW cooling towers.
© 2011 American Society of Heating, Refrigerating and Air-Conditioning Engineers, Inc. (www.ashrae.org).
For personal use only. Additional reproduction, distribution, or transmission in either print or
digital form is not permitted without ASHRAE's prior written permission.

A Practical Guide to Noise and Vibration Control for HVAC Systems
77
wide-chord blades from within the cooling tower basins. Figure 3-7 compares the
octave band sound levels of two of these fans.
4. Open towers and evaporative coolers also produce water noise (see Figure 3-8).
Some equipment manufacturers offer water basin silencers that interrupt the
waterfall a few centimeters above the basin. The remaining drop of only a few
centimeters can reduce the water noise by as much as 4 to 8 dBA. Figure 3-9
shows a view of water basin silencers installed in a tower.
5. Locate the equipment where a building or the natural topography (hillsides,
berms, etc.) will act as a noise barrier between the equipment and any noise-sensi-
tive areas. Tall, solid barriers are often used for visual and acoustical screening of
outdoor equipment. For the greatest effect, such a barrier used for noise control
purposes should be installed as close as possible to the noise source, blocking
line-of-sight to the noise-sensitive area. However, with air-cooled equipment, be
sure that the barrier is not so close to the equipment that it reduces airflow or
causes air recirculation, either of which will reduce the equipment’s capacity.
Also, be sure that the side of the barrier facing the noise source has a sound-
absorbing surface with weather protection; these barrier-absorber combinations
Figure 3-4 ATC-128 octave band LP values for cooling towers of the same
fabrication series but with fans of different diameters.
© 2011 American Society of Heating, Refrigerating and Air-Conditioning Engineers, Inc. (www.ashrae.org).
For personal use only. Additional reproduction, distribution, or transmission in either print or
digital form is not permitted without ASHRAE's prior written permission.
--``,,`,``,```,,`,,```````,,`,,,-`-`,,`,,`,`,,`---

Water-Side Equipment
78
Figure 3-5 View of “standard” cooling tower induced-draft fan.
Figure 3-6 View of an induced-draft fan with wide-chord blades. This fan type
can be as much as 12 dBA quieter than a “standard” fan of the same
diameter.
© 2011 American Society of Heating, Refrigerating and Air-Conditioning Engineers, Inc. (www.ashrae.org).
For personal use only. Additional reproduction, distribution, or transmission in either print or
digital form is not permitted without ASHRAE's prior written permission.

A Practical Guide to Noise and Vibration Control for HVAC Systems
79
are also used for highway noise barriers. Figure 3-10 shows a sound-absorptive
barrier at a cooling tower installation. The photo in Figure 3-11 shows a close-up
of a sample barrier; note that the fibrous, sound-absorbing material is sandwiched
between a solid back-wall and a fluted, perforated front face. The flutes provide
rain protection for the fibrous material by keeping the perforations out of direct
contact with it.
6. If the equipment has a “quiet” side (e.g., opposite the air inlet side of a forced-
draft cooling tower), orient it toward any noise-sensitive areas. A piece of equip-
ment’s “quiet” side can be determined by a review of its ATC-128 sound level
data sheet.
7. As the load on the equipment varies throughout the day, the intermittent starting
and stopping of the fans can cause additional noise complaints. This is especially
true of belt-drive equipment where “belt squeal” occurs when full motor torque
is applied instantly at start-up. Variable-speed drives or “soft-start” starters elim-
inate this problem (see discussion below).
Figure 3-7 ATC-128 octave band LP values for cooling towers with “standard”
and wide-chord fan blades.
© 2011 American Society of Heating, Refrigerating and Air-Conditioning Engineers, Inc. (www.ashrae.org).
For personal use only. Additional reproduction, distribution, or transmission in either print or
digital form is not permitted without ASHRAE's prior written permission.

Water-Side Equipment
80
Figure 3-8 Cooling tower basin with free-falling condenser water.
Figure 3-9 Honeycomb water basin silencers installed several centimeters
above the water surface to reduce the velocity of the falling water
before it hits the basin.
© 2011 American Society of Heating, Refrigerating and Air-Conditioning Engineers, Inc. (www.ashrae.org).
For personal use only. Additional reproduction, distribution, or transmission in either print or
digital form is not permitted without ASHRAE's prior written permission.

A Practical Guide to Noise and Vibration Control for HVAC Systems
81
Figure 3-10 Outdoor noise control barrier installation.
Photo courtesy of Empire Acoustical Systems.
Figure 3-11 Close-up view of a sample of a sound-absorbing, outdoor noise
barrier panel. The perforated front layer faces the noise source.
Noise penetrates through the perforations and is absorbed by the
fibrous fill material. The solid back layer controls sound
transmission to the noise-sensitive region behind it.
© 2011 American Society of Heating, Refrigerating and Air-Conditioning Engineers, Inc. (www.ashrae.org).
For personal use only. Additional reproduction, distribution, or transmission in either print or
digital form is not permitted without ASHRAE's prior written permission.

Water-Side Equipment
82
8. For a multi-cell tower installation, the control sequence can be set up to minimize
equipment noise emissions to surrounding areas. The “typical” control sequence
for a two-cell cooling tower with a pair of single-speed fan motors would leave
Fan #1 on virtually full-time and bring Fan #2 on when required by the load.
Under this scenario the tower noise levels would remain constant over the entire
51% to 100% operating range and would decrease by only 3 dB at loads below
50% of full capacity.
Alternatively, if the two fans are controlled by VFD motor controllers, and if
the control sequence is set up correctly, the sound levels can be greatly reduced
at lower operating capacities. Figure 3-12 shows how the sound level would
vary for a proportional control sequence that does not let either fan speed up
beyond 50% of its maximum rpm until the second fan is also at the same oper-
ating point. Note that the sound level at 50% of full capacity under this control
sequence is about 10 dBA lower than the “full load” sound level. Similar noise
reduction can be achieved with a VFD controlling one fan, while the second
fan uses a two-speed motor.
BOILERS
Boiler manufacturers rarely measure their equipment’s noise, so calculations
for predicting boiler noise exposure at noise-sensitive locations are rarely done.
The combustion process in some boilers produces strong low-frequency noise that
Figure 3-12 Low-noise control sequence for a two-cell cooling tower.
© 2011 American Society of Heating, Refrigerating and Air-Conditioning Engineers, Inc. (www.ashrae.org).
For personal use only. Additional reproduction, distribution, or transmission in either print or
digital form is not permitted without ASHRAE's prior written permission.
--``,,`,``,```,,`,,```````,,`,,,-`-`,,`,,`,`,,`---

A Practical Guide to Noise and Vibration Control for HVAC Systems
83
is carried through the flue system and eventually radiates into the atmosphere. The
flue outlet should be placed away from any noise-sensitive areas so that the low
frequency rumble is not excessive near a building’s perimeter windows or ventila-
tion openings.
Forced-draft boilers use high-pressure induced-draft fans for combustion air,
and octave band Lw values are available for these fans, so an acoustical analysis is
possible for this part of the system. Care should be taken to locate the combustion
air fan remote from noise-sensitive areas. Also, isolate flue pipes from the building
structure where they pass near vibration-sensitive areas.
PUMPS
Pumps are rarely responsible for airborne noise problems. However, structure-
borne vibration transmission due to inadequate vibration isolation of the pump or
its attached piping or conduit can cause severe noise problems. Problems of this
type are usually heard as a strong tone at the pump’s impeller blade passage
frequency, which is generated at the clearance between the impeller tips and the
Figure 3-13 Pump impeller sizing guideline for minimizing the strength of the
blade passage frequency tone.
© 2011 American Society of Heating, Refrigerating and Air-Conditioning Engineers, Inc. (www.ashrae.org).
For personal use only. Additional reproduction, distribution, or transmission in either print or
digital form is not permitted without ASHRAE's prior written permission.
--``,,`,``,```,,`,,```````,,`,,,-`-`,,`,,`,`,,`---

Water-Side Equipment
84
cutwater (see Figure 3-13). Specifying the impeller radius to be no more than about
85% of the cutwater radius (or about 90% of its untrimmed radius) will help mini-
mize the problem.
Figures 3-14 and 3-15 show the proper installations for base-mounted and in-
line pumps. Note, in particular, that the base-mounted assembly shows the suction
elbow mounted on the isolated frame.
Figure 3-14 Proper installation of an end-suction pump.
© 2011 American Society of Heating, Refrigerating and Air-Conditioning Engineers, Inc. (www.ashrae.org).
For personal use only. Additional reproduction, distribution, or transmission in either print or
digital form is not permitted without ASHRAE's prior written permission.

A Practical Guide to Noise and Vibration Control for HVAC Systems
85
PIPING SYSTEMS
There are five primary acoustical concerns with piping systems:
1. Excessive fluid velocity flow across valves, strainers, and backflow preventers
(check valves) can cause high levels of broadband noise due to the strong turbu-
lence.
2. Inadequate vibration isolation allows the pipes to serve as transmission paths for
noise and vibration generated by the attached rotating equipment.
3. Unsealed pipe penetrations through sound-rated walls and slabs can allow sound
leakage through the penetrations.
4. Penetrations with piping that is allowed to touch the penetrated wall or floor can
result in structure-borne transmission of piping system vibration into the wall or
floor, which, in turn, can transmit the vibration into nearby walls or floors.
5. Undersized valves or valve actuators are occasionally responsible for cavitation
noise, valve chatter, or whistle.
Figure 3-15 Proper installation of an inline pump.
© 2011 American Society of Heating, Refrigerating and Air-Conditioning Engineers, Inc. (www.ashrae.org).
For personal use only. Additional reproduction, distribution, or transmission in either print or
digital form is not permitted without ASHRAE's prior written permission.

Water-Side Equipment
86
Unfortunately, acoustical testing that would help optimize the selection of
valves and strainers has not been done, so the general rule of thumb is to select these
items one size larger than the attached piping if they include a component that is
in the fluid stream. For example, a butterfly valve (disc in the waterflow) should be
upsized, whereas a gate valve permits unobstructed flow and does not need to be
oversized. An exception to the “one size larger” rule of thumb applies to throttling
control valves, which must be sized to provide proper control. Table 3-1 gives the
recommended maximum water velocities for pipes that are above lightweight
acoustical ceilings in typical office areas. If the piping system is enclosed in a
gypsum board shaft or horizontal enclosure, somewhat higher velocities may be
acceptable.
In general, all pumped pipe risers, mechanical room piping, and all piping
mains require vibration isolation in the form of either floor mounts or hangers. See
the chapter titled “Vibration Isolation” for more information.
Figure 3-16 shows how to isolate a pipe riser with neoprene pads under steel
load-distributing plates where minimal vibration isolation is needed. Greater vibra-
tion control would need spring isolators. Details for preserving sound isolation at
wall and slab penetrations while maintaining the necessary isolation between the
pipe and the structure are shown in Figures 3-17 and 3-18.
Table 3-1. Maximum Recommended Waterflow Rates
Nominal Pipe
Size, mm
Maximum Velocity
in m/s
Approximate Max. L/s for
Schedule 40 Pipe
25 1 0.5
50 1.2 2.5
75 1.5 7
100 2 15
125 2.2 27
150 2.4 45
200 2.7 88
250 2.9 145
300 or more 3 215
© 2011 American Society of Heating, Refrigerating and Air-Conditioning Engineers, Inc. (www.ashrae.org).
For personal use only. Additional reproduction, distribution, or transmission in either print or
digital form is not permitted without ASHRAE's prior written permission.

A Practical Guide to Noise and Vibration Control for HVAC Systems
87
Figure 3-16 Vibration isolation for piping riser. The use of neoprene pads
under the steel load-distributing plates indicates that the nearby
occupancy was not very noise-sensitive. For more critical cases,
steel spring isolators would be used.
Figure 3-17 Duct and pipe penetrations through walls.
© 2011 American Society of Heating, Refrigerating and Air-Conditioning Engineers, Inc. (www.ashrae.org).
For personal use only. Additional reproduction, distribution, or transmission in either print or
digital form is not permitted without ASHRAE's prior written permission.

Water-Side Equipment
88
Figure 3-18 Sealing pipe penetrations for sound isolation.
Sketches courtesy of McGraw-Hill Book Company.
© 2011 American Society of Heating, Refrigerating and Air-Conditioning Engineers, Inc. (www.ashrae.org).
For personal use only. Additional reproduction, distribution, or transmission in either print or
digital form is not permitted without ASHRAE's prior written permission.

4
Packaged and
Unitary Equipment
89
Note: For information on air-handling units, see the section titled “Air-Handling
Units and Fancoil Units” in Chapter 2.
ROOFTOP PACKAGE UNITS
(AIR-CONDITIONING AND AIR-HANDLING VERSIONS)
Rooftop units (RTUs) are responsible for some of the most frustrating and
expensive noise and vibration problems; frustrating because after building occu-
pancy it is often very difficult to track down the specific cause(s) of the problem(s),
and expensive because the solution can require lifting the unit off the roof while
extensive changes are being made to the building’s roof and roof structure. For
example, a successful 1989 retrofit for a 210 kW unit cost $40,000.
The major noise sources in RTU systems are the fan(s) and compressors(s). In
package units larger than 70 kW, it is very important to design the duct system in
strict accordance with SMACNA guidelines for low static pressure losses because
many units of this type use forward-curved (FC) fans, which cannot accommodate
high duct system static pressures without generating high levels of low-frequency
noise. Most large RTU noise complaints occur where excessive duct system static
pressure causes an FC supply fan to operate in rotating stall.
Proper matching of the roof’s structural design, the placement of the RTU, and
the use of vibration isolators are critical in controlling vibration from the RTU’s
fan(s) and compressor(s). The design guidelines given below and in Figures 4-1
through 4-4 address all of these potential problems.
© 2011 American Society of Heating, Refrigerating and Air-Conditioning Engineers, Inc. (www.ashrae.org).
For personal use only. Additional reproduction, distribution, or transmission in either print or
digital form is not permitted without ASHRAE's prior written permission.

Packaged and Unitary Equipment
90
Figure 4-1 Very noisy rooftop unit installation.
Figure 4-2 Moderately noisy rooftop unit intallation.
© 2011 American Society of Heating, Refrigerating and Air-Conditioning Engineers, Inc. (www.ashrae.org).
For personal use only. Additional reproduction, distribution, or transmission in either print or
digital form is not permitted without ASHRAE's prior written permission.

A Practical Guide to Noise and Vibration Control for HVAC Systems
91
Figure 4-3 Moderately quiet rooftop unit installation.
Figure 4-4 Quietest rooftop unit installation.
© 2011 American Society of Heating, Refrigerating and Air-Conditioning Engineers, Inc. (www.ashrae.org).
For personal use only. Additional reproduction, distribution, or transmission in either print or
digital form is not permitted without ASHRAE's prior written permission.
Packaged and Unitary Equipment
92
Rooftop Unit Design Guidelines (All Sizes)
1. The roof structure should be stiff enough so that the marginal deflection of the
structure due to the equipment load is no more than 6 mm. This may require either
reduced column spacing or auxiliary steel framing in the vicinity of the unit.
2. The unit should be at least 8 m from any private office or other noise-sensitive
area. When locating a unit, keep in mind that an unducted return air opening can
be as noisy as the ducted opening at the supply air end of the unit.
3. Mount the unit on a prefabricated vibration isolation roof curb. Factory-installed
internal vibration isolation is often ineffective. (See Chapter 5 for more informa-
tion on vibration isolation.)
4. Make all ductwork, piping, and electrical connections to the unit with flexible
connectors.
For units at 70 kW and larger, consider the following additional steps:
1. Avoid downblast units. Instead, select either a side-discharge unit or a down-
discharge unit with a discharge plenum. Some manufacturers use a discharge
plenum as the heating section in a heating/cooling unit. Even if the heating capa-
bility is not required, specify this type of unit to take advantage of the acoustical
and aerodynamic benefits provided by the discharge plenum.
2. For installations over noise-sensitive areas, mount the unit on high-deflection (50
to 100 mm) spring isolators resting on an elevated steel frame that is supported
600 to 900 mm above the roof by extensions of the building columns.
3. Also, for installations over noise-sensitive areas, use a parallel arrangement of
circular supply ducts to distribute the conditioned air to the occupied space.
Circular ductwork radiates far less low-frequency noise and rumble than rectan-
gular ductwork. The transition from the unit’s rectangular opening to the circular
ductwork should be heavy (1.6 or 2.0 mm thick steel) to help control breakout
noise through the flat portions of the transition.
4. Because the ducts attached to these units are often very wide, the ceiling and wall
subcontractors are often tempted to attach their framing to the ductwork or its
hangers. This must be avoided because contact with an oil-canning duct can
cause audible creaking of the attached wall or ceiling.
5. The roof construction under and around the unit should be dense concrete for
controlling downward noise transmission. Within the curb boundaries, do not cut
out more of the roof than is necessary for the duct penetrations. All roof penetra-
tions for conduit and piping should be outside the curb.
6. Any noise control steps considered for the supply airside (duct silencers, duct
lining, etc.) should also be considered for the return airside. Return air plenums
© 2011 American Society of Heating, Refrigerating and Air-Conditioning Engineers, Inc. (www.ashrae.org).
For personal use only. Additional reproduction, distribution, or transmission in either print or
digital form is not permitted without ASHRAE's prior written permission.
A Practical Guide to Noise and Vibration Control for HVAC Systems
93
on larger units can often accommodate duct silencers inside the plenum directly
on top of the return air inlet. Another common noise control design for the return
air path splits the return air inlet into a lined “T” arrangement just below the unit.
This distributes the noise over a wider area at a somewhat lower level.
7. Refer to the section titled “Duct System Components” in Chapter 2 for duct
system design guidelines.
WATER-SOURCE HEAT PUMPS
The noise and vibration generated by water-source heat pump units vary
widely among manufacturers, depending mainly on the size of the fan and the type
of compressor used. The extent of vibration isolation used to mount the compressor
and fan in the unit’s cabinet is also critical, e.g., spring isolation is much more effec-
tive than elastomeric pads, grommets or bushings, especially for horizontal heat
pumps that are suspended in ceiling plenums where the ceiling tile is a lightweight
mineral fiber or fiberglass. Guidelines for suspended horizontal and floor-mounted
vertical heat pumps are given below.
Guidelines for Suspended Water-Source Heat Pumps (See Figure 4-5)
1. Suspend the unit as high as possible in the ceiling plenum using spring isolation
hangers.
2. Make condenser water connections to the unit with slack, flexible rubber or
neoprene hose connectors—many heat pump manufacturers offer these as stan-
dard accessories.
3. Condensate drain hookups may also require short flexible connectors.
4. Make electrical connections with slack, flexible conduit.
5. The discharge duct should be fiberglass-lined sheet metal, at least 1.5 m long, and
sized for a velocity of 5 m/s or less. An alternate is a 900 mm long duct silencer
that is selected for a static pressure drop of no more than 35 Pa.
6. Diffuser branch takeoffs from the unit’s discharge duct should be at least 1.2 m
downstream from the unit outlet.
7. A fiberglass-lined sheet metal elbow should be attached to the unit’s return air
inlet.
Guidelines for Floor-Mounted Water-Source Heat Pumps (See Figure 4-6)
1. Locate the unit in a closet next to a corridor or other nonsensitive area. None of
the closet’s walls should be common with a bedroom or other noise-sensitive
area.
2. The closet should be large enough to allow adequate return airflow into the unit;
allow at least a 150 mm clearance all around the unit. In some cases, fiberglass
© 2011 American Society of Heating, Refrigerating and Air-Conditioning Engineers, Inc. (www.ashrae.org).
For personal use only. Additional reproduction, distribution, or transmission in either print or
digital form is not permitted without ASHRAE's prior written permission.

Packaged and Unitary Equipment
94
Figure 4-5 Guidelines for suspended heat pump units.
Figure 4-6 Guidelines for floor-mounted heat pumps.
© 2011 American Society of Heating, Refrigerating and Air-Conditioning Engineers, Inc. (www.ashrae.org).
For personal use only. Additional reproduction, distribution, or transmission in either print or
digital form is not permitted without ASHRAE's prior written permission.
A Practical Guide to Noise and Vibration Control for HVAC Systems
95
plenum liner from 25 to 100 mm thick should be surface-applied to the closet
walls. Be sure to account for this when determining the required closet size.
3. The closet door should be metal or solid core wood and have airtight, full perim-
eter jamb and head seals, and either a solid threshold sweep seal or an automatic
door bottom. Double doors need astragal closures to seal the gap between the
door panels. Provide a return air silencer at the return air opening into the closet.
4. Using a louvered closet door for return airflow is not recommended. However,
if one is used, install a sheet metal shield with 50 mm thick fiberglass plenum
liner behind the louver to reduce direct sound transmission from the unit to the
occupied space.
5. Mount the heat pump on vibration isolators. The type selected will depend on the
unit’s size and the noise-sensitivity of the occupancies near the unit.
6. Make condenser water connections to the unit with slack, flexible rubber or
neoprene hose connectors—many heat pump manufacturers offer these as stan-
dard accessories.
7. Condensate drain hookups may also require short flexible connectors.
8. Make electrical connections with slack, flexible conduit.
9. Size the discharge duct for a velocity of 5 m/s or less.
A wall-mounted, water-source heat pump should never be used in a room with
a criteria rating below NC/RC/NCB-50. This type of unit has very little internal
noise or vibration control, so the lack of a closet around it exposes the noise from
its fan and compressor to the occupied space at levels that are generally unaccept-
able in residences and offices. Also, because this type of unit is typically attached
directly to wall studs, its fan and compressor vibration are transmitted to the
surrounding walls, which radiate the vibration energy as audible hum.
WALL-MOUNTED PACKAGE UNITS
Units of this type in the capacity range of 7 to 18 kW are frequently used in
construction trailers and school classrooms. These units were originally designed
for use in telecommunications shacks, where equipment noise levels are not impor-
tant. Their use is not recommended in rooms where speech communication is
important because they typically generate sound levels in the range of 50 to 65 dBA,
which is excessive for a classroom or any room where good speech intelligibility
is needed. Teachers, for example, turn these units off when they begin lecturing to
students.
A horizontal version of this type of unit in the 2.5 to 5 kW range is commonly
used in hotel guest rooms and produces sound levels that range from about 50 to
60 dBA, depending on the quality of the unit, its fan speed, and its compressor mode
setting. Sound ratings for these units are obtained in accordance with AHRI Stan-
dard 350, which gives the A-weighted LW value at each operating point in terms of
© 2011 American Society of Heating, Refrigerating and Air-Conditioning Engineers, Inc. (www.ashrae.org).
For personal use only. Additional reproduction, distribution, or transmission in either print or
digital form is not permitted without ASHRAE's prior written permission.
--``,,`,``,```,,`,,```````,,`,,,-`-`,,`,,`,`,,`---

Packaged and Unitary Equipment
96
bels (1 bel = 10 decibels). Specifying a maximum AHRI 350 rating of 5.0 bels will
result in a sound level of about 43 dBA in the middle of the room.
SMALL COMMERCIAL AND RESIDENTIAL SPLIT SYSTEMS
(UNDER 35 KW)
Two kinds of noise problems are common with split systems. The first is
condensing unit noise disturbing either a neighbor or the system’s user. Figure 4-7
shows how the problem can occur and how to avoid it with a solid fence of the proper
height. Be sure to follow the condensing unit manufacturer’s guidelines for place-
ment of the fence so that it does not restrict condenser air circulation.
The second kind of problem involves the indoor fan/coil unit or furnace and the
location of its ductwork and grilles. Figure 4-8 shows guidelines for two kinds of
fan/coil unit installations.
Vibration problems most frequently associated with split systems are caused
by rigid contact between the building and either the outdoor condensing unit, the
indoor fan/coil unit, or the refrigerant piping. Figure 4-9 gives guidelines for avoid-
ing this kind of problem.
Ductless split systems have been used successfully in Asia for many years and
are now common throughout the rest of the world. These systems’ indoor fancoil
units and outdoor condensing and heat pump units are quieter than the more tradi-
tional split system components. Figures 4-10 and 4-11 show photos of an indoor
evaporator section and an outdoor condensing section of this system type, respec-
tively. Some versions of this unit use a variable-speed evaporator fan, so the indoor
Figure 4-7 Small condensing unit noise control.
© 2011 American Society of Heating, Refrigerating and Air-Conditioning Engineers, Inc. (www.ashrae.org).
For personal use only. Additional reproduction, distribution, or transmission in either print or
digital form is not permitted without ASHRAE's prior written permission.

A Practical Guide to Noise and Vibration Control for HVAC Systems
97
Figure 4-8 Guidelines for fan coil unit installations.
© 2011 American Society of Heating, Refrigerating and Air-Conditioning Engineers, Inc. (www.ashrae.org).
For personal use only. Additional reproduction, distribution, or transmission in either print or
digital form is not permitted without ASHRAE's prior written permission.
--``,,`,``,```,,`,,```````,,`,,,-`-`,,`,,`,`,,`---

Packaged and Unitary Equipment
98
Figure 4-9 Guidelines for vibration isolation of split systems.
Figure 4-10 Indoor fan coil section of a ductless split system. This type of
equipment with a variable-speed tangential fan can be very quiet.
© 2011 American Society of Heating, Refrigerating and Air-Conditioning Engineers, Inc. (www.ashrae.org).
For personal use only. Additional reproduction, distribution, or transmission in either print or
digital form is not permitted without ASHRAE's prior written permission.
--``,,`,``,```,,`,,```````,,`,,,-`-`,,`,,`,`,,`---

A Practical Guide to Noise and Vibration Control for HVAC Systems
99
sound level for small capacities of this unit can be as low as the 35 to 45 dBA range,
depending on the thermostatically controlled fan speed. The condensing/heat
pump unit is also quieter that its traditional system counterpart.
STANDBY, EMERGENCY, AND
DISTRIBUTED ENERGY GENERATOR SETS
The skid-mounted radiators in engine-generator sets are often as loud as the
engines, and in indoor installations they are often installed directly behind a
discharge louver that directs both the radiator noise and the engine noise to the
outside, where a noise-sensitive area may be present. This potential problem can
be addressed by using a remote radiator (see Figure 4-12). The benefits of a remote
radiator are as follows:
1. Since the hot radiator is outside the generator room, less ventilation air is needed
in the room, so the ventilation inlet and discharge louvers can be smaller. The
reduced louver size helps control the amount of engine-generator noise that is
transmitted to the outdoors.
2. The remote radiator can be located as needed to control the impact of its noise to
any surrounding noise-sensitive areas.
3. Remote radiators are available with low-noise, variable-speed fans that are as
much as 20 dBA quieter than skid-mounted fans.
Figure 4-11 Outdoor condensing unit typically used with ductless split
systems; it can also be used with ducted fan coil units.
© 2011 American Society of Heating, Refrigerating and Air-Conditioning Engineers, Inc. (www.ashrae.org).
For personal use only. Additional reproduction, distribution, or transmission in either print or
digital form is not permitted without ASHRAE's prior written permission.

Packaged and Unitary Equipment
100
Where a remote radiator is not feasible, duct silencers can be used at the gener-
ator room’s air intake and discharge openings to reduce noise emissions. However,
the “silenced” openings must be oversized so that the static pressure losses through
the silencers are compatible with the radiator fan performance.
Figure 4-12 Remote radiator for engine-generator sets can be quiet with an
oversized, variable-speed cooling fan.
Photo courtesy of Young Touchstone, a Wabtec Company.
© 2011 American Society of Heating, Refrigerating and Air-Conditioning Engineers, Inc. (www.ashrae.org).
For personal use only. Additional reproduction, distribution, or transmission in either print or
digital form is not permitted without ASHRAE's prior written permission.
--``,,`,``,```,,`,,```````,,`,,,-`-`,,`,,`,`,,`---

5
Vibration Isolation
101
HVAC equipment that is rigidly attached to a slab, wall, or ceiling can transmit
the equipment vibration into the mounting surface and cause unacceptable levels
of structure-borne noise that can be heard in remote locations throughout the build-
ing. Likewise, piping, conduits, and ductwork can act as transmission paths of
structure-borne sound if they form rigid connection paths between the building and
the vibrating equipment. Isolating equipment vibration from building slabs, walls,
and ceilings is essential for controlling structure-borne sound transmission. There
are many types of vibration isolation systems for HVAC equipment, and the most
cost-effective selection for each piece of equipment depends on the following
factors:
1. The equipment type, drive-type (direct, gear or belt), rpm, and motor kW rating.
2. The mass and location of the vibrating component(s) within the equipment enclo-
sure or on the equipment skid.
3. The nature of the equipment’s vibration—vertical or horizontal, rotating or recip-
rocating.
4. The location of the equipment relative to nearby noise and vibration-sensitive
areas.
5. The stiffness of the building structure supporting the isolated equipment (usually
related to the column spacing and beam depth).
6. The spacing between isolator mounting points.
These factors were all considered in the development of Table 5-1, “Vibration
Isolation Selection Guide,” which is based on Table 42 in Chapter 47, “Sound and
Vibration Control,” in the 2003 ASHRAE Handbook—Applications. Brief descrip-
tions of the isolator and base types are given below.
© 2011 American Society of Heating, Refrigerating and Air-Conditioning Engineers, Inc. (www.ashrae.org).
For personal use only. Additional reproduction, distribution, or transmission in either print or
digital form is not permitted without ASHRAE's prior written permission.
--``,,`,``,```,,`,,```````,,`,,,-`-`,,`,,`,`,,`---

Vibration Isolation
102
Table 5-1. Vibration Isolation Selection Guide
Equipment Type
kW or
Other Rat-
ing RPM
Equipment Location
Slab on Grade
Floor Span
Up to 7 m 7 to 9 m 9 to 12 m
Base
Ty p e
Isolator
Ty p e
Min.
Defl.,
mm
Base
Ty p e
Isolator
Ty p e
Min
Defl.,
mm
Base
Ty p e
Isolator
Ty p e
Min
Defl.,
mm
Base
Ty p e
Isolator
Ty p e
Min
Defl.,
mm
Refrigerator Machines and Chillers
Reciprocating All All A 2 6 A 4 19 A 4 38 A 4 63
Centrifugal, screw All All A 1 6 A 4 19 A 4 38 A 4 38
Open Centrifugal All All C 1 6 C 4 19 C 4 38 C 4 38
Absorption All All A 1 6 A 4 19 A 4 38 A 4 38
Air Compressors and Vacuum Pumps
Tank-mounted horiz. Up to 7.5 All A 3 19 A 3 19 A 3 38 A 3 38
7.5 and up All C 3 19 C 3 19 C 3 38 C 3 38
Tank-mounted vert. All All C 3 19 C 3 19 C 3 38 C 3 38
Base-mounted All All C 3 19 C 3 19 C 3 38 C 3 38
Large Reciprocating All All C 3 19 C 3 19 C 3 38 C 3 38
Pumps
Close-coupled Up to 5.5 All B 2 6 C 3 19 C 3 19 C 3 19
5.5 and up All C 3 19 C 3 19 C 3 38 C 3 38
Large inline 3 to 18.5 All A 3 19 A 3 38 A 3 38 A 3 38
18.5 and up All A 3 38 A 3 38 A 3 38 A 3 63
© 2011 American Society of Heating, Refrigerating and Air-Conditioning Engineers, Inc. (www.ashrae.org).
For personal use only. Additional reproduction, distribution, or transmission in either print or
digital form is not permitted without ASHRAE's prior written permission.

A Practical Guide to Noise and Vibration Control for HVAC Systems
103
Equipment Type
kW or
Other
Rating RPM
Equipment Location
Slab on Grade
Floor Span
Up to 7 m 7 to 9 m 9 to 12 m
Base
Ty p e
Isolator
Ty p e
Min.
Defl.,
mm
Base
Ty p e
Isolator
Ty p e
Min
Defl.,
mm
Base
Ty p e
Isolator
Ty p e
Min
Defl.,
mm
Base
Ty p e
Isolator
Ty p e
Min
Defl.,
mm
End suction
and split case Up to 18.5 All C 3 19 C 3 19 C 3 19 C 3 19
18.5 to 90 All C 3 19 C 3 19 C 3 19 C 3 63
90 and up All C 3 19 C 3 38 C 3 63 C 3 88
Cooling Towers All Up to 300 A 1 6 A 4 88 A 4 88 A 4 88
301 to 500 A 1 6 A 4 63 A 4 63 A 4 63
501 and up A 1 6 A 4 19 A 4 19 A 4 38
Boilers (Fire-tube) All All A 1 6 B 4 19 B 4 38 B 4 63
Axial Fans, Fan Heads, Cabinet Fans, Fan Sections
Up to 600 mm diameter All All A 2 6 A 3 19 A 3 19 C 3 19
600 mm diameter and
up Up to 500 Pa
s.p. Up to 300 B 3 63 C 3 88 C 3 88 C 3 88
300 to 500 B 3 19 B 3 38 C 3 63 C 3 63
501 and up B 3 19 B 3 38 B 3 38 B 3 38
500 Pa s.p.
and up Up to 300 C 3 63 C 3 88 C 3 88 C 3 88
300 to 500 C 3 38 C 3 38 C 3 63 C 3 63
501 and up C 3 19 C 3 38 C 3 38 C 3 63
Table 5-1. Vibration Isolation Selection Guide (continued)
© 2011 American Society of Heating, Refrigerating and Air-Conditioning Engineers, Inc. (www.ashrae.org).
For personal use only. Additional reproduction, distribution, or transmission in either print or
digital form is not permitted without ASHRAE's prior written permission.

Vibration Isolation
104
Equipment Type
kW or
Other
Rating RPM
Equipment Location
Slab on Grade
Floor Span
Up to 7 m 7 to 9 m 9 to 12 m
Base
Ty p e
Isolator
Ty p e
Min.
Defl.,
mm
Base
Ty p e
Isolator
Ty p e
Min
Defl.,
mm
Base
Ty p e
Isolator
Ty p e
Min
Defl.,
mm
Base
Ty p e
Isolator
Ty p e
Min
Defl.,
mm
Centrifugal Fans
Up to 600 mm diameter All All B 2 6 B 3 19 B 3 19 C 3 38
600 mm diameter and
up Up to 30 Up to 300 B 3 63 B 3 88 B 3 88 B 3 88
300 to 500 B 3 38 B 3 38 B 3 63 B 3 63
501 and up B 3 19 B 3 19 B 3 19 B 3 38
30 and up Up to 300 C 3 63 C 3 88 C 3 88 C 3 88
300 to 500 C 3 38 C 3 38 C 3 63 C 3 63
501 and up C 3 25 C 3 38 C 3 38 C 3 63
Propeller Fans
Wall-mounted All All A 1 6 A 1 6 A 1 6 A 1 6
Roof-mounted All All A 1 6 A 1 6 B 4 38 D 4 38
Heat Pumps All All A 3 19 A 3 19 A 3 19 A/D 338
Condensing Units All All A 1 6 A 4 19 A 4 38 A/D 438
Table 5-1. Vibration Isolation Selection Guide (continued)
© 2011 American Society of Heating, Refrigerating and Air-Conditioning Engineers, Inc. (www.ashrae.org).
For personal use only. Additional reproduction, distribution, or transmission in either print or
digital form is not permitted without ASHRAE's prior written permission.

A Practical Guide to Noise and Vibration Control for HVAC Systems
105
Equipment Type
kW or
Other
Rating RPM
Equipment Location
Slab on Grade
Floor Span
Up to 7 m 7 to 9 m 9 to 12 m
Base
Ty p e
Isolator
Ty p e
Min.
Defl.,
mm
Base
Ty p e
Isolator
Ty p e
Min
Defl.,
mm
Base
Ty p e
Isolator
Ty p e
Min
Defl.,
mm
Base
Ty p e
Isolator
Ty p e
Min
Defl.,
mm
Packaged AH, AC, H and V Units
All Up to 7.5 All A 3 19 A 3 19 A 3 19 A 3 19
7.5 and up,
up to 1 kPa
s.p.
Up to 300 A 3 19 A 3 88 A 3 88 C 3 88
300 to 500 A 3 19 A 3 63 A 3 63 A 3 63
501 and up A 3 19 A 3 38 A 3 38 A 3 38
7.5 and up, 1
kPa s.p. and
up
Up to 300 B 3 19 C 3 88 C 3 88 C 3 88
300 to 500 B 3 19 C 3 38 C 3 63 C 3 63
501 and up B 3 19 C 3 38 C 3 38 C 3 63
Packaged Rooftop
Eqmt. All All A/D 1 6 D 3 19 See Reference Note No: 17
Ducted Rotating Equipment
Small fans,
fan-powered boxes Up to
300 L/s All A 3 13 A 3 13 A 3 13 A 3 13
300 L/s & up All A 3 19 A 3 19 A 3 19 A 3 19
Engine-Generators All All A 3 19 C 3 38 C 3 63 C 3 88
Table 5-1. Vibration Isolation Selection Guide (continued)
© 2011 American Society of Heating, Refrigerating and Air-Conditioning Engineers, Inc. (www.ashrae.org).
For personal use only. Additional reproduction, distribution, or transmission in either print or
digital form is not permitted without ASHRAE's prior written permission.

Vibration Isolation
106
ISOLATOR TYPES
Each of the isolators described below is available in different sizes to accom-
modate a wide range of load ratings. For example, Type 3 floor mounts are available
with load capacities that range from about 9 to 18,000 kg. The references to “static
deflection” in the descriptions below refer to the compression of the isolator’s
spring or neoprene element under the equipment load. It does not refer to the motion
of the isolator while the equipment is operating.
Type 1—Ribbed or Waffled Neoprene Pad
or Compressed Fiberglass Pad
These isolators are usually used where the vibration frequency of concern is
at least 100 hertz; and they are typically selected for a load of about 0.04 kg/mm2
and a static deflection of less than 1.2 mm. They are available in durometer ratings
from 30 to 70, with the higher ratings able to support heavier loads. Pads with lower
durometer ratings are more resilient, but carry less weight, than those with higher
durometer ratings. These pads can be stacked in sandwiches with metal load-
distributing plates between the pads for higher static deflections (but not higher
load capacities). Figure 5-1 shows four types of neoprene pads, including a metal/
neoprene assembly with a neoprene bushing that prevents metal-to-metal contact
where the isolator is bolted to a floor structure.
Figure 5-1 Elastomeric pads. The elastomeric bushing inserted in the metal
load-distributing plate prevents metal-to-metal contact between
the plate and its thru-bolt.
Products courtesy of Mason Industries.
© 2011 American Society of Heating, Refrigerating and Air-Conditioning Engineers, Inc. (www.ashrae.org).
For personal use only. Additional reproduction, distribution, or transmission in either print or
digital form is not permitted without ASHRAE's prior written permission.

A Practical Guide to Noise and Vibration Control for HVAC Systems
107
Type 2—Neoprene-in-Shear or
Compressed Fiberglass Floor Mount
These isolators have equipment mounting bolts and base plates for direct attach-
ment to a building structure without the use of neoprene bushings. They are usually used
where the vibration frequency of concern is at least 50 hertz and are usually selected for
a static deflection up to 10 mm (see Figure 5-2). A seismic version (neoprene element
captive in a steel housing) of this isolator type is shown in Figure 5-3. Hanger versions
of this type are also available.
Type 3—Steel Spring Floor Mounts and Hangers
These isolators are used with a wide range of static deflections, from about 12
to 100 mm. The isolation elements in these units are coiled compression springs
that typically rest on neoprene cups or pads. The spring elements should be selected
to accommodate a load that is 50% higher than the design load before “bottoming
out.” For proper horizontal stability, the spring’s loaded (compressed) height
should be approximately equal to its coil diameter. Figure 5-4 shows two sizes of
floor-mount spring isolators. The neoprene pad under the spring baseplate is an
essential part of the isolator because it reduces the strength of the high-frequency
vibration energy that “leaks” through the spring coils.
Figure 5-2 Elastomeric or compressed fiberglass isolation mounts are used
where a static deflection less than 10 mm is needed.
Products courtesy of Mason Industries and Kinetics Noise Control.
© 2011 American Society of Heating, Refrigerating and Air-Conditioning Engineers, Inc. (www.ashrae.org).
For personal use only. Additional reproduction, distribution, or transmission in either print or
digital form is not permitted without ASHRAE's prior written permission.

Vibration Isolation
108
Figure 5-3 Seismically rated elastomeric mounts. The mount on the left (75 mm
tall) has a nominal load rating of about 40 kg. The mount on the right
(165 mm tall) has a nominal load rating of as much as 700 kg.
Products courtesy of Mason Industries.
Figure 5-4 Two types of spring floor mounts. The mount on the left is for low
loads and static deflections of less than 25 mm. The mount on the
right is for larger loads and static deflections greater than 25 mm.
Products courtesy of Mason Industries.
© 2011 American Society of Heating, Refrigerating and Air-Conditioning Engineers, Inc. (www.ashrae.org).
For personal use only. Additional reproduction, distribution, or transmission in either print or
digital form is not permitted without ASHRAE's prior written permission.

A Practical Guide to Noise and Vibration Control for HVAC Systems
109
Isolation hangers contain a spring element within a hanger box. As in the floor
mount, a hanger’s spring should rest in a neoprene cup to control high-frequency
vibration. The load of the suspended equipment or pipe is transferred to the top of
the spring via a length of all-thread rod. To minimize the potential for “short-
circuiting” due to misalignments in the field, specify hangers that allow the all-
thread rods to be misaligned as much as 15 degrees from vertical without touching
the hanger box. Figure 5-5 shows properly installed spring hangers in a trapeze
arrangement.
Type 4—Restrained Spring Isolator
Type 4 is similar to Type 3, with the addition of a restraining assembly that
limits equipment movement during start-up, earthquakes, or high winds. This isola-
tor is also often used with waterside equipment (e.g., cooling towers, chillers,
piping, etc.) to limit uplift when the equipment is drained for service or mainte-
nance. The photo in Figure 5-6 shows two versions of this isolator type.
Base Types
•Type A: No base; isolator attached directly to the equipment frame or
mounting leg.
Figure 5-5 Spring hanger installation with proper spring compression and
hanger rod centered through hole at bottom of hanger box.
© 2011 American Society of Heating, Refrigerating and Air-Conditioning Engineers, Inc. (www.ashrae.org).
For personal use only. Additional reproduction, distribution, or transmission in either print or
digital form is not permitted without ASHRAE's prior written permission.

Vibration Isolation
110
•Type B: Structural steel rails or frame (channel or wide flange, depending on
the load and the frame size) with height-saving brackets, as required.
•Type C: Concrete inertia base whose weight is equal to that of the isolated
equipment.
Other Isolator Types
Pneumatic isolators (air springs) generally provide the highest degree of vibra-
tion isolation and are typically used where very large fans, chillers, or electrical
transformers are installed near noise-sensitive or vibration-sensitive areas. The
isolator is usually a neoprene bellows with equipment and floor-base mounting
plates. Pneumatic isolators can be used as free-standing units or in restraint hous-
ings. Figure 5-7 shows pneumatic isolators in restraint housings supporting an air-
cooled chiller. As with automobile tires, the pneumatic bellows in these isolators
need occasional refilling; this usually requires the presence of a permanent 700 kPa
pneumatic system that includes an air compressor and load-leveling valves that
maintain the isolated equipment at the proper operating height.
Cast metal floor mounts are still available but are not recommended because
of their potential for “short-circuiting.” See Figure 5-8.
Thrust restraints are required where a medium- or high-pressure fan (e.g.,
inline, plenum, etc.) is installed with vibration isolators. Their purpose is to prevent
metal-to-metal contact between the fan and any part of the air distribution system
by counteracting the fan’s thrust force. Figure 5-9 shows a thrust restraint inserted
between a plenum fan and its inlet bulkhead wall. A similar restraint is installed on
Figure 5-6 Two types of spring floor mounts with seismic/wind-loading
standby restraints. The mount on the left is for low loads and static
deflections under 25 mm. The mount on the right is for larger
loads and static deflections greater than 25 mm.
Products courtesy of Mason Industries.
© 2011 American Society of Heating, Refrigerating and Air-Conditioning Engineers, Inc. (www.ashrae.org).
For personal use only. Additional reproduction, distribution, or transmission in either print or
digital form is not permitted without ASHRAE's prior written permission.
--``,,`,``,```,,`,,```````,,`,,,-`-`,,`,,`,`,,`---

A Practical Guide to Noise and Vibration Control for HVAC Systems
111
Figure 5-7 Pneumatic isolators (“air bags”) supporting a rooftop air-cooled
chiller. Thin metal tubing connects 700 kPa compressed air to each
isolator.
Figure 5-8 Cast-metal floor mount is prone to “short-circuiting” and should
never be used. Instead, use a floor mount like that shown in
Figure 5-6.
© 2011 American Society of Heating, Refrigerating and Air-Conditioning Engineers, Inc. (www.ashrae.org).
For personal use only. Additional reproduction, distribution, or transmission in either print or
digital form is not permitted without ASHRAE's prior written permission.

Vibration Isolation
112
the opposite side of the fan. The restraints’ springs work in compression to resist
the fan’s thrust toward the bulkhead wall during fan operation.
Flexible pipe (pump) connectors are used to reduce the transmission of water-
side equipment vibration to a building structure. A flexible, watertight material
(usually neoprene, rubber, or a more advanced elastomer) with either flanged or
threaded ends is installed in a pipe as close as possible to the vibrating equipment.
Best performance occurs when the connector is installed in a pipe that is parallel
to the equipment shaft. Flexible connectors should never be used to accommodate
equipment/piping misalignment because the static offset stresses the elastomer and
shortens its service life. The pipes should be properly aligned before installing the
flexible connector. The photo in Figure 5-10 shows flanged and threaded flexible
connectors.
“Flexible” metal hoses, whether braided or unbraided, are not as effective as
elastomeric pipe connectors, but they may be the only option available for refrig-
erant relief piping and piping that carries natural gas or corrosive or very hot fluids.
In these cases, select the metal hose for a length to be at least ten times the nominal
pipe diameter. Figure 5-11 shows short connectors of this type on an end suction
pump.
Frames and Bases: Lightweight, flexible equipment frames can result in exces-
sive equipment vibration being transmitted into a supporting building structure. A stiff,
Figure 5-9 Thrust restraint at mid-height of fan inlet panel prevents contact
between the panel and the equipment housing framework. An
identical restraint is installed on the opposite side of the fan.
Photo courtesy of Governair Inc.
© 2011 American Society of Heating, Refrigerating and Air-Conditioning Engineers, Inc. (www.ashrae.org).
For personal use only. Additional reproduction, distribution, or transmission in either print or
digital form is not permitted without ASHRAE's prior written permission.

A Practical Guide to Noise and Vibration Control for HVAC Systems
113
Figure 5-10 Flanged and threaded flexible pipe (pump) connectors.
Products courtesy of Mason Industries.
Figure 5-11 Braided metal pump connector is not an effective vibration
isolator.
© 2011 American Society of Heating, Refrigerating and Air-Conditioning Engineers, Inc. (www.ashrae.org).
For personal use only. Additional reproduction, distribution, or transmission in either print or
digital form is not permitted without ASHRAE's prior written permission.

Vibration Isolation
114
auxiliary steel frame or concrete-filled inertia base is sometimes required to mitigate
the vibration transmission. The auxiliary frame or base stabilizes the equipment,
lowers its center of gravity, and stiffens its isolator attachment points. Figure 5-12
shows a frame with height-saving brackets that lowers the center of gravity that is seen
by the isolator. Base-mounted pumps frequently require inertia bases that serve as stiff
platforms to help keep the motor and pump shafts aligned.
Equipment vibration can “leak” past an inertia base due to the entrapped air
between the bottom of the base and its housekeeping pad or floor slab. Also,
construction debris can be unknowingly trapped beneath a base and cause a “short-
circuit.” Minimize the possibility of these problems by specifying that the inertia
base float as least 50 mm above the housekeeping pad or slab. If the inertia base’s
smaller footprint dimension is more than 1 m, leave one or more air relief openings
near the center of the inertia base.
Frames and bases should be designed to minimize the number of isolators
required to carry the load. Proper isolator loading is more difficult to achieve as the
number of isolators increases. Three isolators is the optimal number, although four
are most frequently used.
Special Concerns with Seismic and Wind-Loading Restraints
Vibration-isolated HVAC system components that are installed in seismic
areas or outdoors above occupied spaces may need standby restraints (sometimes
called “snubbers”) to prevent the components from being shaken or blown loose
Figure 5-12 Floor mount spring isolator under a height-saving bracket with a
separate seismic restraint.
© 2011 American Society of Heating, Refrigerating and Air-Conditioning Engineers, Inc. (www.ashrae.org).
For personal use only. Additional reproduction, distribution, or transmission in either print or
digital form is not permitted without ASHRAE's prior written permission.

A Practical Guide to Noise and Vibration Control for HVAC Systems
115
from their building attachments. Individual snubbers can be installed around an
equipment frame after the equipment has been set in place on its isolators. Alter-
natively, the snubbers can be integrated into the isolators themselves. Figure 5-12
shows a vibration-isolated equipment frame with a snubber installed just to the
right of the isolator. Figure 5-13 shows a pump mounted on spring isolators with
integral snubber restraints.
Isolated equipment is prone to horizontal offset if pulled or pushed by the
attachment of a misaligned pipe. If separate isolators and seismic snubbers are
used, small offsets may not cause a “short-circuiting” problem. However, when
a combination isolator/snubber is used, the offset can easily cause a “short-
circuit” that will let equipment vibration bypass the isolator. The ASHRAE
publication, A Practical Guide to Seismic Restraint, and the new FEMA
Manual 412, Installing Seismic Restraints for Mechanical Equipment, show
how restraints should be installed to prevent “short-circuiting” of the vibration
isolators.
There are literally dozens of other variations of isolators, frames, and bases
for both general and specific uses. A qualified isolation equipment vendor will
have an engineering staff that can design and deliver an isolator or complete isola-
tion system for a specific purpose.
Figure 5-13 Pump mounted on combination isolator/restraint under height-
saving bracket. This type of isolator is not recommended because
it is prone to short-circuiting.
© 2011 American Society of Heating, Refrigerating and Air-Conditioning Engineers, Inc. (www.ashrae.org).
For personal use only. Additional reproduction, distribution, or transmission in either print or
digital form is not permitted without ASHRAE's prior written permission.
Vibration Isolation
116
The Importance of the Supporting Structure
Vibration isolation systems work as expected only if the supporting structure
is much stiffer than the isolator. As a worst case, a supporting structure with approx-
imately the same static deflection as an isolator resting on it can amplify the equip-
ment vibration that is transmitted into the structure. This problem can be avoided
by working with the structural engineer to ensure that all structures that accommo-
date either supported or suspended equipment on isolators have a static deflection
of no more than 20% of the isolator’s static deflection. For example, the structure
that supports a piece of equipment on 25 mm deflection isolators should have a
static deflection of no more than 5 mm. The sketches in Figure 1-16 in Chapter 1
show the effect qualitatively.
© 2011 American Society of Heating, Refrigerating and Air-Conditioning Engineers, Inc. (www.ashrae.org).
For personal use only. Additional reproduction, distribution, or transmission in either print or
digital form is not permitted without ASHRAE's prior written permission.
--``,,`,``,```,,`,,```````,,`,,,-`-`,,`,,`,`,,`---

6
Specifications
117
Construction drawings are the primary tools for presenting design require-
ments to a contractor. However, they do not do the whole job because they cannot
fully define the quality of an HVAC system's materials and workmanship. Draw-
ings also cannot always define special installation procedures. Those tasks are
often done with specifications.
The Construction Specification Institute (CSI) has reserved section 23.04.48
for vibration control products in its new six-digit numbering format. The more
familiar section 15074 is the reserved section in the old five-digit format. Neither
the old nor the new CSI format reserves a section specifically for noise control
products. Some specifiers prefer to include the acoustical performance specifica-
tions for all system components in a single section titled “Noise Control.” For
example, the acoustical specifications for fans, air-handling units, terminal units,
diffusers, chillers, cooling towers, duct silencers, duct liners, etc., would all be in
the same specification section. Unfortunately, an acoustical specification in this
location could be overlooked by an equipment vendor who is focusing only on the
overall specification section for his/her product. The acoustical specification is less
likely to be overlooked if it is included in that components’s project specification
section. The section below gives some example acoustical specifications that can
be included in the various products’ specification sections.
SAMPLE SPECIFICATIONS
Fans
Acoustical specifications for fans should specify the maximum sound power
level (Lw) values according to the latest revision of AMCA Standard 300. A sample
specification is shown below.
© 2011 American Society of Heating, Refrigerating and Air-Conditioning Engineers, Inc. (www.ashrae.org).
For personal use only. Additional reproduction, distribution, or transmission in either print or
digital form is not permitted without ASHRAE's prior written permission.
--``,,`,``,```,,`,,```````,,`,,,-`-`,,`,,`,`,,`---

Specifications
118
When tested in complete accordance with the latest revision of AMCA 300,
“Reverberant Room Method for Sound Testing of Fans,” in a laboratory registered
by AMCA to perform the test, the tested LW values shall not exceed the values sched-
uled in the following table when operating at the scheduled operating conditions.
Air-Handling Units and Fancoil Units
Acoustical specifications for AHUs should specify the maximum LW values
according to the latest revision of AHRI Standard 260. A sample specification is
shown below.
All AHUs listed in the schedule below shall be tested in complete accordance
with the latest revision of AHRI Standard 260, “Sound Rating of Ducted Air Moving
and Conditioning Equipment.” When operating at the maximum design capacities,
the tested LW values shall not exceed the values scheduled in the following table.
Mark
Air-
flow in
L/s TSP
in Pa Inlet/
Outlet
Maximum LW values in dB re 1 pW
Octave Band Center Frequency in Hz
63 125 250 500 1000 2000 4000 8000
SF-1 1000 1125 Outlet 98 98 95 90 86 82 77 71
SF-2 8400 525 Outlet 95 92 88 85 82 77 71 65
SF-2 8400 475 Inlet 93 90 86 83 80 75 69 63
Mark Location
Maximum LW values in dB re 1 pW
Octave Band Center Frequency in Hz
63 125 250 500 1000 2000 4000 8000
AH-1 SA discharge 86 90 94 92 88 83 80 75
AH-1 RA inlet 77 85 75 73 71 68 66 62
AH-1 ExA discharge 86 89 86 85 80 75 72 67
AH-1 OA inlet 85 89 87 84 83 76 71 66
AH-1 Case-radiated 78 81 76 64 58 53 50 45
© 2011 American Society of Heating, Refrigerating and Air-Conditioning Engineers, Inc. (www.ashrae.org).
For personal use only. Additional reproduction, distribution, or transmission in either print or
digital form is not permitted without ASHRAE's prior written permission.

A Practical Guide to Noise and Vibration Control for HVAC Systems
119
Chillers
Some chillers produce more noise at partial load than at full load. Therefore,
specify the maximum LP values under all operating conditions, as follows.
Chiller LP values shall be obtained in complete accordance with the latest revi-
sion of AHRI Standard 575, “Method of Measuring Machinery Sound Within an
Equipment Space.” The representative octave band LP values, as defined in the
standard, shall not exceed the values scheduled below for chillers operating at any
operating condition between 25% and 100% of the maximum design capacity.
Duct Silencers
Duct silencers attenuate the noise that travels through them, but they also
create “self-noise” due to the turbulent airflow that they generate. Silencers, there-
fore, must be specified with two sets of acoustical performance limits: a set of mini-
mum insertion loss values and a set of maximum “self-noise” values. Also, because
the acoustical and aerodynamic performances of duct silencers are so closely
linked, it is customary to specify a maximum pressure drop in the acoustical spec-
ification. A sample specification is shown below.
When tested in complete accordance with the latest revision of ASTM E477,
“Standard Method of Testing Duct Liner Materials and Prefabricated Silencers for
Acoustical and Airflow Performance” in a laboratory that is NVLAP-accredited to
conduct the test, the acoustical and aerodynamic performance of all duct silencers
shall conform to the values given in the following schedules.
Mark
Maximum LP at 1 m in dB re 20 μPa
Octave Band Center Frequency in Hz
63 125 250 500 1000 2000 4000 8000
CH-1 85 89 92 89 84 84 82 80
CH-2 83 86 87 89 88 86 85 82
Mark Type Airflow
in L/s Velo city
in m/s Max. P.D.
in Pa
Minimum Dynamic Insertion Loss in dB
Octave Band Center Frequency in Hz
63 125 250 500 1000 2000 4000
ST-1 R+9400 +5.8 20 4 7 14 17 12 11 9
ST-2 F+8400 +4.9 68 610 18 33 38 30 18
ST-3 D8400 7.5 38 715 22 32 30 20 14
Type Legend: D = Dissipative, F = Film-lined, R = Reactive
© 2011 American Society of Heating, Refrigerating and Air-Conditioning Engineers, Inc. (www.ashrae.org).
For personal use only. Additional reproduction, distribution, or transmission in either print or
digital form is not permitted without ASHRAE's prior written permission.

Specifications
120
Positive (+) values for airflow and velocity indicate the airflow and noise travel
in the same direction, whereas negative (–) values indicate that airflow and noise
travel in opposite directions. Good design practice recommends selecting silencers
with static pressure drop of no more than 63 Pa.
Vibration Isolators
Specifications for vibration isolators should include detailed descriptions of
their fabrication materials and methods. The sample specification below is a very
abbreviated example that includes a vibration isolator/frame selection schedule.
All vibration isolators shall be selected to have a minimum static deflection as
scheduled below and a reserve load capacity of at least 50% of the design load. All
spring isolators shall have a loaded height/diameter ratio in the range of 0.8 to 1.2. To
provide adequate frame stiffness all frame and base members shall have a height that
is at least 10% of the spacing between adjacent isolators. All spring hangers shall func-
tion properly with a hanger rod misalignment of no more than 15 degrees from vertical
in any direction. Seismic/wind-loading restraints and cables shall not affect the isola-
tion system effectiveness during normal operating conditions. All vibration isolators
shall be selected in complete conformance with the schedule below.
Mark Type Airflow
in L/s Veloc ity
in m/s Max. P.D.
in Pa
Maximum Self-Noise Sound Power Level
in dB re 1 pW
(0.37 m2 face area)
Octave Band Center Frequency in Hz
63 125 250 500 1000 2000 4000
ST-1 R+9400 +5.8 20 56 49 44 45 53 56 50
ST-2 F+8400 +4.9 68 63 54 52 50 47 48 47
ST-3 D8400 7.5 38 56 56 55 54 55 56 49
Type Legend: D = Dissipative, F = Film-lined, R = Reactive
Mark RPM Motor
kW
Min. Static
Deflection in
mm Isolator Type Frame Type
CH-1 3600 125 25 Spring mount WF
SF-1-12 1150 18.5 50 Spring mount channel
P-1,2 1750 22 50 Spring mount WF
EF-1 750 1 3 Hanger channel
B-1 — — 3 Pad mount —
CHW piping —--- 25 Spring mount —
CW piping — — 25 Spring mount —
© 2011 American Society of Heating, Refrigerating and Air-Conditioning Engineers, Inc. (www.ashrae.org).
For personal use only. Additional reproduction, distribution, or transmission in either print or
digital form is not permitted without ASHRAE's prior written permission.

A Practical Guide to Noise and Vibration Control for HVAC Systems
121
Duct and Plenum Liners
The acoustical specification for duct and plenum liners should include their
locations and acoustical performance. Because the relevant ASTM testing standard
permits mounting the tested samples in one of several mounting arrangements per
ASTM E795, it is important to specify the mounting type. A sample is shown
below.
Duct and plenum liners are rigid or semi-rigid foam or mineral fiber boards
with coatings to prevent fiber erosion under all expected airflow conditions. Duct
liner of the specified thickness shall be located as shown on the drawings and as
listed below.
a. All supply air ducts up to 8 m from fan discharge—50 mm thick.
b. All other supply air ductwork—25 mm thick.
Plenum liner of the specified thickness shall be located as shown in the draw-
ings and as listed below.
a. Supply fan discharge plenum—100 mm thick.
b. Supply fan intake plenum—50 mm thick.
The sound absorption coefficients of all duct and plenum liners shall be deter-
mined in complete accordance with the latest revision of ASTM C423, “Standard
Test Method for Sound Absorption and Sound Absorption Coefficients by the Rever-
beration Room Method,” in a laboratory that is NVLAP-accredited to conduct the
test. The sound absorption coefficient values of all duct and plenum liners shall
conform to the schedule below. Samples shall be tested with a Type A mounting in
complete accordance with the latest revision of ASTM E795, “Standard Practices
for Mounting Test Specimens during Sound Absorption Tests.”
Minimum Sound Absorption Coefficient
Octave Band Center Frequency in Hz
Service Thickness,
mm 125 250 500 1000 2000 4000
Duct 25 0.13 0.50 0.70 0.95 0.98 0.99
Duct 50 0.25 0.70 0.96 0.99 0.99 0.99
Plenum 50 0.25 0.70 0.96 0.99 0.99 0.99
Plenum 100 0.72 0.95 0.99 0.99 0.99 0.99
© 2011 American Society of Heating, Refrigerating and Air-Conditioning Engineers, Inc. (www.ashrae.org).
For personal use only. Additional reproduction, distribution, or transmission in either print or
digital form is not permitted without ASHRAE's prior written permission.
--``,,`,``,```,,`,,```````,,`,,,-`-`,,`,,`,`,,`---

Specifications
122
TE R M I N A L U N I T S
While terminal units are sometimes specified in terms of their cataloged NC
ratings, a complete acoustical specification should include more detailed informa-
tion. A sample specification is shown below. Note the distinction between
discharge and radiated noise.
All terminal units shall be tested in complete accordance with the latest revi-
sion of AHRI 880, “Standard for Air Terminals,” in a laboratory that is AHRI-certi-
fied to conduct the test. When operating at the design capacities scheduled below,
the tested LW values shall not exceed the scheduled values. Units used in a pres-
sure-independent system shall be tested with their inlet velocity sensors installed.
EXAMPLES OF HOW “NOT” TO SPECIFY
Because specifications offer the opportunity to precisely define acoustical
requirements, do not waste the opportunity and detail them with imprecise state-
ments, such as:
Maximum Discharge LW in dB re 1 pW
Octave Band Center Frequency in Hz
Mark
Design
Aiflow
in L/s
Static
Pressure
in Pa 125 250 500 1000 2000 4000
VAV-1 700 250 66 63 60 58 55 52
VAV-2 470 250 63 60 56 55 53 51
VAV-3 280 250 60 58 54 52 50 48
Maximum Radiated LW in dB re 1 picowatt
Octave Band Center frequency in Hz
Mark
Design
Aiflow in
L/s Static Pres-
sure in Pa 125 250 500 1000 2000 4000
VAV-1 700 250 62 53 48 45 43 41
VAV-2 470 250 58 48 42 40 37 35
VAV-3 280 250 55 48 40 36 34 31
© 2011 American Society of Heating, Refrigerating and Air-Conditioning Engineers, Inc. (www.ashrae.org).
For personal use only. Additional reproduction, distribution, or transmission in either print or
digital form is not permitted without ASHRAE's prior written permission.
A Practical Guide to Noise and Vibration Control for HVAC Systems
123
“The HVAC equipment shall not produce objectionable noise or vibration.”
This statement misses the mark on two counts. First, it refers to only the HVAC
equipment, not the entire system. One of the main points of this guide is that most
HVAC noise problems are caused by how the system is put together. Secondly, the
statement does not define the phrase objectionable noise or vibration. Subjective
statements such as this do not belong in contract documents.
“All HVAC system noise and vibration shall be completely eliminated.”
This statement recognizes that the system performance is important, but it mistak-
enly requires that all “noise and vibration shall be completely eliminated.” In fact,
some system noise is desirable for masking other annoying building sounds, such
as conversations in nearby work areas or transformer and lighting ballast hum.
“HVAC system noise shall not exceed NC-40.”
By requiring the contractor to meet a certain NC (Noise Criteria) design goal, this
statement assumes that the contractor will perform an acoustical analysis. Unless
the project is design/build, the contractor probably will not have the capability and
should not have that responsibility. The statement also specifies only one NC
rating, presumably for the entire building. A review of Table B-1 in Appendix B
shows that an NC, RC, or NCB rating should be selected for each type of building
occupancy.
“Duct silencers shall attenuate fan noise by 25 dB.” or “Fan noise shall not
exceed 85 dB.”
These statements specify only one acoustical characteristic of a duct silencer and
a fan with no frequency qualification. The sample specifications at the beginning
of this chapter give recommended specification characteristics at specific octave
bands for various HVAC system components.
“All vibration isolators shall be 90% efficient.”
This statement gives an unreasonable, incomplete requirement that is difficult and
expensive to field-verify. First of all, it is hard to justify the same isolation efficiency at
a roof-mounted, 700 kW reciprocating chiller and a smooth-running, 4 kW, 3600 rpm
pump mounted on grade. Secondly, the concept of isolation efficiency only applies to
a perfect isolator with an infinitely stiff base attachment. A proper vibration isolation
specification details certain fabrication requirements for the isolators and their bases
and refers to a schedule on the drawings where the isolators and base construction for
each piece of equipment are listed.
“All equipment shall be mounted on the manufacturer's standard isolation
base, subject to approval.”
The requirement for a manufacturer’s “standard isolation base” can come back to
© 2011 American Society of Heating, Refrigerating and Air-Conditioning Engineers, Inc. (www.ashrae.org).
For personal use only. Additional reproduction, distribution, or transmission in either print or
digital form is not permitted without ASHRAE's prior written permission.
Specifications
124
haunt you if you aren't completely familiar with all of the isolation packages
offered by each manufacturer. Manufacturers are continually re-engineering their
products so that yesterday's “standard isolation package” may not resemble
today's. More importantly, a “standard isolation package” cannot be matched to the
structural conditions in every building. Every isolator should be selected on the
basis of the equipment’s vibration characteristics, the noise/vibration sensitivity of
the surrounding areas, and the mounting location's structural stiffness.
“When field conditions result in an interference between ductwork and
another building service, the contractor shall install ductwork offsets and
transitions as necessary to avoid the interference.”
This sentence is supposed to save time when an interference is discovered on
a job by instructing the contractor to take care of the problem without bothering the
design team. Unfortunately, when an offset or transition occurs in a medium- or
high-velocity duct, especially near a fan or takeoff, an unexpected result can be
excessive airflow noise, fan noise, or duct rumble. The contractor should never be
allowed to change the duct system design near a fan or takeoff without a review by
the mechanical engineer. A more proper statement would be:
“When field conditions result in an interference at any medium- or
high-velocity duct, the contractor shall submit a revised duct layout for
review by the mechanical engineer.”
© 2011 American Society of Heating, Refrigerating and Air-Conditioning Engineers, Inc. (www.ashrae.org).
For personal use only. Additional reproduction, distribution, or transmission in either print or
digital form is not permitted without ASHRAE's prior written permission.

7
Construction Phase Tasks
125
VALUE ENGINEERING (COST-CUTTING)
Many projects have a “value engineering” phase in which the contractor pres-
ents cost-saving alternatives to the HVAC system design. The contractor and other
project team members can bring valuable experience to a project and propose
changes that could allow the deletion or reduction of some acoustical treatments.
However, since most contractors are unaware of the acoustical impacts of their cost-
saving proposals, it is important that the design team review them for their noise and
vibration impacts. This is especially important because most cost-saving proposals
involve either reducing the size of equipment, ductwork, and mechanical rooms or
substituting cheaper equipment in place of what was specified. Table 7-1 lists some
common value engineering proposals and their potential acoustical impacts.
SUBMITTALS AND SHOP DRAWING REVIEWS
Great care must be taken in reviewing submittals, especially those that include
manufacturer’s sound data. To be reliable, the submitted sound data must be
collected and reported exactly as required in the appropriate test standard. Incorrect
factory data can easily lead to unexpected noise problems on the job site. A more
thorough discussion of manufacturers’ sound data is included in the ASHRAE
publication, Application of Manufacturers’ Sound Data.
Fans, Air-Handling Units (AHU), and Fancoil Units (FCU)
Pay particular attention when reviewing sound power level (LW) submittals.
Some manufacturers submit octave band sound power levels that are calculated by
the obsolete ASHRAE calculation method, while others submit A-weighted octave
© 2011 American Society of Heating, Refrigerating and Air-Conditioning Engineers, Inc. (www.ashrae.org).
For personal use only. Additional reproduction, distribution, or transmission in either print or
digital form is not permitted without ASHRAE's prior written permission.

Construction Phase Tasks
126
Table 7-1. Common Value Engineering Proposals
and Their Potential Acoustical Impacts
Value Engineering Proposal Possible Acoustical Impact
Reduce fan size and speed up the fan Higher noise level due to
fan inefficiency and higher outlet velocity
Reduce duct sizes Higher noise level and increasing chance of
rumble due to higher airflow velocities
Reduce duct wall thickness
(increase gauge number) Greater chance of rumble due to flexible duct
walls; lighter weight allows more breakout sound
transmission through duct walls
Reduce equipment room size Higher noise level in adjacent spaces due to
proximity of equipment to wall(s)
Delete masonry walls, use drywall
partitions at mechanical rooms Higher levels of low-frequency noise
and rumble in adjacent spaces
Replace VFD motor controllers
with inlet vanes for fan capacity control Higher noise levels at all operating capacities
due to addition of inlet vanes at fan inlet
Reduce sizes of terminal units or grilles Increased noise due to higher airflow velocities
Fiberglass ductboard instead
of sheet metal ductwork More breakout sound transmission
through duct walls
Use neoprene mounts instead of
steel spring isolators The lower static deflection of neoprene
will reduce vibration isolation effectiveness
Delete duct silencers Higher noise levels throughout the duct system
Reduce the number of VAV zones Higher noise levels near the
larger VAV terminal units
Change from “chilled water” system
to large rooftop package units Higher noise levels on the top floor directly
beneath the rooftop unit and unacceptable shaft-
wall vibration—both impacts due to excessive air
turbulence in the ductwork near the unit and poor
vibration isolation inside the unit
© 2011 American Society of Heating, Refrigerating and Air-Conditioning Engineers, Inc. (www.ashrae.org).
For personal use only. Additional reproduction, distribution, or transmission in either print or
digital form is not permitted without ASHRAE's prior written permission.
--``,,`,``,```,,`,,```````,,`,,,-`-`,,`,,`,`,,`---

A Practical Guide to Noise and Vibration Control for HVAC Systems
127
band LW values that at first glance make a unit appear to be very quiet at low
frequencies. Since virtually all fan and AHU acoustical specifications specify
unweighted octave band LW values, it is important that any submitted A-weighted
LW values be converted to unweighted values using the simple procedure given in
Table 7-2. The example represented in the table shows how correction factors are
added to the submitted A-weighted LW values to obtain the unweighted values for
a typical forward-curved centrifugal fan. The A-weighting adjustments can be used
for any octave band LP or LW spectrum.
Fans, AHUs, and FCUs produce different sound power levels at their intakes
and discharges, yet most fan manufacturers mistakenly submit the same LW data
for both locations. Verify that the submittal is for the correct side of the equipment.
This kind of equipment also produces case-radiated noise, which can be significant
in some applications.
For equipment used in variable air volume systems, verify that the submitted
LW data include the effects of whatever capacity control device is used. Ensure that
the specified fan type, diameter, speed, and performance curve are submitted. All
of these parameters will affect the noise level.
An acoustical performance submittal for a fan, AHU, or FCU should include
at least the following:
1. The name and location of the laboratory conducting the test.
2. The date of the test.
3. A complete identification of the equipment, e.g., series name, model number, etc.
Table 7-2. Procedure for Converting from
A-Weighted LW Values to Unweighted LW Values
Octave Band Center Frequency in Hertz
63 125 250 500 1000 2000 4000 8000
Submitted A-weighted LW
values in dB re 1 pW 71 77 80 80 77 76 74 69
Adjustment factor to
remove A-weighting +26 +16 +9 +3 +1 –1 –1 +1
Resulting unweighted LW
values in dB re 1 pW 97 93 89 83 78 75 73 70
© 2011 American Society of Heating, Refrigerating and Air-Conditioning Engineers, Inc. (www.ashrae.org).
For personal use only. Additional reproduction, distribution, or transmission in either print or
digital form is not permitted without ASHRAE's prior written permission.
--``,,`,``,```,,`,,```````,,`,,,-`-`,,`,,`,`,,`---
Construction Phase Tasks
128
4. The equipment operating conditions, e.g., airflow, total static pressure, rpm, and
motor kW rating.
5. A statement confirming that the measurements were obtained in complete
conformance with the applicable test standard (AMCA 300 for fans, AHRI 260
for AHUs and FCUs).
6. The unweighted octave band sound power levels and a note as to whether the
values are for discharge, inlet, or case-radiated noise.
Terminal Units and Lab Air Valves
Terminal unit and lab air valve submittals sometimes include only the unit’s
single-number NC rating at various combinations of airflow and differential pres-
sure operating conditions. These NC ratings can be used to compare the relative
loudness of different terminal units, but there is no way to ensure that the published
NC rating will occur in a field installation because the published values are based
on atypical system designs and room conditions. The only way to be sure of a termi-
nal unit’s field performance is to use the published discharge and radiated octave
band LW values in a set of calculations that are based on the actual design condi-
tions, e.g., unit location and operating point, room dimensions and surface finishes,
ceiling type and height, etc.
An acoustical performance submittal for any kind of air terminal unit or lab air
valve should include at least the following:
1. The name and location of the laboratory conducting the test.
2. The complete equipment model number.
3. The equipment operating conditions airflow and static pressure drop.
4. A statement that the measurements were obtained in complete conformance with
the latest revision of test standard AHRI 880.
5. For terminal units, the octave band LW values for discharge and case-radiated
noise.
6. For lab air valves, the octave band LW values for discharge, exhaust, and case-
radiated noise.
Air Devices
Test standard AHRI 890 is used to determine the octave band LW values for air
devices at various airflows. A standard adjustment is applied to the measured data
at each airflow to determine estimates of the device’s flow-dependent NC ratings
in a large room. An acoustical performance submittal for any kind of air device
should include at least the following:
© 2011 American Society of Heating, Refrigerating and Air-Conditioning Engineers, Inc. (www.ashrae.org).
For personal use only. Additional reproduction, distribution, or transmission in either print or
digital form is not permitted without ASHRAE's prior written permission.
A Practical Guide to Noise and Vibration Control for HVAC Systems
129
1. The name and location of the laboratory conducting the test.
2. The device’s complete model number and dimensions.
3. The airflow quantities used during the test.
4. The presence of any appurtenances, e.g., dampers, plenums, etc.
5. A statement that the measurements were obtained in complete conformance with
the latest revision of test standard AHRI 890.
6. The octave band LW values and standardized NC rating at each airflow.
Be very careful to note the following in the submittal:
1. If there will be a damper attached to the device’s inlet (thereby converting it to a
register) verify that the submitted NC rating was determined with the damper in
place. The presence of a damper can add from 5 to 15 points to a device’s NC
rating.
2. Any device with adjustable deflectors or vanes will produce different sound
levels depending on the deflector or vane settings. Therefore, verify that the
submitted NC rating is based on the vane or deflector positions that will be used
in the field installation.
3. Slot diffusers are typically tested for airflow and sound under two conditions:
a. Installed in a very large plenum, and
b. Installed in a small, close-fitting sheet metal boot with a round or oval duct
connection.
Verify that the submitted acoustical data are for the appropriate plenum config-
uration for the project application.
Water-Source Heat Pumps
There are no acoustical test codes specifically for water-source heat pumps.
However, since these units typically have ducted discharges, their discharge LW
values should be determined in accordance with AHRI 260, “Sound Rating of
Ducted Air Moving and Conditioning Equipment.” And since the inlet of this
equipment is typically unducted, the proper test procedure for determining inlet LW
values is AHRI 350, “Sound Rating of Non-Ducted Indoor Air-Conditioning
Equipment,” which is usually used to determine the combination of inlet and case-
radiated sound power level in each octave band from 63 to 4000 hertz.
Since this equipment can operate in “fan only,” “cooling,” and “heating” modes,
the submittal should include octave band LW values for all three modes of operation.
An acoustical performance submittal for a water-source heat pump should
include at least the following:
© 2011 American Society of Heating, Refrigerating and Air-Conditioning Engineers, Inc. (www.ashrae.org).
For personal use only. Additional reproduction, distribution, or transmission in either print or
digital form is not permitted without ASHRAE's prior written permission.
Construction Phase Tasks
130
1. The name and location of the laboratory conducting the test.
2. The test date.
3. A complete identification of the equipment, e.g., series name, model number, etc.
4. The equipment operation conditions, e.g., operating mode, airflow, TSP, rpm,
and motor kW rating.
5. A statement confirming that the measurements were made in complete confor-
mance with the applicable test standard (AHRI 260, AHRI 350, etc.). Any vari-
ations from strict compliance with the test standards should be fully explained.
The inclusion of any noise reduction products or packages should be noted in the
submittal.
6. The unweighted LW values in the octave bands from at least 63 to 4000 hertz for
each operating mode (fan only, cooling, and heating) and a note as to whether the
values are for discharge, inlet, or case-radiated noise. All three should typically
be reported.
Cooling Towers and Evaporative Coolers
Factory noise data for cooling tower, evaporative coolers, and similar equip-
ment are measured in accordance with Cooling Technology Institute’s Acceptance
Test Code ATC-128. An acoustical performance submittal for this type of equip-
ment should include at least the following:
1. The name and location of the laboratory conducting the test.
2. A complete identification of the equipment, e.g., type, series name, model
number, etc.
3. The equipment’s operating conditions; for equipment with variable-speed fans,
the test should be run at 50%, 75%, and 100% of full fan speed.
4. A statement confirming that the measurements were obtained in complete
conformance with the latest revision of test standard ATC-128 and that the
measured data include fan and water noise (if applicable).
5. The octave band LP values for each operating condition at distances of 1.5
and 15 m from all four sides of the equipment, as well as above the fan
discharge.
Water-Cooled Chillers
The noise of indoor water-cooled chillers is measured in accordance with
AHRI 575. An acoustical performance submittal for an indoor water-cooled chiller
should include at least the following:
© 2011 American Society of Heating, Refrigerating and Air-Conditioning Engineers, Inc. (www.ashrae.org).
For personal use only. Additional reproduction, distribution, or transmission in either print or
digital form is not permitted without ASHRAE's prior written permission.
A Practical Guide to Noise and Vibration Control for HVAC Systems
131
1. The name and location of the laboratory conducting the test.
2. A complete identification of the equipment, e.g., series name, model number, etc.
3. The equipment’s operating conditions; for variable capacity equipment, the test
should be run at 50%, 75%, and 100% of full capacity.
4. A statement confirming that the measurements were obtained in complete
conformance with the latest revision of test standard AHRI 575.
5. The octave band LP values for each operating condition at a distance of 1 m from
all four sides of the equipment.
Air-Cooled Chillers
The noise of air-cooled chillers is measured in accordance with AHRI 370. An
acoustical performance submittal for an air-cooled chiller should include at least
the following:
1. The name and location of the laboratory conducting the test.
2. A complete identification of the equipment, e.g., series name, model number, etc.
3. The equipment’s operating conditions; for variable capacity equipment, the test
should be run at 50%, 75%, and 100% of full capacity.
4. A statement confirming that the measurements were obtained in complete
conformance with the latest revision of test standard AHRI 370.
5. The octave band LW values for each operating condition.
SHOP DRAWINGS
In the early construction phase coordination that often precedes the start of
construction in a large project, the ductwork subcontractor will prepare a set of shop
drawings that will help identify field interferences with other trades (e.g., plumb-
ing, electrical, and structural). These shop drawings inevitably include ductwork
layouts that differ from those in the design drawings. The shop drawing reviewer
must, therefore, be careful to verify that any proposed revised duct routings do not
result in noise problems.
For ductwork shop drawings:
1. Verify that the proposed duct runs, especially the trunk ducts, have not been
moved near noise-sensitive areas.
2. Verify that the proposed duct sizes conform to the specified maximum air
velocities.
© 2011 American Society of Heating, Refrigerating and Air-Conditioning Engineers, Inc. (www.ashrae.org).
For personal use only. Additional reproduction, distribution, or transmission in either print or
digital form is not permitted without ASHRAE's prior written permission.

Construction Phase Tasks
132
3. Verify that there are no dampers or duct silencers shown within three equivalent
duct diameters of duct fittings or fan discharge openings.
4. Pay particular attention to offsets and transitions that may have been added in
medium- and high-pressure duct systems, especially near equipment rooms. An
improperly located offset or transition can cause excessive regenerated noise due
to the extra turbulence. It can also cause the creation of excessive static pressure
drop that can force the fan to operate in rotating stall or surge. Figure 7-1 shows
an example where an unexpected offset caused a very troublesome noise problem
at the discharge of an air-handling unit.
5. Verify that all duct penetrations through sound-rated slabs and partitions (usually
those with insulation batts in their stud cavities) are sleeved and caulked airtight.
6. Verify that all of the specified duct and plenum liners, duct silencers, and acous-
tical louvers are shown on the shop drawings.
7. Verify that all duct silencers are in the right locations and that their attenuating
baffles are oriented properly. For duct silencers near elbows, the baffles should
be oriented in the plane of the turn.
8. If a special duct gauge is specified, verify that it is shown on the drawings.
Figure 7-1 Overhead plan views of AHU rooms showing the effects of a duct
offset.
© 2011 American Society of Heating, Refrigerating and Air-Conditioning Engineers, Inc. (www.ashrae.org).
For personal use only. Additional reproduction, distribution, or transmission in either print or
digital form is not permitted without ASHRAE's prior written permission.
A Practical Guide to Noise and Vibration Control for HVAC Systems
133
For piping system shop drawings:
1. Verify that pipe runs have not been located above ceilings or in shafts that are
adjacent to noise-sensitive areas.
2. Verify that no pipe runs will interfere with the design drawing duct locations; any
interference should be resolved by moving the pipe, not by adding an offset in the
ductwork.
3. Be sure that the pipe sizes agree with the specified maximum waterflow veloci-
ties.
4. Verify that all of the specified flexible pipe connectors are shown at pumps, chill-
ers, boilers, cooling towers, and other waterside equipment.
5. Verify that all pipe penetrations through sound-rated partitions and slabs are
sleeved and sealed airtight without making contact with the wall or slab.
For air balance reports:
1. Verify that the total fan pressure, fan speed, operating kW rating, and airflow are
consistent with the performance curve for each fan.
2. Excessive duct leakage will force the balancing technician to increase the fan rpm
(and noise) to achieve the design airflows. Compare traverse readings with air
device totals to determine if duct leakage is occurring.
3. Compare the measured airflow for each grille and register with the design values
in the contract documents.
4. Verify that the in-duct static pressure just upstream of the terminal unit that is
farthest from the fan does not significantly exceed the minimum required to oper-
ate the terminal unit.
SITE INSPECTIONS
A building’s design team takes great care in developing guidelines and details
that are intended to minimize the possibility of noise and vibration problems. If the
guidelines and details are not followed, not only is the design time wasted, but also
the problems that the details were intended to avoid can occur.
The items in the checklists below can be applied to site inspections of buildings
under construction or to troubleshoot situations where visual observation is the first
step in solving the problem. If the answer to any question is “No,” the possibility
of a noise or vibration problem exists.
Site Inspection Checklist for Fan and Air-Handling Unit Installations
1. Is the installed equipment exactly as submitted and approved?
2. For unducted inlets, is the inlet at least 1 full fan wheel diameter from the nearest
obstruction?
© 2011 American Society of Heating, Refrigerating and Air-Conditioning Engineers, Inc. (www.ashrae.org).
For personal use only. Additional reproduction, distribution, or transmission in either print or
digital form is not permitted without ASHRAE's prior written permission.
--``,,`,``,```,,`,,```````,,`,,,-`-`,,`,,`,`,,`---
Construction Phase Tasks
134
3. For ducted inlets, is the nearest elbow, offset, or transition at least 3 equivalent
duct diameters from the unit inlet?
4. For unducted outlets, is the nearest airflow obstruction at least 1.5 fan wheel
diameters from the unit discharge?
5. For ducted outlets, does the outlet transition have an expansion angle of 15
degrees or less?
6. For ducted outlets, is the first elbow, offset, damper, backflow preventer, or duct
silencer at least 3 equivalent duct diameters downstream of the unit discharge
opening?
7. Does the electrical conduit serving the unit have a flexible loop to prevent vibra-
tion transmission via the conduit? Can the conduit be easily moved?
8. Is the duct system attached to the equipment with a flexible canvas connector?
9. Does the equipment float freely on its vibration isolators? It should rock freely
when pushed or jumped on.
10. Is the ductwork installed in accordance with the approved shop drawings and
SMACNA guidelines?
11. Are there any unexpected elbows, offsets, transitions, etc.?
12. In systems with airflow of 900 L/s and higher, is all medium- and high-pressure
ductwork made of sheet metal (instead of fiberglass ductboard)?
13. Is the fan rotation correct?
Site Inspection Checklist for Terminal Units
1. Is every unit exactly as submitted and approved?
2. Is every unit installed in accordance with the approved shop drawings and located
away from noise-sensitive areas?
3. Is every unit free of contact with nearby pipes, walls, ceilings, etc.?
4. Is the nearest upstream duct elbow or offset at least 3 equivalent duct diameters
from the unit inlet? See Figure 7-2 for a proper unit installation.
5. Is the duct leading to the box inlet made of metal, either aluminum or steel? Flex-
ible inlet ducts permit inlet noise breakout into the ceiling plenum.
6. Is the low-pressure discharge duct made of sheet metal with a minimum 25 mm
thick internal acoustical liner?
7. In a system using the ceiling plenum for return air, is the nearest return air grille
at least 1.5 m from the nearest terminal unit?
8. In troubleshooting situations, is the complete ceiling in place and is the air system
balanced?
© 2011 American Society of Heating, Refrigerating and Air-Conditioning Engineers, Inc. (www.ashrae.org).
For personal use only. Additional reproduction, distribution, or transmission in either print or
digital form is not permitted without ASHRAE's prior written permission.
--``,,`,``,```,,`,,```````,,`,,,-`-`,,`,,`,`,,`---

A Practical Guide to Noise and Vibration Control for HVAC Systems
135
Site Inspection Checklist for Ductwork
1. Is all ductwork free of visible oil-canning or other movement?
2. Is all ductwork free of contact with other trades’ work?
3. Do ducts that penetrate walls avoid contact with the wall? Are the gaps around the
ducts sealed with a silicone-based sealant?
4. Is the high/medium-pressure duct system free of steep-angle transitions or offsets
that may have been installed to avoid field interferences?
5. Do all high- or medium-velocity rectangular elbows have turning vanes? Check
for turning vanes by looking for the weld spots or sheet metal screws at the appro-
priate places on the elbow cheeks. The photo in Figure 7-3 shows the screws that
were used to install turning vanes inside a large elbow.
6. Check duct gauge labels and reinforcements against SMACNA requirements.
Site Inspection Checklist for Vibration Isolators
1. Is all rotating equipment and its attached piping either mounted on or suspended
from vibration isolators?
2. Are the installed isolation systems exactly as submitted and approved? Check
isolator labels against the approved shop drawings.
Figure 7-2 Properly installed dual-duct variable air volume unit. The unit is
installed high in the plenum cavity and the two inlet ducts are
straight for several duct diameters upstream of the unit. Airflow is
from right to left.
© 2011 American Society of Heating, Refrigerating and Air-Conditioning Engineers, Inc. (www.ashrae.org).
For personal use only. Additional reproduction, distribution, or transmission in either print or
digital form is not permitted without ASHRAE's prior written permission.
--``,,`,``,```,,`,,```````,,`,,,-`-`,,`,,`,`,,`---

Construction Phase Tasks
136
3. Are all vibration isolation hangers attached directly to the stiffest parts of the
structure above (i.e., beams)? They should not be installed in the middle of a floor
diaphragm or at the bottom or in the midspan of the hanger rod.
4. Are all floor-mounted vibration isolators installed directly over or very near stiff
structural elements, e.g., beams or beam intersections?
5. Are the frames of all vibration-isolated equipment free from distortion or
sagging?
6. Are all inertia bases fully filled with the specified amount of concrete?
7. Can all isolated equipment move freely on its isolators? Check this by rocking or
jumping on the equipment while it is operating. A reasonably healthy person can
rock a properly isolated 1750 kW chiller or cooling tower.
8. Is the area under an isolated frame/base free from tools or construction debris that
might “short-circuit” the isolation? See Figure 7-4 for an example where a small
piece of electrical conduit is “short-circuiting” an isolated equipment frame.
9. Are the isolators properly loaded to give the specified deflection? This can be
checked by comparing each isolator's loaded height with its free height (given on
Figure 7-3 Check of large duct elbow verifying screw attachment of turning
vanes.
© 2011 American Society of Heating, Refrigerating and Air-Conditioning Engineers, Inc. (www.ashrae.org).
For personal use only. Additional reproduction, distribution, or transmission in either print or
digital form is not permitted without ASHRAE's prior written permission.

A Practical Guide to Noise and Vibration Control for HVAC Systems
137
its submittal sheet). Figure 7-5 shows an overloaded spring hanger. Figure 7-6
shows an overloaded spring floor mount.
10. Have the shipping shims been removed from the isolators and seismic/wind-
loading restraints? Figure 7-7 shows a “short-circuited” isolation floor mount
whose shipping shims have not been removed.
11. Does every hanger rod freely penetrate the hole in the bottom of the hanger box?
Figure 7-8 shows an installation where the hanger rod is touching the hanger box,
thereby “short-circuiting” the spring isolator.
12. Are thrust restraints keeping the fans centered on their isolators while they are
operating?
13. Is the floor/roof free of feelable vibration? Check this in areas surrounding the
equipment.
14. Do the seismic or wind-loading restraints remain “out-of-contact” during normal
equipment operation?
Site Inspection Checklist for Central Plants Near Occupied Spaces
1. Is all of the installed equipment exactly as submitted and approved?
2. Is all floor or roof-mounted equipment and piping supported on vibration
isolators?
Figure 7-4 Conduit debris short-circuiting isolator effectiveness. The small
piece of flexible conduit forms a rigid contact path between the
equipment frame and the slab, allowing equipment vibration to
bypass the spring. Also note that the spring is overloaded and
should be replaced with one that can accommodate a heavier load.
© 2011 American Society of Heating, Refrigerating and Air-Conditioning Engineers, Inc. (www.ashrae.org).
For personal use only. Additional reproduction, distribution, or transmission in either print or
digital form is not permitted without ASHRAE's prior written permission.

Construction Phase Tasks
138
Figure 7-5 Overloaded spring hanger.
Figure 7-6 Overloaded free-standing floor mount. The overloading allowed
the gussets welded to the side of the equipment frame to rest on
top of the isolator baseplate. The lower right corner of the gusset
was burned off to eliminate the gusset/baseplate contact. The
proper action would have been to replace the overloaded spring
with a stiffer one able to carry the heavy load.
© 2011 American Society of Heating, Refrigerating and Air-Conditioning Engineers, Inc. (www.ashrae.org).
For personal use only. Additional reproduction, distribution, or transmission in either print or
digital form is not permitted without ASHRAE's prior written permission.

A Practical Guide to Noise and Vibration Control for HVAC Systems
139
Figure 7-7 Short-circuited floor mount isolator whose shipping shims have
not been removed.
Figure 7-8 Faulty spring hanger installation with hanger rod touching the
hanger box. This allows pipe vibration to bypass the spring and
enter the building structure above.
© 2011 American Society of Heating, Refrigerating and Air-Conditioning Engineers, Inc. (www.ashrae.org).
For personal use only. Additional reproduction, distribution, or transmission in either print or
digital form is not permitted without ASHRAE's prior written permission.
--``,,`,``,```,,`,,```````,,`,,,-`-`,,`,,`,`,,`---
Construction Phase Tasks
140
3. Is all suspended equipment and piping hung from the slab above with vibration
isolation hangers that are attached directly to stiff portions of the structure above?
4. Is there any debris lodged beneath vibration isolation frames or concrete inertia
bases that might short-circuit the isolators? Check this by visual inspection and
by rocking or jumping on the equipment. Figure 7-4 shows a small piece of
conduit debris that is “short-circuiting” a floor-mounted spring isolator.
5. Does the electrical conduit serving the equipment have a flexible loop to prevent
vibration transmission via the conduit?
6. Are all pipe penetrations sleeved through walls and slabs to avoid contact with the
wall or slab?
7. Are the walls constructed according to the specifications?
Site Inspection Checklist for Cooling Towers,
Air-Cooled Chillers, and Air-Cooled Condensers
1. Is all of the equipment installed exactly as submitted and approved?
2. Is the “noisy” side of the equipment aimed away from the most noise-sensitive
area?
3. For rooftop installations, is the unit mounted on high-deflection spring isolators
mounted on piers or grillage beams that are directly supported by column exten-
sions or major roof beams? Mounting arrangements that transfer the equipment
load to the roof might encounter problems due to slab flexibility.
4. Does the equipment float freely on its isolators? Figure 7-9 shows an isolated
cooling tower whose taut electrical conduit forms a vibration transmission path
between the tower and the roof structure.
5. Is the equipment free from visible vibration?
6. Is all attached piping isolated from the building? Rigidly attached piping or riser
clamps resting directly on a slab can carry vibration from the equipment into the
building structure. Figure 7-10 shows three pipe risers whose clamp ears are rest-
ing directly on the floor slab. The noise and vibration sensitivity of the nearby
occupancies will determine whether the clamps should rest on neoprene pads or
spring floor mounts.
© 2011 American Society of Heating, Refrigerating and Air-Conditioning Engineers, Inc. (www.ashrae.org).
For personal use only. Additional reproduction, distribution, or transmission in either print or
digital form is not permitted without ASHRAE's prior written permission.
--``,,`,``,```,,`,,```````,,`,,,-`-`,,`,,`,`,,`---

A Practical Guide to Noise and Vibration Control for HVAC Systems
141
Figure 7-9 Taut outdoor “flexible” conduit forms a vibration “short-circuit” at
cooling tower. The grillage under the cooling tower is resting on
spring isolators, but the short conduit between the disconnect and
the roof penetration transmits tower vibration into the roof.
Figure 7-10 Pipe risers without vibration isolation. The pipe clamps transmit
pipe vibration to the slab.
© 2011 American Society of Heating, Refrigerating and Air-Conditioning Engineers, Inc. (www.ashrae.org).
For personal use only. Additional reproduction, distribution, or transmission in either print or
digital form is not permitted without ASHRAE's prior written permission.
--``,,`,``,```,,`,,```````,,`,,,-`-`,,`,,`,`,,`---
© 2011 American Society of Heating, Refrigerating and Air-Conditioning Engineers, Inc. (www.ashrae.org).
For personal use only. Additional reproduction, distribution, or transmission in either print or
digital form is not permitted without ASHRAE's prior written permission.

8
Troubleshooting Noise and
Vibration Complaints
143
It has been the author’s experience that the airside noise and vibration
complaints that are the most difficult to mitigate are those associated with excessive
duct system static pressure drops and airflow turbulence that cause the fan to oper-
ate in either stall or surge. The large majority of these problems can be avoided by
following the various guidelines given in this book, the chapter titled “Sound and
Vibration Control” in the most recent ASHRAE Handbook—Applications, and in
the most recent editions of the SMACNA publications titled HVAC Systems—Duct
Design and HVAC Duct Construction Standards—Metal and Flexible.
The most troublesome waterside noise and vibration problems are usually
associated with inadequate vibration isolation at equipment and piping and
untreated equipment room openings, e.g., either ventilation openings or pipe pene-
trations. Keep these potential problems in mind when investigating a noise or
vibration complaint.
GENERAL APPROACH
A. Describe the complaint as completely as possible.
1. Is the complaint one of noise, vibration, or both?
2. Is the problem heard, felt, or seen?
3. What word(s) best describes the complaint—rumble, roar, hiss, ripples in a
cup of coffee, etc.?
4. Is the problem continuous or repetitive on a certain schedule?
5. Is the problem at its worst at any particular time of day or time of year?
6. Can the problem be associated with the operation of a specific piece of
equipment?
© 2011 American Society of Heating, Refrigerating and Air-Conditioning Engineers, Inc. (www.ashrae.org).
For personal use only. Additional reproduction, distribution, or transmission in either print or
digital form is not permitted without ASHRAE's prior written permission.

Troubleshooting Noise and Vibration Complaints
144
The search for the answers to the above questions may lead not only to the
specific source of the problem but also to its solution without the assistance of an
acoustical professional. Whether or not an acoustical professional is retained, all of
the questions should be answered before beginning an investigation. Some of the
most frequent noise complaints are noted later in this chapter. Figure 8-1 gives
some of the complaint names and the frequency ranges usually associated with the
complaint.
B. Determine the source of the complaint.
This is usually the most difficult step because there are often many possible
sources, including some that are not even part of the HVAC system. An example
is rumble at the top floor of a building that could be caused by the HVAC system
but could also be due to ineffective vibration isolation at the elevators’ motor-gener-
ator sets or at least a half-dozen other reasons.
Determining the source is often done by turning off individual pieces of equip-
ment and asking the complainant if the problem has gone away. This procedure
works well as long as each piece of equipment can be turned off individually.
Figure 8-1 Frequency ranges of the most likely sources of common acoustical
complaints.
© 2011 American Society of Heating, Refrigerating and Air-Conditioning Engineers, Inc. (www.ashrae.org).
For personal use only. Additional reproduction, distribution, or transmission in either print or
digital form is not permitted without ASHRAE's prior written permission.
A Practical Guide to Noise and Vibration Control for HVAC Systems
145
Unfortunately, this procedure sometimes cannot be used to find a problem associ-
ated with a chilled water pump, for example, because its associated chiller, which
could be source of the complaint, should also be turned off to prevent chiller
damage. If the noise/vibration problem disappears when both machines are turned
off, then a more detailed analysis by an acoustical professional may be required to
isolate the exact cause(s) and transmission path(s).
C. Investigate the source and the transmission path.
Find out what it is about the source, its appurtenances, its operation, or any
attached system components that might be responsible for the complaints. First,
look at as much of the system as possible. For an airside system, are the fans and
ductwork all installed according to the contract documents, the guidelines given in
this book, and the SMACNA publication titled “HVAC Systems—Duct Design”?
For a waterside system, are the required vibration isolators installed on all equip-
ment and piping? If the source can operate at variable capacities, operate it at vari-
ous setpoints to determine if the problem occurs in a particular operating range. An
example of this is where the part-load rotation rate of a variable-speed fan resonates
with one of a building’s structural resonances. The solution depends on the
frequency and strength of the resonance.
If there are no obvious visible causes for the complaint, a test and balance tech-
nician should be called in to verify that the equipment is operating properly. Field
investigations of airside noise complaints often find that the fan is operating in a
stall condition (i.e., toward the left side of the fan curve), which can cause very high
levels of low-frequency rumble. The problem is often caused by excessive static
pressure in the fan’s associated ductwork due to an installation that does not comply
with the ASHRAE and SMACNA guidelines.
Remember that a single source may be causing more than one problem; that
is, excessive noise or vibration may be transmitted from a source to a complaint area
by more than one path. The air-handling unit room described in the introduction of
this guide is a good example. Turbulent discharge airflow conditions, a noisy fan,
an undersized mechanical room, and ineffective vibration isolation could all be
causes of complaints. Solving only one of the problems may not be satisfactory.
Conversely, a problem may only occur when two different system components
are operating a particular way. For example, a built-up system using parallel supply
fans with slightly different rpm rates will often exhibit a surge or throb. The surge/
throb is caused by either turbulent airflow conditions through the fan system or the
unequal operation of the fans themselves. The throb/surge rate is proportional to the
rpm difference between the two fans.
D. Select the best retrofit.
After analyzing the problem, review the possible solutions for their probable
acoustical effectiveness and their impact on system operation. The effectiveness of
© 2011 American Society of Heating, Refrigerating and Air-Conditioning Engineers, Inc. (www.ashrae.org).
For personal use only. Additional reproduction, distribution, or transmission in either print or
digital form is not permitted without ASHRAE's prior written permission.
Troubleshooting Noise and Vibration Complaints
146
a retrofit depends on many factors and is frequently limited by the space available
and the system's flexibility to accept a change. For example, adding a duct silencer
to solve a fan noise problem could worsen the problem if space constraints require
locating the silencer too close to the fan discharge. The turbulence caused by this
close placement could result in excessive silencer self-noise and excessive pressure
drop that could put the fan into a stall condition, causing an increase in the noise
level.
SPECIFIC COMPLAINTS
Characterizations of noise complaints are listed in bold; possible causes are
then listed with mitigation strategies noted below it in italics.
Buzz
Misaligned fan—rotating wheel hitting against its housing.
—Check bearings, realign and balance fan.
Ineffective or missing vibration isolation at a high-speed machine, e.g., a chiller.
—Make sure the equipment floats freely on its isolators.
—Install isolation where necessary to permit equipment to float freely without
contacting the building or other building services.
Ineffective or missing vibration isolation at a variable-frequency motor speed
controller.
—Make sure that the controller and all attached conduits are isolated from the
building using neoprene or spring isolators and flexible conduits.
Click—Intermittent
Loose accessory or debris in ductwork.
—Visually inspect ductwork. Tighten loose connections or remove debris.
Ceiling wires vibrating against ductwork, metal grid, or light fixtures.
—Inspect ceiling hanger wires in the vicinity of the complaint and move them
as necessary to avoid contact with other metal objects.
Drumming: “It sounds like a drum roll or a machine gun”
Airborne reciprocating compressor noise transmitting through a lightweight wall.
—Make an airtight seal at all wall penetrations into the equipment room, and
—Build an airtight noise enclosure around the equipment, or
—Furr out an additional gypsum board assembly to “double-up” the existing
wall, or
© 2011 American Society of Heating, Refrigerating and Air-Conditioning Engineers, Inc. (www.ashrae.org).
For personal use only. Additional reproduction, distribution, or transmission in either print or
digital form is not permitted without ASHRAE's prior written permission.
--``,,`,``,```,,`,,```````,,`,,,-`-`,,`,,`,`,,`---
A Practical Guide to Noise and Vibration Control for HVAC Systems
147
—Replace the existing gypsum board assembly with masonry.
(The acoustical performance of the floor slab and the effectiveness of the
vibration isolators sometimes limit the improvements.)
Airborne reciprocating compressor noise transmitting through a lightweight slab.
—Make an airtight seal at all slab penetrations into the equipment room, and
—Build an airtight enclosure around the equipment if the complaint is from the
floor above, or
—Install a vibration-isolated gypsum board ceiling assembly between the
equipment and the complaint area to create a “double-barrier” assembly.
Structure-borne vibration from a reciprocating compressor transmitted via ineffec-
tive or short-circuited isolators or via contact between piping/conduit and a
mechanical room wall/slab.
—Verify that the equipment floats freely on its vibration isolators, and
—Verify that all attached piping is isolated from the building via spring hang-
ers, floor mounts, and sealed penetrations, and
—Verify that all attached electrical conduits are slack and flexible.
Hiss
Air leak in duct or AHU cabinet.
—Visually inspect duct and seal all leaks. If done safely, a lit candle can be
used to find an air leak.
Excessive airflow in VAV box or grille.
—Reduce airflow through the air distribution device, or
—Move grille damper upstream of flexible duct, or
—Replace with quieter equipment selection (e.g., usually a larger size to
reduce air velocity).
Sound leak through door undercut or return air grille.
—Verify proper door alignment in its frame, and
—Install frame-mounted door seals and automatic door bottom to ensure
airtight door closure.
—Attach lined boot over return air grille.
Air leak in pneumatic control system.
—Trace piping to leak and repair or replace faulty component.
© 2011 American Society of Heating, Refrigerating and Air-Conditioning Engineers, Inc. (www.ashrae.org).
For personal use only. Additional reproduction, distribution, or transmission in either print or
digital form is not permitted without ASHRAE's prior written permission.
Troubleshooting Noise and Vibration Complaints
148
Airflow turbulence noise transmitted through thin, circular ductwork or pipe.
—Rarely a problem; an airtight enclosure or lagging spaced from 50 to
100 mm away from the pipe or duct usually helps. Install fiberglass batting
in the gap between the enclosure and the pipe/duct.
—Leak in steam piping system.
Hum
Structure-borne vibration due to ineffective or missing vibration isolation at equip-
ment or piping.
—Verify that the equipment floats freely on isolators during operation.
—Verify that isolators are sufficiently deflected when loaded.
Structure-borne vibration due to rigid contact between pipe or conduit and the
building.
—Detach pipe or conduit from building and reattach with isolator or resilient
clamp.
Common non-HVAC source; structure-borne vibration due to ineffective or miss-
ing transformer vibration isolation.
—Insert neoprene or spring/neoprene isolators under transformer.
—Make all conduit connections with flexible conduits.
Structure-borne vibration from internally isolated equipment whose shipping
bolts, blocks, or shims have not yet been released.
—Release shipping bolts, blocks, or shims to allow the equipment to float
freely on its internal isolators.
Roar: “It's as noisy as when I'm driving on the freeway”
Excessive duct velocity and airflow turbulence.
—Reduce airflow velocity by increasing duct size or adding another duct to
share the airflow.
—Replace high-pressure-drop fitting with one having better aerodynamic
performance and lower pressure drop.
Excessive fan noise due to poor fan selection.
—Replace fan with a more efficient selection.
Excessive fan roar due to lack of duct silencer or duct liner.
—Replace a duct section with a duct silencer, or
—Replace an unlined duct section with lined ductwork.
© 2011 American Society of Heating, Refrigerating and Air-Conditioning Engineers, Inc. (www.ashrae.org).
For personal use only. Additional reproduction, distribution, or transmission in either print or
digital form is not permitted without ASHRAE's prior written permission.
A Practical Guide to Noise and Vibration Control for HVAC Systems
149
Lightweight ceiling near a mechanical room with a plenum return air opening.
—Install a duct silencer or thickly lined duct elbow (a lined boot) at the equip-
ment room return air opening.
Lightweight ceiling under a high velocity duct.
—Replace duct with one of thicker duct gauge, or
—Laminate and strap gypsum board directly to duct walls, or
—Enclose duct in a gypsum board enclosure, or
—Replace ceiling with solid gypsum board, or
—Lay gypsum board panels on top of ceiling.
Medium- or high-velocity duct with closely spaced fittings.
—Reconfigure ductwork to allow 3 equivalent duct diameters between adja-
cent fittings.
Rumble: “I can see the walls shaking and can almost hear/feel the air
vibrating around me”
Fan operating in rotating stall because of excessive duct system static pressure.
—This usually happens when a duct system presents an unexpectedly high
pressure drop and the fan rpm rate is increased to deliver the necessary
airflow without regard to fan pressure. The first step is to inspect all control
system components to be sure that no damper is improperly restricting
airflow. Then check to be sure that there is no debris in the ductwork that
seriously obstructs airflow. Then check to be sure that no system component
was field-modified in a manner that would increase its pressure drop. The
solution for any of these problems is to reconfigure the duct and control
systems for the lowest possible pressure drop. A variable volume fan will
then automatically reduce its speed for the lower pressure drop. A constant
volume fan will need to be manually adjusted for the lower system static
pressure.
Excessively turbulent inlet airflow conditions at fan.
—Move fan or obstruction to provide adequate inlet clearance.
Excessively turbulent discharge airflow condition at fan.
—Reconfigure discharge duct according to SMACNA recommendations.
Figures 8-2 and 8-3 show examples of extremely turbulent fan/duct
discharge airflow conditions that caused noise complaints.
© 2011 American Society of Heating, Refrigerating and Air-Conditioning Engineers, Inc. (www.ashrae.org).
For personal use only. Additional reproduction, distribution, or transmission in either print or
digital form is not permitted without ASHRAE's prior written permission.
--``,,`,``,```,,`,,```````,,`,,,-`-`,,`,,`,`,,`---

Troubleshooting Noise and Vibration Complaints
150
Excessive static pressure in duct system due to an improper air balance.
—Rebalance system by opening dampers to reduce system pressure, and
—Reduce fan rpm to match fan performance to the new system curve.
Ceiling grid suspended from ductwork.
—Remove ceiling hangers from ductwork and reattach to building structure
using a different suspension method that does not touch the ductwork.
Oil-canning of fan housing.
—Check belt and sheave alignments,
—Add reinforcing stiffeners to housing panels.
Oil-canning ductwork caused by turbulent airflow.
—Reduce airflow velocity and/or reconfigure ductwork according to
SMACNA requirements for smoother airflow and lower pressure drop.
Figure 8-2 Example of poor fan discharge duct design. The mitered elbow
with turning vanes and steep transition downstream of the fan
outlet cause fan instability and accompanying noise and rumble. A
better installation would have used a horizontal discharge fan with
fewer downstream fittings.
© 2011 American Society of Heating, Refrigerating and Air-Conditioning Engineers, Inc. (www.ashrae.org).
For personal use only. Additional reproduction, distribution, or transmission in either print or
digital form is not permitted without ASHRAE's prior written permission.
--``,,`,``,```,,`,,```````,,`,,,-`-`,,`,,`,`,,`---

A Practical Guide to Noise and Vibration Control for HVAC Systems
151
—Add duct reinforcing in accord with SMACNA guidelines—helps only if the
original installation was not installed or reinforced according to SMACNA
guidelines.
—Replace ductwork with that of thicker duct gauge or with spiral-wound
circular ductwork.
—Lag ductwork with additional reinforcements and gypsum board between
the reinforcements.
Excessive fan vibration due to imbalance.
—Balance fan.
Excessive fan vibration because of loose adjustable sheave.
—Replace the adjustable sheave with a fixed one of the proper pitch.
Figure 8-3 Fan installation with poor discharge duct system aerodynamics.
The close-coupled discharge damper and reverse-direction elbow
create extremely high turbulence that creates rotating fan stall,
performance reduction, and rumble.
© 2011 American Society of Heating, Refrigerating and Air-Conditioning Engineers, Inc. (www.ashrae.org).
For personal use only. Additional reproduction, distribution, or transmission in either print or
digital form is not permitted without ASHRAE's prior written permission.
Troubleshooting Noise and Vibration Complaints
152
Excessive fan vibration because of worn shaft or bearings or misaligned shaft.
—Realign or replace shaft and bearings as needed.
Fan surging because of loose belts.
—Tighten or replace belts.
Duct or pipe touching wall or ceiling assembly.
—Break contact between the pipe/duct and the wall/ceiling assembly.
Fan, cooling tower, pump, or piping not properly vibration-isolated from the building.
—Install vibration isolation mounts or hangers at all equipment attachments
to the building. Install vibration isolators at all connected piping, electrical
conduits.
—Verify that ducts are attached with flexible duct connectors.
Common non-HVAC source, unisolated elevator motor-generator sets.
—Install vibration isolation mounts under the motor-generator sets.
—Verify that the attached electrical conduit is flexible and not rigidly attached
to the building.
Squeal
Belt slippage during fan start-up.
—This is normal for high kW, constant-speed fans.
—Convert to a variable-speed drive or a “soft start” motor starter.
Belt slippage during normal operation.
—Tighten belts, check sheave alignment.
Surge: “The roar or hum comes and goes about once every second or so”
Fan drive instability due to fan belt mismatch.
—Replace with a matched set of new belts and realign the sheaves.
Fan instability due to poor airflow conditions at inlet
—Improve airflow conditions by either increasing clearance to the fan inlet or
by installing a velocity-smoothing grid at the fan inlet.
Fan instability due to poor airflow conditions at discharge
—Improve discharge airflow conditions by reconfiguring the discharge duct-
work to move all duct fittings and appurtenances at least 3 equivalent duct
diameters downstream of the fan discharge opening.
© 2011 American Society of Heating, Refrigerating and Air-Conditioning Engineers, Inc. (www.ashrae.org).
For personal use only. Additional reproduction, distribution, or transmission in either print or
digital form is not permitted without ASHRAE's prior written permission.
A Practical Guide to Noise and Vibration Control for HVAC Systems
153
Fan instability due to operation at the left side of the fan curve.
—Reconfigure ductwork and/or dampers to reduce system static pressure
drop, and
—Reduce fan rpm to move operation to the right side of the curve, or
—Replace fan with one that can accommodate the higher static pressure.
Pump instability because of worn rotor bearings.
—Replace rotor bearings.
Parallel fans operating at slightly different rpm rates.
—Usually occurs with paired belt-drive fans.
—Convert to direct-drive fans on a single or master-slave VFD arrangement.
Chiller control system misadjusted.
—Readjust control system to load the compressor properly.
Ta p
See Click
Throb
See Surge or Rumble.
Whine
Blade passage tone of vane-axial fan, inadequate noise control at or near fan.
—Verify proper fan selection for the operating setpoint.
—Verify smooth airflow conditions at fan inlet and outlet.
—Verify the presence of close-coupled duct silencers on one or both sides of
the fan.
Blade passage tone of vane-axial fan, inadequate vibration isolation at fan.
—Verify that the fan floats freely on its vibration isolators.
—Verify the presence of neoprene pads at the base of the spring isolators.
—Verify that the duct(s) is (are) connected to the fan via flexible connectors.
—Verify the presence of flexible conduit connections to the motor.
Pump impeller blade tone, inadequate vibration isolation at pump or piping.
—Make sure the pump floats freely on its vibration isolators and the piping is
not rigidly connected to any part of the building.
© 2011 American Society of Heating, Refrigerating and Air-Conditioning Engineers, Inc. (www.ashrae.org).
For personal use only. Additional reproduction, distribution, or transmission in either print or
digital form is not permitted without ASHRAE's prior written permission.
Troubleshooting Noise and Vibration Complaints
154
Airborne “pumping tone” from an indoor, water-cooled screw (rotary) chiller
—Verify that the problem is not due to structure-borne vibration caused by
rigid attachment of chiller, its piping, or its conduits to building.
—If the problem is verified as airborne, enclose the entire chiller in an airtight
enclosure (enclosing only the compressor is usually ineffective because
there is typically significant radiation from the oil separator and heat
exchangers), or
—Install a vibration-isolated gypsum board ceiling assembly between the
equipment and the complaint area to create a “double-barrier” assembly.
—Adding 50 mm thick sound-absorbing panels to the equipment room ceiling
and walls will be effective if only a small amount of noise reduction (about
3 to 5 dBA) is needed.
Structure-borne “pumping tone” from a water-cooled, indoor screw (rotary)
chiller.
—Verify that the chiller is mounted on high-deflection spring isolators that
have neoprene inserts under the springs; in extreme cases, pneumatic isola-
tors are needed.
—Verify that all piping and conduits are resiliently attached to the chiller.
—Verify that all piping is attached to the building using spring hangers that
have neoprene inserts.
—Verify that all isolators are properly adjusted to preclude “short-circuiting.”
Figure 8-4 shows a “short-circuited” restrained spring mount.
Airborne “pumping tone” from an outdoor, air-cooled screw (rotary) chiller.
—Install an airtight enclosure around the compressors and oil separator (and
the heat exchangers, if feasible).
—Install a barrier to block the line-of-sight between the chiller and the
complaint area (verify that the barrier does not restrict airflow to the
chiller’s condenser airflow).
Whistle
Water valve instability.
—Inspect valve to be sure the control mechanism is functioning properly.
Excessive airflow through an air outlet or inlet.
—Reduce airflow through the device.
© 2011 American Society of Heating, Refrigerating and Air-Conditioning Engineers, Inc. (www.ashrae.org).
For personal use only. Additional reproduction, distribution, or transmission in either print or
digital form is not permitted without ASHRAE's prior written permission.
--``,,`,``,```,,`,,```````,,`,,,-`-`,,`,,`,`,,`---

A Practical Guide to Noise and Vibration Control for HVAC Systems
155
Uneven airflow through a grille or diffuser.
—Adjust the upstream ductwork to straighten the airflow into the device’s inlet
collar.
Damper or extractor too close to grille or diffuser inlet.
—Remove damper or extractor or move it upstream at least 3 duct widths from
the device’s inlet collar.
Raw sheet metal edge exposed to airflow.
—Trim edge to be as short as possible or turn edge to be blunt.
SITE INSPECTION PHOTOGRAPHS
Figures 8-5 through 8-23 show proper and improper installations of various
HVAC system components. In many cases, direct comparisons are made to high-
light the most common problems in the areas of vibration isolation, ductwork, and
equipment installation.
Figure 8-4 Restrained spring isolator with a “short circuit” between its
baseplate and equipment mounting plate. This type of isolator has
become obsolete and is not recommended for any type of HVAC
equipment.
© 2011 American Society of Heating, Refrigerating and Air-Conditioning Engineers, Inc. (www.ashrae.org).
For personal use only. Additional reproduction, distribution, or transmission in either print or
digital form is not permitted without ASHRAE's prior written permission.

Troubleshooting Noise and Vibration Complaints
156
Figure 8-5 View into the fan section of a rooftop unit; the tight cabinet
clearance and airflow obstructions at the fan inlet cause excessive
turbulence, pressure drop, and noise.
Figure 8-6 Excellent rooftop package unit installation; the unit is resting on
spring isolators and an elevated frame, thereby avoiding contact
with the roof.
© 2011 American Society of Heating, Refrigerating and Air-Conditioning Engineers, Inc. (www.ashrae.org).
For personal use only. Additional reproduction, distribution, or transmission in either print or
digital form is not permitted without ASHRAE's prior written permission.
--``,,`,``,```,,`,,```````,,`,,,-`-`,,`,,`,`,,`---

A Practical Guide to Noise and Vibration Control for HVAC Systems
157
Figure 8-7 Improperly installed fan-powered variable-air-volume unit. The
unit is resting on the ceiling grid. This allows unit vibration to
transmit directly into the partition below. The partition then acts
as a sounding board, radiating noise into the occupied space.
Figure 8-8 Proper installation of an indoor self-contained packaged HVAC
unit. Note the dual radius supply duct split on top of the unit; the
return air sound traps to the left of the supply duct, the black
plenum liner on the mechanical room wall, and the spring isolator
under the unit.
© 2011 American Society of Heating, Refrigerating and Air-Conditioning Engineers, Inc. (www.ashrae.org).
For personal use only. Additional reproduction, distribution, or transmission in either print or
digital form is not permitted without ASHRAE's prior written permission.

Troubleshooting Noise and Vibration Complaints
158
Figure 8-9 Closely spaced circular duct fittings produce turbulence and noise.
This duct run does not follow the guideline recommending 3 duct
diameters between adjacent fittings. It has five fittings within 8 m.
Figure 8-10 Closely spaced rectangular duct fittings produce turbulence and
noise. A better offset around the pipes could have been made with
a duct section on a 45° slope between the vertical and horizontal
sections.
© 2011 American Society of Heating, Refrigerating and Air-Conditioning Engineers, Inc. (www.ashrae.org).
For personal use only. Additional reproduction, distribution, or transmission in either print or
digital form is not permitted without ASHRAE's prior written permission.
--``,,`,``,```,,`,,```````,,`,,,-`-`,,`,,`,`,,`---

A Practical Guide to Noise and Vibration Control for HVAC Systems
159
Figure 8-11 Improper duct transition at fan inlet. The high-velocity airflow in
the short, abrupt transition between the fan outlet and the vertical
duct causes turbulence and rumble.
Figure 8-12 Vane-axial fan intakes too close to wall. Airflow through the
restricted area between the fans and the wall causes turbulence,
surging, and rumble.
© 2011 American Society of Heating, Refrigerating and Air-Conditioning Engineers, Inc. (www.ashrae.org).
For personal use only. Additional reproduction, distribution, or transmission in either print or
digital form is not permitted without ASHRAE's prior written permission.

Troubleshooting Noise and Vibration Complaints
160
Figure 8-13 Duct split using radius elbows. This design is preferred because it
produces less pressure drop and noise than a bullhead tee.
Figure 8-14 Faulty installation of a large equipment isolator with stanchion
restraints. The spring top plate is touching the near stanchion and
the equipment mounting plate is resting on the stanchions. Both
conditions allow equipment vibrations to bypass the spring and
enter the building structure through the isolator baseplate.
© 2011 American Society of Heating, Refrigerating and Air-Conditioning Engineers, Inc. (www.ashrae.org).
For personal use only. Additional reproduction, distribution, or transmission in either print or
digital form is not permitted without ASHRAE's prior written permission.

A Practical Guide to Noise and Vibration Control for HVAC Systems
161
Figure 8-15 Proper installation of a large equipment isolator with stanchion
restraints. Note that the springs are centered between the
stanchions and are properly compressed and that the equipment
mounting plate is floating about 6 mm above the stanchion top
plates.
Figure 8-16 Braided metal pump connectors do not provide significant
vibration isolation.
© 2011 American Society of Heating, Refrigerating and Air-Conditioning Engineers, Inc. (www.ashrae.org).
For personal use only. Additional reproduction, distribution, or transmission in either print or
digital form is not permitted without ASHRAE's prior written permission.

Troubleshooting Noise and Vibration Complaints
162
Figure 8-17 Neoprene pump connectors provide better isolation of pump
vibration from attached piping.
Figure 8-18 Incomplete vibration isolation at cooling tower. Even though the
tower is isolated, the condenser water pipe supports are mounted
rigidly to the roof. This allows some tower vibration to enter the
roof structure.
© 2011 American Society of Heating, Refrigerating and Air-Conditioning Engineers, Inc. (www.ashrae.org).
For personal use only. Additional reproduction, distribution, or transmission in either print or
digital form is not permitted without ASHRAE's prior written permission.

A Practical Guide to Noise and Vibration Control for HVAC Systems
163
Figure 8-19 Taut “flexible” conduit forms a vibration short-circuit at vane-axial
fan. Spring isolators under the vane-axial fan perform as expected,
but the tight conduit arc transmits fan vibration into the
disconnect, which is rigidly supported on the floor. A longer, more
slack conduit would provide better isolation.
Figure 8-20 Correctly installed flexible conduit between electrical disconnect
and motor. The flexible installation reduces fan and motor
vibration in the floor slab.
© 2011 American Society of Heating, Refrigerating and Air-Conditioning Engineers, Inc. (www.ashrae.org).
For personal use only. Additional reproduction, distribution, or transmission in either print or
digital form is not permitted without ASHRAE's prior written permission.

Troubleshooting Noise and Vibration Complaints
164
Figure 8-21 View of pipe penetration from below roof. The pipe on the right
is contacting the left edge of its penetration. This installation
allowed pipe vibration to excite the roof slab, which radiated the
energy as noise.
Figure 8-22 Non-isolated pipe penetration. Rigid contact allows pipe vibration
to enter the wall, which radiates the energy as noise.
© 2011 American Society of Heating, Refrigerating and Air-Conditioning Engineers, Inc. (www.ashrae.org).
For personal use only. Additional reproduction, distribution, or transmission in either print or
digital form is not permitted without ASHRAE's prior written permission.
--``,,`,``,```,,`,,```````,,`,,,-`-`,,`,,`,`,,`---

A Practical Guide to Noise and Vibration Control for HVAC Systems
165
Figure 8-23 Improperly placed neoprene hanger. The drywall assembly forms
a vibration transmission bridge across the isolator. This type of
interference can be identified and corrected in pre-construction
coordination meetings.
© 2011 American Society of Heating, Refrigerating and Air-Conditioning Engineers, Inc. (www.ashrae.org).
For personal use only. Additional reproduction, distribution, or transmission in either print or
digital form is not permitted without ASHRAE's prior written permission.
--``,,`,``,```,,`,,```````,,`,,,-`-`,,`,,`,`,,`---
© 2011 American Society of Heating, Refrigerating and Air-Conditioning Engineers, Inc. (www.ashrae.org).
For personal use only. Additional reproduction, distribution, or transmission in either print or
digital form is not permitted without ASHRAE's prior written permission.

Appendix A
Some Basics of
HVAC Acoustics
167
Sound and vibration are unavoidable features of all HVAC systems. Turbulent
airflow in fans, ductwork, and plenums generates sound that can intrude into occu-
pied spaces. Waterflow through pumps, central plant equipment, and piping
systems also generate noise that may require control. Additionally, the operation
of rotating and reciprocating equipment, such as fans, pumps, and chillers, creates
noise and vibration that can be transmitted throughout building structures and
annoy building occupants or be emitted into the environment and cause noise
complaints at nearby properties.
AIRBORNE AND STRUCTUREBORNE SOUND
HVAC system noise reaches building occupants by airborne and structure-
borne sound transmission paths. The principles of the two types of sound trans-
mission are shown in Figure A-1. When the hammer in the figure hits the bell,
airborne sound transmission carries the ringing sound throughout the room and
through the walls to adjacent rooms. The transmission is considered to be airborne
because the source does not touch the building. Conversely, the impact of the
hammer on a nail that is embedded in a wall causes structureborne transmission
that carries the impulse throughout the entire building structure, so that even occu-
pants in rooms on other floors can hear it. The contact of the source to the building
makes this a structureborne sound transmission path.
Figure A-2 shows how airborne and structureborne transmission carry sound
and vibration from a piece of equipment throughout a building. Airborne transmis-
sion carries sound directly from the equipment to the surrounding rooms. Even
though the equipment in the figure is shown to be on vibration isolators, it still
transmits vibration energy to the building structure. The energy enters the walls
© 2011 American Society of Heating, Refrigerating and Air-Conditioning Engineers, Inc. (www.ashrae.org).
For personal use only. Additional reproduction, distribution, or transmission in either print or
digital form is not permitted without ASHRAE's prior written permission.

Some Basics of HVAC Acoustics
168
and ceilings, which radiate it as sound throughout the building. The isolators
reduce the structureborne energy to acceptable levels, but they do not eliminate it
completely.
Good acoustical design addresses the potential for both airborne and struc-
tureborne transmission through the effective use of space planning, structural
design, equipment selection, duct system design, and “add-on” noise and vibration
control products and systems, where necessary.
Figure A-1 Airborne and structure-borne sound transmission.
© 2011 American Society of Heating, Refrigerating and Air-Conditioning Engineers, Inc. (www.ashrae.org).
For personal use only. Additional reproduction, distribution, or transmission in either print or
digital form is not permitted without ASHRAE's prior written permission.
--``,,`,``,```,,`,,```````,,`,,,-`-`,,`,,`,`,,`---

A Practical Guide to Noise and Vibration Control for HVAC Systems
169
BASIC TERMINOLOGY
The acoustical terms most frequently encountered in HVAC system design are
decibels, frequency, octave bands, sound pressure level, and sound power level.
These terms are explained below. Definitions of other acoustical terms are given
in the glossary in Appendix E.
Decibel
The decibel (dB) is the basic unit for acoustical calculations and measure-
ments. It applies to sound pressure levels (LP), sound power levels (LW), insertion
loss (IL), transmission loss (TL), and other acoustical properties of HVAC equip-
ment and construction materials.
Figure A-2 Airborne and structure-borne sound transmission from
equipment.
© 2011 American Society of Heating, Refrigerating and Air-Conditioning Engineers, Inc. (www.ashrae.org).
For personal use only. Additional reproduction, distribution, or transmission in either print or
digital form is not permitted without ASHRAE's prior written permission.

Some Basics of HVAC Acoustics
170
Because the decibel scale is logarithmic, the combined sound level of two or
more sound sources is not found by arithmetically adding their individual sound
levels. For example, two identical sources producing 50 dB each generate a total
of 53 dB, not 100 dB. Conversely, if two identical sources produce a combined
sound level of 80 dB, shutting one off drops the level to 77 dB, not 40 dB. The chart
in Figure A-3 can be used for adding decibels. For the addition of more than two
noise sources, first perform the calculation for the two highest LP values, then
perform the calculation again using the previous sum plus the next highest LP value,
etc. This calculation procedure applies to either LP values or LW values.
Frequency
What we hear as sound is the back-and-forth oscillatory motion of the air mole-
cules next to our eardrums. This oscillatory disturbance of the air around us is
caused by a corresponding oscillatory motion of the air molecules near one or more
sound sources. Each back-and-forth motion is called a cycle. The frequency of the
sound is the number of times the air molecules vibrate back and forth each second
and is expressed in terms of cycles per second (cps) or hertz (Hz).
Figure A-3 Chart for adding decibel values.
© 2011 American Society of Heating, Refrigerating and Air-Conditioning Engineers, Inc. (www.ashrae.org).
For personal use only. Additional reproduction, distribution, or transmission in either print or
digital form is not permitted without ASHRAE's prior written permission.

A Practical Guide to Noise and Vibration Control for HVAC Systems
171
Audible sound occurs in the frequency spectrum that spans from about 20 to
20,000 Hz. Figure A-4 shows the approximate frequency ranges of some everyday
sounds.
Octave Bands
For convenience, the frequency spectrum is divided into octave bands, each of
which is a continuous range of frequencies identified by its logarithmic center
frequency. The highest frequency of each octave band is twice its lowest frequency.
Figure A-5 shows the center frequencies of the octave bands that are most important
in HVAC acoustics, as well as the octave band distribution of noise from various kinds
of HVAC equipment. Acoustical analyses at narrower frequency ranges (1/3 octave
wide or even narrower) are frequently used for troubleshooting noise complaints and
product development research.
Table A-1 shows the lower and upper frequency limits for each of the eight
octave bands that are typically encountered in HVAC noise analyses.
Sound Pressure Level
Sound pressure level, abbreviated LP or SPL, is expressed in dB and is the
most widely used acoustical descriptor. It indicates the level of sound at a specific
location at a specific time for a specific set of conditions. Each octave band (or
Figure A-4 Everyday sound sources—their frequencies and wavelengths.
© 2011 American Society of Heating, Refrigerating and Air-Conditioning Engineers, Inc. (www.ashrae.org).
For personal use only. Additional reproduction, distribution, or transmission in either print or
digital form is not permitted without ASHRAE's prior written permission.

Some Basics of HVAC Acoustics
172
Table A-1. Octave Band Center Frequencies
and Their Frequency Ranges
Octave Band
Center Frequency
In Hertz
Lower
Frequency Limit
in Hertz
Upper
Frequency Limit
in Hertz
63 44 88
125 88 177
250 177 354
500 354 707
1000 707 1414
2000 1414 2828
4000 2828 5656
8000 5656 11,312
Figure A-5 Frequencies at which various types of HVAC equipment generally
control their sound spectra.
© 2011 American Society of Heating, Refrigerating and Air-Conditioning Engineers, Inc. (www.ashrae.org).
For personal use only. Additional reproduction, distribution, or transmission in either print or
digital form is not permitted without ASHRAE's prior written permission.

A Practical Guide to Noise and Vibration Control for HVAC Systems
173
1/3-octave band) of a sound spectrum can have its own LP value. For most HVAC
installations, the LP can range from less than 10 dB in a very quiet recording
studio or concert hall to as much as 125 dB in a very noisy fan or chiller room.
Figure A-6 shows the approximate sound pressure levels for common everyday
activities.
Each person hears changes in sound level differently, but the average percep-
tions of sound level changes are fairly well understood and are summarized in
Table A-2. Note that the 3 dB drop that results from shutting down one of two iden-
Figure A-6 Sound pressure levels of some everyday activities.
© 2011 American Society of Heating, Refrigerating and Air-Conditioning Engineers, Inc. (www.ashrae.org).
For personal use only. Additional reproduction, distribution, or transmission in either print or
digital form is not permitted without ASHRAE's prior written permission.

Some Basics of HVAC Acoustics
174
tical sound sources yields a “just perceptible” reduction in loudness. Try this using
two radios tuned to the same station at the same volume level. Notice that the loud-
ness after turning off one of the radios is only a little quieter than before, not half
as loud.
Sound Power Level
Sound power level, abbreviated LW, PWL, or SWL, also expressed in dB, is
used to indicate the amount of sound that a source produces. The sound power
levels that are generated by an HVAC system component depend on its operating
conditions; in general, operation at higher motor kW rating for a given piece of
equipment will usually be louder than at a lower kW rating. Sound power levels are
used as the starting points for most acoustical calculations. The effects of the equip-
ment’s location and the attenuation due to any nearby architectural elements and
HVAC system components are accounted for in the calculation process.
The LW values for each type of HVAC component are determined in specially
designed acoustical laboratories through the use of nationally recognized test stan-
dards. LW values cannot be measured directly but are calculated from LP or sound
intensity measurements. Each octave band or 1/3-octave band of a sound spectrum
can have its own LW value.
Because LP and LW are both expressed in dB and describe levels of sound, they
are often confused with each other. In fact, LP and LW are easy to understand when
compared with joules (J) and the temperature in degrees. Just as the number of
Table A-2. Subjective Impressions of Sound Level Differences
Subjective Impression
63 Hz
Octave Band
125 Hz Octave
Band
250+ Hz
Octave Bands
Half as Loud –6 dB –8 dB –10 dB
Significantly Quieter –3 dB –4 dB –5 dB
Just Barely Quieter –1 dB –1.5 dB –2 dB
Just Barely Louder +1 dB +1.5 dB +2 dB
Significantly Louder +3 dB +4 dB +5 dB
Twice as Loud +6 dB +8 dB +10 dB
© 2011 American Society of Heating, Refrigerating and Air-Conditioning Engineers, Inc. (www.ashrae.org).
For personal use only. Additional reproduction, distribution, or transmission in either print or
digital form is not permitted without ASHRAE's prior written permission.
A Practical Guide to Noise and Vibration Control for HVAC Systems
175
joules can be used to indicate the amount of heat released by a piece of equipment,
the LW value indicates the amount of sound it radiates. The temperature in degrees
at some location away from a heat source depends on the distance from the source
and the environment’s thermal characteristics. Similarly, the LP value at a given
listener’s location away from a sound source depends on the distance from the
source and the acoustical characteristics of the environment between the source and
the listener.
Acoustical professionals and other trained engineers use equipment LW values
to calculate the expected LP values in a finished installation. The calculations are
typically done in octave bands, although A-weighted calculations (see
Appendix B, “Acoustical Rating Systems and Criteria”) are sufficient in some
instances. The chapter titled “Sound and Vibration Control” in the quadrennial
ASHRAE Handbook—Applications (2007, 2011, etc.) is one of many references
that explain the calculation process.
CHARACTERISTICS OF HVAC NOISE
The noise of HVAC system components can be characterized as either broad-
band or tonal. Broadband noise contains sound energy of similar strength over a
wide range of contiguous frequencies. Rain and wind create broadband noise.
HVAC system examples are airflow through ductwork and diffusers and waterflow
through pipes.
Tonal noise contains sound energy at discrete frequencies and is usually more
annoying than broadband noise of equal sound level.
Many kinds of HVAC equipment produce both broadband and tonal noise. For
instance, fans with fewer than 20 blades typically generate strong tones at the blade
passage frequency along with broadband noise caused by the turbulent airflow
through the fan. Likewise, a screw chiller’s compressor creates very strong “pump-
ing tones” at frequencies that depend on the rotation rate of its screws, while the
turbulent flow of water and refrigerant through the chiller package piping create
broadband noise. In many cases, equipment that produces strong tones also
produces significant vibration at the tonal frequencies, so careful attention to both
noise and vibration control are needed.
© 2011 American Society of Heating, Refrigerating and Air-Conditioning Engineers, Inc. (www.ashrae.org).
For personal use only. Additional reproduction, distribution, or transmission in either print or
digital form is not permitted without ASHRAE's prior written permission.
© 2011 American Society of Heating, Refrigerating and Air-Conditioning Engineers, Inc. (www.ashrae.org).
For personal use only. Additional reproduction, distribution, or transmission in either print or
digital form is not permitted without ASHRAE's prior written permission.

Appendix B
Acoustical Rating
Systems and Criteria
177
Because the human response to noise depends on so many factors (e.g., level,
frequency content, modulation rates, etc.), it is difficult to describe an acceptable
noise environment. Several single-number rating methods, each with its own set of
assumptions and limiting conditions, have been developed to help establish accept-
able sound exposure criteria in and around buildings, but no single method has been
universally accepted. The methods that are most frequently used to rate HVAC
system noise are the A-weighted sound level (dBA), C-weighted sound level
(dBC), loudness level (sones), Room Criteria Mark II (RC Mk II), Noise Criteria
(NC), and Balanced Noise Criteria (NCB) rating systems. A brief description of
each rating system is given below.
A-WEIGHTED SOUND LEVEL (dBA)
The A-weighted sound level (LPA), expressed in dBA, is often used to rate
HVAC noise where either hearing conservation or outdoor noise exposure is of
concern. The dBA method has gained popularity because an acoustical environ-
ment’s A-weighted sound level can be used to roughly assess its subjective loud-
ness and because it can be easily measured with an inexpensive, handheld sound
level meter. (More information on sound level meters is given in Appendix C.) A
sound level meter’s A-weighting electrical circuit filters the measured noise in
accordance with the lowest curve shown in Figure B-1. The effect of the curve is
to filter out most of the sound’s low-frequency content in a manner that is similar
to the filtering that occurs in the human ear.
Measuring the A-weighted sound level is rarely valuable when investigating
a noise complaint because it provides no information on the frequency content of
the noise. The A-weighted sound level is most useful when comparing the relative
loudness of one acoustical environment with another similar environment. For
© 2011 American Society of Heating, Refrigerating and Air-Conditioning Engineers, Inc. (www.ashrae.org).
For personal use only. Additional reproduction, distribution, or transmission in either print or
digital form is not permitted without ASHRAE's prior written permission.

Acoustical Rating Systems and Criteria
178
example, in the case of diffuser noise, measuring the A-weighted sound level at
various airflow quantities could help determine if lowering the air quantity to the
diffuser would be an effective noise reduction treatment.
C-WEIGHTED SOUND LEVEL (dBC)
The turbulence caused by wind blowing over a sound level meter’s microphone
can create very high levels of self-generated noise at low frequencies. If the meter
is set to its “linear” (unfiltered) mode, then the unfiltered sound energy at all
frequencies, including the turbulence-generated self-noise, will be included in the
LP value that is displayed by the meter. The dashed line in Figure B-1 shows the
Figure B-1 Frequency weighting curves. Effects of linear, A-weighting, and C-
weighting filters.
© 2011 American Society of Heating, Refrigerating and Air-Conditioning Engineers, Inc. (www.ashrae.org).
For personal use only. Additional reproduction, distribution, or transmission in either print or
digital form is not permitted without ASHRAE's prior written permission.
A Practical Guide to Noise and Vibration Control for HVAC Systems
179
“linear” filter response. The C-weighting filter was designed to filter out most of
the turbulence-generated self-noise with little or no filtering effect at the frequen-
cies of sound that are typically produced by HVAC equipment.
The C-weighted sound level (LPC), expressed in dBC, is often used in conjunc-
tion with a microphone windscreen to measure unweighted sound levels outdoors
in the presence of low-to-moderate winds. In the absence of octave band data,
comparing an acoustical environment’s LPA and LPC values can provide a rough
estimate of frequency balance but usually will not provide enough information to
develop noise reduction treatments when troubleshooting a noise complaint.
LOUDNESS LEVEL (SONES)
The sone rating method was developed to give system designers a linear scale
for rating the approximate loudness of non-ducted fans, such as the small cabinet
fans used in residential bathrooms, kitchens, and utility rooms, and for propeller
panel fans used in general ventilation applications. Unlike the various decibel-
based ratings, for which a doubling of the loudness requires an approximate 10 dB
increase in the sound level, the sone method is linear, such that a doubling of the
sone rating is approximately a doubling of the loudness. For example, a rating of
1 sone is the approximate loudness of sound environment with an A-weighted
sound level in the range of 35 to 40 dBA; a 2 sone rating would apply to an envi-
ronment where the sound level is in the 45 to 50 dBA range, and a 4 sone rating
would correlate with a sound level in the 55 to 60 dBA range.
Unfortunately, there are two different methods for calculating a sone rating,
and they always result in different values. Therefore, since a sone rating is a single
number that does not provide any information on the frequency content of the sound
spectrum, and since there is no universally accepted method for calculating a sone
rating, its usefulness should be limited to comparing the approximate loudness of
fans of the same type from the same manufacturer.
ROOM CRITERIA (RC) AND RC MARK II
The Room Criteria (RC) rating method and its successor method, RC Mark II,
were intended to help rate the acoustical acceptability of measured octave band LP
spectra in finished buildings. They were never intended for rating calculated LP
values obtained during the system design phase; nonetheless, they are sometimes
used erroneously for this purpose. Both of the RC methods compare a set of field-
measured, octave band LP values with a set of reference curves. Figure B-2 shows
the original RC reference curves, and Figure B-3 shows the RC Mark II reference
curves.
Both of the RC rating methods have two factors: (1) a numerical value that
rates the ease of voice communication in the measured acoustical environment and
© 2011 American Society of Heating, Refrigerating and Air-Conditioning Engineers, Inc. (www.ashrae.org).
For personal use only. Additional reproduction, distribution, or transmission in either print or
digital form is not permitted without ASHRAE's prior written permission.

Acoustical Rating Systems and Criteria
180
Figure B-2 Blank RC chart.
© 2011 American Society of Heating, Refrigerating and Air-Conditioning Engineers, Inc. (www.ashrae.org).
For personal use only. Additional reproduction, distribution, or transmission in either print or
digital form is not permitted without ASHRAE's prior written permission.

A Practical Guide to Noise and Vibration Control for HVAC Systems
181
Figure B-3 Blank RC mark II chart.
© 2011 American Society of Heating, Refrigerating and Air-Conditioning Engineers, Inc. (www.ashrae.org).
For personal use only. Additional reproduction, distribution, or transmission in either print or
digital form is not permitted without ASHRAE's prior written permission.
Acoustical Rating Systems and Criteria
182
(2) an alphabetical suffix that indicates the subjective quality of the noise. The RC
Mark II method also includes a quality assessment index (QAI) value that indicates
the relative balance between the measured spectrum’s low, middle, and high
frequency octave band sound levels. Details on the use of both methods are given
in Chapter 47 of the 2003 ASHRAE Handbook—Applications. Proponents of the
RC-based methods recommended using only the RC Mark II method as a diagnos-
tic tool when investigating noise complaints.
NOISE CRITERIA (NC) AND
BALANCED NOISE CRITERIA (NCB)
The NC rating method was the first widely used method for rating octave band
LP spectra. Like the RC method, it can be used to compare field-measured octave
band LP values with a set of reference curves (see Figure B-4). However, since it
is also a design tool, the NC method can also be used to assess the results of design
phase acoustical calculations, for example, to determine whether or not a system
needs a quieter fan or an “add-on” noise reduction treatment, such as a duct silencer
or acoustical louver.
The NC rating of an octave band LP spectrum is determined by finding the
highest reference curve that is tangent to the octave band spectrum. Figure B-5
shows an example of a spectrum that is rated at NC-45 because its 125 Hz sound
level is tangent to the NC-45 curve and no other octave band level is tangent to a
higher NC reference curve. Because NC ratings are defined only on five-point
increments, there is no precisely defined rating such as NC-42. Spectra that fall
between NC reference curves are described by their proximity to the nearest curve.
The NC rating method is still the most popular rating method; however, it
should be used with caution when rating field-measured LP values because the NC
reference curves do not extend to the 16 and 31 Hz octave bands, regions where
some of the most troublesome HVAC noise and vibration control problems occur.
The NCB method, a successor to the NC method, attempts to resolve this short-
coming by defining reference values in the 16 and 31 Hz octave bands while also
adjusting the slopes of the reference curves at the higher frequency bands (see
Figure B-6). Like RC Mark II, the complete NCB method rates spectral balance.
A complete description of the use of both methods can be found in ANSI Standard
S12.2-1995, Standard Criteria for Evaluating Room Noise.
WHICH RATING METHOD IS BEST?
None of the octave band rating methods has received unequivocal acceptance
by the entire acoustical consulting community because none of the methods has all
of the attributes necessary for properly rating the wide range of HVAC noise envi-
ronments; a very complicated method based on 1/3-octave LP values would be
© 2011 American Society of Heating, Refrigerating and Air-Conditioning Engineers, Inc. (www.ashrae.org).
For personal use only. Additional reproduction, distribution, or transmission in either print or
digital form is not permitted without ASHRAE's prior written permission.
--``,,`,``,```,,`,,```````,,`,,,-`-`,,`,,`,`,,`---

A Practical Guide to Noise and Vibration Control for HVAC Systems
183
Figure B-4 Blank NC chart.
© 2011 American Society of Heating, Refrigerating and Air-Conditioning Engineers, Inc. (www.ashrae.org).
For personal use only. Additional reproduction, distribution, or transmission in either print or
digital form is not permitted without ASHRAE's prior written permission.

Acoustical Rating Systems and Criteria
184
Figure B-5 Octave band spectrum rated at NC-45.
© 2011 American Society of Heating, Refrigerating and Air-Conditioning Engineers, Inc. (www.ashrae.org).
For personal use only. Additional reproduction, distribution, or transmission in either print or
digital form is not permitted without ASHRAE's prior written permission.

A Practical Guide to Noise and Vibration Control for HVAC Systems
185
Figure B-6 Blank NCB chart.
© 2011 American Society of Heating, Refrigerating and Air-Conditioning Engineers, Inc. (www.ashrae.org).
For personal use only. Additional reproduction, distribution, or transmission in either print or
digital form is not permitted without ASHRAE's prior written permission.
Acoustical Rating Systems and Criteria
186
required. Since virtually all HVAC equipment noise data are published in octave
bands, ASHRAE Technical Committee TC 2.6 is currently attempting to combine
the best attributes of all four octave band methods to develop a single rating method
that is optimal for the majority of design and commissioning uses. Updated criteria
recommendations will appear in either the “Sound and Vibration Fundamentals”
chapter of the latest quadrennial ASHRAE Handbook—Fundamentals (2005,
2009, etc.) or the “Sound and Vibration Control” chapter of the latest quadrennial
ASHRAE Handbook—Applications (2007, 2011, etc.).
Since the RC and RC Mark II methods were developed specifically for diag-
nosing noise complaints, they should not be used to establish design phase criteria
or for commissioning purposes. The NC and NCB methods were intended to assess
system designs, and it is the author’s opinion that the NCB system is more relevant
if the 16 and 31 hertz octave band levels are ignored; acoustical performance data
for HVAC system components are not available in these two octave bands, so calcu-
lations in these bands are irrelevant. The author, therefore, recommends using the
NCB reference curves in Figure B-6 (ignoring the 16 and 31 hertz octave bands)
as maximum limit curves for assessing system designs. In other words, if NCB-35
is the chosen criterion for a given room, none of the octave band LP values from 63
to 8000 hertz may exceed the NCB-35 curve.
ACCEPTABILITY CRITERIA
Indoor Sound Criteria
In general, acceptable HVAC system noise has the following five qualities:
• It is not too loud.
• Its level does not fluctuate significantly over short time periods.
• It does not have audible tones.
• It is spectrally balanced (i.e., not too much rumble, roar, or hiss).
• It is not too quiet.
The first three qualities apply to HVAC system noise in virtually all spaces.
The last two qualities apply in rooms where sound quality is important and where
the HVAC system noise provides masking to reduce the distracting effects of
intruding sounds generated outside of the room.
Table B-1 gives ranges of recommended numerical design goals for various
building occupancies. The design goals given in the table are the result of a consen-
sus and, in some instances, may be considered conservative. Depending on
economic considerations, they may be increased slightly (up to five points) where
all five of the qualities listed above exist.
© 2011 American Society of Heating, Refrigerating and Air-Conditioning Engineers, Inc. (www.ashrae.org).
For personal use only. Additional reproduction, distribution, or transmission in either print or
digital form is not permitted without ASHRAE's prior written permission.

A Practical Guide to Noise and Vibration Control for HVAC Systems
187
Table B-1. Recommended Indoor Sound Criteria
Ty p e o f A r e a
Recommended Design Goal
NC, RC or NCB
(See Notes a & b below)
Single & multi-family residences 25 to 35
Hotels/Motels
Guest rooms & suites
Meeting/banquet rooms
Hallways, corridors, lobbies, service & support areas
25 to 35
25 to 35
35 to 45
Offices
Private offices & conference rooms
Rooms with frequent teleconferencing
Open-plan office areas
Corridors, hallways & other public areas
25 to 35
20 to 25
35 to 40
35 to 45
Hospitals & clinics
Private rooms, Exam rooms
Semi-private rooms, wards & waiting rooms
Operating rooms
Corridors, hallways & waiting rooms
25 to 35
35 to 40
25 to 35
35 to 45
Performing Arts Spaces
Recording studios & sound stages
Concert & recital halls
Drama theaters
Music teaching rooms
Solo & ensemble practice rooms
(See Note c)
(See Note c)
20 to 25
25 to 30
30 to 35
Sanctuaries, Temples & Mosques (See Note c) 25 to 35
Movie theaters 30 to 35
Schools
Classrooms (See Note d)
Lecture halls with speech amplification
Lecture halls without speech amplification
25 to 30
30 to 35
25
Libraries 35 to 40
Courtrooms
Unamplified speech
Amplified speech 25 to 35
30 to 35
Recording studios, sound stages and associated control rooms (See Note c)
Arenas & Gymnasiums
Gyms & natatoriums
Large arenas with amplified speech 40 to 50
45 to 55
aValues and ranges are based on judgment and experience, not on qualitative evaluation of human reactions.
They represent general limits of acceptability for typical building occupancies. Higher or lower values may
be appropriate and should be based on a careful analysis of economics, space usage and user needs.
bWhen spectral balance is important specify criteria in terms of RC-XX(N). If spectral balance is not as im-
portant as sound level specify criteria in terms of NC or NCB.
cRetain an experienced acoustical consultant for guidance with spaces that have critical acoustical needs.
dThe recommended design goal conforms with the 35 dBA & 55 dBC limits specified in ANSI Standard
S12.60-2002.
© 2011 American Society of Heating, Refrigerating and Air-Conditioning Engineers, Inc. (www.ashrae.org).
For personal use only. Additional reproduction, distribution, or transmission in either print or
digital form is not permitted without ASHRAE's prior written permission.

Acoustical Rating Systems and Criteria
188
At industrial sites or buildings where hearing conservation is more important
than acoustical quality, the A-weighted sound level rating is usually adequate.
Table B-2 gives the Occupationa1 Safety and Health Administration (OSHA)
limits that require action by employers (such as periodic hearing tests and/or other
hearing protection strategies) for a range of daily noise exposures.
Outdoor Sound Criteria
Outdoor LP limits are usually established by municipal codes in terms of maxi-
mum acceptable LPA values, although several municipalities now also mandate
octave band limits. Some municipal codes specify the limits in terms of “ambient
plus 5 dBA,” whereas specific LPA limits are specified in other codes. Table B-3
gives examples of municipal code LPA limits for various land uses.
Speech Communication in a Noisy Environment
In some situations the quality of speech communication in an indoor or
outdoor environment may be critical, for example, where an emergency notifica-
tion system must be audible or where reliable speech communication between two
people is necessary. The audibility of such speech can be estimated using the chart
in Figure B-7, where the distance between speakers, the voice level, and the back-
ground sound level in dBA are known.
Table B-2. Industrial Noise Levels Requiring Employer Action
Average Daily
Exposure Time
Average Sound Level above Which
Employer Action Is Required
8 hours 85 dBA
4 hours 90 dBA
2 hours 95 dBA
1 hour 100 dBA
30 minutes 105 dBA
15 minutes 110 dBA
© 2011 American Society of Heating, Refrigerating and Air-Conditioning Engineers, Inc. (www.ashrae.org).
For personal use only. Additional reproduction, distribution, or transmission in either print or
digital form is not permitted without ASHRAE's prior written permission.
--``,,`,``,```,,`,,```````,,`,,,-`-`,,`,,`,`,,`---

A Practical Guide to Noise and Vibration Control for HVAC Systems
189
Table B-3. Sample Municipal Code Limits*
Property
Zoning
Maximum Sound Level in dBA
Day
(7 a.m.-10 p.m.)
Night
(10 p.m.-7 a.m.)
Single Family Residential 50 45
Multi-Family Residential 55 50
Commercial 60 55
Industrial 70 70
* Note: Some municipal codes mandate the limits at property lines, while others place the limit at any habit-
able location on the property. Some municipalities use different time periods for day and night.
Figure B-7 Quality of speech communication in background noise.
© 2011 American Society of Heating, Refrigerating and Air-Conditioning Engineers, Inc. (www.ashrae.org).
For personal use only. Additional reproduction, distribution, or transmission in either print or
digital form is not permitted without ASHRAE's prior written permission.
© 2011 American Society of Heating, Refrigerating and Air-Conditioning Engineers, Inc. (www.ashrae.org).
For personal use only. Additional reproduction, distribution, or transmission in either print or
digital form is not permitted without ASHRAE's prior written permission.

Appendix C
Measuring HVAC
System Noise
191
Interested readers with access to sound-measuring equipment may want to
make their own sound level measurements to either rate an HVAC noise environ-
ment using one of the rating systems described in Appendix B or to investigate an
HVAC system noise complaint. In either case, meaningful results require selecting
the proper instrumentation and following the proper measurement procedure.
INSTRUMENTATION
The great majority of HVAC sound level measurements are made in the field
using a battery-operated, handheld sound level meter such as that shown in Figure
C-1. The meter uses a microphone, preamplifier, internal weighting filters, and a
visual readout to measure and display the LP values. The black ball on top of the
meter is a low-density foam windscreen that is specifically designed for use with
the meter. Sound level meters with octave band or 1/3-octave band filters are called
spectrum analyzers, and those that are able to measure all of the frequency bands
simultaneously are called realtime spectrum analyzers. The meter in Figure C-1 is
a real-time spectrum analyzer; the vertical bars in the display window represent the
Lp values for the various octave bands.
The most useful spectrum analyzers have high (Type 1) or moderate (Type 2)
precision microphone; linear, A-weighting, and C-weighting filter networks;
octave band filters with center frequencies from 31 to 8000 Hz; and an LCD
display. Sound level meters without octave band filters are much less useful
because they cannot be used to determine the NC, NCB, or RC rating in a room,
and, in a troubleshooting situation, they provide very little information on the
frequency content of the offending noise; knowing the frequency of an offending
noise is required to determine the most cost-effective noise mitigation.
© 2011 American Society of Heating, Refrigerating and Air-Conditioning Engineers, Inc. (www.ashrae.org).
For personal use only. Additional reproduction, distribution, or transmission in either print or
digital form is not permitted without ASHRAE's prior written permission.

Measuring HVAC System Noise
192
MEASUREMENT PLAN
Meaningful sound level measurements require a comprehensive measurement
plan, such as the one shown in Figure C-2. Troubleshooting a noise complaint
almost always requires measuring the LP values in the octave bands from 31 to 4000
Hz. Frequently, the LP values for the 1/3-octave bands from 16 to 4000 Hz are
needed when the complaint is related to a strong tone.
A spectrum analyzer’s readout will often show a fluctuating value, especially
in the lower octave bands. This is normal because low-frequency sound levels are
rarely constant. If the displayed value fluctuates over a range of less than 4 dB,
record its “eyeball” average. If the fluctuation is 5 dB or more, record the highest
and lowest displayed values. Modern spectrum analyzers are able to store the maxi-
mum, minimum, and average LP values in each frequency band over a selected
measurement period.
Figure C-3 shows a sound measurement data sheet that can be used to record
the results of an octave band sound measurement. An example of a completed sheet
is shown in Figure C-4.
Figure C-1 Sound level meter with a foam windscreen protecting its
microphone.
© 2011 American Society of Heating, Refrigerating and Air-Conditioning Engineers, Inc. (www.ashrae.org).
For personal use only. Additional reproduction, distribution, or transmission in either print or
digital form is not permitted without ASHRAE's prior written permission.

A Practical Guide to Noise and Vibration Control for HVAC Systems
193
1. Before arriving at the measurement site, verify the battery life and calibration of the sound
level meter.
2. Before making any measurements at the site, walk slowly through the measurement area and
listen for sound level or sound quality variations. This will help to choose the best measure-
ment location(s). Fill out a Sound Measurement Data Sheet (Figure C-4) with the details of the
measurement.
3. If the measurement is made in a windy area or in a room with airflow, a specially-designed
open-cell foam windscreen should be fitted over the microphone. Even with a windscreen, LP
measurements in the presence of a 9+ m/s breeze may be disrupted by excessive airflow. The
windscreen should be supplied by the sound level meter manufacturer specifically for use with
the meter. Even in areas with low wind it’s a good idea to always use a windscreen to protect
the delicate microphone from possible damage; the small amount of high frequency attenua-
tion inherent in the windscreen is usually insignificant for HVAC noise measurements.
4. Check the meter's instruction manual to determine which way to point the microphone. If
the manual is not available orient the microphone at a 45° angle from the predominant sound
source.
5. In almost all cases the sound level meter's “Fast/Slow” or “Fast/Slow/Impulse” switch
should be set to the “Slow” position. This makes it easier to determine the readout value.
6. Hold the sound level meter at arm's length or attach it to a tripod.
7. If possible, make all measurements with the microphone at least 1 m from any surface. This
applies to sound sources, room boundaries, people and room furnishings.
8. When measuring sound in a specific area - for example, to troubleshoot a noise complaint -
move the sound level meter very slowly so the microphone scans throughout a 600 to 900 mm
region near the complaint area.
9. For outdoor measurements at a property line, for instance, move the meter slowly so that the
microphone samples sound over that part of the properly line that has the greatest exposure
from the noise source(s) being tested.
10. Record the measurement results on the Sound Measurement Data Sheet (Figure C-4) and
the blank worksheet for the desired rating method (See Figures B-2, B-3, B-4, or B-6).
11. If measuring the sound levels of a specific source, make a separate “ambient” measurement
with the source turned off and adjust the “source-on” results per the procedure shown in
Figure C-5 per the procedure described in Table C-1.
12. Compare the measured results with the selected criteria determined using Table B-4.
Figure C-2 Sound measurement plan.
© 2011 American Society of Heating, Refrigerating and Air-Conditioning Engineers, Inc. (www.ashrae.org).
For personal use only. Additional reproduction, distribution, or transmission in either print or
digital form is not permitted without ASHRAE's prior written permission.

Measuring HVAC System Noise
194
Figure C-3 Blank sound measurement data sheet.
© 2011 American Society of Heating, Refrigerating and Air-Conditioning Engineers, Inc. (www.ashrae.org).
For personal use only. Additional reproduction, distribution, or transmission in either print or
digital form is not permitted without ASHRAE's prior written permission.
--``,,`,``,```,,`,,```````,,`,,,-`-`,,`,,`,`,,`---

A Practical Guide to Noise and Vibration Control for HVAC Systems
195
Figure C-4 Completed sound measurement data sheet.
© 2011 American Society of Heating, Refrigerating and Air-Conditioning Engineers, Inc. (www.ashrae.org).
For personal use only. Additional reproduction, distribution, or transmission in either print or
digital form is not permitted without ASHRAE's prior written permission.
--``,,`,``,```,,`,,```````,,`,,,-`-`,,`,,`,`,,`---

Measuring HVAC System Noise
196
It may sometimes be necessary to measure the noise due to a particular piece
of HVAC equipment in the presence of background noise from other sources that
cannot be turned off, such as automobile traffic or certain types of office machines.
Determining the LP value due to the selected equipment alone requires making two
measurements, one with the equipment operating with the background noise and
another with only the background noise (with the equipment turned off). This situ-
ation might occur, for example, when determining if the property line noise expo-
sure from a cooling tower meets a local noise ordinance. The adjustment values
given in Table C-1 will help to determine the LP value of a particular machine in
a sound field with background noise.
When reporting an HVAC system LP measurement, always also report the
microphone location, the time, equipment operating conditions, and ambient noise
conditions.
VIBRATION MEASUREMENTS
While the control of HVAC system noise and vibration are of equal importance,
measuring vibration is not usually necessary for determining the sources or trans-
mission paths of disturbing noise. Also, the techniques and instrumentation used for
vibration measurement and analysis are specialized and are beyond the scope of this
guide. Therefore, the reader should consult other sources, such as The Vibration
Institute, for descriptions of methods of vibration measurement and analysis.
Table C-1. Adjustment Values for Determining Equipment Sound Levels
in the Presence of Constant Background Noise
Difference between
Measurement Result #1 and
Measurement Result #2
Adjustment* to
Measurement Result #1 to
Obtain Equipment Sound Level
* Adjustment applies to all types of frequency weightings and filters.
10 dB or more 0 dB
6-9 dB –1 dB
4 or 5 dB –2 dB
3 dB –3 dB
2 dB –4 dB
0 or 1 dB Equipment sound level cannot be accurately
determined, but is at least
6 dB below Measurement Result #1
Measurement #1 = Equipment Being Tested Plus Background Noise
Measurement #2 = Background Noise Only
© 2011 American Society of Heating, Refrigerating and Air-Conditioning Engineers, Inc. (www.ashrae.org).
For personal use only. Additional reproduction, distribution, or transmission in either print or
digital form is not permitted without ASHRAE's prior written permission.

Appendix D
Using Manufacturers’
Sound Data
197
In response to demands by engineers and architects for accurate sound data,
industry standards have been developed for measuring and rating the acoustical
performance of various types of HVAC equipment. The published ratings based on
the standards have proven to be very helpful. However, misunderstanding and/or
misapplication of the published data often lead to installations that are noisier than
expected. For this reason, ASHRAE has published a companion publication to this
guide titled Application of Manufacturers’ Sound Data to help system designers
use and interpret factory-supplied acoustical data. The publication also includes
application guidelines similar to those found in this guide.
Although most of the test standards mentioned below require performance
data in octave bands, many laboratories acquire the data in 1/3-octave bands, so
such data might be available when trying to assess the likelihood of a strong tone
in the noise spectrum of a piece of equipment.
When reviewing manufacturers’ submitted acoustical data, be sure to verify
the following:
•Fans—All acoustical data should be expressed in terms of unweighted
octave band LW values that are measured in complete accordance with the
latest revision of AMCA Standard 300. Data should be supplied for the fan’s
discharge opening, inlet opening, as well as its case-radiated noise.
•Air-Handling Units and Fan Coil Units—All acoustical data should be
expressed in terms of unweighted octave band LW values that are measured in
complete accordance with the latest revision of AHRI Standard 260. The data
should be supplied for all openings, whether ducted or unducted, and case-
radiated noise. Verify that the “end reflection loss” has been applied properly
© 2011 American Society of Heating, Refrigerating and Air-Conditioning Engineers, Inc. (www.ashrae.org).
For personal use only. Additional reproduction, distribution, or transmission in either print or
digital form is not permitted without ASHRAE's prior written permission.
--``,,`,``,```,,`,,```````,,`,,,-`-`,,`,,`,`,,`---
Using Manufacturers’ Sound Data
198
for the submitted data, as this could create an error of as much as 10 dB or
more in the 63 hertz octave band.
•Terminal Units—Ignore published NC ratings. Accept only octave band LW
values that are measured in complete accordance with the latest revision of
AHRI Standard 880. The data should be supplied for both the discharge and
case-radiated noise.
•Laboratory Air Valves—All acoustical data should be expressed in terms of
octave band LW values that are measured in complete accordance with the
latest revision of AHRI Standard 880. The data should be supplied for the
discharge (in the direction of the airflow), exhaust (in the direction opposite
to the airflow), and radiated noise.
•Duct Silencers—All acoustical performance data should be expressed in
terms of the octave band dynamic insertion loss and self-noise LW values
that are measured in complete accordance with the latest revision of ASTM
E477. Static pressure drop values should also be included for various posi-
tive and negative airflow velocities.
•Grilles and Diffusers—All acoustical data should be expressed in terms of
octave band LW values that are measured in complete accordance with the
latest revision of AHRI Standard 890. Lacking such data, assume that the
field NC rating of each device will be at least five points higher than the cat-
aloged rating.
•Linear (Slot) Diffusers—These diffusers are factory-tested with two types
of plenums. The first is a very large plenum in which the airflow approach-
ing the diffuser is at a very low velocity. The second test is done with a very
small, close-fitting plenum that delivers relatively high-velocity, turbulent
airflow to the diffuser inlet. The close-fitting plenum arrangement can add as
much as 20 NC rating points to diffuser’s “low-velocity plenum” NC rating.
Verify which plenum for any submitted acoustical data.
•Registers—Registers are rarely tested for noise generation, but informal fac-
tory tests have shown that a wide-open damper attached directly to a grille or
diffuser inlet collar can add as much as 5 NC rating points to a device’s “no
damper” NC rating. Closing the damper can add as much as 20 NC rating
points, depending on the damper setting and the upstream airflow conditions.
•Chillers—All acoustical data should be expressed in terms of the
unweighted octave band LP values measured in complete accordance
with the latest revision of AHRI Standard 575. Note that field-measured
LP values will usually be higher than the AHRI-575 values because of
sound energy buildup in the equipment room. The increase can be as
much as 15 dB in a small room.
© 2011 American Society of Heating, Refrigerating and Air-Conditioning Engineers, Inc. (www.ashrae.org).
For personal use only. Additional reproduction, distribution, or transmission in either print or
digital form is not permitted without ASHRAE's prior written permission.
--``,,`,``,```,,`,,```````,,`,,,-`-`,,`,,`,`,,`---
A Practical Guide to Noise and Vibration Control for HVAC Systems
199
•Cooling Towers—All acoustical data should be expressed in terms of the
unweighted octave band LP values measured at the ten locations specified in
CTI Test Code ATC-128. Verify that the submitted data include fan and
water noise.
•Unducted Package Units (e.g., PTACs, ductless split-system fan-coil units,
etc.)—The indoor noise of these units should be expressed in terms of the
unweighted octave band LW values determined in complete accordance with
the latest revision of AHRI Standard 350. The outdoor noise should be
expressed in terms of the unweighted octave band LW values determined in
complete accordance with the latest revision of AHRI Standard 270.
•Small Outdoor Equipment (e.g., residential condensing units)—All acousti-
cal data should be expressed in terms of the unweighted octave band LW val-
ues determined in complete accordance with the latest revision of AHRI
Standard 270.
•Large Outdoor Packaged Equipment (all types)—All acoustical data should
be expressed in terms of the unweighted octave band LW values determined
in complete accordance with the latest revision of ARI Standard 370.
© 2011 American Society of Heating, Refrigerating and Air-Conditioning Engineers, Inc. (www.ashrae.org).
For personal use only. Additional reproduction, distribution, or transmission in either print or
digital form is not permitted without ASHRAE's prior written permission.
© 2011 American Society of Heating, Refrigerating and Air-Conditioning Engineers, Inc. (www.ashrae.org).
For personal use only. Additional reproduction, distribution, or transmission in either print or
digital form is not permitted without ASHRAE's prior written permission.

Appendix E
Definitions and
Abbreviations
201
DEFINITIONS
absorption coefficient: The fraction of incident sound that is absorbed by a given
material, usually given in octave bands.
acoustical louver: A specially built louver using sound-attenuating baffles instead
of single-thickness bent steel or extruded aluminum blades.
aerodynamic noise: Noise due to turbulent airflow. See self-noise and self-gener-
ated noise.
ambient sound: The combination of all near and far sounds, none of which is
particularly dominant.
attenuation: A general term that describes the reduction of sound energy by any
of several mechanisms, including divergence, diffusion, absorption, scattering,
transmission loss, insertion loss, etc.
A-weighted sound level: The sound level measured using the A-weighting network
of a sound level meter. For broadband sounds, the A-weighted sound level is
loosely correlated with the perception of loudness. It is expressed in dBA.
background sound: All sounds, except sound from a particular source of interest.
balanced noise criteria (NCB): A single-number criteria rating system developed
to rate steady-state HVAC system noise.
© 2011 American Society of Heating, Refrigerating and Air-Conditioning Engineers, Inc. (www.ashrae.org).
For personal use only. Additional reproduction, distribution, or transmission in either print or
digital form is not permitted without ASHRAE's prior written permission.
Definitions and Abbreviations
202
bel: One bel = 10 decibels (dB)
blade passage frequency (BPF): The frequency of a tone produced by the rotation
of the blades on a fan wheel or pump impeller (equal to RPM times number of
blades/60).
breakout: The transmission of sound through a duct wall (from inside to outside).
broadband noise: Noise of random character with no discernable tones (e.g., rain
or wind.)
decibel (dB): The primary unit of sound measurement; used to quantify sound
pressure level, sound power level, as well as several types of attenuation mecha-
nisms.
duct silencer: A specially built section of ductwork incorporating internal sound-
attenuating baffles; especially effective in the middle frequency range. Also called
sound traps, duct attenuators, or mufflers.
dynamic insertion loss: The sound insertion loss of a duct silencer while handling
airflow. It is expressed in dB.
equivalent duct diameter: For circular ducts, this is the actual diameter. For rect-
angular and flat-oval ducts, this is approximately the square root of the product of
the height times the width.
flanking path: An indirect sound transmission path, such as the structure-borne
path between two adjacent rooms.
floating floor: A floor assembly in which an array of fiberglass, neoprene, or
spring isolators supports a topping slab that floats above a structural slab; useful for
noise control, but not vibration control.
frequency: The number of oscillations per second, generally expressed in hertz
(Hz) or cycles per second (cps).
fundamental frequency: The lowest resonance frequency of a vibrating object.
insertion loss: The sound level reduction at a given location due to the insertion of
a noise control device, such as a duct silencer or acoustical louver. It is expressed
in dB. See also dynamic insertion loss.
© 2011 American Society of Heating, Refrigerating and Air-Conditioning Engineers, Inc. (www.ashrae.org).
For personal use only. Additional reproduction, distribution, or transmission in either print or
digital form is not permitted without ASHRAE's prior written permission.
A Practical Guide to Noise and Vibration Control for HVAC Systems
203
masking: The process through which the audibility of one sound is reduced
because of the presence of another.
noise: Undesirable sound that interferes with rest, sleep, mental concentration, or
speech communication.
noise criteria (NC): A single-number noise rating system developed to rate
steady-state continuous noise in a room from all types of equipment, including
fans, mixing boxes, diffusers, etc.
noise reduction coefficient (NRC): A single-number rating system used to
compare the approximate sound-absorbing characteristics of building materials.
octave: A continuous range of frequencies whose upper frequency limit is twice
that of its lower frequency limit. Typical center frequencies for HVAC analyses are
62.5, 125, 250, 500, 1000, 2000, 4000, and 8000 hertz, although the 8000 hertz
band is often ignored and the 31.25 hertz band is sometimes considered when
investigating noise and vibration complaints. The lower frequency limit for each
octave band is 70.7% of the center frequency, while the upper frequency limit is
141.4% of the center frequency. For example, the 1000-hertz octave band contains
noise energy at all frequencies from 707 to 1414 hertz.
octave band level (OBL): The sound pressure level of the sound energy within a
single octave band. It is expressed in dB.
random noise: See broadband noise.
regenerated noise: The noise caused by turbulent flow in air and water systems,
usually expressed as LW values in octave bands.
resonance: The natural oscillation of a construction assembly, resilient element, or
air column that persists after the shutoff of an outside excitation. The ringing
sounds that you hear after hitting a bell or plucking a guitar string are examples of
resonance.
resonance frequency: A frequency at which resonance occurs.
room criteria (RC): A single-number noise rating system developed to diagnose
and rate the HVAC noise exposure in a room. This rating system should not be used
for design analysis or building commissioning.
© 2011 American Society of Heating, Refrigerating and Air-Conditioning Engineers, Inc. (www.ashrae.org).
For personal use only. Additional reproduction, distribution, or transmission in either print or
digital form is not permitted without ASHRAE's prior written permission.
Definitions and Abbreviations
204
seismic restraints: Auxiliary restraints that hold a piece of vibration-isolated
equipment in place in the event of an earthquake. They must be designed and
installed very carefully to avoid “short-circuiting” the vibration isolators. These
same restraints are often used to resist wind-loading on outdoor equipment.
self-noise: The regenerated noise occurring in duct silencers or duct fittings.
self-generated noise: See self-noise.
short-circuiting: The process by which the improper adjustment of a seismic or
wind-loading restraint lets equipment vibration bypass an isolator.
sone: A linear scale that is used to rate the approximate loudness of an unducted
fan.
sound level meter: A meter, usually handheld, that is used to measure sound pres-
sure levels.
sound power level (LW or PWL): The total acoustic energy radiated per unit time.
It is usually given in octave bands (dB re 1 pW) and, in general, is not affected by
the acoustic environment.
sound pressure level (LP or SPL): The calculated or measured level of sound pres-
sure, expressed in dB (re 20 μPa), at a specific location under a specific set of
equipment operating conditions. The frequency range of the measurement or
calculation must be indicated along with the LP value in dB. The LP value of any
source varies with the distance from the source and depends upon the acoustic envi-
ronment between the source and the listener.
sound transmission class (STC): A single-number rating system used to compare
the sound-isolating characteristics of partitions, doors, or windows used to separate
occupied spaces. It should not be used to select mechanical equipment room parti-
tions or slabs.
sound trap: See duct silencer.
structure-borne sound: Sound that radiates from a construction assembly after
traveling through a building's structure in the form of vibration.
vibration isolation: The control of equipment vibration by the insertion of resilient
elements (usually a steel spring or elastomeric element) between the equipment
and a supporting structure. Also applies to the resilient attachment of service
connections (conduits, pipes, ducts, etc.) to the equipment.
© 2011 American Society of Heating, Refrigerating and Air-Conditioning Engineers, Inc. (www.ashrae.org).
For personal use only. Additional reproduction, distribution, or transmission in either print or
digital form is not permitted without ASHRAE's prior written permission.
A Practical Guide to Noise and Vibration Control for HVAC Systems
205
ABBREVIATIONS
ADC Air Diffusion Council
AHU air-handling unit
AMCA Air Movement and Control Association
ANSI American National Standards Institute
AHRI Air Conditioning and Refrigeration Institute
ASHRAE American Society of Heating, Refrigerating and Air-Conditioning
Engineers
ASTM American Society for Testing and Materials
CAV constant air volume (a type of air terminal)
CTI Cooling Technology Institute
dB decibel
dBA A-weighted decibel
dBC C-weighted decibel
HVI Heating and Ventilating Institute
Hz hertz (cycles per second)
kg/m2kilograms per square metre (surface density)
kg/m3kilograms per cubic metre (volume density)
kW motor power rating in kilowatts
Lpsound pressure level
LPA A-weighted sound pressure level
LPC C-weighted sound pressure level
LWsound power level
LWA A-weighted sound power level
LWC C-weighted sound power level
L/s liters per second
m/s metres per second
NC noise criteria
NCB balanced noise criteria
NFPA National Fire Prevention Association
NR noise reduction
NRC noise reduction coefficient
NVLAP National Voluntary Laboratory Accreditation Program
OBL octave band sound pressure level
Pa Pascals (pressure)
© 2011 American Society of Heating, Refrigerating and Air-Conditioning Engineers, Inc. (www.ashrae.org).
For personal use only. Additional reproduction, distribution, or transmission in either print or
digital form is not permitted without ASHRAE's prior written permission.
Definitions and Abbreviations
206
PTAC packaged terminal air conditioner
PWL sound power level
RC room criteria
rpm revolutions per minute
SMACNA Sheet Metal and Air Conditioning Contractor's National Association
SP static pressure
SPL sound pressure level
STC sound transmission class
TP total pressure
TSP total static pressure
TL transmission loss
VAV variable air volume
VFD variable-frequency drive (motor speed controller)
© 2011 American Society of Heating, Refrigerating and Air-Conditioning Engineers, Inc. (www.ashrae.org).
For personal use only. Additional reproduction, distribution, or transmission in either print or
digital form is not permitted without ASHRAE's prior written permission.
--``,,`,``,```,,`,,```````,,`,,,-`-`,,`,,`,`,,`---

Appendix F
Addresses of Agencies
and Associations
207
Air Diffusion Council (ADC)
1901 N. Roselle Road, Suite 800
Schaumburg, Illinois 60195
http://www.flexibleduct.org
Air Conditioning, Heating, and Refrigeration Institute (AHRI)
2111 Wilson Blvd., Suite 500
Arlington, VA 22201
http://www.ahrinet.org
Air Movement and Control Association (AMCA)
30 West University Drive
Arlington Heights, IL 60004-1893
http://www.amca.org
American Society of Heating, Refrigerating, and Air-Conditioning Engineers
(ASHRAE)
1791 Tullie Circle N.E.
Atlanta, GA 30329
http://www.ashrae.org
ASTM International (ASTM)
100 Barr Harbor Drive
West Conshohocken, PA 19428-2959
http://www.astm.org
© 2011 American Society of Heating, Refrigerating and Air-Conditioning Engineers, Inc. (www.ashrae.org).
For personal use only. Additional reproduction, distribution, or transmission in either print or
digital form is not permitted without ASHRAE's prior written permission.
--``,,`,``,```,,`,,```````,,`,,,-`-`,,`,,`,`,,`---
Addresses of Agencies and Associations
208
American National Standards Institute (ANSI)
25 West 43rd Street, 4th Floor
New York, NY 10036
http://www.ansi.org
Cooling Technology Institute (CTI)
PO Box 73383
Houston, TX 77273-3383
http://www.cti.org
Sheet Metal and Air Conditioning Contractor's National Association
(SMACNA)
4201 Lafayette Center Drive
Chantilly, VA 20151-1219
http://www.smacna.org
The Vibration Institute
6262 S. Kingery Highway
Suite 212
Willowbrook, IL 60527
http://www.vibinst.org
© 2011 American Society of Heating, Refrigerating and Air-Conditioning Engineers, Inc. (www.ashrae.org).
For personal use only. Additional reproduction, distribution, or transmission in either print or
digital form is not permitted without ASHRAE's prior written permission.

Appendix G
Bibliography and
Selected References
209
BOOKS
Beranek, L.L. (ed.) 1988. Noise and Vibration Control—Revised edition. New
York: McGraw-Hill.
Egan, M.D. 1972. Concepts in Architectural Acoustics. New York: McGraw-Hill.
Egan, M.D. 1988. Architectural Acoustics. New York: McGraw-Hill.
Harris, C.M. (ed.) 1991. Handbook of Acoustical Measurements and Noise Con-
trol, 3rd ed. New York: McGraw-Hill.
Jones, R.S. 1984. Noise and Vibration Control in Buildings. New York: McGraw-
Hill.
Miller, L.N. 1971. Lecture Notes on Noise and Vibration Control for Mechanical
and Electrical Equipment in Buildings. Cambridge, MA: Bolt, Beranek, &
Newman, Inc.
Nevins, R.G. 1976. Air Diffusion Dynamics. Chicago, IL: Air Diffusion Council.
Sharland, I. 1972. Woods Practical Guide to Noise Control. Colchester, UK:
Woods of Colchester, Ltd.
Woods, R.I. (ed.) 1972. Noise Control in Mechanical Services. Colchester, UK:
Sound Research Laboratories.
Fry, A.T. (ed.) 1988. Noise Control in Building Services. Colchester, UK: Sound
Research Laboratories.
FEMA. 2002. FEMA 412-Installing Seismic Restraints for Mechanical Equip-
ment. Washington, DC: Federal Emergency Management Administration.
ASHRAE. 2000. A Practical Guide to Seismic Restraint. Atlanta, GA: American
Society of Heating, Refrigerating and Air-Conditioning Engineers, Inc.
© 2011 American Society of Heating, Refrigerating and Air-Conditioning Engineers, Inc. (www.ashrae.org).
For personal use only. Additional reproduction, distribution, or transmission in either print or
digital form is not permitted without ASHRAE's prior written permission.
Bibliography and Selected References
210
INDUSTRY MANUALS, HANDBOOKS, AND BULLETINS
AMCA. 2002. Publication 201-02, Fans and systems. Arlington Heights, IL: Air
Movement and Control Association, Inc.
AMCA. 1998. Publication 202-98—Troubleshooting. Arlington Heights, IL: Air
Movement and Control Association, Inc.
ASHRAE. 2003. ASHRAE Handbook—HVAC Applications, Chapter 47. Atlanta,
GA: American Society of Heating, Refrigerating and Air-Conditioning
Engineers, Inc. (Revised every four years.)
ASHRAE. 2005. ASHRAE Handbook—Fundamentals, Chapter 7. Atlanta, GA:
American Society of Heating, Refrigerating, and Air-Conditioning Engi-
neers, Inc. (Revised every four years.)
SMACNA. 1990. HVAC system—Duct design. Vienna, VA: Sheet Metal and
Air-Conditioning Contractor's Association.
SMACNA. 1995. HVAC duct construction standards—Metal and flexible.
Vienna, VA: Sheet Metal and Air-Conditioning Contractor's Association.
SMACNA. 1998. Seismic restraint manual: Guidelines for mechanical systems.
Vienna, VA: Sheet Metal and Air-Conditioning Contractor's Association.
Graham, J.B. 1959. Fan noise. Bulletin F-105. Buffalo, NY: Buffalo Forge Com-
pany.
Hassal, J.R., and K. Zaveri. 1979. Acoustic noise measurements, 4th ed. Naerum,
Denmark: Bruel & Kjaer.
Hirschorn, M. 1989. Noise Control Reference Handbook. Bronx, NY: Industrial
Acoustics Company.
Peterson, A.P.G., and E.E. Gross. 1972. Handbook of Noise Measurement, 7th ed.
Concord, MA: General Radio Company.
Schultz, T.J. 1986. Acoustical uses of perforated metal. Milwaukee, WI: Indus-
trial Perforators Association.
Baltimore Aircoil Co. 2005. Product and Application Handbook, pp. J20-J54.
Baltimore, MD: Baltimore Aircoil Company.
Owens-Corning Fiberglas Company. 1987. Noise Control Design Guide. Publ.
No. 5-BL-11691-E. Toledo, OH: Owens-Corning Fiberglas Company.
Trane Company. 1982. Fans and their application in air conditioning. La Crosse,
WI: The Trane Company.
Trane Company. 1986. Acoustics in air conditioning. Application Manual
FNDAM-5. La Crosse, WI: The Trane Company.
Trane Company. 2002. Indoor sound—Sound advice from Trane for sound sensi-
tive large rooftop installations. Bulletin RT-EB-80. La Crosse, WI: The
Trane Company.
© 2011 American Society of Heating, Refrigerating and Air-Conditioning Engineers, Inc. (www.ashrae.org).
For personal use only. Additional reproduction, distribution, or transmission in either print or
digital form is not permitted without ASHRAE's prior written permission.
A Practical Guide to Noise and Vibration Control for HVAC Systems
211
INDUSTRY PERIODICALS
Heating/Piping/Air Conditioning
Sound and Vibration
Specifying Engineer
JOURNALS
ASHRAE Journal
Journal of the Acoustical Society of America
Journal of Sound and Vibration
Noise Control Engineering Journal
© 2011 American Society of Heating, Refrigerating and Air-Conditioning Engineers, Inc. (www.ashrae.org).
For personal use only. Additional reproduction, distribution, or transmission in either print or
digital form is not permitted without ASHRAE's prior written permission.
© 2011 American Society of Heating, Refrigerating and Air-Conditioning Engineers, Inc. (www.ashrae.org).
For personal use only. Additional reproduction, distribution, or transmission in either print or
digital form is not permitted without ASHRAE's prior written permission.
