41257A000 4)PHP(13 Armstrong 4PHP15E Install 48360e006
User Manual: 4)PHP(13
Open the PDF directly: View PDF .
Page Count: 13

# 48360E006 Page 1
Save these instructions for future reference
INSTALLATION AND
MAINTENANCE INSTRUCTIONS
(2,4)PHP(13,15) Series
Self-Contained Heat Pump
Improper installation, adjustment, alteration, service, or maintenance can cause injury or
property damage. Refer to this manual. For assistance or additional information, consult
a qualified installer or service agency.
WARNING
Sharp metal edges can cause injury. When
installing the unit, use care to avoid sharp
edges.
WARNING
Installation and servicing of air conditioning
equipment can be hazardous due to internal
refrigerant pressure and live electrical compo-
nents. Only trained and qualified service
personnel should install or service this equip-
ment. Installation and service performed by
unqualified persons can result in property
damage, personal injury, or death.
WARNING
The installation of this appliance must conform to the requirements of the National Fire Protection Association;
the National Electrical Code, ANSI/NFPA No. 70 (latest edition) in the United States; the Canadian Electrical
Code Part 1, CSA 22.1 (latest edition) in Canada; and any state or provincial laws or local ordinances. Local
authorities having jurisdiction should be consulted before installation is made. Such applicable regulations or
requirements take precedence over the general instructions in this manual.
CAUTION
TABLE OF CONTENTS
INSTALLATION....................................... 2
OPERATION .......................................... 7
MAINTENANCE ................................... 10
CONNECTION DIAGRAMS ................. 11
WARRANTY ......................................... 13
If this unit is to be installed in a mobile or manu-
factured home application, the ductwork must
be sized to achieve static pressures within the
manufacturer’s guidelines. All other installation
guidelines must also be followed. Failure to do
so may result in equipment damage, personal
injury, and improper performance of the unit.
WARNING
*48360E006*
Manufactured By
Allied Air Enterprises Inc.
A Lennox International Inc. Company
215 Metropolitan Drive
West Columbia, SC 29170

Page 2 # 48360E006
INSTALLATION
These instructions explain the recommended method of
installation of the PHP heat pump unit and associated
electrical wiring.
This unit is designed and approved for use as a self-
contained air-to-air outdoor heat pump system.
The units are factory equipped with a transformer and
blower control for applications without auxiliary heat.
Electric heat accessory kits (PHK) can be ordered for field
installation of additional heat where required.
These instructions, and any instructions packaged with
mating components and/or accessories, should be
carefully read prior to beginning installation. Note particu-
larly any CAUTIONS or WARNINGS in these instructions
and all labels on the units.
These instructions are intended as a general guide only, for
use by qualified personnel and do not supersede any
national or local codes in any way. Compliance with all local,
state, provincial, or national codes pertaining to this type of
equipment should be determined prior to installation.
IMPORTANT: The 15 SEER models have been designed
and manufactured to meet ENERGY STAR criteria for
energy efficiency. However, proper refrigerant charge and
proper air flow are critical to achieve rated capacity and
efficiency. Installation of this product should follow the
manufacturer’s refrigerant charging and air flow instructions.
Failure to confirm proper charge and airflow may
reduce energy efficiency and shorten equipment life.
Inspection of Shipment
Upon receipt of equipment, carefully inspect it for possible
shipping damage. If damage is found, it should be noted
on the carrier’s freight bill. Take special care to examine
the unit inside the carton if the carton is damaged. File a
claim with the transportation company.
If any damages are discovered and reported to the carrier
DO NOT INSTALL THE UNIT, as claim may be denied.
Check the unit rating plate to confirm specifications
are as ordered.
Limitations
The unit should be installed in accordance with all national
and local safety codes.
Limitations of the unit and appropriate accessories must
also be observed.
The unit must not be installed with any ductwork in the
outdoor air stream. The outdoor fan is not designed to
operate against any additional static pressure.
Location
The unit is designed to be located outdoors with sufficient
clearance for free entrance to the air inlet and discharge
air openings. The location must also allow for adequate
service access.
The unit must be installed on a solid foundation that will not
settle or shift. Adequate structural support must be pro-
vided. Maintain minimum clearances as shown in Table 1
and install the unit in level position. Isolate the base from
the building structure to avoid possible transmission of
sound or vibration into the conditioned space.
The unit foundation should be raised to a minimum of
3" above finish grade. In areas which have prolonged
periods of temperature below freezing and snowfall, the
unit should be elevated above the average snow line.
Extra precaution should be taken to allow free drainage of
condensate from defrost cycles to prevent ice accumula-
tion. The unit should not be located near walkways to
prevent possible icing of surface from defrost condensate.
Avoid placing the unit near quiet areas such as
sleeping quarters or study rooms. Normal operating
sound levels may be objectionable if the unit is placed
near certain rooms.
Do not permit overhanging structures or shrubs to
obstruct condenser air discharge inlet or outlet.
For improved start-up performance, the indoor coil
should be washed with suitable detergent to remove
any residue from manufacturing processes.
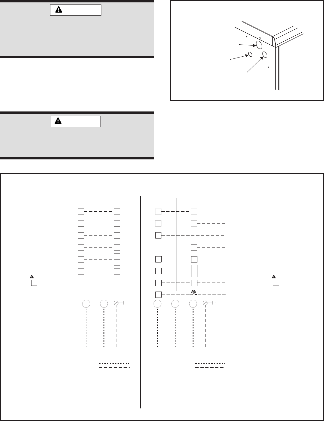
Exercise care when moving the unit. Do not remove any
packaging until the unit is near the place of installation. An
accessory lift kit can be purchased to aid in rigging (see
Figure 1). Spreaders whose length exceed the largest
dimension across the unit must be used across the top
of the unit. Recommended spreader length: 3 ton and
smaller package units – 44", 3.5 ton and larger units – 54".
Units may also be moved or lifted with a forklift while still in
the factory-supplied packaging. The lengths of the forks
of the forklift must be a minimum of 42".
Before lifting a unit, make sure that the weight
is distributed equally on the cables so that it
will lift evenly.
CAUTION

# 48360E006 Page 3
Using Accessory Lift Kit
Figure 1
Roof Curb Assembly
Figure 2
Table 1
Roof Curb Installation
If a roof curb is used, follow the manufacturer’s Installation
Instructions and be sure that all required clearances are
observed (see following Clearances section).
Clearances
All units require certain clearances for proper operation
and service. Refer to Table 1 for the minimum clearances
to combustibles as well as minimum clearances neces-
sary for servicing and proper unit operation.
In the U.S., units may be installed on combustible floors
made from wood or class A, B, or C roof covering material.
In Canada, units may be installed on combustible floors.
Service Access
Access to all serviceable components is provided by four
removable panels: filter compartment, blower compart-
ment, heater compartment, and top panel.
Condensate Drain
The PHP package unit is equipped with a 3/4" FPT
coupling for condensate line connection. Plumbing must
conform to local codes. Use a sealing compound on male
pipe threads.
The condensate drain line must be properly trapped
and routed to a suitable drain. See Figure 3 for proper
drain arrangement. The drain line must pitch to an open
drain or pump to prevent clogging of the line. Seal around
the drain connection with suitable material to prevent air
leakage into the return air system.
oT
elbitsubmoC
lairetaM
roF
ecivreS
roF
reporP
noitarepO
tnorF"0"84"3
raeR "0 "42 "3
resnednoC
dnE "0"42"3
rewolB
dnE "0 "03 "0
poT"0"63"63
Minimum Clearance Requirements
Unit Drain Connection
Positive Liquid Seal Required
3.00" Min.
1.00" Min.
12.00"
Max.
Typical Condensate Drain Connection
Figure 3
To avoid possible
damage to unit
panels from lifting
clevis, place
packing material
between clevis
and panels before
lifting unit.
Spreaders
(Field Supplied)
Lifting Bracket
Accessory
Sheet Metal
Screw

Page 4 # 48360E006
Figure 4
Removing Bottom Duct Covers
Base
1. Remove screw and lift.
2. Slide cover to free back pin.
1
2
When fastening ductwork to side duct flanges
on unit, insert screws through duct flanges
only; do not insert screws through casing. If
using bottom duct work, do not use screws to
secure ductwork to bottom duct opening
under drain pan side. Using screws to secure
bottom duct may damage drain pan.
CAUTION
Ductwork
Ductwork should be designed and sized according to the
methods in Manual Q of the Air Conditioning Contractors
of America (ACCA).
A closed return duct system shall be used. This shall not
preclude use of economizers or outdoor fresh air intake. It
is recommended that supply and return duct connections
at the unit be made with flexible joints.
The supply and return air duct systems should be de-
signed for the CFM and static requirements of the job.
They should not be sized by matching the dimensions
of the duct connections on the unit.
Outdoor ductwork must be insulated and waterproofed.
Equipment is shipped for side ductwork connection. The
unit can be converted to bottom ductwork connection by
removing the duct covers located over the bottom duct
openings and placing these covers over the side duct
openings (see Figure 4).
To remove the bottom duct cover over supply opening:
1. Remove screw on cover nearest side opening.
2. Lift end of cover slightly and push to slide back screw/
pin free from duct flange.
3. Slide duct cover out the side duct opening.
Filters
Air filters are to be used with this heating/cooling unit.
Filters are not factory supplied in the unit. However, a filter
frame accessory is available from the manufacturer
that allows filters to be installed within the unit. If the
filter frame accessory is not used, a filter must be installed
in the duct work by the installer. Filters must always be
installed ahead of the evaporator coil and must be kept
clean or replaced. Dirty filters will reduce the airflow of the
unit. Filters should be sized in accordance with Table 2.
Table 2
Minimum Required Surface Area
for Disposable Filters
gnilooClanimoN aerAretliF
).tf.qs(
000,4276.2
000,03 33.3
000,6300.4
000,24 76.4
000,8433.5
000,06 76.6
Electrical Wiring
All wiring should be done in accordance with the
National Electrical Code, ANSI/NFPA No. 70 (latest
edition); Canadian Electrical Code Part 1, CSA C22.1
(latest edition); or local codes where they prevail. Use
wiring with a temperature limitation of 75°C minimum. Run
the electric power supply through a fused disconnect
switch to the connection box of the unit and connect as
shown in the wiring diagram located on the inside of the
control access panel.
Line voltage is present at all components
when unit is not in operation on units with
single pole contactors. Disconnect all remote
electric power supplies before opening access
panel. Unit may have multiple power supplies.
Failure to disconnect all power supplies could
result in personal injury or death.
WARNING

# 48360E006 Page 5
When connecting electrical power and control
wiring to the unit, waterproof type connectors
must be used so that water or moisture cannot
be drawn into the unit during normal operation.
CAUTION
Power supply to the unit must comply with all applicable
codes and the National Electical Code (NEC) or Canadian
Electrical Code (CEC). A fused disconnect switch should be
field provided for the unit. The switch must be separate from
all other circuits.
Figure 5
Electrical Access
Heater Power Entry
Thermostat
Entry
Line Voltage
Entry
Unit must be grounded in accordance with
national and local codes. Failure to ground unit
properly can result in personal injury or death.
WARNING
Figure 6
Typical Wiring Connections
RR
CC CC
RR
L2 L1
YY Y1
Y
L1L2L3
POWER WIRING
208/230-1-60
(75°C MIN. WIRE)
POWER WIRING
24V CONTROL WIRING
(NEC CLASS 2)
TYPICAL WIRING CONNECTION
1 PHASE
GROUND
SCREW
THERMOSTAT OUTDOOR UNIT THERMOSTAT OUTDOOR UNIT
GROUND
SCREW
POWER WIRING
200/230-3-60, 460/575-3-60
(75°C MIN. WIRE)
24V CONTROL WIRING
(NEC CLASS 2)
POWER WIRING
TYPICAL WIRING CONNECTION
3 PHASE
* W1, W2 CAN BE USED TO STAGE ELECTRIC
HEAT ACCESSORY ON 15 & 20 KW MODELS.
* 5 & 10 KW HEATER ACCESSORY FUNCTION OFF
W1 ONLY.
* W1, W2 CAN BE USED TO STAGE ELECTRIC
HEAT ACCESSORY ON 15 & 20 KW MODELS.
* 10 KW HEATER ACCESSORY FUNCTION OFF
W1 ONLY.
ECONOMIZER
NOT
INSTALLED
ECONOMIZER
W1
W
WW1
G G
GG
W2
Y2
W2
OO
OO
BLUE
YELLOW
YELLOW
ORANGE
GREEN
BLACK
Do not connect connections except when
required by the indoor thermostat. Refer to the
thermostat installation instructions.
C
CAUTION
Do not connect connections except when
required by the indoor thermostat. Refer to the
thermostat installation instructions.
C
CAUTION
If any of the wire supplied with the unit must be replaced,
replacement wire must be of the type shown on the wiring
diagram. Electrical wiring must be sized to carry minimum
circuit ampacity marked on the unit. Use copper conduc-
tors only. Each unit must be wired with a separate branch
circuit and be properly fused.

Page 6 # 48360E006
Thermostat
The room thermostat should be located on an inside wall
where it will not be subject to drafts, sun exposure, or heat
from electrical fixtures or appliances. Follow the
manufacturer’s instructions enclosed with thermostat for
general installation procedure. Color-coded insulated wires
(#18 AWG) should be used to connect thermostat to unit.
Four wires are required for cooling.
Compressor
Units are shipped with compressor mountings factory-
adjusted and ready for operation. Caution: Do not
loosen compressor mounting bolts.
Heater Kit Accessory (if used)
The unit is fully equipped for cooling operation without
auxiliary heat. A heater kit accessory may also be used.
To install the heater kit accessory (see Figure 7):
1. Disconnect the power and remove the heater compart-
ment access panel.
2. Disconnect the plug separating the high voltage wire
harness. Remove the high voltage wire harness plug
and discard.
3. Remove the heater blockoff by removing the four
screws holding it in place.
4. Insert the heater into the control panel and fasten in
the same mounting holes.
5. Plug the heater wiring harness into the wire harness
on the control assembly. Field wiring of the auxiliary
heater is separate from the unit power supply. Wire
the power supply wiring for the heater to the appropri-
ate connections on the heater kit.
6. Replace the heater compartment access panel and
reconnect the power.
Removal of Unit from Common Venting System
When an existing furnace is removed from a common
venting system serving other appliances, the venting system
is likely to be too large to properly vent the remaining
attached appliances. The following test should be conducted
with each appliance while the other appliances connected to
the common venting system are not in operation.
1. Seal any unused openings in the common venting
system.
2. Visually inspect the venting system for proper size
and horizontal pitch and determine there is no block-
age or restriction, leakage, corrosion, or other defi-
ciencies which could cause an unsafe condition.
3. Insofar as is practical, close all building doors and
windows between the space in which the appliances
remaining connected to the common venting system
are located and other spaces in the building. Turn on
clothes dryers and any appliance not connected to the
common venting system. Turn on exhaust fans, such
as range hoods and bathroom exhausts, so they will
operate at maximum speed. Do not operate a summer
exhaust fan. Close fireplace dampers.
4. Following the lighting instructions, place the unit being
inspected in operation. Adjust the thermostat so the
appliance will operate continuously.
5. Test for spillage at the draft control relief opening after
5 minutes of main burner operation. Use the flame of
a match or candle.
6. Follow the preceding steps for each appliance con-
nected to the common venting system.
7. After it has been determined that each appliance
remaining connected to the common venting system
properly vents when tested as outlined above, return
doors, windows, exhaust fans, fireplace dampers, and
any other fuel burning appliance to their previous
condition of use.
8. If improper venting is observed during any of the
above tests, the common venting system must be
corrected. See National Fuel Gas Code, ANSI
Z223.1 (latest edition) or CAN/CGA B149.1 & .2
Canadian Installation Codes to correct improper
operation of common venting system.
Heater Kit Accessory Installation
Figure 7

# 48360E006 Page 7
OPERATION
Sequence of Operation
Cooling
When the thermostat is in the cooling mode, the O circuit is
powered which energizes the reversing valve. Upon cooling
demand, the thermostat closes circuit R and Y. Closing R
and Y closes the unit contactor, starting the compressor
and outdoor fan. The thermostat automatically closes R to
G circuit which also brings on the indoor blower at the same
time. Upon satisfying cooling demand, the thermostat will
open the above circuits and open the main contactor,
stopping the compressor and outdoor fan. If the unit is
equipped with a delay timer, the blower will continue to
operate for 90 seconds which improves system efficiency.
Heating
Upon heating demand, the thermostat closes circuit R to Y,
which closes the unit contactor, starting the compressor and
outdoor fan. The reversing valve is not energized in the heating
mode. The thermostat again automatically brings on the indoor
fan at the same time. Upon satisfying heating demand, the
thermostat opens above circuits and stops unit operation.
Defrost System
The defrost system includes two components: the defrost
thermostat and the defrost control.
Defrost Thermostat
The defrost thermostat is located on the liquid line be-
tween the check/expansion valve and the distributor.
When the defrost thermostat senses 42°F or cooler, the
thermostat contacts close and send a signal to the defrost
control board to start the defrost timing. It also terminates
defrost when the liquid line warms up to 70°F.
Defrost Control
The defrost control board includes the combined functions
of time/temperature defrost control, defrost relay, diagnos-
tic LEDs and terminal strip for field wiring connections
(see Figure 8).
The control provides automatic switching from normal
heating operation to defrost mode and back. During the
compressor cycle (call for defrost), the control accumu-
lates compressor run time at 30, 60, 90 minute field-
adjustable intervals. If the defrost thermostat is closed
when the selected compressor run time interval ends, the
defrost relay is energized and the defrost begins.
Defrost Control Timing Pins
Each timing pin selection provides a different accumulated
compressor run time period during one thermostat run
cycle. This time period must occur before a defrost cycle
is initiated. The defrost interval can be adjusted to 30 (T1),
60 (T2), or 90 (T3) minutes. The defrost timing jumper is
Defrost Control Board
Figure 8
Defrost Interval
Timing Pins
Diagnostic LEDs
24V TerminalStrip
Connections
High Pressure Switch
(optional)
Defrost Thermostat
Reversing Valve
Compressor Delay Pins
Test Pins
K1 Relay
K2 Relay
FAN
DS1
L
24V
P2
P5
O-OUT
DF
Y1-OUT
HI-PS
U1 U2
DS2
K3 Relay
P6
TST PS DF C R O Y1
C5
LO-PS
C2
P1
30
60
90
TEST
W1
C
L
R
Y1
O
Low Pressure Switch
(optional)

Page 8 # 48360E006
factory installed to provide a 60-minute defrost interval. If
the timing selector jumper is not in place, the control
defaults to a 90-minute defrost interval. The maximum
defrost period is 14 minutes and cannot be adjusted.
A test option is provided for troubleshooting. The test mode
may be started any time the unit is in the heating mode and
the defrost thermostat is closed or jumpered. If the jumper
is in the TEST position at power up, the control will ignore
the test pins. When the jumper is placed across the TEST
pins for 2 seconds, the control will enter the defrost mode. If
the jumper is removed before an additional 5-second period
has elapsed (7 seconds total), the unit will remain in defrost
mode until the defrost thermostat opens or 14 minutes have
passed. If the jumper is not removed until after the addi-
tional 5-second period has elapsed, the defrost will termi-
nate and the test option will not function again until the
jumper is removed and reapplied.
Compressor Delay
The defrost board has a field-selectable function to reduce
occasional sounds that may occur while the unit is cycling
in and out of the defrost mode. The compressor will be
cycled off for 30 seconds going in and out of the defrost
mode when the compressor delay jumper is removed.
NOTE: The 30-second “off” cycle is not functional when
jumpering the TEST pins.
Time Delay
The timed-off delay is 5 minutes long. The delay helps to
protect the compressor from short cycling in case the
power to the unit is interrupted or a pressure switch opens.
The delay is bypassed by placing the timer select jumper
across the TEST pins for 0.5 seconds.
Pressure Switch Circuit
The defrost control includes LO-PS terminals to connect
an optional low pressure (loss of charge pressure) switch.
A high pressure switch (optional) can be connected to the
HI PS terminals (see Figure 8 on page 7).
During a single demand cycle, the defrost control will
lock out the unit after the fifth time that the circuit is
interrupted by any pressure switch wired to the
control board. In addition, the diagnostic LEDs will
indicate a locked-out pressure switch after the fifth
occurrence of an open pressure switch (see Table 3).
The unit will remain locked out until power to the
board is interrupted, then re-established, or until the
jumper is applied to the TEST pins for 0.5 seconds.
NOTE: The defrost control board ignores input from the
low pressure switch terminals as follows:
• During the TEST mode
• During the defrost cycle
• During the 90-second start-up period
• For the first 90 seconds each time the reversing
valve switches heat/cool modes
If the TEST pins are jumpered and the 5-minute delay
is being bypassed, the LO PS terminal signal is not
ignored during the 90-second start-up period.
Diagnostic LEDs
The defrost board uses two LEDs for diagnostics. The
LEDs flash a specific sequence according to the condition
as shown in Table 3.
Circulating Air Blower
Depending on the package unit model, the blower motor will
be either a multi-tap PSC motor or a variable speed motor.
PSC Motor
The circulating air blower is controlled by a timing circuit in
the blower control. Timings are not adjustable.
Defrost Control Board
Diagnostic LEDs
edoM DELneerG
)2SD(
DELdeR
)1SD(
rewoPoN
draoBot ffOffO
/noitarepOlamroN
draoBotrewoP hsalFwolSsuoenatlumiS
elcyCtrohS-itnA
tuokcoL hsalFwolSgnitanretlA
erusserPwoL
tluaFhctiwS ffO hsalFwolS
erusserPwoL
tuokcoLhctiwS ffOnO
erusserPhgiH
tluaFhctiwS hsalFwolS ffO
erusserPhgiH
tuokcoLhctiwS nOffO
Table 3

# 48360E006 Page 9
There is no blower “on” delay after a call for heating or
cooling. Blower “off” delay is 90 seconds after the thermo-
stat is satisfied.
Variable Speed Motor
Units equipped with a variable speed circulation air blower
motor will deliver a constant airflow within a wide range of
external static pressures. Other features of this variable
speed motor include:
Soft Start/Stop – The variable speed motor will slowly
ramp up to normal operating speed. This minimizes noise
and increases comfort by eliminating the initial blasts of air
encountered with standard motors. At the end of a cooling
or heating cycle, the motor will slowly ramp down.
Circulation Airflow Adjustments – The controls include
a variable speed motor interface board. The ADJUST tap
can be used to raise (+) or lower (–) the airflow by 15%.
Heating and Cooling Airflows – The units are factory set
for the correct heating and cooling airflows. However,
airflow changes can be made by moving the position of
the HEAT and COOL taps (see Table 4).
Continuous Blower – The comfort level of the living
space can be enhanced when using this feature by
allowing continuous circulation of air between calls for
cooling or heating. The continuous circulation of air occurs
at half the full cooling airflow rate. To use this feature,
place the thermostat fan switch into the ON position.
Cooling Airflow Ramp Up – At the beginning of a call for
cooling, the blower will run at 80% of full airflow for 7.5
minutes. This improves the system’s moisture removal and
saves blower power during cooling start.
Reduced Airflow Operation (Dehumidification) – For
situations where humidity control is an issue, the variable
speed motor can be connected to operate at a 25%
reduction in the normal airflow rate. The variable speed
motor interface board provides for connection of a humi-
distat on the HUM terminal. When a humidistat is con-
nected, the dehumidifier resistor on the interface must be
cut. The humidistat should be wired to open during high
humidity, which will reduce blower airflow.
Cooling System Performance
For maximum performance of the cooling system, operat-
ing temperatures and pressure should be checked.
Subcooling should be determined at Standard ARI test
conditions of 82°F outdoor and 80°F indoor dry bulb/67°F
wet bulb. If subcooling measured deviates from values
found in Table 5, refrigerant charge should be adjusted
accordingly for maximum performance.
ledoM
rotoM
PH
TSUJDA
gnitteS
TAEH
gnitteS
LOOC
gnitteS
MFC
A
MFC
B
MFC
C
MFC
D
lanimoN
gnilooC
UTBk
gnitaeH
eziS
Wk
4201-53/1MRONBB0001008006009
03 01-5 3/1 MRON A A 0001 008 006 009
6351-52/1MRONAA002100010080011
24 02-5 4/3 MRON C C 0081 0061 0041 0021
8402-54/3MRONBB0081006100410021
06 02-5 4/3 MRON A A 0081 0061 0041 0021
Adjusting Airflow (Variable Speed Motor Equipped Units Only)
Table 4
Liquid Subcooling
Table 5
eziS
gniloocbuSdiuqiL
snoitidnoCIRA@
BWDI°76/BDDI°08-DO°28
22R A014
42°01°9
03 °8 °11
63°01°11
84,24 °5 °7
06°01°01
DEHUMIDIFY
CUT TO ENABLE
COOLHEATADJUST
NORM A
B
C
D
A
B
C
D
(+)
(–)
TEST
D1
ADJUST, HEAT, and
COOL Taps
and Dehumidify
Resistor on
Interface Board

Page 10 # 48360E006
Owner Record
Model # _________________________________
Serial # _________________________________
Installation Date___________________________
Installed by:
Dealer __________________________________
Address _________________________________
Telephone # ______________________________
License # ________________________________
Periodic inspection and maintenance normally consists of
changing or cleaning the filters and cleaning the outdoor coil.
On occasion, other components may also require cleaning.
Filters
Filters should be checked at least every 6 weeks. Dispos-
able filters should be replaced when dirty, and cleanable
filters should be cleaned regularly. It is important to keep
the air filters clean, as dirty filters can restrict airflow and
the blower motor depends upon sufficient air flowing
across and through it to keep from overheating.
Motors
Indoor and outdoor fan and vent motors are permanently
lubricated and require no maintenance.
Outdoor Coil
Dirt and debris should not be allowed to accumulate on
the outdoor coil surface or other parts in the air circuit.
Cleaning should be as often as necessary to keep coil
clean. Use a brush, vacuum cleaner attachment, or other
suitable means. If water is used to clean the coil, be sure
the power to unit is shut off prior to cleaning. Care should
be used when cleaning the coil so that the coil fins
are not damaged.
Do not permit the hot condenser air discharge to be
obstructed by overhanging structures or shrubs.
MAINTENANCE
Failure to follow the safety warnings exactly
could result in dangerous operation, serious
injury, death, or property damage.
Improper servicing could result in dangerous
operation, serious injury, death, or property
damage.
•Before servicing, disconnect all electrical
power to unit.
•When servicing controls, label all wires prior
to disconnecting. Reconnect wires correctly.
•Verify proper operation after servicing.
WARNING
ELECTRICAL SHOCK, FIRE,
OR EXPLOSION HAZARD

# 48360E006 Page 11
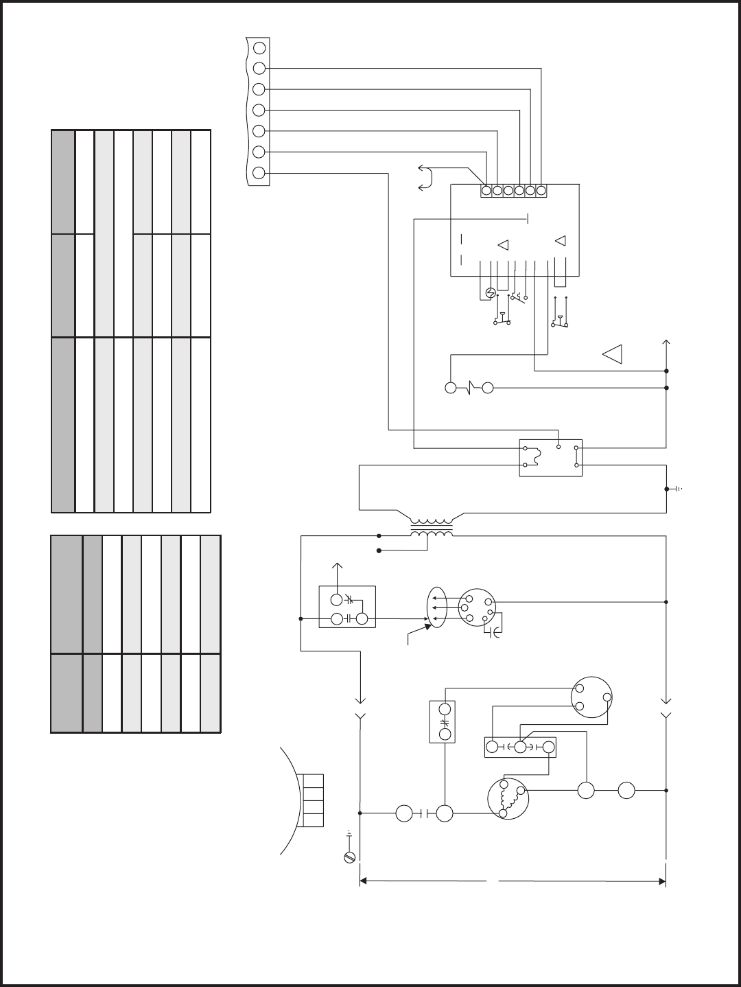
Figure 9
208/230V-1-60
GW1 CRO
BLK
RED
YEL
RED
CONTACTOR
THERMOSTAT
HIGH PRESSURE
SWITCH
(IF USED)
L1
T1
T2
L2
C
H
F
CONDENSER
FAN MOTOR
COMPRESSOR
CONTACTOR
COMPRESSOR
CONTACTOR
DUAL
CAPACITOR
COMPRESSOR
TRANSFORMER
CS
R
WHT
L2
L1
BLK
BRN
PUR
RED
RED
BLK
208V
240V
24V
INDOOR
BLOWER
MOTOR
S4
S1
K1
T1
B3
B4
K1-2
C12
B1
K1-1
BLU
YEL
C4
CAPACITOR
HML
C
SEE CHART
FOR WIRING
NO NC
C
P-3
BLOWER
CONTROL
A15
NC C
CMC1
BLK
C
G
XFMR-R
R
XFMR-C
W1
C
L
R
O
Y1
FAN
O-OUT
LO-PS
DF
HI-PS
COMMON
Y1 OUT
2
2
CMC1
S6
L1
24 V
FUSE
Y
A15
BLOWER
CONTROL
W2
RED
YEL
BLU
WHT
GRN
ORN
RED
BLU
BLU
YEL
BLU
BLK
BLK
DEFROST
CONTROL
BLU
WHT
REVERSING
VALVE
DEFROST
T'STAT
DEFROST CONTROL
P-1
P-2 P-4
P-6 P-5
CONNECTION MUST BE JUMPERED
WHEN PRESSURE SWITCH IS NOT USED.
2
MOTOR
SPEED TAPS
LMHC
Unit Factory Shipped
Settings
Cooling Input (BLK)
24 LOW
30 MED
36 HIGH
42 LOW
48 MED
60 HIGH
BLOWER SPEED CHART
S79
LOW
PRESSURE
SWITCH
(IF USED)
Note: Because the pressure switches are monitored only when "Y1" (Input) is active, the
code for pressure switch open will not be seen when "Y1" is off. Instead, the
“Normal Operation" or “Anti-Short Cycle Lockout” code will be seen.
When a pressure switch opens and causes a short cycle lockout,
the pressure switch-open code will be seen until it closes, then the
short cycle lockout code will flash unless it has already expired.
DIAGNOSTIC DISPLAY
Mode Green LED Red LED
No Power to Board Off Off
Normal Operation/ Power to Board Simultaneous Slow Flash
Anti-Short Cycle Lockout Alternating Slow Flash
Low Pressure Switch Fault Off Slow Flash
Low Pressure Switch Lockout Off On
High Pressure Switch Fault Slow Flash Off
High Pressure Switch Lockout On Off
NOTE - If any of the original wire is replaced,
the same size and type wire must be used.
Use copper conductor only, min. 75°C wire.
WARNING - Electric shock hazard. Unit must
be grounded in accordance with national and
local codes.
Line voltage field installed.
W1 & W2 can be used to stage electric heat
accessory on 15 & 20kW models.
5, 7.5, & 10kW heater accessories function
off W1 only.
Connection Diagram
Single Phase – PSC Motor
P/N 48349-001

Page 12 # 48360E006
Connection Diagram
Single Phase – Variable Speed Motor
P/N 48374-001
Figure 10
DIAGNOSTIC DISPLAY
Note: Because the pressure switches are monitored only when "Y1" (Input) is active, the
code for pressure switch open will not be seen when "Y1" is off. Instead, the
“Normal Operation" or “Anti-Short Cycle Lockout” code will be seen.
When a pressure switch opens and causes a short cycle lockout, the pressure switch-open
code will be seen until it closes, then the short cycle lockout code will flash unless it has
already expired.
Mode Green LED Red LED
No Power to Board Off Off
Normal Operation/ Power to Board Simultaneous Slow Flash
Anti-Short Cycle Lockout Alternating Slow Flash
Low Pressure Switch Fault Off Slow Flash
Low Pressure Switch Lockout Off On
High Pressure Switch Fault Slow Flash Off
High Pressure Switch Lockout On Off
Unit
Factory Shipped Settings
ADJUST HEAT COOL
24 NORM B B
30 NORM A A
36 NORM A A
42 NORM C C
48 NORM B B
60 NORM A A
BLOWER SPEED CHART
DIAGNOSTIC
MODULE
CONNECTION MUST BE
JUMPERED WHEN PRESSURE
SWITCH IS NOT USED.
2
NOTE - If any of the original wire is replaced,
the same size and type wire must be used.
Use copper conductor only, min. 75°C wire.
WARNING - Electric shock hazard. Unit must
be grounded in accordance with national and
local codes.
Line voltage field installed.
W1 & W2 can be used to stage electric heat
accessory on 15 & 20kW models.
5, 7.5, & 10kW heater accessories function
off W1 only.

# 48360E006 Page 13
Limited Warranty
August 1, 1997
This warranty gives you specific legal rights and you may have other rights
which vary from state/province to state/province.
Warrantor: Allied Air Enterprises Inc., 215 Metropolitan Drive, West Columbia, SC 29170
These Allied Air Enterprises Inc. products are available under the following names: AirEase and Armstrong Air
Subject to the limitations stated in this warranty, we warrant to the first buyer for use the residential heating, cooling, or heat pump unit,
when installed, operated, and maintained as required by this warranty, to be free of defects in workmanship or material for a period of
5 years in residential installations (1 year in non-residential installations) from the time of installation. We will replace any defective
component without cost or expense to you except for the costs of delivery and labor for removal and replacement of the defective
component.
These (2,4)PHP(13,15) package heat pump units carry a 10-year limited warranty on the compressor. Limited warranties apply to
the original owner in private owner-occupied residences.
Your new equipment must be properly installed, operated and maintained in accordance with the unit installation, operation and maintenance
instructions provided with each unit. You are responsible for required periodic maintenance or service, to include changing or cleaning of air filters
and lubrication or cleaning of components. Failure to properly install, operate or provide maintenance per the instructions will void the warranty.
Warranty Begins
The warranty period begins when the installation is complete and the product is ready to operate. You must be able to verify this date
whenever a warranty claim is made. Original bill of sale, installer’s invoice, or other similar document will suffice. If the beginning date
cannot be verified, we will consider warranty coverage to begin 6 months after the date the product was shipped from our factory.
Limitations on Implied Warranties
Implied warranties of merchantability or, to the extent applicable, fitness for a particular purpose are limited to 5 years, the same duration
as the basic limited written warranty provided herein. Some states/provinces do not allow limitations on how long an implied warranty of
merchantability or fitness lasts, so the above limitations or exclusions may not apply to you.
Only Warranty
This written Limited Warranty is the only warranty made by the warrantor; this warranty is in lieu of and excludes all other warranties,
express or implied. The warrantor does not authorize any person to provide any other warranty or to assume for it any further obligation in
connection with the warranted product.
These Warranties Apply Only:
• To products in their original installation location and become void upon re-installation.
What is NOT Covered
1. Cabinets or cabinet pieces.
2. Normal maintenance items such as filters, fan belts, fuses or other consumable items.
3. Damage caused by flood, wind, fire, lightning, mold, failure to maintain properly, accidents or misuse, including operation of
electrical equipment at voltages other than the range specified on the unit nameplate (includes damages caused by brownouts).
4. External wiring, piping, venting or attachment of accessory products not integral to our product, including without limitation,
humidifier, air cleaner, vent damper, thermostat or other mechanical devices not manufactured by the warrantor.
5. Products that have been operated in a corrosive atmosphere where a concentration of acids, halogenated hydrocarbons or
other corrosive elements (such as chlorine, fluorine, salt, recycled waste water, urine, fertilizers, or other damaging sub-
stances or chemicals) causes deterioration to metal surfaces or integral components. NOTE: Operation in a corrosive
atmosphere is considered abuse and voids this warranty.
6. Products that have NOT been installed in accordance with our published installation instructions, applicable local, state/
provincial or national codes, ACCA published standards.
7. Products that have NOT been installed by competent, qualified installers.
8. Products that have been moved from their original place of installation.
Warranty on Replacement Components
Any replacement component furnished by us will assume the remaining (unused) portion of the Limited Warranty.
Consequential Damages
The warrantor shall not be responsible for any consequential damages caused by any defect in the product. Some state/provinces do not
allow the exclusion or limitations of incidental or consequential damages, so the above limitation or exclusion may not apply to you.