Avaya IP Office Compact Contact Center V5 Installation
User Manual: Avaya IP Office Compact Contact Center V5 Installation Avaya IP Office Information - www.telecomuserguides.com
Open the PDF directly: View PDF .
Page Count: 74
- Introduction
- Installation Of CCC Components
- IP Office Requirements
- Wallboard Installation & Maintenance
- Introduction
- Ferrograph Wallboard 10
- Ferrograph Wallboard 22
- Spectrum 4120C Wallboard
- Advatel TCD226C Wallboard
- CCC Wallboard Installation
- User Access
- Delta Server
- Upgrade Procedure
- Trouble Shooting

Compact Contact Center V5
Installation
40DH0002USBG Issue 5c (29 September 2005)

iii
Table Of Contents
Introduction................................................................................................................................1
General....................................................................................................................................................... 1
Use of this Manual...................................................................................................................................... 2
About this Manual .................................................................................................................................. 2
Overview of CCC........................................................................................................................................ 3
Twenty Five Agent Systems and below...................................................................................................... 4
Systems above Twenty Five Agents .......................................................................................................... 6
Installation Of CCC Components..............................................................................................7
Introduction................................................................................................................................................. 7
Standalone Server & Agent PCs............................................................................................................ 7
Server, Client & Agent PCs.................................................................................................................... 8
Server Pre-requsites................................................................................................................................... 9
Server Hardware Requirements ............................................................................................................ 9
Software Requirements for CCC Server(s)............................................................................................ 9
Windows 2000/3 Modifications .............................................................................................................. 9
IIS Installation ...................................................................................................................................... 10
Event Log Settings............................................................................................................................... 11
Install Database Application................................................................................................................. 12
Installation of CCC Components .............................................................................................................. 13
Server PC Installation............................................................................................................................... 14
Access Permissions ................................................................................................................................. 17
Logon Requirements ................................................................................................................................ 18
Client Pre-requsites.................................................................................................................................. 19
Client Hardware Specifications............................................................................................................ 19
Software Requirements for CCC Client(s)........................................................................................... 19
Client Software Modifications............................................................................................................... 19
Client PCs Installation .............................................................................................................................. 19
Agent PCs Installation .............................................................................................................................. 19
IP Office Requirements............................................................................................................ 21
Overview................................................................................................................................................... 21
CCC Licenses........................................................................................................................................... 21
Entering License Keys.............................................................................................................................. 22
Naming Directory Numbers ...................................................................................................................... 23
Mailbox Set-up.......................................................................................................................................... 23
Group Reporting....................................................................................................................................... 23
IP Office in the Contact Center Environment....................................................................................... 23
Call Center View and Wallboard Manager........................................................................................... 24
Report Manager................................................................................................................................... 24
CCC reporting associated with Voice Mail Pro ....................................................................................24
Login Codes ............................................................................................................................................. 24
Wallboard Installation & Maintenance.................................................................................... 25
Introduction............................................................................................................................................... 25
Ferrograph Wallboard 10.......................................................................................................................... 25
Introduction - Ferrograph Wallboard 10............................................................................................... 25
Wall Mounting ...................................................................................................................................... 26
Ceiling Mounting .................................................................................................................................. 27
Serial Connection and Configuration ................................................................................................... 28
Dip-switch Number............................................................................................................................... 29
Baud Rate............................................................................................................................................ 29
Test Functions ..................................................................................................................................... 30
System Wiring...................................................................................................................................... 30
RS485.................................................................................................................................................. 30
Periodic Maintenance & Inspection...................................................................................................... 31
Ferrograph Wallboard 22.......................................................................................................................... 32
Introduction - Ferrograph Wallboard 22............................................................................................... 32

CCC Installation
iv
Installation............................................................................................................................................ 33
Wall Mounting ...................................................................................................................................... 33
Ceiling Mounting .................................................................................................................................. 34
RS485 Serial Connection..................................................................................................................... 34
Network Addressing............................................................................................................................. 34
Additional Equipment........................................................................................................................... 34
Connection Details............................................................................................................................... 35
Compatible External Devices............................................................................................................... 35
Periodic Maintenance & Inspection...................................................................................................... 36
Serial Connection & Dip Switch Settings ............................................................................................. 36
RS485 Communication System........................................................................................................... 38
Spectrum 4120C Wallboard ..................................................................................................................... 39
Introduction - Spectrum 4120C............................................................................................................ 39
Advatel TCD226C Wallboard ................................................................................................................... 40
Introduction - AdvaTel TCD226C......................................................................................................... 40
Hardware Connections ........................................................................................................................ 41
PC Communications - Serial Port ........................................................................................................ 41
Daisy Chain.......................................................................................................................................... 42
Wallboard ID and Bleeper Volume Control.......................................................................................... 42
CCC Wallboard Installation ...................................................................................................................... 43
CCC Wallboard Installation.................................................................................................................. 43
Wallboard Properties ........................................................................................................................... 44
Check Wallboard Operation................................................................................................................. 44
View Active PC Wallboard ................................................................................................................... 44
User Access ............................................................................................................................. 45
Starting CCC User Access ....................................................................................................................... 45
Delta Server..............................................................................................................................46
Delta Server Introduction.......................................................................................................................... 46
Launching Delta Server ............................................................................................................................ 46
Upgrade Procedure.................................................................................................................. 47
Overview................................................................................................................................................... 47
MSDE Upgrade ........................................................................................................................................ 48
Backup Your Database............................................................................................................................. 49
Backup CCC files ..................................................................................................................................... 51
Database Uplift......................................................................................................................................... 51
Install CCCv5 Applications ....................................................................................................................... 52
Client Upgrade.......................................................................................................................................... 54
Upgrade to SQL 2000 Procedure............................................................................................................. 55
Trouble Shooting ..................................................................................................................... 57
CCC Installation........................................................................................................................................ 57
Wallboard Server/Client............................................................................................................................ 57
Index..........................................................................................................................................59

Installation Page 1
Compact Contact Center V5 40DH0002USBG Issue 5c (29 September 2005)
Introduction
General
Compact Contact Center (CCC) modules provide the user with the necessary tools to facilitate the
management of call traffic. They are designed to provide a tightly integrated real time and historic
reporting package and wallboard support for the eBusiness digital communications platform. The product
consists of a set of fully integrated modules sharing a common database utilizing Interactive Directory
and Database (IDD) technology.
The suite of modules consists of the following applications:
• Call Center View (CCV):
Provides a realtime management package for telephone based staff and supports any size
Customer Facing Department (CFD) or contact center. To effectively control customer service
levels, real time human resource management is essential and the Call Center View has been
specially designed to manage the CFD’s or contact center’s most valuable and expensive asset –
it's people.
• Call Center View Alarm Reporter:
Provides real time & 7 day historic information (for each Contact Center Profile) about alarms that
have occurred within the Compact Contact Center. The detailed alarm information for each
directory number is presented in report format, which can then be printed.
• Wallboard Manager:
Real time information from the call center is essential to react to constantly changing telephone
traffic levels and provide excellent customer service. Wallboards allow managers and staff to
monitor the service being provided and respond immediately. Wallboards provide current
information on the number of calls waiting, response times and service levels. Wallboard
Manager provides the ability to drive physical wallboards and PC wallboards.
• PC Wallboard:
The PC Wallboard delivers traditional wall mounted wallboard functionality to the desktop but with
the additional benefit of each PC Wallboard agent being able to configure and monitor a
personalized view of the contact center. The PC Wallboard also enables agents to increase their
productivity and maintain revenue levels with the added benefit of managing customer callback
requests.
• Report Manager:
Provides in depth historical reporting on CFD or contact center activity. In addition to call
information, the Report Manager also reports agent activity. This powerful package allows
individual call records to be stored and reported upon months later.
• CCC User Access:
CCC User Access allows storage of personal Call Center View and Wallboard settings. It also
establishes user rights and password protection for Call Center View, Wallboard and Alarm
Reporter software.
• Workforce Management – Blue Pumpkin:
Workforce Management Interface allows integrated rostering, forecasting and scheduling
systems to connect across the LAN to a comma separated variable (CSV) file containing a list of
Contact Center related metrics.
• MultiMedia Module:
MultiMedia Module (MMM), is a customer contact software solution that enables companies and
departments to manage multimedia contacts into and out of the organization. MMM provides
applications that manage Telephony, E-mail and Web Call Back communications. For installation
of MultiMedia Module, refer to the separate Installation Manual.

CCC Installation
Page 2 Installation
40DH0002USBG Issue 5c (29 September 2005) Compact Contact Center V5
Use of this Manual
This manual covers the installation and administration of Avaya's Compact Contact Center (CCC) at
software Level 5.0+. on the following communications platforms:
• IP403/406/406V2/412 Office platforms operating Software Level 2.1+
WARNING - When using Office platforms operating software Level 3.0+, CCC 5.0 must not have
the Key and Lamp functionality operational.
• This Manual does not cover the Installation of CCC 4.0 software.
This guide is intended for use by installers and administrators who are familiar with the relevant
communications platform and have successfully completed the appropriate training courses.
Ensure that you have read and understood this Manual before beginning installation.
About this Manual
This manual provides the information necessary to set up, install and perform basic set-up on CCC
modules. The following overview defines the sequence of actions that must be performed to install
CCC modules:
1. Check the pre-requisites for all Server/Client PCs.
2. Install the required CCC applications on the Server, Client and Agent PCs.
3. Define and set up the IP Office requirements.
4. Install the CCC Licenses on the IP Office.
5. Install the Wallboards (optional)
6. Upgrade the Database to SQL 2000 (optional).
Once installation has been completed, the following manuals provide the details for administrating and
operating the CCC.
• CCC System Administrators Manual
• Alarm Reporter
• Call Center View
• Reporter
• Report Designer
• Wallboard Manager
• PC Wallboard
• Workforce Management Interface
• PC Wallboard Quick Reference Guide

Introduction
Installation Page 3
Compact Contact Center V5 40DH0002USBG Issue 5c (29 September 2005)
Overview of CCC
Avaya's Compact Contact Center (CCC) provides the user with the necessary tools to facilitate the
management of call traffic. The diagram below shows the concept:
Installation of CCC on IP Office requires licenses to enable the various modules. For systems of up to 25
agents* the CCC modules can be installed on a stand-alone Server PC. For systems of more than 25
agents the Server and Client functions must reside on separate PCs.
CCC can support up to 75 agents. There can be up to 21 supervisor positions that can use the Call
Center View, Wallboard Client and Reporting applications.
*Note: An AGENT is defined as a person who makes or receives calls and has 'logged on' to the
system, e.g. has a 'forced log on' status on the switch.

CCC Installation
Page 4 Installation
40DH0002USBG Issue 5c (29 September 2005) Compact Contact Center V5
Twenty Five Agent Systems and below
The Compact Contact Center comprises a suite of tightly integrated modules installed on a Server PC
platform running Windows 2000/2003. The CCC may be installed either with or without Voicemail Pro.
The following lists the modules included within the CCC which are designed to run concurrently on the
Server PC:-
• CCC Server PC
• Delta Server
• Call Center View
• PC Wallboard
• Wallboard Server
Note: If Wallboard Server is installed, Wallboard Client should not be installed.
• Reporter
• Report Server and Client
• CCV Alarm Reporter
• Voice Processing Administration (if Voice Mail Pro is present).
The following diagram shows the Compact Contact Center connectivity (for systems of 25 agents and
below) without Voicemail Pro.
The following diagram shows the Compact Contact Center connectivity (for systems of 25 agents and
below) with Voicemail Pro.

Introduction
Installation Page 5
Compact Contact Center V5 40DH0002USBG Issue 5c (29 September 2005)
The following diagram shows the Compact Contact Center connectivity (for systems of 25 agents and
below) with Voicemail Pro and CCC on the same server.
The following thresholds are applied to the CCC and Voicemail Pro on the same server.
• Maximum number of Agents = 25
• Maximum number of Voicemail Pro Ports = 8
• Maximum call traffic = 1000 calls per 8 hour working day.

CCC Installation
Page 6 Installation
40DH0002USBG Issue 5c (29 September 2005) Compact Contact Center V5
Systems above Twenty Five Agents
The Compact Contact Center supports up to 21 supervisor positions, known as Client PC's. It may be
installed either with or without a Voicemail Pro. For CCC systems above 25 agents, Microsoft SQL 2000
is recommended. See Install Database Application for more information.
The following details where the applications reside:
Client PC Server PC
Call Center View Delta Server
Wallboard Client Report Server
Report Client Wallboard Server
PC Wallboard Database Server Supervisor
CCV Alarm Reporter Workforce Management
(Optional).
The diagram below shows the Compact Contact Center without a Voicemail Pro being installed.
The diagram below shows the Compact Contact Center Manager with a Voicemail Pro.

Installation Page 7
Compact Contact Center V5 40DH0002USBG Issue 5c (29 September 2005)
Installation Of CCC Components
Introduction
This section describes the procedures of installing the software for the Compact Contact Center suite.
Do not begin installation before you have read and performed all the Server & Client Pre-requisites.
Standalone Server & Agent PCs
If you have less than 25 agents, the Server and Client components can be installed on the same PC.
The Supervisor will use the Client components on the Server PC.
Standalone Server PC Agents PCs
Call Center View (Application) PC
Wallboard
PC Wallboard (Application)
Wallboard Server (Application)
Delta Server (Application)
Report Server (Installs historic database)
Report Client (Installs CCC Reporter)
Database Server Supervisor (Allows maintenance plans
to be created, backed up and restored)
Report SDK (Used when designing custom reports in
Crystal Reports)
CCV Alarm Reporter (Application)
Workforce Management Interface (Application)

CCC Installation
Page 8 Installation
40DH0002USBG Issue 5c (29 September 2005) Compact Contact Center V5
Server, Client & Agent PCs
If you have a CCC installation of more than 25 agents, then the Server must be on a separate PC
(serving up to five Client PCs also known as Supervisor positions).
Server PC Client PC
(Supervisor Position)
Agents
PCs
Wallboard Server (Application) Call Center View (Application) PC
Wallboard
Delta Server (Application) PC Wallboard (Application)
Report Server (Installs historic
database)
Wallboard Client (Application)
Database Server Supervisor (Allows
maintenance plans to be created,
backed up and restored)
Report Client (Installs CCC
Reporter)
Report SDK
(Used when designing Crystal
Reports)
CCV Alarm Reporter (Application)
Workforce Management Interface
(Application)
Notes:
• If the Wallboard Server is installed then the Wallboard Client is not required.
• Report Server is not available for installation until IIS has been installed.
• The Database Server Supervisor requires MSDE/SQL.

Installation Of CCC Components
Installation Page 9
Compact Contact Center V5 40DH0002USBG Issue 5c (29 September 2005)
Server Pre-requsites
Server Hardware Requirements
Each Server PC must meet the minimum requirements as follows:-
• Pentium 4 2.8GHz or higher, with a 7,200rpm, Min 10GByte hard disk.
• 512 Mbytes of RAM.
Monitor: 15" (or optional 17") SVGA supporting 800x600.
Network Interface Card:
Keyboard: Win 2000/2003 Compatible.
Floppy Disk Drive A: 3.5" 1.44 Mb high density.
CD ROM Drive:
Backup Device: Minimum 30GB Digital Drive (optional).
Software Requirements for CCC Server(s)
The CCC Server needs one of the following operating systems installed.
• Microsoft Windows 2000 Server (SP3 or above)
• Microsoft Windows 2003 Server
Make sure that the operating system has had all the Windows critical updates installed and that the
following programs have been installed.
• Internet Explorer 5.5 (SP1) or above. If this has come pre-loaded, please check that the version
is 5.5 or above.
Before loading the CCC software the pre-installation requirements need to be completed. These are
listed below and detailed on the following pages.
• Modify the operating system.
• Install Internet Information Services (IIS). If this has been pre-loaded, please check that the
version is 1.1 or above.
Note: It is vital that IIS is installed prior to .NET. If these are installed in the wrong order, remove
.NET (Add/Remove programs) and then re-install.
• Install ASP.NET if using a Windows 2003 Server
• Amend the Event Log settings
• Install the database.
• MS Outlook needs to be installed if the Delta Server email error notification is going to be used.
Windows 2000/3 Modifications
On a machine with Windows 2000/3 already installed you must perform all of the following:-
1. The network protocol must have TCP/IP enabled.
2. Ensure that the Regional Options are set [e.g. for USA set it to English (United States)] and that
the Time is set to local time.
3. Make sure that the screen display properties have been set to the following:
• Desktop area is set to 800 by 600 pixels.
• Color palette is set to True Color (32 Bit).
Caution: It is recommended that the CCC Server is not used as a Domain Controller. If it is it could
cause server application errors.

CCC Installation
Page 10 Installation
40DH0002USBG Issue 5c (29 September 2005) Compact Contact Center V5
IIS Installation
To install IIS on a Windows 2000 operating system:
1. Click Start, highlight Settings and then click Control Panel.
2. Double click the Add/Remove Programs icon.
3. Click the Add/Remove Windows Components button.
4. Select Internet Information Services (IIS)
5. Click the Details button. Ensure that World Wide Web Server is selected and click OK.
6. Click Next to begin the installation.
Note: The original Operating System media CD may be required.
To install IIS and ASP.NET on a Windows 2003 operating system:
1. Click Start, highlight Settings and then click Control Panel.
2. Double click the Add/Remove Programs icon.
3. Click the Add/Remove Windows Components button.
4. Select Application Server
5. Click the Details button.
6. Make sure that ASP.NET is selected.
7. Make sure that Internet Information Services (IIS) is ticked and highlighted.
8. Click the Details button.
9. Ensure that World Wide Web Server is selected and click OK.
10. Click the Details button.
11. Ensure that World Wide Web Server is checked.
12. Click OK to return to the Internet Information Services (IIS) screen.
13. Click OK to return to the Application Server Screen
14. Click Ok to return to the Windows Components screen.
15. Click Next to being the installation.
Note: The original Operating System media CD may be required.

Installation Of CCC Components
Installation Page 11
Compact Contact Center V5 40DH0002USBG Issue 5c (29 September 2005)
Event Log Settings
The Event Log settings are altered through the Windows Event Viewer.
For Windows 2000:
1. Right mouse click on the My Computers Icon. Select Manage.
2. Expand the Event Viewer folder.
3. Right mouse click on Application and select properties.
In the Log size section select Overwrite events as needed.
Click on Apply and then OK.
4. Right mouse click on Security and select properties.
In the Log size section select Overwrite events as needed.
Click on Apply and then OK.
5. Right mouse click on System and select properties.
In the Log size section select Overwrite events as needed.
Click on Apply and then OK.
6. Close all open windows.
For Windows 2003
In Classic View:
1. Click Start, highlight Programs and then Administrative Tools.
2. Click on Event Viewer.
3. In the left hand pane, right click on System and select Properties.
Check Overwrite Events as needed.
4. In the left hand pane, right click on Security and select Properties.
Check Overwrite Events as needed.
5. In the left hand pane, right click on Application and select Properties.
Check Overwrite Events as needed.
6. Click OK and exit the Event Viewer.

CCC Installation
Page 12 Installation
40DH0002USBG Issue 5c (29 September 2005) Compact Contact Center V5
Install Database Application
Database Selection
For CCC systems above 25 agents, Microsoft SQL 2000 is recommended. MSDE 2000 can also be
used for CCC systems above 25 agents. However, you may experience performarnce degradation if
your call traffic is particularly high. If you are expecting high call traffic Avaya recommends you use
Microsoft SQL 2000.
For systems which use MMM, SQL 2000 is a mandatory requirement.
MSDE 2000 (or above) Installation
When using MSDE 2000 (or above) there is a maximum storage capacity of 2Gb. It is recommended that
when more than 5 concurrent Report Viewer connections are required that SQL 2000 (or above) should
be used as the database engine and not MSDE.
1. Insert the CCC Installation CD into the drive.
2. From the Windows taskbar click Start, select Run and then click on the Browse button.
3. View the CD drive and double click the MSDE folder. Select MSDEInstSP.exe and double click
to start the installation.
4. Select the required language for the installation and click OK to continue.
5. Enter and confirm your password for the sa database. The password for this is NMYSBH.
Do not check 'Windows Authentication'.
6. Click the OK button. The installation could take up to 20 minutes.
7. Once the setup is complete, reboot the PC when requested.
Microsoft SQL 2000 (or above) Server Installation
SQL 2000 (or above) must be used instead of MSDE 2000 (or above) on systems over 25 agents and on
systems utilizing MMM. The software is not supplied as part of CCC so it will have to be purchased
separately. Follow the installation instructions provided with the software. The software includes
Enterprise Manager tools that can be used to control the MSDE database. If MSDE 2000 (or above) is
installed you are able to upgrade to SQL 2000 at a later date.

Installation Of CCC Components
Installation Page 13
Compact Contact Center V5 40DH0002USBG Issue 5c (29 September 2005)
Installation of CCC Components
When all the installation pre-requisites have been performed, commence CCC Application installation on
the Server, then the Client PCs and finally the optional PC wallboard application on the Agents PCs.
Note: Only install CCC Components on a Server PC that is operating either as a local machine or within
a domain. Do not spread the installation over both.
The following information is required during the installation process.
• IP Office Address.
• CCC Server Name - The name of the machine that CCC is being installed on.
• SMTP Server Name and Email Address - Required if reports are being distributed by email.
• CRM Host Name.
• SQL Server Name - The name of the machine that the database is installed on.
Note: to find the name of a machine, right mouse click on the My Computers icon and select the
Properties option. The full computer name is shown on the network identification tab.

CCC Installation
Page 14 Installation
40DH0002USBG Issue 5c (29 September 2005) Compact Contact Center V5
Server PC Installation
Note: The installation described below is based on installing the software for a standalone server.
Depending on the componments being installed all or only some of the options described will appear
e.g. steps 10, 11, 12 and 14 only occur if Report Server is selected.
To install the required CCC applications on the Server PC, perform the following:-
1. With Windows running, insert the Application CD into the CD Drive. Use the My Computer
facility to view the CD drive. Within the CCC Folder, find and double click on Setup.exe.
2. Choose the appropriate setup language and click on OK.
3. The InstallShield Wizard will run.
4. If the installation is being carried out on a Windows 2000 server a message will appear asking if
Microsoft.Net Framework 1.1 package should be installed. This software is required for CCC
reporting. If reporting is not required click NO and continue from step 5. To install the software
click Yes.
A license agreement screen will appear. Read through the agreement and then select the option I
Agree and click Install. Microsoft.Net Framework 1.1 files will be installed.
At the message 'Installation of Microsoft .NET Framework 1.1 is complete', click OK to continue.
5. At the Welcome screen click on Next to continue.
6. Choose the destination location. The Browse button allows the location for installation to be
selected if the default is not required. The default location is C:\Program Files\Avaya\IP
Office\CCC. Click Next to continue.
7. The Select Components menu is displayed:
8. Choose the appropriate applications for your Server/Client configuration (check/un-check as
required). Use the scroll bar to view the Report SDK, CCV Alarm Reporter, Workforce
Management - Blue Pumpkin and MultiMedia Module (Interaction Manager) applications. For
installation of the MultiMedia Module, refer to the separate installation manual.
9. Click Next to continue. The installation of the requested setup will start.

Installation Of CCC Components
Installation Page 15
Compact Contact Center V5 40DH0002USBG Issue 5c (29 September 2005)
10. If you have chosen to install the Report Server you will be asked You are about to configure an
Archiver to 2000MB do you wish to continue? Click Yes.
11. Installation will start. A message will appear showing that the database devices are being
created.
12. The CCC Reporting Admin Console menu is displayed. The application window contains a
number of tabs that enable various configuration settings to be specified for the report server
windows service and web application to run correctly. The CRM and Email tabs only need to be
completed if applicable. The information required for each tab is described below.
Caution: Do not click the Update button until you have checked the data in all five tabs.
• PBX tab
Enter the IP Address of the IP Office that contains the licence information.
• Database tab
Allows the name of the machine containing the call data database to be entered as well
as the authentication required. If SQL Server authentication and the database user id
fields are left empty then the default name SDXArchiver is used for connecting to the
database. If you have connected to a different Database Server, enter the name and
password of the new target. For the SQL Server Security field, enter both the name and
password entered whilst installing MSDE 2000. (The defaults are sa and NMYSBH).
Either accept the default settings for the Database Server/Name field or, if you have
connected to a different Database Server, enter the name and password you changed to.
• CRM Tab
Either accept the default or change the CRM Host name to that of the CRM Server if not
on this PC. Make sure that the date and time formats that are used by the MSCRM as
specified in the Calendar tab of the system settings dialog are correct. The date and time
formats must be set correctly so that any reports that contain date and time information
from MSCRM run correctly. The CRM Server must be licensed.
• Email Tab
Enter the name for the SMTP Server (if the Server is on this PC enter 'localhost'). Also
enter the CCC user’s email address.
• Service Tab
Specify the port number that the web application uses to communicate with the windows
service. Enter a Server Port number for CCC. Select the port number from the drop down
list. All the port numbers are allocated to the local machine.
13. Installation will continue. Enter the CCC Server name when requested. Click Next to continue.
14. The setup continues with the Database Management components being installed.
15. The InstallSheild wizard complete screen will appear. Select the option Yes I want to restart the
computer now option and click on the Finish button.
16. The Delta Server needs to configured.
• Start the Delta Server application: Start | Programs | CCC | Delta Server
• Click on Comms in the Toolbar Pane.
• Select the required IP Office connection and click on the Apply button.
• The Server, Server Type and IP Address will show at the top of the screen. The Comms
Status should show as 'Comms Restored'.
• Click on Archiver in the toolbar pane.
• Enter the SQL Server Name (i.e. the name of the PC hosting the database) and check the
option Launch Archiver at Startup.
• Click on the connect button. The screen will remain blank.
• Click on the refresh button and the Archiver should be shown as connected. If the
Archiver is not shown as connected, follow the steps below to achieve connection.

CCC Installation
Page 16 Installation
40DH0002USBG Issue 5c (29 September 2005) Compact Contact Center V5
a. Close Delta Server.
b. Open the Administrative Tools: Start | Settings | Control Panel | Administrative
Tools.
c. Double click on the Services icon.
d. Right mouse click on CCC Delta Server and select Restart from the menu.
e. Close all the open windows.
f. Re-start the Delta Server application: Start | Programs | CCC | Delta Server.
g. Click on Archiver in the Toolbar Pane. All the details should be completed and
the Archiver shown as connected.
17. Close all programs and re-boot the PC.

Installation Of CCC Components
Installation Page 17
Compact Contact Center V5 40DH0002USBG Issue 5c (29 September 2005)
Access Permissions
Once CCC has been installed, read/write permissions need to be assigned to allow full functionality for a
supervisor using a Client PC. Users of Call Center View, PC Wallboard and Alarm Reporter will need
have write permissions for the folders.
The easiest way to give a folder write permissions is detailed below. This is only an example of how
permissions can be set. There are other ways that this can be done according to your network setup and
security policies.
1. From Windows Explorer select the folder containing the programs. By default the directory path
will be C:\Program Files\Avaya\IP Office\ CCC.
2. Right click the CCC folder and select Properties.
3. Click on the Security Tab and select Users. In the Permissions section click in the Allow box for
Write.
4. Click the Apply button and then click OK.
The Client PC's also need to be able to synchronise their time with the Delta Server.
1. From the Start button select Programs | Administrative Tools | Local Security Policy.
2. Under the Local Policies select User Rights Assignment.
3. Right mouse click on Change the system time and select Security.

CCC Installation
Page 18 Installation
40DH0002USBG Issue 5c (29 September 2005) Compact Contact Center V5
4. Click Add and select Authenticated Users.
5. Click Add and then OK.
6. The Local Security Settings screen will now have authenticated users added to the listing.
7. Click OK.
Note: This setting can be set at a Domain level to apply to all CCC Client users. Speak to the local
Domain Administrator for further information.
Logon Requirements
When creating Logon profiles for the Server and Client machines the following points need to be
considered.
1. If the Reporter application needs to print reports to a domain printer or email, CCC Reporting
must be set up to use a domain service account.
2. A service account needs to be created allowing access to MS Exchange Server if email reports
are to be sent from either the Delta Server or CCC Reporter.
3. Ensure that the domain service account is used to logon interactively to the CCC server, to
create printers for preset reports.

Installation Of CCC Components
Installation Page 19
Compact Contact Center V5 40DH0002USBG Issue 5c (29 September 2005)
Client Pre-requsites
Client Hardware Specifications
Each Client PC must meet the minimum requirements as follows:-
• Pentium III 800MHz or higher, with a 7,200rpm, >10GByte hard disk.
• Minimum 128 Mbytes of RAM. Please refer to the recommended requirements of the
Operating System on the Client PC.
Monitor: 15" (or optional 17") SVGA supporting 800x600.
Network Interface Card:
Keyboard:
Floppy Disk Drive A: 3.5" 1.44 Mb high density (optional).
CD ROM Drive:
Software Requirements for CCC Client(s)
A CCC Client PC needs to have one of the following operating systems installed.
• Microsoft Windows 2000 Pro with service pack 4.
• Microsoft Windows XP Pro with service pack 1.
MS Internet Explorer 5.5 and any windows critical updates need to have been installed before any CCC
software is loaded.
Client Software Modifications
The CCC Client or Agent machines need to have the following modifications.
1. Install the appropriate CCC Licences.
2. Ensure that the Time Zone is set e.g. for USA set it to English (United States). Make sure that
the time is set to local time.
Client PCs Installation
For Client configurations (Supervisor positions) follow the procedures detailed for the Server installation.
Refer to the introduction for details of the appropriate applications to install.
Note: Once the CCC applications have been installed the Access Permissions need to be amended.
Agent PCs Installation
Agent PCs can optionally have the PC Wallboard application installed. Follow the installation instructions
detailed within the Server PC Installation section making sure that only the PC Wallboard application is
selected. Once installed the Access Permissions need to be amended.
Note: Ensure that Call Center View is unchecked. This can only be unchecked once the CCV Alarm
Reporter has been unchecked.

Installation Page 21
Compact Contact Center V5 40DH0002USBG Issue 5c (29 September 2005)
IP Office Requirements
Overview
This section assumes that the installer is familiar with the basic programming of the IP Office System
and the Manager manual is available.
• IP Office Software must be Level 2.1+.
• Server License keys are required for the applications (see CCC Licenses).
• If Internet Explorer is on the same PC or server as the delta server software, you must make sure
that where there is an Internet service that there is also an Internet user. You need to amend the
user configuration within the Manager software.
CCC Licenses
Some applications and devices for IP Office require the entry of license keys before they will work. They
may also require licenses to enable certain features.
For full details refer to the separate IP Office License & Feature Keys manual.
The CCC application is enabled by a license key, which also allows for support of up to five call agents.
Additional license keys may be entered to enable support for additional call agents.
Each license is a 32-character string based on a number of unique factors:
• The Serial Number of a Feature Key (a hardware device attached to the parallel or USB port of a
PC running the Feature Key Server software).
• The features and software being enabled.

CCC Installation
Page 22 Installation
40DH0002USBG Issue 5c (29 September 2005) Compact Contact Center V5
Entering License Keys
You can view, add, delete and edit License keys through the IP Office Manager application. License
keys can be copied and pasted into the Manager application. This will help prevent errors arising from
manual entry of the 32-character strings.
1. Start IP Office Manager and load the system configuration.
2. Select System in the left hand panel. In the right hand panel, right click on the system icon and
select Edit. Enter the License Server IP Address. E.g. the IP Address of the PC that has the
Feature Key plugged into its serial or USB port (ideally the Server PC that will be running the CCC
applications).
3. Select License in the left-hand panel. The right hand panel will now show details of the License
Keys entered on the system.
4. By right clicking in the blank space of the right-hand panel or onto an existing license you can select
to add, delete or modify License Keys. The CCC License Keys available are:
• IP400 CCC SVR RFA: Enables Compact Call Center for one supervisor, including reporting on 5
agents and 1 PC Wallbord.
• IP400 CCC Report RFA 5: Enables access to historic reporting for 5 users (or 5 additional
users). There are also 2 additional licences to enable either 10 or 20 users.
• IP400 CCC Designer RFA: Enables a supervisor to design and customize their own reports.
• IP400 CCC Rostering RFA: Enables connection to thirs-party agent rostering packages for
CCC.
• IP400 CCC EMAIL RFA: Enables Email routing and reporting, outbound calling, web call-me
buttons (requiers IP400 CTI Pro RFA and CCC Svr RFA).
• IP400 CCC EMAIL CTI RFA: Enables Email routing and reporting, outbound calling, web call me
buttons (includes IP400 CTI Pro RFA). Requires CCC Svr RFA.
• IP400 CCC AGT RFA 5: Enables reporting for 5 CCC agents (or 5 additional CCC agents).
There are also 3 additional licences to enable 10, 20 or 50 CCC agents.
• IP400 CCC PCW RFA 5: Enables PC Wallboards for 5 agents (or 5 additional agents). There
are also 3 additional licences to enable 10, 20, or 50 agents.
• IP400 CCC Wallboard 4 RFA: Provides software activation for up to 4 physical wallboards for
use with the Compact Call Center, uo to a maximum of 16. Please noter that this activation
does not apply to the WB 22 product.
5. After altering or adding any license keys, upload the new configuration to the system and allow the
system to reboot.
6. Load the system configuration again and check the Status of the License Keys. If any keys are
listed as Invalid, check that the correct key has been entered. Repeat the previous steps if
necessary to correct any errors.
Important: Save a Copy of the Configuration
Once the License Keys have been correctly entered, it is very important that you save a copy of the
configuration. Select File | Save as to save a copy of the configuration onto the PC from which you are
programming.

IP Office Requirements
Installation Page 23
Compact Contact Center V5 40DH0002USBG Issue 5c (29 September 2005)
Naming Directory Numbers
Since the Telephone System programming is reflected within the CCC Manager applications, it is
important to name the directory numbers (i.e. Agents, Groups, Trunks, DDIs, etc) before connecting the
CCC.
It is also highly recommended that the directory names be unique to aid identification of specific directory
number within the Standard Reports.
Where directory numbers of a specific type are unnamed, or where more than one directory number as a
specific type has the same name, the Standard Reports will group data for those directory numbers as a
single entity (e.g. all unnamed agents will be grouped together as a single agent called "No Name", and
all DDIs named "Company DDI" will be grouped together as a single DDI called "Company DDI, etc.).
If the directory numbers have not been named, then the terminology for the directory numbers
implemented in the Contact Center Manager applications is:
• Agent – ACD Agent (XXXX*) – XXXX
• Group – Agt Group (XXXX) – XXXX
• Trunk Grp – Trunk GP (XXXX) – XXXX
Where XXXX is the directory number
Note: An AGENT is defined as a person who makes or receives calls and has 'logged on' to the system,
e.g. has a 'forced log on' status on the switch and has logged on to a handset.
Mailbox Set-up
Mailboxes need to be set-up on any PC that needs to be able to receive Delta Server error reports.
Note: The examples in the following instructions are for Microsoft Exchange Server, but the server can
be any extended MAPI compliant server.
Perform, on all CCC PCs, the following:-
1. Right-click on your Outlook icon and select properties. If the Server profile you require is not
shown, click Add and select from the available list.
2. Click on Properties and view the General tab.
3. Enter the Server and mailbox names.
4. Click OK to finish.
5. On successful installation, proceed with Starting CCC User Access.
Group Reporting
When configuring it is important to understand how calls are attributed to groups on the Call Center
View, Wallboards and Report Manager.
Note: When configuring IP Office for use within a Call Center, none of the groups used with CCC should
have their ring mode set to Group. Collective Group ringing is not a supported mode of operation as the
call data collected will be inaccurate.
IP Office in the Contact Center Environment
Staff Management is a LOCAL issue hence all real time and historic analysis for teams will require local
CCC's.
Traffic Management is a GLOBAL issue. Therefore in an IP Office configuration calls waiting across an
entire network (queued) are displayed on all Call Center View implementations across IP Office.

CCC Installation
Page 24 Installation
40DH0002USBG Issue 5c (29 September 2005) Compact Contact Center V5
Call Center View and Wallboard Manager
The Call Center View and Wallboard Manager products report on groups directly derived from the
Database. Agents and Trunks may be reported on in as many groups as they are members of within the
database. It is important however to understand how statistics for these groups are derived and it is
important for the user of the system to understand these reporting structures. These are defined below.
Call Totals and average durations for Groups are calculated by totaling the statistics for the members
of group. Should an agent or group be a member of multiple groups, their call totals will appear in
multiple groups.
Lost Calls are only attributed to the initial target agent group i.e. Initial ring group. Lost calls are also
attributed to Trunk Lines, and Trunk Groups.
Agent Status Information for a group shows the number of agents or trunks within a given group, which
are in each state.
Agent Statistics for:
• Calls Waiting, PCA, GOS, Longest Wait, LWait (Ans), L Wait (Lost), Overflowed to/From
statistics are only incremented for calls which are directly presented to that agent group. That is
they only increment where the agent group is used for Call routing purposes.
Trunk Statistics for:
• Calls waiting and Lost are calculated by totaling the statistics for the members of the trunk
group. PCA and GOS are calculated for each trunk group after totaling answered calls (plus lost
for GOS) for the members of the trunk group. LWait (Lost) and LWait (Ans) reflect the longest
wait of all those logged against any member of the trunk group.
Report Manager
The CCC has two concepts for historic reporting that cater for different views a supervisor may require of
their contact center. One type of report referred to as 'Target' reports provides analysis based on where
the call was presented and relates closely to the manner in which the call routing has been configured.
The second type of report, referred to as 'collective' reports, is based on arbitrary sets of agents and
need not necessarily correspond to the manner in which switch call routing is programmed.
CCC reporting associated with Voice Mail Pro
The following conditions apply to the initial answer/ lost segment of calls which were first presented to
the Voice Mail Pro (VM) (e.g. Voice Mail front ended systems):
1. Trunk/DDI – Call remains unanswered until answered by a non-Voice Mail Pro device or if
terminated within 3rd party Voice Mail, or encountered an "Answered" flag in Voice Mail Pro.
2. 3rd Party Voice Mail – Answered if Voice Mail connects, lost by Voice Mail if caller hangs up
before Voice Mail can answer.
3. Voice Mail Pro – Calls will only be registered as answered when the Voice Mail Pro has
successfully processed the call (passed an "Answered" flag in Call Flow)
4. Agent/Agent Group – Designation of answered and lost calls is directly dependent upon clause 1.
5. If a call was lost whilst being transferred by Voice Mail Pro, the lost call statistics will be
designated to the transfer target. Calls lost whilst alerting or connected to Voice Mail Pro will be
deemed lost by the Voice Mail Pro device or group.
6. A call successfully transferred by Voice Mail Pro will be treated as a new incoming call by trunks,
DDI and Agents, but transferred by Voice Mail Pro devices.
Login Codes
For reporting on call status and call handling all users should use login codes. This is especially
important for the user associated with the extension by default, who should be set to forced login. The
use of the Login Idle Period is also recommended.

Installation Page 25
Compact Contact Center V5 40DH0002USBG Issue 5c (29 September 2005)
Wallboard Installation & Maintenance
Introduction
This section provides basic details about the Ferrograph 10, Ferrograph 22, Spectrum 4120C and
AdvaTel TCD226C Wallboards together with installation instruction.
Up to 16 Wallboards can be supported on IP Office.
Ferrograph Wallboard 10
Introduction - Ferrograph Wallboard 10
The Wallboard 10 is a single line display consisting of 10 tri-color characters. It is connected via multi-
drop circuits, to the host PC running the Wallboard Server application.
Specifications
Ferrograph Wallboard 10
Voltage Check label on rear of wallboard
Wattage 35W
Cold Start Inrush
Current 30A for up to 6ms
Baud Rate 9600 only
Input RS485
Weight 4 kg
Dimensions L 469 x D 75 x H 123 mm
Installation power distribution circuit rating to be greater than 6 amps. Any circuit breakers must be
capable of handling the cold start inrush current without tripping.
The display is supplied with 2 wall mounting brackets, ceiling mounting kit, PC connection plugs and wall
fixings.
The Wallboard 10 displays all come with a 2 meter power cable provided for mains supply. Ensure the
voltage requirement is compatible with the intended mains supply and that the supply rating is greater
than 5 amps.
The wallboard can be mounted on the ceiling or wall.

CCC Installation
Page 26 Installation
40DH0002USBG Issue 5c (29 September 2005) Compact Contact Center V5
Wall Mounting
Fix the 2 wall mounting brackets using the cavity fixings provided. The bracket is angled to allow a 10
degree downward tilt to the display. Please ensure the brackets are the correct way up. See the diagram
below.
To mount the display, first hook the bottom of the two wall brackets into the bottom rear channel recess
of the display. See the diagram below.
Push display flat against the wall and upwards to fully locate the bottom half of the bracket. Allow display
to then drop down onto the top edge of the 2 brackets to obtain a locked fixing. To remove, reverse the
above procedure.
Note: The display can be adjusted by sliding sideways in both directions.

Wallboard Installation & Maintenance
Installation Page 27
Compact Contact Center V5 40DH0002USBG Issue 5c (29 September 2005)
Ceiling Mounting
From the mounting kit provided, fix the ceiling hanging wires and adjust to the height required. See the
diagram below.
WARNING: Ensure the ceiling can support the weight of the wallboard prior to fixing.
Slide in the 2 ends of the hanging wires into the top groove of the display housing through the pre-drilled
center hole. Center the display on the hanging wires. See the diagram below.

CCC Installation
Page 28 Installation
40DH0002USBG Issue 5c (29 September 2005) Compact Contact Center V5
Serial Connection and Configuration
An RJ45 junction box is provided as standard, alternatively if required an RJ45 coupler and 2 way
adapter can be used. The serial cable is normally connected to the logic board for RS485 operation,
check label on rear of display for specific configuration. The serial communications lead from the PC is
connected to the junction box as shown later in this manual. Modifications to the network numbers and
baud rates can be done by following the sections below, but changing the dip-switch settings as per the
diagram below.
1= RS232 Connection.
2= RS485 Connection.
3 = Dip Switches.
To set the network number requires access to the Wallboard 10 logic board as explained above.
To address individual displays in a network, a network number can be set on the dip-switch on the logic
board. Network 0 is a general address and will accept all data from the host system. The network
number is set using switches 1,2,3 and 4.

Wallboard Installation & Maintenance
Installation Page 29
Compact Contact Center V5 40DH0002USBG Issue 5c (29 September 2005)
Dip-switch Number
OFF position represents 0
ON position represents 1
Address SW1 SW2 SW3 SW4
0 0 0 0 0
1 1 0 0 0
2 0 1 0 0
3 1 1 0 0
4 0 0 1 0
5 1 0 1 0
6 0 1 1 0
7 1 1 1 0
8 0 0 0 1
9 1 0 0 1
10 0 1 0 1
11 1 1 0 1
12 0 0 1 1
13 1 0 1 1
14 0 1 1 1
15 1 1 1 1
Baud Rate
The Baud Rate can be changed to 1200, 2400, 9600 or 19200 using the dip-switch. The Baud Rate is
set using switches 5 and 6.
5 6 Baud Rate
ON ON 1200
OFF ON 2400
ON OFF 9600
OFF OFF 19200
Ensure the Baud rate is set to 9600.

CCC Installation
Page 30 Installation
40DH0002USBG Issue 5c (29 September 2005) Compact Contact Center V5
Test Functions
Test functions are provided to assist installation engineers. These are selected on the dip-switches. Test
functions are selected using switches 7 and 8.
If switch 7 and 8 are OFF at power reset:
Function 7 8
Freeze Display ON ON
Alternating ON/OFF Blocks of LED's OFF ON
Stripes ON OFF
Normal Operation OFF OFF
If switch 7 and 8 are ON at a power reset:
Function 7 8
Information Screen ON ON
Stripes OFF ON
Alternating ON/OFF Blocks of LED's ON OFF
Freeze Display OFF OFF
System Wiring
The principle for wiring up your display wallboards is that the PC output port is connected to the input of
each wallboard.
The connection is RS485 and the screen of the cable is connected to the wallboard signal ground, which
is floating.
The wallboard housing frame ground is connected to earth by the power cable
RS485
This standard officially allows 30 wallboards to be connected via a RS485 transmission cable of up to
1200 Meters to a PC RS485 port.
The PC TX+ is connected to the wallboard RX+; similarly, the PC TX- is connected to the wallboard RX-.
The recommended technique is to run a screened cable from the PC to the nearest wallboard, then from
this wallboard to the next nearest wallboard etc. At the last wallboard on the bus, it is necessary to
connect a 120 Ohm terminating resistor between the wallboard RX+ and RX- connections within the
RJ45 connection box. See the diagram below.
The installation technique is that data input of each display is electronically connected to the transmit
output of the PC.

Wallboard Installation & Maintenance
Installation Page 31
Compact Contact Center V5 40DH0002USBG Issue 5c (29 September 2005)
Periodic Maintenance & Inspection
Cleaning Display Screen
Time periods between cleaning depend upon local conditions and are at the discretion of the operator.
This routine cleaning can be carried out in the normal way using a damp and/or dry cloth.
Note: The screen is specially coated to reduce reflections and although this coating is very durable,
misuse or incorrect cleaning procedures can damage it.
LED Illumination Test Inspection
The purpose of this test is to ensure no LED fails to illuminate and should be checked annually.
Remove the right hand end cheek and carefully slide out the logic control board so that the dip-switches
are accessible. Set switch 8 to ON, inspect the LED display that will run blocks of Green, Red and
Yellow across the display. Look for any LED's that fail to illuminate.
Return switch 8 to the OFF position to stop this test.
LED Matrix Scanning Inspection
The purpose of this inspection is to ensure the LED matrix is being scanned correctly. Remove the right
hand end cheek and carefully slide out the logic control board so that the dip-switches are accessible.
Set switch 7 to ON, Yellow diagonal stripes will run across the display. Check that these stripes are
straight and that Yellow is the only colour displayed. Having completed this visual inspection return
switch 7 to OFF and ensure that all switch settings comply with system requirements for baud rate and
wallboard network address number.

CCC Installation
Page 32 Installation
40DH0002USBG Issue 5c (29 September 2005) Compact Contact Center V5
Ferrograph Wallboard 22
Introduction - Ferrograph Wallboard 22
The Wallboard 22 is a two line by 22-character tri-color Wallboard. It is connected, via multi-drop circuits,
to the host PC running the Wallboard Server application.
Specifications
Ferrograph Wallboard 22
Voltage 220/240V AC OR 110V AC.
(Check label on rear of
wallboard)
Wattage 108W
Cold Start Inrush
Current 30A for up to 6ms
Baud Rate 9600 only
Input RS485
Weight 6 kg
Dimensions L 1097 x D 75 x H 198 mm
Installation power distribution circuit rating to be greater than 6 amps. Any circuit breakers must be
capable of handling the cold start inrush current without tripping.
The display wallboard consists of the following assemblies:
• Housing
A housing that is manufactured from an aluminum extrusion with anti reflective polycarbonate
screen and removable plastic end caps.
• Power Supply
9V DC switch mode power supply assembly incorporating an RJ45 chassis mounted data
connector. The power supply is configurable for use from either 120V AC or 240V AC (NOMINAL
VOLTAGES) supplies.
• Logic Control Board
Logic control board that receives RS485 serial data from the data RJ45 connector.
• Display Board Assembly
Tri-color display board assembly, which consists of three display boards which, are connected one
to the other by a fiber optic link. The left-hand display board receives display data from the logic
control board, via a fiber optic link and it outputs data to the next display board etc. Each display
board consists of decoding and LED row and column circuitry which drives the LED matrix
consisting of 18 5x8 LED blocks.

Wallboard Installation & Maintenance
Installation Page 33
Compact Contact Center V5 40DH0002USBG Issue 5c (29 September 2005)
Installation
Before commencing installation, please check from the packing list that all parts are included.
Packing List:
1 x Wallboard 22
2 x Wall mount brackets
2 x Spun hanging wires
4 x Cavity rawl plugs
4 x Screws
2 x Eyehole bolts
2 x Masonry rawl plugs
2 x Housing clamps
1 x RJ45 Terminal Box
1 x IEC Power lead
Before commencing installation, please take a couple of minutes ensuring that the final location of the
display will be both safe and practical for the customer. Also check that the power socket provided is
suitable for this type of display.
Wall Mounting
Once a location has been decided upon, mark its location on the wall with a pencil through the two holes
in the brackets. Before drilling the holes, a suitable utility detector should be used. Once this has been
done, the holes may be drilled and the brackets mounted using the relevant fixings provided.
Before mounting the display onto the brackets, the network address should be assigned. The power lead
should also be attached prior to mounting.
To mount the display, first hook the bottom of the two brackets into the bottom rear recess channel of the
display. See the diagram shown below.
Push the wallboard flat against the wall and push upwards to fully locate the bottom half into the recess.
Now allow the display to fall approximately one inch. The display should now be safely located onto the
two brackets.
To remove a wall mounted display then reverse the above paragraph.

CCC Installation
Page 34 Installation
40DH0002USBG Issue 5c (29 September 2005) Compact Contact Center V5
Note: The wallboard position can be adjusted by sliding sideways in either direction.
Ceiling Mounting
Using the mounting kit provided, firstly, drill the 6-mm holes for the eyehole bolts and secure them into
the ceiling. Pass the spun wire chain through the eyeholes and through the housing clamps and tighten
at the required height.
Remove the right hand end cheek of the wallboard by unscrewing the two fixing screws.
Slide the two nipples on the end of the spun wire chain into the middle groove of the display housing and
replace the end cheek. Center the display on the hanging wires. Adjustments can be made by sliding the
display to achieve the final level.
WARNING: Ensure the ceiling can support the weight of the wallboard prior to fixing.
RS485 Serial Connection
The RJ45, RS485 flying lead is one metre long. It cannot be removed from the Wallboard; therefore, this
must be taken into consideration for the location of the RJ45 terminal box.
Fit the RJ45 terminal box within one metre of the center of the Wallboard.
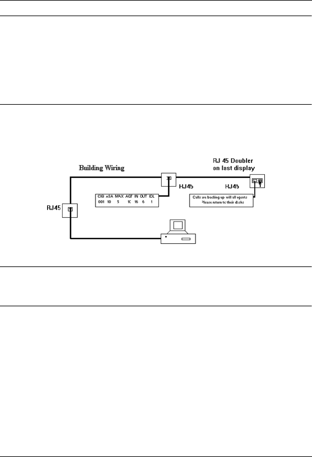
The Wallboard should be connected to the host system by utilizing a drop off wiring configuration.
All RJ45 sockets should be wired identically with the terminated RJ45 plug on the final socket with the
supplied RJ45 doubler.
Network Addressing
Each display can be configured to display different messages. This is achieved by allocating each
display its own network address. Within each display there is a board containing eight dip-switches. For
more information see the section entitled Serial Connection & Dip-Switch Details.
Additional Equipment
External Alarm Device for connection to Wallboard 22 only.
An external alarm device is available to supplement the in-built buzzer. This interface allows a DC
powered device to be attached to a couple of pins provided by a 6-pin DIN connector, which is mounted
on the rear of the display. This 6-pin DIN port provides the ability to connect the additional device in
addition to the internal buzzer.
Note: It is not possible to drive the external device independently of the internal buzzer.

Wallboard Installation & Maintenance
Installation Page 35
Compact Contact Center V5 40DH0002USBG Issue 5c (29 September 2005)
Connection Details
The external 6-pin DIN connector is located adjacent to the Mains Power Lead (IEC Connector). The
pins are numbered on the connector from 1-6. Port 1 will replicate the internal buzzer, and should be
used for buzzers. Ports 2 and 3 are not used at this point.
Socket View - 6 Pin Mini-DIN
The overall connection schematic looks like this:
Compatible External Devices
All of the devices below are available from the Farnell Electronics Catalogue, and have been tested by
Ferrograph and are recommended as suitable for connection to the external interface.
Note: This external interface has been designed for connection of DC Voltage devices ONLY.
• Continuous/Pulsed Single Tone Sounders – 12V & 24V DC.
• Farnell Reference: FEC143-400, FEC143-402, FEC143-403.

CCC Installation
Page 36 Installation
40DH0002USBG Issue 5c (29 September 2005) Compact Contact Center V5
Periodic Maintenance & Inspection
Cleaning Display Screen
Time periods between cleaning depend upon local conditions and are at the discretion of the operator.
This routine cleaning can be carried out in the normal way using a damp and/or dry cloth.
Note: The screen is specially coated to reduce reflections and although this coating is very durable,
misuse or incorrect cleaning, procedures can damage it.
LED Illumination Test Inspection
The purpose of this test is to ensure no LED fails to illuminate and should be checked annually.
Remove the right hand end cheek and carefully slide out the logic control board so that the dip-switches
are accessible. Set switch 8 to ON, inspect the LED display that will run blocks of Green, Red and
Yellow across the display. Look for any LED's that fail to illuminate.
Return switch 8 to the OFF position to stop this test.
LED Matrix Scanning Inspection
The purpose of this inspection is to ensure the LED matrix is being scanned correctly. Remove the right
hand end cheek and carefully slide out the logic control board so that the dip-switches are accessible.
Set switch 7 to ON, Yellow diagonal stripes will run across the display. Check that these stripes are
straight and that Yellow is the only colour displayed. Having completed this visual inspection return
switch 7 to OFF and ensure that all switch settings comply with system requirements for baud rate and
wallboard network address number.
Serial Connection & Dip Switch Settings
Wallboard Terminal Box RJ45 Connector Pin Out Details
Pin Signal
2 Signal Ground
3 Sign Rx+ Input
4 Sign Tx+ Output
5 Sign Tx- Output
6 Sign Rx- Input
7 –
Pin out Connections
Wallboard x RJ45 Socket Wallboard x+1 RJ45 Socket
Pins from 2 to 7 should be connected identically from all RJ45 boxes to all others.

Wallboard Installation & Maintenance
Installation Page 37
Compact Contact Center V5 40DH0002USBG Issue 5c (29 September 2005)
Dip-Switch Details
Network Address
OFF Position Represents 0
ON Position Represents 1
Address SW1 SW2 SW3 SW4
0 0 0 0 0
1 1 0 0 0
2 0 1 0 0
3 1 1 0 0
4 0 0 1 0
5 1 0 1 0
6 0 1 1 0
7 1 1 1 0
8 0 0 0 1
9 1 0 0 1
10 0 1 0 1
11 1 1 0 1
12 0 0 1 1
13 1 0 1 1
14 0 1 1 1
15 1 1 1 1
Baud Rate
Dip Switch Settings are:
SW5 SW6 DATA BIT/SEC
OFF OFF 19200
ON OFF 9600
OFF ON 2400
ON ON 1200
Ensure the Baud rate is set to 9600.

CCC Installation
Page 38 Installation
40DH0002USBG Issue 5c (29 September 2005) Compact Contact Center V5
Test Functions
SW7 SW8 FUNCTION
OFF OFF Normal Running
ON OFF Diagonal Stripe Test
OFF ON Full Screen LED Test
ON ON Information Screen (Only on power up)
The information screen shows three pages where the following text is displayed. The dip switches must
be set with the display powered down, then switch power on to achieve information screen.
• Yellow Text = Software Version Sign Type.
• Green Text = Network Number.
• Red Text = Baud Rate.
RS485 Communication System
RS485 Communication Systems
This standard officially allows 30 wallboards to be connected via a RS485 transmission cable of up to
1200 metres to a PC RS485 port.
The PC TX+ is connected to the wallboard RX+; similarly, the PC TX- is connected to the wallboard RX-.
The recommended technique is to run a cable from the PC to the nearest wallboard then from this
wallboard to the next nearest wallboard etc.
At the last wallboard on the bus it is necessary to connect a 120 ohm terminating resistor between the
wallboard RX+ and RX- connections using the supplied terminated RJ45 Plug and the RJ45 doubler.
The cable specification must include a twisted pair with an overall screen and characteristic impedance
of 100 ohms.
Ground Loops
Proper operation of RS485 requires a signal return path. A third wire should connect all the system
signal grounds together and is most often an additional shield conductor.
Distributed power systems in industrial applications may have differences in the AC power line grounds
of several volts as measured from location to location. Ground differences that are greater than 5V RMS
can destroy the RS485 transceivers. Loop currents can exist within the shield conductor because of
these voltage potentials, causing data errors. Loop currents can be minimized by installing 100 ohm
resistor in series with the cable shield and the RS485 Line Driver ground connection or by ensuring that
the screen of the cable does not make contact with the wallboard frame earth. Spurs, which lead off from
the main RS485 cable to a wallboard, should be kept to less than one metre long.

Wallboard Installation & Maintenance
Installation Page 39
Compact Contact Center V5 40DH0002USBG Issue 5c (29 September 2005)
Spectrum 4120C Wallboard
Introduction - Spectrum 4120C
The Spectrum 4120C is a two line 20-character tri-color wallboard. It is connected via a multi-drop circuit
to the host PC running the Wallboard Server application.
Specifications
Voltage Check label on rear of wallboard
Wattage 150W
Baud Rate 9600 only
Input RS485
Weight 8.4 kg
Dimensions L 1021 x D 129 x H 196 mm
Spectrum Wallboards can be 'daisy-chained'; this will required the use of the Spectrum Remote
Controller to enable serial addressing. For this and the Wallboard specifications, safety statements, wall
mounting instructions, etc., refer to the documentation supplied with the Wallboard.
For installation guidance, please refer to the documentation supplied with the Wallboard. In some
instances the Spectrum 4120C has been renamed as the 3314C. Additional information on this
wallboard is available via http://www.specorp.com/.
Caution: Connection must only be made via the Wallboard's RS485 socket.

CCC Installation
Page 40 Installation
40DH0002USBG Issue 5c (29 September 2005) Compact Contact Center V5
Advatel TCD226C Wallboard
Introduction - AdvaTel TCD226C
The AdvaTel TCD226C is a one line 26 character tri-colour wallboard. It is connected via a multi-drop
circuit to the host PC running the Wallboard Server application.
Specifications
Voltage 240/110V manually switchable on separate PSU
Wattage 120W
Baud Rate 9600 only
Input RS232
Weight 4.4kg
Dimensions L 1207 x D 60 x H 125 mm
AdvaTel Wallboards can be 'daisy-chained'. Refer to the documentation supplied with the wallboard for
details.
Caution: Connection to the PC must only be made via the Wallboard's DB9 socket.
The following is a brief outline of the installation of the AdvaTel TCD226 Wallboard. For more detailed
installation guidance, please refer to the documentation supplied with the Wallboard.
Additional information on this wallboard is available via http://www.advatel.com/.
The display wallboard has the following features.
• Allows the connection of input and output cables with RJ45 connectors
• Contains a DB9 pin connector for serial connection to the PC Com port.
• The distance between Wallboard displays can be up to 500 meters
• A manually switchable AdvaTel 240/110 VAC power supply is supplied with each wallboard. The
power supply is equipped with an internationally acceptable IDC connector
• The wallboard is equipped with a bleeper volume control.

Wallboard Installation & Maintenance
Installation Page 41
Compact Contact Center V5 40DH0002USBG Issue 5c (29 September 2005)
Hardware Connections
The following diagram below shows the connections to the TCD266C Wallboard.
Communications Type:
• 9600 Baud, 8 data bits
• Two stop bits, no parity
• RS232 from PC
• Current loop to 2nd and all daisy chained signs.
The data input to the TCD Wallboards can be connected to either the RJ45 or DB9 pin Transmit/Receive
ports.
PC Communications - Serial Port
There are two cable options that can be used when connecting the serial (COM) port of the PC to the
input of the first display.
1. DB9 pin female connector that plugs into the COM port on the computer with a RJ45 connector that
plugs into the RJ45 Receive/Transmit socket on the display. To correctly identify pin 1 on the RJ45
plug, hold it as shown below with the gold pins facing you. Pins are numbered from top to bottom.

CCC Installation
Page 42 Installation
40DH0002USBG Issue 5c (29 September 2005) Compact Contact Center V5
Daisy Chain
When connecting more than one display in a daisy chain simply use a 1:1 cable terminated on RJ45
connectors.
Plug one end of the RJ45 connector into the Transmit Only RJ45 port on the first display, and plug the
other end of the RJ45 connector into the RJ45 Receive/Transmit port on the next display. Repeat this
configuration for other displays in the daisy chain. The diagram below shows the cabling configuration of
the 1:1 RJ45 cable.
To identify pin 1 on the RJ45 plug, hold it as shown below with the gold pins facing you.
Wallboard ID and Bleeper Volume Control
Each TCD226C display can be individually addressed. At default, the display is set to Address ID = 1.
The addressing DIP switches are located at the back of the display. To access the DIP switched, remove
the two securing screws from the end cap and slide out the back cover.
The ID Addresses range from 1 to 32. The ID addresses are shown below are for ID address = 1 to 8
(binary). The bleeper volume control is also shown.

Wallboard Installation & Maintenance
Installation Page 43
Compact Contact Center V5 40DH0002USBG Issue 5c (29 September 2005)
CCC Wallboard Installation
CCC Wallboard Installation
Before starting the Wallboard Server, you must ensure that the Delta Server is running.
Note: The Wallboard Client does NOT support the Device option.
Wallboard Server is started by:
1. Click the Start button on the Windows taskbar.
2. Point to Programs.
3. Point to CCC.
4. Click Wallboard Server from the sub-menu.
5. Select whether you want the wallboard server to start automatically after a PC re-boot.
Note: Every time you start and/or exit the Wallboard Server, the internal buzzer within the Wallboard
(10/22 or a Spectrum Wallboard) is triggered whilst resetting the Wallboard device(s).
To install a new Wallboard:
1. With the Wallboard Server open, from the Devices menu, select Install New Wallboard. The Install
New Wallboards wizard appears.
2. Select the required Wallboard manufacturer (Ferrograph for 10/22 Wallboards, Spectrum or
AdvaTel).
3. Select the required Ferrograph Wallboard model (10 or 20).
4. Click the Next button.
5. Select the Communications Port that the Wallboard is connected into (use Communications Ports 5
or 6 if using a Communications Card with a Ferrograph wallboard; otherwise use the number of the
Communications Port that the Spectrum wallboard is connected to).
6. Enter the Network Number. There are 30 (1–30) numbers available. For each selected
Communications Port, Network Numbers 1-15 can be used. By default Network Number 0 selects all
the available Wallboard devices on either port.
7. Enter a name for the Wallboard in the Alpha Tag text box. The name can contain both alpha and
numeric characters.
8. Click the Finish button to save the settings.
Note: The Spectrum and AdvaTel wallboards require a licence on IP Office.

CCC Installation
Page 44 Installation
40DH0002USBG Issue 5c (29 September 2005) Compact Contact Center V5
Wallboard Properties
This option enables you to configure as well as add either of the Wallboards.
With the Wallboard Server open, from the Devices menu, select Wallboard Properties. The Wallboard
Properties screen lists the installed Wallboards.
1. To add a Wallboard, click the Add button.
2. To remove a Wallboard, select the device and then click the Remove button.
3. To select a Wallboard as the default device, select the required Wallboard then click the Set as
Default button.
4. To check the configuration of a Wallboard device, select the Wallboard and then click the
Properties button.
• The General tab allows you to:
• Change the Comm Ports setting of the selected Wallboard by selecting a port from the
Available Ports and then click the Change Port button.
• Change the Network Number by entering the required network number and then click the
Change Network Number button. There are 31 (0–30) numbers available.
• Change the name of the Wallboard by clicking in the Alpha Tag text box and modifying
the selected Wallboard name as necessary.
Click the Close button to save any changes.
• The Hardware tab allows you to:
• Clear all the messages on the Wallboard by using the Reset feature. This should only be
used if there are no scheduled messages displayed or that the messages are not
displayed properly on the device.
Check Wallboard Operation
Once you have started the Wallboard server, you can check the Wallboards that you are connected to.
To do this:
1. From the Devices menu select Wallboard Properties.
2. The list of available Wallboards is shown. If no Wallboards show, you will need to install a
Wallboard.
To check a Wallboard:
1. Select the Wallboard to check from the listing.
2. Click on the Properties button.
3. Click on the Hardware tab.
4. Click the Self Test OFF button to start the self-test. A message will show asking 'The self test will
clear any messages on the selected wallboard. Do you wish to continue? Click on the Yes button
if there are no messages running.
5. If information appears on the selected Wallboard, click on the Self test ON button to turn the test
off.
6. Click the Cancel button.
7. Click the Close button.
View Active PC Wallboard
When this option is selected, you will see a list of PC Wallboard(s) currently connected to the Wallboard
Server.
To update the list, click Refresh.

Installation Page 45
Compact Contact Center V5 40DH0002USBG Issue 5c (29 September 2005)
User Access
Starting CCC User Access
CCC User Access is available on all Server and Client PCs. It allows storage of personal Call Center
View profiles and Wallboard settings.
Initially, on each PC, Administrators can log on by entering the following:
Name: Admin Password: NMYSBH
CAUTION: When you log on as Administrator for the first time, it is recommended that you change the
password. The new password must be recorded and kept in a secure place.
As an administrator you have the ability to change all set up screen and run the CCV Alarm Reporter
application.
You can also log on with any name and no password is required. As you are not logged on as an
administrator, CCV Alarm Reporter cannot be run and the following setup screens are not available.
• WB Alarm Scripts
• Alarm WB Destination
• Alarm Settings
• Default Settings.
To log on using CCC User Access:
1. Double click on the CCC User Access Icon showing on the toolbar. If this is not
visible double click the same Icon on the desktop and then double click on the toolbar Icon (which
should now be visible).
2. A CCC User Access screen will be shown. For Administrator rights the User Name must be
Admin. A password box will appear. Enter the default password (NMYSBH) and the Update
button will become active. Click on it to update the user identification.
3. The new password must be recorded and kept in a secure place. To change the password,
click on the New Password button, enter your new password and confirm the change.
4. When you have logged on as either Administrator or Supervisor, the status will appear at the
bottom of the CCV task bar as follows:

CCC Installation
Page 46 Installation
40DH0002USBG Issue 5c (29 September 2005) Compact Contact Center V5
Delta Server
Delta Server Introduction
The Delta Server receives the IP Office call data via the LAN.
The Delta Server is a component to which all the CCC modules connect. It is able to support up to 80
simultaneous client connections and consists of software that ensures every activity on the telephone
system is passed through to these modules. An example of an activity could be that an agent has
'logged on' which would clearly impact the real time Call Center View and the Wallboard Manager
software.
The Delta Server additionally holds a model of the IP Office such that each time a new CCC module is
started it will synchronise itself with "today's" data, thus ensuring consistency between clients
irrespective of when they were started.
Launching Delta Server
Ensure the Delta Server has established connection with the telephone system. Every time the Server
PC is switched on, the Delta Server starts up automatically, as a service. If the Delta Service has not
started then you will not be able to view the web page. To view the Delta Server performing the
following:-
• Click the Start button on the Windows Taskbar.
• Point to Programs | CCC | Delta Server
• Click on Delta Server.
• Click on Comms in the Toolbar Pane to view the connection information.
The information on the screen is:
Comms Status
This indicates the status of the link between the Delta Server and the telephone system. These are:
• Init Comms
Indicates Delta Server is initializing and has established communication with the telephone
system (this happens every time you start the Delta Server).
• Comms Restored
Indicates that the connection between the Delta Server and the telephone system is established.
• Comms Failure
Indicates that the communications link between the Delta Server and the telephone system has
been terminated.
Toolbar Fields
The Event Viewer, Event Viewer Selector, Email Notification, Log to File, SMDR, Comms etc. enable
access to their display field menus.
For details on configuring and using the Delta Server menus, refer to the separate CCC Administrator's
Manual.

Installation Page 47
Compact Contact Center V5 40DH0002USBG Issue 5c (29 September 2005)
Upgrade Procedure
Overview
MultiMedia Module
For the MultiMedia Module, uninstall (control Panel) MMM and reinstall from CCCv4 disc. The original
database and records are preserved for use by the software upgrade. As you proceed through the install
procedure, you will be asked for account names, server details, etc. Obtain these from the configuration
sheets that were compiled on the original installation (refer to separate MMM Installation Manual).
CCCv4 to CCCv5
Please refer to the sections 'Hardware Requirements' and 'Software Requirements' to ensure that the
existing system has necessary pre-requsites before upgrading. Two windows components (IIS and
.NET) are required by CCCv5 that need to be installed. It is vital that IIS (Internet Information Services) is
installed prior to .NET. If these are installed in the wrong order, uninstall .NET and then reinstall.
1. Install Internet Information Services (IIS). If this has already been installed, please check that the
version is 1.1 or above.
2. Install ASP.NET if using a Windows 2003 Server.
3. Perform the installation procedures as detailed in Installation of CCC Components but use the
Repair option at the Welcome screen instead of Modify.
Note: If a CCCv4 database is being moved to a new CCCv5 installation, ensure that a repair is run on
the database after it has been moved so that the database is updated.
CCCv3 to CCCv5
The upgrade from a CCCv3 Server PC to a CCCv5 Server PC is done in five stages. These stages are
as follows:
1. MSDE must have the latest service pack installed (SP3) to protect your system from recent
viruses that have targeted SQL based servers.
2. The Database containing the historic data needs to be backed up.
3. CCV user profiles, wallboard files, custom reports and any report schedule information need to
be backed up.
4. The database structure needs upgrading to make it compatible with CCCv4.
5. The new applications need to be installed.
The total time taken to upgrade will be dependant on the current size of the database and the amount of
client PC's that need upgrading. As a rough guide 2-3 hours should be sufficient time to complete all
upgrade activities.
Note: Custom Reports that have been created in previous versions of CCC can not be migrated into
CCCv5. All those reports will need to be re-created within Crystal reports and published within Reporter.
Previous versions of CCC used Business Objects to create the custom reports. Custom reports are
backed up so that they can be referred back to if needed in the future.

CCC Installation
Page 48 Installation
40DH0002USBG Issue 5c (29 September 2005) Compact Contact Center V5
MSDE Upgrade
Recent viruses have led to Microsoft releasing a new service pack for MSDE, service pack 3. If you have
not already applied this service pack to your system now is the ideal time to do this. Even if you have
applied the service pack you are advised to follow these steps to re-apply the service pack as the install
from the CCCv5 application CD will also enable you to set a password for the database login to offer you
further security for your data.
1. Close down all of the CCC applications that are running on your Server.
2. Insert the CCCv5 Installation CD into your CD-ROM drive.
3. From the Windows taskbar click Start, select Run and then click on the Browse button.
4. View the CD drive and double click the MSDE folder. Select MSDEInstSP3.exe and click on the
Open button. Click the OK button to continue.
5. Select the required language for the installation and then click on the OK button. The following
screen will appear to enable you to setup a password for the database. It is recommended that
you set this password to NMYSBH:
6. When you have entered the password click on the OK button. The installation of the service pack
will continue.
7. Once the setup is complete, reboot the PC when requested.
8. Once Windows has restarted log back on and if any of the CCC applications restart make sure
that you close them down again before backing up your database.

Upgrade Procedure
Installation Page 49
Compact Contact Center V5 40DH0002USBG Issue 5c (29 September 2005)
Backup Your Database
Before proceeding, backup your existing database. This is a precautionary measure that should be taken
just in case something goes wrong during the upgrade and you need to revert to the existing database.
1. You will need to create a new directory on your hard drive to backup your files to. In the example
shown here we have created a directory on the D Drive called "Backup".
Note: The database can be up to 2 gigabytes in size so make sure that you create your backup
directory on a drive that has enough storage space.
2. From the Windows taskbar click Start, select Programs | CCC | Database Server Supervisor.
Remember that the password is the one that you set during the installation of MSDE service pack
3. Click on OK to continue.
3. Expand the Databases and Management trees and then right click on Backup and select New
Backup Device. This is so that we can create a backup device to store our existing database on.
4. Give the backup device a name and set a location and filename for the backup and click on OK.
5. Right click on SDXArchiver in the databases tree and select Backup Database.

CCC Installation
Page 50 Installation
40DH0002USBG Issue 5c (29 September 2005) Compact Contact Center V5
6. The following screen will appear. If there is anything listed in the Destination box select it and
click on Remove.
7. Add the new backup device that was have created to be the destination for the database backup.
Click on Add and, from the Backup Device drop down list that appears, select your backup
device. Click on OK.
8. Make sure that you select the Database – complete and Overwrite existing media options and
then click on OK to start the backup.
9. The database backup will now start. The length of time this takes depends on how much data
you have stored in your database.
10. When the backup has completed click on OK and then close down the Database Server
Supervisor application.
11. If you now browse to your backup directory you will be able to see the database backup file that
you have just created.
The CCC files now need to be backed up.

Upgrade Procedure
Installation Page 51
Compact Contact Center V5 40DH0002USBG Issue 5c (29 September 2005)
Backup CCC files
The operator profiles used for Call Centre View, the wallboard files, any custom reports and any report
schedule information need to be backed up. The Call Centre view profiles, wallboard files and custom
reports will not be overwritten and are backed up as a precaution, the report schedule information will be
overwritten and will need to re-entered when the system has been upgraded.
Note: Custom Reports that have been created in previous versions of CCC can not be migrated into
CCCv5. All those reports will need to be re-created within Crystal reports and published within Reporter.
Previous versions of CCC used Business Objects to create the custom reports. Custom reports are
backed up so that they can be referred back to if needed in the future.
1. Explore to C:\Program Files\Avaya\IP400\CCC\CallCentreView and copy the Operator
directory to your backup directory that you created earlier. This directory contains the user
profiles used for Call Centre View.
2. Explore to C:\Program Files\Avaya\IP400\CCC\WBServer and copy the following files:
• Aggregatevars.mdb
• Devices.mdb
• Wallbrd.mdb
• Sdxwb.ini
If you are using PC Wallboards then also copy the Users directory in the WBServer directory. Copy
all of these files to your backup directory.
3. If you have created any custom reports then copy these to your backup directory. A new set of
standard reports will be installed with CCCv5 so you do not need to back these up.
4. If there were any reports scheduled to print via the Report Scheduler then restart the Report
Scheduler and make a note of the schedule list and distribution. Once you have made a note of
the schedule close the application down.
The database now needs to be uplifted so that it is compatible with the new structure of CCCv5.
Database Uplift
Before the CCCv5 applications are installed we need to modify the database so that it is compatible with
the new database structure of CCCv5. To do this we use a tool supplied on the CCC CD-ROM to "uplift"
it to the correct level.
1. Browse to your CD-ROM drive containing the CCCv4 CD and go to the Database Uplift
directory. Copy the DBUplift3.exe file and paste it on to the desktop.
2. Double click on the application to run it. Select your required language and click on OK.
3. Select your server and remember to enter the password that you set earlier when applying the
service pack to MSDE. Click on OK.
4. A popup screen will appear telling you that the database on ARCHIVERSQL will be upgraded.
Click on Yes to start the uplift procedure.
5. The uplift will now start modifying the database structure and applies any changes necessary to
make it compatible with CCCv5.
6. Once the uplift has completed click on OK and then close down the uplift tool.
The new CCCv5 applications can now be installed.

CCC Installation
Page 52 Installation
40DH0002USBG Issue 5c (29 September 2005) Compact Contact Center V5
Install CCCv5 Applications
1. From the Windows taskbar click Start, select Run and then click on the Browse button.
2. View the CD drive and double click the CCC folder. Select Setup.exe and click on the Open
button.
3. Click the OK button to continue.
4. Select the required language and click on OK.
5. The InstallShield Wizard starts and after a few minutes the upgrade begins by moving all of your
existing applications into a new directory structure. Currently the CCC files will be stored at
C:\Program Files\Avaya\IP400\CCC but during the upgrade they are moved to C:\Program
Files\Avaya\IP Office\CCC. Whilst this is happening the following screen will be displayed.
6. Once the files have been moved the new applications need to be installed. At the InstallShield
Wizard click Next.
7. The components screen then appears. Make sure that you select the correct components to
install. You must select the applications that you have already installed so that they can be
upgraded. The screen below shows most of the options that you should be installing on your
Server, you may also need to select the CCV Alarm Reporter installation as well (not shown).
8. Click on the Next button to start the installation.
9. At approximately the 50% progress mark the following screen will appear. Make sure that you
click on NO as you do not want to overwrite your existing historical call data.

Upgrade Procedure
Installation Page 53
Compact Contact Center V5 40DH0002USBG Issue 5c (29 September 2005)
10. You will then be asked if you want to overwrite your Reports Database. You must make sure
that you click on YES to make sure that the latest CCCv5 Reports are installed.
11. When the installation has completed click on Finish and when the InstallShield Wizard has
closed down reboot the PC.
12. Once Windows has restarted log back on and make sure that all of your new CCCv5 applications
start.
13. If you had any reports scheduled via the Report Scheduler then open these reports and
reschedule them.
Once your Server is upgraded and running you need to upgrade any client PC's that you have.

CCC Installation
Page 54 Installation
40DH0002USBG Issue 5c (29 September 2005) Compact Contact Center V5
Client Upgrade
1. Create a directory to backup your files to.
2. You need to backup your CCV operator profiles and any custom reports as described in the
MSDE Upgrade section. These should be stored in your backup directory. You do not need to
back up any PC Wallboard files as these are stored on the Server PC and only a local copy
exists on the Client PC.
3. Insert the CCCv5 application CD-ROM into your CD drive.
4. From the Windows taskbar click Start, select Run and then click on the Browse button.
5. View the CD drive and double click the CCC folder. Select Setup.exe and click on the Open
button.
6. Click the OK button to continue.
7. Select the required language and click on OK.
8. The InstallShield Wizard starts and after a few minutes the upgrade begins by moving all of your
existing applications into a new directory structure, as explained previously in the MSDE Upgrade
section.
9. Once the files have been moved the new applications need to be installed. At the InstallShield
Wizard click Next.
10. The components screen then appears. Make sure that you select the correct client components
to install. You must select the applications that you have already installed so that they can be
upgraded.
11. Click on the Next button to start the installation.
12. When the installation has completed click on Finish and when the InstallShield Wizard has
closed down reboot the PC.
13. Once Windows has restarted log back on and make sure that all of your new CCCv5 applications
start.

Upgrade Procedure
Installation Page 55
Compact Contact Center V5 40DH0002USBG Issue 5c (29 September 2005)
Upgrade to SQL 2000 Procedure
The following steps will upgrade an installation of MSDE 2000 to SQL Server 2000.
1. Insert the SQL Server 2000 disk into your CD-ROM drive. If the compact disk does not auto run,
double click Autorun.exe in the root directory of the compact disk.
2. Select SQL Server 2000 Components, select Install Database Server and then at the
Welcome screen, click Next.
3. In the Computer Name screen, Local Computer is the default option and the local computer
name appears in the edit box. Click Next.
4. In the Installation Selection screen, click Upgrade, remove or add components to an existing
instance of SQL Server, and then click Next.
5. Enter the 25 digit CD-Key and click Next to continue.
6. In the Instance Name box, default will be selected, click Next. (When upgrading the existing
installation of MSDE 2000 automatically becomes the default instance of the SQL Server 2000).
7. At the existing Installation screen, click Upgrade your existing installation and then click Next.
8. At the Upgrade screen, you are prompted as to whether you want to proceed with the requested
upgrade. Click Yes, upgrade my SQL Server Tools and Data and then click Next.
9. At the Connect to Server screen, select the SQL Server System administrator login
information (SQL Server authentication). Ensure the Enter sa Password field is empty and
then click Next.
10. At the Start Copying Files screen, click Next.
11. In the Choose Licensing Mode dialog box select Processor License for and enter 1 if installing
on a PC with one processor otherwise enter 2 if installing on a PC with 2 processors. Click
Continue. The file installation process begins.
12. At the Setup Complete screen , click Yes, I want to restart my computer now, and then click
Finish.
13. The SQL Server 2000 Components need to be installed now. Re-insert your SQL Server 2000
disk into your CD-ROM drive. If the compact disk does not auto run, double click Autorun.exe in
the root directory of the compact disk.
14. Select SQL Server 2000 Components, select Install Database Server and then setup prepares
the SQL Server Installation Wizard. At the Welcome screen, click Next.
15. At the Computer Name screen, Local Computer is the default option and the local computer
name appears in the edit box. Click Next.
16. At the Existing Installation screen, click Add components to your existing installation and
then click Next.
17. At the Select Components screen, select the required components. It is recommended that in
addition to Server Component being selected that you have Management Tools and Client
Connectivity options selected. Click Next to continue.
18. In Start Copying Files dialog box click Next and In the Setup Complete screen click Finish.

Installation Page 57
Compact Contact Center V5 40DH0002USBG Issue 5c (29 September 2005)
Trouble Shooting
CCC Installation
1. If, for whatever reason, the Server PC has to be renamed, do not use spaces in the new name
(Microsoft SQL cannot be guaranteed to operate correctly).
2. When shutting down a Server PC, ensure that all CCC applications are closed before shutting
down.
3. When re-booting, if a Delta Server Port access is denied message appears, (port number
conflict), consult with your Network Administrator to obtain a free port number.
4. In some situations you may need to install Archiver separately to achieve an installation with just
a Delta Server and Archiver. If just the Delta Server is selected to be installed, then the Archiver
is installed automatically. This type of installation may be used for multiple Delta Servers
reporting to one shared and remote SQL Server.
5. If the following error messages appear you need to ensure that the Client PC's are able to
synchronise their time with the Delta Server.
followed by:
The messages imply that Call Center View is not able to synchronise the time of the local
machine running Call Center View with the Delta Server host.
Close Call Center View and set permissions to allow the user running CCV to change the system
time.
Wallboard Server/Client
On the Wallboard Server/Client, scheduled messages can only be removed from the schedule by a user
with a higher access level than the User that scheduled the message or by the user that scheduled the
message. It therefore follows that if a user with Administrator access rights has scheduled a message
then only that User can remove that message from the schedule.

Index
Installation Page 59
Compact Contact Center V5 40DH0002USBG Issue 5c (29 September 2005)
Index
1
10 tri-color
consisting............................................................25
10 tri-color................................................................25
10/22 Wallboards
Ferrograph..........................................................43
10/22 Wallboards.....................................................43
108W........................................................................32
120 Ohm
connect ...............................................................30
120 Ohm ..................................................................30
120V AC...................................................................32
120W........................................................................40
12V...........................................................................35
150W........................................................................39
18 5x8 LED
consisting............................................................32
18 5x8 LED ..............................................................32
2
2000MB
Archiver...............................................................14
2000MB....................................................................14
20-character tri-color................................................39
220/240V AC OR 110V AC......................................32
22-character tri-color Wallboard ..............................32
240/110V..................................................................40
240V AC...................................................................32
24V DC ....................................................................35
25 Enter ...................................................................55
2Gb ..........................................................................12
2nd...........................................................................41
3
30A.....................................................................25, 32
32-character.......................................................21, 22
3314C ......................................................................39
35W..........................................................................25
3rd............................................................................24
3rd Party Voice Mail.................................................24
4
4.4kg ........................................................................40
5
5V RMS....................................................................38
6
6-mm
drill ......................................................................34
6-mm........................................................................34
6ms ....................................................................25, 32
6-pin DIN............................................................34, 35
8
800
set .........................................................................9
9
9600
set .................................................................29, 37
9V DC ......................................................................32
A
AC............................................................................38
Access
DIP......................................................................42
Wallboard 10.......................................................28
Access ...............................................................28, 42
Access Permissions.................................................17
Add........................................................ 17, 23, 49, 55
Add button................................................................44
Add/Remove ..............................................................9
Add/Remove Programs icon....................................10
Add/Remove Windows Components button............10
Additional Equipment...............................................34
Address ID
set .......................................................................42
Address ID ...............................................................42
Addressing
DIP......................................................................42
Addressing...............................................................42
Admin.......................................................................45
Admin Password......................................................45
Administrative Tools
Open ...................................................................14
Administrative Tools.................................... 11, 14, 17
Administrator................................................. 2, 45, 57
AdvaTel....................................................................43
AdvaTel TCD226 Wallboard....................................40
AdvaTel TCD226C...................................................40
AdvaTel Wallboards.................................................40
AGENT.......................................................... 3, 19, 23
Agent – ACD Agent..................................................23
Agent PCs................................................. 2, 7, 13, 19
Agent PCs Installation .............................................19
Agent Statistics ........................................................24
Agent Status Information .........................................24
Agent/Agent Group ..................................................24
Agents......................................................................24
Agents, Groups........................................................23
Aggregatevars.mdb..................................................51
Agree .......................................................................14
Alarm Reporter.................................................1, 2, 17
Alarm Settings..........................................................45
Alarm WB Destination..............................................45
All RJ45....................................................................34
Allows
10........................................................................26
DC.......................................................................34
Allows.......................................................... 17, 26, 34
Alpha Tag...........................................................43, 44
Alternating
ON/OFF Blocks...................................................30
Alternating................................................................30
And/or ......................................................... 31, 36, 43
Ans...........................................................................24
Answered.................................................................24
Application CD
insert ...................................................................14
Application CD .........................................................14
Application Server Screen .......................................10
Apply ........................................................................11
Apply button.......................................................14, 17
Archiver
2000MB ..............................................................14
Archiver..............................................................14, 57

Index
Page 60 Installation
40DH0002USBG Issue 5c (29 September 2005) Compact Contact Center V5
ARCHIVERSQL .......................................................51
ASP.NET
Windows 2003 ....................................................10
ASP.NET..................................................................10
Associated ...............................................................24
Authenticated Users ................................................17
Autorun.exe..............................................................55
Available Ports.........................................................44
Avaya's Compact Contact Center..........................2, 3
B
Backup.....................................................................49
Backup CCC files.....................................................51
Backup Database.....................................................49
Backup Device.........................................................49
Backup Your Database............................................49
Baud
Ensure ..........................................................29, 37
Baud.............................................................29, 37, 41
Baud Rate........................... 25, 29, 32, 37, 38, 39, 40
Below .........................................................................4
Bit...............................................................................9
Bleeper...............................................................40, 42
Bleeper Volume Control...........................................42
Blocks
Green............................................................31, 36
Blocks ................................................................31, 36
Blue Pumpkin.......................................................1, 14
Board
RS485.................................................................28
Board .......................................................................28
Browse button................................. 12, 14, 48, 52, 54
Business Objects ...............................................47, 51
C
C Explore................................................................51
moved.................................................................52
C ........................................................... 14, 17, 51, 52
Calendar ..................................................................14
Call...........................................................................24
Call Center View
running................................................................57
use ........................................................................3
Call Center View1, 2, 3, 4, 6, 7, 17, 19, 24, 45, 46, 57
Call Center View Alarm Reporter...............................1
Call Center View implementations...........................23
Call Centre...............................................................51
Call Centre View ......................................................51
Call Flow ..................................................................24
Call Totals................................................................24
Calls Waiting............................................................24
Cancel button...........................................................44
CAUTION.................................................................45
Cavity rawl ...............................................................33
CCC
connecting ..........................................................23
loading ..................................................................9
operating...............................................................2
Overview...............................................................3
part......................................................................12
Point....................................................................43
running................................................................22
CCC ... 1, 2, 3, 7, 9, 12, 13, 14, 17, 18, 19, 22, 23, 24,
43, 46, 47, 48, 49, 51, 52, 54, 57
CCC 5.0 .....................................................................2
CCC Administrator's Manual....................................46
CCC Application.................................................13, 21
CCC CD-ROM .........................................................51
CCC Client
Software Requirements ......................................19
CCC Client.........................................................17, 19
CCC Client PC.........................................................19
CCC Components
Installation...........................................................13
Server PC ...........................................................13
CCC Components....................................................13
CCC Delta Server ....................................................14
CCC Folder..............................................................14
CCC Installation.......................................................57
CCC Installation CD
Insert...................................................................12
CCC Installation CD.................................................12
CCC License Keys...................................................22
CCC Licenses..........................................................21
CCC Manager......................................................4, 23
CCC on IP Office .......................................................3
CCC PCs .................................................................23
CCC Reporter ..........................................................18
CCC Reporting.........................................................18
CCC Reporting Admin Console menu.....................14
CCC Server
Enter ...................................................................14
Software Requirements ........................................9
CCC Server..........................................................9, 14
CCC Server Name...................................................13
CCC Server PC..........................................................4
CCC Software............................................................2
CCC Svr RFA...........................................................22
CCC System Supervisor's .........................................2
CCC User Access
Starting................................................................45
CCC User Access................................................1, 45
CCC User Access Icon ............................................45
CCC user’s email
enter....................................................................14
CCC user’s email.....................................................14
CCC Wallboard Installation......................................43
CCCv3
CCCv5 ................................................................47
CCCv3 .....................................................................47
CCCv4
CCCv5 ................................................................47
CCCv4 .....................................................................47
CCCv4 CD
containing ...........................................................51
CCCv4 CD ...............................................................51
CCCv5
CCCv3 ................................................................47
CCCv4 ................................................................47
structure..............................................................51
CCCv5 .................................................. 47, 51, 52, 54
CCCv5 application CD.............................................48
CCCv5 application CD-ROM
Insert...................................................................54
CCCv5 application CD-ROM ...................................54
CCCv5 Reports........................................................52
CCV
running................................................................57

Index
Installation Page 61
Compact Contact Center V5 40DH0002USBG Issue 5c (29 September 2005)
CCV .................................................. 1, 45, 47, 54, 57
CCV Alarm Reporter................. 4, 6, 7, 14, 19, 45, 52
CCV Alarm Reporter application
run.......................................................................45
CCV Alarm Reporter application..............................45
CD
View ................................................. 12, 14, 52, 54
CD................................................... 10, 12, 14, 52, 54
CD Drive ..................................................................14
CD-Key ....................................................................55
CD-ROM ............................................................51, 55
Ceiling
Mounting.............................................................34
Ceiling......................................................................34
Center’s......................................................................1
CFD............................................................................1
CFD’s
manage.................................................................1
CFD’s.........................................................................1
Change
Comm Ports........................................................44
CRM Host ...........................................................14
Network Number.................................................44
Change ..............................................................14, 44
Change Network Number button .............................44
Change Port button..................................................44
Check
Status..................................................................22
Wallboards..........................................................44
Check.................................................................22, 44
Check Wallboard Operation.....................................44
Choose Licensing Mode dialog................................55
Classic View.............................................................11
Cleaning
Display Screen..............................................31, 36
Cleaning.............................................................31, 36
Client
use ........................................................................7
Client................................................. 2, 3, 4, 7, 18, 19
Client Connectivity ...................................................55
Client Hardware Specifications................................19
Client PC....................................................6, 7, 17, 54
Client PCs......................................................7, 13, 45
Client PC's .....................................................6, 17, 57
Client PCs Installation..............................................19
Client Pre-requisites ..................................................7
Client Software Modifications ..................................19
Client Upgrade.........................................................54
Close button.............................................................44
Close Call Center View............................................57
Close Delta Server...................................................14
Cold Start Inrush Current...................................25, 32
Colour ................................................................31, 36
COM.........................................................................41
Comm Ports
Change ...............................................................44
Comm Ports.............................................................44
Comms...............................................................14, 46
Comms Failure.........................................................46
Comms Restored...............................................14, 46
Comms Status ...................................................14, 46
Communications Card .............................................43
Communications Port
Select..................................................................43
Communications Port...............................................43
Communications Type .............................................41
Compact Call Center................................................22
Compact Contact Center
shows....................................................................4
Compact Contact Center ...................................1, 4, 7
Compact Contact Center Manager
shows................................................................4, 6
Compact Contact Center Manager........................4, 6
Company DDI ..........................................................23
Compatible External Devices...................................35
Componments
Depending ..........................................................14
Componments..........................................................14
Computer Name.......................................................55
Configuration......................................................22, 28
Connect
120......................................................................38
120 Ohm.............................................................30
CCC ....................................................................23
Server .................................................................55
Connect................................................. 23, 30, 38, 55
Connection Details...................................................35
Connections.............................................................36
Consisting
10 tri-color...........................................................25
18 5x8 LED.........................................................32
Consisting ..........................................................25, 32
Contact Center...........................................................1
Contact Center Environment ...................................23
Contact Center Manager .........................................23
Contact Center Profile ...............................................1
Containing
CCCv4 CD..........................................................51
DB9.....................................................................40
Containing..........................................................40, 51
Continue...................................................................55
Continuous/Pulsed Single Tone Sounders..............35
Control
MSDE..................................................................12
Control .....................................................................12
Control Panel .....................................................10, 14
Copy
DBUplift3.exe file ................................................51
Operator..............................................................51
Save....................................................................22
Users...................................................................51
Copy...................................................................22, 51
Creating
Logon..................................................................18
Creating ...................................................................18
CRM.........................................................................14
CRM Host
change ................................................................14
CRM Host ................................................................14
CRM Host Name......................................................13
CRM Server .............................................................14
CRM Tab..................................................................14
Crystal................................................................47, 51
Crystal Reports
designing ..............................................................7
Crystal Reports ..........................................................7
CSV............................................................................1
Custom Reports.................................................47, 51

Index
Page 62 Installation
40DH0002USBG Issue 5c (29 September 2005) Compact Contact Center V5
Customer Facing Department....................................1
D
D 129 .......................................................................39
D 60 .........................................................................40
D 75 ...................................................................25, 32
D Drive.....................................................................49
Daisy Chain..............................................................42
Data .........................................................................55
DATA BIT/SEC ........................................................37
Database
Expand................................................................49
select ..................................................................49
Upgrade................................................................2
Database............................................. 1, 2, 24, 47, 49
Database Management ...........................................14
Database Server......................................................14
Database Server Supervisor............................6, 7, 49
Database Server Supervisor application .................49
Database Server/Name ...........................................14
Database Uplift ........................................................51
DB9
Contains..............................................................40
DB9....................................................................40, 41
DBUplift3.exe file
Copy ...................................................................51
DBUplift3.exe file .....................................................51
DC
allows..................................................................34
DC............................................................................34
DC Voltage...............................................................35
DDIs...................................................................23, 24
Default button...........................................................44
Default Settings........................................................45
Delta Server
Ensure ................................................................46
Launching ...........................................................46
start.....................................................................46
view.....................................................................46
Delta Server............ 4, 6, 7, 14, 17, 18, 23, 43, 46, 57
Delta Server application
Start ....................................................................14
Delta Server application...........................................14
Delta Server email .....................................................9
Delta Server Introduction.........................................46
Delta Server Port .....................................................57
Delta Service............................................................46
Depending
componments .....................................................14
Designation..............................................................24
Designing
Crystal Reports.....................................................7
Designing...................................................................7
Destination...............................................................49
Destroy
RS485.................................................................38
Destroy.....................................................................38
Details button...........................................................10
Device......................................................................43
Devices menu ....................................................43, 44
Devices.mdb ............................................................51
Diagonal Stripe Test ................................................38
DIP
access.................................................................42
addressing ..........................................................42
DIP ...........................................................................42
Dip Switch Settings..................................................37
Dip Switches ............................................................28
Dip-Switch Details..............................................34, 37
Dip-switch Number...................................................29
Directory Numbers
Naming................................................................23
Directory Numbers...................................................23
Display Board Assembly..........................................32
Display Screen
Cleaning........................................................31, 36
Display Screen...................................................31, 36
Domain.....................................................................17
Domain Administrator ..............................................17
Domain Controller......................................................9
Drill
6-mm...................................................................34
Drill...........................................................................34
Drives
LED.....................................................................32
Drives.......................................................................32
E
EBusiness
support..................................................................1
EBusiness..................................................................1
Edit...........................................................................22
Email ........................................................... 13, 14, 18
E-mail.........................................................................1
Email Address..........................................................13
Email Notification .....................................................46
Email Tab.................................................................14
Enables Compact Call Center .................................22
Enables Email..........................................................22
Enables PC Wallboards...........................................22
End
RJ45....................................................................42
End...........................................................................42
English .................................................................9, 19
Ensure
Baud..............................................................29, 37
Delta Server........................................................46
Enter sa Password..............................................55
LED...............................................................31, 36
Ensure....................................... 29, 31, 36, 37, 46, 55
Enter
25........................................................................55
CCC Server ........................................................14
CCC user’s email................................................14
IP Address ..........................................................14
License Keys ......................................................22
License Server IP Address .................................22
Network Number.................................................43
Server .................................................................23
Server Port..........................................................14
SQL Server Name ..............................................14
Enter ............................................... 14, 22, 23, 43, 55
Enter sa Password
Ensure.................................................................55
Enter sa Password...................................................55
Enterprise Manager .................................................12
Event Log.................................................................11
Event Log Settings...................................................11
Event Viewer
exit ......................................................................11

Index
Installation Page 63
Compact Contact Center V5 40DH0002USBG Issue 5c (29 September 2005)
Expand................................................................11
Event Viewer......................................................11, 46
Event Viewer Selector .............................................46
Existing
Installation...........................................................55
Existing ....................................................................55
Existing Installation ..................................................55
Exit
Event Viewer.......................................................11
Exit ...........................................................................11
Expand
Databases...........................................................49
Event Viewer.......................................................11
Expand...............................................................11, 49
Explore
C .........................................................................51
Explore.....................................................................51
External Alarm Device .............................................34
Eyehole..............................................................33, 34
Eyeholes ..................................................................34
F
Farnell Electronics Catalogue..................................35
Farnell Reference ....................................................35
Feature Key
Serial Number.....................................................21
Feature Key .......................................................21, 22
Feature Key Server..................................................21
FEC143-400.............................................................35
FEC143-402.............................................................35
FEC143-403.............................................................35
Ferrograph
10/22 Wallboards................................................43
Ferrograph .........................................................35, 43
Ferrograph Wallboard..............................................43
Ferrograph Wallboard 10.........................................25
Ferrograph Wallboard 22.........................................32
Fields .......................................................................46
Fifteen Agent Systems...............................................4
File
Log......................................................................46
Finish ...........................................................52, 54, 55
Finish button ......................................................14, 43
Fit RJ45 ...................................................................34
Fit .............................................................................34
Freeze Display.........................................................30
Full Screen LED Test...............................................38
FUNCTION ..............................................................38
G
General
view.....................................................................23
General ..........................................................1, 23, 44
Gigabytes.................................................................49
GLOBAL...................................................................23
GOS.........................................................................24
Green
blocks............................................................31, 36
Green.................................................................31, 36
Green Text...............................................................38
Ground Loops ..........................................................38
Group.......................................................................24
Group – Agt Group ..................................................23
H
H 123 .......................................................................25
H 125 .......................................................................40
H 196 .......................................................................39
H 198 .......................................................................32
Hardware .................................................................44
Hardware Connections ............................................41
Housing....................................................................33
I
ID..............................................................................42
ID Addresses ...........................................................42
IDC...........................................................................40
IDD.............................................................................1
IEC Connector .........................................................35
IEC Power................................................................33
IIS Windows 2000 ....................................................10
IIS.................................................................. 9, 10, 47
IIS Installation ..........................................................10
In Setup Complete..................................................55
Incorporating
RJ45....................................................................32
Incorporating............................................................32
Indicates Delta Server .............................................46
Information Screen.............................................30, 38
Init Comms...............................................................46
Input
TCD Wallboards .................................................41
Input ...................................................................36, 41
Insert
Application CD....................................................14
CCC Installation CD............................................12
CCCv5 application CD-ROM..............................54
SQL Server 2000................................................55
Insert ..................................................... 12, 14, 54, 55
Install ASP.NET .........................................................9
Install CCCv5 Applications ......................................52
Install Database Application ....................................12
Install Database Server ...........................................55
Install New Wallboard..............................................43
Installation
CCC Components...............................................13
existing................................................................55
Microsoft .............................................................14
Installation............................................. 13, 14, 33, 55
Installation Manual.....................................................1
Installation Selection................................................55
Installing
100......................................................................38
IP Office ................................................................2
MSDE 2000 ........................................................14
PC.......................................................................55
Report Server .....................................................14
Installing.................................................. 2, 14, 38, 55
Installs CCC Reporter................................................7
InstallSheild..............................................................14
InstallShield Wizard .................................... 14, 52, 54
Instance Name.........................................................55
Interaction Manager.................................................14
Internet.....................................................................21
Internet Explorer ......................................................21
Internet Explorer 5.5 ..................................................9
Internet Information Services.............................10, 47

Index
Page 64 Installation
40DH0002USBG Issue 5c (29 September 2005) Compact Contact Center V5
Introduction ....................................... 7, 25, 32, 39, 40
Invalid.......................................................................22
IP Address
Enter ...................................................................14
PC.......................................................................22
IP Address .........................................................14, 22
IP Office
Install ....................................................................2
IP Office ................................ 2, 14, 21, 23, 25, 43, 46
IP Office Address.....................................................13
IP Office License......................................................21
IP Office Manager application..................................22
IP Office Software....................................................21
IP Office System
programming.......................................................21
IP Office System ......................................................21
IP400 CCC AGT RFA..............................................22
IP400 CCC Designer RFA.......................................22
IP400 CCC EMAIL CTI RFA....................................22
IP400 CCC EMAIL RFA...........................................22
IP400 CCC PCW RFA.............................................22
IP400 CCC Report RFA...........................................22
IP400 CCC Rostering RFA......................................22
IP400 CCC SVR RFA..............................................22
IP400 CCC Wallboard .............................................22
IP400 CTI Pro RFA..................................................22
IP400 Email CTI RFA ..............................................22
Issue ..........................................................................2
L
L 1021......................................................................39
L 1097......................................................................32
L 1207......................................................................40
L 469........................................................................25
L Wait.......................................................................24
Lamp..........................................................................2
LAN......................................................................1, 46
Launch Archiver.......................................................14
Launching
Delta Server........................................................46
Launching ................................................................46
LED
drives ..................................................................32
ensure...........................................................31, 36
LED....................................................... 30, 31, 32, 36
LED Illumination Test Inspection .......................31, 36
LED Matrix Scanning Inspection........................31, 36
Level 2.1 ..................................................................21
Level 3.0 ....................................................................2
Level 5.0 ....................................................................2
License.....................................................................22
License Keys
Entering ..............................................................22
License Keys............................................................22
License Server IP Address
Enter ...................................................................22
License Server IP Address ......................................22
List
Packing...............................................................33
Loading
CCC ......................................................................9
Loading ......................................................................9
LOCAL .....................................................................23
Local Computer........................................................55
Local Policies...........................................................17
Local Security Policy................................................17
Local Security Settings ............................................17
Localhost..................................................................14
Log
File ......................................................................46
Log .....................................................................11, 46
Logic Control Board.................................................32
Login ........................................................... 24, 48, 55
Login Codes.............................................................24
Login Idle Period
use ......................................................................24
Login Idle Period......................................................24
Logon
creating ...............................................................18
Logon.......................................................................18
Logon Requirements ...............................................18
Longest Wait............................................................24
Lost ..........................................................................24
Lost Calls .................................................................24
LWait........................................................................24
M
Mailbox Set-up.........................................................23
Mains Power Lead...................................................35
Manage
CFD’s....................................................................1
Manage......................................................................1
Management............................................................49
Management Tools ..................................................55
Manager...................................................................21
Manager application.................................................22
Manual .......................................................................2
MAPI ........................................................................23
Masonry rawl............................................................33
Meters
PC RS485...........................................................30
Meters ......................................................................30
Metre..................................................................34, 38
Metres
PC RS485...........................................................38
Metres ......................................................................38
Microsoft
Installation...........................................................14
Microsoft ............................................................14, 48
Microsoft Exchange Server......................................23
Microsoft SQL ..........................................................57
Microsoft SQL Server 2000 Installation ...................12
Microsoft Windows 2000 Pro...................................19
Microsoft Windows 2000 Server................................9
Microsoft Windows 2003 Server................................9
Microsoft Windows XP Pro ......................................19
Microsoft.Net Framework 1.1...................................14
MMM ....................................................................1, 47
MMM Installation Manual.........................................47
Modify ......................................................................47
Mounting
Ceiling.................................................................34
Mounting ..................................................................34
Moved
C .........................................................................52
Moved ......................................................................52
MS Exchange Server...............................................18
MS Internet Explorer 5.5..........................................19
MS Outlook ................................................................9
MSCRM ...................................................................14

Index
Installation Page 65
Compact Contact Center V5 40DH0002USBG Issue 5c (29 September 2005)
MSDE
control .................................................................12
pack ..............................................................48, 51
MSDE.......................................... 7, 12, 47, 48, 49, 51
MSDE 2000
installing..............................................................14
SQL Server 2000................................................55
MSDE 2000..................................................12, 14, 55
MSDE 2000 Installation ...........................................12
MSDE Upgrade........................................................48
Multi Media Module..................................................47
MultiMedia Module.........................................1, 14, 47
My Computer
Use......................................................................14
My Computer ...........................................................14
My Computers Icon............................................11, 13
N
Naming
Directory Numbers..............................................23
PC.......................................................................14
Naming...............................................................14, 23
NET......................................................................9, 47
NET Framework 1.1.................................................14
Network Addressing...........................................34, 37
Network Administrator .............................................57
Network Number
Change ...............................................................44
Enter ...................................................................43
Network Number..........................................38, 43, 44
Network Numbers 1-15............................................43
New Backup Device.................................................49
New Password button..............................................45
Next................................................. 10, 14, 52, 54, 55
Next button...................................................43, 52, 54
NMYSBH............................................... 12, 14, 45, 48
NO......................................................................14, 52
No Name..................................................................23
NOMINAL VOLTAGES............................................32
Non-Voice Mail Pro..................................................24
Normal Operation.....................................................30
Normal Running.......................................................38
NOT .........................................................................43
O
OFF........................................... 29, 30, 31, 36, 37, 38
OFF Position Represents ........................................37
Office..........................................................................2
OK..................... 10, 11, 12, 14, 17, 23, 49, 51, 52, 54
OK button.............................................. 12, 48, 52, 54
ON............................................. 29, 30, 31, 36, 37, 38
ON button.................................................................44
ON Position Represents ..........................................37
ON/OFF Blocks
Alternating...........................................................30
ON/OFF Blocks........................................................30
ONLY .......................................................................35
Open
Administrative Tools ...........................................14
Open ........................................................................14
Open button .................................................48, 52, 54
Operating
CCC ......................................................................2
Software Level 2.1................................................2
Operating ...................................................................2
Operating System ....................................................10
Operator
copy ....................................................................51
Operator...................................................................51
Outlook icon.............................................................23
Output ......................................................................36
Overflowed to/From .................................................24
Overview
CCC ......................................................................3
Overview....................................................... 3, 21, 47
Overwrite............................................................11, 49
P
Pack
List ......................................................................33
MSDE............................................................48, 51
Pack ............................................................ 33, 48, 51
Panel........................................................................47
Part
CCC ....................................................................12
Part ..........................................................................12
PBX..........................................................................14
PC
installing..............................................................55
IP Address ..........................................................22
name...................................................................14
PC 1, 7, 12, 13, 14, 21, 22, 23, 25, 28, 30, 32, 38, 39,
40, 41, 43, 45, 48, 52, 54, 55
PC Com ...................................................................40
PC Communications ................................................41
PC RS485
Meters.................................................................30
metres.................................................................38
PC RS485..........................................................30, 38
PC TX ................................................................30, 38
PC Wallboard.................... 1, 2, 4, 6, 7, 17, 44, 51, 54
PC Wallboard application ........................................19
PC Wallboard Quick Reference Guide ......................2
PC Wallbord.............................................................22
PCA..........................................................................24
PCs ............................................................................3
PC's..........................................................................47
Permissions .............................................................17
Pin............................................................................36
Pin Mini-DIN.............................................................35
Point
CCC ....................................................................43
Programs ......................................................43, 46
Point...................................................................43, 46
Polycarbonate..........................................................32
Popup.......................................................................51
Power Supply...........................................................32
Pre-installation ...........................................................9
Prepares
SQL Server Installation Wizard ..........................55
Prepares ..................................................................55
Pre-requsites............................................................47
Processor License ...................................................55
Program Files/Avaya/IP Office.................................17
Program Files/Avaya/IP Office/CCC..................14, 52
Program Files/Avaya/IP400/CCC ............................52
Program
Files/Avaya/IP400/CCC/CallCentreView .................51
Program Files/Avaya/IP400/CCC/WBServer...........51
Programming

Index
Page 66 Installation
40DH0002USBG Issue 5c (29 September 2005) Compact Contact Center V5
IP Office System.................................................21
Programming ...........................................................21
Programs
Point..............................................................43, 46
Programs ........................................ 11, 17, 43, 46, 49
Properties
select ..................................................................13
Properties.............................................. 11, 13, 17, 23
Properties button......................................................44
Provides
realtime.................................................................1
Provides.....................................................................1
PSU..........................................................................40
R
Read/write................................................................17
Realtime
Provides................................................................1
Realtime.....................................................................1
Red ....................................................................31, 36
Red Text ..................................................................38
Refresh ....................................................................44
Regional Options .......................................................9
Remove
Wallboard............................................................44
Remove..............................................................44, 49
Remove button.........................................................44
Repair
use ......................................................................47
Repair ......................................................................47
Report Client..........................................................6, 7
Report Designer.........................................................2
Report Manager...................................................1, 24
Report Scheduler...............................................51, 52
Report SDK
view.....................................................................14
Report SDK..........................................................7, 14
Report Server
install...................................................................14
Report Server...............................................4, 6, 7, 14
Report Viewer ..........................................................12
Reporter.............................................................47, 51
Reporter application.................................................18
Reporting ...................................................................3
Reports Database....................................................52
Requiers IP400 CTI Pro RFA ..................................22
Required ..................................................................13
Requires CCC Svr RFA...........................................22
Resetting
Wallboard............................................................43
Resetting............................................................43, 44
Restart .....................................................................14
RFA..........................................................................22
RJ45
end......................................................................42
Fit........................................................................34
incorporating.......................................................32
RJ45........................ 28, 30, 32, 34, 36, 38, 40, 41, 42
RJ45 Plug ................................................................38
RJ45 Receive/Transmit .....................................41, 42
RJ45 Socket.............................................................36
RJ45 Terminal Box ..................................................33
Rostering..............................................................1, 22
RS232................................................................40, 41
RS232 Connection...................................................28
RS485
board...................................................................28
destroy ................................................................38
RS485................................. 25, 28, 30, 32, 34, 38, 39
RS485 Communication Systems.............................38
RS485 Connection...................................................28
RS485 Line Driver....................................................38
RS485 Serial Connection ........................................34
Run
Call Center View.................................................57
CCC ....................................................................22
CCV ....................................................................57
CCV Alarm Reporter application ........................45
Windows 2000/2003 .............................................4
Run ................................. 4, 12, 22, 45, 48, 52, 54, 57
RX ......................................................................30, 38
S
S.............................................................. 9, 19, 43, 44
Sa.......................................................................12, 14
Save
Copy....................................................................22
Save.........................................................................22
Screws .....................................................................33
SDXArchiver ......................................................14, 49
Sdxwb.ini..................................................................51
Security..............................................................11, 17
Security Tab.............................................................17
Select
Communications Port .........................................43
Database ............................................................49
Properties ...........................................................13
SQL Server System............................................55
Wallboard............................................................44
Select.............................................. 13, 43, 44, 49, 55
Select Application Server.........................................10
Select Components..................................................55
Select Components menu .......................................14
Select File ................................................................22
Select Internet Information Services........................10
Select License..........................................................22
Select Manage.........................................................11
Select MSDEInstSP.exe ..........................................12
Select MSDEInstSP3.exe........................................48
Select Setup.exe................................................52, 54
Select SQL Server 2000 Components.....................55
Select System..........................................................22
Self...........................................................................44
Self Test OFF button................................................44
Serial Connection...............................................28, 34
Serial Number
Feature Key ........................................................21
Serial Number..........................................................21
Serial Port ................................................................41
Server
Connect ..............................................................55
Enter ...................................................................23
Server ............... 2, 3, 7, 13, 14, 18, 23, 45, 48, 52, 55
Server Component...................................................55
Server Hardware Requirements ................................9
Server License.........................................................21
Server PC
CCC Components...............................................13
Server PC ............. 3, 4, 6, 7, 9, 13, 14, 22, 46, 54, 57
Server PC Installation ........................................14, 19

Index
Installation Page 67
Compact Contact Center V5 40DH0002USBG Issue 5c (29 September 2005)
Server Port
Enter ...................................................................14
Server Port...............................................................14
Server Type .............................................................14
Server, Client .............................................................7
Server/Client ............................................................14
Server/Client PCs ......................................................2
Service Tab..............................................................14
Services icon............................................................14
Set
800........................................................................9
9600..............................................................29, 37
Address ID..........................................................42
True Color.............................................................9
Set..................................................... 9, 29, 37, 42, 44
Settings....................................................................10
Setup Complete
In.........................................................................55
Setup Complete .......................................................55
Setup.exe.................................................................14
Shows
Compact Contact Center ......................................4
Compact Contact Center Manager...................4, 6
Shows ....................................................................4, 6
Sign Rx ....................................................................36
Sign Tx.....................................................................36
Signal Ground..........................................................36
SMDR ......................................................................46
SMTP Server ...........................................................14
SMTP Server Name.................................................13
Socket View .............................................................35
Software.....................................................................2
Software Level 2.1
operating...............................................................2
Software Level 2.1 .....................................................2
Software Requirements
CCC Client..........................................................19
CCC Server ..........................................................9
Software Requirements .......................................9, 19
Software Version Sign Type ....................................38
SP1 ............................................................................9
SP3 ......................................................................9, 47
Spectrum..................................................................43
Spectrum 4120C......................................................39
Spectrum Remote Controller
use ......................................................................39
Spectrum Remote Controller ...................................39
Spectrum Wallboard ..........................................39, 43
Spun.........................................................................33
SQL..........................................................................47
SQL 2000.................................................................12
SQL 2000 Procedure
Upgrade..............................................................55
SQL 2000 Procedure...............................................55
SQL Server ..................................................14, 55, 57
SQL Server 2000
Insert...................................................................55
MSDE 2000 ........................................................55
SQL Server 2000 .....................................................55
SQL Server 2000 Components................................55
SQL Server Installation Wizard
prepares..............................................................55
SQL Server Installation Wizard................................55
SQL Server Name
Enter ...................................................................14
SQL Server Name..............................................13, 14
SQL Server Security ................................................14
SQL Server System
select...................................................................55
SQL Server System .................................................55
SQL Server Tools ....................................................55
Staff Management....................................................23
Standalone Server .....................................................7
Standalone Server PC...............................................7
Standard Reports.....................................................23
Start | Programs.......................................................14
Start | Settings .........................................................14
Start button
Windows taskbar ..........................................43, 46
Start button ................................................. 17, 43, 46
Start Copying Files...................................................55
Start Copying Files dialog........................................55
Start IP Office Manager ...........................................22
Starting
CCC User Access...............................................45
Delta Server........................................................46
Delta Server application......................................14
Wallboard............................................................44
Wallboard Server................................................43
Starting.. 10, 11, 12, 14, 43, 44, 45, 46, 48, 49, 52, 54
Startup .....................................................................14
Status
check...................................................................22
Status.......................................................................22
Structure
CCCv5 ................................................................51
Structure ..................................................................51
Supervisor............................................................7, 45
Supervisor Position....................................................7
Support
eBusiness .............................................................1
Support ......................................................................1
SW1 ...................................................................29, 37
SW2 ...................................................................29, 37
SW3 ...................................................................29, 37
SW4 ...................................................................29, 37
SW5 .........................................................................37
SW6 .........................................................................37
SW7 .........................................................................38
SW8 .........................................................................38
Switchable................................................................40
Switchable AdvaTel 240/110 VAC...........................40
Synchronise ................................................ 17, 46, 57
System .....................................................................11
System Wiring..........................................................30
Systems above Fifteen Agents..................................6
T
Target.......................................................................24
TCD Wallboards
input ....................................................................41
TCD Wallboards.......................................................41
TCD226C.................................................................42
TCD266C Wallboard................................................41
TCP/IP .......................................................................9
Telephone System...................................................23
Telephony ..................................................................1
Test Functions ...................................................30, 38
Thirs-party................................................................22

Index
Page 68 Installation
40DH0002USBG Issue 5c (29 September 2005) Compact Contact Center V5
Tick/un-tick...............................................................14
Time...........................................................................9
Time Zone................................................................19
Toolbar Pane .....................................................14, 46
Traffic Management.................................................23
Transmit Only RJ45 .................................................42
Transmit/Receive.....................................................41
Tri-color....................................................................32
Tri-colour..................................................................40
True Color
set .........................................................................9
True Color..................................................................9
Trunk GP..................................................................23
Trunk Groups...........................................................24
Trunk Grp.................................................................23
Trunk Lines ..............................................................24
Trunk Statistics ........................................................24
Trunk/DDI.................................................................24
Trunks................................................................23, 24
U
Uninstall ...................................................................47
United States .......................................................9, 19
Unticked...................................................................19
Uo ............................................................................22
Update button ....................................................14, 45
Upgrade
Database ..............................................................2
SQL 2000 Procedure..........................................55
Upgrade ...............................................................2, 55
USA......................................................................9, 19
USB....................................................................21, 22
Use
Call Center View...................................................3
Client.....................................................................7
Login Idle Period.................................................24
My Computer ......................................................14
Repair .................................................................47
Spectrum Remote Controller..............................39
Use............................................ 2, 3, 7, 14, 24, 39, 47
User
copy ....................................................................51
User .............................................................17, 51, 57
User Name...............................................................45
User Rights Assignment ..........................................17
Utilising Interactive Directory .....................................1
V
View
CD.............................................. 12, 14, 48, 52, 54
Delta Server........................................................46
General...............................................................23
Report SDK.........................................................14
View .................................... 12, 14, 23, 46, 48, 52, 54
View Active PC Wallboard.......................................44
VM............................................................................24
Voice Mail ................................................................24
Voice Mail Pro..................................................4, 6, 24
Voice Processing Administration ...............................4
W
Wall..........................................................................33
Wall Mounting ..........................................................33
Wallboard
check ..................................................................44
remove................................................................44
resetting ..............................................................43
Select..................................................................44
started.................................................................44
Wallboard........................ 1, 25, 34, 39, 40, 43, 44, 45
Wallboard 10
access.................................................................28
Wallboard 10......................................................25, 28
Wallboard 22............................................... 32, 33, 34
Wallboard Client...................................... 3, 4, 6, 7, 43
Wallboard ID ............................................................42
Wallboard Manager................................... 1, 2, 24, 46
Wallboard Properties ...............................................44
Wallboard Server
starting ................................................................43
Wallboard Server .................................. 4, 6, 7, 43, 44
Wallboard Server application................ 25, 32, 39, 40
Wallboard Server/Client...........................................57
Wallboard Terminal Box RJ45 Connector Pin
Out Details ...............................................................36
Wallboard x+1 RJ45 Socket ....................................36
Wallboard's DB9 ......................................................40
Wallboard's RS485 ..................................................39
Wallbrd.mdb.............................................................51
WARNING............................................................2, 34
WB 22 ......................................................................22
WB Alarm Scripts.....................................................45
WBServer.................................................................51
Web Call Back ...........................................................1
Welcome..................................................... 14, 47, 55
Win 2000/2003 Compatible .......................................9
Windows ........................................... 9, 14, 48, 52, 54
Windows 2000
IIS........................................................................10
Windows 2000 ............................................ 10, 11, 14
Windows 2000 Professional SP2...............................9
Windows 2000/2003
running..................................................................4
Windows 2000/2003 ..................................................4
Windows 2000/3 ........................................................9
Windows 2000/3 Modifications ..................................9
Windows 2003
ASP.NET ............................................................10
Windows 2003 ...................................................10, 11
Windows 2003 Server..........................................9, 47
Windows Authentication ..........................................12
Windows Components.............................................10
Windows Event Viewer ............................................11
Windows Explorer....................................................17
Windows taskbar
Start button ...................................................43, 46
Windows taskbar................. 12, 43, 46, 48, 49, 52, 54
Workforce Management ..................................1, 6, 14
Workforce Management Interface .....................1, 2, 7
World Wide Web Server ..........................................10
Write.........................................................................17
Www.advatel.com....................................................40
Www.specorp.com...................................................39
X
XXXX .......................................................................23
Y
Yellow ................................................................31, 36
Yellow Text ..............................................................38
Yes.............................................................. 51, 52, 55

Index
Installation Page 69
Compact Contact Center V5 40DH0002USBG Issue 5c (29 September 2005)
Yes button................................................................44

Index
Page 70 Installation
40DH0002USBG Issue 5c (29 September 2005) Compact Contact Center V5
Performance figures and data quoted in this document are typical, and must be specifically
confirmed in writing by Avaya before they become applicable to any particular order or contract.
The company reserves the right to make alterations or amendments to the detailed
specifications at its discretion. The publication of information in this document does not imply
freedom from patent or other protective rights of Avaya or others.
Intellectual property related to this product (including trademarks) and registered to Lucent
Technologies have been transferred or licensed to Avaya.
All trademarks identified by the ® or ™ are registered trademarks or trademarks, respectively,
of Avaya Inc. All other trademarks are the property of their respective owners.
This document contains proprietary information of Avaya and is not to be disclosed or used
except in accordance with applicable agreements.
Any comments or suggestions regarding this document should be sent to
"wgctechpubs@avaya.com".
© 2005 Avaya Inc. All rights reserved.
Avaya
Sterling Court
15 - 21 Mundells
Welwyn Garden City
Hertfordshire
AL7 1LZ
England
Tel: +44 (0) 1707 392200
Fax: +44 (0) 1707 376933
Web: http://www.avaya.com