BAS PRC034 EN 01/20/2011 TR200 Series Variable Frequency Drives Trane Heating System
User Manual: Trane Heating System TR200
Open the PDF directly: View PDF .
Page Count: 24

TR200 Series
January 2011 • 176R0643 BAS-PRC034-EN
Variable Frequency Drives

2BAS-PRC034-EN
The following are trademarks or registered trademarks of their respective companies:
Trane, TR200, IntelliPak, Voyager III are from Trane; BACNet from ASHRAE (American Society of Heating, Refrigerating
and Air-Conditioning Engineers); LonWorks from Echelon Corp; Modbus from Groupe Schneider
TR200 Series VFD Introduction
At Trane, our philosophy is grounded in a commitment to offering solutions that
support energy efficiency and take a sustainable approach to the environment. We
believe in creating High Performance Buildings. Integrated Comfort™ systems are
a single-source offering incorporating high-quality HVAC products and controls,
backed by a trusted and experienced sales force and extensive service network.
They can also encompass fire safety and security systems from a single source.
Trane builds upon 30 years of experience in the controls industry and our firm
commitment to new technology in practical day-to-day applications. Our variable
frequency drive, the TR200 Series, is an example of this commitment.
Today more than ever, facility professionals are required to use a range of
strategies for energy efficiency. A variable frequency drive is an electronic system
that provides infinitely variable speed control of three-phase AC induction motors.
It accomplishes this by converting fixed frequency and voltage input power into
adjustable frequency and voltage. With an installed VFD, you control the speed of
the AC pump or fan motor to meet the exact needs of your building’s customers
and environment. A key benefit of a variable frequency drive is to provide savings
through the reduction of energy consumption by changing the speed of a motor
to meet actual demand. The savings are significant when compared to a motor
running constantly at full speed. Controlling the flow of air and water in HVAC
systems is an effective, permanent way to meet the ever-changing demands put
on the system.
The Trane TR200 Series VFD is an advanced design VFD, fully dedicated to the
optimal operation of HVAC applications. It offers energy savings, prolonged motor
life, user-friendliness and built-in functionality designed to meet the rigorous
demands of HVAC applications. Motor control is based on a vector drive system
providing full motor power at rated speed without derating. Automatic Motor
Adaptation ensures optimum motor torque performance. The Automatic Energy
Optimizer function optimizes the voltage output of the VFD to the actual load of
the motor, thus minimizing its power consumption.

3
BAS-PRC034-EN
ENERGY SAVINGS
Simplified automatic energy optimization (AEO)—• continually monitors the motor’s
speed and load and adjusts the applied voltage to maximize energy savings.
Sleep mode—• automatically stops or restarts the drive when its speed is outside set
levels for a specified time, providing energy savings without separate controllers.
COST SAVINGS
Intelligent HVAC controller—• four auto-tuning PIDs control the drive and up to three
other devices, eliminating external controllers and reducing cost.
Built-in HVAC protocols—• allow TR200 drives to become an intelligent part of the
building management system.
Built-in protection—• integrated technology eliminates the need for external protection
devices while maximizing the life of the motor and other system components.
TROUBLE-FREE OPERATION
Dual DC-link reactors—• non-saturating reactors provide better harmonic performance
than a 5% AC line or saturating DC reactors.
Automatic high ambient derate—• if the ambient temperature exceeds the normal
limit, the drive can be set to warn of its overtemperature and continue to run, keeping
the HVAC system functional. To control its temperature, the drive will reduce the output
carrier frequency and, if necessary, reduce the output current.
EASY TO INSTALL
Compact size—• efficient heatsink design significantly reduces the footprint of TR200
Series drives, particularly in the smaller frame sizes.
Run-permissive circuit—• the ability to accept a “system ready” signal assures that
dampers or other auxiliary equipment are in the proper state for drive operation.
Real-time Clock—• adds sophisticated performance to basic control schemes for
increased comfort and energy savings.
Plenum rated—• all drives and options are UL listed for installation in air handling
compartments.
EASY TO USE
Simple and flexible menu structure—• many installations require nothing more than
scrolling through the twelve “QUICK MENU” items to confirm the default settings. Users
can also select up to 20 parameters to be included in a ”PERSONAL MENU” for easy
access.
Trane Drive Utility commissioning and troubleshooting software—• easy
connection via the onboard USB port provides PC access to drive parameters without
disconnecting the keypad or interrupting communications.
Advanced firefighter’s override—• provides options for emergency operation (using
either the drive only or coordinated with the bypass) that increase the safety of building
inhabitants.
TR200 Series VFD Benefits
Trane TR200 Series drives play an
important role in a system to reduce
energy usage, extend motor life,
optimize AC motor speed control,
maximize occupant comfort and
reduce costs. They are available
factory-mounted and commissioned
on Trane IntelliPak™, Voyager III™
and M-Series and T-Series Climate
Changers. In addition, TR200 Series
support of open standard protocols
make them compatible with virtually
all HVAC equipment and building
automation systems. They can also be
ordered specifically for a project and
easily installed on-site for new and
retrofit applications. With a complete
range available from 1½ to 1350 HP,
the features and flexibility of TR200
Series VFDs make them ideal for
stand-alone control of cooling towers,
exhaust fans, pumps and a variety of
air handlers.

4BAS-PRC034-EN
TR200 Series VFD Features
IMPRESSIVE RANGE OF
STANDARD I/O
• 2analoginputs(currentorvoltage)
for sensors, setpoint sources or
basic speed command
• 6digitalinputs(eitherPNPorNPN)
for hardwired start/stop, safeties,
run-permissive, preset speed and
much more —two can be used as
digital outputs
• 1analogoutputforindicationof
operation or to control other HVAC
devices
• 2FormCrelayoutputs(240V,
2 amps) for remote indication of
operation or to control other HVAC
devices
• 200mAof24VDCtopower
customer devices such as sensors
and valves
USB CONNECTION
PC access to drive parameters without
interrupting communication
STANDARD COMMUNICATION
EIA-485 for direct connection
to Modbus, Siemens Building
Technologies FLN and Johnson
Controls N2 with every drive.
Monitoring and controlling over serial
communications reduces installation
cost. All outputs are available for
commanding over the network.
CONTROL BUILT FOR
PERFORMANCE
• I/Oandcommunicationterminals
are galvanically isolated and
separated from power terminals to
limit interference
• Terminalsarespringloadedfor
security
• Terminalsacceptawiderangeof
wire sizes
• Unpluggableterminals
ADVANCED OPTIONS MADE EASY
Plug and play option modules further
enhance the standard capabilities of
TR200 drives. They fit seamlessly
under the drive keypad, simplifying
installation. These factory or field-
installable modules often eliminate the
need for external devices, resulting in a
lower overall cost of ownership.
COMMUNICATION OPTION
MODULES
BACnet (MCA116)•
LonWorks (MCA 115)•
I/O OPTION MODULES
For additional control and monitoring
capabilities:
General Purpose I/O (MCB 101)
• 3digitalinputs
• 2digitaloutputs
• 1analogcurrentoutput
• 2analogvoltageinputs
Relay Option (MCB 105)
• 3FormCrelayoutputs
External 24VDC (MCB 107)
• Allows24VDCexternalsupply
to be connected to the drive for
powering of control and options
Analog I/O (MCB 115)
• 3analogvoltageoutputs
• 3Pt100/Ni1000inputs

5
BAS-PRC034-EN
TR200 Series VFD Features
Cold plate cooling technology
For efficient heat dissipation
Balanced DC-link reactors
For reduced harmonics
Advanced controller options
Address the needs of complex
applications
Surface-mount components
For compactness and reliability
USB interface
For easy connection to PC
software suite
a
a
b
b
c
c
d
d
e
e
f
f
g
g
h
h
i
i
Removable terminal strips
Angled for easy access
Option modules
Provide additional functionality
Hot-pluggable keypad
Features on-board memory with
user-friendly ergonomic design
Removable, temperature-
controlled fan
For easy servicing

6BAS-PRC034-EN
DRIVE FEATURE USER BENEFIT
Hot-pluggable HVAC keypad with
memory Four drive setups can be uploaded to the keypad and saved. To program
multiple drives, upload the parameter settings to the keypad, then place that
keypad on each of the other drives and download these same settings to
every other drive.
Operates without a keypad in place Assures tamper-proof operation. Drive status shown even with the keypad
removed.
Keypad can easily be remote mounted The standard keypad can be remotely mounted 10 feet from the drive with a
standard 9-pin cable. The remotely mounted keypad is gasketed and carries a
NEMA/UL Type 12 and NEMA/UL Type 3R rating.
Simple and flexible menu structure Many installations require nothing more than scrolling through the twelve
“QUICK MENU” items to confirm that these defaults are correct. Users can
also select up to 20 parameters to be included in a “PERSONAL MENU” for
easy access.
Intelligent HVAC controller Four auto-tuning PIDs control the drive and up to three other devices,
eliminating external controllers and reducing cost.
USB port PC access to drive parameters without disconnecting the keypad or
interrupting communications.
Built-in EIA-485 interface Fully equipped for serial communication. Up to 31 drives can be connected to
one serial bus up to 5,000 feet long.
Built-in HVAC protocols The inclusion of all popular HVAC protocols allows TR200 Series drives to
become an intelligent part of the building management system.
Automatic Motor Adaptation (AMA) Measures motor stator resistance and reactance without turning the motor
or decoupling the load. The drive then automatically uses this information to
optimize performance and efficiency.
Simplified Automatic Energy
Optimization (AEO) Eliminates the need to select a V/Hz pattern. AEO continually monitors the
motor’s speed and load and adjusts the applied voltage to maximize energy
savings. Even at full speed, voltage will be reduced if the load is less than
100%. This automatically compensates for oversized motors or systems that
are not fully loaded.
Energy monitoring Real energy savings information is always available without the additional
expense of external equipment.
Advanced firefighter’s override Provides options for emergency operation (using the drive only or coordinated
with the bypass) that increase the safety of building inhabitants.
Real-time clock Adds sophisticated performance to basic control schemes for increased
comfort and energy savings.
Auto ramping Ensures no-trip acceleration and deceleration.
High breakaway current Up to 160% breakaway current available for high friction loads.
TR200 Series VFD User Benefits

7
BAS-PRC034-EN
DRIVE FEATURE USER BENEFIT
VVCPLUS output switching pattern Superior Voltage Vector Control provides high efficiency and full motor
performance.
Automatic high ambient derate If the ambient temperature exceeds the normal limit, the drive can be set to
warn of its overtemperature and continue to run, keeping the HVAC system
functional. To control its temperature, the drive will reduce the output carrier
frequency and then, if necessary, reduce the output current.
Preventive maintenance scheduling The TR200 Series drive can monitor system usage and notify the operator
when preventive maintenance is required.
Dual DC-link reactors Non-saturating reactors provide better harmonic performance than a 5% AC
line or saturating DC reactor.
Built-in protection Eliminate the need for external protection devices while maximizing the life of
the motor and other system components.
•Motorpreheat
•Overloadandthermistorinput
•No-ow,brokenbelt,drypumpandend-of-curvedetection
Automatic Switching Frequency
Modulation (ASFM) Adjusts the carrier frequency based on the load.
•Providesaquietmotoratcriticallowowconditions
•Providesfullratedoutputwithoutderateathighload
Protected from input or output switching Input or output can be disconnected while the drive is running without the
need for interlocks to protect the drive.
Full torque to base speed Direct drive fans run without derating. The full output torque can be set to
coincide with the maximum design operating speed of the driven equipment,
up to 60 Hz.
Flying start Allows starting into a “windmilling” fan at any speed, in either direction.
Sleep mode Automatically stops the drive when its speed drops below the “sleep” level
for a specified time, and automatically restarts when the speed command
exceeds the “wake” level. Provides increased energy savings without separate
controllers.
Run-permissive circuit The ability to accept a “system ready” signal assures that dampers or other
auxiliary equipment are in the proper state for drive operation.
Safety Interlock Provides external fault indication.
UL and C-UL listed All drives and options sold for US and Canadian applications carry this safety
certification.
CE marked All drives carry the CE mark for sale into international markets.
Plenum rated All drives and options are UL listed for installation in air handling
compartments.
TR200 Series VFD User Benefits

8BAS-PRC034-EN
REAL-TIME CLOCK
The energy savings potential of the TR200 Series drive is maximized with a real-
time clock, allowing the system to respond to the changing needs of the building
throughout the day and week. The real-time clock allows the system to anticipate
conditions or temporarily override the setpoint, enhancing control, comfort
and efficiency. It also allows the drive to provide reminders when preventive
maintenance is required.
Previously, a building automation system was required to obtain these features.
The real-time clock gives these sophisticated functions to any facility.
With the real-time clock, the fault log in all TR200 Series drives contains not only
a list of the ten most recent drive faults, but also the year, month, day, hour and
minute of each fault, greatly simplifying troubleshooting.
HVAC INTELLIGENT CONTROL
TR200 Series drives include a PID controller with four setpoints and three
feedbacks, a feature not currently offered anywhere else in the market. The built-in
combination of HVAC system control features and flexible I/O result in the highest
level of control possible at the lowest overall cost of ownership.
Four on-board, self-tuning PID controllers can operate as a basic air handling unit
controller. One PID maintains fan speed while up to three other PID loops can be
used to operate other HVAC devices.
In pump applications, short-cycle prevention allows maintained operation within
a desired range without the wear and tear produced by system overstarting.
Combined with a flowmeter or a differential pressure transmitter, the TR200
Series drive can measure and regulate flow and replace throttling valves for more
accurate control and energy savings.
Fan tracking allows return fans to maintain the desired pressure by utilizing two
air flow sensors. An enhanced sleep mode saves energy and system wear by
shuttting down fans during idle periods.
TR200 Series VFD HVAC Control Features
Time
Speed
Setpoint

9
BAS-PRC034-EN
FIREFIGHTER’S OVERRIDE MODE
In any enclosed space, fire and smoke control is a major life-safety concern.
Firefighter’s override mode allows the HVAC system to control and contain fire
or extract smoke using air flow and air pressure. When operating in override, the
drive ignores most operating conditions that would otherwise cause it to fault and
shut down. It continues to operate as long as possible regardless of line, load or
environmental conditions.
Firefighter’s override can run the drive at any speed in forward or reverse. It can
be activated either by a normally open or normally closed contact from the fire
panel or through the building automation system. The drive can be set to switch
automatically to a constant speed bypass if operation through the drive becomes
impossible due to failure of the drive’s power circuitry. The bypass will then run the
motor at full speed from the power line until firefighter’s override is deactivated.
Firefighter’s override is standard in all TR200 Series drives, and can be configured
through user-accessible parameters. It can be set up and activated at any time. As
fire codes or the needs of the facility change, the adaptable TR200 Series drive is
ready.
CASCADE CONTROLLER
With features and functions that eliminate the need for external controllers, the
TR200 cascade controller feature increases the efficiency of your multiple pump
or blower systems. Through accurate flow, pressure and level control, it provides
lower energy consumption than valve throttling or the traditional across-the-line
on/off cycling of pumps and blowers.
Other features serve to minimize wear and tear on driven equipment. Lead pump
alternation functionality distributes running time equally among all connected
pumps, maximizing their overall life.
TR200 Series VFD HVAC Control Features

10 BAS-PRC034-EN
NETWORK COMMUNICATION
Standard EIA-485 interface•
Built-in serial communication —allows seamless communication over •
networks using Modbus™ RTU and most building automation systems
communications protocols.
Option modules for BACnet™ and LonWorks• ®—factory- and field-installable;
mounts easily and securely inside the drive.
Easy installation and operation—simple two-wire connection and •
programmable through the network or the drive’s keypad.
HVAC-SPECIFIC FEATURES BUILT IN
Keypad-programmable automatic bypass•
Common start/stop selectable operation in drive and bypass mode•
Coordinated run-permissive in drive and bypass mode•
Advanced firefighter’s override coordinated with TR200 Series drive override •
mode
Serial and BAS control of drive and bypass operation•
PROPORTIONAL, INTEGRAL, DERIVATIVE (PID) CONTROLLER
Closed loop control•
Two setpoints and two feedbacks—a feature unique to TR200 Series drives•
Eliminates the need for extra I/O modules•
Allows for two-zone regulation•
Cooling tower systems—improved efficiency by automatically matching its •
speed to air flow requirements
Pump applications•
Used with a flowmeter, can maintain a given rate –
Used with a differential pressure transmitter, can provide more accurate –
control and energy savings
Optional cascade controller board provides a wide range of efficient –
control in large pumping systems
TR200 Series VFD Features
While offering single-source solutions,
Trane stands committed to open-
standard protocols to meet the needs
of building professionals. The TR200
Series demonstrates this with “plug-
and-play” communication capabilities
that reduce or eliminate the need for
integration gateways.
The TR200 support of major building
communication protocols allows
seamless communication with open
standard protocols such as BACnet™,
LonWorks™ and Modbus™ as well
as other popular building automation
system protocols. Whether factory-
installed on Trane HVAC equipment,
field-installed on new equipment, or
retrofit on existing equipment, the
result is an easily programmable drive
in an easy-to-manage package that
simplifies installation and results in a
lower total cost of ownership.

11
BAS-PRC034-EN
ELECTRO-MECHANICAL BYPASS
Door mounted operators:
Drive / Off / Bypass selector•
Bypass pilot light indication•
Test selection added with 3-contactor bypass units•
24 VDC switch mode power supply
Operates off any two of the three input phases•
Continued drive operation at a reduced load when any input phase is lost•
Eliminates contactor dropout on voltage conditions as low as 70% of nominal •
voltage
Advanced standard and optional features
Common start/stop available•
Run-permissive available•
Basic firefighter’s override available, which runs the motor in bypass, ignoring •
stop commands
Auto bypass with adjustable time delay available•
Class 20 overload•
TR200 Series VFD Features
ELECTRONICALLY CONTROLLED BYPASS
Motor Protection
Phase loss / imbalance protection•
Overload motor protection in bypass•
Overload reset from keypad, digital input or BAS•
24 VDC switch mode power supply
Operates off any two of the three input phases•
Continued drive operation at a reduced load when any input phase is lost•
Eliminates contactor dropout on voltage conditions as low as 70% of nominal •
voltage
Separate power source for drive logic•
Additional protection features
Drive input fuses supplied with every panel•
Bypass run-time hour meter•
Password protection prevents unauthorized bypass operation•
Manual bypass initiation override ensures operation•
Bypass control through the drive smart logic controller and real-time clock•
Bypass fault logging and time stamping•
Bypass-specific keypad
provides one-touch access
to bypass operation

12 BAS-PRC034-EN
TR200 Series VFD PC Software
Trane Drive Utility features include:
• Onlineandofinecommissioning
• Driveupgradetools
• On-boardhelplesforeachdrive
parameter
• Loggingofalarmsandwarningsfor
improved system performance and
documentation
• Conversionwizardstosimplify
drive conversion projects
• Graphicalprogrammingtoolsfor
simplified programming of the
TR200’s Smart Logic Controller
• Real-timedatacollectionusingthe
Scope function
• Congurationandaccesstothe
TR200 drive’s internal data buffer,
providing up to four channels of
high speed (down to 1 millisec)
data collection
TRANE DRIVE UTILITY
The Trane Drive Utility software offers
advanced programming functionality
for TR200 Series drives, greatly
reducing programming and setup time.
Drives are managed in a standard
folder-based user interface that’s
familiar and easy to understand.
Parameter settings for each drive are
contained in a single file, allowing easy
duplication of parameter sets between
drives.
Project folders can also store user-
defined files such as PDFs, CAD
drawings, or Word documents. Trane
Drive Utility software is the one PC tool
for all your drive programming tasks.

13
BAS-PRC034-EN
TR200 Series VFD Protective Features
With an unmatched combination of
drive, motor, and system protection
features, the TR200 Series drive
is a cost-effective overall solution.
Designed and built for long-term,
worry-free operation without the need
for external devices to protect driven
equipment, the TR200 Series drive
provides secure, reliable results, right
out of the box.
SYSTEM PROTECTION
Belt monitoring
The TR200 Series drive's sophisticated
belt monitoring measures both
speed and load and calculates the
difference between actual torque and
expected torque at all speeds. A time
delay allows for reduced load during
deceleration.
No-flow detection
Operation under dead head conditions
provides no flow to the system and
may damage the pump. Differential
pressure switches or flow meters
increase the installation costs and
add complexity. The TR200 Series
drive can automatically detect no-flow
situations and take the appropriate
corrective action.
End-of-curve protection
The TR200 Series drive can
automatically detect over-flow
conditions that indicate operation
off the end of the pump curve. Its
response can be customized to trigger
an alarm and stop the pump, issue a
warning while maintaining operation, or
perform a variety of other functions to
protect both the pump and the system.
Automated vibration avoidance
Fan systems often have resonant
speeds that must be avoided to
reduce vibration and noise. The TR200
Series drive automates the process of
setting up frequency avoidance bands,
minimizing system commissioning
time.
DRIVE PROTECTION
Metal oxide varistors (MOVs) and
capacitor snubbers in both the AC and
DC input circuitry reduce the impact of
voltage spikes on the input. In addition,
a balanced pair of DC-link reactors
between the input rectifier and the
bank of DC-bus capacitors reduces the
severity of any current surge resulting
from abrupt changes in the AC supply
line.
Conformal coating is available to
protect electronic components in
aggressive environments.
MOTOR PROTECTION
The TR200 Series drive’s built-in I2T
motor overload, thermistor input and
motor preheat functions increase the
life of the controlled motor without
the added cost of separately supplied
protection. The drive’s built-in I2T motor
overload is UL-listed as a true overload
device, eliminating the need for
external motor protection hardware.
HARMONIC MITIGATION
DC-link reactors limit harmonic
distortion on the power line, reducing
RMS input current by more than 40%
compared to drives without input
reactors.
Other drive manufacturers address
harmonics with AC line reactors,
usually external to the drive. Often,
these optional AC line reactors are
50% larger than the DC-link reactors
standard on the TR200 Series drive.
This results in significant additional
heat generation and reduced
efficiency.The harmonic performance
of the DC-link reactors in the TR200
Series drive is equal to that of a 5% AC
line reactor, but without the associated
voltage drop and efficiency losses.

14 BAS-PRC034-EN
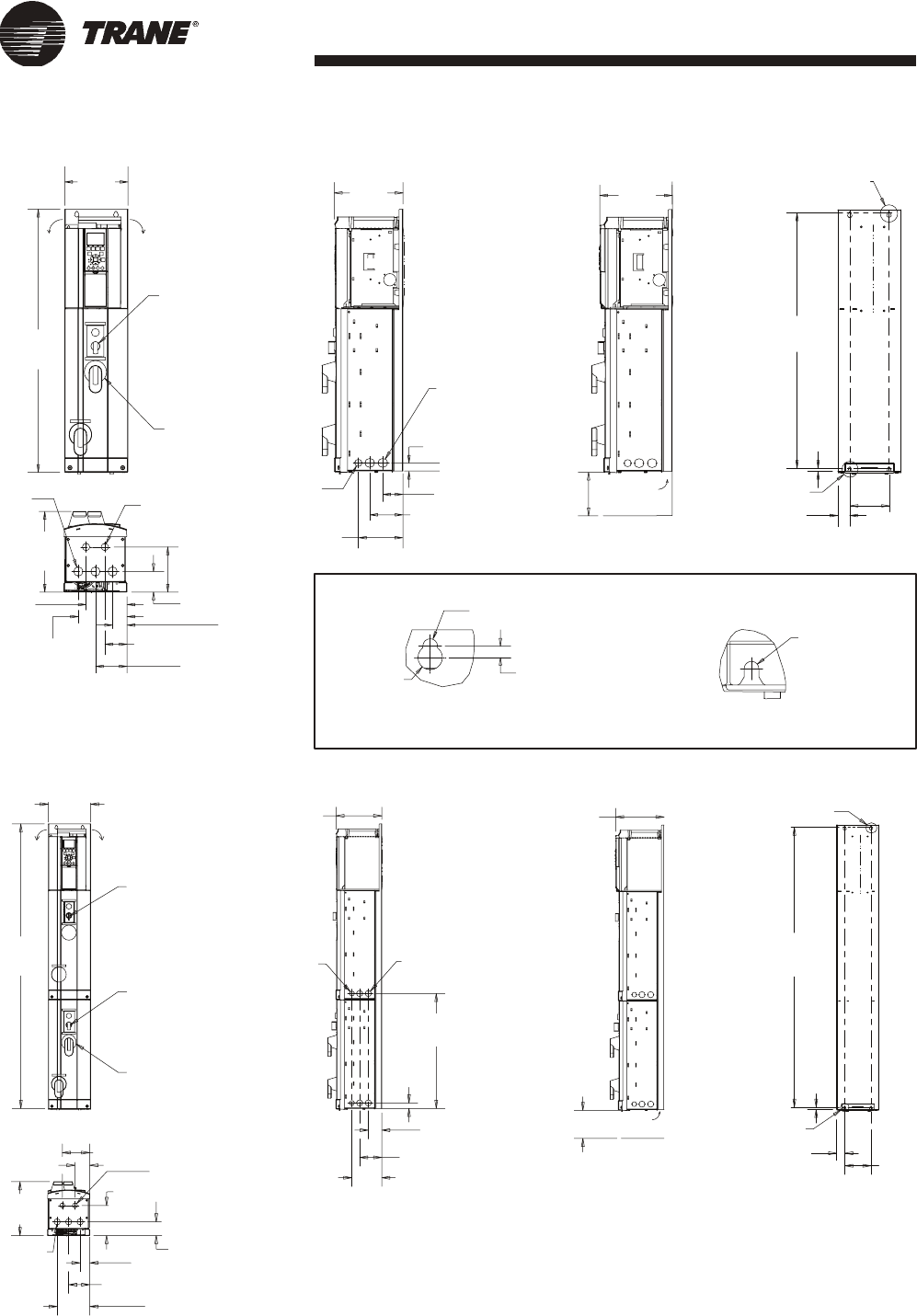
TR200 Series VFD Dimensions
FRAME RATINGS BY HP
Contact Trane for dimensional information on drives larger than 350 HP.
Frame Enclosure HP Range Base Drive Dimensions (Inches)*
NEMA 1 NEMA 12 208V 460V 600V Height Width Depth Page
A2 •0.5–3 0.5–5 14.6 3.5 8.1 15
A3 •5 7.5–10 0.5–10 14.6 5.1 8.1 15
A5 •0.5–5 0.5–10 16.5 9.5 7.9 16
B1 • • 7.5–10 15–25 18.9 9.5 10.3 17
15 18
B2 • • 20 30–40 25.6 9.5 10.3 19
C1 • • 25–30 50–75 26.8 12.1 12.2 20
40
C2 • • 50–60 100–125 30.3 14.6 13.2 21
D1 • • 150–200 150–250 45.6 16.5 14.7 22
D2 • • 250–350 300–350 60.6 16.5 14.7 22
ALL NEMA 3R ALL
*Base drive dimensions are also valid for T1 packages (see below) on A5 and larger frames
T1: Drive only
or
drive with disconnect (with or without fuses)
T2: Drive with bypass
or
Non-bypass panel with AC line reactor, LC
filter or contactor motor selection option
T3: Drive with bypass
and
AC line reactor or LC filter with or without
contactor motor selection option
T1, T2 AND T3 PACKAGES
A2 and A3 frames feature vertical
construction for T1, T2 and T3
packages.
For A5 frames and larger, T2 and T3
packages will utilize enclosure(s) the
same size as the drive enclosure.
These enclosure(s) will be mounted
directly to the right side of the drive.

15
BAS-PRC034-EN
A2 and A3 Frames
DRIVE ONLY
T1
TR200 Series VFD Dimensions
IN (MM)
WITHOUT A OR B OPTION
A2 MOUNTING BASE
A3 MOUNTING BASE
DETAIL B
DETAIL A
8.15
(207) 8.74
(220)
17.62
(448)
0.2
(5)
0.39
(10)
1.97
(50)
1.97
(50)
0.63
(16) 7.75
(197)
8.64
(220)
11.74
(298)
3.54
(90)
2.76
(70) 0.26
(7)
0.26
(7)
10.55
(268)
10.55
(268)
10.1
(257)
0.22
(6)
0.22
(6)
0.2
(4)
0.43
(11)
0.32
(8)
10.1
(257)
4.33
(110)
5.12
(130)
1.48
(38)
4.33
(110)
19.1
(485)
5.21
(132)
9.63
(245) 5.91
(150)
6.3
(160)
0.98
(25)
4.92
(125)
2.56
(65)
4.13
(105)
4.53
(115)
3X Ø
1.1
(28)
3X Ø
0.89
(23)
Ø
0.39
(10)
MIN
3.94
(100)
MIN
3.94
(100)
MIN
3.94
(100)
MIN
3.94
(100)
AIRFLOW AIRFLOW
DETAIL A
DETAIL A
DETAIL B
DETAIL B
AIRFLOW
WITH A OR B OPTION
OPTIONAL
DRIVE
DISCONNECT
Quick
Menu
Ext.
Menu
Alarm
Log
Cancel
Info
OK
On
Warn.
Alarm
Status
Back
Auto
On Reset

16 BAS-PRC034-EN
A2 and A3 Frames
T3
T2
TR200 Series VFD Dimensions
IN (MM)
WITHOUT A OR B OPTION
WITHOUT A OR B OPTION
WITH A OR B OPTION
WITH A OR B OPTION
7.63
(194)
31.74
(806)
9.73
(247)
4.95
(126)
5.88
(149)
5.44
(138)
2.37
(137)
4
(102)
2.42
(62)
0.98
(25)
8.27
(210) 8.75
(222)
30.81
(783)
0.39
(10)
1.45
(37)
4.72
(120)
0.28
(7)
2.49
(63) 1.75
(44)
3.82
(97)
8.25
(210)
7.63
(194)
51.35
(1304)
20.74
(527)
0.98
(25)
2.42
(62)
4
(102)
5.37
(137)
2.49
(63)
5.44
(138)
4.95
(126)
2.68
(68)
9.73
(247)
5.88
(149)
1.75
(44)
3.82
(97)
8.75
(222)
0.39
(10)
1.45
(37) 4.72
(120)
51.56
(1284)
2.68
(68)
OPTIONAL
DRIVE
DISCONNECT
OPTIONAL
DRIVE
DISCONNECT
OPTIONAL
EM CONTROL
OPTIONAL
CONTACTOR
MOTOR SELECT
OPTIONAL
EM CONTROL
3X Ø
1.1
(28)
2X Ø
0.89
(23)
Ø
0.89
(23)
4X Ø
0.89
(23)
2X Ø
0.89
(23)
3X Ø
1.11
(28)
Ø
0.35
(9)
Ø
0.35
(9)
Ø
0.59
(15)
2X Ø
1.11
(28)
8X Ø
1.11
(28)
DETAIL A
DETAIL A
DETAIL B
DETAIL B
DETAIL BDETAIL A
AIRFLOW
MIN
3.94
(100)
AIRFLOW

17
BAS-PRC034-EN
A5 Frames
T3
T2
T1
TR200 Series VFD Dimensions
IN (MM)
15.82
(402)
0.4
(10)
8.46
(215)
8.9
(226)
15.82
(402)
19.18
(487)
19.18
(487)
17.8
(452)
0.69
(18)
0.69
(18)
10.3
(262)
28.7
(729)
5.41
(137)
8.55
(217)
4.06
(103) 2.84
(72)
10.3
(262)
6.5
(165)
0.73
(19)
17.8
(452)
0.69
(18)
0.98
(25)
8.9
(226) 17.8
(452) 26.69
(678)
18.86
(479)
6.5
(165)
0.73
(19)
2.85
(73)
5.41
(137)
4.06
(103)
8.53
(217)
0.53
(14)
5.41
(137) 4.06
(103)
2.82
(72)
0.73
(19)
5.79
(147)
7.92
(201)
9.57
(243)
16.54
(420)
9.53
(242)
0.24
(6)
Ø
0.26
(7)
Ø
0.26
(7)
3X Ø
10.3
(26)
3X Ø
1.03
(26)
3X Ø
10.3
(26)
Ø
0.47
(12)
DETAIL A
DETAIL A
DETAIL A
DETAIL B
DETAIL B
DETAIL B
AIRFLOW
ALLOW 100MM
CLEARANCE FOR
FAN REMOVAL
ALLOW 100MM
CLEARANCE FOR
FAN REMOVAL
ALLOW 100MM
CLEARANCE FOR
FAN REMOVAL
OPTIONAL
DRIVE
DISCONNECT
OPTIONAL
DRIVE
DISCONNECT
OPTIONAL
DRIVE
DISCONNECT
OPTIONAL
EM CONTROL
OPTIONAL
EM CONTROL
OPTIONAL
CONTACTOR
MOTOR SELECT
AIRFLOW
DETAIL B
DETAIL A
MIN
3.94
(100)
MIN
3.94
(100)

18 BAS-PRC034-EN
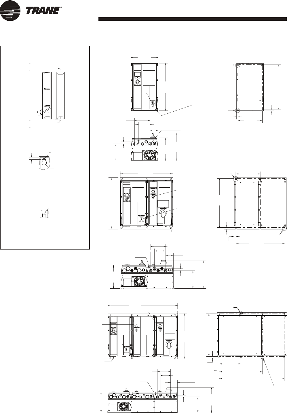
B1 Frames
T2
T1
T3
TR200 Series VFD Dimensions
18.89
(480)
9.53
(242)
ALLOW 100MM
CLEARANCE FOR
FAN REMOVAL
OPTIONAL
EM CONTROL
OPTIONAL
DRIVE
DISCONNECT
OPTIONAL
DRIVE
DISCONNECT
AIRFLOW
AIRFLOW
MIN
3.94
(100)
MIN
3.94
(100)
Ø
0.35
(9)
Ø
0.35
(9)
Ø
1.03
(26)
2X Ø
1.29
(33)
0.35
(9)
Ø
0.7
(19)
DETAIL B
DETAIL A
17.9
(454)
20.1
(511)
0.4
(10)
17.72
(450)
8.3
(210)
8.86
(225)
0.6
(16)
0.69
(18)
0.69
(18)
6.61
(168) 4.92
(125)
1.46
(37) 1.34
(34)
7.43
(189)
12.12
(308)
10.23
(260)
19.09
(485)
21.48
(546)
DETAIL A
DETAIL A
DETAIL B
DETAIL B
Ø
1.03
(26)
2X Ø
1.29
(33)
6.61
(168)
7.66
(195)
0.93
(24)
12.86
(327)
28.66
(728)
21.48
(546)
10.84
(275) 7.66
(195)
2.29
(58)
4.92
(125) 1.46
(37)1.34
(34)
8.08
(205)
20.1
(511)
18
(457) 27
(686)
9
(229)
0.69
(18)
0.83
(21)
DETAIL A
DETAIL B
3X 58,1
2.29[ ]
20.07
(510)
12.86
(327)
10.54
(268)
10.81
(275)
7.57
(192)
2.29
(58)
7.56
(192)
0.98
(25)
ALLOW 100MM
CLEARANCE FOR
FAN REMOVAL
ALLOW 100MM
CLEARANCE FOR
FAN REMOVAL
OPTIONAL
DRIVE
DISCONNECT
OPTIONAL
EM CONTROL
OPTIONAL
CONTACTOR
MOTOR SELECT
IN (MM)

19
BAS-PRC034-EN
OPTIONAL
DRIVE
DISCONNECT
OPTIONAL
EM CONTROL
ALLOW 100MM
CLEARANCE FOR
FAN REMOVAL
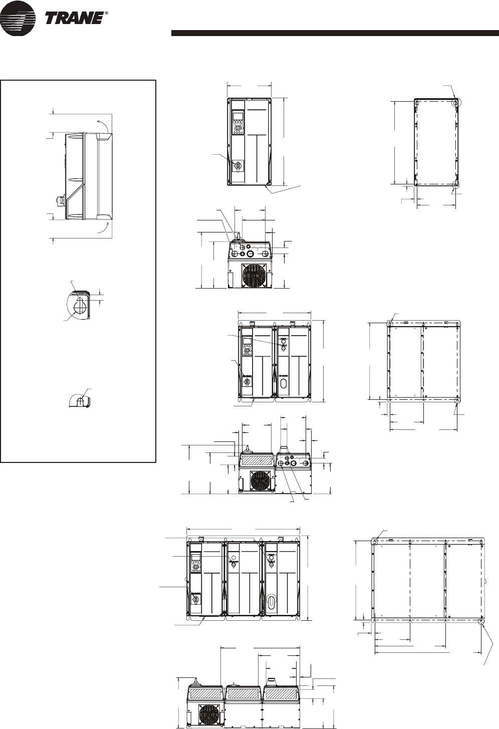
B2 Frames
T2
T3
T1
TR200 Series VFD Dimensions
AIRFLOW
AIRFLOW
MIN
3.94
(100)
MIN
3.94
(100)
Ø
0.35
(9)
Ø
0.35
(9)
0.35
(9)
0.5
(12)
Ø
0.7
(19)
DETAIL B
DETAIL A
24.5
(623)
0.4
(10)
0.69
(18)
0.69
(18) 17.72
(450)
8.86
(225)
8.3
(210)
0.6
(16)
DETAIL A
DETAIL A
DETAIL B
DETAIL B
25.59
(650)
9.53
(242)
OPTIONAL
DRIVE
DISCONNECT
Ø
1.03
(26)
2X Ø
1.29
(33)
5.91
(150) 4.21
(107)
1.81
(45) 1.04
(27)
7.74
(197)
12.12
(308)10.23
(260)
28.17
(716) 26.79
(681)
19.09
(485)
ALLOW 100MM
CLEARANCE FOR
FAN REMOVAL
Ø
1.03
(26) 2X Ø
1.29
(33)
5.91
(150)
4.21
(107) 1.81
(45)
1.04
(27) 8.27
(210)
12.81
(325)10.86
(276)
28.66
(728)
28.17
(716)
0.69
(18)
10.81
(275)
12.81
(325)
0.83
(21)
18
(457) 27
(686)
9
(229)
DETAIL A
DETAIL B
26.79
(681)
ALLOW 100MM
CLEARANCE FOR
FAN REMOVAL
OPTIONAL
DRIVE
DISCONNECT
OPTIONAL
EM CONTROL
OPTIONAL
CONTACTOR
MOTOR SELECT
IN (MM)

20 BAS-PRC034-EN
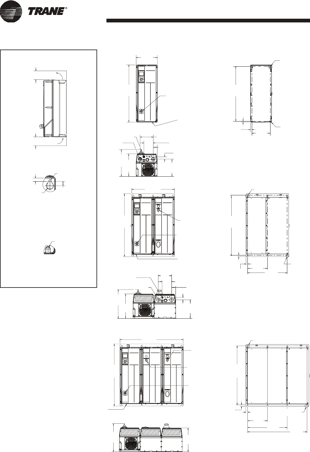
C1 Frames
T2
T1
T3
TR200 Series VFD Dimensions
ALLOW 100MM
CLEARANCE FOR
FAN REMOVAL
26.9
(680)
9.61
(244)
14.13
(359)
12.2
(310)
1.24
(32)
3.96
(101)
6.97
(177)
0.75
(19)
12.1
(308)
4.41
(112)
OPTIONAL
DRIVE
DISCONNECT
AIRFLOW
AIRFLOW
MIN
7.88
(200)
DETAIL B
DETAIL C
DETAIL A
DETAIL C
MIN
7.88
(200)
0.5
(13)
0.39
(10)
0.98
(25)
0.98
(25)
1.77
(45)
Ø
0.35
(9)
Ø
0.35
(9)
Ø
0.7
(19)
25.51
(648)
10.71
(272)
0.66
(17)
0.69
(18)
DETAIL A
DETAIL B
9.62
(244)
1.24
(31)
14.87
(378)
3.97
(101)
12.74
(324)
7.63
(194)
36.63
(930)
29.94
(761)
14.87
(378)
1.24
(32)
9.61
(244)
26
(653)
3.96
(101)
14
(343)
24.37
(619)
OPTIONAL
DRIVE
DISCONNECT ALLOW 100MM
CLEARANCE FOR
FAN REMOVAL
OPTIONAL
EM CONTROL
22
(559)
22
(559)
1.15
(29)
28.55
(725)
29.94
(761)
0.69
(18)
11
(279)
DETAIL A
DETAIL B
OPTIONAL
DRIVE
DISCONNECT
ALLOW 100MM
CLEARANCE FOR
FAN REMOVAL
OPTIONAL
CONTACTOR
MOTOR SELECT
OPTIONAL
EM CONTROL
33.07
(840)
33.07
(840)
1.72
(44)
28.55
(725)
0.69
(18) 22.05
(560)
11.02
(280)
DETAIL A
DETAIL B
12.74
(324)
7.71
(196)
IN (MM)

21
BAS-PRC034-EN
C2 Frames
T2
T1
T3
TR200 Series VFD Dimensions
DETAIL B
DETAIL C
DETAIL A
0.5
(13)
0.39
(10)
0.98
(25)
0.98
(25)
1.77
(45)
Ø
0.35
(9)
Ø
0.35
(9)
Ø
0.7
(19)
29.09
(739)
13.15
(334)
0.39
(10)
0.69
(18)
DETAIL A
DETAIL B
DETAIL B
DETAIL A
ALLOW 100MM
CLEARANCE FOR
FAN REMOVAL
ALLOW 100MM
CLEARANCE FOR
FAN REMOVAL
ALLOW 100MM CLEARANCE
FOR FAN REMOVAL
30.2
(770)
7
(178)
4.62
(117)
11.94
(303)
1.34
(34)
14.93
(379)12.98
(330)
33.49
(851)
16.22
(412)
11.94
(303) 4.62
(117)
13.72
(349)
7.82
(199)
43.93
(1116)
33.49
(851)
38.39
(975)
1.34
(34)
32.09
(815)
0.69
(18)
1.79
(46)
25.59
(650)
12.8
(325)
25.59
(650)
29.24
(743)
0.83
(21)
14.6
(370)
OPTIONAL
DRIVE
DISCONNECT
OPTIONAL
EM CONTROL
4.41
(112)
AIRFLOW
AIRFLOW
MIN
8.86
(225)
MIN
8.86
(225)
DETAIL C
OPTIONAL
DRIVE
DISCONNECT
OPTIONAL
DRIVE
DISCONNECT
OPTIONAL
CONTACTOR
MOTOR SELECT
DETAIL B
DETAIL A
32.09
(815)
0.69
(18)
30.66
(779)
16.05
(408)
11.94
(303)
1.34
(34)
15.67
(398)
4.62
(117)
13.72
(349)
7.75
(197)
2.73
(69)
25.59
(650)
38.39
(975)
12.8
(325)
IN (MM)

22 BAS-PRC034-EN
TR200 Series VFD Dimensions
D Frames
16.5
(420)
33.1
(840)
7.9
(200)
14.7
(373) 14.7
(373)
16.4
(417)
0.9
(22)
0.98
(25)
2.1
(54)
0.98
(25)
16.4
(417)
MIN
8.9
(225)
MIN
8.9
(225)
MIN
8.9
(225)
CBB
C
2.1
(54)
0.98
(25)
12
(304) 12
(304)
3.9
(99)
17.9
(455) 13.8
(350)
1.38
(35)
8
(203)
16.5
(420)
49.6
(1260) 2.1
(54)
0.98
(25)
0.12
(304)
33.1
(840)
16.5
(420)
0.12
(304)
0.12
(304)
34.4
(875)
3.9
(99)
17.9
(455)
1.4
(35)
8
(203)
13.8
(350)
A
DETAIL B
DETAIL C
1
(25)
12
(304)
2.1
(54)
A
8
(203) 13.8
(350)
1.4
(35)
3.9
(99)
A
DETAIL B
DETAIL C
OPTIONAL PEDESTAL
(BOTTOM VIEW)
PEDESTAL MOUNT
DETAIL A
WALL MOUNT
Ø
0.98
(25)
Ø
0.4
(11)
15
(380) 0.4
(11)
9.7
(246)
11.5
(293)
0.3
(7) 13.9
(354)
15.71
(399)
20.7
(526)
105°SWING
ANGLE
Ø
0.4
(11)
ABC
D1 FRAME 45.5
(1154) 47.5
(1208) 45.9
(1166)
D2 FRAME 60.4
(1535) 62.4
(1588) 60.8
(1545)
T2
T1
T3
IN (MM)

23
BAS-PRC034-EN
TR200 Series VFD Specifications
DRIVE INPUT POWER
Input voltage, 3-phase.........200–240, 380–460 or 525–600 VAC
Input voltage range for full output .......................Nominal ±10%
Undervoltage trip point ........................164, 313 VAC or 394 VAC
Overvoltage trip point ......................................... 299, 538 or 690
(792 for 100 HP and above) VAC
Input frequency ............................................ 50 or 60 Hz, ± 2 Hz
Displacement power factor .........................0.98 or greater at all
speeds and loads
Total power factor ............................. 0.90 or greater at full load
and nominal motor speed
DRIVE OUTPUT POWER
Output frequency ..................................... Selectable 0 to 120 Hz
Motor voltages ......................................200, 208, 220, 230; 380,
400, 415, 440, 460; 550 or 575 VAC
Continuous output current ........................... 100% rated current
Output current limit setting ...Adjustable to 110% of drive rating
Current limit timer ............................. 0 to 60 seconds or infinite
Adjustable max. speed .........From min. speed setting to 120 Hz
Adjustable min. speed ............. From max. speed setting to 0 Hz
Acceleration time .....................To 3,600 seconds to base speed
Deceleration time ................ To 3,600 seconds from base speed
Breakaway torque time ..................................0.0 to 0.5 seconds
(1.6 times motor nameplate current)
Start voltage .................................................................. 0 to 10%
DC braking time .................................................0 to 60 seconds
DC braking start .................................. 0 to maximum frequency
DC braking current ................... 0 to 50% of rated motor current
PROTECTIONS
Low and high frequency warnings ........................... 0 to 120 Hz
Low and high current warnings ...............0 to maximum current
Low and high reference warnings .............−999,999 to 999,999
Low and high feedback warnings ..............−999,999 to 999,999
Ground fault .................................................................. Protected
Motor stall .................................................................... Protected
Motor overtemperature ........ Protected (predictive motor temp.)
Motor condensation ................Protected (motor preheat circuit)
Motor overload ....................... Protected (programmable action)
Vibration protection ...........Protected (programming automated)
ENVIRONMENTAL LIMITS
Efficiency ........................................... 97% or greater at full load
and nominal motor speed
Ambient operating temp. ...................................... 14°F to 113°F
(−10°C to 45°C) frames A2–C2;
14°F to 104°F
(−10°C to 40°C) frames D1–E1
Humidity ................................................ < 95%, non-condensing
Altitude: maximum without derating .............3,300 ft. (1,000 m)
Drive / options enclosure(s) ..................NEMA/UL Types 1 or 12;
3R optional
CONTROL CONNECTIONS
Follower signal, analog input .................2; selectable voltage or
current, direct and inverse acting
Programmable digital inputs .............................6 (2 can be used
as digital outputs)
Programmable analog outputs ............................1; 0/4 to 20 mA
Programmable relay outputs... 2 standard Form C 240 VAC, 2 A;
1 or 3 additional optional
Auxiliary voltage ............................ +24 V DC, maximum 200 mA
CONTROL OPTIONAL
MCB 101 General Purpose I/O...............3 DI, 2 DO, 2 AI (voltage)
and 1 AO (current)
MCB 105 Relay Card ................ 3 standard Form C 240 VAC, 2 A
MCB 107 24V DC Supply ....................... Allows external 24 V DC
power to be connected to the TR200 Drive
MCB 115 Programmable I/O ..............Available 2nd half of 2009
SOFTWARE
Lost speed reference action ........... Selectable to go to a preset
speed, max. speed, last speed,
stop, turn off, or stop and trip
Time delay for lost speed reference action .......1 to 99 seconds
Adjustable auto restart time delay ...................0 to 600 seconds
Automatic restart attempts ..............................0 to 20 or infinite
Automatic restart time delay ... 0 to 600 sec. between attempts
Relay ON delay and relay OFF delay ................0 to 600 seconds
Maximum number of preset speeds ........................................16
Maximum number of frequency stepovers ............................... 4
Maximum stepover width .................................................100 Hz
Maximum number of accel rates ...............................................4
Maximum number of decel rates ...............................................4
Delayed start ....................................................0 to 120 seconds

And behind every Trane Variable Frequency Drive
you will find a world leader in HVAC equipment,
controls and services. Whether pre-installed
on Trane equipment, field applied or retrofit,
the Trane TR Series VFD comes with the most
important feature of all—our proven capabilities
throughout the life of your facilities.
We have a dedicated team of professionals
located at over 150 local oces in the U.S. and
Canada and a network of over 200 parts centers
to get you what you want, when you need it. To
learn more about our drives and what’s behind
them, visit www.trane.com/vfd.
Just as important as what’s in your VFD...
...is what’s behind it
Ingersoll Rand (NYSE:IR) is a world leader in creating and sustaining safe, comfortable and ecient environments in commercial, residential and
industrial markets. Our people and our family of brands—including Club Car®, Hussmann®, Ingersoll Rand®, Schlage®, Thermo King® and Trane®—
work together to enhance the quality and comfort of air in homes and buildings, transport and protect food and perishables, secure homes and
commercial properties, and increase industrial productivity and eciency. We are a $13 billion global business committed to sustainable business
practices within our company and for our customers.
© 2011 Trane All rights reserved
BAS-PRC034-EN January 20, 2011 ingersollrand.com
Produced on post-consumer recycled paper, using
environmentally friendly print practices that reduce waste.