BID 012 4 5 Addendum 2 GE Profile GFWH2400LWW
User Manual: GE Profile GFWH2400LWW
Open the PDF directly: View PDF .
Page Count: 16
Addendum 2 – Bid No. 12-4 & 12-5
July 26, 2012
Westgate/Belvedere Homes Community Redevelopment Agency – Single Family Housing Rehabilitation
Attachments for your use:
• Revised Checklist
• Revised Bid Sheets 12-4 & 12-5
• Schedule of Values Form – Must be provided for each house. The selection will be based upon the lowest total bid amount
from a qualified bidder.
• Revised sheets S-3 & S-4
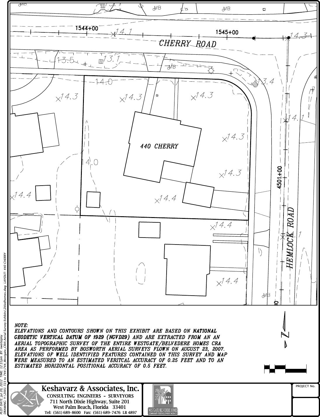
• Aerial Photogrammetry Exhibits
Q1. Page A-1.1 indicates both baths to be handicap accessible. However, the hall bath shows a standard
tub. Is this correct? If so, are we to provide the wall mounted HC sink in this bath as well?
A1: Please provide both fixtures to be ADA accessible for this bid option.
Q2. If the homeowner chooses the option of not having the covered carport, should we include the 1½”depression
where the garage door would normally close?
A2: Yes.
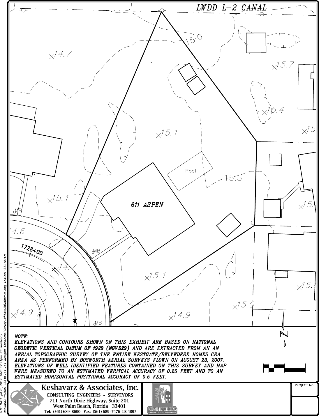
Q3. Page A-0.3 shows a conflict of the addresses in the title block versus the address and street name shown on the
site plan. Please advise which is correct.
A3: The correct address is 611 Aspen Road as shown in site Survey.
Q4. Page A-0.5 shows a conflict in the address located in the title block versus the address located on the site plan.
Please advise which is correct.
A4: The correct address is 824 Dogwood.
Q5. For the HC shower floors, can we use a pre-molded fiberglass shower floor pan in lieu of the detail shown for the
ADA shower stall shown on A1.1? (See Attached)
A5: No attachment provided. However, a pre-fabricated shower stall walls and pan assembly is acceptable as long as the
product is ADA certified and meets the minimum requirements specified as sheet A-1.1.
Q6. Can you provide a tile/carpet specification and manufacturer for equal bidding?
A6: Tile = 12x12 Mohawk Ceramic Tile, Carpet = Mohawk Smartstrand
Q7. Are we to bid the base model with a 4 or 6” shower curb with or without a shower door or shower curtain?
A7: 4” shower curb. Provide curtain rod.
Q8. Will the homeowner be providing shower curtain for the ADA shower stall?
A8: A shower curtain shall not be provided for ADA stall.
Q9. Who is responsible for the supply & install of the appliances, inclusive of the washer and dryer? (At the pre-bid I
thought it was stated that the homeowner would be supplying the appliances.)
A9: Plans revised to reflect the following: Contractor to bid appliances that meet the minimum specifications listed below:
GE® 30" Free-Standing Electric Range Model#: JBP23DRWW or equal
GE Spacemaker® Over-the-Range Microwave Oven Model#: JNM1541DMWW or equal
GE® ENERGY STAR® 21.0 Cu. Ft. Top-Freezer Refrigerator Model#: GTH21KCXWW or equal
GE® Built-In Dishwasher Model#: GDWF100VWW or equal
GE® 7.0 cu. ft. stainless steel capacity frontload dryer Model#: GFDN240ELWW or equal
GE® 4.1 DOE cu. ft. stainless steel capacity frontload washer Model#: GFWH2400LWW or equal
Q10. Bedrooms #1 & #2 do not show a TV outlet…correct?
A10. Correct.
Q11. Is the underside of the carport to be exposed? Or plywood with metal lathe and stucco?
A11. Provide T1-11 plywood siding with weather protection coat at the underside of roof sheathing.
Q12. Can you specify the manufacturer & model # for the decorative louver? Or can a 18” round louver be substituted?
A12. No. The false louver shall be framed with the wall siding molding and infill panel cut to profile at center frame as
shown in plans.
Q13. Floor plan shows the rear door leading out of the master bedroom to be swing doors. The elevations on page A1.2
asks for an aluminum sliding glass door. Please clarify.
A13. Provide a pair of swing doors.
Q14. Is an AIA bonding form acceptable?
A14. Yes. An AIA form or equivalent is acceptable.
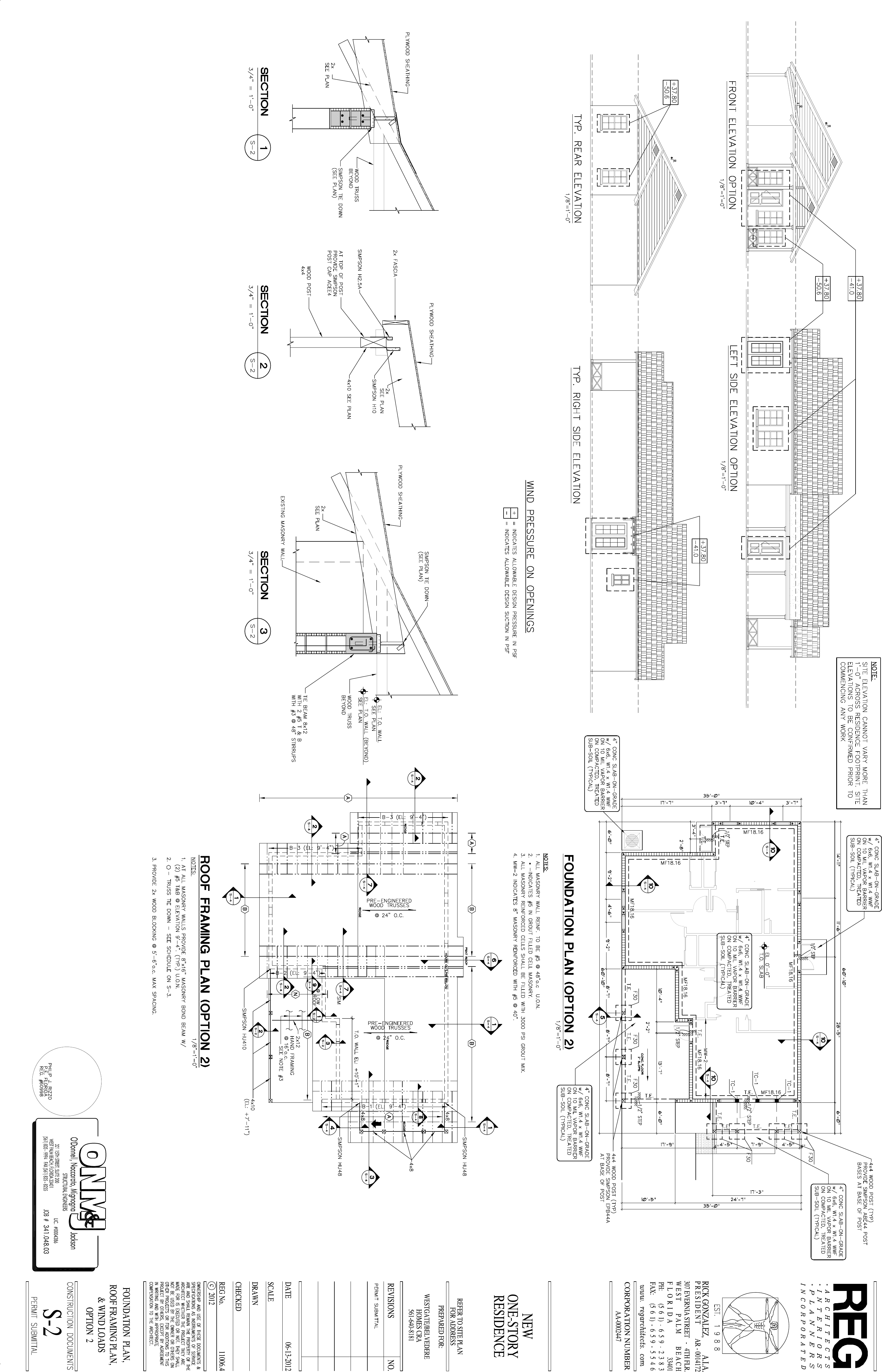
Q15. Structural drawings show conflict between the step wall and thickened edge. Please clarify the appropriate
design.
A15. Thickened edge is the footing for the CMU walls. Please see the attached revised structural plans S-1- S-4.
Q16. Do we have to follow the mounting detail shown on sheet M-2 for the condensing unit?
A16. No. Plans revised to reflect the following: M-2 Condensing Unit Mounting Detail. Piping is to run under the slab to the
A/C unit. Exterior mounting an sheet metal cover will not be approved.
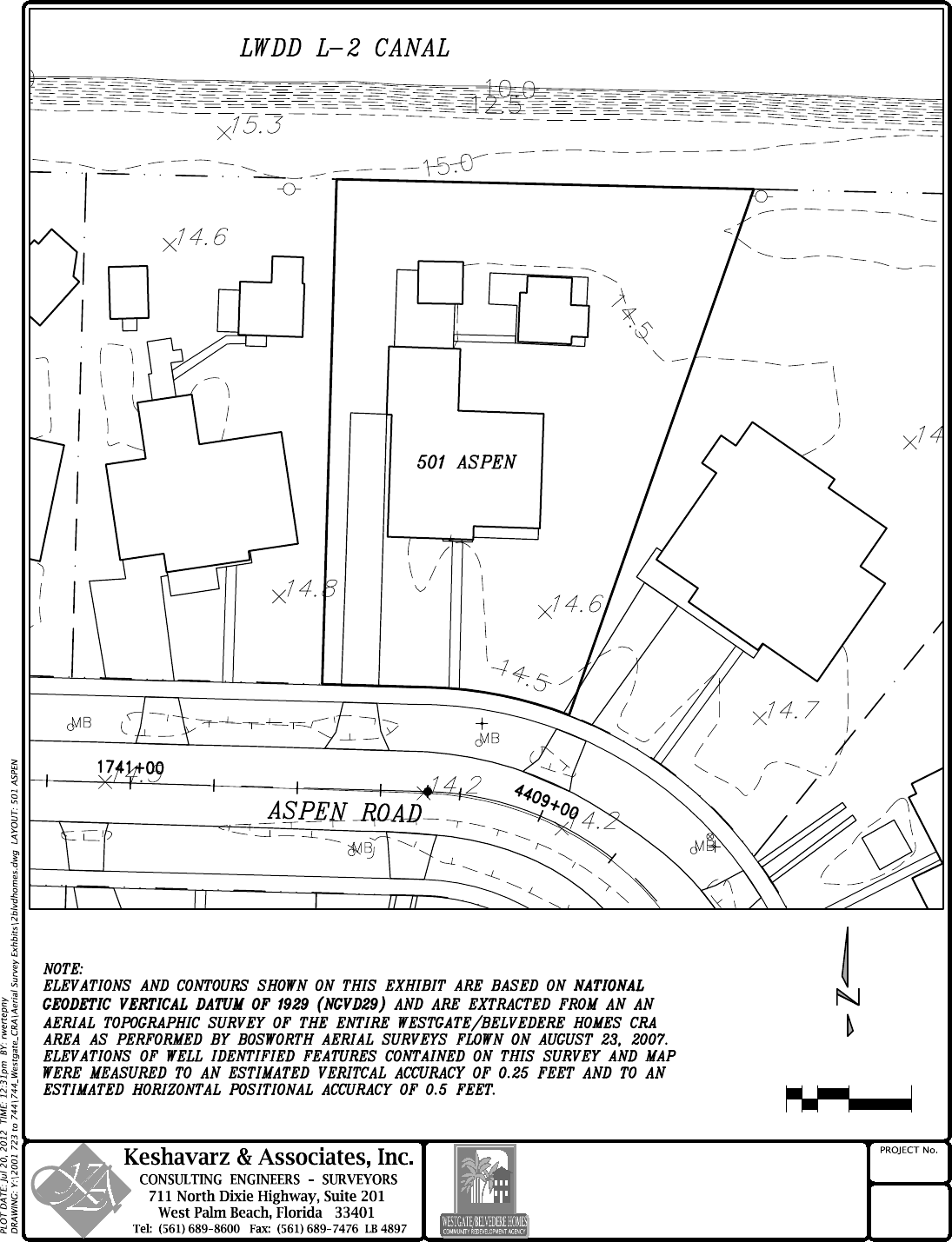
Q17. Please provide the finish floor elevations.
A17. No less than the following:
501 Aspen Road: 15.5’ NGVD
611 Aspen Road: 15.5’ NGVD
440 Cherry Road: 15.5’ NGVD
820 Cherry Road: 16.2’ NGVD
824 Dogwood Road: 16.5’ NGVD
2308 Fairway Drive: 15.5’ NGVD
Q18. Please provide the warranty requirements for this project.
A18. All work is to be warranted by the General Contractor for a period of 1 year from the date of Certificate of Occupancy.
The roof is to be warranted for a minimum of 10 years, manufacturers’ workman and material warranty is acceptable. The
air conditioning system is to be warranted for a minimum of 5 years, appliance warranties as provided by manufacturer
should be no less than one year.
Your bid package must include all items specified on the revised checklist in this document, this Addendum 2 page signed,
Addendum 1 signed, your line item bid and schedule of values using the attached revised documents.
Contractor Signature: _____________________________________________
Contractor Printed Name & Date:_____________________________________

WESTGATE/BELVEDERE HOMES COMMUNITY REDEVELOPMENT AGENCY
NSP2 RRGPINVITATION TO BID FOR RESIDENTIAL CONSTRUCTION
Page 14 of 21
1280 N. Congress Avenue, Suite 215● West Palm Beach, Florida 33409 ● 561.640.8181 ● Fax 561.640.8180
• RETURN ALL PAGES OF THIS BID PROPOSAL TO WCRA
GENERAL CONTRACTOR'S BID PROPOSAL CHECKLIST
* Did you use ink in completing this bid proposal? [ ]Yes
* Did you sign your bid proposal above? [ ]Yes
* Did you complete (fill in blanks, sign, and notarize, etc.) all of the required forms in this bid
document? [ ]Yes
* Did you quote a price for each home? [ ]Yes
* Did you provide a total price for all three homes? [ ]Yes
* Did you provide the names, addresses, telephone numbers and e-mail addresses for three
verifiable references from similar projects (Item 3.A and 3B, page 2-3)? [ ]Yes
* Did you provide the requested document for the general contractor’s key staff (time assignment to
project, knowledge, skills, experience) and include a copy of an active residential, building, or
general contractor’s license (Item 3.C, page 3)? [ ]Yes
* Did you provide requested document for all team members (list of subcontractors, knowledge, skills,
experience) and include applicable licenses and/or certifications (Item 3.D, page 3)? [ ] Yes
* Did you provide the Legal History or Statement of no lawsuits or arbitration as
Required (Item 3.E, page 3)? [ ]Yes
* Did you provide a list of current workload and statement of ability to complete project within in
contract time? (Item 3.F, page 3) [ ]Yes
* Did you provide one (1) electronic copy in .PDF format of the completed bid submission on a
compact disc? (Item 5, page 4) [ ]Yes
* Did you complete and include all Federal Forms including:
Non-collusion Affidavit of Prime Bidder [ ]Yes
Anti- Kick Back Affidavit [ ]Yes
Certification of Eligibility of General Contractor [ ]Yes
Certification of Non-Segregated Facilities [ ]Yes
* Did you provide a letter from bonding agent indicating current unused/uncommitted bonding
capacity of bidder (Item 17, page 9) [ ]Yes
* Did you provide a projected cash flow and spending plan (draw schedule) for this project showing
the ability to meet contracted expenditures requirement? (Item 21, page 10) [ ]Yes
NOTE:
CHECK ITEMS ABOVE ONLY IF REQUESTED DOCUMENTS HAVE BEEN SUBMITTED TO ADDRESS THE
APPLICABLE REQUIREMENTS.
SAMPLE FORMS ARE ATTACHED AS A COURTESY BUT OTHER WRITTEN DOCUMENTS OR FORMATS ARE
ACCEPTABLE AS LONG AS THEY CONTAIN THE REQUESTED INFORMATION IN A CLEAR AND CONCISE
MANNER.
BID SUBMISSIONS WHICH FAIL TO PROVIDE THE REQUESTED ITEMS WILL BE DEEMED UNRESPONSIVE
AND BE DISQUALIFIED.



A completed schedule of values must be provided for each address.
Address:
Description of Work Scheduled Value
Div 1 $
Div 2 $
Div 3 $
Div 4 $
Div 5 $
Div 6 $
Div 7 $
Div 8 $
Div 9 $
Div 10 $
Div 11 $
Div 12 $
Div 13 $
Div 14 $
Div 15 $
Div 16 $
Total $
Schedule of Values





01-744
SHEET
1
AERIAL PHOTOGRAMMETRY
EXHIBIT
440 CHERRY ROAD
15 300
GRAPHIC SCALE

01-744
SHEET
1
AERIAL PHOTOGRAMMETRY
EXHIBIT
501 ASPEN ROAD
15 300
GRAPHIC SCALE

01-744
SHEET
1
AERIAL PHOTOGRAMMETRY
EXHIBIT
611 ASPEN ROAD
15 300
GRAPHIC SCALE

01-744
SHEET
1
AERIAL PHOTOGRAMMETRY
EXHIBIT
820 CHERRY ROAD
15 300
GRAPHIC SCALE

01-744
SHEET
1
AERIAL PHOTOGRAMMETRY
EXHIBIT
824 DOGWOOD ROAD
15 300
GRAPHIC SCALE

01-744
SHEET
1
AERIAL PHOTOGRAMMETRY
EXHIBIT
2308 FAIRWAY DRIVE
15 300
GRAPHIC SCALE