CL10 IOM A 2009 09 15 Manual
User Manual: CL10 manual
Open the PDF directly: View PDF
.
Page Count: 19

Rev. 9/15/09
Installation, Operation & Maintenance Manual
Versymmetric®
Two Post
Surface Mounted Lift
MODEL CL10
10,000 LBS. CAPACITY
2500 LBS. PER ARM
200 Cabel Street, P.O. Box 3944 Louisville, Kentucky 40201-3944
Email:sales@challengerlifts.com Web site:www.challengerlifts.com
Office 800-648-5438 / 502-625-0700 Fax 502-587-1933
IMPORTANT: READ THIS MANUAL COMPLETELY BEFORE
INSTALLING or OPERATING LIFT

Model CL10
Installation, Operation and Maintenance
Page 2
Rev. 9/15/09
CL10-IOM-A.doc
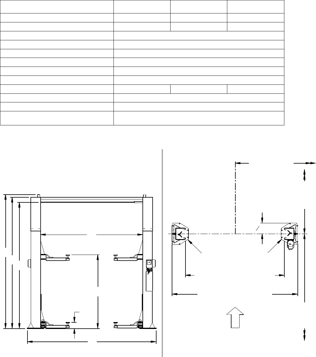
GENERAL SPECIFICATIONS
See Figure 1 CL10 CL10-2 CL10-3
A Column Height 11’- 8” 13’- 8” 14’- 8”
B Floor to Overhead Switch 11’- 2 1/2 ” 13’- 2 1/2” 14’- 2 1/2”
C Rise Height (Screw Pads Highest Position) 75 1/8”
D Cylinder Height (Full Stroke) 11’- 11”
E Adjustable Overall Width 11’- 11” / 11’ – 6 1/2"
F Screw Pad Height 3 7/8” to 7 1/8”
G Inside of Columns 114 1/2” / 110”
Drive Thru Clearance 104 1/2" / 100”
Ceiling Height Required 11’- 11 ” 13’- 9” 14’- 9”
* Maximum Capacity 10,000 lbs. (2500 lbs. Per Arm)
Lifting Time 48 Sec. (approximate)
Motor 2HP, Single Phase, 60Hz, 208/230
Optional – 2HP, Three Phase, 50/60Hz, for 208 or 230 or 460
* Lift capacity ratings are based on loads equally distributed on all four arms.
COLUMN BASE PLATES
144" [12'-0"]
MIN.TO
NEAREST
OBSTRUCTION
1112" REF
(USE AS REFERENCE ONLY)
SEE CHART ABOVE
(INSIDE COLUMN TO COLUMN)
SEE CHART ABOVE
144" [12'-0"]
MIN. TO
NEAREST
OBSTRUCTION
6' TO NEAREST
OBSTRUCTION
OR 7' TO
NEAREST WALL
DRIVE ON
DIRECTION
F
G
C
E
A
D
B
B
D
A
E
C
F
G
144" [12'-0"]
MIN. TO
NEAREST
OBSTRUCTION
(INSIDE COLUMN TO COLUMN)
SEE CHART ABOVE
(USE AS REFERENCE ONLY)
SEE CHART ABOVE
COLUMN BASE PLATES
6' TO NEAREST
OBSTRUCTION
OR 7' TO
NEAREST WALL
1112" REF
DRIVE ON
DIRECTION
144" [12'-0"]
MIN.TO
NEAREST
OBSTRUCTION
B
D
A
E
C
F
G
144" [12'-0"]
MIN. TO
NEAREST
OBSTRUCTION
(INSIDE COLUMN TO COLUMN)
SEE CHART ABOVE
(USE AS REFERENCE ONLY)
SEE CHART ABOVE
COLUMN BASE PLATES
6' TO NEAREST
OBSTRUCTION
OR 7' TO
NEAREST WALL
1112" REF
DRIVE ON
DIRECTION
144" [12'-0"]
MIN.TO
NEAREST
OBSTRUCTION
B
D
A
E
C
F
G
144" [12'-0"]
MIN. TO
NEAREST
OBSTRUCTION
(INSIDE COLUMN TO COLUMN)
SEE CHART ABOVE
(USE AS REFERENCE ONLY)
SEE CHART ABOVE
COLUMN BASE PLATES
6' TO NEAREST
OBSTRUCTION
OR 7' TO
NEAREST WALL
1112" REF
DRIVE ON
DIRECTION
144" [12'-0"]
MIN.TO
NEAREST
OBSTRUCTION
Fig 1a - General Specifications Fig1b - Service Bay Layout

Model CL10
Installation, Operation and Maintenance
Page 3
Rev. 9/15/09
CL10-IOM-A.doc
WARNING
VERTICAL CLEARANCE
Check the height of the area where the lift is to
be installed. Clearance should be calculated
based on the full raised height of the lift.
Failure by purchaser to
provide adequate
clearance could result in
unsatisfactory lift performance, property
damage, or personal injury.
FLOORING
Be certain you have the proper concrete floor to
properly handle the loaded lift. Floor should be in
generally good condition with no large cracks,
spalling or deterioration.
Minimum requirements for concrete are 4
inches minimum depth, with steel
reinforcement, 3500 psi, cured for 28 days per
local commercial practice. Floor should be
level within 3/8 inch over the installation area. No
anchors should be installed within 8 inches of any
crack, edge, or expansion joint. If these
conditions cannot be met, a pad may be poured
to accommodate the lift.
Check with local building inspectors and/or
permits office for any special instructions or
approvals required for your installation.
Failure by purchaser to
provide the recommended
mounting surface could
result in unsatisfactory lift performance,
property damage, or personal injury.
LOCATION
This lift has been evaluated for indoor use only
with an operating ambient temp. range of 5 –
40°C (41– 104°F)
ELECTRICAL REQUIREMENTS
For lift installation and operation for single phase
units, it is necessary to have a dedicated circuit
with a double pole 25 amp circuit breaker or time
delay fuse.
SAFETY NOTICES AND DECALS
For your safety, and the safety of others, read
and understand all of the safety notices and
decals included here.
READ ENTIRE MANUAL BEFORE
ASSEMBLING, INSTALLING,
OPERATING, OR SERVICING THIS
EQUIPMENT.
PROPER MAINTENANCE AND
INSPECTION IS NECESSARY FOR SAFE
OPERATION.
DO NOT OPERATE A DAMAGED LIFT.
Safety decals similar to those shown here are
found on a properly installed lift. Be sure that all
safety decals have been correctly installed on the
Power Unit reservoir. Verify that all authorized
operators know the location of these decals and
fully understand their meaning. Replace worn,
faded, or damaged decals promptly.
Do not attempt to raise a
vehicle on the lift until the
lift has been correctly
installed and adjusted as described in this
manual.
WARNING
WARNING

Model CL10
Installation, Operation and Maintenance
Page 4
Rev. 9/15/09
CL10-IOM-A.doc
RECEIVING
The shipment should be thoroughly inspected as
soon as it is received. The signed bill of lading is
acknowledgement by the carrier of receipt in
good condition of shipment covered by our
invoice.
If any of the goods called for on this bill of lading
are shorted or damaged, do not accept them until
the carrier makes a notation on the freight bill of
the shorted or damaged goods. Do this for your
own protection.
NOTIFY Challenger Lifts AT ONCE if any
hidden loss or damage is discovered after
receipt.
IT IS DIFFICULT TO COLLECT FOR LOSS OR
DAMAGE AFTER YOU HAVE GIVEN THE
CARRIER A CLEAR RECEIPT.
File your claim with Challenger Lifts promptly.
Support your claim with copies of the bill of
lading, freight bill, and photographs, if available.
Component Packing List
PART # QTY/
LIFT DESCRIPTION
A2001-P 1 Power Column Ass’y
A2001-I 1 Idler Column Ass’y
A2060 1 Overhead Beam
A2005H 1 Hardware Box
B2002 1 Arm Pack
A2055-0 Column Extension for CL10
A2055-1 Column Extension for CL10-1
A2055-2
2
Column Extension for CL10-2
A2003-0 Sync Cable Pack for CL10
A2003-1 Sync Cable Pack for CL10-1
A2003-2
1
Sync Cable Pack for CL10-2
A2055 - * 2 Column Extensions
A2003 - * 1 Sync Cable Pack
36035 1 Overhead Shut-Off Bar Ass’y
36027 1 Mercury Switch
A1201-17
A1203-17 1 Power Unit – 1 Phase
Power Unit – 3 Phase
A2150 1 Literature Pack
INSTALLATION
IMPORTANT: Always wear safety glasses while installing lift.
TOOLS (MINIMUM REQUIRED)
a. Tape measure, 16ft
b. Chalk line
c. 4ft level
d. 10” adjustable wrench
e. Standard open end wrenches 7/16”, 1/2",
(2) 9/16”, (2) 11/16”, 3/4", 15/16”
f. 5/16” allen wrench
g. Needle nose pliers
h. Hammer drill with 3/4” diameter carbide
tipped bits
i. 2lb hammer
j. Torque wrench: 150 foot pounds minimum
with 1 1/8” socket
k. 12 ft. Step ladder
l. Anti-Seize lubricant (for arm pins and foot
pad screw threads and stop rings)
LAYOUT
1) Layout the service bay according to the
architect’s plans or owners instructions (see
Fig 1b). Failure to install in this
orientation can result in personal and
property damage. Be certain that the
proper conditions exist, see page 3.
2) Assemble column extension to column using
3/8-16 x 3/4" lg Hex flange head bolt. Repeat
for opposite column and extension.
3) Erect both column assemblies. Align the
notches in column base, with the installation
lines.
LOCKING PAWL
FOR LIFTS WITH OPTIONAL DUAL PENDANT
CONTROL, REFER INSTALLATION OF THE
LOCKING PAWL AND LOCK RELEASE CABLE TO
THE “DUAL PENDANT CONTROL INSTALLATION
& OPERATION MANUAL SUPPLEMENT”.
Fig 2 – Locking Pawl Assembly

Model CL10
Installation, Operation and Maintenance
Page 5
Rev. 9/15/09
CL10-IOM-A.doc
4) Install Power Column locking pawl and lock
release clevis with 5/8” diameter x 1 1/2” lg
shoulder bolt and 1/2”-13 nylon lock nut,
Fig. 2. Attach 3/8” O.D. extension spring to
upper hole in locking pawl and other end to
hole in bracket welded to column.
5) Attach ½” O.D. extension spring to hole
located on bottom side of Idler Column lock
pawl and install using 5/8” shoulder bolt and
lock nut, Fig 2. Attach 3/8” O.D. spring the
same as Power side.
ANCHORING
6) The anchor bolts must be installed at least 8”
from any crack, edge, or expansion joint.
7) Use a concrete hammer drill with a 3/4 inch
carbide bit. Tip diameter should conform to
ANSI Standard B94.12-1977 (.775 to .787).
Do not use excessively worn bits or bits
which have been incorrectly sharpened. A
core bit may be necessary if an obstruction is
encountered. Never substitute with shorter
anchor.
8) Recheck “Inside of Columns” dimension,
Fig 1. Drill the anchor holes using the base
plate as a template. Drill through the floor if
possible or to a depth of 5 inches minimum.
Complete steps 8 thru 11 for the five (5)
exposed anchors around each column, then
raise the carriages. Repeat steps 8 thru 11 for
the two (2) anchors under each carriage.
9) Vacuum dust from the hole for proper holding
power.
10) Shim both columns to plumb using the shims
provided as shown in Fig 3. DO NOT shim
more than 1/2" at any given point. Use a level
no less than 24” in length to plumb columns.
11) Assemble washer and nut to anchor with nut
just below impact section of bolt. Drive
anchor into hole until nut and washer contact
base.
Fig 3 – Column Shimming
12) Tighten power column anchors and recheck
column for plumb. Reshim if necessary.
Torque to 150 foot pounds to set anchors.
OVERHEAD
13) Before raising overhead into position install 4
each (2 per column) hex flange bolts and
nuts in middle hole of column extension (see
Fig 4 Installation Aid) for temporary support of
overhead. Lift overhead assembly up into
position and install with 8 each (4 per
column) 3/8-16 x 3/4” lg hex flange bolts and
hex flange nuts per side as shown in Fig 4.
Fig 4 – Overhead Assembly
14) Check idler column shimming. Use additional
shims (see Fig. 3) to remove any gaps that
may have been created while installing
overhead beam. Tighten anchor bolts and re-
check column for plumb. Torque to 150 foot
pounds.
15) Install Overhead Limit Switch to REAR of
Power Column using (1) 3/8” pivot pin, (1)
3/8” flat washer and (1) hairpin cotter pin as
shown below. Switch MUST pivot freely on
pin for proper function. NOTE switch tube
cord is to be oriented above pivot pin as
shown in Fig 4a. Leave switch cord hanging
at this time.
Fig 4a – Overhead Limit Switch Sub-Assembly

Model CL10
Installation, Operation and Maintenance
Page 6
Rev. 9/15/09
CL10-IOM-A.doc
PIVOT HOLE FOR
11'-11"
OVER ALL WIDTH
OVER ALL WIDTH
11'-6 1/2"
PIVOT HOLE FOR
(6) 3/8" FLAT WASHERS
(6) 3/8" FLAT WASHERS
(6) 3/8" FLAT WASHERS
(6) 3/8" FLAT WASHERS
HAIRPIN COTTER PIN
HAIRPIN COTTER PIN
HAIRPIN COTTER PIN
HAIRPIN COTTER PIN
Fig 4b – Overhead Limit Switch Sub-Assembly
IMPORTANT: There are two overall width
settings. Insure to place the limit switch and
shutoff bar in the proper pivot holes as shown in
Fig’s 4a & 4b.
16) Repeat procedure 12 for shut-off bar. Insert
shut-off bar in switch tube on power column
side and take other end to idler side. Attach
shut-off bar to idler column in same manner
as switch tube.
Insure that both switch tube and shut-off
assemblies pivot freely for proper
operation.
17) Assemble the sheaves and spacers onto the
sheave pin as shown in Fig 5. Set in cradle
with all assembly parts between the two
plates.
Fig 5 – Sheave Assembly
SYNCHRONIZER CABLES
18) Attach one end of synchronizing cable to
carriage with the supplied nut and jam nut.
See Fig 6a & 6b for proper attachment.
NOTE: At each sheave location disassemble and
reassemble the cable trapping bolt to install the
cable onto the sheave.
19) Route cable up and over sheave in
overhead. Follow across to other sheave on
opposite column. Route down through
carriage to sheave in bottom of column.
Route under sheave and up to cable
attachment. Use Fig 6a for proper
attachment.
20) Repeat for opposite side.
21) Manually raise the carriages to a common
lock position, to gain access to the
cable-tie-off tabs located on the carriage
ladder.
Insure that the top of the hydraulic
cylinder is out of the way but still retained
in the opening of the top plate of the
carriage as shown in Fig 6a.
Failure to follow previous
step could result in
personal injury.
IMPORTANT:
4 1/2" lg STAND-OFF
FOR 11'- 6 1/2" WIDTH
SETTING ONLY
IMPORTANT:
4 1/2" lg STAND-OFF
FOR 11'- 6 1/2" WIDTH
SETTING ONLY
IMPORTANT:
4 1/2" lg STAND-OFF
FOR 11'- 6 1/2" WIDTH
SETTING ONLY
IMPORTANT:
4 1/2" lg STAND-OFF
FOR 11'- 6 1/2" WIDTH
SETTING ONLY
Fig 6a – Cable Assembly
IMPORTANT:
Stand-Offs to be used only on the 11’– 6 ½”
Overall Width Setting.
Fig 6b – Jam Nut
C A U T I O N

Model CL10
Installation, Operation and Maintenance
Page 7
Rev. 9/15/09
CL10-IOM-A.doc
POWER UNIT & HYDRAULIC HOSES
POWER UNIT HOSE
'O' RING ELBOW
Fig 7 – Power Unit Mounting
IMPORTANT – To insure proper hose fitting
seal without damage to the fitting follow this
procedure for each hose connection: Screw
flared fitting on finger tight. Rotate flared fitting 1
1/2 hex flats (90 deg.). Back the flared fitting off
one full turn. Again tighten flared fitting finger
tight, then rotate flared fitting 1 1/2 hex flats (90
deg.).
22) Mount Power Unit to power column as shown
in Fig 7. The mounting hardware, (4)
5/16”-18 hex nuts, are pre-installed on power
unit mounting bracket.
23) Uncoil Idler side hose and route through the
Idler Side column extension as shown in Fig
8a. taking care to avoid the synchronizing
cables and hydraulic cylinder path. Remove
slack and tighten all 3 clamps. Route hose
across overhead avoiding the synchronizing
cables and down through the Power Side
column extension as seen in Fig 8b. Do Not
Tighten Clamps at this time.
Fig 8a – Hose Routing,
Idler Side Column Ext.
Fig 8b – Hose Routing,
Power Side Column Ext.
24) Loosely attach power column hose and idler
column hose using the tee fitting (in hardware
box) Attach Power Unit Hose to power side
column extension as seen in Fig 9a.
Connect Power unit hose to tee from Fig 8b
and remove slack from power column hose.
Tighten loose fittings and clamps from
previous step. Serpentine any extra hose
length in overhead.
Fig 9 – Power Unit Hose
25) Thread 9/16-18 O-ring elbow (in hardware box)
into power unit. Attach free end of power unit
hose to elbow. See Fig 7. CAUTION do not
damage rubber O-ring.
26) BE CERTAIN ALL FITTINGS AND CONNECTIONS
ARE TIGHT. IT IS THE INSTALLERS
RESPONSIBILITY TO INSURE SYSTEM IS LEAK-
FREE. Fill the Power Unit with three gallons of
clean 10wt anti-foam anti-rust hydraulic oil or
Dexron III ATF. DO NOT USE OILS WITH
DETERGENTS.

Model CL10
Installation, Operation and Maintenance
Page 8
Rev. 9/15/09
CL10-IOM-A.doc
LOCK RELEASE
27) Attach Mechanical Lock Release Cable
Assembly to Power Column Lock Release
Clevis using the 3/16” diameter x 1/2" long
pin and (2) “C” clip retainers, Fig 10.
28) Insert threaded sleeve portion of cable
assembly in slot located on tab above locking
pawl, Fig 10. One jam nut should be located
on each side of tab. Position threaded sleeve
with ½” of thread below tab as indicated in
Fig 10 and tighten jam nuts.
Fig 10 – Power Column Lock Assembly
29) Route opposite end of cable assembly up
Power Column and into column through
access slot in bottom of Column Extension.
Following the path of the hydraulic line, route
cable assembly across overhead clear of
moving parts and back out through access
slot in bottom of idler side column extension.
Attach Cable Assembly to the hydraulic hose
with loosely fit wire ties.
NOTE: DO NOT kink cable assembly when
routing. Tighten and trim wire ties after final cable
adjustments have been made
30) Attach Adhesive-Backed Tab to Idler Column
left of the lock assembly (Fig 11). Route
Lock Release Cable down left side of Idler
Column and secure with loosely fit wire tie to
Adhesive-Backed Tab. Attach Cable clevis to
1/2" O.D. Extension Spring.
CABLE CLEVIS
1/2" O.D. EXT.
SPRING
EXTEND LOOP WHEN
INSTALLING AT NARROW
OR LOWERED SETTING
EXTEND LOOP WHEN
INSTALLING AT NARROW
OR LOWERED SETTING
1/2" O.D. EXT.
SPRING
CABLE CLEVIS
EXTEND LOOP WHEN
INSTALLING AT NARROW
OR LOWERED SETTING
1/2" O.D. EXT.
SPRING
CABLE CLEVIS
EXTEND LOOP WHEN
INSTALLING AT NARROW
OR LOWERED SETTING
1/2" O.D. EXT.
SPRING
CABLE CLEVIS
Fig 11 – Idler Column Lock Assembly
31) Insert threaded sleeve portion of cable
assembly in slot located on tab below lock
pawl, Fig 11. With one jam nut located on
each side of tab, adjust the threaded sleeve
to begin to pull tension on the ½” O.D. spring.
Snug jam nuts by hand.
THE LOCK RELEASE CABLE ADJUSTMENT IS NOT
COMPLETE UNTIL THE LIFT HAS BEEN LOWERED AND
“FINAL ADJUSTMENTS” HAVE BEEN MADE.
ARM INSTALLATION
32) Lubricate the arm pin or carriage arm pin
hole with “anti-seize” and install the arms.
Insure that the arm restraint gears engage
and disengage properly. Arm restraints
should disengage when lift is fully lowered. If
any binding occurs, insure that the large gear
mounted to the arm has been factory
installed tight against the arm pin.
33) Extend the foot pad to both extents and apply
“anti-seize” to the three retaining rings and
where the double screw makes contact with
the base of the foot pad.
ELECTRICAL
34) Wire tie Limit Switch cord to column
extension hydraulic line and power unit line.
35) Connect the Overhead Limit Switch Cord to
Power Unit as shown in Fig 12.
36) Connect Power Unit to suitable electrical
source as shown in Fig 12.
37) IMPORTANT: AFTER WIRING HAS BEEN
COMPLETED, TEST OPERATION OF POWER UNIT
& OVERHEAD LIMIT SWITCH. WHILE RAISING
LIFT, OPERATE OVERHEAD SHUTOFF BAR.
POWER UNIT MOTOR SHOULD STOP WHEN
SHUTOFF BAR IS RAISED.

Model CL10
Installation, Operation and Maintenance
Page 9
Rev. 9/15/09
CL10-IOM-A.doc
FINAL ADJUSTMENTS
HYDRAULICS
38) Lower the lift to the floor and raise the lift
approximately one foot.
39) Start with Idler side first. Slowly and carefully
loosen the bleed plug on top of the cylinder
just enough to allow the entrapped air to
escape. Repeat for power side.
40) Raise lift 6 inches. Repeat step 38 until no air
comes out of cylinder.
41) Pressure test hydraulic system. Energize
power unit, raise lift to full rise and continue
to run motor for additional 10 seconds.
(NOTE: pressure relief will make a high pitch
squeal sound for these 10 seconds.) Check
hydraulic system for leaks.
42) Energize power unit again for 10 seconds.
With a clean rag, wipe down both cylinder
rods. (The cylinders are shipped with a small
amount of clear anti-corosive lubricant that
will be forced out through the wiper when the
lift reaches full rise.) If lubricant is not
wiped clean from the cylinder rod, the
cylinder will apear to be leaking.
SYNCHRONIZING CABLES
43) Raise lift and insure carriages lower into
same lock position.
44) Adjust synchronizing cables so the tension is
equal in both cables and carriages are firmly
sitting on locks.
45) Cycle lift to insure that latches operate
simultaneously.
LOCK RELEASE CABLE
46) Lower lift to the floor and snap plastic cover
over Power Column lock assembly.
47) Pull and release Power Column lock release
handle while watching Idler Column lock.
Adjust lower threaded sleeve cable adjuster
jam nuts on Idler Column until Idler Column
lock disengages and engages fully. When
properly adjusted, the idler column lock
should just come to rest against the back of
the column when engaged and fully out
against the tab when disengaged. Tighten
Idler Column lower tab jam nuts.
IMPORTANT: IF IDLER SIDE LOCK PAWL DOES NOT
FULLY DISENGAGE, DAMAGE MAY RESULT TO IDLER
SIDE CARRIAGE AND OR CABLE SYNCHRONIZING
SYSTEM.
48) Tighten threaded sleeve cable adjuster jam
nuts and install lock release knob.
49) Tighten and trim wire ties.
50) Snap plastic cover over Idler lock assembly
(align release cable with notches in cover).
OWNER/OPERATOR CHECKLIST
51) Demonstrate the operation of the lift to the
owner/operator and review correct and safe
lifting procedures using the Lifting It Right
booklet as a guide.
52) Complete the Installation Checklist/Warranty
Validation questionnaire with the owner.
Review the terms of the warranty registration
card, and return the card and a copy of the
questionnaires to:
Challenger Lifts, Inc.
200 Cabel Street
Louisville, KY. 40206

Model CL10
Installation, Operation and Maintenance
Page 10
Rev. 9/15/09
CL10-IOM-A.doc
1
5
4
6
(Normally Open) M
Wiring Diagram
A2A1
T9
T5
T4
T6
M
T8
T3
T7
T2
T1
12
34
56
L3
L2
L1
T3
T2
T1
FOR SINGLE PHASE
FACTORY WIRED FOR
208−240V
6
4
2
5
3
1
RECONNECTIONS FOR
440−480V
T3
T2
T1
T9
T6
T7
T4
T8
T5
FOR THREE PHASE
M
FIELD
CONECTIONS
Fig 12 – Electrical Wiring Diagram

Model CL10
Installation, Operation and Maintenance
Page 11
Rev. 9/15/09
CL10-IOM-A.doc
OPERATION PROCEDURE
SAFETY NOTICES AND DECALS
This product is furnished with graphic safety
warning labels, which are reproduced on
page 3 of these instructions. Do not remove
or deface these warning labels, or allow them
to be removed or defaced. For your safety,
and the safety of others, read and understand
all of the safety notices and decals included.
OWNER/EMPLOYER RESPONSIBILITIES
This lift has been designed and constructed according
to ANSI/ALI ALCTV-2006 standard. The standard
applies to lift manufactures, as well as to owners and
employers. The owner/employer’s responsibilities as
prescribed by ANSI/ALI ALOIM-2000, are summarized
below. For exact wording refer to the actual standard
provided with this manual in the literature pack.
The Owner/Employer shall insure that lift
operators are qualified and that they are trained
in the safe use and operation of the lift using the
manufacturer’s operating instructions; ALI/SM
93 -1, ALI Lifting it Right safety manual; ALI/ST-
90 ALI Safety Tips card; ANSI/ALI ALOIM-2000,
American National Standard for Automotive Lifts-
Safety Requirements for Operation, Inspection
and Maintenance; ALI/WL Series, ALI Uniform
Warning Label Decals/Placards; and in case of
frame engaging lifts, ALI/LP-GUIDE, Vehicle
Lifting Points/Quick Reference Guide for Frame
Engaging Lifts.
The Owner/Employer shall establish
procedures to periodically inspect the lift in
accordance with the lift manufacturer’s
instructions or ANSI/ALI ALOIM-2000, American
National Standard for Automotive Lifts-Safety
Requirements for Operation, Inspection and
Maintenance; and the employer shall insure that
the lift inspectors are qualified and that they are
adequately trained in the inspection of the lift.
The Owner/Employer shall establish
procedures to periodically maintain the lift in
accordance with the lift manufacturer’s
instructions or ANSI/ALIOIM-2000, American
National Standard for Automotive Lifts-Safety
Requirements for Operation, Inspection and
Maintenance; and the employer shall insure that
the lift maintenance personnel are qualified and
that they are adequately trained in the
maintenance of the lift.
The Owner/Employer shall maintain the
periodic inspection and maintenance records
recommended by the manufacturer or ANSI/ALI
ALOIM-2000, American National Standard for
Automotive Lifts-Safety Requirements for
Operation, Inspection and Maintenance.
The Owner/Employer shall display the lift
manufacturer’s operating instructions; ALI/SM
93 -1, ALI Lifting it Right safety manual; ALI/ST-
90 ALI Safety Tips card; ANSI/ALI ALOIM-2000,
American National Standard for Automotive Lifts-
Safety Requirements for Operation, Inspection
and Maintenance; and in the case of frame
engaging lift, ALI/LP-GUIDE, Vehicle Lifting
Points/Quick Reference Guide for Frame
Engaging Lifts; in a conspicuous location in the
lift area convenient to the operator.
IMPORTANT SAFETY INSTRUCTIONS
When using your garage equipment, basic safety
precautions should always be followed, including
the following:
1. Read all instructions.
2. Care must be taken as burns can occur
from touching hot parts.
3. To reduce the risk of fire, do not operate
equipment in the vicinity of open containers
of flammable liquids (gasoline).
4. Keep hair, loose clothing, fingers, and all
parts of body away from moving parts.
5. Use only as described in this manual. Use
only manufacturer’s recommended
attachments.
6. ALWAYS WEAR SAFETY GLASSES.
Everyday eyeglasses only have impact
resistant lenses, they are not safety glasses.
SAVE THESE INSTRUCTIONS
Model CL10
Installation, Operation and Maintenance
Page 12
Rev. 9/15/09
CL10-IOM-A.doc
LIFTING A VEHICLE
1) Insure that the lifting arms are parked, out to
full drive thru position.
2) Center the vehicle between the columns in the
service bay and position the vehicle’s center
of gravity midpoint between the columns.
NOTE: the center of gravity is based on the
weight distribution and is not the same as the
center point of the vehicle.
DO NOT EXCEED 2500 POUNDS PER ARM.
DO NOT ATTEMPT TO LIFT THE VEHICLE WITH ONLY
TWO ARMS, AS THIS WILL VOID THE WARRANTY
INSURE THAT THE HIGHEST POINT ON THE VEHICLE
WILL CONTACT THE OVERHEAD LIMIT SWITCH BAR.
DO NOT PLACE THE VEHICLE IN THE SERVICE BAY
BACKWARDS.
REFER TO THE VEHICLE MANUFACTURERS SERVICE
MANUAL, TECHNICAL BULLETINS, “VEHICLE LIFTING
POINTS GUIDE” (ALI/LP-GUIDE) OR OTHER
PUBLICATIONS TO LOCATE THE RECOMMENDED
LIFTING POINTS.
3) Position the arms and adapters so all four
pads contact the vehicle simultaneously.
The vehicle should remain level during lifting.
4) Raise the lift until all four wheels are off the
ground. Test the stability of the vehicle by
attempting to rock the vehicle. Check adapters
for secure contact with vehicle lift points. If the
vehicle seems unstable, lower the lift and
readjust the arms. If the vehicle is stable,
raise the vehicle to a height a few inches
above the desired working height.
5) Lower the vehicle until the safety latches on
both columns engage. The vehicle should
remain level when both latches are engaged.
If one side engages and the other continues to
descend, stop lowering the vehicle, raise it
several inches, and try again to engage both
latches.
Always lower lift into locks before entering
the area beneath the vehicle.
Always use safety stands when removing or
installing heavy components.
LOWERING A VEHICLE
1) Insure that the area under the vehicle is clear
of personnel and tools.
2) Raise the vehicle until both latches are free.
3) Disengage the latches by pulling down and
holding the lock release lever.
4) Lower the vehicle by depressing the lowering
valve handle.
5) Continue to lower the vehicle until the
carriages stop against the base plate. Retract
the extension arms, and park them.
MAINTENANCE
To avoid personal injury, permit only qualified
personnel to perform maintenance on this
equipment. Maintenance personnel should follow
lockout/tagout instructions per ANSI Z244.1.
The following maintenance points are suggested
as the basis of a routine maintenance program.
The actual maintenance program should be
tailored to the installation. See ANSI/ALI ALOIM
booklet for periodic inspection checklist and
maintenance log sheet.
• If lift stops short of full rise or chatters, check
fluid level and bleed both cylinders per
Installation Instructions.
• Replace all Safety, Warning or Caution Labels
if missing or damaged (See Installation
instructions page 3.)
Daily
• Keep lift components clean.
• Check for loose or broken parts.
• Check hydraulic system for fluid leaks.
• Check adapters for damage or excessive wear.
Replace as required with genuine Challenger
Lifts parts.
• Check lock release activation. When properly
adjusted, the idler column lock should rest
firmly against the back of the column when
engaged and against the spring mount tab
when disengaged.
Weekly
• Check synchronizer cables and sheaves for
wear. Replace as required with genuine
Challenger Lifts parts.
• Check lock release cable adjustment per
Installation Instructions step 42.
IMPORTANT: IF IDLER SIDE LOCK PAWL DOES
NOT FULLY DISENGAGE, DAMAGE MAY RESULT
TO IDLER SIDE CARRIAGE AND OR CABLE
SYNCHRONIZING SYSTEM.
• Check synchronizer cable tension per
Installation Instructions. Adjust if necessary.
Monthly
• Torque concrete anchor bolts to 80 ft-lbs.
• Check overhead shutoff switch. While raising
lift, operate overhead shutoff bar. Power Unit
motor should stop when bar is raised.
• Lubricate carriage slide tracks with heavy
viscous grease. (Grease all (4) corners of both
columns.)
• Visually inspect concrete floor for cracks and/or
spalls within 12” of base plate
If any problems are encountered, contact
your local service representative.

Model CL10
Installation, Operation and Maintenance
Page 13
Rev. 9/15/09
CL10-IOM-A.doc
PARTS BREAKDOWN
Fig A. Column & Overhead
ITEM #
PART # QTY/LIFT
DESCRIPTION
A2010-P 1 POWER COLUMN WELD
1
A2010-I 1 IDLER COLUMN WELD
A2055-57-0 COLUMN EXTENSION WELD - CL10
A2055-57-2 COLUMN EXTENSION WELD - CL10-2
2
A2055-57-3
2
COLUMN EXTENSION WELD - CL10-3
3
A2060 1 OVERHEAD CHANNEL
4 36074 1 SHUTOFF BAR
5 31129 1 PAD
6 36027 1 OVERHEAD LIMIT SWITCH
7 A1064 2 3/8 DIA x 1 7/8 Lg. CLEVIS PIN (SHUTOFF BAR)
8 40124 2 HAIRPIN COTTER PIN
9 31036 7 3/8" FLAT WASHER
10
A1153 24 3/8-16NC HEX.FLG.HD.C.S X 3/4" Lg.
11
A1154 32 3/8-16NC HEX.FLG.NUT
12
A2159 4 3/8-16NC x 3”Lg HEX HEAD C.S. Gr.5
Replace all worn or broken parts with genuine Challenger Lifts Inc. parts.
Contact your local Challenger Lifts Parts Distributor for pricing and availability.
(Call Challenger Lifts Inc. (502) 625-0700 for the Parts Distributor in your area)

Model CL10
Installation, Operation and Maintenance
Page 14
Rev. 9/15/09
CL10-IOM-A.doc
PARTS BREAKDOWN (continued)
Fig B. Lock
FOR LIFTS EQUIPPED WITH
DUAL PENDANT CONTROL
REFER TO SEPERATE
"DUAL PENDANT CONTROL
MANUAL SUPPLEMENT"
FOR LIFTS EQUIPPED WITH
DUAL PENDANT CONTROL
REFER TO SEPERATE
"DUAL PENDANT CONTROL
MANUAL SUPPLEMENT"
FOR LIFTS EQUIPPED WITH
DUAL PENDANT CONTROL
REFER TO SEPERATE
"DUAL PENDANT CONTROL
MANUAL SUPPLEMENT"
FOR LIFTS EQUIPPED WITH
DUAL PENDANT CONTROL
REFER TO SEPERATE
"DUAL PENDANT CONTROL
MANUAL SUPPLEMENT"
ITEM #
PART # QTY/LIFT
DESCRIPTION
A2135-0 LOCK RELEASE CABLE ASSEMBLY - CL10
A2135-2 LOCK RELEASE CABLE ASSEMBLY - CL10-2
20
A2135-3
1
LOCK RELEASE CABLE ASSEMBLY - CL10-3
21 A1140 2 LOCK PAWL
22 A1133 2 LOCK COVER
23 30020 2 LOCK PIN (5/8 x 1 1/2" Lg. SHOULDER BOLT)
24 37013 2 LOCK PIN RETAINER (1/2-13NC HEX LOCK NUT)
25 37119 1 CLEVIS PIN KIT
26 A1131 2 LOCK SPRING (3/8" O.D.)
27 A1132 1 CABLE SPRING (1/2" O.D.) – Idler side ONLY
28 A1141 1 LOCK RELEASE CLEVIS ASSEMBLY – Power side ONLY
29 36096 1 BALL HANDLE – Power side ONLY
Replace all worn or broken parts with genuine Challenger Lifts Inc. parts.
Contact your local Challenger Lifts Parts Distributor for pricing and availability.
(Call Challenger Lifts Inc. (502) 625-0700 for the Parts Distributor in your area)

Model CL10
Installation, Operation and Maintenance
Page 15
Rev. 9/15/09
CL10-IOM-A.doc
PARTS BREAKDOWN (continued)
Fig C. Hydraulics
ITEM #
PART # QTY/LIFT
DESCRIPTION
A1201-17 POWER UNIT 1ph, 60 Hz, 208-230V
35 A1203-17 1 POWER UNIT 3ph, 60 Hz, 208-230/460V
36 16138 2 CYLINDER (68" STROKE x 2" BORE)
37 A2128 2 45 Degree ELBOW
38 A2127-I 1 IDLER HOSE
39 A1122-12 7 3/8” HOSE CLAMP
40 A1153 5 3/8-16 x ¾ HEX FLANGE HEAD BOLT
41 A1154 5 3/8-16 HEX FLANGE NUT
42 39103 1 37 Degree UNION TEE
43 A2127-57P
1 POWER HOSE
44 31025 1 3/8” LINE CLAMP
45 A2125 1 ¼-20 x ¾ HEX FLANGE HEAD BOLT
46 40085 1 ¼-20 HEX FLANGE NUT
47 A2127-PU 1 POWER UNIT HOSE
48 16167 1 9/16-18 STRAIGHT THREAD ELBOW
Replace all worn or broken parts with genuine Challenger Lifts Inc. parts.
Contact your local Challenger Lifts Parts Distributor for pricing and availability.
(Call Challenger Lifts Inc. (502) 625-0700 for the Parts Distributor in your area)

Model CL10
Installation, Operation and Maintenance
Page 16
Rev. 9/15/09
CL10-IOM-A.doc
PARTS BREAKDOWN (continued)
Fig D. Synchronizer
ITEM #
PART # QTY/LIFT
DESCRIPTION
A2115-0 SYNCHRONIZER CABLE - CL10
A2115-2 SYNCHRONIZER CABLE - CL10-2
50
A2115-3
2
SYNCHRONIZER CABLE - CL10-3
51 A2116 4 5/8-11NC HEX NUT
52 A2117 4 5/8-11NC HEX JAM NUT
53 A2118 2 CABLE SPACER (4 1/2" LONG)
54 36025 6 SHEAVE ASSEMBLY (5" DIA. X 5/16" GROOVE)
55 36024 2 SHEAVE PIN
A1063-S SHORT SHEAVE SPACER (LINE)
56
A2063-S 4
SHORT SHEAVE SPACER (HOSE)
A1063-L10
LONG SHEAVE SPACER (LINE)
57
A2063-L 2
LONG SHEAVE SPACER (HOSE)
58 36013 10 1" I.D. SPACER WASHER
59 36014 2 1" EXT. RETAINING RING
60 A1153 2 3/8-16 x 3/4" LOCK. HEX FLG. HEAD, C.S
61 A2158 2 1/4 DIA. x 1 3/4" Lg CLEVIS PIN
Replace all worn or broken parts with genuine Challenger Lifts Inc. parts.
Contact your local Challenger Lifts Parts Distributor for pricing and availability.
(Call Challenger Lifts Inc. (502) 625-0700 for the Parts Distributor in your area)

Model CL10
Installation, Operation and Maintenance
Page 17
Rev. 9/15/09
CL10-IOM-A.doc
Fig E. Carriage & 2-Stage Arms
ITEM #
PART # QTY/LIFT
DESCRIPTION
70 B2026-57 2 CARRIAGE WELD (57” LADDER)
71 31023 16 SLIDE BLOCK
72 A1078 4 ARM PIN WELD
73 B2091 2 REAR FEMALE ARM WELD
B1094-R10 2 MALE ARM WELD (REAR)
74 B1094U-R10 2 OPTIONAL MALE ARM WELD (REAR), ROUND STACK PAD MODELS
75 B1104 4 FOOT PAD RUBBER INSERT
76 B1101 4 FOOT PAD WELD
77 B31061 8 M6 KEPS NUT
78 39111 4 FOOT PAD RETAINER RING
B2086-P 1 FRONT FEMALE ARM WELD (POWER)
79 B2086-I 1 FRONT FEMALE ARM WELD (IDLER)
B1094-F 2 MALE ARM WELD (FRONT)
80 B1094U-F 2 OPTIONAL MALE ARM WELD (FRONT), ROUND STACK PAD MODELS
81 B1081 8 M8x1.25 x 16 Flat Socket Head Screw
82 B1082 4 Arm Stop
83 A1070 4 INNER GEAR
84 B1068 8 M10x1.5x25 Hex Flange head Screw
85 A1075 4 PULL RING
86 A1073 4 SHAFT
87 31109 4 COMPRESSION SPRING (RESTRAINT SHAFT)
88 A1072 4 OUTER GEAR
89 36014 4 1" EXT. RETAINING RING
90 B1068 4 M10 x 25mm HEX HEAD BOLT
91 B2026-2 2 RUBBER DOOR GUARD
92 A2101 4 M8 WASHER
93 A2102 4 M8x1.25 x 30mm Lg. SOCKET HEAD BOLT
B2090 2 REAR ARM ASSY (ITEMS NO: 73, 74, 81, 82)
B2085-P 1 FRONT ARM ASSY (POWER) (ITEMS NO: 79, 80, 81, 82)
B2085-I 1 FRONT ARM ASSY (IDLER) (ITEMS NO: 79, 80, 81, 82)
B1100 4 FOOT PAD ASSY (ITEMS NO: 75, 76, 77)
A1077 4 ARM RESTRAINT SHAFT ASSY (ITEMS NO: 85, 86, 87, 88, 89)
Replace all worn or broken parts with genuine Challenger Lifts Inc. parts.
Contact your local Challenger Lifts Parts Distributor for pricing and availability.
(Call Challenger Lifts Inc. (502) 625-0700 for the Parts Distributor in your area)

Model CL10
Installation, Operation and Maintenance
Page 18
Rev. 9/15/09
CL10-IOM-A.doc
Fig G. Carriage & 3-Stage Arms
ITEM #
PART # QTY/LIFT
DESCRIPTION
B2210-P 1 FRONT FEMALE ARM WELD (POWER)
100 B2210-I 1 FRONT FEMALE ARM WELD (IDLER)
101 B17252R 2 FRONT INTERMEDIATE ARM WELD
102 B2218 2 FRONT MALE ARM WELD
103
B2220 2 REAR FEMALE ARM WELD
104
B2230 2 REAR INTERMEDIATE ARM WELD
105
B2235 2 REAR MALE ARM WELD
106
B17258 8 M10 STOP SCREW
107
B2250 4 FOOT PAD ASSEMBLY (items 108-113)
108
B2208 4 RUBBER INSERT
109
B2205 4 FOOT PAD WELD
110
B17256 4 2 x 30mm ROUND WIRE RETAINING RING
111
B17254 4 THREADED SLEEVE
112
B17257 8 3 x 45mm ROUND WIRE RETAINING RING
113
B17276-1 4 THREADED INSERT
114
B2211 4 ROLL PIN, 6mm DIA x 30mm Lg
115
CS1020-01-09 AS NEEDED 10mm FLAT WASHER, 1mm THICK
B2202 1 ARM PACK, CL10, 3-STAGE
B2203U-P 1 FRONT ARM ASSEMBLY (POWER)
B2203U-I 1 FRONT ARM ASSEMBLY (IDLER)
B2204U 2 REAR ARM ASSY.
Replace all worn or broken parts with genuine Challenger Lifts Inc. parts.
Contact your local Challenger Lifts Parts Distributor for pricing and availability.
(Call Challenger Lifts Inc. (502) 625-0700 for the Parts Distributor in your area)
Model CL10
Installation, Operation and Maintenance
Page 19
Rev. 9/15/09
CL10-IOM-A.doc
NOTES: