795 07258 800 CLEAN O MATIC PARTS LIST
User Manual: CLEAN-O-MATIC-800-PARTS-LIST Graymills
Open the PDF directly: View PDF
.
Page Count: 3
Item No. Part Number Description of Part
1322-04095 MTR,1/3HP,1625RPM, ODP A 56C,TOL
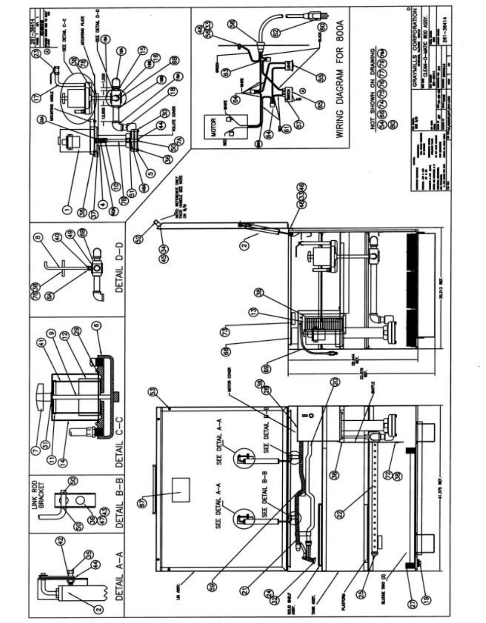
3402-36414 800 COM SHEET METAL COMPONENTS
4504-13197-B PUMP BODY NO. 6, CAST IRON
5525-13607-74 IMPELLER 4 IN DIA. GM2GG
6535-14276 FILTER BASE, CAST IRON
7540-14464-11 THUMB NUT,PLATED, 3/8-16
8568-13434-11 VALVE HANDLE C1141 STL. PLATED
9568-14274 FILTER TIE ROD 3/8 BAR STK RD
10 572-11588-63 COUPLING 1/2 BORE C1214
11 610-14078 SCREEN RETAINER STL.
12 610-15697-31 CUP ALUM.
13 712-35245 PANEL,LOUVERED,16 GA.(COM)
14 715-03498 FILTER,COVER 4 3/8 X 4 1/16 DP
15 720-01264-13 NIPPLE, CL 1 NPT X 1 1/2, GALV
16 720-02026-13 NIPPLE, 1/2 NPT X 1 1/2, GALV.
17 720-16104-11 NIPPLE, 1/2NPT, NI.PLTD.
18 720-02797-13 NIPPLE, 1 NPT X 2, GALV.
19 724-04166-16 PIPE PLUG,W/BUNA WSHR.1-1/2NPT
20 728-02657 HOSE 1/2" ID X 7/8" OD RED 3'
21 728-04102 FLEX HOSE ASSY,1/2ID X 36LG.
22 602-16103 MANIFOLD COM 1 IN BLACK
23 738-02584-41 VALVE, BALL 1/2 F.P.T.
24 738-02927 VALVE, NOZZLE, 3/4 GHT
25 724-03160-13 PIPE CAP 1 NPT
27 742-09926 FILTER FOAM POLYUR.1-1/4X2X9
28 744-03165 NEOPRENE STRIP 1/2"WD.X 1/2THK-1=1"
29 744-13984 GASKET-COM, 4 1/8 KAOKORK
2A 402-16028 SAFETY LINK ASSEMBLY COM
30 744-13709 GASKET, 30 SERIES
31 744-13300 GASKET, COM, FIBER PAPER
32 744-03211 WASHER, BLACK 1" OD X 5/8 ID
33 751-01244-12 M/S RD. HD. 10-32, NF X 3/8 LG
34 751-02550-12 M/S.RD HD 10-24 NCX1/2 LG
35 751-05983-12 M/S HEX HD 1/4-20NC X 5/8 LG
36 752-02969-12 C/S, HEX HD 1/4-20 X 1/2
37 752-02973-12 C/S,HEX HD L/W 3/8-16 X 1 1/4
38 753-01119-12 SCREW HEX HD.10-16 X 1/2"
40 753-00796 SETSCREW, SOC.HD. 1/4-20 X 1/4
41 742-14088-13 SCREEN CYLINDER, COM.
42 760-23677 SLEEVE 5/16OD X 1/4ID X 5/16LG
43 754-00595-12 LOCK WASHER 1/4, SPLIT
44 754-00601-12 FLAT WASHER, .265 ID
45 754-02622-12 LOCK WASHER, NO. 10 SPLIT
46 754-02712-12 FLAT WASHER NO.10,1/2OD,.200ID
Graymills Clean-o-Matic Parts Washer
Parts List for Model 800 795-07258-800
8-03
47 755-00594-12 NUT, HEX. 1/4-20 NC
48 755-02579-12 NUT, HEX KEPS, 10-32 NF
49 756-03101 RETAINING RING INTERNAL 2 IN.D
50 756-00893-81 PIN,COTTER,1/16D.X 1/2LG.18-8
51 765-03264-81 SPRING, COMPRESSION 302 SS
52 766-06854 HANDLE 12"
53 769-04241 BUMPER RUBBER
54 769-04107 CABLE TIE,NYLON,7-3/8"
55 772-04105 INDICATOR LIGHT 115V AMBER
56 773-04243 TERMINAL, RING NO.10 16-14WIRE
57 773-09452 DISCONNECT,FULLY INSUL.,FEMALE,BLUE
58 774-02580 STRAIN RELIEF 5/8 D. OPG, NYLO
59 774-05943 SNAP BUSHING 15/16 ID
60 776-04018 WIRE,BLACK 14 AWG.STRANDED MTW
61 776-07115 WIRE, RED 14 AWG. STRANDED MTW
62 777-03161 CORD + PLUG 18/3SJO-6FT,115V
63 780-00905 CLOSED-END CONNECTOR
64 780-05020 CLOSED-END CONNECTOR #10-12
65 770-08112 SWITCH 125-250 VAC VOLTS,RKR.
6A 535-13230 VALVE BODY, CAST IRON
6B 535-13231 VALVE PLUG, CAST IRON
7A 543-16580-74 CASTLE NUT, CELCON
7B 552-13819-63 SHAFT 1/2D STYLE 2 L=10.937 CS
8A 720-03421-13 NIPPLE, 1/2 NPT X 9, GALV.
18B 720-03204-13 NIPPLE, 1 NPT X 13-1/2, GALV.
19A 724-00586-13 ELBOW 1 NPT 90 GALV.
19B 724-01117-13 ELBOW 1/2 NPT GALV.,90°
32A 744-24282 SLINGER 15/32 I.D. NEOPRENE
40A 753-03904 SETSCREW,SOC.HD 5/16-18 X 5/16
46A 754-03093-12 FLATWASHER.380/385I.D.X.558OD
62A 777-04153 WIRE ASSY. 14/2 TEW105 X 13 LG
Graymills
3705 N. Lincoln Avenue, Chicago IL 60613 USA
773-248-6825 Fax 773-477-8673 www.graymills.com
