F2401ca0 CMP2401 2402 Installation Manual
User Manual: CMP2401-2402 Installation Manual AlarmHow.net Library
Open the PDF directly: View PDF
.
Page Count: 32

CMP-2401B/CMP-2402B
Fire Alarm Control Panel
Installation, Maintenance and Operating
Instruction Manual
24 Viceroy Road
Concord, Ontario L4K2L9
Phone (905) 660-7210
FAX (905) 660-7204
P/N 50907:A ECN 98-425
A
Document #50907
10/26/98 Rev.
© 1998 Fire•Lite

Installation Precautions -
Adherence to the following will aid in problem-free installation with long-term reli
a
WARNING -
Several different sources of power can be connected
to the fire alarm control panel.
Disconnect all sources of power
before servicing. Control unit and associated equipment may be
damaged by removing and/or inserting cards, modules, or inter-
connecting cables while the unit is energized. Do not attempt to
install, service, or operate this unit until this manual is read and
understood.
CAUTION -
System Reacceptance Test after Software Changes:
To ensure proper system operation, this product must be tested in
accordance with NFPA 72-1993 Chapter 7 after any programming
operation or change in site-specific software. Reacceptance test-
ing is required after any change, addition or deletion of system
components, or after any modification, repair or adjustment to sys-
tem hardware or wiring.
All components, circuits, system operations or software functions
known to be affected by a change must be 100% tested. In addi-
tion, to ensure that other operations are not inadvertently affected,
at least 10% of initiating devices that are not directly affected by
the change, up to a maximum of 50 devices must also be tested
and proper system operation verified.
This system meets NFPA requirements for operation at 0-49O C/
32-120O F and at a relative humidity of 85% RH (non-condensing)
at 30O C/86O F. However, the useful life of the system's standby
batteries and the electronic components may be adversely
affected by extreme temperature ranges and humidity. Therefore,
it is recommended that this system and its peripherals be installed
in an environment with a nominal room temperature of 15-27O C/
60-80O F.
Verify that wire sizes are adequate for all initiating device loops.
Most devices cannot tolerate more than a 10% I.R. drop from the
specified device voltage.
Like all solid state electronic devices, this system may oper-
ate erratically or can be damaged when subjected to lightning
induced transients. Although no system is completely immune
from lightning transients and interferences, proper grounding
will reduce susceptibility.
Overhead or outside aerial wiring is
not recommended, due to an increased susceptibility to nearby
lightning strikes.
Consult with the Technical Services Depart-
ment if any problems are anticipated or encountered.
Disconnect AC power and batteries prior to removing or
inserting circuit boards. Failure to do so can damage circuits.
Remove all electronic assemblies prior to any drilling, filing,
reaming or punching of the enclosure. When possible, make
all cable entries from the sides or rear. Before making modifi-
cations, verify that they will not interfere with battery, trans-
former and printed circuit board location.
Do not tighten screw terminals more than 9 in-lbs. Over tight-
ening may damage threads, resulting in reduced terminal con-
tact pressure and difficulty with screw terminal removal.
This system contains static-sensitive components Always
ground yourself with a proper wrist strap before handling any
circuits so that static charges are removed from the body. Use
static suppressive packaging to protect electronic assemblies
removed from the unit.
Follow the instructions in the installation, operating and pro-
gramming manuals. These instructions must be followed to
avoid damage to the control panel and associated equipment.
FACP operation and reliability depend upon proper installation.
While installing a fire alarm system may make lower insurance
rates possible, it is not a substitute for fire insurance!
Fire Alarm System Limitations
An automatic fire alarm system - typically made up of
smoke detectors, heat detectors, manual pull stations, audi-
ble warning devices and a fire alarm control with remote noti-
fication capability can provide early warning of a developing
fire. Such a system, however, does not assure protection
against property damage or loss of life resulting from a fire.
Any fire alarm system may fail for a variety of reasons:
Smoke detectors may not sense fire where smoke cannot
reach the detectors such as in chimneys, in walls, or roofs, or
on the other side of closed doors. Smoke detectors also may
not sense a fire on another level or floor of a building. A sec-
ond floor detector, for example, may not sense a first floor or
basement fire. Furthermore, all types of smoke detectors -
both ionization and photoelectric types, have sensing limita-
tions. No type of smoke detector can sense every kind of fire
caused by carelessness and safety hazards like smoking in
bed, violent explosions, escaping gas, improper storage of
flammable materials, overloaded electrical circuits, children
playing with matches, or arson.
IMPORTANT!
Smoke detectors must be installed in the
same room as the control panel and in rooms used by the
system for the connection of alarm transmission wiring, com-
munications, signaling and /or power.
If detectors are not so
located, a developing fire may damage the alarm system,
crippling its ability to report a fire.
Audible warning devices such as bells may not alert people if
these devices are located on the other side of closed or partly
open doors or are located on another floor of a building.
A fire alarm system will not operate without any electrical
power. If AC power fails, the system will operate from standby
batteries only for a specified time.
Rate-of-Rise heat detectors may be subject to reduced sensi-
tivity over time. For this reason, the rate-of-rise feature of each
detector should be tested at least once per year by a qualified
fire protection specialist.
Equipment used in the system may not be technically compat-
ible with the control panel. It is essential to use only equipment
listed for service with your control panel.
Telephone lines needed to transmit alarm signals from a
premise to a central monitoring station may be out of service or
temporarily disabled.
The most common cause of fire alarm malfunctions, however,
is inadequate maintenance. All devices and system wiring
should be tested and maintained by professional fire alarm
installers following written procedures supplies with each
device. System inspection and testing should be scheduled
monthly or as required by National and/or local fire codes.
Adequate written records of all inspections should be kept.
FCC Warning
WARNING: This equipment generates, uses and can radi-
ate radio frequency energy and if not installed and used in
accordance with the instruction manual, may cause interfer-
ence to radio communications, It has been tested and
found to comply with the limits for class A computing device
pursuant to Subpart B of 15 of FCC Rules, which is
designed to provide reasonable protection against such
interference when operated in a commercial environment.
Operation of this equipment in a residential area is likely to
cause interference, in which case the user will be required
to correct the interference at his own expense.
Canadian Requirements
This digital apparatus does not exceed the Class A limits for radi
tion noise emissions from digital apparatus set out in the Radio
Interference Regulations of the Canadian Department of Comm
u
cations.
Le present appareil numerique n'emet pas de bruits radioelec-
triques depassant les limites applicables aux appareils numeriqu
de la classe A prescrites dans le Reglement sur le brouillage ra
d
electrique edicte par le ministere des Communications du Cana
d

Document 50907 Rev. A 10/26/98 P/N: 50907:A
3
CHAPTER 1: Product Description ..............................................................................................................7
1.1: Product Features..........................................................................................................................................7
FIGURE 1-1: CMP-2401B/CMP-2402B.............................................................................................8
1.2: Specifications ..............................................................................................................................................9
1.3: Controls, Indicators and Operation .............................................................................................................10
1.3.1: Front Panel Slide Switches ...............................................................................................................10
FIGURE 1-2: CMP-2401B/CMP-2402B Control Switches................................................................10
1.3.2: LED Indicators .................................................................................................................................11
FIGURE 1-3: LED Indicators (CMP-2402B Illustrated).....................................................................11
1.3.3: Local Sounder ...................................................................................................................................12
1.3.4: Normal Standby Operation ...............................................................................................................12
1.3.5: Alarm Condition ...............................................................................................................................12
1.3.6: Trouble Condition.............................................................................................................................12
1.4: Circuits ........................................................................................................................................................13
1.5: Components.................................................................................................................................................13
1.6: Optional Modules and Accessories.............................................................................................................14
CHAPTER 2: Installation............................................................................................................................15
2.1: Mounting Options .......................................................................................................................................15
FIGURE 2-1: CMP-2401B/CMP-2402B Mounting............................................................................15
2.2: Backbox Mounting......................................................................................................................................15
FIGURE 2-2: Cabinet Dimensions and Knockout Locations..............................................................16
FIGURE 2-3: FACP Backbox..............................................................................................................17
2.3: Operating Power..........................................................................................................................................18
FIGURE 2-4: Operating Power Connections.......................................................................................18
2.4: Input Circuits...............................................................................................................................................19
FIGURE 2-5: CMP-2402B Style B Initiating Device Circuit Connections ........................................19
2.5: Output Circuits ............................................................................................................................................20
FIGURE 2-6: Auxiliary Power Connection.........................................................................................20
FIGURE 2-7: Notification Appliance Circuit Connections.................................................................20
FIGURE 2-8: Relay Terminals ............................................................................................................21
2.6: UL Power-limited Wiring Requirements ....................................................................................................21
FIGURE 2-9: Typical Wiring Diagram for UL Power-limited Requirements....................................21
2.7: Installation of Optional Module ..................................................................................................................22
2.7.1: 4XTMF Transmitter Module.............................................................................................................22
FIGURE 2-10: 4XTMF Module Connections .....................................................................................22
2.7.2: RTB - Remote Trouble Buzzer..........................................................................................................23
FIGURE 2-11: RTB Remote Trouble Buzzer Connection..................................................................23
CHAPTER 3: Programming Options........................................................................................................... 24
3.1: Earth Ground Fault Detection .....................................................................................................................24
FIGURE 3-1: Ground Fault Detection Circuit.....................................................................................24
3.2: Optional 4XTMF Transmitter Module Placement Supervision..................................................................24
FIGURE 3-2: 4XTMF Module Placement Supervision ......................................................................24
CHAPTER 4: Periodic Testing and Maintenance......................................................................................... 25
CHAPTER 5: Battery Calculations..............................................................................................................26
TABLE 5-1: Battery Calculations........................................................................................................26
5.1: The Main Power Supply..............................................................................................................................27
TABLE 5-2: Load in Standby..............................................................................................................27
TABLE 5-3: Load in Alarm.................................................................................................................28
Table of Contents

4
Document #50907 Rev.A 10/26/98 P/N 50907:A
Notes

This control panel has been designed to comply with standards set forth by the following regulatory agencies:
• Underwriters Laboratories Standard UL 864
• NFPA 72 National Fire Alarm Code
• CAN/ULC - S527M Standard for Control Units for Fire Alarm Systems
NFPA Standards
This Fire Alarm Control Panel complies with the following NFPA Standards:
NFPA 72 National Fire Alarm Code for Local Fire Alarm Systems and
Remote Station Fire Alarm Systems (requires an optional Remote Station Output Module).
Underwriters Laboratories Canada Documents:
CAN/ULC - S524M Standard for Installation of Fire Alarm Systems
CAN/ULC - S527-M87 Standard for Control Units for Fire Alarm Systems
Other:
Applicable Local and State Building Codes
C22.1 Canadian Electrical Code, Part I
C22.2 No. 0, General Requirements - Canadian Electrical Code, Part II
C22.2 No. 0.4, Bonding and Grounding of Electrical Equipment (Protective Grounding) - Canadian
C282, Emergency Electrical Power Supply for Buildings - Canadian
Requirements of the Local Authority Having Jurisdiction (LAHJ)
Fire•Lite Documents
Fire•Lite Device Compatibility Document Document #15384
Before proceeding, the installer should be familiar with the following documents.
Document #50907 Rev. A 10/26/98 P/N 50907:A
5

6
Document #50907 Rev.A 10/26/98 P/N 50907:A
CMP-2401B/CMP-2402B Main Circuit Board
CMP-2402B
Only
Transformer
2402LAYO.CDR
System Reset
Signal Silence
Zone 1
Signal Silence
Zone 2
(CMP-2402B Only)
Trouble Silence
Cut if
Option
Board is
Present
Cut to
Disable
Earth
FAult
Option Module
Connectors
Battery
(7.0 AH, 12 VDC)
AC Power Fuse
2 AMP 3AG
Slow Blow
Connections to Remote
Trouble Buzzer

Document #50907 Rev. A 10/26/98 P/N 50907:A
7
Product Description
CHAPTER 1 Product Description
The CMP-2401B is a one zone FACP (Fire Alarm Control Panel) and the CMP-2402B is a two zone FACP. This
manual will use the term FACP to refer to both the CMP-2401B and CMP-2402B where features are identical. These
control panels provide reliable fire signaling protection for small to medium sized commercial, industrial and institu-
tional buildings. The FACPs use conventional input devices such as two-wire smoke detectors, four-wire smoke
detectors, pull stations, waterflow devices and other normally-open contact devices. Outputs include one NAC (Noti-
fication Appliance Circuit) and 24 volt resettable power. The FACP also supervises all wiring, AC voltage and bat-
tery level.
Activation of a compatible smoke detector or any normally open fire alarm initiating device will activate audible and
visual signaling devices, illuminate an indicating LED and sound the piezo at the FACP, activate the FACP alarm
relay and operate an optional module used to notify a remote station or initiate a supplementary control function.
1.1 Product Features
• Style B (Class B) Initiating Device Circuit (IDC)
✓CMP-2401B - one IDC
✓CMP-2402B - two IDCs
• One NFPA Style Y (Class B) Notification Appliance Circuit (NAC)
• Form-C Alarm Relay
• Form-C Trouble Relay
• Control switches
✓Reset
✓Trouble Silence
✓Signal Silence - Zone One
✓Signal Silence - Zone Two (CMP-2402B only)
• LED Indicators
✓AC Power
✓Zone Alarm and Trouble
✓Bell Trouble
✓Option Module Trouble
✓System Trouble
✓Zone Silence
✓Ground Fault
✓Battery Trouble
• Piezo Sounder for alarm and trouble signal
• Dress Panel coverplate
• 24 volt operation
• Small backbox size
• Low AC voltage sense
• Silence Inhibit Notification Appliance Circuit
• Automatic Battery Float Charger
• Battery Deep Discharge Protection
• Optional Remote Trouble Buzzer

Product Features
8
Document #50907 Rev.A 10/26/98 P/N 50907:A
FIGURE 1-1:CMP-2401B/CMP-2402B
Transformer
Holds up to two 7 AH Batteries
System
Reset *
Signal
Silence
Zone 1*
Signal
Silence Zone
2 * (CMP-
2402B)
Trouble
Silence *
Cut to
Disable
Earth Fault
4X Option
Module
Connectors
Cut if 4X
Option Module
is Installed
Remote
Trouble Buzzer
+24 Volt
Resettable
Power
Alarm Relay
Trouble Relay
Notification
Appliance
Circuit
Input Zones
(2 on CMP-2402B
only)
* Note that all switches are illustrated in the normal position.
2401INBX.CDR

Document #50907 Rev. A 10/26/98 P/N 50907:A
9
Specifications
1.2 Specifications
AC Power - TB3
120 VAC, 60 Hz, 0.5 amps
Fuse F2 - 2 Amp, 3AG Slow Blow
Wire size: minimum #14 AWG (2.0 mm2) with 600V insulation
Battery (lead acid only) - J3
Maximum Charging Circuit: Normal Flat Charge - 27.6V @ 0.8 amp
Maximum Charger Capacity: 7.0 Amp Hour battery which can be housed in the FACP cabinet
Battery Deep Discharge Protection:
In order to protect the battery, the deep discharge circuit disconnects the battery from the FACP when
the battery voltage drops below 15 VDC. The FACP will restart and the battery will begin recharging
only after primary AC power is restored.
Initiating Device Circuit(s) - TB2
Zone 1 - TB2 Terminals Initiating Zone 1 (-) & (+)
Zone 2 - TB2 Terminals Initiating Zone 2 (-) & (+) (CMP-2402B only)
Power-limited circuitry
Operation: NFPA Style B (Class B)
Normal Operating Voltage: Nominal 24 VDC , ripple 2.0 VP-P
Alarm Current: 20 mA minimum
Short Circuit Current: 40 mA maximum
Maximum Loop Resistance: 100 ohms per side (200 ohms total zone resistance)
End-of-Line Resistor: 3.9K ohm, ½ watt
Detector Loop Current is sufficient to ensure operation of two alarmed detectors per zone
Standby Current: 9 mA (includes ELR and 3 mA maximum detector current)
Smoke Detector Identifier A
Refer to Fire•Lite Device Compatibility Document for listed compatible devices
Notification Appliance Circuit - TB2, Terminals Signal Output (-) and Signal Output (+)
Operation: NFPA Style Y (Class B)
Power-limited circuitry
Normal Operating Voltage: Nominal 24 VDC
Current Limit: via PTC
Maximum signaling current: 1.25 amps
End-of-Line Resistor: 3.9K ohm, ½ watt
Refer to Fire•Lite Device Compatibility Document for listed compatible devices
Two Form-C Relays - Terminals Alarm (NC, C, NO) and Trouble (NC, C, NO)
Relay contact ratings: 2.0 amps @ 30 VDC (resistive), 2.0 amps @ 30 VAC (resistive)
Resettable Power - TB1, Terminals Ground and +24V Resettable
Operating Voltage: Nominal 24 VDC
Up to 85 mA is available for powering 4-wire smoke detectors
Power-limited circuitry
Refer to Fire•Lite Device Compatibility Document for compatible listed devices

Controls, Indicators and Operation
10
Document #50907 Rev.A 10/26/98 P/N 50907:A
1.3 Controls, Indicators and Operation
1.3.1 Front Panel Slide Switches
All switches are illustrated in their normal position. The function of each switch is listed below.
System Reset
The function of this nonlatching switch is:
1. to reset the FACP and the smoke detectors provided the alarm condition has been cleared and 60 seconds has
elapsed since the first alarm
2. LED test
Signal Silence - Zone 1
Placing the switch in the Silence position will silence the Notification Appliance Circuit if 60 seconds has elapsed
since the first alarm. A trouble condition is indicated while the switch is in the Silence position. If an alarm
occurs on the silenced zone, the alarm LED will indicate the alarm condition and the alarm relay will transfer.
Signal Silence - Zone 2 (CMP-2402B only)
Placing the switch in the Silence position will silence the Notification Appliance Circuit if 60 seconds has elapsed
since the first alarm. A trouble condition is indicated while the switch is in the Silence position. If an alarm
occurs on the silenced zone, the alarm LED will indicate the alarm condition and the alarm relay will transfer.
Trouble Silence
This latching, two-position switch, will silence the piezo sounder. The trouble LED will continue to indicate a
trouble condition. An intermittent tone will sound when the trouble is cleared to indicate that this switch should
be returned to its normal position.
FIGURE 1-2:CMP-2401B/CMP-2402B Control Switches
System Reset
Signal Silence Zone 1
Signal Silence Zone 2
(CMP-2402B only)
Trouble Silence
2402SWTC.CDR

Document #50907 Rev. A 10/26/98 P/N 50907:A
11
Controls, Indicators and Operation
1.3.2 LED Indicators
The LED indicators for the CMP-2401B/CMP-2402B are labeled in English and French. The purpose of each indica-
tor is listed below:
AC Power (Alimentation) - green LED
The green LED is on when the FACP is operating from normal AC power. The LED turns off to indicate a below
normal AC voltage (brownout) or complete loss of AC power. The System Trouble LED will also turn on.
Option Trouble (Trouble Option) - yellow LED
This yellow LED turns on to indicate the removal of the optional supervised 4XTMF Transmitter Module or a
trouble with the module.
Zone 1 Alarm (Alarme Zone 1) - red LED
This red LED turns on to indicate an alarm condition, even if the Zone Silence switch is in the Silence position.
Zone 2 Alarm (Alarme Zone 2) - red LED (CMP-2402B only)
This red LED turns on to indicate an alarm condition, even if the Zone Silence switch is in the Silence position.
Zone 1 Trouble (Trouble Zone 1) - yellow LED
This yellow LED turns on to indicate a trouble condition, such as an open in the field wiring, on the IDC (Initiat-
ing Device Circuit) zone 1.
Zone 2 Trouble (Trouble Zone 2) - yellow LED (CMP-2402B only)
This yellow LED turns on to indicate a trouble condition, such as an open in the field wiring on the IDC (Initiating
Device Circuit) zone 2.
Zone Silence (M.S. Silence Zone) - yellow LED
This yellow LED turns on to indicate that the Notification Appliance Circuit has been silenced.
Bell Trouble (Trouble Cloche) - yellow LED
This yellow LED turns on to indicate a trouble condition, such as an open or short in the field wiring, on the
Notification Appliance Circuit.
Battery Trouble (Trouble Piles) - yellow LED
This yellow LED turns on to indicate a low battery/no battery condition or battery charger fault.
FIGURE 1-3:LED Indicators (CMP-2402B Illustrated)
2401DISP.CDR

Controls, Indicators and Operation
12
Document #50907 Rev.A 10/26/98 P/N 50907:A
System Trouble (Trouble Systeme) - yellow LED
This yellow LED turns on for all faults or abnormal operating conditions.
Ground Fault (Faute M.A.L.T.) - yellow LED
This yellow LED turns on to indicate a ground fault condition (low impedance to ground) on any field wiring or
battery connections.
1.3.3 Local Sounder
A piezo sounder provides distinct signals for alarm and trouble conditions:
• Alarm - steady
• Trouble - pulse
1.3.4 Normal Standby Operation
Normal standby operation indicates that there are no alarms or trouble conditions present on the FACP and that the
IDC zone(s) have not been Silenced. In Normal Operation:
• All switches must be in their normal positions. Refer to Figure 1-1, “CMP-2401B/CMP-2402B,” on page 8.
• The green AC power LED is on steady
• The red alarm LED(s) are off
• All yellow trouble LEDs are off
1.3.5 Alarm Condition
Alarm condition indicates that an IDC (input) zone has detected an alarm (active smoke detector, pull station
activation, etc.). In Alarm Operation:
• The zone alarm LED will turn on
• The notification appliances are activated
• The optional 4XTMF Transmitter Module is activated
• Piezo sounder turns on steady
• The alarm relay will transfer
1.3.6 Trouble Condition
Trouble condition indicates that one or more faults have been detected by the FACP. Contact the local service
representative for immediate correction of the fault since FACP operation may be impaired. A Trouble condition will
cause the following:
• The yellow System Trouble LED will light steady
• Additional trouble LEDs may turn on
• The piezo sounder will pulse

Document #50907 Rev. A 10/26/98 P/N 50907:A
13
Circuits
1.4 Circuits
Input Circuits
The CMP-2401B has one IDC (Initiating Device Circuit) and the CMP-2402B has two IDCs. Input circuit(s) pro-
vide Style B (Class B) configuration and accept 2-wire smoke detectors and normally-open contact devices.
Output Circuits
• 24 Volt Resettable Power Output 85 mA
• 24 Volt Battery Charger (up to two 7 AH batteries)
Notification Appliance Circuit
One Style Y (Class B) Notification Appliance Circuit @ 1.25 amps maximum
Relays
Two dry Form-C relays for system alarm and system trouble are provided standard. Contacts are rated 2.0 amps
@ 30 VDC (resistive), 2.0 amps @ 30 VAC (resistive).
Battery Charger
The battery charger will charge up to two 7 AH batteries. The FACP cabinet holds a maximum of two 7 AH
batteries.
1.5 Components
Main Circuit Board
The main circuit board contains power supply, alarm and trouble
relays, control switches, LED indicators, option jumpers, wiring
interface connectors and other primary components. The option
module plugs in and is mounted to the main circuit board. The
main circuit board is delivered premounted in the cabinet.
Cabinet
The cabinet is red. The backbox measures 14.5" (36.83 cm)
high X 12.5" (31.75 cm) wide X 2.875" (7.303 cm) deep and
provides space for two batteries (up to 7.0 Amp Hours each).
Also supplied is a blue dress panel which mounts inside the
cabinet.
Dress Panel
A blue dress panel, which is required for Canadian
installations, is provided with the cabinet. The dress panel
restricts access to the system wiring while allowing access to
the control switches.
Transformer Assembly
One transformer is provided standard with the panel. The
transformer plugs into connector J5 on the main circuit board.
Batteries
The cabinet provides space for two 7 Amp Hour batteries
which must be ordered separately.
2402BORD.CDR
MP2401DR.CDR DP-2401.CDR
2401XFOR.CDR
2401BATT.CDR

Optional Modules and Accessories
14
Document #50907 Rev.A 10/26/98 P/N 50907:A
1.6 Optional Modules and Accessories
4XTMF Transmitter Module
The 4XTMF Transmitter Module provides a supervised output for local energy municipal box transmitter and
alarm and trouble reverse polarity. It includes a disable switch and disable trouble LED on the module. A jumper
option on the module allows the reverse polarity circuit to open with a system trouble condition if no alarm
condition exists.
Remote Trouble Buzzer
One Remote Trouble Buzzer can be connected to the FACP using four wires. The remote unit includes an AC
LED, System Trouble LED and piezo sounder which are controlled by the control panel. It mounts to a single-
gang electrical box.

Document #50907 Rev. A 10/26/98 P/N 50907:A
15
Installation
CHAPTER 2 Installation
2.1 Mounting Options
The cabinet may be either semi-flush or surface mounted.
The door is removable during the installation period by open-
ing and lifting the door off the hinges. The cabinet mounts
using two key slots and two additional 0.250” (0.635 cm)
diameter holes located in the backbox. The key slots are
located at the top of the backbox and the two securing holes
at the bottom.
Carefully unpack the system and check for shipping damage.
Mount the cabinet in a clean, dry, vibration-free area where
extreme temperatures are not encountered. The area should
be readily accessible with sufficient room to easily install and
maintain the panel. Locate the top of the cabinet approxi-
mately five feet above the floor with the hinge mounting on
the left. Determine the number of conductors required for the
devices to be installed. Sufficient knockouts are provided for
wiring convenience. Select the appropriate knockout(s) and
pull the required conductors into the box. Note that there are
no knockouts on the left (hinged) side of the cabinet. All
wiring should be in accordance with the National and/or
Local codes for fire alarm systems.
2.2 Backbox Mounting
1. Open the door.
2. Remove the main PC board assembly by unscrewing the four screws in the corners of the board. Set the board
aside in a safe, clean place. Avoid static discharge which may damage the board.
3. Mark and predrill holes for the top two keyhole mounting bolts using the dimensions illustrated in Figure 2-2.
4. Install two upper fasteners in the wall with the screw heads protruding.
5. Using the upper keyholes, mount the backbox over the two screws.
6. Mark and drill the lower two holes.
7. Mount the backbox, install the remaining fasteners and tighten.
8. When the location is dry and free of construction dust, reinstall the main PC board.
FIGURE 2-1:CMP-2401B/CMP-2402B Mounting
MP2401DR.CDR

Backbox Mounting
16
Document #50907 Rev.A 10/26/98 P/N 50907:A
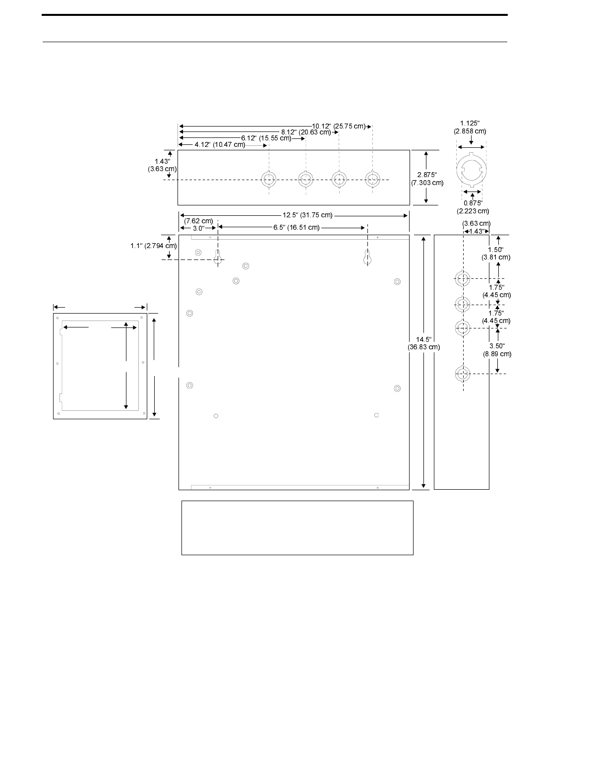
Draw wires through the respective knockout locations.
TR-3-R Trim Ring
12.625"
(32.068 cm)
14.625“ (37.148 cm)
16.625" (42.228 cm)
17.625"
(44.768 cm )
Bottom
Top
Right Side
FIGURE 2-2:Cabinet Dimensions and Knockout Locations
5024JRBB.CDR

Document #50907 Rev. A 10/26/98 P/N 50907:A
17
Backbox Mounting
Door=14.714" (37.374 cm)
Backbox=14.5" (36.83 cm)
Door=12.714" (32.294 cm)
Backbox=12.5“ (31.75 cm) Depth=3"
(7.62 cm)
Right side
Depth=2.875" (7.303 cm)
To p
Bottom
FIGURE 2-3:FACP Backbox
2401CABB.CDR

Operating Power
18
Document #50907 Rev.A 10/26/98 P/N 50907:A
2.3 Operating Power
WARNING: Several different sources of power can be connected to this panel. Disconnect all sources of power
before servicing. The panel and associated equipment may be damaged by removing and/or inserting modules,
interconnecting cables or wiring while this unit is energized.
Primary Power Source (AC) and Earth Ground Connections
AC power connections are made inside the control panel cabinet. The AC input circuit is limited by fuse F2 (2 amp,
3AG Slow Blow). The primary power source for the FACP is 120 VAC, 60 Hz, 0.5 amps. Run a pair of wires (with
ground conductor) from the protected premises main breaker box to TB3 of the main circuit board. As per the
National and Canadian Electric Code, use 14 AWG (2.00 mm2, 1.6 mm O.D.) or heavier gauge wire with 600V insu-
lation. No other equipment may be connected to this circuit. In addition, this circuit must be provided with overcur-
rent protection and may not contain any power disconnect devices. A separate Earth Ground connection must be
made to ensure proper panel operation and lightning and transient protection. Connect the Earth Ground wire [mini-
mum 14 AWG (2.00 mm2)] to the grounding stud on the backbox. Do not use conduit for the Earth Ground connec-
tion since this does not provide reliable protection.
Secondary Power Source (Batteries)
Observe polarity when connecting the battery. Connect the battery cable to J3 on the main circuit board using the
plug-in connector and cable provided. The battery charger is current-limited and capable of recharging sealed lead
acid type batteries. The charger shuts off when the system is in alarm. See Battery Calculations for calculation of the
correct battery rating.
WARNING: Battery contains sulfuric acid which can cause severe burns to the skin and eyes and can destroy fabrics.
If contact is made with sulfuric acid, immediately flush the skin or eyes with water for 15 minutes and seek immedi-
ate medical attention.
!
!
FIGURE 2-4:Operating Power Connections
Neutral
Earth
Hot
AC
Grounding Stud
2402ACBX.CDR

Document #50907 Rev. A 10/26/98 P/N 50907:A
19
Input Circuits
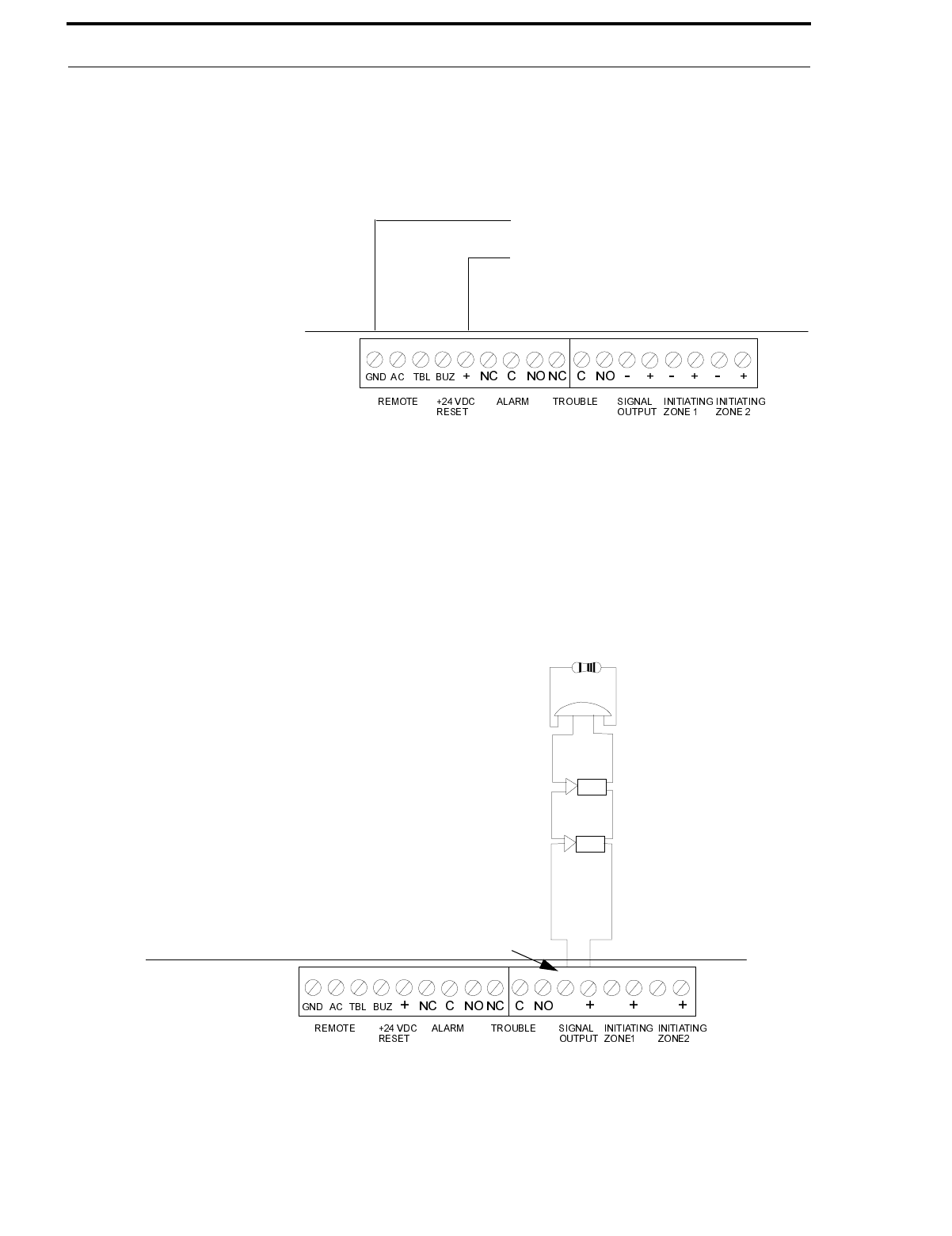
2.4 Input Circuits
The CMP-2401B has one IDC (Initiating Device Circuit) and the CMP-2402B has two IDCs. The maximum total
loop resistance limit for each input circuit is 200 ohms. The field wiring is supervised for opens, shorts and ground
faults. All conditions are visually and audibly annunciated.
The zone(s) is a Style B (Class B) Initiating Device Circuit designed to accept any normally-open contact devices and
conventional 2-wire or 4-wire, 24 VDC smoke detectors. Resettable power is provided via TB1 Terminals 24V
Resettable (+) and Ground (-). Remove the End-of Line resistor from the FACP and install it on the IDC wiring after
the last device in the circuit. Refer to the Fire•Lite Device Compatibility Document for a list of compatible smoke
detectors.
It is allowable to mix an assortment of device types (i.e. smoke detectors, heat detectors, pull stations, etc.) on the
same zone.
TB1 TB2
FIGURE 2-5:CMP-2402B Style B Initiating Device Circuit Connections
UL listed compatible 2-wire smoke detector
Manual Pull Station
Heat Detector
Dummy load unused circuit
Style B (Class B) Initiating Device Circuit (supervised
and power-limited).
3.9K ohm, ½ watt
2402IDC.CDR

Output Circuits
20
Document #50907 Rev.A 10/26/98 P/N 50907:A
2.5 Output Circuits
DC Power Output Connections
Notification Appliance Circuit
The FACP provides one supervised Notification Appliance Circuit as Style Y (Class B). The circuit is capable of
1.25 amps of current. Observe polarity when connecting polarized devices to the NAC. Remove the End-of-Line
resistor from the FACP and install it on the Notification Appliance Circuit wiring after the last device. Refer to
the Fire•Lite Device Compatibility Document for a listing of compatible notification appliances.
TB1 TB2
FIGURE 2-6:Auxiliary Power Connection
4-Wire Smoke Detector Power (85 mA)
24 VDC filtered, resettable power for 4-wire
smoke detectors can be obtained from TB1
Terminals 24V Resettable (+) and Ground (-)
2402TERM.CDR
TB1 TB2
FIGURE 2-7:Notification Appliance Circuit Connections
Polarized Bell
Polarized Horn
Polarized Horn
Note: Notification Appliance
polarities shown in alarm state
Note: Terminal polarity shown in
alarm state
Style Y (Class B) Notification Appliance Circuit (supervised).
3.9 K ohm, ½ watt
2402NAC.CDR

Document #50907 Rev. A 10/26/98 P/N 50907:A
21
UL Power-limited Wiring Requirements
Standard Relays
The FACP provides two Form-C relays rated for 2.0 amps @ 30 VDC (resistive) and 2.0 amps @ 30 VAC
(resistive).
2.6 UL Power-limited Wiring Requirements
Power-limited and nonpower-limited circuit wiring must remain separated in the cabinet. All power-limited circuit
wiring must remain at least 0.25" (6.35 mm) away from any nonpower-limited circuit wiring. Furthermore, all
power-limited and nonpower-limited circuit wiring must enter and exit the cabinet through different knockouts and/or
conduits. A typical wiring diagram for the FACP is illustrated below.
TB1 TB2
FIGURE 2-8:Relay Terminals
Relay connections may be power-limited or nonpower-limited, provided that a minimum of 0.25"
is maintained between conductors of power-limited and nonpower-limited circuits.
M2401REL.CDR
FIGURE 2-9:Typical Wiring Diagram for UL Power-limited Requirements
Power-limited
Circuit
Power-limited
Circuit
Nonpower-limited
Circuit
Power-limited
Circuit
AC Power
Grounding Stud
2401PWRL.CDR

Installation of Optional Module
22
Document #50907 Rev.A 10/26/98 P/N 50907:A
2.7 Installation of Optional Module
CAUTION: Remove all power (AC and DC) before installing or removing modules or wiring.
2.7.1 4XTMF Transmitter Module
Push the disconnect switch to the down position to prevent accidental activation of the municipal box during
testing of the control panel. The Disconnect LED will remain illuminated while the municipal box is
disconnected. The System Trouble LED will indicate disconnected and/or open circuit conditions on the
municipal box. During trouble conditions, it is possible to obtain the circuit condition on the alarm reverse
polarity output. If this operation is desired, cut the TBL jumper on the 4XTMF module.
FIGURE 2-10:4XTMF Module Connections
4XTMF Module
Install 4XTMF Module by
plugging into connector
J6
and
J7
on CMP-2401B/02B main
board
TBL Jumper
Cut R14 for 4XTMF module
placement supervision
1 (+)
2 (-)
3 (+)
4 (-)
5
6 (+)
7 (-)
Remote Alarm (power-limited)*
Remote Trouble (power-limited)*
Municipal Box (nonpower-limited)*
no connection
* Wiring from these terminals can
exit the protected premises.
Disconnect Switch
Disconnect LED
Polarities are shown for
module activation
4XTMF.CDR
2402BRD2.CDR

Document #50907 Rev. A 10/26/98 P/N 50907:A
23
Installation of Optional Module
2.7.2 RTB - Remote Trouble Buzzer
The RTB is a Remote Trouble Buzzer which provides a green AC Power LED and a yellow Trouble LED along
with a piezo sounder, all of which mimic the condition of the control panel. The RTB can be mounted remotely in
a single-gang electrical box. Four wires are required to connect the RTB to the CMP-2401B/CMP-2402B control
panel as illustrated in Figure 2-11.
FIGURE 2-11:RTB Remote Trouble Buzzer Connection
Ground
Trouble LED
AC Power LED
Buzzer
CMP-2401B/CMP-2402B
RTB Remote Trouble Buzzer
2402RTB.CDR
RTBBUZZ.CDR

Programming Options
24
Document #50907 Rev.A 10/26/98 P/N 50907:A
CHAPTER 3 Programming Options
This chapter describes the programming options available by cutting resistors on the FACP main circuit board.
Options should be selected (resistors cut if necessary) prior to applying power to the control panel.
3.1 Earth Ground Fault Detection
The FACP is factory configured to automatically detect ground fault conditions. A ground fault occurs when a low
resistance is detected between an FACP circuit and earth ground. This condition will cause the System Trouble LED
and Ground Fault LED to turn on and the piezo sounder to pulse.
The Ground Fault Detection circuit can be disabled by cutting resistor R72 on the main circuit board. Refer to the
local codes and consult the local Authority Having Jurisdiction before disabling the Ground Fault Detection circuit.
3.2 Optional 4XTMF Transmitter Module Placement Supervision
The 4XTMF module can be used to connect the FACP to a City Box or Reverse Polarity Remote Station. To super-
vise placement and operation of the module, cut resistor R14. Refer to the local codes and consult the local Authority
Having Jurisdiction before installing the 4XTMF Transmitter Module.
FIGURE 3-1:Ground Fault Detection Circuit
R72
Cut to Disable Ground
Fault Detection
2402BRD3.CDR
FIGURE 3-2:4XTMF Module Placement Supervision
R14
Cut to Supervise Placement
of 4XTMF Module when
installed
2402BRD4.CDR

Document #50907 Rev. A 10/26/98 P/N 50907:A
25
Periodic Testing and Maintenance
CHAPTER 4 Periodic Testing and Maintenance
To ensure proper and reliable operation, it is recommended that system inspection and testing be scheduled monthly
or as required by national and/or local fire codes. Testing should be done by a qualified service representative if a
malfunction is encountered.
Before Testing:
1. Notify the fire department and/or central alarm receiving station if an alarm condition will be transmitted.
2. Notify the facility personnel of a test so that alarm sounding devices are ignored during the test period.
3. When necessary, activation of notification appliances can be prevented by using the Signal Silence switch to
silence the zone.
Testing:
1. Activate a zone via an alarm initiating device and check that active notification appliances sound and the alarm
LED lights. Reset the system and repeat the procedure for each zone*.
2. Momentarily activate the following switches (one at a time) and check for a trouble signal:
✓Reset (all LEDs should illuminate for Lamp Test)
✓Signal Silence
3. Depress the Trouble Silence switch and check for an intermittent audible signal. Return the Trouble Silence
switch to the normal position.
4. Momentarily open the following circuits one at a time and check for a trouble signal:
✓Notification Appliance (bell) Circuit
✓Initiating Device Circuit Zone 1
✓Initiating Device Circuit Zone 2 (CMP-2402B only)
5. If new batteries were installed, wait 48 hours before completing this step. Remove AC power, activate a zone
and check that:
✓The Alarm LED lights
✓All active notification appliances sound
Measure battery voltage while the notification appliances are sounding. Replace any battery with
terminal voltage less than 85% of rating. Reapply AC power and press the Reset switch*.
6. Return all switches to their normal positions. Notify the fire department, central station and/or building
personnel that testing is completed.
*Note that the Reset and Signal Silence switches will not operate for one minute following activation of an alarm.

Battery Calculations
26
Document #50907 Rev.A 10/26/98 P/N 50907:A
CHAPTER 5 Battery Calculations
Use the Total Standby and Alarm Load Currents calculated in Table 5-2 and Table 5-3 for the following battery
calculation.
Note:
1. 7 Ampere Hour battery can be located in the backbox.
TABLE 5-1: Battery Calculations
Standby Load
Current (amps)
[ ]
X
Required Standby Time in
Hours (24 or 60 Hours)
[ ]
= __________
Alarm Load
Current (amps)
[ ]
X
Required Alarm Time in Hours
(i.e. 5 minutes = 0.084
10 minutes = 0.167)
[ ]
= __________
Add Standby and Alarm Load for Required Ampere Hour Battery =
Multiply by the Derating Factor of 1.2 X1.2
Total Ampere Hours (AH) Required =

Document #50907 Rev. A 10/26/98 P/N 50907:A
27
The Main Power Supply
5.1 The Main Power Supply
The FACP provides filtered power for operating the fire alarm control panel, external devices and the standby battery.
The power for operating external devices is limited. Use Table 5-2 (standby or nonalarm) and Table 5-3 (alarm) to
determine if external loading is within the capabilities of the power supply.
For 4-wire smoke detectors, be sure to power them from TB1 Terminals (+24V Resettable) and (-Ground).
1. Refer to the Device Compatibility Document for 2-wire smoke detector standby current.
2. Must use compatible listed Power Supervision Relay.
3. The total standby current must include the resettable power from TB1. Caution must be taken to ensure that
current drawn from this output during alarm does not exceed maximum ratings specified (see Table 5-3 )
TABLE 5-2: Load in Standby
Device Type # of Devices Current
(amps) Total Current
(amps)
Main Circuit Board 1 X 0.075 = 0.075
4XTMF (1 max.) X 0.005 =
Remote Trouble Unit (1 max.) X 0.020 =
2-wire Detector Heads [ ] X [ ]1=
4-wire Detector Heads [ ] X [ ]1=
Power Supervision Relays2[ ] X [ ] =
Additional Current Draw
from TB1 (nonalarm)3=
Sum Column for Standby Load = amps

The Main Power Supply
28
Document #50907 Rev.A 10/26/98 P/N 50907:A
1. The current shown represents the CMP-2401B control panel in alarm. If both zones of the CMP-2402B con-
trol panel are in alarm, the current draw increases to 0.175 amps.
2. Current limitations of terminals:
TB1, Terminals Ground and +24V Resettable = 0.085 amps, filtered, 24 VDC +/-5%, ripple @ 10mVRMS.
3. Must use compatible listed Power Supervision Relay
4. Enter current draw of each device. Current limitation of TB2 Notification Appliance Circuit is 1.25 amps.
TABLE 5-3: Load in Alarm
Device Type # of Devices Current
(amps) Total Current
(amps)
Main Circuit Board 1 X 0.1251=
4XTMF (1 max.) X 0.045 =
Remote Trouble Unit (1 max.) X 0.050 =
4-wire Detector Heads2[ ] X [ ] =
Power Supervision Relays3[ ] X [ ] =
Notification Appliances4[ ] X [ ] =
Additional Current Draw
from TB1 (nonalarm)2=
Sum Column for Alarm Load = amps

Document #50907 Rev. A 10/26/98 P/N 50907:A
29
Numerics
4XTMF
see Transmitter Module
A
Alarm 12
B
Backbox 17
Battery 13
Alarm 28
Calculations 26
Charger 13
see also Power - Battery
Standby 27
Trouble 11
C
Cabinet 13
Dimensions 16
Knockouts 16
see also Backbox
D
Description 7
Discharge Protection 9
Dress Panel 13
E
Earth Ground 18
Fault Detection 24
F
Form-C Relays
See also Relays
G
Ground Fault
see also Earth Ground - Fault Detection
I
Indicators 11
AC Power 11
Battery Trouble 11
Bell Trouble 11
Ground Fault 12
Option Trouble 11
System Trouble 12
see also Trouble
Zone Alarm 11
see also Alarm
Zone Silence 11
Zone Trouble 11
Initiating Device Circuit
CurrentAlarm 9
Short Circuit 9
Standby 9
End-of-Line Resistor 9
Style Y 9
Voltage 9
Input Circuits 13, 19
L
LED
see Indicators
M
Maintenance 25
Mounting 15
N
Notification Appliance Circuit 9, 13, 20
Current 9
End-of-Line Resistor 9
Style Y 9
Voltage 9
O
Operational Power 18
Primary 18
see Battery
Output Circuits 20
Resettable Power 13
see’ Battery’ - ’Charger’
P
Piezo
see Sounder
Power
AC 9 AC fuse 9
see also Operational Power - Primary
Battery 9
Charger Capacity 9
charging circuit 9
Deep Discharge Protection 9
Programming 24
R
Relays 9, 13, 21
Contact Rating 9
Remote Trouble Buzzer 14, 23
Resettable Power
Current 9
voltage 9
Resistor, End-of-Line
Initiating Device Circuit 9
Notification Appliance Circuit 9
RTB
see Remote Trouble Buzzer
S
Sounder
Alarm 12
Trouble 12
Standby 12
Style B 7
Style Y 7
Switches 10
Reset 10
Signal Silence 10
Trouble Silence 10
T
Testing 25
Transformer Assembly 13
Transmitter Module 14, 22
Placement Supervision 24
Trouble 12
U
UL Power-limited Wiring 21
Index

30
Document #50907 Rev.A 10/26/98 P/N 50907:A
Notes

Document #50907 Rev.A 10/26/98 P/N 50907:A
31
Notes

24 Viceroy Road, Concord, Ontario L4K2L9
Phone: (905) 660-7210
FAX: (905) 660-7204
Limited Warranty
Fire•Lite® warrants its products to be free from defects in materials and workmanship
for eighteen (18) months from the date of manufacture, under normal use and service.
Products are date stamped at time of manufacture. The sole and exclusive obligation
of Fire•Lite® is to repair or replace, at is option, free of charge for parts and labor, any
part which is defective in materials or workmanship under normal use and service.
For products not under Fire•Lite® manufacturing date-stamp control, the warranty is
eighteen (18) months from date of original purchase by Fire•Lite® distributor unless
the installation instructions or catalog sets forth a shorter period, in which case the
shorter period shall apply. This warranty is void if the product is altered, repaired or
serviced by anyone other than Fire•Lite® or its authorized distributors or if there is a
failure to maintain the products and systems in which they operate in proper and
workable manner. In case of defect, secure a Return Material Authorization form from
our customer service department. Return product, transportation prepaid, to
Fire•Lite®, 24 Viceroy Road, Concord, Ontario L4K2L9.
This writing constitutes the only warranty made by Fire•Lite® with respect to its prod-
ucts. Fire•Lite® does not represent that its products will prevent any loss by fire or
otherwise, or that its products will in all cases provide the protection for which they are
installed or intended. Buyer acknowledges that Fire•Lite® is not an insurer and
assumes no risk for loss or damages or the cost of any inconvenience, transportation,
damage, misuse, abuse, accident or similar incident.
Fire•Lite® GIVES NO WARRANTY, EXPRESSED OR IMPLIED, OF MERCHANT-
ABILITY, FITNESS FOR ANY PARTICULAR PURPOSE, OR OTHERWISE WHICH
EXTEND BEYOND THE DESCRIPTION ON THE FACE HEREOF. UNDER NO CIR-
CUMSTANCES SHALL Fire•Lite® BE LIABLE FOR ANY LOSS OF OR DAMAGE TO
PROPERTY, DIRECT, INCIDENTAL OR CONSEQUENTIAL, ARISING OUT OF THE
USE OF, OR INABILITY TO USE Fire•Lite® PRODUCTS. FURTHERMORE,
Fire•Lite® SHALL NOT BE LIABLE FOR ANY PERSONAL INJURY OR DEATH
WHICH MAY ARISE IN THE COURSE OF, OR AS A RESULT OF, PERSONAL,
COMMERCIAL OR INDUSTRIAL USE OF ITS PRODUCTS.
This warranty replaces all previous warranties and is the only warranty made by
Fire•Lite®. No increase or alteration, written or verbal, of the obligation of this war-
ranty is authorized.
Fire•Lite® is a registered trademark.