2011DS 4_FullSpiral A225 Copeland Selection Guide Condensing Unit
User Manual: A225
Open the PDF directly: View PDF
.
Page Count: 98

Copeland® condensing unit
Selection guide for commercial refrigeration

Condensing Unit Replacement Checklist
These questions help in selecting the appropriate replacement refrigeration condensing unit
• What is the complete model number of the condensing unit you need to replace?
• What refrigerant is currently being used in the application?
• What is the applied voltage?
• What is the capacity/BTU's you need for the application?
• What is the application? Example: Walk-in freezer or cooler, food prep table.
• What box temperature do you need?
• What evaporator temperature do you need?
• Is the condensing unit indoor or outdoor?
• What metering device is being used in the application? TXV, cap tube.
• What accessories were on the unit you removed? Example; Receiver tank, fan cycle controls.
Notes

2011DS-4 _Contents (4/11) Emerson Climate Technologies
Contents
Module Form Number Last Revised
M and F Line SystemPro® hermetic air-cooled condensing units 2011DS-4_M&F 4/11
Copeland Scroll outdoor condensing units for refrigeration applications 2011DS-4_XJ 4/11
F and D Line Copeland Scroll® air-cooled condensing units 2011DS-4_F&D 4/11
Copevap® hermetic air-cooled condensing units 2011DS-4_Copevap 4/11
M and F Line SystemPro® hermetic water-cooled condensing units 2011DS-4_M&Fwater 4/11
C, D and E Line Copelametic® air-cooled condensing units 2011DS-4_CD&E 4/11
W Line semi-hermetic water-cooled condensing units 2011DS-4_W 4/11
Appendix 2011DS-4_Appendix 4/11
This page will be updated each time a module is revised. We recommend it be included when ordering updated modules.


M and F Line
SystemPro® hermetic air-cooled condensing units
Product Information
Horsepower: 1/6 – 5
Temperature Applications: Low/Medium/High
Refrigerants: R-134a, R-404A, R-22, R-407C
Installation Applications: A variety of applications including
under-counter coolers, food prep tables,
reach-in cases, and walk-in boxes

Unit Features
Flare BOM
(Obsolete)
Sweat
BOM
Suction Connections Liquid Connections Filter
Drier
Sight
Glass
Electrical Connections Fan Cycle
Control
Fan
Guard UL/UR
Suction
Valve
Suction
Accumulator
Base
Valve
Receiver
w/Valve
Power
Cord
BX
Conduit
105, 106 111 UR
109 103 UR
201 212
UR*
010 015
UL
001 020
UL
072
UL
272
UR
*These recognized models are identical to listed models less pressure control. Need for the control is to be evaluated in the end use application.
Nomenclature • Welded Condensing Units
Temperature Application Code
High Temperature
Medium Temperature
Low Temperature
Extended Medium Temp.
Extra Low Temperature
Multiple
Multiple
H
M
L
F
E
S
N
Condensing
Unit
Family
Series
Comp. Motor Rating
Nominal
HP Code
1/2
3/4
1
1-1/2
2
3
4
5
6
7-1/2
9
10
15
0050
0075
0100
0150
0200
0300
0400
0500
0600
7500
0900
1000
1500
X X X X - X X X X
Compressor Motor Types
Phase
Description
Code
1 Capacitor Run - Capacitor Start C
1 Induction Run - Capacitor Start I
1 Induction Run - Split Phase S
1 Capacitor Run - Permanent Split P
3 Three Phase - General T
3 Star (Wye) Delta E
3 6 Lead - Part Winding or
Across the Line
F
Compressor Motor Protection
Type Protection Code
External Inherent Protection-
One Protector (Line Break) A
Internal Inherent Protection –
One Protector (Line Break) F
Internal Thermal Protection –
Electronic Sensors; and
Control Module External
S
Bill Of Material (BOM)
001 thru
099
Intended for UL Listing and
CUL Certifi ed
100 thru
299
Intended for UL Rercognition
and CUL Certifi ed
300 thru
399
Not eligible for either UL
Listing, UL Recognition or
CUL Certifi ed
- X X X - X X X
Refrigerant Code
R404A/507 J/4
R134a T/2
R12 B
R22 C/3/M
Multiple F
R22/407C G
R22 9
R134a/404A/22
N
R134a/404A P
R404A/22 8
Type of Design Code
Air Cooled Steel Base A
Air Cooled Copevap Base E/P
Narrow Air Cooled Copevap T
Water Cooled Steel Base W
Custom Base C
Discus D
Electrical Codes
60 Hz. 50 Hz. Code
115-1
230-1
208/230-3
460-3
575-3
-
-
208/230-1
-
-
100-1
-
200/220-3
-
-
230-1
380/420-3
200-1
220-3
220/240-1
A
B
C
D
E
G
M
V
W
Z
Note: When applicable, specifi c 50
Hz ratings (not necessarily identical
to typical shown above) will be shown
as alternate on 60 Hz rated models.

1
2011DS-4 _M&F (4/11) Emerson Climate Technologies
NOTE: See appendix for Flex-Line hood information
Resources and Support
EmersonClimate.com
Online Product Information and Technical Data
• Application Engineering Bulletins
• Instruction Sheets
• Marketing Brochures
Product Selection Tools
• Walk-In Box Load Calculator
Software
• Quick Selection Slide Rule
Where to Buy
SystemPro® hermetic air-cooled condensing units
Features Benefi ts
Copeland® Hermetic Compressor and
Heavy Duty Unit Bearing Fan Motor
Reliability
High Energy Effi ciency
Low Sound & Vibration
Modular Components Replacement Serviceability
Compact Design
Application Flexibility
All Models Rated Up To 110°F Ambient
Application Engineering Bulletins
4-1273 Factors to Consider in Converting Compressor
Rated Capacity to Actual Capacity
4-1292 Medium Temperature R-22 Copelaweld Com-
pressors
4-1295 HFC-134A Refrigerant Guidelines
4-1298 Extended Medium Temperature R-404A/507
Hermetic Compressors and Condensing Units
4-1305 “SystemPro” AF, AR, & AS Refrigeration Her-
metic 1/8-1 Horsepower Compressors
4-1306 Application Guidelines for RF Low Tempera-
ture Refrigeration Compressors
4-1307 Application Guidelines for CF Refrigeration
Compressors and Condensing Units
4-1344 Application Guidelines for RFT, RRT, RST Com-
pressors
11-1147 Suction Accumulators
17-1260 Compressor Overheating
17-1268 Compression Ratio as it Affects Compressor
Reliability
22-1182 Liquid Refrigerant Control in Refrigeration and
Air Conditioning Systems
For more information, visit EmersonClimate.com and login to the Customer Portal to view Online Product Information

2
2011DS-4 _M&F (4/11) Emerson Climate Technologies
NOTE: See appendix for Flex-Line hood information
SystemPro® air-cooled condensing units
Capacity Data
HIGH/MED TEMP Capacity (BTU/Hr) at 90° Ambient - Evaporator Temp (°F)
Model BOM Refrig. H.P. 0 +10 +15 +20 +25
M2FH-0017-SAA 111 134a 1/6 800 910 1030 1150
M2FH-0020-IAA 111 134a 1/5 950 1070 1200 1330
MMFH-0022-IAA 111 22 1/5 1250 1380 1530 1680
M4FH-0022-IAA 111 404A 1/5 1340 1460 1590 1720
M2FH-0024-SAA 111 134a 1/4 1310 1470 1640 1810
M2FH-0026-IAA 072,111,103 134a 1/4 1530 1700 1890 2080
MCFH-0027-IAA 111,103,272 22 1/4 1910 2130 2360 2600
M4FH-0025-IAA 103,272 404A 1/4 1890 2060 2240 2430
M2FH-A033-IAA, IAV 111,103,272 134a 1/3 1870 2110 2360 2620
MCFH-0036-IAA 111,103,272 22 1/3 2270 2550 2830 3140
M4FH-A036-IAA, IAV 111,103,272 404A 1/3 2550 2810 3090 3370
M2FH-0049-IAA, IAV 111,103,272 134a 1/2 2610 2920 3250 3600
MCFH-0049-CAA, CAV 111,103,272 22 1/2 3090 3460 3840 4250
M2FH-0050-IAA-IAV 111,103,272 134a 1/2 2950 3350 3780 4230
M4FF-0050-IAA, IAV 212 404A 1/2 2890 3660 3980 4320 4660
M4FF-0056-IAA, IAV 103,212,272 404A 1/2 3140 3920 4330 4750 5180
M2FH-0056-IAA, IAV 111,103,272 134a 1/2 3240 3680 4140 4630
MCFH-0056-IAA, IAV 111,103,272 22 1/2 3610 4020 4470 4950
M4FH-0050-CAA, CAV 111,103,272 404A 1/2 3320 3660 4010 4380
FTAH-B074-IAA, IAV 212 134a 3/4 3890 4380 4900 5450
FTAM-A075-IAA, IAV 020 134a 3/4 4260 4920 5650 6450
F3AH-A078-IAA, IAV 020 22 3/4 4480 5120 5760 6450
M4FF-0075-CAA, CAV 020 404A 3/4 4000 5010 5550 6090 6660
FTAH-A101-CFV, TFC, TFD 020 134a 1 4990 5860 6820 7770
F3AH-A100-CAV 020 22 1 5260 5960 6700 7480
FJAF-0106-CAV 020 404A 1 5160 6420 7080 7780 8500
F3AM-A105-CFV, TFC 020 22 1 6530 7530 8530 9590
FTAH-A125-CFV, TFC, TFD 020 134a 1-1/4 7170 8420 9770 11200
FJAM-A125-CFV, TFC 020 404A 1-1/4 5390 6840 7620 8450 9340
FJAM-A126-CAV, TFC 020 404A 1-1/4 6350 7940 8770 9640 10500
FTAH-A150-CFV, TFC, TFD 020 134a 1-1/2 10000 11600 13300
FGAH-A151-CFV, TFC, TFD 020 22 1-1/2 7590 8800 10100 11500
FGAH-A151-CFV, TFC, TFD 020 407C 1-1/2 5470 7630 8770 9940 11200
FJAM-A150-CFV, TFC, TFD 020 404A 1-1/2 6860 9100 10200 11400 12500
FTAH-A201-CFV, TFC, TFD 020 134a 2 10300 12200 14200 16400
FGAH-A201-CFV, TFC, TFD 015, 020 22 2 10100 11800 13500 15400
FGAH-A201-CFV, TFC, TFD 015, 020 407C 2 9790 11300 12900 14500
FJAM-A200-CFV, TFC 020 404A 2 8770 11600 13000 14500 16100
FJAM-A225-CFV, TFC, TFD 020 404A 2-1/4 10400 13400 14900 16400 17900
FGAH-A225-CFV, TFC, TFD 015, 020 22 2-1/4 11400 13100 15100 17100
FGAH-A225-CFV, TFC, TFD 015, 020 407C 2-1/4 8110 11400 13200 15000 16800
FGAH-A301-CFV, TFC, TFD 015, 020 22 3 17000 19500 22000 24600
FGAH-A301-CFV, TFC, TFD 015, 020 407C 3 10100 14900 17400 19900 22600
FJAM-A300-CFV, TFC, TFD 020 404A 3 13100 17300 19500 21600 23800
FGAH-A325-CFV, TFC, TFD 015, 020 22 3-1/4 18300 20900 23600 26500
FGAH-A325-CFV, TFC, TFD 015, 020 407C 3-1/4 11200 16400 19100 21900 24800
FJAM-A325-CFV, TFC, TFD 020 404A 3-1/4 14300 18500 20800 23300 26100
FGAH-A401-CFV, TFC, TFD 015, 020 22 4 25900 29500 33400 37600
FGAH-A401-CFV, TFC, TFD 015, 020 407C 4 15500 23000 26900 30900 35200
FJAM-B400-CFV, TFC, TFD 020 404A 4 20700 26900 30300 33900 37800
FGAH-A501-CFV, TFC, TFD, TFE 015, 020 22 5 29800 34000 38200 42700
FGAH-A501-CFV, TFC, TFD, TFE 015, 020 407C 5 22500 30400 34500 38800 43200
FJAM-B500-CFV, TFC 020 404A 5 23200 30400 34100 37700 41200
Capacities are at 60 Hertz with 5°F subcooling.
HT models are rated at 65°F return gas temperature.
MT models are rated at 40°F return gas temperature

3
2011DS-4 _M&F (4/11) Emerson Climate Technologies
NOTE: See appendix for Flex-Line hood information
SystemPro® air-cooled condensing units
Capacity Data
HIGH/MED TEMP Capacity (BTU/Hr) at 90° Ambient - Evaporator Temp (°F)
Model BOM Refrig. H.P. +30 +35 +40 +45
M2FH-0017-SAA 111 134a 1/6 1280 1410 1560 1710
M2FH-0020-IAA 111 134a 1/5 1470 1620 1770 1930
MMFH-0022-IAA 111 22 1/5 1840 2010 2180 2360
M4FH-0022-IAA 111 404A 1/5 1860 2010 2160 2310
M2FH-0024-SAA 111 134a 1/4 2000 2190 2390 2600
M2FH-0026-IAA 072,111,103 134a 1/4 2280 2490 2710 2940
MCFH-0027-IAA 111,103,272 22 1/4 2850 3110 3380 3660
M4FH-0025-IAA 103,272 404A 1/4 2620 2820 3030 3240
M2FH-A033-IAA, IAV 111,103,272 134a 1/3 2900 3190 3500 3820
MCFH-0036-IAA 111,103,272 22 1/3 3460 3790 4140 4500
M4FH-A036-IAA, IAV 111,103,272 404A 1/3 3670 3990 4310 4650
M2FH-0049-IAA, IAV 111,103,272 134a 1/2 3960 4340 4740 5150
MCFH-0049-CAA, CAV 111,103,272 22 1/2 4680 5130 5600 6090
M2FH-0050-IAA-IAV 111,103,272 134a 1/2 4710 5210 5740 6290
M4FF-0050-IAA, IAV 212 404A 1/2
M4FF-0056-IAA, IAV 103,212,272 404A 1/2
M2FH-0056-IAA, IAV 111,103,272 134a 1/2 5150 5690 6270 6870
MCFH-0056-IAA, IAV 111,103,272 22 1/2 5480 6070 6720 7440
M4FH-0050-CAA, CAV 111,103,272 404A 1/2 4770 5180 5600 6040
FTAH-B074-IAA, IAV 212 134a 3/4 6050 6710 7430 8220
FTAM-A075-IAA, IAV 020 134a 3/4
F3AH-A078-IAA, IAV 020 22 3/4 7130 7870 8660 9440
M4FF-0075-CAA, CAV 020 404A 3/4
FTAH-A101-CFV, TFC, TFD 020 134a 1 8780 9790 10800 11800
F3AH-A100-CAV 020 22 1 8320 9220 10200 11200
FJAF-0106-CAV 020 404A 1
F3AM-A105-CFV, TFC 020 22 1
FTAH-A125-CFV, TFC, TFD 020 134a 1-1/4 12800 14400 16200 18000
FJAM-A125-CFV, TFC 020 404A 1-1/4
FJAM-A126-CAV, TFC 020 404A 1-1/4
FTAH-A150-CFV, TFC, TFD 020 134a 1-1/2 15100 17000 19000 21100
FGAH-A151-CFV, TFC, TFD 020 22 1-1/2 13000 14500 16100 17700
FGAH-A151-CFV, TFC, TFD 020 407C 1-1/2 12500 13800 15200 16700
FJAM-A150-CFV, TFC, TFD 020 404A 1-1/2
FTAH-A201-CFV, TFC, TFD 020 134a 2 18800 21300 24000 26900
FGAH-A201-CFV, TFC, TFD 015, 020 22 2 17300 19400 21600 23900
FGAH-A201-CFV, TFC, TFD 015, 020 407C 2 16200 18000 19900 21900
FJAM-A200-CFV, TFC 020 404A 2
FJAM-A225-CFV, TFC, TFD 020 404A 2-1/4
FGAH-A225-CFV, TFC, TFD 015, 020 22 2-1/4 19300 21500 23900 26400
FGAH-A225-CFV, TFC, TFD 015, 020 407C 2-1/4 18800 20800 23000 25200
FGAH-A301-CFV, TFC, TFD 015, 020 22 3 27400 30300 33300 36500
FGAH-A301-CFV, TFC, TFD 015, 020 407C 3 25400 28300 31400 34700
FJAM-A300-CFV, TFC, TFD 020 404A 3
FGAH-A325-CFV, TFC, TFD 015, 020 22 3-1/4 29400 32500 35900 39400
FGAH-A325-CFV, TFC, TFD 015, 020 407C 3-1/4 27900 31100 34400 38000
FJAM-A325-CFV, TFC, TFD 020 404A 3-1/4
FGAH-A401-CFV, TFC, TFD 015, 020 22 4 41900 46500 51200 56200
FGAH-A401-CFV, TFC, TFD 015, 020 407C 4 39700 44400 49500 54800
FJAM-B400-CFV, TFC, TFD 020 404A 4
FGAH-A501-CFV, TFC, TFD, TFE 015, 020 22 5 47400 52400 57500 63000
FGAH-A501-CFV, TFC, TFD, TFE 015, 020 407C 5 47800 52600 57600 62800
FJAM-B500-CFV, TFC 020 404A 5
Capacities are at 60 Hertz with 5°F subcooling.
HT models are rated at 65°F return gas temperature.
MT models are rated at 40°F return gas temperature

4
2011DS-4 _M&F (4/11) Emerson Climate Technologies
NOTE: See appendix for Flex-Line hood information
SystemPro® air-cooled condensing units
Capacity Data
HIGH/MED TEMP Capacity (BTU/Hr) at 100° Ambient - Evaporator Temp (°F)
Model BOM Refrig. H.P. 0 +10 +15 +20 +25
M2FH-0017-SAA 111 134a 1/6 730 830 930 1050
M2FH-0020-IAA 111 134a 1/5 890 1010 1120 1250
MMFH-0022-IAA 111 22 1/5 1140 1270 1400 1550
M4FH-0022-IAA 111 404A 1/5 1230 1340 1460 1590
M2FH-0024-SAA 111 134a 1/4 1230 1390 1530 1710
M2FH-0026-IAA 072,111,103 134a 1/4 1400 1570 1710 1890
MCFH-0027-IAA 111,103,272 22 1/4 1710 1930 2150 2380
M4FH-0025-IAA 103,272 404A 1/4 1700 1870 2030 2220
M2FH-A033-IAA, IAV 111,103,272 134a 1/3 1690 1920 2150 2420
MCFH-0036-IAA 111,103,272 22 1/3 2080 2330 2600 2890
M4FH-A036-IAA, IAV 111,103,272 404A 1/3 2330 2580 2840 3100
M2FH-0049-IAA, IAV 111,103,272 134a 1/2 2410 2710 3020 3350
MCFH-0049-CAA, CAV 111,103,272 22 1/2 2910 3260 3630 4010
M2FH-0050-IAA-IAV 111,103,272 134a 1/2 2730 3170 3500 3860
M4FF-0050-IAA, IAV 212 404A 1/2 2660 3260 3550 3850 4140
M4FF-0056-IAA, IAV 103,212,272 404A 1/2 2780 3490 3860 4240 4630
M2FH-0056-IAA, IAV 111,103,272 134a 1/2 3010 3430 3880 4220
MCFH-0056-IAA, IAV 111,103,272 22 1/2 3270 3660 4070 4520
M4FH-0050-CAA, CAV 111,103,272 404A 1/2 2900 3220 3560 3910
FTAH-B074-IAA, IAV 212 134a 3/4 3420 3870 4350 4860
FTAM-A075-IAA, IAV 020 134a 3/4 3870 4430 5070 5780
F3AH-A078-IAA, IAV 020 22 3/4 4020 4620 5220 5860
M4FF-0075-CAA, CAV 020 404A 3/4 3540 4470 4960 5460 5980
FTAH-A101-CFV, TFC, TFD 020 134a 1 4330 5160 6060 6970
F3AH-A100-CAV 020 22 1 4740 5440 6140 6910
FJAF-0106-CAV 020 404A 1 4650 5800 6410 7040 7700
F3AM-A105-CFV, TFC 020 22 1 5750 6700 7640 8650
FTAH-A125-CFV, TFC, TFD 020 134a 1-1/4 6190 7360 8620 9970
FJAM-A125-CFV, TFC 020 404A 1-1/4 4770 6070 6750 7470 8250
FJAM-A126-CAV, TFC 020 404A 1-1/4 5610 7060 7810 8600 9420
FTAH-A150-CFV, TFC, TFD 020 134a 1-1/2 7370 8760 10200 11800
FGAH-A151-CFV, TFC, TFD 020 22 1-1/2 6490 7630 8850 10200
FGAH-A151-CFV, TFC, TFD 020 407C 1-1/2 4810 6860 7940 9050 10200
FJAM-A150-CFV, TFC, TFD 020 404A 1-1/2 5780 7820 8850 9890 10900
FTAH-A201-CFV, TFC, TFD 020 134a 2 8880 10700 12600 14600
FGAH-A201-CFV, TFC, TFD 015, 020 22 2 8930 10500 12200 13900
FGAH-A201-CFV, TFC, TFD 015, 020 407C 2 6110 8820 10200 11700 13300
FJAM-A200-CFV, TFC 020 404A 2 7500 10100 11400 12800 14200
FJAM-A225-CFV, TFC, TFD 020 404A 2-1/4 9060 11700 13100 14500 15800
FGAH-A225-CFV, TFC, TFD 015, 020 22 2-1/4 10100 11800 13600 15500
FGAH-A225-CFV, TFC, TFD 015, 020 407C 2-1/4 7120 10300 11900 13600 15400
FGAH-A301-CFV, TFC, TFD 015, 020 22 3 15100 17400 19900 22400 25000
FGAH-A301-CFV, TFC, TFD 015, 020 407C 3 8360 12900 15200 17600 20100
FJAM-A300-CFV, TFC, TFD 020 404A 3 11200 15000 17000 18900 20900
FGAH-A325-CFV, TFC, TFD 015, 020 22 3-1/4 16500 19000 21600 24200
FGAH-A325-CFV, TFC, TFD 015, 020 407C 3-1/4 9160 14200 16700 19300 22000
FJAM-A325-CFV, TFC, TFD 020 404A 3-1/4 12200 16000 18100 20400 22900
FGAH-A401-CFV, TFC, TFD 015, 020 22 4 23500 27000 30600 34500
FGAH-A401-CFV, TFC, TFD 015, 020 407C 4 12700 19900 23600 27500 31500
FJAM-B400-CFV, TFC, TFD 020 404A 4 18100 23700 26800 30000 33500
FGAH-A501-CFV, TFC, TFD, TFE 015, 020 22 5 28000 32100 36300 40600
FGAH-A501-CFV, TFC, TFD, TFE 015, 020 407C 5 27600 31600 35700 40000
FJAM-B500-CFV, TFC 020 404A 5 20400 27000 30300 33600 36700
Capacities are at 60 Hertz with 5°F subcooling.
HT models are rated at 65°F return gas temperature.
MT models are rated at 40°F return gas temperature

5
2011DS-4 _M&F (4/11) Emerson Climate Technologies
NOTE: See appendix for Flex-Line hood information
SystemPro® air-cooled condensing units
Capacity Data
HIGH/MED TEMP Capacity (BTU/Hr) at 100° Ambient - Evaporator Temp (°F)
Model BOM Refrig. H.P. +30 +35 +40 +45
M2FH-0017-SAA 111 134a 1/6 1170 1300 1440 1580
M2FH-0020-IAA 111 134a 1/5 1380 1520 1670 1810
MMFH-0022-IAA 111 22 1/5 1700 1870 2030 2190
M4FH-0022-IAA 111 404A 1/5 1720 1870 2010 2150
M2FH-0024-SAA 111 134a 1/4 1870 2050 2230 2420
M2FH-0026-IAA 072,111,103 134a 1/4 2080 2300 2520 2710
MCFH-0027-IAA 111,103,272 22 1/4 2610 2860 3130 3400
M4FH-0025-IAA 103,272 404A 1/4 2400 2620 2840 3030
M2FH-A033-IAA, IAV 111,103,272 134a 1/3 2670 2970 3230 3490
MCFH-0036-IAA 111,103,272 22 1/3 3180 3500 3830 4170
M4FH-A036-IAA, IAV 111,103,272 404A 1/3 3370 3660 3960 4290
M2FH-0049-IAA, IAV 111,103,272 134a 1/2 3690 4050 4430 4800
MCFH-0049-CAA, CAV 111,103,272 22 1/2 4400 4810 5250 5720
M2FH-0050-IAA-IAV 111,103,272 134a 1/2 4360 4820 5340 5940
M4FF-0050-IAA, IAV 212 404A 1/2
M4FF-0056-IAA, IAV 103,212,272 404A 1/2
M2FH-0056-IAA, IAV 111,103,272 134a 1/2 4830 5280 5820 6480
MCFH-0056-IAA, IAV 111,103,272 22 1/2 5020 5580 6200 6880
M4FH-0050-CAA, CAV 111,103,272 404A 1/2 4280 4680 5080 5520
FTAH-B074-IAA, IAV 212 134a 3/4 5420 6030 6700 7440
FTAM-A075-IAA, IAV 020 134a 3/4
F3AH-A078-IAA, IAV 020 22 3/4 6510 7190 7930 8670
M4FF-0075-CAA, CAV 020 404A 3/4
FTAH-A101-CFV, TFC, TFD 020 134a 1 7930 8900 9850 10800
F3AH-A100-CAV 020 22 1 7670 8490 9360 10200
FJAF-0106-CAV 020 404A 1
F3AM-A105-CFV, TFC 020 22 1
FTAH-A125-CFV, TFC, TFD 020 134a 1-1/4 11400 12900 14600 16300
FJAM-A125-CFV, TFC 020 404A 1-1/4
FJAM-A126-CAV, TFC 020 404A 1-1/4
FTAH-A150-CFV, TFC, TFD 020 134a 1-1/2 13500 15200 17100 19000
FGAH-A151-CFV, TFC, TFD 020 22 1-1/2 11500 13000 14500 16100
FGAH-A151-CFV, TFC, TFD 020 407C 1-1/2 11400 12700 14000 15400
FJAM-A150-CFV, TFC, TFD 020 404A 1-1/2
FTAH-A201-CFV, TFC, TFD 020 134a 2 16800 19200 21700 24300
FGAH-A201-CFV, TFC, TFD 015, 020 22 2 15800 17800 19900 22000
FGAH-A201-CFV, TFC, TFD 015, 020 407C 2 14900 16600 18400 20200
FJAM-A200-CFV, TFC 020 404A 2
FJAM-A225-CFV, TFC, TFD 020 404A 2-1/4
FGAH-A225-CFV, TFC, TFD 015, 020 22 2-1/4 17600 19700 22000 24300
FGAH-A225-CFV, TFC, TFD 015, 020 407C 2-1/4 17200 19200 21200 23300
FGAH-A301-CFV, TFC, TFD 015, 020 22 3 27700 30600 33600
FGAH-A301-CFV, TFC, TFD 015, 020 407C 3 22700 25500 28400 31500
FJAM-A300-CFV, TFC, TFD 020 404A 3
FGAH-A325-CFV, TFC, TFD 015, 020 22 3-1/4 27000 29900 32900 36200
FGAH-A325-CFV, TFC, TFD 015, 020 407C 3-1/4 24900 27900 31000 34400
FJAM-A325-CFV, TFC, TFD 020 404A 3-1/4
FGAH-A401-CFV, TFC, TFD 015, 020 22 4 38600 42800 47300 51800
FGAH-A401-CFV, TFC, TFD 015, 020 407C 4 35700 40200 44900 50000
FJAM-B400-CFV, TFC, TFD 020 404A 4
FGAH-A501-CFV, TFC, TFD, TFE 015, 020 22 5 45100 49700 54700 59600
FGAH-A501-CFV, TFC, TFD, TFE 015, 020 407C 5 44300 48900 53600 58500
FJAM-B500-CFV, TFC 020 404A 5
Capacities are at 60 Hertz with 5°F subcooling.
HT models are rated at 65°F return gas temperature.
MT models are rated at 40°F return gas temperature

6
2011DS-4 _M&F (4/11) Emerson Climate Technologies
NOTE: See appendix for Flex-Line hood information
SystemPro® air-cooled condensing units
Capacity Data
HIGH/MED TEMP Capacity (BTU/Hr) at 110° Ambient - Evaporator Temp (°F)
Model BOM Refrig. H.P. 0 +10 +15 +20 +25
M2FH-0017-SAA 111 134a 1/6 660 760 840 950
M2FH-0020-IAA 111 134a 1/5 820 930 1040 1170
MMFH-0022-IAA 111 22 1/5 1050 1170 1300 1440
M4FH-0022-IAA 111 404A 1/5 1130 1230 1350 1480
M2FH-0024-SAA 111 134a 1/4 1140 1290 1420 1590
M2FH-0026-IAA 072,111,103 134a 1/4 1330 1470 1570 1740
MCFH-0027-IAA 111,103,272 22 1/4 1540 1750 1970 2180
M4FH-0025-IAA 103,272 404A 1/4 1530 1690 1840 2020
M2FH-A033-IAA, IAV 111,103,272 134a 1/3 1520 1740 1970 2220
MCFH-0036-IAA 111,103,272 22 1/3 1880 2120 2370 2640
M4FH-A036-IAA, IAV 111,103,272 404A 1/3 2110 2340 2590 2840
M2FH-0049-IAA, IAV 111,103,272 134a 1/2 2210 2490 2790 3100
MCFH-0049-CAA, CAV 111,103,272 22 1/2 2690 3020 3370 3750
M2FH-0050-IAA-IAV 111,103,272 134a 1/2 2470 2890 3210 3560
M4FF-0050-IAA, IAV 212 404A 1/2 2320 2860 3110 3370
M4FF-0056-IAA, IAV 103,212,272 404A 1/2 2430 3070 3400 3750 4100
M2FH-0056-IAA, IAV 111,103,272 134a 1/2 2750 3120 3520 3870
MCFH-0056-IAA, IAV 111,103,272 22 1/2 2960 3320 3710 4130
M4FH-0050-CAA, CAV 111,103,272 404A 1/2 2660 2940 3240 3530
FTAH-B074-IAA, IAV 212 134a 3/4 3030 3450 3880 4350
FTAM-A075-IAA, IAV 020 134a 3/4 3520 3940 4460 5070
F3AH-A078-IAA, IAV 020 22 3/4 3540 4100 4660 5270
M4FF-0075-CAA, CAV 020 404A 3/4 3120 3960 4400 4850 5310
FTAH-A101-CFV, TFC, TFD 020 134a 1 3680 4450 5310 6160
F3AH-A100-CAV 020 22 1 4230 4870 5520 6210
FJAF-0106-CAV 020 404A 1 4120 5150 5700 6270 6860
F3AM-A105-CFV, TFC 020 22 1 3050 4940 5830 6720 7670
FTAH-A125-CFV, TFC, TFD 020 134a 1-1/4 5230 6330 7500 8750
FJAM-A125-CFV, TFC 020 404A 1-1/4 4070 5230 5820 6440 7100
FJAM-A126-CAV, TFC 020 404A 1-1/4 4850 6150 6820 7530 8260
FTAH-A150-CFV, TFC, TFD 020 134a 1-1/2 6220 7520 8900 10400
FGAH-A151-CFV, TFC, TFD 020 22 1-1/2 5400 6470 7620 8850
FGAH-A151-CFV, TFC, TFD 020 407C 1-1/2 6100 7120 8170 9270
FJAM-A150-CFV, TFC, TFD 020 404A 1-1/2 4680 6520 7450 8380 9310
FTAH-A201-CFV, TFC, TFD 020 134a 2 7480 9150 10900 12800
FGAH-A201-CFV, TFC, TFD 015, 020 22 2 7780 9270 10800 12500
FGAH-A201-CFV, TFC, TFD 015, 020 407C 2 7840 9190 10600 12000
FJAM-A200-CFV, TFC 020 404A 2 6230 8530 9740 11000 12300
FJAM-A225-CFV, TFC, TFD 020 404A 2-1/4 7730 10100 11300 12500 13700
FGAH-A225-CFV, TFC, TFD 015, 020 22 2-1/4 8970 10500 12200 14000
FGAH-A225-CFV, TFC, TFD 015, 020 407C 2-1/4 9120 10700 12300 14000
FGAH-A301-CFV, TFC, TFD 015, 020 22 3 13100 15400 17800 20200
FGAH-A301-CFV, TFC, TFD 015, 020 407C 3 10900 13100 15300 17600
FJAM-A300-CFV, TFC, TFD 020 404A 3 9410 12800 14500 16300 18000
FGAH-A325-CFV, TFC, TFD 015, 020 22 3-1/4 14800 17200 19600 22000
FGAH-A325-CFV, TFC, TFD 015, 020 407C 3-1/4 11900 14300 16800 19300
FJAM-A325-CFV, TFC, TFD 020 404A 3-1/4 10100 13500 15400 17500 19800
FGAH-A401-CFV, TFC, TFD 015, 020 22 4 21100 24400 27800 31400
FGAH-A401-CFV, TFC, TFD 015, 020 407C 4 16800 20300 23900 27700
FJAM-B400-CFV, TFC, TFD 020 404A 4 15600 20500 23200 26100 29300
FGAH-A501-CFV, TFC, TFD, TFE 015, 020 22 5 24900 28900 33000 37100
FGAH-A501-CFV, TFC, TFD, TFE 015, 020 407C 5 24600 28500 32500 36600
FJAM-B500-CFV, TFC 020 404A 5 17700 23600 26600 29500 32300
Capacities are at 60 Hertz with 5°F subcooling.
HT models are rated at 65°F return gas temperature.
MT models are rated at 40°F return gas temperature

7
2011DS-4 _M&F (4/11) Emerson Climate Technologies
NOTE: See appendix for Flex-Line hood information
SystemPro® air-cooled condensing units
Capacity Data
HIGH/MED TEMP Capacity (BTU/Hr) at 110° Ambient - Evaporator Temp (°F)
Model BOM Refrig. H.P. +30 +35 +40 +45
M2FH-0017-SAA 111 134a 1/6 1070 1190 1320 1460
M2FH-0020-IAA 111 134a 1/5 1290 1430 1560 1690
MMFH-0022-IAA 111 22 1/5 1590 1740 1890
M4FH-0022-IAA 111 404A 1/5 1610 1740
M2FH-0024-SAA 111 134a 1/4 1740 1920
M2FH-0026-IAA 072,111,103 134a 1/4 1910 2100
MCFH-0027-IAA 111,103,272 22 1/4 2410
M4FH-0025-IAA 103,272 404A 1/4 2190
M2FH-A033-IAA, IAV 111,103,272 134a 1/3 2440 2720
MCFH-0036-IAA 111,103,272 22 1/3 2930 3230 3550
M4FH-A036-IAA, IAV 111,103,272 404A 1/3 3100 3390
M2FH-0049-IAA, IAV 111,103,272 134a 1/2 3430
MCFH-0049-CAA, CAV 111,103,272 22 1/2 4150 4550
M2FH-0050-IAA-IAV 111,103,272 134a 1/2 4060
M4FF-0050-IAA, IAV 212 404A 1/2
M4FF-0056-IAA, IAV 103,212,272 404A 1/2
M2FH-0056-IAA, IAV 111,103,272 134a 1/2 4450 4920
MCFH-0056-IAA, IAV 111,103,272 22 1/2 4610 5140 5730
M4FH-0050-CAA, CAV 111,103,272 404A 1/2 3850 4190
FTAH-B074-IAA, IAV 212 134a 3/4 4850 5420
FTAM-A075-IAA, IAV 020 134a 3/4
F3AH-A078-IAA, IAV 020 22 3/4 5870 6520 7200 7890
M4FF-0075-CAA, CAV 020 404A 3/4
FTAH-A101-CFV, TFC, TFD 020 134a 1 7080 8000
F3AH-A100-CAV 020 22 1 6900 7650
FJAF-0106-CAV 020 404A 1
F3AM-A105-CFV, TFC 020 22 1
FTAH-A125-CFV, TFC, TFD 020 134a 1-1/4 10100 11500 13000 14500
FJAM-A125-CFV, TFC 020 404A 1-1/4
FJAM-A126-CAV, TFC 020 404A 1-1/4
FTAH-A150-CFV, TFC, TFD 020 134a 1-1/2 11900 13500
FGAH-A151-CFV, TFC, TFD 020 22 1-1/2 10200 11500
FGAH-A151-CFV, TFC, TFD 020 407C 1-1/2 10400 11600 12900 14200
FJAM-A150-CFV, TFC, TFD 020 404A 1-1/2
FTAH-A201-CFV, TFC, TFD 020 134a 2 14900 17100 19400 21800
FGAH-A201-CFV, TFC, TFD 015, 020 22 2 14300 16100 18100
FGAH-A201-CFV, TFC, TFD 015, 020 407C 2 13600 15200 16900 18600
FJAM-A200-CFV, TFC 020 404A 2
FJAM-A225-CFV, TFC, TFD 020 404A 2-1/4
FGAH-A225-CFV, TFC, TFD 015, 020 22 2-1/4 15900 17900
FGAH-A225-CFV, TFC, TFD 015, 020 407C 2-1/4 15700 17500 19500 21500
FGAH-A301-CFV, TFC, TFD 015, 020 22 3 22700 25300 28000
FGAH-A301-CFV, TFC, TFD 015, 020 407C 3 20100 22700 25400 28300
FJAM-A300-CFV, TFC, TFD 020 404A 3
FGAH-A325-CFV, TFC, TFD 015, 020 22 3-1/4 24600 27200
FGAH-A325-CFV, TFC, TFD 015, 020 407C 3-1/4 22000 24800 27700 30900
FJAM-A325-CFV, TFC, TFD 020 404A 3-1/4
FGAH-A401-CFV, TFC, TFD 015, 020 22 4 35200 39200 43300 47500
FGAH-A401-CFV, TFC, TFD 015, 020 407C 4 31600 35800 40300 45100
FJAM-B400-CFV, TFC, TFD 020 404A 4
FGAH-A501-CFV, TFC, TFD, TFE 015, 020 22 5 41400 45800 50500 55200
FGAH-A501-CFV, TFC, TFD, TFE 015, 020 407C 5 40800 45100 49600 54200
FJAM-B500-CFV, TFC 020 404A 5
Capacities are at 60 Hertz with 5°F subcooling.
HT models are rated at 65°F return gas temperature.
MT models are rated at 40°F return gas temperature

8
2011DS-4 _M&F (4/11) Emerson Climate Technologies
NOTE: See appendix for Flex-Line hood information
SystemPro® air-cooled condensing units
Physical/Electrical Data
HIGH/MED TEMP
Model
Comp
Model
Oil
Type
Overall Dimensions
(In)
Connecting
Lines
Minimum Circuit Ampacity -
Max Fuse Size
Pump
Down
Cap.
(lbs)
Ship
Wt.
(lbs)
L W H Suction Liquid 115-1-60 208/230-1 230-3 460-3
M2FH-0017-SAA ARB13C3E POE 13.9 11.3 9.7 3/8 S 1/4 S 4.2 - 15 33
M2FH-0020-IAA ARB17C3E POE 13.8 11.3 9.7 3/8 S 1/4 S 5.2 - 15 41
MMFH-0022-IAA ARB21C3 AB 13.8 11.3 9.7 3/8 S 1/4 S 6.5 - 15 37
M4FH-0022-IAA ASB12C3E POE 13.8 11.4 9.7 3/8 S 1/4 S 7.3 - 15 37
M2FH-0024-SAA ARE25C3E POE 13.8 11.8 9.7 3/8 S 1/4 S 6.9 - 15 36
M2FH-0026-IAA ARE27C3E POE 13.8 11.8 9.7 3/8 S 1/4 S 6.8 - 15 2-1/2 41
MCFH-0027-IAA ARE36C3 AB 13.8 11.3 9.7 3/8 S 1/4 S 9.1 - 15 2.5 38
M4FH-0025-IAA ASE19C3E POE 13.8 11.8 9.7 3/8 S 1/4 S 10.7 - 15 2.2 43
M2FH-A033-IAA, IAV ARE37C3E POE 13.8 11.3 9.7 3/8 S 1/4 S 9.9 - 15 4.9 - 15 2.5 43
MCFH-0036-IAA ARE43C3 AB 16.1 12.9 11.8 3/8 S 1/4 S 9.7 - 15 3.6 49
M4FH-A036-IAA, IAV ASE24C3E POE 16.1 12.7 11.8 3/8 S 1/4 S 8.4 - 15 5.9 - 15 3.3 44
M2FH-0049-IAA, IAV ART51C1E POE 16.2 12.7 11.8 3/8 S 1/4 S 12.5 - 20 6.85 - 15 3.7 56
MCFH-0049-CAA, CAV ARE59C3A AB 16.1 13.1 11.8 3/8 S 1/4 S 10.9 - 15 5.6 - 15 4.0 51
M2FH-0050-IAA-IAV ART62C1E POE 16.2 12.7 11.8 3/8 S 1/4 S 13.6 - 20 7.3 - 15 4.1 58
M4FF-0050-IAA, IAV RST45C1E POE 16.1 13.7 11.7 1/2 S 1/4 S 14 - 20 7.2 - 15 2.2 55
M4FF-0056-IAA, IAV RST45C1E POE 17.4 14.4 11.8 1/4 S 5/8 S 14.8 - 20 7.6 - 15 4.3 58
M2FH-0056-IAA, IAV ART64C1E POE 17.9 14.4 11.8 1/2 S 1/4 S 15.5 - 20 8.8 - 15 4.3 66
MCFH-0056-IAA, IAV ART69C1 AB 17.4 14.4 11.8 3/8 S 1/4 S 18.0 - 25 9.6 - 15 4.1 69
M4FH-0050-CAA, CAV ASE32C3E POE 16.1 12.7 11.8 3/8 S 1/4 S 12.3 - 20 6.7 - 15 3.7 50
FTAH-B074-IAA, IAV RR81C2E POE 17.4 14.4 11.8 5/8 S 3/8 S 20.7 - 30 12.3 - 20 5.1 79
FTAM-A075-IAA, IAV RS54C2E POE 24.0 16.9 13.1 5/8 S 3/8 S 16.8 - 25 9.7 - 15 7.9 95
F3AH-A078-IAA, IAV RS47C2 MIN 24.0 16.9 13.1 5/8 S 3/8 S 19.9 - 30 10.1 - 15 6.1 101
M4FF-0075-CAA, CAV RST55C1E POE 24.0 16.9 13.1 5/8 S 3/8 S 20.8 - 30 9.7 - 15 7.2 82
FTAH-A101-CFV, TFC, TFD CS10K6E POE 24.0 16.8 15.9 5/8 S 3/8 S 14.8 - 20 10-5 - 15 5.2 - 15 8.4 130
F3AH-A100-CAV RRG4-0100 MIN 24.0 16.9 13.1 5/8 S 3/8 S 9.5 - 15 8.3 107
FJAF-0106-CAV RST64C1E POE 24.0 18.3 16.1 7/8 S 3/8 S 12.7 - 20 7.9 140
F3AM-A105-CFV, TFC RS70C1 MIN 24.0 18.4 16.2 7/8 S 3/8 S 11.7 - 15 14.7 98
FTAH-A125-CFV, TFC, TFD CS14K6E POE 24.0 18.4 16.3 7/8 S 3/8 S 18.4 - 25 14.3 - 20 7.5 - 15 9.2 140
FJAM-A125-CFV, TFC RS70C1E POE 24.0 18.3 16.2 7/8 S 3/8 S 11.7 - 15 8.8 - 15 12.8 124
FJAM-A126-CAV, TFC RS80C2E POE 24.0 18.3 16.2 7/8 S 3/8 S 14.9 - 20 10.9 - 15 12.8 133
FTAH-A150-CFV, TFC, TFD CS18K6E POE 24.0 18.4 16.3 7/8 S 3/8 S 21.4 - 35 15.9 - 20 7.5 - 15 9.2 153
FGAH-A151-CFV, TFC, TFD CR18KQE POE 24.0 18.3 16.9 7/8 S 3/8 S 14.2 - 20 10.4 - 15 5.4 - 15 9.1 133
FGAH-A151-CFV, TFC, TFD CR18KQE POE 24.0 18.3 16.1 7/8 S 3/8 S 14.2 - 20 10.4 - 15 5.4 - 15 133
FJAM-A150-CFV, TFC, TFD CS10K6E POE 24.0 18.3 16.2 7/8 S 3/8 S 16.5 - 20 12.2 - 15 6.1 - 15 12.8 144
FTAH-A201-CFV, TFC, TFD CS20K6E POE 25.2 34.0 18.9 7/8 S 3/8 S 29.1 - 40 20.0 - 25 9.6 - 15 16.7 140
FGAH-A201-CFV, TFC, TFD CR24KQE POE 25.0 34.0 19.0 7/8 S 3/8 S 19.2 - 30 11.7 - 15 6.1 - 15 17.8 180
FGAH-A201-CFV, TFC, TFD CR24KQE POE 25.2 34.0 19.0 7/8 S 3/8 S 19.2 - 30 11.7 - 15 6.1 -15 215
FJAM-A200-CFV, TFC CS12K6E POE 25.1 31.4 18.9 7/8 S 3/8 S 15.9 - 20 11.7 - 15 14.3 170
FJAM-A225-CFV, TFC, TFD CS14K6E POE 25.1 34.1 18.9 7/8 S 3/8 S 17.8 - 25 13.7 - 20 7.4 - 15 14.3 202
FGAH-A225-CFV, TFC, TFD CR24KQE POE 25.1 34.1 19.0 7/8 S 3/8 S 21.1 - 30 13.3 - 15 7.0 - 15 17.8 239
FGAH-A225-CFV, TFC, TFD CR24KQE POE 25.2 34 19.0 7/8 S 3/8 S 21.1 - 30 13.3 - 15 7.0 - 15 239
FGAH-A301-CFV, TFC, TFD CR37KQE POE 25.2 34.1 19.1 1-1/8 S 3/8 S 28.9 - 40 19.7 - 20 10.2 - 15 20.0 239
FGAH-A301-CFV, TFC, TFD CR37KQE POE 25.2 34 19 7/8 S 3/8 S 28.9 - 40 19.7 - 20 10.2 - 15 239
FJAM-A300-CFV, TFC, TFD CS18K63 POE 25.1 34.1 19.4 1-1/8 S 3/8 S 25.8 - 35 18.8 - 20 9.1 - 15 16.3 217
FGAH-A325-CFV, TFC, TFD CR41KQE POE 25.2 34.1 18.9 1-1/8 S 3/8 S 30.1 - 40 22.2 - 25 10.6 - 15 20.0 239
FGAH-A325-CFV, TFC, TFD CR41KQE POE 25.2 34 19 7/8 S 3/8 S 30.1 - 40 22.2 - 25 10.6 - 15 239
FJAM-A325-CFV, TFC, TFD CS20K6E POE 25.1 34.1 18.9 1-1/8 S 3/8 S 29.1 - 40 20.1 - 25 9.6 - 15 16.3 224
FGAH-A401-CFV, TFC, TFD CR53KQE POE 28.2 44.1 26.9 1-1/8 S 1/2 S 39.9 - 60 26.1 - 40 13.8 - 20 31.5 306
FGAH-A401-CFV, TFC, TFD CR53KQE POE 24 18.3 16.1 7/8 S 3/8 S 39.9 - 60 26.1 - 40 13.8 - 20 306
FJAM-B400-CFV, TFC, TFD CS27K6E POE 28.2 44.1 26.9 1-1/8 S 1/2 S 33.5 - 50 23.1 - 35 12.0 - 15 27.3 373
FGAH-A501-CFV, TFC, TFD, TFE CRKQ-050E POE 28.6 44.1 26.9 1-1/8 S 1/2 S 46.5 - 70 30.4 - 45 14.4 - 20 31.5 337
FGAH-A501-CFV, TFC, TFD, TFE CRKQ-050E POE 28.6 44.1 26.9 1-1/8 S 1/2 S 46.5 - 70 30.4 - 45 14.4 - 20 337
FJAM-B500-CFV, TFC CS33K3E POE 28.2 44.1 26.8 1-1/8 S 1/2 S 42.0 - 60 27.0 - 40 27.3 295
F = Flare S = Sweat *TFE MCA-Max Fuse Size 11.9 - 15

9
2011DS-4 _M&F (4/11) Emerson Climate Technologies
NOTE: See appendix for Flex-Line hood information
SystemPro® air-cooled condensing units
Capacity Data
LOW TEMP Capacity (BTU/Hr) at 90° Ambient - Evaporator Temp (°F)
Model BOM Refrig. H.P. -30 -25 -20 -15 -10 0
M2FL-0023-IAA 111 134a 1/4 440 550 630 740 960
M4FL-0025-IAA 072, 111, 103 404A 1/4 610 710 810 920 1160
M2FL-A025-IAA 111,103,020 134a 1/4 720 820 940 1070 1370
M2FL-B033-IAA 111,103,020 134a 1/3 850 960 1040 1240 1590
M4FL-0033-IAA 072, 111, 103 404A 1/3 860 1040 1210 1390 1750
M2FL-0040-IAA 111,103,020 134a 1/3 920 1120 1320 1540 2010
M4FL-0040-IAA 111,103,272 404A 1/3 1320 1550 1790 2040 2560
FTAL-A050-IAA, IAV 111,103,212 134a 1/2 1280 1590 1910 2260 2980
M4FL-H051-IAA 111,103,272 404A 1/2 1460 1760 2080 2430 3160
M4FL-0067-CFA, CFV 111,103,272 404A 3/4 2190 2520 2890 3290 4200
FJAF-A075-CAA, IAV 020 404A 3/4 2110 2560 3020 3490 4400
FJAL-A101-CAV, TFC 020 404A 1 3160 3680 4240 4850 6170
FJAL-A103-CFV, TFC 020 404A 1 2380 2950 3570 4230 4950 6500
FJAL-B200-CFV, TFC, TFD 020 404A 2 4100 5040 6060 7130 8260 10500
FJAL-A225-CFV, TFC, TFD 020 404A 2-1/4 4350 5380 6510 7730 9010 11600
FJAL-B301-CFV, TFC, TFD 020 404A 3 6330 7830 9470 11200 13100 16900
FJAL-A390-CFV, TFC, TFD 015 404A 4 8700 10400 12200 14000 16000 20000
LOW TEMP Capacity (BTU/Hr) at 100° Ambient - Evaporator Temp (°F)
Model BOM Refrig. H.P. -30 -25 -20 -15 -10 0
M2FL-0023-IAA 111 134a 1/4 420 510 600 710 920
M4FL-0025-IAA 072, 111, 103 404A 1/4 560 640 740 840 1050
M2FL-A025-IAA 111,103,020 134a 1/4 670 760 870 1000 1280
M2FL-B033-IAA 111,103,020 134a 1/3 770 880 1000 1150 1480
M4FL-0033-IAA 072, 111, 103 404A 1/3 690 850 1010 1180 1530
M2FL-0040-IAA 111,103,020 134a 1/3 780 960 1150 1350 1810
M4FL-0040-IAA 111,103,272 404A 1/3 1100 1310 1530 1770 2240
FTAL-A050-IAA, IAV 111,103,212 134a 1/2 1050 1340 1640 1970 2660
M4FL-H051-IAA 111,103,272 404A 1/2 1240 1500 1790 2100 2770
M4FL-0067-CFA, CFV 111,103,272 404A 3/4 1960 2260 2590 2960 3770
FJAF-A075-CAA, IAV 020 404A 3/4 1770 2200 2620 3060 3920
FJAL-A101-CAV, TFC 020 404A 1 2720 3200 3720 4270 5470
FJAL-A103-CFV, TFC 020 404A 1 1930 2430 2970 3550 4180 5540
FJAL-B200-CFV, TFC, TFD 020 404A 2 3410 4250 5170 6140 7160 9170
FJAL-A225-CFV, TFC, TFD 020 404A 2-1/4 3610 4540 5560 6670 7840 10200
FJAL-B301-CFV, TFC, TFD 020 404A 3 5370 6700 8170 9750 11400 14900
FJAL-A390-CFV, TFC, TFD 015 404A 4 7280 8890 10500 12200 14000 17600
LOW TEMP Capacity (BTU/Hr) at 110° Ambient - Evaporator Temp (°F)
Model BOM Refrig. H.P. -30 -25 -20 -15 -10 0
M2FL-0023-IAA 111 134a 1/4 370 470 550 650 870
M4FL-0025-IAA 072, 111, 103 404A 1/4 500 570 660 750 930
M2FL-A025-IAA 111,103,020 134a 1/4 700 800 920 1190
M2FL-B033-IAA 111,103,020 134a 1/3 800 920 1050 1360
M4FL-0033-IAA 072, 111, 103 404A 1/3 520 670 830 990 1320
M2FL-0040-IAA 111,103,020 134a 1/3 600 780 970 1170 1630
M4FL-0040-IAA 111,103,272 404A 1/3 850 1060 1280 1500 1970
FTAL-A050-IAA, IAV 111,103,212 134a 1/2 1700 2350
M4FL-H051-IAA 111,103,272 404A 1/2 970 1210 1480 1770 2410
M4FL-0067-CFA, CFV 111,103,272 404A 3/4 2000 2310 2650 3410
FJAF-A075-CAA, IAV 020 404A 3/4 1840 2230 2630 3400
FJAL-A101-CAV, TFC 020 404A 1 2710 3180 3680 4740
FJAL-A103-CFV, TFC 020 404A 1 1510 1920 2370 2850 3380 4540
FJAL-B200-CFV, TFC, TFD 020 404A 2 3520 4310 5160 6060 7840
FJAL-A225-CFV, TFC, TFD 020 404A 2-1/4 2970 3760 4660 5640 6680 8840
FJAL-B301-CFV, TFC, TFD 020 404A 3 4470 5620 6910 8310 9820 12900
FJAL-A390-CFV, TFC, TFD 015 404A 4 5900 7400 8910 10400 12000 15300
Capacities are at 60 Hertz with 5°F subcooling
LT models are rated at 40°F return gas temperature

10
2011DS-4 _M&F (4/11) Emerson Climate Technologies
NOTE: See appendix for Flex-Line hood information
SystemPro® air-cooled condensing units
Physical/Electrical Data
LOW TEMP
Model
Comp
Model
Oil
Type
Overall Dimensions
(In)
Connecting
Lines
Minimum Circuit Ampacity -
Max Fuse Size
Pump
Down
Cap.
(lbs)
Ship
Wt.
(lbs)
L W H Suction Liquid 115-1-60 208/230-1 230-3 460-3
M2FL-0023-IAA AFB05C3E POE 13.8 11.3 9.7 3/8 S 1/4 S 4.2 - 15 36
M4FL-0025-IAA AFB09C3E POE 13.8 11.8 9.7 3/8 S 1/4 S 6.7 - 15 2.4 42
M2FL-A025-IAA AFE10C3E POE 13.8 11.3 9.7 3/8 S 1/4 S 6.9 - 15 2.5 35
M2FL-B033-IAA AFE12C3E POE 16.2 12.4 9.7 3/8 S 1/4 S 6.7 - 15 2.5 44
M4FL-0033-IAA AFE11C3E POE 13.8 12.0 9.7 3/8 S 1/4 S 7.7 - 15 2.2 44
M2FL-0040-IAA AFT12C1E POE 16.7 12.6 9.7 3/8 S 1/4 S 7.3 - 15 2.8 55
M4FL-0040-IAA AFE13C3E POE 16.2 13.1 11.8 3/8 S 1/4 S 8.9 - 15 3.1 52
FTAL-A050-IAA, IAV RF18C2E POE 16.0 13.3 11.9 1/2 S 1/4 S 17.2 - 25 9.5 - 15 3.6 69
M4FL-H051-IAA AFE17C4E POE 17.4 13.1 11.8 1/2 S 1/4 S 11.6 - 15 3.5 65
M4FL-0067-CFA, CFV AFT26C1E POE 18.1 14.4 11.8 1/2 S 1/4 S 12.7 - 15 6.8 - 15 3.8 65
FJAF-A075-CAA, IAV RS64C2E POE 24.0 16.1 13.1 5/8 S 3/8 S 21.0 - 30 12.7 - 20 4.8 89, 99
FJAL-A101-CAV, TFC RS80C2E POE 24.0 16.9 13.1 5/8 S 3/8 S 13.2 - 20 9.2 - 15 9.2 107
FJAL-A103-CFV, TFC CF04K6E POE 24.0 17.2 15.0 7/8 S 3/8 S 13.2 -20 9.2 -15 7.2 125
FJAL-B200-CFV, TFC, TFD CF06K6E POE 24.0 19.5 16.3 7/8 S 3/8 S 17.2 - 25 11.7 - 15 6.2 - 15 7.9 138
FJAL-A225-CFV, TFC, TFD CF06K6E POE 25.2 34.1 19.0 7/8 S 3/8 S 16.6 - 25 11.1 - 15 6.1 - 15 14.3 197
FJAL-B301-CFV, TFC, TFD CF09K6E POE 25.2 34.1 19.0 7/8 S 3/8 S 26.7 - 35 18.6 - 20 10.1 - 15 16.3 225
FJAL-A390-CFV, TFC, TFD CF12K6E POE 25.2 34.0 19.0 7/8 S 3/8 S 31.4 - 45 21.2 - 25 11.5 - 15 16.3 226
F = Flare S = Sweat
Unit Features
Flare BOM
(Obsolete)
Sweat
BOM
Suction Connections Liquid Connections Filter
Drier
Sight
Glass
Electrical Connections Fan Cycle
Control
Fan
Guard UL/UR
Suction
Valve
Suction
Accumulator
Base
Valve
Receiver
s/Valve
Power
Cord
BX
Conduit
105, 106 111 UR
109 103 UR
201 212
UR*
010 015
UL
001 020
UL
072
UL
272
UR
*These recognized models are identical to listed models less pressure control. Need for the control is to be evaluated in the end use application.
Control Data*
Horsepower Voltage Bill of
Material
Crankcase
Heater
Low Pressure
Control
High/Low
Pressure
Control
Contactor 115 Volt Control Circuit
Transformer
1/6 - 1/2 All All No No No No No
3/4 115 or 208/230 (1Ph) -212 No No No No No
3/4 115 or 208/230 (1Ph) -020 No Yes No No No
1 115 or 208/230 (1Ph) -020 Yes 1Yes As Required No No
1 208/230 (3Ph) -020 Yes 1Yes Yes No
1-1/4 - 1-1/2 208/230 (1Ph) All No 2Yes No No
1-1/4 - 1-1/2 208/230 (3Ph) All No 2Yes Yes No
2 - 5 208/230 (1Ph) All Yes Yes Yes No
2 - 5 208/230 (3Ph) All Yes Yes Yes No
1 - 5 460 (3Ph) All Yes 1Yes Yes Yes
* This data applies to units listed in this brochure only. 1 Except units using R compressor 2 Except units using CS or CF compressor
Hood Specifi cation Data
Emerson
Part #
Mfg.
Part #
External Dimensions (in.) Internal Dimensions (in.) Unit Size*
LWH LWH
505-7066-00 N/A 24.3 20.2 18.7 22.5 18.4 15.0 1/2 Hp to 3/4 Hp
505-7066-01 N/A 30.3 23.5 22.7 28.5 22.2 19 3/4 Hp to 2 Hp
505-7066-02 N/A 32.3 38.3 22.7 30.6 37.1 24.0 2 Hp to 3 Hp
505-7066-03 N/A 35.3 48 34.7 33.6 46.2 30.7 4 Hp to 6 Hp
005-0882-03 CHO-13 35.5 24.0 25.0 34.5 24.0 21.0
005-0882-05 CHO-16 46.5 38.0 38.0 45.5 38.0 33.0
005-0882-06 CHO-17 42.5 74.0 48.5 41.5 74.0 40.5
UL Listed for outdoor use * Specifi c model to hood cross reference should be used.

11
2011DS-4 _M&F (4/11) Emerson Climate Technologies
NOTE: See appendix for Flex-Line hood information
SystemPro® air-cooled condensing units
Hood Selection
Copeland® Model Dimensions (in.) Hood Flex-Line Hood
LWH
SystemPro Air-Cooled
M2FH-0017 13.8 11.8 9.7 005-0882-00 / -09 505-7066-00
M2FH-0026 13.8 11.8 9.7 005-0882-00 / -09 505-7066-00
M2FH-0033 13.8 11.8 9.7 005-0882-00 / -09 505-7066-00
M2FH-0056 17.4 14.4 11.8 005-0882-00 / -09 505-7066-00
M4FH-0025 13.8 11.8 9.7 005-0882-00 / -09 505-7066-00
M4FH-A036 16.1 12.7 11.8 005-0882-00 / -09 505-7066-00
M2FL-0020 13.8 11.1 9.7 005-0882-00 / -09 505-7066-00
M2FL-A025 13.8 11.8 9.7 005-0882-00 / -09 505-7066-00
M2FL-B033 16.2 12.4 9.7 005-0882-00 / -09 505-7066-00
M4FL-0040 16.2 13.1 11.8 005-0882-00 / -09 505-7066-00
M4FL-0051 17.4 13.1 11.8 005-0882-00 / -09 505-7066-00
M4FL-0067 18.1 14.4 11.8 005-0882-00 / -09 505-7066-00
MCFH-0027 13.8 11.8 9.7 005-0882-00 / -09 505-7066-00
MCFH-0036 16 12.9 11.8 005-0882-00 / -09 505-7066-00
MCFH-0056 17.5 14.3 11.8 005-0882-00 / -09 505-7066-00
M4FF-0056 17.5 14.3 12.1 005-0882-00 / -09 505-7066-00
M4FF-0080 24.0 16.9 13.1 005-0882-00 / -09 505-7066-01
FJAL-A101 24.0 16.9 13.1 005-0882-00 / -09 505-7066-01
FJAL-B200 24.0 19.5 16.3 005-0882-02 / -10 505-7066-01
FJAL-B301 25.2 34.1 19.0 005-0882-01 / -11 505-7066-02
FJAL-A390 25.2 34.1 19.0 005-0882-01 / -11 505-7066-02
FJAF-0106 24.0 18.3 16.2 005-0882-00 / -09 505-7066-01
FJAM-A200 25.2 34.1 18.9 005-0882-01 / -11 505-7066-02
FJAM-B400 28.2 44.1 26.9 005-0882-04 505-7066-03
FTAH-B074 17.4 14.4 11.8 005-0882-00 / -09 505-7066-00
FTAH-A101 24.0 16.8 15.9 005-0882-00 / -09 505-7066-01
FTAH-A150 24.0 18.4 16.3 005-0882-02 / -10 505-7066-01
FTAH-A201 25.2 34.0 18.9 005-0882-01 / -11 505-7066-02
FTAL-A050 16.0 13.3 11.9 005-0882-00 / -09 505-7066-00
FGAH-A151 24.1 18.3 16.9 005-0882-02 / -10 505-7066-01
FGAH-A201 25.0 34.0 19.0 005-0882-01 / -11 505-7066-02
FGAH-A301 25.0 34.0 19.0 005-0882-01 / -11 505-7066-02
FGAH-A401 28.6 44.1 26.9 005-0882-04 505-7066-03
FGAH-A501 28.6 44.1 26.9 005-0882-04 505-7066-03
F3AH-A078 24.0 16.9 13.1 005-0882-00 / -09 505-7066-01
F3AH-A100 24.0 16.9 13.1 005-0882-00 / -09 505-7066-01

12
2011DS-4 _M&F (4/11) Emerson Climate Technologies
NOTE: See appendix for Flex-Line hood information
Notes

Product Information
Horsepower: 1-1/2 – 6
Temperature Applications: Low/Medium/High
Refrigerants: R-404A
Installation Applications: A variety of applications including
walk-in boxes
Copeland Scroll®
Outdoor condensing units for refrigeration applications

Dimensional Drawings
Nomenclature • Welded Condensing Units
Temperature Application Code
High Temperature
Medium Temperature
Low Temperature
Extended Medium Temp.
Extra Low Temperature
Multiple
Multiple
H
M
L
F
E
S
N
Condensing
Unit
Family
Series
Comp. Motor Rating
Nominal
HP Code
1/2
3/4
1
1-1/2
2
3
4
5
6
7-1/2
9
10
15
0050
0075
0100
0150
0200
0300
0400
0500
0600
7500
0900
1000
1500
X X X X - X X X X
Compressor Motor Types
Phase
Description
Code
1 Capacitor Run - Capacitor Start C
1 Induction Run - Capacitor Start I
1 Induction Run - Split Phase S
1 Capacitor Run - Permanent Split P
3 Three Phase - General T
3 Star (Wye) Delta E
3 6 Lead - Part Winding or
Across the Line
F
Compressor Motor Protection
Type Protection Code
External Inherent Protection-
One Protector (Line Break) A
Internal Inherent Protection –
One Protector (Line Break) F
Internal Thermal Protection –
Electronic Sensors; and
Control Module External
S
Bill Of Material (BOM)
001 thru
099
Intended for UL Listing and
CUL Certifi ed
100 thru
299
Intended for UL Rercognition
and CUL Certifi ed
300 thru
399
Not eligible for either UL
Listing, UL Recognition or
CUL Certifi ed
- X X X - X X X
Refrigerant Code
R404A/507 J/4
R134a T/2
R12 B
R22 C/3/M
Multiple F
R22/407C G
R22 9
R134a/404A/22
N
R134a/404A P
R404A/22 8
Type of Design Code
Air Cooled Steel Base A
Air Cooled Copevap Base E/P
Narrow Air Cooled Copevap T
Water Cooled Steel Base W
Custom Base C
Discus D
Electrical Codes
60 Hz. 50 Hz. Code
115-1
230-1
208/230-3
460-3
575-3
-
-
208/230-1
-
-
100-1
-
200/220-3
-
-
230-1
380/420-3
200-1
220-3
220/240-1
A
B
C
D
E
G
M
V
W
Z
Note: When applicable, specifi c 50
Hz ratings (not necessarily identical
to typical shown above) will be shown
as alternate on 60 Hz rated models.

1
2011DS-4 _XJ (4/11) Emerson Climate Technologies
Resources and Support
EmersonClimate.com
Online Product Information and Technical Data
• Application Engineering Bulletins
• Instruction Sheets
• Marketing Brochures
Product Selection Tools
• Walk-In Box Load Calculator
Where to Buy
Copeland Scroll® outdoor condensing units
Features Benefi ts
Copeland Scroll® Compressor
Variable Speed Fan Motor
Reliability
High Energy Effi ciency
Low Sound & Vibration
Advanced Diagnostics and Protection Features Faster Troubleshooting
Warranty Reduction
Factory Installed EK Filter Drier and
HMI Moisture Indicator
Fewer Leaks, Reduced Callbacks, Lower Installation Costs,
Increased Equipment Reliability, Lower Warranty
Slim Profi le Design and Light Weight Application Flexibility
Application Engineering Bulletins
4-1273 Factors to Consider in Converting Compressor
Rated Capacity to Actual Capacity
4-1327 Economized Vapor Injection (EVI) Compressors
11-1147 Suction Accumulators
11-1297 Liquid Line Filter Driers
17-1260 Compressor Overheating
17-1268 Compression Ratio as it Affects Compressor
Reliability
22-1182 Liquid Refrigerant Control in Refrigeration and
Air Conditioning Systems
2009IP-43 Copeland Scroll Outdoor Condensing Unit
Installation and Reference Manual is provided
with each unit and is a source for additional
product details.
2007IP-52 Refrigeration Load Calculator software is
available to compute refrigeration loads and
select matching components. Contact your
Emerson sales manager for more details.
For more information, visit EmersonClimate.com and login to the Customer Portal to view Online Product Information

2
2011DS-4 _XJ (4/11) Emerson Climate Technologies
Copeland Scroll® outdoor condensing units
Capacity Data
MED TEMP Capacity (BTU/Hr) at 90° Ambient - Evaporator Temp (°F)
Model Compressor Refrig. H.P. -5 0 +5 +10 +15
XJAM-015Z-CFV ZB11KCE 404A 1-1/2 7800 8500 9700 10800 12000
XJAM-020Z-CFV, TFC ZX15KCE 404A 2 10570 11780 13140 14610 16160
XJAM-030Z-CFV, TFC ZX21KCE 404A 3 15540 17900 19320 21570 23790
XJAM-040Z-CFV, TFC ZX30KCE 404A 4 21280 23920 26450 28030 32400
XJAM-050Z-CFV, TFC ZX38KCE 404A 5 26690 29600 32740 35910 39400
XJAM-060Z-TFC ZX45KCE 404A 6 30360 33830 37780 41780 45890
MED TEMP Capacity (BTU/Hr) at 95° Ambient - Evaporator Temp (°F)
Model Compressor Refrig. H.P. -5 0 +5 +10 +15
XJAM-015Z-CFV ZB11KCE 404A 1-1/2 7450 8100 9300 10400 11600
XJAM-020Z-CFV, TFC ZX15KCE 404A 2 11900 12600 14000 15600
XJAM-030Z-CFV, TFC ZX21KCE 404A 3 16800 18500 20600 22800
XJAM-040Z-CFV, TFC ZX30KCE 404A 4 20400 22800 25300 27500 31000
XJAM-050Z-CFV, TFC ZX38KCE 404A 5 25600 28500 31500 34600 38000
XJAM-060Z-TFC ZX45KCE 404A 6 29000 32400 36100 39900 44000
MED TEMP Capacity (BTU/Hr) at 100° Ambient - Evaporator Temp (°F)
Model Compressor Refrig. H.P. -5 0 +5 +10 +15
XJAM-015Z-CFV ZB11KCE 404A 1-1/2 7100 7800 8900 10000 11200
XJAM-020Z-CFV, TFC ZX15KCE 404A 2 10730 11970 13360 15070
XJAM-030Z-CFV, TFC ZX21KCE 404A 3 15780 17700 19670 21700
XJAM-040Z-CFV, TFC ZX30KCE 404A 4 19440 21770 24210 26920 29620
XJAM-050Z-CFV, TFC ZX38KCE 404A 5 24580 27480 30340 33360 36630
XJAM-060Z-TFC ZX45KCE 404A 6 27730 31000 34500 38110 42040
MED TEMP Capacity (BTU/Hr) at 110° Ambient - Evaporator Temp (°F)
Model Compressor Refrig. H.P. -5 0 +5 +10 +15
XJAM-015Z-CFV ZB11KCE 404A 1-1/2 6330 7220 7900 8100 9600
XJAM-020Z-CFV, TFC ZX15KCE 404A 2 10940 12170 13600
XJAM-030Z-CFV, TFC ZX21KCE 404A 3 17540 19850
XJAM-040Z-CFV, TFC ZX30KCE 404A 4 21910 24400 26830
XJAM-050Z-CFV, TFC ZX38KCE 404A 5 24980 27860 30650 33540
XJAM-060Z-TFC ZX45KCE 404A 6 23370 27280 31410 34800 38390

3
2011DS-4 _XJ (4/11) Emerson Climate Technologies
Copeland Scroll® outdoor condensing units
Capacity Data
MED TEMP Capacity (BTU/Hr) at 90° Ambient - Evaporator Temp (°F)
Model Compressor Refrig. H.P. +20 +25 +30 +35 +40
XJAM-015Z-CFV ZB11KCE 404A 1-1/2 13100 14600 16100 17500 19000
XJAM-020Z-CFV, TFC ZX15KCE 404A 2 17770 19560 20800 22300 23790
XJAM-030Z-CFV, TFC ZX21KCE 404A 3 26070 28490 30340 32470 34600
XJAM-040Z-CFV, TFC ZX30KCE 404A 4 35500 38640 41060 43960 46860
XJAM-050Z-CFV, TFC ZX38KCE 404A 5 43180 47070 49930 53330 56720
XJAM-060Z-TFC ZX45KCE 404A 6 50320 54610 58340 62410 66470
MED TEMP Capacity (BTU/Hr) at 95° Ambient - Evaporator Temp (°F)
Model Compressor Refrig. H.P. +20 +25 +30 +35 +40
XJAM-015Z-CFV ZB11KCE 404A 1-1/2 12700 14100 15500 16900 18200
XJAM-020Z-CFV, TFC ZX15KCE 404A 2 17200 18800 20100 21600 23100
XJAM-030Z-CFV, TFC ZX21KCE 404A 3 25000 27200 29100 31200 33300
XJAM-040Z-CFV, TFC ZX30KCE 404A 4 34000 37000 39400 42200 45000
XJAM-050Z-CFV, TFC ZX38KCE 404A 5 41600 45400 48200 51500 54800
XJAM-060Z-TFC ZX45KCE 404A 6 48200 52400 55900 59800 63700
MED TEMP Capacity (BTU/Hr) at 100° Ambient - Evaporator Temp (°F)
Model Compressor Refrig. H.P. +20 +25 +30 +35 +40
XJAM-015Z-CFV ZB11KCE 404A 1-1/2 12300 13600 14900 16200 17500
XJAM-020Z-CFV, TFC ZX15KCE 404A 2 16640 17930 19460 20930 22410
XJAM-030Z-CFV, TFC ZX21KCE 404A 3 23990 25880 27920 29960 32000
XJAM-040Z-CFV, TFC ZX30KCE 404A 4 32430 35330 37730 40380 43040
XJAM-050Z-CFV, TFC ZX38KCE 404A 5 40040 43760 46450 49630 52800
XJAM-060Z-TFC ZX45KCE 404A 6 45970 50180 53480 57230 60970
MED TEMP Capacity (BTU/Hr) at 110° Ambient - Evaporator Temp (°F)
Model Compressor Refrig. H.P. +20 +25 +30 +35 +40
XJAM-015Z-CFV ZB11KCE 404A 1-1/2 11000 12100 13300 14400 15600
XJAM-020Z-CFV, TFC ZX15KCE 404A 2 14940 16380 17700 19060 20430
XJAM-030Z-CFV, TFC ZX21KCE 404A 3 21800 23340 25470 27410 29340
XJAM-040Z-CFV, TFC ZX30KCE 404A 4 29490 32180 34650 37120 39780
XJAM-050Z-CFV, TFC ZX38KCE 404A 5 36370 39820 42470 45400 48330
XJAM-060Z-TFC ZX45KCE 404A 6 42200 45860 49660 53380 57110

4
2011DS-4 _XJ (4/11) Emerson Climate Technologies
Copeland Scroll® outdoor condensing units
Capacity Data
LOW TEMP Capacity (BTU/Hr) at 90° Ambient - Evaporator Temp (°F)
Model Compressor Refrig. H.P. -40 -35 -30 -25 -20
XJAL-020Z-CFV, TFC ZXI06KCE 404A 2 5700 6960 8210 9450 10690
XJAL-030Z-TFC ZXI09KCE 404A 3 7840 9390 10950 12500 14060
XJAL-035Z-CFV ZXI11KCE 404A 3-1/2 9700 11100 12600 14200 15900
XJAL-040Z-CFV, TFC ZXI14KCE 404A 4 12690 14430 16280 18240 20300
XJAL-050Z-TFC ZXI15KCE 404A 5 14030 16040 18140 20350 22660
XJAL-050Z-CFV ZXI16KCE 404A 5 14030 16040 18140 20350 22660
XJAL-060Z-TFC ZXI18KCE 404A 6 18000 20500 23000 25700 28600
LOW TEMP Capacity (BTU/Hr) at 95° Ambient - Evaporator Temp (°F)
Model Compressor Refrig. H.P. -40 -35 -30 -25 -20
XJAL-020Z-CFV, TFC ZXI06KCE 404A 2 5670 6900 8120 9330 10500
XJAL-030Z-TFC ZXI09KCE 404A 3 7390 8960 10500 12100 13700
XJAL-035Z-CFV ZXI11KCE 404A 3-1/2 9400 10700 12200 13700 15300
XJAL-040Z-CFV, TFC ZXI14KCE 404A 4 12500 14200 16000 17900 19900
XJAL-050Z-TFC ZXI15KCE 404A 5 13600 15500 17500 19700 21900
XJAL-050Z-CFV ZXI16KCE 404A 5 13600 15500 17500 19700 21900
XJAL-060Z-TFC ZXI18KCE 404A 6 17500 20000 22300 25000 27600
LOW TEMP Capacity (BTU/Hr) at 100° Ambient - Evaporator Temp (°F)
Model Compressor Refrig. H.P. -40 -35 -30 -25 -20
XJAL-020Z-CFV, TFC ZXI06KCE 404A 2 5640 6840 8020 9200 10370
XJAL-030Z-TFC ZXI09KCE 404A 3 6940 8520 10100 11680 13260
XJAL-035Z-CFV ZXI11KCE 404A 3-1/2 9090 10300 11700 13100 14700
XJAL-040Z-CFV, TFC ZXI14KCE 404A 4 12370 13980 15710 17540 19480
XJAL-050Z-TFC ZXI15KCE 404A 5 13110 14960 16900 18940 21080
XJAL-050Z-CFV ZXI16KCE 404A 5 13110 14960 16900 18940 21080
XJAL-060Z-TFC ZXI18KCE 404A 6 17240 19480 21930 24380 27030
LOW TEMP Capacity (BTU/Hr) at 110° Ambient - Evaporator Temp (°F)
Model Compressor Refrig. H.P. -40 -35 -30 -25 -20
XJAL-020Z-CFV, TFC ZXI06KCE 404A 2 5500 6610 7710 8810 9890
XJAL-030Z-TFC ZXI09KCE 404A 3 5830 7420 9010 10590 12180
XJAL-035Z-CFV ZXI11KCE 404A 3-1/2 9020 10140 11340 12720 14200
XJAL-040Z-CFV, TFC ZXI14KCE 404A 4 11850 13350 14950 16660 18480
XJAL-050Z-TFC ZXI15KCE 404A 5 11920 13590 15370 17250 19220
XJAL-050Z-CFV ZXI16KCE 404A 5 11920 13590 15370 17250 19220
XJAL-060Z-TFC ZXI18KCE 404A 6 16170 18330 20500 22760 25130

5
2011DS-4 _XJ (4/11) Emerson Climate Technologies
Copeland Scroll® outdoor condensing units
Capacity Data
LOW TEMP Capacity (BTU/Hr) at 90° Ambient - Evaporator Temp (°F)
Model Compressor Refrig. H.P. -15 -10 -5 0
XJAL-020Z-CFV, TFC ZXI06KCE 404A 2 11920 13140 14360 15570
XJAL-030Z-TFC ZXI09KCE 404A 3 15620 17170 18730 20280
XJAL-035Z-CFV ZXI11KCE 404A 3-1/2 17700 19700 21700 23900
XJAL-040Z-CFV, TFC ZXI14KCE 404A 4 22470 24740 27120 29610
XJAL-050Z-TFC ZXI15KCE 404A 5 25060 27570 30170 32880
XJAL-050Z-CFV ZXI16KCE 404A 5 25060 27570 30170 32880
XJAL-060Z-TFC ZXI18KCE 404A 6 31600 34700 38100 41500
LOW TEMP Capacity (BTU/Hr) at 95° Ambient - Evaporator Temp (°F)
Model Compressor Refrig. H.P. -15 -10 -5 0
XJAL-020Z-CFV, TFC ZXI06KCE 404A 2 11700 12900 14100 15300
XJAL-030Z-TFC ZXI09KCE 404A 3 15200 16800 18400 19900
XJAL-035Z-CFV ZXI11KCE 404A 3-1/2 17000 18900 20900 22900
XJAL-040Z-CFV, TFC ZXI14KCE 404A 4 22000 24200 26500 29000
XJAL-050Z-TFC ZXI15KCE 404A 5 24200 26600 29100 31800
XJAL-050Z-CFV ZXI16KCE 404A 5 24200 26600 29100 31800
XJAL-060Z-TFC ZXI18KCE 404A 6 30700 33700 37000 39900
LOW TEMP Capacity (BTU/Hr) at 100° Ambient - Evaporator Temp (°F)
Model Compressor Refrig. H.P. -15 -10 -5 0
XJAL-020Z-CFV, TFC ZXI06KCE 404A 2 11530 12680 13830 14970
XJAL-030Z-TFC ZXI09KCE 404A 3 14840 16420 18000 19580
XJAL-035Z-CFV ZXI11KCE 404A 3-1/2 16300 18100 20000 21900
XJAL-040Z-CFV, TFC ZXI14KCE 404A 4 21530 23680 25940 28300
XJAL-050Z-TFC ZXI15KCE 404A 5 23320 25660 28100 30640
XJAL-050Z-CFV ZXI16KCE 404A 5 23320 25660 28100 30640
XJAL-060Z-TFC ZXI18KCE 404A 6 29780 32740 35800 38200
LOW TEMP Capacity (BTU/Hr) at 110° Ambient - Evaporator Temp (°F)
Model Compressor Refrig. H.P. -15 -10 -5 0
XJAL-020Z-CFV, TFC ZXI06KCE 404A 2 10970 12040 13100 14160
XJAL-030Z-TFC ZXI09KCE 404A 3 13770 15350 16940 18530
XJAL-035Z-CFV ZXI11KCE 404A 3-1/2 15690 17380 19190 21090
XJAL-040Z-CFV, TFC ZXI14KCE 404A 4 20400 22420 24560 26800
XJAL-050Z-TFC ZXI15KCE 404A 5 21300 23470 25740 28110
XJAL-050Z-CFV ZXI16KCE 404A 5 21300 23470 25740 28110
XJAL-060Z-TFC ZXI18KCE 404A 6 27600 30200 32960 34700

6
2011DS-4 _XJ (4/11) Emerson Climate Technologies
Copeland Scroll® outdoor condensing units
Physical/Electrical Data
MED TEMP
Model
(Coolers)
Refrig. Comp H.P.
Overall Dimensions
(in)
Connecting
Lines (in) # of
Fans
Minimum Circuit Ampacity - Max
Fuse Size
Pump
Down
Capacity
(lbs)
Ship
Weight
(lbs)
L W H Suction Liquid 208/230-1-60 208/230-3-60
XJAM-015Z 404A ZB11KCE 1-1/2 16.7 40.5 33.1 3/4 1/2 1 12.3/20 7.5 180
XJAM-020Z 404A ZX15KCE 2 16.7 40.5 33.1 3/4 1/2 1 18.7 / 30 11.1 / 15 7.5 182
XJAM-030Z 404A ZX21KCE 3 16.7 40.5 33.1 3/4 1/2 1 24.3 / 40 14.7 / 25 7.5 194
XJAM-040Z 404A ZX30KCE 4 16.7 40.5 48.9 7/8 1/2 2 32.1 / 50 19.7 / 30 11 250
XJAM-050Z 404A ZX38KCE 5 16.7 40.5 48.9 7/8 1/2 2 36.6 / 60 29.0 / 50 11 258
XJAM-060Z 404A ZX45KCE 6.0 16.7 40.5 48.9 7/8 1/2 2 28.1 / 45 11 270
LOW TEMP
Model
(Freezers)
Refrig. Comp H.P.
Overall Dimensions
(in)
Connecting
Lines (in) # of
Fans
Minimum Circuit Ampacity - Max
Fuse Size
Pump
Down
Capacity
(lbs)
Ship
Weight
(lbs)
L W H Suction Liquid 208/230-1-60 208/230-3-60
XJAL-020Z 404A ZXI06KCE 2 16.7 40.5 33.1 3/4 1/2 1 19.4 / 30 14.7 / 25 7.5 188
XJAL-030Z 404A ZXI09KCE 3 16.7 40.5 33.1 3/4 1/2 1 15.4 / 25 7.5 192
XJAL-035Z 404A ZXI11KCE 3-1/2 16.7 40.5 33.1 7/8 1/2 1 30.7 / 50 7.5 213
XJAL-040Z 404A ZXI14KCE 4 16.7 40.5 48.9 7/8 1/2 2 36.1 / 60 24.5 / 40 11 251
XJAL-050Z 404A ZXI15KCE 5 16.7 40.5 48.9 7/8 1/2 2 26.1 / 45 11 267
XJAL-050Z 404A ZXI16KCE 5 16.7 40.5 48.9 7/8 1/2 2 40.4 / 70 11 287
XJAL-060Z 404A ZXI18KCE 6.0 16.7 40.5 48.9 7/8 1/2 2 30.7 / 50 11 291
Product Features XJAM XJAL
Hood
Elevated Legs
Variable-Speed PSC Fan
Brass Service Valves
Receiver
Liquid Shut-off Valve
Moisture Indicator
Filter Drier
Fixed HP
Adjustable LP
CCH
Diagnostics
Accumulator
Oil Separator
Defrost Timer
One Way Communication
Standard on -002 and -012 models
Standard on -012 models only
Correction
Factor
Refrigerant Liquid Temperature °F
0 102030405060708090100110120130140
R-12 1.60 1.54 1.48 1.42 1.36 1.30 1.24 1.18 1.12 1.06 1.00 .94 .88 .82 .75
R-134a 1.70 1.63 1.56 1.49 1.42 1.36 1.29 1.21 1.14 1.07 1.00 .93 .85 .78 .71
R-22 1.56 1.51 1.45 1.40 1.34 1.29 1.23 1.17 1.12 1.06 1.00 .94 .88 .82 .76
R-404A/R-507 2.00 1.90 1.80 1.70 1.60 1.50 1.40 1.30 1.20 1.10 1.00 .90 .80 .70 .50
Sound Data
Model dBa*
MED
TEMP
XJAM-015Z 55
XJAM-020Z 55
XJAM-030Z 55
XJAM-040Z 58
XJAM-050Z 58
XJAM-060Z 58
LOW
TEMP
XJAL-020Z 53
XJAL-030Z 53
XJAL-035Z 53
XJAL-040Z 59
XJAL-050Z 59
XJAL-060Z 59
Sound pressure values are 10 feet from the unit at 25°F
evap for MT and -10°F evap for LT at 90°F ambient. A
sound reduction of up to 3 dBA will occur in ambient tem-
peratures below 70°F. This data is typical of “free fi eld”
conditions for horizontal air cooled condensing units and
may vary depending on the condensing unit installation.
There are many factors that affect the sound reading of a
condensing unit such as unit mounting, refl ecting walls,
background noise and operating condition.

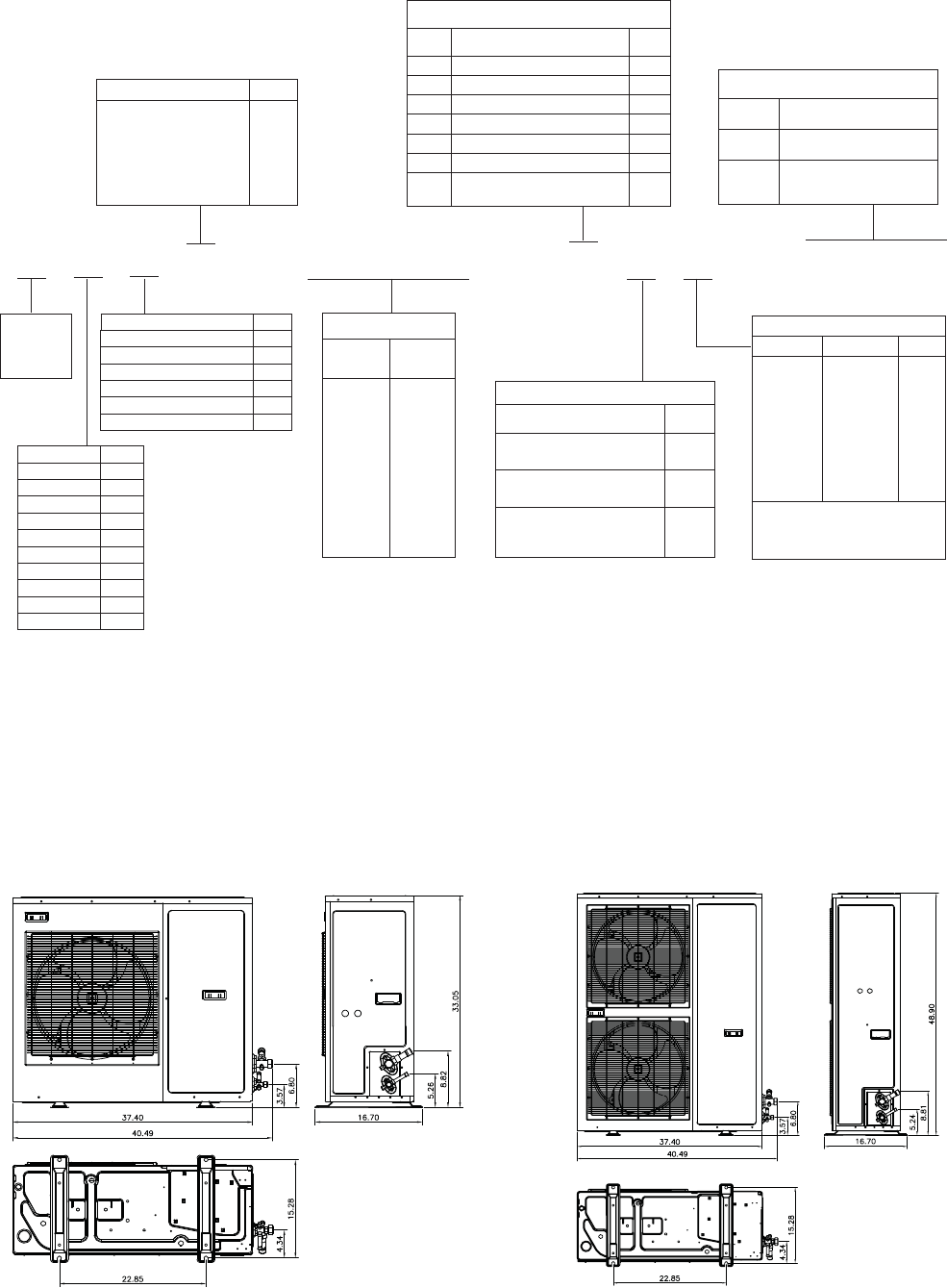
F and D Line
Copeland Scroll® air-cooled condensing units
Product Information
Horsepower: 1 – 10
Temperature Applications: Low/Medium/High
Refrigerants: R-134a, R-404A, R-22, R-407C
Installation Applications: A variety of applications including
bulk milk and walk-in boxes

BOM Suction
Valve*
Suction
Accumulator Receiver BX
Conduit
Fan
Guard
Discharge-
Line T'stat
High/ Low
Pressure
Control
Time Delay
Relay (1 Ø)
Filter
Drier
Moisture
Indicator
Liquid
Solenoid
Valve w/Coil
Fan
Cycle
Control
-015
-020
-071
-072
-073
-074
-081**
-172
-174
* except 1-1/2 HP
** includes factory installed Copeland PerformanceAlert™ module
BOM (bills of material) numbers apply only to the units listed in this section. All Models are UL Listed. UL/UR are registered trademarks of Underwriters Laboratories, Inc.
Nomenclature • Welded Condensing Units
Temperature Application Code
High Temperature
Medium Temperature
Low Temperature
Extended Medium Temp.
Extra Low Temperature
Multiple
Multiple
H
M
L
F
E
S
N
Condensing
Unit
Family
Series
Comp. Motor Rating
Nominal
HP Code
1/2
3/4
1
1-1/2
2
3
4
5
6
7-1/2
9
10
15
0050
0075
0100
0150
0200
0300
0400
0500
0600
7500
0900
1000
1500
X X X X - X X X X
Compressor Motor Types
Phase
Description
Code
1 Capacitor Run - Capacitor Start C
1 Induction Run - Capacitor Start I
1 Induction Run - Split Phase S
1 Capacitor Run - Permanent Split P
3 Three Phase - General T
3 Star (Wye) Delta E
3 6 Lead - Part Winding or
Across the Line
F
Compressor Motor Protection
Type Protection Code
External Inherent Protection-
One Protector (Line Break) A
Internal Inherent Protection –
One Protector (Line Break) F
Internal Thermal Protection –
Electronic Sensors; and
Control Module External
S
Bill Of Material (BOM)
001 thru
099
Intended for UL Listing and
CUL Certifi ed
100 thru
299
Intended for UL Rercognition
and CUL Certifi ed
300 thru
399
Not eligible for either UL
Listing, UL Recognition or
CUL Certifi ed
- X X X - X X X
Refrigerant Code
R404A/507 J/4
R134a T/2
R12 B
R22 C/3/M
Multiple F
R22/407C G
R22 9
R134a/404A/22
N
R134a/404A P
R404A/22 8
Type of Design Code
Air Cooled Steel Base A
Air Cooled Copevap Base E/P
Narrow Air Cooled Copevap T
Water Cooled Steel Base W
Custom Base C
Discus D
Electrical Codes
60 Hz. 50 Hz. Code
115-1
230-1
208/230-3
460-3
575-3
-
-
208/230-1
-
-
100-1
-
200/220-3
-
-
230-1
380/420-3
200-1
220-3
220/240-1
A
B
C
D
E
G
M
V
W
Z
Note: When applicable, specifi c 50
Hz ratings (not necessarily identical
to typical shown above) will be shown
as alternate on 60 Hz rated models.

1
2011DS-4 _F&D (4/11) Emerson Climate Technologies
Resources and Support
EmersonClimate.com
Online Product Information and Technical Data
• Application Engineering Bulletins
• Instruction Sheets
• Marketing Brochures
Product Selection Tools
• Walk-In Box Load Calculator
Where to Buy
Optional Hood (refer to appendix of this catalog or form
number 2010ECT-121 for more information)
Copeland Scroll® air-cooled condensing units
Features Benefi ts
Copeland Scroll® Compressor
Reliability
High Energy Effi ciency
Low Sound & Vibration
Advance Diagnostics and Protection Features Faster Trouble Shooting
Warranty Reduction
Factory Installed EK Filter Drier & HMI Moisture Indicator Less Leaks, Reduce Callbacks, Lower Installation Cost,
Increase Equipment Reliability, Lower Warranty
Modular Components Replacement Serviceability
Multi Refrigerant Approval for High/Med Models Application Flexibility
Inventory Consolidation
Application Engineering Bulletins
4-1273 Factors to Consider in Converting Compressor
Rated Capacity to Actual Capacity
4-1299 Application Guidelines for Copeland Scroll
Compressors 2 - 6 Horsepower
4-1302 Application Guidelines for Copeland Scroll
Compressors 7.5 - 15 Horsepower
4-1317 Application Guidelines for ZBKC / ZBKCE
Refrigeration Scroll Compressors 1.3 to 6 HP
4-1318 Application Guidelines for ZBKC / ZBKCE
Refrigeration Scroll Compressors 7 to 15 HP
8-1347 Copeland PerformanceAlert™ Diagnostic
Module
11-1147 Suction Accumulators
11-1297 Liquid Line Filter-Driers
17-1260 Compressor Overheating
17-1268 Compression Ratio as it Affects Compressor
Reliability
22-1182 Liquid Refrigerant Control in Refrigeration and
Air Conditioning Systems
For more information, visit EmersonClimate.com and login to the Customer Portal to view Online Product Information

2
2011DS-4 _F&D (4/11) Emerson Climate Technologies
Copeland Scroll® air-cooled condensing units
Capacity Data
HIGH/MED TEMP Capacity (BTU/Hr) at 90° Ambient - Evaporator Temp (°F)
Model BOM Refrig. H.P. -5 0 +5 +10 +15
FTAH-A13Z-CFV,TFC,TFD 072, 074 134a 1 7090 8030 9030
FJAM-A15Z-CFV 172, 174 404A 1-1/2 6910 7730 8680 9620 10600
FFAS-A20Z-CFV, TFC 081
22 2 14300
134a 2 7560 8570 9680
404A 2 10200 11200 12400 13600 14800
407C 2 11600 12900
FFAS-A25Z-CFV, TFC 081
22 2-1/2 15000 16800
134a 2-1/2 8880 10100 11400
404A 2-1/2 13100 14500 16100 17700 19400
407C 2-1/2 13200 14900
FFAS-A30Z-CFV, TFC 081
22 3 21200
134a 3 11000 12500 14100
404A 3 15400 17000 18800 20700 22600
407C 3 17200 19200
FFAS-A35Z-CFV, TFC 081
22 3-1/2 24200
134a 3-1/2 12600 14300 16100
404A 3-1/2 17600 19300 21400 23500 25700
407C 3-1/2 22300
FFAS-A40Z-CFV, TFC 081
22 4 26800 29800
134a 4 15300 17300 19600
404A 4 21300 23600 26200 28900 31800
407C 4 23900 26700
FFAS-A50Z-CFV, TFC, TFD 081
22 5 32400 36000
134a 5 18500 21000 23800
404A 5 26100 28900 32000 35200 38600
407C 5 30500 34000
FFAS-A60Z-TFC, TFD 081
22 6 42300
134a 6 22100 24900 28000
404A 6 30400 33700 37200 40900 44700
407C 6 34400 38400
FPAN-070Z-TFC,TFD 071, 073 134a 7 25700 29000 32500
404A 7 38200 42700 47300 52100
FPAN-080Z-TFC,TFD 071,073 134a 8 28600 32200 36000
404A 8 42200 47200 52300 57600
FPAN-091Z-TFC, TFD 071, 073 134a 9 32100 36000 40200
404A 9 48800 54000 59200 64700
FPAN-101Z-TFC,TFD 071, 073 134a 10 37000 41500 46400
404A 10 56800 62500 68200 74100
LOW TEMP Capacity (BTU/Hr) at 90° Ambient - Evaporator Temp (°F)
Model BOM Refrig. H.P. -40 -35
DJAL-015Z-CFV, TFC 081 404A 1-1/2 4750 5460
DJAL-020Z-CFV, TFC 081 404A 2 6040 6870
DJAL-022Z-CFV, TFC 081 404A 2+ 6680 7580
DJAL-026Z-CFV, TFC 081 404A 2-1/2 8420 9580
DJAL-030Z-CFV, TFC 081 404A 3 9280 10600
DJAL-041Z-CFV,TFC,TFD 081 404A 4 12000 13700
DJAL-051Z-TFC, TFD 081 404A 5 14300 16300
DJAL-060Z-TSC, TSD 081 404A 6 17000 19400
Capacities are at 60 Hertz with 65° return gas and 5°F subcooling.

3
2011DS-4 _F&D (4/11) Emerson Climate Technologies
Copeland Scroll® air-cooled condensing units
Capacity Data
HIGH/MED TEMP Capacity (BTU/Hr) at 90° Ambient - Evaporator Temp (°F)
Model BOM Refrig. H.P. +20 +25 +30 +40 +45
FTAH-A13Z-CFV,TFC,TFD 072, 074 134a 1 10100 11200 12400 14900 16300
FJAM-A15Z-CFV 172, 174 404A 1-1/2 11600 12700
FFAS-A20Z-CFV, TFC 081
22 2 15800 17400 19000 22700 24700
134a 2 10900 12200 13600 16500 18100
404A 2 16200 17500
407C 2 14400 15900 17600 21200 23100
FFAS-A25Z-CFV, TFC 081
22 2-1/2 18600 20500 22500 26900 29300
134a 2-1/2 12800 14300 16000 19500 21400
404A 2-1/2 21200 23200
407C 2-1/2 16700 18700 20800 25400 27900
FFAS-A30Z-CFV, TFC 081
22 3 23500 25800 28300 33700 36500
134a 3 15900 17700 19700 24100 26400
404A 3 24700 26900
407C 3 21400 23600 26100 31300 34200
FFAS-A35Z-CFV, TFC 081
22 3-1/2 26700 29300 32100 37900 41100
134a 3-1/2 18100 20200 22400 27300 29900
404A 3-1/2 28000 30400
407C 3-1/2 24700 27300 30200 36300 39400
FFAS-A40Z-CFV, TFC 081
22 4 33100 36500 40100 48000 52200
134a 4 22000 24700 27600 33800 37100
404A 4 34900 38100
407C 4 29800 33200 36800 44700 49000
FFAS-A50Z-CFV, TFC, TFD 081
22 5 39900 44000 48300 57600 62500
134a 5 26700 29900 33300 40700 44700
404A 5 42300 46100
407C 5 37700 41800 46100 55400 60400
FFAS-A60Z-TFC, TFD 081
22 6 46700 51400 56300 67000 72700
134a 6 31400 35000 38800 47100 51500
404A 6 48800 53100
407C 6 42700 47200 52000 62400 68100
FPAN-070Z-TFC,TFD 071, 073 134a 7 36300 40300 44500 53600 58600
404A 7 57100 62400
FPAN-080Z-TFC,TFD 071,073 134a 8 40200 44600 49300 59400 64900
404A 8 63000 68600
FPAN-091Z-TFC, TFD 071, 073 134a 9 44800 49800 55000 66200 72100
404A 9 70300 76300
FPAN-101Z-TFC,TFD 071, 073 134a 10 51600 57200 63100 75900 82600
404A 10 80300 86800
LOW TEMP Capacity (BTU/Hr) at 90° Ambient - Evaporator Temp (°F)
Model BOM Refrig. H.P. -30 -25 -20 -10 0
DJAL-015Z-CFV, TFC 081 404A 1-1/2 6220 7020 7080 9730 11800
DJAL-020Z-CFV, TFC 081 404A 2 7770 8740 9780 12100 14600
DJAL-022Z-CFV, TFC 081 404A 2+ 8540 9560 10600 13000 15600
DJAL-026Z-CFV, TFC 081 404A 2-1/2 10800 12200 13600 16800 20400
DJAL-030Z-CFV, TFC 081 404A 3 12100 13600 15300 18900 22900
DJAL-041Z-CFV,TFC,TFD 081 404A 4 15400 17300 19400 24000 29200
DJAL-051Z-TFC, TFD 081 404A 5 18500 20700 23100 28400 34400
DJAL-060Z-TSC, TSD 081 404A 6 22000 24700 27600 33900 40900
Capacities are at 60 Hertz with 65° return gas and 5°F subcooling.

4
2011DS-4 _F&D (4/11) Emerson Climate Technologies
Copeland Scroll® air-cooled condensing units
Capacity Data
HIGH/MED TEMP Cap. (BTU/Hr) at 100° F Ambient - Evaporator Temp (°F)
Model BOM Refrig. H.P. -5 0 +5 +10 +15
FTAH-A13Z-CFV,TFC,TFD 072, 074 134a 1 7500 8420
FJAM-A15Z-CFV 172, 174 404A 1-1/2 6070 6830 7750 8630 9540
FFAS-A20Z-CFV, TFC 081
22 2 14300
134a 2 7080 8040 9090
404A 2 9270 10200 11300 12400 13600
407C 2
FFAS-A25Z-CFV, TFC 081
22 2-1/2
134a 2-1/2 8330 9460 10700
404A 2-1/2 12000 13300 14700 16200 17800
407C 2-1/2 13900
FFAS-A30Z-CFV, TFC 081
22 3
134a 3 10300 11700 13300
404A 3 14100 15500 17200 18900 20700
407C 3
FFAS-A35Z-CFV, TFC 081
22 3-1/2
134a 3-1/2 11800 13400 15100
404A 3-1/2 16000 17700 19600 21500 23500
407C 3-1/2
FFAS-A40Z-CFV, TFC 081
22 4 28200
134a 4 14300 16300 18400
404A 4 19600 21700 24100 26600 29300
407C 4 25100
FFAS-A50Z-CFV, TFC, TFD 081
22 5
134a 5 17400 19700 22400
404A 5 23900 26500 29400 32300 35500
407C 5
FFAS-A60Z-TFC, TFD 081
22 6
134a 6 20500 23200 26100
404A 6 27900 30800 34100 37400 41000
407C 6
FPAN-070Z-TFC,TFD 071, 073 134a 7 24100 27200 30500
404A 7 34200 38500 42800 47200
FPAN-080Z-TFC,TFD 071,073 134a 8 26800 30200 33800
404A 8 37500 42100 46800 51600
FPAN-091Z-TFC, TFD 071, 073 134a 9 30000 33600 37700
404A 9 44700 49500 54200 59200
FPAN-101Z-TFC,TFD 071, 073 134a 10 34600 38800 43400
404A 10 51700 56800 61900 67300
LOW TEMP Capacity (BTU/Hr) at 100° Ambient - Evaporator Temp (°F)
Model BOM Refrig. H.P. -40 -35
DJAL-015Z-CFV, TFC 081 404A 1-1/2 4310 5020
DJAL-020Z-CFV, TFC 081 404A 2 5490 6310
DJAL-022Z-CFV, TFC 081 404A 2+ 6210 7050
DJAL-026Z-CFV, TFC 081 404A 2-1/2 7710 8840
DJAL-030Z-CFV, TFC 081 404A 3 8530 9770
DJAL-041Z-CFV,TFC,TFD 081 404A 4 11200 12700
DJAL-051Z-TFC, TFD 081 404A 5 13500 15400
DJAL-060Z-TSC, TSD 081 404A 6 15900 18100
Capacities are at 60 Hertz with 65° return gas and 5°F subcooling.

5
2011DS-4 _F&D (4/11) Emerson Climate Technologies
Copeland Scroll® air-cooled condensing units
Capacity Data
HIGH/MED TEMP Capacity (BTU/Hr) at 100° Ambient - Evaporator Temp (°F)
Model BOM Refrig. H.P. +20 +25 +30 +40 +45
FTAH-A13Z-CFV,TFC,TFD 072, 074 134a 1 9400 10400 11500 13900 15200
FJAM-A15Z-CFV 172, 174 404A 1-1/2 10500 11500
FFAS-A20Z-CFV, TFC 081
22 2 15800 17400 19000 22700 24700
134a 2 10200 11500 12800 15600 17100
404A 2 14800 16000
407C 2 13400 14900 16400 19900 21700
FFAS-A25Z-CFV, TFC 081
22 2-1/2 17500 19300 21200 25300 27600
134a 2-1/2 12100 13500 15100 18500 20300
404A 2-1/2 19500 21300
407C 2-1/2 15500 17400 19300 23700 26000
FFAS-A30Z-CFV, TFC 081
22 3 24300 26700 31700 34400
134a 3 14900 16700 18600 22700 24900
404A 3 22600 24600
407C 3 19900 22000 24200 29100 31800
FFAS-A35Z-CFV, TFC 081
22 3-1/2 27500 30100 35600 38600
134a 3-1/2 17000 19000 21100 25700 28200
404A 3-1/2 25600 27800
407C 3-1/2 25100 27800 33600 36500
FFAS-A40Z-CFV, TFC 081
22 4 31200 34500 38000 45400 49500
134a 4 20800 23400 26100 32000 35200
404A 4 32100 35100
407C 4 28000 31200 34600 42100 46200
FFAS-A50Z-CFV, TFC, TFD 081
22 5 37700 41500 45600 54400 59100
134a 5 25200 28300 31500 38600 42300
404A 5 38800 42300
407C 5
FFAS-A60Z-TFC, TFD 081
22 6 48300 53000 63100 68500
134a 6 29300 32700 36300 44200 48300
404A 6 44800 48700
407C 6 40000 44300 48900 58800 64200
FPAN-070Z-TFC,TFD 071, 073 134a 7 34000 37800 41800 50400 55100
404A 7 51900 56800
FPAN-080Z-TFC,TFD 071,073 134a 8 37700 41800 46200 55800 60900
404A 8 56500 61600
FPAN-091Z-TFC, TFD 071, 073 134a 9 42000 46600 51500 62100 67700
404A 9 64400 69800
FPAN-101Z-TFC,TFD 071, 073 134a 10 48400 53700 59200 71200 77600
404A 10 72800 78600
LOW TEMP Capacity (BTU/Hr) at 100° Ambient - Evaporator Temp (°F)
Model BOM Refrig. H.P. -30 -25 -20 -10 0
DJAL-015Z-CFV, TFC 081 404A 1-1/2 5760 6540 7340 9070 10900
DJAL-020Z-CFV, TFC 081 404A 2 7180 8110 9090 11200 13500
DJAL-022Z-CFV, TFC 081 404A 2+ 7940 8870 9860 12000 14400
DJAL-026Z-CFV, TFC 081 404A 2-1/2 10000 11300 12700 15600 18900
DJAL-030Z-CFV, TFC 081 404A 3 11100 12600 14100 17400 21100
DJAL-041Z-CFV,TFC,TFD 081 404A 4 14400 16100 18000 22200 26900
DJAL-051Z-TFC, TFD 081 404A 5 17300 19400 21600 26400 31800
DJAL-060Z-TSC, TSD 081 404A 6 20500 23000 25700 31400 37700
Capacities are at 60 Hertz with 65° return gas and 5°F subcooling.

6
2011DS-4 _F&D (4/11) Emerson Climate Technologies
Copeland Scroll® air-cooled condensing units
Capacity Data
HIGH/MED TEMP Cap. (BTU/Hr) at 110° F Ambient - Evaporator Temp (°F)
Model BOM Refrig. H.P. -5 0 +5 +10 +15
FTAH-A13Z-CFV,TFC,TFD 072, 074 134a 1 7830
FJAM-A15Z-CFV 172, 174 404A 1-1/2 5090 5800 6690 7520 8370
FFAS-A20Z-CFV, TFC 081
22 2
134a 2 7480 8480
404A 2 9200 10200 11200 12200
407C 2
FFAS-A25Z-CFV, TFC 081
22 2-1/2
134a 2-1/2 8820 10000
404A 2-1/2 10800 12000 13300 14700 16100
407C 2-1/2
FFAS-A30Z-CFV, TFC 081
22 3
134a 3 10900 12400
404A 3 14000 15500 17100 18700
407C 3
FFAS-A35Z-CFV, TFC 081
22 3-1/2
134a 3-1/2 12400 14100
404A 3-1/2 15900 17600 19300 21200
407C 3-1/2
FFAS-A40Z-CFV, TFC 081
22 4
134a 4 13300 15200 17200
404A 4 17700 19700 21900 24200 26600
407C 4
FFAS-A50Z-CFV, TFC, TFD 081
22 5
134a 5 18400 20900
404A 5 21600 24000 26600 29300 32200
407C 5
FFAS-A60Z-TFC, TFD 081
22 6
134a 6 21400 24200
404A 6 27800 30800 33900 37100
407C 6
FPAN-070Z-TFC,TFD 071, 073 134a 7 25300 28400
404A 7 30000 34000 38000 42100
FPAN-080Z-TFC,TFD 071,073 134a 8 28100 31500
404A 8 32500 36800 41000 45300
FPAN-091Z-TFC, TFD 071, 073 134a 9 31300 35000
404A 9 40300 44700 49100 53600
FPAN-101Z-TFC,TFD 071, 073 134a 10 36100 40400
404A 10 59000 55400 60100
LOW TEMP Capacity (BTU/Hr) at 110° Ambient - Evaporator Temp (°F)
Model BOM Refrig. H.P. -40 -35
DJAL-015Z-CFV, TFC 081 404A 1-1/2 3940 4650
DJAL-020Z-CFV, TFC 081 404A 2 4960 5760
DJAL-022Z-CFV, TFC 081 404A 2+ 5710 6490
DJAL-026Z-CFV, TFC 081 404A 2-1/2 7010 8100
DJAL-030Z-CFV, TFC 081 404A 3 7910 9030
DJAL-041Z-CFV,TFC,TFD 081 404A 4 10400 11700
DJAL-051Z-TFC, TFD 081 404A 5 12600 14300
DJAL-060Z-TSC, TSD 081 404A 6 14600 16700
Capacities are at 60 Hertz with 65° return gas and 5°F subcooling.

7
2011DS-4 _F&D (4/11) Emerson Climate Technologies
Copeland Scroll® air-cooled condensing units
Capacity Data
HIGH/MED TEMP Capacity (BTU/Hr) at 110° Ambient - Evaporator Temp (°F)
Model BOM Refrig. H.P. +20 +25 +30 +40 +45
FTAH-A13Z-CFV,TFC,TFD 072, 074 134a 1 8710 9660 10700 12900 14100
FJAM-A15Z-CFV 172, 174 404A 1-1/2 9250 10200
FFAS-A20Z-CFV, TFC 081
22 2 16400 17900 21400 23300
134a 2 9570 10700 12000 14600 16100
404A 2 13300 14500
407C 2 15200 18400 20200
FFAS-A25Z-CFV, TFC 081
22 2-1/2 19800 23700 25900
134a 2-1/2 11300 12700 14200 17400 19100
404A 2-1/2 17700 19300
407C 2-1/2 16000 17800 21800 23900
FFAS-A30Z-CFV, TFC 081
22 3 29800 32300
134a 3 13900 15600 17400 21300 23400
404A 3 20500 22300
407C 3 22300 26800 29300
FFAS-A35Z-CFV, TFC 081
22 3-1/2 33200 36000
134a 3-1/2 15800 17800 19800 24100 26400
404A 3-1/2 23100 25100
407C 3-1/2 30800 33500
FFAS-A40Z-CFV, TFC 081
22 4 32500 35700 42800 46600
134a 4 19500 21900 24500 30200 33200
404A 4 29200 31900
407C 4 29100 32300 39400 43200
FFAS-A50Z-CFV, TFC, TFD 081
22 5 42900 51200 55700
134a 5 23600 26500 29600 36300 39900
404A 5 35200 38400
407C 5
FFAS-A60Z-TFC, TFD 081
22 6 49400 59000 64100
134a 6 27100 30400 33800 41200 45100
404A 6 40500 44100
407C 6 45500 54900 55900
FPAN-070Z-TFC,TFD 071, 073 134a 7 31700 35300 39000 47100 51500
404A 7 46400 50900
FPAN-080Z-TFC,TFD 071,073 134a 8 35100 39000 43100 52100 56900
404A 8 49700 54200
FPAN-091Z-TFC, TFD 071, 073 134a 9 39100 43400 48000 57900 63200
404A 9 58300 63200
FPAN-101Z-TFC,TFD 071, 073 134a 10 45000 50000 55200 66400 72400
404A 10 65000 70100
LOW TEMP Capacity (BTU/Hr) at 110° Ambient - Evaporator Temp (°F)
Model BOM Refrig. H.P. -30 -25 -20 -10 0
DJAL-015Z-CFV, TFC 081 404A 1-1/2 5370 6110 6860 8450 10100
DJAL-020Z-CFV, TFC 081 404A 2 6590 7460 8370 10300 12300
DJAL-022Z-CFV, TFC 081 404A 2+ 7300 8150 9040 11000 13100
DJAL-026Z-CFV, TFC 081 404A 2-1/2 9240 10400 11700 14400 17200
DJAL-030Z-CFV, TFC 081 404A 3 10200 11500 12900 15900 19200
DJAL-041Z-CFV,TFC,TFD 081 404A 4 13200 14800 16500 20300 22400
DJAL-051Z-TFC, TFD 081 404A 5 16100 18000 20000 24300 29100
DJAL-060Z-TSC, TSD 081 404A 6 18900 21200 23600 28700 34300
Capacities are at 60 Hertz with 65° return gas and 5°F subcooling.

8
2011DS-4 _F&D (4/11) Emerson Climate Technologies
Copeland Scroll® air-cooled condensing units
Physical Data
Model Refrig. Comp
Overall Dimensions
(In)
Connecting
Lines
Minimum Circuit Ampacity - Max
Fuse Size
Pump
Down
Capacity
(lbs)
Ship
Weight
(lbs)
L W H Suction Liquid 208/230-1 230-3 460-3
FTAH-A13Z-CFV,TFC,TFD 134a ZB15KCE 24.0 18.3 16.2 7/8 S 3/8 S 21.0 - 35 12.5 - 20 7.9 - 15 6.3 131
FJAM-A15Z-CFV 404A ZB11KCE 24.0 18.6 16.2 7/8 S 3/8 S 13.9 - 20 5.4 130
FFAS-A20Z-CFV, TFC
22 ZB15KCE 25.2 34 19 7/8 S 3/8 S 21.8 - 35 13.3 - 20 15.2 214
134a 25.2 34.0 19.0 7/8 S 3/8 S 21.8 - 35 13.3 - 20 15.2 214
404A 25.2 34.0 19.0 7/8 S 3/8 S 21.8 - 35 13.3 - 20 15.2 214
407C 25.2 34.0 19.0 7/8 S 3/8 S 21.8 - 35 13.3 - 20 15.2 214
FFAS-A25Z-CFV, TFC
22 ZB19KCE 25.2 34.1 19.0 1/8 S 3/8 S 25.2 - 40 15.3 - 20 17.2 222
134a 25.2 34.1 19.0 1/8 S 3/8 S 25.2 - 40 15.3 - 20 17.2 222
404A 25.2 34.1 19.0 1/8 S 3/8 S 25.2 - 40 15.3 - 20 17.2 222
407C 25.2 34.1 19.0 1/8 S 3/8 S 25.2 - 40 15.3 - 20 17.2 222
FFAS-A30Z-CFV, TFC
22 ZB21KCE 25 34.0 19.0 1/8 S 3/8 S 28.7 - 45 17.9 - 25 17.2 224
134a 25 34.0 19.0 1/8 S 3/8 S 28.7 - 45 17.9 - 25 17.2 224
404A 25 34.0 19.0 1/8 S 3/8 S 28.7 - 45 17.9 - 25 10.36 224
407C 25 34.0 19.0 1/8 S 3/8 S 28.7 - 45 17.9 - 25 10.36 224
FFAS-A35Z-CFV, TFC
22 ZB26KCE 25.2 34.0 19.0 1/8 S 3/8 S 32.3 - 50 20.2 - 30 17.2 224
134a 25.2 34.0 19.0 1/8 S 3/8 S 32.3 - 50 20.2 - 30 17.2 224
404A 25.2 34.0 19.0 1/8 S 3/8 S 32.3 - 50 20.2 - 30 17.2 224
407C 25.2 34.0 19.0 1/8 S 3/8 S 32.3 - 50 20.2 - 30 17.2 224
FFAS-A40Z-CFV, TFC
22 ZB30KCE 28.1 44.1 26.8 1-1/8 S 1/2 S 37.1 - 60 23.2 - 35 11.4 336
134a 28.1 44.1 26.8 1-1/8 S 1/2 S 37.1 - 60 23.2 - 35 11.4 336
404A 28.1 44.1 26.8 1-1/8 S 1/2 S 37.1 - 60 23.2 - 35 11.4 336
407C 28.1 44.1 26.8 1-1/8 S 1/2 S 37.1 - 60 23.2 - 35 11.4 336
FFAS-A50Z-CFV, TFC, TFD
22 ZB38KCE 28.1 44.1 26.8 1-1/8 S 1/2 S 42.5 - 60 31.2 - 45 14.4 - 20 11.4 336
134a 28.1 44.1 26.8 1-1/8 S 1/2 S 42.5 - 60 31.2 - 45 14.4 - 20 11.4 336
404A 28.1 44.1 26.8 1-1/8 S 1/2 S 42.5 - 60 31.2 - 45 14.4 - 20 11.4 336
407C 28.1 44.1 26.8 1-1/8 S 1/2 S 42.5 - 60 31.2 - 45 14.4 - 20 11.4 336
FFAS-A60Z-TFC, TFD
22 ZB45KCE 44.1 28.2 26.8 1-1/8 S 1/2 S 31.7 - 50 16.8 - 25 29.5 336
134a 44.1 28.2 26.8 1-1/8 S 1/2 S 31.7 - 50 16.8 - 25 29.5 336
404A 44.1 28.2 26.8 1-1/8 S 1/2 S 31.7 - 50 16.8 - 25 29.5 336
407C 44.1 28.2 26.8 1-1/8 S 1/2 S 31.7 - 50 16.8 - 25 29.5 336
FPAN-070Z-TFC,TFD 134a ZB50KCE 28.5 37.4 36.8 1-3/8 S 5/8 S 44.8 - 60 23.2 - 30 70.6 495
404A 28.5 37.4 36.8 1-3/8 S 5/8 S 44.8 - 60 23.2 - 30 60.4 495
FPAN-080Z-TFC,TFD 134a ZB58KCE 28.5 44.0 36.8 1-3/8 S 5/8 S 49.1 - 70 24.9 - 35 70.6 497
404A 28.5 44.0 36.8 1-3/8 S 5/8 S 49.1 - 70 24.9 - 35 60.4 497
FPAN-091Z-TFC, TFD 134a ZB66KCE 28.5 37.4 36.8 1-3/8 S 5/8 S 26.3 - 35 70.6 509
404A 28.5 37.4 36.8 1-3/8 S 5/8 S 51.0 - 70 26.3 - 35 60.4 509
FPAN-101Z-TFC,TFD 134a ZB76KCE 28.5 37.4 36.8 1-3/8 S 5/8 S 60.8 - 90 28.4 - 40 79.2 528
404A 28.5 37.4 36.8 1-3/8 S 5/8 S 60.8 - 90 28.4 - 40 67.8 528
DJAL-015Z-CFV, TFC, TFD 404A ZF06K4E 25.2 34.3 19.0 1-1/8 S 3/8 S 13.9 - 20 6.8 - 15 15.2 220
DJAL-020Z-CFV, TFC, TFD 404A ZF08K4E 25.2 34.0 18.8 7/8 S 3/8 S 22.8 - 35 14.4 - 20 7.7 - 15 15.2 220
DJAL-022Z-CFV, TFC, TFD 404A ZF09K4E 25.2 34.3 19.0 1-1/8 S 3/8 S 16.2 - 20 8.6 - 15 15.2 222
DJAL-026Z-CFV, TFC, TFD 404A ZF11K4E 25.2 34.0 19.0 1-1/8 S 3/8 S 28.7 - 45 19.8 - 30 17.2 235
DJAL-030Z-CFV, TFC, TFD 404A ZF13K4E 25.2 34.3 19.0 1-1/8 S 3/8 S 21.6 - 30 13.5 - 15 17.2 254
DJAL-041Z-CFV,TFC,TFD 404A ZF15K4E 28.2 44.1 26.8 1-1/8 S 1/2 S 43.4 - 70 30.4 - 45 14.4 - 20 29.4 332
DJAL-051Z-TFC, TFD 404A ZF18K4E 28.2 44.1 26.8 1-1/8 S 1/2 S 33.5 - 50 29.4 342
DJAL-060Z-TSC, TSD 404A ZF24K4E 28.2 44.1 26.8 1-1/8 S 1/2 S 41.1 - 60 22.0 - 35 29.4 449
BOM Suction
Valve*
Suction
Accumulator Receiver BX
Conduit
Fan
Guard
Discharge-
Line T'stat
High/ Low
Pressure
Control
Time Delay
Relay (1 Ø)
Filter
Drier
Moisture
Indicator
Liquid
Solenoid
Valve w/Coil
Fan
Cycle
Control
-015
-020
-071
-072
-073
-074
-081**
-172
-174
* except 1-1/2 HP
** includes factory installed Copeland PerformanceAlert™ module
BOM (bills of material) numbers apply only to the units listed in this section. All Models are UL Listed. UL/UR are registered trademarks of Underwriters Laboratories, Inc.

Copevap®
Hermetic air-cooled condensing units
Product Information
Horsepower: 1/6 – 3/4
Temperature Applications: Low/Medium/High
Refrigerants: R-134a, R-404A, R-22
Installation Applications: A variety of applications including
under-counter coolers and freezers,
sandwich, salad and food prep tables,
and milk or juice coolers

BOM Suction
Valve*
Liquid Connections BX
Conduit
Power
Cord
Fan
Guard UR/UL
Base
Valve
Receiver
w/Valve
020
UL
111 UR
208
UR*
908
UR
918
UR
212
UR*
* These recognized models are identical to the UL listed models less pressure control. Need for the control is to be evaluated by the end use application.
UL/UR are registered trademarks of Underwriters Laboratories, Inc.
Nomenclature • Welded Condensing Units
Temperature Application Code
High Temperature
Medium Temperature
Low Temperature
Extended Medium Temp.
Extra Low Temperature
Multiple
Multiple
H
M
L
F
E
S
N
Condensing
Unit
Family
Series
Comp. Motor Rating
Nominal
HP Code
1/2
3/4
1
1-1/2
2
3
4
5
6
7-1/2
9
10
15
0050
0075
0100
0150
0200
0300
0400
0500
0600
7500
0900
1000
1500
X X X X - X X X X
Compressor Motor Types
Phase
Description
Code
1 Capacitor Run - Capacitor Start C
1 Induction Run - Capacitor Start I
1 Induction Run - Split Phase S
1 Capacitor Run - Permanent Split P
3 Three Phase - General T
3 Star (Wye) Delta E
3 6 Lead - Part Winding or
Across the Line
F
Compressor Motor Protection
Type Protection Code
External Inherent Protection-
One Protector (Line Break) A
Internal Inherent Protection –
One Protector (Line Break) F
Internal Thermal Protection –
Electronic Sensors; and
Control Module External
S
Bill Of Material (BOM)
001 thru
099
Intended for UL Listing and
CUL Certifi ed
100 thru
299
Intended for UL Rercognition
and CUL Certifi ed
300 thru
399
Not eligible for either UL
Listing, UL Recognition or
CUL Certifi ed
- X X X - X X X
Refrigerant Code
R404A/507 J/4
R134a T/2
R12 B
R22 C/3/M
Multiple F
R22/407C G
R22 9
R134a/404A/22
N
R134a/404A P
R404A/22 8
Type of Design Code
Air Cooled Steel Base A
Air Cooled Copevap Base E/P
Narrow Air Cooled Copevap T
Water Cooled Steel Base W
Custom Base C
Discus D
Electrical Codes
60 Hz. 50 Hz. Code
115-1
230-1
208/230-3
460-3
575-3
-
-
208/230-1
-
-
100-1
-
200/220-3
-
-
230-1
380/420-3
200-1
220-3
220/240-1
A
B
C
D
E
G
M
V
W
Z
Note: When applicable, specifi c 50
Hz ratings (not necessarily identical
to typical shown above) will be shown
as alternate on 60 Hz rated models.

1
2011DS-4 _Copevap (4/11) Emerson Climate Technologies
Resources and Support
EmersonClimate.com
Online Product Information and Technical Data
• Application Engineering Bulletins
• Instruction Sheets
• Marketing Brochures
Where to Buy
Copevap® hermetic air-cooled condensing units
Features Benefi ts
Copeland® Hermetic Compressor
Reliability
High Energy Effi ciency
Low Sound & Vibration
Molded Shroud
Optimizes Airfl ow Across Coil to Help Lower Temperatures
Larger Condensate Holding Base Quick Evaporation Rate for Condensate Removal
Fan Guard and Power Cord Standard Cost Savings (No need to add parts)
Compact and Narrow Base Design
Application Flexibility
All Models Rated Up to 100° F Ambient
Application Engineering Bulletins
4-1255 U.L. and C.S.A. Agency File Numbers
4-1295 HFC-134A Refrigerant Guidelines
4-1298 Extended Medium Temperature R-404A/507
Hermetic Compressors and Condensing Units
4-1305 System Pro AF, R, AS Refrigeration Hermetic 1/8
- 1 Horsepower Compressors
4-1344 Application Guidelines for RFT,RST,RST Com-
pressors
5-1340 Care and Cleaning of Air-Cooled Condensing
Units
8-1376 Electronic Unit Controller
17-1260 Compressor Overheating
17-1268 Compression Ratio as it Affects Compressor
Reliability
22-1182 Liquid Refrigerant Control in Refrigeration and
Air Conditioning Systems
For more information, visit EmersonClimate.com and login to the Customer Portal to view Online Product Information

2
2011DS-4 _Copevap (4/11) Emerson Climate Technologies
Copevap® hermetic air-cooled condensing units
Capacity Data
HIGH/MED TEMP Capacity (BTU/Hr) at 90° Ambient - Evaporator Temp (°F)
Model BOM Refrig. H.P. 0 +5 +10 +15 +20
M2TH-0017-IAA 908, 918 134a 1/6 670 760 860 970 1090
M2TH-0020-IAA 908, 918 134a 1/5 790 880 980 1090 1220
M4TM-0020-IAA 908, 918 404A 1/5 980 1090 1190 1290 1400
M2TH-0024-IAA 908, 918 134a 1/4 830 1000 1180 1360 1540
M4TM-H025-IAA 908, 918 404A 1/4 1560 1720 1860 2010 2150
M2EH-0026-IAA 020, 111 134a 1/4 1270 1530 1700 1890
M2PH-0026-IAA 020, 111 134a 1/4 1270 1530 1700 1890
MCEH-0027-IAA 111, 212 22 1/4 1520 1710 1910 2130 2360
MCPH-0027-IAA 111, 208, 212 22 1/4 1520 1710 1910 2130 2360
M4EH-0025-IAA 111, 208, 212 404A 1/4 1600 1730 1890 2060 2240
M4PH-0025-IAA 111, 208, 212 404A 1/4 1600 1730 1890 2060 2230
M2TH-H033-IAA 908, 918 134a 1/3 1390 1540 1710 1900 2100
M4TM-0033-IAA, IAV 908, 918 404A 1/3 1560 1750 1920 2110 2310
M2EH-A033-IAA, IAV 111, 208, 212 134a 1/3 1500 1870 2110 2360
M2PH-A033-IAA, IAV 111, 208, 212 134a 1/3 1500 1870 2110 2360
MCEH-0035-IAA 111, 208, 212 22 1/3 1720 1960 2200 2450 2730
MCPH-0035-IAA 111, 208, 212 22 1/3 1740 1960 2200 2450 2730
M4EH-A035-IAA, IAV 111, 208, 212 404A 1/3 1800 2040 2280 2530 2800
M4PH-A035-IAA, IAV 111, 208, 212 404A 1/3 1800 2040 2280 2530 2800
M2EH-0047-IAA, IAV 111, 208, 212 134a 1/2 2050 2400 2740 3100
M2PH-0047-IAA, IAV 111, 208, 212 134a 1/2 2050 2400 2740 3100
M2EM-A048-IAA 121, 122 134a 1/2 2170 2460 2760 3070 3390
MCEH-0048-CAA, CAV 111, 208, 212 22 1/2 2420 2710 3020 3360 3720
M4EH-0049-CAA, CAV 111, 208, 212 404A 1/2 2470 2750 3020 3310 3620
FTEH-B075-IAA, IAV 208, 212 134a 3/4 2960 3440 3920 4420 4950
F3EH-A078-IAA, IAV 208, 212 22 3/4 3290 3860 4480 5120 5760
M4EF-0075-CAA 212 404A 3/4 3980 4490 4990 5520 6060
LOW TEMP Capacity (BTU/Hr) at 90° Ambient - Evaporator Temp (°F)
Model BOM Refrig. H.P. -25 -20 -15 -10 -5
M4TL-H025-IAA 908, 918 404A 1/4 620 700 780 860 960
M2PL-A025-IAA 111, 208, 212 134a 1/4 720 820 940 1070 1210
M4PL-0025-IAA 020, 111 404A 1/4 610 710 810 920 1040
M4TL-H033-IAA 908, 918 404A 1/3 810 920 1040 1170 1310
M4TL-H034-IAA 908, 918 404A 1/3 1010 1140 1270 1420 1570
M2EL-B033-IAA 020, 111 134a 1/3 850 960 1090 1240 1410
M2PL-B033-IAA 020, 111 134a 1/3 850 960 1090 1240 1410
M4EL-0033-IAA 020, 111, 212 404A 1/3 860 1040 1210 1390 1570
M2EL-0040-IAA 020, 111 134a 1/3 920 1120 1320 1540 1770
M2PL-0040-IAA 020, 111 134a 1/3 920 1120 1320 1540 1770
FTEL-A050-IAA, IAV 208, 212 134a 1/2 1280 1590 1910 2260 2620
M4EL-0039-IAA 111, 208, 212 404A 1/2 1290 1510 1740 1980 2240
M4PL-0039-IAA 111, 208, 212 404A 1/2 1290 1510 1740 1980 2240
M4EL-0050-IAA 111, 208, 212 404A 1/2 1330 1590 1870 2170 2480
M4PL-0050-IAA 111, 208, 212 404A 1/2 1330 1590 1870 2170 2470
M4EF-0080-CFA 212 404A 3/4 2490 2930 3930 3880 4380

3
2011DS-4 _Copevap (4/11) Emerson Climate Technologies
Copevap® hermetic air-cooled condensing units
Capacity Data
HIGH/MED TEMP Capacity (BTU/Hr) at 90° Ambient - Evaporator Temp (°F)
Model BOM Refrig. H.P. +25 +30 +35 +40 +45
M2TH-0017-IAA 908, 918 134a 1/6 1210 1340 1480 1630 1770
M2TH-0020-IAA 908, 918 134a 1/5 1350 1500 1650 1810 1970
M4TM-0020-IAA 908, 918 404A 1/5 1520
M2TH-0024-IAA 908, 918 134a 1/4 1730 1920 2130 2340 2550
M4TM-H025-IAA 908, 918 404A 1/4 2300
M2EH-0026-IAA 020, 111 134a 1/4 2080 2280 2490 2710 2940
M2PH-0026-IAA 020, 111 134a 1/4 2080 2280 2490 2710 2940
MCEH-0027-IAA 111, 212 22 1/4 2600 2850 3110 3380 3660
MCPH-0027-IAA 111, 208, 212 22 1/4 2600 2850 3110 3380 3660
M4EH-0025-IAA 111, 208, 212 404A 1/4 2430 2620 2820 3030 3240
M4PH-0025-IAA 111, 208, 212 404A 1/4 2430 2620 2820 3030 3270
M2TH-H033-IAA 908, 918 134a 1/3 2320 2560 2800 3040 3290
M4TM-0033-IAA, IAV 908, 918 404A 1/3 2520
M2EH-A033-IAA, IAV 111, 208, 212 134a 1/3 2620 2900 3190 3500 3820
M2PH-A033-IAA, IAV 111, 208, 212 134a 1/3 2620 2900 3190 3500 3820
MCEH-0035-IAA 111, 208, 212 22 1/3 3020 3330 3650 4000 4360
MCPH-0035-IAA 111, 208, 212 22 1/3 3020 3330 3650 4000 4360
M4EH-A035-IAA, IAV 111, 208, 212 404A 1/3 3100 3430 3810 4230 4710
M4PH-A035-IAA, IAV 111, 208, 212 404A 1/3 3100 3430 3810 4230 4710
M2EH-0047-IAA, IAV 111, 208, 212 134a 1/2 3460 3830 4210 4610 5030
M2PH-0047-IAA, IAV 111, 208, 212 134a 1/2 3460 3830 4210 4610 5030
M2EM-A048-IAA 121, 122 134a 1/2 3740
MCEH-0048-CAA, CAV 111, 208, 212 22 1/2 4110 4520 4950 5410 5880
M4EH-0049-CAA, CAV 111, 208, 212 404A 1/2 3970 4350 4800 5320 5940
FTEH-B075-IAA, IAV 208, 212 134a 3/4 5510 6130 6810 7550 8350
F3EH-A078-IAA, IAV 208, 212 22 3/4 6450 7130 74870 8660 9440
M4EF-0075-CAA 212 404A 3/4 6620
LOW TEMP Capacity (BTU/Hr) at 90° Ambient - Evaporator Temp (°F)
Model BOM Refrig. H.P. 0 +5 +10 +15 +20
M4TL-H025-IAA 908, 918 404A 1/4 1050
M2PL-A025-IAA 111, 208, 212 134a 1/4 1370
M4PL-0025-IAA 020, 111 404A 1/4 1160
M4TL-H033-IAA 908, 918 404A 1/3 1450 1610 1760 1920
M4TL-H034-IAA 908, 918 404A 1/3 1720
M2EL-B033-IAA 020, 111 134a 1/3 1590
M2PL-B033-IAA 020, 111 134a 1/3 1590
M4EL-0033-IAA 020, 111, 212 404A 1/3 1750
M2EL-0040-IAA 020, 111 134a 1/3 2010
M2PL-0040-IAA 020, 111 134a 1/3 2010
FTEL-A050-IAA, IAV 208, 212 134a 1/2 2980
M4EL-0039-IAA 111, 208, 212 404A 1/2 2500
M4PL-0039-IAA 111, 208, 212 404A 1/2 2500
M4EL-0050-IAA 111, 208, 212 404A 1/2 2790
M4PL-0050-IAA 111, 208, 212 404A 1/2 2790
M4EF-0080-CFA 212 404A 3/4 4880 5440 5980 6530 7080

4
2011DS-4 _Copevap (4/11) Emerson Climate Technologies
Copevap® hermetic air-cooled condensing units
Capacity Data
HIGH/MED TEMP Capacity (BTU/Hr) at 100° Ambient - Evaporator Temp (°F)
Model BOM Refrig. H.P. 0 +5 +10 +15 +20
M2TH-0017-IAA 908, 918 134a 1/6 610 700 790 890 1000
M2TH-0020-IAA 908, 918 134a 1/5 740 820 900 1010 1120
M4TM-0020-IAA 908, 918 404A 1/5 870 970 1060 1160 1270
M2TH-0024-IAA 908, 918 134a 1/4 760 920 1080 1250 1420
M4TM-H025-IAA 908, 918 404A 1/4 1470 1590 1700 1800 1920
M2EH-0026-IAA 020, 111 134a 1/4 1170 1400 1570 1710
M2PH-0026-IAA 020, 111 134a 1/4 1170 1400 1570 1710
MCEH-0027-IAA 111, 212 22 1/4 1510 1710 1930 2150
MCPH-0027-IAA 111, 208, 212 22 1/4 1510 1710 1930 2150
M4EH-0025-IAA 111, 208, 212 404A 1/4 1460 1560 1700 1870 2030
M4PH-0025-IAA 111, 208, 212 404A 1/4 1460 1560 1700 1870 2030
M2TH-H033-IAA 908, 918 134a 1/3 1290 1430 1580 1750 1940
M4TM-0033-IAA, IAV 908, 918 404A 1/3 1360 1540 1710 1890 2090
M2EH-A033-IAA, IAV 111, 208, 212 134a 1/3 1350 1690 1920 2150
M2PH-A033-IAA, IAV 111, 208, 212 134a 1/3 1350 1690 1920 2150
MCEH-0035-IAA 111, 208, 212 22 1/3 1770 1990 2230 2490
MCPH-0035-IAA 111, 208, 212 22 1/3 1770 1990 2230 2490
M4EH-A035-IAA, IAV 111, 208, 212 404A 1/3 1570 1800 2020 2250 2510
M4PH-A035-IAA, IAV 111, 208, 212 404A 1/3 1570 1800 2020 2250 2510
M2EH-0047-IAA, IAV 111, 208, 212 134a 1/2 1850 2170 2490 2820
M2PH-0047-IAA, IAV 111, 208, 212 134a 1/2 1850 2170 2490 2820
M2EM-A048-IAA 121, 122 134a 1/2 2250 2520 2810 3110
MCEH-0048-CAA, CAV 111, 208, 212 22 1/2 2460 2760 3080 3430
M4EH-0049-CAA, CAV 111, 208, 212 404A 1/2 2190 2480 2760 3050 3370
FTEH-B075-IAA, IAV 208, 212 134a 3/4 2550 3000 3440 3900 4390
F3EH-A078-IAA, IAV 208, 212 22 3/4 3430 4020 4620 5220
M4EF-0075-CAA 212 404A 3/4 3530 3990 4450 4930 5430
LOW TEMP Capacity (BTU/Hr) at 100° Ambient - Evaporator Temp (°F)
Model BOM Refrig. H.P. -25 -20 -15 -10 -5
M4TL-H025-IAA 908, 918 404A 1/4 540 610 690 770 860
M2PL-A025-IAA 111, 208, 212 134a 1/4 670 760 870 1000 1130
M4PL-0025-IAA 020, 111 404A 1/4 560 640 740 840 950
M4TL-H033-IAA 908, 918 404A 1/3 730 830 940 1060 1190
M4TL-H034-IAA 908, 918 404A 1/3 1030 1160 1290 1430
M2EL-B033-IAA 020, 111 134a 1/3 770 880 1000 1150 1300
M2PL-B033-IAA 020, 111 134a 1/3 770 880 1000 1150 1300
M4EL-0033-IAA 020, 111, 212 404A 1/3 690 850 1010 1180 1360
M2EL-0040-IAA 020, 111 134a 1/3 780 960 1150 1350 1570
M2PL-0040-IAA 020, 111 134a 1/3 780 960 1150 1350 1570
FTEL-A050-IAA, IAV 208, 212 134a 1/2 1050 1340 1970 1640 2310
M4EL-0039-IAA 111, 208, 212 404A 1/2 1080 1280 1500 1720 1950
M4PL-0039-IAA 111, 208, 212 404A 1/2 1080 1280 1500 1720 1950
M4EL-0050-IAA 111, 208, 212 404A 1/2 1110 1340 1590 1860 2150
M4PL-0050-IAA 111, 208, 212 404A 1/2 1130 1350 1600 1870 2150
M4EF-0080-CFA 212 404A 3/4 2180 2590 3020 3470 3930

5
2011DS-4 _Copevap (4/11) Emerson Climate Technologies
Copevap® hermetic air-cooled condensing units
Capacity Data
HIGH/MED TEMP Capacity (BTU/Hr) at 100° Ambient - Evaporator Temp (°F)
Model BOM Refrig. H.P. +25 +30 +35 +40 +45
M2TH-0017-IAA 908, 918 134a 1/6 1110 1240 1370 1500 1640
M2TH-0020-IAA 908, 918 134a 1/5 1240 1380 1520 1670 1830
M4TM-0020-IAA 908, 918 404A 1/5 1390
M2TH-0024-IAA 908, 918 134a 1/4 1600 1780 1970 2160 2360
M4TM-H025-IAA 908, 918 404A 1/4 2030
M2EH-0026-IAA 020, 111 134a 1/4 1890 2080 2300 2520 2710
M2PH-0026-IAA 020, 111 134a 1/4 1890 2080 2300 2520 2710
MCEH-0027-IAA 111, 212 22 1/4 2380 2610 2860 3130 3400
MCPH-0027-IAA 111, 208, 212 22 1/4 2380 2610 2860 3130 3400
M4EH-0025-IAA 111, 208, 212 404A 1/4 2220 2400 2620 2840 3030
M4PH-0025-IAA 111, 208, 212 404A 1/4 2220 2400 2620 2840 3030
M2TH-H033-IAA 908, 918 134a 1/3 2140 2350 2570
M4TM-0033-IAA, IAV 908, 918 404A 1/3 2320
M2EH-A033-IAA, IAV 111, 208, 212 134a 1/3 2420 2670 2970 3230 3490
M2PH-A033-IAA, IAV 111, 208, 212 134a 1/3 2420 2670 2970 3230 3490
MCEH-0035-IAA 111, 208, 212 22 1/3 2770 3070 3380 3710 4060
MCPH-0035-IAA 111, 208, 212 22 1/3 2770 3070 3380 3710 4060
M4EH-A035-IAA, IAV 111, 208, 212 404A 1/3 2800 3130 3500 3930 4430
M4PH-A035-IAA, IAV 111, 208, 212 404A 1/3 2800 3130 3500 3930 4430
M2EH-0047-IAA, IAV 111, 208, 212 134a 1/2 3160 3500 3870 4250
M2PH-0047-IAA, IAV 111, 208, 212 134a 1/2 3160 3500 3870 4250
M2EM-A048-IAA 121, 122 134a 1/2 3430
MCEH-0048-CAA, CAV 111, 208, 212 22 1/2 3810 4220 4650 5110 5590
M4EH-0049-CAA, CAV 111, 208, 212 404A 1/2 3730 4140
FTEH-B075-IAA, IAV 208, 212 134a 3/4 4910 5470 6100 6790 7550
F3EH-A078-IAA, IAV 208, 212 22 3/4 5860 6510 7190 7930 8670
M4EF-0075-CAA 212 404A 3/4 5940
LOW TEMP Capacity (BTU/Hr) at 100° Ambient - Evaporator Temp (°F)
Model BOM Refrig. H.P. 0 +5 +10 +15 +20
M4TL-H025-IAA 908, 918 404A 1/4 940
M2PL-A025-IAA 111, 208, 212 134a 1/4 1280
M4PL-0025-IAA 020, 111 404A 1/4
M4TL-H033-IAA 908, 918 404A 1/3 1320 1460 1600 1740
M4TL-H034-IAA 908, 918 404A 1/3 1560
M2EL-B033-IAA 020, 111 134a 1/3 1480
M2PL-B033-IAA 020, 111 134a 1/3 1480
M4EL-0033-IAA 020, 111, 212 404A 1/3 1530
M2EL-0040-IAA 020, 111 134a 1/3 1810
M2PL-0040-IAA 020, 111 134a 1/3 1810
FTEL-A050-IAA, IAV 208, 212 134a 1/2 2660
M4EL-0039-IAA 111, 208, 212 404A 1/2 2180
M4PL-0039-IAA 111, 208, 212 404A 1/2 2180
M4EL-0050-IAA 111, 208, 212 404A 1/2 2430
M4PL-0050-IAA 111, 208, 212 404A 1/2 2430
M4EF-0080-CFA 212 404A 3/4 4380 4900 5380 5880 6380

6
2011DS-4 _Copevap (4/11) Emerson Climate Technologies
Copevap® hermetic air-cooled condensing units
Capacity Data
HIGH/MED TEMP Capacity (BTU/Hr) at 110° Ambient - Evaporator Temp (°F)
Model BOM Refrig. H.P. 0 +5 +10 +15 +20
M2TH-0017-IAA 908, 918 134a 1/6 550 630 720 810 910
M2TH-0020-IAA 908, 918 134a 1/5 680 750 820 920 1020
M4TM-0020-IAA 908, 918 404A 1/5 870 970 1070 1190
M2TH-0024-IAA 908, 918 134a 1/4 690 840 990 1150 1300
M4TM-H025-IAA 908, 918 404A 1/4 1540 1610 1680
M2EH-0026-IAA 020, 111 134a 1/4 1330 1470 1570
M2PH-0026-IAA 020, 111 134a 1/4 1330 1470 1570
MCEH-0027-IAA 111, 212 22 1/4 1540 1750 1970
MCPH-0027-IAA 111, 208, 212 22 1/4 1540 1750 1970
M4EH-0025-IAA 111, 208, 212 404A 1/4 1250 1390 1530 1690 1840
M4PH-0025-IAA 111, 208, 212 404A 1/4 1250 1390 1530 1690 1840
M2TH-H033-IAA 908, 918 134a 1/3
M4TM-0033-IAA, IAV 908, 918 404A 1/3 1360 1540 1730 1940
M2EH-A033-IAA, IAV 111, 208, 212 134a 1/3 1520 1740 1970
M2PH-A033-IAA, IAV 111, 208, 212 134a 1/3 1520 1740 1970
MCEH-0035-IAA 111, 208, 212 22 1/3 1830 2060 2310
MCPH-0035-IAA 111, 208, 212 22 1/3 1830 2060 2310
M4EH-A035-IAA, IAV 111, 208, 212 404A 1/3 1360 1570 1790 2020 2270
M4PH-A035-IAA, IAV 111, 208, 212 404A 1/3 1360 1570 1790 2020 2270
M2EH-0047-IAA, IAV 111, 208, 212 134a 1/2 2570
M2PH-0047-IAA, IAV 111, 208, 212 134a 1/2 2570
M2EM-A048-IAA 121, 122 134a 1/2 2580 2860
MCEH-0048-CAA, CAV 111, 208, 212 22 1/2 2520 2840 3190
M4EH-0049-CAA, CAV 111, 208, 212 404A 1/2 2580 290
FTEH-B075-IAA, IAV 208, 212 134a 3/4 3050 3470 3910
F3EH-A078-IAA, IAV 208, 212 22 3/4 3540 4100 4660
M4EF-0075-CAA 212 404A 3/4 3940 4370 4820
LOW TEMP Capacity (BTU/Hr) at 110° Ambient - Evaporator Temp (°F)
Model BOM Refrig. H.P. -25 -20 -15 -10 -5
M4TL-H025-IAA 908, 918 404A 1/4 510 590 670 750
M2PL-A025-IAA 111, 208, 212 134a 1/4 700 800 920 1050
M4PL-0025-IAA 020, 111 404A 1/4 500 570 660 750 840
M4TL-H033-IAA 908, 918 404A 1/3 750 850 960 1070
M4TL-H034-IAA 908, 918 404A 1/3 1160 1290
M2EL-B033-IAA 020, 111 134a 1/3 800 920 1050 1200
M2PL-B033-IAA 020, 111 134a 1/3 800 920 1050 1200
M4EL-0033-IAA 020, 111, 212 404A 1/3 520 670 830 990 1160
M2EL-0040-IAA 020, 111 134a 1/3 600 780 970 1170 1390
M2PL-0040-IAA 020, 111 134a 1/3 600 780 970 1170 1390
FTEL-A050-IAA, IAV 208, 212 134a 1/2 1700 2020
M4EL-0039-IAA 111, 208, 212 404A 1/2 850 1050 1250 1470 1670
M4PL-0039-IAA 111, 208, 212 404A 1/2 850 1050 1250 1470 1670
M4EL-0050-IAA 111, 208, 212 404A 1/2 870 1080 1320 1570 1850
M4PL-0050-IAA 111, 208, 212 404A 1/2 880 1090 1330 1580 1850
M4EF-0080-CFA 212 404A 3/4 2290 2680 3080 3500

7
2011DS-4 _Copevap (4/11) Emerson Climate Technologies
Copevap® hermetic air-cooled condensing units
Capacity Data
HIGH/MED TEMP Capacity (BTU/Hr) at 110° Ambient - Evaporator Temp (°F)
Model BOM Refrig. H.P. +25 +30 +35 +40 +45
M2TH-0017-IAA 908, 918 134a 1/6 1020 1140 1260 1380 1510
M2TH-0020-IAA 908, 918 134a 1/5 1130 1260 1390 1540 1690
M4TM-0020-IAA 908, 918 404A 1/5 1320
M2TH-0024-IAA 908, 918 134a 1/4 1470 1630 1810 1990
M4TM-H025-IAA 908, 918 404A 1/4 1770 --- ---
M2EH-0026-IAA 020, 111 134a 1/4 1740 1910 2100
M2PH-0026-IAA 020, 111 134a 1/4 1740 1910 2100
MCEH-0027-IAA 111, 212 22 1/4 2180 2410
MCPH-0027-IAA 111, 208, 212 22 1/4 2180 2410
M4EH-0025-IAA 111, 208, 212 404A 1/4 2020 2190
M4PH-0025-IAA 111, 208, 212 404A 1/4 2020 2190
M2TH-H033-IAA 908, 918 134a 1/3 1960
M4TM-0033-IAA, IAV 908, 918 404A 1/3
M2EH-A033-IAA, IAV 111, 208, 212 134a 1/3 2220 2440 2720
M2PH-A033-IAA, IAV 111, 208, 212 134a 1/3 2220 2440 2720 2720
MCEH-0035-IAA 111, 208, 212 22 1/3 2580 2870 3180 3510
MCPH-0035-IAA 111, 208, 212 22 1/3 2580 2870 3180 3510
M4EH-A035-IAA, IAV 111, 208, 212 404A 1/3 2570 2900 3290 3750
M4PH-A035-IAA, IAV 111, 208, 212 404A 1/3 2570 2900 3290 3750
M2EH-0047-IAA, IAV 111, 208, 212 134a 1/2 2890
M2PH-0047-IAA, IAV 111, 208, 212 134a 1/2 2890
M2EM-A048-IAA 121, 122 134a 1/2 3160
MCEH-0048-CAA, CAV 111, 208, 212 22 1/2 3570 3970
M4EH-0049-CAA, CAV 111, 208, 212 404A 1/2
FTEH-B075-IAA, IAV 208, 212 134a 3/4 4380 4900 5470 5470
F3EH-A078-IAA, IAV 208, 212 22 3/4 5270 5870 6520 7200 7890
M4EF-0075-CAA 212 404A 3/4
LOW TEMP Capacity (BTU/Hr) at 110° Ambient - Evaporator Temp (°F)
Model BOM Refrig. H.P. 0 +5 +10 +15 +20
M4TL-H025-IAA 908, 918 404A 1/4 830
M2PL-A025-IAA 111, 208, 212 134a 1/4 1190
M4PL-0025-IAA 020, 111 404A 1/4 930
M4TL-H033-IAA 908, 918 404A 1/3 1190 1310 1440 1560
M4TL-H034-IAA 908, 918 404A 1/3
M2EL-B033-IAA 020, 111 134a 1/3 1360
M2PL-B033-IAA 020, 111 134a 1/3 1360
M4EL-0033-IAA 020, 111, 212 404A 1/3 1320
M2EL-0040-IAA 020, 111 134a 1/3 1630
M2PL-0040-IAA 020, 111 134a 1/3 1630
FTEL-A050-IAA, IAV 208, 212 134a 1/2 2350
M4EL-0039-IAA 111, 208, 212 404A 1/2 1900
M4PL-0039-IAA 111, 208, 212 404A 1/2 1900
M4EL-0050-IAA 111, 208, 212 404A 1/2 2130
M4PL-0050-IAA 111, 208, 212 404A 1/2 2140
M4EF-0080-CFA 212 404A 3/4 3910 4370 4800 5250 5690

8
2011DS-4 _Copevap (4/11) Emerson Climate Technologies
Copevap® hermetic air-cooled condensing units
Physical Data
HIGH/MED TEMP
Model Comp
Overall Dimensions
(in)
Connecting
Lines
Minimum Circuit Am-
pacity - Max Fuse Size
Pump
Down
Capacity
(lbs)
Ship
Weight
(lbs)
L W H Suction Liquid 115-1-60-1 230-1-60
M2TH-0017-IAA ARB13C3E-IAA 19.0 9.4 10.5 5/16 S 1/4 S 4.4 - 15 2.2 32
M2TH-0020-IAA ARB17C3E-IAA 19.0 8.5 10.5 5/16 S 1/4 S 5.3 - 15 2.2 33
M4TM-0020-IAA ASB12C3E-IAA 19.0 8.5 10.5 5/16 S 1/4 S 7.5 - 15 1.9 33
M2TH-0024-IAA ARE25C3E-IAA 19.0 9.4 10.5 5/16 S 1/4 S 6.7 - 15 2.2 34
M4TM-H025-IAA ASE20C4E-IAA 19.0 8.5 10.5 5/16 S 1/4 S 8.4 - 15 1.9 34
M2EH-0026-IAA ARE27C3E-IAA 16.0 14.3 10.5 3/8 S 1/4 S 6.9 -15 2.3 41
M2PH-0026-IAA ARE27C3E-IAA 19.9 11.1 10.6 3/8 S 1/4 S 6.9 -15 2.3 41
MCEH-0027-IAA ARE36C3-IAA 16.0 14.3 10.5 3/8 S 1/4 S 9.1 - 15 2.5 42
MCPH-0027-IAA ARE36C3-IAA 19.9 11.1 10.5 3/8 S 1/4 S 9.1 - 15 2.5 42
M4EH-0025-IAA ASE19C3E-IAA 16.0 14.3 10.5 3/8 S 1/4 S 10.7 - 15 36
M4PH-0025-IAA ASE19C3E-IAA 19.9 11.0 10.5 3/8 S 1/4 S 10.7 - 15 2.2 41
M2TH-H033-IAA ARE34C4E-IAA 19.0 8.5 10.5 5/16 S 1/4 S 6.6 - 15 2.2 35
M4TM-0033-IAA, IAV ASE24C3E-IA* 19.0 8.5 10.5 5/16 S 1/4 S 8.4 - 15 5.9 - 15 1.9 35
M2EH-A033-IAA, IAV ARE37C3E-IA* 16.0 14.3 10.5 3/8 S 1/4 S 9.9 -15 2.5 46
M2PH-A033-IAA, IAV ARE37C3E-IA* 19.9 11.1 10.5 3/8 S 1/4 S 9.9 -15 4.9 -15 2.5 46
MCEH-0035-IAA ARE43C3-IAA 16.0 15.1 11.8 3/8 S 1/4 S 9.7 - 15 2.9 47
MCPH-0035-IAA ARE43C3-IAA 19.9 11.1 10.5 3/8 S 1/4 S 9.7 - 15 2.9 47
M4EH-A035-IAA, IAV ASE24C3E-IA* 16.0 15.1 11.8 3/8 S 1/4 S 8.4 - 15 5.9 - 15 2.7 45
M4PH-A035-IAA, IAV ASE24C3E-IA* 19.9 11.1 10.5 3/8 S 1/4 S 8.4 - 15 5.9 - 15 2.7 45
M2EH-0047-IAA, IAV ART51C1E-IA* 16.2 15.1 11.8 3/8 S 1/4 S 12.5 - 20 2.9 50
M2PH-0047-IAA, IAV ART51C1E-IA* 19.9 11.1 10.5 3/8 S 1/4 S 12.5 -20 6.9 - 15 2.9 50
M2EM-A048-IAA RRT62C1E-IAA 16.6 15.5 11.8 3/8 S 1/4 S 12.8 - 20 3.7 55
MCEH-0048-CAA, CAV ARE59C3-CA* 16.0 15.3 11.8 3/8 S 1/4 S 10.9 - 15 3.3 54
M4EH-0049-CAA, CAV ASE32C3E-CA* 16.1 15.3 11.8 3/8 S 1/4 S 12.3 - 20 6.7-15 3.4 50
FTEH-B075-IAA, IAV RR81C2E-IA* 24.0 16.6 13.7 5/8 S 3/8 S 21 - 30 10.7-15 5.0 114
F3EH-A078-IAA, IAV RS47C2-IA* 24.0 16.4 13.7 5/8 S 3/8 S 19.9 - 30 10.1-15 6.1 102
M4EF-0075-CAA RST55C1E-CAA 24.0 16.8 13.7 3/8 S 3/8 S 20.8 - 30 3.2 68
LOW TEMP
Model Comp
Overall Dimensions
(in)
Connecting
Lines
Minimum Circuit Am-
pacity - Max Fuse Size
Pump
Down
Capacity
(lbs)
Ship
Weight
(lbs)
L W H Suction Liquid 115-1-60-1 230-1-60
M4TL-H025-IAA AFE08C4E-IAA 19.0 8.5 10.5 5/16 S 1/4 S 5.8 - 15 1.9 31
M2PL-A025-IAA AFE10C3E-IAA 19.9 11.1 10.5 3/8 S 1/4 S 6.9 - 15 2.5 42
M4PL-0025-IAA AFB09C3E-IAA 19.9 11.1 10.5 3/8 S 1/4 S 6.7-15 2.2 40
M4TL-H033-IAA AFE11C4E-IAA 19.0 8.5 10.5 5/16 S 1/4 S 6.1 - 15 1.9 35
M4TL-H034-IAA AFE13C4E-IAA 19.0 8.5 10.5 5/16 S 1/4 S 7.9 - 15 1.9 36
M2EL-B033-IAA AFE12C3E-IAA 16.0 14.4 10.5 3/8 S 1/4 S 6.7 - 15 2.5 47
M2PL-B033-IAA AFE12C3E-IAA 19.9 11.1 10.5 3/8 S 1/4 S 6.7 - 15 2.5 47
M4EL-0033-IAA AFE11C3E-IAA 16.0 14.3 10.5 3/8 S 1/4 S 7.7 - 15 2.2 41
M2EL-0040-IAA AFT12C1E-IAA 16.1 15.3 11.8 3/8 S 1/4 S 7.3 - 15 2.5 47
M2PL-0040-IAA AFT12C1E-IAA 19.9 11.1 10.5 3/8 S 1/4 S 7.3 - 15 2.5 47
FTEL-A050-IAA, IAV RF18C2E-IA* 16.0 15.0 12.7 1/2 S 1/4 S 17 - 25 3.6 76
M4EL-0039-IAA AFE13C3E-IAA 16.0 15.2 11.8 3/8 S 1/4 S 8.9 - 15 2.5 47
M4PL-0039-IAA AFE13C3E-IAA 19.9 11.0 10.4 3/8 S 1/4 S 8.9 - 15 2.5 47
M4EL-0050-IAA AFT18C1E-IAA 16.0 15.0 11.8 1/2 S 1/4 S 10.8 - 15 2.9 55
M4PL-0050-IAA AFT18C1E-IAA 19.9 11.1 10.5 1/2 S 1/4 S 10.8 - 15 2.9 55
M4EF-0080-CFA RST64C1E-CFA 24.0 17.1 13.8 5/8 S 3/8 S 20.3 - 30 8.2 85
S = Sweat RS = Rotalock Sweat
BOM Suction Valve*
Liquid Connections BX
Conduit
Power
Cord
Fan
Guard UR/UL
Base
Valve
Receiver
w/Valve
020
UL
111 UR
208
UR*
908
UR
918
UR
212
UR*
* These recognized models are identical to the UL listed models less pressure control. Need for the control is to be evaluated by the end use application.
UL/UR are registered trademarks of Underwriters Laboratories, Inc.

M and F Line
SystemPro® hermetic water-cooled condensing units
Product Information
Horsepower: 1/4 – 5
Temperature Applications: Low/Medium/High
Refrigerants: R-134a, R-404A, R-22, R-407C
Installation Applications: A variety of applications including
walk-in boxes

Unit Feature -020 Bill of Material
Suction
Connections
Liquid
Connections
Electrical
Connections
UL/UR
Suction
Valve
Suction
Accum.
Base
Valve
Receiver
w/Valve
Power
Cord
BX
Conduit
UL
Control Data -020 Bill of Material
Horsepower Voltage CC Heater Dual Pressure Control Contactor 115 V Control
Circuit Transformer
1/4 -1/2 All No Yes No No
3/4 115 & 208/230 -1 No Yes No No
1 115 & 208/230 -1 No Yes No No
1 208/230 -3 No Yes Yes No
1-1/4 & 1-1/2 208/230 -1 Yes Yes No No
1-1/4 & 1-1/2 208/230 -3 Yes Yes Yes No
2-5 208/230 -1 Yes Yes Yes No
2-5 208/230 -3 Yes Yes Yes No
2-5 460-3 Yes Yes Yes Yes
* This data applies to units listed in this brochure only. 1 Except units using R compressor 2 Except units using CS or CF compressor
Nomenclature • Welded Condensing Units
Temperature Application Code
High Temperature
Medium Temperature
Low Temperature
Extended Medium Temp.
Extra Low Temperature
Multiple
Multiple
H
M
L
F
E
S
N
Condensing
Unit
Family
Series
Comp. Motor Rating
Nominal
HP Code
1/2
3/4
1
1-1/2
2
3
4
5
6
7-1/2
9
10
15
0050
0075
0100
0150
0200
0300
0400
0500
0600
7500
0900
1000
1500
X X X X - X X X X
Compressor Motor Types
Phase
Description
Code
1 Capacitor Run - Capacitor Start C
1 Induction Run - Capacitor Start I
1 Induction Run - Split Phase S
1 Capacitor Run - Permanent Split P
3 Three Phase - General T
3 Star (Wye) Delta E
3 6 Lead - Part Winding or
Across the Line
F
Compressor Motor Protection
Type Protection Code
External Inherent Protection-
One Protector (Line Break) A
Internal Inherent Protection –
One Protector (Line Break) F
Internal Thermal Protection –
Electronic Sensors; and
Control Module External
S
Bill Of Material (BOM)
001 thru
099
Intended for UL Listing and
CUL Certifi ed
100 thru
299
Intended for UL Rercognition
and CUL Certifi ed
300 thru
399
Not eligible for either UL
Listing, UL Recognition or
CUL Certifi ed
- X X X - X X X
Refrigerant Code
R404A/507 J/4
R134a T/2
R12 B
R22 C/3/M
Multiple F
R22/407C G
R22 9
R134a/404A/22
N
R134a/404A P
R404A/22 8
Type of Design Code
Air Cooled Steel Base A
Air Cooled Copevap Base E/P
Narrow Air Cooled Copevap T
Water Cooled Steel Base W
Custom Base C
Discus D
Electrical Codes
60 Hz. 50 Hz. Code
115-1
230-1
208/230-3
460-3
575-3
-
-
208/230-1
-
-
100-1
-
200/220-3
-
-
230-1
380/420-3
200-1
220-3
220/240-1
A
B
C
D
E
G
M
V
W
Z
Note: When applicable, specifi c 50
Hz ratings (not necessarily identical
to typical shown above) will be shown
as alternate on 60 Hz rated models.

1
2011DS-4 _M&Fwater (4/11) Emerson Climate Technologies
Resources and Support
EmersonClimate.com
Online Product Information and Technical Data
• Application Engineering Bulletins
• Instruction Sheets
• Marketing Brochures
Where to Buy
SystemPro® hermetic water-cooled condensing units
Features Benefi ts
Copeland® Hermetic Compressor
Reliability
High Energy Effi ciency
Modular Components
Replacement Serviceability
High, Medium, and Low Temperature Ranges Application Flexibility
Application Engineering Bulletins
4-1273 Factors to Consider in Converting Compressor
Rated Capacity to Actual Capacity
4-1292 Medium Temperature R-22 Copelaweld Com-
pressors
4-1295 HFC-135A Refrigerant Guidelines
4-1298 Extended Medium Temperature R-404A/507
Hermetic Compressors and Condensing Units
4-1305 SystemPro AF, AR, & AS Refrigeration Her-
metic 1/8 - 1 Horsepower Compressors
4-1306 Application Guidelines for RF Low Tempera-
ture Refrigeration Compressors
4-1307 Application Guidelines For CF Refrigeration
Compressors and Condensing Units
5-1174 Water Flow Requirements and Water Pressure
Drop for Copeland Water-Cooled Condensing
Units
11-1147 Suction Accumulators
17-1260 Compressor Overheating
17-1268 Compression Ratio as it Affects Compressor
Reliability
22-1182 Liquid Refrigerant Control in Refrigeration and
Air Conditioning Systems
For more information, visit EmersonClimate.com and login to the Customer Portal to view Online Product Information

2
2011DS-4 _M&Fwater (4/11) Emerson Climate Technologies
SystemPro® water-cooled condensing units
Capacity Data
HIGH/MED TEMP Capacity (BTU/Hr) at 75° - Evaporator Temp (°F)
Model BOM Refrig. H.P. 0 +10 +15 +20
MCWH-C027-IAA 020 22 1/4 1490 1980 2260 2570
M2WH-C026-IAA 020 134a 1/4 1360 1620 1890
M4WH-C025-IAA 020 404A 1/4 2030 2260 2520
MCWH-C036-IAA 020 22 1/3 2280 2600 2950
M2WH-C033-IAA, IAV 020 134a 1/3 1790 2190 2590
M2WH-C040-IAA 020 134a 1/3 2130 2530 2950
M4WH-C036-IAA, IAV 020 404A 1/3 2460 2780 3130
MCWH-C049-CAA, CAV 020 22 1/2 3220 3660 4130
MCWH-C056-IAA, IAV 020 22 1/2 3730 4230 4780
M2WH-C049-IAA, IAV 020 134a 1/2 2590 3050 3540
M2WH-C050-IAA, IAV 020 134a 1/2 2970 3520 4110
M2WH-D056-IAA 020 134a 1/2 3770 4300 4880
M4WH-C050-CAA, CAV 020 404A 1/2 3570 4020 4530
M4WF-C056-IAA, IAV 020 404A 1/2 3250 4200 4730 5290
F3WH-C078-IAA 020 22 3/4 4550 5310 6110
FTWH-C074-IAA, IAV 020 134a 3/4 4260 4940 5690
FTWM-C075-IAA, IAV 020 134a 3/4 4650 5580 6650
M4WF-C075-CAA, CAV 020 404A 3/4 4220 5410 6080 6790
F3WH-C100-CAV 020 22 1 5950 6800 7730
F3WM-C105-CFV, TFC 020 22 1 6550 7720 8970
FPWN-C150-CFV, TFC, TFD 020 134a 1 5150 6260 7510
FJWF-C106-CAV 020 404A 1 5420 6910 7720 8570
FPWN-C225-CFV, TFC, TFD 020 134a 1-1/4 7630 9050 10700
FJWM-C125-CFV, TFC 020 404A 1-1/4 5400 7070 8030 9100
FJWM-C126-CAV, TFC 020 404A 1-1/4 6380 8240 9290 10400
FGWH-A151-CFV, TFC, TFD 020 22 1-1/2 8120 9760 11600
FGWH-A151-CFV, TFC, TFD 020 407C 1-1/2 5370 7950 9330 10800
FPWN-C300-CFV, TFC,TFD 020 134a 1-1/2 9720 11500 13600
FPWN-C150-CFV, TFC, TFD 020 404A 1-1/2 7350 10300 11900 13700
FGWH-A201-CFV, TFC, TFD 020 22 2 10400 12400 14600
FGWH-A201-CFV, TFC, TFD 020 407C 2 6720 9950 11700 13500
FJWM-C200-CFV, TFC 020 404A 2 8720 12000 13900 15800
FGWH-A225-CFV, TFC, TFD 020 22 2-1/4 12000 14200 16600
FGWH-A225-CFV, TFC, TFD 020 407C 2-1/4 8050 11900 14000 16200
FPWN-C225-CFV, TFC, TFD 020 404A 2-1/4 10800 14500 16500 18600
FGWH-A301-CFV, TFC, TFD 020 22 3 12220 17900 20900 24000
FGWH-A301-CFV, TFC, TFD 020 407C 3 9560 15300 18400 21600
FPWN-C300-CFV, TFC, TFD 020 404A 3 13400 18600 21400 24300
FGWH-A325-CFV, TFC, TFD 020 22 3-1/4 20200 23300 26600
FGWH-A325-CFV, TFC, TFD 020 407C 3-1/4 10600 17000 20400 24000
FPWN-C325-CFV, TFC, TFD 020 134a 3-1/4 10300 12600 15000
FPWN-C325-CFV, TFC, TFD 020 404A 3-1/4 15100 20400 23600 27200
FGWH-A401-CFV, TFC, TFD 020 22 4 18700 26300 30400 34700
FGWH-A401-CFV, TFC, TFD 020 407C 4 13900 22400 26800 31500
FJWM-C400-CFV, TFC, TFD 020 404A 4 20100 27500 31700 36400
FGWH-A501-CFV, TFC, TFD, TFE, TFM 020 22 5 21500 30100 34700 39700
FGWH-A501-CFV, TFC, TFD, TFE, TFM 020 407C 5 18100 26800 31800 37400
FJWM-C500-CFV, TFC 020 404A 5 23900 32000 36500 41300
Capacity at 60 Hertz with 5° F subcooling
HT models are rated at 65° F return gas temperature
MT models are rated at 40° F return gas temperature

3
2011DS-4 _M&Fwater (4/11) Emerson Climate Technologies
SystemPro® water-cooled condensing units
Capacity Data
HIGH/MED TEMP Capacity (BTU/Hr) at 75° - Evaporator Temp (°F)
Model BOM Refrig. H.P. +25 +30 +40 +45
MCWH-C027-IAA 020 22 1/4 2910 3300 4200 4730
M2WH-C026-IAA 020 134a 1/4 2160 2450 3100 3470
M4WH-C025-IAA 020 404A 1/4 2790 3090 3790 4190
MCWH-C036-IAA 020 22 1/3 3330 3750 4700 5230
M2WH-C033-IAA, IAV 020 134a 1/3 3000 3420 4350 4860
M2WH-C040-IAA 020 134a 1/3 3390 3870 4920 5520
M4WH-C036-IAA, IAV 020 404A 1/3 3520 3960 5000 5630
MCWH-C049-CAA, CAV 020 22 1/2 4640 5200 6400 7060
MCWH-C056-IAA, IAV 020 22 1/2 5390 6090 7770 8790
M2WH-C049-IAA, IAV 020 134a 1/2 4050 4610 5860 6560
M2WH-C050-IAA, IAV 020 134a 1/2 4720 5390 6860 7680
M2WH-D056-IAA 020 134a 1/2 5510 6190 7730 8580
M4WH-C050-CAA, CAV 020 404A 1/2 5130 5830 7590 8680
M4WF-C056-IAA, IAV 020 404A 1/2 5890
F3WH-C078-IAA 020 22 3/4 6980 7910 10000 11200
FTWH-C074-IAA, IAV 020 134a 3/4 6530 7490 9820 11200
FTWM-C075-IAA, IAV 020 134a 3/4 7850
M4WF-C075-CAA, CAV 020 404A 3/4 6790 7560
F3WH-C100-CAV 020 22 1 8750 9850 12300 13700
F3WM-C105-CFV, TFC 020 22 1 10300
FPWN-C150-CFV, TFC, TFD 020 134a 1 8900 10500 14000 16200
FJWF-C106-CAV 020 404A 1 9470
FPWN-C225-CFV, TFC, TFD 020 134a 1-1/4 12500 14400 18700 21000
FJWM-C125-CFV, TFC 020 404A 1-1/4 10300
FJWM-C126-CAV, TFC 020 404A 1-1/4 11600
FGWH-A151-CFV, TFC, TFD 020 22 1-1/2 13500 15700 20400 23000
FGWH-A151-CFV, TFC, TFD 020 407C 1-1/2 12400 14000 17700 19800
FPWN-C300-CFV, TFC,TFD 020 134a 1-1/2 15900 18400 23800 26800
FPWN-C150-CFV, TFC, TFD 020 404A 1-1/2 15500
FGWH-A201-CFV, TFC, TFD 020 22 2 16900 19400 25100 28300
FGWH-A201-CFV, TFC, TFD 020 407C 2 15500 17600 22200 24800
FJWM-C200-CFV, TFC 020 404A 2 17900
FGWH-A225-CFV, TFC, TFD 020 22 2-1/4 19300 22100 28600 32100
FGWH-A225-CFV, TFC, TFD 020 407C 2-1/4 18600 21100 26600 29700
FPWN-C225-CFV, TFC, TFD 020 404A 2-1/4 20900
FGWH-A301-CFV, TFC, TFD 020 22 3 27300 30900 39100 43300
FGWH-A301-CFV, TFC, TFD 020 407C 3 25000 28700 37100 41900
FPWN-C300-CFV, TFC, TFD 020 404A 3 27200
FGWH-A325-CFV, TFC, TFD 020 22 3-1/4 30200 34200 43400 48800
FGWH-A325-CFV, TFC, TFD 020 407C 3-1/4 27800 32000 41400 46700
FPWN-C325-CFV, TFC, TFD 020 134a 3-1/4 17800 20900 28200 32400
FPWN-C325-CFV, TFC, TFD 020 404A 3-1/4 31400
FGWH-A401-CFV, TFC, TFD 020 22 4 39400 44600 56600 63700
FGWH-A401-CFV, TFC, TFD 020 407C 4 36500 42000 54300 61300
FJWM-C400-CFV, TFC, TFD 020 404A 4 41400
FGWH-A501-CFV, TFC, TFD, TFE, TFM 020 22 5 45100 50900 63900 71200
FGWH-A501-CFV, TFC, TFD, TFE, TFM 020 407C 5 43400 49900 64300 72300
FJWM-C500-CFV, TFC 020 404A 5 46300
Capacity at 60 Hertz with 5° F subcooling
HT models are rated at 65° F return gas temperature
MT models are rated at 40° F return gas temperature

4
2011DS-4 _M&Fwater (4/11) Emerson Climate Technologies
SystemPro® water-cooled condensing units
Water Flow Rate Data
HIGH/MED TEMP Capacity (BTU/Hr) at 75° - Evaporator Temp (°F)
Model Refrig. 0 +10 +15 +20 +25 +30 +35 +40 +45
MCWH-C027 22 0.2 0.2 0.2 0.2 0.2 0.3 0.3 0.3 0.3
M2WH-C026 134a 0.1 0.1 0.2 0.2 0.2 0.2 0.2 0.2 0.3
M4WH-C025 404A 0.2 0.2 0.2 0.2 0.2 0.2 0.3 0.3 0.3
MCWH-C036 22 0.2 0.2 0.2 0.3 0.3 0.3 0.3 0.4 0.4
M2WH-C033 134a 0.1 0.2 0.2 0.2 0.2 0.3 0.3 0.3 0.4
M2WH-C040 134a 0.2 0.2 0.2 0.3 0.3 0.3 0.3 0.4 0.4
M4WH-C036 404A 0.2 0.2 0.2 0.3 0.3 0.3 0.3 0.4 0.4
MCWH-C049 22 0.2 0.3 0.3 0.3 0.4 0.4 0.4 0.5 0.5
MCWH-C056 22 0.3 0.3 0.3 0.4 0.4 0.4 0.5 0.5 0.6
M2WH-C049 134a 0.2 0.2 0.3 0.3 0.3 0.4 0.4 0.4 0.4
M2WH-C050 134a 0.2 0.3 0.3 0.3 0.4 0.4 0.5 0.5 0.5
M2WH-D056 134a 0.5 0.6 0.7 0.7 0.8 0.9 1.0 1.1
M4WH-C050 404A 0.2 0.3 0.3 0.4 0.4 0.4 0.5 0.5 0.6
M4WF-C056 404A 0.5 0.3 0.7 0.7 0.8
F3WH-C078 22 0.3 0.4 0.4 0.5 0.5 0.6 0.6 0.7 0.8
FTWH-C074 134a 0.3 0.4 0.4 0.5 0.5 0.6 0.6 0.7 0.8
FTWM-C075 134a 0.3 0.4 0.5 0.5 0.6
M4WF-C075 404A 0.6 0.7 0.8 0.9 1.0
F3WH-C100 22 0.7 0.9 1.0 1.1 1.2 1.4 1.5 1.7 1.8
F3WM-C105 22 0.4 0.5 0.6 0.7 0.7
FPWN-C150 134a 0.3 0.4 0.5 0.6 0.6 0.7 0.8 0.9 1.0
FJWF-C106 404A 0.8 1.0 1.1 1.2 1.3
FPWN-C225 134a 0.4 0.6 0.6 0.7 0.8 1.0 1.1 1.2 1.3
FJWM-C125 404A 0.5 0.6 0.6 0.7 0.7
FJWM-C126 404A 0.6 0.7 0.7 0.8 0.9
FGWH-A151 22 0.8 1.1 1.3 1.5 1.7 2.0 2.2 2.5 2.8
FGWH-A151 407C 0.8 1.1 1.3 1.4 1.6 1.8 2.0 2.3 2.5
FPWN-C300 134a 0.5 0.7 0.8 0.9 1.1 1.2 1.3 1.5 1.6
FPWN-C150 404A 0.6 0.8 0.9 1.0 1.1
FGWH-A201 22 1.0 1.4 1.7 1.9 2.2 2.4 2.7 3.1 3.4
FGWH-A201 407C 1.0 1.4 1.6 1.8 2.0 2.3 2.6 2.8 3.1
FJWM-C200 404A 0.7 0.9 1.0 1.1 1.2
FGWH-A225 22 1.2 1.6 1.9 2.2 2.5 2.8 3.1 3.5 3.9
FGWH-A225 407C 1.1 1.6 1.9 2.2 2.4 2.7 3.1 3.4 3.8
FPWN-C225 404A 0.8 1.1 1.2 1.3 1.4
FGWH-A301 22 1.7 2.5 2.8 3.2 3.6 4.0 4.5 5.0 5.6
FGWH-A301 407C 1.4 2.1 2.5 2.9 3.3 3.7 4.2 4.7 5.3
FPWN-C300 404A 1.0 1.3 1.5 1.7 1.8
FGWH-A325 22 1.9 2.6 3.0 3.4 3.8 4.2 4.7 5.2 5.9
FGWH-A325 407C 1.5 2.6 2.8 3.2 3.7 4.1 4.7 5.3 59
FPWN-C325 134a 0.5 0.7 0.8 1.0 1.1 1.3 1.5 1.7 1.9
FPWN-C325 404A 1.0 1.3 1.5 1.7 2.0
FGWH-A401 22 2.5 3.4 3.9 4.4 4.9 5.5 6.1 6.9 7.6
FGWH-A401 407C 2.0 3.1 3.6 4.2 4.8 5.4 6.1 6.9 7.7
FJWM-C400 404A 1.5 2.0 2.2 2.5 2.8
FGWH-A501 22 2.9 4.0 4.5 5.1 5.7 6.4 7.0 7.8 8.6
FGWH-A501 407C 2.6 3.7 4.3 5.0 5.7 6.5 7.4 8.2 9.2
FJWM-C500 404A 1.8 2.3 2.6 2.8 3.1

5
2011DS-4 _M&Fwater (4/11) Emerson Climate Technologies
SystemPro® water-cooled condensing units
Physical Data
HIGH/MED TEMP
Model Comp
Overall Dimensions
(In)
Connecting
Lines Minimum Circuit Ampacity - Max Fuse Size Pump
Down
Capacity
(lbs)
Ship
Weight
(lbs)
L W H Suction Liquid 115-1-60-1 230-1-60 230-3-60 460-3-60
MCWH-C027 ARE36C3 17.9 12.7 8.7 3/8 S 1/4 S 8.3 - 15 1.8 49
M2WH-C026 ARE27C3E 17.9 12.7 8.7 3/8 S 1/4 S 6.2 - 15 1.8 44
M4WH-C025 ASE19C3E 17.9 12.8 9.0 3/8 S 1/4 S 10.0 - 15 2.4 44
MCWH-C036 ARE43C3 17.9 12.8 8.8 3/8 S 1/4 S 8.8 - 15 2.8 46
M2WH-C033 ARE37C3E 17.9 12.7 8.7 3/8 S 1/4 S 9.0 - 15 4.3 - 15 1.8 50
M2WH-C040 ARE41C3E 17.9 12.7 9.2 3/8 S 1/4 S 9.3 - 15 1.8 50
M4WH-C036 ASE24C3E 17.9 12.8 8.7 3/8 S 1/4 S 7.5 - 15 5.3 - 15 2.4 43
MCWH-C049 ARE59C3 17.9 12.8 9.2 3/8 S 1/4 S 10.0 - 15 5.0 - 15 2.8 54
MCWH-C056 ART69C1 17.9 13.3 9.8 3/8 S 1/4 S 16.3 - 25 8.6 - 15 2.8 74
M2WH-C049 ART51C1E 17.9 12.8 9.0 3/8 S 1/4 S 11.6 - 20 6.3 - 15 2.8 60
M2WH-C050 ART62C1E 17.9 12.8 9.8 3/8 S 1/4 S 12.8 - 20 6.7 - 15 2.8 57
M2WH-C056 RRT64C1E 18.5 13.8 9.8 3/8 S 1/4 S 13.8 - 20 7.5 - 15 2.6 60
M4WH-C050 ASE32C3E 17.9 12.8 9.3 3/8 S 1/4 S 11.5 - 20 6.1 - 15 2.4 52
M4WF-C056 RST45C1E 17.4 12.7 10.5 5/8 S 1/4 S 13.1 - 20 2.9 48
F3WH-C078 RS47C2 24.0 17.2 12.1 5/8 S 3/8 S 17.9 - 30 8.9 - 15 4.2 90
FTWH-C074 RR81C2E 18.0 12.7 11.6 5/8 S 1/4 S 19.0 - 30 11.3 - 20 3.5 72
FTWM-C075 RS54C2E 24.0 16.1 11.8 5/8 S 3/8 S 14.8 - 25 8.5 - 15 6.3 94
M4WF-C075 RST55C1E 24.0 16.1 10.7 5/8 S 3/8 S 18.8 - 30 8.5 - 15 6.4 139
F3WH-C100 RS64C2 24.0 17.1 11.7 5/8 S 3/8 S 9.6 - 15 6.2 100
F3WM-C105 RS70C1 24.0 17.3 12.8 7/8 S 3/8 S 8.8 - 15 5.9 - 15 11.9 99
FPWN-C150 CS10K6E 24.0 16.1 16.3 7/8 S 3/8 S 13.6 - 20 9.4 - 15 4.5 - 15 11.2 132
FJWF-C106 RST64C1E 24.2 17.2 10.7 7/8 S 3/8 S 11.3 - 20 5.4 93
FPWN-C225 CS14K6E 24.0 16.9 15.0 7/8 S 3/8 S 15.5 - 25 11.4 - 20 5.9 - 15 10.3 140
FJWM-C125 RS70C1E 24.0 18.5 12.8 7/8 S 3/8 S 8.8 - 15 5.9 - 15 10.3 125
FJWM-C126 RS80C2E 24.0 17.3 12.8 7/8 S 3/8 S 12.0 - 20 8.0 - 15 10.3 119
FGWH-A151 CR18KQE 24.0 16.7 15.0 7/8 S 3/8 S 11.3 - 20 7.5 - 15 3.8 - 15 13.0 120
FPWN-C300 CS18K6E 24.0 16.9 15.0 1-1/8 S 3/8 S 20.0 - 35 13.0 - 20 5.9 - 15 10.3 151
FPWN-C150 CS10K6E 24.0 16.1 16.3 7/8 S 3/8 S 13.6 - 20 9.4 - 15 4.5 - 15 11.2 132
FGWH-A201 CR24KQE 24.0 16.7 15.0 7/8 S 3/8 S 16.9 - 30 9.4 - 15 4.6 - 15 13.0 240
FJWM-C200 CS12K6E 24.0 16.8 15.0 7/8 S 3/8 S 13.6 - 20 9.4 - 15 10.3 130
FGWH-A225 CR28KQE 24.0 16.7 15.0 7/8 S 3/8 S 18.8 - 30 11 - 15 5.5 - 15 13.0 111
FPWN-C225 CS14K6E 24.0 16.8 15.0 7/8 S 3/8 S 15.5 - 25 11.4 - 20 5.9 - 15 10.3 140
FGWH-A301 CR37KQE 25.0 21.0 15.5 1-1/8 S 3/8 S 23.1 - 40 13.9 - 20 7.0 - 15 11.9 175
FPWN-C300 CS18K6E 24.0 16.9 15.0 1-1/8 S 3/8 S 20.0 - 35 13.0 - 20 5.9 - 15 10.3 151
FGWH-A325 CR41KQE 25.0 21.0 15.5 1-1/8 S 3/8 S 24.3 - 40 16.4 - 25 7.4 -15 11.9
FPWN-C325 CS20K6E 26.2 21.0 15.5 1-1/8 S 3/8 S 23.3 - 40 14.3 - 25 6.4 - 15 12.0 225
FPWN-C325 CS20K6E 28.0 21.0 15.5 1-1/8 S 3/8 S 23.3 - 40 14.3 - 25 6.4 - 15 10.3 225
FGWH-A401 CR53KQE 26.8 21.0 21.1 1-1/8 S 1/2 S 36.3 - 60 22.5 - 40 11.4 - 20 21.1 325
FJWM-C400 CS27K6E 26.2 21.0 21.0 1-1/8 S 1/2 S 29.9 - 50 19.5 - 35 9.6 - 15 16.5 225
FGWH-A501 CRNQ-050E 25.8 21.8 21.1 1-1/8 S 1/2 S 42.9 - 70 26.8 - 45 12.0 - 20 18.4 342
FJWM-C500 CS33K6E 25.0 21.0 21.1 1-1/8 S 1/2 S 38.4 - 60 23.4 - 40 16.5 189
LOW TEMP
Model Comp
Overall Dimensions
(In) Connecting
Lines Minimum Circuit Ampacity - Max Fuse Size Pump
Down
Capacity
(lbs)
Ship
Weight
(lbs)
L W H Suction Liquid 115-1-60-1 230-1-60
M2WL-C025 AFE10C3E 24.0 16.4 9.5 3/8 S 1/4 S 6.9 - 15 1.8 44
M4WL-C025 AFB09C3E 24.0 16.4 9.5 3/8 S 1/4 S 6.7 - 15 1.6 44
M4WL-C033 AFE11C3E 24.0 16.4 9.5 3/8 S 1/4 S 7.7 - 15 1.6 46
FTWL-C050 RF18C2E 24.0 16.1 12.1 1/2 S 1/4 S 16.9 - 25 9.4 - 15 2.6 90
M4WL-C040 AFE13C3E 24.0 16.4 9.5 3/8 S 1/4 S 8.7 - 15 2.2 50
M4WL-H051 AFE17C4E 24.0 16.4 9.5 3/8 S 1/4 S 10.4 - 15 2.4 69
M4WL-C067 AFT26C1E 24.0 16.4 9.9 1/4 S 1/4 S 11.7 - 15 2.4 97
M4WL-C075 RST64C1E 24.0 16.4 10.7 5/8 S 3/8 S 19 - 30 11.8 - 20 6.4 40
FJWL-C103 CF04K6E 24.0 16.4 15.0 7/8 S 3/8 S 12.6 - 20 8.6 - 15 5.4 138
FJWL-C200 CF06K6E 24.0 16.4 15.0 7/8 S 3/8 S 14.8 - 25 9.3 - 15 5.4 - 15 5.4 130
FJWL-C301 CF09K6E 25.0 21.0 21.1 7/8 S 1/2 S 21.4 - 35 13.3 - 20 7.6 - 15 16.3 157
FJWL-C390 CF12K6E 25.0 21.0 21.1 7/8 S 1/2 S 26.2 - 45 15.9 - 25 16.3 150
S = Sweat Note: Water connections (inlet/outlet) 1/2 in.

6
2011DS-4 _M&Fwater (4/11) Emerson Climate Technologies
SystemPro® water-cooled condensing units
Capacity Data
LOW TEMP
Model Capacity (BTU/Hr) at 75° - Evaporator Temp (°F)
Model BOM Refrig. H.P. -30 -25 -20 -15 -10 0
M2WL-C025-IAA 020 134a 1/4 700 800 930 1080 1430
M4WL-C025-IAA 020 404A 1/4 580 680 780 900 1180
M4WL-C033-IAA 020 404A 1/3 770 960 1160 1370 1830
FTWL-C050-IAA, IAV 020 134a 1/2 1120 1490 1890 2320 3290
M4WL-C040-IAA 020 404A 1/2 1180 1430 1690 1970 2590
M4WL-H051-IAA 020 404A 1/2 1430 1640 1880 2140 2740
M4WL-C067-CFA 020 404A 1/2 2160 2520 2940 3420 4590
M4WL-C075-CFA, IAV 020 404A 3/4 2600 3050 3550 4100
FJWL-C103-CFV, TFC 020 404A 1 2170 2940 3730 4590 5550 7930
FJWL-C200-CFV, TFC, TFD 020 404A 2 3940 5020 6250 7620 9090 12300
FJWL-C301-CFV, TFC, TFD 020 404A 3 5810 7360 9110 11000 13200 17800
FJWL-C390-CFV, TFC 020 404A 4 8200 10100 12200 14300 16700 22100
Capacity at 60 Hertz with 5° subcooling
LT models are rated at 40° F return gas temperature
Water Flow Rate Data
LOW TEMP
Model Water Flow Rate (Gal/Min) at 75° Inlet Water - Evaporator Temp (°F)
Model Refrig. -30 -25 -20 -15 -10 0
M2WL-C025 134a 0.1 0.1 0.1 0.1 0.2
M4WL-C025 404A 0.1 0.1 0.1 0.1 0.1
M4WL-C033 404A 0.1 0.1 0.1 0.2 0.2
FTWL-C050 134a 0.2 0.2 0.2 0.2 0.3
M4WL-C040 404A 0.1 0.2 0.2 0.2 0.2
M4WL-H051 404A 0.2 0.3 0.3 0.3 0.4
M4WL-C067 404A 0.2 0.3 0.3 0.3 0.6
M4WL-C075 404A 0.4 0.5 0.6 0.6 0.7
FJWL-C103 404A 0.3 0.4 0.5 0.6 0.6 0.7
FJWL-C200 404A 0.4 0.5 0.6 0.7 0.8 1.0
FJWL-C301 404A 0.6 0.7 0.8 0.9 1.1 1.4
FJWL-C390 404A 1.2 1.4 1.7 2.0 2.3 3.0
Unit Feature -020 Bill of Material
Suction Connections Liquid Connections Electrical Connections UL/UR
Suction Valve Suction Accumulator Base Valve Receiver w/Valve Power Cord BX Conduit
UL
Control Data -020 Bill of Material
Horsepower Voltage CC Heater Dual Pressure Control Contactor 115 V Control
Circuit Transformer
1/4 -1/2 All No Yes No No
3/4 115 & 208/230 -1 No Yes No No
1 115 & 208/230 -1 No Yes No No
1 208/230 -3 No Yes Yes No
1-1/4 & 1-1/2 208/230 -1 Yes Yes No No
1-1/4 & 1-1/2 208/230 -3 Yes Yes Yes No
2-5 208/230 -1 Yes Yes Yes No
2-5 208/230 -3 Yes Yes Yes No
2-5 460-3 Yes Yes Yes Yes
* This data applies to units listed in this brochure only.
1 Except units using R compressor
2 Except units using CS or CF compressor

C, D and E Line
Copelametic® air-cooled condensing units
Product Information
Horsepower: 1/2 – 10
Temperature Applications: Low/Medium/High
Refrigerants: R-134a, R-404A, R-22, R-407C
Installation Applications: A variety of applications including
walk-ins

Nomenclature • Semi-Hermetic Condensing Units
- X X X - X X XX X X X - X X X X
Refrigerant
R404A/507 J/4
R134a T/2
R12 B/7
R22 3/M/L/C
Multiple F
R22/407C G
R22 9
R134a/404A/22
N
R134a/404A P
R404A/22 8
Temperature Application
Description Code
High Temperature H
Medium Temperature M
Low Temperature L
Extended Medium Temp. F
Extra Low Temp. E
High Temperature B
R22/404A LT & R134a HT G
R22 HT & R404A MT J
R404A LT & R134a HT K
Two Stage U
Two Stage T
Air Cooled Steel Base A
Air Cooled Copevap Base E
Water Cooled Steel Base W
Custom Base C
Discus D
Receiver Base C
Flat Metal Base E, D
Water
Condenser Base W
Transport Unit T
Comp. Motor
Rating
Nominal
(HP) Code
1/2
3/4
1
1-1/2
2
3
4
5
6
7-1/2
9
10
15
20
22
25
27
30
40
50
60
70
80
0050
0075
0100
0150
0200
0300
0400
0500
0600
0750
0900
1000
1500
2000
2200
2500
2700
3000
4000
5000
6000
7000
8000
Note: Left position may
be a letter indicating a
revision change
Product Variations
Numbers will be assigned as follows:
1. Number –100 is standard compressor used
in Copeland® condensing units.
2. Number –200 indicates a STANDARD com-
pressor parts B/M and model no.
3. Number –201 and larger will be assigned for
all other variations of a given model.
4. Number –800 indicates a standard replace-
ment compressor and Component Parts B/M
and model no. –240 volt control.
5. Number –801 indicates a standard replace-
ment compressor and component parts B/M
and model no. –120 volt control.
Compressor Motor Types
Phase Description Code
1 Capacitor Run – Capacitor Start C
1 Induction Run – Capacitor Start I
1 Induction Run – Split Phase S
1Capacitor Run – Permanent
Split Capacitor P
3 Three Phase T
3 Wye (star) Delta E
36 Lead Part Winding or Across
the Line – except 575V F
Compressor Motor Protection
Type Protection Code
External Inherent Protection-
One Protector, (Line Break)
Use with Contactor
A
Internal Inherent Protection-
One Protector (Line Break)
Use with Contactor
F
Internal Thermal Protectors-
Electronic Sensors; and
Control Module External
Use with Contactor
S
Electrical Codes
60 Hz. 50 Hz. Code
115-1
230-1
208/230-3
460-3
575-3
-
-
208/230-1
-
-
100-1
-
200/220-3
-
-
230-1
380/420-3
200-1
220-3
220/240-1
A
B
C
D
E
G
M
V
W
Z
Note: When applicable, specifi c 50
Hz ratings (not necessarily identical
to typical shown above) will be shown
as alternate on 60 Hz rated models.
Control Data
Unit Horsepower Voltage BOM
Low
Pressure
Control
High/Low
Pressure
Control
Contactor
115 V Control
Circuit Transformer
E 1/4 - 1/3 All 020 No No No No
E 1/2 - 1 115-1, 208/230-1 020 Yes No No No
E 1 1/2 - 2 115-1, 208/230-1 020 Yes No No
E 1/2 -1 208/230-3 020 Yes Yes No
E 1/2 -1 460-3 020 Yes Yes Yes
D 2 - 3 208/230-1 020 Yes No No
D 2 - 3 208/230-3 020 Yes Yes No
D 2 - 3 460-3 020 Yes Yes Yes
C 3/4 - 3 208/230-1 001 Yes No No
C 3/4 - 10 208/230-3 001 Yes Yes No
C 3 - 10 460-3, 575-3 001 Yes Yes Yes
All units come standard with a suction valve and receiver. All units are UL Listed.

1
2011DS-4 _CD&E (4/11) Emerson Climate Technologies
Resources and Support
EmersonClimate.com
Online Product Information and Technical Data
• Application Engineering Bulletins
• Instruction Sheets
• Marketing Brochures
Where to Buy
Copelametic® air-cooled condensing units
Features Benefi ts
Copeland® Semi-hermetic Compressor
Copeland Discus® Compressor with
Unique ‘Discus’ Valve Design
Reliability
High Energy Effi ciency
Modular Components Replacement Serviceability
Positive Displacement Oil Pump Application Flexibility
Low Profi le More Cooler Space, Fewer Stockouts, Application Flex-
ibility
Low Re-expansion Volumes Decrease Energy Costs, Greater Capacity
Lower Operating Speeds
Reduces Operating Component Stress
Low Sound
Lower Maintenance Costs
Application Engineering Bulletins
1094 Identifi cation of Port Locations in Heads of
Copelametic® Compressors
1135 Cooling Requirement for Copelametic Compres-
sors
1166 Copeland® Oil Pumps
1283 Discus® R-22 Envelope Extended
1287 Copeland DiscusTM Demand Cooling
1336 DiscusTM Optimized Medium Temperature Models
Bulletin
1174 Water Flow Requirement and Water Pressure Drop
for Copeland® Water Cooled Condensing Units
1275 SENTRONIC+TM Electronic Oil Pressure Control
1147 Suction Accumulators
1297 Liquid Line Filter-Driers
1234 Low Ambient Compressor Operation
1182 Liquid Refrigerant Control in Refrigeration and Air
Conditioning Systems
For more information, visit EmersonClimate.com and login to the Customer Portal to view Online Product Information
2
2011DS-4 _CD&E (4/11) Emerson Climate Technologies

3
2011DS-4 _CD&E (4/11) Emerson Climate Technologies
Copelametic® air-cooled condensing units
Summary Data
Model Compressor H.P. Fans Refrigerant
R-12 R-22 R-404A R-507* R-134a
E8AL-A050-CAV KANB-005E 1/2 1 LT LT LT
EJAL-A050-CAV, IAA, TAC KAN*-00*E 1/2 1 LT LT
ENAG-A050-IAA KANB-005E 1/2 1 LT LT HT
E3AM-A075-CAA,CAV,TAC KAE*-0075 3/4 1 MT
E8AJ-A075-CAV,TAC KAN*-007E 3/4 1 HT MT MT
E8AL-A075-CAA,TAC KAM*-007E 3/4 1 LT LT LT 1
ENAG-A075-CAV KAMB-007E 3/4 1 LT LT HT
C7AB-0100-CAV,TAC,TAD KAJ*-0100 1 1 HT
CBAM-0103-TAC,TAD KAK1-0100 1 1 MT
C8AJ-0100-CAV,TAC,TAD KAR*-010E 1 1 HT MT MT 2
E8AJ-A100-CAV,TAC,TAD KAR*-010E 1 1 HT MT MT 2
E3AM-A101-CAV, TAC, TAD KAM*-0100 1 1 MT
C3AM-0101-CAV,TAC,TAD KAM*-0100 1 1 MT
CNAG-0100-CAV,TAC KAJB-010E 1 1 LT LT LT 2 HT
ENAG-A100-CAV,TAC KAJB-010E 1 1 LT LT LT 2 HT
C7AB-0150-CAV,TAC KALB-0150 1-1/2 1 HT
CBAM-0153-CAV,TAC KATB-0150 1-1/2 1 MT
E3AH-A151-CAV,TAC KAGB-0150 1-1/2 1 wi
C3AH-0150-CAV,TAC,TAD KAG*-0150 1-1/2 1 HT
CLAL-0152-CAB EADB-0200 1-1/2 1 LT
C8AL-0151-TAC EADA-020E 1-1/2 1 LT LT LT
EJAL-A150-TAD KALA-016E 1-1/2 1 LT LT
CJAL-0152-TAD KALA-016E 1-1/2 1 LT LT
CJAL-0153-CAB EADB-021E 1-1/2 1 LT
EPAK-A150-CAV,TAC KALA-016E 1-1/2 1 LT LT HT
CPAK-0150-CAV,TAC KALA-016E 1-1/2 1 LT LT HT
C7AB-0200-CAB,TAC,TAD EAV*-0200 2 1 HT
D8AJ-0200-CAV,TAC KAKB-021E 2 2 HT MT MT
D8AM-0201-TAC,TAD ERCA-021E 2 2 MT MT MT
C3AH-0204-TAD KAKA-0200 2 1 HT
C3AM-0202-CAB ERC2-0200 2 1 MT
C8AJ-0200-CAV,TAC KAKB-021E 2 1 HT MT MT
C8AM-0202-TAC,TAD ERCA-021E 2 1 MT MT MT
C8AL-0200-TAD EAVA-021E 2 1 LT LT LT
DNAG-0200-CAV,TAC EAVB-021E 2 2 LT LT LT HT
CNAG-0200-CAV,TAC EAVB-021E 2 1 LT LT LT HT
C7AB-0300-CAB,TAC,TAD LAH1-0310 3 1 HT
D8AJ-0300-TAC,TAD ERFA-031E 3 2 HT MT MT
C8AJ-0300-TAC,TAD ERFA-031E 3 1 HT MT MT
C3AH-0303-CAB, TAC, TAD, TAE ERF2-0310 3 1 HT
CLAL-0300-CAB,TAC,TAD LAH*-031* 3 1 LT
DLAL-0301-CAB,TAC,TAD LAH*-031* 3 2 LT
DJAL-0300-TAD LAHA-032E 3 2 LT LT 3
CJAL-0300-CAB,TAC,TAD. TAE LAH*-032E 3 1 LT LT 3
DTAH-0300-CAB LAHB-031E 3 2 HT
CTAH-0300-CAB LAHB-031E 3 1 HT
CPDK-0300-TFC,TFD,TFE 2DF3F16KE 3 1 LT LT HT
CMDL-0400-TFC 2DL3F20K0 4 1 LT
CJDL-0400-TFC,TFD,TFE 2DL3F20KE 4 1 LT LT
C8DJ-0500-TFC,TFD,TFE 2DC3R53KE 5 1 HT MT MT
C8DJ-0501-TFC,TFD 2DD3R63KE 5 1 HT MT MT
CPDK-0600-TFC,TFD 2DA3F23KE 6 1 LT LT HT
CPDK-0601-TFC,TFD 3DA3F28KE 6 1 LT LT HT
C8DJ-0750-TFC 2DA3R89KE 7-1/2 1 HT MT MT
CPDK-0750-TFC,TFD,TFE 3DB3F33KE 7-1/2 1 LT LT HT
CPDK-0900-TFC,TFD 3DF3F40KE 9 2 LT LT HT
C8DJ-1000-TFC,TFD 3DB3R12ME 10 2 HT MT MT
CPDK-1000-TFC,TFD 3DS3F46KE 10 2 LT LT HT

4
2011DS-4 _CD&E (4/11) Emerson Climate Technologies
Copelametic® air-cooled condensing units
Capacity Data
HIGH/MED TEMP Capacity (BTU/Hr) at 90° Ambient - Evaporator Temp (°F)
Model BOM Refrig. H.P. -5 0 +10 +15 +20
ENAG-A050-IAA 020 134a 1/2 1900 2380 2650 2930
E8AJ-A075-CAV,TAC 020 22 3/4 3380 4340 4880 5450
E3AM-A075-CAA,CAV,TAC 020 22 3/4 3580 4060 5090 5670 6290
E8AJ-A075-CAV,TAC 020 404A 3/4 3090 3520 4550 5100 5670
ENAG-A075-CAV 020 134a 3/4 2880 3310 4290 4830 5390
C7AB-0100-CAV,TAC,TAD 001 12 1 4550 5740 6400 7120
CBAM-0103-TAC,TAD 001 12 1 5150 6450 7170 7940
C8AJ-0100-CAV,TAC,TAD 001 22 1 5070 6440 7220 8040
C3AM-0101-CAV,TAC,TAD 001 22 1 5710 7410 8330 9300
E8AJ-A100-CAV,TAC,TAD 020 22 1 4820 6110 6830 7590
E3AM-A101-CAV,TAC,TAD 020 22 1 5780 7510 8450 9440
E8AJ-A100-CAV,TAC,TAD 020 404A 1 4810 5350 6650 7320 7980
C8AJ-0100-CAV,TAC,TAD 001 404A 1 4870 5420 6800 7520 8230
CNAG-0100-CAV,TAC 001 134a 1 4580 5770 6450 7170
ENAG-A100-CAV,TAC 020 134a 1 4360 5470 6090 6750
C7AB-0150-CAV,TAC 001 12 1-1/2 6240 7960 8910 9930
CBAM-0153-CAV,TAC 001 12 1-1/2 6540 7430 9430 10500 10500
E3AH-A151-CAV,TAC 020 22 1-1/2 6310 7910 8880 9960
C3AH-0150-CAV,TAC,TAD 001 22 1-1/2 6130 7990 8990 10100
EPAK-A150-CAV,TAC 020 134a 1-1/2 6290 7980 8940 9970
CPAK-0150-CAV,TAC 001 134a 1-1/2 6400 8180 9170 10230
C7AB-0200-CAB,TAC,TAD 001 12 2 8380 11100 12400 13800
D8AJ-0200-CAV,TAC 020 22 2 8100 11000 12500 14000
D8AM-0201-TAC,TAD 020 22 2 8220 9410 12240 13860 15620
C8AJ-0200-CAV,TAC 001 22 2 7860 10700 12100 13500
C3AH-0204-TAD 001 22 2 7860 10700 12100 13500
C3AM-0202-CAB 001 22 2 7980 9100 11700 13200 14800
C8AM-0202-TAC,TAD 001 22 2 8010 9150 11800 13300 15000
D8AJ-0200-CAV,TAC 020 404A 2 8410 9550 11800 13000 14300
D8AM-0201-TAC,TAD 020 404A 2 9800 11100 14000 15400 17000
C8AJ-0200-CAV,TAC 001 404A 2 8170 9240 11300 12400 13700
C8AM-0202-TAC,TAD 001 404A 2 9350 10570 13160 14490 15900
DNAG-0200-CAV,TAC 020 134a 2 8380 11090 12560 14120
CNAG-0200-CAV,TAC 001 134a 2 8120 10700 12000 13500
C7AB-0300-CAB,TAC,TAD 001 12 3 14700 18400 20500 22700
D8AJ-0300-TAC,TAD 020 22 3 14840 18890 21110 23480
C3AH-0303-CAB, TAC, TAD, TAE 001 22 3 14750 18950 21300 23800
C8AJ-0300-TAC,TAD 001 22 3 14750 18950 21300 23800
D8AJ-0300-TAC,TAD 020 404A 3 14600 16400 20500 22600 25000
C8AJ-0300-TAC,TAD 001 404A 3 14800 16600 20900 23200 25700
DTAH-0300-CAB 020 134a 3 15090 18100 19940 21970
CTAH-0300-CAB 001 134a 3 14500 18400 20500 22700
CPDK-0300-TFC,TFD,TFE 001 134a 3 19010 24420 27360 30470
C8DJ-0500-TFC,TFD,TFE 001 22 5 19400 22600 29600 33500 37500
C8DJ-0501-TFC,TFD,TFE 001 22 5 33300 37700 42200
C8DJ-0500-TFC,TFD,TFE 001 404A 5 22300 25100 31660 35240 39020
C8DJ-0501-TFC,TFD 001 404A 5 26700 29800 37300 41300 45500
CPDK-0600-TFC,TFD 001 134a 6 25150 32560 36700 41130
CPDK-0601-TFC,TFD 001 134a 6 29830 38550 43320 48390
C8DJ-0750-TFC 001 22 7-1/2 50800 56300 62300
C8DJ-0750-TFC 001 404A 7-1/2 40100 44600 54500 59900 65500
CPDK-0750-TFC,TFD,TFE 001 134a 7-1/2 34200 44200 49600 55300
CPDK-0900-TFC,TFD 001 134a 9 42600 55500 62500 69900
C8DJ-1000-TFC,TFD 001 22 10 62100 77300 85700 94600
C8DJ-1000-TFC,TFD 001 404A 10 59400 66600 82200 90600 99500
CPDK-1000-TFC,TFD 001 134a 10 46400 60310 67840 75830

5
2011DS-4 _CD&E (4/11) Emerson Climate Technologies
Copelametic® air-cooled condensing units
Capacity Data
HIGH/MED TEMP Capacity (BTU/Hr) at 90° Ambient - Evaporator Temp (°F)
Model BOM Refrig. H.P. +25 +30 +35 +40 +45
ENAG-A050-IAA 020 134a 1/2 3240 3560 3900 4250 4620
E8AJ-A075-CAV,TAC 020 22 3/4 6060 6710 7380 8090 8820
E3AM-A075-CAA,CAV,TAC 020 22 3/4 6980
E8AJ-A075-CAV,TAC 020 404A 3/4 6240
ENAG-A075-CAV 020 134a 3/4 5990 6620 7270 7960
C7AB-0100-CAV,TAC,TAD 001 12 1 7860 8660 9500 10400 11300
CBAM-0103-TAC,TAD 001 12 1 8750
C8AJ-0100-CAV,TAC,TAD 001 22 1 8910 9830 10800 11800 12800
C3AM-0101-CAV,TAC,TAD 001 22 1 10300
E8AJ-A100-CAV,TAC,TAD 020 22 1 8400 9240 10100 11000 11900
E3AM-A101-CAV,TAC,TAD 020 22 1 10500
E8AJ-A100-CAV,TAC,TAD 020 404A 1 8600
C8AJ-0100-CAV,TAC,TAD 001 404A 1 8900
CNAG-0100-CAV,TAC 001 134a 1 7950 8770 9630 10540 11500
ENAG-A100-CAV,TAC 020 134a 1 7440 8170 8920 9700 10500
C7AB-0150-CAV,TAC 001 12 1-1/2 11000 12100 13300 14500 15800
CBAM-0153-CAV,TAC 001 12 1-1/2 13000
E3AH-A151-CAV,TAC 020 22 1-1/2 11100 12400 13700 15100 16500
C3AH-0150-CAV,TAC,TAD 001 22 1-1/2 11200 12400 13600 14900 16300
EPAK-A150-CAV,TAC 020 134a 1-1/2 11060 12210 13410 14650 15950
CPAK-0150-CAV,TAC 001 134a 1-1/2 11350 12540 13770 15060 16400
C7AB-0200-CAB,TAC,TAD 001 12 2 15200 16600 18100 19700 21300
D8AJ-0200-CAV,TAC 020 22 2 15600 17200 19000 20800 22800
D8AM-0201-TAC,TAD 020 22 2 17510
C8AJ-0200-CAV,TAC 001 22 2 15000 16500 18100 19800 21600
C3AH-0204-TAD 001 22 2 15000 16500 18100 19800 21600
C3AM-0202-CAB 001 22 2 16500
C8AM-0202-TAC,TAD 001 22 2 16700
D8AJ-0200-CAV,TAC 020 404A 2 15900
D8AM-0201-TAC,TAD 020 404A 2 18700
C8AJ-0200-CAV,TAC 001 404A 2 15100
C8AM-0202-TAC,TAD 001 404A 2 17420
DNAG-0200-CAV,TAC 020 134a 2 15770 17520 19390 21370 23480
CNAG-0200-CAV,TAC 001 134a 2 15000 16600 18300 20100 22000
C7AB-0300-CAB,TAC,TAD 001 12 3 25000 27500 30200 32900 35800
D8AJ-0300-TAC,TAD 020 22 3 26010 28690 31530 34530 37710
C3AH-0303-CAB, TAC, TAD, TAE 001 22 3 26470 29300 32290 35440 38730
C8AJ-0300-TAC,TAD 001 22 3 26470 29300 32290 35440 38730
D8AJ-0300-TAC,TAD 020 404A 3 27400
C8AJ-0300-TAC,TAD 001 404A 3 28300
DTAH-0300-CAB 020 134a 3 24170 26520 28990 31560 34190
CTAH-0300-CAB 001 134a 3 25000 27400 29900 32600 35300
CPDK-0300-TFC,TFD,TFE 001 134a 3 33780 37270 40970 44880 48980
C8DJ-0500-TFC,TFD,TFE 001 22 5 41700
C8DJ-0501-TFC,TFD,TFE 001 22 5 47000 52100 57400 62900 68600
C8DJ-0500-TFC,TFD,TFE 001 404A 5 42980
C8DJ-0501-TFC,TFD 001 404A 5 49900
CPDK-0600-TFC,TFD 001 134a 6 45870 50920 56280 61950 67970
CPDK-0601-TFC,TFD 001 134a 6 53780 59480 65520 71890 78580
C8DJ-0750-TFC 001 22 7-1/2 68900 75800 83300 91100 99100
C8DJ-0750-TFC 001 404A 7-1/2 71300
CPDK-0750-TFC,TFD,TFE 001 134a 7-1/2 61300 67700 74500 81600 89000
CPDK-0900-TFC,TFD 001 134a 9 77700 86100 95100 104700 114900
C8DJ-1000-TFC,TFD 001 22 10 104100 114200 124900 136100 148000
C8DJ-1000-TFC,TFD 001 404A 10 108700
CPDK-1000-TFC,TFD 001 134a 10 84350 93440 103170 113530 124650

6
2011DS-4 _CD&E (4/11) Emerson Climate Technologies
Copelametic® air-cooled condensing units
Capacity Data
HIGH/MED TEMP Capacity (BTU/Hr) at 100° Ambient - Evaporator Temp (°F)
Model BOM Refrig. H.P. -5 0 +10 +15 +20
ENAG-A050-IAA 020 134a 1/2 1740 2190 2430 2700
E8AJ-A075-CAV,TAC 020 22 3/4 3080 3980 4480 5010
E3AM-A075-CAA,CAV,TAC 020 22 3/4 3280 3720 4670 5190 5780
E8AJ-A075-CAV,TAC 020 404A 3/4 2690 3090 4030 4530 5040
ENAG-A075-CAV 020 134a 3/4 2620 3030 3920 4410 4930
C7AB-0100-CAV,TAC,TAD 001 12 1 4180 5270 5880 6530
CBAM-0103-TAC,TAD 001 12 1 4700 5890 6560 7260
C8AJ-0100-CAV,TAC,TAD 001 22 1 4610 5900 6620 7400
C3AM-0101-CAV,TAC,TAD 001 22 1 5210 6780 7630 8540
E8AJ-A100-CAV,TAC,TAD 020 22 1 4380 5600 6270 6990
E3AM-A101-CAV,TAC,TAD 020 22 1 5270 6870 7740 8670
E8AJ-A100-CAV,TAC,TAD 020 404A 1 4310 4790 5970 6590 7190
C8AJ-0100-CAV,TAC,TAD 001 404A 1 4360 4850 6120 6770 7430
CNAG-0100-CAV,TAC 001 134a 1 4210 5310 5930 6600
ENAG-A100-CAV,TAC 020 134a 1 3990 5020 5590 6200
C7AB-0150-CAV,TAC 001 12 1-1/2 5710 7320 8210 9150
CBAM-0153-CAV,TAC 001 12 1-1/2 5950 6770 8650 9670
E3AH-A151-CAV,TAC 020 22 1-1/2 5790 7250 8160 9170
C3AH-0150-CAV,TAC,TAD 001 22 1-1/2 5640 7380 8310 9310
EPAK-A150-CAV,TAC 020 134a 1-1/2 5850 7420 8310 9270
CPAK-0150-CAV,TAC 001 134a 1-1/2 5870 7540 8480 9470
C7AB-0200-CAB,TAC,TAD 001 12 2 7860 10300 11600 12800
D8AJ-0200-CAV,TAC 020 22 2 7380 10200 11700 13100
D8AM-0201-TAC,TAD 020 22 2 7490 8600 11220 12720 14340
C8AJ-0200-CAV,TAC 001 22 2 7160 9900 11200 12600
C3AH-0204-TAD 001 22 2 7160 9900 11200 12600
C3AM-0202-CAB 001 22 2 7250 8260 10600 12000 13500
C8AM-0202-TAC,TAD 001 22 2 7290 8350 10800 12200 13700
D8AJ-0200-CAV,TAC 020 404A 2 7630 8680 10700 11800 13000
D8AM-0201-TAC,TAD 020 404A 2 8670 9890 12500 13800 15200
C8AJ-0200-CAV,TAC 001 404A 2 7400 8390 10300 11300 12400
C8AM-0202-TAC,TAD 001 404A 2 8270 9370 11740 12950 14230
DNAG-0200-CAV,TAC 020 134a 2 7590 10130 11490 12940
CNAG-0200-CAV,TAC 001 134a 2 7350 9730 11000 12300
C7AB-0300-CAB,TAC,TAD 001 12 3 13600 17000 18900 21000
D8AJ-0300-TAC,TAD 020 22 3 13570 17410 19520 21770
C3AH-0303-CAB, TAC, TAD, TAE 001 22 3 13470 17350 19520 21830
C8AJ-0300-TAC,TAD 001 22 3 13470 17350 19520 21830
D8AJ-0300-TAC,TAD 020 404A 3 12900 14600 18400 20400 22500
C8AJ-0300-TAC,TAD 001 404A 3 13100 14900 18800 21000 23200
DTAH-0300-CAB 020 134a 3 14000 16750 18450 20330
CTAH-0300-CAB 001 134a 3 13600 17200 19100 21100
CPDK-0300-TFC,TFD,TFE 001 134a 3 17500 22550 25280 28190
C8DJ-0500-TFC,TFD,TFE 001 22 5 17200 20300 27000 30700 34500
C8DJ-0501-TFC,TFD,TFE 001 22 5 30500 34700 39000
C8DJ-0500-TFC,TFD,TFE 001 404A 5 20140 22690 28660 31920 35360
C8DJ-0501-TFC,TFD 001 404A 5 24300 27100 33900 37500 41300
CPDK-0600-TFC,TFD 001 134a 6 23330 30230 34080 38200
CPDK-0601-TFC,TFD 001 134a 6 27460 35780 40290 45070
C8DJ-0750-TFC 001 22 7-1/2 47300 52300 58000
C8DJ-0750-TFC 001 404A 7-1/2 36500 40600 49800 54700 59800
CPDK-0750-TFC,TFD,TFE 001 134a 7-1/2 31500 41000 46100 51400
CPDK-0900-TFC,TFD 001 134a 9 39200 51400 58000 64900
C8DJ-1000-TFC,TFD 001 22 10 58000 72400 80300 88700
C8DJ-1000-TFC,TFD 001 404A 10 53800 60500 75000 82800 90800
CPDK-1000-TFC,TFD 001 134a 10 42780 55910 63000 70510

7
2011DS-4 _CD&E (4/11) Emerson Climate Technologies
Copelametic® air-cooled condensing units
Capacity Data
HIGH/MED TEMP Capacity (BTU/Hr) at 100° Ambient - Evaporator Temp (°F)
Model BOM Refrig. H.P. +25 +30 +35 +40 +45
ENAG-A050-IAA 020 134a 1/2 2980 3280 3600 3930 4270
E8AJ-A075-CAV,TAC 020 22 3/4 5570 6170 6790 7450 8120
E3AM-A075-CAA,CAV,TAC 020 22 3/4 6420
E8AJ-A075-CAV,TAC 020 404A 3/4 5550
ENAG-A075-CAV 020 134a 3/4 5490 6070 6670 7300
C7AB-0100-CAV,TAC,TAD 001 12 1 7220 7960 8740 9540 10400
CBAM-0103-TAC,TAD 001 12 1 8020
C8AJ-0100-CAV,TAC,TAD 001 22 1 8210 9070 9960 10900 11800
C3AM-0101-CAV,TAC,TAD 001 22 1 9510
E8AJ-A100-CAV,TAC,TAD 020 22 1 7750 8540 9350 10200
E3AM-A101-CAV,TAC,TAD 020 22 1 9650
E8AJ-A100-CAV,TAC,TAD 020 404A 1 7760
C8AJ-0100-CAV,TAC,TAD 001 404A 1 8040
CNAG-0100-CAV,TAC 001 134a 1 7310 8060 8860 9700 10590
ENAG-A100-CAV,TAC 020 134a 1 6840 7510 8210 8930 9670
C7AB-0150-CAV,TAC 001 12 1-1/2 10100 11200 12300 13400 14600
CBAM-0153-CAV,TAC 001 12 1-1/2
E3AH-A151-CAV,TAC 020 22 1-1/2 10300 11500 12800 14100 15500
C3AH-0150-CAV,TAC,TAD 001 22 1-1/2 10400 11500 12700 13900 15200
EPAK-A150-CAV,TAC 020 134a 1-1/2 10290 11360 12480 13640 14850
CPAK-0150-CAV,TAC 001 134a 1-1/2 10520 11620 12790 14000 15260
C7AB-0200-CAB,TAC,TAD 001 12 2 14100 15500 16800 18300 19800
D8AJ-0200-CAV,TAC 020 22 2 14600 16100 17800 19500 21300
D8AM-0201-TAC,TAD 020 22 2
C8AJ-0200-CAV,TAC 001 22 2 14000 15400 16900 18500 20200
C3AH-0204-TAD 001 22 2 14000 15400 16900 18500 20200
C3AM-0202-CAB 001 22 2 15100
C8AM-0202-TAC,TAD 001 22 2 15300
D8AJ-0200-CAV,TAC 020 404A 2 14400
D8AM-0201-TAC,TAD 020 404A 2 16800
C8AJ-0200-CAV,TAC 001 404A 2 13600
C8AM-0202-TAC,TAD 001 404A 2 15630
DNAG-0200-CAV,TAC 020 134a 2 14480 16120 17870 19730 21720
CNAG-0200-CAV,TAC 001 134a 2 13800 15300 16800 18500 20300
C7AB-0300-CAB,TAC,TAD 001 12 3 23200 25500 27900 30400 33100
D8AJ-0300-TAC,TAD 020 22 3 24150 26690 29370 32200 35210
C3AH-0303-CAB, TAC, TAD, TAE 001 22 3 24300 26910 29680 32600 35640
C8AJ-0300-TAC,TAD 001 22 3 24300 26910 29680 32600 35640
D8AJ-0300-TAC,TAD 020 404A 3 24800
C8AJ-0300-TAC,TAD 001 404A 3 25600
DTAH-0300-CAB 020 134a 3 22370 24560 26860 29250 31720
CTAH-0300-CAB 001 134a 3 23200 25400 27700 30200 32700
CPDK-0300-TFC,TFD,TFE 001 134a 3 31270 34540 38010 41700 45580
C8DJ-0500-TFC,TFD,TFE 001 22 5 38500
C8DJ-0501-TFC,TFD,TFE 001 22 5 43600 48400 53400 58700 64100
C8DJ-0500-TFC,TFD,TFE 001 404A 5 38970
C8DJ-0501-TFC,TFD 001 404A 5 45300
CPDK-0600-TFC,TFD 001 134a 6 42610 47320 52330 57620 63260
CPDK-0601-TFC,TFD 001 134a 6 50120 55470 61130 67100 73370
C8DJ-0750-TFC 001 22 7-1/2 64100 70700 77600 84800 92400
C8DJ-0750-TFC 001 404A 7-1/2 65100
CPDK-0750-TFC,TFD,TFE 001 134a 7-1/2 57100 63100 69400 76000 83000
CPDK-0900-TFC,TFD 001 134a 9 72300 80100 88600 97600 107300
C8DJ-1000-TFC,TFD 001 22 10 97700 107200 117300 127900 139100
C8DJ-1000-TFC,TFD 001 404A 10 99400
CPDK-1000-TFC,TFD 001 134a 10 78510 87060 96210 105980 116480

8
2011DS-4 _CD&E (4/11) Emerson Climate Technologies
Copelametic® air-cooled condensing units
Capacity Data
HIGH/MED TEMP Capacity (BTU/Hr) at 110° Ambient - Evaporator Temp (°F)
Model BOM Refrig. H.P. -5 0 +10 +15 +20
ENAG-A050-IAA 020 134a 1/2 1580 1990 2220 2460
E8AJ-A075-CAV,TAC 020 22 3/4 2780 3610 4070 4560
E3AM-A075-CAA,CAV,TAC 020 22 3/4 2970 3360 4220 4710 5240
E8AJ-A075-CAV,TAC 020 404A 3/4 2300 2660 3520 3960 4410
ENAG-A075-CAV 020 134a 3/4 2360 2720 3540 3990 4460
C7AB-0100-CAV,TAC,TAD 001 12 1 3790 4790 5340 5940
CBAM-0103-TAC,TAD 001 12 1 4250 5340 5940 6590
C8AJ-0100-CAV,TAC,TAD 001 22 1 4150 5370 6050 6780
C3AM-0101-CAV,TAC,TAD 001 22 1 4730 6180 6980 7830
E8AJ-A100-CAV,TAC,TAD 020 22 1 3950 5100 5740 6410
E3AM-A101-CAV,TAC,TAD 020 22 1 4780 6270 7080 7950
E8AJ-A100-CAV,TAC,TAD 020 404A 1 3780 4190 5260 5820 6360
C8AJ-0100-CAV,TAC,TAD 001 404A 1 3830 4250 5400 6000 6590
CNAG-0100-CAV,TAC 001 134a 1 3830 4840 5410 6020
ENAG-A100-CAV,TAC 020 134a 1 3620 4560 5080 5630
C7AB-0150-CAV,TAC 001 12 1-1/2 5150 6640 7470 8350
CBAM-0153-CAV,TAC 001 12 1-1/2 5350 6110
E3AH-A151-CAV,TAC 020 22 1-1/2 5320 6660 7510 8470
C3AH-0150-CAV,TAC,TAD 001 22 1-1/2 5170 6780 7650 8580
EPAK-A150-CAV,TAC 020 134a 1-1/2 5390 6830 7650 8530
CPAK-0150-CAV,TAC 001 134a 1-1/2 5320 6870 7740 8660
C7AB-0200-CAB,TAC,TAD 001 12 2 7370 9620 10700 11900
D8AJ-0200-CAV,TAC 020 22 2 6650 9440 10800 12200
D8AM-0201-TAC,TAD 020 22 2 14680
C8AJ-0200-CAV,TAC 001 22 2 6440 9100 10400 11700
C3AH-0204-TAD 001 22 2 6440 9100 10400 11700
C3AM-0202-CAB 001 22 2 6510 7420 9580 10800 12200
C8AM-0202-TAC,TAD 001 22 2 6560 7560 9870 11200 12500
D8AJ-0200-CAV,TAC 020 404A 2 6840 7790 9590 10500 11600
D8AM-0201-TAC,TAD 020 404A 2 7550 8660 11000 12200 13500
C8AJ-0200-CAV,TAC 001 404A 2 6620 7510 9190 10000 11000
C8AM-0202-TAC,TAD 001 404A 2 7190 8190 10320 11410 12570
DNAG-0200-CAV,TAC 020 134a 2 6810 9150 10410 11750
CNAG-0200-CAV,TAC 001 134a 2 6590 8790 9970 11200
C7AB-0300-CAB,TAC,TAD 001 12 3 12500 15600 17300 19200
D8AJ-0300-TAC,TAD 020 22 3 12300 15970 17970 20090
C3AH-0303-CAB, TAC, TAD, TAE 001 22 3 12190 15740 17720 19840
C8AJ-0300-TAC,TAD 001 22 3 12190 15740 17720 19840
D8AJ-0300-TAC,TAD 020 404A 3 11400 12900 16400 18200 20100
C8AJ-0300-TAC,TAD 001 404A 3 11500 13100 16700 18600 20700
DTAH-0300-CAB 020 134a 3 12870 15340 16890 18610
CTAH-0300-CAB 001 134a 3 12600 15900 17600 19500
CPDK-0300-TFC,TFD,TFE 001 134a 3 15920 20670 23230 25950
C8DJ-0500-TFC,TFD,TFE 001 22 5 18100 24500 28000 31600
C8DJ-0501-TFC,TFD,TFE 001 22 5 28000 31900 36000
C8DJ-0500-TFC,TFD,TFE 001 404A 5 18060 20330 25740 28680 31790
C8DJ-0501-TFC,TFD 001 404A 5 22000 24500 30400 33700 37100
CPDK-0600-TFC,TFD 001 134a 6 21390 27820 31410 35250
CPDK-0601-TFC,TFD 001 134a 6 24990 32950 37240 41760
C8DJ-0750-TFC 001 22 7-1/2 43900 48600 53800
C8DJ-0750-TFC 001 404A 7-1/2 32800 36700 45100 49600 54200
CPDK-0750-TFC,TFD,TFE 001 134a 7-1/2 28600 37700 42500 47600
CPDK-0900-TFC,TFD 001 134a 9 35800 47400 53600 60100
C8DJ-1000-TFC,TFD 001 22 10 53800 67400 74900 82800
C8DJ-1000-TFC,TFD 001 404A 10 48400 54500 67900 75000 82300
CPDK-1000-TFC,TFD 001 134a 10 39230 51660 58340 65400

9
2011DS-4 _CD&E (4/11) Emerson Climate Technologies
Copelametic® air-cooled condensing units
Capacity Data
HIGH/MED TEMP Capacity (BTU/Hr) at 110° Ambient - Evaporator Temp (°F)
Model BOM Refrig. H.P. +25 +30 +35 +40 +45
ENAG-A050-IAA 020 134a 1/2 2720 2990 3280 3590
E8AJ-A075-CAV,TAC 020 22 3/4 5080 5630 6210
E3AM-A075-CAA,CAV,TAC 020 22 3/4 5850
E8AJ-A075-CAV,TAC 020 404A 3/4 4860
ENAG-A075-CAV 020 134a 3/4 4960 5490 6040 6620 3650
C7AB-0100-CAV,TAC,TAD 001 12 1 6580 7250 7960 8700 9480
CBAM-0103-TAC,TAD 001 12 1 7280
C8AJ-0100-CAV,TAC,TAD 001 22 1 7540
C3AM-0101-CAV,TAC,TAD 001 22 1 8750
E8AJ-A100-CAV,TAC,TAD 020 22 1 7120
E3AM-A101-CAV,TAC,TAD 020 22 1 8880
E8AJ-A100-CAV,TAC,TAD 020 404A 1 6880
C8AJ-0100-CAV,TAC,TAD 001 404A 1 7150
CNAG-0100-CAV,TAC 001 134a 1 6670 7360 8090 8860 9670
ENAG-A100-CAV,TAC 020 134a 1 6220 6830
C7AB-0150-CAV,TAC 001 12 1-1/2 9280 10300 11300 12300
CBAM-0153-CAV,TAC 001 12 1-1/2
E3AH-A151-CAV,TAC 020 22 1-1/2 9520 10700 11900
C3AH-0150-CAV,TAC,TAD 001 22 1-1/2 9560 10600 0
EPAK-A150-CAV,TAC 020 134a 1-1/2 9470 10460 11490
CPAK-0150-CAV,TAC 001 134a 1-1/2 9640 10680 11760 12900
C7AB-0200-CAB,TAC,TAD 001 12 2 13000 14200 15500
D8AJ-0200-CAV,TAC 020 22 2 13600 15000 16500 18100
D8AM-0201-TAC,TAD 020 22 2
C8AJ-0200-CAV,TAC 001 22 2 13000 14300
C3AH-0204-TAD 001 22 2 13000 14300
C3AM-0202-CAB 001 22 2 13800
C8AM-0202-TAC,TAD 001 22 2 14000
D8AJ-0200-CAV,TAC 020 404A 2 12800
D8AM-0201-TAC,TAD 020 404A 2 14900
C8AJ-0200-CAV,TAC 001 404A 2 12200
C8AM-0202-TAC,TAD 001 404A 2 13850
DNAG-0200-CAV,TAC 020 134a 2 13180 14700 16330 18070
CNAG-0200-CAV,TAC 001 134a 2 12500 13900
C7AB-0300-CAB,TAC,TAD 001 12 3 21200 23300 25500 27800 30300
D8AJ-0300-TAC,TAD 020 22 3 22330 24720 27250 29920
C3AH-0303-CAB, TAC, TAD, TAE 001 22 3 22090 24490 27020 29700 32500
C8AJ-0300-TAC,TAD 001 22 3 22090 24490 27020 29700 32500
D8AJ-0300-TAC,TAD 020 404A 3 22100
C8AJ-0300-TAC,TAD 001 404A 3 22900
DTAH-0300-CAB 020 134a 3 20500 22520 24650 26890
CTAH-0300-CAB 001 134a 3 21400 23400 25500 27800 30100
CPDK-0300-TFC,TFD,TFE 001 134a 3 28840 31910
C8DJ-0500-TFC,TFD,TFE 001 22 5 35400
C8DJ-0501-TFC,TFD,TFE 001 22 5 40400
C8DJ-0500-TFC,TFD,TFE 001 404A 5 35050
C8DJ-0501-TFC,TFD 001 404A 5 40600
CPDK-0600-TFC,TFD 001 134a 6 39360 43750 48420 53380 58660
CPDK-0601-TFC,TFD 001 134a 6 46520 51550 56850 62460 68330
C8DJ-0750-TFC 001 22 7-1/2 59400 65500
C8DJ-0750-TFC 001 404A 7-1/2 59000
CPDK-0750-TFC,TFD,TFE 001 134a 7-1/2 52900 58500 64400
CPDK-0900-TFC,TFD 001 134a 9 67100 74500 82400 90900 100100
C8DJ-1000-TFC,TFD 001 22 10 91300 100200 109700 119700 130200
C8DJ-1000-TFC,TFD 001 404A 10 90000
CPDK-1000-TFC,TFD 001 134a 10 72910 80940 89550 98750 108670

10
2011DS-4 _CD&E (4/11) Emerson Climate Technologies
Copelametic® air-cooled condensing units
Capacity Data
LOW TEMP Capacity (BTU/Hr) at 90° Ambient - Evaporator Temp (°F)
Model BOM Refrig. H.P. -40 -35 -30 -25 -20
ENAG-A050-IAA 020 R-22 1/2 730 930 1160 1420 1710
E8AL-A050-CAV 020 R-22 1/2 730 930 1160 1420 1710
ENAG-A050-IAA 020 R-404A 1/2 880 1100 1360 1650 1970
E8AL-A050-CAV 020 R-404A 1/2 880 1100 1360 1650 1970
EJAL-A050-CAV, IAA, TAC 020 R-404A 1/2 880 1100 1360 1650 1970
ENAG-A075-CAV 020 R-22 3/4 1670 2000 2370 2790 3250
E8AL-A075-CAA,TAC 020 R-22 3/4 1870 2300 2760 3260 3810
ENAG-A075-CAV 020 R-404A 3/4 1920 2160 2490 2900 3370
E8AL-A075-CAA,TAC 020 R-404A 3/4 1920 2160 2490 2900 3370
ENAG-A100-CAV,TAC 020 R-22 1 2110 2500 2950 3460 4010
CNAG-0100-CAV,TAC 001 R-22 1 2210 2660 3140 3670 4250
ENAG-A100-CAV,TAC 020 R-404A 1 2430 2880 3370 3900 4470
CNAG-0100-CAV,TAC 001 R-404A 1 2430 2900 3410 3960 4550
CLAL-0152-CAB 001 R-22 1-1/2 3110 3890 4730 5640 6630
C8AL-0151-TAC 001 R-22 1-1/2 3410 4180 5020 5930 6910
EPAK-A150-CAV,TAC 020 R-404A 1-1/2 3610 4290 5020 5800 6630
EJAL-A150-TAD 020 R-404A 1-1/2 3390 4190 4980 5770 6580
CPAK-0150-CAV,TAC 001 R-404A 1-1/2 3690 4390 5140 5960 6830
CJAL-0152-TAD 001 R-404A 1-1/2 3470 4300 5120 5940 6790
CJAL-0153-CAB 001 R-404A 1-1/2 3990 4730 5580 6520 7560
C8AL-0151-TAC 001 R-404A 1-1/2 3850 4690 5570 6500 7490
DNAG-0200-CAV,TAC 020 R-22 2 4160 4790 5670 6770 8040
CNAG-0200-CAV,TAC 001 R-22 2 4110 4720 5570 6620 7820
C8AL-0200-TAD 001 R-22 2 4120 4730 5580 6630 7850
DNAG-0200-CAV,TAC 020, 050 R-404A 2 4280 5170 6210 7390 8690
CNAG-0200-CAV,TAC 001 R-404A 2 4180 5020 6010 7120 8340
C8AL-0200-TAD 001 R-404A 2 4180 5020 6010 7120 8340
DLAL-0301-CAB,TAC,TAD 020 R-22 3 5570 6930 8510 10300 12300
CLAL-0300-CAB,TAC,TAD 001 R-22 3 5590 6960 8570 10400 12400
DJAL-0300-TAD 020 R-404A 3 6380 7980 9770 11700 13800
CJAL-0300-CAB,TAC,TAD, TAE 001 R-404A 3 6790 8510 10420 12530 14820
CPDK-0300-TFC,TFD,TFE 001 R-404A 3 10400 12300 14400 16700 19200
CMDL-0400-TFC 001 R-22 4 9630 11700 14100 16700 19700
CJDL-0400-TFC,TFD,TFE 001 R-404A 4 12990 15350 17900 20650 23590
CPDK-0600-TFC,TFD 001 R-404A 6 15800 18600 21500 24700 28100
CPDK-0601-TFC,TFD 001 R-404A 6 19070 22130 25500 29180 33150
CPDK-0750-TFC,TFD,TFE 001 R-404A 7-1/2 22300 25900 29900 34000 38500
CPDK-0900-TFC,TFD 001 R-404A 9 28000 32600 37600 43200 49200
CPDK-1000-TFC,TFD 001 R-404A 10 31730 36870 42460 48490 54970
LT & MT models are rated at 40° F return gas temperature
HT models are rated at 65° F return gas temperature

11
2011DS-4 _CD&E (4/11) Emerson Climate Technologies
Copelametic® air-cooled condensing units
Capacity Data
LOW TEMP Capacity (BTU/Hr) at 90° Ambient - Evaporator Temp (°F)
Model BOM Refrig. H.P. -15 -10 -5 0
ENAG-A050-IAA 020 R-22 1/2 2030 2370 2720 3080
E8AL-A050-CAV 020 R-22 1/2 2030 2370 2720 3080
ENAG-A050-IAA 020 R-404A 1/2 2300 2660 3030 3370
E8AL-A050-CAV 020 R-404A 1/2 2300 2660 3030 3370
EJAL-A050-CAV, IAA, TAC 020 R-404A 1/2 2300 2660 3030 3370
ENAG-A075-CAV 020 R-22 3/4 3740 4260 4820 5380
E8AL-A075-CAA,TAC 020 R-22 3/4 4390 5010 5670 6360
ENAG-A075-CAV 020 R-404A 3/4 3880 4430 4990 5510
E8AL-A075-CAA,TAC 020 R-404A 3/4 3880 4430 4990 5510
ENAG-A100-CAV,TAC 020 R-22 1 4610 5260 5940 6640
CNAG-0100-CAV,TAC 001 R-22 1 4870 5540 6280 7060
ENAG-A100-CAV,TAC 020 R-404A 1 5060 5700 6370 7060
CNAG-0100-CAV,TAC 001 R-404A 1 5190 5870 6590 7310
CLAL-0152-CAB 001 R-22 1-1/2 7690 8840 10100 11400
C8AL-0151-TAC 001 R-22 1-1/2 7960 9100 10300 11600
EPAK-A150-CAV,TAC 020 R-404A 1-1/2 7510 8450 9430 10400
EJAL-A150-TAD 020 R-404A 1-1/2 7410 8280 9200 10100
CPAK-0150-CAV,TAC 001 R-404A 1-1/2 7760 8750 9810 10900
CJAL-0152-TAD 001 R-404A 1-1/2 7670 8600 9590 10600
CJAL-0153-CAB 001 R-404A 1-1/2 8680 9900 11200 12500
C8AL-0151-TAC 001 R-404A 1-1/2 8560 9720 11000 12300
DNAG-0200-CAV,TAC 020 R-22 2 9450 11000 12500 14100
CNAG-0200-CAV,TAC 001 R-22 2 9140 10600 12000 13400
C8AL-0200-TAD 001 R-22 2 9180 10600 12100 13500
DNAG-0200-CAV,TAC 020, 050 R-404A 2 10090 11570 13110 14630
CNAG-0200-CAV,TAC 001 R-404A 2 9630 11000 12410 13750
C8AL-0200-TAD 001 R-404A 2 9630 11000 12400 13800
DLAL-0301-CAB,TAC,TAD 020 R-22 3 14400 16700 19100 21500
CLAL-0300-CAB,TAC,TAD 001 R-22 3 14600 16900 19400 21900
DJAL-0300-TAD 020 R-404A 3 16000 18300 20700 23000
CJAL-0300-CAB,TAC,TAD, TAE 001 R-404A 3 17270 19880 22630 25370
CPDK-0300-TFC,TFD,TFE 001 R-404A 3 21800 24500 27500 30300
CMDL-0400-TFC 001 R-22 4 22800 26200 29800 33600
CJDL-0400-TFC,TFD,TFE 001 R-404A 4 26710 30040 33570 37160
CPDK-0600-TFC,TFD 001 R-404A 6 31700 35600 39700 44000
CPDK-0601-TFC,TFD 001 R-404A 6 37400 41940 46740 51680
CPDK-0750-TFC,TFD,TFE 001 R-404A 7-1/2 43200 48200 53500 59000
CPDK-0900-TFC,TFD 001 R-404A 9 55600 62600 70100 78000
CPDK-1000-TFC,TFD 001 R-404A 10 61840 69150 76850 84800

12
2011DS-4 _CD&E (4/11) Emerson Climate Technologies
Copelametic® air-cooled condensing units
Capacity Data
LOW TEMP Capacity (BTU/Hr) at 100° Ambient - Evaporator Temp (°F)
Model BOM Refrig. H.P. -40 -35 -30 -25 -20
ENAG-A050-IAA 020 R-22 1/2 560 750 980 1,230 1,500
E8AL-A050-CAV 020 R-22 1/2 560 750 980 1,230 1,500
ENAG-A050-IAA 020 R-404A 1/2 670 880 1,120 1,390 1,680
E8AL-A050-CAV 020 R-404A 1/2 670 880 1,120 1,390 1,680
EJAL-A050-CAV, IAA, TAC 020 R-404A 1/2 670 880 1,120 1,390 1,680
ENAG-A075-CAV 020 R-22 3/4 1,500 1,810 2,160 2,550 2,980
E8AL-A075-CAA,TAC 020 R-22 3/4 1,580 1,990 2,430 2,910 3,420
ENAG-A075-CAV 020 R-404A 3/4 1,620 1,850 2,160 2,550 2,980
E8AL-A075-CAA,TAC 020 R-404A 3/4 1,620 1,850 2,160 2,550 2,980
ENAG-A100-CAV,TAC 020 R-22 1 1,860 2,220 2,640 3,120 3,630
CNAG-0100-CAV,TAC 001 R-22 1 1,970 2,400 2,860 3,360 3,890
ENAG-A100-CAV,TAC 020 R-404A 1 2,070 2,480 2,920 3,400 3,920
CNAG-0100-CAV,TAC 001 R-404A 1 2,070 2,490 2,950 3,450 3,990
CLAL-0152-CAB 001 R-22 1-1/2 2,670 3,390 4,170 5,010 5,920
C8AL-0151-TAC 001 R-22 1-1/2 3,000 3,710 4,480 5,320 6,220
EPAK-A150-CAV,TAC 020 R-404A 1-1/2 3,080 3,730 4,410 5,150 5,920
EJAL-A150-TAD 020 R-404A 1-1/2 2,730 3,530 4,300 5,050 5,810
CPAK-0150-CAV,TAC 001 R-404A 1-1/2 3,150 3,820 4,540 5,300 6,120
CJAL-0152-TAD 001 R-404A 1-1/2 2,820 3,640 4,430 5,220 6,020
CJAL-0153-CAB 001 R-404A 1-1/2 3,360 4,010 4,760 5,600 6,530
C8AL-0151-TAC 001 R-404A 1-1/2 3,190 4,010 4,840 5,700 6,620
DNAG-0200-CAV,TAC 020 R-22 2 3,760 4,330 5,130 6,140 7,320
CNAG-0200-CAV,TAC 001 R-22 2 3,720 4,260 5,030 5,980 7,080
C8AL-0200-TAD 001 R-22 2 3,730 4,270 5,040 6,000 7,110
DNAG-0200-CAV,TAC 020, 050 R-404A 2 3,690 4,470 5,410 6,470 7,660
CNAG-0200-CAV,TAC 001 R-404A 2 3,620 4,370 5,250 6,260 7,360
C8AL-0200-TAD 001 R-404A 2 3,620 4,370 5,250 6,260 7,360
DLAL-0301-CAB,TAC,TAD 020 R-22 3 5,020 6,280 7,750 9,410 11,200
CLAL-0300-CAB,TAC,TAD 001 R-22 3 5,060 6,330 7,820 9,500 11,400
DJAL-0300-TAD 020 R-404A 3 4,990 6,560 8,270 10,100 12,100
CJAL-0300-CAB,TAC,TAD, TAE 001 R-404A 3 5,550 7,090 8,830 10,760 12,870
CPDK-0300-TFC,TFD,TFE 001 R-404A 3 8,860 10,800 12,800 15,000 17,300
CMDL-0400-TFC 001 R-22 4 8,360 10,300 12,500 15,000 17,700
CJDL-0400-TFC,TFD,TFE 001 R-404A 4 11,380 13,610 16,000 18,560 21,280
CPDK-0600-TFC,TFD 001 R-404A 6 13,900 16,600 19,400 22,300 25,500
CPDK-0601-TFC,TFD 001 R-404A 6 16,980 19,960 23,190 26,670 30,390
CPDK-0750-TFC,TFD,TFE 001 R-404A 7-1/2 19,900 23,500 27,300 31,200 35,400
CPDK-0900-TFC,TFD 001 R-404A 9 25,300 29,700 34,500 39,700 45,300
CPDK-1000-TFC,TFD 001 R-404A 10 28,440 33,360 38,660 44,340 50,400
LT & MT models are rated at 40° F return gas temperature
HT models are rated at 65° F return gas temperature

13
2011DS-4 _CD&E (4/11) Emerson Climate Technologies
Copelametic® air-cooled condensing units
Capacity Data
LOW TEMP Capacity (BTU/Hr) at 100° Ambient - Evaporator Temp (°F)
Model BOM Refrig. H.P. -15 -10 -5 0
ENAG-A050-IAA 020 R-22 1/2 1,800 2,110 2,440 2,770
E8AL-A050-CAV 020 R-22 1/2 1,800 2,110 2,440 2,770
ENAG-A050-IAA 020 R-404A 1/2 1,980 2,300 2,630 2,920
E8AL-A050-CAV 020 R-404A 1/2 1,980 2,300 2,630 2,920
EJAL-A050-CAV, IAA, TAC 020 R-404A 1/2 1,980 2,300 2,630 2,920
ENAG-A075-CAV 020 R-22 3/4 3,430 3,910 4,410 4,920
E8AL-A075-CAA,TAC 020 R-22 3/4 3,960 4,550 5,170 5,810
ENAG-A075-CAV 020 R-404A 3/4 3,460 3,960 4,460 4,930
E8AL-A075-CAA,TAC 020 R-404A 3/4 3,460 3,960 4,460 4,930
ENAG-A100-CAV,TAC 020 R-22 1 4,190 4,790 5,420 6,070
CNAG-0100-CAV,TAC 001 R-22 1 4,470 5,090 5,780 6,490
ENAG-A100-CAV,TAC 020 R-404A 1 4,460 5,040 5,660 6,280
CNAG-0100-CAV,TAC 001 R-404A 1 4,570 5,190 5,850 6,510
CLAL-0152-CAB 001 R-22 1-1/2 6,910 7,980 9,140 10,400
C8AL-0151-TAC 001 R-22 1-1/2 7,190 8,250 9,380 10,600
EPAK-A150-CAV,TAC 020 R-404A 1-1/2 6,730 7,590 8,490 9,360
EJAL-A150-TAD 020 R-404A 1-1/2 6,570 7,370 8,200 9,000
CPAK-0150-CAV,TAC 001 R-404A 1-1/2 6,970 7,890 8,850 9,810
CJAL-0152-TAD 001 R-404A 1-1/2 6,830 7,680 8,570 9,470
CJAL-0153-CAB 001 R-404A 1-1/2 7,560 8,680 9,890 11,100
C8AL-0151-TAC 001 R-404A 1-1/2 7,600 8,660 9,800 11,000
DNAG-0200-CAV,TAC 020 R-22 2 8,610 10,000 11,500 12,900
CNAG-0200-CAV,TAC 001 R-22 2 8,280 9,560 10,900 12,200
C8AL-0200-TAD 001 R-22 2 8,320 9,610 11,000 12,300
DNAG-0200-CAV,TAC 020, 050 R-404A 2 8,930 10,280 11,680 13,060
CNAG-0200-CAV,TAC 001 R-404A 2 8,540 9,780 11,070 12,290
C8AL-0200-TAD 001 R-404A 2 8,540 9,780 11,100 12,300
DLAL-0301-CAB,TAC,TAD 020 R-22 3 13,200 15,300 17,500 19,700
CLAL-0300-CAB,TAC,TAD 001 R-22 3 13,400 15,500 17,800 20,100
DJAL-0300-TAD 020 R-404A 3 14,100 16,200 18,400 20,500
CJAL-0300-CAB,TAC,TAD, TAE 001 R-404A 3 15,140 17,570 20,140 22,710
CPDK-0300-TFC,TFD,TFE 001 R-404A 3 19,700 22,200 24,900 27,500
CMDL-0400-TFC 001 R-22 4 20,700 23,900 27,300 30,800
CJDL-0400-TFC,TFD,TFE 001 R-404A 4 24,170 27,240 30,490 33,790
CPDK-0600-TFC,TFD 001 R-404A 6 28,800 32,400 36,200 40,100
CPDK-0601-TFC,TFD 001 R-404A 6 34,340 38,540 42,960 47,470
CPDK-0750-TFC,TFD,TFE 001 R-404A 7-1/2 39,800 44,500 49,300 54,300
CPDK-0900-TFC,TFD 001 R-404A 9 51,300 57,800 64,700 71,900
CPDK-1000-TFC,TFD 001 R-404A 10 56,790 63,560 70,680 78,000

14
2011DS-4 _CD&E (4/11) Emerson Climate Technologies
Copelametic® air-cooled condensing units
Capacity Data
LOW TEMP Capacity (BTU/Hr) at 110° Ambient - Evaporator Temp (°F)
Model BOM Refrig. H.P. -40 -35 -30 -25 -20
ENAG-A050-IAA 020 R-22 1/2 390 580 800 1,040 1,310
E8AL-A050-CAV 020 R-22 1/2 390 580 800 1,040 1,310
ENAG-A050-IAA 020 R-404A 1/2 450 640 860 1,100 1,360
E8AL-A050-CAV 020 R-404A 1/2 450 640 860 1,100 1,360
EJAL-A050-CAV, IAA, TAC 020 R-404A 1/2 450 640 860 1,100 1,360
ENAG-A075-CAV 020 R-22 3/4 1,300 1,590 1,920 2,280 2,670
E8AL-A075-CAA,TAC 020 R-22 3/4 1,290 1,680 2,110 2,560 3,040
ENAG-A075-CAV 020 R-404A 3/4 1,250 1,470 1,760 2,110 2,510
E8AL-A075-CAA,TAC 020 R-404A 3/4 1,250 1,470 1,760 2,110 2,510
ENAG-A100-CAV,TAC 020 R-22 1 1,610 1,950 2,340 2,780 3,260
CNAG-0100-CAV,TAC 001 R-22 1 1,720 2,130 2,560 3,030 3,520
ENAG-A100-CAV,TAC 020 R-404A 1 1,720 2,090 2,480 2,910 3,370
CNAG-0100-CAV,TAC 001 R-404A 1 1,720 2,090 2,500 2,950 3,430
CLAL-0152-CAB 001 R-22 1-1/2 2,220 2,890 3,610 4,390 5,250
C8AL-0151-TAC 001 R-22 1-1/2 2,590 3,240 3,940 4,710 5,540
EPAK-A150-CAV,TAC 020 R-404A 1-1/2 2,470 3,090 3,740 4,420 5,130
EJAL-A150-TAD 020 R-404A 1-1/2 1,980 2,780 3,540 4,270 4,990
CPAK-0150-CAV,TAC 001 R-404A 1-1/2 2,550 3,200 3,870 4,590 5,340
CJAL-0152-TAD 001 R-404A 1-1/2 2,060 2,890 3,680 4,440 5,190
CJAL-0153-CAB 001 R-404A 1-1/2 2,940 3,470 4,090 4,820 5,640
C8AL-0151-TAC 001 R-404A 1-1/2 2,530 3,310 4,090 4,890 5,720
DNAG-0200-CAV,TAC 020 R-22 2 3,230 3,730 4,460 5,380 6,460
CNAG-0200-CAV,TAC 001 R-22 2 3,200 3,670 4,350 5,200 6,190
C8AL-0200-TAD 001 R-22 2 3,200 3,680 4,370 5,230 6,220
DNAG-0200-CAV,TAC 020, 050 R-404A 2 3,290 3,940 4,740 5,680 6,720
CNAG-0200-CAV,TAC 001 R-404A 2 3,240 3,870 4,630 5,510 6,490
C8AL-0200-TAD 001 R-404A 2 3,240 3,870 4,630 5,510 6,490
DLAL-0301-CAB,TAC,TAD 020 R-22 3 4,280 5,450 6,810 8,340 10,000
CLAL-0300-CAB,TAC,TAD 001 R-22 3 4,330 5,520 6,900 8,450 10,200
DJAL-0300-TAD 020 R-404A 3 3,570 5,110 6,750 8,490 10,300
CJAL-0300-CAB,TAC,TAD, TAE 001 R-404A 3 4,180 5,550 7,120 8,870 10,810
CPDK-0300-TFC,TFD,TFE 001 R-404A 3 7,180 9,090 11,100 13,200 15,300
CMDL-0400-TFC 001 R-22 4 7,000 8,770 10,800 13,100 15,700
CJDL-0400-TFC,TFD,TFE 001 R-404A 4 9,790 11,900 14,130 16,500 19,010
CPDK-0600-TFC,TFD 001 R-404A 6 12,000 14,500 17,200 20,000 22,900
CPDK-0601-TFC,TFD 001 R-404A 6 14,540 17,460 20,580 23,880 27,390
CPDK-0750-TFC,TFD,TFE 001 R-404A 7-1/2 17,300 20,900 24,600 28,400 32,300
CPDK-0900-TFC,TFD 001 R-404A 9 22,600 26,800 31,400 36,300 41,500
CPDK-1000-TFC,TFD 001 R-404A 10 25,120 29,850 34,900 40,260 45,920
LT & MT models are rated at 40° F return gas temperature
HT models are rated at 65° F return gas temperature

15
2011DS-4 _CD&E (4/11) Emerson Climate Technologies
Copelametic® air-cooled condensing units
Capacity Data
LOW TEMP Capacity (BTU/Hr) at 110° Ambient - Evaporator Temp (°F)
Model BOM Refrig. H.P. -15 -10 -5 0
ENAG-A050-IAA 020 R-22 1/2 1,580 1,870
E8AL-A050-CAV 020 R-22 1/2 1,580 1,870
ENAG-A050-IAA 020 R-404A 1/2 1,630 1,900 2,180
E8AL-A050-CAV 020 R-404A 1/2 1,630 1,900 2,180
EJAL-A050-CAV, IAA, TAC 020 R-404A 1/2 1,630 1,900 2,180
ENAG-A075-CAV 020 R-22 3/4 3,090 3,520
E8AL-A075-CAA,TAC 020 R-22 3/4 3,550
ENAG-A075-CAV 020 R-404A 3/4 2,940 3,390 3,850
E8AL-A075-CAA,TAC 020 R-404A 3/4 2,940 3,390 3,850
ENAG-A100-CAV,TAC 020 R-22 1 3,780 4,330
CNAG-0100-CAV,TAC 001 R-22 1 4,050 4,630
ENAG-A100-CAV,TAC 020 R-404A 1 3,850 4,370
CNAG-0100-CAV,TAC 001 R-404A 1 3,940 4,500 5,100
CLAL-0152-CAB 001 R-22 1-1/2 6,180 7,190 8,290
C8AL-0151-TAC 001 R-22 1-1/2 6,440 7,420 8,480
EPAK-A150-CAV,TAC 020 R-404A 1-1/2 5,870 6,660
EJAL-A150-TAD 020 R-404A 1-1/2 5,700 6,430
CPAK-0150-CAV,TAC 001 R-404A 1-1/2 6,130 6,970 7,850 8,710
CJAL-0152-TAD 001 R-404A 1-1/2 5,950 6,730 7,540 8,340
CJAL-0153-CAB 001 R-404A 1-1/2 6,550 7,560 8,670
C8AL-0151-TAC 001 R-404A 1-1/2 6,610 7,570 8,600
DNAG-0200-CAV,TAC 020 R-22 2 7,640 8,910 10,200
CNAG-0200-CAV,TAC 001 R-22 2 7,270 8,420
C8AL-0200-TAD 001 R-22 2 7,310 8,470
DNAG-0200-CAV,TAC 020, 050 R-404A 2 7,850 9,060 10,320 11,550
CNAG-0200-CAV,TAC 001 R-404A 2 7,540 8,650
C8AL-0200-TAD 001 R-404A 2 7,540 8,650
DLAL-0301-CAB,TAC,TAD 020 R-22 3 11,800 13,700 15,700
CLAL-0300-CAB,TAC,TAD 001 R-22 3 12,000 14,000 16,100 18,200
DJAL-0300-TAD 020 R-404A 3 12,200 14,100 16,100
CJAL-0300-CAB,TAC,TAD, TAE 001 R-404A 3 12,900 15,150 17,550 19,930
CPDK-0300-TFC,TFD,TFE 001 R-404A 3 17,600 19,900
CMDL-0400-TFC 001 R-22 4 18,500 21,500 24,700
CJDL-0400-TFC,TFD,TFE 001 R-404A 4 21,650 24,460 27,430
CPDK-0600-TFC,TFD 001 R-404A 6 26,000 29,200 32,700 36,300
CPDK-0601-TFC,TFD 001 R-404A 6 31,060 34,940 38,990 43,100
CPDK-0750-TFC,TFD,TFE 001 R-404A 7-1/2 36,400 40,700
CPDK-0900-TFC,TFD 001 R-404A 9 47,100 53,000 59,400 66,000
CPDK-1000-TFC,TFD 001 R-404A 10 51,870 58,130 64,700 71,410

16
2011DS-4 _CD&E (4/11) Emerson Climate Technologies
Copelametic® air-cooled condensing units
Physical Data
HIGH/MED
TEMP
Model Comp Oil
Overall
Dimensions
(In)
Connecting
Lines Minimum Circuit Ampacity -
Max Fuse Size
Pump
Down
Capacity
(lbs)
Ship
Weight
(lbs)
L W H Suction Liquid 115-1 230-1 230-3 460-3 575-3
ENAG-A050 KANB-005E POE 19.5 16.3 12.1 1/2 S 1/4 S 10.6 - 15.0 2.5 130
E8AJ-A075 KAN*-007E POE 24 18.0 13.2 5/8 S 3/8 S 7.9 - 15.0 4.9 - 15.0 8.9 190
E3AM-A075 KAE*-0075 MIN 24 18.0 13.2 5/8 S 3/8 S 15.6 - 20.0 7.9 - 15.0 5.4 - 15.0 8.9 160
E8AJ-A075 KAN*-007E POE 24 17.9 13.2 5/8 S 3/8 S 7.9 - 15.0 4.9 - 15.0 6.2 160
ENAG-A075 KAMB-007E POE 24 17.9 13.2 5/8 S 3/8 S 8.2 - 15.0 6.2 160
C7AB-0100 KAJ*-0100 MIN 33.4 20.0 19.1 5/8 S 3/8 S 11.5 - 15.0 7.2 -15.0 4.2 - 15.0 22 190
CBAM-0103 KAK1-0100 MIN 33.4 20.0 19.1 5/8 S 3/8 S 7.0 -15.0 4.0 - 15.0 22 190
C8AJ-0100 KAR*-010E POE 33.4 20.0 19.1 5/8 S 3/8 S 12.2 - 15.0 8.3 - 15.0 4.1 - 15.0 20 209
C3AM-0101 KAM*-0100 MIN 33.4 20.0 19.1 5/8 S 3/8 S 12.3 - 15.0 8.5 - 15.0 4.4 - 15.0 20 213
E8AJ-A100 KAR*-010E POE 24 17.9 13.2 5/8 S 3/8 S 10.4 - 15.0 6.5 - 15.0 3.2 - 15.0 6.2 162
E3AM-A101 KAM*-0100 MIN 26.4 18.4 16.2 7/8 S 3/8 S 12.2 - 15.0 8.5 - 15.0 4.4 - 15.0 12 168
E8AJ-A100 KAR*-010E POE 24 17.9 13.2 5/8 S 3/8 S 10.4 - 15.0 6.5 - 15.0 3.2 - 15.0 6.2 162
C8AJ-0100 KAR*-010E POE 33.4 20.0 19.1 5/8 S 3/8 S 12.2 - 15.0 8.3 - 15.0 4.1 - 15.0 20 209
CNAG-0100 KAJB-010E POE 33.4 20.0 19.1 7/8 S 1/2 S 11.5 - 15.0 8.7 - 15.0 20 190
ENAG-A100 KAJB-010E POE 24 17.9 13.2 5/8 S 3/8 S 10.6 - 15.0 6.9 - 15.0 6.2 185
C7AB-0150 KALB-0150 MIN 33.4 20.0 19.1 7/8 S 1/2 S 15.3 - 20.0 9.7 - 15.0 20 270
CBAM-0153 KATB-0150 MIN 33.4 20.0 19.1 7/8 S 1/2 S 14.9 - 20.0 9.2 - 15.0 20 200
E3AH-A151 KAGB-0150 MIN 26.4 18.4 16.2 7/8 S 3/8 S 14.9 - 20.0 9.8 - 15.0 12 168
C3AH-0150 KAG*-0150 MIN 33.4 20.0 19.1 7/8 S 1/2 S 14.9 - 20.0 9.8 - 15.0 4.7 - 15.0 20 200
EPAK-A150 KALA-016E POE 26.4 18.4 16.2 7/8 S 3/8 S 15.3 - 20.0 11.2 - 15.0 12 175
CPAK-0150 KALA-016E POE 33.4 20.0 19.1 7/8 S 1/2 S 14.2 - 20.0 10.1 - 15.0 20 218
C7AB-0200 EAV*-0200 MIN 33.4 20.0 19.1 7/8 S 1/2 S 14.3 - 20.0 10.1 - 15.0 6.2 - 15.0 22 280
D8AJ-0200 KAKB-021E POE 26.8 34.0 19.0 7/8 S 3/8 S 15.6 - 20.0 10.8 - 15.0 12 278
D8AM-0201 ERCA-021E POE 34.0 26.8 19.0 7/8 S 3/8 S 13.3 - 15.0 5.9 - 15.0 12 354
C8AJ-0200 KAKB-021E POE 33.4 20.0 19.1 7/8 S 1/2 S 16.2 - 20.0 11.4 - 15.0 20 296
C3AH-0204 KAKA-0200 MIN 33.4 20.0 19.1 7/8 S 1/2 S 5.4 - 15.0 20 300
C3AM-0202 ERC2-0200 MIN 33.4 20.0 19.1 7/8 S 1/2 S 15.4 - 20.0 20 270
C8AM-0202 ERCA-021E POE 33.4 20.0 19.1 7/8 S 1/2 S 13.9 - 15.0 6.0 - 15.0 20 280
D8AJ-0200 KAKB-021E POE 26.8 34.0 19.0 7/8 S 3/8 S 15.6 - 20.0 10.8 - 15.0 10 278
D8AM-0201 ERCA-021E POE 27 34.0 19.0 7/8 S 3/8 S 13.3 - 15.0 5.9 - 15.0 10 354
C8AJ-0200 KAKB-021E POE 33.4 20.0 19.1 7/8 S 1/2 S 16.2 - 20.0 11.4 - 15.0 22 296
C8AM-0202 ERCA-021E POE 33.4 20.0 19.1 7/8 S 1/2 S 13.9 - 15.0 6.0 - 15.0 22 280
DNAG-0200 EAVB-021E POE 26.8 34.0 19.0 7/8 S 3/8 S 20.7 - 30.0 11.6 - 15.0 12 337
CNAG-0200 EAVB-021E POE 33.4 20.0 15.2 7/8 S 1/2 S 20.2 - 30.0 11.1 - 15.0 20 296
C7AB-0300 LAH1-0310 MIN 38.4 30.0 29.1 1-1/8 S 1/2 S 23.3 - 30.0 17.8 - 20.0 9.4 - 15.0 59 460
D8AJ-0300 ERFA-031E POE 34.0 30.0 19.0 7/8 S 3/8 S 21.3 - 25.0 10.5 - 15.0 12 349
C3AH-0303 ERF2-0310 MIN 39.0 30.0 29.5 1-1/8 S 1/2 S 25.7 - 35.0 19.0 - 25.0 10.4 - 15.0 8.4 - 15.0 53 430
C8AJ-0300 ERFA-031E POE 38.4 30.0 29.1 1-1/8 S 1/2 S 19.9 - 25.0 9.7 - 15.0 53 440
D8AJ-0300 ERFA-031E POE 26.8 34.0 19.0 7/8 S 3/8 S 21.3 - 25.0 10.5 - 15.0 10 349
C8AJ-0300 ERFA-031E POE 38.4 30.0 29.1 1-1/8 S 1/2 S 19.9 - 25.0 9.7 - 15.0 46 438
DTAH-0300 LAHB-031E POE 34.1 26.2 18.9 1-1/8 S 3/8 S 26.6 - 35.0 12 380
CTAH-0300 LAHB-031E POE 38.4 30.0 29.1 1-1/8 S 1/2 S 25.2 - 35.0 53 434
CPDK-0300 2DF3F16KE POE 38.4 30.0 29.1 1-3/8 S 1/2 S 25.4 - 35.0 12.5 - 15.0 10.3 - 15.0 53 540
C8DJ-0500 2DC3R53KE POE 38.4 30.0 29.1 1-3/8 S 5/8 S 32.2 - 50.0 15.4 - 20.0 11.5 - 15.0 53 555
C8DJ-0501 2DD3R63KE POE 38.4 30.0 29.1 1-3/8 S 5/8 S 32.3 - 50.0 15.5 - 20.0 11.8 - 15.0 53 552
C8DJ-0500 2DC3R53KE POE 38.4 30.0 29.1 1-3/8 S 5/8 S 32.3 - 50.0 15.4 - 20.0 11.5 - 15.0 53 555
C8DJ-0501 2DD3R63KE POE 38.4 30.0 29.1 1-3/8 S 5/8 S 32.3 - 50.0 15.5 - 20.0 53 552
CPDK-0600 2DA3F23KE POE 44.9 36.0 31.0 1-3/8 S 5/8 S 40.4 - 60.0 15.2 - 20.0 64 603
CPDK-0601 3DA3F28KE POE 44.9 36.0 30.7 1-3/8 S 5/8 S 42.3 - 60.0 19.5 - 30.0 64 684
C8DJ-0750 2DA3R89KE POE 44.9 36.0 31.0 1-3/8 S 5/8 S 45.7 - 70.0 64 657
C8DJ-0750 2DA3R89KE POE 44.9 36.0 31.0 1-3/8 S 5/8 S 45.7 -70.0 71 657
CPDK-0750 3DB3F33KE POE 44.1 36.0 31.5 1-3/8 S 5/8 S 43.8 - 70.0 22.5 - 35.0 15.7 - 20.0 64 670
CPDK-0900 3DF3F40KE POE 39.5 66.0 36.3 1-3/8 S 7/8 S 57.2 - 80.0 25.7 - 35.0 80 941
C8DJ-1000 3DB3R12ME POE 39.5 66.0 36.3 1-3/8 S 7/8 S 63.3 - 90.0 29.6 - 45.0 80 941
C8DJ-1000 3DB3R12ME POE 39.5 66.0 36.3 1-3/8 S 7/8 S 63.3 - 90.0 29.6 - 45.0 89 941
CPDK-1000 3DS3F46KE POE 39.5 66.0 36.3 1-3/8 S 7/8 S 61.3 - 90.0 27.9 - 40.0 80 941
S = Sweat

17
2011DS-4 _CD&E (4/11) Emerson Climate Technologies
Copelametic® air-cooled condensing units
Physical Data
LOW TEMP
Model Comp Oil
Overall
Dimensions
(In)
Connecting
Lines Minimum Circuit Ampacity -
Max Fuse Size
Pump
Down
Capacity
(lbs)
Ship
Weight
(lbs)
L W H Suction Liquid 115-1 230-1 230-3 460-3 575-3
ENAG-A050 KANB-005E POE 19.5 16.3 12.1 1/4 S 1/2 S 10.6 - 15.0 2.5 130
E8AL-A050 KANB-005E POE 19.5 16.3 12.1 1/4 S 1/2 S 5.1 - 15.0 2.5 124
ENAG-A050 KANB-005E POE 19.5 16.3 12.1 1/4 S 1/2 S 10.6 - 15.0 2.8 130
E8AL-A050 KANB-005E POE 19.5 16.3 12.1 1/4 S 1/2 S 5.1 - 15.0 3.2 124
EJAL-A050 KAN*-00*E POE 19.5 16.3 12.1 1/4 S 1/2 S 11.1 - 15.0 5.2 - 15.0 3.5 - 15.0 3.2 126
ENAG-A075 KAMB-007E POE 24.0 17.9 13.2 3/8 S 5/8 S 8.2 - 15.0 6.2 160
E8AL-A075 KAM*-007E POE 24.0 17.9 13.2 3/8 S 5/8 S 15.6 - 20.0 5.2 - 15.0 6.2 168
ENAG-A075 KAMB-007E POE 24.0 17.9 13.2 3/8 S 5/8 S 8.2 - 15.0 5.4 190
E8AL-A075 KAM*-007E POE 24.0 17.9 13.2 3/8 S 5/8 S 15.6 - 20.0 5.2 - 15.0 5.4 190
ENAG-A100 KAJ*-01*E POE 24.0 17.9 13.2 3/8 S 5/8 S 10.6 - 15.0 6.9 - 15.0 6.2 185
CNAG-0100 KAJ*-01*E POE 33.4 20.0 19.1 3/8 S 5/8 S 11.5 - 15.0 8.7 - 15.0 20 190
ENAG-A100 KAJ*-01*E POE 24.0 17.9 13.2 3/8 S 5/8 S 10.6 - 15.0 6.9 - 15.0 5.4 185
CNAG-0100 KAJ*-01*E POE 33.4 20.0 19.1 7/8 S 1/2 S 11.5 - 15.0 8.7 - 15.0 22 190
CLAL-0152 EADB-0200 MIN 33.4 20.0 19.1 1/2 S 7/8 S 12.3 - 15.0 20 265
C8AL-0151 EADA-020E POE 33.4 20.0 19.1 3/8 S 7/8 S 10.3 - 15.0 20 280
EPAK-A150 KAL*-01*E POE 26.0 18.3 16.1 3/8 S 7/8 S 15.3 - 20.0 11.2 - 15.0 10 175
EJAL-A150 KALA-016E POE 26.4 20.0 16.2 3/8 S 7/8 S 5.9 - 15.0 10 169
CPAK-0150 KAL*-01*E POE 33.4 20.0 19.1 3/8 S 7/8 S 14.2 - 20.0 10.1 - 15.0 22 218
CJAL-0152 KALA-016E POE 33.4 20.0 19.1 3/8 S 7/8 S 5.5 - 15.0 22 295
CJAL-0153 EADB-021E POE 33.4 20.0 19.1 3/8 S 7/8 S 14.3 - 20.0 22 283
C8AL-0151 EADA-020E POE 33.4 20.0 19.1 3/8 S 7/8 S 10.3 - 15.0 22 280
DNAG-0200 EAV*-021E POE 26.8 34.0 19.0 3/8 S 7/8 S 20.7 - 30.0 11.6 - 15.0 12 337
CNAG-0200 EAV*-021E POE 33.4 20.0 15.2 1/2 S 7/8 S 20.2 - 30.0 11.1 - 15.0 20 296
C8AL-0200 EAVA-021E POE 33.4 20.0 19.1 1/2 S 7/8 S 6.1 - 15.0 20 260
DNAG-0200 EAVB-021E POE 26.8 34.0 19.0 3/8 S 7/8 S 20.7 - 30.0 11.6 - 15.0 10 337
CNAG-0200 EAV*-021E POE 33.4 20.0 15.2 1/2 S 7/8 S 20.2 - 30.0 11.1 - 15.0 22 296
C8AL-0200 EAVA-021E POE 33.4 20.0 19.1 1/2 S 7/8 S 6.1 - 15.0 22 260
DLAL-0301 LAH*-031* MIN 34.1 26.2 18.9 3/8 S 1-1/8 S 26.6 - 35.0 19.2 - 20.0 9.7 - 15.0 12 380
CLAL-0300 LAH*-031* MIN 39.0 30.0 29.5 1/2 S 1-1/8 S 25.2 - 35.0 17.8 - 20.0 8.9 - 15.0 53 465
DJAL-0300 LAHA-032E POE 26.2 34.1 18.9 3/8 S 1-1/8 S 10.7 - 15.0 12 383
CJAL-0300 LAH*-032E POE 38.4 30.0 29.1 1/2 S 1-1/8 S 25.3 - 35.0 20.3 - 25.0 9.9 - 15.0 7.0 - 15.0 59 460
CPDK-0300 2DF3F16KE POE 38.4 30.0 29.1 1-3/8 S 1/2 S 25.4 - 35.0 12.5 - 15.0 10.3 - 15.0 59 540
CMDL-0400 2DL3F20K0 MIN 38.4 30.0 29.1 1-3/8 S 5/8 S 37.3 - 50.0 53 555
CJDL-0400 2DL3F20KE POE 38.4 30.0 29.1 1-3/8 S 5/8 S 37.3 - 50.0 15.2 - 20.0 11.5 - 15 59 550
CPDK-0600 2DA3F23KE POE 44.9 36.0 31.0 1-3/8 S 5/8 S 40.4 - 60.0 15.2 - 20.0 71 603
CPDK-0601 3DA3F28KE POE 44.9 36.0 30.7 1-3/8 S 5/8 S 42.3 - 60.0 19.5 - 30.0 71 684
CPDK-0750 3DB3F33KE POE 45.9 36.0 30.7 1-3/8 S 5/8 S 43.8 - 70.0 22.5 - 35.0 15.7 - 20.0 71 670
CPDK-0900 3DF3F40KE POE 39.5 66.0 36.3 1-3/8 S 7/8 S 57.2 - 80.0 25.7 - 35.0 89 941
CPDK-1000 3DS3F46KE POE 39.5 66.0 36.3 1-3/8 S 7/8 S 61.3 - 90.0 27.9 - 40.0 89 941
CPDK-0601 3DA*-060E POE 44.0 36.0 31.5 1-3/8 S 5/8 S 42.3 19.5 15.1 55.4 630
CPDK-0750 3DB*-075E POE 44.0 36.0 31.5 1-3/8 S 5/8 S 43.8 22.5 15.7 55.4 670
CPDK-0900 3DF*-090E POE 39.0 66.0 36.0 1-3/8 S 7/8 S 57.2 25.7 24.4 69.4 935
CPDK-1000 3DS*-100E POE 39.0 66.0 36.0 1-3/8 S 7/8 S 61.3 27.9 24.8 69.4 940
S = Sweat
Control Data
Unit Horsepower Voltage BOM
Low
Pressure
Control
High/Low
Pressure
Control
Contactor
115 V Control
Circuit Transformer
E 1/4 - 1/3 All 020 No No No No
E 1/2 - 1 115-1, 208/230-1 020 Yes No No No
E 1 1/2 - 2 115-1, 208/230-1 020 Yes No No
E 1/2 -1 208/230-3 020 Yes Yes No
E 1/2 -1 460-3 020 Yes Yes Yes
D 2 - 3 208/230-1 020 Yes No No
D 2 - 3 208/230-3 020 Yes Yes No
D 2 - 3 460-3 020 Yes Yes Yes
C 3/4 - 3 208/230-1 001 Yes No No
C 3/4 - 10 208/230-3 001 Yes Yes No
C 3 - 10 460-3, 575-3 001 Yes Yes Yes
All units come standard with a suction valve and receiver. All units are UL Listed.

18
2011DS-4 _CD&E (4/11) Emerson Climate Technologies
Notes

W Line
Semi-hermetic water-cooled condensing units
Product Information
Horsepower: 3/4 – 40
Temperature Applications: Low/Medium/High
Refrigerants: R-134a, R-404A, R-22
Installation Applications: A variety of applications including
walk-in boxes and industrial air dryers
(Discus)

W
Nomenclature • Semi-Hermetic Condensing Units
- X X X - X X XX X X X - X X X X
Refrigerant
R404A/507 J/4
R134a T/2
R12 B/7
R22 3/M/L/C
Multiple F
R22/407C G
R22 9
R134a/404A/22
N
R134a/404A P
R404A/22 8
Temperature Application
Description Code
High Temperature H
Medium Temperature M
Low Temperature L
Extended Medium Temp. F
Extra Low Temp. E
High Temperature B
R22/404A LT & R134a HT G
R22 HT & R404A MT J
R404A LT & R134a HT K
Two Stage U
Two Stage T
Air Cooled Steel Base A
Air Cooled Copevap Base E
Water Cooled Steel Base W
Custom Base C
Discus D
Receiver Base C
Flat Metal Base E, D
Water
Condenser Base W
Transport Unit T
Comp. Motor
Rating
Nominal
(HP) Code
1/2
3/4
1
1-1/2
2
3
4
5
6
7-1/2
9
10
15
20
22
25
27
30
40
50
60
70
80
0050
0075
0100
0150
0200
0300
0400
0500
0600
0750
0900
1000
1500
2000
2200
2500
2700
3000
4000
5000
6000
7000
8000
Note: Left position may
be a letter indicating a
revision change
Product Variations
Numbers will be assigned as follows:
1. Number –100 is standard compressor used
in Copeland® condensing units.
2. Number –200 indicates a STANDARD com-
pressor parts B/M and model no.
3. Number –201 and larger will be assigned for
all other variations of a given model.
4. Number –800 indicates a standard replace-
ment compressor and Component Parts B/M
and model no. –240 volt control.
5. Number –801 indicates a standard replace-
ment compressor and component parts B/M
and model no. –120 volt control.
Compressor Motor Types
Phase Description Code
1 Capacitor Run – Capacitor Start C
1 Induction Run – Capacitor Start I
1 Induction Run – Split Phase S
1Capacitor Run – Permanent
Split Capacitor P
3 Three Phase T
3 Wye (star) Delta E
36 Lead Part Winding or Across
the Line – except 575V F
Compressor Motor Protection
Type Protection Code
External Inherent Protection-
One Protector, (Line Break)
Use with Contactor
A
Internal Inherent Protection-
One Protector (Line Break)
Use with Contactor
F
Internal Thermal Protectors-
Electronic Sensors; and
Control Module External
Use with Contactor
S
Electrical Codes
60 Hz. 50 Hz. Code
115-1
230-1
208/230-3
460-3
575-3
-
-
208/230-1
-
-
100-1
-
200/220-3
-
-
230-1
380/420-3
200-1
220-3
220/240-1
A
B
C
D
E
G
M
V
W
Z
Note: When applicable, specifi c 50
Hz ratings (not necessarily identical
to typical shown above) will be shown
as alternate on 60 Hz rated models.

1
2011DS-4 _W (4/11) Emerson Climate Technologies
Resources and Support
EmersonClimate.com
Online Product Information and Technical Data
• Application Engineering Bulletins
• Instruction Sheets
• Marketing Brochures
Where to Buy
Semi-hermetic water-cooled condensing units
Features Benefi ts
Copeland® Semi-hermetic Compressor
Copeland Discus® Compressor with
Unique ‘Discus’ Valve Design
Reliability
High Energy Effi ciency
Modular Components Replacement Serviceability
Positive Displacement Oil Pump Oil Lubrication Under All Operating Conditions
Lower Service & Maintenance Cost
Low Re-expansion Volumes Decreases Energy Costs
Greater Capacity
Lower Operating Speeds
Reduces Operating Compnent Stress
Low Sound
Lower Mainenance Costs
Wide Range of Available Models from 3 HP to 40 HP
For HCFC and HFC Refrigerants Application Flexibility
Application Engineering Bulletins
AE5-1174 Water Flow Requirement and Water Pressure
Drop for Copeland® Water-Cooled Condens-
ing Units
AE4-1135 Cooling Requirements for Copelametic® and
Copeland Discus® Compressors
For more information, visit EmersonClimate.com and login to the Customer Portal to view Online Product Information

2
2011DS-4 _W (4/11) Emerson Climate Technologies
Semi-hermetic water-cooled condensing units
Capacity Data
HIGH/MED TEMP Capacity (BTU/Hr) at 75° Inlet Water - Evaporator Temp (°F)
Model BOM Refrig. H.P. -5 0 +5 +10 +15
W2WM-0075-CAV, TAC 001 22 3/4 3680 4260 4880 5550 6290
WJWM-0075-CAV, TAC 001 404A 3/4 3140 3670 4270 4940 5660
W2WH-0075-TAC 001 22 3/4 3450 3980 4570 5230
WTWH-0075-CAV 001 134a 3/4 3370 3910 4510 5160
W3WM-0100-CAV, TAC, TAD 001 22 1 5730 6700 7750 8890
WJWM-0100-TAC 001 404A 1 4890 5650 6410 7210 8090
W2WH-0100-CAV, TAC, TAD 001 22 1 5050 5800 6640 7570
WTWH-0100-CAV, TAC 001 134a 1 4140 4890 5700 6580
WJWM-0152-TAC 001 404A 1-1/2 5860 6470 7650 8640 9740
W2WH-0151-CAV, TAC, TAD 001 22 1-1/2 6390 7270 8310 9510
WTWH-0151-CAV, TAC 001 134a 1-1/2 5960 7040 8210 9470
W3WM-0201-CAV, TAC, TAD 001 22 2 7260 8690 10200 11700 13400
WJWM-0202-TAC 001 404A 2 8440 9750 11000 12300 13800
WJWM-0203-TAC, TAD 001 404A 2 10000 11600 13300 15100 17100
W2WH-0201-CAB, TAC, TAD 001 22 2 2960 5420 7890 10400
WTWH-A201-CAV, TAC, TAD 001 134a 2 8360 9880 11500 13300
WJWM-0300-TAC, TAD 001 404A 3 14800 17000 19400 22000 24800
W2WH-0300-CAB, TAC, TAD 001 22 3 14800 17100 19700 22400
WTDH-0301-TFC, TFD 001 134a 3 19600 22700 26100 29700
W3DD-0504-TFD 001 22 5 23100 27000 31300 35800
WJDM-0502-TFC, TFD 001 404A 5 22500 25800 29500 33600 38100
WTDH-0601-TFD 001 134a 6 24500 28300 32500 37100
W3DD-0752-TFC, TFD 001 22 7-1/2 33000 39400 46100 53100 60400
WJDM-0751-TFC, TFD 001 404A 7-1/2 41300 46600 52500 58900 66000
WTDH-0751-TFD 001 134a 7-1/2 34600 40100 46100 52500
W3DD-1003-TFC, TFD 001 22 10 75990 85930
WJDM-1001-TFC, TFD 001 404A 10 58100 65600 73700 82600 92200
W3DD-1502-TFC, TFD 001 22 15 102930 116170
W3DD-2002-TSD 001 22 20 84800 96500 109400 123700
W3DD-2502-TSC, TSD 001 22 25 142900 160200
W3DD-3002-TSC, TSD 001 22 30 129000 147100 167200 189200
W3DD-3502-TSD 001 22 35 209000 235300
W3DD-4001-TSD 001 22 40 199200 225300 253700 284500
LOW TEMP Capacity (BTU/Hr) at 75° Inlet Water - Evaporator Temp (°F)
Model BOM Refrig. H.P. -40 -35 -30 -25 -20
WJWL-0100-CAV, TAC, TAD 001 404A 1 2300 2800 3360 3980 4660
WJWL-0151-CAV, TAC, TAD 001 404A 2 3450 4200 5020 5920 6900
WJWL-A201-CAV, TAC, TAD 001 404A 2 4440 5460 6580 7810 9170
WJDL-0302-TFC, TFD 050 404A 3 9950 12100 14400 17000 19800
WJDL-0401-TFC, TFD 050 404A 4 12360 14900 17660 20700 24020
WJDL-0603-TFC, TFD 050 404A 6 18090 21350 24950 28920 33280
WJDL-0751-TFC, TFD 050 404A 8 21470 25470 29750 34390 39440
WJDL-0901-TFC, TFD 050 404A 9 26180 30920 36130 41850 48130
WJDL-1001-TFC, TFD 050 404A 10 29850 35220 41090 47500 54480
WJDL-1501-TSC, TSD 050 404A 15 41400 49300 57400 65800 74800
WJDL-2701-TSD 050 404A 27 59500 70700 83200 96900 121700
Performance data at 105° ambient – subcooling 5° F
Return gas temperature 65° F; Condenser water inlet temperature 85° F; Water temperature difference 10° F

3
2011DS-4 _W (4/11) Emerson Climate Technologies
Semi-hermetic water-cooled condensing units
Capacity Data
HIGH/MED TEMP Capacity (BTU/Hr) at 75° Inlet Water - Evaporator Temp (°F)
Model BOM Refrig. H.P. +20 +25 +30 +35 +40 +45
W2WM-0075-CAV, TAC 001 22 3/4 7110 8040
WJWM-0075-CAV, TAC 001 404A 3/4 6450 7280
W2WH-0075-TAC 001 22 3/4 5960 6750 7610 8550 9570 10700
WTWH-0075-CAV 001 134a 3/4 5860 6620 7440 8330 9270 10280
W3WM-0100-CAV, TAC, TAD 001 22 1 10100 11400
WJWM-0100-TAC 001 404A 1 9090 10260
W2WH-0100-CAV, TAC, TAD 001 22 1 8590 9700 10900 12200 13600 15000
WTWH-0100-CAV, TAC 001 134a 1 7540 8580 9730 11000 12400 13900
WJWM-0152-TAC 001 404A 1-1/2 11000 12400
W2WH-0151-CAV, TAC, TAD 001 22 1-1/2 10900 12300 14000 15700 17600 19600
WTWH-0151-CAV, TAC 001 134a 1-1/2 10900 12400 14000 15800 17800 20000
W3WM-0201-CAV, TAC, TAD 001 22 2 15100 17000
WJWM-0202-TAC 001 404A 2 15400 17400
WJWM-0203-TAC, TAD 001 404A 2 19200 21600
W2WH-0201-CAB, TAC, TAD 001 22 2 13000 15700 18600 21600 24800 28200
WTWH-A201-CAV, TAC, TAD 001 134a 2 15200 17300 19700 22200 25000 28000
WJWM-0300-TAC, TAD 001 404A 3 27800 31200
W2WH-0300-CAB, TAC, TAD 001 22 3 25500 28800 32400 36200 40400 44900
WTDH-0301-TFC, TFD 001 134a 3 33700 38100 42900 48100 53800 60100
W3DD-0504-TFD 001 22 5 40800 46100 51900 58100 64900 72200
WJDM-0502-TFC, TFD 001 404A 5 43100 48510
WTDH-0601-TFD 001 134a 6 42200 47700 53700 60400 67600 75400
W3DD-0752-TFC, TFD 001 22 7-1/2 68200 76500 85400 95000 105400 116500
WJDM-0751-TFC, TFD 001 404A 7-1/2 73700 82100
WTDH-0751-TFD 001 134a 7-1/2 59600 67300 75800 85000 95200 106300
W3DD-1003-TFC, TFD 001 22 10 96610 108090 120430 133700 147950 163240
WJDM-1001-TFC, TFD 001 404A 10 102800 114200
W3DD-1502-TFC, TFD 001 22 15 130360 145600 161970 179560 198450 218750
W3DD-2002-TSD 001 22 20 139400 156600 175600 196400 219200 244000
W3DD-2502-TSC, TSD 001 22 25 178800 198900 220700 244500 270400 298700
W3DD-3002-TSC, TSD 001 22 30 213200 239100 266800 296300 327600 360600
W3DD-3502-TSD 001 22 35 263500 293900 326800 362500 401400 443900
W3DD-4001-TSD 001 22 40 317900 353900 392600 434100 478600 526000
LOW TEMP Capacity (BTU/Hr) at 75° Inlet Water - Evaporator Temp (°F)
Model BOM Refrig. H.P. -15 -10 -5 0
WJWL-0100-CAV, TAC, TAD 001 404A 1 5420 6250 7170 8180
WJWL-0151-CAV, TAC, TAD 001 404A 2 7960 9130 10410 11800
WJWL-A201-CAV, TAC, TAD 001 404A 2 10700 12300 14100 16100
WJDL-0302-TFC, TFD 050 404A 3 22900 26300 30100 34200
WJDL-0401-TFC, TFD 050 404A 4 27660 31640 36000 40760
WJDL-0603-TFC, TFD 050 404A 6 38060 43300 49020 55260
WJDL-0751-TFC, TFD 050 404A 8 44980 51090 57810 65240
WJDL-0901-TFC, TFD 050 404A 9 55040 62620 70920 80010
WJDL-1001-TFC, TFD 050 404A 10 62050 70250 79120 88680
WJDL-1501-TSC, TSD 050 404A 15 84400 94800 106600 119600
WJDL-2701-TSD 050 404A 27 127800 145000 163400 183000
Performance data at 105° ambient – subcooling 5° F
Return gas temperature 65° F; Condenser water inlet temperature 85° F; Water temperature difference 10° F

4
2011DS-4 _W (4/11) Emerson Climate Technologies
Semi-hermetic water-cooled condensing units
Physical/Electrical Data
HIGH/MED TEMP
Model Comp Refrig.
Overall Dimensions
(In) Connecting
Lines Base Mounting
Centers Condenser Water
Connections
L W H Suction Liquid Length Width In Out
W2WM-0075-CAV, TAC KWE2-0075 22 28.6 14.5 17.0 3/8 S 5/8 S 14 13 3/8 MPT 1/2 FPT
WJWM-0075-CAV, TAC KWNB-007E 404A 28.6 14.5 17.0 3/8 S 5/8 S 14 12 3/8 MPT 1/2 FPT
W2WH-0075-TAC KWN2-0075 22 28.6 14.5 17.0 3/8 S 5/8 S 14 13 3/8 MPT 1/2 FPT
WTWH-0075-CAV KWMB-007E 134a 28.6 14.5 17.0 3/8 S 5/8 S 14 13 3/8 MPT 21/2 FPT
W3WM-0100-CAV, TAC, TAD KWM2-0100 22 28.6 14.5 17.0 3/8 S 5/8 S 14 13 3/8 MPT 1/2 FPT
WJWM-0100-TAC KWRA-010E 404A 28.6 14.5 17.0 3/8 S 5/8 S 14 12 3/8 MPT 1/2 FPT
W2WH-0100-CAV, TAC, TAD KWR2-0100 22 28.6 14.5 17.0 3/8 S 5/8 S 14 13 3/8 MPT 1/2 FPT
WTWH-0100-CAV, TAC KWJB-010E 134a 28.6 14.5 17.0 3/8 S 5/8 S 14 13 3/8 MPT 21/2 FPT
WJWM-0152-TAC KWGA-010E 404A 34.8 14.5 17.0 3/8 S 7/8 S 18 13 3/8 MPT 1/2 FPT
W2WH-0151-CAV, TAC, TAD KWGB-0150 22 34.8 14.5 17.0 3/8 S 7/8 S 18 13 3/8 MPT 1/2 FPT
WTWH-0151-CAV, TAC KWLB-015E 134a 34.8 14.5 17.0 3/8 S 7/8 S 18 13 3/8 MPT 21/2 FPT
W3WM-0201-CAV, TAC, TAD KWKB-0200 22 34.8 14.5 17.7 3/8 S 7/8 S 18 13 3/8 MPT 1/2 FPT
WJWM-0202-TAC KWKA-020E 404A 34.8 14.5 17.7 3/8 S 7/8 S 18 13 3/8 MPT 1/2 NPT
WJWM-0203-TAC, TAD ERCA-021E 404A 34.0 14.5 20.4 3/8 S 7/8 S 18 13 1/2 NPT 1/2 NPT
W2WH-0201-CAB, TAC, TAD ERA2-0200 22 34.0 14.5 20.4 3/8 S 7/8 S 18 13 1/2 NPT 1/2 NPT
WTWH-A201-CAV, TAC, TAD EAVB-021E 134a 35.6 14.5 20.4 3/8 S 7/8 S 18 13 1/2 NPT 1/2 NPT
WJWM-0300-TAC, TAD ERFA-031E 404A 30.0 17.0 24.0 1/2 S 1-18 S 18 16 1-1/4 FPT 1-1/4 FPT
W2WH-0300-CAB, TAC, TAD ERF2-0310 22 30.0 17.0 24.0 1/2 S 1-1/8 S 18 16 1-1/4 FPT 1-1/4 FPT
WTDH-0301-TFC, TFD 2DF3F16KE 134a 39.9 17.0 28.0 1/2 S 1-1/8 S 25 16 1-1/4 FPT 1-1/4 FPT
W3DD-0504-TFD 2DC3R53K0 22 39.9 17.0 28.0 1/2 S 1-3/8 S 25 16 1-1/4 FPT 1-1/4 FPT
WJDM-0502-TFC, TFD 2DC3R53KE 404A 40.0 17.0 28.0 1/2 S 1-3/8 S 25 16 1-1/4 FPT 1-1/4 FPT
WTDH-0601-TFD 2DA3F23KE 134a 39.9 17.0 28.0 1/2 S 1-3/8 S 25 16 1-1/4 FPT 1-14 FPT
W3DD-0752-TFC, TFD 2DA3R89KE 22 46.0 17.0 38.6 5/8 S 1-3/8 S 25 16 1-1/4 FPT 1-1/4 FPT
WJDM-0751-TFC, TFD 2DA3R89KE 404A 46.0 17.0 38.6 5/8 S 1-3/8 S 25 16 1-1/4 FPT 1-1/4 FPT
WTDH-0751-TFD 3DB3F33KE 134a 46.0 17.0 30.7 5/8 S 1-3/8 S 25 16 1-1/4 FPT 1-1/4 FPT
W3DD-1003-TFC, TFD 3DB3R12ME 22 52.0 17.0 30.6 7/8 S 1-3/8 S 38 16 1-1/4 FPT 1-1/4 FPT
WJDM-1001-TFC, TFD 3DB3R12ME 404A 52.0 17.0 30.6 7/8 S 1-3/8 S 38 16 1-1/4 FPT 1-1/4 FPT
W3DD-1502-TFC, TFD 3DS3R17ME 22 52.0 18.0 32.6 1-1/8 S 1-5/8 S 38 16 1-1/2 FPT 1-1/2 FPT
W3DD-2002-TSD 4DA3R18M0 22 64.0 20.2 34.3 1-1/8 S 1-5/8 S 38 16 2 FPT 2 FPT
W3DD-2502-TSC, TSD 4DH3R22M0 22 64.5 20.5 34.3 1-1/8 S 1-5/8 S 38 16 2 FPT 2 FPT
W3DD-3002-TSC, TSD 4DJ3R28M0 22 64.5 20.5 34.3 1-1/8 S 2-1/8 S 38 17 2 FPT 2 FPT
W3DD-3502-TSD 6DH3A3500 22 77.5 22.4 34.0 1-1/8 S 2-1/8 S 38 18 2-1/2 FPT 2-1/2 FPT
W3DD-4001-TSD 6DJ3A4000 22 89.5 21.4 36.0 1-5/8 S 2-1/8 S 38 18 2-1/2 FPT 2-1/2 FPT
LOW TEMP
Model Comp Refrig.
Overall Dimensions
(In) Connecting
Lines Base Mounting
Centers Condenser Water
Connections
L W H Suction Liquid Length Width In Out
WJWL-0100-CAV, TAC, TAD KWJB-010E 404A 27 15 18 3/8 S 5/8 S 14 13 3/8 MPT 1/2 FPT
WJWL-0151-CAV, TAC, TAD KWLB-015E 404A 35 15 17 3/8 S 7/8 S 18 13 3/8 MPT 1/2 FPT
WJWL-A201-CAV, TAC, TAD EAVB-021E 404A 35 15 20 3/8 S 7/8 S 18 13 1/2 NPT 1/2 NPT
WJDL-0302-TFC, TFD 2DF3F16KE 404A 40 17 37 1/2 S 1-1/8 S 25 16 1-1/4 FPT 1-1/4 FPT
WJDL-0401-TFC, TFD 2DL3F20KE 404A 40 17 37 1/2 S 1-3/8 S 25 16 1-1/4 FPT 1-1/4 FPT
WJDL-0603-TFC, TFD 3DA3F-28KE 404A 46 17 39 5/8 S 1-3/8 S 25 16 1-1/4 FPT 1-1/4 FPT
WJDL-0751-TFC, TFD 3DB3F33KE 404A 46 17 39 5/8 S 1-3/8 S 25 16 1-1/4 FPT 1-1/4 FPT
WJDL-0901-TFC, TFD 3DF3F40KE 404A 52 17 39 7/8 S 1-3/8 S 38 16 1-1/4 FPT 1-1/4 FPT
WJDL-1001-TFC, TFD 3DS3F-46KE 404A 52 17 39 7/8 S 1-3/8 S 38 16 1-14 FPT 1-1/4 FPT
WJDL-1501-TSC, TSD 4DL3F-63KE 404A 52 19 38 1-1/8 S 1-5/8 S 38 16 1-1/2 FPT 1-1/2 FPT
WJDL-2701-TSD 6DL3F-93KE 404A 65 22 43 1-1/8 S 2-1/8 S 38 16 2 FPT 2 FPT
Performance data at 105° ambient – subcooling 5° F
Return gas temperature 65° F; Condenser water inlet temperature 85° F; Water temperature difference 10° F

5
2011DS-4 _W (4/11) Emerson Climate Technologies
Semi-hermetic water-cooled condensing units
Physical /Electrical Data
HIGH/MED TEMP
Model Comp Refrig.
Minimum Circuit Ampacity -
Max Fuse Size Pump
Down
Capacity
(lbs)
Ship
Weight
(lbs)
230-1-60 230-3-60 460-3-60
W2WM-0075-CAV, TAC KWE2-0075 22 4.3 15 26 166
WJWM-0075-CAV, TAC KWNB-007E 404A 6.8 15 3.8 15 23 174
W2WH-0075-TAC KWN2-0075 22 7.6 15 4.4 15 26 166
WTWH-0075-CAV KWMB-007E 134a 9 15 5.8 15 27 178
W3WM-0100-CAV, TAC, TAD KWM2-0100 22 9.4 15 5.6 15 4 15 26 170
WJWM-0100-TAC KWRA-010E 404A 5.4 15 23 209
W2WH-0100-CAV, TAC, TAD KWR2-0100 22 9.3 15 5.4 15 3 15 14 170
WTWH-0100-CAV, TAC KWJB-010E 134a 9 15 5.8 15 14 176
WJWM-0152-TAC KWGA-010E 404A 6 15 28 178
W2WH-0151-CAV, TAC, TAD KWGB-0150 22 12 20 6.9 15 3 15 28 225
WTWH-0151-CAV, TAC KWLB-015E 134a 12 20 8.3 15 33 220
W3WM-0201-CAV, TAC, TAD KWKB-0200 22 13.3 20 8.5 15 4 15 35 225
WJWM-0202-TAC KWKB-021E 404A 8.5 15 31 225
WJWM-0203-TAC, TAD ERCA-021E 404A 11 15 4 15 31 270
W2WH-0201-CAB, TAC, TAD ERA2-0200 22 13 20 8.3 15 4 15 32 294
WTWH-A201-CAV, TAC, TAD EAVB-021E 134a 19 30 9.9 15 5 15 36 311
WJWM-0300-TAC, TAD ERFA-031E 404A 15.5 25 7 15 35 326
W2WH-0300-CAB, TAC, TAD ERF2-0310 22 21.3 35 14.6 25 8 15 41 330
WTDH-0301-TFC, TFD 2DF3F16KE 134a 21 35 10 15 69 492
W3DD-0504-TFD 2DC3R53K0 22 13 20 70 514
WJDM-0502-TFC, TFD 2DC3R-53KE 404A 28 50 13 20 59 501
WTDH-0601-TFD 2DA3F23KE 134a 13 20 69 511
W3DD-0752-TFC, TFD 2DA3R89KE 22 40 70 18 30 129 564
WJDM-0751-TFC, TFD 2DA3R89KE 404A 40 70 18 30 112 590
WTDH-0751-TFD 3DB3F33KE 134a 20 35 130 634
W3DD-1003-TFC, TFD 3DB3R12ME 22 55 90 25 45 144 708
WJDM-1001-TFC, TFD 3DB3R12ME 404A 55 90 25 45 125 670
W3DD-1502-TFC, TFD 3DS3R17ME 22 80 125 36 60 202 935
W3DD-2002-TSD 4DA3R18ME 22 41 70 258 1160
W3DD-2502-TSC, TSD 4DH3R22ME 22 103 175 51 90 247 1233
W3DD-3002-TSC, TSD 4DJ3R28ME 22 118 200 59 100 248 1160
W3DD-3502-TSD 6DH3R35ME 22 67 110 293 1357
W3DD-4001-TSD 6DJ3A40ME 22 89 150 293 1522
LOW TEMP
Model Comp Refrig.
Minimum Circuit Ampacity -
Max Fuse Size Pump
Down
Capacity
(lbs)
Ship
Weight
(lbs)
230-1-60 230-3-60 460-3-60
WJWL-0100-CAV, TAC, TAD KWJB-010E 404A 8.6 15 6 15 3 15 12 177
WJWL-0151-CAV, TAC, TAD KWLB-015E 404A 12.4 20 8 15 4 15 28 218
WJWL-A201-CAV, TAC, TAD EAVB-021E 404A 19 30 10 15 5 15 31 314
WJDL-0302-TFC, TFD 2DF3F16KE 404A 22 35 11 15 59 501
WJDL-0401-TFC, TFD 2DL3F20KE 404A 34 50 14 20 59 513
WJDL-0603-TFC, TFD 3DA3F28KE 404A 39 60 18 30 112 651
WJDL-0751-TFC, TFD 3DB3F33KE 404A 39 70 21 35 112 655
WJDL-0901-TFC, TFD 3DF3F40KE 404A 50 80 22 35 125 500
WJDL-1001-TFC, TFD 3DS3F46KE 404A 53 90 24 40 125 743
WJDL-1501-TSC, TSD 4DL3F63KE 404A 67 110 34 50 153 865
WJDL-2701-TSD 6DL3F93KE 404A 51 90 216 1195
Performance data at 105° ambient – subcooling 5° F
Return gas temperature 65° F; Condenser water inlet temperature 85° F; Water temperature difference 10° F

6
2011DS-4 _W (4/11) Emerson Climate Technologies
Notes

Additional Information
• Copeland to Copeland Condensing Unit Cross Reference
• Tecumseh to Copeland Condensing Unit Cross Reference
• EK Filter Drier
• HMI Moisure Indicator
• HF/HFK Series Thermal Expansion Valve
• TXV Superheat Adjustment Chart
• Outdoor Hood Accessory Information
• Refrigerants and Lubricants Approved for Use in Copeland® Compressors
Appendix

8
2011DS-4 _Appendix (4/11) Emerson Climate Technologies
Copeland to Copeland condensing unit cross reference
Status Product Number Length (in) Width (in) Height (in) Refrigerant Application Capacity MCA / Fuse
Obsolete MBFS-0017-SAA 13.8 11.1 9.7 12 HT 1090 4.2 - 15
Active M2FH-0017-SAA 13.8 11.8 9.7 134a HT 1150 4.3 - 15
Obsolete MBFS-0020-SAA 13.8 11.1 9.7 12 HT 1260 5.5 - 15
Active M2FH-0020-IAA 13.8 11.3 9.7 134a HT 1330 5.2 - 15
Obsolete MBFS-0024-SAA 13.8 11.8 9.7 12 HT 1730 6.3 - 15
Active M2FH-0024-SAA 13.8 11.8 9.7 134a HT 1810 6.3 - 15
Obsolete MBFH-A026-IAA 13.8 11.8 9.7 12 HT 2770 6.9 - 15
Active M2FH-0026-IAA 13.8 11.3 9.7 134a HT 2080 6.9 - 15
Obsolete MBFS-0033-IAA 13.8 11.8 9.7 12 HT 4080 9.7 - 15
Active M2FH-A033-IAA 13.8 11.3 9.7 134a HT 2620 9.9 -15
Obsolete MBFH-0049-IAA 16.2 13.1 11.8 12 HT 4890 12.5 - 20
Active M2FH-0049-IAA 16.2 12.7 11.8 134a HT 3600 12.5 - 20
Obsolete MBFH-0050-IAA 17.9 13.1 11.8 12 HT 4030 13.8 - 20
Active M2FH-0050-IAA 19 14.1 15 134a HT 4230 13.6 - 20
Obsolete FJAF-A050-IAA 16.2 13.2 11.9 404A MT 4340 13.7 - 20
Active M4FF-0050-IAA 16.1 13.7 11.7 404A MT 4660 7.2 - 15
Obsolete FJAF-A050-IAV 16.2 13.2 11.9 404A MT 4340 7.8 - 15
Active M4FF-0050-IAV 16.1 13.7 11.7 404A MT 4660 7.2 - 15
Obsolete FJAF-A056-IAA 17.5 14.3 12.1 404A MT 5100 14.3 - 20
Active M4FF-0056-IAA 17.4 14.4 11.8 404A MT 5180 14.8 - 20
Obsolete FJAF-A056-IAV 17.5 14.3 12.1 404A MT 5630 8.1 - 15
Active M4FF-0056-IAV 17.4 14.4 11.8 404A MT 5350 7.6 - 15
Obsolete FJAF-B078-CAA 24 16.9 13.1 404A MT 6740 18.5 - 25
Active M4FF-0075-CAA 24 17.1 13.1 404A MT 6660 20.8 - 30
Obsolete FJAF-B078-CAV 24 16.9 13.1 404A MT 6740 8.8 - 15
Active M4FF-0075-CAV 24 17.1 13.1 404A MT 6660 9.7 - 15
Obsolete FJAM-A106-CAV 24 18.3 16.2 404A MT 8530 12.5 - 15
Active FJAF-0106-CAV 24 18.3 16.1 404A MT 8500 12.7 - 20
Obsolete F3AD-B151-CFV 24 18.3 16.9 22 HT 11500 14.2 - 20
Active FGAH-A151-CFV 24 18.3 16.9 22 HT 11300 14.2 - 20
Obsolete F3AD-B151-TFC 24 18.3 16.9 22 HT 11300 10.4 - 15
Active FGAH-A151-TFC 24 18.3 16.9 22 HT 11300 10.4 - 15
Obsolete F3AD-B151-TFD 24 18.3 16.9 22 HT 11100 5.4 - 15
Active FGAH-A151-TFD 24 18.3 16.9 22 HT 11300 5.4 - 15
Obsolete F3AD-B201-CFV 25 34 19 22 HT 15400 19.2 - 30
Active FGAH-A201-CFV 25 34 19 22 HT 15400 19.2 - 30
Obsolete F3AD-B201-TFC 25 34 19 22 HT 15800 11.7 - 15
Active FGAH-A201-TFC 25 34 19 22 HT 15400 11.7 - 15
Obsolete F3AD-B201-TFD 25 34 19 22 HT 15800 6.1 - 15
Active FGAH-A201-TFD 25 34 19 22 HT 15400 6.1 - 15
Obsolete F3AD-B225-CFV 25.1 34.1 19 22 HT 17100 21.1 - 30
Active FGAH-A225-CFV 25.1 34.1 19 22 HT 18100 21.1 - 30
Obsolete F3AD-B225-TFC 25.1 34.1 19 22 HT 17100 13.3 - 15
Active FGAH-A225-TFC 25.1 34.1 19 22 HT 18100 13.3 - 15
Obsolete F3AD-B225-TFD 25.1 34.1 19 22 HT 17100 7.0 - 15
Active FGAH-A225-TFD 25.1 34.1 19 22 HT 18100 7.0 - 15
Obsolete F3AD-B301-CFV 25.2 34.1 19.1 22 HT 24600 28.9 - 40
Active FGAH-A301-CFV 25.2 34.1 19.1 22 HT 24600 28.9 - 40
Obsolete F3AD-B301-TFC 25.2 34.1 19.1 22 HT 24600 19.7 - 20
Active FGAH-A301-TFC 25.2 34.1 19.1 22 HT 24600 19.7 - 20
Obsolete F3AD-B301-TFD 25.2 34.1 19.1 22 HT 24600 10.2 - 15
Active FGAH-A301-TFD 25.2 34.1 19.1 22 HT 24600 10.2 - 15
Obsolete F3AD-B325-CFV 25.2 34.1 18.9 22 HT 26500 30.1 - 40
Active FGAH-A325-CFV 25.2 34.1 18.9 22 HT 26400 30.1 - 40
Obsolete F3AD-B325-TFC 25.2 34.1 18.9 22 HT 26500 22.2 - 25
Active FGAH-A325-TFC 25.2 34.1 18.9 22 HT 26400 22.2 - 25
Obsolete F3AD-B325-TFD 25.2 34.1 18.9 22 HT 26500 10.6 - 15
Active FGAH-A325-TFD 25.2 34.1 18.9 22 HT 26400 10.6 - 15
Obsolete F3AD-B401-TFC 28.2 44.1 26.9 22 HT 37600 26.1 - 40
Active FGAH-A401-TFC 28.2 44.1 26.9 22 HT 37500 26.1 - 40
Obsolete F3AD-B401-TFD 28.2 44.1 26.9 22 HT 37600 13.8 - 20
Active FGAH-A401-TFD 28.2 44.1 26.9 22 HT 37500 13.8 - 20
Obsolete F3AD-A501-CFV 28.6 44.1 26.9 22 HT 42700 46.4 - 70
Active FGAH-A501-CFV 28.6 44.1 26.9 22 HT 43200 46.5 - 70
Capacity at +25° F Evap, 90° F Ambient for MT / HT Applications Capacity at -10° F Evap, 90° F Ambient for LT Applications Refrigerant change

9
2011DS-4 _Appendix (4/11) Emerson Climate Technologies
Copeland to Copeland condensing unit cross reference
Status Product Number Length (in) Width (in) Height (in) Refrigerant Application Capacity MCA / Fuse
Obsolete F3AD-A501-TFC 28.6 44.1 26.9 22 HT 42700 30.3 - 45
Active FGAH-A501-TFC 28.6 44.1 26.9 22 HT 43200 30.4 - 45
Obsolete F3AD-A501-TFD 28.6 44.1 26.9 22 HT 42700 14.4 - 20
Active FGAH-A501-TFD 28.6 44.1 26.9 22 HT 43200 14.4 - 20
Obsolete MBFL-0034-IAA 16 12.2 9.7 12 LT 1660 7.0 - 15
Active M2FL-0040-IAA 16.5 12.4 9.7 134a LT 1540 7.3 - 15
Obsolete MBFL-0050-IAA 16.2 13.1 11.8 12 LT 2350 9.9 - 15
Active FTAL-A050-IAA 16 13.1 11.9 134a LT 2260 17.2 - 25
Obsolete FJWM-C056-IAA 17.9 13.2 11.2 404A MT 6000 12.6 - 20
Active M4WF-C056-IAA 17.4 12.7 10.5 404A MT 5890 13.1 - 20
Obsolete FJWM-C056-IAV 17.9 13.2 11.2 404A MT 6000 7.1 - 15
Active M4WF-C056-IAV 17.4 12.7 10.5 404A MT 5890 6.6 - 15
Obsolete FJWM-C078-CAA 24 17.1 12.1 404A MT 7930 16.5 - 25
Active M4WF-C075-CAA 24 16.1 10.7 404A MT 7560 18.8 - 30
Obsolete FJWM-C078-CAV 24 17.1 12.1 404A MT 7930 7.6 - 15
Active M4WF-C075-CAV 24 16.1 10.7 404A MT 7560 8.5 - 15
Obsolete FJWM-C106-CAV 24 16.1 11.8 404A MT 9100 9.6 - 15
Active FJWF-C106-CAV 24.2 17.2 10.7 404A MT 9470 11.3 - 20
Obsolete FJWL-C075-IAV 24 16.1 11.6 404A LT 3750 12.1 - 20
Active M4WL-C075-IAV 24 16.4 10.7 404A LT 4100 11.8 - 20
Obsolete FTAH-A15Z-CFV 24 18.3 16.3 134a HT 13100 23.8 - 40
Active FFAS-A20Z-CFV 25.2 34 19 134a HT 12200 21.8 - 35
Obsolete FTAH-A15Z-TFC 24 18.3 16.3 134a HT 13100 13.9 - 20
Active FFAS-A20Z-TFC 25.2 34 19 134a HT 12200 13.3 - 20
Obsolete FTAH-A20Z-CFV 25.2 34 19 134a HT 17000 28.1 - 45
Active FFAS-A30Z-CFV 25.2 34 19 134a HT 17700 28.7 - 45
Obsolete FJAM-A20Z-CFV 25.2 34 19 404A MT 18100 21.9 - 35
Active FFAS-A20Z-CFV 25.2 34 19 404A MT 17500 21.8 - 35
Obsolete FJAM-A20Z-TFC 25.2 34 19 404A MT 18100 13.4 - 20
Active FFAS-A20Z-TFC 25.2 34 19 404A MT 17500 13.3 - 20
Obsolete FTAH-A25Z-CFV 25.2 34 19 134a HT 19200 31.8 - 50
Active FFAS-A30Z-CFV 25.2 34 19 134a HT 17700 28.7 - 45
Obsolete FTAH-A25Z-TFC 25.2 34 19 134a HT 19200 19.7 - 30
Active FFAS-A30Z-TFC 25.2 34 19 134a HT 17700 17.9 - 25
Obsolete FJAM-A25Z-CFV 25.2 34 19 404A MT 23000 25.2 - 40
Active FFAS-A25Z-CFV 25.2 34.1 19 404A MT 23200 25.2 - 40
Obsolete FJAM-A25Z-TFC 25.2 34 19 404A MT 23000 15.3 - 20
Active FFAS-A25Z-TFC 25.2 34.1 19 404A MT 23200 15.3 - 20
Obsolete FTAH-A30Z-CFV 25.2 34 19 134a HT 23200 36.3 - 60
Active FFAS-A40Z-CFV 28.2 44.1 26.1 134a HT 24700 37.1 - 60
Obsolete FTAH-A30Z-TFC 25.2 34 19 134a HT 23200 22.4 - 35
Active FFAS-A40Z-TFC 28.2 44.1 26.1 134a HT 24700 23.2 - 35
Obsolete FJAM-A30Z-CFV 25.2 34 19 404A MT 26900 28.7 - 45
Active FFAS-A30Z-CFV 25 34 19 404A MT 26900 28.7 - 45
Obsolete FJAM-A30Z-TFC 25.2 34 19 404A MT 26900 17.9 - 25
Active FFAS-A30Z-TFC 25 34 19 404A MT 26900 17.9 - 25
Obsolete FTAH-A35Z-CFV 25.2 34 19 134a HT 27000 41.7 - 60
Active FFAS-A50Z-CFV 28.1 44.1 26.8 134a HT 29900 42.5 - 60
Obsolete FTAH-A35Z-TFC 25.2 34 19 134a HT 27000 30.4 - 45
Active FFAS-A50Z-TFC 28.1 44.1 26.8 134a HT 29900 31.2 - 45
Obsolete FTAH-A35Z-TFD 25.2 34 19 134a HT 27000 15.2 - 20
Active FFAS-A50Z-TFD 28.1 44.1 26.8 134a HT 29900 14.4 - 20
Obsolete FJAM-A35Z-CFV 25.2 34 19 404A MT 30500 32.3 - 50
Active FFAS-A35Z-CFV 25.2 34 19 404A MT 30400 32.3 - 50
Obsolete FJAM-A35Z-TFC 25.2 34 19 404A MT 30500 20.2 - 30
Active FFAS-A35Z-TFC 25.2 34 19 404A MT 30400 20.2 - 30
Obsolete FTAH-A45Z-TFC 28.2 44.1 26.8 134a HT 35000 31.7 - 50
Active FFAS-A60Z-TFC 44.1 28.2 26.8 134a MT 35000 31.7 - 50
Obsolete FTAH-A45Z-TFD 28.2 44.1 26.8 134a HT 35000 16.8 - 25
Active FFAS-A60Z-TFD 44.1 28.2 26.8 134a HT 35000 16.8 - 25
Obsolete FJAM-A40Z-CFV 28.2 44.1 26.8 404A MT 37800 37.1 - 60
Active FFAS-A40Z-CFV 28.2 44.1 26.1 404A MT 38100 37.1 - 60
Obsolete FJAM-A40Z-TFC 28.2 44.1 26.8 404A MT 37800 23.2 - 60
Active FFAS-A40Z-TFC 28.2 44.1 26.1 404A MT 38100 23.2 - 60
Capacity at +25° F Evap, 90° F Ambient for MT / HT Applications Capacity at -10° F Evap, 90° F Ambient for LT Applications Refrigerant change

10
2011DS-4 _Appendix (4/11) Emerson Climate Technologies
Copeland to Copeland condensing unit cross reference
Status Product Number Length (in) Width (in) Height (in) Refrigerant Application Capacity MCA / Fuse
Obsolete FTAH-A50Z-TFC 28.2 44.1 26.8 134a HT 39200 39.4 - 60
Active FFAS-A60Z-TFC 44.1 28.2 26.8 134a MT 35000 31.7 - 50
Obsolete FTAH-A50Z-TFD 28.2 44.1 26.8 134a HT 39200 20.3 - 30
Active FFAS-A60Z-TFD 44.1 28.2 26.8 134a MT 35000 16.8 - 25
Obsolete FJAM-A50Z-CFV 28.2 44.1 26.8 404A MT 45600 42.5 - 60
Active FFAS-A50Z-CFV 28.2 44.1 26.8 404A MT 46100 42.5 - 60
Obsolete FJAM-A50Z-TFC 28.2 44.1 26.8 404A MT 45600 31.2 - 45
Active FFAS-A50Z-TFC 28.2 44.1 26.8 404A MT 46100 31.2 - 45
Obsolete FJAM-A50Z-TFD 28.2 44.1 26.8 404A MT 45600 14.4 - 20
Active FFAS-A50Z-TFD 28.2 44.1 26.8 404A MT 46100 14.4 - 20
Obsolete FJAM-A60Z-TFC 28.2 44.1 26.8 404A MT 52400 31.7 - 50
Active FFAS-A60Z-TFC 44.1 28.2 26.8 404A MT 53100 31.7 - 50
Obsolete FJAM-A60Z-TFD 28.2 44.1 26.8 404A MT 52400 16.8 - 25
Active FFAS-A60Z-TFD 44.1 28.2 26.8 404A MT 53100 16.8 - 25
Obsolete M2EM-0048-IAA 16 15.1 11.8 134a MT 3760 13.6 - 20
Active M2EM-A048-IAA 16.5 15.1 11.8 134a MT 3740 12.8 - 20
Obsolete FJEF-B078-CAA 24 16.8 13.7 404A MT 6740 18.5 - 25
Active M4EF-0075-CAA 24 16.8 13.6 404A MT 6620 20.8 - 30
Obsolete FJEF-A075-IAV 24 16.1 13.7 404A MT 7120 12.7 - 20
Active M4EF-0080-IAV 24 16.8 13.6 404A MT 7640 12.4 - 20
Obsolete F3WD-C151-CFV-020 24 16.1 15 22 HT 13500 11.3 - 20
Active FGWH-A151-CFV-020 24 16.7 14.3 22 HT 13500 11.3 - 20
Obsolete F3WD-C151-TFC-020 24 16.1 14.2 22 HT 13500 7.5 - 15
Active FGWH-A151-TFC-020 24 16.7 14.3 22 HT 13500 7.5 - 15
Obsolete F3WD-C151-TFD-020 24 16.1 15.4 22 HT 13500 3.8 - 15
Active FGWH-A151-TFD-020 24 16.7 15.4 22 HT 13500 3.8 - 15
Obsolete F3WD-C201-CFV-020 24 16.1 15 22 HT 16900 16.9 - 30
Active FGWH-A201-CFV-020 24 16.7 15 22 HT 16900 16.9 - 30
Obsolete F3WD-C201-TFC-020 24 16.1 14.2 22 HT 16900 9.4 - 15
Active FGWH-A201-TFC-020 24 16.7 14.3 22 HT 16900 9.4 - 15
Obsolete F3WD-C201-TFD-020 24 16.1 15.4 22 HT 16900 4.6 - 15
Active FGWH-A201-TFD-020 24 16.7 15.4 22 HT 16900 4.6 - 15
Obsolete F3WD-C225-CFV-020 24 16.1 15 22 HT 19300 18.8 - 30
Active FGWH-A225-CFV-020 24 16.7 15 22 HT 19300 18.8 - 30
Obsolete F3WD-C225-TFC-020 24 16.1 14.6 22 HT 19300 11.0 - 15
Active FGWH-A225-TFC-020 24 16.7 14.6 22 HT 19300 11.0 -15
Obsolete F3WD-C225-TFD-020 24 16.1 15.4 22 HT 19300 5.5 - 15
Active FGWH-A225-TFD-020 24 16.7 15 22 HT 19300 5.5 -15
Obsolete F3WD-C301-CFV-020 26.2 21 15.4 22 HT 27300 23.1 - 40
Active FGWH-A301-CFV-020 25 21 15.5 22 HT 27300 23.1 - 40
Obsolete F3WD-C301-TFC-020 25 21 15.8 22 HT 27300 13.9 - 20
Active FGWH-A301-TFC-020 25 21 15.8 22 HT 27300 13.9 - 20
Obsolete F3WD-C301-TFD-020 25 21 15.8 22 HT 27300 7.0 - 15
Active FGWH-A301-TFD-020 25 21 15.8 22 HT 27300 7.0 - 15
Obsolete F3WD-C325-CFV-020 26.2 21 15.4 22 HT 29700 24.3 - 40
Active FGWH-A325-CFV-020 25 21 15.5 22 HT 30200 24.3 - 40
Obsolete F3WD-C325-TFC-020 25 21 16.1 22 HT 29700 16.4 - 25
Active FGWH-A325-TFC-020 25 21 15.5 22 HT 30200 16.4 - 25
Obsolete F3WD-C325-TFD-020 25 21 16.1 22 HT 29700 7.4 - 15
Active FGWH-A325-TFD-020 25 21 15.5 22 HT 30200 7.4 - 15
Obsolete F3WD-C401-CFV-020 26.8 21 21.1 22 HT 39400 36.3 - 60
Active FGWH-A401-CFV-020 26.8 21 21.1 22 HT 39400 36.3 - 60
Obsolete F3WD-C401-TFC-020 26.8 21 21.1 22 HT 39400 22.5 - 40
Active FGWH-A401-TFC-020 26.8 21 21.1 22 HT 39400 22.5 - 40
Obsolete F3WD-C401-TFD-020 26.8 21 21.1 22 HT 39400 11.4 - 20
Active FGWH-A401-TFD-020 26.8 21 21.1 22 HT 39400 11.4 - 20
Obsolete F3WD-C501-CFV-020 25.8 21.8 21.1 22 HT 45100 42.9 - 70
Active FGWH-A501-CFV-020 25.8 21.8 21.1 22 HT 45100 42.9 - 70
Obsolete F3WD-C501-TFC-020 25.8 21.8 21.1 22 HT 45100 26.8 - 45
Active FGWH-A501-TFC-020 25.8 21.8 21.1 22 HT 45100 26.8 - 45
Obsolete F3WD-C501-TFD-020 25.8 21.8 21.1 22 HT 45100 12.0 - 20
Active FGWH-A501-TFD-020 25.8 21.8 21.1 22 HT 45100 12.0 - 20
Capacity at +25° F Evap, 90° F Ambient for MT / HT Applications Capacity at -10° F Evap, 90° F Ambient for LT Applications Refrigerant change

11
2011DS-4 _Appendix (4/11) Emerson Climate Technologies
Tecumseh to Copeland condensing unit cross reference
Brand Model Number Length
(in)
Width
(in)
Height
(in) Refrig.
Application
Evap Temp
°F
Capacity
Btu/Hr MCA Max
Fuse
Tecumseh AEA1360YXASS 16 11.5 9.9 134A -10 610 15
Copeland M2FL-0023-IAA-103 13.8 11.5 9.7 134A -10 740 4.2 15
Tecumseh AEA1360YXASS 16 11.5 9.9 134A -10 610 15
Copeland M2FL-0023-IAA-111 13.8 11.3 9.7 134A -10 740 4.2 15
Tecumseh AEA2380ZXASB 16 11.5 9.9 404A -10 1030 15
Copeland M4FL-0025-IAA-103 13.8 12 9.7 404A -10 920 6.7 15
Copeland M4FL-0025-IAA-072 14.5 12 11.4 404A -10 920 6.7 15
Tecumseh AEA2380ZXASB 16 11.5 9.9 404A -10 1030 15
Copeland M4FL-0025-IAA-103 13.8 12 9.7 404A -10 920 6.7 15
Copeland M4FL-0025-IAA-072 14.5 12 11.4 404A -10 920 6.7 15
Tecumseh AEA2410YXASB 16 11.5 9.9 134A -10 1180 15
Copeland M2FL-A025-IAA-103 13.8 11.8 9.7 134A -10 1070 6.9 15
Tecumseh AEA2410YXASB 16 11.5 9.9 134A -10 1180 15
Copeland M2FL-A025-IAA-103 13.8 11.8 9.7 134A -10 1070 6.9 15
Tecumseh AEA2411ZXASB 16 11.5 9.9 404A -10 1340 15
Copeland M4FL-0033-IAA-103 13.8 11.8 9.7 404A -10 1390 7.7 15
Copeland M4FL-0033-IAA-072 14.5 12 11.4 404A -10 1390 7.7 15
Tecumseh AEA2411ZXASS 16 11.5 9.9 404A -10 1340 15
Copeland M4FL-0033-IAA-111 13.9 11.7 9.6 404A -10 1390 7.7 15
Copeland M4FL-0033-IAA-072 14.5 12 11.4 404A -10 1390 7.7 15
Tecumseh AEA2413YXASB 16 11.5 9.9 134A -10 1480 15
Copeland M2FL-0040-IAA-103 16.7 12.6 9.7 134A -10 1540 7.3 15
Tecumseh AEA2413YXASB 16 11.5 9.9 134A -10 1480 15
Copeland M2FL-0040-IAA-103 16.7 12.8 9.7 134A -10 1540 7.3 15
Tecumseh AEA3414YXASB 16 11.5 9.9 134A 25 980 15
Copeland M2HH-0017-SAA-102 16.5 6.6 10.8 134A 25 890 4.1 15
Copeland M2FH-0017-IAA-103 13.8 11.9 9.7 134A 25 1150 4.3 15
Tecumseh AEA3414YXASK 16 11.5 9.9 134A 25 980 15
Copeland M2HH-0017-SAA-102 16.5 6.6 10.8 134A 25 890 4.1 15
Tecumseh AEA3417YXASK 16 11.5 9.9 134A 25 1280 15
Copeland M2FH-0020-IAA-111 13.6 11.1 9.7 134A 25 1330 5.2 15
Tecumseh AEA3417YXASK 16 11.5 9.9 134A 25 1280 15
Copeland M2FH-0020-IAA-111 13.6 11.8 9.7 134A 25 1330 5.2 15
Tecumseh AEA3425YXASS 16 11.5 9.9 134A 25 1640 15
Copeland M2FH-0024-SAA-111 13.8 11 9.7 134A 25 1810 6.3 15
Copeland M4FH-0022-IAA-111 13.8 11.4 9.7 404A 25 1720 7.4 15
Copeland MMFH-0022-IAA-103 13.8 11.5 9.7 22 25 1680 6.5 15
Tecumseh AEA3425YXASS 16 11.5 9.9 134A 25 1640 15
Copeland M2FH-0026-IAA-111 13.8 11.8 9.7 134A 25 2080 6.9 15
Copeland M2FH-0026-IAA-072 14.5 12 11.4 134A 25 2080 6.9 15
Tecumseh AEA4430YXASS 16 11.5 9.9 134A 25 2030 15
Copeland M2FH-0026-IAA-111 13.8 11.8 9.7 134A 25 2080 6.9 15
Copeland M2FH-0026-IAA-072 14.5 12 11.4 134A 25 2080 6.9 15
Tecumseh AEA4430YXASB 16 11.5 9.9 134A 25 2030 15
Copeland M2FH-0026-IAA-103 13.8 11.8 9.7 134A 25 2080 6.9 15
Copeland M2FH-0026-IAA-072 14.5 12 11.4 134A 25 2080 6.9 15
Capacity at 90° F Ambient for LT / MT / HT Applications Refrigerant change
Bold Models= Value Add Models With EK Filter Drier and HMI Mositure Indicator Sightglass

12
2011DS-4 _Appendix (4/11) Emerson Climate Technologies
Tecumseh to Copeland condensing unit cross reference
Brand Model Number Length
(in)
Width
(in)
Height
(in) Refrig.
Application
Evap Temp
°F
Capacity
Btu/Hr MCA Max
Fuse
Tecumseh AEA4440YXASK 16 11.5 9.9 134A 25 2610 15
Copeland M2FH-A033-IAA-111 13.8 12 9.7 134A 25 2620 9.9 15
Tecumseh AEA4440YXASB 16 11.5 9.9 134A 25 2610 15
Copeland M2FH-A033-IAA-103 13.8 11.8 9.7 134A 25 2620 9.9 15
Copeland M2FH-A033-IAA-272 14.5 12 11.4 134A 25 2620 9.9 15
Tecumseh AEA4448YXASB 16 11.5 9.9 134A 25 3060 20
Copeland M2FH-0040-IAA-212 16.3 12.5 9.7 134A 25 2870 10.2 15
Tecumseh AEA4448YXASB 16 11.5 9.9 134A 25 3060 20
Copeland M2FH-0040-IAA-212 16.3 12.5 9.7 134A 25 2870 10.2 15
Tecumseh AEA9415EXASB 16 11.5 9.9 22 25 1880 15
Copeland M2FH-0024-SAA-111 13.8 11 9.7 134A 25 1810 6.3 15
Copeland MMFH-0022-IAA-103 13.8 11.5 9.7 22 25 1680 6.5 15
Copeland MCFH-0027-IAA-103 13.8 11.4 9.7 22 25 2600 9.1 15
Tecumseh AEA9415ZXASS 16 11.5 9.9 404A 25 1640 15
Copeland M4FH-0022-IAA-111 13.8 11.4 9.7 404A 25 1720 7.4 15
Copeland M4FH-0022-IAA-272 14.5 12.8 11.4 404A 25 1720 7.4 15
Tecumseh AEA9415EXASB 16 11.5 9.9 22 25 1880 15
Copeland M2FH-0024-SAA-102 13.8 11 9.7 134A 25 1810 6.3 15
Copeland MMFH-0022-IAA-103 13.8 11.4 9.7 22 25 1680 6.5 15
Tecumseh AEA9415ZXASS 16 11.5 9.9 404A 25 1640 15
Copeland M4FH-0022-IAA-111 13.8 11.4 9.7 404A 25 1720 7.4 15
Copeland M4FH-0022-IAA-272 14.46 12.8 11.36 404A 25 1720 7.4 15
Tecumseh AEA9422EXASB 16 11.5 9.9 22 25 2680 15
Copeland M2FH-A033-IAA-103 13.8 11.8 9.7 134A 25 2620 9.9 15
Copeland MCFH-0027-IAA-103 13.8 11.4 9.7 22 25 2600 9.1 15
Copeland MCFH-0027-IAA-272 14.2 12.3 11.8 22 25 2600 9.1 15
Tecumseh AEA9422ZXASB 16 11.5 9.9 404A 25 2530 15
Copeland M4FH-0025-IAA-103 13.8 11.4 9.7 404A 25 2430 10.7 15
Copeland M4FH-0025-IAA-272 14.5 12 11.4 404A 25 2430 10.7 15
Tecumseh AEA9422EXASS 16 11.5 9.9 22 25 2680 15
Copeland MCFH-0027-IAA-111 13.8 11.2 9.7 22 25 2600 9.1 15
Copeland MCFH-0027-IAA-272 14.1 12.3 11.2 22 25 2600 9.1 15
Tecumseh AEA9422ZXASB 16 11.5 9.9 404A 25 2530 15
Copeland M4FH-0025-IAA-103 13.8 11.8 9.7 404A 25 2430 10.7 15
Copeland M4FH-0025-IAA-272 14.5 12 11.4 404A 25 2430 10.7 15
Capacity at 90° F Ambient for LT / MT / HT Applications Refrigerant change
Bold Models= Value Add Models With EK Filter Drier and HMI Mositure Indicator Sightglass

13
2011DS-4 _Appendix (4/11) Emerson Climate Technologies
Emerson® EK filter drier
The EK filter drier is a best-in-class Emerson® product,
recommended by Emerson Climate Technologies, Inc.
for use with HFC refrigerants.
For more information about the EK filter drier see
marketing brochure 2004FC-78 and Application
Engineering Bulletin AE-1297
Application
• Premium compacted bead filter-drier with a finer 20
micron final outlet pad for maximum filtration
• Premium Universal replacement liquid line filter
drier for CFC, HCFC and HFC refrigerants including
R-12, R-134a, R-22, R-404A, R-407C, R-410A, R-500,
R-502, R-507
Features
• Filtration first for more effective use of surface area
of desiccant
• High moisture and acid removal
• Solid copper fittings
• Corrosion resistant epoxy powder paint finish
• Approved for POE Oils with Copeland® products
• Shock resistant steel shell construction
Specifications
• Desiccant blend - optimized for high water capacity
and acid capacity
• Filtration: 20 microns
• Maximum working pressure: 680 psig
• UL/CUL file number: SA 3124
Nomenclature (example: EK-083S)
EK 08 3 S
Drier
Series
Unit Size
(in cu. in.)
Connection Size
(in 1/8”)
S=ODF connections
(omit for SAE)
Ordering Information
PCN Description Dimensions (in) Weight
(lbs)
ABDEF
060009 EK 032 4.38 - -
2.56 1.63 0.50
060012 EK 032S 3.88 3.13 0.38
060011 EK 032FM 3.50
--060010 EK 032MF 3.50
060013 EK 033 4.69
060014 EK 033S 4.06 3.19 0.44
047601 EK 052 4.81 - - 3.00
2.63
0.88
057013 EK 052MF 4.50
063978 EK 0525S 3.57 0.32 2.64 3.02
047602 EK 052S 4.44 3.69 0.38
3.00047603 EK 053 5.13 - -
047604 EK 053S 4.50 3.63 0.44
047605 EK 082 5.63 - -
3.81 1.25
047606 EK 082S 5.25 4.50 0.38
049551 EK 0825S 5.38 4.38 0.50
056906 EK 083MF 5.94 - -
047607 EK 083
047608 EK 083S 5.31 4.44 0.44
047609 EK 084 6.19 - -
047610 EK 084S 5.38 4.38 0.50
047611 EK162 6.56 - -
4.75 1.25
047612 EK 162S 6.19 5.44 0.38
056045 EK 1625S 5.94 5.31 0.31
047613 EK 163 6.88 - -
047614 EK 163S 6.25 5.44 0.44
047615 EK 164 7.06 - -
047616 EK 164S 6.31 5.31 0.50
047617 EK 165 7.50 - -
047618 EK 165S 6.56 5.31 0.63
047619 EK 167S 7.50 5.63 0.75
048210 EK 303 9.63 - -
7.50 3.06 3.75
048211 EK 303S 9.00 8.13 0.44
048212 EK 304 9.88 - -
048213 EK 304S 9.13 8.13 0.50
048214 EK 305 10.31 - -
048215 EK 305S 9.31 8.06 0.63
048216 EK 306S 9.69 8.44
048217 EK 307S 9.88 8.38 0.75
048218 EK 309S 10.25 8.44 0.94
048219 EK 413 9.75 --
7.63
3.69
4.75
048220 EK 414 10.00
048221 EK 414S 9.25 8.25 0.50
048222 EK 415 10.44 - -
048223 EK 415S 9.44 8.19 0.63
048224 EK 417S 10.00 8.50 0.75048225 EK 419S 10.94
048228 EK 757S 15.44 13.94 13.06 7.50
048229 EK 759S 15.75 13.88 0.94
1Does not include weld bead Standard product offering
Dimensional Data
For more information see 2003FC-118 Wholesaler Catalog for Emerson® Valves, Controls and System Protectors

14
2011DS-4 _Appendix (4/11) Emerson Climate Technologies
EK Filter Drier
Capacity Data
Description Connections
Inlet/Outlet
Flow Capacity Tons @ 1 psi ∆P 1, 4
(For kW, multiply tons by 3.5 )
Water Capacity2 Drops of Water3
R-12 R-134a R-22 R-407C R-410A R-404A/507 R-502
R-12 R-134a R-22
R-410A R-407C R-404A
R-507 75oF 125oF75
oF 125oF75
oF 125oF75
oF 125oF75
oF 125oF75
oF 125oF75
oF 125oF
EK 03 2 FM 1/4 Fem/1/4 Male SAE 1.6 2.0 2.2 2.1 1.4
47 41 40 37 40 33 33 25 21 19 38 37 42 37
EK 03 2 MF 1/4 Male/1/4 Fem SAE 1.6 2.0 2.2 2.1 1.4
EK 03 2 1/4 SAE 1.6 2.0 2.2 2.1 1.4
EK 03 2 S 1/4 ODF 2.2 2.7 2.9 2.9 2.0
EK 032 SV 1/4 ODF 2.2 2.7 2.9 2.9 2.0
EK 03 3 3/8 SAE 2.5 3.0 3.3 3.2 2.2
EK 03 3 S 3/8 ODF 2.5 3.0 3.3 3.2 2.2
EK 05 2 FM 1/4 Fem/1/4 Male SAE 1.7 2.1 2.3 2.2 1.5
133 119 116 106 114 97 95 75 64 58 109 106 120 107
EK 05 2 MF 1/4 Male/1/4 Fem SAE 1.7 2.1 2.3 2.2 1.5
EK 05 2 1/4 SAE 1.7 2.1 2.3 2.2 1.5
EK 05 2 S 1/4 ODF 2.7 3.3 3.6 3.5 2.4
EK 05 3 MF 3/8 Male/3/8 Fem SAE 2.9 3.5 3.8 3.7 2.5
EK 05 3 3/8 SAE 2.9 3.5 3.8 3.7 2.5
EK 05 3 S 3/8 ODF 3.6 4.4 4.8 4.7 3.2
EK 08 2 FM 1/4 Fem/1/4 Male SAE 1.9 2.3 2.5 2.4 1.7
274 240 237 218 235 200 195 155 159 118 224 217 245 217
EK 08 2 MF 1/4 Male/1/4 Fem SAE 1.9 2.3 2.5 2.4 1.7
EK 08 2 1/4 SAE 1.9 2.3 2.5 2.4 1.7
EK 08 2 S 1/4 ODF 2.5 3.1 3.4 3.3 2.2
EK 08 25 S 5/16 ODF 2.9 3.5 3.8 3.7 2.5
EK 08 3 MF 3/8 Male/3/8 Fem SAE 3.3 4.0 4.3 4.3 2.9
EK 08 3 3/8 SAE 3.3 4.0 4.3 4.3 2.9
EK 08 3 S 3/8 ODF 3.7 4.5 4.9 4.8 3.3
EK 08 4 1/2 SAE 5.5 6.7 7.3 7.1 4.9
EK 08 4 S 1/2 ODF 5.8 7.1 7.7 7.5 5.1
EK 16 2 MF 1/4 Male/1/4 Fem SAE 1.9 2.3 2.5 2.4 1.7
347 301 371 341 368 313 305 240 206 186 350 340 306 272
EK 16 2 1/4 SAE 1.9 2.3 2.5 2.4 1.7
EK 16 2 S 1/4 ODF 2.5 3.1 3.4 3.3 2.2
EK 16 25 S 5/16 ODF 2.5 3.1 3.4 3.3 2.2
EK 16 3 3/8 SAE 3.2 3.9 4.2 4.1 2.8
EK 16 3 S 3/8 ODF 3.6 4.4 4.8 4.7 3.2
EK 16 4 S 1/2 ODF 7.0 8.5 9.2 9.0 6.2
EK 16 5 5/8 SAE 8.0 9.7 10.5 10.3 7.0
EK 16 5 S 5/8 ODF 8.3 10.1 10.9 10.7 7.3
EK 16 7 S 7/8 ODF 12.7 15.5 16.8 16.5 11.2
EK 30 3 3/8 SAE 3.5 4.3 4.7 4.6 3.1
601 526 664 611 657 561 548 434 515 355 627 608 536 477
EK 30 3 S 3/8 ODF 5.2 6.3 6.8 6.7 4.6
EK 30 4 1/2 SAE 6.6 8.1 8.8 8.6 5.9
EK 30 4 S 1/2 ODF 8.2 10.0 10.8 10.6 7.2
EK 30 5 5/8 SAE 8.7 10.6 11.5 11.3 7.7
EK 30 6 S 3/4 ODF 12.1 14.8 16.0 15.7 10.7
EK 30 7 S 7/8 ODF 13.8 16.8 18.2 17.9 12.2
EK 30 9 S 1 1/8 ODF 16.1 19.6 21.2 20.8 14.2
EK 41 3 3/8 SAE 3.5 4.3 4.7 4.6 3.1
1104
971 938 854 919 785 765 607 715 465 876 850 991 884
EK 41 4 1/2 SAE 8.5 10.4 11.3 11.1 7.5
EK 41 4 S 1/2 ODF 8.9 10.8 11.7 11.5 7.8
EK 41 5 5/8 SAE 9.8 12.0 13.0 12.8 8.7
EK 41 7 S 7/8 ODF 16.6 20.3 22.0 21.6 14.7
EK 41 9 S 1 1/8 ODF 22.7 27.7 30.0 29.4 20.1
EK 75 7 S 7/8 ODF 18.2 22.2 24.1 23.6 16.1
2368
2159
2159
2019
2159
1880
1810
1460
1460
1111
2019
2019
2229
2019
EK 75 9 S 1 1/8 ODF 26.8 32.7 35.4 34.8 23.7
Refrigerant Volume (oz.)
Unit
Size
R-12 R-134a R-22 R-407C R-410A R-404A/R-507 R-502
75°F 125°F 75°F 125°F 75°F 125°F 75°F 125°F 75°F 125°F 75°F 125°F 75°F 125°F
03 2.9 2.6 2.6 2.3 2.6 2.3 2.5 2.1 2.3 1.9 2.3 1.9 2.7 2.3
05 6.5 5.9 6.0 5.4 5.9 5.3 5.6 4.9 5.3 4.4 5.2 4.4 6.0 5.3
08 8.3 7.6 7.6 6.9 7.5 6.8 7.2 6.3 6.7 5.7 6.6 5.6 7.7 6.8
16 10.2 9.4 9.4 8.6 9.3 8.4 8.9 7.8 8.3 7.0 8.2 6.9 9.5 8.4
30 28.7 26.3 26.4 23.9 26.1 23.5 24.9 21.9 23.3 19.6 22.9 19.4 26.7 23.4
41 40.0 36.4 36.9 33.1 36.4 32.5 34.7 30.3 32.5 27.2 31.9 26.8 37.2 32.4
75 72.4 66.3 66.7 60.3 65.8 59.2 62.8 55.2 58.7 49.5 57.7 48.9 67.2 59.0
1 All ratings in accordance with ARI Standard 710-04. 86oF liquid refrigerant temperature
5
oF saturated vapor temperature
3.1 lbs./min./ton for R-134a
2.9 lbs./min./ton for R-22 and R-407C
4.0 lbs./min./ton for R-404A/507 and R-12
2.7 lbs./min./ton for R-410A
2 Water Capacities are based on:
Equilibrium Point Dryness (EPD) of:
50 parts per million for R-134a, R404-A/507,
R-410A and R-407C
60 parts per million for R-22
15 parts per million for R-12
3 20 drops of water = 1 gram = 1 cc
4 For 2 PSI ∆P, Multiply values by 1.4
For more information see 2003FC-118 Wholesaler Catalog for Emerson® Valves, Controls and System Protectors

15
2011DS-4 _Appendix (4/11) Emerson Climate Technologies
HMI-Hermetic Moisture Indicators
Application
• The HMI is designed to provide an accurate
method of determining the moisture content of
a system’s refrigerant.
• The HMI has a unique high accuracy moisture
indicator for CFC, HCFC, and HFC refrigerants.
Features
• Highest sensitivity moisture indicator available
• Hermetic, leak-free construction
• Single indicator for all common refrigerants
• Accurate color calibration at low ppm levels
and higher temperatures
• Wide angle viewing/high visibility window for
ease of monitoring
• All brass corrosion resistant body for fewer leaks
• Solid copper connections
Specifi cations
• Maximum working pressure: 680 psig
• UL/CUL fi le number: SA 9566
Nomenclature (example: HMI 1TT4)
HMI 1 TT 4
Hermetic
Moisture Indicator Series Connection Style
TT = Sweat x Sweat
Connection
Size (in 1/8”)
Moisture Content Color Code (ppm H2O)
Indication
Liquid
Temp.
Dry (Dark Blue) Caution (Purple) Wet (Salmon)
75°F 100°F 125°F 75°F 100°F 125°F 75°F 100°F 125°F
R-12 1.4 2.5 4 5 9 15 25 43 70
R-134A 20 35 60 35 55 85 130 160 190
R-22 25 35 50 40 65 90 145 205 290
R-407C 26 40 64 42 68 109 150 230 370
R-410A 30 55 75 50 85 120 165 290 420
R-404A/507
15 25 45 33 50 80 120 150 180
Dimensional Data (in)
Type Number Connection Size A B C D E F
Min G
HMI - 1MM2 1/4 SAE 3.13 1.56 0.34 0.94
HMI - 1MM3 3/8 SAE 3.38 1.69 0.34 0.94
HMI - 1MM4 1/2 SAE 3.62 1.81 0.47 1.19
HMI - 1MM5 5/8 SAE 3.88 1.94 0.47 1.19
HMI - 1MM6 3/4 SAE 5.00 2.50 0.59 1.53
HMI - 1FM2 1/4 SAE FM 2.75 1.19 0.34 0.94
HMI - 1FM3 3/8 SAE FM 3.00 1.31 0.47 1.19
HMI - 1FM4 1/2 SAE FM 3.22 1.41 0.47 1.19
HMI - 1TT2 1/4 ODF 5.56 0.34 0.94 0.25 0.38
HMI - 1TT3 3/8 ODF 5.61 0.34 0.94 0.38 0.40
HMI - 1TT4 1/2 ODF 5.87 0.47 1.19 0.50 0.50
HMI - 1TT5 5/8 ODF 5.87 0.61 1.19 0.63 0.63
HMI - 1TT6 3/4 ODF 6.56 0.61 1.50 0.75 0.63
HMI - 1TT7 7/8 ODF 6.31 0.61 1.50 0.88 0.75
HMI - 1TT9 1 1/8 ODF 6.59 0.67 1.37 1.13 0.90
HMI - 1TT2MF 1/4 ODM x 1/4 ODF 5.56 0.34 0.94 0.25 0.38 0.25
HMI - 1TT3MF 3/8 ODM x 3/8 ODF 5.61 0.34 0.94 0.38 0.38 0.38
HMI - 1TT4MF 1/2 ODM x 1/2 ODF 5.87 0.47 1.19 0.50 0.50 0.50
HMI - 1 TT5MF 5/8 ODM x 5/8 ODF 5.87 0.61 1.19 0.63 0.50 0.62
If it’s not Blue,
It’s not DRY!
Dimensional Data (in)
Ordering Information
PCN Description Series Connection
Size
065391 HMI-1MM2
Male Flare x Male Flare
1/4
065392 HMI-1MM3 3/8
065393 HMI-1MM4 1/2
065394 HMI-1MM5 5/8
065395 HMI-1MM6 3/4
065405 HMI-1TT2
Sweat x Sweat (ODF)
1/4
065406 HMI-1TT3 3/8
065407 HMI-1TT4 1/2
065408 HMI-1TT5 5/8
065409 HMI-1TT6 3/4
065410 HMI-1TT7 7/8
065411 HMI-1TT9 1 1/8
065396 HMI-1FM2
Female Flare x Male Flare
1/4
065397 HMI-1FM3 3/8
065398 HMI-1FM4 1/2
065622 HMI-1TT2MF
Sweat x Sweat (ODM x
ODF)
1/4
065814 HMI-1TT3MF 3/8
065979 HMI-1TT4MF 1/2
065980 HMI-1TT5MF 5/8
Standard product offering
For more information see 2003FC-118 Wholesaler Catalog for Emerson® Valves, Controls and System Protectors

16
2011DS-4 _Appendix (4/11) Emerson Climate Technologies
The HF series is a balanced ported valve designed for refrig-
eration, air conditioning and heat pump applications
.
Features
• Stainless steel replaceable power element eliminates
corrosion and prevents valve failure
• Two body sizes provide capacities from 1/4 to 20 ton
Standard Body – HF & HFK
• The HF is offered several ways:
– Pre-packaged HFK service kits – Include a mix of bodies
and power elements with a complete set of cages to
serve the most applications with a minimum of parts
– Individual components – Bodies, cages, & power
elements may be ordered separately
– Finished valves – Assembled valves ready for immediate
installation
• Bi-Flow capability up to 5-1/2 tons R-22 allows one valve to
control the superheat in both cooling and heating modes
Extended Body – HF
• Capacity range from 8 to 20 tons (R-22)
• Finished valve only
Options
• ODF or SAE connections
• Straight-through or angle flow configurations
• Removable inlet strainer (ODF only)
• Internal or external equalizer
Specifi cations
• Maximum working pressure: 450 psig
Nomenclature example: HFESC 2 HC 5 FT 3/8 x 1/2 ODF S/T
HF N E S C B 2 H C 5 FT 3/8 x 1/2 ODF S/T
Valve
Series
Balanced
Port
Design
Superheat
Adjustment
N = Non-
Adjustable
Omit for
Adjustable
Equalizer
E=External
(Omit for
Internal)
Connection
Type
S = Solder
(Omit for
SAE Flare)
Removable
Inlet Strainer
(optional)
C = Inlet
Strainer
(ODF only)
Bleed
Hole
(op-
tional)
(Omit for
no bleed
hole)
Capacity
Nominal
Rating in
Tons
(See nominal
capacity
table below)
Refrigerant
Code
+F = R-12
• H = R-22
+M = R-134a
• N = R-407C
* P = R-507
* R = R-502
* S = R-404A
Charge Code
C = medium temp
CA = heat pump
W(MOP) = press.
limiting
Z = low temp
AA = wide range
Capillary
Tube
Length
5 FT (std)
Inlet x Outlet
Connection
Sizes
1/4 x 3/8
3/8 x 1/2
Connection
Type
SAE = fl are
ODF = solder
Confi guration
ANG = 90° angle
S/T = straight-thru
Standard Body HF
R-12 R-134a R-22/R-407C R-502/R-
404A/R-507
1/8 (0.4) 1/4 (0.9) 1/4 (0.9) 1/8 (0.4)
1/4 (0.9) 1/2 (1.8) 1/2 (1.8) 1/4 (0.9)
1/2 (1.8) 3/4 (2.7) 1 (3.5) 1/2 (1.8)
1 (3.5) 1 (3.5) 1 1/2 (5.3) 1 (3.5)
1 1/4 (4.4) 1 1/2 (5.3) 2 (7.0) 1 1/4 (4.4)
1 1/2 (5.3) 1 3/4 (6.2) 2 1/2 (8.8) 1 1/2 (5.3)
2 (7.0) 2 1/2 (8.8) 3 (11.0) 2 (7.0)
3 1/2 (12.0) 4 (14.0) 5 1/2 (20.0) 3 1/2 (12.0)
HF Series-Nominal* Capacity Tables in Tons (kW)
Extended Body HF
R-12 R-134a R-22/R-407C R-502/R-
404A/R-507
5 (17.0) 6(21.0) 8 (28.0) 5 (17.0)
6 (21.0) 7 1/2 (27.0) 10 (35.0) 7 (27.0)
9 (32.0) 11 (39.0) 15 (53.0) 10 (35.0)
12 (42.0) 14 (50.0) 20 (70.0) 13 (46.0)
All capacities shown are at 100°F condensing, 40°F evaporator temperature.
*See Extended Capacity Tables for ratings at a wide range of conditions per ARI standard 750.
+ = R-12 and R-134a are interchangeable refrigerant charges
* = R-507, R-502 and R-404A are interchangeable refrigerant charges
• = R-22 and R-407C are interchangeable refrigerant charges
NOTE: If the HF body is stamped HFK,
the cage is replaceable.
Emerson® HF/HFK series thermal expansion valve
For more information see 2003FC-118 Wholesaler Catalog for Emerson® Valves, Controls and System Protectors

17
2011DS-4 _Appendix (4/11) Emerson Climate Technologies
TXV SUPERHEAT ADJUSTMENT
Valve
Family
Total
Turns
Degrees of SH Per Turn
R-22 R-134a R-404A/507 R410A
+20 F -20 F +20 F +20F -20F +40F
A 8 3.0 5.0 4.5 2.0 4.0 2.0
C 12 – – – – – 4.0
HF 10 2.2 4.2 3.8 1.8 3.2 N/A
TF 10 3.0 5.0 4.5 2.0 4.0 2.0
TRAE 10 2.2 4.2 3.8 1.8 3.2 N/A
TCLE 32 0.8 1.5 1.0 0.5 1.0 N/A
Turn adjustment clockwise to increase superheat, counterclockwise to decrease superheat. To return to
approximate original factory setting, turn adjustment stem counterclockwise until the spring is completely
unloaded (reaches stop or starts to ratchet). Then, turn it back in one half of the Total Turns shown on
the chart.
HFK Cage Nominal* Capacity Table
PCN Description1Cage
Code R-12 R-22 R-134a R-404 R-507 R-502 R-407C
064868 KT-20299-0 0 ⅛¼¼ ⅛⅛⅛ ¼
064869 KT-20299-1 1 ¼ ½ ½ ¼ ¼ ¼ ½
064870 KT-20299-2 2 ½ 1 ¾ ½ ½ ½ 1
064871 KT-20299-3 3 1 1½ 1 1 1 1 1½
064872 KT-20299-4 4 1¼ 2 1½ 1¼ 1¼ 1¼ 2
064873 KT-20299-5 5 1½ 2½ 1¾ 1½ 1½ 1½ 2½
064874 KT-20299-6 6 2 3 2½ 2 2 2 3
064875 KT-20299-7 7 3½ 5½ 4 3½ 3½ 3½ 5½
1 Cage Kit includes Cage, Insertion Tool and ID Clips.
*All capacities shown are at 100°F condensing, 40°F evaporator temperature.
See Extended Capacity Tables for ratings at a wide range of conditions per ARI standard 750.
HFK Accessories
PCN Description
064880 Service Box
064897 Cage Box (Empty)
064898 Insertion Tool
064899 Oil Bottle
065203 Cage Gasket Kit (12 sets)
HFK Body Selection Table
PCN Description Type Connections (Inlet x Outlet)
064881 KT-20298-1 HFK 1/4 x 1/2 SAE Ang Inlet
064882 KT-20298-2 HFK 3/8 x 1/2 SAE Ang Inlet
064883 KT-20298-3 HFKE 1/4 x 1/2 SAE Ang Inlet
064884 KT-20298-4 HFKE 3/8 x 1/2 SAE Ang Inlet
064885 KT-20298-5 HFKSC 3/8 x 1/2 ODF Ang Inlet w/ Strainer
064886 KT-20298-6 HFKESC 3/8 x 1/2 ODF Ang Inlet w/ Strainer
064887 KT-20298-7 HFKS 3/8 x 1/2 ODF S/T
064888 KT-20298-8 HFKS 3/8 x 5/8 ODF S/T
064889 KT-20298-9 HFKS 1/2 x 5/8 ODF S/T
064890 KT-20298-10 HFKS 1/2 x 7/8 ODF S/T
064891 KT-20298-11 HFKES 3/8 x 1/2 ODF S/T
064892 KT-20298-12 HFKES 3/8 x 5/8 ODF S/T
064895 KT-20298-13 HFKES 1/2 x 5/8 ODF S/T
064896 KT-20298-14 HFKES 1/2 x 7/8 ODF S/T
HF & HFK Power Element Table
PCN Description System
Refrigerant(s) Application
053769 X26300-FW15-1 R-134a/R-12 Low Temp MOP
054798 X26300-FW35-1 R-134a/R-12 Low Temp MOP
063869 X26300-FW55-1 R-134a/R-12 Low Temp MOP
053766 X26300-FZ-1 R-134a/R-12 Low Temp
053763 X26300-FC-1 R-134a/R-12 Medium Temp
058074 X26300-MC-1 R-134a Medium Temp
053767 X26300-HZ-1 R-22/R-407C Low Temp
057834 X26300-HCA-1 R-22/R-407C Heat Pump
057764 X26300-HW100-1 R-22/R-407C AC MOP
053764 X26300-HC-1 R-22/R-407C A/C Med. Temp
058085 X26300-SW45-1 R-404/ R-507/ R-502 Low Temp MOP
058082 X26300-SZ-1 R-404/ R-507/ R-502 Low Temp
058083 X26300-SC-1 R-404/ R-507/ R-502 Medium Temp
Cage Kit (PCN 064879)
Item Qty
Size 0 Cage (1/4 ton R-22) 2
Size 1 Cage (1/2 ton R-22) 2
Size 2 Cage (1 ton R-22) 2
Size 3 Cage (1 1/2 ton R-22) 2
Size 4 Cage (2 ton R-22) 2
Size 5 Cage (2 1/2 ton R-22) 2
Size 6 Cage (3 ton R-22) 2
Size 7 Cage (5 1/2 ton R-22) 2
Insertion Tool 1
Oil Bottle 1
Cage ID Tags 16
Replacement Parts – SAE Inlet
PCN Part Number Description
027385 X-11176-1 Filter Screen
058707 27676-1 Seal Cap
Replacement Parts- HFSC & HFESC Only
PCN Kit Number Description
057686 KT-20264 Includes seal cap, gasket
o-ring, screen, spring
Standard Product Offering
Ordering Information
Use the following tables to order individual components.
For more information see 2003FC-118 Wholesaler Catalog for Emerson® Valves, Controls and System Protectors

18
2011DS-4 _Appendix (4/11) Emerson Climate Technologies
Flex-Line hoods
for SystemPro® condensing units
Hood Specifi cation Data
Emerson
Part #
Mfg.
Part #
External Dimensions (in.) Internal Dimensions (in.) Unit Size*
LWH LWH
505-7066-00 N/A 24.3 20.2 18.7 22.5 18.4 15.0 1/2 Hp to 3/4 Hp
505-7066-01 N/A 30.3 23.5 22.7 28.5 22.2 19 3/4 Hp to 2 Hp
505-7066-02 N/A 32.3 38.3 22.7 30.6 37.1 24.0 2 Hp to 3 Hp
505-7066-03 N/A 35.3 48 34.7 33.6 46.2 30.7 4 Hp to 6 Hp
005-0882-03 CHO-13 35.5 24.0 25.0 34.5 24.0 21.0
005-0882-05 CHO-16 46.5 38.0 38.0 45.5 38.0 33.0
005-0882-06 CHO-17 42.5 74.0 48.5 41.5 74.0 40.5
UL Listed for outdoor use * Specifi c model to hood cross reference should be used.
• Four outdoor enclosures to cover all
½ to 6 HP SystemPro® units
• Assembly time reduced 50%
• UL listed
• Elevated rails
• Sliding panels for ease of service
• Ample space for additional features
Hood Selection
Copeland®
Model
Dimensions (in.)
Hood Flex-Line
Hood
LWH
SystemPro® Air-Cooled
M2FH-0017 13.8 11.8 9.7 005-0882-00 / -09 505-7066-00
M2FH-0026 13.8 11.8 9.7 005-0882-00 / -09 505-7066-00
M2FH-0033 13.8 11.8 9.7 005-0882-00 / -09 505-7066-00
M2FH-0056 17.4 14.4 11.8 005-0882-00 / -09 505-7066-00
M4FH-0025 13.8 11.8 9.7 005-0882-00 / -09 505-7066-00
M4FH-A036 16.1 12.7 11.8 005-0882-00 / -09 505-7066-00
M2FL-0020 13.8 11.1 9.7 005-0882-00 / -09 505-7066-00
M2FL-A025 13.8 11.8 9.7 005-0882-00 / -09 505-7066-00
M2FL-B033 16.2 12.4 9.7 005-0882-00 / -09 505-7066-00
M4FL-0040 16.2 13.1 11.8 005-0882-00 / -09 505-7066-00
M4FL-0051 17.4 13.1 11.8 005-0882-00 / -09 505-7066-00
M4FL-0067 18.1 14.4 11.8 005-0882-00 / -09 505-7066-00
MCFH-0027 13.8 11.8 9.7 005-0882-00 / -09 505-7066-00
MCFH-0036 16 12.9 11.8 005-0882-00 / -09 505-7066-00
MCFH-0056 17.5 14.3 11.8 005-0882-00 / -09 505-7066-00
M4FF-0056 17.5 14.3 12.1 005-0882-00 / -09 505-7066-00
M4FF-0080 24.0 16.9 13.1 005-0882-00 / -09 505-7066-01
FJAL-A101 24.0 16.9 13.1 005-0882-00 / -09 505-7066-01
FJAL-B200 24.0 19.5 16.3 005-0882-02 / -10 505-7066-01
FJAL-B301 25.2 34.1 19.0 005-0882-01 / -11 505-7066-02
FJAL-A390 25.2 34.1 19.0 005-0882-01 / -11 505-7066-02
FJAF-0106 24.0 18.3 16.2 005-0882-00 / -09 505-7066-01
FJAM-A200 25.2 34.1 18.9 005-0882-01 / -11 505-7066-02
FJAM-B400 28.2 44.1 26.9 005-0882-04 505-7066-03
FTAH-B074 17.4 14.4 11.8 005-0882-00 / -09 505-7066-00
FTAH-A101 24.0 16.8 15.9 005-0882-00 / -09 505-7066-01
FTAH-A150 24.0 18.4 16.3 005-0882-02 / -10 505-7066-01
FTAH-A201 25.2 34.0 18.9 005-0882-01 / -11 505-7066-02
FTAL-A050 16.0 13.3 11.9 005-0882-00 / -09 505-7066-00
FGAH-A151 24.1 18.3 16.9 005-0882-02 / -10 505-7066-01
FGAH-A201 25.0 34.0 19.0 005-0882-01 / -11 505-7066-02
FGAH-A301 25.0 34.0 19.0 005-0882-01 / -11 505-7066-02
FGAH-A401 28.6 44.1 26.9 005-0882-04 505-7066-03
FGAH-A501 28.6 44.1 26.9 005-0882-04 505-7066-03
F3AH-A078 24.0 16.9 13.1 005-0882-00 / -09 505-7066-01
F3AH-A100 24.0 16.9 13.1 005-0882-00 / -09 505-7066-01

19
2011DS-4 _Appendix (4/11) Emerson Climate Technologies
Hood Selection
Copeland®
Model
Dimensions (in.) Hood Flex-Line Hood
LWH
Copelametic®
E3AH-A050 19.5 14.8 12.0 005-0882-00 / -09 505-7066-00
E3AM-A075 24.0 17.9 13.6 005-0882-00 / -09 505-7066-01
E8AJ-A075 24.0 17.9 13.6 005-0882-00 / -09 505-7066-01
E8AL-A050 19.5 16.3 12.0 005-0882-00 / -09 505-7066-00
E8AL-A075 24.0 17.9 13.3 005-0882-00 / -09 505-7066-01
E8AM-A050 19.5 14.8 12.0 005-0882-00 / -09 505-7066-00
ENAG-A050 19.5 16.3 12.0 005-0882-00 / -09 505-7066-00
ENAG-A075 24.0 17.9 12.0 005-0882-00 / -09 505-7066-01
CBAM-0103 33.5 20.0 19.0 005-0882-03 N/A
C3AM-0101 33.5 20.0 19.0 005-0882-03 N/A
C8AJ-0100 33.5 20.0 19.0 005-0882-03 N/A
C8AJ-0200 33.5 20.0 19.0 005-0882-03 N/A
ENAG-A100 24.0 17.9 13.3 005-0882-00 / -09 505-7066-01
E3AM-A101 26.2 18.3 16.0 005-0882-01 / -11 505-7066-01
CPAK-0150 33.5 20.0 19.0 005-0882-03 N/A
C3AH-0150 33.5 20.0 19.0 005-0882-03 N/A
C3AM-0303 39.0 30.0 29.5 005-0882-05 N/A
C7AB-0150 33.0 20.0 19.0 005-0882-03 N/A
C7AB-0200 33.5 20.0 19.0 005-0882-03 N/A
C7AB-0300 39.0 30.0 29.5 005-0882-05 N/A
C8AL-0151 33.5 20.0 19.0 005-0882-03 N/A
C8AL-0200 33.5 20.0 19.0 005-0882-03 N/A
CNAG-0200 33.5 20.0 19.0 005-0882-03 N/A
C8AJ-0300 39.0 30.0 29.5 005-0882-05 N/A
C8AM-0202 33.5 20.0 19.0 005-0882-03 N/A
CJAL-0300 39.0 30.0 29.5 005-0882-05 N/A
CLAL-0300 39.0 30.0 29.5 005-0882-05 N/A
CPDK-0300 39.0 30.0 29.5 005-0882-05 N/A
CPDK-0600 44.0 36.0 31.5 005-0882-05 N/A
CPDK-0750 44.0 36.0 31.5 005-0882-05 N/A
CJDL-0400 39.0 30.0 29.5 005-0882-05 N/A
CMDL-0400 39.0 30.0 29.5 005-0882-05 N/A
C8DJ-0500 39.0 30.0 29.5 005-0882-05 N/A
C8DJ-0501 39.0 30.0 29.5 005-0882-05 N/A
C8DJ-0750 44.0 36.0 31.5 005-0882-05 N/A
C8DJ-1000 39.0 66.0 36.0 005-0882-06 N/A
Flex-Line hoods for semi-hermetic condensing units

20
2011DS-4 _Appendix (4/11) Emerson Climate Technologies
Hood Selection
Copeland®
Model
Dimensions (in.)
Hood Flex-Line Hood
LWH
Copeland Scroll®
FTAH-A13Z 24.0 18.3 16.3 005-0882-01 / -10 505-7066-01
FJAM-A15Z 24.0 18.3 16.3 005-0882-01 / -10 505-7066-01
FTAH-A15Z 24.0 18.3 16.3 005-0882-01 / -10 505-7066-01
FFAS-A20Z 25.2 34.0 19.0 005-0882-01 / -11 505-7066-02
FFAS-A25Z 25.2 34.0 19.0 005-0882-01 / -11 505-7066-02
FFAS-A30Z 25.2 34.0 19.0 005-0882-01 / -11 505-7066-02
FFAS-A35Z 25.2 34.0 19.0 005-0882-01 / -11 505-7066-02
FFAS-A40Z 28.2 44.1 26.8 005-0882-04 505-7066-03
FFAS-A50Z 28.2 44.1 26.8 005-0882-04 505-7066-03
FFAS-A60Z 28.2 44.1 26.8 005-0882-04 505-7066-03
FPAN-070Z 28.5 44.0 36.8 005-0882-04 N/A
FPAN-080Z 28.5 44.0 36.8 005-0882-04 N/A
FPAN-091Z 28.5 44.0 36.8 005-0882-04 N/A
FPAN-101Z 28.5 44.0 36.8 005-0882-04 N/A
DJAL-015Z 25.2 34.3 19.0 005-0882-01 / -11 505-7066-02
DJAL-020Z 25.2 34.3 19.0 005-0882-01 / -11 505-7066-02
DJAL-022Z 25.2 34.3 19.0 005-0882-01 / -11 505-7066-02
DJAL-026Z 25.2 34.3 19.0 005-0882-01 / -11 505-7066-02
DJAL-030Z 25.2 34.3 19.0 005-0882-01 / -11 505-7066-02
DJAL-041Z 28.2 44.1 26.8 005-0882-04 505-7066-03
DJAL-051Z 28.2 44.1 26.8 005-0882-04 505-7066-03
DJAL-060Z 28.2 44.1 26.8 005-0882-04 505-7066-03
Flex-Line hoods for scroll condensing units

21
2011DS-4 _Appendix (4/11) Emerson Climate Technologies
Legend:
MIN: Mineral Oil (Copeland
®
46BWMO, Sonneborn Suniso 3GS), Chevron/Texaco Capella WF32 ) Mineral oils are interchangeable for ‘top off’ purposes
AB: Alkyl Benzene Oil (Copeland
®
Ultra 200, Shrieve Zerol 200 TD, Sonneborn Suniso AKB200A, Shell 2212)
POE 32: Polyolester Oil (Copeland
®
Ultra 32-3MAF,Lubrizol Emkarate RL32-3MAF, Parker EMKARATE RL32-3MAF/ (Virginia) LE323MAF, Nu Calgon 4314-66 (EMKARATE RL32-3MAF)
Hatcol 22 CC, Copeland
®
Ultra 22 CC & Mobil Arctic 22 CC (last three for ‘top off’ only)
POE*: Contact Application Engineer for oil details
PAG: Polyalkylene Glycol Oil (Lubrizol RPAG 62, UCON LB300X)
POE-32 & MIN: Minimum 50% POE
AB & MIN: Minimum 50% Alkyl Benzene
L: Low Temperature Application (Refrigeration) For R-407A, R-407C, R-422A/D, R-438A, Demand Cooling
®
is required for low temperature application - See AE guidelines for details
M: Medium Temperature Application (Refrigeration)
H: High Temperature Application (Air-Conditioning, Heat Pump, Refrigeration)
Spectronics AR-GLO 4/E Fluorescent Leak Detection Dye is approved for HFC/POE and HCFC/Mineral Oil usage at the manufacturer’s recommended concentrations.
For specific product availability and performance data refer to Emerson Climate Technologies, Inc. sales literature
Refer To Application Bulletins, Change-Over Guidelines And MSDS Sheets for additional information at EmersonClimate.com
93-11 R22 (12/10)
Emerson, Copeland, Copeland Scroll, Demand Cooling, and Discus are trademarks of Emerson Electric Co. or one of its affi liated companies.
©1993 Emerson Climate Technologies, Inc. All rights reserved. Printed in the USA.
Refrigerants/Lubricants Approved for Use in Copeland® Compressors
Refrigerants Similar To Application Lubricant Choices Comments
Retrofit New Preferred Alternate #1 Alternate #2
Ozone
Depleting
CFC R-12 L,M MIN AB & MIN Phased Out in 1996
CFC R-502 L,M MIN AB & MIN POE-32 Phased Out in 1996
HCFC R-22 L,M,H MIN AB & MIN POE-32 No New Equipment 2010
Interims
HCFC R-401A R-12 M,H AB & MIN POE-32 & MIN POE-32 Service Only Suva® MP39
HCFC R-401B R-12 L,M AB & MIN POE-32 & MIN POE-32 Service Only Suva® MP66
HCFC R-402A R-502 L,M AB & MIN POE-32 & MIN POE-32 Service Only Suva® HP80
HCFC R-402B R-502 L,M AB & MIN POE-32 & MIN POE-32 Service Only Suva® HP81
HCFC R-408A R-502 L,M AB & MIN POE-32 & MIN POE-32 Service Only FX10
HCFC R-409A R-12 L,M AB & MIN POE-32 & MIN POE-32 Service Only FX56
Non-
Ozone
Depleting
HFC R-134a R-12 M,H M,H POE-32
HFC R-404A R-502 L,M L,M POE-32 Suva® HP62, Forane® FX70
HFC R-507 R-502 L,M L,M POE-32 Genetron® AZ50
HFC R-407A R-22 L,M L,M POE-32
HFC R-407C R-22 L,M,H L,M,H POE-32 Suva® 9000/KLEA 66
HFC R-410A M,H POE-32 ZP & ZB KCP Copeland Scroll® Models Only
HFC R-422A/D R-22 L,M MIN POE-32 AB Discus® Supermarket Racks Only
HFC R-438A R-22 L,M MIN POE-32 AB Discus® Supermarket Racks Only; ISCEON® MO99
R-704 Helium Cryogenic PAG ZC Copeland Scroll® Models Only
R-744 CO2Sub-Critical POE* ZO Copeland Scroll® Models Only

2011DS-4 (2/11) Emerson, Copelametic, Copeland, Copeland Scroll, Copevap and SystemPro are trademarks of Emerson Electric Co. or one of their affi liated companies.
©2011 Emerson Climate Technologies, Inc. All rights reserved. Printed in the USA.