175 Curtis Parts List 2008
User Manual: 175
Open the PDF directly: View PDF
.
Page Count: 40

S
SN
NO
OW
W &
& I
IC
CE
E C
CO
ON
NT
TR
RO
OL
L P
PR
RO
OD
DU
UC
CT
TS
S
Application Guide
September 2008
World’s fastest-attachment snow plow
TM
Curtis Industries, LLC.
111 Higgins Street • Worcester, MA 01606
Telephone: (800) 343-7676 • Fax: (800) 876-9104
www.curtisplow.com
Curtis Snowplows are protected by the following U.S. patent Numbers: 5,815,955, 6,145,222, 6,151,808, 6,209,231.
Other patents pending.
New!
Comprehensive Parts Listing of
SNOW & ICE CONTROL PRODUCTS
GET MORE DONE!

What’s New for 2008…
Availability and stock quotes are accurate at time of quote and may change hourly. Sno-Pro Application Guide Effective September 1, 2008
Prices, products and specifications are subject to change without notice.
Availability is subject to production, stocking and demand.
Before ordering, have your dealer number, item part #, and quantity ready
2
What’s New for 2008…
The 2008 Application Guide includes some new, updated and more comprehensive information
that will make selling and servicing the Sno-pro family of Snow & Ice Control Products easier and
more profitable than ever.
Our Product Development Department is working hard to continually expand our range of
Snowplow Accessories & Vehicle Applications.
…New for 2008…
➲ SNO-PRO Trip-Edge POLYMER
Two Sizes - 7 1/2” and 8”, Trip-Edge
Features include:
• SNO-PRO 7.5’ Home Pro plow with all the features of the Home-Pro
• High strength, commercial grade polymer moldboard
• Moves more snow at all speeds
• Snow resists sticking to blade
• Hydraulic jack leg
• Never rusts
• Requires less maintenance
• The choice of professionals
➲New! Poly-Electric V-Box Spreader
• 1.8 and 2.1 yard sizes
• Quiet
• Zero gas needed
➲New! Sno-Pro Heavy Duty Sub-Frame Mount Kits
1HD8 – Dode Ram 4500/5500/Sterling Bullet
This Application Guide also features our Heavy Duty Commercial/Municipal Snowplow System
offered in 9’ and 10’ versions. Vehicle Applications for these snowplows (1HD_) are listed on the
next page.

Availability and stock quotes are accurate at time of quote and may change hourly. Sno-pro Application Guide Effective September 1, 2008
Prices, products and specifications are subject to change without notice.
Availability is subject to production, stocking and demand.
Before ordering, have your dealer number, item part #, and quantity ready 11
Parts Schematics
The following pages contain schematics and
parts lists for Curtis Snow & Ice Control Products
Home-Pro 3000 Parts Breakdown page 12 & 13
Trip Edge Snowplow Parts Breakdown page 14 & 15
Sno-Pro V-Plow Parts Breakdown page 16 & 17
Commercial Snowplow Parts Breakdown page 18 & 19
Sno-Pro Full Trip 3000 Parts Breakdown page 20 & 21
Snowplow Electrical System Parts Breakdown page 22
Sno-Pro/Home-Pro Manifold Parts Breakdown page 23
Electric/Hydraulic Power Unit Parts Breakdown page 24
Sno-Pro V-Plow Manifold Pats Breakdown page 25
Trip Edge/Commercial Snowplow Manifold Breakdown page 26
Sno-Pro 2000 Parts Breakdown page 27
TS17/TS25 parts Breakdown page 28-33
1PESP1.8 & 1PESP2.1 Parts Breakdown page 36-39
1CS6 Fasts Cast 550 Parts Breakdown page 34-37
1CS1 Fast Cast 2000 Parts Breakdown page 40
1CS1 Fast Cast 2000 Drive Assemble Parts Breakdown page 41
1CS1/1CS2 Control System Parts Breakdown page 42
1CS2 Fast Cast 175 Parts Breakdown page 43
1SM3 3-Point Hitch Parts Breakdown page 44
1SM4 Drop Utility Hitch Parts Breakdown page 45
1CS9/1CS10 Fast Cast 300 & 400 Parts Breakdown page 44

Availability and stock quotes are accurate at time of quote and may change hourly. Sno-pro Application Guide Effective September 1, 2008
Prices, products and specifications are subject to change without notice.
Availability is subject to production, stocking and demand.
Before ordering, have your dealer number, item part #, and quantity ready
12
SNOWPLOWS

Availability and stock quotes are accurate at time of quote and may change hourly. Sno-pro Application Guide Effective September 1, 2008
Prices, products and specifications are subject to change without notice.
Availability is subject to production, stocking and demand.
Before ordering, have your dealer number, item part #, and quantity ready 13
H
H
O
O
M
M
E
E
-
-
P
P
R
R
O
O
SCHEM ITEM RECOMMEND QTY/
LIST
REF.# PART# DEALER STOCK DESCRIPTION UNIT
PRICE/EA
1 1TBP21I 7’ HOME-PRO MOLDBOARD ASSEMBLY 1 $957.40
2 1TBP124 7’ HOME-PRO MOLDBOARD SKIN 1 129.00
3 1TBP49I 7’ HOME-PRO POLYMER CUTTING EDGE 1 88.00
N/S 1TB21K 7 1/2' HOME-PRO MOLDBOARD ASSEMBLY 1 88.00
N/S 1TBP124-90HP 7 1/2' HOME-PRO MOLDBOARD SKIN 1 88.00
N/S 1TBP49K 7 1/2' HOME-PRO POLYMER CUTTING EDGE 1 88.00
N/S 1TBP49HWB REPLACEMENT HARDWARE FOR CUTTING EDGE 1 18.60
4 1TBP37 * BLADE MARKERS (SET OF 2) 1 29.00
5 1TBP22C HOME-PRO TRIP FRAME 1 434.70
6 1TBP33 * TRIP SPRING 2 22.80
7 1TBP34 * SPRING EYEBOLT W/NUT 2 6.20
8 1TBP127 * TRIP FRAME PIVOT PIN - 3 7.8” 1 9.30
91TBP29D1 A-FRAME ASSEMBLY - FRAME ONLY 1 496.80
9 1TBP29D A-FRAME ASSEMBLY - COMPLETE 1 1,992.40
10 1TBP27 * 10” ANGLE PISTON 2 134.60
NS 1TBP98G 90 DEG. ELBOW 3 7.20
11 1TBP30 * 5/16” X 24” CHAIN 1 18.60
12 1TBP31 * 5/16” ANCHOR SHACKLE 2 12.40
13 1TBP134A * DUAL PLUG HARNESS (PLOW SIDE) 1 155.30
14 1TBP155 * A-FRAME SPINDLE REPAIR KIT 2 21.70
15 1TBP38B LIFT FRAME ASSEMBLE W/LATCH HOOKS 1 600.30
16 1TBP39B LIGHT KIT (SET OF 2) 1 144.90
16A 1TBP39BL PLOW LIGHT - DRIVER’S SIDE ONLY 1 77.60
16B 1TBP39BR PLOW LIGHT - PASSENGER’S SIDE ONLY 1 77.60
17 1TPB40A HOME-PRO LIFT ARM 1 71.40
18 1TBP24 * 3/16” X 1 1/2” COTTER PIN 14 2.10
19 1TBP135 PLUG STORAGE HOLDER 1 8.30
20 1TBP44A 7 1/2” LIFT CYLINDER 1 97.30
21 1TBP137 1/2” X 2 1/2” CLEVIS PIN 1 6.20
22 1TBP138 1” X 2 7/8” HOLLOW PIN 1 6.20
23 1TBP139 1” X 3 3/4” HOLLOW PIN 1 6.20
24 1TBP160 3/4” X 3 3/16” HOLLOW PIN 1 9.30
25 1TBP107 * SNAP LOCK HANDLE ASSEMBLY 2 16.60
26 1TBP112 LIFT FRAME SIDE PLATES (SET OF 2) 1 65.20
27 1TBP113 TORSION SPRING BUSHING 2 16.60
28 1TBP33A SIDE PLATE TORSION SPRING (SET OF 2) 1 24.80
29 1TBP114A DRIVER’S SIDE LATCH HOOK 1 98.30
30 1TBP115A PASSENGER’S SIDE LATCH HOOK 1 98.30
31 1TBP120 7/8” -9 X 4 1/2” FR. 5 BOLT 2 12.40
32 1TBP121 7/8’-9 GR. 5 REVERSIBLE LOCK NUT 2 4.10
33 1TBP125 * ANGLE PISTON PIN - 4 1/8” 2 9.30
34 1TBP126 * LIFT/ANGLE PISTON ANCHOR PIN - 3 3/8” 2 8.30
35 1TBP157 * LIFT FRAME SIDE PLATE HARDWARE SET 1 15.50
36 1TBP159 * SNAP LOCK CROSS BOLT W/BUSHINGS & NUT 2 7.20
37 1TBP58A * A-FRAME COVER W/DECAL 1 65.20
ADDITIONAL ITEMS NOT SHOWN ON SCHEMATIC ASSEMBLY
N/S 1HP-HWB HOME-PRO PLOW HARDWARE BAG 1 100.90
N/S 1TBP60A SWITCH PANEL CONTROL KIT 1 69.30
N/S 1TBP60A-1 * LIFT SWITCH ONLY 1 16.60
N/S 1TBP60A-2 * ANGLE SWITCH ONLY 1 38.30
N/S 1TBP48A *PLOW LIGHT SWITCH ONLY114.50
N/S 1TBP61A * SOLENOID 1 24.80
N/S 1TBP61C SNO-PRO 3000 EMERGENCY PARTS BAG 1 201.80
N/S 1TBP62 #4 CABLE 90” 127.90
N/S 1TBP63 * RESERVOIR CAP - SNOW-PRO 2000 1 19.70
N/S 1TBP63A * RESERVOIR CAP - SNO-PRO 3000 (EXTERNAL) 1 19.70
N/S 1TBP63B * RESERVOIR CAP - SNO-PRO 3000 (INTERNAL) 1 18.60
N/S 1TBP117 A-FRAME BOTTOM JACK COVER 1 15.50
N/S 1TBP64 INSTALLATION & OWNER’S MANUAL 1 6.20
N/S 1TBP67 DEALER SALES & SERVICE BOOK 1 62.10
N/S 1TBP27SK * SEAL KIT (FITS ALL HYDRAULIC PISTONS) 13 18.60
N/S 1TBP109 1’ X 1 3/8” PISTON SPACER 2 3.10
N/S 1TBP134B * DUAL PLUG HARNESS (VEHICLE SIDE) 1 155.30
N/S 1TBP136 * CONTROL PLUG WEATHER CAP (VEHICLE SIDE) 1 8.30
N/S 1TBP54 * HI-AMP PLUG WEATHER CAP 2 4.10
N/S 1TBP140 *LOCK PIN STORAGE HOLDER & LANYARD 18.30
N/S 1TBP141 * HARNESS LOCK PIN (SET OF 50 1 6.20
N/S 1TBP98D * LEFT ANGLE HOSE - 28” 1 21.70
N/S 1TBP98C *RIGHT ANGLE HOSE - 19” 121.70
N/S 1TBP98B * LIFT HOSE - 37 1/2” 1 21.70
N/S 1TBP98A JACK HOSE - 26 1/2” 1 21.70
N/S 1TBP59A *
ELECTRIC/HYDRAULIC POWER UNIT W/MANIFOLD
1921.20
N/S 1TBP95 3” JACK CYLINDER 1 88.00
N/S 1TBP98F 90 DEG BRASS BAR ELBOW 1 7.20
N/S 1TBP96 6” JACK SPRING 1 36.20
N/S 1TBP111 JACK SPRING GUIDE ROD 1 9.30
N/S 1TBP98E BLOCK ADAPTER FOR JACK HOSE 1 7.20
N/S 1TBP100 * A-FRAME JACK SWITCH 1 30.00
N/S 1TBP156 * RUBBER BOOT FOR A-FRAME JACK SWITCH 1 8.30
N/S 1TBP102 SWITCH PANEL ADAPTER 1 30.00
N/S 1TBP161 *PLOW LIGHT MOUNTING KIT 212.40

Availability and stock quotes are accurate at time of quote and may change hourly. Sno-pro Application Guide Effective September 1, 2008
Prices, products and specifications are subject to change without notice.
Availability is subject to production, stocking and demand.
Before ordering, have your dealer number, item part #, and quantity ready
14
SNOWPLOWS

Availability and stock quotes are accurate at time of quote and may change hourly. Sno-pro Application Guide Effective September 1, 2008
Prices, products and specifications are subject to change without notice.
Availability is subject to production, stocking and demand.
Before ordering, have your dealer number, item part #, and quantity ready 15
T
T
R
R
I
I
P
P
-
-
E
E
D
D
G
G
E
E
SCHEM ITEM RECOMMEND QTY/
LIST
REF.# PART# DEALER STOCK DESCRIPTION UNIT
PRICE/EA
1 1TBP21TA 7 1/2’ MOLDBOARD - TRIP EDGE 1 $978.00
1TE75P 7 1/2’ POLY MOLDBOARD 1 TBA
1TE8P 8’ POLY MOLDBOARD 1 TBA
1TBP21TB 8’ MOLDBOARD -TRIP EDGE 1 1,066.10
1TBP21TJ 8 1/2’ MOLDBOARD - TRIP EDGE 1 1,154.00
1TBP21TC 9’ MOLDBOARD - TRIP EDGE 1 1,154.00
2 1TBP149A 7 1/2’ LOWER TRIP EDGE 1 388.10
1TBP149B 8’ LOWER TRIP EDGE 1 445.10
1TBP149J 8 1/2’ LOWER TRIP EDGE 1 502.00
1TBP149C 9’ LOWER TRIP EDGE 1 502.00
3 1VP14 * 1” X 1 1/2” CLEVIS PIN 7 6.20
N/S 1TBP24 * 3/16” X 2” COTTER PIN 14 2.10
4 1TBP33 * TRIP SPRING 4 22.80
5 1TBP142 SPRING ADJUSTMENT ROD - TRIP EDGE 2 39.30
6 1TBP143
SPRING ADJUSTMENT ROD TOP ANGLE - TRIP EDGE
2 18.60
7 1TBP50T * SKID SHOE - TRIP EDGE ONLY 2 38.30
N/S 1TBP49A * 7 1/2’ CUTTING EDGE 1 99.40
1TBP49B * 8’ CUTTING EDGE 1 105.60
1TBP49J * 8 1/2’ CUTTING EDGE 1 150.10
1TBP49C * 9’ CUTTING EDGE 1 158.40
8 1TBP37 * BLADE MARKERS (SET OF 2) 1 29.00
9 1TBP144 1 3/16” X 15 1/8” CENTER PIVOT PIN - TRIP EDGE 1 34.70
10 1TBP145 * 1” X 3 1/2” CLEVIS PIN 4 6.20
11 1TPB29T A-FRAME ONLY - TRIP EDGE 1 496.80
12 1TBP106T JACK LEG - TRIP EDGE 1 67.30
13 1TBP146 * BLOCKER LIFT PISTON - TRIP EDGE 1 71.40
14 1TBP147 * GAS SPRING - TRIP EDGE 1 61.10
15 1TBP148A *
BELLOWS FOR BLOCKER LIFT/GAS SPRING - TRIP EDGE
2 9.30
15A 1TBP148B * RUBBER GROMMET FOR BELLOWS 2 9.30
15B 1TBP148C * CLAMP FOR BELLOWS 2 3.10
16 1TBP27 * 10” ANGLE/LIFT PISTON 3 134.60
N/S 1TBP27SK * SEAL KIT (FITS ALL HYDRAULIC PISTONS) 3 18.60
N/S 1TBP98G * 90 DEG. ELBOW - FOR ANGLE CYLINDER 2 7.20
17 1TBP73 * 1” X 3” CLEVIS PIN 3 6.20
18 1TBP30A * 5/16” X 40” LIFT CHAIN 1 29.00
19 1TBP31 * 5/16” ANCHOR SHACKLE 1 98.30
20 1TBP38T LIFT FRAME ONLY - TRIP EDGE 1 569.30
21 1TBP39B PLOW LIGHT KIT (SET OF 2) 1 144.90
22 1TBP40T LIFT ARM - TRIP EDGE 1 71.40
23 1TBP92 * 1” X 6” CLEVIS PIN 1 9.30
24 1TBP92 * DRIVER’S LATCH HOOK 1 98.30
25 1TBP115 PASSENGER’S LATCH HOOK 198.30
26 1TBP107 * SNAP LOCK HANDLE 2 16.60
27 1TBP33B * SNAP LOCK SPRING 4 2.10
N/S 1TBP159 * SNAP LOCK CROSS BOLD W/BUSHINGS & NUT 2 7.20
28 1TBP120 7/8” X 4 1/2” LATCH HOOK BOLT 2 12.40
29 1TBP121 7/8” REVERSIBLE LOCK NUT 2 4.10
30 1TBP152 UPPER SPRING GUIDE - TRIP EDGE 2 29.5
31 1TBP153 LOWER SPRING GUIDE - TRIP EDGE 2 29.50
32 1TBP149 * 2” X 7” COMPRESSION SPRING - TRIP EDGE 2 49.70
33 1TBP135 *
PLOW SIDE PLUG STORAGE HOLDER/WEATHER CAP
8.30
34 1TBP150 * 12MM X 2 7/8” BOLT - GR. 10.9 - TRIP EDGE 1 8.30
N/S 1TBP151 * 12MM NYLON LOCKNUT - TRIP EDGE 1 4.14
35 1TBP59AP1 ELECTRIC/HYDRAULIC POWER UNIT 1 491.00
36 1TBP59AP3 HYDRAULIC MANIFOLD 1 502.00
37 1TBP58B HYDRAULIC COVER - TRIP EDGE 1 71.40
ADDITIONAL ITEMS NOT SHOWN ON SCHEMATIC ASSEMBLY
N/S 1TBP134AT * DOUBLE PLUG PLOW SIDE HARNESS - TRIP EDGE 1 155.30
N/S 1TBP134B * DOUBLE PLUG VEHICLE SIDE HARNESS 1 155.30
N/S 1TBP136 * VEHICLE SIDE CONTROL WEATHER CAP 1 8.30
N/S 1TBP140 * LOCK PIN STORAGE HOLDER & LANYARD 1 8.30
N/S 1TBP141 * HARNESS LOCK PIN (SET OF 5) 1 6.20
N/S 1TBP53 HI-AMP BATTERY HARNESS 1 50.70
N/S 1TBP54 * HI-AMP WEATHER CAP 1 4.10
N/S 1TBP61A * 12V MOTOR SOLENOID 1 24.80
N/S 1TBP98C * LIFT HOSE - 19” 1 21.70
N/S 1TBP98I * RIGHT ANGLE HOSE - 35” - TRIP EDGE 1 21.70
N/S 1TBP98J *LEFT ANGLE HOSE - 45” - TRIP EDGE 1 21.70
N/S 1TE-HWB HARDWARE BAG - TRIP EDGE 1 81.80
N/S 1TBP98H * 4F DEG. ELBOW FOR LIFT PISTON 1 7.20
N/S 1TBP64T INSTALLATION/OWNER’S MANUAL 1 6.20

Availability and stock quotes are accurate at time of quote and may change hourly. Sno-pro Application Guide Effective September 1, 2008
Prices, products and specifications are subject to change without notice.
Availability is subject to production, stocking and demand.
Before ordering, have your dealer number, item part #, and quantity ready
16
SNOWPLOWS

Availability and stock quotes are accurate at time of quote and may change hourly. Sno-pro Application Guide Effective September 1, 2008
Prices, products and specifications are subject to change without notice.
Availability is subject to production, stocking and demand.
Before ordering, have your dealer number, item part #, and quantity ready 17
V
V
-
-
P
P
L
L
O
O
W
W
P
P
H
H
A
A
S
S
E
E
I
I
I
I
SCHEM ITEM RECOMMEND QTY/
LIST
REF.# PART# DEALER STOCK DESCRIPTION UNIT
PRICE/EA
1 1TBP21V3L MOLDBOARD DRIVER’S SIDE 8’ 2” 1 $926.30
1 1TBP21V3R MOLDBOARD DRIVER’S SIDE 9’ 2” 1 962.60
21TBP21V4L MOLDBOARD PASSENGER’S SIDE 8’ 2” 1 926.30
2 1TBP21V4R MOLDBOARD PASSENGER’S SIDE 9’ 2” 1 962.60
3 1TBP49V1 * CUTTING EDGE FOR 8’ 2” 2 70.40
3 1TBP49V2 CUTTING EDGE FOR 9’ 2” 2 77.60
4 1TBP50 * SKID SHOE 4 38.30
5 1TBP37 * BLADE MARKERS (SET OF 2) 1 29.00
6 1VP10 MOLDBOARD HINGE PIN 1 22.80
71TBP22V1 TRIP/HINGE FRAME 1 357.10
8 1TVP11 TRIP PIN 1 22.80
9 1TBP33 * TRIP SPRING 4 22.80
10 1TBP34 * SPRING EYEBOLT W/HARDWARE 4 6.20
11 1TBP29V1 A-FRAME 1 496.80
12 1TBP106V JACK LEG W/HEIGHT ADJUSTMENT 1 45.50
13 1TBP30A * LIFT CHAIN 1 29.00
14 1VP1 10” DOUBLE ACTING ANGLE PISTON 2 160.40
15 1TBP98G * 90 DEG. ELBOW 4 7.20
16 1TBP73 * 1” X 3” CLEVIS PIN 3 6.20
17 1TBP38V LIFT FRAME 1 615.80
18 1TBP114 LATCH HOOK DRIVER’S SIDE 1 98.30
19 1TBP115 LATCH HOOK PASSENGER’S SIDE 1 98.30
20 1TBP120 7/8” -9 X 4 1/2” GR. 5 BOLT 2 12.40
21 1TBP121 7/8” -9 X 4 1/2” GR. 5 REVERSIBLE LOCK NUT 2 4.10
22 1TBP107 * SNAP LOCK HANDLE ASSEMBLY 2 16.60
23 1TBP33B * SNAP LOCK SPRING 4 2.10
24 1TBP159 * SNAP LOCK CROSS BOLT W/BUSHINGS & NUT 2 7.20
25 1TBP39B LIGHT KIT (SET OF 2) 1 144.90
25A 1TBP39BL PLOW LIGHT - DRIVER’S SIDE ONLY 1 77.60
25B 1TBP39BR PLOW LIGHT - PASSENGER’S SIDE ONLY 1 77.60
26 1TBP92 * 1” X 6” CLEVIS PIN 1 9.30
27 1TBP27 * 10” LIFT PISTON 1 134.60
N/S 1TBP27SK * SEAL KIT (FITS ALL SINGLE ACTING PISTONS) 1 18.60
N/S 1TBP98H 45 DEG. ELBOW - FOR LIFT CYLINDER 1 7.20
28 1TBP58V PUMP COVER 1 50.70
29 1TBP135 * PLUG STORAGE HOLDER 1 8.30
30 1TBP59AP4 ELECTRIC/HYDRAULIC POWER UNIT ONLY 1 615.80
31 1TBP59AP2V
V-PLOW MANIFOLD FOR DOUBLE ACTING PISTONS
1 895.30
32 1VP14 * 1” X 1 1/2” CLEVIS PIN 1 6.20
33 1TBP40T LIFT ARM 1 71.40
34 1TBP145 1” X 3 1/2” CLEVIS PIN 4 8.30
35 1TBP164 12MM X 2 7/8” LIFT CHAIN BOLT W/NUT 1 6.20
36 1TBP165 2” X 2” PLASTIC END PLUG 2 4.10
37 1CP-USC-P UPPER SPRING GUIDE (CAN STYLE) 2 18.60
38 1CP-LSC-P LOWER SPRING GUIDE (CAN STYLE) 2 18.60
39 1CP39 2” X 8” COMPRESSION SPRING 2 71.40
40 1TBP166 1 3/4” ROUND END PLUG 6 4.10
ADDITIONAL ITEMS NOT SHOWN ON SCHEMATIC ASSEMBLY
N/S 1VP-HWB V-PLOW HARDWARE BAG 1 129.40
N/S 1TBP48A *PLOW LIGHT SWITCH ONLY 1 14.50
N/S 1TBP61A * SOLENOID 1 24.80
N/S 1TBP62 #4 CABLE 90” 1 27.90
N/S 1TBP53 HI-AMP BATTERY HARNESS (VEHICLE SIDE) 1 50.70
N/S 1TBP63B * RESERVOIR CAP - INTERNAL 1 18.60
N/S 1TBP64V INSTALLATION & OWNER’S MANUAL 1 15.50
N/S 1TBP136 * WEATHER CAP (VEHICLE SIDE) 1 8.30
N/S 1TBP54 HI-AMP PLUG WEATHER CAP 1 4.10
N/S 1TBP140 LOCK PIN STORAGE HOLDER 1 8.30
N/S 1TBP141 LOCK PIN (SET OF 5) 1 6.20
N/S 1TP1VA TOUCH PAD CONTROL 1 212.20
N/S 1VP3 * CENTER FILLER FLAP (RUBBER) 1 24.80
N/S 1VP8 FILLER FLAP COVER PLATE (STEEL) 222.80
N/S 1VP9 * SPACER BUSHING 4 2.10
N/S 1TBP162 JACK RETURN SPRING 2 6.20
N/S 1TBP24 *3/16’ x 2” COTTER PIN 9 2.10
N/S 1TBP134AV PLOW SIDE HARNESS 1 155.30
N/S 1TBP134BV VEHICLE SIDE HARNESS 1 155.30
N/S 1TBP98C * HYDRAULIC HOSE 19” (LIFT) 1 21.70
N/S 1TBP98K * DRIVER’S EXTEND HOSE 60” (“WC” PORT) 1 33.10
N/S 1TBP98L DRIVER’S RETRACT HOSE 63” (“WD” PORT) 1 33.10
N/S 1TBP98M * PASSENGER’S EXTEND HOSE 45” (“WA”) 1 33.10
N/S 1TBP98N PASSENGER’S RETRACT HOSE 50” (“WB”) 1 33.10
N/S 1TBP158 HOSE KEEPER SPRING 1 6.20
All prices shown are for individual parts

Availability and stock quotes are accurate at time of quote and may change hourly. Sno-pro Application Guide Effective September 1, 2008
Prices, products and specifications are subject to change without notice.
Availability is subject to production, stocking and demand.
Before ordering, have your dealer number, item part #, and quantity ready
18
SNOWPLOWS

Availability and stock quotes are accurate at time of quote and may change hourly. Sno-pro Application Guide Effective September 1, 2008
Prices, products and specifications are subject to change without notice.
Availability is subject to production, stocking and demand.
Before ordering, have your dealer number, item part #, and quantity ready 19
C
C
O
O
M
M
M
M
E
E
R
R
C
C
I
I
A
A
L
L
S
S
N
N
O
O
W
W
P
P
L
L
O
O
W
W
SCHEM ITEM RECOMMEND QTY/
LIST
REF.# PART# DEALER STOCK DESCRIPTION UNIT
PRICE/EA
1 1TBP21C9 9’ COMMERCIAL MOLDBOARD KIT 1 $1,754.30
1 1TBP21C10 10’ COMMERCIAL MOLDBOARD KIT 1 1,857.80
21CP1 9’ REPLACEMENT MOLDBOARD SKIN 1 491.60
2 1CP2 10’ REPLACEMENT MOLDBOARD SKIN 1 512.30
3 1CP5 9’ COMMERCIAL CUTTING EDGE 1 181.10
3 1CP6 10’ COMMERCIAL CUTTING EDGE 1 191.50
4 1TBP50 * SKID SHOE 4 38.30
5 1TBP37 * BLADE MARKER (SET OF 2) 1 29.00
6 1CP101 1 1/4” X 4” CLEVIS PIN 3 16.60
71TBP22CP TRIP FRAME 1 843.50
8 1TVP33 * TRIP SPRING 6 22.80
9 1TBP34 * SPRING EYEBOLT W/NUT 6 6.20
10 1CP74 CENTER PIN 1 39.30
11 1TBP29CP A-FRAME 1 802.10
12 1CP-JSP-P JACK STAND 1 67.30
N/S 1TBP162 JACK RETURN SPRING 2 6.20
13 1CP9 2” X 12” HYDRAULIC ANGLE PISTON 2 191.50
14 1CP102 1 1/8” X 5” CLEVIS PIN 2 16.60
15 1TBP38CP LIFT FRAME 1 822.80
16 1TBP114C LATCH HOOK DRIVER’S SIDE 1 139.70
17 1TBP115C LATCH HOOK PASSENGER’S SIDE 1 139.70
18 1TBP120 7/8” -9 X 4 1/2” GR. 5 BOLT 2 12.40
19 1TBP121 7/8” -9 X 4 1/2” GR. 5 REVERSIBLE LOCK NUT 2 4.10
20 1TBP107 * SNAP LOCK HANDLE ASSEMBLY 2 16.60
21 1TBP33B * SNAP LOCK SPRING 4 2.10
N/S 1TBP159 * SNAP LOCK CROSS BOLT W/BUSHINGS & NUT 2 7.20
22 1TBP39B LIGHT KIT (SET OF 2) 1 144.90
22A 1TBP39BL PLOW LIGHT - DRIVER’S SIDE ONLY 1 77.60
22B 1TBP39BR PLOW LIGHT - PASSENGER’S SIDE ONLY 1 77.60
23 1TBP40CP LIFT ARM 1 81.80
24 1TBP30A * LIFT CHAIN - 5/16” X 40” 2 29.00
25 1TBP31 * ANCHOR SHACKLE - 5/16” 2 12.40
26 1CP103 1 1/8” X 4” CLEVIS PIN 4 16.60
27 1CP8 2” X 10” HYDRAULIC LIFT PISTON 1 181.10
28 1CP104 1 1/8” X 6” CLEVIS PIN 1 16.60
29 1CP105 1 1/8” X 3 3/8” CLEVIS PIN 1 16.60
30 1CP106 12MM X 3 1/2” HEX BOLT 1 6.20
31 1CP107 1 1/8” X 3 3/4” CLEVIS PIN 1 16.60
32 1CP108 1/4” X 2” COTTER PIN (12 PACK) 12 6.20
33 1CP-USC-P UPPER SPRING GUIDE (CAN STYLE) 2 18.60
34 1CP-LSC-P LOWER SPRING GUIDE (CAN STYLE) 2 18.60
35 1CP39 2” X 8” COMPRESSION SPRING 2 71.40
36 1CP84 HYDRAULIC PUMP COVER 1 81.80
N/S 1TBP59AP4 ELEC/HYD POWER UNIT - COMMERCIAL PLOW 1 615.80
N/S 1TBP59AP3 HYDRAULIC MANIFOLD 1 502.00
ADDITIONAL ITEMS NOT SHOWN ON SCHEMATIC ASSEMBLY
N/S 1SD2 RUBBER SNOW DEFLECTOR 1 133.50
N/S 1CP-HWB COMMERCIAL PLOW HARDWARE BAG 1 181.10
N/S 1TBP48A * PLOW LIGHT SWITCH ONLY 1 14.50
N/S 1TBP61A *SOLENOID 1 24.80
N/S 1TBP62 #4 CABLE 90” 1 27.90
N/S 1TBP53 HI-AMP BATTERY HARNESS (VEHICLE SIDE) 1 50.70
N/S 1TBP63B *RESERVOIR CAP - INTERNAL 1 18.60
N/S 1TBP64C INSTALLATION & OWNER’S MANUAL 1 15.50
N/S 1TBP136 * WEATHER CAP (VEHICLE SIDE) 1 8.30
N/S 1TBP54 HI-AMP PLUG WEATHER CAP 1 4.10
N/S 1TBP140 *LOCK PIN STORAGE HOLDER 1 8.30
N/S 1CP7 PLOW SIDE HARNESS 1 155.30
N/S 1TBP134B VEHICLE SIDE HARNESS 1 155.30
N/S 1TBP102 SWITCH PANEL ADAPTER 1 30.00
N/S 1TBP161 * PLOW LIGHT MOUNTING HARDWARE 2 12.40
N/S 1CP54 *LIFT HOSE - 19” 133.10
N/S 1CP53 * DRIVER’S SIDE HOSE - 42” 1 33.10
N/S 1CP52 * PASSENGER’S SIDE HOSE - 35” 1 33.10
All prices shown are for individual parts

Availability and stock quotes are accurate at time of quote and may change hourly. Sno-pro Application Guide Effective September 1, 2008
Prices, products and specifications are subject to change without notice.
Availability is subject to production, stocking and demand.
Before ordering, have your dealer number, item part #, and quantity ready
20
SNOWPLOWS

Availability and stock quotes are accurate at time of quote and may change hourly. Sno-pro Application Guide Effective September 1, 2008
Prices, products and specifications are subject to change without notice.
Availability is subject to production, stocking and demand.
Before ordering, have your dealer number, item part #, and quantity ready 21
F
F
U
U
L
L
L
L
-
-
T
T
R
R
I
I
P
P
3
3
0
0
0
0
0
0
SCHEM ITEM RECOMMEND QTY/
LIST
REF.# PART#
DEALER STOCK DESCRIPTION UNIT
PRICE/EA
1 1TBP21A1 7 1/2’ MOLDBOARD KIT 1 1,014.30
1TBP21A-Poly 7 1/2’ POLY MOLDBOARD 1 TBA
1TBP21B-Poly 8’ POLYMOLDBOARD 1 TBA
1 1TBP21B1 8’ MOLDBOARD KIT 1 1,102.30
1 1TBP21J1 8 1/2’ MOLDBOARD KIT 1 1,190.30
1 1TBP21C1 9’ MOLDBOARD KIT 1 1,190.30
2 1TBP22B1 TRIP FRAME 1 465.80
3 1TBP23 * 1” X 4” CLEVIS PIN 6 6.20
4 1TBP24 * 3/16” X 1 1/2” COTTER PIN 7 2.10
5 1TBP25 1”-8 X 6” GR. 8 BOLT 1 14.50
6 1TBP26 1”-8 NYLON LOCKNUT 1 4.10
7 1TBP27 * 10” ANGLE PISTON 2 134.60
8 1TBP98G * 90 DEG. ELBOW 2 7.20
9 1TBP29C1 A-FRAME ASSEMBLY - FRAME ONLY 1 496.80
9 1TBP29C A-FRAME ASSEMBLY - COMPLETE 1 1,992.40
10 1TBP30 * 5/16” X 24” CHAIN 1 18.60
11 1TBP31 * 5/16” ANCHOR SHACKLE 1 12.40
12 1TBP73 1” X 3” CLEVIS PIN 2 6.20
13 1TBP33 * TRIP SPRING 4 22.80
14 1TBP34 * SPRING EYEBOLT W/NUT 4 6.20
15 1TBP37 * BLADE MARKERS (SET OF 2) 1 29.00
16 1TBP38A LIFT FRAME ASSEMBLY W/LATCH HOOKS 1 600.30
17 1TBP39B LIGHT KIT (SET OF 2) 1 144.00
17L 1TBP39BL PLOW LIGHT - DRIVER'S SIDE ONLY 1 77.60
17R 1TBP139BR PLOW LIGHT - PASSENGER’S SIDE ONLY 1 77.60
18 1TBP40 LIFT ARM 1 71.40
19 1TBP41 * 5/32” X 1 1/4” COTTER PIN 2 2.10
20 1TBP42 * 3/4” X 4 1/2” CLEVIS PIN 1 6.20
21 1TBP43 * 3/4” X 2 3/4” CLEVIS PIN 1 6.20
22 1TBP108 * 1” X 4 1/2” CLEVIS PIN 1 8.30
23 1TBP44A * 7 1/2” LIFT PISTON 1 97.30
24 1TBP49LD * 7 1/2’ LIGHT DUTY CUTTING EDGE 1 129.40
24 1TBP49A * 7 1/2’ CUTTING EDGE 1 99.40
24 1TBP49B * 8’ CUTTING EDGE 1 105.60
24 1TBP49J * 8 1/2’ CUTTING EDGE 1 150.10
24 1TBP49C * 9’ CUTTING EDGE 1 158.40
N/S 1TBP49HWB * REPLACEMENT HARDWARE FOR CUTTING EDGE 1 18.60
25 1TBP50 * SKID SHOE 2 38.30
26 1TBP134A * DUAL PLUG HARNESS (PLOW SIDE) 1 155.30
27 1TBP135 PLUG STORAGE HOLDER 1 8.30
28 1TBP58A * A-FRAME COVER 1 65.20
29 1TBP106 JACK LEG 1 43.50
30 1TBP112 LIFT FRAME SIDE PLATES (SET OF 2) 1 65.20
31 1TBP33A SIDE PLATE TORSION SPRING (SET OF 2) 1 24.80
32 1TBP113 TORSION SPRING BUSHING 2 16.60
33 1TBP114 DRIVER’S SIDE LATCH HOOK 1 98.30
34 1TBP115 PASSENGER’S SIDE LATCH HOOK 1 98.30
35 1TBP120 7/8”-9 X 4 1/2” GR. 5 BOLT 2 12.40
36 1TBP121 7/8”-9 GR. 5 REVERSIBLE LOCK NUT 2 4.10
37 1TBP107 * SNAP LOCK HANDLE ASSEMBLY W/HARDWARE 2 16.60
38 1TBP33B * SNAP LOCK SPRING 4 2.10
39 1TBP133L * MOLDBOARD SPRING MOUNT - DRIVER’S SIDE 2 7.20
40 1TBP133R *
MOLDBOARD SPRING MOUNT - PASSENGER’S SIDE
2 7.20
41 1TBP155 * A-FRAME SPINDLE REPAIR KIT 2 21.70
42 1TBP157 * LIFT FRAME SIDE PLATE HARDWARE SET 1 15.50
43 1TBP159 *SNAP LOCK CROSS BOLT W/BUSHINGS & NUT 2 7.20
ADDITIONAL ITEMS NOT SHOWN ON SCHEMATIC ASSEMBLY
N/S 1SNP-HWB SNO-PRO 3000 PLOW HARDWARE BAG 1 86.90
N/S 1TBP60A SWITCH PANEL CONTROL KIT 1 69.30
N/S 1TBP60A-1 * LIFT SWITCH ONLY 1 16.60
N/S 1TBP60A-2 * ANGLE SWITCH ONLY 1 38.30
N/S 1TBP48A * PLOW LIGHT SWITCH ONLY 1 14.50
N/S 1TBP61A * SOLENOID 1 24.80
N/S 1TBP61C SNO-PRO 3000 EMERGENCY PARTS BAG 1 201.80
N/S 1TBP62 #4 CABLE 90” 1 27.90
N/S 1TBP63 * RESERVOIR CAP - SNO-PRO 2000 1 19.70
N/S 1TBP63A * RESERVOIR CAP - SNO-PRO 3000 (EXTERNAL) 1 19.70
N/S 1TBP63B *RESERVOIR CAP - SNO-PRO 3000 (INTERNAL) 1 18.60
N/S 1TBP117 A-FRAME BOTTOM JACK COVER 1 15.50
N/S 1TBP64 INSTALLATION & OWNER’S MANUAL 1 6.20
N/S 1TBP67 DEALER SALES & SERVICE BOOK 1 62.10
N/S 1TBP27SK *SEAL KIT (FITS ALL HYDRAULIC PISTONS) 318.60
N/S 1TBP109 1” X 3/8” PISTON SPACER 2 3.10
N/S 1TBP98H * 45 DEG. ELBOW 1 7.20
N/S 1TBP134B * DUAL PLUG HARNESS (VEHICLE SIDE) 1 155.10
N/S 1TBP136 * CONTROL PLUG WEATHER CAP (VEHICLE SIDE) 1 8.30
N/S 1TBP54 * HI-AMP PLUG WEATHER CAP 2 4.10
N/S 1TBP140 * LOCK PIN STORAGE HOLDER & LANYARD 1 8.30
N/S 1TBP141 * HARNESS LOCK PIN (SET OF 5) 1 6.20
N/S 1TBP98D * LEFT ANGLE HOSE - 28” 1 21.70
N/S 1TBP98C * RIGHT ANGLE HOSE - 19” 1 21.70
N/S 1TBP98B * LIFT HOSE - 37 1/2” 1 21.70
N/S 1TBP98A JACK HOSE - 26 1/2” 1 21.70
N/S 1TBP59A * ELECTRIC/HYDRAULIC POWER UNIT W/MANIFOLD 1 921.20
N/S 1TBP95 3” JACK CYLINDER 1 88.00
N/S 1TBP98F 90 DEG. BRASS BAR ELBOW 1 7.20
N/S 1TBP96 6” JACK SPRING 1 36.20
N/S 1TBP111 JACK SPRING GUIDE ROD 1 9.30
N/S 1TBP98E BLOCK ADAPTER FOR JACK HOSE 1 7.20
N/S 1TBP100 *A-FRAME JACK SWITCH 1 30.00
N/S 1TBP156 *RUBBER BOOT FOR A-FRAME JACK SWITCH 1 8.30
N/S 1TBP102 SWITCH PANEL ADAPTER 1 30.00
N/S 1TBP161 * PLOW LIGHT MOUNTING HARDWARE 2 12.40

Availability and stock quotes are accurate at time of quote and may change hourly. Sno-pro Application Guide Effective September 1, 2008
Prices, products and specifications are subject to change without notice.
Availability is subject to production, stocking and demand.
Before ordering, have your dealer number, item part #, and quantity ready
22
SCHEM
ITEM RECOMMEND QTY/
LIST
REF.#
PART# DEALER STOCK DESCRIPTION UNIT
PRICE/EA
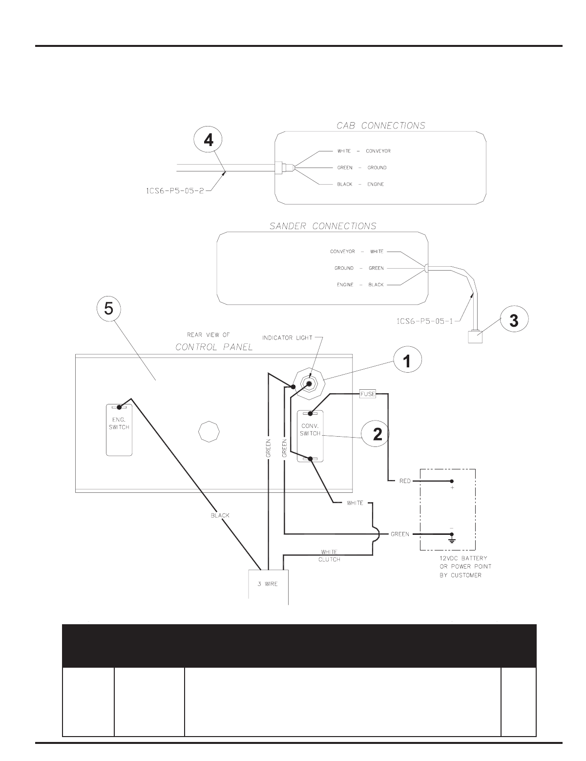
1TBP134BP1 * SPLICE HARNESS 1 $14.50
1 1TBP48A PLOW LIGHT SWITCH ONLY 1 $14.50
2 1TBP134A PLOW SIDE HARNESS - 1 155.30
SNO-PRO 3000/HOME-PRO
2 1TBP134DV VEHICLE SIDE RELAY-STYLE HARNESS - 1 155.30
V-PLOW
2 1TBP134AT PLOW SIDE HARNESS - 1 155.30
TRIP EDGE/COMMERCIAL PLOW
2 1TBP134AV PLOW SIDE HARNESS - V-PLOW 1 155.30
VEHICLE SIDE HARNESS - SNO-PRO 3000
3 1TBP134B HOME-PRO/TRIP EDGE/COMMERCIAL PLOW 1 155.30
31TBP134D HOME-PRO/TRIP EDGE/COMMERCIAL PLOW
VEHICLE SIDE RELAY-STYLE HARNESS - SNO-PRO
1 155.30
3 1TBP134BV VEHICLE SIDE HARNESS - V-PLOW 1 155.30
4 1TBP61A * SOLENOID 1 24.80
5 1TBP62 #4 CABLE 90” 1 27.90
6 1TBP53 HI-AMP BATTERY LEAD - VEHICLE SIDE 1 50.70
71TBP100 *A-FRAME JACK SWITCH - 1 30.00
SNO-PRO 3000/HOME-PRO ONLY
81JS1 JOYSTICK CONTRIL 1 164.60
9 1TBP60A SWITCH PANEL CONTROL 1 69.30
10 1TBP60A-1 LIFT SWITCH ONLY116.60
11 1TBP60A-2 ANGLE SWITCH ONLY 1 38.30
12 1TBP102 SWITCH PANEL ADAPTER 1 30.00
This Page Covers:
Sno-Pro 3000/Home-Pro
Trip Edge/V-Plow
Commercial/Municipal Plow
For information on Sno-Pro 2000, see Page 27.
SCHEM ITEM QTY/ LIST
REF.# PART# DESCRIPTION UNIT
N/S 1TP1 TOUCH PAD CONTROL - STRAIGHT BLADE $191.50
N/S 1TP1V TOUCH PAD CONTROL - V-PLOW 212.20
N/S 1HC1 HANDHELD CONTROLLER 388.10
N/S 1TBP60A-4 YELLOW EXTENSION HANDLE 1 2.10
N/S 1TBP60A-5 BLACK EXTENSION HANDLE 1 2.10
N/S 1TBP54 HI-AMP PLUG WEATHER CAP 1 8.30
N/S 1TBP136
VEHICLE SIDE CONTROL PLUG WEATHER CAP
1 8.30
N/S 1TBP140 LOCK PIN STORAGEHOLDER 1 8.30
N/S 1TBP141 LOCK PIN (SET OF 5) 16.20
SNO-PRO ELECTRICAL SYSTEM

Availability and stock quotes are accurate at time of quote and may change hourly. Sno-pro Application Guide Effective September 1, 2008
Prices, products and specifications are subject to change without notice.
Availability is subject to production, stocking and demand.
Before ordering, have your dealer number, item part #, and quantity ready 23
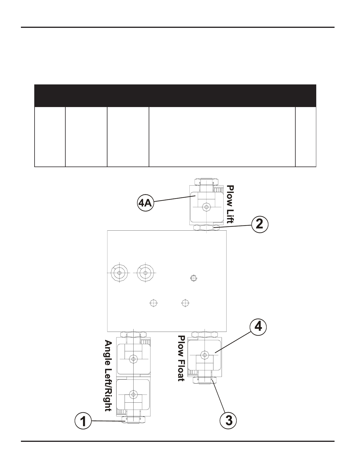
SNO-PRO 3000 & HOME-PRO 3000
HYDRAULIC MANIFOLD PARTS BREAKDOWN
Schem. Item Recommend Qty/ List
Ref# Part# Dealer Stock Description Unit Price
11TBP59AP2 MANIFOLD BLOCK COMPLETE WITH VALVES & COILS 1 $502.00
2 1TBM1 * 3/4 WAY SOLENOID VALVE (ANGLE LEFT/RIGHT) 1 174.90
3 1TBM7 * 2/2 WAY SOLENOID VALVE (PLOW LIFT) 1 174.90
4A 1TBM2A * 2/2 WAY SOLENOID VALVE (JACKET RETRACT) 1 129.40
4B 1TBM2 * 2/2 WAY SOLENOID VALVE (PLOW FLOAT) 1 91.10
5 1TBM4 * 12 VDC COIL (FLOAT FUNCTION ONLY) 1 84.90
6 1TBM4A 10 VDC COIL (ALL OTHER FUNCTIONS) 5 78.70
N/S 1TBM33 RESTRICTOR DISC (ORIFICE) 1 18.60

Availability and stock quotes are accurate at time of quote and may change hourly. Sno-pro Application Guide Effective September 1, 2008
Prices, products and specifications are subject to change without notice.
Availability is subject to production, stocking and demand.
Before ordering, have your dealer number, item part #, and quantity ready
24
SCHEM ITEM RECOMMEND QTY/
LIST
REF.# PART# DEALER STOCK DESCRIPTION UNIT
PRICE/EA
N/S 1TBP59AP1 ELEC/HYD POWER UNIT W/O MANIFOLD 1 $491.60
1 1TBM8 * DC MOTOR 12V 1 367.40
2 1TBM9 VALVE PLUG (SP 2000 ONLY) 1 43.50
3 1TBM10 VALVE PLUMBING PLUG (SP 2000 ONLY) 1 43.50
4 1TBM11 * RESERVOOIR O-RING 1 24.80
5 1TBM12 COUPLING 1 14.50
6 1TBM13 PUMP ASSEMBLY 1 174.90
6 1TBM35 3.1 GPM PUMP - V-PLOW/COMMERCIAL PLOW 1 206.00
7 1TBM14 PUMP O-RING KIT 1 47.10
8 1TBM15 WASHER FLAT 1 3.10
9 1TBM16 PUMP MOUNTING BOLT 2 6.20
10 1TBM17 BOLT - SUCTION COVER 5/16” 1 8.30
11 1TBM18 SCREW TAPTITE M6 X 12MM 1 8.30
12 1TBM19 PLUMBING ASSEMBLY INLET 1 49.20
13 1TBM20 * FILTER 1 40.40
14 1TBM21 * COLLECTOR MAGNET 1 12.40
15 1TBM22 RESERVOIR SCREW 4 8.30
16 1TBM23A * RESERVOIR 1 133.50
16 1TBM36 RESERVOIR - 2 QT - V-PLOW/COMMERCIAL PLOW 1 164.60
17 1TBP63A * EXTERNAL RESERVOIR BREATHER CAP 1 19.70
N/S 1TBM63B * INTERNAL RESERVOIR BREATHER CAP 1 18.60
18 1TBM25 FIXED RELIEF VALVE ASSSEMBLY 1 56.20
18 1TBM25A FIXED RELIEF VALVE - CARTRIDGE STYLE 1 64.70
19 1TBM26 RETURN TUBE 1 33.10
20 1TBM27 COMPRESSION NUT 1 7.20
21 1TBM28 COMPRESSION SLEEVE 1 4.10
22 1TBM29 SUCTION COVER 1 16.60
23 1TBM30 MOTOR BRUSH KIT 1 81.80
24 1TBM31 END HEAD 1 129.40
251TBM32 RESERVOIR DRAIN PLUG 1 18.60
HYDRAULIC POWER UNIT PARTS
SPX Power Unit
Fenner/SPX Hydraulic Power Unit Parts Breakdown
SCHEM ITEM RECOMMEND QTY/
LIST
REF.# PART# DEALER STOCK DESCRIPTION UNIT
PRICE/EA
N/S 1TBP59AP1V ELEC/HYD POWER UNIT W/O MANIFOLD 1 $491.60
1 1TBM8A * DC MOTOR 12V 1 367.40
21TBM13A GEAR PUMP 1174.90
31TBM12A MOTOR TO PUMP COUPLING 1 14.50
4 1TBM35 * 5/16” X 3” PUMP MOUNTING BOLTS 2 6.20
51TBM36 3/8” NPT PLASTIC ELBOW18.30
61TBM20 * 3/8” NPT INLET STRAINER 1 40.40
7 1TBM37 * CARTRIDGE RELIEF VALVE 1 52.80
81TBM23A *STEEL RESERVOIR 1 133.50
9 1TBM11A * RESERVPOR O-RING 1 24.80
10 1TBM21 * COLLECTOR MAGNET 1 12.40
11 1TBM38 1/4” NPT ADAPTER 1 8.30
12 1TBM39 1/2” ID CLEAR PLASTIC TUBING 1 9.30
KTI Power Unit
KTI Hydraulic Power Unit Parts Breakdown

Availability and stock quotes are accurate at time of quote and may change hourly. Sno-pro Application Guide Effective September 1, 2008
Prices, products and specifications are subject to change without notice.
Availability is subject to production, stocking and demand.
Before ordering, have your dealer number, item part #, and quantity ready 25
Sno-Pro V-Plow
HYDRAULIC SYSTEM PARTS BREAKDOWN
Schem. Item Recommend Qty/ List
Ref# Part# Dealer Stock Description Unit Price
1 1TBP59AP2V MANIFOLD BLOCK COMPLETE WITH VALVES & COILS 1 $895.30
2 1TBM1V * 3/4 WAY SOLENOID VALVE (ANGLE LEFT/RIGHT) 1 195.60
3 1TBM3 * 2/2 WAY SOLENOID VALVE (PLOW LIFT) 1 100.40
4 1TBM2V * 2/2 WAY SOLENOID VALVE PLOW FLOAT, ADJUSTABLE) 1 129.40
5 1TBM4 * 12 VDC COIL (FLOAT FUNCTION ONLY) 1 84.90
5A 1TBM4A 10 VDC COIL (ALL OTHER PLOW FUNCTIONS) 5 78.70
6 1TBM34 * CROSS-OVER RELIEF CARTRIDGE 2 67.30

Availability and stock quotes are accurate at time of quote and may change hourly. Sno-pro Application Guide Effective September 1, 2008
Prices, products and specifications are subject to change without notice.
Availability is subject to production, stocking and demand.
Before ordering, have your dealer number, item part #, and quantity ready
26
Trip Edge/Commercial Snowplow
HYDRAULIC MANIFOLD PARTS BREAKDOWN
Also Fits: Sno-Pro 2000 Series
Schem. Item Recommend Qty/ List
Ref# Part# Dealer Stock Description Unit Price
11TBM1 * 3/4 WAY SOLENOID VALVE (ANGLE LEFT/RIGHT) 1 $174.90
2 1TBM3 * 2/2 WAY SOLENOID VALVE (PLOW LIFT) 1 100.40
3 1TBM2 * 2/2 WAY SOLENOID VALVE (PLOW FLOAT) 1 91.10
4 1TBM4 * 12 VDC COIL (PLOW FLOAT FUNCTION) 1 84.90
4A 1TBM4A 10 VDC COIL (ALL OTHER PLOW FUNCTIONS) 3 78.70
5 1TBM59AP3 MANIFOLD BLOCK COMPLETE WITH VALVE & COILS 1 502.00
N/S 1TBM33 RESRICTOR DISC (ORIFICE) 1 18.60

Availability and stock quotes are accurate at time of quote and may change hourly. Sno-pro Application Guide Effective September 1, 2008
Prices, products and specifications are subject to change without notice.
Availability is subject to production, stocking and demand.
Before ordering, have your dealer number, item part #, and quantity ready 27
Sno-Pro 2000 Parts List
Discontinued Model
SCHEM ITEM RECOMMEND QTY/
LIST
REF.# PART# DEALER STOCK DESCRIPTION UNIT
PRICE/EA
1 1TBP21A1-LD 7 1/2’ LIGHT DUTY MOLDBOARD KIT 1 $978.10
11TBP21A1 7 1/2’ MOLDBOARD KIT 1 1,014.30
1 1TBP21B1 8’ MOLDBOARD KIT 1 1,102.30
1 1TBP21J1 8 1/2’ MOLDBOARD KIT 1 1,190.30
11TBP21C1 9’ MOLDBOARD KIT 1 1,190.30
2 1TBP22B1 TRIP FRAME 1 465.80
3*12 1TBP23 * 1” X 4” CLEVIS PIN 1 6.20
41TBP24 * 3/16” X 1 1/2” COTTER PIN 4 2.10
5 1TBP25 * 1”-8 X 6” GR. 8 BOLT 1 14.50
6 1TBP26 * 1”-8 NYLON LOCKNUT 1 4.10
71TBP27 * 10” ANGLE PISTON 2 134.60
N/S 1TBP27SK * SEAL KIT (FITS ALL HYDRAULIC PISTONS) 4 18.60
N/S 1TBP98G * 90 DEG. ELBOW 2 7.20
8*37 1TBP28 3/4” X 4 1/4” HITCH PIN 4 15.00
91TBP29 A-FRAME ASSEMBLY - FRAME ONLY 1 496.80
10 1TBP30 * 5/16” X 24” CHAIN 1 18.60
11 1TBP31 * 5/16” ANCHOR SHACKLE 1 12.40
13 1TBP73 1” X 3” CLEVIS PIN 1 6.20
13 1TBP33 * TRIP SPRING 1 22.80
14 1TBP34 * SPRING EYEBOLT W/NUT 1 6.20
15 1TBP35 5/8” FLAT WASHER 3 1.00
16 1TBP36 5/8”-11 NYLON LOCKNUT 3 3.10
17 1TBP37 * BLADE MARKERS (SET OF 2) 1 29.00
18 1TBP38 LIFT FRAME ASSEMBLY - COMPLETE 1600.30
19 1TBP39 LIGHT KIT (SET OF 2) 1 217.40
20 1TBP40 LIFT ARM 1 71.40
21 1TBP41 *5/32” X 1 1/4 COTTER PIN 3 2.10
22 1TBP42 * 3/4” X 4 1/2” CLEVIS PIN 1 6.20
23 1TBP43 * 3/4” X 2 3/4” CLEVIS PIN 1 6.20
24 1TBP44 *7 1/2” LIFT PISTON 1 97.30
26 1TBP46 * 45 DEG. ELBOW 1 7.20
27 1TBP47 MALE NIPPLE 1 7.20
28 1TBP48 LIGHT KIT HARNESS 176.60
29 1TBP49LD 7 1/2’ LIGHT DUTY CUTTING EDGE 1 129.40
29 1TBP49A 7 1/2’ CUTTING EDGE 1 99.40
29 1TBP49B 8’ CUTTING EDGE 1105.60
29 1TBP49J 8 1/2’ CUTTING EDGE 1 150.10
29 1TBP49C 9’ CUTTING EDGE 1 158.40
30 1TBP5 *SKID SHOES 238.30
31 1TBP51R PLOW CONTROL HARNESS COMPLETE 1 102.50
33 1TBP53 HI-AMP BATTERY LEAD 2 50.70
35 1TBP98D *LEFT ANGLE HOSE - 28” 121.70
35 1TBP98C * RIGHT ANGLE HOSE - 19” 1 21.70
36 1TBP56 * LIFT HOSE - 37 1/2” 1 21.70
38 1TBP58 A-FRAME COVER 1 50.70
ADDITIONAL ITEMS NOT SHOWN ON SCHEMATIC ASSEMBL
Y
N/S 1TBP60A SWITCH PANEL CONTROL KIT 1 69.30
N/S 1TBP60A-1 * LIFT SWITCH ONLY 1 16.60
N/S 1TBP60A-2 * ANGLE SWITCH ONLY 1 38.30
N/S 1TBP48A * PLOW LIGHT SWITCH ONLY 1 14.50
N/S 1TBP61A * SOLENOID 1 24.80
N/S 1TBP62 #4 CABLE 90” 1 27.90
N/S 1TBM32 DRAIN CAP 1 92.00
N/S 1TBP23 RESERVOIR - SNO-PRO 2000 1 92.00
N/S 1TBP63 * RESERVOIR CAP - SNO-PRO 2000 1 19.70
N/S 1TBP64 INSTALLATION & OWNER’S MANUAL 1 6.20

Availability and stock quotes are accurate at time of quote and may change hourly. Sno-pro Application Guide Effective September 1, 2008
Prices, products and specifications are subject to change without notice.
Availability is subject to production, stocking and demand.
Before ordering, have your dealer number, item part #, and quantity ready
28
1TS17/25 Spreader Parts List
Hopper Accessories
Schem. Item Qty/ List
Ref# Part# Description Unit Price
11TS17-ESC-8 TOP SCREEN - 8 FT. 1 $517.50
N/S 1TS17-E134 LOCKING CLIP FOR TOP SCREEN 1 8.30
21TS17-EHD
HEAVY DUTY STRAP ASSEMBLY-ALL INCLUSIVE (1 ONLY)
4 26.10
3 1TS17-EINV INVERTED VEE CONVEYOR BELT 1 239.10
N/S 1TBS17P2 CHUTE EXTENSION KIT (INCLUDES SHAFT)
OPTIONAL
201.80
Discharge Assembly
SCHEM ITEM QTY/
LIST
REF.# PART# DESCRIPTION UNIT
PRICE/EA
1 1TS17-C7 MATERIAL CHUTE 1 $336.40
11TS17A-C7 MATERIAL CHUTE (STAINLESS STEEL) 1 408.80
2 1TS17-E6 MATERIAL DEFLECTOR 3 36.20
3 1TS17-C17A STANDARD SPINNER SHAFT (21 1/4”) 1 74.50
4 1TS17-E18 14” SPINNER DISC 1 98.30
N/S 1TS17-EX19L PILLOW BLOCK MOUNT (LOWER) 1 41.40
N/S 1TS17-E8C MATERIAL GATE 1 36.20

Availability and stock quotes are accurate at time of quote and may change hourly. Sno-pro Application Guide Effective September 1, 2008
Prices, products and specifications are subject to change without notice.
Availability is subject to production, stocking and demand.
Before ordering, have your dealer number, item part #, and quantity ready 29
1TS17/25 Spreader Parts List
Control System
SCHEM ITEM QTY/
LIST
REF.# PART# DESCRIPTION UNIT
PRICE/EA
1 1TS17-C70 CONTROL PANEL 1 $147.00
21TS17-C70B KEYED IGNITION SWITCH 135.20
31TS17-C70C ELECTRIC THROTTLE SWITCH 119.90
41TS17-C70D PILOT LIGHT 112.20
59TS01 CONVEYOR ON/OFF SWITCH 19.30
N/S 1TS17-C44 CAB-SIDE WIRING HARNESS 1198.70
61TS17-C44A 7 WAY CAB-SIDE HARNESS PLUG ENG 125.90
N/S 1TS17-C43 SPREADER SIDE WIRING HARNESS 1198.70
71TS17-C43A 7 WAY SPREADER-SIDE HARNESS PLUG END 125.90
N/S 1TS17-C42 BATTERY 1 111.80
N/S 1TS17-C42A BATTERY BOX 1 29.80
N/S 1TS17-C42B BATTERY HOLD DOWN 115.50
N/S 1TS17-C32N NEGATIVE BATTERT CABLE 115.50
N/S 1TS17-C36P POSITIVE BATTERY CABLE 115.50
81TBP61A STARTER SOLENOID 124.80

Availability and stock quotes are accurate at time of quote and may change hourly. Sno-pro Application Guide Effective September 1, 2008
Prices, products and specifications are subject to change without notice.
Availability is subject to production, stocking and demand.
Before ordering, have your dealer number, item part #, and quantity ready
30
1TS17/25 Spreader Parts List
Conveyor Asssembly
* Schem. Item Qty/ List
Ref# Part# Description Unit Price
1 1TS17-E13 4 BOLT BEARING 2 $22.80
5 1TS17-E14-1 KEYWAY 807 1 81.00
2 1TS17-E14 CONVEYOR DRIVE SHAFT 1 81.00
3 1TS17-E15
CONVEYOR CHAIN OVERALL 18'2" BAR 17'6"
1 569.30
4 1TS17-E11 8 TOOTH SPROCKET 4
N/S 1TS17-E15LPS MASTER LINK 1
N/S 1TS17-E15-SEC CROSS BAR MASTER LINK 12" 1
81.00
Schem. Item Qty/ List
Ref# Part# Description Unit Price
1 1TS17-E101 BH RIVET - 5/8” X 4” 2 $4.10
N/S 1TS17-E103 TAKEUP SPRING - 5” 2 7.80
2 1TS17-E104 TAKEUP BOLT - 5/8”-11 X 5” 2 2.30
N/S 1TS17-E106 BH RIVET - 1/2” X 1 1’4” 2 4.10
31TS17-E11 8 TOOTH SPROCKET 4 50.70
4 1TS17-E12 TAKEUP SHAFT 1 42.40
5 1TS17-E10 TAKEUP BEARING 2 22.80
6 1TS17-E1-5CG CHAIN GUARD 2
6 1TS17-E1-5CGS STAINLESS CHAIN GUARD 2
Take-Up Asssembly

Availability and stock quotes are accurate at time of quote and may change hourly. Sno-pro Application Guide Effective September 1, 2008
Prices, products and specifications are subject to change without notice.
Availability is subject to production, stocking and demand.
Before ordering, have your dealer number, item part #, and quantity ready 31
Schem. Item Qty/ List
Ref# Part# Description Unit Price
11TS17-C02-K REAR MOUNT ASSEMBLY 1 $238.10
21TS17-C3 ENGINE COVER (HOOD) 1 362.30
3 1TS17-E3-10D HINGE ROD 1 22.80
4 1TS17-E3-10 HOOD HINGE 2 26.90
59PRTM HOOD LATCH 214.50
1TS17/25 Spreader Parts List
Hydraulic Drive Assembly
Schem. Item Qty/ List
Ref# Part# Description Unit Price
1 1TS17-C17A SPINNER SHAFT - 1” X 21 1/4” 1 $74.50
N/S 1TS17-EX36S SPINNER SHAFT - 1” X 33 1/4” (CHUTE EXTENSION) 1* 84.90
2 1TS17-EX36P PILLOW BLOCK BEARING 1 22.80
31TS17-EH200 CONVEYOR MOTOR 1 79.70
4
1TS17-T220208
CONVEYOR MOTOR COUPLING (4”) 1 26.90
5 1TS17-C19M SPINNER MOTOR MOUNT BRACKET 1 59.00
61TS17-EX19 PILLOW BLOCK MOUNT (UPPER) 1 41.40
N/S 1TS17-C25-1 PUMP MOUNTING BRACKET 1 55.90
N/S 1TS17-C25-C4 PUMP COUPLING 1 43.50
N/S
1TS17-C25-C4A
3/4” BORE COUPLING 1 19.90
N/S
1TS17-C25-C4B
7/16” COUPLING HALF 1 19.90
N/S
1TS17-C25-C4C
COUPLING INSERT (NITRILE) 1 22.80
Engine
Housing

Availability and stock quotes are accurate at time of quote and may change hourly. Sno-pro Application Guide Effective September 1, 2008
Prices, products and specifications are subject to change without notice.
Availability is subject to production, stocking and demand.
Before ordering, have your dealer number, item part #, and quantity ready
32
1TS17/25 Spreader Parts List
Hydraulic Plumbing
SCHEM ITEM QTY/
LIST
REF.# PART# DESCRIPTION UNIT
PRICE/EA
1 1TS17-C81 HYDRAULIC RESERVOIR 1 $413.00
2 1TS17-C81-4 FILLER BREATHER ASSEMBLY W/SCREEN 1 25.80
3 1TS17-C4 HYDRAULIC PUMP 201.80
4 1TS17-C83 RELIEF BLOCK COMPLETE 1 201.80
5 1TS17-C83-2 SOLENOID VALVE 1 92.10
6 1TS17-C83-3 12VDC SOLENOID COIL 1 51.80
7 1TS17-C83-4 RELIEF VALVE 1 82.80
8 1TS17-CCM-1 CONVEYOR MOTOR 1 439.90
9 1TS17-CSM-1 SPINNER MOTOR 1 600.30
N.S 1TS17-C84-1 FILTER ELEMENT 1 19.90
10 1TS17-C84-2 FILTER HEAD ONLY 1 29.00
11 1TS17-C85 SHUT-OFF VALVE 1 34.20
12 1TS17-CH96 SUCTION HOSE (RESERVOIR TO PUMP) 1 9.80
13 1TS17-CH97 15” HOSE ASSEMBLY (PUMP TO RELIEF BLOCK) 1 19.10
14 1TS17-CH99 14” HOSE ASSEMBLY (RELIEF BLOCK TO CONVEYOR MOTOR) 1 224.30
15 1TS17-CH94 18 1/2” HOSE ASSEMBLY (CONVEYOR TO SPIN/SPIN TO RELIEF BLOCK) 12 27.90
16 1TS17-CH98 13” HOSE ASSEMBLY (RELIEF BLOCK TO FILTER HEAD) 1 19.70
17 1TS17-C86 ELBOW - 90 DEG. MALE NPT X JIC -8-8 (RESERVOIR SUCTION) 1 5.70
18 1TS17-CH96A HOSE COUPLING MALE BARB X MNALE NPT -8-6 (PUMP INLET) 1 4.70
19 1TS17-C92 ELBOW - 90 DEG. MALE NPT X JIC -6-6 (PUMP OUTLET/FILTER IN) 2 7.80
20 1TS17-C93 ELBOW - 90 DEG. MALE NWO X JIC -6-6 (RELIEF BLOCK TO CONVEYOR) 1 7.50
21 1TS17-C89A ELBOW - 90 DEG. MALE NPT X JIC -6-8 (CONVEYOR MOTOR) 2 9.30
22 1TS17-C88 ADAPTER - MALE O-RING X JIC -6-6 (RELIEF BLOCK TO SPIN) 1 5.70
23 1TS17-C91 ADAPTER - MALE NPT X MALE NPT -6-6 (FILTER HEAD TO SHUT-OFF) 1 2.60

Availability and stock quotes are accurate at time of quote and may change hourly. Sno-pro Application Guide Effective September 1, 2008
Prices, products and specifications are subject to change without notice.
Availability is subject to production, stocking and demand.
Before ordering, have your dealer number, item part #, and quantity ready 33
1TS17/25 Spreader Parts List
Engine Electrical
Schem. Item Qty/ List
Ref# Part# Description Unit Price
11TS17-E66 CHOKE SOLENOID 1 $45.50
N/S 1TS17-E66-1 CHOKE RETURN SPRING 1 8.30
2 1TS17-C69-TC TECUMSEH CHOKE BRACKET 1 37.30
3
1TS17-E75BTH
HONDA CHOKE PUSH ROD 1 37.30
3 1TS17P4-1 ELECTRIC THROTTLE MOTOR 1 100.40
4 1TS17-C69BT TECUMSEH THROTTLE BRACKET 1 50.70
4
1TS17-C69BTH
HONDA THROTTLE BRACKET 1 50.70
N/S
1TS17-C75-5TT
THROTTLE MOTOR PUSH-ROD 1 12.40
5
1TS17-C75-5TTH
HONDA THROTTLE PUSH ROD 1 12.40
N/S 1TS17-C25-T 5 HP TECUMSEH ENGINE 1 688.30
6 1TS17P1 5.5 HONDA ENGINE 1 895.00
MISCELLANEOUS STAINLESS STEEL SPREADER PARTS
(3) Fig #1 1TS17A-EINV INVERTED VEE CONVEYOR BRIDGE 1 163.00
(5) Fig #6 1TS17A-C19M SPINNER MOTOR MOUNT BRACKET 1 59.00
(2) Fig #9 1TS17A-C3 ENGINE COVER (HOOD) 1 641.70
(1) Fig #2 1TS17A-C7 MATERIAL CHUTE 1 408.80
(2) Fig #2 1TS17A-E6 MATERIAL DEFLECTOR 3 46.60
N/S 1TS17AP2
CHUTE EXTENSION KIT-STAINLESS STEEL (INCLUDES SHAFT) OPTIONA
L377.80
(1) Fig #9 1TS17A-C02-K REAR MOUNT ASSEMBLY 1 263.90
(6) Fig #6 1TS17A-EX19 PILLOW BLOCK MOUNT (UPPER) 1 51.80
N/S 1TS17A-EX19L PILLOW BLOCK MOUNT (LOWER) 1 55.90
N/S 1TS17A-E8C MATERIAL GATE 1 37.30
N/S 1TS17A-C42A BATTERY BOX 1 29.00
N/S 1TS17A-C42B BATTERY HOLD DOWN 1 15.50

A
2
29
26
27
22
20
31
36
28
1
21
23
36
24A
34
25
35
24A
24
Fast Cast Polyethylene Spreader
P/N: 1PESP1.8 & 1PESP2.1
Service Parts Breakdown
34

6
5
4
3
41
15
16
13
19
14
11
9
30
38
40
32
33
30
7
17
8
30
12
18
39
17
37
10
10
23
42
35
43
Fast Cast Polyethylene Spreader
P/N: 1PESP1.8 & 1PESP2.1
Service Parts Breakdown
35

Availability and stock quotes are accurate at time of quote and may change hourly. Sno-pro Application Guide Effective September 1, 2008
Prices, products and specifications are subject to change without notice.
Availability is subject to production, stocking and demand.
Before ordering, have your dealer number, item part #, and quantity ready
36
1CS6 Fast Cast 550 Parts
Hopper Assembly
Schem. Item Qty/ List
Ref# Part# Description Unit Price
1 HOPPER ASSEMBLY (NOT SOLD SEPARATELY) 1
2 1CS6-P3-A00 ENGINE COVER 1 $263.90
3 1CS6-P3-01 MOTORBED PLATE 1 119.00
41CS6-P2-A00 BUMPER 1 180.10
5 1CS6-P2-08 DEFLECTOR - FIXED 1 27.90
61CS6-P2-09 DEFLECTORS - ADJUSTABLE 3 17.90
7 CONVEYOR BED ASSEMBLY (NOT SOLD SEPARATELY) 1
8 1CS6-P1-11 GATE 1 16.80
9 1CS6-P1-12 GATE GUIDE 1 19.40
10 1CS6-P2-06 SPINNER COVER 1 11.60
11 1CS6-P1-14 LIFTING EYE 1
N/S 1CS6-P6-01 1" RATCHET STRAP 4
N/S 1CS6-P3-11 ENGINE COVER LATCH 2

Availability and stock quotes are accurate at time of quote and may change hourly. Sno-pro Application Guide Effective September 1, 2008
Prices, products and specifications are subject to change without notice.
Availability is subject to production, stocking and demand.
Before ordering, have your dealer number, item part #, and quantity ready 37
1CS6 Fast Cast 550 Parts
Electrical Control
Schem. Item Qty/ List
Ref# Part# Description Unit Price
1 1TS17-C70-D CONVEYOR PILOT LIGHT 1 $11.90
2 9TS01 CONVEYOR ON/OFF SWITCH 1 6.20
31CS6-P5-05-1 SPREADER SIDE HARNESS 18.30
4 1CS6-P5-05-2 CAB SIDE HARNESS 1 51.80
51CS6-P5-A00 CONTROL PANEL COMPLETE 1 62.10

Availability and stock quotes are accurate at time of quote and may change hourly. Sno-pro Application Guide Effective September 1, 2008
Prices, products and specifications are subject to change without notice.
Availability is subject to production, stocking and demand.
Before ordering, have your dealer number, item part #, and quantity ready
38
1CS6 Fast Cast 550 Parts List
Driver Assembly
Schem. Item Qty/ List
Ref# Part# Description Unit Price
1 1CS6-P3-375 3.75 HP ENGINE 1 $396.40
2 1CS6-P4-02 #40 SPINNER DRIVE CHAIN 28 3/4" 1 11.60
3 1CS6-P4-03 #40 CLUTCH DRIVE CHAIN 37" 1 15.50
4 1CS6-P4-04 CONVEYOR CHAIN 1 569.30
51CS6-P4-05 GEAR BOX1551.70
6 1TS17-E11 8 TOOTH SPROCKET - 1” BORE 4 50.70
7 1CS6-P4-06 11 TOOTH SPROCKET - 7/8” BORE 1 12.90
81CS6-P4-07 16 TOOTH SPROCKET - 1” BORE 1 8.50
9 1CS6-P4-08 52 TOOTH SPROCKET - 3” BORE 1 27.70
10 1CS6-P4-09 24 TOOTH SPROCKET - 3/4” BORE 1 15.10
11 1TS17-E10 1” TAKE-UP BEARING 2 22.80
12 1CS6-P4-11 3/4” PILLOW BLOCK BEARING 2 14.70
13 1CS6-P4-12 1”TAKE-UP SHAFT 1 10.90
14 1TS17-E13 4 - BOLT BEARING 1 22.80
15 1CS6-P4-A04 CONVEYOR BELT1543.40
16 1TS17-E104 5/8” TAKE-UP BOLT 2 2.30
17 1CS6-P4-16 SPINNER SHAFT NUTS 2 0.30
18 1CS6-P5-03 CLUTCH 1 314.60
19 1CS6-P2-01 PILLOW BLOCK BRACKET 1 16.00
20 1CS6-P4-18 SPINNER DISC 1 98.30

Availability and stock quotes are accurate at time of quote and may change hourly. Sno-pro Application Guide Effective September 1, 2008
Prices, products and specifications are subject to change without notice.
Availability is subject to production, stocking and demand.
Before ordering, have your dealer number, item part #, and quantity ready 39
1CS6 Fast Cast 550 Parts List
1SM6 Optional P/U Truck Mount
Schem. Item Qty/ List
Ref# Part# Description Unit Price
FIGURE 7
1 1CS6-P10-00 MATERIAL CHUTE ASSEMBLY 1 $465.80
21TS17A-E6 MATERIAL DEFLECTOR - ADJUSTABLE 3 33.10
3 N/A MATERIAL DEFLECTOR - FIXED (NOT SOLD SEPARATELY) 1
4 1CS6-P4-24 HINGE 6 15.50
51CS6-P4-17 EXISTING SHAFT - 17” 1 22.30
6 1CS6-P10-06 COUPLING NUT - 3/4”-10 X 2 1/4” 1 3.10
7 1CS6-P10-05 6” EXTENSION STUD - 3/4” - 10 X 6” 1 20.20
8 1CS6-P4-16 3/4” NUTS & LOCK WASHER 2 2.60
10 1CS6-P4-18 14” SPINNER DISC 1 86.40
FIGURE 9
11CS6P10-01 BUMPER ANGLE 1 44.50
21CS6-P10-20 RECEIVER MOUNT 1119.00
3 1CS6-P10-04 SILL MOUNTING ANGLE 1 45.50
4 1CS6-P10-07 SILL MOUNTING BRACKET 1 22.80
N/S
1CS6-P10-A10-HW
HARDWARE KIT 1 36.20

Availability and stock quotes are accurate at time of quote and may change hourly. Sno-pro Application Guide Effective September 1, 2008
Prices, products and specifications are subject to change without notice.
Availability is subject to production, stocking and demand.
Before ordering, have your dealer number, item part #, and quantity ready
40
1CS1 Fast Cast 2000 Parts List
Including 1SM2 Receiver Mount
FAST CAST 2000 SCHEMATIC ASSEMBLY
Schem. Item Qty/ List
Ref# Part# Description Unit Price
1 1CS1P10 1/2”-13 X 1 1/2” HEX BOLT 4 N/A
2 1CS1P11 1/2” LOCK NUT 4 N/A
31CS1P8 3/8”-16 X 1” HEX BOLT 8 N/A
4 1CS1P9 3/8” LOCK NUT 8 N/A
5 1CS1P41 3/8” FLAT WASHER 2 N/A
6 1CS1P2 FLEXIBLE DRAW LATCH 2 $24.60
71CS1P42 STAINLESS THROAT LINER 1 28.10
81CS1P12 DEFLECTOR - 20” 1 45.70
9 1CS1P5 THROAT CLAMP 1 58.00
10 1CS1P6 5/16”-18 X 1 1/4” STAINLESS PAN HEAD BOLT (5 PACK) 2 24.60
11 1CS1P3 HOPPER 1 584.80
12 1CS1P1 LID W/LATCHES 1 170.80
13 1CS1P4 MAIN FRAME 1 512.30
14 1CS1P46 5/16” FLAT WASHER 2 N/A
15 1CS1P7 5/16” HEX NUT 4 N/A
16 1CS1P47 3/8” STAINLESS WASHER 2 N/A
17 1CS1P48 LATCH KEEPER 2 14.00
18 1CS1P49 COMPLETE DRIVE ASSEMBLY 1 1,029.80
OPTIONAL RECEIVER MOUNT
19 1SM2P1 2” RECEIVER HITCH 1 N/A
20 1SM2P2 5/8” X 5 1/2” HITCH PIN 1 23.30
21 1SM2P3 1 5/16” HAIR PIN CLIP 114.00

Availability and stock quotes are accurate at time of quote and may change hourly. Sno-pro Application Guide Effective September 1, 2008
Prices, products and specifications are subject to change without notice.
Availability is subject to production, stocking and demand.
Before ordering, have your dealer number, item part #, and quantity ready 41
1CS1 Fast Cast 2000 Parts List
Drive Assembly
Schem. Item Qty/ List
Ref# Part# Description Unit Price
1 1CS1P16 MOTOR 12 VOLT DC 1 $377.80
2 1CS1P53 TRANSMISSION 1 408.80
3 1CS1P17 MOTOR COVER 1 33.60
4 1CS1P13 DRIVE ENCLOSURE 1 181.10
5 1CS3P7 FAST CAST 3000 POWER CABLE 1 69.90
5 1CS1P21 FAST CAST 2000 POWER CABLE 1 58.00
61CS1P19 AUGER 1 91.30
7 1CS1P22 CORD RESTRAINT 1 14.00
81CS1P29 3/16” ALUMINUM RIVET 6 N/A
9 1CS1P25 1/4”-20 X 3/4” STAINLESS HEX BOLT 4 N/A
10 1CS1P24 5/16”-18 X 1/2” HEX BOLT 1 N/A
11 1CS1P30 1/4” STAINLESS LOCK WASHER 4 N/A
12 1CS1P27 #10-32 X 5/8” CAP SCREW 2 N/A
13 1CS1P28 #10 LOCK WASHER 2 N/A
14 1CS1P23 5/16”-18 X 3/8” SET SCREW 1 N/A
15 1CS1P18 10” STEEL SPINNER DISC 1 91.10
16 1CS1P51 MOTOR DRIVE COUPLER 1 33.70

Schem. Item Qty/ List
Ref# Part# Description Unit Price
1 1CS1P39 MALE SPLICE CORD - 18” 1 $54.40
2 1CS1P38 FEMALE SPLICE CORD - 18” 1 54.40
31CS1P35 WIRING HARNESS - 24’ 1 158.10
4 1CS1P36 DUST COVER 1 14.00
51CS1P32 CONTROLLER 1 408.80
Schem. Item Qty/ List
Ref# Part# Description Unit Price
1 9TS01 ON/OFF SWITCH 1 $6.20
41CS2P27 20’ VEHICLE HARNESS 189.50
5 1CS2P28 10’ BATTERY HARNESS 1 56.90
6 1CS2P29 RUBBER SWITCH BOOT 1 24.60
71CS2P30 SPREADER SPLICE CORD - 10” 1 47.40
8 1CS2P31 HARNESS SPLICE CORD - 10” 1 47.40
91CS2P10 MOTOR 12 VOLT DC 1 377.80
11 1CS2P33 FUSE HOLDER 1 24.60
Availability and stock quotes are accurate at time of quote and may change hourly. Sno-pro Application Guide Effective September 1, 2008
Prices, products and specifications are subject to change without notice.
Availability is subject to production, stocking and demand.
Before ordering, have your dealer number, item part #, and quantity ready
42
1CS1 Fast Cast 2000 Parts List
Control System
1CS2 Fast Cast 175 Parts List
Control System

Availability and stock quotes are accurate at time of quote and may change hourly. Sno-pro Application Guide Effective September 1, 2008
Prices, products and specifications are subject to change without notice.
Availability is subject to production, stocking and demand.
Before ordering, have your dealer number, item part #, and quantity ready 43
1CS2 Fast Cast 175 Parts List
SCHEM ITEM QTY/
LIST
REF.# PART# DESCRIPTION UNIT
PRICE/EA
1 1CS1P8 3/8”-16 x 1” HEX BOLT 10 N/A
2 1CS1P9 3/8” LOCK NUT 10 N/A
3 1CS1P41 3/8” FLAT WASHER 2 N/A
4 1SM1P3 2 5/16” HAIR PIN CLIP 1 $14.00
5 1SM1P2 5/8” X 5 1/2” HITCH PIN 1 23.30
6 1CS2P15 3/8” FENDER WASHER 4 N/A
7 1CS1P53 TRANSMISSION 1 408.80
8 1CS1P25 1/4”-20 X 3/4” STAINLESS HEX BOLT 4 N/A
9 1CS1P24 5/16”-18 X 1/2” HEX BOLT 1 N/A
10 1CS1P30 1/4” STAINLESS LOCK WASHER 4 N/A
11 1CS1P27 #10-32 X 5/8” HEX MACHINE SCREW 2 N/A
12 1CS1P28 #10-32 LOCK WASHER 2 N/A
13 1SM5P1 5/16” LOCK NUT 6 N/A
14 1CS1P46 5/16” LOCK WASHER 1 N/A
15 1CS2P21 5/16” FLAT WASHER 4 N/A
16 1CS1P7 5/16”-18 HEX NUT 1 N/A
17 1CS1P18 10” STEEL SPINNER DISC 1 91.10
18 1CS1P51 MOTOR DRIVE COUPLER 1 33.70
19 1GC1A T-HANDLE CABLE - 10” 1 139.70
20 1CS2P16 BULKHEAD CABLE FITTING 1 24.60
21 1CS2P17 5/16”-16 X 3/4” BOLT W/HOLE 1 14.00
22 1CS2P3 MAIN FRAME 1 517.50
23 1CS2P7 AGITATOR SPRING 1 33.40
24 1CS2P9 WEATHER COVER 1 92.10
25 1CS2P10 MOTOR 12 VOLT DC 1 377.80
26 1CS2P20 HOPPER 1 450.20
27 1CS2P11 CORD RESTRAINT 1 14.00
28 1CS2P12 BOTTOM COVER ASSSEMBLY 1 92.10
29 1CS2P13 GATE SLIDE 1 37.80
30 1CS2P14 GATE TRACK 1 47.10
31 1CS2P18 FOAM SEAL - 40” 1 21.20
32 1CS2P19 5/16”-18 X 1” STAINLESS HEX BOLT 6 0.00
33 1CS2P22 GATE DECK 1 69.90
34 1CS2P24 GATE SLIDE STOP PIN 1 24.60

Availability and stock quotes are accurate at time of quote and may change hourly. Sno-pro Application Guide Effective September 1, 2008
Prices, products and specifications are subject to change without notice.
Availability is subject to production, stocking and demand.
Before ordering, have your dealer number, item part #, and quantity ready
44
Schem. Item Qty/ List
Ref# Part# Description Unit Price
1 1SM1P7 5/16” LINCH PIN 2 $14.00
2 1SM1P3 2 5/16” HAIR PIN CLIP 1 14.00
3 1SM1P2 5/8” X 5 1/2” HITCH PIN 1 23.30
41SM1P6 7/8” X 5 1/2” LIFT ARM PIN 2 21.20
5 1SM1P1 3-POINT HITCH FRAME 1 0.00
1SM3 3-Point Hitch Mount Parts List
for Fast Cast 2000

Availability and stock quotes are accurate at time of quote and may change hourly. Sno-pro Application Guide Effective September 1, 2008
Prices, products and specifications are subject to change without notice.
Availability is subject to production, stocking and demand.
Before ordering, have your dealer number, item part #, and quantity ready 45
Schem. Item Qty/ List
Ref# Part# Description Unit Price
1 1SM3P4 1/2” FLAT WASHER 2 N/A
2 1CS1P11 1/2” LOCK NUT 2 N/A
31CS1P8 3/8”-16 X 1” HEX BOLT 2 N/A
4 1CS1P9 3/8” LOCK NUT 8 N/A
5 1CS1P41 3/8” FLAT WASHER 9 N/A
6 1SM1P3 2 5/16” HAIR PIN CLIP 2 $14.00
71SM1P2 5/8” X 5 1/2” HITCH PIN 2 23.30
8 1SM4P10 1/2”-13 X 2” HEXT BOLT 2 N/A
9 1CS2P15 3/8” FENDER WASHER 8 N/A
10 1SM4P2 3/8”-16 X 2” TRUSS BOLT FULL THREAD 8 N/A
11 1SM4P3 3/8”-16 HEX NUT 2 N/A
12 1SM4P4 3/8”-16 X 5 HEX BOLT 1 24.60
13 1SM4P5 2” RUBBER STOPPER 1 24.60
14 1SM4P9 MOUNTING RAIL 2 67.30
15 1SM4P6 DROP MOUNT WELDMENT 1 N/A
16 1SM4P7 MOUNTING RAIL HAT SECTION 2 47.40
17 1SM4P8 MULE ADAPTER 1 47.40
1SM4 Drop Utility Hitch Parts List
for Fast Cast 2000

Availability and stock quotes are accurate at time of quote and may change hourly. Sno-pro Application Guide Effective September 1, 2008
Prices, products and specifications are subject to change without notice.
Availability is subject to production, stocking and demand.
Before ordering, have your dealer number, item part #, and quantity ready
46
Fast Cast 300 & 400 P/N: 1CS9 & 1CS10
Service Parts Breakdown
FAST CAST 300 SPREADER ONLY
Schem. Item Qty/ List
Ref# Part# Description Unit Price
1 1CS9P1 HOPPER - SALTER ONLY 1 $295.00
2 1CS9P2 GATE DECK - SALTER ONLY 1 164.60
31CS1P19 AUGER - SALTER ONLY 1 85.90
FAST CAST 400 SPREADER ONLY
11CS10P1 HOPPER - SEEDER ONLY 1 295.00
41CS10P2 GATE DECK - SEEDER ONLY1 164.60
5 1CS10P3 GATE SLIDE - SEEDER ONLY 1 85.90
61CS10P4 GATE TRACK - SEEDER ONLY 1 92.10
N/S 1CS10P5 GATE STOP - SEEDER ONLY 1 50.70
N/S 1CS10P6 GATE KNOB - SEEDER ONLY 1 16.60
N/S 1GC1A T-HANDLE CABLE - 10” 1 139.70
N/S 1CS2P16 BULKHEAD CABLE FITTING 1 24.60
7 1CS2P7 AGITATOR - SEEDER ONLY 1 33.40
N/S 1CS2P17 5/16” X 3/4” BOLT W/HOLE 1 14.00
FAST CAST 300 COMMON PARTS
8 1CS9P3 HOPPER TUBE SUPPORT 1 164.60
9 1CS1P51 MOTOR DRIVE COUPLER 1 33.70
10 1CS1P18 10” SPINNER DISC 1 91.10
11 1CS2P10 12VDC MOTOR 1 377.80
12 1CS9P4 TRANSMISSION MOUNT 1 346.70
13 1CS9P5 TRANSMISSION 1 408.80
14 1CS9P6 PLASTIC BOTTOM COVER 1 56.90
15 1SM1P2 5/8” X 5 1/2” HITCH PIN 1 23.30

Notes…
Notes…

111 Higgins Street • Worcester, MA 01606
Telephone: (800) 343-7676 • Fax: (800) 876-9104
www.curtisplow.com
INDUSTRIES, LLC.