29007358R002_PC1616 1832 1864_4 2_UM_EN DSC 1616 User Manual[1]
User Manual: DSC 1616 User manual[1]
Open the PDF directly: View PDF
.
Page Count: 24

WARNING: This manual contains information on limitations regarding
product use and function and information on the limitations as to liability of
the manufacturer. The entire manual should be carefully read.
PC1616/PC1832/PC1864 v4.2
User Manual
New Zealand Telecom Network
The following is a list of warnings applicable when this equipment is connected to the New Zealand Telecom Network :
General Warning
The grant of a Telepermit for any item of terminal equipment indicates only that Telecom has accepted that the item com-
plies with minimum conditions for connection to its network. It indicates no endorsement of the product by Telecom, nor
does it provide any sort of warranty. Above all, it provides no assurance that any item will work correctly in all respects with
another item of Telepermitted equipment of a different make or model, nor does it imply that any product is compatible
with all of Telecom's network services.
Reverse Numbering (decadic signalling)
Decadic signalling should not be used as it is being progressively phased out of the network. DTMF dialling is 100% avail-
able and it should always be used.
Line Grabbing Equipment
This equipment is set up to carry out test calls at pre-determined times. Such test calls will interrupt any other calls that
may be set up on the line at the same time. The timing set for such test calls should be discussed with the installer. The tim-
ing set for test calls from this equipment may be subject to 'drift'. If this proves to be inconvenient and your calls are inter-
rupted, then the problem of timing should be discussed with the equipment installer. The matter should NOT be reported
as a fault to Telecom Faults Service.
D.C. Line Feed to Other Devices
During dialling, this device unit does not provide DC voltage to the series port connection and this may cause loss of mem-
ory functions for the terminal devices (local telephone) connected to T-1, R-1.
General Operation (Ringer Sensitivity and Loading)
This device only responds to Distinctive Alert cadences DA1 and DA2.

i
PowerSeries System Keypads . . . . . . . . . . . . . . . . . . . . . . . . . . . . . . . . . . . . . . . . . 1
Keypad Display Symbols . . . . . . . . . . . . . . . . . . . . . . . . . . . . . . . . . . . . . . . . . . . . . 2
About Your Security System . . . . . . . . . . . . . . . . . . . . . . . . . . . . . . . . . . . . . . . . . . 3
Fire Detection . . . . . . . . . . . . . . . . . . . . . . . . . . . . . . . . . . . . . . . . . . . . . . . . . . . . 3
Testing . . . . . . . . . . . . . . . . . . . . . . . . . . . . . . . . . . . . . . . . . . . . . . . . . . . . . . . . . 3
Monitoring. . . . . . . . . . . . . . . . . . . . . . . . . . . . . . . . . . . . . . . . . . . . . . . . . . . . . . . 3
Maintenance. . . . . . . . . . . . . . . . . . . . . . . . . . . . . . . . . . . . . . . . . . . . . . . . . . . . . 3
General System Operation. . . . . . . . . . . . . . . . . . . . . . . . . . . . . . . . . . . . . . . . . . 3
PK5500 Language Selection . . . . . . . . . . . . . . . . . . . . . . . . . . . . . . . . . . . . . . . . . . 4
Arming & Disarming the System . . . . . . . . . . . . . . . . . . . . . . . . . . . . . . . . . . . . . . . 4
Arming (Turning On/Setting). . . . . . . . . . . . . . . . . . . . . . . . . . . . . . . . . . . . . . . . . 4
Away Arming (Turned On/Set) . . . . . . . . . . . . . . . . . . . . . . . . . . . . . . . . . . . . . . . 4
Quick Exit . . . . . . . . . . . . . . . . . . . . . . . . . . . . . . . . . . . . . . . . . . . . . . . . . . . . . . . 4
Bell/Siren Sounds After Away Arming . . . . . . . . . . . . . . . . . . . . . . . . . . . . . . . . . 4
Disarming (Turning Off /Unsetting). . . . . . . . . . . . . . . . . . . . . . . . . . . . . . . . . . . . 5
Stay Arming (Partially Turning On / Part Setting) . . . . . . . . . . . . . . . . . . . . . . . . . 5
Night Arming. . . . . . . . . . . . . . . . . . . . . . . . . . . . . . . . . . . . . . . . . . . . . . . . . . . . . 5
Silent Exit Delay . . . . . . . . . . . . . . . . . . . . . . . . . . . . . . . . . . . . . . . . . . . . . . . . . . 5
Remote Arming and Disarming . . . . . . . . . . . . . . . . . . . . . . . . . . . . . . . . . . . . . . 5
Emergency Keys . . . . . . . . . . . . . . . . . . . . . . . . . . . . . . . . . . . . . . . . . . . . . . . . . . . . 5
When Alarm Sounds. . . . . . . . . . . . . . . . . . . . . . . . . . . . . . . . . . . . . . . . . . . . . . . 6
Intrusion (Burglar) Alarm Continuous Siren . . . . . . . . . . . . . . . . . . . . . . . . . . . . . 6
Fire Alarm Pulsed Siren . . . . . . . . . . . . . . . . . . . . . . . . . . . . . . . . . . . . . . . . . . . . . . 6
Time & Date Programming . . . . . . . . . . . . . . . . . . . . . . . . . . . . . . . . . . . . . . . . . . . . 6
Bypassing Zones . . . . . . . . . . . . . . . . . . . . . . . . . . . . . . . . . . . . . . . . . . . . . . . . . . . 6
Trouble Conditions . . . . . . . . . . . . . . . . . . . . . . . . . . . . . . . . . . . . . . . . . . . . . . . . . . 8
Trouble Menu Acknowledgement . . . . . . . . . . . . . . . . . . . . . . . . . . . . . . . . . . . . . . 8
Alarm Memory . . . . . . . . . . . . . . . . . . . . . . . . . . . . . . . . . . . . . . . . . . . . . . . . . . . . . . 8
Door Chime (Entry/Exit Beeps) . . . . . . . . . . . . . . . . . . . . . . . . . . . . . . . . . . . . . . . . 8
Access Code Programming . . . . . . . . . . . . . . . . . . . . . . . . . . . . . . . . . . . . . . . . . . . 8
Access Codes . . . . . . . . . . . . . . . . . . . . . . . . . . . . . . . . . . . . . . . . . . . . . . . . . . . . . . 9
User Code Attributes . . . . . . . . . . . . . . . . . . . . . . . . . . . . . . . . . . . . . . . . . . . . . . . . 9
Bell Squawk Attribute . . . . . . . . . . . . . . . . . . . . . . . . . . . . . . . . . . . . . . . . . . . . . . . 10
Partition Assignment Mask . . . . . . . . . . . . . . . . . . . . . . . . . . . . . . . . . . . . . . . . . . 10
Erasing an Access Code . . . . . . . . . . . . . . . . . . . . . . . . . . . . . . . . . . . . . . . . . . . . 10
User Function Commands . . . . . . . . . . . . . . . . . . . . . . . . . . . . . . . . . . . . . . . . . . . 10
Changing Brightness/Contrast . . . . . . . . . . . . . . . . . . . . . . . . . . . . . . . . . . . . . . . 12
Changing the Buzzer Level . . . . . . . . . . . . . . . . . . . . . . . . . . . . . . . . . . . . . . . . . . 12
Table of Contents

ii
Viewing the Event Buffer from a PK5500/LCD5500 Keypad . . . . . . . . . . . . . . . . 12
PK5500 Global Status Screen . . . . . . . . . . . . . . . . . . . . . . . . . . . . . . . . . . . . . . . . 13
Sensor Reset . . . . . . . . . . . . . . . . . . . . . . . . . . . . . . . . . . . . . . . . . . . . . . . . . . . . . . 13
Reference Sheets 13
System Information. . . . . . . . . . . . . . . . . . . . . . . . . . . . . . . . . . . . . . . . . . . . . . . 13
Access Codes. . . . . . . . . . . . . . . . . . . . . . . . . . . . . . . . . . . . . . . . . . . . . . . . . . . 14
Sensor / Zone Information . . . . . . . . . . . . . . . . . . . . . . . . . . . . . . . . . . . . . . . . . 15
Testing Your System . . . . . . . . . . . . . . . . . . . . . . . . . . . . . . . . . . . . . . . . . . . . . . . 16
Testing Your Keypad Sounder and Siren . . . . . . . . . . . . . . . . . . . . . . . . . . . . . . 16
Testing Your Entire System . . . . . . . . . . . . . . . . . . . . . . . . . . . . . . . . . . . . . . . . 16
Walk Test Mode . . . . . . . . . . . . . . . . . . . . . . . . . . . . . . . . . . . . . . . . . . . . . . . . . 16
Allowing Computer Access To Your System . . . . . . . . . . . . . . . . . . . . . . . . . . . 16
Guidelines for Locating Smoke Detectors . . . . . . . . . . . . . . . . . . . . . . . . . . . . . . 17
Household Fire Safety Audit . . . . . . . . . . . . . . . . . . . . . . . . . . . . . . . . . . . . . . . . . 18
Fire Escape Planning . . . . . . . . . . . . . . . . . . . . . . . . . . . . . . . . . . . . . . . . . . . . . . . 18

1
About Your Security System
Your DSC Security System has been designed to provide you with the greatest possible flexibility and
convenience. Read this manual carefully and have your installer instruct you on your system's opera-
tion and on which features have been implemented in your system. All users of this system should be
equally instructed in its use. Fill out the “System Information” page with all of your zone information
and access codes and store this manual in a safe place for future reference.
NOTE: The PowerSeries security system includes specific false alarm reduction features and is
classified in accordance with ANSI/ SIA CP-01-2000 Control Panel Standard - Features for False
Alarm Reduction. Please consult your installer for further information regarding the false alarm
reduction features built into your system as all are not covered in this manual.
Fire Detection
This equipment is capable of monitoring fire detection devices such as smoke detectors and provid-
ing a warning if a fire condition is detected. Good fire detection depends on having adequate num-
ber of detectors placed in appropriate locations. This equipment should be installed in accordance
with NFPA 72 (N.F.P.A., Batterymarch Park, Quincey MA 02269). Carefully review the Family Escape
Planning guidelines in this manual.
NOTE: Your installer must enable the fire detection portion of this equipment before it becomes
functional.
Testing
To insure that your system continues to function as intended, you must test your system weekly.
Please refer to the “Testing your System” section in this manual. If your system does not function
properly, call your installing company for service.
Monitoring
This system is capable of transmitting alarms, troubles & emergency information to a central station. If you
initiate an alarm by mistake, immediately call the central station to prevent an unnecessary response.
NOTE: The monitoring function must be enabled by the installer before it becomes functional.
SIA NOTE: There is a communicator delay of 30 seconds in this control panel. It can be removed,
or it can be increased up to 45 seconds, at the option of the end-user by consulting with the installer.
Maintenance
With normal use, the system requires minimum maintenance. Note the following points:
• Do not wash the security equipment with a wet cloth. Light dusting with a slightly moistened cloth
should remove normal accumulations of dust.
• Use the system test described in “Testing Your System” to check the battery condition. We recom-
mend, however, that the standby batteries be replaced every 3-5 years.
• For other system devices such as smoke detectors, passive infrared, ultrasonic or microwave motion
detectors or glassbreak detectors, consult the manufacturer’s literature for testing and maintenance
instructions.
General System Operation
Your security system is made up of a DSC control panel, one or more keypads and various sensors
and detectors. The control panel will be mounted out of the way in a utility closet or in a basement.
The metal cabinet contains the system electronics, fuses and standby battery.
NOTE: Only the installer or service professional should have access to the control panel.
All the keypads have an audible indicator and command entry keys. The LED keypads have a group
of zone and system status lights. The LCD keypad has an alphanumeric liquid crystal display (LCD).
The keypad is used to send commands to the system and to display the current system status. The
keypad(s) will be mounted in a convenient location inside the protected premises close to the entry/
exit door(s).
The security system has several zones of area protection and each of these zones will be connected
to one or more sensors (motion detectors, glassbreak detectors, door contacts, etc.). A sensor in
alarm will be indicated by the corresponding zone lights flashing on a LED keypad or by written mes-
sages on the LCD keypad.
Additional features of the PC1616/PC1832/PC1864 Security System are an Automatic Inhibit
(Swinger Shutdown) for Alarm, Tamper and Trouble signals after 3 occurrences in a given set period.
There is also a Programmable Keypad Lockout option.

2
PowerSeries System Keypads
[
Status
Lights
Zone
Lights
Emergency Keys
Number
Pad
PC1555RKZ
LCD5511
Display
System
Lights
Number
Pad
LED5511
1 2 3
4 5 6
7 8
0
* #
9
Stay
Away
Chime
Reset
Quick
Exit
PK5500/PK5501/RFK5500/RFK5501
PK5508/PK5516/RFK5508/RFK5516

3
Keypad Display Symbols
1Clock Digits 1, 2 – These two 7 segment clock digits indicate the hour digits when the local
clock is active, and identify the zone when the OPEN or ALARM icons are active. These two dig-
its scroll one zone per second from the lowest zone number to the highest when scrolling
through zones.
2: (Colon) – This icon is the hours/minutes divider and will flash once a second when the local
clock is active.
3Clock Digits 3, 4 – These two 7 segment displays are the minute digits when the local clock is
active.
41 to 8 – These numbers identify troubles when [][2] is pressed.
5Memory – Indicates that there are alarms in memory.
6 Bypass – Indicates that there are zones automatically or manually bypassed.
7 Program – indicates that the system is in Installer’s Programming, or the keypad is busy.
8Away – Indicates that the panel is armed in the Away Mode.
9Fire – Indicates that there are fire alarms in memory.
10 Stay – Indicates that the panel is armed in the Stay Mode.
11 Chime – This icon turns on when the Chime function key is pressed to enable Door Chime on
the system. It will turn off when the chime function key is pressed again to disable Door Chime.
12 AM, PM – This icon indicates that the local clock is displaying 12 Hr. time. These icons will not
be on if the system is programmed for 24 Hr. time.
13 ALARM – This icon is used with clock digits 1 and 2 to indicate zones in alarm on the system.
When a zone is in alarm, the ALARM icon will turn on, and 7 segment displays 1 and 2 will
scroll through the zones in alarm.
14 OPEN – This icon is used with clock digits 1 and 2 to indicate violated zones (not alarm) on the
system. When zones are opened, the OPEN icon will turn on, and 7 segment displays 1 and 2
will scroll through the violated zones.
15 AC – Indicates that AC is present at the main panel.
16 System Trouble – Indicates that a system trouble is active.
17 Night – Indicates that the panel is armed in the Night Mode.
18 System - Indicates one or more of the following:
Memory – Indicates that there are alarms in memory.
Bypass – Indicates that there are zones automatically or manually bypassed.
System Trouble – This icon is displayed when a system trouble is active.
19 Ready Light (green) – If the Ready light is on, the system is ready for arming.
20 Armed Light (red) – If the Armed light is on, the system has been armed successfully.
9
810
7
11
20
596
17
14 711 10
LCD5501 Fixed Message LCD5501 ICON
LCD5511 LED5511 PK5508/5516/RFK5508/5516
PK5501/RFK5501

4
IMPORTANT NOTICE
A security system cannot prevent emergencies. It is only intended to alert you and – if included – your
central station of an emergency situation. Security systems are generally very reliable but they may
not work under all conditions and they are not a substitute for prudent security practices or life and
property insurance. Your security system should be installed and serviced by qualified security profes-
sionals who should instruct you on the level of protection that has been provided and on system
operations.
PK5500/RFK5500 Language Selection
Your keypad may have the capability to display messages in different languages.
1. Press and hold both keys simultaneously.
2. Using the keys, scroll through the available languages.
3. Press to select your desired language.
NOTE: For systems compliant with the EN 50131-1:2004 standard, you will need to enter your Master
Code to access and change the keypad language.
Arming & Disarming the System
Arming (Turning On/Setting)
Close all sensors (i.e. stop motion and close doors). The Ready ( ) indicator should be on.
To arm, press and hold the Away Key ( ) for 2 seconds and/or enter your Access Code, or press
to Quick Arm. During the setting state (exit delay active) the Armed ( ) and Ready ( ) indi-
cators will turn on, and the keypad will sound one beep per second. You now have ____ seconds to
leave the premises (please check with your installer to have this time programmed). To cancel the
arming sequence, enter your access code.
Away Arming (Turned On/Set)
When the exit delay is completed, the alarm system is armed/set and this is indicated on the keypad
as follows: the Ready ( ) indicator will turn off, the Armed indicator will remain on and the keypad
will stop sounding.
Quick Exit
If the system is armed and you need to exit, use the Quick Exit function to avoid disarming and
rearming the system. Press and hold the Quick Exit key ( ) for 2 seconds or press . You
now have 2 minutes to leave the premises through your exit door. When the door is closed again, the
remaining exit time is cancelled.
Bell/Siren Sounds After Away Arming
Audible Exit Fault
In an attempt to reduce false alarms, the Audible Exit Fault is designed to notify you of an improper
exit when arming the system in the Away mode. In the event that you fail to exit the premises during
the allotted exit delay period, or if you do not securely close the Exit/Entry door, the system will notify
you that it was improperly armed in two ways: the keypad will emit one continuous beep and the bell
or siren will sound.
Your installer will tell you if this feature has been enabled on your system. If this occurs:
1. Re-enter the premises.
2. Enter your [access code] to disarm the system. You must do this before the entry delay timer
expires.
3. Follow the Away arming procedure again, making sure to close the entry/exit door properly. (See
“Away Arming (Turned On/Set)”.)
Arming Error
An error tone will sound if the system is unable to arm. This will happen if the system is not ready to
arm (i.e. sensors are open), or if an incorrect user code has been entered. If this happens, ensure all
sensors are secure, press and try again. Please check with your installer to determine if arming is
inhibited by any other means.
Disarming (Turning Off /Unsetting)
Enter your access code to disarm anytime the system is armed (Armed ( ) indicator is on). The key-
pad will beep if you walk through the entry door. Enter your code within _____ seconds to avoid an
alarm condition (please check with your installer to have this time programmed).

5
Disarming Error
If your code is invalid, the system will not disarm and a 2-second error tone will sound. If this hap-
pens, press and try again.
Stay Arming (Partially Turning On / Part Setting)
Ask your alarm company if this function is available on your system.
Stay arming will bypass the interior protection (i.e. motion sensors) and arm the perimeter of the sys-
tem (i.e. doors and windows). Close all sensors (i.e. stop motion and close doors). The Ready ( )
indicator should be on.
Press and hold the Stay key ( ) for 2 seconds and/or enter your Access Code and do not leave
the premises (if your installer has programmed this button). During the setting state (exit delay
active), the Armed ( ) and Ready ( ) indicators will turn on, and the keypad will sound one beep
every three seconds.
When the exit delay is completed, the alarm system is armed/set and this is indicated on the keypad
as follows: the Ready ( ) indicator will turn off, the Armed ( ) indicator will remain on and the key-
pad will stop sounding.
The Armed ( ) indicator and Bypass or System indicator will turn on. The system will automatically
bypass certain interior sensors (i.e. motion sensors).
NOTE: For SIA FAR listed panels, the Stay Arming Exit Delay will be twice as long as the Away
Arming Exit Delay.
Night Arming
To fully arm the system when it has been armed in Stay Mode, press [][1] at any keypad. All interior
zones will now be armed except for devices programmed as Night Zones.
Night zones are only armed in Away mode, this permits limited movement within the premises when
the system is fully armed. Ensure that your installer has provided you with a list identifying zones pro-
grammed as night zones.
When the interior zones have been activated (i.e., (*)(1) you must enter your access code to disarm
the system to gain access to interior areas that have not been programmed as night zones.
Silent Exit Delay
If the system is armed using the Stay key ( ) (Programmable Function Key) or using the "No
Entry" Arming method ( [access code]), the audible progress annunciation (keypad buzzer)
will be silenced and the exit time will be doubled for that exit period only.
Remote Arming and Disarming
The system can be armed and/or disarmed using the remote control device (wireless key). When arming
the system by using the Arm button on the wireless key, the system will acknowledge the command by
sounding a single bell squawk (if bell squawk is enabled) and when disarming using the Disarm button
on the wireless key the system will acknowledge the command by sounding two bell squawks (if bell
squawk is enabled) that can be heard from the exterior of the premises.
Emergency Keys
Press the (F), (A) or (P) key for 2 seconds to generate a Fire, Auxiliary or Panic alarm. The
keypad sounder will beep indicating that the alarm input has been accepted and transmission to the
central station is underway. Ask your alarm company if the emergency keys are available on your sys-
tem.
NOTE: The Fire keys can be disabled by the installer.
LED5511/LCD5511 Keypad
Press and hold both keys simultaneously for 2 seconds to send the following
messages:
Fire Message, Auxiliary Message, Panic Message.
When Alarm Sounds
The system can generate 2 different alarm sounds:
Continuous Siren = Intrusion (Burglary Alarm)
Temporal / Pulsed Siren = Fire Alarm

6
Intrusion (Burglary) Alarm Continuous Siren
If you are unsure of the source of the alarm approach with caution ! If the alarm
was accidental, enter your Access Code to silence the alarm. Call your central sta-
tion to avoid a dispatch.
Fire Alarm Pulsed Siren
Follow your emergency evacuation plan immediately!
If the fire alarm was accidental (i.e. burned toast, bathroom steam, etc.), enter your Access Code to
silence the alarm. Call your central station to avoid a dispatch. Ask your alarm company if your sys-
tem has been equipped with fire detection. To reset the detectors, see the Sensor Reset section.
Time & Date Programming
Press plus your Master Access Code or press the time programming function key (pro-
grammed by your installer). If you have a Time and Date trouble, press [8] from within the trouble
menu. Press to select Time and Date.
When using the PK5500/RFK5500, use the scroll keys to find the menu option and press
to select. Enter the time in 24-hr format (HH:MM), followed by the date (MM:DD:YY). Press to
exit programming.
NOTE: If you have an LCD keypad, your installer may have programmed your system to display
the time and date while the keypad is idle. If this is the case, you can press the key to clear the
date and time display.
Bypassing Zones
Use the zone bypassing feature when you need access to a protected area while the system is armed,
or when a zone is temporarily out of service, but you need to arm the system. Bypassed zones will
not be able to sound an alarm. Bypassing zones reduces the level of security. If you are bypassing a
zone because it is not working, call a service technician immediately so that the problem can be
resolved and your system returned to proper working order. Ensure that no zones are unintentionally
bypassed when arming your system. Zones cannot be bypassed once the system is armed. Bypassed
zones are automatically cancelled each time the system is disarmed and must be bypassed again, if
required, before the next arming.
NOTE: 24-hour zones can only be unbypassed manually.
NOTE: For security reasons, your installer has programmed the system to prevent you from bypass-
ing certain zones (e.g., smoke detectors).
Bypassing Zones with a PK5500/RFK5500
Start with disarming the system.
1. Press to enter the function menu. The keypad will display “Press for < > Zone Bypass”.
2. Press or , then your [access code] (if required). The keypad will display “Zone Search < >
Zone Name”.
3. Enter the two-digit number of the zone(s) to be bypassed (01-64).
You can also use the keys to find the zone to be bypassed, and then press to select the
zone. The keypad will display “Zone Search < > “Zone Name?”. “B” will appear on the display to show
that the zone is bypassed. If a zone is open (e.g., door with door contact is open), the keypad will dis-
play “Zone Search < > “Zone Name” O”. If you bypass the open zone, a “B” will replace the “O”.
4. To unbypass a zone, enter the two-digit number of the zone(s) to be bypassed (01-64). You can
also use the keys to find the zone, and then press to select the zone. The “B”
will disappear from the display to show that the zone is no longer bypassed.
5. To exit bypassing mode and return to the Ready state, press .

7
Bypassing Zones with a PK5508/PK5516/PK5501/RFK5508/RFK5516/RFK5501
Start with disarming the system
1. Press , then your [access code] (if required).
2. Enter the two-digit number of the zone(s) to be bypassed (01-64). On PK5508/PK5516/
RFK5508/RFK5516 keypads, the zone light will turn on to indicate that the zone is
bypassed.
3. To unbypass a zone, enter the two-digit number of the zone (01-64). On PK5508/PK5516/
RFK5508/RFK5516 keypads, the zone light will turn off to indicate that the zone is not
bypassed.
4. To exit bypassing mode and return to the Ready state, press .
Activating All Bypassed Zones
To activate all bypassed zones:
1. Press , then your [access code] (if necessary).
2. Press .
3. To exit bypassing mode and return to the Ready state, press .
Recalling Bypassed Zones
To recall the last set of bypassed zones:
1. Press , then your [access code] (if necessary).
2. Press .
3. To exit bypassing mode and return to the Ready state, press .
Bypass Groups
A Bypass Group is a selection of zones programmed into the system. If you bypass a group of zones
on a regular basis, you can program them into the Bypass Group, so that you do not have to bypass
each zone individually every time. One Bypass Group can be programmed on each partition.
To program a Bypass Group:
1. Press , then your [access code] (if necessary).
2. Enter the two-digit numbers (01-64) of the zones to be included in the Bypass Group. On
PK5500/RFK5500 keypads, you can also use the keys to find the zone to be
included in the bypass group, and then press to select the zone.
3. To save the selected zone into the group, press .
4. To exit bypassing mode and return to the Ready state, press .
To select a Bypass Group when arming the system:
1. Press , then your [access code] (if necessary).
2. Press . The next time the system is armed, the zones in this group will be bypassed.
3. To exit bypassing mode and return to the Ready state, press .
NOTE: Bypass Groups are only recalled if the system is armed/disarmed after programming the
bypass group.
NOTE: This feature is not to be used in UL Listed installations.

8
Trouble Conditions
When a trouble condition is detected, the Trouble ( ) or System indicator will turn on, and the key-
pad will beep every 10 seconds. Press the key to silence the beeps. Press to view the
trouble condition. The Trouble ( ) or System indicator will flash. The corresponding trouble will be
represented by numbers 1-8.
Trouble Menu Acknowledgement
If the Arming Inhibit for All Troubles features is enabled, Trouble Menu Acknowledgement may be
used. To use this feature while in the Trouble Menu ( ), press to acknowledge and over-
ride the existing troubles, so the system can be armed. An override event will also be generated and
logged, thus identifying the user. To override open zones, use the Zone Bypass feature ( ).
Alarm Memory
When an alarm occurs, the Memory or System indicator (and Fire indicator, if applicable) will turn on.
To view which sensor(s) generated the alarm, press . The Memory or System indicator and cor-
responding sensor number will flash (i.e. sensor 3).
For the PK5500/RFK5500 keypad use the scroll keys to view the sensors in alarm memory.
Press to exit. To clear the memory, arm and disarm the system.
If an alarm sounded while armed, the keypad will automatically go to alarm memory when you dis-
arm the system. In this instance, you should approach with caution, as the intruder may still be within
the building/premises.
Door Chime (Entry/Exit Beeps)
To turn the door chime function on or off, press and hold the Chime key ( ) for 2 seconds or
press .
Access Code Programming
In addition to the Master Access Code, you can program up to 94 additional User Access codes
(access codes 1-48 for PC1616, access codes 1-72 for PC1832 and access codes 1-95 for PC1864).
LED/
DIGIT
Trouble
Condition Comments Action
1Service Required
(Press [1] for
more informa-
tion)
(1) Low Battery (2) Bell Circuit (3) System Trouble (4)
System Tamper (5) Module Supervision (6) RF Jam
Detected (7) PC5204 Low Battery (8) PC5204 AC Fail-
ure
Call for service
2
Loss of AC Power
If the building and/or neighbourhood has lost electri-
cal power, the system will continue to operate on
battery for several hours.
Call for service
3Telephone Line
Fault
The system has detected that the telephone line is
disconnected. Call for service
4 Failure to Com-
municate
The system attempted to communicate with the
monitoring station, but failed. This may be due to
Trouble 3.
Call for service
5 Sensor (or Zone)
Fault
The system is experiencing difficulties with one or
more sensors on the system. Press 6 to display the
zone.
Call for service
6Sensor (or Zone)
Tamp er
The system has detected a tamper condition with one
or more sensors on the system. Call for service
7 Sensor (or Zone)
Low Battery
If the system has been equipped with wireless sen-
sors, one or more has reported a low battery condi-
tion.
Call for service
8 Loss of Time &
Date
If complete power was lost (AC and Battery), the time
and date will need to be re-programmed.
Re-program
Time & Date
(page 6)

9
Press , plus your Master Access Code. The Program or System indicator will begin to flash, and
the Armed ( ) indicator will turn on.
Enter the 2-digit number to be programmed (i.e. 06 for user access code 6; enter 40 for the Master
Access Code).
When using the PK5500/RFK5500, use the keys to find the specific code and press to
select. Enter the new 4 or 6-digit access code, or press to erase it. When programming is com-
plete, enter another 2-digit code to program or press to exit.
For systems using multiple partitions/areas, access codes can be assigned to specific or multiple parti-
tions/areas. Please contact your alarm company for details.
The access codes have programmable attributes which allow zone bypassing, remote access using
the ESCORT5580TC or one-time use activation.
When using 6-digit access codes, the minimum number of variations of access codes are 20833 for
the PC1616, 13888 for the PC1832 and 10638 for the PC1864.
Access Codes
[][5][Master Code] (when disarmed)
The [][5] User’s Programming command is used to program additional access codes.
User Codes - User Codes 1-48 are available for the PC1616. User Codes 01-72 are available
for the PC1832. User Codes 1-95 are available for the PC1864.
Master Code (Access Code 40) - The Master Code can only be changed by the Installer, if pro-
grammed.
Supervisor Codes - These codes are always valid when entering the User Code Program-
ming section. However, these codes can only program additional codes which have equal or lesser
attributes. Once programmed, the Supervisor Codes receive the Master Code’s attributes. These
attributes are changeable. Any User Code can be made a supervisor code by enabeling User Code
Attribute 1 (please see below for details).
Duress Codes - Duress codes are standard User Codes that will transmit the Duress Reporting Code
whenever the code is entered to perform any function on the system. Any User Code can be made a
Duress Code by enabeling User Code Attribute 2 (please see below for details).
NOTE: Duress codes are not valid when entering [][5], [][6] or [][8] sections.
NOTE: Access codes cannot be programmed as a duplicate or as a “Code +/- 1”.
User Code Attributes
1. The default attributes of a new code will be the attributes of the code used to enter
whether it is a new code or an existing code being programmed.
2. System Master (Code 40) has Partition Access for all partitions, as well as Attributes 3-4 ON by
default.
NOTE: These attributes are not changeable.
Inherent Attributes (all codes except installer and maintenance)
Arm / Disarm - Any Access Code with Partition Access enabled will be valid for arming and disarming
that partition.
Command Outputs ([][7][1], [][7][2], [][7][3], and [][7][4]) - If these outputs require
Access Code entry, any Access Code with Partition Access will be valid for performing the [][7][1-
4][Access Code] functions on that partition.
Programmable Attributes ([][5][Master/Supervisor Code][99][Code])
1. Supervisor Code
2. Duress Code
3. Zone Bypassing Enabled
4. ESCORT Access
5. For Future Use
6. For Future Use
7. Bell Squawk upon Arming/Disarming
8. One Time Use Code

10
Bell Squawk Attribute
This attribute is used to determine whether an access code should generate an arming/disarming Bell
Squawk upon entry of the code for Away arming. The Wireless Keys with access codes associated
with them may generate Arming/Disarming Bell squawks. If desired, this option may be used with
codes that are manually entered. Please contact your installer to have this programmed.
NOTE: The Master Code cannot use the Bell Squawk attribute, but is required to enable it for other
codes.
NOTE: This feature cannot prevent the Arm/Disarming squawks from being generated if an access
code assigned to a WLS Key is manually entered at a keypad.
Partition Assignment Mask
In order to accommodate Access Code Partition Assignment for the multiple partitions found on this
product the user must enter [][5][Master Code][98][Code number to be change] (ex.
[][5][1234][98][Code 03]. Under this section, each bit represents the corresponding partition’s
access (i.e. Bit 4 represents Partition 4 access).
The Master Code has access to all partitions, and cannot be modified.
Partition Assignment Mask ([][5][Master/Supervisor Code][98][Code])
1. Partition One Access (available for PC1616/PC1832/PC1864)
2. Partition Two Access (available for PC1616/PC1832/PC1864)
3. Partition Three Access (available for PC1832/PC1864)
4. Partition Four Access (available for PC1832/PC1864)
5. Partition Five Access (available for PC1864)
6. Partition Six Access (available for PC1864)
7. Partition Seven Access (available for PC1864)
8. Partition Eight Access (available for PC1864)
Notes on Access Codes and Programming
1. - [][5][MASTER CODE] [01 to 95] to program access codes
- [][5][MASTER CODE][98] enters the Partition Assignment Mode [01 to 39 and 41 to 95] to edit
access code partition assignments
- [][5][MASTER CODE][99] Enters the Attribute Mode to edit access code Attributes.
2. The Master Code’s attributes cannot be changed.
3. When a new code is programmed in it will be checked against all other codes in the sys-
tem. If a duplicate code is found, an error tone is given and the code is returned to what it was
before it was changed. This applies to both 4 and 6-digit codes.
Erasing an Access Code
To erase a code, select the code and enter as the first digit. If is entered, the system will
delete the code immediately and the user will be returned to select another code.
User Function Commands
First disarm the system then enter [Master Code]
The command is used to gain access to the following list of Master functions of the system.
[1] Time and Date
Enter 4 digits for 24 Hour System Time (HH-MM). Valid entries are 00-23 for the hour and 00-59 for
minutes.
Enter 6 digits for the Month, Day and Year (MM-DD-YY)
[2] Auto-arm/Disarm Control
Pressing [2] while in the User Function menu will enable (3 beeps) or disable (one long beep) the
Auto-arm and Auto-Disarm feature, by partition. With this feature enabled, the panel will automati-
cally arm in the Away mode (Stay Away zones active) or disarm at the same time each day. The auto-
arm time is programmed with the [][6][Master Code][3] command. Auto-Disarm must be pro-
grammed by the system installer.

11
[3] Auto-arm Time
The system can be programmed to arm at a programmed time each day, per partition. Upon entry of
this section, enter 4 digits for the 24-hour Auto-arm time for each day of the week.
At the selected auto-arm time, the keypad buzzers will sound for a programmed amount of time
(programmable by the installer only) to warn that an auto-arm is in progress. The bell can also be
programmed to squawk once every 10 seconds during this warning period. When the warning
period is complete, the system will arm with no exit delay and in the Away Mode.
Auto-arming can be cancelled or postponed by entering a valid access code only, during the pro-
grammed warning period. Auto-arming will be attempted at the same time the next day. When the
auto-arming process is cancelled or postponed, the Auto-arm Cancellation Reporting Code will be
transmitted (if programmed).
If arming is inhibited by one of the following, the Auto-arm Cancellation transmission will be com-
municated.
- AC / DC Inhibit Arm
- Latching System Tampers
- Zone Expander Supervisory Fault
[4] System Test
The system’s Bell Output (2s), Keypad Lights and Communicator are tested. This test will also mea-
sure the panel’s standby battery.
[5] Enable DLS / Allow System Service
If enabled, the installer will be able to access Installer Programming by DLS. In case of DLS access this
provides a window where rings will be detected by the panel. The DLS window will remain open for
6hrs, during which time the installer will be able to enter DLS an unlimited number of times. After
the 6-hr window has expired, Installer’s Programming will be unavailable again until the window is
re-opened.
[6] User Call-up
If enabled by the Installer, the panel will make 1 attempt to call the downloading computer. The
downloading computer must be waiting for the panel to call before downloading can be performed.
[7] For Future Use
[8] User Walk Test (For Europe only)
This test allows the user to verify operation of system detectors and notifies the central station that a
Walk Test is in progress.
Note: Fire zones, the 'F' key, and 2-wire smoke detectors are excluded from this test. Violation of
these zones will cause the system to exit the walk test then generate and transmit alarm condition
to the central station.
1. Press to enable Walk Test. The system will notify the Central Station that a walk test
has begun.
2. Violate all each detector (zone) in sequence. A squawk will occur at the keypad, all LEDs on the
keypad will flash and the violation will be recorded in the Event Buffer.
3. Restore zones. Press to end the Walk Test. The system will notify the Central Station
that the walk test has been terminated.
Note: If a zone is not violated within 15 minutes of activating the Walk Test, the system will auto-
matically exit the Walk Test and resume normal operation.
6
6

12
Changing Brightness/Contrast
PK5500/RFK5500 keypads
When this option is selected, the keypad will allow you to scroll through 10 different brightness/con-
trast levels.
1. Press [Master code].
2. Use the keys to scroll to either Brightness Control or Contrast Control.
3. Press to select the setting you want to adjust.
4. a) ‘Brightness Control’: There are multiple backlighting levels. Use the keys to scroll to
the desired level.
b) ‘Contrast Control’: There are 10 different display contrast levels. Use the keys to
scroll to the desired contrast level.
5. To exit, press .
PK5501/PK5508/PK5516/RFK5501/RFK5508/RFK5516 keypads
When this option is selected, the keypad will allow you to scroll through 4 different backlighting lev-
els. A level of 0 disables the backlighting.
1. Press [Master Code].
2. Use the key to move through the 4 different backlighting levels.
3. The level is automatically saved when you press to exit.
Changing the Buzzer Level
PK5500/RFK5500 keypads
When this option is selected, the keypad will allow you to scroll through 21 different buzzer levels. A
level of 00 disables the buzzer.
1. Press [Master Code].
2. Use the keys to scroll to Buzzer Control.
3. There are 21 different levels, use the keys to scroll to the desired level.
PK5501/PK5508/PK5516/RFK5501/RFK5508/RFK5516 keypads
1. Press [Master Code].
2. Use the key to move through the 21 different buzzer levels.
3. The level is automatically saved when you press to exit.
Viewing the Event Buffer from a PK5500/RFK5500 Keypad
The event buffer will show you a list of the last 500 events that have occurred on your system. You
must use an LCD keypad to view the event buffer.
1. Press [Master Code].
2. To select Event Buffer viewing, press .
3. The keypad will display the event number, partition or area, and the time and date. Press to
switch between this information and the event details.
4. Use the keys to scroll through the events in the buffer.
5. To exit event buffer viewing, press .

13
PK5500 Global Status Screen
When the keypad is loaned to global mode (pressing and holding the key), you will see a Global
Partition Status screen. This shows basic status for up to 8 partitions, depending on the configuration
of your system. The screen looks similar to the example shown below.
1 2 3 4 5 6 7 8
A R ! N - - - -
Each partition is identified by a number. Below each number is the current status of that partition.
A - Partition is Armed
N - Partition is Not Ready to Arm, or keypad is blanked
R - Partition is Ready to Arm
! - Partition is in Alarm
- - Partition is Not Enabled
Sensor Reset
Certain sensors, after having detected an alarm condition, require a reset to exit the alarm condition
(i.e. glass break sensors, smoke detectors, etc.). Ask your alarm company if this function is required
on your system.
To reset the detectors, press and hold the Reset ( ) key for 2 seconds or press .
If a sensor fails to reset, it may still be detecting an alarm condition. If the sensor reset is successful,
the alarm is cancelled. If unsuccessful, the alarm will reactivate or continue.
Reference Sheets
Fill out the following information for future reference and store this guide in a safe place.
System Information
Enabled?
[F] FIRE [A] AUXILIARY [P] PANIC
For Service
Central Station Information
Account#: ___________________ Telephone#: __________________
Installer Information :
Company: ___________________ Telephone#: __________________
If you suspect a false alarm signal has been sent to the central monitoring station,
call the station to avoid an unnecessary response.
The Entry Delay Time is _______ seconds.
The Exit Delay Time is _______ seconds.

14
Access Codes
PC1616/PC1832/PC1864
Master Code [40] : _________________________
PC1832/PC1864
PC1864
Code Access
Code Code Access Code Code Access Code Code Access Code
01 13 25 37
02 14 26 38
03 15 27 39
04 16 28
05 17 29 41
06 18 30 42
07 19 31 43
08 20 32 44
09 21 33 45
10 22 34 46
11 23 35 47
12 24 36 48
Code Access
Code Code Access Code Code Access Code Code Access Code
49 55 61 67
50 56 62 68
51 57 63 69
52 58 64 70
53 59 65 71
54 60 66 72
Code Access
Code Code Access Code Code Access Code Code Access Code
73 79 85 91
74 80 86 92
75 81 87 93
76 82 88 94
77 83 89 95
78 84 90

15
Sensor / Zone Information
Sensor Protected Area Sensor Type Sensor Protected Area Sensor Type
01 33
02 34
03 35
04 36
05 37
06 38
07 39
08 40
09 41
10 42
11 43
12 44
13 45
14 46
15 47
16 48
17 49
18 50
19 51
20 52
21 53
22 54
23 55
24 56
25 57
26 58
27 59
28 60
29 61
30 62
31 63
32 64

16
Testing Your System
NOTE: If you are going to perform a System Test, call your Monitoring Station to inform them
when you begin and also when you end the test.
Testing Your Keypad Sounder and Siren
The System Test provides several system tests, and a two-second check of the keypad sounder and
bell or siren.
1. Press [Master Code] .
2. The following will occur:
- The system activates all keypad sounders and bells or sirens for 2 seconds. All keypad lights turn ON.
- PK5500/RFK5500 keypads will light all pixels
- The Ready, Armed, and Trouble LED’s will flash for the duration of the test
3. To exit the function menu, press .
Testing Your Entire System
All smoke detectors in this installation must be tested by your smoke detector installer or dealer once
a year to ensure they are functioning correctly. It is the user’s responsibility to test the system weekly
(excluding smoke detectors). Ensure you follow all the steps in the ‘Testing Your System’ section
above.
NOTE: Should the system fail to function properly, call your installation company for service im-
mediately.
1. Prior to testing, ensure that the system is disarmed and the Ready light is on.
2. Press and close all zones to return the system to the Ready state.
3. Perform a System Test by following the steps in the previous section.
4. To test the zones, activate each detector in turn (e.g., open each door/window or walk in motion
detector areas).
PK5500/RFK5500 keypads will display the following message when each zone (detector) is acti-
vated: “Secure System Before Arming < >”, “Secure System or Enter Code” or “Secure or Arm
System”. Use the keys to view which zones are open. The message will disappear
when the zones are closed.
On an PK5501/RFK5501 keypad, the display says “Open” when any zone (detector) is acti-
vated. To see which zones are open, press . The keypad will scroll the numbers of all open
zones.
On a PK5508/PK5516/RFK5508/RFK5516 keypad, the zone light turns ON when the zone
(detector) is activated. The zone light turns OFF when the zone is closed (e.g., door or window
closed).
NOTE: Some features described above will not be functional unless enabled by your installer. Ask
your installer which features are functional on your system.
Walk Test Mode
The installer can initiate a Walk Test mode for the system. While in Walk Test mode, The Ready,
Armed, and Trouble LED's will flash to indicate that Walk Test is active. When the system automati-
cally terminates the Walk Test modes, it will annunciate with an audible warning (5 beeps every 10
seconds), beginning five minutes prior to the termination of the test.
Allowing Computer Access To Your System
From time to time, your installer may need to send information to or retrieve information from your
security system. Your installer will do this by having a computer call your system over the telephone
line. You may need to prepare your system to receive this ‘downloading’ call. To do this:
1. Press [Master code] at any keypad. This allows downloading for a limited period of
time. During this time, the system will answer incoming downloading calls.
For more information on this feature, please ask your installer.

17
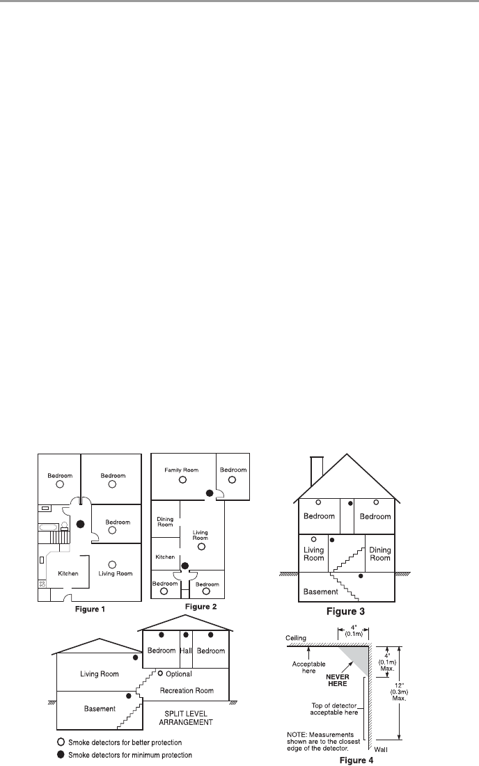
Guidelines for Locating Smoke Detectors
Research has shown that all hostile fires in homes generate smoke to a greater or lesser ex-
tent. Experiments with typical fires in homes indicate that detectable quantities of smoke
precede detectable levels of heat in most cases. For these reasons, smoke alarms should be
installed outside of each sleeping area and on each storey of the home.
The following information is for general guidance only and it is recommended that local fire
codes and regulations be consulted when locating and installing smoke alarms.
It is recommended that additional smoke alarms beyond those required for minimum pro-
tection be installed. Additional areas that should be protected include: the basement; bed-
rooms, especially where smokers sleep; dining rooms; furnace and utility rooms; and any
hallways not protected by the required units.
On smooth ceilings, detectors may be spaced 9.1m (30 feet) apart as a guide. Other spacing
may be required depending on ceiling height, air movement, the presence of joists, uninsu-
lated ceilings, etc. Consult National Fire Alarm Code NFPA 72, CAN/ULC-S553-M86 or other
appropriate national standards for installation recommendations.
• Do not locate smoke detectors at the top of peaked or gabled ceilings; the dead air space
in these locations may prevent the unit from detecting smoke.
• Avoid areas with turbulent air flow, such as near doors, fans or windows. Rapid air move-
ment around the detector may prevent smoke from entering the unit.
• Do not locate detectors in areas of high humidity.
• Do not locate detectors in areas where the temperature rises above 38oC (100oF) or falls
below 5oC (41oF).
• Smoke detectors should always be installed in accordance with NFPA 72, the National Fire
Alarm Code. Smoke detectors should always be located in accordance with:
‘Smoke detectors shall be installed outside of each separate sleeping area in the immediate
vicinity of the bedrooms and on each additional storey of the family living unit, including
basements and excluding crawl spaces and unfinished attics. In new construction, a smoke
detector also shall be installed in each sleeping room’.’Split level arrangment:Smoke detec-
tors are required where shown. Smoke detectors are optional where a door is not provided
between living room and recreation room’.
Figure 3a

18
Household Fire Safety Audit
Read this section carefully for important information about fire safety.
Most fires occur in the home. To minimize this danger, we recommend that a household fire
safety audit be conducted and a fire escape plan be developed.
1. Are all electrical appliances and outlets in a safe condition? Check for frayed cords, overloaded
lighting circuits, etc. If you are uncertain about the condition of your electrical appliances or
household service, have a professional evaluate these units.
2. Are all flammable liquids stored safely in closed containers in a well-ventilated cool area?
Cleaning with flammable liquids should be avoided.
3. Are fire-hazardous materials (matches) well out of reach of children?
4. Are furnaces and wood-burning appliances properly installed, clean and in good working
order? Have a professional evaluate these appliances.
Fire Escape Planning
There is often very little time between the detection of a fire and the time it becomes deadly. It is
thus very important that a family escape plan be developed and rehearsed.
1. Every family member should participate in developing the escape plan.
2. Study the possible escape routes from each location within the house. Since many fires occur
at night, special attention should be given to the escape routes from sleeping quarters.
3. Escape from a bedroom must be possible without opening the interior door.
Consider the following when making your escape plans:
• Make sure that all border doors and windows are easily opened. Ensure that they are not
painted shut, and that their locking mechanisms operate smoothly.
• If opening or using the exit is too difficult for children, the elderly or handicapped, plans for
rescue should be developed. This includes making sure that those who are to perform the res-
cue can promptly hear the fire warning signal.
• If the exit is above the ground level, an approved fire ladder or rope should be provided as well
as training in its use.
• Exits on the ground level should be kept clear. Be sure to remove snow from exterior patio
doors in winter; outdoor furniture or equipment should not block exits.
• Each person should know of a predetermined assembly point where everyone can be
accounted for (e.g., across the street or at a neighbor’s house). Once everyone is out of the
building, call the Fire Department.
• A good plan emphasizes quick escape. Do not investigate or attempt to fight the fire, and do
not gather belongings or pets as this wastes valuable time. Once outside, do not re-enter the
house. Wait for the fire department.
• Write the fire escape plan down and rehearse it frequently so that should an emergency arise,
everyone will know what to do. Revise the plan as conditions change, such as the number of
people in the home, or if there are changes to the building’s construction.
• Make sure your fire warning system is operational by conducting weekly tests. If you are
unsure about system operation, contact your installing dealer.
• We recommend that you contact your local fire department and request further information
on fire safety and escape planning. If available, have your local fire prevention officer conduct
an in-house fire safety inspection.

FCC COMPLIANCE STATEMENT
CAUTION: Changes or modifications not expressly approved by Dig-
ital Security Controls could void your authority to use this equipment.
This equipment has been tested and found to comply with the limits for a
Class B digital device, pursuant to Part 15 of the FCC Rules. These limits
are designed to provide reasonable protection against harmful interfer-
ence in a residential installation. This equipment generates, uses and can
radiate radio frequency energy and, if not installed and used in accord-
ance with the instructions, may cause harmful interference to radio com-
munications. However, there is no guarantee that interference will not
occur in a particular installation. If this equipment does cause harmful in-
terference to radio or television reception, which can be deter-mined by
turning the equipment off and on, the user is encouraged to try to correct
the interference by one or more of the following measures:
• Re-orient the receiving antenna.
• Increase the separation between the equipment and receiver.
• Connect the equipment into an outlet on a circuit different from that
to which the receiver is connected.
• Consult the dealer or an experienced radio/television technician for
help.
The user may find the following booklet prepared by the FCC useful:
"How to Identify and Resolve Radio/Television Interference Problems".
This booklet is available from the U.S. Government Printing Office,
Washington D.C. 20402, Stock # 004-000-00345-4.
The keypads represented in this manual can be used with the following
Control Units: PC1616, PC1832, PC1864.
IMPORTANT INFORMATION
This equipment complies with Part 68 of the FCC Rules and, if the
product was approved July 23, 2001 or later, the requirements adopted
by the ACTA. On the side of this equipment is a label that contains,
among other information, a product identifier. If requested, this number
must be provided to the Telephone Company.
PC1616 Product Identifier US: F53AL01BPC1614
PC1832 Product Identifier US: F53AL01BPC1832
PC1864 Product Identifier US: F53AL01BPC1864
USOC Jack: RJ-31X
Telephone Connection Requirements
A plug and jack used to connect this equipment to the premises wiring
and telephone network must comply with the applicable FCC Part 68
rules and requirements adopted by the ACTA. A compliant telephone
cord and modular plug is provided with this product. It is designed to
be connected to a compatible modular jack that is also compliant. See
installation instructions for details.
Ringer Equivalence Number (REN)
The REN is used to determine the number of devices that may be con-
nected to a telephone line. Excessive RENs on a telephone line may re-
sult in the devices not ringing in response to an incoming call. In most
but not all areas, the sum of RENs should not exceed five (5.0). To be
certain of the number of devices that may be connected to a line, as de-
termined by the total RENs, contact the local Telephone Company. For
products approved after July 23, 2001, the REN for this product is part
of the product identifier that has the format US: AAAEQ##TXXXX.
The digits represented by ## are the REN without a decimal point (e.g.,
03 is a REN of 0.3). For earlier products, the REN is separately shown
on the label.
Incidence of Harm
If this equipment (PC1616, PC1832, PC1864) causes harm to the tele-
phone network, the telephone company will notify you in advance that
temporary discontinuance of service may be required. But if advance no-
tice is not practical, the Telephone Company will notify the customer as
soon as possible. Also, you will be advised of your right to file a com-
plaint with the FCC if you believe it is necessary.
Changes in Telephone Company Equipment or Facilities
The Telephone Company may make changes in its facilities, equipment,
operations or procedures that could affect the operation of the equipment.
If this happens the Telephone Company will provide advance notice in
order for you to make necessary modifications to maintain uninterrupted
service.
Equipment Maintenance Facility
If trouble is experienced with this equipment ( PC1616, PC1832,
PC1864) for repair or warranty information, contact the facility indicated
below. If the equipment is causing harm to the telephone network, the
Telephone Company may request that you disconnect the equipment un-
til the problem is solved. This equipment is of a type that is not intended
to be repaired by the end user.
DSC c/o APL Logistics 757 Douglas Hill Rd, Lithia Springs, GA
30122
Additional Information
Connection to party line service is subject to state tariffs. Contact the state
public utility commission, public service commission or corporation
commission for information.
Alarm dialing equipment must be able to seize the telephone line and
place a call in an emergency situation. It must be able to do this even if
other equipment (telephone, answering system, computer modem, etc.)
already has the telephone line in use. To do so, alarm dialing equipment
must be connected to a properly installed RJ-31X jack that is electrically
in series with and ahead of all other equipment attached to the same tele-
phone line. Proper installation is depicted in the figure below. If you have
any questions concerning these instructions, you should consult your tel-
ephone company or a qualified installer about installing the RJ-31X jack
and alarm dialing equipment for you.
Telephone
Computer
Telephone
Telephone
Fax Machine
Alarm Dialing
Equipment
RJ-31X
Jack Unused
RJ-11 Jack
Telephone
Line
Network
Service
Provider's
Facilities
Customer Premises Equipment and Wiring
Unused
RJ-11 Jack
Network
Demarcation
Point Answering
System
This product is in conformity with EMC Directive 89/336/EEC based on
results using harmonized standards in accordance with article 10(5),
R&TTE Directive 1999/5/EC based on following Annex III of the direc-
tive and LVD Directive 73/23/EEC as amended by 93/68/EEC based on
results using harmonized standards.
This product meets the requirements of Class II, Grade 2 equipment as per
EN 50131-1:2004 Standard. This product is suitable for use in systems
with the following notification options:
- A (use of two warning devices and internal dialer required),
- B (self powered warning device and internal dialer required),
- D (use of DSC model T-Link TL250 encrypted Ethernet communicator
required).
INDUSTRY CANADA STATEMENT
NOTICE: This Equipment meets the applicable Industry Canada Termi-
nal Equipment Technical Specifications. This is confirmed by the regis-
tration number. The abbreviation, IC, before the registration number
signifies that registration was performed based on a Declaration of Con-
formity indicating that Industry Canada technical specifications were met.
It does not imply that that Industry Canada approved the equipment
NOTICE: The Ringer Equivalence Number (REN) for this terminal
equipment is 0.1. The REN assigned to each terminal equipment provides
an indication of the maximum number of terminals allowed to be connect-
ed to a telephone interface. The termination on an interface may consist of
any combination of devices subject only to the requirement that the sum
of the Ringer Equivalence Numbers of all devices does not exceed 5.
PC1864 Registration numberIC: 160A-PC1864
PC1832 Registration numberIC: 160A-PC1832
PC1616 Registration numberIC: 160A-PC1614

©2007 Digital Security Controls Printed in Canada
Toronto, Canada • www.dsc.com
WARNING Please Read Carefully
Note to Installers
This warning contains vital information. As the only individual in contact
with system users, it is your responsibility to bring each item in this warn-
ing to the attention of the users of this system.
System Failures
This system has been carefully designed to be as effective as possible.
There are circumstances, however, involving fire, burglary, or other types
of emergencies where it may not provide protection. Any alarm system of
any type may be compromised deliberately or may fail to operate as
expected for a variety of reasons. Some but not all of these reasons may
be:
n Inadequate Installation
A security system must be installed properly in order to provide adequate
protection. Every installation should be evaluated by a security profes-
sional to ensure that all access points and areas are covered. Locks and
latches on windows and doors must be secure and operate as intended.
Windows, doors, walls, ceilings and other building materials must be of
sufficient strength and construction to provide the level of protection
expected. A reevaluation must be done during and after any construction
activity. An evaluation by the fire and/or police department is highly rec-
ommended if this service is available.
n Criminal Knowledge
This system contains security features which were known to be effective
at the time of manufacture. It is possible for persons with criminal intent
to develop techniques which reduce the effectiveness of these features. It
is important that a security system be reviewed periodically to ensure that
its features remain effective and that it be updated or replaced if it is found
that it does not provide the protection expected.
n Access by Intruders
Intruders may enter through an unprotected access point, circumvent a
sensing device, evade detection by moving through an area of insufficient
coverage, disconnect a warning device, or interfere with or prevent the
proper operation of the system.
n Power Failure
Control units, intrusion detectors, smoke detectors and many other secu-
rity devices require an adequate power supply for proper operation. If a
device operates from batteries, it is possible for the batteries to fail. Even
if the batteries have not failed, they must be charged, in good condition
and installed correctly. If a device operates only by AC power, any inter-
ruption, however brief, will render that device inoperative while it does
not have power. Power interruptions of any length are often accompanied
by voltage fluctuations which may damage electronic equipment such as a
security system. After a power interruption has occurred, immediately
conduct a complete system test to ensure that the system operates as
intended.
n Failure of Replaceable Batteries
This system’s wireless transmitters have been designed to provide several
years of battery life under normal conditions. The expected battery life is
a function of the device environment, usage and type. Ambient conditions
such as high humidity, high or low temperatures, or large temperature
fluctuations may reduce the expected battery life. While each transmitting
device has a low battery monitor which identifies when the batteries need
to be replaced, this monitor may fail to operate as expected. Regular test-
ing and maintenance will keep the system in good operating condition.
n Compromise of Radio Frequency (Wireless) Devices
Signals may not reach the receiver under all circumstances which could
include metal objects placed on or near the radio path or deliberate jam-
ming or other inadvertent radio signal interference.
n System Users
A user may not be able to operate a panic or emergency switch possibly
due to permanent or temporary physical disability, inability to reach the
device in time, or unfamiliarity with the correct operation. It is important
that all system users be trained in the correct operation of the alarm sys-
tem and that they know how to respond when the system indicates an
alarm.
n Smoke Detectors
Smoke detectors that are a part of this system may not properly alert occu-
pants of a fire for a number of reasons, some of which follow. The smoke
detectors may have been improperly installed or positioned. Smoke may
not be able to reach the smoke detectors, such as when the fire is in a
chimney, walls or roofs, or on the other side of closed doors. Smoke
detectors may not detect smoke from fires on another level of the resi-
dence or building.
Every fire is different in the amount of smoke produced and the rate of
burning. Smoke detectors cannot sense all types of fires equally well.
Smoke detectors may not provide timely warning of fires caused by care-
lessness or safety hazards such as smoking in bed, violent explosions,
escaping gas, improper storage of flammable materials, overloaded elec-
trical circuits, children playing with matches or arson.
Even if the smoke detector operates as intended, there may be circum-
stances when there is insufficient warning to allow all occupants to escape
in time to avoid injury or death.
n Motion Detectors
Motion detectors can only detect motion within the designated areas as
shown in their respective installation instructions. They cannot discrimi-
nate between intruders and intended occupants. Motion detectors do not
provide volumetric area protection. They have multiple beams of detec-
tion and motion can only be detected in unobstructed areas covered by
these beams. They cannot detect motion which occurs behind walls, ceil-
ings, floor, closed doors, glass partitions, glass doors or windows. Any
type of tampering whether intentional or unintentional such as masking,
painting, or spraying of any material on the lenses, mirrors, windows or
any other part of the detection system will impair its proper operation.
Passive infrared motion detectors operate by sensing changes in tempera-
ture. However their effectiveness can be reduced when the ambient tem-
perature rises near or above body temperature or if there are intentional or
unintentional sources of heat in or near the detection area. Some of these
heat sources could be heaters, radiators, stoves, barbeques, fireplaces,
sunlight, steam vents, lighting and so on.
n Warning Devices
Warning devices such as sirens, bells, horns, or strobes may not warn peo-
ple or waken someone sleeping if there is an intervening wall or door. If
warning devices are located on a different level of the residence or
premise, then it is less likely that the occupants will be alerted or awak-
ened. Audible warning devices may be interfered with by other noise
sources such as stereos, radios, televisions, air conditioners or other appli-
ances, or passing traffic. Audible warning devices, however loud, may not
be heard by a hearing-impaired person.
n Telephone Lines
If telephone lines are used to transmit alarms, they may be out of service
or busy for certain periods of time. Also an intruder may cut the telephone
line or defeat its operation by more sophisticated means which may be
difficult to detect.
n Insufficient Time
There may be circumstances when the system will operate as intended,
yet the occupants will not be protected from the emergency due to their
inability to respond to the warnings in a timely manner. If the system is
monitored, the response may not occur in time to protect the occupants or
their belongings.
n Component Failure
Although every effort has been made to make this system as reliable as
possible, the system may fail to function as intended due to the failure of a
component.
n Inadequate Testing
Most problems that would prevent an alarm system from operating as
intended can be found by regular testing and maintenance. The complete
system should be tested weekly and immediately after a break-in, an
attempted break-in, a fire, a storm, an earthquake, an accident, or any kind
of construction activity inside or outside the premises. The testing should
include all sensing devices, keypads, consoles, alarm indicating devices
and any other operational devices that are part of the system.
n Security and Insurance
Regardless of its capabilities, an alarm system is not a substitute for prop-
erty or life insurance. An alarm system also is not a substitute for property
owners, renters, or other occupants to act prudently to prevent or mini-
mize the harmful effects of an emergency situation.
29007358R002