95G1UH Ducane 92G1 95G1 Upflow Install
User Manual: 95G1UH
Open the PDF directly: View PDF
.
Page Count: 60
- Unit Dimensions
- Parts Arrangement
- Gas Furnace
- Shipping and Packing List
- Safety Information
- Use of Furnace as a Construction Heater
- General
- Combustion, Dilution & Ventilation Air
- Setting Equipment
- Filters
- Duct System
- Pipe & Fittings Specifications
- Joint Cementing Procedure
- Venting Practices
- Vent Piping Guidelines
- Gas Piping
- Electrical
- Unit Start-Up
- Gas Pressure Adjustment
- High Altitude Information
- Other Unit Adjustments
- Blower Motor Performance
- Service
- Planned Service
- Diagnostic Codes
- Repair Parts List
- Start-Up & Performance Check List

507270-03 Page 1 of 60Issue 1621
This is a safety alert symbol and should never be ignored. When you see this symbol on labels or in
manuals, be alert to the potential for personal injury or death.
As with any mechanical equipment, personal injury can
result from contact with sharp sheet metal edges. Be
careful when you handle this equipment.
CAUTION
Manufactured By
Allied Air Enterprises LLC
A Lennox International, Inc. Company
215 Metropolitan Drive
West Columbia, SC 29170
Improper installation, adjustment, alteration, service
or maintenance can cause property damage, personal
injury or loss of life. Installation and service must
be performed by a licensed professional installer (or
equivalent), service agency or the gas supplier.
WARNING
This manual must be left with the homeowner for future reference.
A95UH1D,A93UH1D,95G1UH-P & 92G1UH-P
INSTALLATION INSTRUCTIONS
Warm Air Gas Furnace
Upow/Horizontal Left and Right Air Discharge
(P) 507270-03
*P507270-03*
TABLE OF CONTENTS
Unit Dimensions ................................................................ 2
Parts Arrangement............................................................. 3
Gas Furnace ...................................................................... 4
Shipping and Packing List ................................................. 4
Safety Information ............................................................. 4
Use of Furnace as a Construction Heater ......................... 5
General ............................................................................ 6
Combustion, Dilution & Ventilation Air ............................... 6
Setting Equipment ............................................................. 9
Filters .......................................................................... 13
Duct System .................................................................... 13
Pipe & Fittings Specications .......................................... 13
Joint Cementing Procedure ............................................. 15
Venting Practices ............................................................. 16
Vent Piping Guidelines .................................................... 18
Gas Piping ....................................................................... 38
Electrical .......................................................................... 41
Unit Start-Up .................................................................... 44
Gas Pressure Adjustment ................................................ 46
High Altitude Information ................................................. 46
Other Unit Adjustments.................................................... 49
Blower Motor Performance .............................................. 50
Service .......................................................................... 54
Planned Service .............................................................. 56
Diagnostic Codes ............................................................ 56
Repair Parts List .............................................................. 57
Start-Up & Performance Check List ................................ 58

507270-03Page 2 of 60 Issue 1621
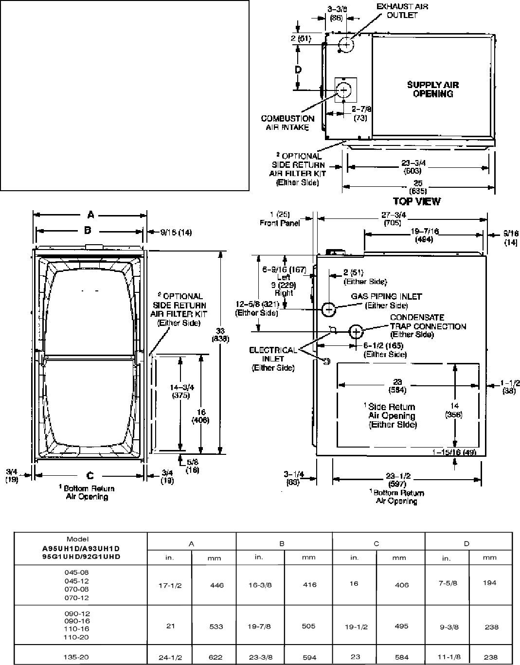
A95UH1D, A93UH1D, 95G1UHD & 92G1UHD Unit Dimensions - inches (mm)
1 NOTE - 20C and 20D (5 Ton) size units installed in upow
applications that require air volumes of 1800 cfm (850 L/s) or
greater must have one of the following:
1. Single side return air with transition, to accommodate
20 x 25 x 1 in. (508 x 635 x 25 mm) cleanable air lter.
(Required to maintain proper air velocity.)
2. Single side return air with optional “RAB” Return Air
Base.
3. Bottom return air.
4. Return air from both sides.
5. Bottom and one side return air.
See “Blower Performance Tables” for additional information.
2 Optional External Side Return Air Filter kit is not for use with
optional Return Air Base.
* Consider sizing requirements for optional IAQ equipment
before cutting side return opening.
FRONT VIEW SIDE VIEW

507270-03 Page 3 of 60Issue 1621
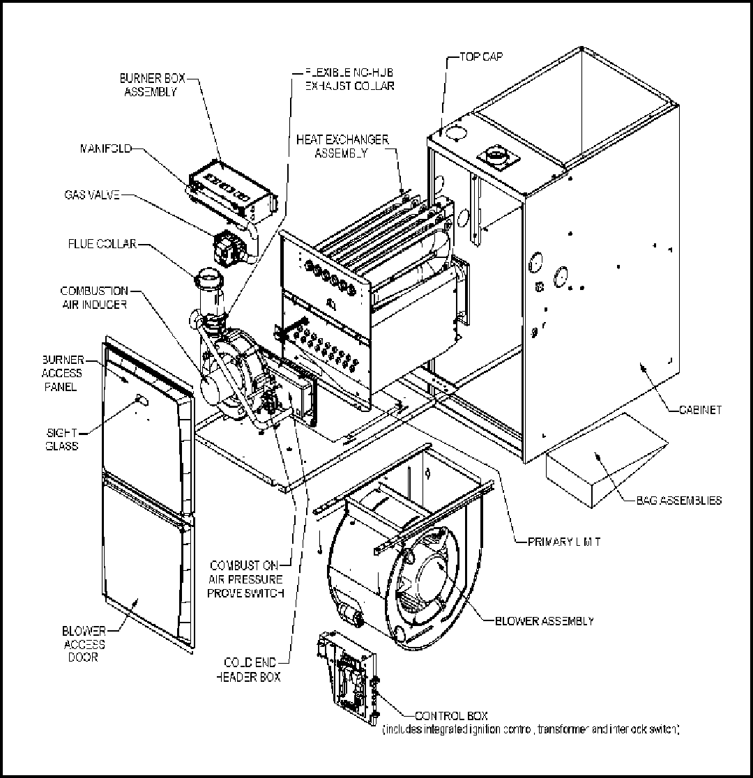
EXPANDED VIEW
Figure 1

507270-03Page 4 of 60 Issue 1621
A95UH1D, A93UH1D, 95G1UH-P & 92G1UH-P Gas
Furnace
The A95UH1D/A93UH1D/95G1UHD & 92G1UHD Category
IV gas furnace is shipped ready for installation in the upow
or horizontal position. The furnace is shipped with the
bottom panel in place. The bottom panel must be removed if
the unit is to be installed in horizontal or upow applications
with bottom return air.
The A95UH1D/A93UH1D/95G1UH-P & 92G1UH-P can
be installed as either a Direct Vent or a Non-Direct Vent
gas central furnace
The furnace is equipped for installation in natural gas
applications. A conversion kit (ordered separately) is
required for use in propane/LP gas applications.
NOTE: In Direct Vent installations, combustion air is taken
from outdoors and ue gases are discharged outdoors.
In Non-Direct Vent installations, combustion air is taken
from indoors and ue gases are discharged outdoors. See
Figures 2 and 3 for applications involving roof termination.
Safety Information
Use only the type of gas approved for use with this furnace.
Refer to unit nameplate.
A95UH1D/A93UH1D/95G1UH-P & 92G1UH-P units are
CSA International certied to ANSI Z21.47 and CSA 2.3
standards.
Building Codes
In the USA, installation of gas furnaces must conform with
local building codes. In the absence of local codes, units
must be installed according to the current National Fuel
Gas Code (ANSI Z223.1/NFPA 54). The National Fuel Gas
Code is available from the American National Standards
Institute, Inc., 11 West 42nd Street, New York, NY 10036.
Shipping and Packing List
1 - Assembled Gas Furnace
1 - Bag assembly containing the following:
1 - Snap bushing
1 - Snap Plug
1 - Wire tie
1 - Condensate trap
1 - Condensate trap cap
1 - Condensate trap clamp
1 - 2” diameter debris screen
1 - 3/4” Threaded street elbow
Check equipment for shipping damage. If you nd any
damage, immediately contact the last carrier.
Please refer to specication sheets for available accessories
DANGER OF EXPLOSION!
DANGER
There are circumstances in which odorant used with
LP/Propane gas can lose its scent. In case of a leak,
LP/Propane gas will settle close to the oor and may be
difcult to smell. An LP/Propane leak detector should
be installed in all LP applications.
As with any mechanical equipment, personal injury can
result from contact with sharp sheet metal edges. Be
careful when you handle this equipment.
CAUTION
Improper installation, adjustment, alteration, service
or maintenance can cause property damage, personal
injury or loss of life. Installation and service must
be performed by a licensed professional installer (or
equivalent), service agency or the gas supplier.
WARNING
Figure 2
Figure 3

507270-03 Page 5 of 60Issue 1621
In Canada, installation must conform with current National
Standard of Canada CSA-B149 Natural Gas and Propane
Installation Codes, local plumbing or waste water codes and
other applicable local codes.
In order to ensure proper unit operation in non-direct vent
applications, combustion and ventilation air supply must be
provided according to the current National Fuel Gas Code
or CSA-B149 standard.
Installation Locations
This furnace is CSA International certied for installation
clearances to combustible material as listed on the unit
nameplate and in the table in Figures13 and 18. Accessibility
and service clearances must take precedence over re
protection clearances.
NOTE: For installation on combustible oors, the furnace
shall not be installed directly on carpeting, tile, or other
combustible material other than wood ooring.
For installation in a residential garage, the furnace must be
installed so that the burner(s) and the ignition source are
located no less than 18 inches (457 mm) above the oor.
The furnace must be located or protected to avoid physical
damage by vehicles. When a furnace is installed in a public
garage, hangar, or other building that has a hazardous
atmosphere, the furnace must be installed according to
recommended good practice requirements and current
National Fuel Gas Code or CSA B149 standards.
Note: Furnace must be adjusted to obtain a temperature
rise within the range specied on the unit nameplate. Failure
to do so may cause erratic limit operation and premature
heat exchanger failure.
This furnace must be installed so that its electrical
components are protected from water.
Installed in Combination with a Cooling Coil
When this furnace is used with cooling units (Figure 4),
it shall be installed in parallel with, or on the upstream
side of, cooling units to avoid condensation in the heating
compartment. With a parallel ow arrangement, a damper
(or other means to control the ow of air) must adequately
prevent chilled air from entering the furnace. If the damper is
manually operated, it must be equipped to prevent operation
of either the heating or the cooling unit, unless it is in the
full HEAT or COOL setting.
When installed, this furnace must be electrically grounded
according to local codes. In addition, in the United States,
installation must conform with the current National Electric
Code, ANSI/NFPA No. 70. The National Electric Code
(ANSI/NFPA No. 70) is available from the following address:
National Fire Protection Association
1 Battery March Park
Quincy, MA 02269
NOTE: This furnace is designed for a minimum continuous
return air temperature of 60°F (16°C) or an intermittent
operation down to 55°F (13°C) dry bulb for cases where a
night setback thermostat is used. Return air temperature
must not exceed 85°F (29°C) dry bulb.
This furnace may be installed in alcoves, closets, attics,
basements, garages, and utility rooms in the upow or
horizontal position.
This furnace design has not been CSA certied for installation
in mobile homes, recreational vehicles, or outdoors.
Use of Furnace as a Construction Heater
These units are not recommended for use as a construction
heater during any phase of construction. Very low return air
temperature, harmful vapors and operation of the unit with
clogged or misplaced lters will damage the unit.
These units may be used for heating of buildings or
structures under construction, if the following conditions
are met:
• The vent system must be permanently installed per
these installation instructions.
• A room thermostat must control the furnace. The use
of xed jumpers that will provide continuous heating is
not allowed.
• The return air duct must be provided and sealed to the
furnace.
• Return air temperature range between 60°F (16°C) and
80°F (27°C) must be maintained.
• Air lters must be installed in the system and must be
maintained during construction.
• Air lters must be replaced upon construction completion.
Figure 4
Heating Unit Installed Parallet to Air Handler Unit
In Canada, all electrical wiring and grounding for the unit
must be installed according to the current regulations of
the Canadian Electrical Code Part I (CSA Standard C22.1)
and/or local codes.

507270-03Page 6 of 60 Issue 1621
• The input rate and temperature rise must be set per the
furnace rating plate.
• One hundred percent (100%) outdoor air must be provided
for combustion air requirements during construction.
Temporary ducting may supply outdoor air to the furnace.
Do not connect duct directly to the furnace. Size the
temporary duct following the instructions in section for
Combustion, Dilution and Ventilation Air in a conned
space with air from outside.
• The furnace heat exchanger, components, duct system,
air lters and evaporator coils must be thoroughly
cleaned following nal construction cleanup.
• All furnace operating conditions (including ignition, input
rate, temperature rise and venting) must be veried
according to these installation instructions.
General
These instructions are intended as a general guide and do
not supersede local codes in any way. Consult authorities
having jurisdiction before installation.
In addition to the requirements outlined previously, the
following general recommendations must be considered
when installing one of these furnaces:
• Place the furnace as close to the center of the air
distribution system as possible. The furnace should
also be located close to the vent termination point.
• When the furnace is installed in non-direct vent
applications, do not install the furnace where drafts
might blow directly into it. This could cause improper
combustion and unsafe operation.
• When the furnace is installed in non-direct vent
applications, do not block the furnace combustion air
opening with clothing, boxes, doors, etc. Air is needed
for proper combustion and safe unit operation.
• When the furnace is installed in an attic or other
insulated space, keep insulation away from the furnace.
• When the furnace is installed in an unconditioned space,
consider provisions required to prevent freezing of
condensate drain system.
Note: The Commonwealth of Massachusetts stipulates
these additional requirements:
• Gas furnaces shall be installed by a licensed plumber
or tter only.
• The gas cock must be “T handle” type.
• When a furnace is installed in an attic, the passageway
to and service area surrounding the equipment shall be
oored.
Combustion, Dilution & Ventilation Air
If this unit is installed as a Non-Direct Vent Furnace,
follow the guidelines in this section.
NOTE: In Non-Direct Vent Installations, combustion air is
taken from indoors and ue gases are discharged outdoors.
In the past, there was no problem in bringing in sufcient
outdoor air for combustion. Inltration provided all the air
that was needed. In today’s homes, tight construction
practices make it necessary to bring in air from outside for
combustion. Take into account that exhaust fans, appliance
vents, chimneys, and replaces force additional air that
could be used for combustion out of the house. Unless
outside
These units should not be installed in areas normally
subject to freezing temperatures.
CAUTION
Insufficient combustion air can cause headaches,
nausea, dizziness or asphyxiation. It will also cause
excess water in the heat exchanger resulting in rusting
and premature heat exchanger failure. Excessive
exposure to contaminated combustion air will result
in safety and performance related problems. Avoid
exposure to the following substances in the combustion
air supply:
Permanent wave solutions
Chlorinated waxes and cleaners
Chlorine base swimming pool chemicals
Water softening chemicals
De-icing salts or chemicals
Carbon tetrachloride
Halogen type refrigerants
Cleaning solvents (such as perchloroethylene)
Printing inks, paint removers, varnishes, etc.
Hydrochloric acid
Cements and glues
Antistatic fabric softeners for clothes dryers
Masonry acid washing materials
WARNING
The State of California has determined that this product
may contain or produce a chemical or chemicals, in
very low doses, which may cause serious illness or
death. It may also cause cancer, birth defects or other
repoductive harm.
WARNING

507270-03 Page 7 of 60Issue 1621
Do not install the furnace in a corrosive or contaminated
atmosphere. Meet all combustion and ventilation air
requirements, as well as all local codes.
CAUTION
inltration. If the furnace is located in a building of tight
construction with weather stripping and caulking around
the windows and doors, follow the procedures in the “Air
from Outside” section.
Conned Space
A conned space is an area with a volume less than 50
cubic feet (1.42 m³) per 1,000 Btu (.29 kW) per hour of
the combined input rating of all appliances installed in that
space. This denition includes furnace closets or small
equipment rooms.
When the furnace is installed so that supply ducts carry
air circulated by the furnace to areas outside the space
containing the furnace, the return air must be handled by
ducts which are sealed to the furnace casing and which
terminate outside the space containing the furnace. This
is especially important when the furnace is mounted on
a platform in a conned space such as a closet or small
equipment room. Even a small leak around the base of the
unit at the platform or at the return air duct connection can
cause a potentially dangerous negative pressure condition.
Air for combustion and ventilation can be brought into the
conned space either from inside the building or from
outside.
Air from Inside
If the conned space that houses the furnace adjoins a
space categorized as unconned, air can be brought in by
providing two permanent openings between the two spaces.
Each opening must have a minimum free area of 1 square
inch (645 mm²) per 1,000 Btu (.29 kW) per hour of total
input rating of all gas-red equipment in the conned space.
Each opening must be at least 100 square inches (64516
mm²). One opening shall be within 12 inches (305 mm) of
the top of the enclosure and one opening within 12 inches
(305 mm) of the bottom. See Figure 5.
air is brought into the house for combustion, negative
pressure (outside pressure is greater than inside pressure)
will build to the point that a down draft can occur in the
furnace vent pipe or chimney. As a result, combustion
gases enter the living space creating a potentially dangerous
situation.
In the absence of local codes concerning air for combustion
and ventilation, use the guidelines and procedures in this
section to install these furnaces to ensure efcient and safe
operation. You must consider combustion air needs and
requirements for exhaust vents and gas piping. A portion
of this information has been reprinted with permission from
the National Fuel Gas Code (ANSI-Z223.1/NFPA 54). This
reprinted material is not the complete and ofcial position
of ANSI on the referenced subject, which is represented
only by the standard in its entirely.
In Canada, refer to the CSA B149 Installation codes.
All gas-red appliances require air for the combustion
process. If sufcient combustion air is not available, the
furnace or other appliance will operate inefciently and
unsafely. Enough air must be provided to meet the needs of
all fuel-burning appliances and appliances such as exhaust
fans which force air out of the house. When replaces,
exhaust fans, or clothes dryers are used at the same time
as the furnace, much more air is required to ensure proper
combustion and to prevent a down draft. Insufcient air
causes incomplete combustion which can result in carbon
monoxide.
In addition to providing combustion air, fresh outdoor air
dilutes contaminants in the indoor air. These contaminants
may include bleaches, adhesives, detergents, solvents and
other contaminants which can corrode furnace components.
The requirements for providing air for combustion and
ventilation depend largely on whether the furnace is installed
in an unconned or a conned space.
Unconned Space
An unconned space is an area such as a basement or large
equipment room with a volume greater than 50 cubic feet
(1.42 m³) per 1,000 Btu (.29 kW) per hour of the combined
input rating of all appliances installed in that space. This
space also includes adjacent rooms which are not separated
by a door. Though an area may appear to be unconned,
it might be necessary to bring in outdoor air for combustion
if the structure does not provide enough air by
Figure 5
Equipment in Conned Space - All Air From Inside

507270-03Page 8 of 60 Issue 1621
Air from Outside
If air from outside is brought in for combustion and
ventilation, the conned space shall be provided with two
permanent openings. One opening shall be within 12” (305
mm) of the top of the enclosure and one within 12” (305 mm)
of the bottom. These openings must communicate directly
or by ducts with the outdoors or spaces (crawl or attic) that
freely communicate with the outdoors or indirectly through
vertical ducts. Each opening shall have a minimum free area
of 1 square inch per 4,000 Btu (645 mm² per .59 kW) per
hour of total input rating of all equipment in the enclosure
(See Figures 6 and 7). It is also permissible to bring in air
for combustion from a ventilated attic (Figure 8) or ventilated
crawl space (Figure 9).
When communicating with the outdoors through horizontal
ducts, each opening shall have a minimum free area of 1
square inch (645 mm²) per 2,000 Btu (.56 kW) per total input
rating of all equipment in the enclosure. See Figure 10.
When ducts are used, they shall be of the same cross-
sectional area as the free area of the openings to which they
connect. The minimum dimension of rectangular air ducts
shall be no less than 3 inches (75 mm). In calculating free
area, the blocking effect of louvers, grilles, or screens must
be considered. If the design and free area of protective
covering is not known for calculating the size opening
required, it may be assumed that wood louvers will have
20 to 25 percent free area and metal louvers and grilles
will have 60 to 75 percent free area. Louvers and grilles
must be xed in the open position or interlocked with the
equipment so that they are opened automatically during
equipment operation.
Figure 6
Equipment in Conned Space - All Air from Outside
(Inlet Air from Crawl Space and Outlet Air to Ventilated Attic)
Figure 7
Equipment in Conned Space - All Air from Outside
(All Air through Ventilated Attic)
Figure 8
Equipment in Conned Space
(Inlet Air from Ventilated Attic & Outlet Air to Outside)
Figure 9
Equipment in Conned Space
(Inlet Air from Ventilated Drawlspace & Outlet Air to Outside)

507270-03 Page 9 of 60Issue 1621
Shipping Bolt Removal
Units with 1/2 hp blower motor are equipped with three
exible legs and one rigid leg. The rigid leg is equipped
with a shipping bolt and a at white plastic washer (rather
than the rubber mounting grommet used with a exible
mounting leg). See Figure 11. The bolt and washer must
be removed before the furnace is placed into operation.
After the bolt and washer have been removed, the rigid leg
will not touch the blower housing.
Figure 10
Equipment in Conned Space - All Air from Outside INSTALLATION
Setting Equipment
WARNING
Blower access panel must be securely in place when
blower and burners are operating. Gas fumes, which
could contain carbon monoxide, can be drawn into living
space resulting in personal injury or death.
WARNING
Do not connect the return air ducts to the back of the
furnace. Doing so will adversely affect the operation of
the safety control devices, which could result in personal
injury or death.
Upow Applications
The gas furnaces can be installed as shipped in the upow
position. Refer to Figure 13 for clearances. Select a
location that allows for the required clearances that are
listed on the unit nameplate. Also consider gas supply
connections,
electrical supply, vent connection, condensate trap and
drain connections, and installation and service clearances
[24 inches (610 mm) at unit front]. The unit must be level
from side to side. Tilt the unit slightly (maximum 1/2 in. from
level) from back to front to aid in the draining of the heat
exchanger. See Figure 12.
Allow for clearances to combustible materials as indicated
on the unit nameplate.
Figure 11
Units with 1/2 HP
Blower Motor
Figure 12
Setting Equipment
Unit must be level side-to-side in all applications.
Tilt the unit slightly (Max. 1/2”) from back to front to aid in the draining of the heat exchanger.

507270-03Page 10 of 60 Issue 1621
WARNING
Improper installation of the furnace can result in
personal injury or death. Combustion and ue products
must never be allowed to enter the return air system
or air in the living space. Use sheet metal screws and
joint tape to seal return air system to furnace.
In platform installations with furnace return, the furnace
should be sealed airtight to the return air plenum. A
door must never be used as a portion of the return air
duct system. The base must provide a stable support
and an airtight seal to the furnace. Allow absolutely no
sagging, cracks, gaps, etc.
For no reason should return and supply air duct systems
ever be connected to or from other heating devices such
as a replace or stove, etc. Fire, explosion, carbon
monoxide poisoning, personal injury and/or property
damage could result.
Return Air Guidlines
Return air can be brought in through the bottom or either
side of the furnace installed in an upow application. If the
furnace is installed on a platform with bottom return, make
an airtight seal between the bottom of the furnace and the
platform to ensure that the furnace operates properly and
safely. The furnace is equipped with a removable bottom
panel to facilitate installation.
Markings are provided on both sides of the furnace cabinet
for installations that require side return air. Cut the furnace
cabinet at the maximum dimensions shown on page 2.
Furnace applications which include side return air and a
condensate trap installed on the same side of the cabinet
(trap can be installed remotely within 5 ft.) require either a
return air base or eld-fabricated transition to accommodate
an optional IAQ accessory taller than 14.5”. See Figure 14.
Figure 13
Installation Clearances
Figure 14
Side Return Air
(with Transition and Filter)

507270-03 Page 11 of 60Issue 1621
Removing the Bottom Panel
Remove the two screws that secure the bottom cap to the
furnace. Pivot the bottom cap down to release the bottom
panel. Once the bottom panel has been removed, reinstall
the bottom cap. See Figure 16.
Horizontal Applications
WARNING
Do not install the furnace on its front or its back. See
Figure 17.
Figure 17
Optional Return Air Base
(Upow Applications Only)
Figure 15
Removing the Bottom Panel
Figure 16

507270-03Page 12 of 60 Issue 1621
Suspended Installation of Horizontal Unit
This furnace may be installed in either an attic or a crawl
space. Either suspend the furnace from roof rafters or oor
joists, as shown in Figure 19, or install the furnace on a
platform, as shown in Figure 20. A horizontal suspension
kit (51W10) may be ordered from your distributor or use
equivalent.
NOTE: When the furnace is installed on a platform or with
the horizontal suspension kit in a crawl space, it must be
elevated enough to avoid water damage, accommodate
drain trap and to allow the evaporator coil to drain.
Platform Installation of Horizontal Unit
1. Select location for unit keeping in mind service and other
necessary clearances. See Figure 18.
2. Construct a raised wooden frame and cover frame with a
plywood sheet. If unit is installed above nished space,
fabricate an auxiliary drain pan to be installed under unit.
Set unit in drain pan as shown in Figure 20. Leave 8
inches for service clearance below unit for condensate
trap.
3. Provide a service platform in front of unit. When
installing the unit in a crawl space, a proper support
platform may be created using cement blocks.
4. Route auxiliary drain line so that water draining from
this outlet will be easily noticed by the homeowner.
5. If necessary, run the condensate line into a condensate
pump to meet drain line slope requirements. The pump
must be rated for use with condensing furnaces. Protect
the condensate discharge line from the pump to the
outside to avoid freezing.
6. Continue with exhaust, condensate and intake piping
installation according to instructions.
Typical Horizontal Application
Figure 19
This furnace can be installed in horizontal applications with
either right or left hand air discharge.
Refer to Figure 18 for clearances in horizontal applications.
NOTE: Heavy-gauge sheet metal straps may be used to
suspend the unit from roof rafters or ceiling joists. When
straps are used to suspend the unit in this way, support
must be provided for both the ends. The straps must not
interfere with the plenum or exhaust piping installation.
Cooling coils and supply and return air plenums must
be supported separately.
Figure 18
Horizontal Application
Installation Clearances

507270-03 Page 13 of 60Issue 1621
Return Air - Horizontal Applications
Return air may be brought in only through the end of a
furnace installed in the horizontal position. The furnace
is equipped with a removable bottom panel to facilitate
installation. See Figure 16.
Filters
This unit is not equipped with a lter or rack. A eld provided
lter is required for the unit to operate properly. Table 1 list
recommended lter sizes.
A lter must be in place whenever the is operating.
Duct System
Use industry approved standards to size and install the
supply and return air duct system. This will result in a quiet
and low-static system that has uniform air distribution.
NOTE: This furnace is not certied for operation in heating
mode (indoor blower operating at selected heating speed)
with an external static pressure which exceeds 0.5 inches
w.c. Operation at these conditions may result in improper
limit operation.
Supply Air Plenum
If the furnace is installed without a cooling coil, a removable
access panel should be installed in the supply air duct. The
access panel should be large enough to permit inspection
(by reected light) of the heat exchanger for leaks after the
furnace is installed. The furnace access panel must always
be in place when the furnace is operating and it must not
allow leaks into the supply air duct system.
Return Air Plenum
NOTE: Return air must not be drawn from a room where
this furnace, or any other gas fueled appliance (i.e.,
water heater), or carbon monoxide producing device
(i.e., wood replace) is installed.
When return air is drawn from a room, a negative pressure
is created in the room. If a gas appliance is operating in a
room with negative pressure, the ue products can be pulled
back down the vent pipe and into the room. This reverse
ow of the ue gas may result in incomplete combustion
and the formation of carbon monoxide gas. This raw gas or
toxic fumes might then be distributed throughout the house
by the furnace duct system.
Return air can be brought in through the bottom or either
side of the furnace. If a furnace with bottom return air is
installed on a platform, make an airtight seal between the
bottom of the furnace and the platform to ensure that the
unit operates properly and safely. Use berglass sealing
strips, caulking, or equivalent sealing method between the
plenum and the furnace cabinet to ensure a tight seal. If a
lter is installed, size the return air duct to t the lter frame.
Pipe & Fittings Specications
All pipe, ttings, primer and solvent cement must conform
with American National Standard Institute and the American
Society for Testing and Materials (ANSI/ASTM) standards.
The solvent shall be free owing and contain no lumps,
undissolved particles or any foreign matter that adversely
affects the joint strength or chemical resistance of the
cement. The cement shall show no gelation, stratication,
or separation that cannot be removed by stirring. Refer to
Table 2 for approved piping and tting materials.
Table 1
Figure 20

507270-03Page 14 of 60 Issue 1621
Use PVC primer and solvent cement or ABS solvent cement
meeting ASTM specications, refer to Table 2. As an
alternate, use all purpose cement, to bond ABS, PVC, or
CPVC pipe when using ttings and pipe made of the same
materials. Use transition solvent cement when bonding ABS
to either PVC or CPVC.
Low temperature solvent cement is recommended during
cooler weather. Metal or plastic strapping may be used for
vent pipe hangers. Uniformly apply a liberal coat of PVC
primer for PVC or use a clean dry cloth for ABS to clean
inside socket surface of tting and male end of pipe to depth
of tting socket.
Canadian Applications Only
Pipe, ttings, primer and solvent cement used to vent
(exhaust) this appliance must be certied to ULC S636 and
supplied by a single manufacturer as part of an approved
vent (exhaust) system. When bonding the vent system to
the furnace, use ULC S636 approved One-Step Transition
Cement to bond the pipe to the ue collar, or to bond the 90°
elbow or reducing 90° elbow to the ue collar. In addition,
the rst three feet of vent pipe from the furnace ue collar
must be accessible for inspection.
Solvent cements for plastic pipe are ammable liquids
and should be kept away from all sources of ignition.
Do not use excessive amounts of solvent cement when
making joints. Good ventilation should be maintained to
reduce re hazard and to minimize breathing of solvent
vapors. Avoid contact of cement with skin and eyes.
CAUTION
A95UH1D/A93UH1D/95G1UH-P & 92G1UH-P exhaust
and intake connections are made of PVC. Use PVC
primer and solvent cement when using PVC vent pipe.
When using ABS vent pipe, use transitional solvent
cement to make connections to the PVC tting in the
unit.
IMPORTANT
PIPING AND FITTINGS SPECIFICATIONS
Table 2
Schedule 40 PVC (Pipe) D1785
Schedule 40 PVC (Cellular Core Pipe) F891
Schedule 40 PVC (Fittings) D2466
Schedule 40 CPVC (Pipe) F441
Schedule 40 CPVC (Fittings) F438
SDR-21 PVC or SDR-26 PVC (Pipe) D2241
SDR-21 CPVC or SDR-26 CPVC (Pipe) F442
Schedule 40 ABS Cellular Core DWV
(Pipe) F628
Schedule 40 ABS (Pipe) D1527
Schedule 40 ABS (Fittings) D2468
ABS-DWV (Drain Waste & Vent)
(Pipe & Fittings) D2661
PVC-DWV (Drain Waste & Vent)
Pipe & Fittings) D2665
PRIMER & SOLVENT CEMENT ASTM
SPECIFICATION
PVC & CPVC Primer F656
PVC Solvent Cement D2564
CPVC Solvent Cement F493
ABS Solvent Cement D2235
PVC/CPVC/ABS All Purpose Cement For
Fittings & Pipe of the same material
D2564, D2235,
F493
ABS to PVC or CPVC Transition Solvent
Cement D3138
CANADA PIPE & FITTING & SOLVENT
CEMENT MARKING
PVC & CPVC Pipe and Fittings
ULCS636PVC & CPVC Solvent Cement
ABS to PVC or CPVC Transition Cement
POLYPROPYLENE VENTING SYSTEM ULC-S636
PolyPro® by Duravent
InnoFlue® by Centrotherm ULC-S636

507270-03 Page 15 of 60Issue 1621
Joint Cementing Procedure
All cementing of joints should be done according to the
specications outlined in ASTM D 2855.
1. Measure and cut vent pipe to desired length.
2. Debur and chamfer end of pipe, removing any ridges
or rough edges. If end is not chamfered, edge of pipe
may remove cement from tting socket and result in a
leaking joint.
3. Clean and dry surfaces to be joined.
4. Test t joint and mark depth of tting on outside of pipe.
5. Uniformly apply a liberal coat of PVC primer for PVC
or use a clean dry cloth for ABS to clean inside socket
surface of tting and male end of pipe to depth of tting
socket.
NOTE: Time is critical at this stage. Do not allow primer
to dry before applying cement.
NOTE: A sheet metal screw may be used to secure the
intake pipe to the connector, if desired. Use a drill or self
tapping screw to make a pilot hole.
DANGER OF EXPLOSION!
Fumes from PVC glue may ignite during system check.
Allow fumes to dissipate for at least 5 minutes before
placing unit into operation.
DANGER
Table 3
Outdoor Termination Kits Usage

507270-03Page 16 of 60 Issue 1621
6. Promptly apply solvent cement to end of pipe and inside
socket surface of tting. Cement should be applied
lightly but uniformly to inside of socket. Take care to
keep excess cement out of socket. Apply second coat
to end of pipe.
7. Immediately after applying last coat of cement to pipe,
and while both inside socket surface and end of pipe
are wet with cement, forcefully insert end of pipe into
socket until it bottoms out. Turn PVC pipe 1/4 turn
during assembly (but not after pipe is fully inserted) to
distribute cement evenly. Do not turn ABS or cellular
core pipe.
NOTE: Assembly should be completed within 20 seconds
after last application of cement. Hammer blows should not
be used when inserting pipe.
8. After assembly, wipe excess cement from pipe at end
of tting socket. A properly made joint will show a bead
around its entire perimeter. Any gaps may indicate an
improper defective assembly due to insufcient solvent.
9. Handle joints carefully until completely set.
Venting Practices
Figure 21
Removal of the Furnace from Common Vent
In the event that an existing furnace is removed from a
venting system commonly run with separate gas appliances,
the venting system is likely to be too large to properly vent
the remaining attached appliances.
Conduct the following test while each appliance is operating
and the other appliances (which are not operating) remain
connected to the common venting system. If the venting
system has been installed improperly, you must correct the
system as indicated in the general venting requirements
section.
CARBON MONOXIDE POISONING HAZARD
Failure to follow the steps outlined below for each
appliance connected to the venting system being
placed into operation could result in carbon monoxide
poisoning or death.
The following steps shall be followed for each appliance
connected to the venting system being placed into
operation, while all other appliances connected to the
venting system are not in operation.
WARNING
1. Seal any unused openings in the common venting
system.
2. Inspect the venting system for proper size and horizontal
pitch. Determine that there is no blockage, restriction,
leakage, corrosion, or other deciencies which could
cause an unsafe condition.
3. Close all building doors and windows and all doors
between the space in which the appliances remaining
connected to the common venting system are located
and other spaces of the building. Turn ON clothes
dryers and any appliances not connected to the common
venting system. Turn ON any exhaust fans, such as
range hoods and bathroom exhausts, so they will
operate at maximum speed. Do not operate a summer
exhaust fan. Close replace dampers.
4. Follow the lighting instructions. Turn ON the appliance
that is being inspected. Adjust the thermostat so that
the appliance operates continuously.

507270-03 Page 17 of 60Issue 1621
Exhaust Piping (Figures 25 and 26)
1. In areas where piping penetrates joist or interior walls,
hole must be large enough to allow clearance on all
sides of pipe through center of hole using a hanger.
2. When furnace is installed in a residence where unit is
shut down for an extended period of time, such as a
vacation home, make provisions for draining condensate
collection from trap and lines.
3. Route piping to outside of structure. Continue with
installation following instructions given in piping
termination section.
The exhaust vent pipe operates under positive pressure
and must be completely sealed to prevent leakage of
combustion products into the living space.
CAUTION
Do not discharge exhaust into an existing stack or
stack that also serves another gas appliance. If vertical
discharge through an existing unused stack is required,
insert PVC pipe inside the stack until the end is even
with the top or outlet end of the metal stack.
CAUTION
5. After the main burner has operated for 5 minutes, test
for leaks of ue gases at the draft hood relief opening.
Use the ame of a match or candle.
6. After determining that each appliance connected to
the common venting system is venting properly, (step
3) return all doors, windows, exhaust fans, replace
dampers, and any other gas burning appliances to their
previous mode of operation.
7. If a venting problem is found during any of the preceding
tests, the common venting system must be modied to
correct the problems.
Resize the common venting system to the minimum vent
pipe size determined by using the appropriate tables in
Appendix G. (These are in the current standards of the
National Fuel Gas Code ANSI Z223.1.
Figure 22

507270-03Page 18 of 60 Issue 1621
Vent Piping Guidelines
This gas furnace can be installed as either a Non-Direct
Vent or a Direct Vent gas central furnace.
NOTE: In non-Direct Vent installations, combustion air is
taken from indoors and ue gases are discharged outdoors.
In Direct Vent installations, combustion air is taken from
outdoors and ue gases are discharged outdoors.
Intake and exhaust pipe sizing - Size pipe according to
Tables 4 and 5 or 6. Table 4 lists the minimum vent pipe
lengths permitted. Table 5 lists the maximum pipe lengths
permitted for A93UH1D and 92G1UH-P. Table 6 lists
the maximum pipe lengths permitted for A95UH1D and
95G1UH-P.
Regardless of the diameter of pipe used, the standard roof
and wall terminations described in section Exhaust Piping
Terminations should be used. Exhaust vent termination
pipe is sized to optimize the velocity of the exhaust gas as
it exits the termination. Refer to Table 8.
In some applications which permit the use of several
different sizes of vent pipe, a combination vent pipe may be
used. Contact Allied Air Technical Service for assistance in
sizing vent pipe in these applications.
NOTE: It is acceptable to use any pipe size which ts within
the guidelines allowed in Tables 5 and 6.
NOTE: The exhaust collar on all models is sized to
accommodate 2” Schedule 40 vent pipe. In horizontal
applications, transition to exhaust pipe larger than 2” must
be made in vertical runs of the pipe. A 2” elbow must be
added before the pipe is transitioned to any size larger than
2”. This elbow must be added to the elbow count used to
determine acceptable vent lengths. Contact the Application
Department for more information concerning sizing of vent
systems which include multiple pipe sizes.
Do not use screens or perforated metal in exhaust or
intake terminations. Doing so will cause freeze-ups and
may block the terminations.
IMPORTANT
Figure 23
Figure 24
Table 4

507270-03 Page 19 of 60Issue 1621
Table 5A
Size intake and exhaust pipe length separately. Values in table are for intake OR exhaust, not combined total. Both intake and exhaust must be same pipe size.
A93UH1D and 92G1UH-P Maximum Allowable Intake or Exhaust Vent Length in Feet
Table 5B
A93UH1D and 92G1UH-P

507270-03Page 20 of 60 Issue 1621
A95UH1D and 95G1UH-P Maximum Allowable Intake or Exhaust Vent Length in Feet
Size intake and exhaust pipe length separately. Values in table are for intake OR exhaust, not combined total. Both intake and exhaust must be same pipe size.
Table 6A

507270-03 Page 21 of 60Issue 1621
Table 6B
A95UH1D and 95G1UH-P Maximum Allowable Intake or Exhaust Vent Length in Feet

507270-03Page 22 of 60 Issue 1621
Figure 26
Figure 25

507270-03 Page 23 of 60Issue 1621
Intake Piping (Figures 27 through 30)
This gas furnace may be installed in either direct vent
or non-direct vent applications. In non-direct vent
applications, when intake air will be drawn into the furnace
from the surrounding space, the indoor air quality must be
considered and guidelines listed in Combustion, Dilution
and Ventilation Air section must be followed.
Follow the next two steps when installing the unit in Direct
Vent applications, where combustion air is taken from
outdoors and ue gases are discharged outdoors. The
provided air intake screen must not be used in direct
vent applications (outdoors).
Figure 27
Figure 28

507270-03Page 24 of 60 Issue 1621
Follow the next two steps when installing the unit in Non–
Direct Vent applications where combustion air is taken
from indoors and ue gases are discharged outdoors.
1. Use eld-provided materials and the factory-provided
air intake screen to route the intake piping as shown in
Figures 29 or 30. Maintain a minimum clearance of 3”
(76 mm) around the air intake opening. The air intake
opening (with the protective screen) should always be
directed forward or to either side in the upow position,
and either straight out or downward in the horizontal
position.
The air intake piping must not terminate too close
to the ooring or a platform. Ensure that the intake
air inlet will not be obstructed by loose insulation
or other items that may clog the debris screen.
2. Use a sheet metal screw to secure the intake pipe to
the connector, if desired
1. Use transition solvent cement or a sheet metal screw
to secure the intake pipe to the inlet air connector.
2. Route piping to outside of structure. Continue with
installation following instructions given in general guide
lines for piping terminations and in intake and exhaust
piping terminations for direct vent sections. Refer to
Tables 5 and 6 for pipe sizes.
Figure 29
Figure 30

507270-03 Page 25 of 60Issue 1621
General Guidelines for Vent Terminations
In Non–Direct Vent applications, combustion air is taken
from indoors and the ue gases are discharged to the
outdoors. This furnace is then classied as a non–direct
vent, Category IV gas furnace.
In Direct Vent applications, combustion air is taken from
outdoors and the ue gases are discharged to the outdoors.
This furnace is then classied as a direct vent, Category IV
gas furnace.
In both Non–Direct Vent and Direct Vent applications, the
vent termination is limited by local building codes. In the
absence of local codes, refer to the current National Fuel
Gas Code ANSI Z223-1/NFPA 54 in U.S.A., and current
CSA-B149 Natural Gas and Propane Installation Codes in
Canada for details.
Position termination according to location given in Figures 31
or 32. In addition, position termination so it is free from any
obstructions and 12” above the average snow accumulation.
At vent termination, care must be taken to maintain protective
coatings over building materials (prolonged exposure to
exhaust condensate can destroy protective coatings). It
is recommended that the exhaust outlet not be located
within 6 feet (1.8 m) of a condensing unit because the
condensate can damage the painted coating.
NOTE: See Table 7 for maximum allowed exhaust pipe
length without insulation in unconditiioned space during
winter design temperature is below 32° F (0° C). If required,
exhaust piping should be insulated with 1/2” (13 mm),
Armaex or equivalent. In extremely cold climate areas with
temperature below 20° F (6.7° C) it is recommended that,
3/4” (19 mm) Armaex or equivalent be used. Insulation
on outside runs of exhaust pipe may be painted or wrapped
to protect insulation from deterioration in accordance with
the insulation manufacturers recommendation. Exhaust
pipe insulation may not be necessary in some specic
applications.
NOTE: During extremely cold temperatures, below
approximately 20° F (6.7° C), units with long runs of vent
pipe through unconditioned space, even when insulated,
may form ice in the exhaust termination that prevents the
unit from operating properly. Longer run times of at least 5
minutes will alleviate most icing problems. Also, a heating
cable may be installed on exhaust piping and termination
to prevent freeze-ups. Heating cable installation kits are
available. See unit specication sheets for part numbers.
For Canadian Installations Only:
In accordance to CSA International B149 installation
codes, the minimum allowed distance between the
combustion air intake inlet and the exhaust outlet of
other appliances shall not be less than 12 inches (305
mm).
IMPORTANT
Do not use screens or perforated metal in exhaust
terminations. Doing so will cause freeze-ups and may
block the terminations.
IMPORTANT
Table 7
Maximum Allowable Exhaust Vent Pipe Length (in ft.) Without Insulation
In Unconditioned Space For Winter Design Temperatures Single - Stage High Efciency Furnace
Winter Design Temperatures1
ºF (ºC)
Vent Pipe
Diameter
Unit Input Size
045 070 090 110 135
32 to 21
(0 to -6)
PVC 2PP PVC 2PP PVC 2PP PVC 2PP PVC 2PP
2 in. 18 16 31 28 50 48 30 30 N/A N/A
2-1/2 in. 13 N/A 24 N/A 42 N/A 56 N/A N/A N/A
3 in. 9 9 18 18 35 35 47 47 52 52
20 to 1
(-7 to -17)
2 in. 9 8 18 16 32 29 30 30 N/A N/A
2-1/2 in. 5N/A 13 N/A 24 N/A 34 N/A N/A N/A
3 in. N/A N/A 8 8 19 19 26 26 30 30
0 to -20
(-18 to -29)
2 in. 5 3 12 10 22 19 30 27 N/A N/A
2-1/2 in. N/A N/A 7N/A 15 N/A 22 N/A N/A N/A
3 in. N/A N/A N/A N/A 10 10 16 16 18 18
1 Refer to 99% Minimum Design Temperature table provided in the current edition of the ASHRAE Fundamentals Handbook.
2 Poly-Propylene vent pipe (PP) by Duravent and Centrotherm
NOTE - Concentric terminations are the equivalent of 5’ and should be considered when measuring pipe length.
NOTE- Maximum uninsulated vent lengths listed may include the termination (vent pipe exterior to the structure ) and
cannot exceed 5 linear feet or the maximum allowable intake or exhaust vent length listed in table 5 or 6.
NOTE - If insulation is required an unconditioned space, it must be located on the pipe closed to the furnace.

507270-03Page 26 of 60 Issue 1621
Figure 31

507270-03 Page 27 of 60Issue 1621
Figure 32

507270-03Page 28 of 60 Issue 1621
Details of Intake and Exhaust Piping Terminations for
Direct Vent Installations
NOTE: In Direct Vent installations, combustion air is taken
from outdoors and ue gases are discharged to outdoors.
NOTE: Flue gas may be slightly acidic and may adversely
affect some building materials. If any vent termination
is used and the ue gases may impinge on the building
material, a corrosion-resistant shield (minimum 24 inches
square) must be used to protect the wall surface. If the
optional tee is used, the protective shield is required.
The shield should be constructed using wood, plastic,
sheet metal or other suitable material. All seams, joints,
cracks, etc. in the affected area should be sealed using an
appropriate sealant. See Figure 37.
Intake and exhaust pipes may be routed either horizontally
through and outside wall or vertically through the roof. In
attic or closet installations, vertical termination through
the roof is preferred. Figures 33 through 43 show typical
terminations.
1. Intake and exhaust terminations are not required to be
in the same pressure zone. You may exit the intake on
one side of the structure and the exhaust on another
side (Figure 34). You may exit the exhaust out the roof
and the intake out the side of the structure (Figure 35).
2. Intake and exhaust pipes should be placed as close
together as possible at termination end (refer to
illustrations). Maximum separation is 3” (76 mm) on roof
terminations and 6” (152 mm) on sidewall terminations.
3. On roof terminations, the intake piping should terminate
straight down using two 90° elbows (See Figure 33).
4. Exhaust piping must terminate straight out or up as
shown. A reducer may be required on the exhaust piping
at the point where it exits the structure to improve the
velocity of exhaust away from the intake piping. See
Table 8.
NOTE: Care must be taken to avoid recirculation of exhaust
back into intake pipe.
Figure 35
Table 8
Figure 33
Figure 34

507270-03 Page 29 of 60Issue 1621
Figure 36

507270-03Page 30 of 60 Issue 1621
Figure 37

507270-03 Page 31 of 60Issue 1621
5. On eld supplied terminations for sidewall exit, exhaust
piping may extend a maximum of 12 inches (305 mm)
for 2” PVC and 20 inches (508 mm) for 3” (76 mm) PVC
beyond the outside wall. Intake piping should be as
short as possible. See Figures 36 and 38.
6. On eld supplied terminations, a minimum distance
between the end of the exhaust pipe and the end of
the intake pipe without a termination elbow is 8” and a
minimum distance of 6” with a termination elbow. See
Figures 36 and 38.
7. If intake and exhaust piping must be run up a side
wall to position above snow accumulation or other
obstructions, piping must be supported every 24” (610
mm) as shown in Figures 36 and 38. When exhaust
and intake piping must be run up an with pipe sized per
Table 8. The intake piping may be equipped with a 90°
elbow turndown. Using turndown will add 5 feet (1.5
m) to the equivalent length of the pipe.
8. A multiple furnace installation may use a group of up to
four terminations assembled together horizontally, as
shown in Figure 42.
Figure 39
Figure 38

507270-03Page 32 of 60 Issue 1621
Details of Exhaust Piping Terminations for Non-Direct
Vent Applications
Exhaust pipes may be routed either horizontally through
an outside wall or vertically through the roof. In attic or
closet installations, vertical termination through the roof is
preferred. Figures 44 through 47 show typical terminations.
1. Exhaust piping must terminate straight out or up as
shown. The termination pipe must be sized as listed
in Table 8. The specied pipe size ensures proper
velocity required to move the exhaust gases away from
the building.
2. On eld supplied terminations for side wall exit, exhaust
piping may extend a maximum of 12 inches (305 mm) for
2” PVC and 20” (508 mm) for 3” (76 mm) PVC beyond
the outside wall. See Figure 45.
Figure 42
Figure 41
Figure 40
Figure 43

507270-03 Page 33 of 60Issue 1621
3. If exhaust piping must be run up a sidewall to position
above snow accumulation or other obstructions, piping
must be supported every 24” (610 mm) as shown in
Figure 46. When exhaust piping must be run up an
outside wall, any reduction in exhaust pipe size must
be done after the nal elbow.
Figure 44
Figure 45
Figure 46
Figure 47

507270-03Page 34 of 60 Issue 1621
NOTE: If necessary the condensate trap may be installed
up to 5’ away from the furnace. Use PVC pipe to connect
trap to furnace condensate outlet. Piping from furnace must
slope down a minimum of 1/4” per ft. toward trap.
1. Determine which side condensate piping will exit the
unit, location of trap, eld-provided ttings and length
of PVC pipe required to reach available drain.
2. Use a large at head screw driver or an 1/2” drive socket
extension and remove plug (Figure 48) from the cold
end header box at the appropriate location on the side
of the unit. Install provided 3/4 NPT street elbow tting
into cold end header box. Use Teon tape or appropriate
pipe dope.
3. Install the cap over the clean out opening at the base
of the trap. Secure with clamp. See Figure 55.
4. Install drain trap using appropriate PVC ttings, glue
all joints. Glue the provided drain trap as shown in
Figure 55. Route the condensate line to an open drain.
Condensate line must maintain a 1/4” downward slope
from the furnace to the drain.
Do not use copper tubing or existing copper condensate
lines for drain line.
CAUTION
Condensate Piping
This unit is designed for either right or left side exit of
condensate piping in upow applications. In horizontal
applications, the condensate trap must extend below the
unit. An 8” service clearance is required for the condensate
trap.
Refer to Figures 48 and 49 for condensate trap locations.
Figure 55 shows trap assembly using 1/2” PVC or 3/4” PVC.
5. Install eld provided vent on trap assembly as shown
in Figures 49 through 54. Trap must extend at least
1” above the furnace condensate drain connection in
upow applications and 4-1/2” above the bottom of the
cabinet in horizontal applications.
6. If unit will be started immediately upon completion of
installation, prime trap per procedure outlined in Unit
Start-Up section.
Figure 48

507270-03 Page 35 of 60Issue 1621
Do not use copper tubing or existing copper condensate
lines for drain line.
CAUTION
Condensate line must slope downward away from the trap
to drain. If drain level is above condensate trap, condensate
pump must be used. Condensate drain line should be routed
within the conditioned space to avoid freezing of condensate
and blockage of drain line. If this is not possible, a heat
cable kit may be used on the condensate trap and line.
Heating cable kit is available in various lengths; 6 ft. (1.8
m) - kit no. 26K68; 24 ft. (7.3 m) - kit no. 26K69; and 50 ft.
(15.2 m) - kit no. 26K70.
Figure 50
Unit with Cooling Coil
Figure 49
Condensate Trap Locations
(Unit shown in upow position with remote trap)
Figure 51
Condensate Trap Locations
(Unit shown in horizontal right-hand discharge position)
* Piping from furnace must slope down a minimum of 1/4” per ft. toward trap.

507270-03Page 36 of 60 Issue 1621
When combining the furnace and evaporator coil
drains together, the A/C condensate drain outlet must
be vented to relieve pressure in order for the furnace
pressure switch to operate properly.
IMPORTANT
Figure 52
Condensate Trap with Optional Overow Switch
Figure 53
Evaporator Coil Using a Common Drain
Figure 54
* Piping from furnace must slope down a minimum of 1/4” per ft. toward trap.
Evaporator Coil Using a Common Drain
(Unit shown in horizontal left-hand discharge position)

507270-03 Page 37 of 60Issue 1621
Figure 55
Trap / Drain Assembly Using 1/2” PVC or 3/4” PVC

507270-03Page 38 of 60 Issue 1621
Gas Piping
1. Gas piping may be routed into the unit through either
the left or right hand side. Supply piping enters into the
gas valve from the side of the valve as shown in Figure
57 and 58. Move Bellows grommet to side which gas
line enters. Ensure opposite gas line hole is plugged
with supplied plug.
2. When connecting gas supply, factors such as length
of run, number of ttings and furnace rating must be
considered to avoid excessive pressure drop. Table 10
list recommended pipe sizes for typical applications.
NOTE: Use two wrenches when connecting gas piping
to avoid transferring to the manifold.
3. Gas piping must not run in or through air ducts, clothes
chutes, chimneys or gas vents, dumb waiters or elevator
shafts. Center gas line through piping hole. Gas line
should not touch side of unit. See Figures 57 and 58.
4. Piping should be sloped 1/4 “ per 15 feet (6 mm per 5.6
m) upward toward the gas meter from the furnace. The
piping must be supported at proper intervals, every 8
to 10 feet (2.44 to 3.05 m), using suitable hangers or
straps. Install a drip leg in vertical pipe runs to serve
as a trap for sediment or condensate.
5. A 1/8” N.P.T. plugged tap or pressure post is located on
the gas valve to facilitate test gauge connection. See
Figure 65.
6. In some localities, codes may require installation of a
manual main shut-off valve and union (furnished by
installer) external to the unit. Union must be of the
ground joint type.
Leak Check
After gas piping is completed, carefully check all piping
connections (factory and eld installed) for gas leaks. Use
a leak detecting solution or other preferred means.
Never use an open ame to test for gas leaks. Check all
connections using a commercially available soap solution
made specically for leak detection.
The furnace must be isolated from the gas supply system
by closing its individual manual shut-off valve during any
pressure testing of the gas supply system at pressures
more than or equal to 1/2 psig (3.48 kPa, 14 inches w.c.).
Compounds used on threaded joints of gas piping must
be resistant to the actions of liquied petroleum gases.
IMPORTANT
FIRE OR EXPLOSION HAZARD
Failure to follow the safety warnings exactly could
result in serious injury, death, or property damage.
Never use an open ame to test for gas leaks. Check
all connections using a commercially available soap
solution made specically for leak detection. Some
soaps used for leak detection are corrosive to certain
metals. Carefully rinse piping thoroughly after leak test
has been completed.
WARNING
If a exible gas connector is required or allowed by the
authority that has jurisdiction, black iron pipe shall be
installed at the gas valve and extend outside the furnace
cabinet. The exible connector can then be added
between the black iron pipe and the gas supply line.
CAUTION
Do not exceed 600 in.-lbs. (50 ft.-lbs.) torque when
attaching the gas piping to the gas valve.
WARNING
When testing pressure of gas lines, gas valve must be
disconnected and isolated. See Figure 56. Gas valves
can be damaged if subjected to pressures greater than
1/2 psig (3.48 kPa).
IMPORTANT
A low inlet pressure switch in LP/propane applications
is recommended.
IMPORTANT
Figure 56

507270-03 Page 39 of 60Issue 1621
Figure 58
Figure 57

507270-03Page 40 of 60 Issue 1621
Table 10

507270-03 Page 41 of 60Issue 1621
Electrical
ELECTROSTATIC DISCHARGE (ESD)
Precautions and Procedures
Electrostatic discharge can affect electronic components.
Take precautions during furnace installation and service
to protect the furnace’s electronic controls. Precautions
will help to avoid control exposure to electrostatic
discharge by putting the furnace, the control and the
technician at the same electrostatic potential. Neutralize
electrostatic charge by touching hand and all tools on
an unpainted unit surface, such as the gas valve or
blower deck, before performing any service procedure.
CAUTION
The unit is equipped with a eld makeup box. The makeup
box may be moved to the right side of the furnace to facilitate
installation. Seal unused openings on left side with plugs
removed from right side. Secure the excess wire to the
existing harness to protect it from damage.
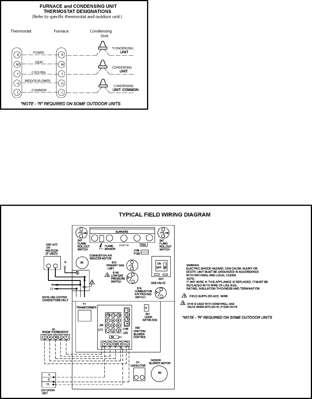
Refer to Figure 62 for eld wiring and Figure 63 for schematic
wiring diagram and troubleshooting.
The power supply wiring must meet Class I restrictions.
Protected by either a fuse or circuit breaker, select circuit
protection and wire size according to unit nameplate.
NOTE: Unit nameplate states maximum current draw.
Maximum Over-Current Protection allowed is 15 AMP.
Holes are on both sides of the furnace cabinet to facilitate
wiring.
Install a separate (properly sized) disconnect switch near
the furnace so that power can be turned off for servicing.
Before connecting the thermostat check to make sure the
wires will be long enough for servicing at a later date. Make
sure that thermostat wire is long enough to facilitate future
removal of blower for service.
Complete the wiring connections to the equipment. Use the
provided unit wiring diagram and the eld wiring diagram
shown in Figure 62. Use 18 gauge wire or larger that is
suitable for Class II rating for thermostat connections.
Electrically ground the unit according to local codes or,
in the absence of local codes, according to the current
National Electric Code (ANSI/HFPA No. 70) for the USA
and current Canadian Electric Code Part 1 (CSA standard
C22.1) for Canada. A green ground wire is provided in the
eld makeup box.
NOTE: The gas furnace contains electronic components
that are polarity sensitive. Make sure that the furnace is
wired correctly and is properly grounded.
Accessory Terminals
One line voltage “EAC” 1/4” spade terminal is provided on
the furnace control board. Any accessory rated up to one
amp can be connected to this terminal with the neutral leg
of the circuit being connected to one of the provided neutral
terminals. If an accessory rated at greater than one amp is
connected to this terminal, it is necessary to use an external
relay. See Figure 64 for control board conguration. This
terminal is energized when the indoor blower is operating.
One line voltage “HUM” 1/4” spade terminal is provided on
the furnace control board. Any humidier rated up to one
amp can be connected to this terminal with the neutral leg
of the circuit being connected to one of the provided neutral
Figure 59
Figure 60

507270-03Page 42 of 60 Issue 1621
Indoor Blower Speeds
1. When the thermostat is set to “FAN ON”, the indoor
blower will run continuously on the heating speed when
there is no cooling or heating demand.
2. When the furnace is running in the heating mode, the
indoor blower will run on the heating speed.
3. When there is a cooling demand, the indoor blower will
run on the cooling speed.
Generator Use - Voltage Requirements
• The furnace requires 120 volts ± 10% (Range: 108 volts
to 132 volts)
• The furnace operates at 60 Hz ± 5% (Range: 57 Hz to
63 Hz)
• The furnace integrated control requires both proper
polarity and proper ground. Both polarity and proper
grounding should be checked before attempting to
operate the furnace on either permanent or temporary
power.
• Generator should have a wave form distortion of less
than 5% THD (total harmonic distortion).
terminals. If a humidier rated at greater than one amp
is connected to this terminal, it is necessary to use an
external relay. See Figure 64 for control board conguration.
This terminal is energized in the heating mode when the
combustion air inducer is operating.
Install the room thermostat according to the instructions
provided with the thermostat. See Figure 61 for thermostat
designations. If the furnace is being matched with a
heat pump, refer to the FM21 installation instruction or
appropriate dual fuel thermostat instructions.
Figure 61
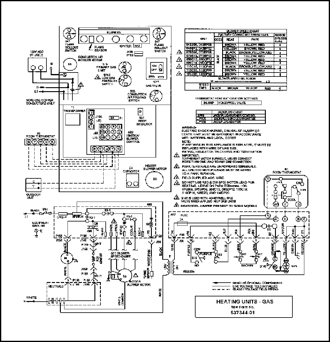
Figure 62

507270-03 Page 43 of 60Issue 1621
TYPICAL WIRING DIAGRAM
Figure 63

507270-03Page 44 of 60 Issue 1621
Unit Start-Up
FOR YOUR SAFETY READ BEFORE OPERATING
Before attempting to perform any service or maintenance,
turn the electrical power to unit OFF at disconnect
switch.
CAUTION
BEFORE LIGHTING the unit, smell all around the furnace
area for gas. Be sure to smell next to the oor because
some gas is heavier than air and will settle on the oor.
The gas valve on the unit is equipped with a gas control
switch (lever). Use only your hand to move switch. Never
use tools. If the switch will not move by hand, do not try
to repair it. Force or attempted repair may result in a re
or explosion.
Placing the furnace into operation:
This furnace is equipped with an automatic hot surface
ignition system. Do not attempt to manually light burners
on this furnace. Each time the thermostat calls for heat, the
burners will automatically light. The ignitor does not get hot
when there is no call for heat on these units.
Do not use this furnace if any part has been underwater.
A flood-damaged furnace is extremely dangerous.
Attempts to use the furnace can result in re or explosion.
Immediately call a qualied service technician to inspect
the furnace and to replace all gas controls, control
system parts, and electrical parts that have been wet
or to replace the furnace, if deemed necessary.
WARNING
Danger of explosion. Can cause injury or
product or property damage. Should the
gas supply fail to shut off or if overheating
occurs, shut off the gas valve to the
furnace before shutting off the electrical
blower deck, before performing any service
procedure.
WARNING
INTEGRATED CONTROL
(Automatic Hot Surface Ignition System)
Figure 64

507270-03 Page 45 of 60Issue 1621
Priming Condensate Trap
The condensate trap should be primed with water prior to
start-up to ensure proper condensate drainage. Either pour
10 . oz. (300 ml) of water into the trap, or follow these steps
to prime the trap:
1. Follow the lighting instructions to place the unit into
operation.
2. Set the thermostat to initiate a heating demand.
3. Allow the burners to re for approximately 3 minutes.
4. Adjust the thermostat to deactivate the heating demand.
5. Wait for the combustion air inducer to stop. Set the
thermostat to initiate a heating demand and again allow
the burners to re for approximately 3 minutes.
6. Adjust the thermostat to deactivate the heating demand
and wait for the combustion air inducer to stop. At this
point, the trap should be primed with sufcient water
to ensure proper condensate drain operation.
If you do not follow these instructions exactly, a re
or explosion may result causing property damage,
personal injury or death.
WARNING
Gas Valve Operation (Figure 65)
1. STOP! Read the safety information at the beginning of
this section.
2. Set the thermostat to the lowest setting.
3. Turn OFF all electrical power to the unit.
4. This furnace is equipped with an ignition device which
automatically lights the burners. Do not try to light the
burners by hand.
5. Remove the upper access panel.
6. Move gas valve switch to OFF. See Figure 65.
7. Wait ve minutes to clear out any gas. If you then
smell gas, STOP! Immediately call your gas supplier
from a neighbor’s phone. Follow the gas supplier’s
instructions. If you do not smell gas go to next step.
8. Move gas valve switch to ON. See Figure 65.
9. Replace the upper access panel.
10. Turn on all electrical power to the unit.
11. Set the thermostat to desired setting.
NOTE: When unit is initially started, steps 1 through 11 may
need to be repeated to purge air from gas line.
12. If the appliance will not operate, follow the instructions
“Turning Off Gas to Unit” and call your service technician
or gas supplier.
Turning Off Gas to Unit
1. Set the thermostat to the lowest setting.
2. Turn off all electrical power to the unit if service is to be
performed.
3. Remove the upper access panel.
4. Move gas valve switch to OFF.
5. Replace the upper access panel.
Failure To Operate
If the unit fails to operate, check the following:
1. Is the thermostat calling for heat?
2. Are access panels securely in place?
3. Is the main disconnect switch closed?
4. Is there a blown fuse or tripped breaker?
5. Is the lter dirty or plugged? Dirty or plugged lters will
cause the limit control to shut the unit off.
6. Is gas turned on at the meter?
7. Is the manual main shut–off valve open?
8. Is the internal manual shut–off valve open?
9. Is the unit ignition system in lockout? If the unit locks
out again, inspect the unit for blockages.
Heating Sequence Of Operation
1. When thermostat calls for heat, combustion air inducer
starts.
2. Combustion air pressure switch proves blower operation.
Switch is factory set and requires no adjustment.
3. After a 15 second prepurge, the hot surface ignitor
energizes.
4. After a 20 second ignitor warm-up period, the gas valve
solenoid opens. A 4-second “Trial for Ignition” period
begins.
5. Gas is ignited, ame sensor proves the ame, and the
combustion process continues.
6. If ame is not detected after rst ignition trial, the ignition
control will repeat steps 3 and 4 four more times before
locking out the gas valve. The ignition control will then
automatically repeat steps 1 through 6 after 60 minutes.
To interrupt the 60 minute period, move thermostat from
“Heat” to “OFF” then back to “Heat”. Heating sequence
then restarts at step 1.
Figure 65

507270-03Page 46 of 60 Issue 1621
Gas Pressure Adjustment
Gas Flow (Approximate)
Furnace should operate at least 5 minutes before checking
gas ow. Determine time in seconds for two revolutions of
gas through the meter. (Two revolutions assures a more
accurate time.) Divide by two and compare to time in
Table 11. If manifold pressure matches Table 12 and rate
is incorrect, check gas orices for proper size and restriction.
Remove temporary gas meter if installed.
NOTE: To obtain accurate reading, shut off all other gas
appliances connected to meter.
Supply Pressure Measurement
When testing supply gas pressure, use the 1/8” N.P.T.
plugged tap or pressure post located on the gas valve to
facilitate test gauge connection. See Figure 65. Check gas
line pressure with unit ring at maximum rate. Low pressure
may result in erratic operation or underre. High pressure
can result in permanent damage to gas valve or overre.
On multiple unit installations, each unit should be checked
separately, with and without other units operating. Supply
pressure must fall within range listed in Table 12.
Manifold Pressure Measurement
1. Remove the threaded plug from the outlet side of the gas
valve and install a eld provided barbed tting. Connect
to a manometer to measure manifold pressure.
2. Start unit and allow 5 minutes for unit to reach steady
state.
High Altitude Information
NOTE: In Canada, certication for installations at elevations
over 4500 feet (1371 m) is the jurisdiction of local authorities.
Units may be installed at altitudes up to 10,000 ft. above
sea level. See table 13 for de-rate manifold values. Units
installed at altitude of 7501 - 10,000 feet require an orice
change. Units installed at altitudes of 4,501 - 10,000 feet
(1371 -3048 m) may require a pressure switch change which
can be ordered separately.
Table 14 lists required pressure switch changes and orice
conversion kits at varying altitudes.
The combustion air pressure switches are factory set and
require no adjustment.
Proper Combustion
Furnace should operate minimum 15 minutes with correct
manifold pressure and gas flow rate before checking
combustion. Take combustion sample beyond the ue outlet
and compare to the tables below.
Page 1
10/13
*2P1013*
507280-01
*P507280-01*
TABLE 1
Manifold and Supply Line Pressure 0-10,000ft.
Unit Gas
Manifold Pressure in. wg. Supply Line Pressure
in. w.g.
0 - 10000 ft.
0-4500 ft. 4501-5500 ft. 5501-6500 ft. 6501 - 7500ft. 7501 - 10000ft.
All Sizes
Natural 3.5 3.3 3.2 3.1 3.5 4.5 13.0
LP/propane 10.0 9.4 9.1 8.9 10.0 11.0 13.0
NOTE -
A natural to L.P. propane gas changeover kit is necessary to convert this unit. Refer to the changeover kit installation instruction for the conversion
procedure.
TABLE 2
Manifold and Supply Line Pressure 0-10,000ft.
Unit Gas
Manifold Pressure in. wg. Supply Line
Pressure
in. w.g.
0 - 10000 ft.
0-4500 ft. 4501-5500 ft. 5501-6500 ft. 6501 - 7500ft. 7501 - 10000ft.
Low
Fire
High
Fire
Low
Fire
High
Fire
Low
Fire
High
Fire
Low
Fire
High
Fire
Low
Fire
High
Fire Min Max
All
Sizes
Natural 1.7 3.5 1.6 3.3 1.5 3.2 1.5 3.1 1.7 3.5 4.5 13.0
LP/propane 4.9 10.0 4.6 9.4 4.4 9.1 4.3 8.9 4.9 10.0 11.0 13.0
NOTE - A natural to L.P. propane gas changeover kit is necessary to convert this unit. Refer to the changeover kit installation instruction for the conversion
procedure.
Table 12
Table 11
3. While waiting for the unit to stabilize, observe the ame.
Flame should be stable and should not lift from burner.
Natural gas should burn blue.
4. After allowing unit to stabilize for 5 minutes, record
manifold pressure and compare to value given in Table
12.
NOTE: Shut unit off and remove manometer as soon as an
accurate reading has been obtained. Take care to remove
barbed tting and replace threaded plug.
Table 13
Unit CO2% for Nat CO2% for L.P.
All 7.2 - 7.9 8.6 - 9.3
The maximum carbon monoxide reading should not exceed 100 ppm.

507270-03 Page 47 of 60Issue 1621
Table 14
Unit Size 0 - 4500 ft
(0 - 1371m)
4501 - 7500 ft
(1371 - 2286m)
7501 - 10000 ft
(2286 - 3048m)
045 No Change No Change 11J09
070 No Change 11J12 10U93
090 No Change 11J11 10U93
110 No Change 11J12 10U93
135 No Change 11J11 10U93
A95 and 95G1 Pressure Switch Requirements at Varying Altitudes
Pressure switch is factory set. No adjustment necessary. All models use the
factory-installed pressure switch from 0-4500 feet (0-1371 m).
Unit Size 0 - 4500 ft
(0 - 1371m)
4501 - 7500 ft
(1371 - 2286m)
7501 - 10000 ft
(2286 - 3048m)
045
No Change 11J09 11J10
070
090
110
135 No Change 11J11 11U68
A93 and 92G1 Pressure Switch at Varying Altitudes
Pressure switch is factory set. No adjustment necessary. All models use the
factory-installed pressure switch from 0-4500 feet (0-1371 m).
Unit
Size
0 - 7500 ft
(0 - 2286 m) 7501 - 10000 ft
(2286 - 3048 m)
Natural
to
LP/Propane
LP/Propane
to
Natural
High Altitude
Natural
Burner Orice
Kit
High Altitude
LP/Propane
Burner Orice
Kit
All 11K50+ 73W80* 51W01 11K45+
Burner Orice Conversion Kits at Varying Altitudes
* Conversion requires installation of a gas valve regulator spring which is provided with the
gas conversion Kit.
+ LP Kits include low line pressure switch.

507270-03Page 48 of 60 Issue 1621
Testing for Proper Venting and Sufcient Combustion Air for Non-Direct Vent Applications
CARBON MONOXIDE POISONING HAZARD
Failure to follow the steps outlined below for each
appliance connected to the venting system being
placed into operation could result in carbon monoxide
poisoning or death.
The following steps shall be followed for each appliance
connected to the venting system being placed into
operation, while all other appliances connected to the
venting system are not in operation.
WARNING
After the gas furnace has been started, the following test
should be conducted to ensure proper venting and sufcient
combustion air has been provided to the unit as well as to
other gas–red appliances which are separately vented.
If this furnace replaces a Category I furnace which was
commonly vented with another gas appliance, the size of the
existing vent pipe for that gas appliance must be checked.
Without the heat of the original furnace ue products, the
existing vent pipe is probably oversized for the single water
heater or other appliance. The vent should be checked for
proper draw with the remaining appliance.
The test should be conducted while all appliances (both in
operation and those not in operation) are connected to the
venting system being tested. If the venting system has been
installed improperly, or if provisions have not been made
for sufcient amounts of combustion air, corrections must
be made as outlined in the previous section.
1. Seal any unused openings in the venting system.
2. Visually inspect the venting system for proper size
and horizontal pitch. Determine there is no blockage
or restriction, leakage, corrosion, or other deciencies
which could cause an unsafe condition.
3. To the extent that it is practical, close all building doors
and windows and all doors between the space in which
the appliances connected to the venting system are
located and other spaces of the building.
4. Close replace dampers.
5. Turn on clothes dryers and any appliances not
connected to the venting system. Turn on any exhaust
fans, such as range hoods and bathroom exhausts, so
they will operate at maximum speed. Do not operate a
summer exhaust fan.
6. Follow the lighting instruction to place the appliance
being inspected into operation. Adjust thermostat so
appliance will operate continuously.
7. Use the ame of match or candle to test for spillage
of ue gases at the draft hood relief opening after 5
minutes of main burner operation.
8. If improper venting is observed during any of the above
tests, the venting system must be corrected or sufcient
combustion/makeup air must be provided. The venting
system should be re–sized to approach the minimum
size as determined by using the appropriate tables in
appendix G in the current standards of the National Fuel
Gas Code ANSI-Z223.1/NPFA 54 in the U.S.A., and
the appropriate Natural Gas and Propane appliances
venting sizing tables in the current standard of the
CSA-B149 Natural Gas and Propane Installation Codes
in Canada.
9. After determining that each appliance remaining
connected to the common venting system properly
vents when tested as indicated in step 3, return doors,
windows, exhaust fans, replace dampers and any other
gas burning appliance to their previous condition of use.

507270-03 Page 49 of 60Issue 1621
Other Unit Adjustments
Primary Limit
The primary limit is located on the heating compartment
vestibule panel. This limit is factory set and requires no
adjustment.
Flame Rollout Switches (Two)
These manually reset switches are located on the front of
the burner box. These limits are factory set and require no
adjustment.
Pressure Switch
The pressure switch is located in the heating compartment
on the cold end header box. This switch checks for proper
combustion air inducer operation before allowing ignition
trial. The switch is factory set and must not be adjusted.
Temperature Rise
After the furnace has been started and supply and return
air temperatures have been allowed to stabilize, check the
temperature rise. If necessary, adjust the blower speed to
maintain the temperature rise within the range shown on
the unit nameplate. Increase the blower speed to decrease
the temperature. Decrease the blower speed to increase
the temperature rise. Failure to adjust the temperature rise
may cause erratic limit operation.
Fan Control
The fan ON time of 30 seconds is not adjustable. The fan
OFF delay (amount of time that the blower operates after
the heat demand has been satised) may be adjusted by
changing the jumper position across the ve pins on the
integrated control. The unit is shipped with a factory heat
fan OFF setting of 120 seconds. The fan OFF delay affects
comfort and is adjustable to satisfy individual applications.
Adjust the fan OFF delay to achieve a supply air temperature
between 90° and 110° F at the moment that the blower is de-
energized. Longer OFF delay settings provide lower return
air temperatures; shorter settings provide higher return air
temperatures. See Figure 66.
Thermostat Heat Anticipation
Set the heat anticipator setting (if adjustable) according to
the amp draw listed on the wiring diagram that is attached
to the unit.
Electrical
1. Check all wiring for loose connections.
2. Check for the correct voltage at the furnace (with furnace
operating). Correct voltage is 120 VAC ± 10%
3. Check amp–draw on the blower motor with the blower
access panel in place.
Motor Nameplate__________Actual__________
Blower Speeds
Follow the steps below to change the blower speeds.
1. Turn off electrical power to furnace.
2. Remove blower access panel.
3. Disconnect existing speed tap at control board speed
terminal.
NOTE: Termination of any unused motor leads must be
insulated.
4. Place unused blower speed tap on integrated control
“PARK” terminal or insulate.
5. Refer to blower speed selection chart on unit wiring
diagram for desired heating or cooling speed. See
Blower performance data beginning on the next page.
6. Connect selected speed tap at control board speed
terminal.
7. Re-secure blower access panel.
8. Turn on electrical power to furnace.
9. Recheck temperature rise.
Electronic Ignition
The integrated control has an added feature of an internal
Watchguard control. The feature serves as an automatic
reset device for integrated control lockout caused by ignition
failure. This type of lockout is usually due to low gas line
pressure. After one hour of continuous thermostat demand
for heat, the Watchguard will break and remake thermostat
demand to the furnace and automatically reset the integrated
control to begin the ignition sequence.
Exhaust and Air Intake Pipe
1. Check exhaust and air intake connections for tightness
and to make sure there is no blockage.
2. Is pressure switch closed? Obstructed exhaust pipe
will cause unit to shut off at pressure switch. Check
termination for blockages.
3. Obstructed pipe or termination may cause rollout
switches to open. Reset manual ame rollout switches
on burner box assembly if necessary.
Figure 66

507270-03Page 50 of 60 Issue 1621

507270-03 Page 51 of 60Issue 1621

507270-03Page 52 of 60 Issue 1621
BLOWER DATA A95UH1D / 95F1UHD

507270-03 Page 53 of 60Issue 1621

507270-03Page 54 of 60 Issue 1621
Service
At the beginning of each heating season, system should be
checked as follows by a qualied service technician:
Blower
Check the blower wheel for debris and clean if necessary.
The blower motors are prelubricated for extended bearing
life. No further lubrication is needed.
The blower access panel must be securely in place
when the blower and burners are operating. Gas fumes,
which could contain carbon monoxide, can be drawn
into living space resulting in personal injury or death.
WARNING
Filters
All air lters are installed external to the unit. Filters should
be inspected monthly. Clean or replace the lters when
necessary to ensure proper furnace operation. Table 1 lists
recommended lter sizes.
Exhaust and air intake pipes
Check the exhaust and air intake pipes and all connections
for tightness and to make sure there is no blockage.
NOTE: After any heavy snow, ice or frozen fog event the
furnace vent pipes may become restricted. Always check
the vent system and remove any snow or ice that may be
obstructing the plastic intake or exhaust pipes.
ELECTRICAL SHOCK, FIRE,
OR EXPLOSION HAZARD.
WARNING
Failure to follow safety warnings exactly could result in
dangerous operation, serious injury, death or property
damage.
Improper servicing could result in dangerous operation,
serious injury, death, or property damage.
Before servicing, disconnect all electrical power to
furnace.
When servicing controls, label all wires prior to
disconnecting. Take care to reconnect wires correctly.
Verify proper operation after servicing.
Electrical
1. Check all wiring for loose connections.
2. Check for the correct voltage at the furnace (with furnace
operating). Correct voltage is 120 VAC ± 10%
3. Check amp-draw on the blower motor with the blower
access panel in place.
Motor Nameplate__________Actual__________
Winterizing and Condensate Trap Care
1. Turn off power to the furnace.
2. Have a shallow pan ready to empty condensate water.
3. Remove the clean out cap from the condensate trap and
empty water. Inspect the trap then reinstall the clean
out cap.
Cleaning Heat Exchanger
If cleaning the heat exchanger becomes necessary,
follow the below procedures and refer to Figure 1 when
disassembling unit. Use papers or protective covering in
front of furnace while removing heat exchanger assembly.
1. Turn off electrical and gas supplies to the furnace.
2. Remove the burner access panel.
3. Mark all gas valve wires and disconnect them from
valve.
4. Remove gas supply line connected to gas valve.
5. Remove sensor wire from ame sensor. Disconnect
2–pin plug from the ignitor.
6. Disconnect wires from ame rollout switches.
7. Remove four burner assembly screws at the vestibule
panel and remove gas valve /manifold and burner box
as a single unit.
8. If necessary, clean burners at this time. Follow
procedures outlined in Burner Cleaning section.
9. Remove the clean-out cap on trap and drain. Replace
cap.
10. Disconnect condensate drain line from the condensate
trap. Remove condensate trap (it may be necessary to
cut drain pipe). Remove the 1/2” NPT tting from the
cold end header box. Disconnect drain tubes from cold
end header collector box.
11. Disconnect condensate drain tubes from ue collar.
Remove screws that secures flue collar in place.
Remove ue collar. It may be necessary to cut the
exiting exhaust pipe for removal of the tting.
12. Loosen two clamps from exible no-hub exhaust collar.
13. Disconnect the 2–pin plug from the combustion air
inducer. Remove screws which secure combustion
air inducer to collector box. Remove combustion air
inducer assembly. Remove ground wire.
14. Mark and disconnect all combustion air pressure tubing
from cold end header collector box.
507270-03 Page 55 of 60Issue 1621
15. Mark and remove wires from pressure switch. Remove
pressure switch. Keep tubing attached to pressure
switch.
16. Remove electrical junction box from the side of the
furnace.
17. Remove blower access panel.
18. Mark and disconnect any remaining wiring to heating
compartment components. Disengage strain relief
bushing and pull wiring and bushing through the hole
in the blower deck.
19. Remove the primary limit from the vestibule panel.
20. Remove top cap screws to allow top cap to be tilted
upward to allow clearance for removing heat exchanger.
21. Remove two screws from the front cabinet ange at
the blower deck. Spread cabinet sides slightly to allow
clearance for removal of heat exchanger.
22. Remove screws along vestibule sides and bottom which
secure vestibule panel and heat exchanger assembly
to cabinet. Remove two screws from blower rails which
secure bottom heat exchanger ange. Remove heat
exchanger from furnace cabinet.
23. Back wash heat exchanger with soapy water solution or
steam. If steam is used it must be below 275°F (135°C).
24. Thoroughly rinse and drain the heat exchanger. Soap
solutions can be corrosive. Take care to rinse entire
assembly.
25. Reinstall heat exchanger into cabinet making sure that
the rear bafe of the heat exchanger assembly is nested
under the support located at the rear of the cabinet.
Remove the indoor blower to view this area through
the blower opening.
26. Re–secure the supporting screws along the vestibule
sides.
27. Reinstall blower assembly and reinstall two screws
through rails.
28. Reinstall cabinet screws on front ange at blower deck.
29. Reinstall screws securing top cap.
30. Reinstall the primary limit on the vestibule panel.
31. Route heating component wiring through hole in blower
deck and reinsert strain relief bushing.
32. Reinstall pressure switch and reconnect pressure switch
wiring.
33. Carefully connect combustion air pressure switch hosing
from pressure switch to proper stubs on cold end header
collector box.
34. Reinstall 1/2” NPT (if removed) in the cold end header
box. Reconnect drain tubing to collector box.
35. Reinstall condensate trap pipe. Reconnect condensate
drain line to the condensate trap.
36. Reinstall electrical junction box.
37. Reinstall the combustion air inducer and exible no hub
connector. Reconnect the 2 pin plug to the wire harness.
38. Reconnect drain tubes between ue collar and cold end
header box.
39. Secure burner assembly to vestibule panel using four
existing screws. Burners are self aligning to center of
clam shells.
40. Reconnect gas supply line to gas valve.
41. Reconnect ame rollout switch wires.
42. Reconnect sensor wire and reconnect 2 pin plug from
ignitor.
43. Reconnect wires to gas valve.
44. Replace the blower compartment access panel.
45. Refer to instruction on verifying gas and electrical
connections when reestablishing supplies.
46. Follow lighting instructions to light and operate furnace
for 5 minutes to ensure that heat exchanger is clean
and dry and that furnace is operating properly.
47. Replace heating compartment access panel.
Cleaning the Burner Assembly
1. Turn off gas and electrical power to the furnace. Remove
heating compartment access panel.
2. Disconnect the gas supply line from the gas valve.
3. Disconnect and label wires from gas valve.
4. Disconnect ignitor wiring at 2 circuit plug.
5. Disconnect and label wires from rollout switch.
6. Disconnect and label ame sensor wire.
7. Disconnect and label ground wire from burner/manifold
assembly.
8. Remove four screws that secures burner/manifold
assembly to vestibule. Remove the assembly and
make note not to allow ignitor plate to dislodge from
the assembly.
9. Gently clean the face of the burners using the soft brush
attachment on a vacuum cleaner. Visually inspect the
inside of the burners and crossovers for any blockage
caused by foreign matter. Remove any blockage
10. Reinstall the burner/manifold assembly using the
existing four screws. Burners are self aligning to
center of clam shells.
11. Reconnect ground wire.
12. Reconnect ame sensor wire.
13. Reconnect rollout switch wires.
14. Reconnect ignitor wires.
15. Reconnect gas valve wires.
16. Reconnect gas supply line to gas valve.
17. Refer to instructions on verifying gas and electrical
connections when re-establishing supplies.
18. Follow instructions to place furnace in operation. Run
furnace 5 minutes to ensure burners are clean and
operating correctly.
19. Replace heating compartment access panel.

507270-03Page 56 of 60 Issue 1621
Planned Service
A service technician should check the following items during
an annual inspection. Power to the unit must be shut off
for safety.
Fresh air grilles and louvers (on the unit and in the
room where the furnace is installed) - Must be open and
unobstructed to provide combustion air.
Burners - Must be inspected for rust, dirt, or signs of water.
Vent pipe - Must be inspected for signs of water, cracked,
damaged or sagging pipe, or disconnected joints.
Unit appearance - Must be inspected for rust, dirt, signs of
water, burnt or damaged wires, or components.
Blower access door - Must be properly in place and
provide a seal between the return air and the room where
the furnace is installed.
Return air duct - Must be properly attached and provide
an air seal to the unit.
Operating performance - Unit must be observed during
operation to monitor proper performance of the unit and
the vent system.
Combustion gases - Flue products should be analyzed
and compared to the unit specications.
Problems detected during the inspection may make it
necessary to temporarily shut down the furnace until the
items can be repaired or replaced.
Instruct the homeowners to pay attention to their
furnace. Situations can arise between annual furnace
inspections that may result in unsafe operation. For
instance, items innocently stored next to the furnace may
obstruct the combustion air supply. This could cause
incomplete combustion and the production of carbon
monoxide gas.
Diagnostic Codes
507270-03 Page 57 of 60Issue 1621
Repair Parts List
The following repair parts are available through Allied Air dealers. When ordering parts, include the complete furnace model
number listed on the CSA nameplate. All service must be performed by a licensed professional installer (or equivalent),
service agency, or gas supplier.
Cabinet Parts
Upper Access Panel
Blower Access Panel
Top Cap
Control Panel Parts
Transformer
Integrated Control Board
Door Interlock Switch
Blower Parts
Blower Wheel
Motor
Motor Mounting Frame
Motor Capacitor
Blower Housing Cutoff Plate
Heating Parts
Flame Sensor
Heat Exchanger Assembly
Gas Manifold
Combustion Air Inducer
Gas Valve
Main Burner Cluster
Main Burner Orices
Pressure Switch
Ignitor
Primary Limit Control
Flame Rollout Switches

507270-03Page 58 of 60 Issue 1621
Gas Supply Pressure
SUPPLY
AIR
Line Voltage
GAS SUPPLY
Natural Gas LP Propane Gas
Piping Connections Tight
Leak Tested
1
INTAKE / EXHAUST PIPE
All Joints Primed and Glued
Terminations Installed Properly
Pipes Supported
Condensate Trap Primed / Line Sloped
Heat Cable Installed and Operable (if applicable)
2
2
2
1
Horizontal Pipes Sloped (if applicable)
UNIT SET UP
3
4
Flter
RETURN AIR
Furnace:
Model Number_______________
Serial Number_________________
3DUCT SYSTEM
SUPPLY AIR DUCT
Sealed
Insulated (if necessary)
RETURN DUCT
Sealed
Filter Installed and Clean
Grilles Unobstructed
4VOLTAGE CHECK
Supply Voltage _____
Electrical Connections Tight
1
Start-Up & Performance Check List

507270-03 Page 59 of 60Issue 1621
Contractor’s: Name_________________________Telephone_____________Checklist Completed____________________
Job Address_____________________________________Technician’s Name___________________________________
1
HEATING MODE
COMBUSTION SAMPLE CO 2%______ CO PPM_______
2
INDOOR BLOWER AMPS______
3
TEMPERATURE RISE
4
Supply Duct Temperature ________
Return Duct Temperature _ _____
Temperature Rise = ________
TOTAL EXTERNAL STATIC
5
Supply External Static _______
Return External Static + ______
Total External Static = _______
CONDENSATE LINE
6
Leak Free
VENT PIPE
7
Leak Free
COOLING MODE
INDOOR BLOWER AMPS______
3
TEMPERATURE DROP
Return Duct Temperature _________
Supply Duct Temperature _ _______
Temperature Drop = _________
4
DRAIN LINE
8
Leak Free
THERMOSTAT
Adjusted and Programmed
Explained Operation to Owner
9
SUPPLY
AIR
Blower Motor Amps
Duct Static
Thermostat
Gas Manifold Pressure
1
2
3
4
5
6
7
8
9
Temperatures
RETURN AIR
Combustion CO
2
UNIT OPERATION
TOTAL EXTERNAL STATIC (dry coil)
Supply External Static _______
Return External Static + ______
Total External Static = _______
5
507270-03Page 60 of 60 Issue 1621
REQUIREMENTS for COMMONWEALTH of MASSACHUSETTS
Modications to NFPA-54, Chapter 10
Revise NFPA-54 section 10.8.3 to add the following
requirements:
For all side wall, horizontally vented, gas-fueled equipment
installed in every dwelling, building or structure used in whole
or in part for residential purposes, including those owned
or operated by the Commonwealth and where the side wall
exhaust vent termination is less than seven (7) feet above
the nished grade in the area of the venting, including but
not limited to decks and porches, the following requirements
shall be satised:
1. INSTALLATION OF CARBON MONOXIDE
DETECTORS. At the time of installation of the side wall,
horizontally vented, gas-fueled equipment, the installing
plumber or gas tter shall observe that a hard-wired
carbon monoxide detector with an alarm and battery
backup is installed on the oor level where the gas
equipment is to be installed. In addition, the installing
plumber or gas fitter shall observe that a battery-
operated or hard-wired carbon monoxide detector with
an alarm is installed on each additional level of the
dwelling, building or structure served by the side wall,
horizontally vented, gas-fueled equipment. It shall
be the responsibility of the property owner to secure
the services of qualied licensed professionals for the
installation of hard-wired carbon monoxide detectors.
a. In the event that the side wall, horizontally
vented, gas-fueled equipment is installed in a crawl
space or an attic, the hard-wired carbon monoxide
detector with alarm and battery backup may be
installed on the next adjacent oor level.
b. In the event that the requirements of this
subdivision cannot be met at the time
of completion of installation, the owner shall
have a period of thirty ( 3 0 ) d a y s t o
comply with the above requirements;
provided, however, that during said thirty (30) day
period, a battery-operated carbon monoxide
detector with an alarm shall be installed.
2. APPROVED CARBON MONOXIDE DETECTORS.
Each carbon monoxide detector as required in
accordance with the above provisions shall comply with
NFPA 720 and be ANSI/UL 2034 listed and IAS certied.
3. SIGNAGE. A metal or plastic identication plate shall
be permanently mounted to the exterior of the building at
a minimum height of eight (8) feet above grade directly
in line with the exhaust vent terminal for the horizontally
vented, gas-fueled heating appliance or equipment. The
sign shall read, in print size no less than one-half (1/2)
inch in size, “GAS VENT DIRECTLY BELOW. KEEP
CLEAR OF ALL OBSTRUCTIONS.”
4. INSPECTION. The state or local gas inspector of the
side wall, horizontally vented, gas-fueled equipment
shall not approve the installation unless, upon
inspection, the inspector observes carbon monoxide
detectors and signage installed in accordance with the
provisions of 248 CMR 5.08(2)(a) 1 through 4.
EXEMPTIONS: The following equipment is exempt from
24 CMR 5.08(2)(a) 1 through 4:
1. The equipment listed in Chapter 10 entitled “Equipment
Not Required to Be Vented” in the most current edition
of NFPA 54 as adopted by the Board; and
2. Product Approved side wall, horizontally vented,
gas-fueled equipment installed in a room or structure
separate from the dwelling, building or structure used
in whole or in part for residential purposes.
MANUFACTURER REQUIREMENTS -
GAS EQUIPMENT VENTING SYSTEM PROVIDED.
When the manufacturer of Product Approved side wall,
horizontally vented, gas-fueled equipment provides a
venting system design or venting system components with
the equipment, the instructions provided by the manufacturer
for installation of the equipment and the venting system
shall include:
1. Detailed instructions for the installation of the venting
system design or the venting system components: and
2. A complete parts list for the venting system design or
venting system.
MANUFACTURER REQUIREMENTS -
GAS EQUIPMENT VENTING SYSTEM NOT PROVIDED.
When the manufacturer of Product Approved sidewall,
horizontally vented, gas-fueled equipment does not provide
the parts for venting the ue gases, but identies “special
venting systems,” the following requirements shall be
satised by the manufacturer:
1. The referenced “special venting system” instructions
shall be included with the appliance or equipment
installation instructions; and
2. The “special venting systems” shall be Product Approved
by the Board, and the instructions for that system shall
include a parts list and detailed installation instructions.
A copy of all installation instructions for all Product
Approved side wall, horizontally vented, gas-fueled
equipment, all venting instructions, all parts lists
for venting instructions, and/or all venting design
instructions shall remain with the appliance or
equipment at the completion of the installation.