Fbla 288 Ed 12 Econoplate Bare Plate IO&M Manual 2008 ED12 AC20111101
User Manual: Econoplate Bare Plate IO&M Manual 2008 FBLA-288 ED12 AC20111101
Open the PDF directly: View PDF .
Page Count: 33

ECONOPLATE
BARE PLATE HEAT EXCHANGERS
INSTALLATION, OPERATION & MAINTENANCE
DOCUMENTATION
STOKVIS ENERGY SYSTEMS
96R WALTON ROAD
EAST MOLESEY
SURREY
KT8 0DL
TEL: 020 8783 3050 / 08707 707 747
FAX: 020 8783 3051 / 08707 707 767
E-MAIL: info@stokvisboilers.com
WEBSITE: www.stokvisboilers.com
FBLA-288 ED12 2008-10-29ML 20111101AC

Reg.nr: fbla-288
Edition: 12
Date: 2008-10-29 ML
Issued by: MSÖ
Page: 2(33)
INDEX
0 Index
1 To the owner
1.1 Preface
1.2 Intended purpose
2 Health and safety precautions
2.1 General advice / dangers
3 General description
3.1 General description
3.2 Identification of unit
4 Main components
4.1 Plates
4.1.1 Ultra Flex (GX)
4.1.2 Conventional (GC/GL)
4.1.3 Wide Gap (GF)
4.1.4 Semi Welded (GW)
4.1.5 Plate material ID
4.2 Gasket glue
4.2.1 Suitable gasket glue
4.2.2 Glue consumption
4.3 Gaskets
4.3.1 Gasket material ID
4.3.2 GX/GL-plates
4.3.3 GC/GF-plates
4.3.4 GW-plates
4.4 Frame
4.5 Connections
5 Plate sequencing
5.1 Plate sequencing specification
5.2 Working principle
5.3 Partition plates for multi-pass
6 Installation
6.1 Unpacking
6.2 Lifting and handling
6.3 Erection
6.4 Foundation
6.5 Installation
6.6 Specialized labour
6.7 Special tools
7 Operation
7.1 Filters
7.2 Pumps
7.3 Initial operation
7.4 Start-up
7.5 Venting
7.6 Shut-Down
8 Storage procedures
8.1 Storage procedures for PHE’s
8.2 Gasket storage procedure
9 Maintenance
9.1 Scheduled maintenance
9.2 Lubrication
9.3 Opening the heat exchanger
9.4 Taking out the plates
9.5 Cleaning the plates
9.6 Plate cleaning guidelines
9.7 Adjusting the gaskets
9.8 Cleaning the gasket groove
9.9 Gluing the gaskets
9.10 Assembly the heat exchanger
9.11 Tightening the heat exchanger
9.12 CIP (Cleaning-In-Place)
9.13 Back flushing
9.14 Recycling and waste disposal
10 Trouble shooting
10.1 Rectifying a leaking PHE
10.1.1 General
10.1.2 Localizing the leak
10.1.3 Determining which liquid is
leaking
10.1.4 Types of gaskets failures
10.1.5 Excessive Pressures
10.2 Impaired PHE Performance
11 Warranty
All rights reserved. Duplication in whole or in part only with written consent.
Information in this brochure is subject to change without prior notice.

Reg.nr: fbla-288
Edition: 12
Date: 2008-10-29 ML
Issued by: MSÖ
Page: 3(33)
1. To the owner
1.1 Preface
These operating instructions are your guide to the installation, operation and maintenance of Stokvis gasketed Plate
Heat Exchangers (PHE). We advise you to study these instructions carefully and to make them accessible to staff
entrusted with the installation, operation and maintenance of the PHE. This manual will be of no value to you if it is
locked away at a time when your personnel need it.
Stokvis accepts no responsibility or liability for damage caused by incorrect installation, operation or maintenance
or by failure to observe these instructions.
In all correspondence with Stokvis concerning your heat exchanger, please quote the serial number,
plate heat exchanger type and year of construction.
HEAD OFFICE & FACTORY
Attn: Service Manager
Address: Stokvis Energy Systems
96R Walton Road 32
East Molesey, Surrey
KT8 0DL
Phone: + 44 (0) 208 783 3050 / (0) 8707 707 747
Fax: + 44 (0) 208 783 3051 / (0) 8707 707 767
INTERNATIONAL SALES & MARKETING OFFICE
Attn: Sales Manager
Address: Tranter International AB
Maria Skolgata 79B
SE-118 53 Stockholm
SWEDEN
Phone: + 46 (0) 8 442 49 70
Fax: + 46 (0) 8 442 49 80
1.2 Intended purpose
These operating instructions are generally applicable to all PHE’s manufactured and supplied by Stokvis. Each heat
exchanger is also delivered with a compact IOM manual with written design limitations.
Stokvis wishes to point out that this PHE has been specially designed and manufactured for the customer-specified
operating conditions concerning pressure, temperature, flow rates, thermal properties and composition of the
media flowing through the PHE. Sudden pressure surges exceeding these operating conditions, e.g. when starting
and stopping the PHE in an abrupt way, may cause damage and must be avoided. Stokvis accepts no liability for
the serviceability of the PHE under operating conditions deviating from those specified.
If a change in the specified operating conditions becomes necessary, Stokvis must be consulted. The PHE may only
be operated under revised conditions after Stokvis has fully assessed the changed conditions and issued written
approval of such.

Reg.nr: fbla-288
Edition: 12
Date: 2008-10-29 ML
Issued by: MSÖ
Page: 4(33)
2. Health and safety precautions
Any work on the heat exchanger should be carried out in full compliance with the applicable Site and Statutory
Safety Regulations.
2.1 General advice / dangers
• If people may be injured by product leakage,
install a protection shroud (splash guard). If the
PHE is equipped with a protections shroud, this
must NOT be removed as long as the PHE is
under pressure.
• Shutdown should take place slowly. Make sure
the unit is NOT under pressure and is empty
before starting service and maintenance.
• Cool the heat exchanger before starting work. If
possible, allow the heat exchanger to stand and
cool overnight.
• When handling heat exchanger plates, always use
gloves to prevent injuries to the hands - the plate
edges are sharp!
• Make sure that the workroom is sufficiently
ventilated when gluing gaskets on to the heat
transfer plates.

Reg.nr: fbla-288
Edition: 12
Date: 2008-10-29 ML
Issued by: MSÖ
Page: 5(33)
3. General description
3.1 General description
The Plate Heat Exchanger (PHE) consists of Fixed and
Moving Cover Plates, Carrying and Guiding Bars, End
Support, corrugated and gasketed Heat Transfer Plates,
Tightening Bolts/Nuts, and Connection Ports. The
corrugated plates are held in between the fixed and
moveable cover and are compressed by the tightening
bolts. Optional protection shrouds are available on
request. The heat exchanger’s construction enables it to be
easily opened for inspection, cleaning and extension.
Plates are manufactured in standard sizes in virtually any
material that can be cold formed. The size, number and
arrangement of the plates are contingent upon the duty to
be performed. Accordingly, the units are custom designed
for each application.
Elastomer gaskets are glued in the gasket groove around
the heat transfer surface and the portholes. The gaskets are
double around the portholes to prevent leakage between
the media. In the event of gasket failure the medium runs
straight out of the exchanger. When the unit is tightened,
the gasket seals the structure and in conjunction with the
portholes, allows fluids to flow in alternate channels and
almost always flow counter-currently. The thin fluid
interspace coupled with the corrugated plate design
induces turbulence that produces extremely high heat
transfer coefficients.
3.2 Identification of unit
Each PHE is provided with a machine (name) plate
attached to the fixed cover. It gives details of:
• Plate heat exchanger type
• Serial number
• Year of construction
• Permitted working pressure range (bar)
• Permitted working temperature range (°C)
• Channel arrangement
• Volume (litres)
• Connection location
• Test pressure (bar)
• Weight empty/full (kg)
In all correspondence with Stokvis concerning your PHE,
always quote the serial number, plate heat exchanger type
and year of construction. Those details can be found on
the machine (name) plate.
1. Fixed Cover Plate
2. Movable Cover Plate
3. Carrying Bar
4. Guiding Bar
5. End Support
6. Heat Transfer Plates
7. Tightening Bolts and Nuts
8. Connection/ Nozzle Ports
9. Gaskets

Reg.nr: fbla-288
Edition: 12
Date: 2008-10-29 ML
Issued by: MSÖ
Page: 6(33)
4. Main components and their function
The plates and gaskets are the main components of your PHE. Always use original Stokvis parts to guarantee the
performance and lifetime.
4.1 Plates
Stokvis offers one of the world’s largest ranges of gasketed plate heat exchangers. Our plate menu consists of:
4.1.1 Ultra Flex (GX) plates
With the gasket groove in the plate’s neutral plane the GX plate can be
rotated about its x-axis as well as its y-axis, thus flow channels are formed
with differing thermal characteristics.
Every plate size is available with two different angle combinations thus
forming six different flow channels for every plate size. This enables exact
matching to every application.
GX Low-theta plate
GX High-theta plate
The GX heat transfer plates are made with two
different arrowhead angles: one obtuse high-theta plate
(higher turbulence, higher heat transfer and higher
resistance to flow), and one acute low-theta plate (lower
turbulence, lower heat transfer and lower resistance to
flow).
The GX series of plates are based on a diagonal flow
pattern and have a gasket groove in the neutral plane.
Parallel flow pattern can be offered on request, but may
affect performance.

Reg.nr: fbla-288
Edition: 12
Date: 2008-10-29 ML
Issued by: MSÖ
Page: 7(33)
4.1.2 Conventional (GC and GL) plates
Conventional herringbone (chevron) pattern complement Stokvis’s range of Ultraflex (GX) plates
GC - Low Theta Plate GC - High Theta Plate
The GC and GL heat transfer plates are made with two
different arrowhead angles: one obtuse high-theta plate
(higher turbulence, higher heat transfer and higher
resistance to flow), and one acute low-theta plate (lower
turbulence, lower heat transfer and lower resistance to
flow).
The GC series of plates is based on a parallel flow
pattern and has the gasket groove in the bottom plane.
The GL series of plates are available in both diagonal
and parallel execution and has the gasket groove in the
neutral plane.
4.1.3 Wide Gap (GF) plates
Stokvis Wide Gap plates are suitable for applications with liquids containing
fibres or solids which would cause extensive clogging and downtime for cleaning
on a conventional plate.
Stokvis’s Wide Gap plates have a draw depth two to five times greater than
conventional plates, which permits unrestricted passage of coarse particles for
fluids containing fibres. This allows the plates to be extremely effective in
applications which involve viscous fluids, solids and slurries.
The GF series of plates is based on a parallel flow pattern and have gasket groove
in the neutral plane.
Stokvis’s new generation Wide Gap plates can be arranged in two different
configurations.
Wide/Narrow when one of the fluids contains large particles that require wide
gap channels or Medium/Medium when both fluids require additions flow area.
Both configurations are accomplished with single plate geometry. Max plate gap
is 12 / 4 mm for Wide/Narrow configuration and 8 / 8 mm for
Medium/Medium configuration.

Reg.nr: fbla-288
Edition: 12
Date: 2008-10-29 ML
Issued by: MSÖ
Page: 8(33)
4.1.4 Semi Welded (GW) plates
Semi-welded plate heat exchangers are especially designed for use with ammonia and other aggressive media. These
exchangers feature asymmetrical and symmetrical plates laser-welded together to form a sealed channel to ensure safe,
reliable operation.
The semi-welded plate pack consists of a number of plate
pairs (also referred to as elements). We can create three
different elements from the GW-80 plates with different
thermal characteristics. A plate pack normally consists of
a start plate (single C or F plate) + elements + end plate
(single D plate).
The GW series of plates is based on a parallel flow
pattern.
GW-81
Two asymmetric C plates welded together with the
narrow channel inside the element. The element is
marked in the upper corner with letter O. Standard
element for ammonia application (Direct Expansion).
GW-83
Two symmetric F plates welded together. The element is
marked in the upper corner with letter S. Standard
element for ammonia application (Thermosiphon
system).
4.1.5 Plate material identification numbering of heat transfer plates
A five-digit number is stamped into the long edge of
each plate when it is pressed. This number is used for
material traceability.
The first digit Year of manufacture
The second digit Quality of material
The last 4 digits Running number for each
Heat/charge.
Example 811031:
Plate is made of AISI 316 / 1.4401 material and is manufactured in 2008. The last four digits 1031 refer to a certain
material / mill certificate.
Second
Digit
Material
0 AISI 304 / 1.4301
1 AISI 316 / 1.4401
3 654 SMO / 1.4652
4 254 SMO / 1.4547
5 Titanium Gr. 1 / 3.7025
6 Titanium Gr. 11 / 3.7225
7 Hastelloy C-276 / 2.4819
8 Hastelloy G-30
9 Other materials

Reg.nr: fbla-288
Edition: 12
Date: 2008-10-29 ML
Issued by: MSÖ
Page: 9(33)
4.2 Gasket glue
4.2.1 Suitable gasket glue
Stokvis uses one-component synthetic glue to bond the gasket to the plate. The advantages are:
• The gasket will not fall off when the unit is opened.
• It is not generally necessary to clean the gasket groove before re-gluing.
• Maintenance at site is made easier.
• The gasket is easy to remove and replace.
Only certain synthetic glues may be used for gluing gaskets, namely:
Bostik 1782
3M EC 1099
Bond Spray 77
Castrol Pliobond 20/30
Do not use other types of glue; they may contain chlorine or other substances, which attack the plate material.
As export regulations for chemicals are very strict, we recommend that you buy glue from a location close to the
installation site.
4.2.2 Glue consumption
The number of gaskets that can be glued from one bottle (1 litre) of Pliobond 20 can be approximated as follows:
Model
Number of
Gaskets / litre
Model
Number of
Gaskets / litre
GW-081/083 70 GX-100 36
GC-012 150 GX-140 28
GC-028 100 GX-180 30
GC-009/GC-030 100 GX/GL-085 32
GX-007/GC-008 100 GX/GL-145 28
GX-012/GL-013 100 GX/GL-205 24
GC-016 100 GX/GL-265 20
GX-018 70 GX/GL-325 16
GX/GC-026 60 GL-230 22
GX-042/GC-044 40 GL-330 18
GX-051/GC-051/054 34 GL-430 14
GX-064 36 GF-057 40
GX-091 30 GF-097 36
GX-118 26 GF-187 30
GX/GC-060 40 GF-145 28
GF-205 24

Reg.nr: fbla-288
Edition: 12
Date: 2008-10-29 ML
Issued by: MSÖ
Page: 10(33)
4.3 Gaskets
The plate gaskets are moulded in one piece. The material is normally an elastomer selected to suit the actual
combination of temperature, chemical environment, working pressure and other prevailing conditions.
The medias are separated from each other with a double-
gasket guidance system. In the event of gasket failure the
media will flow though the leakage grooves so that the
leakage immediately becomes apparent, as illustrated.
4.3.1 Gasket material identification
Identification marking is fashioned into the gasket at the time of moulding. It comprises of a material colour code,
year/month stamping and a gasket mould reference number.
Material Colour Code
The elastomer gaskets are available in various materials. All gaskets are marked with a code colour to be able to
identify the gasket material. The colour marks shall be at least in one end of the gasket, at the bleed port part –
between the ring and diagonal part of the gasket.
Material Code Colour Code Max. Temperature
Nitrile S (S=Sulphur cured) NBR(S) No marking 110°C
Nitrile P (P=peroxide cured) NBR(P) 3 blue stripes 140°C
Nitrile P – FDA Partial FDA NBR 1 blue stripe 140°C
Nitrile P – Low temperature NBR LT 1 blue + 1 yellow stripe 120°C
Hydrogenated Nitrile P HNBR 2 blue stripes 150°C
EPDM P (P=peroxide cured) EPDM(P) 1 grey stripe 170°C
EPDM Hard ~ 86IRHD EPDM XH 4 grey stripe 170°C
EPDM P – FDA Partial FDA EPDM 3 grey stripe 170°C
FKM GB (Fluor G /Viton GB) FKM GB 1 purple stripes 180°C
FKM B (Viton B) FKM B 2 purple stripes 160°C
FKM GF (Viton GF) FKM GF 3 purple stripes 160°C
IIR (R.C. Butyl) RCB 1 yellow stripe 110°C
Neoprene (Chloroprene) CR 1 green stripe 80°C
PTFE encapsulated NBR PTFE/NBR No marking on outside 120°C
PTFE encapsulated EPDM PTFE/EPDM No marking on outside 120°C
The temperatures given are maximum values and may be reduced depending on the medium for your specific
application, maximum operating temperature and maximum operating pressure.
Arrhenius correlation: For every 10 degrees higher operating temperature the life time of the elastomer gasket is
reduced by 50%.
Year/Month of Manufacture
The marking shall be written in digits on the gasket: YYMM. Example 0805 is manufactured in May 2008.
Mould Number
The marking states which mould the gasket was manufactured in.

Reg.nr: fbla-288
Edition: 12
Date: 2008-10-29 ML
Issued by: MSÖ
Page: 11(33)
4.3.2 Gaskets for GX and GL plates
GX and GL heat exchanger plates differ from conventional plates,
because the gasket groove lies in the plate’s neutral plane. Each plate is
glued with one full thickness gasket on the front side, except the last
plate, which also has an additional half-thickness gasket on the back
side. The first plate is only glued with a half-thickness gasket on the
front side.
One complete set of gaskets consists of two (2) half thickness gaskets
and x full thickness gaskets, x = number of plates -1.
It is important to follow the gluing instruction from the plate
sequencing specification sheet, see Section 5.1. Gaskets are always
viewed as being glued to the front face of a plate.
Examples of glued GX plates
GX High Theta Plate glued RC
Letter C up to the right, the ring down to the right
GX High Theta Plate glued LG
Letter G up to the right, the ring down to the left
GX Low Theta Plate glued RL
Letter L up to the right, the ring down to the right
GX Low Theta Plate glued LS
Letter S up to the right, the ring down to the left

Reg.nr: fbla-288
Edition: 12
Date: 2008-10-29 ML
Issued by: MSÖ
Page: 12(33)
4.3.3 Gaskets for GC and GF plates
This range of plates has the gasket groove in the
plate’s bottom plane. Each plate is glued with one
full thickness gasket on the front side. The first
plate is glued with a full thickness gasket that has
rings at all port holes.
One complete set of gaskets comprises of one (1)
four ring gasket and x full thickness gaskets, x =
number of plates -1.
It’s important to follow the gluing instruction from
the plate sequencing specification sheet, see Section
5.1. Gaskets are always viewed as being glued to the
front face of a plate.
Four ring gasket LU. The rings are to the Left
and chevron is pointing Up.
4.3.4 Gaskets for GW plates
Plate pairs (also referred to as elements) are welded
together to form a sealed channel. In order to close off and
seal two of the four portholes in the element, a laser weld
is extended diagonally in front of the two vertically aligned
ports. Refrigerant (or corrosive fluids), which enters the
sealed channel through the inlet port, flows inside the
element. Special designed, double ring gaskets are placed
on either side of the inlet and outlet ports, thereby creating
a seal around the ports. Perimeter gaskets (also referred to
as Parallel Gasket) are placed on either side of the element,
creating a sealed envelope to contain the process fluid. The
process fluid flows between the elements in the gasketed
channel.
It’s important to follow the gluing instruction from the
plate sequencing specification sheet, see Section 5.1.
Parallel gasket Ring gasket
Specially designed ring gaskets are placed on either side
of the inlet and outlet ports, thereby creating a safe
high-resistant seal around the ports.

Reg.nr: fbla-288
Edition: 12
Date: 2008-10-29 ML
Issued by: MSÖ
Page: 13(33)
4.4 Frames
Stokvis PHE’s are supplied with two frame designs, either with or without end support.
P frame with end support
PI frame without end support
The frame type of your unit is displayed in the ’Model’ box on the machine (name) plate located on the Fixed Cover
Plate of your unit e.g.: GX-85 P = Frame type PHE-85 with end support capable of 16 bar design acc. to PED.
PED Design pressure
(bar)
With end support Without end support
6 T TI
10 N NI
16 P PI
25 S SI
4.5 Connections
The connections are positioned either on the fixed cover alone or on the fixed cover and the moveable cover. Stokvis
offer a range of different connection types like studded ports, threaded connections, weld connections, welding neck
flanges and many more. The three most common connections are illustrated below.
Studded connection with Port liner Threaded connection Weld connection

Reg.nr: fbla-288
Edition: 12
Date: 2008-10-29 ML
Issued by: MSÖ
Page: 14(33)
5. Plate sequencing and Working principle
5.1 Plate sequencing specification
Each heat exchanger is supplied with a Plate Sequencing specification sheet. The sheet gives detailed information of
unit, location of connections and plate specification. The plate sequencing specification assists in determining the
proper sequence and the orientation of the plates in the unit.
For the GX and GF units the code is an embossed letter, see picture.
Assembly code UP or DOWN is reflected in GC, GL and GW units as
the arrow direction of the chevron pattern on the plate.
Example 1. Hanging specification for GXD-085 with 421 titanium plates and NBR(p) gaskets
Plate Sequence Plate Type Plate
Materials
Plate
Thickness
Gasket
Material
Piercing Gluing
Hanging
1 GX-085 Titanium
/ 3.7025
0.5 NBR(P) L1234
RL Start * K ***
2, 4 .. 418, 420 GX-085 Titanium
/ 3.7025
0.5 NBR(P) L1234 LS R ***
3, 5 .. 417, 419 GX-085 Titanium
/ 3.7025
0.5 NBR(P) L1234 RL K ***
421 GX-085 Titanium
/ 3.7025
0.5 NBR(P) H0000
RC End ** B ***
Note: Plate 1 is the Plate adjacent to the Fixed Cover Plate
* The start plate (Plate 1) has a half gasket assembly on the front side.
** The back plate (Plate 421) has a full thickness gasket on the front side and a half thickness gasket on the back side.
*** Thus when correctly glued and assembled and viewed from the Fixed Cover End of the unit the embossed letter
coding at the TOP RIGHT HAND CORNER of the Heat Transfer Plates should read as below:
According to the assembly instructions, the plates should be hung as follows:
Plate 1 K
Plate 2,4 .. 418, 420 R
Plate 3,5 .. 417, 419 K
Plate 421 B
Example 2. Hanging specification for GCP-051 with 50 AISI316 plates and EPDM(p) gaskets
Plate Sequence Plate Type Plate
Materials
Plate
Thickness
Gasket
Material
Piercing Gluing
Hanging
1 GC-051 AISI 316 /
1.4401
0.5 EPDM(P) L1234 LU Start LU
2, 4 .. 46, 48 GC-051 AISI 316 /
1.4401
0.5 EPDM(P) L1234 LU RD
3, 5 .. 47, 49 GC-051 AISI 316 /
1.4401
0.5 EPDM(P) L1234 LU LU
50 GC-051 AISI 316 /
1.4401
0.5 EPDM(P) H0000 LU End RD
Note: Plate 1 is the Plate adjacent to the Fixed Cover Plate
According to the assembly instructions, the plates should be hanged as follows:
Plate 1 Arrow Up
Plate 2 Arrow Down
Plate 3 Arrow Up
Plate 4 … Arrow Down …

Reg.nr: fbla-288
Edition: 12
Date: 2008-10-29 ML
Issued by: MSÖ
Page: 15(33)
5.2 Working principle
A series of pressed plates with portholes form a plate pack of flow channels. The heat exchange media flow through
these plates in alternate channels.
Usually single-pass plate heat exchangers are used. They are distinguished by the 100% counter-flow of the two
media. All of the feed and discharge pipes are connected to the fixed cover plate. This is a particularly maintenance
friendly installation.
Close temperature differences between the media may demand multi-pass plate heat exchangers. The connection
pipes are then attached both to the fixed and movable cover plate.
Single pass unit Two pass unit
5.3 Partition plates and draining of multi-pass unit
Multi-pass units may require factory installed drains/vents, i.e. additional nozzles on the cover plates.
The blank ports in the turning plate for two-pass grouping and the first turning
plate for three-pass grouping are provided with holes, 3 mm diameter for small
units and 6 mm diameter for large units.
Larger plate heat exchangers like GX-051/064/091/118, GX-060/100/140/180,
GX/GL-085/145/203/265/325, GL-230/330/430, GF-057/097/187/145/205
and GC-060 require a partition plate after every turning plate to prevent
deformation of the blank ports in multi-pass grouped heat exchangers.
Note. On multi-pass units, which are sized for close temperature approach these drain/vent holes are situated on the
bottom/top of the partition plates and can be opened with a screw. This execution is due to the small amount of
bypassing that otherwise would occur.
Fixed Cover Plate Movable Cover Plate Fixed Cover Plate Movable Cover Plate

Reg.nr: fbla-288
Edition: 12
Date: 2008-10-29 ML
Issued by: MSÖ
Page: 16(33)
6. Installation
Unless otherwise agreed, Stokvis delivers the plate heat exchangers ready to be put in service upon arrival. Stokvis’s
plate heat exchangers are always pressure tested at the factory before delivery.
6.1 Unpacking
Stokvis PHE’s (with optional protection shroud and/or thermal insulation) are strapped/mounted to a steel or
wooden pallet. Other optional items, if supplied, are packed either inside the box or separately. All items should be
checked against packing lists. Should any parts be missing or damaged, please notify your Stokvis representative.
6.2 Lifting and handling
The PHE is usually delivered fully assembled, either lying down on the
fixed cover or standing upright on a steel or wooden pallet. The pallet
can be lifted by a forklift from beneath and transported.
If supplied lying down, the PHE must be erected as follows:
1. Release and remove all fastening screws and elements on the
planks.
2. Attach a sling to one of the tightening bolts on either side of the
PHE. Do not use steel ropes or chains!
3. Slowly lift the PHE from the planks over its centre of gravity.
4. Slowly lower the PHE onto the feet of the fixed plate whilst at
the same time manoeuvring the PHE into its final position at
the installation site.
5. Remove the slings and other aids and anchor the PHE to the
ground.
The unpacked PHE must not be lifted by the carrying bar or the
connections. Use only the lifting holes provided, see figure.
6.3 Raising the PHE
It is necessary to provide enough clearance around the PHE, see figure. This facilitates access to the PHE and
permits for necessary service tasks. The heat exchangers must be installed with clearance on both sides:
Clearance
300 mm
600 mm
1000 mm
1200 mm
1500 mm
Size
GX-007, GC-008/012/028
GX-012/018/026/042, GL-013,
GC-009/016/026/030/044, GW-081/083
GX-051/085, GC-051/054, GL-085
GX-091/118/060/100/145/205,
GC-060, GL-145/205/230,
GF-057/097/187/145/205
GX/GL-265/325, GL-330/430
If the existing installation area is limited, the clearance dimensions may be reduced. This should only be done after
consultation with Stokvis.

Reg.nr: fbla-288
Edition: 12
Date: 2008-10-29 ML
Issued by: MSÖ
Page: 17(33)
6.4 Foundation
All information necessary for the preparation of the foundation appears on the design data sheet. In some cases it
may be practical to place the heat exchanges on a drip tray or a drainage box.
6.5 Installation
FIXED COVER
MOVABLE COVER
S4 S1
S3 S2
M4 M1
M3 M2
All connections to the heat exchanger must be provided with shut-off valves. The lower connections (S2 and S3; M2
and M3) must be provided with drain valves. The upper connections (S1 and S4; M1 and M4) must be provided
with venting devices at their highest points. The hot side’s regulating valve should be installed in the feed pipe
between the pump and the shut-off valve.
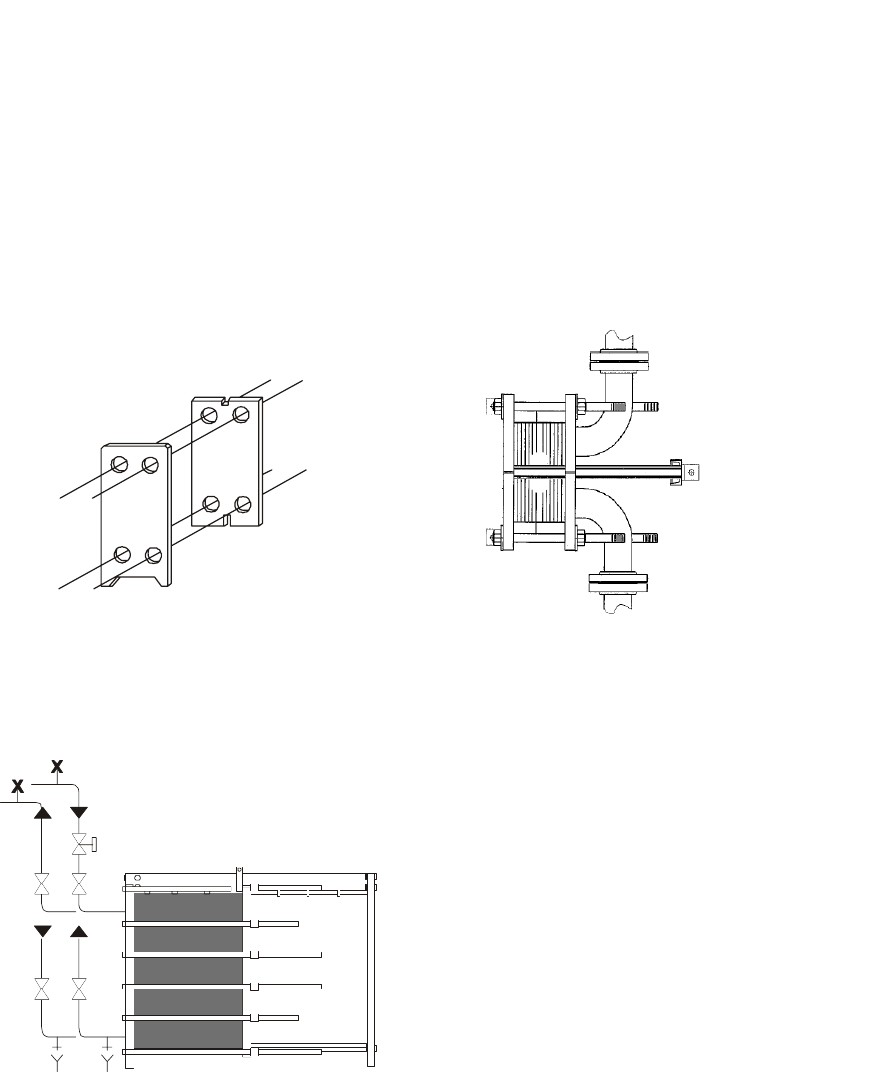
All connections to the movable cover must be made
using removable 90-degree elbows, allowing the movable
cover to be pushed back for servicing.
All nozzle loading must be minimized during installation
and operation.
Make sure that the pipe system connected to the PHE is
secured against sudden pressure surges and temperature
fluctuations.
In case of welding, the PHE must not be used as a
grounding mechanism as electric arcs may occur between
the heat transfer plates.
See Section 7. in this manual for Operation and Start-up.
6.6 Specialized labour
The plate heat exchanger is a simple piece of equipment and is delivered ready to be piped up. Installation and
commissioning of Stokvis’s plate heat exchangers does not normally require our own personnel on site. Stokvis can
naturally send our service engineers to site if necessary. Detailed service contracts can be offered on request. Please
contact your Stokvis representative for more information.
6.7 Special tools
No special tools are required. A ratchet spanner is all that is needed for maintenance and repair. Disassembly and re-
assembly of large plate heat exchangers during maintenance operations using standard tools can be time consuming.
Stokvis also offer hydraulic tightening equipment, which you may find beneficial for use with the unit where
frequent servicing is necessary.

Reg.nr: fbla-288
Edition: 12
Date: 2008-10-29 ML
Issued by: MSÖ
Page: 18(33)
7. Operation
Always check applicable Site and Statutory Safety Regulations before you start. The heat exchanger is often one part
of a complete process system, sometimes with advanced automatic controls. Always check applicable instructions for
the whole process system before you start.
7.1 Filters
Stokvis recommend primary filters to be installed before the plate heat exchanger to capture fibres, debris and other
coarse particles in the process fluids which can foul and clog the plate heat exchanger.
7.2 Pumps
Pumps that feed the plate heat exchanger must be provided with regulating valves. If the pumps can deliver a higher
pressure than the rated pressure for the heat exchanger, safety valves must be installed. The pumps must not be
allowed to suck in air.
7.3 Initial operation
Each heat exchanger is supplied with thermal design data sheet, giving details of the operating parameters, limits,
capacity etc.
1. Check that the operating data does not exceed that given on the heat exchanger's machine (name) plate.
2. Check that all tightening bolts are properly tightened.
3. Check that all connection pipes are screwed tight.
4. Check that the A-dimension is correct.
7.4 Start-up
Always start with one side at a time.
1. Close the feed valve between the pump and the PHE.
2. Fully open the valve at the outlet connector, if present.
3. Open the vent valves.
4. Start the pump.
5. Slowly open the feed valve to prevent pressure surges.
6. When all the air has escaped from the PHE, close the vent valves.
Follow step 1-6 for the second side.
Hammering must be avoided, otherwise the rubber gaskets may be displaced and cause leakage.
7.5 Venting
The exchanger must be properly vented. Remaining air can cause air locks and serious scorching of the plates,
reducing the heat transfer capacity and increasing the risk of corrosion.

Reg.nr: fbla-288
Edition: 12
Date: 2008-10-29 ML
Issued by: MSÖ
Page: 19(33)
7.6 Shut-down
Short period of time
If the PHE is to be shut-down briefly, proceed as follows:
- Slowly close the feed valves, starting with the feed line with the higher pressure.
- Switch off the pump(s).
- Close the valve in the outlet pipes, if present.
Longer period of time
For longer periods of downtime and especially when there is a risk of freezing or if the media are aggressive, the heat
exchanger must be emptied and cleaned. While the unit is not in use, ease the tension on the tightening bolts so that
the plates just lie against each other, but close enough to prevent any dirt entering between them. The tightening
bolts should be greased.

Reg.nr: fbla-288
Edition: 12
Date: 2008-10-29 ML
Issued by: MSÖ
Page: 20(33)
8. Storage procedures
8.1 Storage procedures for Stokvis plate heat exchangers
When a plate heat exchanger is to be placed in storage for an extended period of time, the procedures listed below
must be followed.
1. If the unit has been recently shipped from our factory and is unused, disregard statements 2, 3 and 4; follow
instructions 5-10.
2. If the unit has been used and long-term storage is required, it must be completely drained. Prior to
draining, remove any shroud and let the unit cool to ambient temperature. Units with plate packs arranged
in one pass (all connections to the fixed cover plate) are self-draining. Simply vent at the upper nozzle
location and drain from the lower nozzle for each side individually. A multi pass unit is also self draining,
provided all nozzles are at the lower elevations (S2/S3/M2/M3). Other units may be self-draining if they
have been fitted with separate drain and vent connections. Units that are not self-draining must have the
plate pack completely loosened to drain all liquids. Before opening the plate pack, wipe off the exterior
surfaces with water to make sure no fluids or debris fall into the plate pack.
3. Open the plate pack and thoroughly clean the unit internally and externally. Dry the unit by blowing air at
approx. 60°C on all areas.
4. Install blind flanges with gaskets on all nozzles. Plug all other openings.
5. Coat all unpainted carbon steel components with light grease, SAE 30 oil or other rust inhibiting products.
6. Coat all bolt threads with light grease.
7. To minimize gasket compression set, the plate pack length dimension needs to be adjusted. As a guideline,
the units tightening dimension should be increased by a factor 1.2 (e.g. if the A-dimension is 500 mm, the
bolts should be slackened to new dimension 600 mm).
8. Protect the unit from direct sunlight, intense heat radiation or ultra violet light by loosely covering the unit
with an opaque, reflecting type plastic film or similar material. Make sure air is allowed to circulate around
the unit preventing condensation and other negative effects.
9. It is preferable to store the unit indoors, well protected from the weather. The temperature in the storage
area should ideally be 20°C with a relative humidity of max. 70 %. Avoid storing the unit in an area where
the temperature can fall below 0°C.
10. All potential sources of Ozone, such as operating electric motors, or welding equipment, should be removed
from the storage area to prevent Ozone attack on the gaskets. For gasket storage, please refer to separate
instruction in this manual.

Reg.nr: fbla-288
Edition: 12
Date: 2008-10-29 ML
Issued by: MSÖ
Page: 21(33)
8.2 Gasket storage procedure
General
If the rubber gaskets are stored under unsuitable conditions, the physical properties of the rubber material may
change, resulting in a hardness change, permanent deformation, cracks or other surface damage. The changes can be
caused by, for example, the oxygen in the surrounding air, Ozone, heat, light, humidity, solvents or mechanical
forces. If the rubber parts are handled and stored correctly, they will maintain their properties for a longer period of
time.
Storage room
The storage room should be cool, dry, free from dust and only moderately ventilated. It should also be relatively dark
and protected from direct sunshine.
Temperature
If the temperature is >20°C, a gradual deterioration of the physical properties occurs. A 10°C increase in
temperature can result in twice the ageing rate. Rubber gaskets that have been subjected to low temperature during
freight or storage may be stiff from the cold and should be "thawed" at approx +20°C for a period of time.
Precautions to avoid condensation on the gaskets should be taken.
Light
Rubber articles should be protected from light, especially direct sunshine and artificial light with high UV intensity.
Air and ozone
Ozone is a danger to the gaskets. Electrical motors or other machines that produce sparks or other electrical
discharges which can produce Ozone must not be present in the storage room.
Deformation
Rubber gaskets should be stored so that they are deformed as little as possible. Mechanical forces within the rubber
material can speed up the ageing rate and is the basic mechanism behind the formation of Ozone cracks, especially in
NBR rubbers.
Storage times
If the above recommendations are followed, the storage time will be at least:
Material Code Shelf time
Nitrile NBR 3 years
HNBR HNBR 3 years
EPDM EPDM 5 years
FKM GB (Fluor G) FKM 5 years
FKM B (Viton B) FKM 5 years
FKM GF (Viton GF) FKM 5 years
IIR (R.C. Butyl) RCB 3 years
Neoprene CR 3 years
Remember to use gaskets on a first in, first out (FIFO) basis.

Reg.nr: fbla-288
Edition: 12
Date: 2008-10-29 ML
Issued by: MSÖ
Page: 22(33)
9. Maintenance
9.1 Scheduled maintenance
Unscheduled shutdowns are very expensive and mostly quite unnecessary. Fouling causes decreased performance and
gaskets ageing. The heat exchanger should be emptied and cleaned on a regular basis so that the condition of the heat
transfer plates and the gaskets can be checked. Each application is unique, making it very hard to predict service
intervals. Stokvis has several service centres that offer reconditioning of plates. Please contact your Stokvis
representative for more information.
Gaskets age. If they are replaced in time, you avoid both
leakage and resulting damage.
Plates get dirty. The coating affects heat transfer
and reduces performance.
9.2 Lubrication
The thread of the tightening bolts must be kept
lubricated with molybdenum disulphide or
equivalent, particularly on the section of the thread
used for opening and closing the equipment.
To improve their sliding ability, the following
components should be treated with an acid free
grease:
1. Sectional rails and beam surfaces to which the
plates are attached and on which they are slid.
2. Pressure surfaces between tightening nut and
retaining ring.
3. The bearings of the carrier roller on the
movable cover plate. .

Reg.nr: fbla-288
Edition: 12
Date: 2008-10-29 ML
Issued by: MSÖ
Page: 23(33)
9.3 Opening the heat exchanger
No special tools are required. A ratchet spanner is all that is needed for
maintenance and repair.
• Shutdown should take place slowly. Make sure the unit is NOT
under pressure and is empty before starting work.
• Cool the heat exchanger. If possible allow the heat exchanger to
stand and cool overnight.
• Disconnect any connection to the moveable cover.
• Clean the thread of the tightening bolt.
• Apply a thin film of oil to the thread.
• We advise painting a diagonal line across the plate pack to ensure
that the plates are reassembled in the right order.
• Note the current A-dimension.
• Remove Bolts 1.
• Slacken nuts 2, 3 and 4 alternatively so that the movable cover
can move parallel with the frame plate.
• Remove bolts 3 and 4.
• Slacken nuts 2 alternatively.
Warning! In some applications space is limited and standard length of guiding bars and tightening bolts cannot be
used. Those units are tightened with short bolts and are under compression. Special handling is required to open the
units. Please read the special instruction Fbla-260.
9.4 Taking out the heat transfer plates
USE GLOVES - THE PLATE EDGES ARE SHARP!
If two or more plates have stuck together they must be separated carefully so that the gaskets are kept on the correct
plate. The plates support each other in pairs. If a plate has been so damaged that it must be taken out and cannot be
repaired or replaced with an identical one, the adjacent plate must also be taken out of the heat exchanger.
If the number of plates is changed, so is the A-dimension (see Section 9.11). Special plates, such as the first and last
plates and turning plates in multi-pass heat exchangers, must be replaced with identical plates.

Reg.nr: fbla-288
Edition: 12
Date: 2008-10-29 ML
Issued by: MSÖ
Page: 24(33)
9.5 Cleaning the plates
Fouling of the plate heat exchanger is often caused by low flow velocity through the heat exchanger. Where the
possibility exists to increase the flow this should be tried if the heat exchanger shows signs of reduced capacity or
increased pressure drop. Severe fouling requires opening and cleaning the heat exchanger.
• The heat exchanger is opened according to Section 9.3.
• Steel wool or brushes of carbon steel must not be used, nor may stainless steel be used on titanium plates.
• In the first step the heat transfer surface is cleaned by rinsing with a powerful jet of water and scrubbing
with a nylon or similar brush.
• Take care not to damage the gaskets.
• The gaskets must be wiped dry with a cloth. Solid particles adhering to the gaskets cause damage and result
in leakage when the unit is put back in operation.
• The lower portion of each plate as hung in the unit should be inspected carefully and cleaned appropriately
as this is the primary area where residual solid material tends to accumulate.
Do not use chlorine or chlorinated water to clean stainless steel or Nickel alloys. Chlorine is commonly used to
inhibit bacteria growth in cooling water systems. Chlorine and chlorinated water can rapidly attack the above
mentioned materials. For any applications where chlorination must be used with non-titanium equipment, please
contact your Stokvis representative.
9.6 Plate cleaning guidelines
• Do not use hydrochloric acids, or water containing in excess of 300 ppm chlorides, with stainless steel.
• Do not use phosphoric or sulfamic acid for cleaning titanium plates.
• Limit cleaning solution concentration to 4% strength, with temperature not exceeding 60°C unless
otherwise specified.
General guidelines for cleaning are tabulated below:
Type of Fouling Suggested cleaners
Calcium Sulphate, Silicates Citric, Nitric, Phosphoric or Sulfamic acid
Calcium Carbonate 10% Nitric acid
Alumina, Metal oxides, Silt Citric, Nitric, Phosphoric or Sulfamic acid
(To improve cleaning add detergent to acid)
Biological growth Sodium Carbonate or Sodium Hydroxide (NaOH)
Greasy deposit Kerosene and a soft brush. After cleaning, rinse thoroughly with water
Important! Sodium hydroxide and concentrated Nitric acid can seriously harm skin and mucous membranes. The
solution must be handled with greatest care. Always wear protective goggles and protect hands with rubber gloves.

Reg.nr: fbla-288
Edition: 12
Date: 2008-10-29 ML
Issued by: MSÖ
Page: 25(33)
9.7 Adjusting the gaskets
A gasket that has come loose, either partly or entirely, must be glued in place. If only a short length has become
detached, gluing can be carried out immediately before clamping, with the plate still hanging in the frame. If the
entire gasket has become detached, the plate should be taken out of the heat exchanger.
9.8 Cleaning the gasket groove
The solvent must not contain chlorine. Clean the plates from residues of the old gasket. Small patches of glue that
are securely stuck to the gasket groove may remain there. They provide an excellent foundation for the new gasket.
Clean the gasket groove so that it is completely free of oil and other greasy substances, using a rag and acetone or
other solvent not containing chlorine compounds. Then let the plate dry off.
9.9 Gluing the gasket
Glue consumption is listed in Section 4.2.
Glue is applied with a small flat brush to those parts of the plate’s gasket groove in which the gasket lies. These parts
of the gasket groove are easily recognized as they differ in colour arising from previous residues of glue. The gasket is
then placed into position on the plate. After drying for about 30 seconds (the time depends on the thickness of the
glue film and how much the glue has been diluted), the glue holds the rubber gasket firmly in place in the gasket
groove, thus facilitating mounting. The plate must then be held under light pressure with the aid of other heat
transfer plates, a stiff sheet or plate of suitable weight for about half an hour.
When the glue joint has dried the gasket should be coated with talc to prevent the plates subsequently sticking to
each other. The plates are then ready to be assembled into the frame.
Always follow the precautionary instructions given by the manufacturer of the glue/adhesive!
9.10 Assembly
Before the heat exchanger is assembled, inspect all gaskets
and surfaces that lie against the gasket. Particles that may
jeopardize the integrity of the seals or damage the gasket
or sealing surfaces must be removed. Note that
contaminants usually collect at the lower part of the
plates.
Plates that have been provided with new gaskets must be
checked to make sure that the gaskets lie correctly in the
gasket groove. Also check the half thickness gaskets on the
first and last plates.
Use the Plate Sequencing Specification Sheet, to make
certain that the plate pack is assembled correctly.
The plate edges form a regular honeycomb pattern.

Reg.nr: fbla-288
Edition: 12
Date: 2008-10-29 ML
Issued by: MSÖ
Page: 26(33)
9.11 Tightening the heat exchanger
The plate pack must be compressed to a specific thickness -
the A-dimension. The A-dimension +/-3% gives the inside
length in millimetres between the fixed and moveable cover.
NEVER TIGHTEN THE PLATE HEAT EXCHANGER
WHILE IT IS UNDER PRESSURE!
Size Plate thickness Draw depth A-dimension
GX-007 0.5 mm 2.5 mm 3.0 x number of plates
GX-012/018 0.5 mm 2.9 mm 3.4 x number of plates
GX-026/042/051 0.5 mm 3.3 mm 3.8 x number of plates
GX-037/064/091/118 0.5 mm 2.9 mm 3.4 x number of plates
GX-060/100/140/180 0.5 mm 3.3 mm 3.8 x number of plates
GX-085/145/205/265/325 0.5 mm 3.3 mm 3.8 x number of plates
GL-013 0.5 mm 2.9 mm 3.4 x number of plates
GL-085/145/205/265/325 0.5 mm 3.3 mm 3.8 x number of plates
GL-230/330/430 0.5 mm 4.5 mm 5.0 x number of plates
GC-008 0.4 mm 2.1 mm 2.5 x number of plates
GC-009 0.5 mm 2.5 mm 3.0 x number of plates
GC-012/030 0.6 mm 2.5 mm 3.1 x number of plates
GC-016 0.4 mm 1.85 mm 2.25 x number of plates
GC-028 0.4 mm 2.05 mm 2.45 x number of plates
GC-026/051 0.5 mm 4.0 mm 4.5 x number of plates
GC-044 0.5 mm 1.6 mm 2.1 x number of plates
GC-054 0.4 mm 1.7 mm 2.1 x number of plates
GC-060 0.5 mm 4.4 mm 4.9 x number of plates
GF-057/097/187/145/205 0.8 mm 8.0 mm 8.8 x number of plates
GW-081/083 0.5 mm 2.4 mm 2.9 x number of plates
Example 1: A GX-026 has a total of 37 plates (0.5 mm thick).
The A-dimension is calculated as: 3.8 x 37 = 140.6 mm +/- 3%
Example 2: A GX-026 has a total of 37 plates (0.6 mm thick)
The A-dimension is calculated as: 3.9 x 37 = 144.3 mm +/- 3%
NOTE! With large plate packs the A-dimension, due to tolerances in the plate thickness and depth of pressing,
can deviate somewhat from values given above. With the correct A-dimension the plates lie in metallic contact
with each other. Check this by examining the plate edges around the heat exchanger. Further compression can
deform the plates.

Reg.nr: fbla-288
Edition: 12
Date: 2008-10-29 ML
Issued by: MSÖ
Page: 27(33)
Tightening sequence
The nuts must be tightened alternately. The movable cover plate must
always be moved parallel to the frame at all times, and not drawn out of
alignment.
• Tighten bolts 3 alternately.
• As the resistance is increased also tighten bolts 1 and 2 alternately.
• Tighten bolts 4 alternately.
• Check the A-dimension along the heat exchanger.
• The A-dimension must not vary more than 2 mm at different
measuring points.
9.12 CIP (Cleaning-In-Place)
Cleaning-in-place is the preferred cleaning method for fouling applications and when especially aggressive liquids are
processed in a plate heat exchanger unit. Install drain piping to avoid corrosion of the plates due to residual liquids
left in the unit after an operation cycle.
To prepare the unit for cleaning, follow the procedures listed below:
1. Drain both sides of the unit. If it is impossible to drain, force liquids out of the unit with flush water.
2. Flush the unit on both sides with warm water at approximately 40°C until the effluent water is clear and
free from process fluid.
3. Drain the flush water from the unit and connect CIP pump.
4. For thorough cleaning it is necessary to circulate the CIP solution from bottom to top to ensure wetting of
all surfaces with cleaning solution. When cleaning multiple pass units it is necessary to reverse flow of the
cleaning solution for at least half the cleaning time to wet all surfaces.
5. For optimum cleaning, use a flow rate of water and/or CIP solution that is greater than normal product rate
of flow. A CIP operation will be most effective if performed on a regularly scheduled basis and before the
unit is completely fouled.
6. Flush thoroughly with clean water after CIP cleaning.
Cleaning Example 1. Protein or grease deposits
1. Rinse with water immediately after using the process fluid.
2. Circulate a 2-3% caustic soda solution at 80°C for thirty minutes.
3. Flush with sufficient amount of water.
4. Circulate a 0.5% nitric acid solution at max 65°C (alternatively a 2% phosphoric acid solution at 80°) for
fifteen minutes. Caution: Nitric acid attacks elastomer gaskets.
5. Flush with sufficient amount of water until the acid is completely rinsed out of the PHE and the pipe
system.
Cleaning Example 2. Limescale deposits
1. Circulate a 2-3% phosphoric acid solution at 20°C for two hours.
2. Flush with sufficient amount of water until the acid is completely rinsed out of the PHE and the pipe
system.

Reg.nr: fbla-288
Edition: 12
Date: 2008-10-29 ML
Issued by: MSÖ
Page: 28(33)
9.13 Back flushing
Often, when fibres or large particles are present, back flushing of the unit proves to be very beneficial. This is
accomplished by one of the following methods:
1. Flush the unit with clean water in reverse flow to the normal operation direction.
2. Arrange piping and valves so the unit may be operated in reverse flow mode on the product side for fixed
periods of time. This method is particularly well suited for steam applications.
The use of filters and strainers is required in supply lines ahead of the exchanger when the streams contain significant
solids or fibres. This will reduce the requirements for back flushing.
9.14 Recycling and waste disposal
Heat exchangers have no consumable items apart from the heat transfer plates and gaskets which are considered to be
spare parts. The plates, gaskets and all other parts of the heat exchanger can be recycled after cleaning them from the
process liquid. No parts of the heat exchangers are considered hazardous. Please check local regulation for recycling
and waste disposal.

Reg.nr: fbla-288
Edition: 12
Date: 2008-10-29 ML
Issued by: MSÖ
Page: 29(33)
10. Trouble shooting
10.1 Rectifying a leaking PHE
10.1.1 General
Measure the A-dimension at several points around the plate pack. Compare with theoretical value and adjust if
necessary, see section 9.11 for details.
To rectify a minor leak, it may be sufficient to tighten the unit a bit further. Ensure that the plate pack is not
tightened below the minimum A-dimension.
Check that the frame cover plates are parallel and not drawn out of alignment.
If a PHE is leaking, it is important to localize the leak before the unit is dismantled, otherwise it often becomes more
difficult to rectify the problem.
10.1.2 Localizing the leak
The unit should be inspected thoroughly on all sides
including top and bottom of the plate pack. Pinpoint all
leaks by counting the number of plates from a frame cover
and by accurate measurements. If possible, connection
ports that are not under pressure should be inspected for
leaks. There are four possible leakages:
A. Through the gasket leakage groove (from the area
between ring and diagonal gasket)
B. Through an external gasket on the side of the plate
pack
C. Internal leakage
D. Leakage at the connections

Reg.nr: fbla-288
Edition: 12
Date: 2008-10-29 ML
Issued by: MSÖ
Page: 30(33)
A. Leakage through the gasket leakage groove
The most common reason for this type of leakage is
gasket failure, either the ring or the diagonal gasket.
If the gaskets are in good condition and correctly located
in the gasket grooves, check for possible corrosion in the
areas between the ring and diagonal gasket by visual
inspection or dye penetration.
B. Leakage through an external gasket
If an external leakage occurs on the side of a plate pack at any position excluding the ones described in picture 1.1
above, during operation, this may have the following causes:
- Inadmissible high pressure or temperature. Check operating pressure and temperature. Correct if necessary.
- The compression (A dimension) is incorrect. In this case, shut down the PHE and tighten gradually in its
unpressurized state. Do not go below minimum A-dimension. The A-dimension must not vary by more
than 2 mm at different measuring points.
- Incorrectly positioned or damaged gaskets. Check the gasket and its location in the gasket groove for foreign
particles that might jeopardize the integrity of the seal. Replace damaged gaskets and if necessary correct the
position of the gaskets.
C. Internal leakage
If there is an internal leak inside the PHE, the reason is probably a hole or crack in a heat transfer plate caused by
corrosion or mechanical damage. To localize this type of leak, it is necessary to disconnect one of the lower
connections, pressurize the other side and observe where the drops come from.
Note that it may be necessary to switch sides to find the hole or crack. Measure the distance from the frame cover to
the leak to determine which plates are suspected. Remove and check these plates visually and by dye penetration to
find the holes and cracks. Replace damaged heat transfer plates with new ones.
D. Leakage at the connections
If a leak occurs adjacent to a frame cover near a port, the reason could be:
• Cracks in the metal/rubber liner results in leakage between the cover plate and the liner. If this occurs on
the inside of the frame cover, it is often easy to see.
• If it occurs on the outside of the frame cover, it can sometimes be difficult to see the difference between
this and a leaking gasket for the connection flange.
• The ring gasket on the first heat transfer plate not sealing correctly
to the liner can also cause a leak at the cover inside.
If this is due to incorrect centring of the liner/ring gasket, it can be
remedied by adjusting the carrying bar. In certain cases, it may be
possible to adjust the liner somewhat by moving it sideways in the
cover porthole.

Reg.nr: fbla-288
Edition: 12
Date: 2008-10-29 ML
Issued by: MSÖ
Page: 31(33)
10.1.3 Determining which liquid is leaking
Even though both liquids in the heat exchanger may be similar and hard to distinguish (i.e. water on both sides), it
may still be possible to determine which of the two liquids is leaking.
External leakage on the side of the heat exchanger
Heat exchangers assembled according to Stokvis standard, the liquid in the first channel (that is the channel formed
by plate numbers 1 and 2) corresponds to connections S2 and S4.
Channel number Corresponds to connection
Even S1 & S3
Odd S2 & S4
Leakage through the leakage vent
If only one side of the exchanger is pressurized, and the leak occurs through the leakage vent, the following applies
for heat exchangers assembled according to Stokvis standard:
Pressurized
connections
Leakage from channel with even number Leakage from channel with odd number
S1 & S3 Diagonal gasket failure Ring gasket failure or hole in plate between
ring and diagonal gasket
S2 & S4 Ring gasket failure or hole in plate between
ring and diagonal gasket
Diagonal gasket failure
10.1.4 Types of gasket failures
• Gaskets not located correctly in the gasket groove
• Gasket crushed (split). This is caused by excessive deformation of the rubber material by, for example:
o Excessive tightening of the plate pack.
o Swelling of the gasket material by chemical attack and/or high temperatures.
o Gaskets squeezed between contact points due to incorrect location of the gasket in the groove.
• Gasket attacked chemically by the liquid. This can lead to the gasket being dissolved, swelled, hardened etc.
• Gasket has lost its elasticity due to heat ageing.
10.1.5 Excessive pressure and spikes
Operating a plate heat exchanger above its design pressure will result in gasket sealing problems. These problems vary
depending on the type of plate heat exchanger being used but are most often indicated by protruding gaskets which
will extrude between plates and be visible on the perimeter of the plate pack. Leakage may or may not be present; but
in either case, steps must be taken to correct the situation. Excessive pressure must be reduced to limits within the
design pressure of the unit. All regulating and throttling valves must be placed on the inlet sides of the heat
exchanger. Excessive lengths of piping being stopped by valves on nozzle outlets can cause tremendous pressure on
gaskets and this is to be avoided at all times. Pressure spikes can also cause extremely high pressures. Some of the
causes are totally closed systems without allowance for expansion, booster-pump start-up and rapid acting control
valves. When these conditions exist, they should be handled with vented closed systems, slow-acting control valves
and accumulators whenever possible.

Reg.nr: fbla-288
Edition: 12
Date: 2008-10-29 ML
Issued by: MSÖ
Page: 32(33)
10.2 Impaired plate heat exchanger performance
If your PHE shows impaired performance in the form of high pressure drops or insufficient heat transfer, check the
connection pipes and plate pack for contamination, foreign particles or other deposits. Open and clean the heat
exchanger if necessary. Check that filters before the plate heat exchanger are working properly.
Impaired performance may also be caused by problems elsewhere in the system, e.g. inaccurate substance values,
deviations in the volumetric flow or inadequate pump performance.

Reg.nr: fbla-288
Edition: 12
Date: 2008-10-29 ML
Issued by: MSÖ
Page: 33(33)
11. Warranty
Stokvis Energy Systems warrants to the original purchaser/user that all equipment or parts thereof supplied by
it will be free from defects in material and workmanship only, under normal use and service, for a period of 12
months from the date of installation, but no longer than 15 months from the date of original shipment. Longer
guarantee period can be offered for special projects.
Stokvis Energy Systems shall not be liable for any loss of profit, loss by reason of plant shutdown, non-operation or
increased cost of operation, loss of product or material or other special or consequential loss or damages.
DISCLAIMER
The plate heat exchanger performance is based on installation, maintenance and operating conditions in
conformance with this manual. Stokvis Energy Systems cannot assume any liability for plate heat exchangers that
do not meet these criteria.
Please contact your Stokvis representative for further information.