DPPrint Electrical Schematic
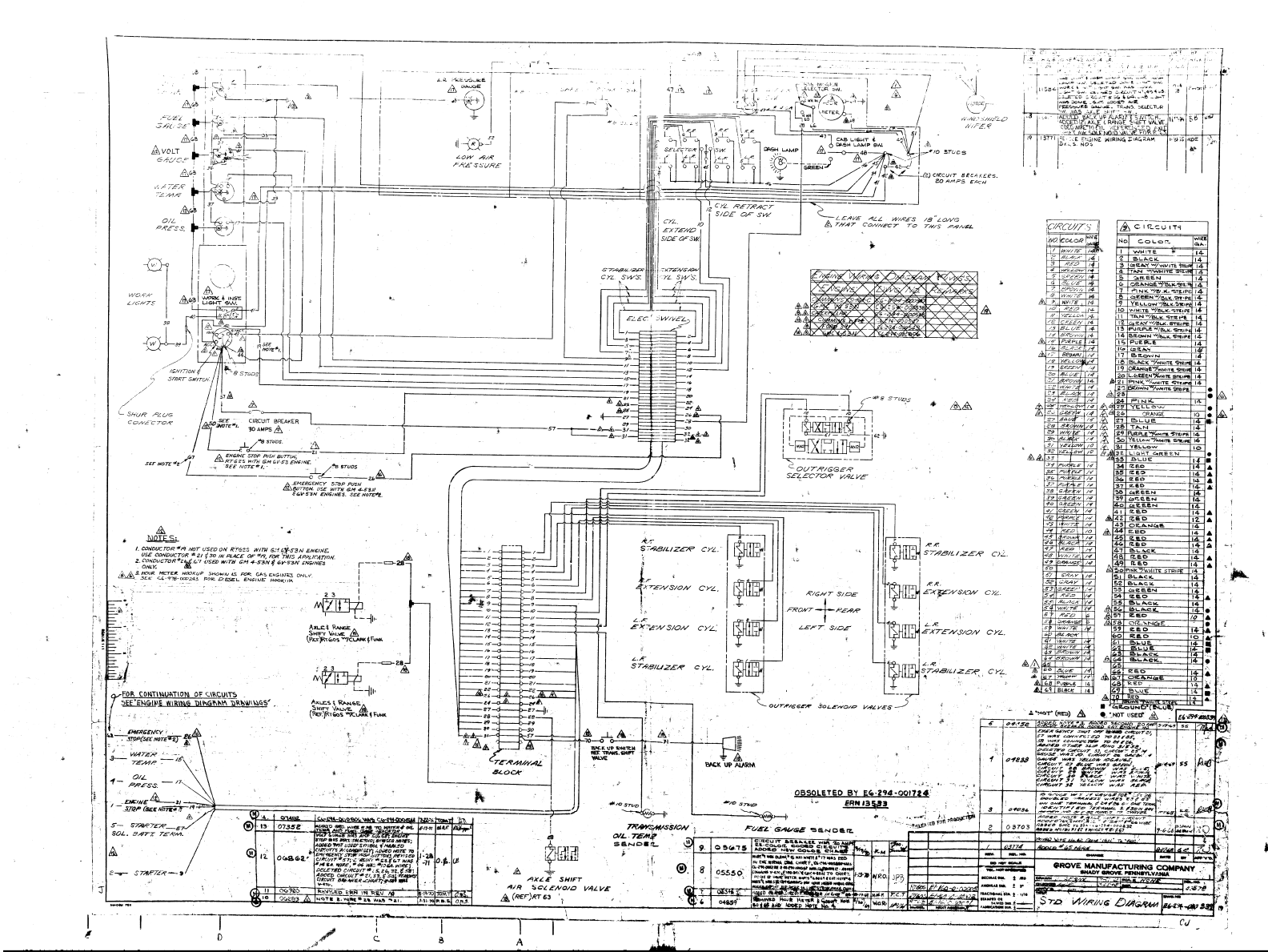
User Manual: Electrical-Schematic Grove Rough Terrain Crane == RT650S Owner CD == TROUBLESHOOTING
Open the PDF directly: View PDF
.
Page Count: 1

User Manual: Electrical-Schematic Grove Rough Terrain Crane == RT650S Owner CD == TROUBLESHOOTING
Open the PDF directly: View PDF
.
Page Count: 1
