EPIC40 Epic Installation
User Manual: EPIC40
Open the PDF directly: View PDF
.
Page Count: 36

INSTALLER: Leave this manual with the appliance.
CONSUMER: Retain this manual for future reference.
INSTALLATEUR: Laissez cette notice avec l'appareil.
CONSOMMATEUR: Conservez cette notice pour consul-
tation ultérieure.
- Do not store or use gasoline or other flammable vapors and
liquids in the vicinity of this or any other appliance.
- WHAT TO DO IF YOU SMELL GAS
• Do not try to light any appliance.
• Do not touch any electrical switch; do not use any
phone in your building.
• Immediately call your gas supplier from a neighbor’s
phone. Follow the gas supplier’s instructions.
• If you cannot reach your gas supplier, call the fire
department.
- Installation and service must be performed by a quali-
fied installer, service agency or the gas supplier.
WARNING: If the information in these instructions is
not followed exactly, a fire or explosion may result
causing property damage, personal injury or death.
- Ne pas entreposer ni utilizer d’essence ni d’autres
vapeurs ou liquides inflammables dans le voisinage
de cet appareil ou de tout autre appareil.
- QUE FAIRE SI VOUS SENTEZ UNE ODEUR DE GAZ:
• Ne pas tenter d’allumer d’appareil.
• Ne touchez à aucan interrupteur. Ne pas vous servir
des téléphones se trouvant dans le bâtiment où vous
trouvez.
• Appelez immédiatement votre fournisseur de gaz
depuis un voisin. Suivez les instructions du fournis-
seur.
• Si vous ne pouvez rejoindre le fournisseur de gaz,
appelez le service des incindies.
- L’installation et l’entretien doivent être assurés par un
installateur ou un service d’entretien qualifié ou par
le fournisseur de gaz.
AVERTISSEMENT: Assurez-vous de bien suivre les
instructions données dans cette notice pour réduire
au minimum le risque d’incindie ou d’explosion ou
pour éviter tout dommage matériel, toute blessure
ou la mort.
INSTALLATION AND OPERATION
Ce manuel d’installation est disponible en francais, s implement en faire
la demande. Numéro de la pièce 775,223CF.
MODELS
US
Portland
P/N 775,223M REV. C 03/2010
Direct-Vent
EPIC™
This appliance may be installed in an aftermarket permanently located, manufactured home (USA only) or mobile
home, where not prohibited by local codes. This appliance is only for use with the type of gas indicated on the rating
plate. This appliance is not convertible for use with other gases, unless a certified kit is used.
WARNING
AVERTISSEMENT
UNE SURFACE VITRÉE CHAUDE PEUT
CAUSER DES BRÛLURES.
LAISSER REFROIDIR LA SURFACE
VITRÉE AVANT D'Y TOUCHER.
NE PERMETTEZ JAMAIS À UN ENFANT
DE TOUCHER LA SURFACE VITRÉE.
HOT GLASS WILL
CAUSE BURNS.
DO NOT TOUCH GLASS
UNTIL COOLED.
NEVER ALLOW CHILDREN TO
TOUCH GLASS.
EPIC33/40
The Epic™ Gas Stove is factory equipped for 40,000 BTU input
and can be converted to 33,000 using the smaller orifice provided.
OTL Report No. 050-S-21b-5

2
CONGRATULATIONS!
When you purchased your new gas stove, you joined the ranks
of thousands of individuals whose answer to their home heat-
ing needs reflects their concern for aesthetics, efficiency and
our environment. We extend our continued support to help you
achieve the maximum benefit and enjoyment available from
your new gas stove.
Thank you for selecting a Lennox Hearth Products gas stove as
the answer to your home heating needs.
TABLE OF CONTENTS
Using this Manual ...................................................... 2
Safety and Warning Information ....................................... 3
Orifice Size / Altitude Adjustment ........................................ 5
Codes and Approvals ....................................................... 5
New York City, New York (MEA) .......................................... 5
Commonwealth Of Massachusetts Requirements ..................... 5
Pre-Installation............................................................6-8
Features ............................................................ 6
Packaging List ..................................................... 6
Ratings.............................................................. 6
Preparing Your Epic Stove for Installation .................... 7
Dimensions ........................................................ 7
Clearances to Combustibles ..................................... 8
Installation ............................................................... 8-12
Trim Installation ................................................... 8
Firebox Setup ...................................................... 9
Brick Panel Installation ......................................... 10
Log Set and Ember Installation ................................ 11
Vent Installation .......................................................12-16
Venting .............................................................12
Residential and Mobile Home Installations ................. 12
Vent Considerations .............................................12
Vent Parts List ....................................................13
Horizontal Vent Installation ..................................... 13
Vertical Vent Installation ........................................ 14
Flue Restrictors ..................................................15
Horizontal Terminations ......................................... 16
Vertical Terminations ............................................ 16
Horizontal Vent Termination Locations ....................... 17
Gas Line Installation ......................................................18
Gas Pressure Requirements .................................... 18
LP and Natural Gas Supplies ...................................18
Attaching Safety In Operation Warnings ............................... 19
Operating Instructions ................................................20-23
Pre-Lighting Checklist ........................................... 20
Lighting Instructions ............................................. 20
Flame Color and Behavior ......................................21
Air Shutter Adjustment ..........................................22
Quiet Operation ................................................... 22
Paint Curing ....................................................... 22
Optional Wall Thermostat ....................................... 22
Operating Options ................................................ 23
Millivolt Control System ........................................ 23
Maintenance and Servicing ..........................................24-26
Maintenance Checklist ..........................................24
Millivolt and Systems Checks ..................................24
Vent Pipe Maintenance .......................................... 24
Glass Door Cleaning and Maintenance ....................... 25
Opening and Removing Door ................................... 25
Fuel Conversion .................................................. 26
Troubleshooting ............................................................27
Wire Harness Diagram .................................................... 28
Replacement Parts ........................................................29
Accessories ................................................................. 32
Stove Labels ............................................................ 33-34
Product Reference Information .......................................... 36
USING THIS MANUAL
Please read and carefully follow all of the instructions found in this
manual. Please pay special attention to the safety instructions provided
in this manual.
PRODUCT IS SUBJECT TO CHANGE WITHOUT NOTICE

IMPORTANT SAFETY AND WARNING
INFORMATION
WARNING
Young children should be carefully supervised when
they are in the same room as the appliance. Tod-
dlers, young children and others may be susceptible
to accidental contact burns. A physical barrier is
recommended if there are at risk individuals in the
house. To restrict access to a fireplace or stove,
install an adjustable safety gate to keep toddlers,
young children and other at risk individuals out of
the room and away from hot surfaces.
AVERTISSEMENT
Les jeunes enfants devraient être surveillés étroite-
ment lorsqu’ils se trouvent dans la même pièce que
l’appareil. Les tout petits, les jeunes enfants ou les
adultes peuvent subir des brûlures s’ils viennent en
contact avec la surface chaude. Il est recommandé
d’installer une barrière physique si des personnes à
risques habitent la maison. Pour empêcher l’accès
à un foyer ou à un poêle, installez une barrière de
sécurité; cette mesure empêchera les tout petits,
les jeunes enfants et toute autre personne à risque
d’avoir accès à la pièce et aux surfaces chaudes.
WARNING
Improper installation, adjustment, alteration, ser-
vice or maintenance can cause injury or property
damage. Refer to this manual. For assistance or
additional information consult a qualified installer,
service agency or the gas supplier.
WARNING
Failure to comply with these installation instructions
will result in an improperly installed and operating
appliance, voiding its warranty. Any change to this
appliance and/or its operating controls is danger-
ous.
WARNING
Clothing or other flammable material should not
be placed on or near the appliance.
AVERTISSEMENT
On ne devrait pas placer de vêtements ni d’autres
matières inflammables sur l’appareil ni à prox-
imité.
WARNING
Any safety screen or guard removed for servicing
the appliance must be replaced prior to operating
the appliance.
AVERTISSEMENT
Tout écran ou protecteur retiré pour permettre
l’entretien de l’appareil doit être remis en place
avant de mettre l’appareil en marche.
WARNING
Improper installation or use of this appliance can
cause serious injury or death from fire, burns,
explosion or carbon monoxide poisoning.
WARNING
Children and adults should be alerted to the hazards
of high surface temperature and should stay away to
avoid burns or clothing ignition.
AVERTISSEMENT
Les enfants et les adultes devraient être infor-més
des dangers que posent les températures de surface
élevées et se tenir à distance afin d’éviter des brûlures
ou que leurs vêtements ne s’enflamment.
WARNING
DO NOT ATTEMPT TO ALTER OR MODIFY THE CON-
STRUCTION OF THE APPLIANCE OR ITS COMPO-
NENTS. ANY MODIFICATION OR ALTERATION MAY
VOID THE WARRANTY, CERTIFICATION AND LISTINGS
OF THIS UNIT.
3

4
FOR YOUR SAFETY do not install or operate this appliance without
first reading and understanding this manual. Any installation or
operation of the appliance deviating from that which is stated
in this manual WILL void the warranty and may be hazardous.
INSTALLATION AND REPAIR SHOULD ONLY BE DONE BY
A QUALIFIED SERVICE TECHNICIAN. DO NOT ATTEMPT
TO SERVICE THE APPLIANCE YOURSELF.
Do not make any make-shift compromises during installation.
Any modification or alteration may result in damage to the ap-
pliance or dwelling and will void the warranty, certification and
listings of this unit.
Failure to use manufacturer provided parts, variations in tech-
niques and construction materials or practices other than those
described in this manual may create a fire hazard and void the
limited warranty.
This gas appliance must be equipped for the proper fuel type
and altitude at which it will be operated. Any operation outside
the parameters outlined in this manual may result in a hazard-
ous condition and will void the warranty. Please carefully read
the sections pertaining to these subjects and/or be sure your
appliance is properly equipped.
Never use solid fuels such as wood, paper, cardboard, coal, or
any flammable liquids, etc., in this appliance.
Any grill, panel, or glass removed for service MUST be replaced
prior to operating the appliance. Do not operate appliance with
the glass front removed, cracked or broken.
Gold and nickel plated surfaces must be cleaned with glass
cleaner and a clean soft cloth before firing the first time or
fingerprints will remain permanently. NEVER use brass polish
to clean gold or nickel, this will remove the plating!!!
When opening the lower door while the stove is burning, pull on
the handle located on the top side of the lower door. Be cautious
not to touch any part of the front door and firebox just above the
lower door as those areas are hot.
LHP, its employees, or any of its representatives assume no
responsibility for any damages caused by an inoperable, inad-
equate, or unsafe condition as a result of any improper operation,
service or installation procedures, whether direct or indirect.
Due to high temperatures, the appliance should be located out
of traffic and away from furniture and draperies.
En raison des températures élevées, l’appareil devrait être
installé dans un endroit où il y a peu de circulation et loin du
mobilier et des tentures.
Provide adequate clearances around air openings and adequate
accessibility clearance for service and proper operation. Never
obstruct the front openings of the appliance.
These appliances are designed to operate on natural or propane
gas only. The use of other fuels or combination of fuels will de-
grade the performance of this system and may be dangerous.
These appliances are designed as supplemental heaters. There-
fore, it is advisable to have an alternate primary heat source
when installed in a dwelling.
These appliances must not be connected to a chimney or flue
serving a separate solid fuel burning appliance.
These appliances are vented gas appliances. Do not burn wood
or other material in these appliances.
This appliance is only for use with the type of gas indicated on
rating plate. This appliance is not convertible for use with other
gases, unless a certified kit is used.
Cet appareil doit être utilisé uniquement avec les types de gaz
indiqués sur la plaque signalétique. Ne pas l'utiliser avec
d'autres gaz sauf si un kit de conversion certifié est installé.
Hot while in operation. Do not touch. Severe Burns may result.
Keep children, clothing furniture, gasoline and other liquids
having flammable vapors away.
L’appareil est chaud lorsqu’il fonctionne. Ne pas toucher
l’appareil. Risque de brûlures graves. Surveiller les enfants.
Garder les vêtements, les meubles, l’essence ou autres liquides
produisant des vapeur inflammables loin de l’appareil.
This appliance may be installed in an aftermarket, permanently
located, manufactured home (USA only) or mobile home, where
not prohibited by local codes.
Cet appareil peut être installé dans une maison préfabriquée
(mobile) déjà installée à demeure si les règlements locaux le
permettent.
Ensure clearances are in accordance with local installation
codes and the requirements of the gas supplier.
Dégagement conforme aux codes d'installation locaux et aux
exigences du foumisseunde gaz.
Installation and repair should be done by a qualified service
person. The appliance should be inspected before use and at
least annually by a professional service person. More frequent
cleaning may be required due to excessive lint from carpet-
ing, bedding material, etcetera. It is imperative that control
compartments, burners and circulating air passageways of the
appliance be kept clean.
L’installation et la réparation devrait être confiées à un technicien
qualifié. L’appareil devrait faire l’objet d’une inspection par un
technicien professionnel avant d’être utilisé et au moins une
fois l’an par la suite. Des nettoyages plus fréquents peuvent
être nécessaires si les tapis, la literie, et cetera produisent une
quantité importante de pous-sière. Il est essentiel que les com-
partiments abritant les commandes, les brûleurs et les conduits
de circulation d’air de l’appareil soient tenus propres.
Do not use these appliances if any part has been under water.
Immediately call a qualified, professional service technician
to inspect the appliance and to replace any parts of the control
system and any gas control which have been under water.
Ne pas utiliser cet appareil s’il a été plongé, même partielle-
ment, dans l’eau. Appeler un technicien qualifié pour inspecter
l’appareil et remplacer toute partie du système de commande
et toute commande qui a été plongée dans l’eau.
Only trim kit(s) supplied by the manufacturer shall be used in
the installation of this appliance.
Seules les trousses de garniture fournies par le fabricant doivent
être utilisées pour l’installation de cet appareil.
INSTALLER: THESE INSTRUCTIONS ARE TO REMAIN WITH THE
HOME OWNER!

5
Certification
Gas appliances must be tested and certified by a nationally recognized
testing and certification laboratory to ANSI (American National Standard
Institute) gas appliance safety standards.
This stove has been tested and certified by OMNI -Test Laboratories to
ANSI Z21.88 / CSA 2.33 Standard for Vented Gas Fireplace Heater and
CGA 2.17-M91 and UL 307B Gas Burning Heating Appliances for Manu-
factured (Mobile) Homes in both USA and Canada.
• Must conform with all local, state and national installation codes. In
the absence of local codes, the installation must conform with National
Fuel Gas Code ANSI Z223.1 - latest edition, also known as NFPA 54
(In Canada, the current CAN/CSA B149.1 installation code). Refer to
the National Fuel Gas Code and local zoning and code authorities for
details on installation requirements.
• Mobile home installations must conform with the Mobile Home Con-
struction and Safety Standard, Title 24 CFR, Part 3280 (in Canada
CAN/CSA Z240 MH), or, when such a standard is not applicable, the
Standard for Mobile Home Installations, ANSI A225.1 - latest edi-
tion.
• Must be vented directly to the outside in accordance with the latest
edition of the National Fuel Gas Code and must never be attached to
a chimney serving a separate solid fuel burning appliance.
• Has been certified for use with either natural gas or propane.
• Is not for use with solid fuels.
• Is approved for sitting rooms and/or bedrooms.
THE EPIC™ STOVE
For altitudes above 2,000 feet (In Canada 4,500 FT/1370 M),the orifice
should be de-rated by 4% for every 1,000 feet to maintain the proper ratio
of gas to air. Improper orifice sizing may result in damage and unsafe
conditions. Changing the orifice should only be done by a qualified service
technician. Contact your Lennox Hearth Products dealer for proper orifice
sizes. (see Page 26 for more information).
Since there are always several potential sources of fire in any home, we
recommend installing smoke detectors. If possible, install the smoke
detector in a hallway adjacent to the room (to reduce the possibility of
occasional false activation from the heat produced by the appliance). If
your local code requires a smoke detector be installed within the same
room, you must follow the requirements of your local code. Check with
your local building department for requirements in your area.
ORIFICE SIZE/ALTITUDE ADJUSTMENT
SMOKE DETECTORS
CODES AND APPROVALS
Installation of these appliances are approved for installation in New York
City in the US state of New York (MEA#: 138-07-E).
NEW YORK CITY, NEW YORK (MEA)
COMMONWEALTH OF MASSACHUSETTS REQUIREMENTS
(Massachusetts Approval #G3-0806-6)
These appliances are approved for installation in the US state of Mas-
sachusetts if the following additional requirements are met:
• Install this appliance in accordance with Massachusetts Rules and
Regulations 248 C.M.R. Sec. 5.08 2(a) through 2(e).
• Installation and repair must be done by a plumber or gas fitter licensed
in the Commonwealth of Massachusetts.
• The flexible gas line connector used shall not exceed 36 inches (92
centimeters) in length.
• The individual manual shut-off must be a T-handle type valve.
Massachusetts Horizontal Vent Requirements
In the Commonwealth of Massachusetts, horizontal terminations installed
less than seven (7) feet above the finished grade must comply with the
following additional requirements:
• A hard wired carbon monoxide detector with an alarm and battery
back-up must be installed on the floor level where the gas fireplace
is installed. The carbon monoxide detector must comply with NFPA
720, be ANSI/UL 2034 listed and be ISA certified.
• A metal or plastic identification plate must be permanently mounted to
the exterior of the building at a minimum height of eight (8) feet above
grade and be directly in line with the horizontal termination. The sign
must read, in print size no less than one-half (1/2) inch in size, GAS
VENT DIRECTLY BELOW. KEEP CLEAR OF ALL OBSTRUCTIONS.
It has met all necessary ANSI Standards and is fully certified for installa-
tion in any community. If there are any questions or if you need further
substantiation either write to or call your Lennox Hearth Products dealer.
If you have further questions, please contact Lennox Hearth Products.
Check all local building and safety codes before installation. The installation
instructions and appropriate code requirements must be followed exactly
and without compromise. In the absence of local codes the following
standards and codes must be followed.
The Installation must conform to local codes or, in the absence of local
codes, with the National Fuel Gas Code, ANSI Z223.1/NFPA 54 - latest
edition (In Canada, the current CAN/CSA-B149.1 installation code).
The appliance, when installed, must be electrically grounded and wired
in accordance with local codes or, in the absence of local codes, with the
National Electrical Code, ANSI/NFPA 70 - latest edition, or the Canadian
Electrical Code, CSA C22.1 - latest edition.

6
Features
Installation Options
Residential
Vented vertical and horizontal
Manufactured (mobile) home
Natural gas (NG) or propane (LP)
Bedrooms
Optional wall-mounted or remote thermostat
Venting
This stove can be vented with Security™ Secure Vent™ pipe*. Coaxial
pipe diameters are 6-5/8” outer and 4” inner. The combustion air for this
stove is drawn from outside the house through the outer DV (direct-vent)
pipe. Room air is not required for combustion.
When planning your installation, select the correct length of vent pipe
for your particular requirements. Determine the minimum clearance to
combustibles from the rear of the unit to the wall. It is also important
to note the thickness of the wall. Before cutting the vent hole through
the wall make sure that ALL vent and termination clearances (see Page
17) will be met.
Electrical
The standard fan motor requires 120 Volts AC for operation. The stove is
not dependent on the fan or an outside electrical supply to operate.
WARNING - Electrical Grounding Instructions - This appliance is
equipped with a three-prong (grounding) plug for your protec-
tion against shock hazard and should be plugged directly into a
properly grounded three-prong receptacle. Do not cut or remove
the grounding prong from this plug.
RATINGS
Epic™ 33 (EPIC33) Epic™ 40 (EPIC40)
NATURAL GAS LP GAS NATURAL GAS LP GAS
Max/Min Input BTUh 0-2,000 Feet
(0-610 M)u
33,000 / 23,000 31,000 / 24,000 40,000 / 27,000 39,000 / 30,000
Manifold Pressure (IN. WC)
3.5 / 1.7 10.0 / 5.4 3.5 / 1.7 10.0 / 5.4
Min. Inlet Pressure (IN. WC)
5.0 11.0 5.0 11.0
P4 Efficiency
w
56.98% 63.58% 63.54% 65.10%
Orifice (DMS) 0-2,000 Feet (0-610 M)u
#36/.106 IN. #52/.064 IN. #31/.120 IN. #49/.073 IN.
uUnit factory equipped for 0-2000 FT/0-610 M, In Canada 0-4500 FT/0-1370 M
vThe Steady State Efficiency numbers based on maximum vent configuration.
wTested to CSA P.4.1-02 “Testing Method for Measuring Annual Fireplace Efficiency.
Electrical Rating: 120 VAC, 60 HZ, Less Than 2 Amps
Millivolt Valve
This stove is operated with a millivolt valve and therefore burns even
during a power outage.
Fuel
This stove comes from the factory equipped to burn natural gas at a
specified elevation. The stove can be converted to burn LP gas (liquid
propane) by changing the cassette (valve and pilot assembly) or installing
a conversion kit. Only Lennox Hearth Products conversion kits can be
used to convert from NG to LP or LP to NG. Contact your Lennox Hearth
Products dealer for details.
Specifications
Pipe:Type - direct-vent
Recommended manufacturer*
Security™ Secure Vent™*
Diameter - 6-5/8”x 4” for all installations
Stove Packaging List
The Epic™ gas stove comes with the following parts:
1 Stove Body with Burner Cassette and 150 CFM Blower
1 3/8”x 9” Gas Pipe
1 3 pc. Brick Panel Set
1 4 pc. Log Set
1 Bag of Ember Material
1 Bag of Rock Wool
1 Bag of Flue Restrictors, Brick Panel Brackets and Tap-tites
1 Power Cord
1 Epic 33 Conversion Orifice
1 Installation and Operation Manual
Options
One required: Black Painted, Gold, Brushed Nickel, or Black Nickel Trim
Kit
* Other approved chimney brand is Simpson Dura-Vent DV-GS.
PRE-INSTALLATION

7
NOTE: DIAGRAMS & ILLUSTRATIONS ARE NOT TO SCALE.
Dimensions
The gas line attaches to the gas valve at the lower left corner at the
back of the stove. Test all gas connections for leaks with a gas leak test
solution.
Preparing Your Epic™ Stove For Installation
Read all instructions before beginning your installation. If instructions
have not been read carefully, your installation could void your warranty
and may create a serious fire, health, or other safety hazard.
The Lennox Hearth Products warranty will be voided if one of the fol-
lowing occurs:
• Installation of any damaged stove or vent system component.
• Unauthorized modification of the direct-vent system.
• Installation other than as instructed by Lennox Hearth Products,
Security™ Chimneys, or Simpson Dura-Vent.
• Installation of any stove or vent system component not manu-
factured or approved by Lennox Hearth Products, Security™
Chimneys, or Simpson Dura-Vent.
When planning the installation for your Epic gas stove, it’s necessary to
consider the following:
• Where the unit is to be installed
• The vent system configuration to be used
• Gas supply (NG or LP)
• Electrical wiring
• Optional accessories (door trim assembly and wall-mounted or
remote thermostat)
23-1/2”
(597mm)
17”
(432mm)
23-1/2”
(597mm)
31-1/4”
(794mm)
Top View
Front View
Figure 1
Figure 2
17”
(432mm)
23-1/2”
(597mm)
23-1/2”
(597mm)
31-1/4”
(794mm)

8NOTE: DIAGRAMS & ILLUSTRATIONS ARE NOT TO SCALE.
Clearances to Combustibles
Minimum clearances to combustible materials in inches (millimeters):
Parallel Installation
Corner Installation
Alcove dimensions
The minimum width between the alcove side walls is 48” (1219mm).
The minimum height of the alcove is 69” (753mm) and the maximum
depth is 48” (1219mm).
Floor Protection
A noncombustible hearth pad is not required. This stove may be installed
on a combustible surface. Also, the floor beneath the stove must be
stable, level, hard and strong enough to support the stove without a
tipping hazard.
48”
(1219mm)
Min.
48”
(1219mm)
Max.
69”
(753mm)
Min.
24-1/2”
(622mm)
Min.
12-1/2”
(318mm)
Min.
4” (102mm)
4-1/2”
(114mm)
Min.
4-1/2”
(114mm)
Min.
10-1/2”
(267mm)
Min.
90°
Figure 3
Figure 4
Figure 5 - Alcove Dimensions
Pipe Clearances
All installations using a vertical termination cap must maintain one inch
clearance between the direct-vent pipe and combustibles. For horizontal
runs of pipe, one inch of clearance to combustibles on the sides and
bottom and two inches on the top of the pipe is required. See Page 16
for allowable pipe configurations.
Back Wall
Side Wall
INSTALLATION
Install Door Trim Kit
Install door trim kit per instructions provided in kit (ref. form
#775291M).
Figure 6

9
NOTE: DIAGRAMS & ILLUSTRATIONS ARE NOT TO SCALE.
Log Stands
Secondary Air Holes
Air Deflector
Gas Ports
1
2
3
4
Do not cover any secondary air holes or gas ports (see Burner Pan
Diagram above) behind this line.
To ensure a proper burn leave a 1” space free of any embers or rockwool
directly in front of the air deflector (see Burner Pan Diagram above).
Burner Pan Diagram
Completed Firebox Setup
Firebox Setup
Figure 7
Figure 8

10 NOTE: DIAGRAMS & ILLUSTRATIONS ARE NOT TO SCALE.
Brick Panel Installation
CAUTION: The brick panels are required for your appliance to
function correctly and safely.
Packaging List: Rear brick panel (A), left brick panel (B), right brick panel
(C), retaining brackets (D) - in flue restrictor bag
1. Remove the brick panels from the box and carefully unwrap them.
The panels are fragile, so handle them with care. Remove the bag
containing the brick retaining brackets (D) and flue restrictors from
the firebox.
4. Using the included screws, install the brick retaining brackets (D) above
the left and right brick panels (B and C).
3. Install the left panel (B) bottom first and stand flush against left wall of
firebox. Repeat for right panel (C) against the right wall of firebox.
2. Install the rear brick panel (A) bottom first and stand it flush against
the rear of the firebox ensuring the pilot cutout is at the bottom directly
above the pilot.
AB C
D
Figure 9
Figure 10
Figure 11
Figure 13
Figure 14
Figure 15
Figure 12

11
NOTE: DIAGRAMS & ILLUSTRATIONS ARE NOT TO SCALE.
C
D
Log Set and Ember Installation
If logs are not installed according to the log installation instruc-
tions, flame impingement and improper combustion could
occur and result in soot and/or excessive production of carbon
monoxide (CO), a colorless, odorless, toxic gas.
The size and position of the log set is critical to achieve a safe,
reliable and attractive flame pattern. Any attempt to use a differ-
ent log set in the fireplace will void the warranty and will result
in incomplete combustion, sooting and poor flame quality.
Packaging List: Log set [rear log (A), left rear log (B), left front log
(C), center log (D)], embers (E) and rockwool (F)
1. Carefully remove the logs from their packaging and ensure you
have a complete set. The logs are fragile, so handle them with
care.
3. Place the rear log (A) onto log stands 1 and 2 (see Burner Pan
Diagram, Page 9). The charred surface of the log should face the
front.
4. Place the embers (E) on the burner pan. Using the larger embers
first, create a small pile on the elevated air deflector near the center
and place
them along the front edge of the burner (leaving about 1/4”
in between each ember and a 2” gap in the center). It will not affect the
performance, but smaller embers may
fall into the front air gap.
Place
the rest of the embers throughout the firebox taking care not to block
off any secondary air holes or gas ports (see example below for proper
placement of embers).
5. Place the rockwool (F) over the gas ports and in between the embers
along the front of the firebox. The rockwool can be placed over gas
ports but do not cover the secondary air holes (see Burner Pan
Diagram, Page 9).
6. Place the left front log (C) on log stand 3 (see Burner Pan Diagram,
Page 9) and the center log (D) spanning from log stand 4 to the
peg found on the right side of rear log (A). When installed correctly,
both logs should sit firmly in place with the charred side facing
forward.
2. Install left rear log (B) onto the front half of log stand 1 (see Burner
Pan Diagram, Page 9). When installed correctly it should sit firmly
in place with the charred surface facing the center of the firebox.
NOTE: All logs are designed to fit only one way. For the ap-
pliance to function properly, it is essential that the logs be
installed correctly. See below for an example of a correctly
burning Epic™ gas stove.
Figure 17
Figure 20
Figure 16
Figure 18
Figure 19
A
B
CD
E
F
B
A
B
A
C
D

12 NOTE: DIAGRAMS & ILLUSTRATIONS ARE NOT TO SCALE.
Vent Installation
Venting:
The Epic™ gas stove has been tested and listed as a direct-vent
heater system by OMNI-Test Laboratories, Beaverton, Oregon
and is recommended for use with Security™ Secure Vent pipe*.
Use only approved chimney brands with this appliance.
Important:
• Read all instructions carefully before starting the installation.
Failure to follow these instructions may create a fire or other
safety hazard and will void the warranty. Be sure to check for
specific clearances to combustible requirements on Page 8.
Do not extend the venting system vertically or horizontally in
excess of the distance prescribed on Page 16. Consult your
local building codes before beginning the installation.
• Always maintain the proper air spaces between the vent pipe
and nearby combustibles to prevent a fire hazard. Do not fill
air spaces with insulation. Be sure to check the vent termina-
tion clearance requirements from decks, windows, soffits, gas
regulators, air supply inlets and public walkways, as specified
in these installation instructions on Page 17 and local building
codes.
• This gas stove and vent system must be vented directly to
the outside of the building and never be attached to a chim-
ney serving a separate solid fuel or gas-burning appliance.
Each direct-vent gas appliance must use its own separate vent
system. Common vent systems are prohibited.
• The Epic gas stove is recommended for use with Security™
Secure Vent pipe*. The appliances and vent manufacturers
warranties will be voided and serious fire, health, or other safety
hazards may result from any of the following actions:
• Installation of any damaged direct-vent component.
• Unauthorized modification of the direct-vent system.
• Installation of any vent component part not approved or
manufactured by the approved vent manufacturer.
• Installation other than as instructed by Lennox Hearth
Products and vent manufacturers instructions.
Residential and Mobile Home Installations:
These are the minimum pieces required. Other parts may be required for
your particular installation.
Minimum Components for Horizontal Installation:
Horizontal Termination Kit which includes:
• 1 6-5/8”x 6” Black Pipe
• 1 Riser Vent Terminal
• 1 Wall Penetration Heat Shield (Wall Thimble) (2 pcs)
• 1 Decorative Wall Trim (black)
• 1 Tube Mill-Pac
• Screws
Optional Components:
• 45º Elbow
• Vinyl Siding Shield for Riser Vent Terminal
• Vent Guard
• Snorkel Termination (36”)
• Snorkel Termination (14”)
• Wall Penetration Heat Shield
Vent Considerations:
Twist-lock procedure: Four indentations on female ends of pipes and
fittings are designed to slide straight onto male ends of adjacent pipes
and fittings by orienting the four pipe indentations so they match and
slide into the four entry slots. Push pipe sections completely together,
then twist-lock one section clockwise approximately one-quarter turn
until the two sections are fully locked. The female locking lugs will not
be visible from the outside on the pipe or fittings. They may be located
by examining the inside of the female ends.
Supports: Horizontal runs of vent must be supported every 3 feet. Wall
straps are available for this purpose.
Pipe Sealing: If Simpson Dura-Vent pipe is used, the pipe must be sealed
as follows: seal both the inner and outer pipes with a high temperature
silicone sealant rated for at least 600ºF (commonly know as “RTV”).
Run a 1/8” (3mm) bead of silicone around outside of male end of outer
sleeve. Run a 1/8” (3mm) bead of silicone about 1/4” (6mm) from the
end of the male inner pipe, which is found in the pipe to be attached
above. Twist-lock the pipes or fittings together.
* Other approved chimney brand is Simpson Dura-Vent DV-GS.
Figure 22
Figure 21
Sealant
Female
Locking
Lugs
Male
Locking
Lugs

13
NOTE: DIAGRAMS & ILLUSTRATIONS ARE NOT TO SCALE.
Vent Parts List
Direct vent pipe Security™ Secure Vent™ * may be used with the Epic™
gas stove. Please see the lists below to verify the components available
from each direct-vent pipe manufacturer. Snorkel terminations are available
for applications which may require vertical rise on the building exterior.
The components listed below come in a galvanized finish. Most of the
components are also available in a painted black finish. Add a “B” to the
end of the part number when ordering if a black part is desired.
Security™ Secure Vent 6-5/8”x 4” Pipe
Part Number Description
SV4LC 6” Pipe Length
SV4L12 12” Pipe Length
SV4L24 24” Pipe Length
SV4L36 36” Pipe Length
SV4L48 48” Pipe Length
SV4LA 6” Pipe, Adjustable
SV4LA12 12” Pipe, Adjustable
SV4FA Flashing, 1/12 to 6/12 Roof Pitch
SV4FB Flashing, 7/12 to 12/12 Roof Pitch
SV4RSM Wall Radiation Shield
SV4E46 45º Elbow
SV4E90 90º Elbow
SV4VS Vinyl Shield Protector
SV4FC Storm Collar
SV4CGV Vertical Termination Cap
SV4BF Firestop
SV4CHC Horizontal Termination Cap
SV4STC36 Snorkel Termination Cap (36”)
SV4STC14 Snorkel Termination Cap (14”)
SV4BM Wall Band
Simpson Dura-Vent GS 6-5/8”x 4” Pipe
Part Number Description
908 6” Pipe Length
907 9” Pipe Length
906 12” Pipe Length
904 24” Pipe Length
903 36” Pipe Length
902 48” Pipe Length
911 11” to 14-5/8” Pipe, Adjustable
942 Wall Thimble
940 Rnd Support Box/Wall Thimble Cover
941 Cathedral Ceiling Support Box
943 Flashing, 0/12 to 6/12 Roof Pitch
943S Flashing, 7/12 to 12/12 Roof Pitch
945 45º Elbow
990 90º Elbow
950 Vinyl Siding Standoff
953 Storm Collar
963 Ceiling Firestop
988 Wall Strap
981 Snorkel Termination (36”)
982 Snorkel Termination (14”)
984 Horizontal Termination Cap
985 Horizontal Termination Cap (High Wind)
980 Vertical Termination Cap
991 Vertical Termination Cap (High Wind)
Horizontal Vent Installation
Venting terminals may not be recessed into a wall or siding.
1. Set the unit in the desired location. Check whether or not wall studs
are in the way when the venting system is attached. If wall studs are
in the way, you may want to adjust the location of the unit.
2. All horizontally terminated vent installations may only use 6-5/8”x 4”
Security™ Secure Vent pipe*.
3. Assemble the desired combination of pipe and elbow(s) to the appli-
ance adapter with pipe seams facing down. Offsetting the pipe seams
as double seams in one place will cause the outer pipe to take an oval
shape.
4. When this pipe passes through a wall, a wall thimble - Simpson #942
or Security™ #SV4RSM - is required. The hole in the wall for the
wall thimble should be 9-1/4” x 10-1/4”. If the wall being penetrated
is constructed of non-combustible material (i.e. masonry block or
concrete), a 7” diameter hole is acceptable and a wall thimble is not
required.
5. Horizontal runs of vent pipe must be supported every 3 feet. Wall
straps - Security™ #SV4BM or Simpson #988 - are available for this
purpose.
6. If the vent passes through a ceiling or floor, a firestop - Security™
#SV4BF or Simpson #963 - is required.
7. Also note that venting terminals shall not be recessed into a wall or
siding. If installing the termination cap on a wall covered with vinyl
siding, a vinyl siding standoff - Security™ #SV4VS or Simpson #950
- or furring strips must be used to ensure that the termination cap is
not recessed into the siding.
8. The horizontal run of vent should have a 1/4” (6mm) rise for every 12”
of run toward the termination. Never allow the vent to run downward.
This could cause high temperatures and may present the possibility
of a fire.
9. The location of the horizontal vent termination on an exterior wall must
meet all local and national building codes and must not be blocked
or obstructed. For allowable external vent termination locations see
Page 17.
10. Allowable clearances from the vent pipe to combustible materials must
be maintained. See Page 8 for these clearances.
11. Do not locate the termination cap where it may be blocked by shrub-
bery or snow.
* Other approved chimney brand is Simpson Dura-Vent DV-GS.

14 NOTE: DIAGRAMS & ILLUSTRATIONS ARE NOT TO SCALE.
Vertical Vent Installation
Important Notes
1. All vertically terminated vent installations use 6-5/8”x 4” Se-
curity™ Secure Vent™ pipe*.
2. If the vent passes through a ceiling or floor, a firestop - Simpson
#963 or Security™ #SV4BF - is required.
3. If the vent passes through the roof, a roof flashing - Simpson
#943 or 943S or Security™ #SV4FA or SV4FB - and storm collar
- Simpson #953 or Security™ #SV4FC - are required.
4. A 1-inch clearance from the vent pipe to combustible materials
must be maintained.
5. A maximum of either four 45º elbows or two 90º elbows may
be used. See Page 15 for allowable offsets.
6. The maximum system height is 30 feet (9.1M) and the minimum
is 10 feet (3M).
Storm Collar Vertical Termination Cap
Ceiling Firestop
Ceiling Minimum
Framing 10”x 10”
Roof - Maintain
1” Clearance
to Combustibles
Pipe Length
Flashing
Figure 23

15
NOTE: DIAGRAMS & ILLUSTRATIONS ARE NOT TO SCALE.
A B
C D
* Other approved chimney brand is Simpson Dura-Vent DV-GS.
Figure 24
Flue Restrictors
The flue restrictor settings shown in Figures 25 and 26 are for typical
installations and may need to be adjusted from standard to take into
account other variables in the installation to achieve proper combustion.
See Flue Restrictor Guidelines on this page to assist you in making a
proper flue restrictor adjustment.
This stove requires a balanced flue to ensure proper combustion. As such,
flue restrictors may need to be installed depending on the vent configura-
tion of your stove. The drawings on the next page show all the allowable
pipe configurations for the Epic™ gas stove. To properly install the flue
restrictors, find your pipe configuration in the drawings on the next page
and note which restrictor setting is recommended. The flue restrictors are
shipped in the firebox of your stove. Install the flue restrictors using the
four allen head screws according to the diagram below. Install the flue
restrictor screws in their original holes in the top of the firebox. Restrictor
positions are based on tests run in a laboratory.
Flue Restrictor Adjustment Guidelines
After the flue restrictors have been changed to the standard flue restrictor
settings as shown in Figures 25 and 26, the burner flame appearance
should be evaluated to determine if the A, B, C or D flue restrictor standard
settings were the correct adjustment for variables in your installation.
Light the appliance and allow it to burn for 20 minutes on the high setting.
See Flame Color and Behavior on Pages 21 and 22 to determine if you
have a proper burner flame appearance. If the proper flame appearance
cannot be achieved, the flue restrictor may need to be changed to a dif-
ferent position (A,B,C or D). See the following guidelines to determine if
you need to readjust the flue restrictors.
Before proceeding, confirm the manifold and inlet gas pressure is correct,
primary air shutter is properly adjusted, venting system connections are
secure and not blocked and if you are at a high elevation, ensure unit
has been properly derated:
Symptoms - Lack of Combustion Air
If the symptoms listed below are present, you may need to adjust the
flue restrictor to a more open position.
• Flame appears yellow
• Floating Flames (lazy, ill defined, quiet, may roll)
• Sooting
• Pilot becomes yellow and appliance shuts down
Symptoms - Excessive Combustion Air
If the symptoms listed below are present, you may need to adjust the
flue restrictor to a more closed position.
• Low Flame
• Pilot pulls and appliance shuts down
• Pilot flame ghosts

16
Vertical Terminations
The diagram below shows all allowable combinations of straight vertical
and offset to vertical vent configurations with vertical terminations. The
termination must fall within the shaded areas on the diagram. Use the
restrictor positions indicated. Offsets may consist of two 90° elbows
OR four 45° elbows. The minimum termination height is 10 feet and the
maximum is 30 feet.
NOTE: Horizontal pipe requires 1/4” rise for every 12” of run. Offsets
must remain within max and min lines. Vertical height is measured
from the bottom of stove.
Horizontal Terminations
The shaded areas in the diagram below show all allowable combinations
of vent configurations with horizontal terminations. Horizontal sections
of pipe require 1/4” of rise for every 12” of run. A second 90° or 45°
elbow (in addition to the first 90° elbow at the top of the vertical length
of pipe) is allowed as long as the overall length of the horizontal run of
pipe does not exceed those shown below. Use the restrictor positions
indicated. Note that if the termination cap falls in the unshaded area, then
no restrictor is installed in the stove.
Figure 25 Figure 26
2
4
6
8
10
12
14
16
18
20
2
4
6
8
10
12
14
16
18
20
22
24
26
28
MIN. 24" VERT. PIPE SECT.
WITH 9" HORIZONTAL SECT.
8' MAX
30' MAX
30
19' 7" MAX VERT. WITH
8' HORIZONTAL
VERTICAL HEIGHT (FT)
2 4 6 8 2 4 6 8
VERTICAL HEIGHT (FT)
HORIZONTAL DISTANCE (FT) HORIZONTAL DISTANCE (FT)
6' MAX
2’ (MIN) OF
VERTICAL PIPE
REQUIRED BELOW
TERMINATION
A B C D
RESTRICTOR POSITIONS
HORIZONTAL DISTANCE (FEET)
VERTICAL HEIGHT (FEET)
HORIZONTAL DISTANCE (FEET)
VERTICAL HEIGHT (FEET)

17
Exterior Horizontal Vent Termination Clearance Requirements
V
V V
V
V
F
C
B
B
A
B
H
M
I
X V
D
V
A A
A
V
L
B
J
X E
V
A
G
*18”
18”
B
C
C
C
K
X
�
�
�
* See Item D in the Text Below.
Center Line
of Termination
Exterior Wall
Horizontal
Termination
Ventilated Soffit
Inside Corner
DETAIL D
Minimum Clearances Canadian Installation * US Installation **
A = Clearance above grade, veranda, porch, deck
or balcony.
12 inches (30 cm) * 12 inches (30 cm) **
B = Clearance to window or door that may be
opened.
6 in. (15.2 cm) for appliances < 10,000 BTU/hr (3kW),
12 in. (30 cm) for appliances > 10,000 BTU/hr (3kW) and <
100,000 BTU/hr (30kW), 36 inches (91 cm) for appliances
> 100,000 BTU/hr (30kW)*
6 in. (15.2 cm) for appliances < 10,000 BTU/hr (3kW),
9 in. (23 cm) for appliances > 10,000 BTU/hr (3kW) and <
50,000 BTU/hr (15kW), 12 inches (30 cm) for appliances
> 50,000 BTU/hr (15kW)*
C = Clearance to permanently closed window 12 inches (305 mm) recommended to prevent window
condensation
9 inches (229 mm) recommended to prevent window
condensation
D = Vertical clearance to ventilated soffit located
above the terminal within a horizontal distance of 18
in. (458 mm) from the center line of the terminal
18 inches (458 mm) 18 inches (458 mm)
E = Clearance to unventilated soffit 12 inches (30 cm) 12 inches (30 cm)
F = Clearance to outside corner 5 inches (12.7 cm) 5 inches (12.7 cm)
G = Clearance to inside corner 6 in. (15 cm) 6 in. (15 cm)
H = Clearance to each inside of center line extended
above meter / regulator assembly
3 feet (91 cm) within a height of 15 feet above the meter /
regulator assembly *
3 feet (91 cm) within a height of 15 feet above the meter
/ regulator assembly **
I = Clearance to service regulator vent outlet 3 feet (91 cm) * 3 feet (91 cm) **
J = Clearance to non-mechanical air supply inlet
to building or the combustion air inlet to any other
appliance
6 in. (15.2 cm) for appliances < 10,000 BTU/hr (3kW), 12
in. (30 cm) for appliances > 10,000 BTU/hr (3kW) and <
100,000 BTU/hr (30kW), 36 inches (91 cm) for appliances
> 100,000 BTU/hr (30kW)*
6 in. (15.2 cm) for appliances < 10,000 BTU/hr (3kW), 9
in. (23 cm) for appliances > 10,000 BTU/hr (3kW) and <
50,000 BTU/hr (15kW), 12 inches (30 cm) for appliances
> 50,000 BTU/hr (15kW)*
K = Clearance to mechanical air supply inlet 6 feet (1.8 meters) * 3 feet (91 cm) above, if within 10 feet (3 m) horizon-
tally**
L = Clearance above paved sidewalk or paved
driveway located on public property
7 feet (2.13 m) ‡ 7 feet (2.13 m) ‡
M = Clearance under veranda, porch, deck or
balcony
12 in. (30 cm) * ‡ 12 in. (30 cm) ** ‡
* In accordance with the current CSA-B149.1 National Gas and B149.2 Propane Installation Code - Latest Editions.
** In accordance with the current ANSI Z223.1 / NFPA 54 National Fuel Codes - Latest Edition.
‡ A vent shall not terminate directly above a sidewalk or paved driveway which is located between two single family dwellings and serves both dwellings.
*‡ Only permitted if veranda, porch, deck or balcony is fully open on a minimum 2 sides beneath the floor.
Inside
Corner Detail
Operable
Window
Fixed
Closed
Window
= 9" in U.S.
= 12" in Canada
3 ft.
3 ft.
= Air Supply Inlet = Vent Terminal = Area where Terminal is NOT permitted
Figure 27

18
Gas Line Installation
This stove must be connected to the gas line in accordance with local
codes and/or the National Fuel Gas Code, ANSI Z223.1 (In Canada, the
current CAN/CSA B149.1 installation code). Remove the four screws
holding the back of the pedestal in place. Slide rear cover back far enough
to gain access to the inside of the pedestal. Remove plastic plug from
the 3/8”x 9” pipe. Connect gas line to the 3/8”x 9” pipe. After connect-
ing the gas line, all joints in the line and connections at the valve should
be checked for leaks before final positioning of the unit. Conduct a gas
leakage test of the appliance piping and control system downstream of
the shutoff valve in the supply line to the appliance.
Gas Pressure Requirements
A MAJOR CAUSE OF OPERATING PROBLEMS WITH GAS
APPLIANCES IS IMPROPER GAS PRESSURE!
The most important item to check during the initial installation
and the first thing to check when operating problems occur is
gas pressure! This appliance will not function properly unless
the required gas pressure is supplied. See the table on this
page for gas pressure requirements.
Two pressure taps are provided on the stove’s valve to check gas pressures.
To access the taps, remove the four socket head screws from the valve
control panel. The taps are located below the On/Off/Pilot knob (see
Figure 29 on Page 21). The left tap is the inlet (supply) pressure side.
To check inlet pressure (with the stove burning) insert a small flat-bladed
screwdriver into the tap and turn a half-turn counterclockwise. Cover the
tap with the line from the manometer and check the pressure. Close the tap
gently but securely after completing the check. The manifold (outlet) tap
is to the right of the inlet tap. To check manifold pressure (with the stove
burning at the high burn setting) insert a small flat-bladed screwdriver
into the tap and turn a half-turn counterclockwise. Cover the tap with the
line from the manometer and check the pressure. Again close the tap
gently but securely after completing the check. Check the taps for gas
leaks with a gas leak test solution (retighten if necessary).
If the pressure is not sufficient, make sure the gas supply line is large
enough, the supply regulator is properly adjusted and the total gas load
for the residence does not exceed the amount supplied.
Propane tanks are at pressures that will cause damage to valve com-
ponents. Verify that the tanks have step down regulators to reduce the
pressure to safe levels.
LP and Natural Gas Supplies:
Your Epic™ gas stove is equipped from the factory for use with natural gas
only as specified on the Safety / Listing label attached to the appliance.
This appliance can only be operated using propane gas (LP) if a certified
fuel conversion kit provided by Lennox Hearth Products is installed by a
qualified service technician.
Also check the orifice size on the label on the igniter bracket. It must be
the correct size for the fuel and altitude.
Do not run propane tank dry. Running the tank dry may cause a
hazardous condition due to pressure drop in empty tank.
Solid fuel is NOT to be used with this unit.
Fuel
Type
Inlet Pressure Manifold Pressure
Desired Minimum Maximum On Hi
Fire
On Lo
Fire
Natural
Gas
7" WC 5" WC 10.5" WC 3.5" WC 1.7" WC
LP Gas 11" WC 11" WC 13" WC 10" WC 6.0” WC
Check all connections
for leaks using a gas
leak test solution.
Figure 28
These appliances must be isolated from the gas supply piping system
(by closing their individual manual shut-off valve) during any pressure
testing of the gas supply piping system at test pressures equal to or
less than 1/2 psig (3.5 kPa).
These appliances and their individual shut-off valves must be discon-
nected from the gas supply piping system during any pressure testing
of that system at pressures greater than 1/2 psig (3.5 kPa).
NOTE: DIAGRAMS & ILLUSTRATIONS ARE NOT TO SCALE.

19
NOTE: DIAGRAMS & ILLUSTRATIONS ARE NOT TO SCALE.
La chimenea caliente cau-
sará quemaduras graves
Nunca permita que los niños
toquen el vidrio ni otras
partes de la chimenea
ADVERTENCIA
Un foyer chaud peut causer
de graves brûlures
Ne laissez jamais un enfant
toucher à la vitre ou à toutes
autres parties du foyer
AVERTISSEMENT
ATTACHING SAFETY IN OPERATION WARN-
INGS
It is required that the safety instruction labels fur-
nished with the fireplace be affixed to the operation
and control point of the fireplace. A safety instruction
label must be affixed to the wall switch plate where
the fireplace is turned on and off (See Figure A)
or wall thermostat (See Figure B) and if used on
the remote control handheld transmitter (Figure
C). To properly complete the installation of this
fireplace, locate the multi-lingual adhesive labels
provided with the Care and Operation Instructions
and proceed as follows:
1. Locate the wall switch or wall thermostat that
controls the fireplace (verify the switch operates
the fireplace by turning it on and off). Clean the
wall switch plate or wall thermostat thoroughly
to remove any dust and oils. Affix the label to
the surface of the plate of the wall switch that
controls the fireplace (Figure A) or the wall
thermostat (Figure B). Choose the language
primarily spoken in the home. If unknown, affix
the English language label.
2. If a remote control is used to control the fireplace,
locate the transmitter and clean it thoroughly
to remove any dust and oils. Affix the label to
the surface of handheld transmitter (Figure C).
Choose the language primarily spoken in the
home. If unknown, affix the English language
label.
3. If you are unable to locate the labels, please call
Lennox Hearth Products or your nearest Lennox
Hearth Products dealer to receive additional
safety instruction labels free of charge.
Cat. No. H8024 Replacement Label Kit
LENNOX HEARTH PRODUCTS
1-800-9-LENNOX
Note: English is red text on clear label. French and
Spanish are white text on black label.
Hot Fireplace Will Cause
Severe Burns
Never Allow Children to
Touch Glass or other Fire-
place Parts
WARNING
La chimenea caliente
causará quemaduras graves
Nunca permita que los niños
toquen el vidrio ni otras
partes de la chimenea
Un foyer chaud peut causer
de graves brûlures
Ne laissez jamais un enfant
toucher à la vitre ou à toutes
autres parties du foyer
ADVERTENCIA
Figure A
INSTALLER INSTRUCTIONS - ATTACHING SAFETY IN OPERATION WARNINGS
It is the installers responsibility to ensure these warnings are properly affixed during installation. These warning labels are a
critical step in informing consumers of safe operation of this appliance.
Hot Fireplace Will Cause
Severe Burns
Never Allow Children to
Touch Glass or other Fire-
place Parts
WARNING
Figure B Figure C
DIAGRAMMES DES ÉTIQUETTES DE SÉCURITÉ / DIAGRAMAS DE ETIQUETAS DE SEGURIDAD / SAFETY LABEL DIAGRAMS
APPOSITION DES MISES EN GARDE RELATIVES
À LA SÉCURITÉ D’UTILISATION
Il est impératif que les étiquettes de sécurité fournies
avec le foyer soient collées à côté des dispositifs
de contrôle du foyer. Une étiquette de sécurité doit
être collée sur la plaque de l’interrupteur contrôlant
l’allumage du foyer (voir Figure A) ou sur le thermostat
mural (voir Figure B) et, le cas échéant, sur le boîtier
de la télécommande (Figure C). Pour achever l’instal-
lation correcte de ce foyer, procédez comme suit avec
les étiquettes adhésives en langues étrangères fournies
avec les instructions d’utilisation et d’entretien :
1. Repérez l’interrupteur ou le thermostat mural qui
contrôle le foyer (vérifiez que l’interrupteur
contrôle le fonctionnement du foyer en le faisant
basculer de Marche à Arrêt, et vice-versa). Nettoyez
soigneusement la plaque murale de l’interrupteur
ou le thermostat mural pour éliminer la poussière
et les traces de graisse ou d’huile. Collez l’étiquette
sur la surface de la plaque de l’interrupteur mural
qui contrôle le foyer (Figure A) ou du thermostat
mural (Figure B). Choisissez la langue qui est
principalement parlée dans la résidence du
propriétaire. En cas de doute, collez l’étiquette en
anglais.
2. Si une télécommande est utilisée pour contrôler
le foyer, nettoyez la soigneusement pour éliminer
la poussière et les traces de graisse ou d’huile.
Collez l’étiquette sur le boîtier de la télé-
commande (Figure C). Choisissez la langue qui est
principalement parlée dans la résidence du proprié-
taire. En cas de doute, collez l’étiquette en anglais.
3. Si vous ne trouvez pas les étiquettes, veuillez
appeler Lennox Hearth Products ou votre distribu-
teur Lennox Hearth Products local pour recevoir
gratuitement des étiquettes supplémentaires.
Étiquettes de remplacement, n° cat. H8024
LENNOX HEARTH PRODUCTS
1-800-9-LENNOX
Remarque : Le texte anglais est rouge sur un support
transparent. Le texte français et espagnol est blanc
sur un support noir.
COLOCACIóN DE ADVERTENCIAS DE SEGURIDAD
EN OPERACIóN
Se requiere que las etiquetas de instrucciones de
seguridad incluidas con la chimenea se coloquen en
el punto de operación y control de la misma. Se debe
colocar una etiqueta de instrucciones de seguridad
en la placa del interruptor de pared desde el cual se
enciende y se apaga la chimenea (ver la Figura A) o en el
termostato de pared (ver la Figura B) y en el transmisor
de control remoto (Figura C) si se usa. Para completar
correctamente la instalación de esta chimenea,
encuentre las etiquetas adhesivas multilingües incluidas
con las instrucciones de cuidado y operación y haga
lo siguiente:
1. Identifique el interruptor o el termostato de pared
que controla la chimenea (verifique que el interruptor
opera la chimenea encendiéndola y apagándola).
Limpie bien la placa del interruptor o el termostato
de pared para quitar el polvo y aceite. Pegue la
etiqueta en la superficie de la placa del interruptor que
controla la chimenea (Figura A) o en el termostato
de pared (Figura B). Seleccione el idioma que
más se habla en la casa. Si no sabe cuál es, use la
etiqueta en inglés.
2. Si se usa un control remoto para controlar la
chimenea, encuentre el transmisor y límpielo bien
para quitar el polvo y aceite. Pegue la etiqueta en
la superficie del transmisor (Figura C). Seleccione
el idioma que más se habla en la casa. Si no sabe
cuál es, use la etiqueta en inglés.
3. Si no puede encontrar las etiquetas, sírvase llamar
a Lennox Hearth Products o al distribuidor de
Lennox Hearth Products más cercano para recibir
etiquetas de instrucciones de seguridad adicionales
gratuitas.
Juego de etiquetas de repuesto - Nº de cat. H8024
LENNOX HEARTH PRODUCTS
1-800-9-LENNOX
Nota: La etiqueta en inglés es transparente con texto
rojo. Las etiquetas en francés y español son negras
con texto blanco.
AVERTISSEMENT

20
WHAT TO DO IF YOU SMELL GAS:
DO NOT try to light the appliance. DO NOT touch any electric
switch. DO NOT use any phone in the building. Immediately
call your gas supplier from a neighbor’s phone. Follow the gas
supplier’s instructions. If you cannot reach your gas supplier, call
the fire department.
C. Use only your hand to push in or turn the gas control knob.
Never use any tool. If the knob will not push in or turn by hand,
don’t try to repair it, call a qualified service technician. Force or
attempted repair may result in a fire or explosion.
D. DO NOT use this appliance if any part has been under water.
Immediately call a qualified service technician to inspect the
appliance and to replace any part of the control system and
any gas control which has been under water.
OPERATING INSTRUCTIONS
CAUTION: YOUR Lennox Hearth Products gas APPLIANCE MUST
ALWAYS BE OPERATED WITH THE GLASS DOOR IN PLACE.
STOP!! Read the safety information above before proceeding.
1. Make sure gas supply shut off cocks are open and ON/OFF
rocker switch is “OFF.” If equipped with a thermostat, set it to
the lowest setting.
2. Turn off all electrical power to the appliance.
3. Push in gas cock dial slightly and turn clockwise to
“OFF”.
NOTE: Dial cannot be turned from “PILOT” to “OFF” unless dial
is pushed in slightly. Do not force.
4. Wait five minutes to clear out any gas. If you smell gas, STOP!!
Follow “B” above. If you don’t smell gas, continue.
5. Locate the pilot by looking through the hole under the right front
log. Blue flame will be seen when the pilot is lit.
6. Turn the gas control knob counter-clockwise to the
“PILOT” position.
7. Push the knob all the way in and hold in that position. Im-
mediately light the pilot by pressing the igniter button several
times until pilot is lit. Continue to hold the knob in for about
30 seconds after the pilot is lit. Release knob and it will pop
back out. Pilot should remain lit. If it goes out, repeat steps
4-8 holding knob in an additional 15 seconds after pilot is lit.
If knob does not pop out when released, stop and immediately
call your service technician or gas supplier. If the pilot will not
stay lit after several tries, turn the gas control knob to “OFF”
and call you service technician or your gas supplier.
Operating Instructions
Pre-Lighting Checklist:
Be sure to check these items before the initial lighting of the
stove:
c The stove gas label corresponds to the gas supply available
- that is “natural gas” for natural gas or “LP gas” for LP
gas.
c Gas pressure has been checked carefully - see Page 18.
c All gas fittings have been checked for leaks.
c All clearances to combustibles have been met - see Page
8.
c All combustible materials have been removed from area in
front of the stove.
c All vented areas of the stove are unobstructed.
c House is ventilated to clear initial paint curing odors - see
Page 22.
c All packaging materials have been removed from the fire-
box.
c While stove is cool, fingerprints or other marks have been
cleaned from any gold or nickel surfaces with denatured
alcohol and a soft cloth. Marks left on these surfaces may
become etched into the finish if not removed prior to burning
the unit.
c Brick panel, log set and embers have been installed.
c The glass door is in place and is properly sealed.
Lighting Instructions:
The following is a copy of the operating and lighting instructions
found with each stove:
FOR YOUR SAFETY READ BEFORE OPERATING
WARNING: IF YOU DO NOT FOLLOW THESE INSTRUCTIONS
EXACTLY, A FIRE OR EXPLOSION MAY RESULT CAUSING PROP-
ERTY DAMAGE, INJURY, OR LOSS OF LIFE.
CAUTION: HOT WHILE IN OPERATION. DO NOT TOUCH. KEEP
CHILDREN, FURNITURE, GASOLINE AND OTHER LIQUIDS WITH
FLAMMABLE VAPORS AWAY. NEVER OPERATE UNIT WITH GLASS
DOOR OFF OR ATTEMPT TO OPEN THE DOOR WHILE HOT.
A. This appliance is equipped with a piezo ignition device to light
the pilot. When lighting the pilot, follow these instructions
exactly.
B. BEFORE LIGHTING, smell around the appliance area for gas.
Be sure to smell next to the floor, because some gas is heavier
than air and will settle on the floor.

21
Flame Color and Behavior
Your stove is designed for maximum heating efficiency. Therefore, upon
lighting of the main burner the flames will be semitransparent or “bluish.”
After 10-20 minutes of operation, the logs will heat up and the flames will
become a yellow/orange color.
Adjusting the stove to cause the flames to turn orange sooner may result
in poor combustion, sooting and a hazardous situation. See the drawing
to the right showing proper flame appearance.
When testing for proper operation - If an optional thermostat is installed
adjust it to its highest temperature setting. Visually determine that main
burner gas is burning properly: i.e., no floating, lifting or flashback. Ad-
just the primary air shutter(s) as required. Check for proper main burner
operation at both high and low flame.
8. After pilot is lit, turn gas control counter-clockwise to
“ON.” Knob can only be turned “ON” if the knob has popped
out.
9. To turn burner on, turn “ON/OFF” rocker switch to “ON” or
set the thermostat to the desired temperature above room
temperature.
10. Adjust the flame height (and heat output) by turning the flame
height knob clockwise for reduced flame and counter-
clockwise for full flame.
11. Set the blower to the desired air flow after it turns on when the
appliance reaches operating temperature.
TO TURN OFF GAS TO APPLIANCE
1. Turn the “ON/OFF” rocker switch and/or thermostat (if installed)
to “OFF.”
2. Turn off electric power to the appliance if service is to be
performed.
3. Turn gas control knob clockwise to “OFF.” Do not
force.
This appliance needs fresh air for safe operation and must be
installed so there are provisions for adequate combustion and
ventilation air. See Installation and Operation Manual accompa-
nying appliance.
SHUTDOWN PROCEDURE
To turn off the burner, turn the rocker switch to “OFF” or adjust
the thermostat (if installed) to a setting below room temperature.
The pilot will remain lit for future burner ignition. For complete
shutdown, see “TO TURN OFF GAS TO APPLIANCE” above.
IMPORTANT NOTE: When opening the lower door while
the stove is burning, pull on the handle located on the top
side of the lower door. Be cautious not to touch any part
of the front door and firebox just above the lower door as
those areas are hot.
No Blue Flame
Center
Soot at
Flame Tip
Dark Orange
Flame
IMPROPERLY
BURNING FLAME
Soot above
Flame Tip No Soot at
Flame Tip
PROPERLY
BURNING FLAME
Semi-Transparent
Yellow Flame
Blue Flame
Center
Ports on Pan
Burner Assembly
Burner Flame Appearance
Figure 30
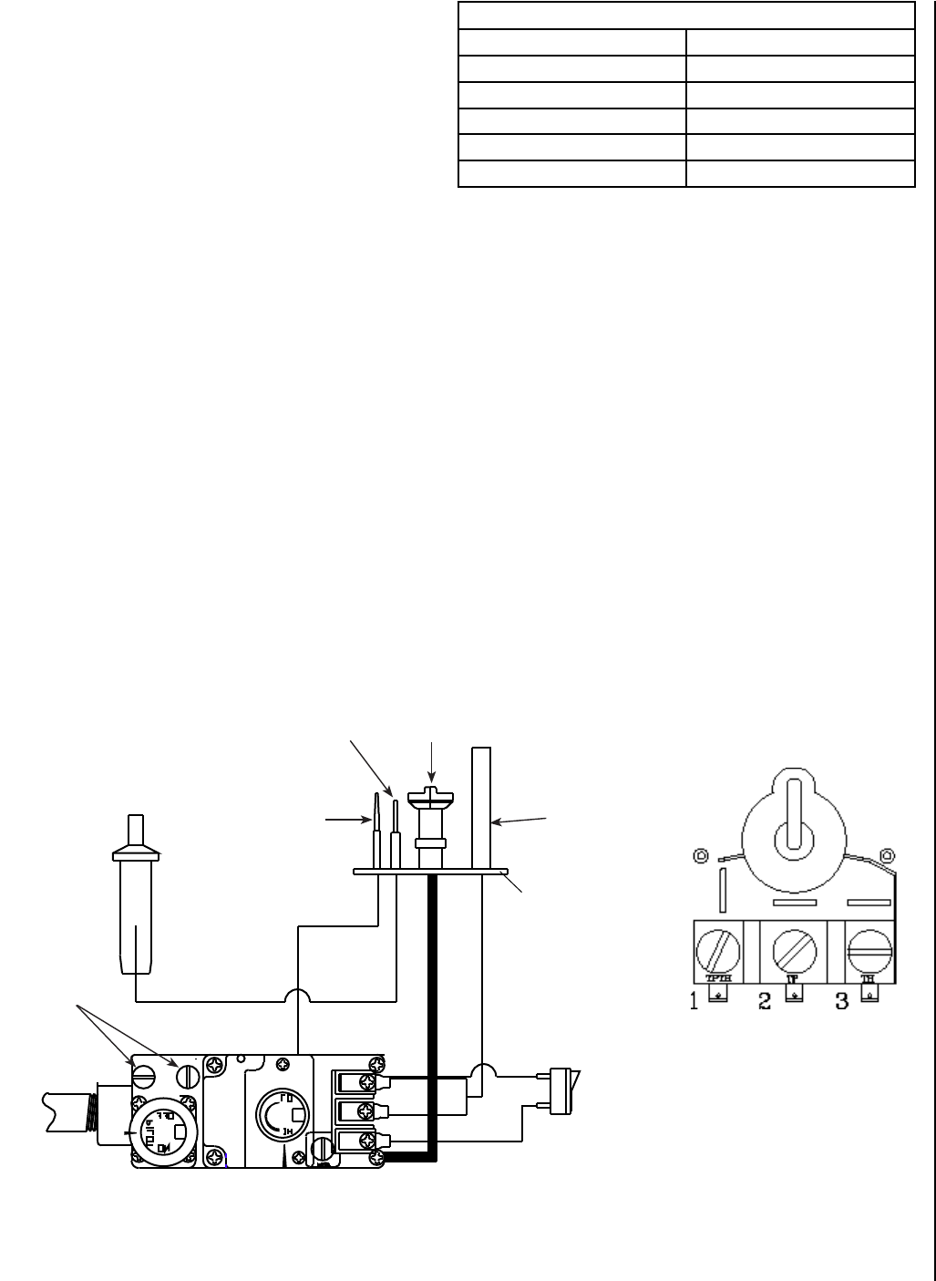
SIT Millivolt Gas Valve
Gas Control Knob
(Pilot / On / Off)
Flame Height Control
Knob (HI/LO)
ON
OFF
PILOT
HI
LOW
GAS CONTROL
ON/OFF FLAME HEIGHT
Control Panel
Figure 29
WARNINGS
•
Improper installation, adjustment, alteration,
service or maintenance can cause injury or
property damage. For assistance or additional
information, consult a qualified installer, service
agency or your gas supplier.
•
Operation of this appliance when not connected
to a properly installed and maintained venting
system can result in carbon monoxide (CO)
poisoning and possible death.
•
Carbon monoxide poisoning – early signs of
carbon monoxide poisoning resemble the flu
with headaches, dizziness, or nausea. If you
have these signs, get fresh air at once! Have
the heater inspected by a qualified service
technician. Some people are more affected by
carbon monoxide than others. These include
pregnant women, people with heart or lung
disease or anemia, those under the influence
of alcohol and those at high altitudes.
Gas Control
Off / Pilot / On Flame Height
NOTE: DIAGRAMS & ILLUSTRATIONS ARE NOT TO SCALE.

22
Pilot Flame Appearance
Figure 31
Air Shutter Adjustment
CAUTION: Air shutter is hot while the Epic™ gas stove is operating
and should only be adjusted using a heat resistant glove.
The air shutter control lever is located inside the main control door above
the control panel. The lever is linked to the primary air shutter on the main
burner. The air shutter regulates the amount of primary air the burner
receives and, therefore, how clean the stove burns. The air shutter should
only be adjusted by a qualified gas technician. The stove should burn for
about 15 minutes with the logs installed before adjusting the air shutter.
Moving the lever to the left (closing the shutter) will raise the height of
the flames as well as turn them more yellow/orange. Moving the lever to
the right will open the shutter, turning the flames to a cleaner transparent
blue and enhance the glow of the logs.
CAUTION: The air shutter should never be set so as to make the
tips of the flames sooty or create sooting on the viewing glass,
logs, or firebox ceiling. If soot begins to form after burning, the
air shutter should be opened gradually until the sooting condi-
tion stops. Gas quality and gas pressure may vary, which can
affect the burning characteristics of the stove.
Quiet Operation
As the Epic gas stove is burning, a number of normal operational sounds
may be heard. The flow of gas through the gas valve and orifice may
make a rushing or whistling noise. If this noise is objectionable, it can be
reduced by turning down the flame. Turning down the flame can reduce
total heat output by more than 30%. When the blower turns on, the
sound of rushing air may be heard. The blower sounds may be reduced
by adjusting the speed control located on the blower assembly. Also, a
slight clicking sound may be heard as the gas valve or blower switch is
turned on and off.
Paint Curing
This stove has been painted with Stove Bright high temperature metallic
paint. It leaves the factory dry to the touch, but completes the curing
process as the stove is used. To cure the paint, burn the appliance four
successive times for ten minutes each time with a five minute cool down
between each firing. Also some parts of the appliance may be lightly
coated with machining oil. Ventilate the house during these first firings
as the paint and oil give off carbon dioxide and unpleasant odors. It is
recommended that persons sensitive to an imbalance in the indoor air
quality avoid the stove during the curing process.
Optional Wall Thermostat
If an optional wall thermostat is to be installed, install the thermostat per
the manufacturers instructions (provided with the thermostat). Failure
to follow manufacturers instructions could result in a malfunction. Pay
special attention to the thermostat location requirements. If the loca-
tion requirements are not adhered to the appliance, erratic operation or
failure may occur.
Do not mount the thermostat where it may be affected by:
• Radiant heat from this appliance, fireplaces, sun or other heat
sources.
• Drafts or dead spots behind doors or in corners.
• Hot or cold air from ducts.
Air Shutter Adjustment Handle, highlighted
Closed Open
Loosen screws to adjust, tighten
screws when adjustment is complete.
Figure 32
NOTE: DIAGRAMS & ILLUSTRATIONS ARE NOT TO SCALE.

23
NOTE: DIAGRAMS & ILLUSTRATIONS ARE NOT TO SCALE.
Operating Options
Your stove comes equipped with an “On/Off” rocker switch used to turn
the burner on and off while the pilot light is on. The switch is a round
rocker switch located behind the main control panel door.
A millivolt wall thermostat, or a remote control, can be used to supple-
ment the rocker switch. The gas valve is powered by millivolts generated
by the pilot assembly. This millivolt system is very sensitive to electrical
resistance, therefore, make sure all connections are tight, clean and free
from corrosion. Do not splice any millivolt wires. Consult the table below
to determine the proper gage of wire for the thermostat or wall switch
connections. This table refers to the total length of the wire (out to the
switch and back). The thermostat must be a millivolt type. A 24-volt
furnace thermostat will not work. Never hook up household current - 120
Volts - to the millivolt system. It is not recommended to hook up any
more than two switches to the stove (for example a rocker switch and a
wall thermostat). Additional switches may affect the system resistance
and increase the chance of the burner not igniting.
Follow the instructions included with the thermostat or remote control
for wiring. The thermostat, remote control and rocker switch will turn the
burner on and off independently. Be sure to set the rocker switch to the
“Off” position when using the thermostat or remote control and set the
thermostat or remote control to the lowest temperature when you wish
to use the rocker switch only, otherwise one may override the other.
Millivolt Control System
This stove operates on a millivolt control system. As such, no additional
power supply is needed for the stove to heat. The pilot assembly contains
a thermocouple that, when heated by the pilot flame, generates electricity
(millivolts- mV=1/1000 of a volt) which opens a valve allowing gas to
continue flowing to the pilot assembly. The pilot assembly also contains a
thermopile that, when heated by the pilot flame, generates electricity that
flows to terminal #1 (labeled TPTH) on the gas valve. When the electricity
is conducted from terminal #1 through the on/off switch, thermostat,
or receiver of the remote control to terminal #3 (labeled TH) on the gas
valve, the main burner will ignite.
CAUTION: Label all wires prior to disconnection when servic-
ing controls. Wiring errors can cause improper and dangerous
operation.
ATTENTION: Au moment de l'entretien des commandes,
étiquetez tous les fils avant de les débrancher. Des erreurs
de cáblage peuvent entraîner un fonctionnement inadéquat et
dangereux.
Terminal 3Terminal 1 Terminal 2
Figure 33
Thermostat Wire
Wire Size Maximum Length
12 Gage 100 Feet
14 Gage 64 Feet
16 Gage 40 Feet
18 Gage 25 Feet
20 Gage 16 Feet
Gas Valve
Wiring Terminals
-
Millivolt Control Schematic
Thermopile
ON/OFF Rocker Switch, Ther-
mostat, or Remote Thermostat
Piezo Igniter
Thermocouple
Pilot
Gas
Line
Sparker Pilot Hood
Pilot Assembly
Gas Inlet
Pressure Taps
NOTE: DIAGRAMS & ILLUSTRATIONS ARE NOT TO SCALE.

24 NOTE: DIAGRAMS & ILLUSTRATIONS ARE NOT TO SCALE.
CAUTION: Wear gloves and safety glasses for protection while
doing required maintenance.
Verify proper operation after servicing.
S'assurer que l'appareil fonctionne adéquatement une fois
l'entretien terminé.
Maintenance Checklist:
The following should only be performed by a qualified service
technician.
1. Annual inspection should be made and the following checks per-
formed:
oWhen unit is cool, open glass viewing door and inspect burner for
dirt, soot and lint accumulations and remove if necessary. If exces-
sive soot accumulation is present on burner, have a qualified service
technician adjust burner for proper combustion.
oClean inside of glass viewing door with gas fireplace glass cleaner.
NEVER attempt to open door or clean glass when unit is
hot.
oCheck the hot air outlet vents for lint or other accumulations. Never
block or restrict vent openings or obstruct flow of ventilation air.
oCheck that direct-vent pipe, air intake and flue are open and free of
soot, blockage, or debris.
oCheck gaskets once a year. Gaskets must be tight. Replace if neces-
sary.
oInspect the pilot system for proper flame. NEVER ADJUST THE
PILOT until after the gas pressure has been checked and supply
lines have been completely bled (this may take an hour or more when
bleeding through the pilot). All pilots are checked and burned at the
factory prior to shipment. The pilot adjustment screw is located to
the lower left of the flame height control knob.
.25 Adjust the pilot screw to properly size the flames. The flames
should completely surround the thermopile and thermocouple and
extend across the main burner tube ports. Be careful not to back
the screw out of its threads.
oCheck that the area around the stove is kept clear and is free of
combustible materials, gasoline and other flammable vapors
and liquids.
oCheck the millivolt system as per the table on this page.
Proper Pilot Flame Appearance
Figure 34
Millivolt and System Checks
Check
Test
To
Test
Connect
Meter
Leads to
Terminals
Thermostat
Connects
Meter Read-
ing
Should Be
A Complete
System
2 & 3 Closed 100 MV
or More
B Thermopile
Output
1 & 2 Open Greater Than
325 MV
C System
Resistance
2 & 3 Closed 2.5 Ohms
See Figure 33 - Wiring Terminals
2. The viewing glass should be cleaned periodically (see Glass Door
Cleaning and Maintenance).
3. Should repairs or maintenance of the stove require the disassem-
bly of the vent/air intake system, the reassembly and resealing
should be completed by a qualified service technician and follow
the instructions on Page 12 of this manual.
MAINTENANCE AND SERVICING
WARNING
Turn off gas and electrical power to the fireplace
and allow it to cool before cleaning or servicing
the appliance.
Vent Pipe Maintenance
Conduct an inspection of the venting system semiannually.
Recommended areas to inspect are as follows:
1. Check areas of the venting system which are exposed to
the elements for corrosion. These will appear as rust spots,
streaks, or, in extreme cases, holes. These components should
immediately be replaced.
2. Remove the cap and shine a flashlight down the vent. Remove
any bird nests or other foreign material.
3. Check for evidence of excessive condensate, such as water
droplets forming in the inner liner and subsequently dripping
out at joints. Continuous condensate can cause corrosion of
caps, pipe and fittings. It may be caused by having excessive
lateral runs, too many elbows, or exterior portions of the system
being exposed to cold weather.
4. Inspect joints to verify that no pipe sections or fittings have been
disturbed and consequently loosened. Also check mechanical
supports such as wall straps or plumbers’ tape for rigidity.

25
NOTE: DIAGRAMS & ILLUSTRATIONS ARE NOT TO SCALE.
4. With both doors open, remove the four socket head cap screws,
two on each side, securing the top. Lift and remove the top of
the stove.
5. Unlatch main door and lift straight up off of the locating hinge
pins.
6. Reinstall door assembly following steps in reverse order.
Glass Door Cleaning and Maintenance
Cleaning: Do not remove or clean the glass door when hot. When
cool, the glass may be cleaned with a clean, soft cloth and glass cleaner.
For cleaning white condensation from the interior glass use a gas stove
glass cleaner available from your stove dealer. Use of caustic or abrasive
cleaners may damage glass. Gold or nickel plated trim must be cleaned
with glass cleaner or denatured alcohol and a soft cloth before firing
or fingerprints and stains will remain permanently. Never use abrasive
polish to clean the gold or nickel as it will ruin the finish. DO NOT spray
commercial glass cleaner with ammonia on the door and glass gasket
as it may dissolve the gasket glue.
Repair: If the glass is broken in the glass door, the entire door (metal
frame, gasket and glass) should be replaced as a unit. This replacement
glass door is available from your Lennox Hearth Products dealer. Do not
use substitute parts or materials. The glass is neo-ceramic and alternative
types must not be used.
NOTE: BE CAREFUL NOT TO SPRAY COMMERCIAL GLASS
CLEANER WITH AMMONIA ON GASKET AREA OF DOOR. AM-
MONIA WILL DISSOLVE GASKET GLUE.
NOTE: GOLD PLATED SURFACE MUST BE CLEANED WITH GLASS
CLEANER AND SOFT RAG BEFORE FIRING THE FIRST TIME OR
FINGER PRINTS AND STAINS WILL REMAIN PERMANENTLY.
NEVER USE BRASS POLISH TO CLEAN GOLD, THIS WILL RE-
MOVE GOLD PLATING!
Figure 35
Glass Door
Only doors certified with the appliance shall be used.
Seules des portes certifiées pour cet appareil doivent être
utilisées.
CAUTION: DO NOT abuse glass door by striking or slamming
shut.
Do not remove glass door while the appliance is hot.
Opening and Removing Door
To replace the door:
1. Shut off the main burner using the rocker switch.
2. Shut off the pilot flame by turning the pilot knob clockwise to “OFF.”
3. Facing the stove pull open the left side door and open the right side
door by removing the socket head cap screw located underneath the
door near the front of the stove.
WARNING
• Do not attempt to substitute the materials used
on these doors, or replace cracked or broken
glass.
• Handle this glass with extreme care! Glass is
susceptible to damage – Do not scratch or handle
roughly while reinstalling the glass door frame.
• The glass door(s) of this appliance must only be
replaced as a complete unit as provided by the
manufacturer. Do not attempt to replace broken,
cracked or chipped glass separately.
• Do not attempt to touch the front enclosure glass
with your hands while the appliance is in use.
WARNING
Do not operate appliance with the glass front
removed, cracked or broken.
AVERTISSEMENT
Ne pas utiliser l'appareil si le panneau frontal en
verre n'est pas en place, est craqué ou brisé.

26
Fuel Conversion
Converting the stove between natural gas (NG) and propane (LP) can be
accomplished by either changing the cassette (valve and pilot assembly)
or installing a conversion kit (regulator, burner orifice and repositioning
the slide orifice of the pilot). Only a qualified service technician should
perform the conversion.
Conversion Kit
Please see instructions provided with conversion kit.
Cassette Removal
CAUTION: Label all wires prior to disconnection when servic-
ing controls. Wiring errors can cause improper and dangerous
operation.
ATTENTION: Au moment de l'entretien des commandes,
étiquetez tous les fils avant de les débrancher. Des erreurs
de cáblage peuvent entraîner un fonctionnement inadéquat et
dangereux.
1. Be sure the gas supply is shut off. The electrical supply for the blower
should be unplugged from both the wall and the Epic™ gas stove
before beginning the conversion.
2. Disconnect back of pedestal by removing the four button head cap
screws securing it, slide back far enough to label and disconnect wires
from the AC inlet plug. Remove the white remote thermostat plug.
Completely remove back of pedestal from the Epic gas stove.
3. Disconnect the gas supply from the stove, being careful not to apply
pressure to the valve in the process.
4. Remove socket head cap screw securing the bottom of the right side
door, open, label and remove the wires leading to the snap switch.
5. Remove the control panel containing the On/Off switch by removing
the four socket head cap screws securing it. Pull the control panel
out far enough to remove the orang e piezo igniter wire. Detach the
two black wires from the back of the On/Off switch, disconnect the
fan control wires and completely remove the control panel. Remove
the knob extensions from the valve controls.
6. Remove the log set and brick panels (see Brick Panel, Log Set and
Ember Installation).
7. Remove the two screws from the back of the burner. Lift the left end
of the burner and slide if off the orifice and shutter tube. Remove the
burner from the firebox.
8. From inside the firebox, remove the right side burner support. Then
remove the seven socket head cap screws holding the cassette in
place.
9. From inside the pedestal remove the four 3/8” nuts holding the back
of the control panel.
Cassette Screws
Blower Removal
10. Mark and unplug the remaining fan wire. Remove the three screws
securing the fan and set aside.
11. Remove the cassette assembly by carefully pulling the top cassette
plate downward, guiding the pilot assembly out of the firebox, down
into the pedestal area. Once the pilot assembly is clear of the firebox,
remove the cassette from the pedestal.
12. Install the new, converted, or serviced cassette in the reverse order of
removal. All surfaces of the cassette must be sealed to the firebox
to ensure an air tight seal. The old gasket must be replaced with a
new gasket.
13. All parts and wires must be correctly reinstalled to ensure safe and
proper operation of the unit.
Figure 36
Figure 37
NOTE: DIAGRAMS & ILLUSTRATIONS ARE NOT TO SCALE.

27
TROUBLESHOOTING
NOTE: When troubleshooting the gas control system, be sure the external gas shut off valve, located at the gas supply inlet is in
the “ON” position.
IMPORTANT: Call your gas supplier or plumber for additional help with any gas control problem. Valve system troubleshooting
should only be accomplished by a qualified service technician.
SYMPTOM PROBABLE CAUSE CORRECTIVE ACTION
Thin black coating
(soot) forms on the
viewing glass, logs, or
firebox.
Improper log or ember
placement.
Blocked flue.
Improper air shutter
setting.
See Brick Panel, Log Set and Ember Installation.
Check for obstructions in vent pipe, check for proper restrictor setting. See Flue Restric-
tors.
See Air Shutter Adjustment.
Humming or whistling
coming from fireplace.
Normal operating noise.
Dirt in burner orifice.
See Quiet Operation. The noise may be reduced by slightly turning the flame down. Turning
the flame down will reduce the heat output of the fireplace.
Clean orifice.
A change in flame
appearance or burner
operation.
A change in gas pres-
sure.
Improper ember or log
placement.
Have your gas supplier check for correct gas pressure (7” W.C. natural gas; 11” W.C. LP
gas).
See Brick Panel, Log Set and Ember Installation.
Pilot will not light. No gas supplied to unit.
Air in line.
Defective igniter (no
spark at electrode).
The valve control knob
is not turned to “pilot”
and pushed in.
Turn on gas.
To purge, hold in control knob in pilot position for 1-2 minutes and light.
Check for spark at electrode and pilot, if no spark and electrode wire is properly connected,
replace igniter.
See Lighting Instructions.
Pilot will not stay lit
after carefully following
lighting instructions.
Pilot flame is not sur-
rounding thermocouple.
Thermocouple not
generating sufficient
voltage.
Air in gas supply line.
Check pilot flame adjustment (see Maintenance and Servicing section).
Check the connection between the thermocouple lead and the valve. Turn control knob to
“pilot” and push in and light pilot. While lit, take millivolt reading at lead going into valve’s
CPU. Minimum reading should be 17 millivolts. If less, replace thermocouple.
Purge air in pilot gas line by holding in control knob at “pilot” and sparking igniter. The air
in the line may take up to several minutes to purge.
Main burner will not
burn.
Pilot has gone out.
Rocker switch or
thermostat wires are
defective.
Thermopile may not be
generating sufficient
millivolts.
See Lighting Instructions.
Disconnect rocker switch and thermostat wires at terminals 1 and 3 on valve. Jumper
across from 1 to 3 with pilot lit. If burner comes on either rocker switch or thermostat wir-
ing is not functioning.
Make sure thermopile is fully engulfed by the pilot flame. Check thermopile with millivolt
meter. With pilot lit and the rocker switch and thermostat off, the millivolt reading with the
meter connected to valve terminals 1 and 2 should be after 2 minutes at least 325. If the
thermopile lead connections are good at terminals 1 and 2 and readings are less than 325,
replace faulty thermopile.

28
Wire Harness Diagram
CAUTION: Label all wires prior to disconnection when servicing controls. Wiring errors can cause improper and dangerous
operation.
ATTENTION: Au moment de l'entretien des commandes, étiquetez tous les fils avant de les débrancher. Des erreurs de cáblage
peuvent entraîner un fonctionnement inadéquat et dangereux.
POWER CORD
SNAP SWITCH
SPEED CONTROL
SWITCH
BLOWER
MALE SPADE 1/4"
FEMALE SPADE 1/4"
RING LUG CRIMP
W
H
T
FEMALE SPADE 1/4"
FEMALE SPADE 1/4"
x3
24"
Remote Thermostat Plug
Wht 5"
BLK 5"
GRN 24"
WHT 5"
BLK 18"
BLK 5"
BLK 16"
FEMALE SPADE 1/4"
MALE SPADE 1/4"
BLK 24"
FEMALE SPADE
1/4"
6ft
Figure 38
NOTE: DIAGRAMS & ILLUSTRATIONS ARE NOT TO SCALE.

29
Diagram No. Part No. Description
1 H3102 Front Door
2 H5835 Burner Support, Right
3 H5834 Burner Support, Left
4 H3137 Burner Pan
5,6,7 H5872 Brick Panel Set
8 H5836 Brick Panel Bracket
10,11 H3124 Heat Exchanger Kit
12,13 H6014 Side Door
14 H5875 Snap Switch
16,17,24,25,26 H6015 Large Relief Door Assembly
18 H6017 Top Cover
19 H5919 Flue Adapter 6-5/8”
20 H5909 Flue Adapter Gasket
22,23,24,25,26 H3127 Relief Door Assembly, Small
27 H3125 Door Latch Assembly
29 H3126 Magnet and Bracket Assembly
30 H6016 Control Door Assembly
32 H3125 Control Door Latch
33 H5969 Flame Control Extension Knob
34 H5968 Pilot Control Extension Knob
35, 37, 38, 50, 51, 52 H3138 Cassette Assembly, NG
H5942 Gas Control Valve, NG
H5943 Regulator, NG
H5945 Regulator, LP
41 H5744 On/Off Switch, Round
42 H5742 Blower Speed Control (rheostat)
43 H5745 Piezo Igniter
44 H5888 Blower
48 H5896 Fitting Bulkhead
49 H5924 Orifice, NG #36, 33,000 BTU
49 H5973 Orifice, NG #31, 40,000 BTU
51 H5922 Pilot Assembly, NG or LP
52 H5907 Cassette Gasket
53,54 H3078 Blower Grill Assembly
55 H3079 A/C Power Plug
H3077 Power Cord
H5873 Log Set
H5863 Bag of Embers (volcanic stone)
H5864 Bag of Rockwool
REPLACEMENT PARTS - Epic™ 33/40 (EPIC33/40)
WARNING
Failure to position the parts in accordance
with these diagrams or failure to use only
parts specifically approved with this appli-
ance may result in property damage or
personal injury.
AVERTISSEMENT
Risque de dommages ou de blessures
si les pièces ne sont pas installées
conformément à ces schémas et ou si
des pièces autres que celles spécifique-
ment approuvées avec cet appareil sont
utilisées.
Contact an Authorized Lennox Hearth Products dealer
to obtain any of these parts. Never use substitute ma-
terials. Use of non-approved parts can result in poor
performance and safety hazards.

30
1
2
4
15
19
21
12
27
28
29
3
6
7
10
18
11
13
30
14
20
22
23
24
25
26
31
16
17
8
5
32
9
NO. DESCRIPTION
1 FRONT DOOR
2 RIGHT BURNER SUPPORT
3 LEFT BURNER SUPPORT
4 BURNER PAN / LOG SET
5 BRICK PANEL SET
6 BRICK PANEL SET
7 BRICK PANEL SET
8 BRICK PANEL BRACKET
9 NAME PLATE
10 SHEETMETAL HEATSINK
11 HEATSINK GASKET
NO. DESCRIPTION
12 SIDE DOOR
13 SIDE DOOR
14 SNAP SWITCH
15 TOP HINGE BRACKET
16 RELIEF DOOR ASSY. LARGE
17 RELIEF DOOR, LARGE
18 TOP COVER
19 6-5/8” FLUE ADAPTER
20 FLUE ADAPTER GASKET
21 REAR TOP HINGE
22 SMALL RELIEF DOOR GASKET
NO. DESCRIPTION
23 SMALL RELIEF DOOR
24 SPRING, RELIEF DOOR
25 WASHER, RELIEF DOOR
26 BOLT, RELIEF DOOR
27 DOOR LATCH KIT
28 SPACER
29 MAGNET AND BRACKET ASSY
30 CONTROL DOOR
31 CONTROL DR LATCH BRACKET
32 CONTROL DOOR LATCH
REPLACEMENT PARTS DIAGRAMS - Epic™ 33/40 (EPIC33/40)
NOTE: DIAGRAMS & ILLUSTRATIONS ARE NOT TO SCALE.

31
36
38
39
40
41
43
44
45
46
47
48
49
50
51
52
57
35
33
34
53
54
55
56
42
37
NO. DESCRIPTION
33 FLAME CONTROL EXTENSION
34 PILOT CONTROL EXTENSION
35 VALVE ASSY.
36 BLACK IRON PIPE
37 STREET ELBOW
38 BRACKET, VALVE
39 CONTROL PANEL
40 DASHBOARD
41 ON/OFF SWITCH
42 RHEOSTAT
43 PIEZO IGNITER
NO. DESCRIPTION
44 BLOWER
45 SLIDER WASHER
46 CASSETTE PLATE
47 BULKHEAD SPACER
48 FITTING BULKHEAD
49 ORIFICE
50 PILOT ASSEMBLY BRACKET
51 PILOT ASSEMBLY
52 CASSETTE GASKET
53 FAN GRILL COVER
54 FAN GRILL MOUNT
NO. DESCRIPTION
55 AC POWER PLUG
56 PEDESTAL BACK
57 THERMO. OUTLET BRACKET
NOTE: DIAGRAMS & ILLUSTRATIONS ARE NOT TO SCALE.

32
Trim Kits
Kits Include: Matching Trim
for Glass (Upper and Lower)
(ref. form #775291M)
Cat. No. Model Description
75348 EPIC-TRIM-B Black Trim
75349 EPIC-TRIM-G Gold Trim
75350 EPIC-TRIM-BN Brushed Nickel Trim
75351 EPIC-TRIM-BKN Black Nickel Trim
Gas Conversion Kits
Cat. No. Model Description
75355 EPIC-CK-LP to NG Conversion Kit LP to NG (ref. form #775235M)
75352 EPIC-CK-NG to LP Conversion Kit NG to LP (ref. form #775244M)
ACCESSORIES
NOTE: The form numbers referenced are the part numbers of the instruction sheets
included in kits.
Touch-Up Paint Kit
70K99 TSPK-B Touch-Up Paint, Metallic Black (12 oz aerosol)
P
A
I
N
T
Wall
Thermostat
Remote
Control
Controls
70005 RT-AC Remote Thermostat AC (ref. form #775280M)
H0251 RCL-STAT Remote Control, Deluxe Thermostat DC,
(ref. form #750129M)
H4635 DWTK Wall Thermostat, Digital
NOTE: DIAGRAMS & ILLUSTRATIONS ARE NOT TO SCALE.

33
MODEL
MODÈLE
EPIC™ NG 40
MANUFACTURED BY:
LENNOX HEARTH PRODUCTS
PO BOX 987
AUBURN, WA., USA 98071
SERIAL NO.
NUMÉRO DE
SÉRIE
Report No. / Número de Rapport
050-S-21b-5
RATINGS
EPIC 33 EPIC 40
NATURAL GAS LP GAS NATURAL GAS LP GAS
MAXIMUM INPUT BTUH 0-2,000 FT (0-610 M)* 33,000 / 23,000 31,000 / 24,000 40,000 / 27,000 39,000 / 30,000
ORIFICE (DMS) 0-2,000 FT (0-610 M)* #36/.106 IN. #52/.064 IN. #31/.120 IN. #49/.073 IN.
MANIFOLD PRESSURE (IN. WC)
3.5 / 1.7 10.0 / 5.4 3.5 / 1.7 10.0 / 5.4
MIN. INLET PRESSURE (IN. WC) 5.0 11.0 5.0 11.0
*UNIT FACTORY EQUIPPED FOR 0-2000 FT/0-610 M, IN CANADA 0-4500 FT/0-1370 M
ELECTRICAL RATING: 120 VAC, 60 HZ, LESS THAN 2 AMPS
MINIMUM CLEARANCES - TO COMBUSTIBLES IN INCHES
CAUTION:
HOT WHILE IN OPERATION. DO NOT TOUCH. SEVERE BURNS MAY RESULT. KEEP
CHILDREN, CLOTHING, FURNITURE, GASOLINE AND OTHER LIQUIDS HAVING FLAMMABLE VAPORS
AWAY. KEEP BURNER AND CONTROL COMPARTMENT CLEAN. SEE INSTALLATION AND OPERATING
INSTRUCTIONS ACCOMPANYING APPLIANCE. FOR USE WITH GLASS DOORS CERTIFIED WITH THIS
APPLIANCE ONLY. DO NOT OPERATE THE APPLIANCE WITH GLASS REMOVED, CRACKED OR BROKEN.
REPLACEMENT OF THE PANEL(S) SHOULD BE DONE BY A LICENSED OR QUALIFIED PERSON.
WARNING: IMPROPER INSTALLATION, ADJUSTMENT, ALTERATION, SERVICE OR MAINTENANCE CAN
CAUSE INJURY OR PROPERTY DAMAGE. REFER TO THE OWNER’S INFORMATION MANUAL PROVIDED
WITH THIS APPLIANCE. FOR ASSISTANCE OR ADDITIONAL INFORMATION CONSULT A QUALIFIED
INSTALLER, SERVICE AGENCY OR GAS SUPPLIER.
ALCOVE DIMENSIONS
MAXIMUM DEPTH 48” (1219mm)
MINIMUM WIDTH 48” (1219mm)
MINIMUM HEIGHT 69” (1753mm)
SEE OWNER’S MANUAL FOR
OTHER ALCOVE CLEARANCE
CONFIGURATIONS
HEARTH PROTECTION
SEE INSTRUCTION MANUAL
INSTALLATION
4" (102mm)
24.5" (622mm)
12.5"
(318mm)
90°
4.5"
(114mm)
4.5"
(114mm)
INSTALLATION
10.5" (267mm)
Part No./ No. Pièce #36247 Rev. B, 03/08 DO NOT REMOVE OR COVER THIS LABEL Made in U.S.A.
DATE OF MANUFACTURE / DATE DE FABRICATION
2008 2010 20112009 JANV
JAN FEVR
FEB MARS
MAR AVR
APR MAI
MAY JUIN
JUN JUIL
JUL AOÛT
AUG SEPT
SEP OCT
OCT NOV
NOV DEC
DEC
N’ENLEVEZ PAS OU NE COUVREZ PAS CETTE ÉTIQUETTE Fabriqué aux U.S.A. IGN 08-0711
DANGER:
CET APPAREIL DÉGAGE DES TEMPÉRATURES ÉLEVÉES ET DEVRAIT ÊTRE INSTALLÉ
À L’ÉCART DES ENDROITS TRÈS PASSANTS ET LOIN DES MEUBLES ET RIDEAUX. SURVEILLEZ LES
ENFANTS QUI SE TROUVENT DANS LA PIÈCE. GARDEZ LA ZONE AUTOUR DU FOYER EXEMPTE DE
MATÉRIAUX COMBUSTIBLES, D’ESSENCE ET AUTRES VAPEURS ET LIQUIDES INFLAMMABLES.
MAINTENEZ LE BRÛLEUR ET LE BOÎTIER DES COMMANDES PROPRE EN TOUT TEMPS. VOIR LES
MANUELS D’INSTALLATION ET D’ENTRETIEN QUI ACCOMPAGNENT L’APPAREIL. SEUL LE PANNEAU
VITRÉ FOURNI PAR LE MANUFACTURIER PEUT ÊTRE UTILISÉ AVEC CET APPAREIL. EN AUCUN CAS,
L’APPAREIL NE PEUT ÊTRE UTILISÉ SANS LA VITRE OU AVEC LA VITRE BRISÉE. LE REMPLACEMENT DE
LA VITRE DOIT ÊTRE EFFECTUÉ PAR UN TECHNICIEN DE SERVICE QUALIFIÉ.
AVERTISSEMENT: UNE INSTALLATION INADÉQUATE DE MÊME QU’UN AJUSTEMENT, UNE MODIFICATION,
UNE RÉPARATION OU UN ENTRETIEN INCORRECTS PEUVENT CAUSER DES BLESSURES OU DOMMAGES
À LA PROPRIÉTÉ. RÉFÉREZ-VOUS AU MANUEL D’ENTRETIEN LIVRÉ AVEC CET APPAREIL. POUR DE
L’ASSISTANCE, CONSULTEZ UN INSTALLATEUR QUALIFIÉ, UNE ENTREPRISE DE SERVICE OU UN
FOURNISSEUR DE GAZ.
DIMENSIONS – ALCOVE
PROFONDEUR MAXIMUM: 48 PO. (1219mm)
LARGEUR MAXIMUM : 48 PO. (1219mm)
HAUTEUR MAXIMUM : 69 PO. (1753mm)
REFEREZ VOUS AU MANUEL D’INSTALLATION
POUR TOUT AUTRE DEGAGEMENT REQUIS.
PROTECTIONS AU PLANCHER : REFEREZ
VOUS AU MANUEL D’INSTALLATION
DÉGAGEMENTS AUX COMBUSTIBLES - POUCES
HOMOLOGUÉ FOYER RADIANT PRÉFABRIQUÉ AU GAZ -NE PAS UTILISER AVEC DU COMBUSTIBLE
SOLIDE
MAY BE INSTALLED IN RESIDENTIAL BEDROOMS AND MANUFACTURED (MOBILE) HOMES.
TESTÉ SELON LA NORME ANSI Z21.88-2005/CSA 2.33-2005 «FOYER RADIANT AU GAZ», UL307B, CSA P.4.1-02, ET CGA 2.17-M91.
CET APPAREIL DOIT ÊTRE INSTALLÉ CONFORMÉMENT AUX EXIGENCES DES CODES RÉGIONAUX ET DU CODE D’INSTALLATION
ANSI NFPA 54-DERNIÈRE ÉDITION (ETATS-UNIS), OU CAN/CGA-B149.1-DERNIÈRE ÉDITION (CANADA) POUR LES MAISON
MOBILE LE STANDARD DE SÉCURITÉ EST TITLE 24CFR, PART 3280 . CET APPAREIL DOIT ÊTRE INSTALLER SELON LES
SPÉCIFICATIONS DU MANUFACTURIER.
CET APPAREIL DOIT ÊTRE UTILISÉ AVEC LE TYPE DE GAZ INDIQUÉ SUR LA PLAQUE SIGNALÉTIQUE ET PEUT ÊTRE INSTALLÉ
DANS UNE MAISON PRÉUSINÉE OU DANS UNE MAISON MOBILE FIXE, LÀ OÙ LES CODES RÉGIONAUX LE PERMETTENT. VOIR
LE MANUEL D’ENTRETIEN POUR PLUS DE DÉTAILS. CET APPAREIL NE PEUT PAS ÊTRE CONVERTI POUR L’USAGE AVEC
D’AUTRES TYPES DE GAZ À MOINS D’UTILISER UNE TROUSSE DE CONVERSION HOMOLOGUÉE.
DANGER: RISQUE DE CHOC ÉLECTRIQUE. DÉBRANCHEZ L’APPAREIL AVANT D’EN FAIRE L’ENTRETIEN.
SI L’APPAREIL REQUIERT UN BRANCHEMENT ÉLETRIQUE, LES RACCORDEMENTS ET LA MISE À LA TERRE DOIVENT ÉTRE
CONFORMES AUX EXIGENCES DES CODES RÉGIONAUX ET DU CODE D’INSTALLATION ANSI/NFPA 70 OU CSA C22-1.
POSITION
EN COIN
POSITION PARALLÈLE OU
POSITION DE L'ALCÔVE
VENTED GAS FIREPLACE HEATER - NOT FOR USE WITH SOLID FUEL
MAY BE INSTALLED IN RESIDENTIAL BEDROOMS AND MANUFACTURED (MOBILE) HOMES.
TESTED TO ANSI Z21.88-2005/CSA 2.33-2005 “VENTED GAS FIREPLACE HEATERS”, UL307b, CSA P.4.1-02,
AND CGA 2.17-M91.
THIS APPLIANCE MUST BE INSTALLED IN ACCORDANCE WITH LOCAL CODES, IF ANY. IF NOT, FOLLOW THE
CURRENT ANSI Z223.1/NFPA 54-LATEST EDITION (USA) OR CAN/CGA B149.1-LATEST EDITION (CANADA)
AND SAFETY STANDARD, TITLE 24 CFR, PART 3280 FOR MOBILE HOMES. ALSO, APPLIANCE MUST BE
INSTALLED IN ACCORDANCE WITH THE MANUFACTURER’S INSTALLATION INSTRUCTIONS.
THIS APPLIANCE IS ONLY FOR USE WITH THE TYPE OF GAS INDICATED ON THE RATING PLATE AND MAY
BE INSTALLED IN AN AFTERMARKET, PERMANENTLY LOCATED, MANUFACTURED (MOBILE) HOME WHERE
NOT PROHIBITED BY LOCAL CODES. SEE OWNER’S MANUAL FOR DETAILS. THIS APPLIANCE IS NOT
CONVERTIBLE FOR USE WITH OTHER GASES, UNLESS A CERTIFIED KIT IS USED.
DANGER: RISK OF ELECTRICAL SHOCK. DISCONNECT POWER BEFORE SERVICING UNIT.
IF ELECTRICALLY CONNECTED, CONNECTIONS AND GROUNDING MUST BE IN ACCORDANCE WITH LOCAL
CODES, IF ANY. IF NOT, FOLLOW THE CURRENT NATIONAL ELECTRICAL CODE ANSI/NFPA 70-LATEST
EDITION (USA) OR CSA C22-1-LATEST EDITION (CANADA).
FACTORY EQUIPPED FOR NATURAL GAS. IF CONTROL PANEL
CONTRADICTS THIS LABEL, UNIT FUEL TYPE HAS BEEN CONVERTED.
CET APPAREIL EST MUNI D’ÉQUIPEMENT POUR L’USAGE DU GAZ NATUREL.
SI L’ÉTIQUETTE DU PANNEAU DES COMMANDES CONTREDIT CETTE ÉTIQUETTE,
C’EST QUE LE TYPE DE CARBURANT DE CET APPAREIL A ÉTÉ CONVERTI.
VENTING: THIS APPLIANCE MUST BE PROPERLY CONNECTED TO A VENTING SYSTEM IN ACCORDANCE
WITH THE MANUFACTURER’S INSTRUCTIONS. SEE MANUFACTURER’S INSTALLATION INSTRUCTIONS FOR
APPROVED PIPE BRANDS AND PIPE SEALING PROCEDURES.
FOR ALTITUDES ABOVE 2,000 FT/610M (IN CANADA 4500 FT/1370M) DE-RATE THE APPLIANCE BY FOUR (4)%
FOR EVERY 1,000 FT (405 M).
THIS VENTED GAS FIREPLACE HEATER IS NOT FOR USE WITH AIR FILTERS.
SPÉCIFICATIONS Modèle
EPIC 33
Modèle
EPIC 40
GAZ NATUREL GAZ PROPANE GAZ NATUREL GAZ PROPANE
ENTRÉE MAX/MIN BTU/HR 0-4500 pi
(0-1370 M)*
33000/ 23000 31000/ 24000 40000/ 27000 39000/ 30000
ORIFICE (DMS) 0-4500 pi (0-1370 M)*
#36/.106" #52/.064" #31/.120" #49/.073"
PRESSION À LA SORTIE (IN. WC/C.E.)
3.5 / 1.7 10.0 / 5.4 3.5 / 1.7 10.0 / 5.4
PRESSION MINIMUM D’ENTRÉE DU GAZ
(IN. WC/C.E.)
5.0 11.0 5.0 11.0
* L’APPAREIL PRÉUSINÉ EST MUNI D’ÉQUIPEMENT POUR 0-2000 PIEDS (0-610 M). AU CANADA 0-4500 PIEDS (0-1370M).
SPÉCIFICATIONS ÉLECTRIQUE 120 VCA, 60 HZ, MOINS DE 2 AMPÈRES
CONDUIT: CET APPAREIL DOIT ETRE INSTALLER SEULEMENT AVEC UN CONDUIT D’EVACUATION
RECOMMANDE PAR LE MANUFACTURIER. TOUJOURS SE REFERER AU MANUEL D’INSTALLATION.
EN ALTITUDE, AU-DELÀ DE 2000 PI/610 M, (AU CANADA 0-4500 PI/0-1370M) LA CAPACITÉ ÉNERGÉTIQUE DE
L’APPAREIL DIMINUE DE QUATRE (4)% POUR CHAQUE 1000 PI (405 M).
CE FOYER RADIANT AU GAZ À ÉVACUATION N’EST PAS CONÇU POUR ÊTRE UTILISÉ AVEC DES FILTRES À AIR.
ALCOVE OR PARALLEL
INSTALLATION CORNER INSTALLATION
INSTALLATION
4" (102mm)
24.5" (622mm)
12.5"
(318mm)
Mur Combustible
Mur Combustible
90°
4.5"
(114mm)
4.5"
(114mm)
INSTALLATION
10.5" (267mm)
Mur Combustible
Mur Combustible
Combustible Wall
Combustible Wall
Combustible Wall
Combustible Wall
SAFETY / LISTING LABEL
US
Portland
2010 2011 2012 2013
NOTE: DIAGRAMS & ILLUSTRATIONS ARE NOT TO SCALE.

34
CAUTION: YOUR COUNTRY GAS APPLIANCE MUST ALWAYS BE OPERATED WITH GLASS DOOR IN PLACE.
STOP! Read the safety information above before proceeding.
1. Open the lower door. Make sure gas supply shut-off cocks are open
and ON/OFF Rocker Switch is “OFF”. If equipped with a thermostat,
set it to the lowest setting.
2. Turn off all electrical power to the appliance.
3. Push in Gas Control Knob slightly and turn clockwise to
“OFF”.
NOTE: Knob cannot be turned from “PILOT” to “OFF” unless Knob is pushed in slightly. Do not force.
4. Wait five (5) minutes to clear out any gas. If you smell gas, STOP! Follow “B” above. If you don’t smell gas continue.
5. Locate the pilot by looking at the center bottom of the back log. Blue flame will be seen when the pilot is lit.
6. Turn the gas control knob counterclockwise to the “PILOT” position.
7. Push the knob all the way in and hold in that position. Immediately light the pilot by pressing the igniter button
FOR YOUR SAFETY READ BEFORE OPERATING
1. To turn off the burner, switch the rocker switch to “OFF” or adjust the thermostat to a setting below room temperature (if installed). The pilot will remain lit for future burner ignition.
For complete shutdown: See “TO TURN OFF GAS TO APPLIANCE” above.
SHUTDOWN PROCEDURE
OPERATING INSTRUCTIONS
WARNING:
IF YOU DO NOT FOLLOW THESE INSTRUCTIONS EXACTLY, A FIRE OR EXPLOSION MAY RESULT CAUSING PROPERTY DAMAGE, INJURY OR LOSS OF LIFE.
CAUTION:
HOT WHILE IN OPERATION. DO NOT TOUCH. KEEP CHILDREN, FURNITURE, GASOLINE AND OTHER LIQUIDS WITH FLAMMABLE VAPORS AWAY. NEVER OPERATE UNIT WITH GLASS DOOR OFF OR ATTEMPT TO OPEN
THE DOOR WHILE HOT.
A. This appliance is equipped with a piezo ignition device to light the pilot. When lighting the pilot, follow these
instructions exactly.
B. BEFORE LIGHTING, smell around the appliance area for gas. Be sure to smell next to the floor because some gas is
heavier than air and will settle on the floor.
WHAT TO DO IF YOU SMELL GAS:
• DO NOT try to light the appliance.
• DO NOT touch any electric switch; do not use any phone in the building.
1. Turn off the “ON/OFF” rocker switch and/or thermostat (if installed).
2. Turn off electric power to the appliance if service is to be performed.
3. Turn gas control knob clockwise to "OFF". Do not force.
This appliance needs fresh air for safe operation and must be installed so there are provisions for adequate combustion and ventilation air. See Installation and Operation Manual accompanying
appliance.
WARNING: Improper installation, adjustment, alteration, service or maintenance can cause injury or property damage. For assistance or additional information,
consult a qualified installer, service agency or your gas supplier.
Operation of this appliance when not connected to a properly installed and maintained venting system can result in carbon monoxide (CO) poisoning and possible death.
TO TURN OFF GAS TO APPLIANCE
Part No. #36252 Rev. A, 04/07
• Immediately call your gas supplier from a neighbor's phone. Follow the gas supplier's instructions.
• If you cannot reach your gas supplier, call the fire department.
C. Use only your hand to push in or turn the gas control knob. Never use any tool. If the knob will not push in or turn
by hand, don't try to repair it, call a qualified service technician. Force or attempted repair may result in a fire or
explosion.
D. DO NOT use this appliance if any part has been under water. Immediately call a qualified service technician to inspect
the appliance and to replace any part of the control system and any gas control which has been under water.
ON
OFF
PILOT
HI
LOW
GAS CONTROL
ON/OFF FLAME HEIGHT
several times until pilot is lit. Continue to hold the knob in for about 30 seconds after the pilot is lit. Release knob and
it will pop back out.
Pilot should remain lit. If it goes out, repeat steps 4-8 holding knob in an additional 15 seconds after pilot is lit.
• If knob does not pop out when released, stop and immediately call your service technician or gas supplier.
• If the pilot will not stay lit after several tries, turn the gas control knob to
“OFF” and call your service technician or your gas supplier.
8. After pilot is lit, turn gas control counterclockwise to “ON”. Knob
can only be turned “ON” if the knob has popped out.
9. To turn burner on, turn “ON/OFF” rocker switch to “ON” or set the thermostat
to the desired temperature above room temperature.
10. Adjust the flame height (and heat output) by turning the flame height knob
clockwise for reduced flame and counterclockwise for full
flame.
11. Turn on all electrical power to the appliance.
12. Set the blower to the desired air flow after it turns on when the appliance reaches operating temperature.
PILOT ASSEMBLY
Gas Pilot Hood
Igniter
Thermocouple
Thermopile
IGN
LENNOX
LIGHTING LABEL
DANGER: VOTRE APPAREIL AU GAZ LENNOX DOIT ÊTRE OPÉRÉ AVEC DES PORTES DE VERRE.
ATTENTION! Lisez les consignes de sécurité ci-dessous avant d’opérer
votre appareil.
1. Ouvrez la porte d’accès à la droite de l’appareil. Assurez-vous que
l’alimentation en gaz est à la position Fermée “OFF”. Si l’appareil est
équippé d’un thermostat, placez-le à la température la plus basse.
2. Couper le courant électrique qui alimente l’appareil.
3. Enfoncez légèrement le bouton de contrôle du gaz et tournez-le dans le
sens des aiguilles d’une montre à la position “OFF”.
NOTE: Le bouton de contrôle du gaz ne peut être tourné de la position
“PILOT” à “OFF” sans qu’une légère pression ne soit appliquée.
4. Attendez au moins 5 minutes pour que le gaz qui se trouve dans la chambre de combustion puissse s’échapper. Si
vous sentez une odeur de gaz ARRÊTEZ! Référez-vous à la section B ci-dessus. Si vous ne sentez pas d’odeur de
gaz, allez à la prochaine étape.
5. Repérez la veilleuse située au centre de la chambre de combustion, sous la bûche céramique arrière. Une flamme
bleue est visible lorsque la veilleuse est allumée.
6. Tournez le bouton de contrôle de gaz dans le sens inverse des aiguilles d’une montre pour le placer sur
“PILOT”.
7. Cet appareil de chauffage est equipé d’un système d’allumage par étincelle (allumeur Piézo-électirque), devant être
utilisé pour l’allumage de la veilleuse.
POUR VOTRE SÉCURITÉ, LIRE AVANT L’ALLUMAGE
1. Pour arrêter le brûleur, mettre l’interrupteur à la position “OFF” ou ajustez le thermostat à une température en dessous de la température ambiante. La veilleuse restera allumée pour permettre un alummage ultérieur.
Pour un arrêt complet: Consultez la procédure ci-dessus «POUR COUPER L’ALIMENTATION EN GAZ DE L’APPAREIL».
PROCÉDURE D’ARRÊT
ALLUMAGE
AVERTISSEMENT: SI VOUS NE RESPECTEZ PAS RIGOUREUSEMENT LES INSTRUCTIONS CI-DESSOUS, VOUS POURRIEZ ENCOURIR UN RISQUE D’INCENDIE ET/OU D’EXPLOSION QUI POURRAIENT CAUSER DES DOMMANGES MATÉRIELS ET CORPORELS POUVANT ENTRAÎNER LA MORT.
DANGER: CET APPAREIL DÉGAGE DES TEMPÉRATURES ÉLEVÉES ET DEVRAIT ÊTRE INSTALLÉ À L’ÉCART DES ENDROITS TRÈS PASSANTS ET LOIN DES MEUBLES ET RIDEAUX. GARDEZ LA ZONE AUTOUR DU FOYER EXEMPTE DE MATÉRIAUX COMBUSTIBLES, D’ESSENCE ET AUTRES VAPEURS ET
LIQUIDES INFLAMMABLES.
A. Cet appareil utilise un système d’allumage par étincelle (allumeur Piézo-électrique) pour allumer la veilleuse.
Assurez-vous de suivre rigoureusement les instructions d’allumage de la veilleuse.
B. AVANT D’ALLUMER L’APPAREIL, assurez-vous qu’il n’y a pas d’odeur de gaz près de l’appareil ni près du sol car
certains gaz plus lourds que l’air auraient tendance à s’y accumuler en cas de fuite.
QUE FAIRE SI VOUS SENTEZ UNE ODEUR DE GAZ:
• N’ALLUMEZ aucun appareil.
• Ne touchez aucune prise électrique; N’utilisez aucun téléphone dans votre édifice.
1. Fermez l’interrupteur et/ou le thermostat «MARCHE/ARRÊT».
2. Coupez l’alimentation électrique de l’appareil si vous prévoyez en faire le service.
3. Tournez le bouton de commande du gaz dans le sens des aiguilles d’une montre à “OFF”. Ne le forcez pas.
Cet appareil a besoin d’air frais pour opérer sécritairement et doit être installé pour qu’il y ait un apport en air suffisant. Référez-vous aux manuels d’entretien et d’installation fournis avec l’appareil.
AVERTISSEMENT: Une installation inadéquate, un mauvais ajustement, une altération ou toutes autres modifications inappropriés pourraient entraîner des blessures physiques et/ou des
dommanges matériels. Référez-vous au guide d’utilisation fourni avec ce foyer. Pour assistance ou information supplémentaires contactez un installateur qualifié, un agent de service ou un
fournisseur de gaz.
Si vous opérez cet appareil sans qu’il ne soit correctement raccordé à un conduit d’évacuation, vous pourriez risquer d’être empoisonné au monoxyde de carbone (CO) ce qui pourrait entraîner des
conséquences grave ou la mort.
Part No. #36252 Rev. A, 04/07
• Sortez de la maison. À partir d’un autre endroit, appelez immédiatement votre fournisseur de gaz et suivez les directives.
• S’il est impossible de joindre le distributeur du gaz, appelez les pompiers.
C. N’utilisez aucun outil pour tourner ou pousser le dispositif de contrôle du gaz. Si vous ne pouvez le faire
manuellement, n’essayez pas de réparer l’appareil.Appelez un technicien de service qualifié. Si vous tentez de forcer
ou réparer le dispositif de contrôle du gaz vous pourriez encourir un risque d’incendie et/ou d’explosion.
D. N’utilisez pas cet appareil si une de ses composantes a été émergée dans l’eau. Appelez immédiatement un
technicien de service qualifié et reconnu afin qu’il inspecte et remplace au besoin toutes pièces du système qui
auraient été en contact avec l’eau.
Poussez complètement le bouton de contrôle du gaz et le maintenir dans cette position.Appuyez immédiatement
sur le bouton (allumeur Piézo-électrique) situé à gauche du robinet de contrôle du gaz.L’étincelle produite par
l’allumeur Piézo-électrique doit allumer la veilleuse. Continuez à maintenir le bouton de contrôle dans cette position
pendant environ 30 secondes après l’allumage de la veilleuse. Relâchez le bouton de contrôle du gaz qui reviendra à
la position initiale. La veilleuse doit rester allumée. Répétez les étapes 4 à 8
pendant 15 secondes supplémentaires si la veilleuse s’éteind.
• Si le bouton de contrôle du gaz ne revient pas à la position initiale une fois
relâché, appeler immédiatement un technicien qualifié ou votre distributeur
de gaz.
• Si la veileuse ne reste pas allumée après plusieurs essais, tournez le
bouton de contrôle du gaz à la position “OFF” et appelez immédiatement un
technicien qualifié ou votre distributeur de gaz.
8. Lorsque la veilleuse est allumée, tournez le bouton de contrôle du gaz dans
le sens invers des aiguilles d’une montre pour le placer à la position
“ON”. Le bouton de contrôle peut-être tourné à la position “ON” seulement si il n’est plus enfoncé.
9. Pour allumer le brûleur, mettre l’interrupteur à la position “ON” ou ajustez le thermostat à la température souhaitée.
10. Ajustez la flamme et la température souhaitée en tournant le bouton de réglage de la flamme dans les sens des
aiguille d’une montre pour l’abaisser et dans le sens contraire pour l’augmenter.
11. Allumez l’alimentation électrique de l’appareil.
12. Ajustez le ventilateur au volume désiré lorsque l’appareil aura atteint la température de fonctionnement.
PILOT ASSEMBLY
Veilleuse à gaz
Allumeur
Thermocouple
Thermopile
IGN
POUR COUPER L’ALIMENTATION EN GAZ DE L’APPAREIL
ON
OFF
PILOT
HI
LOW
Bouton de contrôle
(Veilleuse / Ouverte
/ Fermée)
- LO / HI +
(Commande De Taille
De Flamme)
Interrupteur
Allumeur Ventilateur

35
NOTES

36
Your Stove's Model Number __________________________________________
Your Stove's Serial Number ___________________________________________
The Date On Which Your Stove Was Installed _____________________________
The Type of Gas Your Stove's Uses _____________________________________
Your Dealer's Name _________________________________________________
Fuel Type (Check one) cNatural Gas cPropane Gas (LP)
Printed in U.S.A. © 2007 Lennox Hearth Products
P/N 775,223M REV. C 03/2010
Lennox Hearth Products reserves the right to make changes at any time, without notice, in
design, materials, specifications, prices and also to discontinue colors, styles and products.
Consult your local distributor for fireplace code information.
WARRANTY
Your gas stove is covered by a limited warranty (provided with appliance).
Please read the warranty to be familiar with its coverage.
Retain this manual. File it with your other documents for future refer-
ence.
PRODUCT REFERENCE INFORMATION
We recommend that you record the following important information
about your appliance. Please contact your Lennox Hearth Products dealer
for any questions or concerns. For the number of your nearest Lennox
Hearth Products dealer, please call 1-800-9-LENNOX.
REPLACEMENT PARTS
See Page 29 for a complete replacement parts list. Use only parts sup-
plied from the manufacturer.
Normally, all parts should be ordered through your Lennox Hearth
Products distributor or dealer. Parts will be shipped at prevailing prices
at time of order.
When ordering repair parts, always give the following information:
1. The model number of the appliance.
2. The serial number of the appliance.
3. The part number.
4. The description of the part.
5. The quantity required.
6. The installation date of the appliance.
If you encounter any problems or have any questions concerning the
installation or application of this system, please contact your dealer.
LENNOX HEARTH PRODUCTS
1508 Elm Hill Pike, Suite 108
Nashville, TN 37210
Visit us at www.Lennox.com
1508 Elm Hill Pike, Suite 108 • Nashville, TN 37210