FLARE LC 100
User Manual: FLARE-LC-100
Open the PDF directly: View PDF
.
Page Count: 5

2"
51
4" min.
102 min.
36" min.
915 min.
Combustible Materials
Non Combustible Materials
4" min.
102 min.
2"
51
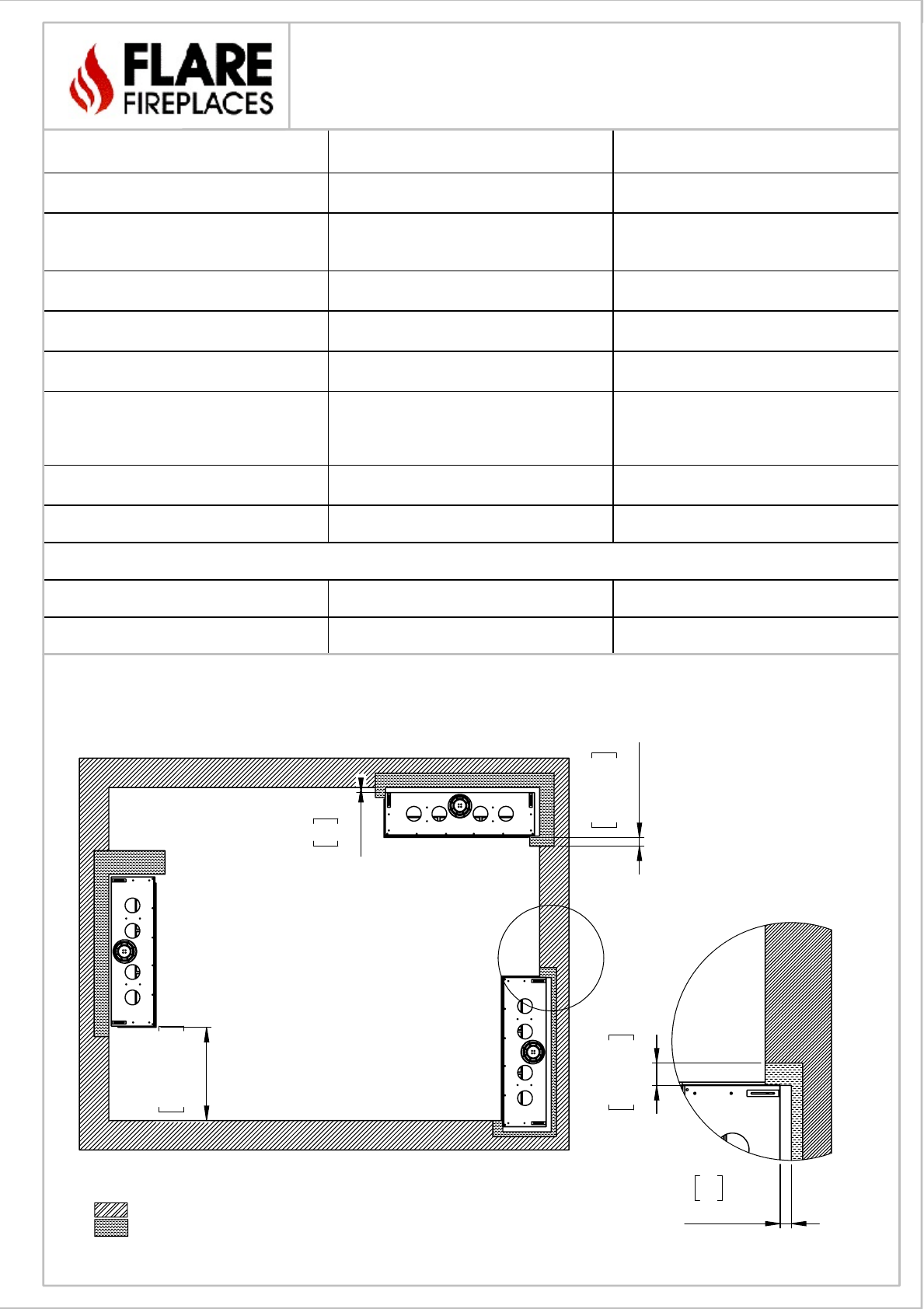
Specifications for Appliance
Flare Left Corner 100
Appliance Location
Factor
NG
LPG
Burner Type
55,105,55 55,105,55
Orifice
550,1200,550 180,260,180
BTU Max.
60000 60000
BTU min.
32500 25500
Kw/h
17.5k 17.5k
Chimney DIA.
5X8 5X8
Manifold Pressure[w.c]
4.4 7.4
Efficiency rate
81 76
Glass Size Length\Width
2520.5 X 423 mm
99'' 1/4 X 16" 9/16'
Appliance Weigh
270Kg
595lb

100"
2540
8"
203
5"
127
51
4
"
133
28"
711
16"
407
97 3
16
"
2468
2"
51
32"
813
4"
102
Telescopic leg ranges
(from bottom of glass):10''-19''
10"
254
18 1
16
"
459
17 9
16
"
446
FLARE Left Corner 100

20 1
16
"
509
102"
2591
33"
838
33"
838
Metal Studs
24 1
16
"
611
106"
2693
Metal Studs
Step 1 - Basic Framing : Step 1 - Basic Framing :
Flat Vs. Recess Installation
For FLARE LC Fireplace
Recess Installation
Flat Installation
Top of Recess
4'' max

4"
102
1"
25
21
2
"
64
21
2
"
64
4" max.
102 max.
1"
25
gap to match the
max. length of
top shelf.
Fireplace frame finishing
holder space to match
wall finishing thickness
Step 2 -Positioning the Fireplace:
Flat Installation
Recess Installation
Step 2 -Positioning the Fireplace:
Flat Vs. Recess Installation
For FLARE LC Fireplace

Covering
material
thickness
Flat Vs. Recess Installation
For FLARE LC Fireplace
Last Step - Finishing The Fireplace Wall:
Step 3 - Framing Front Studs For Recess
After positioning the Fireplace:
Recess Installation
Flat Installation
Last Step - Finishing The Fireplace Wall: