Guide
Guide
User Manual:
Open the PDF directly: View PDF
.
Page Count: 17

STEP BY STEP GUIDE
INTRODUCTION
This hydroponic system was developed as a custom design feature for Bitcoin Coffee in Parallel Polis. It is
meant to supply the Cafe with specific vegetables that are being used there (mostly leaf vegetables). It also
serves for experiments that are combining growing in hydroponic system, IoT technologies, and open
source in order to reach as much autonomity of the system as possible that is able to optimize growing
process, and energy consumption to the most reasonable effectivity.

TOOLS
Drilling machine
Screw driver
Glue gun (depending of the type of the glue)
Paint brush (10cm or wider)
NT cutter
Personal protection equipment
RESERVOIR CONSTRUCTION
LIST OF MATERIALS:
Plywood board 96x20x2cm 2PCS
Plywood board 150x20x2cm 2PCS
Screws for wood 4x40 12PCS
Plastic board (used plastic banner) 150x100x0,5cm 1PC
Screws for the wood 3x40 46PCS
Plastic board (used plastic banner) 146x96x0,5cm 1PC
Plastic board (used plastic banner) 146x18x0,5cm 2PCS
Plastic board (used plastic banner) 95x18x0,5cm 2PCS
Glue for plastics 0,5L
Plumbers putty 280ml
PROCEDURE:
Step 1 Construct the basic frame of the box out of the plywood. Fix each side evenly with 3 screws 4x40. To avoid
rupture of the plywood it is recommended to drill a hole of slightly smaller diameter than the diameter of the screw.
When completed, dril a hole for pump cable in the upper half of the box height (as per drawing).

Step 2 Attach the plastic board (150x100cm) to the wooden frame to create first layer of the bottom. Use glue and
screws 3x40. Screws shall be placed in 10cm distance from each other.
Step 3 Glue another plastic board (146x96cm) on the top of the bottom plastic board to create second layer of the
bottom. Blank side should face up.

Step 4 Glue plastic boards (146x18x0,5cm and 95x18x0,5cm) on sides of the box from the inside.
Step 5 Seal all gaps with plumbers putty to seal the reservoir. Repeat this operation couple of times to make sure
the reservoir will be waterproof. TIP: Once this step is done conduct a leakage test by filling the reservoir with water
to the level of 11cm of depth and look for any leakage.
(Ilustrative photo)
REFERENCE Refer to the drawing Reservoir for more information.

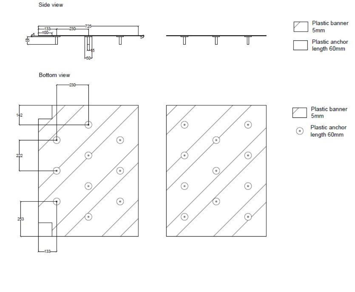
MIDDLE FLOOR
LIST OF MATERIALS:
Plastic board (used plastic banner) 95x72,5x0,5cm 2PCS
Plastic anchors for styrofoam heat insulation Length 6cm 21PCS
Plumbers putty 280ml
PROCEDURE:
Step 1 Take one plastic board and cut away two corners. Corners are being cut away to create passage for the
irrigation pipeline, and to create access to the growing solution for monitoring.
Step 2 Cut plastic anchors to the length of 6cm and glue them to both boards with plumbers putty.

REFERENCE Refer to the drawing Middle Floor Construction for more information.

TOP BOARD
LIST OF MATERIALS:
Plastic board (used plastic banner) 75x100x0,5cm 2PCS
Plastic board (used plastic banner) 72,5x95x0,5cm 2PCS
Glue for plastics
Plastic anchors for styrofoam heat insulation Length 12,5cm 10PCS
Plumbers putty
PROCEDURE:
Step 1 Glue smaller plastic boards to the bottom of larger ones. One edge should be aligned with the larger board
while leaving even 2,5cm gap on other three sides.

Step 2 Cut away holes for pots and irrigation capillary pipes.
Step 3 Cut plastic anchors to the length of 12,5cm and glue them with plumbers putty or super glue to the bottom
of both plastic boards.

REFERENCE Refer to the drawing Top Board Construction for more information.

IRRIGATION
LIST OF MATERIALS:
Plastic pipe diameter 1,5cm holder 14PCS
Plastic pipe diameter 1,5cm 6m
Plastic pipe L connection diameter 1,5cm 8PCS
Plastic pipe T connections diameter 1,5cm 3PCS
Plastic hose diameter 1,5cm 1m
Plastic hose L connections 2PCS
Plastic flow regulator 22PCS
Plastic capillary pipes 30cm 21PCS
Dripping needles 21PCS
Super glue 1PC
Submersible water pump 750l/h 1PC
Lever cable connectors 2PCS
PROCEDURE:
Step 1 Glue plastic pipe holders to the bottom of the board (7pcs per board) with super glue.

Step 2 Cut plastic pipe in 4 pieces of 89cm and 4 pices of 66cm and connect them with L connections. Create two
rectangular pipeline circuits.
Step 3 Cut two shorter plastic pipes and insert T connection..

Step 4 Drill small holes into the pipeline and insert flow regulators. Holes should be placed with similar distance to
ensure even solution delivery. Note: One module should feed 11 plants, and the other one only 10. To distribute the
solution evenly, install 11 flow regulators on both pipeline modules. The extra flow regulator installed in the growing
board that feeds only 10 plants will be kept unused.

Step 5 Attach capillary pipes to flow regulators and put them through holes in the board. Then you may attach
dripping needles to blank ends of capillary pipes. Note: One flow regulator on the board with 10 pot holes will
remain blank.
Step 6 Finalize the construction with attaching the hose to inlets of pipeline modules. At the end use one T
connection to join pipeline modules to one inlet. Hose should not be folded over to avoid water to move through the
system easily.

Step 7 Cut the power cable of the pump near the socket plug, put the pump into the box and push the cable
through the cable hole in the box. Join the cable again with cable connections.
2PICS
Step 8 Assemble the system. Put the middle floor inside the box and then install the top board.

Step 9 Connect the hose to the pump outlet.
REFERENCE: Refer to drawings Top Board Construction and Setup for more information.

LIGHTING SYSTEM
LIST OF MATERIALS:
Wooden prism 150x3x2cm 17PCS
Wooden prism 99x5x2cm 3PCS
Nails length 3cm 51PCS
Steel hooks with screws 4PCS
Full spectrum LED lights SANlight M30 30W 4PCS
PROCEDURE:
Step 1 Construct a grid out ouf wooden prisms with nails, and attach steel hooks to the top of the grid as per
drawings.

Step 2 Hang wooden contruction to the ceiling.
Step 3 Attach lights to the construction and lead cables as needed.
REFERENCE Refer to the drawing Lighting System for more information.