HP ProLiant DL380 G7 Server Maintenance And Service Guide Pro Liant
User Manual: HP ProLiant DL380 G7 shared.swissparts.ch - /Manuals/HP/Server/
Open the PDF directly: View PDF
.
Page Count: 110 [warning: Documents this large are best viewed by clicking the View PDF Link!]
- HP ProLiant DL380 G7 Server Maintenance and Service Guide
- Abstract
- Notice
- Contents
- Customer self repair
- Illustrated parts catalog
- Removal and replacement procedures
- Required tools
- Preparation procedures
- Safety considerations
- HP Trusted Platform Module
- Access panel
- Air baffle
- Full-length expansion board shipping bracket
- PCI riser cage
- SAS hard drive blank
- Hot-plug SAS hard drive
- Power supply blank
- Hot-plug power supply
- Optical drive
- Optical drive cage
- Power supply backplane
- Hot-plug fan
- SFF hard drive backplane
- SFF hard drive cage
- LFF hard drive backplane
- LFF hard drive cage
- Systems Insight Display
- Front left bezel
- Front right bezel
- Fan cage
- Expansion slot covers
- Battery-backed write cache procedures
- Flash-backed write cache procedures
- Expansion slot covers
- Expansion boards
- Heatsink
- Power supply cage assembly
- Processor
- DIMMs
- Battery replacement
- System maintenance switch
- System board
- Cabling
- Diagnostic tools
- Component identification
- Front panel components
- Front panel LEDs and buttons
- Systems Insight Display LEDs
- Systems Insight Display LED combinations
- Rear panel components
- Rear panel LEDs and buttons
- Non-hot-plug PCI riser board slot definitions
- System board
- SAS and SATA device numbers
- PCI riser cage LEDs
- Battery pack LEDs
- FBWC module LEDs
- Hot-plug fans
- Specifications
- Acronyms and abbreviations
- Documentation feedback
- Index

HP ProLiant DL380 G7 Server
Maintenance and Service Guide
Abstract
This guide describes identification and maintenance procedures, diagnostic tools, specifications and requirements for hardwar
e components and
software. This guide is for an experienced service technician. HP assumes you are qualified in the servicing of computer equipment, trained in
recognizing hazards in products, and are familiar with weight and stability precautions.
Part Number: 594659-006
December 2012
Edition: 6
© Copyright 2010, 2012 Hewlett-Packard Development Company, L.P.
The information contained herein is subject to change without notice. The only warranties for HP products and services are set forth in the express
warranty statements accompanying such products and services. Nothing herein should be construed as constituting an additional warranty. HP shall
not be liable for technical or editorial errors or omissions contained herein.
Microsoft® and Windows® are U.S. registered trademarks of Microsoft Corporation.
Intel® and Xeon® are trademarks or registered trademarks of Intel Corporation in the U.S. and other countries.

Contents 3
Contents
Customer self repair ...................................................................................................................... 6
Parts only warranty service ......................................................................................................................... 6
Illustrated parts catalog ............................................................................................................... 16
Mechanical components ........................................................................................................................... 16
System components ................................................................................................................................. 19
Removal and replacement procedures ........................................................................................... 25
Required tools ......................................................................................................................................... 25
Preparation procedures ............................................................................................................................ 25
Power down the server ................................................................................................................... 25
Extend the server from the rack ........................................................................................................ 26
Remove the server from the rack ...................................................................................................... 27
Access the product rear panel ......................................................................................................... 27
Safety considerations ............................................................................................................................... 29
Preventing electrostatic discharge .................................................................................................... 29
Server warnings and cautions ......................................................................................................... 29
HP Trusted Platform Module ...................................................................................................................... 30
Access panel .......................................................................................................................................... 30
Air baffle ............................................................................................................................................... 31
Full-length expansion board shipping bracket .............................................................................................. 31
PCI riser cage ......................................................................................................................................... 32
SAS hard drive blank ............................................................................................................................... 33
Hot-plug SAS hard drive ........................................................................................................................... 33
Power supply blank ................................................................................................................................. 34
Hot-plug power supply ............................................................................................................................. 35
Optical drive .......................................................................................................................................... 36
Optical drive cage .................................................................................................................................. 37
Power supply backplane .......................................................................................................................... 38
Hot-plug fan ........................................................................................................................................... 39
SFF hard drive backplane ......................................................................................................................... 40
SFF hard drive cage ................................................................................................................................ 41
LFF hard drive backplane ......................................................................................................................... 42
LFF hard drive cage ................................................................................................................................. 43
Systems Insight Display ............................................................................................................................ 44
Front left bezel ........................................................................................................................................ 44
Front right bezel ...................................................................................................................................... 45
Fan cage ................................................................................................................................................ 46
Expansion slot covers ............................................................................................................................... 47
Battery-backed write cache procedures ...................................................................................................... 48
Removing the cache module ........................................................................................................... 49
Removing the battery pack .............................................................................................................. 49
Recovering data from the battery-backed write cache ......................................................................... 50
Flash-backed write cache procedures ......................................................................................................... 51
Flash-backed write cache module .................................................................................................... 51
Flash-backed write cache capacitor pack .......................................................................................... 52
Expansion slot covers ............................................................................................................................... 53
Contents 4
Expansion boards ................................................................................................................................... 55
Half-length expansion board ........................................................................................................... 55
Full-length expansion board ............................................................................................................ 56
Heatsink ................................................................................................................................................. 57
Power supply cage assembly .................................................................................................................... 59
Processor ............................................................................................................................................... 60
DIMMs ................................................................................................................................................... 68
Battery replacement ................................................................................................................................. 69
System maintenance switch....................................................................................................................... 70
System board ......................................................................................................................................... 71
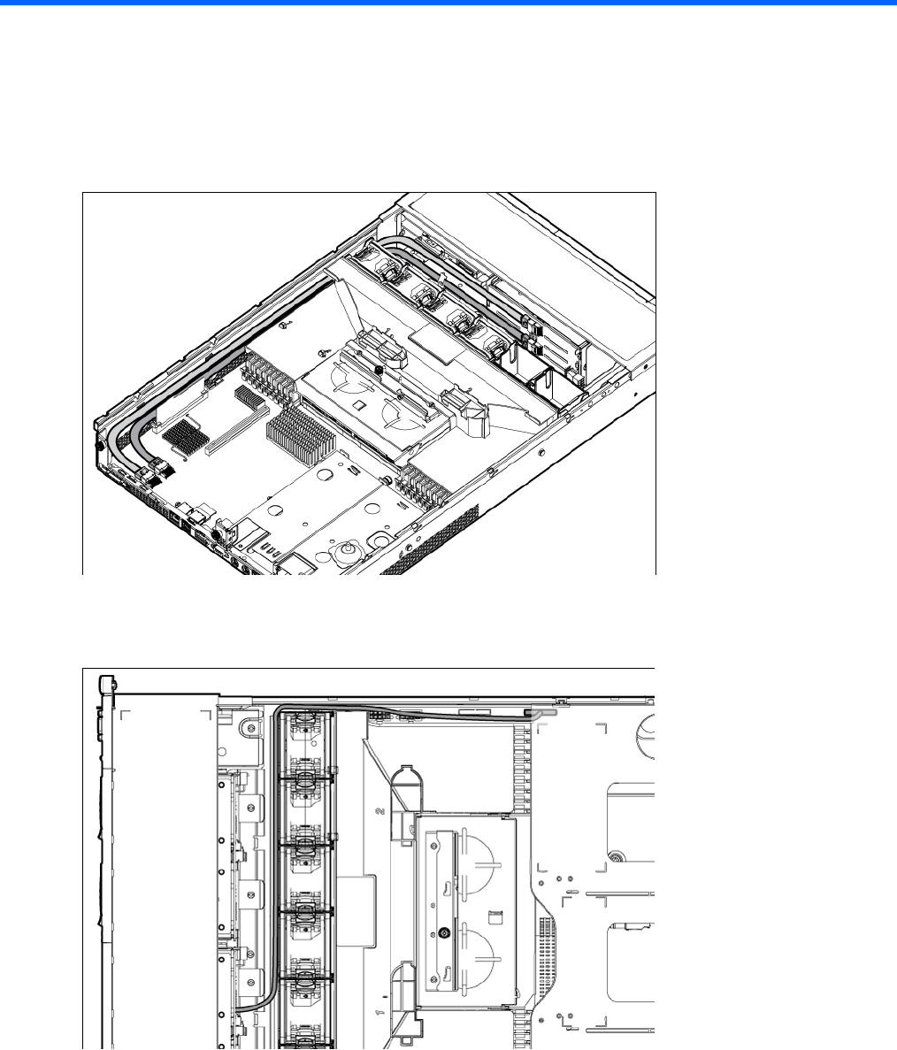
Cabling ..................................................................................................................................... 80
SAS hard drive cabling ............................................................................................................................ 80
Optical drive cabling ............................................................................................................................... 80
BBWC battery cabling ............................................................................................................................. 81
FBWC capacitor pack cabling .................................................................................................................. 81
Diagnostic tools .......................................................................................................................... 82
Troubleshooting resources ........................................................................................................................ 82
HP Insight Diagnostics .............................................................................................................................. 82
HP Insight Diagnostics survey functionality .................................................................................................. 82
Integrated Management Log ..................................................................................................................... 83
HP Insight Remote Support software ........................................................................................................... 83
USB support ........................................................................................................................................... 84
Component identification ............................................................................................................. 85
Front panel components ........................................................................................................................... 85
Front panel LEDs and buttons .................................................................................................................... 86
Systems Insight Display LEDs ..................................................................................................................... 87
Systems Insight Display LED combinations ................................................................................................... 88
Rear panel components ............................................................................................................................ 89
Rear panel LEDs and buttons ..................................................................................................................... 90
Non-hot-plug PCI riser board slot definitions ................................................................................................ 90
System board ......................................................................................................................................... 92
System board components .............................................................................................................. 92
System maintenance switch ............................................................................................................. 93
NMI functionality ........................................................................................................................... 93
DIMM slot locations ....................................................................................................................... 94
DIMM identification ....................................................................................................................... 95
SAS and SATA device numbers ................................................................................................................. 96
SAS and SATA drive LEDs .............................................................................................................. 97
SAS and SATA drive LED combinations ............................................................................................ 97
PCI riser cage LEDs .................................................................................................................................. 98
Battery pack LEDs .................................................................................................................................... 99
FBWC module LEDs ............................................................................................................................... 100
Hot-plug fans ........................................................................................................................................ 101
Specifications ........................................................................................................................... 103
Environmental specifications ................................................................................................................... 103
Mechanical specifications ...................................................................................................................... 103
Power supply specifications .................................................................................................................... 103
Hot-plug power supply calculations .......................................................................................................... 105
Acronyms and abbreviations ...................................................................................................... 106

Customer self repair 6
Customer self repair
HP products are designed with many Customer Self Repair (CSR) parts to minimize repair time and allow for
greater flexibility in performing defective parts replacement. If during the diagnosis period HP (or HP service
providers or service partners) identifies that the repair can be accomplished by the use of a CSR part, HP will
ship that part directly to you for replacement. There are two categories of CSR parts:
• Mandatory—Parts for which customer self repair is mandatory. If you request HP to replace these parts,
you will be charged for the travel and labor costs of this service.
• Optional—Parts for which customer self repair is optional. These parts are also designed for customer
self repair. If, however, you require that HP replace them for you, there may or may not be additional
charges, depending on the type of warranty service designated for your product.
NOTE: Some HP parts are not designed for customer self repair. In order to satisfy the customer warranty,
HP requires that an authorized service provider replace the part. These parts are identified as "No" in the
Illustrated Parts Catalog.
Based on availability and where geography permits, CSR parts will be shipped for next business day
delivery. Same day or four-hour delivery may be offered at an additional charge where geography permits.
If assistance is required, you can call the HP Technical Support Center and a technician will help you over the
telephone. HP specifies in the materials shipped with a replacement CSR part whether a defective part must
be returned to HP. In cases where it is required to return the defective part to HP, you must ship the defective
part back to HP within a defined period of time, normally five (5) business days. The defective part must be
returned with the associated documentation in the provided shipping material. Failure to return the defective
part may result in HP billing you for the replacement. With a customer self repair, HP will pay all shipping
and part return costs and determine the courier/carrier to be used.
For more information about HP's Customer Self Repair program, contact your local service provider. For the
North American program, refer to the HP website (http://www.hp.com/go/selfrepair).
Parts only warranty service
Your HP Limited Warranty may include a parts only warranty service. Under the terms of parts only warranty
service, HP will provide replacement parts free of charge.
For parts only warranty service, CSR part replacement is mandatory. If you request HP to replace these parts,
you will be charged for the travel and labor costs of this service.
Réparation par le client (CSR)
Les produits HP comportent de nombreuses pièces CSR (Customer Self Repair = réparation par le client) afin
de minimiser les délais de réparation et faciliter le remplacement des pièces défectueuses. Si pendant la
période de diagnostic, HP (ou ses partenaires ou mainteneurs agréés) détermine que la réparation peut être
effectuée à l'aide d'une pièce CSR, HP vous l'envoie directement. Il existe deux catégories de pièces CSR:
Customer self repair 7
Obligatoire - Pièces pour lesquelles la réparation par le client est obligatoire. Si vous demandez à HP de
remplacer ces pièces, les coûts de déplacement et main d'œuvre du service vous seront facturés.
Facultatif - Pièces pour lesquelles la réparation par le client est facultative. Ces pièces sont également
conçues pour permettre au client d'effectuer lui-même la réparation. Toutefois, si vous demandez à HP de
remplacer ces pièces, l'intervention peut ou non vous être facturée, selon le type de garantie applicable à
votre produit.
REMARQUE: Certaines pièces HP ne sont pas conçues pour permettre au client d'effectuer lui-même la
réparation. Pour que la garantie puisse s'appliquer, HP exige que le remplacement de la pièce soit effectué
par un Mainteneur Agréé. Ces pièces sont identifiées par la mention "Non" dans le Catalogue illustré.
Les pièces CSR sont livrées le jour ouvré suivant, dans la limite des stocks disponibles et selon votre situation
géographique. Si votre situation géographique le permet et que vous demandez une livraison le jour même
ou dans les 4 heures, celle-ci vous sera facturée. Pour bénéficier d'une assistance téléphonique, appelez le
Centre d'assistance technique HP. Dans les documents envoyés avec la pièce de rechange CSR, HP précise
s'il est nécessaire de lui retourner la pièce défectueuse. Si c'est le cas, vous devez le faire dans le délai
indiqué, généralement cinq (5) jours ouvrés. La pièce et sa documentation doivent être retournées dans
l'emballage fourni. Si vous ne retournez pas la pièce défectueuse, HP se réserve le droit de vous facturer les
coûts de remplacement. Dans le cas d'une pièce CSR, HP supporte l'ensemble des frais d'expédition et de
retour, et détermine la société de courses ou le transporteur à utiliser.
Pour plus d'informations sur le programme CSR de HP, contactez votre Mainteneur Agrée local. Pour plus
d'informations sur ce programme en Amérique du Nord, consultez le site Web HP
(http://www.hp.com/go/selfrepair).
Service de garantie "pièces seules"
Votre garantie limitée HP peut inclure un service de garantie "pièces seules". Dans ce cas, les pièces de
rechange fournies par HP ne sont pas facturées.
Dans le cadre de ce service, la réparation des pièces CSR par le client est obligatoire. Si vous demandez à
HP de remplacer ces pièces, les coûts de déplacement et main d'œuvre du service vous seront facturés.
Riparazione da parte del cliente
Per abbreviare i tempi di riparazione e garantire una maggiore flessibilità nella sostituzione di parti
difettose, i prodotti HP sono realizzati con numerosi componenti che possono essere riparati direttamente
dal cliente (CSR, Customer Self Repair). Se in fase di diagnostica HP (o un centro di servizi o di assistenza
HP) identifica il guasto come riparabile mediante un ricambio CSR, HP lo spedirà direttamente al cliente per
la sostituzione. Vi sono due categorie di parti CSR:
Obbligatorie – Parti che devono essere necessariamente riparate dal cliente. Se il cliente ne affida la
riparazione ad HP, deve sostenere le spese di spedizione e di manodopera per il servizio.
Opzionali – Parti la cui riparazione da parte del cliente è facoltativa. Si tratta comunque di componenti
progettati per questo scopo. Se tuttavia il cliente ne richiede la sostituzione ad HP, potrebbe dover sostenere
spese addizionali a seconda del tipo di garanzia previsto per il prodotto.
NOTA: alcuni componenti HP non sono progettati per la riparazione da parte del cliente. Per rispettare la
garanzia, HP richiede che queste parti siano sostituite da un centro di assistenza autorizzato. Tali parti sono
identificate da un "No" nel Catalogo illustrato dei componenti.
Customer self repair 8
In base alla disponibilità e alla località geografica, le parti CSR vengono spedite con consegna entro il
giorno lavorativo seguente. La consegna nel giorno stesso o entro quattro ore è offerta con un supplemento
di costo solo in alcune zone. In caso di necessità si può richiedere l'assistenza telefonica di un addetto del
centro di supporto tecnico HP. Nel materiale fornito con una parte di ricambio CSR, HP specifica se il cliente
deve restituire dei componenti. Qualora sia richiesta la resa ad HP del componente difettoso, lo si deve
spedire ad HP entro un determinato periodo di tempo, generalmente cinque (5) giorni lavorativi. Il
componente difettoso deve essere restituito con la documentazione associata nell'imballo di spedizione
fornito. La mancata restituzione del componente può comportare la fatturazione del ricambio da parte di HP.
Nel caso di riparazione da parte del cliente, HP sostiene tutte le spese di spedizione e resa e sceglie il
corriere/vettore da utilizzare.
Per ulteriori informazioni sul programma CSR di HP contattare il centro di assistenza di zona. Per il
programma in Nord America fare riferimento al sito Web HP (http://www.hp.com/go/selfrepair).
Servizio di garanzia per i soli componenti
La garanzia limitata HP può includere un servizio di garanzia per i soli componenti. Nei termini di garanzia
del servizio per i soli componenti, HP fornirà gratuitamente le parti di ricambio.
Per il servizio di garanzia per i soli componenti è obbligatoria la formula CSR che prevede la riparazione da
parte del cliente. Se il cliente invece richiede la sostituzione ad HP, dovrà sostenere le spese di spedizione
e di manodopera per il servizio.
Customer Self Repair
HP Produkte enthalten viele CSR-Teile (Customer Self Repair), um Reparaturzeiten zu minimieren und höhere
Flexibilität beim Austausch defekter Bauteile zu ermöglichen. Wenn HP (oder ein HP Servicepartner) bei der
Diagnose feststellt, dass das Produkt mithilfe eines CSR-Teils repariert werden kann, sendet Ihnen HP dieses
Bauteil zum Austausch direkt zu. CSR-Teile werden in zwei Kategorien unterteilt:
Zwingend – Teile, für die das Customer Self Repair-Verfahren zwingend vorgegeben ist. Wenn Sie den
Austausch dieser Teile von HP vornehmen lassen, werden Ihnen die Anfahrt- und Arbeitskosten für diesen
Service berechnet.
Optional – Teile, für die das Customer Self Repair-Verfahren optional ist. Diese Teile sind auch für Customer
Self Repair ausgelegt. Wenn Sie jedoch den Austausch dieser Teile von HP vornehmen lassen möchten,
können bei diesem Service je nach den für Ihr Produkt vorgesehenen Garantiebedingungen zusätzliche
Kosten anfallen.
HINWEIS: Einige Teile sind nicht für Customer Self Repair ausgelegt. Um den Garantieanspruch des
Kunden zu erfüllen, muss das Teil von einem HP Servicepartner ersetzt werden. Im illustrierten Teilekatalog
sind diese Teile mit „No“ bzw. „Nein“ gekennzeichnet.
CSR-Teile werden abhängig von der Verfügbarkeit und vom Lieferziel am folgenden Geschäftstag geliefert.
Für bestimmte Standorte ist eine Lieferung am selben Tag oder innerhalb von vier Stunden gegen einen
Aufpreis verfügbar. Wenn Sie Hilfe benötigen, können Sie das HP technische Support Center anrufen und
sich von einem Mitarbeiter per Telefon helfen lassen. Den Materialien, die mit einem CSR-Ersatzteil geliefert
werden, können Sie entnehmen, ob das defekte Teil an HP zurückgeschickt werden muss. Wenn es
erforderlich ist, das defekte Teil an HP zurückzuschicken, müssen Sie dies innerhalb eines vorgegebenen
Zeitraums tun, in der Regel innerhalb von fünf (5) Geschäftstagen. Das defekte Teil muss mit der zugehörigen
Dokumentation in der Verpackung zurückgeschickt werden, die im Lieferumfang enthalten ist. Wenn Sie das
Customer self repair 9
defekte Teil nicht zurückschicken, kann HP Ihnen das Ersatzteil in Rechnung stellen. Im Falle von Customer
Self Repair kommt HP für alle Kosten für die Lieferung und Rücksendung auf und bestimmt den
Kurier-/Frachtdienst.
Weitere Informationen über das HP Customer Self Repair Programm erhalten Sie von Ihrem Servicepartner
vor Ort. Informationen über das CSR-Programm in Nordamerika finden Sie auf der HP Website unter
(http://www.hp.com/go/selfrepair).
Parts-only Warranty Service (Garantieservice
ausschließlich für Teile)
Ihre HP Garantie umfasst möglicherweise einen Parts-only Warranty Service (Garantieservice ausschließlich
für Teile). Gemäß den Bestimmungen des Parts-only Warranty Service stellt HP Ersatzteile kostenlos zur
Verfügung.
Für den Parts-only Warranty Service ist das CSR-Verfahren zwingend vorgegeben. Wenn Sie den Austausch
dieser Teile von HP vornehmen lassen, werden Ihnen die Anfahrt- und Arbeitskosten für diesen Service
berechnet.
Reparaciones del propio cliente
Los productos de HP incluyen muchos componentes que el propio usuario puede reemplazar (Customer Self
Repair, CSR) para minimizar el tiempo de reparación y ofrecer una mayor flexibilidad a la hora de realizar
sustituciones de componentes defectuosos. Si, durante la fase de diagnóstico, HP (o los proveedores o socios
de servicio de HP) identifica que una reparación puede llevarse a cabo mediante el uso de un componente
CSR, HP le enviará dicho componente directamente para que realice su sustitución. Los componentes CSR se
clasifican en dos categorías:
• Obligatorio: componentes para los que la reparación por parte del usuario es obligatoria. Si solicita a
HP que realice la sustitución de estos componentes, tendrá que hacerse cargo de los gastos de
desplazamiento y de mano de obra de dicho servicio.
• Opcional: componentes para los que la reparación por parte del usuario es opcional. Estos
componentes también están diseñados para que puedan ser reparados por el usuario. Sin embargo, si
precisa que HP realice su sustitución, puede o no conllevar costes adicionales, dependiendo del tipo de
servicio de garantía correspondiente al producto.
NOTA: Algunos componentes no están diseñados para que puedan ser reparados por el usuario. Para que
el usuario haga valer su garantía, HP pone como condición que un proveedor de servicios autorizado
realice la sustitución de estos componentes. Dichos componentes se identifican con la palabra "No" en el
catálogo ilustrado de componentes.
Según la disponibilidad y la situación geográfica, los componentes CSR se enviarán para que lleguen a su
destino al siguiente día laborable. Si la situación geográfica lo permite, se puede solicitar la entrega en el
mismo día o en cuatro horas con un coste adicional. Si precisa asistencia técnica, puede llamar al Centro de
asistencia técnica de HP y recibirá ayuda telefónica por parte de un técnico. Con el envío de materiales
para la sustitución de componentes CSR, HP especificará si los componentes defectuosos deberán
devolverse a HP. En aquellos casos en los que sea necesario devolver algún componente a HP, deberá
hacerlo en el periodo de tiempo especificado, normalmente cinco días laborables. Los componentes
defectuosos deberán devolverse con toda la documentación relacionada y con el embalaje de envío. Si no
Customer self repair 10
enviara el componente defectuoso requerido, HP podrá cobrarle por el de sustitución. En el caso de todas
sustituciones que lleve a cabo el cliente, HP se hará cargo de todos los gastos de envío y devolución de
componentes y escogerá la empresa de transporte que se utilice para dicho servicio.
Para obtener más información acerca del programa de Reparaciones del propio cliente de HP, póngase en
contacto con su proveedor de servicios local. Si está interesado en el programa para Norteamérica, visite
la página web de HP siguiente (http://www.hp.com/go/selfrepair).
Servicio de garantía exclusivo de componentes
La garantía limitada de HP puede que incluya un servicio de garantía exclusivo de componentes. Según las
condiciones de este servicio exclusivo de componentes, HP le facilitará los componentes de repuesto sin
cargo adicional alguno.
Para este servicio de garantía exclusivo de componentes, es obligatoria la sustitución de componentes por
parte del usuario (CSR). Si solicita a HP que realice la sustitución de estos componentes, tendrá que hacerse
cargo de los gastos de desplazamiento y de mano de obra de dicho servicio.
Customer Self Repair
Veel onderdelen in HP producten zijn door de klant zelf te repareren, waardoor de reparatieduur tot een
minimum beperkt kan blijven en de flexibiliteit in het vervangen van defecte onderdelen groter is. Deze
onderdelen worden CSR-onderdelen (Customer Self Repair) genoemd. Als HP (of een HP Service Partner) bij
de diagnose vaststelt dat de reparatie kan worden uitgevoerd met een CSR-onderdeel, verzendt HP dat
onderdeel rechtstreeks naar u, zodat u het defecte onderdeel daarmee kunt vervangen. Er zijn twee
categorieën CSR-onderdelen:
Verplicht: Onderdelen waarvoor reparatie door de klant verplicht is. Als u HP verzoekt deze onderdelen
voor u te vervangen, worden u voor deze service reiskosten en arbeidsloon in rekening gebracht.
Optioneel: Onderdelen waarvoor reparatie door de klant optioneel is. Ook deze onderdelen zijn ontworpen
voor reparatie door de klant. Als u echter HP verzoekt deze onderdelen voor u te vervangen, kunnen
daarvoor extra kosten in rekening worden gebracht, afhankelijk van het type garantieservice voor het
product.
OPMERKING: Sommige HP onderdelen zijn niet ontwikkeld voor reparatie door de klant. In verband met
de garantievoorwaarden moet het onderdeel door een geautoriseerde Service Partner worden vervangen.
Deze onderdelen worden in de geïllustreerde onderdelencatalogus aangemerkt met "Nee".
Afhankelijk van de leverbaarheid en de locatie worden CSR-onderdelen verzonden voor levering op de
eerstvolgende werkdag. Levering op dezelfde dag of binnen vier uur kan tegen meerkosten worden
aangeboden, indien dit mogelijk is gezien de locatie. Indien assistentie gewenst is, belt u een HP Service
Partner om via de telefoon technische ondersteuning te ontvangen. HP vermeldt in de documentatie bij het
vervangende CSR-onderdeel of het defecte onderdeel aan HP moet worden geretourneerd. Als het defecte
onderdeel aan HP moet worden teruggezonden, moet u het defecte onderdeel binnen een bepaalde
periode, gewoonlijk vijf (5) werkdagen, retourneren aan HP. Het defecte onderdeel moet met de
bijbehorende documentatie worden geretourneerd in het meegeleverde verpakkingsmateriaal. Als u het
defecte onderdeel niet terugzendt, kan HP u voor het vervangende onderdeel kosten in rekening brengen. Bij
reparatie door de klant betaalt HP alle verzendkosten voor het vervangende en geretourneerde onderdeel en
kiest HP zelf welke koerier/transportonderneming hiervoor wordt gebruikt.
Customer self repair 11
Neem contact op met een Service Partner voor meer informatie over het Customer Self Repair programma
van HP. Informatie over Service Partners vindt u op de HP website (http://www.hp.com/go/selfrepair).
Garantieservice "Parts Only"
Het is mogelijk dat de HP garantie alleen de garantieservice "Parts Only" omvat. Volgens de bepalingen van
de Parts Only garantieservice zal HP kosteloos vervangende onderdelen ter beschikking stellen.
Voor de Parts Only garantieservice is vervanging door CSR-onderdelen verplicht. Als u HP verzoekt deze
onderdelen voor u te vervangen, worden u voor deze service reiskosten en arbeidsloon in rekening
gebracht.
Reparo feito pelo cliente
Os produtos da HP são projetados com muitas peças para reparo feito pelo cliente (CSR) de modo a
minimizar o tempo de reparo e permitir maior flexibilidade na substituição de peças com defeito. Se,
durante o período de diagnóstico, a HP (ou fornecedores/parceiros de serviço da HP) concluir que o reparo
pode ser efetuado pelo uso de uma peça CSR, a peça de reposição será enviada diretamente ao cliente.
Existem duas categorias de peças CSR:
Obrigatória – Peças cujo reparo feito pelo cliente é obrigatório. Se desejar que a HP substitua essas peças,
serão cobradas as despesas de transporte e mão-de-obra do serviço.
Opcional – Peças cujo reparo feito pelo cliente é opcional. Essas peças também são projetadas para o
reparo feito pelo cliente. No entanto, se desejar que a HP as substitua, pode haver ou não a cobrança de
taxa adicional, dependendo do tipo de serviço de garantia destinado ao produto.
OBSERVAÇÃO: Algumas peças da HP não são projetadas para o reparo feito pelo cliente. A fim de
cumprir a garantia do cliente, a HP exige que um técnico autorizado substitua a peça. Essas peças estão
identificadas com a marca "No" (Não), no catálogo de peças ilustrado.
Conforme a disponibilidade e o local geográfico, as peças CSR serão enviadas no primeiro dia útil após o
pedido. Onde as condições geográficas permitirem, a entrega no mesmo dia ou em quatro horas pode ser
feita mediante uma taxa adicional. Se precisar de auxílio, entre em contato com o Centro de suporte técnico
da HP para que um técnico o ajude por telefone. A HP especifica nos materiais fornecidos com a peça CSR
de reposição se a peça com defeito deve ser devolvida à HP. Nos casos em que isso for necessário, é
preciso enviar a peça com defeito à HP dentro do período determinado, normalmente cinco (5) dias úteis.
A peça com defeito deve ser enviada com a documentação correspondente no material de transporte
fornecido. Caso não o faça, a HP poderá cobrar a reposição. Para as peças de reparo feito pelo cliente, a
HP paga todas as despesas de transporte e de devolução da peça e determina a transportadora/serviço
postal a ser utilizado.
Para obter mais informações sobre o programa de reparo feito pelo cliente da HP, entre em contato com o
fornecedor de serviços local. Para o programa norte-americano, visite o site da HP
(http://www.hp.com/go/selfrepair).
Serviço de garantia apenas para peças
A garantia limitada da HP pode incluir um serviço de garantia apenas para peças. Segundo os termos do
serviço de garantia apenas para peças, a HP fornece as peças de reposição sem cobrar nenhuma taxa.

Customer self repair 12
No caso desse serviço, a substituição de peças CSR é obrigatória. Se desejar que a HP substitua essas
peças, serão cobradas as despesas de transporte e mão-de-obra do serviço.

Customer self repair 13

Customer self repair 14

Customer self repair 15

Illustrated parts catalog 16
Illustrated parts catalog
Mechanical components
Item Description Spare part number Customer self repair
(on page
6
)
1 Access panel 610525-001 Mandatory1
2 Power supply cage 496063-001 Mandatory1
3 Fan cage 496067-001 Mandatory1
4 Optical drive cage 496076-001 Mandatory1
5
SFF drive cage
496074-001
Mandatory
1
6 PCI riser cage 614778-001 Mandatory1
7 Air baffle 599039-001 Mandatory1
8 Bezels — —
a) Right bezel 507689-001 Mandatory1
b) Left bezel 496080-001 Mandatory1
9
LFF drive cage*
496075-001
Mandatory
1
10 Drive blank* 392613-001 Mandatory1
11 Power supply blank* 409417-002 Mandatory1
12 Heatsink* — —
a) Processor heatsink kit 496064-001 Optional2
b) Thermal kit (cleaning pad and thermal 468290-001 Optional2

Illustrated parts catalog 17
Item Description Spare part number Customer self repair
(on page
6
)
grease)
13 Hardware kit* 496058-001 Mandatory1
a) Optical device blank — —
b) Fan blank — —
c) Full-length expansion slot cover — —
d) Low-profile expansion slot cover — —
e) PCI retainer — —
f) PCI top retainer — —
g) PCI end retainer — —
h) PCI removable retainer — —
* Not shown
1Mandatory—Parts for which customer self repair is mandatory. If you request HP to replace these parts, you will be
charged for the travel and labor costs of this service.
2Optional—Parts for which customer self repair is optional. These parts are also designed for customer self repair. If,
however, you require that HP replace them for you, there may or may not be additional charges, depending on the type
of warranty service designated for your product.
3No—Some HP parts are not designed for customer self repair. In order to satisfy the customer warranty, HP requires that
an authorized service provider replace the part. These parts are identified as "No" in the Illustrated Parts Catalog.
1Mandatory: Obligatoire—Pièces pour lesquelles la réparation par le client est obligatoire. Si vous demandez à HP de
remplacer ces pièces, les coûts de déplacement et main d'œuvre du service vous seront facturés.
2Optional: Facultatif—Pièces pour lesquelles la réparation par le client est facultative. Ces pièces sont également
conçues pour permettre au client d'effectuer lui-même la réparation. Toutefois, si vous demandez à HP de remplacer ces
pièces, l'intervention peut ou non vous être facturée, selon le type de garantie applicable à votre produit.
3No: Non—Certaines pièces HP ne sont pas conçues pour permettre au client d'effectuer lui-même la réparation. Pour
que la garantie puisse s'appliquer, HP exige que le remplacement de la pièce soit effectué par un Mainteneur Agréé. Ces
pièces sont identifiées par la mention “Non” dans le Catalogue illustré.
1Mandatory: Obbligatorie—Parti che devono essere necessariamente riparate dal cliente. Se il cliente ne affida la
riparazione ad HP, deve sostenere le spese di spedizione e di manodopera per il servizio.
2Optional: Opzionali—Parti la cui riparazione da parte del cliente è facoltativa. Si tratta comunque di componenti
progettati per questo scopo. Se tuttavia il cliente ne richiede la sostituzione ad HP, potrebbe dover sostenere spese
addizionali a seconda del tipo di garanzia previsto per il prodotto.
3No: Non CSR—Alcuni componenti HP non sono progettati per la riparazione da parte del cliente. Per rispettare la
garanzia, HP richiede che queste parti siano sostituite da un centro di assistenza autorizzato. Tali parti sono identificate
da un “No” nel Catalogo illustrato dei componenti.
1Mandatory: Zwingend—Teile, die im Rahmen des Customer Self Repair Programms ersetzt werden müssen. Wenn Sie
diese Teile von HP ersetzen lassen, werden Ihnen die Versand- und Arbeitskosten für diesen Service berechnet.
2Optional: Optional—Teile, für die das Customer Self Repair-Verfahren optional ist. Diese Teile sind auch für Customer
Self Repair ausgelegt. Wenn Sie jedoch den Austausch dieser Teile von HP vornehmen lassen möchten, können bei
diesem Service je nach den für Ihr Produkt vorgesehenen Garantiebedingungen zusätzliche Kosten anfallen.
3No: Kein—Einige Teile sind nicht für Customer Self Repair ausgelegt. Um den Garantieanspruch des Kunden zu erfüllen,
muss das Teil von einem HP Servicepartner ersetzt werden. Im illustrierten Teilekatalog sind diese Teile mit „No“ bzw.
„Nein“ gekennzeichnet.
1Mandatory: Obligatorio—componentes para los que la reparación por parte del usuario es obligatoria. Si solicita a HP
que realice la sustitución de estos componentes, tendrá que hacerse cargo de los gastos de desplazamiento y de mano
de obra de dicho servicio.

Illustrated parts catalog 18
2Optional: Opcional— componentes para los que la reparación por parte del usuario es opcional. Estos componentes
también están diseñados para que puedan ser reparados por el usuario. Sin embargo, si precisa que HP realice su
sustitución, puede o no conllevar costes adicionales, dependiendo del tipo de servicio de garantía correspondiente al
producto.
3No: No—Algunos componentes no están diseñados para que puedan ser reparados por el usuario. Para que el usuario
haga valer su garantía, HP pone como condición que un proveedor de servicios autorizado realice la sustitución de estos
componentes. Dichos componentes se identifican con la palabra “No” en el catálogo ilustrado de componentes.
1Mandatory: Verplicht—Onderdelen waarvoor Customer Self Repair verplicht is. Als u HP verzoekt deze onderdelen te
vervangen, komen de reiskosten en het arbeidsloon voor uw rekening.
2Optional: Optioneel—Onderdelen waarvoor reparatie door de klant optioneel is. Ook deze onderdelen zijn
ontworpen voor reparatie door de klant. Als u echter HP verzoekt deze onderdelen voor u te vervangen, kunnen
daarvoor extra kosten in rekening worden gebracht, afhankelijk van het type garantieservice voor het product.
3No: Nee—Sommige HP onderdelen zijn niet ontwikkeld voor reparatie door de klant. In verband met de
garantievoorwaarden moet het onderdeel door een geautoriseerde Service Partner worden vervangen. Deze
onderdelen worden in de geïllustreerde onderdelencatalogus aangemerkt met "Nee".
1Mandatory: Obrigatória—Peças cujo reparo feito pelo cliente é obrigatório. Se desejar que a HP substitua essas peças,
serão cobradas as despesas de transporte e mão-de-obra do serviço.
2Optional: Opcional—Peças cujo reparo feito pelo cliente é opcional. Essas peças também são projetadas para o
reparo feito pelo cliente. No entanto, se desejar que a HP as substitua, pode haver ou não a cobrança de taxa
adicional, dependendo do tipo de serviço de garantia destinado ao produto.
3No: Nenhuma—Algumas peças da HP não são projetadas para o reparo feito pelo cliente. A fim de cumprir a garantia
do cliente, a HP exige que um técnico autorizado substitua a peça. Essas peças estão identificadas com a marca “No”
(Não), no catálogo de peças ilustrado.

Illustrated parts catalog 19
System components
Item Description Spare part number Customer self repair (on
page
6
)
System components
14 Hot-plug fan, 60-mm 496066-001 Mandatory1
15 Power supplies, hot-plug — —
a) 460-W, AC 511777-001 Mandatory1
b) 750-W, AC* 511778-001 Mandatory1
c) 1200-W, -48VDC* 451816-001 Mandatory1
d) 450-W HE 94%* 599381-001 Mandatory1
e) 750-W HE 94%* 599383-001 Mandatory1
f) 1200-W HE 94%* 579229-001 Mandatory1
Boards
16 System board assembly 599038-001 Optional2
17 Riser boards — —
a) PCI riser board 496057-001 Optional2
b) PCI-X riser board* 496077-001 Optional2
c) PCIe riser board* 496078-001 Optional2
18 Power supply backplane 496062-001 Mandatory1
19 Systems Insight Display subassembly 496073-001 Optional2
20 HP Trusted Platform Module 505836-001 No3
21 SFF SAS backplane 507690-001 Optional2
22 LFF SAS backplane* 496079-001 Optional2
23 SAS controller board* 462919-001 Mandatory1
24 HP Smart Array P410i cache module* 462975-001 Mandatory1
Memory
25 RDIMM* — —

Illustrated parts catalog 20
Item Description Spare part number Customer self repair (on
page
6
)
a) PC3-8500 (DDR3-1066), 4-GB (RoHS) 4R kit
501535-001
Mandatory
1
b) PC3-8500 (DDR3-1066), 8-GB (RoHS) 4R kit 519201-001 Mandatory1
c) PC3-8500 (DDR3-1066), 8-GB (RoHS) 2R kit 501537-001 Mandatory1
d) PC3-10600 (DDR3-1333), 2-GB (RoHS) 2R kit 501533-001 Mandatory1
e) PC3-10600 (DDR3-1333), 4-GB (RoHS) 2R kit 501534-001 Mandatory1
f) PC3-10600R (DDR3-1333), 4-GB (RoHS) 9R kit 595424-001 Mandatory1
g) PC3 10600R (DDR3-1333), 8-GB (RoHS) 501536-001 Mandatory1
26 UDIMM* — —
a) PC3-10600 (DDR3-1333), 1-GB (RoHS) 501539-001 Mandatory1
b) PC3-10600 (DDR3-1333), 2-GB (RoHS) 501540-001 Mandatory1
c) PC3-10600E (DDR3-1333), 4-GB (RoHS) 501541-001 Mandatory1
27 LV DIMM* ** — —
a) PC3L-8500R, 4-GB 595422-001 Mandatory1
b) PC3L-8500R, 8-GB 595423-001 Mandatory1
c) PC3L-10600R, 4-GB 606426-001 Mandatory1
d) PC3L-10600R, 8-GB 606427-001 Mandatory1
28 Processors* † — —
a) 2.13-GHz Intel Xeon processor L5630 594891-001 Optional2
b) 2.13-GHz Intel Xeon processor E5506 506013-001 Optional2
c) 2.26-GHz Intel Xeon processor L5640 594890-001 Optional2
d) 2.40-GHz Intel Xeon processor E5620 594887-001 Optional2
e) 2.53-GHz Intel Xeon processor E5630 594886-001 Optional2
f) 2.66-GHz Intel Xeon processor E5640 594885-001 Optional2
g) 2.66-GHz Intel Xeon processor X5650 594884-001 Optional2
h) 2.80-GHz Intel Xeon processor X5660 594883-001 Optional2
i) 2.93-GHz Intel Xeon processor X5670 594882-001 Optional2
j) 3.33-GHz Intel Xeon processor X5680 614739-001 Optional2
k) 3.46-GHz Intel Xeon processor X5677 594881-001 Optional2
l) 2.00-GHz Intel Xeon processor E5503 594889-001 Optional2
m) 3.60-GHz Intel Xeon processor X5687 638137-001 Optional2
n) 3.46-GHz Intel Xeon processor X5690 638136-001 Optional2
o) 3.06-GHz Intel Xeon processor X5675 638134-001 Optional2
p) 3.20-GHz Intel Xeon processor X5672 638135-001 Optional2
q) 2.53-GHz Intel Xeon processor E5649 628695-001 Optional2
r) 2.40-GHz Intel Xeon processor E5645 628696-001 Optional2

Illustrated parts catalog 21
Item Description Spare part number Customer self repair (on
page
6
)
s) 2.13-GHz Intel Xeon processor E5606
628699-001
Optional
2
t) 1.60-GHz Intel Xeon processor E5603 628700-001 Optional2
Drives
29 Hot-plug SFF SAS* — —
a) 36-GB, 15,000-rpm, dual-port 418397-001 Mandatory1
b) 72-GB, 10,000-rpm, dual-port 389346-001 Mandatory1
c) 72-GB, 15,000-rpm, dual-port 418398-001 Mandatory1
d) 146-GB, 10,000-rpm, dual-port, 6G 507283-001 Mandatory1
e) 146-GB, 10,000-rpm, dual-port 418399-001 Mandatory1
f) 146-GB, 15,000-rpm, dual-port 504334-001 Mandatory1
g) 300-GB, 10,000-rpm, dual-port, 6G
507284-001
Mandatory
1
h) 300-GB, 10,000-rpm, dual-port 493083-001 Mandatory1
30 Hot-plug SFF SATA* — —
a) 120-GB, 5,400-rpm, 1-year warranty 459322-001 Mandatory1
b) 250-GB, 5,400-rpm, 1-year warranty 460426-001 Mandatory1
31 Hot-plug LFF SAS* — —
a) 72-GB, 15,000-rpm, dual-port 389343-001 Mandatory1
b) 146-GB, 15,000-rpm, dual-port 488058-001 Mandatory1
c) 300-GB, 15,000-rpm, dual-port, enterprise 488060-001 Mandatory1
d) 400-GB, 10,000-rpm, dual-port 456896-001 Mandatory1
e) 450-GB,15,000-rpm, dual-port 454274-001 Mandatory1
f) 750-GB, 7200-rpm, dual-port, 1-year warranty 461288-001 Mandatory1
g) 1-TB, 7200-rpm, dual-port, 1-year warranty 461289-001 Mandatory1
32 Hot-plug LFF SATA* — —
a) 160-GB, 7200-rpm, 1-year warranty 483095-001 Mandatory1
b) 250-GB, 7,200-rpm, 3G 459318-001 Mandatory1
c) 500-GB, 7,200-rpm, 1-year warranty 459319-001 Mandatory1
d) 750-GB, 7,200-rpm, 1-year warranty 459320-001 Mandatory1
e) 1-TB, 7200-rpm, 1-year warranty 454273-001 Mandatory1
Optical drives
33 Slimline CD-ROM drive* 399401-001 Mandatory1
34 Slimline 8x/24x DVD-ROM drive* 397928-001 Mandatory1
35 Slimline 24x CD-RW/DVD-ROM drive* 399959-001 Mandatory1
36 Slimline 8x DVD+R/RW drive* 399402-001 Mandatory1
Cables
37 SAS backplane cable* 496070-001 Mandatory1

Illustrated parts catalog 22
Item Description Spare part number Customer self repair (on
page
6
)
38
Optical drive data and power cable*
496071-001
Mandatory
1
39 AC power cord* 142258-001 Mandatory1
40 HP Smart Array P410i cache module battery
cable* 488137-001 Mandatory1
41 Battery cable, 24 in.* 488138-001 Mandatory1
42 SATA to Mini-SAS cable, 24 in.* 626597-001 Mandatory1
Batteries — —
43 System battery, 3.3-V, lithium* 153099-001 Mandatory1
44 Smart Array P410i cache module battery pack* 462976-001 Optional2
45 Capacitor pack* 587324-001 Optional2
Rack Mounting Hardware Kit — —
46 a) LFF* 574898-001 Optional2
b) SFF* 574765-001 Optional2
47 Full-length expansion board shipping bracket* 618597-001 Mandatory1
Heatsink
48 Processor heatsink 496064-001 Optional2
Controller option
49 FBWC module, with 1-GB cable 505908-001 Mandatory1
*Not shown
**If LVDIMMs are mixed with standard DDR3 DIMMs on the same server, the LVDIMMs operate at 1.5V. LVDIMMs are
only supported for use with the Intel® Xeon® 5600 series of processors.
†All processors in this HP ProLiant server must have the same cache size, speed, number of cores, and rated maximum
power consumption.
1Mandatory—Parts for which customer self repair is mandatory. If you request HP to replace these parts, you will be
charged for the travel and labor costs of this service.
2Optional—Parts for which customer self repair is optional. These parts are also designed for customer self repair. If,
however, you require that HP replace them for you, there may or may not be additional charges, depending on the type
of warranty service designated for your product.
3No—Some HP parts are not designed for customer self repair. In order to satisfy the customer warranty, HP requires that
an authorized service provider replace the part. These parts are identified as "No" in the Illustrated Parts Catalog.
1Mandatory: Obligatoire—Pièces pour lesquelles la réparation par le client est obligatoire. Si vous demandez à HP de
remplacer ces pièces, les coûts de déplacement et main d'œuvre du service vous seront facturés.
2Optional: Facultatif—Pièces pour lesquelles la réparation par le client est facultative. Ces pièces sont également
conçues pour permettre au client d'effectuer lui-même la réparation. Toutefois, si vous demandez à HP de remplacer ces
pièces, l'intervention peut ou non vous être facturée, selon le type de garantie applicable à votre produit.
3No: Non—Certaines pièces HP ne sont pas conçues pour permettre au client d'effectuer lui-même la réparation. Pour
que la garantie puisse s'appliquer, HP exige que le remplacement de la pièce soit effectué par un Mainteneur Agréé. Ces
pièces sont identifiées par la mention “Non” dans le Catalogue illustré.
1Mandatory: Obbligatorie—Parti che devono essere necessariamente riparate dal cliente. Se il cliente ne affida la
riparazione ad HP, deve sostenere le spese di spedizione e di manodopera per il servizio.
2Optional: Opzionali—Parti la cui riparazione da parte del cliente è facoltativa. Si tratta comunque di componenti
progettati per questo scopo. Se tuttavia il cliente ne richiede la sostituzione ad HP, potrebbe dover sostenere spese
addizionali a seconda del tipo di garanzia previsto per il prodotto.
Illustrated parts catalog 23
3No: Non CSR—Alcuni componenti HP non sono progettati per la riparazione da parte del cliente. Per rispettare la
garanzia, HP richiede che queste parti siano sostituite da un centro di assistenza autorizzato. Tali parti sono identificate
da un “No” nel Catalogo illustrato dei componenti.
1Mandatory: Zwingend—Teile, die im Rahmen des Customer Self Repair Programms ersetzt werden müssen. Wenn Sie
diese Teile von HP ersetzen lassen, werden Ihnen die Versand- und Arbeitskosten für diesen Service berechnet.
2Optional: Optional—Teile, für die das Customer Self Repair-Verfahren optional ist. Diese Teile sind auch für Customer
Self Repair ausgelegt. Wenn Sie jedoch den Austausch dieser Teile von HP vornehmen lassen möchten, können bei
diesem Service je nach den für Ihr Produkt vorgesehenen Garantiebedingungen zusätzliche Kosten anfallen.
3No: Kein—Einige Teile sind nicht für Customer Self Repair ausgelegt. Um den Garantieanspruch des Kunden zu erfüllen,
muss das Teil von einem HP Servicepartner ersetzt werden. Im illustrierten Teilekatalog sind diese Teile mit „No“ bzw.
„Nein“ gekennzeichnet.
1Mandatory: Obligatorio—componentes para los que la reparación por parte del usuario es obligatoria. Si solicita a HP
que realice la sustitución de estos componentes, tendrá que hacerse cargo de los gastos de desplazamiento y de mano
de obra de dicho servicio.
2Optional: Opcional— componentes para los que la reparación por parte del usuario es opcional. Estos componentes
también están diseñados para que puedan ser reparados por el usuario. Sin embargo, si precisa que HP realice su
sustitución, puede o no conllevar costes adicionales, dependiendo del tipo de servicio de garantía correspondiente al
producto.
3No: No—Algunos componentes no están diseñados para que puedan ser reparados por el usuario. Para que el usuario
haga valer su garantía, HP pone como condición que un proveedor de servicios autorizado realice la sustitución de estos
componentes. Dichos componentes se identifican con la palabra “No” en el catálogo ilustrado de componentes.
1Mandatory: Verplicht—Onderdelen waarvoor Customer Self Repair verplicht is. Als u HP verzoekt deze onderdelen te
vervangen, komen de reiskosten en het arbeidsloon voor uw rekening.
2Optional: Optioneel—Onderdelen waarvoor reparatie door de klant optioneel is. Ook deze onderdelen zijn
ontworpen voor reparatie door de klant. Als u echter HP verzoekt deze onderdelen voor u te vervangen, kunnen
daarvoor extra kosten in rekening worden gebracht, afhankelijk van het type garantieservice voor het product.
3No: Nee—Sommige HP onderdelen zijn niet ontwikkeld voor reparatie door de klant. In verband met de
garantievoorwaarden moet het onderdeel door een geautoriseerde Service Partner worden vervangen. Deze
onderdelen worden in de geïllustreerde onderdelencatalogus aangemerkt met "Nee".
1Mandatory: Obrigatória—Peças cujo reparo feito pelo cliente é obrigatório. Se desejar que a HP substitua essas peças,
serão cobradas as despesas de transporte e mão-de-obra do serviço.
2Optional: Opcional—Peças cujo reparo feito pelo cliente é opcional. Essas peças também são projetadas para o
reparo feito pelo cliente. No entanto, se desejar que a HP as substitua, pode haver ou não a cobrança de taxa
adicional, dependendo do tipo de serviço de garantia destinado ao produto.
3No: Nenhuma—Algumas peças da HP não são projetadas para o reparo feito pelo cliente. A fim de cumprir a garantia
do cliente, a HP exige que um técnico autorizado substitua a peça. Essas peças estão identificadas com a marca “No”
(Não), no catálogo de peças ilustrado.

Illustrated parts catalog 24

Removal and replacement procedures 25
Removal and replacement procedures
Required tools
You need the following items for some procedures:
• T-10/T-15 Torx screwdriver (included with the server)
• HP Insight Diagnostics software ("HP Insight Diagnostics" on page 82)
Preparation procedures
To access some components and perform certain service procedures, you must perform one or more of the
following procedures:
• Extend the server from the rack (on page 26).
If you are performing service procedures in an HP, Compaq branded, telco, or third-party rack cabinet,
you can use the locking feature of the rack rails to support the server and gain access to internal
components.
For more information about telco rack solutions, refer to the RackSolutions.com website
(http://www.racksolutions.com/hp).
• Power down the server (on page 25).
If you must remove a server from a rack or a non-hot-plug component from a server, power down the
server.
• Remove the server from the rack (on page 27).
If the rack environment, cabling configuration, or the server location in the rack creates awkward
conditions, remove the server from the rack.
• Access the product rear panel (on page 27).
If you are performing certain service procedures, access the product rear panel.
Power down the server
WARNING: To reduce the risk of personal injury, electric shock, or damage to the equipment,
remove the power cord to remove power from the server. The front panel Power On/Standby
button does not completely shut off system power. Portions of the power supply and some internal
circuitry remain active until AC power is removed.
IMPORTANT: If installing a hot-plug device, it is not necessary to power down the server.
1. Back up the server data.
2. Shut down the operating system as directed by the operating system documentation.

Removal and replacement procedures 26
NOTE: If the operating system automatically places the server in Standby mode, omit the next
step.
3. Press the Power On/Standby button to place the server in Standby mode. When the server activates
Standby power mode, the system power LED changes to amber.
IMPORTANT: Pressing the UID button illuminates the blue UID LEDs on the front and rear panels.
In a rack environment, this feature facilitates locating a server when moving between the front and
rear of the rack.
4. Disconnect the power cords.
The system is now without power.
Extend the server from the rack
1. Pull down the quick release levers on each side of the server.
2. Extend the server from the rack.
WARNING: To reduce the risk of personal injury or equipment damage, be sure that the rack is
adequately stabilized before extending a component from the rack.
3. After performing the installation or maintenance procedure, slide the server back into the rack, and then
press the server firmly into the rack to secure it in place.
WARNING: To reduce the risk of personal injury, be careful when pressing the server rail-release
latches and sliding the server into the rack. The sliding rails could pinch your fingers.

Removal and replacement procedures 27
Remove the server from the rack
To remove the server from an HP, Compaq branded, telco, or third-party rack:
1. Power down the server (on page 25).
2. Extend the server from the rack (on page 26).
3. Disconnect the cabling and remove the server from the rack. For more information, refer to the
documentation that ships with the rack mounting option.
4. Place the server on a sturdy, level surface.
Access the product rear panel
Cable management arm with left-hand swing
To access the server rear panel:

Removal and replacement procedures 28
1. Remove the cable arm retainer.
2. Open the cable management arm.
Cable management arm with right-hand swing
NOTE: To access some components, you may need to remove the cable management arm.
To access the product rear panel components, open the cable management arm:
1. Power down the server (on page 25).
2. Swing open the cable management arm.
3. Remove the cables from the cable trough.

Removal and replacement procedures 29
4. Remove the cable management arm.
Safety considerations
Before performing service procedures, review all the safety information.
Preventing electrostatic discharge
To prevent damaging the system, be aware of the precautions you need to follow when setting up the system
or handling parts. A discharge of static electricity from a finger or other conductor may damage system
boards or other static-sensitive devices. This type of damage may reduce the life expectancy of the device.
To prevent electrostatic damage:
• Avoid hand contact by transporting and storing products in static-safe containers.
• Keep electrostatic-sensitive parts in their containers until they arrive at static-free workstations.
• Place parts on a grounded surface before removing them from their containers.
• Avoid touching pins, leads, or circuitry.
• Always be properly grounded when touching a static-sensitive component or assembly.
Server warnings and cautions
Before installing a server, be sure that you understand the following warnings and cautions.

Removal and replacement procedures 30
WARNING: To reduce the risk of electric shock or damage to the equipment:
• Do not disable the power cord grounding plug. The grounding plug is an important safety
feature.
•
Plug the power cord into a grounded (earthed) electrical outlet that is easily accessible at all
times.
• Unplug the power cord from the power supply to disconnect power to the equipment.
• Do not route the power cord where it can be walked on or pinched by items placed against it.
Pay particular attention to the plug, electrical outlet, and the point where the cord extends from
the server.
WARNING: To reduce the risk of personal injury from hot surfaces, allow the drives and the
internal system components to cool before touching them.
CAUTION: Do not operate the server for long periods with the access panel open or removed.
Operating the server in this manner results in improper airflow and improper cooling that can
lead to thermal damage.
HP Trusted Platform Module
The TPM is not a customer-removable part.
CAUTION: Any attempt to remove an installed TPM from the system board breaks or disfigures
the TPM security rivet. Upon locating a broken or disfigured rivet on an installed TPM,
administrators should consider the system compromised and take appropriate measures to ensure
the integrity of the system data.
If you suspect a TPM board failure, leave the TPM installed and remove the system board. Contact an HP
authorized service provider for a replacement system board and TPM board.
Access panel
WARNING: To reduce the risk of personal injury from hot surfaces, allow the drives and the
internal system components to cool before touching them.
CAUTION: For proper cooling, do not operate the server without the access panel, baffles,
expansion slot covers, or blanks installed. If the server supports hot-plug components, minimize
the amount of time the access panel is open.
To remove the component:
1. Power down the server if performing a non-hot-plug installation or maintenance procedure ("Power
down the server" on page 25).
2. Extend the server from the rack (on page 26).
3. Use the T-15 Torx screwdriver attached to the rear of the server to loosen the security screw on the hood
latch.
4. Lift up on the hood latch handle, and then remove the access panel.
To replace the component, reverse the removal procedure.

Removal and replacement procedures 31
Air baffle
To remove the component:
CAUTION: For proper cooling, do not operate the server without the access panel, baffles,
expansion slot covers, or blanks installed. If the server supports hot-plug components, minimize
the amount of time the access panel is open.
1. Power down the server (on page 25).
2. Extend or remove the server from the rack ("Remove the server from the rack" on page 27, "Extend the
server from the rack" on page 26).
3. Remove the access panel ("Access panel" on page 30).
CAUTION: Do not detach the cable that connects the battery pack to the cache module.
Detaching the cable causes any unsaved data in the cache module to be lost.
4. Remove the battery pack from the air baffle ("Removing the battery pack" on page 49).
5. Remove the air baffle.
To replace the component, reverse the removal procedure.
Full-length expansion board shipping bracket
To remove the component:
CAUTION: To prevent damage to the server or expansion boards, power down the server and
remove all AC power cords before removing or installing the PCI riser cage.
1. Power down the server (on page 25).
2. Extend the server from the rack (on page 26).
3. Remove the access panel ("Access panel" on page 30).
4. Remove the full-length expansion board retainer:

Removal and replacement procedures 32
o If no full-length expansion boards are installed, remove the full-length expansion board shipping
bracket as indicated.
o If full-length expansion boards are installed, remove the full-length expansion board shipping
bracket as indicated.
To replace the component, reverse the removal procedure.
PCI riser cage
To remove the component:
CAUTION: To prevent damage to the server or expansion boards, power down the server and
remove all AC power cords before removing or installing the PCI riser cage.
1. Power down the server (on page 25).

Removal and replacement procedures 33
2. Extend or remove the server from the rack ("Extend the server from the rack" on page 26).
3. Remove the access panel ("Access panel" on page 30).
4. If any full-length expansion boards are installed, remove the full-length expansion board shipping
bracket ("Full-length expansion board shipping bracket" on page 31).
5. Remove the PCI riser cage.
To replace the component, reverse the removal procedure.
SAS hard drive blank
CAUTION: For proper cooling, do not operate the server without the access panel, baffles,
expansion slot covers, or blanks installed. If the server supports hot-plug components, minimize
the amount of time the access panel is open.
Remove the component as indicated.
To replace the blank, slide the blank into the bay until it locks into place.
Hot-plug SAS hard drive
To remove the component:

Removal and replacement procedures 34
CAUTION: For proper cooling, do not operate the server without the access panel, baffles,
expansion slot covers, or blanks installed. If the server supports hot-plug components, minimize
the amount of time the access panel is open.
1. Determine the status of the drive from the hot-plug SAS hard drive LED combinations ("SAS and SATA
drive LED combinations" on page 97).
2. Back up all server data on the hard drive.
3. Remove the hard drive.
To replace the component, reverse the removal procedure.
Power supply blank
To remove the component:
CAUTION: To prevent improper cooling and thermal damage, do not operate the server unless
all bays are populated with either a component or a blank.
1. Access the product rear panel (on page 27).
2. Remove the power supply blank.
WARNING: To reduce the risk of personal injury from hot surfaces, allow the power supply or
power supply blank to cool before touching it.

Removal and replacement procedures 35
To replace the component, reverse the removal procedure.
Hot-plug power supply
WARNING: To reduce the risk of personal injury from hot surfaces, allow the power supply or
power supply blank to cool before touching it.
CAUTION: To prevent improper cooling and thermal damage, do not operate the server unless
all bays are populated with either a component or a blank.
To remove the component:
1. Determine how many hot-plug power supplies are installed:
o If only one hot-plug power supply is installed, power down the server (on page 25).
o If more than one hot-plug power supply is installed, continue with the next step.
2. Disconnect the power cord from the source.
3. Access the product rear panel (on page 27).
4. Remove the power cord from the server.
5. Remove the hot-plug power supply.
WARNING: To reduce the risk of electric shock or damage to the equipment, do not connect the
power cord to the power supply until the power supply is installed.
To replace the component:
1. Slide the hot-plug power supply into the power supply bay.
2. Connect the power cord to the power supply.
3. Install the cable management arm, if removed ("Access the product rear panel" on page 27).
4. Route the power cord through the cable management arm or power cord anchor.

Removal and replacement procedures 36
NOTE:
If using the power cord anchor, be sure to leave enough slack in the power cord so that
the redundant power supply can be removed without disconnecting the power cord from the
primary power supply.
5. Close the cable management arm.
6. Connect the power cord to the power source.
7. Be sure that the power supply LED is green ("Rear panel LEDs and buttons" on page 90).
8. Be sure that the power supply LED on the SID is green ("Systems Insight Display LEDs" on page 87).
Optical drive
To remove the component:
CAUTION: To prevent improper cooling and thermal damage, do not operate the server unless
all bays are populated with either a component or a blank.
1. Power down the server (on page 25).
2. Extend or remove the server from the rack ("Extend the server from the rack" on page 26).
3. Remove the access panel ("Access panel" on page 30).
4. Disconnect the cable from the optical drive.

Removal and replacement procedures 37
5. Remove the optical drive.
To replace the component, reverse the removal procedure.
Optical drive cage
To remove the component:
CAUTION: To prevent improper cooling and thermal damage, do not operate the server unless
all bays are populated with either a component or a blank.
1. Power down the server (on page 25).
2. Extend or remove the server from the rack ("Extend the server from the rack" on page 26).
3. Remove the access panel ("Access panel" on page 30).
4. Disconnect the cable from the optical drive.
5. Remove the optical drive ("Optical drive" on page 36).

Removal and replacement procedures 38
6. Remove the optical drive cage.
To replace the component, reverse the removal procedure.
Power supply backplane
To remove the component:
1. Power down the server (on page 25).
2. Remove all power supplies ("Hot-plug power supply" on page 35).
3. Extend or remove the server from the rack ("Remove the server from the rack" on page 27, "Extend the
server from the rack" on page 26).
4. Remove the access panel ("Access panel" on page 30).
5. Remove the power supply backplane.
To replace the component, reverse the removal procedure.

Removal and replacement procedures 39
Hot-plug fan
The server supports variable fan speeds. The fans operate at minimum speed until a temperature change
requires a fan speed increase to cool the server.
The server shuts down in the following temperature-related scenarios:
• At POST:
o The BIOS suspends the server for 5 minutes if it detects a cautionary temperature level. If the
cautionary temperature level is still detected after 5 minutes, the BIOS performs an orderly shutdown
and enters Standby mode.
o The BIOS performs an orderly shutdown if two or more fans have failed.
o The server performs an immediate shutdown if it detects a critical temperature level.
IMPORTANT: An immediate shutdown is a hardware-controlled function and it overrides any
firmware or software actions.
• In the operating system:
o The Health Driver performs an orderly shutdown if it detects a cautionary temperature level. If the
server detects a critical temperature level before the orderly shutdown occurs, the server performs an
immediate shutdown. Additionally, the Health Driver performs an orderly shutdown if more than
one fan is failed or removed.
o When Thermal Shutdown is disabled in RBSU, the server performs an immediate shutdown if it
detects a critical temperature level.
IMPORTANT: An immediate shutdown is a hardware-controlled function and it overrides any
firmware or software actions.
To remove the component:
1. Extend or remove the server from the rack ("Remove the server from the rack" on page 27, "Extend the
server from the rack" on page 26).
2. Remove the access panel ("Access panel" on page 30).

Removal and replacement procedures 40
3. Remove the fan.
CAUTION: Do not operate the server for long periods with the access panel open or removed.
Operating the server in this manner results in improper airflow and improper cooling that can
lead to thermal damage.
To replace the component, reverse the removal procedure.
SFF hard drive backplane
To remove the component:
1. Power down the server (on page 25).
2. Extend or remove the server from the rack ("Extend the server from the rack" on page 26).
3. Remove the access panel ("Access panel" on page 30).
4. Remove all hot-plug hard drives ("Hot-plug SAS hard drive" on page 33).

Removal and replacement procedures 41
5. Disconnect all cables from the hard drive backplane.
6. Remove the hard drive backplane.
To replace the component, reverse the removal procedure.
SFF hard drive cage
To remove the component:
1. Power down the server (on page 25).
2. Extend or remove the server from the rack ("Extend the server from the rack" on page 26).
3. Remove the access panel ("Access panel" on page 30).
4. Remove all hot-plug hard drives ("Hot-plug SAS hard drive" on page 33).
5. Disconnect all cables from the hard drive backplane.
6. Remove the hard drive backplane ("SFF hard drive backplane" on page 40).

Removal and replacement procedures 42
7. Remove the hard drive cage.
To replace the component, reverse the removal procedure.
LFF hard drive backplane
To remove the component:
1. Power down the server (on page 25).
2. Extend or remove the server from the rack ("Extend the server from the rack" on page 26).
3. Remove the access panel ("Access panel" on page 30).
4. Remove all hot-plug hard drives ("Hot-plug SAS hard drive" on page 33).
5. Disconnect all cables from the hard drive backplane.

Removal and replacement procedures 43
6. Remove the hard drive backplane.
To replace the component, reverse the removal procedure.
LFF hard drive cage
To remove the component:
1. Power down the server (on page 25).
2. Extend or remove the server from the rack ("Extend the server from the rack" on page 26).
3. Remove the access panel ("Access panel" on page 30).
4. Remove all hot-plug hard drives ("Hot-plug SAS hard drive" on page 33).
5. Disconnect all cables from the hard drive backplane.
6. Remove the hard drive backplane ("LFF hard drive backplane" on page 42).
7. Remove the hard drive cage.

Removal and replacement procedures 44
To replace the component, reverse the removal procedure.
Systems Insight Display
To remove the component:
1. Power down the server (on page 25).
2. Extend the server from the rack (on page 26).
3. Remove the access panel ("Access panel" on page 30).
4. Remove the PCI riser cage ("PCI riser cage" on page 32).
5. Remove the air baffle ("Air baffle" on page 31).
6. Disconnect the Systems Insight Display cable.
7. Remove the Systems Insight Display.
To replace the component, reverse the removal procedure.
Front left bezel
To remove the component:
1. Power down the server (on page 25).
2. Extend or remove the server from the rack ("Remove the server from the rack" on page 27, "Extend the
server from the rack" on page 26).
3. Remove the access panel ("Access panel" on page 30).
4. Remove the PCI riser cage ("PCI riser cage" on page 32).
5. Remove the air baffle ("Air baffle" on page 31).
6. Extend or remove the Systems Insight Display ("Systems Insight Display" on page 44).

Removal and replacement procedures 45
7. Remove the three T-10 Torx screws, and then detach the front bezel.
To replace the component, reverse the removal procedure.
Front right bezel
To remove the component:
1. Extend or remove the server from the rack ("Remove the server from the rack" on page 27, "Extend the
server from the rack" on page 26).
2. Remove the three T-10 Torx screws, and then detach the front bezel.
To replace the component, reverse the removal procedure.

Removal and replacement procedures 46
Fan cage
To remove the component:
1. Power down the server (on page 25).
2. Extend or remove the server from the rack ("Remove the server from the rack" on page 27, "Extend the
server from the rack" on page 26).
3. Remove the access panel ("Access panel" on page 30).
4. Remove the PCI riser cage ("PCI riser cage" on page 32).
5. Remove the air baffle ("Air baffle" on page 31).
6. Remove the fan blanks.
7. Remove the fans ("Hot-plug fan" on page 39).
8. Remove the fan cage.

Removal and replacement procedures 47
To replace the component, reverse the removal steps. When re-installing the fans, press down on the top of
each fan to be sure it is seated properly.
Expansion slot covers
CAUTION: To prevent damage to the server or expansion boards, power down the server and
remove all AC power cords before removing or installing the PCI riser cage.
CAUTION: For proper cooling, do not operate the server without the access panel, baffles,
expansion slot covers, or blanks installed. If the server supports hot-plug components, minimize
the amount of time the access panel is open.
1. Power down the server (on page 25).
2. Extend the server from the rack (on page 26).
3. Remove the access panel ("Access panel" on page 30).
4. Remove the PCI riser cage ("PCI riser cage" on page 32).
5. Remove the expansion slot cover:
o To remove slot cover 1 or 4, push in on the retainer to release it, and then slide out the cover.

Removal and replacement procedures 48
o To remove slot covers 2 and 3, lift up on the latch, remove the latch, and then remove the cover.
o To remove slot covers 5 and 6, push down on the latch, rotate the latch down, and then remove the
cover.
Battery-backed write cache procedures
Two types of procedures are provided for the BBWC option:
• Removal and replacement of failed components:
o Removing the cache module (on page 49)
o Removing the battery pack (on page 49)
• Recovery of cached data from a failed server ("Recovering data from the battery-backed write cache"
on page 50)

Removal and replacement procedures 49
CAUTION: Do not detach the cable that connects the battery pack to the cache module.
Detaching the cable causes any unsaved data in the cache module to be lost.
Removing the cache module
To remove the component:
1. Power down the server (on page 25).
2. Extend or remove the server from the rack ("Remove the server from the rack" on page 27, "Extend the
server from the rack" on page 26).
3. Remove the access panel ("Access panel" on page 30).
4. Remove the PCI riser cage ("PCI riser cage" on page 32).
5. Remove the air baffle ("Air baffle" on page 31).
6. Remove the cache module.
To replace the component, reverse the removal procedure.
CAUTION: To prevent damage to the cache module during installation, be sure the cache
module is fully inserted before pressing down.
Removing the battery pack
To remove the component:
1. Power down the server (on page 25).
2. Extend or remove the server from the rack ("Extend the server from the rack" on page 26).
3. Remove the access panel ("Access panel" on page 30).
4. Remove the PCI riser cage ("PCI riser cage" on page 32).

Removal and replacement procedures 50
5. Disconnect the cable, and then remove the battery pack.
To replace the component, reverse the removal procedure.
Recovering data from the battery-backed write cache
If the server fails, use the following procedure to recover data temporarily stored in the BBWC.
CAUTION: Before starting this procedure, read the information about protecting against
electrostatic discharge ("Preventing electrostatic discharge" on page 29).
1. Perform one of the following:
o Set up a recovery server station using an identical server model. Do not install any internal drives or
BBWC in this server. (HP recommends this option.)
o Find a server that has enough empty drive bays to accommodate all the drives from the failed server
and that meets all the other requirements for drive and array migration.
2. Power down the failed server ("Power down the server" on page 25). If any data is stored in the cache
module, a green LED on the module flashes every 2 seconds.
CAUTION: Do not detach the cable that connects the battery pack to the cache module.
Detaching the cable causes any unsaved data in the cache module to be lost.
3. Transfer the hard drives from the failed server to the recovery server station.
4. Perform one of the following:
o If the array controller has failed, remove the cache module ("Removing the cache module" on page
49) and battery pack ("Removing the battery pack" on page 49) from the failed array controller,
and install the cache module and battery pack on an array controller in the recovery server.
o If the server has failed, remove the controller ("Half-length expansion board" on page 55,
"Full-length expansion board" on page 56), cache module ("Removing the cache module" on page
49), and battery pack ("Removing the battery pack" on page 49) from the failed server, and install
the controller, cache module, and battery pack in the recovery server.

Removal and replacement procedures 51
5. Power up the recovery server. A 1759 POST message is displayed, stating that valid data was flushed
from the cache. This data is now stored on the drives in the recovery server. You can now transfer the
drives (and controller, if one was used) to another server.
Flash-backed write cache procedures
Two types of procedures are provided for the FBWC option:
• Removal and replacement of failed components:
o Removing the cache module ("Flash-backed write cache module" on page 51)
o Removing the capacitor pack ("Flash-backed write cache capacitor pack" on page 52)
• Recovery of cached data from a failed server ("Recovering data from the battery-backed write cache"
on page 50)
CAUTION: Do not detach the cable that connects the battery pack or capacitor pack to the cache
module. Detaching the cable causes any unsaved data in the cache module to be lost.
Flash-backed write cache module
To remove the component:
CAUTION: The cache module connector does not use the industry-standard DDR3 mini-DIMM
pinout. Do not use the controller with cache modules designed for other controller models,
because the controller can malfunction and you can lose data. Also, do not transfer this cache
module to an unsupported controller model, because you can lose data.
1. Back up all data.
2. Close all applications.
3. Power down the server (on page 25).
CAUTION: In systems that use external data storage, be sure that the server is the first unit to be
powered down and the last to be powered back up. Taking this precaution ensures that the system
does not erroneously mark the drives as failed when the server is powered up.
4. Extend the server from the rack (on page 26).
5. Remove the access panel ("Access panel" on page 30).
6. Remove the PCI riser cage ("PCI riser cage" on page 32)
7. If the existing cache module is connected to a capacitor pack, observe the FBWC module LEDs (on
page 100):
o If the amber LED is flashing, data is trapped in the cache. Restore system power, and restart this
procedure from step 1.
o If the amber LED is not illuminated, remove the controller from the server, and then continue with the
next step.

Removal and replacement procedures 52
8. Open the ejector latches on each side of the cache module connector. Normally, the cache module is
ejected from the cache module connector. If the module is not ejected automatically, remove the cache
module.
9. If the cache module is connected to a capacitor pack, disconnect the capacitor pack cable from the
connector on the top of the cache module.
To replace the component, reverse the removal procedure.
CAUTION: To prevent damage to the cache module during installation, be sure the cache
module is fully inserted before pressing down.
Flash-backed write cache capacitor pack
To remove the component:
1. Back up all data.
2. Close all applications.
3. Power down the server (on page 25).

Removal and replacement procedures 53
CAUTION: In systems that use external data storage, be sure that the server is the first unit to be
powered down and the last to be powered back up. Taking this precaution ensures that the system
does not erroneously mark the drives as failed when the server is powered up.
4. Extend the server from the rack (on page 26).
5. Remove the access panel ("Access panel" on page 30).
6. Remove the PCI riser cage ("PCI riser cage" on page 32).
7. If the capacitor pack is connected to the cache module, disconnect the capacitor pack cable from the
connector on the top of the cache module.
8. Disconnect the capacitor pack from the air baffle.
To replace the component, reverse the removal procedure.
Expansion slot covers
CAUTION: To prevent damage to the server or expansion boards, power down the server and
remove all AC power cords before removing or installing the PCI riser cage.

Removal and replacement procedures 54
CAUTION: For proper cooling, do not operate the server without the access panel, baffles,
expansion slot covers, or blanks installed. If the server supports hot-plug components, minimize
the amount of time the access panel is open.
1. Power down the server (on page 25).
2. Extend or remove the server from the rack ("Extend the server from the rack" on page 26).
3. Remove the access panel ("Access panel" on page 30).
4. If any full-length expansion boards are installed, remove the full-length expansion board shipping
bracket ("Full-length expansion board shipping bracket" on page 31).
5. Remove the PCI riser cage ("PCI riser cage" on page 32).
6. Remove the expansion slot cover:
o To remove slot cover 1 or 4, push in on the retainer to release it, and then slide out the cover.
o To remove slot covers 2 and 3, lift up on the latch, remove the latch, and then remove the cover.

Removal and replacement procedures 55
o To remove slot covers 5 and 6, push down on the latch, rotate the latch down, and then remove the
cover.
Expansion boards
Half-length expansion board
To remove the component:
1. Power down the server (on page 25).
2. Extend the server from the rack (on page 26).
3. Remove the access panel ("Access panel" on page 30).
4. Disconnect any external cables that are connected to the expansion board.
5. Remove the PCI riser cage ("PCI riser cage" on page 32).
6. Disconnect any internal cables that are connected to the expansion board.

Removal and replacement procedures 56
7. Remove the expansion board.
To replace the component, reverse the removal procedure.
Full-length expansion board
To remove the component:
1. Power down the server (on page 25).
2. Extend the server from the rack (on page 26).
3. Remove the access panel ("Access panel" on page 30).
4. Disconnect any external cables that are connected to the expansion board.
5. Remove the PCI riser cage ("PCI riser cage" on page 32).
6. Disconnect any internal cables that are connected to the expansion board.
7. Remove the expansion board.

Removal and replacement procedures 57
To replace the component, reverse the removal procedure.
Heatsink
To remove the heatsink:
1. Power down the server (on page 25).
2. Extend the server from the rack (on page 26).
3. Remove the access panel ("Access panel" on page 30).
4. If full-length expansion boards are installed, remove the PCI riser cage ("PCI riser cage" on page 32).
5. Remove the air baffle ("Air baffle" on page 31).
6. Open the heatsink retaining bracket.
7. Remove the heatsink.

Removal and replacement procedures 58
To replace the heatsink:
1. Clean the old thermal grease from the processor with the alcohol swab. Allow the alcohol to evaporate
before continuing.
2. Apply all the grease to the top of the processor in the following pattern to ensure even distribution.
3. Install the heatsink.

Removal and replacement procedures 59
4. Close and lock the heatsink retaining latches.
5. Install the air baffle ("Air baffle" on page 31).
6. If the PCI riser cage was removed, install the PCI riser cage ("PCI riser cage" on page 32).
7. Install the access panel ("Access panel" on page 30).
8. Install the server into the rack.
9. Power up the server.
Power supply cage assembly
To remove the component:
1. Power down the server (on page 25).
2. Access the product rear panel (on page 27).
3. Remove all power supplies ("Hot-plug power supply" on page 35).
4. Remove the server from the rack (on page 27).
5. Remove the access panel ("Access panel" on page 30).
6. Remove the PCI riser cage ("PCI riser cage" on page 32).
7. Remove the air baffle ("Air baffle" on page 31).
8. Remove the power supply backplane ("Power supply backplane" on page 38).
9. Loosen the system board thumbscrews, and then slide the system board assembly forward.

Removal and replacement procedures 60
10. Remove the power supply cage assembly.
To replace the component, reverse the removal procedure.
Processor
CAUTION: To avoid damage to the processor and system board, only authorized personnel
should attempt to replace or install the processor in this server.
CAUTION: To prevent possible server malfunction and damage to the equipment, multiprocessor
configurations must contain processors with the same part number.
IMPORTANT:
Processor socket 1 must always be populated. If processor socket 1 is empty, the
server does not power up.
To remove a processor:
1. Power down the server (on page 25).
2. Extend the server from the rack (on page 26).
3. Remove the access panel ("Access panel" on page 30).
4. If full-length expansion boards are installed, remove the PCI riser cage ("PCI riser cage" on page 32).
5. Remove the air baffle ("Air baffle" on page 31).

Removal and replacement procedures 61
6. Open the heatsink retaining bracket.
7. Remove the heatsink.

Removal and replacement procedures 62
8. Open the processor locking lever and the processor socket retaining bracket.
9. Using the processor tool, remove the processor from the system board:
a. Line up the processor tool, ensuring the locking lever graphic on the tool is oriented correctly.
b. Press in on the plastic tabs, and then place the tool on the processor.
c. Release the tabs, and then carefully lift the processor and tool straight up.

Removal and replacement procedures 63
10. Carefully rotate the tool, and then push in and release the tabs to secure the processor in the tool.
CAUTION: To avoid damage to the processor, do not touch the bottom of the processor,
especially the contact area.
CAUTION: To avoid damage to the system board:
• Do not touch the processor socket contacts.
• Always install the processor socket cover after removing the processor from the socket.
• Do not tilt or slide the processor when lowering the processor into the socket.

Removal and replacement procedures 64
To replace the processor:
1. Carefully insert the processor into the processor installation tool. Handle the processor by the edges
only, and do not touch the bottom of the processor, especially the contact area.

Removal and replacement procedures 65
2. Be sure the tool is oriented correctly. Align the processor installation tool with the socket, and then install
the processor. THE PINS ON THE SYSTEM BOARD ARE VERY FRAGILE AND EASILY DAMAGED.
CAUTION: THE PINS ON THE SYSTEM BOARD ARE VERY FRAGILE AND EASILY DAMAGED. To
avoid damage to the system board:
• Never install or remove a processor without using the processor installation tool.
• Do not touch the processor socket contacts.
• Do not tilt or slide the processor when lowering the processor into the socket.

Removal and replacement procedures 66
3. Press and hold the tabs on the processor installation tool to separate it from the processor, and then
remove the tool.
4. Close the processor socket retaining bracket and the processor locking lever.
CAUTION:
Be sure to close the processor socket retaining bracket before closing the processor
locking lever. The lever should close without resistance. Forcing the lever closed can damage the
processor and socket, requiring system board replacement.
5. Clean the old thermal grease from the heatsink and the top of the processor with the alcohol swab.
Allow the alcohol to evaporate before continuing.

Removal and replacement procedures 67
6. Apply all the grease to the top of the processor in the following pattern to ensure even distribution.
7. Install the heatsink.

Removal and replacement procedures 68
8. Close and lock the heatsink retaining latches.
9. Install the air baffle ("Air baffle" on page 31).
10. If the PCI riser cage was removed, install the PCI riser cage ("PCI riser cage" on page 32).
11. Install the access panel ("Access panel" on page 30).
12. Install the server into the rack.
13. Power up the server.
DIMMs
IMPORTANT: This server does not support mixing RDIMMs and UDIMMs. Attempting to mix
these two types causes the server to halt during BIOS initialization.
To identify the DIMMs installed in the server, see "DIMM slot locations ("DIMM identification" on page 95)."
To remove the component:
1. Power down the server (on page 25).
2. Remove all power:
a. Disconnect each power cord from the power source.
b. Disconnect each power cord from the server.
3. Extend ("Extend the server from the rack" on page 26) or remove ("Remove the server from the rack" on
page 27) the server from the rack.
4. Remove the access panel ("Access panel" on page 30).
5. Remove the air baffle ("Air baffle" on page 31).

Removal and replacement procedures 69
6. Remove the DIMM.
To replace the component, reverse the removal procedure.
For DIMM configuration information, see the server user guide.
Battery replacement
If the server no longer automatically displays the correct date and time, you may need to replace the battery
that provides power to the real-time clock.
WARNING: The computer contains an internal lithium manganese dioxide, a vanadium
pentoxide, or an alkaline battery pack. A risk of fire and burns exists if the battery pack is not
properly handled. To reduce the risk of personal injury:
• Do not attempt to recharge the battery.
• Do not expose the battery to temperatures higher than 60°C (140°F).
• Do not disassemble, crush, puncture, short external contacts, or dispose of in fire or water.
• Replace only with the spare designated for this product.
To remove the component:
1. Power down the server (on page 25).
2. Extend or remove the server from the rack ("Extend the server from the rack" on page 26).
3. Remove the access panel ("Access panel" on page 30).
4. If any full-length expansion boards are installed, remove the full-length expansion board shipping
bracket ("Full-length expansion board shipping bracket" on page 31).
5. Remove the PCI riser cage ("PCI riser cage" on page 32).
6. Remove the air baffle ("Air baffle" on page 31).

Removal and replacement procedures 70
7. Remove the battery.
To replace the component, reverse the removal procedure.
For more information about battery replacement or proper disposal, contact an authorized reseller or an
authorized service provider.
System maintenance switch
Position Default Function
S1 Off Off = iLO 2 security is enabled.
On = iLO 2 security is disabled.
S2 Off Off = System configuration can be modified.
On = System configuration is locked and cannot be modified.
S3 Off Reserved
S4 Off Reserved
S5 Off Off = Power-on password is enabled.
On = Power-on password is disabled.
S6 Off Off = Normal
On = ROM treats system configuration as invalid.
S7 Off Reserved
S8 Off Reserved
When the system maintenance switch position 6 is set to the On position, the system is prepared to erase all
system configuration settings from both CMOS and NVRAM.
CAUTION: Clearing CMOS and/or NVRAM deletes configuration information. Be sure to
properly configure the server or data loss could occur.

Removal and replacement procedures 71
System board
To remove the component:
1. Power down the server (on page 25).
2. Extend or remove the server from the rack ("Remove the server from the rack" on page 27, "Extend the
server from the rack" on page 26).
3. Remove all power supplies ("Hot-plug power supply" on page 35).
4. Remove the access panel ("Access panel" on page 30).
5. Remove the PCI riser cage ("PCI riser cage" on page 32).
6. Remove the battery pack ("Removing the battery pack" on page 49).
7. Remove the air baffle ("Air baffle" on page 31).
8. Remove all DIMMs ("DIMMs" on page 68).
9. Remove the hot-plug fans ("Hot-plug fan" on page 39).
10. Remove the fan cage ("Fan cage" on page 46).
11. Remove the power supply backplane ("Power supply backplane" on page 38).
12. Disconnect all cables connected to the system board.
13. Open the heatsink retainer bracket.

Removal and replacement procedures 72
14. Remove the heatsink.
15. Open the processor locking lever and the processor socket retaining bracket.
16. Using the processor tool, remove the processor from the system board:
a. Line up the processor tool, ensuring the locking lever graphic on the tool is oriented correctly.
b. Press in on the plastic tabs, and then place the tool on the processor.

Removal and replacement procedures 73
c. Release the tabs, and then carefully lift the processor and tool straight up.
17. Carefully rotate the tool, and then push in and release the tabs to secure the processor in the tool.
CAUTION: To avoid damage to the processor, do not touch the bottom of the processor,
especially the contact area.
18. Loosen the system board thumbscrew.
19. Remove the power supply cage.

Removal and replacement procedures 74
20. Remove the system board.
To replace the component:
1. Install the spare system board.
CAUTION: Failure to completely open the processor locking lever prevents the processor from
seating during installation, leading to hardware damage.

Removal and replacement procedures 75
2. Open the processor locking lever and the processor socket retaining bracket. Do not remove the
processor socket cover.
IMPORTANT: Be sure the processor remains inside the processor installation tool.
3. If the processor has separated from the installation tool, carefully re-insert the processor in the tool.
Handle the processor by the edges only, and do not touch the bottom of the processor, especially the
contact area.

Removal and replacement procedures 76
4. Align the processor installation tool with the socket, and then install the processor. THE PINS ON THE
SYSTEM BOARD ARE VERY FRAGILE AND EASILY DAMAGED.
CAUTION: THE PINS ON THE SYSTEM BOARD ARE VERY FRAGILE AND EASILY DAMAGED. To
avoid damage to the system board:
• Never install or remove a processor without using the processor installation tool.
• Do not touch the processor socket contacts.
• Do not tilt or slide the processor when lowering the processor into the socket.

Removal and replacement procedures 77
5. Press the tabs on the processor installation tool to separate it from the processor, and then remove the
tool.
6. Close the processor socket retaining bracket and the processor locking lever. The processor socket
cover is automatically ejected. Remove the cover.
CAUTION:
Be sure to close the processor socket retaining bracket before closing the processor
lockin
g lever. The lever should close without resistance. Forcing the lever closed can damage the
processor and socket, requiring system board replacement.
7. Install the processor socket cover onto the processor socket of the failed system board.
8. Clean the old thermal grease from the heatsink and the top of the processor with the alcohol swab.
Allow the alcohol to evaporate before continuing.

Removal and replacement procedures 78
9. Apply all the grease to the top of the processor in the following pattern to ensure even distribution.
10. Install the heatsink.
IMPORTANT: Install all components with the same configuration that was used on the failed
system board.
11. Install all components removed from the failed system board.
12. Install the access panel ("Access panel" on page 30).
13. Install the power supplies ("Hot-plug power supply" on page 35).
14. Power up the server.
After you replace the system board, you must re-enter the server serial number and the product ID.
1. During the server startup sequence, press the F9 key to access RBSU.
2. Select the Advanced Options menu.
3. Select Service Options.
4. Select Serial Number. The following warnings appear:
Removal and replacement procedures 79
WARNING! WARNING! WARNING! The serial number is loaded into the system during
the manufacturing process and should NOT be modified. This option should only
be used by qualified service personnel. This value should always match the
serial number sticker located on the chassis.
Warning: The serial number should ONLY be modified by qualified personnel.
This value should always match the serial number located on the chassis.
5. Press the Enter key to clear the warning.
6. Enter the serial number and press the Enter key.
7. Select Product ID. The following warning appears:
Warning: The Product ID should ONLY be modified by qualified personnel. This
value should always match the Product ID on the chassis.
8. Enter the product ID and press the Enter key.
9. Press the Esc key to close the menu.
10. Press the Esc key to exit RBSU.
11. Press the F10 key to confirm exiting RBSU. The server automatically reboots.

Cabling 80
Cabling
SAS hard drive cabling
Optical drive cabling

Cabling 81
BBWC battery cabling
FBWC capacitor pack cabling

Diagnostic tools 82
Diagnostic tools
Troubleshooting resources
The HP ProLiant Servers Troubleshooting Guide provides procedures for resolving common problems and
comprehensive courses of action for fault isolation and identification, error message interpretation, issue
resolution, and software maintenance on ProLiant servers and server blades. This guide includes
problem-specific flowcharts to help you navigate complex troubleshooting processes. To view the guide,
select a language:
• English (http://www.hp.com/support/ProLiant_TSG_en)
• French (http://www.hp.com/support/ProLiant_TSG_fr)
• Italian (http://www.hp.com/support/ProLiant_TSG_it)
• Spanish (http://www.hp.com/support/ProLiant_TSG_sp)
• German (http://www.hp.com/support/ProLiant_TSG_gr)
• Dutch (http://www.hp.com/support/ProLiant_TSG_nl)
• Japanese (http://www.hp.com/support/ProLiant_TSG_jp)
HP Insight Diagnostics
HP Insight Diagnostics is a proactive server management tool, available in both offline and online versions,
that provides diagnostics and troubleshooting capabilities to assist IT administrators who verify server
installations, troubleshoot problems, and perform repair validation.
HP Insight Diagnostics Offline Edition performs various in-depth system and component testing while the OS
is not running. To run this utility, launch the SmartStart CD.
HP Insight Diagnostics Online Edition is a web-based application that captures system configuration and
other related data needed for effective server management. Available in Microsoft® Windows® and Linux
versions, the utility helps to ensure proper system operation.
For more information or to download the utility, refer to the HP website (http://www.hp.com/servers/diags).
HP Insight Diagnostics survey functionality
HP Insight Diagnostics (on page 82) provides survey functionality that gathers critical hardware and software
information on ProLiant servers.
This functionality supports operating systems that may not be supported by the server. For operating systems
supported by the server, see the HP website (http://www.hp.com/go/supportos).
If a significant change occurs between data-gathering intervals, the survey function marks the previous
information and overwrites the survey data files to reflect the latest changes in the configuration.

Diagnostic tools 83
Survey functionality is installed with every SmartStart-assisted HP Insight Diagnostics installation, or it can be
installed through the HP PSP.
NOTE: The current version of SmartStart provides the memory spare part numbers for the server.
To download the latest version, see the HP website (http://www.hp.com/support).
Integrated Management Log
The IML records hundreds of events and stores them in an easy-to-view form. The IML timestamps each event
with 1-minute granularity.
You can view recorded events in the IML in several ways, including the following:
• From within HP SIM
• From within Survey Utility
• From within operating system-specific IML viewers
o For NetWare: IML Viewer (does not apply to HP ProLiant DL980 Servers)
o For Windows®: IML Viewer
o For Linux: IML Viewer Application
• From within the iLO 3 user interface
• From within HP Insight Diagnostics (on page 82)
For more information, see the Management CD or DVD in the HP Insight Foundation suite for ProLiant.
HP Insight Remote Support software
HP strongly recommends that you install HP Insight Remote Support software to complete the installation or
upgrade of your product and to enable enhanced delivery of your HP Warranty, HP Care Pack Service, or
HP contractual support agreement. HP Insight Remote Support supplements your monitoring 24 x 7 to ensure
maximum system availability by providing intelligent event diagnosis, and automatic, secure submission of
hardware event notifications to HP, which will initiate a fast and accurate resolution, based on your product’s
service level. Notifications may be sent to your authorized HP Channel Partner for on-site service, if
configured and available in your country. The software is available in two variants:
• HP Insight Remote Support Standard: This software supports server and storage devices and is
optimized for environments with 1–50 servers. Ideal for customers who can benefit from proactive
notification but do not need proactive service delivery and integration with a management platform.
• HP Insight Remote Support Advanced: This software provides comprehensive remote monitoring and
proactive service support for nearly all HP servers, storage, network, and SAN environments, plus
selected non-HP servers that have a support obligation with HP. It is integrated with HP Systems Insight
Manager. A dedicated server is recommended to host both HP Systems Insight Manager and HP Insight
Remote Support Advanced.
Details for both versions are available on the HP website (http://www.hp.com/go/insightremotesupport).
To download the software, go to Software Depot (http://www.software.hp.com).
Select Insight Remote Support from the menu on the right.
Diagnostic tools 84
USB support
HP provides both standard USB 2.0 support and legacy USB 2.0 support. Standard support is provided by
the OS through the appropriate USB device drivers. Before the OS loads, HP provides support for USB
devices through legacy USB support, which is enabled by default in the system ROM.
Legacy USB support provides USB functionality in environments where USB support is not available normally.
Specifically, HP provides legacy USB functionality for the following:
• POST
• RBSU
• Diagnostics
• DOS
• Operating environments which do not provide native USB support

Component identification 85
Component identification
Front panel components
• SFF model
Item Description
1 Quick release levers (2)
2 Systems Insight Display
3 Hard drive bays
4 SATA optical drive bay
5 Video connector
6 USB connectors (2)
• SFF model with optional hard drive cage
Item Description
1 Quick release levers (2)
2 Systems Insight Display
3 Hard drive bays
4 Hard drive bays (optional)
5 Video connector

Component identification 86
Item Description
6 USB connectors (2)
• LFF model
Item Description
1 Quick release levers (2)
2 Systems Insight Display
3 Hard drive bays
4 USB connectors (2)
5 Video connector
Front panel LEDs and buttons
Item Description Status
1 UID LED and button Blue = Activated
Flashing blue = System being remotely managed
Off = Deactivated

Component identification 87
Item Description Status
2 System health LED Green = Normal
Amber = System degraded.
Red = System critical.
To identify components in degraded or critical state, see "Systems
Insight Display LEDs (on page 87)."
3 Power On/Standby button
and system power LED
Green = System on
Amber = System in standby, but power is still applied
Off = Power cord not attached or power supply failure
Systems Insight Display LEDs
The HP Systems Insight Display LEDs represent the system board layout. The display enables diagnosis with
the access panel installed.

Component identification 88
Item Description Status
1 NIC link/activity LED Green = Network link
Flashing green = Network link and activity
Off = No link to network. If the power is off,
view the rear panel RJ-45 LEDs for status
("Rear panel LEDs and buttons" on page
90)
2 Power cap To determine Power cap status, see
"Systems Insight Display LED combinations
(on page 88)."
3 AMP status Green = AMP mode enabled
Amber = Failover
Flashing amber = invalid configuration
Off = AMP modes disabled
— All other LEDs Off = Normal
Amber = Failure
For detailed information on the activation
of these LEDs, see "Systems Insight Display
LED combinations (on page 88)."
Systems Insight Display LED combinations
When the health LED on the front panel illuminates either amber or red, the server is experiencing a health
event. Combinations of illuminated Systems Insight Display LEDs, the system power LED, and the health LED
indicate system status.
Systems Insight Display
LED and color Health LED System power
LED Status
Processor (amber) Red Amber One or more of the following conditions may
exist:
•
Processor in socket X has failed.
•
Processor X is not installed in the socket.
•
Processor X is unsupported.
•
ROM detects a failed processor during
POST
Processor (amber)
Amber
Green
Processor in socket X is in a pre-failure
condition.
DIMM (amber) Red Green One or more DIMMs have failed.
DIMM (amber) Amber Green DIMM in slot X is in a pre-failure condition.
Overtemperature (amber) Amber Green The Health Driver has detected a cautionary
temperature level.
Overtemperature (amber) Red Amber The server has detected a hardware critical
temperature level.
Fan (amber) Amber Green One fan has failed or has been removed.
Fan (amber) Red Green Two or more fans have failed or been
removed.

Component identification 89
Systems Insight Display
LED and color Health LED System power
LED Status
Power supply (amber)
Red
Amber
•
Only one power supply is installed and
that power supply is in standby.
•
Power supply fault
•
System board fault
Power supply (amber) Amber Green
•
Redundant power supply is installed and
only one power supply is functional.
•
AC power cord is not plugged into
redundant power supply.
•
Redundant power supply fault
•
Power supply mismatch at POST or
power supply mismatch through hot-plug
addition.
Power cap (off) — Amber Standby
Power cap (green) — Flashing green Waiting for power
Power cap (flashing
amber)
— Amber Power cap has been exceeded
Power cap (green) — Green Power is available
IMPORTANT: If more than one DIMM slot LED is illuminated, further troubleshooting is required.
Test each bank of DIMMs by removing all other DIMMs. Isolate the failed DIMM by replacing
each DIMM in a bank with a known working DIMM.
Rear panel components
Item Description
1 PCI slot 5
2 PCI slot 6
3 PCI slot 4
4 PCI slot 2
5 PCI slot 3
6 PCI slot 1
7 Power supply bay 2
8 Power supply bay 1 (populated)
9 USB connectors (2)

Component identification 90
10
Video connector
11 NIC 1 connector
12 NIC 2 connector
13 Mouse connector
14 Keyboard connector
15 Serial connector
16 iLO 3 connector
17 NIC 3 connector
18 NIC 4 connector
Rear panel LEDs and buttons
Item Description Status
1 Power supply LED Green = Normal
Off = System is off or power supply has failed.
2 UID LED/button Blue = Activated
Flashing blue = System being managed remotely
Off = Deactivated
3 NIC/iLO 3 activity
LED
Green = Network activity
Flashing green = Network activity
Off = No network activity
4 NIC/iLO 3 link LED Green = Network link
Off = No network link
Non-hot-plug PCI riser board slot definitions

Component identification 91
Secondary
(slot - form factor)
Primary
(slot - form factor)
PCIe2 riser
slot description PCIe2 x16 riser
slot description PCIe2/PCI-X riser
slot description
4 - FL/FH
1 - FL/FH
PCIe2 x16 (8,4,1)
PCIe2 x16
(16,8,4,1)
PCI-X 64 bit/133 MHz
5 - LP 2 - HL/FH PCIe2 x8 (4,1) — PCIe2 x16 (8,4,1)
6 - LP 3 - HL/FH PCIe2 x8 (4,1) — PCIe2 x8 (4,1)
Notes:
• "Primary" denotes the risers are installed in the primary riser connector.
• "Secondary" denotes the risers are installed in the secondary riser connector.
• Installing the risers listed in the table above in either the primary or secondary riser connectors
determines the form factor of the PCI cards supported by those risers.
• FL/FH denotes full-length, full-height. HL/FH denotes half-length, full-height. LP denotes low profile.
• The PCIe2 x16 riser supports a maximum power of 150 W with an HP power cable. This cable must be
used for PCIe card wattages greater than 75 W.

Component identification 92
System board
System board components
Item Description
1 Processor 2 DIMM slots
2 SAS power connector A
3 SAS power connector B
4 Front I/O connector
5 SATA optical drive connector
6 Internal USB connector
7 System battery
8 Power supply backplane connector
9 NMI jumper
10 System maintenance switch
11 Processor socket 2
12 Primary riser connector
13 SD card slot
14 TPM connector
15 Processor socket 1 (populated)

Component identification 93
Item Description
16 Processor 1 DIMM slots
17 Secondary riser connector
18 SAS connector A
19 SAS connector B
20 Cache module connector
21 Fan connector 1
22 Fan connector 2
23 Fan connector 3
24 Fan connector 4
25 Fan connector 5
26 Fan connector 6
System maintenance switch
Position Default Function
S1 Off Off = iLO 3 security is enabled.
On = iLO 3 security is disabled.
S2 Off Off = System configuration can be
changed.
On = System configuration is locked.
S3 Off Reserved
S4 Off Reserved
S5 Off Off = Power-on password is enabled.
On = Power-on password is disabled.
S6 Off Off = No function
On = Clear NVRAM
S7 — Reserved
S8 — Reserved
S9 — Reserved
S10 — Reserved
When the system maintenance switch position 6 is set to the On position, the system is prepared to erase all
system configuration settings from both CMOS and NVRAM.
CAUTION: Clearing CMOS and/or NVRAM deletes configuration information. Be sure to
properly configure the server or data loss could occur.
NMI functionality
An NMI crash dump enables administrators to create crash dump files when a system is hung and not
responding to traditional debug mechanisms.

Component identification 94
Crash dump log analysis is an essential part of diagnosing reliability problems, such as hangs in operating
systems, device drivers, and applications. Many crashes freeze a system, and the only available action for
administrators is to cycle the system power. Resetting the system erases any information that could support
problem analysis, but the NMI feature preserves that information by performing a memory dump before a
hard reset.
To force the OS to invoke the NMI handler and generate a crash dump log, the administrator can use the iLO
Virtual NMI feature.
For more information, see the white paper on the HP website
(http://h20000.www2.hp.com/bc/docs/support/SupportManual/c00797875/c00797875.pdf).
DIMM slot locations
DIMM slots are numbered sequentially (1 through 9) for each processor. The supported AMP modes use the
letter assignments for population guidelines.

Component identification 95
DIMM identification
To determine DIMM characteristics, use the label attached to the DIMM and the following illustration and
table.
Item Description Definition
1 Size —
2 Rank 1R = Single-rank
2R = Dual-rank
4R = Quad-rank
3 Data width x4 = 4-bit
x8 = 8-bit
4 Voltage rating L = Low voltage (1.35v)
Blank or omitted = Standard
5 Memory speed 10600 = 1333-MHz
8500 = 1066-MHz
6 DIMM type R = RDIMM (registered)
E = UDIMM (unbuffered with ECC)
For the latest supported memory information, see the QuickSpecs on the HP website (http://www.hp.com).

Component identification 96
SAS and SATA device numbers
• SFF device bay numbering
• Optional SFF device bay numbering
• LFF device bay numbering

Component identification 97
SAS and SATA drive LEDs
Item Description
1 Fault/UID LED (amber/blue)
2 Online LED (green)
SAS and SATA drive LED combinations
Online/activity
LED (green) Fault/UID LED
(amber/blue) Interpretation
On, off, or
flashing
Alternating amber and
blue The drive has failed, or a predictive failure alert has been
received for this drive; it also has been selected by a management
application.
On, off, or
flashing
Steadily blue The drive is operating normally, and it has been selected by a
management application.
On Amber, flashing
regularly (1 Hz)
A predictive failure alert has been received for this drive.
Replace the drive as soon as possible.
On Off The drive is online, but it is not active currently.
Flashing regularly
(1 Hz)
Amber, flashing
regularly (1 Hz) Do not remove the drive. Removing a drive may terminate the
current operation and cause data loss.
The drive is part of an array that is undergoing capacity
expansion or stripe migration, but a predictive failure alert has
been received for this drive. To minimize the risk of data loss, do
not replace the drive until the expansion or migration is complete.
Flashing regularly
(1 Hz)
Off Do not remove the drive. Removing a drive may terminate the
current operation and cause data loss.
The drive is rebuilding, or it is part of an array that is undergoing
capacity expansion or stripe migration.
Flashing
irregularly
Amber, flashing
regularly (1 Hz) The drive is active, but a predictive failure alert has been received
for this drive. Replace the drive as soon as possible.
Flashing
irregularly
Off The drive is active, and it is operating normally.

Component identification 98
Online/activity
LED (green) Fault/UID LED
(amber/blue) Interpretation
Off
Steadily amber
A critical fault condition has been identified for this drive, and the
controller has placed it offline. Replace the drive as soon as
possible.
Off Amber, flashing
regularly (1 Hz) A predictive failure alert has been received for this drive. Replace
the drive as soon as possible.
Off Off The drive is offline, a spare, or not configured as part of an array.
PCI riser cage LEDs
CAUTION: To prevent damage to the server or expansion boards, power down the server and
remove all AC power cords before removing or installing the PCI riser cage.
Status
On = AC power is connected.
Off = AC power is disconnected.
Missing = Riser is not installed, or power might not be connected.

Component identification 99
Battery pack LEDs
Item Color Description
1 Green System Power LED. This LED is on when the system is
powered up and 12 V system power is available. This
power supply is used to maintain the battery charge and
provide supplementary power to the cache microcontroller.
2 Green Auxiliary Power LED. This LED is on when 3.3V auxiliary
voltage is detected. The auxiliary voltage is used to
preserve BBWC data and is available any time that the
system power cords are connected to a power supply.
3 Amber Battery Health LED. To interpret the illumination patterns of
this LED, see the following table.
4 Green BBWC Status LED. To interpret the illumination patterns of
this LED, see the following table.
LED3 pattern LED4 pattern Interpretation
Off
Flashing (2 Hz)
The system is powered down, and the cache contains data that has not
yet been written to the drives. Restore system power as soon as
possible to prevent data loss.
Data preservation time is extended any time that 3.3 V auxiliary
power is available, as indicated by LED 2. In the absence of auxiliary
power, battery power alone preserves the data. A fully-charged
battery can normally preserve data for at least 2 days.
The battery lifetime also depends on the cache module size. For more
information, see the controller QuickSpecs on the HP website
(http://www.hp.com).
Off Double flash, then
pause
The cache microcontroller is waiting for the host controller to
communicate.

Component identification 100
LED3 pattern LED4 pattern Interpretation
Off Flashing (1 Hz) The battery pack is below the minimum charge level and is being
charged. Features that require a battery (such as write cache, capacity
expansion, stripe size migration, and RAID migration) are unavailable
temporarily until charging is complete. The recharge process takes
between 15 minutes and 2 hours, depending on the initial capacity of
the battery.
Off On The battery pack is fully charged, and posted write data is stored in the
cache.
Off Off The battery pack is fully charged, and no posted write data exists in
the cache.
Flashing (1 Hz) Flashing (1 Hz) An alternating green and amber flashing pattern indicates that the
cache microcontroller is executing from within its boot loader and
receiving new flash code from the host controller.
On — A short circuit exists across the battery terminals or within the battery
pack.
BBWC features are disabled until the battery pack is replaced.
The life expectancy of a battery pack is typically more than 3 years.
Flashing (1 Hz) — An open circuit exists across the battery terminals or within the battery
pack. BBWC features are disabled until the battery pack is replaced.
The life expectancy of a battery pack is typically more than 3 years.
FBWC module LEDs
The FBWC module has two single-color LEDs (green and amber). The LEDs are duplicated on the reverse side
of the cache module to facilitate status viewing.
1 Green LED 2 Amber LED Interpretation
Off On A backup is in progress.
Flashing (1 Hz) On A restore is in progress.
Flashing (1 Hz) Off The capacitor pack is charging.
On Off The capacitor pack has completed charging.
Flashing (2 Hz)
Alternating with
amber LED
Flashing (2 Hz)
Alternating with
green LED
One of the following conditions exists:
•
The charging process has timed out.
•
The capacitor pack is not connected.
On On The flash code image failed to load.

Component identification 101
1 Green LED 2 Amber LED Interpretation
Off Off The flash code is corrupt.
Hot-plug fans
CAUTION: To avoid damage to server components, fan blanks must be installed in fan bays 5
and 6 in a single-processor configuration.
The only two valid fan configurations are listed in the following table.
Configuration Fan bay 1 Fan bay 2 Fan bay 3 Fan bay 4 Fan bay 5 Fan bay 6
1 processor Fan Fan Fan Fan Fan blank Fan blank
2 processors Fan Fan Fan Fan Fan Fan
For a single-processor configuration, four fans and two blanks are required in specific fan bays for
redundancy. A fan failure or missing fan causes all fans to spin at high speed. A second fan failure or missing
fan causes an orderly shutdown of the server.
Installing more than the required number of fans in a single-processor configuration is not a supported
configuration.
For a dual-processor configuration, six fans are required for redundancy. A fan failure or missing fan causes
all fans to spin at high speed. A second fan failure or missing fan causes an orderly shutdown of the server.
The server supports variable fan speeds. The fans operate at minimum speed until a temperature change
requires a fan speed increase to cool the server. The server shuts down during the following
temperature-related scenarios:
• At POST and in the OS, iLO 3 performs an orderly shutdown if a cautionary temperature level is
detected. If the server hardware detects a critical temperature level before an orderly shutdown occurs,
the server performs an immediate shutdown.
• When the Thermal Shutdown feature is disabled in RBSU, iLO 3 does not perform an orderly shutdown
when a cautionary temperature level is detected. Disabling this feature does not disable the server
hardware from performing an immediate shutdown when a critical temperature level is detected.

Component identification 102
CAUTION: A thermal event can damage server components when the Thermal Shutdown feature
is disabled in RBSU.

Specifications 103
Specifications
Environmental specifications
Specification Value
Temperature range*
Operating
10
C to 35
C (50
F to 95
F)
Shipping -30C to 50C (-22F to 122F)
Storage -30°C to 60°C (-22°F to 140°F)
Maximum wet bulb
temperature
28C (82.4F)
Relative humidity
(noncondensing)**
Operating 10% to 90%
Non-operating 5% to 95%
* All temperature ratings shown are for sea level. An altitude derating of 1°C per 300 m (1.8°F per 1,000 ft) to 3048
m (10,000 ft) is applicable. No direct sunlight allowed.
** Storage maximum humidity of 95% is based on a maximum temperature of 45°C (113°F). Altitude maximum for
storage corresponds to a pressure minimum of 70 KPa.
Mechanical specifications
Specification Value
Dimensions
Height 8.59 cm (3.38 in)
Depth 66.07 cm (26.01 in)
Width 44.54 cm (17.54 in)
Weight (maximum) 27.2 kg (60.0 lb)
Weight (no drives installed) 20.4 kg (47.2 lb)
Power supply specifications
Depending on installed options, the server is configured with one of the following power supplies:
• HP ProLiant 1200 W Power Supply
Specification Value
Input requirements
Rated input voltage 100 to 120 VAC, 200 to
240 VAC
Rated input frequency
50 Hz to 60 Hz

Specifications 104
Rated input current
10 A at 100 VAC
4.9 A at 200 VAC
Rated input power 930 W at 100V AC input
1348 W at 200V AC input
BTUs per hour 3530 at 120V AC input
4600 at 200V to 240V AC input
Power supply output
Rated steady-state power 800 W at 100V AC input
900 W at 120V AC input
1200 W at 200V to 240V AC
input
Maximum peak power 800 W at 100V AC input
900 W at 120V AC input
1200 W at 200V to 240V AC
input
• HP ProLiant 750 W Power Supply
Specification Value
Input requirements
Rated input voltage 100 to 120 VAC, 200 to
240 VAC
Rated input frequency 50 Hz to 60 Hz
Rated input current 8.9 A at 100 VAC
4.3 A at 200 VAC
Rated input power 857 W at 100V AC input
824 W at 200V AC input
BTUs per hour 2925 at 100V AC input
2812 at 200V AC input
Power supply output
Rated steady-state power 750 W at 100V to 120V AC input
750 W at 200V to 240V AC input
Maximum peak power 750 W at 100V to 120V AC input
750 W at 200V to 240V AC input
• HP ProLiant 460 W Power Supply
Specification Value
Input requirements
Rated input voltage 100 to 120 VAC, 200 to
240 VAC
Rated input frequency 50 Hz to 60 Hz
Rated input current 5.5 A at 100 VAC
2.6 A at 200 VAC
Rated input power 526 W at 100V AC input
505 W at 200V AC input
BTUs per hour 1794 at 100V AC input
1725 at 200V AC input
Power supply output

Specifications 105
Rated steady-state power
460 W at 100V to 120V AC input
460 W at 200V to 240V AC input
Maximum peak power 460 W at 100V to 120V AC input
460 W at 200V to 240V AC input
Hot-plug power supply calculations
For hot-plug power supply specifications and calculators to determine electrical and heat loading for the
server, refer to the HP Enterprise Configurator website (http://h30099.www3.hp.com/configurator/).

Acronyms and abbreviations 106
Acronyms and abbreviations
ASR
Automatic Server Recovery
BBWC
battery-backed write cache
DDR
double data rate
FBWC
flash-backed write cache
iLO
Integrated Lights-Out
IML
Integrated Management Log
NMI
nonmaskable interrupt
NVRAM
nonvolatile memory
PCIe
peripheral component interconnect express
PCI-X
peripheral component interconnect extended
POST
Power-On Self Test
RBSU
ROM-Based Setup Utility
Acronyms and abbreviations 107
SAS
serial attached SCSI
SATA
serial ATA
TPM
Trusted Platform Module
UID
unit identification
USB
universal serial bus

Documentation feedback 108
Documentation feedback
HP is committed to providing documentation that meets your needs. To help us improve the documentation,
send any errors, suggestions, or comments to Documentation Feedback (mailto:docsfeedback@hp.com).
Include the document title and part number, version number, or the URL when submitting your feedback.

Index 109
A
access panel 30
air baffle 31
B
battery 69
battery cabling for BBWC 81
battery pack LEDs 99
battery-backed write cache (BBWC) 48, 50, 99
battery-backed write cache battery pack 48
BBWC cabling 81
bezel, front 44, 45
blue screen event 93
buttons 85
C
cable management arm 27, 28
cables 80
cabling 80
cabling, BBWC 81
cache module 49
cache module, removing 49
cautions 29
components 16, 25, 85
components, identification 16, 85
components, system board 93
connectors 85
crash dump analysis 93
CSR (customer self repair) 6
customer self repair (CSR) 6
D
diagnostic tools 82
diagnostics utility 82
DIMMs 68, 94
drive LEDs 97
drives 33, 97
E
electrostatic discharge 29
environmental specifications 103
expansion boards 55
expansion slot covers 47, 53
expansion slot covers, removing 47, 53
expansion slots 53
extending server from rack 26
F
fan cage 46
fans 39
FBWC cabling 81
FBWC capacitor cabling 81
FBWC module LEDs 100
features 85
flash-backed write cache capacitor pack 52
flash-backed write cache module 51
flash-backed write cache procedures 51
front panel buttons 86
front panel components 85
full-length expansion board 56
H
half-length expansion board 55
hard drive backplane 40, 42
hard drive bays 85
hard drive blanks 33
hard drive cage 41, 43
hard drive LEDs 97
hard drives, determining status of 97
health LEDs 86
heatsink 57
HP Insight Diagnostics 82
HP Insight Remote Support software 83
I
illustrated parts catalog 16
IML (Integrated Management Log) 83
Insight Diagnostics 82
Integrated Management Log (IML) 83
L
LEDs 88, 97
Index
Index 110
LEDs, battery pack 99
LEDs, hard drive 97
LEDs, SAS hard drive 97
LEDs, troubleshooting 98
M
management tools 82
mechanical components 16
mechanical specifications 103
memory 95
memory dump 93
N
NIC connectors 89
NMI header 93
O
operating system crash 93
optical drive 36, 85
optical drive cage 37
P
part numbers 16
PCI expansion slots 90
PCI riser cage 32
power LEDs, system 99
power requirements 105
power supply 35, 105
power supply backplane 38
power supply blank 34
power supply cage assembly 59
power supply LEDs 90
power supply specifications 103
powering down 25
preparation procedures 25
processor tool 57, 60, 71
processors 60
R
rear panel buttons 90
rear panel components 89
rear panel LEDs 90
rear panel, accessing 27
removal and replacement procedures 25
removing server from rack 27
removing the access panel 30
removing the battery pack 49
S
safety considerations 29
SAS and SATA device numbers 96
SAS drive numbers 97
SAS hard drive LEDs 97
SD card slot 92
spare part numbers 16
specifications 103
specifications, environmental 103
specifications, mechanical 103
specifications, power 103
specifications, server 103
static electricity 29
status lights, battery pack 99
switches 70, 93
system battery 69
system board components 92
system board replacement 71, 92
system components 85
system maintenance switch 70, 93
system power LED 86, 99
Systems Insight Display LEDs 87, 88
T
telco racks 27
tool, processor 57, 60, 71
tools 25
troubleshooting 82
Trusted Platform Module (TPM) 30
U
UID LED 93
USB connectors 85
USB support 84
utilities 82
V
video connector 85
W
warnings 29