Hayward H200FDN Manual
User Manual: Hayward-H200FDN-Manual Igor's of metalworking and electrical manuals
Open the PDF directly: View PDF
.
Page Count: 64

FOR YOUR SAFETY
WARNING: If the information in these
instructions is not followed exactly, a re or
explosion may result causing property damage,
injury, or death.
- Do not store or use gasoline or other am-
mable vapors or liquids in the vicinity of this
or any other appliance.
WHAT TO DO IF YOU SMELL GAS:
• Do not try to light any appliance.
• Do not touch any electrical switch; do not use
any phone in your building.
• Immediately call your gas supplier from a
neighbor’s phone. Follow the gas supplier’s
instructions.
• If you cannot reach your gas supplier, call the
re department.
- Installation and service must be performed by
a qualied installer, service agency, or the
gas supplier.
POOL AND SPA/HOT TUB HEATERS
H150FD, H200FD, H250FD, H300FD,
H350FD & H400FD MODELS
SERVICE & INSTALLATION MANUAL
FOR YOUR SAFETY
This product must be installed and serviced by authorized personnel, qualied in pool/
spa heater installation. Improper installation and/or operation can create carbon monoxide gas
and ue gases that can cause serious injury, property damage, or death.
PRINTED 10/24/2011 AT 1:13 PM
1301623301 Rev J 0413
U.S. PATENT NOS. 6,026,804, 6,321,833, & 7,971,603

Pomona, CA Clemmons, NC Nashville, TN
Tel: 908-351-5400 www.haywardpool.com
USE ONLY HAYWARD GENUINE REPLACEMENT PARTS
2CONTENTS
Section I General information ........................... 7
Introduction .................................................... 7
Warranty ........................................................ 7
Maintaining proper water chemistry ............... 7
Section II Installation ......................................... 9
Equipment inspection .................................... 9
Important notice ............................................. 9
Conformance with codes ............................... 9
Altitude of installation ..................................... 9
Uncrating the heater .................................... 11
Locating the heater ....................................... 11
Flooring ........................................................ 12
Tie-Down Brackets .......................................12
Indoor Installation and Venting ..................... 13
Clearances ................................................... 13
Air Supply ..................................................... 13
Vertical Venting ............................................. 15
Horizontal or Vertical Venting ....................... 16
Vent Kit Installation ....................................... 18
Reversible water connections ...................... 20
Gas supply and piping ................................. 22
Water piping .................................................25
Installation above pool surface .................... 27
Chlorinator/chemical feeder ......................... 27
Drain valve installation (ASME Models) ....... 28
Pressure relief valve .................................... 28
Electricalspecications ................................ 28
Electrical connections .................................. 29
Remote control connection .......................... 30
Section III Check-out & Start-up ..................... 33
General ........................................................ 33
Gas line testing ............................................ 33
Gas pressure testing ................................... 34
Water pressure switch .................................35
Two-speed pump ......................................... 35
Temperature adjustment .............................. 36
Temperature lock-out ................................... 37
Fahrenheit v. Celsius ................................... 37
Heating mode .............................................. 37
Retry (Failure of light) .................................. 38
Recycle(Lossofame) ............................... 38
Keypad inputs .............................................. 38
Automatic reset time .................................... 39
Periodic inspection ...................................... 39
Winterization ................................................ 39
Draining the heat exchanger ....................... 40
Spring start-up ............................................. 40
Section IV Technician Service ........................ 41
General ........................................................ 41
Maintenance ................................................ 41
Heat exchanger inspection and cleaning ..... 42
Combustion chamber .................................. 42
Heat exchanger removal ............................. 42
Burner inspection and cleaning ................... 42
Burner removal and replacement ................ 43
Gas valve replacement ................................ 43
Igniter ........................................................... 44
Flame sensor ............................................... 44
Burnerorices ............................................. 44
Gas conversion ............................................ 45
Electrical wiring ............................................ 45
Ignition control system ................................. 46
Blower vacuum switch .................................. 46
High limit switch ........................................... 47
Thermistor .................................................... 48
Water pressure switch .................................48
Transformer ................................................. 49
Blower .......................................................... 49
By-pass service cartridge ............................ 49
Section V Troubleshooting ............................. 50
General ........................................................ 50
Automatic reset time .................................... 50
Supply wiring ............................................... 50
Internal wiring .............................................. 51
Fusespecications ...................................... 51
Error codes ................................................... 52
Troubleshooting ........................................... 54
Warranty ....................................................... 58
Service Parts ................................................ 60

Pomona, CA Clemmons, NC Nashville, TN
Tel: 908-351-5400 www.haywardpool.com
USE ONLY HAYWARD GENUINE REPLACEMENT PARTS
3
SAFETY INFORMATION
Basic safety precautions should always be followed, including the following: Failure to follow instructions
can cause severe injury and/or death.
This is the safety-alert symbol. When you see this symbol on your equipment or in this manual, look for
one of the following signal words and be alert to the potential for personal injury.
WARNING warns about hazards that could cause serious personal injury, death or major property dam-
age and if ignored presents a potential hazard.
CAUTION warns about hazards that will or can cause minor or moderate personal injury and/or prop-
erty damage and if ignored presents a potential hazard. It can also make consumers aware of actions that
are unpredictable and unsafe.
ATTENTION indicates special instructions that are important but not related to hazards.
READ AND FOLLOW ALL INSTRUCTIONS IN THIS OWNER’S
MANUAL AND ON EQUIPMENT.
IMPORTANT SAFETY INSTRUCTIONS
Before installing or servicing this electrical equipment, turn power supply OFF.
KEEP SAFETY LABELS IN GOOD CONDITION AND REPLACE IF MISSING OR DAMAGED.
WARNING – To reduce risk of injury, do not permit children to use or climb on the heater, pumps or
lters. Closely supervise children at all times. Components such as the ltration system, pumps, and
heaters must be positioned to prevent children from using them as a means of access to the pool.
CAUTION – This heater is intended for use on permanently installed swimming pools and may also
be used with spas. Do NOT use with storable pools. A permanently installed pool is constructed in or
on the ground or in a building such that it cannot be readily disassembled for storage. A storable pool is
constructed so that it is capable of being readily disassembled for storage and reassembled to its original
integrity.
Though this product is designed for outdoor use, it is strongly recommended to protect the electrical
components from the weather. Select a well drained area, one that will not ood when it rains. It requires free
circulation of air for cooling. Do not install in a damp or non-ventilated location.
WARNING – It is required that licensed electricians do all electrical wiring. Risk of
Electric Shock. Hazardous voltage can shock, burn, cause death or serious property
damage. To reduce the risk of electric shock, do NOT use an extension cord to connect
unit to electric supply. Provide a properly located outlet. All electrical wiring MUST be
in conformance with applicable local and national codes and regulations. Before work-
ing on this unit, turn off power supply to the heater.
WARNING – To reduce the risk of electric shock replace damaged wiring immediately. Locate conduit
to prevent abuse from lawn mowers, hedge trimmers and other equipment.
WARNING – Failure to bond to pool structure will increase risk for electrocution and could result in
injury or death. To reduce the risk of electric shock, the electrician must comply with installation in-
structions and must bond the heater accordingly. In addition, the licensed electrician must also conform
to local electrical codes for bonding requirements.

Pomona, CA Clemmons, NC Nashville, TN
Tel: 908-351-5400 www.haywardpool.com
USE ONLY HAYWARD GENUINE REPLACEMENT PARTS
4
NOTES TO THE ELECTRICIAN:
Use a solid copper conductor, size 8 or larger. Run a continuous wire from external bonding lug to rein-
forcing rod or mesh. Connect a No. 8 AWG solid copper bonding wire to the grounding lug provided on the
heater and to all metal parts of swimming pool or spa, and to all electrical equipment, metal piping (except
gas piping), and conduit within 5 ft. (1.5 m) of inside walls of swimming pool or spa. IMPORTANT -Refer-
ence NEC codes for all wiring standards including, but not limited to, grounding, bonding and other general
wiring procedures.
WARNING – Suction Entrapment Hazard.
Suction in suction outlets and/or suction outlet covers which are damaged, broken,
cracked, missing, or unsecured can cause severe injury and/or death due to the following
entrapment hazards:
Hair Entrapment- Hair can become entangled in suction outlets.
Limb Entrapment- A limb inserted into an opening of a suction outlet or suction outlet
cover that is damaged, broken, cracked, missing, or not securely attached can result in a
mechanical bind or swelling of the limb.
Body Suction Entrapment- A differential pressure applied to a large portion of the body or limbs can
result in an entrapment.
Evisceration/ Disembowelment - A vacuum applied directly to the intestines through an unprotected
suction outlet sump or suction outlet cover which is damaged, broken, cracked, missing, or unsecured
can result in evisceration (disembowelment).
Mechanical Entrapment- There is potential for jewelry, swimsuit, hair decorations, nger, toe or knuck-
le to be caught in an opening of a suction outlet or suction outlet cover resulting in mechanical entrap-
ment.
WARNING - To reduce the risk of entrapment hazards:
• When suction outlets are less than a 18” x 23” equivalent, a minimum of two function-
ing suction outlets per pump must be installed. Suction outlets in the same plane (i.e.
oor or wall), must be installed a minimum of three feet (3’) [1 meter] apart, as mea-
sured from near point to near point.
• Dual suction outlets shall be placed in such locations and distances to avoid “dual
blockage” by a user.
• Dual suction ttings shall not be located on seating areas or on the backrest for such
seating areas.
• The maximum system ow rate shall not exceed the ow rating of any listed (per current revision of
ASME/ANSI A112.19.8) suction outlet cover installed.
• Never use the Pool or Spa if any suction outlet component is damaged, broken, cracked, missing, or
not securely attached.
• Replace damaged, broken, cracked, missing, or not securely attached suction outlet components im-
mediately.
• Install two or more suction outlets per pump in accordance with latest APSP (formally NSPI) Stan-
dards and CPSC guidelines. Follow all applicable National, State, and Local codes.

Pomona, CA Clemmons, NC Nashville, TN
Tel: 908-351-5400 www.haywardpool.com
USE ONLY HAYWARD GENUINE REPLACEMENT PARTS
5
WARNING – Failure to remove pressure test plugs and/or plugs used in winterization of the pool/spa
from the suction outlets can result in an increase potential for suction entrapment as described above.
WARNING – Failure to keep suction outlet components clear of debris, such as leaves, dirt, hair, paper
and other material can result in an increase potential for suction entrapment as described above.
WARNING – Suction outlet components have a nite life, the cover/grate should be inspected fre-
quently and replaced at least every ten years or if found to be damaged, broken, cracked, missing, or not
securely attached.
WARNING – All suction and discharge valves MUST be OPEN when starting the circulation system.
Failure to do so could result in severe personal injury and/or property damage. All drains and suction
outlets MUST have properly installed covers, securely attached using the screws supplied with the cov-
ers. If screws are lost, order replacement parts from your supplier.
WARNING – Hazardous Pressure. Pool and spa water circulation systems operate
under hazardous pressure during start up, normal operation, and after pump shut off.
Stand clear of circulation system equipment during start up. Failure to follow safety
and operation instructions could result in violent separation of the pump housing and
cover due to pressure in the system, which could cause property damage, severe per-
sonal injury, or death. Before servicing pool and spa water circulation system, all sys-
tem and pump controls must be in off position and lter manual air relief valve must
be in open position. Before starting system pump, all system valves must be set in a
position to allow system water to return back to the pool. Do not change lter control
valve position while system pump is running. Before starting system pump, fully open
lter manual air relief valve. Do not close lter manual air relief valve until a steady
stream of water (not air or air and water) is discharged.
WARNING – Separation Hazard. Failure to follow safety and operation instructions
could result in violent separation of pump components. Strainer cover must be prop-
erly secured to pump housing with strainer cover lock ring. Before servicing pool and
spa circulation system, manual air relief valve must be in open position. Do not oper-
ate pool and spa circulation system if a system component is not assembled properly,
damaged, or missing. Do not operate pool and spa circulation system unless lter air
relief valve body is in locked position in lter upper body.
WARNING – Never operate or test the circulation system at more than 40 PSI.
WARNING – Fire and burn hazard. Motors operate at high temperatures and if they are not properly
isolated from any ammable structures or foreign debris they can cause res, which may cause severe
personal injury or death. It is also necessary to allow the motor to cool for at least 20 minutes prior to
maintenance to minimize the risk of burns.
WARNING – Failure to install according to dened instructions may result in severe personal injury or
death.

Pomona, CA Clemmons, NC Nashville, TN
Tel: 908-351-5400 www.haywardpool.com
USE ONLY HAYWARD GENUINE REPLACEMENT PARTS
6
WARNING – The following “Safety Rules for Hot Tubs” recommended by the U.S. Consumer
Product Safety Commission should be observed when using the spa.
1. Spa or hot tub water temperatures should never exceed 104°F [40°C]. A temperature of 100°F
[38°C] is considered safe for a healthy adult. Special caution is suggested for young children. Pro-
longed immersion in hot water can induce hyperthermia.
2. Drinking of alcoholic beverages before or during spa or hot tub use can cause drowsiness, which
could lead to unconsciousness and subsequently result in drowning.
3. Pregnant women beware! Soaking in water above 100°F [38°C] can cause fetal damage during the
rst three months of pregnancy (resulting in the birth of a brain-damaged or deformed child). Preg-
nant women should adhere to the 100°F [38°C] maximum rule.
4. Before entering the spa or hot tub, users should check the water temperature with an accurate ther-
mometer; spa or hot tub thermostats may err in regulating water temperatures by as much as 4°F
(2.2°C).
5. Persons taking medications, which induce drowsiness, such as tranquilizers, antihistamines or anti-
coagulants, should not use spas or hot tubs.
6. If the pool/spa is used for therapy, it should be done with the advice of a physician. Always stir pool/
spa water before entering the pool/spa to mix in any hot surface layer of water that might exceed
healthful temperature limits and cause injury. Do not tamper with controls, because scalding can
result if safety controls are not in proper working order.
7. Persons with a medical history of heart disease, circulatory problems, diabetes or blood pressure
problems should obtain a physicians advice before using spas or hot tubs.
8. Hyperthermia occurs when the internal temperature of the body reaches a level several degrees
above normal body temperature of 98.6°F [37°C]. The symptoms of Hyperthermia include: drowsi-
ness, lethargy, dizziness, fainting, and an increase in the internal temperature of the body.
The effects of Hyperthermia include:
1. Unawareness of impending danger.
2. Failure to perceive heat.
3. Failure to recognize the need to leave the spa.
4. Physical inability to exit the spa.
5. Fetal damage in pregnant women.
6. Unconsciousness resulting in danger of drowning.
DEFINITIONS:
Suction Outlet – The term Suction Outlet is a tting, tting assembly, cover/grate and related compo-
nents that provide a means for water to exit the pool and into the pump circulating
system.
Inches of
Mercury (in Hg) - A unit for measuring pressure below atmospheric (“suction” or “vacuum”) (1.0 inch
Hg = .491 PSI)
Main Drain – See Suction Outlet
PSI – An abbreviation for pounds per square inch.

Pomona, CA Clemmons, NC Nashville, TN
Tel: 908-351-5400 www.haywardpool.com
USE ONLY HAYWARD GENUINE REPLACEMENT PARTS
7
INTRODUCTION:
This manual contains instructions for installation, operation, maintenance, troubleshooting, and parts lists
for the safe use of the swimming pool/spa/hot tub heaters. Hayward strongly recommends that the installer
read the manual before installing the swimming pool/spa/hot tub heater. If after reviewing the manual any
questions remain unanswered, contact the factory or local representative. Following heater installation, the
installer should leave all manuals with the consumer for future reference.
LIMITED WARRANTY SUMMARY:
Hayward warrants the pool/spa/hot tub heater to be free from defects in materials and workmanship, and
will within one year from date of installation for all users, for the original purchaser, repair or, at our option,
replace without charge any defective part. Hayward further warrant that if the heat exchanger or exchanger
headers (water-containing section) leak within one year from date of such installation for all users, due to
defects in materials and workmanship, Hayward will provide a replacement part. Cost of freight, installation,
fuel, and service labor (after one year) is at user’s expense. For full details of warranty agreement, see war-
ranty certicate included in this manual.
ATTENTION: If the pool/spa/hot tub heater is damaged or destroyed by improper maintenance, exces-
sive water hardness, incorrect water chemistry, or freezing it is not covered under the manufacturer’s
warranty.
SECTION I. GENERAL INFORMATION
MAINTAINING PROPER WATER CHEMISTRY:
The heat exchanger in your Hayward pool heater is made from the highest quality of copper and nickel
(Cupronickel) materials. The premium materials and the exacting processes used in the manufacture of the
heat exchanger is state of the art in pool heater design and manufacture. Yet, it remains vital that the heat ex-
changer be protected from damaging or corrosive chemicals, insufcient water ow or improperly balanced
water chemistry. Heat exchanger damage or failure resulting from improper ow, improperly balanced pool
water or the improper addition of sanitizers into the water is NOT covered under the terms of your warranty.
The following factors are critical to heat exchanger protection. Follow these guidelines to help prevent
pre-mature damage or failure to your heater and heat exchanger.
1. WATER FLOW THROUGH HEATER
Water must be owing through the heater at the minimum rated ow rate during operation. Check that
the pump is operating and the system is lled with water and purged of all air prior to starting the heater. The
minimum rated ow rates are listed on page 26. Some installations may require an adjustment to the water
pressure switch for proper low-ow protection. Test your system and if necessary, adjust the water pressure
switch as described on page 35.
WARNING: Failure to Maintain Proper Water Chemistry May Cause
Premature Heat Exchanger Damage or Failure

Pomona, CA Clemmons, NC Nashville, TN
Tel: 908-351-5400 www.haywardpool.com
USE ONLY HAYWARD GENUINE REPLACEMENT PARTS
8
2. POOL/SPA WATER CHEMISTRY
The chemistry balance and mineral content of swimming pool water changes daily due to the addition of
pool and sanitizing chemicals, bather loads, rain, runoff and the amount of sun - to name a few. Improper chem-
istry balance and mineral content can cause scaling and deposits to form on pool walls, in the ltration system,
in the heat exchanger tubes and additionally can promote corrosive action to all metals in the water path. Chang-
ing spa water regularly and maintaining the correct chemical balance in your pool/spa will keep the pool/spa
safe and sanitary, and will help protect the heat exchanger. Use a 4-way pool/spa water test kit to check your
water frequently (at least weekly). Use the following guidelines to help protect your heater’s heat exchanger:
3. SKIMMER CHLORINATION
Placing chlorine or bromine tablets directly into the skimmer may result in high chemical concentrations
owing through the heater. DO NOT place chlorine or bromine tablets in the skimmer.
4. CHLORINATOR INSTALLATION
Chlorinators must be installed downstream of the heater, and a check valve must be installed between the
heater and chlorinator to prevent high chemical concentrations from back owing into the heater. Make sure your
piping arrangement meets the chlorinator installation requirements shown on page 27.
5. BYPASS
Until water chemistry is properly balanced, and if your piping has a bypass valve installed for the heater,
open the bypass so that corrosive and potentially damaging water will not ow through the heater and there-
fore the heat exchanger. Close the bypass valve once the water is properly balanced. Failure to close the
bypass valve when attempting to operate the heater will result in extensive damage to the heat exchanger.
Ensure water ow through the heater is restored before operating the heater. A bypass feature is also advanta-
geous for service needs and for the ability to remove the heater from the water path when not heating. Refer
to page 26 for further information.
Recommended
LevelEffect of Low Levels Effect of High Levels
Chlorine1 - 3 ppm
Bromine 2 - 4 ppm
pH 7.4 - 7.6corrosive to heat exchanger,
swimmer irritation
cloudy water, scaling of heat exchanger,
reduced sanitizer effectiveness
Total Alkalinity80 - 120 ppm corrosive to heat exchanger,
large fluctuations in pH scaling of heat exchanger
Calcium Hardness 200 - 400 ppm corrosive to heat exchangerscaling of heat exchanger
Salt 2700 - 5000 ppm poor salt chlorinator performancecorrosive to heat exchanger
hazy water, algea growth,
bacteria causing infections
swimmer irritation, bleaching of clothes/hair,
corrosive to heat exchanger

Pomona, CA Clemmons, NC Nashville, TN
Tel: 908-351-5400 www.haywardpool.com
USE ONLY HAYWARD GENUINE REPLACEMENT PARTS
9
EQUIPMENT INSPECTION:
On receipt of the heater, inspect the heater carton(s) for damage. If any carton(s) is damaged, note it when
signing for it. Remove the heater from the carton(s) inspect it and advise the carrier of any damages at once.
IMPORTANT NOTICE:
The installation instructions are intended for the use of a qualied technician, specically trained and
experienced in the installation of this type of heating equipment. Some states or provinces require that instal-
lation be licensed. If this is the case in the state or province where heater is located, the contractor must be
properly licensed.
WARNING: Failure to comply with the appliance and vent package installation instructions and service
instructions in this manual may result in equipment damage, re, asphyxiation, or carbon monoxide poi-
soning. Exposure to products of incomplete combustion (carbon monoxide) can cause cancer and birth
defects or other reproductive harm.
CONFORMANCE WITH CODES:
The heater shall be installed in accordance with all local and state codes. The heater installation must con-
form to the latest edition of the National Fuel Gas Code (ANSI Z223.1/NFPA 54) and with the requirements of
the authority having jurisdiction. Design certication of the heater is in compliance with ANSI Z21.56/CSA 4.7.
For Canadian installations, the heater is to be installed in accordance with the standards CAN/CGA B149.1
and B149.2 – Installation Codes for Gas Burning Appliances and Equipment and/or local codes and, if appli-
cable, CSA C22.1 – Canadian Electrical Code, Part I.
ALTITUDE OF INSTALLATION:
The heater may be installed at any altitude up to 10,100 ft above sea level, provided the appropriate
modication(s) are performed. The altitudes which require modication vary depending on the model. Parts
necessary to convert the heater for outdoor installation at altitudes up to 7,700 ft (minimum) are included
with the heater. Conversion is accomplished by replacement of the blower air inlet plate, and for indoor ap-
plications, installation of a special vent pressure switch. The blower air inlet plates are clearly marked with
the compatible heater model(s), vent conguration(s), and altitude range(s). Care should be taken to verify
the correct plate (and vent pressure switch, when applicable) is being used to ensure proper heater perfor-
mance. The vent pressure switch should be provided with the indoor adapter kit, or if you have an older
indoor adapter kit, order p/n FDXLVPS1931 for the high-altitude indoor vent pressure switch.
High-Altitude Conversion Procedure:
1. Identify the altitude of the installation site. This may be done using a GPS device, or by looking up the
altitude for the geographic location. Altitudes for all locations in the United States and Canada may be
found using the zip/postal code database at www.zip-codes.com. If the altitude for the installation site
is greater than 10,100 ft, the heater may not be installed. Note that if installing outdoors, some
Universal H-Series heaters may be compatible with your altitude without modication. Table 1 lists the
altitude ranges for heaters without modication. All indoor heaters installed above 2,000 ft require a
special vent pressure switch.
2. Select the appropriate blower air inlet plate to use based on the heater model, vent conguration
(outdoor or indoor), and altitude needed. Extra plate(s) are included with the heater, packaged in the
plastic bag with this manual. Each plate has a label which identies which model(s), vent
conguration(s), and altitude range(s) it is designed for. Table 1 lists the maximum installation
altitudes using the included conversion plate(s). If installing above 7,700 ft, the high-altitude kit
SECTION II. INSTALLATION

Pomona, CA Clemmons, NC Nashville, TN
Tel: 908-351-5400 www.haywardpool.com
USE ONLY HAYWARD GENUINE REPLACEMENT PARTS
10
FDXLHAK1930 (sold separately) may be necessary.
3. If installing indoors, select the appropriate high-altitude indoor vent pressure switch from the indoor
adapter kit or from the FDXLVPS1931 kit. Each switch has a label which identies which model(s) and
altitude range(s) it is designed for.
4. If connected, turn pump, main gas valve, and heater power off.
5. Remove heater front access door.
6. Remove the 4 #10 hex head screws that fasten the blower air inlet plate to the blower, and remove the
blower air plate and discard. Save the 4 screws as they will be needed to install the new plate.
See Figure 49 (page 47).
7. Install the appropriate blower plate from the kit using the 4 screws. It may be helpful to drive the screws
in and out of the plate outside of the heater rst to “thread” the holes before installing it in the heater.
8. If the installation is congured for indoor venting, a special high-altitude vent pressure switch must be
installed. Follow the instructions for vent kit installation (page 17), but use the appropriate blower air
inlet plate and vent pressure switch for your altitude.
9. Re-install heater front door.
10. If connected, turn pump, main gas valve, and heater power back on.
11. Activate heater and check for proper function.
Table 1 lists the maximum altitudes each model is designed for with: a) no modications, b) the included
conversion plate installed, and c) the accessory conversion kit FDXLHAK1930 installed (sold separately).
TABLE 1
No Modifications
to Heater
Included
Conversion Plate
Installed on
Heater
Conversion kit
FDXLHAK1930
Installed on
Heater
No Modifications
to Heater
Included
Conversion Plate
Installed on
Heater
Conversion kit
FDXLHAK1930
Installed on
Heater
H150FDNNAT 7,700 ft N/A10,100 ft 10,100 ft N/
AN
/A
H150FDPLP7,700 ft N/A10,100 ft 2,000 ft 10,100 ft N/A
H200FDNNAT 10,100 ft N/AN/A 10,100 ft N/
AN
/A
H200FDPLP5,400 ft 10,100 ft N/A2,000 ft 10,100 ft N/A
H250FDNNAT 5,400 ft 10,100 ft N/A2,000 ft 10,100 ft N/A
H250FDPLP2,000 ft 7,700 ft 10,100 ft 2,000 ft 7,700 ft 10,100 ft
H300FDNNAT 10,100 ft N/AN/A 10,100 ft N/
AN
/A
H300FDPLP2,000 ft 10,100 ft N/A2,000 ft 10,100 ft N/A
H350FDNNAT 2,000 ft 10,100 ft N/A2,000 ft 10,100 ft N/A
H350FDPLP2,000 ft 7,700 ft 10,100 ft 2,000 ft 7,700 ft 10,100 ft
H400FDNNAT 10,100 ft N/AN/A 10,100 ft N/
AN
/A
H400FDP LP 2,000 ft 7,700 ft 10,100 ft 2,000 ft 7,700 ft 10,100 ft
Indoor Installation *
Maximum Installation Altitude
* All indoor installations at altitudes above 2,000 ft also require a special vent pressure switch to be installed in addition to the blower air inlet plate.
The special vent pressure switch is included with the appropriate indoor vent kit (UHXNEGVT1xxx or UHXPOSHZ1xxx), or the high-altitude vent
pressure switch kit FDXLVPS1931.
Heater ModelGas
Outdoor Installation

Pomona, CA Clemmons, NC Nashville, TN
Tel: 908-351-5400 www.haywardpool.com
USE ONLY HAYWARD GENUINE REPLACEMENT PARTS
11
LOCATING THE HEATER:
Locate the pool/spa/hot tub heater in an area where leakage of the heat exchanger or connections will not
result in damage to the area adjacent to the heater or to the structure. When such locations cannot be avoided,
it is recommended that a suitable drain pan, with drain outlet, be installed under the heater. The pan must not
restrict airow.
This heater must be installed at least (5) feet from the inside wall of a pool (in-ground or aboveground)/
spa/hot tub unless separated from the pool/spa/hot tub by a solid barrier.
The heater must be installed such that the location of the exhaust gas vent assembly outlet relative to
adjacent public walkways, adjacent buildings, openable windows, and building openings complies with the
National Fuel Gas Code (ANSI Z223.1/NFPA 54) and/or CAN/CGA B149 installation codes. Outdoor instal-
lation and service clearances:
The heater must be installed outdoors such that the installation and service clearances from combustible
materials shown in Table 2 are maintained. This heater may be installed on combustible oors.
1. The heater is self-venting when installed outdoors and does not require additional vent piping.
2. Do not install in a location where growing shrubs may in time obstruct a heater’s combustion air
and venting areas.
3. Do not install this appliance under an overhang less than (3) feet from the top of the appliance.
The area under the overhang must be open on (3) sides.
4. Do not install the heater where water spray from ground sprinkler can contact the heater. The wa-
ter could splash on the controls causing electrical damage.
5. Do not install under a deck.
UNCRATING THE HEATER:
To remove the shipping carton from the heater:
1. Remove the corrugated carton from the
heater. The carton, top pad, bottom pad, and
the four corner posts can be recycled.
2. There are three (3) screws total used to se-
cure the heater to the wood pallet. All three
must be removed to separate the heater from
the pallet. One (1) is located in the lower
rear of the heater as shown in Figure 1.
3. To access the other two (2) screws, open the
front access panel by removing the four (4)
black phillips-head screws. Then remove
the two (2) screws which hold the
heater base pan to the pallet as
shown in Figure 2.
4. Lift the heater clear of the corrugat-
ed bottom pad and off of the pallet.
ATTENTION: Do not drop the
heater from a pickup truck tailgate
to the ground. This may damage the
heater.
Remove the (2)
shipping screws
and discard bottom
corrugated tray.
Figure 2
Figure 1
The screw through the
rear shipping bracket
is located in this area.
Remove the screw.
It is not necessary to
remove the bracket or
the rear louvered panel.

Pomona, CA Clemmons, NC Nashville, TN
Tel: 908-351-5400 www.haywardpool.com
USE ONLY HAYWARD GENUINE REPLACEMENT PARTS
12
6. Do not install within 24” of any outdoor
HVAC equipment.
7. Do not install where water may run-off a
roof into the heater. A gutter may be needed
to protect the heater.
8. Any enclosure around the heater must
provide a combustion air vent commencing
within 12 inches of the bottom of the enclo-
sure. The vent opening shall have a mini-
mum free area of 1 square inch per 4,000
btu/hr input rating of all gas appliances in the enclosure. See Table 5.
FLOORING:
This heater may be installed on either non-combustible or combustible ooring. Ultralite™ or equivalent
concrete-over-foam HVAC pads are acceptable.
TIE-DOWN BRACKETS:
The heater is equipped for installation of factory-supplied tie-down brackets if required by local codes.
The brackets are shipped in the consumer kit. You will need the following to complete the installation:
1. Tie-down brackets (FACTORY-SUPPLIED, quantity = 4)
2. Sheet metal screws (FACTORY-SUPPLIED, quantity = 4)
3. Concrete tapping screws (tapcons) (eld-supplied, quantity = 4, size to be ¼” diameter with a
minimum length of 2”)
INSTALLING TIE-DOWN BRACKETS:
1. Locate the tie-down brackets and the sheet metal screws.
2. Obtain the tap-cons. Be sure the overall length of the concrete tapping screw is at least 2”.
3. Remove the front access panel (4 screws).
4. Remove the rear access panel (4 screws).
5. Position the heater on the pad so that all tap-
cons can “bite” into the pad. Observe local codes
regarding pad construction, some jurisdictions
specify a minimum thickness for concrete pads.
6. Slip the tie-down brackets into the slots in the
front of the heater base pan from underside of
the heater, so that they are positioned as shown
in gure 3. Install the sheet metal screws through
the holes in the bracket to secure the bracket to
the heater base pan.
7. Install the tap-cons through the holes in the tie-
down brackets into the pad.
8. Repeat Steps 6 & 7 at the rear of the heater.
9. Installation is completed when (4) brackets are
secured to the heater and the pad. Install the ac-
cess panels when complete.
Equipment pad
Install sheet metal screws (supplied) at
these locations (front and rear)
Install concrete tapping screws (eld-supplied)
at these locations (front and rear)
Figure 3
Table 2
Outdoor Installation Clearances
Heater Panel Required Clearance
Top Unobstructed
Front 24 inches
Back 6 inches
Water Connection Side 12 inches
Side Opposite Water Connection 6 inches

Pomona, CA Clemmons, NC Nashville, TN
Tel: 908-351-5400 www.haywardpool.com
USE ONLY HAYWARD GENUINE REPLACEMENT PARTS
13
INDOOR INSTALLATION AND VENTING
POSITIVE AND NEGATIVE PRESSURE VENTING SYSTEMS
The heater is designed such that it may be vented using either a negative-pressure or a positive-pressure
venting system. The appropriate system of venting for a particular site will depend on many factors such as
vent termination needs (horizontal/vertical), and the cost of venting system. Table 3 lists the indoor venting
kits available and the limitations of each system.
Table 3
Indoor Vent Kits and Limitations of Venting Systems
Indoor Vent Kit Part
Number Description
For Use With
Heater
Models
Vent Pipe Limitations Vent Pipe
Material
Vent
Termination
Requirement
UHXNEGVT11501
Indoor Vent Adapter Kit,
Negative Pressure,
Vertical Venting
Applications
H150FD
50 ft max vetical height,
25 ft max horizontal length
(horizontal length cannot
exceed 1/2 of vertical height),
3 elbows max
Single or Double
Wall Galvanized
Non-Sealed
Vent Pipe
Vertical Only,
Termination Above
Roof of House/
Building
UHXNEGVT12001 H200FD
UHXNEGVT12501 H250FD
UHXNEGVT13001 H300FD
UHXNEGVT13501 H350FD
UHXNEGVT14001 H400FD
UHXPOSHZ11501
Indoor Vent Adapter Kit,
Positive Pressure,
Horizontal or Vertical
Venting Applications
H150FD
50 ft max with 1 elbow,
40 ft max with 2 elbows,
or 30 ft max with 3 elbows
(horizontal or vertical)
Single or Double
Wall Stainless
Steel Sealed
Vent Pipe
Horizontal or
Vertical, Termina-
tion Immediately
Outside Wall of
House/Building
UHXPOSHZ12001 H200FD
UHXPOSHZ12501 H250FD
UHXPOSHZ13001 H300FD
UHXPOSHZ13501 H350FD
UHXPOSHZ14001 H400FD
CLEARANCES
The heater must be installed such that the installation and
service clearances from combustible materials shown in Table
4 are maintained. This heater may be installed on combustible
oors. Do not install heater in a closet.
AIR SUPPLY
Indoor installations and outdoor shelters (conned spaces)
must be provided with adequate combustion and ventilation air
vents to assure proper heater operation. These vents must be
sized according to the requirements stated in paragraph A or B below (whichever applies to the installation).
These vents must never be obstructed when heater is in operation.
When air blowers are used in spa/hot tub installations and are located in proximity to the heater, caution
must be observed to ensure sufcient combustion air is available to the heater for proper combustion. A separate
blower air duct is recommended.
Table 4
Indoor Installation Clearances
Heater Panel Required Clearance
Top 36 inches
Front 24 inches
Back 6 inches
Water Connection Side 12 inches
Side Opposite Water
Connection
6 inches

Pomona, CA Clemmons, NC Nashville, TN
Tel: 908-351-5400 www.haywardpool.com
USE ONLY HAYWARD GENUINE REPLACEMENT PARTS
14
(A) ALL AIR SUPPLY FROM INSIDE THE BUILDING:
The conned space shall be provided with 2 permanent openings communicating directly with an addi-
tional room(s) of sufcient volume so that the combined volume of all spaces meets the criteria for an uncon-
ned space (a space whose volume is not less than 50 cubic feet per 1,000 btu/hr). The total input of all gas
utilization equipment installed in the combined space shall be considered in making the determination. Each
opening shall have a minimum free area of 1 square inch per 1,000 btu/hr of the total input rating of all gas
utilization equipment in the conned space, but not less than 100 square inches. See Table 5. One opening
shall be within 12 inches of the top and and one within 12 inches of the bottom of the enclosure.
(B) ALL AIR SUPPLY FROM OUTDOORS:
The conned space shall be provided with 2 permanent
openings, once commencing within 12 inches of the bottom
of the enclosure. The opening shall communicate directly,
or by ducts, with the outdoors or spaces (crawl or attic) that
freely communicate with the outdoors.
1. When communicating with the outdoors (either di-
rectly or through vertical ducts), each opening shall
have a minimum free area of 1 square inch per 4,000
btu/hr of total input rating of all equipment in the
enclosure. See Table 5.
2. When communicating with the outdoors through hori-
zontal ducts, each opening shall have a minimum free
area of 1 square inch per 2,000 btu/hr of total input
rating of all equipment in the enclosure. See Table 5.
3. When ducts are used, they shall be of the same cross-
sectional area as the free area of the openings to
which they connect. The minimum dimension of rect-
angular air ducts shall not be less
than 3 inches.
4. When installing a heater below
ground (in a pit), combustion and
ventilation air openings must be
provided as shown in Figure 4.
Each opening shall have a mini-
mum free area of 1 square inch per
250 btu/hr or total input rating of
all equipment in the pit. See Table
5. Below-ground (pit) installations
must be natural gas only.
For more detailed methods of provid-
ing air for combustion and ventilation,
refer to the latest edition of the National
Fuel Gas Code (ANSI Z223.1/NFPA 54).
Table 5: Combustion and Ventilation Air Requirements
Free Area per Btu
Requirement
Total Input
(btu/hr)
Combustion Air Free
Area Required (sq. in.)
Ventilation Air Free
Area Required (sq. in.)
1 sq. in. per 1,000 btu/hr
(paragraph A)
150,000 150 150
200,000 200 200
250,000 250 250
300,000 300 300
350,000 350 350
400,000 400 400
1 sq. in. per 2,000 btu/hr
(paragraph B-2)
150,000 75 75
200,000 100 100
250,000 125 125
300,000 150 150
350,000 175 175
400,000 200 200
1 sq. in. per 4,000 btu/hr
(paragraph B-1)
150,000 37.5 37.5
200,000 50 50
250,000 62.5 62.5
300,000 75 75
350,000 87.5 87.5
400,000 100 100
1 sq. in. per 250 btu/hr
(paragraph B-4)
150,000 600 600
200,000 800 800
250,000 1000 1000
300,000 1200 1200
350,000 1400 1400
400,000 1600 1600
Figure 4
Below-Ground (Pit) Installation
Figure 9
Below-Ground (Pit) Installation
Ground Level
Ventilation
Air Combustion
Air
Air Duct from
Ground to Base
Drip Tee
Gas Cock
Sediment Trap Level Flooring
or Slab
Rise of 1 inch
per foot
Vent Cap

Pomona, CA Clemmons, NC Nashville, TN
Tel: 908-351-5400 www.haywardpool.com
USE ONLY HAYWARD GENUINE REPLACEMENT PARTS
15
Listed
cap
Listed gas
vent
12
Roof pitch is x/12
Lowest discharge opening
H (minimum)-
Minimum height from roof
to lowest discharge opening
x
VERTICAL VENTING – NEGATIVE PRESSURE
VENT SIZING
Size the vent pipe according to the venting
tables in the National Fuel Gas Code (ANSI
Z223.1/NFPA 54) for a Category I gas appliance
using single-wall or double-wall (Type B) gas
vent. Vent pipe diameter should not be less than
the size of the vent pipe adapter on the heater
(see Table 6). The maximum vent height can-
not exceed 50 ft. The total lateral (horizontal)
length cannot exceed 1/2 of the total vent height.
The system may have up to 3 90-degree elbows
maximum. Single-wall vent may be used in
conditioned spaces only. Clearance to combus-
tible materials for single-wall vent is 9 inches.
Double-wall (Type B) vent must be used in non-
conditioned spaces.
VENT TERMINATION
Vent extending through a roof or wall must be listed double-wall (Type B) vent, and pass through an
approved roof jack, or roof thimble. A listed vent cap must be used. Gas vents that are spaced less than 8 ft
horizontally from a vertical wall or similar obstruction shall terminate not less than 2 ft above any portion
of a building within 10 ft. Gas vents that are spaced 8 ft or more horizontally from a vertical wall or similar
obstruction shall terminate above the roof a distance H based on the roof pitch. Using the roof pitch, nd the
minimum value of H using Figure 5 and Table 7.
Table 6
Vent Pipe Diameters for
Negative-Pressure Indoor Vent Kits
Indoor Vent Kit
Part Number Heater Model
Vent Pipe
Diameter
UHXNEGVT11501 H150FD 6 inch
UHXNEGVT12001 H200FD 6 inch
UHXNEGVT12501 H250FD 6 inch
UHXNEGVT13001 H300FD 8 inch
UHXNEGVT13501 H350FD 8 inch
UHXNEGVT14001 H400FD 8 inch
Figure 5
Minimum Height from Roof for Vent Cap
Table 7
Height Requirements for Vent Caps
(see Figure 5)
Roof Slope
Min. Height H from Roof to
Lowest
Discharge Opening
Flat to 6/12 1.0 ft
Over 6/12 to 7/12 1.25 ft
Over 7/12 to 8/12 1.5 ft
Over 8/12 to 9/12 2.0 ft
Over 9/12 to 10/12 2.5 ft
Over 10/12 to 11/12 3.25 ft
Over 11/12 to 12/12 4.0 ft
Over 12/12 to 14/12 5.0 ft
Over 14/12 to 16/12 6.0 ft
Over 16/12 to 18/12 7.0 ft
Over 18/12 to 20/12 7.5 ft
Over 20/12 to 21/12 8.0 ft

Pomona, CA Clemmons, NC Nashville, TN
Tel: 908-351-5400 www.haywardpool.com
USE ONLY HAYWARD GENUINE REPLACEMENT PARTS
16
HORIZONTAL OR VERTICAL VENTING – POSITIVE PRESSURE
VENT SIZING
Vent pipe diameter must match the vent pipe diameter on the heater (see Table 9). The vent pipe must be
Heatfab single or double-wall stainless steel sealed vent as listed in Table 9. Double-wall vent must be used
in non-conditioned spaces. The maximum total length of vent pipe, and number of 90-degree elbows cannot
exceed the limits specified in Table 8.
The venting system must be installed in accordance with the vent manufacturer’s (Heatfab) installation in-
structions and guidelines. The installer is urged to visit Heatfab’s website (www.heatfab.com) and review the
installation information for Saf-T Vent EZ-Seal (single-wall) and/or Saf-T Vent CI Plus (double-wall) prod-
ucts.
VENT TERMINATION
The vent system must terminate with a vent terminal approved for this pool heater. Termination may be either
horizontal or vertical. See Table 9 for the Heatfab vent terminals which are approved.
OBTAINING VENT PIPE AND TERMINALS
Hayward offers a variety of double-wall vent components, including terminals, elbows, and straight lengths,
which will satisfy the needs of most applications. The available parts are listed in the service parts section in
the back of this manual. Also, Hayward publishes an instruction sheet which can be used as a guide in speci-
fying installation. It can be obtained on Hayward’s website at www.haywardnet.com. If you need more spe-
cialized fittings, you may order them directly from Heatfab, or from an authorized Heatfab dealer. To locate a
dealer for Heatfab venting parts, contact Heatfab at:
Selkirk Corporation
Heatfab Division
130 Industrial Blvd
Turners Falls, MA 01376
(800) 772-0739
www.heatfab.com
Number of 90-
degree Elbows
Maximum Vent Pipe
Length
(horizontal & vertical)
0 50 ft
1 50 ft
2 40 ft
3 30 ft
Table 8
Maximum Vent Pipe Length and Number of Elbows for
Positive-Pressure Vent Systems

Pomona, CA Clemmons, NC Nashville, TN
Tel: 908-351-5400 www.haywardpool.com
USE ONLY HAYWARD GENUINE REPLACEMENT PARTS
17
Table 9
Vent Pipe & Terminal Specications for Positive-Pressure Indoor Vent Kits
Kit Part Number Heater
Model
Nominal Vent
Pipe Diameter Vent Type Vent Pipe Horizontal Vent
Terminal
Vertical Vent
Terminal
UHXPOSHZ11501
UHXPOSHZ12001
H150FD
H200FD 6 inch
Single-Wall
Heatfab Saf-T
Vent EZ Seal
P/N 960x *
Heatfab P/N
9614TERM
(elbow terminal)
and
5691CI (wall
penetration)
Heatfab P/N
5600CI
Double-Wall
Heatfab Saf-
T Vent CI Plus
P/N CCA06Lxx **
Heatfab P/N
9614TERM
(elbow terminal),
CCK06FC (collar),
CCA06ADSV
(connector ring),
and
CCL06WPNS
(wall penetration)
Heatfab P/N
CCA06RC
UHXPOSHZ12501 H250FD 6 inch
Single-Wall
Heatfab Saf-T
Vent EZ Seal
P/N 960x *
Heatfab P/N
5690CI
Heatfab P/N
5600CI
Double-Wall
Heatfab Saf-
T Vent CI Plus
P/N CCA06Lxx **
Heatfab P/N
CCE06WP
Heatfab P/N
CCA06RC
UHXPOSHZ13001
UHXPOSHZ13501
UHXPOSHZ14001
H300FD
H350FD
H400FD
8 inch
Single-Wall
Heatfab Saf-T
Vent EZ Seal
P/N 980x *
Heatfab P/N
5890CI
Heatfab P/N
5800CI
Double-Wall
Heatfab Saf-T
Vent CI Plus
P/N CCA08Lxx **
Heatfab P/N
CCE08WP
Heatfab P/N
CCA08RC
* For vent pipe section length, “x” should be: 1, 2, 4, 5, or 7, where: 1=6 inches, 2=12 inches, 4=18 inches, 5=24 inches, and 7=36 inches.
** For vent pipe section length, “xx” should be: 06, 09, 12, 18, 24, or 36 indicating the length of the vent pipe section in inches.

Pomona, CA Clemmons, NC Nashville, TN
Tel: 908-351-5400 www.haywardpool.com
USE ONLY HAYWARD GENUINE REPLACEMENT PARTS
18
VENT KIT INSTALLATION PROCEDURE
(positive and negative-pressure venting)
1. If connected, turn pump, main gas valve, and heater power off.
2. Locate the heater as close as practical to the gas vent exit.
3. Remove the countersunk phillips-head screws and remove the ue cover panel on top of the heater
and discard. Save the countersunk screws as they will be re-used later.
4. Remove the screws that fasten the heat barrier to the heater. Remove the heat barrier and discard.
See Figure 6.
5. Remove the screws that fasten the rain guard to the heater. Remove the rain guard and discard. See
Figure 6.
6. Install the vent pipe adapter plate included in the kit into the heater using the #10 screws included
with the kit. Ensure the white gaskets are in place under the vent pipe adapter plate before install-
ing. See Figure 7.
7. Install the new ue cover included with the kit over the vent pipe adapter and secure with the coun-
tersunk screws from step 3 above. See Figure 8.
8. Remove heater front access door.
9. The vent pressure switches included with the indoor kit are labeled based on heater model and
altitude compatibility. Depending on your model and altitude, select the appropriate vent pressure
switch, and install inside the heater using 2 #10 screws as shown in Figure 9. If your heater is above
2,000 ft elevation, other high-altitude conversion steps may be necessary for proper heater perfor-
mance. Refer to the information on page 8 and/or the instructions with the FDXLHAK1930 high-
altitude kit.
10. Remove the rubber cap from the blower outlet pressure tap and discard. See Figure 10 for blower
tap location.
11. Attach the pressure switch tubing to the vent pressure switch and to the pressure tap on the blower
outlet. See Figure 10 for blower tap location.
12. Connect the jumper wire included with the indoor kit onto one of the terminals on the vent pressure
switch. Unplug the in-line quick connect on the red wire in the heater wire harness, and connect the
vent pressure switch in series with the red wire. See heater wiring schematic on page 28.
13. If installing the kit on models H250FDN, H250FDP, or H400FDP, you must also replace the existing
blower air inlet restrictor with the new one included in the kit.
a. Remove the 4 #10 hex head screws that fasten the plate to the blower, and remove the blower
air plate and discard. Save the 4 screws as they will be needed to install the new plate.
b. Install the new blower plate included in the kit using the 4 screws. It may be helpful to drive
the screws in and out of the plate outside of the heater rst to “thread” the holes before install-
ing it in the heater. See Figure 10.
14. Re-install heater front door.
15. Connect vent piping system to heater vent adapter.
16. If connected, turn pump, main gas valve, and heater power back on.
17. Activate heater and check for proper function.

Pomona, CA Clemmons, NC Nashville, TN
Tel: 908-351-5400 www.haywardpool.com
USE ONLY HAYWARD GENUINE REPLACEMENT PARTS
19
FIGURE 6
FIGURE 7
FIGURE 8
FIGURE 9
FIGURE 10
Heat Barrier
Rain Guard
Vent Adapter
Flue Cover
Vent Pressure
Switch
Blower
Pressure
Tap
Blower
Air Inlet
Plate
Vent Pressure
Switch Tubing

Pomona, CA Clemmons, NC Nashville, TN
Tel: 908-351-5400 www.haywardpool.com
USE ONLY HAYWARD GENUINE REPLACEMENT PARTS
20
REVERSIBLE WATER CONNECTIONS:
This heater is designed so that it can be installed
with the water connections located on either the right
or left side. Heaters are factory-shipped with right-side
water connections. To move the connections to the left
side follow the instructions below. A trained service
technician should perform these steps before the heater
is installed.
1. Before beginning, be aware that it is not necessary to remove the water header from the heat exchang-
er. When this procedure is complete, the water inlet will be located at the BACK of the heater. The
water outlet will be located at the FRONT.
2. Remove screws and remove both of the upper plastic heater side panels (see Figures 11 and 12). Note
the wires that pass through a hole in the heater side panel go through a split-bushing, which will allow
separation of the wires from the panel without disconnecting them.
3. Disconnect the 2 wires connecting the heater wire harness to the heat exchanger header. One is lo-
cated on the water pressure switch and one is located on the temperature limit switch, both on the top
of the header. Pull these wires into the heater cabinet from the hole in the right-hand metal side panel
in the heater, and re-route them out through the left-hand metal side panel in the heater.
4. Remove countersunk screws on the heater top and remove louvered exhaust panel on heater top (see
Figure 12).
5. Remove the heater top ue cover by removing 3 screws on each side of the heater (see Figure 12).
6. Remove screws and remove rain shield assembly (see Figure 12). Note that there are screws which
hold the rain shield assembly to the heat exchanger tube sheets, which also must be removed.
7. Remove the front access panel (see Figure 12).
8. Disconnect water temperature sensor plug from the ignition control board located inside the heater
(see Figure 12).
9. Pull the water temperature sensor wires out of the heater cabinet through the hole in the right-hand
metal side panel.
10. Lift and rotate the heat exchanger. Do not ip. Use care when setting the heat exchanger in place not
to damage the white sealing gaskets or combustion chamber.
11. Route the water temperature sensor wires into the heater cabinet through the hole in the left-hand
metal side panel, and re-connect to the ignition control board.
12. Re-connect the heater wire harness to the water pressure switch and temperature limit.
13. Reverse the above steps to reassemble the heater.
Figure 14
Screw Locations
Figure 11:

Pomona, CA Clemmons, NC Nashville, TN
Tel: 908-351-5400 www.haywardpool.com
USE ONLY HAYWARD GENUINE REPLACEMENT PARTS
21
1303264301 rev B
Page 2 of 2
Front Access Panel
Ignition Control
Circuit Board
Drain Plug or Valve
Temperature
Limit Switches
Upper Plastic Heater
Side Panel
Upper Plastic Heater
Side Panel
Heat Exchanger
Assembly
Pressure
Switch Port
Rain Shield Assembly
Top Flue Cover
Louvered
Exhaust Panel
Figure 2
Figure 12

Pomona, CA Clemmons, NC Nashville, TN
Tel: 908-351-5400 www.haywardpool.com
USE ONLY HAYWARD GENUINE REPLACEMENT PARTS
22
Distance from Gas
Meter to Heater Gas
Valve Inlet
Model H150FDN H200FDN H250FDN H300FDN H350FDN H400FDN
btu/hr input 150,000 200,000 250,000 300,000 350,000 400,000
Line Material Iron or Plastic Pipe Iron or Plastic Pipe Iron or Plastic Pipe Iron or Plastic Pipe Iron or Plastic Pipe Iron or Plastic Pipe
0 to 50 ft 3/4" 1" 1" 1-1/4" 1-1/4" 1-1/4"
50 to 100 ft 1" 1" 1-1/4" 1-1/4" 1-1/4" 1-1/4"
100 to 200 ft 1-1/4" 1-1/4" 1-1/4" 1-1/2" 1-1/2" 1-1/2"
200 to 300 ft 1-1/4" 1-1/4" 1-1/2" 2" 2" 2"
Table 10
Natural Gas Pipe Sizing, Low-Pressure, Single-Stage Regulation
Table 11
Propane Gas Pipe Sizing, Low-Pressure, Single-Stage Regulation
Table 12
Natural Gas Pipe Sizing, High-Pressure, 2-Stage Regulation
Based upon an inlet gas pressure of 0.5 psig or less at a pressure drop of 0.5 in-wc
Gas Supply and Piping :
To properly size the gas piping for the heater, refer to Tables 10, 11, 12, and 13, depending on natural or propane gas, and single-stage or
2-stage regulation. Follow local gas codes for proper gas line material selection (copper, iron, plastic, etc.). It is VERY IMPORTANT when
installing a propane heater on a 2-stage regulation system to follow the gas line sizing data in Table 13 without exception.
Distance from
Tank Regulator
Outlet to
Heater Gas
Valve Inlet
Model H150FDP H200FDP H250FDP H300FDP H350FDP H400FDP
btu/hr input 150,000 200,000 250,000 300,000 350,000 400,000
Line
Material Iron Pipe Tubing Iron Pipe Tubing Iron Pipe Tubing Iron Pipe Tubing Iron Pipe Tubing Iron Pipe Tubing
0 to 50 ft 3/4" 7/8" 3/4" 7/8" 1" 1-1/8" 1" 1-1/8" 1" 1-1/8" 1" ---
50 to 100 ft 3/4" 1-1/8" 1" 1-1/8" 1" 1-1/8" 1" --- 1-1/4" --- 1-1/4" ---
100 to 200 ft 1" 1-1/8" 1" --- 1-1/4" --- 1-1/4" --- 1-1/4" --- 1-1/4" ---
200 to 300 ft 1" --- 1-1/4" --- 1-1/4" --- 1-1/4" --- 1-1/4" --- 1-1/2" ---
Based upon an inlet gas pressure of 11 in-wc at a pressure drop of 0.5 inch w.c.
Distance from Outlet
of 1st Stage Regulator
to Inlet of 2nd Stage
Regulator
Model H150FDN H200FDN H250FDN H300FDN H350FDN H400FDN
btu/hr input 150,000 200,000 250,000 300,000 350,000 400,000
Line Material Iron or Plastic
Pipe
Iron or Plastic
Pipe
Iron or Plastic
Pipe
Iron or Plastic
Pipe
Iron or Plastic
Pipe
Iron or Plastic
Pipe
First Stage *
0 to 50 ft 1/2" 1/2" 1/2" 1/2" 1/2" 1/2"
50 to 100 ft 1/2" 1/2" 1/2" 1/2" 3/4" 3/4"
100 to 150 ft 1/2" 1/2" 1/2" 3/4" 3/4" 3/4"
Second
Stage ** 0 to 10 ft 3/4" 3/4" 3/4" 3/4" 3/4" 3/4"
* Based upon an inlet gas pressure of 2 psig at a pressure drop of 1 psi
** Based upon an inlet gas pressure of 10 in-wc at a pressure drop of 0.5 in-wc

Pomona, CA Clemmons, NC Nashville, TN
Tel: 908-351-5400 www.haywardpool.com
USE ONLY HAYWARD GENUINE REPLACEMENT PARTS
23
Table 13
Propane Gas Pipe Sizing, High-Pressure, 2-Stage Regulation
* Based upon an inlet gas pressure of 10 psig at a pressure drop of 1 psi
** Based upon an inlet gas pressure of 11 in-wc at a pressure drop of 0.5 in-wc
Distance from
Tank Regulator
Outlet to
Heater Gas
Valve Inlet
Model H150FDP H200FDP H250FDP H300FDP H350FDP H400FDP
btu/hr input 150,000 200,000 250,000 300,000 350,000 400,000
Line
Material
Iron
Pipe Tubing Iron
Pipe Tubing Iron
Pipe Tubing Iron
Pipe Tubing Iron
Pipe Tubing Iron
Pipe Tubing
First Stage *
0 to 50 ft 1/2" 1/2" 1/2" 1/2" 1/2" 1/2" 1/2" 1/2" 1/2" 1/2" 1/2" 1/2"
50 to 100 ft 1/2" 1/2" 1/2" 1/2" 1/2" 1/2" 1/2" 1/2" 1/2" 5/8" 1/2" 5/8"
100 to 150 ft 1/2" 1/2" 1/2" 1/2" 1/2" 1/2" 1/2" 5/8" 1/2" 5/8" 1/2" 5/8"
Second
Stage ** 0 to 10 ft 1/2" 5/8" 1/2" 5/8" 1/2" 3/4" 3/4" 3/4" 3/4" 7/8" 3/4" 7/8"

Pomona, CA Clemmons, NC Nashville, TN
Tel: 908-351-5400 www.haywardpool.com
USE ONLY HAYWARD GENUINE REPLACEMENT PARTS
24
GAS SUPPLY INSTALLATION:
The heater is shipped from the factory with the gas connection
located on the left-hand side of the heater cabinet. Insert the pipe to
the gas valve through the grommet in the cabinet side (see Figure
14.) A union should be installed outside the heater cabinet for easy
removal of the gas manifold assembly during service.
A CSA certied main gas shutoff valve must be installed outside
the cabinet and within 6 feet of the heater. This valve must have an
I.D. large enough to supply the proper amount of gas
volume to the heater. See Figure 13.
ATTENTION: Apply joint compound (pipe dope)
sparingly and only to the male threads of pipe joints.
Do not apply joint compound to the rst two threads.
Use joint compounds resistant to the action of lique-
ed petroleum gas. Do not overtighten the gas inlet
pipe or damage may result.
ATTENTION : Do not use exible appliance con-
nectors on any gas connections unless the connector
is CSA approved for outdoor installation, is marked
with BTUH capacity (which must be equal to or
greater than the heater rated input) and the type of gas
(natural or LP).
Reduction of gas supply pipe or tubing to the inlet of
the heater gas valve must be made at the valve only and must match the valve inlet size (3/4” NPT).
If more than one appliance is installed on the gas line, consult the local gas company for the proper gas
line size.
Questions on the installation of the proper gas line size can be directed to Hayward Technical Service.
NATURAL GAS:
The gas meter must have the capacity to supply enough gas to the pool heater and any other gas appli-
ances if they are on the same pipeline (Example: 225 meter = 225,000 BTUH). If doubt exists as to the meter
size, consult the local gas utility for assistance. Hayward will not be responsible for heaters that soot up due
to improper meter and gas line sizing resulting in improper gas volume.
PROPANE GAS:
All propane gas tanks must be located outdoors and away from pool/spa structure and in accordance with
the standard for storage and handling of propane gas, ANSI/NFPA 58 (latest edition) and applicable local
codes. If the propane gas tank is installed underground, the discharge of the regulator vent must be above the
highest probable water level.
Propane tanks must have sufcient capacity to provide adequate vaporization for the full capacity of the
equipment at the lowest expected temperatures. Consult a propane company expert for correct sizing.
Figure 13
Gas
Inlet
Supply
voltage
inlet
Low
voltage
inlet
Bonding
lug
Figure 14

Pomona, CA Clemmons, NC Nashville, TN
Tel: 908-351-5400 www.haywardpool.com
USE ONLY HAYWARD GENUINE REPLACEMENT PARTS
25
ATTENTION: Whenever a high-pressure double regulation system is utilized for propane gas, consult
a propane expert for accurate pipe and pressure sizing. Make sure that 1st and 2nd stage regulators are
large enough to handle the BTUH input listed for the heater(s) being used.
Hayward will not be responsible for heaters that soot up due to improper gas line or propane tank sizing
resulting in improper gas volume.
WATER PIPING:
The heater is designed for use with pool and spa/hot tub water only, as furnished by municipal water dis-
tribution systems. The warranty does not cover heater use with mineral water, seawater (PPM>4000), or other
non-potable waters.
Do not install any restriction in the water pipe between the heater outlet and the pool/spa with the
exception of:
1. three-way switching valve
2. in-line chlorinator
3. chlorinator check valve
WA R N I NG: EXPLOSION
HAZARD Blockage of water
ow from heater return to pool
may result in re or explosion
causing property damage,
personal injury, or loss of life.
The heater is equipped with CPVC anged pipe
nipples to accomodate water piping to and from the pool
or spa. These pipe nipples will accept piping by solvent
welding (PVC glue). The ttings will accept either a
2” pipe, or a 2 1/2” pipe tting, and seal to the heater
header with rubber gaskets. On plastic headers, the t-
tings are secured in place with plastic union nuts, and on
bronze headers (ASME models), the ttings are secured
in place with bolts. Assemble these parts to the heater
prior to plumbing. Tighten union nuts (or bolts) securely
before gluing ttings to the ends of the pipe nipples. See Figure 15.
The CPVC anged pipe nipples must be installed on the heater inlet and outlet without modication.
Pipe, ttings, valves, and any other element of the lter system may be made of plastic materials, if accept-
able to the authority having jurisdiction.
Heat sinks, heat tapes, remen switches, and check valves are not required on the heater. However, if there
is any chance of “back-siphoning” of hot water when the pump stops running, it is suggested that a check valve
be used on the heater inlet pipe.
The built-in bypass inside the header will maintain proper ow through the heat exchanger if the ow rate is
within the range for the heater. See Table 14.
The minimum ow rate is to be calculated or measured with the inoor cleaning system in use, if the pool is
so equipped, as well as any other jets or other demands on the water ow.
Figure 15: Pipe nipples
Gaskets Fittings Bolts
Heater
Header
Bronze Header (ASME)
Plastic Header
Gaskets Fittings Union Nuts
Heater
Header

Pomona, CA Clemmons, NC Nashville, TN
Tel: 908-351-5400 www.haywardpool.com
USE ONLY HAYWARD GENUINE REPLACEMENT PARTS
26
If the normal pump and lter system ow rate exceeds
125 gpm then a manual bypass valve must be installed as
shown in Figure 16. Damage caused by ow rates outside
this range will void the manufacturer’s warranty.
The installation is as follows:
1. Install a ow meter on the outlet line of the heater.
2. Adjust the manual bypass valve until the ow
rate is within the ow rate range specied for the
heater.
3. Once the valve is set, note the position and remove
the valve handle to prevent further adjustment.
ATTENTION: Improperly adjusted manual bypass valves will result in damage to the heater if the
ow rates are not maintained as specied in Table 14 under all operating conditions. The heat exchang-
er will fail and this damage will not be covered under the Hayward warranty.
Table 14
Allowable Water Flow Rate Range
Model Minimum Flow
Rate (GPM)
Maximum Flow
Rate (GPM)
H150FD
H200FD 20 125
H250FD
H300FD 25 125
H350FD
H400FD 30 125
Figure 16: Manual Bypass valve

Pomona, CA Clemmons, NC Nashville, TN
Tel: 908-351-5400 www.haywardpool.com
USE ONLY HAYWARD GENUINE REPLACEMENT PARTS
27
INSTALLATION ABOVE POOL/SPA SURFACE:
If the heater is installed less than three (3) feet above the sur-
face of the pool/spa water, install eyeball ttings or directional ow
ttings on the end of the return water line to the pool/spa to create
adequate back pressure at the heater to operate the pressure safety
switch when the lter pump is running.
If the heater is installed more than three (3) feet above the surface
of the pool/spa water, install a loop as shown in Figure 19 to prevent
drainage of water in the heater during a lter change.
For installation below the pool/spa surface, refer to Section III.
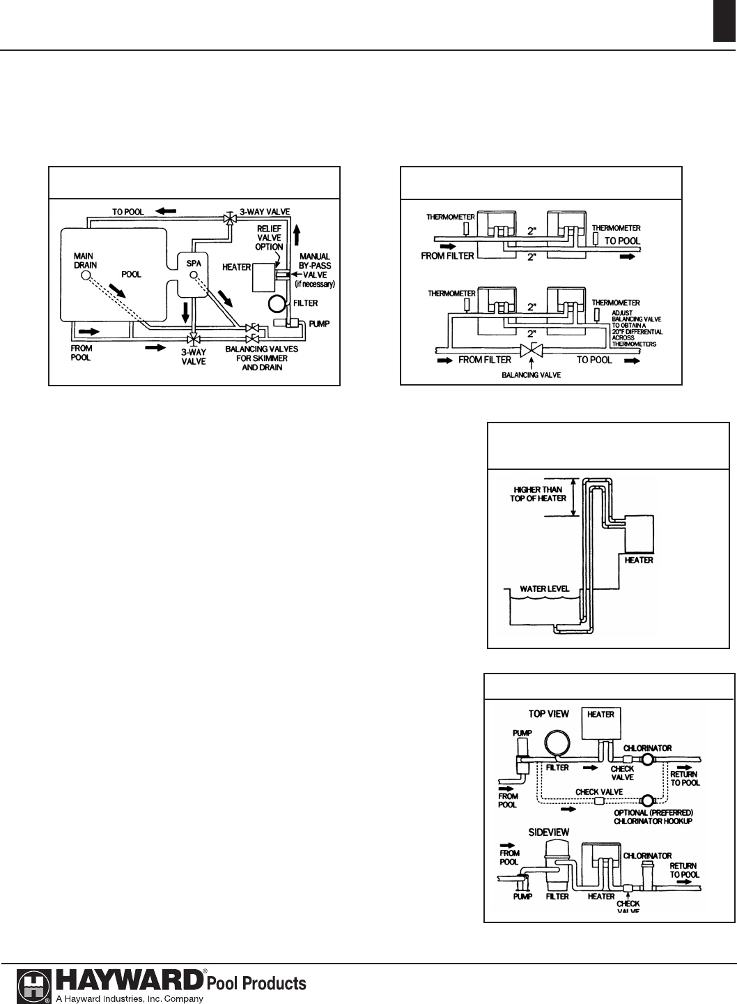
Figure 17: Typical plumbing to pool Figure 18: Multiple heater system
Figure 20: Automatic chlorinator
Figure 19: Heater installation
above pool/spa
AUTOMATIC CHLORINATORS AND
CHEMICAL FEEDERS:
If used, a chlorinator must be installed downstream from the
heater in the pool return line and at a lower elevation than the heater
as shown in Figure 20. Install a separate positive seal corrosion
resistant check valve between the heater outlet and the chlorinator to
prevent highly concentrated sanitizers from backsiphoning into the
heater. Backsiphoning usually occurs when the pump is shut off and
a pressure differential is created.
Figure 17 illustrates a typical pool piping diagram and layout for the pool equipment.
Figure 18 illustrates a multiple heater installation for very large pools with and without a manual
bypass valve.

Pomona, CA Clemmons, NC Nashville, TN
Tel: 908-351-5400 www.haywardpool.com
USE ONLY HAYWARD GENUINE REPLACEMENT PARTS
28
DRAIN VALVE INSTALLATION (ASME MODELS ONLY):
If installing an ASME model heater, a 3/4” brass drain valve must be installed. A suitable drain valve is
included separately with all ASME heaters. Apply a suitable amount of pipe thread sealant or teon tape to
the threads and install as shown in Figure 21.
PRESSURE RELIEF VALVE (ASME MODELS ONLY):
If installing an ASME model heater, a 3/4” pressure-relief valve having a
discharge capacity greater than or equal to the Btu/hr input of the heater, and a
pressure rating equal to or less than the working pressure must be installed. See
the rating plate located inside the front access panel on the heater for the input
rating and working pressure. A suitable pressure relief valve is included sepa-
rately with all ASME heaters. Apply a suitable amount of pipe thread sealant or
teon tape to the threads and install as shown in Figure 21. Please note that the
drain valve must be installed before the pressure relief valve. Install the pressure
relief valve with the discharge connection facing the ground. If necessary, con-
nect a pipe (of the same size as the valve outlet) to the outlet and run it to a safe
place of discharge. Do not install any shut-off or restriction in this drain line.
PRESSURE RELIEF VALVE (NON-ASME MODELS ONLY):
Some local building codes require a pressure relief valve for non-ASME pool/spa heaters. The plastic header
has a 3/4” port which can be used for this purpose (see Figure 28 for location of port). A 3/4” pressure relief
valve having a discharge capacity greater than or equal to the Btu/hr input of the heater, and a pressure rating
equal to or less than the working pressure is recommended. See the rating plate located inside the front access
panel on the heater for the input rating and working pressure. If desired, you may order the pressure relief valve
from Hayward; order p/n CHXRLV1930. Remove the factory-installed pipe plug, and install the pressure relief
valve using a suitable amount of pipe thread sealant or teon tape on the threads. Install the pressure relief valve
with the discharge connection facing the ground. If necessary, connect a pipe (of the same size as the valve out-
let) to the outlet and run it to a safe place of discharge. Do not install any shut-off or restriction in this drain line.
ELECTRICAL SPECIFICATIONS :
WARNING: It is required that licensed electricians do all electrical wiring. Risk
of Electric Shock. Hazardous voltage can shock, burn, and cause death or serious
property damage. To reduce the risk of electric shock, do NOT use an extension cord
to connect unit to electric supply. Provide a properly located electrical receptacle. All
electrical wiring MUST be in conformance with applicable local and national codes
and regulations. Before working on heater, turn off power supply.
GENERAL INFORMATION :
Wiring connections must be made as shown in the wiring diagram found inside the heater cabinet, and as
shown in Figure 23. The heater must include a denite means of grounding and bonding. There is a ground
lug inside the control box and a bonding lug on the side of the heater.
MAIN POWER :
WARNING - Power connections supplied to the heater must be in accordance with National Electric
Figure 21: Drain valve and
relief valve locations
Pressure
Relief Valve
Drain
Valve
Figure 34

Pomona, CA Clemmons, NC Nashville, TN
Tel: 908-351-5400 www.haywardpool.com
USE ONLY HAYWARD GENUINE REPLACEMENT PARTS
29
Code (NEC) and local electric codes. The NEC contains no standards requiring Ground-Fault Inter-
ruption protection (via GFI Circuit Breaker or otherwise) of “Fixed” or “Stationary” equipment, under
article 680: Swimming Pools, Fountains, & Similar Installations.
BONDING :
CAUTION - This heater must be connected to a bonding grid with a solid copper conductor wire
gauge 8 AWG or larger. All Hayward heaters are designed for copper conductors only. The National
Electrical Code (NEC), and most other codes require that all metallic components of a pool structure,
including reinforcing steel, metal ttings and above ground equipment, be bonded together with a solid
copper conductor wire gauge 8 AWG or larger. The heater, along with pumps and other pool equipment
must be connected to this bonding grid. A bonding lug is provided on the side of the heater to ensure
that this requirement is met.
ELECTRICAL CONNECTIONS:
The heater is equipped with a hot surface ignition control system that automatically lights the burners. An
external power supply is required to power the control system.
The heater is shipped from the factory wired for use with 240VAC, 60 Hz eld power supply. To convert
the heater to 120VAC, 60 Hz operation remove the 240VAC voltage selector jumper from the ignition con-
trol board and replace it with the 120VAC jumper. These jumpers are tie-wrapped together and are located
on the fuse board. See Figure 25 for location of the fuse board. All wiring connections to the heater must be
made in accordance with the latest edition of the National Electrical Code ANSI/NFPA 70, unless local code
requirements specify otherwise. In Canada, follow CSA C22.1 Canadian Electrical Code, Part 1.The heater
must be electrically grounded and bonded in accordance with local codes or, in the absence of local codes,
with National Electrical Code, ANSI/NFPA 70. The heater may be installed with the electrical service and
remote control entering the heater cabinet on either the left or right sides of the heater. The heater is equipped
with (4) openings for electrical entry. Any unused openings must be plugged (these are supplied). Field power
wiring connections are to be made to the terminal block located in the upper compartment inside the junction
box (see Figure 22). The heater has 2 junction boxes (one on each side of the heater). Only one junction box
should be used for eld power wiring.

Pomona, CA Clemmons, NC Nashville, TN
Tel: 908-351-5400 www.haywardpool.com
USE ONLY HAYWARD GENUINE REPLACEMENT PARTS
REMOTE CONTROL CONNECTION:
The heater is equipped for con-
nection to an external 2-wire remote
thermostat or a 3-wire remote switch. A
2-wire thermostat has its own tempera-
ture sensor for regulating water tempera-
ture. A 3- wire remote switch allows the
“POOL” or “SPA” models to be re-
motely selected. Connect remote wiring
to the terminal block located in the lower
compartment inside the junction box (see
Figure 22). The heater has 2 junction
boxes (one on each side of the heater).
Only one junction box should be used for
remote wiring. Do not remove the wires
connected to the remote connection ter-
minal block. Remote wiring must be run
in a separate conduit. Use 22 AWG wire
for runs less than 30 feet. Use 20 AWG
wire for runs over 30 feet. The maximum
allowable run is 200 feet.
Figure 22
2-WIRE REMOTE CONTROL CONNECTION:
To congure the heater for 2- wire remote thermostat control, use the “MODE” key on the heater keypad
to put the control into “STANDBY” mode. Then press and hold both the “DOWN” and “MODE” keys for 3
seconds until the display shows the code “bo”.
On the remote control wiring terminal block (Figure 22), connect the appropriate wires from the remote
control to the terminals adjacent to the ORANGE wire (“POOL”) and WHITE wire (“24V”).
To operate the heater by remote thermostat, the heater’s control must be in either “POOL” or “SPA”
mode. The display will show “bo”. The “POOL” or “SPA” LED will be illuminated. The remote thermostat
will operate the heater. The heater’s thermostat will function to limit the water temperature to a maximum of
104°F.
3-WIRE REMOTE CONTROL CONNECTION:
On the remote control wiring terminal block (Figure 22), connect the appropriate wires from the remote
control to the terminals adjacent to the ORANGE wire (“POOL”), WHITE wire (“24V”), and RED wire
(“SPA”). To operate the heater with a remote 3-wire switch, the heater’s control must be in “STANDBY”
mode. The “STANDBY” LED will be illuminated. When the remote switch is set to “Pool/Low” the “POOL”
LED will be illuminated and the water temperature will be displayed. When the remote switch is set to “Spa/
High” the “SPA” LED will be illuminated and the water temperature will be displayed. The heater will use its
internal thermostat to regulate the water temperature to the set point of the mode selected.
Figure 29
Spa (RED)
Common
(WHITE)
Pool
(ORANGE)
Remote
Connection
Terminal Block
L (120v)
or
L1 (240v)
N (120v)
or
L2 (240v)
Ground
Field Power
Wiring Terminal
Block
30

31
Figure 23: Wiring connection diagram.

Figure 24:
Lighting &
Operating
Instructions
label
32

SECTION III. INSTALLER CHECK-OUT AND START-UP:
GENERAL:
Some of the following procedures will require the heater to be operating. Full lighting and shutdown instruc-
tions are included on the lighting and operating label afxed to the inside of the front access panel. The heater
automatically lights in response to a call for heat, and automatically shuts down when that call for heat is satised.
Water must be owing through the heater during operation. Check that the pump is operating and the
system is lled with water and purged of all air prior to starting the heater.
GAS LINE TESTING:
The appliance and its gas connection must be leak tested before placing the appliance in operation. The
heater and its individual shutoff valve must be disconnected from the gas supply during any pressure testing
of that system at test pressure in excess of ½ psig (3.45 kPa). The heater must be isolated from the gas sup-
ply piping system by closing its individual manual shutoff valve during any pressure testing of the gas supply
piping system at test pressure equal to or less than ½ psig (3.45 kPa).
Gas supply line must be capped when not connected. After pressure testing, reconnect the gas piping to the
gas valve. Turn gas supply “ON” and test all pipe and tubing joints for leaks. Use a soap and water solution.
Figure 25: Location of components
Figure 31: Location of Components
(H150FD and H200FD models)
(H250FD, H300FD, H350FD, and H400FD models)
Transformer
Ignition Control
Board
Air Box
Blower
Vacuum
Switch
Gas Valve
Gas Manifold
Flame Sensor
Blower
Keypad
Fuse Board
Ignition Control
Board
Transformer
Gas Manifold
Air Box
Ignitor
Access Panel
Cover
Sight Glass
Flame Sensor
Blower
Keypad
Fuse Board
Gas Valve
Blower
Vacuum
Switch
Sight Glass
Ignitor
Access Panel
Figure 31: Location of Components
(H150FD and H200FD models)
(H250FD, H300FD, H350FD, and H400FD models)
Transformer Ignition Control
Board
Air Box
Blower
Vacuum
Switch
Gas Valve
Gas Manifold
Flame Sensor
Blower
Keypad
Fuse Board
Ignition Control
Board
Transformer
Gas Manifold
Air Box
Ignitor
Access Panel
Cover
Sight Glass
Flame Sensor
Blower
Keypad
Fuse Board
Gas Valve
Blower
Vacuum
Switch
Sight Glass
Ignitor
Access Panel
33
Pomona, CA Clemmons, NC Nashville, TN
Tel: 908-351-5400 www.haywardpool.com
USE ONLY HAYWARD GENUINE REPLACEMENT PARTS

Pomona, CA Clemmons, NC Nashville, TN
Tel: 908-351-5400 www.haywardpool.com
USE ONLY HAYWARD GENUINE REPLACEMENT PARTS
34
If gas pressure is inadequate, check for undersize piping between the gas meter and the heater or for a
low-capacity gas meter. Gas pressure test procedure:
1. Obtain the necessary equipment:
a. Manometer to read pressure in inches of
water column
b. 1/8” pipe nipple (1/8” thread x 1” long)
c. 3/16” hex wrench
d. Flat screwdriver
2. Remove the 1/8” plug from the gas valve.
3. Install the 1/8” pipe nipple into the gas valve.
4. Attach the manometer to the pipe nipple.
5. Turn on the water system and start the heater
following the lighting & operating instruc-
tions on the label afxed inside the front access
panel. If there is more than one pool/spa heater
connected to the gas supply line, turn each of those appliances “ON” while testing the heater.
6. Take a pressure reading with the heater running, the value should agree with those in Table 15. If the
pressure is within the range of 1.8” - 2.0” w.c. (natural) or 6.8” - 7.0” w.c. (propane), then no further
adjustment is needed.
7. If the gas pressure does not meet the above requirements the regulator must be adjusted.
8. Gas pressure regulator adjustment procedure:
a. Remove the screw cap over the regulator adjustment screw (see Figure 26).
b. Turn the regulator adjustment screw clockwise to increase pressure and counterclockwise to de-
crease pressure.
c. Replace the screw cap over the regulator adjustment screw.
WARNING EXPLOSION HAZARD: Do not remove the 1/8” pipe nipple with
the valve in the “ON” position. The valve must be in the “OFF” position when the
nipple is removed. Removal of the nipple with the gas valve “on” could cause an
explosion resulting in severe injury and/or death.
WARNING: EXPLOSIVE HAZARD. The use of an open ame to check for gas
leaks could cause an explosion resulting in severe injury and/ or death.
Shut off gas and x even the smallest leak r ight away. Be sure to leak test the heater
gas manifold ttings using the above procedure once the heater is in operation.
GAS PRESSURE TESTING:
The following gas pressure requirements are important to the proper operation of the burners in
gas heaters. Improper gas pressure or gas volume will create the following conditions:
1. Flame burns totally yellow.
2. Flame lifts off burner.
3. Heat exchanger soots up. The gas pressure regulator on all heaters is preset at the factory,
but the setting should be veried by the installer to ensure proper operation.
Pomona, CA Clemmons, NC Nashville, TN
Tel: 908-351-5400 www.haywardpool.com
USE ONLY HAYWARD GENUINE REPLACEMENT PARTS
32
If gas pressure is inadequate, check for undersize piping between the gas meter and the heater or for a
low-capacity gas meter. Gas pressure test procedure:
1. Obtain the necessary equipment:
a. Manometer to read pressure in inches of water column
b. 1/8” pipe nipple (1/8” thread x 1” long)
c. 3/16” hex wrench
d. Flat screwdriver
2. Remove the 1/8” plug from the gas valve.
3. Install the 1/8” pipe nipple into the gas valve.
4. Attach the manometer to the pipe nipple.
5. Turn on the water system and start the heater following the lighting & operating instructions on the
label affixed inside the front access panel. If there is more than one pool/spa heater connected to the
gas supply line, turn each of those appliances “ON” while testing the heater.
6. Take a pressure reading with the heater running, the value should agree with those in Figure 33. If
the pressure is within the range of 1.8” - 2.0” w.c. (natural) or 6.8” - 7.0” w.c. (propane), then no
further adjustment is needed.
7. If the gas pressure does not meet the above requirements the regulator must be adjusted.
8. Gas pressure regulator adjustment procedure:
a. Remove the screw cap over the regulator adjustment screw (see Figure 32).
b. Turn the regulator adjustment screw clockwise to increase pressure and counterclockwise to de-
crease pressure.
c. Replace the screw cap over the regulator adjustment screw.
WARNING EXPLOSION HAZARD: Do not remove the 1/8” pipe nipple with
the valve in the “ON” position. The valve must be in the “OFF” position when the
nipple is removed. Removal of the nipple with the gas valve “on” could cause an
explosion resulting in severe injury and/or death.
Figure 26: Gas valve
Inlet
pressure
tap plug
ON/OFF
knob
Manifold
pressure
tap plug
Regulator
adjustment
screw under
this screw
cap
Electrical
terminals
INCREASE
PRESSURE
DECREASE
PRESSURE

Pomona, CA Clemmons, NC Nashville, TN
Tel: 908-351-5400 www.haywardpool.com
USE ONLY HAYWARD GENUINE REPLACEMENT PARTS
35
9. Remove the 1/8” pipe nipple and replace the
1/8” pipe plug. If proper pressure cannot be
achieved by adjusting the gas valve regula-
tor, the installer must contact the gas sup-
plier and request that the inlet pressure to
the heater be set to within the gas pressure
range shown in Table 15.
WARNING EXPLOSION HAZARD: Gas pressures in excess of those listed in
Fig. 33 could cause a gas leak or diaphragm rupture. Gas leakage could cause an
explosion resulting in severe injury or death.
WATER PRESSURE SWITCH TEST / ADJUSTMENT PROCEDURE:
The pressure switch is preset at the factory for most typical, deck level installations. When the heater is located
above or below the level of the pool or spa, the pressure switch may require adjustment to compensate for the change
in static head pressure. The following procedure is recommended when the switch needs adjustment and/or is replaced:
For Installations with Heater Above Water Level:
1. Be sure the lter is clean before making the adjustment.
2. Turn “ON” the lter pump and ensure all air is out of the water lines, and ensure water ow rate is at
least the rated minimum (see Table 14).
3. Turn “ON” the heater and adjust the thermostat to create a call for heat.
4. If the heater does not light, adjust the pressure switch by turning the adjustment knob on the pressure
switch counter-clockwise, until the heater lights. Turning the adjustment knob counterclockwise
decreases the pressure needed to close the switch.
5. Check the function of the pressure switch by turning the lter pump on and off several times. The pool
heater should turn off immediately when the pump is turned off. Never allow the heater to operate with
less than the minimum rated water ow rate.
For Installations with Heater Below Water Level:
1. Be sure the lter is clean before making the adjustment.
2. Turn “ON” the lter pump and ensure all air is out of the water lines, and ensure water ow rate is at
least the rated minimum (see Table 14).
3. Turn “ON” the heater and adjust the thermostat to create a call for heat.
4. Turn the adjustment knob on the pressure switch clockwise, until the heater turns off, then turn the knob
¼ turn counter-clockwise, so that the heater turns back on. Turning the adjustment knob clockwise
increases the pressure needed to close the switch.
5. Check the function of the pressure switch by turning the lter pump on and off several times. The pool
heater should turn off immediately when the pump is turned off. Never allow the heater to operate with
less than the minimum rated water ow rate.
TWO-SPEED PUMP:
In a few cases the pressure from a two-speed pump is below the 1- pound minimum required to operate the wa-
ter pressure switch on the heater. This is apparent when the pressure switch cannot be further adjusted. In these cases
the pump must be run at high speed to operate the heater. If the pump and piping arrangement are such that the re-
quired 1-pound minimum pressure cannot be obtained, do not attempt to operate the heater. Correct the installation.
Table 15: Correct gas pressures
Pressure, in. w.c. FDN FDP
Fuel Natural Propane
Manifold 1.8” - 2.0” w.c. 6.8” - 7.0” w.c.
Inlet, minimum 4.5” w.c. 9.0” w.c.
Inlet, maximum 10.5” w.c. 13.0” w.c.

Pomona, CA Clemmons, NC Nashville, TN
Tel: 908-351-5400 www.haywardpool.com
USE ONLY HAYWARD GENUINE REPLACEMENT PARTS
36
TEMPERATURE ADJUSTMENT:
This pool heater is equipped with a digital thermostat which allows the user to select the desired water
temperature. The heater will then function automatically to maintain the desired temperature. The heater has
3 modes of operation:
1. STANDBY: in this mode, the heater will not function to heat the water.
2. SPA: in this mode, the heater will automatically function to maintain the water temperature setting for
SPA mode.
3. POOL: in this mode, the heater will automatically function to maintain the water temperature setting
for POOL mode.
Use the MODE button to change modes. The indicator lights will illuminate to show which mode the
heater is currently in. Each mode has its own temperature setting, allowing the user to have 2 individual
pre-set temperature settings. To adjust the temperature while in SPA or POOL mode, use the UP and DOWN
buttons. The numeric display will ash to indicate the temperature setting is being displayed / adjusted. When
the numeric display is not ashing, the actual water temperature is being displayed. The temperature settings
for both SPA and POOL modes are initially set at the factory to 65°F. The minimum allowed settings for SPA
and POOL modes are both 65°F. The maximum allowed settings for SPA and POOL modes are adjustable up
to 104°F using the temperature lockout feature (see below).
After selecting SPA or POOL mode or adjusting the temperature setting, it is normal for the heater to
delay up to 10 seconds before the heater starts operating. This delay is an internal self-test of the heater. On
occasion, the numeric display may show a diagnostic error code; refer to list of diagnostic error codes in Fig-
ure 31. Pressing the MODE button to cycle to STANDBY and back to SPA or POOL will clear a diagnostic
error code. When clearing a diagnostic error code this way, it is normal for the heater to delay up to 5 seconds
before resuming normal operation, assuming the diagnostic error code does not re-appear.
diagnostic error code this way, it is normal for the heater to delay up to 5 seconds before
resuming normal operation, assuming the diagnostic error code does not re-appear.
Figure 27: User interface keypad
TEMPERATURE LOCK-OUT
The digital thermostat in this pool heater allows the user to lock the maximum temperature
setting allowed. This feature is useful for preventing unauthorized users from manually adjusting
the temperature settings higher than desired. On a new heater, the maximum allowed
temperature lock settings are initially set at the factory to 90°F for POOL mode, and 104°F for
SPA mode. To adjust these settings, use the following procedure:
1. Use the MODE button to put the heater in STANDBY mode.
2. Press and hold both the UP and DOWN buttons at the same time.
3. After 3 seconds, the thermostat enters maximum temperature lock adjustment mode.
4. The SPA indicator light illuminates and the numeric display shows the current SPA mode
maximum temperature lock setting. Both the SPA indicator light and the numeric display
flashes rapidly when in adjustment mode.
5. Use the UP and DOWN buttons to set the desired maximum temperature lock setting.
When finished, press the MODE button.
6. The POOL indicator light illuminates and the numeric display shows the current POOL
mode maximum temperature lock setting. Both the POOL indicator light and the
numeric display flashes rapidly when in adjustment mode.
7. Use the UP and DOWN buttons to set the desired maximum temperature lock. When
finished, press the MODE button.
8. The heater will return to STANDBY mode.
Numeric Display
Buttons
Indicator Lights

Pomona, CA Clemmons, NC Nashville, TN
Tel: 908-351-5400 www.haywardpool.com
USE ONLY HAYWARD GENUINE REPLACEMENT PARTS
37
TEMPERATURE LOCK-OUT:
The digital thermostat in this pool heater allows the user to lock the maximum temperature setting allowed.
This feature is useful for preventing unauthorized users from manually adjusting the temperature settings higher
than desired. On a new heater, the maximum allowed temperature lock settings are initially set at the factory to
90°F for POOL mode, and 104°F for SPA mode. To adjust these settings, use the following procedure:
1. Use the MODE button to put the heater in STANDBY mode.
2. Press and hold both the UP and DOWN buttons at the same time.
3. After 3 seconds, the thermostat enters maximum temperature lock adjustment mode.
4. The SPA indicator light illuminates and the numeric display shows the current SPA mode maximum
temperature lock setting. Both the SPA indicator light and the numeric display ashes rapidly when in
adjustment mode.
5. Use the UP and DOWN buttons to set the desired maximum temperature lock setting. When nished,
press the MODE button.
6. The POOL indicator light illuminates and the numeric display shows the current POOL mode
maximum temperature lock setting. Both the POOL indicator light and the numeric display ashes
rapidly when in adjustment mode.
7. Use the UP and DOWN buttons to set the desired maximum temperature lock. When nished, press
the MODE button.
8. The heater will return to STANDBY mode
FAHRENHEIT VERSUS CELSIUS:
The temperature can be displayed in Fahrenheit or Celsius. TO change the display, use the “MODE” button
to place the heater in “STANDBY”. Then press and hold the “UP” and “MODE” buttons until the display shows
the °F/°C selection. Press the “DOWN” button to toggle between selections. To accept the selection, press the
“MODE” button. If the user does not act, the selection will be automatically accepted after 60 seconds.
HEATING MODE:
The control continually compares the water temperature with the set point and the high limit temperature.
When the water temperature is more than 1° below the set point a call for heat is generated and a heating
cycle is initiated.
1. The control checks for open contacts at the blower vacuum switch.
2. The control energizes the blower and the igniter. The igniter heat-up time is approximately 20 seconds.
The blower is running a pre-purge cycle during this time.
3. The control checks for closed contacts at the blower vacuum switch.
4. When the igniter reaches the proper temperature a 4-second trial for ignition begins. The control opens
the gas valve and monitors ame current. The igniter is turned off when ame is sensed or after 4 sec-
onds.
5. The blower vacuum switch, the temperature limit switches, the vent pressure switch, the water pressure
switch, the water temperature sensors, and the ame sensor are constantly monitored during a call for
heat to assure the heater is operating properly.
6. When the thermostat is satised and the call for heat ends the control immediately de-energizes the
gas valve. Flame is extinguished.
7. The control operates the blower during a 30-second post-purge period.

Pomona, CA Clemmons, NC Nashville, TN
Tel: 908-351-5400 www.haywardpool.com
USE ONLY HAYWARD GENUINE REPLACEMENT PARTS
38
FAILURE TO LIGHT – RETRY:
If the rst ignition attempt fails during a normal heating cycle the control will make two (2) additional
ignition attempts:
1. The control de-energizes the gas valve after the 4-second ignition trial ends.
2. The control operates the blower during a 30-second post-purge period.
3. The control monitors for open contacts at the blower vacuum switch.
4. The control performs a gas valve relay check.
5. A normal ignition sequence resumes with Item #2 in “Heating Mode” (above). If the third ignition
trial fails the control enters a safety lockout (or “hard” lockout) after the postpurge period of the
third failed trial.
6. The error code “IF” is displayed and the “SERVICE” indicator is illuminated.
a. The control automatically resets and clears the “IF” error code without any user intervention after
60 minutes. If there is a call for heat after reset the control will make three (3) trials for ignition. If
ignition is not established the control will again enter safety lockout for 60 minutes. This cycle will
continue until ignition is established or the call for heat is removed.
b. The user can reset the control and clear the “IF” error code by pressing the “MODE” button to
move through “STANDBY” and return to the previous mode (“SPA” or “POOL”).
LOSS OF FLAME – RECYCLE:
If ame is established and then lost, the control will make ten (10) attempts at ignition. If ame is lost
within ten (10) seconds of ignition the control will respond within 2 seconds. If ame is lost more than ten (10)
seconds after ignition the control will respond within 0.8 seconds.
1. The control de-energizes the gas valve and the blower.
2. The control monitors for open contacts at the blower vacuum switch.
3. The control performs a gas valve relay check.
4. A normal ignition sequence resumes with Item #2 in “Heating Mode” (above).
5. If the tenth ignition trial fails the control enters a safety lockout (or “hard” lockout) after the post-
purge period of the tenth failed trial.
6. The error code “IF” is displayed and the “SERVICE” indicator is illuminated.
a. The control automatically resets after 60 minutes. If there is a call for heat after reset the control
will make three (3) trials for ignition. If ignition is not established the control will again enter safety
lockout for 60 minutes. If ame is established but is lost the control will make ten (10) attempts at
ignition. This cycle will continue until ignition is established or the call for heat is removed.
b. The user can reset the control and clear the “IF” error code by pressing the “MODE” button to move
through “STANDBY” and return to the previous mode (“SPA” or “POOL”).
KEYPAD INPUTS:
The control accepts user inputs via the keypad on the front panel.
1. When changing the mode from “STANDBY” to either “SPA” or “POOL” there may be up to a 10-
second delay for the blower fan to begin running. The control performs an internal self-test and then
veries that the blower vacuum switch contacts are open before energizing the blower.
2. It is normal for the heater to display a 1- to 2-second delay in responding to any keypad input.
3. It is normal for the heater to display up to a 5-second delay when the keypad is used to reset the control
to clear an error code.
4. The control will accept a mode change during lockout after 5 seconds. The control will continue to
display the error code and remain in lockout until it is reset. At reset the control will go to the last saved
mode.

Pomona, CA Clemmons, NC Nashville, TN
Tel: 908-351-5400 www.haywardpool.com
USE ONLY HAYWARD GENUINE REPLACEMENT PARTS
39
AUTOMATIC RESET TIME:
The heater will automatically reset when an error condition is corrected and resume operation as detailed
in the table below. The heater can be manually reset using the keypad by cycling the mode button through
“STANDBY” and back to the original operating mode (“SPA” or “POOL”).
PERIODIC INSPECTION:
The heater is designed and built for long performance life when installed and operated according to the
manufacturer’s directions. Regular inspection by qualied service personnel is recommended to keep the
heater working properly. The following inspection points are suggested to help maximize heater life.
1. Periodically check the venting on outdoor heaters. The heater’s venting areas (the louvered top panel)
must never be obstructed in any way and minimum clearances must be observed to prevent restric-
tion of combustion and ventilation air. Remember that shrubs grow and in time may obstruct a heater’s
venting areas.
2. Check the venting of indoor heaters for looseness and possible leaks. Keep all openings for combustion
and ventilation air clear and unobstructed.
3. Keep the entire pool heater area clean and free of all debris, combustible materials, gasoline, and other
ammable vapors and liquids. Remove any leaves or paper from around the heater.
4. Do not store chlorine, other pool chemicals, or other corrosives in the vicinity of the heater.
5. If the heater is operating on propane gas, the tank must not fall below 30% full or damage to the heater
may occur. Hayward will not be responsible for heaters that soot up due to improper gas level in the
tank resulting in inadequate gas volume.
6. If another appliance is added to the gas line at a later date, consult the local gas company to be sure the
gas line will have the capacity to supply both units at full input rating at the same time.
7. Do not use the heater if any part has been under water. Contact a qualied service technician to inspect
the entire heater and replace any part of the control system or gas valve that was under water. If heater
has been totally submerged in water it must be removed and the entire heater must be replaced.
8. An inspection program is a good preventative maintenance measure. Keep this manual in a safe place
for future reference for yourself as well as for a service technician to consult when inspecting or servic-
ing the heater. Additional inspection procedures to be performed by a qualied service technician are
covered in Section VI of this manual.
WINTERIZATION:
In moderate climates, the heater can continue to operate during short-term cold spells. Do not use the
heater to maintain the water temperature just above freezing or for freeze protection. Care must be taken to
avoid freeze-up in the heater. When it is used during freezing weather, the pump must run continuously. The
heater is not warranted against freeze-ups. In regions where freezing temperatures are encountered, all water
must be drained from the heater when it is out of service, to prevent damage to the heater and piping. Drain-
ing the heat exchanger is recommended as part of the season’s shutdown procedures.
ATTENTION: A heater damaged by freezing is not covered under the Hayward warranty.

Pomona, CA Clemmons, NC Nashville, TN
Tel: 908-351-5400 www.haywardpool.com
USE ONLY HAYWARD GENUINE REPLACEMENT PARTS
40
Figure 28: Heat exchanger header components
Cartridge
Retaining Nut
Water Pressure
Switch
Thermistor
Pressure Relief
Valve Port
Drain Plug
Temperature
Limits
Bypass Service
Cartridge
Inlet/Outlet
Header
DRAINING THE HEAT EXCHANGER:
This procedure applies to installations where the heater is located higher than the pool water level. If it
is necessary to drain a pool heater located below the pool water level, you must either partially drain the
pool, or isolate the pool heater from the pool using valves.
1. Set the heater to STANDBY mode using the keypad.
2. Turn the electricity to the heater OFF at the circuit breaker panel.
3. Turn the heater gas valve OFF using the knob on the valve (see Figure 26).
4. Turn the heater’s gas supply OFF at the main shut-off valve outside the heater cabinet.
5. Be sure the circulating pump is OFF.
6. On models with plastic headers, remove the plastic drain plug (see Figure 28). On models with
bronze headers (ASME models), open the brass drain valve located on the header (see Figure 21).
7. Allow all water to drain from the heater.
8. On models with plastic headers, re-install the plastic drain plug. On models with bronze headers
(ASME models), close the brass drain valve located on the header.
SPRING START-UP:
1. Inspect and clean the heater, being sure the heater is free of leaves and debris prior to startup.
2. Be sure inlet and outlet piping are properly attached to the heater and the drain valve is closed.
3. Turn the ltration system pump “ON” and allow the system to run long enough to purge all the air
from the lines.
4. Turn the gas supply to the heater “ON”.
5. Set the temperature control using the keypad to “POOL” or “SPA” and adjust the set point to the
desired temperature setting.
6. If operating difculties are encountered, contact a qualied service company for assistance.
ATTENTION: Heater installation, checkout, and start-up should now be completed. BE SURE to
leave the Owner’s Manual with the pool owner.

Pomona, CA Clemmons, NC Nashville, TN
Tel: 908-351-5400 www.haywardpool.com
USE ONLY HAYWARD GENUINE REPLACEMENT PARTS
41
SECTION IV. QUALIFIED TECHNICIAN – MAINTENANCE & SERVICING
GENERAL:
ATTENTION: Only qualied service technicians, with appropriate test equipment, should be allowed
to service the heater. Bear in mind that all of the components that comprise the system have an effect
on heater operation. Before proceeding with heater related troubleshooting tips covered in Section VII,
be certain that the pump is operating correctly, the lters and strainers are not blocked, the valves in the
piping are properly positioned, and the time clocks are properly set.
WARNING: EXPLOSION HAZARD Do not attempt to repair any components of
this heater. Do not modify the heater in any manner. To do so may result in a mal-
function that could result in death, personal injury, or property damage. Check with
the consumer to see if any part of the heater has been under water. Replace any part
of the control system and any gas control that has been under water.
MAINTENANCE:
The following inspection procedures are recommended to be performed as part of annual heater mainte-
nance and to ensure safe operation.
1. External heat exchanger
2. Internal heat exchanger
3. Main burner ame patterns
4. Main burner orices
5. Operating controls

Pomona, CA Clemmons, NC Nashville, TN
Tel: 908-351-5400 www.haywardpool.com
USE ONLY HAYWARD GENUINE REPLACEMENT PARTS
42
BURNER INSPECTION AND CLEANING:
With the heater “ON”, remove the front
access panel and make a visual inspection of
the main burners through the sight glass (see
Figure 25.) The main burner ames should be
about ½” to 2” in height and should not “lift”
off the burner ports (see Figure 29).
A normal ame is blue, without yellow
tips. Yellow tips or a totally yellow or “lazy”
ame may be an indication of a fuel-rich mix-
ture due to restricted air supply. Spider nests in
the burner and/or gas orices may also cause
yellow tips.
Figure 29: Burner Flame characteristics
EXTERNAL HEAT EXCHANGER INSPECTION AND CLEANING:
Remove the louvered exhaust cover panel (see Figure 12) and inspect the external surfaces of the heat exchang-
er for soot accumulation. If soot has accumulated, it must be removed by following the recommended procedure:
1. Turn pump, main gas valve, and heater power “OFF”.
2. Remove heat exchanger according to the procedure in Section II, under “Reversible Water Connections”.
WARNING: BURN HAZARD Do not use a wire brush to remove soot from the
heat exchanger. This could cause a spark and ignite the gases trapped within the soot.
3. Using a soft-tipped brush such as a paint brush, apply a degreaser to the entire heat ex-
changer surface (top and bottom). Allow the heat exchanger to sit for a period of time to
allow the degreaser to loosen the soot. Wash the heat exchanger using a garden hose ensuring
both the top and bottom surfaces are cleaned. Re-assemble the heater by reversing the disassembly steps.
Although the heat exchanger should be cleaned of soot and reinstalled, the fact that sooting occurred
should be investigated, as it may indicate other problems such as:
• Insufcient air supply
• Inadequate venting
• High or low gas pressure
• Blockage of burner tubes or orices
• Blockage of blower inlet
• Low voltage supply causing blower to “spin” slower
• Improper heater location installation
• Incorrect gas supply pipe size
• Excessive water ow through heat exchanger
• LP tank below 30% full
COMBUSTION CHAMBER:
The combustion chamber is a single-piece casting. If damaged, the entire chamber must be replaced.
HEAT EXCHANGER REMOVAL:
Follow steps in Section II, under “Reversible Water Connections” for heat exchanger removal procedure.

Pomona, CA Clemmons, NC Nashville, TN
Tel: 908-351-5400 www.haywardpool.com
USE ONLY HAYWARD GENUINE REPLACEMENT PARTS
43
BURNER REMOVAL AND REPLACEMENT:
Refer to Figures 12, 25, and 26 as needed.
1. Turn pump, gas supply, and heater power “OFF”.
2. Turn gas valve knob “OFF”.
3. Remove the front access panel. It is secured
with (4) screws.
4. Disconnect the union joint in the gas supply piping outside the heater cabinet.
5. Disconnect the wiring terminals from the gas valve.
6. Disconnect the wiring terminals from the blower.
7. Remove the gas manifold assembly. It is attached
to the air box using (4) screws.
8. Remove the screws from the igniter access panel and pull it out of the way.
Do not disconnect the wires.
9. Remove the air box cover. Do not remove the blower from the air box cover.
10. Remove the (2) screws securing each burner to the combustion chamber front.
11. Pull the burners straight out of the heater.
12. Reverse the above procedure to install the burners.
13. Turn the gas supply “on”. Use a soapy water solution to check for leaks.
Bubbles forming indicate a leak.
WARNING: EXPLOSION HAZARD The use of an open ame to check for gas
leaks could cause an explosion resulting in severe injury and/or death
GAS VALVE REPLACEMENT:
Refer to Figures 12 and 25 as needed.
ATTENTION: Do not attempt to repair the gas valve. If found defective, replace the entire valve.
Attempts to repair it will void the warranty.
1. Turn pump, gas supply, and heater power “OFF”.
2. Disconnect the union joint in the gas supply piping outside the heater cabinet.
3. Remove the front access panel. It is secured with (4) screws.
4. Disconnect the wiring terminals from the gas valve.
5. Remove the gas manifold assembly. It is attached to the air box using (4) screws.
6. Unscrew the gas valve from the gas manifold pipe.
7. Reassemble the gas manifold assembly using the new gas valve. Only use liquid pipe thread sealant
on the male threads of the gas manifold pipe. Do not place pipe dope on the rst two threads of any
joint.
8. Reverse the above procedure to re-install the gas manifold.

Pomona, CA Clemmons, NC Nashville, TN
Tel: 908-351-5400 www.haywardpool.com
USE ONLY HAYWARD GENUINE REPLACEMENT PARTS
44
IGNITER:
Refer to Figures 12 and 25 as needed. To remove the igniter:
1. Turn pump, gas supply, and heater power “OFF”.
2. Remove the front access panel. It is secured with (4) screws.
3. Disconnect the igniter wires from the ignition control board.
4. Remove the screws from the igniter access panel. Working from the underside of the panel, press the
bushing out of the hole in the sheet metal panel.
5. Slide the igniter wires through the slot on the panel and pull the panel free.
6. Remove the (2) screws that secure the igniter.
7. Pull the igniter straight back until it is free of the combustion chamber, then out of the air box.
8. Reverse the above procedure to install the igniter.
FLAME SENSOR:
Refer to Figures 12 and 25 as needed. To remove the ame sensor:
1. Turn pump, gas supply, and heater power “OFF”.
2. Remove the front access panel (4 screws).
3. Disconnect the wire from the ame sensor.
4. Remove the screws that secure the ame sensor to remove the sensor.
5. Reverse the above procedure to install the ame sensor.
BURNER ORIFICES:
Refer to Figures 12 and 25 as needed. To remove the burner orices:
1. Turn pump, gas supply, and heater power “OFF”.
2. Disconnect the union joint in the gas supply piping outside the heater cabinet.
3. Remove the front access panel. It is secured with (4) screws.
4. Disconnect the wiring terminals from the gas valve.
5. Remove the gas manifold assembly. It is attached to the air box using (4) screws.
6. Remove the orices using a 7/16” wrench.
7. After cleaning or replacing orices re-install into the gas manifold pipe being careful not to cross-
thread or over tighten as a leak may result.
ATTENTION: Do not enlarge orice holes.

Pomona, CA Clemmons, NC Nashville, TN
Tel: 908-351-5400 www.haywardpool.com
USE ONLY HAYWARD GENUINE REPLACEMENT PARTS
45
GAS CONVERSION:
The factory-installed gas train, where appropriate, may be changed from natural gas to propane or from
propane to natural gas, using the appropriate conversion kits available from the factory. Gas conversions are
to be performed only by a qualied service agency. Detailed instructions are included with each kit.
ATTENTION: Conversion kits are not available in Canada. Conversions must be performed by the
conversion station at Hayward Pool Products Canada, Inc.
ELECTRICAL WIRING:
ATTENTION: If it is necessary to replace any of the original wiring, it must be replaced with
Hayward supplied replacement parts.

Pomona, CA Clemmons, NC Nashville, TN
Tel: 908-351-5400 www.haywardpool.com
USE ONLY HAYWARD GENUINE REPLACEMENT PARTS
46
IGNITION CONTROL SYSTEM:
The ignition control system in this heater consists of 3 printed circuit boards (the ignition control board,
the display board, and the fuse board) and a keypad. The locations of these components are shown in Figure
31. The ignition control system functions as the heater’s thermostat, safety control system, and controller for
the gas combustion system.
To remove/replace the ignition control board or the fuse board:
1. Turn pump, gas supply, and heater power OFF.
2. Remove the front access panel.
3. Disconnect all wires from the printed circuit board.
4. Detach the board from the sheet metal panel by compressing the plastic stand-offs.
5. Replace the board, and reverse the above steps to reassemble.
To remove/replace the display board or keypad:
1. Turn pump, gas supply, and heater power OFF.
2. Remove the front access panel.
3. Unplug the display board ribbon cable from the ignition control board.
4. Remove the 4 screws and remove the plastic bezel & keypad assembly from the sheet metal panel on
the front of the heater.
5. The display board is attached to the back side of the bezel & keypad assembly. Unplug the keypad
ribbon cable from the display board.
6. Detach the board from the plastic bezel by removing the 2 small screws.
7. Replace the display board or bezel & keypad assembly, and reverse the above steps to reassemble.
BLOWER VACUUM SWITCH:
The blower vacuum switch is a safety device that prevents the ignition sequence from continuing unless
the blower is developing sufcient airow for combustion. Figure 31 shows the location of the blower vacu-
um switch in the heater cabinet. When the blower achieves sufcient airow, the negative pressure created in
the blower housing closes the contacts on the blower vacuum switch, indicating to the ignition control board
that it is safe to continue the ignition sequence. A silicone tube connects the blower vacuum switch with the
blower as shown in Figure 31.
To remove the blower vacuum switch:
1. Turn pump, gas supply, and heater power “OFF”.
2. Remove the front access panel. It is secured with (4) screws
3. Remove the wires from the pressure switch.
4. Pull the tubing from the hose barb on the switch.
5. Remove the (2) screws that secure the pressure switch to the control panel.
6. Reverse the above procedure to install the blower vacuum switch.

Pomona, CA Clemmons, NC Nashville, TN
Tel: 908-351-5400 www.haywardpool.com
USE ONLY HAYWARD GENUINE REPLACEMENT PARTS
47
HIGH LIMIT SWITCHES:
The high limit is an automatically resetting safety device wired in series with the thermostat and gas
valve. See Figure 28. The heater is equipped with two automatic high limits, located on the water header.
If the water temperature exceeds the limit set point, the gas valve will be closed, shutting off gas supply to
the burners.
Erratic high limit operation is often an indication of a problem with water ow. Reduced ow may be caused by:
1. Clogged lter or strainer.
2. Excessive ow through the external bypass if one is used.
3. Lime scale accumulation in the heat exchanger.
TO REPLACE A HIGH LIMIT SWITCH:
1. Turn pump, gas supply, and heater power “OFF”.
2. Drain the heat exchanger of all water.
3. Unplug the high limit wires from the wiring harness.
4. Unscrew the high limit switch from the header.
5. Replace the high limit switch. Use new sealant on the high limit switch threads before reinstalling.
Reverse the above procedure to install the high limit switch.

Pomona, CA Clemmons, NC Nashville, TN
Tel: 908-351-5400 www.haywardpool.com
USE ONLY HAYWARD GENUINE REPLACEMENT PARTS
48
THERMISTOR:
The thermistor monitors the return water temperature. See Figure 28. To replace the thermistor:
1. Turn pump, gas supply, and heater power “OFF”.
2. Drain the heat exchanger of all water.
3. Remove the front access panel. It is secured with (4) screws
4. Unplug the thermistor connector from the ignition control board.
5. From outside the heater, pull the thermistor leads out of the control box and through the hole in the
heater chassis.
6. Unscrew the thermistor from the inlet side of the header.
7. Replace the thermistor. Use new sealant on the thermistor threads before re-installing. Reverse steps
above to complete the procedure.
WATER PRESSURE SWITCH:
The water pressure switch (Figure 28) is preset at the factory for most typical, deck level installations.
When the heater is located above or below the level of the pool or spa, the pressure switch may require
adjustment to compensate for the change in static head pressure. If adjustment is needed, the procedure is
detailed in Section III, under Water Pressure Switch Test / Adjustment Procedure.
ATTENTION: Do not operate the pool heater without the function of a properly adjusted pressure
switch or ow switch.
To replace the pressure switch:
1. Turn pump, gas supply, and heater power “OFF”.
2. Unplug the high limit terminals from the main wire harness.
3. Remove the (4) screws securing metal trim panel around the header.
4. Remove the wires from the pressure switch.
5. Using two ½” open-end wrenches disconnect the pressure switch from the pressure switch tubing.
6. Replace the pressure switch. Use new sealant on the pressure switch threads before re-installing.
7. Reverse steps above to complete the procedure.

Pomona, CA Clemmons, NC Nashville, TN
Tel: 908-351-5400 www.haywardpool.com
USE ONLY HAYWARD GENUINE REPLACEMENT PARTS
49
TRANSFORMER:
The transformer converts the eld supply voltage (either 240 VAC or 120 VAC) to a 120 VAC output for
blower and igniter power, and a 24 VAC output for powering the ignition control board, control circuits, and
gas valve. See Figure 25 for its location. To replace the transformer:
1. Turn pump, gas supply, and heater power “OFF”.
2. Remove the front access panel. It is secured with (4) screws.
3. Disconnect all wires from the transformer leads.
4. Remove the (2) screws that secure the transformer to the control box.
5. Replace the transformer. Reassembly is the reversal of steps above.
BLOWER:
The blower provides the air that mixes with the gas at the main burners for the combustion process. The
blower operates during the pre-purge time (approximately 30 seconds) at the beginning of each ignition cycle,
during the entire time the gas valve is open and the burners are ring, and for 30 seconds after the valve gas
closes. See Figures 25 and 30.
To replace the blower:
1. Turn pump, gas supply, and heater power “OFF”.
2. Remove the front access panel (4 screws).
3. Disconnect the blower wire harness from the ignition
control board.
4. Disconnect the tubing from the hose barb on the blower
housing.
5. Remove the blower air inlet plate from the blower (4 screws).
6. Remove the blower from the air box cover (4 screws).
7. Reverse the above steps to reassemble the blower.
Be sure the blower outlet gasket is in place before proceeding.
BYPASS SERVICE CARTRIDGE:
The following procedure details how to remove and replace the internal pressure bypass valve in the
header. This procedure applies only to plastic (non-ASME) headers. On bronze (ASME) headers, the bypass
service cartridge is not eld-replacable. Please contact Hayward technical support for more information.
1. Turn pump, main gas valve, and heater power off.
2. Drain heat exchanger according to instructions in Section III of this manual.
3. Remove 6 screws and remove the upper plastic heater side panel, to allow access to the header.
4. Remove the cartridge retaining nut from end of header (see Figure 28).
5. Slide out the bypass cartridge from the end of the header (see Figure 28).
6. Check the function of the bypass valve to ensure the valve aps rotate smoothly on the shaft, and the
spring fully closes the valve.
7. Apply silicone o-ring grease (Hayward Jack’s 327 Multilube p/n SP032712, or equivalent) on o-ring seals
on the bypass cartridge before inserting into the header.
8. Insert bypass cartridge into header with the arrow on the end of the cartridge pointing up.
9. Re-install cartridge retaining nut. Nut should be tightened hand-tight only. DO NOT OVER-TIGHTEN.
10. Re-install the upper plastic heater side panel.
Figure 30: Blower
Blower Air Inlet Plate
Blower
Air Box Cover
Blower Outlet Gasket
Figure 30: Blower

Pomona, CA Clemmons, NC Nashville, TN
Tel: 908-351-5400 www.haywardpool.com
USE ONLY HAYWARD GENUINE REPLACEMENT PARTS
50
GENERAL:
ATTENTION: These instructions are intended for the use of qualied personnel trained and experi-
enced in the installation and servicing of this type of heating equipment and its related system compo-
nents. Some states may require installation and service personnel to be licensed. Persons not qualied
should not attempt to repair this equipment according to these instructions. These instructions and
procedures are not or the use of “do-it-yourself” consumers.
WARNING: BURN HAZARD The operation of the heater with the pump shut off
could cause heater overheating and re. Never operate heater with the pump shut off.
ATTENTION: As a preliminary check, make sure that all wire connections are
clean and tight and that all wiring conforms to the wiring diagram.
AUTOMATIC RESET TIME:
The heater will automatically reset when an error condition is corrected and resume operation. The heater
can be manually reset using the keypad by cycling the MODE button through “STANDBY” and back to the
original operating mode (“POOL” or “SPA”).
ERROR CODES:
See Figure 31 for an error code chart.
TROUBLESHOOTING:
See Figure 32 for troubleshooting guide.
SUPPLY WIRING:
If the heater is connected to the line side of the circuit it will be powered at all times. In this situation,
when the pump shuts down the heater will display a fault code of “LO”. If there is a call for heat and the
pump then restarts there will be a 2-minute delay for the heater to re. After the pump has been running for at
least 2 minutes there is no delay for heater operation.
Wiring the heater to the load side of the timer or controller will not result in a 2-minute delay if the pump
primes quickly enough to activate the heater’s water pressure switch. If the pump is slow to prime the heater
may display an “LO” fault code and will take 2 minutes to automatically restart. If the pump has primed, this
wait can be avoided by manually clearing the error code via the keypad by changing the mode through the
“STANDBY” setting and returning to the initial setting (“SPA” or “POOL”).
When a heater is wired to the line side of the power circuit (continuous power) the blower will not oper-
ate when the pump is cycled via a time clock or other switch method.
SECTION V. TROUBLESHOOTING

Pomona, CA Clemmons, NC Nashville, TN
Tel: 908-351-5400 www.haywardpool.com
USE ONLY HAYWARD GENUINE REPLACEMENT PARTS
51
INTERNAL WIRING:
If the heater display is blank after the electrical has been installed see Figures 43 and 44 to determine the
cause. The ribbon cable between the display board and the ignition control board is polarized and cannot be
inserted upside down if it was removed when electrical was done.
FUSE SPECIFICATIONS:
The fuse designations are printed on the ignition board and the control board. See Figure 25 for board lo-
cations. Fuses are available as common hardware items or may be purchased from Hayward in a service parts
kit. The fuse specications are:
• F1 fuse (low voltage): 3A blade style fast-acting automotive fuse, type 257
• FC1 & FC2 (transformer primary) and FC4 (transformer secondary):
3A slo-blo fuse, 5 x 20 mm

Pomona, CA Clemmons, NC Nashville, TN
Tel: 908-351-5400 www.haywardpool.com
USE ONLY HAYWARD GENUINE REPLACEMENT PARTS
52
Code Description Information
bD Internal fault/power-up
error
On initial trial for ignition. Automatic reset is immediate once the gas valve relay
check results are acceptable.
bD
Gas valve sensed
as “ON” error
If valve is open when it should be closed the heater will shut down and go into
lockout. Blower will operate until error condition is corrected. Automatic restart
2 minutes after error is corrected.
bD
Gas valve sensed
as “OFF” error
If valve is closed but ame is sensed the blower will run for 5 s then start a new
ignition sequence. If error occurs 10 times during a call for heat the control will
go into lockout. Automatic reset is 60 minutes.
bD Data retrieval error If control input data is corrupted the heater will shut down and go into lockout.
HF
Flame present with gas
valve “OFF” error
If ame is sensed with the gas valve off the control will go into lockout. The
blower will run until error condition is corrected. When corrected, control will
run blower for 5 s then automatically restart after 2 minutes.
PF Electrical supply wiring
error
This code will display if 120V polarity is reversed, low voltage is detected, or if
the ground path is not sufcient. Reset is immediate after error is corrected.
AO
Blower vacuum switch
open error
If the blower prover switch does not close after the blower starts the control will
stop the ignition trial go into lockout. The blower will continue to run. Automatic
reset is immediate after the switch closes.
AO
Blower vacuum switch
open when expected
closed error
If the blower prover switch opens unexpectedly during operation the control will
shut down and attempt to re-light. If the switch does not close after the blower
starts the control will go into lockout with the blower running. Automatic reset is
immediate after error is corrected.
AO
Blower vacuum switch
open during post-purge
error
If the blower prover switch opens during the postpurge cycle (heater is not r-
ing) the control will display the error code. The post-purge cycle will be com-
pleted once the blower prover switch closes.
AC
Blower vacuum switch
closed when expected
open error
If the blower prover switch is closed before blower start-up the control will not
start the blower. Automatic reset is immediate when the switch opens.
IO
Igniter open error If the control is not in lockout and senses that the igniter circuit is open when the
blower is running the control will turn off the blower and go into lockout. Auto-
matic restart 2 min after error is corrected.
SF
Thermistor error An excessive temperature difference between the two thermistors (5 °F or more)
or an “out of bounds” condition on both sensors (less than 10°F or greater than
180°F) will result in the error code. Automatic restart is 2 minutes after the error
is corrected.
Figure 31: ERROR CODES

Pomona, CA Clemmons, NC Nashville, TN
Tel: 908-351-5400 www.haywardpool.com
USE ONLY HAYWARD GENUINE REPLACEMENT PARTS
53
Pomona, CA Clemmons, NC Nashville, TN
Tel: 908-351-5400 www.haywardpool.com
USE ONLY HAYWARD GENUINE REPLACEMENT PARTS
Code Description Information
HS
Water Temperature
Sensing Error
A) Inlet water temperature sensor is reporting a temperature in excess of 104°F.
Normal operation resumes 2 minutes after inlet water temperature sensor reports
temperatures of 104°F or less. This error functions in both normal and remote
thermostat modes.
or
B) Inlet water temperature sensor is reporting a temperature change at a rate
faster than 6°F in 60 seconds, indicating a potentially damaging low water ow
conditon. Normal operation resumes when temperatures stabilize. If this condi-
tion is detected 3 times, the heater will lock-out until the electrical power is
cycled off and back on.
Sb
Keypad button stuck
closed error
If one of the keypad buttons is closed (or pressed) for more than 30 s the error
code will be displayed but the control will continue to function. The error code
will be cleared when the condition is corrected.
IF Ignition failure error If the control exceeds the maximum number of ignition retries or recycles the
heater will shut down and go into lockout. Automatic reset is 60 minutes.
CE
Communication error If communication between the ignition board and the display board is not estab-
lished within 3 s of power-up an error will be displayed. After communication is
established, if it is lost for 30 s, the error will be displayed. The error code will
be cleared upon a valid data exchange between boards.
LO
Limit string open error If the limit string opens the heater shuts down and goes into lockout. Automatic
restart is 2 minutes after the error condition is corrected and the limit string
closes. See below for more detail.
EE EEPROM ERROR An error was detected in the ignition control circuit board.
Figure 31: ERROR CODES (continued)

54 Figure 32: TROUBLESHOOTING
Code Fault Diagnosis Step Remedy
None
Heater will not
power up.
1. Check for Low & High
Voltage Output from Fuse
Board
Disconnect plug from P5 connector from Fuse Board. Measure
for 24VA C between pins of receptacle on Fuse Board. Reconnect
plug. Disconnect plug from P6 of Fuse Board. Measure for 120VA C
between pin 3 and 5 of receptacle on Fuse Board. Reconnect plug. If
OK, proceed to section titled ‘‘Low voltage circuit fault’’. Otherwise,
proceed to step 2.
2. Ensure eld power supply
to heater is turned on.
Measure for eld supply voltage across terminals of TB1 terminal block
on Fuse Board. If OK, proceed to step 3
3. Check for faulty Fuse
Board wiring.
Insoect Fuse Board wiring. Ensure all plugs are securely fastened to
Fuse Board. If OK, proceed to step 4.
4. Verify that FC1 and FC2
Fuses on Fuse Board are not
open.
Remove FC1 and FC2 fuses from fuseholder. Measure continuity
across fuse. If fuses are open, proceed to section titled ‘‘Open FC1 and/
or FC2 Fuses’’. If fuses are OK, reinstall them and proceed to step 5.
5. Verify that 240vac Voltage
Selector Plug is not installed
with a 120vac eld power
supply
Check that proper Volatage Selector Plug is installed in Fuse Board. If
OK, proceed to step 6
6. Check for defective
Transformer.
Disconnect plug from P4 connector from Fuse Board. Mesure for
24VA C between pins 1 & 2 of plug of Transformer and 120VA C
between pins 4 & 6. If 24VAC or 120VAC is not present, replace
Transformer. Otherwise, proceed to step 7.
7. Fuse Board is defective Replace Fuse Board.
None
Low voltage
circuit fault.
1. Check for Low Voltage
Output from Fuse Board
Diconnect plug from P5 connector from Fuse Board. Measure for
24VAC across pins. Reconnect plug. If OK, proceed to step 2.
Otherwise, proceed to step 5.
2. Check for faulty Control
Module wiring.
Inspect Control Module wiring. Ensure all plugs are securly fastened to
Control Module. If OK, proceed to step 3.
3. Verify low voltage input
to Control Module.
Verify 24VAC across R and C terminals on Control Module. If not OK,
replace harness. If OK, procced to step 4.
4. Verify that F1 Fuse on
Control Board is not open.
Remove F1 fuse from fuseholder. Measure continuity across fuse. If
OK, replace Control Module. If fuse is open, proceed to section titled
‘‘Open FC3 or FC1 Fuses’’.
5. Verify that FC3 on Fuse
Board is not open
Remove FC3 fuse from fuseholder. Measure continuity across fuse. If
fuse is open, proceed to section titled ‘‘Open FC3 or FC1 Fuses’’. If
OK, reinstall fuse and proceed to step 6.
6. Check for defective
Transformer.
Disconnect plug from P4 connector from Fuse Board. Mesure for
24VAC between pins 1 & 2 of plug from transformer. If 24VAC is not
present, replace Transformer. Otherwise, proceed to step 7.
7. Fuse Board is defective Replace Fuse Board
None
Open FC1 and/or
FC2 Fuses.
1. Verify that 120VAC
Voltage Selector Plug is not
installed with a 240VAC
eld power supply.
Check that proper Voltage Selector Plug is installed. If OK, proceed to
step 2.
If 120VAC plug is installed and eld supply voltage is 240VAC, FC1
and FC2 fuses will have to be opened. Install the correct Voltage
Selector Plug and new FC1 and FC2 fuses.
2. Check for faulty
Transformer wiring.
Inspect Transformer wiring. Ensure insulation on wiring is not worn. If
OK, proceed to step 3.
3. Defective Transformer Replace Transformer.

Pomona, CA Clemmons, NC Nashville, TN
Tel: 908-351-5400 www.haywardpool.com
USE ONLY HAYWARD GENUINE REPLACEMENT PARTS
55
Code Fault Diagnosis Step Remedy
None
Open FC3 and/or
F1 Fuses
1. Check for faulty Gas
Valve wiring.
Inspect Gas Valve wiring. Ensure insulation on wiring is not worn. If
OK, proceed to step 2.
2. Verify that Gas Valve is
not defective.
Mesure for resistance across Gas Valve terminals and between each
terminal and ground. If short exists, replace Gas Valve. If OK, proceed
to step 3.
3. Check for faulty Control
Module wiring.
Inspect Control Module wiring. Ensure insulation on wiring is not worn.
If OK proceed to step 4.
4. Control Module is
defective.
Replace Control Module.
None
Open FC4 Fuse. 1. Check for faulty Igniter
wiring.
Inspect Igniter wiring. Ensure insulation on wiring is not worn. If OK,
proceed to step 2.
2. Check for faulty Blower
wiring.
Inspect Blower wiring. Ensure insulation on wiring is not worn. If OK,
proceed to step 3.
3. Check for defective
Igniter.
Disconnect Igniter plug from Control Module. Measure resistance
across Igniter. Resistance should be 10.9-19.7 ohms at at 77°F. If out of
this range, replace igniter. If OK, proceed to step 4
4. Check for defective
Blower.
Disconnect Blower plug from Control Module. Measure resistance
across Blower windings. Winding resistance across lead should be in
the following range: Red-to-White: 8 to 9 ohms. If measured values
vary substantially from these values, blower is defective. Replace.
Otherwise proceed to step 5.
5. Control Module is
defective.
Replace Control Module.
bD
Bad Board or
Secondary Hig
Voltage Fault
1. Verify that FC4 Fuse on
Fuse Board is not open.
Remove FC from fuseholder. Mesure continuity across fuse. If OK,
reinstall fuse and proceed to step 2. If Fuse is open, proceed to section
titled ‘‘Open FC4 Fuse’’.
2. Verify high voltage output
from Fuse Board.
Disconnect plug from P6 connector of Fuse Board. Measure for
120VAC across pins 3 and 5 of P6 receptacle on Fuse Board. If OK,
reconnect plug and proceed to step 3. If not OK, go to step 4.
3. Check for defective
Harness.
Disconnect plug from E10 connector of Contol Module. Measure for
120VAC across pins 1 and 3 of Plug on Harness. If OK, replace Control
Module. If not OK, replace Harness.
4. Check for defective
Transformer.
Disconnect plug from P4 connector of Fuse Board. Measure for
120VAC between pins 4 and 6 of plug from Transformer. If OK,
proceed to step 5. If not OK, replace Transformer.
5. Fuse Board is defective Replace Fuse Board.
EE Bad Board 1. Defective Control Module Replace Control Module.
CE
Communication
Error between
Control Module
and Display
Interface
Assembly
1. Disconnect and then re-
connect power to heater.
2. Check for faulty wiring or
connection.
Inspect Display Interface Wiring. Ensure Display Interface Plug is
securely attached to Control Module. If OK, proceed to step 2.
3. Control Module and/or
Display Interface Assembly
are defective.
Replace Control Module and/or Display Interface Assembly.
IO Igniter Failure 1. Check for faulty wiring or
connection.
Inspect Igniter wiring. Ensure Igniter Plug is securely attached to
Control Module. If OK, proceed to step 2.
2. Igniter is defective Replace Ignitier.
Sb Keypad Failure 1. Keypad is defective Replace Display Interface Assembly.
Figure 32: TROUBLESHOOTING

56
Code Fault Diagnosis Step Remedy
SF
Temperature
sensor input
failure
1. Check for faulty wiring or
connection.
Inspect sensor wiring. Ensure sensor is pluggd into back of control
module. If OK, proceed to step 2.
2. Sensor is defective Replace temperature sensor.
HS
Water
Temperature
Sensing Error
1. Check remote thermostat
setting
Verify set point setting of remote thermostat is at or below 104°F. If
set point of remote thermostat is OK, or if heater is not congured for
remote thermostat, proceed to step 2.
2. Verify that the water ow
is adequate
Verify that water ow to heater is above minimum required (20 GPM for
H150FD and H200FD, 25 GPM for H250FD and H300FD, 30 GPM for
H350FD and H400FD). Note that intermittent periods of low water ow
will cause this error. If OK, proceed to step 3.
3. Check inlet water
temperature sensor
Compare the heater's temperature reading to the pool water temperature
with an accurate thermometer. If signicantly different, replace inlet
water temperature sensor.
HF
Flame Present
with Gas Valve
not Energized
1. Gas Valve is defective Replace Gas Valve
bO
Bypass
Operation
1. Check to see if Control
Module is in Bypass
Operation
This is normal display when heater is being controlled by a remote
thermostat. No service is required. If heater is not being controlled by
remote thermostat, change setting by using the MODE key to put the
heater into STANDBY. Press and hold the DOWN key and then press
and hold the MODE key. Hold down both keys for 3 seconds until the
indication ‘‘bO’’ is removed from the display.
LO
Water pressure
switch fault
1. Verify that the pump is
running.
This is a normal display when the pump is off. Turn pump on. LO code
should clear. If LO does not clear, proceed to step 2.
2. Verify that water ow is
adequate
Verify that water ow rate to heater is above minimum required (20
GPM for H150FD and H200FD, 25 GPM for H250FD and H300FD, 30
GPM for H350FD and H400FD). If OK, proceed to step 3
3. Check for faulty wiring or
connection.
Inspect water pressure switch wiring. Ensure wire harness terminals are
securely fastened to spade terminals on water pressure switch. If OK,
procced to step 4.
4.Verify state of water
pressure switch contacts.
Remove wire leads from water pressure switch and jumper leads.
Operate heater. Measure continunity across water pressure switch.
If open, proceed to step 5. If closed, LO code is not caused by water
pressure switch fault. Remove jumper from wire leads and reconnect
wire leads to water pressure switch.
5. Ensure that low pump
pressure does not exist.
Clean lter or clear blockages. Check position of valves in plumbing
system. If OK proceed to step 6.
6. Check for correct water
pressure switch setting.
Adjust water pressure switch setting as shown on page 33 of Installation
Manual (only if heater is above or below water level). If LO does not
clear, proceed to step 7.
7. Water pressure switch is
defective
Replace water pressure switch.
Vent pressure
switch fault
(applies only
if indoor
installation)
1. Check for faulty wiring or
connection.
Inspect vent pressure switch wiring. Ensure wire harness terminals are
securely fastened to spade terminals on vent pressure switch. If OK,
proceed to step 2.
2. Verify state of vent
pressure contacts.
Remove wire leads from vent pressure switch and jumper leads. Operate
heater. Measure continuity across vent pressure switch. If closed, LO code is
not caused by vent pressure switch fault. If open, proceed to step 3. Remove
jumper from wire leads and reconnect wire leads to vent pressure switch.
3. Check for restricted or
blocked ue.
Ensure that ue is not blocked or restricted. See indoor vent sizing
requirements in installation manual. If OK, proceed to step 4.
4. Vent pressure switch is
defective.
Replace vent pressure switch.
Figure 32: TROUBLESHOOTING

57
LO
Temperature
limit switch fault
1. Check for faulty wiring or
connection.
Inspect temperature limit switch wiring. Ensure wire harness teminals
are securely fastened to spade terminals on temperature limit switches.
If OK, proceed to step 2.
LO
Temperature
limit switch fault
(cont’d)
2. Verify state of temperature
limits’ contacts
Remove wire leads from limit switch and jumper leads. Operate heater.
Measure continity across limit switches. If closed, LO code is not
caused by temperature limit switch fault. If open, proceed to step 3.
Remove jumper from leads and reconnect leads to temperature limits.
3. Verify that water ow is
adequate
Verify that water ow rate to heater is above the minimum required
(20 GPM for H150FD and H200FD, 25 GPM for H250FD and H300FD,
30 GPM for H350FD and H400FD). If OK, proceed to step 4.
4. Temperature limit switch
is defective.
Replace temperature limit switch.
IF
Ignition Failure 1. Ensure gas supply shutoff
valves are open.
Ensure that main gas shutoff installed adjacent to heater is open. Ensure
that knob on gas valve inside unit is in ‘‘on’’ position. If OK, proceed to
step 2.
2. Check for low gas supply
pressure
Ensure inlet gas supply pressure is between the minimum and maximum
values indicated on rating plate. If OK, proceed to step 3.
3. Check for faulty ame
sense wiring or connection.
Inspect ame sense wiring. Ensure wire harness terminals are securely
fastened to ame sense and to control module. If OK, proceed to step 4.
4. Check for faulty gas valve
wiring or connection
Inspect gas valve wiring. Ensure wire harness terminals are securely
fastened to spade terminals on gas valve. If OK, proceed to step 5.
5. Check for gas valve
failure or gas valve relay
failure.
1. Measure voltage across gas valve during trial for igintion. If 24VAC
is present and gas valve does not open, gas valve is defective. Replace
gas valve.
2. If 24VAC is not present, gas valve relay on control module is
defective. Replace control module.
6. Check for blockages in
gas orices and burners
Inspect gas orices for blockages which could prevent gas ow. Remove
and inspect burners for blockages.
AC
Blower vacuum
switch closed.
1. Check for defective
blower on relay or control
module.
Disconnect Blower plug fron Control Module. With heater off, measure
continuity across pins 1 and 2 of receptacle on Control Module. If
closed, control module relay is defective. Replace control module. If
OK, proceed to step 2.
2. Vacuum switch is
defective.
Replace blower vacuum switch.
AO
Blower vacuum
switch open.
1. Check for faulty vacuum
switch tubing
Check tubing and replace if necessary. If OK, proceed to step 2.
2. Check for faulty vacuum
switch wiring or connection.
Inspect vacuum switch wiring. Ensure wire harness terminals are
securely fastened to spade terminals on vacuum switch. If OK, proceed
to step 3.
3. Check for faulty blower
wiring or connection
Inspect blower wiring. Ensure plug on blower is securely fastened to
control module. If OK, proceed to step 4.
4. Check for defective
vacuum switch
Disconnect Blower plug from Control Module. Measure resistance
across Blower windings. Winding resistance across lead should be in
the following range; Red-to-White: 8 to 9 ohms. If measured values
vary substantially from these values, Blower is defective. Replace. If
OK, proceed to step 5.
5. Check for defective
blower relay.
Disconnect Blower plug from Control Module. Place heater in Pool
or Spa Mode. Lower set point temperature to generate call for heat.
During pre-purge period, measure for 120VAC across pins 1 and 2. If
120VAC is not present, control module relay is defective. Replace
control module. If OK, proceed to step 6
6. Vacuum switch is
defective
Replace blower vacuum switch.
Figure 32: TROUBLESHOOTING
Code Fault Diagnosis Step Remedy

Pomona, CA Clemmons, NC Nashville, TN
Tel: 908-351-5400 www.haywardpool.com
USE ONLY HAYWARD GENUINE REPLACEMENT PARTS
58
HAYWARD POOL HEATER CERTIFICATE OF LIMITED WARRANTY
Limited heater warranty:
TERMS AND COVERAGE: We warrant our pool heater to be free from defects in workmanship and materi-
als under normal use and service. Pursuant to this warranty and subject to the Conditions and
Exceptions indicated below:
1. We will replace (cost of freight, installation, cost of fuel, and service labor at user’s expense) with
the prevailing comparable model, or, at our option, repair any pool/spa heater that leaks under nor-
mal use and service within one year from the date of original installation for all users.
2. In addition, we will replace (cost of freight, installation, cost of fuel, and service labor at user’s
expense) or, at our option, repair any part or parts of the pool/spa heater which malfunctions under
normal use and service within one year from the date of original installation for all users.
LIMITATION ON IMPLIED WARRANTIES: WE ARE NOT LIABLE FOR ANY CONSEQUENTIAL
DAMAGES FOR BREACH OF ANY WRITTEN OR IMPLIED WARRANTY OF THIS PRODUCT. Im-
plied warranties, including the WARRANTY of MERCHANTABILITY and all other implied warranties that
may arise from course of dealing or usage of trade imposed on the sale of this heater under laws of the state
are limited in duration to the term of one (1) year for all users. There are no warranties which extend beyond
the description on the face hereof. We shall not in any event be held liable for any special, indirect, or conse-
quential damages.
EXPENSE OF DELIVERY AND INSTALLATION:
Each pool heater or replacement part to be furnished under this warranty shall be furnished at our nearest
distribution center. We shall not pay, nor be responsible for shipping or delivery charges to the place of instal-
lation, nor for labor charges or other costs of removal or installation. Every defective heater or part replaced
under this warranty shall become our property, and as such, must be returned to our distribution center with
transportation charges paid by the user. Any replacement pool heater furnished under this warranty shall re-
main in warranty only for the unexpired portion of this warranty.
CONDITIONS AND EXCEPTIONS:
This warranty applies only to the pool/spa at its original place of installation and only for the original
owner. It does not apply if the pool heater is installed in violation of any applicable code or ordinance, or is
not installed, operated and maintained in accordance with our instructions, or is misused, damaged by ac-
cident, weather, act of God, freezing, water void and/or excess pressure, altered or disconnected. It does not
apply with respect to:
1. A heater not equipped with Certied C.S.A. limit controls or equivalent pressure relief valve.
2. A heater operated with settings in excess of, and/or with fuel not conforming to those shown on rat-
ing plate;
3. A heater on which the serial numbers have been altered, defaced, or removed.
4. Leaks arising from defective installation;
5. Production of noise, odors, or discolored (rusty, etc.) water;
6. Leakage substantially contributed to by sediment, lime precipitate and/or higher than normal dis-
solved solids (pH above 7.8) in the tank, copper tubes, or water ways;
7. Leakage caused substantially contributed to by corrosive elements in the atmosphere (such as the
storage of chlorine or other chemicals);
8. Leakage caused substantially or contributed to by corrosive pool water in an acid condition (pH
below 7.2);
9. Damage caused substantially or contributed to by an external source of energy;
10. A pool/spa heater is a water containing device. Leakage of water from this device can be expected
at some time due to malfunction or the limitations

Pomona, CA Clemmons, NC Nashville, TN
Tel: 908-351-5400 www.haywardpool.com
USE ONLY HAYWARD GENUINE REPLACEMENT PARTS
59
of the service life of various components. Do not install this product where such leakage can cause damage.
MANUFACTURER IS NOT RESPONSIBLE OR LIABLE FOR ANY COSTS INCURRED BY SUCH
DAMAGE.
IN NO CASE ARE WE TO BE HELD LIABLE FOR DAMAGE
TO SURROUNDING AREA OR PROPERTY
CAUSED BY LEAKAGE OR MALFUNCTION.
HOW TO CLAIM UNDER THIS WARRANTY:
The original owner, upon discovering the defect, must present the attached completed warranty claim card
with proof of purchase either to the dealer or notify the Company in writing at either address:
HAYWARD POOL PRODUCTS, INC.
620 DIVISION ST.
ELIZABETH, NJ 07207
OR
HAYWARD POOL PRODUCTS, INC.
2875 POMONA BOULEVARD
POMONA, CA 91768
Upon receipt of such notication we shall decide whether to repair such parts or replace any pool heater,
reserving at all times the right to inspect in order to verify any claimed defect. We also reserve the right to
have our representatives make any inspections, repairs, or to furnish replacements. This warranty is intended
as a legally binding obligation of the Company, enforceable in the courts. This warranty may give you spe-
cic legal rights which may vary from state to state.
LIMITATION ON LIABILITY:
All intended representations have been expressly set forth in this document. This warranty may not be
extended by oral or any other additional representations, written sales information, drawings, or other mal-
function, is strictly limited to repair or replacement of the defective heater or part, as provided herein and
the Company is not responsible hereunder for incidental or consequential or incidental costs or damages.
The company neither assumes, nor authorizes any person or rm to assume for us, any further liability or
obligation in connection with the sale, installation, use, maintenance, or existence of the heater. SAFETY
WARNING: Pool heaters are heat producing appliances and to avoid damage or injury in the event of pos-
sible overheating of the outer jacket (1) no materials should be stored against the jacket and (2) care should
be taken to avoid unnecessary contact (especially by children) with the jacket. When lighting a gas heater, the
lighting instructions must be followed exactly to prevent “ashback” of excess gas in the heater. Electronic
ignition heaters and electric heaters must have the power shut off when making adjustments to, servicing, or
coming into contact with the heater. UNDER NO CIRCUMSTANCES SHOULD FLAMMABLE MATERI-
ALS, SUCH AS GASOLINE OR PAINT THINNERS, BE USED OR STORED IN THE VICINITY OF THE
HEATER OR IN ANY LOCATION FROM WHICH FUMES COULD REACH THE HEATER. For your
comfort, enjoyment and safety, please read the enclosed operating instructions carefully.

60 SERVICE PARTS
32
40
30
41
27
26
22
21
23
17 16
18
19
25
24
15
20
8
10
3
11
31
5
28
2
1
14
13
12
10
4
6
7
9
38
34
35
39
30
29
37
33
36
27
29
Bronze Header Models (ASME) Plastic Header Models (Non-ASME)
32

61
Pomona, CA Clemmons, NC Nashville, TN
Tel: 908-351-5400 www.haywardpool.com
ITEM PART NO. DESCRIPTION
1 FDXLJKT1150 JACKET TOP - H150FD
FDXLJKT1200 JACKET TOP - H200FD
FDXLJKT1250 JACKET TOP - H250FD
FDXLJKT1300 JACKET TOP - H300FD
FDXLJKT1350 JACKET TOP - H350FD
FDXLJKT1400 JACKET TOP - H400FD
FDXLJKT1250A JACKET TOP, GRAY, ASME - H250FD
FDXLJKT1400A JACKET TOP, GRAY, ASME - H400FD
2 FDXLTFC1150 TOP FLUE COVER - H150FD
FDXLTFC1200 TOP FLUE COVER - H200FD
FDXLTFC1250 TOP FLUE COVER - H250FD
FDXLTFC1300 TOP FLUE COVER - H300FD
FDXLTFC1350 TOP FLUE COVER - H350FD
FDXLTFC1400 TOP FLUE COVER - H400FD
FDXLTFC1250A TOP FLUE COVER, GRAY, ASME - H250FD
FDXLTFC1400A TOP FLUE COVER, GRAY, ASME - H400FD
3 FDXLFAD1150 FRONT ACCESS DOOR ASSY - H150FD
FDXLFAD1200 FRONT ACCESS DOOR ASSY - H200FD
FDXLFAD1250 FRONT ACCESS DOOR ASSY - H250FD
FDXLFAD1300 FRONT ACCESS DOOR ASSY - H300FD
FDXLFAD1350 FRONT ACCESS DOOR ASSY - H350FD
FDXLFAD1400 FRONT ACCESS DOOR ASSY - H400FD
FDXLFAD1250A FRONT ACCESS DOOR ASSY, GRAY, ASME - H250FD
FDXLFAD1400A FRONT ACCESS DOOR ASSY, GRAY, ASME - H400FD
4 FDXLRAD1150 REAR ACCESS DOOR ASSY - H150FD
FDXLRAD1200 REAR ACCESS DOOR ASSY - H200FD
FDXLRAD1250 REAR ACCESS DOOR ASSY - H250FD
FDXLRAD1300 REAR ACCESS DOOR ASSY - H300FD
FDXLRAD1350 REAR ACCESS DOOR ASSY - H350FD
FDXLRAD1400 REAR ACCESS DOOR ASSY - H400FD
FDXLRAD1250A REAR ACCESS DOOR ASSY, GRAY, ASME - H250FD
FDXLRAD1400A REAR ACCESS DOOR ASSY, GRAY, ASME - H400FD
5 FDXLTFP1150 TOP FRONT PANEL - H150FD
FDXLTFP1200 TOP FRONT PANEL - H200FD
FDXLTFP1250 TOP FRONT PANEL - H250FD
FDXLTFP1300 TOP FRONT PANEL - H300FD
FDXLTFP1350 TOP FRONT PANEL - H350FD
FDXLTFP1400 TOP FRONT PANEL - H400FD
FDXLTFP1250A TOP FRONT PANEL, GRAY, ASME - H250FD
FDXLTFP1400A TOP FRONT PANEL, GRAY, ASME - H400FD
6 FDXLUEC1930 UPPER END CAP
7 FDXLLEC1930 LOWER END CAP
8 FDXLLTP1930 LEFT TRIM PANEL
9 FDXLRTP1930 RIGHT TRIM PANEL
10 FDXLLJC1930 JUNCTION BOX COVER, LEFT
FDXLRJC1930 JUNCTION BOX COVER, RIGHT
11 FDXLPBL1930 BASE LEG

62
Pomona, CA Clemmons, NC Nashville, TN
Tel: 908-351-5400 www.haywardpool.com
ITEM PART NO. DESCRIPTION
12 FDXLFCS1930 FLUE COLLECTOR SIDE PANEL
13 FDXLRGK1151 RAIN GUARD ASSEMBLY - H150FD
FDXLRGK1201 RAIN GUARD ASSEMBLY - H200FD
FDXLRGK1251 RAIN GUARD ASSEMBLY - H250FD
FDXLRGK1301 RAIN GUARD ASSEMBLY - H300FD
FDXLRGK1351 RAIN GUARD ASSEMBLY - H350FD
FDXLRGK1401 RAIN GUARD ASSEMBLY - H400FD
14 FDXLHBP1150 HEAT BARRIER PANEL - H150FD
FDXLHBP1200 HEAT BARRIER PANEL - H200FD
FDXLHBP1250 HEAT BARRIER PANEL - H250FD
FDXLHBP1300 HEAT BARRIER PANEL - H300FD
FDXLHBP1350 HEAT BARRIER PANEL - H350FD
FDXLHBP1400 HEAT BARRIER PANEL - H400FD
15 FDXLBBN1150 BLOWER INLET BAFFLE - H150FD
FDXLBBN1200 BLOWER INLET BAFFLE - H200FD
FDXLBBN1250 BLOWER INLET BAFFLE - H250FD
FDXLBBN1300 BLOWER INLET BAFFLE - H300FD
FDXLBBN1350 BLOWER INLET BAFFLE - H350FD
FDXLBBN1400 BLOWER INLET BAFFLE - H400FD
16 FDXLIAC1930 IGNITER ACCESS COVER
17 FDXLGSV0001 GAS VALVE, NATURAL
FDXLGSV0002 GAS VALVE, PROPANE
18 FDXLBON1930 BURNER ORIFICE KIT, NATURAL
FDXLBOP1930 BURNER ORIFICE KIT, PROPANE
19 FDXLMAN1150 GAS MANIFOLD - H150FD
FDXLMAN1200 GAS MANIFOLD - H200FD
FDXLMAN1250 GAS MANIFOLD - H250FD
FDXLMAN1300 GAS MANIFOLD - H300FD
FDXLMAN1350 GAS MANIFOLD - H350FD
FDXLMAN1400 GAS MANIFOLD - H400FD
FDXLGCK1150NP CONVERSION KIT, NA TO LP, QUICK-CHANGE - H150FD
FDXLGCK1150PN CONVERSION KIT, LP TO NA, QUICK-CHANGE - H150FD
FDXLGCK1200NP CONVERSION KIT, NA TO LP, QUICK-CHANGE - H200FD
FDXLGCK1200PN CONVERSION KIT, LP TO NA, QUICK-CHANGE - H200FD
FDXLGCK1250NP CONVERSION KIT, NA TO LP, QUICK-CHANGE - H250FD
FDXLGCK1250PN CONVERSION KIT, LP TO NA, QUICK-CHANGE - H250FD
FDXLGCK1300NP CONVERSION KIT, NA TO LP, QUICK-CHANGE - H300FD
FDXLGCK1300PN CONVERSION KIT, LP TO NA, QUICK-CHANGE - H300FD
FDXLGCK1350NP CONVERSION KIT, NA TO LP, QUICK-CHANGE - H350FD
FDXLGCK1350PN CONVERSION KIT, LP TO NA, QUICK-CHANGE - H350FD
FDXLGCK1400NP CONVERSION KIT, NA TO LP, QUICK-CHANGE - H400FD
FDXLGCK1400PN CONVERSION KIT, LP TO NA, QUICK-CHANGE - H400FD
20 FDXLBWR1930 COMBUSTION BLOWER
21 FDXLBVS1930 BLOWER VACUUM SWITCH
22 FDXLICB1930 INTEGRATED CONTROL BOARD
23 FDXLFWP1930 FIELD WIRING PANEL
24 FDXLIGN1930 IGNITOR

63
Pomona, CA Clemmons, NC Nashville, TN
Tel: 908-351-5400 www.haywardpool.com
25 IDXLFLS1930 FLAME SENSOR
26 IDXL2TRF1930 TRANSFORMER
27 FDXLWPS1930 WATER PRESSURE SWITCH
28 IDXL2DB1930 DISPLAY BOARD ONLY
FDXLBKP1930 BEZEL & KEYPAD ASSEMBLY
FDXLBKP1931 BEZEL & KEYPAD ASSEMBLY, BLUE, ASME
FDXLGSK1932 GASKET, BEZEL/TOP
29 FDXLHLI1930 HIGH LIMIT KIT
30 FDXLTER1930 THERMISTOR
31 FDXLGSK1934 GASKET, CC FRONT/AIR BOX - ALL MODELS
32 FDXLHXA1150 HEAT EXCHANGER ASSY - H150FD
FDXLHXA1200 HEAT EXCHANGER ASSY - H200FD
FDXLHXA1250 HEAT EXCHANGER ASSY - H250FD
FDXLHXA1300 HEAT EXCHANGER ASSY - H300FD
FDXLHXA1350 HEAT EXCHANGER ASSY - H350FD
FDXLHXA1400 HEAT EXCHANGER ASSY - H400FD
FDXLHXA1250A HEAT EXCHANGER ASSY, ASME - H250FD
FDXLHXA1400A HEAT EXCHANGER ASSY, ASME - H400FD
33 FDXLFHD1930 INLET/OUTLET HEADER ONLY
FDXLFHA1930 INLET/OUTLET HEADER ASSY
34 FDXLHDW1930 HEADER HARDWARE KIT
35 FDXLHMB1930 HEADER MOUNTING BASE KIT
36 FDXLBKP1930 BYPASS CARTRIDGE KIT
37 CHXPLG1930 3/4” BRASS PLUG
38 FDXLCRN1930 HEADER CARTRIDGE RETAINING NUT
39 SPX4000FG DRAIN PLUG WITH GASKET
40 FDXLDRV1930A DRAIN VALVE, ASME
41 CHXRLV1930 PRESSURE RELIEF VALVE
NOT SHOWN:
--- FDXLGSK1930 GASKET KIT, AIR SIDE - ALL MODELS
INCLUDES:
GASKET, BLOWER MOUNTING
GASKET, IGNITER COVER
GASKET, COVER/AIR BOX FRONT - ALL MODELS
GASKET, MANIFOLD/AIR BOX - ALL MODELS
--- FDXLGSK1931 GASKET KIT, EXHAUST SIDE - ALL MODELS
INCLUDES:
GASKET, FLUE COLLECTOR SIDE
GASKET, RAIN GUARD SIDE
GASKET, RAIN GUARD BOTTOM SIDE
GASKET, FLUE COLLECTOR TOP - ALL MODELS
GASKET, RAIN GUARD FRONT & REAR - ALL MODELS
GASKET, RAIN GUARD BOTTOM FRONT & REAR - ALL MODELS
--- FDXLGSK1933 INSULATION, RETURN SIDE TUBE SHEET
ITEM PART NO. DESCRIPTION

64
NOT SHOWN (CONTINUED):
--- FDXLBRN1930 BURNER
--- FDXLFOR1930 HEADER O-RING KIT
--- FDXLWHA1930 WIRING HARNESS KIT, COMPLETE
--- FDXLVSJ1930 VOLTAGE SELECTOR JUMPER
--- FDXLFSK1930 FUSE SERVICE KIT
--- FDXLFSKF30 FUSE KIT, 3.0A, FOR FIELD WIRING PANEL (QTY 10)
--- FDXLFSKC30 FUSE KIT, 3.0A, FOR INTEGRATED CONTROL BOARD (QTY 10)
--- SPX3200UNKIT UNION KIT (INCLUDES FITTINGS, UNION NUTS, GASKETS)
--- FDXLUNK1930A ASME UNION FLANGE KIT (INCL. FITTINGS, BOLTS, GASKETS)
--- FDXLTDK1930 TIE-DOWN KIT
--- FDXLDRV1930A DRAIN VALVE, ASME
--- UHXNEGVT11501 INDOOR VENT ADAPTER KIT, NEG-PRESS (VERTICAL) - H150FD
--- UHXNEGVT12001 INDOOR VENT ADAPTER KIT, NEG-PRESS (VERTICAL) - H200FD
--- UHXNEGVT12501 INDOOR VENT ADAPTER KIT, NEG-PRESS (VERTICAL) - H250FD
--- UHXNEGVT13001 INDOOR VENT ADAPTER KIT, NEG-PRESS (VERTICAL) - H300FD
--- UHXNEGVT13501 INDOOR VENT ADAPTER KIT, NEG-PRESS (VERTICAL) - H350FD
--- UHXNEGVT14001 INDOOR VENT ADAPTER KIT, NEG-PRESS (VERTICAL) - H400FD
--- UHXPOSHZ11501 INDOOR VENT ADAPTER KIT, POS-PRESS (HORIZONTAL) - H150FD
--- UHXPOSHZ12001 INDOOR VENT ADAPTER KIT, POS-PRESS (HORIZONTAL) - H200FD
--- UHXPOSHZ12501 INDOOR VENT ADAPTER KIT, POS-PRESS (HORIZONTAL) - H250FD
--- UHXPOSHZ13001 INDOOR VENT ADAPTER KIT, POS-PRESS (HORIZONTAL) - H300FD
--- UHXPOSHZ13501 INDOOR VENT ADAPTER KIT, POS-PRESS (HORIZONTAL) - H350FD
--- UHXPOSHZ14001 INDOOR VENT ADAPTER KIT, POS-PRESS (HORIZONTAL) - H400FD
--- UHXHD6ETERM HEATFAB STAINLESS VENT KIT, 6” HORIZONTAL ELBOW TERMINAL
--- UHXHD6STERM HEATFAB STAINLESS VENT KIT, 6” HORIZONTAL STRAIGHT TERMINAL
--- UHXHD6ELBOW HEATFAB STAINLESS VENT KIT, 6” 90-DEGREE ELBOW
--- UHXHD6PIPE18 HEATFAB STAINLESS VENT KIT, 6” VENT PIPE, 18” LONG
--- UHXHD6PIPE24 HEATFAB STAINLESS VENT KIT, 6” VENT PIPE, 24” LONG
--- UHXHD6PIPE36 HEATFAB STAINLESS VENT KIT, 6” VENT PIPE, 36” LONG
--- UHXHD8STERM HEATFAB STAINLESS VENT KIT, 8” HORIZONTAL STRAIGHT TERMINAL
--- UHXHD8ELBOW HEATFAB STAINLESS VENT KIT, 8” 90-DEGREE ELBOW
--- UHXHD8PIPE18 HEATFAB STAINLESS VENT KIT, 8” VENT PIPE, 18” LONG
--- UHXHD8PIPE24 HEATFAB STAINLESS VENT KIT, 8” VENT PIPE, 24” LONG
--- UHXHD8PIPE36 HEATFAB STAINLESS VENT KIT, 8” VENT PIPE, 36” LONG
--- FDXLCNK0001 GAS CONVERSION KIT, NA TO LP
--- FDXLCNK0002 GAS CONVERSION KIT, LP TO NA
--- FDXLHAK1930 CONVERSION KIT, HIGH ALTITUDE, 2,000-10,100 FT
--- FDXLVPS1930 VENT PRESSURE SWITCH, INDOOR, 0-2,000 FT
--- FDXLVPS1931 VENT PRESSURE SWITCH, INDOOR, 2,000-10,100 FT
ITEM PART NO. DESCRIPTION
Hayward Pool Products, Inc.
620 Division St.
Elizabeth, NJ 07207
Hayward Pool Products, Inc.
2875 Pomona Boulevard
Pomona, CA 91768
Hayward Pool Products, Inc.
2880 Plymouth Drive
Oakville, Ontario L6H 5R4
Hayward S.A.
Zoming de Jumet
B6040 Jumet, Belgium
© 2004 Hayward Printed in U.S.A.