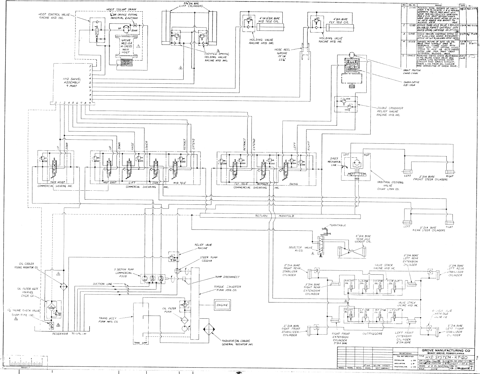
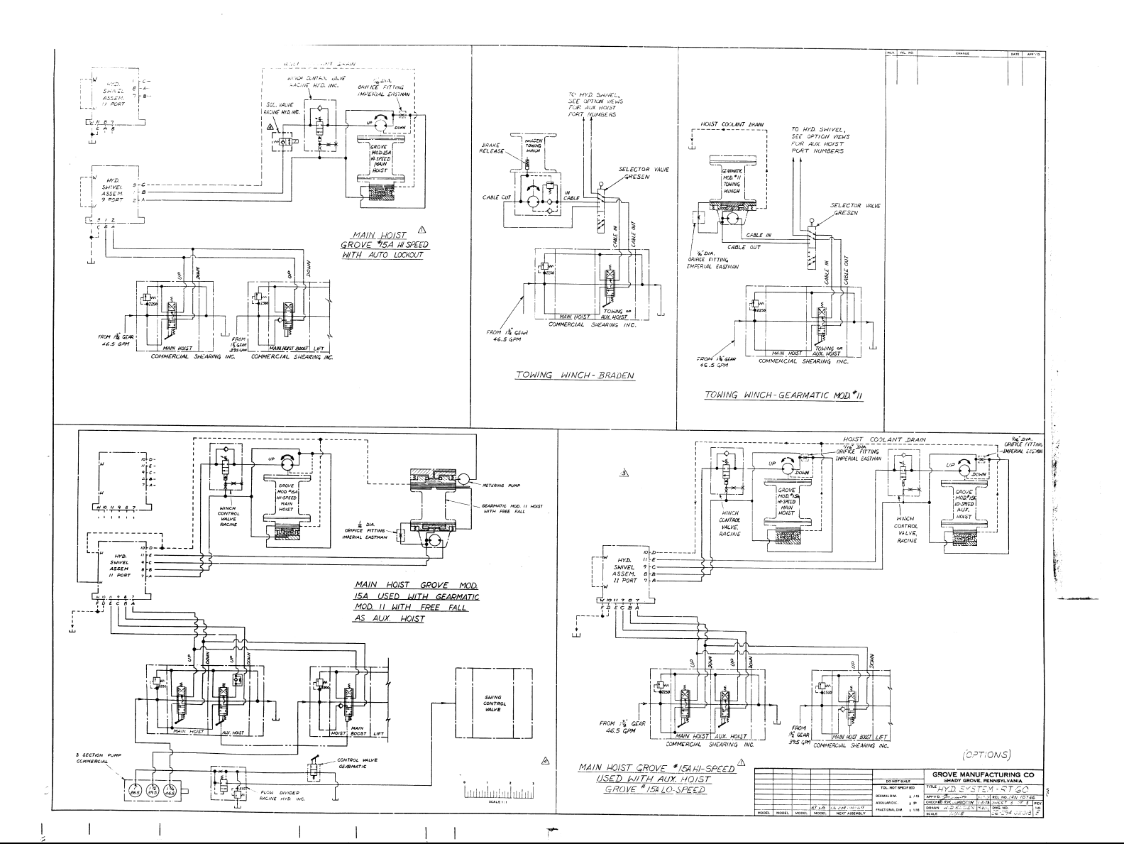
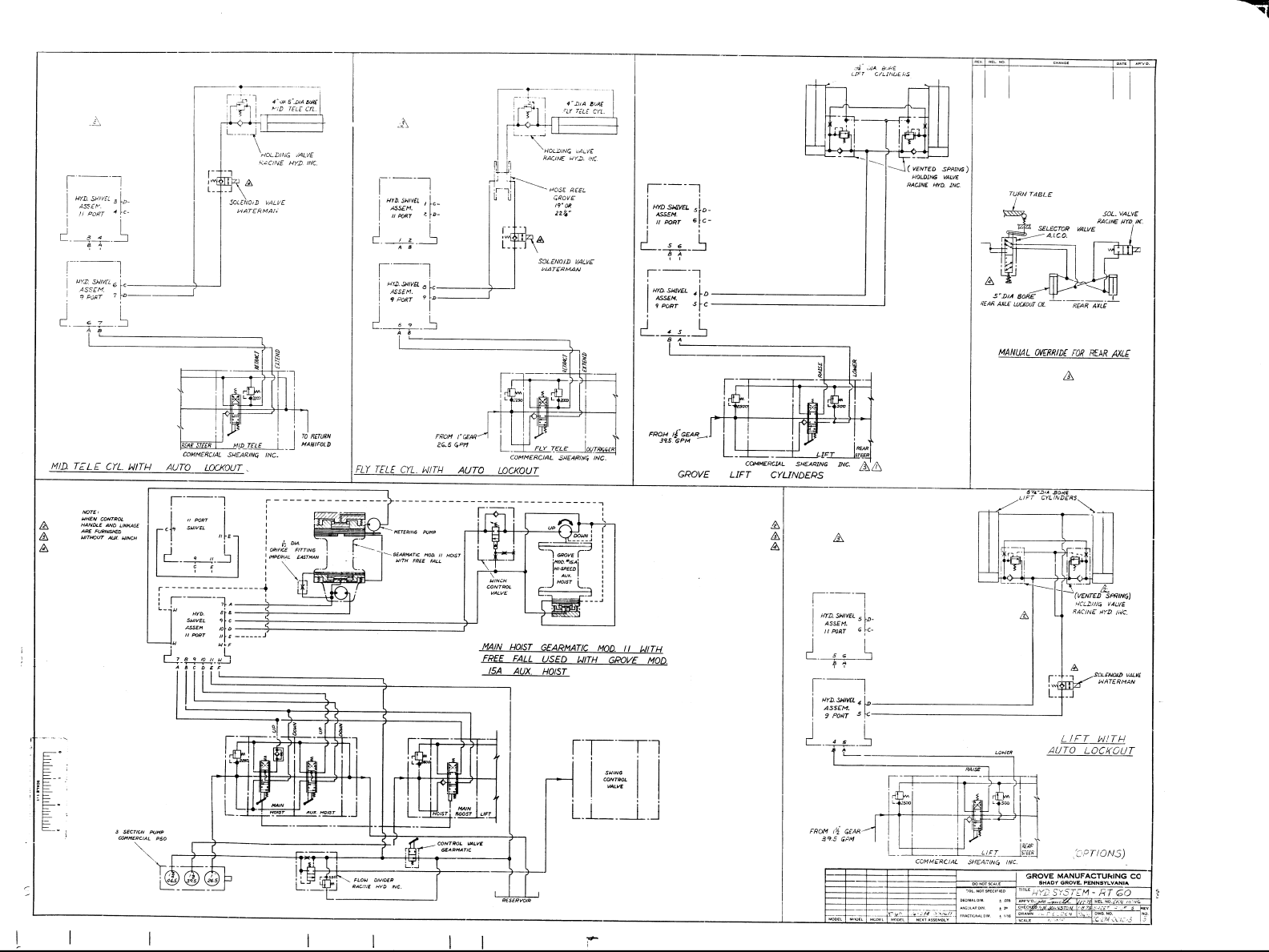
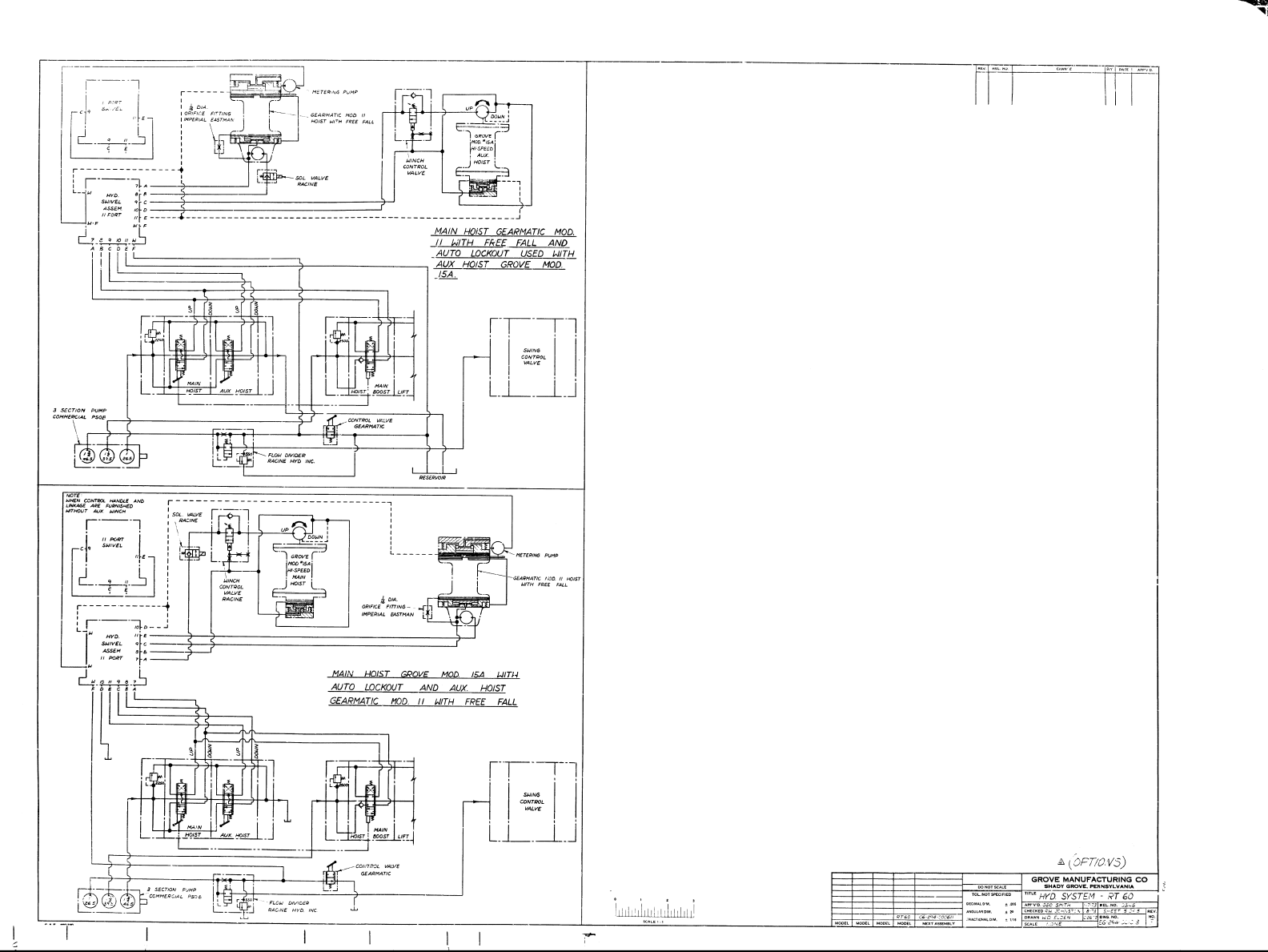
DPPrint Hydraulic Schematic
User Manual: Hydraulic-Schematic Grove Rough Terrain Crane == RT650S Owner CD == TROUBLESHOOTING
Open the PDF directly: View PDF
.
Page Count: 5





User Manual: Hydraulic-Schematic Grove Rough Terrain Crane == RT650S Owner CD == TROUBLESHOOTING
Open the PDF directly: View PDF
.
Page Count: 5




