Installation And Operation Manual (CSS IAP D01 L1 V06 0) SVJ DS01D IOP
User Manual: SVJ-DS01D
Open the PDF directly: View PDF
.
Page Count: 122 [warning: Documents this large are best viewed by clicking the View PDF Link!]

INSTALLATION AND OPERATION MANUAL
Danfoss Turbocor Compressors Inc. CSS-IOP-D01-L1-V06.0
July 2010
TWIN-TURBINE CENTRIFUGAL COMPRESSOR
This Page Left Intentionally Blank

Installation and Operation Manual
Danfoss Turbocor Compressors Inc. 3
CSS-IOP-D01-L1-V06.0
Table of Contents
Proprietary Notice ........................................................................................................... 5
List of Changes ............................................................................................................... 6
Introduction ...................................................................................................................... 9
Tools ................................................................................................................................ 9
Safety Summary............................................................................................................. 10
Safety Warnings ................................................................................................. 10
Voltage Checks Using DC Bus Test Harness (Safety Cable) ............................ 12
Voltage Checks Using DC Bus Test Harness .................................................... 12
Installation ...................................................................................................................... 19
Unpacking and Inspection .................................................................................. 19
Rigging Requirements........................................................................................ 19
Unit Placement ................................................................................................... 19
Piping Connections ............................................................................................ 21
Control Wiring..................................................................................................... 24
Compressor I/O Board - Mounting Instructions ............................................. 24
Control Wiring Connections .......................................................................... 24
Control Wiring Connection Guidelines ................ .......................................... 25
Control Wiring Details ................................................................................... 27
Circuit Grounding .......................................................................................... 29
Voltage-Free Contacts .................................................................................. 32
Power Wiring ...................................................................................................... 33
Commissioning............................................................................................................... 35
I/O Jumper Setup and Initial Checks.................................................................. 35
I/O Jumper Settings ...................................................................................... 35
System Checks ............................................................................................. 38
Configuring the Compressor Using the Service Monitoring Tool ....................... 42
System Requirements ................................................................................... 43
Software Installation ...................................................................................... 44
Monitoring Tool Installation ........................................................................... 44
Establishing a Connection.................................................................................. 51
RS-232 Connection ....................................................................................... 52
RS-485 Connection ....................................................................................... 52
Service Monitoring Tool Basics .......................................................................... 53
Starting the Service Monitoring Tool ............................................................. 53
Entering User Input ....................................................................................... 53
Compressor Connection Manager ................................................................ 53
Controlling User Access ................................................................................ 54
Changing Access Codes ............................................................................... 55
Monitor w/o Connection...................................................................................... 56
Using the Compressor Commissioning Wizard.................................................. 57
Chiller Control Mode ..................................................................................... 60

4Danfoss Turbocor Compressors Inc.
CSS-IOP-D01-L1-V06.0
Startup Settings ............................................................................................ 61
Electronic Valve Control ................................................................................ 63
Analog Output Setup ..................................................................................... 66
Modbus Communications ............................................................................. 68
Review and For Download Settings .............................................................. 69
Running Checks ................................................................................................. 73
Functional Description.................................................................................................... 75
Compressor Fundamentals ................................................................................ 75
Main Fluid Path ............................................................................................. 75
Motor Cooling ................................................................................................ 77
Inlet Guide Vanes ......................................................................................... 79
Compressor Control Overview ........................................................................... 79
Motor Drive System ...................................................................................... 81
Soft-Start Board ............................................................................................ 81
Bearing Motor Compressor Controller ........... ............................................... 81
Abnormal Conditions ..................................................................................... 83
Bearing PWM Amplifier ................................................................................. 83
Serial Driver .................................................................................................. 83
Backplane .............. ....................................................................................... 89
High-Voltage DC-DC Converter .................................................................... 90
Magnetic Bearing System .................................................................................. 91
Overview ............ ........................................................................................... 91
Bearing Control System ................................................................................ 91
Power Line Control and Filtering ........................................................................ 93
Power Line Contactor ................................................................................... 93
Power Line Filters and Line Reactor ............................................................. 93
Compressor Operating Modes ........................................................................... 94
Analog Mode ................................................................................................. 94
Chiller Mode .................................................................................................. 95
Modbus Mode ............................................................................................... 95
Expansion Valve Control .................................................................................... 95
Operational Maintenance Checks .................................................................................. 96
Owner's Responsibilities .................................................................................... 96
Frequency of Inspections ................................................................................... 96
Checking the Main Supply Voltage .................................................................... 99
Mounting Instructions .................................................................................. 107
AC Line Cable Connection (From External Disconnect) ............................. 109
AC Line Cable Connection (to Compressor Terminal) ................................ 109
Line Side Connection .................................................................................. 111
Load Side Connection ................................................................................. 111
Mounting Instructions .................................................................................. 114

Installation and Operation Manual
Danfoss Turbocor Compressors Inc. 5
CSS-IOP-D01-L1-V06.0
Proprietary Notice
This publication contains information proprietary and confidential to Danfoss Turbocor Compressors Inc.
(DTC). This document may be reproduced and distributed provided no fee is charged, the text is not
modified, and the copyright notice is included.
DTC reserves the right to make changes without notice in product or component design as warranted by
evolution in user needs or advancements in engineering or manufacturing technology.
DTC has exercised its best efforts to ensure that the information contained in this manual is correct.
However, no warranty of reliability or accuracy is given with respect to the information and DTC shall not
be responsible or liable for the correctness or suitability of the information or for any error or omission. If
you encounter any difficulty in using this manual, please forward your query to DTC or its authorized sales
agent.
All brand names and product names used in this manual are trademarks, registered trademarks, or trade
names of their respective holders.
For product support issues, corrections, or inquiries, contact:
Product Support
product.support@turbocor.com
Danfoss Turbocor Compressors Inc.
1769 East Paul Dirac Drive
Tallahassee, Florida 32310
USA
Telephone 1-850-504-4800
Fax 1-850-575-2126
www.turbocor.com
* Subject to change without notice.
* Danfoss Turbocor’s commitment to excellence ensures continuous product improvements.

List of Changes
6Danfoss Turbocor Compressors Inc.
CSS-IOP-D01-L1-V06.0
List of Changes
Version Date Page Description of Change
67/19/10 Entire
Manual
Reformatted to one column. Applied new numbering. Added updated
Danger, Caution and Note symbols. Updated cover to new logo and
graphic.
67/19/10 9Removed T25 Torx bit and driver; and 16mm, 17mm sockets and
driver from the Service Tools/Equipment table.
67/19/10 15 Updated Figure 5 "Cable Passage".
67/19/10 15 Updated Figure 6 "Service Side Pass Through".
67/19/10 16 Modifed description of the location of the fuses.
67/19/10 17 Updated the fuse size to 1.0A
67/19/10 20 Updated Figure 8 "Rigging Set-up".
67/19/10 22 Modified step 1 in procedure to include “After releasing the pressure”
67/19/10 22 Modified step 2 in procedure to include “Install new O-Rings”
67/19/10 22 Modifed step 7 in procedure to include “and charge”
67/19/10 23 Updated Figure 13 "Motor-Cooling Connection and Access Port"
67/19/10 25 Updated Control Wiring Connections procedure
67/19/10 25 Added Control Wiring Connection Guidelines
67/19/10 28 Added EXV 1 to Control Wiring Details
67/19/10 28 Added EXV 2 to Control Wiring Details
67/19/10 29 Updated Spare P +/- description
67/19/10 26 Updated Figure 16 "Compressor I/O Board Connections"
67/19/10 31 Added Figure 19 "Grounding Check"
67/19/10 33 Updated Power Wiring note to include grounding.
67/19/10 33 Updated Figure 21 "Typical Electrical Connections"
67/19/10 34 Updated and re-ordered procedures 5, 6 and 7 in Power Wiring
Procedure
67/19/10 34 Updated Figure 23 "Compressor AC Input Terminals"
67/19/10 40 Updated step 6 in “Initial Checks - Compressor ON” table

Installation and Operation Manual
Danfoss Turbocor Compressors Inc. 7
CSS-IOP-D01-L1-V06.0
67/19/10 35 to 73 Updated entire Compressor Configuration section with Service
Monitoring Tool Version 86 information
67/19/10 73 Updated Running Checks procedures
67/19/10 80 Updated Figure 53 "Component Locations"
67/19/10 96 Added step in Electronic Inspections section of Table 10 "Preventive
Maintenance Tasks"
67/19/10 99 Changed T25 Torx bit and driver to #2 Phillips bit and driver
67/19/10 109 Updated step 4 to main supply panel from box connector
67/19/10 109 Added step 4 to secure AC line cable to the main supply panel
67/19/10 110 Modifed Figure 65 "Line Reactor Connections" to include line 1, 2 and
3
67/19/10 114 Modifed Mounting Tools procedures to remove tools used
NOTE: This list does not include editorial changes that do not affect technical content.
Version Date Page Description of Change
This Page Left Intentionally Blank

Installation and Operation Manual
Danfoss Turbocor Compressors Inc. 9
CSS-IOP-D01-L1-V06.0
1 Introduction
The purpose of this manual is to inform original equipment manufacturers (OEMs), contractors
and their engineers of the recommended methods for proper installation and operation for the
Danfoss Turbocor twin-turbine (two-stage) centrifugal compressor.
2 Tools
The following table lists the hand tools required to perform the procedures outlined in this
manual.
• • • DANGER! • • •
All electrical instruments must be rated to 1kVAC
and 60 0VDC. This includ es voltage leads an d
probes.
Table 1
Service Tools / Test Equipment
• 15/16” deep socket
• 13mm, 24mm combination wrenches
• Adjustable 14” wrench
• Torque wrenches - 22 Nm (200 in-lbs), 75 Nm
(55 ft-lbs)
• Precision slotted screwdriver
• Phillips #2 screwdriver
• Multimeter (1kVAC 600VDC) with ammeter
clamp
• Voltmeter (minimum Cat 3 with diode setting
and capable of reading 1kVDC)
• Level

Safety Summary
10 Danfoss Turbocor Compressors Inc.
CSS-IOP-D01-L1-V06.0
3 Safety Summary
3.1 Safety Warnings
Safety precautions must be observed during installation, startup, and service of the compressor
due to the presence of refrigerant-charge and high-voltage hazards. Only qualified personnel
should install, start up, and service this equipment. Safety information is located throughout the
manual to alert service personnel of potential hazards. The safety information is identified by the
headings DANGER and CAUTION. DANGER signifies an essential operating or maintenance
procedure, practice, or condition which, if not strictly observed, could result in injury to or death of
personnel or long-term health hazards. CAUTION signifies an essential operating or
maintenance procedure, practice, or condition which, if not strictly observed, could result in
damage to or destruction of equipment or potential problems in the outcome of the procedure
being performed. The following DANGER notices must be strictly followed.
The comp ressor is p ressurized with nitr ogen to
173 kPa (25 p si). Pre ssure must be relieved
through the Schr ader valve o n the comp ressor
end bell prior to r emoving the b lanking p lates
(see Figure 13 ). Iso lation an d r ecovery of the
refrigerant must be p erformed by a q ualified
technician. Always wear pr oper safe ty
equipment when handling refrigerants
• • • DANGER! • • •

This e quipment co ntains haza rdous volt ages
that can cause injury or death. Only qualified and
trained per sonnel sh ould wo rk on hig h-voltage
electrical equipment. Removing the main s input
cover will expose you to a high-v oltage (380 -
604VAC) haz ard. Removing the top cover will
expose you to a hig h-voltage (6 00 - 90 0VDC)
hazard. Exercise care wh en w orking a round
energized circuits.
When se rvicing or re placing a com pressor, the
high-voltage cap acitors must be dischar ged
before op ening a ny of the com pressor a ccess
covers. Perform steps in Section 3.3 on the next
page.
Installation and Operation Manual
Danfoss Turbocor Compressors Inc. 11
CSS-IOP-D01-L1-V06.0
• • • DANGER! • • •

Safety Summary
12 Danfoss Turbocor Compressors Inc.
CSS-IOP-D01-L1-V06.0
3.2 Voltage Checks Using DC Bus Test Harness (Safety Cable)
Voltage checks with the top covers removed should not be performed. All voltage checks should
be performed using the DC Bus Test Harness (PN 100326). Follow the steps below to safely
remove power from the compressor and install the DC Bus Test Harness.
Before using the DC Bus Test Harness, integrity
of the fuses/resistors and cable must be checked
(see Section 3.3).
3.3 Voltage Checks Using DC Bus Test Harness
1. Turn off AC power input to the compressor.
2. Secure/lock out/tag out the isolating switch to ensure against accidental or unauthorized
reapplication of the AC power.
3. Wait at least 15 minutes, then remove the mains input cover by releasing the four screws
that secure the cover.
4. Using an appropriately rated voltmeter, confirm that the AC voltage is still isolated.
5. Confirm integrity of the fuses and resistors in the DC Bus Test Harness by using a
multimeter set to resistance. Check each cable individually (see Figure 1). Resistance
should be approximately 100k
6. Remove the top cover by releasing the nine screws that secure the cover, taking particular
care not to touch ANY components underneath.
7. Using an appropriately rated voltmeter, check the DC bus bars for voltage level. If the
voltage is above 5VDC, wait five minutes and recheck until 5VDC or below is achieved.
8. Remove the service-side cover by releasing the six screws that secure the cover.
9. Disconnect the J1 and J7 connectors on the Soft-Start Board (see Figure 2).
• • • DANGER! • • •
NOTE
Please ensure that the screws do not fall into the
compressor. Retain the screws for installation.

Safety Summary
14 Danfoss Turbocor Compressors Inc.
CSS-IOP-D01-L1-V06.0
Figure 3 Connect Test Harness to Compressor
11. Connect the two plugs of the DC Bus Test Harness into the Soft-Start Board (see Figure 4).
Figure 4 Connect Test Harness to Soft-Start Board (As Seen From Top Side of Board)
12. Carefully push the plugs away so that the covers can fit into place.
13. Route the cable into the cable passage on the right side of the high voltage (HV) DC-DC
converter, down into the service side (see Figure 5 and Figure 6).

Installation and Operation Manual
Danfoss Turbocor Compressors Inc. 15
CSS-IOP-D01-L1-V06.0
Figure 5 Cable Passage
Figure 6 Service Side Pass Through
14. Reinstall the mains input and top covers and tighten all screws.
15. Reapply AC power to the compressor.

Safety Summary
16 Danfoss Turbocor Compressors Inc.
CSS-IOP-D01-L1-V06.0
16. Using an appropriately rated voltmeter with the 1000VDC range selected, insert the
positive voltmeter lead into the DC(+F) test harness lead, and the negative voltmeter lead
into the DC(-) test harness lead. See Tab l e 2 for expected DC bus voltage. If the voltage
corresponds to Table 2, the DC bus voltage is correct and the HV DC fuse on the Soft-Start
Board is good. If the voltage reads zero, go to step 17. If the voltage is within acceptable
limits, this indicates that the Soft-Start Board and SCRs are functioning correctly; go to step
20.
17. Leaving the DC(-) test lead in place, relocate the positive (+) test lead to DC(+). If the DC
voltage is consistent with Tab l e 2 , the HV DC fuse on the Soft-Start Board is defective.
Refer to the Service Manual to verify the HV DC-DC converter.
18. Reset the multimeter scaling to read 15VAC and connect to the 15VAC lead in the DC Bus
Test Harness. If the reading is zero, isolate the three-phase supply in accordance with steps
1-7.
19. When access is safe, remove the four screws that hold the Soft-Start Board in position, and
check fuses F2 and F3 for continuity (these fuses are located next to the J5 fan connector
and between the J1 and J7 connectors on the underside of the Soft-Start Board). Fuse F4
or external in line, as appropriate, should also be checked for continuity.
• If fuses are found to be defective, replace them and return to step 16.
• If voltage is present but outside specifications, go to step 20.
Table 2 Compressor Voltage Ranges
Compressor
Nameplate
AC Voltage
Acceptable
AC Voltage
Range
Expected DC
Bus Voltage
575 VAC 518 - 632 VAC 632 - 900 VDC
460 VAC 414 - 506 VAC 550 - 720 VDC
400 VAC 360 - 440 VAC 485 - 625 VDC
380 VAC 342 - 418 VAC 460 - 595 VDC
NOTE
See th e Se rvice M anual for pr ocedures o n
determining the cause of the blown fuse.

Installation and Operation Manual
Danfoss Turbocor Compressors Inc. 17
CSS-IOP-D01-L1-V06.0
20. Measure the 15VAC from the Soft-Start Board. If the 15VAC is not within +10 percent,
replace the Soft-Start Board (refer to the Service Manual). If the 15VAC is correct, proceed
to the next step.
21. Verify the SCR gate terminals (refer to the Service Manual). If the SCR gate terminals are
not within specifications, replace the SCRs (refer to the Service Manual). If the gate
terminals are OK, proceed to the next step.
22. Verify the SCRs (refer to the Service Manual). If the SCRs are not within specifications,
replace them (refer to the Service Manual). If the SCRs are OK, replace the Soft-Start
Board (refer to the Service Manual).
NOTE
The fuse locations in this procedure apply to the
Rev. J ver sion of the So ft-Start board. Co ntact
Customer Su pport a bout ot her versions of the
Soft-Start board.
Fuse F2 (.25A) protects an output of transformer
T1, which supplies 15V AC to the HV D C-DC
Converter. Fuse F3 ( 1.0A) protects an output of
T2, which supplies power to the Soft-Start Board.
Fuse F4 pr otects th e incomin g AC to the Soft-
Start Board.
• • • DANGER! • • •
The DC Bus Test Harness is not designed to be
left in th e comp ressor du ring no rmal op eration.
When volt age chec ks are complete, dis connect
and remove the DC Bus Test Harness.

Safety Summary
18 Danfoss Turbocor Compressors Inc.
CSS-IOP-D01-L1-V06.0
Figure 7 DC Bus Test Harness Connection Diagram

Installation and Operation Manual
Danfoss Turbocor Compressors Inc. 19
CSS-IOP-D01-L1-V06.0
4Installation
4.1 Unpacking and Inspection
The compressor should be carefully inspected for visible signs of damage. Check for loose bolts
and damage to covers or outer casing. Damage should first be reported to the carrier not DTC.
DTC Customer Support and Service can be contacted to assist in determining the extent of
damage or if compressor should be returned to DTC. Damage should be specified on the Bill of
Lading or transportation/freight forwarder documentation. Open all containers and verify all parts
against the packing list. Report any shortages to DTC. Contact DTC to conduct report actions via
the Incident Report form.
4.2 Rigging Requirements
Care must be exercised at all times when rigging or handling the compressor to protect it from
damage. Two eyebolts (one at each end) are provided for compressor rigging. A spreader bar
should be used to safely position the compressor into its final location (see Figure 8).
4.3 Unit Placement
1. If mounting the compressor with the DTC mounting kit, refer to "Appendix B Mounting Kit
Instructions"; if not, install four isolation pads in accordance with the footprint dimensions
given in Figure 9.
2. Mount the compressor onto the isolation pads. Ensure the compressor mounting rails are
properly isolated from the base frame once the attaching hardware is secured; for example,
the screw should not extend from the compressor mounting rails to the base frame (see
Figure 10 and Figure 11).
3. Check that the compressor mounting rails are level ± 5mm (3/16”) in the lateral and
longitudinal planes.

Installation
20 Danfoss Turbocor Compressors Inc.
CSS-IOP-D01-L1-V06.0
Figure 8 Rigging Set-up
Figure 9 Mounting Details

Installation and Operation Manual
Danfoss Turbocor Compressors Inc. 21
CSS-IOP-D01-L1-V06.0
Figure 10 Incorrect Compressor Mounting Pad Installation
Figure 11 Correct Compressor Mounting Pad Installation
4.4 Piping Connections
!
• • • CAUTION! • • •
Install new O-rings wh en at taching the ba ll
valves, n on-return valves, o r flanges to the
compressor. O-r ings mu st be of typ e
polychloroprene rubber
(also kn own b y the tr ade na me Neoprene,
compound # C1 278 for R1 34a re frigerant). O-
ring grease must be silicone-based and
compatible with R134a.

Installation
22 Danfoss Turbocor Compressors Inc.
CSS-IOP-D01-L1-V06.0
1. After releasing the pressure, remove the suction and discharge connection blanking plates
from the new compressor.
2. Ensure flange surfaces are clean and free from debris. Install new O-rings.
3. Attach the suction, discharge, and economizer (if applicable) connections. Install O-rings.
4. Solder all joints according to approved practice ensuring that dry nitrogen is used at all
times.
5. Attach the motor-cooling connection at the rear of the compressor (see Figure 13).
6. Install a strainer in the suction line. It should be located between the compressor and the
service valve as close as possible to the suction port of the compressor.
7. Perform a leak test, evacuation and charge according to industry standards.
!
• • • CAUTION! • • •
The motor-cooling line should be channeled from
the liquid line (see Figure 12). On the TT300, the
motor-cooling p ort is e quipped with a n in tegral
strainer t o protect th e co oling circ uit fr om
blockage. T he motor-cooling line re quires the
installation of a se rvice va lve (no t included) to
enable r efrigerant iso lation during comp ressor
servicing. The compressor is pres surized with
nitrogen to 173 kPa (25 psi). Pressure should be
relieved th rough th e Schrader valve on the
compressor end bell pr ior to re moving th e
suction a nd d ischarge conn ection b lanking
plates (see Figure 13).
!
• • • CAUTION! • • •
Ensure th e discharge line is fitted with a non-
return valve. Dur ing a sur ge condition or
shutdown, the non-return valve prevents reverse
flow in to the dischar ge po rt, which can cau se
damage t o compressor components. Dry- fit the
pipework to th e valves and ver ify the
connections are aligned and there is no strain on
the joints.

Installation and Operation Manual
Danfoss Turbocor Compressors Inc. 23
CSS-IOP-D01-L1-V06.0
Figure 12 Typical Refrigeration Schematic
Figure 13 Motor-Cooling Connection and Access Port
Motor Cooling
Connection
Access Port
(Schrader Valve)

Installation
24 Danfoss Turbocor Compressors Inc.
CSS-IOP-D01-L1-V06.0
4.5 Control Wiring
The compressor I/O Board enables communication of control and status signals between the
compressor controller and external equipment. These signals include, among others, cooling
demand, input, EXV control inputs and outputs, alarm and interlock contacts, and Modbus
protocol communications.
4.5.1 Compressor I/O Board - Mounting Instructions
The compressor I/O Board is designed to be installed on DIN EN 50022, 50035, or 50045
mounting rails. The board should be mounted in a dry area free from vibration and electrical
noise (see Figure 14).
Figure 14 Compressor I/O Board/ Compressor I/O Board Installation
4.5.2 Control Wiring Connections
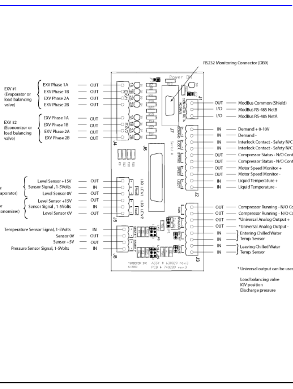
Figure 15 shows the control wiring connections to the compressor I/O Board. Table 3 provides
details for the module terminal connections.
!
• • • CAUTION! • • •
Incorrect w iring of th e terminals ca n severely
damage the module and other components.

Installation and Operation Manual
Danfoss Turbocor Compressors Inc. 25
CSS-IOP-D01-L1-V06.0
The interface cable connects the compressor to the compressor I/O board. To connect the cable:
• Plug the cable connector into connector J6 on the compressor I/O board.
For RS-485 communication, the total length of the interface cable and control wiring can be
extended up to 100 meters (328 feet) (see Figure 15). If the compressor is going to be monitored
over an RS-232 line, the total cable length between the compressor and the PC should not
exceed 15 meters (50 feet). See Section 4.5.3.
4.5.3 Control Wiring Connection Guidelines
To ensure proper control wiring techniques, the following guidelines must be adhered to:
1. The ground reference of the external circuit connected to the Compressor Interface Module
must be at the same potential as the ground reference on the Compressor Interface
Module.
2. The Interlock circuit must be voltage-free, i.e., all external contactors/switches must not
introduce current into the circuit.
3. Analog outputs (such as Motor Speed) must be received by the external circuit without
sending current back to the Compressor Interface Module.
4. All interlock and analog output cables must be shielded with one end of the shield
connected to the Compressor Interface Module ground. The other end of the shield can not
be grounded as this would create a ground loop.
Figure 15 I/O Wiring Specifications

Installation
26 Danfoss Turbocor Compressors Inc.
CSS-IOP-D01-L1-V06.0
Figure 16 Compressor I/O Board Connections

Installation
28 Danfoss Turbocor Compressors Inc.
CSS-IOP-D01-L1-V06.0
Table 3 Control Wiring Details
I/O Description
COM (shield) Shield for RS-485 communication
Modbus RS-485 NetB/NetA Modbus over RS-485 communication port
EXV 1 Phase 1A, 1B, 2A, 2B
and
EXV 2 Phase 1A, 1B, 2A, 2B
Optional output connections for controlling the main electronic expansion
valve (evaporator) or auxillary electronic expansion valve (economizer or
load balancing valve).
Level Sensor +15V (Evaporator) Power supply for level sensor #1
Sensor Signal (Evaporator) Input from a level sensor to control the main expansion valve
(evaporator)
Level Sensor +15V (Economizer) Power supply for level sensor #2
Sensor Signal (Economizer) Input from a level sensor to control the auxiliary expansion valve
(economizer)
Demand 0 - 10V Analog input from customer-supplied controller to drive the compressor,
i.e., 0 - max. kW input with a deadband of 2VDC for the respective
compressor model.
Interlock Connects to a set of external normally closed contacts that typically open
in the event of loss of chilled water or air flow
Status An internal contact that is closed during normal operation and opens in
the event of a compressor fault. With the circuit open, the compressor
will not restart until the demand signal has been reset to 0 (via chiller/unit
controller). Circuit rated at 1A @ 30VDC/24VAC.
Motor Speed Monitor Analog output indicating compressor RPMs. 0 to 5.0V = 0 to 50,000
RPMs
Liquid Temperature Provides superheat readings for EXV control
Run An internal contact that is closed while the compressor is running. The
speed at which the contact closes is user-configurable via the Monitor
Program. Circuit rated at 1A @ 30 VDC/24VAC.
Analog Universal analog output for load balancing valve, IGV position, or
discharge pressure. Operating range can be set to 0-5V or 0-10V via
onboard jumpers.

Installation and Operation Manual
Danfoss Turbocor Compressors Inc. 29
CSS-IOP-D01-L1-V06.0
4.5.5 Circuit Grounding
Improper grounding or voltage in circuits connected to the compressor I/O board can lead to
component failures. In particular, the interlock and analog output circuits are sensitive to
improperly connected external circuits (see Figure 18).
Prior to connecting the control wiring to the compressor I/O board, check for improper grounding.
Improper grounding can be identified by measuring the voltage between the customer’s negative
terminals and the ground (J1 COM or Modbus shield) terminal on the compressor I/O board (see
Figure 19). If the measured voltage is not zero, determine the source of the voltage. The most
likely cause of voltage is insufficient insulation of the external circuit. In case of uncertainty of the
grounding, connect the negative terminals of the external circuit to a ground and then connect
the external ground to the ground on the compressor I/O board.
Entering Chilled Water Temp Analog input indicating water temperature. The temperature sensor must
be an NTC type 10K @ 25°C thermistor. Refer to the Application Manual
for thermistor specification.
Leaving Chilled Water Temp Analog input indicating water temperature. The temperature sensor must
be an NTC type 10K @ 25°C thermistor. Refer to the Application Manual
for thermistor specification.
Spare T +/- Refer to the Application Manual for thermistor specification
Spare P +/- Can be connected to a 0-5V type pressure sensor
Table 3 Control Wiring Details (Continued)
I/O Description

Installation
30 Danfoss Turbocor Compressors Inc.
CSS-IOP-D01-L1-V06.0
Figure 18 Interlock and Motor Speed Connections

Installation and Operation Manual
Danfoss Turbocor Compressors Inc. 31
CSS-IOP-D01-L1-V06.0
Figure 19 Grounding Check

Installation
32 Danfoss Turbocor Compressors Inc.
CSS-IOP-D01-L1-V06.0
4.5.6 Voltage-Free Contacts
Prior to connecting the interlock terminals of the compressor I/O board, measure the resistance
across the customer’s interlock terminals (see Figure 20). Ensure that the interlock contacts are
closed. The measured value should be less than 1 .
Figure 20 Interlock Circuit Tests
Measure the voltage between each customer interlock terminal and the frame ground while the
interlock contacts are open and closed. In either contact state, if the measured voltage is not
zero, verify the source of the voltage. Do not connect the interlock terminals until the voltage
source is removed (see Figure 20).

Installation and Operation Manual
Danfoss Turbocor Compressors Inc. 33
CSS-IOP-D01-L1-V06.0
4.6 Power Wiring
This section describes the connection of the power wiring to the compressor.
Figure 21 shows a typical schematic for the compressor’s electrical connections.
Figure 21 Typical Electrical Connections
NOTE
The AC in put cable should be CSA, UL, or CE
approved, 3- wire with a comm on shie ld an d
single ground. It is re commended that the cable
be double-jacketed; for exam ple, a teck cab le
type. The cable must be rated for 90° C (194° F)
minimum with a m aximum cu rrent rating
corresponding to the LRA va lue on the
compressor nameplate.
Keep power cables and control interface cables
in separate conduits. Use metal cable glands for
shielded cables to ensure good grounding.
If you are installing a DTC line reactor or EMI or
harmonic filter in the mains input circuit, r efer to
the applic able inst allation instruc tions in
"Appendix C: Power Lin e Acce ssories
Installation".

Installation
34 Danfoss Turbocor Compressors Inc.
CSS-IOP-D01-L1-V06.0
1. Release the four screws that secure the mains input cover to the compressor. Lift away
cover.
2. Insert a cable gland (customer-supplied) into the opening in the mains input bracket.
3. Fasten the cable gland to the bracket with the locknut.
4. Feed the AC input cable through the cable gland.
5. Attach the ground cable to the ground post on the compressor housing.
6. Attach and secure the ground nut to the ground post (see Figure 22).
Figure 22 Ground Connection Details
7. Attach the three main power cables to the compressor terminals (see Figure 23). Tighten
the terminal nuts to 21.7 Nm (192 in-lbs).
Figure 23 Compressor AC Input Terminals
8. Tighten the gland nut to secure the cable to the mains input bracket.
9. Replace the mains input cover and secure it using four screws. Tighten the screws to 7 Nm
(62 in-lbs).
AC Input
Connections

Installation and Operation Manual
Danfoss Turbocor Compressors Inc. 35
CSS-IOP-D01-L1-V06.0
5 Commissioning
Commissioning of the compressor is organized into three main tasks:
1. Setting the I/O jumpers and performing initial checks.
2. Configuring the compressor via the Service Monitoring Tool.
3. Performing running checks.
5.1 I/O Jumper Setup and Initial Checks
This section details the I/O jumper settings and the initial system checks.
5.1.1 I/O Jumper Settings
Check and, if necessary, set the jumpers on the compressor I/O board as per application
requirements (see Table 4).
For all inputs that are not connected, install the associated jumper. For level sensors, install the
jumpers between pins 2a and 3a, and pins 2b and 3b (see Figure 24).
• • • DANGER! • • •
The compressor sh ould be co mmissioned on ly
by a technicia n spe cifically tra ined on Danfo ss
Turbocor comp ressors a nd commissioning/
service procedures. M any pr ocedures a re q uite
different fro m conven tional pro cedures,
therefore, incor rect methods can pr esent a
serious danger to personnel and equipment.

Table 4 Jumper Details
Jumper Function and Set-Up
JP1 Determines the operating voltage range (0-5V or 0-10V) of the ANALOG output. If used, set the
jumper to the appropriate range.
JP2 Modbus termination jumper: install the jumper if Modbus is used and if the Modbus connection
is at the end of a run
ENTRY Install the jumper if there is no temperature sensor connected to the “Entering Chilled Water”
analog input
LEAVE Install the jumper if there is no temperature sensor connected to the “Leaving Chilled Water”
analog input
JP5/
JP6
Jumpers J5 and J6 are used to match the characteristics of the liquid level sensors.
Voltage-type Level Sensor - If using a voltage-type sensor with 15V supply and 0-5V signal,
install jumpers between LVL pins 2a and 3a, and pins 2b and 3b. Connect the sensor leads to
the +, S, and - terminals on the Interface module. Consult vendor documentation for sensor
lead identification.
Resistive-type Float Sensor - If using a resistive-type sensor, install jumpers between LVL
pins 1a and 2a, and pins 1b and 2b. Connect the sensor leads to the - and S terminals on the
Interface module.
Superheat Control - For superheat control (adjustable via the compressor control monitoring
program), install jumpers between LVL pins 2a and 3a, and pins 2b and 3b.
JP7 Supplies 5VDC to pin 1 on the 9-pin connector to power an optional Bluetooth adapter. Install if
Bluetooth device is being used in RS-232 connection (DB9).
Commissioning
36 Danfoss Turbocor Compressors Inc.
CSS-IOP-D01-L1-V06.0

Installation and Operation Manual
Danfoss Turbocor Compressors Inc. 37
CSS-IOP-D01-L1-V06.0
Figure 24 I/O Jumper Location

Commissioning
38 Danfoss Turbocor Compressors Inc.
CSS-IOP-D01-L1-V06.0
5.1.2 System Checks
This section covers the initial system checks.
Table 5 Initial Checks - Compressor OFF
Step Procedure
Verify the following:
1Confirm mains power is isolated. Remove the top and mains input covers. Check DC bus voltage.
Check that the mains input terminals and all mounting screws (DC bus, SCR, etc.) are tight.
Replace the mains input and top covers. (see Figure 25.)
2Compressor is powered OFF
3Compressor is level ± 5mm (3/16”)
4External pipework is adequately supported and aligned to the compressor ports
5Electrical power and control wiring are connected in accordance with Danfoss Turbocor
specifications and application requirements
6Safety switches (customer-supplied) are connected to the interlock circuit and all contacts are
closed
7System was leak-tested, evacuated, and charged with refrigerant in accordance with industry
standards
8Compressor I/O Board terminals are tight
9Remove the service-side cover. Check that all modules and cable connectors are secure. Check
that the PWM module’s heatsink mounting screws are tight and that the heatsink is firmly seated
against the main compressor housing (see Figure 25).
10 Check that size and type of fuses installed are according to specifications
11 Check grounding
12 All refrigerant service valves, including motor-cooling liquid line, are open
13 Installation and orientation of discharge line check valve
14 Continue the steps in Ta ble 6

Installation and Operation Manual
Danfoss Turbocor Compressors Inc. 39
CSS-IOP-D01-L1-V06.0
Figure 25 TT300 Compressor Details
Table 6 Initial Checks - Compressor ON
Step Procedure
1 Check that the chiller/unit controller is in OFF mode before the mains power is switched ON to the
compressor. Verify that the demand input to the compressor is zero. Unplug terminal strip J2
from the I/O Board.
2Have installing electrical contractor switch ON 3-phase mains power. Verify correct voltage as per
nameplate for all 3 phases.
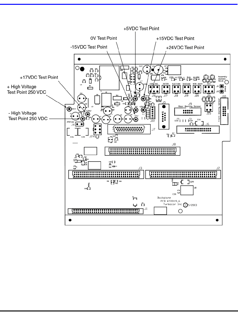
3On the backplane, check the status of the following LEDs (see Figure 26):
• 5V - illuminated
•15V - illuminated
• 17V - illuminated
• 24V - illuminated

Commissioning
40 Danfoss Turbocor Compressors Inc.
CSS-IOP-D01-L1-V06.0
4Check that all DC voltages on the backplane are within the specified range, as follows:
P/S:Range:
• HV+/HV- = 237.5 to 262.5
•+17HV/HV- = 16.15 to 17.85
• +24V/0V = 22.8 to 25.2
• +15V/0V = 14.25 to 15.75
• -15V/0V = -14.25 to -15.75
• +5V/0V = 4.75 to 5.25
5Replace the service-side cover
6Listen for distinctive “clunks” that indicate the completion of the compressor self-check within two
minutes of power being applied
7Reconnect terminal strip J2 on the I/O Board
Table 6 Initial Checks - Compressor ON (Continued)

Installation and Operation Manual
Danfoss Turbocor Compressors Inc. 41
CSS-IOP-D01-L1-V06.0
Figure 26 Backplane Test Points

Commissioning
42 Danfoss Turbocor Compressors Inc.
CSS-IOP-D01-L1-V06.0
5.2 Configuring the Compressor Using the Service Monitoring Tool
This section describes compressor configuration using the Service Monitoring Tool. Installation
and operation of the Service Monitoring Tool Commissioning Wizard are also covered.
Figure 27 eZ Compressor Control Window
NOTE
For a de tailed de scription of th e Se rvice
Monitoring Tool, refer t o t he Se rvice M onitoring
Tool User Manual.

Installation and Operation Manual
Danfoss Turbocor Compressors Inc. 43
CSS-IOP-D01-L1-V06.0
5.2.1 System Requirements
The Service Monitoring Tool must be installed on a PC that meets the minimum requirements
specified in Table 7 Minimum Requirements.
The Service Monitoring Tool was developed for the .NET Framework and requires that .NET
Framework 3.5 be installed on the PC where the program runs. If you do not have the
prerequisite software, it will be installed as part of the Service Monitoring Tool installation. The
latest Windows service packs and security updates should also be installed on the PC (see
Table 7 ).
.
NOTE
Please consult the Microso ft d ocumentation or
web site for the operating system requirements.
Table 7 Minimum Requirements
Operating System The Monitoring Program is supported on the following platforms:
• Windows XP (32-bit)
• Windows Vista (32-bit)
• Windows 7 (32-bit)
The Service Monitoring Tool was found NOT to work properly on:
• Windows 2000
• Windows XP (x64)
• Windows Vista (x64)
• Windows 7 (x64)
All care is taken to check that the Monitoring Program operates as intended with the
above operating systems and standard configuration computers. However, Danfoss
Turbocor Compressors Inc. makes no guarantee that this program will work bug free
in all circumstances. We would appreciate notification of any operating difficulty
encountered, along with as much detail possible, to product.support@turbocor.com.
Required Add-On
Software
• .NET Framework 3.5
• Crystal Reports Basic for Visual Studio 2008 x86 Redistributable
Package (32 bit)
• NI LabWindows/CVI 7.1 Run Time Engine

Commissioning
44 Danfoss Turbocor Compressors Inc.
CSS-IOP-D01-L1-V06.0
5.2.2 Software Installation
The Service Monitoring Tool is installed on the PC and communicates with the compressor using
the Modbus protocol over a RS-232 or RS-485 serial link. Administrator privileges may be
required to install and remove software on the PC. Security software may block the installation,
as well.
If a previous version of the Service Monitoring Tool is already installed on the PC, it must be
uninstalled before proceeding with the current installation. To uninstall the Service Monitoring
Tool: from the Start menu, select Settings Control Panel. Double-click Add/Remove
Programs. From the list, select Danfoss Turbocor Service Monitoring Tool and then click the
Remove button.
5.2.3 Monitoring Tool Installation
To download and install the Monitoring Tool, complete the following steps:
1. From Internet Explorer, go to www.turbocor.com.
2. Click on Product Support.
3. Log-in using your user name and password.
4. Click on Monitoring Program.
5. Select Full-Integrated Electronics.
6. Double-Click on the SMT V.2.1.86.zip file that is displayed:
The File Download window opens.
Memory 128 MB of RAM, 256 MB recommended
Hard Disk 110 MB of hard disk space required, 40 MB additional hard disk space required for
installation (150 MB total)
Display 800 x 600 or higher-resolution display with 256 colors recommended
Input Device Microsoft mouse or compatible pointing device
Table 7 Minimum Requirements (Continued)

Installation and Operation Manual
Danfoss Turbocor Compressors Inc. 45
CSS-IOP-D01-L1-V06.0
7. Click Open. The files download and the Zip window displays.
8. Click Extract on the Zip window toolbar.
The Extract window opens.

Commissioning
46 Danfoss Turbocor Compressors Inc.
CSS-IOP-D01-L1-V06.0
9. Select a folder to extract the files to. Click Extract.
The following icons will be created:
10. Double-click on setup.
11. T he Danfoss Turbocor Service Monitor Tool Installation window opens. Click Next.

Installation and Operation Manual
Danfoss Turbocor Compressors Inc. 47
CSS-IOP-D01-L1-V06.0
Figure 28 Service Monitor Tool Installation Window

Commissioning
48 Danfoss Turbocor Compressors Inc.
CSS-IOP-D01-L1-V06.0
Figure 29 License Agreement
12. If any of the prerequisites (Crystal Reports runtime, NI LabWindows/CVI Run Time Engine,
or .NET) need to be installed, the program will install them for you. Follow the directions on
the windows for the installation.
13. Read the License Agreement, and then click I Agree.
14. Click Next.

Installation and Operation Manual
Danfoss Turbocor Compressors Inc. 49
CSS-IOP-D01-L1-V06.0
Figure 30 Service Monitor Tool Installation Form
The default path is shown. The following message is also displayed:
Install Danfoss Turbocor Service Monitor Tool for yourself, or for anyone who uses this
computer:
15. Select one of the following:
• Everyone
•Just me
16. Click Next.

Commissioning
50 Danfoss Turbocor Compressors Inc.
CSS-IOP-D01-L1-V06.0
Figure 31 Service Monitor Tool Confirm Installation Form
17. Click Next. The Service Monitoring Tool will install.

Installation and Operation Manual
Danfoss Turbocor Compressors Inc. 51
CSS-IOP-D01-L1-V06.0
Figure 32 Service Monitor Tool - Successful Install
18. Click Close.
5.3 Establishing a Connection
The Service Monitoring Tool communicates with the compressor via the Modbus* protocol using
either the RS-232 or RS-485 connection at the Compressor I/O Board. RS-485 communication
requires an adapter appropriate for the computer being used (user-supplied) RS-232
communication is recommended for cable lengths not exceeding 15 meters (50 feet) between
the PC and compressor. For cables that run up to 100 meters (328 feet), RS-485 communication
is recommended. Always use shielded, twisted-pair cable for data communications.
*The Modbus protocol was originally developed to exchange information between products on
the factory floor. This protocol has become a de facto standard for exchanging data and control
between Programming Logic Controllers (PLC) systems. Modbus is a registered trademark of
Modicon Corp.

Commissioning
52 Danfoss Turbocor Compressors Inc.
CSS-IOP-D01-L1-V06.0
5.3.1 RS-232 Connection
1. Connect one end of the RS-232 cable (user-supplied) to the DB9 connector on the
Compressor I/O Board (see Figure 33).
2. Connect the other end of the cable to an available USB or COM port on the PC. This
may require an adapter.
3. Confirm that jumpers JP2 and JP7 are in the proper positions before starting.
JP2 is the Modbus termination jumper. Install the jumper if the Modbus connection is at the
end of a cable run.
JP7 provides 5VDC to Pin 1 of the DB9 connector. Remove JP7 to enable RS-232
communication with the PC. Install JP7 if using Bluetooth.
Figure 33 RS-232 and RS485 Connectors - Compressor I/O Board
5.3.2 RS-485 Connection
To set up the RS485 connection, complete the following steps:
1. Connect the RS-485/RS-232 adapter (user-supplied) directly to the PC.
2. Connect the other side of the adapter to the RS485 3-terminal connector.
3. Follow your RS-485/RS-232 adapter instructions.

Installation and Operation Manual
Danfoss Turbocor Compressors Inc. 53
CSS-IOP-D01-L1-V06.0
5.4 Service Monitoring Tool Basics
5.4.1 Starting the Service Monitoring Tool
To start the Monitoring Program: from the Start menu, select All Programs Danfoss
Turbocor Service Monitoring Tool.
5.4.2 Entering User Input
When user input is required for the Service Monitoring Tool fields, perform the following
sequence:
1. Click or double-click the variable field (or press Tab to step through).
2. Scroll or type in the new setting.
3. Press Enter.
5.4.3 Compressor Connection Manager
The Compressor Connection Manager (4) is the window that first displays when the Service
Monitoring Tool is opened.
It contains fields that must be filled to enable communication between the Service Monitoring
Tool and the compressor. The comm settings default to the most recently used values.
Figure 34 Compressor Connection Manager

Commissioning
54 Danfoss Turbocor Compressors Inc.
CSS-IOP-D01-L1-V06.0
To begin using the Service Monitoring Tool, complete the following steps:
1. Set the fields on the Compressor Connection Manager, or you can use the default values.
The fields are:
• Slave Address - 1-64. (1: default)
•Serial Port - Serial Communication Port that the computer will use to connect to the
compressor. The serial ports listed reflect the names of the serial ports currently
available on the host computer.
•Baud Rate -19,200 or 38,400 baud
2. To view recent compressors connected through the Service Monitoring Tool, click Recent
Compressors. Select the compressor to connect.
3. To search for a compressor, enter the Search Addresses, and then click Search. Select
the compressor to connect.
4. Click Connect to connect to the compressor.
The connection status and compressor details display in the lower right pane of the
Compressor Connection Manager.
5. If necessary, change the access level. Enter the access code in the Access Code field,
and then click Submit. Confirm that the correct access level is displayed in the right-hand
pane of the Compressor Connection Manager.
5.4.4 Controlling User Access
The access code system allows OEM customers to set their own unique access codes, thereby
restricting access to company-authorized personnel only.
These access codes control access to all adjustable parameters via the Modbus
communications protocol. The access levels are:
• Level 1 - This level is “Read Only” and is intended for the plant operator, building
maintenance personnel or owner. This is the default user level and no access code is
required.
• Level 2 - This level allows minimal adjustments to be made such as leaving chilled water
temp, display units, chiller enable/disable, etc. and is intended for the technician
commissioning the compressor and performing limited fault-finding operations. A Basic Level
User access code is required.
• Level 3 - This level allows most adjustments to be made such as operating the compressor in
manual mode or calibrating the bearings and is intended for the OEM trained (certified)
technician. An OEM Level User access code is required.

Installation and Operation Manual
Danfoss Turbocor Compressors Inc. 55
CSS-IOP-D01-L1-V06.0
5.4.5 Changing Access Codes
This feature can only be accessed with an OEM user access level.
To change access codes complete, the following steps:
1. To change the access code, select Access Codes from the Advanced menu item The
Access Codes window displays.
Figure 35 Access Codes Window
2. Select the appropriate radio button.
3. Select the current access code followed by the new access code for the selected user level
(if you enter the incorrect access code nothing will be changed).
4. Re-enter the new access code in the Confirm Access Code field.
5. Click the Change Access Code button.
The new access code does not take effect until you cycle power to the compressor so that the
information is written to the Eeprom.

Commissioning
56 Danfoss Turbocor Compressors Inc.
CSS-IOP-D01-L1-V06.0
5.5 Monitor w/o Connection
The Monitor w/o Connection feature allows you to operate the Service Monitoring Tool without
being connected to a compressor. Since there is no connection, many of the features will not be
able to function correctly.
To monitor without a connection:
1. Click File->Monitor w/o Connection. The Select User Level to Simulate window (19) is
displayed:
Figure 36 Select User Level to Simulate Dialog Box
2. Select a user level to simulate.
3. Click OK. You can begin using the Service Monitoring Tool.

Installation and Operation Manual
Danfoss Turbocor Compressors Inc. 57
CSS-IOP-D01-L1-V06.0
5.6 Using the Compressor Commissioning Wizard
The Service Monitoring Tool features a Turbocor Compressor Commissioning wizard to guide
you through the complete compressor configuration process. The following section describes
how to use the wizard.
Use the Turbocor Compressor Commissioning
wizard only if compress or is no t running. Never
attempt a download while the comp ressor is
running as it can lead to a loss of comp ressor
control. If loss of co ntrol occurs, then o pen th e
interlock co ntacts to stop the compressor.
Ensure that the inter lock con tacts are o pen
before downloading configuration data.
To use the Turbocor Compressor Commissioning Wizard, complete the following steps:
1. Select System Commissioning from the Advanced menu item.
The Turbocor Compressor Commissioning Setup wizard displays (see Figure 37).
!
• • • CAUTION! • • •

Commissioning
58 Danfoss Turbocor Compressors Inc.
CSS-IOP-D01-L1-V06.0
Figure 37 Turbocor Compressor Commissioning Setup Wizard - Initial Window
• To bypass the Turbocor Compressor Commissioning wizard and use a saved configuration
file to set up the compressor, check the check box and click Next. Continue with section
Section 5.6.6.4 "Using a Saved Configuration File".
2. Click Next. The General Compressor Settings window displays.

Installation and Operation Manual
Danfoss Turbocor Compressors Inc. 59
CSS-IOP-D01-L1-V06.0
Figure 38 General Compressor Settings
3. Select the appropriate units of measurement: metric or imperial (see Figure 38).
4. Select the appropriate compressor control method:
• Analog Input: Compressor loading is controlled using an Analog demand signal of 0-
10VDC from an external controller. The variable demand signal corresponds to the
range of 0 percent to 100 percent maximum power available.
• Modbus Network: The compressor receives a demand from an external computer, PLC,
or building management system using the Modbus protocol on an RS-232 or RS-485
communication link.
• Chiller Control: This mode is fully automatic. The chilled water temperature is controlled
using a temperature sensor connected directly to the compressor I/O Board. This mode
can also be used to control evaporating temperature, which is derived from the suction
pressure measurement.
A control mode must be selected to continue with the commissioning process.
While the compressor is linked to an external controller, changes cannot be made to the
Loading Demand, Inlet Guide Vane, or Desired Shaft Speed fields via the Service Monitoring
Tool. These values are being determined based on the signal being received from the
external controller.
5. Click the Next button.

Commissioning
60 Danfoss Turbocor Compressors Inc.
CSS-IOP-D01-L1-V06.0
• If you selected Analog Input or Modbus Network as your control mode, jump to Section 5.6.2
"Startup Settings".
• If you selected Chiller Control Mode, proceed to Section 5.6.1 "Chiller Control Mode".
5.6.1 Chiller Control Mode
If you selected Chiller Control Mode, the following window displays.
Figure 39 Chiller Control Mode
To set the Chiller Control Mode settings, perform the following steps:
1. Select the type of sensor that will control the chiller. If selecting Entering or Leaving Chiller
Air/Water Temperature, connect an NTC temperature sensor (as specified in the Application
Manual) to either the Entering or Leaving Chilled Water Temperature input on the
compressor I/O Board.
2. Set the Chiller Control Set Point to the desired value.
3. Set the Proportional and Integral Gain values to obtain stable control (the Proportional
and Integral Gain values will vary depending on the application). This may require some
trial and error before arriving at the optimum values.

Installation and Operation Manual
Danfoss Turbocor Compressors Inc. 61
CSS-IOP-D01-L1-V06.0
The Integral part of the internal chiller controller is switched off until the compressor reaches
a speed of 18,500 RPMs. Stopping the compressor and restarting also resets the Integral
part to 0.
4. Click in the Chiller Enable check box to activate chiller control mode. Ensure that the
Interlock contact (located on the compressor I/O Board is open to prevent the compressor
from starting before the commissioning sequence is complete.
5. Click Next.
6. Proceed to Section 5.6.2 "Startup Settings".
5.6.2 Startup Settings
The Startup Settings window is used to set various parameters used by the compressor when
starting up.
Figure 40 Startup Settings
To enter the startup parameters, complete the following steps:
1. Enter the Temporary Suction Pressure Alarm %.

Commissioning
62 Danfoss Turbocor Compressors Inc.
CSS-IOP-D01-L1-V06.0
The Temporary Suction Pressure Alarm % is a percentage of the existing Suction Pressure
Limit in the Eeprom. For example, if a suction pressure trip of 270 kPa was set and the
temporary suction pressure alarm was set to 50 percent, the temporary suction pressure trip
limit would be 135 kPa. This temporary alarm is only active while the Suction Pressure Delay
timer is counting down.
2. Enter the Temporary Suction Pressure Delay Time.
The Temporary Suction Pressure Delay Time parameter represents the time in seconds
that the temporary suction pressure alarm % is in effect. The timer starts to count down when
the drive is enabled.
3. Enter the Compressor Starting Speed.
If the estimated minimum speed is greater than the starting speed setting, the compressor
will ramp up to the estimated minimum speed. If the starting speed setting is greater than
the estimated minimum speed, the compressor will ramp up to the starting speed. In both
cases, the compressor speed will increase at the full ramp rate.
4. Enter the Run Contact Close RPM.
The compressor Serial Driver contains a normally open (NO) relay contact that closes while
the compressor is running. The speed at which the contact closes is determined by the Run
Contact Close RPM.
5. Enter the Inlet Guide Vane Starting % Open.
Typically the IGV Starting % Open should be a minimum of 25% and usually 50-70% is
optimal to prevent check valve chatter.
6. Click Next to continue.

Installation and Operation Manual
Danfoss Turbocor Compressors Inc. 63
CSS-IOP-D01-L1-V06.0
5.6.3 Electronic Valve Control
This section explains how to set up the expansion valves for various applications. Both valves
can be operated independently or in parallel. Expansion valves with different numbers of total
steps can be used. Consult the valve manufacturer’s literature for design step numbers (see
Figure 41).
Figure 41 Electronic Valve Control Setup
For Expansion Valve #1:
1. Enter the number of steps to drive the valve from fully closed to fully open.
!
• • • CAUTION! • • •
If the incorrect number of step s is selected, the
valves may no t have enough travel to allow the
required amount of r efrigerant flow or the valve
may not be able to throttle down to the r equired
amount of re frigerant flow. This si tuation cou ld
cause liquid floo d back and da mage to th e
compressor.

Commissioning
64 Danfoss Turbocor Compressors Inc.
CSS-IOP-D01-L1-V06.0
2. Select the control mode for the expansion valve. Available options are: superheat, liquid
level, or load balance. See Ta ble 8 for a description of the modes.
3. Enter the Starting Valve Position %. If desired, at compressor startup, the valves can be
set to open to a pre-start value for a given time.
This value represents the percentage of maximum steps and is sent to the motor when the
shaft starts to rotate. The stepper motor will hold at this position until the stepper start delay
timer has expired.
4. Enter the Valve Starting Position Delay Time. This parameter represents the time in
seconds that the starting valve position is in effect. The timer starts to count down when the
drive is enabled.
5. Enter the Control Setpoint (suction superheat or Liquid level % in accordance with the
control mode selected. Not applicable to load balance control mode as compressor fixes
best position.).
6. Enter the Valve Control Loop Speed. This value represents the reaction time of the
control loop to a process error and replaces the PID (proportional, integral, and derivative)
controller gains.
7. Enter the Minimum Closure During Operation. This is the minimum close position for the
valve while the compressor is in operation.
8. Click Next to continue. Repeat steps 1 through 7 for electronic expansion valve # 2.
9. Click Next to go to Analog Output setup. See Section 5.6.4 "Analog Output Setup".

Installation and Operation Manual
Danfoss Turbocor Compressors Inc. 65
CSS-IOP-D01-L1-V06.0
.
Table 8 Expansion Valve Control Modes
Control
Mode Description
Superheat The calculation of superheat can be based on the temperature and pressure
measurements from one of the following sources:
NOTE: Thermistor must be an NTC type 10k @ 25° C, curve type F
NOTE: When this mode is selected, the display labeled "External Pressure" in the
Compressor Control window will use a 9-149 PSIA (62-1027 KPa) range. Any other
EXV control mode will result in the display labeled "External Pressure" in the
Compressor Control window to use a 9-510 PSIA (62-3516 KPa) range when a sensor
is connected.
Liquid Level Liquid level can be measured from one of the following sources:
For liquid level sensing, two types of level sensors can be used: a level sensor with a
supply of 15VDC and an output of 0-5VDC or a resistive-type level sensor, 0-90 Ohm
(see Table 4). Refer to vendor documentation for wiring these types of sensors to the
compressor I/O Board.
Load
Balance
The Load Balance control mode uses the compressor’s own internal control algorithm
to determine the best mix of speed control, inlet guide vane opening and load balance
valve opening. Use this mode only if a load balancing valve is installed in the system.
Since the load balancing valve is connected to the compressor’s capacity control
algorithm, selecting this mode without a valve installed will add a delay to the loading/
unloading process, i.e., the compressor will try to open and close the valve for 2
minutes rather than close the vane or change the speed.
• Superheat control using the compressor flange temperature and pressure (this
mode is not recommended as the temperature at the compressor flange is
influenced by external factors).
• Superheat control using the compressor flange pressure and a 10K thermistor that
is connected to the terminals labeled “ENTRY” on the Compressor I/O Board.
• Superheat control using an external temperature and pressure sensor connected
to the terminals on the I/O pcb labeled “SPARE T” & “SPARE P”.
• Liquid Level 1 control using a level sensor connected to the terminals on the
compressor I/O Board labeled “LIQ LEV1”.
• Liquid Level 2 control using a level sensor connected to the terminals on the
compressor I/O Board labeled “LIQ LEV2”.

Commissioning
66 Danfoss Turbocor Compressors Inc.
CSS-IOP-D01-L1-V06.0
5.6.4 Analog Output Setup
The compressor features a universal Analog output that is proportional to the selected Control
Mode. This output can be selected as 0-5v DC or 0-10v DC by jumper JP1 on the I/O board.
Figure 42 Analog Output Setup
To configure the Analog output:
1. Select the control mode for the Analog output. This selection determines which control
variable will be the source for the Analog Output. The options are:
• Load Balance Valve
• Discharge Pressure
• Inlet Guide Vane %
• Superheat - Flange TP (temperature and pressure measured at the Compressor suction
flange)
• Superheat - FlangeP, EWT (pressure measured at the Compressor suction flange,
temperature measured by the sensor connected to the ENTRY terminals of I/O board)
• Superheat - FlangeP, LIQT (pressure measured at the Compressor suction flange,
temperature measured by the sensor connected to the LIQDT terminals of I/O board)

Installation and Operation Manual
Danfoss Turbocor Compressors Inc. 67
CSS-IOP-D01-L1-V06.0
• Suction Pressure.
• Leaving Temp (temperature measured by the sensor connected to the LEAVE terminals of I/O
board)
• Entering Temp (pressure measured at the Compressor suction flange, temperature by the
sensor connected to the ENTRY terminals of I/O board)
• Liquid Temp (temperature measured by the sensor connected to the LIQDT terminals of I/O
board)
2. Enter the Starting Output. This value equals the percentage of maximum voltage sent to
the Analog terminals (JP1) on the compressor I/O Board. The Analog output will hold at this
position until the start delay timer has expired.
3. Enter Starting Output Delay Time.This parameter represents the time in seconds that the
starting output is in effect The timer starts to count down when the drive is enabled.
4. Check the Control Action check box for reverse acting. Leaving the check box unchecked
will enable direct acting.
5. Enter the Proportional, Integral, and Derivative gains to provide stable control. These
gain values may require some trial and error to achieve optimum result.
6. Enter the minimum Analog output %. This parameter can be used to maintain a minimum
valve % open.
This value is a percentage of the total VDC. This parameter can be used, for example, to
maintain a minimum valve open position during operation.

Commissioning
68 Danfoss Turbocor Compressors Inc.
CSS-IOP-D01-L1-V06.0
5.6.5 Modbus Communications
Set up the RS-485 and RS-232 ports, as required, on the compressor I/O Board to enable
communication with an external PLC, computer or building management system (see Figure 43).
Figure 43 Modbus Communications Window
Record the comm settings before you close the Service Monitoring Tool since they will be
necessary to communicate with the compressor when you restart the Service Monitoring Tool.

Installation and Operation Manual
Danfoss Turbocor Compressors Inc. 69
CSS-IOP-D01-L1-V06.0
5.6.6 Review and For Download Settings
The Review and For Download Settings window allows you to review the settings you have
made before downloading and/or saving the configuration data.
Figure 44 Review and For Download Settings

Commissioning
70 Danfoss Turbocor Compressors Inc.
CSS-IOP-D01-L1-V06.0
5.6.6.1 Downloading and Saving Configuration Data
At the end of the commissioning sequence, you can download the commissioning data to the
compressor, save it to a file for later use, or do both.
Figure 45 Download Settings Window
5.6.6.2 Downloading Commissioning Data to the Compressor
To download the new commissioning data to the compressor:
1. Click the Save to Compressor button.
.
!
• • • CAUTION! • • •
Never attempt a download while the compressor
is running as it can lead to a loss of compressor
control. Open inter lock cont acts on the
Compressor I/O Board befor e d ownloading
configuration data

Installation and Operation Manual
Danfoss Turbocor Compressors Inc. 71
CSS-IOP-D01-L1-V06.0
In order for the commissioning data to take effect, perform the following steps:
2. When the message “Done. Cycle power before running the compressor” appears, turn
OFF power to the compressor (see Figure 46). Wait at least 5 minutes, then check that
the LEDs on the Backplane and/or compressor I/O Board are OFF.
Figure 46 Download Settings Window
(After Download)
3. Click Finish. A report is displayed.

Commissioning
72 Danfoss Turbocor Compressors Inc.
CSS-IOP-D01-L1-V06.0
Figure 47 Download Report
4. Close the Service Monitoring Tool.
5. Turn ON power to the compressor.
6. Restart the Service Monitoring Tool.
5.6.6.3 Saving Commissioning Data to a Configuration File
To save the data to a configuration file:
1. Click the Save Configuration to File button.
2. In the Save As dialog box, name the file and save it in a designated location.
If modifications are made to the configuration data after the commissioning is complete, the
compressor must be re-commissioned with the new values in order to create and save a
new file if they are to be used to commission future compressors.
5.6.6.4 Using a Saved Configuration File
Follow the steps outlined here if you have bypassed the commissioning wizard in order to
download a configuration file to the compressor.

Installation and Operation Manual
Danfoss Turbocor Compressors Inc. 73
CSS-IOP-D01-L1-V06.0
1. Click the Load Configuration From File button; see Section 5.6.6.4 "Using a Saved
Configuration File".
2. In the Open File dialog box, browse to the location of the configuration (.ttc) file.
3. Click Open.
4. Click Download to Compressor button.
5. When the message “Done. Cycle power before running the compressor” appears, turn
OFF power to the compressor (see Figure 46). Wait at least 5 minutes, then check that
the LEDs on the Backplane and/or Compressor I/O Board are OFF.
6. Close the Service Monitoring Tool.
7. Turn ON power to the compressor.
8. Restart the Service Monitoring Tool.
5.7 Running Checks
This section contains the running checks that should be performed following compressor
configuration.
1. Disable Power. Remove the mains input cover. Enable power. Using a voltmeter, check the
line voltages at the Compressor terminals and verify that they match the display readings
(under the heading of Soft Start Data on the VSPMM form of the Service Monitoring Tool).
Disable power. Replace the mains input cover. Enable power.
2. If necessary, clear alarms, before running the compressor.
3. Start compressor. (Refer to the Service Monitoring Tool User Manual for instructions on
starting the compressor in various modes).
4. Using a pressure gauge, check the suction and discharge pressures and verify that they
match the display readings. If the compressor is equipped with the economizer option, also
check the intermediate pressure.
!
• • • CAUTION! • • •
Never attempt a download while the compressor
is running as it can lead to a loss of compressor
control. Open inter lock cont acts on the
Compressor I/O Board befor e d ownloading
configuration data.

Commissioning
74 Danfoss Turbocor Compressors Inc.
CSS-IOP-D01-L1-V06.0
5. Using a temperature probe, check the suction and discharge temperatures and verify that
they match the display readings.
6. Ensure that operational temperatures and pressures are as per application.
NOTE
After the compressor has been operating for 100
hours at 80 percent to 100 percent load, remove
the suction strainer.

Installation and Operation Manual
Danfoss Turbocor Compressors Inc. 75
CSS-IOP-D01-L1-V06.0
6 Functional Description
6.1 Compressor Fundamentals
Compressor operation begins with a call for cooling from a chiller controller or from the
compressor itself in the chiller control mode. The compressor controller then begins compressor
spin-up.
6.1.1 Main Fluid Path
The following paragraphs describe the flow of refrigerant from the intake to the discharge port of
the compressor (see Figure 48 and Figure 49).
The refrigerant enters the suction side of the compressor as a low-pressure, low-temperature,
super-heated gas. The refrigerant gas passes through a set of adjustable Inlet Guide Vanes
(IGVs) that are used to control the compressor capacity at low-load conditions. The first
compression element the gas encounters is the first-stage impeller. The centrifugal force
produced by the rotating impeller results in an increase in both gas velocity and pressure. The
high-velocity gas discharging from the impeller is directed to the second-stage impeller through
de-swirl vanes. The gas is further compressed by the second-stage impeller and then discharged
through a volute via a diffuser (a volute is a curved funnel increasing in area to the discharge
port. As the area of the cross-section increases, the volute reduces the speed of the gas and
increases its pressure). From there, the high-pressure/high-temperature gas exits the
compressor at the discharge port.

Functional Description
76 Danfoss Turbocor Compressors Inc.
CSS-IOP-D01-L1-V06.0
Figure 48 Compressor Fluid Path (TT300)
Figure 49 Compressor Fluid Path (TT350, TT400, TT500)

Installation and Operation Manual
Danfoss Turbocor Compressors Inc. 77
CSS-IOP-D01-L1-V06.0
6.1.2 Motor Cooling
Liquid refrigerant is channelled at full condenser pressure from the main liquid line to the
compressor to cool the electronic, mechanical, and electromechanical components (see Figure
50 and Figure 51).
A minim um op erating pr essure ra tio of 1.5 is
required to maintain ad equate coolin g of th e
compressor.
The sub-cooled refrigerant enters the compressor through two solenoid valves and associated
fixed orifices located behind the service access cover. The orifices cause the refrigerant to
expand, thereby lowering its temperature. Both valves operate relative to the temperature at the
sensors that are located at the Insulated Gate Bipolar Transistor (IGBT) Inverter and motor
cavity. When the temperature at either sensor reaches a pre-determined threshold, one solenoid
valve opens. If the temperature increases to the point where it equals a higher temperature
threshold, the second solenoid valve opens.
From the outlet of the orifices, the refrigerant is directed to the heatsink plate of the IGBT Inverter
and then to the underside of the SCR heatsink. From there, the refrigerant passes through
grooves surrounding the motor stator. As the refrigerant flows through the grooves, it vaporizes
into a gas. At the coil outlet, the refrigerant gas is channeled back to the suction inlet via the
motor cavity, thereby cooling the rotor. The TT350, TT400, TT500 and some models of the
TT300 use a split-cooling method where the motor and electronics portions are cooled
separately by refrigerant liquid.
• • • DANGER! • • •

Functional Description
78 Danfoss Turbocor Compressors Inc.
CSS-IOP-D01-L1-V06.0
Figure 50 Compressor Cooling Circuit (TT300)
Figure 51 Compressor Cooling Circuit (TT300 Split-Cooling and TT350, TT400 and TT500)

Installation and Operation Manual
Danfoss Turbocor Compressors Inc. 79
CSS-IOP-D01-L1-V06.0
6.1.3 Inlet Guide Vanes
The Inlet Guide Vane (IGV) assembly is a variable-angle guiding device that pre-rotates
refrigerant flow at the compressor intake and is also used for capacity control. The IGV assembly
consists of movable vanes and a motor. The vane angle, and hence, the degree of pre-rotation to
the refrigerant flow is determined by the BMCC and controlled by the Serial Driver. The IGV
position can vary between approximately 0-percent and 110-percent open.
6.2 Compressor Control Overview
Figure 52 shows a functional block diagram of the compressor control and monitoring system.
Figure 53 displays the component locations. The major components include:
• Motor Drive
• Soft-Start Board
• Bearing Motor Compressor Controller (BMCC)
• Bearing PWM Amplifier
• Backplane
• Serial Driver
• HV DC-DC Converter

Functional Description
80 Danfoss Turbocor Compressors Inc.
CSS-IOP-D01-L1-V06.0
Figure 52 Compressor Control System Functional Block Diagram
PWM Amplifier
Bearing Motor
Compressor
Controller (BMCC)
Serial Driver
Backplane
Soft Start Board
IGBT
DC/DC Converter
SCRs
Figure 53 Component Locations

Installation and Operation Manual
Danfoss Turbocor Compressors Inc. 81
CSS-IOP-D01-L1-V06.0
6.2.1 Motor Drive System
Normally, AC power to the compressor remains on even when the compressor is in the off state.
The compressor motor requires a variable-frequency three-phase source for variable-speed
operation. The AC line voltage is converted into a DC voltage by Silicon-Controlled Rectifiers
(SCRs). DC capacitors at the SCR output serve as energy storage and filter out the voltage
ripple to provide a smooth DC voltage. The Insulated Gate Bipolar Transistor (IGBT) is an
inverter that converts the DC voltage into an adjustable three-phase AC voltage. Pulse Width
Modulation (PWM) signals from the Bearing Motor compressor Controller (BMCC) control the
inverter output frequency and voltage. By modulating the on and off times of the inverter power
switches, three-phase variable sinusoidal waveforms are obtained.
If the power should fail while the compressor is running, the motor switches into generator mode,
thereby sustaining the capacitor charge. The rotor can then spin down safely in a controlled
sequence preventing damage to components.
6.2.2 Soft-Start Board
The Soft-Start Board limits inrush current by progressively increasing the conduction angle of the
SCRs. This technique is used at compressor start-up while the DC capacitors are charging up.
The soft-start function and the variable-speed drive combined limit the inrush current at startup.
6.2.3 Bearing Motor Compressor Controller
The hardware and software for the compressor controller and the bearing/motor controller
physically reside in the BMCC. The BMCC is the central processor of the compressor.

Functional Description
82 Danfoss Turbocor Compressors Inc.
CSS-IOP-D01-L1-V06.0
6.2.3.1 Compressor Control
The Compressor Controller is continuously updated with critical data from external sensors that
indicate the compressor’s operating status. Under program control, the compressor controller
can respond to changing conditions and requirements to ensure optimum system performance.
Figure 54 to Figure 59 shows how the controller responds to chiller demands.
6.2.3.2 Capacity Control
One of the Compressor Controller’s primary functions is to control the compressor’s motor speed
and IGV position in order to satisfy load requirements and to avoid surge and choke conditions.
However, the majority of capacity control can be achieved via motor speed.
6.2.3.3 Expansion Valve Control
The on-board Electronic Expansion Valve (EXV) controller uses a simplified loop gain to control
the response characteristics of the valve. The valve opening is determined by either superheat or
liquid level sensing.
Depending on the application, a load balancing (hot gas bypass) valve can be driven by the
auxiliary EXV output. Load balancing allows the compressor to obtain lower capacities at higher
pressure ratios. The valve opens to lower the overall pressure ratio and thereby reduces the lift,
enabling the compressor to reduce speed/unload.
6.2.3.4 Motor/Bearing Control
The magnetic bearing system physically supports a rotating shaft while enabling non-contact
between the shaft and surrounding stationary surfaces.
A digital bearing controller and motor controller provide the PWM command signals to the
Bearing PWM Amplifier and IGBT Inverter, respectively.
The bearing controller also collects shaft position inputs from sensors and uses the feedback to
calculate and maintain the desired shaft position.
6.2.3.5 Monitoring Functions
The compressor controller monitors more than 60 parameters, including:
• Gas pressure and temperature monitoring
• Line voltage monitoring and phase failure detection
• Motor temperature
• Line currents
• External interlock

Installation and Operation Manual
Danfoss Turbocor Compressors Inc. 83
CSS-IOP-D01-L1-V06.0
6.2.4 Abnormal Conditions
The compressor controller responds to abnormal conditions by monitoring:
• Surge RPMs
•Choke RPMs
• Power failure/phase unbalance
• Low/high ambient temperature
• High discharge pressure
• Low suction pressure
• Stop/start short cycle
• Motor-cooling circuit failure (over temperature)
• Refrigerant loss
• Power supply
• Overcurrent
6.2.5 Bearing PWM Amplifier
The Bearing PWM Amplifier supplies current to the radial and axial magnetic bearing actuators.
The PWM Amplifier consists of high-voltage switches that are turned on and off at a high
frequency, as commanded by the PWM signal from the BMCC.
6.2.6 Serial Driver
The Serial Driver module performs serial-to-parallel conversion on the stepper motor drive
signals from the BMCC. The module also contains four normally open relays under BMCC
control. Two of the relays drive the motor-cooling solenoids, and the other two are used to
indicate compressor fault status and running status. The status relays can be wired to external
control circuits.

Functional Description
84 Danfoss Turbocor Compressors Inc.
CSS-IOP-D01-L1-V06.0
Figure 54 Compressor Controller Operational Flow Chart (1 of 6)

Installation and Operation Manual
Danfoss Turbocor Compressors Inc. 85
CSS-IOP-D01-L1-V06.0
Figure 55 Compressor Controller Operational Flow Chart (2 of 6)

Functional Description
86 Danfoss Turbocor Compressors Inc.
CSS-IOP-D01-L1-V06.0
Figure 56 Compressor Controller Operational Flow Chart (3 of 6)

Installation and Operation Manual
Danfoss Turbocor Compressors Inc. 87
CSS-IOP-D01-L1-V06.0
Figure 57 Compressor Controller Operational Flow Chart (4 of 6)

Functional Description
88 Danfoss Turbocor Compressors Inc.
CSS-IOP-D01-L1-V06.0
Figure 58 Compressor Controller Operational Flow Chart (5 of 6)

Check for fault
condition
FAULT_CODEnot
equal to 0
Start Active
Control
Fault Present
AND
demand = 0%
AND
Shaft Not Levitated?
Demand NOT EQUAL 0%
AND
Shaft Not Levitated
AND
READY_TO_CLEAR_FLAG =
TRUE
Set System to
Ready to Clear
Reset the Status
Contacts
Yes
Yes
No
Clear CC fault
Clear BMC fault
Set
READY_TO_CLEAR_FLAG =
False
Recheck Fault After Clear
No
READY_TO_CLEAR_FLAG =
TRUE
READY_TO_CLEAR_FLAG
= FALSE
FAULT_CODE = 0
FAULT_CODE
Fault Handling
FAULT_CODE
No
Installation and Operation Manual
Danfoss Turbocor Compressors Inc. 89
CSS-IOP-D01-L1-V06.0
Figure 59 Compressor Controller Operational Flow Chart (6 of 6)
6.2.7 Backplane
The Backplane physically interconnects the on-board plug-in modules with the power
electronics, IGV stepper motor, motor-cooling solenoids, rotor position sensors, and pressure/
temperature sensors. The Backplane also features on-board, low-voltage DC-DC converters for
generating +15V, -15V, +5V, and +17V from an input of +24VDC. The Backplane receives its
+24VDC power input from the High-Voltage (HV) DC-DC Converter mounted on the topside of
the compressor.
The Backplane is also equipped with status-indicating LEDs. All LEDs are yellow except for the
alarm LED, which is green/red. Table 9 describes the LEDs functions.

Table 9 Backplane LEDs
LED Function
+5V, +15V,
+17HV, +24V
LEDs are lighted when DC
power is available.
Cool -H, Cool -L LEDs are lighted when their
respective coil is energized.
Run LED is lighted when the shaft is
spinning.
Alarm LED is green when in normal
status, red when in alarm status.
D13, D14, D15,
D16
LEDs indicate IGV status and
flash when IGV is moving.
Functional Description
90 Danfoss Turbocor Compressors Inc.
CSS-IOP-D01-L1-V06.0
6.2.8 High-Voltage DC-DC Converter
DC-DC converters supply and electrically isolate the high and low DC voltages that are required
by the control circuits. The HV DC-DC Converter delivers 24VDC and 250VDC from an input of
460-900VDC. The 24VDC and 250VDC are used to power the Backplane and magnetic bearing
PWM Amplifier, respectively.

Installation and Operation Manual
Danfoss Turbocor Compressors Inc. 91
CSS-IOP-D01-L1-V06.0
6.3 Magnetic Bearing System
6.3.1 Overview
A rotating shaft, under changing load conditions, will experience forces in both radial and axial
directions. In order to compensate for these forces, a five-axis bearing system is used,
incorporating two radial bearings of two axes each, and one thrust (axial) bearing (see Figure
60).
Figure 60 Magnetic Bearing Configuration
6.3.2 Bearing Control System
The Bearing Control System uses rotor position feedback to close the loop and maintain the rotor
in the correct running position (see Figure 60). The Bearing Controller issues position commands
to the Bearing PWM Amplifier. The position commands consist of five channels with each
channel allocated to one of the five bearing actuator coils (one coil for each axis). The amplifier
uses IGBT technology to convert the low-voltage position commands to the 250VDC PWM
signals that are applied to each bearing actuator coil.
Rotor position sensors are located on rings attached to the front and rear radial bearing
assemblies. The front sensor ring contains sensors that read the rotor position along the X, Y,
and Z axes. The rotor position along the Z (or axial) axis is read by measuring the distance
between the sensor and a target sleeve mounted on the rotor. The rear sensor ring contains
sensors that read the position along the X and Y axes. Information from the position sensors is
continuously fed back to the bearing controller.

Functional Description
92 Danfoss Turbocor Compressors Inc.
CSS-IOP-D01-L1-V06.0
Figure 61 Magnetic Bearing Control System

Installation and Operation Manual
Danfoss Turbocor Compressors Inc. 93
CSS-IOP-D01-L1-V06.0
6.4 Power Line Control and Filtering
6.4.1 Power Line Contactor
Consult local codes to determine if a power line contactor is necessary for your application.
NOTE
It is not recommended to use the contactor to
start/stop the compressor during normal
operation. compressor generator mode is used
for emergency purposes only.
6.4.2 Power Line Filters and Line Reactor
The equipment described in this section may be available from Danfoss Turbocor as compressor
accessories. For equipment specifications, see the Applications Manual.
6.4.2.1 EMI Filter
The EMI filter minimizes harmonics in the higher-frequency domain (typically above 1kHz). It
should be located between the contactor and the line reactor. The European version of an EMI
filter is required for CE compliance.
6.4.2.2 Line Reactor
The line reactor acts as an input buffer between the motor drive power circuits and the AC line
power. Line reactors provide additional circuit impedance that improves power factor, reduces
line current harmonics, and dampens the transient voltages on the power line.
6.4.2.3 Harmonic Filter
The harmonic filter operates in conjunction with the line reactor to minimize low-frequency
harmonics on the power line emanating from the switching devices on the compressor. It should
be located between the line reactor and the compressor.

Functional Description
94 Danfoss Turbocor Compressors Inc.
CSS-IOP-D01-L1-V06.0
6.5 Compressor Operating Modes
There are four modes for controlling compressor operation, ranging from fully automatic to
manual, as follows:
• Analog mode
• Chiller mode
• Modbus mode
• Manual mode
Manual mode is reserved for authorized service personnel only (see the Service Manual for
further information).
6.5.1 Analog Mode
This control mode is used when an external controller controls the chiller/compressor. An analog
control signal is applied to the compressor that represents the setpoint for the compressor
loading.
The relationship is as follows: 2-10VDC = 0 – 100% of maximum power available for that given
compressor model number and operating condition (see the following example).
When a demand >2V is applied to the compressor, the shaft will levitate and the compressor will
automatically speed up to the minimum startup speed. This takes about 90 seconds. When the
compressor has reached this point, it will adjust its speed and the IGV position in order to attain
the desired kW setpoint. If the demand drops below 2V, the compressor will ramp down to 0
RPMs and will de-levitate the shaft. For proper operation, various control strategy rules are
implemented in the compressor controller. They can mainly be divided into efficiency rules,
unloading rules, and safety rules (see Figure 62).
Figure 62 Demand - kW Relationship

Installation and Operation Manual
Danfoss Turbocor Compressors Inc. 95
CSS-IOP-D01-L1-V06.0
6.5.2 Chiller Mode
When a chiller is equipped with a single compressor, a separate chiller controller is not needed;
the compressor can be set to control the leaving/entering chilled water temperature by
connecting an NTC temperature sensor to the I/O Board (refer to the Application Manual for
sensor characteristics). The chilled water setpoint can be set through the Service Monitoring
Tool.
6.5.3 Modbus Mode
The demand to the compressor motor kW can be either directly set using the Service Monitoring
Tool or can be provided by the chiller controller via the Modbus over an RS-485 link. The
compressor will adjust its speed in order to attain the desired setpoint. The compressor controller
will keep monitoring all critical parameters and ensure safe operation.
6.6 Expansion Valve Control
The compressor has the optional functionality to control two electronic expansion valves. These
valves should be of the stepper motor design (see the Applications Manual for details on which
valves can be used). The first expansion valve (or main expansion valve) can be set up to control
liquid level, superheat, or load balancing (hot gas by-pass valve). When controlling liquid level, it
will normally control the level in the evaporator or condenser. The second valve (or auxiliary
expansion valve) can also be set up to control liquid level, superheat, or load balancing. When
controlling liquid level, it will normally be for economizer level control.

Operational Maintenance Checks
96 Danfoss Turbocor Compressors Inc.
CSS-IOP-D01-L1-V06.0
7 Operational Maintenance Checks
7.1 Owner's Responsibilities
• Report any compressor damage
• Report any faults that occur with the compressor
• Turn off the compressor if fault condition persists
• Maintain a safe working environment in the plant room, free from obstructions and debris
• Maintain adequate lighting
• Ensure plant room ventilation is adequate and as per government regulations
7.2 Frequency of Inspections
DTC recommends that on-site operational checks be carried out as per Table 10. The
operational checks evaluate the system performance, fault history, and system trends.
Table 10 Preventive Maintenance Tasks
Item Task Frequency
6
Mos 12
Mos Other
General
Inspections
Check for visible mechanical damage to compressor.
Check for excessive vibration from other rotating
equipment.
Electrical
Inspections
Check main power supply voltages.
Ensure electrical terminals are tight.
Check for signs of hot spots/discoloration on power cables.
Ensure amperages are as per design.
Check DC bus voltage.

Installation and Operation Manual
Danfoss Turbocor Compressors Inc. 97
CSS-IOP-D01-L1-V06.0
Replace capacitor assembly. Storage: 5 yrs
Operating: 10
yrs
Check operation of all system safety devices and
interlocks.
Perform moisture-prevention measures (see Service
Manual, ECD-00007-S).
Electronic
Inspections
Ensure all communication cables are secure.
Ensure all electronic modules are secure.
Check physical condition of all exposed printed circuit
boards (PCBs).
Check PWM connectors to bearings are secure and flush
on feed-throughs.
Check all exposed PCBs for dust build-up and clean, if
necessary.
Check discharge and suction pressure/temperature
sensors for accuracy against calibrated pressure/
temperature gauges.
Refrigeration Check operation of IGV assembly.
Check system refrigeration charge.
Check superheat/level control, if applicable.
Table 10 Preventive Maintenance Tasks (Continued)
Item Task Frequency
6
Mos 12
Mos Other

Operational Maintenance Checks
98 Danfoss Turbocor Compressors Inc.
CSS-IOP-D01-L1-V06.0
Check system and motor-cooling liquid line to ensure
sufficient subcooling.
Verify Poppet (part #100419, 100513, or 100579). If there is
backward gas flow immediately after stopping the
compressor or if the pressure equalizes in a short period of
time (providing the Liquid Line Solenoid Valve is in place
and functioning properly), shut OFF power to the
compressor and open the Check Valve and check the
Poppet. Replace, if necessary.
Check operating conditions external to the compressor.
Inspect/clean motor-cooling strainer (if service has taken
place).
As required
Table 10 Preventive Maintenance Tasks (Continued)
Item Task Frequency
6
Mos 12
Mos Other

Installation and Operation Manual
Danfoss Turbocor Compressors Inc. 99
CSS-IOP-D01-L1-V06.0
7.3 Checking the Main Supply Voltage
Removing the mains input cover will expose you
to a high voltage (380-604VAC) hazard. Exercise
care when working around energized circuits.
Service Tools / Test Equipment:
1. Release the four captive screws that secure the mains input cover to the compressor. Lift
away cover.
2. With a voltmeter, measure the voltage between each phase and a grounding point such as
the main input bracket.
3. Verify that the voltage is as per design value ±10%.
4. Replace and secure the mains input cover.
• • • DANGER! • • •
• #2 Phillips bit and driver
• Voltmeter
This Page Left Intentionally Blank

Installation and Operation Manual
Danfoss Turbocor Compressors Inc. 101
CSS-IOP-D01-L1-V06.0
Appendix A: Acronyms
Acronym / Term Definition
Alarms Alarms indicate a condition at the limit of the normal operating envelope.
compressor alarms will still allow the compressor to run, but speed is reduced to
bring the alarm condition under the alarm limit.
AHRI Air-Conditioning, Heating, and Refrigeration Institute (www.ari.org;
www.ahrinet.org)
ASHRAE American Society of Heating Refrigeration and Air-Conditioning Engineers
(www.ashrae.org)
ASIC Application-Specific Integrated Circuit
ASTM American Society for Testing and Materials (www.astm.org)
Axial Bearing Bearing that controls the horizontal movement (Z axis) of the motor shaft
Backplane A PCB for the purpose of power and control signal transmission. Many other
components connect to this board.
Balance Piston Component within the compressor that provides primary counter to impeller
thrust. Impeller thrust is trimmed by the axial bearing.
BMCC Bearing Motor compressor Controller. The BMCC is the central processor board
of the compressor. Based on its sensor inputs, it controls the bearing and motor
system and maintains compressor control within the operating limits.
Bus Bars Heavy-gauge metal conductors used to transfer large electrical currents
Capacitor A passive component that stores energy in the form of an electrostatic field
Cavity Sensor NTC temperature sensor located behind the Backplane for the purpose of sensing
motor-cooling vapor temperature. Provides overheat protection to motor
windings.
CE Conformance European. The CE marking (also known as CE mark) is a
mandatory conformity mark on many products placed on the single market in the
European Economic Area. The CE marking certifies that a product has met EU
health, safety, and environmental requirements, which ensure consumer safety.
Choke Definitive point on compressor map where mass flow rate is at maximum for
compressor speed and lift conditions.
Compression
Ratio The absolute discharge pressure divided by the absolute suction pressure
CSA Canadian Standards Association (www.csa.ca)
DC Bus High DC voltage simultaneously connected to multiple compressor components
via metallic bus bars, including the capacitors
DC Capacitor
Assembly An assembly of four DC capacitors, four bleeder resistors, and positive and
negative bus bars

102 Danfoss Turbocor Compressors Inc.
CSS-IOP-D01-L1-V06.0
DC-DC Converter DC-DC converters supply and electrically isolate the high and low DC voltages
that are required by the control circuits. When the compressor is switched on, the
High-Voltage (HV) DC-DC Converter receives its 15VAC supply from the Soft-
Start Board. Once the DC bus voltage has risen to a pre-determined level, the HV
DC-DC Converter’s onboard circuits are powered by the DC bus (460-900VDC).
The HV DC-DC Converter delivers +24VDC (with respect to 0V) to the Backplane,
and HV+ (+250VDC with respect to HV-) to the magnetic Bearing Pulse Width
Modulation (PWM) Amplifier via the Backplane.
Dielectric A dielectric is a nonconducting substance. Although "dielectric" and "insulator" are
generally considered synonymous, the term "dielectric" is more often used when
considering the effect of alternating electric fields on the substance while
"insulator" is more often used when the material is being used to withstand a high
electric field.
Diffuser Part of a centrifugal compressor in the fluid module that transforms the high-
velocity, low-pressure gas exiting the impeller into higher-pressure, low-velocity
gas discharged into the condenser.
Diode A two-terminal device between which current may flow in one direction only
Down-Trip Voltage A voltage threshold where, if the incoming AC voltage drops below it, the SCRs
will shut down
D-Sub A type of connector/plug (male and female) for control wiring. The RS-232 and
large connectors on either side of the I/O cable are both types of D-Sub
connectors.
DTC Danfoss Turbocor compressors Inc.
EEPROM Electrically Erasable Programmable Read Only Memory. A small chip holds bits of
data code that can be rewritten and erased by an electrical charge, one byte at a
time. EEPROM data cannot be selectively rewritten; the entire chip must be
erased and rewritten to update its contents.
EER Energy Efficiency Ratio
EMC Electromagnetic Compatibility
EMF Electromotive Force
EMI Electromagnetic Interference
EMI Filter A circuit or device that provides electromagnetic noise suppression for an
electronic device
EPC Extended Performance Compressor
ETL ETL Testing Laboratories, now a mark of Intertek Testing Services
EXV Electronic Expansion Valve. Pressure-independent refrigerant metering device
driven by electrical input
Event Log A record of events occurring during the compressor’s lifecycle, indicating when
events and faults occur and in what order. The event log is held in the BMCC.
Acronym / Term Definition

Installation and Operation Manual
Danfoss Turbocor Compressors Inc. 103
CSS-IOP-D01-L1-V06.0
Faults (Critical) Critical faults indicate an intolerable or unsafe condition that will result in
equipment failure if unchecked. They will cause the compressor controller to
reduce speed and shut down the system within 60 seconds. This type of fault
requires a manual reset. Critical faults include: Discharge Pressure Fault, 3-
Phase Over-Current Fault, and Lock Out Fault. If any of the following faults occur
three times within a 30-minute period, they also will require a manual reset:
Inverter Temperature Fault, Cavity Temperature, SCR Temperature Fault, Motor
High Current Fault, and Motor back EMF is low.
Faults (Non-Critical) Faults indicate an intolerable or unsafe condition that will result in equipment
failure if unchecked. They will cause the compressor controller to reduce speed
and shut down the system within 60 seconds. This type of fault has an automatic
reset.
Feedthrough An insulated conductor connecting two circuits on opposite sides of a barrier such
as a compressor housing or PCB.
FIE Fully Integrated Electronics version of the compressor.
FLA Full Load Amps
Generator Mode A function of the compressor where the stator becomes a generator, creating
sufficient power to allow for the shaft to graduate slowly and drop onto the
touchdown bearings safely. This occurs when the inverter has insufficient power
to sustain safe and normal operation and is typically due to a loss of power.
Genlanolin A type of grease. In certain climates where the dew point falls below the operating
temperature of some of the electronic components, it is necessary to apply
Genlanolin to certain parts of the compressor to prevent moisture accumulation.
Harmonics Harmonics are multiples of the fundamental frequency distortions found in
electrical power, subjected to continuous disturbances.
HFC Hydrofluorocarbon
HFC-134a A positive-pressure, chlorine-free refrigerant having zero ozone depletion
potential.
Hermetic Motor A motor that is sealed within the refrigerant atmosphere inside the compressor.
ICD Integrated compressor Design
IEEE Institute of Electrical and Electronic Engineers (www.ieee.org)
IGBT Insulated Gate Bipolar Transistor. The IGBT Inverter converts the DC bus voltage
into an adjustable frequency and adjustable amplitude, three-phase simulated AC
voltage.
IGV Inlet Guide Vanes. The IGV assembly is a variable-angle guiding device that pre-
rotates refrigerant flow at the compressor intake and is also used for capacity
control. The IGV assembly consists of movable vanes and a motor. The vane
angle, and hence, the degree of pre-rotation to the refrigerant flow, is determined
by the BMCC and controlled by the Serial Driver. The IGV position can vary
between approximately 0-percent and 110-percent open.
Impeller Rotating part of a centrifugal compressor that increases the pressure of
refrigerant vapor from the cooler pressure to the condenser pressure.
Acronym / Term Definition

104 Danfoss Turbocor Compressors Inc.
CSS-IOP-D01-L1-V06.0
I/O Board Input/Output Board facilitating a connection between the compressor controller
and/or PC and the compressor. It allows the user to control the compressor and
allows the compressor to return status and sensor information to the user.
Inverter See “IGBT”
IPLV Integrated Part Load Value
LBV Load Balance Valve. A modulating valve that can be installed to bypass discharge
gas to the inlet of the evaporator to provide gas flow at certain conditions such as
startup, surge, and further unloading of the compressor.
LED Light-Emitting Diode
Levitation The elevation or suspension of the compressor shaft by the magnetic field created
by the magnetic bearings.
Line Reactor A transformer-like device designed to introduce a specific amount of inductive
reactance into a circuit. When this occurs, it limits the change in current in the line,
which in turn filters the waveform and attenuates electrical noise and harmonics
associated with an inverter/drive output.
LLSV Liquid Line Solenoid Valve
LR Line Reactor
LRA Locked Rotor Amps
Mid Bus A connection between the capacitors allowing them to be connected in series and
in parallel simultaneously. Two capacitors in a series make up the DC- and two in
a series make up the DC+, and those two sets of two are connected in parallel.
Modbus A serial communications protocol published by Modicon in 1979 for use with its
programmable logic controllers (PLCs). It has become a de facto standard
communications protocol in industry, and is now the most commonly available
means of connecting industrial electronic devices. Modbus allows for
communication between many devices connected to the same network, for
example a system that measures temperature and humidity and communicates
the results to a computer.
Monitor Program A software program provided by DTC that can be downloaded to a PC or laptop
computer to monitor, regulate, control or verify the operation of a compressor.
MOP Maximum Operating Pressure
Motor Back EMF Back electromotive force is a voltage that occurs in electric motors where there is
relative motion between the armature of the motor and the external magnetic field
and is also a parameter used to evaluate the strength of the permanent magnets
of the shaft. One practical application is to use this phenomenon to indirectly
measure motor speed as well as estimate position.
NEC National Electric Code (www.necplus.org)
Nm Newton meter. A unit of torque. 1 Nm = 0.738 pound-force foot (lbf/f).
NTC Negative Temperature Coefficient. Refers to thermistor characteristic. Decrease
in temperature results in a rise in resistance (ohms).
OEM Original Equipment Manufacturer
Acronym / Term Definition

Installation and Operation Manual
Danfoss Turbocor Compressors Inc. 105
CSS-IOP-D01-L1-V06.0
Open Impeller A compressor impeller with exposed vanes similar to a boat propeller or
turbocharger.
PCB Printed Circuit Board
Permanent Magnet
Motor A motor that has permanent magnetism as opposed to electromagnetism.
PLC Programmable Logic Controller
Pressure Ratio See “Compression Ratio”
Proximity Sensor Sensors that are able to detect the presence of nearby objects without any
physical contact. A proximity sensor often emits an electromagnetic or
electrostatic field, or a beam of electromagnetic radiation (infrared, for instance),
and looks for changes in the field or return signal.
PWM Pulse Width Modulation
Radial Bearing Bearings that control the position of the shaft on the X and Y axis.
Rectifier A rectifier is an electrical device that converts AC current to pulsating DC current.
Resistor A resistor is an electrical component that limits or regulates the flow of electrical
current in an electronic circuit.
RMA Return Material Authorization
SCR Silicon-Controlled Rectifier. The SCR is a four-layer, solid-state device that
controls current and converts AC to DC.
Serial Driver A PCB plug-in responsible for the operation of the IGV stepper motor and optional
expansion valves. It contains four relays for the solenoid valves, compressor
status and compressor run status respectively.
SDT Saturated Discharge Temperature
SEER Seasonal Energy Efficiency Ratio
Shaft Orbit The path travelled by the compressor shaft relative to the bearing magnetic
centers
Shrouded Impeller An impeller with boxed in, or “shrouded,” impeller blades, as opposed to an open
impeller.
SIE Semi-Integrated Electronics version of the compressor.
Single-Stage
Centrifugal
compressor
Type of centrifugal compressor having one impeller.
Snubbers Capacitors responsible for eliminating electrical noise/harmonics from the DC Bus
before it reaches the IGBT
Acronym / Term Definition

106 Danfoss Turbocor Compressors Inc.
CSS-IOP-D01-L1-V06.0
* Danfoss Turbocor’s commitment to excellence ensures continuous product improvements.
* Subject to change without notice.
Soft-Start Board /
Soft-Starter The Soft-Start Board limits in-rush current by progressively increasing the
conduction angle of the SCRs. This technique is used at compressor startup while
the DC capacitors are charging up. The Soft-Start Board takes as input a 3-phase
voltage source at 50/60Hz from the input terminal and a DC voltage signal from
the SCR output. In turn, it outputs pulses to the SCR and provides power to the
High-Voltage (HV) DC-DC Converter. All voltages from the Soft-Start Board are
with respect to the positive DC bus and not the compressor ground.
SST Saturated Suction Temperature
Surge The condition at which the compressor cannot sustain the discharge pressure,
allowing refrigerant to temporarily and rapidly re-enter the compressor fluid path,
creating a cavitating effect. This is an undesirable situation that should be
avoided.
Thrust Bearing A bearing that absorbs the axial forces produced in a centrifugal compressor by
the refrigerant pressure differential across the impeller.
Ton The basic unit for measuring the rate of heat transfer (12,000 BTU/H; 3.516 kw/H)
Touchdown
Bearings Carbon races or ball bearing for the purpose of preventing mechanical
interference between the shaft and the magnetic bearings should they lose power
or fail.
TT Twin Turbine
Two-Stage
Centrifugal
compressor
Type of centrifugal compressor having two impellers. The first-stage impeller
raises the pressure of the refrigerant vapor approximately halfway from the cooler
pressure to the condenser pressure, and the second-stage impeller raises the
pressure the rest of the way. With a two-stage compressor, an interstage
economizer may be used to improve the refrigeration cycle efficiency.
TXV Thermal Expansion Valve. A pressure-dependent refrigerant metering device that
operates independently and is controlled by temperature.
UL Underwriters Laboratories (www.ul.com)
Up-Trip Voltage When the DC- bus reaches the up-trip voltage, the SCRs will be gated open
continuously
VAC Volts Alternating Current
Vaned Diffuser An assembly of plates with curved vanes that serve to slow, compress, and
reduce refrigerant rotation as it enters the second-stage impeller
Vaneless Diffuser Similar to a Vaned Diffuser, except that it does not possess any de-swirl vanes
VDC Volts Direct Current
VFD Variable Frequency Drive
Acronym / Term Definition

Installation and Operation Manual
Danfoss Turbocor Compressors Inc. 107
CSS-IOP-D01-L1-V06.0
Appendix B Mounting Kit Instructions
The compressor mounting kit includes:
• four rubber mounts.
• four sets of attaching hardware, including 3/8” screws, spring washers, and flat washers.
7.3.1 Mounting Instructions
1. Following the footprint dimensions given in Figure 63, drill two 9mm (11/32”) holes in the
base frame for each rubber mount.
2. Align the rubber mounts over the holes and secure them with attaching hardware
(customer-supplied).
3. Place one flat washer on each rubber mount.
4. Position the compressor over the rubber mounts and align the four holes in the compressor
mounting rails with the rubber mounts.
5. Assemble the four 3/8” screws with the spring washers. Insert the screws into the rubber
mounts and tighten them.
6. Check that the compressor mounting rails are level ±5mm (3/16”) in the lateral and
longitudinal planes.
Figure 63 Compressor Mounting Details
This Page Left Intentionally Blank

Installation and Operation Manual
Danfoss Turbocor Compressors Inc. 109
CSS-IOP-D01-L1-V06.0
Appendix C: Power Line Accessories Installation
Line Reactor Installation Instructions
These instructions apply to the installation of the line reactor kit in a main supply panel. See the
Applications Manual for product specifications.
7.3.2 AC Line Cable Connection (From External Disconnect)
Figure 65 shows a schematic of the main input circuit and connections to the line reactor. Use
this schematic as a guide for choosing the location of the line reactor.
1. Feed the AC line cable through the opening in the side of the main supply panel.
2. Attach the AC line wires to the line reactor terminals as shown in Figure 66.
3. Attach the ground cable to the mounting block on the panel wall. Ensure there is good
electrical/mechanical contact between the ground cable and the panel wall.
4. Secure the AC line cable to the main supply panel using approved methods (i.e. cable
gland).
7.3.3 AC Line Cable Connection (to Compressor Terminal)
1. Feed the AC line cable through the opening in the side of the main supply panel.
2. Attach the AC line wires to the line reactor output terminals as shown in Figure 67.
3. If a harmonic filter is being installed, attach its AC line wires to the line reactor
output terminals.
4. Attach the ground wire to the mounting block on the panel wall. Ensure there is good
electrical/mechanical contact between the ground wire and the panel wall.
5. Secure the AC line cable to the main supply panel using approved methods (i.e. cable
gland).
6. See Section 4.6 "Power Wiring" for instructions on completing the AC input connection to
the compressor.
NOTE
The custo mer is resp onsible for supplying the
mounting hardware for the line reactor.

Figure 64 Main Input Schematic
Figure 65 Line Reactor Connections
110 Danfoss Turbocor Compressors Inc.
CSS-IOP-D01-L1-V06.0

Installation and Operation Manual
Danfoss Turbocor Compressors Inc. 111
CSS-IOP-D01-L1-V06.0
EMI/EMC Filter Installation Instructions
1. Mount the filter on the floor or on a wall in a vertical position.
2. Ensure there is a minimum of 60mm (2 3/8”) of space for the cooling slots.
7.3.4 Line Side Connection
Input and output filter leads should be separated by a maximum practical distance within the
enclosure and should be routed separately in interconnecting conduits when used (see Figure
66).
1. Insert the line wires into the terminals labelled L1, L2, and L3 on the ‘Line’ side of the filter.
Tighten the terminal screws.
2. Attach the ground lug to the main ground bus and tighten the nut (see Figure 67).
7.3.5 Load Side Connection
1. Insert the load wires (from the line side of the line reactor) into the terminals labelled L1’,
L2’, and L3’on the ‘Load’ side of the filter. Tighten the terminal screws.
2. Attach the ground lug to the main ground bus and tighten the nut.
Harmonic Filter
If a Harmonic Filter is to be installed, follow the manufacturers instructions.
Connection of a Harmonic Filter should be made on the Load side of the Line Reactor (Figure 9).
NOTE
A short, heavy, stranded conductor from the filter
chassis to the main ground bus is recommended
for top performance. A battery braid, litz wire, or
flexible we lding ca ble with man y fine str ands is
recommended for best grounding performance.

Figure 66 Interconnection Layout
Figure 67 Grounding Diagram
112 Danfoss Turbocor Compressors Inc.
CSS-IOP-D01-L1-V06.0

Installation and Operation Manual
Danfoss Turbocor Compressors Inc. 113
CSS-IOP-D01-L1-V06.0
Appendix D: Valve / Flange Kit Installation Instructions
The instructions provided in this section apply to the following Turbocor valve/flange kits:
• Suction flange or service valve
• Discharge flange or service valve
• Economizer flange or service valve.
Each individual valve kit includes an O-ring, lubrication, and attaching hardware.
NOTE
Please consult Acce ssories M anual for p art
numbers and availability.
!
• • • CAUTION! • • •
Brazing without the use o f dry nitrogen will
result in debris being d eposited in the
pipework, potentially causing blockage and/
or damage.
!
• • • CAUTION! • • •
The h eat g enerated fro m b razing can damage
valve c omponents. Always us e in dustry
standard practices to reduce valve temperature.

114 Danfoss Turbocor Compressors Inc.
CSS-IOP-D01-L1-V06.0
7.3.6 Mounting Instructions
1. Assemble the four sets of M16 x 45 hex head screws and spring washers.
2. Align the suction valve/flange with the compressor suction port and insert the four hex head
screws. Tighten the screws to 75 Nm (55 ft-lbs).
3. Assemble the six sets of M10 x 35 hex head screws and spring washers.
4. Align the discharge valve/flange with the compressor discharge port and insert the four hex
head screws.Tighten the screws to 22 Nm (16.25 ft-lbs).
5. If applicable, align the economizer valve/flange with the compressor economizer port and
insert the two hex head screws. Tighten the screws to 22 Nm (16.25 ft-lbs).
Figure 68 Compressor Ports

Installation and Operation Manual
Danfoss Turbocor Compressors Inc. 115
CSS-IOP-D01-L1-V06.0
Appendix E: Commissioning Log
Job Details
Job Name: _________________
Customer:
(equipment manufacturer) __________________
Compressor Serial No.:______________
Equipment Serial No.: ________________
Contractor: ______________________
Contact: ____________________
Tel. #: _____________________
Application:
Air-cooled chiller (DX)
Air-cooled chiller (flooded)
Water-cooled chiller (DX)
Water-cooled chiller (flooded)
Air-cooled (rooftop)
Evaporatively-cooled chiller (DX)
Evaporatively-cooled chiller (flooded)
Evaporatively-cooled (rooftop)
Retrofit
Other (specify) ______________________

116 Danfoss Turbocor Compressors Inc.
CSS-IOP-D01-L1-V06.0
Attach a screen capture of the monitor display to this log sheet.
Commissioning Notes:
Step Procedure Display
Value Measured
Value
1. Confirm that the line voltage is as per rated input
+/-10%.
N/A
2. Remove the mains input cover. Using a voltmeter,
check the line voltages at the compressor terminals
and verify that they match the display readings
(under the heading of Soft Start Data on the
VSPMM form of the Monitor Program). Replace the
mains input cover.
3. Check that all DC voltages on the Backplane are
within the specified range, as follows:
P/S: Range:
+5V 4.9 - 5.1V
+15V 14.7 - 15.6V
+17V 16.6 - 17.5V
+24V 23.7 - 24.5V
+250V 237.5 - 262.5V
-15V -14.6 - -15.7V
N/A +5V ____
+15V ____
+17V __ __
+24V ____
+250V____
-15V ____
4. Complete the commissioning sequence using the
Monitor Program.
5. Using a pressure gauge, check the suction,
intermediate, and discharge pressures and verify
that they match the display readings.
6. Using a temperature probe, check the suction,
intermediate, and discharge temperatures and
verify that they match the display readings.
7. Ensure operational temperatures and pressures
are as per application

Installation and Operation Manual
Danfoss Turbocor Compressors Inc. 117
CSS-IOP-D01-L1-V06.0
Technician Name: _____________________
Company: _________________________
Date: _________________
Telephone No. ______________
Note:This commissioning report must be duly completed and returned to DTC for warranty pur-
poses.
This Page Left Intentionally Blank

Installation and Operation Manual
Danfoss Turbocor Compressors Inc. 119
CSS-IOP-D01-L1-V06.0
A
abnormal conditions, 83
analog mode, 94
B
Backplane, 89
LEDs, 90
Bearing Control System, 91
Bearing Motor Compressor Controller, 81
Bearing PWM Amplifier, 83
C
Capacity Control, 82
check
main supply voltage, 99
checks
iniital checks with compressor off, 38
iniitial with compressor on, 39
initial system, 35
system, 38
Chiller Interface Module
mounting, 24
chiller mode, 95
commissioning, 35
I/O jumper
setup, 35
system checks, 35
Component Locations, 80
Compressor
fundamentals, 75
general data page, 42
operating modes, 94
compressor
placement, 19
Compressor Control, 82
overview, 79
Compressor Controller
operational flow chart, 84, 85, 86, 87, 88, 89
Compressor I/O Board
mounting instructions, 24
configuration
magnetic bearing, 91
connections
control wiring, 24
control wiring, 24
connections, 24
details, 28
crcuit grounding, 29
D
datageneral for compressor, 42
E
EMI Filter, 93
End Commissioning, 73
Expansion Valve Control, 82, 95
F
fundamentals
compressor, 75
G
grounding
circuit, 29
H
Harmonic Filter, 93
High-voltage DC-DC Converter, 90
I
I/O jumper
settings, 35
setup, 35
initial checks
compressor off, 38
system, 35
inittial checks
compressor on, 39
Inlet Guide Vanes, 79
J
jumper details, 36
L
LEDs
Backplane, 90
Line Reactor, 93
M
magnetic bearing
configuration, 91
Magnetic Bearing System, 91
Main Fluid Path, 75
main supply voltage
checking, 99
maintenance
inspections, 96
frequency, 96
operational maintenance checks, 96
Modbus Network Mode, 95
Monitor Program
downloading and saving configuration data, 70
minimum requirements, 43
RS232 connection, 52
Monitoring Functions, 82

120 Danfoss Turbocor Compressors Inc.
CSS-IOP-D01-L1-V06.0
Motor Cooling, 77
Motor Drive System, 81
Motor/Bearing Control, 82
mounting instructions
Compressor I/O Board, 24
O
operating modes
analog mode, 94
chiller mode, 95
compressor, 94
Modbus network mode, 95
operational maintenance checks, 96
owner’s responsibilities, 96
P
piping connections, 21
power line
contactor, 93
control and filtering, 93
filters, 93
power wiring, 33
ground connection, 34
R
responsibililities
owner’s, 96
rigging requirements, 19
S
safety precautions, 10
safety summary, 10
Serial Driver, 83
settings
I/O jumper, 35
system checks, 35, 38
T
tools, 9
service, 9
TT300 Compressor Fluid Path, 76
U
unit placement, 19
unpacking and inspection, 19
V
voltage
checking main supply, 99
W
wiring
control, 24
power, 33

Copyright © 2010 Printed in USA
Danfoss Turbocor Compressors Inc., 1769 East Paul Dirac Drive, Tallahassee, Florida 32310
Phone: 1-850-504-4800 Fax: 1-850-575-2126 www.turbocor.com

