KML 451MAH 451M H Serv
User Manual: KML-451MAH
Open the PDF directly: View PDF
.
Page Count: 48
- I. Specifications
- II. General Information
- III. Technical Information
- IV. Service Diagnosis
- V. Removal and Replacement of Components
- A. Service for Refrigerant Lines
- B. Removal and Replacement of Compressor
- C. Removal and Replacement of Expansion Valve
- D. Removal and Replacement of Hot Gas Valve or Line Valve
- E. Removal and Replacement of Evaporator
- F. Removal and Replacement of Water Regulating Valve - Water Cooled Model Only
- G. Adjustment of Water Regulating Valve - Water-Cooled Model Only
- H. Removal and Replacement of Headmaster (Condensing Pressure Regulator - C.P.R.) - Remote Air-Cooled Model Only
- I. Removal and Replacement of Thermistor
- J. Removal and Replacement of Fan Motor
- K. Removal and Replacement of Water Valves
- L. Removal and Replacement of Pump Motor
- VI. Cleaning and Maintenance Instructions

Hoshizaki
“A Superior Degree
of Reliability”
www.hoshizaki.com
Models
KML-451MAH
KML-451MWH
Low-Profile Modular Crescent Cuber
Hoshizaki America, Inc.
SERVICE MANUAL
™
Number: 73143
Issued: 3-1-2007

2
IMPORTANT
Only qualified service technicians should attempt to service or maintain this
unit. No such service or maintenance should be undertaken until the technician
has thoroughly read this Service Manual.
HOSHIZAKI provides this manual primarily to assist qualified service technicians in the
service and maintenance of the unit.
Should the reader have any questions or concerns which have not been satisfactorily
addressed, please call, write or send an e-mail message to the HOSHIZAKI Technical
Support Department for assistance.
HOSHIZAKI AMERICA, INC.
618 Highway 74 South
Peachtree City, GA 30269
Attn: HOSHIZAKI Technical Support Department
Phone: 1-800-233-1940 Technical Service
(770) 487-2331
Fax: 1-800-843-1056
(770) 487-3360
E-mail: techsupport@hoshizaki.com
Web Site: www.hoshizaki.com
NOTE: To expedite assistance, all correspondence/communication MUST include the
following information:
•ModelNumber
•SerialNumber
•Completeanddetailedexplanationoftheproblem
3
Please review this manual. It should be read carefully before the icemaker is serviced or
maintenance operations are performed. Only qualified service technicians should service
and maintain the icemaker. This manual should be made available to the technician prior to
service or maintenance.
CONTENTS
I. Specifications ...................................................................................................................... 5
A. Icemaker ....................................................................................................................... 5
1. KML-451MAH (air-cooled) ....................................................................................... 5
2. KML-451MWH (water-cooled) ................................................................................. 6
II. General Information ........................................................................................................... 7
A. Construction .................................................................................................................. 7
1. KML-451MAH (air-cooled) ....................................................................................... 7
2. KML-451MWH (water-cooled) ................................................................................. 8
B. Sequence of Operation ................................................................................................. 9
1. One Minute Fill Cycle .............................................................................................. 9
2. Initial Harvest Cycle ................................................................................................ 9
3. Freeze Cycle ........................................................................................................... 9
4. Pump-Out Cycle ..................................................................................................... 9
5. Normal Harvest Cycle ............................................................................................ 9
C. Control Board .............................................................................................................. 11
1. Control Board Layout ............................................................................................. 12
2. Features ................................................................................................................ 13
a) Maximum Water Supply Period – 6 minutes ....................................................... 13
b) Harvest Backup Timer and Freeze Timer ........................................................... 13
c) High Temperature Safety .................................................................................... 13
d) Low Water Safety ............................................................................................... 13
e) High Voltage and Low Voltage Cut-outs ............................................................. 13
f) LED Lights and Audible Alarm Safeties ............................................................... 14
3. Controls and Adjustments ..................................................................................... 15
a) Default Dip Switch Settings ................................................................................ 15
b) Harvest Timer (dip switch 1 & 2) ........................................................................ 15
c) Pump-Out Timer (dip switch 3 & 4) ..................................................................... 16
d) Pump-Out Frequency Control (dip switch 5 & 6) ................................................ 16
e) Freeze Timer (dip switch 9 & 10) ........................................................................ 17
4. Control Board Check Procedure ............................................................................ 17
5. Control Board Replacement .................................................................................. 17
D. Harvest Control – Thermistor ...................................................................................... 18
E. Bin Control .................................................................................................................. 18
F. Switches ...................................................................................................................... 18
1. Control Switch ....................................................................................................... 18
2. Service Switch ....................................................................................................... 19
a) DRAIN ................................................................................................................ 19
b) CIRCULATE ....................................................................................................... 19
c) WASH ................................................................................................................. 19
4
III. Technical Information ...................................................................................................... 20
A. Water Circuit and Refrigeration Circuit ........................................................................ 20
1. KML-451MAH (air-cooled) ..................................................................................... 20
2. KML-451MWH (water-cooled) ............................................................................... 21
B. Wiring Diagrams .......................................................................................................... 22
1. KML-451MAH (air-cooled) and KML-451MWH (water-cooled) ............................. 22
C. Performance Data ....................................................................................................... 23
1. KML-451MAH (air-cooled) ..................................................................................... 23
2. KML-451MWH (water-cooled) ............................................................................... 24
IV. Service Diagnosis ........................................................................................................... 25
A. 10-Minute Diagnostic Procedure ................................................................................ 25
B. Diagnostic Charts ........................................................................................................ 26
1. No Ice Production .................................................................................................. 26
2. Evaporator is Frozen Up ........................................................................................ 30
3. Low Ice Production ................................................................................................ 31
4. Abnormal Ice ......................................................................................................... 31
5. Other ...................................................................................................................... 31
V. Removal and Replacement of Components .................................................................... 33
A. Service for Refrigerant Lines ...................................................................................... 33
1. Refrigerant Recovery ............................................................................................. 33
2. Brazing .................................................................................................................. 33
3. Evacuation and Recharge (R-404A) ...................................................................... 34
B. Removal and Replacement of Compressor ................................................................ 35
C. Removal and Replacement of Expansion Valve ......................................................... 36
D. Removal and Replacement of Hot Gas Valve or Line Valve ....................................... 36
E. Removal and Replacement of Evaporator .................................................................. 37
F. Removal and Replacement of Water Regulating Valve - Water Cooled Model Only.... 38
G. Adjustment of Water Regulating Valve - Water-Cooled Model Only ........................... 39
H. Removal and Replacement of Headmaster (Condensing Pressure Regulator - C.P.R.)
- Remote Air-Cooled Model Only .............................................................................. 39
I. Removal and Replacement of Thermistor .................................................................... 40
J. Removal and Replacement of Fan Motor .................................................................... 41
K. Removal and Replacement of Water Valves ............................................................... 41
L. Removal and Replacement of Pump Motor ................................................................. 42
VI. Cleaning and Maintenance Instructions ......................................................................... 43
A. Cleaning and Sanitizing Procedures ........................................................................... 43
1. Cleaning Procedure ............................................................................................... 43
2. Sanitizing Procedure – Following Cleaning Procedure .......................................... 44
B. Maintenance ................................................................................................................ 45
C. Preparing the Icemaker for Long Storage ................................................................... 45

5
I. Specifications
A. Icemaker
1. KML-451MAH (air-cooled)
AC SUPPLY VOLTAGE 115/60/1
AMPERAGE 10.3 A ( 5 Min. Freeze AT 104°F / WT 80°F)
MINIMUM CIRCUIT AMPACITY 20 A
MAXIMUM FUSE SIZE 20 A
APPROXIMATE ICE PRODUCTION Ambient WATER TEMP. (°F)
PER 24 HR. Temp.(°F) 50 70 90
lbs./day ( kg/day ) 70 *403 (183) 387 (176) 355 (161)
Reference without *marks 80 391 (177) 366 (166) 328 (149)
90 387 (176) *349 (158) 313 (142)
100 377 (171) 340 (154) 279 (127)
SHAPE OF ICE Crescent Cube
ICE PRODUCTION PER CYCLE 7.0 lbs. (3.2 kg) 360 pcs.
APPROXIMATE STORAGE CAPACITY N/A
ELECTRIC & WATER CONSUMPTION 90/70°F 70/50°F
ELECTRIC W (kWH/100 lbs.) 970(6.7) 890(5.3)
WATER gal./24HR (gal./100 lbs.) 64(18.3) 115(28.5)
EXTERIOR DIMENSIONS (WxDxH) 30" x 27 3/8" x 22" (762 x 695 x 560 mm)
EXTERIOR FINISH Stainless Steel, Galvanized Steel (Rear)
WEIGHT Net 154 lbs. (70 kg), Shipping 185 lbs. (84 kg)
CONNECTIONS - ELECTRIC Permanent - Connection
- WATER SUPPLY Inlet 1/2" FPT
- DRAIN Outlet 3/4" FPT
CUBE CONTROL SYSTEM Float Switch
HARVESTING CONTROL SYSTEM Hot Gas and Water, Thermistor and Timer
ICE MAKING WATER CONTROL Timer Controlled. Overflow Pipe
COOLING WATER CONTROL N/A
BIN CONTROL SYSTEM Thermostat
COMPRESSOR Hermetic, Model RS43C2E-CAA-219
CONDENSER Air-Cooled, Fin and tube type
EVAPORATOR Vertical type, Stainless Steel and Copper
REFRIGERANT CONTROL Thermostatic Expansion Valve
REFRIGERANT CHARGE R404A, 1 lb. 13.1 oz. (825g)
DESIGN PRESSURE High 467PSIG, Low 230PSIG
P.C. BOARD CIRCUIT PROTECTION High Voltage Cut-out ( Internal )
COMPRESSOR PROTECTION Auto-reset Overload Protector ( Internal )
REFRIGERANT CIRCUIT PROTECTION Auto-reset High Pressure Control Switch
LOW WATER PROTECTION Float Switch
ACCESSORIES -SUPPLIED N/A
-REQUIRED Ice Storage Bin
OPERATING CONDITIONS VOLTAGE RANGE 104 - 127 V
AMBIENT TEMP. 45 -100° F
WATER SUPPLY TEMP. 45 - 90° F
WATER SUPPLY PRESSURE 10 - 113 PSIG
Note: We reserve the right to make changes in specifications and design without prior
notice.

6
2. KML-451MWH (water-cooled)
Note: We reserve the right to make changes in specifications and design without prior
notice.
AC SUPPLY VOLTAGE 115/60/1
AMPERAGE 8.9 A ( 5 Min. Freeze AT 104°F / WT 80°F)
MINIMUM CIRCUIT AMPACITY 20 A
MAXIMUM FUSE SIZE 20 A
APPROXIMATE ICE PRODUCTION Ambient WATER TEMP. (°F)
PER 24 HR. Temp.(°F) 50 70 90
lbs./day ( kg/day ) 70 *404 (183) 402 (182) 384 (174)
Reference without *marks 80 402 (183) 399 (181) 373 (169)
90 402 (182) *397 (180) 374 (169)
100 393 (178) 392 (178) 352 (160)
SHAPE OF ICE Crescent Cube
ICE PRODUCTION PER CYCLE 6.8 lbs. (3.1 kg) 360 pcs.
APPROXIMATE STORAGE CAPACITY N/A
ELECTRIC & WATER CONSUMPTION 90/70°F 70/50°F
ELECTRIC W (kWH/100 lbs.) 880(5.3) 860(5.1)
WATER gal./24HR (gal./100 lbs.) 78(19.7) 125(31.0)
WATER COOLED CONDENSER 548(138) 319(79)
gal./24HR (gal./100 lbs.)
EXTERIOR DIMENSIONS (WxDxH) 30" x 27 3/8" x 22" (762 x 695 x 560 mm)
EXTERIOR FINISH Stainless Steel, Galvanized Steel (Rear)
WEIGHT Net 154 lbs. (70 kg), Shipping 185 lbs. (84 kg)
CONNECTIONS - ELECTRIC Permanent - Connection
- WATER SUPPLY Inlet 1/2" FPT Condenser Inlet 1/2" FPT
- DRAIN Outlet 3/4" FPT Condenser Outlet 3/8" FPT
CUBE CONTROL SYSTEM Float Switch
HARVESTING CONTROL SYSTEM Hot Gas and Water, Thermistor and Timer
ICE MAKING WATER CONTROL Timer Controlled. Overflow Pipe
COOLING WATER CONTROL Water Regulator
BIN CONTROL SYSTEM Thermostat
COMPRESSOR Hermetic, Model RS43C2E-CAA-219
CONDENSER Water-cooled, Tube in tube type
EVAPORATOR Vertical type, Stainless Steel and Copper
REFRIGERANT CONTROL Thermostatic Expansion Valve
REFRIGERANT CHARGE R-404A, 1 lb. 2.3 oz. (520g)
DESIGN PRESSURE High 427PSIG, Low 230PSIG
P.C. BOARD CIRCUIT PROTECTION High Voltage Cut-out ( Internal )
COMPRESSOR PROTECTION Auto-reset Overload Protector ( Internal )
REFRIGERANT CIRCUIT PROTECTION Auto-reset High Pressure Control Switch
LOW WATER PROTECTION Float Switch
ACCESSORIES -SUPPLIED N/A
-REQUIRED Ice Storage Bin
OPERATING CONDITIONS VOLTAGE RANGE 104 - 127 V
AMBIENT TEMP. 45 -100° F
WATER SUPPLY TEMP. 45 - 90° F
WATER SUPPLY PRESSURE 10 - 113 PSIG

7
II. General Information
A. Construction
1. KML-451MAH (air-cooled)
Spray Tubes
Water Supply
Inlet
Junction Box
Condenser
Condenser
Fan Motor
Control Box
Drier
Hot Gas Valve
Compressor
Float Switch
Water Pump
Bin Control
Thermostat
Control
Switches
Expansion
Valve
Inlet Water
Valve
Drain Valve
Wash Valve

8
2. KML-451MWH (water-cooled)
Water
Regulator
Water Supply
Inlet
Junction Box
Condenser
Control Box
Drier
Hot Gas Valve
Compressor
Float Switch
Water Pump
Bin Control
Thermostat
Control
Switches
Expansion
Valve
Spray Tubes
Drain Valve
Wash Valve
Inlet Water
Valve
9
B. Sequence of Operation
The steps in the sequence are as outlined below. When power is supplied, a 5 second
delay occurs at startup. Note that the order of the LEDs from the outer edge of the board
is 1, 4, 3, 2.
1. One Minute Fill Cycle
LED 4 is on. WV opens and the fill period begins. After 1 minute, the board checks for
a closed F/S. If F/S is closed, the harvest cycle begins. If not, WV will remain energized
through additional 1 minute cycles until water enters the sump and F/S closes. This
serves as a low water safety to protect the water pump.
2. Initial Harvest Cycle
LEDs 1, 4, and 2 are on. WV remains open, Comp and FMR energize, HGV opens,
and harvest begins. As the evaporator warms, the thermistor located on the suction line
checks for a 48°F (9°C) temperature. When 48°F (9°C) is reached, a 3.9 kΩ signal turns
the harvest over to the adjustable harvest timer which is factory set for normal conditions.
The timer has settings of 60, 90, 120, and 180 seconds (dip switch 1 & 2). The water
valve is open during harvest for a maximum of 6 minutes or the length of harvest,
whichever is shorter. When the harvest timer completes its count down, the harvest cycle
is complete and the freeze cycle starts.The minimum total time allowed by the board for
a complete harvest cycle is 2 minutes.
3. Freeze Cycle
LED 1 is on. Comp and FMR continue to run, PM and FMS energize, LLV opens, HGV
and WV close and the freeze cycle starts. For the first 5 minutes the control board
will not accept a signal from F/S. This 5 minute minimum freeze acts as a short cycle
protection. At the end of 5 minutes, F/S assumes control. As ice builds on the evaporator
the water level in the sump lowers. The freeze continues until F/S opens and terminates
ice production.
4. Pump-Out Cycle
LEDs 1, 3, and 2 are on. Comp and FMR continue to run, HGV opens, LLV closes, and
FMS de-energizes. PM stops for 2 seconds. SR energizes, restarting PM and taking
water from the sump and forcing it to go through DV and down the drain. When the
pump-out timer stops counting, the pump out is complete.
Pump out always occurs on the 2nd harvest after startup. Then, depending on the control
board setting, pump out occurs every cycle, or every 2nd, 5th or 10th cycle (dip switch
5 & 6).
5. Normal Harvest Cycle
LEDs 1, 4, and 2 are on. Comp and FMR continue to run, HGV remains open and WV
opens. As the evaporator warms, the thermistor reaches 48°F (9°C). The control board
then receives the thermistor's 3.9 kΩ signal and starts the harvest timer. The water valve
is open during harvest for a maximum of 6 minutes or the length of harvest, whichever is
shorter. When the harvest timer completes its count down, the harvest cycle is complete
and the next freeze cycle starts. The unit continues to cycle through 3, 4 and 5 sequence
until the bin control senses ice and shuts the unit down.
Legend: Comp–compressor; DV–Drain Valve; FMR–remote fan motor; FMS–self-contained
fan motor; F/S–float switch; HGV–hot gas valve; L LV –Liquid Line Valve; PM–pump
motor; SR–Service Relay; WV–inlet water valve

10
KML-451MAH and KML-451MWH Sequence Flow Chart and Component Operation
1. One Minute
Fill Cycle
2. Harvest Cycle 3. Freeze Cycle
4. Pump-Out
Cycle
Cycle Steps
WV Energized
F/S open
F/S closed
Comp energized
HGV energized
FMR energized
WV continues
LLV de-energized
Thermistor temp
reaches 48°F (9°C)
(3.9 kΩ or less)
Harvest timer starts
F/S open
Comp continues
FMR continues
HGV de-energized
WV de-energized
PM energized
FMS energized
LLV energized
F/S closed
Freeze cycle
operation turned
over to F/S
PM stops for 2 sec., SR
energizes, starting PM &
DV for 10/20 sec. each 1,
2, 5, or 10 cycles.
Comp continues
FMR continues
HGV energized
FMS de-energized
LLV de-energized
F/S Check
F/S Check
•Maximuminletwatervalvetime:6minutes
•Maximumharvesttime:20minutes
Thermistor in
control
1 to 3 minute timer
in control
•Minimumfreezetime:5minutes
•Maximumfreezetime:freezetimersetting
5 minute timer
in control
F/S in
control
Initial startup always
begins here
"E" board will have
5 second delay
If F/S is open, compressor stops and cycle returns to 1 minute fill
Legend:
Comp–compressor
DV–drain valve
FMR–remote fan motor
FMS–self-contained fan motor
F/S–float switch
HGV–hot gas valve
LLV–liquid line valve
PM–pump motor
SR–service relay
WV–inlet water valve
Components Energized when the Control Switch is in the SERVICE Position
When in the "SERVICE" position, the control switch supplies power to the service switch and the machine
is in service mode. The service switch has three positions: "DRAIN," "CIRCULATE" and "WASH." See the
information below for details of each function.
DRAIN Power is supplied to the pump and drain valve. This drains the water tank.
CIRCULATE Power is supplied to the pump only. This operation can be used to circulate cleaner for
extended periods of time over the outside surface of the evaporator.
WASH Power is supplied to the pump and wash valve. This operation is used to circulate cleaner
and sanitizer over both the inside and outside surfaces of the evaporator.

11
C. Control Board
•A HOSHIZAKI exclusive solid-state control is employed in KML-451MAH and
KML-451MWH Modular Crescent Cubers.
•All models are pretested and factory-adjusted.
CAUTION
1. Fragile, handle very carefully.
2. A control board contains integrated circuits, which are susceptible to failure
due to static discharge. It is especially important to touch the metal part of
the unit when handling or replacing the board.
3. Do not touch the electronic devices on the board or the back of the board to
prevent damage to the board.
4. Do not change wiring and connections. Do not misconnect K3, K4 and K5,
because the same connector is used for the thermistor and float switch. K4 is
not connected.
5. Always replace the whole board assembly if it goes bad.
6. Do not short out power supply to test for voltage.

12
Output Test Switch
(used to test relays on board)
Connector K3
Harvest Control
(thermistor)
Connector K4
Open
(not connected)
Microprocessor
(board revision level
indicated by last 2
digits on label)
Connector K5
Float Switch
Part Number
Connector K1
Pins #1 through #10
#1, 9 Magnetic Contactor
#2 Hot Gas Valve
#3 Line Valve
Self-Contained Fan Motor (FMS)
#4 Pump Motor (icemaking)
#5 Pump Motor (drain)
#6 Water Valve
#7, 10 Power (line, bin control)
#8 Open
Switch for "C" board
and "ALPINE" board
(service boards only)
Alarm Reset Switch
Backup Freeze
Timer LED
Dip Switch
Backup Harvest
Timer LED
Alarm Buzzer
Power LED
(lights when
power is supplied
to the board)
Relay LEDs (4)
(indicate which
relays are energized
as listed below)
LED 2
Hot Gas Valve (HGV)
Self-Contained Fan
Motor (FMS) (FMS
off when LED on)
LED 3
Pump Motor (PM)
(on at pump out only)
LED 4
Water Valve (WV)
LED 1
Compressor (Comp)
Remote Fan Motor
(FMR)
Transformer
Connector
Control Board
Part Number 2A1410-01 (factory); 2A1410-02 (service)
Type HOS-001A (Control Products - 10 Pin)
Control Products "E" Control Board
1. Control Board Layout
13
2. Features
a) Maximum Water Supply Period – 6 minutes
Inlet water valve opening, in the harvest cycle, is limited by the harvest timer. The water
valve cannot remain open longer than the maximum period. The water valve can close in
less than six minutes if the harvest cycle is completed.
b) Harvest Backup Timer and Freeze Timer
The harvest backup timer shuts down the icemaker if, for two cycles in a row, the harvest
cycle takes more than 20 minutes to complete. The control board will signal this problem
using 2 beeps every 3 seconds.
The freeze timer shuts down the icemaker if, for two cycles in a row, the freeze cycle
takes longer than the time specified to complete. The control board will signal this
problem using 3 beeps every 3 seconds. The time is factory set using dip switches 9 &
10.
The reset button on the control board must be pressed with power on to reset either of
these safeties.
c) High Temperature Safety
The temperature of the suction line in the refrigeration circuit is limited by the high
temperature safety. This protects the unit from excessively high temperatures. If the
evaporator temperature rises above 127°F ± 7°F (53°C ± 4°C), the thermistor operates
the safety. This shuts down the circuit and the icemaker automatically stops.
The control board will signal this problem using 1 beep every 3 seconds. The reset button
on the control board must be pressed with power on to reset the safety.
d) Low Water Safety
The control board checks the position of the float switch at the end of the initial one
minute water fill cycle and at the end of each harvest cycle.
If the float switch is in the up position (electrical circuit closed), the control board changes
to the next cycle. If the float switch is in the down position (electrical circuit open), the
control board changes to additional one minute water fill cycles until water enters the
sump and the float switch closes. When the float switch closes, the control board changes
to the next cycle. The unit will not start without adequate water in the sump. This serves
as a low water safety to protect the water pump.
For water-cooled model, if the condenser water supply is shut off, the unit is protected by
the high-pressure switch.
e) High Voltage and Low Voltage Cut-outs
The maximum and minimum allowable supply voltages of this icemaker are limited by the
high voltage and low voltage cut-outs.
If miswiring (especially on single phase 3 wire models) causes excessive voltage (147Vac
±5% or more) on the control board, the high voltage cut-out shuts down the circuit
in 3 seconds and the icemaker automatically stops. The control board will signal this
problem using 7 beeps every 3 seconds.
The icemaker also automatically stops in cases of insufficient voltage (92Vac ±5% or
less). The control board will signal this problem using 6 beeps every 3 seconds.
When the proper supply voltage is resumed, the icemaker automatically starts running
again.

14
f) LED Lights and Audible Alarm Safeties
The red LED indicates proper control voltage and will remain on unless a control voltage
problem occurs. At startup a 5 second delay occurs while the board conducts an internal
timer check. A short beep occurs when the power switch is turned OFF.
The green LEDs 1 through 4 energize and sequence from initial startup as listed in the
table below. Note that the order of the LEDs from the outer edge of the board is 1, 4, 3, 2.
For more information, see "II.B. Sequence of Operation."
Sequence Step LED Energized
Components
Time LEDs are On
Min. Max. Avg.
1 Minute Fill Cycle 4 WV 60 seconds
Harvest Cycle 1, 4, and 2 WV, HGV,
Comp, FMR
2 minutes 20 minutes 3 to 5 minutes
Freeze Cycle 1 Comp, PM,
FMR/FMS,
LLV
5 minutes freeze timer
setting
30 to 35 minutes
Pump Out 1, 3, and 2 Comp, HGV,
PM, FMR,
SR, DV
10 seconds 20 seconds factory setting
The built in safeties shut down the unit and have alarms as follows:
No. of Beeps
(every 3 sec.) Type of Alarm Notes
1High Evaporator Temp.
(temperature > 127°F)
(53°C)
Check for harvest problem (stuck HGV or
relay), hot water entering unit, stuck HM,
or shorted thermistor.
2Harvest Backup Timer
(harvest > 20 min. for two
cycles in a row)
Orange LED marked H TIMER lights up.
Check for open thermistor, HGV not
opening, TXV leaking by, low charge, or
inefficient compressor.
3Freeze Timer
(freeze > specified setting
for two cycles in a row)
Timer is factory set using
dip switches 9 & 10
Yellow LED marked F TIMER lights up.
Check for F/S stuck closed (up), WV
leaking by, HGV leaking by, TXV not
feeding properly, low charge, HM not
bypassing, or inefficient compressor.
To manually reset the above safeties, press the alarm reset button with the power
supply on.
6Low Voltage
(92Vac ±5% or less)
Red LED will turn off if voltage protection
operates.
The control voltage safeties automatically
reset when voltage is corrected.
7High Voltage
(147Vac ±5% or more)
Legend: Comp–compressor; DV–Drain Valve; FMR–remote fan motor; FMS–self-
contained fan motor; F/S–float switch; HGV–hot gas valve; HM–headmaster
(C.P.R.); LLV –Liquid Line Valve; PM–pump motor; SR–Service Relay;
TXV–thermostatic expansion valve; WV–inlet water valve

15
3. Controls and Adjustments
a) Default Dip Switch Settings
The dip switch is factory-adjusted to the following positions:
Dip Switch No. 1 2 3 4 5 6 7 8 9 10
KML-451MAH OFF OFF OFF OFF OFF OFF OFF OFF OFF ON
KML-451MWH ON OFF OFF OFF ON ON OFF OFF OFF ON
Freeze Timer (9 & 10)
Pump-Out Frequency Control (5 & 6)
Pump-Out Timer (3 & 4)
Harvest Timer (1 & 2)
Normally in the OFF position.
b) Harvest Timer (dip switch 1 & 2)
The harvest timer starts counting when the thermistor reads 48°F (9°C) at the evaporator
outlet.
No adjustment is required under normal use, as the harvest timer is adjusted to the
suitable position. However, a setting longer than the factory setting may be advised in
cases where the flush provided at harvest needs to be prolonged for extra cleaning.
Before changing this setting, call the HOSHIZAKI Technical Support Department at
1-800-233-1940 for recommendations. Keep in mind that setting the harvest timer to a
longer setting will decrease 24 hour production.
Dip Switch Setting Time
(seconds)
No. 1 No. 2
OFF OFF 60
ON OFF 90
OFF ON 120
ON ON 180

16
c) Pump-Out Timer (dip switch 3 & 4)
When a freeze cycle is completed, the pump motor stops, and the icemaker resumes
operation in 2 seconds. Then, during cycles when a pump out is called for, the pump
motor drains the water tank for the time determined by the pump-out timer. The pump-
out timer also acts in place of the harvest timer during cycles with a pump out.
The pump-out timer is factory-adjusted, and no adjustment is required.
Dip Switch Setting Time (seconds)
No. 3 No. 4 T1 T2
OFF OFF 10 150
ON OFF 10 180
OFF ON 10 120
ON ON 20 180
T1: Time to drain the water tank
T2: Harvest timer at pump out
Pump out always occurs on the 2nd harvest after startup. Then, depending on the pump-
out frequency control setting (dip switch 5 & 6), pump out occurs every cycle, or every
2nd, 5th or 10th cycle.
d) Pump-Out Frequency Control (dip switch 5 & 6)
The pump motor drains the water tank at the frequency set by the pump-out frequency
control.
The pump-out frequency control is factory-adjusted to drain the water tank every 10
cycles, and no adjustment is required. However, where water quality is bad and the
icemaker needs a pump drain more often, the pump-out frequency can be adjusted as
shown in the table below.
Dip Switch Setting Frequency
No. 5 No. 6
OFF OFF every cycle
ON OFF every 2 cycles
OFF ON every 5 cycles
ON ON every 10 cycles

17
e) Freeze Timer (dip switch 9 & 10)
CAUTION
Adjust to proper specification, or the unit may not operate correctly.
The freeze timer setting determines the maximum allowed freeze time to prevent
possible freeze-up issues. Upon termination of freeze timer, machine initiates the harvest
cycle. After 2 consecutive timer terminations, machine will shut down, possibly indicating
a problem.
The freeze timer is factory adjusted and no adjustment is required.
Dip Switch Setting Time
(minutes)
No. 9 No. 10
OFF OFF 60
OFF ON 50
ON OFF 70
ON ON 60
4. Control Board Check Procedure
Before replacing a control board that does not show a visible defect and that you suspect
is bad, always conduct the following check procedure. This procedure will help you verify
your diagnosis.
1) Check the dip switch settings to assure that #3, 4, 7, 8, 9, & 10 are in the factory default
position. Switches 1, 2, 5, & 6 are cleaning adjustments and the settings are flexible.
2) Turn the control switch to ICE and check for proper control voltage. If the red LED is ON,
the control voltage is good. If the red LED is OFF, check the control transformer circuit.
3) Check the 115 volt input at the 10-pin connector. Check the brown wire at pin #10 to a
white neutral wire for 115 volts. (Always choose a white neutral wire to establish a good
neutral connection when checking voltages.) A jumper also feeds 115 volts into pin #7.
If no voltage is present, check the 115 volt supply circuit.
4) The output test switch provides a relay sequence test. Make sure the control switch is
in the ICE position, then press the output test switch. The correct lighting sequence
should be none, 2, 3, 4, 1. Some components (e.g., the compressor) will cycle during
the test. Note that the order of the relays from the outer edge of the board is 1, 4, 3, 2. If
the LEDs light in a different sequence, the control board is bad and should be replaced.
After the output test, the unit automatically resumes normal operation at the 1 minute fill
cycle.
5. Control Board Replacement
The application switch located between relay X3 & X4 must be set to match the original
board application. Place this switch in the ALP position if there is no white wire supplied
to the K1 connector. If there is a white wire, place the switch in the C position. If this
switch is placed in the wrong position either the compressor contactor will remain
energized with the control switch OFF or the unit will not start.
The dip switches should be adjusted to the factory default settings as outlined in this
manual. 8 must remain in the OFF position.

18
D. Harvest Control – Thermistor
A thermistor (semiconductor) is used for a harvest control sensor. The resistance varies
depending on the suction line temperatures. The thermistor detects the temperature of
the evaporator outlet to start the harvest timer. No adjustment is required. If necessary,
check for resistance between thermistor leads, and visually check the thermistor
mounting, located on the suction line next to the evaporator outlet.
Temperature (°F) Temperature (°C) Resistance (kΩ)
0 -18 14.401
10 -12 10.613
32 0 6.000
50 10 3.871
70 21 2.474
90 32 1.633
Check a thermistor for resistance by using the following procedure:
1) Disconnect the connector K3 on the board.
2) Remove the thermistor. See "V.I. Removal and Replacement of Thermistor."
3) Immerse the thermistor sensor portion in a glass containing ice and water for 2 or 3
minutes.
4) Check for a resistance between thermistor leads. Normal reading is within 3.5 to 7 kΩ.
Replace the thermistor if it exceeds the normal reading.
E. Bin Control
CAUTION
When the ambient temperature is below 45°F (7°C), the bin control thermostat
operates to stop the icemaker even if the ice storage bin is empty. When the
thermostat is set in the prohibited range, the icemaker operates continuously
even if the ice storage bin is filled with ice. Setting in the prohibited range might
cause severe damage to the icemaker resulting in failure.
No adjustment is required under normal use, as the bin control is factory-adjusted. Adjust
it, if necessary, so that the icemaker stops automatically within 10 seconds after ice
contacts the bin control thermostat bulb.
F. Switches
Two control switches are used to control operation in the KML Series Modular Crescent
Cubers. These switches are referred to as the "control switch" and the "service switch"
and are located on the control box.
1. Control Switch
The control switch has three positions: "OFF" for power off; "ICE" for icemaking, and
"SERVICE" to activate the service switch.
19
2. Service Switch
When the control switch is in the "SERVICE" position, the control switch supplies power
to the service switch and the machine is in service mode. The service switch has three
positions: "DRAIN," "CIRCULATE," and "WASH." See the information below for details of
each function.
Note:
1. When the service switch is activated, power is supplied to the water pump in all
three positions.
2. When the control switch is in the "OFF" position or in the "ICE" position, the
service switch has no power and can be left in any position.
a) DRAIN
The KML series utilizes a pump-out drain system. When the service switch is active and
placed in the "DRAIN" position, power is supplied to the pump and drain valve.
b) CIRCULATE
When the service switch is active and placed in the "CIRCULATE" position, power is
supplied to the pump only. This operation can be used to circulate cleaner for extended
periods of time over the outside surface of the evaporator.
c) WASH
The KML series utilizes a solenoid operated wash (bypass) valve. When the service
switch is active and placed in the "WASH" position, power is supplied to the pump and
wash valve. This operation is used to circulate cleaner and sanitizer over both the inside
and outside of the evaporator.

20
III. Technical Information
A. Water Circuit and Refrigeration Circuit
1. KML-451MAH (air-cooled)

21
2. KML-451MWH (water-cooled)

22
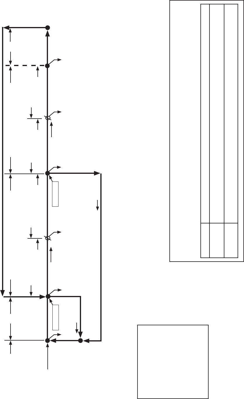
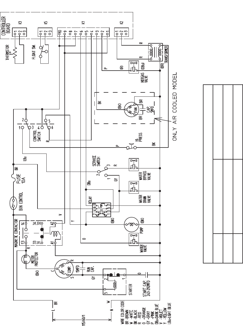
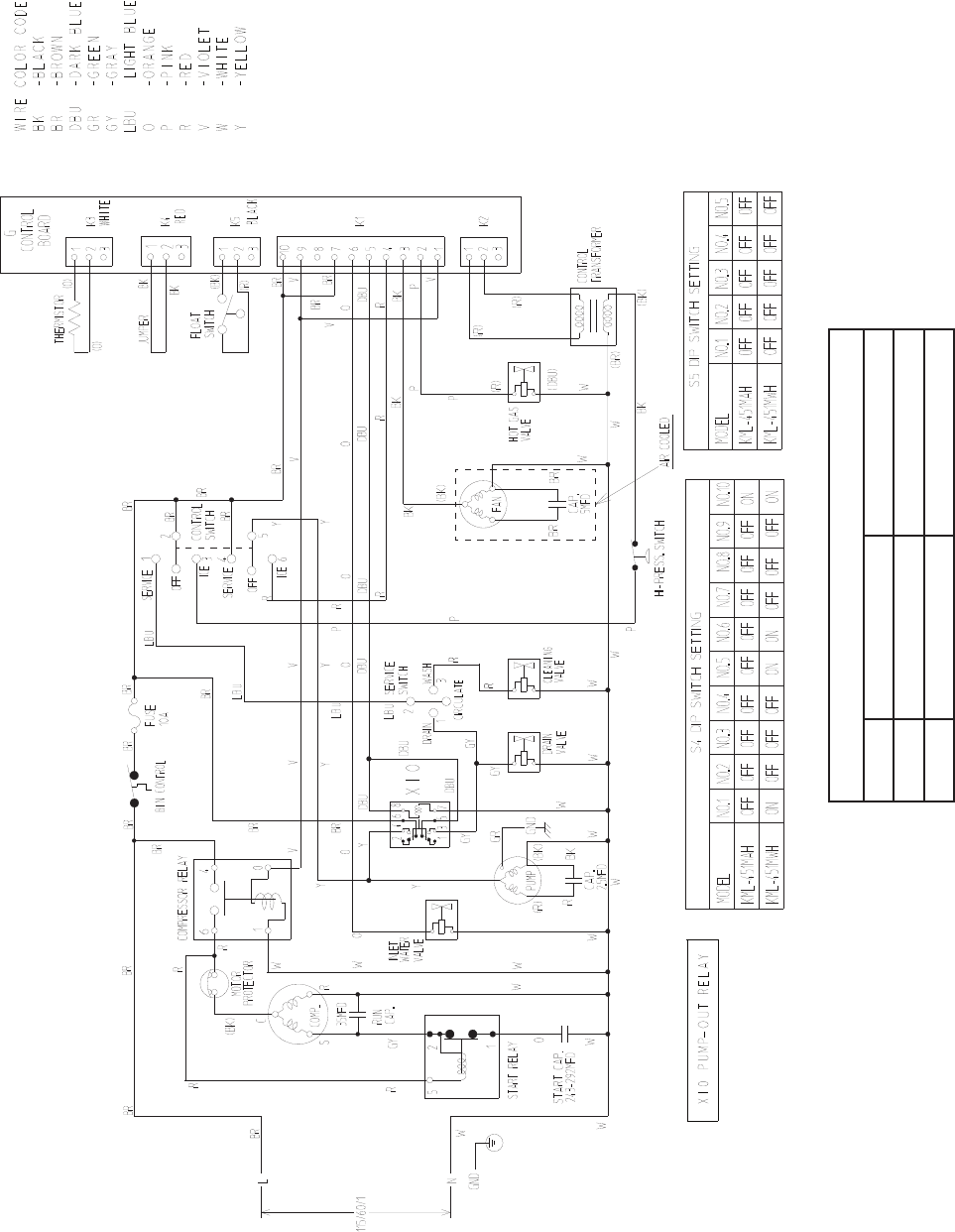
B. Wiring Diagrams
1. KML-451MAH (air-cooled) and KML-451MWH (water-cooled)
* Pressure Switch
Air-Cooled Model Water-Cooled Model
Cut-out 412±21.3 PSIG 384±21.3 PSIG
Cut-in 327±21.3 PSIG 284±21.3 PSIG
00
*12V
(WASH)

23
C. Performance Data
1. KML-451MAH (air-cooled)
70/21 403 183 387 176 355 161
80/27 391 177 366 166 328 149
90/32 387 176 349 158 313 142
lbs./day kg./da
y
100/38 377 171 340 154 279 127
70/21
80/27
90/32
watts 100/38
70/21 115 0.43 100 0.38 92 0.35
80/27 104 0.39 80 0.30 79 0.30
90/32 100 0.38 64 0.24 60 0.23
gal./day m3/day 100/38 83 0.31 63 0.24 56 0.21
70/21
80/27
90/32
min. 100/38
70/21
80/27
90/32
min. 100/38
70/21 225 15.8 248 17.5 276 19.4
80/27 243 17.1 279 19.6 305 21.4
90/32 248 17.5 305 21.4 332 23.3
PSIG kg/cm2G100/38 253 17.8 311 21.9 357 25.1
70/21 42 3.0 45 3.2 51 3.6
80/27 44 3.1 49 3.5 55 3.9
90/32 45 3.2 53 3.7 59 4.1
PSIG kg/cm2G100/38 47 3.3 54 3.8 64 4.5
23
23
25
2.7
4.0
3.2
3.6
3.1
2.7
3.7
21
APPROXIMATE ICE
PRODUCTION PER 24 HR.
APPROXIMATE ELECTRIC
CONSUMPTION
APPROXIMATE WATER
CONSUMPTION PER 24 HR.
FREEZING CYCLE TIME
WATER TEMP. (ºF/ºC)
AMBIENT TEMP.
(ºF/ºC) 50/10 70/21 90/32
917
913
944
970
976
890
908
913
25
28
30
32
941
969
996
1020
28
23
24
27
2.7
SUCTION PRESSURE
HARVEST CYCLE TIME
HEAD PRESSURE
3.5
3.2
3.6 2.7
TOTAL HEAT OF REJECTION 7,100 BTU/h [AT 90ºF (32ºC) / WT 70ºF (21ºC)]
Note:
1. Pressure data is recorded at 5 minutes into freezing cycle. The data not in bold
should be used for reference only.
2. We reserve the right to make changes in specifications and design without prior
notice.

24
2. KML-451MWH (water-cooled)
Note:
1. Pressure data is recorded at 5 minutes into freezing cycle. The data not in bold
should be used for reference only.
2. We reserve the right to make changes in specifications and design without prior
notice.
70/21 404 183 402 182 384 174
80/27 402 183 399 181 373 169
90/32 402 182 397 180 374 169
lbs./day kg./da
y
100/38 393 178 392 178 352 160
70/21
80/27
90/32
watts 100/38
70/21 444 1.68 498 1.88 741 2.80
80/27 485 1.84 568 2.15 905 3.43
90/32 498 1.88 626 2.37 929 3.52
gal./day m3/day 100/38 650 2.46 697 2.64 1207 4.57
70/21
80/27
90/32
min. 100/38
70/21
80/27
90/32
min. 100/38
70/21 260.2 18.3 260 18.3 267 18.8
80/27 260 18.3 261 18.3 271 19.1
90/32 260 18.3 261 18.4 270 19.0
PSIG kg/cm2G100/38 264 18.6 263 18.5 278 19.5
70/21 44 3.1 45 3.1 48 3.4
80/27 44 3.1 46 3.2 50 3.5
90/32 45 3.1 47 3.3 51 3.6
PSIG kg/cm2G100/38 46 3.2 48 3.4 55 3.8
TOTAL HEAT OF REJECTION FROM COMPRESSOR 1,100 BTU/h [AT 90ºF (32ºC) / WT 70ºF (21ºC)]
WATER FLOW FOR CONDENSER 48 gal./h [AT 100ºF (38ºC) / WT 90ºF (32ºC)]
PRESSURE DROP OF COOLING WATER LINE less than 10 PSIG
21
21
22
2.5
4.3
3.2
3.8
3.1
2.5
3.9
21
APPROXIMATE ICE
PRODUCTION PER 24 HR.
APPROXIMATE ELECTRIC
CONSUMPTION
APPROXIMATE WATER
CONSUMPTION PER 24 HR.
FREEZING CYCLE TIME
WATER TEMP. (ºF/ºC)
AMBIENT TEMP.
(ºF/ºC) 50/10 70/21 90/32
862
866
874
880
879
860
864
866
23
24
24
25
864
866
875
870
23
21
22
23
HARVEST CYCLE TIME
HEAD PRESSURE
3.5
3.1
3.8 2.4
2.2
TOTAL HEAT OF REJECTION FROM CONDENSER 6,400 BTU/h [AT 90ºF (32ºC) / WT 70ºF (21ºC)]
SUCTION PRESSURE

25
IV. Service Diagnosis
A. 10-Minute Diagnostic Procedure
The 10 minute check out procedure is basically a sequence check which can be used
at unit start-up or for system diagnosis. Using this check out procedure will allow you
to diagnose electrical system and component failures in approximately 10 minutes
under normal operating conditions of 70°F or warmer air and 50°F or warmer water
temperatures. Before conducting a 10 minute checkout, check for correct installation,
proper voltage per unit nameplate and adequate water supply. As you go through the
procedure, check to assure the components energize and de-energize correctly. If not,
those components and controls are suspect. Check for voltage at the 10-pin connector.
1) Turn power OFF and access the control box.
2) Turn power ON and place the control switch in ICE position. A 5 second delay occurs.
3) One Minute Fill Cycle – The inlet water valve is energized. After 1 minute, the control
board checks the float switch. If the float switch is closed, the unit cycles to harvest. If
closed, continue to step 4. If the float switch is open, the unit repeats the 1 minute fill
cycle until water enters and the float switch closes (low water safety protection during
initial start up and at the end of each harvest). Diagnosis: If the water valve does not
open, check for no supply voltage at water valve terminals, bad coil, or plugged screen
or external filter (no water flow). If unit fails to start harvest, check for open float switch
or bad 1 minute timer in board.
4) Initial Harvest Cycle – Inlet water valve remains energized, contactor coil energizes to
start the compressor (and fan motor on a remote condenser unit), and the hot gas valve
energizes. The evaporator warms and the thermistor senses 48°F (9°C). The control
board then receives the thermistor's 3.9 kΩ signal and turns operation of harvest over
to the harvest timer. The timer completes counting (1 to 3 minutes). The unit then cycles
to freeze. Diagnosis: Check if compressor is running, hot gas valve is open, water
valve still open. Average harvest cycle at factory setting is 2 to 3 minutes. How long
does initial harvest last? 1.5 minutes after initial harvest begins, touch the compressor
discharge line. Is it hot? If not check refrigerant pressures and compressor operation.
If it is hot, touch the inlet line to the evaporator. Is it hot? If it is hot and the freeze cycle
is not starting, check the harvest timer adjustment, the thermistor for open circuit, the
discharge line temperature, compressor efficiency, and if the hot gas valve is fully open.
5) Freeze Cycle – Compressor remains energized, pump motor, (line valve if applicable),
and fan motor energize. The inlet water valve and hot gas valve de-energize. The unit
is held in freeze by a 5 minute short cycle protection timer. After 5 minutes, the freeze
cycle operation is transferred to the float switch for freeze termination. During the first
5 minutes of freeze, confirm that the evaporator temperature drops. After 7 minutes
in freeze, remove the black float switch lead from the K5 connector. The unit should
immediately switch to the pump-out cycle. Diagnosis: If the evaporator is not cold,
check to see if the hot gas valve is still open or if the expansion valve is not opening
properly, if the water valve is continuing to fill the reservoir, if there are improper unit
pressures, an inoperative compressor, or an inoperative headmaster (C.P.R.) (remote
condenser unit only). If the unit remains in freeze with the float switch removed, replace

26
the board.
Note: Normal freeze cycle will last 20 to 40 minutes depending on model and
conditions. Cycle times and pressures should follow performance data provided
in this manual.
6) Pump-Out Cycle (10/20 second pump out) – the compressor remains energized,
the hot gas valve energizes, the fan motor de-energizes, the pump motor stops for
2 seconds. The service relay energizes, restarting the pump motor and taking water
from the sump and forcing it to go through the drain valve and down the drain for 10/20
seconds. This removes contaminants from the water reservoir. Diagnosis: If the pump
motor does not run, check the circuit, service relay and capacitor. Check for proper
voltage. If water does not pump out, check and clean the tubing at the drain valve and
then check and clean the valve assembly.
7) Normal Harvest Cycle – same as the initial harvest cycle – Return to step 4.
Note: Unit continues to cycle until bin control is satisfied or power is switched OFF. (The
pump out cycle can be adjusted to occur every cycle, or every 2, 5, or 10 cycles.
The factory default is every 10 cycles.) The unit always restarts at the 1 minute fill
cycle.
B. Diagnostic Charts
1. No Ice Production
Problem Possible Cause Remedy
[1] The icemaker will not
start.
a) Power Supply 1. OFF position. 1. Move to ON position.
2. Loose connection. 2. Tighten.
3. Bad contacts. 3. Check for continuity and
replace.
4. Voltage too high or too
low.
4. Check and get
recommended voltage.
b) Fuse (Inside fused
disconnect, if any)
1. Blown. 1. Check for short circuit and
replace.
c) Control Switch 1. OFF position. 1. Move to ICE position.
2. Bad contacts. 2. Check for continuity and
replace.
d) Bin Control Thermostat 1. Tripped with bin filled
with ice.
1. Remove ice.
2. Ambient temperature
too cool.
2. Increase ambient
temperature.
3. Set too warm. 3. See "II.E. Bin Control."
4. Bulb out of position. 4. Place in position.
5. Bad contacts. 5. Check for continuity and
replace.
e) High Pressure Control 1. Bad contacts. 1. Check for continuity and
replace.
2. Dirty air filter or
condenser.
2. Clean.

27
Problem Possible Cause Remedy
[1] The icemaker will not
start. (continued)
e) High Pressure Control
(continued)
3. Ambient or condenser
water temperature too
warm.
3. Reduce temperature.
4. Refrigerant
overcharged.
4. Recharge.
5. Fan not operating.
(except water-cooled
model)
5. See chart 1.[6]
6. Refrigerant line or
components plugged.
6. Clean and replace drier.
7. Condenser water
pressure too low or off.
(water-cooled model)
7. Check and get
recommended pressure.
f) Transformer 1. Coil winding opened
or shorted.
1. Replace.
g) Wiring to Control Board 1. Loose connections or
open.
1. Check for continuity and
replace.
h) Thermistor 1. Leads shorted or
opened and high
temperature or harvest
backup timer safety
operates. (1 beep or 2
beep alarm)
1. See "II.D. Harvest Control
– Thermistor."
i) Hot Gas Valve 1. Continues to open
in freeze cycle and
freeze timer safety
operates. (3 beep
alarm)
1. Check for hot gas valve
stuck open and replace.
j) Water Supply Line 1. Water supply off and
water supply cycle
does not finish.
1. Check and get
recommended pressure.
2. Condenser water
pressure too low
or off and pressure
control opens and
closes frequently to
finally operate high
temperature safety.
(1 beep alarm)
2. Check and get
recommended pressure.
k) Inlet Water Valve 1. Mesh filter or orifice
gets clogged and
water supply cycle
does not finish.
1. Clean.
2. Coil winding opened. 2. Replace.
3. Wiring to water valve. 3. Check for loose
connection or open, and
replace.
l) Control Board 1. Defective or in alarm. 1. See "II.C.4. Control Board
Check Procedure."

28
Problem Possible Cause Remedy
[1] The icemaker will not
start. (continued)
m)Control Switch 1. SERVICE position. 1. Move to ICE position.
2. Bad contacts. 2. Check and replace.
[2] Water continues to
be supplied, and the
icemaker will not
start.
a) Float Switch 1. Connector
disconnected.
1. Place in position.
2. Leads opened or
defective switch.
2. Check and replace.
3. Float does not move
freely.
3. Clean or replace.
b) Control Board 1. Defective. 1. See "II.C.4. Control Board
Check Procedure."
[3] Compressor will
not start or stops
operating.
a) Magnetic Contactor 1. Bad contacts. 1. Check for continuity and
replace.
2. Coil winding opened. 2. Replace.
b) Start Capacitor or Run
Capacitor
1. Defective. 1. Replace.
c) Internal Overload
Protector Open (check
1 through 3 to the right
and d through f below)
1. Loose terminal. 1. Tighten or replace.
2. Voltage. 2. Check and correct.
3. Dirty condenser. 3. Clean.
d) Starter 1. Bad contacts. 1. Check and replace.
2. Coil winding opened. 2. Replace.
e) Compressor 1. Wiring to compressor. 1. Check for loose
connection or open, and
replace.
2. Defective. 2. Replace.
3. Protector tripped. 3. Reduce temperature.
f) Control Board 1. No power to contactor. 1. See "II.C.4. Control Board
Check Procedure."
[4] Water continues to
be supplied in freeze
cycle.
a) Inlet Water Valve 1. Diaphragm does not
close.
1. Check for water leaks with
icemaker off.
b) Control Board 1. Defective. 1. See "II.C.4. Control Board
Check Procedure."
[5] No water comes from
spray tubes. Water
pump will not start, or
freeze cycle time is
too short.
a) Water Supply Line 1. Water pressure too
low and water level in
water tank too low.
1. Check and get
recommended pressure.
b) Inlet Water Valve 1. Dirty mesh filter or
orifice and water level
in water tank too low.
1. Clean.
c) Water System 1. Water leaks. 1. Check connections for
water leaks, and replace.
2. Clogged. 2. Clean.
d) Pump Motor 1. Motor winding opened. 1. Replace.
2. Bearing worn out. 2. Replace.

29
Problem Possible Cause Remedy
[5] No water comes from
spray tubes. Water
pump will not start, or
freeze cycle time is
too short. (continued)
d) Pump Motor
(continued)
3. Wiring to pump motor. 3. Check for loose
connection or open, and
replace.
4. Defective capacitor. 4. Replace.
5. Defective or bound
impeller.
5. Replace and clean.
e) Control Board 1. Defective. 1. See "II.C.4. Control Board
Check Procedure."
[6] Fan motor will
not start, or is not
operating.
a) Fan Motor 1. Motor winding opened. 1. Replace.
2. Bearing worn out. 2. Replace.
3. Wiring to fan motor. 3. Check for loose
connection or open, and
replace.
4. Defective capacitor. 4. Replace.
5. Fan blade bound. 5. Check and replace.
b) Control Board 1. Defective. 1. See "II.C.4. Control Board
Check Procedure."
[7] All components
run, but no ice is
produced.
a) Refrigerant 1. Undercharged. 1. Check for leaks and
recharge.
2. Air or moisture
trapped.
2. Replace drier and
recharge.
b) Compressor 1. Defective valve. 1. Replace.
c) Hot Gas Valve 1. Continues to open in
freeze cycle.
1. Check and replace.
d) Line Valve
(if applicable)
1. Continues to close in
freeze cycle.
1. Check and replace.
e) Inlet Water Valve 1. Water valve is wide
open during freeze.
1. Check for water leaks with
icemaker off.
f) Headmaster (C.P.R.)
(remote air-cooled
model)
1. Not operating properly
and liquid line
temperature too warm.
1. Replace headmaster.
g) Water Supply Line
(water-cooled model)
1. Condenser water
pressure too low or off
and pressure control
opens and closes
frequently.
1. Check and get
recommended pressure.
h) Water Regulator
(water-cooled model)
1. Set too high. 1. Adjust or replace. See
"V.G. Adjustment of Water
Regulating Valve."

30
2. Evaporator is Frozen Up
Problem Possible Cause Remedy
[1]Freeze cycle time is
too long.
a)Float Switch 1. Leads short-circuit or
defective switch.
1. Check and replace.
2. Float does not move
freely.
2. Clean or replace.
b)Inlet Water Valve 1. Diaphragm does not
close.
1. Check for water leaks with
icemaker off.
c) Control Board 1. Defective. 1. See "II.C.4. Control Board
Check Procedure."
[2]All ice formed on
evaporator does not
fall into bin in harvest
cycle.
a)Evaporator 1. Scaled up. 1. Clean.
b)Water Supply Line 1. Water pressure too
low.
1. Check and get
recommended pressure.
c) Water Filter System 1. Dirty/Restricted 1. Replace filter.
d)Inlet Water Valve 1. Dirty mesh filter or
orifice.
1. Clean.
2. Diaphragm does not
close.
2. Check for water leaks with
icemaker off.
e) Ambient and/or water
temperature.
1. Too cool. 1. Increase temperature.
f) Line Valve
(if applicable)
1. Continues to open in
harvest cycle.
1. Check operation in harvest
cycle and replace.
g)Thermistor 1. Out of position or
loose attachment.
1. See "V.I. Removal
and Replacement of
Thermistor."
h)Control Board 1. Harvest timer is set
too short.
1. Adjust longer, referring
to "II.C.3. Controls and
Adjustments, b) Harvest
Timer."
2. Defective. 2. See "II.C.4. Control Board
Check Procedure."
[3]Other a) Spray Tubes 1. Clogged. 1. Clean
2. Out of position. 2. Place in position.
b)Water System 1. Dirty. 1. Clean.
c) Refrigerant 1. Undercharged. 1. Check for leaks and
recharge.
d)Expansion Valve 1. Bulb out of position or
loose attachment.
1. Place in position.
2. Defective. 2. Replace.
e)Hot Gas Valve 1. Coil winding opened. 1. Replace.
2. Plunger does not
move.
2. Replace.
3. Wiring to hot gas
valve.
3. Check for loose
connection or open, and
replace.
f) Ice Cube Guide 1. Out of position and ice
trapped.
1. Place in position.

31
Problem Possible Cause Remedy
[3]Other (continued) g)Water Supply Line 1. Too small; requires
3/8" OD line dedicated
per machine.
1. Increase water line size.
h)Water Filter 1. Flow rate too small. 1. Replace with filter that has
larger flow rate.
3. Low Ice Production
Problem Possible Cause Remedy
[1] Freeze cycle time is
long.
a) See chart 1.[3] and check dirty air filter or condenser, ambient or water
temperature, water pressure, condenser water regulating valve (water-cooled
model), and refrigerant charge.
b) See chart 2.[1] and check float switch, inlet water valve and control board.
c) Check pump, hot gas valve, headmaster (C.P.R.) (remote air-cooled model),
expansion valve, refrigeration check valve, and compressor.
[2] Harvest cycle time is
long.
a) See chart 2.[2] and check control board, thermistor, evaporator, ambient and/or
water temperature, water supply line, inlet water valve, line valve (if applicable),
and hot gas valve.
4. Abnormal Ice
Problem Possible Cause Remedy
[1] Small cubes. a) Ice Cube Guide 1. Out of position.
Circulated water falls
into bin.
1. Place in position.
b) See chart 1.[5] and check water supply line, inlet water valve, water system,
pump motor, and control board.
c) Drain Valve 1. Dirty. 1. Clean.
[2] Cloudy or irregular
cubes.
a) See chart 2.[1] and 2.[3], and check float switch, inlet water valve, control
board, spray tubes, water system, refrigerant charge, and expansion valve.
b) Spray Guide 1. Dirty. 1. Clean.
c) Water Quality 1. High hardness or
contains impurities.
1. Install a water softener or
filter.
5. Other
Problem Possible Cause Remedy
[1] Icemaker will not stop
when bin is filled with
ice.
a) Bin Control Thermostat 1. Set too cold. 1. Adjust warmer.
2. Defective. 2. Replace
[2] Abnormal noise. a) Pump Motor 1. Bearings worn out. 1. Replace
b) Fan Motor 1. Bearings worn out. 1. Replace
2. Fan blade deformed. 2. Replace fan blade.
3. Fan blade does not
move freely.
3. Replace.
c) Compressor 1. Bearings worn out or
cylinder valve broken.
1. Replace.

32
Problem Possible Cause Remedy
[2] Abnormal noise.
(continued)
c) Compressor
(continued)
2. Mounting pad out of
position.
2. Reinstall.
d) Refrigerant Lines 1. Rub or touch other
lines or surfaces.
1. Replace.
[3] Ice in storage bin
often melts.
a) Drain Line(s) 1. Plugged. 1. Clean.
b) Icemaker and Bin 1. Drains not run
separately.
1. Separate the drain lines.
c) Ice Cube Guide 1. Out of position.
Circulated water falls
into bin.
1. Place in position.

33
V. Removal and Replacement of Components
IMPORTANT
1. Ensure all components, fasteners and thumbscrews are securely in place
after the equipment is serviced.
2. The Polyol Ester (POE) oils used in R-404A units can absorb moisture
quickly. Therefore it is important to prevent moisture from entering the system
when replacing or servicing parts.
3. Always install a new drier every time the sealed refrigeration system is
opened. Do not replace the drier until after all other repair or replacement
has been made.
4. Do not leave the system open for longer than 15 minutes when replacing or
servicing parts.
A. Service for Refrigerant Lines
WARNING
Do not use R-404A as a mixture with pressurized air for leak testing.
Refrigerant leaks can be detected by charging the unit with a trace of
refrigerant, raising the pressure with nitrogen and using an electronic leak
detector.
1. Refrigerant Recovery
The icemaker unit is provided with refrigerant access valves. Using proper refrigerant
practices, recover the refrigerant from the access valves and store it in an approved
container. Do not discharge the refrigerant into the atmosphere.
2. Brazing
WARNING
1. Refrigerant R-404A itself is not flammable at atmospheric pressure and
temperatures up to 176°F (80°C).
2. Refrigerant R-404A itself is not explosive or poisonous. However, when
exposed to high temperatures (open flames), R-404A can be decomposed to
form hydrofluoric acid and carbonyl fluoride both of which are hazardous.
3. Always recover the refrigerant and store it in an approved container. Do not
discharge the refrigerant into the atmosphere.
4. Do not use silver alloy or copper alloy containing arsenic.
5. Do not use R-404A as a mixture with pressurized air for leak testing.
Refrigerant leaks can be detected by charging the unit with a trace of
refrigerant, raising the pressure with nitrogen and using an electronic leak
detector.
1) Always install a new drier every time the sealed refrigeration system is opened. Do not
replace the drier until after all other repair or replacement has been made. Install the

34
new drier with the arrow on the drier in the direction of the refrigerant flow.
2) Braze all fittings while purging with nitrogen gas flowing at a pressure of 3 to 4 PSIG.
3) Check for leaks using nitrogen gas (140 PSIG) and soap bubbles. Do not use R-404A
as a mixture with pressurized air for leak testing.
Note: Because the pipes in the evaporator case are specially coated to resist corrosion,
it is important to make connections outside the evaporator case when possible. If
it is necessary to braze inside the evaporator case, use sandpaper to remove the
coating from the brazing connections before unbrazing the components.
3. Evacuation and Recharge (R-404A)
1) Attach a vacuum pump to the system. Be sure to connect charging hoses to both high
and low-side access valves.
IMPORTANT
The vacuum level and vacuum pump may be the same as those for current
refrigerants. However, the rubber hose and gauge manifold to be used for
evacuation and refrigerant charge should be exclusively for POE oils.
2) Turn on the vacuum pump. Never allow the oil in the vacuum pump to flow backward.
3) Allow the vacuum pump to pull down to a 29.9" Hg vacuum. Evacuating period depends
on pump capacity.
4) Close the low-side valve and high-side valve on the service manifold.
5) Disconnect the vacuum pump, and attach a refrigerant service cylinder to the high-side
line. Remember to loosen the connection, and purge the air from the hose. For air-
cooled and water-cooled models, see the nameplate for the required refrigerant charge.
For remote air-cooled models, see the rating label inside the icemaker. Hoshizaki
recommends only virgin refrigerant or reclaimed refrigerant which meets ARI Standard
No. 700-88 be used.
6) A liquid charge is recommended for charging an R-404A system. Invert the service
cylinder and place it on scales. Open the high-side valve on the service manifold.
7) Allow the system to charge with liquid until the proper charge weight is met.
8) If necessary, add any remaining charge to the system through the low-side. Use a
throttling valve or liquid dispensing device to add the remaining liquid charge through
the low-side access port with the unit running.
9) Close the two refrigerant access valves and disconnect the service manifold hoses.
10) Cap the access valves to prevent a possible leak.

35
B. Removal and Replacement of Compressor
IMPORTANT
Always install a new drier every time the sealed refrigeration system is opened.
Do not replace the drier until after all other repair or replacement has been
made.
Note: When replacing a compressor with a defective winding, be sure to install the
new start capacitor and start relay supplied with the replacement compressor.
Due to the ability of the POE oil in the compressor to absorb moisture quickly,
the compressor must not be opened more than 15 minutes for replacement or
service. Do not mix lubricants of different compressors even if both are charged
with R-404A, except when they use the same lubricant.
1) Turn off the power supply.
2) Remove the panels.
3) Recover the refrigerant and store it in an approved container.
4) Remove the terminal cover on the compressor, and disconnect the compressor wiring.
5) Remove the hold-down bolts, washers and rubber grommets.
6) Remove the discharge and suction pipes.
7) Remove the compressor. Unpack the new compressor package.
8) Attach the rubber grommets of the prior compressor.
9) Place the compressor in position, and secure it using the bolts and washers.
10) Remove the drier, then place the new drier in position.
11) Remove plugs from the suction, discharge and process pipes.
12) Braze all fittings while purging with nitrogen gas flowing at a pressure of 3 to 4 PSIG.
13) Check for leaks using nitrogen gas (140 PSIG) and soap bubbles.
14) Evacuate the system, and charge it with refrigerant. For air-cooled and water-cooled
models, see the nameplate for the required refrigerant charge. For remote air-cooled
models, see the rating label inside the icemaker.
15) Connect the terminals, and replace the terminal cover in its correct position.
16) Replace the panels in their correct positions.
17) Turn on the power supply.

36
C. Removal and Replacement of Expansion Valve
IMPORTANT
Sometimes moisture in the refrigeration circuit exceeds the drier capacity and
freezes up at the expansion valve. Always install a new drier every time the
sealed refrigeration system is opened. Do not replace the drier until after all
other repair or replacement has been made.
1) Turn off the power supply.
2) Remove the panels.
3) Recover the refrigerant and store it in an approved container.
4) Remove the insulation and the expansion valve bulb on the suction line.
5) Remove the expansion valve cover and disconnect the expansion valve. Place the new
expansion valve in position.
6) Remove the drier, then place the new drier in position.
7) Braze all fittings while purging with nitrogen gas flowing at a pressure of 3 to 4 PSIG.
WARNING
Always protect the valve body by using a damp cloth to prevent the valve from
overheating. Do not braze with the valve body exceeding 250°F (121°C).
8) Check for leaks using nitrogen gas (140 PSIG) and soap bubbles.
9) Evacuate the system, and charge it with refrigerant. For air-cooled and water-cooled
models, see the nameplate for the required refrigerant charge. For remote air-cooled
models, see the rating label inside the icemaker.
10) Attach the expansion valve bulb to the suction line in the same location as the previous
bulb. The bulb should be at the 12 o'clock position on the tube. Be sure to secure the
bulb with the clamp and holder and to insulate it.
11) Place the new set of expansion valve cover in position.
12) Replace the panels in their correct positions.
13) Turn on the power supply.
D. Removal and Replacement of Hot Gas Valve or Line Valve
IMPORTANT
1. Always use a copper tube of the same diameter and length when replacing
the hot gas lines; otherwise the performance may be reduced.
2. Always install a new drier every time the sealed refrigeration system is
opened. Do not replace the drier until after all other repair or replacement
has been made.
3. Always replace the strainer when replacing the hot gas valve.

37
1) Turn off the power supply.
2) Remove the panels.
3) Recover the refrigerant and store it in an approved container.
4) Remove the screw and the solenoid.
5) Disconnect the valve. If replacing the hot gas valve, also remove the strainer.
6) Place the new valve and strainer, if applicable, in position.
7) Remove the drier, then place the new drier in position.
8) Braze all fittings while purging with nitrogen gas flowing at a pressure of 3 to 4 PSIG.
CAUTION
Always protect the valve body by using a damp cloth to prevent the valve from
overheating. Do not braze with the valve body exceeding 250°F (121°C).
9) Check for leaks using nitrogen gas (140 PSIG) and soap bubbles.
10) Evacuate the system, and charge it with refrigerant. For air-cooled and water-cooled
models, see the nameplate for the required refrigerant charge. For remote air-cooled
models, see the rating label inside the icemaker.
11) Cut the leads of the solenoid allowing enough lead length to reconnect using closed
end connectors.
12) Connect the new solenoid leads.
13) Attach the solenoid to the valve body, and secure it with the screw.
14) Replace the panels in their correct positions.
15) Turn on the power supply.
E. Removal and Replacement of Evaporator
IMPORTANT
Always install a new drier every time the sealed refrigeration system is opened.
Do not replace the drier until after all other repairs or replacement have been
made.
1) Turn off the power supply.
2) Remove the panels and the top insulation over the evaporator.
3) Recover the refrigerant and store it in an approved container.
4) Remove the spray tubes and the insulations at the "U" shaped notch where the
refrigeration tubings pass through the molded chassis.
5) Disconnect the evaporator tubing.
6) Remove the pop rivets securing the evaporator, then lift out the evaporator.
7) Install the new evaporator.

38
8) Remove the drier, then place the new drier in position.
9) Braze all fittings while purging with nitrogen gas flowing at a pressure of 3 to 4 PSIG.
10) Check for leaks using nitrogen gas (140 PSIG) and soap bubbles.
11) Evacuate the system, and charge it with refrigerant. For air-cooled and water-cooled
models, see the nameplate for the required refrigerant charge. For remote air-cooled
models, see the rating label inside the icemaker.
12) Replace the removed parts in the reverse order of which they were removed.
13) Replace the top insulation and the panels in their correct positions.
14) Turn on the power supply.
F. Removal and Replacement of Water Regulating Valve -
Water Cooled Model Only
IMPORTANT
Always install a new drier every time the sealed refrigeration system is opened.
Do not replace the drier until after all other repair or replacement has been
made.
1) Turn off the power supply.
2) Close the water supply line shut-off valve.
3) Remove the panels.
4) Recover the refrigerant and store it in an approved container.
5) Disconnect the capillary tube at the condenser outlet.
6) Disconnect the flare-connections of the valve.
7) Remove the screws and the valve from the bracket.
8) Install the new valve.
9) Remove the drier, then place the new drier in position.
10) Braze all fittings while purging with nitrogen gas flowing at a pressure of 3 to 4 PSIG.
11) Check for leaks using nitrogen gas (140 PSIG) and soap bubbles.
12) Evacuate the system, and charge it with refrigerant. See the nameplate for the required
refrigerant charge.
13) Connect the flare-connections.
14) Open the water supply line shut-off valve.
15) Check for water leaks.
16) Replace the panels in their correct positions.
17) Turn on the power supply.

39
G. Adjustment of Water Regulating Valve - Water-Cooled Model Only
The water regulating valve (also called "water regulator") is factory-adjusted. No
adjustment is required under normal use. Adjust the water regulator, if necessary, using
the following procedures.
1) Prepare a thermometer to check the condenser drain temperature. Attach a pressure
gauge to the high-side line of the system.
2) Five minutes after a freeze cycle starts, confirm that the thermometer reads 104°F to
115°F (40°C to 46°C). If it does not, rotate the adjustment screw by using a flat blade
screwdriver until the temperature is in the proper range. See Fig. 1. Next, check that
the reference pressure is in the range indicated in the Head Pressure table in the
Performance Data section. If it is not in the proper range, verify the refrigerant charge.
3) Check that the condenser drain temperature is stable.
H. Removal and Replacement of Headmaster (Condensing Pressure
Regulator - C.P.R.) - Remote Air-Cooled Model Only
IMPORTANT
Always install a new drier every time the sealed refrigeration system is opened.
Do not replace the drier until after all other repair or replacement has been
made.
1) Turn off the power supply.
2) Remove the panels from the remote condenser unit.
3) Recover the refrigerant and store it in an approved container.
4) Before heating, break off the stub on the dome to release the dome charge.
5) Disconnect the headmaster.
6) Place the new headmaster in position.
Fig. 1
Adjustment
Screw
CW – Higher
CCW – Lower
Top View

40
7) Braze the fittings while purging with nitrogen gas flowing at a pressure of 3 to 4 PSIG.
CAUTION
Always protect the headmaster body by using a damp cloth to prevent it from
overheating. Do not braze with the headmaster body exceeding 250°F (121°C).
8) Remove the drier in the icemaker, then place the new drier in position.
9) Braze the fittings while purging with nitrogen gas flowing at a pressure of 3 to 4 PSIG.
10) Check for leaks using nitrogen gas (140 PSIG) and soap bubbles.
11) Evacuate the system and charge it with refrigerant. For the required refrigerant charge,
see the charge label in the machine compartment of the icemaker.
12) Replace the panels in their correct positions.
13) Turn on the power supply.
I. Removal and Replacement of Thermistor
IMPORTANT
1. Fragile, handle very carefully.
2. Always use a recommended sealant (high thermal conductive type), Model
KE4560RTV manufactured by SHINETSU SILICONE, Part Code 60Y000-11,
or Part Code 4A0683-01 or equivalent.
3. Always use a recommended foam insulation (non-absorbent type) or
equivalent.
4. Do not shorten or cut the thermistor leads when installing.
1) Turn off the power supply.
2) Remove the panels.
3) Remove the control box cover.
4) Disconnect the thermistor leads from the
K3 connector on the control board.
5) Remove the plastic cable ties, foam
insulation, thermistor holder and thermistor.
See Fig. 2.
6) Scrape away the old sealant on the
thermistor holder and the suction pipe.
7) Wipe off moisture or condensation on the
suction pipe.
8) Smoothly apply recommended sealant (KE4560RTV, Part Code 60Y000-11 or
4A0683-01) to the thermistor holder concave.
Foam Insulation Thermistor Holder
Thermistor Lead Cable Tie
Fig. 2
41
9) Attach the new thermistor to the suction pipe in the same position as the previous
thermistor. Be very careful to prevent damage to the leads. Secure it using the
thermistor holder and recommended foam insulation.
10) Secure the insulation using the plastic cable ties.
11) Connect the thermistor leads through the bushing of the control box to the K3 connector
on the control board.
Note: Do not cut the leads of the thermistor while installing it.
12) Replace the control box cover and the panels in their correct positions.
13) Turn on the power supply.
J. Removal and Replacement of Fan Motor
Note: When replacing a fan motor with defective winding, it is recommended that a new
capacitor be installed.
1) Turn off the power supply.
2) Remove the panels.
3) Remove the junction box cover from the remote condenser unit (remote air-cooled
model).
4) Remove the closed end connectors from the fan motor leads.
5) Remove the fan motor bracket and fan motor.
6) Install the new fan motor, and replace the removed parts in the reverse order of which
they were removed.
7) Replace the panels in their correct positions.
8) Replace the junction box cover in its correct position (remote air-cooled model).
9) Turn on the power supply.
K. Removal and Replacement of Water Valves
1) Turn off the power supply.
2) Close the water supply line shut-off valve.
3) Remove the panels.
4) Remove the tubing attached to the valve. If replacing the inlet water valve, loosen the
fitting nut. Be careful not to lose the washer.
5) Disconnect the terminals from the water valve.
6) Remove the bracket and valve from the unit.
7) Install the new water valve. Replace the removed parts in the reverse order of which
they were removed. If replacing the inlet water valve, make sure the washer is in place
in the fitting nut.
8) Open the water supply line shut-off valve.
9) Turn on the power supply.
10) Check for leaks.
11) Replace the panels in their correct positions.
42
L. Removal and Replacement of Pump Motor
1) Turn off the power supply.
2) Remove the front panel.
3) Remove the three screws and the float switch assembly.
4) Remove the wiring connectors from the pump motor leads.
5) Disconnect the hoses attached to the pump motor assembly.
6) Remove the four screws and the pump motor.
7) Install the new pump, and replace the removed parts in the reverse order of which they
were removed.
8) Turn on the power supply, and check for leaks.
9) Replace the front panel in its correct position.

43
VI. Cleaning and Maintenance Instructions
IMPORTANT
Ensure all components, fasteners and thumbscrews are securely in place after
any maintenance or cleaning is done to the equipment.
A. Cleaning and Sanitizing Procedures
WARNING
1. HOSHIZAKI recommends cleaning this unit at least once a year. More
frequent cleaning, however, may be required in some existing water
conditions.
2. To prevent injury to individuals and damage to the icemaker, do not use
ammonia type cleaners.
3. Always wear liquid-proof gloves to prevent the cleaning and sanitizing
solutions from coming into contact with skin.
1. Cleaning Procedure
1) Dilute approximately 10.5 fl. oz. (310 ml) of Hoshizaki "Scale Away" with 2 gallons (7.6 l)
of warm water.
2) Remove all ice from the evaporator and the storage bin.
Note: To remove cubes on the evaporator, turn off the power supply and turn it on
after 3 minutes. The defrost cycle starts and the cubes will be removed from the
evaporator.
3) Turn off the power supply.
4) Remove the front panel.
5) Place the control switch in the "SERVICE" position. Then place the service switch in the
"DRAIN" position.
6) Replace the front panel in its correct position and turn on the power supply for
2 minutes.
7) Turn off the power supply.
8) Remove the front panel and then remove the insulation panel by lifting up the panel
slightly and pulling it towards you.
9) Pour the cleaning solution into the water tank.
10) Move the service switch to the "WASH" position.
11) Replace the insulation panel and the front panel in their correct positions.
12) Turn on the power supply, and start the washing process.
13) Turn off the power supply after 30 minutes.
14) Remove the front panel.
44
15) Move the service switch to the "DRAIN" position.
16) Replace the front panel in its correct position and turn on the power supply for
2 minutes.
17) Turn off the power supply and remove the front panel.
18) Move the control switch to the "ICE" position.
19) Replace the front panel in its correct position.
20) Turn on the power supply to fill the water tank with water.
21) Turn off the power supply after 3 minutes.
22) Remove the front panel.
23) Place the control switch in the "SERVICE" position. Then place the service switch in the
"WASH" position.
24) Replace the front panel in its correct position.
25) Turn on the power supply to rinse off the cleaning solution.
26) Turn off the power supply after 5 minutes.
27) Remove the front panel.
28) Move the service switch to the "DRAIN" position.
29) Replace the front panel in its correct position and turn on the power supply for
2 minutes.
30) Turn off the power supply.
31) Remove the front panel.
32) Repeat steps 18 through 31 three more times to rinse thoroughly.
Note: If you do not sanitize the icemaker, go to step 14 in "2. Sanitizing Procedure."
2. Sanitizing Procedure – Following Cleaning Procedure
1) Dilute approximately 1 fl. oz. (30 ml) of a 5.25% sodium hypochlorite solution (chlorine
bleach) with 2 gallons (7.6 l) of warm water.
2) Remove the insulation panel.
3) Pour the sanitizing solution into the water tank.
4) Move the service switch to the "WASH" position.
5) Replace the insulation panel and the front panel in their correct positions.
6) Turn on the power supply, and start the sanitizing process.
7) Turn off the power supply after 15 minutes.
8) Remove the front panel.
9) Move the service switch to the "DRAIN" position.
10) Replace the front panel in its correct position and turn on the power supply for
2 minutes.
11) Turn off the power supply.

45
12) Remove the front panel.
13) Repeat steps 18 through 31 in "1. Cleaning Procedure" two times to rinse thoroughly.
14) Move the control switch to the "ICE" position.
15) Replace the front panel in its correct position.
16) Clean the storage bin with water.
17) Turn on the power supply, and start the automatic icemaking process.
B. Maintenance
1. Stainless Steel Exterior
To prevent corrosion, wipe the exterior occasionally with a clean and soft cloth. Use a
damp cloth containing a neutral cleaner to wipe off oil or dirt build-up.
2. Storage Bin and Scoop
•Washyourhandsbeforeremovingice.Usetheplasticscoopprovided.(Accessory).
•Thestoragebinisforiceuseonly.Donotstoreanythingelseinthebin.
•Keepthescoopclean.Cleanitbyusinganeutralcleanerandrinsingthoroughly.
•Cleanthebinlinerbyusinganeutralcleaner.Rinsethoroughlyaftercleaning.
3. Air Filter (air-cooled models only)
A plastic mesh air filter removes dirt or dust from the air and keeps the condenser from
getting clogged. As the filter gets clogged, the icemaker’s performance will be reduced.
Check the filter at least twice a month. When clogged, use warm water and a neutral
cleaner to wash the filter.
4. Condenser (air-cooled and remote air-cooled models only)
Check the condenser once a year, and clean if required by using a brush or vacuum
cleaner. More frequent cleaning may be required depending on the location of the
icemaker or condenser unit.
C. Preparing the Icemaker for Long Storage
CAUTION
When shutting off the icemaker for an extended time, drain out all water from
the water tank and remove the ice from the storage bin. The storage bin should
be cleaned and dried. Drain the icemaker using air or carbon dioxide to prevent
damage to the water supply line at sub-freezing temperatures. Shut off the
icemaker until the proper ambient temperature is resumed.
When the icemaker is not used for two or three days, it is sufficient to only move
the control switch to the "OFF" position, unless the icemaker will be at sub-freezing
temperatures.
46
1. On water-cooled model only, first remove the water from the water-cooled
condenser:
1) Turn off the power supply.
2) Remove the front panel.
3) Move the control switch on the control box to the "OFF" position.
4) Wait 3 minutes.
5) Move the control switch to the "ICE" position.
6) Replace the front panel and turn on the power supply.
7) Allow 5 minutes for the icemaker to fill with water and the water pump to start operating.
8) Close the water-cooled condenser water supply line shut-off valve.
9) Open the drain valve for the water-cooled condenser water supply line.
10) Allow the line to drain by gravity.
11) Attach compressed air or carbon dioxide supply to the condenser water line drain valve.
12) Blow the water-cooled condenser out, using compressed air or carbon dioxide until
water stops coming out.
2. Remove the water from the potable water supply line:
1) Turn off the power supply and remove the front panel.
2) Move the control switch on the control box to the "OFF" position.
3) Wait 3 minutes.
4) Close the potable water supply line shut-off valve and open the potable water supply
line drain valve.
5) Allow the line to drain by gravity.
6) Attach compressed air or carbon dioxide supply to the potable water line drain valve.
7) Move the control switch to the "ICE" position.
8) Replace the front panel and turn on the power supply.
9) Blow the potable water line out using compressed air or carbon dioxide.
3. Drain the Potable Water Tank:
1) Turn off the power supply.
2) Remove the front panel.
3) Move the control switch to "SERVICE" and move the service switch to the "DRAIN"
position
4) Replace the front panel and turn on the power supply for 2 minutes.
5) Turn off the power supply.
6) Close water supply line drain valve(s).

2013 ADDENDUM
A. Dip Switch Settings
1) S4 Dip Switch Settings
S4 Dip Switch
Model Auxiliary Code
Dip Switch No.
1 2 345678910
KML-250MAH B-1 and Later OFF OFF OFF ON ON ON OFF OFF ON OFF
KML-250MWH B-1 and Later OFF OFF OFF ON ON ON OFF OFF OFF ON
KML-351MAH V-1 and Later OFF OFF OFF OFF OFF OFF ON OFF OFF ON
KML-351MWH TBD ON OFF ON ON OFF OFF OFF OFF OFF ON
KML-451MAH B-1 and Later OFF OFF OFF OFF OFF OFF OFF OFF OFF ON
KML-451MWH B-1 and Later ON OFF OFF OFF ON ON OFF OFF OFF ON
KML-631MAH B-1 and Later ON OFF OFF OFF ON ON OFF OFF OFF ON
KML-631MWH C-0 and Later ON OFF OFF OFF ON ON OFF OFF OFF ON
KML-631MRH C-0 and Later ON OFF OFF OFF ON ON OFF OFF OFF ON
2) S5 Dip Switch Settings
S5 Dip Switch (Do Not Adjust)
Model Auxiliary Code
Dip Switch No.
1 2 3 4 5
KML-250MAH B-1 and Later OFF OFF OFF OFF OFF
KML-250MWH B-1 and Later OFF OFF OFF OFF OFF
KML-351MAH V-1 and Later OFF OFF OFF OFF OFF
KML-351MWH TBD OFF OFF OFF OFF OFF
KML-451MAH B-1 and Later OFF OFF OFF OFF OFF
KML-451MWH B-1 and Later OFF OFF OFF OFF OFF
KML-631MAH B-1 and Later OFF OFF OFF OFF OFF
KML-631MWH C-0 and Later OFF OFF OFF OFF OFF
KML-631MRH C-0 and Later OFF OFF OFF OFF OFF
1 2 3 4 5
ON
1 2 3 4 5 6 7 8 9 10
ON
Freeze Timer (9 & 10)
Pump-Out Frequency Control (5 & 6)
Pump-Out Timer (3 & 4)
Harvest Timer (1 & 2)
Harvest Pump Timer (7) (Do not adjust)
Factory Use (8)
S4 Dip Switch
Do Not Adjust
S5 Dip Switch
Rell Counter
(2 through 5)
Float Switch
Selector (1)
A-1

B. Wiring Diagram
1. KML-451MAH and KML-451MWH B-1 and Later
*High-Pressure Switch
Air-Cooled Model Water-Cooled Model
Cut-out 412±22 PSIG 384±22 PSIG
Cut-in 327±22 PSIG 284±22 PSIG
0 0
A-2
*