KV ES34M81 KVES34M81
User Manual: KVES34M81
Open the PDF directly: View PDF
.
Page Count: 140 [warning: Documents this large are best viewed by clicking the View PDF Link!]
- KV-ES34M81
- SPECIFICATIONS
- TABLE OF CONTENTS
- SELF DIAGNOSTIC FUNCTION
- GENERAL
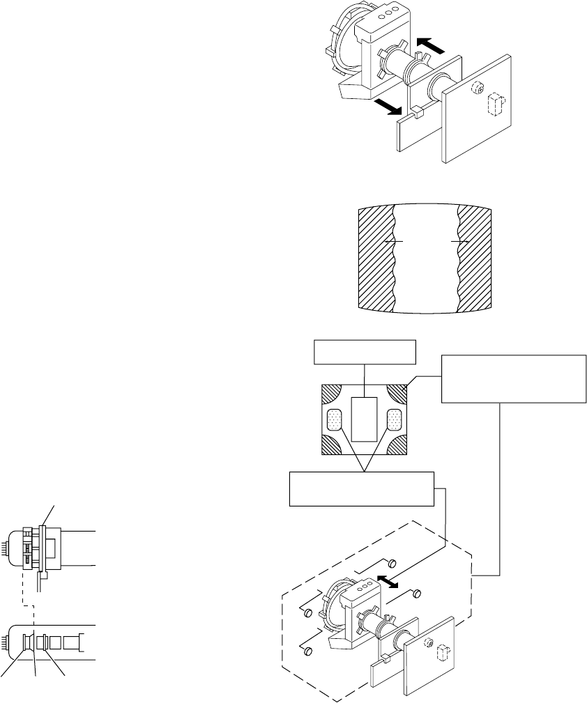
- DISASSEMBLY
- REAR COVER REMOVAL
- SPEAKER BOX REMOVAL
- H2 BOARD REMOVAL
- CHASSIS ASSY REMOVAL
- SERVICE POSITION
- DH BOARD REMOVAL
- J BOARD REMOVAL
- B3, D1 AND E BOARDS REMOVAL
- A AND D BOARDS REMOVAL
- H1 BOARD REMOVAL
- F2 BOARD REMOVAL
- DEMAGNETIZATION COIL REMOVAL
- TOP SWITCH REMOVAL
- G2 LEAD REMOVAL
- PICTURE TUBE REMOVAL
- FRAME SUB-ASSY DISASSEMBLY
- SERVICE JIG
- SET-UP ADJUSTMENTS
- CIRCUIT ADJUSTMENTS
- DIAGRAMS
- EXPLODED VIEWS
- ELECTRICAL PARTS LIST

MODEL COMMANDER DEST. CHASSIS NO.
KV-ES34M81 RM-916 ME SCC-P32D-A
KV-ES34M91 RM-916 ME SCC-P32E-A
MODEL COMMANDER DEST. CHASSIS NO.
CHASSIS
TRINITRON
®
COLOR TV
SERVICE MANUAL AG3
TV
123
456
78
0
9

– 2 –
KV-ES34M81/ES34M91
RM-916
SPECIFICATIONS
Note
Power requirements 110-240 V AC, 50/60 Hz
Power consumption (W) Indicated on the rear of the TV
Television system B/G, I, D/K, M
Color system PAL, PAL 60, SECAM, NTSC4.43, NTSC3.58
Stereo/Bilingual system NICAM Stereo / Bilingual B/G, I; A2 Stereo / Bilingual (German) B/G Except KV-ES34M81
Teletext language English, Arabic, French
Channel coverage
B/G VHF: E2 to E12 / UHF: E21 to E69 / CATV: S01 to S03, S1 to S41
IUHF: B21 to B68 / CATV: S01 to S03, S1 to S41
D/K VHF: C1 to C12, R1 to R12 / UHF: C13 to C57, R21 to R60
CATV: S01 to S03, S1 to S41, Z1 to Z39
MVHF: A2 to A13 / UHF: A14 to A79 /
CATV: A-8 to A-2, A to W+4, W+6 to W+84
˘ (Antenna) 75-ohm external terminal
Audio output (Speaker) 15W + 15W 10% distortion
Number of terminal
D (Video) Input: 4 Output: 1 Phono jacks; 1 VP-P, 75 ohms
≥ (Audio) Input: 4 Output: 1 Phono jacks; 500 mVrms
(S Video) Input: 2 Y : 1 Vp-p, 75 ohms,
unbalanced, sync
negative
C : 0.286 Vp-p, 75 ohms
(Component Video)
Input: 1 Phono jacks
Y : 1 Vp-p, 75 ohms,
sync negative
CB : 0.7 Vp-p, 75 ohms
CR : 0.7 Vp-p, 75 ohms
Audio : 500 mVrms
DIGITAL IN Input: 1 Phono jack; 0.5 Vp-p, 75 ohms
2 (Headphone) Output: 1 Stereo minijack
Picture tube 34 inch
Tube size (cm) 86 Measured diagonally
Screen size (cm) 80 Measured diagonally
Dimension (w/h/d, mm) 859 × 650 × 573
Mass (kg) 84
Design and specifications are subject to change without notice.
SAFETY-RELATED COMPONENT WARNING!!
COMPONENTS IDENTIFIED BY SHADING AND MARK ! ON
THE SCHEMATIC DIAGRAMS, EXPLODED VIEWS AND IN THE
PARTS LIST ARE CRITICAL TO SAFE OPERATION. REPLACE
THESE COMPONENTS WITH SONY PARTS WHOSE PART
NUMBERS APPEAR AS SHOWN IN THIS MANUAL OR IN
SUPPLEMENTS PUBLISHED BY SONY.
CAUTION
SHORT CIRCUIT THE ANODE OF THE PICTURE TUBE AND
THE ANODE CAP TO THE METAL CHASSIS, CRT SHIELD, OR
CARBON PAINTED ON THE CRT, AFTER REMOVING THE
ANODE.

– 3 –
KV-ES34M81/ES34M91
RM-916
TABLE OF CONTENTS
Section Title Page
SELF DIAGNOSIS FUNCTION ................................ 4
1. GENERAL ........................................................................ 8
2. DISASSEMBLY
2-1. Rear Cover Removal ................................................ 33
2-2. Speaker Box Removal ............................................. 33
2-3. H3 Board Removal .................................................. 33
2-4. Chassis Assy Removal ............................................. 34
2-5. Service Position ....................................................... 34
2-6. DH Board Removal ................................................. 34
2-7. J Board Removal ...................................................... 34
2-8. B3, D1 and E Boards Removal................................ 35
2-9. A and D Boards Removal ........................................ 35
2-10. H1 Board Removal .................................................. 35
2-11. F2 Board Removal ................................................... 35
2-12. Demagnetization Coil Removal .............................. 36
2-13. Top Switch Removal ................................................ 36
2-14. G2 Lead Removal .................................................... 36
2-15. Picture Tube Removal.............................................. 37
2-16. Frame Sub-Assy Disassembly ................................. 37
3. SERVICE JIG
3-1. Jigs Required for Servicing ..................................... 40
4. SET-UP ADJUSTMENTS
4-1. Beam Landing .......................................................... 41
4-2. Convergence Adjustment ......................................... 42
4-3. Focus Adjustment .................................................... 44
4-4. Neck Assy Twist Adjustment................................... 44
4-5. G2 (Screen) and White Balance Adjustments ......... 45
5. CIRCUIT ADJUSTMENTS
5-1. Adjustments with Commander ................................ 46
5-2. Adjustment Method ................................................. 47
5-3. Picture Quality Adjustments.................................... 61
5-4. Deflection Adjustments ........................................... 63
5-5. A Board Adjustment After IC003 (Memory)
Replacement............................................................. 64
5-6. Picture Distortion Adjustment ................................. 65
Section Title Page
6. DIAGRAMS
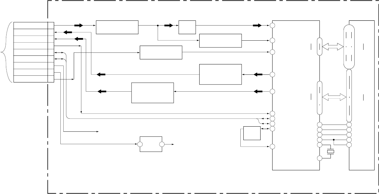
6-1. Block Diagram ......................................................... 69
6-2. Frame Schematic Diagrams .................................... 87
6-3. Circuit Boards Location ......................................... 90
6-4. Schematic Diagrams and Printed Wiring Boards .. 90
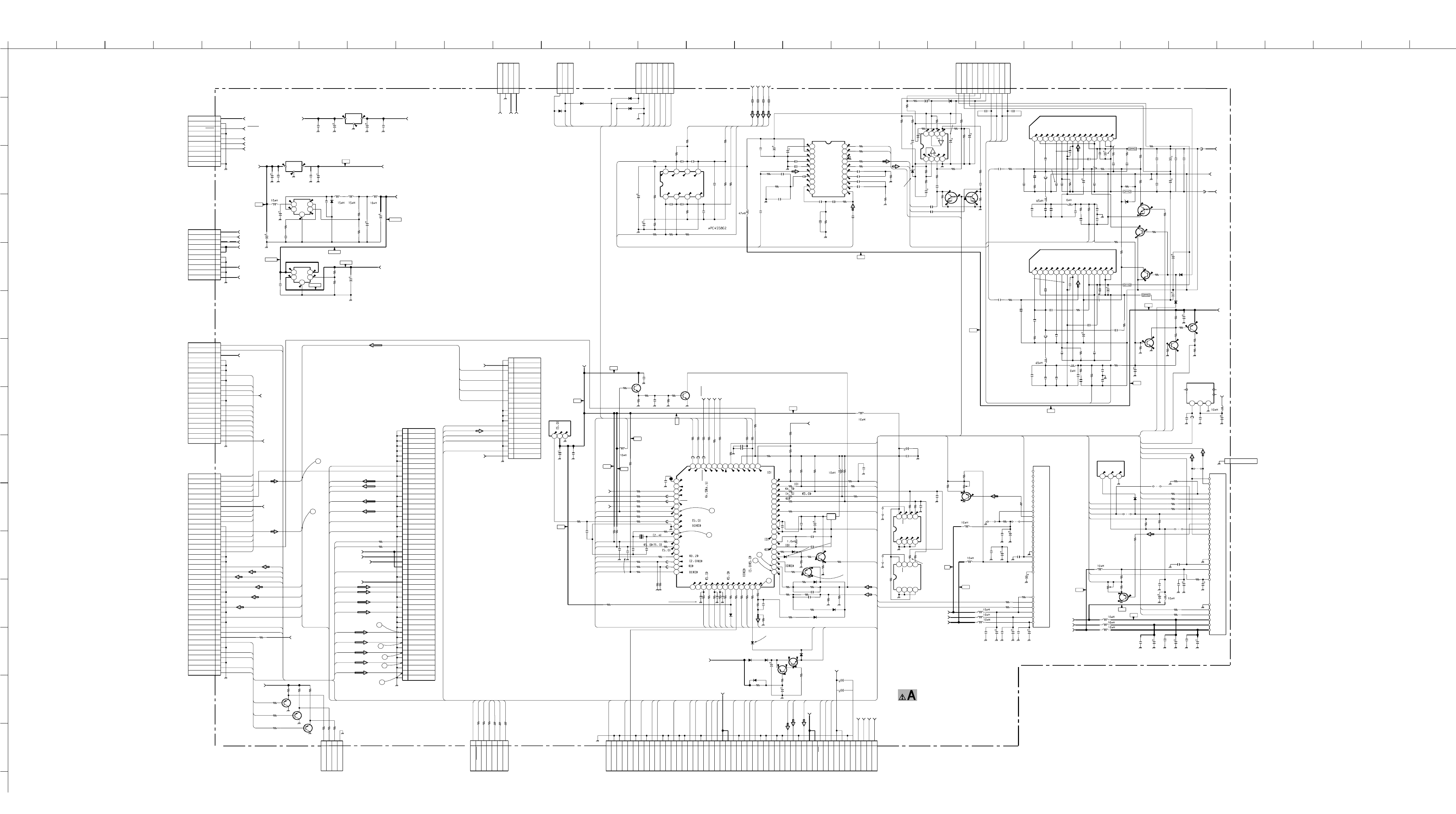
(1) Schematic Diagram of A Board ............................. 95
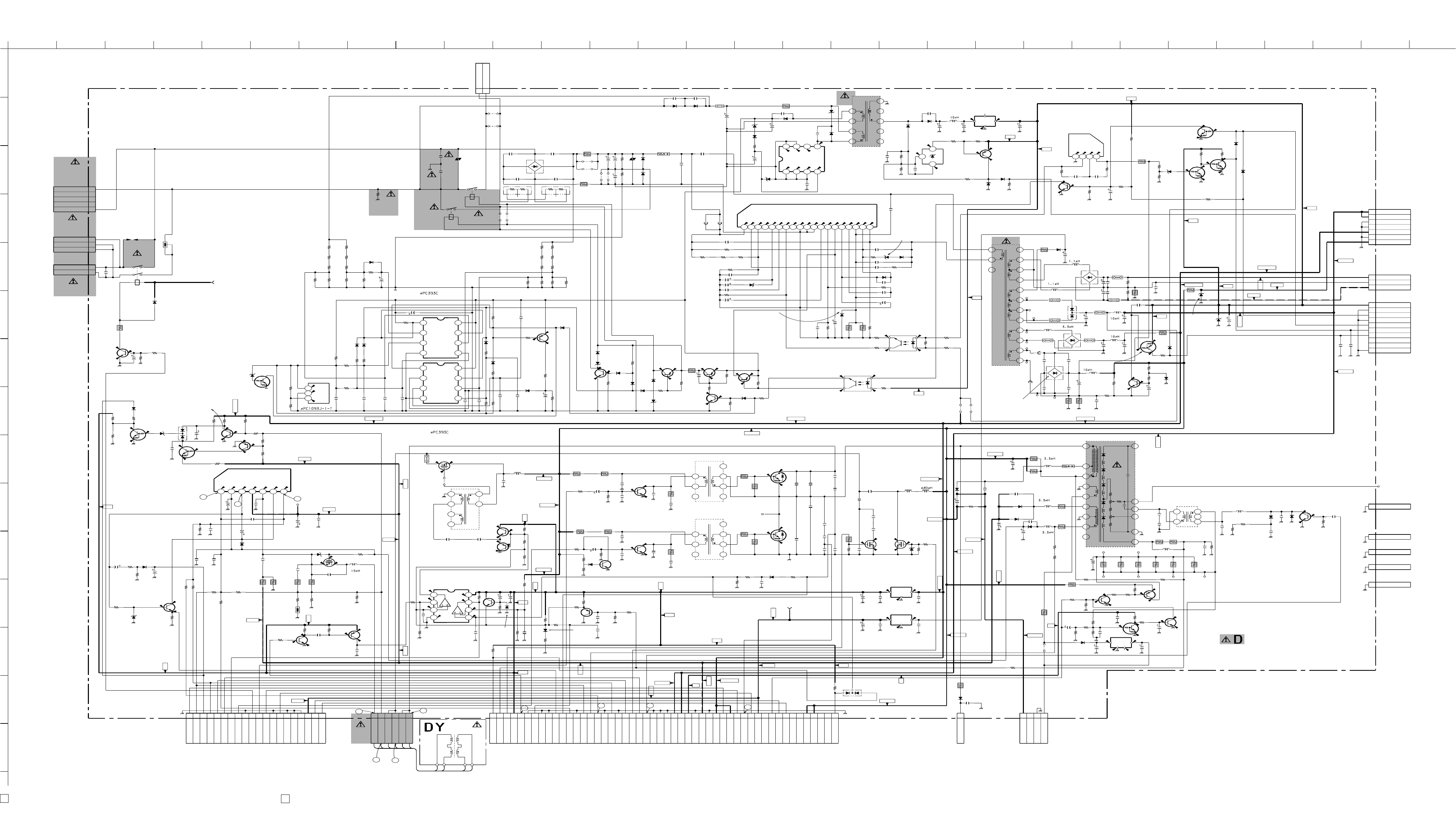
(2) Schematic Diagram of D Board ............................. 99
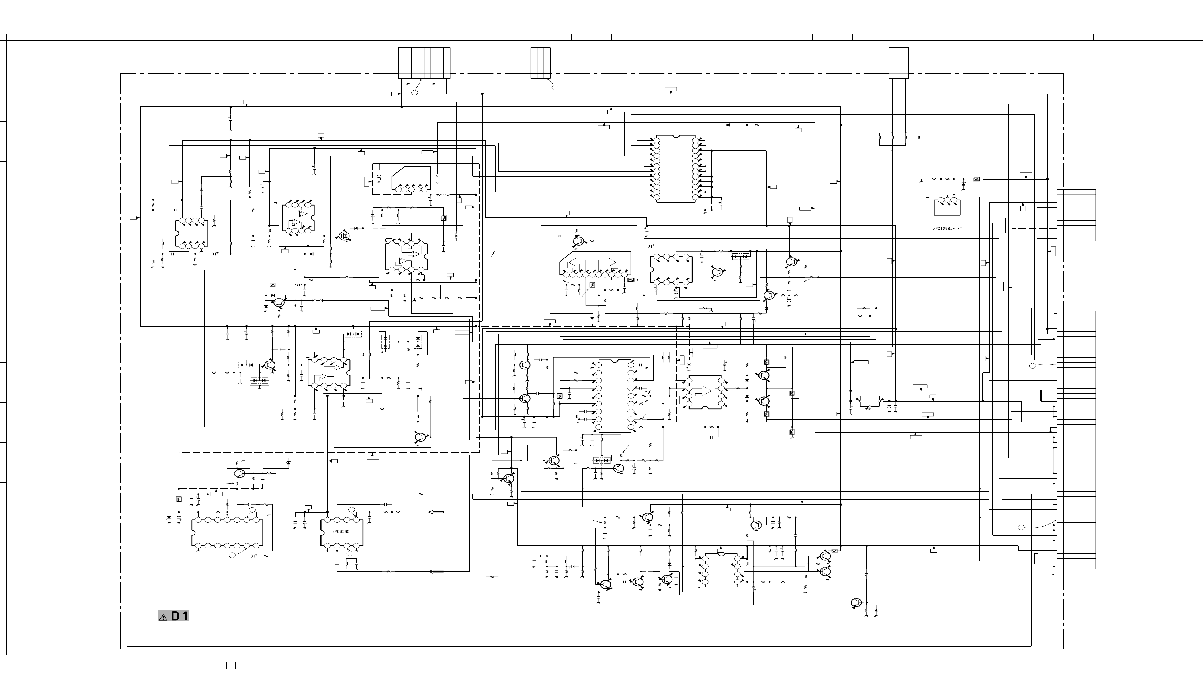
(3) Schematic Diagram of D1 Board ........................... 107
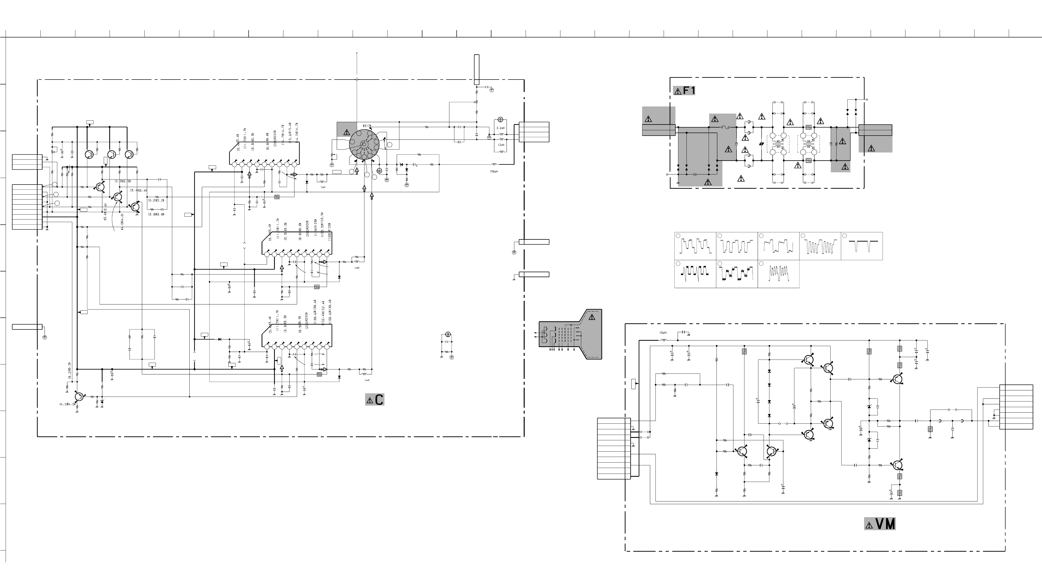
(4) Schematic Diagrams of C, F1 and VM Boards ...... 115
(5) Schematic Diagram of E Board .............................. 119
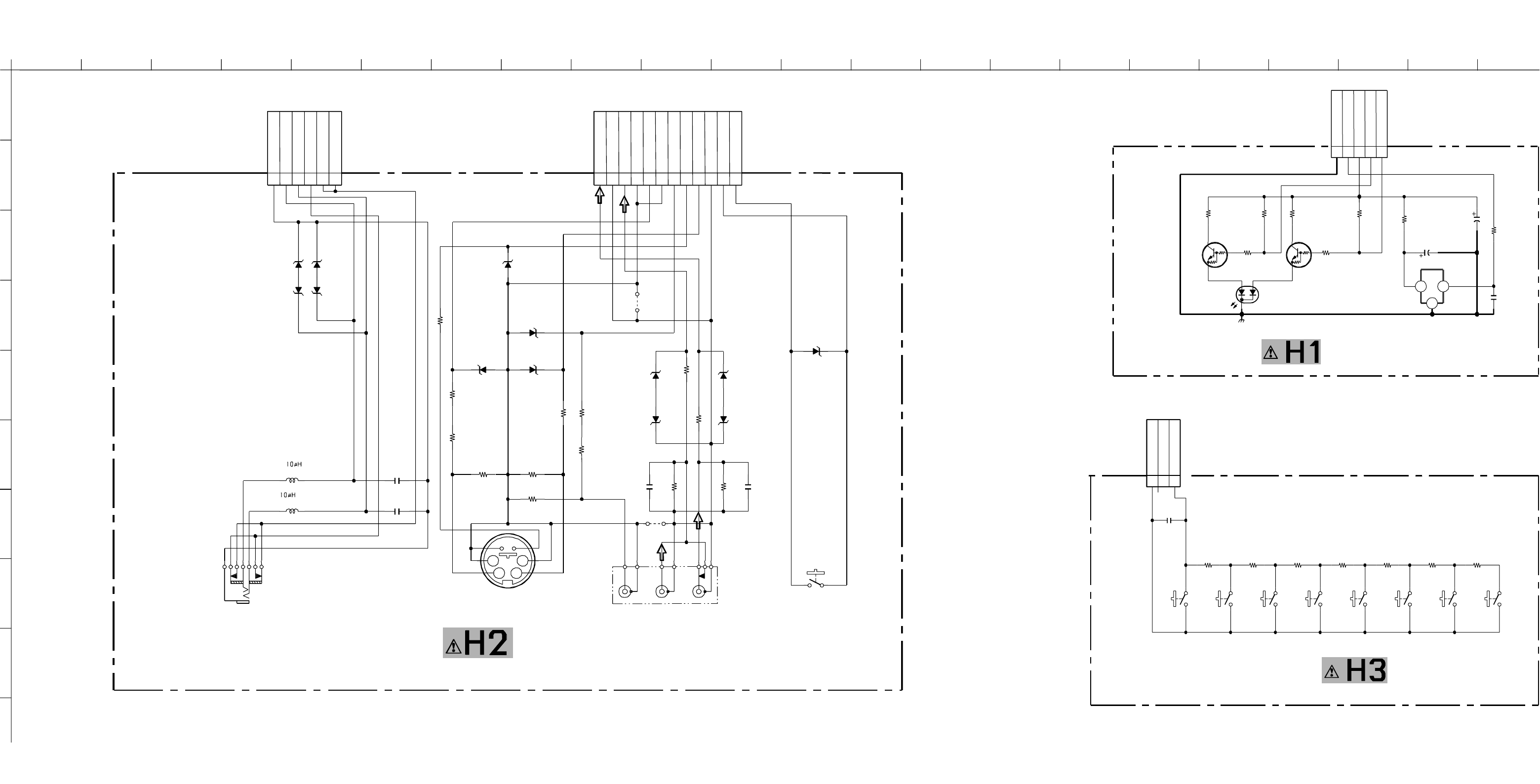
(6) Schematic Diagrams of H1, H2 and H3 Boards .... 126
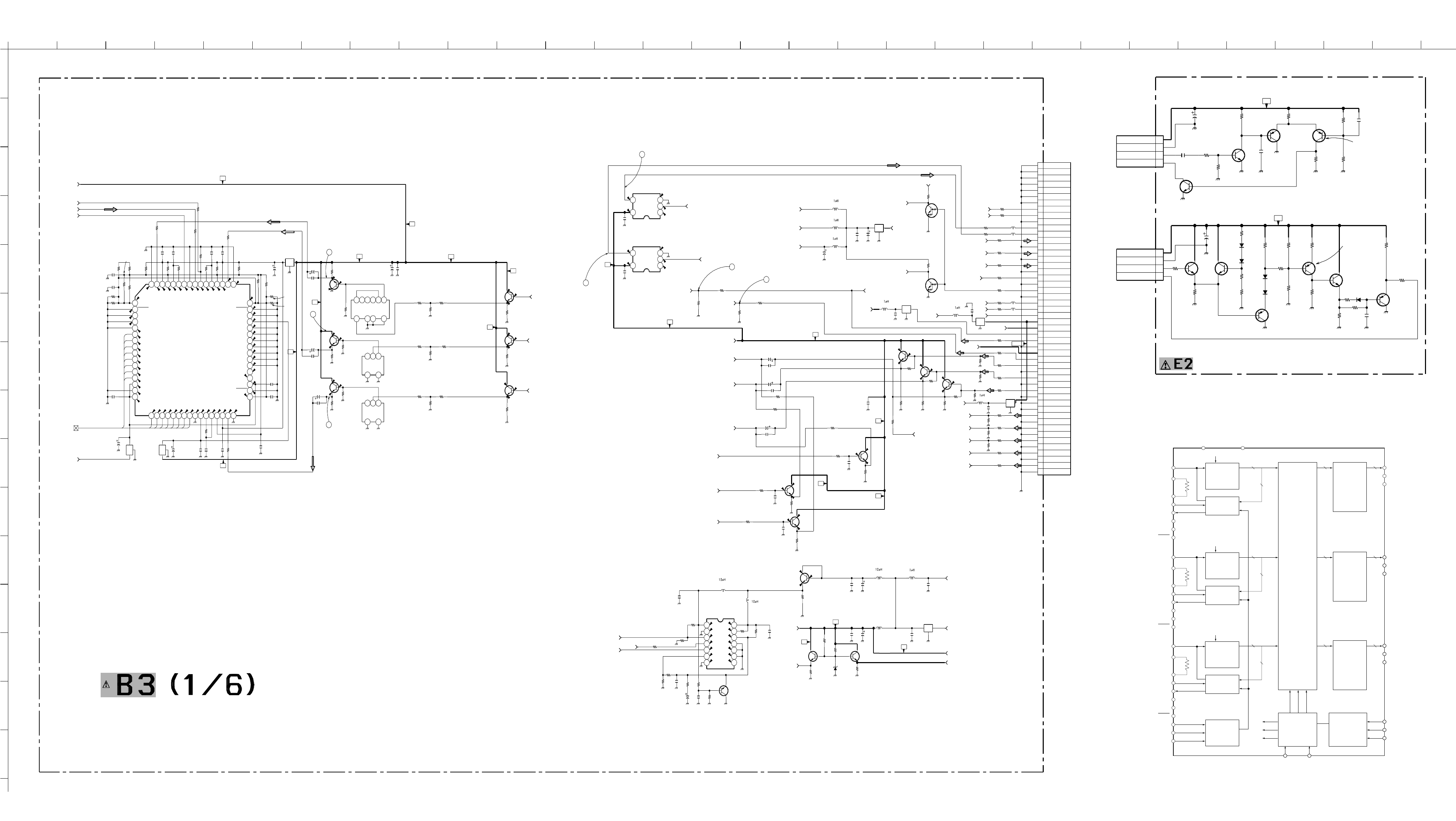
(7) Schematic Diagrams of B3 (1/6), E2 Boards ......... 131
(8) Schematic Diagram of B3 (2/6) Board .................. 135
(9) Schematic Diagram of B3 (3/6) Board .................. 139
(10) Schematic Diagram of B3 (4/6) Board .................. 143
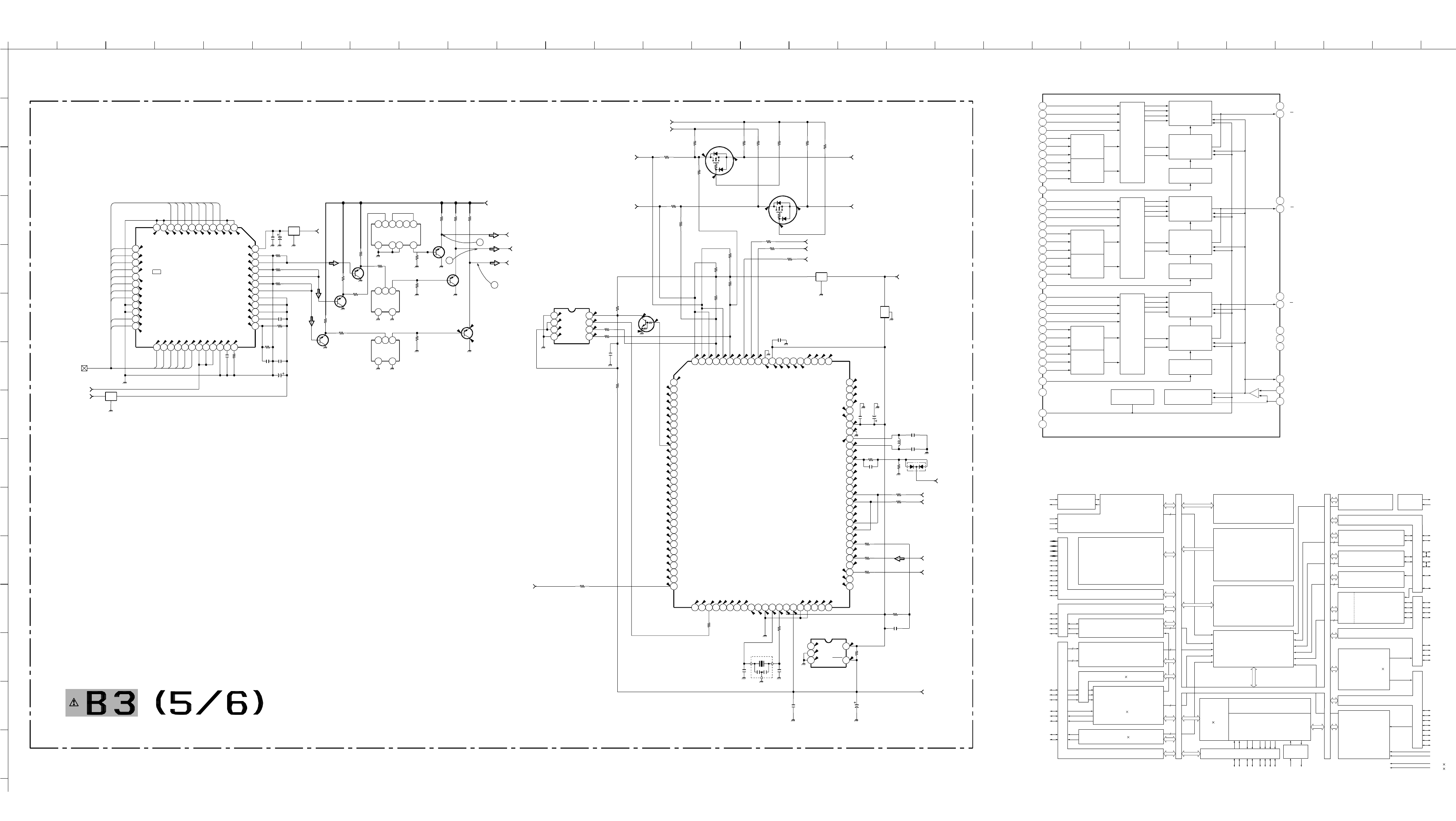
(11) Schematic Diagram of B3 (5/6) Board .................. 147
(12) Schematic Diagram of B3 (6/6) Board .................. 151
(13) Schematic Diagram of F2 Board ............................ 155
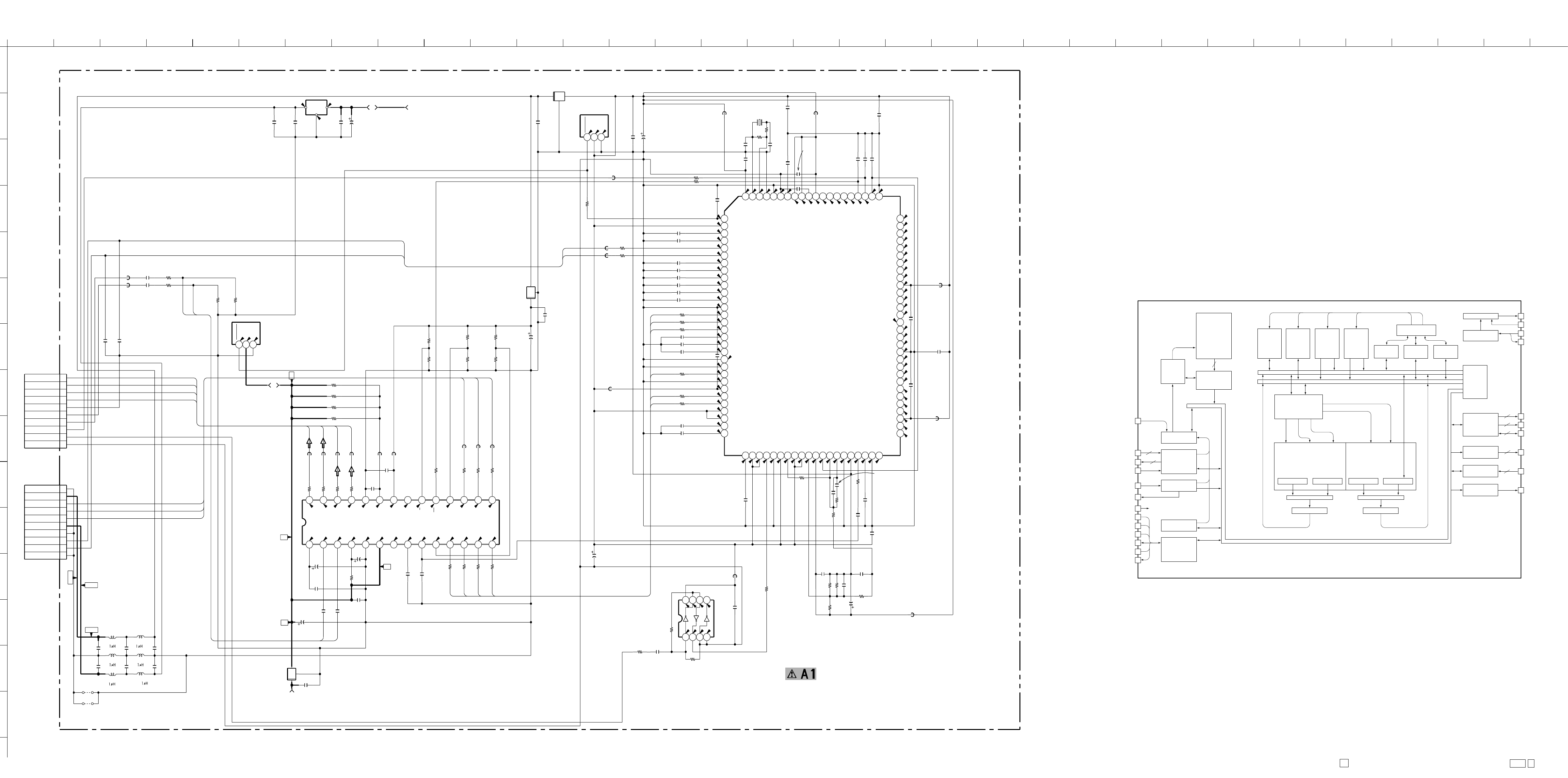
(14) Schematic Diagram of A1 Board ........................... 161
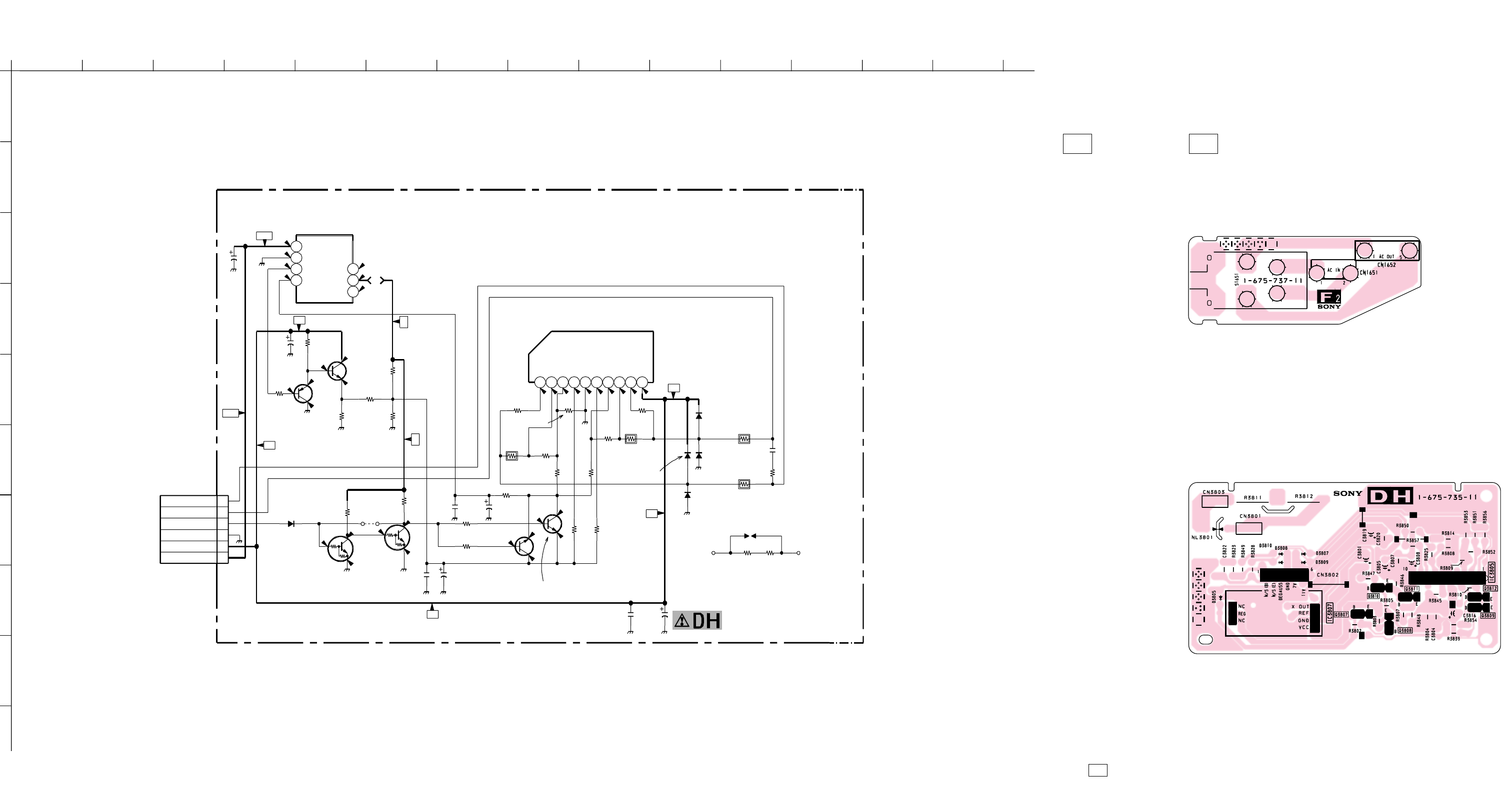
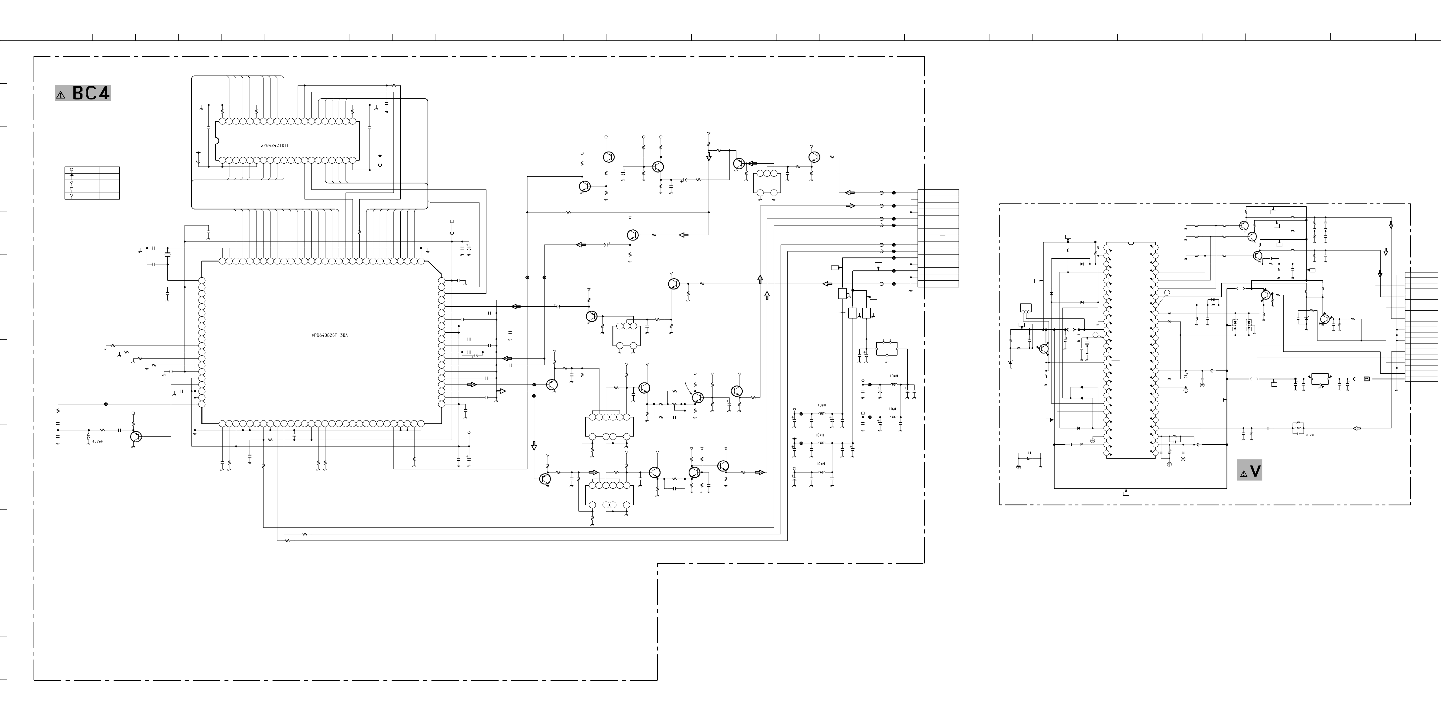
(15) Schematic Diagrams of BC4, DH and V Boards ... 166
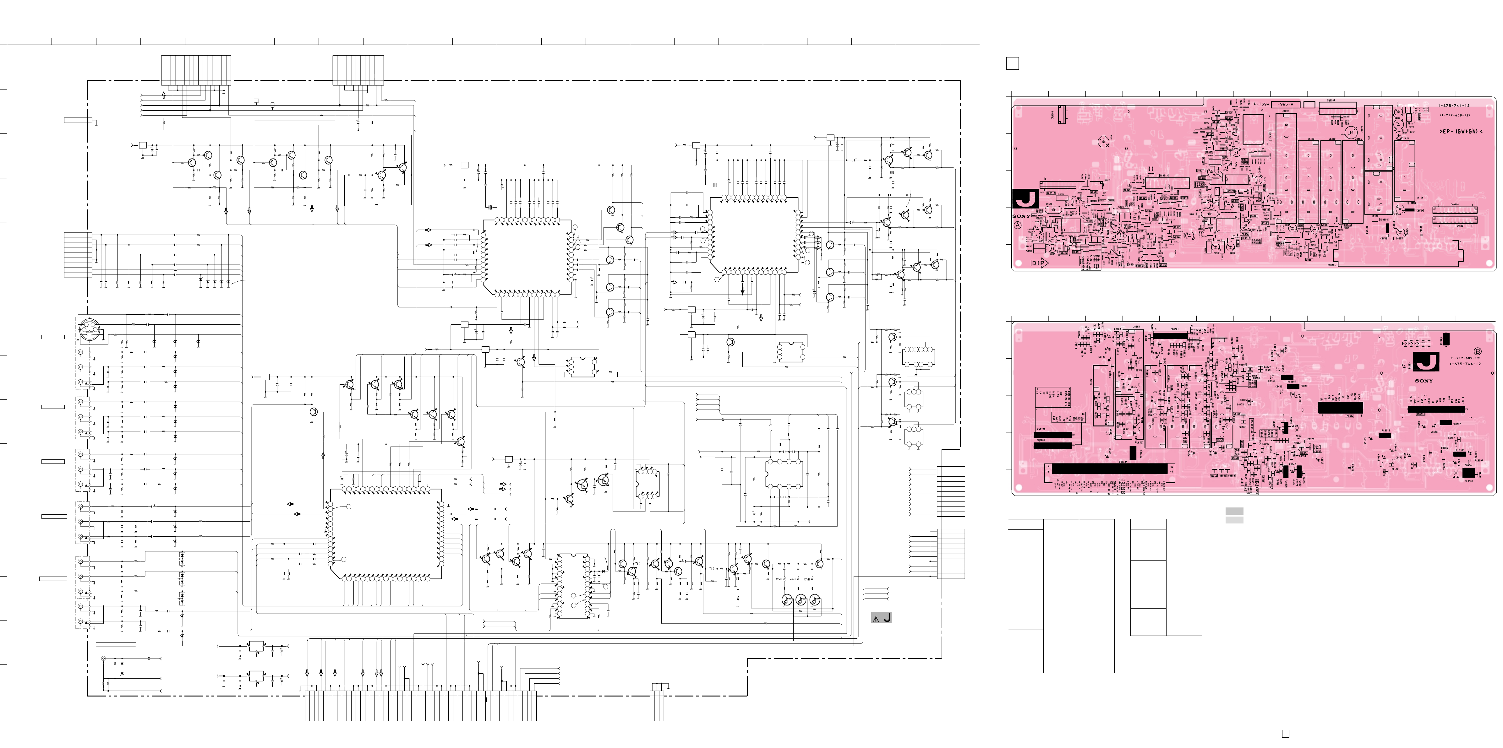
(16) Schematic Diagram of J Board............................... 177
6-5. Semiconductors....................................................... 182
7. EXPLODED VIEWS
7-1. Speaker Bracket ...................................................... 187
7-2. Chassis .................................................................... 188
7-3. Picture Tube ............................................................ 189
8. ELECTRICAL PARTS LIST...................................... 190

– 4 –
KV-ES34M81/ES34M91
RM-916
The units in this manual contain a self-diagnostic function. If an error occurs, the STANDBY/TIMER lamp will automatically
begin to flash.
The number of times the lamp flashes translates to a probable source of the problem. A definition of the STANDBY/TIMER
lamp flash indicators is listed in the instruction manual for the user’s knowledge and reference. If an error symptom cannot
be reproduced, the remote commander can be used to review the failure occurrence data stored in memory to reveal past
problems and how often these problems occur.
1. DIAGNOSTIC TEST INDICATORS
When an errors occurs, the STANDBY/TIMER lamp will flash a set number of times to indicate the possible cause of the
problem. If there is more than one error, the lamp will identify the first of the problem areas.
Result for all of the following diagnostic items are displayed on screen. No error has occured if the screen displays a “0”.
Diagnostic
Item
Description
• Power does not
turn on
• +B overcurrent
(OCP)
• +B overvoltage
(OVP)
• Vertical deflection
failure
• White balance
failure (no
PICTURE)
• Horizontal
deflection
failure
• Audio Protection
• Micro reset
No. of times
STANDBY/TIMER
lamp flashes
Does not light
2 times
3 times
4 times
5 times
6 times
7 times
—
Self-diagnostic
display/Diagnostic
result
—
002:000 or
002:001~255
003:000 or
003:001~255
004:000 or
004:001~255
005:000 or
005:001~255
006:000 or
006:001~225
007:000 or
007:001~225
101:00 or
101:001~225
Probable
Cause
Location
• Power cord is not plugged
in.
• Fuse is burned out F1601
(F1 Board)
• H.OUT Q6807 is shorted.
• H.LIM Q6810 is shorted.
• PH 6602 faulty.
• 10.5V is not supplied.
(D board)
• V.OUT IC6800 faulty
D6816 faulty
D6817 faulty
D6824 faulty
R6852 open
R6851 open
• G2 is improperly adjusted.
(Note 2)
• CRT problem.
• Video OUT IC9001, 9002,
9003 are faulty. (C board)
• IC8306 (J board) and
IC4301 (E board) are faulty.
• No connection E board to C
board.
• C6831 is open circuit.
• CN6101 (D1 board) is
disconnected.
• Power supply fails.
• IC1203, IC1204 faulty
• Discharge CRT (C Board)
• Static discharge
• External noise
Detected
Symptoms
• Power does not come on.
• No power is supplied to the
TV.
• AC power supply is faulty.
• Power does not come on.
• Load on power line is
shorted.
• Power does not come on.
• Vertical deflection pulse is
stopped.
• Vertical size is too small.
• Vertical deflection stopped.
• No raster is generated.
• CRT cathode current
detection reference pulse
output is small.
• H pulse output is too high.
• There is picture but speaker
does not release sound.
• Power is shut down shortly,
after this return back to
normal.
• Detect Micro latch up.
Note 1: Refer to screen (G2) Adjustment in section 4-5 of this manual.
SELF DIAGNOSTIC FUNCTION

– 5 –
KV-ES34M81/ES34M91
RM-916
2. DISPLAY OF STANDBY/TIMER LIGHT FLASH COUNT
Lamp ON 0.3 sec. Lamp OFF 3 sec.
Lamp OFF 0.3 sec.
2 times
3 times
4 times
5 times
6 times
7 times
Diagnostic Item Flash Count*
+B overcurrent 2 times
+B overvoltage 3 times
V deflection stop 4 times
White balance failure 5 times
High voltage protector 6 times
Audio Protection 7 times
* One flash count is not used for self-diagnostic.
3. STOPPING THE STANDBY/TIMER FLASH
Turn off the power switch on the TV main unit or unplug the power cord from the outlet to stop the STANDBY/TIMER lamp
from flashing.
STANDBY/SLEEP lamp

– 6 –
KV-ES34M81/ES34M91
RM-916
4. SELF-DIAGNOSTIC SCREEN DISPLAY
For errors with symptoms such as “power sometimes shuts off” or “screen sometimes goes out” that cannot be confirmed, it
is possible to bring up past occurances of failure for confirmation on the screen:
[To Bring Up Screen Test]
In standby mode, press buttons on the remote commander sequentially in rapid succession as shown below:
[Screendisplay] /channel [5] /Sound volume [-] /Power ON
˘
Note that this differs from entering the service mode (mode volume [+]).
Self-Diagnosis screen display
5. HANDLING OF SELF-DIAGNOSTIC SCREEN DISPLAY
Since the diagnostic results displayed on the screen are not automatically cleared, always check the self-diagnostic screen
during repairs. When you have completed the repairs, clear the result display to “0”.
Unless the result display is cleared to “0”, the self-diagnostic function will not be able to detect subsequent faults after
completion of the repairs.
[Clearing the result display]
To clear the result display to “0”, press buttons on the remote commander sequentially as shown below when the diagnostic
screen is being displayed.
Channel [8] /0
[Quitting Self-diagnostic screen]
To quit the entire self-diagnostic screen, turn off the power switch on the remote commander or the main unit.
002 : 000
003 : 000
004 : 000
005 : 001
Numeral "0" means that no fault has been detected.
Numeral "1" means a fault has been detected.
006 : 002
007 : 000
101 : 000
SELF DIAGNOSTIC
Numeral "2" means two faults have been detected.

– 7 –
KV-ES34M81/ES34M91
RM-916
6. SELF-DIAGNOSTIC CIRCUIT
IC4301
RGB JUNGLE
CXA2100Q
OVP OCP
FROM
CRT (IK)
[V] D6806/D6801
IC001
SYSTEM
SDA
SDA
IC003
MEMORY
IC004
MEMORY
IKIN
XRAY
LED
525
20
54
3
6
V PROT
16 5
[H] IC6801
[+BovercurrentªOCPº] Occurs when an overcurrent on the +B(135) line is detected by Q6610
and Q6609.
If Q6610 and Q6609 go to ON, the voltage to the pin3 of IC001 go to UP.
The unit will automatically turn off.
[+BovervoltageªOVPº] Occurs when an overvoltage on the +B(135) line is detected by D6635,
Q6611 and Q6612. If Q6611 and Q6612 go to ON, the voltage to pin6 of
IC001 go to UP. The unit will automatically turn off.
[Verticaldeflectionfailure] Occurs when an absence of the vertical deflection pulse is detected by
Q6811, Q6819, Q6820, Q6821 and D6801. Shut down the power supply.
[Whitebalancefailure] If the RGB levels do not balance or become low level within 5 seconds.
This error will be detected by IC4301.
TV will stay on, but there will be no picture.
[HighvoltageprotectorofHorizontalDeflection] Occurs when an overvoltage of horizontal pulse is detected by D6809 and
IC6801.
If the voltage of 7 pin of IC6801 goes to High, the voltage to pin20 of
IC4301 go to UP. The unit will automatically turn off.

– 8 –
KV-ES34M81/ES34M91
RM-916
SECTION 1
GENERAL
2
WARNING
• Dangerously high voltages are present inside the TV.
• Operate the TV only between 110 – 240 V AC.
To prevent fire or shock hazard, do not expose
the TV to rain or moisture.
Do not operate the TV if any liquid or solid object
falls into it. Have it checked immediately by
qualified personnel only.
Do not open the cabinet and the rear cover of the
TV. Refer servicing to qualified personnel. Do not install the TV in hot, humid or excessively
dusty places.
Do not install the TV in a confined space, such
as a bookcase or built-in cabinet.
Do not block the ventilation openings of the TV.
Install the TV in a stable position. Do not allow
children to climb onto it.
Do not plug in too many appliances to the same
power socket. Do not damage the power cord.
Clean the TV with a dry and soft cloth.
Do not use benzine, thinner, or any other chemicals
to clean the TV. Do not scratch the picture tube.
For your own safety, do not touch any part of the
TV, the power cord and the antenna cable during
lightning storms.
Pull the power cord out by the plug. Do not pull
the power cord itself. Disconnect the TV if you
are not going to use it for several days.
The operating instructions mentioned here are partial abstracts
from the Operating Instruction Manual. The page numbers of
the Operating Instruction Manual remain as in the manual.
4
Using Your New TV
Getting Started
Step 1
Connect the antenna
If you wish to connect a VCR, see the “Connecting a VCR” diagram below.
CAUTION
Do not connect the power cord until all other connections are complete;
otherwise, a minimal current leakage through the antenna and/or other
terminals to the ground could occur.
Connecting a VCR
To play a video tape, press t (see page 11).
Using Your New TV
: Signal flow
IEC connector
(not supplied)
or
Antenna cable (not supplied)
Antenna cable (not supplied)
Rear of TV
To video and
audio outputs
To S video
output
Audio/Video cable
(not supplied)
S video cable
(not supplied)
: Signal flow
To
(S video input)
VCR
Antenna cable (not supplied)
To antenna
output
To ˘ (antenna)
R
L
23
Y
C
B
C
R
VIDEO
VIDEO IN
VIDEO OUT
AUDIO
R L
R
L
(MONO) DIGITAL IN
(DOLBY DIGITAL/PCM)
1
Rear of TV
To t 1, 2 or 3 (video input)
(yellow)
-L (MONO) (white)
-R (red)

– 9 –
KV-ES34M81/ES34M91
RM-916
5
Using Your New TV
Using Your New TV
Notes
•If you connect a monaural VCR, connect the yellow plug to (the yellow
jack) and the black plug to -L (MONO) (the white jack).
•If you connect a VCR to the 8 (antenna) terminal, preset the signal
output from the VCR to the program number 0 on the TV.
•When both the (S video input) and t 1 (video input) are connected,
the (S video input) is automatically selected. To view the video input
to t 1 (video input), disconnect the S video cable.
Step 2
Insert the batteries into
the remote
Notes
•Do not use old batteries or different types of batteries together.
•To operate some of the functions of your TV, you may have to open the
remote control cover.
Step 3
Preset the channels automatically
Notes
•To stop the automatic channel presetting, press MENU twice.
•If your TV has preset an unwanted channel or cannot preset a particular
channel, then preset your TV manually (see page 43).
•To open the side panel of your TV, push on it until you hear a click, then it
will open.
2
AUTO
PROGR
L
≥
R
2
…4
AUTO
PROGR
1
AUTO PROGRAM
01
TV SYS : AUTO
VHF LOW
PR :
U
U
g
(MONO)
1
AUTO
PROGR
L
≥
R
2
…4
(MONO)
PUSH
PUSH
b
b
b
Side panel
6Using Your New TV
Connecting optional components
You can connect optional audio/video components, such as a VCR, multi disc player,
camcorder, video game, or stereo system. To watch and operate the connected
equipment, see pages 11 and 27.
Connecting a camcorder/video game equipment
using the t (video input) jacks
Notes
•When connecting video game equipment, display the “FEATURE” menu
and select “ON” for “GAME MODE” to adjust the picture setting that is
suitable for video games (see page 38).
•You can also connect video equipment to the t 1, 2, or 3 (video input)
jacks at the rear of your TV.
•When both the (S video input) and t 4 (video input) are connected,
the (S video input) is automatically selected. To view the video input
to t 4 (video input), disconnect the S video cable.
Connecting audio/video equipment using the T
(monitor output) jacks
Note
•If you select “DVD” on your TV screen, no signal will be output at the
T (monitor output) jacks (see page 11).
: Signal flow
To S video output
Side panel
Camcorder
Video game equipment
To video and
audio outputs
To
(S video input)
To
…
4
(video input)
or
Audio/Video cable
(not supplied)
S video cable
(not supplied)
(yellow)
-L (MONO)
(white)
-R (red)
Rear of TV
To
antenna
output
To video and
audio inputs
or
Audio system
To
audio
inputs
VCR
: Signal flow
To T
(monitor
output)
Antenna cable (not supplied)
Audio cable
(not supplied)
Audio/Video cable (not supplied)
AUTO
PROGR
L
≥
R
2
…4
(MONO)
RR
L
L
(MONO)
123
Y
C
B
C
R
DIGITAL IN
(DOLBY DIGITAL/PCM)

– 10 –
KV-ES34M81/ES34M91
RM-916
8Using Your New TV
VIDEO
R-AUDIO-L
LINE OUT
R
L
(MONO)
123
Connecting a DVD player to t (video input)
Connect t 1, 2, or 3 (video input) / (audio/video) connectors on your TV to
LINE OUT on your DVD player.
To audio/video
output
(yellow)
-L (MONO) (white)
-R (red)
To t 1, 2, or 3
(video input)
: Signal flow
Audio/Video cable
(not supplied)
Connecting optional components (continued)
Notes
•Since the high quality pictures on a DVD disc contain a lot of information,
picture noise may appear. In this case, adjust the sharpness (“SHARP”)
under “PERSONAL ADJUST” in the “PICTURE MODE” menu (see
page 33).
•Connect your DVD player directly to your TV. Connecting the DVD
player through other video equipment will cause unwanted picture noise.
7
Using Your New TV
Using Your New TV
Connect To (on the DVD player)
Y (green) Y
C
B
(blue) C
b
, B-Y or P
B
C
R
(red) C
r
, R-Y or P
R
Connecting a DVD player to (component video input)
1 Using an audio cable, connect R and L under (component video input) on your
TV to the LINE OUT, AUDIO R and L output connectors on your DVD player.
2 Using a coaxial digital connecting cord, connect DIGITAL IN under (component
video input) on your TV to the DIGITAL OUT, COAXIAL output connector on your
DVD player.
3 Using a component video cable, connect Y, C
B
, and C
R
under (component video
input) on your TV to the COMPONENT VIDEO OUT Y, C
B
, and C
R
output
connectors on your DVD player.
4 Press t on the remote or the TV until “DVD” appears on the screen.
To component
video output
Component video cable
(not supplied)
DVD
player
To L (white)
R (red)
To audio
output
Audio cable (not supplied)
: Signal flow
To
(component video input)
To coaxial
digital
output
Coaxial digital
connecting
cord (not
supplied)
To DIGITAL IN
(digital input)
VIDEO
COAXIAL
OPTICAL
R-AUDIO-L
LINE OUT
Y
COMPONENT VIDEO OUT
S VIDEO OUT
C
B
C
R
DIGITAL OUT
R
DIGITAL IN
(DOLBY DIGITAL/PCM)
L
Y
C
B
C
R
continued
Notes
•Some DVD player terminals may be labeled differently:
•When connecting to (component video input) on your TV, you must
connect Y, C
B
, and C
R
to receive the video signals, and at least connect
DIGITAL IN to receive digital audio signals or connect L and R to receive
analog audio signals (see page 34).
•When making connections to DIGITAL IN under (component video
input) on your TV, always set “DIGITAL IN: OFF” in the “A/V
CONTROL” menu. After completing all connections, then set “DIGITAL
IN: ON”. If you set “DIGITAL IN: ON” while still making connections to
DIGITAL IN (component video input), a loud noise may suddenly
come out from the speakers, affecting your hearing and causing damage
to the speakers (see page 34).

– 11 –
KV-ES34M81/ES34M91
RM-916
9
Using Your New TV
Using Your New TV
20 mm
AB
Securing the TV
To prevent the TV from falling, secure the TV using one of the following methods:
A
With the supplied screws, attach the stabilizer band to the TV stand and to
the rear of the TV using the provided hole.
OR
B
Pass a cord or chain through the clamps and secure them to the rear of the
TV and a wall or pillar.
Note
•Use only the supplied screws. Use of other screws may damage the TV.
OR
3.8 mm
10 Using Your New TV
Number buttons
PROGR +/–
Watching the TV
This section explains various functions
and operations used while watching the
TV. Most operations can be done using
the remote.
or
123
456
78
0
9
MENU PROGR
ENTER
JUMP
.
A/B
DRC-MF
FAVORITE PROGR
INDEX
PIC
MODE SOUND
MODE SURROUND
U
123
456
78
0
9
JUMP
PROGR
1
Press ! to turn on the TV.
When the TV is in standby
mode (the 1 indicator on
the TV is lit red), press 1/1
on the remote or on the TV.
2
Press PROGR +/– or the
number buttons to select
the TV channel.
For double digit numbers,
press ÷, then the number
(e.g., for 25, press ÷, then
2 and 5).
Note
•When you turn on the TV, either the program number or video mode is
displayed for approximately 40 seconds. The ECO MODE ( ) icon will
also appear if “ECO MODE” in the “FEATURE” menu is set “ON” (see
page 38).
To select a TV program quickly
(1) Press and hold PROGR +/–.
(2) Release PROGR +/– when the desired program number appears.
Note
•When you select a TV program quickly, the picture may be disrupted.
This does not indicate a malfunction.
U
–
PROGR
+
ENTERMENU –
.
+
…

– 12 –
KV-ES34M81/ES34M91
RM-916
12 Using Your New TV
Using the Remote Control Button Joystick ( )
You can select the menu item on the
screen by moving up, down, left or
right (see page 31).
To confirm a selected item, press .
You can also press ENTER on the remote
to confirm a selected item.
Changing the menu language
You can change the menu language as well as the on-screen language. For details on
how to use the menu, see “Introducing the menu system” on page 29.
1
Press MENU.
2
Move up or down to
select , then press .
3
Make sure “LANGUAGE”
is selected then press .
4
Move up or down to
select the desired
language (e.g., ), then
press .
The selected menu
language appears.
To return to the normal screen
Press MENU.
A / V CONTROL
DRC-MF: DRC1250
SURROUND: OFF
DIGITAL IN : OFF
PICTURE MODE: DYNAMIC
SOUND MODE: DYNAMIC
SET UP :ENGL I SH
CHILD LOCK:PR0 1 OFF
FF
PIC ROTATION
FAVORI TE CH
INTELLIGENT VOL:O
LANGUAGE
To move
To confirm
.
78
0
9
MENU PROGR
ENTER
PRESET
VTR 1 2 3 DVD
JUMP
.
FAVORITE PROGR
INDEX
PIC
MODE SOUND
MODE SURROUND
MENU
b
bb
bb
b
Watching the TV (continued)
SET UP :ENGL I SH
CH I LD LOCK
PIC ROTATI
FAVORI TE C
INTELLIGEN
LANGUAGE/
11
Using Your New TV
Using Your New TV
To
Turn off temporarily
Turn off completely
Adjust the volume
Mute the sound
Watch the video input
(VCR, camcorder, etc.)
Jump back to the previous channel
Display the on-screen information*
Press
1/1.
The 1 indicator on the TV lights up red.
! on the TV.
2 +/–.
%.
t (or t on the TV) to select “VIDEO 1”,
“VIDEO 2”, “VIDEO 3”, “VIDEO 4”or “DVD”.
To return to the TV screen, press a (or t on the TV).
JUMP.
.
Additional tasks
JUMP
. +/–
MENU
TV
123
456
78
0
9
MENU PROGR
ENTER
PRESET
VTR 1 2 3 DVD
JUMP
.
A/B
DRC-MF
FAVORITE PROGR
INDEX
PIC
MODE SOUND
MODE SURROUND
ENTER
continued
* Some picture/sound settings, and either the program number or video
mode are displayed. The on-screen display for the picture/sound settings
disappears after about 3 seconds.
U
–
PROGR
+
ENTERMENU –
.
+
…
TITLE
PROGR
+
DRC-MF
VIDEO

– 13 –
KV-ES34M81/ES34M91
RM-916
13
Using Your New TV
Using Your New TV
Setting the Wake Up timer
1
Press until the desired
period of time appears.
The Wake Up timer starts
immediately after you
have set it.
2
Select the TV channel or video mode you want to wake up to.
3
Press 1/1, or set the Sleep timer if you want the TV to turn off
automatically.
The indicator on the TV lights up orange.
To cancel the Wake Up timer
Press until “WAKE UP TIMER: OFF” appears, or turn off the TV’s
main power.
Note
•If no buttons or controls are pressed for more than two hours after the TV
is turned on using the Wake Up timer, the TV automatically goes into
standby mode. To resume watching the TV, press any button or control on
the TV or the remote.
Setting the Sleep timer
Press until the desired
period of time appears.
The Sleep timer starts
immediately after you
have set it.
To cancel the Sleep timer
Press until “SLEEP TIMER: OFF” appears, or turn the TV off.
WAKE UP TIMER:10M
WAKE UP TIMER:OFF WAKE UP TIMER:12H00M
After 10 minutes
No Wake Up Timer After 12 hours
SLEEP TIMER:30M SLEEP TIMER:60M
SLEEP TIMER:OFF SLEEP TIMER:90M
After 30 minutes
No Sleep Timer
After 60 minutes
After 90 minutes
14 Advanced Operations
Advanced Operations
Selecting the picture mode
Press PIC MODE
repeatedly until the
desired picture mode is
selected.
Select
“DYNAMIC”
“STANDARD”
“HI-FINE”
“PERSONAL”
To
receive high contrast pictures.
receive normal pictures.
receive higher resolution pictures with mild contrast.
receive the last adjusted picture setting from the “ADJUST” option in the
“A/V CONTROL” menu (see page 33).
Selecting the sound mode
Press SOUND MODE
repeatedly until the
desired sound mode is
selected.
Select
“DYNAMIC”
“DRAMA”
“SOFT”
“PERSONAL”
To
listen to dynamic and clear sound that emphasizes both the low and high
tones.
listen to sound that emphasizes voice and high tones.
receive soft sound.
receive the last adjusted sound setting from the “ADJUST” option in the
“A/V CONTROL” menu (see page 33).
Tip
•You can also set the picture and sound modes using the menu (see
“Changing the “A/V CONTROL” setting” on page 32).
Selecting the picture
and sound modes
You can select picture and sound modes
and adjust the setting to your preference
in the “PERSONAL” option.
MENU PROGR
ENTER
PRESET
VTR 1 2 3 DVD
.
FAVORITE PROGR
INDEX
PIC
MODE SOUND
MODE SURROUND
SOUND MODE
PIC MODE
PERSONAL
DYNAMIC
HI-FINE
STANDARD
PIC
MODE
≥DYNAMIC
≥PERSONAL ≥SOFT
≥DRAMA
SOUND
MODE

– 14 –
KV-ES34M81/ES34M91
RM-916
15
Advanced Operations
Viewing higher
quality pictures
— “DRC-MF”
The Digital Reality Creation-Multi
Function (DRC-MF) feature allows you
to enjoy higher quality pictures on your
TV. You can select “DRC1250” to watch
super real (higher resolution) pictures,
or “DRC100” to reduce flicker if
necessary.
Press DRC-MF repeatedly
until you receive the
desired picture quality.
Tip
•When the broadcast signal is weak, you may see some dots or noise on the
TV screen. To reduce this interference, display the “A/V CONTROL”
menu and select “ADJUST” in “PICTURE MODE”, then adjust “SHARP”
to reduce the sharpness (see page 33).
Note
•The DRC-MF mode is not selectable when using the “PROGRAM INDEX”
or “FAVORITE” channel feature, or when the “GAME MODE”, Picture-In-
Picture (“PIP”), or “TWIN” mode is turned “ON”.
The DRC-MF logo ( ) and “DRC-MF” are trademarks of
Sony Corporation.
Select
“DRC1250”
“DRC100”
To
select higher resolution pictures.
reduce flicker on the screen.
123
456
78
0
9
MENU PROGR
ENTER
JUMP
.
A/B
DRC-MF
FAVORITE PROGR
INDEX
PIC
MODE SOUND
MODE SURROUND
DRC-MF
Advanced Operations
DRC-MF: DRC1250 DRC-MF: DRC100
DRC-MF
16 Advanced Operations
Viewing your
favorite channels
— “FAVORITE CH”
You can display seven favorite channels
for quick and easy selection.
The last seven channels selected with
the number buttons are displayed in
“AUTO” mode. You can set up your
own favorite channels in “MANUAL”
mode under the “FAVORITE CH” menu
(see “Changing the favorite channel
setting” on page 41).
Selecting a favorite channel
1
Press FAVORITE.
2
Move up, down, left
or right to select the
desired channel (e.g. PR
8), then press .
3
Press again.
Note
•When you use your TV for the first time, seven preset channels appear.
FAVORITE
TV
78
0
9
MENU PROGR
ENTER
PRESET
VTR 1 2 3 DVD
JUMP
.
FAVORITE PROGR
INDEX
PIC
MODE SOUND
MODE SURROUND
ENTER
1
3
4
12 10 8 6
FAVORITE
b
FAVORITE CH
FAVORITE CH
7.PR 12 6.PR 10 5.PR 08 4.PR 06
3.PR 04
2.PR 03
1.PR 01
8
1
3
4
12 10 8 6
FAVORITE CH
bb
b

– 15 –
KV-ES34M81/ES34M91
RM-916
17
Advanced Operations
Watching two
programs at the
same time
— “PIP”, “TWIN”
With the Picture-in-Picture (PIP) or
TWIN pictures features, you can display
a different TV program or video within
or beside the main picture.
Displaying the PIP screen
Press .
Displaying TWIN pictures
Press .
To return to the normal screen
Press (when in the PIP screen) or (when in the TWIN picture
screen).
Tip
•You can also display the PIP screen or TWIN pictures using the menu (see
“Changing the MULTI PICTURE setting” on page 35).
12
10 12
TITLE
PROGR
+
PROGR
–
PROGR
.
MENU
ENTER
DRC-MF
FAVORITE PROGR
INDEX
PIC
MODE SOUND
MODE SURROUND
PROGR +/PROGR –
/
VIDEO
continued
18 Advanced Operations
Additional PIP/TWIN pictures tasks
To
change a TV program in the PIP
screen or in the right TWIN picture
swap pictures between the main
and PIP screens
freeze the PIP screen
change the position of the PIP screen
swap the right and left pictures of
the TWIN pictures
change the screen size of the TWIN
pictures
Notes
•The button does not function in the TWIN pictures mode.
•When you display a video input on the PIP screen at a faster/slower
speed, the picture may be disrupted depending on the VCR type.
•If you display different color systems on the main screen and the PIP
screen, the size of the PIP screen may be different and the PIP picture may
be disrupted. This does not indicate a malfunction of the TV.
•In the TWIN picture screen, you can only operate and hear the sound of
the main left screen ( appears on the screen).
•When the button is pressed, the TV screen flickers or goes blank for
about one second before the TWIN pictures appear. This does not indicate
a malfunction of the TV.
Press/Move
Press PROGR + or PROGR –. For a video input,
press .
Press
.
Press
.
To unfreeze the screen, press the button again.
Press D
.
Press
.
Move left to increase the left screen size.
Move right to increase the right screen size.
Watching two programs at the same time (continued)

– 16 –
KV-ES34M81/ES34M91
RM-916
19
Advanced Operations
Displaying
multiple
programs
— “PROGRAM INDEX”
The PROGRAM INDEX feature displays
all of the preset TV programs on twelve
or seven sub screens for direct selection.
Press PROGR INDEX.
The first twelve preset
programs appear one by
one, clockwise from the
upper left corner.
When the number of the
preset TV programs is less
than eight, the first seven
preset programs appear
one by one, clockwise from
the upper right corner.
Tip
•When you press the PROGR INDEX button in the TWIN pictures mode,
the left picture appears as the main screen of the PROGRAM INDEX
mode.
PROGR INDEX
b
PROGR +/–
Main screen
Main screen
Still sub screens
Still
sub
screens
16
1234
12 5
11 6
10987
16
1
2
3
7654
TV
123
456
78
0
9
MENU PROGR
ENTER
PRESET
VTR 1 2 3 DVD
JUMP
.
FAVORITE PROGR
INDEX
PIC
MODE SOUND
MODE SURROUND
PROGR
INDEX
continued
20 Advanced Operations
Displaying multiple programs (continued)
To view the next or the previous twelve preset programs
This works only when the number of the preset TV programs is
more than twelve.
Press PROGR +/– on the remote or the TV.
To select the desired program directly from the sub screens
1 Move up, down, left or right to move the frame to the screen
of the program you want to watch.
2 Press .
3 Press again.
Tip
•Pressing the number buttons directly displays the program.
16
1234
12 5
11 6
10987
16
13 14 15 16
17
18
8
1234
12 5
11 6
10987
b
8
b
16
1234
12 5
11 6
10987
b

– 17 –
KV-ES34M81/ES34M91
RM-916
21
Advanced Operations
To return to the normal screen
Press PROGR INDEX again, or:
1 Select “PROGRAM INDEX” from the “MULTI PICTURE” menu.
2 Press .
Tip
•You can also display multiple programs using the menu (see “Changing
the MULTI PICTURE setting” on page 35).
Note
•When displaying multiple programs, only the sound of the main screen is
heard.
22 Advanced Operations
Listening with
surround sound
The surround feature enables you to
enjoy the sound effects of a concert hall
or movie theater.
Press SURROUND
repeatedly until you
receive the desired
surround sound.
Notes
•The Virtual Dolby Surround of this model consists of Dolby Digital, Dolby
Pro Logic and TruSurround.
•
The “
a
VIRTUAL” (Virtual Dolby Digital) is only available when receiving
a Dolby Digital signal through the
DIGITAL IN (component video
input)
jack at the rear of your TV and “DIGITAL IN: ON” in the “A/V
CONTROL” menu is selected (see pages 7 and 32).
•When using the DIGITAL IN (component video input) jack at the rear
of your TV, the available surround modes depend on the type of digital
signal being received.
•SIMULATED uses SRS (MONO).
* Manufactured under license from Dolby Laboratories Licensing Corporation.
DOLBY, the double-D symbol a and “PRO LOGIC” are trademarks of
Dolby Laboratories Licensing Corporation.
“
TM
” is a trademark of SRS Labs, Inc. SRS and the SRS
symbol are registered trademarks of SRS Labs, Inc. in the United
States and selected foreign countries. SRS and TruSurround are
incorporated under license from SRS Labs, Inc. and are protected
under United States Patent Nos.4,748,669 and 4,841,572 with
numerous additional issued and pending foreign patents”.
SURROUND
Select
“a VIRTUAL
”
“TruSurround
”
“SIMULATED
”
“OFF
”
To
listen to Dolby* Surround encoded sound.
listen to the surround sound that spreads out to the rear of a room.
listen to monaural sound with a stereo-like effect.
turn off the surround sound.
123
456
78
0
9
JUMP
A/B
DRC-MF
FAVORITE PROGR
INDEX
PIC
MODE SOUND
MODE SURROUND
SURROUND: OFF SURROUND: SIMULATED
SURROUND: TruSurround
SURROUND: VIRTUAL
SURROUND

– 18 –
KV-ES34M81/ES34M91
RM-916
23
Advanced Operations
Enjoying stereo or
bilingual
programs
(KV-ES34M91 only)
You can enjoy stereo sound or bilingual
programs of NICAM and A2 (German)
stereo systems.
Press A/B repeatedly until
you receive the sound you
want.
The on-screen display
changes to show the
selected sound and the
 indicator on the TV
lights up red.
When receiving a NICAM program
A/B
Broadcasting On-screen display (Selected sound)
NICAM stereo
NICAM bilingual
NICAM monaural
123
456
78
0
9
JUMP
A/B
DRC-MF
FAVORITE PROGR
INDEX
PIC
MODE SOUND
MODE SURROUND
NICAM MONO
(Stereo sound) (Regular sound)
NICAM
MAIN MONO
(Main sound) (Regular sound)
NICAM
SUB
(Sub sound)
NICAM
MAIN MONO
(Main sound) (Regular sound)
STEREO
A/B
continued
24 Advanced Operations
When receiving an A2 (German) program
Notes
•If the signal is very weak, the sound becomes monaural automatically.
•If the stereo sound is noisy when receiving a NICAM program, select
“MONO”. The sound becomes monaural, but the noise is reduced.
If the sound is distorted or noisy when receiving a monaural
program through the 8 (antenna) terminal
Press A/B repeatedly until “MONO” appears on the screen.
To cancel the monaural sound setting, press A/B again until
“AUTO” appears on the screen.
Notes
•The “MONO” or “AUTO” setting is memorized for each program
position.
•You cannot receive a stereo broadcast signal when the TV is in the
“MONO” setting. Normally, set the TV to “AUTO”.
Broadcasting On-screen display (Selected sound)
A2 (German) stereo
A2 (German) bilingual
STEREO
MONO
(Stereo sound)
(Regular sound)
MAIN SUB
(Main sound) (Sub sound)
MONO AUTO
Enjoying stereo or bilingual programs (continued)

– 19 –
KV-ES34M81/ES34M91
RM-916
25
Advanced Operations
Viewing Teletext
Some TV stations broadcast an
information service called Teletext
which allows you to receive various
information, such as stock market
reports and news.
Displaying Teletext
1
Select a TV channel that carries the Teletext broadcast you want to watch.
2
Press to display the
text.
A Teletext page (normally
the index page) is
displayed. If there is no
Teletext broadcast, “100?”
is displayed at the top left
corner of the screen after
approximately 10 seconds.
To turn off Teletext
Press a.
TITLE
VIDEO
PROGR
+
PROGR
–
PROGR
.
MENU
ENTER
DRC-MF
FAVORITE PROGR
INDEX
PIC
MODE SOUND
MODE SURROUND
PRESET
VTR 1 2 3 DVD
123
456
78
0
9
JUMP
A/B
DRC-MF
A/B
P166 SECTEXT 166 FR1 MAR 03:59:09
From Singapore
To PA RI S
To OSAKA
To ROMA
To SYDNEY
Day Dep/Arr Flight Alrcraft
1.6 220/0588 SQ28 747
2 2130/1225 PA115 L15
3 2115/1330 SQ26 747
2.7 2130/0745 SQ24
747
4 2300/0915 AZ487 747
2.5 1000/1715 SQ6 747
4.6 0930/2015 CX522 L10
1 2210/0610 SQ21A 747
2 2100/0835 SQ21A 747
(red, green,
yellow, blue)
continued
26 Advanced Operations
Additional Teletext tasks
To
display a Teletext page on the TV
picture
check the contents of a Teletext service
select a Teletext page
hold (pause) a Teletext page
(stop the page from scrolling)
reveal concealed information
(e.g., an answer to a quiz)
enlarge the Teletext display
stand by for a Teletext page while watching
a TV program
* You can also select a Teletext page of any page number that appears in the
colored column at the bottom of the screen using the corresponding color-
coded button on the remote.
Using FASTEXT
This feature allows you to quickly access a Teletext page that uses
FASTEXT. When a FASTEXT program is broadcast, colored menus
appear at the bottom of the screen. The color of each menu
corresponds to the color-coded buttons on the remote (red ,
green , yellow , and blue ).
To access a FASTEXT menu
Press the color-coded button on the remote corresponding to the
menu you want. The menu page appears on the screen after a few
seconds.
Do this
Press .
Each time you press , the screen changes as
follows: Teletext n Teletext and TV n TV.
Press .
An overview of the Teletext contents, including
page numbers, appears on the screen.
Press the number buttons to enter the three-digit
page number of the desired Teletext page.* If you
make a mistake, reenter the correct page number. To
access the next or previous page, press PROGR +/–.
Press to display the symbol “j” at the top left
corner of the screen. To resume normal Teletext
viewing, press or .
Press .
To conceal the information, press the button again.
Press .
Each time you press , the Teletext display
changes as follows: Enlarge upper half n Enlarge
lower half n Normal size.
1 Enter the Teletext page number that you want to
refer to, then press .
2 When the page number is displayed, press to
show the text.
Viewing Teletext (continued)

– 20 –
KV-ES34M81/ES34M91
RM-916
27
Advanced Operations
Operating
optional
components
You can use the supplied remote to
operate Sony video equipment such as
Beta, 8 mm, VHS or DVD.
Setting up the remote to work with other
connected equipment
Switch VTR to select the
desired equipment type
(see the chart below).
Notes
•If your video equipment is furnished with a COMMAND MODE selector,
set this selector to the same position as the VTR switch.
•If the equipment does not have a certain function, the corresponding
button on the remote will not operate.
To control
DVD
VTR1 (Beta)
VTR2 (8 mm)
VTR3 (VHS)
For example, to operate a
Sony 8 mm VCR:
Select
DVD
1
2
3
VIDEO I/1
Video equipment
operation buttons
VTR
VTR 1 2 3 DVD
TITLE
PROGR
+
PROGR
–
PROGR
.
VIDEO
MENU
ENTER
DRC-MF
FAVORITE PROGR
INDEX
PIC
MODE SOUND
MODE SURROUND
PRESET
VTR 1 2 3 DVD
continued
MENU
28 Advanced Operations
Operating a VCR using the remote
Operating a DVD player using the remote
To
turn on/off
record
play
stop
fast forward ())
rewind the tape (0)
pause
search the picture forward ())
or backward (0)
Press
VIDEO I/1
( while pressing r.
(
p
+
=
P
Press again to resume normal playback.
+ or =during playback.
Release to resume normal playback.
To
turn on/off
play
stop
pause
step through different tracks of an
audio disc
display the title menu
display the menu
select the menu item
Press
VIDEO I/1
(
p
P
Press again to resume normal playback.
+ to step forward or = to step backward.
TITLE
MENU while holding down r.
Move up, down, left or right while holding
down r.
Operating optional components (continued)

– 21 –
KV-ES34M81/ES34M91
RM-916
29
Adjusting Your Setup (MENU)
Level 1
“A/V
CONTROL”
“MULTI
PICTURE”
“FEATURE”
Adjusting Your Setup (MENU)
Return icon
CH PRESET icon
SET UP icon
MULTI PICTURE icon
Name of the current
menu
A/V CONTROL icon
Level 2
“DRC-MF”
“PICTURE MODE”
“ADJUST”
“SOUND MODE”
“ADJUST”
“SURROUND”
“DIGITAL IN”
“PIP”
“PIP POSITION”
“SWAP”
“TWIN”
“PROGRAM INDEX”
“WIDE MODE”
“ECO MODE”
“GAME MODE”
Level 3/Function
Select the “DRC-MF” mode:
“DRC1250” t “DRC100”
Select the picture mode:
“DYNAMIC” t “STANDARD” t “HI-FINE” t
“PERSONAL” t “ADJUST”
Adjust the “PERSONAL” option:
“PICTURE” t “COLOR” t “BRIGHT” t “HUE” t
“SHARP”
Select the sound mode:
“DYNAMIC” t “DRAMA” t “SOFT” t
“PERSONAL” t “ADJUST”
Adjust the “PERSONAL” option:
“BASS” t “TREBLE” t “BALANCE” t “BBE”*
Select the “SURROUND” mode:
“a VIRTUAL” t “TruSurround” t “SIMULATED” t
“OFF”
Activate or deactivate the digital audio input jack at the
rear of your TV.
Activate or deactivate the PIP feature.
Change the position of the sub screen.
Swap the pictures between the main and sub screens.
Display a TV program or video beside the main screen.
Display all the preset TV programs at the same time.
Activate or deactivate WIDE MODE feature.
Activate or deactivate ECO MODE feature.
Activate or deactivate GAME MODE feature.
Introducing the menu system
The MENU button lets you open a menu and change the settings of your TV. The
following is an overview of the menu system.
Menu level 3
Menu level 2
Guide mark icon
Menu level 1
SET UP :ENGL I SH
CH I LD LOCK
PIC ROTATI
FAVOR I TE C
INTELLIGEN
LANGUAGE/
FEATURE icon
Adjusting Your Setup (MENU)
continued
30 Adjusting Your Setup (MENU)
Introducing the menu system (continued)
Level 1
“SET UP”
“CH PRESET”
Level 2
“LANGUAGE”
“CHILD LOCK”
“PIC ROTATION”
“FAVORITE CH”
“INTELLIGENT
VOL”
“AUTO
PROGRAM”
“MANUAL
PROGRAM”
“SKIP”
“TV SYS”
“COL SYS”
Level 3/Function
Change the menu language:
“ENGLISH” t “” (Chinese) t “” (Arabic)
Lock out specific channels.
Rotate the picture.
Set favorite channels.
Adjust the volume automatically.
Preset channels automatically.
Preset channels manually.
Skip unwanted or unused program numbers.
Select the TV system:
“B/G” t “I” t “D/K” t “ M”
Select the color system:
“AUTO” t“ PAL ” t “SECAM” t “NTSC3.58” t
“NTSC4.43”
* The BBE is manufactured by Sony Corporation under license from BBE
Sound, Inc. It is covered by U.S. Patent No. 4,638,258 and No. 4,482,866.
The word “BBE” and the BBE symbol are the trademarks of BBE Sound, Inc.

– 22 –
KV-ES34M81/ES34M91
RM-916
31
Adjusting Your Setup (MENU)
ENTER
b
MU L T I P I C TURE
:
:OFF
SWAP
TW I N :OFF
PROGRAM I NDEX
PIP POSITION
PIP
How to use the menu
Move the button
joystick ( ) up,
down, left or right
to select the desired
item.
Press the button
joystick ( ) to confirm
the selection and/or go
to the next level. You
can also press ENTER
on the remote to do
this.
Press MENU to display
the menu.
To
Adjust the setting value
Move to the next/previous menu level
Cancel the menu
Other menu operations
Tips
•If you want to exit from Menu level 2 to Menu level 1, move up or
down until the return icon (3) is highlighted, then press or ENTER.
•The MENU, ENTER, and
2
+/– buttons on the TV can also be used for
the operations above.
Note
•If more than 60 seconds elapse between entries, the menu screen
automatically disappears.
Press/Move
Move up, down, left or right.
Move left or right.
Press MENU.
or
TV
MENU PROGR
ENTER
PRESET
VTR 1 2 3 DVD
.
FAVORITE PROGR
INDEX
PIC
MODE SOUND
MODE SURROUND
MENU
b
A / V CONTROL
DRC-MF: DRC1250
SURROUND: OFF
DIGITAL IN : OFF
PICTURE MODE: DYNAMIC
SOUND MODE: DYNAMIC
MU L T I P I C TURE
:
:OFF
SWAP
TW I N :OFF
PROGRAM I NDEX
PIP
PIP POSITION
b
32 Adjusting Your Setup (MENU)
Select
either “DRC1250“ or “DRC100“.
either “DYNAMIC“, “STANDARD“, “HI-FINE“, “PERSONAL“*, or “ADJUST“.
either “DYNAMIC“, “DRAMA“, “SOFT“, “PERSONAL“*, or “ADJUST“.
either “a VIRTUAL“, “TruSurround“, “SIMULATED“, or “ OFF“.
either “ON“ or “OFF“.
Changing the “A/V
CONTROL” setting
The “A/V CONTROL” menu allows you
to adjust the picture and sound settings.
1Press MENU.
2Move up or down to
select , then press .
3Move up or down to
select either “DRC-MF”,
“PICTURE MODE”, “SOUND
MODE”, “SURROUND”, or
“DIGITAL IN“, then press
.
4
Move up or down to
select the desired option,
then press .
* When the “PERSONAL” mode is selected, the last adjusted picture/sound
settings from the “ADJUST” option are received (see page 31).
MENU
Tip
•For details on the options under the “DRC-MF“, “PICTURE MODE“/
“SOUND MODE“, “SURROUND“ and “DIGITAL IN“ modes, see pages
15, 14, 22 and 34 respectively.
To return to the normal screen
Press MENU.
ENTER
For
“DRC-MF“
“PICTURE MODE“
“SOUND MODE“
“SURROUND“
“DIGITAL IN“
MENU PROGR
ENTER
MENU
b
A/V CONTROL
DRC-MF: DRC1250
SURROUND: OFF
DIGITAL IN : OFF
PICTURE MODE: DYNAMIC
SOUND MODE: DYNAMIC
A/V CONTROL
SURROUND: OFF
DIGITAL IN : OFF
PICTURE MODE: DYNAMIC
SOUND MODE: DYNAMIC
DRC-MF: DRC1250
bb
A/V CONTROL
DRC1250
PICTURE MODE
DRC-MF : DRC100
SOUND MODE
SURROUND : O
DIGITAL IN
bb
b

– 23 –
KV-ES34M81/ES34M91
RM-916
33
Adjusting Your Setup (MENU)
Adjusting the “ADJUST” options under “PICTURE MODE”
1
Move up or down to
select the desired item
(e.g., “COLOR”), then
press .
2
Adjust the value according to the following table, then press .
* You can adjust “HUE” for the NTSC color system only.
3
Repeat the above steps to adjust other items.
The adjusted settings will be received when you select “PERSONAL”.
Adjusting the “ADJUST” options under “SOUND MODE”
1
Move up or down to
select the desired item
(e.g., “BALANCE”), then
press .
2
Adjust the value according to the following table, then press .
3
Repeat the above steps to adjust other items.
The adjusted settings will be received when you select “PERSONAL”.
For
“PICTURE”
“COLOR”
“BRIGHT”
“HUE”*
“SHARP”
Move up or right to
increase picture contrast
increase color intensity
brighten the picture
increase green picture tones
sharpen the picture
Move down or left to
decrease picture contrast
decrease color intensity
darken the picture
increase red picture tones
soften the picture
COLOR 08
BALANCE
00
bb
bb
For
“BASS”
“TREBLE”
“BALANCE”
“BBE”
Move
down or left to decrease the bass, up or right to increase the bass.
down or left to decrease the treble, up or right to increase the treble.
down or left to increase the left speaker’s volume, up or right to increase
the right speaker’s volume.
up or down to select “HIGH”, “LOW”, or “OFF”.
“BBE” can produce clear sound.
continued
34 Adjusting Your Setup (MENU)
Setting the “DIGITAL IN” options
1
In the “DIGITAL IN”
menu, move up or
down to select the
desired option (see table
below).
2
Press to confirm the
selected option.
Note
•Your TV can only receive Dolby Digital or Linear PCM format digital
signals through the DIGITAL IN (component video input) jack
(see page 7). Receiving any other format digital signal may cause
unwanted noise or no sound from the speakers.
Tip
•For details on the menu system and how to use the menu, refer to
“Introducing the menu system” on page 29.
To
receive digital audio signal through DIGITAL IN (component
video input) jack.
receive analog audio signal through L and R (component
video input) jack.
b
A / V CONTROL
ON
PICTURE MODE
DRC-MF : DRC OFF
SOUND MODE
SURROUND : O
DIGITAL IN
Changing the “A/V CONTROL” setting (continued)
Select
“ON“
“OFF”

– 24 –
KV-ES34M81/ES34M91
RM-916
35
Adjusting Your Setup (MENU)
Changing the
“MULTI PICTURE”
setting
The “MULTI PICTURE” menu allows
you to use the Picture-in-Picture (PIP),
TWIN pictures, or PROGRAM INDEX
features.
1
Press MENU.
2
Move up or down to
select , then press .
MENU
PROGR INDEX
TV
TITLE
PROGR
+
PROGR
–
PROGR
.
MENU
ENTER
DRC-MF
FAVORITE PROGR
INDEX
PIC
MODE SOUND
MODE SURROUND
PRESET
VTR 1 2 3 DVD
VIDEO
bb
continued
A/V CONTROL
DRC-MF: DRC1250
SURROUND: OFF
DIGITAL IN : OFF
PICTURE MODE: DYNAMIC
SOUND MODE: DYNAMIC
MUL T I P I CTURE
:
:OFF
SWAP
TW I N :OFF
PROGRAM I NDEX
PIP POSITION
PIP
MENU
b
36 Adjusting Your Setup (MENU)
3
Move up or down to
select the desired option
(see the table below),
then press .
To return to the normal screen
Press MENU.
Tip
•For details on the menu system and how to use the menu, see
“Introducing the menu system” on page 29.
Select
“PIP”
“PIP POSITION”
“SWAP”
“TWIN”
“PROGRAM INDEX”
To
display the PIP screen within the main picture.
Move up or down to select “ON”, then press .
To cancel, press or select “OFF”, then press .
change the position of the PIP screen.
Move up or down to select the desired position, then press .
swap the main and PIP screens, or right and left pictures of the
TWIN pictures.
display a different TV program or video beside the main picture.
Move up or down to select “ON”, then press .
To cancel, press or select “OFF”, then press .
view multiple programs on the sub-screens.
To cancel, press PROGR INDEX.
b
Changing the “MULTI PICTURE” setting (continued)

– 25 –
KV-ES34M81/ES34M91
RM-916
37
Adjusting Your Setup (MENU)
TV
123
456
78
0
9
MENU PROGR
ENTER
PRESET
VTR 1 2 3 DVD
JUMP
A/B
DRC-MF
FAVORITE PROGR
INDEX
PIC
MODE SOUND
MODE SURROUND
MENU
ENTER
Changing the
“FEATURE” setting
The “FEATURE” menu allows you to
change the size of the picture on the
screen when receiving wide mode (16:9)
picture signals. You can also adjust the
picture setting that is suitable for
viewing video games, and reduce the
power consumption of your TV.
1
Press MENU.
2
Move up or down to
select , then press .
bb
FEATURE
ECO MODE: OFF
GAME MODE: OFF
:OFF
WIDE MODE
continued
A/V CONTROL
DRC-MF: DRC1250
SURROUND: OFF
DIGITAL IN : OFF
PICTURE MODE: DYNAMIC
SOUND MODE: DYNAMIC
MENU
b
38 Adjusting Your Setup (MENU)
3
Move up or down to
select the desired option
(see the table below),
then press .
Notes
•When you turn on “ECO MODE”, the picture may become dimmer.
Turning “ECO MODE” off will restore the picture to its original setting.
•“WIDE MODE” and “GAME MODE” is available only when receiving
signals through the t (video input), (S video input), or
(component video input) jacks at the side and rear of your TV.
•If “ECO MODE” is on, the ECO MODE ( ) icon will appear at the
bottom right corner of the screen when you turn on the TV or when you
press on the remote (see pages 10 and 11).
To return to the normal screen
Press MENU.
Tip
•For details on the menu system and how to use the menu, see
“Introducing the menu system” on page 29.
Select
“WIDE MODE”
“ECO MODE”
“GAME MODE”
To
change the size of the picture when receiving wide-mode (16:9)
picture signal.
Move up or down to select “ON”, then press .
To restore the normal picture size, select “OFF” then press .
reduce power consumption of your TV to save energy.
Move up or down to select “ON”, then press .
To cancel, select “OFF”, then press .
adjust the picture setting that is suitable to view video games.
Move up or down to select “ON”, then press .
To cancel, select “OFF”, then press .
b
b
Changing the “FEATURE” setting (continued)

– 26 –
KV-ES34M81/ES34M91
RM-916
40 Adjusting Your Setup (MENU)
Changing the “SET UP” setting (continued)
Blocking channels (“CHILD LOCK”)
1
After selecting “CHILD
LOCK”, either move up
or down, or press the
number buttons (or
PROGR +/–) to select the
desired channel (e.g. PR 06),
then press .
2
Move up or down to
select “ON”, then press .
To unlock the channel,
select “OFF”.
The lock symbol ( )
appears on the screen when
“ON” is selected.
If a locked channel is
selected, the lock symbol
appears on the screen.
3
Repeat steps 1 and 2 to lock other channels.
To return to the normal screen
Press MENU.
Note
•If you preset a locked channel, that channel will be unlocked (see page 42).
b
or
b
SET UP
:
LANGUAGE
E
CHILDLOCKPR06
PIC ROTATI
FAVORI TE C ON
INTELLIGEN OFF
b
123
456
78
0
9
JUMP
bb
SET UP ENGL I SH
PR06 ON
PIC ROTATION
FAVORI TE CH
INTELLIGENT VOL:OFF
CH I LD LOCK :
:
LANGUAGE
6
39
Adjusting Your Setup (MENU)
Changing the
“SET UP” setting
The “SET UP” menu allows you to:
change the menu language, block
channels, adjust the picture position,
program your favorite channels, and
adjust the volume automatically.
1
Press MENU.
2
Move up or down to
select , then press .
3
Move up or down to
select the desired option,
then press .
To return to the normal screen
Press MENU.
MENU
Number buttons
ENTER
continued
Select
“LANGUAGE”
“CHILD LOCK”
“PIC ROTATION”
“FAVORITE CH”
“INTELLIGENT
VOL”
To
change the menu language (see page 12).
block channels (see page 40).
adjust the picture position when it is not aligned with the TV screen.
Move up or right to adjust the position clockwise, then press .
Move down or left to adjust the position counterclockwise, then
press .
select your favorite channels (see pages 16 and 41).
adjust the volume of all TV programs automatically.
Move
up or down
to select “ON”, then press .
To cancel, select “OFF”, then press .
123
456
78
0
9
MENU PROGR
ENTER
PRESET
VTR 1 2 3 DVD
JUMP
FAVORITE PROGR
INDEX
PIC
MODE SOUND
MODE SURROUND
A/V CONTROL
DRC-MF: DRC1250
SURROUND: OFF
DIGITAL IN : OFF
PICTURE MODE: DYNAMIC
SOUND MODE: DYNAMIC
MENU
b
bb
SET UP :ENGL I SH
CHILD LOCK:PR0 1 OFF
FF
PIC ROTATION
FAVORI TE CH
INTELLIGENT VOL:O
LANGUAGE
bb
PIC ROTATION
bb

– 27 –
KV-ES34M81/ES34M91
RM-916
41
Adjusting Your Setup (MENU)
Changing the favorite channel setting
1
After selecting “FAVORITE
CH”, make sure “MODE”
is selected, then press .
2
Move up or down to
select “MANUAL”, then
press .
3
Move up or down to
select the program you
want to change, then
press .
4
Move up or down to
change the number, then
press .
5
Repeat steps 3 and 4 to set other channels.
To return to the normal screen
Press MENU.
Note
•If you press the PROGR +/– buttons or number buttons in step 4 above,
the TV will display the channel immediately.
bb
bb
bb
b
FAVORI TE CH
MODE :AUTO AUTO
1.PR01 MANUAL
2.PR02
3.PR06
4.PR08
FAVORI TE CH
MODE :MANUA L
1.PR01 5.PR09
2.PR02 6.PR11
3.PR06 7.PR13
4.PR08
FAVORI TE CH
MODE :MANUA L
1.PR01 5.PR09
2.PR02 6.PR11
3.PR 7.PR13
4.PR08
06
FAVORI TE CH
MODE :MANUA L
1.PR01 5.PR09
2.PR02 6.PR11
3.PR05 7.PR13
4.PR08
42 Adjusting Your Setup (MENU)
Changing the “CH
PRESET” setting
The “CH PRESET” menu allows you to
adjust the setup of your TV. For
example, you can manually tune in a
channel with a weak signal that fails to
be tuned in by automatic presetting.
MENU
ENTER
1
Press MENU.
2
Move up or down to
select , then press .
3
Move up or down to
select the desired option,
then press .
To return to the normal screen
Press MENU.
Tip
•For details on the menu system and how to use the menu, refer to
“Introducing the menu system” on page 29.
bb
b
A/V CONTROL
DRC-MF: DRC1250
SURROUND: OFF
DIGITAL IN : OFF
PICTURE MODE: DYNAMIC
SOUND MODE: DYNAMIC
CH PRESET
MANUAL PROGRAM
SK I P :PR02 OFF
TV SYS :B/G
COL SYS :AUTO
AUTO PROGRAM
Select
“AUTO PROGRAM”
“MANUAL PROGRAM”
“SKIP”
“TV SYS”
“COL SYS”
MENU PROGR
ENTER
PRESET
VTR 1 2 3 DVD
FAVORITE PROGR
INDEX
PRESET
MENU
b
To
preset channels automatically.
preset channels manually. See “Presetting channels
manually” on page 43.
skip unwanted or unused channels.
1 Either move up or down, or press the number buttons
(or PROGR +/–) until the unused or unwanted channel
number appears, then press .
2 Select “ON”, then press .
3 To disable other channels, repeat steps 1 and 2.
To restore the skipped channel, select “OFF” in step 2.
select the TV system.
select the color system. Normally, set this to “AUTO”.

– 28 –
KV-ES34M81/ES34M91
RM-916
43
Adjusting Your Setup (MENU)
Presetting channels manually
1
After selecting “MANUAL
PROGRAM”, select the
program number to
which you want to preset
a channel.
(1) Make sure “PR” is selected,
then press .
(2) Move up or down until
the program number you
want to preset (e.g.,
program number “10”)
appears on
the menu,
then press
.
Tips
•You can also select the “MANUAL PROGRAM” menu directly by pressing the
PRESET button on the remote.
•You can also select the program number with the PROGR +/– or number buttons.
2
Select the desired channel.
(1)
Move
up or down to
select either “VHF LOW”,
“VHF HIGH”, or “UHF”,
then press
.
(2) Move up or down
until the desired
channel’s broadcast
appears on the TV
screen, then press .
3
If the sound of the
desired channel is
abnormal, select the
appropriate TV system.
(1) Move up or down to
select “TV SYS”, then
press .
(2) Move up or down
until the sound
becomes normal, then
press .
continued
MANUAL PROGRAM
PR :06
TV SYS :B/G
SENS :HIGH
VHF LOW
FINE:AUTO
b
MANUAL PROGRAM
PR :10
TV SYS :B/G
SENS :HIGH
VHF LOW
FINE:AUTO
bb
MANUAL PROGRAM
PR :10
TV SYS :B/G
SENS :HIGH
VHF LOW
FINE:AUTO
MANUAL PROGRAM
PR :10
TV SYS :B/G
SENS :HIGH
VHF LOW
FINE:AUTO
MANUAL PROGRAM
PR :10 B/G
TV SYS :I
SENS :HIG D/K
VHF LOW M
FINE:AUTO
MANUAL PROGRAM
PR :10
TV SYS :I
SENS :HIGH
VHF LOW
FINE:AUTO
bb
bb
bb
bb
44 Adjusting Your Setup (MENU)
4
If you are not satisfied with
the picture and sound
quality, you may be able to
improve them by using the
“FINE” tuning feature.
(1) Move up or down
to select “FINE”, then
press .
(2) Move up or down
to select “MANUAL”,
then press .
(3) Move either up,
down, left or right
until the picture
and sound quality are
optimal, then press .
The + or – icon on the
menu flashes while
tuning.
5
If the TV signal is too
strong and the picture is
distorted, you can adjust
the TV reception
sensitivity.
(1) Move up or down
to select “SENS”,
then press .
(2) Move up or down
to select “LOW”, then
press .
To return to the normal screen
Press MENU.
Notes
•The TV system (“TV SYS”) and the TV reception sensitivity (“SENS”)
settings are memorized for each program number.
•If you preset a locked channel, that channel will be unlocked (see page 40).
Changing the “CH PRESET” setting (continued)
bb
MANUAL PROGRAM
PR :10
TV SYS :IMANUAL
SENS :HIG
VHF LOW
FINE:
AUTO
MANUAL PROGRAM
PR :10 AUTO
TV SYS :I
SENS :HIG
VHF LOW
FINE:
MANUAL
MANUAL PROGRAM
PR :10
TV SYS :I
SENS :HIGH
VHF L L
OW
FINE:MA ANU
MANUAL PROGRAM
PR :10 HIGH
TV SYS :ILOW
SENS :
VHF LOW
FINE:MA ANU
MANUAL PROGRAM
PR :10
TV SYS :I
:LOW
VHF L L
OW
FINE:MA ANU
SENS
bb
bb
bb
bb

– 29 –
KV-ES34M81/ES34M91
RM-916
45
Additional Information
Additional Information
Self-diagnosis function
Your TV is equipped with a self-diagnosis function. If there is a
problem with your TV, the 1 (standby) indicator flashes red. The
number of times the 1 indicator flashes indicates the possible
causes.
1Check that the 1 indicator flashes red a number of times between 3-second
intervals.
2Count the number of times the 1 indicator flashes.
3Press ! (main power) to turn off your TV.
4Inform your nearest Sony service center about the number of times the
1 indicator flashed.
Be sure to note the model name and serial number located on the rear of
your TV.
Front of TV
1
indicator
U
Additional Information
46 Additional Information
•Check the antenna cable and
connection on the TV, VCR and at the
wall.
•Press the PRESET button to display
the “MANUAL PROGRAM” menu
and preset the channel again.
•Check the antenna type (VHF/UHF).
Contact a Sony dealer for advice.
•Adjust the antenna direction. Contact
a Sony dealer for advice.
•Try using a booster.
•Press the PRESET button to display
the“MANUAL PROGRAM” menu.
Then, select “ SENS: LOW”.
•Turn off or disconnect the booster if it
is in use.
•If the sound of all the channels are noisy,
display the “CH PRESET” menu and
select “AUTO PROGRAM” to preset the
channels again.
•If the sound of some channels is noisy,
select the channel, then display the
“CH PRESET” menu and select the
appropriate TV system (“TV SYS”).
•Set “DIGITAL IN: OFF” in the “A/V
CONTROL” menu and connect L
and R (component video input) on your
TV to receive analog audio signals.
Troubleshooting
If you have any problem while viewing your TV, please check the following
troubleshooting guide. If the problem persists, contact your Sony dealer.
Possible cause
Symptom Solutions
Snowy picture
Noisy sound
Distorted picture
Noisy sound
Good picture
Noisy sound
Page
4
43
–
–
–
44
–
42
43
7, 34
•The connection is
loose or the cable is
damaged.
•Channel presetting
is inappropriate or
incomplete.
•The antenna type is
inappropriate.
•The antenna
direction needs
adjustment.
•Signal transmission
is low.
•Broadcast signals
are too strong.
•The TV system
setting is
inappropriate.
•The digital audio
signal is
inappropriate.

– 30 –
KV-ES34M81/ES34M91
RM-916
47
Additional Information
•Check the power cord, antenna and
the VCR connections.
•Press I/1 (power).
•Press U (main power) on the TV to
turn off the TV for about five
seconds, then turn it on again.
•Press ¸ + to increase the volume
level.
•Press ¤ to cancel the muting.
•Press A/B until a better sound is
heard. (KV-ES34M91 only)
•Set “DIGITAL IN: OFF” in the “A/V
CONTROL” menu and connect L
and R (component video input) on your
TV to receive analog audio signals.
•When connecting to (component
video input) on your TV, set “DIGITAL
IN: ON” to receive digital audio signals
through DIGITAL IN, or set
“DIGITAL IN: OFF” to receive analog
audio signals through L and R.
•Do not use a hair dryer or other
equipment near the TV.
•Adjust the antenna direction for
minimum interference. Contact a
Sony dealer for advice.
•Use a highly directional antenna.
•Use the fine tuning (“FINE”) function.
•Adjust the antenna direction. Contact a
Sony dealer for advice.
•Turn off or disconnect the booster if it
is in use.
Possible cause
Symptom Solutions
No picture
No sound
Good picture
No sound
Dotted lines or
stripes
Double images or
“ghosts”
Page
4
10
11
11
11
23
7, 34
34
–
–
–
44
–
–
•The power cord,
antenna or VCR is
not connected.
•The TV is not turned
on.
•The volume level is
too low.
•The sound is muted.
•The broadcast signal
has a transmission
problem.
•The digital audio
signal is
inappropriate.
•The “DIGITAL IN”
setting in the “A/V
CONTROL” menu
is inappropriate.
•There is local
interference from
cars, neon signs, hair
dryers, power
generators, etc.
•
Broadcast signals are
reflected by nearby
mountains or
buildings.
•The antenna
direction needs
adjustment.
•Use of a booster is
inappropriate.
continued
48 Additional Information
Troubleshooting (continued)
Possible cause
Symptom
No color
Abnormal color
patches
TV cannot receive
stereo broadcast
signal.
(KV-ES34M91 only)
Stereo broadcast
sound switches
on and off or
is distorted.
or
The sound switches
between stereo and
monaural frequently.
(KV-ES34M91 only)
“100?” appears at
the top of the
screen after
approximately 10
seconds and there is
no Teletext display.
Teletext display is
incomplete
(snowy picture or
double images).
Solutions
•
Display the “A/V CONTROL” menu and
select “ADJUST” of “PICTURE MODE”,
then adjust the “COLOR” level.
•Display the “CH PRESET” menu and
check the color system (“COL SYS”)
setting (usually set this to “AUTO”).
•Adjust the antenna direction. Contact a
Sony dealer for advice.
•Locate external speakers or other
equipment away from the TV. Do not
move the TV while the TV is turned on.
Press U (main power) on the TV to turn
off the TV for about five minutes, then
turn it on again.
•Press A/B until “AUTO” appears on the
screen.
•Check the antenna cable and connection
on the TV, VCR and on the wall.
•Adjust the antenna direction. Contact a
Sony dealer for advice.
•Press A/B until a better sound is heard.
—
•
Check the antenna cable and connection
on the TV, VCR, and at the wall.
•Adjust the antenna direction. Contact a
Sony dealer for advice.
•Try using a booster.
•Use the fine tuning (FINE) function.
•The color level
setting is too low.
•
The color system
setting is
inappropriate.
•The antenna
direction needs
adjustment.
•The magnetic
disturbance from
external speakers or
other equipment, or
the direction of the
earth’s magnetic field
may affect the TV.
•The stereo reception
setting is
inappropriate.
•
The connection is
loose or the cable is
damaged.
•The antenna
direction needs
adjustment.
•The broadcast signal
has a transmission
problem.
•The channel carries
no Teletext
broadcast.
•Connection is loose
or the cable is
damaged.
•The antenna
direction
is inappropriate.
•Signal transmission
is too low.
Page
33
42
–
–
23
4
–
23
25
4
–
–
44

– 31 –
KV-ES34M81/ES34M91
RM-916
49
Additional Information
•Display the “SET UP” menu and adjust
“PIC ROTATION” so that the picture is
aligned to the TV screen.
•Use the fine tuning (“FINE”) function.
•Contact your nearest Sony service
center.
––
––
––
•Terrestrial
magnetism is
affecting your TV set.
•There is interference
from external
sources, e.g., heavy
machineries, nearby
broadcast station.
•Your TV may need
servicing.
•
Changes in room
temperature
sometimes make the
TV cabinet expand or
contract, causing a
noise. This does not
indicate a
malfunction.
•
The TV’s
demagnetizing
function is working.
This does not indicate
a malfunction.
•This is the same
static discharge that
is felt when touching
metal door handles
or car doors
especially when the
air is dry, for
example in winter.
This does not
indicate a
malfunction.
Possible cause
Symptom Solutions Page
39
44
45
–
–
–
Picture slant
Lines moving across
the TV screen.
The 1 indicator on
your TV flashes red a
number of times
between 3-second
intervals.
TV cabinet creaks.
A small “boom”
sound is heard when
the TV is turned on.
Static discharge is
felt when touching
the TV cabinet.
50 Additional Information
Identifying parts and controls
Front, top and side panels
Side panel
Top panel
Front panel
AUTO
PROGR
L
≥
R
2
…4
–
PROGR
+
ENTERMENU –
.
+
…
U
g
(MONO)
PageFunction
Button
Side panel
i
AUTO PROGR
Front panel
!
Top panel
I/1
PROGR +/–
2 +/–
t
ENTER
MENU
Headphone jack. –
Preset channels automatically.5
Turn off completely or 10
turn on the TV.
Turn off temporarily or 10
turn on the TV.
Select program number. 10
Adjust volume. 11
Select TV or video input. 11
Confirm selected items. 31
Display the menu. 31

– 32 –
KV-ES34M81/ES34M91
RM-916
51
Additional Information
The names/symbols of buttons on the remote are
indicated in different colors to represent the available
functions.
Label color
White
Green
Yellow
Button function
For general TV operations
For Teletext operations
For PIP operations
Page
Button Function
Remote control
TV
123
456
78
0
9
MENU PROGR
ENTER
PRESET
VTR 1 2 3 DVD
JUMP
A/B
DRC-MF
FAVORITE PROGR
INDEX
PIC
MODE SOUND
MODE SURROUND
TITLE
PROGR
+
PROGR
–
DRC-MF
FAVORITE PROGR
INDEX
PIC
MODE SOUND
MODE SURROUND
VIDEO
continued
I / 1
PROGR +/–
0 – 9, ÷
¤
;
t
. +/–
JUMP
Timer operations
SOUND MODE
PIC MODE
DRC-MF
Favorite Channel operations
FAVORITE
PIP and Twin picture operations
PROGR +/
PROGR –
A
Turn off temporarily or 10
turn on the TV.
Select program number. 10
Input numbers. 10
Display on-screen information. 11
Mute the sound. 11
Display the TV program. 11
Select TV or video input. 11
Adjust volume. 11
Jump to previous channel. 11
Set TV to turn on automatically.
13
Set TV to turn off automatically. 13
Select sound mode. 14
Select picture mode. 14
Select DRC-MF mode. 15
Display favorite channels. 16
Select desired channel. 16
Display the PIP screen. 17
Display TWIN pictures. 17
Adjust Twin picture size. 18
Change program in PIP/ 18
Twin picture.
Select video input for PIP/ 18
Twin picture.
Swap main and PIP/Twin 18
picture.
Freeze PIP screen. 18
Adjust position of PIP screen. 18
52 Additional Information
Page
Button Function
TV
123
456
78
0
9
MENU PROGR
ENTER
PRESET
VTR 1 2 3 DVD
JUMP
A/B
DRC-MF
FAVORITE PROGR
INDEX
PIC
MODE SOUND
MODE SURROUND
TITLE
PROGR
+
PROGR
–
DRC-MF
FAVORITE PROGR
INDEX
PIC
MODE SOUND
MODE SURROUND
VIDEO
Identifying parts and controls (continued)
Program Index operations
PROGR INDEX
PROGR +/–
SURROUND
Stereo/bilingual operations
(KV-ES34M91 only)
A/B
Teletext operations
0 - 9
PROGR +/–
(red, green,
yellow, blue)
Optional components operations
VTR
VIDEO I / 1
TITLE
(
+
=
r
p
P
Menu operations
MENU
ENTER
PRESET
Display all preset TV 19
programs.
View next/previous 12 TV 20
programs.
Select desired channel. 20
Select surround mode. 22
Select stereo/bilingual mode. 23
Display Teletext broadcast. 25
Display Teletext service contents.
26
Stop Teletext page from scrolling.
26
Reveal concealed information. 26
Enlarge the Teletext display. 26
Show TV screen while waiting
26
for Teletext page.
Input Teletext page number.26
Display the next or previous 26
page.
Access a FASTEXT menu. 26
Set up the remote. 27
Power. 28
Display the title menu. 28
Play. 28
Fast forward/Search forward. 28
Rewind/Search backward. 28
Record. 28
Stop. 28
Pause. 28
Display the menu. 31
Select, adjust and confirm 31
selected items.
Confirm selected items. 31
Display “MANUAL 43
PROGRAM” menu.

– 33 –
KV-ES34M81/ES34M91
RM-916
SECTION 2
DISASSEMBLY
2-1. REAR COVER REMOVAL
2-2. SPEAKER BOX REMOVAL
2-3. H2 BOARD REMOVAL
Caution: Please make sure that the red colour taped point is just placed with the
purse lock when treating the leads to H2 board. If lead treatment is wrongly
arranged, it will affect the door opening and closing malfunction.
Eight screws
(+BVTP 4X20)
1Two screws
(TP + TWH 4X25)
2SPEAKER BOX
L/R ASSEMBLY
1 One screw
(+BVTP 4X20)
Red tape
2 Two screws
(+BVTP 3X25)
4 Two shafts
5 Two screws
(+BVTP 3X12)
1 One spring
3 H2 Board

– 34 –
KV-ES34M81/ES34M91
RM-916
2-6. DH BOARD REMOVAL
2-5. SERVICE POSITION
2-4. CHASSIS ASSY REMOVAL
Chassis
CRT Supporter
A board
D board
Blacket
DH board
1Six screws
(+BVTP 3X12)
2-7. J BOARD REMOVAL
1Two screws
(+BVTP 3X12)
1Three screws
(+BVTP 3X12)
2
(+BVTP 3X12)
Four screws
3
4 J board
5 J sheild cover
Metal Case
Terminal bracket

– 35 –
KV-ES34M81/ES34M91
RM-916
2-8. B3, D1 AND E BOARDS REMOVAL
NOTE: V board is not used for KV-ES34M80/ES34M90.
2-9. A AND D BOARDS REMOVAL
2 Two connectors
3 Two connectors
5 V board
4 B3 board
7 D1 board
8 E board
Driver
P board
6 Metal Case V board
1Three screws
(+BVTP 3X12)
3D board
2A board
1Three connectors
1Four screws
(+BVTP 3X12)
Driver
H1 bracket
1
2
Driver
F2 bracket
1
2
2-10. H1 BOARD REMOVAL
NOTE : Push the hook down using the tip of a screwdriver and at the same time
pull the H1 bracket.
2-11. F2 BOARD REMOVAL
NOTE : To remove F2 board, firstly remove the H1 board. Then, push the hook
down using the tip of a screwdriver and at the same time pull the F2
bracket.
Caution : When removing the F2 board, please turn off the main AC supply and
disconnect the AC plug.

– 36 –
KV-ES34M81/ES34M91
RM-916
2-13. TOP SWITCH REMOVAL (H3 BOARD REMOVAL)
NOTE : To remove H3 board, the CRT has to be removed first.
2-12. DEMAGNETIZATION COIL REMOVAL
5Two DGC clips
1Two DGC holders
2DGC band
4Demagnetization
coil
4 Top switch
3 H3 board
2 H3 bracket
1 Two screws
(+BVTP 4X12)
2-14. G2 LEAD REMOVAL
NOTE : Insert pin to both edge holes on socket and release the lock.
1
2
Pin

– 37 –
KV-ES34M81/ES34M91
RM-916
2-15. PICTURE TUBE REMOVAL
NOTE : i) Prior to picture tube removal, please remove the front cover first.
Caution : Aluminium frame is easily scratched if extra caution is not taken when
handling it.
7C board
5Chassis assembly
8Neck assembly
2Speaker box(L)
assembly
2Speaker box(R)
assembly
9Deflection yoke
9Two springs
4Two claws
!™Two DGC holders
!¡Two fooks
!¢ DGC band
!£ Two DGC clips
3Anode cap
!§ Four screws
6Four screws
(+BVTP 4X20)
!¶ Picture tube
Frame Sub Assy
1Two screws
(TP+TWH 4X25)
1Two screws
(TP+TWH 4X25)
!∞ Demagnetization
coil
Coil, landing correction
2-16. FRAME SUB-ASSY DISASSEMBLY
1
Screw Special (Dia. 8)
Sp Screw
Fasten
× 1
× 1
× 2
× 2
Sp Screw
× 2
Sp Screw
× 2 Sp Screw
× 2
× 2
× 1
× 1 × 1
(+) TP 4 × 9
CRT Bracket

– 38 –
KV-ES34M81/ES34M91
RM-916
Corner Block
FRAME SUB ASSY, LEFT REMOVAL
Slide
Screw Special (Dia. 8)
× 2
(+) TP 4 × 9
Screw Special (Dia. 8)
× 2
(+) TP 4 × 9
FRAME SUB ASSY, RIGHT REMOVAL
Slide
Screw Special (Dia. 8)
× 2
(+) TP 4 × 9
Screw Special (Dia. 8)
× 2
(+) TP 4 × 9
FRAME SUB ASSY, TOP REMOVAL
Slide
Screw Special (Dia. 8)
× 2
(+) TP 4 × 9
Screw Special (Dia. 8)
× 2
(+) TP 4 × 9 Screw Special (Dia. 8)
Corner Block
(+) TP 4 × 9
× 2
a)
b)

– 39 –
KV-ES34M81/ES34M91
RM-916
FRAME SUB ASSY, BOTTOM REMOVAL
Slide
Screw Special (Dia. 8)
× 2
(+) TP 4 × 9
Screw Special (Dia. 8)
× 2
(+) TP 4 × 9 Screw Special (Dia. 8)
Corner Block
(+) TP 4 × 9
× 2
a)
b)
NOTE : When replacing the Frame Sub-Assy Top and Bottom, fix the original corner
block to the new part.
•REMOVAL OF ANODE-CAP
NOTE : After removing the anode, short circuit the anode of the picture tube and
the anode cap to the metal chassis, CRT shield or carbon paint on the
CRT.
•REMOVING PROCEDURES
1Do not damage the surface of anode-caps with sharp shaped objects.
2Do not press the rubber too hard so as not to damage the inside of anode-cap.
A metal fitting called the shatter-hook terminal is built into the rubber.
3Do not turn the foot of rubber over too hard.
The shatter-hook terminal will stick out or damage the rubber.
•HOW TO HANDLE AN ANODE-CAP
3When one side of the rubber cap is separated from the anode button, the anode-cap
can be removed by turning up the rubber cap and pulling it up in the direction of the
arrow c.
2Using a thumb pull up the rubber cap firmly in the direction indicated by the arrow b.
1Turn up one side of the rubber cap in the direction indicated by the arrow a.
a
a
b
b
c
Anode button

– 40 –
KV-ES34M81/ES34M91
RM-916 SECTION 3
SERVICE JIG
3-1. JIGS REQUIRED FOR SERVICING
REF NO. DESCRIPTION PART NO. REMARK
J-1 TOOL (20P), SERVICE 3-702-763-01 For A to V board extension
J-2 TOOL (40P), SERVICE 3-702-764-01 For A to E board extension
J-3 TOOL (50P-A), SERVICE 3-702-765-01 For A to B3 board extension
J-4 TOOL (50P-J), SERVICE 3-702-766-01 For A to J board extension
For D to D1 board extension
J-1 J-2
J-3 J-4
EX2EX1
EX
3
EX
4
EX6
EX5
EX
8
EX
7

– 41 –
KV-ES34M81/ES34M91
RM-916
•The following adjustments should be made when a complete
realignment is required or a new picture tube is installed.
•These adjustments should be performed with rated power
supply voltage unless otherwise noted.
Controls and switches should be set as follows unless otherwise noted:
PICTURE control........................................................... normal
BRIGHTNESS control................................................... normal
Perform the adjustments in the following order :
1. Beam Landing
2. Convergence
3. Focus
4. White Balance
Note : Test Equipment Required.
1. Color-bar/Pattern Generator
2. Degausser
3. Oscilloscope
SECTION 4
SET-UP ADJUSTMENTS
................................................................................................................................................................................................................................
Fig. 4-3
}normal
Neck assy
G2G1 G3
Behind the G2 edge
Fig. 4-1
Red
Blue
Green
Preparation :
•In order to reduce the influence of geomagnetism on the set's
picture tube, face it east or west.
•Switch on the set's power and degauss with the degausser.
4-1. BEAM LANDING
1. Input a white signal with the pattern generator.
Contrast
Brightness
2. Position neck assy as shown in Fig4-1.
3. Set the pattern generator raster signal to a green raster.
4. Move the deflection yoke to the rear and adjust with the purity
control so that the green is at the center and the blue and the red
take up equally sized areas on each side.
(See Figures 4-1 through 4-3.)
5. Move the deflection yoke forward and adjust so that the entire
screen is green. (See Figure 4-2.)
6. Switch the raster signal to blue, then to green and verify the
condition.
7. When the position of the deflection yoke has been decided,
fasten the deflection yoke with the screws and DY spacers.
8. If the beam does not land correctly in all the corners, use a
magnet to adjust it.
(See Figure 4-4.)
Fig. 4-2
Fig. 4-4
Purity control
corrects this area. Disk magnets or rotatable
disk magnets correct these
areas (a-d).
Deflection yoke positioning
corrects these areas.
a
b
b
c
c
d
d
a

– 42 –
KV-ES34M81/ES34M91
RM-916
4-2. CONVERGENCE ADJUSTMENT
Preparation :
•Before starting this adjustment, adjust the focus, horizontal size
and vertical size.
•Set the PICTURE and BRIGHTNESS 50%.
•Cross hatch / Dot pattern.
(1) Horizontal and Vertical Static Convergence
1. (Moving horizontally), adjust the H.STAT control so that the
red, green and blue dots are on top of each other at the center of
the screen.
2. (Moving vertically), adjust the V.STAT magnet so that the red,
green and blue dots are on top of each other at the center of the
screen.
3. Adjust Horizontal Trapezoid with “DAC 04 HTR” in Service
Mode to make H-Trapezoid distortion best.
4. If the H.STAT variable resistor cannot bring the red, green and
blue dots together at the center of the screen, adjust the
horizontal convergence with the H.STAT variable resistor and
the V.STAT magnet in the manner given below.
(In this case, the H.STAT variable resistor and the V.STAT
magnet influence each other, so be sure to perform adjustments
while tracking.)
1V. STAT
2H. STAT VR
Center dot
R G B
R
G
B
H. STAT VR V. STAT
Magnet
RV702
H. STAT
Y magnet
C Board
RR
GG
BB
a
a
b
b b
R
R
G
G
B
B
a
b
3
R
R
GG
B
B
a
a
b
b
b
V.STAT
Purity
BMC (Hexapole)

– 43 –
KV-ES34M81/ES34M91
RM-916
5Y separation axis correction magnet adjustment.
1. Receive the cross-hatch signal and adjust [PICTURE] to [MIN]
and [BRIGHTNESS] to [STANDARD] .
2. Adjust the Y separation axis correction magnet on the neck
assembly so that the horizontal lines at the top and bottom of
the screen are straight.
Note
1. The Red and Blue magnets should be equally far from the
horizontal center line.
2. Do not separate the Red and Blue magnets too far. (Less than
8 mm)
(2) Dynamic Convergence Adjustment
Preparation:
•Before starting this adjustment, adjust the horizontal static
convergence and the vertical static convergence
•Set the PICTURE and BRIGHTNESS to normal.
1. Adjust TLH. (TLH correction piece)
1Receive the dot/hatch pattern signal and adjust picture quality
by the menu.
2Correct horizontal mis-convergence of red and blue of both sides
on the X axis.
When red is outside insert BMC magnet to right side (THL+)
views from DY neck. And when blue is outside, insert it to left
side (THL–) and take both sides.
2. Adjust V TILT-TLV (TLV 34")
Correct the vertical mis-convergence of red and blue of verti-
cally sides on the Y axis.
3. Adjust YCH.
Adjust horizontal mis-convergence of red and blue of verti-
cally sides on the Y axis. Mentioned above steps 2 to 4 are
adjusting respectively perform minuteness tracking.
4BMC (Hexapole) Magnet.
If the red, green and blue dots are not balanced or aligned, then
use the BMC magnet to adjust in the manner described below.
RG B R G B R GB
RB
RG
GGB RB
Blue
Red
VM board
Blue
Red
VM board
Neck assy Neck assy
R
(B) B
(R) B
(R) TLH +
TLH -
R
(B)
TLV
BMC magnet C board
RV9001
VM board
H-TRPYCH

– 44 –
KV-ES34M81/ES34M91
RM-916
4-3. FOCUS ADJUSTMENT
Note
Focus adjustment should be completed before W/B adjustment.
(1) Receive digital monoscope pattern.
(2) Set "A/V CONTROL" to "STANDARD".
(3) Adjust FOCUS VR so that the center of the screen becomes
justfocus.
(4) Change the receiving signal to white pattern and blue back.
(5) Confirm MAGENTA RING should not be over the limit sam-
ple. In case MAGENTA RING is over the limit sample, adjust
FOCUS VR to take tracking of MAGENTA RING and FO-
CUS.
FLYBACK TRANSFORMER (T6803)
Focus
4-4. NECK ASSY TWIST ADJUSTMENT
(1) Receive dot/hatch pattern.
(2) Turn FOCUS VR fully counter-clockwise.
(3) Confirm the dot shape at the screen center. (Fig. 4-4)
(4) Resume FOCUS VR.
Note
In case of turning NECK ASSY, loosen the screw 3 turns. Do not
move the position.
OK
Turn NECK ASSY clockwise.
Turn NECK ASSY counter clockwise.
Fig. 4-4
Fix a Permalloy assy corresponding to the misconverged
areas.
ba
cd
a-d : screen-corner
misconvergence
a
b
c
d
Permalloy assembly
(3) Screen-corner Convergence
Screen (No Function)

– 45 –
KV-ES34M81/ES34M91
RM-916
3. SUB PICTURE BRIGHTNESS ADJUSTMENT
1) Tune RF PAL white signal at program No. 1 and No. 2.
2) Select “TWIN PICTURE” mode.
3) Receive different RF PAL white signals in MAIN and Sub
picture.
4) Adjust RV3300 on A PWB, so that the output from the 17 pin
and 20 pin of the CN1180 becomes within the spec.
CVBS 1
17 pin
MAIN
A
CVBS 2
20 pin
SUB
B
Spec: |A - B| ≤ ± 20mV
4-5. G2 (SCREEN) AND WHITE BALANCE
ADJUSTMENTS
1. G2 (SCREEN) ADJUSTMENT
1) Set the PICTURE and BRIGHTNESS to normal.
2) Put to VIDEO input mode without signals.
3) Connect R, G and B of the C board cathode to the oscilloscope.
4) Adjust BRIGHTNESS to obtain the cathode voltage to the value
below.
5) Whilst watching the picture, adjust the screen VR (RV9002)
located on the C board to the point just before the flyback return
lines disappear (to the point before cut-off).
0 V
2. WHITE BALANCE ADJUSTMENT
1) Set to Service Mode (Refer Section 5-1: ADJUSTMENTS
WITH COMMANDER).
2) Input white raster signal.
3) Set the following condition.
PICTURE minimum, BRIGHTNESS 50%
4) Select GCT (WHB 7) and BCT (WHB 8) with [1] and [4], and
adjust the level with [3] and [6] for the best white balance.
5) Set the PICTURE to maximum.
6) Select GDR (WHB 4) and BDR (WHB 5) with [1] and [4], and
adjust the level with [3] and [6] for the best white balance.
7) Write into the memory by pressing [MUTING] then [0].
170 V ± 2 (VDC)

– 46 –
KV-ES34M81/ES34M91
RM-916 SECTION 5
CIRCUIT ADJUSTMENTS
With the unit on standby
↓
[DISPLAY]
↓
5
↓
VOL (+)
↓
[POWER]
This operation sequence puts the unit into service mode.
5-1. ADJUSTMENTS WITH COMMANDER
Service adjustments are made with the RM-916 that comes with
this unit.
a. ENTERING SERVICE MODE
1, 4Select the adjustment item.
↓
3, 6Raise/lower the data value.
↓
[MUTING] Writes.
↓
-Executes the writing.
7, -All the data becomes the values in memory.
8, -All user control goes to the standard state.
5, -Service data initialization (Be sure not to use
usually.)
[DISPLAY], -Write 50Hz adjustment data to 60Hz, or vice
versa.
2, -Copy and write all data.
PAL, SECAM : 50
NTSC : 60
00
VSZ 29 SERVICE
Data
Mode
Item Name
Item No
Software version
Suffix No
(OEM Code)
Total Power-On time (hours)
pp
Marking of virgin NVM
GEO
013Q
1.2M 59 000AFF0
Device Name
50
RM-916
b. METHOD OF CANCELLATION FROM SERVICE
MODE
Set the standby condition (Press [POWER] button on the commander),
then press [POWER] button again, hereupon it becomes TV mode.
c. METHOD OF WRITE INTO MEMORY
1) Set to Service Mode.
2) Press [1] (UP) and [4] (DOWN), select an item of adjustment.
3) Press [MUTING] button and it will indicate WRITE on the screen.
4) Press [0] button to write into memory.
d. MEMORY WRITE CONFIRMATION METHOD
1) After adjustment, pull out the plug from AC outlet, and then
plug into AC outlet again.
2) Turn the power switch ON and set to Service Mode.
3) Call the adjusted items again to confirm adjustments were made.
The screen display is :
TV
123
456
78
0
9
MENU PROGR
ENTER
PRESET
VTR 1 2 3 DVD
JUMP
A/B
DRC-MF
FAVORITE PROGR
INDEX
PIC
MODE SOUND
MODE SURROUND

– 47 –
KV-ES34M81/ES34M91
RM-916
5-2. ADJUSTMENT METHOD
Item Number 00 of device GEO
This explanation uses H-Position as an example.
1. Select “GEO 00 VSZ” with the 1 and 4 buttons.
2. Raise/lower the data with the 3 and 6 buttons.
3. Select the optimum state. (The standard is 1F for PAL reception.)
4. Write with the [MUTING] button. (The display changes to
WRITE.)
5. Execute the writing with the - button. (The WRITE
display will be changed to red color while excuting, and back
to SERVICE.)
Use the same method for all Items. Use 1 and 4 to select the
adjustment item, use 3 and 6 to adjust, write with [MUTING],
then execute the write with -.
Note :1.In [WRITE], the data for all items are written into memory
together.
2. For adjustment items that have different standard data
between 50Hz or 60Hz, be sure to use the respective
input signal after adjustment.
3. Additional function to skip category (device) to category
(device).
example:
GEO 00 HPS
↕
DAC 00 XXX
The buttons for the function above should be cursor +/–.
29 SERVICE 50HPS
Adjusted with [3]
and [6] buttons.
GREEN
Written with [MUTING]
Write executed with [0]
GEO 00
59 FF 0 000A1.2M
0 013Q
59 FF1.2M
0 013Q
59 FF1.2M
0 013Q
1F SERVICE 50HPS RED
The WRITE display
then the display
returns to a green
SERVICE.
GEO 00
0 000A
1F WRITE 50HPS GREEN
GEO 00
0 000A

– 48 –
KV-ES34M81/ES34M91
RM-916
SERVICE LIST ITEM
GVTytilanoitcnuFnoitcnuF emaNeciveD
05 06edoMocE
yrogetaC.oNemaNCRD 0521 CRD V0521 PniPVPniPXEDNINIWTCRD 001 CRD V001 CRD 0521 V06PniPVPniPXEDNINIWTCRD 001 CRD V001 ocE nO ocE ffO ocE VnO ocE VffO
OEG00ZSVEZISVD171D17191D1C191E191E191E1E1E1C1QA0012AXC
10SPVNOITISOPV2212221222E1D2320222022202D12232
20NLVYTIRAENILV607060707070607060716070
30OCSNOITCERROCSA070A0708090909090909080
40ZSHEZISHF1F1F1F1F1F1F1F10202020202021212
50SPHNOITISOPHB3A3B3A3F313B3A31303130393431303
60PAPPMANIP33F233F20323432343237333
70NPUNIPRENROCREPPU62826282227252A252A24242
80NPLNIPRENROCREWOL321232123242324232424242
90ZRTMUIZEPARTA090A090A08050808091809090607070
A0LGAELGNACFA809080908090A0A0A0A0A0A0
B0WOBWOBCFA809080908080908090808090
C0 LBL GNIKNALBHTFEL1111111111111111C1C1C1C1C1C1C1C1
D0 LBR GNIKNALBHTHGIRC2C2C2C2C2C2C2C23232323232323232
E0 NPM NOITROTSIDNIPELDDIM NOITASNEPMOC 00000000
F0 LVU YTIRAENILVREPPU0000
01 LVL YTIRAENILVREWOL0000
11 PSH EGATLOVHGIHLATNOZIROH NOITASNEPMOC 00000000
21 PCV EGATLOVHGIHLACITREV NOITASNEPMOC 00000000
31 SAV TCEPSAVF2F2F2F2
41 CSV LLORCSVF1F1
51 CSU FFO/NOEDOMNACS-REDNU00100010
61 WBV LORTNOCHTDIWGNIKNALBV003000300000000000000000
71 1TA GNIMITECNEREFERBKA200020002020200020002020
CAD00TCHRETNECHA4A4 14188BM
10NLHYTIRAENILH131313131313131313131313
20PDMNIPELDDIM020202020202020202020202
30PCCNIPRENROCREWOL505050505050505050505050
40RTHMUIZEPARTLATNOZIROHF1F1F1F1F1F1F1F1F1F1F1F1
50 FD HCTIWSFFO/NOFD101010101010101010101010
60 HPD ESAHPFD222222222222222222222222
70 HPQ ESAHPPQ212121212121212121212121
80 CAQ EDUTILPMAPQF2F2F2F2F2F2F2F2F2F2F2F2
90 CDQ LEVELCDPQE1E1E1E1E1E1E1E1E1E1E1E1
A0 VDQ NOITALUDOMVPQD2D2D2D24343A2A2A2A20303
B0 VAQ NOITALUDOMEDUTILPMAPQ626262621212626262621212
C0 CBA LORTNOCA/DLBA 0000E7E7

– 49 –
KV-ES34M81/ES34M91
RM-916
GVTytilanoitcnuFnoitcnuFeciveD
yrogetaC.oNemaNnommoC
BHW00OBC 1BCROFRELLECNACTESFFOCDA0QA0012AXC
10 ORC 1RCROFRELLECNACTESFFOCDA0
20RBSLORTNOCSSENTHGIRBBUS22
30 RDR EVIRDR92
40RDGEVIRDG52
50RDBEVIRDB02
60 TCR FFOTUCR42
70TCGFFOTUCG70
80TCBFFOTUCBF2
90 OBS TESFFOSSENTHGIRBBUS02
A0 ODR TESFFOEVIRDRC1
B0 ODG TESFFOEVIRDGF1
C0 ODB TESFFOEVIRDBB1
D0 OCR TESFFOFFOTUCRF1
E0 OCG TESFFOFFOTUCG02
F0 OCB TESFFOFFOTUCB41
SERVICE LIST ITEM

– 50 –
KV-ES34M81/ES34M91
RM-916
SERVICE LIST ITEM
GVTytilanoitcnuFnoitcnuF emaNeciveD
nommoC0506niwTxednIedoMerutciPedoMocE
yrogetaC.oNemaN VToediVDVDVToediVDVDcimanyDdradnatSeniF-iHlanosrePCNnO-ocECNffO-ocECVnO-ocECVffO-ocE
JAS00CIP LORTNOCERUTCIP F32382QA0012AXC
10 TRB LORTNOCSSENTHGIRB 32F1B1
20 LOC LORTNOCROLOC E2F1F1
30 EUH LORTNOCEUH F1F1F1
40 PHS LORTNOCSSENPRAHS 22F1D1
50 LMV LEVELMV 30301030
60 CYD FFO/NOROLOCCIMANYD 10100010
70 MTC ROLOCCIMANYDROFERUTAREPMETROLOC 00000000
80 XAC NOITACIFICEPSXIRTAMROLOC 202020000000
90 AMG NOITCERROCAMMAG 20203020
A0 TCD LORTNOCNOISSIMSNARTCD 10100010
B0 LPD LORTNOCLEVELLATSEDEPOTUA 20100010
C0 MBA LORTNOCEDOMLBA 10000000
D0 TBA LORTNOCHTVNOITCETEDTNERRUCLBA 20002000
E0 OLC TESFFOROLOC 90809090
F0 WLC N/SFOEGNAHCEHTOTHTDIWPETSROLOC30
01 OUH TESFFOEUH 80809090
11 OHS TESFFOSSENPRAHS 4171F0C0F0F0
21 WHS N/SFOEGNAHCEHTOTHTDIWPETSSSENPRAHS10
31 OIP XEDNI/NIWTROFTESFFOERUTCIP 7070
41 ORB TESFFOSSENTHGIRB 70707070
LGJ00NOP TUPTUOESLUPECNEREFERBKADNABGR FFO/NO 10 QA0012AXC
10 BGR NOITCELESTUPTUOBGR70
20 GGA NOITCELESEDOMGNIGA00
30 SPD HCTIWSEDOMSSAPENILYALEDC/Y00
40 TBB LORTNOCRETTIMILMOTTOBBGR30
50 LML LORTNOCRETTIMILEDUTILPMABGR00
60 BAP LBAKAEPROFLEVELCDF0
70 OCS LORTNOCERUTCIPBUS80
80 2VL 2BGRROFLEVELBGR70
90 0FS 0FTIUCRICSSENPRAHS 101010101010
A0 ORP LORTNOCOITARTOOHS-REVO/ERP 003030303030
B0 ITL TNEMEVORPMITNEISNARTECNANIMUL 20200020
C0 ITC TNEMEVORPMITNEISNARTECNANIMORHC 10100010

– 51 –
KV-ES34M81/ES34M91
RM-916
SERVICE LIST ITEM
GVTytilanoitcnuFnoitcnuF emaNeciveD
nommoCD2bmoC D3 bmoC tupnI-SsrehtOVToediVDVD
yrogetaC.oNemaN 050605060506
TCY00TNTCSTNROFTNEMTSUJDATNIT 4242F1F1Q3212AXC
10 GNP HTDIWETAGCSTN/LAP10
20 INP WSYTIVITISNESCSTN/LAP00
30LCSLORTNOCROLOCBUS 50407070
40TCSLORTNOCTSARTNOCBUS 80708070
50 0FS GNIGNAHCYCNEUQERFRETNECSSENPRAHS20
60 QES CITSIRETCARAHCREZILAUQESSENPRAHS30
70 GHS LORTNOCNIAGSSENPRAHS 506050607070
80LOYLORTNOCLEVELTUPTUO-YF1
90 PSB GNIGNAHCTNIOPTRATSHCTERTSKCALB00
A0LOCLORTNOCLEVELTUPTUORC/BCA1
B0 RCD TNEMTSUJDAOITARNOITAROTSERCD00
C0 0FB TNEMTSUJDA0FFQT/FPB10
D0 QFB TNEMTSUJDAQFQT/FPB20
E0 WSF HCTIWSFQT/FPB10
F0 TDS HCTIWSPARTELBUODMACES10
01 FPL HCTIWSFPLRC/BC/Y10
11 LDY TNEMTSUJDAEMITLD-Y 60503050
21 TMC HCTIWSETUMTUPTUORC/BC00
31 1OB )ETUORNIAM(TNEMTSUJDA1TESFFOBC70
41 1OR TNEMTSUJDA1TESFFORC70
51 FDC HCTIWSYCNEUQERFNWODTNUOCV00
61 MDC HCTIWSEGDUJNWODTNUOCV00
71 CFA HCTIWSYTIVITISNESCFA 00000000
81 MVM KSAMCFA+KSAMNOISIVORCAM00
91 YRS TNEMTSUJDAKCALBY-RMACES70
A1 YBS TNEMTSUJDAKCALBY-BMACES10
B1 LEB GNIHCTIWSFPH/LLEBMACES20
C1 FLB TNEMTSUJDA0FLLEB00
D1 IVS HCTIWSDI-VMACES00
E1 PGS TNEMTSUJDANOITISOPETAGMACES00
F1 DIS HCTIWSYTIVITISNESMACES10
02 HIS HCTIWSNOITIBIHNIMACES00
12 PTS SULPLAPROFPUTESLEVELKCALBY00
22 CVH GNILLECNACRETCARAHCERUTAREPMETOCV-H20
32 RN3 FFO/NONOITAREPORND310
42 6WB FFO/NOLANGISTSUB-NONzH06ROFRND310
52 HSW NOITCUDERESIONROFPETSNIAGSSENPRAHS00
62 OCW TNEMTSUJDAOITARNOITAROTSERCD00

– 52 –
KV-ES34M81/ES34M91
RM-916
SERVICE LIST ITEM
GVTytilanoitcnuFnoitcnuF emaNeciveD
nommoCtupnI-SedoMloCVToediVDVD
yrogetaC.oNemaN MACESCSTNLAP05060506
CYS00TNTCSTNROFTNEMTSUJDATNIT 12120202Q3212AXC
10 GNP HTDIWETAGCSTN/LAP10
20 INP WSYTIVITISNESCSTN/LAP00
30LCSLORTNOCROLOCBUS 60609090
40TCSLORTNOCTSARTNOCBUS 80708070
50 0FS GNIGNAHCYCNEUQERFRETNECSSENPRAHS20
60 QES CITSIRETCARAHCREZILAUQESSENPRAHS30
70 GHS LORTNOCNIAGSSENPRAHS70
80LOYLORTNOCLEVELTUPTUO-YF1
90 PSB GNIGNAHCTNIOPTRATSHCTERTSKCALB00
A0LOCLORTNOCLEVELTUPTUORC/BCC3
B0 RCD TNEMTSUJDAOITARNOITAROTSERCD00
C0 0FB TNEMTSUJDA0FFQT/FPB10
D0 QFB TNEMTSUJDAQFQT/FPB20
E0 WSF HCTIWSFQT/FPB10
F0 TDS HCTIWSPARTELBUODMACES10
01 FPL HCTIWSFPLRC/BC/Y10
11 LDY TNEMTSUJDAEMITLD-Y 50302030
21 MCN HCTIWSNOITIDDAH-110
31 TMC HCTIWSETUMTUPTUORC/BC00
41 1OB )ETUORNIAM(TNEMTSUJDA1TESFFOBC70
51 1OR TNEMTSUJDA1TESFFORC70
61 FDC HCTIWSYCNEUQERFNWODTNUOCV00
71 MDC HCTIWSEGDUJNWODTNUOCV00
81 CFA HCTIWSYTIVITISNESCFA 000000
91 MVM KSAMCFA+KSAMNOISIVORCAM00
A1 YRS TNEMTSUJDAKCALBY-RMACES70
B1 YBS TNEMTSUJDAKCALBY-BMACES10
C1 LEB GNIHCTIWSFPH/LLEBMACES20
D1 FLB TNEMTSUJDA0FLLEB00
E1 IVS HCTIWSDI-VMACES00
F1 PGS TNEMTSUJDANOITISOPETAGMACES00
02 DIS HCTIWSYTIVITISNESMACES10
12 HIS HCTIWSNOITIBIHNIMACES00
22 PTS SULPLAPROFPUTESLEVELKCALBY00
32 CVH GNILLECNACRETCARAHCERUTAREPMETOCV-H20

– 53 –
KV-ES34M81/ES34M91
RM-916
SERVICE LIST ITEM
GVTytilanoitcnuFnoitcnuFeciveD
yrogetaC.oNemaN nommoC
PSM00TSW DLOHSERHTOERETSG/W51D5143PSM
10 TBW DLOHSERHTLAUGNILIBG/WAE
20 LLW DLOHSERHTLARUAONOMG/W50
30 CAW TNUOCTNEMEERGAG/W10
40 LDW YALEDHCRAESG/W03
50 LDN YALEDHCRAESMACIN02
60 LDS YALEDDAERSUTATSOERETS01
70 CGA TNATSNOC/OTUAHCTIWSCGA10
80 LER EDOMTNATSNOCTANIAGCGA82
90 MRC FFO/NOGNITUMREIRRAC00
A0 OCA FFO/NOKCOLCOIDUA10
B0 PF METSYSM-NONROFELACSERPMFB1
C0 MPF METSYSMROFELACSERPMF23
D0 HF VEDHROFELACSERPMFD2
E0 MHF MDNAVEDHROFELACSERPMF56
F0 PGW ELACSERPG/WA2
01 PIN ELACSERPMACIND6
11 RRE DLOHSERHTHCTIWSMFOTUA05
21 LOV HFF70OTH0070NIAGREKAEPSDUOLD6
GVTytilanoitcnuFnoitcnuF emaNeciveD
yrogetaC.oNemaN nommoCDDVruSPDVruSSRTruSMISruSffOruScimanyDamarDtfoS
PA00SAB LORTNOCSSAB B080705137ADT
10 ERT LORTNOCELBERT B09070
20NDLFFO/NOSSENDUOL10
PSD00LUD EDOMNOITCETEDKCOLNURID00F6449CT
10 MID EDOMTUPNILATIGID30
20 MFT SUNIMTNORFDNUORRUSURT A5A5
30 PFT SULPTNORFDNUORRUSURT 2121
40 ECT RETNECDNUORRUSURT 0404
50 1ST 1#DNUORRUSDNUORRUSURT 020E
60 2ST 2#DNUORRUSDNUORRUSURT 0202
70 PST SULPDNUORRUSDNUORRUSURT 8686
80 MST SUNIMDNUORRUSDNUORRUSURT 8686
90 EFL TCEFFEYCNEUQERFWOLA5
A0 LHB HGIHEBBROF1TCEFFEEBB 3333338204
B0 HHB HGIHEBBROF2TCEFFEEBB 0303038283
C0 LLB WOLEBBROF1TCEFFEEBB B2B2B24233
D0 HLB WOLEBBROF2TCEFFEEBB 9292924203
E0 RLD TESERPSDTANOITCELESYALED70
F0 EBB NOITCELESEBB 101030

– 54 –
KV-ES34M81/ES34M91
RM-916
SERVICE LIST ITEM
GVTytilanoitcnuFnoitcnuF emaNeciveD
nommoCniwTVToediVedoMerutciP
yrogetaC.oNemaN cimanyDdradnatSeniF-iHlanosreP
ITL00HDL NOITCELESTNEMGESMARGOTSIH108719ADT
10 SFC NOITCELESRETLIFRUOTNOC10
20 BLW HCTIWSWODNIWXOBRETTEL00
30 CDV GNIROCTNEDNEPEDOEDIV 10101010
40 MED EDOMNOITARTSNOMED00
50 PDC YALEDECNANIMUL40
60 PSO GNIKAEPTRAMSELURREVO00
70 OPW FFOHCTERTSTNIOPETIHW00
80 KSD HCTIWSENOTNIKS 00000000
90 KSA NOITCELESELGNAENOTNIKS00
A0 KSW NOITCELESHTDIWENOTNIKS00
B0 KSS NOITCELESEZISENOTNIKS00
C0 RGD HCTIWSTNEMECNAHNENEERG 00 10100010
D0 TGD HCTIWSTNEMECNAHNENEERGFODLOHSERHT70
E0 RGG NIAGTNEMECNAHNENEERG00
F0 RGW HDTIWTNEMECNAHNENEERG00
01 RGS EZISTNEMECNAHNENEERG00
11 LBD HCTIWSHCTERTSEULB00
21 LBG NOITCELESNIAGHCTERTSEULB00
31 LBS NOITCELESEZISHCTERTSEULB00
41 SDC SSENPRAHSTNEDNEPEDROLOC 10100010
51 TSC SSENPRAHSTNEDNEPEDROLOCFODLOHSERHT70
61 ITC TNEMEVORPMITNEISNARTROLOC 00000000
71 NOB NOITASNEPMOCTESFFOKCALB 00000000
81 DTB HCTERTSKCALBEVITPADA 00000000
91 DLN REIFILPMAYTIRAENIL-NON 00 51510051
A1 WLN REIFILPMAYTIRAENIL-NONFOHTDIWPETS70
B1 DGV AMMAGELBAIRAV F1 F1F1F1F1
C1 WGV AMMAGELBAIRAVFOHDTIWPETS00
D1 DKP EDUTILPMAGNIKAEP F303E003
E1 WKP EDUTILPMAGNIKAEPFOHTDIWPETS80
F1 DPS NOITCERROCSSENPETS 00000000
02 DRC LEVELGNIROC 61610061
12 WRC LEVELGNIROCFOHTDIWPETS90
22 ORC EDOMOEDIVROFTESFFOLEVELGNIROC10
32 DWL NOITCERROCHTDIWENILF1
42 MNS NOITIDNOCN/SELBILAERNUREDNUEDOMN/S00
52 CNS RETNUOCEGAREVAOITARN/S 3030
62 CMF RETNUOCGNIHCTAMEDOMERUTAEF20

– 55 –
KV-ES34M81/ES34M91
RM-916
SERVICE LIST ITEM
GVTytilanoitcnuFnoitcnuF0506 emaNeciveD
yrogetaC.oNemaN elgniS 0521CRD PniPNIWTXEDNIelgniS 001CRD elgniS 0521CRD PniPNIWTXEDNIelgniS 001CRD
DIM00HPHESAHPAERAYALPSIDEVITCALATNOZIROH 252529D8252525E7872581949BM
10HPVESAHPAERAYALPSIDEVITCALACITREV A1A14202D0D1D1625211
20ZSHEZISAERAYALPSIDEVITCALATNOZIROH F7F7F7F7F7F7F7F7F7F7
30ZSVEZISAERAYALPSIDEVITCALACITREV F7F7F7F7F7F7F7F7F7F7
40WPHHTDIWSULPCNYS-HYALPSID F3F3F3F3F3F3F3F3F3F3
50WPVHTDIWSULPCNYS-VYALPSID 30303030303030303030
60LDYNOITCERROCYALEDC/YTUPTUOYALPSID 00000000000000000000
70PHM)PNIP&ELGNIS(NOITISOPLATNOZIROHERUTCIPNIAM F7F7F7F7F7F7
80PVM)PNIP&ELGNIS(NOITISOPLACITREVERUTCIPNIAM F7F7F7F7F7F7
90SHM)PNIP&ELGNIS(EZISLATNOZIROHERUTCIPNIAM F7F7F7F7F7F7
A0SVM)PNIP&ELGNIS(EZISLACITREVERUTCIPNIAM F7F7F7F7F7
B0PHPNOITISOPLATNOZIROHERUTCIPBUSPNIP F7 F7
C0PVPNOITISOPLACITREVERUTCIPBUSPNIP F7 F7
D0SHPEZISLATNOZIROHERUTCIPBUSPNIP F7 F7
E0SVPEZISLACITREVERUTCIPBUSPNIP F7 F7
F0OHPTESFFONOITISOPLATNOZIROHERUTCIPBUSPNIP F7 F7
01OVPTESFFONOITISOPLACITREVERUTCIPBUSPNIP F7 F7
11PMTNOITISOPLATNOZIROHERUTCIPNIAMNIWT 00 00
21PSTNOITISOPLATNOZIROHERUTCIPBUSNIWT
31PVTNOITISOPLACITREVERUTCIPBUS&NIAMNIWT
41SHTEZISLATNOZIROHERUTCIPBUS&NIAMNIWT
51SVTEZISLACITREVERUTCIPBUS&NIAMNIWT
61OHTTESFFONOITISOPLATNOZIROHERUTCIPBUS&NIAMNIWT
71OVTTESFFONOITISOPLACITREVERUTCIPBUS&NIAMNIWT
81SHXEZISLATNOZIROHERUTCIPBUSXEDNI
91SVXEZISLACITREVERUTCIPBUSXEDNI
A1GHXSERUTCIPNEEWTEBHTDIWPAGLATNOZIROHXEDNI
B1GVXSERUTCIPNEEWTEBHTDIWPAGLACITREVXEDNI
C1PHXNOITISOPLATNOZIROHSERUTCIPBUSTS1XEDNI
D1PVXNOITISOPLACITREVSERUTCIPBUSTS1XEDNI
E1PHDNOITISOPAERAEVITCALATNOZIROHCRD F7F7F7F7F7F7F7F7F7F7
F1SHDEZISLEXIPEVITCALATNOZIROHCRD F7F7F7F7F7F7F7F7F7F7

– 56 –
KV-ES34M81/ES34M91
RM-916
SERVICE LIST ITEM
GVTytilanoitcnuFnoitcnuF0506 emaNeciveD
yrogetaC.oNemaN elgniS 0521CRD PniPNIWTXEDNIelgniS 001CRD elgniS 0521CRD PniPNIWTXEDNIelgniS 001CRD
DIM02PVDNOITISOPENILAERAEVITCALACITREVCRD A1A1F3F3A1A1A19393A181949BM
12SVDEZISENILAERAEVITCALACITREVCRD F7F7F7F7F7F7F7F7F7F7
22PHVNOITISOPAERAEVITCALATNOZIROHODV F7F7F7F7F7F7
32SHVEZISLEXIPAERAEVITCALATNOZIROHODV F7F7F7F7F7F7
42PEVNOITISOPNEVEAERAEVITCALACITREVODV E1E1E1B1B1B1
52SVVEZISENILAERAEVITCALACITREVODV F7F7F7F7F7F7
62POVNOITISOPDDOAERAEVITCALACITREVODV 000000000000
72TLCGNIMITTUPTUOESLUPPMALCODV F7F7F7F7F7F7
82WLCHTDIWESLUPPMALCODV 404040404040
92DYVNOITCERROCYALEDC/YTUPNIGOLANAODV 000000000000
A2RCVREDROLANGISAMORCODV 101010101010
B2IDVNOITCELESTUPNIGOLANALATIGIDODV 101010101010

– 57 –
KV-ES34M81/ES34M91
RM-916
SERVICE LIST ITEM
GVTytilanoitcnuFnoitcnuF emaNeciveD
nommoCVToediVedoMRNedoMerutciP
yrogetaC.oNemaN 0edomRN1edomRN4edomRN3edomRNcimanyDdradnatSeniF-iHlanosreP
MC300ZRF TIBTSETYROMEMLANRETXE 00 28046DPU
10 MRN EDOMNOITAREPONOITCUDERESION 00
20 OCY NOITCELESTUPTUOLANGISC/Y D0
30 CYS NOITCELESKCOLCMETSYS 10
40 DTS NOITCELESNOITAREPODRADNATS-NON/DRADNATS 00
50 SSM NOITCELESNOITAREPOENIL-RETNI/EMARF-RETNI 00
60 LIK NOITCELESNOITAREPORELLIK-NON/RELLIK 30
70 DAE HCTIWSCDA-YLANRETXE 00
80 SCE NOITCELESTUPNICNYS-CLANRETXE 10
90 PPC NOITCELESHTDIWESLUPPMULC&LEVELTUPNICDA 20
A0 RWP HCTIWSHTDIWTUPNICDA 00
B0 PDH TNEMTSUJDAESAHPLATNOZIROH 50
C0 LDC TNEMTSUJDALANGIS-C 40
D0 CYD TNEMTSUJDALEVELGNIROCNOITCETEDYD 20202040
E0 GYD TNEMTSUJDANIAGNOITCETEDYD A0A0A0A0
F0 CCD TNEMTSUJDALEVELGNIROCNOITCETEDCD 50303050
01 GCD TNEMTSUJDANIAGNOITCETEDCD 50A0A050
11 RNY PUTESRETLIFRAENIL-NONRNY 10
21 RNC PUTESRETLIFRAENIL-NONRNC 10
31 CSW TNEMTSUJDAGNIROCNOITCETEDESION 10
41 HTV DRADNATS-NONCNYS-HROFNOITCELESSISERETSYH 1010
51 RTV DRADNATS-NONCNYS-HROFNOITCELESYTIVITISNES 1010
61 RDL DRADNATS-NONCNYS-EMARFROFNOITCELESYTIVITISNES 2010
71 PAV NOITCERROCEPAHSLACITREVROFTNEMTSUJDANIAG 30000000
81 IAV NOITCERROCEPAHSLACITREVROFTNEMTSUJDAGNIHSINAV C0000000
91 TST TIBTSET 00
A1 FPY FPBGNIKAEP-YROFNOITCELESYCNEUQERFRETNEC 30303030
B1 GPY FPBGNIKAEP-YROFTNEMTSUJDANIAG A0808080
C1 ESV PUTESRETLIFBMOCENIL A0
D1 NCC HCTIWSRETLIFTILPSLANGIS-C 00
E1 SOC NOITCUDERESIONTAHCTIWSYALEDLANGIS-C 00
F1 CDS HCTIWSYTIVITISNESNOITCETEDCD 00

– 58 –
KV-ES34M81/ES34M91
RM-916
SERVICE LIST ITEM
GVTytilanoitcnuFnoitcnuF emaNeciveD
nommoCVToediVedoMRNedoMerutciP
yrogetaC.oNemaN 0edomRN1edomRN4edomRN3edomRNcimanyDdradnatSeniF-iHlanosreP
MC302YDS HCTIWSYTIVITISNESREVEL-REWOLNOITCETEDYD 10 28046DPU
12 G2D NOITCELESNIAG2D 40
22 CHY NOITCELESGNIROCLEVEL-REHGIHLANGIS-Y 00 00000000
32 GHY HCTIWSNIAGLEVEL-REHGIHLANGIS-Y 00 00000000
42 THS STIBTSETRETNUOCV/H&NOITCETEDDRADNATS-NON 00
52 KLC STIBTSETKCOLC 80
62 LLP PUTESRETLIFLLP D0
72 FRK TNEMTSUJDAECNEREFERNOITCETEDRELLIK 30
82 LSH TNEMTSUJDALEVELECILSCNYS-H C0
92 LSV TNEMTSUJDALEVELECILSCNYS-V 80
A2 SPB TNEMTSUJDANOITISOPTRATSETAGTSRUBLANRETNI 40
B2 WPB TNEMTSUJDAHTDIWETAGTSRUBLANRETNI A0
C2 CDA NOITCELESYALEDKCOLCCDA 30
D2 DPA HCTIWSNWOD-REWOPCDA 10
E2 DSN TIBTSETNOITCETEDDRADNATS-NON 10
F2 DPS HCTIWSNWOD-REWOPYROMEM 20
03 TNC TIBTSETRNC 00
MC200APA FFO/NONOCAPABMOCD2 10000000Q9602AXC
GVTytilanoitcnuFnoitcnuFeciveD
yrogetaC.oNemaN0506
CYD00HBS 1VNOCCITATSHF1F1P0708AXC
10 UBY REPPU2VNOCCITATSHF1F1
20 LBY REWOL2VNOCCITATSHF1F1
30 ASR TFEL1VNOCCIMANYDHF1F1
40 ASL THGIR1VNOCCIMANYDHF1F1
50 BUL TFELPOT2VNOCCIMANYDHF1F1
60 BLL TFELMOTTOB2VNOCCIMANYDHF1F1
70 BUR THGIRPOT2VNOCCIMANYDHF1F1
80 BLR THGIRMOTTOB2VNOCCIMANYDHF1F1

– 59 –
KV-ES34M81/ES34M91
RM-916
SERVICE LIST ITEM
GVTytilanoitcnuFnoitcnuF eciveD
yrogetaC.oNemaN nommoC0506
TXT00HXTNOITISOPLATNOZIROHTXETELET B4 1625AAS
10VXTNOITISOPLACITREVTXETELET E0
MPO00HSONOITISOPHDSO 21 690057PXC CSIM-NOITPO
101WF1#PUTESWODNIWDLEIFNEVE/DDODSO 00
202WF2#PUTESWODNIWDELIFNEVE/DDODSO 30
30OHOXEDNIROFTESFFONOITISOPHDSO 70
40OCI)XEDNI1+21(TESFFOLATNOZIROHDSO"OEDIV"XEDNI 10
50OSITESFFOLATNOZIROHDSONEERCS-BUSXEDNI 20
601LINOITISOPLACITREVENILTS1DSONEERCS-BUSXEDNI C191
70OVITESFFOLACITREVDSONEERCS-BUSXEDNI F222
80 MOC NOITCELESNOITAREPOBMOC 00
90 CPA ETUMHCTIWSCPA 10
A0 YST METSYSVTOTUAHTIWGNIHCRAESREDNUNOITCELESMETSYSVT 00
B0 TUM ETUMLANGISON 00
C0 MFA HCTIWSMFOTUA 10
D0OVTNOITATORERUTCIPOTNOITCERROCELGNA-V 30
E0LBDNOITCNUFKCABEULBELBASID 10
F0 OSS NOITCELESHCRAESHCDEEPS 10
01PRTTUPNIHCAEROFNOITCUDERESIONGEPJ/GEPM 00
BPO001PO)TEEHSDEIFICEPSEHTEES(1STIBLANOITPO 76 STIB-NOITPO
102PO)TEEHSDEIFICEPSEHTEES(2STIBLANOITPO 31

– 60 –
KV-ES34M81/ES34M91
RM-916
Abbreviation:
ECO = Eco Mode
VC = V-Compressed Mode
NC = Non-Compressed Mode
Sur = Surround
VDD = Virtual Dolby Digital
VDP = Virtual Dolby Prologic
TRS = Tru Surround
SIM = Simulated
NOTE
• shaded items are fixed data.
• no data.
• Standard data listed on the Adjustment Item Table are reference values, therefore it may be different for each model and for each mode.
• Note for Different Data: Those are the standard data values written on the microprocessor. Therefore, the data values of the modes
and stored respectively in the memory.
In case of a device replacement, adjustment by rewriting the data value is necessary for some items.
OPTION NOTE
COM Comb Operation Selection 00 = automatic operation (depends on color system status),
01 = no comb operation,
02 = forced 2D-comb operation,
03 = forced 3D-comb operation
TSY TV System Selection for Auto TV System 00 = B/G, 01 = I, 10 = D/K, 11 = M
SSO Speed CH Search Selection 00 = normal, 01 = 4 times, 10 = 6 times, 11 = 8 times
TRP MPEG/JPEG Noise Reduction
OP2 Items
Item
KV-ES34M81
KV-ES34M91
Language
1
1
OSD
1
1
SSV Model
0
0
US ST
0
0
A-TVsys
1
1
Korean Mode
0
0
Korean Stereo
0
0
OP1 Items
Item
KV-ES34M81
KV-ES34M91
1
1
1
1
DVD Input
1
1
Reserved
0
0
HDEV
1
1
NICAM
1
1
TOP
1
1
AV Input
–
0
0
C-Text
0
0
Input DVDVideo 4Video 3Video 2Video 1TV––
AV Input 00 = no AV Input, 01 = 1 AV Input, 10 = 3 AV Input, 11 = 4 AV Input

– 61 –
KV-ES34M81/ES34M91
RM-916
1. NTSC VIDEO INPUT
Input signal ; NTSC color bar, 75% to Video 1.
[TWIN] mode, [Service] mode.
(i) SUB CONTRAST
Condition : SAJ 00 PIC 3F
02 COL 0
JGL 01 RGB 4
SAJ 13 PIO 0
Adjusting parameter:
LEFT ; YCT 08 YOL
RIGHT ; SYC 08 YOL
VR1
VR2
GND
VR1 - VR2 = 1.85 ± 0.07 (Vp-p)
(ii) SUB HUE/SUB COL
Condition : SAJ 02 COL 1F
JGL 01 RGB 7
SAJ 10 HUO 7
Adjusting parameter:
LEFT ; YCT 0A COL
YCT 00 TNT
RIGHT ; SYC 0A COL
SYC 00 TNT
VB1 VB2 VB3
VB4
VB1 = VB4 ± 70 mV
VB2 = VB3 ± 70 mV
5-3. PICTURE QUALITY ADJUSTMENTS
-H-TRAPIZIUM ADJUSTMENT
1. Input a cross hatch/dot signal.
2. Adjust DAC 4 HTR to make H-Trapizoid distortion best.
SUB CONTRAST, SUB HUE, SUB COLOR
Adjustment condition
SAJ 00 PIC 3F
06 DYC 0
0E CLO 6
10 HUO 7
13 PIO 0
JGL 04 BBT 0
05 LML 3
PICTURE QUALITY : HI-FINE
ECO MODE : OFF
WIDE MODE : OFF
DRC-MF : DRC1250
INPUT SIGNAL
Video Color Bar (White and Color 75%)
RF Color Bar (White and Color 75%)
MEASUREMENT POINT
VR ; R100 (the pin 6 of CN1100 at A board)
VB ; B100 (the pin 7 of CN1100 at A board)
CAUTION
After the above Adjustment, these adjustment parameters must be
recovered to the original condition.
Original condition
SAJ 00 PIC 28 HI-FINE
SAJ 06 DYC 0 HI-FINE
50 TV 50 VIDEO 60 TV 60 VIDEO
OE CLO 9 8 9 9
10 HUO 8 8 9 9
13 PIO TWIN = 7
JGL 04 BBT 3
05 LML 0

– 62 –
KV-ES34M81/ES34M91
RM-916
3. PAL RF INPUT
Input signal ; PAL RF color bar, 75%.
[TWIN] mode, [Service] mode.
(i) SUB CONTRAST
Condition : SAJ 00 PIC 3F
SAJ 02 COL 0
JGL 01 RGB 4
Adjusting parameter:
LEFT ; YCT 04 SCT
RIGHT ; SYC 04 SCT
VR1
VR2
GND
VR1 - VR2 = 1.85 ± 0.07 (Vp-p)
(ii) SUB HUE/SUB COL
Condition : SAJ 02 COL 1F
JGL 01 RGB 7
Adjusting parameter:
LEFT ; YCT 03 SCL
RIGHT ; SYC 03 SCL
VB1 VB2 VB3
VB4
VB2 = VB3 = VB4 = ± 70 mV
2. NTSC RF INPUT
Input signal ; NTSC RF color bar, 75%.
[TWIN] mode, [Service] mode.
(i) SUB CONTRAST
Condition : SAJ 00 PIC 3F
02 COL 0
JGL 01 RGB 4
Adjusting parameter:
LEFT ; YCT 04 SCT
RIGHT ; SYC 04 SCT
VR1
VR2
GND
VR1 - VR2 = 1.85 ± 0.07 (Vp-p)
(ii) SUB HUE/SUB COL
Condition : SAJ 02 COL 1F
JGL 01 RGB 7
SAJ 10 HUO 7
Adjusting parameter:
LEFT ; YCT 03 SCL
YCT 00 TNT
RIGHT ; SYC 03 SCL
SYC 00 TNT
VB1 VB2 VB3
VB4
VB1 = VB4 ± 70 mV
VB2 = VB3 ± 70 mV

– 63 –
KV-ES34M81/ES34M91
RM-916
5-4. DEFLECTION ADJUSTMENTS
FOR DRC 1250
1. Set to Service Mode.
2. Input a Pal cross hatch/dot signal.
3. Set the following condition.
Picture Mode to [DYNAMIC], Picture Rotation to [+/–0] and
Eco Mode to OFF.
4. Set to DRC 1250 mode.
5. Using the 1 and 4 buttons select category GEO (Service
Mode).
6. Select and adjust the following items to obtain optimum image.
Raise/lower the data with the 3 and 6 buttons.
1 00 VSZ V SIZE
2 04 HSZ H SIZE
3 01 VPS V POSITION
4 05 HPS H POSITION
5 03 SCO S CORRECTION
6 02 VLN V LINEARITY
7 0B BOW AFC BOW
8 06 PAP PIN AMP
9 07 UPN UPPER CORNER PIN
10 08 LPN LOWER CORNER PIN
11 09 TRZ TRAPEZIUM
7. Using the 1 and 4 buttons select category DAC (Service
Mode).
8. Select and ad List the following items to obtain optimum image.
Raise/lower the data with the 3 and 6 buttons.
1 01 HLN H LINEARITY
2 00 HCT H CENTER
9. Select “GEO 04 HSZ” with the 1 and 4 buttons.
10. Confirm the H Size condition. If necessary, adjust the H SIZE
to get a best condition.
11. Write into the memory by pressing [MUTING] then -.
FOR DRC 100 MODE
12. Set to DRC 100 mode.
13. Repeat Step 5, Step 6 and Step 7.
14. Write “DAC 00 HCT DRC 100 Mode” as “DAC 00 HCT DRC
1250 Mode”.
Write “DAC 01 HLN DRC 100 Mode” as “DAC 01 HLN DRC
1250 Mode”.
FOR PIP MODE
15. Set to PIP mode.
16. Repeat Step 5 and Step 6.
17. Write into the memory by pressing [MUTING] then -.
FOR TWIN MODE
18. Set to TWIN Mode.
19. Using the 1 and 4 buttons select category GEO (Service
Mode).
20. Select and adjust the following items to obtain optimum image.
Raise/lower the data with the 3 and 6 buttons.
1 01 VPS V POSITION
2 05 HPS H POSITION
3 06 PAP PIN AMP
4 09 TRZ TRAPEZIUM
21. Write into the memory by pressing [MUTING] then -.
FOR INDEX M0DE
22. Set to Index Mode.
23. Repeat Step 5 and Step 6.
24. Write into the memory by pressing [MUTING] then -.
FOR WIDE MODE
25. Set to WIDE Mode.
26. Using the 1 and 4 buttons select category GEO (Service
Mode).
27. Select and adjust the following items to obtain optimum image.
Raise/lower the data with the 3 and 6 buttons.
1 00 VSZ V SIZE
2 01 VPS V POSITION
3 05 HPS H POSITION
4 06 PAP PIN AMP
5 09 TRZ TRAPEZIUM
28. Input a NTSC cross hatch/dot signal and repeat all above steps.

– 64 –
KV-ES34M81/ES34M91
RM-916
5-5. A BOARD ADJUSTMENT AFTER IC003
(MEMORY) REPLACEMENT
When replacing IC003 and IC004 (MEMORY), be sure to change
IC001 (µ-COM) to the following at the same time.
1. Enter to Service Mode.
2. Press commander buttons 5 and - (Data Initialize), and 2
and - (Data Copy) to initialize the data.
3. Call each item number and check if the respective screen shows
the normal picture.
In cases where items are not well adjusted, rectify the items
with fine adjustment.
Write the data per each item number ([MUTING] +-).
4. Select item numbers “OPB0” (OP1), “OPB1” (OP2) and
respectively set the bit per model with command buttons 3
and 6.
5. Press commander buttons 8 and - (Test Normal) to return
to the data that was set on the shipment from the factory.
(This will also cancel Service Mode.)
KV-ES34M81/ES34M91 CXP750096-013Q
MODEL IC001 (µ-CON)

– 65 –
KV-ES34M81/ES34M91
RM-916
5-6. PICTURE DISTORTION ADJUSTMENT (1)
Item Number 00 – 0B
GEO 4 HSZ (H SIZE)
GEO 9 TRZ (TRAPEZIUM)
GEO 07 UPN (UPPER CORNER PIN)
GEO 08 LPN (LOWER CORNER PIN)
GEO 0 VSZ (V SIZE)
GEO 5 HPS (H POSITION)
GEO 0A AGL (AFC.ANGLE)
GEO 0B BOW (AFC.BOW)
GEO 6 PAP (PIN AMP)
GEO 1 VPS (V POSITION)
GEO 2 VLN (V LINEARITY)
GEO 3 SCO (VERTICAL S-Correction)
PICTURE DISTORTION ADJUSTMENT (2)
H-TRAPEZOID (DAC 4 HTR)

– 66 –
KV-ES34M81/ES34M91
RM-916
MEMO

– 67 –
KV-ES34M81/ES34M91
RM-916
MEMO

– 68 –
KV-ES34M81/ES34M91
RM-916
MEMO

SECTION 6
DIAGRAMS
6-1. BLOCK DIAGRAM
– 70 – – 71 –– 69 – – 72 –
KV-ES34M81/ES34M91
RM-916 KV-ES34M81/ES34M91
RM-916 KV-ES34M81/ES34M91
RM-916 KV-ES34M81/ES34M91
RM-916
CN1652
1
5
3
2
2
1
1
CN6603
RELAY DRIVE
Q6601
AC IN
RELAY
RY6603
RELAY
RY6602
RY6601
TH6601
MAIN RECT
D6605
T6602
±17V RECT
D6634
MAIN
CONVERTER
ST-BY
CONVERTER
+17V AUDIO
–17V AUDIO
+12V
+6.5V 5V
3.3V
DEFLECTION
2.5V
+10.5V 9V
+135V
+12V REG
+15V
+6.5V RECT
D6633
SWITCHING
REGULATOR
ST-BY RECT
D
S
C
IC6604
IC6603
MCR51A2
CONTROL BLOCK
& RELAY DRIVE
IC6602
DETECT STBY RECT
IC6608
DETECT MAIN RECT
IC6601
REF. VOLTAGE
CATHODE
ANODE
REF
SWITCHING REGULATOR
+10.5V RECT
D6644
+135V RECT
D6631
GO
I
FOR
CHECK
CN6602
DEGAUSS
PIN
CN6800
D BOARD
DGC CHECK
DGC CHECK
FROM
F2
7
9
6
2
1
18
3
17
16
15
14
13
12
11
10
5
1
4
T6601
SRT
5
7
2
19181716151413121110987654321
VD
VG (H)
SS. RST
NC
SS
CT
RT
COVP
COCP
VOCP
COM
VS
4
3
1
8
6
9
1
4
3
5V STBY
+5V
+5V REG
IC6607
POWER MODULE 3
PH6601
POWER ON CONTROL
4
2
1
+135V
IC6613
DEGAUSS CN6800
11
13
1
IC6637
+5V STBY
TO A
DF SW
M PIN
H LIN
H CENTER
HP2
HP1
DF DRIVE
ABL 1
10
48
30
34
40
14
28
49
VFB2 Q6800
V SAW
IC6801
DY PROT
TO C BOARD
CN9007
–15V –15V RECT
D6817
D6824
+15V RECT
D6816
DFT
T6801 DF DAMP
Q6821
FOCUS TO
C BOARD J9001
DF ON/OFF SW
Q6816, 6815
DF PROT
Q6817, 18
+15V
Q6809
M PIN OUT
H LIN OUT
+200V +200V RECT
D6813
Q6810
VSAW–
VSAW–
VSAW+
VSAW+
41
37
39
35
33
N/S
CN6802
VM
FOCUS
EXTRA-PARA
AFC PULSE
17
31
29
15
13
EXTRA PARA
FOCUS
VM
N/S
X-RAY
9
15
16
20
14
VSAW–
VSAW+
HD2
HD1
H. PULSE
19
VPROT
CN6800 V PROT
Q6811, Q6819
Q6820, Q6821
H-OUT DRIVE
Q6806 HDT
T6804
HDT
T6802
PIN OUT
Q6808
D6801
IC6800
V-OUT
PUMP UP
Q6801
V+ 6
5
4
3
2
1
1
4
V-
H-
H+
200V
H1 TO C BOARD
CN9002
TO PICTURE TUBE
HV
CN6801
V.DYV.DYH.DYH.DY
H-OUT
Q6807
H-OUT DRIVE
Q6805
CN6802 IC6801 H-C CLT
H-CERT
CN6802
H-SAW
H-SAW
Q6813, 14
H-CAMP
Q6804, 3
H-C OUT
Q6802
H-C SHIFT
Q6822
PULS-RECT
D6809
D6814
G2RECT
T6800
18
17
10
13
7
TO D1 BOARD CN6100 TO A BOARD CN1162
STANDBY PIN 5
OF CN6605
IC6608
IC6606
GO
I
3
PH6602
FEEDBACK
4
2
1
+10.5
OUT1 VCC
IN1– OUT2
IN1+ IN2–
GND IN2+
8
7
6
5
1
2
3
4
OUT3 VCC
IN3– OUT4
IN3+ IN4–
GND IN4+
8
7
6
5
1
2
3
4
3
2
1
11
7
6
5
9
10
8
7
6
F
13
SC
12
11
5
2
+135V
4
1HV
46
3
2
1
1
3
7
5
44 DY
D
(POWER SUPPLY, DEFLECTION HV)
1
2
3
3 -IN1
4 +IN1
DH (MAGNETIC FIELD CORRECTION)
TO LCC
TO A BOARD
CN1138
CN3802
N/S (B)
N/S (E)
DEGAUSS Q3807
Q3808
BUFFER Q3809, 3812
N/S MUTE
IC3805
NS DRIVE
Q3810, 3811
BUFFER
2
8OUT2
OUT1
7 -IN2
6 +IN2
4XOUT
NL3801
TO BEZEL
TO COATING
EARTH
IC3807 SENSOR
CN3801 RS812
1M
1/2W
R3811
470k
1/2W
CN3803
3REF
1
2
3
9
9
8
D9005
IC9001
VIDEO OUT (RED)
Q9009
BUFFER
Q9010
BUFFER
Q9011
BUFFER
Q9001
BUFFER
VO
VB
VI
VOF
IK
R
G
B
J9001
12
11
10
5
7
3
CN9002
TO D BOARD
FV(T6803)
CN9007
FV
A1
G2
HV
32CI
PICTURETUBE
TO D BOARD
HV(T6803)
TO E BOARD
CN4500
CN9001
R DRIVE
12 V
C
(CRT DRIVE)
TO D BOARD
TO D BOARD
G2(T6803)
7
CN9001
8
IK
5
CN9001
B DRIVE
3
CN9001
G DRIVE
1
3
9
5
8
IC9002
VIDEO OUT (GREEN)
VO
VB
VI
VOF
IK
1
3
7
5
8
IC9003
VIDEO OUT (BLUE)
VO
VB
VI
VOF
IK
AC OUT
AC OUT
AC IN
AC IN
AC IN
AC IN
S1651
POWER
CN1652 CN1651
TO D BOARD
CN6604
TO AC CORD
F1601
F1601
LFT
CN6101
1
2
AC OUT
AC OUT
CN1602
1
2
1
2
1
2
F1 (AC LINE FILTER) F2 (AC SWITCH)
1 4
2 3
F1602
LFT
14
2 3

– 74 – – 75 –– 73 – – 76 –
KV-ES34M81/ES34M91
RM-916 KV-ES34M81/ES34M91
RM-916 KV-ES34M81/ES34M91
RM-916 KV-ES34M81/ES34M91
RM-916
CN4101
EXTRA PARABOLA
H DEFL
AFC PULSE
HD1
D FOCUS
HD2
V DEFL
R100
VPROT
XRAY
GREEN
RED
BLUE
BLK
TEXT RED
TEXT GREEN
TEXT BLUE
TEXT BLK
Y100
U100
V100
DPIC SW
63
59
64
60
46
16
20
35
36
34
33
41
40
39
38
52
53
54
43
EXTRA-PARA R_OUT
G_OUT
B_OUT
VM_OUT
500K
ABL_IN
ABL_FIL
EW
HD
IC4803
CPC-AMP
IKIN
HS_IN
HP_IN
L2_FIL
DF_PARA
VS_IN
VM_MOD
V_PROT1
XRAY
G2_IN
R2_IN
B2_IN
YS/YM2
R1_IN
G1IN
B1_IN
YS/YM1
Y1IN
CB1IN
CR1IN
DPIC_DCTR
19
30
28
26
25
45
15
22
23
1
17
R OUT
G OUT
B OUT
IK
5
67
Q4800 - H DRIVE1
Q4801 - H DRIVE2
5
67
1
2
3
VM
PROT 1
CPCP
HP2
HP1
ABL 1
PROR 1
Q4315
V PROT SW
IC4800
FF CONP2
IC4801
FF CONP1
IC4802
PLL AMP
IC4301
CRT-DRIVER
CN4500
CN4502
CN4800
39
40
36
29
27
25
23
22
21
20
19
16
14
13
12
9
6
4
3
2
1
37
5
67
1
2
3
5
67
1
2
3
1
3
1
2
3
4
4
5
6
9
10
E
(RGB OUT, DEFLECTION)
TO A BOARD CN1401
18
TO C BOARD CN9001TO D1 BOARD CN6101 TO VM
BOARD
CN5402
1L SP
R SP
LHP
RHP
CN1118
FS IN
B IN TO V BOARD
CN1801
G IN
R IN
TEXT RED
CN1140
TEXT GREEN
TEXT BLUE
TEXT BLK
4
6
7
61
52
62
6
3
7
8
32
33
34
36
37
35
9
19
13
54
53
64
7
45
16
17
18
23
29
30
31
47
49
40
48
50
VP 100
KEY 2 IN
LED R
LED G
SIRCS
LN IN
LP IN
RN IN
RP IN
TVL OUT
TVR OUT
CVBS 2 OUT
CVBS 1 OUT
KEY 1 IN
I
ANTENNA IN
RF SIGNAL
RF SIGNAL
IC001
MAIN CONTROLLER
DEGAUSS KEY 2
LED 1
LED 2
SIRCS
KEY 1
ATT SW
AGC MONITOR
AFT1
AFT2
F MONO F MONO
AFT2
AFT1
AGC
ST
MSP RESET(MSP)
MUTE
SDA 1
SCL 1
W PROTECT
SDA0
SCL0
NS ROT
ST-BY
OVP
OCP
H SYNC
V SYNC
R
G
B
YS
YM
RESET
B-INT
HP100
CN1150
R
G
B
Q002
BUFFER
Q001
INVERTER
YS
IC002
CN1100
B INT
TO H2 BOARD
CN1934
CN1195
TO H1/H3 BOARD
CN1901/CN1980
CN1190
TO J BOARD
CN8304
CN1180
CP1300
XMUTE
Q301 Q313
MUTE
ST
MSPR
STBY
MUTE
SDA
SCL
IC003
EEPROM
WC
CN1162
DEGAUSS
NS ROT
ST-BY
OVER VOLTAGE PROT.
OVER CURRENT PROT.
CN1161
LO
RO
L+
L-
R+
R-
L-UB
R-UB
IC1205
DIFFERENTIAL AMP
MSPR
SDA
SCL
F MONO
MODE
AFT1
Q101
BUFFER
ST
AG
AFT2
Q3300
Q3301
AMP.
11
6
17
16
L-UB LOUT
IN
OUT
ROUT
OUT
IN
R-UB
IC1201
TONE-CTRL
IC1203
R-AMP
IC1204
L-AMP
IC2200
HP-AMP
RESET IC
TO SPEAKER
TO H2 BOARD
CN1932
TO E BOARD
CN1401
TO D BOARD
CN6800
TO D BOARD
CN6605
TO B
US C
ONTRO
LLER
1
3
7
5
1
9
9
1
1
2
3
4
14
16
17
20
R OUT
TU101
TU3301
L OUT
DEL OUT
SDA
SCL
NC
NC
NC (RESET)
PLL-SW
AFT OUT
RF AGC
SDA
SCL
DET OUT
SIGNAL
SPLITTER
AFT OUT
SDA
SCL
2
1
2
4
7
1
7
3
2
5
6
1
5
6
7
A20
11
20
5
11
13
1
2
23
BLUE OUT 21
RED OUT 20
GREEN OUT 19
25
27
29
3
5
7
9
CN1193
A
(MAIN-MICON, TUVIF, AUDIO AMP)

– 78 – – 79 –– 77 – – 80 –
KV-ES34M81/ES34M91
RM-916 KV-ES34M81/ES34M91
RM-916 KV-ES34M81/ES34M91
RM-916 KV-ES34M81/ES34M91
RM-916
1
2
3
4
5
6
7
8
9
10
11
12
3
12
4
J1932
J1933
J1931
S1931
AUTO PRESET
R IN
L IN
Y IN
S IN
C IN
KEY 2 IN
CN1934
VLR
TO J BOARD
CN8301 TO A BOARD
CN1195
CN1932
TO A BOARD
CN1193
HP GND
HP LIN
H2
(AV INPUT, PRESET KEY, PHONE OUT)
1
2
HP R IN
3
AU GND
4
HP MUTE
5
PLL UP
6
G
R
CN1901
5P
WHT
S-MICRO
IC1901
REMOTE SENSOR
Q1901
LED DRIVER
Q1902
LED DRIVER
D1906
SPB-26MVWF
STBY
ON
4 SIRCS
LED2
LED1
TO A BOARD CN1190
2
1
H1
(LED, SIRCS RECEIVER)
1
2
3
GND
CN1980
KEY 1 OUT
STBY
S1972
PRG+
S1973
PGRM-
S1974
VOL+
S1975
VOL-
S1976
TV/VIDEO
S1977
ENTER
S1978
MENU
S1979
TO A BOARD
CN1190
H3
(TOP KEY)
IG
IC6353
Q6107
5V REG
DQP H-MOJI
1
2
3
4
5
6
7
8
9
10
11
12
M-PIN
DF SW
DF PH
H-LIN
QP DV
H-TRP
QP PH
QP AC
CP CTR
H-CENT
QP AV
QP DC
2
3
5
6
1
7
DF SW
HP1
N/S
DF DRIVE
FOCUS
H LIN
GND
V COMP+
V COMP-
V SAW-
V SAW+
VFB2
H CENT
H-SAW
M PIN
ABL 1
HP1
REF
CP CNTL
Q6125
H LIN AMP 1
Q6126
H LIN AMP2
IC6201
V SIZE COMP
Q6128
H-SAW
Q6106
CONST. C
2
5
7
3
1
IC6103
M.PIN CONP
IC6102
DQP-CONT
2
3
5
6
1
1
7
2
3
5
6
1
7
1
3
8
6
5
IC6354
MULTIPLAY
+
IC6356
N/S. OUT
1
2
3
8
7
6
5
IC6101
QP-CONT
3
1
2
4
5
3
IC6104
DQP-AMP
TO VM BOARD
2
3
5
6
3
1
8
IC6351
DC CONT.
ROT-
ROT+
IC6105
DQP-CONT
IC6106
H-SIZE CONT
IC6202
LPF
QP (–)
CN6104
TO RT COIL
TO E BOARD
CN4800
TO BOARD CN6802
CN6101
CN6100
CN6103
3
1
6
4
2
10
14
17
28
29
30
34
35
37
33
41
44
46
48
49
39
14 11 10 9
234 6
5
5
IC6108
DAC CONT.
D1
(DF, DQP DRIVE)
1 2 3 4 5 6 7 8 9 10
IC8302
CXA2069Q
2L1
4R1
9L2
11R2
16L3
18R3
23L4
25R4
59DVDL
61
L OUT
R OUT
L IN
SDA
SCL
DIR
DIR AMP
IC8106
DIGITAL
AUDIO IN
J8106
L OUT–
L OUT+
R OUT–
R OUT+
CLK
MCLK LRCK
IC8103 AK4524 AUDIO CODEC
BCK SDI SD0
MCLK LRCK BCK SD0 SDI
IC1205
DIFF. AMP IC1201
TDA7315D
AUDIO
PRCESSOR
IC1204
TDA7481
LCH OUT
MUTING
L SPEAKER
R SPEAKER
IC1203
TDA7481
RCH OUT
IC8105
TC9446F-002
AUDIO DIGITAL SIGNAL PROCESSOR
A1 (AUDIO DSP)
A (MAIN-MICON, TUVIF, AUDIO AMP)
J
A
SCL SDA P001 (ALIVE)
CONTROL LINE FROM MAIN UCOM
CONTROL LINE FROM MAIN UCOM
3.3V
DAT 3.3V 5VCS
R IN
MON L
MON R
DVDR
62TVL
64TVR
SCL
SDA
43
45
52
54
50
49
48
47
FS OUT
B OUT
G OUT
R OUT
V SYNC TEXT
TO A BOARD CN1118
H SYNC TEXT
CVBS IN
45
30
G
R
IC1801
TEXT DECODER
BLAN
B
HS/SC
VS
CVBS
CN1801
Q1802
BUFFER
BUFFER
Q1806
BUFFER
Q1805
BUFFER
Q1804
Q1803
BUFFER
46
3
5
7
9
17
19
15
V (TELETEXT)

– 82 – – 83 –– 81 – – 84 –
KV-ES34M81/ES34M91
RM-916 KV-ES34M81/ES34M91
RM-916 KV-ES34M81/ES34M91
RM-916 KV-ES34M81/ES34M91
RM-916
Q8302
BUFFER
2
11
1
48
39
41
44
43
46
19
18
17
4
9
23
22
21
10
C1
CVB S/Y
Y FOR SYNC
SYNC IN
SCP
YOUT
CbOUT
CrOUT
C3
C2
CVBS/Y2
CVBS/Y3
Cb1
Y1
FSC OUT
Cr1
VS
HS
47
36
3
5
7
1
2
4
8
9
11
30
15
16
18
59
61
43
45
60
63
62
64
53
52
54
31
29
44
41
39
37
25
23
24
22
28
26
Y1
DC OUT
COUT2
C1
S1
V1
LV1
RV1
V2
LV2
RV2
VS
V3
LV3
RV3
LV6
RV6
RV4
CN8301
TO H2 BOARD
CN1934
R IN
L IN
Y IN
CV IN
S IN
C IN
LV4
Y4
V4
S-4
C4
J8301
43
12
V1
L1
R1
V2
L2
R2
V3
L3
R3
Y B-Y R-Y L R
2
11
19
18
17
21
22
23
4
9
43
44
1
IC8309
SW
3
1
7
Q8331
AMP
Q8332
BUFFER
Q8329
AMP
Q8330
BUFFER
Q8301
BUFFER
Monitor Out
Q8304
BUFFER
BUFFER
BUFFER
BUFFER
BUFFER
Q8305
Q8304
Q8306
Q8308
Q8309
1
6
8
19
17
16
SC
YIN
-UIN
-VIN
9
2 IC8312
AND GATE
AND GATE
SYNC IN YOUT
CbOUT
CrOUT
VS
HS
C2
C2
C2
Y FOR SYNC
Y1
CB1
Cr1
4
FL8314
FL8315
FL8316
IC8311
24
IC8313
IC8314
CV OUT
Y IN
C IN
C OUT
Y IN
C IN
CV OUT
FSC
ACPN
Video In 1
Video In 2
Video In 3
Component In
IC8306
MAIN COLOR DECODER
IC8302 AV/SW
LOUT2
ROUT2
STV
TV
LTV
RTV
VOUT1
LOUT1
ROUT1
RVS
V/YOUT2
VOUT3
YOUT3
COUT3
LVS
IC8308
SUBCOLOR DECODER
IC8310
LTI
CN8304
CN8200
Monitor out
J8106
Digital
Audio
In
Y MAIN OUT
U MAIN OUT
V MAIN OUT
V PULSE MAIN OUT
H PULSE MAIN OUT
Y SUB OUT
U SUB OUT
V SUB OUT
V PULSE SUB OUT
H PULSE SUB OUT
CVBS OUT TEXT
CVBS 2 IN
CVBS 1 IN
TVL IN
TVR IN
RN OUT
RP OUT
LN OUT
LP OUT
TO BC4 BOARD
CN2001
TO A BOARD
CN1180
1
3
5
15
1
4
9
6
11 BUFFER
Q8361
BUFFER
Q8362
BUFFER
Q8363
1
3
5
7
8
9
50
47
44
42
41
38
35
34
32
31
27
20
17
16
14
4
3
2
1
LP
LN
RN
R-SW
V
L-SW
COAXIAL SIG
1
2
RP
3
4
6
7
9
TO SBX3005-11
TO A1 BOARD
CN8100
J
(YCT, COMB FILTER,
VIDEO/AUDIO-IN/OUT)
BUFFER
Q8464
BUFFER
Q8465
BUFFER
Q8466
L
R
Digital
Audio
Cr-Y
ADC
TLC5733
PLL
TLC29321
PLL
TLC2933
ADC
CXD2306
DAC
CXD2309 LPF
PLL
CXA3106
LPF
16Mbit SDRAM
64Mbit SDRAM
From sub
chroma decoder
IC603
IC504
IC604
To MID-X
IC501
IC601
IC302
IC303
IC902
IC602
IC802
Chroma
Decoder
(CXA2123)
DRC 1chip
(CXD2090Q)
DRC process
525i n 525p
525i n 1050i
625i n 625p
625i n 1250i
IC801
IC901
MID-X
(CXD9509Q)
FF process
P and P
P in P
T and P
Index
Scan Convert
Sub
Chroma
Decoder
(CXA2123)
Sub µ com
(IIC BUS)
IIC BUS
Expander
(CXA1875)
Level
converter
Y in
C in
Y in
C in
Cr-Y 8
Cb-Y
Cb-Y 8
Y
Y
Cr-Y
Cb-Y
H
V
H
13.5MHz
WPLLHD HREF
RPLLHD
5.0V
2.5V
54MHz
Clock
Y
V
H
54MHz
54MHz
Clamp pulse
clock
H
I2C
V
Clamp pluse
V
8
Cr-Y
Cr-Y
Cb-Y
Y
Cr-Y
Cb-Y
54MHz
clock
8
Cb-Y
Y
8
Y8
J board
A board
IC8306
IC8308
3.3V
2.5V
17.28MHz
3.3V
5.0V
5.0V
3.3V
B3
(DRC, MID, DRC/MID CONTROLLER)
U100 OUT
Y100 OUT
CN502
V100 OUT
A7
A8
A9
CN1108
A24
Y-MAIN OUT
V-PULSE M OUT
A21
V-MAIN OUT A23
U-MAIN OUT A22
H-PULSE M OUT A25
Y SUB OUT A19
V SUB OUT A17
U SUB OUT A18
H-PULSE SUB OUT A15
V-PULSE SUB OUT B16

– 85 –
KV-ES34M81/ES34M91
RM-916
S DAT
RESET
C OUT
Y OUT
COMP V IN LPF
Q2018, 2019, FL2004
BPF
Q2012, 2016, FL2003
LPF
Q2004, 2005, 2008
Q2010, FL2002
BPF
Q2003, 2006, 2007
Q2009, FL2001
BUFF
Q2011, 2013, 2015
IC2004
3D COMB FILTER IC2003
MEMORY
BUFF
Q2014
BUFF
Q2002
IC2005
+3.3V REG
Y
CN2001
J BOARD TO
IC8313
1
3
5
6
9
9V
S CLK
10
11
5V
13
C IN
15
88
28
76
96
84
83
57
59
60
47
11 13
50
CV
CV
CV
C
C
Y
Y
C
AYI
MIO0
MIO15
CSI
ACI
AYO
ACO
RSTB
WE
SCL
SDA
FSC0
FSC1
13 5
2
10
7
IO1
IO16
AO
A8
MA0
MA8
MWE
98 14 RAS
MRAS
12 27 OE
MOE
10 28 U CAS
MZAS
30 29 L CAS
X2001
20MHz
XI
31
XO
99
1
9
39
36
34
31
19
16
26
22
10
+5V
9V
+3.3V
BC4 (Y/C SEP)

– 86 –
KV-ES34M81/ES34M91
RM-916
QP-
QP-
QP+
QP+
VM
VM
Q5400, 5401
VM AMP
Q5402
Q5403
Q5404
Q5405
BUFFER
Q5406
Q5407
VMOUT
CN5402
QP(+)
QP(-1)
VM
CN5401
VM (VM DRIVE)
TO NECK ASSY
TO D1 BOARD
CN6104
TO E BOARD
CN4502
3
4
9
1
2
3
4
7
8

6-2. FRAME SCHEMETIC DIAGRAMS
– 88 – – 89 –– 87 – – 90 –
1
2
3
4
1
2
3
1
2
3
4
5
6
7
1
2
3
4
5
6
7
8
9
10
1
2
3
4
5
6
1
2
1
2
3
4
5
6
1
2
3
4
5
6
7
8
9
1
2
3
4
5
6
7
8
9
1
2
3
4
1
1
1
1
2
1
2
3
4
5
6
7
8
9
10
11
1
2
3
4
Y
1
2
3
4
5
6
7
8
9
10
11
12
13
14
15
16
17
18
19
20
21
22
23
24
25
26
27
28
29
30
31
32
33
34
35
36
37
38
39
40
41
42
43
44
45
46
47
48
49
50
1
135V
CY+
NC
CY—
NC
QP (+)
NC
QP (—)
NC
GND
9V
2
3
4
5
6
7
8
1
2
3
4
5
6
7
8
9
10
1
2
3
4
5
6
7
8
9
1
2
3
4
5
6
7
8
9
10
11
12
1N/S (B)
N/S (E)
DEGAUSS
GND
7V
11V
2
3
4
5
6
1
2
3
4
5
6
7
8
9
10
1
2
3
4
5
6
7
1
2
3
4
5
6
7
8
9
10
11
12
13
14
15
16
17
18
19
20
1
2
3
4
5
1
2
3
1
2
3
4
1
2
3
1
2
3
4
5
6
7
8
9
10
11
12
13
14
15
16
17
18
19
20
21
22
23
24
25
26
27
28
29
30
31
32
33
34
35
36
37
38
39
40
A1
GND
GND
GND
GND
GND
GND
GND
MID-BUSY
FPD
GND
HP 100 OUT
VP 100 OUT
Y 100 OUT
GND
U100-OUT
GND
V100-OUT
GND
DPIC SW
GND
RESET 100
GND
SDA
SCL
+5V DIGITAL
+2.5V
+3.3V
5V
H-PULSE SUB IN
V SUB IN
PORT 2
U SUB IN
PORT 1
Y SUB IN
GND
GND
GND
Y-IN
GND
U-IN
GND
V-IN
GND
VP-IN
CN1801
20P
:BTOB
(TELETEXT)
GND
+9V
V-PULSE SUB IN
GND
HP-IN
GND
GND
+5V
FS OUT
B OUT
G OUT
R OUT
GND
GND
GND
SCL
CVBS IN
SDA
V SYNC TEXT
GND
H SYNC TEXT
+9V
B1
A2
B2
A3
B3
A4
B4
A5
B5
A6
B6
A7
B7
A8
B8
A9
B9
A10
B10
A11
B11
A12
B12
A13
B13
A14
B14
A15
B15
A16
B16
A17
B17
A18
B18
A19
B19
A20
B20
A21
B21
A22
B22
A23
B23
A24
B24
A25
B25
1
2
3
4
5
6
7
8
9
10
11
12
13
14
15
16
17
18
19
20
1
2
3
4
5
6
7
8
9
10
11
12
13
14
15
16
17
18
19
20
21
22
23
24
25
26
27
28
29
30
31
32
33
34
35
36
37
38
39
40
41
42
43
44
45
46
47
48
49
50
1
2
3
4
5
6
7
8
9
10
11
12
13
14
15
1
2
3
4
5
6
7
8
9
1
2
3
1
2
3
4
5
6
7
8
1
2
3
4
5
6
7
8
9
10
CN1934
12P
RED
:S-MICRO
CN1932
6P
WHT
:S-MICRO
CN502
50P
:BTOB
(DRC, MID, DRC/MID CONTROLLER)
S1931
AUTO
PRESET
R IN
GND
L IN
GND
Y IN
GND
CV IN
S IN
C IN
GND
KEY 2
GND
PULL UP
HP MUTE
AU GND
R HP
L HP
GND HP
11
12
13
14
15
J1933
(AV OUTPUT, PRESET KEY, PHONE OUT)
J1932
J1931
CN6801
6P
CN6602
2P
:MINI
CN6603
3P
WHT
:S-MICRO
CN6604
5P
:VH
CN1652 5P
WHT:VH CN1651 4P
WHT:VH
(AC SW)
CN6804
4P
:S-MICRO
CN6605
10P
CN1161
10P
CN6608
3P
(POWER SUPPLY DEFLECTION, HV)
CN6606
7P
CN1160
10P
CN6805
1P
+5V STANDBY
PROT
NC
NC
135V
135V
NC
NC
SDA2
SCL
DF—SW
NC
12V
AFC PULSE
HP1
EX PARA
10.5V
N/S
10.5V
6.5V
5V
GND
—15V
GND
6.5V
GND
GND
GND
DF DRIVE
FOCUS
H LIN
VM
GND
V SAW+
GND
V COMP+
15V PULSE
V SAW—
GND
V COMP—
HP2
VFB2
GND
GND
H-CENT
GND
H-SAW
9V
M PIN
ABL1
PROT
GND
STANDBY
GND
AC ON/OFF
OVERVOLTAGE PORT
OVERCURRENTPORT
NC
NC
GND
CN9003
1P
:TAB
CN9004
1P
:TAB
CN9005
3P
WHT
:S-MICRO
CN9007
1P FOCUS
CN9002
4P
WHT
:S-MICRO
CN9001
9P
BLK
:S-MICRO
(CRT DRIVE)
J8307
2P J8305
3P J8304
PR
R-Y
B-Y
PB
DIGITAL
AUDIO
IN CN8200
#
:WHT
:S-MICRO
CN8201
#
:WHT
:S-MICRO
(YCT, COMB FILTER, VIDEO/AUDIO-IN/OUT)
GND
GND
PULL UP
HP MUTE
AU GND
R HP
L HP
GND HP
R SP
AUDIO GND
AUDIO GND
L SP
KEY2 IN
1 GND
1
2
3
+17V
GND (AUDIO)
-17V
+6.5V
+6.5V
GND
GND
+10.5V
GND
+30V
DGC CHK
DGC CHK
DGC
DGC
N.C.
V+ AC IN
AC OUT
AC OUT
1
2
AC IN
AC IN
AC IN
N.C.
N.C.
N.C.
V-
H-
H+
200V
N.C.
GND
H1
H+
H-
G2
FOCUS
GND
R
B
IK
E
E
R DRV
G DRV
B DRV
12V
E
E
GND
GND
GND
R OUT
G OUT
1
2
3
GND
9V/12V
VM
B OUT
IK
+12V
GND
H1
200V
E
NC
E
E
G2
R IN
CN2001
(Y/C SEP)
COMP V IN
E
Y OUT
E
C OUT
RESET
Y IN
MN/NT
S DAT
S CLK
9V
E
5V
E
C IN
GND
L IN
GND
Y IN
GND
CV IN
S IN
C IN
L
R
NC
NC
10
11
C
1
2
3
4
5
6
7
8
9
10
CN8100
10P
CN8101
10P
CN9007
1P
LP
LN
RP
RN
A GND
R-SW
L-SW
DSP ALIVE
COAXIAL SIG
COAXIAL GND
1
2
3
4
5
6
7
8
9
10
GND
3.3V
CLK
DAT
CS
6.5V
GND
SDA
SCL
GND
A1
(AUDIO DSP)
DY
F2 F1
J
A
NECK ASSY
VM
BC4
H2
B3
V
1
2
3
4
5
6
7
8
9
10
LP
LN
RP
RN
A GND
R-SW
L-SW
1
2
3
4
5
6
7
8
9
10
TO SBX3005-11
CN8302
CN8304
50P
:BTOB
CN8303
CN8301
9P
WHT-L
:S-MICRO
CV OUT
GND
Y IN
GND
C IN
NC
SDA
SCL
+9V
GND
+5V
GND
C OUT
RESET
NC
Y IN
5V
GND
C IN
GND
GND
FSC
NT/PAL
APCN
CV OUT
9V
DH H3 H1
D
D1
TO SPEAKER
DSP ALIVE
COAXIAL SIG
COAXIAL GND
GND
3.3V
CLK
DAT
CS
6.5V
GND
SDA
SCL
GND
HV G4 G1 KR
G2 KBKG
CV
HH.DY H.DY V.DYV.DY
1
2
3
4
5
6
7
8
9
10
11
12
13
14
15
16
17
18
19
20
21
22
23
24
25
26
27
28
29
30
31
32
33
34
35
36
37
38
39
40
41
42
43
44
45
46
47
48
49
50
PROT
N.C.
N.C.
135V
135V
N.C.
N.C.
SDA2
SCL
DF—SW
N.C.
12V
AFC PULSE
HP1
EX PARA
10.5V
N/S
10.5V
6.5V
5V
GND
—15V
GND
6.5V
GND
GND
GND
DF DRIVE
FOCUS
H LIN
VM
GND
V SAW+
GND
V COMP+
15V PULSE
V SAW—
GND
V COMP—
HP2
VFB2
GND
GND
H-CENT
GND
H-SAW
9V
M PIN
PROT 1
REF
—15V
CP CNTL
HP2
HP1
GND
5V
ABL 1
PROT 1
ABL1
PROT
1
2
3
4
5
6
7
8
9
10
+5V STANDBY
GND
STANDBY
GND
AC ON/OFF
OVERVOLTAGE PORT
OVERCURRENTPORT
NC
NC
GND
1
2
3
4
5
6
7
8
9
10
+17V
GND (AUDIO)
-17V
+6.5V
+6.5V
GND
GND
+10.5V
GND
+30V
CN6807
1P 1 GND
CN6808
1P 1 GND
CN6809
1P 1 GND
SCA 2
SCL 2
+12V
GND
GND
GND
AFC PULSE
GND
EXTRA PARA
HD2
DEGAUSS
GND
HD1
X-RAY
FOCUS
VM
VSAW+
VPROT
VSAW—
N/S
EXTRA PARABOLA
H DEFL
AFC PULSE
HD1
FPD
D FOCUS
+12V
V SAW+
HD2
V SAW—
GND
V DEFL
R100
VPROT
ABL-CTR
XRAY
B100
GND
GREEN
RED
BLUE
BLK
TEXT RED
GND
TEXT GREEN
GND
TEXT BLUE
GND
TEXT BLK
GND
SCL2
SDA2
9V
SCP
GND
Y100
U100
GND
V100
DPIC SW
CN6817
1P
CN6802
50P
:BTOB
CN6104
8P
:S-MICRO
CN6102
3P
WHT
:S-MICRO
CY COIL
CN6101
10P
:S-MICRO CN6800
20P CN1162
20P
CN4800
10P
YEL
:S-MICRO
CN4101
40P
:BTOB
CN4500
9P
BLK
:S-MICRO
CN4502
3P
WHT
:S-MICRO
1 GND
1
2
3
4
5
6
7
8
9
10
11
12
13
14
15
16
17
18
19
20
SDA
SCL
+12V
GND
GND
GND
FLYBACK PULSE
GND
EXTRA PARABOLA
HD2
DEGAUSS
GND
HD1
X-RAY
DYNAMIC FOCUS
VM MODULATION
VERTICAL SAW1
VERTICAL-PROT
VERTICAL SAW—
NS ROT
CN1602 2P
:VH
(AC LINE
FILTER)
CN1604
1P
:TAB
GND
CN1116
1P
:FASTEN
CN1180
50P
:BTOB
CN1108
50P
:BTOB
CN1118
20P
:BTOB
CN1190
7P
WHT
:S-MICRO
CN1138
4P
BLACK
:S-MICRO
CN1195
3P
WHT
:S-MICRO
CN1193
10P
WHT
:S-MICRO
CN1601 2P
:VH
2
1
AC OUT
AC OUT
1
2
AC IN
AC IN
V
R
L
J8303
V3
R3
L3
J8302
V2
R2
L2
J8301
1V
1R
1L
GND
GND
Y SUB OUT
GND
GND
U SUB OUT
Y MAIN OUT
GND
GND
U MAIN OUT
TRAP
GND
V MAIN OUT
GND
V-PULSE MAIN OUT
H-PULSE MAIN OUT
V SUB OUT
GND
V-PULSE SUB OUT
H-PULSE SUB OUT
COMB RESET
+10.5V IN
+10.5V IN
CVBS OUT (TEXT)
GND
DSP ALIVE
SCL
SDA
GND
GND
CVBS 2 IN
GND
GND
CVBS 1 IN
TV L IN
GND
TV R IN
+6.5V IN
+6.5V IN
CS
DAT
CLK
+3.3V IN
+3.3V IN
GND
GND
RN OUT
RP OUT
LN OUT
LP OUT
1
2
3
4
5
6
7
8
9
10
11
12
13
14
15
16
17
18
19
20
21
22
23
24
25
26
27
28
29
30
31
32
33
34
35
36
37
38
39
40
41
42
43
44
45
46
47
48
49
5
1
0
GND
GND
Y SUB IN
GND
GND
U SUB IN
Y MAIN IN
GND
GND
GND
U MAIN IN
TRAP
GND
V MAIN IN
GND
V-PULSE MAIN IN
H-PULSE MAIN IN
V SUB IN
GND
V-PULSE SUB OUT
H-PULSE SUB OUT
COMB RESET
+10.5V OUT
+10.5V OUT
CVBS OUT (TEXT)
GND
DSP ALIVE
SCL
SDA
GND
GND
CVBS 2 OUT
GND
GND
CVBS 1 OUT
TV L OUT
GND
TV R OUT
+6.5V OUT
+6.5V OUT
CS
DAT
CLK
+3.3V-D
+3.3V-D
GND
GND
RN IN
RP IN
LN IN
LP IN
A1
GND
GND
GND
GND
GND
GND
GND
MID-BUSY
FPD
GND
HP 100 IN
VP 100 IN
Y 100 IN
GND
U100 IN
GND
V100 IN
GND
DPIC SW
GND
RESET 100
GND
SDA
SCL
+5V DIGITAL
+2.5V
+3.3V
+5V
H-PULSE SUB OUT
V SUB OUT
GND
U SUB OUT
GND
Y SUB OUT
GND
GND
GND
Y-MAIN OUT
GND
U-MAIN OUT
GND
V-MAIN OUT
GND
V-PULSE M OUT
GND
+9V
VP SUB OUT
GND
H-PULSE M OUT
GND
B1
A2
B2
A3
B3
A4
B4
A5
B5
A6
B6
A7
B7
A8
B8
A9
B9
A10
B10
A11
B11
A12
B12
A13
B13
A14
B14
A15
B15
A16
B16
A17
B17
A18
B18
A19
B19
A20
B20
A21
B21
A22
B22
A23
B23
A24
B24
A25
B25
GND
+5V
FS IN
B IN
G IN
R IN
GND
GND
GND
SCL
CVBS IN
SDA
V SYNC TEST
GND
KEY 1 IN
10.5V
6.5V
GND
L. C. MUTE
GND
GND
SIRCS
STBY +5V
LED G
LED R
H SYNC TEXT
+9V
1
2
3
4
5
6
7
8
9
10
11
12
13
14
15
16
17
18
19
20
V
R
L
1
2
3
4
5GND
SIRCS
STBY+5V
LED 2
LED 1
4
3
2
1
KEY 1 OUT
NC
GND
3
2
1
(MAGNETIC FIELD
CORRECTION)
CN3802
6P
BLK
:S-MICRO
TO BUS CONTROLLER
TO LCC
CN1980
3P
WHT-L
:S-MICRO
CN1901
5P
WHT
:S-MICRO
TOP KEY (LED, SIRCS
RECEIVER)
QP
Q.P.—
Q.P.+
E
VM
TO NECK ASSY
CN5402
11P
WHT
:S-MICRO
CN5401
8P
:BTOB
(VM DRIVE)
QP—
135V
NC
QP (+)
NC
QP (—)
NC
GND
9V
9V/12V
GND
VM
NC
QP+
QP+
GND
GND
VM
VM
QP VM
1
2
3
4
5
6
7
8
9
10
PROT 1
REF
—15V
CPC
HP2
HP1
GND
5V
ABL 1
PROT 1
ROT—
ROT+
1
2
3
CN6103
3P
BLK
:S-MICRO
CN6100
50P
:BTOB
(DF, DQP, DRIVE)
E
(RGB OUT, DEFLECTION)
(MAIN-MICON, TUVIF, AUDIO AMP)
CY COIL
1
2
3
4
5
6
7
8
9
10
11
12
13
14
15
16
17
18
19
20
21
22
23
24
25
26
27
28
29
30
31
32
33
34
35
36
37
38
39
40
EXTRA PARABOLA
HORIZONTAL
FLYBACK PULSE
HD1
FPD
DYNAMIC FOCUS
+12V
VERTICAL SAW+
HD2
VERTICAL SAW—
GND
VERTICAL DEF
R100
VERTICAL PROTECT
ABL-CTR
X-RAY
B100
GND
GREEN OUT
RED OUT CN1140
40P
:BTOB
BLUE OUT
BLANKING OUT
TEXT RED
GND
TEXT GREEN
GND
TEXT BLUE
GND
TEXT BLK
GND
SCL
SDA
+9V
SCP
GND
Y-100 OUT
U-100 OUT
GND
V-100 OUT
DPIC SW
1
2
3
4
CN1100
4P
WHT
SCL
SDA
B INT
5
6
7
B100
R100
SCP
GND
6-4. SCHEMATIC DIAGRAMS AND PRINTED WIRING BOARDS
Note:
•All capacitors are in µF unless otherwise noted.
•All electrolytic capacitors are rated at 50V unless otherwise noted.
•All resistors are in ohms.
kΩ = 1000Ω, MΩ = 1000kΩ
•Indication of resistance which does not have rating electrical
power is as follows.
Pitch: 5 mm
Rating electrical power 1/4W (CHIP: 1/10W)
•: nonflammable resistor.
•¢: internal component.
•: panel designation or adjustment for repair.
•All variable and adjustable resistors have characteristic curve B
unless otherwise noted.
•Readings are taken with a color-bar signal input.
no mark : PAL
( ) : SECAM
[ ] : NTSC 3.58
« » : NTSC 4.43
•Readings are taken with a 10 MW digital multimeter.
•Voltage are dc with respect to ground unless otherwise
noted.
•Voltage variations may be noted due to normal production
tolerances.
•All voltages are in V.
•: Cannot be measured.
•Circled numbers are waveform references.
•: B + bus.
•: B – bus.
•: signal path.
Note: The component identified by shading and
mark !!
!!
! are critical for safety. Replace only with
part number specified.
✻
Reference information
RESISTOR : RN METAL FILM
: RC SOLID
: FPRD NONFLAMMABLE CARBON
: FUSE NONFLAMMABLE FUSIBLE
: RS NONFLAMMABLE METAL OXIDE
: RB NONFLAMMABLE CEMENT
: RW NONFLAMMABLE WIREWOUND
: *ADJUSTMENT RESISTOR
COIL : LF-8L MICRO INDUCTOR
CAPACITOR : TA TANTALUM
: PS STYROL
: PP POLYPROPYLENE
: PT MYLAR
: MPS METALIZED POLYESTER
: MPP METALIZED POLYPROPYLENE
: ALB BIPOLAR
: ALT HIGH TEMPERATURE
: ALR HIGH RIPPLE
6-3. CIRCUIT BOARDS LOCATION
VM
D
DH
A
J
BC4
E
E2
B3
D1
H3
C
H1
F2
A1
F1 H2
V
÷

A
123456789101112
13
B
C
D
E
F
G
A
123456789101112
13
B
C
D
E
F
G
– 92 – – 93 –– 91 – – 94 –
1
5.0Vp-p (V)
6
5.0Vp-p (V)
11
4.8Vp-p (H)
2
4.0Vp-p (V)
7
5.1Vp-p (H)
12
4.9Vp-p (V)
3
0.2Vp-p (V)
8
2.6Vp-p (H)
4
0.2Vp-p (V)
9
2.9Vp-p (H)
5
0.2Vp-p (V)
10
2.3Vp-p (H)
A BOARD WAVEFORMS
OVER CURRENT
DETECT CIRCUIT
Vo CONTROL
CIRCUIT
+
–
Q
R
S
F/F
OSSCILATOR
SOFT START
CIRCUIT
ON/OFF
CIRCUIT
ERROR AMP.
PWM COMP.
THERMAL
PROTECTION
CIRCUIT
1
V IN V out
ON/OFF
O ADJ
COM
VREF
–
+
4
5
3
2
A BOARD IC2603 PQICG2032FZ
AN0 ~ AN5
RMC
6PA0 ~ PA78
PB0 ~ PB78
PC0 ~ PC5*
PC6 ~ PC7*
6
2
2
3
PD0 ~ PD78
PE0 ~ PE1
PE2 ~ PE3
PE4 ~ PE6
2
PF0 ~ PF78
PG3 ~ PG6*, PG75
A/D CONVERTER
6CH
SPC700α11
CPU CORE
RAM
96K/120K BYTES
PRESCALER/
TIME-BASE TIMER
I
2
C BUS
INTERFACE UNIT 14-BIT PWM 1CH
8-BIT PWM 8CH
(6CH)
8(6)
32kHz
TIMER/COUNTER
WATCHDOG TIMER
RAM
2496 BYTES
CLOCK GENERATOR
/SYSTEM CONTROL
INTERRUPT CONTROLLER
PORT APORT BPORT CPORT DPORT EPORT FPORT G
SERIAL INTERFACE
UNIT
8-BIT TIMER/
COUNTER 0
ON-SCREEN
DISPLAY
HSYNC COUNTER 0
HSYNC COUNTER 1
8-BIT TIMER 1
REMOCON FIFO
SI
SO
SCK
EC
TO
XLC
EXLC
R
G
B
I
YS
YM
HSYNC
VSYNC
HS0
HS1
SDA0
SDA1
SCL0
SCL1
PWM
PWM0 ~ PMW7
(PWM0 ~ PMW5)
ADJ
INT0
INT1
INT2
TEX
TX
EXTAL
XTAL
RST
V
DD
V
SS
2
2
2
A BOARD IC001 CXP750096-013Q
CONTROL
CIRCUIT
1DC IN (V IN) DC OUT (Vo)
V OUT ADJUSTMENT PIN
ON/OFF CONTROL (Vc) 5 4
3
2
A BOARD IC2604 PQ5EV3
PRINTED WIRING BOARDS
– A Board (Component Side) –
A[MAIN-MICON, TUVIF, AUDIO AMP]
– A Board (Conductor Side) –
A BOARD (Component Side) A BOARD (Conductor Side)
IC
IC100 G-10
IC901 I-13
IC1203 G-1
IC1204 B-1
IC2600 E-7
IC2601 F-4
IC2603 F-5
IC2604 F-6
TRANSISTOR
Q101 G-11
Q301 D-4
Q313 D-4
Q902 I-13
Q2200 D-3
Q2201 E-4
Q3300 F-11
IC
IC001 B-9
IC002 C-8
IC003 A-8
IC1201 E-13
IC1203 F-13
IC1204 B-13
IC1205 F-12
IC2200 E-12
IC2600 E-8
IC2601 G-10
IC2603 F-9
IC2604 F-8
TRANSISTOR
Q1201 D-12
Q1206 D-13
Q1209 D-13
Q1210 D-13
Q1205 E-13
DIODE
D1208 E-13
D1209 D-11
DIODE
D300 A-9
D301 B-9
D302 B-6
D1205 F-1
D2200 E-3
D2201 D-3
•:Pattern from the side which enables seeing.
•:Pattern from the rear side.
A BOARD ✻ MARK LIST
KV-ES34M81 KV-ES34M91
JR109 0 : CHIP #
TU101 BTF-LG434 BTF-WG442
Note: This parts indicated as "#" in this Circuit Diagram are not
listed here, as they are not used for these models.

– 96 – – 97 –– 95 – – 98 –
A
123456789101112
13 14 15 16 17 18 19 20 21 22 23 24 25 26 27 28 29 30
B
C
D
E
F
G
H
I
J
K
L
M
N
O
(1) Schematic Diagram of A Board
1
2
3
4
5
6
7
8
9
10
11121314151617181920
1
2
3
4
5
6
7
8
9
10
11
12
13
14
15
16
17
18
19
20
21
22
23
24
25
26
27
28
29
30
31
32
33343536373839404142434445464748495051
52
53
54
55
56
57
58
59
60
61
62
63
64
1 2 3 4
5678
1
9V
30V
5V
SCL
SDA
AS
RF AGC
VIF
9V
AFT OUT
GND
R OUT
L OUT
NC
NC
NC
NC
NC
5V
DET OUT
PLL-SW
NC
NC
NC
SCL
SDA
NC
9V
30V
5V
SCL
SDA
AS
RF AGC
VIF
9V
AFT OUT
GND
R OUT
L OUT
NC
NC
NC
NC
NC
5V
DET OUT
PLL-SW
NC
NC
NC
SCL
SDA
NC
1 2 3 4
5678
1
2
3
4
1
2
3
51
2
3
4
51
2
3
4
1 2 3
1 2 3 4
5678
1
2
3
4
5
6
7
8
9
10
11
12
13
14
15
16
17
18
19
20
21
22
23
24
25
26
27
28
29
30
31
32
33
34
35
36
37
38
39
40
41
42
43
44
45
46
47
48
49
50
A1
B1
A2
B2
A3
B3
A4
B4
A5
B5
A6
B6
A7
B7
A8
B8
A9
B9
A10
B10
A11
B11
A12
B12
A13
B13
A14
B14
A15
B15
A16
B16
A17
B17
A18
B18
A19
B19
A20
B20
A21
B21
A22
B22
A23
B23
A24
B24
A25
B25
IO
G
IO
G
1
2
3
4
5
6
7
EMI
1
2
3
4
5
6
7
8
9
10
1
2
3
4
5
6
7
8
9
10
11
12
13
14
15
16
17
18
19
20
1 2 3 4
5678
1
2
3
4
5
6
7
1
2
3
4
1 2 3 4 5 6 7 8 9
10 11 12 13 14 15
1 2 3 4 5 6 7 8 9
10 11 12 13 14 15
1
2
3
4
5
6
7
8
9
10
11
12
13
14
15
16
17
18
19
20
1 2 3
1 2
ANT IN OUT
OUT
MAIN
SUB
ATT SW BST +B
3
GND
1
2
3
4
5
6
7
8
9
10
11
12
13
14
15
16
17
18
19
20
21
22
23
24
25
26
27
28
29
30
31
32
33
34
35
36
37
38
39
40
1
2
3
4
5
6
7
8
9
10
1
2
3
4
5
6
7
8
9
10
C1243
C1246
C1250
C1251
C1252
C1253
C1245
C1255 C1257
C1258
C1260
C1261
C1263
C1264 C1265
C1259
C1267
R1260
C1270
R1261
C1271
R1264
R1265
C1219
C1220
C1221
R1280
C1276
R1281
C1275
R1205
R1206
C1214
C1215
PS1201
PS1203
PS1202
PS1204
R1235
R1236
R1237
R1238
R1239
R1240
L1202 R1243 R1244
IC1204
R1245
R1246
R1247
L1203
R1251
R1252
C1244
C1248
R1266
FB1207FB1208
FB1205
FB1206
C1241
C1278
C1280
C1282
C1208
IC1201
C1206
C1207
L1201
R1202
R1201
C1202
C1201
C1209
C1203
C007
C004
C005
R008
R011
R013
R014
R015
C1269
C2200
C2201
C2202
C2206
L105
C108
C107
C104
R111
R112
C112
C113
C114 C110C109C111
L102
L103
L104
R109
C3353
C3354
C3355 C3350
C3351
C3352
L3304
L3305
L3306
R3323
R3334
L3303
L3302
C3336
C3331
C3338
JR1302
R3362
L1300
C326
R023
R039
R041
R043
R027
R028
R044
R045
R048
L001
C3330
L002
C1302
C301
C2209
IC1203
R049
R050
C3302
C101
R017
C013
C002
C106
C012
C024
C028
C030
C031
C1301
C3337
JR105
R007
R009
R100
R101
R102
R104
L101
C011
R053
R066
C1285
C1286
C1287
C1288
C1289
C1290
C1291
C1292
R1253
R1257
R1249
C008
R302
R056
R057
R2201
R2202 R2204
R2206
R2209
R2210
R2212
R2215
Q2200
Q2201
R1269
R1271
R1272
R1275
R1276
R1270
CN1162
CN1195
C2605 C2606
C2608
C2609
C2611
C2612 C2613
D2600
JR2601
R2600
L005
R303
C2607 L2602
CN1116
IC2600
IC2601
CN1108
R1282
R1285
C1294
C1296
C1293
C1295
R106
R115
R114
C2603
C2602
C1281
R2208
R067
R062
CN1190
R068
R069
R029
R032
R030
R077
R079
C032 FL001
R1286
CN1193
R2603
R2604
R2602
C1222
C1223
C1224
C1225
R025
R026
R031
R033
R070
R037
R036
R060
R054
R006
R002R001
R040
R059
R047
C018 C019 C020
R2203
R2200
R2601
R051
R052
C014
R081
R082
C2203
C009
C010
R3300
R3304
R110
RV100
RV3300
R083
R084 R085 R086
R087
C033
C034
R042
C003
R092
C021
C001
C016
C017
R024
R080
R022
R065
R018 R038
C015
CN1140
CN1180
R019
CN1161
CN1160
R103
R034
R093
R094
L2600 L2601
R089
R072
R071
R046
IC2604
IC003
IC004
CN1100
R061
R063
R064
R097
R098
R099
R095 R096
R088
CN1196
IC2603
JL001
R301
Q1205
R116
R117
R118
C1227
C1228
C1226
R1277
C2615 C2616
C2614
L2603
C1242
C1247
C1249
C1262
C1273
C2204
C2205
CP1300
D001
D007
D013
D014
D100
D300
D317
D1205
D1208
D1209
D2200
D2201
IC002
IC100
IC1205
IC2200
L1204
L1205
Q003
Q004
Q1206
Q1207
Q1209
Q1210
R020
R035
R073
R074
R075
R1267
R1273
R2213
R2214
TU3301
C1266
D301
D006
Q002
D004
D005
D302
D003
D002
C1211
C1212
C1213
C1216
C1217
C1254
D008
FB001
FB002
FB003
FB004
FB005
FB006 FB007 FB008
Q001
Q005
Q006
Q007
Q101
Q301
Q313
Q1211
Q3300
R1203
R1204
R1241 R1242
R1248
R1250
R1254
R1255
R1256
R1258 R1259
R2207
C1272
R010
R012
R2205
R2211
C2600 C2601
R1279
R1278
C1284
C1283
C1297
C1277
C1298 C1279
L003
JR1301
C103
C1300
C2610
D012
X001
R1284
R1283
C1210
C1274
R078
R076
R004 R005
JR001
R016
R058 R055
C006
R091
R090
JR002
R3374
R3320
FB1300
JR107
R105
JR102
CN1138
CN1118
C1205
C1204
C2207
C2208
C1256
C1268
R003
R021
JR109
TU101
IC001
0.1
B:CHIP
0.47
16V
B:CHIP
0.0047
B:CHIP
100p
CH:CHIP
0.1
B:CHIP
0.1
B:CHIP
0.001
B:CHIP #
:PT
0.1
B:CHIP
0.47
16V
B:CHIP
0.0047
B:CHIP
100p
CH:CHIP 0.1
B:CHIP
0.1
B:CHIP
0.001
B:CHIP
150
:CHIP
680p
B:CHIP
150
:CHIP
680p
B:CHIP
470
:CHIP
470
:CHIP
2.2
2.2
100
16V
150
:CHIP
680p
B:CHIP
150
:CHIP
680p
B:CHIP
47k
:CHIP
47k
:CHIP
2.7A
2.7A
2.7A
2.7A
12k
:RN-CP
33k
:CHIP
22k
:CHIP 5.6k
:CHIP
33k
:CHIP
#
:FPRD 10k
:CHIP
TDA7481
L-AMP
12k
:RN-CP
33k
:CHIP
#
:FPRD 10k
:CHIP
1k
:CHIP
1.1UH1.1UH
1.1UH
1.1UH
0.1
B:CHIP
0.1
B:CHIP
TDA7315D013TR
TONE CTRL
22
0.1
16V
B:CHIP
220 :CHIP
220 :CHIP
0.1
16V
B:CHIP
0.1
16V
B:CHIP
2.2
16V
F:CHIP
2.2
16V
F:CHIP
#:PT
220p
B:CHIP
220p
B:CHIP
100
16V
100
16V
470p
B:CHIP 100
16V
470p
B:CHIP 470p
B:CHIP
470p
B:CHIP 100
16V
47
47
10
100
16V
#
B:CHIP
#
B:CHIP
#
CH:CHIP
#
CH:CHIP
10
10
10
10
100
16V
100
16V
470p
B:CHIP
470p
B:CHIP
470p
B:CHIP
470p
B:CHIP 100
16V
47
47
#
:CHIP
4.7k
:CHIP
4.7k
:CHIP
4.7k
:CHIP
100 :CHIP
100 :CHIP
100
:CHIP
1k:CHIP
1k:CHIP
100:CHIP
100:CHIP
100:CHIP
4.7k
:CHIP
4.7k
:CHIP
10k
:CHIP
470
:CHIP
100
:CHIP
100 :CHIP
#
:CHIP
#
:CHIP
100
:CHIP
100 :CHIP
100
:CHIP
0.1
16V
B:CHIP
TDA7481
R-AMP
1k :CHIP
0.01
B:CHIP
100 :CHIP
100 :CHIP
1k
:CHIP
#
:CHIP
#
B:CHIP
#
:CHIP
10p
:CHIP
10p
:CHIP
0.022
B:CHIP
1
0.1
16V
B:CHIP
#
#
:CHIP
1000
16V
470
470
2200
2200
100
16V
100
16V
100p
CH:CHIP
100p
CH:CHIP
100p
CH:CHIP
100p
CH:CHIP
100p
CH:CHIP
100p
CH:CHIP
100
16V
0.1
B:CHIP
100
#
#
:CHIP
#
:CHIP
#
:CHIP
#
:CHIP
#
:CHIP
#
:CHIP
1k:CHIP
#:CHIP
#:CHIP
100
:CHIP
4.7k
:CHIP
100
:CHIP
0 :CHIP
0 :CHIP
100
:CHIP
1k
:CHIP
1k
:CHIP
22k
:CHIP
DTC144EKA-T146
MUTE4
DTC144EKA-T146
MUTE5
47k
:CHIP
47k
:CHIP
22k
:CHIP
4.7k
:CHIP
4.7k
:CHIP
10k
:CHIP
680k
:CHIP
680k
:CHIP
47k
:CHIP
10k
:CHIP
47k
:CHIP
20P
3P
WHT
:S-MICRO
470
10V
0.068
25V
B:CHIP
1000
6.3V
470
6.3V
220
16V
100
25V 100
25V
D5S4M
0 :CHIP
4.7k
:CHIP
47k
:CHIP
1P
:FASTEN
#
:CHIP
BA05T
+5V REG
50P
:BTOB
#
:CHIP
#
:CHIP
#
:CHIP
#
:CHIP
#
:CHIP
#
:CHIP
#
:CHIP
#
:CHIP #
:CHIP
100
16V
100
16V
0.1
B:CHIP
4.7k:CHIP
1k
:CHIP
10k
:CHIP
1k:CHIP
1k:CHIP
#:CHIP
0.01
B:CHIP EMI
10k
:CHIP
4.7k
:CHIP
100 :CHIP
100 :CHIP
2.2k
:RN-CP
2.2k
:RN-CP
7P
WHT
:S-MICRO 10P
WHT
:S-MICRO
10k
:CHIP
910
:RN-CP
2.2
6.3V
B:CHIP
2.2
6.3V
B:CHIP
2.2
6.3V
B:CHIP
2.2
6.3V
B:CHIP
47
0.01
B:CHIP 0.01
B:CHIP 0.01
B:CHIP
220
:CHIP 220
:CHIP
220:CHIP
220 :CHIP
220 :CHIP
220 :CHIP
220 :CHIP
220 :CHIP
220 :CHIP
220:CHIP
220
:CHIP
1k :CHIP
1k :CHIP
220:CHIP
220:CHIP
220:CHIP
220 :CHIP
100
:CHIP 470
:CHIP
68
:CHIP
68
:CHIP
1.5k
:RN-CP
0.1
25V
B:CHIP
0.1
25V
B:CHIP
#
:CHIP
560
:CHIP
#
0.1
B:CHIP
220p
CH:CHIP
BA09T
+9V REG
1k
:CHIP
1k
:CHIP 4.7k
:RN-CP 10k
:CHIP
220
:CHIP
560
:CHIP
1k
4.7
0 :CHIP
# :CHIP
0.01
B:CHIP
220
:CHIP
#
:CHIP
47p CH:CHIP
68p CH:CHIP
10p :CHIP
680
:CHIP
220 :CHIP
3.9k :CHIP
680
:CHIP
680
:CHIP
3.9k
:CHIP
1k:CHIP
#
:CHIP
# :CHIP
1k:CHIP
100
:CHIP
100 :CHIP
220 :CHIP
40P
:BTOB
10P
DIP PIN
10P
DIP PIN
50P
:BTOB
10k
:CHIP
10k
:CHIP
M24C08-MN6T
EEPROM(A0-A7)
M24C04-MN6T
EEPROM(A8-AB)
PQ1CG2032FZ
+3.3V REG
4P
WHT
100
:CHIP
100
:CHIP
100
:CHIP
1k
:CHIP 1k
:CHIP 1k
:CHIP
100
:CHIP
100
:CHIP
100
:CHIP
#
7P
WHT
PQ5EV3
+2.5V REG
470k :CHIP
DTC144EKA-T146
MUTE
100:CHIP
100:CHIP
100:CHIP
#
#
#
:CHIP
4.7k
:CHIP
#
:CHIP #
:CHIP
470
10V
0.1mF
CH:CHIP
0.1mF
CH:CHIP
0.001mF
CH:CHIP
0.001mF
CH:CHIP
0.1mF
CH:CHIP
2.2 6.3VF:CHIP
2.2
6.3V
F:CHIP
SpLITTER RF
MA111-(K8).SO
MUTE
RD5.6SB3
PROTECTOR
RD5.6SB3
PROTECTOR
MA111-(K8).SO
VOLTAGE SHIFT
MA111-(K8).SO
MA111-(K8).SO
STBY MUTE
MA111-(K8).SO
ST-BY MUTE
RD9.1SB
PROTECTOR
MA111-(K8).S0
MA111-(K8).SO
STBY MUTE
RD9.1SB
PROTECT
RD9.1SB
PROTECT
S-80743AL-A7-S
RESET
S-80743AL-A7-S
MSP-RESET
DIFFERENTIAL AMP
NJM4560M
SUB-HP-AMP
2SC2712-YG
BLANKING
2SC2712-YG
BLANKING
2SC2712-YG
MUTING
2SC2712-YG
MUTING
2SC2712-YG
PROTECTOR
2SC2712-YG
PROTECTOR
2.2k
:CHIP
2.2k :CHIP
1.8k
:CHIP
1.8k
:CHIP
1.8k
:CHIP
15k
:CHIP
4.7k
:CHIP
47k
:CHIP
47k:CHIP
FSS BTF-LG436
#
MA111-(K8).SO
VOLTAGE SHIFT
MA111-(K8).SO
OSD(YM)SW
2SC2712-YG
YS-BUFFER
MA111-(K8).SO
OSD(G) SW
MA111-(K8).SO
OSD(R)SW
MA111-(K8).SO
MUTING SW
MA111-(K8).SO
OSD(B) SW
MA111-(K8).SO
OSD(YS)SW
0.033mF 25V B:CHIP
2.2mF 6.3V B:CHIP
0.033mF 25V B:CHIP
2200mF
25V
2200mF
25V
#
#
PROTECT0R
OUH
OUH
0UH
0UH
0UH
0UH 0UH 0UH
2SA1037AK-T-146
0SD(INTENSITY)SW
2SA1037AK-T146-R
Y 100 BUFFER
2SA1037AK-T146-R
B-Y100 BUFFER
2SA1037AK-T146-R
R-Y100 BUFFER
2SA1037AK-T146-R
BUFFER
2SA1037AK-T146-R
MUTE
2SC2712-YG
MUTE
2SA1037AK-T146-R
PROTECTOR
2SA1037AK-T146-R
AMPLIFIER
18k
:CHIP
18k
:CHIP
10k
:CHIP 10k
:CHIP
12k
:CHIP
3.9k
:CHIP
12k
:CHIP
12k
:CHIP
10k
:CHIP
12k
:CHIP 10k
:CHIP
3.9k
:CHIP
470
25V
2.2k
:CHIP
2.2k
:CHIP
100k
:CHIP
100k
:CHIP
0.1
25V
:CHIP
0.1
25V
:CHIP
2.2 6.3V :CHIP
2.2 6.3V :CHIP
0.0022
CH:CHIP
0.0022
CH:CHIP
1
:PT
0.0022
CH:CHIP
1
:PT 0.0022
CH:CHIP
0
0.1
16V
B:CHIP
#
0.1
25V
:CHIP
#
PROTECTOR
0
0
2.2mF 6.3V B:CHIP
0.1mF
CH:CHIP
0
0
00
0
2.2k
:CHIP
00
0.1
16V
B:CHIP
0
0
0
0
10k
:CHIP
0
0
0
0
#
20P
0.0022mF CH:CHIP
0.0022mF CH:CHIP
4.7K B:CHIP
4.7K B:CHIP
0.47mF
:PT
0.47mF
:PT
#
:CHIP
0 :CHIP
CXP750096-013Q
MAIN CONTROLLER
+5V
+9V
+9V
+5V
+6.5V
+10.5V
+12V
+9V
+9V
+6.5V
+10.5V
+12V
AU GND
-17V
+9V
ST-BY
+17V
-17V
AU GND
+10.5V
ST-BY
NS ROT
NS ROT
+17V
L.C.MUTE
L.C.MUTE
OCP
OVP
DEGAUSS
+30V
OVP
OCP
+10.5V
+6.5V +5V
+3.3V-DIGITAL
+2.5V
+30V
+30V
+10.5V
+6.5V
+5V ST-BY
+5V ST-BY
+2.5V
+3.3V-DIGITAL
RN IN
RP IN
LN IN
LP IN
DEGAUSS
LP IN
LN IN
RP IN
RN IN
+5V
+9V
+9V
+5V
+9V
AC ON/OFF
AC ON/OFF
+9V
+3.3V-DIGITAL
R
L
ST
AGC
AFT1
AFT2
MODE
SCL
ATT
SCL
ST
SCL
DE(3)
DE(4)
DE(6)
DE(13)
DE(7)
DE(12)
DE(8)
DE(9)
BE(1)
BE(2)
BE(4)
BE(3)
DE(6)
DE(7)
DE(15)
DE(9)
BE(1)
BE(2)
BE(4)
SDA
SCL
SDA
SCL
DSP
AFT2
TV R
TV L
AFT1
SDA
MSPR
CVBS1
MODE
FMONO
SCL
SDA
KEY2
KEY1
FMONO
MSPR
R
YS
G
B
DE(15)
JB(12)
JB(11)
JB(10)
JB(9)
JB(7)
JB(6)
JB(5)
JB(4)
JB(3)
JB(1)
CVBST
ATT
DE(10)
CVBS2
CVBS1
HP100
VP100
DSP
SDA
DE(13)
R
YS
L SP
R SP
L
R
L SP
SDA
SCL
SDA
JB(1)
JB(4)
JB(5)
JB(6)
JB(12)
JB(11)
JB(10)
JB(9)
JB(7)
G LSPG RSP
G LSP
G RSP
STBY MUTE
SP PROT
SP MUTE
R
SCL
SDA
INT
TV R
TV L
INT
SP MUTE
STBY MUTE
SDA
GND
LED2
LED1
SP PROT
LED1
LED2
STBY +5V
SIRCS
GND
SP MUTE
SDA
SCL
AGC
CVBS2
SIRCS
STBY +5V
GND
GND
GND
KEY2
RESET 100
3CS
3DAT
3CLK
3CLK
3DAT
RESET 100
3CS
LN
LP
RP
RN
LP
LN
R-UB
L-UB
R-UB
R SP
JB(7)
COMB
COMB
L
GND
L-UB
KEY1
STBY +5V
JB(3)
SCL
CVBST
SDA
VP100
HP100
BLKT
BT
GT
RT
RP
RN
DE(4)
DE(3)
DE(8)
DE(10)
DE(12)
G
B
SCL
BE(3)
HP100
VP100
HP100
VP100
RT
GT
BT
BLKT
MID-B
MID-B
BE(2)
BE(3)
BE(1)
*
*
L SP
R SP
AUDIO GND
AUDIO GND
(SXE)
(ASF)
(ASF)
(MUSE)
Y MAIN IN
U MAIN IN
GND
V MAIN IN
GND
GND
V-PULSE MAIN IN
Y SUB IN
GND
U SUB IN
V SUB IN
GND
GND
+10.5V OUT
SCL
GND
+6.5V OUT
GND
CVBS 1 OUT
GND
GND
GND
GND
GND
GND
GND
+5V STANDBY
AC ON/OFF
PROT.
GND
GND
+10.5V
GND
SDA
SCL
+12V
GND
FLYBACK PULSE
GND
EXTRA PARABO LA
GND
X-RAY
VM MODULATION
VERITCAL SAW 1
VERTICAL-PROT
VERTICAL SAW -
HP 100 IN
VP 100 IN
GND
U 100 IN
GND
V 100 IN
GND
RESET 100
GND
SCL
+3.3V
GND
V SUB OU T
U SUB O UT
Y SUB OU T
GND
GND
Y MAIN OUT
GND
U MAIN OUT
GND
V MAIN OUT
GND
GND
GND
HORIZONTAL
FLYBACK PULSE
VERTICAL SAW +
VERTICAL SAW -
VERTICAL DEF
GND
VERTICAL PROTECT
VM MODULATION
X-RAY
GND
GND
GND
GND
GND
GND
SCL
GND
Y-100 OUT
GND
U-100 OU T
DPIC SW
V-100 OUT
SDA
+5V DIGITAL
SDA
SDA
GND
GND
GND
GND
GND
+5V
FS IN
B IN
G IN
R IN
+9V
EXTRA PARABO LA
DYNAMIC FOCUS
TO E BOARD
+12V
RED OUT
GREEN OUT
BLANKING OUT
BLUE OUT
TEXT RED
TEXT GREEN
TEXT BLUE
TEXT BLK
+9V
SCL
SDA
R HP
L HP
GND HP
GND
SIRCS
STBY +5V
LED G
LED R
TO D BOARD
TO D BOARD
+17V
-17V
+6.5V
TO D BOARD
TO V BOARD
TO J BOARD
GND
SDA
SCL
NS ROT
GND
KEY1 IN
L.C.MUTE
GND
6.5V
10.5V
GND
GND
KEY2 IN
+30V
(RESET)
TO H2 BOARD
Y 100 IN
DPIC SW
+2.5V
+10.5V OUT
+6.5V OUT
DAT
CLK
CS
+3.3V-D
+3.3V-D
RN IN
RP IN
LN IN
LP IN
HD2
HD1
HD1
HD2
DEGAUSS
TO BUS CONTROLLER
COMB RESET
OVER VO LTAGE
OVER CURRENTPROT.
ST-BY
NC
TV R OUT
TV L OUT
GND
GND
GND
GND
GND
GND
GND
GND
H-PULSE SUB OU T
V-PULSE M O UT
H-PULSE M OUT
GND
GND
GND
CVBS OUT (TEXT)
H-PULSE SUB OUT
V-PULSE SUB OUT
GND
GND
GND
TO B3 BOARD
B INT
H-PULSE MAIN IN
DSP ALIVE
CVBS 2 OUT
DYNAMIC FOCUS
PULL UP
HP MUTE
AU GND
+9V
VP SUB OU T
CVBS IN
V SYNC TEST
H SYNC TEXT
+5V
GND
GND
GND
GND
FPD
FPD
GND
GND
ABL-CTR
E0
E1
E2
GND
VCC
SCL
SDA
WC
TRAP
NC
GND(AUDIO)
+6.5V
MID-BUSY
GND
Y100
B-Y100
R-Y100
6
7
8
9
10
11
12
-+-+
AUDIO(R)
AUDIO(R)
R(OSD)
HS
TV
AUDIO(L)
AUDIO(R)
B(OSD)
G(OSD)
TV
TV
AUDIO(L)
AUDIO(R)
AUDIO(L)
AUDIO(L)
AUDIO(R)
AUDIO(L)
VS
G(OSD)
R(OSD)
B(OSD)
R(TELETEXT)
G(TELETEXT)
B(TELETEXT)
V
R/G/B(TELETEXT)
CN4101
CN6605
CN6606
CN6800
CN1801
CN1108
TO MAGNETIC COIL
CN1934
TO H1(CN1901)/
TO H3(CN1980)
TO H2 BOARD CN1932
TO SPEAKER
CN8304
TO F1 BOARD
CN1604
AUDIO AMP
MAIN MICON,TUVIF,
()
+5V
+5V
+5V
+5V
+5V
+5V
+5V
+5V
+9V
5V
+9V
+9V
+5V
+9V
+9V
+9V
+9V
+9V
+3.3V
+3.3V
+3.3V
+3.3V
+3.3V
+5V
+5V
SCP
SCP
SCP
R 100
B 100
SCP
R 100
B 100
(SXE)
0
9.0
12.1
6.8
0
5.0
3.3
0
1.2
1.4
0.8
3.3
1.2
3.3
2.5
0
0
0
5.0
VDD
LO
L-
L+
GNDR+
R-
RO
4.5
0
4.5
9.0
4.5
4.5
0
0
CREF
9V
GND
TRE(L)
TRE(R)
RIN
LO(R)
NC
LO(L)
NC
SCL
SDA
DGND
LOUT
ROUT
BO(R)
BI(R)
BO(L)
BI(L)
LIN
0
4.4
9.0
0
4.4
4.4
0
4.4
4.4
0
4.4
4.4
4.4
4.4
4.4
4.4
4.3
4.4
4.4
4.4
R
L
4.5
4.4
4.4
4.5
9.0
0
0
0
0
0
0
0
0
0
OUT
B/D
NC
FREQ
F/C
IN
MODE
VCC
VREG
VCC
BOOT
GND
-VCC
-VCC
-VCC
0
-8.0
9.9
000
-19
0
-8.0
-15.9
5.9
19.1
19.1
-19.0
-19.0
OUT
B/D
NC
FREQ
F/C
IN
MODE
VCC
VREG
VCC
BOOT
GND
-VCC
-VCC
-VCC
-3.3
-15.8
*
-0
-16.6
-5.3
0
-18.3
-16.1
7.4
19.1
0
0
0
0
4.8
0
4.8
2.8 8.9
2.1
0
0
0
-0
00
0
0
0
0
0
0
0
0
0
0.1
5.5
0
0
0
11.6
12.0
0
11.6
0
0
5.0
5.0
00
E0
E1
E2
GND
VCC
SCL
SDA
WC
0
0
0
0
0
5.0
5.0
5.0
3.18.3
8.9
H SYNC
V SYNC
RESET
VSS
XTAL
EXTAL
KEY2
KEY1
AGC MONITOR
AFT1
AFT2
B-INT
F MONO
ST
MSP RESET(SAP)
MUTE
R
SIRCS
LED1
LED2
MODE
SCL0
SDA1
SDA0
SDA1
ATT SW
VSS
VDD
EXLC
XLC
YM
YS
I
B
G
DSP ALIVEAUDIO PROTECTION
L.C.MUTE
ST-BY
SO
SCK
NS ROT
AC ON/OFF
OCP
OVP
RESET 100
CHIP SEL
DEGAUSS
H50
NOISE DETECT
ABL-CTR
NC
B-INT READY
TRAP
MID-BUSY
0
0.3
COMB RESET
0
0
0
2.3
0
0
0
0
(0)2.6
0
0
4.5
0
0
0
0
0
0
0
0.3
1
2
3
4
5
5.0
(0)
0
0.1
5.0 (0)
5.0
0.3
0
(5.0)
5.0 (0)
0(2.4) 0(3.2)
0
(5.0)
0
03.2
2.5
2.6
5.0
0
0
0
0
0
0(0.6)
0(5.0)
0
0
5.0
2.6
4.8
5.0
0
0.1
0.1
5.0
(3.9)
5.0
4.0 (4.5)
4.9 (0)
0
(4.5)
0
0
0.1
2.4
B-SSS10288-ME.-A..-ES34

– 100 – – 101 –– 99 – – 102 –
A
12345678910111213 14 15 16 17 18 19 20 21 22 23 24 25 26 27 28 29 30
B
C
D
E
F
G
H
I
J
K
L
M
N
O
(2) Schematic Diagram of D Board
Schematic diagram
D board /
Schematic diagram
?A board
HV
1
4
2
11
13
12
7
8
9
5
6
10
SC
F
1234
IO
G
1
2
3
1 2 3 4
5678
1 2 3 4 5 6 7 8 9
10 11 12 13 14 15 16 17 18 19
123
1 2 3 4 5 6 7 3
2
4
5
1
6
1
2
3
4
5678
1
2
3
4
5
6
IO G
IO G
GVC
OI
1
2
3
4
5
6
7
8
9
5
6
7
1
2
3
4
5
6
7
1
2
3
4
1
2
1
2
3
4
5
6
7
8
9
10
11
12
13
14
15
16
17
18
19
20
21
22
23
24
25
26
27
28
29
30
31
32
33
34
35
36
37
38
39
40
41
42
43
44
45
46
47
48
49
50
1
1
1
1
7
9
2
17
16
15
14
13
12
11
10
6
1
18
3
1
2
1
1
2
3
4
5
6
7
1
1
2
3
4
5678
1
2
3
4
5678
1
2
3
1
2
3
4
5
6
7
8
9
10
11
12
13
14
15
16
17
18
19
20
1
2
3
4
1
2
34
6
1
2
3
4
5
1
2
3
4
5
6
7
8
9
10
1
2
3
R6688
R6602
C6613
R6642
R6641
C6623
C6634
R6657
C6633
C6647
C6648
L6601
C6649
R6681 R6685
R6694
R6693
R6697
C6668
R6691
R6690
C6665
C6667
R6689
C6662
L6606
C6661
L6605
R6683
L6604
R6682
C6642
R6665
C6636
R6667
R6672
R6674
R6669
R6636R6632
R6630
R6631 R6635
R6634
R6629
R6623
R6615
R6614
R6608
R6607
R6618
R6606
R6605
R6875
C6866
L6806
L6805
L6804
C6857
C6853
R6839
C6838
C6837
C6835
C6833
C6840
C6839
R6838
R6833
R6832
R6831
C6827
C6823
C6822
R6829
C6819
R6825
R6830
C6821
C6820
R6828
C6818
R6824
R6816
C6817
C6811
C6800
R6807
D6620
CN6603
PH6602
R6661
PH6601
C6854
C6836
C6834
R6648
C6628
R6653
R6650
R6656
R6692
R6612
C6604
T6800
R6817
R6819
C6631
C6658
C6659
C6841
C6855
C6865
L6808
R6818
C6619
C6601
VD6603
C6638
C6637
R6637
R6633
R6660
C6635
R6687
R6840
R6846
C6874
C6877
C6862
PS6604
PS6603
PS6602
PS6601
R6613
T6601
T6804
C6805
JW6601
JW6602
VD6601
R6822
R6823
CN6801
CN6602
R6820
R6821
R6862
R6864
R6867
R6868
R6870
T6802
C6826
Q6601
R6621
R6628
R6646
R6655
R6658
R6659
R6644
R6649
R6640
R6643
R6654
R6619
C6615
C6606 C6620
C6618
C6605
R6803
R6814
R6887
R6888
R6896
R6891
R6892
R6895
R6897
R6893
C6802
C6868
C6876
C6813
C6610
IC6606
R6679 R6684
C6657
CN6607
CN6604
C6655
R6805
R6880
C6654
R6812
R6800
R6645
R6699
D6638
IC6601
C6611
PS6801
C6871
R6852
R6851
C6843
C6844
C6849
C6850
C6875
R6695
R6899
R6843
R6844
Q6608
R6647
R6662
R6663
C6864
JW6654
JW6655
C6858
R6811
R6622
R6500
C6881
R6853
TH6601
C6630
R6884
C6859
R6651
C6614
C6617
R6668
R6841
C6882
CN6810
CN6802
CN6605
RY6601
T6602
IC6800
Q6808
Q6807
Q6810
Q6809
IC6805
D6825
D6820 D6821
C6815
C6883
C6652
R6902
RY6602
RY6603
IC6603
CN6608
C6806
R6834
R6835
R6836
R6837
C6879
D6803
CN6811
CN6812
IC6804
CN6800
C6621
C6622
Q6815
C6851
C6884
C6814
Q6801
C6807
L6800
R6904
C6607
C6608
C6669
JR6602
R6810 R6813
D6816
D6817
D6824
Q6823
D6808
Q6822
R6848
C6847
R6847
CN6606
L6801
R6701
R6702
C6624
R6704
R6878
R6666
R6877
R6611
R6885
R6886
R6815
R6603
R6604
R6883
R6871
R6625
R6610
R6616 R6627
R6617 R6620
L6807
Q6814
L6602
L6603
R6802
R6801
C6801
R6707
IC6801
T6801
C6878
C6863
R6872
R6873
C6603
R6652
C6627
C6632
C6676
D6645
R6859
L6607
CN6609
CN6611
CN6610
CN6613
CN6615
CN6614
CN6616 CN6618
IC6608
C6612
C6616 R6624
R6626
FB6602
R6638
R6639
C6674
R6905
JW6603
JW6604
C6629
JW6605
JW6606
CN6612
PS6607
PS6605
PS6606
CN6813 CN6814
D6601
D6651
D6800
D6801
D6805
D6806
D6807
D6809
D6812
D6813
D6814
D6823
D6826
Q6602
Q6604
Q6605
Q6610
Q6611
Q6612
Q6613
Q6802
Q6803
Q6804
Q6805
Q6806
Q6811
Q6812
Q6813
Q6816
Q6817
Q6818
Q6819
Q6820
Q6821
R6664
R6808
TH6603
JW6804
D6616 D6617 D6619
D6650
D6613
D6612
D6605
IC6602
D6602
D6604
D6606
D6607
Q6614
D6608
D6648
D6609
D6632
D6610
D6611
D6615
D6649
D6614 D6618
Q6606
D6622
D6623
IC6607
D6642
D6635
D6643
D6625
D6626
D6634
D6633
D6644
Q6609
D6631
D6636
D6640
C6660
C6803
C6804
C6829
C6860
C6869
C6870
CN6804
D6603
D6637
D6641
D6822
IC6604
IC6806
L6802 L6803
Q6603
Q6615
Q6800
R6698
R6869
R6900
R6901
T6803
C6880
C6664
R6713
C6663 R6714
R6703
C6678
D6621
D6628
D6639
R6671
R6670
R6678
R6676
R6677
R6675
CN6617
CN6805
CN6807
CN6809
D6627
D6629
D6630
Q6607
IC6605
D6624
FB6604 FB6601
C6677
R6865
R6804 C6809
R6806
C6808
C6812
C6872
JW6803 C6816
R6827
R6826
C6825
C6824
R6882 R6881
R6845
C6639
C6626 C6643
JR6603
R6600
C6831
C6842
C6846
C6845
C6828
C6856
C6867
R6863
R6854 R6856 R6857 R6860 R6842 R6903
R6855
CN6816 CN6817 CN6818
CN6815
R6858
CN6808
R6861
C6672 C6673
C6675
FB6603
TH6801
R6879
R6894
Q6616
R6711
R6712
R6906
R6907
R6601
C6602
R6609
C6609
R6686
C6625
C6645
C6646
C6671
C6641
C6640
C6644
R6673
C6653
C6670
C6651
C6650
R6680
C6656
C6666
R6710
R6696
C6810
C6830
C6832
C6848
R6850
R6849
R6866
R6890
R6889
R6876
R6898
C6679
D6652
R6809
47
47
100
10
10
47
25V
10
47
1
1
470p
B
0.047
200V
:PT
470p
B330p
500V
B
0.0047
100V
:PP
0.01100V:PP
100
16V
100
16V
330p
500V
B
1k
120k
:RN
75k
:RN
680k
:RN
680k
:RN
120k
:RN
680k
:RN
680k
:RN
75k
:RN 33k
:RN
75k
:RN
680k
:RN
680k
:RN
680k
:RN
680k
:RN
680k
:RN
680k
:RN 330k :RN 330k :RN
330k :RN
22
1k:RN
470
1k
2.2k
220
10k
820
2.2k
4.7
10k
270
18k
:RN
120k
:RN 10k
1.5
:FPRD
120k
1/2W
:RN
330
330
1k
1k
10k
1/2W
:FPRD
10k
1/2W
:FPRD
220k
:RN
1M
:RN 47k
:RN
100
:FPRD
1k
#
10
0.0047
500V
E#
470p 1kV :HR
#
#
470
25V
100
25V
47
16V
47
16V
#
330
25V
0.047
200V
:PT
680p1.5k:PP
680p
1.5k
:PP
680p
1.5k
:PP
680p
1.5k
:PP
470p
500V
B
47025V
470p
500V
B
3P
WHT
:S-MICRO
:LHL08
:LHL08
:LHL08
ON3171-R
ON3171-R
470k
1/2W
470k
1/2W
220k
1/2W
1k
:FPRD
470k
1/2W
2.2k
2.2M 1/2W
2.2M
1/2W
0.12
250V
:PP
33
160V
3.3mmH
:LHL10
0.0047
500V
#
4.7 :FPRD
100p
#
#
100
25V
22p
2kV
10
0.022
400V
:PP
0.1
:PT
10
36k
:RN
56k
:RN
470k:RN
220k
1/2W
680k
:RN
3300
25V
3300
25V
0.022
200V
:PP
JW(5)
JW(5)
JW(5)
JW(5)
330
25V
7.5MM
7.5MM
SRT
HDT
5.6k
2W
:RS
3.3k
2W
:RS
2P
:MINI
4.7k
:CHIP 22k
:CHIP
22k
:CHIP
4.7k
:CHIP
4.7k
:CHIP
2.2k
:CHIP
HDT
330p
500V
B
#100p
CH:CHIP
100p
CH:CHIP
0.01
B:CHIP 100p
CH:CHIP
#
2SC2785TP-HFE
470k
:CHIP
10k
:CHIP
10k
:CHIP
22k
:CHIP
22k
:CHIP
4.7k
:CHIP 10k
:CHIP 4.7k
:CHIP
47k
:CHIP
10k
:CHIP
10k
:CHIP
10k
:CHIP
#
100p
CH:CHIP
#
#
47k
#
6.8k
:RN
6.8k
:RN
10k
3.3k
22k
:CHIP
47k
:CHIP
6.8k
:CHIP
100k
:CHIP
33k
:CHIP
100k
:CHIP
47k
:CHIP 100k
:CHIP
#
#
1000p
CH:CHIP
470p
CH:CHIP
1.6A
0.1
1/2W
:RF
#
10k
:CHIP
2.2k
:CHIP
10k
:CHIP
0.47
1/2W
:FPRD
0.47
1W
:RS
10k
:CHIP
3300
16V
1000
25V
0.01
B:CHIP
0.001
B:CHIP 0.1
B:CHIP
0.1
B:CHIP
0.1
B:CHIP
0.1
B:CHIP
0.01
B:CHIP
47
16V
0.01
B:CHIP
5P
:VH
BA05T
2SC2500-B
100
1/4W
150
1W
:RS
#
#
470p
500V
B
0.47
10W
:RB
0.47
10W
:RB
#
:CHIP
ENE471D-20A
100k
6P
150p
2kV
B
2.4k :RN
0.0047
500V
E
0.0047
500V
E
22
450V
0.0022
630V
:PP
0.0047
2k
B
50P
:BTOB 1P
:TAB
0.22 3W :RS
0.22
3W
:RS
47 :CHIP
220
3W
:RS
1.8k
1W
:RS
0.47
1/2W
:FPRD
10P
WHT
:S-MICRO
DH12D2-0(M)
STV9379
V-OUT
2SC5480-01
PIN-OUT
2SC5480-01
H-OUT
IRF1830G
H LIN OUT
2SK2251
M PIN OUT
BA12T
12V-REG
DNA202K
CN-PROT
ERA38-06
SNUBER ERA38-06
DF DAMP
0.001B:CHIP
330
160V
100
100V
4.7
160V
10
3P
WHT
:S-MICRO
1P
1P
S3L20UF4
V-BOOST
MCR5152
BA09T
9V-REG
0.22
3W
:RS
0.22
3W
:RS
10
3W
:RS
10
3W
:RS
100k
DJ12D1-0(M) TV-8
DJ12D1-0(M) TV-8
2SA1776TV2Q
DF ON/OFF SW
20P
IRF620
PONP UP
#:CHIP
:LHL08
#
470p
250V
470p
250V
330p
1kV
:HR
#
S3L20UF4
+15V RECT
S3L20UF4
-15V RECT1
S3L20UF4
-15V RECT2
2PD601AR
H-C MUTE
DAN202K
STOPPER2
2SA1037AK
H-C SHIFT
7P
WHT
:S-MICRO
1200
250V
1200
250V
100
16V
2.2
10V
B:CHIP
0.1
25V
B:CHIP
47
160V
2.2
10V
B:CHIP
4.7mH
:LHL10
10k
:CHIP
68k
:CHIP
0.47
1/4W
:FPRD
1.8
1/2W
:RN
1.8
1/2W
:RN 2.2k
:CHIP
150k
:CHIP
2.2mH
:LHL08
1
2SA1037
H-SAW
10k
:RN-CP
10k
:RN-CP
100k
:RN-CP
4.7k
:RN-CP
100k
:RN-CP
390k
:RN-CP 470k
:RN-CP
68k
:RN-CP
150k
:RN-CP
1k :RN-CP
2.2k
10k
10k
:RN
6.2k
:RN-CP
47k
:RN-CP
2.2k
:RN-CP 330
:RN-CP
10k
:RN-CP
4.7k:RN-CP
4.7k
:RN-CP
LM393N
DY-PROT
DFT
10
16V
:BP
10
150k
1/2W
150k
1/2W
#
16k :RN
0.01 B
4.7
#
#
2.2k
1W
:RS
1P
1P
1P
1P
1P
1P
1P 1P
10
100p
CH:CHIP 100k
:RN-CP
100k
:RN-CP
1
15W
1
15W
330
25V
4.7
:FPRD
#
#
#
#
#
1P
5A
5A
5A
##
1SS119-25
DTZ-TT11.24B
:CHIP
RD7.5ESB2
CLAP
1SS119-25
CLIP
RD15ESB1
CLAP
1SS119-25
STOPPER1
RD3.6ESB1
LEVEL-SHIFT
GP08D
PULS-RECT
RD15ESB1
PROT
ELIZ
200V RECT
RGP02-20EL-6394
G2 RECT
1SS119-25
TEMP
1SS119-25
H-C MUTE
2SC2785-HFE
2SA1175-HFE
2SC2712-YG
2SC2785-HFE
DTC114ESA
DTC114ESA
DTC114ESA
IRF720-LF49
H CENT OUT
2SA1175-HFE
H CENT AMP 2
2SC2785-HFE
H CENT AMP 1
2SD774-34
H DRIVE 1
2SD774-34
H DRIVE 2
DTC144EKA-T146
V-PROT
2SC3840(3)
DF OUT
2PD601A-Q-TX
H-SAW
2SD774-34
DF 0N/OFF SW1
2PD601A-Q-TX
INVER
DTC144EKA-T146
DF-PROT
DTC144EKA-T146
INVER
2PD601A-Q-TX
V-PROT MAX
2SA1037AK-T146-R
V-PROT MINI
#
#
NTC
#
U05G
STBY RECT U05G
STBY RECT
RD12ESB1
18V CLAMP
1SS119-25
STOPPER
U05G
PROTECT
U05G
PROTECT
D4SB60L
AC RECT
REF.REGULATOR
MA111-(K8).S0
STOPPER
MA111-(K8).SO
STOPPER
MA111-(K8).SO
STOPPER
MA111-(K8).SO
STOPPER
2SA1175-HFE
LATCH
MA111-(K8).SO
PROTECT
RD12ESB1
SPEED UP
1SS119-25
PROTECT
MA111-(K8).SO
LATCH
MA111-(K8).SO
RELAY SW
MA111-(K8).SO
STOPPER
1SS119-25
PROTECT
MA111-(K8).SO
STOPPER
RD12ESB1
SPEED UP MA111-(K8).SO
POWER ON SW
2SB733-34
VCC SWITCH
UF4005PKG23
SNUBBER
P6KE200AG23
CLAMP
DM-58
+B CONTROL
1SS119-25
STOPPER
RD18ESB
OVP SW
UF4005PKG23
STOPPER
RD13ESB2
CLAMP
UF4005PKG23
BOOST UP
D4SBS6
AUDIO RECT
D10SC4M
6.5V RECT
D10SBS4F
10.5V RECT
DTA144ESA
OCP SW
D4SBL20U
+B RECT
1SS119-25
OCP SW
RD30ESB2
30V CLAMP
1mF
50V
0.01mF
:CHIP
0.01mF
:CHIP
330pF
2kV
150pF
2kV
B
100mF
16V
470mF
25V
3P
:S-MICRO
MA111-(K8).SO
#
STOPPER
RD6.8ESB1
PROTECT
RN4Z
TOP209P
PQ6RD83B
1mm
2SA1175-HFE
DTC114EK
:CHIP
2SD601A-Q-TX
V-SAW
1k
470k
:CHIP
15k
:RN-CP
15k
:RN-CP
NX-4601
#
0.01
3.3k
1/4W
0.01 3.3k
1/4W
56k
:CHIP
#
10ELS2N-TB5
18V RECT
10ELS2N-TB5
DETECT RECT
10ELS2N-TB5
15V RECT
#
#
#
#
#
#
#
#
#
#
#
#
#
STOPPER
#
#
AC DETECT
11EQSO3LN-TA1B2
NOISE UP
##
0.022
B:CHIP
150k
:CHIP
3.6k
:RN-CP 0.001
B
3.6k
:RN
0.22
100V
:PT
0.47
100V
:PT
0.001
CH:CHIP
#0.047
400V
:PT
2.7k
2W
:RS
2.2k
2W
:RS
#
#
10k
:RN
3.3k
:RN
56k
RN-CP
0.001 CH:CHIP
8200 :PP 0.001 CH:CHIP
0
0
8200pF
1.5kV
:PP
1.5mF
250V
:PP
0.22mF
250V
:PP
0.27mF
250V
:PP
0.01mF
:PT
200V
470
50V
0.47
100V
:PT
2.2k
2W
:RS
10k
3W
:RS
10k
3W
:RS
10k
3W
:RS
10k
3W
:RS
10k
3W
:RS
10k
3W
:RS
24k 0.5W :RN
###
#
24k
0.5W
:RN
1P
0
0.0022mF 1kV :R 0.0022mF 1kV :R
#
#
220k
:CHIP
680k
1/2W
DTC114ESA-TP
120k
:RN
18k
:RN
18k :CHIP
18k :CHIP
JW(7.5MM)
0.033
630V
:PP
680k
:RN
1.0
:PT
8.2M
1W
:RN
0.022
630V
:PP
0.1
:PT
0.01
:PT
0.022
630V
:PP
0.1 250V :MPS
470p
1kV
JW(5mm)
JW(5MM)
0.0047
:PT
330p
1kV
330p
1kV
330p
1kV
0.27
2W
:RS
0.1
:PT
0.01
:PT
0.47
5W
:RN
22k
3W
:RS
0.1
100V
:PT
1000pF
1.2kV
:PP
12000pF
1.5kV
:PP 0.047mF
250V
:PP
0.47
:FPRD
0.47
:FPRD
2.7k
:RN
150k
1/2W
:CHIP
150k
1/2W
:CHIP
0.47
0.5W
:FPRD
JW(5MM)
0.01
:CHIP
MTZJ-T-77-18
JW(5MM)
+12V
+12V
+17V
-17V
GND(AUDIO)
GND
GND
+10.5V
GND
+5V STANDBY
GND
STANDBY
GND
AC ON/OFF
GND
AC IN
AC IN
DGC
N.C
DGC
N/S
VSAW-
VSAW+
VM
FOCUS
X-RAY
HD1
GND
DEGAUSS
HD2
EXTRA PARA
GND
GND
+12V
V+
V-
H-
H+
H+
H-
H-SAW
ABL1
9V
GND
VFB2
GND
GND
15V PALSE
VM
GND
GND
GND
GND
GND
-15V
N/S
EX PARA
10.5V
10.5V
AFC PULSE
HP1
12V
SCL
NC
NC
135V
135V
200V
GND
H1
HP2
PFC IN
N.C.
PFC OUT
TO CRT ANODE
5V
6.5V
6.5V
DGC CHK
DGC CHK
DF-SW
GND
GND
GND
GND
PROT
NC
NC
H LIN
GND
V SAW+
V SAW-
PROT
H-CENT
M PIN
FOCUS
N.C
G4
DF DRIVE
N.C.
N.C.
GND
GND
NC
G2
+6.5V
+30V
TO A BOARD
NC
NC
OVERVOLTAGE
OVERCURRENT PROT
PROT
+6.5V
TO A BOARD
GND
GND
V COMP+
V COMP-
TO A BOARD
VPROT
GND
CN1160
CN1161
TO C BOARD
CN9002
TO C BOARD
CN9007
TO D1 BOARD
CN6100
SDA
TO A BOARD
TO DY
CN1162
SDA
SCL
AFC PALSE
TO F2 BOARD
CN1652
TO DGC
OUT1
IN1-
IN1+
GND IN2+
IN2-
OUT2
VCC
OUT3
IN3-
IN3+
GND IN4+
IN4-
OUT4
VCC
+5V
1
2
3
+12V
+12V
+12V
+12V
+6.5V
+6.5V
+6.5V
+6.5V
+6.5V
+6.5V
5V
5V
5V
-15V
-15V
-15V
-15V
-15V
-15V
-15V
-15V
+10.5V
+10.5V
+10.5V
+10.5V+10.5V
+10.5V
+10.5V
+10.5V
+10.5V
+135V
+135V
+135V
+135V
+135V
+135V
+135V
+135V
+135V
+9V
+9V
+9V
+9V
+9V
+9V
+9V
+9V
+9V
+9V
+9V
+200V
+200V
+5V
+5V
+5V
+5V
+5V
+5V
+5V
+5V
+17V
-17V
+30V
47
56
H.DY H.DY V.DY V.DY
8
9
10
11
DEFLECTION HV
POWER SUPPLY,
()
0
0
12.1
8.8
-0
-0 -10.9
8.8
-0
0
0.1
0
0.2
-0.1
-10.9
DRIVE-IN
VCC
FB-PLS
VEE
OUT-PUT
VCC(OUT)
REF-VOLT
1.3
-0.5
1.3
14.0
-13.1
-15.8
14.6
-0.5 11.1
0.2
0.9
14.6 0.3
0
5.8
0.4
2.9
8.8
8.8
0
1.4
6.6
2.2
0.2
8.8
6.6
2.9
8.8
0
6.6
6.5
6.5
6.6
203
135.7
135.7
-0.3
0
-0.3
0
-0
65.2
77.5
240.0
240.0
240.0
241.5
241.5
00
3.4
8.3 0135
14.6
0
8.8 12.2
11.9
0
0
0-75.6
-85.0
-85.0
-84.6
-75.1
-78.7
-78.0
-78.0
-78.0
-75.0
-75.0
-75.0 -75.0
-75.2
-85.1
-85.1
-85 11.2
-83.5 12.3
0
1.1
-74.8
-74.8
-84.7
-84.5
-84.5
-81.5
-84.5 -84.4 0.1
-31.6
9.6
0
4.3
5.0
5.0
5.0
-20.5
-18.7
-18.0
VD
VG(H)
N.C.
SS
CT
RT
N.C
COVP
GND
OUP
COCP
VOCP
VC-1
VC-2
VG(L)
COM
VB
VS
SS.RST
-85.0
-85.0
84.2
-3.0
-82.1
-0
-82
-83
-82.5
-82.6
-84.6
-85.0
-85.0
-74.4
-78.6
-82.6
-84.6
-0.2
-6.0
2.4
0
0
0
0.6
0
0
0
0
0
0
4.1
2.9
2.9
10.7
133.9
0
8.6
-0.8
0
0
0
0
0
0
0.5
134.4
134.1
135
3.2
0.5
8.1 21.2
06.2
0
5.0
5.0
5.0
0.5
0.2
CATHODE
ANODE
REF
-82.0
-83.5
-84.6
NL6601
GAP SPARK
B-SSS10288-ME.-D..-ES34

A
12345 6 7 8910111213
B
C
D
E
F
G
H
I
J
A
12345 6 7 8910111213
B
C
D
E
F
G
H
I
J
IC
IC6601 J-2
IC6602 J-2
IC6603 G-5
IC6604 E-1
IC6605 D-1
IC6606 C-1
IC6607 B-1
IC6800 C-7
IC6801 C-9
IC6804 E-8
IC6805 E-6
IC6806 G-9
TRANSISTOR
Q6601 1-8
Q6602 G-2
Q6603 H-2
Q6604 H-1
Q6606 H-1
Q6607 D-2
Q6608 B-1
Q6609 A-2
Q6610 A-7
Q6611 C-2
Q6612 C-1
Q6613 A-1
Q6801 E-7
Q6802 E-9
Q6803 D-8
Q6804 D-8
DIODE
D6601 J-8
D6605 I-4
D6609 H-2
D6612 H-5
D6613 H-6
D6614 H-2
D6615 H-2
D6616 G-3
D6617 G-2
D6619 F-3
D6620 F-1
D6621 F-3
D6622 F-2
D6623 G-2
D6624 G-4
D6625 F-6
D6626 F-4
D6627 E-1
D6628 E-2
D6629 D-2
D6630 D-1
D6631 C-5
D6633 B-3
D6634 E-3
D6635 C-1
D6636 A-6
D6637 A-2
D6638 A-1
D6639 D-5
D6640 A-6
D6641 A-3
D6642 A-1
D6643 F-5
D6644 C-4
D6645 G-5
D6648 H-2
D6650 F-1
D6800 B-7
D6801 A-7
D6803 D-7
D6805 E-7
D6806 B-7
D6807 B-7
D6809 D-10
D6812 D-9
D6813 F-9
D6814 F-11
D6816 I-9
D6817 H-9
D6820 H-8
D6821 I-9
D6822 G-9
D6823 C-9
D6824 H-10
D6826 C-9
Q6805 B-12
Q6806 C-12
Q6807 B-12
Q6808 E-11
Q6809 C-10
Q6810 D-10
Q6812 H-8
Q6814 I-1
Q6815 I-8
Q6816 I-11
– 104 – – 105 –– 103 – – 106 –
PRINTED WIRING BOARDS
– D Board (Component Side) –
D[POWER SUPPLY, DEFLECTION, HV]
– D Board (Conductor Side) –
D BOARD IC6603 MCR5152 D BOARD WAVEFORMS
D BOARD (Component Side) D BOARD (Conductor Side)
IC
IC6601 J-12
IC6602 I-13
IC6603 F-8
IC6604 F-13
IC6605 D-13
IC6606 C-13
IC6607 B-13
IC6800 C-8
IC6801 B-5
IC6804 E-6
IC6805 D-8
IC6806 F-5
TRANSISTOR
Q6601 J-6
Q6602 G-12
Q6603 H-13
Q6604 H-13
Q6605 H-13
Q6606 H-13
Q6607 D-13
Q6608 B-13
Q6611 C-12
Q6612 C-13
Q6614 I-13
Q6800 B-7
Q6801 D-7
Q6802 E-4
Q6803 D-6
Q6804 D-6
Q6806 C-2
Q6807 D-2
Q6808 E-3
Q6809 C-4
Q6810 D-5
Q6811 C-7
Q6812 H-6
Q6815 I-7
Q6816 J-3
Q6817 J-3
Q6818 J-3
Q6819 C-8
Q6820 B-7
Q6821 C-7
Q6822 D-5
Q6825 C-5
DIODE
D6601 J-6
D6602 J-13
D6603 J-13
D6604 J-12
D6605 I-11
D6606 I-13
D6607 I-12
D6608 I-13
D6609 H-12
D6610 G-13
D6611 G-13
D6612 H-9
D6613 H-9
D6614 H-12
D6615 H-12
D6616 G-11
D6617 G-12
D6619 F-11
D6620 F-13
D6621 G-11
D6622 F-13
D6624 G-10
D6625 F-9
D6626 F-10
D6627 E-13
D6628 E-12
D6629 D-13
D6630 D-13
D6631 B-10
D6632 I-13
D6634 E-11
D6635 C-13
D6636 A-8
D6637 A-13
D6638 A-13
D6639 D-9
D6640 A-8
D6641 A-12
D6642 A-13
D6643 E-9
D6644 C-11
D6645 H-9
D6648 H-12
D6649 G-13
D6650 F-13
D6800 B-7
D6801 A-7
D6803 D-7
D6805 E-7
D6806 B-7
D6807 B-7
D6808 B-8
D6809 D-4
D6812 D-5
D6813 F-5
D6814 F-4
D6816 I-5
D6817 H-5
D6820 H-6
D6821 I-6
D6822 G-5
D6824 H-5
D6825 B-3
D6826 C-5
•:Pattern from the side which enables seeing.
•:Pattern from the rear side.
PULSE
FILTER
10V 10V
5V
13V/BV
20P
50K
5K
50K
17
13
0.2V
5V
4V
U.V.
DETECT
~
~
PULSE
CEN.
19
50K
15
16
VS
VC-2
VD
IVB
18
2VG (H)
V
REL
/V
E–3
LEVEL
SHIFT
V
REL
/V
E–2
LEVEL
SHIFT
–
+
–
+
–
+
–
+
–
+
REFRESH
ON SHEET
RELAY
U.V.
DETECT
START
UP
DELAY
6
CT RT ROCP VOVP
7811 5312
2K
5V
R
S
R
RESET
5V
R
R
S
O
O
4.7
21V
4.7
21V
+
–
–
+
SS RESET COOP GND
10
+
–
0V/3V
5V
VOOP
COM
VC (L)
TSD
O
O
T
S.V.
LEVEL
SHIFT
VC-1
14
YC-2 11V
OSC
1
0.7Vp-p (H)
3
5
7
9
2
4
6
8
10
0.9Vp-p (H)
2.4Vp-p (H)
108Vp-p (H)
52.4Vp-p (H)
3.8Vp-p (H)
28.8Vp-p (H)
222Vp-p
6.7Vp-p (H)
1.7Vp-p (H)
11
7.8Vp-p (H)

A
123456789101112
13 14 15 16 17 18 19 20 21 22 23 24 25 26 27 28 29 30
B
C
D
E
F
G
H
I
J
K
L
M
N
O
– 108 – – 109 –– 107 – – 110 –
(3) Schematic Diagram of D1 Board
Schematic diagram
D1 board /
1234
5 6 7 8
1 2 3 4
5678
1234
5
6
7
8
1
2
3
4
5678
1 2 3 4 5 6 7 8 9
10
1234
5 6 7 8
1 2 3 4
5678
1
2
3
4
5
6
7
8
9
10
11
12
13
14
15
16
17
18
19
20
21
22
23
24
25
26
27
28
29
30
31
32
33
34
35
36
37
38
39
40
41
42
43
44
45
46
47
48
49
50
1
2
3
4
5
6
7
8
1
2
3
4
5
6
7
8
9
10
1 2 3 4
5678
1
2
3
4
5
6
7
8
9
10 11 12 1314 15 1617 18
1
2
3
1
2
3
1 2 3 4 5
1
2
3
4
5
6
7
8
10
9
11
12
13 14 15 16 17 18 19 20 21 22 23 24
IO
G
1234
5 6 7 8
123
1 2 3 4 5 6 7
89
1011121314
C6352
R6274
R6272
R6273
R6251
R6252
R6253
D6357
D6356
R6214
C6124
R6275
R6250
R6280
C6366
C6107
R6164
R6279
C6110
R6362
R6378
R6203
R6121
D6111
D6351
D6350
D6355
C6392
R6135
JW6157
C6128 C6129
R6324
R6325
C6376
C6378
C6207
C6208
C6127
R6168
R6177
C6116
C6209
R6216
R6210 R6212
C6115
R6170
C6210
R6211
R6217
C6117
R6190
C6112
C6123
R6215
R6458
R6456
R6109
R6172 C6108
R6171
L6102
R6116
L6101
R6204 R6206
C6350
R6357
R6360
R6359
R6361 C6356
C6358 C6361
R6391
R6375
C6362
R6394
R6137
R6419
R6433
R6442 R6140
R6157
C6381
C6140
C6385
C6388
C6409
C6138
C6386
C6377
R6174
R6180
C6351
C6114
C6365 R6379
R6130
R6108
C6109
C6353
R6162
R6196
R6101
R6102
R6103
R6104
R6129
JW6158
C6265
C6266
R6192
D6404
C6118
C6122
R6166
R6160
R6282
R6283
R6281
R6205
R6278
R6277
R6276
R6269
R6270
R6271
R6268
R6287
R6286
R6285
R6267
R6265
R6284
R6254
R6260
R6263
R6264
R6262
R6261
R6258
R6257
R6256
R6255
R6259
C6263
C6264
C6261
C6260
C6262
C6256
C6258
C6259
C6257
C6254
C6255
C6253
C6250
D6253
D6254
D6255
Q6253
Q6254
Q6252
Q6250
Q6251
IC6251
IC6250
R6167
R6418
R6420 R6152
R6266
R6151
R6156
R6153
R6136
CN6103
CN6100
R6158
IC6103
IC6351
PS6101
IC6105
IC6356
IC6354
R6147
R6173
R6201
R6209
R6213
R6227
C6201
C6202
C6204
C6206
C6211
C6205 C6203
C6139
R6459
C6213 C6214
C6215
C6216
C6104
IC6102
C6105
C6113
Q6107
IC6201
IC6106
Q6124
R6113
R6107
R6226
IC6108
R6202
R6123
R6219
R6119
R6105
R6106
R6126
R6208
R6161
R6146
R6128
Q6128
R6117
R6207
R6138
R6143
R6114
R6142
R6150
R6169
R6413
R6326
R6367
R6416
R6118
R6368
R6133
R6115
R6175
R6155
R6149
R6224
R6225
R6141
R6382
R6386
R6127
R6218
Q6118
Q6125
Q6201 Q6202
Q6350
Q6356
Q6455
Q6106
Q6126
Q6405
Q6104
Q6105
R6438
R6134
CN6101
R6124
R6120
R6220
R6221
R6110
C6120
CN6102
R6163
R6165
CN6104
C6121
R6125 R6181
R6179
C6106
Q6108
D6101
D6103
D6104
D6105
D6108
D6110
D6133
D6201
D6210
IC6101
IC6202
IC6353
Q6127
R6111
R6132
R6148
D6134
D6106
R6131
R6139
R6154
R6159
R6195
R6200
R6457
C6212
D6102
IC6104
Q6103
Q6203
R6112
C6133
C6380
R6145
R6223
R6385
R6222
R6122
C6125
R6350 R6327
C6101 C6102
C6103
C6355
C6136
R6176
R6178
C6131
R6144
150k:RN
15
3W
:RS
DAN202K
CLAP
DAN202K
CLAP
DAN202K
CLAP
47
25V
10k
:CHIP
0.01
B:CHIP
10
47
:CHIP
47
:CHIP
47
16V
0.1
B:CHIP
47
47
0.01
B:CHIP
4.7k
:CHIP
4.7k
:CHIP
0.001
CH:CHIP
4.7k
:CHIP
2.2k
:CHIP 2.2k
:CHIP
470p
B:CHIP
330
:CHIP0.001
:CHIP
10k
:CHIP
10k
:CHIP
0.001
CH:CHIP
2.2k
:CHIP
0.022
B:CHIP
47k
:CHIP
47k
:CHIP
100k
:CHIP
10k
:CHIP
220k
:CHIP
0.1
25V
B:CHIP
470k
:CHIP
10mH
:LHL13
2.2k
:CHIP
10mH
:LHL16
2.2k
:CHIP
220
:CHIP
0.1
25V
B:CHIP 2.2k
:CHIP
10k
:CHIP
100k
:CHIP
100k
:CHIP
0.047
25V
B:CHIP
0.1
25V
B:CHIP
0.1
25V
B:CHIP
1k
:CHIP
470
:CHIP
0.0033
B:CHIP
6.8k
:CHIP
1k
:CHIP
100k
:CHIP
100k
:CHIP
2.2k
:CHIP
15k
:CHIP
47k
:CHIP
10
1
47
25V
10
4.7
100
47
25V
22
25V
22k
:CHIP
2.2k:CHIP
47
47
0.047
25V
B:CHIP 0
:CHIP
10k :CHIP
10k
:CHIP
47
0.47
:FPRD
100
:CHIP
1k:CHIP
4.7k
:CHIP
2.2
1W
:RS
5MM
#
47
16V
47
#
:CHIP
470k
:CHIP 390k
:CHIP
22k
:CHIP
470p
CH:CHIP
100p
CH:CHIP
DAN202K
CLAP
1k
:CHIP
15k
:CHIP
220k
:CHIP
39k
:CHIP
LM393N
H.LIN
M.PIN CONP
LM393N
DC-CONT
0.75A
:CFK-I
LM393N
DQP-CONT
LA6510
N/S-OUT
CA0005AD
MALUTIPLAY
#
1
47
47
47
0.01
B:CHIP
0.01
B:CHIP
10
10
50P
:BTOB
1k
1/2W
100k
:CHIP
680
1/2W
:FPRD
120k
:CHIP
100k
:CHIP
220
:CHIP
2.2k :CHIP
LM393N
DQP-CONT
100
25V
0.0047
630V
:PP
2SB734
DQP-H MOJI
CA0007AD
V SIZE COMP
2PD601AR
H-CIN MUTE
22
2.2k
:CHIP
47k
:CHIP
MB88141APF-ER
DAC CONT
3.3k :CHIP
#
#
0.001CH:CHIP
#
##
#
#
##
#
#
#
#
#
#
#
#
#
#
#
#
#
#
#
3P
BLK
:S-MICRO
#
#
#
#
#
#
H-SIZE CONT
#
#
2SC2712-YG
INVERT
2SC2712-YG
AMP
2SA1037AK
CONST.C
2SC2712-YG
H-SAW
2SC2712-YG
H LIN AMP1
2SA1037AK
H LIN AMP2
2SC2712-YG
H-SAW
2SC2712-YG
H-SAW 2SC2712-YG
H-SAW
#
#
#
#
#
2SC2712-YG
BUFF
2SC2712-YG
DF.PRE DRIVE
2SA1037AK
BUTT
2SC2712-YG
H PUL 2
#
4.7k
:RN-CP
4.7k
:RN-CP
10k
:RN-CP
22k
:RN-CP
1k
:RN-CP
15k
:RN-CP
3.9k
:RN-CP 39k
3W
:RS
1k
:RN-CP
4.7k
:RN-CP
120k
:RN-CP 220k
:RN-CP
18k
:RN-CP
4.7k
:RN-CP
100k
:RN-CP
10k
:RN-CP
5.6k
:RN-CP
47k:RN-CP
56k
:RN-CP
10k
:RN-CP
47k
:RN-CP
#
33k
:RN-CP
1k
:CHIP
#
#
10k
:RN-CP
27k
:RN-CP
0
:CHIP
#
3.3k
:RN-CP
10k
:RN-CP
#
180k
:RN-CP
1k
:RN-CP
56k
:RN-CP
56k
:RN-CP
220
:CHIP
#
#
#
#
#
#
#
#
#
#
#
#
#
#
#
#
#
##
#
#
#
#
#
#
#
#
#
#
#
#
#
#
#
#
##
#
12k
:RN-CP
#
12k
:RN-CP
15k
:RN-CP
100k
:RN-CP
100k
:RN-CP
10k
:RN-CP
12k
:RN-CP
10k
:RN-CP
4.7k
:RN
10P
:S-MICRO
12k
:RN-CP
10k
:RN-CP
0
:CHIP
47k
:RN-CP
47k
:RN-CP
0.047
25V
B:CHIP
#
#
#
8P
WHITE
:S-MICRO
4.7
0.047
25V
:CHIP
2SA1037AK
2.2k
:CHIP
150k
:CHIP
220k
:CHIP
D1NS4
DC CLAP
DINL20U-TR
DQP-SW
1SS119-25
RD2.7ESB2
DC SHIFT
1SS119-25
TEMP.CORR
ERA85-009
DQP-H CLAP2
1SS119-25
H SAW-TEP
RD5.6ESB1
-5V-REF
RD5.6ESB1
CXA1211M
QP-CONT
LPF
TA7805S
5V-REG
#
#
#
#
1SS119-25
H-L MUTE
DINS4
PUMP-UP
:4M
8.2k
:CHIP
4.3k
:RN-CP
10k
:RN-CP
6.8k
:RN-CP
5.6k
:RN-CP
56k
:RN-CP
39k
:RN-CP
0.22
25V
B:CHIP
D1NS4
DC CLAP
LA6500-FA
DQP-AMP
IRF720-LF49
2PD601A-Q-TX
ABL INV
56k
:CHIP
0.47
:PT
0.068
:PT
3.6k
0
0
0
0
47mF
16V
5.6k
:CHIP 5.6k
:CHIP
10 2.2
10
100p
CH:CHIP
0.015
630V
:PP
4.7
:FPRD
0.47
:FPRD
10
:CI
120
:RN-CP
.BLK0473
9V
GND
QP(-)
135V
ROT-
ROT+
CY+
NC
CY-
135V
135V
N.C.
N.C.
SCL
SDA2
GND
HP1
AFC PULSE
10.5V
10.5V
EX PARA
-15V
GND
GND
GND
GND
GND
V SAW+
15V PULSE
V SAW-
GND
GND
9V
H-SAW
N/S
VFB2
+
-
+
--
+
+
-
-
+
GND
6.5V
6.5V
12V
5V
DF SW
N.C.
-15V
HP2
HP1
GND
N.C.
H LIN
VM
H CENT
HP2
M PIN
ABL1
PROT
PROT
REF
FOCUS
CP CNTL
5V
PROT
PROT 1
PROT 1
ABL1
N.C.
QP(+)
N.C.
N.C.
N.C.
GND
GND
V COMP-
V COMP+
DF DRIVE
TO D BOARD
CN6802
TO DY
TO E BOARD
CN4800
TO RT COILTO VM BOARD
+
--
+
+
-
3
4
1
2
5
6
7
8
V-SAW
V-SAW
9V
9V
9V
9V
9V
9V
9V
9V
9V
9V
9V
9V
9V
9V
9V
9V
9V
9V
9V
9V
9V
9V
9V 9V
9V
9V
9V
5V
5V5V
5V
5V 5V
5V
5V
5V
5V
5V
5V
5V
5V
-15V
-15V
-15V
-15V
-15V
-15V
-15V
-15V
135V
135V
135V
10.5V
10.5V
10.5V
10.5V
10.5V
6.5V
6.5V
6.5V
6.5V
(DF,DQP)
0
2.1
2.6
5.0
0
3.4
1.6
0
4.9
4.4
4.3
8.8
1.7
4.3
0
1.6
4.1
4.2
0
12.0
5.8
12.4
1.7
0.4
0
0
4.6 4.2 5.1
4.4
3.8
0.3
8.8
0
1.7
1.1
8.8
1.3
1.4
8.8 1.4
3.2
8.8
3.4
0
4.5 0.4
0
2.8
0
3.4
0
0
0.7
3.1
1.9
3.4
1.7
1.7
8.8
02.1
2.2
2.2
2.1
12.4
0
5.0
1.9
2.1
-15.8
1.4
6.9
4.4
0
8.8
1.3
1.3
0.2
6.6
4.2
0.3
1.8
0
DGND
SCL
SDL
DVCC
HD
REFV
HSAW
HAGC
AVCC
VSIN
VSAW
REF
HDY
VDY
HSTAT
VSTAT
VOUT
CON
CON
V
CIAMP
H
CIAMP
0
0
0
0
0
0
0
0
0
0
0
0
0
0
11.9
5.0
3.2
2.0 0
0
11.9
0
15.8
0
0
0
0
0
0
0
1.2
0.1
00
8.9
M-PIN
DF SW
DF PH
H-LIN
QP DV
H-TRP
QP PH
QP AC
CP CTR
H-CENT
QP DC
QP AV
GND
VSS1
VDD1
SDA
SCL
MOD
CS2
CS1
CS0
VDD2
VSS2
VCC 5.0
0
5.0
5.0
5.0
0
0
0
0
5.0
2.7
4.9
0.3
4.7
3.6
1.9
1.8
2.9
1.2
0.5
1.6
2.3
4.5
4.1
0
5.0
3.4
2.9
3.8
4.4
0
3.1
-3.3
4.4
08.8 0
4.4
4.4
0
3.9
+
-3.4
-3.4
-3.2
-3.3
-15.9
0
-3.3
-3.2
-3.3
11.9
0
0.5
5.2
B-SSS10288-ME-D1.-ES34

– 111 – – 112 –
KV-ES34M81/ES34M91
RM-916 KV-ES34M81/ES34M91
RM-916
PRINTED WIRING BOARD
– D1 Board –
D1 [DF, DQP DRIVE]
1
80Vp-p (H)
3
5
7
2
4
6
8
294Vp-p
74Vp-p
8.8Vp-p
280Vp-p
0.5Vp-p
6.6Vp-p
8.5Vp-p
D1 BOARD WAVEFORMS

– 113 – – 114 –
KV-ES34M81/ES34M91
RM-916 KV-ES34M81/ES34M91
RM-916
PRINTED WIRING BOARDS
– C Board –
C[CRT DRIVE] VM [VM DRIVE] F1 [AC LINE FILTER]
– VM Board –
– F1 Board –

– 116 – – 117 –
– 115 – – 118 –
A
123456789101112
13 14 15 16 17 18 19 20 21 22 23 24 25 26 27 28 29 30
B
C
D
E
F
G
H
I
J
K
1
118Vp-p (H)
PAL SECAM/NTSC
5
4.5Vp-p (H)
1
118Vp-p (H)
6
4.4Vp-p (H)
2
117Vp-p (H)
7
4.4Vp-p (H)
3
123Vp-p (H)
4
23.2Vp-p (H)
C BOARD WAVEFORMS
(4) Schematic Diagrams of C, F1 and VM Boards
1 2 3 4 5 6 7 8 9
1 2 3 4 5 6 7 8 9
1 2 3 4 5 6 7 8 9
1
2
3
4
1
1
1
1
3 5
6
7
8
9
10
11
12
13
G2
G1-1
H1
H2
G1-2
KB
KG
KR
G1-3
G4
CV
1
1
2
3
4
5
6
7
8
9
1
2
3
R9057
R9061
R9069
R9051
R9052
R9047
R9059
NL9001
R9035
R9038
R9039
R9040
R9045
R9046
R9031
R9007
R9026
R9037
R9086
Q9003 Q9004
Q9005
R9089
R9091
R9014
R9016
C9046
C9013
RV9003
R9056
CN9007
R9073
R9048 R9049
CN9001
CN9005
R9088
R9033
R9001
C9015
R9019
C9010
R9018 C9009
C9023 C9027
C9031 C9032
C9016
C9030
R9044
C9020
C9002
C9024
R9042
R9041
C9029
C9026
R9043
D9007
L9003
R9053
C9011
C9022
C9018
D9006
C9028R9036
C9012
R9050
L9002
NL9003
C9004
C9033
R9030
L9005
NL9002
L9001
L9006
CN9003
CN9006
D9008
L9004
R9054
IC9003
C9014
C9025
C9021
IC9002
IC9001
C9019
CN9004
R9012
R9008
R9065
R9006
R9068
R9013
D9002
C9042
R9072
D9009
R9087
R9015
R9070
R9071
C9003
C9034
R9055
R9058
R9020
R9021
R9022
R9034
L9007
CN9002
C9005
Q9001
Q9009
Q9010
Q9011
D9005
D9010
J9001
C9008
R9023
C9007
C9031
RV9002
C9006
RV9001
220
1/2W
:RC
220
1/2W
:RC
220
1/2W
:RC
560k
1/2W
:RC 1k
1/2W
:RC
100
1/2W
:RC
100
1/2W
:RC
2.2k
:RN-CP
2.2k
:RN-CP
2.2k
:RN-CP
JW(5)
JW(5)
JW(5)
2k
:RN-CP
2k
:RN-CP
2k
:RN-CP
#
:CHIP
:L
100k
3W
##
#
#
:CHIP
#
:CHIP
#
:CHIP
#
:CHIP
#
#
:CHIP
#
#
:CHIP
12k
:RN-CP
2.7k
:CHIP 4p
CH:CHIP
2.7k
:CHIP
4p
CH:CHIP
2.7k
:CHIP
4p
CH:CHIP
0.01
F
0.01
F
680p
2kV
B
#
0.0047
B:CHIP
100k 3W :RS
10
250V
:HT
4p
CH:CHIP
0.047
F:CHIP
1k
:CHIP
1k
:CHIP
0.0047
B:CHIP
0.047
F:CHIP
100k
3W
:RS
HSS83TD
PROTECT
:EL0606
3.9k
0.01
F10
250V
:HT
HSS83TD
PROTECT
0.0047 B:CHIP
1k :CHIP
3.9k
:EL0606
#
0.0047
2kV
22
250V
#
:LHL10
#
:LHL08
:LHL08
1P
:TAB
#
:TAB
HSS83TD
PROTECT
:EL0606
3.9k
TDA6111Q/N4
BLUE-VIDEO-OUT
220
16V
:HT
10
250V
:HT
TDA6111Q/N4
GREEN-VIDEO-OUT
TDA6111Q/N4
RED-VIDEO-OUT
0.047
F:CHIP
1P
:TAB
1k
:CHIP
33k
:CHIP
6.8k
:CHIP
10k
:CHIP
150k
:CHIP
1k
:CHIP
MA3091
PROTECT
330
25V
330
:CHIP
GP08D
#
:CHIP
#
:CHIP
0.047250VE
0.047
250V
E
0.047250VE
4700
2kV
B
9P
BLK
:S-MICRO
3P
WHT
:S-MICRO
2.2k
:CHIP
2.2k
:CHIP
22k
1/2W
:RC
330
:CHIP
330
:CHIP
2.2k
:CHIP
4p
CH:CHIP
1P
#
820k
1/2W
:RC
820k
1/2W
:RC
#
:CHIP
#
:CHIP
0
:CHIP
5.6k
:RN-CP
#
3P
WHT
:S-MICRO
4pF
CH:CHIP
2SA1037AK-T146-R
BUFFER
2SA1037AK-T146-R
R DRIVE
2SA1037AK-T146-R
G DRIVE
2SA1037AK-T146-R
B DRIVE
MA111-(K8).SO
RD10ESB2
SOCKET CRT
8p
CH:CHIP
0
8p
CH:CHIP
4700
2kV
B
2.2M
8pF
CH:CHIP
110M
+12V
VB
IK
GREEN.OUT
RED.OUT
BLUE.OUT
G4
H1
G2
200V
12V
VI
VB
E
IK
200V
VF
VO
VOF
VB
12V
VI
E
IK
200V
VF
VO
VOF
VB
12V
VI
E
IK
200V
VF
VO
VOF
H ST
E
E
E
E
R DRV
G DRV
B DRV
12V
E
E
E
E
TO E BOARD
CN4500
TO D BOARD CN6804
TO COATING EARTH
TO COATING
EARTH
GND
R
B
NC
0
0
0
0
0
0
0
0
0
(CRT DRIVE)
1
2
3
4
5
6
7
B
B
G
G
R
RR
G
B
12V
12V
12V
12V
12V
12V
12V
12V
12V
0
(2.9)
0
(3.6)
(3.4)
0
(4.0)
0
(3.2)
0(3.8)
0
(3.4)
0( 1 1.7)
0(3.3)
0
(8.8)
0.1 (200)
0.8 (14.7)
0.5 (15.6)
1.0 (14.7)
0(3.4)
0
(11.7)
0
(3.3)
0
(8.8)
0.1 (200)
1.2 (128)
0
(153.5)
0
(128)
0
(3.4)
0
(11.7)
12V
12V
0( 3 .3)
0.1 (200)
(8.9)
0
1.2 (138.6)
0.6 (152.4)
1.6 (138.6)
0(8.2)
(4.5)
0
282
152.0
153.6
157.0
PICTURE TUBE
B-SSS10288-ME-C..-ES34
A80LNH10X
1
2
1
2
1
23
4
1
23
4
CN1601
C1601
CN1602
C1603
VDR161
FB1601
FB1602
FB1603
FB1604
R1602
R1603
CN1603
CN1604
JW1603
JW1604 JW1607
JW1608
JW1605
JW1606
JW1601
JW1602
T1602
R1601
C1602
T1601
F1601
2P
:VH
0.47
250V
2P
:VH
4700p
250V
1.1UH
1.1UH
1.1UH
1.1UH
#
#
1P
:TAB
1P
:TAB
#
##
#
#
#
#
#
1M
1/2W
0.68
250V
:PT
T5A
250V
.BLK0018
AC IN
AC IN
AC OUT
AC OUT
GND
(AC LINE FILTER)
TO AC CORD
TO A BOARD
CN1116
TO F2 BOARD
CN1651
B-SSSAG3-...-F1.-ES34
1
2
3
4
5
6
7
8
9
10
11
1
2
3
4
5
6
7
8
C5409
C5405
C5401
C5410
C5411
R5407
R5410
R5411
R5408
R5418
R5419
R5420
R5406
R5412
R5417
R5414
R5413
D5405
D5406
Q5407
Q5406
R5409
C5403
C5406
R5426
C5404
CN5401
R5400
C5419
FB5400
FB5401
C5416
C5414
C5402
C5413
C5418
L5400
C5407
C5408
C5412 R5422
R5425
R5423
JW5402
JW5400
R5415
R5403
R5428
JW5406
JW5407
R5424
R5427
C5420
CN5402
C5400
C5417
C5415
R5402
R5416
R5421
D5400
D5401
D5402
D5403
D5404
Q5400
Q5401
Q5402
Q5403
Q5404
Q5405
R5404
R5401
R5405
100
16V
470
16V
33
47
47
100
560
2.2k
2.2k
4.7k
10k
18k
560
:FPRD
470
6.3V
470
6.3V
2.2
250V
0.001
:PT
0.001
:PT
MTZJ-T-77-22
LEV.SHIFT
MTZJ-T-77-22
LEV.SHIFT
2SA2005
VM-OUT
2SC5511
VM-OUT
220
18k
8P
:BTOB
#
#
#
#
#
#
100
:FPRD
47 33
160V
470
3W
:RS
0.47
:PT
0.01
200V
:PT
0.01
200V
:PT
470
16V
100
160V
#
5MM
:LHL08
100
1/2W
:FPRD
100
1/2W
:FPRD
#
15
15
#
5MM
#
11P
WHT
:S-MICRO
#
#
680
2.2
:FPRD
2.2
:FPRD
#
0.1
200V
:PT
#
1SS119-25
TEMP-CORR
D1NS4
1SS119-25
1SS119-25
1SS119-25
2SC2785-HFE
VM AMP
2SC2785-HFE
VM AMP
2SC2785-HFE
BUFFER
2SC2785-HFE
BUFFER
2SA1175-HFE
BUFFER
2SA1175-HFE
1.2k
4.7k
5MM
135V
QP(+)
QP(-)
GND
QP-
QP+
QP+
GND
GND
VM
VM
TO D1 BOARD
TO NECK ASSY
CN6104
GND
9V
VM
N.C.
N.C.
N.C.
N.C.
9V/12V
2.0
5.0
1.4
5.0
0
5.5
5.5
0
5.7
1.9
8.0
1.2
5.9
8.9
5.7
5.5
8.8
5.8
1.3 0.7
0.9
57
133.9
134.4
(VM DRIVE)
(Pin 1-7)
(Pin 8-11)
TO E BOARD
CN4502
135V
B-SSSAG3-...-VM.-ES34

– 120 – – 121 –
– 119 – – 122 –
A
123456789101112
13 14 15 16 17 18 19 20 21 22 23 24 25 26 27 28 29 30
B
C
D
E
F
G
H
I
J
K
L
M
N
O
(5) Schematic Diagram of E Board
Schematic diagrams
?C F1 VM boards
Schematic diagram
E board /
1 2 3 4 5 6 7 8 9
10 11 12 13 14 15 16 17 18 19
20
21
22
23
24
25
26
27
28
29
30
31
32
33343536373839404142434445464748495051
52
53
54
55
56
57
58
59
60
61
62
63
64
1
2
3
1
2
3
4
5678
1
2
3
4
5678
1
2
3
4
5678
1
2
3
4
5
6
7
8
9
1234
5 6 7 8
1
2
3
4
5
6
7
8
9
10
1
2
3
4
5
6
7
8
9
10
11
12
13
14
15
16
17
18
19
20
21
22
23
24
25
26
27
28
29
30
31
32
33
34
35
36
37
38
39
40
R4344
C4345
R4347
C4340
C4342
R4359
R4361
C4356
C4357
C4358
C4353
R4367
R4366
R4365
R4372
R4377
R4375
C4365C4363
C4364
C4369
C4333
C4334
C4331
C4317
C4354
C4355
R4363
C4359
C4318
C4319
C4320
C4329
R4350
X4300
C4324
C4316
R4343
C4350
R4384
R4335
R4336
R4337
R4348
C4336
C4338
D4301
C4352
R4314
D4313
R4313
C4343
C4328
C4326
C4327
C4321
C4322
C4361
D4302
L4307
Q4305
Q4306
R4340
R4342
R4362
R4364
R4368
C4351
C4360
Q4317
R4301
R4401
R4518
D4309
D4308
C4325
R4307
R4521
C4344
R4358
C4347
CN4500
CN4502
L4309
L4301
L4302
L4303
L4304
L4305
L4306
L4308
C4310
C4311
C4312
C4313
C4314
C4315
R4801
R4802
R4803
R4807
R4809
R4812
R4813
R4816
R4819
R4820
R4821
R4822
R4823
R4824
R4825
R4841
R4843
R4847
R4848
R4850
R4853
R4856
R4861
R4863
R4866
R4867
R4868
R4873
R4876
R4879
C4800
C4803 C4804
C4805
C4806
C4811
C4812
C4813
C4814
C4817
C4819
C4820
C4821 C4822
C4823
C4826
C4370
D4806
C4809
C4802
C4381
C4827
C4828
C4829
C4831
R4808
R4888
R4829
R4828
R4826
R4800
IC4801
IC4800
D4800
D4801
D4809
D4807
D4808
R4893
R4894 R4895
R4302
R4303
R4304
R4305
R4306
R4520
R4370
R4316
C4309
R4405
R4407
C4379
R4507
R4383
R4339 R4353
Q4319
R4338
C4339
R4349
R4881
C4346
C4348
C4349
C4330
IC4802
R4317
R4330
R4328
C4308
R4872 R4885
R4896
C4832
L4312
CN4101
C4341
R4352
R4345
R4360
R4334 R4355 R4356
R4331
R4332
R4333
R4504
R4505
R4506
L4311
R4380
R4382
C4378
R4875
D4813
D4814
C4825
R4877
R4402 C4380
R4403
R4404
R4406
Q4318
R4329
R4834
R4835
R4324
R4354
R4346
R4323
R4811
R4869
R4325
R4327
R4832
R4833
R4836
R4837
R4842
R4884
R4326
R4838
Q4818
Q4307
Q4308
Q4310
R4351
C4377
Q4802
Q4803
Q4804
Q4805
Q4806
Q4807
Q4810
Q4811
Q4808
Q4809
Q4812
Q4813
Q4814
Q4815
R4321
R4318
R4319
R4320
CN4800
IC4301
R4369 R4374
R4376
C4371
R4845C4830
R4898
Q4816
Q4817
R4870
C4366
C4807
C4810
C4833
D4303
D4304
D4311
D4312
D4803
D4804
D4811
D4816
IC4803
Q4301
Q4302
Q4304
Q4315
Q4820
Q4821 Q4822
R4309
R4311
R4315
R4322
R4371
R4810
R4839
R4880
R4892
Q4321
Q4322
Q4320
D4305
R4890
C4815
C4816
C4818
D4802
D4805
D4812
D4815
Q4316
Q4800
Q4801
R4804
R4857
R4858
R4862
R4878
R4519
R4408
R4409
R4410
R4411
R4412
C4801
C4808
R4818
R4840
R4849
R4852
R4851
R4854
R4398
R4395
R4396
R4397
C4332
R4341
C4301
R4381
R4373 R4387 FB4387
R4388 FB4388
R4389 FB4389
R4308 R4310
JR4301 R4312
C4362
R4855
R4874
R4846
R4805
R4806
R4844
R4887
R4886
R4814
R4815
R4883
C4518
C4834
R4899
R4897
L4310
C4335 C4337
R4859
R4860
R4864
Q4303
R4357
R4827
C4824
R4817
R4871
R4882
R4831
R4865
C4367
0.1
25V
B:CHIP
0.47
0.1
25V
B:CHIP
47
47
0.01B:CHIP
47
0.47 16V B:CHIP
0.1 25V B:CHIP
0.1 25V B:CHIP
0.1 25V B:CHIP
47
47
#
0.1
25V
B:CHIP
100
:CHIP
100:CHIP
470:CHIP
3.3M :CHIP
100 :CHIP
100 :CHIP
100 :CHIP
1k
:CHIP
1k
:CHIP
1k
:CHIP
0.47 16V B:CHIP
0.1 25V B:CHIP
100
:CHIP
0.0022
B:CHIP
0.1 25V B:CHIP
0.1 25V B:CHIP
0.1 25V B:CHIP
4.7
100
:CHIP
503.5KHz
0.1
25V
B:CHIP
47
25V
100
:CHIP
0.1 25V B:CHIP
100 :CHIP
100 :CHIP
100 :CHIP
100 :CHIP
100
:CHIP
47
0.1
25V
B:CHIP
#
47
2.2k
:CHIP
MA3062M-TX
4.7k
:CHIP
0.1 25VB:CHIP
0.1 25V B:CHIP
0.1 25V B:CHIP
#
#
#
#
#
#
#
#
#
0.001
B:CHIP
4.7
DTC114EKA
100 :CHIP
#
#
10p
:CHIP
100
:CHIP
0.1 25V B:CHIP
9P
BLK
:S-MICRO
0.1 25VB:CHIP
0.1 25VB:CHIP
0.1 25VB:CHIP
3P
WHT
:S-MICRO
8.2k:CHIP
220k:CHIP
100
:CHIP
100 :CHIP
0.047
25V
B:CHIP
:CHIP
:CHIP
:CHIP
:CHIP
:CHIP
:CHIP
:CHIP
:CHIP
#
:CHIP
#
:CHIP
#
:CHIP
#
:CHIP
#
:CHIP
#
:CHIP
1k
:CHIP
10k
:CHIP
1k
:CHIP
1k
:CHIP
10k
:CHIP
0
:CHIP
47k
:CHIP
10k
:CHIP
2.2k:CHIP
10k
:CHIP
10k
:CHIP
2.2k
:CHIP
2.2k
:CHIP 10k
:CHIP
10k
:CHIP
2.2k
:CHIP
2.2k
:CHIP
10k
:CHIP
10k
:CHIP
100k
:CHIP
1.5k
:CHIP
2.2k
:CHIP
2.2k:CHIP
#
:CHIP
47k
:CHIP
#
:CHIP
#
#
220k
:CHIP
0.1
:MPS
0.01
B:CHIP
47
10
470p
CH:CHIP
0.01
B:CHIP
47
0.01
B:CHIP
47
47
#
47
47
16V
47
16V
0.0047
B:CHIP
47
#
#
:CHIP
#
:CHIP
#
:CHIP # :CHIP
#
:CHIP
#
:CHIP
2.2k
:CHIP
0.001
CH:CHIP
0.001
CH:CHIP
2.2k
:CHIP 2.2k
:CHIP
LM393N
FF CONP1
LM393N
FF CONP2
DAN202K
DISV-SHARGE
DAN202K
PROTECT
DAN202K
E/W ABL1
DAN202K
BIAS
DAN202K
PROTECT
2.2k
:CHIP
#
:CHIP
10k
:CHIP
10k
:CHIP
100 :CHIP
100 :CHIP
100 :CHIP
100 :CHIP
100 :CHIP
100
:CHIP
#
:CHIP
#
:CHIP
#
CH:CHIP
#
:CHIP
0.22
16V
B:CHIP
6.8k
:CHIP
18k
:CHIP
22p
CH:CHIP
2SA1037K
470
:CHIP
1.2k
:CHIP
470
:CHIP
1.2k
:CHIP
116VF:CHIP
116VF:CHIP
116VF:CHIP
0
:CHIP
1k
:CHIP
#
:CHIP
0.1
:PP
NJM3404AD
PLL AMP
22k
:CHIP
47k
:CHIP
1
#
:CHIP
#
#
#
:CHIP
#
:CHIP
#
:CHIP
2.2k
:CHIP
#
:CHIP
#
:CHIP
2.2k:CHIP
10p
CH:CHIP
40P
:BTOB
12k
:CHIP
470
:CHIP
#
:CHIP
# :CHIP
# :CHIP
:CHIP
100
:CHIP
100
:CHIP
100
:CHIP
1k
:CHIP
1k
:CHIP
1k
:CHIP
2.2k
:CHIP
DAN202K
CN PROT
DAN202K
CN PROT
#
:CHIP
#
B:CHIP
#
:CHIP
#
:CHIP
#
:CHIP
#
AFC CORE
100p
CH:CHIP
0.047
25V
B:CHIP
10k
:CHIP
10k
:CHIP
2.2k
:CHIP
#
2SA1037
2SA1037
2SA1037
2SA1037
PIN BUFF1
22k
:RN-CP
4.7k
:RN-CP
33k
:RN-CP
68k
:RN-CP
47k
:RN-CP
1k
:RN-CP
18k
:RN-CP
22k:CHIP
10k
:RN-CP
22k
:RN-CP
47k
:RN-CP
47k
:RN-CP
2.2k
:RN-CP
2.2k
:RN-CP
47k
:RN-CP
47k
:RN-CP
100k
:RN-CP
47k
:RN-CP
22k
:RN-CP
47k
:RN-CP
2SA1037
E/W BUFF
2SC2712
INVER H DRIVE
2SC2712
H SIZE SAFT
2SC2712
FF2
2SC2712
FF1
2SC2712
FF2
2SC2712
FF1
2SA1037
H PRE DRIVE1
2SA1037
H PRE DRIVE2
2SC2712
H PULS
2SC2712 H.PULS 2SA1037
GATE2
2SA1037
BIAS
2SA1037 GATE1
8.2k
:RN-CP
8.2k
:RN-CP
2.2k
:RN-CP 2.2
:CHIP
10P
WHT
CONNECTOR ASSY
CXA2100AQ
Y/C/J
100
:CHIP
100
:CHIP
100
:CHIP
0.1 25V B:CHIP
100k :RN-CP# :CHIP
:CHIP
2SA1037 H.CONP
2SC2712 PIN BUFF2
#:CHIP
0.01mF
B:CHIP
#
#
10mF
RD3.9ESB2
CLIP
DTZ9.1
CLAP
DAN202K
DAN202K
1SS119-25 CPC1
1SS119-25 CPC2
RD2.2ESB2
E/W ABL2
1SS119-25
CPC-AMP
2SC2712-YG
ABL CONT 1
2SA1037AK
ABL CONT 2
2SC2712-YG
DTC144EKA-T146
PROT SW
2SC2712-YG
DTC144EKA-T146 2SC2712-YG
#
#
#
#
#
22k
8.2k
#
0
2SA1037AK
BUFFER
2SA1037AK
BUFFER
2SA1037AK
BUFFER
DTZ9.1
PROTECTOR
#
22pF
10pF
:CHIP
10mF
#
DAN202K
1SS119-25
E/W ABL3
RD2.2ESB2
2SC2712-YG
2SC2712-YG
H DRIVE1
2SC2712-YG
H DRIVE2
4.7k
:CHIP
#
12k
15k
180k
10k
:CHIP
100
:CHIP
10k
:CHIP
2.2k
:CHIP
10k
:CHIP
100k
:CHIP
0.047mF
:PT
0.1
:PT
2.2k
:CHIP
0
82k
:CHIP
22k
:CHIP
1.5k
:CHIP
3.3k
:CHIP
#
0
0
0
0.047
:PT
0
0.1mF
25V
:CHIP 1.5
:CHIP
0
00
00
00
00
00
0.01
25V
B:CHIP
15k
:CHIP
0
220
1/10W
:CHIP
2.7k
:RN-CP
2.7k
:RN-CP
5.6k
:CHIP
22k 1/10W :CHIP
47k
1/10W
:CHIP
100k
:CHIP
100k :CHIP
330k
1/10W
:CHIP
#
100mF
16V
#
:CHIP
#
:CHIP
#
:CHIP ##
820
1/10W
:RN-CP
4.7k
:RN-CP
2.2k
:RN-CP
2SC2412K
AGC CONT
10k
:CHIP
#
0.047
25V
B:CHIP
#
82k
:RN-CP
120k
:RN-CP
3.3k
:RN-CP
1.0k
:RN-CP
25V
B:CHIP
R,G,B,BLK
+12V
BLK
G
R
R
G
B
BLK
B
RT
GT
BT
BLKT
BLKT
BT
GT
RT
R100
B100
B100
R100
GND
GND
GND
R 0UT
G OUT
B OUT
IK
TO A BOARD
CN1401
+12V
GND
VPROT
XRAY
GND
GND
GND
9V
GND
Y100
GND
U100
DPIC SW
V100
+12V
H DEFL
V DEFL
EXTRA PARABO LA
D FOCUS
GND
RED
GREEN
BLK
BLUE
GND
SDA2
SCL2
HD1
HD2
HP2
TEXT RED
TEXT GREEN
TEXT BLUE
TEXT BLK
GND
GND
HP1
-15V
CPCP
REF
VM
GND
5V
PROT 1
FPD
ABL-CTR
PROR 1
ABL 1
9V/12V
TO D1 BOARD
CN6101
AFC PULSE
V SAW +
V SAW -
TO VM BOARD
CN5402
TO C BOARD
CN9001
SCP
R100
B100
R(TEXT)
G(TEXT)
B(TEXT)
R(OSD)
B(OSD)
G(OSD)
R
G
B
R
G
B
11
12
8
7
9
10
Y100
U100
V100
R/G/B(OSD)
R/G/B (TELETEXT)
HS
VS
+12V
+12V +12V
+12V
+12V +12V
9V
9V
9V
9V
9V
9V
9V
9V
9V
5V
-15V
-15V
-15V
-15V
+12V
(RGB OUT,DEFLECTION)
4.4
0
1.7
0
-0
-1.7
0.2
0
4.5
4.5 3.2
0.3
8.9
4.5
0.2
4.4
0
4.6 3.2
0.3
8.9
4.6
3.2
2.2
-0
8.9
0
4.7
0.3
-0
-0
-0
0.2
-0
0
4.4
1.7
1.7 0
4.3
4.3
4.9
3.1
4.2
0.2
0
3.2
0
-0
-0
2.0
-0
3.2
2.0
7.70.0 0.4
0.8
8.9
0.7
6.6
0
-0.1
8.9
-0.1
8.9
0.3
0
0
0
0
-0
1.4
-0
1.2
0.5 0.6
1.6
0.6
0
-0
0.6
2.5
0
2.2
0
1.5
0
0
0
0
-0
2.3
3.0 -0
2.8
3.4 -0
3.2
2.6
0
0
0
0
2.7
4.9
8.9
6.3
1.9
6.9
6.9
6.2
XRAY
RGB_AFC
ABL_IN
ABL_FIL
PABL_FIL
IKIN
B_OUT
B_SH
G_OUT
G_SH
R_OUT
R_SH
VCC
VCC
CLP_C
IREF_SIG
BPH
NC
Y1IN
FS
Y2IN
HS_IN
VS_IN
SDA
SCL
EXTRA_PARA
DF_PARA
B2_IN
G2_IN
R2_IN
VCC
YSYM1
B1_IN
G1IN
R1_IN
GND
DPIC_DCTR
VM/SHC_OFF
VM_OUT
VM_MOD
EW
GND
V_OSC
V_AGC
VDP
VDN
REG
GND
VTIM/TEST
IREF_J
VCC(H.V)
SCP
AFC_FIL
500K
V_PROT1
HD
HP_IN
L2_FIL
YS/YM2
NC
CR2IN
CB2IN
CB1IN
CR1IN
3.4
3.4
7.6
1.7
8.9
5.0
2.5
0
2.6
0
6.0
8.9
4.7
4.7
8.9
0
6.3
8.9
8.9
3.9
5.8
5.8
5.8
5.8
0.3
0
3.5
12
3
7
4
5
6
6.1
-0
5.8
4.5
4.1
4.2
3.7
-0
-0
4.7
-0
-0
0.4
-0
-0
4.1
1.5
5.3
-0
5.1
2.6
3.7
2.8
4.1
2.4
3.3
-0
2.4
5.2
-0
-0
-0
4.8
4.8
4.8
-0
4.6
B-SSS10288-ME.-E..-ES34

– 123 – – 124 – – 125 –
KV-ES34M81/ES34M91
RM-916 KV-ES34M81/ES34M91
RM-916 KV-ES34M81/ES34M91
RM-916
A
12345
B
C
D
E
A
12345
B
C
D
E
PRINTED WIRING BOARDS
E[RGB OUT, DEFLECTION]
1
1.5Vp-p (V)
6
2.4Vp-p (H)
11
2.7Vp-p (V)
2
1.4Vp-p (V)
7
7.3Vp-p (V)
12
2.1Vp-p (V)
3
5.0Vp-p (V)
8
64.0Vp-p (V)
13
0.1Vp-p (H)
4
2.4Vp-p
9
1.7Vp-p (V)
5
2.4Vp-p
10
1.2Vp-p (V)
14
0.7Vp-p (H)
15
0.6Vp-p (H)
E BOARD WAVEFORMS
46 45
49 11
44 48 43 50 41 40 39
54
53
52
57
58
56
55
38 36 35 34 33
24
30
28
26
31
29
27
25
VM
YYY
SHP
LTI
• VM-LEVEL
• SHARPNESS
• PRE/OVER
• LTI-LEVEL
• SHP-F0
• DPIC-LEVEL
• AGING W
• AGING B
• R-DRIVE
• G-DRIVE
• B-DRIVE
• ABL-MODE
• ABL-TH
• P-ABL
• LRGB2-LEV
• R-CUTOFF
• G-CUTOFF
• B-CUTOFF
• BLK-BOTTOM
• PIC-ON
• R-ON
• G-ON
• B-ON
• PICTURE
• SUB-CON
• BRIGHT
• SUB-BRIGHT
• GAMMA
• D-COL
• DCOL-TEMP
• LIMIT-LEV
CLP
CLP
SCP
SW
CTI
CLP PULSE
BLK PULSE
I
2
C BUS
DECORDER
CLP DPIC
Cb/Cr
R-Y
G-Y
R
G
B
B-Y
SW COL
HUE AXIS
ABL
IREF REG
7
AGC
VOSC
IREF-SIG
IREF-J
REF
3
V-OSC
4
V-AGC
Y1-IN
Cb1-IN
Cr1-IN
FS
Y2-IN
Cb2-IN
Cr2-IN
SCP-OUT
AFC-FIL
500K
HS-IN
SDA
SCL
VTIM-OUT
VS-IN
PABL-FIL
R-OUT
G-OUT
B-OUT
R-SH
G-SH
B-SH
IK-IN
22 ABL-IN
23 ABL-FIL
21 PGB-AFC-OUT
19 L2-FIL
18 HP-IN
14
20 XRAY-IN
17 HD-OUT
13 16 VPROT
5VDP-OUT
6
10 VDN-OUT
1EW-OUT
64 DF-PARA
63 EXTRA-PARA
SW
AFC
YS
YM
MAT
YCbCr
YCbCr
VM-MOD
VM-OUT
VMC-OFF
CLP-C
DPIC-DCTR
BPH
R1-IN
G1-IN
B1-IN
YSYM1
R2-IN
G2-IN
B2-IN
YSYM2
YS
YM
PIC
BRT
GAM
DCOL
LIMT DRV AKB
BLK
PABL
0~-9dB
60
15
59
61
62
COUNT
16/HVCO
1/16 DIV
PULSE
GEN
• LEFT-BLK
• RIGHT-BLK
• H-LOCK
• V-FREERUN
• AKB-TIM1
• AKB-TIM2
• VBLKW
• CTI-LEVEL
• DL-PASS • DC-TRAN
• COLOR
• HUE
• CB-OFFSET1
• CR-OFFSET1
• CB-OFFSET2
• CR-OFFSET2
LOOP2 HD
V-FUNC
EW-FUNC
DF-FUNC
EXTRA
• H-POSITION
• AFC-BOW
• AFC-ANGLE
W-FUNC
• V-SCROLL
• V-ASPECT
• M-PIN
• LO-CORNERPIN
• TRAPEZIUM • EW-DC
• H-COMP
• V-SIZE
• V-POSITION
• S-CORRECTION
• V-LINEARITY
• V-COMP
• V-ON
• H-SIZE
• PIN-AMP
• UP-CORNERPIN
• UP-VLIN
• LO-VLIN
• U-SCAN
• ZOOM-SW
• COLOR-AXIS
• NTSC-JPN
• NTSC-US
• PAL
• OTH
E Board IC4301 CXA2100AQ
– E Board (Component Side) – – E Board (Conductor Side) –
Schematic diagrams
H1 H2 H3 boards /
E BOARD (Conductor Side)
IC
IC4800 B-2
IC4801 C-2
IC4802 B-1
IC4803 C-2
TRANSISTOR
Q4301 A-3
Q4302 B-3
Q4315 C-3
Q4316 B-4
Q4317 B-4
Q4318 D-3
Q4801 B-2
Q4802 B-2
E BOARD (Component Side)
IC
IC4301 C-2
IC4800 A-4
IC4801 C-4
IC4802 B-5
IC4803 D-4
TRANSISTOR
Q4303 D-4
Q4304 C-1
Q4305 A-2
Q4307 B-2
Q4308 B-2
Q4310 B-2
Q4319 C-1
Q4320 D-1
Q4321 D-1
Q4322 D-2
Q4800 B-4
Q4804 B-5
Q4805 B-4
Q4806 B-2
Q4807 C-5
Q4808 B-4
Q4810 B-5
Q4811 B-5
Q4813 A-4
Q4815 B-5
Q4816 A-3
Q4817 A-5
Q4818 A-5
DIODE
D4302 A-2
D4303 B-3
D4304 B-3
D4305 B-12
D4308 D-3
D4309 D-3
D4802 B-5
D4805 B-4
D4806 C-5
D4811 A-3
D4812 A-4
D4815 A-4
Q4806 B-12
Q4809 B-1
Q4812 A-1
Q4814 A-1
DIODE
D4301 C-3
D4303 B-3
D4311 B-5
D4312 B-5
D4313 A-4
D4800 B-1
D4801 C-1
D4802 B-1
D4803 C-1
D4804 C-1
D4806 A-1
D4807 A-2
D4808 B-1
D4809 A-3
D4811 A-3
D4812 A-2
D4813 B-4
D4814 B-3
D4815 A-2
D4819 C-3
• :Pattern from the side which enables seeing.
• :Pattern from the rear side.

– 126 – – 127 – – 128 –
A
123456789101112
13 14 15 16 17 18 19 20 21 22
B
C
D
E
F
G
H
I
J
(6) Schematic Diagrams of H1, H2 and H3 Boards
12
34
1
2
3
4
5
6
V
L
R
1
2
3
4
5
6
7
8
9
10
11
12
C1935 C1938
D1932
D1933
D1938
D1939
D1940
D1941
D1942
J1931
L1931
L1932
R1949
R1952
R1953
S1931
R1948
JW1933
JW1934
D1943
CN1934
CN1932
R1933
R1934
R1935
R1936
J1932
D1934
D1937
R1947R1932
R1954
R1950
R1951
D1931
D1930
D1935
C1930
C1932
J1933
470p 470p
#
PROTECTOR
#
PROTECTOR
#
PROTECTOR
#
PROTECTOR
#
PROTECTOR
#
PROTECTOR
#
PROTECTOR
:EL0606
:EL0606
JW(5)
2.2k
JW(5)
AUTO PRESET
JW(5)
#
#
#
PROTECTOR
12P
RED
:S-MICRO
6P
WHT
:S-MICRO
470k
100
100
470k
#
#
##
#
JW(5)
JW(5)
#
RD9.1ES-L2
PROTECTOR
RD9.1ES-L2
PROTECTOR
0.01
:PT
0.01
:PT
3P
HP GND
HP L IN
HP R IN
R IN
GND
L IN
GND
Y IN
GND
CV IN
S IN
C IN
GND
GND
KEY 2
AU GND
HP MUTE
PULL UP
TO A BOARD
CN1193
TO A BOARD
CN1195
&
TO J BOARD
CN8301
(AV INPUT,PRESET KEY,PHONE OUT)
AUDIO RIGHT
AUDIO LEFT
R
L
B-SSSAG3-...-H2.-ES34
1
2
3
4
5
1
2
3
CN1901
R1913
R1917
C1912
C1910
C1911
R1916
R1915
R1921
R1914
R1920
R1911
D1906 IC1901
Q1901 Q1902
47
16V
47
16V
470p
5P
WHT
:S-MICRO
330 10k 330 10k
47
100
100 100
SPB-26MVWF
LED(2COLOUR LED)
SBX1981-51P
REMOTE SENSOR
DTC144ESA
LED DRIVER
DTC144ESA
LED DRIVER
LED 2
LED 1
STBY+5V
SIRCS
GND
GR
TO A BOARD
CN1190
(LED,SIRCS RECEIVER)
B-SSSAG3-...-H1.-ES34
1
2
3
R1970 R1971 R1972 R1973 R1974 R1975 R1976
S1972 S1973 S1974 S1975 S1976 S1977 S1978 S1979
CN1980
C1970
820 1k 1.2k 1.8k 3.3k 6.8k 18k
STBY PRG+ PRG- VOL+ VOL- TV/VIDEO ENTER MENU
3P
WHT-L
:S-MICRO
#
GND
KEY 1 OUT
TO A BOARD
CN1190
(TOP KEY)
NC
B-SSSAG3-...-H3.-ES34

– 129 –
KV-ES34M81/ES34M91
RM-916
PRINTED WIRING BOARDS
H1 [LED, SIRCS RECEIVER] H2 [AV INPUT, PRESET KEY, PHONE OUT] H3 [TOP KEY]
– H3 Board –
– H1 Board –
– H2 Board –

– 130 –
KV-ES34M81/ES34M91
RM-916
NC 1 V
CC
5
OUT V6
IN A 2
GND 3
B3 BOARD IC309, IC505, IC506 TC7SET04F (TE85R)
1
1.7Vp-p (H)
6
2.3Vp-p (V)
11
0.6Vp-p (H)
2
1.0Vp-p (H)
7
2.2Vp-p (V)
12
1.0Vp-p (H)
3
1.1Vp-p (H)
8
2.8Vp-p (V)
13
3.5Vp-p (V)
4
4.7Vp-p (V)
9
3.1Vp-p (V)
5
4.9Vp-p (V)
10
0.6Vp-p (H)
14
0.9Vp-p (H)
15
0.6Vp-p (H)
16
0.5Vp-p (H)
17
3.7Vp-p (V)
18
0.6Vp-p
19
0.1Vp-p (H)
20
0.6Vp-p
B3 BOARD WAVEFORMS

– 132 – – 133 –– 131 – – 134 –
(7) Schematic Diagrams of B3 (1/6) and E2 Boards
A
123456789101112
13 14 15 16 17 18 19 20 21 22 23 24 25 26 27 28 29 30
B
C
D
E
F
G
H
I
J
K
L
M
N
O
VPO DGND
SAMPLING
COMPARATOR
CLK A
CLAMP
CONTROL
VIN(A)
VRT(A)
VRB(A)
CLPV(A)
IBIAS(A)
VCC(A)
GND(A)
OE(A)
SAMPLING
COMPARATOR
CLK B
CLAMP
CONTROL
VIN(B)
VRT(B)
VRB(B)
CLPV(B)
IBIAS(B)
VCC(B)
GND(B)
OE(B)
SAMPLING
COMPARATOR
CLK C
CLAMP
CONTROL
VIN(C)
VRT(C)
VRB(C)
CLPV(C)
IBIAS(C)
VCC(C)
GND(C)
EXTCLP
CLPEN
NT/PAL
OE(C)
D(A)1-8
VDD(QA)
DGND(QA)
D(B)1-8
VDD(QB)
DGND(QB)
DGND(QC)
MODE0
MODE1
TEST
CLK XSYNC
D(C)1-8
VDD(QC)
CLAMP PULSE
INT/EXT
CONTROL
888
8
888
8
888
8
CLOCK
GENERATOR
OUTPUT FORMAT
/TEST
SWITCHING
DATA
LATCH
CLK A
CLK B
CLK C
B3 BOARD IC501 TLC5733A1PM
1
2
3
4
5
6
7
8
9
10
11
12
13
14
15
16
17
18
19
20
21
22
23
24
25
26
27
28
29
30
31
32
33343536373839404142434445464748
49
50
51
52
53
54
55
56
57
58
59
60
61
62
63
64
1 3 6
7
10
2 4 5
9
12
EMI
EMI
EMI
1 2 3
45
1 2 3
45
EMI
EMI
EMI
EMI
EMI
1 2 3
46
1 2 3
46
1
2
3
4
5
6
7
89
1011121314
A1
B1
A2
B2
A3
B3
A4
B4
A5
B5
A6
B6
A7
B7
A8
B8
A9
B9
A10
B10
A11
B11
A12
B12
A13
B13
A14
B14
A15
B15
A16
B16
A17
B17
A18
B18
A19
B19
A20
B20
A21
B21
A22
B22
A23
B23
A24
B24
A25
B25
R529
R530
R532
R548
R549
R550
R551
R552
R554
R555
R556
R558
R559
R560
R572
R573
R574
R575
R576
R578
R579
R586
R587
R589
R590
R592
C501
C504
C506
C508
C514
C515
C516
C517
C519
C520
C521
C522
C523
C526
C527
C528
C511
R577
C555
C557
R981
R982
R983
R985
R986
R987
R988
R989
R990
L503
L504
L506
FL501
FL502
FL503
L511
FL504
FL505
FL506
R597
C560
C559
R591
C535
C536
C537
Q520
R998
R585
R583 R581
R596
R506
R507
FL508
FL509
R594
R584 R582
R513
R514
R515
R516
R517
CN502
C524
C525
FL511FL510
FL512
C540
C539
C542
C538
C554
C551
C546 C548
C550
C543
C502
C503
C505
C507
C518
C549
R993
R567 R537
R519
R520
R522
R523
R526
R525
L508
L509
R557
L502
C510
L512
C512
L501
C509
L507
L505
R956
R501
R508
R509
R994
R996
R995
R997
C556
C545
R502
R942
R943
C529
C531
C533
R564
R565
R566
R512
R527
R538
R539
R536
R511
R535
R510
R534
R561
R562
R563
R528
R533
R531
R991
R540
Q519
IC501
IC504
IC505
IC506
Q501
Q502
Q503 Q510
Q511
Q512
Q513
Q514
Q515
Q516
Q517
Q518
Q521
Q522
Q523
Q524
R984
R598 FB503
FB504
FB501
FB502
R571
R553
R580
R521
R518
R524
C530
C532
C534
R503
R504
R505
D501
0.01
B:CHIP
#
B:CHIP
#
B:CHIP
#
B:CHIP
0.1
25V
F:CHIP
0.01
B:CHIP
0.01
B:CHIP
0.1
25V
F:CHIP
0.1
25V
F:CHIP
0.01
B:CHIP
0.1
25V
F:CHIP
0.01
B:CHIP
0.01
B:CHIP
0.01
B:CHIP
0.1
25V
F:CHIP
0.01
B:CHIP
5.6k
:RN-CP
5.6k
:RN-CP
5.6k
:RN-CP
47
:RN-CP
47
:RN-CP
82
:RN-CP
82
:RN-CP
47
:RN-CP
47
:RN-CP
15k
:CHIP
#
:CHIP
100
:CHIP
15k
:CHIP
47
:RN-CP
47
:RN-CP
15k
:RN-CP
1k
:RN-CP
82
:RN-CP
82
:RN-CP
47
:RN-CP
47
:RN-CP
15k
:CHIP
1k
:CHIP
1k
:CHIP
1k
:CHIP
1k
:CHIP
1k
:CHIP
10k
:CHIP
330
:CHIP
330
:CHIP
47k
:CHIP
470k
:CHIP
3.3k
:CHIP
1k
:CHIP
220
:CHIP
22k
:CHIP
470k
:CHIP
0.01
B:CHIP
0.01
B:CHIP
1k
:CHIP
0.1
25V
F:CHIP
0.1
25V
F:CHIP
0.1
25V
F:CHIP
DTC144EKA
10k
:CHIP
#
:CHIP
#
:CHIP #
:CHIP
1k :CHIP
100 :CHIP
100 :CHIP
470
:CHIP
470
:CHIP
470
:CHIP
560 :CHIP
560 :CHIP
560 :CHIP
1k :CHIP
1k :CHIP
0.01
B:CHIP
0.01
B:CHIP
0.01
B:CHIP
0.01
B:CHIP
0.01
B:CHIP
0.01
B:CHIP
0.01
B:CHIP 0.01
B:CHIP
47k
:CHIP
#
:CHIP
#
560
:RN-CP
560
:RN-CP
560
:RN-CP
2.2k
:RN-CP
220
:CHIP
#
:CHIP
#
:CHIP
#
:CHIP
10
16V
:AL-CP
10
16V
:AL-CP
10
16V
:AL-CP
10
16V
:AL-CP
0.01
B:CHIP
0.01
B:CHIP
0.01
B:CHIP
0.1
25V
B:CHIP
0.1
25V
B:CHIP
47
16V
10
16V
:AL-CP
10
16V
:AL-CP
0.1
25V
B:CHIP
#
:AL-CP
#
:AL-CP
#
:AL-CP
47
16V
:AL-CP
47
16V
:AL-CP
47
16V
:AL-CP
47
16V
:AL-CP
100
6.3V
:AL-CP
50P
:BTOB
LPF
LPF
LPF
CKD510JB1A105ST
CKD510JB1A105ST
CKD510JB1A105ST
CKD510JB1A105ST
CKD510JB1A105ST
CKD510JB1A105ST CKD510JB1A105ST
CKD510JB1A105ST
:CHIP
:CHIP
:CHIP
:CHIP
:CHIP :CHIP
#
:CHIP
:CHIP
:CHIP
:CHIP
:CHIP
100 :CHIP
100 :CHIP
100 :CHIP
100 :CHIP
#
#
1k
:CHIP
330
:CHIP
220
:CHIP
47k
:CHIP
220
:CHIP
330
:CHIP
330
:CHIP
560 :CHIP
#
:CHIP
#
:RN-CP
#
:RN-CP
2.2k
:CHIP
560 :CHIP
#
:RN-CP
560 :CHIP#
:RN-CP
560
:CHIP
560
:CHIP
560
:CHIP
330
:CHIP
180
:CHIP
180
:CHIP
0 :CHIP
1k :CHIP
DTC144EKA
INVERT
TLC5733AIPM
A/D CONVERTER
TLC2933IPWR
PLL
TC7SET04F(TE85R)
LEVEL SHIFT
TC7SET04F(TE85R)
LEVEL SHIFT
2SA1162-G
BUFFER
2SC1623-L5L6
BUFFER
2SC1623-L5L6
BUFFER
2SC1623-L5L6
BUFFER
2SD1623-L5L6
BUFFER
2SC1623-L5L6
BUFFER
2SC1623-L5L6
BUFFER
2SC1623-L5L6
BUFFER
2SC1623-L5L6
BUFFER
2SC1623-L5L6
3.3V REG
2SC1623-L5L6
BUFFER
2SA1162-G
BIAS
2SC1623-L5L6
BUFFER
2SC1623-L5L6
BUFFER
2SC1623-L5L6
BUFFER
2SC1623-L5L6
3.3V REG
3.3k
:CHIP
100
:CHIP 0UH
0UH
0UH
0UH
0
0
0
0
0
0
0
0
0
0
0
0
ODZ-TF-17-3.9B
WSYNC
W1
A5V-1
ADTB
YMCK
D3.3V-1
SDA
SCL
HP 100 OUT
VP 100 OUT
Y 100 OUT
U 100 OUT
V 100 OUT
Y MAIN IN
V MAIN IN
U MAIN IN
Y MAIN IN
VP SUB IN
V SUB IN
U SUB IN
Y SUB IN
VP MAIN IN
HP MAIN IN
A5V-1
VDOCBCLVL
VDOCRCLVL
VDOYCLVL
CK54
HREF
A5V-1
D5V
D3.3V-1
D3.3V
3.3VGR
R1
+5V
+2.5V
+3.3V
+3.3V
+5V
D3.3V-MID
XRST
HP SUB IN
G
XRST5
HP SUB PLL
V MAIN IN
U MAIN IN
A5V
A5V
A3.3V
+9V
+2.5V-1
FPD
D5V
MID BUSY
DPIC SW
C0
C1
C2
C3
C4
C5
C6
C7
Y0
Y1
Y2
Y3
Y4
Y5
Y6
Y7
VRB(A)
NT/PAL
TEST
DGND(QA)
D(A)8
D(A)7
D(A)6
D(A)5
D(A)4
D(A)3
D(A)2
D(A)1
VDD(QA)
DGND(QB)
VDD(QB)
D(B)8
D(B)7
D(B)6
D(B)5
D(B)4
D(B)3
D(B)2
D(B)1
DGND
VDD
CLPV(C)
VRT(C)
VCC(C)
VIN(C)
GND(C)
MODE0
MODE1
DGND(QC)
D(C)1
D(C)2
D(C)3
D(C)4
D(C)5
D(C)6
D(C)7
D(C)8
VDD(QC)
VRB(C)
OE(B)
OE(C)
OE(A)
GND(A)
VIN(A)
VCC(A)
VRT(A)
CLPV(A)
IBIAS(A)
XSYNC
CLPEN
CLK
EXTCLP
IBIAS(B)
CLPV(B)
VRT(B)
VCC(B)
VIN(B)
GND(B)
VRB(B)
IBIAS(C)
HP 100 OUT
VP 100 OUT
Y 100 OUT
GND
U 100 OUT
GND
GND
GND
GND
GND
GND
GND
GND
GND
GND
H-PULSE M-IN
V-PULSE M-IN
V MAIN IN
U MAIN IN
Y MAIN IN
Y SUB IN
PORT 1
U SUB IN
PORT 2
V SUB IN
V-PULSE SUB IN
H-PULSE SUB IN
+3.3V
+5V DIGITAL
SCL
SDA
RESET 100
PORT 3
DPIC SW
V 100 OUT
+2.5V
1-233-877-21
1-233-504-21
1-233-504-21
GND
GND
GND
GND
GND
GND
GND
GND
GND
GND
+9V
A5V
FPD
MID BUSY
1.0
1.4
-0.1
-0.1
4.6
4.6
2.3
2.3
-0.0
1.4
-0.1
3.1
1.4
1.4
3.2
4.6
1.9
-0.1
4.9
4.9
4.2
(DRC,MID,SUB-MICON DRC/MID CONTROLLER)
V PULSE
H PULSE
Y
U
V
SUB-HP
SUB-VP
SUB V
SUB U
SUB Y
MAIN Y
MAIN U
MAIN V
MAIN VP
MAIN HP
TO A BOARD
CN1108
1
2
3
4
5
6
7
5V
5V
5V 5V
5V
5V
5V
5V
5V
5V
5V
5V
5V
5V
5V
5V
5V
5V
+2.5V
0
0
0
3.0
0
0
0
0
3.2
0
1.6
4.7
1.0 1.7
-0
1.0
2.6
2.0
0
1.8
4.7
0
4.7
1.7
4.7
2.0
2.0
4.2
0
0
0
0
0.3
0
4.2
2.8
1.4
0
0
0
0
2.6
0
1.9
3.1
4.7
2.5
2.5
4.7
1.9
0
0
0
0
0
0
1.1
0
0
0
0
0
0
0
1.1
1.1
0.8
1.5
0
1.6
1.4
3.2
0
3.2
1.4
1.6
1.4
1.6
1.8
1.6
1.7
1.6
0
4.7
2.4
0
3.3
0
0
0
0
0
0
4.7
0
0
0
0
0
0
1.4 0
3.2
0
0
B-SSSAG3-...-B3(P1)-ES34
1
2
3
4
1
2
3
4
-2
-2
-2
-2
-2 -2
-2
-2
-2
C4902
CN4901
C4901
C4903
C4904
R4901
R4902
R4903 R4904
R4905
R4906
R4907
D4300
D4301
D4304
R4302
R4303
R4304
R4307
R4308
R4312
Q4301
C4300
D4303
R4300
R4301
R4305
R4306
R4309
R4311
R4314
CN4902
C4301
R4310
R4313
R4315
D4302
Q4300
Q4304
Q4303
Q4903 Q4904
Q4901
Q4902
Q4302
Q4305
10
4P
WHT
:S-MICRO
0.1
:PET
1000p
:PP
0.1
:PET
1.0k
4.7k
33k 4.7k
10k
10k
2.2k
#
#
#
#
#
#
#
#
#
#
10
JW(5MM)
100
2.2k
2.2k
47k
2.2k
:RN
2.2k
2.2k
4P
RED
:S-MICRO
0.1:mpS
10k
:RN
39k
:RN
220k
:RN
1SS119
BIAS
2SC2785
BUFFER
2SC2785
BUFFER
2SA1175
INVERTER-AMP
2SA1175
COMPARISON 1
2SA1175
COMPARISON 2
2SC2785
INVERTER
2SC2785
INVERTER
2SA1175
INVERTER-AMP
2SA1175
INVERTER
9V
GND
AFC IN
AFC OUT
9V
GND
HD IN
HD CLAMP
9V
9V
B-SSSAG3-...-E2.-ES34
(AFC RASTER DISTORTION CIRCUIT)

– 136 – – 137 –
– 135 –– 138 –
A
123456789101112
13 14 15 16 17 18 19 20 21 22 23 24 25 26 27 28 29 30
B
C
D
E
F
G
H
I
J
K
L
M
N
O
(8) Schematic Diagram of B3 (2/6) Board
PRINTED WIRING BOARDS
– B3 Board (Component Side) –
B3 [DRC, MID, SUB MICON, DRC/MID CONTROLLER]
– B3 Board (Conductor Side) –
Schematic diagrams
?B
3
(1/6) E
2
boards
Schematic diagram
B3 (2/6) board /
B3 BOARD (Component Side)
IC
IC302 C-7
IC303 B-8
IC305 B-7
IC306 B-8
IC307 A-7
IC308 A-7
IC310 A-7
IC311 C-8
IC501 C-1
IC504 A-4
IC505 D-5
IC506 D-4
IC601 I-8
IC602 H-6
IC603 D-8
IC701 A-5
IC801 E-6
IC802 C-7
IC901 I-13
IC902 A-6
IC904 A-6
B3 BOARD (Conductor Side)
IC
IC304 A-1
IC309 B-2
IC311 C-1
IC604 C-5
IC704 A-4
IC705 B-4
IC803 C-3
IC903 A-3
TRANSISTOR
Q513 D-7
Q514 D-7
Q515 C-7
Q516 E-6
Q517 B-5
Q518 A-4
Q519 D-6
Q520 D-6
Q524 E-6
Q601 A-7
Q602 A-7
Q901 D-5
Q902 D-5
Q903 C-6
Q904 A-2
Q905 A-2
Q906 A-2
DIODE
D301 A-7
D302 B-5
D901 B-11
TRANSISTOR
Q501 D-6
Q502 E-7
Q503 F-6
Q510 D-2
Q511 F-1
Q512 D-2
Q521 E-2
Q522 E-1
Q523 D-1
Q907 D-4
Q908 D-3
Q909 C-4
DIODE
D601 I-8
•:Pattern from the side which enables seeing.
•:Pattern from the rear side.
123456789
10 11 12 13 14 15 16 17 18 19 20 21 22 23 24 25 26 27 28 29 30 31 32 33 34 35 36 37 38 39 40 41 42 43 44 45 46 47 48 49 50 51 52
53
54
55
56
57
58
59
60
61
62
63
64
65
66
67
68
69
70
71
72
73
74
75
76
77
78
79
80
81
82
83
84
85
86
87
88
89
90
91
92
93
94
95
96
97
98
99
100
101
102
103
104
105
106
107
108
109
110
111
112
113
114
115
116
117
118
119
120
121
122
123
124
125
126
127
128
129
130
131
132
133
134
135
136
137
138
139
140
141
142
143
144
145
146
147
148
149
150
151
152
153
154
155
156
157
158
159
160
161
162
163
164
165
166
167
168
169
170
171
172
173
174
175
176
177
178
179
180
181
182
183
184
185
186
187
188
189
190
191
192
193
194
195
196
197
198
199
200
201
202
203
204
205
206
207
208
EMI
G
EMI
G
EMI
G
EMI
G
1
2
3
4
5
6
7
8
9
10
11
12
13
14
15
16
17
18
19
20
1
2
3
4
5
6
7
8
9
10
11
12
13
14
15
16
17
18
19
20
21
22
23
24
25
26 2728 29 30 31 32 33 34 3536 37 38 39 40 41 42 43 44 45 46 47 48 49 50
1
2
3
4
5
6
7
89
10 11 12 13 14
1 2 3 4 5 6 7 8
9
10111213141516
R601
R602
R603
R607
R627
R632
R633
R636
R637 R641
R644
R646
R652 R656
R665
R666
R667
R671
R672
R673
R674
R675
R688
R689
R692
R695 R696
R697
R698
R700
R600
C603
C604
C605
C606
C607
C608
C609
C610
C611
C612
C613
C614
C615
C617
C623
C624
C625
C626
C627C628
C630
C631
C633
C634
C635
C636
C638
C639
C642
R691
C618
C620
C621
C622
C643
FL601
FL602
FL603
C645
R693
R625
R626
R609 R611
R619
R668
R664
C632
C644
C601
R620
R612
R640
C616
R676
R677
R678
R679
R680
R681
R682
R683
R684
R685
R686
CN503
R657
R614
L604
L605
C637
C640
R659
R658
R661
R660
R653
R654
C619
R610
R604
FL606
RB019
RB020
RB021
RB022
RB023
RB024
RB025
RB026
RB027
C602
C629
R616
R629
R630
R606
IC601
IC603
D601
IC604
Q601
Q602
R618
R639
RB001
RB002
RB003
RB004
RB005
RB006
FB601
IC602
R613
C646
R624 R623 R622 R621
R608
R605
R617
R628
R631 R635
R634 R638
R642
R643 R645
R694
R690
R670
R687
R669
R615
R651 R655
R699
0.01
B:CHIP
0.01
B:CHIP
0.01
B:CHIP
0.01
B:CHIP
0.01
B:CHIP
0.01
B:CHIP
0.01
B:CHIP
0.01
B:CHIP
0.01
B:CHIP
0.01
B:CHIP
0.01
B:CHIP
0.01
B:CHIP
0.01
B:CHIP
0.1
25V
F:CHIP
0.1
25V
F:CHIP
0.01
B:CHIP
0.01
B:CHIP
0.01
B:CHIP
0.01
B:CHIP
0.01
B:CHIP
0.01
B:CHIP
0.01
B:CHIP
0.01
B:CHIP
0.01
B:CHIP
0.01
B:CHIP
0.01
B:CHIP
0.01
B:CHIP
0.01
B:CHIP
0.01
B:CHIP
0.01
B:CHIP
0.01
B:CHIP
0.01
B:CHIP
0.01
B:CHIP
0.01
B:CHIP
0.01
B:CHIP
10k :CHIP
10k :CHIP
10k :CHIP
#
:CHIP
#
:CHIP
#
:CHIP
#
:CHIP
#
:CHIP
#
:CHIP
#
:CHIP
#
:CHIP
#
:CHIP
#
:CHIP
#
:CHIP
270
:CHIP
620
:RN-CP
3.3k
:RN-CP
10k
:CHIP
10k:CHIP
10k:CHIP
10k:CHIP
10k:CHIP
3.3k
:CHIP
2.2k
:CHIP
3.3k
:CHIP
2.2k
:CHIP
820
:CHIP
1k
:CHIP 680k
:CHIP
680k
:CHIP
#
:CHIP
22
:CHIP
10k
:CHIP
10k
:CHIP
10k
:CHIP
10k
:CHIP
22
:CHIP
22
:CHIP
#
:CHIP
10k
:CHIP
22 :CHIP
10k:CHIP
10k:CHIP
10k:CHIP
10k:CHIP
10k:CHIP
10k:CHIP
10k:CHIP
10k:CHIP
10k:CHIP
10k:CHIP
10k:CHIP
#
22
:CHIP
#
:CHIP
0.01
B:CHIP
0.01
B:CHIP
0.1
25V
F:CHIP
10
16V
:AL-CP
10
16V
:AL-CP
47
16V
:AL-CP
100
6.3V
:AL-CP
4.7
35V
:AL-CP
CKD510JB1A105ST
CKD510JB1A105ST
CKD510JB1A105ST
NFM51R30P507
:CHIP
:CHIP
5.1k
:CHIP
220 :CHIP
220
:CHIP
0
:CHIP
100
:CHIP
220
:CHIP
1k
:CHIP
100
:CHIP
100
:CHIP
100
:CHIP
47
:CHIP
47
:CHIP
47
:CHIP
47
:CHIP
47
:CHIP
47
:CHIP
47
:CHIP
47
:CHIP
47
:CHIP
0.01
B:CHIP
10k
:CHIP
10k
:CHIP
#
#
:CHIP
CXD2090Q
DRC-MF
TLC2932IPW
PLL
MA111-(K8).SO
CXA1875AM-T4
I/O EXPANDER
2SC1623-L5L6
2SC1623-L5L6
#
47 :CHIP
47
:CHIP
47
:CHIP
47
:CHIP
47
:CHIP
47
:CHIP
47
:CHIP
0UH
MB81F161622B-80
S-DRAM
4.7k
:CHIP
#
0000
0
0
0
0
00
00
0
00
0
0
0
0
#
47k
:CHIP
00
0
A9
A8
A7
A6
A5
A4
C54O
R1
C54O
3.3VGR
D5V
WSYNC
D3.3V-1
W1
HREF
D3.3V-1
CK54
ADTB
YMCK
VDMID
HDMID
D5V
DRCDCLK
VP MAIN IN
HP MAIN IN
DS OUT
D5V
SDA
SCL
CK54 OUT1
PLL ENABLE IN
+2.5V-1
FPD
Y0
Y1
Y2
Y3
Y4
Y5
Y6
Y7
XCAS
XRAS
XWE
DOM
XCS
DQ1
DQ2
DQ3
DQ4
DQ5
DQ6
DQ7
DQ8
DQ9
DQ10
DQ11
DQ12
DQ13
DQ14
DQ15
A0
A1
A2
A3
A10
A11
A10
A11
XCS
XRAS
XCAS
XWE
DOM
DQ0
DQ1
DQ2
DQ3
DQ4
DQ5
DQ6
DQ8
DQ9
DQ10
DQ11
DQ12
DQ13
DQ14
DQ15
A3
A2
A1
A0
DSB2
DSB3
DSB4
DSB5
DSB6
DSB7
DSB8
DSB9
C0
C1
C2
C3
C4
C5
C6
C7
DSY2
DSY3
DSY4
DSY5
DSY6
DSY7
DSY8
DSY9
DSR2
DSR3
DSR4
DSR5
DSR6
DSR7
DSR8
DSR9
DAC0
DAC1
DAC2
DAC3
DAC0
DAC1
DAC2
DAC3
DAC4
IVDD
IHDD
W13ID
DIYD7
DIYD0
DIYD1
DIYD2
DIYD3
DIYD4
DIYD5
DIYD6
DICD1
DICD2
DICD3
DICD4
DICD5
DICD6
DICD7
DIYD0
DIYD1
DIYD2
DIYD3
DIYD4
DIYD5
DIYD6
DIYD7
DICD0
DICD1
DICD2
DICD3
DICD4
DICD5
DICD6
DICD7
IVDD
IHDD
W13ID
DAC4
DICD0
DQ0
DQ7
DQ0
VCC
DQ1
VSSQ
DQ2
DQ3
VCCQ
DQ4
DQ5
VSSQ
DQ6
DQ7
VCCQ
LDQM
WE
CAS
RAS
CS
ADDR10
ADDR11
ADDR0
ADDR1
ADDR2
ADDR3
VCC
VSS
DQ15
DQ14
VSSQ
DQ13
DQ12
VCCQ
DQ11
DQ10
VSSQ
DQ9
DQ8
VCCQ
NC
UDOM
CLK
CKE
NC
ADDR9
ADDR8
ADDR6
ADDR5
ADDR4
VSS
ADDR7
VD1
VS1
W13ID
IHDD
IVDD
MODE
XCAS
XRAS
XWE
DOM
XCS
VS2
DQ7
DQ6
DQ5
DQ4
DQ3
DQ2
DQ1
DQ0
VD2
VS3
AVD1
AVS1
DQ15
DQ14
DQ13
DQ12
DQ11
DQ10
DQ9
DQ8
TENA3
VS4
ADDR11
ADDR10
ADDR9
ADDR8
ADDR7
ADDR6
ADDR5
ADDR4
VD3
VS5
C13O
ADDR3
ADDR2
ADDR1
ADDR0
AVD2
AVS2
VD4
VS6
DVSFT
DLINIT
IFPCT
FV
FH
PXI
VSTILL1
VSTILL0
VDPR
VDCL
VDL0
VDL1
VS7
XRST
CRCT
GAME
OCKSL
M0
M1
RBSL
VD5
VS8
B2
CYD0
CYD1
FSEL
S0
S1
AVD3
AVS3
VS9
ORDER
INSEL
LEVEL
XCLH
RXI
XOC
FPO
FFSW
VD6
HREF
RPLLHD
C54I
XH9O
XV9O
V9O
VD2O
HD2
VD7
VS10
FPD
CLP
VS14
DBO9
DBO8
DBO7
DBO6
DBO5
DBO4
DBO3
DBO2
DBO1
DBO0
AVS5
AVD5
VS13
VD9
DRO9
DRO8
DRO7
DRO6
DRO5
DRO4
DRO3
DRO2
DRO1
DRO0
VS12
DYO9
DYO8
DYO7
DYO6
DYO5
DYO4
DYO3
DYO2
DYO1
DYO0
C27O
VS11
C54O
VD8
AVS4
AVD4
ABO
DAVS
DAVD
VG
ARO
VB
IRF
VRF
AYO
ADHD
RCON
BCON
WPLLHD
W13I
IVD
VS15
DIC0
DIC1
DIC2
DIC3
DIC4
DIC5
DIC6
DIC7
VD10
VS16
DIY0
DIY1
DIY2
DIY3
DIY4
DIY5
DIY6
DIY7
VD11
TCK
TDI
TMS
TDO
TRST
VS17
DICD0
DICD1
DICD2
DICD3
DICD4
DICD5
DICD6
DICD7
VD12
VS18
DIYD0
DIYD1
DIYD2
DIYD3
DIYD4
DIYD5
DIYD6
DIYD7
AVD6
AVS6
LOGICVDD
SELECT
VCO OUT
FINA
FINB
PFD OUT
LOGIC GND
VCO VDD
R BIAS
VCO IN
VCO GND
VCO INHBIT
PFD INHBIT
NC
B-Y
R-Y
Y
VCC
SCL
SDA
SAD2
SAD1
SAD0
SW3
SW2
GND
DAC0
DAC1
DAC2
DAC3
DAC4
SW0
SW1
IVDD
IHDD
W13ID
GND
DIYD7
DIYD6
DIYD5
DIYD4
DIYD3
DIYD2
DIYD1
DIYD0
DICD7
DICD6
DICD5
DICD4
DICD3
DICD2
DICD1
DICD0
1.4
1.5
1.4
1.0
1.5
1.7
1.2
4.9
8
9
10
11
12
DRC,MID,SUB-MICON,DRC/MID
CONTROLLER
()
0
0
0
0
0
0
0
1.4
0
1.3
1.4
0
3.4
0
1.4
0
0
0
0
3.2
1.5
1.6
0
1.7
1.5
0
1.2
0
0
0
0
0
0.5
3.2
3.1
0
0
0
0
0
0
0
0
0
0
1.4
1.4
0
1.2
1.1
3.2
1.3
1.5
0
1.6
1.6
3.2
0
0.5
1.4
3.2
0
0
0
0
0
0
0
0
4.9
0
3.0
3.0
3.0
0.4
0.3
0
0
3.2
0
4.9
0
4.5
4.4
4.9
2.3
0
0
0
0
0
3.1
3.1
3.1
0.5
3.1
0
1.3
1.4
1.3
1.1
1.6
1.5
0
3.2
0
1.5
1.2
1.1
1.1
1.3
1.4
1.4
3.2
0
-0
0
0
0
0
0
0
0
0
2.3
0
1.3
0
0
0
0
3.2
0
2.3
-0
3.2
0
0
3.2
3.2
2.7
0
0
0
0
3.0
0.4
-0
3.2
-0
0
0
3.2
0
2.3
-0
0
0
3.2
3.2
0
0
3.2
0
0
3.2
0.3
3.2
0
0
0
0
1.6
3.0
2.3
1.6
3.2
1.8
3.0
3.2
0
0
0
0.2
2.3
0
0.3
1.0
0.9
0
0.5
2.0
3.3
0
0.5
3.2
0
0
1.5
0
1.7
1.3
1.3
0
1.3
1.4
1.1
1.0
1.0
1.1
0
1.0
1.1
0
0
1.7
1.6
1.1
0
1.8
2.3
0
0
0
1.2
1.2
1.5
-0
1.7
2.0
1.5
0
1.4
0
0
3.2
3.0
3.1
1.3
1.4
0
0
1.6
1.6
1.6
1.5
1.6
1.4
1.5
1.5
2.3
0
1.4
1.5
1.7
1.5
0.7
1.0
1.2
2.4
0
3.3
3.3
0
3.3
0
0
0
0
0
0
0
0
0
2.3
0
0
0
0
0
0
0
0
0
3.2
0
B-SSSAG3-...-B3(P2)-ES34

– 140 – – 141 –– 139 – – 142 –
(9) Schematic Diagram of B3 (3/6) Board
A
123456789101112
13 14 15 16 17 18 19 20 21 22 23 24 25 26 27 28 29 30
B
C
D
E
F
G
H
I
J
K
L
M
N
O
1 2 3 4 5 6 7 8 9
10 11 12 13 14 15 16 17 18 19 20 21 22 23 24 25 26 27 28 29 30 31 32 33 34 35 36 37 38 39 40 41 42 43 44 45 46 47 48 49 50 51 52
53
54
55
56
57
58
59
60
61
62
63
64
65
66
67
68
69
70
71
72
73
74
75
76
77
78
79
80
81
82
83
84
85
86
87
88
89
90
91
92
93
94
95
96
97
98
99
100
101
102
103
104
105106107108109110111112113114115116117118119120121122123124125126127128129130131132133134135136137138139140141142143144145146147148149150151152153154155156
157
158
159
160
161
162
163
164
165
166
167
168
169
170
171
172
173
174
175
176
177
178
179
180
181
182
183
184
185
186
187
188
189
190
191
192
193
194
195
196
197
198
199
200
201
202
203
204
205
206
207
208
1
2
3
4
5
6
7
8
9
10
11
12
13
14
15
16
17 18 19 20 21 22 23 24 25 26 27 28 29 30 31 32
1234
5678
EMI
G
EMI
G
EMI
G
EMI
G
RB701
RB702
RB703
RB704
RB705
RB706
IC701
C717 C718 FL704
C719
C716 R710
C726 C725 C724 C723 C722 C738
C715
C727
IC704
C735 FL703
C714
C728
C713
C729
C712
C740 R715
IC705
R714
X702
C739
C711
C709
FL705
C710 C708
C707
C730
R709
FL701
C703 C704 C705 C706
R712
FB701
R703
R713
FB702
R663
R704 R705
0
:CHIP
0
:CHIP
0
:CHIP
0
:CHIP
0
:CHIP
0
:CHIP
#
## #
#
##
## # # # #
#
#
#
##
#
#
#
#
#
##
#
#
#
#
#
#
#
##
#
#
#
#
### #
#
#
#
#
#
#
##
XRST
CE
CE
XRST
A3.3V
D3.3V
HDMID
VDMID
D3.3V
DS OUT
D OUT
A3.3V
SCL-MID
SDA-MID
CK54 OUT1
O16
O17
O18
O19
O20
O21
O22
O23
O16
O17
O18
O19
O20
O21
O22
O23
DSY2
DSY3
DSY4
DSY5
DSY6
DSY7
DSY8
DSY9
DSY2
DSY3
DSY4
DSY5
DSY6
DSY7
DSY8
DSY9
DSR2
DSR3
DSR4
DSR5
DSR6
DSR7
DSR8
DSR9
DSB9
DSB2
DSB3
DSB4
DSB5
DSB6
DSB7
DSB8
DR0
DR1
DR2
DR3
DR4
DR5
DR6
DR7
DB0
DB1
DB2
DB3
DB4
DB5
DB6
DB7
DY0
DY1
DY2
DY3
DY4
DY5
DY6
DY7
DY6
DY5
DY0
DY1
DY3
DY2
DY7
DY4
DB0
DB1
DB2
DB7
DB6
DB5
DB4
DB3
DY8
DY8
DB0
DB1
DB2
DB3
DB4
DB5
DB6
DB7
DR0
DR1
DR2
DR3
DR4
DR5
DR6
DR7
DY0
DY1
DY2
DY3
DY4
DY5
DY6
DY7
DSB2
DSB3
DSB4
DSB5
DSB6
DSB7
DSB8
DSB9
DSR2
DSR3
DSR4
DSR5
DSR6
DSR7
DSR8
DSR9
DSY2
DSY3
DSY4
DSY5
DSY6
DSY7
DSY8
DSY9
VIN6
VIN5
VIN4
VIN3
VIN2
VIN1
VIN0
VSS
I2CAD0
I2CAD1
I2CAD2
I2CSCL
I2CSDA
VDD
XRST
HSYNC0
VSYNC0
SCK0
VSS
SCK1
HSYNC1
VSYNC1
VSYNC2
HSYNC2
SCK2
VDD
SCK3
HSYNC3
VSYNC3
IGFLGC
IGFLGD
VSS
TESTMD
TESTGO
BIST
BURNIN
TESTBE
TESTAK
CKSEL
SCANEN
MINTEST
VDD
TDI
TMS
TCK
TRSTZ
TDO
XROMENA
VSS
PDIV2
PDIV1
PDIV0
SDA7
VDD
SDA8
SDA9
SDCKE
VDD
SDCK
VSS
SDD08
SDD09
SDD010
SDD011
VDD
SDD012
SDD013
SDD014
SDD015
VSS
SDA3
SDA2
SDA1
SDA0
SDA10
SDA11
VDDP
VDD
SDRAS
SDCAS
SDWE
VSS
SDD07
SDD06
SDD05
SDD04
VDD
SDD03
SDD02
SDD01
SDD00
VSS
SDPLLPDN
SDCKREF
AVCC
SLF
AVSS
SVCORNG
SDIV0
SDIV1
SDIV2
VDD
PLLTST
XPLLRST
PVCORNG
AVSS
PLF
AVCC
PCKREF
PPLLFDN
VDD
VOUT0
VOUT1
VOUT2
VOUT3
VSS
VOUT4
VOUT5
VOUT6
VOUT7
VDD
VOUT8
VOUT9
VOUT10
VOUT11
VSS
VOUT12
VOUT13
VOUT14
VOUT15
VDD
VOUT16
VOUT17
VOUT18
VOUT19
VSS
VOUT20
VOUT21
VOUT22
VOUT23
VDD
VOUT24
VOUT25
VOUT26
VOUT27
VSS
VOUT28
VOUT29
VOUT30
VOUT31
VDD
VOUT32
VOUT33
VOUT34
VOUT35
VSSSDA6
SDA5
SDA4
VSS
SDD18
SDD19
SDD110
SDD111
VDD
SDD112
SDD113
SDD114
SDD115
VSS
SDD17
SDD16
SDD15
SDD14
VDD
SDD13
SDD12
SDD11
SDD10
VSS
VIN31
VIN30
VIN28
VIN29
VIN27
VIN26
VIN25
VIN24
VDD
VIN23
VIN22
VIN21
VIN20
VIN19
VIN18
VIN17
VIN16
VSS
VIN15
VIN14
VIN13
VIN12
VIN11
VIN10
VIN9
VIN8
VDD
VIN7
VPP
A16
A15
A12
A7
A6
A5
A4
A3
A2
A1
A0
D0
D1
D2
VSS D3
D4
D5
D6
D7
CE
A10
OE
A11
A9
A8
A13
A14
VCC
A18
A17
(DRC,MID,SUB-MICON DRC/MID CONTROLLER)
B-SSSAG3-...-B3(P3)-ES34

– 144 – – 145 –
– 143 – – 146 –
A
123456789101112
13 14 15 16 17 18 19 20 21 22 23 24 25 26 27 28 29 30
B
C
D
E
F
G
H
I
J
K
L
M
N
O
(10) Schematic Diagram of B3 (4/6) Board
Schematic diagram
?B
3
(3/6) board
Schematic diagram
B3 (4/6) board /
1 2 3 4 5 6 7 8 9
10 11 12 13 14 15 16 17 18 19 20 21 22 23 24 25 26 27 28 29 30 31 32 33 34 35 36 37 38 39 40 41 42 43 44 45 46 47 48 49 50 51 52 53 54 55 56 57 58 59 60
61
62
63
64
65
66
67
68
69
70
71
72
73
74
75
76
77
78
79
80
81
82
83
84
85
86
87
88
89
90
91
92
93
94
95
96
97
98
99
100
101
102
103
104
105
106
107
108
109
110
111
112
113
114
115
116
117
118
119
120
121122123124125126127128129130131132133134135136137138139140141142143144145146147148149150151152153154155156157158159160161162163164165166167168169170171172173174175176177178179180
181
182
183
184
185
186
187
188
189
190
191
192
193
194
195
196
197
198
199
200
201
202
203
204
205
206
207
208
209
210
211
212
213
214
215
216
217
218
219
220
221
222
223
224
225
226
227
228
229
230
231
232
233
234
235
236
237
238
239
240
VD
O
G
CO
CRYST AL
1
2
3
45
1
2
3
4
5
6
7
8
9
10
11
12
13
14
15
16
17
18
19
20
21
22
23
24
25
26
27
28
29
30
31
32
33
34
35
36
37
38
39
40
41
42
43
44454647484950515253545556575859606162636465666768697071727374757677787980818283848586
EMI
G
EMI
G
EMI
G
EMI
G
EMI
G
EMI
G
EMI
G
EMI
G
EMI
G
C802
C806
C813
C814
C815
C816
C819
C820
C821
C822
C823
C824
C827
C839
C841
C842
C843
R812
R814
R815
R817
C844
C808
C809
C810
C811 C812
C849
FL801
FL802
FL803
FL804
R816
C848
C851
C835
C834
R844
R845
R846
R847
R848
R849
R850
R851
R852
R853
R854
R855
R856
R857
R858
R859
R860
R861
R862
R863
R864
R865
R866
R867
R868
R869
R870
R871
R872
R873
R874
R875
R876
R877
R878
R879
R880
R881
R882
R883
R884
R885
R886
R887
R888
R889
R898
R897
R896
R895
R894
R893
R892
R891
R890
C850
C829
FL805
FL806 FL807
FL808
RB018
RB013
RB014
RB015
RB016
C801
C807
C840
C804
C803
R827
R801
R821
C828
R808
C852
R2807
R2808
R836
R2801
R2803 R2806
R804
FL810
R802
C817
R838
C837
C836
R839
R800
R2811
R823
R824
R819
R820
C825
R2812
R2814
R2816
R2819
R2821
R2823
R806
R807
C818
RB007 RB008
RB009 RB010
RB012
RB011
R2802
R2804
R2805
X801
X802
R831
R832
R833
R2824 R834
R825
R826 R835
IC801
IC802
C853
IC803
RB017
C826
FB801
FB802
R939
R818
R979
R899
C854
R822
R2813
R2815
R2822
R2809
R2810
R2817
R840
R2818 R2820
R940
R941
R813
0.01
B:CHIP
0.01
B:CHIP
0.01
B:CHIP
0.01
B:CHIP
0.01
B:CHIP
0.01
B:CHIP
0.01
B:CHIP
0.01
B:CHIP
0.01
B:CHIP
0.01
B:CHIP
0.01
B:CHIP
0.01
B:CHIP
0.01 B:CHIP
0.01
B:CHIP
0.01
B:CHIP
0.01 B:CHIP
0.01
B:CHIP
10k :CHIP
10k :CHIP
10k :CHIP
0.1
25V
F:CHIP
0.01
B:CHIP
0.01
B:CHIP
0.01
B:CHIP
0.01
B:CHIP
0.01
B:CHIP
0.01
B:CHIP
10k :CHIP
27
:RN-CP
0.1
25V
F:CHIP
0.1
25V
F:CHIP
0.01
B:CHIP
22 :CHIP
22 :CHIP
22 :CHIP
22 :CHIP
22 :CHIP
22 :CHIP
22 :CHIP
22
:CHIP
22
:CHIP
22 :CHIP
22 :CHIP
22 :CHIP
22 :CHIP
22 :CHIP
22 :CHIP
22 :CHIP
22 :CHIP
22 :CHIP
22 :CHIP
22 :CHIP
22 :CHIP
22 :CHIP
22 :CHIP
22 :CHIP
22 :CHIP
22 :CHIP
22 :CHIP
22 :CHIP
22 :CHIP
22 :CHIP
22 :CHIP
22 :CHIP
22 :CHIP
22 :CHIP
22 :CHIP
22 :CHIP
22
:CHIP
22 :CHIP
22 :CHIP
22 :CHIP
22 :CHIP
22 :CHIP
22 :CHIP
22 :CHIP
22 :CHIP
22 :CHIP
22 :CHIP
22 :CHIP
22 :CHIP
22 :CHIP
22 :CHIP
22 :CHIP
22 :CHIP
22 :CHIP
22
:CHIP
0.01
B:CHIP
0.01
B:CHIP
22
:CHIP
15
:RN-CP
0.01
B:CHIP
10k :CHIP
12p
CH:CHIP
#
:CHIP
0.01
B:CHIP
#
CH:CHIP
#
:CHIP
10k :CHIP
10k :CHIP
0.01 B:CHIP
10
16V
:AL-CP
10
16V
:AL-CP
10
16V
:AL-CP
10
16V
:AL-CP
12p
CH:CHIP
#
100
6.3V
:AL-CP
4700p
B:CHIP
CKD510JB1A105ST
CKD510JB1A105ST
CKD510JB1A105ST
CKD510JB1A105ST
CKD510JB1A105ST
CKD510JB1A105ST CKD510JB1A105ST
CKD510JB1A105ST
CKD510JB1A105ST
22 :CHIP
10k
:RN-CP
270
:RN-CP
#
# :CHIP
1k :RN-CP
#
22
:RN-CP
#
:CHIP
120
:RN-CP
68
:RN-CP
10
:RN-CP
100
:RN-CP
68
:RN-CP
22
:RN-CP
#
#
#
#
:CHIP
#
:CHIP
#
:CHIP
#
:CHIP
#
:CHIP
# :CHIP
150 150
150 150
150
150
22
:CHIP
22
:CHIP
22
:CHIP
22
:CHIP
22
:CHIP
54MHz
17.28MHz
#
:CHIP
#
:CHIP
#
:CHIP
#120
:RN-CP
56
:RN-CP
390
:RN-CP
68
:RN-CP
CXD9509Q
MID-X
MB81F643242B-10
S-DRAM
0.0033mF
50V
PST9120NL
22
:CHIP
0.22 16V B:CHIP
0UH
0UH
0
0
0
10k
:CHIP
0.1
25V
:CHIP
0
0
0
0
0
0
0
0
00
0
0
0
DSP Y/CR/CB
SDDQM0
SDDQM1
SDCLKIN
SDCKE
SDCLK
DSPCLK
DRCDCLK
SDDQM0
SDCLKIN
SDCLK
SDCKE
SDDQM1
D OUT
VP 100 OUT
HP 100 OUT
VDMID
HDMID
VP SUB IN
Y SUB IN
U SUB IN
V SUB IN
VDOYCLVL
VDOCBCLVL
VDOCRCLVL
VDOCLAMP
D3.3V-MID
+2.5V
D3.3V-MID
SCL-MID
SDA-MID
XRST
SUB Y/C
ANREF1
ANREF2
VDO CLK OUT
VDO CLK IN
Y SUB AD
U SUB AD
V SUB AD
BLK015A
XVDOHS
A5V-1
DPIC SW
D0
D1
D2
D3
D4
D5
D6
D7
D8
D9
D10
D11
D12
D13
D14
D15
D16
D17
D18
D19
D20
D21
D22
D23
D24
D25
D26
D27
D28
D29
D30
D31
A0
A1
A2
A3
A4
A5
A6
A7
A8
A9
A10
A11
A12
WE
CAS
RAS
CS
A8
A7
A6
A5
A4
A3A2
A1
A0
A10
A11
A12
WE
CAS
RAS
CS
CB7
CB6
CB5
CB4
CB3
CB2
CB1
CB0
CR7
CR6
CR5
CR4
CR3
CR2
CR1
CR0
Y7
Y6
Y5
Y4
Y3
Y2
Y1
D0
D1
D2
D3
D4
D5
D6
D7 D8
D9
D10
D11
D12
D13
D14
D15
D16
D17
D18
D19
D20
D21
D22
D23 D24
D25
D26
D27
D28
D29
D30
D31
A9
DB0
DB1
DB2
DB3
DB4
DB5
DB6
DB7
CB0
CB1
CB2
CB3
CB4
CB5
CB6
CB7
DR0
DR1
DR2
DR3
DR4
DR5
DR6
DR7
DY0
DY1
DY2
DY3
DY4
DY5
DY6
DY7
CR0
CR1
CR2
CR3
CR4
CR5
CR6
CR7
Y7
Y6
Y5
Y4
Y3
Y2
Y1
Y0
R0
R1
R2
R3
R4
R5
R6
R7
B0
B1
B2
B3
B4
B5
B6
B7
G0
G1
G2
G3
G4
G5
G6
G7
Y0
C0
C1
C2
C3
C4
C5
C6
C7
Y0
Y1
Y2
Y3
Y4
Y5
Y6
Y7
DTVCIN2
DTVCIN1
DTVCIN0
DTVVSYNC
DTVPHLD
VDD2
VSS
DTVYCLVL
DTVCLKOUT
DTVCLAMP
DTVHSYNC
XDRCVS
XDRCHS
DRCCBIN7
DRCCBIN6
DRCCBIN5
DRCCBIN4
VDD2
VSS
DRCCBIN3
DRCCBIN2
DRCCBIN1
DRCCBIN0
DRCCRIN7
VDD1
DRCCRIN6
DRCCRIN5
DRCCRIN4
DRCCRIN3
VSS
DRCCRIN2
DRCCRIN1
DRCCRIN0
DRCDCLK
VDD1
DRCYIN7
DRCYIN6
DRCYIN5
DRCYIN4
DRCYIN3
VDD1
VSS
DRCYIN2
DRCYIN1
DRCYIN0
DSPY7
DSPY6
DSPY5
DSPY4
DSPY3
DSPY2
DSPY1
VDD2
VSS
DSPY0
DSPCB7
DSPCB6
DSPCB5
DSPCB4
DSPCB3
DSPCB2
DSPCB1
DSPCB0
DSPCR7
VDD2
VSS
DSPCR6
DSPCR5
DSPCR4
DSPCR3
DSPCR2
DSPCR1
DSPCR0
XDSPHS
XDSPVS
VDD1
VSS
DSPCLK
XDSPYS
AVCCDSP
DSPLPFO
DSPLPFI
AVSSDSP
AVSSSD
AVCCSD
XTST
VDD1
VSS
DXT1IN
DXT1OUT
IICSDA
IICSCL
IICC KSEL
TMOD ENB
DXT2IN
DXT2OUT
VDD1
VSS
SDDAT31
SDDAT30
SDDAT29
SDDAT28
SDDAT27
SDDAT26
VDDSD
SDDAT25
SDDAT24
SDDAT23
SDDAT22
VDD2
VSS
SDDAT21
SDDAT20
SDDAT19
SDDAT18
SDDAT17
SDDAT16
SDADR 3
SDADR4
SDADR5
SDADR6
VDD2
VSS
SDCLK
SDADR7
SDADR8
SDADR9
SDADR2
SDADR1
SDADR0
SDADR10
SDADR11
SDADR12
SDCS
VDD2
VSS
VSSSD
SDRAS
SDCKE
SDCLKIN
SDCAS
SDWE
SDDQM1
SDDQM0
VSS
SDDAT7
SDDAT6
SDDAT5
SDDAT4
SDDAT3
VDD1
SDDAT2
SDDAT1
SDDAT0
SDDAT15
SDDAT14
VDD1
VSS
SDDAT13
SDDAT12
SDDAT11
SDDAT10
SDDAT9
SDDAT8
VDOYCLVL
VDOCBCLVL
VDOCRCLVL
VDOYIN7
VDD2
VSS
VDOYIN6
VDOYIN5
VDOYIN4
VDOYIN3
VDOYIN2
VDOYIN1
VDOYIN0
VDOC IN7
VDOC IN6
VDOC IN5
VDOC IN4
VDOC IN3
VDOC IN2
VDOC IN1
VDOC IN0
VDOCLKOUT
XVDOVS
XVDOH S
XRESET
VDD1
VSS
VDOC LAMP
XOSDH S
XOSDVS
VDOC LKIN
AVSSPLL
VDOLPFI
VDOLPFO
AVCCPLL
ANCRIN
AVCCAD3
AVSSAD3
ANCBI N
ANREF2
ANREF1
ANYGIN
AVCCAD1
AVSSAD1
DTVLPFO
DTVLPFI
AVCCDTV
AVSSDTV
DTVCLKIN
DTVYIN7
DTVYIN6
DTVYIN5
DTVYIN4
DTVYIN3
DTVYIN2
DTVYIN1
DTVYIN0
DTVCIN7
DTVCIN6
DTVCIN5
DTVCIN4
DTVCIN3
VDD1
OVSS2
OVSS1
MST
MAINCHIP
OVSS3
OVDD21
OVDD22
OVDD11
VPDTEST
VDD1
VSS
AVCCAD 2
AVSSAD2
VCC
DQ0
VCCQ
DQ1
DQ2
VSSQ
DQ3
DQ4
VCCQ
DQ5
DQ6
VSSQ
DQ7
N.C.
VCC
DQM0
WE
CAS
RAS
N.C.
A12
A11
A10
A0
A1
A2
CS
DQM2
N.C.
VCC
DQ16
VSSQ
DQ17
DQ18
VCCQ
DQ19
DQ20
VSSQ
DQ21
DQ22
VCCQ
DQ23
VCC VSS
DQ24
VSSQ
DQ25
DQ26
VCCQ
DQ27
DQ28
VSSQ
DQ29
DQ30
VCCQ
DQ31
N.C.
VSS
DQM3
A3
A4
A5
A6
A7
A8
A9
CKE
CLK
N.C.
N.C.
DQM1
VSS
N.C.
DQ8
VCCQ
DQ9
DQ10
VSSQ
DQ11
DQ12
VCCQ
DQ13
DQ14
VSSQ
DQ15
VSS
MEMORY
XSM
MB81F643242B
1.7
1.1
1.2
1.6
3.1
-0.1
1.3
1.1
2.7
1.7
0.5
1.4
0.8
2.7
(DRC,MID,SUB-MICON DRC/MID CONTROLLER)
13
+2.5V
+2.5V
+2.5V
+2.5V
3.2
3.3
0.5
0
1.7
0
0.2
2.0
0
0
0
0
0
0
3.0
2.8
3.2
0
1.6
0
0
0
0
2.4
0
3.2
0
1.5
0
1.4
1.1
3.2
3.2
1.7
0
1.2
1.4
3.2
0.8
3.2
0
1.4
0
2.0
1.7
3.3
1.6
1.9
0
1.1
0.9
3.2
0
0
0
0
0
0
1.6
2.9
0
0
1.6
1.9
2.4
2.4
0
0
0
0
3.2
0
1.3
1.4
0
1.9
0
0
0
0
0
0
0
1.3
1.3
0
1.3
1.3
2.4
0
2.4
2.4
1.3
0
1.4
3.2
1.5
2.4
1.6
0
0
0
0
0
0
0
0
0
0.4
0
1.2
2.4
1.2
0
1.2
0
2.4
0
0
0
0
0
0
2.4
0
0
0
0
0
0
0
0
0
0
0.3
0
2.4
0
0
0
0
0
0
0
0
0
0
0
3.2
0
0
0
0.2
1.4
1.8
1.7
1.4
2.0
1.6
1.7
3.2
0
1.6
1.7
1.5
1.3
1.7
2.4
1.5
1.4
1.5
0
1.0
-2.0
-1.9
-1.9
-0.8
-2.0
-3.2
-1.9
-1.7
0
-0.6
-3.0
-2.0
-1.9
-1.9
-1.8
-1.8
-1.6
-1.6
1.5
1.1
1.2
1.3 0
2.5
0
1.6
0
0
0
0
2.4
0
0
0
1.6
1.6
0
1.6
3.3
0
1.6
3.2
2.9
2.8
3.0
2.4
0
0
0.5
0.5
0
0
0
0
0.6
0.6
0
1.7
2.0
1.1
0.7
1.2
2.0
0
0
0
1.3
2.1
1.5
1.3
0
1.0
0
0
1.1
0.2
0
2.1
2.1
B-SSSAG3-...-B3(P4)-ES34

– 148 – – 149 –– 147 – – 150 –
A
123456789101112
13 14 15 16 17 18 19 20 21 22 23 24 25 26 27 28 29 30
B
C
D
E
F
G
H
I
J
K
L
M
N
O
(11) Schematic Diagram of B3 (5/6) Board
1
2
43
42
3
4
5
6
7
8
9
10
31
(LSB) R0
(MSB) R9
(LSB) G0
(MSB) G9
RCK
G1
G2
R5
R6
R7
R2
R1
AV
SS
R3
R4
R8
(LSB) B0
(MSB) B9
B5
B6
B7
B2
B1
B3
B4
B8
G3
G4
G5
G6
G7
G8
GCK
BCK
VB
DV
DD
DV
SS
LATCHES
DECODER
DECODER
4LSB'S
CURRENT
CELLS
6LSB'S
CURRENT
CELLS
CLOCK
GENERATOR
11
12
13
14
15
16
17
18
19
20
32
LATCHES
DECODER
DECODER
4LSB'S
CURRENT
CELLS
6LSB'S
CURRENT
CELLS
CLOCK
GENERATOR
30
33
48
35
34
37
38
36
LATCHES
DECODER
DECODER
4LSB'S
CURRENT
CELLS
6LSB'S
CURRENT
CELLS
CLOCK
GENERATOR
CURRENT CELLS
(FOR FULL SCALE)
BIAS VOLTAGE
GENERATOR
21
22
23
41
40
47
46
45
44
39
24
25
26
27
28
29
–
+
RO
AV
SS
GO
AV
SS
AV
DD
AV
DD
AV
DD
BO
VG
VREF
IREF
8bit PWM ( 8)
X0
X1
XRST
MOD0
MOD1
P07-00/DB 7-0
P17-10/DB15-5
P27-20/AB 8-1
P37-30/AB18-9
P40/A17
P41/A23
P42/XLB
P43/XHB
P44/XWRS
P45/XRDS
P46/CLK
P47/WAIT
P54
P53
P52/USCK
P51/US0
P50/USI
P67/EC0
P66/EC1
P65/EC2
P64/EC3
P60/T001/EI00
P61/T301/E101
P62/OC0/EI10
P63/OC1/EI11
PORT 6
EXT. INT
UART
PORT 5
PORT ø~4
16bit Timer ( 2)
8/16bit Capture
Timer/Counter
(4)
L. P. F. ( 3)
Ext-Bus Control
System Clock Control & Bus Mode Control
Main Clock
Generator
2
2
2
2
2
2
2
2
2
12
2
CPU
Sub Clock
Generator
Sub Clock
Generator
PORT 7
Hsync
Hsync
V0T
V0B
I
B
G
R
Clock
stop
P70/Hsync
P71/Hsync
P72/V0T
P73/V0B
P74/IOUT
P75/BOUT
P76/GOUT
P77/ROUT
D0T
XD0T
PORT A
12C
12C
RMC
8bit A/DC
RAM S10
PORT 9
PORT 8
ROM
RAM
Interrupt
Controller
OSDC
CGROM
VRAM
(2)
PMW0~3
PMW4~7
AN0~7
AVDD
AVSS AVDD
AVSS
P87/AN0
P87/AN1
P87/AN2
P87/AN3
P90/PWM3
P91/PWM2
P92/PWM1
P93/PWM0
P97/XCS
P97/STB
P97/SCK
P97/S0
PA0/SI
PA1/RMC1
PA2/SDA0
PA3/SDA1
PA4/SCL0
PA5/SCL1
PA6/SDA2
PA7/SCL2
CL1
CL0
P87/AN4/PWM7
P87/AN5/PWM6
P87/AN8/PWM5
P87/AN7/PWM4
AVDD 2
AVSS 2
B3 BOARD IC901 CXD2309Q
B3 BOARD IC902 MB94918-AG3M1D
123456789
101112
13
14
15
16
17
18
19
20
21
22
23
24
25 26 27 28 29 30 31 32 33 34 35 36
37
38
39
40
41
42
43
44
45
46
47
48
1 2 3
46
1 2 3
46
EMI
G
1
2
3
4
5
6
7
8
9
10
11
12
13
14
15
16
17
18
19
20
21
22
23
24
25
26
27
28
29
30
31
32
33
34
35
36
37
38
39
40
41
42
43
44
45
46
47
48
49
50
51 52 53 54 55 56 57 58 59 60 61 62 63 64 65 66 67 68 69 70 71 72 73 74 75 76 77 78 79 80
81
82
83
84
85
86
87
88
89
90
91
92
93
94
95
96
97
98
99
100
1
2
3
4
5678
1
2
3
45
S
S
EMI
G
EMI
G
EMI
G
1 3 6
7
10
2 4 5
9
12
C901
C902
C903
C905
C907
R901
R902
R903
R906
R908
R909
R910
R911
R912
FL901
FL904
R913 R914
R915 R916
R932
C912
R951
R952
FL905
C906
C904
C911
FL902
FL903
R907
R957
R958
R959
R960
R961
R962
R905
R904
IC901
Q904
Q905
IC902
IC903
IC904
Q901
Q902
Q903
Q906
Q907
Q908
Q909
R929
R930
R931
R933
R934
R936
R937
R938
X901
R919
R922
R921
FL906
FL907
C951
C952
D901
C953
R975
R976
R977
R978
R928
R917
L908
R944
R945
R935
R954
R955
R927
R926
R923
R953
C908
C950
C954
C909
C910
C913
C914
3.3k
:CHIP
1k
:CHIP
1k
:CHIP
1k
:CHIP
0.1
25V
F:CHIP
0.1
25V
F:CHIP
0.01
B:CHIP
0.01
B:CHIP
#
:CHIP
2.2k
:RN-CP
3.3k
:RN-CP
220
:RN-CP
220
:RN-CP
220
:RN-CP
4.7k
:CHIP
4.7k
:CHIP
#
:CHIP
2.2k
:CHIP
2.2k
:CHIP
#
#
220
:RN-CP
220 :RN-CP
220 :RN-CP
10
16V
:AL-CP
1
10V
B:CHIP
10
16V
:AL-CP
#
:CHIP
LPF
LPF
LPF
CKD510JB1A105ST
CKD510JB1A105ST
220
:RN-CP
220
:RN-CP
220
:RN-CP
220
:RN-CP
220
:RN-CP
220
:RN-CP
CXD2309Q
D/A CONVERTER
2SK2036
LEVEL SHIFT
2SK2036
LEVEL SHIFT
MB94918-AG3MID
SUB MICRO
CONTROLLER
M24CO4-MN6T
NVM
PST9145NL
RESET IC
2SA1162
BUFFER
2SA1162-G
BUFFER
2SA1162-G
BUFFER
DTC144EKA
INVERT
2SA1162
BUFFER
2SA1162-G
BUFFER
2SA1162-G
BUFFER
100
:CHIP
100
:CHIP
470
:CHIP
100
:CHIP
100
:CHIP
470
:CHIP
100
:CHIP
100
:CHIP
20MHz
#
#
#
#
#
#
#
#
#
#
#
#
#
#
0
:CHIP
0
:CHIP
10k
:CHIP
0
0
0
2.2k
:CHIP 2.2k
:CHIP
0
0.01mF
:CHIP
0.01mF
:CHIP
0.01mF
:CHIP
47mF
16V
:AL-CP
0.001mF
:CHIP
0.01mF
:CHIP
10mF
16V
:AL-CP
A5V-1
A5V-1
D5V
DSP Y/CR/CB
DSPCLK
V 100 OUT
U 100 OUT
Y 100 OUT
VP MAIN IN
D5V
SDA
SCL
SDA-MID
SCL-MID
G
HP SUB IN
VP SUB IN
XRST5
PLL ENABLE
PLL DATA
PLL CLK
PLL READ
D3.3V-MID
D5V
MID BUSY
R0
R1
R2
R3
R4
R5
R6
R7
G0
G1
G2
G3
G4
G5
G6
G7
B0
B1
B2
B3
B4
B5
B6
B7
R0
R1
R2
R3
R4
R5
R6
R7
R8
R9
G0
G1
G2
G3
G4
G5
G6
G7
G8
G9
B0
B1
B2
B3
B4
B5
B6
B7
B8
B9
RCK
BCK
GCK
D-VSS
VB
IREF
VREF
VG
A-VDD
A-VDD
A-VDD
RO
A-VSS
GO
A-VSS
BO
A-VSS
D-VDD
(Y)
(CR)
(CB)
1-233-876-21
WP
CLK
DAT
VCC
RST
CN CONT
NASY
CNST
BS-RST
DEC-IN
ST1
BILIN1
BILIN2
ST2
BS-LED
RST
ANT
AFT2
AFT1
VDD
XBINT
UV1-H
UV2-H
B-INT
BEEP
VP-MAIN
C2
D2
C1
C0
D1
D0
UV1-MOD
UV1-AGC
UV2-MOD
UV2-MONO
UV1-MON0
BS-REC
GND
X1
X2
VDD
GND
VDD
VM-AMP
NV-RST
OSD-CS
NVM-WP
SCK
SO
SI
BCH-SW
SS2FH
PXI
BCH-HSYNC
BCH-VSYNC
CHR-RST
CHR-BUSY
SUB-BUSY
OSD-HSYNC
OSD-VSYNC
A8
MN-LOCK
OSD-R
OSD-G
OSD-B
OSD-YS
GR-SW
GR-RST
S-MUSE
Y/C-SW1
Y/C-SW2
BS/DEC-SW1
BS/DEC-SW2
1.3
(DRC,MID,SUB-MICON DRC/MID CONTROLLER)
14
15
16
1.3
1.3
0
1.1
1.1
1.0
0
0
1.1
0
0
0
1.9
0.9
0
1.2
1.2
1.2
1.7
1.5
0
1.5
1.9
1.5
4.9
0
0.5
0
0.3
0
0.5
4.7
4.7
4.7
2.3
1.9
0
0
1.2
0
1.4
0
0
0
0
0
0
0.5
0.1
0
0
0
4.9
0
4.9
4.9
4.9
0
0
4.9
0
3.2
4.9
3.2
3.2 0
4.9
0
0
0
4.9
4.9
0
0
0
0
0
0
0
0
0
0
0
0
0
0
0
0
0
0
0
0
0
0
4.9
0
0
0
0
0
4.9
4.9
0
0
4.9
0
0
0
0
0
0
0
0
2.3
2.3
4.9
4.9
0
0
1.9
2.4
0
0
0
0
0
0
0
4.9
0
4.9 4.9
0
0
0
0
0
0
0.1
0
4.9
4.9
0.1
0
0
4.9
0
0
0
0
0
0
4.4
4.5
4.9
4.9
4.9
4.9
0
2.2
0
4.9
0
4.9
0
0
0
1.1
4.9
4.9
0
0
B-SSSAG3-...-B3(P5)-ES34

– 152 – – 153 –– 151 – – 154 –
A
123456789101112
13 14 15 16 17 18 19 20 21 22 23 24 25 26 27 28 29 30
B
C
D
E
F
G
H
I
J
K
L
M
N
O
(12) Schematic Diagram of B3 (6/6) Board
32
30
ARTS
DV
SS
AV
DD
60
AV
SS
61
AV
SS
65
AV
SS
AV
SS
AV
SS
AV
SS
52
CLK
35
AV
DD
41
AV
DD
42
AV
DD
22
DV
DD
23
DV
DD
1
DV
DD
11
DV
SS
12
DV
SS
71
72
A0 (LSB)
13
DV
SS
2
DV
DD
62
AV
DD
68
AV
DD
A-CH
8-BIT
ADC
DATA
SELECTOR
+
LATCH
9-BIT
DAC
31 8
ART
28AIN
26ARB
25ARBS
29AIO
A7 (MSB)
20
XAOE
B0 (LSB)
B7 (MSB)
XBOE
C0 (LSB)
C7 (MSB)
XCOE
44
3
10
45
73
80
46
TGR
21
58
CLE
53
CLP
51
SEL
54
REF0
57
REF3
59
TEST
43
TEST
CTL0
47
CTL2
49
SY
50
33BRTS
34BRT
37BIN
39BRB
40BRBS
36BIO
70CRTS
69CRT
66CIN
64CRB
63CRBS
67CIO
24
27
38
DIGITAL
CLAMP
CIRCUIT
B-CH
8-BIT
ADC
9-BIT
DAC
B-CH
8-BIT
ADC
9-BIT
DAC
9
8
DIGITAL
CLAMP
CIRCUIT
CLAMP CONTROL
9
8
DIGITAL
CLAMP
CIRCUIT
DECODER
9
TTLIN
VCO
(TTL)
VCO
(PECL)
SYNC
(TTL)
HOLD
(TTL)
TREF SENABLE SCLK SDATA SEROUT DIVOUT TLOAD C3
VBB
UNLOCK
CLK/2
(PECL)
NCLK/2
(TTL)
CLK/2
(TTL)
CLK
(PECL)
NCLK
(TTL)
DSYNC
(PECL)
DSYNC
(TTL)
CLK
(TTL)
SYNC
(PECL)
PECLIN
TTLIN
PECLIN
TTLIN
DAC
1/2
POLARITY
POLARITY
1bit
1bit
2bit
12bit
6bit
1/256 ~ 1/4096
1/32 ~ 64/32 CLK
1 ~ 4 CLK
1bit
1bit
2bit
2bit 1bit
1bit
1bit
ON/OFF
1bit
ON/OFF
1bit
ON/OFF
1bit
ON/OFF
1bit
ON/OFF
1bit
1bit
ON/OFF
1bit
ON/OFF
1bit
ON/OFF
RSET
RC1 RC2
LATCH
LOGIC DSYNC
HOLD
COARSE
DELAY
TTLOUT TTLIN
READ OUT
TTLOUT
PHASE
DETECTOR CHARGE
PUMP FINE
DELAY DIV
1, 2, 4, 8
VCO
CONTROL REGISTER PECL
UNLOCK
DETECT
PECLOUT
TTLOUT
TTLOUT
PECLOUT
TTLOUT
PECLOUT
TTLOUT
TTLOUT
SYNTHESIZER
POWER SAVE
PROGRAMMABLE
COUNTER
WHOLE CHIP
POWER SAVE
MUX
B3 BOARD IC302 CXD2303AQ
B3 BOARD IC303 CXA3266Q-T6
Schematic diagram
?B
3
(5/6) board
Schematic diagrams
B3 (6/6) board /
1
2
1
2
S1651
CN1651
CN1652
AC-PUSH-SW
4P
WHT
:VH
5P
WHT
:VH
AC OUT
AC OUT
AC IN
AC IN
TO D BOARD
CN6604
TO F1 BOARD
CN1602
(AC SWITCH)
B-SSSAG3-...-F2.-ES34
1 2 3 4 5 6 7 8 9
10 11 12 13 14 15 16 17 18 19 20 21 22 23 24
25
26
27
28
29
30
31
32
33
34
35
36
37
38
39
40
414243444546474849505152535455565758596061626364
65
66
67
68
69
70
71
72
73
74
75
76
77
78
79
80
1 2 3 4 5 6 7 8 9
10 11 12
13
14
15
16
17
18
19
20
21
22
23
24
252627282930313233343536
37
38
39
40
41
42
43
44
45
46
47
48
1 2 3 4 5 6 7
89
1011121314
1 2 3 4 5 6 7
89
1011121314
IO
G
1 2 3 4 5 6 7 8
9
10111213141516
1 2 3 4 5 6 7 8
9
10111213141516
123
45
EMI
G
EMI
G
EMI
G
1 2 3
45
1 2 3
45
IC302
C350R305
R336
R302
C353
R335
R319
C316
C315
R325
C310
C337
C305
C346
C318
C321
C320
C323
C324
C325 C332 C341
C347
FL304
C340
FL305
FL306
R310
RB301 RB302
R334
C349
R337
R324
R323
R321
R318
R313
R309
R311
R316
R306
R303
C312
L302
L303
C322 R346 R347
R348
R328
R351
R349
C319
C361
C317
C362
C363
D301 D302
IC303
IC309
IC311
C314
C355
C354
C302
R344
C357
C360
R342
IC304
IC310
R341
C358
IC305
R345
R340
IC306
C359
IC307
IC308
R333
R338
C333 R339
R350
R343
C313 C327 C331
C339
C338
C330
C309
C306
1k
:CHIP
33
:CHIP
33
:CHIP
33
:CHIP
1k
:CHIP
0.1 25V F:CHIP
100p
CH:CHIP
10k
:CHIP
0.1
25V
F:CHIP
0.1
25V
F:CHIP
0.1
25V
F:CHIP
0.1
25V
F:CHIP
0.01
B:CHIP
0.01
B:CHIP
0.01
B:CHIP
0.01
B:CHIP
0.01
B:CHIP
0.01
B:CHIP
0.01
B:CHIP
0.01
B:CHIP
0.1
25V
F:CHIP
22
:CHIP
#
:CHIP
0.01
B:CHIP
100k
:CHIP
CXD2303AQ
A/D
22:CHIP
22:CHIP
22:CHIP
22:CHIP
22:CHIP
22:CHIP
22:CHIP
22:CHIP
#
B:CHIP
100 :CHIP
#
:CHIP
0.01
B:CHIP 0
:CHIP
# :CHIP
#
:CHIP
0.001
CH:CHIP
10
16V
:AL-CP
10
16V
:AL-CP
47
16V
:AL-CP
47
16V
:AL-CP
10
16V
:AL-CP
0.01
B:CHIP
0.0047
B:CHIP
CKD510JB1A105ST
CKD510JB1A105ST
NFM51R10P107
:CHIP
:CHIP
4.7k
:RN-CP
2k
:RN-CP
#
22
:CHIP
22
:CHIP
MA113-(TX) MA113-(TX)
CXA3266Q-T6
PLL
TC7SET04F(TE85R)
NJM78L05A
0.1
25V
B:CHIP
10
6.3V
:AL-CP
10
6.3V
:AL-CP
10
6.3V
:AL-CP
#
#
#
#
#
#
#
#
#
#
#
#
#
#
#
0
0
00
0
0
0.1
25V
B:CHIP
0.1
25V
B:CHIP
0.1
25V
B:CHIP
0.1
25V
B:CHIP
0.1
25V
B:CHIP
0.1
25V
B:CHIP
0.1
25V
B:CHIP
0.1
25V
B:CHIP
ANREF2
ANREF1
SUB Y/C
VDO CLK OUT
VDO CLK IN
VDOCLAMP
HP SUB PLL
U SUB AD
Y SUB AD
V SUB AD
SDA
SCL
PLL DATA
PLL CLK
PLL ENABLE
PLL ENABLE IN
G
PLL READ
XVDOHS
+9V
D5V
D5V
A5V-1
D3.3V-MID
C0
C1
C2
C3
C4
C5
C6
C7
Y0
Y1
Y2
Y3
Y4
Y5
Y6
Y7
ENB2
CLK
CLK
ENB2
DAT
DAT
AVSS
CIN
CIO
AVDD
CRT
CRTS
DVSS
DVSS
C0
C1
C2
C3
C4
C5
C6
C7
DVDD
DVDD
B0
B1
B2
B3
B4
B5
B6
B7
DVSS
DVSS
A0
A1
A2
A3
A4
A5
A6
A7
TGR
AVSS
ARBS
ARB
AVSS
AIN
AIO
AVDD
ART
ARTS
BRTS
BRT
AVDD
BIO
BIN
AVSS
BRB
BRBS
AVDD
AVDD
TEST
XAOE
XBOE
XCOE
CTL0
CTL1
CTL2
SY
SEL
CLK
CLP
REF0
REF1
REF2
REF3
CLE
TEST
AVSS
AVSS
AVDD
CRBS
CRB
DVDD
DVDD
VCOH
VCOL
VCO
SYNCH
SYNCL
SYNC
SENABLE
SCLK
SDATA
TLOAD
CS
SEROU T
HOLD
DIVOUT
UNLOCK
DVCC
DGND
CLK/2N
CLK/2
CLKN
CLK
DSYNC
TTLGND
TTLVCC
IOGND
PECLVCC
CLK/2L
CLK/2H
CLKL
CLKH
DSYNCL
DSYNCH
VBB
PECLVCC
IOGND
IOVCC
PLLVCC
PLLGND
VCOVC C
VCOGND
VCOHGND
IREF
RC2
RC1
IRGND
IRVCC
IOVCC
IOGND
0.5
0.5
0.5
1.4
4.9
(DRC,MID,SUB-MICON DRC/MID CONTROLLER)
17
18
19
20
000
4.9
8.9 5.0
0
4.9
0
0
0
0
1.7
4.4
3.7
0.2
4.9
0
0
4.9
4.9
2.2
2.7
4.9
4.9
0
0
0
0.1
0.3
4.9
0
0
0
0
0
0
4.9
4.9
0
4.9
0
0
0
4.9
0
4.9
0
0
1.1
1.8
0
0
0
0
3.2
1.3
1.3
1.3
1.3
1.3
1.3
1.3
1.3
0
0
0.5
0.5
-0.5
0.6
0
1.3
3.2
3.2
0
0.3
0.3
0
4.1
4.1
4.7
1.9
1.9
1.9
1.9
4.7
0.1
0.1
0
0.3
0.3
0
0.3
4.7
0
0
0
0
4.6
0
0
0
0
0
1.5
0
4.9
0
4.6
0
0
0
0
4.7
4.7
0
1.0
1.1
4.7
1.9
1.9
0
0
0.1
0
0
0
0
0.1
0.1
0.1
B-SSSAG3-...-B3(P6)-ES34

– 155 – – 68 –– 156 – – 157 –
A
123456789101112
13 14
1
B
C
D
E
F
G
H
I
J
KV-ES34M81/ES34M91
RM-916
(13) Schematic Diagram of DH Board
– F2 Board –
PRINTED WIRING BOARDS
F2 [AC SWITCH]
– DH Board –
DH [MAGNETIC FIELD CORRECTION]
Schematic diagram
?DH board
1
2
3
4
VCC
GND
REF
XOUT
678
NC
REG
NC
1 2 3 4 5 6 7 8 9
10
1
2
3
4
5
6
C3804
R3825
R3814
R3828
C3808
C3807
C3816
R3849
D3807
D3808
D3809
D3810
R3856 R3857
R3808
R3810
R3839
R3847
R3846
R3848
R3845
C3805
R3854
IC3805
R3853
R3852
R3804
R3807
R3802 R3803
JW3801
R3823
C3822
R3851
CN3802
IC3807
D3805
Q3807 Q3808
Q3809
Q3810
Q3811
Q3812
R3809
R3811R3812
C3819
C3820
R3850
C3801
CN3801 CN3803
NL3801
R3805
0.01
B
1k
330
#
0.01
B
10
0.47
:FPRD
#
PROTECT
#
PROTECT
#
PROTECT
#
PROTECT
##
150k
4.7k
10k
100
1k
1k
4.7k
10
10k
LA6510
N/S DRIVE
#
1k 1k
#
0.47
:FPRD
100k
9.1k
470
15
0.1
:MPS
JW(5MM)
6P
BLK
:S-MICRO
SENSOR UNIT
MIU-113
1SS119-25 SW
DTC144ESA DTC144ESA
2SC2785-HFE
N/S DRIVE MUTE
2SA1175-HFE
BUF
2SC2785-HFE
BUF
2SC2785-HFE
N/S DRIVE MUTE
75k
470k
1/2W
1M
1/2W
1.0mF
#
#
10mF
50V
TAB CONTACT TAB CONTACT
GAP,SPARK
820
5V
GND
7V
DEGAUSS
VS1
OUT1
-IN1
+IN1
GND
+IN2
-IN2
OUT2
VS2
VCC
11V
N/S(E)
N/S(B)
TO A BOARD
CN1138
(MAGNETIC FIELD CORRECTION)
7V
7V
7V
7V
7V
11V
11V
5V
5V
12.2
0
2.5
2.2
0
0
5.4
6.8
2.5
3.2
0
3.2
2.5
0
0
5.0 5.0
0
0
0
2.0
2.8
0
2.8
2.0
3.4
4.1
2.8
2.8
00
2.8
2.8
2.4
6.7
TO BEZEL TO COATING
EARTH
B-SSS10288-ME.-DH.-ES34

– 158 – – 159 – – 160 –
KV-ES34M81/ES34M91
RM-916
KV-ES34M81/ES34M91
RM-916 KV-ES34M81/ES34M91
RM-916
– A1 Board (Component Side) –
PRINTED WIRING BOARDS
A1 [AUDIO DSP]
– A1 Board (Conductor Side) –
ADC HPF
DATT
DAC DATT
SMUTE
Audio I/F
Controller
Clock Gen. & DividerControl Register I/F
VD
VT
DGND
PD
LRCK
BICK
SDTO
SDTI
XTI XTALECLKO XTOCDTI CIFCS CCLK
VREF
VA
AGND
AOUTR+
AOUTR-
AOUTL+
VCOM
AINR
AINL
AOUTL-
A1 Board IC8103 AK4524
A1 BOARD (Component Side)
IC
IC8102 B-1
IC8104 A-2
IC8105 B-4
IC8106 B-3
IC8108 B-1
• :Pattern from the side which enables seeing.
• :Pattern from the rear side.
A
123
B
A
123
B

A
123456789101112
13 14 15 16 17 18 19 20 21 22 23 24 25 26 27 28 29 30 31 32 33 34
B
C
D
E
F
G
H
I
J
K
L
M
N
O
(14) Schematic Diagram of A1 Board
– 163 – – 164 –– 162 – – 165 –– 161 –
SCKO
SCKI
DLON
LPFO
Timing
DLL
Bus
Switch
C pointer
register
Y pointer
register
X pointer
register
Register
X0,X1,X2
Y0,Y2,Y3
ERAM
4kword
CROM
4kword
YRAM
4kword
XRAM
4kword
Program
Program
Instruction
Control Instruction
Decorder
Interrupt
control
Audio
Interface
MCU
Interface
DIR
Timer
ROM
4kword x 3
RAM
128word
Address Operator
x 2
MX
40bit
X bus
Y bus
I bus
A1
Round/Limiter Round/Limiter
A0 A2 A3
MY MZ AX
MAC ALU
AY
External SRAM
Interface
General
output port
Flag
DIT
/CE,/OE,/WR
ADn
IOn
IRQ
SDIn
SDOn
LRCK/BCK
RX
LOCK
/RST
MIMD
/MICS
/MILP
MIDIO
/MICK
MIACK
POn
FIn
TXO
3
17
2
4
8
8
4
A1 BOARD IC8105 TC9446F-002
Schematic diagrams
BC4
V
boards
/
Schematic diagram
?A
1
board
IO
G
1 2 3 4 5 6 7 8 9
10 11 12 13 14
1516171819202122232425262728
1 2 3 4
5678
1 2 3
1
2
3
4
5
6
7
8
9
10
1
2
3
4
5
6
7
8
9
10
1 2 3
1
2
3
4
5
6
7
8
9
10
11
12
13
14
15
16
17
18
19
20
21
22
23
24
25
26
27
28
29
30
31
32
33
34
35
36
37
38
39
40
41
42
43
44
45
46
47
48
49
50
51 52 53 54 55 56 57 58 59 60 61 62 63 64 65 66 67 68 69 70 71 72 73 74 75 76 77 78 79 80
81
82
83
84
85
86
87
88
89
90
91
92
93
94
95
96
97
98
99
100
EMI
EMI
EMI
C8101 C8102
C8112
C8116
R8102
R8103
R8144
R8145
R8146
R8161
R8129
R8136
C8108
C8128
C8120
C8134
C8165
C8146
C8199
C8164
C8148
C8127
FB8109
IC8103
X8102
C8147
C8168
C8202
R8168
R8170
C8204
R8138 R8140
IC8106
R8133
IC8104
IC8107
R8171
C8150
C8207
C8206
C8208
C8209
C8210
C8155
R8172
R8121
R8122
R8127
R8128
R8106 R8107
C8136
C8137
C8138
C8139
C8140
C8141
R8120
R8207
C8218
R8205
R8203
C8163
R8173
R8130
R8200
R8204
C8205
R8202
R8201
C8144
C8166
R8123
R8124
R8125
R8126
FL8100
FL8101
FL8102
C8124
C8125
C8126
C8133
C8143
C8167
C8197
C8198
R8206
C8142
C8145
C8212
C8213
C8162
C8129
L8100
L8101
C8103
C8104
C8105
C8106
C8107
C8109
C8110
C8111
L8102
L8103 L8104
L8105
IC8102
JR8100
JR8101
C8117
C8135
C8130
C8131
C8161
C8119
IC8105
CN8100
CN8101
C8211
C8132
FB8116
FB8117
FB8115
FB8108
R8149
R8157
FB8110
FB8112
C8122
FB8118
FB8119
FB8120
FB8121
FB8104
FB8106
R8139
R8169
R8158
FB8111
FB8113
R8131 R8137
R8143
R8142
R8134 R8135 R8141
FB8102
FB8103
FB8105
FB8114
R8101
FB8100
FB8101
C8200
C8201
R8147
R8148
R8155
C8203
C8123
C8121
C8118
2200p
B:CHIP
3.3k
:CHIP
3.3k
:CHIP
##
220p
B:CHIP
100
:CHIP
220
:CHIP
220
:CHIP
100
:CHIP
0.1
25V
B:CHIP
0.1
25V
B:CHIP
1.1UH
:CHIP
0.1
25V
B:CHIP
22p
CH:CHIP
22p
CH:CHIP
0.1
25V
B:CHIP
0.47
16V
B:CHIP
#
B:CHIP
#B:CHIP
#B:CHIP
22
:CHIP
#
:CHIP
0.1
25V
B:CHIP
0.1
25V
B:CHIP
0.47
16V
B:CHIP
0.47
16V
B:CHIP
100
:CHIP
1M
:CHIP
18.432MHz
1k
:CHIP 1k
:CHIP
TC7WU04F(TE12R)
DIR AMP
2.2M
:CHIP
S-80743AN-D7
5V-RESET
100 :CHIP
0.1
25V
B:CHIP
0.1
25V
B:CHIP
100p CH:CHIP
100
:CHIP
100p CH:CHIP
100p CH:CHIP
100p CH:CHIP
100p CH:CHIP
S-80827ANUP-EDQ-
RESET
100:CHIP
100:CHIP
100:CHIP
100:CHIP
2.2k
:CHIP
2.2k
:CHIP
100p CH:CHIP
100p CH:CHIP
100p CH:CHIP
100p CH:CHIP
100p CH:CHIP
100p CH:CHIP
1k
:CHIP
#
:CHIP
0.1 25VB:CHIP
100p
CH:CHIP
100
:CHIP
1k
:RN-CP
1k
:RN-CP
56k
:CHIP
10k
:CHIP
10k
:CHIP
4.7k
:CHIP
100:CHIP
120p
CH:CHIP
22 :CHIP
22 :CHIP
22 :CHIP
22 :CHIP
0.01
B:CHIP
0.01
B:CHIP
0.01
B:CHIP
0.01 B:CHIP
22p
CH:CHIP
0.01
B:CHIP
100p
CH:CHIP
18p
CH:CHIP
2.2 16VF:CHIP
100pCH:CHIP
0.01
B:CHIP
0.01
B:CHIP
0.01
B:CHIP
2.2
6.3V
B:CHIP
2.2
6.3V
B:CHIP
1k
:CHIP
0.01
B:CHIP
0.01
B:CHIP
0.01
B:CHIP
0.01
B:CHIP
0.01
B:CHIP
0.01
B:CHIP
0.01
B:CHIP
0.01
B:CHIP
0.01
B:CHIP
EMI
:CHIP
EMI
:CHIP
EMI
:CHIP
TC9446F-
AUDIO DIGITAL
SIGNAL PROCESSOR
100
16V
10
25V
100
16V
100
16V
100
16V
100
16V
LF50CDT-TR
5V REG
#
:CHIP
#
:CHIP
10P
10P
AK4524
0.22
25V
B:CHIP
2.2mF
6.3V
CH:CHIP
0UH
:CHIP
0UH
:CHIP
0UH
:CHIP
0UH
:CHIP
330 :CHIP
330 :CHIP
0UH
:CHIP
0UH
:CHIP
2.2
6.3V
F:CHIP
0UH:CHIP
0UH:CHIP
0UH:CHIP
0UH:CHIP
0UH
:CHIP
0UH
:CHIP
330
:CHIP
100k
:CHIP
330 :CHIP
0UH
:CHIP
0UH
:CHIP
00
0
#
000
0
0
0
0UH
0
0
0
0
0
0
0
0
0.01B:CHIP
47
6.3V
2.2
6.3V
F:CHIP
47
6.3V
5V
5V
.BLK0101
.BLK0102
+5.0V-AU
+5.0V-AU
SDA
SCL
SDA
SCL
CLK
LRCK
BCK
SDO
SDI
LRCK
BCK
BCK
LRCK
SDI
SDO
L IN
R IN
R IN
L IN
RP
RN
LP
LN
DAT
/CS
CLK
DAT
/CS
LP
LN
RP
RN
MIMD0
MIDI0
MIACK
FI0
FI1
FI2
FI3
IRQ0
VSS
LRCKA.
BCKA
SDO0
SDO1
SDO2
SDO3
LRCKB
BCKB
SDI0
SDI1
VDD
LRCKOA
BCKOA
TEST0
TEST1
LRCKOB
BCKOB
/RST
/MICS
/MILP
/MICK
TXO
TEST2
TEST3
RX
VSS
TSTSUB0
FCONT
TSTSUB1
TSTSUB2
PDO
VDDA
PLON
AMPI
AMPO
CKI
VSSA
CKO
LOCK
VSS
WRN
OEN
CEN
VDD
IO7
IO6
IO5
IO4
IO3
IO2
IO1
IO0
VSS
AD0
AD1
AD2
AD3
AD4
AD5
AD6
AD7
VDD
AD8
AD9
AD10
AD11
AD12
AD13
AD14
AD15
AD16
VSS
PO03
PO04
PO05
PO06
PO07
VDDDL
LPFO
DLON
DLCKS
SCKO
VSSDL
SCIK
XO
XI
VCOM
AINR
AINL
VREF
AGND
VA
TEST
XTO
XTI
XTALE
LRCK
BICK
SDTO
SDTI
AOUTR+
AOUTR-
AOUTL+
AOUTL-
DGND
VD
VT
CLKO
M/
CIF
CS
CCLK
CDTI
S
PD
RESET
VCC
GND
(ALIVE)PO01
(PLL SW)PO00
RESET
VCC
GND
(/PD CTRL)PO02
LP
LN
RP
RN
A GND
R-SW
L-SW
DSP ALIVE
GND
3.3V
CLK
DAT
CS
6.5V
GND
SDA
SCL
GND
COAXIAL SIG
COAXIAL GND
VDDX
VSSX
R+
R-
L+
L-
0
0
(AUDIO DSP)
3.3V
3.3V
6.5V
5V
5V
5V
5V
0.2
-0.2
-3.5
-3.5
0.8
0.7
-0.3
-0.3
-0.3
-0.3
-0.3
-3.5
-3.5
-0.3
-3.5
-3.5
-3.5
-3.5
-3.5
-3.5
-3.5
-0
-3.5
-0.3
-3.5
-3.5
-0.3
-3.5
-3.5
-3.5
-3.5
-0.3
-0.3
-3.2
-3.5
-0.3
-1.9
-0.3
-0.3
-1.9
-0.3
-3.5
-1.9
-2.5
-3.5
-3.5
-3.5
-3.5
-3.5
-0.3
-3.6
-0.3
-0.3
-0.3
-0.3
-0.3
-0.3
-0.3
-0.3
-0.3
-0.3
-3.6
-0.3
-0.3
-3.6
-0.3
-0.3
-0.3
-0.3
-0.3
-0.3
-0.3
-0.3
-3.6
-0.3
-0.3
-3.6
-0.3
-0.3
-0.3
-3.6
-3.6
-3.5
-3.6
-3.6
-3.6
-3.6
-3.6
-3.6
-0.4
-0.3
-0.3
-0.3
-3.6
-3.6
-3.6
-3.6
-0.3
-2.1
-2.3
-0
-0.3
-3.5
3.1 5.0
-3.6
1.3
-1.8
-3.2
-3.6
-3.6
0.3
-1.6
-1.4
-0.3
-1.1
-1.1
-1.1
-1.1
1.2
-3.5
-0.3
-1.7
-0.3
0
-3.5
1.4 1.4
1.4
-2.3
-2.3
-2.0
-1.9
-1.2
-2.0
-0.1
-3.5
1.4
-0.1
1.4
-1.1
-1.1
-0.1
B-SSSAG3-...-A1.-ES34

– 167 – – 168 –
– 166 – – 169 – – 170 –
A
123456789101112
13 14 15 16 17 18 19 20 21 22 23 24 25 26 27 28 29 30 31 32 33 34
B
C
D
E
F
G
H
I
J
K
L
M
N
O
(15) Schematic Diagrams of BC4 and V Boards
123456789
101112131415161718192021222324252627282930
31
32
33
34
35
36
37
38
39
40
41
42
43
44
45
46
47
48
49
50
51 52 53 54 55 56 57 58 59 60 61 62 63 64 65 66 67 68 69 70 71 72 73 74 75 76 77 78 79 80
81
82
83
84
85
86
87
88
89
90
91
92
93
94
95
96
97
98
99
100
1 2 3
46
1 2 3
46
1
2
3
4
5
6
7
8
9
10
11
12
13
14
15
1 2 3 4 5 6 7 8 9
10 11 12 13 14 15 16 17 18 19 20
2122232425262728293031323334353637383940
G
IO
VC NC
1 3 6
7
10
2 4 5
9
12
1 3 6
7
10
2 4 5
9
12
EMI
EMI
EMI
L2001
R2011
R2015
R2027
R2028
R2029
R2030
R2031
R2032
RV2001
R2038
C2046
R2042
R2046
R2048
R2049
R2050
R2051
R2052
R2053
R2056
R2057
R2058
R2059
R2061
R2062
R2064
R2066
R2071
C2054
C2055
C2056
R2072
C2057
C2058
R2073
R2074
C2062
C2063
C2064
C2065
C2066
C2067
C2068
C2069
C2070
C2071
C2005
C2015
C2018 C2030
C2031
C2032
C2033
C2034
C2036
C2042
C2053
C2041
C2044
C2078 C2079 C2080
R2055
C2060
C2061C2059
R2060
C2011
C2010
R2033
R2034
R2076R2077
C2095
R2113
R2024
R2047
R2041
R2044
R2037
R2069
C2017
C2016
C2048
R2040
R2043
C2021C2006
R2115
C2052
C2003
R2063
R2054
R2045
C2029
R2067
R2070
R2092
R2093
C2049
R2108
C2051
C2039
C2040
C2038
C2037
C2072
R2039
C2043
C2073
C2074
C2035
C2075
R2021
R2111
R2114
C2050
C2096
C2097
R2035
C2098
C2099
R2036
C2045
FL2001
FL2002
FL2003
FL2004
CN2001
FB2002
FB2008
FB2009
IC2004
FL2005
FL2006 FL2007
R2078
R2118
R2119
R2200
C2024
R2019
R2075
R2104
R2105
R2106
R2107
R2117
R2116
R2112
R2110
X2001
FB2017
FB2016
FB2015
FB2014
FB2012
FB2011
FB2010
L2007
L2006
L2005
L2004
L2008
C2047
Q2011
Q2013
Q2014
Q2015
Q2018
Q2019
Q2016
Q2012
Q2005
Q2008
Q2010
Q2004
Q2003
Q2007
Q2006
Q2009
Q2002
IC2005
IC2003
0.01
F:CHIP
390p
CH:CHIP
0.1
25V
F:CHIP
24p
CH:CHIP
24p
CH:CHIP
0.1
F:CHIP
0.1
F:CHIP
0.1
F:CHIP
0.1
F:CHIP
0.1
25V
F:CHIP
0.1
F:CHIP
0.1
F:CHIP
0.1
F:CHIP
0.1
F:CHIP
0.1
F:CHIP
0.1
F:CHIP
330
6.3V
0.1
F:CHIP
47
16V
10
10
470p
CH:CHIP
1
47
16V
47
16V
15p
CH:CHIP
0.01
F:CHIP
0.01
F:CHIP
47
16V
0.01
F:CHIP
0.01
F:CHIP
47
16V
0.1
F:CHIP
0.01
F:CHIP
0.01
F:CHIP
47
16V
47
16V
47
16V
0.01
F:CHIP
47
16V
0.1
F:CHIP
47
16V
0.01
F:CHIP
0.01
F:CHIP
15p
CH:CHIP
:CHIP
470
:CHIP
#
1k
:CHIP
1k
:CHIP
560
:CHIP
560
:CHIP
5.6k
:CHIP
5.6k
:CHIP
2.2k
:CHIP
2.2k
:CHIP
620
:CHIP
#
2.2k
:CHIP
820
:CHIP
12k
:CHIP
33k
:CHIP
2.2k
:CHIP
12k
:CHIP
33k
:CHIP
1k
:CHIP
4.7k
:CHIP
47
:CHIP
1k
:CHIP
1k
:CHIP
470
:CHIP
470
:CHIP
47
:CHIP
5.6k
:CHIP
1k
:CHIP
2.2k
:CHIP
1k
:CHIP
100
:CHIP
560
:CHIP
220k
:CHIP
47k
:CHIP
1k
:CHIP
220
:CHIP
560
:RN-CP
5.6k
:CHIP
560
:CHIP
1k
:CHIP
100
:CHIP
100
:CHIP
100
:CHIP
47
:CHIP
1k
:CHIP
220
#
0.1
F:CHIP
470
:CHIP
1
1.8k
:CHIP
1.8k
:CHIP
1k
:CHIP
10
0.1
:CHIP
0.1 :CHIP
0.1 F:CHIP
47
16V
27p
CH:CHIP
560
:CHIP
390
:RN-CP
820
:CHIP
#
#
0.1
25V
F:CHIP
0.1
F:CHIP
0.1
25V
F:CHIP
100
:CHIP
#
#
15p
CH:CHIP
15p
CH:CHIP
15p
CH:CHIP
560 :CHIP
#
#
820
:RN-CP 36p
CH:CHIP
15P
:B TO B
0UH
0UH
0UH
3D COMB/HH DEC
37UH
37UH 37UH
0
0
0
0
0
0
0
0
0
0
0
0
0
0
0
OUH
:CHIP
0UH
:CHIP
OUH
:CHIP
0UH
:CHIP
0UH
:CHIP
0UH
:CHIP
0UH
:CHIP
:CHIP
:CHIP
:CHIP
:CHIP
:CHIP
2.2
16V
F:CHIP
2PD601AR-115
BUFF
2PB709AR-115
BUFF
2PD601AR-115
BUFF
2PD601AR-115
BUFF
2PB709AR-115
BUFF
2PD601AR-115
BUFF
2PD601AR-115
BUFF
2PB709AR-115
BUFF
2PD601AR-115
BUFF
2PD601AR-115
AMP
2PD601AR-115
Y-BUFF
2PB709AR-115
BUFF
2PB709AR-115
BUFF
2PD601AR-115
AMP
2PD601AR-115
BUFF
2PD601AR-115
C-BUFF
2PB709AR-115
BUFF
PQ3DZS3U
3V REG
MEMORY
5V-2
9V
9V
9V 9V 9V
9V9V
9V
9V
9V
9V
3.3V
3.3V-2
3.3V-2
3.3V
9V
9V
9V
9V
9V
9V
9V
5V-2
5V-2
5V
5V
5V
5V
5V
3.3V-2
IO0
IO1
IO2
IO3
IO4
IO5
IO6
IO7
IO0
IO1
IO2
IO3
IO4
IO5
IO6
IO7
IO8
IO9
IO10
IO11
IO12
IO13
IO14
IO15
IO8
IO9
IO10
IO11
IO12
IO13
IO14
IO15
MA4
MA5
MA6
MA7
MA8
MA0
MA1
MA2
MA3
MA0
MA1
MA2
MA3
MA4
MA5
MA6
MA7
MA8
MA7
MA6
MA5
MA4
MA3
MA2
MA1
MA0
MCAS
MWE
MOE
MIO15
MIO14
MIO13
MIO12
MIO11
MIO10
MIO9
MIO8
MIO7
MIO6
MIO5
MIO4
MIO3
MIO2
MIO1
MIO0
DGND
XI
XO
DVDD
HO3
HO2
HO1
HO0
HWCK
HRCK
HRST
DGND
HI3
HI2
HI1
HI0
DVDD
AVDD
FSCO
AGND
AGND
FSC1
CPLL
RPLL
CKMD
DGND
CLK8
RSTB
SLA0
SCL
SDA
ST0
ST1
NSTD
DVDD
DYCO0
DYCO1
DYCO2
DYCO3
DYCO4
DYCO5
DYCO6
DYCO7
DYCO8
DYCO9
ALTF
CSI
TEST
LINE
KIL
DGND
AVDD
CBPC
ACO
AYO
CBPY
AGND
AGND
AYI
VCL
VRBY
VRTY
AVDD
AVDD
VRTC
VRBC
ACI
AGND
MRAS
DVDD
VCC
IO1
IO2
IO3
IO4
IO5
IO6
IO7
IO8
NC
NC
*WE
*RAS
NC
A0
A1
A2
A3
VCCGND
A4
A6
A7
A8
*OE
*UCAS
*LCAS
NC
IO9
IO10
IO11
GND
IO13
IO14
IO15
IO16
GND
DGND
A5
VCC
IO12
MA8
TO A BOARD
CN801
E
Y OUT
E
C OUT
RESET
Y IN
C IN
S DAT
S CLK
9V
E
5V
E
AVDD
D5V
A3.3V
D3.3V
9V
5V-2
3.3V
3.3V-2
9V
5V
A5V
MN/NT
COMP V IN
VIDEO
Y
C
Y
C
C
C
C
C
Y
VIDEO
C
VIDEO
VIDEO
VIDEO
VIDEO
9V
5V
5V
B-SSSAG3-...-BC4.-ES34
(Y/C SEP)
123456789
1011121314151617181920212223242526
27
28
29
30
31
32
33
34
35
36
37
38
39
40
41
42
43
44
45
46
47
48
49
50
51
52
IO
G
1
2
3
4
5
6
7
8
9
10
11
12
13
14
15
16
17
18
19
20
C1801
C1804
C1806 C1807
C1808
C1814
C1815 C1819
C1821
C1823
C1824
C1825
R1805
R1806
R1808
R1810
R1820
R1821
R1823
R1824
R1826
R1827
R1828
R1829
R1830
R1831
D1805
D1806
D1807
L1801
R1833
R1834
R1822 R1825 C1820
R1832
C1816
C1817
C1818
R1819
R1818
R1817
R1835
R1837
R1836
R1838
R1839
R1840
R1841
D1803
R1815
D1809
D1802
CN1801
D1811
D1810
X1801
C1828
D1804
FB1801
FB1802
FB1803
FB1804
R1804
R1807
IC1801
Q1804
Q1805
Q1806
Q1802
Q1803
IC1802
C1802
R1801
R1803
R1802
D1801
Q1801
R1813
R1811
R1809
R1816
R1814
R1812
C1812 C1813
C1810
C1809
C1811
C1803
C1805
D1808
C1822
C1826
C1827
#
#
#
#
#
##
#
#
0.033
B:CHIP
33p
:CHIP
33p
:CHIP
0.01
B:CHIP
47p
CH:CHIP
0.47
25V
F:CHIP 220p
B:CHIP
1000p
B:CHIP
100 :CHIP
100
:CHIP
100
:CHIP
1M
:CHIP
470
:CHIP
47k
:CHIP
1k
:CHIP
1k
:CHIP
330
:CHIP
1.5k
:CHIP
3.9k
:CHIP
10k
:CHIP
4.7k
:CHIP
4.7k
:CHIP
#
:CHIP
#
:CHIP
100
:CHIP
#
:CHIP
#
:CHIP
#
:CHIP
#
:CHIP
MA111-TX
(58H)
MA111-TX (H/V)
#
:CHIP
#
:CHIP
MA111-TX
(P100 OFF)
0 :CHIP
22
1W
1k
:CHIP
1k
:CHIP
1k
:CHIP
100
:CHIP
100
:CHIP
100
:CHIP
4.7k
:CHIP
6MHz
#
0.01
B:CHIP
20P
:BTOB
MA111-TX
#
1.1UH
1.1UH
1.1UH
1.1UH
2.7k
:RN-CP
27k
:RN-CP
SDA5254-2
TELEDECODER
2SA1037
R BUFFER
2SA1037
G BUFFER
2SA1037
B BUFFER
2SC2412K
BUFFER
2SC2412K
BUFFER
LM78L05ACZ
VOLTAGE REG
#
#
#
0OHM
#
#
POWER ON RESET
100
:RN-CP
100
:RN-CP
100 :RN-CP
0
0
0
100
16V
0.01
B:CHIP
0.00
B:CHIP
100
16V
0.01
B:CHIP
100
16V
0.01
B:CHIP
#
220
16V
0.01
B:CHIP
220
16V
5V
5V
5V
VDD
XTAL1
XTAL2
P4.0
RST
P1.7
P1.6
P1.5
P1.4
P3.1
P0.7
P0.6
P0.5
P0.4
P0.3
P0.2
P0.1
P0.0
VSS
P1.1
VSSC
FIL3
P3.0
COR
BLAN
B
G
R
VS
HS/SC
P3.2
P3.4
P3.5
P3.6
P3.7
VDD
P3.3
VSS
P2.0
P2.1
P2.2
P2.3
CVBS
IREF
VDDC
NC NC
NC
NC
+5V
GND
FS OUT
B OUT
G OUT
R OUT
GND
GND
SCL
GND
SDA
GND
+9V
V SYNC TEXT
H SYNC TEXT
CVBS IN
P1.3
P1.2
P1.0
(TELETEXT)
TO A BOARD
CN1118
1
2
R
G
B
V
5V
5V
5V
5V
5V
5V
5V
5V
5V
5V
5V
4.8
4.2
4.9
0.2
4.9
0.2
0
0
0
4.9 0
6.8
0
0.1
4.9
4.9
0.1
0.1
0.1
0.1
0.1
0
4.9
2.3
2.5
2.3
4.8
4.9
4.9
4.9
4.9
4.9
4.9
4.9
4.9
0
2.3
4.9
4.9
4.9
0
0
0
0
0
0.2
4.4
4.0
4.9
4.9
4.9
4.6
4.6
4.9
4.3
0
0
0
0
0
2.2
1.3
4.9
0
1 2 3
IC1803
S-80743AL-A7-T1
B-SSSAG3-...-V..-ES34

– 172 – – 173 –– 171 –
KV-ES34M81/ES34M91
RM-916
KV-ES34M81/ES34M91
RM-916
KV-ES34M81/ES34M91
RM-916
– BC4 Board –
PRINTED WIRING BOARDS
BC4 [Y/C SEP]
– V Board –
V[TELE TEXT]
V Board IC1801 SDA5254-2B006
C500
CPU
PWM
ADC
Watchdog
Timer
VTX, VPS
Slicer
TTC
TTD
Acquisition
Display
Generator
R
G
B
BLAN
COR
CVBS
FIL1SLC
FIL2SLC
FIL3SLC
I
REF
P3
P2
P1
P0
XTAL1, XTAL2
RD, WR
PSEN, ALE
D(7:0)
A(16:0)
P4.1(A18), P4.0(A17)
(1) Only ROM Version
(2) Only ROMless Version
(3) Only SDA 5250, SDA 5254
and SDA 5255
(4) 8 KByte for SDA 5250,
SDA 5254 and SDA 5255
1 KByte for SDA 5251,
SDA 5252
LCIN
LCOUT
VS
HS/SC
Capture
Compare
Timer
Memory
Management
Unit
(MMU)
(2)
Extended
Data
RAM
1 K Byte
(3)
Program
Memory
ROM
(1)
Dual Port
Interface
VBI Buffer
1 K Byte
Display
Timing
Character
ROM
448 * 12 * 10
Dual Port
Interface
Display
RAM
4)
– E2 Board –
E2 [AFC RASTER DISTORTION CIRCUIT]

– 174 – – 175 – – 176 –
KV-ES34M81/ES34M91
RM-916
KV-ES34M81/ES34M91
RM-916
KV-ES34M81/ES34M91
RM-916
J Board IC8302 CXA2069Q J Board IC8306 CXA2123AQ-T6
63
1
8
22
30
60
15
10
17
24
3
VOUT1
YIN1
YOUT1
TRAP1
COUT1
CIN1
6dB
6dB
6dB
6dB
6dB
6dB
51
V/YOUT2
44
58
56
49
12
19
26
62
2
9
16
23
29
59
64
4
11
18
25
31
61
5
53
VOUT3
6dB
6dB
6dB
6dB
6dB
6dB
6dB
6dB
0dB
41
COUT2
47
TRAP2
46
COUT3
37
VGND
57
BIAS
50
VCC
42
AGND
35
LOUT1
52
ROUT1
54
LOUT2
43
ROUT2
45
LOUT3
38
ROUT3
40
DC OUT
36
SCL
33
SDA
34
ADR
32
S-1
7
S-2
14
S-3
21
S-4
28
S2-1
6
S2-2
13
S2-3
20
S2-4
27
MUTE
LTV
LV1
LV2
LV3
LV4
LV5
LV6
TV
V1
V2
V3
V4
V5
V6
Y1
Y2
Y3
Y4
C1
C2
C3
C4
RTV
RV1
RV2
RV3
RV4
RV5
RV6
48
YOUT3
39
55
6dB
0dB
BIAS
LOGIC
SYNC
SEPA
CWC
DE-
EMPHASIS
1 2 3 4 5 6 7 8 9 10 11 12 13
37 36 35 34 33 32 31 30 29 28 27 26
15
16
17
18
19
20
21
22
23
24
48
47
46
45
44
43
42
41
40
39
14
25
38
VCX0
APC
SCL
SDA
YS3
(RGB1-IN)
SYNC-GND
CR1-IN
CB1-IN
Y1-IN
APL-FIL
Y-OUT
CB-OUT
CR-OUT
YS1
(YCBCR2-IN)
YVI-OUT
SYNC-VCC
SCP
DIGITAL-GND
HS
COMB C-IN
/FORCED-S
COMB Y-IN
DIGITAL-VDD
CVBS-OUT
VS
CVBS1/Y1-IN
SYNC-IN
G1-IN
CLAMP
B1-IN
Y/C-GND
R1-IN
CR2-IN
Y2-IN
CB2-IN
Y/C-VCC
C2-IN
B2-IN
YS2/YM
(RGB2-IN)
R2-IN
X'TAL
BPH-FIL
11 C/D
AFC
11 VCO
SUB
COLOR
BASE
BAND SW
CW
PHASE
TINTFAC
LPF
SW
(C-MUTE)
P/N
DEMO
BPF
TOF BELL
CHROMA
ID
CHROMA
TRAP
SECAM
ID
ACC
BLACK
ADJ
V C/D V
SEPA
V
INTEC
NOISE
DOT
SW
CLAMP
S DOUBLE
TRAP
EQ
V DL
SW
Y
SUB
CONTRAST
COLOR
SYSTEM
P/N ID SECAM
DEMO
PC BUS
CONTROL
CVBS/YC
SELECT
CY
MATRIX
CLAMP
MATRIX
CLAMP
OFFSET2
OFFSET1
SET-UP
SW
HALF TONE
AMP
LPF
BS
DC
REST
SHARP-
NESS DL
SW
MASK
C1-IN
AFC-FIL
FAC-OUT
COMB SYS
CWBS2/Y2-IN
C2-IN
ADDRESS
CWBS3/Y3-IN
APC-FIL
C3-IN
1
1.3Vp-p (H)
6
1.4Vp-p (H)
11
0.5Vp-p (H)
2
2.6Vp-p (H)
7
1.0Vp-p (H)
12
0.5Vp-p (H)
3
1.6Vp-p (H)
8
1.4Vp-p (H)
13
0.4Vp-p (H)
4
1.7Vp-p (H)
9
0.3Vp-p (H)
5
1.4Vp-p
10
0.5Vp-p (H)
14
2.1Vp-p (H)
J BOARD WAVEFORMS

A
123456789101112
13 14 15 16 17 18 19 20 21 22
B
C
D
E
F
G
H
I
J
K
L
M
N
O
– 179 – – 180 –– 178 – – 181 –– 177 –
PRINTED WIRING BOARDS
– J Board (Component Side) –
J[YCT, AUDIO DSP, COMB FILTER, VIDEO/AUDIO-IN/OUT]
– J Board (Conductor Side) –
J BOARD (Conductor Side)
J BOARD (Component Side)
IC
IC0302 A-8
IC8101 A-12
IC8102 E-13
IC8103 B-13
IC8105 A-13
IC8106 C-12
IC8107 D-12
IC8304 D-12
IC8305 D-11
IC8306 D-7
IC8308 D-2
IC8309 C-6
IC8310 B-7
IC8311 E-3
IC8312 D-7
IC8313 C-2
IC8314 B-5
TRANSISTOR
Q8302 A-6
Q8303 A-6
Q8304 B-6
Q8305 C-3
Q8306 A-6
IC
IC8104 B-2
IC8313 C-12
IC8314 C-10
TRANSISTOR
Q8301 B-7
Q8356 C-7
Q8357 D-6
Q8358 E-7
Q8359 E-6
Q8360 E-6
DIODE
D8101 C-3
D8102 C-3
D8301 A-4
Q8307 C-3
Q8308 A-6
Q8309 A-6
Q8310 D-7
Q8312 E-3
Q8313 C-5
Q8319 C-7
Q8320 C-7
Q8321 D-7
Q8322 D-4
Q8323 D-5
Q8324 D-4
Q8325 B-6
Q8326 B-6
Q8327 B-6
Q8328 C-6
Q8329 C-7
Q8330 C-7
Q8331 C-7
Q8332 C-7
Q8333 C-7
Q8334 D-9
Q8335 D-7
Q8336 D10
Q8337 E-9
Q8338 C-3
Q8339 C-3
Q8340 C-5
Q8341 C-5
Q8342 C-4
Q8343 C-4
Q8344 D-8
Q8345 C-3
Q8346 D-4
Q8347 D-4
Q8348 D-5
Q8349 E-3
Q8350 D-4
Q8351 D-9
Q8352 E-9
Q8353 E-5
Q8354 E-5
Q8355 D-5
D8302 B-6
D8303 B-7
D8304 B-7
D8305 C-6
D8306 B-6
D8307 B-6
D8308 C-6
D8309 B-6
D8310 B-5
D8311 C-5
D8313 C-5
D8314 B-5
D8315 A-4
D8316 B-4
D8317 B-4
D8318 C-4
D8319 C-4
D8320 A-4
D8321 B-6
D8325 A-4
• :Pattern from the side which enables seeing.
• :Pattern from the rear side.
(16) Schematic Diagram of J Board
Schematic diagram
?J board
A
12345 6 7 89101112
13
B
C
D
E
A
123456789101112
13
B
C
D
E
1 2 3 4 5 6 7 8 9
10 11 12 13 14
15
16
17
18
19
20
21
22
23
24
2526272829303132333435363738
39
40
41
42
43
44
45
46
47
48
EMI
EMI
EMI
1 2 3 4 5 6 7 8 9
10 11 12 13 14
15
16
17
18
19
20
21
22
23
24
2526272829303132333435363738
39
40
41
42
43
44
45
46
47
48
EMI
EMI
EMI
1 2 3 4 5 6 7 8 9
10 11 12 13 14 15 16 17 18 19
20
21
22
23
24
25
26
27
28
29
30
31
32
33343536373839404142434445464748495051
52
53
54
55
56
57
58
59
60
61
62
63
64
12
34
V
L
R
1
2
3
4
5
6
7
8
9
10
11
EMI
1
2
3
4
5
6
7
8
10
9
11
12
1314 151617 1819 2021 2223 24
EMI
EMI
Y
PR
PB
1 3 6
7
10
2 4 5
9
12
1
1
2
3
4
5
6
7
8
9
10
1
2
3
4
5
6
7
8
9
10
1 2 3 4
5678
IO
G
IO
G
1
2
3
4
5
6
7
8
9
10
11
12
13
14
15
1
2
3
4
5
6
7
8
9
1 2 3 4
5678
EMI
1
2
3
4
5
6
7
8
9
10
11
12
13
14
15
16
17
18
19
20
21
22
23
24
25
26
27
28
29
30
31
32
33
34
35
36
37
38
39
40
41
42
43
44
45
46
47
48
49
50
1 2 3
46
1 2 3
46
1
2
3
45
1
2
3
45
1
2
3
C8355
J8301
FL8303
R8389
IC8302
C8301
C8302
C8303
C8304
C8305
C8306
C8307
C8308
C8309
C8310
C8311
C8312
C8313
C8314
C8317
C8318
C8319
C8322
C8323
C8326
C8327
C8328
C8336
C8337
C8340
C8342
C8343
C8346
C8353
C8354
C8356
C8357
C8358
C8360
C8364
C8365
C8366
C8367
C8368
C8369
C8370
C8371
C8372
C8373 C8375
C8376
C8381
C8386
C8396
C8401
C8402
C8406
C8407
C8408
C8410
C8412
C8414
C8416
C8417
C8418
C8419
C8424
C8425
C8437
R8301
R8302
R8303
R8304
R8306
R8307
R8308
R8309
R8310
R8311
R8312
R8313
R8314
R8315
R8316
R8317
R8318
R8319
R8320
R8321
R8322
R8328
R8329
R8335
R8336
R8338
R8339
R8340
R8341
R8342
R8343
R8348
R8349
R8350
R8351
R8352
R8358
R8361
R8364 R8367
R8370
R8376
R8377
R8379
R8380
R8381
R8383
R8384
R8385 R8386
R8388
R8396
R8399
R8400
R8406
R8408
R8414
R8415
R8417
R8418
R8419
R8420
R8425
FL8301
FL8304
FL8305
FL8307
FL8308
FL8309
R8434
R8443
R8444
R8445
C8330
C8331
C8341
C8339
C8374
CN8301
C8315
C8316
C8390
R8467 R8468 R8469
R8476
R8477
R8478 R8479
R8480
R8481
R8482
R8483
R8486 R8488
R8489
R8490
R8491
R8497
R8507
R8508
C8446
R8426
C8447
C8450
C8452
C8453
C8454
C8455
C8456
C8457
C8459
FL8311
R8509
C8448
C8451
JR8301
FL8312
C8334
C8335
C8344
C8347
R8354
R8353
R8362
R8369
R8374
R8375
R8393
R8394
R8398
R8401 R8404
R8412 R8413 R8510
R8512
R8391
R8470
FL8313 C8464
C8465 C8468
C8471
C8474
R8530
R8532
R8538
R8540
R8528
R8533
C8345
C8379
C8449
C8473
C8476
C8467
C8470
C8477
C8478 C8479
C8480
C8481
C8482
JR8305
Q8338
Q8339
Q8340
Q8341
R8359
R8360
R8371
R8387
R8392
R8397
R8517
R8520
R8549
R8550
R8553 R8554
R8555
R8559
R8563
C8325
C8361
C8399
C8359
C8403
R8411
R8424
C8377
C8378
C8380
C8383
C8384
C8385
C8387
C8388
C8389
C8427
C8428
C8429
C8434
C8435
C8436
C8400
C8398
C8404
C8422 C8426
J8302
J8303
J8304
R8471
R8473
D8315
D8316
D8317
J8305
J8307
R8485
R8496
R8502
R8539
C8420
C8421
C8423
R8567
R8570
R8573
C8460
C8461
C8462
C8463
C8338
R8305 R8326
R8576
R8541
R8484 R8487
C8415
X8301
X8302
D8301 D8302
D8303
D8304
D8305
D8306
D8307
D8308
D8309
D8310
D8311
D8312
D8313
D8314
D8318
D8319
D8321
D8324
D8325
R8588 R8589
R8590
R8591
C8329
R8593
R8596
R8597
R8598
C8332
R8595
IC8314
R8378 R8382
R8395 R8405
R8407
R8582
R8583
R8584
R8585
R8586
CN8302
R8581
R8580
R8494
R8492 R8499R8493
R8501R8495
R8498
R8518 R8519
R8513 R8514
L8302 L8303 L8304
C8431 C8432 C8433
Q8358
R8552 R8357
Q8359 Q8360
R8568
R8571
R8574
R8416
R8423
R8427
R8431
R8432
R8433
R8561
R8505
R8521
R8543
R8511
R8565
R8529
R8531
R8439
R8535
R8527
R8546
R8523
R8437
R8564
R8551
R8516
R8557
C8466
C8469
CN8304
CN8200
CN8201
C8352
C8362
C8363
C8333
CN8305
C8382
C8300
R8330 R8337 R8344
D8320
D8322
D8323
IC8308
IC8306
C8348
C8320
C8321
C8324
C8349
R8363 R8390
R8558
R8562
R8566
R8569
R8572
R8575
Q8304
Q8307 Q8313
Q8337
C8104
C8103
R8101
J8106
R8436
L8305
C8441
R8447
R8451
R8441
R8453R8448
R8442
R8455R8449
R8446
Q8361
Q8362
Q8363
Q8464
Q8465
Q8466
R8456
R8457
R8458
R8459
R8460
R8461
R8463
R8474
R8503 C8445
R8464
R8465
R8466
C8392
C8393
C8391
C8438
C8439
C8440
C8411
C8413
C8430
C8442
C8443
C8444
R8450
R8452
R8454
R8462
R8472
R8475
Q8302 Q8303
Q8306
Q8308
Q8309
Q8310
Q8312
Q8325
Q8329
Q8330
Q8331
Q8332 Q8333 Q8334 Q8335 Q8336
Q8342
Q8349
Q8351
Q8356
IC8310
IC8311
IC8312
Q8357
Q8326
Q8327
Q8328
IC8309
D8331
D8101
IC8304
IC8305
Q8301
Q8305
Q8319
Q8320
Q8321
Q8322
Q8323
Q8324
Q8343
Q8344
Q8350
Q8352
Q8353
Q8354
Q8355
Q8512
R8435
R8500
R8578
R8592
JR8302
R8587 R8594
JR8303
JR8304
R8410
R8334
R8327
R8324
R8409
R8355
R8356
R8365
R8366
R8325
R8331
R8332
R8333
R8208 R8209
D8102
R8402
R8403
C8472
R8440
R8428
R8421
R8429
R8372
R8577
R8373
C8475
R8579
R8515
R8109 R8112 R8114
R8111
R8116
C8114
R8119
R8118
C8115
IC8101
R8110
FB8103
R8108
R8113
C8214
R8115
C8113
C8215
C8216
C8217
R8117
R8430
R8323
FB8101
C8350
C8351
Q8346
R8504
R8544 R8548
Q8348
Q8345
R8556
R8547
R8522
R8438
R8560
Q8347
R8524
R8525
FL8315
FL8316
FL8314
R8537
R8422
C8107
C8105
C8109
C8106
C8111
R8536
C8110
0.01 B:CHIP
0.01 B:CHIP
47
16V
47
16V
47
16V
0.1
25V
B:CHIP
0.1
25V
B:CHIP
10
0.01
B:CHIP
0.01
B:CHIP
47
16V
47
16V
0.01
B:CHIP
10p
CH:CHIP
10
0.01
B:CHIP
47
16V
0.22
25V
B:CHIP
47
16V
EMI
EMI
EMI
EMI
EMI
47
:CHIP
47
:CHIP
3.9k :CHIP
47k :CHIP
100 :CHIP
100 :CHIP
47
16V
EMI
47
:CHIP
1k
:CHIP
0.1
25V
B:CHIP
100
:CHIP
100
:CHIP
0.01
B:CHIP
1k
:CHIP
47
:CHIP
47
:CHIP
10p
CH:CHIP
0.47
16V
B:CHIP
0.47
16V
B:CHIP
4.7
0.01
B:CHIP
0.01 B:CHIP
47
16V
EMI
10
470
:CHIP
470
:CHIP
1k
:CHIP
100
:CHIP
100
:CHIP
100
:CHIP
100
:CHIP
220
:CHIP
100
:CHIP
100
:CHIP
220
:CHIP
180
:CHIP
220
:CHIP
2.2k
:CHIP
220k
:CHIP
220k
:CHIP
4.7k
:CHIP
4.7k
:CHIP
100 :CHIP
100
:CHIP
220k
:CHIP
220k
:CHIP
4.7k
:CHIP
4.7k
:CHIP
220k
:CHIP
220k
:CHIP
4.7k
:CHIP
4.7k
:CHIP
68
:CHIP
470k
:CHIP
470
:CHIP
470k
:CHIP
1k
:CHIP
470
:CHIP
470k
:CHIP
220
:CHIP
220
:CHIP
220
:CHIP
100
:CHIP
1k
:CHIP
220k
:CHIP
220k
:CHIP
4.7k
:CHIP
4.7k
:CHIP
4.7k
:CHIP
4.7k
:CHIP
2.2k :CHIP
0.01
B:CHIP
0.1
25V
B:CHIP
0.1
25V
B:CHIP
0.1
25V
B:CHIP
0.1
25V
B:CHIP
0.1
25V
B:CHIP
0.1
25V
B:CHIP
470p
CH:CHIP
470p
CH:CHIP
470p
CH:CHIP
470p
CH:CHIP
470p
CH:CHIP
470p
CH:CHIP
470p
CH:CHIP
470p
CH:CHIP
470p
CH:CHIP
470p
CH:CHIP
1
16V
F:CHIP
1
16V
F:CHIP
1
16V
F:CHIP
1
16V
F:CHIP
0.1 25V B:CHIP
1
16V
F:CHIP
1
16V
F:CHIP
1
16V
F:CHIP
1
16V
F:CHIP
0.47
16V
B:CHIP
1
16V
F:CHIP
1
16V
F:CHIP
0.47 16V B:CHIP
47
16V 0.1
25V
B:CHIP
1 16V F:CHIP
1 16V F:CHIP
1 16V F:CHIP
CXA2069Q
AV SW
75
:CHIP
75
:CHIP
75
:CHIP
75
:CHIP
75
:CHIP
75
:CHIP
75
:CHIP
75
:CHIP
1
16V
F:CHIP
1 16V F:CHIP
0.47 16V B:CHIP
1
16V
F:CHIP
1
16V
F:CHIP
9P
WHT-L
:S-MICRO
4.7
470p
CH:CHIP
470p
CH:CHIP
470
:CHIP
470
:CHIP
470
:CHIP
3.9k
:CHIP
47
16V
180
:CHIP
220
:CHIP
47k
:CHIP
100k
:CHIP
10k
:CHIP
82k
:CHIP
47k
:CHIP
#
:CHIP
1k
:CHIP
470
:CHIP
1k
:CHIP
1k
:CHIP
100
:CHIP
100
:CHIP
100
:CHIP
100
:CHIP
EMI
0.1
25V
B:CHIP
0.0022
CH:CHIP
0.47
16V
B:CHIP
2.2
16V
F:CHIP
0.1
25V
B:CHIP
0.1
25V
B:CHIP
0.1
25V
B:CHIP
47
16V
47
16V
47
16V
0.1
25V
B:CHIP
100
:CHIP
EMI
0
:CHIP
47
16V
0.1
25V
B:CHIP 0.01
B:CHIP
0.1
25V
B:CHIP
47 :CHIP
47
:CHIP
47
:CHIP
470
:CHIP
390
:CHIP
470
:CHIP
470
:CHIP
330
:CHIP
470
:CHIP
100
:CHIP
22k
:CHIP
220
:CHIP
10k
:CHIP
470
:CHIP
470
:CHIP
47
:CHIP
EMI 47
16V
0.1
25V
B:CHIP
0.1
25V
B:CHIP
0.1
25V
B:CHIP
0.1
25V
B:CHIP
6.8k
:CHIP
100
:CHIP
470
:CHIP
470
:CHIP
470
:CHIP
470
:CHIP
470 :CHIP
470
16V
#
:CHIP
0.022 B:CHIP
2.2
#:CHIP
2.2
0.022 B:CHIP
#
:CHIP
#
:CHIP
#
:CHIP
#
:CHIP
#
:CHIP
#
:CHIP
#
:CHIP
#
:CHIP
#
:CHIP
#
:CHIP
#
:CHIP
#
:CHIP
#
#
#
#
#
:CHIP
#
:CHIP
#
:CHIP
#
:CHIP
#
:CHIP
#
:CHIP
27k
:CHIP
27k
:CHIP
#
:CHIP
#
:CHIP
#
:CHIP
#
:CHIP
#
:CHIP
#
:CHIP
#
:CHIP
#
:CHIP
#
:CHIP
#:CHIP
#:CHIP
#:CHIP
#:CHIP
#:CHIP
#:CHIP
#:CHIP
#:CHIP
#:CHIP
#:CHIP
#
:CHIP
#:CHIP
#
:CHIP
#
:CHIP
#:CHIP
#:CHIP
#:CHIP
#:CHIP
#:CHIP
#:CHIP
100
:CHIP
100
:CHIP
3P
2P
#B:CHIP
#B:CHIP
#:CHIP
330
:CHIP
1k
:CHIP
1k
:CHIP
22k
:CHIP
47
:CHIP
47
:CHIP
47
:CHIP
#
:CHIP
#
:CHIP
#
:CHIP
#
:CHIP
STZ6.8N-T146
PROTECT
STZ6.8N-T146
PROTECT
STZ6.8N-T146
PROTECT
1 16V F:CHIP
470k
:CHIP
470k
:CHIP
390
:CHIP
33
:CHIP
680
:CHIP
680
:CHIP
1 16V F:CHIP
16.2MHz
82p
CH:CHIP
82p
CH:CHIP
RD9.1SB-T1
PROTECT
RD9.1SB-T1
PROTECT
RD9.1SB-T1
PROTECT
RD9.1SB-T1
PROTECT
RD9.1SB-T1
PROTECT
RD9.1SB-T1
PROTECT
RD9.1SB-T1
PROTECT
RD9.1SB-T1
PROTECT
RD9.1SB-T1
PROTECT
RD9.1SB-T1
PROTECT
RD9.1SB-T1
PROTECT
RD9.1SB-T1
PROTECT
RD9.1SB-T1
PROTECT
RD9.1SB-T1
PROTECT
RD9.1SB-T1
PROTECT
RD9.1SB-T1
PROTECT
RD9.1SB-T1
PROTECT
RD9.1SB-T1
PROTECT
RD9.1SB-T1
PROTECT
470
:CHIP
470
:CHIP
470
:CHIP
#
:CHIP
# :CHIP
470
:CHIP
470
:CHIP
470
:CHIP
#
:CHIP
16.2MHz
SBX3005-11
220
:CHIP
220
:CHIP
220
:CHIP
220
:CHIP
220
:CHIP
4.7M
:CHIP
4.7M :CHIP
4.7M
:CHIP
4.7M :CHIP
4.7M :CHIP
#
:CHIP
#
:CHIP
470
:CHIP
820
:CHIP
820
:CHIP
390
:CHIP
390
:CHIP
#
#:CHIP 47 :CHIP
#
:CHIP
#
:CHIP
#
:CHIP
#
:CHIP
#
:CHIP
#
:CHIP
#
:CHIP
#
:CHIP
#
:CHIP
#
:CHIP
#
:CHIP
#
:CHIP
#
:CHIP
47p
CH:CHIP
33p
CH:CHIP
1P
:TAB
DTC144EKA DTC144EKA DTC144EKA
1k
:CHIP
1k
:CHIP
1k
:CHIP
100
:CHIP
#
:CHIP
22k
:CHIP
470
:CHIP
22k
:CHIP
560
:CHIP
22k
:CHIP
22k
:CHIP
1k
:CHIP
100
:CHIP
1k
:CHIP
#
#
:CHIP :CHIP :CHIP
1k
:CHIP
# :CHIP
#:CHIP
#:CHIP
1k
:CHIP
1k
:CHIP
0.22
25V
B:CHIP
0.47
16V
B:CHIP
0.1
25V
B:CHIP
0.1 25V B:CHIP
#
WHT
:S-MICRO
#
WHT
:S-MICRO
50P
:BTOB
CXA2123AQ-T6
SUB COLOR
DECODER
CXA2123AQ-T6
MAIN
COLOR DECODER
0.47 16V B:CHIP
0.1 25V B:CHIP
#
RD9.1SB-T1
RD9.1SB-T1
RD9.1SB-T1
75
:CHIP
75
:CHIP
75
:CHIP
4.7
10V
F:CHIP
4.7
10V
F:CHIP
4.7
10V
F:CHIP
4.7 10V F:CHIP
100
16V
L 7MM
2SC2712
2SC2712 2SC2712
2SC2712
430
:RN-CP
430
:RN-CP
560
:RN-CP
560
:RN-CP
560
:RN-CP
5.6k
:RN-CP
5.6k
:RN-CP
5.6k
:RN-CP
#
#
75
:CHIP
1P
47 :CHIP
#
:CHIP
1
16V
F:CHIP
100
:CHIP
100k
:CHIP
1k
:CHIP
100k
:CHIP
100
:CHIP
1k
:CHIP
100k
:CHIP
100
:CHIP
1k
:CHIP
2SC2712
2SC2712
2SC2712
2SC2712
2SC2712
2SC2712
1k
:CHIP
1k
:CHIP
1k
:CHIP
100
:CHIP
100
:CHIP
100
:CHIP
100k
:CHIP
100k
:CHIP
100k
:CHIP
1
16V
F:CHIP
100
:CHIP
100 :CHIP
100 :CHIP
0.1 25V B:CHIP
0.1
25V
B:CHIP
0.1
25V
B:CHIP
0.1
25V
B:CHIP
0.1
25V
B:CHIP 0.1
25V
B:CHIP
4.7
10V
F:CHIP
4.7
10V
F:CHIP
4.7
10V
F:CHIP
4.7
10V
F:CHIP
4.7
10V
F:CHIP
4.7
10V
F:CHIP
47k
:CHIP
47k
:CHIP
47k
:CHIP
47k
:CHIP
47k
:CHIP
47k
:CHIP
2SC2712
BUFFER
2SC2712
BUFFER
2SC2712
BUFFER
2SC2712
BUFFER
2SC2712
BUFFER
2SC2712
BUFFER
2SC2712
BUFFER
2SC2712
BUFFER
2SC2712
AMP
2SC2712
BUFFER
2SC2712
AMP
2SC2712
BUFFER 2SC2712
AMP
2SC2712
BUFFER
2SC2712
AMP
2SC2712
BUFFER
2SC2712
AMP
2SC2712
AMP
2SC2712
AMP
#
BUFFER
TDA9178T/N1.118
LT1
TC7SET08FU-TE85R
AND GATE
TC7SET08FU-TE85R
AND GATE
#
BUFFER
2SC2712
INV
DTC144EKA-T146
INV
DTC144EKA-T146
INV
MM1115XFBE
SW
MA113-(TX)
DC SHIFT
MA111-(K8).SO
LF50CDT-TR
5V REG
LF90CDT-TR
9V REG
2SA1037AK
BUFFER
2SA1037AK
2SA1037AK
BUFFER
2SA1037AK
BUFFER
2SA1037AK
BUFFER
2SA1037AK
2SA1037AK
2SA1037AK
2SA1037AK
AMP
2SA1037AK
2SA1037AK
AMP
2SA1037AK
AMP
2SA1037AK
BUFFER
2SA1037AK
BUFFER
2SA1037AK
BUFFER
2SA1037AK
0
:CHIP
220
:CHIP
220
:CHIP
0
0
00
0
0
0
0
0
0
0
0
0
1k
1k
0
0
0
0
00
0
#
#
#
0
0
0
0
0
0
0
#
0
0
###
#
#
#
#
#
#
#
BUFFER AMP
#
#
#
#
#
#
#
#
#
#
#
0
0
0UH
#
#
2SA1037AK
AMP
0
470
:CHIP
220 :CHIP
2SA1037AK-T146-R
AMP
2SC2712
AMP
100
:CHIP
0
470
:CHIP
#
:CHIP
100
:CHIP
2SC2712
AMP
470
:CHIP
220 :CHIP
LPF
LPF
LPF
#
:CHIP
0
#
#
#
#
#
#
:CHIP
#
CH:CHIP
9V
+10.5V
SCL
SDA
SDA
SCL
SCL
SDA
+6.5V
SDA
SCL
+10.5V
+5V
+5V
+9V
+5V
+5V
+5V
+9V
+6.5V
+3.3V
RN
RP
LN
LP
R-TRS
L-TRS
R-SW
L-SW
A GND
CS
DAT
CLK
DSP ALIVE
SDA
+9V
COMB RESET
SDA
SCL
+5V
+9V
COMB RESET
+9V
+9V
SCL
LP
LN
RP
RN
A GND
L-SW
DSP ALIVE
COAXIAL GND
COAXIAL SIG
CLK
DAT
CS
SDA
SCL
R-SW
+3.3V
+6.5V
+9V
R-TRS
L-TRS
LP
LN
RP
RN
A GND
COAXIAL SIG
COAXIAL GND
A GND
000000
SUB-C
SUB-Y
AGND
L OUT
R OUT
SUB-CV
TEXT-CV
SUB-C
SUB-Y
SUB-CV
TEXT-CV
MAIN-Y
MAIN-C
L4
Y4
CV4
S4
C4
Y1
C1
S1
CV1
L1
R1
CV2
L2
R2
CV3
L3
R3
CV
L
R
L
R
L
R
L
R
BY
S-TV
L
M-TV
R
CV
CV1
L1
Y1
R1
C1
S1
CV2
L2
R2
CV3
L3
R3
S4
C4
R4
Y4
L4
S-TV
M-TV
L
R
DAT
CLK
R4
CV4
HP.M
VP.M
Y.M
U.M
V.M
VP.M
HP.M
Y.S
U.S
V.S
VP.S
HP.S
CS
RY
R OUT
L OUT
AGND
CS
DAT
CLK
MAIN-CV
YN
-BY
-RY
-BY
SCL
Y
-BY
-RY
-BY
-RY
MAIN-CV
V.M
U.M
RY
BY
Y
BY
RY
SDA
Y
MAIN-C2
MAIN-CV2
FSC
NT-Y
NT-C
FSC
PAL-Y
PAL-C
MAIN-CV2
MAIN-C2
APCN
MAIN-C
MAIN-Y
SDA
Y
Y.M
-RY
Y
APCN
YN
SCL
V.S
U.S
Y.S
Y.S
U.S
V.S
VP.S
HP.S
Y.S
U.S
V.S
Y
PAL-C
PAL-Y
NT-C
NT-Y
LP
LN
RP
RN
RN
LN
LP
RP
RY
Y
BY
Y
BY
RY
V-PULSE SUB OUT
H-PULSE SUB OUT
CVBS OUT (TEXT)
TO OUTPUT AMP (PAGE 2)
H-PULSE
GND
GND
RESET
NC
NC
SDA
SCL
+9V
GND
+5V
GND
5V
GND
GND
9V
GND
FSC
APCN
CV OUT
Y IN
C IN
C OUT
/PAL
NT
Y IN
C IN
CV OUT
R IN
GND
L IN
GND
Y IN
GND
CV IN
S IN
C IN
1
1
1
V2
R2
L2
V3
L3
R3
V
L
R
L
R
VIDEO IN 1
VIDEO IN 2
VIDEO IN 3
MONITOR OUT
COMPONENT IN
TO A CN1180
+6.5V IN
GND
GND
DAT
CLK
TV R IN
+3.3V IN
RN OUT
RP OUT
LN OUT
LP OUT
+3.3V IN
+6.5V IN
SCL
SDA
GND
GND
GND
GND
CVBS 1 IN
TV L IN
DSP ALIVE
CVBS 2 IN
GND
GND
+10.5V IN
+10.5V IN
COMB RESET
Y SUB OUT
GND
U SUB OUT
V SUB OUT
GND
GND
GND
GND
V MAIN OUT
GND
GND
Y MAIN OUT
U MAIN OUT
GND
GND
V-PULSE
MAIN OUT
MAIN OUT
CS
B-Y
R-Y
GND
TRAP
LP
LN
RP
RN
A GND
R-SW
L-SW
DSP ALIVE
COAXIAL SIG
COAXIAL GND
GND
GND
GND
3.3V
CLK
DAT
CS
6.5V
SDA
SCL
GND
GND
GND
IC8313
VDD
RO
R-
R+
LO
L-
L+
GND
DIGITAL AUDIO IN
YCT,COMBFILTER
VIDEO AUDIO-IN
/OUT
(
(
6
7
8
VS
HS
14
CVBS
9V
5V
VS
HS
R
L
VarLS
VarR3
CVBS
5.0
0
0
9.0
0
12.3
L
R
Y
B-Y
R-Y
Y
B-Y
R-Y
TO H2 BOARD
CN1934
Pin (1-9)
0
4.8
0.9
0.7
4.8
0
C3
CVBS/Y3
ADD(88H)
C2
CVBS/Y2
COM B SYS
C1
CVBS/Y1
SYNC IN
CVBS OUT(2VPpp)
VS
COMB Y
COMB C/FORCED S
D-GND
HS
SCP
Y FOR SYNC
SYNC-Vcc
SYNC-GND
Cr1
Cb1
Y1
Y OUT
YS1
B1
G1
R1
Y/C GND
Cr2
Cb2
Y2
Y/C Vcc
B2
G2
Xtal
D-VDD
SCL
SDA
YS3
R2
AFC-FIL
FSC OU T
APC-FIL
BPH-FIL
YS2/YM
APL-FIL
Cr OUT
Cb OUT
0
0
1.8
0
4.9
3.7
1.7
-1.3
-1.6
-2.2
-3.4
-1.2
1.3
-1.0
-3.6
-3.2
-2.8
-1.2
1.3
0.9
0.8
0
0
-2.2
-1.1
-1.9
-1.7
-3.6
-0.8
0.9
-0.8
-3.6
-0.8
-0.8
-1.6
1.3
-0.8
-0.7
-0.7
-3.6
-2.5
0.3
1.7
3.2
2.2
1.7
2.2
2.3
SYNC-GND
Cr1
Cb1
Y1
Y OUT
YS1
B1
G1
R1
Y/C GND
Cr2
Cb2
Y2
Y/C Vcc
B2
G2
Xtal
C3
CVBS/Y3
C2
CVBS/Y2
COMB SYS
C1
ADD(8AH)
SYNC IN
CVBS OUT(2VPpp)
VS
COMB Y
COMB C/FORCED S
D-GND
HS
SCP
Y FOR SYNC
SYNC-Vcc
CVBS/Y1
D-VDD
SCL
SDA
YS3
R2
BPH-FIL
YS2/YM
AFC-FIL
FSC OUT
APC-FIL
APL-FIL
Cr OUT
Cb OUT
0
9
10
11
12
13
14
-0.8
-1.0
-1.2
-3.4
1.3
0
-1.0
-3.6
3.2
0.7
-0.5
0
1.3
0
-0
-1.7
-0
-1.6
-1.2
-2.2
-1.1
-1.1
-3.6
-3.6
0.3
-2.5
-0.6
-0.6
0.6
1.3
-1.5
-0.7
*
-3.6
-0.7
-0.8
-0.7
1.9
-0.2
-0.2
1.0
-1.9
-1.7
1.1
-0.7
-0.7
1.8
VGND
TRAP2
V1
LV1
Y1
RV1
C1
S2-1
S-1
V2
LV2
Y2
RV2
C2
S2-2
S-2
V3
LV3
Y3
RV3
C3
S2-3
S-3
V4
LV4
Y4
RV4
C4
S2-4
S-4
LV5
V5
ADR
RV5
SCL
SDA
AGND
DC OUT
LOUT3
YOUT3
ROUT3
VOUT3
VCC
LOUT2
V/YOUT2
ROUT2
COUT2
MUTE
YIN1
BIAS
CIN1
LOUT1
VOUT1
ROUT1
TRAP1
YOUT1
COUT1
LV6
V6
RV6
LTV
TV
RTV
COUT3
1
2
0.3
0.8
0.3
0.8
0.8
-3.3
1.3
0.3
0
0.9
0.8
0.8
-3.3
1.3
0.3
0
0.9
0
0.8
-3.6
0
1.0
0.8
1.3
-3.3
0.8
0.8
0.3
0.8
0.3
1.3
-3.3
0.8
0.8
1.1
-3.6
0.8
0.1
0.8
0.6
0.8
5.4
1.7
0.8
0.1
0.8
0.8
0.2
-3.6
*
0.8
0.8
0.7
0.1
0.8
0.8
0.6
0.8
1.1
0.8
0.7
-3.6
-0.3
0.1
2.0
-1.1
-1.8
5.4
2.0
1.4
2.7
-1.8
-0
5.4
2.7
2.1
SC
ADEXT2
ADEXT3
YIN
ADR
-UIN
-VIN
SCL SDA
-UOUT
YOUT
VCC
SOUT
CF
DEC
-VOUT
VEE
ADEXT1
NC
NC
NC
NC
NC NC
3
4
5
-2.8
-3.6
-0
-0
-0
-1.5 -3.6
1.4
2.1 -3.6
*
-3.6
-3.6
-3.6
0
-1.1
4.6
-0.5
-3.6
-0.8
-0.9
1.4
0.8
-3.6
2.0
2.1
1.5 5.4
2.9
2.2
4.7
5.4
0
-0.9
1.5
4.7
2.9
5.4
2.3
1.5
2.0
2.2
0.1
0.4
5.4
0
0
4.7
-0.5
-1.1
0.7
0
0
4.7
0
-1.1
0
0
4.7
5.4
4.7
0
1.1
IN B
IN A
GND
VCC
OUT
-0
-3.5
-3.5
-3.6
-3.2
1.3
-3.2
1.3
0.8
0.2
5.4
0
0
5.4 5.4
0.6
0
5.4
0.6
0
5.4
1.7
1.1
5.4
0.1
0.4
5.4
0.8
0.2
CVIN
SW
YIN
NC NC
VCC
YOUT
GND
0
0
-0
-3.3
-3.4
0
-3.6
1.8
-3.4
-3.6
-0
0
-0
0.5
-0
-0.8
-0
BC4 COMPL
B-SSS10288-ME.-J..-ES34

– 183 – – 184 –– 182 – – 185 – – 186 –
6-5. SEMICONDUCTORS
TRANSISTOR
D1NL20U-TR
DAN202K
EL1Z
GP08D
HSS83TD
RGP02-20EL-6394
MA8039
ON3171-R
MARKING SIDE VIEW
ANODE
CATHODE
3
1
2
1
3
2
CATHODE
ANODE
ANODE
CATHODE
2
1
3
4
1
43
S3L20UF4
CATHODE
ANODE
LED
SPB-26MVWF
CATHODE
ANODE
(GRN) ANODE
(GRN)
DTA144EKA-T146
DTC114EK
2SA1037AK-T146-R
2SA1162-G
2SA1776TV2Q
2SC1623-L5L6
2SC2712-YG
2SD601A-Q-TX
2SD601-Q-TX
DTC144ESA
2SA1175-HFE
2SC2785-HFE
2SA2005
2SB733-34
2SD774-34
2SC3840(3)
E
B
C
ECB
LETTER SIDE
ECB
E
LETTER SIDE
CB
EBC
MARK
IC
2SK2036(TE85L)
2SK2251-01-F19
IRF620
IRF720-LF49
GS
D
AK4524
LF50CDT-TR
MM1115XFBE
NJM4560M
TC7WU04F
TDA7315D013TR
TDA7481
u
PC4558G2
LA6510
LM78L05ACZ
MSM514265C-60SJ
STV9379
1TOP VIEW
Dual In-line Package
Pin 6
~
98
TA7805S
D4SBL20U
D4SBS6
MA3062M-TX
MA3091
STZ6.8N-T146
3
1
2
1
3
2
D5S4M
ANODE
CATHODE
2SC2500-B
ECB
CA0005AD
CA0007AD
NJM3404AD
TOP209P
UPC393C
UPC358C
1TOP VIEW
Dual In-line Package
Pin 6
~
98
TL431CZ
TLC5733AIPM
1 19
51
52
64
32
20
33
TOP VIEW
MB88141APF-ER
TDA9178/N1.118
Small Outline L-leaded
Package
Pin 8
~
98
1TOP VIEW
MB94918-AG3MID
1 30
80
81
100
50
31
51
TOP VIEW
LA6500-FA
1
5
CXA1211M
CXA1875AM-T4
1TOP VIEW
8pin
CXD2309Q
1
TOP VIEW
Quad Flat L-leaded
Package
Pin 20~996
CXD2303AQ
1 24
64
65
80
40
25
41
TOP VIEW
D10SC4M
D10SBS4F
CXA3266Q-T6
CXD2090Q
TOP VIEW
CXA2100AQ-TL
TOP VIEW
E
B
C
INDEX
TOP VIEW
113
26 14
UPC1093J-1-T
3
2
1
TLC2932IPW
TLC2933IPWR
1TOP VIEW
14pin
PQ3TZ53U
LM393N
1TOP VIEW
8pin
MB81F161622B-80
TOP VIEW
CXD9509Q
TOP VIEW
UPD64082
TOP VIEW
MB81F64324B-10FN
TOP VIEW
TC7SET04F(TE85R)
PQ1CG2032FZ
TOP VIEW
125
2650
PQ5EV3
MCR5152
n
1
TC9446F-002
130
80
81
100
50
31
51
TOP VIEW
CXA2123AQ-T6
P6KE200AG23
UF4005PKG23
CATHODE
ANODE
2SC5480-01
2SC5511
SBX1981-51P
DM-58
PST9120NL
PST9145NL
TC7SET08FU(TE85L)
5pin
TDA6111Q/N4
1
9
BA12T
BA09T
DIODE
D1NS4
ERA38-06
ERA85-009
RD10ESB2
RD12ES-B2
RD13ES-B2
RD15ES-B2
RD18ESB2
RD2.2ES-B
RD2.7ESB2
RD22ESB
RD3.6ES-B1
RD3.9ES-B2
RD30ESB2
RD4.7ESB2
RD5.6ES-B
RD6.8ES-B2
RD7.5ESB2
1SS119-25
DTZ9.1
MA111-(K8).S0
MA113-(TX)
RD3.0B2
RD5.6SB3
RD9.1S-B
D4SB60L
RD9.1ES-L2
CATHODE
ANODE
CATHODE
ANODE
BA05FP-E2
BA05T
BA09FP-E2
CXP750096-013Q

– 187 –
KV-ES34M81/ES34M91
RM-916
SECTION 7
EXPLODED VIEWS
•Items marked " ∗ " are not stocked since
they are seldom required for routine
service. Some delay should be
anticipated when ordering these items.
The components identified by
shading and mark ! are critical
for safety.
Replace only with part number
specified.
NOTE:
•Items with no part number and no
description are not stocked because
they are seldom required for routine
service.
•The construction parts of an assembled
part are indicated with a collation
number in the remark column.
CAUTION: The aluminium frame must be connected to the ground with the ground cable from DH board. Failure
to do so, may cause the user to suffer electric shock.
7-1. SPEAKER BRACKET
p: 7-685-663-71 SCREW +BVTP 4 × 16
4: 7-685-664-79 SCREW +BVTP 4 × 20
r: 7-685-648-79 SCREW +BVTP 3 × 12
REF. NO. PART NO. DESCRIPTION REMARK
1
7
2
4
5
3
6
2
1
2
2
1
3
4
5
1
7
8
8
8
8
1 4-374-745-11 CUSHION (A)
2 4-064-929-02 SCREW, TP+TWH 4X25
3 1-529-562-11 SPEAKER (7X4CM)
4 1-505-473-11 SPEAKER (12CM)
5 * 4-071-339-01 DUCT, SPEAKER
6!X-4036-879-2 COVER ASSY, REAR
7 * 4-073-084-01 DUCT, CUSHION
8 * 4-074-512-01 CUSHION (S), DGC

– 188 –
KV-ES34M81/ES34M91
RM-916
7-2. CHASSIS
r: 7-685-648-79 SCREW +BVTP 3 × 12
REF. NO. PART NO. DESCRIPTION REMARK REF. NO. PART NO. DESCRIPTION REMARK
62 * 4-071-315-01 BRACKET, TERMINAL
63 * A-1241-402-A F1 BOARD MOUNT
64 * 4-071-307-02 HOLDER, F2/H1 BOARD
65 * A-1372-728-A H1 BOARD MOUNT
66 4-071-305-03 BUTTON, POWER
67 * A-1394-965-B J BOARD COMPLETE
68 * A-1136-069-A BC4 BOARD COMPLETE
69 * A-1241-403-A F2 BOARD MOUNT
70 * 4-071-316-01 SUPPORTER, PWB
71 * A-1343-850-A DH BOARD MOUNT
72 * A-1299-092-A A1 BOARD COMPLETE
73 * A-1342-516-A V BOARD MOUNT
74 1-790-082-11 CABLE, RF
75 1-543-827-31 CLAMP, SLEEVE FERRITE
76 * A-1343-862-A E2 BOARD MOUNT
70
71
62
67
65
64
69
64
68
60
76
51
54
52
56
72
74
63
53
59
66
57
61
75
58
55
73
51 8-598-450-10 TUNER, FSS BTF-LG434 (KV-ES34M81)
8-598-452-20 TUNER, FSS BTF-WG442 (KV-ES34M91)
52 8-598-508-10 TUNER, FSS BTF-LG436
53 * A-1299-162-B A BOARD COMPLETE (KV-ES34M81)
* A-1299-157-B A BOARD COMPLETE (KV-ES34M91)
54 * A-1136-054-A B3 BOARD COMPLETE
55 * A-1343-778-C E BOARD MOUNT
56 * A-1343-777-A D1 BOARD MOUNT
57 * A-1346-902-B D BOARD COMPLETE
58 !1-453-326-11 TRANSFORMER ASSY, FLYBACK
(NX-4601//J1J4)
59 * 4-071-314-01 BRACKET, MAIN
60 !4-022-115-00 HOLDER, AC CORD
61 !1-791-439-11 CORD, POWER (WITH CONNECTOR)

– 189 –
KV-ES34M81/ES34M91
RM-916
116
117
118
103
102
126
141
105 104
132
131
107
106
109
108
104
110
112
113
111
114 139 115
123
127
122 141
141
119
133
142
142
129
141
128124
130
125
101 120
121
134
136
135
137
143
139
140
138
139
139
141
◆
7-3. PICTURE TUBE
r: 7-685-648-71 SCREW +BVTP 3 × 12
p: 7-685-663-71 SCREW +BVTP 4 × 16
4: 7-685-661-14 SCREW +BVTP 4 × 12
◆
: 7-685-661-14 SCREW +BVTP 4 × 20
REF. NO. PART NO. DESCRIPTION REMARK REF. NO. PART NO. DESCRIPTION REMARK
123 * 4-071-336-01 BRACKET (TL), CRT
124 * 4-071-337-01 BRACKET (BR), CRT
125 * 4-071-338-01 BRACKET (BL), CRT
126 * 4-071-311-02 HOLDER, H3
127 X-4037-420-1 FRAME SUB ASSY, TOP
128 X-4037-421-1 FRAME SUB ASSY, BOTTOM
129 X-4037-422-1 FRAME SUB ASSY, RIGHT
130 X-4037-423-1 FRAME SUB ASSY, LEFT
131 * 4-071-306-01 LIGHT, GUIDE
132 * 4-072-950-01 BRACKET, LIGHT GUIDE
133 4-073-080-01 FASTEN
134 * 4-071-310-04 BRACKET, SIDE
135 * A-1372-729-A H2 BOARD MOUNT
136 4-047-464-01 CATCHER, PUSH
137 4-067-455-01 BAND, DGC
138 !1-419-295-11 COIL, LANDING CORRECTION
139 * 4-074-513-01 CUSHION (L), DGC
140 * 4-054-297-01 HOLDER, DGC
141 4-072-956-01 SCREW SPECIAL (DIA.8) (+TP4X9)
142 * 4-071-673-01 SHEET, COVER
101 4-071-308-01 DOOR, CONTROL
102 * A-1372-730-A H3 BOARD MOUNT
103 4-071-312-03 BUTTON, TOP SW
104 4-046-765-12 SCREW, TAPPING 7+CROWN WASHER
105 !8-735-062-05 PICTURE TUBE (A80LNH10X)
106 4-046-600-01 SPACER, DY
107 4-065-852-21 SPRING, EXTENSION
108 2-163-920-01 PLATE, TLH CORRECTION
109 !8-451-500-31 DEFLECTION YOKE (Y34RSC2-M3)
110 8-453-007-31 NA324-M3
111 1-452-896-11 COIL, NA ROTATION (RT200)
112 * A-1332-005-A C BOARD MOUNT
113 * A-1342-515-A VM BOARD MOUNT
114 !1-419-293-11 COIL, DEGAUSSING
115 4-067-221-02 CLIP, DGC
116 1-452-032-00 MAGNET,DISC
117 1-452-094-00 CIRCULAR DISC MAGNET B
118 4-051-734-21 PIECE B(120), CONV. CORRECT
119 * 4-071-334-01 COVER, FRONT
120 * X-4037-280-1 HOLDER ASSY, CONTROL
121 4-071-323-01 SPRING, CONE
122 * 4-071-335-01 BRACKET (TR), CRT

– 190 –
REF. NO. PART NO. DESCRIPTION REMARK REF. NO. PART NO. DESCRIPTION REMARK
KV-ES34M81/ES34M91
RM-916 The components identified by shading
and mark ! are critical for safety.
Replace only with part number specified.
* A-1299-162-B A BOARD COMPLETE (KV-ES34M81)
* A-1299-157-B A BOARD COMPLETE (KV-ES34M91)
********************
* 1-555-110-00 CABLE, PIN
4-382-854-11 SCREW (M3X10), P, SW (+)
<CAPACITOR>
C004 1-163-001-11 CERAMIC CHIP 220PF 10.00%50V
C005 1-163-001-11 CERAMIC CHIP 220PF 10.00%50V
C006 1-107-725-11 CERAMIC CHIP 0.1UF 10.00%16V
C007 1-126-933-11 ELECT 100UF 20.00%16V
C009 1-164-004-11 CERAMIC CHIP 0.1UF 10.00%25V
C010 1-164-004-11 CERAMIC CHIP 0.1UF 10.00%25V
C012 1-163-227-11 CERAMIC CHIP 10PF 0.50PF 50V
C013 1-163-021-91 CERAMIC CHIP 0.01UF 10.00%50V
C014 1-126-967-11 ELECT 47UF 20.00%50V
C015 1-163-227-11 CERAMIC CHIP 10PF 0.50PF 50V
C016 1-102-852-91 CERAMIC 47PF 5.00% 50V
C017 1-102-525-11 CERAMIC 68PF 5.00% 50V
C018 1-163-021-91 CERAMIC CHIP 0.01UF 10.00%50V
C019 1-163-021-91 CERAMIC CHIP 0.01UF 10.00%50V
C020 1-163-021-91 CERAMIC CHIP 0.01UF 10.00%50V
C021 1-163-021-91 CERAMIC CHIP 0.01UF 10.00%50V
C024 1-163-227-11 CERAMIC CHIP 10PF 0.50PF 50V
C028 1-163-037-11 CERAMIC CHIP 0.022UF 10.00%50V
C030 1-126-960-11 ELECT 1UF 20.00%50V
C031 1-107-725-11 CERAMIC CHIP 0.1UF 10.00%16V
C032 1-163-021-91 CERAMIC CHIP 0.01UF 10.00%50V
C033 1-115-339-11 CERAMIC CHIP 0.1UF 10.00%50V
C034 1-163-259-91 CERAMIC CHIP 220PF 5.00% 50V
C103 1-107-725-11 CERAMIC CHIP 0.1UF 10.00%16V
C104 1-126-933-11 ELECT 100UF 20.00%16V
C107 1-163-005-11 CERAMIC CHIP 470PF 10.00%50V
C108 1-126-933-11 ELECT 100UF 20.00%16V
C109 1-163-005-11 CERAMIC CHIP 470PF 10.00%50V
C110 1-163-005-11 CERAMIC CHIP 470PF 10.00%50V
C111 1-163-005-11 CERAMIC CHIP 470PF 10.00%50V
C112 1-126-933-11 ELECT 100UF 20.00%16V
C113 1-126-967-11 ELECT 47UF 20.00%50V
C114 1-126-967-11 ELECT 47UF 20.00%50V
C301 1-126-767-11 ELECT 1000UF 20.00%16V
C326 1-126-964-11 ELECT 10UF 20.00%50V
C1201 1-107-725-11 CERAMIC CHIP 0.1UF 10.00%16V
C1202 1-107-725-11 CERAMIC CHIP 0.1UF 10.00%16V
C1203 1-164-505-11 CERAMIC CHIP 2.2UF 16V
C1204 1-164-690-91 CERAMIC CHIP 0.0022UF 5.00% 50V
C1205 1-164-690-91 CERAMIC CHIP 0.0022UF 5.00% 50V
C1206 1-126-965-11 ELECT 22UF 20.00%50V
C1207 1-107-725-11 CERAMIC CHIP 0.1UF 10.00%16V
C1208 1-126-023-11 ELECT 100UF 20.00%16V
C1209 1-164-505-11 CERAMIC CHIP 2.2UF 16V
C1210 1-125-838-91 CERAMIC CHIP 2.2UF 10% 6.3V
C1211 1-163-989-11 CERAMIC CHIP 0.033UF 10.00%25V
C1212 1-125-838-91 CERAMIC CHIP 2.2UF 10% 6.3V
C1213 1-163-989-11 CERAMIC CHIP 0.033UF 10.00%25V
C1214 1-126-055-11 ELECT 470UF 20.00%50V
C1215 1-126-055-11 ELECT 470UF 20.00%50V
C1216 1-126-943-11 ELECT 2200UF 20.00%25V
C1217 1-126-943-11 ELECT 2200UF 20.00%25V
C1219 1-126-961-11 ELECT 2.2UF 20.00%50V
C1220 1-126-961-11 ELECT 2.2UF 20.00%50V
C1221 1-126-933-11 ELECT 100UF 20.00%16V
C1222 1-125-838-91 CERAMIC CHIP 2.2UF 10% 6.3V
C1223 1-125-838-91 CERAMIC CHIP 2.2UF 10% 6.3V
C1224 1-125-838-91 CERAMIC CHIP 2.2UF 10% 6.3V
C1225 1-125-838-91 CERAMIC CHIP 2.2UF 10% 6.3V
C1241 1-115-339-11 CERAMIC CHIP 0.1UF 10.00%50V
C1242 1-115-339-11 CERAMIC CHIP 0.1UF 10.00%50V
C1243 1-115-339-11 CERAMIC CHIP 0.1UF 10.00%50V
C1244 1-110-617-51 ELECT 2200UF 20.00%50V
C1245 1-115-339-11 CERAMIC CHIP 0.1UF 10.00%50V
C1246 1-107-823-11 CERAMIC CHIP 0.47UF 10.00%16V
C1247 1-115-339-11 CERAMIC CHIP 0.1UF 10.00%50V
C1248 1-110-617-51 ELECT 2200UF 20.00%50V
C1249 1-163-009-11 CERAMIC CHIP 0.001UF 10.00%50V
C1251 1-163-017-00 CERAMIC CHIP 0.0047UF 10.00%50V
C1252 1-163-251-11 CERAMIC CHIP 100PF 5.00% 50V
C1253 1-115-339-11 CERAMIC CHIP 0.1UF 10.00%50V
C1255 1-163-009-11 CERAMIC CHIP 0.001UF 10.00%50V
C1256 1-137-194-81 MYLAR 0.47UF 5.00% 50V
C1258 1-115-339-11 CERAMIC CHIP 0.1UF 10.00%50V
C1259 1-115-339-11 CERAMIC CHIP 0.1UF 10.00%50V
C1260 1-107-823-11 CERAMIC CHIP 0.47UF 10.00%16V
C1262 1-163-009-11 CERAMIC CHIP 0.001UF 10.00%50V
C1263 1-163-017-00 CERAMIC CHIP 0.0047UF 10.00%50V
C1264 1-163-251-11 CERAMIC CHIP 100PF 5.00% 50V
C1265 1-115-339-11 CERAMIC CHIP 0.1UF 10.00%50V
C1267 1-163-009-11 CERAMIC CHIP 0.001UF 10.00%50V
C1268 1-137-194-81 MYLAR 0.47UF 5.00% 50V
C1270 1-163-007-11 CERAMIC CHIP 680PF 10.00%50V
C1271 1-163-007-11 CERAMIC CHIP 680PF 10.00%50V
C1272 1-126-941-11 ELECT 470UF 20.00%25V
C1273 1-115-339-11 CERAMIC CHIP 0.1UF 10.00%50V
C1274 1-115-339-11 CERAMIC CHIP 0.1UF 10.00%50V
C1275 1-163-007-11 CERAMIC CHIP 680PF 10.00%50V
SECTION 8
ELECTRICAL PARTS LIST
•All resistors are in ohms
•F : nonflammable
CAPACITORS
•MF : µF, PF : µµF
COILS
• MMH : mH, UH : µH
•Items marked " ∗ " are not stocked since they
are seldom required for routine service.
Some delay should be anticipated when or-
dering these items.
•All variable and adjustable resistors have
characteristic curve B, unless otherwise
noted.
A
REF. NO. PART NO. DESCRIPTION REMARK REF. NO. PART NO. DESCRIPTION REMARK
NOTE:
The components identified by shading
and mark ! are critical for safety.
Replace only with part number specified.
When indicating parts by reference
number, please include the board name.

– 191 –
REF. NO. PART NO. DESCRIPTION REMARK REF. NO. PART NO. DESCRIPTION REMARK
KV-ES34M81/ES34M91
RM-916
The components identified by shading
and mark ! are critical for safety.
Replace only with part number specified.
C1276 1-163-007-11 CERAMIC CHIP 680PF 10.00%50V
C1277 1-164-690-91 CERAMIC CHIP 0.0022UF 5.00% 50V
C1279 1-164-690-91 CERAMIC CHIP 0.0022UF 5.00% 50V
C1281 1-115-339-11 CERAMIC CHIP 0.1UF 10.00%50V
C1282 1-115-339-11 CERAMIC CHIP 0.1UF 10.00%50V
C1283 1-164-690-91 CERAMIC CHIP 0.0022UF 5.00% 50V
C1284 1-164-690-91 CERAMIC CHIP 0.0022UF 5.00% 50V
C1285 1-126-933-11 ELECT 100UF 20.00%16V
C1286 1-126-933-11 ELECT 100UF 20.00%16V
C1287 1-163-251-11 CERAMIC CHIP 100PF 5.00% 50V
C1288 1-163-251-11 CERAMIC CHIP 100PF 5.00% 50V
C1289 1-163-251-11 CERAMIC CHIP 100PF 5.00% 50V
C1290 1-163-251-11 CERAMIC CHIP 100PF 5.00% 50V
C1291 1-163-251-11 CERAMIC CHIP 100PF 5.00% 50V
C1292 1-163-251-11 CERAMIC CHIP 100PF 5.00% 50V
C1297 1-136-177-00 MYLAR 1UF 5.00% 50V
C1298 1-136-177-00 MYLAR 1UF 5.00% 50V
C1301 1-126-933-11 ELECT 100UF 20.00%16V
C1302 1-115-339-11 CERAMIC CHIP 0.1UF 10.00%50V
C2200 1-126-964-11 ELECT 10UF 20.00%50V
C2201 1-126-964-11 ELECT 10UF 20.00%50V
C2202 1-126-964-11 ELECT 10UF 20.00%50V
C2203 1-126-963-11 ELECT 4.7UF 20.00%50V
C2204 1-125-838-91 CERAMIC CHIP 2.2UF 10% 6.3V
C2205 1-125-838-91 CERAMIC CHIP 2.2UF 10% 6.3V
C2206 1-126-964-11 ELECT 10UF 20.00%50V
C2207 1-216-065-91 RES-CHIP 4.7K 5% 1/10W
C2208 1-216-065-91 RES-CHIP 4.7K 5% 1/10W
C2209 1-126-968-11 ELECT 100UF 20.00%50V
C2600 1-164-004-11 CERAMIC CHIP 0.1UF 10.00%25V
C2601 1-164-004-11 CERAMIC CHIP 0.1UF 10.00%25V
C2602 1-126-933-11 ELECT 100UF 20.00%16V
C2603 1-126-933-11 ELECT 100UF 20.00%16V
C2605 1-126-925-11 ELECT 470UF 20.00%10V
C2606 1-164-344-11 CERAMIC CHIP 0.068UF 10.00%25V
C2608 1-126-916-11 ELECT 1000UF 20.00%6.3V
C2609 1-126-935-11 ELECT 470UF 20.00%6.3V
C2610 1-164-004-11 CERAMIC CHIP 0.1UF 10.00%25V
C2611 1-126-934-11 ELECT 220UF 20.00%16V
C2612 1-104-665-11 ELECT 100UF 20.00%25V
C2613 1-104-665-11 ELECT 100UF 20.00%25V
C2614 1-126-925-11 ELECT 470UF 20.00%10V
C3330 1-107-725-11 CERAMIC CHIP 0.1UF 10.00%16V
C3331 1-126-933-11 ELECT 100UF 20.00%16V
C3336 1-126-933-11 ELECT 100UF 20.00%16V
C3338 1-163-005-11 CERAMIC CHIP 470PF 10.00%50V
C3350 1-163-005-11 CERAMIC CHIP 470PF 10.00%50V
C3351 1-163-005-11 CERAMIC CHIP 470PF 10.00%50V
C3352 1-163-005-11 CERAMIC CHIP 470PF 10.00%50V
C3353 1-126-933-11 ELECT 100UF 20.00%16V
C3354 1-126-967-11 ELECT 47UF 20.00%50V
C3355 1-126-967-11 ELECT 47UF 20.00%50V
<CONNECTOR>
CN1100* 1-560-218-00 PIN, CONNECTOR 7P
CN1108 1-695-299-11 CONNECTOR, BOARD TO BOARD 50P
CN1116 1-695-915-11 TAB (CONTACT)
CN1118 1-793-493-11 CONNECTOR, BOARD TO BOARD 20P
CN1138* 1-564-507-11 PLUG, CONNECTOR 4P
CN1140 1-793-494-11 CONNECTOR, BOARD TO BOARD 40P
CN1160* 1-564-513-11 PLUG, CONNECTOR 10P
CN1162 1-900-903-64 CONNECTOR ASSY 20P
CN1180 1-793-495-11 CONNECTOR, BOARD TO BOARD 50P
CN1190* 1-564-510-11 PLUG, CONNECTOR 7P
CN1193* 1-564-513-11 PLUG, CONNECTOR 10P
CN1195* 1-564-506-11 PLUG, CONNECTOR 3P
CN1196* 1-508-797-00 PIN, CONNECTOR 4P
<COMPOSITION CIRCUIT BLOCK>
CP1300 1-251-658-31 SPLITTER RF
<DIODE>
D001 8-719-073-01 DIODE MA111-TX
D002 8-719-073-01 DIODE MA111-TX
D003 8-719-073-01 DIODE MA111-TX
D004 8-719-073-01 DIODE MA111-TX
D005 8-719-073-01 DIODE MA111-TX
D006 8-719-073-01 DIODE MA111-TX
D007 8-719-158-18 DIODE RD5.6SB3-T1
D013 8-719-158-18 DIODE RD5.6SB3-T1
D014 8-719-073-01 DIODE MA111-TX
D100 8-719-073-01 DIODE MA111-TX
D300 8-719-073-01 DIODE MA111-TX
D301 8-719-073-01 DIODE MA111-TX
D302 8-719-073-01 DIODE MA111-TX
D317 8-719-073-01 DIODE MA111-TX
D1205 8-719-158-35 DIODE RD9.1SB-T1
D1208 8-719-073-01 DIODE MA111-TX
D1209 8-719-073-01 DIODE MA111-TX
D2200 8-719-158-35 DIODE RD9.1SB-T1
D2201 8-719-158-35 DIODE RD9.1SB-T1
D2600 8-719-500-70 DIODE D5S4M
<FERRITE BEAD>
FB001 1-414-233-22 INDUCTOR CHIP 0UH
FB002 1-414-233-22 INDUCTOR CHIP 0UH
FB003 1-414-233-22 INDUCTOR CHIP 0UH
FB004 1-414-233-22 INDUCTOR CHIP 0UH
FB005 1-414-233-22 INDUCTOR CHIP 0UH
FB006 1-414-233-22 INDUCTOR CHIP 0UH
FB007 1-414-233-22 INDUCTOR CHIP 0UH
FB008 1-414-233-22 INDUCTOR CHIP 0UH
FB1205 1-410-397-21 FERRITE 1.1UH
FB1206 1-410-397-21 FERRITE 1.1UH
FB1207 1-410-397-21 FERRITE 1.1UH
FB1208 1-410-397-21 FERRITE 1.1UH
FB1300 1-216-295-91 SHORT 0
<FILTER>
FL001 1-236-071-11 ENCAPSULATED COMPONENT
A

– 192 –
REF. NO. PART NO. DESCRIPTION REMARK REF. NO. PART NO. DESCRIPTION REMARK
KV-ES34M81/ES34M91
RM-916 The components identified by shading
and mark ! are critical for safety.
Replace only with part number specified.
<IC>
IC001 8-752-910-27 IC CXP750096-013Q
IC002 8-759-042-02 IC S-80743AL-A7-T1
IC003 8-759-527-76 IC M24C08-MN6T
IC004 8-759-527-75 IC M24C04-MN6T
IC100 8-759-042-02 IC S-80743AL-A7-T1
IC1201 8-759-273-12 IC TDA7315D013TR
IC1203 8-759-553-45 IC TDA7481
IC1204 8-759-553-45 IC TDA7481
IC1205 8-759-100-96 IC UPC4558G2-T2
IC2200 8-759-745-64 IC NJM4560M-TE2
IC2600 8-759-394-36 IC BA09T
IC2601 8-759-450-47 IC BA05T
IC2603 8-759-640-19 IC PQ1CG2032FZ
IC2604 8-759-644-37 IC PQ5EV3
<CHIP CONDUCTOR>
JR001 1-216-295-91 SHORT 0
JR002 1-216-295-91 SHORT 0
JR107 1-216-295-91 SHORT 0
JR109 1-216-295-91 SHORT 0 (KV-ES34M81 only)
JR1301 1-216-295-91 SHORT 0
JR2601 1-216-295-91 SHORT 0
<COIL>
L001 1-414-856-11 INDUCTOR 10UH
L002 1-414-856-11 INDUCTOR 10UH
L003 1-414-751-11 INDUCTOR 1UH
L005 1-414-856-11 INDUCTOR 10UH
L101 1-414-856-11 INDUCTOR 10UH
L102 1-414-856-11 INDUCTOR 10UH
L103 1-414-856-11 INDUCTOR 10UH
L104 1-414-856-11 INDUCTOR 10UH
L105 1-414-856-11 INDUCTOR 10UH
L1201 1-414-187-11 INDUCTOR 47UH
L1202 1-416-857-11 INDUCTOR 65UH
L1203 1-416-857-11 INDUCTOR 65UH
L1204 1-416-966-11 INDUCTOR 0UH
L1205 1-416-966-11 INDUCTOR 0UH
L1300 1-414-856-11 INDUCTOR 10UH
L2600 1-419-249-11 INDUCTOR 15UH
L2601 1-419-249-11 INDUCTOR 15UH
L2602 1-412-525-31 INDUCTOR 10UH
L2603 1-412-525-31 INDUCTOR 10UH
L3302 1-414-856-11 INDUCTOR 10UH
L3303 1-414-856-11 INDUCTOR 10UH
L3304 1-414-856-11 INDUCTOR 10UH
L3305 1-414-856-11 INDUCTOR 10UH
L3306 1-414-856-11 INDUCTOR 10UH
<IC LINK>
PS1201 1-532-686-21 LINK, IC 2.7A/150V
PS1202 1-532-686-21 LINK, IC 2.7A/150V
PS1203 1-532-686-21 LINK, IC 2.7A/150V
PS1204 1-532-686-21 LINK, IC 2.7A/150V
<TRANSISTOR>
Q001 8-729-026-49 TRANSISTOR 2SA1037AK-T146-QR
Q002 8-729-230-49 TRANSISTOR 2SC2712-YG-TE85L
Q003 8-729-230-49 TRANSISTOR 2SC2712-YG-TE85L
Q004 8-729-230-49 TRANSISTOR 2SC2712-YG-TE85L
Q005 8-729-026-49 TRANSISTOR 2SA1037AK-T146-QR
Q006 8-729-026-49 TRANSISTOR 2SA1037AK-T146-QR
Q007 8-729-026-49 TRANSISTOR 2SA1037AK-T146-QR
Q101 8-729-026-49 TRANSISTOR 2SA1037AK-T146-QR
Q301 8-729-026-49 TRANSISTOR 2SA1037AK-T146-QR
Q313 8-729-230-49 TRANSISTOR 2SC2712-YG-TE85L
Q1205 1-801-806-11 TRANSISTOR DTC144EKA-T146
Q1206 8-729-230-49 TRANSISTOR 2SC2712-YG-TE85L
Q1207 8-729-230-49 TRANSISTOR 2SC2712-YG-TE85L
Q1209 8-729-230-49 TRANSISTOR 2SC2712-YG-TE85L
Q1210 8-729-230-49 TRANSISTOR 2SC2712-YG-TE85L
Q1211 8-729-026-49 TRANSISTOR 2SA1037AK-T146-QR
Q2200 1-801-806-11 TRANSISTOR DTC144EKA-T146
Q2201 1-801-806-11 TRANSISTOR DTC144EKA-T146
Q3300 8-729-026-49 TRANSISTOR 2SA1037AK-T146-QR
<RESISTOR>
R001 1-216-033-00 RES-CHIP 220 5% 1/10W
R002 1-216-033-00 RES-CHIP 220 5% 1/10W
R003 1-216-049-91 RES-CHIP 1K 5% 1/10W
R004 1-216-295-91 SHORT 0
R005 1-216-295-91 SHORT 0
R006 1-216-033-00 RES-CHIP 220 5% 1/10W
R008 1-216-065-91 RES-CHIP 4.7K 5% 1/10W
R010 1-216-061-00 RES-CHIP 3.3K 5% 1/10W
R011 1-216-065-91 RES-CHIP 4.7K 5% 1/10W
R012 1-216-061-00 RES-CHIP 3.3K 5% 1/10W
R013 1-216-065-91 RES-CHIP 4.7K 5% 1/10W
R014 1-216-025-91 RES-CHIP 100 5% 1/10W
R015 1-216-025-91 RES-CHIP 100 5% 1/10W
R016 1-216-057-00 RES-CHIP 2.2K 5% 1/10W
R017 1-216-049-91 RES-CHIP 1K 5% 1/10W
R018 1-216-045-00 RES-CHIP 680 5% 1/10W
R019 1-216-049-91 RES-CHIP 1K 5% 1/10W
R020 1-216-057-00 RES-CHIP 2.2K 5% 1/10W
R021 1-216-295-91 SHORT 0
R022 1-216-033-00 RES-CHIP 220 5% 1/10W
R023 1-216-025-91 RES-CHIP 100 5% 1/10W
R024 1-216-063-91 RES-CHIP 3.9K 5% 1/10W
R025 1-216-033-00 RES-CHIP 220 5% 1/10W
R026 1-216-033-00 RES-CHIP 220 5% 1/10W
R027 1-216-049-91 RES-CHIP 1K 5% 1/10W
R028 1-216-049-91 RES-CHIP 1K 5% 1/10W
R029 1-216-049-91 RES-CHIP 1K 5% 1/10W
R031 1-216-033-00 RES-CHIP 220 5% 1/10W
R032 1-216-049-91 RES-CHIP 1K 5% 1/10W
R033 1-216-033-00 RES-CHIP 220 5% 1/10W
R035 1-216-057-00 RES-CHIP 2.2K 5% 1/10W
R036 1-216-033-00 RES-CHIP 220 5% 1/10W
R037 1-216-033-00 RES-CHIP 220 5% 1/10W
R038 1-216-045-00 RES-CHIP 680 5% 1/10W
R039 1-216-025-91 RES-CHIP 100 5% 1/10W
A

– 193 –
REF. NO. PART NO. DESCRIPTION REMARK REF. NO. PART NO. DESCRIPTION REMARK
KV-ES34M81/ES34M91
RM-916
The components identified by shading
and mark ! are critical for safety.
Replace only with part number specified.
R040 1-216-033-00 RES-CHIP 220 5% 1/10W
R041 1-216-025-91 RES-CHIP 100 5% 1/10W
R042 1-216-295-91 SHORT 0
R043 1-216-025-91 RES-CHIP 100 5% 1/10W
R044 1-216-065-91 RES-CHIP 4.7K 5% 1/10W
R045 1-216-065-91 RES-CHIP 4.7K 5% 1/10W
R046 1-216-033-00 RES-CHIP 220 5% 1/10W
R047 1-216-033-00 RES-CHIP 220 5% 1/10W
R048 1-216-073-00 RES-CHIP 10K 5% 1/10W
R051 1-216-049-91 RES-CHIP 1K 5% 1/10W
R052 1-216-049-91 RES-CHIP 1K 5% 1/10W
R053 1-216-049-91 RES-CHIP 1K 5% 1/10W
R054 1-216-033-00 RES-CHIP 220 5% 1/10W
R055 1-216-295-91 SHORT 0
R056 1-216-295-91 SHORT 0
R057 1-216-295-91 SHORT 0
R058 1-216-295-91 SHORT 0
R059 1-216-033-00 RES-CHIP 220 5% 1/10W
R060 1-216-033-00 RES-CHIP 220 5% 1/10W
R061 1-216-025-91 RES-CHIP 100 5% 1/10W
R062 1-216-049-91 RES-CHIP 1K 5% 1/10W
R063 1-216-025-91 RES-CHIP 100 5% 1/10W
R064 1-216-025-91 RES-CHIP 100 5% 1/10W
R065 1-216-045-00 RES-CHIP 680 5% 1/10W
R066 1-216-049-91 RES-CHIP 1K 5% 1/10W
R067 1-216-073-00 RES-CHIP 10K 5% 1/10W
R068 1-216-073-00 RES-CHIP 10K 5% 1/10W
R069 1-216-065-91 RES-CHIP 4.7K 5% 1/10W
R070 1-216-033-00 RES-CHIP 220 5% 1/10W
R071 1-216-025-91 RES-CHIP 100 5% 1/10W
R072 1-216-025-91 RES-CHIP 100 5% 1/10W
R073 1-216-055-00 RES-CHIP 1.8K 5% 1/10W
R074 1-216-055-00 RES-CHIP 1.8K 5% 1/10W
R075 1-216-055-00 RES-CHIP 1.8K 5% 1/10W
R076 1-216-295-91 SHORT 0
R077 1-216-025-91 RES-CHIP 100 5% 1/10W
R078 1-216-295-91 SHORT 0
R079 1-216-025-91 RES-CHIP 100 5% 1/10W
R080 1-216-063-91 RES-CHIP 3.9K 5% 1/10W
R081 1-216-025-91 RES-CHIP 100 5% 1/10W
R082 1-216-041-00 RES-CHIP 470 5% 1/10W
R083 1-216-049-91 RES-CHIP 1K 5% 1/10W
R084 1-216-049-91 RES-CHIP 1K 5% 1/10W
R085 1-208-798-11 METAL CHIP 4.7K 0.5% 1/10W
R086 1-216-073-00 RES-CHIP 10K 5% 1/10W
R087 1-216-033-00 RES-CHIP 220 5% 1/10W
R088 1-216-049-91 RES-CHIP 1K 5% 1/10W
R089 1-216-049-91 RES-CHIP 1K 5% 1/10W
R090 1-216-295-91 SHORT 0
R091 1-216-295-91 SHORT 0
R092 1-216-033-00 RES-CHIP 220 5% 1/10W
R093 1-216-073-00 RES-CHIP 10K 5% 1/10W
R094 1-216-073-00 RES-CHIP 10K 5% 1/10W
R095 1-216-049-91 RES-CHIP 1K 5% 1/10W
R096 1-216-049-91 RES-CHIP 1K 5% 1/10W
R097 1-216-025-91 RES-CHIP 100 5% 1/10W
R098 1-216-025-91 RES-CHIP 100 5% 1/10W
R099 1-216-025-91 RES-CHIP 100 5% 1/10W
R101 1-216-025-91 RES-CHIP 100 5% 1/10W
R102 1-216-025-91 RES-CHIP 100 5% 1/10W
R105 1-216-295-91 SHORT 0
R109 1-216-041-00 RES-CHIP 470 5% 1/10W
R110 1-216-043-91 RES-CHIP 560 5% 1/10W
R111 1-216-025-91 RES-CHIP 100 5% 1/10W
R112 1-216-025-91 RES-CHIP 100 5% 1/10W
R116 1-216-025-91 RES-CHIP 100 5% 1/10W
R117 1-216-025-91 RES-CHIP 100 5% 1/10W
R118 1-216-025-91 RES-CHIP 100 5% 1/10W
R301 1-216-113-00 RES-CHIP 470K 5% 1/10W
R302 1-216-089-91 RES-CHIP 47K 5% 1/10W
R303 1-216-089-91 RES-CHIP 47K 5% 1/10W
R1201 1-216-033-00 RES-CHIP 220 5% 1/10W
R1202 1-216-033-00 RES-CHIP 220 5% 1/10W
R1203 1-216-079-00 RES-CHIP 18K 5% 1/10W
R1204 1-216-079-00 RES-CHIP 18K 5% 1/10W
R1205 1-216-089-91 RES-CHIP 47K 5% 1/10W
R1206 1-216-089-91 RES-CHIP 47K 5% 1/10W
R1236 1-208-808-11 METAL CHIP 12K 0.5% 1/10W
R1237 1-216-085-00 RES-CHIP 33K 5% 1/10W
R1238 1-216-081-00 RES-CHIP 22K 5% 1/10W
R1239 1-216-067-00 RES-CHIP 5.6K 5% 1/10W
R1240 1-216-085-00 RES-CHIP 33K 5% 1/10W
R1241 1-216-073-00 RES-CHIP 10K 5% 1/10W
R1242 1-216-073-00 RES-CHIP 10K 5% 1/10W
R1244 1-216-073-00 RES-CHIP 10K 5% 1/10W
R1246 1-208-808-11 METAL CHIP 12K 0.5% 1/10W
R1247 1-216-085-00 RES-CHIP 33K 5% 1/10W
R1248 1-216-075-00 RES-CHIP 12K 5% 1/10W
R1249 1-216-025-91 RES-CHIP 100 5% 1/10W
R1250 1-216-063-91 RES-CHIP 3.9K 5% 1/10W
R1252 1-216-073-00 RES-CHIP 10K 5% 1/10W
R1253 1-216-065-91 RES-CHIP 4.7K 5% 1/10W
R1254 1-216-075-00 RES-CHIP 12K 5% 1/10W
R1255 1-216-075-00 RES-CHIP 12K 5% 1/10W
R1256 1-216-073-00 RES-CHIP 10K 5% 1/10W
R1257 1-216-025-91 RES-CHIP 100 5% 1/10W
R1258 1-216-075-00 RES-CHIP 12K 5% 1/10W
R1259 1-216-073-00 RES-CHIP 10K 5% 1/10W
R1260 1-216-029-00 RES-CHIP 150 5% 1/10W
R1261 1-216-029-00 RES-CHIP 150 5% 1/10W
R1264 1-216-041-00 RES-CHIP 470 5% 1/10W
R1265 1-216-041-00 RES-CHIP 470 5% 1/10W
R1266 1-216-049-91 RES-CHIP 1K 5% 1/10W
R1267 1-216-077-91 RES-CHIP 15K 5% 1/10W
R1269 1-216-025-91 RES-CHIP 100 5% 1/10W
R1270 1-216-089-91 RES-CHIP 47K 5% 1/10W
R1271 1-216-049-91 RES-CHIP 1K 5% 1/10W
R1272 1-216-049-91 RES-CHIP 1K 5% 1/10W
R1273 1-216-065-91 RES-CHIP 4.7K 5% 1/10W
R1275 1-216-081-00 RES-CHIP 22K 5% 1/10W
R1276 1-216-081-00 RES-CHIP 22K 5% 1/10W
R1277 1-216-065-91 RES-CHIP 4.7K 5% 1/10W
R1278 1-125-838-91 CERAMIC CHIP 2.2UF 10% 6.3V
R1279 1-125-838-91 CERAMIC CHIP 2.2UF 10% 6.3V
R1280 1-216-029-00 RES-CHIP 150 5% 1/10W
A

– 194 –
REF. NO. PART NO. DESCRIPTION REMARK REF. NO. PART NO. DESCRIPTION REMARK
KV-ES34M81/ES34M91
RM-916 The components identified by shading
and mark ! are critical for safety.
Replace only with part number specified.
R1281 1-216-029-00 RES-CHIP 150 5% 1/10W
R1283 1-216-295-91 SHORT 0
R1284 1-216-295-91 SHORT 0
R1286 1-216-073-00 RES-CHIP 10K 5% 1/10W
R2200 1-216-021-00 RES-CHIP 68 5% 1/10W
R2201 1-216-065-91 RES-CHIP 4.7K 5% 1/10W
R2202 1-216-065-91 RES-CHIP 4.7K 5% 1/10W
R2203 1-216-021-00 RES-CHIP 68 5% 1/10W
R2204 1-216-073-00 RES-CHIP 10K 5% 1/10W
R2205 1-216-097-91 RES-CHIP 100K 5% 1/10W
R2206 1-216-117-00 RES-CHIP 680K 5% 1/10W
R2207 1-216-063-91 RES-CHIP 3.9K 5% 1/10W
R2208 1-216-065-91 RES-CHIP 4.7K 5% 1/10W
R2209 1-216-117-00 RES-CHIP 680K 5% 1/10W
R2210 1-216-089-91 RES-CHIP 47K 5% 1/10W
R2211 1-216-097-91 RES-CHIP 100K 5% 1/10W
R2212 1-216-073-00 RES-CHIP 10K 5% 1/10W
R2213 1-216-089-91 RES-CHIP 47K 5% 1/10W
R2214 1-216-089-91 RES-CHIP 47K 5% 1/10W
R2215 1-216-089-91 RES-CHIP 47K 5% 1/10W
R2600 1-216-065-91 RES-CHIP 4.7K 5% 1/10W
R2601 1-216-655-11 METAL CHIP 1.5K 0.5% 1/10W
R2602 1-208-781-11 METAL CHIP 910 0.5% 1/10W
R2603 1-208-790-11 METAL CHIP 2.2K 0.5% 1/10W
R2604 1-208-790-11 METAL CHIP 2.2K 0.5% 1/10W
R3300 1-216-043-91 RES-CHIP 560 5% 1/10W
R3320 1-216-073-00 RES-CHIP 10K 5% 1/10W
R3323 1-216-025-91 RES-CHIP 100 5% 1/10W
R3334 1-216-025-91 RES-CHIP 100 5% 1/10W
R3362 1-216-025-91 RES-CHIP 100 5% 1/10W
R3374 1-216-295-91 SHORT 0
<VARIABLE RESISTOR>
RV3300 1-238-597-11 RES, ADJ, CARBON 1K
<TUNER>
TU101 8-598-450-10 TUNER, FSS BTF-LG434 (KV-ES34M81)
TU101 8-598-452-20 TUNER, FSS BTF-WG442 (KV-ES34M91)
TU3301 8-598-508-10 TUNER, FSS BTF-LG436
<CRYSTAL>
X001 1-567-928-11 VIBLATOR, CERAMIC
***************************************************************
* A-1299-092-A A1 BOARD COMPLETE
*********************
<CAPACITOR>
C8103 1-163-021-91 CERAMIC CHIP 0.01MF 10% 50V
C8104 1-163-021-91 CERAMIC CHIP 0.01MF 10% 50V
C8105 1-163-021-91 CERAMIC CHIP 0.01MF 10% 50V
C8106 1-163-021-91 CERAMIC CHIP 0.01MF 10% 50V
C8107 1-163-021-91 CERAMIC CHIP 0.01MF 10% 50V
C8108 1-164-004-11 CERAMIC CHIP 0.1MF 10% 25V
C8109 1-163-021-91 CERAMIC CHIP 0.01MF 10% 50V
C8110 1-163-021-91 CERAMIC CHIP 0.01MF 10% 50V
C8111 1-163-021-91 CERAMIC CHIP 0.01MF 10% 50V
C8112 1-163-001-11 CERAMIC CHIP 220PF 10% 50V
C8116 1-164-161-11 CERAMIC CHIP 0.0022MF 10% 50V
C8117 1-126-382-11 ELECT 100MF 20% 16V
C8118 1-127-532-11 ELECT 47MF 20% 6.3V
C8119 1-126-795-11 ELECT 10MF 20% 25V
C8120 1-164-004-11 CERAMIC CHIP 0.1MF 10% 25V
C8121 1-125-838-91 CERAMIC CHIP 2.2MF 10% 6.3V
C8122 1-125-838-91 CERAMIC CHIP 2.2MF 10% 6.3V
C8123 1-127-532-11 ELECT 47MF 20% 6.3V
C8124 1-163-021-91 CERAMIC CHIP 0.01MF 10% 50V
C8125 1-163-021-91 CERAMIC CHIP 0.01MF 10% 50V
C8126 1-163-021-91 CERAMIC CHIP 0.01MF 10% 50V
C8127 1-163-235-11 CERAMIC CHIP 22PF 5% 50V
C8128 1-163-235-11 CERAMIC CHIP 22PF 5% 50V
C8129 1-163-021-91 CERAMIC CHIP 0.01MF 10% 50V
C8130 1-126-382-11 ELECT 100MF 20% 16V
C8131 1-126-382-11 ELECT 100MF 20% 16V
C8132 1-125-838-91 CERAMIC CHIP 2.2MF 10% 6.3V
C8133 1-163-021-91 CERAMIC CHIP 0.01MF 10% 50V
C8134 1-164-004-11 CERAMIC CHIP 0.1MF 10% 25V
C8135 1-126-382-11 ELECT 100MF 20% 16V
C8136 1-163-251-11 CERAMIC CHIP 100PF 5% 50V
C8137 1-163-251-11 CERAMIC CHIP 100PF 5% 50V
C8138 1-163-251-11 CERAMIC CHIP 100PF 5% 50V
C8139 1-163-251-11 CERAMIC CHIP 100PF 5% 50V
C8140 1-163-251-11 CERAMIC CHIP 100PF 5% 50V
C8141 1-163-251-11 CERAMIC CHIP 100PF 5% 50V
C8142 1-163-235-11 CERAMIC CHIP 22PF 5% 50V
C8143 1-163-021-91 CERAMIC CHIP 0.01MF 10% 50V
C8144 1-163-251-11 CERAMIC CHIP 100PF 5% 50V
C8145 1-163-233-11 CERAMIC CHIP 18PF 5% 50V
C8146 1-107-823-11 CERAMIC CHIP 0.47MF 10% 16V
C8147 1-164-004-11 CERAMIC CHIP 0.1MF 10% 25V
C8150 1-164-004-11 CERAMIC CHIP 0.1MF 10% 25V
C8155 1-164-004-11 CERAMIC CHIP 0.1MF 10% 25V
C8161 1-126-382-11 ELECT 100MF 20% 16V
C8162 1-164-505-11 CERAMIC CHIP 2.2MF 16V
C8163 1-164-004-11 CERAMIC CHIP 0.1MF 10% 25V
C8166 1-163-251-11 CERAMIC CHIP 100PF 5% 50V
C8167 1-163-021-91 CERAMIC CHIP 0.01MF 10% 50V
C8168 1-164-004-11 CERAMIC CHIP 0.1MF 10% 25V
C8197 1-163-021-91 CERAMIC CHIP 0.01MF 10% 50V
C8198 1-163-021-91 CERAMIC CHIP 0.01MF 10% 50V
C8199 1-164-004-11 CERAMIC CHIP 0.1MF 10% 25V
C8200 1-216-295-91 SHORT 0
C8201 1-216-295-91 SHORT 0
C8202 1-107-823-11 CERAMIC CHIP 0.47MF 10% 16V
C8203 1-163-021-91 CERAMIC CHIP 0.01MF 10% 50V
C8204 1-107-823-11 CERAMIC CHIP 0.47MF 10% 16V
C8205 1-163-253-11 CERAMIC CHIP 120PF 5% 50V
C8206 1-163-251-11 CERAMIC CHIP 100PF 5% 50V
C8207 1-163-251-11 CERAMIC CHIP 100PF 5% 50V
C8208 1-163-251-11 CERAMIC CHIP 100PF 5% 50V
A A1

– 195 –
REF. NO. PART NO. DESCRIPTION REMARK REF. NO. PART NO. DESCRIPTION REMARK
KV-ES34M81/ES34M91
RM-916
The components identified by shading
and mark ! are critical for safety.
Replace only with part number specified.
<COIL>
L8100 1-412-026-11 INDUCTOR CHIP 1UH
L8101 1-412-026-11 INDUCTOR CHIP 1UH
L8102 1-412-026-11 INDUCTOR CHIP 1UH
L8103 1-412-026-11 INDUCTOR CHIP 1UH
L8104 1-412-026-11 INDUCTOR CHIP 1UH
L8105 1-412-026-11 INDUCTOR CHIP 1UH
<RESISTOR>
R8101 1-216-295-91 SHORT 0
R8102 1-216-061-00 RES,CHIP 3.3K 5% 1/10W
R8103 1-216-061-00 RES,CHIP 3.3K 5% 1/10W
R8106 1-216-057-00 RES,CHIP 2.2K 5% 1/10W
R8107 1-216-057-00 RES,CHIP 2.2K 5% 1/10W
R8120 1-216-049-91 RES,CHIP 1K 5% 1/10W
R8121 1-216-025-91 RES,CHIP 100 5% 1/10W
R8122 1-216-025-91 RES,CHIP 100 5% 1/10W
R8123 1-216-009-91 RES,CHIP 22 5% 1/10W
R8124 1-216-009-91 RES,CHIP 22 5% 1/10W
R8125 1-216-009-91 RES,CHIP 22 5% 1/10W
R8126 1-216-009-91 RES,CHIP 22 5% 1/10W
R8127 1-216-025-91 RES,CHIP 100 5% 1/10W
R8128 1-216-025-91 RES,CHIP 100 5% 1/10W
R8129 1-216-009-91 RES,CHIP 22 5% 1/10W
R8131 1-216-295-91 SHORT 0
R8133 1-216-129-00 RES,CHIP 2.2M 5% 1/10W
R8134 1-216-295-91 SHORT 0
R8135 1-216-295-91 SHORT 0
R8137 1-216-295-91 SHORT 0
R8138 1-216-049-91 RES,CHIP 1K 5% 1/10W
R8139 1-216-037-00 RES,CHIP 330 5% 1/10W
R8140 1-216-049-91 RES,CHIP 1K 5% 1/10W
R8141 1-216-295-91 SHORT 0
R8143 1-216-295-91 SHORT 0
R8144 1-216-025-91 RES,CHIP 100 5% 1/10W
R8145 1-216-033-00 RES,CHIP 220 5% 1/10W
R8146 1-216-033-00 RES,CHIP 220 5% 1/10W
R8147 1-216-295-91 SHORT 0
R8148 1-216-295-91 SHORT 0
R8149 1-216-037-00 RES,CHIP 330 5% 1/10W
R8155 1-216-295-91 SHORT 0
R8157 1-216-037-00 RES,CHIP 330 5% 1/10W
R8158 1-216-037-00 RES,CHIP 330 5% 1/10W
R8161 1-216-025-91 RES,CHIP 100 5% 1/10W
R8168 1-216-025-91 RES,CHIP 100 5% 1/10W
R8169 1-216-097-91 RES,CHIP 100K 5% 1/10W
R8170 1-216-121-91 RES,CHIP 1M 5% 1/10W
R8171 1-216-025-91 RES,CHIP 100 5% 1/10W
R8172 1-216-025-91 RES,CHIP 100 5% 1/10W
R8173 1-216-025-91 RES,CHIP 100 5% 1/10W
R8200 1-216-073-00 RES,CHIP 10K 5% 1/10W
R8201 1-216-025-91 RES,CHIP 100 5% 1/10W
R8202 1-216-065-91 RES,CHIP 4.7K 5% 1/10W
R8203 1-208-782-11 METAL CHIP 1K 0.50% 1/10W
C8209 1-163-251-11 CERAMIC CHIP 100PF 5% 50V
C8210 1-163-251-11 CERAMIC CHIP 100PF 5% 50V
C8211 1-115-340-11 CERAMIC CHIP 0.22MF 10% 25V
C8212 1-125-838-91 CERAMIC CHIP 2.2MF 10% 6.3V
C8213 1-125-838-91 CERAMIC CHIP 2.2MF 10% 6.3V
C8218 1-163-251-11 CERAMIC CHIP 100PF 5% 50V
<CONNECTOR>
CN8100 1-793-867-11 PIN, CONNECTOR (PC BORAD) 10P
CN8101 1-793-867-11 PIN, CONNECTOR (PC BORAD) 10P
<FERRITE BEAD>
FB8100 1-216-295-91 SHORT 0
FB8101 1-216-295-91 SHORT 0
FB8102 1-216-295-91 SHORT 0
FB8103 1-216-295-91 SHORT 0
FB8104 1-414-598-11 INDUCTOR CHIP 0UH
FB8105 1-216-295-91 SHORT 0
FB8106 1-414-598-11 INDUCTOR CHIP 0UH
FB8108 1-414-598-11 INDUCTOR CHIP 0UH
FB8109 1-414-598-11 INDUCTOR CHIP 0UH
FB8110 1-414-598-11 INDUCTOR CHIP 0UH
FB8111 1-414-598-11 INDUCTOR CHIP 0UH
FB8112 1-414-598-11 INDUCTOR CHIP 0UH
FB8113 1-414-598-11 INDUCTOR CHIP 0UH
FB8114 1-414-598-11 INDUCTOR CHIP 0UH
FB8115 1-414-598-11 INDUCTOR CHIP 0UH
FB8116 1-414-598-11 INDUCTOR CHIP 0UH
FB8117 1-414-598-11 INDUCTOR CHIP 0UH
FB8118 1-414-598-11 INDUCTOR CHIP 0UH
FB8119 1-414-598-11 INDUCTOR CHIP 0UH
FB8120 1-414-598-11 INDUCTOR CHIP 0UH
FB8121 1-414-598-11 INDUCTOR CHIP 0UH
<FILTER>
FL8100 1-234-177-21 FILTER, CHIP EMI
FL8101 1-234-177-21 FILTER, CHIP EMI
FL8102 1-234-177-21 FILTER, CHIP EMI
<IC>
IC8102 8-759-576-72 IC LF50CDT-TR
IC8103 8-759-579-68 IC AK4524
IC8104 8-759-542-87 IC S-80827ANUP-EDQ-T2
IC8105 8-759-651-20 IC TC9446F-002
IC8106 8-759-242-70 IC TC7WU04F
IC8107 8-759-459-69 IC S-80743AN-D7
<CHIP CONDUCTOR>
JR8102 1-216-295-91 SHORT 0
JR8103 1-216-295-91 SHORT 0
A1

– 196 –
REF. NO. PART NO. DESCRIPTION REMARK REF. NO. PART NO. DESCRIPTION REMARK
KV-ES34M81/ES34M91
RM-916 The components identified by shading
and mark ! are critical for safety.
Replace only with part number specified.
R8204 1-216-073-00 RES,CHIP 10K 5% 1/10W
R8205 1-208-782-11 METAL CHIP 1K 0.50% 1/10W
R8206 1-216-049-91 RES,CHIP 1K 5% 1/10W
R8207 1-216-091-00 RES,CHIP 56K 5% 1/10W
<CRYSTAL>
X8102 1-781-041-11 VIBRATOR, CRYSTAL
***************************************************************
* A-1136-054-A B3 BOARD COMPLETE
*********************
<CAPACITOR>
C302 1-117-136-11 ELECT CHIP 10MF 20% 6.3V
C305 1-163-038-91 CERAMIC CHIP 0.1MF 25V
C306 1-163-038-91 CERAMIC CHIP 0.1MF 25V
C309 1-163-038-91 CERAMIC CHIP 0.1MF 25V
C310 1-163-038-91 CERAMIC CHIP 0.1MF 25V
C312 1-163-275-11 CERAMIC CHIP 0.001MF 5% 50V
C313 1-163-038-91 CERAMIC CHIP 0.1MF 25V
C314 1-164-004-11 CERAMIC CHIP 0.1MF 10% 25V
C315 1-163-251-11 CERAMIC CHIP 100PF 5% 50V
C316 1-163-038-91 CERAMIC CHIP 0.1MF 25V
C317 1-163-021-91 CERAMIC CHIP 0.01MF 10% 50V
C318 1-124-779-00 ELECT CHIP 10MF 20% 16V
C319 1-126-394-11 ELECT CHIP 10MF 20% 16V
C320 1-163-021-91 CERAMIC CHIP 0.01MF 10% 50V
C321 1-163-021-91 CERAMIC CHIP 0.01MF 10% 50V
C323 1-163-021-91 CERAMIC CHIP 0.01MF 10% 50V
C324 1-163-021-91 CERAMIC CHIP 0.01MF 10% 50V
C325 1-163-021-91 CERAMIC CHIP 0.01MF 10% 50V
C327 1-163-038-91 CERAMIC CHIP 0.1MF 25V
C330 1-163-038-91 CERAMIC CHIP 0.1MF 25V
C331 1-163-038-91 CERAMIC CHIP 0.1MF 25V
C332 1-163-021-91 CERAMIC CHIP 0.01MF 10% 50V
C333 1-216-295-91 SHORT 0
C337 1-163-038-91 CERAMIC CHIP 0.1MF 25V
C338 1-163-038-91 CERAMIC CHIP 0.1MF 25V
C339 1-163-038-91 CERAMIC CHIP 0.1MF 25V
C340 1-163-038-91 CERAMIC CHIP 0.1MF 25V
C341 1-163-021-91 CERAMIC CHIP 0.01MF 10% 50V
C346 1-163-038-91 CERAMIC CHIP 0.1MF 25V
C347 1-163-021-91 CERAMIC CHIP 0.01MF 10% 50V
C349 1-163-021-91 CERAMIC CHIP 0.01MF 10% 50V
C350 1-126-396-11 ELECT CHIP 47MF 20% 16V
C353 1-126-204-11 ELECT CHIP 47MF 20% 16V
C354 1-117-136-11 ELECT CHIP 10MF 20% 6.3V
C355 1-117-136-11 ELECT CHIP 10MF 20% 6.3V
C361 1-124-779-00 ELECT CHIP 10MF 20% 16V
C362 1-163-021-91 CERAMIC CHIP 0.01MF 10% 50V
C363 1-163-017-00 CERAMIC CHIP 0.0047MF 10% 50V
C501 1-163-021-91 CERAMIC CHIP 0.01MF 10% 50V
C502 1-124-779-00 ELECT CHIP 10MF 20% 16V
C503 1-124-779-00 ELECT CHIP 10MF 20% 16V
C505 1-124-779-00 ELECT CHIP 10MF 20% 16V
C507 1-124-779-00 ELECT CHIP 10MF 20% 16V
C509 1-163-021-91 CERAMIC CHIP 0.01MF 10% 50V
C510 1-163-021-91 CERAMIC CHIP 0.01MF 10% 50V
C511 1-163-038-91 CERAMIC CHIP 0.1MF 25V
C512 1-163-021-91 CERAMIC CHIP 0.01MF 10% 50V
C514 1-164-004-11 CERAMIC CHIP 0.1MF 10% 25V
C515 1-163-021-91 CERAMIC CHIP 0.01MF 10% 50V
C516 1-164-004-11 CERAMIC CHIP 0.1MF 10% 25V
C517 1-163-021-91 CERAMIC CHIP 0.01MF 10% 50V
C518 1-126-204-11 ELECT CHIP 47MF 20% 16V
C519 1-163-038-91 CERAMIC CHIP 0.1MF 25V
C520 1-163-038-91 CERAMIC CHIP 0.1MF 25V
C521 1-163-021-91 CERAMIC CHIP 0.01MF 10% 50V
C522 1-163-038-91 CERAMIC CHIP 0.1MF 25V
C523 1-163-021-91 CERAMIC CHIP 0.01MF 10% 50V
C524 1-124-779-00 ELECT CHIP 10MF 20% 16V
C525 1-126-394-11 ELECT CHIP 10MF 20% 16V
C526 1-163-021-91 CERAMIC CHIP 0.01MF 10% 50V
C527 1-164-004-11 CERAMIC CHIP 0.1MF 10% 25V
C528 1-163-021-91 CERAMIC CHIP 0.01MF 10% 50V
C530 1-216-295-91 SHORT 0
C532 1-216-295-91 SHORT 0
C534 1-216-295-91 SHORT 0
C535 1-163-038-91 CERAMIC CHIP 0.1MF 25V
C536 1-163-038-91 CERAMIC CHIP 0.1MF 25V
C537 1-163-038-91 CERAMIC CHIP 0.1MF 25V
C538 1-163-021-91 CERAMIC CHIP 0.01MF 10% 50V
C539 1-126-204-11 ELECT CHIP 47MF 20% 16V
C540 1-163-021-91 CERAMIC CHIP 0.01MF 10% 50V
C542 1-126-204-11 ELECT CHIP 47MF 20% 16V
C543 1-163-021-91 CERAMIC CHIP 0.01MF 10% 50V
C545 1-126-396-11 ELECT CHIP 47MF 20% 16V
C546 1-163-021-91 CERAMIC CHIP 0.01MF 10% 50V
C548 1-163-021-91 CERAMIC CHIP 0.01MF 10% 50V
C549 1-126-204-11 ELECT CHIP 47MF 20% 16V
C550 1-163-021-91 CERAMIC CHIP 0.01MF 10% 50V
C551 1-163-021-91 CERAMIC CHIP 0.01MF 10% 50V
C554 1-163-021-91 CERAMIC CHIP 0.01MF 10% 50V
C555 1-163-038-91 CERAMIC CHIP 0.1MF 25V
C556 1-126-392-11 ELECT CHIP 100MF 20% 6.3V
C557 1-163-021-91 CERAMIC CHIP 0.01MF 10% 50V
C559 1-163-021-91 CERAMIC CHIP 0.01MF 10% 50V
C560 1-163-021-91 CERAMIC CHIP 0.01MF 10% 50V
C601 1-126-394-11 ELECT CHIP 10MF 20% 16V
C602 1-126-394-11 ELECT CHIP 10MF 20% 16V
C603 1-163-021-91 CERAMIC CHIP 0.01MF 10% 50V
C604 1-163-021-91 CERAMIC CHIP 0.01MF 10% 50V
C605 1-163-021-91 CERAMIC CHIP 0.01MF 10% 50V
C606 1-163-021-91 CERAMIC CHIP 0.01MF 10% 50V
C607 1-163-021-91 CERAMIC CHIP 0.01MF 10% 50V
C608 1-163-021-91 CERAMIC CHIP 0.01MF 10% 50V
C609 1-163-021-91 CERAMIC CHIP 0.01MF 10% 50V
C610 1-163-021-91 CERAMIC CHIP 0.01MF 10% 50V
C611 1-163-021-91 CERAMIC CHIP 0.01MF 10% 50V
C612 1-163-021-91 CERAMIC CHIP 0.01MF 10% 50V
A1B3

– 197 –
REF. NO. PART NO. DESCRIPTION REMARK REF. NO. PART NO. DESCRIPTION REMARK
KV-ES34M81/ES34M91
RM-916
The components identified by shading
and mark ! are critical for safety.
Replace only with part number specified.
C613 1-163-021-91 CERAMIC CHIP 0.01MF 10% 50V
C614 1-163-021-91 CERAMIC CHIP 0.01MF 10% 50V
C615 1-163-021-91 CERAMIC CHIP 0.01MF 10% 50V
C616 1-126-396-11 ELECT CHIP 47MF 20% 16V
C617 1-163-038-91 CERAMIC CHIP 0.1MF 25V
C618 1-163-038-91 CERAMIC CHIP 0.1MF 25V
C619 1-163-038-91 CERAMIC CHIP 0.1MF 25V
C620 1-163-021-91 CERAMIC CHIP 0.01MF 10% 50V
C621 1-163-021-91 CERAMIC CHIP 0.01MF 10% 50V
C622 1-163-021-91 CERAMIC CHIP 0.01MF 10% 50V
C623 1-163-021-91 CERAMIC CHIP 0.01MF 10% 50V
C624 1-163-021-91 CERAMIC CHIP 0.01MF 10% 50V
C625 1-163-021-91 CERAMIC CHIP 0.01MF 10% 50V
C626 1-163-021-91 CERAMIC CHIP 0.01MF 10% 50V
C627 1-163-021-91 CERAMIC CHIP 0.01MF 10% 50V
C628 1-163-021-91 CERAMIC CHIP 0.01MF 10% 50V
C629 1-163-021-91 CERAMIC CHIP 0.01MF 10% 50V
C630 1-163-021-91 CERAMIC CHIP 0.01MF 10% 50V
C631 1-163-021-91 CERAMIC CHIP 0.01MF 10% 50V
C632 1-126-206-11 ELECT CHIP 100MF 20% 6.3V
C633 1-163-021-91 CERAMIC CHIP 0.01MF 10% 50V
C634 1-163-021-91 CERAMIC CHIP 0.01MF 10% 50V
C635 1-163-021-91 CERAMIC CHIP 0.01MF 10% 50V
C636 1-163-021-91 CERAMIC CHIP 0.01MF 10% 50V
C637 1-163-021-91 CERAMIC CHIP 0.01MF 10% 50V
C638 1-163-021-91 CERAMIC CHIP 0.01MF 10% 50V
C639 1-163-021-91 CERAMIC CHIP 0.01MF 10% 50V
C640 1-163-021-91 CERAMIC CHIP 0.01MF 10% 50V
C642 1-163-021-91 CERAMIC CHIP 0.01MF 10% 50V
C643 1-163-021-91 CERAMIC CHIP 0.01MF 10% 50V
C644 1-126-398-11 ELECT CHIP 4.7MF 20% 35V
C645 1-163-021-91 CERAMIC CHIP 0.01MF 10% 50V
C801 1-124-779-00 ELECT CHIP 10MF 20% 16V
C802 1-163-021-91 CERAMIC CHIP 0.01MF 10% 50V
C803 1-124-779-00 ELECT CHIP 10MF 20% 16V
C804 1-124-779-00 ELECT CHIP 10MF 20% 16V
C806 1-163-021-91 CERAMIC CHIP 0.01MF 10% 50V
C807 1-124-779-00 ELECT CHIP 10MF 20% 16V
C808 1-163-021-91 CERAMIC CHIP 0.01MF 10% 50V
C809 1-163-021-91 CERAMIC CHIP 0.01MF 10% 50V
C810 1-163-021-91 CERAMIC CHIP 0.01MF 10% 50V
C811 1-163-021-91 CERAMIC CHIP 0.01MF 10% 50V
C812 1-163-021-91 CERAMIC CHIP 0.01MF 10% 50V
C813 1-163-021-91 CERAMIC CHIP 0.01MF 10% 50V
C814 1-163-021-91 CERAMIC CHIP 0.01MF 10% 50V
C815 1-163-021-91 CERAMIC CHIP 0.01MF 10% 50V
C816 1-163-021-91 CERAMIC CHIP 0.01MF 10% 50V
C817 1-163-229-11 CERAMIC CHIP 12PF 5% 50V
C818 1-163-229-11 CERAMIC CHIP 12PF 5% 50V
C819 1-163-021-91 CERAMIC CHIP 0.01MF 10% 50V
C820 1-163-021-91 CERAMIC CHIP 0.01MF 10% 50V
C821 1-163-021-91 CERAMIC CHIP 0.01MF 10% 50V
C822 1-163-021-91 CERAMIC CHIP 0.01MF 10% 50V
C823 1-163-021-91 CERAMIC CHIP 0.01MF 10% 50V
C824 1-163-021-91 CERAMIC CHIP 0.01MF 10% 50V
C825 1-163-021-91 CERAMIC CHIP 0.01MF 10% 50V
C826 1-164-489-11 CERAMIC CHIP 0.22MF 10% 16V
C827 1-163-021-91 CERAMIC CHIP 0.01MF 10% 50V
C829 1-163-021-91 CERAMIC CHIP 0.01MF 10% 50V
C834 1-163-038-91 CERAMIC CHIP 0.1MF 25V
C835 1-163-038-91 CERAMIC CHIP 0.1MF 25V
C837 1-163-021-91 CERAMIC CHIP 0.01MF 10% 50V
C839 1-163-021-91 CERAMIC CHIP 0.01MF 10% 50V
C840 1-126-206-11 ELECT CHIP 100MF 20% 6.3V
C841 1-163-021-91 CERAMIC CHIP 0.01MF 10% 50V
C842 1-163-021-91 CERAMIC CHIP 0.01MF 10% 50V
C843 1-163-021-91 CERAMIC CHIP 0.01MF 10% 50V
C844 1-163-038-91 CERAMIC CHIP 0.1MF 25V
C848 1-163-017-00 CERAMIC CHIP 0.0047MF 10% 50V
C849 1-163-021-91 CERAMIC CHIP 0.01MF 10% 50V
C850 1-163-021-91 CERAMIC CHIP 0.01MF 10% 50V
C851 1-163-021-91 CERAMIC CHIP 0.01MF 10% 50V
C852 1-163-021-91 CERAMIC CHIP 0.01MF 10% 50V
C853 1-164-182-11 CERAMIC CHIP 0.0033MF 10% 50V
C854 1-163-038-91 CERAMIC CHIP 0.1MF 25V
C901 1-163-038-91 CERAMIC CHIP 0.1MF 25V
C902 1-163-038-91 CERAMIC CHIP 0.1MF 25V
C903 1-163-021-91 CERAMIC CHIP 0.01MF 10% 50V
C904 1-124-779-00 ELECT CHIP 10MF 20% 16V
C905 1-109-982-11 CERAMIC CHIP 1MF 10% 10V
C906 1-124-779-00 ELECT CHIP 10MF 20% 16V
C907 1-163-021-91 CERAMIC CHIP 0.01MF 10% 50V
C908 1-163-031-11 CERAMIC CHIP 0.01MF 50V
C909 1-126-396-11 ELECT CHIP 47MF 20% 16V
C910 1-163-009-11 CERAMIC CHIP 0.001MF 10% 50V
C913 1-163-031-11 CERAMIC CHIP 0.01MF 50V
C914 1-126-394-11 ELECT CHIP 10MF 20% 16V
C950 1-163-021-91 CERAMIC CHIP 0.01MF 10% 50V
C954 1-163-021-91 CERAMIC CHIP 0.01MF 10% 50V
<CONNECTOR>
CN502 1-695-302-11 CONNECTOR, BOARD TO BOARD 50P
<DIODE>
D301 8-719-041-97 DIODE MA113-(TX)
D302 8-719-041-97 DIODE MA113-(TX)
D501 8-719-422-12 DIODE MA8039
D601 8-719-073-01 DIODE MA111-(K8).S0
<FERRITE BEAD>
FB501 1-414-813-11 FERRITE 0UH
FB502 1-414-813-11 FERRITE 0UH
FB503 1-414-813-11 FERRITE 0UH
FB504 1-414-813-11 FERRITE 0UH
FB601 1-414-553-11 FERRITE 0UH
FB801 1-414-553-11 FERRITE 0UH
FB802 1-414-553-11 FERRITE 0UH
<FILTER>
FL304 1-234-177-21 FILTER, CHIP EMI
FL305 1-234-177-21 FILTER, CHIP EMI
B3

– 198 –
REF. NO. PART NO. DESCRIPTION REMARK REF. NO. PART NO. DESCRIPTION REMARK
KV-ES34M81/ES34M91
RM-916 The components identified by shading
and mark ! are critical for safety.
Replace only with part number specified.
FL306 1-239-558-11 FILTER, CHIP EMI
FL501 1-233-877-11 FILTER, LOW PASS
FL502 1-233-504-21 FILTER, LOW PASS
FL503 1-233-504-21 FILTER, LOW PASS
FL504 1-234-177-21 FILTER, CHIP EMI
FL505 1-234-177-21 FILTER, CHIP EMI
FL506 1-234-177-21 FILTER, CHIP EMI
FL508 1-234-177-21 FILTER, CHIP EMI
FL509 1-234-177-21 FILTER, CHIP EMI
FL510 1-234-177-21 FILTER, CHIP EMI
FL511 1-234-177-21 FILTER, CHIP EMI
FL512 1-234-177-21 FILTER, CHIP EMI
FL601 1-234-177-21 FILTER, CHIP EMI
FL602 1-234-177-21 FILTER, CHIP EMI
FL603 1-234-177-21 FILTER, CHIP EMI
FL606 1-239-560-11 FILTER, CHIP EMI
FL801 1-234-177-21 FILTER, CHIP EMI
FL802 1-234-177-21 FILTER, CHIP EMI
FL803 1-234-177-21 FILTER, CHIP EMI
FL804 1-234-177-21 FILTER, CHIP EMI
FL805 1-234-177-21 FILTER, CHIP EMI
FL806 1-234-177-21 FILTER, CHIP EMI
FL807 1-234-177-21 FILTER, CHIP EMI
FL808 1-234-177-21 FILTER, CHIP EMI
FL810 1-234-177-21 FILTER, CHIP EMI
FL901 1-233-878-11 FILTER, LOW PASS
FL902 1-233-876-11 FILTER, LOW PASS
FL903 1-233-876-11 FILTER, LOW PASS
FL904 1-234-177-21 FILTER, CHIP EMI
FL905 1-234-177-21 FILTER, CHIP EMI
FL906 1-234-177-21 FILTER, CHIP EMI
FL907 1-234-177-21 FILTER, CHIP EMI
<IC>
IC302 8-752-388-98 IC CXD2303AQ
IC303 8-752-088-27 IC CXA3266Q-T6
IC309 8-759-640-16 IC TC7SET04F(TE85R)
IC311 8-759-708-05 IC NJM78L05A
IC501 8-759-447-90 IC TLC5733AIPM
IC504 8-759-430-32 IC TLC2933IPWR
IC505 8-759-640-16 IC TC7SET04F(TE85R)
IC506 8-759-640-16 IC TC7SET04F(TE85R)
IC601 8-752-398-47 IC CXD2090Q
IC602 8-759-567-37 IC MB81F161622B-80FN
IC603 !8-759-268-00 IC TLC2932IPW-E20
IC604 8-752-072-94 IC CXA1875AM-T4
IC801 8-759-592-40 IC CXD9509Q
IC802 8-759-595-53 IC MB81F643242B-10FN
IC803 8-759-460-29 IC PST9120NL
IC901 8-752-367-59 IC CXD2309Q
IC902 8-759-648-21 IC MB94918-APF-G-121-BND
IC903 8-759-527-75 IC M24C04-MN6T
IC904 8-759-349-11 IC PST9145NL
<COIL>
L302 1-412-029-11 INDUCTOR CHIP 10UH
L303 1-412-029-11 INDUCTOR CHIP 10UH
L501 1-412-026-11 INDUCTOR CHIP 1UH
L502 1-412-026-11 INDUCTOR CHIP 1UH
L503 1-412-026-11 INDUCTOR CHIP 1UH
L504 1-412-026-11 INDUCTOR CHIP 1UH
L505 1-412-029-11 INDUCTOR CHIP 10UH
L506 1-412-026-11 INDUCTOR CHIP 1UH
L508 1-412-029-11 INDUCTOR CHIP 10UH
L509 1-412-029-11 INDUCTOR CHIP 10UH
L511 1-412-026-11 INDUCTOR CHIP 1UH
L512 1-412-026-11 INDUCTOR CHIP 1UH
L604 1-412-029-11 INDUCTOR CHIP 10UH
L605 1-412-029-11 INDUCTOR CHIP 10UH
<TRANSISTOR>
Q501 8-729-216-22 TRANSISTOR 2SA1162-G
Q502 8-729-120-28 TRANSISTOR 2SC1623-L5L6
Q503 8-729-120-28 TRANSISTOR 2SC1623-L5L6
Q510 8-729-120-28 TRANSISTOR 2SC1623-L5L6
Q511 8-729-120-28 TRANSISTOR 2SC1623-L5L6
Q512 8-729-120-28 TRANSISTOR 2SC1623-L5L6
Q513 8-729-120-28 TRANSISTOR 2SC1623-L5L6
Q514 8-729-120-28 TRANSISTOR 2SC1623-L5L6
Q515 8-729-120-28 TRANSISTOR 2SC1623-L5L6
Q516 8-729-120-28 TRANSISTOR 2SC1623-L5L6
Q517 8-729-120-28 TRANSISTOR 2SC1623-L5L6
Q518 8-729-216-22 TRANSISTOR 2SA1162-G
Q519 1-801-806-11 TRANSISTOR DTC144EKA-T146
Q520 1-801-806-11 TRANSISTOR DTC144EKA-T146
Q521 8-729-120-28 TRANSISTOR 2SC1623-L5L6
Q522 8-729-120-28 TRANSISTOR 2SC1623-L5L6
Q523 8-729-120-28 TRANSISTOR 2SC1623-L5L6
Q524 8-729-120-28 TRANSISTOR 2SC1623-L5L6
Q601 8-729-120-28 TRANSISTOR 2SC1623-L5L6
Q602 8-729-120-28 TRANSISTOR 2SC1623-L5L6
Q901 8-729-216-22 TRANSISTOR 2SA1162-G
Q902 8-729-216-22 TRANSISTOR 2SA1162-G
Q903 8-729-216-22 TRANSISTOR 2SA1162-G
Q904 8-729-028-28 TRANSISTOR 2SK2036(TE85L)
Q905 8-729-028-28 TRANSISTOR 2SK2036(TE85L)
Q906 1-801-806-11 TRANSISTOR DTC144EKA-T146
Q907 8-729-216-22 TRANSISTOR 2SA1162-G
Q908 8-729-216-22 TRANSISTOR 2SA1162-G
Q909 8-729-216-22 TRANSISTOR 2SA1162-G
<RESISTOR>
R302 1-216-013-00 RES,CHIP 33 5% 1/10W
R303 1-216-667-11 METAL CHIP 4.7K 0.50% 1/10W
R305 1-216-049-91 RES,CHIP 1K 5% 1/10W
R306 1-216-658-11 METAL CHIP 2K 0.50% 1/10W
R309 1-216-009-91 RES,CHIP 22 5% 1/10W
R310 1-216-009-91 RES,CHIP 22 5% 1/10W
R311 1-216-009-91 RES,CHIP 22 5% 1/10W
R313 1-216-009-91 RES,CHIP 22 5% 1/10W
B3

– 199 –
REF. NO. PART NO. DESCRIPTION REMARK REF. NO. PART NO. DESCRIPTION REMARK
KV-ES34M81/ES34M91
RM-916
The components identified by shading
and mark ! are critical for safety.
Replace only with part number specified.
R316 1-216-009-91 RES,CHIP 22 5% 1/10W
R318 1-216-009-91 RES,CHIP 22 5% 1/10W
R319 1-216-049-91 RES,CHIP 1K 5% 1/10W
R321 1-216-009-91 RES,CHIP 22 5% 1/10W
R323 1-216-009-91 RES,CHIP 22 5% 1/10W
R324 1-216-009-91 RES,CHIP 22 5% 1/10W
R325 1-216-073-00 RES,CHIP 10K 5% 1/10W
R328 1-216-025-91 RES,CHIP 100 5% 1/10W
R333 1-216-295-91 SHORT 0
R335 1-216-013-00 RES,CHIP 33 5% 1/10W
R336 1-216-013-00 RES,CHIP 33 5% 1/10W
R337 1-216-097-91 RES,CHIP 100K 5% 1/10W
R338 1-216-295-91 SHORT 0
R339 1-216-295-91 SHORT 0
R343 1-216-295-91 SHORT 0
R347 1-216-295-91 SHORT 0
R350 1-216-295-91 SHORT 0
R501 1-216-025-91 RES,CHIP 100 5% 1/10W
R502 1-216-025-91 RES,CHIP 100 5% 1/10W
R503 1-216-295-91 SHORT 0
R504 1-216-295-91 SHORT 0
R505 1-216-295-91 SHORT 0
R506 1-216-025-91 RES,CHIP 100 5% 1/10W
R507 1-216-025-91 RES,CHIP 100 5% 1/10W
R508 1-216-025-91 RES,CHIP 100 5% 1/10W
R509 1-216-025-91 RES,CHIP 100 5% 1/10W
R510 1-216-043-91 RES,CHIP 560 5% 1/10W
R511 1-216-043-91 RES,CHIP 560 5% 1/10W
R512 1-216-043-91 RES,CHIP 560 5% 1/10W
R513 1-216-043-91 RES,CHIP 560 5% 1/10W
R514 1-216-043-91 RES,CHIP 560 5% 1/10W
R515 1-216-043-91 RES,CHIP 560 5% 1/10W
R516 1-216-049-91 RES,CHIP 1K 5% 1/10W
R517 1-216-049-91 RES,CHIP 1K 5% 1/10W
R518 1-216-295-91 SHORT 0
R520 1-216-645-11 METAL CHIP 560 0.50% 1/10W
R521 1-216-295-91 SHORT 0
R523 1-216-645-11 METAL CHIP 560 0.50% 1/10W
R524 1-216-295-91 SHORT 0
R526 1-216-645-11 METAL CHIP 560 0.50% 1/10W
R528 1-216-037-00 RES,CHIP 330 5% 1/10W
R529 1-216-669-11 METAL CHIP 5.6K 0.50% 1/10W
R530 1-216-669-11 METAL CHIP 5.6K 0.50% 1/10W
R531 1-216-031-00 RES,CHIP 180 5% 1/10W
R532 1-216-669-11 METAL CHIP 5.6K 0.50% 1/10W
R533 1-216-031-00 RES,CHIP 180 5% 1/10W
R536 1-216-057-00 RES,CHIP 2.2K 5% 1/10W
R537 1-216-659-11 METAL CHIP 2.2K 0.50% 1/10W
R540 1-216-049-91 RES,CHIP 1K 5% 1/10W
R548 1-216-619-11 METAL CHIP 47 0.50% 1/10W
R549 1-216-619-11 METAL CHIP 47 0.50% 1/10W
R550 1-216-625-11 METAL CHIP 82 0.50% 1/10W
R551 1-216-625-11 METAL CHIP 82 0.50% 1/10W
R552 1-216-619-11 METAL CHIP 47 0.50% 1/10W
R553 1-216-295-91 SHORT 0
R554 1-216-619-11 METAL CHIP 47 0.50% 1/10W
R555 1-216-077-91 RES,CHIP 15K 5% 1/10W
R557 1-216-049-91 RES,CHIP 1K 5% 1/10W
R558 1-216-025-91 RES,CHIP 100 5% 1/10W
R559 1-216-077-91 RES,CHIP 15K 5% 1/10W
R560 1-216-619-11 METAL CHIP 47 0.50% 1/10W
R561 1-216-043-91 RES,CHIP 560 5% 1/10W
R562 1-216-043-91 RES,CHIP 560 5% 1/10W
R563 1-216-043-91 RES,CHIP 560 5% 1/10W
R571 1-216-295-91 SHORT 0
R572 1-216-619-11 METAL CHIP 47 0.50% 1/10W
R573 1-216-679-11 METAL CHIP 15K 0.50% 1/10W
R574 1-216-651-11 METAL CHIP 1K 0.50% 1/10W
R575 1-216-625-11 METAL CHIP 82 0.50% 1/10W
R576 1-216-625-11 METAL CHIP 82 0.50% 1/10W
R577 1-216-619-11 METAL CHIP 47 0.50% 1/10W
R578 1-216-619-11 METAL CHIP 47 0.50% 1/10W
R579 1-216-077-91 RES,CHIP 15K 5% 1/10W
R580 1-216-295-91 SHORT 0
R582 1-216-041-00 RES,CHIP 470 5% 1/10W
R584 1-216-041-00 RES,CHIP 470 5% 1/10W
R586 1-216-049-91 RES,CHIP 1K 5% 1/10W
R587 1-216-049-91 RES,CHIP 1K 5% 1/10W
R589 1-216-049-91 RES,CHIP 1K 5% 1/10W
R590 1-216-049-91 RES,CHIP 1K 5% 1/10W
R591 1-216-049-91 RES,CHIP 1K 5% 1/10W
R592 1-216-049-91 RES,CHIP 1K 5% 1/10W
R594 1-216-041-00 RES,CHIP 470 5% 1/10W
R596 1-216-049-91 RES,CHIP 1K 5% 1/10W
R597 1-216-073-00 RES,CHIP 10K 5% 1/10W
R598 1-216-025-91 RES,CHIP 100 5% 1/10W
R600 1-216-066-00 RES,CHIP 5.1K 5% 1/10W
R601 1-216-073-00 RES,CHIP 10K 5% 1/10W
R602 1-216-073-00 RES,CHIP 10K 5% 1/10W
R603 1-216-073-00 RES,CHIP 10K 5% 1/10W
R604 1-216-033-00 RES,CHIP 220 5% 1/10W
R605 1-216-295-91 SHORT 0
R608 1-216-295-91 SHORT 0
R609 1-216-073-00 RES,CHIP 10K 5% 1/10W
R610 1-216-033-00 RES,CHIP 220 5% 1/10W
R611 1-216-073-00 RES,CHIP 10K 5% 1/10W
R612 1-216-073-00 RES,CHIP 10K 5% 1/10W
R613 1-216-065-91 RES,CHIP 4.7K 5% 1/10W
R615 1-216-089-91 RES,CHIP 47K 5% 1/10W
R616 1-216-073-00 RES,CHIP 10K 5% 1/10W
R617 1-216-295-91 SHORT 0
R619 1-216-073-00 RES,CHIP 10K 5% 1/10W
R621 1-216-295-91 SHORT 0
R622 1-216-295-91 SHORT 0
R623 1-216-295-91 SHORT 0
R624 1-216-295-91 SHORT 0
R625 1-216-295-91 SHORT 0
R626 1-216-073-00 RES,CHIP 10K 5% 1/10W
R628 1-216-295-91 SHORT 0
R629 1-216-073-00 RES,CHIP 10K 5% 1/10W
R631 1-216-295-91 SHORT 0
R634 1-216-295-91 SHORT 0
R635 1-216-295-91 SHORT 0
R638 1-216-295-91 SHORT 0
R639 1-216-017-91 RES,CHIP 47 5% 1/10W
B3

– 200 –
REF. NO. PART NO. DESCRIPTION REMARK REF. NO. PART NO. DESCRIPTION REMARK
KV-ES34M81/ES34M91
RM-916 The components identified by shading
and mark ! are critical for safety.
Replace only with part number specified.
R640 1-216-009-91 RES,CHIP 22 5% 1/10W
R642 1-216-295-91 SHORT 0
R643 1-216-295-91 SHORT 0
R645 1-216-295-91 SHORT 0
R651 1-216-295-91 SHORT 0
R653 1-216-025-91 RES,CHIP 100 5% 1/10W
R654 1-216-033-00 RES,CHIP 220 5% 1/10W
R655 1-216-295-91 SHORT 0
R657 1-216-009-91 RES,CHIP 22 5% 1/10W
R658 1-216-049-91 RES,CHIP 1K 5% 1/10W
R659 1-216-025-91 RES,CHIP 100 5% 1/10W
R660 1-216-025-91 RES,CHIP 100 5% 1/10W
R661 1-216-025-91 RES,CHIP 100 5% 1/10W
R664 1-216-009-91 RES,CHIP 22 5% 1/10W
R665 1-216-035-00 RES,CHIP 270 5% 1/10W
R666 1-216-646-11 METAL CHIP 620 0.50% 1/10W
R667 1-216-663-11 METAL CHIP 3.3K 0.50% 1/10W
R668 1-216-009-91 RES,CHIP 22 5% 1/10W
R670 1-216-295-91 SHORT 0
R671 1-216-073-00 RES,CHIP 10K 5% 1/10W
R672 1-216-073-00 RES,CHIP 10K 5% 1/10W
R673 1-216-073-00 RES,CHIP 10K 5% 1/10W
R674 1-216-073-00 RES,CHIP 10K 5% 1/10W
R675 1-216-073-00 RES,CHIP 10K 5% 1/10W
R676 1-216-073-00 RES,CHIP 10K 5% 1/10W
R677 1-216-073-00 RES,CHIP 10K 5% 1/10W
R678 1-216-073-00 RES,CHIP 10K 5% 1/10W
R679 1-216-073-00 RES,CHIP 10K 5% 1/10W
R680 1-216-073-00 RES,CHIP 10K 5% 1/10W
R681 1-216-073-00 RES,CHIP 10K 5% 1/10W
R682 1-216-073-00 RES,CHIP 10K 5% 1/10W
R683 1-216-073-00 RES,CHIP 10K 5% 1/10W
R684 1-216-073-00 RES,CHIP 10K 5% 1/10W
R685 1-216-073-00 RES,CHIP 10K 5% 1/10W
R686 1-216-073-00 RES,CHIP 10K 5% 1/10W
R687 1-216-295-91 SHORT 0
R688 1-216-061-00 RES,CHIP 3.3K 5% 1/10W
R689 1-216-057-00 RES,CHIP 2.2K 5% 1/10W
R690 1-216-295-91 SHORT 0
R691 1-216-061-00 RES,CHIP 3.3K 5% 1/10W
R692 1-216-057-00 RES,CHIP 2.2K 5% 1/10W
R693 1-216-009-91 RES,CHIP 22 5% 1/10W
R694 1-216-295-91 SHORT 0
R695 1-216-047-91 RES,CHIP 820 5% 1/10W
R696 1-216-049-91 RES,CHIP 1K 5% 1/10W
R697 1-216-117-00 RES,CHIP 680K 5% 1/10W
R698 1-216-117-00 RES,CHIP 680K 5% 1/10W
R699 1-216-295-91 SHORT 0
R801 1-216-009-91 RES,CHIP 22 5% 1/10W
R802 1-216-009-91 RES,CHIP 22 5% 1/10W
R804 1-216-073-00 RES,CHIP 10K 5% 1/10W
R806 1-216-675-91 METAL CHIP 10K 0.50% 1/10W
R807 1-216-637-11 METAL CHIP 270 0.50% 1/10W
R812 1-216-073-00 RES,CHIP 10K 5% 1/10W
R813 1-216-295-91 SHORT 0
R814 1-216-073-00 RES,CHIP 10K 5% 1/10W
R815 1-216-073-00 RES,CHIP 10K 5% 1/10W
R816 1-216-073-00 RES,CHIP 10K 5% 1/10W
R817 1-216-613-11 METAL CHIP 27 0.50% 1/10W
R818 1-216-295-91 SHORT 0
R820 1-216-651-11 METAL CHIP 1K 0.50% 1/10W
R822 1-216-295-91 SHORT 0
R823 1-216-073-00 RES,CHIP 10K 5% 1/10W
R824 1-216-073-00 RES,CHIP 10K 5% 1/10W
R825 1-216-621-11 METAL CHIP 56 0.50% 1/10W
R826 1-216-641-11 METAL CHIP 390 0.50% 1/10W
R827 1-216-607-11 METAL CHIP 15 0.50% 1/10W
R834 1-216-629-11 METAL CHIP 120 0.50% 1/10W
R835 1-216-623-11 METAL CHIP 68 0.50% 1/10W
R836 1-216-611-11 METAL CHIP 22 0.50% 1/10W
R840 1-216-295-91 SHORT 0
R844 1-216-009-91 RES,CHIP 22 5% 1/10W
R845 1-216-009-91 RES,CHIP 22 5% 1/10W
R846 1-216-009-91 RES,CHIP 22 5% 1/10W
R847 1-216-009-91 RES,CHIP 22 5% 1/10W
R848 1-216-009-91 RES,CHIP 22 5% 1/10W
R849 1-216-009-91 RES,CHIP 22 5% 1/10W
R850 1-216-009-91 RES,CHIP 22 5% 1/10W
R851 1-216-009-91 RES,CHIP 22 5% 1/10W
R852 1-216-009-91 RES,CHIP 22 5% 1/10W
R853 1-216-009-91 RES,CHIP 22 5% 1/10W
R854 1-216-009-91 RES,CHIP 22 5% 1/10W
R855 1-216-009-91 RES,CHIP 22 5% 1/10W
R856 1-216-009-91 RES,CHIP 22 5% 1/10W
R857 1-216-009-91 RES,CHIP 22 5% 1/10W
R858 1-216-009-91 RES,CHIP 22 5% 1/10W
R859 1-216-009-91 RES,CHIP 22 5% 1/10W
R860 1-216-009-91 RES,CHIP 22 5% 1/10W
R861 1-216-009-91 RES,CHIP 22 5% 1/10W
R862 1-216-009-91 RES,CHIP 22 5% 1/10W
R863 1-216-009-91 RES,CHIP 22 5% 1/10W
R864 1-216-009-91 RES,CHIP 22 5% 1/10W
R865 1-216-009-91 RES,CHIP 22 5% 1/10W
R866 1-216-009-91 RES,CHIP 22 5% 1/10W
R867 1-216-009-91 RES,CHIP 22 5% 1/10W
R868 1-216-009-91 RES,CHIP 22 5% 1/10W
R869 1-216-009-91 RES,CHIP 22 5% 1/10W
R870 1-216-009-91 RES,CHIP 22 5% 1/10W
R871 1-216-009-91 RES,CHIP 22 5% 1/10W
R872 1-216-009-91 RES,CHIP 22 5% 1/10W
R873 1-216-009-91 RES,CHIP 22 5% 1/10W
R874 1-216-009-91 RES,CHIP 22 5% 1/10W
R875 1-216-009-91 RES,CHIP 22 5% 1/10W
R876 1-216-009-91 RES,CHIP 22 5% 1/10W
R877 1-216-009-91 RES,CHIP 22 5% 1/10W
R878 1-216-009-91 RES,CHIP 22 5% 1/10W
R879 1-216-009-91 RES,CHIP 22 5% 1/10W
R880 1-216-009-91 RES,CHIP 22 5% 1/10W
R881 1-216-009-91 RES,CHIP 22 5% 1/10W
R882 1-216-009-91 RES,CHIP 22 5% 1/10W
R883 1-216-009-91 RES,CHIP 22 5% 1/10W
R884 1-216-009-91 RES,CHIP 22 5% 1/10W
R885 1-216-009-91 RES,CHIP 22 5% 1/10W
R886 1-216-009-91 RES,CHIP 22 5% 1/10W
R887 1-216-009-91 RES,CHIP 22 5% 1/10W
B3

– 201 –
REF. NO. PART NO. DESCRIPTION REMARK REF. NO. PART NO. DESCRIPTION REMARK
KV-ES34M81/ES34M91
RM-916
The components identified by shading
and mark ! are critical for safety.
Replace only with part number specified.
R888 1-216-009-91 RES,CHIP 22 5% 1/10W
R889 1-216-009-91 RES,CHIP 22 5% 1/10W
R890 1-216-009-91 RES,CHIP 22 5% 1/10W
R891 1-216-009-91 RES,CHIP 22 5% 1/10W
R892 1-216-009-91 RES,CHIP 22 5% 1/10W
R893 1-216-009-91 RES,CHIP 22 5% 1/10W
R894 1-216-009-91 RES,CHIP 22 5% 1/10W
R895 1-216-009-91 RES,CHIP 22 5% 1/10W
R896 1-216-009-91 RES,CHIP 22 5% 1/10W
R897 1-216-009-91 RES,CHIP 22 5% 1/10W
R898 1-216-009-91 RES,CHIP 22 5% 1/10W
R899 1-216-073-00 RES,CHIP 10K 5% 1/10W
R901 1-216-061-00 RES,CHIP 3.3K 5% 1/10W
R902 1-216-659-11 METAL CHIP 2.2K 0.50% 1/10W
R903 1-216-663-11 METAL CHIP 3.3K 0.50% 1/10W
R904 1-216-635-11 METAL CHIP 220 0.50% 1/10W
R905 1-216-635-11 METAL CHIP 220 0.50% 1/10W
R906 1-216-635-11 METAL CHIP 220 0.50% 1/10W
R907 1-216-635-11 METAL CHIP 220 0.50% 1/10W
R908 1-216-635-11 METAL CHIP 220 0.50% 1/10W
R909 1-216-635-11 METAL CHIP 220 0.50% 1/10W
R910 1-216-049-91 RES,CHIP 1K 5% 1/10W
R911 1-216-049-91 RES,CHIP 1K 5% 1/10W
R912 1-216-049-91 RES,CHIP 1K 5% 1/10W
R914 1-216-065-91 RES,CHIP 4.7K 5% 1/10W
R916 1-216-065-91 RES,CHIP 4.7K 5% 1/10W
R923 1-216-057-00 RES,CHIP 2.2K 5% 1/10W
R926 1-216-057-00 RES,CHIP 2.2K 5% 1/10W
R927 1-216-295-91 SHORT 0
R929 1-216-025-91 RES,CHIP 100 5% 1/10W
R930 1-216-025-91 RES,CHIP 100 5% 1/10W
R931 1-216-041-00 RES,CHIP 470 5% 1/10W
R933 1-216-025-91 RES,CHIP 100 5% 1/10W
R934 1-216-025-91 RES,CHIP 100 5% 1/10W
R935 1-216-073-00 RES,CHIP 10K 5% 1/10W
R936 1-216-041-00 RES,CHIP 470 5% 1/10W
R937 1-216-025-91 RES,CHIP 100 5% 1/10W
R938 1-216-025-91 RES,CHIP 100 5% 1/10W
R939 1-216-295-91 SHORT 0
R940 1-216-295-91 SHORT 0
R941 1-216-295-91 SHORT 0
R942 1-216-037-00 RES,CHIP 330 5% 1/10W
R943 1-216-033-00 RES,CHIP 220 5% 1/10W
R944 1-216-295-91 SHORT 0
R945 1-216-295-91 SHORT 0
R951 1-216-057-00 RES,CHIP 2.2K 5% 1/10W
R952 1-216-057-00 RES,CHIP 2.2K 5% 1/10W
R953 1-216-295-91 SHORT 0
R954 1-216-295-91 SHORT 0
R955 1-216-295-91 SHORT 0
R956 1-216-089-91 RES,CHIP 47K 5% 1/10W
R957 1-216-635-11 METAL CHIP 220 0.50% 1/10W
R958 1-216-635-11 METAL CHIP 220 0.50% 1/10W
R959 1-216-635-11 METAL CHIP 220 0.50% 1/10W
R960 1-216-635-11 METAL CHIP 220 0.50% 1/10W
R961 1-216-635-11 METAL CHIP 220 0.50% 1/10W
R962 1-216-635-11 METAL CHIP 220 0.50% 1/10W
R979 1-216-295-91 SHORT 0
R981 1-216-037-00 RES,CHIP 330 5% 1/10W
R982 1-216-037-00 RES,CHIP 330 5% 1/10W
R983 1-216-089-91 RES,CHIP 47K 5% 1/10W
R984 1-216-061-00 RES,CHIP 3.3K 5% 1/10W
R985 1-216-113-00 RES,CHIP 470K 5% 1/10W
R986 1-216-061-00 RES,CHIP 3.3K 5% 1/10W
R987 1-216-049-91 RES,CHIP 1K 5% 1/10W
R988 1-216-033-00 RES,CHIP 220 5% 1/10W
R989 1-216-081-00 RES,CHIP 22K 5% 1/10W
R990 1-216-113-00 RES,CHIP 470K 5% 1/10W
R991 1-216-295-91 SHORT 0
R993 1-216-089-91 RES,CHIP 47K 5% 1/10W
R994 1-216-033-00 RES,CHIP 220 5% 1/10W
R995 1-216-033-00 RES,CHIP 220 5% 1/10W
R996 1-216-037-00 RES,CHIP 330 5% 1/10W
R997 1-216-037-00 RES,CHIP 330 5% 1/10W
R998 1-216-073-00 RES,CHIP 10K 5% 1/10W
R2801 1-216-629-11 METAL CHIP 120 0.50% 1/10W
R2802 1-216-623-11 METAL CHIP 68 0.50% 1/10W
R2803 1-216-603-11 METAL CHIP 10 0.50% 1/10W
R2804 1-216-627-11 METAL CHIP 100 0.50% 1/10W
R2805 1-216-623-11 METAL CHIP 68 0.50% 1/10W
R2806 1-216-611-11 METAL CHIP 22 0.50% 1/10W
R2809 1-216-295-91 SHORT 0
R2810 1-216-295-91 SHORT 0
R2813 1-216-295-91 SHORT 0
R2815 1-216-295-91 SHORT 0
R2817 1-216-295-91 SHORT 0
R2818 1-216-295-91 SHORT 0
R2820 1-216-295-91 SHORT 0
R2822 1-216-295-91 SHORT 0
RB001 1-239-409-11 NETWORK RESISTOR (CHIP) 47
RB002 1-239-409-11 NETWORK RESISTOR (CHIP) 47
RB003 1-239-409-11 NETWORK RESISTOR (CHIP) 47
RB004 1-239-409-11 NETWORK RESISTOR (CHIP) 47
RB005 1-239-409-11 NETWORK RESISTOR (CHIP) 47
RB006 1-239-409-11 NETWORK RESISTOR (CHIP) 47
RB007 1-239-414-11 NETWORK RESISTOR (CHIP) 150
RB008 1-239-414-11 NETWORK RESISTOR (CHIP) 150
RB009 1-239-414-11 NETWORK RESISTOR (CHIP) 150
RB010 1-239-414-11 NETWORK RESISTOR (CHIP) 150
RB011 1-239-414-11 NETWORK RESISTOR (CHIP) 150
RB012 1-239-414-11 NETWORK RESISTOR (CHIP) 150
RB013 1-239-621-11 NETWORK RESISTOR (CHIP) 22
RB014 1-239-621-11 NETWORK RESISTOR (CHIP) 22
RB015 1-239-621-11 NETWORK RESISTOR (CHIP) 22
RB016 1-239-621-11 NETWORK RESISTOR (CHIP) 22
RB017 1-239-621-11 NETWORK RESISTOR (CHIP) 22
RB018 1-239-621-11 NETWORK RESISTOR (CHIP) 22
RB019 1-239-409-11 NETWORK RESISTOR (CHIP) 47
RB020 1-239-409-11 NETWORK RESISTOR (CHIP) 47
RB021 1-239-409-11 NETWORK RESISTOR (CHIP) 47
RB022 1-239-409-11 NETWORK RESISTOR (CHIP) 47
RB023 1-239-409-11 NETWORK RESISTOR (CHIP) 47
RB024 1-239-409-11 NETWORK RESISTOR (CHIP) 47
RB025 1-239-409-11 NETWORK RESISTOR (CHIP) 47
B3

– 202 –
REF. NO. PART NO. DESCRIPTION REMARK REF. NO. PART NO. DESCRIPTION REMARK
KV-ES34M81/ES34M91
RM-916 The components identified by shading
and mark ! are critical for safety.
Replace only with part number specified.
RB026 1-239-409-11 NETWORK RESISTOR (CHIP) 47
RB027 1-239-409-11 NETWORK RESISTOR (CHIP) 47
RB301 1-239-621-11 NETWORK RESISTOR (CHIP) 22
RB302 1-239-621-11 NETWORK RESISTOR (CHIP) 22
RB701 1-239-711-91 NETWORK RESISTOR (CHIP) 0
RB702 1-239-711-91 NETWORK RESISTOR (CHIP) 0
RB703 1-239-711-91 NETWORK RESISTOR (CHIP) 0
RB704 1-239-711-91 NETWORK RESISTOR (CHIP) 0
RB705 1-239-711-91 NETWORK RESISTOR (CHIP) 0
RB706 1-239-711-91 NETWORK RESISTOR (CHIP) 0
<CRYSTAL>
X801 1-781-649-21 OSCILLATOR, CRYSTAL
X802 1-781-650-21 VIBRATOR, CRYSTAL
X901 1-760-014-11 VIBRATOR, CERAMIC
***************************************************************
* A-1136-069-A BC4 BOARD COMPLETE
**********************
<CAPACITOR>
C2003 1-163-031-11 CERAMIC CHIP 0.01MF 50V
C2005 1-163-131-00 CERAMIC CHIP 390PF 5% 50V
C2006 1-163-038-91 CERAMIC CHIP 0.1MF 25V
C2010 1-163-102-00 CERAMIC CHIP 24PF 5% 50V
C2011 1-163-102-00 CERAMIC CHIP 24PF 5% 50V
C2015 1-165-319-11 CERAMIC CHIP 0.1MF 50V
C2016 1-165-319-11 CERAMIC CHIP 0.1MF 50V
C2017 1-165-319-11 CERAMIC CHIP 0.1MF 50V
C2018 1-165-319-11 CERAMIC CHIP 0.1MF 50V
C2021 1-163-038-91 CERAMIC CHIP 0.1MF 25V
C2024 1-216-295-91 SHORT 0
C2029 1-165-319-11 CERAMIC CHIP 0.1MF 50V
C2030 1-165-319-11 CERAMIC CHIP 0.1MF 50V
C2031 1-165-319-11 CERAMIC CHIP 0.1MF 50V
C2032 1-165-319-11 CERAMIC CHIP 0.1MF 50V
C2033 1-165-319-11 CERAMIC CHIP 0.1MF 50V
C2034 1-165-319-11 CERAMIC CHIP 0.1MF 50V
C2035 1-165-319-11 CERAMIC CHIP 0.1MF 50V
C2036 1-165-319-11 CERAMIC CHIP 0.1MF 50V
C2037 1-104-664-11 ELECT 47MF 20% 16V
C2038 1-165-319-11 CERAMIC CHIP 0.1MF 50V
C2039 1-165-319-11 CERAMIC CHIP 0.1MF 50V
C2040 1-165-319-11 CERAMIC CHIP 0.1MF 50V
C2041 1-126-924-11 ELECT 330MF 20% 6.3V
C2042 1-165-319-11 CERAMIC CHIP 0.1MF 50V
C2044 1-104-664-11 ELECT 47MF 20% 16V
C2045 1-163-106-00 CERAMIC CHIP 36PF 5% 50V
C2046 1-126-964-11 ELECT 10MF 20% 50V
C2047 1-164-505-11 CERAMIC CHIP 2.2MF 16V
C2048 1-126-964-11 ELECT 10MF 20% 50V
C2049 1-126-960-11 ELECT 1MF 20% 50V
C2050 1-163-231-11 CERAMIC CHIP 15PF 5% 50V
C2051 1-126-964-11 ELECT 10MF 20% 50V
C2052 1-163-133-00 CERAMIC CHIP 470PF 5% 50V
C2053 1-126-960-11 ELECT 1MF 20% 50V
C2054 1-104-664-11 ELECT 47MF 20% 16V
C2055 1-104-664-11 ELECT 47MF 20% 16V
C2056 1-163-231-11 CERAMIC CHIP 15PF 5% 50V
C2057 1-163-031-11 CERAMIC CHIP 0.01MF 50V
C2058 1-163-031-11 CERAMIC CHIP 0.01MF 50V
C2059 1-104-664-11 ELECT 47MF 20% 16V
C2060 1-163-031-11 CERAMIC CHIP 0.01MF 50V
C2061 1-163-031-11 CERAMIC CHIP 0.01MF 50V
C2062 1-104-664-11 ELECT 47MF 20% 16V
C2063 1-165-319-11 CERAMIC CHIP 0.1MF 50V
C2064 1-163-031-11 CERAMIC CHIP 0.01MF 50V
C2065 1-163-031-11 CERAMIC CHIP 0.01MF 50V
C2066 1-104-664-11 ELECT 47MF 20% 16V
C2067 1-104-664-11 ELECT 47MF 20% 16V
C2068 1-104-664-11 ELECT 47MF 20% 16V
C2069 1-163-031-11 CERAMIC CHIP 0.01MF 50V
C2070 1-104-664-11 ELECT 47MF 20% 16V
C2071 1-165-319-11 CERAMIC CHIP 0.1MF 50V
C2072 1-163-237-11 CERAMIC CHIP 27PF 5% 50V
C2074 1-163-038-91 CERAMIC CHIP 0.1MF 25V
C2075 1-163-038-91 CERAMIC CHIP 0.1MF 25V
C2078 1-104-664-11 ELECT 47MF 20% 16V
C2079 1-163-031-11 CERAMIC CHIP 0.01MF 50V
C2080 1-163-031-11 CERAMIC CHIP 0.01MF 50V
C2095 1-163-231-11 CERAMIC CHIP 15PF 5% 50V
C2096 1-163-231-11 CERAMIC CHIP 15PF 5% 50V
C2097 1-163-231-11 CERAMIC CHIP 15PF 5% 50V
<CONNECTOR>
CN2001* 1-793-685-11 PIN, CONNECTOR (PC BOARD) 15P
<FERRITE BEAD>
FB2002 1-414-234-22 INDUCTOR CHIP 0UH
FB2008 1-414-234-22 INDUCTOR CHIP 0UH
FB2009 1-414-234-22 INDUCTOR CHIP 0UH
FB2010 1-414-234-22 INDUCTOR CHIP 0UH
FB2011 1-414-234-22 INDUCTOR CHIP 0UH
FB2012 1-414-234-22 INDUCTOR CHIP 0UH
FB2014 1-414-234-22 INDUCTOR CHIP 0UH
FB2015 1-414-234-22 INDUCTOR CHIP 0UH
FB2016 1-414-234-22 INDUCTOR CHIP 0UH
FB2017 1-414-234-22 INDUCTOR CHIP 0UH
<FILTER>
FL2001 1-239-848-11 FILTER, LOW PASS
FL2002 1-239-848-11 FILTER, LOW PASS
FL2003 1-239-848-11 FILTER, LOW PASS
FL2004 1-239-848-11 FILTER, LOW PASS
FL2005 1-233-512-21 FERRITE 37UH
FL2006 1-233-512-21 FERRITE 37UH
FL2007 1-233-512-21 FERRITE 37UH
B3BC4

– 203 –
REF. NO. PART NO. DESCRIPTION REMARK REF. NO. PART NO. DESCRIPTION REMARK
KV-ES34M81/ES34M91
RM-916
The components identified by shading
and mark ! are critical for safety.
Replace only with part number specified.
R2047 1-216-085-00 RES,CHIP 33K 5% 1/10W
R2048 1-216-049-91 RES,CHIP 1K 5% 1/10W
R2049 1-216-065-91 RES,CHIP 4.7K 5% 1/10W
R2050 1-216-017-91 RES,CHIP 47 5% 1/10W
R2051 1-216-049-91 RES,CHIP 1K 5% 1/10W
R2052 1-216-049-91 RES,CHIP 1K 5% 1/10W
R2053 1-216-041-00 RES,CHIP 470 5% 1/10W
R2054 1-216-041-00 RES,CHIP 470 5% 1/10W
R2055 1-216-017-91 RES,CHIP 47 5% 1/10W
R2056 1-216-067-00 RES,CHIP 5.6K 5% 1/10W
R2057 1-216-049-91 RES,CHIP 1K 5% 1/10W
R2058 1-216-057-00 RES,CHIP 2.2K 5% 1/10W
R2059 1-216-049-91 RES,CHIP 1K 5% 1/10W
R2060 1-216-025-91 RES,CHIP 100 5% 1/10W
R2061 1-216-043-91 RES,CHIP 560 5% 1/10W
R2062 1-216-105-91 RES,CHIP 220K 5% 1/10W
R2063 1-216-089-91 RES,CHIP 47K 5% 1/10W
R2064 1-216-049-91 RES,CHIP 1K 5% 1/10W
R2066 1-216-033-00 RES,CHIP 220 5% 1/10W
R2067 1-216-043-91 RES,CHIP 560 5% 1/10W
R2069 1-216-645-11 METAL CHIP 560 0.50% 1/10W
R2070 1-216-641-11 METAL CHIP 390 0.50% 1/10W
R2071 1-216-067-00 RES,CHIP 5.6K 5% 1/10W
R2072 1-216-043-91 RES,CHIP 560 5% 1/10W
R2073 1-216-049-91 RES,CHIP 1K 5% 1/10W
R2074 1-216-025-91 RES,CHIP 100 5% 1/10W
R2075 1-216-295-91 SHORT 0
R2076 1-216-025-91 RES,CHIP 100 5% 1/10W
R2077 1-216-025-91 RES,CHIP 100 5% 1/10W
R2078 1-216-295-91 SHORT 0
R2092 1-216-055-00 RES,CHIP 1.8K 5% 1/10W
R2093 1-216-055-00 RES,CHIP 1.8K 5% 1/10W
R2104 1-216-295-91 SHORT 0
R2105 1-216-295-91 SHORT 0
R2106 1-216-295-91 SHORT 0
R2107 1-216-295-91 SHORT 0
R2108 1-216-049-91 RES,CHIP 1K 5% 1/10W
R2110 1-216-295-91 SHORT 0
R2112 1-216-295-91 SHORT 0
R2113 1-216-017-91 RES,CHIP 47 5% 1/10W
R2115 1-216-049-91 RES,CHIP 1K 5% 1/10W
R2116 1-216-295-91 SHORT 0
R2117 1-216-295-91 SHORT 0
R2118 1-216-296-91 SHORT 0
R2119 1-216-296-91 SHORT 0
R2200 1-216-296-91 SHORT 0
<VARIABLE RESISTOR>
RV2001 1-223-271-21 RES, ADJ, CERMET 220
<CRYSTAL>
X2001 1-767-606-11 VIBRATOR, CRYSTAL
***************************************************************
<IC>
IC2003 8-759-568-27 IC MSM514265C-60JSDR1
IC2004 8-759-594-44 IC UPD64082GF-3BA
IC2005 8-759-431-14 IC PQ3TZ53U
<COIL>
L2001 1-410-200-31 INDUCTOR CHIP 4.7UH
L2004 1-412-058-11 INDUCTOR CHIP 10UH
L2005 1-412-058-11 INDUCTOR CHIP 10UH
L2006 1-412-058-11 INDUCTOR CHIP 10UH
L2007 1-412-058-11 INDUCTOR CHIP 10UH
<TRANSISTOR>
Q2002 8-729-216-22 TRANSISTOR 2SA1162-G
Q2003 8-729-216-22 TRANSISTOR 2SA1162-G
Q2004 8-729-216-22 TRANSISTOR 2SA1162-G
Q2005 8-729-422-33 TRANSISTOR 2SD601A-Q-TX
Q2006 8-729-422-33 TRANSISTOR 2SD601A-Q-TX
Q2007 8-729-422-33 TRANSISTOR 2SD601A-Q-TX
Q2008 8-729-422-33 TRANSISTOR 2SD601A-Q-TX
Q2009 8-729-422-33 TRANSISTOR 2SD601A-Q-TX
Q2010 8-729-422-33 TRANSISTOR 2SD601A-Q-TX
Q2011 8-729-422-33 TRANSISTOR 2SD601A-Q-TX
Q2012 8-729-216-22 TRANSISTOR 2SA1162-G
Q2013 8-729-216-22 TRANSISTOR 2SA1162-G
Q2014 8-729-422-33 TRANSISTOR 2SD601A-Q-TX
Q2015 8-729-422-33 TRANSISTOR 2SD601A-Q-TX
Q2016 8-729-422-33 TRANSISTOR 2SD601A-Q-TX
Q2018 8-729-216-22 TRANSISTOR 2SA1162-G
Q2019 8-729-422-33 TRANSISTOR 2SD601A-Q-TX
<RESISTOR>
R2011 1-216-041-00 RES,CHIP 470 5% 1/10W
R2015 1-216-041-00 RES,CHIP 470 5% 1/10W
R2019 1-216-295-91 SHORT 0
R2021 1-216-025-91 RES,CHIP 100 5% 1/10W
R2027 1-216-049-91 RES,CHIP 1K 5% 1/10W
R2028 1-216-049-91 RES,CHIP 1K 5% 1/10W
R2029 1-216-043-91 RES,CHIP 560 5% 1/10W
R2030 1-216-043-91 RES,CHIP 560 5% 1/10W
R2031 1-216-067-00 RES,CHIP 5.6K 5% 1/10W
R2032 1-216-067-00 RES,CHIP 5.6K 5% 1/10W
R2033 1-216-057-00 RES,CHIP 2.2K 5% 1/10W
R2034 1-216-057-00 RES,CHIP 2.2K 5% 1/10W
R2035 1-216-043-91 RES,CHIP 560 5% 1/10W
R2036 1-216-649-11 METAL CHIP 820 0.50% 1/10W
R2037 1-216-044-00 RES,CHIP 620 5% 1/10W
R2039 1-216-047-91 RES,CHIP 820 5% 1/10W
R2040 1-216-057-00 RES,CHIP 2.2K 5% 1/10W
R2041 1-216-047-91 RES,CHIP 820 5% 1/10W
R2042 1-216-075-00 RES,CHIP 12K 5% 1/10W
R2043 1-216-085-00 RES,CHIP 33K 5% 1/10W
R2044 1-216-057-00 RES,CHIP 2.2K 5% 1/10W
R2046 1-216-075-00 RES,CHIP 12K 5% 1/10W
BC4

– 204 –
REF. NO. PART NO. DESCRIPTION REMARK REF. NO. PART NO. DESCRIPTION REMARK
KV-ES34M81/ES34M91
RM-916 The components identified by shading
and mark ! are critical for safety.
Replace only with part number specified.
* A-1332-005-A C BOARD MOUNT
****************
4-382-854-11 SCREW (M3X10), P, SW (+)
<CAPACITOR>
C9002 1-163-087-00 CERAMIC CHIP 4PF 0.25PF 50V
C9003 1-163-087-00 CERAMIC CHIP 4PF 0.25PF 50V
C9004 1-162-114-00 CERAMIC 0.0047MF 2KV
C9005 1-163-087-00 CERAMIC CHIP 4PF 0.25PF 50V
C9006 1-163-091-00 CERAMIC CHIP 8PF 0.25PF 50V
C9007 1-163-091-00 CERAMIC CHIP 8PF 0.25PF 50V
C9008 1-163-091-00 CERAMIC CHIP 8PF 0.25PF 50V
C9009 1-163-087-00 CERAMIC CHIP 4PF 0.25PF 50V
C9010 1-163-087-00 CERAMIC CHIP 4PF 0.25PF 50V
C9011 1-136-207-11 MYLAR 0.047MF 10% 250V
C9012 1-136-207-11 MYLAR 0.047MF 10% 250V
C9014 1-136-207-11 MYLAR 0.047MF 10% 250V
C9015 1-163-087-00 CERAMIC CHIP 4PF 0.25PF 50V
C9018 1-107-961-91 ELECT 10MF 20% 250V
C9019 1-163-035-00 CERAMIC CHIP 0.047MF 50V
C9020 1-107-961-91 ELECT 10MF 20% 250V
C9021 1-107-961-91 ELECT 10MF 20% 250V
C9022 1-101-004-00 CERAMIC 0.01MF 50V
C9023 1-101-004-00 CERAMIC 0.01MF 50V
C9024 1-163-035-00 CERAMIC CHIP 0.047MF 50V
C9025 1-104-653-11 ELECT 220MF 20% 16V
C9026 1-163-035-00 CERAMIC CHIP 0.047MF 50V
C9027 1-101-004-00 CERAMIC 0.01MF 50V
C9028 1-163-017-00 CERAMIC CHIP 0.0047MF 10% 50V
C9029 1-163-017-00 CERAMIC CHIP 0.0047MF 10% 50V
C9030 1-163-017-00 CERAMIC CHIP 0.0047MF 10% 50V
C9031 1-162-114-00 CERAMIC 0.0047MF 2KV
C9032 1-162-116-00 CERAMIC 680PF 10% 2KV
C9033 1-107-662-11 ELECT 22MF 20% 250V
C9042 1-126-940-11 ELECT 330MF 20% 25V
<CONNECTOR>
CN9001* 1-564-512-11 PLUG, CONNECTOR 9P
CN9002 1-691-765-11 PLUG (MICRO CONNECTOR) 3P
CN9003 1-695-915-11 TAB (CONTACT)
CN9004 1-695-915-11 TAB (CONTACT)
CN9005* 1-564-506-11 PLUG, CONNECTOR 3P
CN9007 1-785-879-11 CONNECTOR, ONE TOUCH
<DIODE>
D9002 8-719-400-75 DIODE MA3091
D9005 8-719-073-01 DIODE MA111-(K8).S0
D9006 8-719-051-85 DIODE HSS83TD
D9007 8-719-051-85 DIODE HSS83TD
D9008 8-719-051-85 DIODE HSS83TD
D9009 8-719-908-03 DIODE GP08D
D9010 8-719-110-17 DIODE RD10ESB2
<IC>
IC9001 8-759-360-83 IC TDA6111Q/N4
IC9002 8-759-360-83 IC TDA6111Q/N4
IC9003 8-759-360-83 IC TDA6111Q/N4
<JACK>
J9001 !1-540-071-22 SOCKET, CRT
<COIL>
L9001 1-414-158-11 INDUCTOR 2.2UH
L9002 1-408-591-11 INDUCTOR 1UH
L9003 1-408-591-11 INDUCTOR 1UH
L9004 1-408-591-11 INDUCTOR 1UH
L9005 1-406-666-21 INDUCTOR 150UH
L9006 1-412-526-11 INDUCTOR 12UH
<NEON LAMP>
NL9001 1-519-526-11 LAMP, NEON
<TRANSISTOR>
Q9001 8-729-026-49 TRANSISTOR 2SA1037AK-T146-R
Q9009 8-729-026-49 TRANSISTOR 2SA1037AK-T146-R
Q9010 8-729-026-49 TRANSISTOR 2SA1037AK-T146-R
Q9011 8-729-026-49 TRANSISTOR 2SA1037AK-T146-R
<RESISTOR>
R9001 1-216-059-00 RES,CHIP 2.7K 5% 1/10W
R9006 1-216-073-00 RES,CHIP 10K 5% 1/10W
R9007 1-208-789-11 METAL CHIP 2K 0.50% 1/10W
R9008 1-216-085-00 RES,CHIP 33K 5% 1/10W
R9012 1-216-049-91 RES,CHIP 1K 5% 1/10W
R9013 1-216-049-91 RES,CHIP 1K 5% 1/10W
R9018 1-216-059-00 RES,CHIP 2.7K 5% 1/10W
R9019 1-216-059-00 RES,CHIP 2.7K 5% 1/10W
R9021 1-216-295-91 SHORT 0
R9023 1-216-295-91 SHORT 0
R9026 1-208-789-11 METAL CHIP 2K 0.50% 1/10W
R9031 1-208-789-11 METAL CHIP 2K 0.50% 1/10W
R9033 1-208-808-11 METAL CHIP 12K 0.50% 1/10W
R9034 1-208-800-11 METAL CHIP 5.6K 0.50% 1/10W
R9035 1-208-790-11 METAL CHIP 2.2K 0.50% 1/10W
R9036 1-216-049-91 RES,CHIP 1K 5% 1/10W
R9037 1-240-233-71 METAL OXIDE 100 5% 3W
R9038 1-208-790-11 METAL CHIP 2.2K 0.50% 1/10W
R9039 1-208-790-11 METAL CHIP 2.2K 0.50% 1/10W
R9041 1-216-049-91 RES,CHIP 1K 5% 1/10W
R9042 1-216-049-91 RES,CHIP 1K 5% 1/10W
R9043 1-240-233-71 METAL OXIDE 100 5% 3W
R9044 1-240-233-71 METAL OXIDE 100 5% 3W
R9047 1-202-557-00 SOLID 220 20% 1/2W
R9048 1-216-057-00 RES,CHIP 2.2K 5% 1/10W
C

– 205 –
REF. NO. PART NO. DESCRIPTION REMARK REF. NO. PART NO. DESCRIPTION REMARK
KV-ES34M81/ES34M91
RM-916
The components identified by shading
and mark ! are critical for safety.
Replace only with part number specified.
R9049 1-216-057-00 RES,CHIP 2.2K 5% 1/10W
R9050 1-249-424-11 CARBON 3.9K 5% 1/4W
R9051 1-202-557-00 SOLID 220 20% 1/2W
R9052 1-202-557-00 SOLID 220 20% 1/2W
R9053 1-249-424-11 CARBON 3.9K 5% 1/4W
R9054 1-249-424-11 CARBON 3.9K 5% 1/4W
R9055 1-202-884-11 SOLID 820K 20% 1/2W
R9056 1-202-813-00 SOLID 22K 10% 1/2W
R9057 1-202-847-00 SOLID 560K 20% 1/2W
R9058 1-202-884-11 SOLID 820K 20% 1/2W
R9059 1-202-818-00 SOLID 1K 20% 1/2W
R9061 1-202-549-00 SOLID 100 20% 1/2W
R9065 1-216-069-00 RES,CHIP 6.8K 5% 1/10W
R9068 1-216-101-00 RES,CHIP 150K 5% 1/10W
R9069 1-202-549-00 SOLID 100 20% 1/2W
R9070 1-216-037-00 RES,CHIP 330 5% 1/10W
R9071 1-216-037-00 RES,CHIP 330 5% 1/10W
R9072 1-216-037-00 RES,CHIP 330 5% 1/10W
R9073 1-216-057-00 RES,CHIP 2.2K 5% 1/10W
<VARIABLE RESISTOR>
RV9001 1-241-714-11 RES, ADJ, METAL FILM 110M
RV9002 1-230-641-11 RES, ADJ, METAL GLAZE 2.2M
***************************************************************
* A-1346-902-B D BOARD COMPLETE
********************
1-803-614-11 VARISTOR
* 4-363-146-00 HEAT SINK, V.OUT
4-382-854-11 SCREW (M3X10), P, SW (+)
4-382-854-21 SCREW (M3X14), P, SW (+)
<CAPACITOR>
C6601 1-104-665-11 ELECT 100UF 20.00%25V
C6602 1-129-720-00 FILM 0.033UF 5.00% 630V
C6604 1-126-967-11 ELECT 47UF 20.00%50V
C6606 1-163-251-11 CERAMIC CHIP 100PF 5.00% 50V
C6607 !1-119-886-51 CERAMIC 470PF 10.00%250V
C6608 !1-119-886-51 CERAMIC 470PF 10.00%250V
C6609 1-136-177-00 MYLAR 1UF 5.00% 50V
C6610 1-163-251-11 CERAMIC CHIP 100PF 5.00% 50V
C6611 1-163-275-11 CERAMIC CHIP 0.001UF 5.00% 50V
C6612 1-126-964-11 ELECT 10UF 20.00%50V
C6613 1-161-830-00 CERAMIC 0.0047UF 99% 500V
C6614 1-161-830-00 CERAMIC 0.0047UF 500V
C6615 1-163-251-11 CERAMIC CHIP 100PF 5.00% 50V
C6616 1-163-251-11 CERAMIC CHIP 100PF 5.00% 50V
C6617 1-161-830-00 CERAMIC 0.0047UF 500V
C6618 1-163-021-91 CERAMIC CHIP 0.01UF 10.00%50V
C6619 1-161-830-00 CERAMIC 0.0047UF 99% 500V
C6620 1-163-251-11 CERAMIC CHIP 100PF 5.00% 50V
C6621 1-131-940-11 ELECT 1200UF 20% 250V
C6622 1-131-940-11 ELECT 1200UF 20% 250V
C6624 1-126-933-11 ELECT 100UF 20.00%16V
C6625 1-129-718-00 FILM 0.022UF 5.00% 630V
C6626 1-130-029-00 FILM 8200PF 2.00% 50V
C6627 1-102-129-00 CERAMIC 0.01UF 10.00%50V
C6628 1-104-330-91 CERAMIC 470PF 10.00%1KV
C6630 1-107-680-91 ELECT 22UF 20.00%450V
C6631 1-126-964-11 ELECT 10UF 20.00%50V
C6632 1-126-963-11 ELECT 4.7UF 20.00%50V
C6633 1-126-967-11 ELECT 47UF 20.00%50V
C6634 1-126-968-11 ELECT 100UF 20.00%50V
C6635 1-102-973-00 CERAMIC 100PF 5.00% 50V
C6637 1-109-879-11 CERAMIC 22PF 5.00% 2KV
C6638 1-126-964-11 ELECT 10UF 20.00%50V
C6639 1-163-275-11 CERAMIC CHIP 0.001UF 5.00% 50V
C6640 1-104-330-91 CERAMIC 470PF 10.00%1KV
C6641 1-104-341-11 MYLAR 0.1UF 10.00%250V
C6642 1-126-964-11 ELECT 10UF 20.00%50V
C6643 1-163-275-11 CERAMIC CHIP 0.001UF 5.00% 50V
C6648 1-126-941-11 ELECT 470UF 20.00%25V
C6649 1-104-665-11 ELECT 100UF 20.00%25V
C6650 1-162-115-00 CERAMIC 330PF 10.00%1KV
C6651 1-162-115-00 CERAMIC 330PF 10.00%1KV
C6652 1-110-626-11 ELECT 330UF 20.00%160V
C6653 1-137-368-11 MYLAR 0.0047UF 5.00% 50V
C6654 1-126-936-11 ELECT 3300UF 20.00%16V
C6655 1-126-942-61 ELECT 1000UF 20.00%25V
C6656 1-136-165-00 MYLAR 0.1UF 5.00% 50V
C6658 1-126-944-11 ELECT 3300UF 20.00%25V
C6659 1-126-944-11 ELECT 3300UF 20.00%25V
C6660 1-126-960-11 ELECT 1UF 20.00%50V
C6661 1-104-664-11 ELECT 47UF 20.00%16V
C6662 1-104-664-11 ELECT 47UF 20.00%16V
C6663 1-102-129-00 CERAMIC 0.01UF 10.00%50V
C6664 1-102-129-00 CERAMIC 0.01UF 10.00%50V
C6665 1-126-964-11 ELECT 10UF 20.00%50V
C6666 1-137-370-11 MYLAR 0.01UF 5.00% 50V
C6668 1-104-664-11 ELECT 47UF 20.00%25V
C6669 1-162-115-00 CERAMIC 330PF 10.00%1KV
C6670 1-162-115-00 CERAMIC 330PF 10.00%1KV
C6671 1-129-718-00 FILM 0.022UF 5.00% 630V
C6672 1-104-331-11 CERAMIC 0.0022UF 10.00%1KV
C6673 1-104-331-11 CERAMIC 0.0022UF 10.00%1KV
C6674 1-128-527-11 ELECT 330UF 20.00%25V
C6677 1-163-037-11 CERAMIC CHIP 0.022UF 10.00%50V
C6679 1-107-823-11 CERAMIC CHIP 0.47UF 10.00%16V
C6680 1-136-157-00 MYLAR 0.022UF 5.00% 50V
C6800 1-126-964-11 ELECT 10UF 20.00%50V
C6801 1-126-960-11 ELECT 1UF 20.00%50V
C6802 1-163-021-91 CERAMIC CHIP 0.01UF 10.00%50V
C6803 1-102-129-00 CERAMIC 0.01UF 10.00%50V
C6804 1-102-129-00 CERAMIC 0.01UF 10.00%50V
C6805 1-111-087-11 ELECT 330UF 20.00%25V
C6806 1-107-933-11 ELECT 100UF 20.00%100V
C6808 1-106-228-00 MYLAR 0.22UF 10.00%100V
C6809 1-102-074-00 CERAMIC 0.001UF 10.00%50V
C6810 1-106-220-00 MYLAR 0.1UF 10.00%100V
C6811 1-111-087-11 ELECT 330UF 20.00%25V
C D

– 206 –
REF. NO. PART NO. DESCRIPTION REMARK REF. NO. PART NO. DESCRIPTION REMARK
KV-ES34M81/ES34M91
RM-916 The components identified by shading
and mark ! are critical for safety.
Replace only with part number specified.
C6812 1-130-785-11 MYLAR 0.47UF 10.00%100V
C6813 1-163-009-11 CERAMIC CHIP 0.001UF 10.00%50V
C6814 1-115-565-11 CERAMIC CHIP 2.2UF 10.00%10V
C6815 1-163-009-11 CERAMIC CHIP 0.001UF 10.00%50V
C6816 1-136-207-11 MYLAR 0.047UF 5% 400V
C6817 1-126-967-11 ELECT 47UF 20.00%50V
C6818 1-126-960-11 ELECT 1UF 20.00%50V
C6819 1-126-960-11 ELECT 1UF 20.00%50V
C6820 1-102-114-00 CERAMIC 470PF 10.00%50V
C6821 1-106-383-00 MYLAR 0.047UF 10.00%200V
C6822 1-102-114-00 CERAMIC 470PF 10.00%50V
C6823 1-106-383-00 MYLAR 0.047UF 10.00%200V
C6826 1-102-030-00 CERAMIC 330PF 10.00%500V
C6827 1-102-030-00 CERAMIC 330PF 10.00%500V
C6828 1-107-364-11 MYLAR 0.01UF 10.00%200V
C6829 1-162-115-00 CERAMIC 330PF 10.00%2KV
C6830 1-117-619-11 FILM 1000PF 3.00% 1.2KV
C6831 1-117-838-21 FILM 8200PF 3.00% 1.5KV
C6832 1-117-842-21 FILM 12000PF 3.00% 1.5KV
C6833 1-136-287-11 FILM 0.0047UF 5.00% 100V
C6834 1-125-893-11 FILM 680PF 3.00% 1.5KV
C6835 1-125-893-11 FILM 680PF 3.00% 1.5KV
C6836 1-137-150-11 FILM 0.01UF 5.00% 100V
C6837 1-125-893-11 FILM 680PF 3.00% 1.5KV
C6838 1-125-893-11 FILM 680PF 3.00% 1.5KV
C6839 1-126-933-11 ELECT 100UF 20.00%16V
C6840 1-126-933-11 ELECT 100UF 20.00%16V
C6841 1-117-660-81 FILM 0.12UF 5.00% 250V
C6842 1-117-673-11 FILM 1.5UF 5.00% 250V
C6843 1-115-339-11 CERAMIC CHIP 0.1UF 10.00%50V
C6844 1-115-339-11 CERAMIC CHIP 0.1UF 10.00%50V
C6845 1-117-664-11 FILM 0.27UF 5.00% 250V
C6846 1-115-514-11 FILM 0.22UF 5.00% 250V
C6847 1-164-004-11 CERAMIC CHIP 0.1UF 10.00%25V
C6848 1-113-979-51 FILM 0.047UF 5% 250V
C6849 1-115-339-11 CERAMIC CHIP 0.1UF 10.00%50V
C6850 1-115-339-11 CERAMIC CHIP 0.1UF 10.00%50V
C6851 1-107-639-11 ELECT 47UF 20.00%160V
C6853 1-102-228-00 CERAMIC 470PF 10.00%500V
C6854 1-126-941-11 ELECT 470UF 20.00%25V
C6855 1-123-024-21 ELECT 33UF 160V
C6856 1-126-971-11 ELECT 470UF 20.00%50V
C6857 1-102-228-00 CERAMIC 470PF 10.00%500V
C6858 1-102-228-00 CERAMIC 470PF 10.00%500V
C6859 1-162-129-00 CERAMIC 150PF 10.00%2KV
C6860 1-162-129-00 CERAMIC 150PF 10.00%2KV
C6862 1-130-202-00 FILM 0.022UF 5.00% 200V
C6863 1-107-906-11 ELECT 10UF 20.00%50V
C6864 1-129-898-00 FILM 0.0022UF 5.00% 630V
C6865 1-130-202-00 FILM 0.022UF 5.00% 400V
C6866 1-102-030-00 CERAMIC 330PF 10.00%500V
C6867 1-130-785-11 MYLAR 0.47UF 10.00%100V
C6868 1-163-021-91 CERAMIC CHIP 0.01UF 10.00%50V
C6869 1-128-526-11 ELECT 100UF 20.00%16V
C6870 1-128-528-11 ELECT 470UF 20.00%25V
C6871 1-163-133-00 CERAMIC CHIP 470PF 5.00% 50V
C6872 1-163-275-11 CERAMIC CHIP 0.001UF 5.00% 50V
C6874 1-136-165-00 MYLAR 0.1UF 5.00% 50V
C6875 1-104-664-11 ELECT 47UF 20.00%16V
C6876 1-163-021-91 CERAMIC CHIP 0.01UF 10.00%50V
C6877 1-126-964-11 ELECT 10UF 20.00%50V
C6878 1-126-320-11 ELECT 10UF 20.00%16V
C6879 1-107-960-11 ELECT 4.7UF 20.00%160V
C6882 1-104-574-11 CERAMIC 0.0047UF 10.00%2KV
C6883 1-126-964-11 ELECT 10UF 20.00%50V
C6884 1-115-565-11 CERAMIC CHIP 2.2UF 10.00%10V
<CONNECTOR>
CN6602*!1-508-786-13 PIN, CONNECTOR (5MM PITCH) 2P
CN6603*!1-573-963-11 PIN, CONNECTOR (PC BOARD) 3P
CN6604*!1-691-291-11 PIN, CONNECTOR (PC BOARD) 5P
CN6605* 1-564-513-11 PLUG, CONNECTOR 10P
CN6606* 1-564-510-11 PLUG, CONNECTOR 7P
CN6608* 1-564-506-11 PLUG, CONNECTOR 3P
CN6609* 1-508-784-21 PIN, CONNECTOR (5MM PITCH) 1P
CN6610* 1-508-784-21 PIN, CONNECTOR (5MM PITCH) 1P
CN6611* 1-508-784-21 PIN, CONNECTOR (5MM PITCH) 1P
CN6612* 1-508-784-21 PIN, CONNECTOR (5MM PITCH) 1P
CN6613* 1-508-784-21 PIN, CONNECTOR (5MM PITCH) 1P
CN6614* 1-508-784-21 PIN, CONNECTOR (5MM PITCH) 1P
CN6615* 1-508-784-21 PIN, CONNECTOR (5MM PITCH) 1P
CN6616* 1-508-784-21 PIN, CONNECTOR (5MM PITCH) 1P
CN6618* 1-508-784-21 PIN, CONNECTOR (5MM PITCH) 1P
CN6800 1-785-802-11 PIN, CONNECTOR (WITH PWB) 20P
CN6801*!1-785-270-12 PIN, DY CONNECTOR (PC BOARD)
CN6802 1-793-495-11 CONNECTOR, BOARD TO BOARD 50P
CN6810 1-785-879-11 CONNECTOR, ONE TOUCH
CN6811* 1-508-784-21 PIN, CONNECTOR (5MM PITCH) 1P
CN6812* 1-508-784-21 PIN, CONNECTOR (5MM PITCH) 1P
<DIODE>
D6601 8-719-911-19 DIODE 1SS119-25TD
D6602 8-719-073-01 DIODE MA111-TX
D6603 8-719-073-01 DIODE MA111-TX
D6604 8-719-073-01 DIODE MA111-TX
D6605 8-719-510-53 DIODE D4SB60L
D6606 8-719-073-01 DIODE MA111-TX
D6607 8-719-073-01 DIODE MA111-TX
D6608 8-719-073-01 DIODE MA111-TX
D6609 8-719-911-19 DIODE 1SS119-25TD
D6610 8-719-073-01 DIODE MA111-TX
D6611 8-719-073-01 DIODE MA111-TX
D6612 8-719-911-55 DIODE ERC04-06S
D6613 8-719-911-55 DIODE ERC04-06S
D6614 8-719-110-30 DIODE RD12ES-T1B
D6615 8-719-911-19 DIODE 1SS119-25TD
D6616 8-719-911-55 DIODE ERC04-06S
D6617 8-719-911-55 DIODE ERC04-06S
D6618 8-719-073-01 DIODE MA111-TX
D6619 8-719-110-30 DIODE RD12ES-T1B
D6621 8-719-063-73 DIODE D1NL20U-TR
D6622 8-719-979-64 DIODE UF4005PKG23
D6623 8-719-059-23 DIODE P6KE200AG23
D

– 207 –
REF. NO. PART NO. DESCRIPTION REMARK REF. NO. PART NO. DESCRIPTION REMARK
KV-ES34M81/ES34M91
RM-916
The components identified by shading
and mark ! are critical for safety.
Replace only with part number specified.
D6624 8-719-510-02 DIODE D1NS4-TR
D6625 8-719-110-36 DIODE RD13ES-T1B
D6626 8-719-979-64 DIODE UF4005PKG23
D6628 8-719-063-73 DIODE D1NL20U-TR
D6631 8-719-050-18 DIODE D4SBL20U
D6632 8-719-073-01 DIODE MA111-TX
D6633 8-719-510-12 DIODE D10SC4M-F
D6634 8-719-060-88 DIODE D4SBS6
D6635 8-719-110-47 DIODE RD18ES-T1B
D6636 8-719-911-19 DIODE 1SS119-25TD
D6639 8-719-063-73 DIODE D1NL20U-TR
D6640 8-719-110-72 DIODE RD30ES-T1B
D6641 8-719-109-96 DIODE RD6.8ES-T1B
D6642 8-719-911-19 DIODE 1SS119-25TD
D6643 8-719-979-64 DIODE UF4005PKG23
D6644 8-719-052-92 DIODE D10SBS4F
D6648 8-719-110-30 DIODE RD12ES-T1B
D6649 8-719-073-01 DIODE MA111-TX
D6650 8-719-911-19 DIODE 1SS119-25TD
D6651 8-719-977-95 DIODE RD5.6SB2-T1
D6652 8-719-110-47 DIODE RD18ES-T1B
D6800 8-719-110-03 DIODE RD7.5ES-T1B
D6801 8-719-911-19 DIODE 1SS119-25TD
D6803 8-719-510-73 DIODE S3L20UF4
D6805 8-719-110-39 DIODE RD15ES-T1B
D6806 8-719-911-19 DIODE 1SS119-25TD
D6807 8-719-109-68 DIODE RD3.6ES-T1B
D6808 8-719-914-43 DIODE DAN202K-T-146
D6809 8-719-908-03 DIODE GP08DPKG23
D6812 8-719-110-39 DIODE RD15ES-T1B
D6813 8-719-302-06 DIODE EU2-V1
D6814 8-719-018-82 DIODE RGP02-20EL-6394
D6816 8-719-510-73 DIODE S3L20UF4
D6817 8-719-510-73 DIODE S3L20UF4
D6820 8-719-970-87 DIODE ERA38-06TP1
D6821 8-719-970-87 DIODE ERA38-06TP1
D6822 8-719-067-18 DIODE RN4Z
D6823 8-719-911-19 DIODE 1SS119-25TD
D6824 8-719-510-73 DIODE S3L20UF4
D6825 8-719-914-43 DIODE DAN202K-T-146
D6826 8-719-911-19 DIODE 1SS119-25TD
<FERRITE BEAD>
FB6602 1-239-358-21 FILTER, NOISE
FB6603 1-239-358-21 FILTER, NOISE
<IC>
IC6601 8-759-198-31 IC UPC1093J-1-T
IC6602 8-759-103-93 IC UPC393C
IC6603 8-749-016-66 IC MCR5152
IC6604 8-759-468-89 IC TOP209P
IC6606 8-759-450-47 IC BA05T
IC6607 8-749-012-13 IC DM-58
IC6608 8-759-103-93 IC UPC393C
IC6800 8-759-192-71 IC STV9379
IC6801 8-759-450-95 IC LM393N
IC6804 8-759-394-36 IC BA09T
IC6805 8-759-394-35 IC BA12T
IC6806 8-749-013-76 IC PQ6RD83B
<CHIP CONDUCTOR>
JR6601 1-216-295-91 SHORT 0
JR6603 1-216-295-91 SHORT 0
JR6604 1-216-296-91 SHORT 0
JR6605 1-216-296-91 SHORT 0
JR6606 1-216-296-91 SHORT 0
JR6607 1-216-295-91 SHORT 0
JR6608 1-216-296-91 SHORT 0
JR6609 1-216-295-91 SHORT 0
JR6610 1-216-296-91 SHORT 0
JR6611 1-216-295-91 SHORT 0
JR6802 1-216-296-91 SHORT 0
JR6803 1-216-295-91 SHORT 0
JR6810 1-216-295-91 SHORT 0
<COIL>
L6601 1-412-525-31 INDUCTOR 10UH
L6602 1-410-397-21 FERRITE 1.1UH
L6603 1-410-397-21 FERRITE 1.1UH
L6604 1-412-525-31 INDUCTOR 10UH
L6605 1-412-525-31 INDUCTOR 10UH
L6606 1-412-525-31 INDUCTOR 10UH
L6607 1-412-519-11 INDUCTOR 3.3UH
L6800 1-412-525-31 INDUCTOR 10UH
L6801 1-406-675-11 INDUCTOR 4.7MH
L6802 1-416-775-21 INDUCTOR 1MH
L6803 1-406-982-11 INDUCTOR 680UH
L6804 1-412-519-11 INDUCTOR 3.3UH
L6805 1-412-519-11 INDUCTOR 3.3UH
L6806 1-412-519-11 INDUCTOR 3.3UH
L6807 1-412-552-11 INDUCTOR 2.2MH
L6808 1-406-674-11 INDUCTOR 3.3MH
<PHOTO COUPLER>
PH6601!8-749-924-35 PHOTO COUPLER ON3171-R
PH6602!8-749-924-35 PHOTO COUPLER ON3171-R
<IC LINK>
PS6605 1-533-597-41 LINK, IC
PS6606 1-533-597-41 LINK, IC
PS6607 1-533-597-41 LINK, IC
PS6801 1-532-841-21 LINK, IC
<TRANSISTOR>
Q6601 8-729-119-78 TRANSISTOR 2SC2785TP-HFE
Q6602 8-729-119-78 TRANSISTOR 2SC2785TP-HFE
Q6603 8-729-119-76 TRANSISTOR 2SA1175TP-HFE
D

– 208 –
REF. NO. PART NO. DESCRIPTION REMARK REF. NO. PART NO. DESCRIPTION REMARK
KV-ES34M81/ES34M91
RM-916 The components identified by shading
and mark ! are critical for safety.
Replace only with part number specified.
Q6604 8-729-119-76 TRANSISTOR 2SA1175TP-HFE
Q6605 8-729-230-49 TRANSISTOR 2SC2712-YG-TE85L
Q6606 8-729-140-93 TRANSISTOR 2SB734-T-4
Q6608 8-729-200-21 TRANSISTOR 2SC2500-B
Q6609 8-729-029-56 TRANSISTOR DTA144ESA-TP
Q6610 8-729-119-78 TRANSISTOR 2SC2785TP-HFE
Q6611 8-729-029-66 TRANSISTOR DTC114ESA-TP
Q6612 8-729-029-66 TRANSISTOR DTC114ESA-TP
Q6613 8-729-030-02 TRANSISTOR DTC144ESA-TP
Q6614 8-729-119-76 TRANSISTOR 2SA1175TP-HFE
Q6615 8-729-900-53 TRANSISTOR DTC114EKA-T146
Q6616 8-729-029-66 TRANSISTOR DTC114ESA-TP
Q6800 8-729-422-33 TRANSISTOR 2PD601AR-115
Q6801 8-729-039-68 TRANSISTOR IRF620
Q6802 8-729-046-33 TRANSISTOR IRF720-LF49
Q6803 8-729-119-76 TRANSISTOR 2SA1175TP-HFE
Q6804 8-729-119-78 TRANSISTOR 2SC2785TP-HFE
Q6805 8-729-140-96 TRANSISTOR 2SC3209-L
Q6806 8-729-140-96 TRANSISTOR 2SC3209-L
Q6807 8-729-046-18 TRANSISTOR 2SC5480-01
Q6808 8-729-046-18 TRANSISTOR 2SC5480-01
Q6809 8-729-038-83 TRANSISTOR 2SK2251-01-F19
Q6810 8-729-047-60 TRANSISTOR IRFI830G-LF49
Q6811 1-801-806-11 TRANSISTOR DTC144EKA-T146
Q6812 8-729-043-95 TRANSISTOR 2SC3840K
Q6813 8-729-422-33 TRANSISTOR 2PD601AR-115
Q6814 8-729-026-49 TRANSISTOR 2SA1037AK-T146-QR
Q6815 8-729-045-65 TRANSISTOR 2SA1776TV2Q
Q6816 8-729-140-96 TRANSISTOR 2SC3209-L
Q6817 8-729-422-33 TRANSISTOR 2PD601AR-115
Q6818 1-801-806-11 TRANSISTOR DTC144EKA-T146
Q6819 1-801-806-11 TRANSISTOR DTC144EKA-T146
Q6820 8-729-422-33 TRANSISTOR 2PD601AR-115
Q6821 8-729-026-49 TRANSISTOR 2SA1037AK-T146-QR
Q6822 8-729-026-49 TRANSISTOR 2SA1037AK-T146-QR
Q6823 8-729-422-33 TRANSISTOR 2PD601AR-115
<RESISTOR>
R6500 1-220-797-11 CEMENTED 0.47 5% 10W
R6600 1-216-295-91 SHORT 0
R6602 1-249-417-11 CARBON 1K 5% 1/4W
R6603 1-208-806-11 METAL CHIP 10K 0.5% 1/10W
R6604 1-208-806-11 METAL CHIP 10K 0.5% 1/10W
R6605 1-215-471-00 METAL 120K 1% 1/4W
R6606 1-215-466-00 METAL 75K 1% 1/4W
R6607 1-215-489-00 METAL 680K 1% 1/4W
R6608 1-215-489-00 METAL 680K 1% 1/4W
R6609 1-215-489-00 METAL 680K 1% 1/4W
R6610 1-208-830-11 METAL CHIP 100K 0.5% 1/10W
R6611 1-208-798-11 METAL CHIP 4.7K 0.5% 1/10W
R6612 1-215-471-00 METAL 120K 1% 1/4W
R6613 1-215-489-00 METAL 680K 1% 1/4W
R6614 1-215-489-00 METAL 680K 1% 1/4W
R6615 1-215-489-00 METAL 680K 1% 1/4W
R6616 1-208-830-11 METAL CHIP 100K 0.5% 1/10W
R6617 1-208-844-11 METAL CHIP 390K 0.5% 1/10W
R6618 1-215-466-00 METAL 75K 1% 1/4W
R6619 1-216-113-00 RES-CHIP 470K 5% 1/10W
R6620 1-208-846-11 METAL CHIP 470K 0.5% 1/10W
R6621 1-216-073-00 RES-CHIP 10K 5% 1/10W
R6622 1-220-797-11 CEMENTED 0.47 5% 10W
R6623 1-215-457-00 METAL 33K 1% 1/4W
R6624 1-208-830-11 METAL CHIP 100K 0.5% 1/10W
R6625 1-208-826-11 METAL CHIP 68K 0.5% 1/10W
R6626 1-208-830-11 METAL CHIP 100K 0.5% 1/10W
R6627 1-208-834-11 METAL CHIP 150K 0.5% 1/10W
R6628 1-216-073-00 RES-CHIP 10K 5% 1/10W
R6629 1-215-466-00 METAL 75K 1% 1/4W
R6630 1-215-489-00 METAL 680K 1% 1/4W
R6631 1-215-489-00 METAL 680K 1% 1/4W
R6632 1-215-489-00 METAL 680K 1% 1/4W
R6633 1-215-458-00 METAL 36K 1% 1/4W
R6634 1-215-489-00 METAL 680K 1% 1/4W
R6635 1-215-489-00 METAL 680K 1% 1/4W
R6636 1-215-489-00 METAL 680K 1% 1/4W
R6637 1-215-463-00 METAL 56K 1% 1/4W
R6638 1-240-876-11 CEMENTED 1 5% 15W
R6639 1-240-876-11 CEMENTED 1 5% 15W
R6640 1-216-081-00 RES-CHIP 22K 5% 1/10W
R6641 1-260-131-11 CARBON 470K 5% 1/2W
R6642 1-260-131-11 CARBON 470K 5% 1/2W
R6643 1-216-081-00 RES-CHIP 22K 5% 1/10W
R6644 1-216-065-91 RES-CHIP 4.7K 5% 1/10W
R6645 1-202-933-61 FUSIBLE 0.1 10% 1/2W
R6646 1-216-073-00 RES-CHIP 10K 5% 1/10W
R6647 1-215-864-00 METAL OXIDE 150 5% 1W
R6648 1-215-481-00 METAL 330K 1% 1/4W
R6649 1-216-065-91 RES-CHIP 4.7K 5% 1/10W
R6650 1-215-481-00 METAL 330K 1% 1/4W
R6651 1-215-430-00 METAL 2.4K 1% 1/4W
R6652 1-215-450-00 METAL 16K 1% 1/4W
R6653 1-219-776-11 CARBON 2.2M 10% 1/2W
R6654 1-216-089-91 RES-CHIP 47K 5% 1/10W
R6655 1-216-073-00 RES-CHIP 10K 5% 1/10W
R6656 1-215-481-00 METAL 330K 1% 1/4W
R6657 1-247-791-91 CARBON 22 5% 1/4W
R6658 1-216-073-00 RES-CHIP 10K 5% 1/10W
R6659 1-216-073-00 RES-CHIP 10K 5% 1/10W
R6660 1-249-389-11 CARBON 4.7 5% 1/4W
R6661 1-215-421-00 METAL 1K 1% 1/4W
R6662 1-216-381-11 METAL OXIDE 0.22 5% 3W
R6663 1-216-381-11 METAL OXIDE 0.22 5% 3W
R6665 1-219-776-11 CARBON 2.2M 10% 1/2W
R6666 1-208-782-11 METAL CHIP 1K 0.5% 1/10W
R6667 1-249-413-11 CARBON 470 5% 1/4W
R6668 1-216-017-91 RES-CHIP 47 5% 1/10W
R6669 1-249-417-11 CARBON 1K 5% 1/4W
R6672 1-249-421-11 CARBON 2.2K 5% 1/4W
R6674 1-249-415-11 CARBON 680 5% 1/4W
R6679 1-249-437-11 CARBON 47K 5% 1/4W
R6680 1-216-362-11 METAL OXIDE 0.27 5% 2W
R6681 1-249-429-11 CARBON 10K 5% 1/4W
R6682 1-249-416-11 CARBON 820 5% 1/4W
D

– 209 –
REF. NO. PART NO. DESCRIPTION REMARK REF. NO. PART NO. DESCRIPTION REMARK
KV-ES34M81/ES34M91
RM-916
The components identified by shading
and mark ! are critical for safety.
Replace only with part number specified.
R6683 1-260-127-11 CARBON 220K 5% 1/2W
R6685 1-249-421-11 CARBON 2.2K 5% 1/4W
R6686 !1-218-265-11 METAL 8.2M 5% 1W
R6688 1-249-417-11 CARBON 1K 5% 1/4W
R6689 1-249-389-11 CARBON 4.7 5% 1/4W
R6690 1-249-429-11 CARBON 10K 5% 1/4W
R6691 1-260-131-11 CARBON 470K 5% 1/2W
R6692 1-249-410-11 CARBON 270 5% 1/4W
R6693 1-215-451-00 METAL 18K 1% 1/4W
R6694 1-215-471-00 METAL 120K 1% 1/4W
R6696 1-215-925-11 METAL OXIDE 22K 5% 3W
R6697 1-249-429-11 CARBON 10K 5% 1/4W
R6698 1-249-417-11 CARBON 1K 5% 1/4W
R6701 1-216-073-00 RES-CHIP 10K 5% 1/10W
R6702 1-216-093-91 RES-CHIP 68K 5% 1/10W
R6703 1-216-091-00 RES-CHIP 56K 5% 1/10W
R6704 1-249-377-11 CARBON 0.47 5% 1/4W
R6707 1-249-421-11 CARBON 2.2K 5% 1/4W
R6710 1-217-158-00 METAL 0.47 10% 5W
R6711 1-215-471-00 METAL 120K 1% 1/4W
R6712 1-215-451-00 METAL 18K 1% 1/4W
R6713 1-249-423-11 CARBON 3.3K 5% 1/4W
R6714 1-249-423-11 CARBON 3.3K 5% 1/4W
R6715 1-249-429-11 CARBON 10K 5% 1/4W
R6800 1-249-429-11 CARBON 10K 5% 1/4W
R6801 1-249-429-11 CARBON 10K 5% 1/4W
R6802 1-249-429-11 CARBON 10K 5% 1/4W
R6803 1-216-073-00 RES-CHIP 10K 5% 1/10W
R6804 1-208-795-11 METAL CHIP 3.6K 0.5% 1/10W
R6805 1-215-441-00 METAL 6.8K 1% 1/4W
R6806 1-215-434-00 METAL 3.6K 1% 1/4W
R6807 1-249-383-11 CARBON 1.5 5% 1/4W
R6810 1-214-798-21 METAL 1.8 1% 1/2W
R6811 1-215-913-11 METAL OXIDE 220 5% 3W
R6812 1-247-843-11 CARBON 3.3K 5% 1/4W
R6813 1-214-798-21 METAL 1.8 1% 1/2W
R6814 1-216-057-00 RES-CHIP 2.2K 5% 1/10W
R6815 1-208-801-11 METAL CHIP 6.2K 0.5% 1/10W
R6816 1-214-915-00 METAL 120K 1% 1/2W
R6818 1-215-485-00 METAL 470K 1% 1/4W
R6819 1-249-421-11 CARBON 2.2K 5% 1/4W
R6820 1-216-065-91 RES-CHIP 4.7K 5% 1/10W
R6822 1-216-461-00 METAL OXIDE 5.6K 5% 2W
R6823 1-215-895-11 METAL OXIDE 3.3K 5% 2W
R6824 1-249-411-11 CARBON 330 5% 1/4W
R6825 1-249-411-11 CARBON 330 5% 1/4W
R6826 1-215-894-11 METAL OXIDE 2.2K 5% 2W
R6827 1-216-459-00 METAL OXIDE 2.7K 5% 2W
R6828 1-249-417-11 CARBON 1K 5% 1/4W
R6829 1-249-417-11 CARBON 1K 5% 1/4W
R6830 1-247-764-11 CARBON 10K 5% 1/2W
R6831 1-247-764-11 CARBON 10K 5% 1/2W
R6832 1-215-477-00 METAL 220K 1% 1/4W
R6833 1-215-493-00 METAL 1M 1% 1/4W
R6834 1-216-381-11 METAL OXIDE 0.22 5% 3W
R6835 1-216-381-11 METAL OXIDE 0.22 5% 3W
R6836 1-215-905-11 METAL OXIDE 10 5% 3W
R6837 1-215-905-11 METAL OXIDE 10 5% 3W
R6838 1-215-461-00 METAL 47K 1% 1/4W
R6839 1-249-405-11 CARBON 100 5% 1/4W
R6841 1-216-434-11 METAL OXIDE 1.8K 5% 1W
R6842 1-215-923-00 METAL OXIDE 10K 5% 3W
R6843 1-216-073-00 RES-CHIP 10K 5% 1/10W
R6844 1-247-807-31 CARBON 100 5% 1/4W
R6845 1-208-824-11 METAL CHIP 56K 0.5% 1/10W
R6846 1-260-127-11 CARBON 220K 5% 1/2W
R6847 1-216-057-00 RES-CHIP 2.2K 5% 1/10W
R6848 1-216-101-00 RES-CHIP 150K 5% 1/10W
R6849 1-249-443-11 CARBON 0.47 5% 1/4W
R6850 1-249-443-11 CARBON 0.47 5% 1/4W
R6851 1-260-288-11 CARBON 0.47 5% 1/2W
R6852 1-216-345-11 METAL OXIDE 0.47 5% 1W
R6853 1-260-288-11 CARBON 0.47 5% 1/2W
R6854 1-215-923-00 METAL OXIDE 10K 5% 3W
R6855 1-214-898-81 METAL 24K 1% 1/2W
R6856 1-215-923-00 METAL OXIDE 10K 5% 3W
R6857 1-215-923-00 METAL OXIDE 10K 5% 3W
R6858 1-214-898-81 METAL 24K 1% 1/2W
R6859 1-215-871-11 METAL OXIDE 2.2K 5% 1W
R6860 1-215-923-00 METAL OXIDE 10K 5% 3W
R6861 1-216-295-91 SHORT 0
R6862 1-216-081-00 RES-CHIP 22K 5% 1/10W
R6863 1-215-894-11 METAL OXIDE 2.2K 5% 2W
R6864 1-216-081-00 RES-CHIP 22K 5% 1/10W
R6865 1-216-101-00 RES-CHIP 150K 5% 1/10W
R6866 1-215-431-00 METAL 2.7K 1% 1/4W
R6867 1-216-065-91 RES-CHIP 4.7K 5% 1/10W
R6868 1-216-065-91 RES-CHIP 4.7K 5% 1/10W
R6869 1-216-113-00 RES-CHIP 470K 5% 1/10W
R6870 1-216-057-00 RES-CHIP 2.2K 5% 1/10W
R6871 1-208-822-11 METAL CHIP 47K 0.5% 1/10W
R6872 1-260-125-11 CARBON 150K 5% 1/2W
R6873 1-260-125-11 CARBON 150K 5% 1/2W
R6875 1-249-417-11 CARBON 1K 5% 1/4W
R6876 1-260-288-11 CARBON 0.47 5% 1/2W
R6877 1-208-790-11 METAL CHIP 2.2K 0.5% 1/10W
R6878 1-208-770-11 METAL CHIP 330 0.5% 1/10W
R6879 1-216-105-91 RES-CHIP 220K 5% 1/10W
R6880 1-215-441-00 METAL 6.8K 1% 1/4W
R6881 1-215-447-00 METAL 12K 1% 1/4W
R6882 1-215-456-00 METAL 30K 1% 1/4W
R6883 1-208-806-11 METAL CHIP 10K 0.5% 1/10W
R6884 1-249-441-11 CARBON 100K 5% 1/4W
R6885 1-208-798-11 METAL CHIP 4.7K 0.5% 1/10W
R6886 1-208-798-11 METAL CHIP 4.7K 0.5% 1/10W
R6887 1-216-081-00 RES-CHIP 22K 5% 1/10W
R6888 1-216-089-91 RES-CHIP 47K 5% 1/10W
R6889 1-260-125-11 CARBON 150K 5% 1/2W
R6890 1-260-125-11 CARBON 150K 5% 1/2W
R6891 1-216-069-00 RES-CHIP 6.8K 5% 1/10W
R6892 1-216-097-91 RES-CHIP 100K 5% 1/10W
R6893 1-216-085-00 RES-CHIP 33K 5% 1/10W
R6894 1-260-133-11 CARBON 680K 5% 1/2W
R6895 1-216-097-91 RES-CHIP 100K 5% 1/10W
R6896 1-216-089-91 RES-CHIP 47K 5% 1/10W
D

– 210 –
REF. NO. PART NO. DESCRIPTION REMARK REF. NO. PART NO. DESCRIPTION REMARK
KV-ES34M81/ES34M91
RM-916 The components identified by shading
and mark ! are critical for safety.
Replace only with part number specified.
R6897 1-216-097-91 RES-CHIP 100K 5% 1/10W
R6899 1-216-073-00 RES-CHIP 10K 5% 1/10W
R6900 1-208-810-11 METAL CHIP 15K 0.5% 1/10W
R6901 1-208-810-11 METAL CHIP 15K 0.5% 1/10W
R6902 1-249-441-11 CARBON 100K 5% 1/4W
R6903 1-215-923-00 METAL OXIDE 10K 5% 3W
R6905 1-249-389-11 CARBON 4.7 5% 1/4W
R6906 1-216-079-00 RES-CHIP 18K 5% 1/10W
R6907 1-216-079-00 RES-CHIP 18K 5% 1/10W
<RELAY>
RY6601!1-515-840-12 RELAY
RY6602!1-755-357-11 RELAY, AC POWER
RY6603!1-755-357-11 RELAY, AC POWER
<TRANSFORMER>
T6601 !1-431-732-12 TRANSFORMER, CONVERTER (SRT)
T6602 !1-435-081-11 TRANSFORMER, CONVERTER (PIT)
T6800 1-429-741-11 TRANSFORMER, DRIVE
T6801 1-433-934-11 TRANSFORMER, FERRITE (DFT)
T6802 1-433-489-11 TRANSFORMER, FERRITE (HDT)
T6803 !1-453-326-11 FBT ASSY NX-4601//J1J4
T6804 1-433-489-11 TRANSFORMER, FERRITE (HDT)
<THERMISTOR>
TH6601 1-803-540-11 THERMISTOR
TH6603 1-803-586-11 THERMISTOR, NTC
****************************************************************
A-1343-850-A DH BOARD MOUNTED
*********************
<CAPACITOR>
C3801 1-126-964-11 ELECT 10UF 20.00%50V
C3804 1-102-129-00 CERAMIC 0.01UF 10.00%50V
C3805 1-126-964-11 ELECT 10UF 20.00%50V
C3807 1-102-129-00 CERAMIC 0.01UF 10.00%50V
C3816 1-126-964-11 ELECT 10UF 20.00%50V
C3819 1-126-960-11 ELECT 1UF 20.00%50V
C3822 1-136-165-00 MYLAR 0.1UF 5.00% 50V
<CONNECTOR>
CN3801 1-695-915-11 TAB (CONTACT)
CN3802* 1-564-509-11 PLUG, CONNECTOR 6P
CN3803 1-695-915-11 TAB (CONTACT)
<DIODE>
D3805 8-719-911-19 DIODE 1SS119-25TD
D3805 8-719-991-33 DIODE 1SS133T-77
<IC>
IC3805 8-759-822-38 IC LA6510
IC3807 1-418-597-11 SENSOR UNIT, MAGNETIC
<NEON LAMP>
NL3801 1-576-414-21 GAP, SPARK
<TRANSISTOR>
Q3807 8-729-030-02 TRANSISTOR DTC144ES-TP
Q3808 8-729-030-02 TRANSISTOR DTC144ES-TP
Q3809 8-729-119-78 TRANSISTOR 2SC2785TP-HFE
Q3810 8-729-119-76 TRANSISTOR 2SA1175TP-HFE
Q3811 8-729-119-78 TRANSISTOR 2SC2785TP-HFE
Q3812 8-729-119-78 TRANSISTOR 2SC2785TP-HFE
<RESISTOR>
R3802 1-249-417-11 CARBON 1K 5% 1/4W
R3803 1-249-417-11 CARBON 1K 5% 1/4W
R3804 1-215-444-00 METAL 9.1K 1% 1/4W
R3805 1-249-416-11 CARBON 820 5% 1/4W
R3807 1-215-413-00 METAL 470 1% 1/4W
R3808 1-247-883-00 CARBON 150K 5% 1/4W
R3809 1-247-876-11 CARBON 75K 5% 1/4W
R3810 1-249-425-11 CARBON 4.7K 5% 1/4W
R3811 1-219-510-11 CARBON 470K 5% 1/2W
R3812 1-219-759-11 CARBON 1M 5% 1/2W
R3814 1-249-411-11 CARBON 330 5% 1/4W
R3823 1-249-395-11 CARBON 15 5% 1/4W
R3825 1-249-417-11 CARBON 1K 5% 1/4W
R3828 1-249-377-11 CARBON 0.47 5% 1/4W
R3839 1-249-429-11 CARBON 10K 5% 1/4W
R3845 1-249-425-11 CARBON 4.7K 5% 1/4W
R3846 1-249-417-11 CARBON 1K 5% 1/4W
R3847 1-247-807-31 CARBON 100 5% 1/4W
R3848 1-249-417-11 CARBON 1K 5% 1/4W
R3849 1-249-377-11 CARBON 0.47 5% 1/4W
R3852 1-249-441-11 CARBON 100K 5% 1/4W
R3854 1-249-429-11 CARBON 10K 5% 1/4W
****************************************************************
* A-1343-778-C E BOARD MOUNTED
*******************
<CAPACITOR>
C4301 1-164-004-11 CERAMIC CHIP 0.1MF 10% 25V
C4308 1-126-960-11 ELECT 1UF 20.00%50V
C4309 1-164-489-11 CERAMIC CHIP 0.22UF 10.00%16V
C4316 1-104-664-11 ELECT 47UF 20.00%25V
C4317 1-164-004-11 CERAMIC CHIP 0.1UF 10.00%25V
C4318 1-164-004-11 CERAMIC CHIP 0.1UF 10.00%25V
C4319 1-164-004-11 CERAMIC CHIP 0.1UF 10.00%25V
DDH E

– 211 –
REF. NO. PART NO. DESCRIPTION REMARK REF. NO. PART NO. DESCRIPTION REMARK
KV-ES34M81/ES34M91
RM-916
The components identified by shading
and mark ! are critical for safety.
Replace only with part number specified.
C4320 1-164-004-11 CERAMIC CHIP 0.1UF 10.00%25V
C4321 1-164-004-11 CERAMIC CHIP 0.1UF 10.00%25V
C4322 1-164-004-11 CERAMIC CHIP 0.1UF 10.00%25V
C4324 1-164-004-11 CERAMIC CHIP 0.1UF 10.00%25V
C4325 1-163-093-00 CERAMIC CHIP 10PF 5.00% 50V
C4326 1-164-004-11 CERAMIC CHIP 0.1UF 10.00%25V
C4327 1-164-004-11 CERAMIC CHIP 0.1UF 10.00%25V
C4328 1-164-004-11 CERAMIC CHIP 0.1UF 10.00%25V
C4329 1-126-963-11 ELECT 4.7UF 20.00%50V
C4330 1-136-244-11 FILM 0.1UF 5.00% 50V
C4331 1-126-959-11 ELECT 0.47UF 20.00%50V
C4332 1-136-161-00 MYLAR 0.047UF 5.00% 50V
C4333 1-164-004-11 CERAMIC CHIP 0.1UF 10.00%25V
C4334 1-126-967-11 ELECT 47UF 20.00%50V
C4336 1-126-967-11 ELECT 47UF 20.00%50V
C4338 1-164-004-11 CERAMIC CHIP 0.1UF 10.00%25V
C4339 1-163-235-11 CERAMIC CHIP 22PF 5.00% 50V
C4340 1-126-967-11 ELECT 47UF 20.00%50V
C4341 1-163-227-11 CERAMIC CHIP 10PF 0.50PF 50V
C4342 1-163-021-91 CERAMIC CHIP 0.01UF 10.00%50V
C4343 1-164-004-11 CERAMIC CHIP 0.1UF 10.00%25V
C4344 1-163-809-11 CERAMIC CHIP 0.047UF 10.00%25V
C4345 1-126-967-11 ELECT 47UF 20.00%50V
C4346 1-164-346-11 CERAMIC CHIP 1UF 16V
C4347 1-164-004-11 CERAMIC CHIP 0.1UF 10.00%25V
C4348 1-164-346-11 CERAMIC CHIP 1UF 16V
C4349 1-164-346-11 CERAMIC CHIP 1UF 16V
C4350 1-164-004-11 CERAMIC CHIP 0.1UF 10.00%25V
C4351 1-163-009-11 CERAMIC CHIP 0.001UF 10.00%50V
C4352 1-126-967-11 ELECT 47UF 20.00%50V
C4353 1-107-823-11 CERAMIC CHIP 0.47UF 10.00%16V
C4354 1-107-823-11 CERAMIC CHIP 0.47UF 10.00%16V
C4355 1-164-004-11 CERAMIC CHIP 0.1UF 10.00%25V
C4356 1-164-004-11 CERAMIC CHIP 0.1UF 10.00%25V
C4357 1-164-004-11 CERAMIC CHIP 0.1UF 10.00%25V
C4358 1-164-004-11 CERAMIC CHIP 0.1UF 10.00%25V
C4359 1-164-161-11 CERAMIC CHIP 0.0022UF 10.00%50V
C4360 1-126-963-11 ELECT 4.7UF 20.00%50V
C4362 1-164-004-11 CERAMIC CHIP 0.1UF 10.00%25V
C4363 1-126-967-11 ELECT 47UF 20.00%50V
C4364 1-126-967-11 ELECT 47UF 20.00%50V
C4366 1-104-760-11 CERAMIC CHIP 0.047UF 10.00%50V
C4367 1-164-004-11 CERAMIC CHIP 0.1UF 10.00%25V
C4369 1-164-004-11 CERAMIC CHIP 0.1UF 10.00%25V
C4370 1-126-967-11 ELECT 47UF 20.00%50V
C4371 1-164-004-11 CERAMIC CHIP 0.1UF 10.00%25V
C4378 1-163-251-11 CERAMIC CHIP 100PF 5.00% 50V
C4800 1-136-165-00 MYLAR 0.1UF 5.00% 50V
C4801 1-136-161-00 MYLAR 0.047UF 5.00% 50V
C4802 1-163-275-11 CERAMIC CHIP 0.001UF 5.00% 50V
C4803 1-163-021-91 CERAMIC CHIP 0.01UF 10.00%50V
C4804 1-126-967-11 ELECT 47UF 20.00%50V
C4805 1-126-964-11 ELECT 10UF 20.00%50V
C4806 1-163-133-00 CERAMIC CHIP 470PF 5.00% 50V
C4808 1-136-165-00 MYLAR 0.1UF 5.00% 50V
C4809 1-163-275-11 CERAMIC CHIP 0.001UF 5.00% 50V
C4811 1-163-021-91 CERAMIC CHIP 0.01UF 10.00%50V
C4812 1-126-967-11 ELECT 47UF 20.00%50V
C4813 1-163-021-91 CERAMIC CHIP 0.01UF 10.00%50V
C4814 1-126-967-11 ELECT 47UF 20.00%50V
C4817 1-126-967-11 ELECT 47UF 20.00%50V
C4818 1-107-906-11 ELECT 10UF 20.00%50V
C4820 1-107-909-11 ELECT 47UF 20.00%50V
C4821 1-107-909-11 ELECT 47UF 20.00%16V
C4822 1-107-909-11 ELECT 47UF 20.00%16V
C4823 1-163-017-00 CERAMIC CHIP 0.0047UF 10.00%50V
C4824 1-163-809-11 CERAMIC CHIP 0.047UF 10.00%25V
C4825 1-163-809-11 CERAMIC CHIP 0.047UF 10.00%25V
C4833 1-126-964-11 ELECT 10UF 20.00%50V
C4834 1-126-933-11 ELECT 100UF 20.00%16V
C4835 1-164-004-11 CERAMIC CHIP 0.1UF 10.00%25V
C4836 1-164-004-11 CERAMIC CHIP 0.1UF 10.00%25V
C4837 1-163-275-11 CERAMIC CHIP 0.001UF 5.00% 50V
<CONNECTOR>
CN4101 1-793-497-11 CONNECTOR, BOARD TO BOARD 40P
CN4500* 1-564-512-11 PLUG, CONNECTOR 9P
CN4502* 1-564-506-11 PLUG, CONNECTOR 3P
<DIODE>
D4304 8-719-042-28 DIODE HZU9.1BTRF
D4305 8-719-042-28 DIODE HZU9.1BTRF
D4311 8-719-914-43 DIODE DAN202K-T-146
D4312 8-719-914-43 DIODE DAN202K-T-146
D4313 8-719-401-63 DIODE MA3062M-TX
D4314 8-719-914-43 DIODE DAN202K-T-146
D4800 8-719-914-43 DIODE DAN202K-T-146
D4801 8-719-914-43 DIODE DAN202K-T-146
D4802 8-719-109-81 DIODE RD4.7ES-T1B2
D4803 8-719-911-19 DIODE 1SS119-25TD
D4804 8-719-911-19 DIODE 1SS119-25TD
D4807 8-719-914-43 DIODE DAN202K-T-146
D4808 8-719-914-43 DIODE DAN202K-T-146
D4809 8-719-914-43 DIODE DAN202K-T-146
D4812 8-719-911-19 DIODE 1SS119-25TD
D4813 8-719-914-43 DIODE DAN202K-T-146
D4814 8-719-914-43 DIODE DAN202K-T-146
D4815 8-719-109-54 DIODE RD2.2ES-T1B2
D4816 8-719-911-19 DIODE 1SS119-25TD
<FERRITE BEAD>
FB4387 1-216-295-91 SHORT 0
FB4388 1-216-295-91 SHORT 0
FB4389 1-216-295-91 SHORT 0
<IC>
IC4301 8-752-090-87 IC CXA2100AQ
IC4800 8-759-450-95 IC LM393N
IC4801 8-759-450-95 IC LM393N
IC4802 8-759-638-79 IC NJM3404AD-W
IC4803 8-759-700-42 IC NJM2904D
E

– 212 –
REF. NO. PART NO. DESCRIPTION REMARK REF. NO. PART NO. DESCRIPTION REMARK
KV-ES34M81/ES34M91
RM-916 The components identified by shading
and mark ! are critical for safety.
Replace only with part number specified.
<CHIP CONDUCTOR>
JR4301 1-216-295-91 SHORT 0
<COIL>
L4301 1-412-029-11 INDUCTOR CHIP 10UH
L4302 1-412-029-11 INDUCTOR CHIP 10UH
L4303 1-412-029-11 INDUCTOR CHIP 10UH
L4304 1-412-029-11 INDUCTOR CHIP 10UH
L4305 1-412-029-11 INDUCTOR CHIP 10UH
L4306 1-412-029-11 INDUCTOR CHIP 10UH
L4308 1-412-031-11 INDUCTOR CHIP 47UH
L4309 1-412-031-11 INDUCTOR CHIP 47UH
L4311 1-412-002-31 INDUCTOR CHIP 4.7UH
<TRANSISTOR>
Q4301 8-729-230-49 TRANSISTOR 2SC2712-YG-TE85L
Q4302 8-729-026-49 TRANSISTOR 2SA1037AK-T146-QR
Q4303 8-729-120-28 TRANSISTOR 2SC2412K-T-146-R
Q4304 8-729-230-49 TRANSISTOR 2SC2712-YG-TE85L
Q4307 8-729-026-49 TRANSISTOR 2SA1037AK-T146-QR
Q4308 8-729-026-49 TRANSISTOR 2SA1037AK-T146-QR
Q4310 8-729-026-49 TRANSISTOR 2SA1037AK-T146-QR
Q4315 1-801-806-11 TRANSISTOR DTC144EKA-T146
Q4316 8-729-230-49 TRANSISTOR 2SC2712-YG-TE85L
Q4317 8-729-900-53 TRANSISTOR DTC114EKA-T146
Q4319 8-729-026-49 TRANSISTOR 2SA1037AK-T146-QR
Q4320 8-729-026-49 TRANSISTOR 2SA1037AK-T146-QR
Q4321 8-729-026-49 TRANSISTOR 2SA1037AK-T146-QR
Q4322 8-729-026-49 TRANSISTOR 2SA1037AK-T146-QR
Q4800 8-729-230-49 TRANSISTOR 2SC2712-YG-TE85L
Q4801 8-729-230-49 TRANSISTOR 2SC2712-YG-TE85L
Q4802 8-729-230-49 TRANSISTOR 2SC2712-YG-TE85L
Q4803 8-729-230-49 TRANSISTOR 2SC2712-YG-TE85L
Q4804 8-729-230-49 TRANSISTOR 2SC2712-YG-TE85L
Q4805 8-729-230-49 TRANSISTOR 2SC2712-YG-TE85L
Q4806 8-729-230-49 TRANSISTOR 2SC2712-YG-TE85L
Q4807 8-729-230-49 TRANSISTOR 2SC2712-YG-TE85L
Q4808 8-729-026-49 TRANSISTOR 2SA1037AK-T146-QR
Q4809 8-729-026-49 TRANSISTOR 2SA1037AK-T146-QR
Q4810 8-729-230-49 TRANSISTOR 2SC2712-YG-TE85L
Q4811 8-729-230-49 TRANSISTOR 2SC2712-YG-TE85L
Q4812 8-729-026-49 TRANSISTOR 2SA1037AK-T146-QR
Q4813 8-729-026-49 TRANSISTOR 2SA1037AK-T146-QR
Q4814 8-729-026-49 TRANSISTOR 2SA1037AK-T146-QR
Q4815 8-729-026-49 TRANSISTOR 2SA1037AK-T146-QR
Q4816 8-729-026-49 TRANSISTOR 2SA1037AK-T146-QR
Q4817 8-729-230-49 TRANSISTOR 2SC2712-YG-TE85L
Q4818 8-729-026-49 TRANSISTOR 2SA1037AK-T146-QR
Q4820 8-729-230-49 TRANSISTOR 2SC2712-YG-TE85L
Q4821 1-801-806-11 TRANSISTOR DTC144EKA-T146
Q4822 8-729-230-49 TRANSISTOR 2SC2712-YG-TE85L
Q4823 8-729-026-49 TRANSISTOR 2SA1037AK-T146-QR
Q4824 8-729-026-49 TRANSISTOR 2SA1037AK-T146-QR
Q4825 8-729-230-49 TRANSISTOR 2SC2712-YG-TE85L
Q4826 8-729-230-49 TRANSISTOR 2SC2712-YG-TE85L
<RESISTOR>
R4302 1-216-025-91 RES-CHIP 100 5% 1/10W
R4303 1-216-025-91 RES-CHIP 100 5% 1/10W
R4304 1-216-025-91 RES-CHIP 100 5% 1/10W
R4307 1-216-025-91 RES-CHIP 100 5% 1/10W
R4308 1-216-295-91 SHORT 0
R4312 1-216-295-91 SHORT 0
R4316 1-216-069-00 RES-CHIP 6.8K 5% 1/10W
R4317 1-216-081-00 RES-CHIP 22K 5% 1/10W
R4318 1-208-804-11 METAL CHIP 8.2K 0.5% 1/10W
R4319 1-208-804-11 METAL CHIP 8.2K 0.5% 1/10W
R4320 1-208-790-11 METAL CHIP 2.2K 0.5% 1/10W
R4321 1-216-298-00 RES-CHIP 2.2 5% 1/10W
R4323 1-208-814-91 METAL CHIP 22K 0.5% 1/10W
R4324 1-208-798-11 METAL CHIP 4.7K 0.5% 1/10W
R4325 1-208-818-11 METAL CHIP 33K 0.5% 1/10W
R4326 1-208-826-11 METAL CHIP 68K 0.5% 1/10W
R4327 1-208-822-11 METAL CHIP 47K 0.5% 1/10W
R4329 1-208-782-11 METAL CHIP 1K 0.5% 1/10W
R4330 1-216-089-91 RES-CHIP 47K 5% 1/10W
R4331 1-216-025-91 RES-CHIP 100 5% 1/10W
R4332 1-216-025-91 RES-CHIP 100 5% 1/10W
R4333 1-216-025-91 RES-CHIP 100 5% 1/10W
R4334 1-216-049-91 RES-CHIP 1K 5% 1/10W
R4335 1-216-025-91 RES-CHIP 100 5% 1/10W
R4336 1-216-025-91 RES-CHIP 100 5% 1/10W
R4337 1-216-025-91 RES-CHIP 100 5% 1/10W
R4338 1-216-041-00 RES-CHIP 470 5% 1/10W
R4339 1-216-051-00 RES-CHIP 1.2K 5% 1/10W
R4341 1-216-295-91 SHORT 0
R4343 1-216-025-91 RES-CHIP 100 5% 1/10W
R4344 1-216-025-91 RES-CHIP 100 5% 1/10W
R4345 1-216-075-00 RES-CHIP 12K 5% 1/10W
R4346 1-208-812-11 METAL CHIP 18K 0.5% 1/10W
R4347 1-216-025-91 RES-CHIP 100 5% 1/10W
R4348 1-216-025-91 RES-CHIP 100 5% 1/10W
R4349 1-216-041-00 RES-CHIP 470 5% 1/10W
R4350 1-216-025-91 RES-CHIP 100 5% 1/10W
R4351 1-216-081-00 RES-CHIP 22K 5% 1/10W
R4352 1-216-041-00 RES-CHIP 470 5% 1/10W
R4353 1-216-051-00 RES-CHIP 1.2K 5% 1/10W
R4354 1-208-806-11 METAL CHIP 10K 0.5% 1/10W
R4355 1-216-049-91 RES-CHIP 1K 5% 1/10W
R4356 1-216-049-91 RES-CHIP 1K 5% 1/10W
R4357 1-216-073-00 RES-CHIP 10K 5% 1/10W
R4358 1-216-071-00 RES-CHIP 8.2K 5% 1/10W
R4359 1-216-041-00 RES-CHIP 470 5% 1/10W
R4360 1-216-057-00 RES-CHIP 2.2K 5% 1/10W
R4361 1-216-133-00 RES-CHIP 3.3M 5% 1/10W
R4363 1-216-025-91 RES-CHIP 100 5% 1/10W
R4365 1-216-025-91 RES-CHIP 100 5% 1/10W
R4366 1-216-025-91 RES-CHIP 100 5% 1/10W
R4367 1-216-025-91 RES-CHIP 100 5% 1/10W
R4369 1-216-025-91 RES-CHIP 100 5% 1/10W
R4370 1-216-049-91 RES-CHIP 1K 5% 1/10W
R4372 1-216-049-91 RES-CHIP 1K 5% 1/10W
E

– 213 –
REF. NO. PART NO. DESCRIPTION REMARK REF. NO. PART NO. DESCRIPTION REMARK
KV-ES34M81/ES34M91
RM-916
The components identified by shading
and mark ! are critical for safety.
Replace only with part number specified.
R4373 1-216-295-91 SHORT 0
R4374 1-216-025-91 RES-CHIP 100 5% 1/10W
R4375 1-216-049-91 RES-CHIP 1K 5% 1/10W
R4376 1-216-025-91 RES-CHIP 100 5% 1/10W
R4377 1-216-049-91 RES-CHIP 1K 5% 1/10W
R4380 1-216-073-00 RES-CHIP 10K 5% 1/10W
R4381 1-208-854-11 METAL CHIP 1M 0.5% 1/10W
R4382 1-216-073-00 RES-CHIP 10K 5% 1/10W
R4383 1-216-079-00 RES-CHIP 18K 5% 1/10W
R4384 1-216-025-91 RES-CHIP 100 5% 1/10W
R4387 1-216-295-91 SHORT 0
R4388 1-216-295-91 SHORT 0
R4389 1-216-295-91 SHORT 0
R4395 1-216-295-91 SHORT 0
R4396 1-216-295-91 SHORT 0
R4397 1-216-295-91 SHORT 0
R4399 1-247-807-31 CARBON 100 5% 1/4W
R4401 1-216-105-91 RES-CHIP 220K 5% 1/10W
R4408 1-216-025-91 RES-CHIP 100 5% 1/10W
R4409 1-216-073-00 RES-CHIP 10K 5% 1/10W
R4410 1-216-057-00 RES-CHIP 2.2K 5% 1/10W
R4411 1-216-073-00 RES-CHIP 10K 5% 1/10W
R4412 1-216-097-91 RES-CHIP 100K 5% 1/10W
R4518 1-216-025-91 RES-CHIP 100 5% 1/10W
R4519 1-216-073-00 RES-CHIP 10K 5% 1/10W
R4520 1-216-025-91 RES-CHIP 100 5% 1/10W
R4521 1-216-025-91 RES-CHIP 100 5% 1/10W
R4800 1-216-057-00 RES-CHIP 2.2K 5% 1/10W
R4801 1-216-049-91 RES-CHIP 1K 5% 1/10W
R4802 1-216-073-00 RES-CHIP 10K 5% 1/10W
R4803 1-216-049-91 RES-CHIP 1K 5% 1/10W
R4804 1-216-065-91 RES-CHIP 4.7K 5% 1/10W
R4805 1-208-792-11 METAL CHIP 2.7K 0.5% 1/10W
R4806 1-208-792-11 METAL CHIP 2.7K 0.5% 1/10W
R4807 1-216-049-91 RES-CHIP 1K 5% 1/10W
R4809 1-216-073-00 RES-CHIP 10K 5% 1/10W
R4810 1-208-814-91 METAL CHIP 22K 0.5% 1/10W
R4811 1-208-814-91 METAL CHIP 22K 0.5% 1/10W
R4812 1-216-295-91 SHORT 0
R4813 1-216-089-91 RES-CHIP 47K 5% 1/10W
R4814 1-208-830-11 METAL CHIP 100K 0.5% 1/10W
R4815 1-208-830-11 METAL CHIP 100K 0.5% 1/10W
R4816 1-216-073-00 RES-CHIP 10K 5% 1/10W
R4817 1-208-854-11 METAL CHIP 1M 0.5% 1/10W
R4818 1-216-057-00 RES-CHIP 2.2K 5% 1/10W
R4819 1-216-057-00 RES-CHIP 2.2K 5% 1/10W
R4820 1-216-073-00 RES-CHIP 10K 5% 1/10W
R4821 1-216-073-00 RES-CHIP 10K 5% 1/10W
R4822 1-216-057-00 RES-CHIP 2.2K 5% 1/10W
R4823 1-216-057-00 RES-CHIP 2.2K 5% 1/10W
R4824 1-216-073-00 RES-CHIP 10K 5% 1/10W
R4825 1-216-073-00 RES-CHIP 10K 5% 1/10W
R4826 1-216-057-00 RES-CHIP 2.2K 5% 1/10W
R4827 1-216-295-91 SHORT 0
R4828 1-216-057-00 RES-CHIP 2.2K 5% 1/10W
R4829 1-216-057-00 RES-CHIP 2.2K 5% 1/10W
R4831 1-208-794-11 METAL CHIP 3.3K 0.5% 1/10W
R4832 1-208-822-11 METAL CHIP 47K 0.5% 1/10W
R4833 1-208-822-11 METAL CHIP 47K 0.5% 1/10W
R4834 1-208-790-11 METAL CHIP 2.2K 0.5% 1/10W
R4835 1-208-790-11 METAL CHIP 2.2K 0.5% 1/10W
R4836 1-208-822-11 METAL CHIP 47K 0.5% 1/10W
R4837 1-208-822-11 METAL CHIP 47K 0.5% 1/10W
R4838 1-208-830-11 METAL CHIP 100K 0.5% 1/10W
R4839 1-208-802-11 METAL CHIP 6.8K 0.5% 1/10W
R4840 1-216-295-91 SHORT 0
R4841 1-216-057-00 RES-CHIP 2.2K 5% 1/10W
R4842 1-208-822-11 METAL CHIP 47K 0.5% 1/10W
R4843 1-216-057-00 RES-CHIP 2.2K 5% 1/10W
R4844 1-208-798-11 METAL CHIP 4.7K 0.5% 1/10W
R4845 1-208-830-11 METAL CHIP 100K 0.5% 1/10W
R4846 1-216-295-91 SHORT 0
R4847 1-216-073-00 RES-CHIP 10K 5% 1/10W
R4848 1-216-073-00 RES-CHIP 10K 5% 1/10W
R4849 1-216-095-00 RES-CHIP 82K 5% 1/10W
R4850 1-216-097-91 RES-CHIP 100K 5% 1/10W
R4851 1-216-053-00 RES-CHIP 1.5K 5% 1/10W
R4852 1-216-081-00 RES-CHIP 22K 5% 1/10W
R4853 1-216-053-00 RES-CHIP 1.5K 5% 1/10W
R4854 1-216-061-00 RES-CHIP 3.3K 5% 1/10W
R4855 1-216-077-91 RES-CHIP 15K 5% 1/10W
R4856 1-216-057-00 RES-CHIP 2.2K 5% 1/10W
R4857 1-208-810-11 METAL CHIP 15K 0.5% 1/10W
R4859 1-208-792-11 METAL CHIP 2.7K 0.5% 1/10W
R4860 1-208-792-11 METAL CHIP 2.7K 0.5% 1/10W
R4861 1-216-057-00 RES-CHIP 2.2K 5% 1/10W
R4862 1-208-810-11 METAL CHIP 15K 0.5% 1/10W
R4864 1-208-784-11 METAL CHIP 1.2K 0.5% 1/10W
R4865 1-208-782-11 METAL CHIP 1K 0.5% 1/10W
R4866 1-216-089-91 RES-CHIP 47K 5% 1/10W
R4869 1-208-814-91 METAL CHIP 22K 0.5% 1/10W
R4871 1-208-830-11 METAL CHIP 100K 0.5% 1/10W
R4872 1-216-057-00 RES-CHIP 2.2K 5% 1/10W
R4874 1-216-295-91 SHORT 0
R4875 1-216-057-00 RES-CHIP 2.2K 5% 1/10W
R4877 1-216-057-00 RES-CHIP 2.2K 5% 1/10W
R4878 1-208-836-11 METAL CHIP 180K 0.5% 1/10W
R4879 1-216-105-91 RES-CHIP 220K 5% 1/10W
R4881 1-216-295-91 SHORT 0
R4882 1-208-834-11 METAL CHIP 150K 0.5% 1/10W
R4883 1-208-842-11 METAL CHIP 330K 0.5% 1/10W
R4884 1-208-822-11 METAL CHIP 47K 0.5% 1/10W
R4887 1-208-814-91 METAL CHIP 22K 0.5% 1/10W
R4892 1-216-295-91 SHORT 0
R4894 1-216-073-00 RES-CHIP 10K 5% 1/10W
R4895 1-216-073-00 RES-CHIP 10K 5% 1/10W
R4897 1-208-788-11 METAL CHIP 1.8K 0.5% 1/10W
R4898 1-208-798-11 METAL CHIP 4.7K 0.5% 1/10W
R4899 1-216-025-91 RES-CHIP 100 5% 1/10W
<CRYSTAL>
X4300 1-767-127-11 VIBRATOR, CERAMIC
*****************************************************************
E

– 214 –
REF. NO. PART NO. DESCRIPTION REMARK REF. NO. PART NO. DESCRIPTION REMARK
KV-ES34M81/ES34M91
RM-916 The components identified by shading
and mark ! are critical for safety.
Replace only with part number specified.
A-1343-862-A E2 BOARD MOUNTED
********************
1-678-034-11 PWB, E2
1-718-468-11 PWB, E2 COMBINED
<CAPACITOR>
C4300 1-126-964-11 ELECT 10UF 20.00%50V
C4301 1-136-165-00 MYLAR 0.1UF 5.00% 50V
C4901 1-130-495-00 MYLAR 0.1UF 5.00% 50V
C4902 1-126-964-11 ELECT 10UF 20.00%50V
C4903 1-136-479-11 FILM 0.001UF 5.00% 50V
C4904 1-130-495-00 MYLAR 0.1UF 5.00% 50V
<CONNECTOR>
CN4901* 1-564-507-11 PLUG, CONNECTOR 4P
CN4902* 1-564-507-11 PLUG, CONNECTOR 4P
<DIODE>
D4302 8-719-911-19 DIODE 1SS119-25TD
D4303 8-719-109-72 DIODE RD3.9ES-T1B
<TRANSISTOR>
Q4300 8-729-119-78 TRANSISTOR 2SC2785TP-HFE
Q4302 8-729-026-49 TRANSISTOR 2SA1037AK-T146-QR
Q4303 8-729-119-76 TRANSISTOR 2SA1175TP-HFE
Q4304 8-729-230-49 TRANSISTOR 2SC2712-YG-TE85L
Q4305 8-729-119-76 TRANSISTOR 2SA1175TP-HFE
Q4901 8-729-119-78 TRANSISTOR 2SC2785TP-HFE
Q4902 8-729-119-78 TRANSISTOR 2SC2785TP-HFE
Q4903 8-729-119-76 TRANSISTOR 2SA1175TP-HFE
Q4904 8-729-119-76 TRANSISTOR 2SA1175TP-HFE
<RESISTOR>
R4300 1-247-807-31 CARBON 100 5% 1/4W
R4301 1-216-025-91 RES-CHIP 100 5% 1/10W
R4305 1-216-025-91 RES-CHIP 100 5% 1/10W
R4306 1-216-025-91 RES-CHIP 100 5% 1/10W
R4309 1-215-429-00 METAL 2.2K 1% 1/4W
R4310 1-216-295-91 SHORT 0
R4311 1-249-421-11 CARBON 2.2K 5% 1/4W
R4313 1-216-065-91 RES-CHIP 4.7K 5% 1/10W
R4314 1-216-057-00 RES-CHIP 2.2K 5% 1/10W
R4315 1-215-477-00 METAL 220K 1% 1/4W
R4901 1-249-417-11 CARBON 1K 5% 1/4W
R4902 1-249-425-11 CARBON 4.7K 5% 1/4W
R4903 1-249-435-11 CARBON 33K 5% 1/4W
R4904 1-249-425-11 CARBON 4.7K 5% 1/4W
R4905 1-249-429-11 CARBON 10K 5% 1/4W
R4906 1-249-429-11 CARBON 10K 5% 1/4W
R4907 1-249-421-11 CARBON 2.2K 5% 1/4W
R4908 1-216-049-91 RES-CHIP 1K 5% 1/10W
R4909 1-216-065-91 RES-CHIP 4.7K 5% 1/10W
R4910 1-216-065-91 RES-CHIP 4.7K 5% 1/10W
R4911 1-208-818-11 METAL CHIP 33K 0.5% 1/10W
R4912 1-208-806-11 METAL CHIP 10K 0.5% 1/10W
R4913 1-208-806-11 METAL CHIP 10K 0.5% 1/10W
R4914 1-216-057-00 RES-CHIP 2.2K 5% 1/10W
****************************************************************
* A-1241-402-A F1 BOARD MOUNT
****************
1-533-223-11 HOLDER, FUSE
* 4-374-846-01 COVER, CAPACITOR, CAP TYPE
<CAPACITOR>
C1601 !1-104-708-11 MYLAR 0.47MF 20% 250V
C1602 !1-109-835-11 MYLAR 0.68MF 20% 250V
C1603 !1-117-703-51 CERAMIC 0.0047MF 99% 250V
<CONNECTOR>
CN1601*!1-580-843-11 PIN, CONNECTOR (POWER)
CN1602*!1-580-843-11 PIN, CONNECTOR (POWER)
CN1603 1-695-915-11 TAB (CONTACT)
CN1604 1-695-915-11 TAB (CONTACT)
<FUSE>
F1601 !1-532-299-11 FUSE, TIME-LAG 5A/250V
<FERRITE BEAD>
FB1601 1-410-397-21 FERRITE 1.1UH
FB1602 1-410-397-21 FERRITE 1.1UH
FB1603 1-410-397-21 FERRITE 1.1UH
FB1604 1-410-397-21 FERRITE 1.1UH
<RESISTOR>
R1601 !1-202-885-91 SOLID 1M 10% 1/2W
<TRANSFORMER>
T1601 1-433-900-11 TRANSFORMER, LINE FILTER
T1602 1-433-900-11 TRANSFORMER, LINE FILTER
<VARISTOR>
VDR161 1-803-830-31 VARISTOR (ERZV14D621)
***************************************************************
E2F1

– 215 –
REF. NO. PART NO. DESCRIPTION REMARK REF. NO. PART NO. DESCRIPTION REMARK
KV-ES34M81/ES34M91
RM-916
The components identified by shading
and mark ! are critical for safety.
Replace only with part number specified.
* A-1241-403-A F2 BOARD MOUNT
*****************
<CONNECTOR>
CN1651* 1-580-843-11 PIN, CONNECTOR (POWER)
CN1652* 1-691-291-11 PIN, CONNECTOR (PC BOARD) 5P
<SWITCH>
S1651 !1-571-433-31 SWITCH, PUSH (AC POWER)
***************************************************************
* A-1372-728-A H1 BOARD MOUNT
*****************
* 4-055-304-01 HOLDER, LED
<CAPACITOR>
C1910 1-104-664-11 ELECT 47MF 20% 16V
C1911 1-104-664-11 ELECT 47MF 20% 16V
C1912 1-102-824-00 CERAMIC 470PF 5% 50V
<CONNECTOR>
CN1901* 1-564-520-11 PLUG, CONNECTOR 5P
<DIODE>
D1906 8-719-045-19 DIODE SPB-26MVWF
<IC>
IC1901 8-742-134-00 HYB IC SBX1981-51P
<TRANSISTOR>
Q1901 8-729-030-02 TRANSISTOR DTC144ESA
Q1902 8-729-030-02 TRANSISTOR DTC144ESA
<RESISTOR>
R1911 1-249-411-11 CARBON 330 5% 1/4W
R1913 1-249-429-11 CARBON 10K 5% 1/4W
R1914 1-249-411-11 CARBON 330 5% 1/4W
R1915 1-249-429-11 CARBON 10K 5% 1/4W
R1916 1-249-401-11 CARBON 47 5% 1/4W
R1917 1-247-807-31 CARBON 100 5% 1/4W
R1920 1-247-807-31 CARBON 100 5% 1/4W
R1921 1-247-807-31 CARBON 100 5% 1/4W
***************************************************************
* A-1372-729-A H2 BOARD MOUNT
*****************
<CAPACITOR>
C1930 1-136-153-00 MYLAR 0.01MF 5% 50V
C1932 1-136-153-00 MYLAR 0.01MF 5% 50V
C1935 1-102-824-00 CERAMIC 470PF 5% 50V
C1938 1-102-824-00 CERAMIC 470PF 5% 50V
<CONNECTOR>
CN1932* 1-564-509-11 PLUG, CONNECTOR 6P
CN1934* 1-564-515-11 PLUG, CONNECTOR 12P
<DIODE>
D1930 8-719-121-26 DIODE RD9.1ESL2
D1935 8-719-121-26 DIODE RD9.1ESL2
<JACK>
J1931 1-770-786-11 JACK
J1932 1-537-744-11 TERMINAL, S
J1933 1-770-329-11 JACK, PIN 3P
<COIL>
L1931 1-408-603-31 INDUCTOR 10UH
L1932 1-408-603-31 INDUCTOR 10UH
<RESISTOR>
R1933 1-247-895-91 CARBON 470K 5% 1/4W
R1934 1-247-807-31 CARBON 100 5% 1/4W
R1935 1-247-807-31 CARBON 100 5% 1/4W
R1936 1-247-895-91 CARBON 470K 5% 1/4W
R1952 1-249-421-11 CARBON 2.2K 5% 1/4W
<SWITCH>
S1931 1-692-431-21 SWITCH, TACTILE
***************************************************************
* A-1372-730-A H3 BOARD MOUNT
*****************
<CONNECTOR>
CN1980* 1-564-518-11 PLUG, CONNECTOR 3P
<RESISTOR>
R1970 1-249-416-11 CARBON 820 5% 1/4W
R1971 1-247-831-91 CARBON 1K 5% 1/4W
R1972 1-249-418-11 CARBON 1.2K 5% 1/4W
F2H1H2H3

– 216 –
REF. NO. PART NO. DESCRIPTION REMARK REF. NO. PART NO. DESCRIPTION REMARK
KV-ES34M81/ES34M91
RM-916 The components identified by shading
and mark ! are critical for safety.
Replace only with part number specified.
R1973 1-249-420-11 CARBON 1.8K 5% 1/4W
R1974 1-247-843-11 CARBON 3.3K 5% 1/4W
R1975 1-249-427-11 CARBON 6.8K 5% 1/4W
R1976 1-249-432-11 CARBON 18K 5% 1/4W
<SWITCH>
S1972 1-572-198-11 SWITCH, KEYBOARD
S1973 1-572-198-11 SWITCH, KEYBOARD
S1974 1-572-198-11 SWITCH, KEYBOARD
S1975 1-572-198-11 SWITCH, KEYBOARD
S1976 1-572-198-11 SWITCH, KEYBOARD
S1977 1-572-198-11 SWITCH, KEYBOARD
S1978 1-572-198-11 SWITCH, KEYBOARD
S1979 1-572-198-11 SWITCH, KEYBOARD
**************************************************************
* A-1394-965-B J BOARD COMPLETE
*******************
3-350-679-01 WASHER, FIBER
<CAPACITOR>
C8300 1-107-823-11 CERAMIC CHIP 0.47UF 10.00%16V
C8301 1-163-133-00 CERAMIC CHIP 470PF 5.00% 50V
C8302 1-163-133-00 CERAMIC CHIP 470PF 5.00% 50V
C8303 1-163-133-00 CERAMIC CHIP 470PF 5.00% 50V
C8304 1-163-133-00 CERAMIC CHIP 470PF 5.00% 50V
C8305 1-163-133-00 CERAMIC CHIP 470PF 5.00% 50V
C8306 1-163-133-00 CERAMIC CHIP 470PF 5.00% 50V
C8307 1-163-133-00 CERAMIC CHIP 470PF 5.00% 50V
C8308 1-163-133-00 CERAMIC CHIP 470PF 5.00% 50V
C8309 1-163-133-00 CERAMIC CHIP 470PF 5.00% 50V
C8310 1-163-133-00 CERAMIC CHIP 470PF 5.00% 50V
C8311 1-164-346-11 CERAMIC CHIP 1UF 16V
C8312 1-164-346-11 CERAMIC CHIP 1UF 16V
C8313 1-164-346-11 CERAMIC CHIP 1UF 16V
C8314 1-164-346-11 CERAMIC CHIP 1UF 16V
C8315 1-163-133-00 CERAMIC CHIP 470PF 5.00% 50V
C8316 1-163-133-00 CERAMIC CHIP 470PF 5.00% 50V
C8317 1-164-004-11 CERAMIC CHIP 0.1UF 10.00%25V
C8318 1-164-346-11 CERAMIC CHIP 1UF 16V
C8319 1-164-346-11 CERAMIC CHIP 1UF 16V
C8320 1-117-720-11 CERAMIC CHIP 4.7UF 10V
C8321 1-117-720-11 CERAMIC CHIP 4.7UF 10V
C8322 1-164-346-11 CERAMIC CHIP 1UF 16V
C8323 1-164-346-11 CERAMIC CHIP 1UF 16V
C8324 1-117-720-11 CERAMIC CHIP 4.7UF 10V
C8325 1-126-935-11 ELECT 470UF 20.00%16V
C8326 1-107-823-11 CERAMIC CHIP 0.47UF 10.00%16V
C8327 1-164-346-11 CERAMIC CHIP 1UF 16V
C8328 1-164-346-11 CERAMIC CHIP 1UF 16V
C8329 1-163-249-11 CERAMIC CHIP 82PF 5.00% 50V
C8330 1-164-346-11 CERAMIC CHIP 1UF 16V
C8331 1-164-346-11 CERAMIC CHIP 1UF 16V
C8332 1-163-249-11 CERAMIC CHIP 82PF 5.00% 50V
C8333 1-115-340-11 CERAMIC CHIP 0.22UF 10.00%25V
C8334 1-104-664-11 ELECT 47UF 20.00%16V
C8335 1-164-004-11 CERAMIC CHIP 0.1UF 10.00%25V
C8336 1-104-664-11 ELECT 47UF 20.00%16V
C8337 1-164-004-11 CERAMIC CHIP 0.1UF 10.00%25V
C8338 1-164-346-11 CERAMIC CHIP 1UF 16V
C8339 1-164-346-11 CERAMIC CHIP 1UF 16V
C8340 1-107-823-11 CERAMIC CHIP 0.47UF 10.00%16V
C8341 1-107-823-11 CERAMIC CHIP 0.47UF 10.00%16V
C8342 1-126-964-11 ELECT 10UF 20.00%50V
C8343 1-104-664-11 ELECT 47UF 20.00%16V
C8344 1-163-021-91 CERAMIC CHIP 0.01UF 10.00%50V
C8346 1-164-004-11 CERAMIC CHIP 0.1UF 10.00%25V
C8347 1-164-004-11 CERAMIC CHIP 0.1UF 10.00%25V
C8348 1-126-968-11 ELECT 100UF 20.00%16V
C8349 1-117-720-11 CERAMIC CHIP 4.7UF 10V
C8352 1-107-823-11 CERAMIC CHIP 0.47UF 10.00%16V
C8353 1-115-340-11 CERAMIC CHIP 0.22UF 10.00%25V
C8354 1-107-823-11 CERAMIC CHIP 0.47UF 10.00%16V
C8355 1-163-021-91 CERAMIC CHIP 0.01UF 10.00%50V
C8356 1-164-346-11 CERAMIC CHIP 1UF 16V
C8357 1-163-021-91 CERAMIC CHIP 0.01UF 10.00%50V
C8358 1-164-346-11 CERAMIC CHIP 1UF 16V
C8359 1-163-037-11 CERAMIC CHIP 0.022UF 10.00%50V
C8360 1-163-021-91 CERAMIC CHIP 0.01UF 10.00%50V
C8361 1-126-961-11 ELECT 2.2UF 20.00%50V
C8362 1-164-004-11 CERAMIC CHIP 0.1UF 10.00%25V
C8363 1-164-004-11 CERAMIC CHIP 0.1UF 10.00%25V
C8364 1-104-664-11 ELECT 47UF 20.00%16V
C8365 1-104-664-11 ELECT 47UF 20.00%16V
C8366 1-163-021-91 CERAMIC CHIP 0.01UF 10.00%50V
C8367 1-104-664-11 ELECT 47UF 20.00%16V
C8368 1-104-664-11 ELECT 47UF 20.00%16V
C8369 1-104-664-11 ELECT 47UF 20.00%16V
C8370 1-164-004-11 CERAMIC CHIP 0.1UF 10.00%25V
C8371 1-164-004-11 CERAMIC CHIP 0.1UF 10.00%25V
C8372 1-164-004-11 CERAMIC CHIP 0.1UF 10.00%25V
C8373 1-163-227-11 CERAMIC CHIP 10PF 0.50PF 50V
C8374 1-164-346-11 CERAMIC CHIP 1UF 16V
C8375 1-126-964-11 ELECT 10UF 20.00%50V
C8376 1-164-004-11 CERAMIC CHIP 0.1UF 10.00%25V
C8381 1-163-021-91 CERAMIC CHIP 0.01UF 10.00%50V
C8382 1-164-004-11 CERAMIC CHIP 0.1UF 10.00%25V
C8386 1-163-021-91 CERAMIC CHIP 0.01UF 10.00%50V
C8390 1-126-963-11 ELECT 4.7UF 20.00%50V
C8391 1-164-004-11 CERAMIC CHIP 0.1UF 10.00%25V
C8392 1-164-004-11 CERAMIC CHIP 0.1UF 10.00%25V
C8393 1-164-004-11 CERAMIC CHIP 0.1UF 10.00%25V
C8396 1-107-823-11 CERAMIC CHIP 0.47UF 10.00%16V
C8399 1-126-961-11 ELECT 2.2UF 20.00%50V
C8401 1-163-021-91 CERAMIC CHIP 0.01UF 10.00%50V
C8402 1-164-346-11 CERAMIC CHIP 1UF 16V
C8403 1-163-037-11 CERAMIC CHIP 0.022UF 10.00%50V
C8406 1-104-664-11 ELECT 47UF 20.00%16V
H3J

– 217 –
REF. NO. PART NO. DESCRIPTION REMARK REF. NO. PART NO. DESCRIPTION REMARK
KV-ES34M81/ES34M91
RM-916
The components identified by shading
and mark ! are critical for safety.
Replace only with part number specified.
C8407 1-104-664-11 ELECT 47UF 20.00%16V
C8408 1-163-021-91 CERAMIC CHIP 0.01UF 10.00%50V
C8410 1-164-004-11 CERAMIC CHIP 0.1UF 10.00%25V
C8411 1-117-720-11 CERAMIC CHIP 4.7UF 10V
C8412 1-164-004-11 CERAMIC CHIP 0.1UF 10.00%25V
C8413 1-117-720-11 CERAMIC CHIP 4.7UF 10V
C8414 1-104-664-11 ELECT 47UF 20.00%16V
C8415 1-164-346-11 CERAMIC CHIP 1UF 16V
C8416 1-164-004-11 CERAMIC CHIP 0.1UF 10.00%25V
C8417 1-163-227-11 CERAMIC CHIP 10PF 0.50PF 50V
C8418 1-126-964-11 ELECT 10UF 20.00%50V
C8419 1-164-004-11 CERAMIC CHIP 0.1UF 10.00%25V
C8424 1-163-021-91 CERAMIC CHIP 0.01UF 10.00%50V
C8425 1-163-021-91 CERAMIC CHIP 0.01UF 10.00%50V
C8430 1-117-720-11 CERAMIC CHIP 4.7UF 10V
C8431 1-163-243-11 CERAMIC CHIP 47PF 5.00% 50V
C8432 1-163-239-11 CERAMIC CHIP 33PF 5.00% 50V
C8437 1-126-963-11 ELECT 4.7UF 20.00%50V
C8438 1-164-004-11 CERAMIC CHIP 0.1UF 10.00%25V
C8439 1-164-004-11 CERAMIC CHIP 0.1UF 10.00%25V
C8440 1-164-004-11 CERAMIC CHIP 0.1UF 10.00%25V
C8441 1-164-346-11 CERAMIC CHIP 1UF 16V
C8442 1-117-720-11 CERAMIC CHIP 4.7UF 10V
C8443 1-117-720-11 CERAMIC CHIP 4.7UF 10V
C8444 1-117-720-11 CERAMIC CHIP 4.7UF 10V
C8445 1-164-346-11 CERAMIC CHIP 1UF 16V
C8446 1-104-664-11 ELECT 47UF 20.00%16V
C8447 1-164-004-11 CERAMIC CHIP 0.1UF 10.00%25V
C8448 1-164-690-91 CERAMIC CHIP 0.0022UF 5.00% 50V
C8450 1-107-823-11 CERAMIC CHIP 0.47UF 10.00%16V
C8451 1-164-505-11 CERAMIC CHIP 2.2UF 16V
C8452 1-164-004-11 CERAMIC CHIP 0.1UF 10.00%25V
C8453 1-164-004-11 CERAMIC CHIP 0.1UF 10.00%25V
C8454 1-164-004-11 CERAMIC CHIP 0.1UF 10.00%25V
C8455 1-104-664-11 ELECT 47UF 20.00%16V
C8456 1-104-664-11 ELECT 47UF 20.00%16V
C8457 1-104-664-11 ELECT 47UF 20.00%16V
C8459 1-164-004-11 CERAMIC CHIP 0.1UF 10.00%25V
C8464 1-104-664-11 ELECT 47UF 20.00%16V
C8465 1-164-004-11 CERAMIC CHIP 0.1UF 10.00%25V
C8466 1-247-807-31 CARBON 100 5% 1/4W
C8468 1-164-004-11 CERAMIC CHIP 0.1UF 10.00%25V
C8469 1-247-807-31 CARBON 100 5% 1/4W
C8471 1-164-004-11 CERAMIC CHIP 0.1UF 10.00%25V
C8474 1-164-004-11 CERAMIC CHIP 0.1UF 10.00%25V
<CONNECTOR>
CN8301* 1-564-524-11 PLUG, CONNECTOR 9P
CN8302 1-695-915-11 TAB (CONTACT)
CN8304 1-793-498-11 CONNECTOR, BOARD TO BOARD 50P
<DIODE>
D8101 8-719-073-01 DIODE MA111-TX
D8102 1-216-295-91 SHORT 0
D8301 8-719-158-35 DIODE RD9.1SB-T1
D8302 8-719-158-35 DIODE RD9.1SB-T1
D8303 8-719-158-35 DIODE RD9.1SB-T1
D8304 8-719-158-35 DIODE RD9.1SB-T1
D8305 8-719-158-35 DIODE RD9.1SB-T1
D8306 8-719-158-35 DIODE RD9.1SB-T1
D8307 8-719-158-35 DIODE RD9.1SB-T1
D8308 8-719-158-35 DIODE RD9.1SB-T1
D8309 8-719-158-35 DIODE RD9.1SB-T1
D8310 8-719-158-35 DIODE RD9.1SB-T1
D8311 8-719-158-35 DIODE RD9.1SB-T1
D8312 8-719-158-35 DIODE RD9.1SB-T1
D8313 8-719-158-35 DIODE RD9.1SB-T1
D8314 8-719-158-35 DIODE RD9.1SB-T1
D8315 8-719-067-40 DIODE STZ6.8N-T146
D8316 8-719-067-40 DIODE STZ6.8N-T146
D8317 8-719-067-40 DIODE STZ6.8N-T146
D8318 8-719-158-35 DIODE RD9.1SB-T1
D8319 8-719-158-35 DIODE RD9.1SB-T1
D8320 8-719-158-35 DIODE RD9.1SB-T1
D8321 8-719-158-35 DIODE RD9.1SB-T1
D8322 8-719-158-35 DIODE RD9.1SB-T1
D8323 8-719-158-35 DIODE RD9.1SB-T1
D8324 8-719-158-35 DIODE RD9.1SB-T1
D8325 8-719-158-35 DIODE RD9.1SB-T1
D8331 8-719-041-97 DIODE MA113-(TX)
<FERRITE BEAD>
FB8101 1-414-598-11 INDUCTOR CHIP 0UH
<FILTER>
FL8301 1-236-071-11 ENCAPSULATED COMPONENT
FL8303 1-236-071-11 ENCAPSULATED COMPONENT
FL8304 1-236-071-11 ENCAPSULATED COMPONENT
FL8305 1-236-071-11 ENCAPSULATED COMPONENT
FL8307 1-236-071-11 ENCAPSULATED COMPONENT
FL8308 1-236-071-11 ENCAPSULATED COMPONENT
FL8309 1-236-071-11 ENCAPSULATED COMPONENT
FL8311 1-236-071-11 ENCAPSULATED COMPONENT
FL8312 1-236-071-11 ENCAPSULATED COMPONENT
FL8313 1-236-071-11 ENCAPSULATED COMPONENT
FL8314 1-233-877-11 FILTER, LOW PASS
FL8315 1-233-504-21 FILTER, LOW PASS
FL8316 1-233-504-21 FILTER, LOW PASS
<IC>
IC8302 8-752-080-04 IC CXA2069Q
IC8304 8-759-576-72 IC LF50CDT-TR
IC8305 8-759-576-74 IC LF90CDT-TR
IC8306 8-752-094-47 IC CXA2123AQ-T6
IC8308 8-752-094-47 IC CXA2123AQ-T6
IC8309 8-759-337-26 IC MM1115XFBE
IC8310 8-759-572-04 IC TDA9178T/N1.118
IC8311 8-759-485-79 IC TC7SET08FU(TE85R)
IC8312 8-759-485-79 IC TC7SET08FU(TE85R)
IC8314 8-742-175-00 HYB IC SBX3005-11
J

– 218 –
REF. NO. PART NO. DESCRIPTION REMARK REF. NO. PART NO. DESCRIPTION REMARK
KV-ES34M81/ES34M91
RM-916 The components identified by shading
and mark ! are critical for safety.
Replace only with part number specified.
<JACK>
J8106 1-793-787-11 JACK BLOCK, PIN 1P
J8301 1-774-748-11 TERMINAL BLOCK, S
J8302 1-774-746-11 JACK BLOCK, PIN
J8303 1-774-746-11 JACK BLOCK, PIN
J8304 1-774-746-11 JACK BLOCK, PIN
J8305 1-695-444-11 PIN JACK BLOCK 3P
J8307 1-565-838-11 JACK BLOCK, PIN 2P
<CHIP CONDUCTOR>
JR8301 1-216-295-91 SHORT 0
JR8302 1-216-295-91 SHORT 0
JR8303 1-216-295-91 SHORT 0
JR8304 1-216-295-91 SHORT 0
<COIL>
L8302 1-414-196-41 INDUCTOR 47UH
L8303 1-414-196-41 INDUCTOR 47UH
L8304 1-414-196-41 INDUCTOR 47UH
<TRANSISTOR>
Q8301 8-729-026-49 TRANSISTOR 2SA1037AK-T146-QR
Q8302 8-729-230-49 TRANSISTOR 2SC2712-YG-TE85L
Q8303 8-729-230-49 TRANSISTOR 2SC2712-YG-TE85L
Q8304 8-729-230-49 TRANSISTOR 2SC2712-YG-TE85L
Q8305 8-729-026-49 TRANSISTOR 2SA1037AK-T146-QR
Q8306 8-729-230-49 TRANSISTOR 2SC2712-YG-TE85L
Q8307 8-729-230-49 TRANSISTOR 2SC2712-YG-TE85L
Q8308 8-729-230-49 TRANSISTOR 2SC2712-YG-TE85L
Q8309 8-729-230-49 TRANSISTOR 2SC2712-YG-TE85L
Q8310 8-729-230-49 TRANSISTOR 2SC2712-YG-TE85L
Q8312 8-729-230-49 TRANSISTOR 2SC2712-YG-TE85L
Q8313 8-729-230-49 TRANSISTOR 2SC2712-YG-TE85L
Q8319 8-729-026-49 TRANSISTOR 2SA1037AK-T146-QR
Q8320 8-729-026-49 TRANSISTOR 2SA1037AK-T146-QR
Q8321 8-729-026-49 TRANSISTOR 2SA1037AK-T146-QR
Q8322 8-729-026-49 TRANSISTOR 2SA1037AK-T146-QR
Q8323 8-729-026-49 TRANSISTOR 2SA1037AK-T146-QR
Q8324 8-729-026-49 TRANSISTOR 2SA1037AK-T146-QR
Q8326 8-729-230-49 TRANSISTOR 2SC2712-YG-TE85L
Q8327 1-801-806-11 TRANSISTOR DTC144EKA-T146
Q8328 1-801-806-11 TRANSISTOR DTC144EKA-T146
Q8329 8-729-230-49 TRANSISTOR 2SC2712-YG-TE85L
Q8330 8-729-230-49 TRANSISTOR 2SC2712-YG-TE85L
Q8331 8-729-230-49 TRANSISTOR 2SC2712-YG-TE85L
Q8332 8-729-230-49 TRANSISTOR 2SC2712-YG-TE85L
Q8333 8-729-230-49 TRANSISTOR 2SC2712-YG-TE85L
Q8334 8-729-230-49 TRANSISTOR 2SC2712-YG-TE85L
Q8335 8-729-230-49 TRANSISTOR 2SC2712-YG-TE85L
Q8336 8-729-230-49 TRANSISTOR 2SC2712-YG-TE85L
Q8337 8-729-230-49 TRANSISTOR 2SC2712-YG-TE85L
Q8342 8-729-230-49 TRANSISTOR 2SC2712-YG-TE85L
Q8343 8-729-026-49 TRANSISTOR 2SA1037AK-T146-QR
Q8344 8-729-026-49 TRANSISTOR 2SA1037AK-T146-QR
Q8345 8-729-230-49 TRANSISTOR 2SC2712-YG-TE85L
Q8346 8-729-026-49 TRANSISTOR 2SA1037AK-T146-QR
Q8347 8-729-230-49 TRANSISTOR 2SC2712-YG-TE85L
Q8348 8-729-026-49 TRANSISTOR 2SA1037AK-T146-QR
Q8349 8-729-230-49 TRANSISTOR 2SC2712-YG-TE85L
Q8350 8-729-026-49 TRANSISTOR 2SA1037AK-T146-QR
Q8351 8-729-230-49 TRANSISTOR 2SC2712-YG-TE85L
Q8352 8-729-026-49 TRANSISTOR 2SA1037AK-T146-QR
Q8353 8-729-026-49 TRANSISTOR 2SA1037AK-T146-QR
Q8354 8-729-026-49 TRANSISTOR 2SA1037AK-T146-QR
Q8355 8-729-026-49 TRANSISTOR 2SA1037AK-T146-QR
Q8358 1-801-806-11 TRANSISTOR DTC144EKA-T146
Q8359 1-801-806-11 TRANSISTOR DTC144EKA-T146
Q8360 1-801-806-11 TRANSISTOR DTC144EKA-T146
Q8361 8-729-230-49 TRANSISTOR 2SC2712-YG-TE85L
Q8362 8-729-230-49 TRANSISTOR 2SC2712-YG-TE85L
Q8363 8-729-230-49 TRANSISTOR 2SC2712-YG-TE85L
Q8364 8-729-026-49 TRANSISTOR 2SA1037AK-T146-QR
Q8464 8-729-230-49 TRANSISTOR 2SC2712-YG-TE85L
Q8465 8-729-230-49 TRANSISTOR 2SC2712-YG-TE85L
Q8466 8-729-230-49 TRANSISTOR 2SC2712-YG-TE85L
Q8512 8-729-026-49 TRANSISTOR 2SA1037AK-T146-QR
<RESISTOR>
R8101 1-216-022-00 RES-CHIP 75 5% 1/10W
R8208 1-216-295-91 SHORT 0
R8209 1-216-295-91 SHORT 0
R8301 1-216-041-00 RES-CHIP 470 5% 1/10W
R8302 1-216-041-00 RES-CHIP 470 5% 1/10W
R8303 1-216-021-00 RES-CHIP 68 5% 1/10W
R8304 1-216-057-00 RES-CHIP 2.2K 5% 1/10W
R8305 1-216-113-00 RES-CHIP 470K 5% 1/10W
R8306 1-216-022-00 RES-CHIP 75 5% 1/10W
R8307 1-216-022-00 RES-CHIP 75 5% 1/10W
R8308 1-216-105-91 RES-CHIP 220K 5% 1/10W
R8309 1-216-105-91 RES-CHIP 220K 5% 1/10W
R8310 1-216-022-00 RES-CHIP 75 5% 1/10W
R8311 1-216-105-91 RES-CHIP 220K 5% 1/10W
R8312 1-216-105-91 RES-CHIP 220K 5% 1/10W
R8313 1-216-022-00 RES-CHIP 75 5% 1/10W
R8314 1-216-105-91 RES-CHIP 220K 5% 1/10W
R8315 1-216-105-91 RES-CHIP 220K 5% 1/10W
R8316 1-216-113-00 RES-CHIP 470K 5% 1/10W
R8317 1-216-022-00 RES-CHIP 75 5% 1/10W
R8318 1-216-022-00 RES-CHIP 75 5% 1/10W
R8319 1-216-022-00 RES-CHIP 75 5% 1/10W
R8320 1-216-105-91 RES-CHIP 220K 5% 1/10W
R8321 1-216-105-91 RES-CHIP 220K 5% 1/10W
R8322 1-216-022-00 RES-CHIP 75 5% 1/10W
R8323 1-216-295-91 SHORT 0
R8324 1-216-295-91 SHORT 0
R8325 1-216-295-91 SHORT 0
R8326 1-216-113-00 RES-CHIP 470K 5% 1/10W
R8327 1-216-295-91 SHORT 0
R8328 1-216-113-00 RES-CHIP 470K 5% 1/10W
R8329 1-216-113-00 RES-CHIP 470K 5% 1/10W
J

– 219 –
REF. NO. PART NO. DESCRIPTION REMARK REF. NO. PART NO. DESCRIPTION REMARK
KV-ES34M81/ES34M91
RM-916
The components identified by shading
and mark ! are critical for safety.
Replace only with part number specified.
R8330 1-216-022-00 RES-CHIP 75 5% 1/10W
R8331 1-216-295-91 SHORT 0
R8332 1-216-295-91 SHORT 0
R8333 1-216-295-91 SHORT 0
R8334 1-216-295-91 SHORT 0
R8335 1-216-065-91 RES-CHIP 4.7K 5% 1/10W
R8336 1-216-065-91 RES-CHIP 4.7K 5% 1/10W
R8337 1-216-022-00 RES-CHIP 75 5% 1/10W
R8338 1-216-065-91 RES-CHIP 4.7K 5% 1/10W
R8339 1-216-065-91 RES-CHIP 4.7K 5% 1/10W
R8340 1-216-065-91 RES-CHIP 4.7K 5% 1/10W
R8341 1-216-065-91 RES-CHIP 4.7K 5% 1/10W
R8342 1-216-065-91 RES-CHIP 4.7K 5% 1/10W
R8343 1-216-065-91 RES-CHIP 4.7K 5% 1/10W
R8344 1-216-022-00 RES-CHIP 75 5% 1/10W
R8345 1-216-033-00 RES-CHIP 220 5% 1/10W
R8346 1-216-031-00 RES-CHIP 180 5% 1/10W
R8347 1-216-025-91 RES-CHIP 100 5% 1/10W
R8348 1-216-057-00 RES-CHIP 2.2K 5% 1/10W
R8349 1-216-049-91 RES-CHIP 1K 5% 1/10W
R8350 1-216-049-91 RES-CHIP 1K 5% 1/10W
R8351 1-216-065-91 RES-CHIP 4.7K 5% 1/10W
R8352 1-216-065-91 RES-CHIP 4.7K 5% 1/10W
R8353 1-216-017-91 RES-CHIP 47 5% 1/10W
R8354 1-216-017-91 RES-CHIP 47 5% 1/10W
R8355 1-216-295-91 SHORT 0
R8356 1-216-295-91 SHORT 0
R8357 1-216-017-91 RES-CHIP 47 5% 1/10W
R8358 1-216-017-91 RES-CHIP 47 5% 1/10W
R8361 1-216-017-91 RES-CHIP 47 5% 1/10W
R8362 1-216-017-91 RES-CHIP 47 5% 1/10W
R8363 1-208-773-11 METAL CHIP 430 0.5% 1/10W
R8364 1-216-041-00 RES-CHIP 470 5% 1/10W
R8365 1-216-049-91 RES-CHIP 1K 5% 1/10W
R8366 1-216-049-91 RES-CHIP 1K 5% 1/10W
R8367 1-216-041-00 RES-CHIP 470 5% 1/10W
R8369 1-216-041-00 RES-CHIP 470 5% 1/10W
R8370 1-216-025-91 RES-CHIP 100 5% 1/10W
R8372 1-216-295-91 SHORT 0
R8373 1-216-295-91 SHORT 0
R8374 1-216-039-00 RES-CHIP 390 5% 1/10W
R8375 1-216-041-00 RES-CHIP 470 5% 1/10W
R8376 1-216-049-91 RES-CHIP 1K 5% 1/10W
R8377 1-216-025-91 RES-CHIP 100 5% 1/10W
R8378 1-216-033-00 RES-CHIP 220 5% 1/10W
R8379 1-216-033-00 RES-CHIP 220 5% 1/10W
R8380 1-216-025-91 RES-CHIP 100 5% 1/10W
R8381 1-216-025-91 RES-CHIP 100 5% 1/10W
R8382 1-216-033-00 RES-CHIP 220 5% 1/10W
R8383 1-216-033-00 RES-CHIP 220 5% 1/10W
R8384 1-216-025-91 RES-CHIP 100 5% 1/10W
R8385 1-216-025-91 RES-CHIP 100 5% 1/10W
R8386 1-216-025-91 RES-CHIP 100 5% 1/10W
R8388 1-216-031-00 RES-CHIP 180 5% 1/10W
R8389 1-216-033-00 RES-CHIP 220 5% 1/10W
R8390 1-208-773-11 METAL CHIP 430 0.5% 1/10W
R8391 1-216-041-00 RES-CHIP 470 5% 1/10W
R8393 1-216-037-00 RES-CHIP 330 5% 1/10W
R8394 1-216-041-00 RES-CHIP 470 5% 1/10W
R8395 1-216-033-00 RES-CHIP 220 5% 1/10W
R8396 1-216-033-00 RES-CHIP 220 5% 1/10W
R8398 1-216-025-91 RES-CHIP 100 5% 1/10W
R8399 1-216-025-91 RES-CHIP 100 5% 1/10W
R8400 1-216-025-91 RES-CHIP 100 5% 1/10W
R8401 1-216-081-00 RES-CHIP 22K 5% 1/10W
R8404 1-216-033-00 RES-CHIP 220 5% 1/10W
R8405 1-216-033-00 RES-CHIP 220 5% 1/10W
R8406 1-216-033-00 RES-CHIP 220 5% 1/10W
R8407 1-216-033-00 RES-CHIP 220 5% 1/10W
R8408 1-216-033-00 RES-CHIP 220 5% 1/10W
R8409 1-216-295-91 SHORT 0
R8410 1-216-295-91 SHORT 0
R8411 1-216-083-00 RES-CHIP 27K 5% 1/10W
R8412 1-216-073-00 RES-CHIP 10K 5% 1/10W
R8413 1-216-041-00 RES-CHIP 470 5% 1/10W
R8414 1-208-796-11 METAL CHIP 3.9K 0.5% 1/10W
R8415 1-216-049-91 RES-CHIP 1K 5% 1/10W
R8417 1-216-025-91 RES-CHIP 100 5% 1/10W
R8418 1-216-025-91 RES-CHIP 100 5% 1/10W
R8419 1-216-017-91 RES-CHIP 47 5% 1/10W
R8420 1-216-017-91 RES-CHIP 47 5% 1/10W
R8421 1-216-295-91 SHORT 0
R8422 1-216-295-91 SHORT 0
R8424 1-216-083-00 RES-CHIP 27K 5% 1/10W
R8425 1-216-089-91 RES-CHIP 47K 5% 1/10W
R8426 1-208-796-11 METAL CHIP 3.9K 0.5% 1/10W
R8428 1-216-295-91 SHORT 0
R8429 1-216-295-91 SHORT 0
R8430 1-216-295-91 SHORT 0
R8431 1-216-049-91 RES-CHIP 1K 5% 1/10W
R8432 1-216-049-91 RES-CHIP 1K 5% 1/10W
R8433 1-216-049-91 RES-CHIP 1K 5% 1/10W
R8434 1-216-049-91 RES-CHIP 1K 5% 1/10W
R8435 1-216-295-91 SHORT 0
R8436 1-216-017-91 RES-CHIP 47 5% 1/10W
R8440 1-216-295-91 SHORT 0
R8441 1-216-049-91 RES-CHIP 1K 5% 1/10W
R8442 1-216-049-91 RES-CHIP 1K 5% 1/10W
R8443 1-216-025-91 RES-CHIP 100 5% 1/10W
R8444 1-216-025-91 RES-CHIP 100 5% 1/10W
R8445 1-216-017-91 RES-CHIP 47 5% 1/10W
R8446 1-216-049-91 RES-CHIP 1K 5% 1/10W
R8447 1-216-025-91 RES-CHIP 100 5% 1/10W
R8448 1-216-025-91 RES-CHIP 100 5% 1/10W
R8449 1-216-025-91 RES-CHIP 100 5% 1/10W
R8450 1-216-089-91 RES-CHIP 47K 5% 1/10W
R8451 1-216-097-91 RES-CHIP 100K 5% 1/10W
R8452 1-216-089-91 RES-CHIP 47K 5% 1/10W
R8453 1-216-097-91 RES-CHIP 100K 5% 1/10W
R8454 1-216-089-91 RES-CHIP 47K 5% 1/10W
R8455 1-216-097-91 RES-CHIP 100K 5% 1/10W
R8456 1-216-049-91 RES-CHIP 1K 5% 1/10W
R8457 1-216-049-91 RES-CHIP 1K 5% 1/10W
R8458 1-216-049-91 RES-CHIP 1K 5% 1/10W
R8459 1-216-025-91 RES-CHIP 100 5% 1/10W
R8460 1-216-025-91 RES-CHIP 100 5% 1/10W
J

– 220 –
REF. NO. PART NO. DESCRIPTION REMARK REF. NO. PART NO. DESCRIPTION REMARK
KV-ES34M81/ES34M91
RM-916 The components identified by shading
and mark ! are critical for safety.
Replace only with part number specified.
R8461 1-216-025-91 RES-CHIP 100 5% 1/10W
R8462 1-216-089-91 RES-CHIP 47K 5% 1/10W
R8463 1-216-097-91 RES-CHIP 100K 5% 1/10W
R8464 1-216-025-91 RES-CHIP 100 5% 1/10W
R8465 1-216-025-91 RES-CHIP 100 5% 1/10W
R8466 1-216-025-91 RES-CHIP 100 5% 1/10W
R8467 1-216-041-00 RES-CHIP 470 5% 1/10W
R8468 1-216-041-00 RES-CHIP 470 5% 1/10W
R8469 1-216-041-00 RES-CHIP 470 5% 1/10W
R8470 1-216-069-00 RES-CHIP 6.8K 5% 1/10W
R8471 1-216-025-91 RES-CHIP 100 5% 1/10W
R8472 1-216-089-91 RES-CHIP 47K 5% 1/10W
R8473 1-216-025-91 RES-CHIP 100 5% 1/10W
R8474 1-216-097-91 RES-CHIP 100K 5% 1/10W
R8475 1-216-089-91 RES-CHIP 47K 5% 1/10W
R8478 1-216-089-91 RES-CHIP 47K 5% 1/10W
R8479 1-216-097-91 RES-CHIP 100K 5% 1/10W
R8480 1-216-073-00 RES-CHIP 10K 5% 1/10W
R8481 1-216-095-00 RES-CHIP 82K 5% 1/10W
R8482 1-216-089-91 RES-CHIP 47K 5% 1/10W
R8484 1-216-045-00 RES-CHIP 680 5% 1/10W
R8485 1-216-037-00 RES-CHIP 330 5% 1/10W
R8486 1-216-049-91 RES-CHIP 1K 5% 1/10W
R8487 1-216-045-00 RES-CHIP 680 5% 1/10W
R8488 1-216-041-00 RES-CHIP 470 5% 1/10W
R8489 1-216-049-91 RES-CHIP 1K 5% 1/10W
R8490 1-216-049-91 RES-CHIP 1K 5% 1/10W
R8491 1-216-025-91 RES-CHIP 100 5% 1/10W
R8492 1-216-041-00 RES-CHIP 470 5% 1/10W
R8493 1-216-081-00 RES-CHIP 22K 5% 1/10W
R8494 1-216-041-00 RES-CHIP 470 5% 1/10W
R8495 1-216-081-00 RES-CHIP 22K 5% 1/10W
R8496 1-216-049-91 RES-CHIP 1K 5% 1/10W
R8497 1-216-025-91 RES-CHIP 100 5% 1/10W
R8498 1-216-043-91 RES-CHIP 560 5% 1/10W
R8499 1-216-081-00 RES-CHIP 22K 5% 1/10W
R8500 1-216-033-00 RES-CHIP 220 5% 1/10W
R8501 1-216-081-00 RES-CHIP 22K 5% 1/10W
R8502 1-216-049-91 RES-CHIP 1K 5% 1/10W
R8503 1-216-097-91 RES-CHIP 100K 5% 1/10W
R8504 1-216-295-91 SHORT 0
R8507 1-216-025-91 RES-CHIP 100 5% 1/10W
R8508 1-216-025-91 RES-CHIP 100 5% 1/10W
R8510 1-216-041-00 RES-CHIP 470 5% 1/10W
R8511 1-216-041-00 RES-CHIP 470 5% 1/10W
R8512 1-216-017-91 RES-CHIP 47 5% 1/10W
R8513 1-216-039-00 RES-CHIP 390 5% 1/10W
R8514 1-216-039-00 RES-CHIP 390 5% 1/10W
R8515 1-216-295-91 SHORT 0
R8516 1-216-049-91 RES-CHIP 1K 5% 1/10W
R8518 1-216-047-91 RES-CHIP 820 5% 1/10W
R8519 1-216-047-91 RES-CHIP 820 5% 1/10W
R8522 1-216-041-00 RES-CHIP 470 5% 1/10W
R8524 1-216-041-00 RES-CHIP 470 5% 1/10W
R8525 1-216-033-00 RES-CHIP 220 5% 1/10W
R8528 1-216-025-91 RES-CHIP 100 5% 1/10W
R8530 1-216-041-00 RES-CHIP 470 5% 1/10W
R8532 1-216-041-00 RES-CHIP 470 5% 1/10W
R8533 1-216-041-00 RES-CHIP 470 5% 1/10W
R8536 1-216-025-91 RES-CHIP 100 5% 1/10W
R8538 1-216-041-00 RES-CHIP 470 5% 1/10W
R8540 1-216-041-00 RES-CHIP 470 5% 1/10W
R8541 1-216-039-00 RES-CHIP 390 5% 1/10W
R8544 1-216-041-00 RES-CHIP 470 5% 1/10W
R8547 1-216-295-91 SHORT 0
R8548 1-216-033-00 RES-CHIP 220 5% 1/10W
R8551 1-216-049-91 RES-CHIP 1K 5% 1/10W
R8556 1-216-025-91 RES-CHIP 100 5% 1/10W
R8557 1-216-049-91 RES-CHIP 1K 5% 1/10W
R8558 1-208-776-11 METAL CHIP 560 0.5% 1/10W
R8560 1-216-025-91 RES-CHIP 100 5% 1/10W
R8561 1-216-049-91 RES-CHIP 1K 5% 1/10W
R8562 1-208-776-11 METAL CHIP 560 0.5% 1/10W
R8564 1-216-025-91 RES-CHIP 100 5% 1/10W
R8565 1-216-049-91 RES-CHIP 1K 5% 1/10W
R8566 1-208-776-11 METAL CHIP 560 0.5% 1/10W
R8567 1-216-017-91 RES-CHIP 47 5% 1/10W
R8569 1-208-800-11 METAL CHIP 5.6K 0.5% 1/10W
R8570 1-216-017-91 RES-CHIP 47 5% 1/10W
R8572 1-208-800-11 METAL CHIP 5.6K 0.5% 1/10W
R8573 1-216-017-91 RES-CHIP 47 5% 1/10W
R8575 1-208-800-11 METAL CHIP 5.6K 0.5% 1/10W
R8576 1-216-013-00 RES-CHIP 33 5% 1/10W
R8577 1-216-295-91 SHORT 0
R8578 1-216-033-00 RES-CHIP 220 5% 1/10W
R8579 1-216-295-91 SHORT 0
R8582 1-208-291-11 RES-CHIP 4.7M 5% 1/10W
R8583 1-208-291-11 RES-CHIP 4.7M 5% 1/10W
R8584 1-208-291-11 RES-CHIP 4.7M 5% 1/10W
R8585 1-208-291-11 RES-CHIP 4.7M 5% 1/10W
R8586 1-208-291-11 RES-CHIP 4.7M 5% 1/10W
R8587 1-216-295-91 SHORT 0
R8588 1-216-041-00 RES-CHIP 470 5% 1/10W
R8589 1-216-041-00 RES-CHIP 470 5% 1/10W
R8590 1-216-041-00 RES-CHIP 470 5% 1/10W
R8592 1-216-295-91 SHORT 0
R8594 1-216-295-91 SHORT 0
R8595 1-216-041-00 RES-CHIP 470 5% 1/10W
R8596 1-216-041-00 RES-CHIP 470 5% 1/10W
R8597 1-216-041-00 RES-CHIP 470 5% 1/10W
<CRYSTAL>
X8301 1-781-612-11 VIBRATOR, CRYSTAL
X8302 1-781-612-11 VIBRATOR, CRYSTAL
****************************************************************
J

– 221 –
REF. NO. PART NO. DESCRIPTION REMARK REF. NO. PART NO. DESCRIPTION REMARK
KV-ES34M81/ES34M91
RM-916
The components identified by shading
and mark ! are critical for safety.
Replace only with part number specified.
* A-1342-516-A V BOARD MOUNT
****************
<CAPACITOR>
C1803 1-104-665-11 ELECT 100MF 20% 16V
C1804 1-163-989-11 CERAMIC CHIP 0.033MF 10% 25V
C1805 1-163-021-91 CERAMIC CHIP 0.01MF 10% 50V
C1806 1-163-105-00 CERAMIC CHIP 33PF 5% 50V
C1807 1-163-105-00 CERAMIC CHIP 33PF 5% 50V
C1808 1-163-021-91 CERAMIC CHIP 0.01MF 10% 50V
C1809 1-104-665-11 ELECT 100MF 20% 16V
C1810 1-163-009-11 CERAMIC CHIP 0.001MF 10% 50V
C1811 1-163-021-91 CERAMIC CHIP 0.01MF 10% 50V
C1812 1-104-665-11 ELECT 100MF 20% 16V
C1813 1-163-021-91 CERAMIC CHIP 0.01MF 10% 50V
C1815 1-163-243-11 CERAMIC CHIP 47PF 5% 50V
C1819 1-164-005-11 CERAMIC CHIP 0.47MF 25V
C1821 1-163-001-11 CERAMIC CHIP 220PF 10% 50V
C1822 1-104-666-11 ELECT 220MF 20% 16V
C1824 1-163-021-91 CERAMIC CHIP 0.01MF 10% 50V
C1826 1-163-021-91 CERAMIC CHIP 0.01MF 10% 50V
C1827 1-104-666-11 ELECT 220MF 20% 16V
C1828 1-163-021-91 CERAMIC CHIP 0.01MF 10% 50V
C1829 1-163-021-91 CERAMIC CHIP 0.01MF 10% 50V
<CONNECTOR>
CN1801 1-793-496-11 CONNECTOR, BOARD TO BOARD 20P
<DIODE>
D1802 8-719-073-01 DIODE MA111-(K8).S0
D1803 8-719-073-01 DIODE MA111-(K8).S0
D1809 8-719-073-01 DIODE MA111-(K8).S0
D1810 8-719-073-01 DIODE MA111-(K8).S0
<FERRITE BEAD>
FB1801 1-410-397-21 FERRITE 1.1UH
FB1802 1-410-397-21 FERRITE 1.1UH
FB1803 1-410-397-21 FERRITE 1.1UH
FB1804 1-410-397-21 FERRITE 1.1UH
FB1805 1-410-397-21 FERRITE 1.1UH
<IC>
IC1801 8-759-652-13 IC SDA5254-2B006
IC1802 8-759-239-14 IC TA78L05S
IC1803 8-759-042-02 IC S-80743AL-A7-S
<COIL>
L1801 1-408-602-31 INDUCTOR 8.2UH
<TRANSISTOR>
Q1802 8-729-230-49 TRANSISTOR 2SC2712-YG
Q1803 8-729-230-49 TRANSISTOR 2SC2712-YG
Q1804 8-729-026-49 TRANSISTOR 2SA1037AK-T146-R
Q1805 8-729-026-49 TRANSISTOR 2SA1037AK-T146-R
Q1806 8-729-026-49 TRANSISTOR 2SA1037AK-T146-R
<RESISTOR>
R1804 1-208-792-11 METAL CHIP 2.7K 0.50% 1/10W
R1805 1-216-025-91 RES,CHIP 100 5% 1/10W
R1806 1-216-025-91 RES,CHIP 100 5% 1/10W
R1807 1-208-816-11 METAL CHIP 27K 0.50% 1/10W
R1808 1-216-025-91 RES,CHIP 100 5% 1/10W
R1809 1-208-758-11 METAL CHIP 100 0.50% 1/10W
R1811 1-208-758-11 METAL CHIP 100 0.50% 1/10W
R1812 1-216-295-91 SHORT 0
R1813 1-208-758-11 METAL CHIP 100 0.50% 1/10W
R1814 1-216-295-91 SHORT 0
R1815 1-216-295-91 SHORT 0
R1816 1-216-295-91 SHORT 0
R1820 1-216-121-91 RES,CHIP 1M 5% 1/10W
R1821 1-216-041-00 RES,CHIP 470 5% 1/10W
R1822 1-216-025-91 RES,CHIP 100 5% 1/10W
R1823 1-216-089-91 RES,CHIP 47K 5% 1/10W
R1824 1-216-049-91 RES,CHIP 1K 5% 1/10W
R1825 1-216-041-00 RES,CHIP 470 5% 1/10W
R1826 1-216-049-91 RES,CHIP 1K 5% 1/10W
R1827 1-216-037-00 RES,CHIP 330 5% 1/10W
R1829 1-216-053-00 RES,CHIP 1.5K 5% 1/10W
R1830 1-216-063-91 RES,CHIP 3.9K 5% 1/10W
R1831 1-216-073-00 RES,CHIP 10K 5% 1/10W
R1832 1-215-859-00 METAL OXIDE 22 5% 1W F
R1833 1-216-065-91 RES,CHIP 4.7K 5% 1/10W
R1834 1-216-065-91 RES,CHIP 4.7K 5% 1/10W
R1835 1-216-049-91 RES,CHIP 1K 5% 1/10W
R1836 1-216-049-91 RES,CHIP 1K 5% 1/10W
R1837 1-216-049-91 RES,CHIP 1K 5% 1/10W
R1838 1-216-025-91 RES,CHIP 100 5% 1/10W
R1839 1-216-025-91 RES,CHIP 100 5% 1/10W
R1840 1-216-025-91 RES,CHIP 100 5% 1/10W
R1841 1-216-065-91 RES,CHIP 4.7K 5% 1/10W
<CRYSTAL>
X1801 1-781-685-21 VIBRATOR, CRYSTAL
***************************************************************
* A-1342-515-A VM BOARD MOUNT
******************
4-382-854-11 SCREW (M3X10), P, SW (+)
<CAPACITOR>
C5401 1-126-935-11 ELECT 470MF 20% 16V
C5402 1-137-194-81 MYLAR 0.47MF 5% 50V
C5403 1-126-935-11 ELECT 470MF 20% 6.3V
C5405 1-126-933-11 ELECT 100MF 20% 16V
C5406 1-126-935-11 ELECT 470MF 20% 6.3V
VVM

– 222 –
REF. NO. PART NO. DESCRIPTION REMARK REF. NO. PART NO. DESCRIPTION REMARK
KV-ES34M81/ES34M91
RM-916 The components identified by shading
and mark ! are critical for safety.
Replace only with part number specified.
C5407 1-107-364-11 MYLAR 0.01MF 10% 200V
C5408 1-107-364-11 MYLAR 0.01MF 10% 200V
C5409 1-107-649-11 ELECT 2.2MF 20% 250V
C5410 1-130-471-00 MYLAR 0.001MF 5% 50V
C5411 1-130-471-00 MYLAR 0.001MF 5% 50V
C5412 1-126-935-11 ELECT 470MF 20% 16V
C5413 1-107-648-91 ELECT 100MF 20% 160V
C5415 1-104-999-11 MYLAR 0.1MF 10% 200V
C5418 1-107-638-11 ELECT 33MF 20% 160V
<CONNECTOR>
CN5401* 1-770-723-11 CONNECTOR, BOARD TO BOARD 8P
CN5402 1-764-334-11 PLUG, CONNECTOR 11P
<DIODE>
D5400 8-719-911-19 DIODE 1SS119-25
D5401 8-719-510-02 DIODE D1NS4
D5402 8-719-911-19 DIODE 1SS119-25
D5403 8-719-911-19 DIODE 1SS119-25
D5404 8-719-911-19 DIODE 1SS119-25
D5405 8-719-110-56 DIODE RD22ESB1
D5406 8-719-110-56 DIODE RD22ESB1
<COIL>
L5400 1-412-525-31 INDUCTOR 10UH
<TRANSISTOR>
Q5400 8-729-119-78 TRANSISTOR 2SC2785-HFE
Q5401 8-729-119-78 TRANSISTOR 2SC2785-HFE
Q5402 8-729-119-78 TRANSISTOR 2SC2785-HFE
Q5403 8-729-119-78 TRANSISTOR 2SC2785-HFE
Q5404 8-729-119-76 TRANSISTOR 2SA1175-HFE
Q5405 8-729-119-76 TRANSISTOR 2SA1175-HFE
Q5406 8-729-045-05 TRANSISTOR 2SA2005
Q5407 8-729-045-04 TRANSISTOR 2SC5511
<RESISTOR>
R5401 1-249-425-11 CARBON 4.7K 5% 1/4W
R5402 1-249-415-11 CARBON 680 5% 1/4W
R5403 1-247-739-11 CARBON 100 5% 1/2W F
R5404 1-249-418-11 CARBON 1.2K 5% 1/4W
R5406 1-249-425-11 CARBON 4.7K 5% 1/4W
R5407 1-249-399-11 CARBON 33 5% 1/4W
R5408 1-247-807-31 CARBON 100 5% 1/4W
R5409 1-247-815-91 CARBON 220 5% 1/4W
R5410 1-249-401-11 CARBON 47 5% 1/4W
R5411 1-249-401-11 CARBON 47 5% 1/4W
R5412 1-249-429-11 CARBON 10K 5% 1/4W
R5413 1-249-414-11 CARBON 560 5% 1/4W F
R5414 1-249-432-11 CARBON 18K 5% 1/4W
R5415 1-247-739-11 CARBON 100 5% 1/2W F
R5416 1-249-385-11 CARBON 2.2 5% 1/4W F
R5417 1-249-432-11 CARBON 18K 5% 1/4W
R5418 1-249-414-11 CARBON 560 5% 1/4W
R5419 1-249-421-11 CARBON 2.2K 5% 1/4W
R5420 1-249-421-11 CARBON 2.2K 5% 1/4W
R5421 1-249-385-11 CARBON 2.2 5% 1/4W F
R5422 1-249-405-11 CARBON 100 5% 1/4W F
R5423 1-215-915-11 METAL OXIDE 470 5% 3W F
R5424 1-249-395-11 CARBON 15 5% 1/4W
R5425 1-249-401-11 CARBON 47 5% 1/4W
R5427 1-249-395-11 CARBON 15 5% 1/4W
**************************************************************
MISCELANEOUS
***************
! 1-419-293-11 COIL, DEGAUSSING
!1-419-295-11 COIL, LANDING CORRECTION
1-452-094-00 CIRCULAR DISC MAGNET B
1-452-032-00 MAGNET,DISC
1-452-896-11 COIL, NA ROTATION (RT200)
1-505-473-11 SPEAKER (12CM)
1-529-562-11 SPEAKER (7X4CM)
1-543-827-31 CLAMP, SLEEVE FERRITE
1-569-008-21 ADAPTOR, CONVERSION 2P
1-769-175-21 CABLE, ANTENNA (WITH FILTER)
1-790-082-11 CABLE, RF
! 1-791-439-11 CORD, POWER (WITH CONNECTOR)
! 8-451-500-31 DEFLECTION YOKE (Y34RSC2-M3)
8-453-007-31 NA324-M3
! 8-735-062-05 PICTURE TUBE (A80LNH10X)
1-900-251-82 LEAD ASSY, G2
***************************************************************
ACCESSORIES AND PACKING MATERIALS
***************************************
A-1028-255-A PACKING GROUP (KV-ES34M81)
A-1028-257-A PACKING GROUP (KV-ES34M91)
1-569-008-21 ADAPTOR, CONVERSION 2P
1-769-175-21 CABLE, ANTENNA (WITH FILTER)
3-701-910-00 SCREW, SPECIAL (DIA. 3.8X20)
3-867-756-21 MANUAL, INSTRUCTION
3-867-756-31 MANUAL, INSTRUCTION
* 4-067-103-11 TRAY
* 4-073-255-01 INDIVIDUAL CARTON
* 4-074-690-01 CUSHION (UPPER)(ASSY)
* 4-074-691-01 CUSHION (LOWER)(ASSY)
* 4-384-101-21 BAG, PROTECTION
4-392-004-11 CLIP
4-392-003-01 BAND, HOLD
* 4-396-077-01 JOINT
***************************************************************
VM

– 223 –
REF. NO. PART NO. DESCRIPTION REMARK REF. NO. PART NO. DESCRIPTION REMARK
KV-ES34M81/ES34M91
RM-916
The components identified by shading
and mark ! are critical for safety.
Replace only with part number specified.
REMOTE COMMANDER
*********************
1-418-566-11 REMOTE COMMANDER (RM-916)
4-074-721-01 BATTERY COVER, REMOTE COMMANDER

– 224 –
MODEL COMMANDER DEST. CHASSIS NO.
KV-ES34M81 RM-916 ME SCC-P32D-A
KV-ES34M91 RM-916 ME SCC-P32E-A
SUPPLEMENT-1 AG3
SUBJECT : PART CHANGE
File this supplement with the Service Manual.
☛
MODEL COMMANDER DEST. CHASSIS NO.
CHASSIS
Note: The changes apply to model KV-ES34M81 (ME) only.
SECTION 7 : EXPLODED VIEWS
7-2. CHASSIS
51 52
63
53
57
58
REF. NO. PART NO. DESCRIPTION REMARK
53 *A-1299-162-H A BOARD COMPLETE (KV-ES34M81)
SECTION 8 : ELECTRICAL PARTS LIST
REF. NO. PART NO. DESCRIPTION REMARK
*A-1299-162-H A BOARD COMPLETE (KV-ES34M81)
Sony Corporation
Sony Technology Malaysia Sdn. Bhd.
Visual Products General Area
9-965-789-02 English
2001.6