KVT 719DVD_729DVD_729DVDY_739DVD KVT729DVD
User Manual: KVT729DVD
Open the PDF directly: View PDF .
Page Count: 114 [warning: Documents this large are best viewed by clicking the View PDF Link!]
- COVER
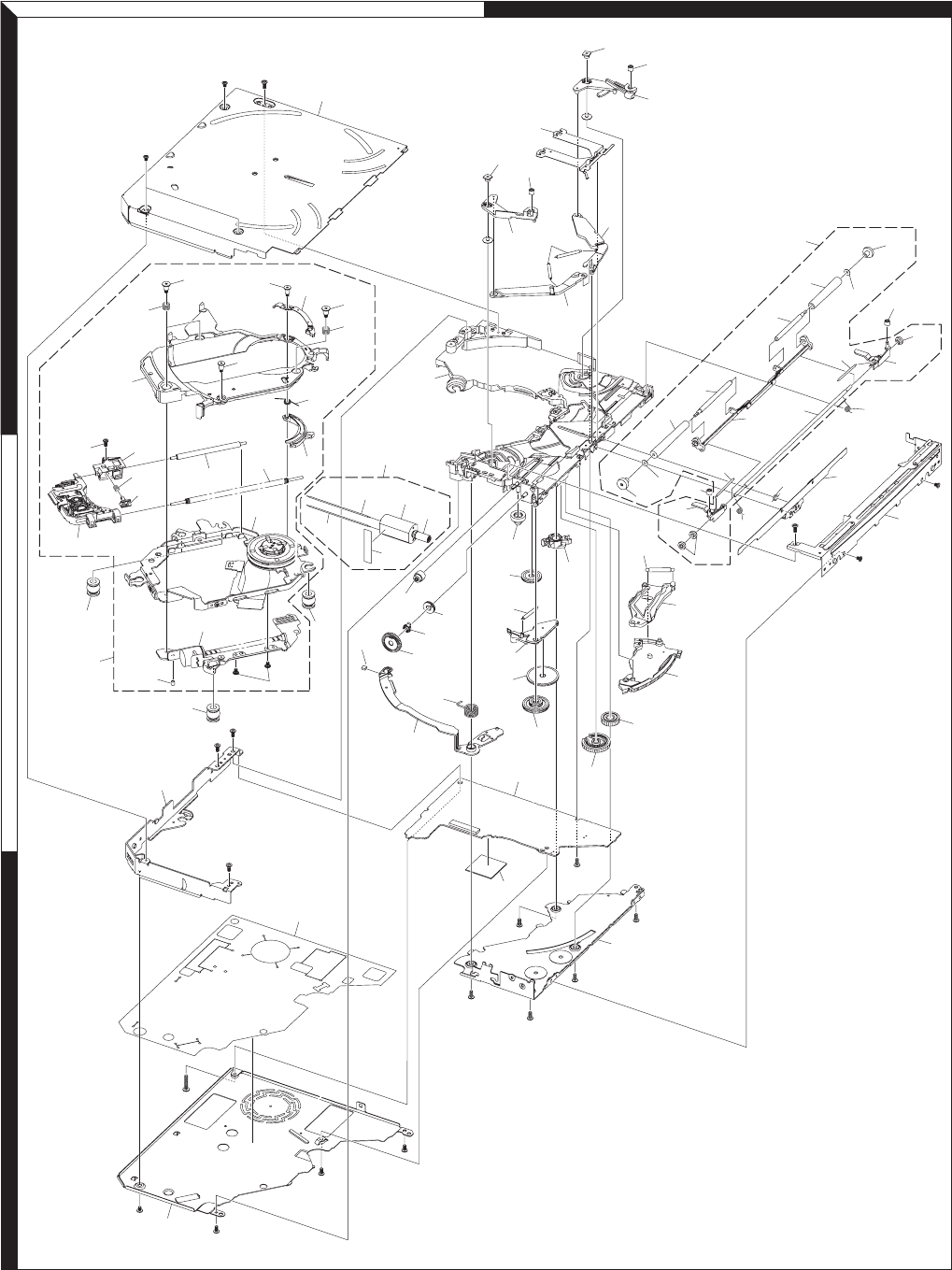
- GEAR POSITION IN A DVD MECHANISM
- CAUTIONS IN ASSEMBLING PANEL DRIVE MECHANISM (A10-5171)
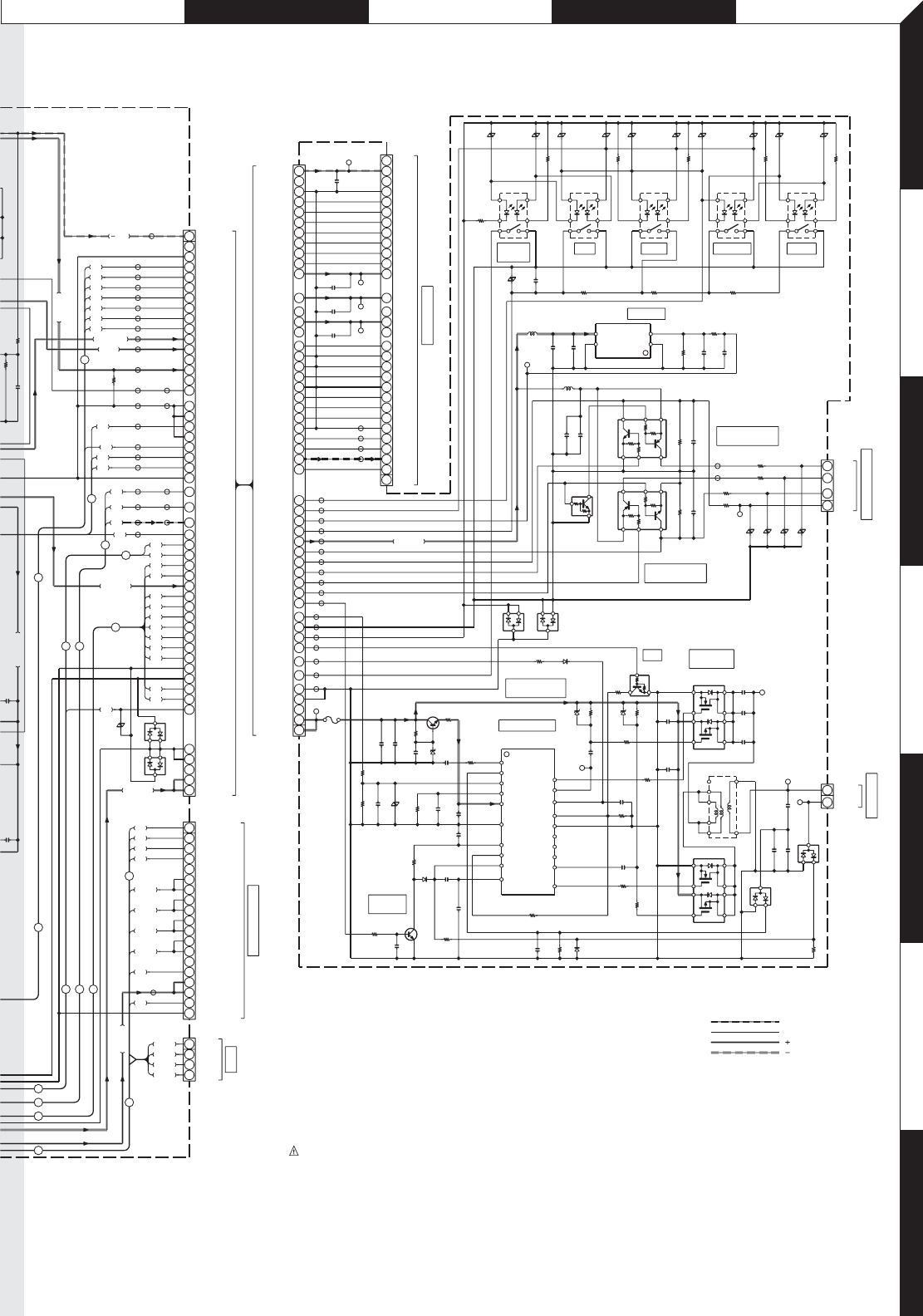
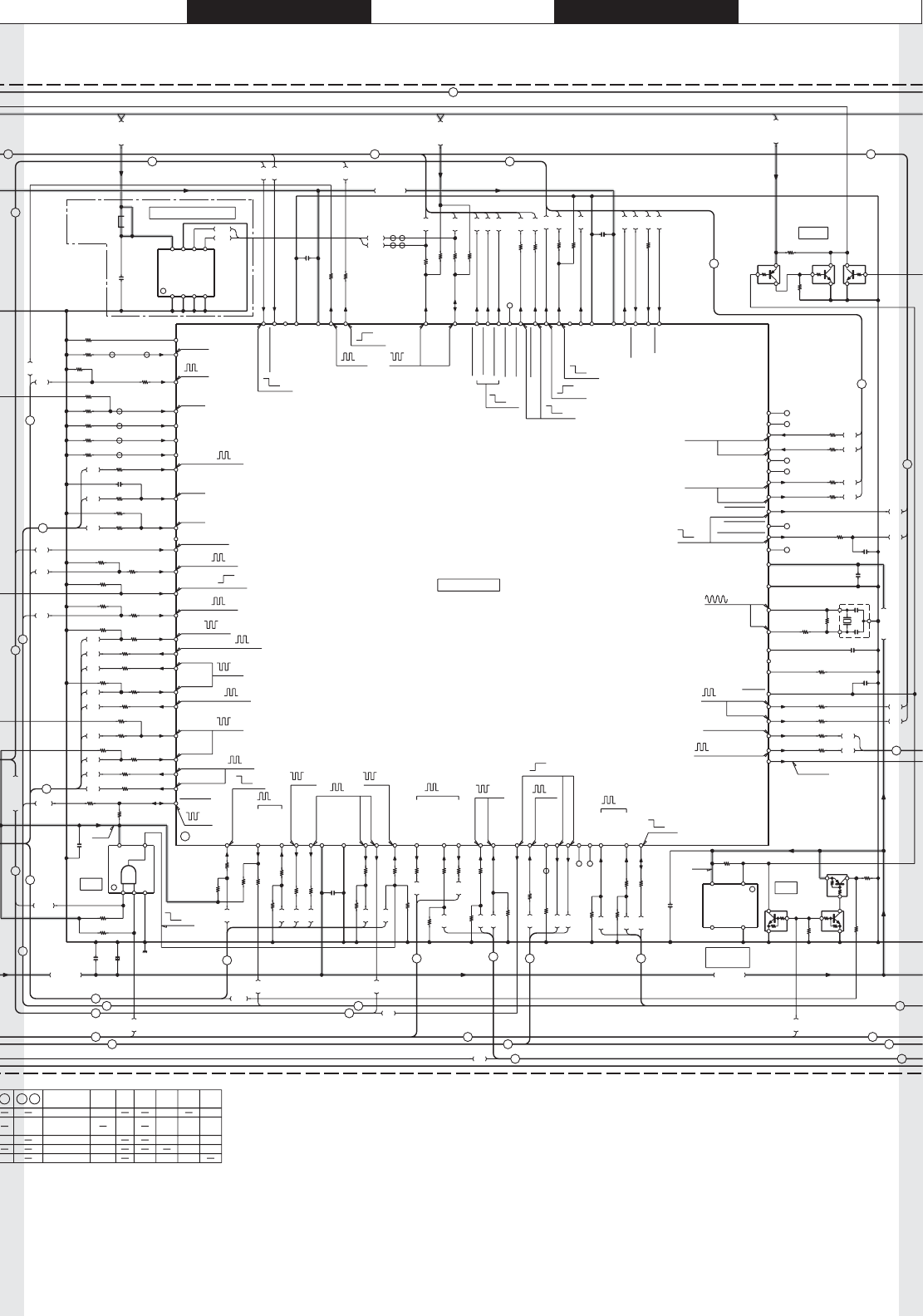
- BLOCK DIAGRAM
- COMPONENTS DESCRIPTION
- MICROCOMPUTER’S TERMINAL DESCRIPTION
- TEST MODE
- ADJUSTMENT
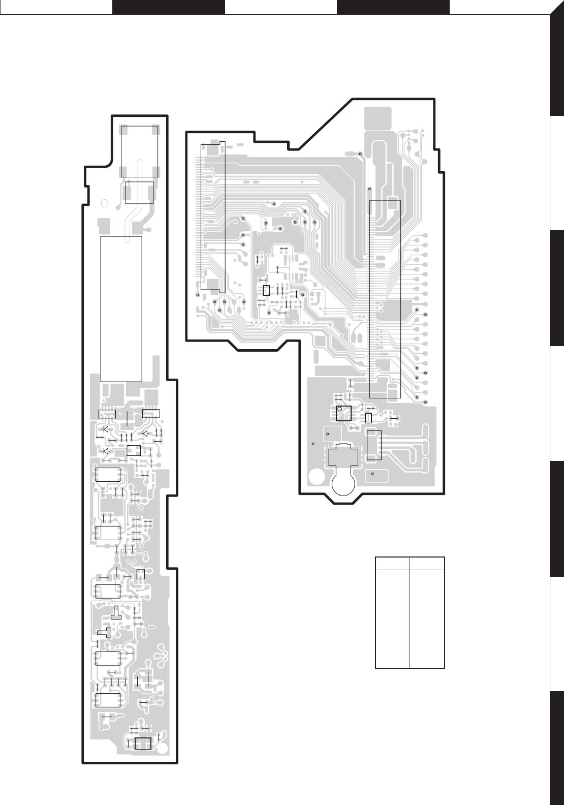
- PC BOARD
- INTERCONNECTION DIAGRAM
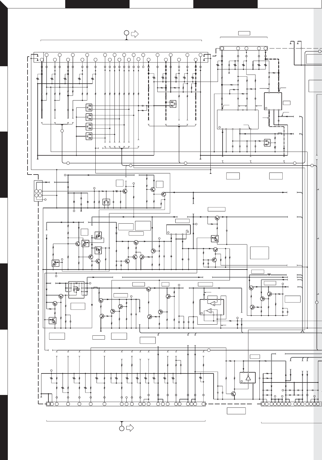
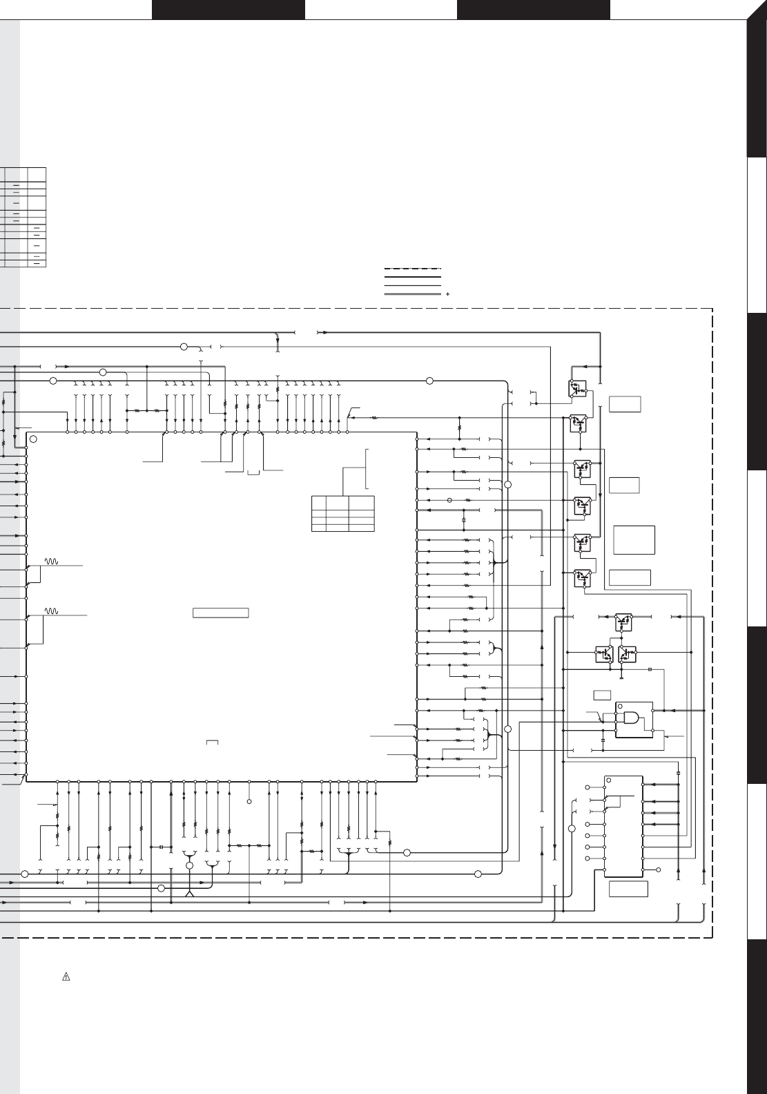
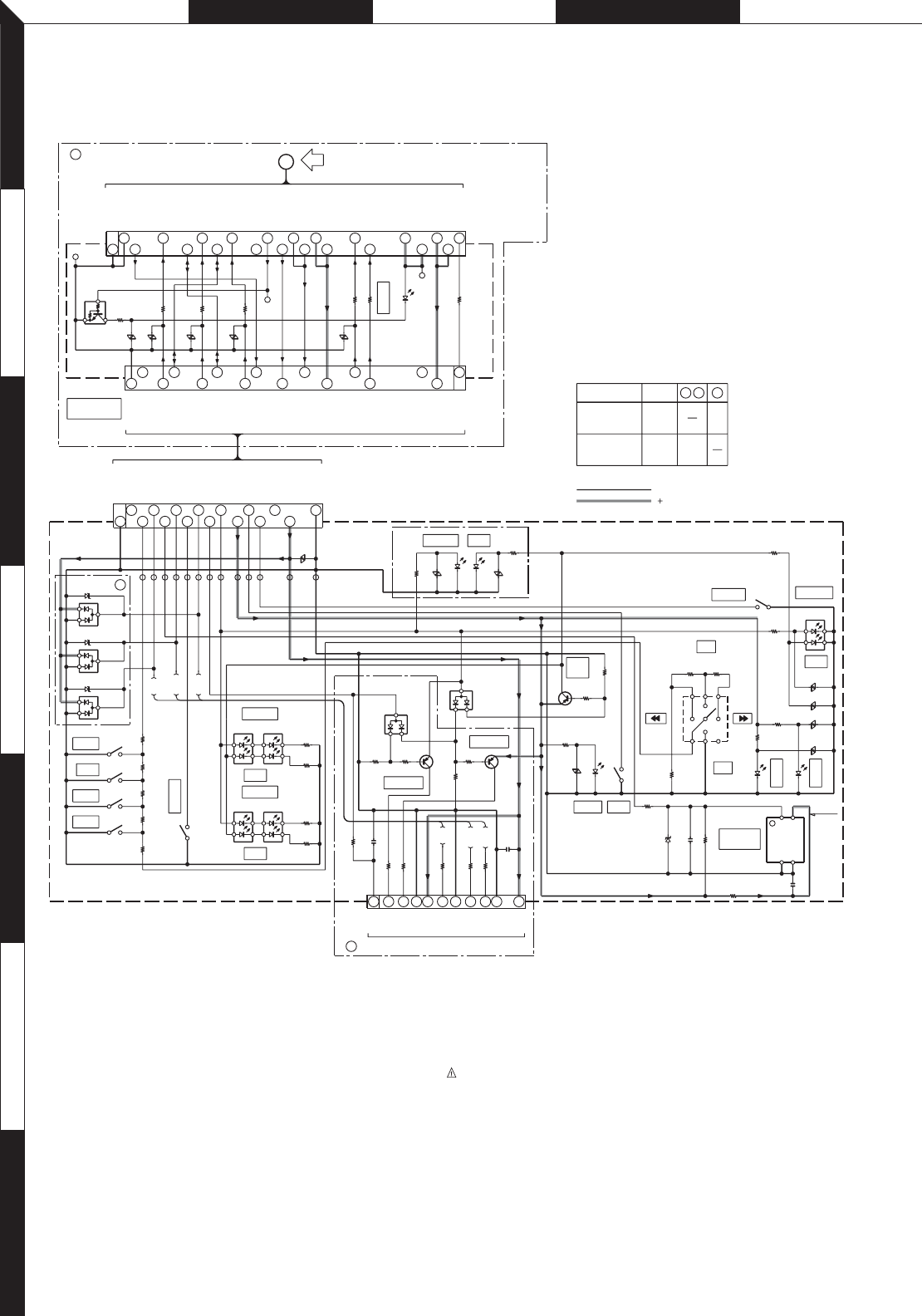
- SCHEMATIC DIAGRAM
- EXPLODED VIEW
- PARTS LIST
- SPECIFICATIONS

This product uses Lead Free solder.
This product complies with the RoHS directive for the European market.
MONITOR WITH DVD RECEIVER
KVT-719DVD/729DVD
/729DVDY/739DVD
SERVICE MAN UAL © 2007-3 PRINTED IN JA PAN
B53-0507-00 (N) 552
SIZE AAA BATTERY
(NOT SUPPLIED)
Cord with plug (6m)
(E30-6688-05)
Carrying case
(W01-1661-05)
Cord with plug (6m)
(E30-6483-05)
DC cord (6m)
(E30-6681-15)
DC cord (6m)
(E30-6680-05)
Screw set
(N99-1775-05)
Mounting hardware
(J22-0054-14) x2
Lever
(D10-4674-04) x2
Remote controller
(A70-2082-15 : RC-DV330) M,X type
(A70-2083-15 : RC-DV340) E,K,R type
Mounting hardware assy
(J21-9823-03)
Escutcheon
(B07-3159-02)
Illustrations is KVT-719DVD
TDF SPARE-PANEL
Screw set
(N99-1753-05)
Antenna adaptor
(T90-0552-05)
Cord with plug (1m)
(E30-6693-05)
DC cord (35cm)
(E30-6676-15)
DC cord (35cm)
(E30-6675-05)
Wire band
(J61-0620-05) x2
E type M,X type
K,M,R,X type
KVT-719DVD/729DVD
/729DVDY/739DVD
MODEL TDF PANEL No. TDF NAME
Y33-2760-60 TDF-719DVD
Illustrations is RC-DV340

2
KVT-719DVD/729DVD
/729DVDY/739DVD
● The IC106 in the DIGITAL I/O UNIT (X88-2020-11) is not a replaceable component.
In case of defective of this IC, replace the entire unit (X88-2020-11).
● The IC5, IC21, and IC60 in the DVD unit (X37-1120-03) are not replaceable components.
In case of defective of any of these ICs, replace the DVD mechanism assembly. (The IC5 has a device key, which shall be
made consistent with the S/No. of the mechanism assembly after replacement. Thus you cannot replace only the board.)
In assembling the Traverse UD arm, Drive cam assembly,
Drive gear 5 and Drive gear 4C, align register marks on
these components.
GEAR POSITION IN A DVD MECHANISM
Drive gear 5
Drive cam assembly
Do not forcibly press gears to engage their teeth
but freely let the gears fall under their own weight
and engage their teeth.
Traverse UD arm
Drive gear 4C
Inscriptions
(register marks)
on gears
Align 6 marks
as shown in the
figure

3
KVT-719DVD/729DVD
/729DVDY/739DVD
Observe the instructions described in this document when
you are going to replace the parts or components that are
shown in this document.
1. Replacement of motor fl at spring
• When mounting the flat spring that shall be in contact
with the worm gear, press the spring toward the direction
shown with an arrow so that there will be no gap between
the tip of the gear and the spring and then mount the
spring. The gear shall be pressure-inserted into the
motor.
• Note that there are two motors. Above operation of
mounting the fl at spring is required on both of them.
CAUTIONS IN ASSEMBLING PANEL DRIVE MECHANISM (A10-5171)
Tilt drive gear train Slide drive gear train
Mount the flat spring
while pressing it
towards the direction
shown with an arrow so
that there will be no
clearance.
Mount the flat spring
while pressing it
towards the direction
shown with an arrow so
that there will be no
clearance.
DC Motor
Worm
Flat Spring
DC Motor
Worm
Flat Spring

4
KVT-719DVD/729DVD
/729DVDY/739DVD
2. Phase matching among gears
• Monitor tilt is driven under the control of the
rotary sensor and the phase matching among
gears and sensor is required.
The procedure for the phase matching is
described in the rest of this subsection.
1) Align the mark on the rack with the pin. (When
the monitor is folded down at 0 degree, the
rack is located at the position where the mark
and pin are aligned.
2) Insert the gear while keeping aligning the rack
pin with the notched section on the tilt gear 7.
3) Pre-assemble the tilt motor bracket assembly
(BKT Assy).
4) Align the notch on the sensor BKT with the
concave section of the sensor in the Assy.
5) While keeping the conditions stated in 3) and
4), insert the tilt motor BKT Assy transversally,
and fi x the motor.
Tilt drive gear train
Location of mark
on the Rack
T-Rack-A Pin
Location of
notched section
Tilt Gear 7
Location of
notched section
Sensor Tilt Sensor Bkt
CAUTIONS IN ASSEMBLING PANEL DRIVE MECHANISM (A10-5171)

5
KVT-719DVD/729DVD
/729DVDY/739DVD
3. Insertion of slider
• This subsection describes cautions for inserting the
slider (slide section inside of the unit) into the outer
chassis.
1) On the rail at the left side of the slider, there is a part
called a stabilizer that is used to minimize play in right
and left sides.
The slide is made of resin. (Note that the rail is shown
at the right side of the slider in the picture.)
When inserting the slider, press the stabilizer towards
the direction shown with a blue arrow and insert it into
the groove on the rail.
2) PCB holder is pushed out towards the downside
of the picture due to the spring force and thus the
chassis and photo refl ection sheet may be get caught
by the holder during the assembly.
Insert the slider while slightly lifting up the holder with
a pair of tweezers or any other similar device.
3) Insert the gear after confirming that the both of D
shaft gears at the right and left sides of the slider are
aliened with the tip of the right and left racks on the
chassis.
(Otherwise the slider will be inserted sidelong.
(Slider -Slide section inside of the unit)
Stabilizer
PCB Holder
These portions
tend to be get
caught.
Hold and lift up the holder
with a pair of tweezers.
Push the opposite side of
the PCB holder towards
the downside of the picture
and lift up the portions
that may get caught.
D shaft gear
D shaft gear
Rack gear
Rack gear
CAUTIONS IN ASSEMBLING PANEL DRIVE MECHANISM (A10-5171)

6
KVT-719DVD/729DVD
/729DVDY/739DVD
BLOCK DIAGRAM
BU3.3V
IC1
PON 3.3V
Q22
SW14V
J1
DC CN
DC/DC
IC101
D5V
MECHA
7.5V or 5V V5V
TC3.3V
DC/DC
IC102
USB5V
SW3.3V
P5V
Q43
LED9V
DVDA8V
Q31
AREF
A8V
Q35
DRIVER
MOTOR
IC501,502
iPod
CN401
SPDIF
J501
IC400 IC401
AUDIO SEL
IC408 (SUB)
IC407 (MAIN)
to DVD MECHA
CN502CN503
to X34
SYS-COM
IC201
IC402
PARALLEL
SERIAL
Q304,306-308
RGB SW
IC403
IC404
RGB SW
CN501
GAMMA IC
IC301
to X88
CN501
VIDEO IN SW
IC405
DVD MUTE
IC406
OUT SW
VIDEO
IC450
SW
LED
SERIAL
(MID)
PARALLEL
CN503
IC303
to X35 to X16
18.5V
DC/DC
IC100
-12V 12.5V
to X14
CN300
SERIAL
PARALLEL
IC301
CONTROLLER
TIMING
IC302
to INV
CN302
CN104
to X14
CN101
to X16
J101
SI
ZACTION
MECHA
CN303
to X35
LED SW
OPEN/CLOSE
SCREEN//MODE
FNC/VSEL/
CIRCUIT
INVERTER
to BACK LIGHT
CN1
to TOUCH PANEL
CN501
to LCD PANEL
CN503
LCD PANELTOUCH PANELBACK LIGHT
DIMMER
AUTO
IC401
to X16
J201
GND
IC201
REMO
SW
EJECT/
SRC/
RESET
ATT/
VOL+
VOL/
DISP
FM
AM
CN201
(MID)
MINI LCD
DVD MECHA
DC CN
J1
RELAY SW
J2
BU5V
Q51
SW5V
Q53
A8V
Q71
9V (MID)
IC904
1/2VCC (MID)
V5V
Q61
IC910,911
POWER IC
IC301
J501
LEVEL SHIFT
IC106
IC501,502
DET MUTE E2PROM
AUDIO
u-COM
IC101
SERIAL
PARALLEL
IC105
5V AMP
(MID)
IC901
(MID)
5V AMP
IC902
(MID)
5V AMP
IC903
MUTE MUTE MUTE MUTE
SEL
AUDIO
IC203 (SUB)
IC202 (MAIN)
OUTPUT SECTION
E-VOL
INPUT
SECTION
REAR
PRE OUT
SUB AV OUTFRONT
J351
LX
J401
A251
F/E
E2PROM
RDS IC
IC251
AV IN1
J703
BACK CAM
AV IN
AV OUT
IC723
VIDEO SW
IC804
IC803
VIDEO SW
VIDEO SW
IC805
VSYNC SW
J702
NAVI I/F TV-TUNER I/F
J701
IC701
RGB SW
809
CN327
IC332
A5V
IC105
1.8V
USB2
5V (MID)5V
USB1
OSD IC
IC309
CPLD
IC322 IC104
MEDIA PROCESSOR
IC106
VIDEO ENC
IC302
to X14
X100 IC301
2ch DAC
IC305
LPF
IC211 IC202,203 IC200
32,768kHz
X202
IC201,205
NOR FLASH
128Mbit 256Mbit
SDRAM
X'TAL
14.7456MHz
IC101 (MID)
IC100
IC207
AUTHENTICATION
iPod
PROTECT
OVER CURRENT
USB CN
CN101
USB2
5V (MID)
5V
USB1
W251
IC201
BUFF
DELAY
REG
REG
BUFF
IC807-
806,810
IC802,
ISOISO
ISO ISO
BU DET
ACC DET
PON
MECHA
7.5V or 5V
A8VV5V
USB
iPod
DVD
AMUTE
DVD SCL
DVD S DA
DVD RESET
DISC DET
MAIN
SUB
BU DET
SW1/2/3/4
AUTO
iPod COMP
A8V
BU3.3V
SEL DATA
SEL CLK
V IN SW1/2/3
V OUT SW
VCOM IN
VR/VG/VB
SW3.3V
EX M+/M-
RI M+/M-
SW A/B/C
Z SWT/CNT
R SENS
XDATA
YDATA
OPEN/CLOSE
REMO
SRC
KEY3
RESET
X0/X1/Y0
SP DATA
PWM
HSY ADJ
ENABLE
INV PWM
INV SW
SP CLK
VCOM
R/G/B
POLS
V5V
V5V
OSD BLK
GAN COMP
V5V
DVD R/G/B
DVD COMP
M CLK
M DATA
SYS ON
M REQ
S DATA
S REQ
RESET
VOUT
V5V
RESET
X34 COMP
X34 R/G/B
GRA SYNC
V5V
GRA R/G/B
D5V
X16 ILL
LED9V
LED R
LED G
LED B
(MID)
SDA
SCL
RGB SW1/2
GAN VSW
DVD R/G/B
GAN SYNC SW
REMO
SRC
MINI CLK
MINI CS
MINI DATA
(MID)
EJECT
RESET
REMO
KEY2
OSD MODE
FILD DET
CIR BU DET
CIRMREQ
CIR STBY
CIR CON
CIR SREQ
CIR RST
CIR INI
CIR RX
CIR TX
SW3.3V
NCLP
BLK
HSY
HSY
VSY
STH
DOT CLK
CPV
BL14V
TC3.3V
PON3.3V
V5V
MECHA8V
LED9V
TP3.3V
SMOTOR M/P
TMOTOR M/P
HPOSI1/2/3/4
MODE1/2/3
NT/PAL
MIRROR
KEY1
OPEN/CLOSE
SP DATA
SP CLK
POLS
BLK/HSY
VSY/CPV
NCLP
DOT CLK
STH
VCOM
R/G/B
AUTO DIM
EX M+/M-
RI M+/M-
SW A/B/C
Z SWT/CNT
R SENS
DSI
(MID)
MINI CS
MINI CLK
MINI DATA
PANEL DET
RESET
EJECT
REMO
KEY2
SRC BU3.3V
+12.5V
BL14V
INV PWM
ENABLE
PWM
X1
XDATA
YDATA
X0
Y0
CX
CPH1
CPV2
HDIR
STV1/2
UPSD
STH1/2
OE1/2/3
R/G/B
VCOM
TP3.3V
PON3.3V
TC3.3V
18.5V
-12V
V5V AUTO DIM
TP3.3V
PON3.3V
BL14V
TC3.3V
18.5V
-12V
LED9V
V5V
SW3.3V
LED9V
LED R
(MID)
LED G
X16 ILL
D5V
LED B
BU3.3V
SW3.3V
X16 ILL
LED9V
LED R
LED G
(MID)
D5V
LED B
DET
PAN E L
KEY2
SRC
RESET
EJECT
MINI DATA
MINI CLK
MINI CS
REMO
X16 ILL
D5V
LED G
LED R
LED9V
SW3.3V
LED R
LED G
LED B
P5V
V5V
D5V
A8V
AREF
LINE MUTE
EXT CON
ANT CON
P CON
W REMO
ILLUMI
REVERSE
PARKING
PWIC STBY
BU DET
PON
OFFSET DET
RELAY SW1/2
RELAY DET1/2
I2C SCL/SDA
MUTE 0/1/2/A/B/C
PWIC DC DET
BU MUTE
BU5V SW5V
BEEP
MUTE
SYS ON
M DATA
M CLK
M REQ
BU5V
BU
S DATA
S REQ
MUTE (SYS BU-DET)
RESET
REMO
A IN SEL 1/2/3/4
V IN SEL 1/2/3
V OUT SEL 1/2/3
SEL DATA
SEL CLK
SW5V
TV RESET
SW5V
W REMO MIX REMO
V SYNC DET
AUTO SW 1/2
TV SC CON
TV JUDGE
TV CLK
TV MC REQ
TV SC REQ
TV MC DATA
TV SC DATA
NAVI TX
NAVI RX
RGB MUTE
RGB SW
RDS CLK
TUN SMET
TUN SCL
TUN SDA
TUN IFC
AM +B
RDS QAUAL
RDS DATA
RDS AFS
RDS NOISE
LX RST
LX CON
LX MUTE
LX CLK
LX REQ M
LX REQ S
LX DATA M
LX DATA S
BU5V BU5V BU5V BU5V
X14 AUDIO
TV
AVI N 1
LX
MAIN
SUB
TUNER
NAVI
AVOUT
A8V
BU3.3V
SW3.3V
V5V
USB5V
A8V
SW5V
A8V
V5V
AVI N 1
V5V
NAVI
TV
BACK CAM
AVI N 1
X14 VIDEO
MIX REMO
NAVI RX
NAVI TX
A8V
TV
NAVI RGB
TV RGB
V5V
RGB SW
RGB MUTE
TV MC REQ
TV SC DATA
TV MC DATA
TV SC REQ
TV SC CON
TV CLK
TV JUDGE
TV RST
AVI N 1
BACK CAM
USB5V
V5V
SW3.3V
BU3.3V
A8V
A8V
SW3.3V
OSD R/G/B
OSD BCK/FILD DET
OSD MODE
HSY/VSY
STH
DOT CLK
GRA SYNCVSYNC
HSYNC
GRA R/G/B
SP CLK
EP R/G/B
CPV
OSD DATA
OSD CE
OSD CLK
CS6
CS0
CIR BU DET
CIR CON
CIR SREQ
CIR MREQ
CIR STBY
CIR RST
CIR INI
CIR MDATA
CIR SDATA
SDO0
LRCLK
SCLK
MCLK
USB L/R
CP READY
SCL
SDA
ENB (MID)
ENA
FLGB (MID)
FLGA
ADDRESS
DATA
USBm0
USBp0
USB5V
USBm1
USBp1
SPDIF
R/G/B
GAN
OSD R/G/B
TC3.3V
V5V
MUTE
BU5V
A8V
BU
A8V
NAVI
BU
V IN SEL 1/2/3
V OUT SEL 1/2/3
VIN
X14 VIDEO
RGB OUT
CIR RST
BACK CAM
V5VV5V
(X14-983)
(X35-471)
(X35-471)
(X34-475)
(X88-200)
(X16-392)
(X16-392)

7
KVT-719DVD/729DVD
/729DVDY/739DVD
BLOCK DIAGRAM
(X37-112)
MOTOR
SPINDLE
LIM-SW
HALL IC
M
LO/EJ
DC MOTOR 2PHASE
STEPPING
KDP2C
OPTICAL
PICKUP
(28P)
CONNECTOR
P5V
P5V ACTUATER
MOTOR &
DRIVER
(30P)
CONNECTOR
A5V A5V
IC39
IOPDET
A3.3V
Q27
Q12,13
Q10,11
D3.3V
IC1
SDRAM
IC54
D3.3V
D3.3V
A3.3V V3.3V
PLL3.3V D1.2V
D3.3V
Q25
ROM D-FF
IC10
IC5 IC42
D3.3V D3.3V
FLASH
D3.3V
LOGIC
IC55
CONNECTOR(35P)
BUFFER
IC53
IC57
AUDIO
DAC
IC15
VIDEO AMP
IC12
3.3V to 1.2V
IC49
D3.3V
D1.2V
IC50,51
L.P.F
A8V
5V REG
IC60
A8V
A5V
A5V
ADATA0-2
BCK/LRCK
PD
Y/G,Pb/B,Pr/R
VIDEO
SPDIF
AMUTE
SDA,SCL
AREFL
Lch
MASTER/SLAVE
RESET
CONNECTOR
(10P)
(50P)
CONNECTOR
Rch
AREFR
DISC DET
IFSELIF-SEL
SW LOST
SW LOEND
D5V
A5V
P5V
A8V
D7
D3.3V
V3.3V
PLL3.3V
A3.3V
IC9
E2PROM
D3.3V
D1.2V
IC21
SW REG
F/E+B/E+MCU
DVN
DISC
Q14,15
D5V
VIDEO AMP
HALL BIAS
U.V.W COIL
HALL SENSOR
PDIC VCC
DVD LD/CD LD
HFM
VREFH
THERMISTER
PDIC I/V OUT
IMON/VR DVD/VR CD
FO+-,TR+-
3
3
H1H,H1L,HB
A1,A2,A3
FO6,RO6
FO4,RO4
FO5,RO5
FO3,RO3
FO2,RO2
VREF,EC VHALF
STBY
BMS
FG
SPIN,IN2-6,MUTE
4
LPC01/LPC02
DRV0
VREFH
LPC1/LPC2
A,B,C,D,E,F,FE1,FE2,RF
TEMP(AD1)
2
9
VHALF
DQM3,P9
DRV1,DRV2,DRV3,DRV4
PWM0,PWM1,P10
FG,P5
MDQ0-15
NWE,NCAS,NRAS,NCSM,MCK0
BA0-1,MA0-11,DQM0-1
IOP
(AD0)
7
2
21
16
2
27MHz
IF-SEL
E
DQ0-15
W,G
A0-20
CLR
D1-8
Q1,Q2
CLK
Q3-8
23
8
EXADT11
EXADT
DQM2
NEXCE
0-15
A19
NEXWE
EXADR16-19
EXADT0-15
NEXOE
P15
NEXWE
P6,P14
P0,P3
DD0-15,DA0-1,CS1FX,CS3FX
INTREQ,IORDY,DASP,PDIAG
DMARQ,DIOW,DIORDMACK
RESET
MASTER
16 4
2
3
4
2
R+
L-
R-
L+
DACCK
ADOUT3
P1,P2
IECOUT
DAC4OUT
DAC0-3OUT
SRCK,LRCK
ADOUT0-2
2
2
3
PON
3
2
6
30
ATAPI I/F
P7,P8
NRST
POR
SW2
SW1
2
4
SW EIEND
P12(CE)
CLAMP/BIAS,
POWER SAVE

8
KVT-719DVD/729DVD
/729DVDY/739DVD
● VIDEO CONTROL UNIT (X14-983x-xx)
Ref. No. Application / Function Operation / Condition / Compatibility
IC1 3.3V regulator BU_3.3V
IC2 3.3V regulator TC3.3V
IC10 OP AMP AREF power supply (4V)
IC101 DC-DC control IC DC-DC control (Mechanism 7.5V, V5V)
IC102 DC-DC control IC DC-DC control (SW3.3V, D5V)
IC201 MPU System µ-com
IC202 Reset IC Reset IC
IC203 E2MROM Save settings
IC205 AND Inverter PWM buffer
IC301 Chroma gamma Chroma gamma
IC302 NOT HSY reverse buffer
IC303 Monostable multivibrator HSYNC delay
IC304 NOT HSYNC delay
IC400 VIDEO ISO AMP iPod video signal
IC401 AUDIO ISO AMP iPod audio signal
IC402 Serial/parallel conversion Extension of µ-com port
IC403 Video switch X34 RGB or Graphic RGB
IC404 Video switch IC403 RGB or DVD RGB
IC405 Video switch iPod or DVD or Graphic or X34 Composite signal
IC406 Video switch For AVOUT (To X34)
IC407 Audio selector MAIN
IC408 Audio selector SUB
IC501 Motor driver Tilt
IC502 Motor driver Slide
IC503 NOT Remote controller signal waveform shaping
Q1 SW ACC_DET detection circuit
Q2~10 SW BU_DET detection circuit
Q13 Short protection BU power supply regulator (8.5V)
Q14 8.5V regulator BU power supply regulator (8.5V)
Q15~17 8.5V regulator control BU power supply regulator (8.5V)
Q19~21 SW P-ON 14V control
Q22 SW FET P-ON 14V ON/OFF
Q23,24 Emitter follower Analogue power supply reference circuit
Q25,26 SW T_P3.3V switch
Q31 8V regulator DVD A8V regulator
Q32~34 8V regulator control DVD A8V regulator
Q35 8V regulator A8V regulator
Q36~38 8V regulator control A8V regulator
Q43 9V regulator LED9V regulator
Q44~46 9V regulator control LED9V regulator
COMPONENTS DESCRIPTION

9
KVT-719DVD/729DVD
/729DVDY/739DVD
Ref. No. Application / Function Operation / Condition / Compatibility
Q101 SW DC-DC output voltage switching
Q103,106
Q108,111
SW DC-DC protection control
Q104 SW DC-DC SW FET (5V or 8V)
Q105 SW DC-DC SW FET (5V)
Q109 SW DC-DC SW FET (3.3V)
Q110 SW DC-DC SW FET (5V)
Q201 SW µ-com reset SW
Q203 SW KEY RESET
Q204,205
SW LED SW (Red)
Q206,207
SW LED SW (Green)
Q208~210
SW TDF power supply SW
Q301 Buffer Composite signal
Q304 Buffer VCOM
Q305 MUTE IC301 SYNC OUT MUTE
Q306 Buffer RGB Signal_R
Q307 Buffer RGB Signal_G
Q308 Buffer RGB Signal_B
Q309 Buffer HSY SYNC
Q401 Buffer Graphic SYNC
Q501 MUTE DVD MUTE (Lch)
Q502 MUTE DVD MUTE (Rch)
Q503 SW DVD MUTE control
Q504 Buffer SPDIF signal
Q508 Buffer Remote control signal
● SWITCH UNIT (X16-3920-10)
Ref. No. Application / Function Operation / Condition / Compatibility
IC201 Remote controller photoreceptor Remote controller photoreceptor
Q101 For switching DSI signal DSI signal control
Q206 For switching LED Switch LED_Red or LED_Green
● ELECTRIC UNIT (X34-475x-xx)
Ref. No. Application / Function Operation / Condition / Compatibility
IC61 3 terminal regulator V5V generation
IC71 3 terminal regulator Audio8V and Tuner8V generation
IC101 Pin 100 µ-com Primarily, audio board control
IC102 Voltage detection IC µ-com reset voltage (4.2V) monitoring
IC104 Logic IC (AND) Remote controller data switching (REMO/WREMO)
IC105 Serial and parallel conversion IC Audio/Video selector control data output from µ-com
IC106 Logic IC (AND x 4) 5V step-up for the signal data between the unit and BOX
COMPONENTS DESCRIPTION

10
KVT-719DVD/729DVD
/729DVDY/739DVD
Ref. No. Application / Function Operation / Condition / Compatibility
IC201 Electronic volume IC Audio volume control and audio signal selection
IC202 Logic IC (multi plexer) Audio signal selection (Main)
IC203 Logic IC (multi plexer) Audio signal selection (Sub)
IC251 RDS decoder IC RDS signal processing and demodulation
IC301 Power IC Power amplifi er for speaker output
IC501 Isolation amplifi er IC Audio signal GND isolation (X14 source_MAIN)
IC502 Isolation amplifi er IC Audio signal GND isolation (X14 source_SUB)
IC701 Isolation amplifi er IC Audio signal GND isolation (TV-CH)
IC702 Logic IC (AND) NAVI remote controller data switching
IC723 Isolation amplifi er IC Audio signal GND isolation (AV-IN)
IC802 Video switch Video signal output switching (for monitoring the unit)
IC803,804
Video switch Video signal output switching (AV-OUT)
IC805 Video switch Video signal detection SW
IC806 Video switch Video signal output switching (for monitoring the unit)
IC807 Video switch Video signal selection (R)
IC808 Video switch Video signal selection (G)
IC809 Video switch Video signal selection (B)
IC810 Video switch Video signal output switching (for monitoring the unit)
Q1 Transistor REVERSE detection circuit
Q2 Transistor PARKING detection circuit
Q3 Transistor ILLUMI detection circuit
Q4 Transistor BU detection circuit
Q6 Transistor BU detection circuit
Q7~10 Transistor P_CON output circuit
Q11,12 Transistor ANT_CON output circuit
Q13 Transistor EXT_CONT output circuit
Q14,15 Transistor RELAY control circuit
Q51 Transistor BU5V generation
Q52~54 Transistor BU5V circuit
Q61 Transistor V5V generation
Q62 Transistor V5V circuit
Q70 Transistor P-ON circuit
Q71 Transistor Audio8V and Tuner8V generation
Q72 Transistor Audio8V and Tuner8V circuit
Q81~85 Transistor RELAY control circuit
Q91~95 Transistor RELAY control circuit
Q101,102
Transistor RESET detection circuit
Q103 Transistor RESET detection circuit (TV)
Q104,105
Transistor MUTE circuit (RESET)
Q107 Transistor MUTE circuit (DVD)
Q251,252
Transistor On when AM (Tuner8V)
COMPONENTS DESCRIPTION

11
KVT-719DVD/729DVD
/729DVDY/739DVD
Ref. No. Application / Function Operation / Condition / Compatibility
Q351 Transistor Pre-OutMute Mute transistor (FL)
Q352 Transistor Pre-OutMute circuit (Front, Rear)
Q353 Transistor Pre-OutMute Mute transistor (FR)
Q354 Transistor Pre-OutMute Mute transistor (RL)
Q355 Transistor Pre-OutMute Mute transistor (RR)
Q356 Transistor Pre-OutMute Mute transistor (SUB L)
Q357 Transistor Pre-OutMute circuit (SUB)
Q358 Transistor Pre-OutMute Mute transistor (SUB R)
Q359 Transistor Pre-OutMute Mute transistor (AV-OUT L)
Q360 Transistor Pre-OutMute circuit (AV-OUT)
Q361 Transistor Pre-OutMute Mute transistor (AV-OUT R)
Q802~808
Transistor Synchronizing separator circuit
Q809 Transistor TV_MUTE circuit (R)
Q810 Transistor TV_MUTE circuit (G)
Q811 Transistor TV_MUTE circuit (B)
Q813 Transistor TV_MUTE circuit (R)
Q814 Transistor TV_MUTE circuit (G)
Q815 Transistor TV_MUTE circuit (B)
● VIDEO UNIT (X35-4710-10)
Ref. No. Application / Function Operation / Condition / Compatibility
IC1 Inverter control IC Control and drive of the inverter circuit for the back light
IC101 DC/DC converter IC
+12.5V power supply for VCOM amplifi er (Gamma IC) and -12.0V/+18.5V power supply for LCD
IC102 Mono-multi Delay 5V power supply for DC/DC IC
IC103 NOT Reverse
IC301 Serial/parallel conversion Extension of µ-com port
IC302 AND Buffer to delay V.SYNC
IC303 PLL LPF LPF for PLL control (VT voltage control)
IC304 Timing controller IC Control of LCD module
IC401 Dimmer sensor Detection for auto-dimmer
Q1 Dimmer SW Turn on or off in response to the PWM control signal to dimmer the back light
Q2,3 Inverter driver Drive the inverter circuit
Q4 Switch SW to change the free run frequency for inverter control IC
Q5 5V constant voltage 5V power supply for inverter control IC
Q301 VCO For PLL oscillation
Q303 Buffer For PLL clock
Q501 Touch panel Y1 SW Y0 (X0) SW: On in response to Y (X) axis input and off in response to X (Y) axis input
Q502 Touch panel X1/Y0 SW
X1 SW: Turn on in response to sensing of the touch on the panel or X axis input and apply voltage
Q503 Touch panel Y1 SW Y1 SW: Turn on in response to Y axis input and apply voltage
COMPONENTS DESCRIPTION

12
KVT-719DVD/729DVD
/729DVDY/739DVD
● DIGITAL I/O UNIT (X88-2020-11)
Ref. No. Application / Function Operation / Condition / Compatibility
IC100 Fixed Current Limit
Power Distribution Switch Large current distribution switch for USB1
IC104 Exclusive OR Gate EP_SYNC (composite sync) output
IC105 Low Dropout Voltage
Linear Regulator SW3.3V → 1.8V (for EP9307IRZ)
IC106 System-On-Chip Processor Media Processor
IC108 Inverter E_HSYNC Buffer
IC200 Triple Inverter Sub Clock Buffer
IC201 Octal Bus Transceiver Flash Memory data line switching (DA0~7)
IC202,203
SDRAM 256Mbit SDRAM for work memory
IC205 Octal Bus Transceiver Flash Memory data line switching (DA8~15)
IC207 iPod Authentication Coprocessor iPod Authentication
IC211 NOR Flash Memory 128Mbit Flash Memory for program data and graphic data
IC301 Stereo DAC Audio signal digital/analog converter
IC302 Color TV signal encoder Graphic signal digital/analog converter
IC305 Dual OP-Amp.(LPF) Stereo DAC Output LPF
IC309 On-Screen Display Controller On-Screen Display analog signal output
IC316 Triple Inverter Dot Clock(14.4MHz) Buffer
IC322 CPLD 2/3 frequency dividing and PAL thinning control (compression processing circuit)
IC332 Low Dropout Voltage Regulator A8V → A5V(for Stereo DAC and LPF)
IC336 Triple Schmitt Inverter VSY, HSY Buffer
IC337 Triple Schmitt Inverter CPV, STH Buffer
Q302 General Purpose Transistor OSD ROUT Current Amplifi er
Q303 General Purpose Transistor OSD GOUT Current Amplifi er
Q304 General Purpose Transistor OSD BOUT Current Amplifi er
● DVD UNIT (X37-1120-03)
Ref. No. Application / Function Operation / Condition / Compatibility
IC1 One chip LSI for DVD player
RF signal processing / Servo processing / Decoding processing / AV decoding processing
IC5 FLASH ROM To retain F/W for one chip LSI (Nonvolatile memory)
IC9 EEP ROM To retain data for one chip LSI (Nonvolatile memory)
IC10 Driver IC Fo coil / Tr coil / SP motor / SLD motor / LO-EJ motor drive
IC12 1ch video AMP +6dB amplifi er with internal composite video output fi lter
IC15 Audio DAC DA converter for 2ch analogue audio output
IC21 2-output switching REG 5V → 3.3V/1.2V
IC39 OP-AMP for Iop measurement For Iop measurement
IC42 Logic IC for port extension For port extension
IC49 Low voltage logic For S/PDIF signal amplitude conversion (3.3V → 1.2V)
IC50 OP-AMP for audio LPF LPF for 2ch analogue audio output (Rch)
IC51 OP-AMP for audio LPF LPF for 3ch analogue audio output (Lch)
COMPONENTS DESCRIPTION

13
KVT-719DVD/729DVD
/729DVDY/739DVD
Ref. No. Application / Function Operation / Condition / Compatibility
IC54 SDRAM To retain data for one chip LSI (Nonvolatile memory)
IC55,56 Logic IC for port extension For port extension
IC57 3ch video amplifi er With built-in fi lter +6dB amplifi er for component/RGB video output
IC60 Power supply for 5.0V 8V → 5V (Exclusively for audio DAC)
Q1 Transistor with internal resistor LO_MUTE control
Q2 Transistor with internal resistor For FG signal
Q3 Transistor with internal resistor For BMS
Q4 Transistor with internal resistor DRMUTE control
Q10 Front end transistor for APC Control of CD laser diode emission
Q11 Front end transistor for APC Control of DVD laser diode emission
Q12 Rear end transistor for APC Control of CD laser diode emission
Q13 Rear end transistor for APC Control of DVD laser diode emission
Q14 MOS-FET ON/OFF control of CD laser diode
Q15 MOS-FET ON/OFF control of DVD laser diode
Q20 MOS-FET for level shifter Level shifter for I2C clock
Q21 MOS-FET for level shifter Level shifter for I2C data
Q24 MOS-FET For Iop measurement
Q25 Transistor with internal resistor IFSEL control
Q27 Transistor with internal resistor HFM ON/OFF control
Q28 Transistor for APC For CD laser diode protection (Current limiter)
Q29 Transistor for APC For DVD laser diode protection (Current limiter)
COMPONENTS DESCRIPTION

14
KVT-719DVD/729DVD
/729DVDY/739DVD
● SYSTEM µ-COM: 703261YGC315A (X14: IC201)
Pin No.
Pin Name I/O Application
Truth Value
Table
Processing Operation Description
1 AVREF0
2 AVSS
3 V_MUTE O For video mute H: ON, L: OFF
4 HSY_ADJ/HSY_ADJ O Free run adjustment HSY frequency control
4 HSY_ADJ/NC O (KOS)
5 AVREF1
6 DSI/SI O DSI control (KVT)
6 DSI/SI O SI control (DDX)
6 NC O (KOS)
7
CIR_BU_DET/CIR_BU_DET
OWhen BU_DET has been detected, make the core
recognize the detection.
7 CIR_BU_DET/STATUS0 O Cope with the special only when the mechanism
endurance jig (KVT).
8 FLMD0 I Used when writing µ-com
9 VDD
10 REGC
11 VSS
12 X1 4.953MHz
13 X2
14 RESET
15 XT1 32.768kHz
16 XT2
17
PANEL_DET/PANEL_DET
I
Front panel mounting/dismounting detection (KVT/KOS)
.H: Panel dismounted
L: Panel mounted
17 PANEL_DET/NC O (DDX)
18 VSY (VD) I V-SYNC input
19 BU_DET I Backup detection H: Reduced voltage detection
20
O
SD_MODE/OSD_MODE
O Output when the screen mode is cinema/zoom Refer to “NTSC_PAL”
20 OSD_MODE/NC O (KOS)
21 ACC_DET I ACC detection H: ACC reduced voltage detection
22 γ_CS O Communication CS with Chroma γ-IC
23 γ_DATA O Communication data with Chroma γ-IC
24 γ_CLK O Communication clock with Chroma γ-IC
25 CIR_MDATA O Communication with media processor
26 CIR_SDATA I Communication with media processor
27 CIR_INI O Media processor initial Normally fi xed to “L” and output “H”
only in the case of reset recovery
28 CIR_RESET O Reset of media processor
MICROCOMPUTER’S TERMINAL DESCRIPTION

15
KVT-719DVD/729DVD
/729DVDY/739DVD
Pin No.
Pin Name I/O Application
Truth Value
Table
Processing Operation Description
29 CIR_STB I Standby of media processor
30 CIR_MREQ O Request to media processor
31 CIR_SREQ I Request from media processor
32 CIR_CON O Permission to operate media processor
33 EVSS
34 EVDD
35 SDA I/O Communication data with E2P
36 SCL O Communication clock with E2P
37 SIPA_CLK1/SIPA_CLK1 O Serial/parallel IC communication clock (KVT/DDX)
37 SIPA_CLK1/NC O (KOS)
38 SIPA_DATA1/PLL_EN O Enable PLL_IC (KOS)
38
SIPA_DATA1/SIPA_DATA1
O Serial/parallel IC communication data (KVT/DDX)
39 PGOOD I DC-DC_IC error detection
40 NC O Cope with the special only when the mechanism
endurance jig (KVT)
40 STATUS1/SYNC_DET I
Detection of composite signal in the monitor output (KOS)
40 STATUS1/NC O
41 DISC_DET/DISC_DET I Detection of disc (KVT/DDX) L: Detected (Disc is found)
41 DISC_DET/NC O (KOS)
42
DVD_RESET/DVD_RESET
O DVD mechanism resetting (KVT/DDX)
42
DVD_RESET/MON_SYS_ON
O Monitor µ-com ON/OFF control (KOS)
43 DVD_SDA/DVD_SDA I/O Communication data with DVD mechanism (KVT/DDX)
43
DVD_SDA/MON_S_DATA
O Communication data with monitor µ-com (KOS)
44 DVD_SCL/DVD_SCL O
Communication clock with DVD mechanism (KVT/DDX)
44
DVD_SCL/MON_M_DATA
I Communication with monitor µ-com (KOS)
45 INV_PWM/INV_PWM O Inverter frequency control (KVT/DDX) PWM output
45 INV_PWM/MON_RESET O Reset of monitor µ-com (KOS)
46 POWER_START O DC-DC_IC soft start L: Start, H: Stop
47 POWER_PWM O Oscillation frequency control of DC-DC_IC PWM output
48 PON O Power ON/OFF control H: ON, L: OFF
49 PWM/REMO_PWM O Convert the touch on the screen into the remote
controller code (KOS) PWM output
49 PWM/PWM O LCD brightness control (KVT/DDX) PWM output
50 HSY (HD) I H-SYNC input Count H
51 MCNT/PLL_MDATA O Data output to PLL_IC (KOS/X88FCT special)
51 MCNT/MCNT O P-MECHA power supply voltage switching (KVT) H: 7.5V, L: 5V (KVT)
51 MCNT/MCNT O T-MECHA power supply voltage switching (DDX) H: 8V, L: 5V (DDX)
52 INV_SW/PLL_CLK O
Communication clock with PLL_IC (KOS/X88FCT special)
MICROCOMPUTER’S TERMINAL DESCRIPTION

16
KVT-719DVD/729DVD
/729DVDY/739DVD
Pin No.
Pin Name I/O Application
Truth Value
Table
Processing Operation Description
52 INV_SW/INV_SW O Inverter free run frequency switching (KVT/DDX)
53 SYS_SDATA I Data input from AUDIO µ-com
54 SYS_MDATA O Data output to AUDIO µ-com
55 SYS_CLK O Communication clock with AUDIO µ-com
56 SYS_SREQ I Request from AUDIO µ-com
57 TYPE3/STATUS2 O Cope with the special only when the mechanism
endurance jig (KVT)
57 TYPE3 O Setup of destination q
58 SRC/MON_POWER I Monitor power ON/OFF input (KOS)
58 SRC/SRC I Source key (KVT/DDX)
59 SYS_MREQ O Request to AUDIO µ-com
60 SYS_ON O AUDIO µ-com ON/OFF control
61
OPEN_CLOSE/OPEN_CLOSE
I OPEN/CLOSE key on P-MECHA (KVT)
61
OPEN_CLOSE/OPEN_CLOSE
I Eject key (DDX)
61 OPEN_CLOSE/NC O (KOS)
62 TYPE1 I Setup of destination q
63 TYPE2 I Setup of destination q
64 NTSC_PAL/NTSC_PAL I NTSC/PAL determination input H: NTSC, L: PAL
65 TMOTOR_M/PLL_EN O Enable PLL_IC (X88FCT jig special)
65
TMOTOR_M/TMOTOR_M
O Panel mechanism tilt control (KVT)
65 TMOTOR_M/TILT_M- O Tilt mechanism tilt control (DDX)
65 TMOTOR_M/NC O (KOS)
66 TMOTOR_P/PMOTOR_P O Panel mechanism tilt control (KVT)
66 TMOTOR_P/TILT_M+ O Tilt mechanism tilt control (DDX)
66 TMOTOR_P/NC O (KOS)
67 SMOTOR_M/SD_DET1 I SD card detection (DDX)
67
SMOTOR_M/SMOTOR_M
O Panel mechanism slide control (KVT)
67 SMOTOR_M/NC O (KOS)
68 SMOTOR_P/SD_DET2 I SD card detection (DDX)
68 SMOTOR_P/SMOTOR_P O Panel mechanism slide control (KVT)
68
SMOTOR_P/SP_ACC_DET
ISpeaker input detection → “H” when the speaker input
is found (KOS) L: Speaker input is not found
69 BVSS
70 BVDD
71 WRT_E2P I Used when writing E2P
72 MINI_CLK/MINI_CLK O Mini liquid crystal control clock (Mid at KVT)
72
MINI_CLK/RGBOUT_MUTE
OMute RGB output when the connected monitor is other
than the special monitor (KOS)
72 MINI_CLK/NC O Lo/DDX at KVT
MICROCOMPUTER’S TERMINAL DESCRIPTION

17
KVT-719DVD/729DVD
/729DVDY/739DVD
Pin No.
Pin Name I/O Application
Truth Value
Table
Processing Operation Description
73 ILL_R/ILL_R O Key illumi red ON/OFF (Lo at KVT) H: ON, L: OFF
73 ILL_R/KEY_ILL O Key illumination ON/OFF (DDX) H: ON, L: OFF
73 ILL_R/MINI_DATA O Mini liquid crystal control data (Mid at KVT)
73 ILL_R/NC O KOS
74 ILL_G/JIG_EJ I Can operate without tilt mechanism (DDX) L: Normal
74 ILL_G/ILL_G O Key illumi green ON/OFF (Lo at KVT) H: ON, L: OFF
74 ILL_G/MINI_CS O Mini liquid crystal control chip select (Mid at KVT)
74 ILL_G/NC O KOS
75 FIELD_DET/FIELD_DET I Determination of video signal fi eld (KVT/DDX)
75 FIELD_DET/SYNC_SEL O
Switching of composite signal in the monitor output (KOS)
76 FLMD1 I Used when writing µ-com
77 ENABLE/ENABLE O Backlight ON/OFF (KVT/DDX) H: ON, L: OFF
77 ENABLE/REMO_SEL O Remote controller output switching (KOS)
H: DVD player operation with the
accessory remote controller
L: DVD player operation with the
other controller than accessory
remote controller
78 Y0/OEM_SW O Is the connected monitor the special (dedicated)
monitor or not? (KOS)
H: Special (Dedicated)
L: OEM (Default)
78 Y0/Y0 O Touch panel control (KVT/DDX)
79 X1/γ_VIN_SW2 O Chroma γ COMP/RGB input switching (KOS)
79 X1/X1 O Touch panel control (KVT/DDX)
80 X0/γ_SYNC_SW2 O Chroma γ SYNC input switching (KOS)
80 X0/X0 O Touch panel control (KVT/DDX)
81 SW_A/SW_A I Detection of panel mechanism (KVT)
81 SW_A/HPOS1 O Display “H” position adjustment (DDX)
81 SW_A/RGB_SW3 O RGB switching control (KOS)
82 SW_B/SW_B I Detection of panel mechanism (KVT)
82 SW_B/HPOS2 O Display “H” position adjustment (DDX)
82 SW_B/VIN_SW4 O RGB switching control (KOS)
83 SW_C/SW_C I Detection of panel mechanism (KVT)
83 SW_C/HPOS3 O Display “H” position adjustment (DDX)
83 SW_C/VIN_SW5 O COMP switching control (KOS)
84 ZACT_SW/ZACT_SW I Detection of panel mechanism (KVT)
84 ZACT_SW/HPOS4 O Display “H” position adjustment (DDX)
84
ZACT_SW/COMP_MUTE
O COMP mute control (KOS) H: When OEM_SW is “L” and at
full graphic
85 SIPA_CLK2/SIPA_CLD2 O Serial/parallel IC communication clock (KVT)
85 SIPA_CLK2/MODE1 O Screen mode switching (DDX)
85 SIPA_CLK2/RGB_MUTE O RGB mute control (KOS)
MICROCOMPUTER’S TERMINAL DESCRIPTION

18
KVT-719DVD/729DVD
/729DVDY/739DVD
Pin No.
Pin Name I/O Application
Truth Value
Table
Processing Operation Description
86
SIPA_DATA2/AOUT_SW5
O Audio out switching (KOS)
86
SIPA_DATA2/SIPA_DATA2
O Serial/parallel IC communication data (KVT)
86 SIPA_DATA2/MODE2 O Screen mode switching (DDX)
87 LED_SW/AOUT_SW6 O Audio out switching (KOS)
87 LED_SW/LED_SW O
LED goes on or off in conjunction with OPEN/CLOSE (KVT)
H: ON, L: OFF
87 LED_SW/MODE3 O Screen mode switching (DDX)
88 MIRROR/EJECT I Eject key (KVT)
88 MIRROR/MIRROR O Reverse control of back monitor mirror (DDX)
88 MIRROR/NC O (KOS)
89 VCOM/VCOM I For γ curve automatic adjustment (KVT/DDX)
89 VCOM/NC O (KOS)
90 VR/VR I
For γ curve and PHASE/TINT automatic adjustment
(KVT/DDX)
For PHASE/TINT automatic adjustment (KOS)
91 VG/VG I For γ automatic adjustment (KVT/DDX)
For RGB level automatic adjustment (KOS)
92 VB/VB I
For γ curve and PHASE/TINT automatic adjustment
(KVT/DDX)
For PHASE/TINT automatic adjustment (KOS)
93 KEY1/KEY1 I (KVT)
93 KEY1/KEY3 I (DDX)
93 KEY1/NC O (KOS)
94 KEY2/KEY2 I (KVT)
94 KEY2/NT_PAL O NTSC/PAL output for X35 (DDX/KOS) NTSC: L, PAL: H
95 R_SENS/R_SENS I Detection of panel mechanism tilt (KVT)
95 R_SENS/R_SENS I Detection of tilt mechanism tilt (DDX)
95 R_SENS/NC O (KOS)
96 ZACT_CONT/LEN_ON O Disc LED ON/OFF (Mid at DDX) H: ON, L: OFF
96
ZACT_CONT/ZACT_CONT
I Panel mechanism slide position detection (KVT)
96 ZACT_CONT/NC O Lo/KOS at DDX
97 AUTO_DIM/AUTO_DIM I Auto dimmer input (KVT)
97 AUTO_DIM/NC O DDX/KOS
98 YDATA/YDATA I Touch data input (KVT/DDX)
98 YDATA/NC O (KOS)
99 XDATA/XDATA I Touch data input (KVT/DDX)
99 XDATA/NC O (KOS)
100 TYPE0 I Setup of destination q
MICROCOMPUTER’S TERMINAL DESCRIPTION

19
KVT-719DVD/729DVD
/729DVDY/739DVD
Truth Value Table
q KVT/DDX/KOS Setup of destination
MODEL Category Destination TYPE3 TYPE2 TYPE1 TYPE0
Lo
KVT
K000∗
E000∗
M0 0 0 ∗
V/X 0 0 0 ∗
R000∗
DDX
K001∗
E001∗
M0 0 1 ∗
V/X 0 01∗
R001∗
KOS
K010∗
E010∗
M0 1 0 ∗
V/X 0 1 0 ∗
R010∗
AVN
K011∗
E011∗
M0 1 1 ∗
V/X 0 1 1 ∗
R011∗
Mid
KVT
K100∗
E100∗
M100∗
V/X 100∗
R100∗
DDX
K101∗
E101∗
M1 0 1 ∗
V/X 1 0 1 ∗
R101∗
KOS
K110∗
E110∗
M1 1 0 ∗
V/X 1 1 0 ∗
R110∗
TYPE0 is AD input. Refer to the next table (TYPE0 Setup Voltage) for the “∗”.
TYPE0 Setup Voltage
Destination µ-com setup value
min Mid point voltage max
K0.00 0.00 0.41
E 0.42 0.83 1.23
M 1.24 1.65 2.06
V/X 2.07 2.48 2.88
R 2.89 3.30
MICROCOMPUTER’S TERMINAL DESCRIPTION

20
KVT-719DVD/729DVD
/729DVDY/739DVD
NTSC_PAL Setup
Audio γT/C
VSYNC_DET D8 D15 D9
0: NTSC, 1:PAL SYNC_SW NT_PAL
NTSC
GRA - 1
0
1 Hi: IN2
Lo
DVD - 1 1 Lo: IN1
VD Yes 0 - Lo: IN1
None None 0 - Hi: IN2
iPod - 1 0 Lo: IN1
None - 1 0 Hi: IN2
TV - 0 - Lo: IN1
NAVI - 1 1 Lo: IN1
PAL
DVD - 1 1 Lo: IN1
Hi
VD Yes 0 - Lo: IN1
None None 0 - Hi: IN2
iPod - 1 1 Lo: IN1
None - 1 1 Hi: IN2
TV - 0 - Lo: IN1
OSD_MODE (Thinning measure between CPLD OFF/ON control)
NTSC PAL (NT_PAL: Hi)
FULL
Lo
Hi
NORMAL
JUST
Lo
ZOOM
CINEMA (ZOOM2)
MICROCOMPUTER’S TERMINAL DESCRIPTION

21
KVT-719DVD/729DVD
/729DVDY/739DVD
● AUDIO µ-COM: 703030BYGCJ30 (X34: IC101)
Pin No.
Pin Name I/O Application
Truth Value
Table
Processing Operation Description
1 TV_JUDGE I TV-BOX new/old detection
2 TUN_SCL O F/E I2C clock output terminal
3 NAVI_RX I Navi control data input
4 NAVI_TX O Navi control data output
5 TV_MC_REQ O Communication request to TV_COM
6 EVDD
7 EVSS
8 TV_SC_CON O Start-up request to TV_COM
9 BEEP O BEEP When BEEP: Pulse output
10 MIX_REMO I Remote controller input
11 SYS_SREQ O Communication request to SYS_COM
12 SYS_MDATA I SYS_COM communication data input
13 SYS_SDATA O SYS_COM communication data output
14 SYS_MCLK I SYS_COM communication clock
15 SYS_MREQ I SYS_COM communication request input
16 EXT_CON O EXT-CONT output
17 VSYNC_DET I Video detection
18 VPP
19 RGB_MUTE O MUTE RGB except when NAVI or SECAM
20 RGB_SW O NAVI/SECAM switching
21 AIN_SEL5 O Audio in switching (KOS)
21 NC O KVT/DDX Only
22 AIN_SEL6 O Audio in switching (KOS)
22 NC O KVT/DDX Only
23 R_QUAL I RDS decoder QUAL input terminal
24 R_DATA I RDS decoder DATA input terminal
25 R_AFS_H I/O Constant number switching when noise detected
26 AM+B O AM power supply ON H: When AM, L: EXCEPT
27 AUTO_SW_1 O SW for video detection H: AVIN1, AVIN2, L: BACK CAMERA
28 AUTO_SW_2 O Video detection, NTSC/PAL determination H: AVIN2, L: AVIN1, BACK CAMERA
29 SEL_CLK O CLK for Audio and Video selector
30 SEL_DATA O DATA for Audio and Video selector
31 RESET
32 XT1
33 XT2
34 REGC
35 X2
36 X1
37 VSS
MICROCOMPUTER’S TERMINAL DESCRIPTION

22
KVT-719DVD/729DVD
/729DVDY/739DVD
Pin No.
Pin Name I/O Application
Truth Value
Table
Processing Operation Description
38 VDD
39 CLKOUT
40 PRE_MUTESW O PREout sub woofer MUTE H: MUTE OFF, L: MUTE ON
41 PRE_MUTER O PREout rear MUTE H: MUTE OFF, L: MUTE ON
42 PRE_MUTEF O PREout front MUTE H: MUTE OFF, L: MUTE ON
43 RELAY_SW1 O ON/OFF of external equipment relay control H: Relay ON, L: Relay OFF
44 RELAY_SW2 O ON/OFF of external equipment relay control H: Relay ON, L: Relay OFF
45 RELAY_SW3 O ON/OFF of external equipment relay control H: Relay ON, L: Relay OFF
45 NC O Low Only L fi xed
46 RELAY_SW4 O ON/OFF of external equipment relay control H: Relay ON, L: Relay OFF
46 NC O Low Only L fi xed
47 RELAY_DET1 I Detection of external equipment relay control When RELAY_SW1 is Hi, L: Normal, H: Error
(Hi when SW1 is Low)
48 RELAY_DET2 I Detection of external equipment relay control When RELAY_SW2 is Hi, L: Normal, H: Error
(Hi when SW2 is Low)
49 RELAY_DET3 I Detection of external equipment relay control When RELAY_SW3 is Hi, L: Normal, H: Error
(Hi when SW3 is Low)
49 NC O Low Only L fi xed
50 RELAY_DET4 I Detection of external equipment relay control When RELAY_SW4 is Hi, L: Normal, H: Error
(Hi when SW4 is Low)
50 NC O Low Only L fi xed
51 ILL_DET I ILL detection L: Illumi ON
52 PAK_DET I Parking detection H: Parking ON
53 REV_DET I Reverse detection L: Reverse ON
54 P_CON O P-CON control output L: When STANDBY or POWER OFF
EXCEPT: H
55 BVDD
56 BVSS
57 ANT_CON O P-ANT control output H: ANT UP, L: ANT DOWN
58 NC O
59 PWIC_STBY O PWIC standby H: POWER ON, L: POWER OFF
60 PWIC_MUTE O PWIC_FR MUTE L: MUTE ON
61 AUD_MUTEC O E-VOL inputSEL_C MUTE L: MUTE ON, H: MUTE OFF
62 AUD_MUTEB O E-VOL inputSEL_B MUTE L: MUTE ON, H: MUTE OFF
63 AUD_MUTEA O E-VOL inputSEL_A MUTE L: MUTE ON, H: MUTE OFF
64 AUD_MUTE2 O E-VOL center, SWMUTE L: MUTE ON, H: MUTE OFF
65 AUD_MUTE1 O E-VOL rear MUTE L: MUTE ON, H: MUTE OFF
66 AUD_MUTE0 O E-VOL front MUTE L: MUTE ON, H: MUTE OFF
67 AUD_SDA I/O E-VOL data output
67 AUD_SDA I/O ROM correstion E2PROM communication data
input/output
MICROCOMPUTER’S TERMINAL DESCRIPTION

23
KVT-719DVD/729DVD
/729DVDY/739DVD
Pin No.
Pin Name I/O Application
Truth Value
Table
Processing Operation Description
68 AUD_SCL O E-VOL clock output
68 AUD_SCL O ROM correstion E2PROM communication clock
output
69 PON O A8V,V5V,SW5V ON/OFF H: Only when in RESET sequence
L: Other output
70 LX_RST O Hardware-reset to slave unit
71 AVDD
72 AVSS
73 AVREF
74 PWIC_DCDET I SP_FR output DC offset detection L: When detected
75 LINE_MUTE I LINE-MUTE input detection Normal: 1.6V, TEL MUTE: 1V or lower
NAVI MUTE: 2.5V or higher
76 NC
77 A_WRT_E2P I Used when writing E2PROM H: When writing E2PROM
78 LX_MUTE I MUTE request from slave unit
79 A_TYPE0 I Destination (Voltage reading) wRefer to the truth value table
80 A_TYPE1 I KVT or DDX qRefer to the truth value table
81 A_TYPE2 I OEM or Other qRefer to the truth value table
82 A_TYPE3 I Hi or Low qRefer to the truth value table
83 TUN_IFC I F/E IFC OUT input terminal H: Station found, L: Station not found
84 TUN_SMET I S meter input
85 R_NOISE I FM noise detection terminal
86 RIP_MUTE O Power IC inside H: MUTE OFF, L: MUTE ON
87 BU_DET I BU reduced voltage detection H: Reduced voltage detection
88 TV_SC_REQ I Communication request from TV_COM
89 SYS_ON I SYS_COM communication control input H: Start up request from AUDIO_µ-com
90 R_CLK I RDS decoder CLK input terminal
91 LX_REQ_S I Communication request from slave unit
92 LX_REQ_M O Communication request to slave unit
93 LX_CON O Start-up request to slave unit
94
A_FLASH_MDATA
I Data from Flash re-write terminal writer
94 LX_DATA_S I Data from slave unit
95
A_FLASH_SDATA
O Data to Flash re-write terminal writer
95 LX_DATA_M O Data to slave unit
96 A_FLASH_SCK I Clock from Flash re-write terminal writer
96 LX_CLK O LX BUS clock
97 TV_SC_DATA I DATA input from TV_COM
98 TV_MC_DATA O DATA output to TV_COM
99 TV_BP_CLK O CLK output to TV_COM
100 TUN_SDA I/O F/E I2C data input/output terminal
MICROCOMPUTER’S TERMINAL DESCRIPTION

24
KVT-719DVD/729DVD
/729DVDY/739DVD
Truth Value Table
q TYPE1, 2 and 3 Truth Value Table
Category TYPE3 TYPE2 TYPE1 TYPE0
KVT Hi MODEL 1 0 0 ∗1
KVT Low MODEL 0 0 0 ∗1
DDX Hi MODEL 1 0 1 ∗1
DDX Low MODEL 0 0 1 ∗1
KOS Hi MODEL 1 1 0 ∗1
KOS Low MODEL 0 1 0 ∗1
AVN MODEL 0 1 1 ∗1
TYPE0 is AD input.
Refer to the next table (TYPE0 Setup Voltage) for the “∗1”.
w TYPE0 Setup Voltage
Destination
µ-com setup value
min Mid point voltage max
K 0.00 0.00 0.62
E 0.63 1.25 1.87
M 1.88 2.50 3.12
V/X 3.13 3.75 4.37
R 4.38 5.00
Detection of interrupt signal (if there is a signal or not)
Decide if there is a signal or not based on the number of pulses that is coming in the VSYNC_DET terminal (Pin 17) within 100ms.
Name of control line VSYNC_DET
µ-com terminal number 17
Is there a signal or not?
No 3 or less
Yes. 4~7
No 8~
MICROCOMPUTER’S TERMINAL DESCRIPTION

25
KVT-719DVD/729DVD
/729DVDY/739DVD
● MEDIA MICROPROCESSOR: EP9307IRZ (X88: IC106)
Pin No. Pin Name I/O Application Processing Operation Description
A1 #CS1 I Watchdog startup
A10 RXDVAL I (ETHER I/F for design)
A11 MIITXD1 O (ETHER I/F for design)
A12 CRS I (ETHER I/F for design)
A13 MIN_CE O Not used (For High model Mini liquid crystal chip enable)
A14 NC
A17 NC I
A2 #CS7 I BOOT bus width select
A3 SDCLKEN O SDRAM clock enable
A4 DA31 I/O Data bus
A5 DA29 I/O Data bus
A6 DA27 I/O Data bus
A7 NC
A8 #RD O Memory read
A9 MIIRXD3 I (ETHER I/F for design)
B1 AD25 O Address bus
B10 MIIRXD1 I (ETHER I/F for design)
B11 MIITXD2 O (ETHER I/F for design)
B12 TXEN O (ETHER I/F for design)
B13 MIN_D_CONT O Not used
(For High model Mini liquid crystal data buffer control)
L: Data output to mini liquid crystal
H: Data input from mini liquid crystal
B14 NAND_R_#B O Not used (NAND Flash READY/BUSY) L: BUSY, H: READY
B15 NC
B16 DA_MCLK O AUDIO DAC Master clock I2S
B17 3.3V
B2 #CS2 I Watchdog startup
B2 #CS2 O SRAM chip select
B3 #CS6 I BOOT bus width select
B3 #CS6 O Nor Flash chip select
B4 AD20 O Address bus
B5 DA30 I/O Data bus
B6 AD18 O Address bus
B7 EP_STBY O Permission to turn OFF the mother power supply
B8 AD17 O Address bus
B9 RXCLK I (ETHER I/F for design)
C1 AD23 O Address bus
C10 MIIRXD2 I (ETHER I/F for design)
MICROCOMPUTER’S TERMINAL DESCRIPTION

26
KVT-719DVD/729DVD
/729DVDY/739DVD
Pin No. Pin Name I/O Application Processing Operation Description
C11 TXCLK I (ETHER I/F for design)
C12 MIITXD0 O (ETHER I/F for design)
C13 CLD I (ETHER I/F for design)
C14 OSD_CE O OSD communication chip enable SPI
C15 TRSTN I (JTAG I/F for design)
C16,C17 NC
C2 DA26 I/O Data bus
C3 #CS3 O SRAM chip select
C5 AD24 O Address bus
C6 AD19 O Address bus
C7 EP_SREQ O EP9307 communication request
C8 #WR O Memory write
C9 MDIO I/O (ETHER I/F for design)
D1 #SDCS3 O SDRAM chip select
D10 MDC O (ETHER I/F for design)
D11 RXERR I (ETHER I/F for design)
D12 MIITXD3 O (ETHER I/F for design)
D13 IPOD_BSY I iPod READY/BUSY L: BUSY, H: READY
D14 LOW_#MID I Setup of destination H: LOW model, L: MID model
D15~D17 NC
D2 DA23 I/O Data bus
D3 SDCLK O SDRAM clock Commercial product: 100MHz
Thermal expansion product: 92MHz
D4 DA24 I/O Data bus
D5 MIN_CLK O Not used
(For High model Mini liquid crystal communication clock)
D6 EP_MREQ I SysCom communication request
D7 DA28 I/O Data bus
D8 #EP_INI I Reset start notifi cation
D9 AD16 O Address bus
E1 #SDCS2 O SDRAM chip select
E10 vddr
E11 MIIRXD0 I (ETHER I/F for design)
E12 TXERR O (ETHER I/F for design)
E13 EP_CON I Permission to operate PE9307
E14 USB1_ERR I 5V over current detection in USB1 L: Over current is detected.
E15 USB1_EN O Control of USB1 5V over current detection IC L: USB5V OFF, H: USB5V ON
E16 NC
MICROCOMPUTER’S TERMINAL DESCRIPTION

27
KVT-719DVD/729DVD
/729DVDY/739DVD
Pin No. Pin Name I/O Application Processing Operation Description
E17 NC
E2 #SDWE O SDRAM write enable
E3 DA22 I/O Data bus
E4 AD3 O Address bus
E5 DA15 I/O Data bus
E6 AD21 O Address bus
E7 DA17 I/O Data bus
E8,E9 vddr
F1 #RAS O SDRAM RAS
F10 vddc
F11 gndr
F12 EP_BUDET I Momentary power down notifi cation L: Normal operation
H: Momentary power down detection
F13 NC
F14 ADC_GND
F15~F17 NC
F2 #SDCS1 O SDRAM chip select
F3 #SDCS0 O SDRAM chip select
F4 #DQM3 O Memory data mask
F5 AD5 O Address bus
F6~F8 gndr
F9 vddc
G1 #DQM0 O Memory data mask
G12 gndr
G13 USB0_ERR I 5V over current detection in USB0 L: Over current is detected
G14 EGPIO10/DREQ1 L: Over current is detected
G15~G17 NC
G2 #CAS O SDRAM CAS
G3 DA21 I/O Data bus
G4 AD22 O Address bus
G5 vddr
G6 gndr
H1 DA18 I/O Data bus
H10 gndc
H12 gndr
H13 vddr
H14 USB0_EN O Control of USB0 5V over current detection IC L: USB5V OFF, H: USB5V ON
H15 #EP_RST0 I Power on reset
MICROCOMPUTER’S TERMINAL DESCRIPTION

28
KVT-719DVD/729DVD
/729DVDY/739DVD
Pin No. Pin Name I/O Application Processing Operation Description
H16 MIN_DO O Not used (For High model Mini liquid crystal data output)
H17 NC
H2 DA20 I/O Data bus
H3 DA19 I/O Data bus
H4 DA16 I/O Data bus
H5 vddr
H6 vddc
H8,H9 gndc
J1 AD6 O Address bus
J10 gndc
J12 vddc
J13 vddr
J14 OSD_ROMSEL I OSD ROM select L: Built-in, H: External
J15 MIN_DI O Not used (For High model Mini liquid crystal data input)
J16 #CS0 O Nor Flash chip select
J17 NAND_CLE O Not used (NAND Flash Command latch enable)
J2 DA14 I/O Data bus
J3 AD7 O Address bus
J4 DA13 I/O Data bus
J5 vddr
J6 vddc
J8 gndc
K1 AD4 O Address bus
K10 gndc
K12 vddc
K13 NAND_#CE O Not used (NAND Flash Chip enable)
K14 PLL_VDD Main oscillator power supply 1.8V
K15 NAND_ALE O Not used (NAND Flash Address latch enable)
K16 NAND_#RE O Not used (NAND Flash Read enable)
K17 NAND_#WE O Not used (NAND Flash Write enable)
K2 DA12 I/O Data bus
K3 DA10 I/O Data bus
K4 DA11 I/O Data bus
K5 vddr
K6 gndr
K8,K9 gndc
L1 DA9 I/O Data bus
MICROCOMPUTER’S TERMINAL DESCRIPTION

29
KVT-719DVD/729DVD
/729DVDY/739DVD
Pin No. Pin Name I/O Application Processing Operation Description
L12 gndr
L13 NAND_D7 O Not used (NAND Flash Data bus)
L14 NAND_D5 O Not used (NAND Flash Data bus)
L15 PLL_GND Main oscillator GND
L17 XTALO Main clock 14.7456MHz
L2 AD2 O Address bus
L3 AD1 O Address bus
L4 DA8 I/O Data bus
L5 NC
L6 gndr
M1 NC
M10,M11 gndr
M12 NAND_D6 O Not used (NAND Flash Data bus)
M13 NAND_D4 O Not used (NAND Flash Data bus)
M14 NAND_D1 O Not used (NAND Flash Data bus)
M15 NAND_D0 O Not used (NAND Flash Data bus)
M16 NAND_D3 O Not used (NAND Flash Data bus)
M17 NAND_D2 O Not used (NAND Flash Data bus)
M2 AD0 O Address bus
M3 #DQM1 O Memory data mask
M4 #DQM2 O Memory data mask
M5 E_R5 O Video data bus (Red)
M6,M7 gndr
M8 vddc
M9 vddc
N1 E_R2 O Video data bus (Red)
N10 vddr
N11 I2C_SCL O Communication clock (I2C)
N11 I2C_SCL I BOOT mode L: External BOOT, H: Internal BOOT
N12 DA_SDO0 O AUDIO DAC data I2S
N12 DA_SDO0 I BOOT bus width select
N13 CTS I (UART I/F for design)
N14 RXD0 I (UART I/F for design)
N15 TXD0 O (UART I/F for design)
N16 UART_TXD1 O (UART I/F for design)
N17 UART_TXD2 O EP9307 communication data
N2 E_R4 O Video data bus (Red)
MICROCOMPUTER’S TERMINAL DESCRIPTION

30
KVT-719DVD/729DVD
/729DVDY/739DVD
Pin No. Pin Name I/O Application Processing Operation Description
N3 E_R3 O Video data bus (Red)
N4 E_R1 O Video data bus (Red)
N5 E_R0 O Video data bus (Red)
N6 DA5 I/O Data bus
N7~N9 vddr
P1 SPCLK O Video dot clock
P10 TCK I (JTAG I/F for design)
P11 BOOT1 I Test mode select
P12 I2C_SDA I/O Communication data (I2C)
P12 I2C_SDA I Test mode select
P13 G_LED O Green LED
P14 R_LED O Red LED
P15 NC
P16 UART_RDX1 I (UART I/F for design)
P17 UART_RDX2 I System µ-com communication data
P2 E_G4 O Video data bus (Green)
P3 E_G5 O Video data bus (Green)
P4 E_B3 O Video data bus (Blue)
P5 AD15 O Address bus
P6 AD13 O Address bus
P7 AD12 O Address bus
P8 DA2 I/O Data bus
P9 AD8 O Address bus
R1 E_G3 O Video data bus (Green)
R10 TDI I (JTAG I/F for design)
R11 BOOT0 I Test mode select
R12 DA_LRCLK O AUDIO DAC Sample rate clock I2S
R13 OSD_DATA O OSD communication data SPI
R14 NC
R15 USB0_NEG I/O USB0 data
R16 DA_SCLK O AUDIO DAC Data bit clock I2S
R17 USB0_POS I/O USB0 data
R2 E_HSYNC O Video H-SYNC
R3 E_G0 O Video data bus (Green)
R4 E_B5 O Video data bus (Blue)
R5 E_B0 O Video data bus (Blue)
R6 AD14 O Address bus
MICROCOMPUTER’S TERMINAL DESCRIPTION

31
KVT-719DVD/729DVD
/729DVDY/739DVD
Pin No. Pin Name I/O Application Processing Operation Description
R7 DA4 I/O Data bus
R8 DA1 I/O Data bus
R9 NC
T1 NC
T10 TMS I (JTAG I/F for design)
T11 gndr
T12 NC
T13 INT2 I (ETHER I/F for design)
T14 NC
T15 USB1_POS I/O USB1 data
T16,T17 NC
T2 NC
T3 E_VSYNC O Video V-SYNC
T4 E_G1 O Video data bus (Green)
T5 E_B2 O Video data bus (Blue)
T6 DA7 I/O Data bus
T7 AD11 O Address bus
T8 AD9 O Address bus
T9 NC
U1 NC
U10 TDO O (JTAG I/F for design)
U11 NC
U12 OSD_CLK O OSD communication clock SPI
U13,U14 NC
U15 RTS O (JTAG I/F for design)
U16 USB1_NEG I/O USB1 data
U17 NC
U2 NC
U3 E_G2 O Video data bus (Green)
U4 E_B4 O Video data bus (Blue)
U5 E_B1 O Video data bus (Blue)
U6 DA6 I/O Data bus
U7 DA3 I/O Data bus
U8 AD10 O Address bus
U9 DA0 I/O Data bus
MICROCOMPUTER’S TERMINAL DESCRIPTION

32
KVT-719DVD/729DVD
/729DVDY/739DVD
1. Generals
1-1. Purpose
This document has been prepared to identify the items
required in the test mode used in the 07Visual Product
production process.
1-2. Scope of applications
This document is applicable to models that are listed in Table
1-2-1.
Class Series Model Name Destination
MID
KVT
KVT-819DVD K
KVT-829DVD E
KVT-839DVD M/V/X/R
DDX
DDX8019 K
DDX8029 E
DDX8039 M/V/X/R
KOS KOS-V1000 K/E/M
LOW
KVT
KVT-719DVD K
KVT-729DVD E
KVT-739DVD M/V/X/R
DDX
DDX7019 K
DDX7029 E
DDX7039 M/V/X/R
KOS KOS-V500 K/E/M
DNX DNX7100 K
DNX7200 E
− F-MONITOR KOS-L702 K/E/M
Table 1-2-1 List of Models in 07Visual Product
1-3. Overview
The following sections describe display specifications,
control specifi cation of key/remote controller, operations of
components, etc. in the test mode of 07Visual Product.
2. Test mode specifi cation
2-1. Operations
Product can be transferred into the test mode using the
following three approaches:
q While pressing [SRC] and [ATT] keys at the same time
(SRC+ATT), press Reset key to start the system. (In the
KOS series, press [MODE] and [VOL.UP] keys)
w Connect the region-writing jig to Lx connector and press
[Reset] key to start the system.
e Connect unit/BOX designed for use exclusively in the test
mode and press [Reset] key to start the system.
r Connect BOX/Monitor designed for use exclusively in the
test mode and press [Reset] key to start the system.
t When in standby source, use “AUD SW” on the remote
controller to enter Tenkey1→6→3→4→2 in order to
transfer to the test mode.
• Step e is only applicable to KVT series.
• Step r is only applicable to KOS series (including KOS
Monitor). [Reset] key can be used for both Monitor and
Box.
• In addition to unit/BOX (e/r), X14 (System µ-com:
Special µ-com) is also designed exclusively for X88 FCT.
2-2. Screen transition
During the test mode, selecting Graphic screen transfers the
screen to Test Mode Main screen.
A variety of screens that can be transferred from Test Mode
Main screen is shown in Figure 2-2-1.
Refer to Section 2-3 for functions in each screen. (Note that
screens that can be transferred from Test Mode Main screen
vary depending on the model.)
Test Mode Main
Information Source
Source
Direct
Set Up
Set Up
Menu
Audio
Audio
Control
E2PROM
Write
Tou c h
Tou c h
Adjust
E2PROM
Write
HPOSI
Graphic/DVD
/VIDEO/TV/
NAVI/iPod etc.
E2PROM
Write
Auto
Adjust
Each Auto
Adjust
E2PROM
Write
Mecha
Adjust
Inverter
Check
iPod
Check
Service
Serial/Tuner
etc.
iPod Inverter Tilt
MECHA
Figure 2-2-1 Screens transferred from Test Mode Main screen
TEST MODE

33
KVT-719DVD/729DVD
/729DVDY/739DVD
2-3. Specifi cation of screens
This section describes the test mode functions available in
each screen.
2-3-1. Test Mode Main screen
This section describes the keys for transferring to each
screen from Test Mode Main screen.
The variety of screens displayed on Test Mode Main screen
is shown in Figure 2-3-1.
Figure 2-3-1 Test Mode Main screen
[Key specifi cation]
Information: Move on to Information screen.
Service: Move on to Service screen.
Source: Move on to Source Direct screen.
Set Up: Move on to Set Up Menu screen.
Audio: Move on to Audio Control Menu screen.
Touch: Move on to Touch Adjust screen.
HPOSI: Move on to HPOSI Adjust screen.
Auto Adjust: Move on to Auto Adjust Menu screen.
iPod: Move on to iPod Authentication Confi rmation screen.
Inverter: Move on to Inverter Confi rmation screen.
Tilt MECHA: Move on to Tilt MECHA Position Adjustment
screen. Only in “DDX” and “DNX” series
ExtSw Test: Ext-Sw waveform output (Output is “400ms
ON/OFF” using operations, SW1→SW2→SW3→SW4.)
Operation SW3/4 for “MID KOS”.
2-3-2. Information screen
This screen shows such data as Serial No., Version
information of each µ-com, Region code, Status, etc.
The contents displayed on the Information screen are shown
in Figure 2-3-2.
Test Mode Main
Information
Service
Source
Set Up
Audio
Tou c h
HPOSI
Auto Adjust
iPod
Inverter
Tilt MECHA
EXT SW TEST
Figure 2-3-2 Information screen
• Monitor µCom information is shown only when the “KOS
Monitor” is connected.
• B/E, F/E, Region, and macrovision information are shown
only for the “KVT/DDX/DNX” series.
• TV Tuner Box is shown only when the “TV” is connected
(“V500” is “V- - - -”).
• Version information of the “OSD-ROM” is shown at the left
of the OSD display of the iPod image.
• Display shown before System/Audio is Model: Mid/Low
and Type: KVT/DDX/DNX/KOS.
[Key specifi cation]
Return: Move on to Test Mode Main screen.
2-3-3. Service screen
This screen is used to display or clear service information.
Chroma data in the E2PROM is cleared. DC Offset detection
information is displayed or cleared.
The contents displayed on the Service screen are shown in
Figure 2-3-3.
Figure 2-3-3 Service screen
• “DVD Service INFO” and “DVD DivX Registration Code
Clear” are shown only for the “KVT/DDX/DNX” series.
Serial : ∗∗∗∗∗∗∗∗ DC Offset : None Security : Off
Media Processor
Low KVT System µCom
Mid DDX Audio µCom
Monitor µCom
TV Tuner Box
Return
B/E : V∗.∗∗ F/E : V∗.∗∗ Region : ∗
macrovision : V∗.∗∗
: Redboot 12:00:00 Sep 15 2006
Kernel Sep 15 12:00:00 JST 2006
RootFS 060915_12:00
: V∗.∗∗∗ ROM : R– – – – Type∗
: V∗.∗∗∗ ROM : R– – – –
: V∗.∗∗∗ ROM : R– – – Type∗
: V∗.∗∗∗ ROM : R– – – – Type∗ Span∗
Init
Return
Power On ∗∗∗ minutes
Monitor Open ∗∗∗ times
Monitor Close ∗∗∗ times
Serial
Clear
Chroma
Ready
DC Offset
None
Clear
Init
Init
∗ ∗ ∗ ∗
■Start
DVD Service INFO
Tuner Mute Level
DVD DivX
Registration Code Clear
TEST MODE

34
KVT-719DVD/729DVD
/729DVDY/739DVD
[Key specifi cation]
Init: Select the item to be initialized.
■
Start: Pressing and holding (for 2 seconds or longer)
initializes the selected item’s information.
Serial: Move on to Serial No. Manual Input screen.
Clear: Clear Chroma data or DC Offset information in the
E2PROM.
DVD Service INFO: Switch DVD video and display DVD
service information using “B/E OSD”.
Tuner Mute Level: Move on to the Tuner Mute Level
Adjustment screen.
DVD DivX Registration Clear: Clear DVD DivX
Registration Code.
Return: Move on to Test Mode Main screen.
● Service Information
Select the item to be initialized by pressing the [Init]
key (multiple items can be selected/selected items are
highlighted).
After selection is completed, press and hold the [Start]
key for 1 second or longer to initialize the displayed
service information.
● Chroma
Chroma information is normally displayed as “Ready” and
“CLR OK/NG” when E2PROM data is cleared.
When not completing Reset after Clear, setup data is not
modifi ed. After resetting, cleared data is refl ected.
In case of “KOS” series, clear Chroma data; touch
correction value and HPOSI correction value in E2PROM.
● DC Offset
When DC Offset detection information is shown as “None”,
offset is not detected. When it is shown as “Detect (x)”,
offset is detected. X=0~3: Number of capacitor leaks
detected.
Clear the detection information with the [Clear] key.
● DVD DivX Registration Code
Display Registration Code of DivX and clear the Code
with the [Clear] key.
After clearing the Code, “None” will be displayed.
* Clear the code only after ejecting the disc.
● DVD Service INFO
Switch DVD video and display DVD service information
using “B/E OSD”.
Use the [DISP] key and CURSOR (right or left) on the
remote controller*1 to feed pages.
Press [VSEL] key or [FNC] key to return from DVD image
to Service screen.
Once the DVD Image screen is shown by selecting the
DVD Service INFO, the OSD is no more displayed on the
DVD image screen. Re-start the set by recycling the ACC/
Power (i.e., ACC/Power Off→On) to display the OSD on
the DVD Image screen.
*1: RC-DV430 (DVD MODE)
2-3-4. Serial No. Entry screen
Enter the serial code of each set from this screen.
Serial No. Entry screen is shown in Figure 2-3-4.
↓
Figure 2-3-4 Serial No. Entry screen
[Key specifi cation]
0~9: 10key for entering the serial No.
Clear: Clear the serial No. which is being input.
Cancel: Move on to Service screen.
Enter: Start entering the serial No.
(When entry is successfully completed, “Write OK” is
displayed. When entry is not successful, “Write NG” is
displayed)
When “Write OK” is displayed, use this key to move on to
the Service screen.
If “Write NG” is displayed, transfer to the test mode again
and repeat entry from the fi rst step.
Cancel
1
4
7
2
5
8
0
3
6
9
– – – – – – – –
Clear
Clear Cancel Enter
∗ ∗ ∗ ∗ ∗ ∗ ∗ ∗
TEST MODE

35
KVT-719DVD/729DVD
/729DVDY/739DVD
2-3-5. Tuner Mute Level screen
Adjust the Mute Level stored in the E2PROM of the Tuner F/E.
Tuner Mute Level Setup screen is shown in Figure 2-3-5.
↓
Figure 2-3-5 Tuner Mute Level Setup screen
[Key specifi cation]
UP: Mute Level Up
DW: Mute Level Down
■Write: Press and hold (for 2 seconds or longer) to make
an entry in E2PROM.
Return: Move on to Service screen.
• Adjust the Tuner Mute Level under the following
conditions. Under conditions other than the followings,
adjustment of the Tuner Mute Level is not possible if the
Tuner Mute Level Setup screen is shown.
Frequency should be set before transferring to the Tuner
Mute Level Setup screen.
Audio source: Tuner
LOUD: OFF
Volume: Step30
Frequency: Default value of the set
Note that frequency remains unchanged after completion
of setup and after screen exits from the Tuner Mute Level
Setup screen.
2-3-6. Source/Set Up/Audio screen
Source Direct, Set Up, and Audio Control screens can be
transferred to in the same nominal manner as for other
screens.
2-3-7. Touch screen
Fine-adjust fl uctuation of Touch of each set.
Touch 4 markers one by one, and adjustment is complete
when “Write OK” is displayed on the screen.
If “Write NG” is shown, go to the test mode again to start
over the adjustment.
Touch Adjustment Service screen is shown in Figure 2-3-6.
↓
Figure 2-3-6 TOUCH screen
[Key specifi cation]
Cancel: When the Cancel button is pressed while entering
the 1-point, the screen returns to Test Mode Main screen.
When the Cancel button is pressed while entering a point
other than the 2-point, the screen returns the status to
enter the 1-point.
Return: When the “Return” button is pressed, the screen
returns to Test Mode Main screen.
Note: If “NG” is shown, go to the test mode again to start
over the adjustment.
■Write
DW UP
Cancel
∗∗∗∗
Write OK/NG
Return
Cancel
1-point being input 2-point being input
3-point being input 4-point being input
Write OK/NG
Return
TEST MODE

36
KVT-719DVD/729DVD
/729DVDY/739DVD
2-3-8. HPOSI screen
Adjust each screen’s horizontal display position.
The screen shall be transferred like “Graphic→NAVI→”.
(In case of “KOS” series, screen shall be changed as follows:
“Graphic→VIDEO (NT)→NAVI→VIDEO (PAL)”)
HSY adjustment is applicable to “KVT/DDX Graphic” and
“DNX Graphic/NAVI”. Adjustment screen is shown in Figure
2-3-7.
↓
Figure 2-3-7 HPOSI screen
[Key specifi cation]
Next: Move on to the next HPOSI screen. When the
screen is the NAVI screen, start writing in the E2PROM.
<<: Screen moves toward the left.
>>: Screen moves toward the right.
Cancel: Move on to Test Mode Main screen.
Return: Move on to Test Mode Main screen.
If “HPOSI NG (E2PROM Write NG)” is shown, go to the
test mode again to start over the adjustment.
DVD wallpaper should be fi xed to NTSC. When adjusting
DVD, TDV-540A (Title3-Chapter16) shall be played. After
loading the DISC, use Ten-key 4 to transfer to “Title3-
Chapter16”. (KVT/DDX/DNX)
Note: If “NG” is shown, go to the test mode again to start
over the adjustment.
2-3-9. Auto Adjust screen
This section displays the keys that are related to auto
adjustment.
The contents displayed on the Auto Adjust screen are shown
in Figure 2-3-8.
Note: Data related with Chroma auto adjustment can be
cleared by the [Clear] key on the Service screen.
Refer to hardware service documents for equipment to
connect to the set.
Figure 2-3-8 Auto Adjust screen
[Key specifi cation]
GAMMA Curve : Move on to GAMMA Curve screen.
Tint/Phase: Move on to Tint/Phase screen.
RGB: Move on to RGB screen.
CHROMA FNC: Move on to CHROMA FNC screen.
Free Run Frequency: Move on to Free Run Frequency
screen.
CHROMA Auto: Collectively adjust the following: “Free
Run Frequency→Tint/Phase→GAMMA”.
Return: Move on to Test Mode Main screen.
2-3-9-1. GAMMA Curve screen
Auto adjust the γ curve of the Chroma γIC and save it in
E2PROM.
The screen after the completion of GAMMA Curve auto
adjustment is shown in Figure 2-3-9.
Figure 2-3-9 GAMMA Curve screen
Step value
Step value
Next
Graphic
HSY
Cancel
<<
<<
>>
>>
HPOSI OK/NG
Return
Return
Auto Adjust
GAMMA Curve
Tint/Phase
RGB
CHROMA FNC
Free Run Frequency
CHROMA Auto
Auto Adjust OK/NG
Return
TEST MODE

37
KVT-719DVD/729DVD
/729DVDY/739DVD
[Key specifi cation]
Return: Move on to Auto Adjust screen.
2-3-9-2. Tint/Phase screen
Auto adjust the Tint/Phase of the Chroma γIC and save them
in E2PROM.
The screen after the completion of Tint/Phase auto
adjustment is shown in Figure 2-3+10.
Figure 2-3-10 Tint/Phase screen
[Key specifi cation]
Return: Move on to Auto Adjust screen.
2-3-9-3. RGB screen
After auto adjustment of RGB, save it in E2PROM. (This is
applicable only to “KOS” series.)
The screen after the completion of RGB auto adjustment is
shown in Figure 2-3-11.
Figure 2-3-11 RGB screen
[Key specifi cation]
Return: Move on to Auto Adjust screen.
2-3-9-4. CHROMA FNC screen
Manually adjust the Chroma γIC, and save it in E2PROM.
This adjustment should be made from the remote controller.
The CHROMA FNC screen is shown in Figure 2-3-12.
The Chroma data in the E2PROM can be erased by the
[CHROMA Clear] key on the Service screen.
Figure 2-3-12 CHROMA FNC screen
[Key specifi cation (Remote controller)]
Direct: Chroma adjustment mode ON/OFF (Writing in the
E2PROM)
Play/Pause: Setup/Clear Chroma setup value
Tenkey7: To the items before Chroma adjustment
Tenkey8: Chroma adjustment setup value UP
Tenkey9: To the next item in the Chroma adjustment
Tenkey0: Chroma adjustment setup value DW
2-3-9-5. Free Run Frequency screen
After auto adjustment of Free Run Frequency, save it in
the E2PROM. (This is applicable only to “KVT/DDX/DNX”
series.)
The screen after completion of Free Run Frequency auto
adjustment is shown in Figure 2-3-13.
Figure 2-3-13 Free Run Frequency screen
[Key specifi cation]
Return: Move on to Auto Adjust screen.
2-3-9-6. CHROMA Auto screen
Successively perform adjustments in 2-3-9-5 Free Run
Frequency auto adjustment, 2-3-9-2 Tint/Phase auto
adjustment, and 2-3-9-1 GAMMA Curve auto adjustment,
and save them in the E2PROM.
The screen shown after completion of auto adjustment is
shown in Figure 2-3-14.
Auto Adjust OK/NG
Return
Auto Adjust OK/NG
Return
CH : ∗∗ ∗∗∗∗∗
VAL ∗∗
Auto Adjust OK/NG
Return
TEST MODE

38
KVT-719DVD/729DVD
/729DVDY/739DVD
Figure 2-3-14 CHROMA Auto screen
[Key specifi cation]
Return: Move on to Auto Adjust screen.
2-3-10. iPod screen
Check communication for iPod authentication.
The iPod screen is shown in Figure 2-3-15.
↓
Figure 2-3-15 iPod screen
[Key specifi cation]
iPod Check: Start checking communication for iPod
authentication.
Cancel, Return: Move on to Test Mode Main screen.
2-3-11. Inverter screen
Change inverter frequency.
Inverter screen is shown in Figure 2-3-16.
Figure 2-3-16 Inverter screen
[Key specifi cation]
Low: Set inverter frequency to Low level.
High: Set inverter frequency to High level.
Cancel, Return: Move on to Test Mode Main screen.
2-3-12. Tilt MECHA screen
Adjust the panel mechanism position. (DDX/DNX)
The Tilt MECHA screen is shown in Figure 2-3-17.
↓
Figure 2-3-17 Tilt MECHA screen
[Key specifi cation]
MECHA Adjust: Start mechanism position adjustment.
Cancel, Return: Move on to Test Mode Main screen.
Auto Adjust OK/NG
Return
Cancel
iPod Check
iPod Check
Return
iPod Check
iPod OK/NG
Low High
Return
Inverter Check
Cancel
MECHA Adjust
Return
MECHA Adjust OK/NG
TEST MODE

39
KVT-719DVD/729DVD
/729DVDY/739DVD
If “MECHA Adjust (E2PROM Write NG)” is displayed, go
to the test mode again to start over the adjustment.
The ”NG” is shown under any one of the following
conditions: (When “NG” is shown, position is not written in
the E2PROM.)
E2PROM writing error
NG when voltage acquired is 0.177V or higher in the
Open.
NG when voltage acquired is lower than 2.746V or higher
than 2.888V in the Close.
Note: If “NG” is displayed, check if the mechanism
position adjustment jig is properly installed and then go to
the test mode again to start over the adjustment.
2-4. Functional specifi cation
This section describes the test mode specifi cation for each
function.
2-4-1. Display
Basically, specialized screen when in the Test Mode.
Display Touch position (+). However, shall not be displayed
in Touch Adjust screen (under adjustment).
2-4-2. Key
Hard key specification is listed in Table 2-4-1. (Note that
the keys that are not listed in the table have conventional
functions.)
Key KVT
(Internal SP)
KVT
(BOX SP) DDX/DNX KOS
(Monitor)
AUTO MID
Normal Short: Invalid
Long: Flicker −−
AUTO
LOW
Normal Short: Invalid
Long: Flicker −−
ATT Motor driver Motor driver Motor driver −
V.SEL V.SEL+
AV-OUT
V.SEL+
AV-OUT
V.SEL+
AV-OUT
V.SEL+
AV-OUT
FNC No “Easy“
mode
No “Easy“
mode
No “Easy“
mode
No “Easy“
mode
(Reference)
Mode Description KVT DDX/DNX KOS
The Test Mode SRC + ATT +
Reset
SRC + ATT +
Reset
MODE +
VOLUP +
Reset
Span switching SRC + VOL.
DW + Reset
SRC + VOL.
DW + Reset
VSEL + VOL.
DW + Reset
Mode Description KVT DDX/DNX KOS
Clear DC Offset/
Service/Memory,
etc.
SRC + AUTO
(TI) + Reset
SRC + FUNC
+ Reset
VSEL + FUNC
+ Reset
Retailer mode On EJECT + VOL.
DW + Reset
EJECT + VOL.
DW + Reset ×
Retailer mode Off SRC + Reset SRC + Reset ×
RDS test drive
mode
EJECT + ATT
+ Reset
EJECT + ATT
+ Reset
FUNC +
VOLUP +
Reset
Table 2.4.1 Hard Key
2-4-3. Remote controller
Remote controller specifications are listed in Table 2-4-2.
(Note that the keys that are not listed in the table have
conventional functions.)
Mode of the remote controller shall be “AUDIO”.
Key Function
Band (FM+) Video mode selection (NAVI/VIDEO/iPod/DVD)
M/S (AM-) DVD audio/image switching (Other than “KOS”)
Tenkey1 Tilt mechanism position adjustment (Only in “DDX/
DNX”), Illumination switching (KVT)
Tenkey2 DC Offset detection direct switching (Only for “CD-
CH” source)
Tenkey3 The V-IN (R-CAM) mirror mode switching
Tenkey4 HPOSI DVD confirmation direct switching (Other
than “KOS”)
Tenkey5 NAVI forced interruption
Tenkey6 Call Screen Adjustment screen
Tenkey7 To the items before Chroma adjustment
Tenkey8 Chroma adjustment setup value UP
Tenkey9 To the next item in the Chroma adjustment
Tenkey0 Chroma adjustment setup value DW
Direct Chroma adjustment mode ON/OFF (Writing in the
E2PROM)
Play/Pause Setup/Clear Chroma setup value
Table 2-4-2 Keys on Remote controller
2-4-4. Video control
• When in the test mode, unit boots up in the VIDEO mode.
Use [FNC] key to move on to Test Mode Main screen.
• In conjunction with V.SEL, AV-OUT is also switched (Any
AV-OUT can be accepted in Graphic and NAVI).
AVIN→iPod→R_CAM→NAVI→(DVD)→(TV)→AVIN · · ·
• Skip Easy Control screen with the [FNC] key.
• OSD is not displayed when input is VIDEO image.
(OSD is displayed when the V.SEL is switched. However,
OSD is not displayed in VIDEO mode.)
TEST MODE

40
KVT-719DVD/729DVD
/729DVDY/739DVD
2-4-5. Tuner
• When unable to access E2PROM, display Error (Tuner
screen).
• K3I forced switching
Force to narrow by pressing and holding Preset4.
: xxx.x1MHz
Force to middle by pressing and holding Preset5.
: xxx.x2MHz
Force to wide by pressing and holding Preset6.
: xxx.x3MHz
• Switch Span (K↔M) with [SRC] key + [VOL.DW] key +
[Reset] key. (In the KOS series, use [VSEL] key + [VOL.
DW] key + [Reset] key)
Span information is displayed on the Information screen.
• In the Tuner source, P-CON is turned OFF when “RDS
PS” is “RDS_TEST”.
2-4-6. TV Tuner
• If destination is E, set the TV2 default value to “Area
5 (Russia), 8ch (191.25MHz)” (when KTC-V500 is
connected).
• If destination is E, set the TV2 default value to “Area
4 (Russia), 8ch (191.25MHz)” (when KTC-V300 is
connected).
• HPOSI adjustment mode shall be TV1.
If started up as above, even if the test mode is cleared
by ACC, Power OFF→ON, setting values are retained.
(Default value is resumed by Reset.)
2-4-7. DVD
• Use CD media KTD-02A and DVD media TDV-540A/
TTD-100 and play back in the order of sequence shown
in the following Table.
• When Loading, set to Title1-Chapter1.
• Set region code at the position for the time code.
• Title3-Chapter16 (Monoscope) is directly selected by
pressing Tenkey4 while adjusting HPOSI.
• CDDA checking (KTD-02A)
Use “Track UP/DW” to play back in the order of sequence
as shown: 1↔9↔15↔10↔11↔12↔13↔14↔9↔1 · · ·
Track 28 is directly selected by pressing [RDM] key.
• DVD audio/video checking (TDV-540A)
Use “Chapter UP/DW” to play back in the order of
sequence as shown in Tables 2-4-3 and 2-4-4.
Use M/S (AM-) on the remote controller to switch Video/
Audio.
For DVD video checking
Title Chapter Audiostream1
1 1 Audiostream1
3 6 Level Audiostream1
3 7 S/N Audiostream1
3 17 AM/PM noise Audiostream1
38 Frequency
characteristics Audiostream1
312 Color
measurement Audiostream1
4 1 1kHz, 0dB PCM96k/24bit Audiostream3
4 6 17Hz PCM96k/24bit Audiostream3
Table 2-4-3 DVD Video checking
For DVD audio checking
Title Chapter Audiostream1
1 1 Audiostream3
4 1 1kHz, 0dB PCM96k/24bit Audiostream3
4 6 17Hz PCM96k/24bit Audiostream3
4 16 44kHz PCM96k/24bit Audiostream3
4 2 Infi nity PCM96k/24bit Audiostream3
4 3 L PCM96k/24bit Audiostream3
4 4 R PCM96k/24bit Audiostream3
4 1 1kHz, 0dB Dolby Audiostream1
4 2 Infi nity Dolby Audiostream1
Table 2-4-4 DVD Audio checking
2-4-8. Audio
• Default setting of Volume should be Step30.
• BAL/FAD setting is changed among MIN↔CENT↔MAX
by 1 click.
• Xover setting is changed between MIN↔MAX by 1 click.
• Tone setting is changed among MIN↔CENT↔MAX by 1
click.
• The default setting of Tone (EQ) should be Flat.
• The default setting of System Q should be Off.
• When there is Digital Out terminal, setting should always
be the output On setting.
• Default setting of Line Mute should be On.
2-4-9. AVIF
• Default setting of Interruption of AVIN should be On.
• Default setting of R-CAM Interruption should be On.
• Normally an interruption occurs when the R-CAM is
detected.
• The Reverse condition is always set at On (R-CAM is
available in V.SEL).
TEST MODE
41
KVT-719DVD/729DVD
/729DVDY/739DVD
• Default setting of NAVI interruption SP should be Front
ALL.
• V-IN mirror mode switching is done by Tenkey3 on the
remote controller.
2-4-10. Screen adjustment
• By pressing the remote control Tenkey6 on each video
screen, each video screen's Screen adjustment items are
displayed.
• Default value is Center. Click once to change between
Full Down↔Center↔Full Up.
• Default value of Bright during illumination Off should be
MAX. (Bright should be Center when illumination is On.)
2-4-11. BEEP
• Beep regardless of any destination. But do not output
BEEP during screen selection and iPod/USB operation.
(While in Standby source, BEEP cannot be output
because of PWIC restriction.)
2-4-12. DC Offset
• DC Offset detection status (normal/error) clear
By the Service information screen’s DC Offset information
[Clear] key, clear E2PROM’s DC Offset detection
information.
• DC Offset detection information is displayed on the
Information screen/Service information screen.
• While in the test mode, even if DC Offset is detected, it is
not written into E2PROM.
However, a detection operation shall be carried out
and when the DC Offset is detected, Protect shall be
displayed and it will become an all CH Mute operation.
• Volume setting is changed to the setting values below by
pressing the remote control Tenkey2.
Source: CD-CH
Assigned DISC: KTD-02A
Assigned Track: 15 (20Hz, 0dB)
Specifi ed VOL: 28 Step (Mid), 26 Step (Low)
2-4-13. Flicker adjustment
• KVT
q Connect Special Box to enter the test mode.
w Press [AUTO] key to turn fl icker adjustment On.
e Slide the monitor in the foreground, set screen mode
to ZOOM and set image mode to VIDEO.
r Press [AUTO] key to turn fl icker adjustment Off.
t Slide the monitor innermost (Test mode default value),
set screen mode to FULL, and set image as it is
changed during the adjustment.
• DDX/DNX/KOS
q Connect the region writing jig to Lx, and turn on the
power to turn fl icker adjustment On.
w Screen mode should be set to ZOOM and image
should be set to VIDEO.
e By turning the power Off, fl icker adjustment is set to
Off.
2-4-14. Panel mechanism
• Touch operations shall be available even when the Tilt
mechanism is in the Full Open condition. (Only in “DDX/
DNX” series)
• When the ZAC mechanism is set to Open, make the
Angle vertical and place Slide to the hindmost. (This is
applicable only to “KVT” series.)
• The Slide and Angle settings in the ZAC mechanism are
changed among MIN↔CENT↔MAX by 1 click. (This is
applicable only to “KVT” series.)
2-4-15. Driver for Panel mechanism motor
• When the [ATT] key is pressed and held, driver port for
motor shall be On.
When the [ATT] key is pressed and held, and with the
ON key pressed once, the motor is On in the reverse
direction, and stopped by the Off key.
When the On key is pressed for the second time, the
motor is On in the normal direction, and stopped by the
Off key. Subsequently repeat the same steps.
2-4-16. E2PROM Contents clear
• Clear the E2PROM contents which should not remain
when shipping the unit.
KVT: Clear the contents of E2PROM with “[SRC] key +
AUTO (TI) + [Reset] key”.
DDX/DNX: Clear the contents of E2PROM with “[SRC]
key + [FNC] key + [Reset] key”.
KOS: Clear the contents of E2PROM with “[VSEL] key +
[FNC] key + [Reset] key”.
Clear OK: Boot up normally.
Clear NG: Error display (at all the models). In “DDX/
DNX” series, the SI will not be lit.
Contents of display “E2PROM Clear NG”
The following information is cleared: DC Offset information
/ Memory information / Retailer mode information /
Service information
• If a jig is connected and the region is written in, the
following information shall be cleared.
Serial No. / Security code / Touch correction / HPOSI
TEST MODE
42
KVT-719DVD/729DVD
/729DVDY/739DVD
correction / Mechanism position adjustment / DC Offset
information / Memory information / Retailer mode
information / Service information
Note: Since the above data is cleared (not defi ned) when
the E2PROM has been replaced during the service, it is
required to re-adjust the data in the test mode.
2-4-17. Security Code writing-in
• To write-in the Security Code (for other destinations than
K/R) maintained in pair with the serial number, call out the
Security screen from the Setup screen with the [Security
Set Up] key.
• When E2PROM’s Security Code is blank in other
destinations than K/R, Set key is displayed. Press the Set
key.
• In the Security Code writing-in screen, run the same
operation as when registering Security Code in normal
mode, and press [Enter] key to start writing.
Note: The Security Code to be entered here is a set-
specifi c code linked to the serial No.
• If “Complete” is displayed, operation was completed
normally, and if “NG” is displayed, operation was
completed with errors.
Note: If NG, go to the test mode again and repeat from
the 1st step.
● Procedure to clear Security Code
• If the unit is started with the Security ON condition when
the destination is K/R, use the following procedure to
clear the Security Code (in the mode other than the test
mode).
q When unit is Reset or is switched on after backup is
OFF, with the condition that Security is ON, unit boots
up from the Security Code Entry screen.
w Manually enter the code from the remote controller
following the next procedure where the AudioSW
mode has to be selected on the accessory (remote
controller).
Step 1: “K” input (Press Tenkey5 2 times)
Step 2: “C” input (Press Tenkey2 3 times)
Step 3: “A” input (Press Tenkey2 once)
Step 4: “Q” input (Press Tenkey7 2 times)
Note: On the other remote controller than that
provided as an accessory, pressing Tenkey7 2 times
enters “R” in the unit.
When entry is made improperly during the Steps 1~4,
repeat code entry from Step 1 after entering another
remote controller Key.
w When the Security Code input screen is cleared,
clearing of the SecurityCode is complete.
2-4-18. Other
• Do not operate the Back Up Memory function in the test
mode.
TEST MODE

43
KVT-719DVD/729DVD
/729DVDY/739DVD
1. Flicker adjustment
● Condition (As in the previous models)
Video source: VIDEO
Video: Luster white 30%~50%
BRIGHT: MAX
MODEL: ZOOM
● Adjustment procedure
q Display luster white 30%~50%
w Place a fl icker adjustment jig to the monitor and observe
the waveform with an oscilloscope.
e Turn VR*** and adjust to make the amplitude of the
waveform to minimum.
KVT: VR203, DDX: VR100
Oscilloscope range: 20mV, 0.5mS
(setting at the time of 04 commercial production)
● Note
q In checking the screen after the adjustment, move the
monitor up and down in order to confi rm that the screen
does not fl icker. (This check is also carried out on the 06
model.)
w Noise due to AC200V can be observed in the flicker
adjustment jig and oscilloscope and thus carefully set up
the power supply and GND of the jig and oscilloscope.
In 06 model, GND of the measurement equipment has
been fl oated.
2. Free-run frequency adjustment
● Adjustment procedure
q Press Auto Adjust on the Test Mode Main screen.
w Press FREQ on the Auto Adjust screen.
Completion of the procedure with “Auto Adjust OK”
DVD video signal is used as the reference signal for the
adjustment (15.734kHz).
DVD wall paper that is shown at the start of the TEST mode
is fixed to the NTSC display regardless of its destination.
Once a DISC is played, the wall paper turns into the display
mode of the destination.
(When the DVD video signal is in PAL mode, the adjustment
becomes NG.)
ADJUSTMENT

44
KVT-719DVD/729DVD
/729DVDY/739DVD
3. TINT/PHASE Adjustment (Auto)
● Adjustment requirement
Input signal: Input magenta (PAL) in VIDEO 1.
● Adjustment Method
q Press Auto Adjust on the Test Mode Main screen.
w Press Tint/Phase on the Auto Adjust screen.
e Confirm that “Auto Set OK” is displayed after the auto
adjustment and that no fl ickering or horizontal stripes is
observed on the magenta to complete the adjustment.
4. Gamma adjustment
● Adjustment method
q Press Auto Adjust on the Test Mode Main screen.
w Press GAMMA Curve on the Auto Adjust screen.
e Confirm that “Auto Set OK” is displayed after the auto
adjustment and that lower 8 steps are being brighten
gradually from the left side to complete the adjustment.
ADJUSTMENT

45
KVT-719DVD/729DVD
/729DVDY/739DVD
5. Free-run, TINT PHASE and Gamma
adjustments
● Adjustment method
q Press Auto Adjust on the Test Mode Main screen.
w Press CHROMA Auto on the Auto Adjust screen.
e Make the following adjustments at the same time in the
order of sequence as shown: Free-run adjustment→TINT
PHASE adjustment→Gamma adjustment
6. Adjustment of Horizontal display start
position, pixel
Display position should be adjusted after the completion of
the free-run adjustment.
Screen position adjustment key (HPOSI): The whole screen's
horizontal display starting position adjustment
Pixel adjustment key (HSY): Adjustment of horizontal display
position of pixel.
● Image on the adjustment screen
GRAPHIC: Special screen used only for adjustment (See
below)
DNX_NAVI: Special screen used only for adjustment of
GARMIN (See below)
DDX_NAVI: Input KNA-DV3200.
• GRAPHIC adjustment screen
Horizontal
screen
position
Horizontal
screen
position
Horizontal
screen
position
Horizontal
screen
position
Pixel adjustment key
Return to the Menu
Screen position adjustment key
Proceed to the next
adjustment screen
ADJUSTMENT

46
KVT-719DVD/729DVD
/729DVDY/739DVD
• DNX GARMIN adjustment screen
Procedure to display NAVI adjustment screen
q Start the set.
w Connect special jig on MINI_USB of NAVI.
● Adjustment procedure
q Press HPOSI on the Test Mode Main screen.
w Adjust the horizontal display start position for 2 types of
the display, Graphic and NAVI.
w-1 Graphic: HSY default value: 20
At fi rst, use the pixel adjustment key to eliminate blur from
the lower left and upper right corners on the screen.
Then, use the screen adjustment key to make the Graphic
screen symmetrical.
• Pixel adjustment
OK
NG
NG
w-2-1 DNX_NAVI: HSY default value: 20
At fi rst, use the pixel adjustment key to eliminate blur from
the lower left and upper right corners on the screen.
Then, use the screen position adjustment key to make the
NAVI screen symmetrical.
• Pixel Adjustment
OK
NG
NG
Eliminate brown blur on this corner
Eliminate black blur on this corner
Eliminate brown blur on this corner
Eliminate black blur on this corner
ADJUSTMENT

47
KVT-719DVD/729DVD
/729DVDY/739DVD
w-2-2 DDX_NAVI:
Use the screen adjustment key to make the NAVI screen
symmetrical.
Note 1
If the center of the screen cannot be located right on
the middle of the display, while adjusting the horizontal
display start position, (i.e., when the display moves a
bit too left when it is moved by 1 step toward left and it
moves a bit too right when it is moved by 1 step toward
right), press “NEXT” to fi nalize the adjustment when the
display is located towards the left. (The screen is moved
toward the left by 1 or 2 dots).
Note 2
Allowable limit of adjustment: 0~50 (Note that the screen
can be adjusted between 0~100.)
Please make sure that the steps over 50 are not used in
the adjustment.
Note 3
Changes in the adjustment procedure. Please make sure
that the following changes are observed:
• If the blur is observed at the upper side of the entire
screen when the Step is 20 (default); Decrease the step
(use the left KEY) to make adjustment.
• If the blur is observed at the lower side of the entire
screen when the Step is 20 (default); Increase the step
(use the right KEY) to make adjustment.
• If the blur is observed on the entire screen when the Step
is 20 (default) and it is diffi cult to tell if the bur is at the
upper or lower side of the screen; Increase the step (use
the right KEY) to make adjustment.
• If the blur is hardly observed on the entire screen when
the Step is 20 (default) (and it is OK not to make the
adjustment); Shift the step for the moment until the blur is
observed and then re-adjust the screen.
After adjustment, press the [Next] key, and if “Hposi OK” is
displayed, adjustment is completed.
Adjust the screen such that KEY (gap) at the right and
left side becomes symmetrical
7. Touch panel adjustment
Touch panel should be adjusted after the free-run and
screen position adjustments.
● Adjustment procedure
q Press the Touch Key on the Test Mode Menu screen to
enter the Touch panel adjustment screen.
w Touch the center of “+” mark below in the following order.
Upper left→Upper right→Lower left→Lower right
To touch, make sure to use the designated touch stick.
e After adjustment is completed for 4 areas, if “Write OK” is
displayed, the adjustment is completed.
Press Return to exit from the Touch screen.
If the center of “+” mark wasn't pressed accurately, press
Cancel to start over the adjustment.
Note
The touch panel adjustment data is finalized when the
touch stick is released from the mark.
Therefore, the Knack for Adjustment is not to release the
touch stick from the mark right after touching the center of
the “+” mark, but to confi rm that the stick is exactly on the
center of the “+” mark while keeping touching the screen.
(If the stick is not exactly on the center of the mark,
move the stick onto the center of the mark while keeping
touching the screen.)
Then, quickly and vertically release the stick from the
screen.
Cancel Cancel
CancelCancel
ADJUSTMENT

48
KVT-719DVD/729DVD
/729DVDY/739DVD
ABCDE
1
2
3
4
5
6
7
PC BOARD (COMPONENT SIDE VIEW)
VIDEO CONTROL UNIT X14-983x-xx (J76-0389-32)
J1
Q26
Q14
D4
Q306
Q307
Q308
Q23
CN502
Q17
J502
Q309
D2
Q1
Q13
Q15
Q16
Q25
Q201
Q101
Q103
Q106
Q108
Q111
P102
P101
P105
D3
Q503
Q501
Q24
Q502
D501
IC202
IC101 IC102
IC450
28
31
42
EBC
1
1
1
C
1
C1
1
R22
R25
C202
C203
L201
C450
R257
C356
C358
R347
R349
R351
R353
R354
R355
R1
R2
R3
C433 C434
C502
L101
C14
R248
C505
C506
C510
C508
C20
C6
C503
R
5
R5
R40
R43
C507
L2
C19
L103 L105L107
R120 R158
R170
R171
C153
R154
R162
C112
R116
R124
C171
C130
C140
C183
R104
R133
C120
C143
C181
R143
C161
C511
C359
C504
R388
C193
C192
C194
C4
C5
R65
R4
R24
R27
C204
C205
C200
C199
C191
R262
R389
C23
C215
C104
C105
C107
C108
C110
C114
C145
C146
C148
C149
C151
C155
R102R103
R106
R108
R112
R115
R118
R145
R146
R150
R153
R156
C353
C354
C355
R348
R350
R352
R357
R359
R361
C102
C106
C109
C111
C116
C121
C126
C127
C138
C139
C147
C150
C152
C157
C162
C167
C168
C177
C178
C184
C350
C351
C352
C197 C198
L102
L104
L106
L108
R26
R28 R29
R41
R44
R77
R105
R107
R111 R114
R117
R121
R122
R123
R125
R130
R131
R132 R135
C214
C216
R144
R149 R152
R155
R159
R160
R161
R163
R168
R169
R172
R204
R205
R206
R207
R243 R244
R245 R246
R356
R358
R360
C217
R18
R522
R525
R526
R527
C530
C531
C532
C533
C534
L500
R
5
R89
L3
R39
R60
C34
R460
R539
R461
R540
C552
C551
C443
C444
R531
R532
R533
R530R529
L501
C539
50
60
68
2
6
8
916
15
14
28 15
114
43
2
EB
ECB
CEB
EBC
CBE
ECB
EBC
BE
BE
BE
BE
BE
BEBE
BE
BE
BEBE
BE
BE
BE
BE BE
E
B
BE
BE

49
KVT-719DVD/729DVD
/729DVDY/739DVD
JIHGF
1
2
3
4
5
6
7
CN501
CN301
0
2J501
CN401
D310
D311
D312
D313
D314
D315
D316
D317
D318
D319
D320
D321
D322
D323
D324
P104
P103
IC406
IC301
1
1
1
1
1
F301
R542
R454
C303
C304
C305
C306
R301
R305
R308
6
C429
C337
C502
5
05
C503
R518
C501
R276
C504
R326
C313
C316 C317
C319
C322 C325
R307
R311
R313
R324
C301
C307 C308
C309 C310
C311 C312
C314
C331
C430
C431
C432
R302
R303
R304
R306
R309
R310
R316 R319
R325
R327
R328
R329
R370
R371
R372
R375
R376
R377
R378
R379
R380
R381
R382
R383
R384
R385
R386
R387
R455
R501
R504
R506
R507
R508
R509
R510
R511
R512 R513
R514 R515
X301 X302
C530
5
31
C529
R519
C513
C514
C348
68
26
SPD DIF
12 25
36
3748
13 24
5
3
46
Refer to the schematic diagram for the values
of resistors and capacitors.
X14-983x-xx
Ref. No. Address
IC101
IC102
IC202
IC301
IC406
Q1
Q13
Q14
Q15
Q16
Q17
Q23
Q24
Q25
Q26
Q101
Q103
Q106
Q108
Q111
Q201
Q306
Q307
Q308
Q309
Q501
Q502
Q503
4B
4C
5E
3G
4G
6B
6C
5C
6C
6C
6C
5D
5D
5C
5D
4A
4B
4B
4C
4D
5E
5D
5D
5D
5E
2C
2D
2C

50
KVT-719DVD/729DVD
/729DVDY/739DVD
KLMNO
1
2
3
4
5
6
7
VIDEO CONTROL UNIT X14-983x-xx (J76-0389-32)
Q212
Q203
Q304
Q205
Q207
Q35
Q38
Q
3
Q210
Q31
Q211
CN503
D503
D404
Q504
Q32
Q36
Q204
Q206
Q208
Q209
D510
D511
D512
D513
D514
D515
D516
D518
D502
D504
D505
D506
D507
D402
D401
D405
D523
D524
D525
D526 D527
Q305
Q401
D301
D403
Q301
D508
Q508
D528
D529
D530
D531
D532
D533
D534
D535
D536
D406
D400
D517
IC201
IC501IC502
IC302
IC405
IC403
IC404
IC407
IC408
IC10
IC205
IC402
IC401
IC503
IC2
IC203
IC204
IC303
IC304
IC400
1
C201
C208
C209
R230
R237
R254
R255
R256
R258
C515
C516
R450
C339
C344
L301
R318
R335
R337
L305
L303
R444
R421
R431
C409
C416
C423
L403
C327
C328
C329
C330
L302
C333
C334
C335
C336
R344
C16
C435 L404
R265
R266
C12
C13
CP403
L401
R58
R61
C549
R42
R214
C212
R581
C11
C408
L402
CP401
CP402
R420 C548
C29
R211
R212
R213
C404
R415
C521
R590
R591
C210
C211
C340 C342
R209
R210
R228
R229
R241
R331
R535
C405
C406
C407
R
R56
R57
R59
R62
R412
R552
R554
R556
R558
C206
C207
C452
R201
R231
R232
R233
R247
R538
R249
R250
R259
R260
R261
R537
X201
R215
C523
C364
C519
C362
C361
R592
C363
C321
C324
C338
C428
R312
R317
R334
R336
R338
R346
R413
R426
R428
R430
R437
R440
R443
R453
R568
R569
R570
R571
C315
C323
C341
C343
C401
C402
C403
C410
C411
C412
C413
C414
C415
C417 C418
C419
C420
C421
C422
C424
C425
C426
C427
C440
C442
C445
C447
R593
R50
R55
R74
R1
6
R202
R203
R208
R216
R217 R218
R219
R220
R221
R222
R223
R224
R225
R226R227
R234
R235
R236
R238
R239
R240
R242
R251
R252
R253
R320
R321
R322
R330
R332
R339
R342
R345
R373
R374
R401
R402
R403
R404
C400
R410 R411
R414
R422
R423
R424
R425
R427
R429
R432
R433
R434
R435
R436
R438
R439
R441
R442
R445
R446
R447
R448
R449
R451
R452
R456 R457
R458 R459
R505
C448
C22
R263
R264
R534
C512
R551
R553
R555
R557
R559
R560
R561
R562
R563
R564
R565
R566
R567
R582
R583
R584
R585
R586
R587
R588
R589
R594
X202
R536
C540
C542
C544
C546
C528
C518
C541
C543
C545
C547
C535
R573
R574
R575
R572
R595
R596
R597
R598
R405
R394
R400
C213
C27
C28
R577
R576
C465
R463
R464
C464
C463
C260
C451
C553
C554
R502
R503
1
8
16
1
8
7
1
14
1
11
1
1
22
3
7
14 8
18
16 9
18
16 9
9
8
5
1
4
1
4
8
5
1
1
45
31
54
54
13
45
31
4
58
3
45
5
10 6
45
31
14 8
17
8
16
9
16
9
1
8
45
8
100
25
76 50
26
5175
EB
BE
BE
BE
BE
BE
BEC
BCE
BE
BE
EB
BE
EB
BE
BE
BE
BE
EB
BE
BE
EB
BE
E
PC BOARD (FOIL SIDE VIEW)

51
KVT-719DVD/729DVD
/729DVDY/739DVD
TSRQP
1
2
3
4
5
6
7
D1
Q2
Q4
Q20Q21
Q22
Q43
Q46
Q38
Q33
Q37
Q31
Q34
Q3
Q5
Q7
Q9
D101 D102
D103 D104
Q105 Q104
Q45
Q32
Q36
Q6
Q8
Q10
Q19
Q44
Q109Q110
0
IC1
R136
R127
R165
R166
C2
R6
R11
30
R34
C16
C17
R69
R58
2
14
R129
C189
C10
C11
R53
C7
R167
C122
C132
C163
C173
R138
1
2
C117
C118
C158
C159 C172
C187
C188
R175
C131
C185
C186
R137
R188
C141
C190
C119
C182
R176
C160
C195
R228
R
229
C196
R51 R52
R54
R56
R57
R59
R62
C3
C8
R8
R9
R10
R13
R16
R17
R19
R36
R38
R67
R68
R70
C101
C115
C123
C124
C128
C129
C133
C134
C136
C137
C142
C156
C164
C165
C169
C170
C174
C175
C179
C180
R7
R12
R14
R15
R35
R37
R50
R66
R73
R74
R76
R126 R134
R164 R173
C22
C517
C24
R500
C94 C92
C520
C96
C98
C95 C93
C97
C99
I
5
8
O
G
BE
BE
B
E
BE
BE
BE
B
E
BE
BE
BEBE
BE
BE
BE
BEBE
DDDD
SSSG
BE
BE
BE
G
D
S
D
GS
DD
G
D
S
D
GS
DD
G
D
S
D
GS
DD
G
D
S
D
GS
DD
B
E
BE BE
BE
Refer to the schematic diagram for the values
of resistors and capacitors.
X14-983x-xx
Ref. No. Address Ref. No. Address
IC1
IC2
IC10
IC201
IC203
IC205
IC302
IC303
IC304
IC400
IC401
IC402
IC403
IC404
IC405
IC407
IC408
IC501
IC502
IC503
Q2
Q3
Q4
Q5
Q6
Q7
Q8
Q9
Q10
Q19
Q20
Q21
6P
5M
6O
4N
3N
4O
4L
4L
4L
5L
5L
4M
4M
3M
3M
6O
6N
6M
6L
2O
5Q
5Q
5Q
5Q
5Q
5Q
5Q
5Q
5Q
5R
5R
5R
Q22
Q31
Q32
Q33
Q34
Q35
Q36
Q37
Q38
Q43
Q44
Q45
Q46
Q104
Q105
Q109
Q110
Q203
Q204
Q205
Q206
Q207
Q208
Q209
Q210
Q301
Q304
Q305
Q401
Q504
Q508
5Q
2O
2P
2P
2P
5O
5O
5P
5P
5P
5P
5P
5P
3R
3Q
3P
3P
5N
3O
4O
3N
4N
3O
3O
3O
3L
3L
3M
3L
6M
2O

52
KVT-719DVD/729DVD
/729DVDY/739DVD
UVWXY
1
2
3
4
5
6
7
J100
J101
P301 P302
P303 P304
CN327
CN101
D104
D105
D109
D102 D103
D300
D106
D107
D108
IC305
IC105
IC100
IC303
IC309
IC106
IC302
IC300
IC101
IC301
IC200
IC207
IC322
DIGITAL I/O UNIT X88-2020-11 (J76-0394-42)
1
4
1
1
1
5
1
1
15
48
1
11
3
1
37
40
1
1
4
1
13
10
5
R502
R503
R505
R496
R498
R500
C113
C138
C139
C200
C202
C300
C106
CP204
R157
R158
L302
CP205
C342
CP206
R293
C112
R294
R295
R6
R8
R177
CP128
CP129 CP130
CP131 CP147
CP148
CP149
CP150
CP151
CP152
CP153
CP154
R178
CP207
C100
R179
C101
L203
L204
L205
L212
L306
L307
L310
R105
R107
R108
R109
R1
R116
R118
R124
R126
R220
R221
R267
R268
R269
R270
R271
L300
L301
L304
C143
R159
C330
L305
C352
C354
C355
C356
C357
C360 C361
C375
C376
R465
L101
C126
C133
L102
C130
C134
C118
R112
C311
C322
C336
R37
R36
C227
R212
C228
R213
C362 C363
C303
C304
C305
C306
C308
C313
C319 C320
C325
R318
R443
R444
R445
C331
C332
R320
C201
C314
C316
R301
R300
R35
R33
C153
C317
R34
C302
CP104
C142
C230 C231
R13
C264
C301
C307
C107 C389
C392
C394
C395
R180
C140
R181
R182
R292
R115
U1 A1
U17 A17
R121
R123
R162
R129
R137
R219
R248
R249
R250
R258
R259
R260
R265
R266
R304
R305
R308 R310
R321
R322
R185
R186
C315
R440
C309
C310
C312
C318
C328
C329
R467
C367
C368
R344
R345
R458
C337
C338
C340
C341
C349
C351
R187
CP105
R188
R189
R190
R191R192
R160
R161
R163
R166
CP155
CP156
CP157
CP158
CP159
R165
R164
R167
R170
R172
R171
R175
R203
R329 R328
R202
R200
L303
R104
R134
R139
R150
R153
R174
R173
R176
R255
R3
R9
R273
R10
R315 R317
R324
R325
R326
R327
R459
R332
R333
R343
R5
R373
R14
R463 R464
R473
R478
R485
R486
R487
R494
X100
X202
C148
R284
R285
R286
R287
C154
R462
C478
L200
R523
R291
R15
R16
R142
R141
R529
C275 R297
C800
C801
C802
C803
C804
C805
C807
C808
C809
C810
C811
C812 C813
C814
R601 R600
R602
R603
C601
C602
R703
R705
81
31
20
10 21
30
6
36 25
12
24
48
37
4
6
3
1
5
48
24
13
12
2536
20
1110
81
4
60
12
36 25
37
48
24
13
3
5
4
80 61
21 40
20 41
60
TP302
TP200
TP300
PC BOARD (COMPONENT SIDE VIEW)
Refer to the schematic diagram for the values of resistors and capacitors.
X88-2020-11
Ref. No Address
IC100
IC105
IC106
IC200
IC207
IC301
IC302
IC305
IC309
IC322
5V
5V
4V
2V
2V
6V
5V
6V
5X
5W

53
KVT-719DVD/729DVD
/729DVDY/739DVD
ADACABAAZ
1
2
3
4
5
6
7
R29
R482
R2
C125
L104
L103
C456
R481
R472
R31
C102
R7
CP132
CP133
CP134
L308
R148
L309
C114
C105
C108
C109
C110
C117
C115
C116
C120
C119
C122
C124
C128
C129
R30
C103
C104
C127
C121
C123
C135
R32
C217 C218 C219 C220 C221
C233
C234
C222 C223 C224 C225 C226
C235C236
R527
C471
C327
C460
C464
C468
C244
C247
R12
CP106
CP107
CP108
CP109
C400
C401
R17
R18
R506
R507
R447
R524
C144
R183
R140
R145
R146
R149
R509
R184
R376
R438
R461
C326
C358
C470
R199
CP117
CP118
CP119
CP120
CP121
CP122
CP123
CP124
CP125
CP126
CP127
CP135
CP136
CP137
CP138
CP139
CP140CP141
CP142
CP143
CP144
CP145
CP146
R169
R168
R130
R131
R132
C482
R147
R701
R223
R227
R193
R276
R316
R197
R198
R195
R196
R194
R367
R368
R369
R370
R371
R372
R446
R4
R452
R455
R469
R474
R493
CP160
L106
L105
R296
C324
C323
R348
R352
R357
R24
R522
R347
R351
R356
C203
C204
CP200
CP201
CP202
CP203
C149
C472
C473
R525
R201 C712 C713
C702 C703 C704 C700
C707 C708
C706
C709
C705
C710
C701
C711
C715
C600
14
85
14
58
14
58
14
58
3
15
4
3
1
5
4
1
34
5
1
20 11
10
20 11
110
128
2956
154
28 27
54
28 27
1
601
BE
BE BE
P306 P305
P307P308
P310 P309
CN328
Q302
Q303
Q304
IC201IC205
IC202IC203
IC104
IC316
IC108
IC332
IC336
IC337
IC211
IC335
DIGITAL I/O UNIT X88-2020-11 (J76-0394-42)
PC BOARD (FOIL SIDE VIEW)
Refer to the schematic diagram for the values of resistors and capacitors.
X88-2020-11
Ref. No Address
IC104
IC108
IC201
IC202
IC203
IC205
IC211
IC316
IC332
IC336
IC337
Q302
Q303
Q304
6AC
3AC
3AC
2AC
2AB
3AB
3AB
6AB
6AC
6AA
6AB
6AA
6AA
6AA

54
KVT-719DVD/729DVD
/729DVDY/739DVD
AE AF AG AH AI
1
2
3
4
5
6
7
D101
D103
D307
D301
D305
D314
D303
CN104
D309
Q303
Q301
D104
D102
D7
Q5
CN502
CN503
Q502
Q503
D4
D5
D6
D8
Q4
D10
CN501
IC101
IC301
IC304
IC303
IC1
VIDEO UNIT X35-4710-10 A/2 (J76-0385-22)
X35 B/2
1
1
1
1
1
4
1
1
C
E
C102
C307
C330
C347
R324
R325
C101
C319
C321
C304
C335
C315
C316
C318
C328
C327
C301
C104
C107
C108
C118
C103
C106
C110
C308
L102
C338
C334
C303
C305
C306
L101
L103
R358
R361
R362
R366
R367
R368
R369
R370
R376
L104
L105
L106
L303
L302
R105
R380
C115
R201
R609
R610
R611
R612
C116
C302
C311
C313
C317
C324
C325
C337
R313
R320
R334
R333
R336
R371
R385
R397
R357
R304
R396
R319
R391
R393
R218
R316
R392
R394
R339
R329
R330
R348
R321
R219
C109
C112
C113
C320
C331
C332
C339
R102
R104
R331
R332
R355
R377
C322
C100
C326
C323
C329
C114
L306
L307
R101
R103
R359
R360
R338
R399
R341 R352
R343
R342
R344
R337
R389
R340 R350
R351
R398
R349
R354
R373
R378
R346
R347
R328
R326 R327
R345
CP303
CP302
CP301
R374
C340
C346
R365
C348
R119
R381
C349
C350
C1
C2
C24
F1
R10
C9
C11
C423 C504
C501
C12
C14
C17
C502
L401 L501
C6
C8
C13
C22
C25
R6
R12
R14
R18
R22
R501
C18
C28
C3
C16
R21
R24
R9
R23
R15
5
10 6
89
16 64 49
32
17
16 33
48
19
10
11
20
1
50
30
B
B
C
ECEB
ECB
3
1
4
5
BE
BE
BE
BE
VR203
+12.5V
-12.0V
+18.5V
VGND
BLK
VR
HSY
+3.3V
VCOM
COMP
VB
VG
NCLP
VSY
PC BOARD (COMPONENT SIDE VIEW)
Refer to the schematic diagram for the values of resistors and capacitors.
X35-4710-10
Ref. No Address
IC1
IC101
IC301
IC303
IC304
Q4
Q5
Q301
Q303
Q502
Q503
4AH
4AF
3AF
2AG
3AG
4AH
4AH
3AH
3AG
6AH
5AH

55
KVT-719DVD/729DVD
/729DVDY/739DVD
ANAMALAKAJ
1
2
3
4
5
6
7
VIDEO UNIT X35-4710-10 A/2 (J76-0385-22)
X35 B/2
CN101
P101
CN302
CN103
D1
D2
Q2
Q3
Q1
D9
D306
D401
D501
D502
D503
D504 D403
D404
D405
D406
D407
D408
D409
D410
D411
D412
Q501
S401
S402
S403
S404S405
D3
CN1
IC302
IC102 IC103
IC401
50
1
1
1
1
5
GS
12
R305
C333
C312
F100
R314
R315
C314
R323
C309
C342
C310
R301
R307
R310
R308
C105
C119
C121
C120
R118
R100
C117
C23
C401
C10
R1
R8
C427
C21
R3 R13
R17
R7
R11
R16
C428
C424
C503
C425
C426
L1
C421
C422
R422
R502
R406 R456
R407 R441
R453
R454
C5
C7
C15
R504
R505
R506
OPEN/
CLOSE
FNC
VSEL
SCREEN
MODE
R503
R423
R5
R404
R402
R403
R4
43
1
4
8
5
4
68
3
15
4
GS
DDDD
GSGS
DDDD
2
14
3
BE
BE
+12.5V
-12.0V
+18.5V
5.0V
VGL
VGH
VGND
DGND
TP+3.3V
CPV
STH1
CPV
STH2
VB
U/D
+3.3V
L/R
CX
NVD
STV1
CPH
HSYADJ
STV2
VR
VG
VCOM
NHD
COMP
MECHA+3.3V
PC BOARD (FOIL SIDE VIEW)
Refer to the schematic diagram for the values of resistors and capacitors.
X35-4710-10
Ref. No Address
IC102
IC103
IC302
IC401
Q1
Q2
Q3
Q501
4AM
4AM
3AL
7AK
4AK
4AK
4AJ
5AK

56
KVT-719DVD/729DVD
/729DVDY/739DVD
AO AP AQ AR AS
1
2
3
4
5
6
7
ELECTRIC UNIT X34-475x-xx (J76-0391-12)
J703
J701
A251
J351
J704
J702
Q61
P252
P251
Q7
Q8
Q83
Q104
Q352
Q357
Q360
Q103
Q2
Q13
Q802
Q803
Q805
Q806
Q808
Q62
D714
D737
Q351
Q353
Q354
Q355
Q356
Q358
D2
D4
D11
D13
D24
D25
Q1
Q3
Q10
Q12
Q14
Q15
Q82
D201
D202
D203
Q101
Q102
Q105
Q107
D351D352
D353
D354
D355
D356
D512
D708
D709
D710
D711D712
D723
D724 D725
D727
D731
D732
D733
J501
Q807
Q809
Q810
Q811
Q813
Q814
Q815
D357 D358
D3
D10
D12
D81
D91
D360
D363
D365
D713
D735
Q11
Q84
Q804
D513
D522
IC201
IC202
IC203
IC101
IC102
IC106
IC104
IC105
IC802
IC803
IC804
IC805
IC806
IC807
IC808
IC809
IC810
IC702
IC723
IC701
IC251
IC61
W251
1
1
9
6
10
1
1
1
5
1
5
100
1
119
220
1
8
1
1
4
8
C8
C205
C101
C206
C808
C709
C62
C233
C707
C268
C358C362
C366
C370
C359
C725
C269
C355C363
C367
24 1
C211
C210
C209
C721
C719
C720
C711
C729
C812
C820
C850
C851
C852
X251
1
3
31
64
O
C870
R833
R809
R810
C9
C14
R61
C216
L701
R207
L101
C103
C104
C105
C107
C109
C110
R126
C113
L105
L255
L702
R1
R6
R34
R38
R148
R149
R187
R188
R200
C61
C809
C810
C811
C818
C819 C824
C856
C857
C858
R62
R819
R822
R836
R838
R840
C713
C723
R791
C708
R734
C204
C207
C368
C369
R381
R384
R9
R25
R33
C108
R103
R123
R124
R125
R140
R150
R151
R152
R154
R155
R179
R180
R181
R183
R189
R509
R510
R511
R512
R513
R514
X101
R203
C847C848
C849
C855
C832
R63
R535
R701
R702
R703
R704
R812
R813
R818 R830
R831
R832
R837
R839
R841
C10
C267
C701
C702
C703
C710 C712
159
2 6 10 13
1173
4812
C730
C801 C802C803 C804
C807
C815
C821
C822
C827
C835C837
C839
C844
C845
C846
R3
R7
R8
R10
R12
R24
R27
R28
R29
R35
R37
R40
R41
R42
R44
R81
R82
R83
R85
R86
R87
R91
R93
R95
R107
R108
R109
R110
R111
R112
R114
R115
R116
R117 R118
R127 R128
R132
R133
R134
R135
R136
R137
R138
R139
R141
R142
R143
R144
R145
R146
R147
R162
R163
R164
R165
R166
R168
R169
R170
R171
R172
R173 R175
R176
R177
R178
R191
R192
R206
R208
R209
R355
R361
R363
R369
R371
R377
R379
R380
R385
R386
R526
R527
R528
R529
R530
R531
R532
R533
R534
R536
R537
R538
R539
R544
R705
R706
R707
R708
R709
R710
R711
R712
R713
R714
R715
R716
R717
R718
R719
R720
R721
R722
R723
R724
R733
R735
R736
R737
R738
R739
R740
R745
R746
R747
R748
R751
R755
R756
R757
R758
R764
R768
R769
R770
R772
R774
R775
R777
R781
R783
R786
R787 R789
R814
R816
R821
R824
R825
R848
R849
R850
C859
C861
R852
R85
3
4
54
31
64
31
64
31
64
31
64
31
64
31
64
31
16
9
16
8
1
16 9
18
6
2
76
7551
25
50
26
5
41 4
58
5
610
GI
4
16
33 48
32
17
8
16 9
7
14 8
26
BE
BEBE BEBEBE
BE BE
BE
BE
BE
BE
BE
E
BE
BE
BE
BBE
EB
BE
BE BE
BE
BE
BE
BE
BE
BE
BE
BE BE
BE BE
BE BE
BE
BE
B
E
BE
BE
BE
BEBE BE
TP111
TP112 TP114
PC BOARD (COMPONENT SIDE VIEW)

57
KVT-719DVD/729DVD
/729DVDY/739DVD
AXAWAVAUAT
1
2
3
4
5
6
7
D1
J401
Q71 Q51
J1
P1
P2
D6
Q93
Q53
Q70
D24
D25
Q4
Q6
Q54
Q82Q92
3
54
D401
D406
D405
D402 D403D404
D505
D506
D509
D510
D7
D8
D81
D91
D301
D302
J705
IC301
C201
IC202
IC203
IC501IC502
IC71
C1
L1
C51
1
64
I
G
14
85
912
13
1
22
11
12
127
226
1
C72
C201
C54
C514
C202
C319
C511
C515
C53
C311
C312
C305
C306C317
C318
C225
C226
C513
C512C505
C506
C402 C403
C401
C507
C509 C508
C517
C870
C15
R19
R51
C71
L71
R72
C203
C
216
R201
F51
R13
R55
TH301
C501
C502
R73
R202
R306
C7
C316
C882
C881
C880
C871
R16
R21
R22
R302
13
R514
C223
C224
R14
R15
R29
R41
R43
R56
R82 R92
R93
R95
R96
R97
R303
R304
R305
R401
R402
R403
R404
R405
R406
R407
R408
R409
R410
R411
R501
R502
R503
R504
R505
R506
R507
R508
R518
R519
R520
R522
R523
R524
R525
R526
R527
R544
R212
R213
R214
R215
C872
C873
C874
C875
C876
C877
C878
C879
916
81
6
9
8
10 6
15
610
51
49
48
O
4
BE BE
B
E
B
E
BE BE
BE
EBEB
BE
BE
Refer to the schematic diagram for the values
of resistors and capacitors.
X34-475x-xx
Ref. No. Address Ref. No. Address
IC61
IC71
IC101
IC102
IC104
IC105
IC106
IC201
IC202
IC203
IC251
IC301
IC501
IC502
IC701
IC702
IC723
IC802
IC803
IC804
IC805
IC806
IC807
IC808
IC809
IC810
Q1
Q2
Q3
Q4
Q6
Q7
Q8
Q10
Q11
Q12
Q13
Q14
Q15
Q51
5AS
3AU
3AR
3AQ
3AS
3AS
3AS
4AS
3AT
3AS
3AP
5AV
3AU
3AT
2AQ
2AQ
5AQ
3AP
4AQ
5AQ
4AQ
3AP
3AQ
3AP
3AP
3AP
6AR
5AS
6AS
5AU
5AT
6AS
5AS
5AS
6AS
5AS
6AS
5AS
5AR
3AU
Q53
Q54
Q61
Q62
Q70
Q71
Q82
Q83
Q84
Q92
Q93
Q101
Q102
Q103
Q104
Q105
Q107
Q351
Q352
Q353
Q354
Q355
Q356
Q357
Q358
Q360
Q802
Q803
Q804
Q805
Q806
Q807
Q808
Q809
Q810
Q811
Q813
Q814
Q815
3AU
3AU
5AS
5AS
3AU
4AU
5AT
5AS
5AS
5AT
5AT
3AQ
3AQ
3AQ
3AR
3AR
3AR
6AR
5AR
6AR
6AR
6AR
6AR
5AR
6AR
6AP
5AR
5AR
5AR
5AQ
5AQ
5AR
5AR
2AQ
2AP
2AP
2AP
2AP
2AP

58
KVT-719DVD/729DVD
/729DVDY/739DVD
AY AZ BA BB BC
1
2
3
4
5
6
7
ELECTRIC UNIT X34-475x-xx (J76-0391-12)
D9 Q9
Q52 Q72
D504
D519
D5
D14
D15
D52
Q81
Q91
D514
D515
D516
D517
D518
D523
D701
D702
D703
D
D524
D204
D205
D359 D361 D
D503
D520
Q85
Q94
Q95
C2
R71
C234
C235
R601
R602
R603
R604
R89
R99
R190
C115
R161
R186
C114
R102
R184
R185
R221
R605
R606
R607
R608
R609
R610
R611
R52
R517
R542
C351
C352
C353
C356
C357
C360
C361
C364
C371
R204
R357
R360
R365
R368
R373
C4
C5
C6
C11
C12
C13
C16
C17
C81
C91
C315
R2
R4
R5
R11
R23
R30
R36
R39
R84
R88
R94
R98
C112
R104
R121
R122
R153
R156
R157
R182
C726
C212
C213
C227
C228
R26
R31
R32
R53
R54
R129
R174
R205
R210
R211
R216
R217
R218
R219
R301
R356
R358
R359
R362
R364
R366
R367
R370
R372
R374
R375
R521
R543
C853
C883
C884
C885
C862
C886
C887
C888
R855
R856
C868
C869
R857
C867
C889
C890
C891
C892
C893
C894
BE
BE
BE
BEBE
BE
BE
BE
TP23
TP701
TP71
TP52
TP53
TP51
TP21
TP352
TP355
TP358
TP22
TP24
TP761
TP707
TP304
TP951
TP1
TP2
TP3 TP4
TP5
TP6
TP7
TP8
TP9 TP10
TP11 TP12
TP13 TP14
TP15 TP16
TP17
TP18
TP19
TP20
TP81
TP91
TP11
0
TP113
TP115
TP116
TP201
TP202
TP203
TP301
TP302
TP303
TP305
TP306
TP307
TP308
TP351
TP353
TP354
TP356
TP357
TP359
TP401
TP402
TP403
TP404
TP405
TP406
TP407
TP408
TP409
TP410
TP411
TP702
TP703
TP704 TP705
TP706
TP741
TP742
TP743
TP744
TP745
TP747
TP746
TP748
TP749
TP750
TP751
TP752
TP753
TP754
TP755
TP756
TP757
TP759
TP758
TP760
TP80
3
TP764
TP952
TP953
TP954
TP955
TP956
TP957
PC BOARD (FOIL SIDE VIEW)

59
KVT-719DVD/729DVD
/729DVDY/739DVD
BHBGBFBEBD
1
2
3
4
5
6
7
Q252
Q359
Q361
D
702
D703
D704
D705
D706
D707
D715
D716
D719
D717
D718
D722
D721
D720
D251
Q251
D
361 D362
D364
C895
L703
R161
R186
L253
R102
R221
C261 C263
R251
C830
C841
C842
C843
R815
R826
R829
R842
R843
R844
L251
C262
C260
R853
C860
C270
C354
C360
C361
C364
C365
C371 R368
R373
R376
R253
C106
C116
C264
C265
C266
R104
R105
R106
R119
R120
R121
R122
R131
R153
R156
R157
C715
C726
R760
R771
R792
C727
C825
C828
C829
C854
R741
R742
R743
R744
R761
R763
R817
R820
R823
R827
C813
C814
C817
C834
C836
C838
R129
R130
R252
R255
R256
R257
R367
R370
R372
R374
R375
R378
R382
R383
R828
R845
R846
R847
BEBE
BE BE
TP701
TP256
TP271
TP61 TP261
TP254
TP361
TP761
TP251
TP255
TP260
TP262
TP266
TP268
TP272
TP707
TP726 TP729
TP101
TP102
TP103
TP104
TP105
TP106
TP107
TP108
TP109
TP110
TP113
P
115
TP252
TP253
TP257
TP258
TP259
TP263
TP264
TP265
TP267
TP269
TP270
TP360
TP362
TP703
TP704 TP705
TP706
TP708 TP709
TP710 TP711
TP712 TP713
TP714 TP715
TP716 TP717
TP718
TP719
TP721
TP723
TP727
TP728
TP730
TP731
TP732 TP733
TP734
TP735
TP736
TP737
TP738
TP739
TP740
TP762
TP801
TP802
TP803
TP804
TP805 TP806
TP807
TP808 TP809
TP958
TP954
Refer to the schematic diagram for the values
of resistors and capacitors.
X34-475x-xx
Ref. No Address
Q9
Q52
Q72
Q81
Q85
Q91
Q94
Q95
Q251
Q252
Q359
Q361
5BC
3AZ
3BA
5BB
5BB
5BB
5BB
5BB
5BE
5BF
6BF
6BF

60
KVT-719DVD/729DVD
/729DVDY/739DVD
BI BJ BK BL BM
1
2
3
4
5
6
7
S1
Q14
Q15
CN1
D5
D6
Q24
Q12
Q13
Q10
Q11
Q28
Q27
Q29
IC55
IC27
IC42
IC56
IC5
IC39
IC31
IC60
IC54
IC15
IC53
IC21
IC50 IC51
130
8
1
1
1
1
1
6
1
1
1
5
1
1
C73
C305
C427
C302
C304
C306
C409
C272
R450
CP60
L5
R600
CP65
C202
C203
C441
R152
R153
C446
C72
C517
C401
C402
C403
C404
C405
R513
C410
C513 C514
R475
CP62
R476
R477
C443
C444
L8
C445
C516
C530
R90
R119
C455
R464
R465
C51
R621
R623
C54
C266 C267
R628
R615
R617
C63
R478
C515
C440
C207
C208
R629
C497
C412
C413/
R574
C414
C415/R560
C416/R576
R630
R599
R116
R480
R154
R155
R162R163
R304
R603
C271
C3
R631
R622
R499
C459
R632
R601
C253 C250
C255
C254 C252C251
C256
C473
C464
CP64
C261
C262
C263
C265
C270
C300
C301
R602
R614
CP69
R498
R474
R607
L6
L10
L11
L15
CP73
C476
CP63
R490
R79
C498
C520
R627
R150
R151
R156
R157
R158
R159
R164R165
R251
L22
R267
R535
C519
R537
C518
R564
R265
R262
R266
R259
R269
R302
R303
R305
R588
R256
R264
R538
R536
R300
R301
R254 R257
R260
R263
R261
R556
R557
R558
R559
C468
C469
R523
R524
CP61
R508
R507
R511
R512
R604
R514
R515
R516
R517
C200
C201
C478
C494
C480
C496
C493
C495
C512
R258
R255
R533
C521
R633
C511L21
R586
R587
R583
R584
4
58
43
1
20
60
41
2140
8061
54
2827
1
43
1
45
8
20 11
10
3
45
24
48 25
14
15 28
4
5
41
85
4
58
56
10
BE
BE
EB
GSG
DD
S
G
D
S
BE
BE
EB
BE
DVD UNIT X37-1120-03 (J76-0162-02)
LD CD LD DVD
GND
D1.2V
DGND
A5V
DGND
AGND
F+
F+
T+
T+
VCC
DGND
D5V
IOP+
PC BOARD (COMPONENT SIDE VIEW)
Refer to the schematic diagram for the values of resistors and capacitors.
X37-1120-03
Ref. No Address
IC5
IC15
IC21
IC39
IC42
IC50
IC51
IC54
IC55
IC56
IC60
Q10
Q11
Q12
Q13
Q14
Q15
Q24
Q27
Q28
Q29
3BL
4BK
4BL
3BK
3BL
5BK
5BK
2BL
3BL
3BL
5BL
3BK
3BK
3BK
3BK
3BK
3BJ
3BK
3BK
3BK
3BK

61
KVT-719DVD/729DVD
/729DVDY/739DVD
BRBQBPBOBN
1
2
3
4
5
6
7
Q20
Q21
Q1
Q2
Q3
Q4
Q25
CN10
CN3
S2
D7
CN6
P11
P7
P1
P8
CN11
P12
P4
IC10
IC1
IC9
IC57
IC12
IC49
C448
C167
C168
C169
C164
C166
C165
CP59
C103
C105
C50
C524
C59
C434
C108
C449
C142
C152
L4
L12
C62
L3
L14
L2
L13
C110
C119
C135
R544
R545
C452
CP67
C100
C101
C102
C104
C106
C107
C109
C146
C147
C148
C149
C151
C153
C162
C400
C450
R509
C442
R546
C435
C4
C505
CP66
R485
C115
R121
R122
R275
R276
R410
R411
R496
R21
C454
C17
R547
C20
CP5
C60
C111
C112
C113
C114
C120
C121
R481
CP45
C134
C136
C139
C140
C143
C144
C158
C231
C122
CP54
R22
R10
R520
C350
R5
C411/R575
CP55
C466
CP56 CP57
R563
C467
CP58
R486
CP36
CP37
R487
CP44
R497
R548
R2
R89
C510
R130
C528
R634
R131
C123
R482
X1
R483
R470
C14
C15
C16
C18
C351
R484
R1 R16
R24
R471
C506
C5
C461
R472
C11
R521
C504
C117 C118
C126
C127
C128 C129
C130
C131
C132
C133
C137
C138
CP70
R626
C221
C222
C223
C224
C226 C229
C230
R522
R469
CP1 CP2 CP3 CP4
CP6
R467
CP7
CP8
CP9
C456
CP71
C457
C458
R473
R549
CP72
R550
R91
L1
L7
R3
R4
R468
R17
R19
R491
R492
R493
R551
C220
R489
R80
R81
R84 R85
R86
R87
C523
R530
R525
R111
R112
R113
R624
C7
C6
R200
R201
R202
R203
R204
R205
R206
R207
R208
C507
L20
R541
R350
R351
R400
R401
R402
R562
C527
R409
R552
R6
R561
C525
R92
R625
CP68
R620
R619
C529
C526
R94
C145
R637
R636
R458
C470
R553
R554
R531
R555
R605
R518
R519
R510
C462
R501
R502
R503
R504
R505
R539
C477
C479
C482
C486
C490
C8
C484
C488
C492
R606
C481
C483
C474
C485
C489
C487
C491
R532
C522
R635
R639
R641
R638
R640
R642
R643
R645
R644
C154
R591
1
1
1
1
1
1
1
1
1
1
1035
4
8
5
7
8
14
34
5
3
64
50
28
12 25
36
2413
48 37
256 193
192
65 128
64 129
GSGS
DD
BE
BE
BEBE
BE
DVD UNIT X37-1120-03 (J76-0162-02)
K
3.3V
A3.3V
PGND
PGND
SPD
LOAD-
LOAD+
H-
H+
U
V
W
B+
B-
A-
A+
AGND
AMONI2
AMONI1
SPDIF
A8VAGND
VREF
MUTE
TRD
SLD2
SLD1
IFSEL
AMUTE
DGND
LD
DRV1.65
DGND
A5V
D1
D2
BMS
STBY
U+
SDAT
U-
FG
D0
SCLK
RST
D3
F
E
FE1
FE2
T-
DGND
T+
F+
B
A
F-
LMINSW
P5V
IOP
DGND
D5
D6
D4
D7
C
VGND
AS
FE
TE
D
PD
TDO
P7
P4
3.3V
3.3V
1.2V
D5V
DRCCLK
A5V
VGND
VHALF
VHALF
SW-
EJEND
A-
B-
RF
P1
P8
SW LoSt
SW LoEnd
FOD
PC BOARD (FOIL SIDE VIEW)
Refer to the schematic diagram for the values of resistors and capacitors.
X37-1120-03
Ref. No Address
IC1
IC9
IC10
IC12
IC49
IC57
Q1
Q2
Q3
Q4
Q20
Q21
Q25
3BP
4BO
7BO
5BP
4BO
4BP
6BO
6BN
6BO
6BN
4BO
4BO
4BN

62
KVT-719DVD/729DVD
/729DVDY/739DVD
BS BT BU BV BW
1
2
3
4
5
6
7
C204
R217
R202
R204
ATT
VOL- VOL+
DISP AM
FM
EJECT
RST
SRC
R207
R208
R201
R203
R205
R206
R240
R101
R102
R103
R104
R105
R106
R107
31
24
1
21
22
2
BE
D405
D406
D410
D207
D208
D209
D211
D212
D213
D214
D215
D216
D217
D225
S201
S202
S203
S204
S205
S206
S207
S208
D221
D222
D224
D223
CN101
D101
D103
D102
Q101
D105
D106
D104
IC201
X16 B/2
SWITCH UNIT
X16-3920-10 A/2
(J76-0393-22)
1
15
1
1
11
2
16
15 16
2
C201
C202
C203
R224
R235
R243
R244 R209
R210
R211
R212
R213
R214
R215
R216
R219
R221
R222
R225
R226
R234
R236
R237
R238
R239
R242
R245
BE BE
BE
D404
D407
D408D409
D411
D412
CN201
D201
J201
D203
D205
Q204
Q205
Q206
J101
SWITCH UNIT
X16-3920-10 A/2
(J76-0393-22)
X16 B/2
PC BOARD
(COMPONENT SIDE VIEW)
Refer to the schematic diagram for the values of resistors and capacitors.
(FOIL SIDE VIEW)
X16-3920-10
Ref. No Address
IC201
Q101
5BS
3BU
X16-3920-10
Ref. No Address
Q206 6BW

63
KVT-719DVD/729DVD
/729DVDY/739DVD
DC CORD
VIDEO UNIT
(X35-4710-10) (A/2)
(X14-983x-xx)
VIDEO CONTROL UNIT
(X34-475x-xx)
AUDIO CIRCUIT UNIT
(X37-1120-03)
DVD UNIT
(X92-5920-00)
DVS-8530V
DVD MECHA
(S79-0858)
TOUCH PANEL
(B38-1176)
LCD PANEL
ZACTION MECHA
(A10-5171)
(E30-6680)
K,M,R,X,V TYPE
DC CORD
(E30-6681)
E,E2 TYPE
(X35- ) (B/2)
UNIT
(X88-2020-xx)
SUB CIRCUIT UNIT
(X16-3920-xx) (A/2)
(X16- ) (B/2)
MEDIA PROCESSOR
MINI LCD∗
(W02-5159)
(E30-6676)
E,E2 TYPE
DC CORD
DC CORD
K,M,R,X,V TYPE
(E30-6675)
(X34-489x-xx)
CN6
CN502
CN501
CN301
CN327
J502J1
CN302
CN502
J701
J1J501
J401
CN101
LX-BUS
KTC-V500/V300
to TV TUNER
W251
ANT
CN104
CN501
CN101 CN503
J351 J703 J704
NAVIGATION
J702
CN503
CN101
CN103
SYSTEM
CN401 J501
J101
J201 CN201
J100 J101
CN101
J705
CN210
USB
∗KVT-8∗9DVD ONLY
RR+
RL-
FR+
RR-
FL-
FL+
FR-
RL+
P.CON
ACC
B31
42
57
68
A3
4
1
2
B.U
5
6
7
8
BLU/WHT
RED
BLK
MUTE
BRN
YEL
ANT CONT
WHT/BLK
BLU/WHT
GRY/BLK
P CONT
FR+
FR-
FL-
GRY
FL+ WHT
GRN/BLK
VIOL
VIOL/BLK
RR+
RL-
RR-
GRN RL+
PNK/BLK EXT. CONT.
ORG/WHT
EXT.CONT
MUTE
BLK
GND
16
1
YEL
RED
BLU/WHT
BLU
GRY
GRY/BLK
WHT/BLK
WHT
FRONT R
P. CON
ANT CONT
ACC
FRONT L
REAR R
VIOL
PNK/BLK
ORG/WHT
14 15
32
BRN
12 13
54
ILLUMI
VIOL/BLK
GRN/BLK
1011 7 689
GRN
REAR L
BU
10A
150
150
1 68
160
60 1
501
150
20
19
2
1
12
11
22
1
262
125
13
24
FFC
(E39-0907)
FFC
(E39-0908)
(J86-0038)
FPC
(J86-0033)
FPC
201817 19 2221
VIO/WHT
LGRN PRK SW
REVERSE
LBLU REMO CONT
18
511 10 9
12 13 14
87 6
15 16 17 22
342
2019 21
1
VIO/WHT
LGRN
REVERSE
PRK SW
LBLU REMO CONT
10A
(E30-6688)
68 1
19 114
12301
(E30-6492)
ILLUMI
25
26
1
2
22 1
21 1
14
15
15 1
151
216
162
111
41
85
14
10 1
iPod
AUDIO IN
iPod
VIDEO IN
3
2
1
4
RED
BLK
YLE
ACC
BATT
GND
REDACC
YLEBATT
GND BLK 1
24
3
5A
5A
RELAY1
RELAY2
14
(E39-6689)
E30-6690
(E30-6693)
(E39-0906)
FFC
222
140
INTERCONNECTION DIAGRAM

64
KVT-719DVD/729DVD
/729DVDY/739DVD
ABCDE
1
2
3
4
5
6
7
1.0V
5.0V
0V
1.7V 1.7V
4.3V
0V
4.3V
8.0V
4.3V
4.3V4.3V
4.3V
3.3V
0V
8.5V
4.0V
4.0V
0V
4.0V 4.0V
8.0V
5.0V
5.0V
0V
0V
IC401
IC1
IC503
IC400
IC10
(X1
4
A
C
Q15 Q16
Q13
Q17
Q14
Q21
Q20
Q19
Q6
Q8
Q9
Q4
Q10
Q7
Q5
Q22
Q46
Q43
Q45
Q44
D517
D516
D515
D518
D511
D510
D512
Q32
Q33
Q34
Q31
D403
D505
D506
D507
D504
Q35
Q38
Q36
Q37
Q26
Q25
J1
D514
D513
D524
∗D527
∗D526
∗D525
D401
D402
D405
D406
P102 P101
D528
D529
D530
D531
D533
D535
D534
D532
D536
D508
D523
Q24
Q23
D1
D4
LED 9V
DVD A8V
A8V
J502
CN401
CN501CN503
3.3V AVR
Q1
D2
D3
Q508
D404
D400
Q3
Q2
5/5 X34-475
J501
X16-392(A/2)
CN101
3/5
to iPOD
iPod
8.5V REG.
REMO
AUDIO
ISO AMP
VIDEO
ISO AMP
OPE AMP
ACC
DET DET
BU
DET
BU
SHORT
PROTECT
8.5V
CONTROL
REG.
T P3.3V SW
ANALOG
SUPPLY
POWER
REFERENCE
P-ON 14V
CONTROL
P-ON 14V
ON/OFF
8V REG.
CONTROL8V REG.
8V REG.
8V REG.
CONTROL
9V REG.
CONTROL
9V REG.
CONTROL
PROTECTI
O
DC/DC
OUTPUT
VOLTAGE
DC/DC
SW
REMO. CON.
SIGNAL
1
11 1
1
2 2
2
2
TP543
TP542
TP546
TP545
TP544
TP547
TP101
TP103
TP108
TP105
TP107
TP109
TP104
TP106
TP112
TP111
TP117
TP114
TP110
TP113
TP115
TP119
TP121
TP120
TP123
TP122
TP129
TP133
TP143
TP142
TP141
TP139
TP132
TP136
TP137
TP134
TP138
TP131
TP127
TP130
TP135
TP128
TP140
TP116
TP118
TP124
TP126
TP125
TP102
TP4
TP402
TP401
TP404
TP403
TP5
TP7
TP8
TP9
TP11
TP12
TP13
TP14
TP19
DGND
TP405
ESD GND2
2200u16
C1
R551 10
R552 47K
R553 10
R554 47K
R557 10
R558 47K
R576 1K
R559 100
R560 100
R561 100
R562 100
R564 100
R565 100
R566 1K
10
C447
100
R572
75
R568
75
R569
75
R570
75
R571
22K
R410
0.47
C401
0.47
C402
2.2K
R414
0.01
C531
0.01
C530
0.1
C503
0.1
C505
0.1
C504
0.1
C506
0.01
C532
C521 0.1
4.7K
R591
330K
R14
330K
R15
11K
R11
100K
R12
220K
R16
220K
R17
R13 68K
R19 220K
220K
R22
0.1
C20
30K
R24
220K
R25
2K
R26
220K
R27
110K
R29
C24 10
220u16
C5
100u6.3
C6
C7 10
15K
R65
15K
R40
10
C34
R60 22K
4.7K
R43
560
R44
1
100
R76
33K
R69
C16
0.01
C12 10
C13 0.01
C22 10
10K
R61
3.3K
R56
2.7K
R57
11K
R59
3K
R55
11K
R54
3.3K
R51
2.7K
R52
39K
R53
C10 10
C11 0.01
180
L2
100u25
C19
3K
R50
82K
R34
R36 220K
R38 220K
C8 0.1 33K
R37
1
2
3
4
5
6
7
8
9
10
11
12
13
14
15
16
17
18
19
20
21
22
23
24
25
26
MAIN L
AGND
MAIN R
AGND
SUB L
AGND
SUB R
AGND
AMUTE
SD ATA
MD ATA
CLK
SREQ
MREQ
SYS ON
REMO
RESET
NC
COMP
VGND
COMP IN
VGND
B IN
G IN
R IN
VGND
12345
Lch
GND
Rch
VGND
VIDEO
110
IN2+
IN2-
NC
IN1-
IN1+
OUT2
VCC
VREF
GND
OUT1
5
4
3
2
6
7
8
9
60 59 58 57 56 55 54 53 52 51 50 49 48 47 46
4
DGND
DGND
USB1_5V
USB1_5V
USB1_5V
USB1_5V
SW5V
SW5V
SW3.3V
SW3.3V
SW3.3V
BU3.3V
DGND
DGND
DGND
GND
2
1
3
5
VCC
4
123456 7 8910111213141516171819202122
GND
GND
MIN DATA
KEY2
MINI CLK
REMO
MINI CS
RESET
NC
DSI
LED B
LED G
LED G
SW5V
SW5V
SRC
EJECT
BU3.3V
BU3.3V
SW3.3V
SW3.3V
PANEL DET
1
VOUT
VIN
GND1
2
3
BU GND
TP1
TP2
TP3
3ACC
1
4
2
0.47
9.1K
R4
C4
R2 6.2K
R1 6.2K
R5
47K
TP6
15K
R3
0.1
C2
0.1
C3
100
R77
220K
R280
R39
10K
R35
100
R73
100
R74
39K
R58
4
6
4
7
3
9
100
∗R594
100
∗R593
100
∗R592
73
94
72
74
Q203
100
∗R595
100
R598
100
∗R597
R584
100
R583
100
R582
6
58
88
17
100
0.1
C535
100
R587
100
∗R596
100
R588
1K
R586
100
R585
100P
C523
0
R581
C519 0.1
C518 0.01
4.7K
R590
R589 10K
R563 100
10
R555
47K
R556
75
R567
10
R573
10
R574
10
R575
4.7K
R577
0.1
C528
AGND
1
5
3
7
53
59
54
60
55
56
Q201
19
23
24
25
21
10
C442
10
C440
C445 10
10
C405
0.01
C404
10
C406
10
C407
1K
R415
0.47
C400
120
L401
15
2
2K
R412
2K
R405
8
0.47
C403
10
R403
10
R402
10
R400
22K
R411
USB5V
SW3.3V
BU3.3V
1000P
C451
3VINV+
VGND
GND
VOUT
2
1
4
5
100
R463
4.7
C463
100
R464
4.7
C464
10
R404
10
C465
75
R413
1000P
C452
VGND
V5V
A8V
AGND
BU
R10
220K
220K
R9
R8
33K
R7
51K
R6
100K
BU
TP3.3V
BU
BU GND
BU
BU3.3V
BU3.3V
BU3.3V
BU
SW14V SW14V
A8V
8
7
6
5
1
2
3
4
10K
R62
A8V
21
R18 0
LED9V
SW3.3V
0
R89
3K
R66
R70
2.7K
R68
3.3K
R67
BU3.3V
SW3.3V
AGND
BU GND
BU GND
BU GND
ESD GND2
19
BU GND
BU3.3V
TC3.3V
R41 2.7K
DVD_A8V
SW5V
SW5V_1
48
Q212
Q207
51
DGND
DGND
DGND
AGND
AGND
AGND
VGND
BU GND
ESD GND2
R401 10
SW14V
GND
VCC
10uH
L3
10u16
C14
+
0
R42
10
C17 20K
470
R502
R503
470
OUT
IC401 IC400
Q4-10
Q13
Q15-17
C23
Q23,24
Q19-21
Q22
Q32-34
Q31 Q36-38
Q44-46
Q101
Q508
SW14V-1
+
+
+
+
X14-983x-xx (1/5)

65
KVT-719DVD/729DVD
/729DVDY/739DVD
X14-983x-xx (2/5)
JIHGF
3.3V
0-19.0V
0-BU
5.0-19.0V
SW+B
0-5.0V
5.0V
0-5.0V
5.0-19.0V
0-BU
0-19.0V
5.0V
5.3V
0V
0.9V
1.2V
0-3.3V
0V
0V
0.6V
1.0V
0.9V
5.1V
5.1V
2.7V
5.5V
5.5V
3.3V
0.9V
1.2V
0-3.3V
0V
0V
1.0V
5.1V
0.9V
0.5V
5.1V
3.3V
0-19.0V
0-BU
5.0-19.0V
SW+B
0-5.0V
5.0V
5.0V
0-5.0V
0V
5.0-19.0V
0-BU
0-19.0V
5.3V
5.0/8.0V 0V
0/3.3V
0/5.0/8.0V
5.0/8.0V
0/5.0/8.0V
0/3.3V
0/3.3V
0/5.0/8.0V
5.0/8.0V
0/3.3V
0V
0/5.0/8.0V
0V
0/3.3V
0/5.0/8.0V
5.0/8.0V
0/5.0/8.0V
0/3.3V
5.0/8.0V 0V
0/3.3V
5.0/8.0V
0/5.0/8.0V
0/5.0/8.0V
0/3.3V
0-3.3V
0V
0-3.3V
0/4.5V
0V
0/3.6V
0/3.6V
0/4.5V 0/4.2V
0/4.2V
0V
0/7.9V
0/7.7V
0/7.9V
0/7.9V
3.3V
1.3V
0/3.7V
0.6V
0V
0.6V
0.6V
0/3.7V
1.3V
1.3V
0V
1.3V
5.0V
1.3V
0V
0/3.7V
1.3V
IC502
IC101
IC402
IC404
IC102
IC501
(X14-983x-xx)
D
Q103
Q101
Q106
01
Q104
Q105
D102D101
CN502
Q111
D104D103
Q110
Q108 Q109
SERIAL
PARALLEL
DVD or SEL1
X88-202
CN327 or CN328
2/5
DC/DC
DC/DC
5/7.5V
5V
3.3V
MOTOR
DRIVER
DC/DC
CONTROL
PROTECTION
PROTECTION
CONTROL
DC/DC
CONTROL
PROTECTION
DC/DC
OUTPUT
VOLTAGE
DC/DC
SW
5V
1
1
1
2
2
2
26 72
2
35
62753
4
4
8
TP504
TP505
TP506
TP507
TP503
TP501
TP502
TP513
TP512
TP514
TP510
TP511
TP508
TP509
TP519
TP521
TP517
TP518
TP515
TP516
TP528
TP524
TP523
TP534
TP533
TP535
TP531
TP532
TP529
TP530
TP540
TP537
TP536
TP543
TP542
TP544
TP554
TP553
TP549
TP548
TP552
TP557
TP555
TP551
TP550
TP520
MGND
TP541
TP522
TP15
TP16
V5V
MECHA8V
0.1
C508
10uH
L500
10
C517
0.1
C507
0.1
C501
0.01
C529
0
R501
R515 0
R514 0
R513 0
R512 0
R511 0
R509 0
R508 0
R507 0
R506 0
R505 0
0.01
∗C549
R504 0
22K
R519
0.1
C503
120
L402
CP403
10K
2.2K
CP401
C183 1000P
R133 560
R132 560
1000P
C184
560
R103
560
R1020.047
C101
1000P
C102
11K
R107
0
R106
6.2K
R105
C104 220P
0.01
C106
10K
R108
C108 100P
33K
R112
0.022
C109
33K
R116
1000P
C112
C114 220P
C115 0.047
R123
0
22
10
R120
C119 2.2
C120 0.1
R131
10
C185
10
C117
0.1
C118
22
R121
10uH
L103
C133 0.01
C191 0.1
C141 0.01
C193 0.1
C214
120u10
C140
C215
220u6.3
C130
C194 0.1
C131 0.01
C192 0.1
C123 0.01
C124 10
L101
10uH
1000P
C138
10
R135
1000P
C139
L104
10uH
1000P
C136
1000P
C137
L102
10uH
1000P
C127
1000P
C12610
R125
0
R129
0.022
R127
1000P
C128
10
R126
14
13
12
11
10
9
8
GND2
IN3
OUT3
VS2
OUT4
IN4
VC
1
2
3
4
5
6
7
VCC
IN1
OUT1
VS1
OUT2
IN2
GND1
12 3 45 67 89 1011121314
A5V
A5V
VGND
VIDEO
VGND
R
VGND
B
VGND
G
VGND
A8V
A8V
AGND
4948474645 44 434241403938373635343332313029282726252423222120191817161514131211109 87654321
BU3.3V
DGND
DGND
DGND
A8V
AGND
AUDIO1 L
AUDIO1 GND
AUDIO1 R
AGND
DGND
DGND
USB2.5V
EP BUDET
EP INI
EP STBY
EP CON
EP RST
EP MDATA
EP SDATA
EP SREQ
EP MREQ
USB2.5V
USB2.5V
DGND
DOT CLK
DGND
FILD DET
STH
PLL CLK
PLL EN
PLL DATA
CPV
HSY
VSY
OSD BLK
OSD R
OSD G
OSD B
V5V
V5V
V GND
EP SYNC
EP R
EP G
EP B
V GND
USB2_5V
OSD MODE
1
2
3
4
5
6
7
8
9
10
11
12
13
14
RUN/SS1
SENSE1+
SENSE1-
VOSENSE1
PLLFLTR
PLLIN
FCB
ITH1
SGND
OUT3.3V
ITH2
VOSENSE2
SENSE2-
SENSE2+
28
27
26
25
24
23
22
21
20
19
18
17
16
15
PGOOD
TG1
SW1
BOOST1
VIN
BG1
EXTVCC
INTVCC
PGND
BG2
BOOST2
SW2
TG2
RUN/SS2
1
2
3
4
5
6
7
8
VSS
DATA
CLOCK
Q0
Q1
Q2
Q3
Q4
16
15
14
13
12
11
10
9
VDD
Q11
Q10
Q9
Q8
Q7
Q6
Q5
1
2
3
4
5
6
7
8
IN1B
SW1
OUT1
GND2
OUT2
OUT3
SW3
IN3A
16
15
14
13
12
11
10
9
IN1A
GND1
IN2B
VCC
SW2
IN2A
GND3
IN3B
1K
R437
1000P
C105
R111 0
C110 47P R114 0
680
R118
5.6K
R117
68K
R115
0.01
C111
33K
R104
0.1
C121
0.1
C186
R122
C189 0.1C190 0.1
C134 10
47u25
47u25
10
R134
0.1
C116
0.01
C122
0.01
C132
1000P
C129
0.047
R137
TP17
R173
C177
1000P
C178
1000P
22
227
R14310K560
C164 0.01
C174 0.01
1000P
C152R153
C155 220P
C156 0.1
R155
5.6K
R156
680
68K
0
R161
R154
33K
0.022
C153
1000P
C151 47P
C149 47P
0.01
C147
C145 220P
10K
100P
C148
68K
R150
R146
1000P
C146
R152 0
0.015
C150
R149 0
33K
C143
R159
R160
R169
BG2
BOOST2
RUN/SS2
VOSENSE2
SENSE2-
SENSE2+
11
12
13
14
ITH2
SW2
TG2
17
16
18
15
EXTVCC
INTVCC
PGND
BOOST1
6
SGND
OUT3.3V
8
7
9
10
PLLIN
ITH1
FCB
SENSE1+
SENSE1-
VOSENSE1
PLLFLTR
3
4
5
21
20
19
22
10
C188
C187
0.1
24
VIN
BG1 23
25
26
SW1
TG1
C196 0.1
22
C157
0.1
1000P
C167
R163
10
1000P
C168
C163
0.01
10uH
L105
C158
10
C159
C160 2.2
0.1 C162
0.1
C195 0.1
C161 0.1
0.01
C173
10
R158 10uH
L107
C169R164
C172 0.01C165 10
C217
47u25 220u6.3
C171
C200 0.1
1000P
1000P
R166
0.022
C170
10
L106
10uH R188
0
D5V
TP18
1000P
C198 0.1
C197 0.1
C216
47u25
C199 0.1
C181
330u4
C182 0.01
C175 10
C179
C180
1000P
R171 0
R170 0
R144R145
PGOODRUN/SS1
128
10
R172
R175
0.033
SW3.3V
10
R176
0
0
R167
0.022
R165
46
47
39
TP20
C142 0.047
10uH
L108
IN1 IN3
2
VCC
1GND2 14
13
4VS1
OUT2
5OUT4
VS2
3OUT1 OUT3
GND1
7VC
6IN2 IN4
10
11
12
8
9
67
68
65
66
38
37
15
14
1
C417
750
R436
100
R435
100
R432
14
13
15
100
R434
VGND
0.1
C502
TP539
TP538
32
29
27
7
30
31
26
25
28
R510 0
59
75
55
43
50
51
11
18
16
17
11
16
Q401
8
20
2.2
C514
2.2
C513
22K
R518 14
5
A8V
BU3.3V
SW5V
V GND
DGND
DVD_A8V
SW14V
USB5V
P5V
SW5V
SW3.3V
PGND
PGND
0
R542
VCC VCC
VCC
SW3.3V
SW5V
A8V
USB5V
USB5V
USB5V
SW14V
100
R433
1
C419
1K
R443
R441 R442
1
SW5V
A8V
0
R138
5
3
1
10K
R420
12
6
51
DGND
100P
C107
AGND
PGND
PGND
V GND
DGND
0.1
∗C548
DGND
C408 0.1
R136
0.047
C93
0.1
C92
0.01
0.1
C95
0.01
C94
0.1
C97
0.01
C96
C99
C98
0.01
0.1
C554
0.1
C516
0.01
C515
C553
0.1
IC501,502
R162
0
Q106,108
R124
0
Q101
0
0
0
R168
0
R130
C422
+
++
+
+
+
+
+

66
KVT-719DVD/729DVD
/729DVDY/739DVD
X14-983x-xx (3/5)
KLMNO
0V
0/3.3V 0/3.3V
0/4.2V
0/4.2V
0V
0/7.9V
0/7.7V
0/7.9V
0/7.9V
3.3V
1.3V
0V
1.3V
5.0V
1.3V
0V
0/3.7V
3
V
1.2-2.2V
0V
1.4V
0/4.5V
1.4V
5.0V
2.0V
0V
0/4.2V
0/4.2V
0V
2.0V
0V
0V
2.0V
5.0V
0V
0.4V
2.0V
2.0V
1.3V
0.6V
0V
0.6V
0.6V
0/3.7V
1.3V
0/3.7V
0V
1.3V
5.0V
0/3.7V
1.3V
0V
1.3V
1.3V
5.0V
1.3V
3.3V
0V
5.0V
0V
4.0V
4.3V
4.0V
4.0V
4.0V
4.0V
4.0V
4.0V
4.3V
4.0V
0V
4.3V
4.0V
4.0V
4.0V
8.0V
0/8.0V
4.0V
4.0V
4.0V
4.0V
4.3V
8.0V
4.0V
0/8.0V
5
.
0
-
0-3.3V
0V
0V 0V
0-3.3V
3.3
V
0V
0-3.3V
3.3V
IC303
IC403
IC408
IC407
IC2
IC302
IC406
IC405
IC501
B
Q
D315
D322
D324
D316
D318
D320
D321
D317
D323
D314
Q401 Q309
D319
D312
D313
D503
D502
Q504
Q502
D501
Q503
Q501
SPD DIF
J501
SUB
MAIN
AUDIO SEL
VIDEO OUT
VIDEO IN
P103 P105
X34 or GRA
TC3.3V
CN101
X35-471(A/2)
4/5
CN6
X37-112
to DVD UNIT
HSYNC DELA
Y
NOT
DVD MUTE
DVD MUTE
CONTROL SPDIF
SIGNAL
COMP
O
SIGNA
HSY
SYNC
GRAPHIC
SYNC
1
1
11
1
6
11
3
11
7
7
2
26547 47562
6
7
2
5
4
8
8
8
8
8
10
108
14
14
14
14
TP573
TP563
TP558
TP572
TP564
TP559
TP560
TP574
TP566
TP557
TP570
TP567
TP568
TP561
TP575
TP571
TP555
TP565
TP569
TP577
TP576
TP362
TP361
TP360
TP359
TP358
TP357
TP355
TP356
TP350
TP353
TP351
TP349
TP354
TP352
TP348
TP347
TP343
TP346
TP344
TP342
TP345
TP341
TP339
TP340
TP334
TP337
TP335
TP338
TP336
TP333
TP331
TP332
TP328
TP329
TP327
TP326
TP324
TP325
TP322
TP330
TP323
MGND
DGND
BL GND
TP303
ESD GND2
TP579
TP578
TP580
F301
1.6A
0.01
C363
R376 100
R375 100
R374 100
10
C343
10
R337
30K
R335
30K
R336
360
R334
75
R536
0.1
C512
R534 10
R535 150
C520 10
C510 0.1
100
R527
C533 0.01
10uH
L501
470
R530
0.1
C508
CP403
10K 10K
CP402
1 2 3 4 5 6 7 8 9 10111213141516171819202122 23 24 25 26 27 28 29 30 31 32 33 34 353637383940414243444546474849 5
0
EX M+
EX M+
EX M-
EX M-
RI M+
RI M+
RI M-
RI M-
NC
SW A
SW B
SW C
Z SWT
Z CNT
R SENS
NC
SW+14V
SW+14V
BL GND
BL GND
INV PWM
INV SW
ENABLE
PWM
Y0
X1
X0
YD ATA
XD ATA
KEY1
AUTO DIM
VCOM
LED G
LED R
VGND
VR
VG
VB
VGND
VGND
VGND
CPV
TC3.3V
SP CLR
SP STB
SP DATA
SP CLK
BLK
HSY
GND
2
1
3
5
VCC
4
1
2
3
VIN
GND
VC
5
4
VO
NR
1
2
3
4
5
6
7
8
Y0
Y2
YCOM
Y3
Y1
INH
VEE
VSS
16
15
14
13
12
11
10
9
VDD
X2
X1
XCOM
X0
X3
A
B
161
X3INH
VSS
VEE
8
7
B
A
9
10
Y1
Y3
YCOM
Y2
Y0
6
5
4
3
2
X0
XCOM
X1
X2
VDD
11
12
13
14
15
0.01
C434
100
R458
47K
R460
100
R459
0.01
C433
10
C443
1
2
3
4
A
B
CLR
GND
8
7
6
5
VCC
RX/CX
CX
Q
NC
3
1
2
47K
R331
39P
C341
10uH
L301
10
C303
10
C304
10K
R326
100
R522
100
R525
100
R526
11 12 13 14 15 16 17 18 19 20 21 22 23 24 25 26 27 28 29 30 31 32 33 34 35 36 37 38 39 40 41 42 43 44 45 46 47 48 49 50
VGND
A8V
A8V
AGND
AGND
AREFL
AOUTL
A Sheld
AOUTR
AREFR
AGND
DGND
DGND
SPDIF
DGND
DGND
DISC DET
M/S
AMUTE
SDA
DGND
SCL
IFSEL
D5V
D5V
D5V
D5V
D5V
D5V
DGND
DGND
RESET
PGND
PGND
PGND
PGND
P5V
P5V
P5V
P5V
16
15
14
13
12
11
10
9
1
C420
0.01
C409
C411
R421 0
R423 100
C412
11
6
10
OUT3
SW3
IN3A
8
7
IN2A
9
GND3
IN3B
16
15
14
13
12
IN1B
SW1
OUT1
GND2
OUT2
1
2
3
4
5
IN1A
GND1
IN2B
VCC
SW2
1
2
3
SW
OUT
VCC
6
5
4
IN1
GND
IN2
1
2
3
4
5
6
7
IN1
GND1
CTLA
CTLB
CTLC
IN2
GND2
14
13
12
11
10
9
8
OUT
GND4
IN5
VCC
IN4
GND3
IN3
100
R448
R445 100
R446 100
330u6.3
C430
220
R450
1
C424
120
L403
10
C448
0.01
C429
0.01
C423
100
R451
750
R452
1K
R453
OUT2 OUT4
GND1
7VC
6IN2 IN4 8
9
66
MECHA
+3.3V
C540 0.1
C542 0.1
C544 0.1
C546 0.1
C547 0.01
C545 0.01
C543 0.01
C541 0.01
MGND
100
R387
100
R386
100
R385
100
R384
100
R383
100
R382
100
R381
100
R380
100
R379
100
R378
100
R377
0.1
C364
DGND
VGND
VGND
15
14
13
12
ND
19
2.2K
R449
9
10
11
21
R447 100
C425 1
1
C428
0
R444
1
C427
1
C426
100
R455
1
C431
1
C432
R454 0
8
VGND
1K
R425
1K
R426
1K
R427C414 1
23
11
24
16
1K
R428
1
8
100
R424
100
R422
1
C410
1K
R429
1
C415
1K
R430
VGND
10
C29
0.1
C28
0.1
C27
VGND
5
14
15
12
13
1
47K
R461
10
C444
3
7
215
10
C435
AGND
2.7K
R388
R389
0.01
C340
C305
360
R332
1K
R338
47K
R540
47K
R539
0
R500
470
R529
10
C551
0
R531
0
R532
10
C552
41
43
120u6.3
C539
+
44
42
0.01
C534
0.1
C511
DVD_A8V
12
1
0
R533
D5V SW5V
P5V
0
R538
0
R537
VCC
SW3.3V
SW5V
TC3.3V
A8V
TP3.3V
SW14V-1
TC3.3V
11
10
9
1
C419
0
R431
1
C421
0.01
C416
1K
R443
100
R438
750
R439
R440 1K
100
R441
750
R442
C418 1
PGND
SW3.3V
SW3.3V
DGND
3
1
5
81
95
84
83
82
96
78
79
80
98
99
49
77
52
IC205
93
97
Q207
Q205
R
G
B
43
86
85
50
0.01
C339
100
R457
100
R456
25
120
L404
SW5V
TC3.3V
1
12
Q401
5
14
DGND
DGND
DGND
DGND DGND
VGND
AGND
AGND
VGND
VGND
VGND
VGND
0.1
C359
TC3.3V
AGND
C515
C553
0.1
0.01
V5V
C413
1
1
+

67
KVT-719DVD/729DVD
/729DVDY/739DVD
X14-983x-xx (4/5)
TSRQP
3.3V
0V
0/3.3V
0.2-1.5V
3.3V
0/3.3V
3.3V
0V
3.3V
2.6V
0V
3.3V
0/3.3V
0/3.3V
0V
0/3.3V
0V
0/3.3V
0/3.3V
0/3.3V
0-3.3V
0
5.0V
0-5.0V
0V
0-3.3V
3.3V
V
3.3V
0-3.3V
0-3.3V
0-4.5V
0-3.3V
0V
0V
1.3V
5.0V
3.3V
1.5-2.7V
2.6-4.4V
0-3.3V
0/4.5V
2.3-3.1V
2.3-3.1V
2.3-3.1V
2.3-3.1V
2.3-3.1V
2.3-3.1V
0.8V
1.7-2.2V
3.0V
3.0V
0V
0V
0V
3.58MHz
2.4V
4.43MHz
0V
0-5.0V
0-5.0V
0-5.0V
5.0V
0V
2.2-10.0V
12.5V
0-3.3V
0-4.4V
0/3.3V
0-3.3V
3.3V
3.3V
0V
0V
0V
0V
0V
0V 3.3V
0V
3.3V
3.3V
IC304
IC203
IC204
IC302
IC301
IC202
NOT USED
Q306
Q301
Q308
Q304
Q307
Q305
Q201
Q203
D301
D310
Q
309
D311
CN301
P104
ROM CORRECTION
(X14-983x-xx)
∗ A
H
SYNC DELAY
CHROMINANCE
/GAMMA
RST
SET STORAGE
NOT
COMPOSITE
SIGNAL
IC301 SYNC
OUT MUTE
RGB SIGNAL
VCOM
u-COM
RST SWRST
KEY
45 12
2
2
2
2
13 13
13
452 2
8
8
88
8
8
10
10
10
TP302
TP305
TP306
C310 0.01
TP301
X202
32.768kHz
X201
4.950MHz
TP324
TP319
TP322
TP320
TP323
TP321
TP318
TP316
TP317
TP312
TP314
TP311
TP315
TP313
TP310
TP308
TP309
TP307
TP201
G
ND
VGND
TP304
TP213
TP212 TP214
TP215
L: COMP or RGB1
H: OSD
L: OTHERS
OUT
H: RGB1
H: GRAFIC
L: COMP
L: SYNC IN1
L: PAL
H: NTSC
H: SYNC IN2
R376
100
R375 100
R374 100
R373 0
R372 0
0.01
C361
0.1
C362
C356 10
C358 0.01
3.6K
R355
3.6K
R354
3.6K
R353
1K
R360
1K
R358
1K
R356
100K
R351
100K
R349
100K
R347
36K
R352
36K
R350
36K
R348
C350 10
C351 10
C352 10
1000P
C354
1000P
C353
1000P
C355
1K
R361
1K
R359
1K
R357
C333 10
C335 10
C336 0.1
C334 10
2.2K
R344
1000P
C338
22
C331
1.5K
R346
C327 10
C328 10
C329 10
C330 0.1
R322 0
R321 0
R320 0
X301
8P
C325
680
R319
X302
0.01
C324
0.47
C323
5.6K
R318
8.2K
R317
5P
C322
C311 0.01
C312 0.01
C316 1
R311 1M
C319 0.1
C321 0.01
0
R339
10
C343
10
R337
30K
R335
30K
R336
R209 4.7K
R210 4.7K
47 48 49 50 51 52 53 54 55 56 57 58 59 60 61 62 63 64 65 66
SP DATA
SP CLK
BLK
HSY
VSY
NCLP
POLS
VGND
STH
COMP
T P+3.3V
HSY ADJ
DOT CLK
D GND
D GND
LED GND
LED SW
+12.5V
NC
P ON+5V
P ON+5V
GND
5
VCC
4
8
7
6
5
C
X
X
Q
NC
NC
GND
3
1
24
VCC 5
47K
R331
39P
C341
10
C303
10
C304
0.1
C306
48
47
46
45
44
43
42
41
40
39
38
37
36
35
34
33
32
31
30
29
28
27
26
25
13
14
15
16
17
18
19
20
21
22
23
24
1
2
3
4
5
6
7
8
9
10
11
12
CS
DI
CLK
N/P OUT
DAC OUT
BLK IN
FRP
COM FRP
VCC3
COMOUT
GND3
COM DC
VCC2
BOUT
GOUT
ROUT
GND2
GND12
CO OUT P
4.433619MHz VCO IN P
APC FIL
NVCO OUT N
3.579545MHz VCO IN N
TC1
BIN1
GIN1
RIN1
BIN2
GIN2
RIN2
HFIL IN
VIDEO IN
AGC FIL
CLP
CIN
ACC FIL
HSY IN
SYNC OUT
SYNC IN2
SYNC IN1
HFIL OUT
SYNC SW
GND11
F ADJ
VCC1
PSAVE
SW2
SW1
2.2K
R305
680
R304
18K
R307
10uH
L302
10K
R324
0.1
C337
10K
R326
1
2
3
4
A0
A1
A2
GND
8
7
6
5
VCC
WP
SCL
SDA
1A0
A1
A2
2
3
GND
4
8
7
6
VCC
WP
SCL
SDA 5
C210 0.01
R205 100
R206 100
R207 100
R208 100
3
4NC
VSS
2
1
VDD
OUT
47K
R257
0.1
C203
47K
R201
C204 4.7
R203 018P
C207
120
L201
67 68
100
R371
100
R370
D GND
VGND
10uH
L305
0
R394
R
G
B
92
91
90
2.7K
R388
2.2K
R389
4.3K
R345
0.01
C342
10
C305
0.01
C344
1K
R338
0
R342
100
R302
12
1M
R313
10
C315
6800P
C317
R312 0
2.2K
R316
B
G
R
64
22
23
24
C301 1
1K
R301
0
R303
1
2
3
4
5
6
7
8
9
10
11
12
13
14
15
16
17
18
19
20
21
22
23
24
25
AV
R
AV
S
VM
U
HS
Y
AV
R
DSI
/
CIR
FL
M
VD
D
RE
G
VS
S
X1
X2
RE
S
XT1
XT2
PA
N
VS
Y
BU
D
OS
D
AC
C
r C
S
r D
A
r C
L
CIR
19
18
17
20
25
22
23
24
22P
C206
0
R202
7
6
3
4
21
R204 100
Q201
Q203
C205 0.1
26
SCL
SDA
VDD
VDD
VDD
SW3.3V
10
C201
0.01
C202
VDD
SW5V
VCC1
VCC1
VCC1
VCC1
TP3.3V
SW5V
+12.5V
55
59
50
15
86
85
50
18
89
100
R330
0.01
C339
3
4
10uH
L303
BU3.3V
87
61
47K
R308
0
R306
6
∗R259
1000P
C260
10K
∗R258
100K
R262
47K
R215
R309
0
11
13
14
16
15
17
18
C314 1
560
R310
820P
C313
0.01
C307
0.01
C308
0.01
C309
DGND
DGND
DGND
DGND
DGND
DGND
VGND
VGNDVGND
0.1
C
359
VGND
KVT-719DVD
KVT-739DVD
KVT-729DVDY
KVT-729DVD
MODEL NAME
2-71
0-10
3-21
UNIT
No.
0-71
0-21
0-11
3-22
KVT-739DVD
KVT-739DVD
KVT-819DVD
KVT-839DVD
2-72
0-22
0-72
KVT-829DVD
KVT-829DVDY
KVT-839DVD
KVT-839DVD
YES
YES
YES
YES
YES
527
D525-
YES
YES
YES
YES
YES
YES
YES
YES
YES
YES
IC450
YES
YES
YES
YES
R258
YES
YES
YES
YES
10K
30K
3.3K
R259
10K
10K
30K
10K
3.3K YES
YES
YES
YES
YES
R263,
592-597
YE
S
YE
S
YE
S
YE
S
YE
S
R26
26
6
YES
YES
YES
YES
YES
Q211,
212
OPEN/
CLOSE
100
R329
100
R328
100
R327
0
R325
0.01
C211
YES
YES
A
YES
YES
YES
YES
100P
C348
0
R248
548,549
C450,
Q306-308
Q201Q203

68
KVT-719DVD/729DVD
/729DVDY/739DVD
YXWVU
1
2
3
4
5
6
7
3.3V
0V
0
/3.3V
2
-1.5V
3.3V
0
/3.3V
3.3V
0V
3.3V
2.6V
0V
4.95MHz
3.3V
32.768kHz
/
3.3V
/
3.3V
0V
/
3.3V
0V
/
3.3V
/
3.3V
/
3.3V
0-3.3V
0-3.3V
3.3V
3.3V
0V
0-3.3V
0-3.3V
3.3V
0V
3.3V
3.3V
3.3V
3.3V
3.3V
3.3V
0-3.3V
0-3.3V
0-3.3V
0-3.3V
0-3.3V
0V
0-3.3V
0-3.3V
0-3.3V
3.3V
0/3.3V
0/3.3V
0-3.3V
0-3.3V
0-4.3V
0-5.0V
0/3.3V
3.3V
0-3.3V
3.3V
3.3V
0V
0V
0/3.3V
0/3.3V
0/3.3V
0/3.3V
0/3.3V
0V
3.3V
0-3.3V
0V
0/3.3V
0-3.3V
0-3.3V
0-3.3V
0/2.8V
0/2.8V
0/2.8V
0/3.3V
0.6-2.6V
0.6-3.0V
0.6-3.0V
0.6-3.0V
0-3.3V
0-3.3V
0/3.3V
0-3.3V
0-2.4V
0-2.8V
0-2.7V
0-3.3V
0-3.3V
0-3.3V
0-3.3V
3.3V
0V
3.3V
3.3V
3.3V
3.3V
0/3.3V
0/3.3V
0/3.3V
0-3.3V
0-3.3V
0V
IC205
∗IC450
IC201
KVT-719DVD/729DVD/729DVDY/739DVD (1/5)
Q206
Q204
Q205
Q207
Q208 Q209
Q210
∗Q212
∗Q211
IC1 : SI-3033KMS
IC2 : PQ1X331M2ZPH
IC10 : NJM4565V-ZB
IC101,102 : LTC3728LEGN
IC201 : 703261YGC315A
IC202 : S1000N30N4T1G
IC203 : BR24L08FV-W
IC205 : TC7SET08FU-F
IC301 : RB5P0090M
IC302,503 : TC7SET04FU-F
IC303 : TC7WH123FU-F
IC304 : TC7SH04FU-F
IC400 : NJM2505AF-ZB
IC401 : NJM2794RB2ZB
IC402 : BU2090FS
IC403,404 : MM1234XFBE-E
IC405 : BA7649F
IC406 : MM1508XNRE-E
IC407,408 : TC4052BFT
IC450 : M62320FP
IC501,502 : LB1836M-TLM-E
Q1,2,4,6,13,15,16,23,32,34,36,
38,44,46,301 : 2SC4081
Q3,5,17,20,21,24,33,37,45,401,504
: 2SA1576A
Q7,503 : DTA114EUA
Q8,10,25,101,204,206,208,209,
211,305 : DTC114YUA
Q9 : DTA114TUA
Q14,31,35,43 : 2SB1184
Q19,103,106,108,111,201 : DTC144EUA
Q22 : TPC8110-F
Q26 : 2SB1689
Q104,105,109,110 : HAT2218R-E
Q203,212 : DTA144EUA
Q205,207,210 : DTB123YK
Q304,306-309 : UMZ1N
Q501,502 : DTC323TU
Q508 : 2SC3437-F(Y)
D1 : 1SR154-400
D2,301 : DAN202U
D3 : UDZS6.2B
D4 : EP05Q04
D101-104 : 1SS357-F
D310,311,314-324,401,402,405,510-513,
515-518,523,525-527 : AVRM1608120M6A
D312,313,514,524 : AVRM1608180M6A
D400,406,502,528-536 : AVRM1608270MAA
D403,501 : DAP202U
D404 : UDZS4.7B
D503 : DA204U
D504-508 : STZ6.2N
GND LINE
SIGNAL LINE
B LINE
VIDEO LINE
NOT USEDIC204 :
SYSTEM u-COM
AND
PARALLEL
SERIAL
LED SW
(RED)
LED SW
(GREEN)
POWER SW
TDF
TDF LIQUID
BACKLIGHT
CRYSTAL
SW (BLUE)
12
12
2 2
2
13
8
8
8
8
8
8
2
6
8kHz
0
MHz
TP204
TP202
TP600
TP605
∗R265 0
∗R266 0
0.1
C209
R246 100
R245 100
R244 100
R243 100
R242 100
R241 47K
R240 100
R239 100
R238 100
R237 47K
R236 100
R234 100
R232 47K
R233 47K
R220 100
R221 100
R222 100
R223 100
R224 100
16
15
14
13
12
11
10
9
CS0
CS1
CS2
VDD
D7
D6
D5
D4
1
2
3
4
5
6
7
8
SO
SCL
SDA
D0
D1
D2
D3
GND
3
0
R253 100
R252 100
R251 100
47K
R276
X14 SIPA
X35 SIPA
100
99
98
97
96
95
94
93
92
91
90
89
88
87
86
85
84
83
82
81
80
79
78
77
76
75
74
73
72
71
70
69
68
67
66
65
64
63
62
61
60
59
58
57
56
55
54
53
52
51
26
27
28
29
30
31
32
33
34
35
36
37
38
39
40
41
42
43
44
45
46
47
48
49
50
1
2
3
4
5
6
7
8
9
10
11
12
13
14
15
16
17
18
19
20
21
22
23
24
25
TYPE0
XD ATA
YD ATA
AUTO DIM
ZACT CONT
R SENS
KEY2
KEY1
VB
VG
VR
VCOM
EJECT
LED SW
SIPA DATA2
SIPA CLK2
ZACT SW
SW C
SW B
SW A
X0
X1
Y0
ENABLE
FLMD1
FILD ET
ILL G/MINI CS
ILL R/MINI DATA
NC/MINI CLK
WRT E2P
BVDD
BVSS
SMOTOR P
SMOTOR M
TMOTOR P
TMOTOR M
NTSC PAL
TYPE2
TYPE1
OPEN CLOSE
SYS ON
SYS MREQ
SRC
TYPE3
SYS SREQ
SYS CLK
SYS MDATA
SYS SDATA
INV SW
MCNT
CIR RX
CIR INI
CIR RESET
CIR STB
CIR MREQ
CIR SREQ
CIR CON
EVSS
EVDD
SDA
SCL
SIPA CLK1
SIPA DATA1
PGOOD
NC/STATUS1
DISC DET
DVD RESET
DVD SDA
DVD SCL
INV PWM
POWER START
POWER PWM
PON
PWM
HSY(HD)
AVREF0
AVSS
VMUTE
HSY ADJ
AVREF1
DSI/SI
CIR BU DET/STATUS0
FLMD0
VDD
REGC
VSS
X1
X2
RESET
XT1
XT2
PANEL DET
VSY(VD)
BU DET
OSD MODE
ACC DET
r CS
r DATA
r CLK
CIR TX
2
R261 10K
R260 10K
100
R216
100
R217
100
R218
100
R219
100
R227
26
27
28
29
3.3K
R212
30
31
47K
R213
32
SDA
SCL
37
38
39
41
100K
R214
100K
R230
42
43
44
100
R225
4.7K
R228
4.7K
R229
100
R226
48
47
46
47K
R231
50
49
0.1
C208
10K
R211
SW3.3V
99
98
97
96
95
94
93
12K
R256
12K
R255
92
91
90
89
88
47K
R254
84
86
87
85
83
79
80
81
82
78
77
47K
R250
47K
R249
75
74
73
72
47K
R247
65
66
67
68
61
60
59
58
56
55
54
R235 100
53
51
52
Q207
Q205
Q212
SW5V_1
GND 4
VCC 5
3
2
1
IC205
0.1
C212
SCL
SDA
TP601
TP602
TP603
TP604
SW5V
220P
C213
SW3.3V
SW5V
VDD
VDD VDD
VDD
VDDVDD
SW3.3V
VDD
0.1
∗C450
SW3.3V SW3.3V
Q207
LED9V
LED9V
∗R263 10K
∗R264 10K
R259 10K
64
DGND
DGND
DGND
DGND
K
K
K
9
K
K
K
K
K
YES
YES
YES
YES
YES
R263,
592-597
YES
YES
YES
YES
YES
R264-
266
SW5V_2
Q204,205
Q206,207
Q208-210
Q211,212
No. MODEL MODEL
0-3.3VNC72
0-3.3V0/3.3V73
0-3.3V0/3.3V74
MIDDLE
LOW
PIN
CAUTION : For continued safety, re place safe ty critical com po nents only with manufacturer’s rec om mend ed parts (refer to parts list).
Indicates safety critical com po nents. To reduce the risk of electric shock, leakage-cur rent or re sis tance mea sure ments shall be car-
ried out (ex posed parts are ac cept ably in su lat ed from the supply cir cuit) be fore the ap pli ance is returned to the customer.
• DC voltages are as measured with a high impedance volt me ter. Val ues may vary slight ly due to vari a tions between in di vid u al in-
stru ments or/and units.
X14-983x-xx (5/5)

69
KVT-719DVD/729DVD
/729DVDY/739DVD
ZAA AB AC AD
1
2
3
4
5
6
7
5.0V
0V
0V
0-5.0V
0-5.0V
5.0V
5.0V
0-4.6V
5.0V
0V
0-3.3V
0V
0V
5.0V
5.0V
0V
0V
0V
0V
1.1V
2.3V
2.2V
0V
5.0V
5.0V
0-5.0V
0V
0-3.3V
0V
5.0V
2.2V
1.7-3.1V
1.5-2.5V
5.0V
0-3.3V
0V
0-3.3V
5.0V
0-3.3V
0V
0V
0-3.3V0-3.3V
0V
0V
0-3.3V
0-3.3V
0-3.3V
0V
0V
1.0V
0V
2.2V
5.0V
2.2V
3.3V
3.3V
0V
0V
5.0V
3.3V
0-3.
3
1.0V-4.0V
IC301
IC302
IC303
IC300
D
D300
∗CN327
∗CN328
∗ A
1/5
CN501
X14-
PLL 9.6MHz
COLOR TV
SIGNAL ENCODER
2-INPUT
AND GATE
312
1
2
1
2
3
2
1
1
2
2
1
5
4
4
5
5
45
DGND AGND
ZERO
AGND
10 AVDD
9
8
7
6
VOUTR
DVDD
DGND
2
5
4
3
MCLK
BCKIN
DIN
1LRCIN
DGND
VGND
C318
0.1
C322
27P
L303
68uH
0.1
C329
10
C336
3950
VGND
60 59 58 57 56 5355 54 52 51 4549 48 47 46 4244 43 41 40 283438 37 36 35 3133 32 30 29 2327 26 25 24 2022 21 19 18
R321
10K
C332
0.1
C331
10
VGND
TP300
RC1 SEROUT
L304
10uH
GCLAMP
AVCC1
RCLAMP
AGND1
NC44
VREFOUT
DGND
VCLK
BDATA0
BDATA1
BDATA2
BDATA3
37
C312
0.1
48
47
46
45
44
43
42
41
40
39
38
GDATA7
GDATA6
GDATA5
GDATA4
GDATA3
GDATA2
GDATA1
GDATA0
BDATA7
BDATA6
BDATA5
BDATA4
24
YTRAP
5
BCLAMP
AGND2
2
1
GOUT
ROUT
4
3
8COUT
YOUT
BOUT
7
6
AVCC2
VOUT
10
9
RDATA6
13
14
15
16
NT/PAL
NC12
NC11
12
11
SYNCIN
RDATA7
SCIN
17
18
19
20
21
22
23
RDATA5
RDATA4
DVDD
RDATA3
RDATA2
RDATA1
RDATA0
32
35
36
33
34
R308
10K
29
30
31
27
28
R310
10K
25
26
SYNCH
TP100
DGND
C306
0.1
C313
0.1
2
1
IRGND
48
47
HOLD
VCO
VCOL
VCOH
IOGND
5
4
3
7
6
5VCC
4GND
2
3
1
TLOAD
SDATA
SCLK
SENABLE
SYNC
SYNCL
10
9
8
12
11
13
14
CS
C330
0.1
CLK/2H
C305
0.1 VCOHGND
VCOGND
RC2
IREF
46
45
44
43
PLLGND
42
41
40
39
35
VOCLP
IOGND
38
37
PECLVcc 0.1
36
DSYNCL
DSYNCH
VBB
CLKL
CLKH 32
33
34
30
31
L300
10uH
C308
DIVOUT
UNLOCK
CLK/2N
DGND
15
16
17
18
19
20
21
22
CLK/2
CLKN
DSYNC
IOGND
CLK/2L
TTLGND
27
28
29
25
26
0.1
23
24
CLK
0.1
R317
22
R469
0
C320
C319
RST
C357
0.1
0.1
C478
C356
0.1 TP303
VD
D
VSS
CLK
O
VD
D
VSS
19
20
18
17
16
R463 0
R464 0
TP302
TP301
0.1
C355
CS
TES
T
TES
T
HBL
HS
Y
VBL
K
VSY
VD
D
15
14
13
12
11
10
9
8
SIN
SCL
CT
R
OS
C
OS
C
VSS
7
6
5
4
3
2
1
OSC
TP305
TP400
TP306 2P
C358
0
∗R493
10K
R438
24
DOT CLK
HSY
CPV
STH
VSY
V5V
V5V
EP B
V GND
OSD MODE
USB2 5V
V GND
EP SYNC
EP R
EP G
OSD BLK
OSD G
OSD B
OSD R
PLL CLK
PLL EN
PLL DATA
D GND
FLD DET
10K
R440
1217 16 15 14 13 911 10 8 7
211353 4 6 7 8 9 10 11 12 1614 15 17 18 19 20 21 22 23
A8V
AUDIO1 L
A GND
AUDIO1 R
A GND
D GND
D GND
D GND
D GND
A GND
D GND
SW5V
SW5V
SW3.3V
SW3.3V
SW3.3V
BU3.3V
D GND
USB2 5V
CIR RESET
CIR MDATA
CIR SDATA
CIR SREQ
CIR MREQ
UDB2 5V
USB2 5V
CIR BUDET
CIR STBY
CIR CON
CIR INI
46352725 26 28 29 30 31 32 33 34 3836 37 39 40 4341 42 44 45 4947 48 50 51 5
4
52 53
HSY
EP B3
EP B2
EP B4
EP B5
EP G3
EP G0
EP G1
EP G2
EP G4
EP G5
EP R4
EP R5
EP R3
EP R2
EP R1
EP R0
SYNC
10K
R322
R320
R523 0
EP B0
EP B1
TP348
TP347
EP B
EP R
EP G
0.1
C311
0.1
C304
0.068
C302
680P
C300
3K
R300
100P
C301
3K
R301
0.1
C307
10
C303
PLL EN
PLL CLK
PLL DATA
47K
R445
0.1
C325
15P
C328
100K
R318
100
R315
R496 0
R498 0
R500 0
TP304
HSYNC
C349 2P
10
C315
10
C314
0.1
C317
0.1
C316
10uH
L302
10uH
L301
R52
4
TP371
TP365
TP367
TP366
TP370
TP368
TP369
TP373
TP372
TP374
TP375
TP376
TP378
TP362
TP361
TP360
TP363
TP357
TP387
TP382
TP383
TP386
TP384
TP385
TP388
TP389
TP390
TP399
TP394
TP393
TP395
TP396
CPV
VSY
BLK
OSD R
OSD B
OSD G
HSY
DCLK
FLD DET
PLL CLK
STH
PLL DATA
PLL EN
C BU
C SDA
C MDA
C ST
C INI
C RST
C MR
C SR
C CON
EP R
EP G
EP B
SYNC
MODE
TP364
TP359
TP392
TP307
R465 0
10uH
L306
C352
0.1
C354
10
0.1
C351
R304 10K MCLK
LRCK
SDO0
SCLK
47K
R443
47K
R444
0
R529
0
R485
0
R486
0
R487
10uH
L305
SYNC
SPCLK
R305 10K
OCE
OCL
ODA
AL
AR
SW3.3V
C309
C310
TP398
TP397
VSY
28
20
C RST
V5V
V5V
SW5V
A5V
560
R462
PLLVCC
VCOVCC
IRVCC
IOVCC
PECLVCC
TTLVCC
DVCC
USB2 5V
USB2 5V
USB2 5V
10K
0.1
0.1
X88-2020-11 (1/6)

70
KVT-719DVD/729DVD
/729DVDY/739DVD
X88-2020-11 (2/6)
AE AF AG AH AI
8.0V
0V
5.0V
1.2V
0V
0-2.7V
3.3V
0-3.3V
3.3V
3.3-0V
0V
5.0-0V
0V
3.3V
0V
3.3V
0V
3
.3V 0-3.3V
0-1.0V
0-0.7V
0-0.7V
0V 3.3V
1.0-0V 1.2V
0V
3.3V
0V
0V
3.3V
0V3.3V0V
3.3V
1.0-4.0V
2.5V
5.0V
0V
3.3V
3.3V
0V
0V
3.3V
0-3.3V
1.2-3.7V
2.5V
2.5V
2.5V
2.5V
5.0V
1.2-3.7V
3.0V
0V
3.3V
0-3.3V 0-3.3V
3.3V
0V
0V
0-3.3V
3.3V
3.3V
0-3.3V
0V
3.3V
3.0V
0V
0-3.3V
1.2-1.8V
0V
0-3.3V
0-3.3V
3.3V
0V
3.3V
0-3.3V
3.3V
0-3.3V
0-3.3V
3.3V
0V
3.3V
0-3.3V
0-3.3V
3.3V 0V
1.0V-4.0V
IC301
IC305
IC316
IC309
IC335
IC332
IC322
IC336IC337
(X88-2020-1x)
Q302
Q303
P301
Q304
P302 P303 P304 P305 P306 P307 P308 P309P310
(0-11), (0-14) ONLY (0-13), (0-15) ONLY (0-10), (0-13) ONLY (0-12), (0-15) ONLY
(0-10), (0-12)
STEREO DAC
CPLD
∗ B
∗ C
(X88-2020-1x)
LPF
5V REG.
ON-SCREEN
DISPLAY CONTROLLER
TRIPLE INVERTER
TRIPLE SCHMITT INVERTER
OSD OUT
AMPLIFIER
CURRENT
1
2
2
2
1
54
3
6
C226
0.1
R325
10K
MODE
ZERO
CSBIWL
AGND
10 AVDD
9
8
7
6
VOUTR
DVDD
DGND
VMID
VOUTL 11
VREFN
VREFP
12
13
14
15
MUTEB
SDIDEM
2
5
4
3
MCLK
BCKIN
DIN
1LRCIN 19
SCK
16
17
18
LATI2S 20
R324
10K
GND
R327
8.2K
C341
330P
5
6
R329
4.7K
150
R333
8
7
VCC
C342
0.01
R326
8.2K
2
4
3
C340
R328
4.7K
330P
150
1
R332
A15
A14
A13
A12
A11
A10
VSS32
VDD32
VSS33
VDD33
GD1
RST
1
7
8
22
21
25
24
23
VDD13
VSS13
CLKOUT
VDD12
VSS12
19
20
18
17
16
RD1
RD2
GD2
RD0
0
CS
TEST2
TEST1
HBLK
HSYNC
VBLK
VSYNC
VDD11
15
14
13
12
11
10
9
8
SIN
SCLK
CTRL1
OSCOUT
OSCIN
VSS11
7
6
5
4
3
2
1
C368 0.1
C367 1
R467
C470
0.01
R446
100
R344 68
C362
L307
10uH
10
0
VCC
3
4GND
1
2
5
6
7
8
TP350
R472
0
L308
10uH
VDD14
BOUT
31
28
27
26
30
29
33
32
36
35
34
BD2
GD0
BLK
BD0
BD1
OUTR
VDD2
VSS14
GOUT
ROUT
39
38
37
40
VSS15
CVREF
CCOMP
VSS2
RREF
42
D11
D10 41
D9
D8 43
44
45
D0
D4
D7
D6
D5
46
47
48
49
D3
D2
D1
50
51
52
53
VSS31
VDD31
CE
OE
54
55
56
57
A17
A16
58
59
60
A2
0
R470
5
0
2
P
79
80
A1
A0
76
77
78
358
R494
93
0
70
73
A4
A3 74
75
A7
A6
A5
71
72
A8 68
69
A9
65
66
67
62
63
64
61
43 CNTL
9110 87654 132
AGND
GND
4
1
3
2
VCC
R525
8
6
5
7
200
SW5V
SW5V
SW3.3V
SW3.3V
SW3
.
3V
D GND
USB1 5V
USB1 5V
USB1 5V
USB1 5V
D GND
57051 5452 53 55 56 6058 59
USB SHELD GND
DGND
R509
0
C482
0.1
NB
C464
0.047
C468
10
R507
0
R506
0
R505
0
R503
0
TP337
DGND
A5 HSY OUT
48 13
R527
0
VGND
A9
3
A4
TDI
2
1
6
GND1
A7
A6
5
4
A8
VCCO1
8
7
GND2
12
11
10
TCK
A11
A10
9
VCC1
47
46
45
44
43
42
40
39
38
37
L309
10uH
R373
10K
L310
10uH
GND3
B14
A0/GOE0
A3
A2
A1
CLK0
CLK3
B15/GOE1
41
34
VCC2
GND4
B13
B12
TDO 35
36
VCCO2
31
B9
B10
B11
32
33
B8
29
30
B1
A12
A13
A14
A15
CLK1
CLK2
17
14
15
16
B0
18
19
20
OSD 9.6M B7
B5
B6 26
27
28
TMS 25
B2
B3
B4
21
22
23
24
C394
0.1
TP332
3
GND
4
2
1VCCVCC
GND
4
1
3
2
8
5
7
6
R481
0GND
VIN
2
1
6
5
7
8
2VCC
1
TCK
TDI
TDO
4
3
GND
TMS
6
5
R482
0
VOUT 5
R502
0
VSY
HSY
STH
CPV
C400
C401
C456
0.1
C460
10
TP356
TP319
TP320
TP328
TP330
TP331
TP329
TP334
TP333
0.1
C395
0.1
C392
0.1
C389
R376 2.2K
7
8
3
R478
R473
TCK
TDI
0
R452
22
R454
TP351
TP352
TP353
TP354
TP355
C472
0.1
C375
0.1
C361
0.1
C360
0.1
C376
6
0
8
0
0
0
10
R351
130
R352
100
R343
0.1
C363
1.5K
R345
1500P
C338
47K
R458
47K
R461
0.1
C323
R524 33 R447 5.1M
C471 0.01
TP402
28
20
0
0.1
C351
SD A
D
SD A
D
SD A
D
SD A
D
SD A
D
SD A
D
SD A
D
EP CA
S
EP RA
S
EP D
Q
EP SD
W
SD D
A
SD D
A
SD D
A
SD D
A
SD D
A
SD D
A
SD D
A
SD D
A
SD A
D
SD A
D
SD A
D
SD A
D
SD A
D
SD A
D
SD A
D
EP CA
S
EP RA
S
EP D
Q
EP SD
W
SD D
A
SD D
A
SD D
A
SD D
A
SD D
A
SD D
A
SD D
A
C219
0.1
C221
0.1
C220
0.1
0.1
C217
C218
0.1
SD D
A
10uH
L204
10uH
L203
1500P
C337
C324 0.1
C327 10
130
R348
10
R347
10
R356
130
R357
R369 100
R371 100
R367 100
R368 2.7K
2.7K
R370
2.7K
R372
OSD B
OSD G
OSD R
BLK
AR
AL
47K
R459
47K
R316
10
C326
19
7
8
21
3
19
21
R455 0
FLD DET
DCLK
MODE
0.1
C222
0.1
C223
0.1
C224
0.1
C225
EP SDCS0 R273 0
SW3.3V
TP398
TP397
TMS
TDO
TDO
TMS
TDI
TCK
28
330P
C473
0
R474
V5V
SW3.3V
SW5V
SW5V
SW3.3V
A5V
A5V
USB1 5V
DDX7019
MODEL NAME
0-13
0-12
0-10
0-11
UNIT
No.
YES
YES
YES
YES
AC B
0-15
0-14
KVT-719DVD
YES
YES
DDX7029/Y
KVT-729DVD/Y
DDX7039
KVT-739DVD
KVT-829DVD/Y
KVT-819DVD
KVT-839DVD
DDX8029/Y
DDX8019
DDX8039
USB2 5V
IC335-337
Q302-304
0
0
0.1
0.1
0.1

71
KVT-719DVD/729DVD
/729DVDY/739DVD
X88-2020-11 (3/6)
ANAMALAKAJ
3.3V
0-3.3V
3.3V
3.3V
0V
3.3V
3.3V
0-3.3V
0-3.3V
0-3.3V
0-3.3V
0-3.3V
0-3.3V
0-3.3V
0-3.3V
0-3.3V
0-3.3V
0-3.3V
0-3.3V
0-3.3V
0-3.3V
0-3.3V
0-3.3V
0-3.3V
0-3.3V
0V
0-3.3V
0V
0-3.3V
3.3V
0V
0V
0V
3.3V
0-3.3V
0-3.3V
0-3.3V
0-3.3V
0-3.3V
0-3.3V
0-3.3V
0-3.3V
0-3.3V
0-3.3V
0-3.3V
0-3.3V
0-3.3V
0-3.3V
0-3.3V
0-3.3V
0-3.3V
0-3.3V
3.3V
3.3V
3.3V
3.3V
3.3V
0V
0V
0-3.3V
0-3.3V
0-3.3V
0-3.3V
0-3.3V
0-3.3V
0-3.3V
0-3.3V
0-3.3V
0-3.3V
0-3.3V
0-3.3V
0-3.3V
0-3.3V
0-3.3V
0-3.3V
0-3.3V
0-3.3V
0-3.3V
0-3.3V
0V
0V
0V
0V
3.3V
3.3V
0-3.3V
0-3.3V
0-3.3V
0-3.3V
0-3.3V
0-3.3V
0-3.3V
0-3.3V
0-3.3V
0-3.3V
0-3.3V
0-3.3V
0-3.3V
0-3.3V
0-3.3V
0-3.3V
0-3.3V
0-3.3V
0-3.3V
0-3.3V
0-3.3V
0-3.3V
0-3.3V
0-3.3V
0-3.3V
0-3.3V
0-3.3V
0-3.3V
0V
0-3.3V
0-3.3V
0-3.3V
0-3.3V
0-3.3V
0-3.3V
0-3.3V
0-3.3V
0-3.3V
3.3V
3.3V
0-3.3V
0-3.3V
0-3.3V
0-3.3V
0-3.3V
0-3.3V
0-3.3V
0-3.3V
0-3.3V 0V
0-3.3V
0-3.3V
0-3.3V
0-3.3V
0-3.3V
0-3.3V
0-3.3V
0-3.3V
0-3.3V
0-3.3V
3.3V
0V 0-3.3V0.6-1.7V
0V
3.3V
0V
0-3.3V
0-3.3V
0.0V
0V
0-
3
0V
0V
0-3.3V
3.3
V
0V
0V
0V
0-3.3V
0V
3.3V
3.3V
3.3V
0-3.3V
0V
3.3V
0V
3.3V
0-3.3V
0-3.3V
0-3.3V
IC203
IC205
IC202
IC201 ∗IC211
IC200
IC207
CN210
SDRAM 256Mbit
BUS
TRANSCEIVER
iPod AUTHENTICATION
TRANSCEIVER
BUS
NOR FLASH
128Mbit
MEMORY
SDRAM 256Mbit
TRIPLE
INVERTER
45 54
3 3
8
7
6
7
8
6
6
7
8
7
6
9
9
9
8
6
11
10
11
12
2
6
1
DGND
R287 47K
R286 47K
R285 47K
DGND
4213
1
NC40LDQM
3223
VDD3
27
26
25
24
A3
A2
A1
A0
28
VSS1
A4
A5
A6
A7
29
30
31
22
21
20
A10
BA1
BA0
CS
19
18
17
16
RAS
CAS
WE
A8
A9
A11
A12
33
34
35
CKE
CLK
UDQM
36
37
38
39
DQ12DQ3
VSSQ2
VDDQ2
DQ6
15
14
13
12
VDD2
DQ7
11
10 DQ5
DQ4
9
8
DQ9
VSS2
DQ8
VDDQ3
40
41
42
43
DQ10
VSSQ3
DQ11
44
45
46
47
VSSQ1
VDDQ1
4
DQ2
DQ1
7
6
5
DQ0
VDD1
3
2
1
51
VDDQ4
DQ13
DQ14
48
49
50
VSSQ4
DQ15
VSS3
52
53
54
DGND
C228
10
A11BA0
VDD3
A1
27
26
25
A3
A2
24
23
22
21
A0
A10
BA1
A6
VSS1
A4
A5
28
29
30
A7
A8
A9
31
32
33
34
LDQM
17
20
19
18
CS
RAS
CAS
16
15
14
WE
VDD2
DQ7
38
A12
CKE
CLK
35
36
37
UDQM
NC40
VSS2
DQ8
39
40
41
0.1
C204
CP207 10K
CP206 10K
CP205 10K
CP204 10K
CP203 22
CP202 22
20 VCC
18
17
19
2
1
4
3
14
15
13
16
11
12
20 VCC
6
5
8
7
GND 10
9
505
VSSQ2
VDDQ2
VSSQ1
9
12
11
10
DQ6
DQ5
DQ4
DQ3
DQ2
8
7
6
46
VDDQ3
DQ9
DQ10
VSSQ3
43
44
45
DQ11
DQ12
VDDQ4
DQ13
47
48
49
VDDQ1
VDD1
DQ1
DQ0
4
3
2
1VSS3
DQ14
VSSQ4
DQ15
51
52
53
54
C227
10
L200
10uH
0.1
C203
CP201 22
CP200 22
12
19
18
16
17
14
13
15
2
4
3
6
5
8
7
11 GND 10
9
DGND
489
VSS1
A3
NC28
28
27
26
25
NC27
A1
A2
DGND
VCC1
NC30
A0
E
29
30
31
32
17
R223
47K
R222
47K
24
23
22
21
A4
A5
A6
20
19
18
A7
A17
A18
RB
13
16
15
14
WP
A21
RP
W
12
11
10
A20
A19
A8
A9
40
DQ1
G
DQ0
DQ8
33
34
35
36
DQ9
DQ2
DQ10
37
38
39
44
DQ3
DQ11
VCC2
DQ4
41
42
43
DQ12
DQ5
DQ13
DQ6
45
46
47
NC1
A13
8
7
6
A10
A11
A12
5
4
3
2
A14
A15
A22
L205
10uH
1NC56
VSS2
DQ14
DQ7
DQ15
49
50
51
BYTE
A16
NC55
52
53
54
55
56
R201
0
TP401
3
4
R297
10K
2
1
TP246
R248 47K
32.768kHz
X202
GND
5
VCC 7
6
8
R250 47K
R249 47K I2CADDR1 NC22
NC37
40
39
38
4XOUT
VCC1
1
XIN
3
2
NRESET
VCC2
VSS
I2CADDR0
I2CSCL
CLOCKENAB
7NC6
NC5
6
5
9
8
TP200
37
36
35
34
33
32
31
NC23
NC24
NC25
NC26
NC27
NC28
NC29
NC30
NC36
NC35
NC34
CLOCKOUT
NC33
NC31
27
30
28
29
24
25
26
22
23
NC14
T
P
I2CADDR2
10
CPREADY
MODE0
MODE1
11
12
13
SPIUCLK
I2CSDA
MODE2
ROSC
14
15
16
17
SPINSS
SPISIMO
SPISOMI
18
19
20
21
TP205
TP2
0
TP2
0
TP203
DGND
DGND
EP TXERR
EP RXERR
DGND
EP RXDVAL
EP MIIRXD0
EP MIIRXD1
EP MIIRXD2
EP MIIRXD3
EP MDC
EP MDIO
EP INT2
SW3.3V
SW5V
CIR RESET
NC
TCK
TMS
EP RXCLK
TRSTN
TDI
TDO
RESET J
DGND
632154987121110 19151413 1816 17 2220 21 2423 25
CTS0
RTS0
TXD1
TXD0
RXD1
RXD0
EP CRS
EP CLD
EP MIITXD3
EP MIITXD2
EP MIITXD1
EP MIITXD0
EP TXEN
EP TXCLK
DGND
32282726 313029 353433 383736 4039
SD AD2
SD AD3
SD AD1
SD AD0
SD AD14
SD AD10
SD AD15
EP CAS
EP RAS
EP DQM0
EP SDWE
SD DA7
SD DA6
SD DA5
SD DA3
SD DA4
SD DA2
SD DA1
SD DA0
SD AD5
SD AD4
SD AD7
SD AD6
SD AD9
SD AD8
SD AD11
SDCLK
EP CKE
SD AD12
EP DQM1
SD DA8
SD DA10
SD DA9
SD DA11
SD DA12
SD DA14
SD DA13
SD DA15
SD AD2
SD AD3
SD AD0
SD AD1
SD AD15
SD AD10
SD AD14
EP CAS
EP RAS
EP DQM2
EP SDWE
SD DA23
SD DA22
SD DA21
SD DA19
SD DA20
SD DA18
SD DA17
SD AD5
SD AD4
SD AD6
SD AD7
SD AD11
SD AD8
SD AD9
SDCLK
SD AD12
EP CKE
EP DQM3
SD DA25
SD DA24
SD DA26
SD DA27
SD DA28
SD DA30
SD DA29
SD DA31
1
9
1
2
1
1
2
0
1
1
1
7
1
8
1
C234
0.1
C233
0.1
1000P
C230
SD DA16
L DA14
L DA15
L DA13
L DA1
L DA10
L DA12
L DA11
L DA9
L DA8
L DA0
L DA2
L DA3
L DA4
L DA5
L DA6
L DA7
FSD14
FSD15
FSD12
FSD13
FSD1
FSD10
FSD11
FSD8
FSD9
FSD0
FSD2
FSD3
FSD4
FSD5
FSD6
FSD7
FSD2
FSD1
FSD8
FSD0
FSD9
FSD10
FSD11
FSD3
FSD12
FSD5
FSD4
FSD13
FSD6
FSD14
FSD15
FSD7
10
R213
u
H
0
4
10
R212
L AD14
L AD3
L AD2
L AD6
L AD5
L AD4
L AD8
L AD18
L AD7
L AD19
L AD22
L AD20
L AD21
L AD11
L AD9
L AD10
L AD13
L AD12
L AD16
L AD15
L AD23
L AD24
FSD3
FSD0
FSD9
FSD8
FSD1
FSD2
FSD10
FSD11
FSD5
FSD4
FSD12
FSD14
FSD13
FSD6
FSD7
FSD15
L AD17
47K
R293
0.1
C264
TP245
TP202
47K
R292
R202 10M
R291 33
330K
R203
22P
C200
22P
C202
0.1
C201
10
C275
1
2
2
1
2
3
1
2
4
1
2
5
0.1
C236
0.1
C235
1000P
C231
L AD1
0
R296
10
R227
1000P
C247
10
C244
S
U
I
33
R200
TP243
TP234
TP240
TP241
TP242
TP239
TP235
TP238
TP231
TP232
TP233
TP230
TP228
TP227
TP226
TP229
TP223
TP225
TP224
TP221
TP222
TP220
TP215
TP218
TP217
TP216
TP219
TP212
TP214
TP213
TP211
TP208
TP209
TP210
C RST
TP403
MIITXD1
TXCLK
MIITXD0
TXEN
MIITXD3
MIITXD2
RXD0
TXD0
RTS0
CTS0
TXD1
CRS
CLD
RXD1
TXERR
RXERR
RXCLK
MDIO
EP INT2
MDC
RXDVAL
MIIRXD0
MIIRXD2
MIIRXD1
MIIRXD3
RST
TRS
TMS
TDI
TDO
TCK
R267 4.7K
R268 4.7K
R269 4.7K
R220 4.7K
R221 4.7K
R270 4.7K
R271 4.7K
R219 4.7K
R284 47K
R266 4.7K
R265 4.7K
C RST
SW5V
SW3.3V
IC211
DW128F70NF5X2
DW128F70NF9W7
YES
YES
YES
YES
AC B
YES
YES
R493
DW128F70NF5X2
DW128F70NF5X2
DW128F70NF5X2
DW128F70NF9W7
YES
YES YES
YES
YES
D
YES
CN101
YES
YES
YES
YES
J101
YES
J100
YES
YES
CN327
YES
YES
YES
YES
CN328
YES
R32
YES
YES
YES
R31
YES
YES

72
KVT-719DVD/729DVD
/729DVDY/739DVD
X88-2020-11 (4/6)
AO AP AQ AR AS
0V
0-3.3V
0V
0V
3.3V
0V
0V
0-3.3V
0-3.3V
0V
0-3.3V
3.3V
3.3V
0V
0-3.3V
3.3V
3.3V
0V
1.8V
1.8V
0V
0-3.3V
0-3.3V
0-3.3V
0-3.3V
0-3.3V
0-3.3V
0-3.3V
0-3.3V
0-3.3V
0-3.3V
0-3.3V
0-3.3V
0-3.3V
0-3.3V
0-
3
0-3.3V
0-3.3V 0-
3
0-3.3V
0-3.3V
0-3.3V 0-3.3V
0-
3
0-3.3V
0-3.3V 0-3.3V
0-3.3V
0-3.3V
0-3.3V 0-3.3V
0-3.3V 0-
3
0-3.3V
0-3.3V
0-3.3V
0-3.3V
0-3.3V
0-3.3V
0-
3
0-3.3V
0-3.3V
0-3.3V
0-
3
0-3.3V
0-3.3V 0-
3
0-3.3V
0-3.3V0-3.3V
0-
3
0-3.3V
0-3.3V
0-
3
0-3.3V
0-3.3V
0-
3
0-3.3V
0-3.3V
0-3.3V
IC108
IC104
IC105
IC106
(BOTTOM VIEW)
MEDIA PROCESSOR
1.8V REG.
R
FLASH
M
bit
M
ORY
INVERTER
EXCLUSIVE OR GATE
4
5
3
3 3
7
8
9
6
7
6 9
8
4
9
6
4
11
11 11
10
10
10
12
12
13
13
5
14
15
1614
15
16
15 16
17
17
17 17
18
18
18
15 16
18
1615
15
16
18
18
16
DGND
R276
0
N
C14
TP244
ADY
O
DE0
O
DE1
11
12
13
SDA
O
DE2
O
SC
14
15
16
17
NSS
S
IMO
S
OMI
18
19
20
TP205
TP207
TP206
L212
10uH
R2
SD AD4
SD DA19 DA19
DA17
DA27
DA24
CP156 22
CP151 10K
CP159 22
CP158 22
CP157 22
CP154 10K
CP153 10K
CP152 10K
RD
EP DQM0
EP DQM1
EP DQM2
EP DQM3
EP SDWE
EP INT2
EP CKE
47K
R189
R185
47K
CP155 22
R176 22
R175 47
INT2
CKE
SDWE
R174 47
R173 68
R172 68
R171 33
R170 33
R169 22
DQM1
DQM2
DQM3
WR
DQM0
EP RAS
EP CAS
EP SDCS0
47K
R177
47K
R178
R168 22
R167 22
R166 22
R165 47
R164 47
R163 22
CAS
SDCS0
SDCS3
CS6
RAS
R162 22
R161 22
R160 22 CS0
CS3
CS2
T3
CP149 10K
CP150 10K
CP148 10K
CP146 68
CP147 10K
SD DA31
SD DA28
SD DA30
SD DA29
SD DA25
SD DA26
SD DA27
SD DA24
DA30
DA31
DA29
DA28
DA26
DA25
CP144 68
CP145 68
SD DA21
SD DA22
SD DA20
SD DA23
SD DA18
SD DA16
SD DA17
DA23
DA20
DA22
DA21
DA16
DA18
CP132 10K
33
CP133 10K
CP134 10K
R129 2.2K
DGND
R126 47K
R124 47K
R123 2.2K
R121 2.2K
R190 47K
CS6
CS2
CKE
0.1
C122
0.1
C120
C117
0.1
AD25
CS3
AD23
DA26
DA25
A1 A2
C1
B1 B2
C2
CP129 10K
CP130 10K
CP131 10K
CP127 22
CP126 22
CP128 10K
SD AD14
SD AD12
SD AD15
SD AD5
SD AD9
SD AD6
SD AD8
SD AD7
SD AD10
SD AD11
47K
R182 47K
R188 47K
DQM3
SDCS0
SDCLK
SDCS3
AD21
SDWE
DA22
DA15
DA23
DA24
AD3
RAS
E2E1
D1
R104
D2
F1 F2
R180 47K
R179 47K
C109
0.1
C110
0.1
DQM0
AD22
AD5
CAS
0.1
C104
0.1
C103
C108
0.1
DA18
DA16
DA19
DA20
DA21
AD6
AD7
DA13
DA14
G1 G2
J1
H1 H2
J2
DA31
AD20
A3 A4
B3
C3
B4
C4
E4E3
D3 D4
F3 F4
G3 G4
H3
J3
H4
J4
DA14
TXD1
TXD0
RXD0
RXD1
EP G3
EP G2
EP G4
EP G0
EP G1
EP B5
EP B4
EP B1
EP B0
EP B2
EP B3 E B3
CP104 22
CP105 22
N14
N15
N16
P16
E B1
E B0
E B2
CP108 22
CP109 22
E G1
E B5
E G0
E G2
E B4
E G4
E G3
EP R5
EP R3
EP R4
EP R2
EP R0
EP R1
EP G5
E R4
CP106 22
CP107 22
E R2
E R0
E R1
E G5
E R3
CP160 22
0.1
E R5
DGND
SD DA8
CP142 33
CP143 68
SD DA12
SD DA13
SD DA15
SD DA14
SD DA9
SD DA11
SD DA10
CP140 33
CP141 33
SD DA4
SD DA5
SD DA6
SD DA2
SD DA0
SD DA1
SD DA7
L DA9 DA9
CP138 22
CP139 33
L DA13
L DA15
L DA14
SD DA3
L DA10
L DA11
L DA12
DA13
DA15
DA10
DA11
DA12
CP136 22
CP137 22
L DA5
L DA6
L DA8
L DA7
L DA2
L DA4
L DA3
DA5
DA6
DA8
DA7
DA2
DA4
DA3
22
5
VCC
5
4
GND
VCC
1
2
3
4GND
1
2
3
22
C112
C153
C113
100u4
CP135 22
L DA0
L DA1
DA0
DA1
R33
47K
1VC
1
4GND1
VIN
3
2
SENSE
VOUT
5
CP122 22
CP123 22
CP124 22
CP125 22
L AD24
SD AD1
SD AD2
SD AD3
SD AD0
L AD16
L AD17
L AD22
L AD21
L AD23
L AD19
L AD20
AD24
AD25
AD23
AD21
AD20
AD22
AD16
AD17
AD19
CP118 22
CP119 22
CP120 22
CP121 22
L AD9
L AD10
L AD13
L AD12
L AD18
L AD15
L AD14
L AD11
L AD2
L AD3
L AD5
L AD4
L AD7
L AD8
L AD6
AD9
AD13
AD18
AD15
AD14
AD10
AD12
AD11
AD5
AD8
AD7
AD6
AD4
AD3
AD2
E R0
R186 47K
R187 47K
DQM1
DQM2
AD2
C107
0.1 AD4
DA10
DA12
DA9
DA8
DA11
AD1
E R5
AD0
K1
L1
K2
L2
M1 M2
AD14
AD15
AD13
R522
E B3
E R4
E R2
E R3
E R1
E G5
E G4
E G3
E G0
R2
E B2
E G1
T3
E B0
E B5
N1
P1
68
N2
P2
R1 R2
CP117 22
10
C106
0.1
C105
C114
0.1
L AD1
TP101
AD1
AD0
E B4
E B1
E G2
T1
U1
T2
U2
K3
L3
K4
L4
M3 M4
N3
P3
N4
P4
R3 R4
T3
U3
T4
U4
E12
D11
A12
D12
E11
A11
A10
D10
C13
B9
B11
B12
C12
B10
C11
C10
C9
A9
TXERR
RXERR
MIITXD3
CRS
MIITXD1
RXDVAL
MIIRXD0
CLD
MDC
RXCLK
MIITXD2
MIITXD0
TXEN
MIIRXD2
TXCLK
MIIRXD1
MDIO
MIIRXD3
4
8
8
4
SYNC
SDCLKSDCLK
1
000P
C247
10
C244
SPCLK
0.1
C102
SDA
SUB CLK
SCL
IPOD
47K
R260
47K
R259
47K
R258
100K
R255
47K
R295
47K
R294
SW3.3V SW3.3V
1.8V
1.8V
R24
C149
R181
+

73
KVT-719DVD/729DVD
/729DVDY/739DVD
X88-2020-11 (5/6)
AXAWAVAUAT
0-3.3V
0-3.3V
0-3.3V
0-3.3V
0-3.3V
0-3.3V
0-3.3V
0-3.3V
0-3.3V
0-3.3V
0-3.3V
0-3.3V
0-3.3V
0-3.3V
0-3.3V
0-3.3V
0-3.3V
0-3.3V
0-3.3V
0-3.3V
3.3V
0-3.3V
0-3.3V
0-3.3V
0-3.3V
0-3.3V
0-3.3V0-3.3V
0-3.3V
0-3.3V
0-3.3V
0-3.3V
0-3.3V
0-3.3V
0-3.3V
0-3.3V
0-3.3V
0-3.3V
0-3.3V
0-3.3V
0-3.3V
0-3.3V
0-3.3V
0-3.3V
0-3.3V
0-3.3V
0-3.3V
0-3.3V
0-3.3V
0-3.3V
0-3.3V
0-3.3V
3.3V
0-3.3V
3.3V
3.3V
0-3.3V
0-3.3V
0-3.3V 0-3.3V 0V 0V 0V
1.8V
0V 0-3.3V
0V
0-3.3V
0-3.3V
3.3V
0V
0V 0V
0V
0V
0V
3.3V
0-3.3V
1.8V
3.3V
0-3.3V
3.3V
1.8V
3.3V
0-3.3V3.3V
0-3.3V 0-3.3V 0-3.3V
0-3.3V
0-3.3V
1.8V
0-3.3V
0-3.3V
0-2.0V
0.2-1.2V0V
0-3.3V
0-3.3V 0-3.3V
0V 0V
0V
1.8V
0-3.3V 0-3.3V 0-3.3V 0-3.3V 3.3V 3.3V
0-3.3V
0-3.3V0-3.3V
0-3.3V
0-3.3V 0-3.3V
0-3.3V
0-3.3V
0-3.3V 0-3.3V 0-3.3V
0-3.3V
0V
0-3.3V
0-3.3V
0-3.3V
0-3.3V
0-3.3V
0-3.3V
0-3.3V
0-3.3V
0-3.3V
0-3.3V
0-3.3V
0-3.3V 0-3.3V 0V
0-3.3V
0-3.3V 0-3.3V
0-3.3V
0V
0-3.3V
0-3.3V
0-3.3V 0-3.3V
0-3.3V
0-3.3V 0-3.3V
0-3.3V
0-3.3V
0-3.3V
0-3.3V
0-3.3V
0-3.3V
0-3.3V
0-3.3V
0-3.3V
0-3.3V
KVT-7
1
D102 D106
D107
IC10
IC10
4
IC10
5
IC10
IC10
IC20
IC20
IC20
2
IC20
IC21
IC30
IC30
IC30
2
IC30
3
IC30
5
IC30
IC32
2
IC33
2
IC33
5
Q30
2
D10
2
D10
4
D30
0
S
SOR
3
3
3
3
33
11
11
11
17 17
17
17
14
5
13
15
16
5
13
5
5
5
5
13
13
13
13
18
16
C11
0.1
C123
0.1
C121
R199 47K
R198 22
R196 22
DA31
AD24
AD20
DA30
DA29
AD19
AD18
C MR
DA27
DA17
DA28
A
3A4
B
3
C
3
B4
C4
A5 A6
B5
C5
B6
C6
R1 47K
R157 22
R197 22
C INI
C SR
C ST
WR
R183 47K
R184 47K
RD
AD16
AD17
A9
B10
B9
C9
A10
C10
D10
A11
B11
C9
B9
A9A8A7
C8
B8B7
C7
A10 A11
B10
C10
B11
C11
E4
E
3
D
3D4
F
3F4
E5
D5 D6
E6
F5 F6
G
3G4
H
3
J
3
H4
J4
G5 G6
H5
J5
H6
J6
F9
E9
D9D8D7
F8
E8E7
F7
D10 D11
E10
F10
E11
F11
H9H8
J8
H10
J10
K
3
L
3
K4
L4
M
3M4
K5
L5
K6
L6
M5 M6
N
3
P
3
N4
P4
R
3R4
N5
P5
N6
P6
R5 R6
M9
K9K8
M8M7
K10
M10 M11
R9
P9
N9
P8
N8N7
P7
R8R7
N10
P10
N11
P11
R10 R11
T
3
U
3
T4
U4
T5
U5
T6
U6
DA7
DA6
DA5
AD12
AD11
U9
T9
U8
T8T7
U7
DA1
DA2
DA4
DA3
DA0
AD8
AD9
AD10
T10
U10
T11
U11
TDO
TMS
10K
R109
R112
TCK
TDI
2.2K
R115
2.2K
IPOD
C16
B16
A16
TP120
D12
D11
E11
A12
C12
B12
C13
E12
A12 A13
B12
C12
B13
C13
A15A14
C15
B15B14
C14
47K
A17
B17
C17
C130
C134
10
0.1
MCLK
L101
10uH
OCE
C135
0.1
J16
G16
H16
F16
E16
D16
D12
D13
E12
F12
E13
F13
E14 E15
D15D14
F15F14
G12 G13
H12
J12
H13
J13
G15G14
J15
H15H14
J14
∗R31 47K
∗R32 4.7K
E17
D17
TP105
0
F17
TP119
R12
R147 22
TP118
R105 10K
C CON
22
C BU
E15
E14
R195
C129
0.1
G17
TP116
TP117
H17
J17
47K
R13
C154
C RST
SUB CLK
H14
0.1
RST
R153
0
0.1
C128
R16
P16
N16
M16
L16
K16
K12
L12
K13
L13
M12 M13
L15
K15K14
L14
M15M14
N12
P12
N13
P13
R12 R13
P15
N15N14
P14
R15R14
R135 47K
R194 22
14.7456MHz
R139 1M
K17
L17
C126
C133
R134
22
0.1
10
M17
X100
10uH
C138
10P
L102
C127
0.1
N15
SDO0
N17
P17
R10 22
R159 22
R158 22
TP115
R17
R193 22
R130 22
TP102
LRCK
N16
RTS0
N14
C SDA
C MDA
P16
2
3
ODA
R5 22
INT2
T15
SCLK
C124
0.1
U16
T16
T12
U12
T13
U13
R118 10K
R116 10K
SDA
SCL
U15
T15T14
U14
T17
U17
R132
C125
22
R7
22P
R9 C116
R4
OCL 22
4.7K
CTS0
U16
C119
0.1
C118
0.10.1
C144
0.10.1
C115
T15
2
E14
E15
G13
H14
G13
10P
C139
R2 47K
47K
R192
560
R14
CS0
TRS
4.7K
R137
R108 10K
R107 10K
22
R150
33
R34
SW3.3V
SW3.3V
USB1 5V
1.8V1.8V
1.8V
USB2 5V
R8 47K
R3 22
R6 47K
R131 22
R37
R36 33
R191
22

74
KVT-719DVD/729DVD
/729DVDY/739DVD
BCBBBAAZAY
1
2
3
4
5
6
7
0V
5.0V
3.3V
0V
5.0V
3.3V
5.0V
0V
3.3V 3.3V
0V
5.0V
IC101
IC100
KVT-719DVD/729DVD/729DVDY/739DVD (2/5)
D103
D102
D105
D104
∗J100
D106
D107
D108
D109
∗J101
∗CN101
IC100,101 : MIC2005-05YM6
IC104 : TC7S86FU-F
IC105 : SI-3018KM
IC106 :
IC108 : TC7SH04FU-F
IC200,316 : TC7WHU04FU-F
IC201,205 : TC74LCX245FT
IC202,203 : K4S561632HUI7
IC207 : 341S1962
IC211 : ∗
IC300 : CXA3266Q
IC301 : WM8728SEDSR
IC302 : BH7240AKV
IC303 : TC7SET08FU-F
IC305 : NJM2100V-ZB
IC309 : LC74735NW8A20
IC322 : L4032VN8IPINO
IC332 : NJM2864F05-ZB
IC335-337 : TC7WH14FU-F
Q302-304 : 2SA1576A
D102,103,106,107
: AVRL1613R3FTA
D104,105,108,109
: IMSA-6802-E
D300 : DA204U
VIDEO LINE
SIGNAL LINE
GND LINE
∗ D
DISTRIBUTION SW
to USB CORD
B LINE
1
3
1
3
1
3
USB
100P
220u6.3
FAULT
CSLEW
VOUT
FAULT
CSLEW
VOUT
2
DGND
R30
4.7K
3ENABLE
GND
1VIN
100P
R149
4.7K
3
2
1VIN
ENABLE
GND
5
DGND
R142
22
4R29
47K
TP113
TP111
C142
220u6.3
TP112
L104
30
L103
30
2
TP114
3
4
1
6
4
5
R148
47K
6
1
4
3
2
DGND
R16 22
R15
22
R18 15K
R17 15K
C148
56
USB SHELD GND
6
8
7
10
9
8
7
4
5
1
2
3
TP110
U16
T15
3
2
E14
E15
G13
H14
SHELD
GND
R145 15K
R146 15K
33
R34
22
R141
R35 33
SW3.3V
USB1 5V
USB2 5V
33
R37
R36 33
30
L106
30
L105 TP107
TP109
TP108
1
C143
1
C140
C101
C100
+
+
CAUTION : For continued safety, re place safe ty critical
com po nents only with manufacturer’s rec om mend ed parts
(refer to parts list).
Indicates safety critical com po nents. To reduce the risk
of electric shock, leakage-cur rent or re sis tance mea sure -
ments shall be carried out (ex posed parts are ac cept ably
in su lat ed from the supply cir cuit) be fore the ap pli ance is
returned to the customer.
• DC voltages are as measured with a high impedance
volt me ter. Val ues may vary slight ly due to vari a tions be-
tween in di vid u al in stru ments or/and units.
2SB1565
DTA143XE
DTA143ZE
DTA144EUA
DTB123YK
DTC114YE
DTC114YUA
2SA1576A
2SC4617
2SB1188
2SB1184
2SB1443
DTC323TU
2SA1774
2SC4081
DTA114EUA
DTA114TUA
DTA124EUA
DTC124EUA
DTC144EUA
DAN202U
DAP202U
DA204U
2SK3019
BU2090FS
TC7SH04FU-F
TC7S08FU-F
TC7S86FU-F
X88-2020-11 (6/6)

75
KVT-719DVD/729DVD
/729DVDY/739DVD
BD BE BF BG BH
1
2
3
4
5
6
7
0-5.0V
5.0V
0V
IC201
C
(A/2)
(X16- ) (B/2)
(X16-392x-xx)
KVT-719DVD/729DVD/729DVDY/739DVD (3/5)
D217
S201
D214
D216
D215
D212
D213
D211
CN201
D223D224
Q204 Q205
D412
D411
Q101
J201
J101
D102
D104
D103
D105
CN101
D101
D106
D201
D207
D410
S206
S207
D208
D209
D225
Q206
VOL-
∗ A
RESET
SRCBLUE
FM
AM
BLUE
BLUE
GREEN
RED
LED R
D405
D404
D406
D407
D409
D203
REDGREEN
D408
D205
1/5 X14-983-
to W02-5159-∗5 MINI LCD
GND LINE
B LINE
IC201 : RS-181
Q101 DTC114YUA:
Q204-206 2SA1576A:
D101,203 B30-1713-05:
D102,404-410 AVRM1608180M6A:
D201,214-216
D103-106
UDZS6.2B
AVRM1005270MAA
:
:
D217
D211-213
D207-209
AVRM1608120M6A:
DA204U
B30-1767-05
:
:
:
D221-225
D411,412
B30-1605-05
DAP202U
:
:
DISC
GREEN
RED
S202
ATT
S203
DISP
S208
EJECT
RED
GREEN
D221 D222
VOL+ S204
S205
D205 B30-1740-05:
REMOTE
SENSOR
∗ C
∗ B
CN503
(X16-392x-xx)
LED SW
LED SW
LED
SW
DSI SIGNAL
CONTROL
TP204
TP200
TP201
TP203
1110987654321
180
R207
R208
330
LED G
LED B
GND
LED R
GND
VCC
CS
GND
SDA
SCL
VCC
C201
0.1
R213 680
TP214
TP213
TP211
TP210
TP209
TP207
TP205
TP206
TP208
10K
R211 100
R210 100
R242
10K
C202
R212 100
1
R245
10K
R243
100
R214
13
KEY2
31
2
GND
NC
LCD DATA
RESET
LCD CLK
REMO
LCD CS
4
57
68
14
NC
GND
16
15
LCD DATA
RESET
LCD CLK
REMO
LCD CS
KEY2
13
12 10
11 9
100
100
R103
1
GND
73
246
5
TP102
108
911
12
MINI CLK
(NC)
GND
KEY2
REMO
RESET
DSI
MINI CS
MINI DATA
LED G
LED B
NC
14
EJECT
SW5V
LED G
LED B
11
10
9
12
13
SRC
PANE L
SW3.3V
15
16
NC
EJECT
SW5V
LED G
LED B
68
7
SRC
5
4
PANE L
SW3.3V
2
31
R105 1K
R104 1K
100
TP103
R107 1K
14
15 17
16 18
2119
20 22
SW5V
SW5V
LED G
EJECT
SRC
SW3.3V
SW3.3V
PANEL DET
C203
220P
100
R217
8.2K
R224
R225
15K
R226
47K
R239
470
100
R203
CS
SCL
SDA
CS
SDA
SCL
R215 560
R222 390
R244
10K
100K
R216
2.2
C204
R106
BU+3.3V
BU+3.3V
470
R237
R219
390
470
R221
R234
2.2K
R235
2.2K
R236
470
470
R240
390
R238
KVT-739DVD
MODEL NAME
0-10
A
KVT-729DVDY
KVT-729DVD
KVT-719DVD
R204
R202
180
330
R201
1.5K
R205
2.7K
R206
3.3K
R209
4.7K
0-11 YES
UNIT No.
R102
R101
1K
43
GND VCC
GND
2OUT 1
TP101
DET
DET
KVT-839DVD
KVT-829DVDY
KVT-829DVD
KVT-819DVD
B
YES
C
Q101
CAUTION : For continued safety, re place safe ty critical com po nents
only with manufacturer’s rec om mend ed parts (refer to parts list).
Indicates safety critical com po nents. To reduce the risk of electric
shock, leakage-cur rent or re sis tance mea sure ments shall be carried
out (ex posed parts are ac cept ably in su lat ed from the supply cir cuit)
be fore the ap pli ance is returned to the customer.
• DC voltages are as measured with a high impedance volt me ter.
Val ues may vary slight ly due to vari a tions between in di vid u al in-
stru ments or/and units.
X16-3920-10 (1/1)

76
KVT-719DVD/729DVD
/729DVDY/739DVD
BI BJ BK BL BM
1
2
3
4
5
6
7
0V
0V
3.3V
3.3V
0V
3.3V
0V
5.0V
3.3V
3.1V
0V
18.6V
18.7V
0-3.3V
0-19.1V
5.0V
1.3V
1.3V
0V
0-13.2V
1.5V
1.6V
0V
1.6V
1.0-3.0V
5.0V
0 or 3.3V
0-3.3V
0-3.3V
0V
0V
0 or 3.3V
3.3V
0V
0V
3.3V
0-3.3V
0-4.6V
0-4.8V 0-3.3V
3.3V
3.3V
0V
3.3V
0.8-2.4V
3.3V
0V
0V
3.3V
0-3.3V
3.3V
3.3V
0V
0V
0V
0V
3.3V
3.3V
0-3.3V
0-3.3V
0 or 2.8V
0-3.3V
0-3.3V
3.3V0V
5.0V
0V
5.0V
0-4.8V
0.2-4.5V
0-3.3V
3.3V
0-3.3V
0-3.3V
IC102
IC103
IC101
IC303
IC301
IC304
IC302
B
(X35-4710-10) (A/2)
Q301
Q303
D102
D303
D104
D101
D103
CN101
D301
D309
1/5
CN301
X14-983
P101
DC/DC
SERIAL-
CONVERSION
PARALLEL
NOT
MONO MULTI
PLL
LPF
TIMING CONTROLLER
AND
VCO
BUFFER
TP352A
TP350A
TP348B
TP347B
TP346B
TP345B
TP344B
TP343B
TP342B
TP341B
TP340B
TP339B
TP338B
TP337B
TP335B
TP336B
TP334B
TP333B
TP332B
TP351A
TP349A
TP354B
TP355B
TP317A
TP103ATP103B
TP330B
TP331B
TP329B
TP327B
TP328B
TP326B
TP323B
TP324B
TP376B
TP375B
TP319B
TP325B
TP318B
TP317B
TP318A
TP315B
TP314B
TP316B
TP312B
TP306B
TP311B
TP309B
TP307B
TP308B
TP304B
TP305B
TP301B
TP303B
TP302B
TP378B
TP313B
1
2
3
4
A
B
CLR
GND
8
7
6
5
VCC
RX/CX
CX
Q2
3
1
4
5
0.01
C119
0.01
C121
0.1
C120
750K
R118
R100
10
C117
1000P
6
7
8
9
10
VIN
SW2
SHDN
VO2
VON
5
4
3
2
1
GND
SW1
CT
FB2
FB1
C116 22
C102 10
0.1
C105
180K
R103
0.15
C112
13K
R104
0.22
C114
0.1
L103
4.7uH L106
10uH
L102 3.3uH
L101 3.3uH
C101 0.1
C118 0.01
0.01
C110
C115
L104
10uH
22u16
C104
C107 10
C106 0.01
10K
R219
R119 2.2K
10uH
L105
C103 0.01
C108 10
TP102A
TP102B
TP101BTP101A
1
C109
2.2
C113
11K
R102
150P
C100
100K
R101
47K
R105
VR203
10K
1K
R218 0
R201
1
2
3
4
5
6
7
8
9
10
11
12
13
14
15
16
17
18
19
20
21
22
23
24
25
26
27
28
29
30
31
32
33
34
35
36
37
38
39
40
41
42
43
44
45
46
47
48
49
50
51
52
53
54
55
56
57
58
59
60
61
62
63
64
65
66
67
68
P ON+5V
P ON+5V
NC
+12.5V
OPEN/CLOSE
LED SW
LED GND
D GND
D GND
DOT CLK
HSY ADJ
T P+3.3V
COMP
STH
VGND
POLS
NCLP
VSY
HSY
BLK
SP CLK
SP DATA
SP STB
SP CLR
TC+3.3V
CPV
VGND
VGND
VGND
VB
VG
VR
VGND
LED R
LED G
VCOM
AUTO DIM
KEY1
XDATA
YDATA
X0
X1
Y0
PWM
ENABLE
INV SW
INV PWM
BL GND
BL GND
SW+14V
SW+14V
NC
MECHA+3.3V
R SENS
Z CNT
Z SWT
SW C
SW B
SW A
NC
RI M-
RI M-
RI M+
RI M+
EX M-
EX M-
EX M+
EX M+
R
G
B
28
DATA
CLK
8
9
11
12
13
TP310BTP310A
F100
0.63A
E_M+
E_M-
R_M+
R_M-
59
58
57
56
55
54
47
46
45
44
43
42
41
40
39
38
37
0.01
C347
220
R389
0
R381
1K
R392
2K
R394
10
R391
2K
R393
0.01
C337
100
R396
0
R609
0
R610
0
R611
C301
0.01
C302
0.1
0.01
C303
C330
0.01
4.7K
R321
0
R304
10uH
L302
C334
10
C304
10
10
C305
68K
R327
15K
R328
47K
R326
4.7K
R324
0.1
C318
4.7K
R325
0.1
C316
0.1
C315
3
2
1
IN-
V-
IN+
4
5
OUT
V+
680P
C326
68K
R345
0.1
C327
1M
R346
2K
R348
0.1
C335
1.8K
R330
C349 33P
R331 330
R332 3.3K
1000P
C322
100P
C323
15K
R347
C328 0.1
C350 10
5.6uH
L306
820nH
L307
1
C348
9.1K
47K
R380
82
R355
100P
C329
0.01
C346
30
R354
0.01
C324
C320 33P
5.6K
R378
13K
R349
1
2
3
4
5
6
7
8
VSS
DATA
CLOCK
Q0
Q1
Q2
Q3
Q4
16
15
14
13
12
11
10
9
VDD
Q11
Q10
Q9
Q8
Q7
Q6
Q5
R358 10K
R361 10K
R362 10K
R366 10K
R367 10K
R368 10K
R369 10K
1
2
3
4
5
6
7
100
R399
100
R398
0.01
0.01
C306
C307
CLK
DATA
18
19
R370 10K
R376 10K
C342 10P
100P
C339
100
R307
0
R305
10P
C309
0.1
C333
620
R308
0.033
C310
0
R371
0.01
C311
10K
R314
0
R313
0
R357
0
R612
10uH
L303
C338
C308
10
0.01
64
63
62
61
60
59
58
57
56
55
54
53
52
51
50
49
48
47
46
45
44
43
42
41
40
39
38
37
36
35
34
33
17
18
19
20
21
22
23
24
25
26
27
28
29
30
31
32
1
2
3
4
5
6
7
8
9
10
11
12
13
14
15
16
VDD7
SCKE
VSS8
CPH3
VSS7
CPH1
VDD6
CPH2
HDIR
VSS6
STH2
STH1
VSS5
TSTD
PDOS
VDD5
VSS4
LPFI
SPL
VDD4
OSCI
SCK
VSS3
SIZE
XCKI
TST4
TST3
TST2
TST1
SVSEP
XCKE
VDD3
UPSD
MIRROR
PAL
VSS2
NVD
NHD
RV
HSRV
STV1
VDD2
CX
CPV
NGOE3
NGOE2
NGOE1
STV2
HPOS1
HPOS2
HPOS3
HPOS4
MODE1
MODE2
MODE3
NBLK
NDSH
VSS1
NDSV
NCLP
POLS
POLC
COMPS
VDD1
CP301 1K
CP302 1K
1
2
3
7
6
5
4
R373 560
CP303 100
12
8
9
11 0
R385
0
R397
13
GND
3
1
2
5
4
VCC
R341 100
R342 100
R343 100
R344 100
R340 100
R339 1K
R338 100
R337 100
0.01
C325
0
R336
0
R334
0
R333
C340 100P
0.01
C312
100
R365
28
29
30
31
32
27
25
R316 1K
R319 1K
100
R310
18
19
R315 10K 10
R359
39P
C331 0.01
C3130
R320
0.01
C314
39P
C332
10
R360
0
R323
0.01
C317
R351
R352 100
R301 22
54
53
R350 56
59
35
34
5
14
11
10
10
11
22
28
22
22,28
0.1
C319
0.1
C321
100
R329
R377
17
14
+5V
+5V
+5V +5V-1
+5V
TP+3.3V
TP+3.3V
TP+3.3V
TC+3.3V
TC+3.3V-1
TC+3.3V-1
TC+3.3V-1
TC+3.3V-1
TC+3.3V-1
SW+14V
SW+14V
M+3.3V
M+3.3V
+18.5V
+18.5V
+18.5V-1
12V
VCC
GND
IC102
Q301
100
100
+
1
1
1
2
2
2 22
2
3
3
3
3 3 3
4
4
4 4 4
5
5 5 5
6
6
6
6
7
7
7
8
9 9
X35-4710-10 (1/2)

77
KVT-719DVD/729DVD
/729DVDY/739DVD
X35-4710-10 (2/2)
BRBQBPBOBN
1
2
3
4
5
6
7
5.0V
5.0V
3.1V
1.5V
1.2V
1.1V
3.4V
0V
0.2V
0V
0-5.0V
0-5.0V
0-5.0V
1.0-2.8V
1.1V
0V
0-5.0V
0V
3.3V 2.8V
0V
IC1
(X35- ) (B/2)
IC401
KVT-719DVD/729DVD
/729DVDY/739DVD (4/5)
D314 D305
D307
CN302
CN104
CN103
CN502
BL INVERTER
Q1
D8
D3
D306
D7
Q5
D9
D6
Q3
D1
D2
Q2
S401
D401
CN503
D403
Q501
Q502
Q503
DIM DET
S402
D405
D404
D406
S403
D407
D409
D408
CN1
D5
D4
CN501
S404
D410
to JIG
to PANEL MECHA
GND LINE
B LINE
B LINE
VIDEO LINE
to LCD(BL) to TOUCH PANEL
D411
D412
S405
OPEN/
CLOSE
FNC VSEL SCREEN MODE
Q4
D10
D501
D502
D503
D504
to LCD PANEL
IC1 : OZ964ISN-C
IC101 : LT1947-PBF
IC102 : TC7WH123FU-F
IC103 : TC7SH04FU-F
IC301 : BU2090FS
IC302 : TC7SET08FU-F
IC303 : NJM2107F-ZB
IC304 : TC200G02G0104
IC401 : TPS850
Q1,5,303 : 2SC4081
Q2,3 : SI5504DC-E3
Q4 : DTC114YUA
Q301 : 2SC4097
Q501 : DTC114YE
Q502,503 : PUMD10
D1,2,7 : UDZS5.6B
D3,10 : 1SS355
D4,5,9,303,305,306,314
: DA204U
D6 : MA2S784-F
D8 : AVRM1005270MAA
D101,103,104
: EP05Q04
D102 : EP05Q06
D301 : UDZS3.9B
D307,401 : AVRM1608120M6A
D403-412,501-504
: AVRM1608180M6A
1SV231-FD309 :
SW INVERTER
DRIVER
5V CONSTANT
VOLTAGE
TOUCH PANEL
Y1 SW
X1/Y0 SW
TOUCH PANEL
DIMMER
SW
TP377B
TP372B
TP322A
TP321A
TP320A
TP321B
TP322B
TP320B
TP370B
TP371B
TP369B
TP368B
TP367BTP367A
TP366B
TP363B
TP365B
TP364B
TP361B
TP362B
TP360B
TP374A
TP359B
TP358B
TP357B
TP356B
TP374B
2K
R348
1
C348
9
.
1K0
.
01
0.01
C
324
0.01
C
325
1
2
3
4
5
6
7
8
9
10
11
12
13
14
15
16
17
18
19
20
21
22
23
24
25
26
27
28
29
30
31
32
33
34
35
36
37
38
39
40
41
42
43
44
45
46
47
48
49
50
VGL
NC
VSS
STV1
U/D
CPV
OE3
OE2
OE1
STV2
VDD1
VDD2
NC
VGH
NC
VCOM
VSS
VSS
CPH
VSS
CX
L/R
STH1
VSS
VB
VG
VR
STH2
LED R
LED G
AUTO DIM
KEY1
T P+3.3V
XDATA
YDATA
X0
X1
Y0
PWM
ENABLE
D GND
LED GND
INV SW
INV PWM
OPEN/
BL GND
BL GND
NC
SW+14V
SW+14V
1
2
3
4
5
6
7
8
9
10
11
12
13
14
15
16
17
18
19
Z SWT
SW-C
SW-B
SW-A
NC
EX M+
EX M+
EX M-
EX M-
RI M+
RI M+
RI M-
RI M-
NC
R SENS
MECHA+3.3V
MECHA+3.3V
Z CNT
DGND
1
2
3
4
EX M+
EX M-
RI M+
RI M-
47K
R374
E_M-
E_M+
R_M+
R_M-
E_M+
R_M-
R_M+
E_M-
57
59
58
56
55
54
25
17
28
29
30
31
32
59
27
56
53
54
R
G
B
35
34
37
38
39
40
41
42
43
44
45
46
47 C28
C3
C18
TP56B
TP30B
TP28B
TP29B
TP27B
OPEN/
7
SW+14V
SW+14V
ENABLE
INV SW
LED GND
AUTO DIM
T P+3.3V
8
NC
BL GND
BL GND
PWM
1
2
3
4
5
11
12
TP15B
TP17B
TP16B
D GND
Y0
X1
X0
YDATA
XDATA
KEY1
9
10
13
14
15
16
17
19
20
18
TP4B
TP20B
TP2B
TP5B
TP19B
TP21B
TP3B
TP22B
TP1B
TP23B
TP53B
VDD2 39
LED G
LED R
INV PWM
STH2
VR
VG
VB
VSS
STH1
21
22
6
23
24
25
26
27
28 TP26B
TP40B
TP25B
TP42B
TP41B
TP24B
L/R
CX
VSS
CPH
VSS
VSS
VCOM
NC
VGH
NC
29
30
31
32
33
34
35
36
37
38
C426 1
C428 10
C425
VDD1
STV2
OE1
OE2
OE3
CPV
U/D
STV1
VSS
40
41
42
43
44
45
46
47
48
C427 2.2
50VGL
NC 49
1
C503 0.01
R502 33K
R9
200K
0.01
NDR D
PDR C
LPWM
PGND
PDR A
NDR B
2.2
R7
OVP
C21
R15
51K
C22
C16
0.018
C9
C10
0.01
R5
15K
R18 2.2K
22
C13
0.47
R225
1M
R4 43K
1500P
C17
2.2 2.2
CMP
FB
RT1
REF
GNDA
VDDA
SST
ENA
10
9
8
7
6
5
4
3
R3
22
C11
C14 R10
1.6A
F1
C24 0.01
C23 10
0.01 1.5K
R21
100K CTIMR
2
1
R13
20 L1
22
11
R12
1M
R17
DIM
LCT
RT
CT
12
13
14
15
16
17
18
19
R6
56K
C8
220P
R16
22
C15
0.047
22
71
2
6
3
5
4
R8
R1
R11
22
C7
0.047
1
1
1
VDD218
NC
STH2
VR
VG
VB
VSS
STH1
1
2
3
4
5
6
7
L/R
CX
VSS
CPH
VSS
VSS
VCOM
NC
VGH
NC
8
9
10
11
12
13
14
15
16
17
L401
10uH
C423
10
TP23A
VDD1
STV2
OE1
OE2
OE3
CPV
U/D
STV1
VSS
19
20
21
22
23
24
25
26
27
NC
VGL
NC
28
29
30
R453
1K
R441
750
R454
510
R456
360
C401
1000P
OUT
GND1
10uH
C504 10
C501 0.01
VCC
GND2
R402
3.9K
L501
4
3
C424
0.01
R403
8.2K
R501 33K
C502 0.01
R404
24K
1
2
R422
68K
R423
100K
C422
1
C421
1
R14
470
TP50B
C5
10PC6 0.012
C25 2700P
1
2
TP51B EX M+
EX M-
R506 10
R505 10
R504 10
R503 10
3
2
1
4
X1
Y0
X0
Y1
5
+5V-1
TP+3.3V
TC+3.3V-1
TC+3.3V-1
SW+14V
M+3.3V
+18.5V-1
12V
R407
750
R406
360
5.1K
5.1K
TP59B
R24
4.7K
TP52B
TP55B
TP60B
TP10B
C1
10
C2
10
CLOSE
CLOSE
TP+3.3V
820K
R23 TP57B
C12 0.01
TP538B
Q2,3
Q5
Q501,503
Q502
2
2
2
2
3
3
3
3
4
4
4
5
5
5
7
7
7
8
CAUTION : For continued safety, re place safe ty critical com po nents only with manufacturer’s
rec om mend ed parts (refer to parts list).
Indicates safety critical com po nents. To reduce the risk of electric shock, leakage-cur rent or
re sis tance mea sure ments shall be carried out (ex posed parts are ac cept ably in su lat ed from the
supply cir cuit) be fore the ap pli ance is returned to the customer.
• DC voltages are as measured with a high impedance volt me ter. Val ues may vary slight ly due
to vari a tions between in di vid u al in stru ments or/and units.

78
KVT-719DVD/729DVD
/729DVDY/739DVD
BS BT BU BV BW
1
2
3
4
5
6
7
3.5V
0
V
0.6V
4.3V
0V
5V
1.2V13.8V
0V
1.2V
13.5V
0V
7V
6.8V
7V
0V
IC61
IC301
IC71
(X34-475x-xx)
Q70
Q54
Q61
Q62
D52
Q52
POWER
Q51 Q53
L
X
J401
D405
D406
D3
POWER IC
P CON
Q8
D9
Q10
Q9
EXT AMP
ANT CON
Q12
L MUTE
Q7
D11
D12
REVERSE DET
Q1
PARK DET Q2
Q11
D13
D14
D15
Q4
BU DET
D2
D6
D7
Q6
D8
D360
Q352
Q351
D359
Q353
D351
D354
D355
Q91
Q93
Q92
Q94
Q95
Q15
D25
RELAY2
D91
D10
∗ A
Q13
Q72
Q71
F
R
L
D1
J1
P1
D5
ILL DET
D4
Q3
P2
D81
RELAY1
Q81
Q82
Q14
Q84
Q85
Q83
D24
J705
∗ C
to DC CORD
BU5V
SW5V
V5V
8V AVR
P-ON
RELAY CONTROL
RELAY CONTROL
1
1
3
3
4
4
4
5
1
4
4
47u25
C62
C862
0.01
C14
0.47
GND
R63
5.1K
4.7uH
L71
IN
2
12
R55
22K
R61
220
C51
220u25
0
R53
R54
100
C53
10u50
20K
IN OUT
TP61
R62
C61
15K
330u6.3
100
C54
R56
2.2K
R51
TAB
TP52TP51
1.6A
F51
OUT1+
OUT2+
OFFDET
6
4
2
OUT2-
10
8
IN1
OUT1- VC
C
STB
Y
PWGN
D
SV
R
PWGND
2
1
TP53
C306
0.47u16
24
OUT4+
OUT3+
18
16
14
IN3
SGND
20
22
OUT4-
OUT3-
PWGND
3
ACGN
D
IN
4
MUT
E
VCC
2
26 HSD
TP302
TAB
2
PWGND
4
C305
0.47u16
TP951 TP301
C403
A GND
LX CON
12
13
11 10
4
8
Rch
Lch
7
32
6
B.U.
GND
TP411
TP410
TP409
TP406
4.7
10
10
C401
0.47u50
0.47u50
R406 4.3K
C402
47u25
C4
R1
10K
1
R9
47K
R7
10K
R6
47K
C5
1
2.2K
R34
47K
47K
R37
100K
R40
R13
100K
R15
10K
R16
18K
R3
2.7K
R8
10K
R19
68K
R14
22K
C7
0.01
100K
R22
R21
39K
R357
22K
1000P
R355
100
C355
10u50
R356
470
R360
R361
100
R358
10K
R359
10K
C358
10u50
R362
470
22K
1000P
C371
2200P
TP352
TP351
TP353
TP354
C353
0.1
R97
120K
R94
0.047
C17
2.4K
47K
R98
10K
R44
4.7K
R91
R92
47K
R43
1.5K
R96 2
R93
620
1/2W
1/2W
2
R95
4.7K
C91
1
47K
R99
R5
R25 1K
1/2W
1/2W 10K
R33
10K
R29
2.2K
1/2W
R30
1K
1K
1/2W
4.7K
R28
0
∗R27
C10
0.1
1K
R26
C9
1
22K
R24
3.3u50
C8
R23 4.7K
+
R32
R31
54
57
10K
C11
R38
0.01
R39
R36
560
1K
R35
1K
R4
C12
0.01
53
52
87
FL-
FR-
FL+
FR+
FR
RL
RR+
RR-
RL-
RL+
R520.47
C15
R71
220
TP71
IN OUT
GND
4.3K
R73 R72
24K
C71
100u10
C72
1
C356 C357
FL
FR
10u50
C359 R364
470
R363
100
R411
R409
R410
93
LX-L
LX-R
LX-G
TP20
ACC
NC
REV
PRK
NC
TP9
TP10
TP11
16 7
REMO
EXT AMP
LMUTE
(SPD)
ANT
PCON
ILL
TP16
TP12
TP13
TP14
TP15
TP17
TP18
TP19
17 6
18 5
19 4
20 3
3900u16
TP24
TP23
BU
GND
C2
0.01
C1
221
122
L1
140uH
TP21
TP22
0.01
R10
2.7K
R11
1K
C13
R12
1K
C6
REM
51
100K
R200
1
75
4.7K
1
R2
C81
C16
R84
0.047
R82
47K4.7K
R81 R41
620
R83
1.5K
47K
R42
R88
10K
2.4K
R89
1/2W
120K
R87
47K
2
R86 2
1/2W
R85
TUN8V
A8V
V5V
SW5V
69
44
43
47
48
BU5V
SW5V
BU
BU
BU
BU5V
3TP91
4
2
1
TP81
BU
16
VGND
AGND
BUGND
BU5V
BU
RL+
12 FL+
11
13 10
RL-
RR-
FL-
14 FR-
9
RR+
15 FR+
8
C871 2200P
FL-
C881 22P
RL+
C880 2200P
C885 2200P
C884 22P
C872 22P
RL-
FL+
C890 22P
C888 2200P
C887 22P
C874 2200P
C875 22P
RR-
FR-
C891 2200P
C877 2200P
C878 22P
C893 22P
RR+
FR+
C894 2200P
TP1
TP2
TP3
TP4
TP5
TP6
TP7
TP8
+
+
+
+
+
+
+
+
+
+
+
X34-475x-xx (1/6)

79
KVT-719DVD/729DVD
/729DVDY/739DVD
X34-475x-xx (2/6)
CBCABZBYBX
3.3V
3.3V
3.6V
4.0V
4.0V
3.5V
6.9V
5V
0V
3.3V
3.3V
0.5V
8.5V
0V
0V
4.3V
3.4V
0V
0V
0V
14.4V
0V
0V
0V
14.4V
0V
0.6V
4.3V
0V
5V
7.0V
0V
4.4V
8.5V
4.4V
4.4V
4.4V
4.4V
0V
4.4V
8.5V
3.3V
3.3V
4.1V
4.3V
3.3V
3.3V
4.3V
6
.8V
V
4.4V
4.4V
4.4V
4.4V
8.5V
IC201
IC502
IC501
A
D302
LX-BUS
J401
D401D404
D403 D402
J501
P
OWER IC
D301
D203
D201
D202
E-VOL (IC2-6)
D204
D205
3
53
D352
D351
D355
J351
D509
D353
D356
D361
Q354 Q355
D363 D362
Q357
Q356 Q358
PRE MUTE
FRSW
PRE-OUT/SW
D510
D503
D504
D520
D519
D505
D506
1/5
J502
X14-983-
ISOLATION AMP
ISOLATION AMP
1
1
1 1
2
2
2 2
3
3
3
3
3
5
5
5
5
6
6
6
7
7 7
7
10
10
10
11
11
11 1111
11
11
SYS MCLK
12
IN2
TAB1
VCC1
STBY
PWGND1
5
1
3
SVR
PWGND2
11
7
9
TP307
TP304
TP308
TP305
PWGND3
ACGND
IN4 15
17
13
MUTE
VCC2
23
21
19
TAB2
PWGND4
27
25
C315
1
R301
33K
33u25
C319
R305
C312 1u16
C317
0.47u16
0.47u16
C318
C311 1u16
R306
4.3K
10
C316
R857
330
C867
5P
1
TP303
LX DATA M
LX MUTE
LX REQ S
LX DATA S
LX CLK
LX RST
LX REQ M
13
11 10
7
32
6
GND
9
1
5
ESDGND
TP408
TP407
TP405
TP404
TP403
TP402
TP401
R404 100
R408 100
R407 4.3K
R405 100
R402 4.3K
R403 4.3K
R401 4.3K
ESDGND
R526 100
C507
2.2u50
2.2u50
X14 SUB LG
X14 MAIN RG
X14 MAIN R
X14 MAIN LG
X14 MAIN L
X14 SUB L
SYS MDATA
SYS SDATA
X14 SUB RG
MUTE
X14 SUB R
3
2
1
6
5
4
TP702
TP741
TP742
TP743
9
8
711
10
TP744
TP745
TP764
TP746
AGND
C508
C517
2.2u50
C509
2.2u50
10u50
C514
TH301 470
R215 47
R214 47
R213 47
R212 47
R210
R211
16
33
3.3u50
SARES
C207 R206
C206
3.3u50
DCERR
10K1
21
20
19
18
17
SDA
SEL
SACLK
SCL
ACIN3R
C210
1u50
C209
C211
1u50
1u50 REF3V3
27
26
25
24
23
22
REF5V5
SAIN
SAOUT
VOLINR
VOLINL
32
31
30
29
28
MUTE1
MUTE0
ACOUTR
ACOUTL
MUTE2
C212
C213
1K1
1K1
TUNERR
CDR
MDL
MDR
C205
R205
1K
R204
100K
8
WINTC1
WINTC0
WININ
MUXCR
MUXCL
MUXBR
MUXBL
MUXAR
12
15
14
13
11
10
9
MUXAL
AUXR
AUXCOM
AUXL
CDCHR
CDCHCOM
CDCHL
4
7
6
5
3
2
1
R219
62
63
64
CDL
60
61
C228
0.47100
C226
2.2u50
LDOUT0R
LDOUT0L
PAOUT1R
PAOUT1L
PAOUT0R
PAOUT0L
MUTEC
MUTEB
MUTEA
TUNERL
ACIN3L
ACIN2R
ACIN2L
ACIN1R
ACIN1L
ACIN0R
ACIN0L
LDOUT2R
LDOUT2L
LDOUT1R
LDOUT1L
41
C216
0.01
37
34
35
36
38
39
40
VCC
45
42
43
44
GND
46
47
48
PGND
PREF
57
58
59
54
55
56
TP203
51
52
53
VP
49
50
C202
10u50
R203
10
ESDGND
7P
C204
C868R855
C869R856
330
330
5P
5P
ESDGND
6
0
R361
100
10K
C358
10u50
R362
470
K
0
P
TP352
TP351
TP353
TP355
TP354
TP356
TP358
TP357
R534 100
R533 100
R532 100
R531 100
R530 100
R529 100
R528 100
R527 100
SYS MREQ
SYS SREQ
REMO
SYS ON
TP751
14
13
16
15
TP749
TP747
TP748
TP750
TP752
TP753
TP754
TP755
R514 47K
R513 47K
R512 47K
R511 47K
R510 47K
R509 47K
0.1
C351
C352
0.1
TP359
LX-G
LX-L
LX-R
NAVI-AG
NAVI-AR
NAVI-AL
67
68
TP201 TP202
100
R209
100
R208
10K
R207
66
65
64
SWR
SWL
RL
RR
AV-L
AV-R
100
R217
SUB-R
SUB-L
100
R218 C227
0.47
R216
100 2.2u50
C225
MAIN-R
MAIN-L
0.47
C223
0.47
C224
TUN-R
TUN-L
FL
RR
FR
RL
FR
FL
RR
FL
9
59
60
5
7
FR
RR
RL 10u50
C359 R364
470
C362
10u50
R370
470
100
R369
R363
100
R366
10K
1000P
22K
R365
C360
R367
10K
R368
22K
1000P
C361
SWR
SWL 10u50
C363 R372
470
C366
10u50
R378
470
100
R377
R371
100
R374
10K
1000P
22K
R373
C364
R375
10K
R376
22K
1000P
C365
40
92
78
70
94
91
95
96
10
R544
10
R525
10
R524
10
R523
2.2u5010
R519 C512
R522
R520
R518
10 2.2u50
C513
C505
10
10 2.2u50
C506
2.2u50
9
10
11
12
13
14
15
16
OUT1
2GND
VREF
OUT2
VCC
4
5
3
1IN1+
IN1- 9
IN2-
IN2+
7
6
NC 8
10
C502
1K
R505
00
R507
R521
R517
2.2K
R508
0
R506
0
0.01
47u25
+
C511
+
2.2K
R543
47u25
C515 10
56
OUT2 IN2+
OUT1
GND
VREF
2
3
1
VCC
4
IN1+
IN1- 9
8
IN2- 7
NC
C501
0.01
1K
R542
R503
R501
0
0
R504
0
0
R502
BU
L
LG
RG
R
LG
L
RG
R
R302 1.8K
R303 220
R304 22K
SW5V
42
74
7P
R201
10
R20
2
A8V
C203
0
47u25
C201
TP952
X14MAIN-R
X14SUB-R
X14MAIN-L
X14SUB-L
61
BU
A8V-A
A8V-A
A8V-A
DGND
0.01
C870
TP306
+
+
+
+
+
+
+
+
+
+
+
+
+
+
+
+
+
+
+
+
+
+
+
+

80
KVT-719DVD/729DVD
/729DVDY/739DVD
X34-475x-xx (3/6)
CC CD CE CF CG
8.5V
4.3V
0V
4.3V
4.3V
1.7V
0 or 5.0V
1.7V
0V
0V
1.0V
5.0V
1.7V
1.3V
5.0V2.0V
2.0V
0V
3.6V
0 or
3.6V
0 or
1.3V
5.0V
2.0V
2.0V
1.4V
4.3V
4.3V
4.3V
4.3V
4.3V
4.3V
1.4V
0V
1.7V
1.7V
5.0V
0V
4.7V
0 or
1.7V
1.0V
1.3V
0V
5.0V
1.4V
1.4V
0V
IC805
IC701
IC723
IC804
IC803
IC810
IC806 IC802
Q803
Q802
Q804
J701
D702
D701
D705
D708
D707
D709
D710
D732
D735
D737
LVR
D733
D731
J703
D727
AVOUT
D725
D724
J704
D723
V SEL
AV IN
Q360
D365 D364
Q359
D357
Q361
D358
Q807
Q808
Q806
Q805
D516
D515
D514
D524
D522
D523
D513
D512
D517
D518
D706
D712
D711
D704
D703
to TV TUNER
VIDEO SW
VSYNC
DET
∗ E
ISOLATION AMP
VIDEO SW
VIDEO SW
PRE
MUTE
1 1
2 2
6
6
6 6
7
7 77
8
8 8
9
9
9 9
10
10
10
11
12
12
12
13
13 13
13
14
14
16
16
17
17
17
17
17
1
8
1
8
12
54
1
CTLB IN3 C855
1
R813
47K
IN2
CTLA
IN1
C821
C822
1
3
2
1GND
VCC
OUT
6
7
8
C824
0.1
R818
C825 0.01
15K
C827
TP803
R814
0 0.047
C828
0.01
2.2K 33K
C830
R826
6.8K
2.2K
R820
3K
R823
2.2K
0
100K
0.01
R827
47K
R824
R819
62K
R822
R833
47K
C703
C701
TV R
5
TP704
R539 75
R538 75
R537 75
R536 75
R535 75
R534 100
R533 100
R532 100
R531 100
B OUT
23
SYS MREQ
RESET
REMO
SYS ON
VGND
X14 VIDEO
NC
VGND
VIN
14
17
16
15
20
19
18 22
21
TP752
TP753
TP754
TP755
VGND
R OUT
G OUT
26
25
24
TP756
TP757
TP758
TP759
TP760
1
TP953
BU
BU
GND
GND
TP701
2
1
4
3
TP761
TP703
100
100
ESDGND
4.7
R707 100
10
10
R712 1K
R711 1K
R710 0
R709 100
R708 100
R706 1K
R705 1K
TV SC DATA
TV COMP
TV B
TV G
VGND
TV SC CON
TV MC REQ
TV MC DATA
TV SC REQ
TV JUDGE
TV CLK
11
TP708
8
7
610
9
TP706
TP705
TP707
13
12 16
15
14
TP709
TP710
TP712
TP711
TV AGND
TV AL
TV RST
TV AR
19
18
17
20
TP713
TP714
TP715
TP716
TP717
TP718
100
100
ESDGND
0.01
R829
47K
R830
2.2K
R828
100K
OUT1
1
IN1+
10
L703
4.7uH
IN1+
IN2+
C721
0.47u50
C729
0.47u50
C720
0.47u50
C719
0.47u50
IN2-
IN1-
NC
10
9
8
7
6
VCC
OUT1
GND
VREF
1
2
3
OUT2
4
5
R789
2.2K
C725
C723
0.01
47u25
R791
1K
ESDGND
C726
2200P
18K
R787
18K
R781
R786
TP762
TP719
TP723
TP721
R769
10
R768
R761
TP727
TP726
75
ESDGND
R771
0
VGND
VGND
R774
100
ESDGND
10
R777
TP361
TP360
TP362
TP729
TP728
R764
75
C727
1000P
TP730
R792
R763
75
0
SW
OUT
VCC
IN3
VCC
OUT
GND
IN2
C854
1
C817
1
C818
GND
IN1
6
5
IN1
C814
1
4
CTL2
CTL1
IN2
4
3
2
C813
11
0.1
C819
C820
TP802
1
2
330u6.3
3
5
6
7
8
SW
VCC
OUT
SW
OUT
VCC
0.1
C803
1
1
C804
GND
4
5
6IN1
IN2
C801
1
C802
1IN2
GND
IN1
6
5
4
C808
22u16
C810
0.1
C832
C807
1
4
6
5IN2
IN1
GND
1
3
2
1
3
SW
OUT
VCC
1
2
1
2
3
AV-L
AV-R
10K
R775
10 100
R772
C860 0.01
R853 1K
C715 0.01
R760 1K
10
R770
10K
R783
R724
10
10
AV-L
AV-R
10K
R383
10K
R382
AV-L 10u50
C367
470
R386
AV-R 10u50
C370
470
R380
0.1
1000P
100
R385
22K
R381
C368
C354
1000P
R379
22K
R384
C369
100
ESDGND
6
7
C809 0.1
9
10
1
C815
AV-V
AV-V
BCAM
28
27
C829 6.8K
R816R817 R815
R825
H
L
H
L
VOUTSEL 1
H
H
H
L
L
VINSEL 1
L
H
H
VOUTSEL 2
L
L
L
L
VOUTSEL 3
L
X14 V
AVIN1 V
MUTE
VOUT
TV
L
H
H
VINSEL 2
L
H
L
H
L
VINSE
L
L
L
14
15
16
17
B
G
R
VIDEO
97
88
98
5
99
8
1
RST
0.47
0.47
R715
R714
R713
R719
R718
R716
R717
75
R701
75
R702
75
R703
75
R704
TV-G
TV-B
TV-C
TV-R
10
R720
10
10
R722
R721
10
R723
TV L
C702 0.47
C730
7P 10
R202
A8V
C203
0
47u25
C201
A8V-A
A8V-A
BU5V
V5V
17
BCAM
BU
VIDEO
V5V
NAVI-C
TV-C
11
62
61
VGND
A8V-A
BU
V5V
R812
47K
C861
0.1
C895
12K
R810
12K
R809
R821
47K
IC803,804
IC802,806,810
Q359-361
0.47
C811
0.1
+
+
+
+
+
+
+
+
+
+

81
KVT-719DVD/729DVD
/729DVDY/739DVD
X34-475x-xx (4/6)
CLCKCJCICH
0V
4.3V
8.5V
4.3V
4.3V
4.3V
1.3V
0 or 3.6V
5.0V
1.4V
0V 1.3V
5.0V
0V
1.4V
1.4V
5.0V
1.3V
0V
1.4V
0V
1.4V
5.0V
1.3V
0V
1.4V
0V
1.4V
0V
8.3V
4.5V
0V
0V
8.3V
0V
4.5V
8.3V
8.3V
5V
0V
0V
5.0V
0 or 5.0V
0 or 8.5V
0 or 8.5V
0 or 8.5V
0 or 8.5V
5.0V
5.0V
0V
5.0V
5.0V
4.3V
4.3V
4.3V
IC807
IC105
IC202
IC203
IC701
IC702
0
2
IC808
IC809
Q813
Q809
R
ASEL MAIN
ASEL SUB
D714
D713
Q810
Q814
G
Q815
Q811
B
J702
NAVIGATION
D718
D717
D721
D722
D719
D720
D715
D716 (X34-475x-xx)
∗ D
DATA CONV.
VIDEO SW
VIDEO SW
VIDEO SW
ISOLATION
AMP
AND
TV MUTE
1 1
1
1
1
2 2
2
2
6
6
6
6
66
7
7
77
8
8
9
9
9
10
10
10
10
10
10
10
13
13
13 13
14
14
14
14 14
15
15
15
16 16
16
16
17
17
17
1818
18
18
10
19
19
19
19
19
19
20
20
20
6
6
6
R609 10K
R608 10K
R607 10K
R606 10K
R605 10K
R604 10K
R603 10K
R602 10K
R601 10K
C841
C844
R837
47K
TP805
1
R836
47K
R832
47K47K
R831
4
6
5
R842
2.7K
120
0.01
1
R848
47K ∗C847
C834
0.1
R845
C835
1
IN1
GND
SW
OUT 1
TP807
C856 0.1
IN2 VCC C850
330u6.3
3
2
16
15
14
13
12
11
10
9
2
C114
0.01
VDD
Q11
VSS
DATA 1
Q10
Q9
Q8
Q7
CLOCK
Q0
Q1
Q2
Q6
Q5
Q3
Q4
6
3
4
5
7
8
XCOM
16 VDD
12
13
14
X0
X1
X2
15
9
10 B
A
X3
11
1
Y0
5
Y1
Y3
YCOM
Y2
4
3
2
VSS
VEE
INH
8
7
6
XCOM
15
VDD
X2
16
11
X1
X0
X3
14
13
12
A
B
10
9
2
C234
0.01
Y0
Y2 1
6
YCOM
Y3
Y1
INH
3
4
5
VEE
VSS 7
8
C233
10u50
C235
0.01
R611 10K
R610 10K
G
ND
R734
R733C709
22u16
1K
2.2K
2
.
2K
L105
120
L101
120
VREF
GND
OUT1
3
2
1
OUT2
VCC
5
4
NC
IN1-
IN1+
8
9
10
IN2+
IN2-
6
7
4.7uH
C707
47u25
C708
0.01
L701
R748 100
R747 100
R746 100
R745 100
C712
0.47
C711
47u25
C710
0.47
100
R741 75
R742 75
R743 75
R744 75
TP731
TP735
TP737
TP733
R737
1K
R736
1K
R735
1K
TP738
TP739
TP740
R758 10
R757 10
R756 10
R755 10
GND
VCC
5
4
C713
1
2
3
0.1
L702
120
C812
330u6.3
C810
0.1
D
TP801
3
SW
OUT
VCC
1
2
R
R839
TP804
1
C845
R843
R838
0.01
C842
47K
47K
2.7K
R849
47K
0.1
1
∗C848
R846
120
1
C837
C836 6IN1
4
5
IN2
GND
SW
VCC
OUT
TP808
C851
330u6.3
2
1
3
G
C857 0.1
1
1
R841
0.01
C843
47K
TP806
C846
R840
47K
R844
2.7K
1
R850
47K
R847
120
0.1
∗C849
C838
C839
6IN1
GND
5
SW
OUT
C858 0.1
4IN2 VCC TP809
2330u6.3
1
C852
3
B
NAVI-R
TV-G
NAVI-G
TV-R
TV-B
NAVI-B
SEL4
SEL3
SEL2
SEL1
SEL1
SEL2
SEL3
SEL4
11
10
9
6
7
8
29
30
SUB-R
AV-R
AV-L
TV-R
TV-L
X14MAIN-R
X14SUB-R
X14SUB-L
X14MAIN-L
SUB-L
MAIN-L
L
H
H
S
EL 2
L
H
L
H
L
VINSEL 3
L
L
L
L
L
VINSEL 4
L
L
TV
X14 V
NAVI
VIN
BCAME
AVIN1 V
LLL
KVT LOW MODEL
DDX LOW MODEL
OEM+HI MODEL
DDX HI MODEL
H
L
H
H
L
L
∗
H
H
2
KVT HI MODEL
3
HLL
1
OEM+LOW MODEL LH
∗
TYPE
78
87
88
90
10
0
70
RE
M
TV-L
TV-R
13
NAVI-AG
R738
R740
Lch
Rch
TP736
TP732
10
10
NAVI-AL
NAVI-AR
8
12
67
1011
423
5
9
1
ESDGND
R739
AGND TP734 4.7
G
B
SYNC
R
RX
TX
REMO
R751
3
4
NAVI-G
NAVI-B
NAVI-C
NAVI-R
3,4,10
17
19
20
V5V
A8V-A
AVI-C
TV-C
SW5V
SW5V
BU5V
SW5V
MAIN-R
19,20
10
9,16,REM
V5V
A8V-A
A8V-A
BU5V-A
+
8
KVT-719DVD
KVT-739DVD
KVT-729DVDY
KVT-729DVD
MODEL NAME
3-21
0-21
0-10
2-71
UNIT
No.
YES
A
0-71
YES
YES
YES
YES
BC
YES
YES
YES
YES
YES
D
YES
X
X
X
X
X
E
IC701
Q809-811,813-815
+
+
+
+
+
+
+

82
KVT-719DVD/729DVD
/729DVDY/739DVD
X34-475x-xx (5/6)
CM CN CO CP CQ
0V
5V
5.0V
0V
5V
0V
0V
5V
0V
5V 5V
0V
5V
0V
5V
0V
0V
5V
5V
0V
5V
0V
0 or 5.0V
(RESET : 0V)
0V
5.0V
5V
0V
0-5.0V
5V
0V
0V
5.0V
19.81MHz
0V
5V
0 or 5.0V
0 or 5.0V
0 or 5.0V
0 or 5.0V
0 or 5.0V
0 or 5.0V
5.0V
0V
0 or 5.0V
0V
5V
5V
0V
5V
0V
5V
0V
5V
0V
5V
0V
0V
5.0V
3.3V
5V
0V
0V
0V
5V 0V
5V
0-5.0V
0V
0V
0V
0V
5V
0-5.0V
0-5.0V
0 or 5.0V
5V
0V
0V
5V
5V
0V
5V
0V
5V
0V
0V
5V
5V
0V
5V
0V
5V
0V
5V
0V
0V
5.0V (RESET : 0V)
5.0V
0V
3.3V
5.0V
5.0V
5V
0V
0V
5V
IC104
IC102
IC101
IC103
Q101 Q102
Q103
Q104 Q105 Q107
ROM CORRECTION
NOT USED
IC61,71 : M5237ML-CF0J
IC101 : 703030BYGCJ30
IC102 : S-80842CNNB-G
IC104 : TC7SET08FU-F
IC105 : BU2090FS
IC106 : TC74VHCT08AFT
IC201 : E-TDA7415CB
IC202,203 : TC4052BFT
IC251 : E-TDA7479AD
IC301 : E-TDA7850A
IC501,502,701,723
: NJM2794RB2ZB
IC702 : TC7S08FU-F
IC802,804,807-809
: MM1508XNRE-E
IC803 : BA7652AF
IC805 : BA7653AFV
IC806,810 : MM1503-E
Q1,3,54,70,251
: DTC124EUA
Q2,8,13,84,94,806,
808-811 : 2SA1576A
Q4,6,12,14,15,52,82,85,
92,95,802-805,807,
813-815 : 2SC4081
Q7 : 2SB1188(Q,R)
Q9,103 : DTA114EUA
Q10 : DTC114YUA
Q11 : 2SB1188(R)
Q51,71 : 2SB1565(E,F)
Q53,252 : 2SB1689
Q61 : 2SB1443
Q62,72 : DTA124EUA
Q81,91,105 : DTC114TUA
Q83,93 : 2SB1184
Q101,102 : DTC144EUA
Q104 : DTA114TUA
Q107 : RT1N440M
Q351,353-356,358,359,361
: DTC323TU
Q352,357,360 : DTA144EUA
D1 : RM10ZLFNF
D2-4 : DAN202U
D5,707 : UDZS6.2B
D6,8 : UDZS6.8B
D7,9,201-205,301,302,
359-365,503,520,713,
735 : DAP202U
D10-13,24,25,81,91
: 1SR154-400
D14,52 : UDZS5.6B
D15,504,519,714,737
: UDZS4.7B
AUDIO u-COM
NOT USEDIC103 :
D251 IMSA-6801-E:
D351-358,708 AVRM1608180M
6
:
RST
VOLTAGE
DETECT
AND
MUTE
1
1
1 1
1
11
1
1
2 2 2
2
9 9
9
9
10
16 16
16
16
16
20
20
20
20 20
20
20
6
6
6
6
6
2121
21
1
R125
47K
8
43
R181 47K
2
1
C113
0.01
VCC 5
R180 100K
R179 100K
R111 100
R110 100
R108 470
47K
R104 47K
R103 47K
GND
C103
1000P
R178 470
R185
R184 47K
R183 47K
R182 47K
4.7K
R177 100
R176 100
R173 100
R174 100
TV MC DATA
TV SC DATA
TUN SCL
100 TUN SDA
2
1
TV BP CLK
LX CLK
99
98
97
TV MC REQ
NAVI TX
NAVI RX
5
4
3
EVSS
EVDD
7
6
R116 100
100
R192
TP101
RGB MUTE
19
18
17
16
15
14
13
12
11
10
SYS SDATA
SYS MDATA
SYS SREQ
MIX REMO
TV SC CON
BEEP
9
VSYNC DET
EXT CON
SYS MREQ
SYS MCLK
VPP
25
24
23
22
21
20
AUTO SW 1
AUTO SW 2
SEL DATA
NC(AIN SEL6)
NC(AIN SEL5)
RGB SW
R DATA
R QUAL
26
AM+B
R AFS H
SEL CLK
27
28
29
47K
R122 47K
R121 47K
R120 47K
R119 47K
R124
47K
1
2
4
3
VSS
NC
OUT
VDD
R130 100
R129 100
R128 100
R127 100
R126
C116
0.01
R191
100
68 100
R146 100
R147 100
∗R165 2.2K
R163 1K
R164 2.2K
C112 1000P
TP111
TP116
R152 47K
∗R153 10K
A TYPE1
R171 100
R170 100
TP957
TV SC REQ
LX REQ M
LX DATA M
LX DATA S
LX CON
96
95
94
93
LX REQ S
R CLK
SYS ON
92
91
90
89
TUN SMET
BU DET
NC
R NOISE
88
87
86
85
TUN IFC
A TYPE3
A TYPE2
84
83
82
81TP956
TP955
TP954
∗R161 10K
69
70
72
73
74
75
A WRT E2P
PWIC DCDET
NC
LINE MUTE
A TYPE0
LX MUTE
80
79
78
77
76
AVSS
AVREF
71
PON
LX RST
AVDD
0.1
120
C111
L102
45
1
A2
A1
A0
3
2
8
SCL
WP
VCC
6
7
GND SDA
R139 100
R140 47K
R141 1K
R142 100
R143 100
R144 100
RELAY SW4
VDD
REGC
RESET
XT1
XT2
30
31
32
33
X2
X1
VSS
34
35
36
37
PRE MUTESW
PRE MUTER
PRE MUTEF
RELAY SW1
RELAY SW2
RELAY SW3
CLKOUT
38
39
40
41
42
43
44
45
ANT CON 57
58
59
60
62
63
64
65
66
67
AUDIO MUTEA
AUDIO MUTE2
AUDIO MUTE1
AUDIO MUTE0
AUD SDA
AUD SCL
PWIC STBY
PWIC MUTE
AUDIO MUTEC
AUDIO MUTEB
61
NC
TP110
52
53
54
55
56
RELAY DET1
RELAY DET2
RELAY DET3
RELAY DET4
51
PAK DET
REV DET
P CON
BVDD
BVSS
46
47
48
49
ILL DET
50
C108
0.1
19.800MHz
R132
0
R133
C106
15K
C107
0.1
X101
R189
47K
R190
47K
SCL
SDA
0.1
C110
74
75
69
68
67
66
65
64
61
62
60
59
57
0.1
C109
54
53
52
51
R148 10K
R149 10K
SCL
SDA
R145
TP115
TP114
TP113
TP112
83
84
85
R156 10K
R155 10K
R154 10K
∗R157
R162
78
R151 47K
47K
R150
87
88
90
91
92
93
94
95
R186 100K
96
100
R168
100
R169
100
R172
100
R166
100
R175
97
98
99
100
70
10K30K
10K
10K
10K
3.3K
10K
R157 R161
10K
1
2
3
4
5
R102 4.7K
100K
0.1
C104
8
R123 47K
9
10
10
13
15
14
16
17
20
19
TP102
TP103
330u6.3
C101
REM R187 100K
R188 100K
25
24
23
100
R117
22K
R118
100
R852
100
R115
100
R112
100
R109
100
R107
TP109
TP108
TP107
TP106
43
44
47
48
42
40
TP105
TP104
10K
1K
R134
100
R137
100
R135
100
R138
100
R136
30
29
28
27
0.1
C105
17
16
BU5V
SW5V
89
R221
RST
R131
SW5V
9,16,REM
DGND
BU5V-A
BU5V-A
BU5V-A
BU5V-A
R27C
Y
ES
Y
ES
YES
R153
YES
R165
YES
YES
YES
YES
100
D
YES
A251
X86-4080-12
X86-4080-12
X86-4080-12
X86-4082-71
X86-4082-71
100
TV JUDGE
R851
0
R114
12
47K
R105
R106
E
YES
YES
YES
YES
C847-
849
+

83
KVT-719DVD/729DVD
/729DVDY/739DVD
CVCUCTCSCR
1
2
3
4
5
6
7
5.0V
0V
0V
4.332MHz
0V
5V
5V
0V
2.5V
2.4V
5.0V
5V
0V
5V
0V
3.3V
0V
0V
5.0V
0V
3.3V
5V
0V
5.0V
3.3V
0V
0V
5V
IC106
IC251
KVT-719DVD/729DVD
/729DVDY/739DVD (5/5)
RDS DECODER
∗A251
Q251
Q252
D251
W251 ANT.
P251
P252
0
ZLFNF
2
02U
S
6.2B
S
6.8B
2
,
3,
2
02U
1
54-400
S
5.6B
S
4.7B
D401-406,505,506,509,
510,712,718,727
: STZ6.8N
D512-518,522-524,
701-706,711,715-717,
719-722,724,725,732
: STZ6.2N
D731,733 : UDZS8.2B
GND LINE
SIGNAL LINE
B LINE
VIDEO LINE
∗ B
A
-6801-E
D723 AVRM1608270MAA:
M
1608180M6A
D709,710 AVRM1608120M6A:
FM/AM TU
AND
TUNER 8V
2
9
10
10
10
16
16
16
20
20
20
20
21
21
21
5
C853
100P
0.01
C115
11
10
C859 100P
8
9
GND
6
7
4
5
14
13
12
VCC
3
1
2
IFGND
IF+B
R
STDGND
RDSMUTE
DGND2
MFRDS
QUALITY
AMIFOUT
12
5
C266
C269
10u50
TUN GND
0.01
C270
0.01
C268
10u50
EXTRES
8
7
6
FILOUT
ARI
GND
OSEL
9
10
11
FSEL
TM
VCC
R253
0
ESDGND
C265
10P
C264
10P
4.332MHz
X251
R255
2.2K
330P
R257
2.2K
TP958
C267
TUN GND
L255
OSCOUT
1
4
3
2
MPX
VREF
RDDA
QUAL
2.2K 16
13
14
15
OSCIN
T57
RDCL
4.7uH
R256
L
TP269
C263
0.01
TP272
TP271
TP270
2
1
TP266
TP268
TP267
TP264
TP265
3
4
5
6
7
8
9
10
25
AMETER
PLLGND
VDD5V
DGND
SCL
SDA
IFC
COM+B
VT
OSCGND
AM+B
NC
ANT
RFGND
R252
1K
R251
L253
4.7uH
22K
18
TP263
TP262
TP261
TP260
TP259
14
12
13
11
15
16
17
C261
0.01
TP257
TP256
TP258
TP254
TP255
C260
0.01
22
20
21
19
23
24
L251
4.7uH
TP252
TP251
TP253
1
27
26
2
3
15
14
11
15
14
12
42
40
30
29
C262
0.01
83
100
2
84
85
25
TUN-R
TUN-L
26
23
24
90
SW5V
TUN8V
26
9
BUGND
BU5V-A
BU5V-A
89
12
+
+
CAUTION : For continued safety, re place safe ty critical com po nents
only with manufacturer’s rec om mend ed parts (refer to parts list).
Indicates safety critical com po nents. To reduce the risk of electric
shock, leakage-cur rent or re sis tance mea sure ments shall be carried
out (ex posed parts are ac cept ably in su lat ed from the supply cir cuit)
be fore the ap pli ance is returned to the customer.
• DC voltages are as measured with a high impedance volt me ter.
Val ues may vary slight ly due to vari a tions between in di vid u al in-
stru ments or/and units.
M5237ML-CF0J
TC7SET08FU-F
NJM2100V-ZB
NJM4580V-ZB
TC7WHU04FU-F
TC7WH123FU-F
NJM2107F-ZB
TC7SET04FU-F
TC74VHC273FT
X34-475x-xx (6/6)

84
KVT-719DVD/729DVD
/729DVDY/739DVD
CW CX CY CZ DA
1
2
3
4
5
6
7
3.3V
0V
3.3V
3.3V
3.3V
3.3V
3.3V
0V
0V
3.3V
0V
0V
0V
0V
3.3V
0V
3.3V
0V
3.3V
3.3V
0V
0V
3.3V
0V
5.0V
1.7V
1.7V
5.0V
5V
0V
0V
5.0V
0V
0V
5V
0V
5V
0V
0V
5.0V
0V
0V
0.2V
0V
3.3V
5.0V
0V1.7V
0V
0V
0V
0V
0V
0V
2.6V
2.2V
0V
0V
3.3V
3.3V
3.3V
0V
3.3V
0V
3.3V
3.3V
0V
3.3V
3.3V
0V
3.3V
0V
0V
3.3V
0V
5V
IC54
IC10
IC31
IC5
(X37-1120-0x)
VM1
∗P7
Q1
Q3
∗CN10
ATAPI I/F
to MAIN UNIT
128M SDRAM
CN3
P12
Q2
Q4
MOTOR DRIVER
32M FLASH
ATRAC3
CODEC
M
VM3
M
VM2
M
SPINDLE
& LIM SW
MOTOR
SLAD
MOTOR
MOTOR
LOAD
∗ A
FOD
TRD
TP3
LO.MUTE
PGND
TP13
FGND2
FG
TP1
TP12
CP69 22
L8
600
TP254
1
2
3
4
5
6
7
8
9
10
11
12
13
14
15
16
17
18
19
20
21
22
23
24
25
26
27
28
29
30
31
32
33
34
35
RESET
DGND
DD7
DD8
DD6
DD9
DD5
DD10
DD4
DD11
DD3
DD12
DD2
DD13
DD1
DD14
DD0
DD15
DGND
DMARQ
DGND
DIOW
DGND
DIOR
IORDY
DMACK
INTRQ
DA1
PDIAG
DA0
DA2
CS1FX
CS3FX
DASP
DGND
CP44 33
RST
196
197
200
CP63
10K
CP54 33
10K
CP64
202
204
203
201
CP65
10K
207
211
206
205
CP55 33
CP56 33
CP62
10K
212
213
215
214
82
R471
10K
R468
33
R472
82
R484
82
R482
CP58 33
224
223
222
219
10K
CP59
216
217
218
10K
R522
10K
R521
10K
R520
10K
R519
82
R483
CP57 82
226
227
228
229
CP66
10K
225
230
1
2
3
4
5
6
7
8
9
10
11
12
13
14
15
16
17
18
19
20
21
22
23
24
25
26
27
VDD1
DQ0
VCCQ1
DQ1
DQ2
VSSQ1
DQ3
DQ4
VCCQ2
DQ5
DQ6
VSSQ2
DQ7
VDD2
LDQM
WE
CAS
RAS
CS
BA0
BA1
A10
A0
A1
A2
A3
VDD3
54
53
52
51
50
49
48
47
46
45
44
43
42
41
40
39
38
37
36
35
34
33
32
31
30
29
28
VSS3
DQ15
VSSQ4
DQ14
DQ13
VCCQ4
DQ12
DQ11
VSSQ3
DQ10
DQ9
VCCQ3
DQ8
VSS2
NC40
UDQM
CLK
CKE
NC36
A11
A9
A8
A7
A6
A5
A4
VSS1
1uH
C62
237
C60
239
241
243
248
1uH
252
250
254
1uH
C59
C50
255
3
4
5
6
1uH
8
10
14
16
18
20
22
1
C521
236
238
240 C51
1uH
22
C478
22
C477
10K
R621
244
242
249
251 1uH
C54
253
234
256
22
R623
33K
R622
21
19
17
15
11
9
7
22
C63
22
C479
28
27
26
25
24
23
22
21
20
19
18
17
16
15
14
13
12
11
10
9
8
7
6
5
4
3
2
1
SW
VCC
DGND
SW LmIn
GND
GND
HU-
H+
HU+
H-
V
V
U
U
W
W
B+
B+
B-
B-
A-
A-
A+
A+
LOAD-
LOAD-
LOAD+
LOAD+
EJEND(H)
LOAD+
TP15
TP14
LOAD-
TP28
A+
TP29
A-
TP30
B-
TP31
B+
TP238
A-
TP239
B-
A-
B-
B+
A+
LOAD-
LOAD+
W
TP26
W
U
TP24
U
V
TP25
V
H-
U+
U-
TP16
TP18
TP17
TP19
H-
U+
H+
U-
TP206
TP215
2.20.01
R548C485
R550
R551
R549
2.2
2.2150P
C486
470P
2.2
C488
C487
1000P
24
23
22
21
20
19
18
17
16
15
14
13
12
11
10
9
8
7
6
5
4
3
2
1
37
38
39
40
41
42
43
44
45
46
47
48
25
26
27
28
30
31
32
33
34
35
36
A1
RCS2
A2
A3
RCS1
CS
VMSP1
FO1
RO1
FO2
PGAC
RO2
FO3
RO3
VMAC
FB3
IN3
FB2
IN2
FB1
IN1
VDD
FG
STBY
PGST
FO5
RO5
FO6
RO6
GND
IN4
IN5
IN6
FB6
VREF
SPIN
VMSP2
HB
H1H
H1L
GSW
BMS
SFG
MUTE
VMST1
VMST2
FO4
RO4
U
W
V
10
C16
0.01
C435
270
R17
29
U-
U+
H-
300
R19
A-
A+
B+
B-
LOAD+
LOAD-
1
R630
1.2
R631
1
R628
R632
R629
1.2
27
F+
F-
T-
T+
10
C14
0.1
C15
10
C434
820
R505
2.4K
R504
33K
R502
1.3K
R501
20K
R503
0.01
C462
149
150
4700P
C461
87
27
0.01
C11
0
R525
C3
22
22
C443
C444
22
22
C445
C442
0.1
4.7
∗R24
1000P
∗C20
TP8
TP9
TP4
4.7
C17
10K
R16
10K
R1
22
C18
79
80
80
79
78
77
76
75
74
73
72
71
70
69
68
67
66
65
64
63
62
61
60
59
58
57
56
55
54
53
52
51
50
49
48
47
46
45
44
43
42
41
21
22
23
24
25
26
27
28
29
30
31
32
33
34
35
36
37
38
39
40
1
2
3
4
5
6
7
8
9
10
11
12
13
14
15
16
17
18
19
20
VDD2 80
A0
A1
A2
A3
A4
VSS 74
VDD1 73
A5
A6
A7
RD
WR
CS
VSS 66
VDD1 65
BCKO
LRCKO
DATAO
DATAI
LRCKI
BCKI
TDO
TRST
VSS 56
VDD2 55
TDI
TMS
TCK
RLRCK
RBCK
RDATA
VDD1 48
VSS 47
RMCK
VSS 45
XOUT
XIN
VDD2 42
VSS 41
VSS 21
INT
DREQPCMIN
DACKPCMIN
TEST0
DREQENCOUT
DACKENCOUT
TEST1
DREQDECIN
DACKDECIN
VDD1 31
VSS 32
TEST2
VDD2 34
RESET
VSS 36
VDD1 37
PHI
VSS 39
VDD2 40
VSS 1
D0
D1
D2
D3
D4
D5
D6
D7
D8
D9
VDD1 12
VSS 13
D10
D11
D12
D13
D14
D15
VDD2 20
D0
D1
D2
D3
D4
D5
D6
D7
D8
D9
D10
D11
D12
D13
D14
D15
100
R498
2K
R450
0.1
C401
1000P
C459
1K
R499
0.1
C412
0.1
C413
0.1
C402
0.1
C400
0.1
C411
A0
A1
A2
A3
A4
A5
A6
A7
RD
WR
CS
0.1
C416
10K
R513
0.1
C405
188
187
189
01
C404
1
2
3
4
5
6
7
8
9
10
11
12
13
14
15
16
17
18
19
20
21
22
23
24
A15
A14
A13
A12
A11
A10
A9
A8
A19
A20
WE
RESET
NC13
WP/ACC
RY/BY
A18
A17
A7
A6
A5
A4
A3
A2
A1
48
47
46
45
44
43
42
41
40
39
38
37
36
35
34
33
32
31
30
29
28
27
26
25
A16
BYTE
VSS2
DQ15
DQ7
DQ14
DQ6
DQ13
DQ5
DQ12
DQ4
VCC
DQ11
DQ3
DQ10
DQ2
DQ9
DQ1
DQ8
DQ0
OE
VSS1
CE
A0
WR
A20
A19
A8
A9
A10
A11
A12
A13
A14
A15
A5
A4
A3
A2
A1
A18
A17
A7
A6
A0
CE
RD
D0
D8
D1
D9
D2
D10
D3
D11
D4
D12
D5
D13
D6
D14
D7
D15
A16
1K
R497
195
89 76
86
TP2
P5V
94
1.2K
R563
6.8K
R562
1.2K
R541
95
96
4700P
C504
DRV1.65
L1
30
0.01
0.01
C6
C7
R3
10K
R4
10K
133
97
TP11
TP7 SLD1
TP6 SLD2
16K
12K
R6
TP5
SPD
TP10
0.01
C5
R10
6.8K
R561
12K
R5
LOAD
C4 470P
R21 10K
C8 470P
R22 10K
C506 1000P
C507 1000P
C505 4700P
27,87,149,150,PW
P5V
3.3V
3.3V3.3V
P5V
P5V P5V
3.3V
3.3V
P7
PW
1
12
2
4
4
4
5
5
5
5
6
2
6
6
6
8
8
8 8
20
20
20
21
21
X37-1120-03 (1/4)

85
KVT-719DVD/729DVD
/729DVDY/739DVD
X37-1120-03 (2/4)
DFDEDDDCDB
0V
3.3V
0V
3.3V
0V
3.3V
3.3V
0V
3.3V
3.3V
0V
3.3V
3.3V
0V
3.3V
3.3V
3.3V
0V
0V
0V
3.3V
3.3V
3.3V
3.3V
0V
3.3V
3.3V
3.3V
3.3V
0V
3.3V
3.3V
0V
3.3V
3.3V
0V
3.3V
3.3V
0V
3.3V
3.3V
0V
0V
1.2V
3.3V
3.3V
0V
0V
3.3V
3.3V
1.2V
0V
0V
3.3V
3.3V
0V
3.3V
3.3V
0V
3.3V
0V
3.3V
0V
3.3V
0V
0V
3.3V
0V
0V
0V
0V
3.3V
1.2V
3.3V
0V
3.3V
0V0V
3.3V
0V
3.3
V
0V
3.3V
0V
3.3V
0V
1.2V
3.3V
3.3V
0V
0V
0V
3.3V
0V
3.3V
∗IC27
IC42
IC55
IC56
I
C
IC9
S2
P11
Q25
D7
1.8V
S1
SW
LOST
SW
LOEND
PORT
EXTENDED
RF SIGNAL P
R
SERVO/DECO
D
E2PROM
TP230
TP242
TP243
TP249
TP250
22
R544
2.2
C481
0.01
2.2
R547
R546
2.2
R545
2.2
150P
C483
C482
470P
C484
1000P
C480 0.1
61
60
59
58
57
56
55
54
53
52
51
50
49
48
47
46
45
44
43
42
41
DATAI
LRCKI
BCKI
TDO
TRST
VSS 56
VDD2 55
TDI
TMS
TCK
RLRCK
RBCK
RDATA
VDD1 48
VSS 47
RMCK
VSS 45
XOUT
XIN
VDD2 42
VSS 41
0
∗R617
0.1
C414
22
R607
0.1
C403
0.1
C415
TP183
188
187
189
10
C427
NC
2
3
1
4
VIN 5
GND
CNTL
VOUT
0.1
C404
1
∗C410
∗R560 0
∗R575 0
∗R574 0
∗R576 0
∗C409 2.2
48
47
46
45
44
43
42
41
40
39
38
37
36
35
34
33
32
31
30
29
28
27
26
25
A
16
Y
TE
S
S2
Q
15
D
Q7
Q
14
D
Q6
Q
13
D
Q5
Q
12
D
Q4
V
CC
Q
11
D
Q3
Q
10
D
Q2
D
Q9
D
Q1
D
Q8
D
Q0
OE
S
S1
CE
A0 A0
CE
RD
D0
D8
D1
D9
D2
D10
D3
D11
D4
D12
D5
D13
D6
D14
D7
D15
A16
CP70 10K
CP71 10K
CP72 10K
CP73 10K
0.1
C72
10
C73
0.01
C470
470
R531
R487 10K
R485 1K
R486 10K
75
78
88
1
2
3
4
5
6
7
8
9
10
CLR
Q1
D1
D2
Q2
Q3
D3
D4
Q4
GND
20
19
18
17
16
15
14
13
12
11
VCC
Q8
D8
D7
Q7
Q6
D6
D5
Q5
CK
12
15
16
19
D3
D0
D2
D1
1K
R604
1K
R603
1K
R601
1K
R79
0.1
C513
1K
R602
2
5
6
9
D7
D6
D5
D4
1
4
3
2
5
6
7
8
VCC
GND
0.1
C514
A19
CS
WR
6
5
4
VCC
1
2
3
GND
IN0
0.1
C515
10K
R600
256
255
254
253
252
251
250
249
248
247
246
245
244
243
242
241
240
239
238
237
236
235
234
233
232
231
230
229
228
65
66
67
68
69
70
71
72
73
74
75
76
77
78
79
80
81
82
83
84
85
86
87
88
89
90
91
92
93
94
95
96
1
2
3
4
5
6
7
8
9
10
11
12
13
14
15
16
17
18
19
20
21
22
23
24
25
26
27
28
29
30
31
32
33
34
35
36
37
38
39
40
41
42
43
44
45
46
47
48
49
50
51
52
53
54
55
56
57
58
59
60
61
62
63
64
DQM1
DQM0
MDQ7
MDQ8
MDQ6
MDQ9
MDQ5
MDQ10
MDQ4
VDD33 16
VDD12 8
VSS15
MDQ11
MSQ3
MDQ12
MDQ2
MDQ13
MDQ1
MDQ14
MDQ0
MDQ15
VDD33 15
MCK
VSS14
MCKI
VDD33 14
NDASP
NCS3FX
NCS1FX
EXADR18
EXADR17
EXADT7
EXADT6
EXADT5
EXADT4
EXADT3
EXADT2
EXADT1
P15(ADR20)
P14 (SW LOEND)
P13 (RES)
P12 (CE)
P11 (SW EjEnd)
P10 (BMS)
P9 (DRV MUTE)
VSS7
VDD12 3
VDD33 7
P8 (SCL1)
P7 (SDA1)
P6 (SW LIMIN)
P5 (FG)
P4 (SW LOST)
P3 (ZINT)
P2 (SCL0)
P1 (SDA0)
P0
DRV5
DRV4 (LO/EJ)
DRV3 (STEP A)
VSS1
VDD33 1
NWE
NCAS
NRAS
NCSM
MA11
BA0
MA9
BA1
MA8
VSS2
VDD33 2
MA10
MA7
MA0
NA6
MA1
MA5
MA2
MA4
MA3
VSS3
VDD12 1
VDD33 3
DQM2 (CLR)
DQM3 (STBY)
EXDT0
EXDT8
EXDT1
EXDT9
EXDT2
EXDT10
EXDT3
VSS4
VDD33 4
EXDT11
EXDT4
EXDT12
EXDT5
EXDT13
EXDT6
EXDT14
EXDT7
EXDT15
VSS5
VDD12 2
VDD33 5
EXADR16
NEXOE
NEXCE
EXADT0
EXADT15
EXADT14
EXADT13
EXADT12
EXADT11
EXADT10
EXADT9
EXADT8
EXADR19
NEXWE
VSS6
VDD33 6
CP67 10K
10K
R510
0.1
C109
120P
C467
R119 10K
R512 10K
10K
R2
0.1
C162
1
2
3
4
A0
A1
A2
GND
8
7
6
5
VCC
WP
SCL
SDA
CP60
10K 10K
CP36
1
C152
0.1
C153
0.1
C149
22
R80
33
L20
47
R91
47
R467
0.1
C154
0.1
C100
47
CP5 CP6
47
CP7
47
CP8
47
CP4 47
10K
R599
0.1
C102
0.1
C101
C103
1
C105
1
1
C108
256
255
254
253
251
252
249
250
248
243
244
242
241
240
238
237
236
239
47
R81 234
230
229
228
CP3 47
3
4
5
6
9
10
7
8
CP2 47
CP1 47
CP9 47
16
15
14
11
20
19
18
17
22
21
D0
D8
D1
D9
D2
D10
D3
D11
D4
D12
D5
D13
D6
D14
D7
D15
A16
RD
CE
A0
A15
A14
A13
A12
A11
A10
A9
A8
A19
WR
0.1
C106
0.1
C107
0.1
C104
CP61 10K
R511 47K
4.7K
R532
CP37 10K
A18
A17
A7
A6
A5
A4
A3
A2
A1
A20
77
78
75
88
79
80
86
87
94
95
10K
R507
SDA
SCL
76
89
SDA
SCL
10K
R605
10K
R606
100
R112
100
R113
SDA
SCL 4.7K
R275
4.7K
R276
77
18
24
27
172
18,24
P5VP5VP5V
D1.2V
D1.2VD1.2V D1.2V
D1.2V D1.2V
3.3V3.3V
3.3V3.3V
V
3.3V3.3V3.3V
3.3V
3
3.3V
1 1 1
1
2
2
2
2
2
2
2
2
22
3
3 3
4 4
5 5
6 6
7
7
7
7
7
7
8 8 8
9
9 9
9
10
10
10 10
10
13

86
KVT-719DVD/729DVD
/729DVDY/739DVD
X37-1120-03 (3/4)
DG DH DI DJ DK
0.6V
5.0V
3.3V
0.6V
5.0V
5.0V
0
0V
0V
3.3V
0V
0V
0V
0V
0V
3.3V
3.3V
3.3V
1.2V
3.3V
3.3V
0V
0.8V
2.4V
1.9V
1.0V
0V
1.8V
1.8V
1.8V
1.8V
330mVp-p 150mVp-p
3.3V
1.9V
1.4V
2.6V
1.7V
2.2V
150mVp-p
0.7V
1.3V
1.7V
3.3V
0V
1.7V
1.7V
3.3V
2.2V
1.0V
1.0V
2.2V
0V
VIDEO SIGNAL
3.3V
0V
0V
0V
0V
3.3V
1.2V
3.3V
27.00MHz
3.3V
0V
0V
0V
3.3V
1.2V
3.3V
3.3V
0V
0V
3.3V
3.3V
0V
3.3V
0V
3.3V
1.2V
0V
0V
3.3V
3.3V
3.3V
3.3V
0V
3.3V
IC1
IC21
Q21
Q20
R
F SIGNAL PROCESSOR/
S
ERVO/DECODE/AV DECODE
∗P8 ∗
P
DC/DC
1.2V
3.3V/
∗ B
D0
TP174
D1
D5
TP97
TP176
TP153
TP96
D2
TP177
D6
D4
D3
TP210 D7
TP216 DRCCLK
TP225
TP226
TP240
TP237
TP249
TP251
P1
TP252
P8
232
231
230
229
228
227
226
225
224
223
222
221
220
219
218
217
216
215
214
213
212
211
210
209
208
207
206
205
204
203
202
201
200
199
198
197
196
195
194
193
192
191
190
189
188
187
186
185
184
183
182
181
180
179
178
177
176
175
174
173
172
171
170
169
168
167
166
165
164
163
162
161
160
159
158
157
156
155
154
153
152
151
150
149
148
147
146
145
144
143
142
141
140
139
138
137
136
135
134
133
132
131
130
129
93
94
95
96
97
98
99
100
101
102
103
104
105
106
107
108
109
110
111
112
113
114
115
116
117
118
119
120
121
122
123
124
125
126
127
128
VSS14
MCKI
VDD33 14
NDASP
NCS3FX
NCS1FX
DA2
DA0
NPDIAG
DAI
INTRQ
NDMACK
VDD33 13
VSS13
IORDY
NIORD
NIOWR
DMARQ
HDD15
HDD0
HDD14
HDD1
HDD13
VDD33 12
VDD12 7
VSS12
HDD2
HDD12
HDD3
HDD11
HDD4
HDD10
HDD5
HDD9
VDD33 11
VSS11
HDD6
HDD8
HDD7
NRESET
MASTER
SCLOCK
SDATA
EXTRG0
(ADATAIN) EXTRG1
(BCKIN) TRCCLK
(LRCKIN) TRCDATA0
(MONI AS) TRCDATA1
(MONI FE) TRCDATA2
(MONI TE) TRCDATA3
(-) TRCST
VDD33 10
VDD12 6
VSS10
IECOUT
ADOUT0
ADOUT1
ADOUT2
ADOUT3
SRCK
LRCK
DACCK
VSS9
OSCI
OSCO
VDD33 9
VDD12 5
AVSSG
AVDDG
AVSSE
AVDDE
DAC5OUT
DAC4OUT
AVSSF
COMP2
IREF1
VREF
COMP1
AVDDF
(Y/G) DAC1OUT
(Pb/B) DAC2OUT
(Pr/R) DAC3OUT
AVDDH
PWM0
PWM1
AVSSH
(VDET) AD4
(BSDA Offset) AD2
(TEMP) AD1
(IOP) AD0
(A) VIN1
(B) VIN2
(D) VIN4
(C) VIN3
(FE2) VIN8
(FE1) VIN7
(F) VIN6
(E) VIN5
(E) VIN9
(F) VIN10
VHALF
VREFH
(LD-CD) LPCO2
LPC2
(LD-DVD) LPCO1
P0
DRV5
DRV4 (LO/EJ)
DRV3 (STEP A)
DRV2 (STEP B)
DRV1 (SPD)
DRV0 (HFM)
FG
VSS8
NRST
VDD33 8
VDD12 4
AVDDD
PLFIL1
AVSSD
VREFH7
VREFL7
AVSSC
ANAMONI1
ANAMONI2
AVDDC
IREFRF
CCAPA
CDATA
RFINN
RFINP
VIN6RF
VIN5RF
VIN4RF
VIN3RF
VIN2RF
VIN1RF
AVDDB
VREFH5
VREFL5
AVSSB
LPC1
22K
R90
0.1
C112
C113 0.1
C454 0.1
R481 20K
C120 0.1
C129 0.1
30
L12
4.7K
R122
1.8K
R121
4.7K
R478 2K
R480
10K
R634
0
R530
150P
C132
R85 2K
R84 2K
600
L3
0.1
C158
5.1K
R94
10
C165
30
L14
30
L13
0.1
C145
10
C164
1K
R87
10P
C143
10P
C144
600
L2
X1
27MHz
∗R635 22
∗R458 22
∗R131 22
∗R636 22
∗R130 22
0.1
C146
∗CP45 33
10K
R469
1K
R496
0.1
C450
R509 1K
10K
∗CP68
TP207
TP170
TP208
TP169
TP209
TP168
TP175
TP211
TP212
TP213
1000P
C510
10K
R470
0.1
C147
1
C151
0.1
C149
22
R80
0.1
C148
C119
1
0.033
C111
1
C135
1000P
C134
∗R637 22
1
C
1
100
L5
2.2
R552
2.2
R553
2.2
R554
2.2
R555
150P
C489
470P
C490
1000P
C491
0.01
C492
2.2
R556
2.2
R557
2.2
R558
2.2
R559
150P
C493
470P
C494
1000P
C495
0.01
C496
2.2
R638
150P
C522
2.2
R639
470P
C523
2.2
R640
1000P
C524
2.2
R641
0.01
C525
2.2
R642
150P
C526
2.2
R643
470P
C527
2.2
R644
2.2
R645
1000P
C528
0.01
C529
1000P
R627
1000P
VFB1
RUN1
VIN
SW1
GND1
T
P
T
P
TP152
C
3
T
P
T
P
4.
7
R
3
1
C
3
1
C517
2.2uH
L11
R301 4.7K
R533 68K
1
2
3
4
5
10K 0.01
4.7uH
2K
R304
10
9
8
7
6
VFB2
RUN2
POR
SW2
MODE
10
C30
5
TP229
L10
R302 18K
R303 18K
C300 4.7K
R633
100
L6
16K
R305
C301
TP245
230
229
228
227
226
225
224
223
222
219
218
217
216
215
214
213
212
211
207
206
205
204
203
202
201
200
197
196
195
RST
94
95
96
97
10K
R606
C110
1
C452
1
C118 1
C117 0.1
C468 0.1
C114 5600P
C115 0.018
C469 0.1
1
C136
C126 0.1
C127 0.1
C128 0.1
C121 0.1
2.2M
R508
R401 47
47
R400
1K
R411
R410 1K
R402 47
47
R409
189
188
187
R492 750
R493 750
C457 6800P
C458 6800P
R491 750 C456 6800P
R518 10K
1
C448
R111 22
178
177
176
175
174
173
173
174
172
172
1M
R86
1
C142
C140
1
C139
1
1
C449 1
C137
30K
R89 1
C138
12K
R92
Y/G
Pr/R
Pb/B
150
C133 150P
149
C131 150PC130 150P
TH-
C
D
FE1
FE2
B
A
F
E
0.1
C446
1K
R614
0.1
C455
131
129
133
132
10
C123
10
C122
10
C166
C
1
1
1
C
1
SCL
SDA
C
D
B
A
A
B
C
D
144
L4
600
179
193
116
98
128
P5V
D1.2V
D1.2V
D1.2VD1.2VD1.2V
2
V
3.3V
3.3V
3.3V3.3V3.3V
3.3V
D1.2V
A3.3V
A3.3V
A3.3V A3.3V
PW
3.3V
D1.2V
3 3
3
3
5 5
5
5
6 6
7 7
8
11
11
12
12
1212
13 13
13
14 14
1515
16
16
16
16
17
17
17
19 19
19
CAUTION : For continued safety, re place safe ty critical com po nents only with manufacturer’s rec om mend ed parts (refer to parts list).
Indicates safety critical com po nents. To reduce the risk of electric shock, leakage-cur rent or re sis tance mea sure ments shall be carried
out (ex posed parts are ac cept ably in su lat ed from the supply cir cuit) be fore the ap pli ance is returned to the customer.

87
KVT-719DVD/729DVD
/729DVDY/739DVD
DPDODNDMDL
1
2
3
4
5
6
7
0V
3.3V
3.3V
3.3V
0V
3.3V
0V
3.3V
0V
3.3V
1.2V
0V
0V
5.0V
0V
VIDEO SIGNAL VIDEO SIGNAL
5.0V
0V
0V
5.0V
0V
5.0V
3.3V
0V
5.0V
0V
0V
0V
5.0V
5.0V
0V
5.0V
5.0V
0V
0V
2.5V
0V
3.3V
3.3V
0V
0V
8.0V
8.0V
0V
5.0V
0V
3.4V
8.0V
3.4V
5.0V5.0V
0V
5.0V
5.0V
3.3V
5.0V
5.0V
5V
0V
0V
0V
5V
0V
1.2V
0V
3.3V
3.3V
5.0V
IC53
IC49
IC12
IC57
IC15
IC60
IC51
IC39
IC50
VPU1
OPTICAL
PICKUP
Q21
Q20
Q11
Q13
Q10
Q24
Q12
Q14
Q27
Q28
Q29
∗P4
∗CN11
∗CN6
2ch AUDIO DAC
D6 D5
Q15
CN1
IOP
VIDEO AMP
LPF
LPF
to MAIN UNIT
∗P8 ∗P1
IC1 : MN2DS0016AAUB
IC5 : S29AL32D70TFI
IC9 : S-24CS04AFT
IC10 : AN41250A-VB
IC12 : MM1671XNRE
IC15 : AK4396VF
IC21 : LTC3548EDD-F
IC27 : NJM2865F318ZB
IC31 : LC82360-E
IC39 : NJU7042
IC42 : TC74HC273FT
IC49 : TC7SG04FU-F
IC50,51 : NJM4580V-ZB
IC53 : TC7WH08FK-F
IC54 : IS45S16800TL1
IC55 : TC7WH32FU-F
IC56 : HD74LV1GW57AE
IC57 : NJM2573V-ZB
IC60 : MM1665AHBE
Q1-4,25 : DTA143XE
Q10,11 : 2SC4617
Q12,13 : 2SB1709
Q14,15,20,21
: 2SK3019
Q24 : SSM3J15FU-F
Q27 : DTA143ZE
Q28,29 : 2SA1774
D5,6 : 015AZ5.1-F(Y)
D7 : 1SS402-F
GND LINE
SIGNAL LINE
B LINE
(X37-1120-0x)
∗ C
∗ D
VIDEO LINE
TP68
TP65
TP64
TP81
TP107
TP41
A8V
TP82
FGND3
TP220
AGND
TP221
TP222
TP223
D5V
TP224
DGND
TP228
TP235
TP237
TP241
A5V
P
251
1
P
252
8
P4
A3.3V
IOP
LD DVD
LD CD
GND
1.8K
1
2
3
4
5
6
7
8
9
10
ADATA0
DGND
ADATA1
DGND
ADATA2
DGND
BCK
DGND
LRCK
PD
50
49
48
47
46
45
44
43
42
41
40
39
38
37
36
35
34
33
32
31
30
29
28
27
26
25
24
23
22
21
20
19
18
17
16
15
14
13
12
11
10
9
8
7
6
5
4
3
2
1
A5V
A5V
VGND
VIDEO
VGND
Pr/R
VGND
Pb/B
VGND
Y/G
VGND
A8V
A8V
AGND
AGND
AREFL
AOUTL
A-SHIELD
AOUTR
AREFR
AGND
DGND
DGND
SPDIF
DGND
DGND
DISC-DET
M/S
AMUTE
SDT
DGND
TCK
IFSEL
D5V
D5V
D5V
D5V
D5V
D5V
DGND
DGND
RESET
PGND
PGND
PGND
PGND
P5V
P5V
P5V
P5V
10
C169
100
L5 2.2
R554
2.2
R555
1000P
C491
0.01
C492
2.2
R558
2.2
R559
1000P
C495
0.01
C496
2.2
R640
1000P
C524
2.2
R641
0.01
C525
2.2
R644
2.2
R645
1000P
C528
0.01
C529
4GND
3
1
2
6
5
VCC
7
8
0.1
C440
33
R587
22
R586
TP140
VGND
TP227
A5V
TP160
GND
3
1
2
5
4
VCC
22
R489
0.1
C466
33
R473
4
5
6
IN
GND
VCC
3
2
1
SAG
OUT
PS
0.01
C224
200
R200
150
R204
150
R207
0.01
C230
0.01
C229
1
C220
1
C222
1
C221
33K
R620
150
R205
150
R206
1
2
3
4
5
6
7
VSAG1
V+1
VIN1
PS
VIN2
GND1
VIN3
14
13
12
11
10
9
8
VOUT1
V+2
VSAG2
VOUT2
GND2
VOUT3
CLAMP
R624 3.3K
R201 200
R625 3.3K
R202 200
R626 3.3K
R203 200
600
L7
22
C226
4.7
∗R208
1000P
∗C231
1000P
∗C474
4.7
∗R539
1
2
3
4
5
6
7
8
9
10
11
12
13
14
DVSS
DVDD
MCLK
PDN
BICK
SDATA
LRCK
SMUTE
DFS0
DEM0
DEM1
DIF0
DIF1
DIF2
28
27
26
25
24
23
22
21
20
19
18
17
16
15
ACKS
TST2
TST1
P
VCOM
AOUTL+
AOUTL-
AOUTR+
AOUTR-
AVSS
AVDD
VREFH
VREFL
TTL
1
R615
1000P
C271
1
C270
R514 22
R515 22
R516 22
R517 22
1
C272
1
C263
1
C530
9.1K
R257
9.1K
R254
220P
C251
220P
C252
7.5K
R258
100
R266
100
R464
7.5K
R255
1000P
C250
330P
C261
0.1
C473
820
R538
820
R537
1
C464
9.1K
R263
9.1K
R260
10
R269
1
R251
22
C267
0.033
C266
1
C265
1
2
3
4
VOUT
NC2
GND1
CN
8
7
6
5
VIN
NC7
NC6
CONT
6
5
7
8V+
V- 3
4
2
1
TP151
TP110
4.7
R350
1000P
C350
82
R591
390
R583
1000P
C351
4.7
R351
4.7
R523
10
C200
750
R154
10
C201
4.7
R524
56
R156
10
C306
470
R152
10
C202
2.2
R15810
C203
2.2
R159
56
R157
10
R151
4.7
R588
750
R155
10
R150
470
R153
4.7
R476
2.2
R475
100K
R162
100K
R163
0.1
C208
0.1
C207
0.1
C441
110
R477
R165 100
R164 100
600
L22
100P
C476
4.7
R564
1000P
C520
600
L21
10
C511
1
2
3
4
5
6
7
8
9
10
11
12
13
14
15
16
17
18
19
20
21
22
23
24
25
26
27
28
29
30
GND
VREF
VCC
F+H/G+H
E+G/E+F
SW
NC
LD CD
LD DVD
GND
HFM
GND(G)
RF
B
A
C
D
FE1
FE2
TH-
TH+
Imon
NC
VR CD
VR DVD
NC
F-
T+
F+
T-
33
R474
22
R490
1
C223
51K
R619
R116 10K
330
R256
330
R259
47P
C518
C256
C512
1
0.1
390
47P
C519
5
6
R584
820
R536
820
R535
V+
8
7
R267
C262
R261
C254
2
220P
3
4
V-
C255
220P 100
1
330
C253
1000P
330
R262
R265
7.5K
R264
7.5K
R465
330P
100
178
177
176
4
OUT
5
VDD
3IN-
1IN+
2VSS
F-
T+
F+
T-
TP48
TP47
TP46
TP45
TP232
TP234
TP231
TP233
TH-
TP108
FE2
TP54
FE1
TP55
D
TP56
C
TP57
A
TP58
B
E
F
TP51
TP59
TP198
TP247
TP63
TP62
IOP+
TP248
16
19
18
24
SDA
SCL
5
6
2
Y/G
Pb/B
Pr/R
CMP
Pb/B
Pr/R
Y/G
CMP
9
15
12
174
173
179
600
L15
193
Y/G
Pb/B
Pr/R
VFB1
RUN1
VIN
SW1
GND1
TP218
TP217
C304
TP236
TP219
4.7K
R300
10
C302
10
C517
2.2uH
L11
R533 68K 2
3
4
5
0.01
4.7uH
0.033
2K
R304
C516
9
8
7
6
VFB2
RUN2
POR
SW2
MODE
10
C305
22
C497
TP246
22
C498
2
9
L10
R303 18K
172
174
175
173
131
129
132
C167
10
10
C168
Q24
SCL
SDA
144
16,19
116
98
128
18,24,SDA,SCL
P5V
D5V
P5V
P5V
D5V
A5V
A5V
D1.2V
D1.2V 3.3V
A5V
A3.3V
A3.3V
V
A8V
A8V
0-03
0-02
0-00
0-01
UNIT
No.
YES
YES
A
YES
YES
YES
410
C409, CP45CN6
E41-2598-05
E41-2603-05
E41-2598-05
E41-2603-05
E41-2602-05
E41-2597-05
E41-2602-05
E41-2597-05
CN10
E41-2601-05
E41-2595-05
CN11
YES
YES
IC27
YES
YES
R560,574-576,
617
TP253
0-04 E41-2603-05 E41-2602-05 YES YES
B
YES
YES
D
YES
YES
C
YES
YES
YES
YES
YES
YES
CP68
YES
YESYES
YES
231,474
C20,
YES YES
YES
YES
P1,4,
7,8
YES
YES
YES
208,539
R24,
YES
YES
R130,
635,637
YES
YES
YES
458,636
R131,
YES
MODEL NAME
HDV-790/990
DNX7100/7200
DDX70∗9/80∗9
KVT-7∗9DVD/8∗9DVD
6 6
7
7
7
7
7
7
7
7
7
7
11
11 11
11
12
1212
12
14
15
16
1717
18 18
• DC voltages are as measured with a high impedance volt me ter.
Val ues may vary slight ly due to vari a tions between in di vid u al in stru ments or/and units.
X37-1120-03 (4/4)

88
KVT-719DVD/729DVD
/729DVDY/739DVD
EXPLODED VIEW (DVD MECHANISM)
Parts with the exploded numbers larger than 700 are not supplied.
3
2
1
BA
66x2
75
9
7
8
53 43
B
B
B
B
B
B
B
B
B
D
B
A
B
B
894
861
837x2
839
837
817
A
B
A
823
844
824
848
847
849
10
43
70
74
69
43
53
25
96
2
43
69
C
B
A
C
845
887
887
838
882x2
881x2
873x2
55x2
872
820
821
882
873
871
883
884
883
885
805
98
3
VM1
28
12
67
68
80
36
42
27
41 14
34
32
60
79
65
93
33
15
4
35
13
31
40
890
829
858
891
892
851
877
895
850
822
859
862
Ax2
54
54
70
A
B
C
D
M1.7x2
φ1.7x4
M2x2
φ2x10
: N09-6382-05
: N09-6408-15
: N09-6426-15
: N09-6104-05
1

89
KVT-719DVD/729DVD
/729DVDY/739DVD
EXPLODED VIEW (UNIT)
Parts with the exploded numbers larger than 700 are not supplied.
3
2
1
DC
(X35-)
(B/2)
(X16-)
(B/2)
(X14-)
(X88-)
(X35-)
(A/2)
(X16-)
(A/2)
F
G
J
K
L
M
M2.6x3.2
φ2.0x5
M2.0x4
WASHER (1.6x3.2)
: N09-6227-15
: N09-6236-05
: N09-6302-04
: N09-6303-04
: N09-6355-05
: N19-2022-04
R
S
T
U
V
M2.6x5
φ2x6
φ2x5
φ2x7
φ2.6x5
: N35-2605-47
: N80-2006-43
: N82-2005-48
: N82-2007-47
: N86-2605-48
Fx2
Vx2
Fx2
Vx2
Vx2
Ux3
780
218
272
226
209
FPC2
276
PA1
208
225
279
K
J
J
J
JJ
F
F
R
R
KK
716
775
775
852
773
290
LCD1
274
263
333 344
284
338
Jx2
Fx2
Fx2
Sx3
G
M
GG
L
L
L
L
T
T
R
R
V
V
V
V
U
U
871
850
277
852
781
FPC1
FPC2
FC1
214
278
FC3
272
FC4
269
324
324
VME1
FPC1
PME1
268
282
FC2
870
853
822
785
786
780
775
820
713
789
788
717
242
261
335
334
222
336
235
299
331
298
803
220
FC4
FPC2
215
211
234
236
206
332
337
FC2
325
339
PA2
297
FC3
851
821
851

90
KVT-719DVD/729DVD
/729DVDY/739DVD
EXPLODED VIEW (DRIVE MECHANISM)
Parts with the exploded numbers larger than 700 are not supplied.
3
2
1
FE
(X16-300)
(X16-299)
A
B
C
D
E
H
N
P
Q
M2x2.2
M2x3.5
M1.7x2.2
WASHER (1.6x4)
WASHER
RETAINING RING
: N09-6205-05
: N09-6206-05
: N09-6207-05
: N09-6211-05
: N09-6255-05
: N09-6270-05
: N19-2195-04
: N19-2303-04
: N29-0538-04
Hx2
Bx2
Cx4
Cx3
805
257
247
246
316
256
252
N
N
N
N
N
N
N
C
Q
Q
E
E
E
E
E
E
E
E
E
B
B
B
A
A
N
C
H
H
D
D
H
H
N
B
B
B
B
N
P
P
704
783
201
295
260
254
256
202
318
296 249
348
320
258
250
238
296
292
319
PM2
PM1
243
221
296
203
328
302 302
308
240
FC1
239
251
253
252
329
244
347
248
310
319
248
294
314
293
309
806

91
KVT-719DVD/729DVD
/729DVDY/739DVD
EXPLODED VIEW (TUNER BOX & ACCESSORIES)
Parts with the exploded numbers larger than 700 are not supplied.
3
2
1
HG
W
V
X
Y
Z
:
:
:
:
:
N09-6234-05
N86-2605-48
N89-3008-43
N09-4461-05
N84-3008-43
M2.6x18
φ2.6x5
φ3x8
φ3x8
A251
311
342
341
265
230x2
312x2
SIZE AAA BATTERY
(NOT SUPPLIED)
F2
F2
F1
326x2
346
W251
(X34-)
(X34-)
(X86-)
F1
DC1
DC2
DC3
DC4
Xx2
Xx3
Zx2
Yx2
Wx2
Xx3
Xx2
Xx2
873
864
267
362
355
367 RC1
270
360
X
X
861
875
876
X
874
865
863
V
V
V
V
868
Depends on the modles. Refer to the parts list.

PARTS LIST
Indicates safety critical com po nents.
Ref. No. A
d
d
N
e
wParts No. Description Desti-
nation
E1 : KVT-729DVD E2 : KVT-729DVDY (Europe)
K : KVT-719DVD (North America) R1 : KVT-739DVD (Latin America)
X1 : KVT-739DVD (Australia) M1 : KVT-739DVD (Other Areas)
Ref. No. A
d
d
N
e
wParts No. Description Desti-
nation
✽ New parts
Parts without Parts No. are not supplied.
Les articles non mentionnes dans le Parts No. ne sont pas fournis.
Teile ohne Parts No. werden nicht geliefert.
KVT-719DVD/729DVD
/729DVDY/739DVD
92
201 3F
✽
A10-5164-02 CHASSIS CALKING ASSY
202 2F
✽
A10-5166-03 CHASSIS CALKING ASSY
203 2F
✽
A10-5168-03 CHASSIS CALKING ASSY
206 3C A11-1645-14 SUB CHASSIS CALKING ASSY
208 1D
✽
A21-6584-02 DRESSING PANEL
209 1D
✽
A21-6585-03 DRESSING PANEL
211 3C
✽
A22-3124-13 SUB PANEL ASSY
214 1D
✽
A46-1818-02 REAR COVER
215 3C
✽
A46-1849-01 REAR COVER
PA1 1C
✽
A64-4106-11 PANEL ASSY K
PA1 1C
✽
A64-4107-11 PANEL ASSY R1
PA1 1C
✽
A64-4108-11 PANEL ASSY E1E2
PA1 1C
✽
A64-4109-11 PANEL ASSY M1X1
PA2 3C
✽
A64-4116-02 PANEL ASSY
KR1X1
PA2 3C
✽
A64-4117-02 PANEL ASSY
E1E2M1
PME1 1D
✽
A10-5171-01 CHASSIS ASSY
- B46-0606-04 ID CARD KR1
- B46-0612-14 ID CARD
E1E2M1
- B46-0612-14 ID CARD X1
-
✽
B54-4513-00
INSTALLATION MANUAL (ENG.SPA.)
KR1
-
✽
B54-4514-00 INSTALLATION MANUAL (FRE.) K
-
✽
B54-4515-00 INSTALLATION MANUAL (POR.) R1
-
✽
B54-4516-00 INSTALLATION MANUAL (ENG.) E1E2
-
✽
B54-4517-00
INSTALLATION MANU (FRE.GER.DUT)
E1
-
✽
B54-4517-00
INSTALLATION MANU (ITA.SPA.POR)
E1
-
✽
B54-4518-00
INSTALLATION MANUAL (ENG.KOR.)
M1X1
-
✽
B54-4519-00
INSTALLATION MANUAL (T-CHI.KOR)
M1
-
✽
B59-1880-00 SUB-INSTRUCTION MANUAL
-
✽
B64-3569-00 INSTRUCTION MANUAL (ENG.) KR1
-
✽
B64-3570-00 INSTRUCTION MANUAL (FRE.) K
-
✽
B64-3571-00 INSTRUCTION MANUAL (SPA.) KR1
-
✽
B64-3572-00 INSTRUCTION MANUAL (POR.) R1
-
✽
B64-3573-00 INSTRUCTION MANUAL (ENG.) E1E2
-
✽
B64-3574-00 INSTRUCTION MANUAL (FRE.) E1
-
✽
B64-3575-00 INSTRUCTION MANUAL (GER.) E1
-
✽
B64-3576-00 INSTRUCTION MANUAL (DUT.) E1
-
✽
B64-3577-00 INSTRUCTION MANUAL (ITA.) E1
-
✽
B64-3578-00 INSTRUCTION MANUAL (SPA.) E1
-
✽
B64-3579-00 INSTRUCTION MANUAL (POR.) E1
-
✽
B64-3580-00 INSTRUCTION MANUAL (ENG.) M1X1
-
✽
B64-3581-00
INSTRUCTION MANUAL (T-CHI.)
M1
-
✽
B64-3582-00 INSTRUCTION MANUAL (KOR.) M1
218 1C
✽
B07-3202-02 ESCUTCHEON K
218 1C
✽
B07-3203-02 ESCUTCHEON
R1M1X1
218 1C
✽
B07-3204-02 ESCUTCHEON E1E2
220 3C
✽
B10-4955-03 FRONT GLASS
221 3F
✽
B11-1453-04 REFLECTION SHEET
222 3C B19-2330-04 LIGHTING BOARD
225 1C B43-1518-04 BADGE
226 1C B43-1527-04 BADGE
LCD1 2C B38-1176-05 LCD
230 1G D10-4674-04 LEVER
234 3C
✽
D10-4727-03
✽
A ARM
235 3C
✽
D10-4728-04
✽
A ARM
236 3C
✽
D10-4729-04
✽
A LEVER
238 2F
✽
D10-4836-03 ARM ASSY
239 2F
✽
D10-4837-04 LEVER ASSY
240 2E
✽
D10-4840-03 ARM
242 3C
✽
D13-2280-04
✽
A GEAR
243 3F
✽
D13-2335-03 RACK (GEAR)
244 3F
✽
D13-2336-03 RACK (GEAR)
246 1F
✽
D13-2338-04 GEAR
247 1F
✽
D13-2339-04 GEAR
248 2F
✽
D13-2340-04 GEAR
249 1F
✽
D13-2341-04 GEAR
250 1F
✽
D13-2342-04 GEAR
251 1F
✽
D13-2343-04 GEAR
252 1E
✽
D13-2344-04 GEAR
253 2F
✽
D13-2345-04 GEAR
254 2F
✽
D13-2346-04 GEAR
256 1F
✽
D13-2349-04 GEAR
257 1F
✽
D13-2350-04 GEAR
258 1F
✽
D13-2351-04 GEAR
260 2F
✽
D21-2446-03 SHAFT
261 3C D39-0239-05 DAMPER
263 3C
✽
E29-2109-04 LEAD PLATE
265 2G E30-6483-05 CORD WITH PLUG
267 1G
✽
E30-6688-05 CORD WITH PLUG
268 3D
✽
E30-6689-05 CORD WITH PLUG
269 3D
✽
E30-6690-05 CORD WITH PLUG
270 2G
✽
E30-6693-05 CORD WITH PLUG M1X1
DC1 1G
✽
E30-6675-05 DC CORD
KR1M1
DC1 1G
✽
E30-6675-05 DC CORD X1
DC2 1G
✽
E30-6676-15 DC CORD E1E2
DC3 1G
✽
E30-6680-05 DC CORD
KR1M1
DC3 1G
✽
E30-6680-05 DC CORD X1
DC4 1G
✽
E30-6681-15 DC CORD E1E2
FC1 2F
✽
E39-0665-05 FLAT CABLE
FC2 3D
✽
E39-0906-05 FLAT CABLE
FC3 3D
✽
E39-0907-05 FLAT CABLE
FC4 3D
✽
E39-0908-05 FLAT CABLE
272 1D
✽
F07-1184-04 COVER
274 2C F09-1802-04 SHEET
276 1D
✽
F09-2865-04 SHEET
277 2D
✽
F09-2866-04 SHEET
278 1D
✽
F09-2867-04 SHEET
279 1D
✽
F09-2868-04 SHEET
282 3D F09-2890-04 CAP
284 2C F12-0775-04 SHIELDING SHEET
290 2C
✽
F20-2401-03 INSULATING SHEET
F1 1G F06-1032-05 FUSE 10A
F2 1G F52-0004-05 MINI FUSE 5A
292 2F
✽
G01-3222-04 COMPRESSION SPRING
293 3F
✽
G01-3223-04 TORSION COIL SPRING
294 3F
✽
G01-3224-04 TORSION COIL SPRING
KVT-719DVD/729DVD/729DVDY/739DVD

PARTS LIST
Indicates safety critical com po nents.
Ref. No. A
d
d
N
e
wParts No. Description Desti-
nation Ref. No. A
d
d
N
e
wParts No. Description Desti-
nation
KVT-719DVD/729DVD
/729DVDY/739DVD
93
E1 : KVT-729DVD E2 : KVT-729DVDY (Europe)
K : KVT-719DVD (North America) R1 : KVT-739DVD (Latin America)
X1 : KVT-739DVD (Australia) M1 : KVT-739DVD (Other Areas)
295 2F
✽
G01-3225-04 EXTENSION SPRING
296 2F
✽
G01-3226-04 COMPRESSION SPRING
297 3C G01-3265-04 TORSION COIL SPRING
298 3C G01-3266-04 COMPRESSION SPRING
299 3C G01-3267-04 TORSION COIL SPRING
302 2E
✽
G11-3587-04 CUSHION
-
✽
H54-4026-03 ITEM CARTON CASE K
-
✽
H54-4027-03 ITEM CARTON CASE M1X1
-
✽
H54-4028-03 ITEM CARTON CASE E1
-
✽
H54-4029-03 ITEM CARTON CASE E2
-
✽
H54-4064-03 ITEM CARTON CASE R1
308 2E
✽
J19-7004-03 HOLDER
309 2F
✽
J19-7005-04 STABILIZER
310 2F
✽
J19-7007-03 HOLDER
311 1G J21-9823-03 MOUNTING HARDWARE ASSY
312 1G J22-0054-14 MOUNTING HARDWARE
314 3E
✽
J22-0198-02 MOUNTING HARDWARE ASSY
316 1F
✽
J22-0200-04 MOUNTING HARDWARE ASSY
318 1F
✽
J22-0202-04 MOUNTING HARDWARE ASSY
319 1F
✽
J22-0203-03 MOUNTING HARDWARE ASSY
319 1F
✽
J22-0212-04 MOUNTING HARDWARE
320 1F
✽
J22-0206-03 MOUNTING HARDWARE ASSY
324 2D
✽
J32-1373-04 HEXAGON BOSS
325 3C
✽
J39-0864-04 SPACER
326 2G J61-0620-05 WIRE BAND
328 2F
✽
J90-1092-03 GUIDE
329 2E
✽
J90-1093-03 GUIDE
FPC1 2D
✽
J86-0033-15 FPC (LEAD FREE)
FPC2 1D
✽
J86-0038-05 FPC (LEAD FREE)
331 3C K24-4346-04 PUSH KNOB (RELEASE)
332 3C
✽
K24-4673-03 PUSH KNOB (SRC)
333 2C
✽
K24-4680-03 PUSH KNOB (M.CTRL)
334 3C
✽
K24-4681-04 PUSH KNOB (RESET)
335 3C
✽
K24-4682-13 PUSH KNOB (EJECT)
336 3C
✽
K25-1871-03 PUSH KNOB (VOL)
337 3C
✽
K25-1872-03 PUSH KNOB (ATT.AUTO)
338 2C
✽
K25-1875-02 PUSH KNOB (OPEN-SCRN)
339 3C
✽
K28-0221-04 KEY TOP (4WAY)
341 1G N99-1753-05 SCREW SET
342 1G N99-1775-05 SCREW SET
KR1M1
342 1G N99-1775-05 SCREW SET X1
A 2E
✽
N09-6205-05 STEPPED SCREW
B 1F
✽
N09-6206-05 MACHINE SCREW (M2X2.2)
C 2E
✽
N09-6207-05 MACHINE SCREW (M2X3.5)
D 3F
✽
N09-6211-05 STEPPED SCREW
E 3F
✽
N09-6225-05 MACHINE SCREW
F 2D N09-6227-15
MACHINE SCREW (M2.6X 3.2NI)
G 3C N09-6236-05
SEMS (TAPTITE SCREW)(2.0X 5)
H 1F
✽
N09-6270-05 MACHINE SCREW (M1.7X2.2)
J 1D
✽
N09-6302-04 MACHINE SCREW
K 1D
✽
N09-6303-04 MACHINE SCREW
L 3C N09-6355-05 MACHINE SCREW (M2.0X4)
M 3C N19-2022-04 FLAT WASHER (1.6X3.2X0.25)
N 1F
✽
N19-2195-04 FLAT WASHER (1.6X4X0.25 BL)
P 1F
✽
N19-2303-04 FLAT WASHER
Q 2E
✽
N29-0538-04 RETAINING RING (2)
R 2D N35-2605-47
BINDING HEAD MACHINE SCREW
S 3C N80-2006-43 PAN HEAD TAPTITE SCREW
T 3C N82-2005-48
BINDING HEAD TAPTITE SCREW
U 1D
✽
N82-2007-47
BINDING HEAD TAPTITE SCREW
V 3D N86-2605-48
BINDING HEAD TAPTITE SCREW
344 2C
✽
S79-0858-05 SWITCH ASSY (7INCH/T0.7)
346 2G T90-0552-05 ANTENNA ADAPTOR E1E2
PM1 1F
✽
T42-1097-04 MOTOR ASSY
PM2 1F
✽
T42-1099-04 MOTOR ASSY
347 2F
✽
W02-5121-05 ELECTRIC CIRCUIT MODULE
348 1F
✽
W02-5122-05 ELECTRIC CIRCUIT MODULE
355 1H
✽
X90-4240-10 TUNER ASSY K
355 1H
✽
X90-4240-21 TUNER ASSY M1
355 1H
✽
X90-4240-71 TUNER ASSY X1
355 1H
✽
X90-4242-71 TUNER ASSY E1E2
355 1H
✽
X90-4243-21 TUNER ASSY R1
VME1 2C
✽
X92-5920-00
DVD MECHANISM ASSY (DVS-8530V)
360 1H
✽
A01-4425-11 METALLIC CABINET M1X1
360 1H
✽
A01-4432-11 METALLIC CABINET
KR1E1
360 1H
✽
A01-4432-11 METALLIC CABINET E2
RC1 2G
✽
A70-2082-15
REMOTE CONTROLLER AS (RC-DV330)
M1X1
RC1 2G
✽
A70-2083-15
REMOTE CONTROLLER AS (RC-DV340)
KR1E1
RC1 2G
✽
A70-2083-15
REMOTE CONTROLLER AS (RC-DV340)
E2
362 3G B07-3159-02 ESCUTCHEON
V 2H N86-2605-48
BINDING HEAD TAPTITE SCREW
W 2H N09-6234-05 MACHINE SCREW (M2.6X18)
X 1H N89-3008-43
BINDING HEAD TAPTITE SCREW
367 3G W01-1661-05 CARRYING CASE
C1 C90-5670-05 ELECTRO 2200UF 16WV
C2,3 CK73GB1H104K CHIP C 0.10UF K
C4 CK73FB1E474K CHIP C 0.47UF K
C5 CE32BF1C221M CHIP EL 220UF 16WV
C6 CE32BF0J101M CHIP EL 100UF 6.3WV
C7 CK73FB0J106K CHIP C 10UF K
C8 CK73GB1H104K CHIP C 0.10UF K
C10 CK73EB1A106K CHIP C 10UF K
C11 CK73GB1H103K CHIP C 0.010UF K
C12 CK73EB1A106K CHIP C 10UF K
C13 CK73GB1H103K CHIP C 0.010UF K
C14 CE32BJ1C100M CHIP EL 10UF 16WV
C16 CK73EB1C106K CHIP C 10UF K
C17 CK73GB1H103K CHIP C 0.010UF K
C19 CE32BF1E101M CHIP EL 100UF 25WV
C20 CK73GB1H104K CHIP C 0.10UF K
C22 CK73FB0J106K CHIP C 10UF K
TUNER ASSY (X90-424x-xx)
VIDEO CONTROL UNIT (X14-983x-xx)
KVT-719DVD/729DVD/729DVDY/739DVD

PARTS LIST
Indicates safety critical com po nents.
Ref. No. A
d
d
N
e
wParts No. Description Desti-
nation
E1 : KVT-729DVD E2 : KVT-729DVDY (Europe)
K : KVT-719DVD (North America) R1 : KVT-739DVD (Latin America)
X1 : KVT-739DVD (Australia) M1 : KVT-739DVD (Other Areas)
Ref. No. A
d
d
N
e
wParts No. Description Desti-
nation
KVT-719DVD/729DVD
/729DVDY/739DVD
94
C23 CK73GB1A105K CHIP C 1.0UF K
C24 CK73EB1C106K CHIP C 10UF K
C27,28 CK73GB1H104K CHIP C 0.10UF K
C29 CK73FB0J106K CHIP C 10UF K
C34 CK73FB0J106K CHIP C 10UF K
C92 CK73GB1H103K CHIP C 0.010UF K
C93 CK73GB1H104K CHIP C 0.10UF K
C94 CK73GB1H103K CHIP C 0.010UF K
C95 CK73GB1H104K CHIP C 0.10UF K
C96 CK73GB1H103K CHIP C 0.010UF K
C97 CK73GB1H104K CHIP C 0.10UF K
C98 CK73GB1H103K CHIP C 0.010UF K
C99 CK73GB1H104K CHIP C 0.10UF K
C101 CK73GB1H473K CHIP C 0.047UF K
C102 CK73GB1H102K CHIP C 1000PF K
C104 CC73GCH1H221J CHIP C 220PF J
C105 CK73GB1H102K CHIP C 1000PF K
C106 CK73GB1H103K CHIP C 0.010UF K
C107,108 CC73GCH1H101J CHIP C 100PF J
C109 CK73GB1H223K CHIP C 0.022UF K
C110 CC73GCH1H470J CHIP C 47PF J
C111 CK73GB1H103K CHIP C 0.010UF K
C112 CK73GB1H102K CHIP C 1000PF K
C114 CC73GCH1H221J CHIP C 220PF J
C115 CK73GB1H473K CHIP C 0.047UF K
C116 CK73GB1H104K CHIP C 0.10UF K
C117 CK73FB0J106K CHIP C 10UF K
C118 CK73GB1H104K CHIP C 0.10UF K
C119 CK73EB1E225K CHIP C 2.2UF K
C120,121 CK73GB1H104K CHIP C 0.10UF K
C122,123 CK73GB1H103K CHIP C 0.010UF K
C124 C93-1367-05 CHIP C 10UF K
C126-129 CK73GB1H102K CHIP C 1000PF K
C130
✽
CE32AV0J221M CHIP EL 220UF 6.3WV
C131-133 CK73GB1H103K CHIP C 0.010UF K
C134 C93-1367-05 CHIP C 10UF K
C136-139 CK73GB1H102K CHIP C 1000PF K
C140
✽
CE32AV1A121M CHIP EL 120UF 10WV
C141 CK73GB1H103K CHIP C 0.010UF K
C142 CK73GB1H473K CHIP C 0.047UF K
C143 CK73GB1H102K CHIP C 1000PF K
C145 CC73GCH1H221J CHIP C 220PF J
C146 CK73GB1H102K CHIP C 1000PF K
C147 CK73GB1H103K CHIP C 0.010UF K
C148 CC73GCH1H101J CHIP C 100PF J
C149 CC73GCH1H470J CHIP C 47PF J
C150 CK73GB1H153K CHIP C 0.015UF K
C151 CC73GCH1H470J CHIP C 47PF J
C152 CK73GB1H223K CHIP C 0.022UF K
C153 CK73GB1H102K CHIP C 1000PF K
C155 CC73GCH1H221J CHIP C 220PF J
C156,157 CK73GB1H104K CHIP C 0.10UF K
C158 CK73FB0J106K CHIP C 10UF K
C159 CK73GB1H104K CHIP C 0.10UF K
C160 CK73EB1E225K CHIP C 2.2UF K
C161,162 CK73GB1H104K CHIP C 0.10UF K
C163,164 CK73GB1H103K CHIP C 0.010UF K
C165 C93-1367-05 CHIP C 10UF K
C167-170 CK73GB1H102K CHIP C 1000PF K
C171
✽
CE32AV0J221M CHIP EL 220UF 6.3WV
C172-174 CK73GB1H103K CHIP C 0.010UF K
C175 C93-1367-05 CHIP C 10UF K
C177-180 CK73GB1H102K CHIP C 1000PF K
C181
✽
CE32AV0G331M CHIP EL 330UF 4.0WV
C182 CK73GB1H103K CHIP C 0.010UF K
C183,184 CK73GB1H102K CHIP C 1000PF K
C185 CK73FB0J106K CHIP C 10UF K
C186,187 CK73GB1H104K CHIP C 0.10UF K
C188 CK73FB0J106K CHIP C 10UF K
C189-200 CK73GB1H104K CHIP C 0.10UF K
C201 CK73FB0J106K CHIP C 10UF K
C202 CK73GB1H103K CHIP C 0.010UF K
C203 CK73GB1H104K CHIP C 0.10UF K
C204 CK73FB0J475K CHIP C 4.7UF K
C205 CK73GB1H104K CHIP C 0.10UF K
C206 CC73GCH1H220J CHIP C 22PF J
C207 CC73GCH1H180J CHIP C 18PF J
C208,209 CK73GB1H104K CHIP C 0.10UF K
C210 CK73GB1H103K CHIP C 0.010UF K
C212 CK73GB1H104K CHIP C 0.10UF K
C213 CK73GB1H221K CHIP C 220PF K
C214-217 CE32BM1E470M CHIP EL 47UF 25WV
C260 CK73GB1H102K CHIP C 1000PF K
C301 CK73GB1A105K CHIP C 1.0UF K
C303-305 CK73FB0J106K CHIP C 10UF K
C306 CK73GB1H104K CHIP C 0.10UF K
C307-312 CK73GB1H103K CHIP C 0.010UF K
C313 CC73GCH1H821J CHIP C 820PF J
C314 CK73GB1A105K CHIP C 1.0UF K
C315 CK73EB1A106K CHIP C 10UF K
C316 CK73GB1A105K CHIP C 1.0UF K
C317 CK73GB1H682K CHIP C 6800PF K
C319 CK73GB1H104K CHIP C 0.10UF K
C321 CK73GB1H103K CHIP C 0.010UF K
C322 CC73GCH1H050C CHIP C 5.0PF C
C323 CK73GB1A474K CHIP C 0.47UF K
C324 CK73GB1H103K CHIP C 0.010UF K
C325 CC73GCH1H080D CHIP C 8.0PF D
E1E2M1
C325 CC73GCH1H080D CHIP C 8.0PF D X1
C327-329 CK73FB0J106K CHIP C 10UF K
C330 CK73GB1H104K CHIP C 0.10UF K
C331 C93-1403-05 CHIP C 22UF M
C333-335 CK73EB1C106K CHIP C 10UF K
C336,337 CK73GB1H104K CHIP C 0.10UF K
C338 CK73GB1H102K CHIP C 1000PF K
C339,340 CK73GB1H103K CHIP C 0.010UF K
C341 CC73GCH1H390J CHIP C 39PF J
C342 CK73GB1H103K CHIP C 0.010UF K
C343 CK73EB1A106K CHIP C 10UF K
C344 CK73GB1H103K CHIP C 0.010UF K
VIDEO CONTROL UNIT (X14-983x-xx)

PARTS LIST
Indicates safety critical com po nents.
Ref. No. A
d
d
N
e
wParts No. Description Desti-
nation Ref. No. A
d
d
N
e
wParts No. Description Desti-
nation
KVT-719DVD/729DVD
/729DVDY/739DVD
95
E1 : KVT-729DVD E2 : KVT-729DVDY (Europe)
K : KVT-719DVD (North America) R1 : KVT-739DVD (Latin America)
X1 : KVT-739DVD (Australia) M1 : KVT-739DVD (Other Areas)
C348 CC73GCH1H101J CHIP C 100PF J
C350-352 CK73FB0J106K CHIP C 10UF K
C353-355 CK73GB1H102K CHIP C 1000PF K
C356 CK73EB1C106K CHIP C 10UF K
C358 CK73GB1H103K CHIP C 0.010UF K
C359 CK73GB1H104K CHIP C 0.10UF K
C361 CK73GB1H103K CHIP C 0.010UF K
C362 CK73GB1H104K CHIP C 0.10UF K
C363 CK73GB1H103K CHIP C 0.010UF K
C364 CK73GB1H104K CHIP C 0.10UF K
C400-403 CK73GB1A474K CHIP C 0.47UF K
C404 CK73GB1H103K CHIP C 0.010UF K
C405-407 CK73FB0J106K CHIP C 10UF K
C408 CK73GB1H104K CHIP C 0.10UF K
C409 CK73GB1H103K CHIP C 0.010UF K
C410-415 CK73GB1A105K CHIP C 1.0UF K
C416 CK73GB1H103K CHIP C 0.010UF K
C417-422 CK73GB1A105K CHIP C 1.0UF K
C423 CK73GB1H103K CHIP C 0.010UF K
C424-428 CK73GB1A105K CHIP C 1.0UF K
C429 CK73GB1H103K CHIP C 0.010UF K
C430 CE32BQ0J331M CHIP EL 330UF 6.3WV
C431,432 CK73GB1A105K CHIP C 1.0UF K
C433,434 CK73GB1H103K CHIP C 0.010UF K
C435 CK73EB1A106K CHIP C 10UF K
C440 CK73FB0J106K CHIP C 10UF K
C442-445 CK73FB0J106K CHIP C 10UF K
C447,448 CK73FB0J106K CHIP C 10UF K
C451,452 CK73GB1H102K CHIP C 1000PF K
C463,464 CK73GB0J475K CHIP C 4.7UF K
C465 CK73FB0J106K CHIP C 10UF K
C501-508 CK73GB1H104K CHIP C 0.10UF K
C510-512 CK73GB1H104K CHIP C 0.10UF K
C513,514 CK73FB1A225K CHIP C 2.2UF K
C515,516 CK73GB1H103K CHIP C 0.010UF K
C517 CK73FB0J106K CHIP C 10UF K
C518 CK73GB1H103K CHIP C 0.010UF K
C519 CK73GB1H104K CHIP C 0.10UF K
C520 CK73FB0J106K CHIP C 10UF K
C521 CK73GB1H104K CHIP C 0.10UF K
C523 CC73GCH1H101J CHIP C 100PF J
C528 CK73GB1H104K CHIP C 0.10UF K
C529-534 CK73GB1H103K CHIP C 0.010UF K
C535 CK73GB1H104K CHIP C 0.10UF K
C539
✽
CE32AV0J121M CHIP EL 120UF 6.3WV
C540 CK73GB1H104K CHIP C 0.10UF K
C541 CK73GB1H103K CHIP C 0.010UF K
C542 CK73GB1H104K CHIP C 0.10UF K
C543 CK73GB1H103K CHIP C 0.010UF K
C544 CK73GB1H104K CHIP C 0.10UF K
C545 CK73GB1H103K CHIP C 0.010UF K
C546 CK73GB1H104K CHIP C 0.10UF K
C547 CK73GB1H103K CHIP C 0.010UF K
C548 CK73GB1H104K CHIP C 0.10UF K
C549 CK73GB1H103K CHIP C 0.010UF K
C551,552 CK73FB0J106K CHIP C 10UF K
C553,554 CK73GB1H104K CHIP C 0.10UF K
CN301 E41-2065-05 FLAT CABLE CONNECTOR
CN401
✽
E41-2806-05 PIN ASSY
CN501 E41-2237-05
FLAT CABLE CONNECTOR (60P)
CN502 E41-2197-05
FLAT CABLE CONNECTOR (50P)
CN503
✽
E41-2410-05
FLAT CABLE CONNECTOR (22P)
J1
✽
E58-1065-05
RECTANGULAR RECEPTACLE (4P)
J501 E11-0638-05 PHONE JACK
J502
✽
E58-1069-05 RECTANGULAR RECEPTACLE
F301 F53-0297-05 FUSE (UL,CSA) 1.6A
L2 L92-0373-05 CHIP FERRITE
L3
✽
L33-2369-05 CHOKE COIL
L101
✽
L33-2369-05 CHOKE COIL
L102
✽
L33-2370-05 CHOKE COIL
L103
✽
L33-2369-05 CHOKE COIL
L104,105
✽
L33-2370-05 CHOKE COIL
L106
✽
L33-2417-05 CHOKE COIL
L107
✽
L33-2369-05 CHOKE COIL
L108
✽
L33-2370-05 CHOKE COIL
L201 L92-0319-05 CHIP FERRITE
L301-303 L41-1005-33 SMALL FIXED INDUCTOR (10U)
L305 L41-1005-33 SMALL FIXED INDUCTOR (10U)
L401-404 L92-0319-05 CHIP FERRITE
L500 L41-1001-28 SMALL FIXED INDUCTOR (10U)
L501
✽
L33-2369-05 CHOKE COIL
X201 L78-1210-05 RESONATOR (4.95MHZ)
X202
✽
L77-2917-15
CRYSTAL RESONATOR (32.768KHZ)
X301 L77-2905-05
CRYSTAL RESONATOR (3.579545MHZ)
X302 L77-2906-05
CRYSTAL RESONATOR (4.433619MHZ)
E1E2M1
X302 L77-2906-05 CRYSTAL RESONATOR (4.433619MHZ)
X1
CP401 RK74GB1J222J CHIP-COM 2.2K J 1/16W
CP402,403
RK74GB1J103J CHIP-COM 10K J 1/16W
R1,2
✽
RK73EB2E622J CHIP R 6.2K J 1/4W
R3 RK73GB2A153J CHIP R 15K J 1/10W
R4 RK73GB2A912J CHIP R 9.1K J 1/10W
R5 RK73GB2A473J CHIP R 47K J 1/10W
R6 RK73GH2A104D CHIP R 100K D 1/10W
R7 RK73GH2A513D CHIP R 51K D 1/10W
R8 RK73GH2A333D CHIP R 33K D 1/10W
R9,10 RK73GB2A224J CHIP R 220K J 1/10W
R11 RK73GH2A113D CHIP R 11K D 1/10W
R12 RK73GH2A104D CHIP R 100K D 1/10W
R13 RK73GH2A683D CHIP R 68K D 1/10W
R14,15 RK73GH2A334D CHIP R 330K D 1/10W
R16,17 RK73GB2A224J CHIP R 220K J 1/10W
R18 RK73GB2A000J CHIP R 0.0 J 1/10W
R19 RK73GB2A224J CHIP R 220K J 1/10W
R22 RK73GB2A224J CHIP R 220K J 1/10W
R24 RK73GB2A303J CHIP R 30K J 1/10W
R25 RK73GB2A224J CHIP R 220K J 1/10W
R26 RK73GB2A202J CHIP R 2.0K J 1/10W
R27,28 RK73GB2A224J CHIP R 220K J 1/10W
VIDEO CONTROL UNIT (X14-983x-xx)

PARTS LIST
Indicates safety critical com po nents.
Ref. No. A
d
d
N
e
wParts No. Description Desti-
nation
E1 : KVT-729DVD E2 : KVT-729DVDY (Europe)
K : KVT-719DVD (North America) R1 : KVT-739DVD (Latin America)
X1 : KVT-739DVD (Australia) M1 : KVT-739DVD (Other Areas)
Ref. No. A
d
d
N
e
wParts No. Description Desti-
nation
KVT-719DVD/729DVD
/729DVDY/739DVD
96
R29 RK73GB2A114J CHIP R 110K J 1/10W
R34 RK73GB2A823J CHIP R 82K J 1/10W
R35 RK73GB2A103J CHIP R 10K J 1/10W
R36 RK73GB2A224J CHIP R 220K J 1/10W
R37 RK73GB2A333J CHIP R 33K J 1/10W
R38 RK73GB2A224J CHIP R 220K J 1/10W
R39 RK73GB2A000J CHIP R 0.0 J 1/10W
R40 RK73GB2A153J CHIP R 15K J 1/10W
R41 RK73GB2A272J CHIP R 2.7K J 1/10W
R42 RK73GB2A000J CHIP R 0.0 J 1/10W
R43 RK73GB2A472J CHIP R 4.7K J 1/10W
R44 RK73GB2A561J CHIP R 560 J 1/10W
R50 RK73GB2A302J CHIP R 3.0K J 1/10W
R51 RK73GB2A332J CHIP R 3.3K J 1/10W
R52 RK73GB2A272J CHIP R 2.7K J 1/10W
R53 RK73GB2A393J CHIP R 39K J 1/10W
R54 RK73GB2A113J CHIP R 11K J 1/10W
R55 RK73GB2A302J CHIP R 3.0K J 1/10W
R56 RK73GB2A332J CHIP R 3.3K J 1/10W
R57 RK73GB2A272J CHIP R 2.7K J 1/10W
R58 RK73GB2A393J CHIP R 39K J 1/10W
R59 RK73GB2A113J CHIP R 11K J 1/10W
R60 RK73GB2A223J CHIP R 22K J 1/10W
R61,62 RK73GB2A103J CHIP R 10K J 1/10W
R65 RK73GB2A153J CHIP R 15K J 1/10W
R66 RK73GB2A302J CHIP R 3.0K J 1/10W
R67 RK73GB2A332J CHIP R 3.3K J 1/10W
R68 RK73GB2A272J CHIP R 2.7K J 1/10W
R69 RK73GB2A333J CHIP R 33K J 1/10W
R70 RK73GB2A203J CHIP R 20K J 1/10W
R73,74 RK73GB2A101J CHIP R 100 J 1/10W
R76,77 RK73GB2A101J CHIP R 100 J 1/10W
R89 RK73GB2A000J CHIP R 0.0 J 1/10W
R102,103 RK73GH2A561D CHIP R 560 D 1/10W
R104 RK73GH2A333D CHIP R 33K D 1/10W
R105 RK73GH2A622D CHIP R 6.2K D 1/10W
R106 RK73GB2A000J CHIP R 0.0 J 1/10W
R107 RK73GH2A113D CHIP R 11K D 1/10W
R108 RK73GB2A103J CHIP R 10K J 1/10W
R111 RK73GB2A000J CHIP R 0.0 J 1/10W
R112 RK73GB2A333J CHIP R 33K J 1/10W
R114 RK73GB2A000J CHIP R 0.0 J 1/10W
R115 RK73GB2A683J CHIP R 68K J 1/10W
R116 RK73GH2A333D CHIP R 33K D 1/10W
R117 RK73GH2A562D CHIP R 5.6K D 1/10W
R118 RK73GH2A681D CHIP R 680 D 1/10W
R120 RK73EB2E100J CHIP R 10 J 1/4W
R121 RK73GB2A220J CHIP R 22 J 1/10W
R122-124 RK73GB2A000J CHIP R 0.0 J 1/10W
R125,126 RK73EB2E100J CHIP R 10 J 1/4W
R127
✽
R92-5158-05 CHIP R 0.022 J 1/4W
R129 RK73GB2A000J CHIP R 0.0 J 1/10W
R130 RK73GB2A220J CHIP R 22 J 1/10W
R131 RK73GB2A000J CHIP R 0.0 J 1/10W
R132,133 RK73GH2A561D CHIP R 560 D 1/10W
R134,135 RK73EB2E100J CHIP R 10 J 1/4W
R136,137
✽
R92-5160-05 CHIP R 0.047 J 1/4W
R138 RK73GB2A000J CHIP R 0.0 J 1/10W
R143 RK73GH2A333D CHIP R 33K D 1/10W
R144 RK73GH2A103D CHIP R 10K D 1/10W
R145 RK73GH2A561D CHIP R 560 D 1/10W
R146 RK73GB2A103J CHIP R 10K J 1/10W
R149 RK73GB2A000J CHIP R 0.0 J 1/10W
R150 RK73GB2A683J CHIP R 68K J 1/10W
R152 RK73GB2A000J CHIP R 0.0 J 1/10W
R153 RK73GB2A683J CHIP R 68K J 1/10W
R154 RK73GH2A333D CHIP R 33K D 1/10W
R155 RK73GH2A562D CHIP R 5.6K D 1/10W
R156 RK73GH2A681D CHIP R 680 D 1/10W
R158 RK73EB2E100J CHIP R 10 J 1/4W
R159 RK73GB2A220J CHIP R 22 J 1/10W
R160-162 RK73GB2A000J CHIP R 0.0 J 1/10W
R163,164 RK73EB2E100J CHIP R 10 J 1/4W
R165,166
✽
R92-5158-05 CHIP R 0.022 J 1/4W
R167 RK73GB2A000J CHIP R 0.0 J 1/10W
R168 RK73GB2A220J CHIP R 22 J 1/10W
R169-171 RK73GB2A000J CHIP R 0.0 J 1/10W
R172,173 RK73EB2E100J CHIP R 10 J 1/4W
R175
✽
R92-5159-05 CHIP R 0.033 J 1/4W
R176 RK73GB2A000J CHIP R 0.0 J 1/10W
R188 RK73GB2A000J CHIP R 0.0 J 1/10W
R201 RK73GB2A473J CHIP R 47K J 1/10W
R202,203 RK73GB2A000J CHIP R 0.0 J 1/10W
R204-208 RK73GB2A101J CHIP R 100 J 1/10W
R209,210 RK73GB2A472J CHIP R 4.7K J 1/10W
R211 RK73GB2A103J CHIP R 10K J 1/10W
R212 RK73GB2A332J CHIP R 3.3K J 1/10W
R213 RK73GB2A473J CHIP R 47K J 1/10W
R214 RK73GB2A104J CHIP R 100K J 1/10W
R215 RK73GB2A473J CHIP R 47K J 1/10W
R216-227 RK73GB2A101J CHIP R 100 J 1/10W
R228,229 RK73GB2A472J CHIP R 4.7K J 1/10W
R230 RK73GB2A104J CHIP R 100K J 1/10W
R231-233 RK73GB2A473J CHIP R 47K J 1/10W
R234-236 RK73GB2A101J CHIP R 100 J 1/10W
R237 RK73GB2A473J CHIP R 47K J 1/10W
R238-240 RK73GB2A101J CHIP R 100 J 1/10W
R241 RK73GB2A473J CHIP R 47K J 1/10W
R242-246 RK73GB2A101J CHIP R 100 J 1/10W
R247 RK73GB2A473J CHIP R 47K J 1/10W
R248 RK73GB2A000J CHIP R 0.0 J 1/10W
R249,250 RK73GB2A473J CHIP R 47K J 1/10W
R251-253 RK73GB2A101J CHIP R 100 J 1/10W
R254 RK73GB2A473J CHIP R 47K J 1/10W
R255,256 RK73GB2A123J CHIP R 12K J 1/10W
R257 RK73GB2A473J CHIP R 47K J 1/10W
R258 RK73GB2A103J CHIP R 10K J 1/10W
R1E1E2
R258 RK73GB2A103J CHIP R 10K J 1/10W X1
R258-261 RK73GB2A103J CHIP R 10K J 1/10W M1
R259 RK73GB2A303J CHIP R 30K J 1/10W X1
VIDEO CONTROL UNIT (X14-983x-xx)

PARTS LIST
Indicates safety critical com po nents.
Ref. No. A
d
d
N
e
wParts No. Description Desti-
nation Ref. No. A
d
d
N
e
wParts No. Description Desti-
nation
KVT-719DVD/729DVD
/729DVDY/739DVD
97
E1 : KVT-729DVD E2 : KVT-729DVDY (Europe)
K : KVT-719DVD (North America) R1 : KVT-739DVD (Latin America)
X1 : KVT-739DVD (Australia) M1 : KVT-739DVD (Other Areas)
R259 RK73GB2A332J CHIP R 3.3K J 1/10W E1E2
R259-261 RK73GB2A103J CHIP R 10K J 1/10W K
R260,261 RK73GB2A103J CHIP R 10K J 1/10W
R1E1E2
R260,261 RK73GB2A103J CHIP R 10K J 1/10W X1
R262 RK73GB2A104J CHIP R 100K J 1/10W
R264 RK73GB2A103J CHIP R 10K J 1/10W
R265,266 RK73GB2A000J CHIP R 0.0 J 1/10W
R276 RK73GB2A473J CHIP R 47K J 1/10W
R301 RK73GB2A102J CHIP R 1.0K J 1/10W
R302 RK73GB2A101J CHIP R 100 J 1/10W
R303 RK73GB2A000J CHIP R 0.0 J 1/10W
R304 RK73GB2A681J CHIP R 680 J 1/10W
R305 RK73GB2A222J CHIP R 2.2K J 1/10W
R306 RK73GB2A000J CHIP R 0.0 J 1/10W
R307 RK73GH2A183D CHIP R 18K D 1/10W
R308 RK73GB2A473J CHIP R 47K J 1/10W
R309 RK73GB2A000J CHIP R 0.0 J 1/10W
R310 RK73GB2A561J CHIP R 560 J 1/10W
R311 RK73GB2A105J CHIP R 1.0M J 1/10W
R312 RK73GB2A000J CHIP R 0.0 J 1/10W
R313 RK73GB2A105J CHIP R 1.0M J 1/10W
R316 RK73GH2A222D CHIP R 2.2K D 1/10W
R317 RK73GB2A822J CHIP R 8.2K J 1/10W
R318 RK73GB2A562J CHIP R 5.6K J 1/10W
R319 RK73GH2A681D CHIP R 680 D 1/10W
E1E2M1
R319 RK73GH2A681D CHIP R 680 D 1/10W X1
R320-322 RK73GB2A000J CHIP R 0.0 J 1/10W
R324 RK73GB2A103J CHIP R 10K J 1/10W
R325 RK73GB2A000J CHIP R 0.0 J 1/10W
R326 RK73GB2A103J CHIP R 10K J 1/10W
R327-330 RK73GB2A101J CHIP R 100 J 1/10W
R331 RK73GH2A473D CHIP R 47K D 1/10W
R332 RK73GB2A361J CHIP R 360 J 1/10W
R334 RK73GB2A361J CHIP R 360 J 1/10W
R335,336 RK73GB2A303J CHIP R 30K J 1/10W
R337 RK73GB2A100J CHIP R 10 J 1/10W
R338 RK73GB2A102J CHIP R 1.0K J 1/10W
R339 RK73GB2A000J CHIP R 0.0 J 1/10W
R342 RK73GB2A000J CHIP R 0.0 J 1/10W
R344 RK73GB2A222J CHIP R 2.2K J 1/10W
R345 RK73GH2A432D CHIP R 4.3K D 1/10W
R346 RK73GH2A152D CHIP R 1.5K D 1/10W
R347 RK73GH2A104D CHIP R 100K D 1/10W
R348 RK73GH2A363D CHIP R 36K D 1/10W
R349 RK73GH2A104D CHIP R 100K D 1/10W
R350 RK73GH2A363D CHIP R 36K D 1/10W
R351 RK73GH2A104D CHIP R 100K D 1/10W
R352 RK73GH2A363D CHIP R 36K D 1/10W
R353-355 RK73GB2A362J CHIP R 3.6K J 1/10W
R356-361 RK73GH2A102D CHIP R 1.0K D 1/10W
R370,371 RK73GB2A101J CHIP R 100 J 1/10W
R372,373 RK73GB2A000J CHIP R 0.0 J 1/10W
R374-387 RK73GB2A101J CHIP R 100 J 1/10W
R388 RK73GB2A272J CHIP R 2.7K J 1/10W
R389 RK73GB2A222J CHIP R 2.2K J 1/10W
R394 RK73GB2A000J CHIP R 0.0 J 1/10W
R400-403 RK73EB2E100J CHIP R 10 J 1/4W
R404 RK73GB2A100J CHIP R 10 J 1/10W
R405 RK73GB2A202J CHIP R 2.0K J 1/10W
R410,411 RK73GB2A223J CHIP R 22K J 1/10W
R412 RK73GB2A202J CHIP R 2.0K J 1/10W
R413 RK73GB2A750J CHIP R 75 J 1/10W
R414 RK73GB2A222J CHIP R 2.2K J 1/10W
R415 RK73GB2A102J CHIP R 1.0K J 1/10W
R420 RK73GB2A103J CHIP R 10K J 1/10W
R421 RK73GB2A000J CHIP R 0.0 J 1/10W
R422-424 RK73GB2A101J CHIP R 100 J 1/10W
R425-430 RK73GB2A102J CHIP R 1.0K J 1/10W
R431 RK73GB2A000J CHIP R 0.0 J 1/10W
R432-435 RK73GB2A101J CHIP R 100 J 1/10W
R436 RK73GB2A751J CHIP R 750 J 1/10W
R437 RK73GB2A102J CHIP R 1.0K J 1/10W
R438 RK73GB2A101J CHIP R 100 J 1/10W
R439 RK73GB2A751J CHIP R 750 J 1/10W
R440 RK73GB2A102J CHIP R 1.0K J 1/10W
R441 RK73GB2A101J CHIP R 100 J 1/10W
R442 RK73GB2A751J CHIP R 750 J 1/10W
R443 RK73GB2A102J CHIP R 1.0K J 1/10W
R444 RK73GB2A000J CHIP R 0.0 J 1/10W
R445-448 RK73GB2A101J CHIP R 100 J 1/10W
R449 RK73GB2A222J CHIP R 2.2K J 1/10W
R450 RK73GB2A221J CHIP R 220 J 1/10W
R451 RK73GB2A101J CHIP R 100 J 1/10W
R452 RK73GB2A751J CHIP R 750 J 1/10W
R453 RK73GB2A102J CHIP R 1.0K J 1/10W
R454 RK73GB2A000J CHIP R 0.0 J 1/10W
R455-459 RK73GB2A101J CHIP R 100 J 1/10W
R460,461 RK73GB2A473J CHIP R 47K J 1/10W
R463,464 RK73EB2E101J CHIP R 100 J 1/4W
R500,501 RK73GB2A000J CHIP R 0.0 J 1/10W
R504-515 RK73GB2A000J CHIP R 0.0 J 1/10W
R518,519 RK73GB2A223J CHIP R 22K J 1/10W
R522 RK73GB2A101J CHIP R 100 J 1/10W
R525-527 RK73GB2A101J CHIP R 100 J 1/10W
R529,530 RK73GB2A471J CHIP R 470 J 1/10W
R531-533 RK73GB2A000J CHIP R 0.0 J 1/10W
R534 RK73GB2A100J CHIP R 10 J 1/10W
R535 RK73GB2A151J CHIP R 150 J 1/10W
R536 RK73EB2E750J CHIP R 75 J 1/4W
R537,538 RK73GB2A000J CHIP R 0.0 J 1/10W
R539,540 RK73GB2A473J CHIP R 47K J 1/10W
R542 RK73GB2A000J CHIP R 0.0 J 1/10W
R551 RK73GB2A100J CHIP R 10 J 1/10W
R552 RK73GB2A473J CHIP R 47K J 1/10W
R553 RK73GB2A100J CHIP R 10 J 1/10W
R554 RK73GB2A473J CHIP R 47K J 1/10W
R555 RK73GB2A100J CHIP R 10 J 1/10W
R556 RK73GB2A473J CHIP R 47K J 1/10W
R557 RK73GB2A100J CHIP R 10 J 1/10W
R558 RK73GB2A473J CHIP R 47K J 1/10W
VIDEO CONTROL UNIT (X14-983x-xx)

PARTS LIST
Indicates safety critical com po nents.
Ref. No. A
d
d
N
e
wParts No. Description Desti-
nation
E1 : KVT-729DVD E2 : KVT-729DVDY (Europe)
K : KVT-719DVD (North America) R1 : KVT-739DVD (Latin America)
X1 : KVT-739DVD (Australia) M1 : KVT-739DVD (Other Areas)
Ref. No. A
d
d
N
e
wParts No. Description Desti-
nation
KVT-719DVD/729DVD
/729DVDY/739DVD
98
R559-565 RK73EB2E101J CHIP R 100 J 1/4W
R566 RK73EB2E102J CHIP R 1.0K J 1/4W
R567 RK73EB2E750J CHIP R 75 J 1/4W
R568-571 RK73GB2A750J CHIP R 75 J 1/10W
R572 RK73GB2A101J CHIP R 100 J 1/10W
R573-575 RK73GB2A100J CHIP R 10 J 1/10W
R576 RK73GB2A102J CHIP R 1.0K J 1/10W
R577 RK73GB2A472J CHIP R 4.7K J 1/10W
R581 RK73GB2A000J CHIP R 0.0 J 1/10W
R582-585 RK73EB2E101J CHIP R 100 J 1/4W
R586 RK73EB2E102J CHIP R 1.0K J 1/4W
R587,588 RK73EB2E101J CHIP R 100 J 1/4W
R589 RK73GB2A103J CHIP R 10K J 1/10W
R590,591 RK73GB2A472J CHIP R 4.7K J 1/10W
R598 RK73GB2A101J CHIP R 100 J 1/10W
D1 1SR154-400 DIODE
D2 DAN202U DIODE
D3 UDZS6.2B ZENER DIODE
D4 EP05Q04 DIODE
D101-104
✽
1SS357-F DIODE
D301 DAN202U DIODE
D310,311 AVRM1608120M6A VARISTOR
D312,313 AVRM1608180M6A VARISTOR
D314-324 AVRM1608120M6A VARISTOR
D400 AVRM1608270MAA VARISTOR
D401,402 AVRM1608120M6A VARISTOR
D403 DAP202U DIODE
D404 UDZS4.7B ZENER DIODE
D405 AVRM1608120M6A VARISTOR
D406 AVRM1608270MAA VARISTOR
D501 DAP202U DIODE
D502 AVRM1608270MAA VARISTOR
D503 DA204U DIODE
D504-508 STZ6.2N ZENER DIODE
D510-513 AVRM1608120M6A VARISTOR
D514 AVRM1608180M6A VARISTOR
D515-518 AVRM1608120M6A VARISTOR
D523 AVRM1608120M6A VARISTOR
D524 AVRM1608180M6A VARISTOR
D528-536 AVRM1608270MAA VARISTOR
IC1 SI-3033KMS ANALOGUE IC
IC2 PQ1X331M2ZPH ANALOGUE IC
IC10 NJM4565V-ZB ANALOGUE IC
IC101,102
✽
LTC3728LEGN ANALOGUE IC
IC201
✽
703261YGC315A MICROCONTROLLER IC
IC202
✽
S1000N30N4T1G ANALOGUE IC
IC203 W05-1260-00 ROM IC K
IC203 W05-1261-00 ROM IC E1E2
IC203 W05-1262-00 ROM IC M1
IC203 W05-1263-00 ROM IC R1X1
IC205 TC7SET08FU-F MOS-IC
IC301 RB5P0090M ANALOGUE IC
IC302 TC7SET04FU-F MOS-IC
IC303 TC7WH123FU-F MOS-IC
IC304 TC7SH04FU-F MOS-IC
IC400
✽
NJM2505AF-ZB ANALOGUE IC
IC401
✽
NJM2794RB2ZB ANALOGUE IC
IC402 BU2090FS MOS-IC
IC403,404 MM1234XFBE-E ANALOGUE IC
IC405 BA7649F ANALOGUE IC
IC406 MM1508XNRE-E ANALOGUE IC
IC407,408 TC4052BFT MOS-IC
IC501,502 LB1836M-TLM-E ANALOGUE IC
IC503 TC7SET04FU-F MOS-IC
Q1,2 2SC4081 TRANSISTOR
Q3 2SA1576A TRANSISTOR
Q4 2SC4081 TRANSISTOR
Q5 2SA1576A TRANSISTOR
Q6 2SC4081 TRANSISTOR
Q7 DTA114EUA DIGITAL TRANSISTOR
Q8 DTC114YUA DIGITAL TRANSISTOR
Q9 DTA114TUA DIGITAL TRANSISTOR
Q10 DTC114YUA DIGITAL TRANSISTOR
Q13 2SC4081 TRANSISTOR
Q14 2SB1184 TRANSISTOR
Q15,16 2SC4081 TRANSISTOR
Q17 2SA1576A TRANSISTOR
Q19 DTC144EUA DIGITAL TRANSISTOR
Q20,21 2SA1576A TRANSISTOR
Q22 TPC8110-F FET
Q23 2SC4081 TRANSISTOR
Q24 2SA1576A TRANSISTOR
Q25 DTC114YUA DIGITAL TRANSISTOR
Q26 2SB1689 TRANSISTOR
Q31 2SB1184 TRANSISTOR
Q32 2SC4081 TRANSISTOR
Q33 2SA1576A TRANSISTOR
Q34 2SC4081 TRANSISTOR
Q35 2SB1184 TRANSISTOR
Q36 2SC4081 TRANSISTOR
Q37 2SA1576A TRANSISTOR
Q38 2SC4081 TRANSISTOR
Q43 2SB1184 TRANSISTOR
Q44 2SC4081 TRANSISTOR
Q45 2SA1576A TRANSISTOR
Q46 2SC4081 TRANSISTOR
Q101 DTC114YUA DIGITAL TRANSISTOR
Q103 DTC144EUA DIGITAL TRANSISTOR
Q104,105
✽
HAT2218R-E DUAL FET
Q106 DTC144EUA DIGITAL TRANSISTOR
Q108 DTC144EUA DIGITAL TRANSISTOR
Q109,110
✽
HAT2218R-E DUAL FET
Q111 DTC144EUA DIGITAL TRANSISTOR
Q201 DTC144EUA DIGITAL TRANSISTOR
Q203 DTA144EUA DIGITAL TRANSISTOR
Q204 DTC114YUA DIGITAL TRANSISTOR
Q205 DTB123YK DIGITAL TRANSISTOR
Q206 DTC114YUA DIGITAL TRANSISTOR
Q207 DTB123YK DIGITAL TRANSISTOR
Q208,209 DTC114YUA DIGITAL TRANSISTOR
VIDEO CONTROL UNIT (X14-983x-xx)

PARTS LIST
Indicates safety critical com po nents.
Ref. No. A
d
d
N
e
wParts No. Description Desti-
nation Ref. No. A
d
d
N
e
wParts No. Description Desti-
nation
KVT-719DVD/729DVD
/729DVDY/739DVD
99
E1 : KVT-729DVD E2 : KVT-729DVDY (Europe)
K : KVT-719DVD (North America) R1 : KVT-739DVD (Latin America)
X1 : KVT-739DVD (Australia) M1 : KVT-739DVD (Other Areas)
Q210 DTB123YK DIGITAL TRANSISTOR
Q301 2SC4081 TRANSISTOR
Q304 UMZ1N TRANSISTOR
Q305 DTC114YUA DIGITAL TRANSISTOR
Q306-309 UMZ1N TRANSISTOR
Q401 2SA1576A TRANSISTOR
Q501,502 DTC323TU DIGITAL TRANSISTOR
Q503 DTA114EUA DIGITAL TRANSISTOR
Q504 2SA1576A TRANSISTOR
Q508
✽
2SC3437-F(Y) TRANSISTOR
D101 B30-1713-05 LED (SR,TS)
D203 B30-1713-05 LED (SR,TS)
D205 B30-1740-05 LED (CL-270PG-C-TSL)
D207-209 B30-1767-05 LED
D221-225 B30-1605-05 LED (2COLOR PG/RED)
C203 CC73GCH1H221J CHIP C 220PF J
C204 CK73FB1A225K CHIP C 2.2UF K
CN101 E41-2366-05 FLAT CABLE CONNECTOR
J101 E58-1008-05 RECTANGULAR RECEPTACLE
J201 E59-0843-05 RECTANGULAR PLUG
R101,102 RK73EB2E101J CHIP R 100 J 1/4W
R103-105 RK73EB2E102J CHIP R 1.0K J 1/4W
R106 RK73GB2A101J CHIP R 100 J 1/10W
R107 RK73EB2E102J CHIP R 1.0K J 1/4W
R201 RK73GB2A152J CHIP R 1.5K J 1/10W
R202 RK73GB2A181J CHIP R 180 J 1/10W
R203 RK73GB2A101J CHIP R 100 J 1/10W
R204 RK73GB2A331J CHIP R 330 J 1/10W
R205 RK73GB2A272J CHIP R 2.7K J 1/10W
R206 RK73GB2A332J CHIP R 3.3K J 1/10W
R207 RK73GB2A181J CHIP R 180 J 1/10W
R208 RK73GB2A331J CHIP R 330 J 1/10W
R209 RK73GB2A472J CHIP R 4.7K J 1/10W
R214 RK73EB2E101J CHIP R 100 J 1/4W
R216 RK73GB2A104J CHIP R 100K J 1/10W
R217 RK73EB2E101J CHIP R 100 J 1/4W
R219 RK73GB2A391J CHIP R 390 J 1/10W
R221 RK73EB2E471J CHIP R 470 J 1/4W
R224 RK73GB2A822J CHIP R 8.2K J 1/10W
R225 RK73GB2A153J CHIP R 15K J 1/10W
R226 RK73GB2A473J CHIP R 47K J 1/10W
R234,235 RK73GB2A222J CHIP R 2.2K J 1/10W
R236 RK73GB2A471J CHIP R 470 J 1/10W
R237 RK73FB2B471J CHIP R 470 J 1/8W
R238 RK73GB2A391J CHIP R 390 J 1/10W
R239,240 RK73GB2A471J CHIP R 470 J 1/10W
S201-206 S70-0901-05 TACT SWITCH
S207 S70-0874-05 TACT SWITCH
S208 S70-0901-05 TACT SWITCH
D102 AVRM1608180M6A VARISTOR
D103-106 AVRM1005270MAA VARISTOR
D201 UDZS6.2B ZENER DIODE
D217 AVRM1608120M6A VARISTOR
D404-410 AVRM1608180M6A VARISTOR
D411 DAP202U DIODE
IC201 RS-181 ANALOGUE IC
Q101 DTC114YUA DIGITAL TRANSISTOR
Q206 2SA1576A TRANSISTOR
C1 C90-5612-05 ELECTRO 3900UF 16WV
C2 CK73GB1H103K CHIP C 0.010UF K
C4-6 CK73FB1C105K CHIP C 1.0UF K
C7 CK73GB1H103K CHIP C 0.010UF K
C8 CD04AS1H3R3M ELECTRO 3.3UF 50WV
C9 CK73FB1C105K CHIP C 1.0UF K
C10 CK73GB1H104K CHIP C 0.10UF K
C11-13 CK73GB1H103K CHIP C 0.010UF K
C14,15 CK73FB1E474K CHIP C 0.47UF K
C16,17 CK73GB1H473K CHIP C 0.047UF K M1X1
C51 CD04AY1E221M ELECTRO 220UF 25WV
C53 CD04AY1H100M ELECTRO 10UF 50WV
C54 CD04AY0J331M ELECTRO 330UF 6.3WV
C61 CK73GB1A105K CHIP C 1.0UF K
C62 CD04AY1E470M ELECTRO 47UF 25WV
C71 CK73GB1A105K CHIP C 1.0UF K
C72 CD04AY1A101M ELECTRO 100UF 10WV
C81 CK73EB1E105K CHIP C 1.0UF K M1X1
C91 CK73EB1E105K CHIP C 1.0UF K M1X1
C101 CD04BJ0J331M ELECTRO 330UF 6.3WV
C103 CK73GB1H102K CHIP C 1000PF K
C104,105 CK73GB1H104K CHIP C 0.10UF K
C106 CK73GB1A105K CHIP C 1.0UF K
C107-110 CK73GB1H104K CHIP C 0.10UF K
C112 CK73GB1H102K CHIP C 1000PF K
C113-116 CK73GB1H103K CHIP C 0.010UF K
C201 CD04BJ1E470M ELECTRO 47UF 25WV
C202 CD04AS1V100M ELECTRO 10UF 35WV
C203,204 CC73GCH1H070D CHIP C 7.0PF D
C205,206 CD04AS1H3R3M ELECTRO 3.3UF 50WV
C207 CK73FB1C105K CHIP C 1.0UF K
C209-211 CD04AS1H010M ELECTRO 1UF 50WV
C212,213 CK73FB1C105K CHIP C 1.0UF K
C216 CK73GB1H103K CHIP C 0.010UF K
C223,224 CK73FB1E474K CHIP C 0.47UF K
C225,226 CD04AS1H2R2M ELECTRO 2.2UF 50WV
C227,228 CK73FB1E474K CHIP C 0.47UF K
C233 CD04AS1V100M ELECTRO 10UF 35WV
C234,235 CK73GB1H103K CHIP C 0.010UF K
C260-263 CK73GB1H103K CHIP C 0.010UF K
C264,265 CC73GCH1H100D CHIP C 10PF D
KR1E1
C264,265 CC73GCH1H100D CHIP C 10PF D E2M1
C266 CK73GB1H103K CHIP C 0.010UF K
KR1E1
C266 CK73GB1H103K CHIP C 0.010UF K E2M1
C267 CC73GCH1H331J CHIP C 330PF J
KR1E1
C267 CC73GCH1H331J CHIP C 330PF J E2M1
C268,269 CD04AS1V100M ELECTRO 10UF 35WV
KR1E1
ELECTRIC UNIT (X34-475x-xx)
SWITCH UNIT (X16-3920-10)
VIDEO CONTROL UNIT (X14-983x-xx)

PARTS LIST
Indicates safety critical com po nents.
Ref. No. A
d
d
N
e
wParts No. Description Desti-
nation
E1 : KVT-729DVD E2 : KVT-729DVDY (Europe)
K : KVT-719DVD (North America) R1 : KVT-739DVD (Latin America)
X1 : KVT-739DVD (Australia) M1 : KVT-739DVD (Other Areas)
Ref. No. A
d
d
N
e
wParts No. Description Desti-
nation
KVT-719DVD/729DVD
/729DVDY/739DVD
100
C268,269 CD04AS1V100M ELECTRO 10UF 35WV E2M1
C270 CK73GB1H103K CHIP C 0.010UF K
KR1E1
C270 CK73GB1H103K CHIP C 0.010UF K E2M1
C305,306 C90-6779-05 ELECTRO 0.47UF 16WV
C311,312 C90-6780-05 ELECTRO 1UF 16WV
C315,316 CK73GB1A105K CHIP C 1.0UF K
C317,318 C90-6779-05 ELECTRO 0.47UF 16WV
C319 CD04BM1E330M ELECTRO 33UF 25WV
C351-354 CK73GB1H104K CHIP C 0.10UF K
C355 CD04AS1V100M ELECTRO 10UF 35WV
C356,357 CK73GB1H102K CHIP C 1000PF K
C358,359 CD04AS1V100M ELECTRO 10UF 35WV
C360,361 CK73GB1H102K CHIP C 1000PF K
C362,363 CD04AS1V100M ELECTRO 10UF 35WV
C364,365 CK73GB1H102K CHIP C 1000PF K
C366,367 CD04AS1V100M ELECTRO 10UF 35WV
C368,369 CK73GB1H102K CHIP C 1000PF K
C370 CD04AS1V100M ELECTRO 10UF 35WV
C371 CK73GB1H222K CHIP C 2200PF K
C401 CD04AS1HR47M ELECTRO 0.47UF 50WV
C402 CD04BJ1E470M ELECTRO 47UF 25WV
C403 CD04AS1HR47M ELECTRO 0.47UF 50WV
C501,502 CK73GB1H103K CHIP C 0.010UF K
C505-509 CD04AS1H2R2M ELECTRO 2.2UF 50WV
C511 CD04BJ1E470M ELECTRO 47UF 25WV
C512,513 CD04AS1H2R2M ELECTRO 2.2UF 50WV
C514 CD04AS1V100M ELECTRO 10UF 35WV
C515 CD04BJ1E470M ELECTRO 47UF 25WV
C517 CD04AS1H2R2M ELECTRO 2.2UF 50WV
C701-703 CK73GB1A474K CHIP C 0.47UF K
C707 CD04BJ1E470M ELECTRO 47UF 25WV
C708 CK73GB1H103K CHIP C 0.010UF K
C709 CD04AS1C220M ELECTRO 22UF 16WV
C710 CK73GB1A474K CHIP C 0.47UF K
C711 CD04BJ1E470M ELECTRO 47UF 25WV
C712 CK73GB1A474K CHIP C 0.47UF K
C713 CK73GB1H104K CHIP C 0.10UF K
C715 CK73GB1H103K CHIP C 0.010UF K
C719-721 CD04AS1HR47M ELECTRO 0.47UF 50WV
C723 CK73GB1H103K CHIP C 0.010UF K
C725 CD04BJ1E470M ELECTRO 47UF 25WV
C726 CK73GB1H222K CHIP C 2200PF K
C727 CK73GB1H102K CHIP C 1000PF K
C729 CD04AS1HR47M ELECTRO 0.47UF 50WV
C730 CK73GB1A474K CHIP C 0.47UF K
C801-804 CK73GB1A105K CHIP C 1.0UF K
C807 CK73GB1A105K CHIP C 1.0UF K
C808 CD04AS1C220M ELECTRO 22UF 16WV
C809-811 CK73GB1H104K CHIP C 0.10UF K
C812 CD04BJ0J331M ELECTRO 330UF 6.3WV
C813-815 CK73GB1A105K CHIP C 1.0UF K
C817 CK73GB1A105K CHIP C 1.0UF K
C818,819 CK73GB1H104K CHIP C 0.10UF K
C820 CD04BJ0J331M ELECTRO 330UF 6.3WV
C821,822 CK73GB1A105K CHIP C 1.0UF K
C824 CK73GB1H104K CHIP C 0.10UF K
C825 CK73GB1H103K CHIP C 0.010UF K
C827 CK73GB1H473K CHIP C 0.047UF K
C828-830 CK73GB1H103K CHIP C 0.010UF K
C832 CK73GB1A105K CHIP C 1.0UF K
C834 CK73GB1H104K CHIP C 0.10UF K E1E2
C835 CK73GB1A105K CHIP C 1.0UF K
C836 CK73GB1H104K CHIP C 0.10UF K E1E2
C837 CK73GB1A105K CHIP C 1.0UF K
C838 CK73GB1H104K CHIP C 0.10UF K E1E2
C839 CK73GB1A105K CHIP C 1.0UF K
C841-843 CK73GB1H103K CHIP C 0.010UF K E1E2
C844-846 CK73GB1A105K CHIP C 1.0UF K E1E2
C847-849 CK73GB1A105K CHIP C 1.0UF K
KR1M1
C847-849 CK73GB1A105K CHIP C 1.0UF K X1
C850-852 CD04BJ0J331M ELECTRO 330UF 6.3WV
C853 CC73GCH1H101J CHIP C 100PF J
C854,855 CK73GB1A105K CHIP C 1.0UF K
C856-858 CK73GB1H104K CHIP C 0.10UF K
C859 CC73GCH1H101J CHIP C 100PF J
C860 CK73GB1H103K CHIP C 0.010UF K
C861 CK73GB1A105K CHIP C 1.0UF K
C862 CK73GB1H103K CHIP C 0.010UF K
C867-869 CC73GCH1H050C CHIP C 5.0PF C
C870 CK73GB1H103K CHIP C 0.010UF K
C871 CK73GB1H222K CHIP C 2200PF K
C872 CC73GCH1H220J CHIP C 22PF J
C874 CK73GB1H222K CHIP C 2200PF K
C875 CC73GCH1H220J CHIP C 22PF J
C877 CK73GB1H222K CHIP C 2200PF K
C878 CC73GCH1H220J CHIP C 22PF J
C880 CK73GB1H222K CHIP C 2200PF K
C881 CC73GCH1H220J CHIP C 22PF J
C884 CC73GCH1H220J CHIP C 22PF J
C885 CK73GB1H222K CHIP C 2200PF K
C887 CC73GCH1H220J CHIP C 22PF J
C888 CK73GB1H222K CHIP C 2200PF K
C890 CC73GCH1H220J CHIP C 22PF J
C891 CK73GB1H222K CHIP C 2200PF K
C893 CC73GCH1H220J CHIP C 22PF J
C894 CK73GB1H222K CHIP C 2200PF K
C895 CK73GB1H104K CHIP C 0.10UF K
J1 E58-1043-05 RECTANGULAR RECEPTACLE
J351
✽
E63-0944-05 PIN JACK
J401 E56-0856-05 CYLINDRICAL RECEPTACLE
J501
✽
E58-1069-05 RECTANGULAR RECEPTACLE
J701 E58-1034-05 RECTANGULAR RECEPTACLE
J702 E56-0868-05 CYLINDRICAL RECEPTACLE
J703
✽
E63-0943-05 PIN JACK
J704
✽
E63-0945-05 PIN JACK
J705 E58-1067-05 RECTANGULAR RECEPTACLE M1X1
W251 3G E30-6492-05 CORD WITH PLUG
F51 F53-0297-05 FUSE (UL,CSA) 1.6A
ELECTRIC UNIT (X34-475x-xx)

PARTS LIST
Indicates safety critical com po nents.
Ref. No. A
d
d
N
e
wParts No. Description Desti-
nation Ref. No. A
d
d
N
e
wParts No. Description Desti-
nation
KVT-719DVD/729DVD
/729DVDY/739DVD
101
E1 : KVT-729DVD E2 : KVT-729DVDY (Europe)
K : KVT-719DVD (North America) R1 : KVT-739DVD (Latin America)
X1 : KVT-739DVD (Australia) M1 : KVT-739DVD (Other Areas)
L1 L33-1063-25 CHOKE COIL
L71 L41-4795-33
SMALL FIXED INDUCTOR (4.7U)
L101 L92-0319-05 CHIP FERRITE
L105 L92-0319-05 CHIP FERRITE
L251 L41-4795-33
SMALL FIXED INDUCTOR (4.7U)
L253 L41-4795-33
SMALL FIXED INDUCTOR (4.7U)
L255 L41-4795-33
SMALL FIXED INDUCTOR (4.7U)
KR1E1
L255 L41-4795-33
SMALL FIXED INDUCTOR (4.7U)
E2M1
L701 L41-4795-33
SMALL FIXED INDUCTOR (4.7U)
L702 L92-0319-05 CHIP FERRITE
L703 L41-4795-33
SMALL FIXED INDUCTOR (4.7U)
X101
✽
L78-1220-05 RESONATOR (19.8000MHZ)
X251 L77-2002-05 CRYSTAL RESONATOR
KR1E1
X251 L77-2002-05 CRYSTAL RESONATOR E2M1
Y 3H N09-4461-05 TAPTITE SCREW
Z 3H N84-3008-43 PAN HEAD TAPTITE SCREW
R1 RK73GB2A103J CHIP R 10K J 1/10W
R2 RK73FB2B472J CHIP R 4.7K J 1/8W M1X1
R3 RK73EB2E272J CHIP R 2.7K J 1/4W
R4 RK73GB2A102J CHIP R 1.0K J 1/10W
R5 RK73FB2B472J CHIP R 4.7K J 1/8W M1X1
R6 RK73GB2A473J CHIP R 47K J 1/10W
R7 RK73GB2A103J CHIP R 10K J 1/10W
R8 RK73EB2E103J CHIP R 10K J 1/4W
R9 RK73GB2A473J CHIP R 47K J 1/10W
R10 RK73EB2E272J CHIP R 2.7K J 1/4W
R11 RK73GB2A102J CHIP R 1.0K J 1/10W
R12 RK73EB2E102J CHIP R 1.0K J 1/4W
R13 RK73GB2A104J CHIP R 100K J 1/10W
R14 RK73GB2A223J CHIP R 22K J 1/10W
R15 RK73GB2A103J CHIP R 10K J 1/10W
R16 RK73GB2A183J CHIP R 18K J 1/10W
R19 RK73GB2A683J CHIP R 68K J 1/10W
R21 RK73GB2A393J CHIP R 39K J 1/10W
R22 RK73GB2A104J CHIP R 100K J 1/10W
R23 RK73FB2B472J CHIP R 4.7K J 1/8W
R24 RK73GB2A223J CHIP R 22K J 1/10W
R25,26 RK73PB2H102J CHIP R 1.0K J 1/2W
R27 RK73GB2A000J CHIP R 0.0 J 1/10W E1E2
R28 RK73GB2A103J CHIP R 10K J 1/10W
KR1M1
R28 RK73GB2A103J CHIP R 10K J 1/10W X1
R29 RK73GB2A222J CHIP R 2.2K J 1/10W
KR1M1
R29 RK73GB2A222J CHIP R 2.2K J 1/10W X1
R30 RK73FB2B472J CHIP R 4.7K J 1/8W
R31,32 RK73PB2H102J CHIP R 1.0K J 1/2W
KR1M1
R31,32 RK73PB2H102J CHIP R 1.0K J 1/2W X1
R33 RK73GB2A103J CHIP R 10K J 1/10W
KR1M1
R33 RK73GB2A103J CHIP R 10K J 1/10W X1
R34 RK73GB2A473J CHIP R 47K J 1/10W
R35 RK73GB2A222J CHIP R 2.2K J 1/10W
R36 RK73FB2B561J CHIP R 560 J 1/8W
R37 RK73EB2E102J CHIP R 1.0K J 1/4W
R38 RK73GB2A104J CHIP R 100K J 1/10W
R39 RK73GB2A473J CHIP R 47K J 1/10W
R40 RK73EB2E103J CHIP R 10K J 1/4W
R41-44 RK73GB2A473J CHIP R 47K J 1/10W M1X1
R51 RK73EB2E000J CHIP R 0.0 J 1/4W
R52 RK73FB2B203J CHIP R 20K J 1/8W
R53,54 RK73GB2A101J CHIP R 100 J 1/10W
R55 RK73GB2A223J CHIP R 22K J 1/10W
R56 RK73FB2B222J CHIP R 2.2K J 1/8W
R61 RK73FB2B221J CHIP R 220 J 1/8W
R62 RK73GH2A153D CHIP R 15K D 1/10W
R63 RK73GH2A512D CHIP R 5.1K D 1/10W
R71 RK73FB2B221J CHIP R 220 J 1/8W
R72 RK73GH2A243D CHIP R 24K D 1/10W
R73 RK73GH2A432D CHIP R 4.3K D 1/10W
R81 RK73GB2A472J CHIP R 4.7K J 1/10W M1X1
R82 RK73EB2E152J CHIP R 1.5K J 1/4W M1X1
R83 RK73GB2A621J CHIP R 620 J 1/10W M1X1
R84 RK73GB2A242J CHIP R 2.4K J 1/10W M1X1
R85,86
✽
RK73PB2H2R0J CHIP R 2.0 J 1/2W M1X1
R87 RK73GB2A124J CHIP R 120K J 1/10W M1X1
R88 RK73GB2A103J CHIP R 10K J 1/10W M1X1
R89 RK73GB2A473J CHIP R 47K J 1/10W M1X1
R91 RK73GB2A472J CHIP R 4.7K J 1/10W M1X1
R92 RK73EB2E152J CHIP R 1.5K J 1/4W M1X1
R93 RK73GB2A621J CHIP R 620 J 1/10W M1X1
R94 RK73GB2A242J CHIP R 2.4K J 1/10W M1X1
R95,96
✽
RK73PB2H2R0J CHIP R 2.0 J 1/2W M1X1
R97 RK73GB2A124J CHIP R 120K J 1/10W M1X1
R98 RK73GB2A103J CHIP R 10K J 1/10W M1X1
R99 RK73GB2A473J CHIP R 47K J 1/10W M1X1
R102 RK73GB2A472J CHIP R 4.7K J 1/10W
R103-106 RK73GB2A473J CHIP R 47K J 1/10W
R107 RK73GB2A101J CHIP R 100 J 1/10W
R108 RK73GB2A471J CHIP R 470 J 1/10W
R109-112 RK73GB2A101J CHIP R 100 J 1/10W
R114-117 RK73GB2A101J CHIP R 100 J 1/10W
R118 RK73GB2A223J CHIP R 22K J 1/10W
R119-126 RK73GB2A473J CHIP R 47K J 1/10W
R127-130 RK73GB2A101J CHIP R 100 J 1/10W
R131 RK73GB2A103J CHIP R 10K J 1/10W
R132 RK73GB2A000J CHIP R 0.0 J 1/10W
R133 RK73GB2A153J CHIP R 15K J 1/10W
R134 RK73GB2A102J CHIP R 1.0K J 1/10W
R135-139 RK73GB2A101J CHIP R 100 J 1/10W
R140 RK73GB2A473J CHIP R 47K J 1/10W
R141 RK73GB2A102J CHIP R 1.0K J 1/10W
R142-147 RK73GB2A101J CHIP R 100 J 1/10W
R148,149 RK73GB2A103J CHIP R 10K J 1/10W
R150-152 RK73GB2A473J CHIP R 47K J 1/10W
R153-156 RK73GB2A103J CHIP R 10K J 1/10W X1
R154-156 RK73GB2A103J CHIP R 10K J 1/10W
R1E1E2
R154-157 RK73GB2A103J CHIP R 10K J 1/10W KM1
R157 RK73GB2A303J CHIP R 30K J 1/10W X1
R157 RK73GB2A332J CHIP R 3.3K J 1/10W E1E2
R161 RK73GB2A103J CHIP R 10K J 1/10W
R1E1E2
R161 RK73GB2A103J CHIP R 10K J 1/10W M1X1
ELECTRIC UNIT (X34-475x-xx)

PARTS LIST
Indicates safety critical com po nents.
Ref. No. A
d
d
N
e
wParts No. Description Desti-
nation
E1 : KVT-729DVD E2 : KVT-729DVDY (Europe)
K : KVT-719DVD (North America) R1 : KVT-739DVD (Latin America)
X1 : KVT-739DVD (Australia) M1 : KVT-739DVD (Other Areas)
Ref. No. A
d
d
N
e
wParts No. Description Desti-
nation
KVT-719DVD/729DVD
/729DVDY/739DVD
102
R162 RK73GB2A101J CHIP R 100 J 1/10W
R163 RK73GB2A102J CHIP R 1.0K J 1/10W
R164 RK73GB2A222J CHIP R 2.2K J 1/10W X1
R164,165 RK73GB2A222J CHIP R 2.2K J 1/10W
KR1E1
R164,165 RK73GB2A222J CHIP R 2.2K J 1/10W E2M1
R166 RK73GB2A101J CHIP R 100 J 1/10W
R168-177 RK73GB2A101J CHIP R 100 J 1/10W
R178 RK73GB2A471J CHIP R 470 J 1/10W
R179,180 RK73GB2A104J CHIP R 100K J 1/10W
R181-184 RK73GB2A473J CHIP R 47K J 1/10W
R185 RK73GB2A472J CHIP R 4.7K J 1/10W
R186-188 RK73GB2A104J CHIP R 100K J 1/10W
R189,190 RK73GB2A473J CHIP R 47K J 1/10W
R191,192 RK73GB2A101J CHIP R 100 J 1/10W
R200 RK73GB2A104J CHIP R 100K J 1/10W
R201 RK73EB2E000J CHIP R 0.0 J 1/4W
R202,203 RK73GB2A100J CHIP R 10 J 1/10W
R204 RK73GB2A104J CHIP R 100K J 1/10W
R205 RK73GB2A102J CHIP R 1.0K J 1/10W
R206,207 RK73GB2A103J CHIP R 10K J 1/10W
R208,209 RK73GB2A101J CHIP R 100 J 1/10W
R210,211 RK73GB2A102J CHIP R 1.0K J 1/10W
R212-215 RK73GB2A470J CHIP R 47 J 1/10W
R216-219 RK73GB2A101J CHIP R 100 J 1/10W
R221 RK73GB2A104J CHIP R 100K J 1/10W
R251 RK73GB2A223J CHIP R 22K J 1/10W
R252 RK73GB2A102J CHIP R 1.0K J 1/10W
R253 RK73GB2A000J CHIP R 0.0 J 1/10W
R255-257 RK73GB2A222J CHIP R 2.2K J 1/10W
KR1E1
R255-257 RK73GB2A222J CHIP R 2.2K J 1/10W E2M1
R301 RK73GB2A333J CHIP R 33K J 1/10W
R302 RK73GB2A182J CHIP R 1.8K J 1/10W
R303 RK73GB2A221J CHIP R 220 J 1/10W
R304 RK73GB2A223J CHIP R 22K J 1/10W
R305 RK73GB2A432J CHIP R 4.3K J 1/10W
R306 RK73GB2A100J CHIP R 10 J 1/10W
R355 RK73FB2B101J CHIP R 100 J 1/8W
R356 RK73GB2A471J CHIP R 470 J 1/10W
R357 RK73GB2A223J CHIP R 22K J 1/10W
R358,359 RK73GB2A103J CHIP R 10K J 1/10W
R360 RK73GB2A223J CHIP R 22K J 1/10W
R361 RK73FB2B101J CHIP R 100 J 1/8W
R362 RK73GB2A471J CHIP R 470 J 1/10W
R363 RK73FB2B101J CHIP R 100 J 1/8W
R364 RK73GB2A471J CHIP R 470 J 1/10W
R365 RK73GB2A223J CHIP R 22K J 1/10W
R366,367 RK73GB2A103J CHIP R 10K J 1/10W
R368 RK73GB2A223J CHIP R 22K J 1/10W
R369 RK73FB2B101J CHIP R 100 J 1/8W
R370 RK73GB2A471J CHIP R 470 J 1/10W
R371 RK73FB2B101J CHIP R 100 J 1/8W
R372 RK73GB2A471J CHIP R 470 J 1/10W
R373 RK73GB2A223J CHIP R 22K J 1/10W
R374,375 RK73GB2A103J CHIP R 10K J 1/10W
R376 RK73GB2A223J CHIP R 22K J 1/10W
R377 RK73FB2B101J CHIP R 100 J 1/8W
R378 RK73GB2A471J CHIP R 470 J 1/10W
R379 RK73FB2B101J CHIP R 100 J 1/8W
R380 RK73GB2A471J CHIP R 470 J 1/10W
R381 RK73GB2A223J CHIP R 22K J 1/10W
R382,383 RK73GB2A103J CHIP R 10K J 1/10W
R384 RK73GB2A223J CHIP R 22K J 1/10W
R385 RK73FB2B101J CHIP R 100 J 1/8W
R386 RK73GB2A471J CHIP R 470 J 1/10W
R401-403
✽
RK73EB2E432J CHIP R 4.3K J 1/4W
R404,405 RK73EB2E101J CHIP R 100 J 1/4W
R406,407
✽
RK73EB2E432J CHIP R 4.3K J 1/4W
R408 RK73EB2E101J CHIP R 100 J 1/4W
R409 RK73EB2E100J CHIP R 10 J 1/4W
R410 RK73EB2E4R7J CHIP R 4.7 J 1/4W
R411 RK73EB2E100J CHIP R 10 J 1/4W
R501-508 RK73GB2A000J CHIP R 0.0 J 1/10W
R509-514 RK73GB2A473J CHIP R 47K J 1/10W
R517 RK73GB2A102J CHIP R 1.0K J 1/10W
R518-520 RK73EB2E100J CHIP R 10 J 1/4W
R521 RK73GB2A222J CHIP R 2.2K J 1/10W
R522-525 RK73EB2E100J CHIP R 10 J 1/4W
R526-534 RK73EB2E101J CHIP R 100 J 1/4W
R535 RK73GB2A750J CHIP R 75 J 1/10W
R536-539 RK73EB2E750J CHIP R 75 J 1/4W
R542 RK73GB2A102J CHIP R 1.0K J 1/10W
R543 RK73GB2A222J CHIP R 2.2K J 1/10W
R544 RK73EB2E100J CHIP R 10 J 1/4W
R601-611 RK73GB2A103J CHIP R 10K J 1/10W
R701-704 RK73GB2A750J CHIP R 75 J 1/10W E1E2
R704 RK73GB2A750J CHIP R 75 J 1/10W
KR1M1
R704 RK73GB2A750J CHIP R 75 J 1/10W X1
R705,706 RK73EB2E102J CHIP R 1.0K J 1/4W
R707-709 RK73EB2E101J CHIP R 100 J 1/4W
R710 RK73EB2E000J CHIP R 0.0 J 1/4W
R711,712 RK73EB2E102J CHIP R 1.0K J 1/4W
R713 RK73EB2E100J CHIP R 10 J 1/4W
R714 RK73EB2E4R7J CHIP R 4.7 J 1/4W
R715 RK73EB2E100J CHIP R 10 J 1/4W
R716-719 RK73EB2E101J CHIP R 100 J 1/4W E1E2
R719 RK73EB2E101J CHIP R 100 J 1/4W
KR1M1
R719 RK73EB2E101J CHIP R 100 J 1/4W X1
R720-723 RK73GB2A100J CHIP R 10 J 1/10W E1E2
R723 RK73GB2A100J CHIP R 10 J 1/10W
KR1M1
R723 RK73GB2A100J CHIP R 10 J 1/10W X1
R724 RK73EB2E100J CHIP R 10 J 1/4W
R733 RK73GB2A222J CHIP R 2.2K J 1/10W
R734 RK73GB2A102J CHIP R 1.0K J 1/10W
R735-737 RK73EB2E102J CHIP R 1.0K J 1/4W
R738 RK73EB2E100J CHIP R 10 J 1/4W
R739 RK73EB2E4R7J CHIP R 4.7 J 1/4W
R740 RK73EB2E100J CHIP R 10 J 1/4W
R741-744 RK73GB2A750J CHIP R 75 J 1/10W
R745-748 RK73EB2E101J CHIP R 100 J 1/4W
R751 RK73GB2A101J CHIP R 100 J 1/10W
ELECTRIC UNIT (X34-475x-xx)

PARTS LIST
Indicates safety critical com po nents.
Ref. No. A
d
d
N
e
wParts No. Description Desti-
nation Ref. No. A
d
d
N
e
wParts No. Description Desti-
nation
KVT-719DVD/729DVD
/729DVDY/739DVD
103
E1 : KVT-729DVD E2 : KVT-729DVDY (Europe)
K : KVT-719DVD (North America) R1 : KVT-739DVD (Latin America)
X1 : KVT-739DVD (Australia) M1 : KVT-739DVD (Other Areas)
R755-758 RK73GB2A100J CHIP R 10 J 1/10W
R760 RK73GB2A102J CHIP R 1.0K J 1/10W
R761 RK73GB2A750J CHIP R 75 J 1/10W
R763 RK73GB2A750J CHIP R 75 J 1/10W
R764 RK73EB2E750J CHIP R 75 J 1/4W
R768-770 RK73EB2E100J CHIP R 10 J 1/4W
R771 RK73GB2A000J CHIP R 0.0 J 1/10W
R772 RK73EB2E101J CHIP R 100 J 1/4W
R774 RK73EB2E101J CHIP R 100 J 1/4W
R775 RK73GB2A100J CHIP R 10 J 1/10W
R777 RK73GB2A100J CHIP R 10 J 1/10W
R781 RK73GB2A103J CHIP R 10K J 1/10W
R783 RK73GB2A103J CHIP R 10K J 1/10W
R786,787 RK73GB2A183J CHIP R 18K J 1/10W
R789 RK73GB2A222J CHIP R 2.2K J 1/10W
R791 RK73GB2A102J CHIP R 1.0K J 1/10W
R792 RK73GB2A000J CHIP R 0.0 J 1/10W
R809,810 RK73GB2A123J CHIP R 12K J 1/10W
R812,813 RK73GB2A473J CHIP R 47K J 1/10W
R814 RK73GB2A000J CHIP R 0.0 J 1/10W
R815 RK73GH2A333D CHIP R 33K D 1/10W
R816 RK73GH2A222D CHIP R 2.2K D 1/10W
R817 RK73GH2A153D CHIP R 15K D 1/10W
R818 RK73GB2A302J CHIP R 3.0K J 1/10W
R819 RK73GB2A623J CHIP R 62K J 1/10W
R820 RK73GB2A222J CHIP R 2.2K J 1/10W
R821,822 RK73GB2A473J CHIP R 47K J 1/10W
R823 RK73GB2A222J CHIP R 2.2K J 1/10W
R824 RK73GB2A682J CHIP R 6.8K J 1/10W
R825 RK73GB2A104J CHIP R 100K J 1/10W
R826 RK73GB2A682J CHIP R 6.8K J 1/10W
R827 RK73GB2A473J CHIP R 47K J 1/10W
R828 RK73GB2A104J CHIP R 100K J 1/10W
R829 RK73GB2A473J CHIP R 47K J 1/10W
R830 RK73GB2A222J CHIP R 2.2K J 1/10W
R831,832 RK73GB2A473J CHIP R 47K J 1/10W
R833 RK73GB2A000J CHIP R 0.0 J 1/10W
R836-841 RK73GB2A473J CHIP R 47K J 1/10W E1E2
R842-844 RK73GB2A272J CHIP R 2.7K J 1/10W E1E2
R845-847 RK73GB2A121J CHIP R 120 J 1/10W E1E2
R848-850 RK73GB2A473J CHIP R 47K J 1/10W E1E2
R851 RK73GB2A000J CHIP R 0.0 J 1/10W
R852 RK73GB2A101J CHIP R 100 J 1/10W
R853 RK73GB2A102J CHIP R 1.0K J 1/10W
R855-857 RK73GB2A331J CHIP R 330 J 1/10W
D1 RM10ZLFNF DIODE
D2-4 DAN202U DIODE
D5 UDZS6.2B ZENER DIODE
D6 UDZS6.8B ZENER DIODE
D7 DAP202U DIODE
D8 UDZS6.8B ZENER DIODE
D9 DAP202U DIODE
D10-13 1SR154-400 DIODE
D14 UDZS5.6B ZENER DIODE
D15 UDZS4.7B ZENER DIODE
D24,25 1SR154-400 DIODE M1X1
D52 UDZS5.6B ZENER DIODE
D81 1SR154-400 DIODE M1X1
D91 1SR154-400 DIODE M1X1
D201-205 DAP202U DIODE
D251 IMSA-6801-E SURGE ABSORBER
D301,302 DAP202U DIODE
D351-358 AVRM1608180M6A VARISTOR
D359-365 DAP202U DIODE
D401-406 STZ6.8N ZENER DIODE
D503 DAP202U DIODE
D504 UDZS4.7B ZENER DIODE
D505,506 STZ6.8N ZENER DIODE
D509,510 STZ6.8N ZENER DIODE
D512-518 STZ6.2N ZENER DIODE
D519 UDZS4.7B ZENER DIODE
D520 DAP202U DIODE
D522-524 STZ6.2N ZENER DIODE
D701-706 STZ6.2N ZENER DIODE E1E2
D704-706 STZ6.2N ZENER DIODE
KR1M1
D704-706 STZ6.2N ZENER DIODE X1
D707 UDZS6.2B ZENER DIODE
D708 AVRM1608180M6A VARISTOR
D709,710 AVRM1608120M6A VARISTOR
D711 STZ6.2N ZENER DIODE
D712 STZ6.8N ZENER DIODE
D713 DAP202U DIODE
D714 UDZS4.7B ZENER DIODE
D715-717 STZ6.2N ZENER DIODE
D718 STZ6.8N ZENER DIODE
D719-722 STZ6.2N ZENER DIODE
D723 AVRM1608270MAA VARISTOR
D724,725 STZ6.2N ZENER DIODE
D727 STZ6.8N ZENER DIODE
D731 UDZS8.2B ZENER DIODE
D732 STZ6.2N ZENER DIODE
D733 UDZS8.2B ZENER DIODE
D735 DAP202U DIODE
D737 UDZS4.7B ZENER DIODE
IC61 M5237ML-CF0J ANALOGUE IC
IC71 M5237ML-CF0J ANALOGUE IC
IC101
✽
703030BYGCJ30 MICROCONTROLLER IC
IC102 S-80842CNNB-G MOS-IC
IC104 TC7SET08FU-F MOS-IC
IC105 BU2090FS MOS-IC
IC106 TC74VHCT08AFT MOS-IC
IC201 E-TDA7415CB ANALOGUE IC
IC202,203 TC4052BFT MOS-IC
IC251 E-TDA7479AD ANALOGUE IC
KR1E1
IC251 E-TDA7479AD ANALOGUE IC E2M1
IC301 E-TDA7850A ANALOGUE IC
IC501,502
✽
NJM2794RB2ZB ANALOGUE IC
IC701
✽
NJM2794RB2ZB ANALOGUE IC
IC702 TC7S08FU-F MOS-IC
IC723
✽
NJM2794RB2ZB ANALOGUE IC
ELECTRIC UNIT (X34-475x-xx)

PARTS LIST
Indicates safety critical com po nents.
Ref. No. A
d
d
N
e
wParts No. Description Desti-
nation
E1 : KVT-729DVD E2 : KVT-729DVDY (Europe)
K : KVT-719DVD (North America) R1 : KVT-739DVD (Latin America)
X1 : KVT-739DVD (Australia) M1 : KVT-739DVD (Other Areas)
Ref. No. A
d
d
N
e
wParts No. Description Desti-
nation
KVT-719DVD/729DVD
/729DVDY/739DVD
104
IC802 MM1508XNRE-E ANALOGUE IC
IC803 BA7652AF ANALOGUE IC
IC804 MM1508XNRE-E ANALOGUE IC
IC805 BA7653AFV ANALOGUE IC
IC806 MM1503-E ANALOGUE IC
IC807-809 MM1508XNRE-E ANALOGUE IC
IC810 MM1503-E ANALOGUE IC
Q1 DTC124EUA DIGITAL TRANSISTOR
Q2 2SA1576A TRANSISTOR
Q3 DTC124EUA DIGITAL TRANSISTOR
Q4 2SC4081 TRANSISTOR
Q6 2SC4081 TRANSISTOR
Q7 2SB1188(Q,R) TRANSISTOR
Q8 2SA1576A TRANSISTOR
Q9 DTA114EUA DIGITAL TRANSISTOR
Q10 DTC114YUA DIGITAL TRANSISTOR
Q11 2SB1188(R) TRANSISTOR
KR1M1
Q11 2SB1188(R) TRANSISTOR X1
Q12 2SC4081 TRANSISTOR
KR1M1
Q12 2SC4081 TRANSISTOR X1
Q13 2SA1576A TRANSISTOR
Q14,15 2SC4081 TRANSISTOR M1X1
Q51 2SB1565(E,F) TRANSISTOR
Q52 2SC4081 TRANSISTOR
Q53 2SB1689 TRANSISTOR
Q54 DTC124EUA DIGITAL TRANSISTOR
Q61 2SB1443 TRANSISTOR
Q62 DTA124EUA DIGITAL TRANSISTOR
Q70 DTC124EUA DIGITAL TRANSISTOR
Q71 2SB1565(E,F) TRANSISTOR
Q72 DTA124EUA DIGITAL TRANSISTOR
Q81 DTC114TUA DIGITAL TRANSISTOR M1X1
Q82 2SC4081 TRANSISTOR M1X1
Q83 2SB1184 TRANSISTOR M1X1
Q84 2SA1576A TRANSISTOR M1X1
Q85 2SC4081 TRANSISTOR M1X1
Q91 DTC114TUA DIGITAL TRANSISTOR M1X1
Q92 2SC4081 TRANSISTOR M1X1
Q93 2SB1184 TRANSISTOR M1X1
Q94 2SA1576A TRANSISTOR M1X1
Q95 2SC4081 TRANSISTOR M1X1
Q101,102 DTC144EUA DIGITAL TRANSISTOR
Q103 DTA114EUA DIGITAL TRANSISTOR
Q104 DTA114TUA DIGITAL TRANSISTOR
Q105 DTC114TUA DIGITAL TRANSISTOR
Q107
✽
RT1N440M TRANSISTOR
Q251 DTC124EUA DIGITAL TRANSISTOR
Q252 2SB1689 TRANSISTOR
Q351 DTC323TU DIGITAL TRANSISTOR
Q352 DTA144EUA DIGITAL TRANSISTOR
Q353-356 DTC323TU DIGITAL TRANSISTOR
Q357 DTA144EUA DIGITAL TRANSISTOR
Q358,359 DTC323TU DIGITAL TRANSISTOR
Q360 DTA144EUA DIGITAL TRANSISTOR
Q361 DTC323TU DIGITAL TRANSISTOR
Q802-805 2SC4081 TRANSISTOR
Q806 2SA1576A TRANSISTOR
Q807 2SC4081 TRANSISTOR
Q808 2SA1576A TRANSISTOR
KR1M1
Q808 2SA1576A TRANSISTOR X1
Q808-811 2SA1576A TRANSISTOR E1E2
Q813-815 2SC4081 TRANSISTOR E1E2
TH301 PRF18BE471QB2 POSITIVE RESISTOR
A251
✽
X86-4080-12 FRONT-END UNIT
KR1X1
A251
✽
X86-4082-71 FRONT-END UNIT
E1E2M1
C1,2 C93-1396-05 CHIP C 10UF Z
C3 C93-1283-05 CHIP C 1.0UF K
C5 C93-1363-05 CHIP C 10PF
C6 C93-1361-05 CHIP C 0.012UF
C7 CK73GB1H473K CHIP C 0.047UF K
C8 C93-1383-05 CHIP C 220PF F
C9 CK73GB0J225K CHIP C 2.2UF K
C10 CK73GB1H103K CHIP C 0.010UF K
C11 CK73GB0J225K CHIP C 2.2UF K
C12 CK73HB1E103K CHIP C 0.010UF K
C13 CK73GB1A474K CHIP C 0.47UF K
C14 CK73HB1E103K CHIP C 0.010UF K
C15 CK73GB1H473K CHIP C 0.047UF K
C16 CK73HB1C183K CHIP C 0.018UF K
C17 CK73HB1E103K CHIP C 0.010UF K
C18 C93-1283-05 CHIP C 1.0UF K
C21 CK73GB0J225K CHIP C 2.2UF K
C22 CK73HB1H152K CHIP C 1500PF K
C23 C93-1396-05 CHIP C 10UF Z
C24 CK73GB1H103K CHIP C 0.010UF K
C25 C93-1286-05 CHIP C 2700PF
C28 C93-1283-05 CHIP C 1.0UF K
C100 CC73GCH1H151J CHIP C 150PF J
C101 CK73GB1H104K CHIP C 0.10UF K
C102 CK73FB0J106K CHIP C 10UF K
C103 CK73GB1H103K CHIP C 0.010UF K
C104 CE32AU1C220M CHIP EL 22UF 16WV
C105 CK73GB1H104K CHIP C 0.10UF K
C106 CK73GB1H103K CHIP C 0.010UF K
C107,108 CK73EB1C106K CHIP C 10UF K
C109 CK73FB1C105K CHIP C 1.0UF K
C110 CK73GB1H103K CHIP C 0.010UF K
C112 CK73FB1E154K CHIP C 0.15UF K
C113 CK73EB1E225K CHIP C 2.2UF K
C114 CK73GB1C224K CHIP C 0.22UF K
C115 CK73GB1H104K CHIP C 0.10UF K
C116 CK73EB0J226K CHIP C 22UF K
C117 CK73HB1H102K CHIP C 1000PF K
C118 CK73GB1H103K CHIP C 0.010UF K
C119 CK73HB1E103K CHIP C 0.010UF K
C120 CK73GB1H104K CHIP C 0.10UF K
C121 CK73HB1E103K CHIP C 0.010UF K
C301 CK73EB1C106K CHIP C 10UF K
VIDEO UNIT (X35-4710-10)
ELECTRIC UNIT (X34-475x-xx)

PARTS LIST
Indicates safety critical com po nents.
Ref. No. A
d
d
N
e
wParts No. Description Desti-
nation Ref. No. A
d
d
N
e
wParts No. Description Desti-
nation
KVT-719DVD/729DVD
/729DVDY/739DVD
105
E1 : KVT-729DVD E2 : KVT-729DVDY (Europe)
K : KVT-719DVD (North America) R1 : KVT-739DVD (Latin America)
X1 : KVT-739DVD (Australia) M1 : KVT-739DVD (Other Areas)
C302 C93-1396-05 CHIP C 10UF Z
C303 CK73GB1H103K CHIP C 0.010UF K
C304 CK73GB1H104K CHIP C 0.10UF K
C305,306 CK73GB1H103K CHIP C 0.010UF K
C307 CK73FB0J106K CHIP C 10UF K
C308 CK73GB1H103K CHIP C 0.010UF K
C309 CC73HCH1H100D CHIP C 10PF D
C310 CK73HB1C333K CHIP C 0.033UF K
C311 CK73HB1E103K CHIP C 0.010UF K
C312 CK73GB1H103K CHIP C 0.010UF K
C313,314 CK73HB1E103K CHIP C 0.010UF K
C315,316 CK73GB1H104K CHIP C 0.10UF K
C317 CK73HB1E103K CHIP C 0.010UF K
C318,319 CK73GB1H104K CHIP C 0.10UF K
C320 CC73HCH1H330J CHIP C 33PF J
C321 CK73GB1H104K CHIP C 0.10UF K
C322 CC73GCH1E102J CHIP C 1000PF J
C323 CC73HCH1H101J CHIP C 100PF J
C324,325 CK73HB1E103K CHIP C 0.010UF K
C326 CC73GCH1H681J CHIP C 680PF J
C327,328 CK73GB1H104K CHIP C 0.10UF K
C329 CC73HCH1H101J CHIP C 100PF J
C330 CK73FB0J106K CHIP C 10UF K
C331,332 CC73HCH1H390J CHIP C 39PF J
C333 CK73GB1H104K CHIP C 0.10UF K
C334 CK73GB1H103K CHIP C 0.010UF K
C335 CK73GB1H104K CHIP C 0.10UF K
C337 CK73HB1E103K CHIP C 0.010UF K
C338 CK73GB1H103K CHIP C 0.010UF K
C339 CC73HCH1H221J CHIP C 220PF J
C340 CC73HCH1H101J CHIP C 100PF J
C342 CC73HCH1H100D CHIP C 10PF D
C346,347 CK73HB1E103K CHIP C 0.010UF K
C348 CK73FB1C105K CHIP C 1.0UF K
C349 C93-1389-05 CHIP C 33PF J
C350
✽
CK73GB0J106M CHIP C 10UF M
C401 CK73HB1H102K CHIP C 1000PF K
C421,422 CK73GB1A105K CHIP C 1.0UF K
C423 CK73FB0J106K CHIP C 10UF K
C424 CK73HB1E103K CHIP C 0.010UF K
C425 CK73FB1C105K CHIP C 1.0UF K
C426 CK73EB1E105K CHIP C 1.0UF K
C427 CK73GB0J225K CHIP C 2.2UF K
C428 CK73FB0J106K CHIP C 10UF K
C501-503 CK73HB1E103K CHIP C 0.010UF K
C504 CK73FB0J106K CHIP C 10UF K
CN1 E41-2483-05 PIN ASSY
CN101 E41-2608-05 FLAT CABLE CONNECTOR
CN103 E41-2359-05 PIN ASSY
CN104 E41-2444-05 FLAT CABLE CONNECTOR
CN302
✽
E41-2761-05 FLAT CABLE CONNECTOR
CN501 E41-2087-05 FLAT CABLE CONNECTOR
CN502
✽
E41-2762-05 FLAT CABLE CONNECTOR
CN503 E41-2564-05 FLAT CABLE CONNECTOR
F1 F53-0297-05 FUSE (UL,CSA) 1.6A
F100 F53-0280-05 FUSE 0.63A
L1 L19-0783-05
TRANSFORMER FOR CONVERTER
L101,102 L41-3392-13
SMALL FIXED INDUCTOR (3.3UH)
L103 L41-4792-13
SMALL FIXED INDUCTOR (4.7UH)
L104-106 L41-1005-33 SMALL FIXED INDUCTOR (10U)
L302,303 L41-1005-33 SMALL FIXED INDUCTOR (10U)
L306 L41-5695-33
SMALL FIXED INDUCTOR (5.6U)
L307 L41-8281-15
SMALL FIXED INDUCTOR (0.82U)
L401 L41-1005-33 SMALL FIXED INDUCTOR (10U)
L501 L41-1005-33 SMALL FIXED INDUCTOR (10U)
CP301,302
RK74HB1J102J CHIP-COM 1.0K J 1/16W
CP303 RK74HB1J101J CHIP-COM 100 J 1/16W
R1 RK73HB1J512J CHIP R 5.1K J 1/16W
R3 RK73HB1J220J CHIP R 22 J 1/16W
R4 RK73GH2A433D CHIP R 43K D 1/10W
R5 RK73HB1J153J CHIP R 15K J 1/16W
R6 RK73HH1J563D CHIP R 56K D 1/16W
R7 RK73HB1J220J CHIP R 22 J 1/16W
R8 RK73HB1J512J CHIP R 5.1K J 1/16W
R9 RK73HH1J204D CHIP R 200K D 1/16W
R10 RK73FB2B152J CHIP R 1.5K J 1/8W
R11 RK73HB1J220J CHIP R 22 J 1/16W
R12 RK73HB1J105J CHIP R 1.0M J 1/16W
R13 RK73HB1J220J CHIP R 22 J 1/16W
R14 RK73GH2A471D CHIP R 470 D 1/10W
R15 RK73GH2A513D CHIP R 51K D 1/10W
R16,17 RK73HB1J220J CHIP R 22 J 1/16W
R18 RK73HB1J222J CHIP R 2.2K J 1/16W
R21 RK73HB1J104J CHIP R 100K J 1/16W
R22 RK73GB2A515J CHIP R 5.1M J 1/10W
R23 RK73HH1J824D CHIP R 820K D 1/16W
R24 RK73HB1J472J CHIP R 4.7K J 1/16W
R100 RK73HB1J100J CHIP R 10 J 1/16W
R101 RK73GH2A104D CHIP R 100K D 1/10W
R102 RK73GH2A113D CHIP R 11K D 1/10W
R103 RK73GH2A184D CHIP R 180K D 1/10W
R104 RK73GH2A133D CHIP R 13K D 1/10W
R105 RK73HB1J473J CHIP R 47K J 1/16W
R118
✽
RK73HB1J754J CHIP R 750K J 1/16W
R119 RK73FB2B222J CHIP R 2.2K J 1/8W
R201 RK73HB1J000J CHIP R 0.0 J 1/16W
R218 RK73HB1J102J CHIP R 1.0K J 1/16W
R219 RK73HB1J103J CHIP R 10K J 1/16W
R301 RK73HB1J220J CHIP R 22 J 1/16W
R304,305 RK73HB1J000J CHIP R 0.0 J 1/16W
R307 RK73HB1J101J CHIP R 100 J 1/16W
R308 RK73HB1J621J CHIP R 620 J 1/16W
R310 RK73HB1J101J CHIP R 100 J 1/16W
R313 RK73HB1J000J CHIP R 0.0 J 1/16W
R314,315 RK73HB1J103J CHIP R 10K J 1/16W
R316 RK73HB1J102J CHIP R 1.0K J 1/16W
R319 RK73HB1J102J CHIP R 1.0K J 1/16W
R320 RK73HB1J000J CHIP R 0.0 J 1/16W
VIDEO UNIT (X35-4710-10)

PARTS LIST
Indicates safety critical com po nents.
Ref. No. A
d
d
N
e
wParts No. Description Desti-
nation
E1 : KVT-729DVD E2 : KVT-729DVDY (Europe)
K : KVT-719DVD (North America) R1 : KVT-739DVD (Latin America)
X1 : KVT-739DVD (Australia) M1 : KVT-739DVD (Other Areas)
Ref. No. A
d
d
N
e
wParts No. Description Desti-
nation
KVT-719DVD/729DVD
/729DVDY/739DVD
106
R321 RK73GH2A472D CHIP R 4.7K D 1/10W
R323 RK73HB1J000J CHIP R 0.0 J 1/16W
R324,325 RK73GH2A472D CHIP R 4.7K D 1/10W
R326 RK73HH1J473D CHIP R 47K D 1/16W
R327 RK73HH1J683D CHIP R 68K D 1/16W
R328 RK73HH1J153D CHIP R 15K D 1/16W
R329 RK73HH1J101D CHIP R 100 D 1/16W
R330 RK73HH1J182D CHIP R 1.8K D 1/16W
R331 RK73HH1J331D CHIP R 330 D 1/16W
R332 RK73HH1J332D CHIP R 3.3K D 1/16W
R333,334 RK73HB1J000J CHIP R 0.0 J 1/16W
R336 RK73HB1J000J CHIP R 0.0 J 1/16W
R337,338 RK73HB1J101J CHIP R 100 J 1/16W
R339 RK73HB1J102J CHIP R 1.0K J 1/16W
R340-344 RK73HB1J101J CHIP R 100 J 1/16W
R345 RK73HH1J683D CHIP R 68K D 1/16W
R346 RK73HH1J105D CHIP R 1.0M D 1/16W
R347 RK73HH1J153D CHIP R 15K D 1/16W
R348 RK73HB1J202J CHIP R 2.0K J 1/16W
R349 RK73HB1J133J CHIP R 13K J 1/16W
R350-352 RK73HB1J101J CHIP R 100 J 1/16W
R354 RK73HB1J300J CHIP R 30 J 1/16W
R355 RK73HB1J820J CHIP R 82 J 1/16W
R357 RK73HB1J000J CHIP R 0.0 J 1/16W
R358 RK73HB1J103J CHIP R 10K J 1/16W
R359,360 RK73HB1J100J CHIP R 10 J 1/16W
R361,362 RK73HB1J103J CHIP R 10K J 1/16W
R365 RK73HB1J101J CHIP R 100 J 1/16W
R366-370 RK73HB1J103J CHIP R 10K J 1/16W
R371 RK73HB1J000J CHIP R 0.0 J 1/16W
R373 RK73HB1J561J CHIP R 560 J 1/16W
R374 RK73HB1J473J CHIP R 47K J 1/16W
R376 RK73HB1J103J CHIP R 10K J 1/16W
R377 RK73HB1J912J CHIP R 9.1K J 1/16W
R378 RK73HB1J562J CHIP R 5.6K J 1/16W
R380 RK73HB1J473J CHIP R 47K J 1/16W
R381 RK73HB1J000J CHIP R 0.0 J 1/16W
R385 RK73HB1J000J CHIP R 0.0 J 1/16W
R389 RK73HB1J221J CHIP R 220 J 1/16W
R391 RK73HB1J100J CHIP R 10 J 1/16W
R392 RK73HB1J102J CHIP R 1.0K J 1/16W
R393,394 RK73HB1J202J CHIP R 2.0K J 1/16W
R396 RK73HB1J101J CHIP R 100 J 1/16W
R397 RK73HB1J000J CHIP R 0.0 J 1/16W
R398,399 RK73HB1J101J CHIP R 100 J 1/16W
R402 RK73HB1J392J CHIP R 3.9K J 1/16W
R403 RK73HB1J822J CHIP R 8.2K J 1/16W
R404 RK73HB1J243J CHIP R 24K J 1/16W
R406 RK73GB2A361J CHIP R 360 J 1/10W
R407 RK73GB2A751J CHIP R 750 J 1/10W
R422 RK73HB1J683J CHIP R 68K J 1/16W
R423 RK73HB1J104J CHIP R 100K J 1/16W
R441 RK73GB2A751J CHIP R 750 J 1/10W
R453 RK73FB2B102J CHIP R 1.0K J 1/8W
R454 RK73FB2B511J CHIP R 510 J 1/8W
R456 RK73GB2A361J CHIP R 360 J 1/10W
R501,502 RK73HB1J333J CHIP R 33K J 1/16W
R503-506 RK73GB2A100J CHIP R 10 J 1/10W
R609-612 RK73GB2A000J CHIP R 0.0 J 1/10W
VR203 R32-0328-05
SEMI FIXED VARIABLE RESISTOR
S401-405 S70-0937-05 TACT SWITCH
D1,2 UDZS5.6B ZENER DIODE
D3 1SS355 DIODE
D4,5 DA204U DIODE
D6 MA2S784-F DIODE
D7 UDZS5.6B ZENER DIODE
D8 AVRM1005270MAA VARISTOR
D9 DA204U DIODE
D10 1SS355 DIODE
D101 EP05Q04 DIODE
D102 EP05Q06 DIODE
D103,104 EP05Q04 DIODE
D301 UDZS3.9B ZENER DIODE
D303 DA204U DIODE
D305,306 DA204U DIODE
D307 AVRM1608120M6A VARISTOR
D309 1SV231-F
VARIABLE CAPACITANCE DIODE
D314 DA204U DIODE
D401 AVRM1608120M6A VARISTOR
D403-412 AVRM1608180M6A VARISTOR
D501-504 AVRM1608180M6A VARISTOR
IC1 OZ964ISN-C ANALOGUE IC
IC101 LT1947-PBF ANALOGUE IC
IC102 TC7WH123FU-F MOS-IC
IC103 TC7SH04FU-F MOS-IC
IC301 BU2090FS MOS-IC
IC302 TC7SET08FU-F MOS-IC
IC303 NJM2107F-ZB ANALOGUE IC
IC304 TC200G02G0104 MOS-IC
IC401 TPS850 ANALOGUE IC
Q1 2SC4081 TRANSISTOR
Q2,3 SI5504DC-E3 DUAL FET
Q4 DTC114YUA DIGITAL TRANSISTOR
Q5 2SC4081 TRANSISTOR
Q301 2SC4097 TRANSISTOR
Q303 2SC4081 TRANSISTOR
Q501 DTC114YE DIGITAL TRANSISTOR
Q502,503 PUMD10 DUAL TRANSISTOR
C3 CK73HB1A104K CHIP C 0.10UF K
C4
✽
CC73HCH1H471J CHIP C 470PF J
C5-7 CK73HB1E103K CHIP C 0.010UF K
C8
✽
CC73HCH1H471J CHIP C 470PF J
C11 CK73HB1E103K CHIP C 0.010UF K
C14
✽
CK73GB0J106M CHIP C 10UF M
C15 CK73HB1A104K CHIP C 0.10UF K
C16
✽
CK73GB0J106M CHIP C 10UF M
C17 CK73GB0J475K CHIP C 4.7UF K
C18 CK73FB0J226M CHIP C 22UF M
DVD UNIT (X37-1120-03) IN DVD MECHANISM
VIDEO UNIT (X35-4710-10)

PARTS LIST
Indicates safety critical com po nents.
Ref. No. A
d
d
N
e
wParts No. Description Desti-
nation Ref. No. A
d
d
N
e
wParts No. Description Desti-
nation
KVT-719DVD/729DVD
/729DVDY/739DVD
107
E1 : KVT-729DVD E2 : KVT-729DVDY (Europe)
K : KVT-719DVD (North America) R1 : KVT-739DVD (Latin America)
X1 : KVT-739DVD (Australia) M1 : KVT-739DVD (Other Areas)
C20
✽
CC73HCH1H102J CHIP C 1000PF J
C50,51 C93-1228-05 CHIP C 1UF M
C54 C93-1228-05 CHIP C 1UF M
C59,60 C93-1228-05 CHIP C 1UF M
C62 C93-1228-05 CHIP C 1UF M
C63 CK73FB0J226M CHIP C 22UF M
C72 CK73HB1A104K CHIP C 0.10UF K
C73
✽
CK73GB0J106M CHIP C 10UF M
C100-102 CK73HB1A104K CHIP C 0.10UF K
C103 C93-1228-05 CHIP C 1UF M
C104 CK73HB1A104K CHIP C 0.10UF K
C105 C93-1228-05 CHIP C 1UF M
C106,107 CK73HB1A104K CHIP C 0.10UF K
C108 C93-1228-05 CHIP C 1UF M
C109 CK73HB1A104K CHIP C 0.10UF K
C110 C93-1228-05 CHIP C 1UF M
C111 CK73HB1C333K CHIP C 0.033UF K
C112,113 CK73HB1A104K CHIP C 0.10UF K
C114 CK73GB1H562K CHIP C 5600PF K
C115 CK73HB1C183K CHIP C 0.018UF K
C117 CK73HB1A104K CHIP C 0.10UF K
C118 CK73HB0J105K CHIP C 1.0UF K
C119 C93-1228-05 CHIP C 1UF M
C120,121 CK73HB1A104K CHIP C 0.10UF K
C122,123
✽
CK73GB0J106M CHIP C 10UF M
C126-129 CK73HB1A104K CHIP C 0.10UF K
C130-133 CC73HCH1H151J CHIP C 150PF J
C134
✽
CC73HCH1H102J CHIP C 1000PF J
C135,136 C93-1228-05 CHIP C 1UF M
C137,138 CK73HB0J105K CHIP C 1.0UF K
C139,140 C93-1228-05 CHIP C 1UF M
C142 C93-1228-05 CHIP C 1UF M
C143,144 CC73HCH1H100D CHIP C 10PF D
C145-149 CK73HB1A104K CHIP C 0.10UF K
C151,152 C93-1228-05 CHIP C 1UF M
C153,154 CK73HB1A104K CHIP C 0.10UF K
C158 CK73HB1A104K CHIP C 0.10UF K
C162 CK73HB1A104K CHIP C 0.10UF K
C164-169
✽
CK73GB0J106M CHIP C 10UF M
C200-203
✽
CK73GB0J106M CHIP C 10UF M
C207,208 CK73HB1A104K CHIP C 0.10UF K
C220-223 CK73HB0J105K CHIP C 1.0UF K
C224 CK73HB1E103K CHIP C 0.010UF K
C226 CK73FB0J226M CHIP C 22UF M
C229,230 CK73HB1E103K CHIP C 0.010UF K
C231
✽
CC73HCH1H102J CHIP C 1000PF J
C250
✽
CC73HCH1H102J CHIP C 1000PF J
C251,252 CC73HCH1H221J CHIP C 220PF J
C253
✽
CC73HCH1H102J CHIP C 1000PF J
C254,255 CC73HCH1H221J CHIP C 220PF J
C256 CK73HB1A104K CHIP C 0.10UF K
C261,262
✽
CC73HCH1H331J CHIP C 330PF J
C263 CK73HB0J105K CHIP C 1.0UF K
C265 CK73GB1A105K CHIP C 1.0UF K
C266 CK73HB1C333K CHIP C 0.033UF K
C267 CK73FB0J226M CHIP C 22UF M
C270 CK73HB0J105K CHIP C 1.0UF K
C271
✽
CC73HCH1H102J CHIP C 1000PF J
C272 CK73HB0J105K CHIP C 1.0UF K
C300,301
✽
CC73HCH1H102J CHIP C 1000PF J
C302
✽
CK73GB0J106M CHIP C 10UF M
C304-306
✽
CK73GB0J106M CHIP C 10UF M
C350,351
✽
CC73HCH1H102J CHIP C 1000PF J
C434
✽
CK73GB0J106M CHIP C 10UF M
C435 CK73HB1E103K CHIP C 0.010UF K
C441 CK73HB1A104K CHIP C 0.10UF K
C442-445 CK73FB0J226M CHIP C 22UF M
C446 CK73HB1A104K CHIP C 0.10UF K
C448,449 C93-1228-05 CHIP C 1UF M
C450 CK73HB1A104K CHIP C 0.10UF K
C452 C93-1228-05 CHIP C 1UF M
C454,455 CK73HB1A104K CHIP C 0.10UF K
C456-458 CK73HB1H682K CHIP C 6800PF K
C461 CK73HB1H472K CHIP C 4700PF K
C462 CK73HB1E103K CHIP C 0.010UF K
C464 CK73HB0J105K CHIP C 1.0UF K
C466 CK73HB1A104K CHIP C 0.10UF K
C467 CC73HCH1H121J CHIP C 120PF J
C468,469 CK73HB1A104K CHIP C 0.10UF K
C470 CK73HB1E103K CHIP C 0.010UF K
C473 CK73HB1A104K CHIP C 0.10UF K
C474
✽
CC73HCH1H102J CHIP C 1000PF J
C476 CC73HCH1H101J CHIP C 100PF J
C477-479 CK73FB0J226M CHIP C 22UF M
C480 CK73HB1A104K CHIP C 0.10UF K
C481 CC73HCH1H151J CHIP C 150PF J
C482
✽
CC73HCH1H471J CHIP C 470PF J
C483
✽
CC73HCH1H102J CHIP C 1000PF J
C484 CK73HB1E103K CHIP C 0.010UF K
C485 CC73HCH1H151J CHIP C 150PF J
C486
✽
CC73HCH1H471J CHIP C 470PF J
C487
✽
CC73HCH1H102J CHIP C 1000PF J
C488 CK73HB1E103K CHIP C 0.010UF K
C489 CC73HCH1H151J CHIP C 150PF J
C490
✽
CC73HCH1H471J CHIP C 470PF J
C491
✽
CC73HCH1H102J CHIP C 1000PF J
C492 CK73HB1E103K CHIP C 0.010UF K
C493 CC73HCH1H151J CHIP C 150PF J
C494
✽
CC73HCH1H471J CHIP C 470PF J
C495
✽
CC73HCH1H102J CHIP C 1000PF J
C496 CK73HB1E103K CHIP C 0.010UF K
C497,498 CK73FB0J226M CHIP C 22UF M
C504,505 CK73HB1H472K CHIP C 4700PF K
C506,507
✽
CC73HCH1H102J CHIP C 1000PF J
C510
✽
CC73HCH1H102J CHIP C 1000PF J
C511
✽
CK73GB0J106M CHIP C 10UF M
C512 CK73HB0J105K CHIP C 1.0UF K
C513-515 CK73HB1A104K CHIP C 0.10UF K
C516 CK73HB1C333K CHIP C 0.033UF K
C517 CK73HB1E103K CHIP C 0.010UF K
DVD UNIT (X37-1120-03) IN DVD MECHANISM

PARTS LIST
Indicates safety critical com po nents.
Ref. No. A
d
d
N
e
wParts No. Description Desti-
nation
E1 : KVT-729DVD E2 : KVT-729DVDY (Europe)
K : KVT-719DVD (North America) R1 : KVT-739DVD (Latin America)
X1 : KVT-739DVD (Australia) M1 : KVT-739DVD (Other Areas)
Ref. No. A
d
d
N
e
wParts No. Description Desti-
nation
KVT-719DVD/729DVD
/729DVDY/739DVD
108
C518,519 CC73HCH1H470J CHIP C 47PF J
C520
✽
CC73HCH1H102J CHIP C 1000PF J
C521 CK73HB0J105K CHIP C 1.0UF K
C522 CC73HCH1H151J CHIP C 150PF J
C523
✽
CC73HCH1H471J CHIP C 470PF J
C524
✽
CC73HCH1H102J CHIP C 1000PF J
C525 CK73HB1E103K CHIP C 0.010UF K
C526 CC73HCH1H151J CHIP C 150PF J
C527
✽
CC73HCH1H471J CHIP C 470PF J
C528
✽
CC73HCH1H102J CHIP C 1000PF J
C529 CK73HB1E103K CHIP C 0.010UF K
C530 CK73HB0J105K CHIP C 1.0UF K
CN1 E41-2594-05 FLAT CABLE CONNECTOR
CN3
✽
E41-2596-05 FLAT CABLE CONNECTOR
CN6 E41-2603-05 FLAT CABLE CONNECTOR
CN10
✽
E41-2602-05 FLAT CABLE CONNECTOR
L1 L92-0365-05 CHIP FERRITE
L2-4
✽
L92-0612-05 CHIP FERRITE
L5,6
✽
L92-0611-05 CHIP FERRITE
L7,8
✽
L92-0612-05 CHIP FERRITE
L10
✽
L33-2281-05 SMALL FIXED INDUCTOR
L11
✽
L33-2280-05 SMALL FIXED INDUCTOR
L12-14 L92-0365-05 CHIP FERRITE
L15
✽
L92-0612-05 CHIP FERRITE
L20
✽
L92-0617-05 CHIP FERRITE
L21
✽
L92-0612-05 CHIP FERRITE
L22 L92-0838-05 CHIP FERRITE
X1
✽
L77-2924-05
CRYSTAL RESONATOR (27MHZ,30PPM)
CP1-9 RK74HB1J470J CHIP-COM 47 J 1/16W
CP36,37 RK74HB1J103J CHIP-COM 10K J 1/16W
CP44,45 RK74HB1J330J CHIP-COM 33 J 1/16W
CP54-56 RK74HB1J330J CHIP-COM 33 J 1/16W
CP57 RK74HB1J820J CHIP-COM 82 J 1/16W
CP58 RK74HB1J330J CHIP-COM 33 J 1/16W
CP59-68 RK74HB1J103J CHIP-COM 10K J 1/16W
CP69 RK74HB1J220J CHIP-COM 22 J 1/16W
CP70-73 RK74HB1J103J CHIP-COM 10K J 1/16W
R1-4 RK73HB1J103J CHIP R 10K J 1/16W
R5,6 RK73HH1J123D CHIP R 12K D 1/16W
R10 RK73HB1J163J CHIP R 16K J 1/16W
R16 RK73HB1J103J CHIP R 10K J 1/16W
R17 RK73HB1J271J CHIP R 270 J 1/16W
R19 RK73HB1J301J CHIP R 300 J 1/16W
R21,22 RK73HH1J103D CHIP R 10K D 1/16W
R24 RK73HB1J4R7J CHIP R 4.7 J 1/16W
R79 RK73HB1J102J CHIP R 1.0K J 1/16W
R80 RK73HB1J220J CHIP R 22 J 1/16W
R81 RK73HB1J470J CHIP R 47 J 1/16W
R84,85 RK73HB1J202J CHIP R 2.0K J 1/16W
R86 RK73HB1J105J CHIP R 1.0M J 1/16W
R87 RK73HB1J102J CHIP R 1.0K J 1/16W
R89 RK73HH1J303D CHIP R 30K D 1/16W
R90 RK73HB1J223J CHIP R 22K J 1/16W
R91 RK73HB1J470J CHIP R 47 J 1/16W
R92 RK73HH1J123D CHIP R 12K D 1/16W
R94 RK73HH1J512D CHIP R 5.1K D 1/16W
R111 RK73HB1J220J CHIP R 22 J 1/16W
R112,113 RK73HB1J101J CHIP R 100 J 1/16W
R116 RK73HB1J103J CHIP R 10K J 1/16W
R119 RK73HB1J103J CHIP R 10K J 1/16W
R121 RK73HB1J182J CHIP R 1.8K J 1/16W
R122 RK73HB1J472J CHIP R 4.7K J 1/16W
R131 RK73HB1J220J CHIP R 22 J 1/16W
R150,151 RK73HB1J100J CHIP R 10 J 1/16W
R152,153 RK73HB1J471J CHIP R 470 J 1/16W
R154,155 RK73HB1J751J CHIP R 750 J 1/16W
R156,157 RK73HB1J560J CHIP R 56 J 1/16W
R158,159 RK73HB1J2R2J CHIP R 2.2 J 1/16W
R162,163 RK73HB1J104J CHIP R 100K J 1/16W
R164,165 RK73HH1J101D CHIP R 100 D 1/16W
R200-203
✽
RK73HH1J201D CHIP R 200 D 1/16W
R204-207
✽
RK73HH1J151D CHIP R 150 D 1/16W
R208 RK73HB1J4R7J CHIP R 4.7 J 1/16W
R251 RK73HB1J1R0J CHIP R 1.0 J 1/16W
R254
✽
RK73HH1J912D CHIP R 9.1K D 1/16W
R255
✽
RK73HH1J752D CHIP R 7.5K D 1/16W
R256 RK73HH1J331D CHIP R 330 D 1/16W
R257
✽
RK73HH1J912D CHIP R 9.1K D 1/16W
R258
✽
RK73HH1J752D CHIP R 7.5K D 1/16W
R259 RK73HH1J331D CHIP R 330 D 1/16W
R260
✽
RK73HH1J912D CHIP R 9.1K D 1/16W
R261
✽
RK73HH1J752D CHIP R 7.5K D 1/16W
R262 RK73HH1J331D CHIP R 330 D 1/16W
R263
✽
RK73HH1J912D CHIP R 9.1K D 1/16W
R264
✽
RK73HH1J752D CHIP R 7.5K D 1/16W
R265 RK73HH1J331D CHIP R 330 D 1/16W
R266,267 RK73HH1J101D CHIP R 100 D 1/16W
R269 RK73HB1J100J CHIP R 10 J 1/16W
R275,276 RK73HB1J472J CHIP R 4.7K J 1/16W
R300,301 RK73HH1J472D CHIP R 4.7K D 1/16W
R302,303
✽
RK73HH1J183D CHIP R 18K D 1/16W
R304 RK73HH1J202D CHIP R 2.0K D 1/16W
R305 RK73HB1J163J CHIP R 16K J 1/16W
R350,351 RK73HB1J4R7J CHIP R 4.7 J 1/16W
R400-402 RK73HB1J470J CHIP R 47 J 1/16W
R409 RK73HB1J470J CHIP R 47 J 1/16W
R410,411 RK73HB1J102J CHIP R 1.0K J 1/16W
R450 RK73HB1J202J CHIP R 2.0K J 1/16W
R458 RK73HB1J220J CHIP R 22 J 1/16W
R464,465 RK73HH1J101D CHIP R 100 D 1/16W
R467 RK73HB1J470J CHIP R 47 J 1/16W
R468-470 RK73HB1J103J CHIP R 10K J 1/16W
R471 RK73HB1J820J CHIP R 82 J 1/16W
R472,473 RK73HB1J330J CHIP R 33 J 1/16W
R475 R92-3350-05 CHIP R 2.2 F 1/10W
R476
✽
R92-5112-05 CHIP R 4.7 F 1/10W
R477 RK73GH2A111D CHIP R 110 D 1/10W
R478 RK73HH1J472D CHIP R 4.7K D 1/16W
DVD UNIT (X37-1120-03) IN DVD MECHANISM

PARTS LIST
Indicates safety critical com po nents.
Ref. No. A
d
d
N
e
wParts No. Description Desti-
nation Ref. No. A
d
d
N
e
wParts No. Description Desti-
nation
KVT-719DVD/729DVD
/729DVDY/739DVD
109
R480 RK73HH1J202D CHIP R 2.0K D 1/16W
R481 RK73HH1J203D CHIP R 20K D 1/16W
R482-484 RK73HB1J820J CHIP R 82 J 1/16W
R485 RK73HB1J102J CHIP R 1.0K J 1/16W
R486,487 RK73HB1J103J CHIP R 10K J 1/16W
R489 RK73HB1J220J CHIP R 22 J 1/16W
R491-493 RK73HB1J751J CHIP R 750 J 1/16W
R496,497 RK73HB1J102J CHIP R 1.0K J 1/16W
R498 RK73HB1J101J CHIP R 100 J 1/16W
R501
✽
RK73HH1J132D CHIP R 1.3K D 1/16W
R502 RK73HH1J333D CHIP R 33K D 1/16W
R503 RK73HH1J203D CHIP R 20K D 1/16W
R504 RK73HB1J242J CHIP R 2.4K J 1/16W
R505 RK73HB1J821J CHIP R 820 J 1/16W
R507 RK73HB1J103J CHIP R 10K J 1/16W
R508 RK73HB1J225J CHIP R 2.2M J 1/16W
R509 RK73HB1J102J CHIP R 1.0K J 1/16W
R510 RK73HB1J103J CHIP R 10K J 1/16W
R511 RK73HB1J473J CHIP R 47K J 1/16W
R512,513 RK73HB1J103J CHIP R 10K J 1/16W
R514-517 RK73HB1J220J CHIP R 22 J 1/16W
R518-522 RK73HB1J103J CHIP R 10K J 1/16W
R523,524 RK73HB1J4R7J CHIP R 4.7 J 1/16W
R525 RK73HB1J000J CHIP R 0.0 J 1/16W
R530 RK73HB1J000J CHIP R 0.0 J 1/16W
R531 RK73HB1J471J CHIP R 470 J 1/16W
R532 RK73HB1J472J CHIP R 4.7K J 1/16W
R533 RK73HH1J683D CHIP R 68K D 1/16W
R535-538
✽
RK73HH1J821D CHIP R 820 D 1/16W
R539 RK73HB1J4R7J CHIP R 4.7 J 1/16W
R541
✽
RK73HH1J122D CHIP R 1.2K D 1/16W
R544-559 RK73HB1J2R2J CHIP R 2.2 J 1/16W
R560 RK73HB1J000J CHIP R 0.0 J 1/16W
R561,562 RK73HH1J682D CHIP R 6.8K D 1/16W
R563
✽
RK73HH1J122D CHIP R 1.2K D 1/16W
R564 RK73HB1J4R7J CHIP R 4.7 J 1/16W
R574-576 RK73HB1J000J CHIP R 0.0 J 1/16W
R583,584
✽
RK73HH1J391D CHIP R 390 D 1/16W
R588
✽
R92-5112-05 CHIP R 4.7 F 1/10W
R591 RK73HB1J820J CHIP R 82 J 1/16W
R599,600 RK73HB1J103J CHIP R 10K J 1/16W
R601-604 RK73HB1J102J CHIP R 1.0K J 1/16W
R605,606 RK73HB1J103J CHIP R 10K J 1/16W
R614 RK73HH1J102D CHIP R 1.0K D 1/16W
R615 RK73HB1J1R0J CHIP R 1.0 J 1/16W
R617 RK73HB1J000J CHIP R 0.0 J 1/16W
R619 RK73HB1J513J CHIP R 51K J 1/16W
R620 RK73HB1J333J CHIP R 33K J 1/16W
R621 RK73HB1J103J CHIP R 10K J 1/16W
R622 RK73HB1J333J CHIP R 33K J 1/16W
R623 RK73HB1J220J CHIP R 22 J 1/16W
R624-626 RK73HH1J332D CHIP R 3.3K D 1/16W
R627 RK73HB1J103J CHIP R 10K J 1/16W
R628,629
✽
R92-5147-05 CHIP R 1.2 D 1/4W
R630,631
✽
R92-5146-05 CHIP R 1.0 D 1/4W
R632
✽
RK73HH1J270D CHIP R 27 D 1/16W
R633 RK73HB1J472J CHIP R 4.7K J 1/16W
R634 RK73HB1J103J CHIP R 10K J 1/16W
R636 RK73HB1J220J CHIP R 22 J 1/16W
R638-645 RK73HB1J2R2J CHIP R 2.2 J 1/16W
S1
✽
S68-0911-15 PUSH SWITCH
S2
✽
S68-0910-05 PUSH SWITCH
D5,6
✽
015AZ5.1-F(Y) ZENER DIODE
D7 1SS402-F DIODE
IC1
✽
MN2DS0016AAUB MOS-IC
IC5
✽
- ROM IC
IC9 - ROM IC
IC10
✽
AN41250A-VB ANALOGUE IC
IC12
✽
MM1671XNRE ANALOGUE IC
IC15
✽
AK4396VF MOS-IC
IC21 - MOS-IC
IC39 NJU7042 ANALOGUE IC
IC42 TC74VHC273FT MOS-IC
IC49
✽
TC7SG04FU-F MOS-IC
IC50,51 NJM4580V-ZB ANALOGUE IC
IC54
✽
IS45S16800TL1 DRAM IC
IC55 TC7WH32FU-F MOS-IC
IC56
✽
HD74LV1GW57AE MOS-IC
IC57
✽
NJM2573V-ZB ANALOGUE IC
IC60
✽
- ANALOGUE IC
Q1-4 DTA143XE DIGITAL TRANSISTOR
Q10,11 2SC4617 TRANSISTOR
Q12,13
✽
2SB1709 TRANSISTOR
Q14,15 2SK3019 FET
Q20,21 2SK3019 FET
Q24
✽
SSM3J15FU-F FET
Q25 DTA143XE DIGITAL TRANSISTOR
Q27 DTA143ZE DIGITAL TRANSISTOR
Q28,29 2SA1774 TRANSISTOR
C100 CC73HCH1H101J CHIP C 100PF J
C102-105 CK73HB1A104K CHIP C 0.10UF K
C106
✽
CK73GB0J106M CHIP C 10UF M
C107-110 CK73HB1A104K CHIP C 0.10UF K
C112 CK73EB0J226K CHIP C 22UF K
C113
✽
C92-1983-05 ELECTRO 100UF 4WV
C114-124 CK73HB1A104K CHIP C 0.10UF K
C125 CC73HCH1H220J CHIP C 22PF J
C126-130 CK73HB1A104K CHIP C 0.10UF K
C133,134
✽
CK73GB0J106M CHIP C 10UF M
C135 CK73HB1A104K CHIP C 0.10UF K
C138,139 CC73HCH1H100D CHIP C 10PF D
C142
✽
CE32BN0J221M CHIP EL 220UF 6.3WV
C143 CK73HB0J105K CHIP C 1.0UF K
C144 CK73HB1A104K CHIP C 0.10UF K
C149 CK73HB1A104K CHIP C 0.10UF K
C153 CK73HB0J105K CHIP C 1.0UF K
C154 CK73HB1A104K CHIP C 0.10UF K
C200 CC73HCH1H220J CHIP C 22PF J
DIGITAL I/O UNIT(X88-2020-11)
DVD UNIT (X37-1120-03) IN DVD MECHANISM
●
IC5, IC21, and IC60 in the DVD unit
(X37-1120-03) are not replaceable
components. In case of defective of
any of these ICs, replace the DVD
mechanism assembly.
E1 : KVT-729DVD E2 : KVT-729DVDY (Europe)
K : KVT-719DVD (North America) R1 : KVT-739DVD (Latin America)
X1 : KVT-739DVD (Australia) M1 : KVT-739DVD (Other Areas)

PARTS LIST
Indicates safety critical com po nents.
Ref. No. A
d
d
N
e
wParts No. Description Desti-
nation
E1 : KVT-729DVD E2 : KVT-729DVDY (Europe)
K : KVT-719DVD (North America) R1 : KVT-739DVD (Latin America)
X1 : KVT-739DVD (Australia) M1 : KVT-739DVD (Other Areas)
Ref. No. A
d
d
N
e
wParts No. Description Desti-
nation
KVT-719DVD/729DVD
/729DVDY/739DVD
110
C201 CK73HB1A104K CHIP C 0.10UF K
C202 CC73HCH1H220J CHIP C 22PF J
C203,204 CK73HB1A104K CHIP C 0.10UF K
C217-226 CK73HB1A104K CHIP C 0.10UF K
C227,228
✽
CK73GB0J106M CHIP C 10UF M
C230,231 CK73HB1H102K CHIP C 1000PF K
C233-236 CK73HB1A104K CHIP C 0.10UF K
C244
✽
CK73GB0J106M CHIP C 10UF M
C247 CK73HB1H102K CHIP C 1000PF K
C264 CK73HB1A104K CHIP C 0.10UF K
C275
✽
CK73GB0J106M CHIP C 10UF M
C309-312 CK73HB1A104K CHIP C 0.10UF K
C314,315
✽
CK73GB0J106M CHIP C 10UF M
C316-318 CK73HB1A104K CHIP C 0.10UF K
C322-324 CK73HB1A104K CHIP C 0.10UF K
C326,327
✽
CK73GB0J106M CHIP C 10UF M
C329 CC73HCH1H270J CHIP C 27PF J
C331
✽
CK73GB0J106M CHIP C 10UF M
C332 CK73HB1A104K CHIP C 0.10UF K
C336
✽
CK73GB0J106M CHIP C 10UF M
C337,338 CK73HB1H152K CHIP C 1500PF K
C340,341
✽
CC73HCH1H331J CHIP C 330PF J
C342 CK73HB1E103K CHIP C 0.010UF K
C349 CC73HCH1H020C CHIP C 2.0PF C
C351 CK73HB1A104K CHIP C 0.10UF K
C352
✽
CK73GB0J106M CHIP C 10UF M
C354-357 CK73HB1A104K CHIP C 0.10UF K
C358 CC73HCH1H020C CHIP C 2.0PF C
C360,361 CK73HB1A104K CHIP C 0.10UF K
C362
✽
CK73GB0J106M CHIP C 10UF M
C363 CK73HB1A104K CHIP C 0.10UF K
C367 CK73HB0J105K CHIP C 1.0UF K
C368 CK73HB1A104K CHIP C 0.10UF K
C375,376 CK73HB1A104K CHIP C 0.10UF K
C389 CK73HB1A104K CHIP C 0.10UF K
C392 CK73HB1A104K CHIP C 0.10UF K
C394,395 CK73HB1A104K CHIP C 0.10UF K
C400,401 CK73HB1A104K CHIP C 0.10UF K
C456 CK73EB1A106K CHIP C 10UF K
C460 CK73HB1A104K CHIP C 0.10UF K
C464 CK73HB1C473K CHIP C 0.047UF K
C468
✽
CK73GB0J106M CHIP C 10UF M
C470,471 CK73HB1E103K CHIP C 0.010UF K
C478 CK73HB1A104K CHIP C 0.10UF K
C482 CK73GB1H222K CHIP C 2200PF K
C700-713 CK73HB1H222K CHIP C 2200PF K
C715 CK73HB1A104K CHIP C 0.10UF K
C800 CK73HB1H222K CHIP C 2200PF K
C801,802 CK73HB1H102K CHIP C 1000PF K
C803,804 CK73HB1H222K CHIP C 2200PF K
C805 CK73HB1H102K CHIP C 1000PF K
CN101
✽
E41-2839-05 PIN ASSY
CN210 E41-2195-05 FLAT CABLE CONNECTOR
CN327 E41-2237-05 FLAT CABLE CONNECTOR
L101,102 L41-1005-33 SMALL FIXED INDUCTOR (10U)
L103,104 L92-0321-05 CHIP FERRITE
L200 L41-1005-33 SMALL FIXED INDUCTOR (10U)
L203-205 L41-1005-33 SMALL FIXED INDUCTOR (10U)
L212 L41-1005-33 SMALL FIXED INDUCTOR (10U)
L301,302 L41-1005-33 SMALL FIXED INDUCTOR (10U)
L303 L41-6805-33 SMALL FIXED INDUCTOR (68U)
L304-310 L41-1005-33 SMALL FIXED INDUCTOR (10U)
X100
✽
L77-2941-05
CRYSTAL RESONATOR (14.7456MHZ)
X202
✽
L77-2917-15
CRYSTAL RESONATOR (32.768KHZ)
CP104-109
RK74HB1J220J CHIP-COM 22 J 1/16W
CP117-127
RK74HB1J220J CHIP-COM 22 J 1/16W
CP128-134
RK74HB1J103J CHIP-COM 10K J 1/16W
CP135-138
RK74HB1J220J CHIP-COM 22 J 1/16W
CP139-142
RK74HB1J330J CHIP-COM 33 J 1/16W
CP143-146
RK74HB1J680J CHIP-COM 68 J 1/16W
CP147-154
RK74HB1J103J CHIP-COM 10K J 1/16W
CP155-160
RK74HB1J220J CHIP-COM 22 J 1/16W
CP200-203
RK74HB1J220J CHIP-COM 22 J 1/16W
CP204-207
RK74HB1J103J CHIP-COM 10K J 1/16W
R1,2 RK73HB1J473J CHIP R 47K J 1/16W
R3-5 RK73HB1J220J CHIP R 22 J 1/16W
R6 RK73HB1J473J CHIP R 47K J 1/16W
R7 RK73HB1J472J CHIP R 4.7K J 1/16W
R8 RK73HB1J473J CHIP R 47K J 1/16W
R9,10 RK73HB1J220J CHIP R 22 J 1/16W
R12 RK73HB1J000J CHIP R 0.0 J 1/16W
R13 RK73HB1J473J CHIP R 47K J 1/16W
R14 RK73HB1J561J CHIP R 560 J 1/16W
R15,16 RK73FB2B220J CHIP R 22 J 1/8W
R17,18 RK73HB1J153J CHIP R 15K J 1/16W
R24 RK73HB1J220J CHIP R 22 J 1/16W
R29 RK73HB1J473J CHIP R 47K J 1/16W
R30 RK73HB1J472J CHIP R 4.7K J 1/16W
R31 RK73HB1J473J CHIP R 47K J 1/16W
R33 RK73HB1J473J CHIP R 47K J 1/16W
R34-37 RK73FB2B270J CHIP R 27 J 1/8W
R104 RK73HB1J330J CHIP R 33 J 1/16W
R105 RK73HB1J103J CHIP R 10K J 1/16W
R107-109 RK73HB1J103J CHIP R 10K J 1/16W
R112 RK73HB1J222J CHIP R 2.2K J 1/16W
R115 RK73HB1J222J CHIP R 2.2K J 1/16W
R116 RK73HB1J103J CHIP R 10K J 1/16W
R118 RK73HB1J103J CHIP R 10K J 1/16W
R121 RK73HB1J222J CHIP R 2.2K J 1/16W
R123 RK73HB1J222J CHIP R 2.2K J 1/16W
R124 RK73HB1J473J CHIP R 47K J 1/16W
R126 RK73HB1J473J CHIP R 47K J 1/16W
R129 RK73HB1J222J CHIP R 2.2K J 1/16W
R130-132 RK73HB1J220J CHIP R 22 J 1/16W
R134 RK73HB1J220J CHIP R 22 J 1/16W
R137 RK73HB1J472J CHIP R 4.7K J 1/16W
R139 RK73HB1J105J CHIP R 1.0M J 1/16W
R140 RK73HB1J222J CHIP R 2.2K J 1/16W
R141,142 RK73FB2B220J CHIP R 22 J 1/8W
DIGITAL I/O UNIT(X88-2020-11)

PARTS LIST
Indicates safety critical com po nents.
Ref. No. A
d
d
N
e
wParts No. Description Desti-
nation Ref. No. A
d
d
N
e
wParts No. Description Desti-
nation
KVT-719DVD/729DVD
/729DVDY/739DVD
111
E1 : KVT-729DVD E2 : KVT-729DVDY (Europe)
K : KVT-719DVD (North America) R1 : KVT-739DVD (Latin America)
X1 : KVT-739DVD (Australia) M1 : KVT-739DVD (Other Areas)
R145,146 RK73HB1J153J CHIP R 15K J 1/16W
R147 RK73HB1J220J CHIP R 22 J 1/16W
R148 RK73HB1J473J CHIP R 47K J 1/16W
R149 RK73HB1J472J CHIP R 4.7K J 1/16W
R150 RK73HB1J220J CHIP R 22 J 1/16W
R153 RK73HB1J000J CHIP R 0.0 J 1/16W
R157-163 RK73HB1J220J CHIP R 22 J 1/16W
R164,165 RK73HB1J470J CHIP R 47 J 1/16W
R166-169 RK73HB1J220J CHIP R 22 J 1/16W
R170,171 RK73HB1J330J CHIP R 33 J 1/16W
R172,173 RK73HB1J680J CHIP R 68 J 1/16W
R174,175 RK73HB1J470J CHIP R 47 J 1/16W
R176 RK73HB1J220J CHIP R 22 J 1/16W
R177-192 RK73HB1J473J CHIP R 47K J 1/16W
R193-198 RK73HB1J220J CHIP R 22 J 1/16W
R199 RK73HB1J473J CHIP R 47K J 1/16W
R200 RK73HB1J330J CHIP R 33 J 1/16W
R201 RK73HB1J000J CHIP R 0.0 J 1/16W
R202 RK73HB1J106J CHIP R 10M J 1/16W
R203 RK73HB1J334J CHIP R 330K J 1/16W
R212,213 RK73HB1J100J CHIP R 10 J 1/16W
R219-221 RK73HB1J472J CHIP R 4.7K J 1/16W
R223 RK73HB1J473J CHIP R 47K J 1/16W
R227 RK73HB1J100J CHIP R 10 J 1/16W
R248-250 RK73HB1J473J CHIP R 47K J 1/16W
R255 RK73HH1J104D CHIP R 100K D 1/16W
R258-260 RK73HB1J473J CHIP R 47K J 1/16W
R265-271 RK73HB1J472J CHIP R 4.7K J 1/16W
R273 RK73HB1J000J CHIP R 0.0 J 1/16W
R276 RK73HB1J000J CHIP R 0.0 J 1/16W
R284-287 RK73HB1J473J CHIP R 47K J 1/16W
R291 RK73HB1J330J CHIP R 33 J 1/16W
R292-295 RK73HB1J473J CHIP R 47K J 1/16W
R296 RK73HB1J000J CHIP R 0.0 J 1/16W
R297 RK73HB1J103J CHIP R 10K J 1/16W
R304,305 RK73HB1J103J CHIP R 10K J 1/16W
R308 RK73HB1J103J CHIP R 10K J 1/16W
R310 RK73HB1J103J CHIP R 10K J 1/16W
R316 RK73HB1J473J CHIP R 47K J 1/16W
R320-322 RK73HB1J103J CHIP R 10K J 1/16W
R324,325 RK73HB1J103J CHIP R 10K J 1/16W
R326,327 RK73HB1J822J CHIP R 8.2K J 1/16W
R328,329 RK73HB1J472J CHIP R 4.7K J 1/16W
R332,333 RK73HB1J151J CHIP R 150 J 1/16W
R343 RK73HB1J101J CHIP R 100 J 1/16W
R344 RK73HB1J680J CHIP R 68 J 1/16W
R345 RK73HB1J152J CHIP R 1.5K J 1/16W
R347
✽
RK73HH1J100D CHIP R 10 D 1/16W
R348 RK73HH1J131D CHIP R 130 D 1/16W
R351
✽
RK73HH1J100D CHIP R 10 D 1/16W
R352 RK73HH1J131D CHIP R 130 D 1/16W
R356
✽
RK73HH1J100D CHIP R 10 D 1/16W
R357 RK73HH1J131D CHIP R 130 D 1/16W
R367 RK73HB1J101J CHIP R 100 J 1/16W
R368 RK73HB1J272J CHIP R 2.7K J 1/16W
R369 RK73HB1J101J CHIP R 100 J 1/16W
R370 RK73HB1J272J CHIP R 2.7K J 1/16W
R371 RK73HB1J101J CHIP R 100 J 1/16W
R372 RK73HB1J272J CHIP R 2.7K J 1/16W
R373 RK73HB1J103J CHIP R 10K J 1/16W
R376 RK73HB1J222J CHIP R 2.2K J 1/16W
R438 RK73HB1J103J CHIP R 10K J 1/16W
R440 RK73HB1J103J CHIP R 10K J 1/16W
R445 RK73HB1J473J CHIP R 47K J 1/16W
R446 RK73HB1J101J CHIP R 100 J 1/16W
R447 RK73GB2A515J CHIP R 5.1M J 1/10W
R452 RK73HB1J000J CHIP R 0.0 J 1/16W
R455 RK73HB1J000J CHIP R 0.0 J 1/16W
R458,459 RK73HB1J473J CHIP R 47K J 1/16W
R461 RK73HB1J473J CHIP R 47K J 1/16W
R462 RK73HB1J561J CHIP R 560 J 1/16W
R463-465 RK73HB1J000J CHIP R 0.0 J 1/16W
R467 RK73HB1J000J CHIP R 0.0 J 1/16W
R472,473 RK73HB1J000J CHIP R 0.0 J 1/16W
R478 RK73HB1J000J CHIP R 0.0 J 1/16W
R481,482 RK73HB1J000J CHIP R 0.0 J 1/16W
R485-487 RK73HB1J000J CHIP R 0.0 J 1/16W
R494 RK73HB1J000J CHIP R 0.0 J 1/16W
R496 RK73HB1J000J CHIP R 0.0 J 1/16W
R498 RK73HB1J000J CHIP R 0.0 J 1/16W
R500 RK73HB1J000J CHIP R 0.0 J 1/16W
R502,503 RK73HB1J000J CHIP R 0.0 J 1/16W
R505-507 RK73HB1J000J CHIP R 0.0 J 1/16W
R509 RK73HB1J000J CHIP R 0.0 J 1/16W
R522 RK73HB1J680J CHIP R 68 J 1/16W
R523 RK73HB1J000J CHIP R 0.0 J 1/16W
R524 RK73HB1J330J CHIP R 33 J 1/16W
R527 RK73HB1J000J CHIP R 0.0 J 1/16W
R701 RK73HB1J000J CHIP R 0.0 J 1/16W
D102,103
✽
AVRL1613R3FTA VARISTOR
D104,105 IMSA-6802-E SURGE ABSORBER
D300 DA204U DIODE
IC100 MIC2005-05YM6 MOS-IC
IC104 TC7S86FU-F MOS-IC
IC105 SI-3018KM ANALOGUE IC
IC106 - MICROPROCESSOR IC
IC108 TC7SH04FU-F MOS-IC
IC200 TC7WHU04FU-F MOS-IC
IC201 TC74LCX245FT MOS-IC
IC202,203
✽
K4S561632HUI7 DRAM IC
IC205 TC74LCX245FT MOS-IC
IC207
✽
341S1962 MICROPROCESSOR IC
IC211
✽
DW128F70NF9W7 ROM IC
IC301
✽
WM8728SEDSR ANALOGUE IC
IC302
✽
BH7240AKV MOS-IC
IC305 NJM2100V-ZB ANALOGUE IC
IC309
✽
LC74735NW8A20 MOS-IC
IC316 TC7WHU04FU-F MOS-IC
IC322
✽
L4032VN8IPINO MOS-IC (48PIN 32V)
DIGITAL I/O UNIT(X88-2020-11)
●
IC106 in the DIGITAL I/O UNIT
(X88-2020-11) is not a replaceable
component. In case of defective
of this IC, replace the entire unit
(X88-2020-11).

PARTS LIST
Indicates safety critical com po nents.
Ref. No. A
d
d
N
e
wParts No. Description Desti-
nation
E1 : KVT-729DVD E2 : KVT-729DVDY (Europe)
K : KVT-719DVD (North America) R1 : KVT-739DVD (Latin America)
X1 : KVT-739DVD (Australia) M1 : KVT-739DVD (Other Areas)
Ref. No. A
d
d
N
e
wParts No. Description Desti-
nation
KVT-719DVD/729DVD
/729DVDY/739DVD
112
IC332 NJM2864F05-ZB ANALOGUE IC
IC336,337 TC7WH14FU-F MOS-IC
Q302-304 2SA1576A TRANSISTOR
1 1A
✽
A10-5331-41 CHASSIS
2 2B A10-5332-41 CHASSIS
3 1A
✽
A10-5333-31 CHASSIS
4 3A
✽
A10-5334-22 CHASSIS
7 1B
✽
D10-4918-12 ARM
8 1B
✽
D10-4919-12 ARM
9 1B
✽
D10-4920-02 LEVER
10 1B
✽
D10-4921-02 LEVER
12 2B
✽
D10-4922-12 SLIDER
13 2A
✽
D10-4923-12 ARM
14 2B
✽
D10-4924-13 ARM
15 2B
✽
D10-4925-12 ARM
25 2B
✽
D10-4938-04 SLIDER ASSY
27 2A
✽
D10-4945-04 LEVER
28 2B
✽
D12-0639-02 CAM
31 2B
✽
D13-2402-04 GEAR
32 2B
✽
D13-2403-04 GEAR
33 2B
✽
D13-2404-04 GEAR
34 2B
✽
D13-2405-04 GEAR
35 2B
✽
D13-2406-04 GEAR
36 2B
✽
D13-2407-04 GEAR
40 2A D13-2413-04 GEAR
41 2A D13-2415-04 GEAR
42 2A D13-2416-04 GEAR
43 1B
✽
D14-1013-14 ROLLER
53 1B
✽
D21-2487-04 SHAFT
54 2A
✽
D39-0269-05 DAMPER
55 2A
✽
D39-0270-05 DAMPER
60 3A
✽
F09-2825-23 SHEET
65 2B
✽
G01-3298-04 EXTENSION SPRING
66 1B
✽
G01-3299-04 EXTENSION SPRING
67 2A
✽
G01-3300-14 TORSION COIL SPRING
68 1B
✽
G01-4601-04 EXTENSION SPRING
69 1B
✽
G01-4602-04 EXTENSION SPRING
70 1B
✽
G01-4604-04 TORSION COIL SPRING
74 2B
✽
G01-4609-14 TORSION COIL SPRING
75 1B
✽
G02-1550-03 FLAT SPRING
79 2A
✽
J22-0475-11 MOUNTING HARDWARE
80 3B
✽
J22-0476-01 MOUNTING HARDWARE
A 1A
✽
N09-6382-05 MACHINE SCREW (M1.7X2.0)
B 3B
✽
N09-6408-15
TAPTITE SCREW (1.7X4 P-TITE)
C 1B
✽
N09-6426-15
MACHINE SCREW (LOAD ARM SCREW
D 3A N09-6104-05
MACHINE SCREW (2X10 S-TITE)
93 2A
✽
T99-0471-05 MAGNET
96 1B
✽
X94-2080-00 ROLLER ASSY
98 2A
✽
X94-2060-00
TRAVERSE ASSY (PICKUP,SPINDLE)
VM1 2A
✽
X94-2070-00 MOTOR ASSY (LOADING)
DVD MECHANISM ASSY (X92-5920-00) (DVS-8530V)
DIGITAL I/O UNIT(X88-2020-11)
113
KVT-719DVD/729DVD
/729DVDY/739DVD
Monitor section
Picture size
........................ 6.97 inches (diagonal) wide, 154.1 x 87.1mm
Display system ............................ Transparent TN LCD panel
Drive system ...................................TFT active matrix system
Number of pixels .................... 336,960 (480H x 234V x RGB)
Effective pixels ............................................................99.99%
Pixel arrangement .........................RGB striped arrangement
Back lighting ........................ Cold Cathode Fluorescent Tube
DVD section
D/A Converter ................................................................. 24bit
Decoder .......Linear PCM/ Dolby Digital/ dts/MP3/ WMA/AAC
Wow & Flutter ...................................Below Measurable Limit
Frequency Response
Sampling frequency; 96kHz .......................... 20~44,000Hz
Sampling frequency; 48kHz .......................... 20~22,000Hz
Sampling frequency; 44.1kHz ....................... 20~20,000Hz
Total Harmonic Distortion ................................. 0.01% (1kHz)
S/N Ratio ............................................98dB (DVD-Video 96k)
Dynamic Range ..................................98dB (DVD-Video 96k)
DISC Format ........................ DVD-Video/ VIDEO-CD/ CD-DA
Sampling frequency .......................... 44.1kHz/ 48kHz/ 96kHz
Quantifying bit number ...................................... 16/ 20/ 24 bit
USB IF section
USB Standard .................................................... USB 1.1/ 2.0
File System ............................................................FAT 16/ 32
Maximum Power Supply Current ................................ 500mA
D/A Converter .................................................................24Bit
Decoder .......................................................MP3/ WMA/ AAC
FM tuner section
Frequency Range
K,R .............................................87.9~107.9MHz (200kHz)
M,X ....87.5~108.0MHz (50kHz), 87.9~107.9MHz (200kHz)
E ...................................................87.5~108.0MHz (50kHz)
Usable Sensitivity (S/N : 26dB)
K,R,M,X ................................................ 9.3dBf (0.8µv/75Ω)
E ......................................................................... 0.7µv/75Ω
Quieting Sensitivity (S/N : 46dB) ...........15.2dBf (1.6µV/75Ω)
Frequency Response (± 3.0dB) ......................... 30Hz~15kHz
S/N
K,R,M,X ........................................................70dB (MONO)
E ...................................................................65dB (MONO)
Selectivity (±400kHz) .................................................. ≥80dB
Stereo Separation
K,R,M,X ...........................................................40dB (1kHz)
E ......................................................................35dB (1kHz)
AM tuner section : K,R,X type
Frequency Range
K,R ................................................... 530~1700kHz(10kHz)
X ................ 531~11611kHz (9kHz), 530~1700kHz (10kHz)
Usable Sensitivity ........................................................ 28dBµ
LW Tuner section : M,E type
Frequency Range ................................... 153~281kHz (9kHz)
Usable Sensitivity
M .............................................................................. 28dBµ
E ................................................................................. 45µV
MW Tuner section : M,E type
Frequency Range
M ................. 531~1611kHz (9kHz), 530~1700kHz (10kHz)
E ..................................................531kHz~1611kHz (9kHz)
Usable Sensitivity .............................................28dBµ (25µV)
Video section
Color system of external video input
K,R ............................................................................ NTSC
M,X,E ................................................................NTSC/ PAL
External video input level (RCA jacks) .................. 1Vp-p/75Ω
External audio max input level (RCA jacks) ..............2V/25kΩ
Analog RGB input .............................................. 0.7Vp-p/75Ω
Video Output level (RCA jacks) ............................ 1Vp-p/75Ω
Audio Output level (RCA jacks) .............................1.2V/10kΩ
Audio section
Maximum Power (Front & Rear) ................................50W x 4
Full Bandwidth Power (Front & Rear)
K,R (4Ω, 14.4V, 1% THD) ..................................... 22W × 4
M,X (at less than 1% THD) ....................................22W x 4
E (PWR DIN45324, +B=14.4V) ..............................30W x 4
SPECIFICATIONS

KVT-719DVD/729DVD
/729DVDY/739DVD
Preout level ...............................................................2V/10kΩ
Preout impedance ...................................................... ≤600Ω
Speaker impedance ....................................................... 4~8Ω
Tone action
Bass ................................................................. 100Hz±8dB
Middle ................................................................ 1kHz±8dB
Treble ............................................................... 10kHz±8dB
External SW : M,X type
Maximum Power Supply Current ................................ 500mA
General
Operating voltage ..........................14.4V (11~16V allowable)
Current Consumption ...................................................... 15A
Installation Size (W × H × D)
Main Unit
.............. 182 × 53 × 161 mm, 7-3/16 × 2-1/16 × 6-3/8 inch
Hideaway unit
.................... 228 x 40 x176 mm, 9 x 1-9/16 × 6-15/16 inch
Operational Temperature Range ...................... -10°C~+60°C
Storage Temperature Range ............................ -20°C~+85°C
Weight
Main unit ....................................................... 2.2kg (4.9lbs)
Hideaway unit ................................................ 1.1kg (2.4lbs)
SPECIFICATIONS
DANGER:
Please do not look at the laser beam directly during
re pair or operation check.
KENWOOD follows a policy of continuous advancements
in development. For this reason specifications may be
changed without notice.
Although the effective pixels for the liquid crystal panel is
given as 99.99% or more, 0.01% of pixels may not light or
may light incorrectly.
US and foreign patents licensed from Dolby Laboratories.