A4_PVL14_Manual_AP PVL14 Letter Manual AP
2019-04-25
: Letter Pvl14 Manual Ap-Pvl14 Letter_PVL14_Manual_AP-PVL14 4postlifts manuals s
Open the PDF directly: View PDF
.
Page Count: 63

Replace This With Cover PDF

Revised: 8/27/2018
Read this entire manual before operation begins.
Record below the following information which is located on the serial number
data plate.
Serial No.
Model No.
Date of Installation

Contents
General Information. . . . . . . . . . 9
Product Identifi cation . . . . . . . . .12
Packing / Transport / Storage . . . . .13
Product Description . . . . . . . . . .15
Technical Specifi cation. . . . . . . . .17
Safety . . . . . . . . . . . . . . . .23
Installation . . . . . . . . . . . . . .27
Operation And Use . . . . . . . . . .39
Maintenance . . . . . . . . . . . . .42
Troubleshooting. . . . . . . . . . . .44
Additional Information. . . . . . . . .45
Part List . . . . . . . . . . . . . . .53
Warranty . . . . . . . . . . . . . . .63

4
PVL14
Operations And Maintenance Manual: 4-Post Lifts
Please read this manual in its entirety before installing or operating
your lift. By proceeding, you agree that you fully understand the contents
of this manual and the installation, operation, and maintenance instructions
contained within. Please deliver this manual to the lift owner and/or operator
along with all other documentation provided with the lift. Failure to operate this
equipment as intended may cause injury or death.
Check for any freight damages. The shipment should be thoroughly inspected
as soon as it is received. The signed bill of lading is acknowledgement by the
carrier of receipt in good condition of shipment covered by your invoice. If any of
the goods called for on your bill of lading are shorted or damaged, do not accept
to unload until the carrier makes a notation on the freight bill of the missing
or damaged goods. Do this for your own protection. Check the contents of the
accessory and hardware boxes to make sure no parts are missing.
Important Notice And Operating Conditions
• This lift is not intended for outdoor use. It is intended for indoor installation
only, with an operating temperature range of 41 – 104 °F (5 – 40 °C).
• Concrete fl ooring must be 4 ¼” minimum thicknesses with 3,000 psi. Do
not install on asphalt or other similar unstable surface type.
• Check ceiling height and electrical requirements as described in this
manual.
• Reference ANSI/ALI ALIS, Safety Requirements for Installation and Service
of Automotive Lifts.
• Consult a qualifi ed expert to address all seismic load concerns and other
local or state requirements.
• Atlas Automotive Equipment and its distributors will assume no liability for
loss or damage of any kind, express or implied, resulting from improper
installation, operation or maintenance of this lift.

5
PVL14
Owner, Operator, & Employer Responsibilities:
• Shall ensure that lift operators are qualifi ed and that they are trained in
the safe use and operation of the lift using the manufacturer’s operating
instructions; ALI/SM 93-1, ALI Lifting it Right safety manual; ALI/ST-90
ALI Safety Tips card; ANSI/ALI ALOIM-2008, American National Standard
for Automotive Lifts - Safety Requirements for Operation, Inspection and
Maintenance; ALI/WL Series, ALI Uniform Warning Label Decals/Placards;
and in the case of frame engaging lifts, ALI/LP-GUIDE, Vehicle Lifting
Points/Quick Reference Guide for Frame Engaging Lifts.
• Shall establish procedures to periodically inspect the lift in accordance
with the lift manufacturer’s instructions or ANSI/ALI ALOIM-2008,
American National Standard for Automotive Lifts - Safety Requirements
for Operation, Inspection and Maintenance; and the Employer shall ensure
that the lift inspectors are qualifi ed and that they are adequately trained in
the inspection of the lift.
• Shall establish procedures to periodically maintain the lift in accordance
with the lift manufacturer’s instructions or ANSI/ALI ALOIM-2008,
American National Standard for Automotive Lifts - Safety Requirements
for Operation, Inspection and Maintenance; and the Employer shall
ensure that the lift maintenance personnel are qualifi ed and that they are
adequately trained in the maintenance of the lift.
• Shall maintain the periodic inspection and maintenance records
recommended by the lift manufacturer’s instructions or ANSI/ALI
ALOIM-2008, American National Standard for Automotive Lifts - Safety
Requirements for Operation, Inspection and Maintenance.
• Shall display the lift manufacturer’s operating instructions; ALI/SM 93-
1, ALI Lifting it Right safety manual; ALI/ST-90 ALI Safety Tips card;
ANSI/ALI ALOIM-2008, American National Standard for Automotive Lifts
- Safety Requirements for Operation, Inspection and Maintenance; ALI/
WL Series, ALI Uniform Warning Label Decals/Placards; and in the case of
frame engaging lifts, ALI/LP- GUIDE, Vehicle Lifting Points/Quick Reference
Guide for Frame Engaging Lifts in a conspicuous location in the lift area
convenient to the operator.
• Shall provide necessary lockout/tagout means for energy sources per ANSI
Z244.1-1982 (R1993), Safety Requirements for the Lockout/Tagout of
Energy Sources, before beginning any lift repairs and maintenance.
• Shall not modify the lift without the prior written consent of the
manufacturer.

6
PVL14
IMPORTANT SAFETY INSTRUCTIONS
Please read carefully
• Read all instructions and warnings thoroughly before servicing, or
maintaining the lift.
• Inspect the lift daily. Never operate if there are broken or damaged parts
or if the lift is malfunctioning.
• Do not operate if there are damaged cords or if any piece of the equipment
has been dropped or damaged until it has been examined by a qualifi ed
professional.
• Do not touch hot parts as burns can occur.
• Keep area well lit at all times and do not use in damp or wet locations.
• Do not let any cords come in contact with hot manifolds or moving blades.
• A cord with a current rating equal to or more than that of the equipment
should be used if an extension cord is necessary. Cords rated for less
current than the equipment may overhead. Be careful to avoid putting in
an area where it could be tripped over or interfered with.
• Always unplug equipment when not in use. Do not attempt to grab the
cord, grasp plug to disconnect.
• Allow equipment to cool completely before storing away. Loop cord loosely
around the equipment when storing.
• To reduce the risk of fi re, never operate near open containers of fl ammable
liquids (for example, gasoline).
• Adequate ventilation should be provided when working on or operating
internal combustion engines.
• Always keep loose clothing, hair, fi ngers, and all parts of the body away
from any moving parts.
• To reduce the risk of electric shock, never use on wet surfaces or expose to
rain.
• Always wear safety glasses. Everyday glasses are not safety glasses and do
not provide adequate protection.
• Use only as described in this manual – use only Atlas Automotive
Equipment optional accessories and attachments.
• Never attempt to overload the lift. The rated capacity is shown on the
identifi cation label.
• Never modify the lift or attempt to override the operating controls.
• Do not attempt to raise a vehicle until installation is completed per
instructions in this manual.

7
PVL14
• Only trained and qualifi ed personnel are to operate, maintain, service or
repair the lift.
• Keep hands and feet clear of any moving parts and avoid pinch points.
• Always use all four arms to raise and support the vehicle.
• Never work under or near the lift unless the mechanical safety locks are
securely engaged.
• Always keep the work area free of spills and debris.
• Never permit anyone in a vehicle or on the lift when it is either being raised
or lowered.
• Always check for obstructions before lowering the lift.
• Never remove hydraulic fi ttings while the lift is under pressure.
• Clear the work area immediately if a vehicle is in danger of falling.
• Do not hit or drive over arms or adapters. Always provide an unobstructed
entrance between columns prior to loading vehicle onto the lift.
• Always ensure that the lift is grounded while in use to protect the operator
from electric shock.
• Disconnect power unit before performing any electrical repairs.
• Avoid rocking a vehicle while it is on the lift.
• Always use safety and/or support stands when removing or installing heavy
vehicle components.
• Never remove or tamper with safety components.
• Use common sense and always stay alert.
• SAVE THESE INSTRUCTIONS
Record the following information which can be located on the serial
number data plate: Serial No, Model No, and Date of Installation.
The Following Are Included With Your Lift:
• ALI/SM Lifting it Right
• ALI/ST Safety Tips
• ALI/ALOIM
• ALI/ALIS
• ALI/LPG Lifting Point Guide
• Attachment/accessory Notice labels

8
PVL14
Printing Characters And Symbols
Throughout this manual, the following symbols and printing characters are used
to facilitate reading:
Indicates the operations which need proper care
Indicates prohibition
Indicates a possibility of danger for the operators
Indicates the direction of access for motor vehicles to the lift
BOLD
TYPE Important information
WARNING: before operating the lift and carrying out any
adjustment, read carefully chapter 7 “installation” where all
proper operations for a better functioning of the lift are shown.

General Information 9
PVL14
General Information
This chapter contains warning instructions to operate the lift properly and
prevent injury to operators or objects. This manual has been written to be used
by shop technicians in charge of the lift (operator) and routine maintenance
technician (maintenance operator). The operating instructions are considered to
be an integral part of the machine and must remain with it for its whole useful
life.
Read every section of this manual carefully before operating the lift and
unpacking it since it gives helpful information about:
• safety of people
• safety of the lift
• safety of lifted vehicles
The company is not liable for possible problems, damage, accidents, etc.
resulting from failure to follow the instructions contained in this manual.
Only skilled technicians of AUTHORISED DEALERS or SERVICE CENTRES
AUTHORISED by the manufacturer shall be allowed to carry out lifting, transport,
assembling, installation, adjustment, calibration, settings, extraordinary
maintenance, repairs, overhauling and dismantling of the lift.
The manufacturer is not responsible for possible damage to people,
vehicles or objects if said operations are carried out by unauthorized
personnel or the lift is improperly used.
Any use of the machine made by operators who are not familiar with the
instructions and procedures contained herein shall be forbidden.
1.1 Manual Keeping
For a proper use of this manual, the following is recommended:
• keep the manual near the lift, in an easily accessible place.
• keep the manual in an area protected from the damp.
• use this manual properly without damaging it.
• Any use of the machine made by operators who are not familiar with the
instructions and procedures contained herein shall be forbidden.

General Information 10
PVL14
This manual is an integral part of the lift: it shall be given to the new owner if
and when the lift is resold.
1.2 Obligation In Case Of Malfunction
In case of machine malfunction, follow the instructions
contained in the following chapters.
1.3 Cautions For The Safety Of The Operator
Operators must not be under the infl uence of sedatives, drugs or alcohol when
operating the machine.
Before operating the lift, operators must be familiar with
the position and function of all controls, as well as with the
machine features shown in the chapter “Operation and use”
1.4 Warnings
Unauthorized changes and/or modifi cations to the machine
relieve the manufacturer of any liability for possible damages
to objects or people. Do not remove or make inoperative the
safety devices, this would cause a violation of safety at work
laws and regulations.
Any other use which differs from that provided for by the
manufacturer of the machine is strictly forbidden.
The use of non genuine parts may cause damage to people or
objects

General Information 11
PVL14
Declaration Of Warranty And Limitation Of Liability
The manufacturer has paid proper attention to the preparation of this manual.
However, nothing contained herein modifi es or alters, in any way, the terms
and conditions of manufacturer agreement by which this lift was acquired, nor
increase, in any way, manufacturer’s liability to the customer.
To The Reader
Every effort has been made to ensure that the information contained in this
manual is correct, complete and up-to date. The manufacturer is not liable for
any mistakes made when drawing up this manual and reserves the right to make
any changes due the development of the product, at any time.

Product Identification 12
PVL14
Product Identifi cation
The identifi cation data of the machine are shown in the serial plate placed on the
power side column.
The removal of this serial plate is strictly forbidden.
Machines may be updated or slightly modifi ed from an aesthetic point of view
and, as a consequence, they may present different features from these shown,
this without prejudicing what has been described herein.
2.1 Warranty Certifi cate
The warranty is valid for a period of 12 months starting from the date of the
purchase invoice.
The warranty will come immediately to an end when unauthorized modifi cations
to the machine or parts of it are carried out.
The presence of defects in workmanship must be verifi ed by the Manufacturer’s
personnel in charge.
2.2 Technical Servicing
For all servicing and maintenance operations not specifi ed or shown in these
instructions, contact your Dealer where the machine has been bought or the
Manufacturer’s Commercial Department.
Only skilled personnel who are familiar with the lift and this manual shall
be allowed to carry out packing, lifting, handling, transport and unpacking
operations.

Packing / Transport / Storage 13
PVL14
Packing / Transport / Storage
3.1 Packing
The packing of the lift is shown in the fi gure 1: N. 1 base unit packed in a steel
frame, wrapped up in non-scratch material, and N.1 package of power unit.
The package weight is about 2735 lbs.
If requested, optional accessories are available to satisfy each customer’s
requirements.
Figure 1 - Package
3.2 Lifting And Handling
When loading/unloading or transporting the equipment to the site, be sure to use
suitable loading (e.g. cranes, trucks) and hoisting means. Be sure also to hoist
and transport the components securely so that they cannot drop, taking into
consideration the package’s size, weight and centre of gravity and it’s fragile parts.

Packing / Transport / Storage 14
PVL14
3.3 Storage And Stacking Of Packages
Packages must be stored in a covered place, out of direct sunlight and in low
humidity, at a temperature between -10°C and +40°C.
Stacking is not recommended: the package’s narrow base, as well as its
considerable weight and size make it diffi cult and hazardous.
3.4 Delivery And Check Of Packages
When the lift is delivered, check for possible damages due to transport and
storage; verify that what is specifi ed in the manufacturer’s confi rmation of order
is included. In case of damage in transit, the customer must immediately inform
the carrier of the problem.
Packages must be opened paying attention not to cause damage to people (keep
a safe distance when opening straps) and parts of the lift (be careful the objects
do not drop from the package when opening).

Product Description 15
PVL14
Product Description
Lift Description (Ref. Figure 2)
The lift is suitable for lifting motor vehicles having maximum weight as described
in the nameplate on the power side column of the lift. All mechanical parts have
been built in steel plate to make the frame stiff and strong while keeping a low
weight. The electro hydraulic operation is described in detail in chapter 8.
Figure 2 – Lift
This chapter describes the lift’s principal elements, allowing the user to be
familiar with the machine.
As shown in fi gure 2, the lift is composed of four columns: N.1 power-side
column (1), N.3 off-side columns (2), two platforms: the power-side platform
(3) and the off-side platform (4), and two transverse beams (5), anchored to the
ground by means of the column base plates.

Product Description 16
PVL14
Raising motion is carried out by pushing the lifting button on the power unit (6)
to operate a power unit delivering the hydraulic fl uid to cylinders to act on cable
lifting system.
Lowering motion is controlled by pushing the lowering lever on the power unit
and carried out under the weight of the load lifted.
The automatic mechanical back-up safety (7) holds on the lift in the elevated
position, can be released by pushing the lever of the control valve (8). The slack
cable safety (9) can hold on the lift in event of cable slackening and/or failure.

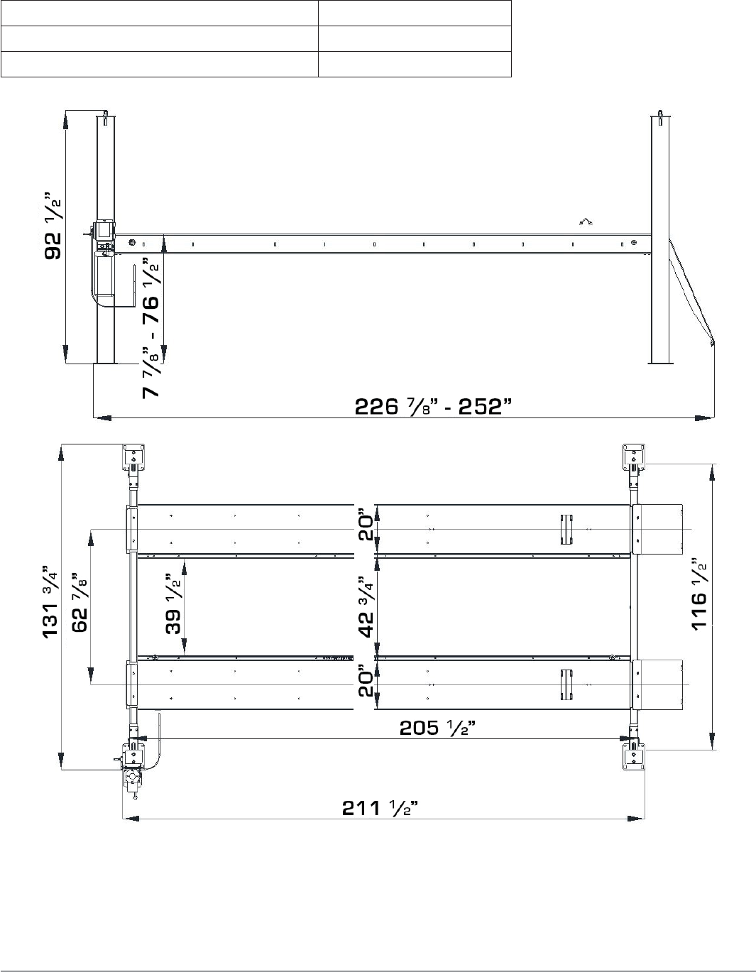
Technical Specification 17
PVL14
Technical Specifi cation
5.1 Size And Main Features (Ref. Figure 3)
LIFT CAPACITY 6400kg (14,000lbs)
Maximum raised height 76 1/2” (2000mm)
Runway length 205 1/2” (5219mm)
Runway width 20” (510mm)
Free width between runways 42 3/4” (1086mm)
Width between two columns 116 3/8” (2955mm)
Max. overall length 252” (6400mm)
Overall height 92 1/2” (2349mm)
Overall width 131 3/4” (3345mm)
Raised time 66s
Noise level 80 dB(A)/1m
Rated pneumatic pressure 6bar – 8bar
Working temperature 5 °C - 40 °C
Average weight of package 2670lbs
5.2 Electric Motor
Voltage 208V-240V/50Hz/60Hz/1Ph
Power 3HP
N° Poles 2
Speed 2880/3450 rpm
Motor enclosure type B14
Insulation class IP 54
Motor connection must be carried out referring to the attached wiring diagrams
(fi g.6). The motor direction of rotation is shown in the label placed on the motor.
Before use of the lift, make sure to check if the motor specifi cation shown in the
nameplate of the motor conforms to the local electric supply.

Technical Specification 18
PVL14
5.3 Pump
Type Gear
Flow rate 2.5 cm3/g
Continuous working pressure 160 bar
Figure 3 – Lift Layout
NOTE: You will need at least 9’ of clearance from the opposite end of the
power unit end of the lift and 6’ at the power unit end.

Technical Specification 19
PVL14
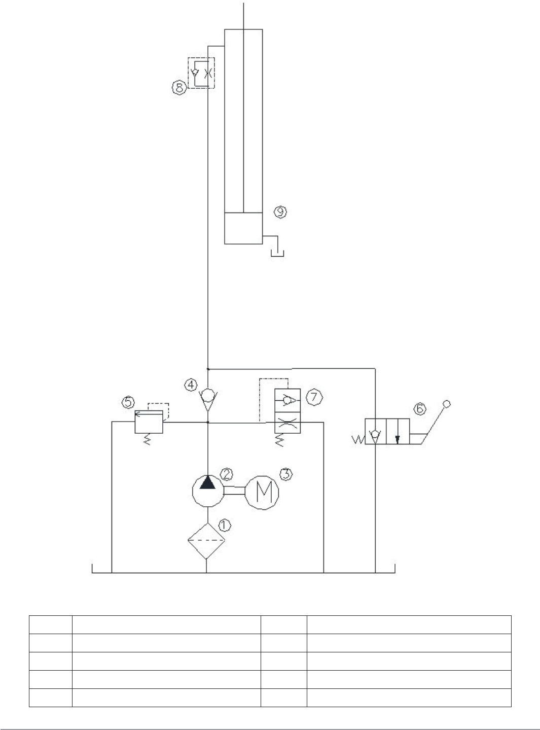
5.4 Hydraulic Power Unit
The hydraulic unit is equipped with:
Figure 4 – Hydraulic Power Unit
5.5 Oil
Use wear proof oil for hydraulic drive, in conformity with ISO 6743/4 rules (HM
class). The oil with features similar to those shown in the table is recommended.
Test standards Features Value
ASTM D 1298 Density 20°C 0.8 kg/l
ASTM D 445 Viscosity 40°C 32 cSt
ASTM D 445 Viscosity 100°C 5.43 cSt
ASTM D 2270 Viscosity index 104 N°
ASTM D 97 Pour point ~ 30 °C
ASTM D 92 Flash point 215 °C
ASTM D 644 Neutralization number 0.5 mg KOH/g
Change hydraulic oil at 1 year intervals

Technical Specification 20
PVL14
Figure 5 -Hydraulic Plan
1 Oil fi lter 6 Manual lowering valve
2 Gear pump 7 Startup valve
3 Motor 8 Flow restrictor
4 Non return valve 9 Hydraulic cylinder
5 Pressure overload valve

Technical Specification 21
PVL14
Figure 6 – Electrical Diagram (220V/50Hz/60Hz/1Ph)

Technical Specification 22
PVL14
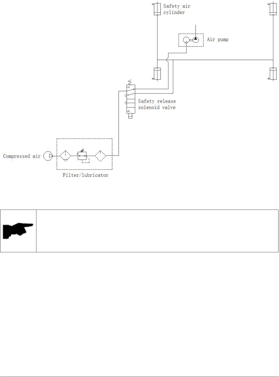
Figure 7 – Pneumatic Plan
Filter/regulator must be equipped on the air circuit and the
air pressure is to be set at 6-8bar.
Filter/regulator is not supplied by the manufacturer if no
special order.

Safety 23
PVL14
Safety
Read this chapter carefully and completely because it contains important
information for the safety of the operator and the person in charge of
maintenance.
The lift has been designed and built for lifting vehicles and
making them stand above level in a closed area. any other
use is forbidden.
The manufacturer is not liable for possible damages to
people, vehicles or objects resulting from an improper or
unauthorized use of the lift.
For operator and people safety, a safety area at least 1m free away from the lift
must be vacated during lifting and lowering. The lift must be operated only from
the operator’s control site in this safety area.
Operator’s presence under the vehicle, during working, is only admitted when
the vehicle is lifted and runways are not running.
Never use the lift when safety devices are off-line. People,
the lift and the vehicles lifted can be seriously damaged if
these instructions are not followed.
6.1 General Warnings
The operator and the person in charge of maintenance must follow accident-
prevention laws and rules in force in the country where the lift is installed
They also must carry out the following:
• neither remove nor disconnect hydraulic, electric or other safety devices;
• carefully follow the safety indications applied on the machine and included
in the manual;
• observe the safety area during lifting;
• be sure the motor of the vehicle is off, the gear engaged and the parking
brake put on;

Safety 24
PVL14
• be sure only authorized vehicles are lifted without exceeding the maximum
lifting capacity;
• Verify that no one is on the runways during lifting or standing.
Any use of the lift other than that herein specifi ed can cause
serious accidents to people in close proximity of the machine.
6.2 Risks For People
All risks the personnel could run, due to an improper use of the lift, are
described in this section.
6.3 Personnel Crushing Risks
During lowering of runways and vehicles, personnel must not be within the
area covered by the lowering trajectory. The operator must be sure no one is in
danger before operating the lift.
Fig. 8a Fig. 8b Fig. 8c
6.5 Risk Of The Vehicle Falling From The Lift
Vehicle falling from the lift can be caused when the vehicle is improperly placed
on platforms, and when its dimensions are incompatible with the lift or by
excessive movement of the vehicle.
In this case, keep immediately away from the working area.
Fig. 9a Fig. 9b Fig. 9c

Safety 25
PVL14
6.6 Slipping Risks
The risk of slipping can be caused by oil or dirt on the fl oor near the lift.
Keep the area under and around the lift clean. Remove all oil spills.
6.7 Electrocution Risks
Avoid use of water, steam, and solvent, varnish jets in the
lift area where electric cables are placed and, in particular,
next to the electric panel.
6.8 Risks Resulting From Improper Lighting
Make sure all areas next to the lift are well and uniformly lit, according to local
regulations.
6.9 Risks Of Breaking Component During Operation
Materials and procedures, suitable for the designed parameters of the
lift, have been used by the manufacturer to build a safe and reliable
product. Operate the lift only for the use it has been designed for and
follow the maintenance schedule shown in the chapter “Maintenance”.
6.10 Risks For Unauthorized Uses
The presence of unauthorized persons next to the lift and on the
platforms is strictly forbidden during lifting as well as when the
vehicle has been already lifted
Fig. 10
Fig. 11
Fig. 12

Safety 26
PVL14
6.11 Risks During Vehicle Lifting And Working
To avoid overloading and possible breaking during lifting and working, the
following safety devices have been used:
• A pressure valve placed inside the hydraulic unit to prevent excessive
weight.
The maximum pressure valve has been preset by the
manufacturer to a proper pressure. DO NOT try to adjust it to
overrun the rated lifting capacity.
• Automatic mechanical back-up safety holds on the lift in the elevated
position.
• Slack safety in event of cable slackening and/or failure.
It is strictly forbidden to modify any safety device. Always
ensure the safety device for proper operation during the service.

Installation 27
PVL14
Installation
Only skilled technicians, appointed by the manufacturer, or by
authorized dealers, must be allowed to carry out installation.
Serious damage to people and to the lift can be caused if
installations are made by unskilled personnel.
Always refer to the exploded views attached during installation.
7.1 Tool Required
Rotary Hammer Drill D.16 Hex-Key/Allen Wrench Set
Masonry Bit Crow Bar For Shim Installation
Hammer Chalk Line
Level Medium Cross Screwdriver
Open-End Wrench Set Medium Flat Screwdriver
Medium Crescent Wrench Tape measure
7.2 Checking For Room Suitability
The lift has been designed to be used in covered and sheltered places.
The place of installation must not be next to washing areas, painting
workbenches, solvent or varnish deposits. The installation near to rooms, where
a dangerous situation of explosion can occur, is strictly forbidden.
The relevant standards of the local Health and Safety at Work regulations, for
instance, with respect to minimum distance to wall or other equipment, must be
observed.
7.3 Lighting
Lighting must be carried out according to the effective regulations of the place of
installation. All areas next to the lift must be well and uniformly lit.

Installation 28
PVL14
7.4 Installation Surface
The lift MUST be installed on 3000 PSI concrete with the minimum thickness 6”
and an extension of at least 5’ from anchoring points.
New concrete must be adequately cured by at least 21 days minimum.
A level fl oor is suggested for proper installation. Small
differences in fl oor slope may be compensated for by proper
shimming. Any major slope change will affect the level lifting
performance. If a fl oor is of questionable slope (more than 3
degrees), considering to pour the new concrete slab.
7.5 Site Layout
• Determine which end of the lift will be approach side.
• Determine which side the power-side runway (with the hydraulic cylinder
attached) will be located on. Remember that the power-side runway must
be installed on the same side as the power-side column.

Installation 29
PVL14
7.6 Installation Of Runways To Transverse Beams
It is important to position the power-side runway (with
the hydraulic cylinder) on the same side as the power unit
location.
Elevate runways off the fl oor with blocks of wooed to prevent
any damage.
Before installation, make sure that all accessories have been
installed in the runways and transverse beams.
• Place each runway in the predetermined
location. Make sure that the rails on
each side must be installed to the inside.
Pay attention to the location of the
power-side runway;
• Place the front and rear transverse
beams on each ends of runways. The
runways and transverse beams should
be laid out as shown in fi gure 13. Make
sure the cables are in the proper pulley grooves as shown in the fi gure 14;
• Slide the cables from the end of power-side runway and route the cables
though the transverse beams referring to the routing diagram (fi g. 15).
Make sure that the cables are not twisted during routing and routed on
the correct pulleys in runways. Make sure to route the cables through the
retainer before attaching them to the holder.
Fig.13
Fig. 14

Installation 30
PVL14
Figure 15 – Cable Routing Diagram
• Bolt the runways with the wheel stops onto the
front transverse beam as shown in the fi gure 16;
• Bolt the runways onto the rear transverse beam.
7.7 Installation Of Columns To Transverse Beam
• Transport the columns to the located site.
• Insert the thread end of latch rack through the top plate of each column as
shown in the fi gure 17;
• Move each column closed to the respective end of the transverse.
Make sure that all columns are positioned in the correct location (ref.
fi g.3). Make sure to use caution to prevent columns from falling over. If
necessary, use the shims;
Fig. 16

Installation 31
PVL14
• Keep the latch rack locked in the lowest locking position and mount the
sliders on the transverse beam as shown in the fi gure 18. Make sure the
latch rack is inside the groove of the slider;
• With both sliders attached, move the column
toward the column until stopped by the slides;
• Insert the steel cable through the top plate of
the column as shown in the fi gure 17. Make
sure the cable is routed correctly on the slack
cable roller as shown in the fi gure 19.
• Mount the guard on the end of the transverse
beam using M8X12 screws and washers as
shown in the fi gure 19;
• Repeat the same procedures for each column
and transverse beam.
Each cable must be routed through the column hole toward to
the lift center. The lift cannot work properly and thus damage
the cable if failure to do so.
7.8 Anchoring Columns
• Before proceeding, check the measurement referring to the fi gure 20 and
make sure to keep columns square to the center line of lift;
• Using the base plate as guide, drill each hole in the concrete approximately
5” deep with the rotary hammer drill D.16. To assure full holding power, do
not ream the hole or allow drill to wobble.
• After drilling, remove dust thoroughly from each hole using compressed air
or wire brush.
Fig. 17
Fig. 18 Fig. 19

Installation 32
PVL14
• Assemble the washers and nuts on the anchors then tap into each hole
with a hammer until the washer rests against the base plate. Be sure if
shimming is required, enough threads are left exposed.
• If shimming is required, insert the shims as necessary around the anchor
bolts, the columns will be plumb.
• With the shims and anchor bolts in place, tighten by securing the nut to
the base.
• If anchors do not tighten to 150 ft-lbs. installation torque, replace the
concrete under each column base with a 4’ x 4’ x 6” thick 3000 PSI
minimum concrete pad keyed under and fl ush with the top of existing fl oor.
Allow concrete to cure before installing lifts and anchors (typically 2 to 3
weeks).
Figure 20 – Square And Diagonal Measurement

Installation 33
PVL14
7.9 Installation Of Power Unit
• Attach the power unit onto the bracket
on the power side column;
• Secure it using M8X25 screws, M8 nuts
and the washers;
• Make sure to keep the power unit clean.
7.10 Connection Of Hydraulic Hoses (Ref. Fig.22)
When routing the hydraulic hose, make sure that the hose
is clear of any moving part, make sure to keep the hose and
fi ttings clean from dust.
• Clean the hoses and fi ttings;
• Inspect all threads for damage and make sure that all hose fi ttings are in
good condition;
• Route the hoses as shown;
• Tighten the hose fi ttings thoroughly. Make sure not to over-tighten the
hose fi ttings so as to result in oil leakage.
Figure 22 – Hydraulic Line Connection
Fig. 21

Installation 34
PVL14
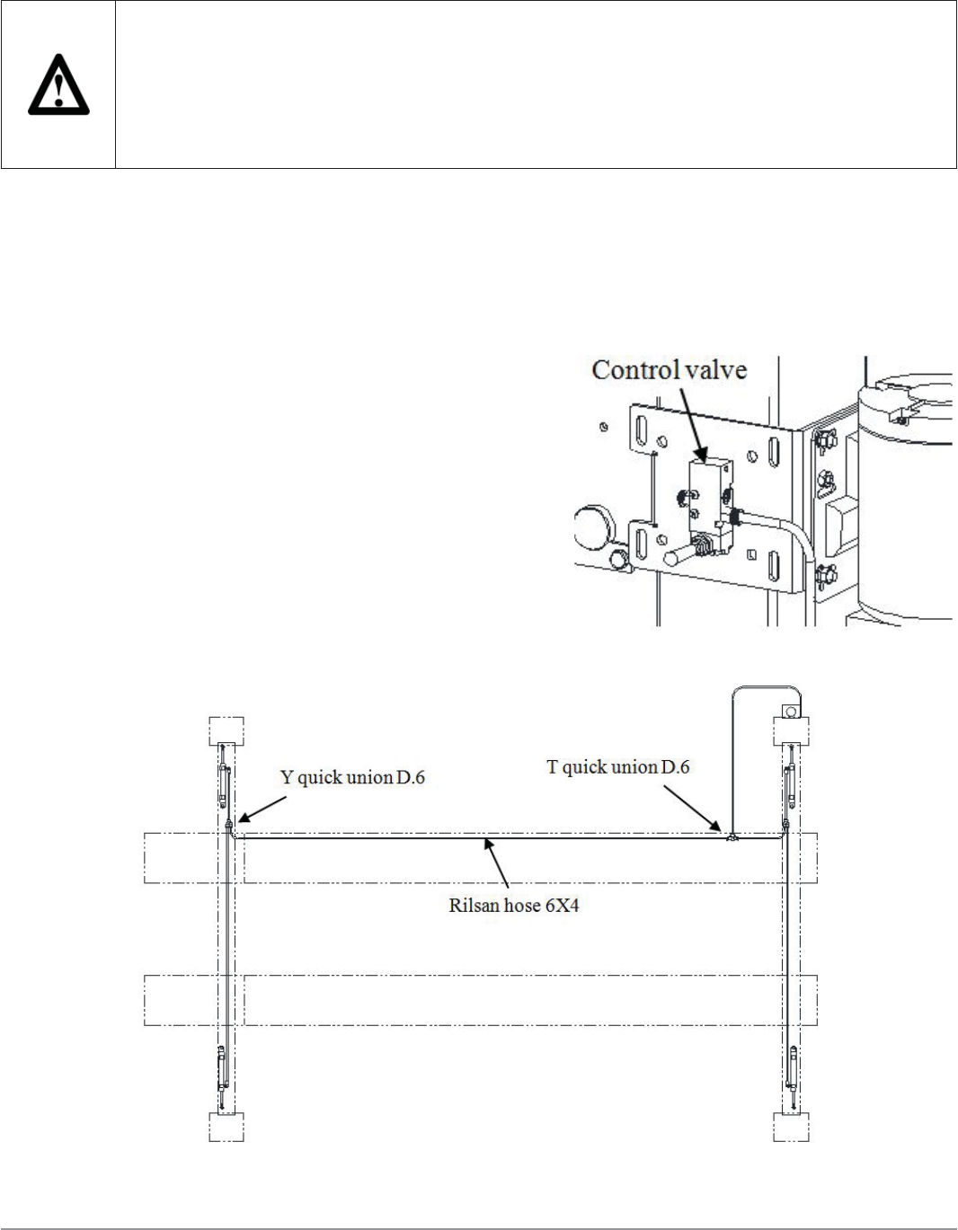
7.11 Pneumatic System Connection
When routing the air tubes, make sure that the tubes are
clear of any moving part. It may necessary to tie the hoses
clear by using nylon tie straps or wire.
Filter/regulator must be equipped on the air circuit and the
air pressure is to be set at 6-8bar.
The pneumatic supply at site (to which the pneumatic system of the lift
is connected) must be equipped with a servicing unit composed of water
separator, lubricator and pressure reducer. These devices can be supplied by the
manufacturer on request.
For the connection of the pneumatic lines
proceed as follow:
• Install the control valve on the motor
bracket using screws M4X30 (ref. fi g. 23);
• Connect the pneumatic lines referring to
the diagram (fi g.24);
• Connect the air valve to the pneumatic
supply at site;
• Check for the air leaks by depressing the
air valve.
Figure 24 – Pneumatic Connection Diagram
Fig. 23

Installation 35
PVL14
7.12 Make The Electrical Hookup To The Power Unit
The hookup work must be carried out by a qualifi ed electrician.
Make sure that the power supply is right.
Make sure the connection of the phases is right.
The power unit must be kept dry.
It is strictly forbidden to use 60Hz motor on 50Hz power supply.
Never operate the motor on the power less than 208V. Motor
damage may occur.
• Make the electric hookup to the hydraulic power unit referring to the wiring
diagram (fi g. 6);
• Make sure to install a proper circuit breaker on the circuit (DZ47-63/
D32A/2P is suggested for single phase 208-240V);
• Make sure the lift is grounded well.
7.13 Oil Filling And Bleeding
DO NOT run power unit with no oil. Damage to pump can occur.
If motor gets hot or sounds peculiar, stop immediately and
recheck the electric connection.
• Use the hydraulic fl uid recommended in the chapter 5.5;
• Remove the vented cap on the oil tank and pour oil in the tank about 17
liters;
• Cycle the lift up and down several times to bleed the hydraulic system until
the lift is lowered smoothly. To lower the lift, latches must be released by
depressing the air valve;
• Fill the more fl uid if necessary till the tank is full.

Installation 36
PVL14
7.14 Final Installation
7.14.1 Runway Leveling Adjustment
Runways must be leveled side to side, front to rear.
The maximum tolerance cannot be over 1.5mm.
• Raise the lift off all latches until the cables are supporting the lift and check
that all cables are adjusted in the same tension;
• Verify if both the runways are leveled horizontally by means of a water
gauge or a leveling instrument. If not make the adjustment referring to the
fi gure 17.
7.14.2 Locking Position Adjustment
All latches must be engaging uniformly before any attempt is
made to work on or near the vehicle.
• Raise the lift from bottom to top and verify if 18 locking latch clicks can be
heard;
• Lower the lift to the topmost latch position to verify if four latches are
engaging uniformly. If not, make the adjustment referring to the fi gure 17.
7.14.3 Ramp Installation
• Install the ramps on the rear runways as shown in the fi gure 25.
Fig. 25

Installation 37
PVL14
7.15 Check Before Start-Up
During START UP procedure, observe all operating
components and check for proper installation and
adjustment. DO NOT attempt to raise vehicle until a thorough
operation check has been completed.
7.15.1 General Checks
• Make sure to check that the columns are plumb;
• Make sure to check the lift anchored to the ground and all anchor bolts
tightened.
• Make sure to check the electrical system feeding voltage is equal to that
specifi ed in the nameplate on the motor;
• Make sure to check the electric system connection in conformity of
the electric plan shown as the electric diagram (fi g. 6) and for proper
grounding.
• Make sure to check all plastic sliders are on the position and greased
properly.
• Make sure to check all pins are installed correctly and greased properly.
• Make sure to check all bolts, nuts and screws are tightened securely.
• Particularly, below checks must be followed:
7.15.2 Steel Cable For Proper Installation
There will be some initial stretching of the cables in the
beginning. It will be necessary to re-adjust the cables a
week after the fi rst week, then three months thereafter.
Failure to do this will cause uneven lifting.
• Check to make sure that all cables are routed correctly and are on the
correct pulleys.
• Check that all cables are adjusted in the same tension and the lift can be
raised evenly. If not, make the adjustment.

Installation 38
PVL14
7.15.3 Safety Lock For Proper Installation
• Check to make sure that all air hoses are connected properly and the air
pressure is set to 6-8bar.
• Check to make sure that the control valve for proper operation.
• Check if four latches are engaging uniformly. If not, make the adjustment.
7.15.4 Hydraulic System For Proper Operation
• Proper oil level in the tank, refi ll if needed.
• Raise the lift to the full height and keep the motor running for 5 seconds
and check all hoses connections no leakage. Tighten the connections or
reseal if necessary.
• Check the lift for reaching its maximum height.
If the vented cap is lost or broken, order the replacement.
The oil tank must be vented well.
7.16 Check With Load
WARNING: please follow carefully the instructions in the
coming paragraph for avoiding damages on the lift.
Carried out two or three complete cycles of lowering with the vehicle loaded and
lifting and:
• Repeat the checks provided for by 7.15.
• Check no strange noise during lifting and lowering.
• If the runways weren’t leveled, readjust.

Operation And Use 39
PVL14
Operation And Use
Never operate the lift with any person or equipment below.
Never exceed the rated lifting capacity.
Always ensure that all latches are engaged well before any
attempt is made to work on or near the vehicle.
Never leave the lift in an elevated position unless the
safeties are engaged.
If an anchor bolt becomes loose or any component of the lift
is found to be defective, DO NOT USE THE LIFT until repairs
are made.
8.1 Controls Of Lift
Figure 26 – Controls Of Lift

Operation And Use 40
PVL14
Controls for operating the lift are:
LIFTING BUTTON (1)
• When pressed, the power unit is running and the lift can be raised to a
desired height until the button is released.
AIR CONTROL VALVE (2)
• When pressed, the lock latches will be released so that the lift can be
lowered.
LOWERING HANDLE (3)
• When the air control valve is not pressed, press the lowering handle to
lower the lift to engage the nearest latch rack.
• When the latches are released by pressing the air control valve, press the
lowering handle in the meantime to lower the lift to the desired height
under its weight and the load lifted until the handle is released.
Lift operation can be summarized into three steps:
8.1.1 Lifting
• Pay attention to overhead clearance;
• The lift must be fully lowered and no one in the service area while the
vehicle is driven onto the lift;
• Position the wheels in center of each runway;
• Stop the vehicle when it contacts the front stops or at the desired position;
• Set the parking brake or place the wheel chops on each side of the rear
wheels;
• Make sure the all personnel must be exit before the lift is raised;
• Raise the lift by pushing the lifting button until reaching the desire height.
8.1.2 Standing
• Press the lowering handle to engage the nearest latch position;
• Always ensure that the latch in each column is engaged before any attempt
is made to work on or near the vehicle.

Operation And Use 41
PVL14
8.1.3 LOWERING
• Be sure the safety area is free of people and objects;
• Raise the lift high enough by pushing the lifting button to clear off the
locks;
• Lower the lift by pressing both the air control valve and the lowering
handle;
• Observe the lift and the vehicle to be sure the lift is level while being
lowered;
• Lower the lift fully;
• Remove the wheel chops and check to be sure that the area is clear before
removing the vehicle off the lift.

Maintenance 42
PVL14
Maintenance
Only trained personnel who knows how the lift works, must
be allowed to service the lift.
To service properly the lift, the following has to be carried out:
• use only genuine spare parts as well as equipment suitable for the work
required;
• follow the scheduled maintenance and check periods shown in the manual;
• discover the reason for possible failures such as too much noise,
overheating, oil blow-by, etc.
• refer to documents supplied by the manufacture or dealer to carry out
maintenance.
Before carrying out any maintenance or repair on the lift,
disconnect the power supply, padlock the general switch and
keep the key in a safe place to prevent unauthorized persons
from switching on or operating the lift.
9.1 Ordinary Maintenance
The lift has to be properly cleaned at least once a month using self-cleaning
clothes.
The use of water or infl ammable liquid is strictly forbidden.
Be sure the rod of the hydraulic cylinders is always clean and not damaged
since this may result in leakage from seals and, as a consequence, in possible
malfunctions.

Maintenance 43
PVL14
9.2 Periodic Maintenance
Daily pre-operation
• Check hydraulic connections and hoses for leaks
• Check air connections and hoses for leaks
• Check safety lock audibly and visually while in operation
• Check bolts, nuts and screws are tight
Every 1 month
• Check all cable connections, pins and bolts to insure proper mounting
• Check all anchor bolts and retighten if necessary
• Check columns for square-ness and plumb
• Check steel cable tension, adjust if necessary
• Check all lifting pads, replace if necessary
• Lubricate sliders with grease
• Lubricate all pivot pins
• Check the hydraulic oil, fi ll or replace if necessary
• Check hydraulic systems for proper operation
Every 12 months
• Verify that all components and mechanisms are not damaged
• Verify the equalizer cables are not worn, change if necessary
• Check the electrical system to verify that the motors operate properly (this
work must be carried out by skilled electricians)
• empty the oil tank and change the hydraulic oil

Troubleshooting 44
PVL14
Troubleshooting
A list of possible troubles and solutions is given below
Trouble: Possible Cause: Solution:
The lift does not work
There is no power Check Power on to restore if
necessary
The electrical wires are
disconnected Reconnect
The circuit breaker are
blown Check for correct voltage
Replace
The lift does not raise
The lift is overloaded Check the vehicle weight
The motor direction of
rotation is not correct. Interchange the two phases
on the main switch
The oil in the power unit
is not suffi cient. Add some hydraulic oil
The UP button is faulty. Check UP button and
connection for proper
operation. Replace if needed
The lowering valve does
not close. Check and clean, if dirty or
replace if faulty
The suction tube or
pump fi lter is dirty. Check and clean if needed.
Presence of air in the
hydraulic system Bleed the hydraulic system
The lifting capacity is
not suffi cient
The pump is faulty Check the pump and replace
if needed.
Oil leakages in hydraulic
circuit Check the circuit for any
leakage
The lift does not lower
when the lowering lever
and the safety release
lever are pressed
The lowering valve does
not work properly Check the valve and replace
if needed.
The equalizer cables are
not in the same tension. Readjust the equalizer
cables.
The lift does not lower
smoothly
Presence of air in the
hydraulic system Bleed the hydraulic system
Lubrication of sliders is
not enough. Grease
Sliders are damaged Replace

Additional Information 45
PVL14
Additional Information
Final Check of Assembled Lift
Final dimension check after anchoring.
Base and columns properly shimmed and stable.
Anchor bolts tightened.
Runways properly attached, secured, and level.
Check for hydraulic leaks.
Ensure cables are properly routed and free from obstructions.
Check jam nuts on cables are tightened.
Check oil level and look for leaks.
Check adjustment of safety release cable to ensure both sides
are working properly.
Re-check level of towers.
Check torque of anchor bolts.
Check all fasteners, tighten if necessary.
Electric power supply confi rmed.
Check for overhead obstructions.
Check shut off at top of stroke to ensure lift shuts off.
Check proper operation of arm restraints.
Operate lift to full stroke then lower to ground while checking
for proper functionality.
Check proper operation of arm restraints.
Operation and Safety Manual at site.
Ensure all documents listed below are given to the owner.
ANSI / ALI Lift It Right Manual
ANSI / ALI Safety Tip Card
ANSI / ALI ALIS Safety Requirements for Installation
ALI/LP Lifting Points Quick Reference Guide
Train end user on operation of lift.

Additional Information 46
PVL14
Operation Test with Vehicle
Prior to starting this section, please refer to the important safety instructions at
the beginning of this manual. Reference Automotive Lift-Safety Requirements for
Operation, Inspection, and Maintenance (ANSI/ALI ALOIM)
After fi nishing the above assembly instructions and adjustments, perform an
operation test of the lift using a typical vehicle.
1. Lower lift to ground.
2. Drive vehicle on to lift and position the arms as per the “Lift it Right”
manual and “Lifting Points Quick Reference” guide.
3. Raise lift to and lower onto 3-4 lock positions during full rise to ensure all
locks are working correctly.
4. Re-adjust cables if necessary while vehicle is on.
5. Check lowering speed and smooth decent rate.
6. Lower lift to ground and drive vehicle off lift.
Run the lift in the low position several times, and then run the lift to the top
completely.
If any problems occur during the fi nal checkout or operation test
of the lift with a vehicle, please contact your lift distributor, sales
representative or manufacturer immediately.

Additional Information 47
PVL14
Operating Instructions
Please reference enclosed ANSI/ALI ALOIM – Current Edition and ALI/LP Guide
before proceeding.
1. Ensure lift is fully lowered and service bay is clear.
2. Move swing arms to full drive thru position.
3. Center the vehicle between the lift posts and position the arms in
accordance with the supplied “Lifting it Right” and “Lifting Point” guides. Be
sure you are using the proper adapters.
4. Push the raise switch on the power unit and ensure that the arm restraint
pins for engagement.
5. Raise the vehicle until the suspension and tires clear the fl oor.
6. Stop and check the adapters for secure contact in accordance with the
vehicle manufacturer recommended lifting points and “Lifting Point” guide.
7. Moderately shake vehicle by pushing on the front or rear bumper to ensure
that vehicle is safely positioned on the lift.
8. After confi rmation that vehicle is securely positioned, continue to raise the
lift to the desired lift height.
9. Lower the lift onto the mechanical locking latches.
10. Avoid excessive rocking of the vehicle while it on the lift.
11. Always use safety support stands when removing or installing heavy vehicle
components.
12. To lower the lift, fi rst be sure that all objects and all personnel are free from
lift area. Observe pinch point and other warning decals.
13. Raise the lift off the locking latches.
14. Pull down and hold the safety release while pressing the hydraulic lowering
valve handle until the lift has fully lowered to the ground and the arm
restraints have disengaged.
15. Remove adapters and position arms in full drive thru position before
removing vehicle from the service bay.

Additional Information 48
PVL14
Inspection and Maintenance
Please refer to the ANSI/ALI ALOIM – Current Edition “AMERICAN NATIONAL
STANDARD for Automotive Lifts – Safety Requirements for Operation, Inspection
and Maintenance”.
Periodic inspections and maintenance shall be performed only by trained lift
service personnel. Never operate a lift that is damaged or in disrepair. Proper
inspection and maintenance is necessary for the safe operation of the lift.
Contact a local service or factory representative immediately if any issues
arise or if you are not completely familiar with automotive lift maintenance
procedures.
Daily Procedures
• Check to ensure bolts are tightened
• Check lift components and keep clean and free of debris
• Check for oil leakage
• Check all electrical components and wiring
• Check cables and sheaves
• Check all hydraulic lines and fi ttings
• Repair or replace all damaged, defective, worn, frayed or broken
components immediately. Only use parts approved by the original
equipment manufacturer or parts meeting original manufacturer
specifi cations.
Monthly Procedures
• Check equalizer cable tension and adjust accordingly
• Check lubrication points and lubricate accordingly
• Check anchor bolts for tightness and appropriate torque
• Check fl uid levels
• Repair or replace all damaged, defective, worn, frayed or broken
components immediately. Only use parts approved by the original
equipment manufacturer or parts meeting original manufacturer
specifi cations.

Additional Information 49
PVL14
Lockout and Tagout Procedures
Please refer to ANSI Z244.1
Purpose: This procedure establishes the minimum requirements for lockout of
energy sources that could cause injury to personnel by the operation of the lift. .
All employees and/or operators shall comply with the procedure.
Responsibility: The responsibility for seeing that this procedure is followed is
binding upon all owners, employees and lift operators. All owners, employees
and operators shall be instructed in the safety signifi cance of the lockout
procedure by the owner, supervisor or appropriate personnel. Each new or
transferred affected employee or operator shall be instructed by appropriate
personnel in the purpose and use of the lockout procedure.
Preparation for Lockout: Employees authorized to perform lockout shall be
certain as to which switch, valve, or other energy isolating devices applies to
the lift. More than one energy source (electrical, mechanical, or others) may
be involved. Any questionable identifi cation of sources shall be cleared by
the employees, their supervisors, or appropriate personnel. Assure that job
authorization has been obtained before lockout commences.
Sequence of Lockout Procedure
• Notify all affected employees and operators that a lockout is required and
the reason therefore.
• If the lift is operating, shut it down by the normal stopping procedure (such
as assuring the disconnect switch is off)
• Operate the switch, valve, or other energy isolating devices so that
the energy source(s) (electrical, mechanical, hydraulic, and other) are
disconnected or isolated from the lift.
• If it is a lockable device, lockout with an assigned individual lock. If it is
not a lockable device, replace with a dummy device and tag accordingly.
If more than one individual is required to lock out the lift, each shall place
their own personal lock on the energy isolating device(s).
• Adequately label or tag the lift stating not to operate or tamper with the
tag or label
• Stored energy (such as that in capacitors and hydraulic systems) must also
be addressed

Additional Information 50
PVL14
• After ensuring that no personnel are exposed and as a check to ensure
the lockout is working, operate the push button or other normal operating
controls to make certain the lift will not operate. Return the lift operating
controls to neutral position after the test.
• The equipment is now locked out.
Restoring Equipment to Service
• When the job is complete and equipment is ready for testing or normal
service, check the lift area to see that no one is exposed.
• When lift is clear, remove all locks. The energy isolating devices may be
operated to restore energy to lift.
Rules for Using Lockout Procedure: The lift shall be locked out to protect
against accidental or inadvertent operation when such operation could cause
injury to personnel. Never attempt to operate any switch, valve, or other energy
isolating device bearing a lock.
Wire Ropes
WARNING
• Wire ropes are critical to the safe and reliable performance of your lift.
• Cables are expendable items and should be replaced as a set.
Cable Condition Guide
Maximum Allowable Cable Necking
Nom. Cable Diameters Max.
Reduction in Diameter
Up to 5/16” 1/64”
3/8” to 1/2” 1/32”
9/16” to 3/4” 3/64”
7/8” to 1-1/8” 1/16”
1-1/4” to 1-1/2” 3/32”

Additional Information 51
PVL14
Typical Good Cable Cable with Broken Wires
Cable with Severe Corrosion Cable with Necking
Wire Rope Replacement Criteria
WARNING
If any cable is found to be in need of replacement,
the entire cable set, pulleys and safety rollers,
must be replaced immediately.
See Cable Condition Guide.
The Wire Rope MUST be Replaced if One or More of the Following
Criteria Are Met:
• More than six (6) randomly distributed broken wires in one rope lay or 6xd
length.
• More than three (3) broken wires in one strand in one rope lay or 6xd length.

Additional Information 52
PVL14
• Three (3) or more broken wires at rope terminations.
• One outer wire broken at the point or contact with the core of the rope
whish has worked its way out of the rope structure and protrudes or loops
out from the rope structure.
• Heavy rusting, corrosion, or pitting. A light surface corrosion on outer wires
is normal.
• Wear or scraping of one-third (1/3) of the original diameter of outside
individual wires.
• Excessive stretch. It is normal for new cable to require adjustment during
“break-in,” after which small periodic adjustments may be required.
However, if a cable that has been in service for 6 months should suddenly
require frequent adjustments or has used all the cable adjustments
available, all cables must be replaced immediately.
• Deformed strands, kinking, crushing, bird-caging, or any other damage or
distortion of wire rope structure.
• Variations in diameter (necking) or any change from normal appearance.
• Reductions from nominal diameter of more than 1/32” (for cables 3/8” to
1/2” diameter inclusive.)
• End attachments cracked, deformed or worn.
* Lay is the distance measured, parallel to the rope axis, in which a single strand
makes one complete turn around the rope axis, or the wires make a complete
turn around the axis of the strand.
Please reference ANSI/ALI ALOIM standard for
more information on wire rope cable inspection.
EMERGENCY OPERATION IF LIFT BECOMES
INOPERABLE IN RAISED POSITION
If the lift becomes inoperable in the raised position, wait until electrical
power is restored to the lift before attempting to lower the vehicle. If
it is crucial for reasons of safety that the vehicle be lowered, please
DO NOT attempt to do so on your own without fi rst contacting your
local authorized service representative or distributor, who can verbally
walk you through the process or assist, in person, where necessary.
WARNING: DO NOT LOOSEN OR REMOVE HYDRAULIC
CONNECTIONS OR FITTINGS UNDER PRESSURE.
SERIOUS INJURY OR DEATH COULD OCCUR.

Part List 53
PVL14
Part List
Item Part number Description Qty Item Part number Description Qty
1 Z72C102000 Column A 1 11 Z72B810001 Ramp pin 2
2 Z72B110101 Column weldment B 3 12 0213053 Split pin 5X45 4
3 Z72B111101 Latch rack 4 13 Z72C310002 Wheel stop plate 2
4 0203012 Nut M20 8 14 0205013 Washer D.12 8
5 Z72C210000 Transverse beam B 1 15 0208009 Locking washer 12 8
6 Z72C220000 Transverse beam A 1 16 0201220 Screw M12X35 8
7 Z72C310000 Power-side runway 1 17 0203012 Nut M20 8
8 Z72C321000 Off-side runway 1 18 0205022 Washer D.20 4
9 Z72A300100 Wheel chock 2 19 0302010 Hydraulic power unit 1
10 Z72C810000 Drive-on ramp 2
Figure 27 – General Part List

Part List 54
PVL14
Item Part number Description Qty Item Part number Description Qty
1 Z72C311000 Runway weldment 1 20 Z72B310014 Anti-derailment pin 4
2 Z72B210002 Cable pulley 6 21 Z72BY90000 Hydraulic cylinder unit 1
3 Z72B220005 Fastening plate B 2 22 Z72BY90100 Cylinder liner 1
4 Z72B310001 Pulley shaft 2 23 Z72BY90001 Guiding cover 1
5 Z72B310002 Cylinder pin 1 24 Z72BY90002 Cylinder shaft 1
6 Z72B310003 Pulley spacer 7 25 Z72BY90003 Piston 1
7 Z72C310001 Spacer 1 26 0312018 Gasket 90X70X22.4 1
8 Z72B310012 Hose relief 1 27 0310031 Seal 36X46X8 2
9 Z72B310100 Cable holder 1 28 0311016 Scraper 36X44X5/6.5 1
10 Z72B310200 Cable retainer 1 29 0305006 Guiding ring 36X25X2.5 1
11 Z72C311005 Washer 2 30 Z72BY90008 Restrictor body 1
12 0210052 Bush 4020/SF-1 6 31 0313076 Washer 3/4 1
13 0213113 Split pin 5X50 2 32 0313074 Seeger D. 19 1
14 0201062 Screw M10X20 4 33 Z11AY63806 Spacer 1
15 0205011 Washer D.10 4 34 Z11AY63807 Flow restrictor 1
16 0208007 Locking washer D.10 4 35 0309122 O-ring 82.5X3.55 1
17 0205027 Washer D.30 1 36 0313074 Nylon spacer 1
18 0204019 Jam nut M33X2 1 37 0309123 O-ring 90X2 1
19 0203038 Nut M33X2 1
Figure 28 – Power-Side Runway Assembly

Part List 55
PVL14
Item Part number Description Qty Item Part number Description Qty
1 Z72B211000 Beam A weldment 1 15 0201059 Screw M10X16 4
2 Z72B212000 Cable slack lever 2 16 0208007 Locking washer D.10 4
3 Z72B210005 Nylon roller 2 17 0213055 Split pin 1.6X12 4
4 Z72B210001 Pulley shaft 2 18 0205022 Washer D.20 4
5 Z72B210002 Cable pulley 2 19 0213035 Split pin 4X30 4
6 Z72B210003 Nylon spacer 4 20 0207041 Screw M8X12 8
7 Z72B210008 Fastening plate A 2 21 0201022 Screw M8X12 4
8 Z72B210004 Safety latch 2 22 0205008 Washer D.8 6
9 Z72B210007 Pin 4 23 Z72B210012 Rubber plug 1
10 Z72B210006 Latch shaft 2 24 0210058 Bush 2012/SF-1 2
11 Z72B210010 Pulley cover 2 25 Z72B210009 Cylinder joint 2
12 Z72B210011 Nylon slider 4 26 0203029 Nut M8 2
13 0212013 Seeger D. 10 2 27 CM2C20-50TZ Latch release cylinder 2
14 0210052 Bush 4020/SF-1 2
Figure 29 – Transverse Beam A Assembly

Part List 56
PVL14
Item Part number Description Qty Item Part number Description Qty
1 Z72B221000 Beam B weldment 1 15 0201059 Screw M10X16 4
2 Z72B212000 Cable slack lever 2 16 0208007 Locking washer D.10 4
3 Z72B210005 Nylon roller 2 17 0213055 Split pin 1.6X12 4
4 Z72B210001 Pulley shaft 2 18 0205022 Washer D.20 4
5 Z72B210002 Cable pulley 2 19 0213035 Split pin 4X30 4
6 Z72B210003 Nylon spacer 4 20 0207041 Screw M8X12 8
7 Z72B210008 Fastening plate A 2 21 0201022 Screw M8X12 4
8 Z72B210004 Safety latch 2 22 0205008 Washer D.8 6
9 Z72B210007 Pin 4 23 Z72B210012 Rubber plug 1
10 Z72B210006 Latch shaft 2 24 0210058 Bush 2012/SF-1 2
11 Z72B210010 Pulley cover 2 25 Z72B210009 Cylinder joint 2
12 Z72B210011 Nylon slider 4 26 0203029 Nut M8 2
13 0212013 Seeger D. 10 2 27 CM2C20-50TZ Latch release cylinder 2
14 0210052 Bush 4020/SF-1 2
Figure 30 – Transverse Beam B Assembly

Part List 57
PVL14
Item Part number Description Qty Item Part number Description Qty
1 Z72C2850100 Cable A L=8890 1 3 Z72C2850300 Cable C L=10345 1
2 Z72C2850200 Cable B L=5040 1 4 Z72C2850400 Cable D L=3580 1
Figure 31 – Steel Cable Assembly

Part List 58
PVL14
Item Part number Description Qty
1 0306065 Rotation union 8-1/4 1
2 0306096 Rilsan hose 8X5.5 L=2600 1
3 0303002 90° fi tting 1/4 1
4 ZW4500 Hydraulic hose 5/16 L=4500 1
Figure 32 – Hydraulic Line

Part List 59
PVL14
Item Part number Description Qty Item Part number Description Qty
1 Z72B110207 Motor bracket 1 4 0206018 Screw M4X30 2
2 0306258 Air control valve 1 5 0306045 Quick union 8-1/8 2
3 0305014 Plug 1/8 1 6 0306087 Silencer 1/8 2
Figure 33 – Latch Release Valve Assembly

Part List 60
PVL14
Item Part number Description Qty Item Part number Description Qty
1 Z72A334000 Spacer 1 2 12 Z72A300004 Spring 8
2 Z72A336000 Recess spacer 4 13 0215087 Steel ball bearing 88
3 Z72A333000 Spacer 2 2 14 0206036 Screw M6X8 4
4 Z72A335000 Recess cover 2 15 0202061 Screw M10X25 20
5 Z72A332000 Platform cover 2 16 0205011 Washer D.10 16
6 Z72A338000 Ball bearing gasket 2 17 0208007 Locking washer D.10 16
7 Z72A331000 Approach ramp 2 18 0203009 Nut M10 16
8 Z72A337000 Rear slipping plate 2 19 0205013 Washer D.12 4
9 Z72A339000 Plate stop pin 4 20 0208009 Locking washer D.12 4
10 Z72A300003 Washer 4 21 0203013 Nut M12 4
11 0201049 Screw M10X30 4
Figure 34 – Bolt-On Alignment Kit Assembly - Optional

Part List 61
PVL14
Item Part number Description Qty Item Part number Description Qty
1 0301030 Air pedal pump 1 25 J07B000007 Cylinder upper shaft 1
2 J07B110000 Jack base 1 26 J07BY63000 Jack hydraulic cylinder 1
3 0211015 Seeger D.8 4 27 0209002 Screw M6X10 3
4 J07B100100 Wheel 4 28 J07B000006 Cylinder lower shaft 1
5 0511172 Nylon bush 1010 4 29 0206069 Screw M10X20 2
6 J07B100001 Wheel shaft 4 30 J07B000008 Washer 2
7 0511173 Nylon pin 8 31 0210086 Bush SF-1/2012F 4
8 J07B120000 Base extension 2 32 J07B000004 Middle shaft 1
9 0213109 Elastic pin 6X25 4 33 0203008 Nut M8 4
10 J07B000003 Nylon lower slider 2 34 J07B400000 Jack table 1
11 J07B000200 Safety lock 2 1 35 J07B500000 Table extension 2
12 0215017 Knob M10X33 1 36 J07B600000 Lifting adaptor 2
13 J07B000005 Shaft 1 37 0606033 Rubber pad 115X100X55 2
14 0209010 Screw M6X10 1 38 J07B600100 Adaptor base 2
15 J07B000100 Safety lock 1 1 39 0202020 Screw M5X8 2
16 J07B200000 Outer scissor arm 1 40 0202043 Screw M8X12 4
17 J07B000001 Nylon upper slider 1 2 41 0309091 O-ring 45X2.65 2
18 J07B300000 Inner scissor arm 1 42 Z23A313002 Outer thread bush 2
19 0204004 Self-locking nut M8 2 43 0212034 Seeger D.42 2
20 0205008 Washer D.8 6 44 Z23A313001 Inner thread bush 2
21 0201043 Screw M8X20 6 45 0212035 Seeger D.32 2
22 J07B000002 Nylon upper slider 2 2 46 Z23A313100 Pad tray 2
23 0209030 Screw M6X8 1 47 Z23A313202 Round rubber pad 2
24 0210089 Bush SF-1/2024F 2 48 0202032 Screw M6X16 2
Figure 35 – Rolling Jack Assembly - Optional

Part List 62
PVL14
Item Part
number Description Qty Item Part number Description Qty
1 ZY1090 Hose 1/4 L=1090 1 8 8240TX-63-3 Cylinder guiding cover 1
2 0306112 Quick union 8-1/4 1 9 0306087 Silencer 1/8 1
3 0303020 45° union 1 10 0311005 Scraper 30X38X5/6.5 1
4 0307022 Parachute valve 1/4 1 11 0305007 Guiding ring 30X10X2.5 1
5 J07BY63100 Cylinder liner 1 12 0309022 O-ring 24X2.4 1
6 8240TX-63-2 Piston 1 13 0312012 Gasket 63X47X18.4 1
7 J07BY63200 Cylinder shaft 1 14 0212005 Seeger D.20 1
Figure 36 – Jack Hydraulic Cylinder Unit And Line

Warranty 63
PVL14
Warranty
This item is warranted for fi ve (5) years on structural
components, two (2) years on hydraulic cylinders, and one (1)
year on electric or air / hydraulic power units from invoice date.
Wear items are covered by a 90 day warranty.
Our LIMITED warranty policy does not include a labor warranty. Our products are sold at such
a competitive price that Greg Smith Equipment cannot afford to send technicians into the fi eld to
repair the Atlas® automotive lifts. We assume that the buyer of our automotive lifts is mechanically
inclined or has employees that are mechanically inclined to perform essential repair services and or
maintenance. We also have a list of service technicians that can come to your facility/house at the
customer’s expense.
NOTE: ALL WARRANTY CLAIMS MUST BE PRE-APPROVED BY THE MANUFACTURER TO BE
VALID.
The Manufacturer shall repair or replace at their option for this period those parts returned to
the factory freight prepaid, which prove after inspection to be defective. This warranty will not
apply unless the product is installed, used and maintained in accordance with the Manufacturers
installation, operation and maintenance instructions.
This warranty applies to the ORIGINAL purchaser only, and is non-transferable. The warranty
covers the products to be free of defects in material and workmanship but, does not cover normal
maintenance or adjustments, damage or malfunction caused by: improper handling, installation,
abuse, misuse, negligence, carelessness of operation or normal wear and tear. In addition, this
warranty does not cover equipment when repairs or alterations have been made or attempted to
the Manufacturer’s products.
THIS WARRANTY IS EXCLUSIVE AND IS LIEU OF ALL OTHER WARRANTIES EXPRESSED OR IMPLIED
INCLUDING ANY IMPLIED WARRANTY OR MERCHANTABILITY OR ANY IMPLIED WARRANTY OF
FITNESS FROM A PARTICULAR PURPOSE, AND ALL SUCH IMPLIED WARRANTIES ARE EXPRESSLY
EXCLUDED.
THE REMEDIES DESCRIBED ARE EXCLUSIVE AND IN NO EVENT SHALL THE MANUFACTURER, NOR
ANY SALES AGENT OR OTHER COMPANY AFFILIATED WITH IT OR THEM, BE LIABLE FOR SPECIAL
CONSEQUENTIAL OR INCIDENTAL DAMAGES FOR THE BREACH OF OR DELAY IN PERFORMANCE
OF THIS WARRANTY. THIS INCLUDES, BUT IS NOT LIMITED TO, LOSS OF PROFIT, RENTAL OR
SUBSTITUTE EQUIPMENT OR OTHER COMMERCIAL LOSS.
The warranty shall be governed under the laws of Indiana, and shall be subject to the exclusive
jurisdiction of the Court in the State of Indiana in the county of Marion.
PRICES: Prices and specifi cations are subject to change without notice. All orders will be invoiced
at prices prevailing at time of shipment. Prices do not include any local, state or federal taxes.
RETURNS: Products may not be returned without prior written approval from the Manufacturer.
DUE TO THE COMPETITIVENESS OF THE SELLING PRICE OF THESE LIFTS, THIS WARRANTY POLICY
WILL BE STRICTLY ADMINISTERED AND ADHERED TO.