Liebert CW Parts Manual CW038
User Manual: CW038
Open the PDF directly: View PDF .
Page Count: 95
- Liebert CW Parts Manual
- 1. Product Description
- 2. Model Number Definition
- 3. Blower/ Motor Section
- 4. Electrical Section
- 4.1. Accent Panel
- 4.2. EP Display
- 4.3. EP Controls
- 4.4. EP Back Panel
- 4.5. EP Condensate Pump
- 4.6. EP Humidifier IR
- 4.7. EP Humidifier Steam
- 4.8. EP Motor
- 4.9. EP Disconnect
- 4.10. EP Reheat
- 4.11. EP Sensor
- 4.12. EP Extra Common Alarm
- 4.13. EP Main Fan Auxiliary
- 4.14. EP Firestat
- 4.15. Intellislot
- 4.16. EP Remote Humidifier Contact
- 4.17. EP Smoke Detector
- 4.18. Extra Remote Shutdown
- 5. Exterior Section
- 6. Filter Section
- 7. Humidifier Section
- 7.1. Steam Gen without CP
- 7.2. Steam Gen with CP
- 7.3. IR without CP
- 7.3.1. Downflow
- 7.3.2. Upflow VFR
- 7.3.3. Upflow VRR
- 7.3.4. FR/BR
- 7.3.5. Humidifier Bulbs
- 7.3.5.1. 2 Bulb/3 Bulb
- 7.3.6. 4 Bulb/6 Bulb
- 7.3.7. Alarm High Water
- 7.3.8. Humidifier Reset Safety
- 7.3.9. Solenoid Valve Assembly
- 7.3.10. Socket Assemblies
- 7.3.10.1. 009-0261
- 7.3.10.2. 009-0262
- 7.3.10.3. 009-0263
- 7.3.10.4. 009-0264
- 7.3.10.5. 009-0265
- 7.3.10.6. 009-0266
- 7.3.10.7. 009-0267
- 7.3.10.8. 009-0268
- 7.3.10.9. 009-0297
- 7.4. IR with CP
- 7.5. No Humidifier Drain
- 8. Reheat Section
- 9. Piping Section
- 10. Parts Gallery
- 11. Revision Page

Liebert CW Parts Manual
While every precaution has been taken to ensure accuracy and completeness in this
manual, Liebert Corporation assumes no responsibility, and disclaims all liability for
damages resulting from use of this information or for any errors or omissions.
© 2009 Liebert Corporation All rights reserved throughout the world. Specifications
subject to change without notice.
® Liebert and the Liebert logo are the registered trademarks of the Liebert
Corporation

Table of Contents
May 2009 (Rev00) Confidential Document - i -
1. Product Description ............................................................................. 4
2. Model Number Definition ..................................................................... 5
3. Blower/ Motor Section ......................................................................... 6
3.1. Blower ........................................................................................... 6
3.2. Motor ............................................................................................ 8
3.3. Drive Package............................................................................... 10
4. Electrical Section ............................................................................... 11
4.1. Accent Panel................................................................................. 11
4.2. EP Display .................................................................................... 12
4.3. EP Controls................................................................................... 13
4.4. EP Back Panel ............................................................................... 15
4.4.1. Circuit Breaker ....................................................................... 15
4.4.2. Fused.................................................................................... 16
4.5. EP Condensate Pump ..................................................................... 17
4.6. EP Humidifier IR............................................................................ 19
4.6.1. Circuit Breaker ....................................................................... 19
4.6.2. Fuse ..................................................................................... 19
4.7. EP Humidifier Steam ...................................................................... 21
4.8. EP Motor ...................................................................................... 23
4.8.1. Circuit Breaker ....................................................................... 23
4.8.2. Fuse ..................................................................................... 24
4.9. EP Disconnect ............................................................................... 26
4.10. EP Reheat ................................................................................. 27
4.10.1. Circuit Breaker .................................................................... 27
4.10.2. Fuse .................................................................................. 28
4.11. EP Sensor ................................................................................. 30
4.12. EP Extra Common Alarm ............................................................. 31
4.13. EP Main Fan Auxillary ................................................................. 32
4.14. EP Firestat ................................................................................ 33
4.15. Intellislot .................................................................................. 34
4.16. EP Remote Humidifier Contact...................................................... 35
4.17. EP Smoke Detector..................................................................... 36
4.18. Extra Remote Shutdown.............................................................. 37
5. Exterior Section ................................................................................. 38
5.1. CW Downflow ............................................................................... 38
5.2. Vertical Front Return...................................................................... 39
5.2.1. 48”/72”/97” VRR CW............................................................... 39
5.2.2. 120” VRR............................................................................... 39
5.3. Vertical Rear Return ...................................................................... 40
5.3.1. 48”/ 72”/97” VRR CW .............................................................. 40
5.3.2. 120”Frame............................................................................. 41
5.4. Vertical Bottom Return................................................................... 42
6. Filter Section...................................................................................... 43
6.1. VFR ............................................................................................. 43
6.2. Downflow ..................................................................................... 44
6.3. VRR............................................................................................. 45
7. Humidifier Section ............................................................................. 46
7.1. Steam Gen without CP ................................................................... 46
7.1.1. Downflow .............................................................................. 46
7.1.2. Upflow .................................................................................. 47
7.1.3. VRR ...................................................................................... 48
7.2. Steam Gen with CP........................................................................ 49
7.2.1. Downflow .............................................................................. 49
7.2.2. VBR/VFR................................................................................ 50
7.2.3. CW VFR................................................................................. 51

Liebert CW Parts Manual
- ii - Confidential Document March 2009 (Rev00)
7.2.4. VRR...................................................................................... 52
7.2.5. Upflow VFR............................................................................ 53
7.2.6. Steam Generated Humidifier .................................................... 54
7.3. IR without CP ............................................................................... 55
7.3.1. Downflow .............................................................................. 55
7.3.2. Upflow VFR............................................................................ 56
7.3.3. Upflow VRR............................................................................ 57
7.3.4. FR/BR ................................................................................... 58
7.3.5. Humidifier Bulbs ..................................................................... 59
7.3.5.1. 2 Bulb/3 Bulb ..................................................................... 59
7.3.6. 4 Bulb/6 Bulb......................................................................... 60
7.3.7. Alarm High Water ................................................................... 60
7.3.8. Humidifier Reset Safety ........................................................... 61
7.3.9. Solenoid Valve Assembly ......................................................... 61
7.3.10. Socket Assemblies............................................................... 61
7.3.10.1. 009-0261........................................................................... 61
7.3.10.2. 009-0262........................................................................... 62
7.3.10.3. 009-0263........................................................................... 62
7.3.10.4. 009-0264........................................................................... 62
7.3.10.5. 009-0265........................................................................... 63
7.3.10.6. 009-0266........................................................................... 63
7.3.10.7. 009-0267........................................................................... 63
7.3.10.8. 009-0268........................................................................... 64
7.3.10.9. 009-0297........................................................................... 64
7.4. IR with CP.................................................................................... 65
7.4.1. Upflow VRR............................................................................ 65
7.4.2. Upflow VFR............................................................................ 66
7.4.3. VFR ...................................................................................... 67
7.4.4. VBR...................................................................................... 68
7.4.5. Downflow .............................................................................. 69
7.4.6. VRR...................................................................................... 70
7.5. No Humidifier Drain....................................................................... 71
8. Reheat Section................................................................................... 72
9. Piping Section.................................................................................... 73
9.1. 2-Way ......................................................................................... 73
9.1.1. Downflow .............................................................................. 73
9.1.2. SP VFR.................................................................................. 74
9.1.3. SP VRR ................................................................................. 74
9.1.4. HP VFR ................................................................................. 75
9.1.5. HP VRR ................................................................................. 76
9.1.6. HP STD and BV ...................................................................... 77
9.1.7. Supply Piping......................................................................... 78
9.1.8. Return Piping ......................................................................... 79
9.1.9. Valve Assembly ...................................................................... 79
9.1.10. Return Assembly ................................................................. 80
9.1.11. Supply Valve Assembly ........................................................ 80
9.2. 3-Way ......................................................................................... 81
9.2.1. Downflow .............................................................................. 81
9.2.2. Standard Pressure .................................................................. 81
9.2.3. High Pressure ........................................................................ 82
9.2.4. Flow Switch ........................................................................... 83
9.2.5. SP VFR.................................................................................. 83
9.2.6. Valve Assembly 3W................................................................. 84
9.2.7. HP VFR ................................................................................. 84
9.2.8. SP VRR ................................................................................. 85
9.2.9. HP VRR ................................................................................. 86

Table of Contents
May 2009 (Rev00) Confidential Document - iii -
9.2.10. HP STD .............................................................................. 87
9.2.11. HP BV ................................................................................ 87
10. Parts Gallery................................................................................... 88
11. Revision Page ................................................................................. 94

Liebert CW Parts Manual
- 4 - Confidential Document March 2009 (Rev00)
1. Product Description
Liebert CW is available in downflow and upflow models, in 26-181 kW capacities.
Options include Variable Speed Drive fan motors for all models; and EC Plug Fans
for 86kW, 106kW, 114kW, 146kW and 181kW downflow models. 60 Hz and 50 Hz.
Flexibility:
Provides a complete environmental control package, including both precision
air conditioning and humidity control.
Both upflow and downflow configurations are available to cover raised floor
and non-raised applications.
Liebert iCOM control system brings high-level supervision to multiple units,
allowing them to work together as a single system to optimize room
performance.
Higher Availability:
Designed with the highest quality components selected for their proven
reliability and performance.
Provides around-the-clock operation to protect critical installations.
Operates with a high sensible heat ratio, assuring that proper humidity
levels will be maintained.
Liebert iCOM control system adds automatic sequencing of components to
even wear and extend service life.
Lowest Total Cost Of Ownership:
Uses existing building chilled water systems to provide cooling.
Higher efficiency fan options offer more energy savings.
Ideally Suited For:
Data centers
Telecommunications central switch offices
Industrial process control centers
Laboratories
Medical facilities
Other sensitive electronic applications

Model Number Definition
2. Model Number Definition
May 2009 (Rev00) Confidential Document - 5 -

Liebert CW Parts Manual
3. Blower/ Motor Section
3.1. Blower
Item Part Number Description 48” 72” 97” 120”
2 193196G1L EC FAN ASSEMBLY 3
125425P1 SHAFT BLOWER 30T AWG 1
1C11151P1 SHAFT TUBULAR FAN 1
1C11153P1 SHAFT FAN 1.0DIA X 24.12 1
1C30119P1 SHAFT FAN 1.19DIA X 26.5 1
B02-0200 SHAFT TUBULAR FAN 1
B05-0150 SHAFT TUBULAR FAN 74.00X3.00 1
3
B-1140 SHAFT TUBULAR FAN 1
160067P1 BEARING ROLLER PB 1-7/16" 2
185861P1 BEARING ASSEMBLY 2-015 SERIES 2
185862P1 BEARING PILLOW BLOCK 1-3/16 2 2 2
1A16949P1 BEARING PILLOW BLOCK 1-3/16 2 2
1A30499P1 BEARING PILLOW BLOCK W/FTG 2 2
B-0040 BEARING 2
B05-0200 BEARING PILLOW BLOCK 2 2
4
B-064A BEARING PILLOW BLK CI 1-3/16 2 2
- 6 - Confidential Document March 2009 (Rev00)

Blower/ Motor Section
May 2009 (Rev00) Confidential Document - 7 -
Item Part Number Description Model Quantity
1C11154P1 BLOWER W/H A15-15AX1.00 1SS
CW026
CW038
CW041
1
1C29077P2 BLOWER W/H A15-15AX1.19 KEY
CW026
CW038
CW041
1
1C11155P1 BLOWER W/H A15-11AX2.25
CW051
CW060 2
CW076
CW084 2
B02-0210 BLOWER W/H A15-15AX3.00
CW106
CW114 3
B-1170 BLOWER W/H A15-15AX2.25
CW076
CW084 2
1C11155P1 BLOWER W/H A15-11AX2.25
CW076
CW084 2
1C25524P2 BLOWER W/H A15-11AX3.00
CW106
CW114 3
5
1C29077P2 BLOWER W/H A15-15AX1.19 KEY
CW026
CW038
CW041
1

Liebert CW Parts Manual
3.2. Motor
Item Part Number Description 2HP 3HP 5HP 7.5HP
10HP 15HP 20HP
B05-014E MOTOR BASE ADJUSTABLE 215-T 1
B05-014F MOTOR BASE ADJUSTABLE 254-T 1
B05-014D MOTOR BASE ADJUSTABLE 256-T 1
B-0320 MOTOR BASE ADJUSTABLE 145-T 1
B-0330 MOTOR BASE ADJUSTABLE 182-T 1 1
B-0430 MOTOR BASE ADJUSTABLE 184-T 1
1
B-0440 MOTOR BASE ADJUSTABLE 213-T 1
Item Part Number Description Quantity Quantity
B-0920 MOTOR 2.0HP 200/380/400-3-50 1
B-1100 MOTOR 2.0HP 220/380-3-50 1
160632P1 MOTOR 2.0HP 208-3-60 PE 1
160633P1 MOTOR 2.0HP 230/460-3-60 PE 1
160634P1 MOTOR 2.0HP 575-3-60 PE
2HP
1
B-0930 MOTOR 3HP190/416-3-50 380-3-60 1
B-1110 MOTOR 3.0HP 220/380-3-50 1
160635P1 MOTOR 3.0HP 575-3-60 PE 1
181595P1 MOTOR 3HP 230/460 1
181595P2 MOTOR 3HP 208 1
1A30349P1 MOTOR 3.0HP 230/460-3-60 PE 1
1A30349P2 MOTOR 3.0HP 208-3-60 PE
3HP
1
B-0940 MOTOR 5.0HP 200/380/400-3-50 1
B-1120 MOTOR 5.0HP 220/380-3-50 1
160636P1 MOTOR 5.0HP 575-3-60 PE 1
1C30169P1 MOTOR 5.0HP 230/460-3-60 PE 1
1C30169P2 MOTOR 5.0HP 208-3-60 PE
5HP
1
B-2170 MOTOR7.5/190-416-3-50/380-3-60 1
B-1330 MOTOR 7.5HP 200/380/400-3-50 1
B-133A MOTOR 7.5HP 220/380-3-50 1
160995P1 MOTOR 7.5HP 575-3-60 PE 1
1A22733P1 MOTOR 7.5HP 230/460-3-60 PE 1
1A22733P2 MOTOR 7.5HP 208-3-60 PE
7.5HP
1
B02-0110 MOTOR 10.0HP 200/380/400-3-50 1
B02-0120 MOTOR 10.0HP 220/380-3-50 1
132584P1 MOTOR 10.0HP 575-3-60 TEFC 1
140998P1 MOTOR 10.0HP 575-3-60 1
155671P1 MOTOR 10.0HP 380/3/60 1
160285P1 MOTOR 10.0HP 575-3-60 PE 1
163925P1 MOTOR 10HP 230/460-60 INVD 1
163926P1 MOTOR 10HP 575-3-60 INVD 1
163928P1 MOTOR 10HP 220-3-50 INVD 1
163929P1 MOTOR 10HP 200/380/415-50INVD 1
163930P1 MOTOR 10HP 208-3-60 INVD 1
1A20755P1 MOTOR 10.0HP 230/460-3-60 TEF 1
1A22735P1 MOTOR 10.0HP 230/460-3-60 PE 1
12
1A22735P2 MOTOR 10.0HP 208-3-60 PE
10HP
1
- 8 - Confidential Document March 2009 (Rev00)

Blower/ Motor Section
May 2009 (Rev00) Confidential Document - 9 -
Item Part Number Description Quantity Quantity
B02-0140 MOTOR 15.0HP 200/380/400-3-50 1
135322P2 MOTOR 15.0HP 575-3-60TEFC 1
136175P1 MOTOR 15.0HP 575-3-60 PE 1
146006P1 MOTOR 15.0HP 380-3-60 1
163937P1 MOTOR 15HP 230/460-60 INVD 1
163937P2 MOTOR 15HP 230/460-60 INVD 1
163938P1 MOTOR 15HP 575-3-60 INVD 1
163938P2 MOTOR 15HP 575-3-60 INVD 1
163940P2 MOTOR 15HP 220-3-50 INVD 1
163941P1 MOTOR 15HP 200/380/415-50INVD 1
163941P2 MOTOR 15HP 200/380/415-50INVD 1
163942P1 MOTOR 15HP 208-3-60 INVD 1
163942P2 MOTOR 15HP 208-3-60 INVD 1
1A30102P1 MOTOR 15.0HP 208/230/460-3-60 1
1C32993P1 MOTOR 15.0HP 230/460-3-60 PE 1
1C32993P2 MOTOR 15.0HP 208-3-60 PE
15HP
1
160179P1 MOTOR 20.0HP 208-3-60 PEFF 1
160180P1 MOTOR 20.0HP 230/460-3-60 PEF 1
160076P1 MOTOR 20.0HP 380/415-3-50 1
160074P1 MOTOR 20.0HP 380-3-60 1
160181P1 MOTOR 20.0HP 575-3-60 PE 1
160137P1 MOTOR 20HP 200/380/415-50INVD 1
160134P1 MOTOR 20HP 208-3-60 INVD 1
160135P1 MOTOR 20HP 230/460-60 INVD 1
160136P1 MOTOR 20HP 575-3-60 INVD
20HP
1
Item Part Number Description Quantity
179161P3 BUSHING PULLEY B 1-7/16" DIA 1
B-0080 BUSHING PULLEY H 1"DIA 1
B-1160 BUSHING PULLEY H 1-3/16"DIA 1
1A23547P1 BUSHING PULLEY HX1 7/16 DIA 1
136133P3 BUSHING PULLEY B 1-5/8" DIA 1
14
1A32397P4 BUSHING PULLEY H 1-3/8" 1
19 B-0650 KEY STOCK 1/4X 1-5/16 1

Liebert CW Parts Manual
- 10 - Confidential Document March 2009 (Rev00)
3.3. Drive Package
Due to the complexity of the Drive Package Options for units, you will need to contact the Factory for the
Drive Package Parts for your specific unit(s). Please supply the Serial Number(s) and Model Number(s) of
the unit(s) for which you need the parts.

Electrical Section
4. Electrical Section
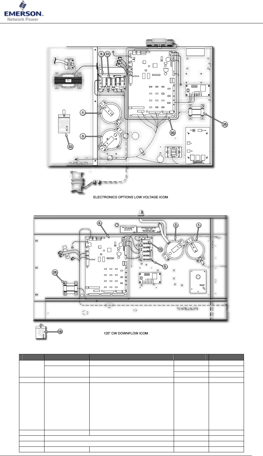
4.1. Accent Panel
Item Part Number Description Type Quantity
2 1A18353P1 SHAFT EXTENSION K/M DISC SWT K/M 1
3 1C18352P1 HANDLE DISC SWT/FACEPLATE K/M K/M 1
1C18707P1 PLATE DISC K/M K/M 1
F30-0030 PLATE LOCKING DISC 6//22T LOCKING 1
F30-0040 PLATE NON LOCKING DISC 6//22T NON LOCKING 1
4
1C18707P1 PLATE DISC K/M K/M 1
184107G27 ACCNT 48" NO DISC LIEB CW ICOM NO DISC 1
184107G28 ACCNT 48" N/L LIEB CW ICOM NON LOCKING 1
184107G30 ACCNT 48" K/M LIEB CW ICOM K/M 1
184107G31 ACCNT 72" K/M LIEB CW ICOM K/M 1
184107G32 ACCNT 72" LOK LIEB CW ICOM LOCKING 1
184107G33 ACCNT 72" N/L LIEB CW ICOM NON LOCKING 1
184107G34 ACCNT 72" NO DISC LIEB CW ICOM NO DISC 1
184107G35 ACCNT 97" LOK LIEB CW ICOM LOCKING 1
184107G36 ACCNT 97" N/L LIEB CW ICOM NON LOCKING 1
184107G37 ACCNT 97" NO DISC LIEB CW ICOM NO DISC 1
184107G38 ACCNT 97" K/M LIEB CW ICOM K/M 1
184107G39 ACCNT 97" V K/M LIEB CW ICOM K/M 1
184107G39H ACCNT 97" V K/M LIEB CW ICOM K/M 1
184107G40 ACCNT 97" V N/L LIEB CW ICOM NON LOCKING 1
184107G40H ACCNT 97" V N/L LIEB CW ICOM NON LOCKING 1
184107G41 ACCNT 97" V LOK LIEB CW ICOM LOCKING 1
184107G41H ACCNT 97" V LOK LIEB CW ICOM LOCKING 1
184107G42 ACCNT 97" V NO DISC LIEB CW IC NO DISC 1
184107G42H ACCNT 97" V NO DISC LIEB CW IC NO DISC 1
184108G5 ACCNT 120" K/M LIEB CW ICOM K/M 1
184108G6 ACCNT 120" LOK LIEB CW ICOM LOCKING 1
184108G7 ACCNT 120" N/L LIEB CW ICOM NON LOCKING 1
5
184108G8 ACCNT 120" NO DISC LIEB CW ICO NO DISC 1
20 179746P1 DISCONNECT BEZEL GLOBAL ALL 1
K/M 1
NO
DISCONNECT 1
LOCKING 1
33 1B29146P1 CYLINDER GAS SUPPORT 30T V
NON LOCKING 1
May 2009 (Rev00) Confidential Document - 11 -

Liebert CW Parts Manual
4.2. EP Display
Item Part Number Description Quantity
55 181898P1 COUPLER XOVER CAT5E RJ45 F/F 1
180632G2 DISPLAY ASSY LRG LRG GR LED GL 1
58 180633G1 DISPLAY ASSY LRG SM GR ICOM 1
179747P1 DISPLAY BEZEL ICOM 1
60 179747P2 DISPLAY BEZEL NO LOGO 1
- 12 - Confidential Document March 2009 (Rev00)

Electrical Section
4.3. EP Controls
Item Part Number Description Model Quantity
B02-0190 SW AIRFLO SENSING ALL 1
CW106 1
1 172296P1 SW AIRFLO SENSING .32 IWG
OPEN CW114 1
3 128199P1 SW AIR DIFFERENTIAL 2PORTS ALL 1
5 416891G1 PWA ENV GLOBAL FUSE BOARD
CW026
CW038
CW041
CW051
CW060
CW076
CW084
CW106
CW114
1
8 416761G1 PWA ENV ICOM CTRL LARGE ALL 1
15 See Table below for item #15
16 See Table below for item #16
26 180792P1 TRANSFORMER ISOLATION ALL 1
May 2009 (Rev00) Confidential Document - 13 -

Liebert CW Parts Manual
- 14 - Confidential Document March 2009 (Rev00)
Item Part Number Description Model Quantity
30 416761G1 PWA ENV ICOM CTRL LARGE ALL 1
32 See Table below for item #32
Item Part Number Description Hz Model Quantity
135409P2 FUSE GLASS 250V 4AMP .25X1.25 50Hz 5
15
135409P3 FUSE GLASS 250V 6AMP .25X1.25 60Hz
CW026
CW038
CW041
CW051
CW060
CW076
CW084
CW106
CW114
5
135637P2 FUSE KIT QTY6-4A/2-1.5A NON-TD 60Hz
135637P3 FUSE KIT QTY6-6A/2-1.5A NON-TD 50Hz
CW106
CW114 1
135637P5 FUSE KIT QTY 6-4A/2-3A NON-TD 60Hz
CW026
CW038
CW041
CW051
CW060
CW076
CW084
CW106
CW114
1
16
135637P6 FUSE KIT QTY 6-6A/2-3A NON-TD 50Hz
CW026
CW038
CW041
CW051
CW060
CW076
CW084
CW106
CW114
1
135637P2 FUSE KIT QTY6-4A/2-1.5A NON-TD 60Hz
135637P3 FUSE KIT QTY6-6A/2-1.5A NON-TD 50Hz
CW106
CW114 1
135637P5 FUSE KIT QTY 6-4A/2-3A NON-TD 60Hz
CW026
CW038
CW041
CW051
CW060
CW076
CW084
CW106
CW114
1
32
135637P6 FUSE KIT QTY 6-6A/2-3A NON-TD 50Hz
CW026
CW038
CW041
CW051
CW060
CW076
CW084
CW106
CW114
1

Electrical Section
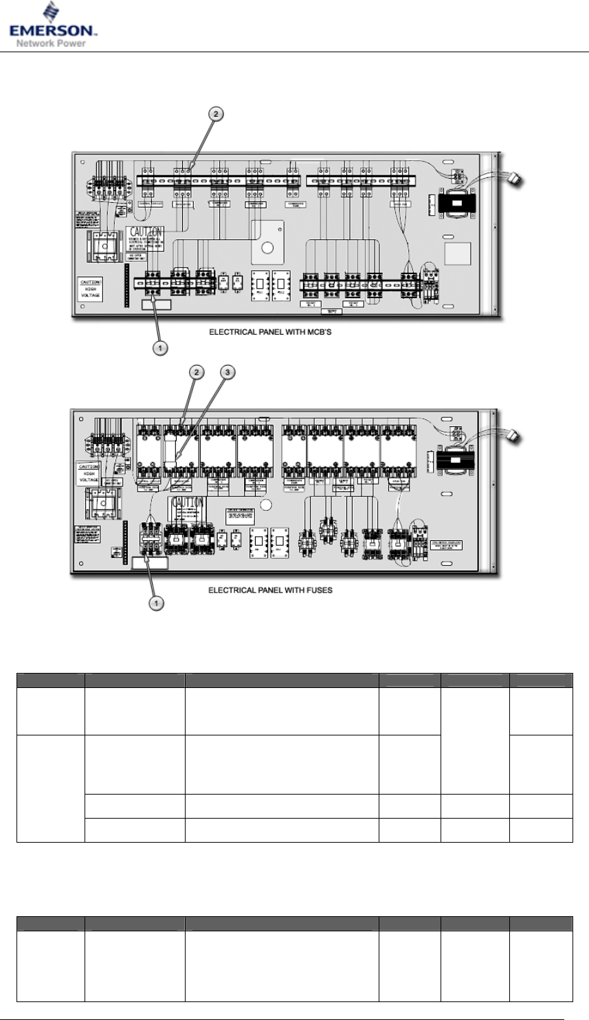
4.4. EP Back Panel
4.4.1. Circuit Breaker
Item Part Number Description Model Voltage Quantity
91 E-362B TERM LUG MECH #14-2/0 1/4" ALL - 1
95 E-6030 FUSEBLOCK 600V 2P 030A
CW026
CW038
CW041
CW051
CW060
CW076
CW084
CW106
CW114
466V
385/415V
576V
1
E-203D FUSE DUAL ELMNT 250V 02.8AMP
CW026
CW038
CW041
CW051
CW060
CW076
CW084
CW106
CW114
205//236V
206/236V 2
96
E-2030 FUSE DUAL ELMNT 250V 04.5AMP
CW026
CW038
CW041
206/236V 2
May 2009 (Rev00) Confidential Document - 15 -

Liebert CW Parts Manual
- 16 - Confidential Document March 2009 (Rev00)
Item Part Number Description Model Voltage Quantity
E-194C FUSE DUAL ELMNT 600V
01.25AMP
CW026
CW038
CW041
CW051
CW060
CW076
CW084
CW106
CW114
466V
385/415V
576V
2
187014P1 FUSE DUAL ELMNT 600V 2.0 AMP
CW026
CW038
CW041
385/415V
466V
576V
2
136201P3 XFMR 200VA 460-615/24V60 ALL - 1
136202P2 XFMR 300VA 200-240/24V50/60 ALL - 1
105
136202P3 XFMR 300VA 380-415/24V 50/60 ALL - 1
106 136205P1 PWRBLK 2PL 600V 65A TCHPRF
CW051
CW060
CW076
CW084
CW106
CW114
- 1
140753G1 EP S3 EARTH GROUND BAR ALL - 1
175 E-3620 GROUND LUG STRIP 13POS
SCRTRM
CW106
CW114 - 1
4.4.2. Fused
Item Part Number Description Model Voltage Quantity
62 E-362B TERM LUG MECH #14-2/0 1/4" ALL - 1
91 E-3620 GROUND LUG STRIP 13POS
SCRTRM ALL - 1
136240P3 CB MCB 2P 240/415V 1.6A K CURV
CW026
CW038
CW041
CW051
CW060
CW076
CW084
CW106
CW114
385/415V 1
136240P4 CB MCB 2P 240/415V 2A K CURVE 385/415V 1
95
136240P5 CB MCB 2P 240/415V 3A K CURVE
CW106
CW114 205/235V 1
136201P2 XFMR 200VA 380-415/2450 ALL - 1
105 136202P3 XFMR 300VA 380-415/24V 50/60 ALL - 1
136205P1 PWRBLK 2PL 600V 65A TCHPRF
106
140653P1 PWRBLK 3PL COVER 4X2.5
CW051
CW060
CW076
CW084
CW106
CW114
- 1

Electrical Section
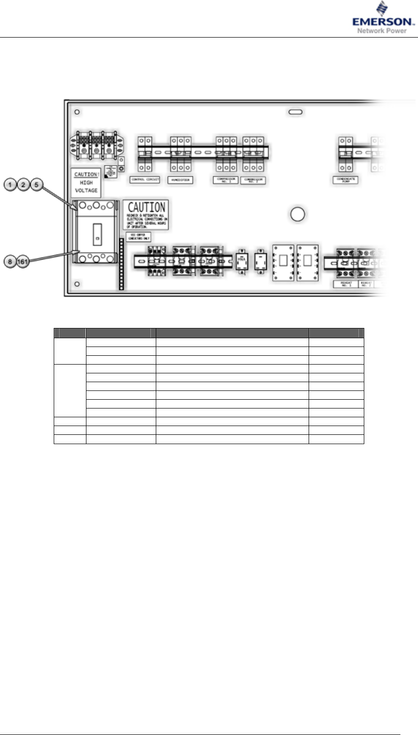
4.5. EP Condensate Pump
Item Part Number Description Model Voltage Quantity
136240P4 CB MCB 2P 240/415V 2A K CURVE CW106
CW114 385/415V 1
40
136240P5 CB MCB 2P 240/415V 3A K CURVE
CW051
CW060
CW076
CW084
CW106
CW114
205/235V
385/415V 1
E-6030 FUSEBLOCK 600V 2P 030A
CW051
CW060
CW076
CW084
CW106
CW114
385/415V
466V
576V
1
130
E-6040 FUSEBLOCK 250V 2P 030A
CW051
CW060
CW076
CW084
CW106
CW114
205/236V
206/236V 1
May 2009 (Rev00) Confidential Document - 17 -

Liebert CW Parts Manual
- 18 - Confidential Document March 2009 (Rev00)
Item Part Number Description Model Voltage Quantity
E-203D FUSE DUAL ELMNT 250V 02.8AMP
CW051
CW060
CW076
CW084
CW106
CW114
205/236V
206/236V
2
E-1951 FUSE DUAL ELMNT 600V 02.8AMP
CW051
CW060
CW076
CW084
CW106
CW114
385/415V
466V
576V
2
131
E-194C FUSE DUAL ELMNT 600V 01.25AMP
CW051
CW060
CW106
CW114
576V 2
200 E-0130 RELAY 2P2T 24VAC COIL ALL - 1

Electrical Section
4.6. EP Humidifier IR
4.6.1. Circuit Breaker
Item Part Number Description Model Voltage Quantity
1 136224P1 CONTACTOR 3P40IND/55RES24
CW076
CW084
CW106
CW114
1
136241P11 CB MCB 3P 240/415V 20A K CURVE
CW076
CW084
CW106
CW114
385/415V
1
136241P13 CB MCB 3P 240/415V 32A K CURVE CW106
CW114 235V 1
2
136241P14 CB MCB 3P 240/415V 40A K CURVE CW106
CW114 205V 1
4.6.2. Fuse
Item Part Number Description Model Voltage Quantity
1 E-0100 CONTACTOR 3PL 24VCOIL
40/50AMP
CW051
CW060
CW076
CW084
CW106
CW114
- 1
May 2009 (Rev00) Confidential Document - 19 -

Liebert CW Parts Manual
- 20 - Confidential Document March 2009 (Rev00)
Item Part Number Description Model Voltage Quantity
E-0110 CONTACTOR 3PL 24VCOIL
25/30AMP
CW026
CW038
CW041
- 1
E-011B CONTACTOR 2PL 24VCOIL
25/35AMP
CW026
CW038
CW041
- 1
E-011C CONTACTOR 2PL 24VCOIL
40/50AMP
CW051
CW060 - 1
E-1020 FUSEBLOCK 250V 3P 030A
CW026
CW038
CW041
CW051
CW060
CW076
CW084
CW106
CW114
205/206V
235/236V
236V
1
E-1040 FUSEBLOCK 250V 3P 060A
CW051
CW060
CW076
CW084
CW106
CW114
205/206V
206V 1
E-1050 FUSEBLOCK 600V 3P 030A
CW026
CW038
CW041
CW051
CW060
CW076
CW084
CW106
CW114
466V
385/415V
576V
1
2
E-6030 FUSEBLOCK 600V 2P 030A
CW026
CW038
CW041
CW051
CW060
576V 1
E-1200 FUSE DUAL ELMNT 250V 35.0AMP
CW051
CW060
CW076
CW084
CW106
CW114
205/206V
206V 3
E-1230 FUSE DUAL ELMNT 250V 20.0AMP
CW026
CW038
CW041
205/206V 3
CW076
CW084
CW106
CW114
385/415V 3
466V
385/415V 3
E-2020 FUSE DUAL ELMNT 600V 20.0AMP
CW051
CW060 576V 2
E-2070 FUSE DUAL ELMNT 250V 15.0AMP
CW026
CW038
CW041
235/236V 3
E-2090 FUSE DUAL ELMNT 250V 30.0AMP
CW051
CW060
CW076
CW084
CW106
CW114
235/236V
236V 3
385/415V 3
466V 3
CW026
CW038
CW041 576V 2
E-2410 FUSE DUAL ELMNT 250V 30.0AMP CW076
CW084
CW106
CW114
576V 3
3
E-2730 FUSE DUAL ELMNT 600V 17.5AMP
CW076
CW084
CW106
CW114
466V 3

Electrical Section
4.7. EP Humidifier Steam
Item Part Number Description Model Voltage Quantity
E-009F CONTACTOR 3PL 24VCOIL 30/40AMP
CW051
CW060
CW076
CW084
CW106
CW114
- 1
1
E-0110 CONTACTOR 3PL 24VCOIL 25/30AMP ALL - 1
E-1020 FUSEBLOCK 250V 3P 030A
CW026
CW038
CW041
CW051
CW060
CW076
CW084
CW106
CW114
235/236V 1
2
E-1040 FUSEBLOCK 250V 3P 060A
CW026
CW038
CW041
CW051
CW060
CW076
CW084
CW106
CW114
205/206V 1
May 2009 (Rev00) Confidential Document - 21 -

Liebert CW Parts Manual
- 22 - Confidential Document March 2009 (Rev00)
Item Part Number Description Model Voltage Quantity
E-1050 FUSEBLOCK 600V 3P 030A
CW026
CW038
CW041
CW051
CW060
CW076
CW084
CW106
CW114
385/415V
466V
576V
1
E-1200 FUSE DUAL ELMNT 250V 35.0AMP
CW051
CW060
CW076
CW084
CW106
CW114
205/206V 3
E-2070 FUSE DUAL ELMNT 250V 15.0AMP
CW026
CW038
CW041
235/236V 3
E-2090 FUSE DUAL ELMNT 250V 30.0AMP
CW051
CW060
CW076
CW084
CW106
CW114
235/236V 3
E-2410 FUSE DUAL ELMNT 600V 15.0AMP
CW026
CW038
CW041
CW051
CW060
CW076
CW084
CW106
CW114
385/415V
466V
576V
3
E-2730 FUSE DUAL ELMNT 600V 17.5AMP
CW051
CW060
CW076
CW084
CW106
CW114
385/415V 3
3
E-2740 FUSE DUAL ELMNT 250V 17.5AMP
CW026
CW038
CW041
205/206V 3
136222P1 CONTACTOR 3P23IND/32RES24/50 1
41 136223P1 CONTACTOR 3P30IND/40RES24
CW106
CW114 1
136241P11 CB MCB 3P 240/415V 20A K CURVE 385/415V 1
136241P13 CB MCB 3P 240/415V 32A K CURVE 235V 1
42
136241P14 CB MCB 3P 240/415V 40A K CURVE
CW106
CW114 205V 1
47 E03-0170 RELAY 1P2T 24V 50/60HZ CW106
CW114 - 1

Electrical Section
4.8. EP Motor
4.8.1. Circuit Breaker
Item Part Number Description Model Voltage Quantity
136221P1 CONTACTOR 3P16IND/21RES24/50
CW026
CW038
CW041
CW051
CW060
CW076
CW084
- 1
136223P1 CONTACTOR 3P30IND/40RES24 ALL - 1
136224P1 CONTACTOR 3P40IND/55RES24 ALL - 1
20
136225P1 CONTACTOR 3P60IND/75RES24 CW106
CW114 - 1
136241P10 CB MCB 3P 240/415V 16A K CURVE
136241P11 CB MCB 3P 240/415V 20A K CURVE
CW026
CW038
CW041
CW051
CW060
CW076
CW084
385/415V 1
21
136241P12 CB MCB 3P 240/415V 25A K CURVE
CW026
CW038
CW041
CW051
CW060
CW076
CW084
CW106
CW114
385/415V 1
May 2009 (Rev00) Confidential Document - 23 -

Liebert CW Parts Manual
- 24 - Confidential Document March 2009 (Rev00)
Item Part Number Description Model Voltage Quantity
136241P14 CB MCB 3P 240/415V 40A K CURVE
CW026
CW038
CW041
CW051
CW060
CW076
CW084
CW106
CW114
385/415V 1
136241P15 CB MCB 3P 240/415V 50A K CURVE CW106
CW114 205//235V 1
136241P16 CB MCB 3P 240/415V 63A K CURVE CW106
CW114 205//235V 1
29 124547P1 OVERLOAD RELAY W/B MNT 32A C-H ALL - 1
4.8.2. Fuse
Item Part Number Description Model Voltage Quantity
124501P1 CONTACTOR 3P16IND/21RES24/50
CW026
CW038
CW041
CW051
CW060
CW076
CW084
- 1
E-009F CONTACTOR 3PL 24VCOIL 30/40AMP ALL - 1
E-009H CONTACTOR 3PL 24VCOIL 65/75AMP CW106
CW114 - 1
E-0100 CONTACTOR 3PL 24VCOIL 40/50AMP ALL - 1
E-0110 CONTACTOR 3PL 24VCOIL 25/30AMP ALL - 1
20
E-2500 CONTACTOR 3PL 24VCOIL 50/63AMP ALL - 1
E-1020 FUSEBLOCK 250V 3P 030A
CW026
CW038
CW041
CW051
CW060
CW076
CW084
206/236V 1
E-1040 FUSEBLOCK 250V 3P 060A
CW026
CW038
CW041
CW051
CW060
CW076
CW084
CW106
CW114
205//235V
206/236V 1
E-1041 FUSEBLOCK 250V 3P 100A
CW026
CW038
CW041
CW051
CW060
CW076
CW084
CW106
CW114
205//235V
206//236V 1
E-1050 FUSEBLOCK 600V 3P 030A
CW026
CW038
CW041
CW051
CW060
CW076
CW084
CW106
CW114
466V
385/415V
576V
1
21
E-105A FUSEBLOCK 600V 3P 060A
CW026
CW038
CW041
CW051
CW060
CW076
CW084
CW106
CW114
466V
385/415V
576V
1

Electrical Section
May 2009 (Rev00) Confidential Document - 25 -
Item Part Number Description Model Voltage Quantity
136811P1 FUSEBLOCK BUSS JP600V 30A 3P
CW026
CW038
CW041
CW051
CW060
CW076
CW084
CW106
CW114
466V
385/415V
576V
1
194432P1 FUSEBLOCK J 600V 100A 3P
CW026
CW038
CW041
CW051
CW060
CW076
CW084
CW106
CW114
466V
205//235V
206//236V
385/415V
576V
1
E05-3810 FUSE DUAL ELMNT 600V 45.0AMP 466V
E05-4170 FUSE DUAL ELMNT 600V 50.0AMP 385/415V
E-1120 FUSE DUAL ELMNT 250V 90.0AMP
CW106
CW114 206/236V
3
E-1200 FUSE DUAL ELMNT 250V 35.0AMP 206//236V 3
E-2070 FUSE DUAL ELMNT 250V 15.0AMP 206/236V 3
E-2080 FUSE DUAL ELMNT 250V 25.0AMP 206/236V 3
E-2410 FUSE DUAL ELMNT 600V 15.0AMP
CW026
CW038
CW041
CW051
CW060
CW076
CW084 466V
385/415V
576V
3
E-116A FUSE DUAL ELMNT 250V 70.0AMP 205//235
206/236
E-2020 FUSE DUAL ELMNT 600V 20.0AMP 466V
385/415V
E-2021 FUSE DUAL ELMNT 600V 35.0AMP 466V
576V
E-2023 FUSE DUAL ELMNT 600V 40.0AMP 385/415V
E-2730 FUSE DUAL ELMNT 600V 17.5AMP 576V
E-3050 FUSE DUAL ELMNT 600V 25.0AMP 385/415V
576V
E-6050 FUSE DUAL ELMNT 250V 45.0AMP
CW026
CW038
CW041
CW051
CW060
CW076
CW084
CW106
CW114
206/236V
3
186009P12 FUSE FASTACTING "J" 600V 15.0A 576V
186009P14 FUSE FASTACTING "J" 600V 20.0A
466V
385/415V
576V
186009P15 FUSE FASTACTING "J" 600V 25.0A
466V
385/415V
576V
186009P16 FUSE FASTACTING "J" 600V 30.0A 466V
385/415V
186009P17 FUSE FASTACTING "J" 600V 35.0A 466V
186009P18 FUSE FASTACTING "J" 600V 40.0A 385/415V
186009P19 FUSE FASTACTING "J" 600V 45.0A 205//235V
206//236V
186009P21 FUSE FASTACTING "J" 600V 60.0A 206//236V
22
186009P22 FUSE FASTACTING "J" 600V 70.0A
CW026
CW038
CW041
CW051
CW060
CW076
CW084
205//235V
206//236V
3
29 124547P1 OVERLOAD RELAY W/B MNT 32A C-H ALL 1

Liebert CW Parts Manual
4.9. EP Disconnect
Item Part Number Description Quantity
1C18351P1 SW DISC 600V 3PL 100A 1
1C18351P2 SW DISC 600V 3PL 60A 1
1
E-2900 SW DISC 240V 3PL 225A 1
125718P1 BRKT DISC CSU 3MOD 1
1C18603P1 BRKT DISC K/M 1
F02-2140 BRKT LKDISC OPER 225 1
135627P2 BRKT LKDISC OPER 225A GE 120" 1
135627P4 BRKT NON LKDISC 225A GE 120" 1
2
F02-2160 BRKT NON LKDISC OPER 225 1
5 1C18354P1 COLLAR LKG DISC W/2 SCREWS KM 1
8 E-290A SW DISC LOKG HANDLE ROTARY 1
161 E-288B SW DISC LOKG RING CATCH 1
- 26 - Confidential Document March 2009 (Rev00)

Electrical Section
4.10. EP Reheat
4.10.1. Circuit Breaker
Item Part Number Description Type Voltage Quantity
136222P1 CONTACTOR 3P23IND/32RES24/50
CW026
CW038
CW041
CW051
CW060
3 136222P1
136223P1 CONTACTOR 3P30IND/40RES24 CW051 3 136223P1
40
136227P1 CONTACTOR 3P32IND/50RES24
CW060
CW076
CW084
CW106
CW114
3 136227P1
136222P1 CONTACTOR 3P23IND/32RES24/50
CW026
CW038
CW041
CW060
CW106
CW114
1 136222P1
136223P1 CONTACTOR 3P30IND/40RES24 CW051 1 136223P1
41
136227P1 CONTACTOR 3P32IND/50RES24
CW060
CW076
CW084
CW106
CW114
1 136227P1
May 2009 (Rev00) Confidential Document - 27 -

Liebert CW Parts Manual
- 28 - Confidential Document March 2009 (Rev00)
Item Part Number Description Type Voltage Quantity
136240P13 CB MCB 2P 240/415V 32A K CURVE CW051
CW060 385/415V 3
136240P14 CB MCB 2P 240/415V 40A K CURVE
CW051
CW076
CW084
CW106
CW114
205V
235V
385/415V
3
136240P15 CB MCB 2P 240/415V 50A K CURVE CW060 235V 3
136240P16 CB MCB 2P 240/415V 63A K CURVE
CW060
CW076
CW084
CW106
CW114
205/235V 3
136241P11 CB MCB 3P 240/415V 20A K CURVE CW038
CW041 385/415V 1
136241P13 CB MCB 3P 240/415V 32A K CURVE CW038
CW041 385/415V 1
136241P14 CB MCB 3P 240/415V 40A K CURVE CW026 205V
235V 1
136241P15 CB MCB 3P 240/415V 50A K CURVE CW038
CW041
205V
235V 1
136241P16 CB MCB 3P 240/415V 63A K CURVE CW106
CW114 385/415V 1
4.10.2. Fuse
Item Part Number Description Type Voltage Quantity
E-011A CONTACTOR 2PL 24VCOIL
20/30AMP ALL - 3
E-011B CONTACTOR 2PL 24VCOIL
25/35AMP CW051 - 3
40
E-011C CONTACTOR 2PL 24VCOIL
40/50AMP
CW060
CW076
CW084
CW106
CW114
- 3
E-0110 CONTACTOR 3PL 24VCOIL
25/30AMP ALL - 1
E-009F CONTACTOR 3PL 24VCOIL
30/40AMP CW051 - 1
41
E-0100 CONTACTOR 3PL 24VCOIL
40/50AMP
CW060
CW076
CW084
CW106
CW114
- 1
CW026
CW038
CW041
1
E-1040 FUSEBLOCK 250V 3P 060A
CW051
CW060
CW076
CW084
CW106
CW114
205/206V
235/236V
2
CW026
CW038
CW041
1
E-1050 FUSEBLOCK 600V 3P 030A
CW051
CW060
CW076
CW084
CW106
CW114
466V
385/415V
576V 2
CW106
CW114 1
42
E-105A FUSEBLOCK 600V 3P 060A CW076
CW084
CW106
CW114
466V
385/415V
576V 2
1A11899P1 FUSE DUAL ELMNT 600V
60.0AMP
CW106
CW114 385/415V 3
43
E05-4170 FUSE DUAL ELMNT 600V
50.0AMP
CW106
CW114
466V 3

Electrical Section
May 2009 (Rev00) Confidential Document - 29 -
Item Part Number Description Type Voltage Quantity
CW060
CW076
CW084
CW106
CW114
6
E-1100 FUSE DUAL ELMNT 600V
30.0AMP
CW038
CW041
385/415V
466V
3
E-1160 FUSE DUAL ELMNT 250V
60.0AMP
CW060
CW076
CW084
CW106
CW114
205/206V
235/236V 6
E-1200 FUSE DUAL ELMNT 250V
35.0AMP CW026 205/206V
235/236V 3
E-2020 FUSE DUAL ELMNT 600V
20.0AMP
CW026
CW038
CW041
385/415V
576V 6
CW051
CW060
466V
576V 3
E-2021 FUSE DUAL ELMNT 600V
35.0AMP
CW076
CW084
CW106
CW114
385/415V 6
E-2023 FUSE DUAL ELMNT 600V
40.0AMP
CW106
CW114 576V 3
E-2100 FUSE DUAL ELMNT 250V
40.0AMP CW051 205/206V
235/236V 6
CW051 6
E-2410 FUSE DUAL ELMNT 600V
15.0AMP CW026 576V 3
E-2730 FUSE DUAL ELMNT 600V
17.5AMP CW026 466V 3
CW038
CW041 466V 3
E-3050 FUSE DUAL ELMNT 600V
25.0AMP
CW051
CW060
CW076
CW084
CW106
CW114
385/415V
466V
576V
6
CW038
CW041
205/206V
235/236V 3
E-3060 FUSE DUAL ELMNT 250V
50.0AMP CW060 235/236V 6

Liebert CW Parts Manual
4.11. EP Sensor
Item Part Number Description Quantity
91 181464G1 SENSOR T/H ASSY INTERNAL ICOM 181464G1
- 30 - Confidential Document March 2009 (Rev00)

Electrical Section
4.12. EP Extra Common Alarm
Item
Part Number Description Quantity
199 E-2440 RELAY 4P2T 24VAC 125V MAXLOAD 1
May 2009 (Rev00) Confidential Document - 31 -

Liebert CW Parts Manual
4.13. EP Main Fan Auxiliary
Item Part Number Description Quantity
81 149117P1 CONTACTS AUX NO/NC 49ACR6 FRNS 1
E-0380 TERMBLK SECTION 1POS 4
83 132487P1 TERMLSTRIP SECTION 1 POS 4
132487P2 TERMLSTRIP SECTION END BARRIER 1
84 E-0390 TERMBLK SECTION END BARRIER 1
- 32 - Confidential Document March 2009 (Rev00)

Electrical Section
4.14. EP Firestat
Item
Part Number Description Quantity
1 E-2350 FIRESTAT OPEN ON RISE 1
May 2009 (Rev00) Confidential Document - 33 -

Liebert CW Parts Manual
4.15. Intellislot
Item Part Number Description Model Quantity
OC485-LBDS KIT OC485-LBDS - 1
1 IS-WEBLBDS KIT IS-WEBLBDS - 1
21 416911G2 PWA INTELLISLOT PWR SPLY DC IN - ALL
22 200509P1 ENCLOSURE INTELLISLOT 34 PIN - ALL
CW106 1
185059P1 BRKT MTG INTELLISLOT S3 CW CW104 1
CW026 1
CW038 1
CW041 1
CW051 1
CW060 1
CW076 1
34
184653P1 BRKT MTG S3 CW INTELLISLOT
CW084 1
- 34 - Confidential Document March 2009 (Rev00)

Electrical Section
4.16. EP Remote Humidifier Contact
Item
Part Number Description Quantity
E-0380 TERMBLK SECTION 1POS 2
2 132487P1 TERMLSTRIP SECTION 1 POS 2
132487P2 TERMLSTRIP SECTION END BARRIER 1
3 E-0390 TERMBLK SECTION END BARRIER 1
4 E03-0170 RELAY 1P2T 24V 50/60HZ 1
May 2009 (Rev00) Confidential Document - 35 -

Liebert CW Parts Manual
4.17. EP Smoke Detector
Item Part Number Description Quantity
11 124502P2 PWA SMOKE DET CNTL 24VDC 2CONN 1
12 149110G1 SMOKE DETECTOR ENCLO ASSY 731L 1
- 36 - Confidential Document March 2009 (Rev00)

Electrical Section
4.18. Extra Remote Shutdown
Item
Part Number Description Quantity
E-0380 TERMBLK SECTION 1POS 4
197 132487P1 TERMLSTRIP SECTION 1 POS 4
132487P2 TERMLSTRIP SECTION END BARRIER 1
198 E-0390 TERMBLK SECTION END BARRIER 1
May 2009 (Rev00) Confidential Document - 37 -

Liebert CW Parts Manual
5. Exterior Section
5.1. CW Downflow
Item Part Number Description Quantity
136021G1 PANEL ASSY 120"CW BTM 2
2 194589G1 PANEL ASSY 120"CW BTM 2
F02-6940 PANEL EXT FR-MDL RR-TOP 2
F02-7110 PANEL EXT FR-MDL RR-TOP 2
4
F02-7130 PANEL EXT FR-MDL RR-TOP 2
6 1C21770P2 PANEL EXT END- LEFT/RIGHT 2
F02-6950 PANEL EXT FR-BTM RR-BTM&MDL 3
F02-7080 PANEL EXT FR-BTM RR-MDL&BTM 3
7
F02-7100 PANEL EXT FR-BTM RR-MDL&BTM 3
11 136057G1 PANEL ASSY 120"CW END 2
12 136058G1 PANEL ASSY 120"CW FRT/RR RIGHT 2
16 136022G1 PANEL ASSY 120"CW MDL 3
- 38 - Confidential Document March 2009 (Rev00)

Exterior Section
5.2. Vertical Front Return
5.2.1. 48”/72”/97” VRR CW
Item
Part Number Description Quantity
1 1C21770P3 PANEL EXT END 69.5 X 28.8 1
1C19065P10 GRILLE RTN AIR 44X18 WG B 1
1C19065P11 GRILLE RTN AIR 68X20 WG B 1
3
1C19065P12 GRILLE RTN AIR 86X18 WG B 1
F02-7110 PANEL EXT FR-MDL RR-TOP 1
F02-7130 PANEL EXT FR-MDL RR-TOP 1
4
F02-6940 PANEL EXT FR-MDL RR-TOP 1
6 1C21770P2 PANEL EXT END- LEFT/RIGHT 1
F02-6950 PANEL EXT FR-BTM RR-BTM&MDL 2
F02-7080 PANEL EXT FR-BTM RR-MDL&BTM 2
7
F02-7100 PANEL EXT FR-BTM RR-MDL&BTM 2
177182G1 PANEL ASSY FR MID 48" CW 20GA 1
177182G2 PANEL ASSY FR MID 72" CW 20GA 1
8
160463G1 PANEL ASSY FR/RR MID LNR 20GA 1
F02-7070 PANEL EXT FR-BTM RR-BTM W/D.C 1
F02-7060 PANEL EXT FR-BTM RR-BTM W/GRIL 1
F02-714A PANEL EXT FR OR RR-BOT ASSY 1
F02-7140 PANEL EXT FR-BTM RR-BTM W/OPNG 1
F02-716A PANEL EXT FR OR RR-BOT ASSY 1
27
F02-7160 PANEL EXT FR-BTM RR-BTM W/OPNG 1
5.2.2. 120” VRR
Item
Part Number Description Quantity
2 160019P4 PANEL VERT REAR 20GA 30T 1
F02-7130 PANEL EXT FR-MDL RR-TOP 1
4 1D28982P3 PANEL EXT FR-MDL RR-TOP 1
160004P1 PANEL EXT END-LEFT/RIGHT 76" 1
6 160004P2 PANEL EXT END-LFT/RGT 76" 16GA 1
F02-7100 PANEL EXT FR-BTM RR-MDL&BTM 1
7 1D28980P3 PANEL EXT FR-BTM RR-MDL&BTM 1
160009P1 PANEL EXT BTM REAR 99" 1
8 160009P2 PANEL EXT BTM REAR 76" 16GA 1
163009G2 PANEL ASSY VERT W/OPG 16GA 1
12 163009G4 PANEL ASSY VRT 20GA OPG & BDG 1
160463G1 PANEL ASSY FR/RR MID LNR 20GA 1
13 160463G2 PANEL ASSY FR/RR MID LNR 16GA 1
160006P1 PANEL EXT BTM W/OPNG 76" 1
27 160006P2 PANEL EXT BTM W/OPNG76" 16GA 1
160004P5 PANEL EXT END LEFT 120"UH 1
29 160004P6 PANEL EXT END LEFT 120"UH 16GA 1
May 2009 (Rev00) Confidential Document - 39 -

Liebert CW Parts Manual
5.3. Vertical Rear Return
5.3.1. 48”/ 72”/97” VRR CW
Item Part Number Description Quantity
1 1C21770P3 PANEL EXT END 69.5 X 28.8 1
1C19065P10 GRILLE RTN AIR 44X18 WG B 1
1C19065P11 GRILLE RTN AIR 68X20 WG B 1
3
1C19065P12 GRILLE RTN AIR 86X18 WG B 1
F02-7110 PANEL EXT FR-MDL RR-TOP 1
F02-7130 PANEL EXT FR-MDL RR-TOP 1
4
F02-6940 PANEL EXT FR-MDL RR-TOP 1
6 1C21770P2 PANEL EXT END- LEFT/RIGHT 1
F02-6950 PANEL EXT FR-BTM RR-BTM&MDL 2
F02-7080 PANEL EXT FR-BTM RR-MDL&BTM 2
7
F02-7100 PANEL EXT FR-BTM RR-MDL&BTM 2
177182G1 PANEL ASSY FR MID 48" CW 20GA 1
177182G2 PANEL ASSY FR MID 72" CW 20GA 1
8
160463G1 PANEL ASSY FR/RR MID LNR 20GA 1
177182G1 PANEL ASSY FR MID 48" CW 20GA 1
177182G2 PANEL ASSY FR MID 72" CW 20GA 1
160463G1 PANEL ASSY FR/RR MID LNR 20GA 1
177182G1 PANEL ASSY FR MID 48" CW 20GA 1
177182G2 PANEL ASSY FR MID 72" CW 20GA 1
27
160463G1 PANEL ASSY FR/RR MID LNR 20GA 1
- 40 - Confidential Document March 2009 (Rev00)

Exterior Section
May 2009 (Rev00) Confidential Document - 41 -
5.3.2. 120”Frame
Item
Part Number Description Quantity
2 160019P4 PANEL VERT REAR 20GA 30T 1
F02-7130 PANEL EXT FR-MDL RR-TOP 1
4 1D28982P3 PANEL EXT FR-MDL RR-TOP 1
160004P1 PANEL EXT END-LEFT/RIGHT 76" 1
6 160004P2 PANEL EXT END-LFT/RGT 76" 16GA 1
F02-7100 PANEL EXT FR-BTM RR-MDL&BTM 1
7 1D28980P3 PANEL EXT FR-BTM RR-MDL&BTM 1
160009P1 PANEL EXT BTM REAR 99" 1
8 160009P2 PANEL EXT BTM REAR 76" 16GA 1
163009G2 PANEL ASSY VERT W/OPG 16GA 1
12 163009G4 PANEL ASSY VRT 20GA OPG & BDG 1
160463G1 PANEL ASSY FR/RR MID LNR 20GA 1
13 160463G2 PANEL ASSY FR/RR MID LNR 16GA 1
160006P1 PANEL EXT BTM W/OPNG 76" 1
27 160006P2 PANEL EXT BTM W/OPNG76" 16GA 1
160004P5 PANEL EXT END LEFT 120"UH 1
29 160004P6 PANEL EXT END LEFT 120"UH 16GA 1

Liebert CW Parts Manual
5.4. Vertical Bottom Return
Item Part Number Description Quantity
1 1C21770P3 PANEL EXT END 69.5 X 28.8 1
F02-6940 PANEL EXT FR-MDL RR-TOP 1
F02-7110 PANEL EXT FR-MDL RR-TOP 1
4
F02-6940 PANEL EXT FR-MDL RR-TOP 1
6 1C21770P2 PANEL EXT END- LEFT/RIGHT 1
F02-6950 PANEL EXT FR-BTM RR-BTM&MDL 3
F02-7080 PANEL EXT FR-BTM RR-MDL&BTM 3
7
F02-7100 PANEL EXT FR-BTM RR-MDL&BTM 3
177182G1 PANEL ASSY FR MID 48" CW 20GA 1
177182G2 PANEL ASSY FR MID 72" CW 20GA 1
8
160463G1 PANEL ASSY FR/RR MID LNR 20GA 1
- 42 - Confidential Document March 2009 (Rev00)

Filter Section
6. Filter Section
6.1. VFR
Item Part Number Description 48” 72” 97” 120”
195531P2 FILTER 18X24X2 MERV 7 10
195531P3 FILTER 18X24X4 MERV 7 2 10
195543P4 FILTER 24X24X4 MERV 7 2 3 4 10
1
195543P5 FILTER 24X24X4 MERV 11 3 4
May 2009 (Rev00) Confidential Document - 43 -

Liebert CW Parts Manual
6.2. Downflow
Item Part Number Description 48” 72” 97” 120”
195553P2 FILTER 30.63X23.1X4 MERV 7 5
1 195553P3 FILTER 30.63X23.1X4 MERV 11 5
- 44 - Confidential Document March 2009 (Rev00)

Filter Section
6.3. VRR
Item Part Number Description 48” 72” 97” 120”
195531P2 FILTER 18X24X2 MERV 7 10
195531P3 FILTER 18X24X4 MERV 7 2 10
195543P4 FILTER 24X24X4 MERV 7 2 3 4 10
1
195543P5 FILTER 24X24X4 MERV 11 3 4
May 2009 (Rev00) Confidential Document - 45 -

Liebert CW Parts Manual
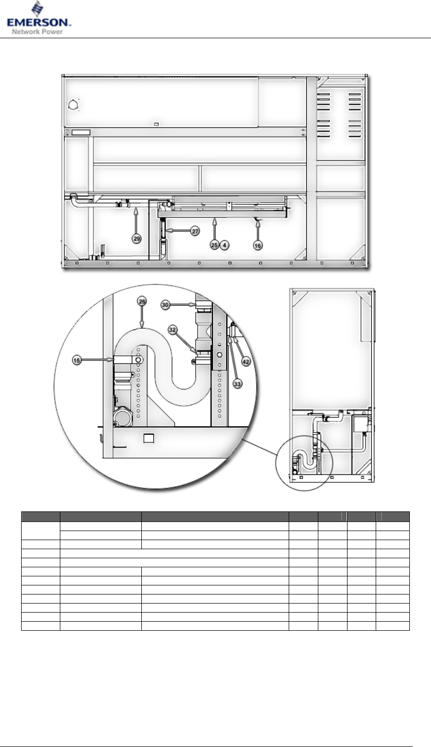
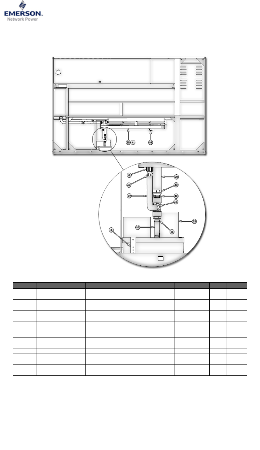
7. Humidifier Section
7.1. Steam Gen without CP
7.1.1. Downflow
Item Part Number Description 48” 72” 97” 120”
13 P15-0170 HOSE DRAIN .75 ID STRAIGHT 2 3 3
14 1C19070P1 HOSE DRAIN .75 ID TRAP 1 1 1 1
15 121965P1 FTG CROSS 3/8HOSE X 3/8TUB STR 1 1 1
16 P15-0150 CLAMP WIRE 5 5 5 8
18 F02-371A SUPPORT VALVE TEV 1 1 1
22 1A21071P1 HOSE STEAM 1.25ID 10PSI 1 1 1
23 P02-0020 CLAMP HOSE WORM DRIVE .75-1.75 2 2 2 1
25 127781P1 ADAPTER BRASS 1/4COMX1/4MPT 1 1 1
26 H-0390 STRAINER "Y" BRASS 1/4FPT 1 1 1
28 9A20000P150 TUBE STR CU 1/4X.028X39.25" 1 1 1
31 P02-0260 ADAPTER POLY 3/4FPTX3/4HOSE 1 1 1 1
35 P02-0260 ADAPTER POLY 3/4FPTX3/4HOSE 1 1 1 1
50 P-229B CLAMP INSULATED METAL 1" 1 1 1
51 149301P4 CLAMP INSUL MTL HDR SUPT 1-1/8 1 1 1
99 124216P2 CLAMP HOSE WORM DRIVE .31X1.25 1 1 1
100 130916P2 CLAMP NON-INSULATED 1-1/8 DIA 1 1 1
- 46 - Confidential Document March 2009 (Rev00)

Humidifier Section
May 2009 (Rev00) Confidential Document - 47 -
7.1.2. Upflow
Item Part Number Description 48” 72” 97” 120”
6 1A11359P1 SGH STM SUPPLY HOSE 7/8" ID 6
7 1C11305P1 HOSE DRAIN .75 ID FORMED 1
8 127781P1 ADAPTER BRASS 1/4COMX1/4MPT 2
9 H-0390 STRAINER "Y" BRASS 1/4FPT 1
10 9A20000P159 TUBE STR CU 1/4X.028X41.50" 1
12 136161P2 DRAIN LINE FORMED RUBBER LONG 1
13 P02-0020 CLAMP HOSE WORM DRIVE .75-1.75 10
16 121965P1 FTG CROSS 3/8HOSE X 3/8TUB STR 1
18 S13-0140 CLAMP INSUL MTL HVY DTY 1-1/8" 2
19 136389P1 TEE POLYP 1"X1"X1" FPT 1
20 136161P1 HOSE DRAIN 1.25 ID FORMED 1
21 136393P1 ADAPTER POLYP 1"NPT-1.25"BARB 2
36 130916P2 CLAMP NON-INSULATED 1-1/8 DIA 1
38 P15-0150 CLAMP WIRE 4
42 9A20001P172 TUBE STR CU 3/8X.028X44.75" 1
43 9A20001P172 TUBE STR CU 3/8X.028X44.75" 1
46 136395P1 ADAPT POLYP 1-1/4 MPT 1-1/4 HB 1
48 136159P1 HOSE DRAIN 1.25 ID TRAP 1
49 136161P2 DRAIN LINE FORMED RUBBER LONG 1
58 P-5020 CLAMP INSUL MTL HVY DTY 1-5/8" 3

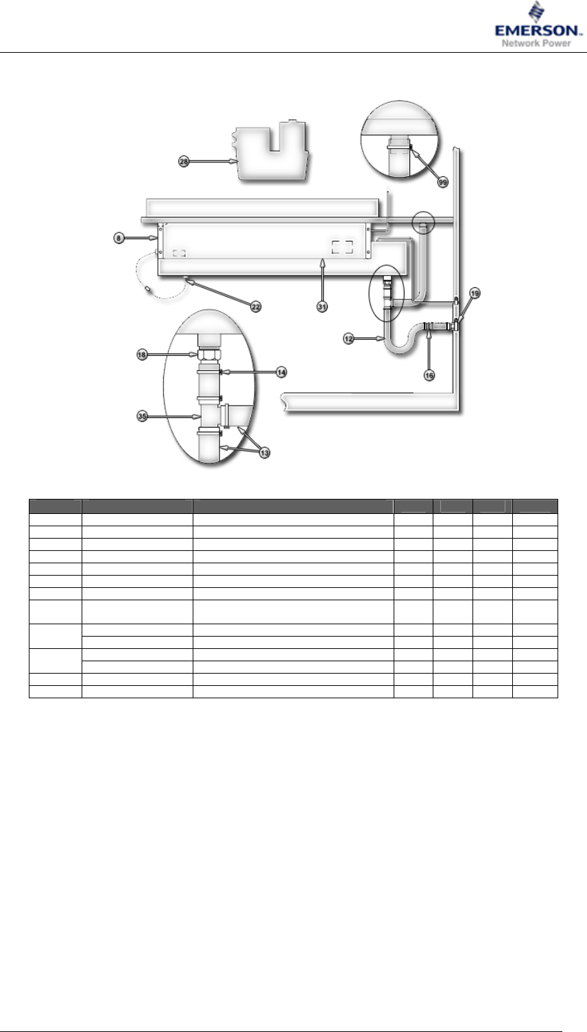
Liebert CW Parts Manual
7.1.3. VRR
Item Part Number Description 48” 72” 97” 120”
18 1A21071P1 HOSE STEAM 1.25ID 10PSI 1 1 1
19 P02-0020 CLAMP HOSE WORM DRIVE .75-1.75 2 2 2
20 P15-0170 HOSE DRAIN .75 ID STRAIGHT 2 3 4 2
21 P-5500 HOSE DRAIN .75 ID TRAP 1 1 1
22 P15-0140 UNION NYLON 3/4BARBX3/4BARB 1 1 1
24 P15-0150 CLAMP WIRE 9 11 13
25 P02-0260 ADAPTER POLY 3/4FPTX3/4HOSE 1 1 1 1
26 121965P1 FTG CROSS 3/8HOSE X 3/8TUB STR 1 1 1
27 1C11305P1 HOSE DRAIN .75 ID FORMED 1
29 P-229A CLAMP INSULATED METAL 1/4" 2 2 2 1
30 S13-0140 CLAMP INSUL MTL HVY DTY 1-1/8" 3 3 4
31 H-0390 STRAINER "Y" BRASS 1/4FPT 1 1 1
32 127781P1 ADAPTER BRASS 1/4COMX1/4MPT 2 2 2
34 9A20001P172 TUBE STR CU 3/8X.028X44.75" 1 1 1
41 9A20001P172 TUBE STR CU 3/8X.028X44.75" 1 1 1
47 1A11359P1 SGH STM SUPPLY HOSE 7/8" ID 3 6 6
49 F20-2300 BRKT COND PUMP ADJ-PART B 2 2 2 2
- 48 - Confidential Document March 2009 (Rev00)

Humidifier Section
7.2. Steam Gen with CP
May 2009 (Rev00) Confidential Document - 49 -
7.2.1. Downflow
Item Part Number Description 48” 72” 97” 120”
13 P15-0170 HOSE DRAIN .75 ID STRAIGHT 1 4 4
15 121965P1 FTG CROSS 3/8HOSE X 3/8TUB STR 1 1 1
16 P15-0150 CLAMP WIRE 5 5 5
19 S13-0140 CLAMP INSUL MTL HVY DTY 1-1/8" 2 1 1
22 1A21071P1 HOSE STEAM 1.25ID 10PSI 1 1 1
23 P02-0020 CLAMP HOSE WORM DRIVE .75-1.75 2 2 2
24 9A20000P172 TUBE STR CU 1/4X.028X44.75" 1 1 1
25 127781P1 ADAPTER BRASS 1/4COMX1/4MPT 1 1 1
26 H-0390 STRAINER "Y" BRASS 1/4FPT 1 1 1
30 P-229A CLAMP INSULATED METAL 1/4" 1 1 1
31 1C11305P1 HOSE DRAIN .75 ID FORMED 2
35 See table below for item #35
39 P15-0140 UNION NYLON 3/4BARBX3/4BARB 1 1 1
1A19271P1 PUMP CONDENSATE 208/230/1/60DF 1 1 1
40 1A19271P2 PUMP CONDENSATE 460/1/60DF 1 1 1
42 9A20002P102 TUBE STR CU 1/2X.028X27.25" 1 1 1
46 P-5020 CLAMP INSUL MTL HVY DTY 1-5/8" 1 1
50 P-2290 CLAMP INSULATED METAL 1/2" 1 1
51 149301P4 CLAMP INSUL MTL HDR SUPT 1-1/8 1 1 1
99 124216P2 CLAMP HOSE WORM DRIVE .31X1.25 1 1 1
100 130916P2 CLAMP NON-INSULATED 1-1/8 DIA 1 1 1
Item Part Number Description Voltage 48” 72” 97” 120”
206/236
466 2
576 4
35 F20-2300 BRKT COND PUMP ADJ-PART B
ALL 6 6

Liebert CW Parts Manual
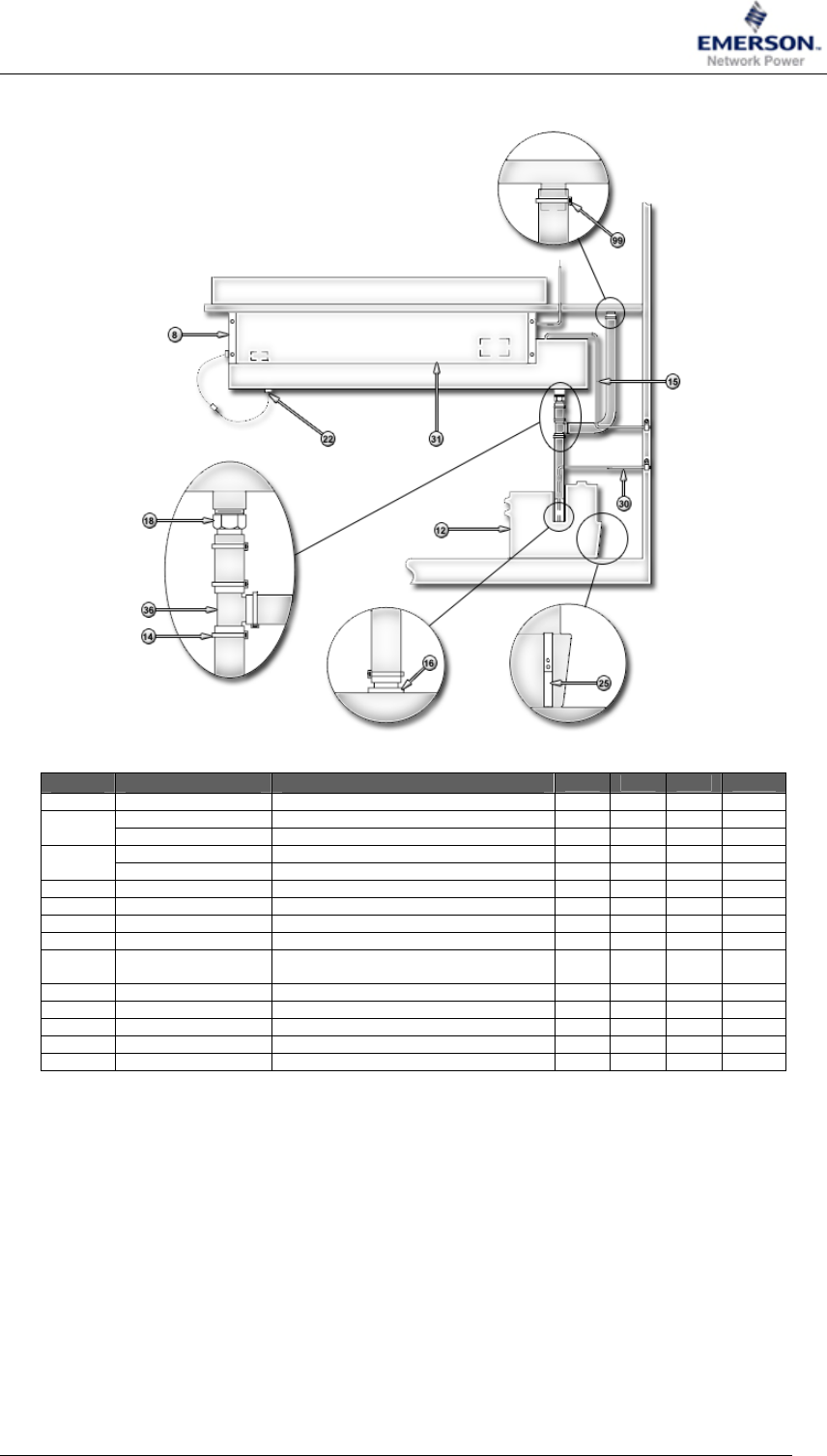
7.2.2. VBR/VFR
Item Part Number Description 48” 72” 97” 120”
8 See “Steam Generated Humidifier ” on page 54
18 1A21071P1 HOSE STEAM 1.25ID 10PSI 1 1 1
19 P02-0020 CLAMP HOSE WORM DRIVE .75-1.75 2 2 2
20 P15-0170 HOSE DRAIN .75 ID STRAIGHT 2 3 5
21 P-5500 HOSE DRAIN .75 ID TRAP 1 1 1
22 P15-0140 UNION NYLON 3/4BARBX3/4BARB 1 1 1
24 P15-0150 CLAMP WIRE 9 11 13
25 P02-0260 ADAPTER POLY 3/4FPTX3/4HOSE 1 1 1
26 121965P1 FTG CROSS 3/8HOSE X 3/8TUB STR 1 1 1
29 P-2290 CLAMP INSULATED METAL 1/2" 2 2 2
30 S13-0140 CLAMP INSUL MTL HVY DTY 1-1/8" 3 3 3
31 H-0390 STRAINER "Y" BRASS 1/4FPT 1 1 1
32 127781P1 ADAPTER BRASS 1/4COMX1/4MPT 2 2 2
34 9A20000P150 TUBE STR CU 1/4X.028X36.00" 1 1 1
47 1A11359P1 SGH STM SUPPLY HOSE 7/8" ID 3 6 6
99 124216P2 CLAMP HOSE WORM DRIVE .31X1.25 1 1 1
100 130916P2 CLAMP NON-INSULATED 1-1/8 DIA 1 1 1
- 50 - Confidential Document March 2009 (Rev00)

Humidifier Section
May 2009 (Rev00) Confidential Document - 51 -
7.2.3. CW VFR
Item Part Number Description 48” 72” 97” 120”
8 See “Steam Generated Humidifier ” on page 54
18 1A21071P1 HOSE STEAM 1.25ID 10PSI 1 1 1
19 P02-0020 CLAMP HOSE WORM DRIVE .75-1.75 2 2 2
20 P15-0170 HOSE DRAIN .75 ID STRAIGHT 2 3 3
24 P15-0150 CLAMP WIRE 7 9 11
25 P15-0210 ADAPTER HSE NYLON 1/2MPX3/4BRB 1 1 1
26 121965P1 FTG CROSS 3/8HOSE X 3/8TUB STR 1 1 1
27 P-5510 HOSE DRAIN .75 ID FORMED 1 1 1
29 P-2290 CLAMP INSULATED METAL 1/2" 2 2 2
P-2290 CLAMP INSULATED METAL 1/2" 2 2 2
30 P-229A CLAMP INSULATED METAL 1/4" 2 2 2
31 H-0390 STRAINER "Y" BRASS 1/4FPT 1 1 1
32 127781P1 ADAPTER BRASS 1/4COMX1/4MPT 2 2 2
1A19271P1 PUMP CONDENSATE 208/230/1/60DF 1 1 1
45 1A19271P2 PUMP CONDENSATE 460/1/60DF 1 1 1
47 F20-2300 BRKT COND PUMP ADJ-PART B 6 6 6
54 1A11359P1 SGH STM SUPPLY HOSE 7/8" ID 3 6 6
55 S13-0140 CLAMP INSUL MTL HVY DTY 1-1/8" 2 2 2
99 124216P2 CLAMP HOSE WORM DRIVE .31X1.25 1 1 1
100 130916P2 CLAMP NON-INSULATED 1-1/8 DIA 1 1 1

Liebert CW Parts Manual
7.2.4. VRR
Item Part Number Description 48” 72” 97” 120”
8 See “Steam Generated Humidifier ” on page 54
18 1A21071P1 HOSE STEAM 1.25ID 10PSI 1 1 1
19 P02-0020 CLAMP HOSE WORM DRIVE .75-1.75 2 2 2
20 P15-0170 HOSE DRAIN .75 ID STRAIGHT 2 3 4
24 P15-0150 CLAMP WIRE 7 9 11
25 P15-0210 ADAPTER HSE NYLON 1/2MPX3/4BRB 1 1 1
29 P-229A CLAMP INSULATED METAL 1/4" 2 2 2
30 P-2290 CLAMP INSULATED METAL 1/2" 2 2 2
31 H-0390 STRAINER "Y" BRASS 1/4FPT 1 1 1
32 127781P1 ADAPTER BRASS 1/4COMX1/4MPT 2 2 2
41 9A20002P185 TUBE STR CU 1/2X.028X48.00" 1 1 1
1A19271P1 PUMP CONDENSATE 208/230/1/60DF 1 1 1
45 1A19271P2 PUMP CONDENSATE 460/1/60DF 1 1 1
47 F20-2300 BRKT COND PUMP ADJ-PART B 6 6 6
54 1A11359P1 SGH STM SUPPLY HOSE 7/8" ID 3 6 6
56 S13-0140 CLAMP INSUL MTL HVY DTY 1-1/8" 2 2 3
- 52 - Confidential Document March 2009 (Rev00)

Humidifier Section
May 2009 (Rev00) Confidential Document - 53 -
7.2.5. Upflow VFR
Item Part Number Description 48” 72” 97” 120”
1 See “Steam Generated Humidifier ” on page 54
6 1A11359P1 SGH STM SUPPLY HOSE 7/8" ID 6
7 1C11305P1 HOSE DRAIN .75 ID FORMED 1
8 127781P1 ADAPTER BRASS 1/4COMX1/4MPT 2
9 H-0390 STRAINER "Y" BRASS 1/4FPT 1
13 P02-0020 CLAMP HOSE WORM DRIVE .75-1.75 6
18 S13-0140 CLAMP INSUL MTL HVY DTY 1-1/8" 3
20 P15-0170 HOSE DRAIN .75 ID STRAIGHT 1
21 136393P1 ADAPTER POLYP 1"NPT-1.25"BARB 1
22 136394P1 ADAPTER POLYP 1"NPTM-3/4"BARB 2
23 160461P1 TUBE FORM CU 1/2 CP UH740C 1
24 P-2290 CLAMP INSULATED METAL 1/2" 1
25 P-229A CLAMP INSULATED METAL 1/4" 1
27 1A19271P2 PUMP CONDENSATE 460/1/60DF 1
28 F20-2300 BRKT COND PUMP ADJ-PART B 4
36 130916P2 CLAMP NON-INSULATED 1-1/8 DIA 1
38 P15-0150 CLAMP WIRE 11
54 P-5020 CLAMP INSUL MTL HVY DTY 1-5/8" 1

Liebert CW Parts Manual
7.2.6. Steam Generated Humidifier
Item Part Number Description 48” 72” 97” 120”
4 121069P1 PLATE BASE STEAM HUM D 1 1 1 1
11 153042P1 PLATE HUMIDIFIER VALVE 1 1 1 1
30 130916P2 CLAMP NON-INSULATED 1-1/8 DIA 1 1 1 1
32 P-057A SLEEVE COMPRESSION BRASS 1/4" 1 1 1 1
- 54 - Confidential Document March 2009 (Rev00)

Humidifier Section
May 2009 (Rev00) Confidential Document - 55 -
7.3.1.
7.3. IR without CP
Downflow
Item Part Number Description 48” 72” 97” 120”
3 F20-2300 BRKT COND PUMP ADJ-PART B 1
5 P-229A CLAMP INSULATED METAL 1/4" 1
6 P-5400 ADAPTER SWIVL3/4FPTX3/4HOSEBRB 1 1 1 1
8 P15-0150 CLAMP WIRE 5 5 5 2
15 S13-0140 CLAMP INSUL MTL HVY DTY 1-1/8" 1 1 1 1
22 1C11813P1 TUBE FORM CU 1/4X.028 1
25 See “Humidifier Bulbs” on page 59
1C11305P1 HOSE DRAIN .75 ID FORMED 1
27 136161P1 HOSE DRAIN 1.25 ID FORMED 1
26 136159P1 HOSE DRAIN 1.25 ID TRAP 1
136161P1 HOSE DRAIN 1.25 ID FORMED 1
29 136161P2 DRAIN LINE FORMED RUBBER LONG 1
30 P02-0020 CLAMP HOSE WORM DRIVE .75-1.75 4
31 136389P1 TEE POLYP 1"X1"X1" FPT 1
32 136393P1 ADAPTER POLYP 1"NPT-1.25"BARB 2
34 136395P1 ADAPT POLYP 1-1/4 MPT 1-1/4 HB 1
35 P-2290 CLAMP INSULATED METAL 1/2" 1

Liebert CW Parts Manual
7.3.2. Upflow VFR
Item Part Number Description 48” 72” 97” 120”
1 See “Humidifier Bulbs” on page 59
5 1C11305P1 HOSE DRAIN .75 ID FORMED 1
6 P-5400 ADAPTER SWIVL3/4FPTX3/4HOSEBRB 1
8 P15-0150 CLAMP WIRE 2
10 160376P1 TUBE FORM CU 1/4 IR 1
12 136161P2 DRAIN LINE FORMED RUBBER LONG 2
13 P02-0020 CLAMP HOSE WORM DRIVE .75-1.75 8
19 136389P1 TEE POLYP 1"X1"X1" FPT 1
20 136161P1 HOSE DRAIN 1.25 ID FORMED 1
21 136393P1 ADAPTER POLYP 1"NPT-1.25"BARB 2
22 136394P1 ADAPTER POLYP 1"NPTM-3/4"BARB 1
25 P-229A CLAMP INSULATED METAL 1/4" 1
46 136395P1 ADAPT POLYP 1-1/4 MPT 1-1/4 HB 1
50 P-5020 CLAMP INSUL MTL HVY DTY 1-5/8" 3
- 56 - Confidential Document March 2009 (Rev00)

Humidifier Section
May 2009 (Rev00) Confidential Document - 57 -
7.3.3. Upflow VRR
Item Part Number Description 48” 72” 97” 120”
F30-0520 DUCT HUM LWR REAR RTN V 15/20T 1
4 1D11187P2 DUCT HUM LWR 1 1
15 P-5020 CLAMP INSUL MTL HVY DTY 1-5/8" 4
16 See “Humidifier Reset Safety” on page 61
25 See “Humidifier Bulbs” on page 59
26 136159P1 HOSE DRAIN 1.25 ID TRAP 1
27 1C11305P1 HOSE DRAIN .75 ID FORMED 1
29 136161P2 DRAIN LINE FORMED RUBBER LONG 3
30 P02-0020 CLAMP HOSE WORM DRIVE .75-1.75 8
32 136393P1 ADAPTER POLYP 1"NPT-1.25"BARB 2
33 136394P1 ADAPTER POLYP 1"NPTM-3/4"BARB 1
42 124216P2 CLAMP HOSE WORM DRIVE .31X1.25 1 1 2

Liebert CW Parts Manual
7.3.4. FR/BR
Item Part Number Description 48” 72” 97” 120”
8 See “Humidifier Bulbs” on page 59
16 P-5500 HOSE DRAIN .75 ID TRAP 1
18 P15-0150 CLAMP WIRE 7
19 P15-0140 UNION NYLON 3/4BARBX3/4BARB 1
21 P-5400 ADAPTER SWIVL3/4FPTX3/4HOSEBRB 1
22 P02-0260 ADAPTER POLY 3/4FPTX3/4HOSE 1
23 S13-0140 CLAMP INSUL MTL HVY DTY 1-1/8" 1
26 See “Humidifier Reset Safety” on page 61
32 P-229A CLAMP INSULATED METAL 1/4" 1
33 F30-0550 DUCT HUM LWR FR&BR V 6//22T 1
36 1A16207P1 TEE BARB 3/4X3/4X3/4 1
- 58 - Confidential Document March 2009 (Rev00)

Humidifier Section
May 2009 (Rev00) Confidential Document - 59 -
7.3.5. Humidifier Bulbs
7.3.5.1. 2 Bulb/3 Bulb
Item Part Number Description 48” 72” 97” 120”
6 F-602C REFLECTOR 575 V DOUBLE 1
5 160158G1 PAN WELDMENT HUMIDIFIER (LONG 1
11 1C18003G2 STANDPIPE ASSY W/NUT 1
15 See” Solenoid Valve Assembly” on page 61
23 1C11199P1 PLATE END HUM ELEC BOX 1
25 P-229A CLAMP INSULATED METAL 1/4" 2
26 F-6100 SUPPORT REFLECTOR 2
27 F-6090 COVER END BLOCK 2
33 R13-0090 SAFETY SWT THERM 120F TR 2 2 2 2
H-0030 LAMP I/R LINEAR/QRTZ 3800W570V 2
151187P1 LAMP I/R LINEAR/QRTZ 3200W240V 3
36
151187P2 LAMP I/R LINEAR/QRTZ 3200W277V 3
37 See “Socket Assemblies 009261, 009262, 009263,
009264, 0090268” on page 61
39 See “Socket Assemblies 009261, 009262, 009263,
009264, 0090268” on page 61
41 1C18337P1 PLATE SYS3 HUMID 1
61 See “Alarm High Water” on page 60

Liebert CW Parts Manual
7.3.6. 4 Bulb/6 Bulb
Item Part Number Description 48” 72” 97” 120”
8 160158G1 PAN WELDMENT HUMIDIFIER (LONG) 1
9 F-601C REFLECTOR DOUBLE 1
13 1C18003G2 STANDPIPE ASSY W/NUT 1
24 F-6100 SUPPORT REFLECTOR 2
25 F-6090 COVER END BLOCK 2
29 R13-0090 SAFETY SWT THERM 120F TR 2
32 H-0020 LAMP I/R LINEAR/QRTZ 1600W240V 4
H-002A LAMP I/R LINEAR/QRTZ 1600W208V 4
37 See “Socket Assemblies 009265, 009266. 009267. 0090297”
on page 61
38 See “Socket Assemblies 009265, 009266. 009267. 0090297”
on page 61
49 1C18337P1 PLATE SYS3 HUMID 1
61 See “Alarm High Water” on page 60
72 See” Solenoid Valve Assembly” on page 61
7.3.7. Alarm High Water
Item Part Number Description Quantity
4 1C18661P2 SUPERSEDED SEE 183699P1 1
5 1A18660P1 SW LEVEL LIQUID GEMS LS-7 1
- 60 - Confidential Document March 2009 (Rev00)

Humidifier Section
May 2009 (Rev00) Confidential Document - 61 -
7.3.8. Humidifier Reset Safety
Item Part Number Description Quantity
3 H-0450 SENSOR SAFETY THOPN-RISE 225F 1
7.3.9. Solenoid Valve Assembly
Item Part Number Description Quantity
2 P-5590 VALVE SOL/STRNR/FLO-REG .5 GPM 1
3 P15-0250 ELBOW, 90 DEGREE COMPRESSION 1
5 127781P1 ADAPTER BRASS 1/4COMX1/4MPT 1
7.3.10. Socket Assemblies
7.3.10.1. 009-0261
Item Part Number Description Quantity
1 H-014A SOCKET BUSBAR PORCELAIN 1
2 H-0370 BUSBAR HUMIDIFIER HI-VOLT 3

Liebert CW Parts Manual
7.3.10.2. 009-0262
Item Part Number Description Quantity
1 H-014A SOCKET BUSBAR PORCELAIN 1
2 H-0370 BUSBAR HUMIDIFIER HI-VOLT 3
7.3.10.3. 009-0263
Item Part Number Description Quantity
1 H-014A SOCKET BUSBAR PORCELAIN 1
2 H-0370 BUSBAR HUMIDIFIER HI-VOLT 2
7.3.10.4. 009-0264
Item Part Number Description Quantity
1 H-014A SOCKET BUSBAR PORCELAIN 1
2 H-0370 BUSBAR HUMIDIFIER HI-VOLT 2
- 62 - Confidential Document March 2009 (Rev00)

Humidifier Section
7.3.10.5. 009-0265
Item Part Number Description Quantity
1 H-014A SOCKET BUSBAR PORCELAIN 1
2 H-0370 BUSBAR HUMIDIFIER HI-VOLT 3
7.3.10.6. 009-0266
Item Part Number Description Quantity
1 H-014A SOCKET BUSBAR PORCELAIN 1
2 H-0370 BUSBAR HUMIDIFIER HI-VOLT 2
7.3.10.7. 009-0267
Item Part Number Description Quantity
1 H-014A SOCKET BUSBAR PORCELAIN 1
2 H-0360 BUSBAR HUMIDIFIER HI-VOLT 2
May 2009 (Rev00) Confidential Document - 63 -

Liebert CW Parts Manual
7.3.10.8. 009-0268
Item Part Number Description Quantity
1 H-014A SOCKET BUSBAR PORCELAIN 1
2 H-0360 BUSBAR HUMIDIFIER HI-VOLT 3
7.3.10.9. 009-0297
Item Part Number Description Quantity
1 H-014A SOCKET BUSBAR PORCELAIN 1
2 H-0370 BUSBAR HUMIDIFIER HI-VOLT 2
3 H-0460 PWRBLK HUMFR 2PL 600V (UL)SPCL 1
- 64 - Confidential Document March 2009 (Rev00)

Humidifier Section
7.4. IR with CP
May 2009 (Rev00) Confidential Document - 65 -
7.4.1. Upflow VRR
Item Part Number Description 48” 72” 97” 120”
3 P15-0170 HOSE DRAIN .75 ID STRAIGHT 2 1
4 F30-0520 DUCT HUM LWR REAR RTN V 15/20T 4
1D11187P1 DUCT HUM LWR 1
6 P-5400 ADAPTER SWIVL3/4FPTX3/4HOSEBRB 1 1
8 1A19271P1 PUMP CONDENSATE 208/230/1/60DF 1 1
10 P15-0170 HOSE DRAIN .75 ID STRAIGHT 2 1
16 See “Humidifier Reset Safety” on
page 61
21 1A19271P1 PUMP CONDENSATE 208/230/1/60DF 1 1
25 See “Humidifier Bulbs” on page 59
27 1C11305P1 HOSE DRAIN .75 ID FORMED 1
29 136161P2 DRAIN LINE FORMED RUBBER LONG 2
30 P02-0020 CLAMP HOSE WORM DRIVE .75-1.75 4
32 136393P1 ADAPTER POLYP 1"NPT-1.25"BARB 2
33 136394P1 ADAPTER POLYP 1"NPTM-3/4"BARB 2
42 124216P2 CLAMP HOSE WORM DRIVE .31X1.25 1 2

Liebert CW Parts Manual
7.4.2. Upflow VFR
Item Part Number Description 48” 72” 97” 120”
3 See “Humidifier Bulbs” on page
5 1C11305P1 HOSE DRAIN .75 ID FORMED 1
6 P-5400 ADAPTER SWIVL3/4FPTX3/4HOSEBRB 1 1
8 P15-0150 CLAMP WIRE 4
12 136161P2 DRAIN LINE FORMED RUBBER LONG 1
13 1C11305P1 HOSE DRAIN .75 ID FORMED 1
16 See “Humidifier Reset Safety” on
page 61
17 F30-0550 DUCT HUM LWR FR&BR V 6//22T 1
20 P15-0170 HOSE DRAIN .75 ID STRAIGHT 1
21 136393P1 ADAPTER POLYP 1"NPT-1.25"BARB 1
136394P1 ADAPTER POLYP 1"NPTM-3/4"BARB 2
24 P-2290 CLAMP INSULATED METAL 1/2" 1
25 P-2290 CLAMP INSULATED METAL 1/2" 2
27 1A19271P1 PUMP CONDENSATE 208/230/1/60DF 1
1A19271P2 PUMP CONDENSATE 460/1/60DF 1
28 F20-2300 BRKT COND PUMP ADJ-PART B 7
32 136161P1 HOSE DRAIN 1.25 ID FORMED 1
- 66 - Confidential Document March 2009 (Rev00)

Humidifier Section
May 2009 (Rev00) Confidential Document - 67 -
7.4.3. VFR
Item Part Number Description 48” 72” 97” 120”
8 See “Humidifier Bulbs” on page 59
1A19271P1 PUMP CONDENSATE 208/230/1/60DF 1 1 1
12 1A19271P2 PUMP CONDENSATE 460/1/60DF 1 1 1
13 P15-0170 HOSE DRAIN .75 ID STRAIGHT 2
14 P15-0150 CLAMP WIRE 5 5 5
15 P15-0140 UNION NYLON 3/4BARBX3/4BARB 1 1 1
17 P-5400 ADAPTER SWIVL3/4FPTX3/4HOSEBRB 1 1 1
22 See “Humidifier Reset Safety” on
page 61
25 F20-2300 BRKT COND PUMP ADJ-PART B 4 4 4
31 1D11186P1 DUCT HUM LWR 1
F30-0550 DUCT HUM LWR FR&BR V 6//22T 1 1
35 1A16207P1 TEE BARB 3/4X3/4X3/4 1 1 1
99 124216P2 CLAMP HOSE WORM DRIVE .31X1.25 1 1 1

Liebert CW Parts Manual
7.4.4. VBR
Item Part Number Description 48” 72” 97” 120”
8 See “Humidifier Bulbs” on page 59
12 P-5500 HOSE DRAIN .75 ID TRAP 1 1 1
13 P15-0170 HOSE DRAIN .75 ID STRAIGHT 2
14 P15-0150 CLAMP WIRE 7 7 7
16 P15-0140 UNION NYLON 3/4BARBX3/4BARB 1 1 1
18 P-5400 ADAPTER SWIVL3/4FPTX3/4HOSEBRB 1 1 1
19 P02-0260 ADAPTER POLY 3/4FPTX3/4HOSE 1 1 1
22 See “Humidifier Reset Safety” on
page 61
1A19271P1 PUMP CONDENSATE 208/230/1/60DF 1 1 1
28 1A19271P2 PUMP CONDENSATE 460/1/60DF 1 1 1
1D11186P1 DUCT HUM LWR 1
31 F30-0550 DUCT HUM LWR FR&BR V 6//22T 1 1
35 1A16207P1 TEE BARB 3/4X3/4X3/4 1 1 1
99 124216P2 CLAMP HOSE WORM DRIVE .31X1.25 1 1 1
- 68 - Confidential Document March 2009 (Rev00)

Humidifier Section
May 2009 (Rev00) Confidential Document - 69 -
7.4.5. Downflow
Item Part Number Description 48” 72” 97” 120”
8 See “Humidifier Bulbs” on page 59
1A19271P1 PUMP CONDENSATE 208/230/1/60DF 1 1 1
11 1A19271P2 PUMP CONDENSATE 460/1/60DF 1 1 1
14 1C11813P1 TUBE FORM CU 1/4X.028 1 1 1
15 P15-0150 CLAMP WIRE 5 5 5
17 P-5400 ADAPTER SWIVL3/4FPTX3/4HOSEBRB 1 1 1
18 P15-0140 UNION NYLON 3/4BARBX3/4BARB 1 1 1
19 See “Humidifier Reset Safety” on
page 61
23 F20-2300 BRKT COND PUMP ADJ-PART B 6 6 6
29 S13-0140 CLAMP INSUL MTL HVY DTY 1-1/8" 1 1
38 1A16207P1 TEE BARB 3/4X3/4X3/4 1 1 1
99 124216P2 CLAMP HOSE WORM DRIVE .31X1.25 1 1 1

Liebert CW Parts Manual
7.4.6. VRR
Item Part Number Description 48” 72” 97” 120”
8 See “Humidifier Bulbs” on page 59
1A19271P1 PUMP CONDENSATE 208/230/1/60DF 1 1 1
11 1A19271P2 PUMP CONDENSATE 460/1/60DF 1 1 1
1A19271P1 PUMP CONDENSATE 208/230/1/60DF 1 1
12 1A19271P2 PUMP CONDENSATE 460/1/60DF 1 1
14 P15-0150 CLAMP WIRE 5 5
15 1C12503P3 TUBE FORM CU 1/4X.028 1
16 P15-0140 UNION NYLON 3/4BARBX3/4BARB 1 1
18 P-5400 ADAPTER SWIVL3/4FPTX3/4HOSEBRB 1 1
22 See “Humidifier Reset Safety” on
page 61
25 F20-2300 BRKT COND PUMP ADJ-PART B 4 4
30 9A20002P102 TUBE STR CU 1/2X.028X27.25" 1
31 1D11187P2 DUCT HUM LWR 1 1
36 1A16207P1 TEE BARB 3/4X3/4X3/4 1 1
99 124216P2 CLAMP HOSE WORM DRIVE .31X1.25 1 1
- 70 - Confidential Document March 2009 (Rev00)

Humidifier Section
7.5. No Humidifier Drain
Item Part Number Description 48” 72” 97” 120”
1C11305P1 HOSE DRAIN .75 ID FORMED 1 1 1
1 136161P1 HOSE DRAIN 1.25 ID FORMED 1
1C19070P1 HOSE DRAIN .75 ID TRAP 1 1
136159P1 HOSE DRAIN 1.25 ID TRAP 1
193274P1 HOSE DRAIN 1.25 TRAP SHORT 1
2
P-5500 HOSE DRAIN .75 ID TRAP 1 1
124216P2 CLAMP HOSE WORM DRIVE .31X1.25 1 1 1
3 P02-0020 CLAMP HOSE WORM DRIVE .75-1.75 4
4 P15-0140 UNION NYLON 3/4BARBX3/4BARB 3 3
P02-0260 ADAPTER POLY 3/4FPTX3/4HOSE 1 1
5 136395P1 ADAPT POLYP 1-1/4 MPT 1-1/4 HB 1
6 P15-0150 CLAMP WIRE 7 7
7 F20-2300 BRKT COND PUMP ADJ-PART B 1 1
8 S13-0140 CLAMP INSUL MTL HVY DTY 1-1/8" 2 2
May 2009 (Rev00) Confidential Document - 71 -

Liebert CW Parts Manual
8. Reheat Section
Item Part Number Description KW Quantity
148367P2 HEATER 03.3KW 230V SS 304 S/F 3
148367P3 HEATER 03.3KW 400V SS 304 S/F 3
148367P4 HEATER 03.3KW 460V SS 304 S/F 3
148367P5 HEATER 03.3KW 575V SS 304 S/F
10KW
3
148367P6 HEATER 05.0KW 208V SS 304 S/F 3
148367P7 HEATER 05.0KW 230V SS 304 S/F 3
148367P8 HEATER 05.0KW 400V SS 304 S/F 3
148367P9 HEATER 05.0KW 460V SS 304 S/F 3
148367P10 HEATER 05.0KW 575V SS 304 S/F
15KW
3
148367P11 HEATER 06.6KW 208V SS 304 S/F 3
148367P12 HEATER 06.6KW 230V SS 304 S/F 3
148367P13 HEATER 06.6KW 400V SS 304 S/F 3
148367P14 HEATER 06.6KW 460V SS 304 S/F 3
148367P15 HEATER 06.6KW 575V SS 304 S/F
20KW
3
148367P16 HEATER 08.3KW 208V SS 304 S/F 3
148367P17 HEATER 08.3KW 230V SS 304 S/F 3
148367P18 HEATER 08.3KW 400V SS 304 S/F 3
148367P19 HEATER 08.3KW 460V SS 304 S/F 3
148367P20 HEATER 08.3KW 575V SS 304 S/F
25KW
3
148367P21 HEATER 09.5KW 208V SS 304 S/F 3
148367P22 HEATER 10.0KW 230V SS 304 S/F 3
148367P23 HEATER 10.0KW 400V SS 304 S/F 3
148367P24 HEATER 10.0KW 460V SS 304 S/F 3
5
148367P25 HEATER 10.0KW 575V SS 304 S/F
30KW
3
Item Part Number Description Voltage Model Quantity
136965P1 SAFETY SWT THERM 105F
10KW
15KW
20KW
25KW
30KW
205/206V
235/236V
466V
576V
2
R-0970 SAFETY SWT THERM. 115F
10KW
15KW
20KW
25KW
30KW
205/206V
235/236V
385/405V
415V
466V
576V
2
6
R-013A SAFETY SWT THERM. 125F
20KW
25KW
30KW
205/206V
235/236V
466V
576V
2
- 72 - Confidential Document March 2009 (Rev00)

Piping Section
9. Piping Section
9.1. 2-Way
May 2009 (Rev00) Confidential Document - 73 -
9.1.1. Downflow
Item Part Number Description Standard
Pressure
Standard Pressure
w/ Valve Ball
High
Pressure
Standard
and High
Pressure SR
146353G3 ACTUATOR ASSY SP LRG 151"
WH 1 1
1
1C23799G4 ACTUATOR ASSY S3 HP .5
W/CAM77 1
14 See Supply Piping on page 78
15 See Return Piping on page 4
31 1A23371P1 CLAMP INSUL MTL HVY DTY
03" 1 1 1 1
32 1C14431P6 VALVE BALL BRONZE 2" SWT
F/P 1

Liebert CW Parts Manual
9.1.2. SP VFR
Item Part Number Description Quantity
1 146353G3 ACTUATOR ASSY SP LRG 151" WH 1
2 See “Valve Assembly” on page 79
4 See “Return Assembly” on page 80
11 1A23371P1 CLAMP INSUL MTL HVY DTY 03" 2
13 P02-0290 VALVE CORE REFRIGERANT 2
9.1.3. SP VRR
Item Part Number Description Quantity
1 146353G3 ACTUATOR ASSY SP LRG 151" WH 1
2 See “Valve Assembly” on page 79
4 See “Return Assembly” on page 80
11 1A23371P1 CLAMP INSUL MTL HVY DTY 03" 3
13 P02-0290 VALVE CORE REFRIGERANT 2
15 See “Supply Valve Assembly” on page 80
- 74 - Confidential Document March 2009 (Rev00)

Piping Section
May 2009 (Rev00) Confidential Document - 75 -
9.1.4. HP VFR
Item Part Number Description Quantity
1 1C23799G5 ACTUATOR ASSY HP .5 W/CAM77 LG 1
2 See “Valve Assembly” on page 79
4 See “Return Assembly” on page 80
11 1A23371P1 CLAMP INSUL MTL HVY DTY 03" 1
14 P02-0290 VALVE CORE REFRIGERANT 2

Liebert CW Parts Manual
9.1.5. HP VRR
Item Part Number Description Quantity
1 1C23799G5 ACTUATOR ASSY HP .5 W/CAM77 LG 1
2 See “Valve Assembly” on page 79
4 See “Return Assembly” on page 80
11 1A23371P1 CLAMP INSUL MTL HVY DTY 03" 3
13 P02-0290 VALVE CORE REFRIGERANT 2
15 See “Supply Valve Assembly” on page 80
- 76 - Confidential Document March 2009 (Rev00)

Piping Section
May 2009 (Rev00) Confidential Document - 77 -
9.1.6. HP STD and BV
Item Part Number Description Quantity
159006P3 VALVE CW2WAY 1" 250# B/C 1
159006P4 VALVE CW2WAY 1-1/4" 250# B/C 1
159006P5 VALVE CW2WAY 1-1/2" 250# B/C 1
159006P6 VALVE CW2WAY 2" 250# B/C 1
5
P02-0290 VALVE CORE REFRIGERANT 2
17 1C23799G4 ACTUATOR ASSY S3 HP .5 W/CAM77 1
18 1C14935P1 TUBE FORM CU 1-1/8X.050 1
1C14936P2 TUBE FORM CU 1-1/8 WTR 1
1C13673P2 TUBE FORM CU 1-5/8 1
1C13777P2 TUBE FORM CU 2-1/8 1
22
1C15006P2 TUBE FORM CU 1-3/8 1
186192P1 TUBE FORM CU 2-1/8 1
1C13672P1 TUBE FORM CU 1-5/8 1
1C13776P1 TUBE FORM CU 2-1/8 1
26
1C15005P1 TUBE FORM CU 1-1/8 WTR 1
1A23371P1 CLAMP INSUL MTL HVY DTY 03" 1
P-5020 CLAMP INSUL MTL HVY DTY 1-5/8" 1
39
P-5560 CLAMP INSUL MTL HVY DTY 21/8ID 1

Liebert CW Parts Manual
9.1.7. Supply Piping
Item Part # Description SP HP
159009P3 VALVE 2" 2WAY UNION BODY 1
5 159006P6 VALVE CW2WAY 2" 250# B/C 1
9 P02-0270 VALVE ACCESS BODY 1/4X SWT 1 1
- 78 - Confidential Document March 2009 (Rev00)

Piping Section
May 2009 (Rev00) Confidential Document - 79 -
9.1.8. Return Piping
Item Part Number Description Quantity
6 187933G1 VALVE ACC BODY 1/4 EXT2" BEAD 1
9.1.9. Valve Assembly
Item Part Number Description SP HP
159009P3 VALVE 2" 2WAY UNION BODY 1
1 159006P6 VALVE CW2WAY 2" 250# B/C 1
6/7 P02-0270 VALVE ACCESS BODY 1/4X SWT 1 1

Liebert CW Parts Manual
9.1.10. Return Assembly
Item Part Number Description Quantity
8
10 1C14431P7 VALVE BALL BRONZE 2-1/2 SWT SP 1
9.1.11. Supply Valve Assembly
Item Part Number Description Quantity
4 P02-0270 VALVE ACCESS BODY 1/4X SWT 1
- 80 - Confidential Document March 2009 (Rev00)

Piping Section
9.2. 3-Way
May 2009 (Rev00) Confidential Document - 81 -
9.2.1.
9.2.2.
Downflow
Standard Pressure
Item Part # Description SP SP-VB SP- FS SP-VB- FS
1 146352G1 ACTUATOR ASSY SP SML 92" WH 1 1 1 1
10 159010P3 VALVE 2" 3WAY UNION BODY 1 1 1 1
15 See Return Piping on page 79 See p.79 See p.79 See p.79 See p.79
21 See Flow Switch on page 83 See p.83 See p.83
24 1C14431P6 VALVE BALL BRONZE 2" SWT F/P 1 1
33 P02-0270 VALVE ACCESS BODY 1/4X SWT 2 2 2
Legend:
SP – Standard Pressure
SP-VB – Standard Pressure with Valve Ball
SP-FS – Standard Pressure with Flow Switch
SP-VB-FS – Standard Pressure with Valve Ball and Flow Switch

Liebert CW Parts Manual
9.2.3. High Pressure
Item Part # Description HP HP-VB HP- FS HP-VB- FS
1 1C23799G4 ACTUATOR ASSY S3 HP .5 W/CAM77 1 1 1 1
10 159007P6 VALVE CW3WAY 2" 250# B/C 1 1 1 1
15 See Return Piping on page 79 See p.79 See p.79 See p.79 See p.79
21 See Flow Switch on page 83 See p.83 See p.83
24 1C14431P6 VALVE BALL BRONZE 2" SWT F/P 1 1
33 P02-0270 VALVE ACCESS BODY 1/4X SWT 2 2 2 2
Legend:
SP – Standard Pressure
SP-VB – Standard Pressure with Valve Ball
SP-FS – Standard Pressure with Flow Switch
SP-VB-FS – Standard Pressure with Valve Ball and Flow Switch
- 82 - Confidential Document March 2009 (Rev00)

Piping Section
May 2009 (Rev00) Confidential Document - 83 -
9.2.4. Flow Switch
Part
Number Description 147
200
248
302
376
422
522 529 600
739
740
127998P1 SW FLOW ASSY 1-3/8" 1
127998P2 SW FLOW ASSY 1-1/8" 1
127998P3 SW FLOW ASSY 1-5/8" 1 1
127998P4 SW FLOW ASSY 2-1/8" 1 1 1 1 1
1A15464P1 SW FLOW HI PRESSURE 1 1 1 1 1 1 1 1 1 1 1
P-5540 SW FLOW SPDT
1.25"MPT 300#
1 1 1 1 1 1 1
P-4120 SW FLOW SPDT 1"MPT 1 1
9.2.5. SP VFR
Item Part # Description SP SP-VB SP- FS SP-VB- FS
1 146352G3 ACTUATOR ASSY SP SML 151"
WH 1 1 1 1
2 See “Valve Assembly” on page
84 See p.84 See p.84 See p.84 See p.84
8 See “ Switch Flow Assembly”
above See p.83 See p.83
17 P02-0290 VALVE CORE REFRIGERANT 2 2 2 2

Liebert CW Parts Manual
9.2.6. Valve Assembly 3W
Item Part Number Description Quantity
1 159010P3 VALVE 2" 3WAY UNION BODY 1
9.2.7. HP VFR
Item Part # Description SP
SP-VB SP- FS SP-VB- FS
4 See “Switch Flow Assembly” on page
83 See p.83 See p.83
13 1C23799G5 ACTUATOR ASSY HP .5 W/CAM77 LG 1 1 1 1
17 P02-0290 VALVE CORE REFRIGERANT 2 2 2 2
- 84 - Confidential Document March 2009 (Rev00)

Piping Section
May 2009 (Rev00) Confidential Document - 85 -
9.2.8. SP VRR
Item Part # Description SP SP-VB SP- FS SP-VB- FS
1 146352G3 ACTUATOR ASSY SP SML 151" WH 1 1 1 1
2 Valve Assembly on page 84 See p.84 See p.84 See p.84 See p.84
15 Switch Flow Assembly on page 83 See p.83 See p.83
17 P02-0290 VALVE CORE REFRIGERANT 2 2 2 2
21 1A23371P1 CLAMP INSUL MTL HVY DTY 03" 1 1 2 2

Liebert CW Parts Manual
9.2.9. HP VRR
Item Part # Description SP SP-VB SP- FS SP-VB- FS
1 1C23799G5 ACTUATOR ASSY HP .5 W/CAM77 LG 1 1 1 1
2 See “Valve Assembly” on page 84 See p.84 See p.84 See p.84 See p.84
15 See “Switch Flow Assembly” on page 83 See p.83 See p.83
17 P02-0290 VALVE CORE REFRIGERANT 2 2 2 2
20 1A23371P1 CLAMP INSUL MTL HVY DTY 03" 1 1 2 2
- 86 - Confidential Document March 2009 (Rev00)

Piping Section
May 2009 (Rev00) Confidential Document - 87 -
9.2.10. HP STD
Item Part Number Description Quantity
17 1C23799G4 ACTUATOR ASSY S3 HP .5 W/CAM77 1
1C13676G1 PIPG SUP/LINE ASSY 1-5/8 DF CW 1
31 185674G1 PIPG SUP/LINE ASSY 2-1/8 DF CW 1
P-5020 CLAMP INSUL MTL HVY DTY 1-5/8" 1
P-5560 CLAMP INSUL MTL HVY DTY 21/8ID 1
45
1A23371P1 CLAMP INSUL MTL HVY DTY 03" 1
9.2.11. HP BV
Item Part Number Description Quantity
18 1C23799G4 ACTUATOR ASSY S3 HP .5 W/CAM77 1
31 185674G1 PIPG SUP/LINE ASSY 2-1/8 DF CW 1
P-5020 CLAMP INSUL MTL HVY DTY 1-5/8" 1
P-5560 CLAMP INSUL MTL HVY DTY 21/8ID 1
58 1A23371P1 CLAMP INSUL MTL HVY DTY 03" 1

Liebert CW Parts Manual
10. Parts Gallery
1A22733P1 193196G1 B05-014E B-0040
B-0080 B-0650 B-1140 B-1170
1a18353P1
1B29146P1 1C13815P1
1C18351p1
1C18352P1 1C18354 1C18603P1 1C18707P1
124501P1 124502P2 124547P1 128199P1
132487P1 132487P2 135409P2 135637P6
136201P1
136205P1
136222P1
136223
- 88 - Confidential Document March 2009 (Rev00)

Parts Gallery
136224P1 136240P1 136241P11 140654P1
149117P1 179746P1 179747 180294P1
180632G1 180633G1 181464G1 181898P1
200509P1 416761G1 416891G1 416911G2
B02-0190 E03-0170 E-009F E-011A
E-0100 E-105A E-0110 E-0130
E-194C
E-288A
E-288B E-362B
May 2009 (Rev00) Confidential Document - 89 -

Liebert CW Parts Manual
E-0380 E-1020 E-1040 E-1050
E-1200 E-1230 E-2020 E-2090
E-2350 E-2410 E-2440 E-2730
E-3060 E-3620 E-6030 E-6040
1C19065P10 1C21770P2 136022G1 136057G1
136058G1 160004P1 160006P1 160009P1
160019P4 160463G1 163009G2 177182G1
- 90 - Confidential Document March 2009 (Rev00)

Parts Gallery
194589G1 F02-6940 F02-6950 F02-7070
F02-7100 F02-7130 195531P2 1a11359P1
1A16207P1 1A19271P1 1A21071P1. 1c11305P1
1C18003G2 1C18337P1 1C19071P1 1C21353
121068P1 121964 121965P1 124216P2
127781P1 153042P1 153310 160158G1
May 2009 (Rev00) Confidential Document - 91 -

Liebert CW Parts Manual
F20-2300 F30-0520 F30-0550 F-601C
F-601D F-602C F-6090 F-6100
H-002A H-014A H-0020 H-0030
H-0360 H-0370 H-0390 H-0450
H-0460 P02-0020 P02-0260 P15-0140
P15-0150 P15-0170 P15-0210 P15-0250
P-057A P-229A P-229B P-2290
- 92 - Confidential Document March 2009 (Rev00)

Parts Gallery
P-5020 P-5400 P-5500 P-5510
P-5590 R13-0090 S13-0140 1A23371P1
1C13676G1 1C14431P2 1C23799G4 026-0044
127998P2 146352G1 159009P1 159010P3
187933G1 P02-0270 P02-0290 136965P1
148367P1
May 2009 (Rev00) Confidential Document - 93 -

Liebert CW Parts Manual
- 94 - Confidential Document March 2009 (Rev00)
11. Revision Page
Revision Date Modification Details
05/2009 - Manual Release Date