MAN0845 !!
Preview ! MAN0845 Woods Equipment Lawn Mower Manuals - Lawn Mower Manuals – The Best Lawn Mower Manuals Collection
User Manual: !! Woods Equipment Lawn Mower Manuals - Lawn Mower Manuals – The Best Lawn Mower Manuals Collection
Open the PDF directly: View PDF
.
Page Count: 48

OPER ATOR'S MANUAL
REARMOUNT
MOWERS
MAN0845
(Rev. 10/1/2013)
Tested. Proven. Unbeatable.
RD990X

2 Introduction
Gen’l (Rev. 12/5/2011)
TO THE DEALER:
Assembly and proper installation of this product is the responsibility of the Woods
®
dealer. Read manual instructions
and safety rules. Make sure all items on the Dealer’s Pre-Delivery and Delivery Check Lists in the Operator’s Manual
are completed before releasing equipment to the owner.
The dealer must complete the online Product Registration form at the Woods Dealer Website which certifies that
all Dealer Check List items have been completed. Dealers can register all Woods product at
dealer.WoodsEquipment.com under Product Registration.
Failure to register the product does not diminish customer’s warranty rights.
TO THE OWNER:
Read this manual before operating your Woods equipment. The information presented will prepare you to do a better and
safer job. Keep this manual handy for ready reference. Require all operators to read this manual carefully and become
acquainted with all adjustment and operating procedures before attempting to operate. Replacement manuals can be
obtained from your dealer. To locate your nearest dealer, check the Dealer Locator at www.WoodsEquipment.com, or in
the United States and Canada call 1-800-319-6637.
The equipment you have purchased has been carefully engineered and manufactured to provide dependable and
satisfactory use. Like all mechanical products, it will require cleaning and upkeep. Lubricate the unit as specified.
Observe all safety information in this manual and safety decals on the equipment.
For service, your authorized Woods dealer has trained mechanics, genuine Woods service parts, and the necessary
tools and equipment to handle all your needs.
Use only genuine Woods service parts. Substitute parts will void the warranty and may not meet standards required for
safe and satisfactory operation. Record the model number and serial number of your equipment in the spaces
provided:
Model:
_______________________________
Date of Purchase:
_____________________
Serial Number:
(see Safety Decal section for location) ____________________________________
Provide this information to your dealer to obtain correct repair parts.
Throughout this manual, the term
NOTICE
is used to indicate that failure to observe can cause damage to equipment.
The terms
CAUTION, WARNING,
and
DANGER
are used in conjunction with the Safety-Alert Symbol (a triangle with
an exclamation mark) to indicate the degree of hazard for items of personal safety.

Introduction 3
MAN0845 (1/12/2010)
TABLE OF CONTENTS
INTRODUCTION . . . . . . . . . . . . . . . . . . . . . . . . . . . . . . . . . . . . . . . . . . . . . . 2
SPECIFICATIONS. . . . . . . . . . . . . . . . . . . . . . . . . . . . . . . . . . . . . . . . . . . . . 4
GENERAL INFORMATION . . . . . . . . . . . . . . . . . . . . . . . . . . . . . . . . . . . . . . 4
SAFETY RULES . . . . . . . . . . . . . . . . . . . . . . . . . . . . . . . . . . . . . . . . . . . . . 5-7
SAFETY DECALS . . . . . . . . . . . . . . . . . . . . . . . . . . . . . . . . . . . . . . . . . . . . 8-9
OPERATION . . . . . . . . . . . . . . . . . . . . . . . . . . . . . . . . . . . . . . . . . . . . . . . . 10
OWNER SERVICE . . . . . . . . . . . . . . . . . . . . . . . . . . . . . . . . . . . . . . . . . . . 15
TROUBLE SHOOTING . . . . . . . . . . . . . . . . . . . . . . . . . . . . . . . . . . . . . . . . 19
DEALER SERVICE . . . . . . . . . . . . . . . . . . . . . . . . . . . . . . . . . . . . . . . . . . . 22
ASSEMBLY . . . . . . . . . . . . . . . . . . . . . . . . . . . . . . . . . . . . . . . . . . . . . . . . . 29
DEALER CHECK LIST . . . . . . . . . . . . . . . . . . . . . . . . . . . . . . . . . . . . . . . . 34
PARTS LISTS . . . . . . . . . . . . . . . . . . . . . . . . . . . . . . . . . . . . . . . . . . . . . . . 35
BOLT TORQUE CHART . . . . . . . . . . . . . . . . . . . . . . . . . . . . . . . . . . . . . . . 43
BOLT SIZE CHART & ABBREVIATIONS . . . . . . . . . . . . . . . . . . . . . . . . . . 44
INDEX . . . . . . . . . . . . . . . . . . . . . . . . . . . . . . . . . . . . . . . . . . . . . . . . . . . . . 45
PRODUCT WARRANTY . . . . . . . . . . . . . . . . . . . . . . . . . . . . . . . . . . . . . . . 45
REPLACEMENT PARTS WARRANTY . . . . . . . . . . . . INSIDE BACK COVER
Si no lee Ingles, pida ayuda a
alguien que si lo lea para que le
traduzca las medidas de seguridad.
LEA EL INSTRUCTIVO!
!

4 Introduction
MAN0845 (1/12/2011)
SPECIFICATIONS
RD990X
3-Point Hitch Category 1 and 2
Cutting Width 90"
Cutting Height Range 1-1/2" - 7"
Operating Weight with
Chain Shielding 1200 lbs
Blade Speed (feet per minute) 17,000
Blade Speed (RPM) 2,074
Blade Spindles 3
Number of Blades 6
Universal Drive Series ASAE Cat. 4
Caster Wheels 13 x 5 x 10 Solid Rib Tire
-or-
13 x 5 x 6 Pneumatic Tire
Tractor PTO Speed RPM 540
Recommended Maximum
Tractor Horsepower 75HP
Mower Frame Thickness 5/16"
GENERAL INFORMATION
■
Some illustrations in this manual show the
mower with safety shields removed to provide a
better view. The mower should never be operated
with any safety shielding removed.
The purpose of this manual is to assist you in operating
and maintaining your mower. Read it carefully. It fur-
nishes information and instructions that will help you
achieve years of dependable performance. These
instructions have been compiled from extensive field
experience and engineering data. Some information
may be general in nature, due to unknown and varying
operating conditions. However, through experience
and these instructions, you should be able to develop
procedures suitable to your particular situation.
The illustrations and data used in this manual were cur-
rent at the time of printing. However, due to possible
inline production changes, your machine may vary
slightly in detail. We reserve the right to redesign and
change the machines as may be necessary without
notification.
Throughout this manual, references are made to right
and left directions. These are determined by standing
behind the tractor facing the direction of forward travel.

Safety 5
PRD Mower (9/13/2005)
TRAINING
Safety instructions are important! Read all
attachment and power unit manuals; follow all
safety rules and safety decal information. (Replace-
ment manuals and safety decals are available from
your dealer. To locate your nearest dealer, check
the Dealer Locator at www.WoodsEquipment.com,
or in the United States and Canada call 1-800-319-
6637.) Failure to follow instructions or safety rules
can result in serious injury or death.
Know your controls and how to stop engine and
attachment quickly in an emergency.
If you do not understand any part of this manual
and need assistance, see your dealer.
Operators must be instructed in and be capable
of the safe operation of the equipment, its attach-
ments, and all controls. Do not allow anyone to
operate this equipment without proper instructions.
Never allow children or untrained persons to
operate equipment.
PREPARATION
Check that all hardware is properly installed.
Always tighten to torque chart specifications
unless instructed otherwise in this manual.
Always wear relatively tight and belted clothing
to avoid getting caught in moving parts. Wear
sturdy, rough-soled work shoes and protective
equipment for eyes, hair, hands, hearing, and head;
and respirator or filter mask where appropriate.
Make sure attachment is properly secured,
adjusted, and in good operating condition.
Make sure spring-activated locking pin or collar
slides freely and is seated firmly in tractor PTO
spline groove.
Make sure driveline guard tether chains are
attached to the tractor and equipment as shown in
the pamphlet that accompanies the driveline.
Replace if damaged or broken. Check that driveline
guards rotate freely on driveline before putting
equipment into service.
Connect PTO driveline directly to power unit
PTO shaft. Never use adapter sleeves or adapter
shafts. Adapters can cause driveline failures due to
incorrect spline or incorrect operating length and
can result in personal injury or death.
Before starting power unit, check all equipment
driveline guards for damage. Replace any damaged
guards. Make sure all guards rotate freely on all
drivelines. If guards do not rotate freely on drive-
lines, repair and replace bearings before putting
equipment into service.
Power unit must be equipped with ROPS or
ROPS cab and seat belt. Keep seat belt securely
fastened. Falling off power unit can result in death
from being run over or crushed. Keep foldable
ROPS system in “locked up” position at all times.
Remove accumulated debris from this equip-
ment, power unit, and engine to avoid fire hazard.
Make sure all safety decals are installed.
Replace if damaged. (See Safety Decals section for
location.)
Make sure shields and guards are properly
installed and in good condition. Replace if damaged.
A minimum 20% of tractor and equipment
weight must be on the tractor front wheels when
attachments are in transport position. Without this
weight, front tractor wheels could raise up result-
ing in loss of steering. The weight may be attained
with front wheel weights, ballast in tires or front
tractor weights. Weigh the tractor and equipment.
Do not estimate.
OPERATION
Full chain shielding must be installed when
operating in populated areas or other areas where
thrown objects could injure people or damage
property.
• If this machine is not equipped with full chain
shielding, operation must be stopped when any-
one comes within 300 feet (92 m).
• This shielding is designed to reduce the risk
Safety is a primary concern in the design and
manufacture of our products. Unfortunately, our
efforts to provide safe equipment can be wiped
out by an operator’s single careless act.
In addition to the design and configuration of
equipment, hazard control and accident preven-
tion are dependent upon the awareness, concern,
judgement, and proper training of personnel
involved in the operation, transport, maintenance
and storage of equipment.
It has been said “The best safety device is an
informed, careful operator.” We ask you to be that
kind of operator.
SAFETY RULES
ATTENTION! BECOME ALERT! YOUR SAFETY IS INVOLVED!

6 Safety
PRD Mower (9/13/2005)
of thrown objects. The mower deck and protec-
tive devices cannot prevent all objects from
escaping the blade enclosure in every mowing
condition. It is possible for objects to ricochet
and escape, traveling as much as 300 feet (92 m).
Inspect and clear area of stones, branches, or
other hard objects that might be thrown, causing
injury or damage.
Never direct discharge toward people, animals,
or property.
Keep bystanders away from equipment.
Do not operate or transport equipment while
under the influence of alcohol or drugs.
Operate only in daylight or good artificial light.
Keep hands, feet, hair, and clothing away from
equipment while engine is running. Stay clear of all
moving parts.
Always comply with all state and local lighting
and marking requirements.
Never allow riders on power unit or attachment.
Always sit in power unit seat when operating
controls or starting engine. Securely fasten seat
belt, place transmission in neutral, engage brake,
and ensure all other controls are disengaged
before starting power unit engine.
Operate tractor PTO at 540 RPM. Do not exceed.
Look down and to the rear and make sure area
is clear before operating in reverse.
Do not operate or transport on steep slopes.
Do not stop, start, or change directions sud-
denly on slopes.
Use extreme care and reduce ground speed on
slopes and rough terrain.
Watch for hidden hazards on the terrain during
operation.
Stop power unit and implement immediately
upon striking an obstruction. Dismount power unit,
using proper procedure. Inspect and repair any
damage before resuming operation.
TRANSPORTATION
Use additional caution and reduce speed when
under adverse surface conditions, turning, or on
inclines.
Do not operate PTO during transport.
A minimum 20% of tractor and equipment
weight must be on the tractor front wheels when
attachments are in transport position. Without this
weight, front tractor wheels could raise up result-
ing in loss of steering. The weight may be attained
with front wheel weights, ballast in tires or front
tractor weights. Weigh the tractor and equipment.
Do not estimate.
Do not operate or transport on steep slopes.
Do not operate or transport equipment while
under the influence of alcohol or drugs.
Always comply with all state and local lighting
and marking requirements.
Never allow riders on power unit or attachment.
MAINTENANCE
Before working underneath, carefully read Oper-
ator’s Manual instructions, disconnect driveline,
raise mower, securely block up all corners with
jackstands, and check stability. Secure blocking
prevents equipment from dropping due to hydrau-
lic leak down, hydraulic system failures, or
mechanical component failures.
Do not modify or alter or permit anyone else to
modify or alter the equipment or any of its compo-
nents in any way.
Always wear relatively tight and belted clothing
to avoid getting caught in moving parts. Wear
sturdy, rough-soled work shoes and protective
equipment for eyes, hair, hands, hearing, and head;
and respirator or filter mask where appropriate.
Make sure attachment is properly secured,
adjusted, and in good operating condition.
Keep all persons away from operator control
area while performing adjustments, service, or
maintenance.
Make certain all movement of equipment com-
ponents has stopped before approaching for ser-
vice.
Never go underneath equipment (lowered to the
ground or raised) unless it is properly blocked and
secured. Never place any part of the body under-
neath equipment or between moveable parts even
when the engine has been turned off. Hydraulic
system leak down, hydraulic system failures,
mechanical failures, or movement of control levers
can cause equipment to drop or rotate unexpect-
edly and cause severe injury or death. Follow Oper-
ator's Manual instructions for working underneath
SAFETY RULES
ATTENTION! BECOME ALERT! YOUR SAFETY IS INVOLVED!

Safety 7
PRD Mower (9/13/2005)
and blocking requirements or have work done by a
qualified dealer.
Frequently check blades. They should be sharp,
free of nicks and cracks, and securely fastened.
Do not handle blades with bare hands. Careless
or improper handling may result in serious injury.
Your dealer can supply genuine replacement
blades. Substitute blades may not meet original
equipment specifications and may be dangerous.
Tighten all bolts, nuts, and screws to torque
chart specifications. Check that all cotter pins are
installed securely to ensure equipment is in a safe
condition before putting unit into service.
Make sure all safety decals are installed.
Replace if damaged. (See Safety Decals section for
location.)
Make sure shields and guards are properly
installed and in good condition. Replace if damaged.
Wear gloves when installing belt. Be careful to
prevent fingers from being caught between belt
and pulley.
Use care when installing or removing belt from
spring-loaded idler. Springs store energy when
extended and, if released suddenly, can cause per-
sonal injury.
STORAGE
Follow manual instructions for storage.
Keep children and bystanders away from stor-
age area.
SAFETY RULES
ATTENTION! BECOME ALERT! YOUR SAFETY IS INVOLVED!

8 Safety
MAN0845 (1/12/2011)
9 - 57123 9" Red Rear Reflector
SHIELD MISSING
DO NOT OPERATE
PUT SHIELD ON
DANGER
18867--B
6 - 15503
5 - 18867
1 - Serial Number Plate
MODEL NO. SERIAL NO.
Woods Equipment Company
Oregon, Illinois, U.S.A.
BE CAREFUL!
Use a clean, damp cloth to clean safety decals. Avoid spraying too close to decals
when using a pressure washer; high-pressure water can enter through very small
scratches or under edges of decals causing them to peel or come off.
Replacement safety decals can be ordered free from your Woods dealer. To
locate your nearest dealer, check the Dealer Locator at www.woodsonline.com, or
in the United States and Canada call 1-800-319-6637.
ROTATING BLADES AND
THROWN OBJECTS
Do not put hands or feet under or into mower when
engine is running.
Before mowing, clear area of objects that may be
thrown by blade.
Keep bystanders away.
Keep guards in place and in good condition.
BLADE CONTACT OR THROWN OBJECTS CAN
CAUSE SERIOUS INJURY OR DEATH.
DANGER
15503-C
SAFETY & INSTRUCTIONAL DECALS
ATTENTION! BECOME ALERT! YOUR SAFETY IS INVOLVED!
Replace Immediately If Damaged!
(Rev. 10/1/2013)

Safety 9
MAN0845 (1/12/2011)
SAFETY & INSTRUCTIONAL DECALS
ATTENTION! BECOME ALERT! YOUR SAFETY IS INVOLVED!
Replace Immediately If Damaged!
33347E
FALLING OFF CAN RESULT IN BEING RUN OVER.
Tractor must be equipped with ROPS (or ROPS CAB) and seat
belt. Keep foldable ROPS systems in “locked up” position at all
times.
Buckle Up! Keep seat belt securely fastened.
Allow no riders.
RAISED EQUIPMENT CAN DROP AND CRUSH.
Before working underneath, follow all instructions and safety rules in
operator’s manual and securely block up all corners of equipment
with jack stands.
Securely blocking prevents equipment dropping from hydraulic leak-
down, hydraulic system failures or mechanical component failures.
FALLING OFF OR FAILING TO BLOCK SECURELY CAN
RESULT IN SERIOUS INJURY OR DEATH.
WARNING
18865--C
If shaft connection is visible, shield
is missing. Replace shield before
operating equipment.
DA
NG
NG
ER
ER
1004114
2 - 18865
10 - 1004114
8 - 33347
7 - 18864
3 - 18877
CRUSHING AND PINCHING HAZARD
Be extremely careful handling various parts of
the machine. They are heavy and hands, fingers,
feet, and other body parts could be crushed or
pinched between tractor and implement.
Operate tractor controls from tractor seat only.
Do not stand between tractor and implement
when tractor is in gear.
Make sure parking brake is engaged before
going between tractor and implement.
Stand clear of machine while in operation or
when it is being raised or lowered.
FAILURE TO FOLLOW THESE
INSTRUCTIONS COULD RESULT IN
SERIOUS INJURY OR DEATH.
WARNING
1003751-A
11 - 1003751
WARNING
TO AVOID SERIOUS
INJURY OR DEATH:
Read Operator's Manual (available
from dealer) and follow all safety
precautions.
Keep all shields in place and in good
condition.
Operate mower from tractor seat only.
Lower mower, stop engine and remove
key before dismounting tractor.
Allow no children or untrained persons
to operate equipment.
Do not transport towed or
semi-mounted units over 20 mph.
FAILURE TO OPERATE SAFELY
CAN RESULT IN
INJURY OR DEATH.
18877-C
DANGER
ROTATING DRIVELINE
CONTACT CAN CAUSE DEATH
KEEP AWAY!
DO NOT OPERATE WITHOUT -
All driveline guards, tractor and
equipment shields in place
Drivelines securely attached at both ends
Driveline guards that turn freely on
driveline
18864-C
540 RPM
WARNING
18866-D
4 - 18866

10 Operation
MAN0845 (1/12/2011)
OPERATION
The operator is responsible for the safe operation of
the mower. The operator must be properly trained.
Operators should be familiar with the mower, the trac-
tor, and all safety practices before starting operation.
Read the safety rules and safety decals on pages 5 to
9.
This mower is designed for light brush shredding and
grass mowing. It is especially useful in cane, berry,
grape and vegetable crops for mowing and shredding
prunings.
Recommended mowing speed for most conditions is
from 2 to 5 mph.
Full chain shielding must be installed when
operating in populated areas or other areas where
thrown objects could injure people or damage
property.
• If this machine is not equipped with full chain
shielding, operation must be stopped when any-
one comes within 300 feet (92 m).
• This shielding is designed to reduce the risk
of thrown objects. The mower deck and protec-
tive devices cannot prevent all objects from
escaping the blade enclosure in every mowing
condition. It is possible for objects to ricochet
and escape, traveling as much as 300 feet (92 m).
Never allow children or untrained persons to
operate equipment.
Keep bystanders away from equipment.
Make sure spring-activated locking pin or collar
slides freely and is seated firmly in tractor PTO
spline groove.
Before working underneath, carefully read Oper-
ator’s Manual instructions, disconnect driveline,
raise mower, securely block up all corners with
jackstands, and check stability. Secure blocking
prevents equipment from dropping due to hydrau-
lic leak down, hydraulic system failures, or
mechanical component failures.
Keep all persons away from operator control
area while performing adjustments, service, or
maintenance.
Stop power unit and implement immediately
upon striking an obstruction. Dismount power unit,
using proper procedure. Inspect and repair any
damage before resuming operation.
Always wear relatively tight and belted clothing
to avoid getting caught in moving parts. Wear
sturdy, rough-soled work shoes and protective
equipment for eyes, hair, hands, hearing, and head;
and respirator or filter mask where appropriate.
TRACTOR STABILITY
A minimum 20% of tractor and equipment
weight must be on the tractor front wheels when
attachments are in transport position. Without this
weight, front tractor wheels could raise up result-
ing in loss of steering. The weight may be attained
with front wheel weights, ballast in tires or front
tractor weights. Weigh the tractor and equipment.
Do not estimate.
Figure 1
. Tractor Stability
ATTACHING MOWER TO TRACTOR
Make sure spring-activated locking pin or collar
slides freely and is seated firmly in tractor PTO
spline groove.
The standard 1-3/8" 6B-spline driveline with a QD yoke
is used to connect the mower to the tractor.
CAUTION
CAUTION

Operation 11
MAN0845 (1/12/2011)
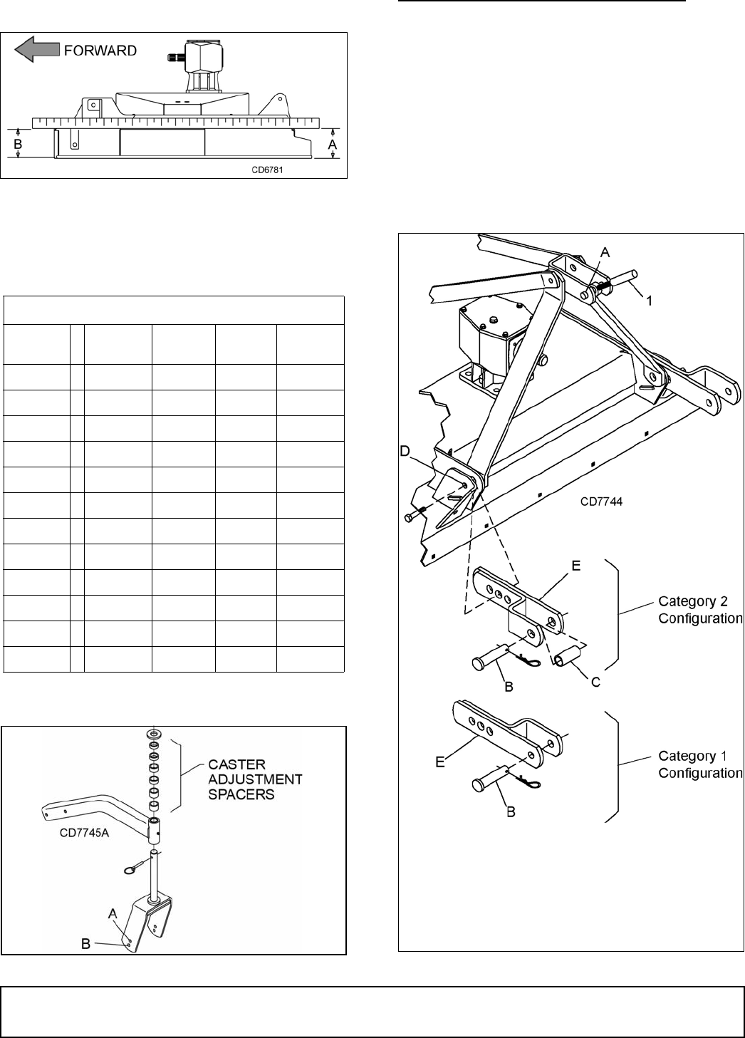
Refer to Figure 2
1.
For Category 1 hitch, position mower hitch arms
(E) with offset toward center of mower. For
Category 2 hitch, position mower hitch arms (E)
with offset toward outside of mower.
2.
Attach the mower hitch pins (B) to lower tractor lift
arms and secure.
3.
Attach tractor top link (1) to mower top link bracket
attachment point A. Connect driveline to tractor
PTO shaft.
Figure 2
. Attachment Points
Figure 3
. Attaching Mower to Tractor
4.
Attach tether chain to tractor drawbar if drive
equipped with chain, (Figure 3).
5.
Adjust the tractor lower 3-point arm anti-sway
devices to prevent mower from swinging side to
side during transport.
CUTTING HEIGHT ADJUSTMENT
Keep all persons away from operator control
area while performing adjustments, service, or
maintenance.
NOTICE
■
Avoid low cutting heights. Striking the ground
with blades produces one of the most damaging
shock loads a mower can encounter. Allowing
blades to contact ground repeatedly will cause
damage to mower and drive.
1.
Level mower from side to side. Check by
measuring from mower frame to the ground at
each deck rail.
2.
Verify that the same amount of spacers are under
all caster arms.
3.
Loosen cap screws that attach caster arm
assembly to deck.
4.
Set mower on the ground.
5.
Retighten cap screws. This equalizes the
clearance in the bolt holes.
6.
Adjust front of mower level with or slightly lower
than the rear to obtain best mowing results. See
Figure 4.
7.
Control cutting height by adjusting front and rear
caster wheels.
8.
To raise rear of mower, move caster adjustment
spacers under rear caster arms. See Figure 6.
1. Tractor top link
A. Mower top link attachment point
B. Mower hitch pin
C. Category 2 sleeve
D. Lower hitch arm attachment point
E. Mower hitch arm
CM906
Tether Chain

12 Operation
MAN0845 (1/12/2011)
9.
To raise front of mower, move spacers under front
caster wheel arms.
Figure 4
. Cutting Height Adjustment
Remember, measurement at location A (Figure 4)
should not be less than location B and should not be
over 1/2" greater than location B.
Figure 5
. Cutting Height Chart
Figure 6
. Height Adjustment with Caster Arm Spacers
TRACTOR TOP LINK ADJUSTMENT
When the cutting height is set, adjust tractor top link
until mower top link attachment point (A) is aligned ver-
tically with mower hitch pin (B), Figure 7.
Adjust tractor top link so mower is level between caster
wheel and ground (dimension C), Figure 8. This will
allow the mower to follow ground contour.
The mower has three lower hitch plate attachment
points (D), Figure 7. It may be necessary to change the
mower hitch plate attachment point to obtain proper tire
clearance and/or lift height.
Figure 7
. Top Link Adjustment
Cut
Height
Axle
Position
1/2"
Spacer
3/4"
Spacer
1"
Spacer
1-1/2"
A
2"
A1
2-1/2"
A1
3"
A1 1
3-1/2"
A2
4"
A1 2
4-1/2"
A2 2
5"
A22
5-1/2"
A122
6"
A222
6-1/2"
B122
7"
B222
Spacers under caster arm pivot
tube
1. Tractor top link
A. Mower top link attachment point
B. Mower hitch pin
C. Category 2 sleeve
D. Lower hitch arm attachment point
E. Mower hitch arm
(Rev. 10/1/2013)

Operation 13
MAN0845 (1/12/2011)
FRONT CASTER WHEEL INTERFERENCE
CHECK
NOTICE
■
Do not operate tractor and mower until this
interference check has been performed. If you
change tractors, you must perform the check for
that mounting.
Figure 8
. Front Caster Wheel Interference Check
Perform this check with all of the spacers above caster
wheel arm. This will place caster wheels in their highest
position and provide lowest cutting height for mower.
1.
Raise mower with tractor hydraulics to 16" at
dimension C or maximum height of tractor lift,
whichever is less.
2.
Pivot both front caster wheels forward and check
that there is clearance between caster wheels and
tractor tires.
3.
If there is interference adjust mower hitch arm (E)
as shown in Figure 7.
NOTE:
If interference continues, see tractor operator's
manual and adjust tractor wheels to narrower spacing.
FRONT ROLLER (OPTIONAL)
The caster wheels and side skids effectively reduce
scalping in most cases. However, you may encounter
areas where the caster wheels and/or side skids drop
into depressions and allow center of the mower to con-
tact ground and scalp. An optional front roller may be
installed to minimize scalping. See page 32.
OPERATING TECHNIQUE
Stop power unit and implement immediately
upon striking an obstruction. Dismount power unit,
using proper procedure. Inspect and repair any
damage before resuming operation.
Power for operating mower is supplied by tractor PTO.
Operate PTO at 540 rpm. Know how to stop tractor and
mower quickly in an emergency.
If mower becomes plugged causing belt to slip for over
two seconds follow these steps:
1.
Maneuver equipment into a previously cut area
and allow mower to clear accumulated material.
2.
Continue running at least two minutes, allowing
pulleys to cool. Stopping the mower in contact with
a very hot pulley will bake and ruin belt.
Proper ground speed will depend upon the terrain, the
height, and type and density of material to be cut.
Normally, ground speed will range from 2 to 5 mph. Tall
dense material should be cut at a low speed; thin
medium-height material can be cut at a faster ground
speed.
Always operate tractor PTO at 540 rpm to maintain
proper blade speed and produce a clean cut.
Under certain conditions, tractor tires may roll some
grass down and prevent it from being cut at the same
height as the surrounding area. When this occurs,
reduce your ground speed, but maintain PTO at 540
rpm. The lower ground speed will permit grass to par-
tially rebound.
In general, lower cutting heights give a more even cut
and leave less tire tracks. However, it is better to cut
grass frequently rather than too short. Short grass
deteriorates rapidly in hot weather and invites weed
growth during growing seasons. Follow local recom-
mendations for the suitable cutting height in your area.
Operating Tips
Inspect and clear area of stones, branches, or
other hard objects that might be thrown, causing
injury or damage.
Extremely tall material should be cut twice. Set mower
at a higher cutting height for the first pass. Then cut at
desired height, 90 degrees to the first pass.
Remember, sharp blades produce cleaner cuts and
require less power.
Analyze area to be cut to determine the best proce-
dure. Consider height and type of grass and terrain
type: hilly, level, or rough.
CAUTION

14 Operation
MAN0845 (1/12/2011)
Plan your mowing pattern to travel straight forward
whenever possible. Mow with uncut grass to the right.
This will distribute the clippings over the cut area.
Uneven Terrain
Do not operate or transport on steep slopes.
Do not stop, start, or change directions sud-
denly on slopes.
Use extreme care and reduce ground speed on
slopes and rough terrain.
Watch for hidden hazards on the terrain during
operation.
Pass diagonally through sharp dips and avoid sharp
drops to prevent hanging up tractor and mower.
Practice will improve your skills in maneuvering rough
terrain.
MOWER REMOVAL & STORAGE
1.
Disengage PTO, place tractor and mower on solid,
level surface. Raise mower with 3-point hitch.
2.
Place blocks under mower side skids. Lower
mower onto blocks.
3.
Set parking brake, stop engine and remove key.
Disconnect mower driveshaft from tractor PTO.
4.
Collapse driveshaft as far as possible and store in
driveshaft hanger bracket to prevent ground
contact.
5.
Disconnect mower from tractor 3-point hitch. Start
tractor and carefully drive away from mower.
6.
Before extended storage, see page 18 for cleaning
instructions.
OWNER PRE-OPERATION CHECK LIST
(OWNER'S RESPONSIBILITY)
___ Review and follow all safety rules and safety
decal instructions on pages 5 to 9.
___ Check that all safety decals are installed and in
good condition. Replace if damaged.
___ Check that all shields and guards are properly
installed and in good condition. Replace if dam-
aged.
___ Check that chain shielding is in good condition
and replace any damaged chain links.
___ Check that all hardware and cotter pins are prop-
erly installed and secured.
___ Check to ensure blades are sharp, in good condi-
tion, and installed correctly. Replace if damaged.
___ Check that equipment is properly and securely
attached to tractor.
___ Make sure driveline spring-activated locking pin
or collar slides freely and is seated firmly in trac-
tor PTO spline groove.
___ Make sure the driveline guards and tether chains
are in good condition. Guards must rotate freely
on driveline. Fasten tether chains to the tractor
and the equipment as instructed.
___ Inspect area and remove stones, branches or
other hard objects that might be thrown, causing
injury or damage.
___ Do not allow riders.
___ Check all lubrication points and grease as
instructed in “Lubrication Information” on page
15. Make sure the PTO slip joint is lubricated and
that the gearbox fluid levels are correct.
___ Set tractor PTO at 540 rpm.
___ Make sure tractor ROPS or ROPS cab and seat
belt are in good condition. Keep seat belt
securely fastened during operation.
___ Before starting engine, operator must be in trac-
tor seat with seat belt fastened. Place transmis-
sion in neutral or park, engage brake, and
disengage tractor PTO.

Owner Service 15
MAN0845 (1/12/2011)
OWNER SERVICE
The information in this section is written for operators
who possess basic mechanical skills. If you need help,
your dealer has trained service technicians available.
For your protection, read and follow the safety informa-
tion in this manual.
Never allow children or untrained persons to
operate equipment.
Keep bystanders away from equipment.
Before working underneath, carefully read Oper-
ator’s Manual instructions, disconnect driveline,
raise mower, securely block up all corners with
jackstands, and check stability. Secure blocking
prevents equipment from dropping due to hydrau-
lic leak down, hydraulic system failures, or
mechanical component failures.
Keep all persons away from operator control
area while performing adjustments, service, or
maintenance.
Operate tractor PTO at 540 RPM. Do not exceed.
Always wear relatively tight and belted clothing
to avoid getting caught in moving parts. Wear
sturdy, rough-soled work shoes and protective
equipment for eyes, hair, hands, hearing, and head;
and respirator or filter mask where appropriate.
BLOCKING METHOD
Do not work underneath mower unless it is properly
attached to the tractor and blocked securely. When
properly attached, the unit will be anchored to minimize
front to rear movement.
Raise mower completely, set tractor brakes, turn
engine off, remove key, block tractor wheels front and
rear, and disconnect mower driveline from tractor.
The only approved blocking device for this mower is a
jackstand with a load rating of 1000 pounds or more.
One jackstand under each corner of the mower (four
total) must be installed before working underneath.
See Figure 9.
When blocking, you must consider overall stability of
the unit. Just blocking under the unit will not ensure
your safety. The working surface must be level and
solid to support the loaded weight of the jackstands.
Test jackstands stability before working under any por-
tion of the mower.
Figure 9
. Blocking Method
LUBRICATION INFORMATION
Do not let excess grease collect on or around parts,
particularly when operating in sandy areas.
Figure 10 shows the lubrication points. The accompa-
nying chart gives the frequency of lubrication in operat-
ing hours, based on normal operating conditions.
Severe or unusual conditions may require more fre-
quent lubrication. Some reference numbers have more
than one location; be sure you lubricate all locations.
Use a lithium grease of #2 consistency with a MOLY
(molybdenum disulfide) additive for all locations. Be
sure to clean fittings thoroughly before attaching
grease gun. When applied according to the lubrication
chart, one good pump of most guns is sufficient.
Use SAE 90W gear lube in the gearbox. Fill to plug on
side of gearbox.
Check gearbox daily for evidence of leakage at both
seals and the gasket between the housing and cover. If
leakage is noted, repair immediately. There may be a
small amount of lube emitted from the vent plug; this is
not considered leakage.
Overfilling the gearbox will cause the excess gear lube
to blow out vent plug and ruin the belt.
Driveshaft Lubrication
Lubricate the driveshaft slip joint every 8 operating
hours. Failure to maintain proper lubrication could
result in damage to U-joints, gearbox, and driveshaft.
1.
Lower mower to ground.
2.
Apply grease at three locations shown in Figure 10.
3.
Raise and lower mower several times to distribute
grease.
CAUTION
(Rev. 10/1/2013)

16 Owner Service
MAN0845 (1/12/2011)
Figure 10
. Lubrication Points & Chart
REF DESCRIPTION FREQUENCY
1 Driveline U-Joints 8 Hours
2 Gearbox (Fill to center of horizontal shaft with SAE 90W gear lube) Check for
leaks daily
3 Caster Wheel (Four Wheels) 8 Hours
4 Caster Pivot (Four Yokes) 8 Hours
5 Slip Joint 8 Hours
6 Shield Bearing 8 Hours
7 Blade Spindles (Access through hole) 8 Hours
(Rev. 10/1/2013)

Owner Service 17
MAN0845 (1/12/2011)
Figure 11
. Belt Routing
BELT SERVICE
Belt Replacement
One of the major causes of belt failure is improper
installation. Before installing a new belt, check the fol-
lowing:
1.
Check pulley shafts and bearings for wear.
2.
Check pulley grooves for cleanliness.
3.
Make sure spindles turn freely and without wobble.
If grooves require cleaning, moisten a cloth with a non-
flammable, non-toxic degreasing agent or commercial
detergent and water.
Avoid excessive force during installation. Do not use
tools to pry belt into pulley groove. Do not roll belt over
pulleys to install. This can cause hidden damage and
premature belt failure.
Belt Installation
1.
Disconnect idler spring from deck lug I.
2.
Slide belt under drive pulley A and over idler arm.
Position belt around drive pulley A.
3.
Route belt around pulley B, idler C and pulley D as
shown.
4.
Make sure belt is on drive pulley A, route around
idler E, and connect idler spring to lug I on deck.
5.
Loosen bolt holding belt guide G and swing it away
from pulley F.
6.
Grasp belt between spindle pulley F, spring loaded
idler E and spindle pulley D. Pull spring loaded
idler with belt to obtain enough belt length to route
it over pulley F. Make sure spring-loaded idler
pivots freely with belt installed.
NOTICE
■
Use care when installing or removing belt from
spring-loaded idler at step 6. Springs store energy
when extended and, if released suddenly, can
cause personal injury.
7.
Adjust belt guide G to provide 1/8" to 3/16"
clearance from belt. Tighten bolt to 85 lbs-ft.
BLADE SERVICE
Before dismounting power unit or performing
any service or maintenance, follow these steps:
disengage power to equipment, lower the 3-point
hitch and all raised components to the ground,
operate valve levers to release any hydraulic pres-
sure, set parking brake, stop engine, remove key,
and unfasten seat belt.
Keep all persons away from operator control
area while performing adjustments, service, or
maintenance.
Blade Removal
1.
Remove Nylok bolt (5).
2.
Remove blade lock (4) from groove in blade pin.
3.
Remove blade (2) and pin (3) from spindle
assembly (1).
Figure 12
. Blade Removal
1. Blade Spindle
2. Blade
3. Blade Pin
4. Blade Lock
5. 1/2NC x 3/4 Nylok
Bolt

18 Owner Service
MAN0845 (1/12/2011)
Blade Installation
Your dealer can supply genuine replacement
blades. Substitute blades may not meet original
equipment specifications and may be dangerous.
Figure 13
. Blade Assembly
1.
Install blade pin (3) thru blade (2) and blade
spindle (1).
2.
Make sure blade cutting edge is positioned to lead
in a clockwise rotation, as viewed from top of
mower.
3.
Insert blade lock (4) into groove of blade pin (3).
4.
Secure lock (4) with Nylok bolt (5).
Blade Sharpening
Figure 14
. Blade Sharpening
NOTICE
■
When sharpening blades, grind the same
amount on each blade to maintain balance.
Replace blades in pairs. Unbalanced blades will
cause excessive vibration, which can damage
gearbox bearings. Vibration may also cause struc-
tural cracks to cutter.
1.
Always sharpen both blades at the same time to
maintain balance. Follow original sharpening
pattern.
2.
Do not sharpen blade to a razor edge. Leave at
least a 1/16" blunt edge.
3.
Do not sharpen back side of blade.
CHAIN SHIELDING
Full chain shielding must be installed when
operating in populated areas or other areas where
thrown objects could injure people or damage
property.
• If this machine is not equipped with full chain
shielding, operation must be stopped when any-
one comes within 300 feet (92 m).
• This shielding is designed to reduce the risk
of thrown objects. The mower deck and protec-
tive devices cannot prevent all objects from
escaping the blade enclosure in every mowing
condition. It is possible for objects to ricochet
and escape, traveling as much as 300 feet (92 m).
Check that chain shielding is in good condition and
replace any damaged chain links.
CLEANING
After Each Use
●
Remove large debris such as clumps of dirt, grass,
crop residue, etc. from machine.
●
Inspect machine and replace worn or damaged
parts.
●
Replace any safety decals that are missing or not
readable.
Periodically or Before Extended Storage
●
Clean large debris such as clumps of dirt, grass,
crop residue, etc. from machine.
●
Remove the remainder using a low-pressure water
spray.
1.
Be careful when spraying near scratched or torn
safety decals or near edges of decals as water
spray can peel decal off surface.
2.
Be careful when spraying near chipped or
scratched paint as water spray can lift paint.
3.
If a pressure washer is used, follow the advice
of the pressure washer manufacturer.
●
Inspect machine and replace worn or damaged
parts.
●
Sand down scratches and the edges of areas of
missing paint and coat with Woods spray paint of
matching color (purchase from your Woods
dealer).
●
Replace any safety decals that are missing or not
readable (supplied free by your Woods dealer).
See Safety Decals section for location drawing.
CAUTION
1. Blade Spindle
2. Blade
3. Blade Pin
4. Blade Lock
5. 1/2NC x 3/4 Nylok
Bolt

Troubleshooting 19
MAN0845 (1/12/2011)
TROUBLE SHOOTING
MOWING CONDITIONS
PROBLEM POSSIBLE CAUSE SOLUTION
Grass cut higher in center of
swath than at edge
Height of mower higher at rear
than at front
Adjust mower height and attitude so
that mower rear and front are within
1/2 inch of same height. See
instructions on page 11.
Grass cut lower in center of
swath than at edge
Height of mower lower at rear
than at front
Adjust mower height and attitude so
that mower rear and front are within
1/2 inch of same height. See
instructions on page 11.
Streaking conditions in swath Conditions too wet for mowing Allow grass to dry before mowing.
Blades unable to cut that part of
grass pressed down by path of
tractor tires
Slow ground speed of tractor but keep
engine running at full PTO rpm.
Cutting lower will help. Adjust tractor
tire spacing if possible.
Dull blades Sharpen or replace blades.
Material discharges from mower
unevenly; bunches of material
along swath
Material too high and too much
material
Reduce ground speed but maintain
540 rpm at tractor PTO, or make two
passes over material. Raise mower
for the first pass and lower for the
second and cut at 90 degrees to first
pass. Raise rear of mower high
enough to permit material to
discharge, but not so high that
conditions listed above occur.
Grass wet Allow grass to dry before mowing.
Slow ground speed of tractor but keep
engine running at full PTO rpm.
Rear of mower too low, trapping
material under mower
Adjust mower height and attitude.

20 Troubleshooting
MAN0845 (1/12/2011)
TROUBLE SHOOTING
BELT CONDITIONS
* Check belt for damage by laying it flat on the floor. A belt that does not lie flat (has humps or twists, indicating broken
or stretched cords) must be replaced.
PROBLEM POSSIBLE CAUSE SOLUTION
Belt slippage Mower overloading; Material too
tall or heavy
Reduce tractor ground speed but
maintain full PTO rpm. Cut material
twice, one high pass and then mow at
desired height. Cut at 90 degrees to
first pass.
Oil on belt from over lubrication Be careful not to over-lubricate. Clean
lubricant from belt and pulleys with
clean rag. Replace oil-soaked belt.
Belt hung up or rubbing Check belt position in pulleys and
idlers. Check belt for free travel in
pulleys. Check under mower and
around blade spindle shaft for wire,
rags, or other foreign material. Clean
all material from under mower.
Frayed edges on belt cover Belt misaligned or belt rubbing
guide
Re-align belt. Be sure belt does not
rub any other part while running.
Pulley misaligned Inspect to ensure belt is running in
center of backside idler. Shim idler as
necessary to align.
Damaged belt Rollover, high shock loads or
installation damaged
Replace belt.*
Belt breakage High shock loads Avoid abusive mowing. Avoid hitting
the ground or large obstructions.
Belt came off drive Check pulleys for foreign material in
grooves. Avoid hitting solid objects or
ground.

Troubleshooting 21
MAN0845 (1/12/2011)
NOTES

22 Dealer Service
MAN0845 (1/12/2011)
DEALER SERVICE
The information in this section is written for dealer ser-
vice personnel. The repair described here requires
special skills and tools. If your shop is not properly
equipped or your mechanics are not properly trained in
this type of repair, you may be time and money ahead
to replace complete assemblies.
Before working underneath, read manual
instructions, securely block up, and check stability.
Secure blocking prevents equipment from drop-
ping due to hydraulic leak down, hydraulic system
failure, or mechanical component failure.
Keep all persons away from operator control
area while performing adjustments, service, or
maintenance.
Always wear relatively tight and belted clothing
to avoid getting caught in moving parts. Wear
sturdy, rough-soled work shoes and protective
equipment for eyes, hair, hands, hearing, and head;
and respirator or filter mask where appropriate.
BLOCKING METHOD
See "Blocking Method" instructions on page 15.
BLADE SPINDLE SERVICE
Spindle repair requires special skills and tools. If your
shop is not properly equipped or your mechanics are
not trained in this type of repair, you may be time and
money ahead to use a new spindle assembly.
For reference, the grease fitting is in the top of the spin-
dle shaft.
Permatex
®
3D Aviation Form-A-Gasket or equivalent is
recommended as a sealant.
Spindle Removal
1.
Remove blade (11) from spindle (7).
2.
Remove belt from pulleys.
3.
Remove jam nut (16) and washer (15) from top of
spindle shaft, Figure 15.
4.
Disassemble split taper bushing (13) (located on
top of pulley) by removing the two bolts and key
(14).
5.
Insert bolts into the threaded holes of bushing
flange.
6.
Tighten bolts alternately to remove split taper
bushing.
7.
Remove pulley (12).
8.
Remove bolts that attach spindle to mower frame
and remove spindle.
9.
Remove grease fitting (17) from top of shaft.
Figure 15
. Sheave and Blade Assembly
Spindle Disassembly
1.
Place spindle assembly in press and press shaft
down through housing.
2.
Remove seals from housing.
3.
Remove bearing cups from housing by placing a
punch in the slots provided and driving them out.
Alternate punch positions from side to side. Take
care to prevent housing damage.
CAUTION
5. Spindle Housing
7. Spindle Shaft and Crossbar
8. Blade Lock
9. Blade Pin
10. 1/2NC x 3/4 Nylock HHCS
11. Blade
12. Sheave
13. Bushing
14. Key
15. 1" Lock Washer
16. 1NC Jam Nut
17. Grease Fitting

Dealer Service 23
MAN0845 (1/12/2011)
Figure 16
. Spindle Disassembly
Spindle Assembly
Refer to Figure 17.
Bearing cones and cups are designed to work together.
It is important to position them so bearing cone taper
mates with cup taper.
1.
Lubricate new cups (6) with a light oil. Place them
in spindle housing (5) so they will mate with
bearing cones (4). Cups (6) and cones (4) are a
press fit to minimize wear.
Seat cups (6) securely with a press or place a large
drift in the flat lip and drive them into housing (5)
until cup seats against machined shoulder of hous-
ing.
2.
Place bottom bearing cone (4) into spindle with
taper positioned to mate with cup (6).
Figure 17
. Spindle and Shaft Assembly
NOTICE
■
Improper positioning of seals can cause seal
damage. An improperly installed seal will leak and
could cause bearing failure.
3.
Identify the open side of the seal (3) containing the
spring.
4.
Apply a thin coat of Permatex to the area of
housing where seals seat.
5.
Install bottom seal (3) with spring up toward center
of housing.
6.
Place seal squarely on housing and select a piece
of pipe or tubing with an OD that will set on outside
edge of seal. A tubing with an OD that is too small
will bow seal cage.
7.
Carefully press seal into housing, to prevent
distortion to metal seal cage. Bottom seal should
seat firmly and squarely against machined
shoulder in housing.
8.
Make sure seal lip did not roll under. Distortion to
seal cage or damage to seal lip will cause seal to
leak. Damaged seals must be replaced.
9.
Insert shaft (7) through bottom of housing (5).
10.
Fill housing cavity with a medium grade grease.
11.
Install top bearing (4) on shaft (7) to mate with top
cone (6).
12.
Apply a thin coat of Permatex to shaft area where
sleeve will seat.
13.
Install sleeve (2) on shaft and press sleeve and
bearing into housing until all free play is removed
and there is a very light drag on bearings (similar to
adjusting front wheel bearings on an automobile).
Check by spinning spindle. It should turn freely.
14.
Be careful not to overtighten bearings. Proper
bearing adjustment is essential to good bearing
life.
15.
If you overtighten bearings, hold spindle housing
and rap spindle shaft with a lead hammer.
16.
Carefully press top seal (3) in with spring up. Top
seal should be flush with or to within 1/16" above
the housing.
17.
Rotate housing on spindle shaft, checking for free
movement.
18.
Install grease fitting (17) in spindle shaft.
Spindle Installation
NOTICE
■
Pulley installation sequence is very important
for bearing life. Follow the sequence exactly.
1.
Install spindle through bottom of mower and secure
with four mounting bolts.
3. Seal
5. Spindle Housing
7. Spindle Shaft and Crossbar
2. Sleeve
3. Seal
4. Bearing Cone
5. Spindle Housing
6. Bearing Cup
7. Spindle Shaft & Crossbar
17. Grease fitting

24 Dealer Service
MAN0845 (1/12/2011)
2.
Install pulley (12) and split taper bushing (13) with
integral key (14) on spindle shaft. Make sure
bushing is in contact with sleeve on spindle shaft.
3.
Alternately tighten split taper bushing cap screws
to 20 lbs-ft.
4.
Install lock washer and nut on spindle shaft.
Tighten nut until snug, but do not over-tighten.
Check shaft to make sure it spins freely..
Figure 18
. Gearbox Assembly
GEARBOX REPAIR
Read this entire section before starting any repair.
Many steps are dependent on each other.
Repair to this gearbox is limited to replacing bearings,
seals, and gaskets. Replacing gears, shafts, and a
housing is not cost effective. It is more economical to
purchase a complete gearbox if repair to anything other
than replacement of bearings, seals or gaskets is
required.
Fill gearbox with SAE 80W or 90W gear lube until it
runs out the side level plug.
Inspect gearbox for leakage and bad bearings.
Leakage is a very serious problem and must be cor-
rected immediately.
Bearing failure is indicated by excessive noise and side
to side or end play in gear shafts.
Seal Replacement
Recommended sealant for gearbox repair is Perma-
tex
®
Aviation 3D Form-A-Gasket or equivalent.
Leakage can occur at the vertical or horizontal gaskets
and shaft seals.
Leakage at the horizontal gasket or seal can be
repaired without removing the gearbox from the cutter.
Seal Installation
NOTE:
Proper seal installation is important. An improp-
erly installed seal will leak.
1. Crown gear
2. Gearbox housing
3. Input shaft
4. Output shaft
5. Gear pinion
6. Bearing
7. Bearing
8. Protective flat washer
9. Cotter pin
10. Snap ring
11. Snap ring
12. Spacer
13. Shim
14. Castle nut
15. Castle nut M24 x 2
16. Shim
17. Flat washer
18. Oil seal (40 x 80 x 12 mm)
19. Oil seal (35 x 72 x 10 mm)
20. Cap
21. Snap ring
22. Top cover
23. Bolt M8 x 14 mm
24. Breather level plug
25. Cotter pin
26. Bearing
27. Ball bearing

Dealer Service 25
MAN0845 (1/12/2011)
1.
Clean area in housing where seal outer diameter
(OD) seats. Apply a thin coat of Permatex.
2.
Inspect area of shaft where seal seats. Remove
any burrs or nicks with an emery cloth.
3.
Lubricate gear shaft and seal lips.
4.
Place seal squarely on housing, spring-loaded lip
toward housing. Select a piece of pipe or tubing
with an OD that will sit on the outside edge of the
seal but will clear the housing. Tubing with an OD
that is too small will bow seal cage and ruin seal.
5.
Carefully press seal into housing, avoiding
distortion to the metal seal cage.
Figure 19
. Seal Installation
Vertical Shaft Seal Replacement
1.
Disconnect and remove the driveline from the
gearbox.
2.
Remove vent plug (24). Figure 18, and siphon gear
lube from housing through this opening.
3.
Remove gearbox stand from mower deck.
4.
Remove gearbox and pulley from gearbox stand.
5.
Remove vertical shaft seal (18). Replace with new
seal (see Seal Replacement, page 24).
Vertical seal should be recessed in housing.
NOTE:
Distortion to seal cage or damage to seal lip
will cause seal to leak.
6.
Fill gearbox with SAE 80W or 90W gear lube until it
runs out the level plug.
7.
Assemble gearbox and pulley to gearbox stand.
Attach gearbox stand to mower deck.
Horizontal Shaft Seal Replacement
1.
Disconnect and remove the driveline from the
gearbox.
2.
Remove vent plug (24), Figure 18, and siphon gear
lube from housing through this opening.
3.
If the leak occurred at either end of horizontal shaft,
remove oil cap (20) and/or oil seal (19). Replace
with new one (see Seal Replacement, page 24).
Horizontal seal should be pressed flush with out-
side of housing.
4.
Fill gearbox with SAE 80W or 90W gear lube until it
runs out the level plug
Gearbox Removal from Mower
Refer to Figure 20.
Figure 20
. Gearbox Stand Assembly
1.
Disconnect and remove the driveline from the
gearbox (1).
2.
Remove vent plug (2) and siphon gear lube from
housing through this opening.
3.
Remove gearbox stand (3) from mower deck rails
by removing four cap screws (6).
1. Seal
2. Pipe or tube
3. Seal seat
4. Casting
Pipe or tube
must press at
outer edge of
Incorrect
Installation
7. 5/8NC x 1-3/4 Flange HHCS
8. 5/8NC Flange Lock Nut
9. M8 x 1.25P x 16mm HHCS
11. 5/16 Flat Washer
12. 1/4 x 1/4 x 1-1/4 Key
13. 25 x 44 x 4mm Flat Washer
14. M24 x 2 Castle Nut
15. 3/16 x 2 Cotter Pin
1. Gearbox
2. Vent Plug
3. Gearbox Stand
4. Sheave
5. Shield
6. 1/2NC X 2 HHCS

26 Dealer Service
MAN0845 (1/12/2011)
4.
Remove four cap screws (9), flat washer (11), and
remove shield (5) from gearbox.
5.
Remove castle nut (14) and hardware from output
shaft of gearbox.
6.
Remove sheave (4) from gearbox.
7.
Remove four bolts (9) that attach gearbox to
gearbox stand and remove gearbox.
Gearbox Disassembly
Refer to Figure 18.
1.
Remove top cover (22) from housing. Turn gearbox
upside down and pour out remaining gear oil from
gearbox.
2.
Remove oil cap (20) (to be replaced).
3.
Remove snap ring (10) and shim (13) from input
shaft (3).
4.
Support gearbox in hand press and push on input
shaft (3) to remove bearing (7).
5.
Remove gear (1) from inside housing.
6.
Remove oil seal (19) from front of housing (to be
replaced).
7.
Remove snap ring (10) and shim (13) from front of
housing (2).
8.
Remove input bearing (7) by using a punch and
hammer from outside of housing.
9.
Support housing in vise in a horizontal position.
10.
The castle nut (15) and cotter pin (25) are already
removed with the drive sheave. Remove snap ring
(21), washer (8), and seal (18).
11.
Remove cotter pin (9), castle nut (14), and washer
(17) from output shaft (4).
12.
Remove output shaft (4) by using a punch and
hammer and tap on top to drive down.
13.
Remove gear (5) and shim (16) from inside
housing.
14.
Remove bearing (26) by using a punch and
hammer from the top, outside the housing.
15.
Support housing upside down (top cover surface)
and remove bearing (6) by using a punch and
hammer from the bottom side of the housing.
16.
Inspect gears for broken teeth and wear. Some
wear is normal and will show on loaded side.
Forged gear surfaces are rough when new. Check
that wear pattern is smooth.
17.
Inspect vertical and horizontal shafts for grooves,
nicks, or bumps in the areas where the seals seat.
Resurface any damage with emery cloth.
18.
Inspect housing and caps for cracks or other
damage.
Gearbox Reassembly
Refer to Figure 18.
NOTE:
Repair to this gearbox is limited to replacing
bearings, seals, and gaskets. Replacing gears, shafts,
and a housing is not cost effective. Purchasing a com-
plete gearbox is more economical.
1.
Clean housing, paying specific attention to areas
where gaskets will be installed.
2.
Wash housing and all components thoroughly.
Select a clean area for gearbox assembly. Replace
all seals, bearings, and gaskets. All parts must be
clean and lightly oiled before reassembling.
3.
Insert output bearings (6 & 26) in the housing,
using a round tube of the correct diameter and a
hand press.
4.
Slide output shaft (4) through both bearings (6 &
26) until it rests against bearing (6).
5.
Slide shim (16) over output shaft (4).
6.
Press gear (5) onto output shaft (4) and secure
with washer (17), castle nut (14), and cotter pin (9).
7.
Apply grease to lower seal lips (18) and press seal
over output shaft (4), using a tube of the correct
diameter. Be sure not to damage the seal lip. Press
in housing so that seal is recessed.
8.
Insert protective washer (8) by hand. Install snap
ring (21) and position it together with dual lip seal
(18) by pressing it into position. Verify that snap
ring is seated correctly.
9.
Press bearing (7) into the housing, using a round
tube of the correct diameter and a hand press.
Secure with shim (13) and snap ring (10).
10.
Secure snap ring (11) on input shaft (3) if not
already secure.
11.
Place gear (1) through top of housing and align
gear (1) and gear (5) so that gear teeth are a
match.
12.
While holding gear (1) in place, slide input shaft (3)
through gear (1) and bearing (7). Align splines on
shaft (3) and gear (1).
13.
Slide spacer (12) over input shaft (3) and press
bearing onto input shaft (3), using a round tube of
the correct diameter and a hand press.
14.
Slide shim (13) over input shaft (3) and secure with
snap ring (10).
15.
Check input shaft end float by moving the input
shaft (3) by hand. If end float is higher than 0.012”,
insert shim between input shaft (3) and rear
bearing (7). Repeat until end float is less than
0.012”. Check rotational torque by hand. The
torque should be less than 2.2 lbs-inch.

Dealer Service 27
MAN0845 (1/12/2011)
16.
Check that the gear backlash is between 0.006”
and 0.016”. You should not have to adjust the
backlash.
17.
Press in input oil seal (19), using tube of correct
diameter. Be careful not to damage seal lip.
18.
Press oil cap (20) on to cover the rear of housing,
using a tube of the correct diameter.
19.
Check gearbox housing for leaks by plugging all
holes except one. Apply 4 psi compressed air and
immerse the gearbox in water to verify that there
are no leaks.
20.
Remove gearbox from water and dry off with
compressed air. Add SAE 80W or 90W EP oil until
it runs out of side level hole. Tighten all plugs.
Gearbox Installation
NOTE:
Gearbox is heavy: do not attempt to move with-
out mechanical assistance.
1.
Set gearbox on gearbox stand and fasten with
bolts and nuts. Torque bolts to 175 lbs-ft.
2.
Attach drive sheave to output shaft. Secure using
castle nut and hardware previously removed.
Torque castle nut to 170 lbs-ft.
3.
Attach gearbox stand to mower using four flanged
1/2" cap screws.
Drive Sheave Installation
Refer to Figure 21.
1.
When gear stand is installed on mower, the
distance from the top of the mower deck to the
center line of the lower groove on the drive pulley
must be 2-21/32" (±1/32"). This is a critical
dimension and must be carefully adjusted for
proper belt life.
2.
Tighten gear stand hardware.
3.
Fill gearbox half full with SAE 90W gear lube.
4.
Check level after waiting five minutes to permit
lube to work through bearings. Add lube, if
necessary, until gearbox is half full.
5.
Replace driveline shield. Attach driveline to
gearbox.
Figure 21
. Drive Sheave Installation
UNIVERSAL JOINT REPAIR
Figure 22
. U-Joint Exploded View
U-Joint Disassembly
1.
Remove external snap rings from yokes in four
locations as shown in Figure 23.
.
Figure 23
Figure 24
2.
With snap rings removed, support drive in vise,
hold yoke in hand and tap on yoke to drive cup up
out of yoke. See Figure 24.
1. Yoke
2. Cup and bearings
3. Snap ring
4. Journal cross

28 Dealer Service
MAN0845 (1/12/2011)
3.
Clamp cup in vise as shown in Figure 25 and tap
on yoke to completely remove cup from yoke.
Repeat Step 2 and Step 3 for opposite cup.
Figure 25
Figure 26
4.
Place universal cross in vise as shown in Figure 26
and tap on yoke to remove cup. Repeat Step 3 for
final removal. Drive remaining cup out with a drift
and hammer.
U-Joint Assembly
1.
Place seals securely on bearing cups. Insert cup
into yoke from outside and press in with hand
pressure as far as possible. Insert journal cross
into bearing cup with grease fitting away from
shaft. Be careful not to disturb needle bearings.
Insert another bearing cup directly across from first
cup and press in as far as possible with hand
pressure.
2.
Trap cups in vise and apply pressure. Be sure
journal cross is started into bearings and continue
pressure with vise, squeezing in as far as possible.
Tapping the yoke will help.
3.
Seat cups by placing a drift or socket (slightly
smaller than the cup) on cup and rap with a
hammer. See Figure 27. Install snap ring and
repeat on opposite cup.
4.
Repeat Step 1 & Step 2 to install remaining cups in
remaining yoke.
5.
Move both yokes in all directions to check for free
movement. If movement is restricted, rap on yokes
sharply with a hammer to relieve any tension.
Repeat until both yokes move in all directions
without restriction.
Figure 27

Assembly 29
MAN0845 (1/12/2011)
ASSEMBLY INSTRUCTIONS
DEALER SET-UP INSTRUCTIONS
Assembly of this mower is the responsibility of the
Woods dealer. If should be delivered to the owner com-
pletely assembled, lubricated, and adjusted for normal
cutting conditions.
Complete Dealer Check Lists on page 34 when you
have completed the assembly.
The mower is shipped partially assembled. Assembly
will be easier if components are aligned and loosely
assembled before tightening hardware. Recommended
torque values for hardware are located on page 43.
Select a suitable working area. Open parts boxes and
lay out parts and hardware to make location easy.
Refer to illustrations, accompanying text, parts lists and
exploded view drawings.
Before working underneath, carefully read Oper-
ator’s Manual instructions, disconnect driveline,
raise mower, securely block up all corners with
jackstands, and check stability. Secure blocking
prevents equipment from dropping due to hydrau-
lic leak down, hydraulic system failures, or
mechanical component failures.
Always wear relatively tight and belted clothing
to avoid getting caught in moving parts. Wear
sturdy, rough-soled work shoes and protective
equipment for eyes, hair, hands, hearing, and head;
and respirator or filter mask where appropriate.
Figure 28
. Shipping Unit
Disassemble Shipping Unit (Figure 28)
1.
Remove all parts that are wired and strapped to
mower.
2.
Remove wood blocks (1) and chain shielding (2)
attached to front of mower. Discard blocks.
3.
Remove cap screws (12) and lock nuts (15) from
rear shipping bracket (3). Discard bracket.
4.
Remove cap screw (14) and lock nuts (15) from
front shipping bracket (4). Discard bracket and
replace hardware through PTO hanger (5),
diagonal braces (6), A-frame bars (7), U-link (8)
and sleeve (9). Do not over tighten lock nut against
the PTO hanger. PTO hanger should rotate freely.
CAUTION
1. Wood Blocks
2. Chain Shielding
3. Rear Shipping Bracket
4. Front Shipping Bracket
5. PTO Hanger
6. Diagonal Brace
7. A-Frame Bar
8. U-Link
9. Sleeve
10. Caster Arms
11. Hitch Arms
12. 1/2 NC x 1-1/2 HHCS
13. 1/2 NC x 4 HHCS
14. 1/2 NC x 6-1/2 HHCS
15. 1/2 NC Flange Lock Nut
16. 5/8 NC x 3-1/2 HHCS
17. 5/8 NC Flange Lock Nut
18. Lug
19. 1/2 NC x 4-1/2 HHCS
(Rev. 10/1/2013)

30 Assembly
MAN0845 (1/12/2011)
Install Front Casters ( Figure 28 & 29)
1.
Remove cap screws (12 & 13) and lock nuts (15)
from outer caster arms (10).
2.
Place arms inside of pockets in front corners of
deck. Replace hardware.
Figure 29
. Caster Arm Assembly
Torque Caster Arms
1.
Place mower on a hard level surface.
2.
Loosen cap screws and lock nuts on all four caster
wheel arms. This allows clearance in the caster
wheel assemblies to be equalized.
3.
Torque all cap screws and nuts to 85 lbs-ft.
Install Hitch Arms
1.
Remove cap screws, lock nuts and hitch arms (E)
from lower hitch arm attachment point (D).
2.
Position arms according to Figure 30 and replace
hardware.
Figure 30
. Hitch Arm Installation
10. Caster arm
12. 1/2 NC x 1-1/2 HHCS
13. 1/2 NC x 4 HHCS
15. 1/2 NC Flange lock nut
18. Lug
19. 1/2 NC x 4-1/2 HHCS
1. Tractor top link
A. Mower top link attachment point
B. Mower hitch pin
C. Category 2 sleeve
D. Lower hitch arm attachment point
E. Mower hitch arm

Assembly 31
MAN0845 (1/12/2011)
Install Driveshaft
1.
Pull locking collar (B) back and, at the same time,
push driveline onto gearbox shaft until locking
device engages.
2.
Rotate PTO hanger forward. Rest driveline on PTO
hanger.
3.
If so equipped, hook anti-rotation chain (C) on
shield (2).
Figure 31
. Driveshaft Installation
Fill Gearbox
NOTICE
■
Gearbox is not filled at the factory. Prior to
delivery, make sure each gearbox is filled half-full
with 80W or 90W API GL-4 or GL-5 gear lube.
1.
Make sure vent plug hole is clear. Fill gearbox half-
full with high quality gear oil that has a viscosity
index of 80W or 90W and an API service rating of
GL-4 or GL-5.
2.
Fill gearbox until oil runs out the side plug on
gearbox.
3.
Pour in one pint of gear lube, wait five minutes and
add additional gear lube until it just comes out of
side hole.
4.
Allow an additional five minutes for the lube to flow
through bearings, then check to make sure oil level
is at bottom of side hole. Replace side plug. Install
vent plug.
A. Gearbox input shaft
B. Locking collar
C. Anti-rotation chain
1. Gearbox
2. Shield
3. Driveline
4. Washer, flat standard 5/16
5. Screw, HHCS 8 mm x 1.25P x 16 mm

32 Assembly
MAN0845 (1/12/2011)
Figure 32
. Chain Shield Installation
Install Chain Shielding
Full chain shielding must be installed when
operating in populated areas or other areas where
thrown objects could injure people or damage
property.
• If this machine is not equipped with full chain
shielding, operation must be stopped when any-
one comes within 300 feet (92 m).
• This shielding is designed to reduce the risk
of thrown objects. The mower deck and protec-
tive devices cannot prevent all objects from
escaping the blade enclosure in every mowing
condition. It is possible for objects to ricochet
and escape, traveling as much as 300 feet (92 m).
1.
Install front and rear chain shields with hardware
shown.
Install Front Roller (Optional)
1.
Remove center belt shield from mower.
2.
Insert four carriage bolts (8) through top of deck
plate.
3.
Place roller bracket (1) over bolts; then install
flange lock nuts (9) on bolts and tighten.
4.
Place front roller (2), two bearings (4), spacer (3)
and two SAE flat washers (6) between roller
bracket as shown in Figure 33.
5.
Insert cap screw (5) through bracket and roller.
6.
Secure with flanged lock nut (7). Do not
overtighten, roller must spin freely.
Figure 33
. Front Roller Installation
1. Front chain shield plate
2. Rear corner chain shield plate
3. Left corner chain shield plate
4. Right rear chain shield plate
5. Left rear chain shield plate
6. 1/4 Chain - 3 link
7. 1/4 Chain - 4 link
8. Pin, 28 to 30 Chains
9. Pin, 7 to 9 Chains
10. Pin 40 to 42 Chains
11. 3/8 NC x 1 Carriage Bolt
12. 3/8 NC Flange Lock Nut
1.
Roller Bracket
2.
Roller
3.
Spacer
4.
Bearing
5.
1/2 NC x 9 HHCS
6.
1/2 SAE Flat Washer
7.
1/2 NC Flange Lock Nut
8.
3/8 NC Carriage Bolt
9.
3/8 NC Flange Lock Nut

Assembly 33
MAN0845 (1/12/2011)
Figure 34
. Quick Hitch Kit Installation (Optional)
Install Quick Hitch (Optional)
NOTE:
This kit allows mower to fit Category 1 or
Category 2 standard quick hitches.
1.
Lower hitch arms must be located in center
attachment hole. See Figure 34 for adjustment.
2.
For use with Category 1 quick hitch, lower hitch
arms should be positioned with offset toward inside
of mower. For use with Category 2 quick hitch,
lower hitch arms should be positioned with offset
toward outside of the mower.
3.
Remove clevis pins from lower hitch arms. Pins will
not be used for quick hitch.
4.
Attach A-Frame arms (1) and sleeve (2) to lower
hitch arms using cap screws (7), sleeve (5),
washers (6) and hex nut (8).
5.
Attach upper end of A-Frame arms (1) and sleeve
(4) to U-bracket, using cap screw (7), washers (6)
and hex nut (8).
6.
Remove rear offset links. They will be replaced
with chains (12).
7.
Attach chains (12) to top of A-frame on both sides
as shown, using cap screw (10), washers (9), and
flange lock nut.
8.
Attach opposite ends of chains (12) to rear mower
frame using cap screws (11), washers (9), and
flange lock nut. Vary length slightly as desired.
Twist chain to make finite adjustments in length
until unit lifts level.
9.
Tighten all hardware.
1. A-Frame Arm
2. Sleeve, .94 x 1.44 x 2.75 (Cat 2 Only)
3. Sleeve, .94 x 1.44 x 1.94 (Cat 1 Only)
4. Sleeve, .81 x 1.25 x 2.12
5. Sleeve, .88 x 1-1/8 x 19/32
6. 3/4 Flat Washer
7. 3/4 NC x 5-1/2 HHCS GR5
8. 3/4 NC Hex Nut
9. 1/2 Flat Washer
10. 1/2 NC x 6 HHCS
11. 1/2 NC x 2 HHCS
12. 3/8 Chain, 38-Link

34 Notes
MAN0845 (1/12/2011)
DEALER CHECK LISTS
PRE-DELIVERY CHECK LIST
(DEALER’S RESPONSIBILITY)
Inspect the equipment thoroughly after assembly to
ensure it is set up properly before delivering it to the
customer.
The following check lists are a reminder of points to
inspect. Check off each item as it is found satisfactory
or after proper adjustment is made.
___ Check that all safety decals are installed and in
good condition. Replace if damaged.
___ Check that shields and guards are properly
installed and in good condition. Replace if dam-
aged.
___ Check all bolts to be sure they are properly
torqued.
___ Check that all cotter pins and safety pins are
properly installed. Replace if damaged.
___ Check and grease all lubrication points as iden-
tified in “Lubrication Information” on page 15.”
___ Gearboxes are not filled at the factory. Prior to
delivery, fill as specified in the “Owner Service,
lubrication information” on page 15 and check to
see that there are no leaking seals.
___ Check that blades have been properly installed.
DELIVERY CHECK LIST
(DEALER’S RESPONSIBILITY)
___ Show customer how to make adjustments and
select proper PTO speed.
___ Instruct customer how to lubricate and explain
importance of lubrication.
___ Point out the safety decals. Explain their mean-
ing and the need to keep them in place and in
good condition. Emphasize the increased safety
hazards when instructions are not followed.
___ Present Operator's Manual and request that
customer and all operators read it before oper-
ating equipment. Point out the manual safety
rules, explain their meanings and emphasize
the increased safety hazards that exist when
safety rules are not followed.
___ Show customer how to make sure driveline is
properly installed and that spring-activated lock-
ing pin or collar slides freely and is seated in
groove on tractor PTO shaft.
___ Show customer the safe, proper procedures to
be used when mounting, dismounting, and stor-
ing equipment.
___ Explain to customer the potential crushing haz-
ards of going underneath raised equipment.
Instruct that before going underneath to discon-
nect the driveline, securely block up all corners
with jack-stands and to follow all instructions in
the “Owner Service, Blocking Methods” section
of the Operator’s Manual. Explain that blocking
up prevents equipment dropping from hydraulic
leak down, hydraulic system failures or mechan-
ical component failures.
___ For mounted units, add wheel weights, ballast in
front tires, and/or front tractor weight to enhance
front end stability. A minimum 20% of tractor
and equipment gross weight must be on front
tractor wheels. When adding weight to attain
20% of tractor and equipment weight on front
tractor wheels, you must not exceed the ROPS
weight certification. Weigh the tractor and
equipment. Do not estimate!
___ Make customer aware of optional equipment
available so that customer can make proper
choices as required.
___ Point out all guards and shields. Explain their
importance and the safety hazards that exist
when not kept in place and in good condition.

Parts 35
MAN0845 (1/12/2011)
PARTS INDEX
MAIN FRAME ASSEMBLY . . . . . . . . . . . . . . . . . . . . . . . . . . . . . . . 36 - 37
GEARBOX ASSEMBLY . . . . . . . . . . . . . . . . . . . . . . . . . . . . . . . . . . . . . 38
DRIVESHAFT ASSEMBLY . . . . . . . . . . . . . . . . . . . . . . . . . . . . . . . . . . 39
BLADE & SPINDLE ASSEMBLY . . . . . . . . . . . . . . . . . . . . . . . . . . . . . . 40
CHAIN SHIELDING ASSEMBLY . . . . . . . . . . . . . . . . . . . . . . . . . . . . . . 41
FRONT ROLLER ASSEMBLY (OPTIONAL) . . . . . . . . . . . . . . . . . . . . . 42
QUICK HITCH KIT (OPTIONAL) . . . . . . . . . . . . . . . . . . . . . . . . . . . . . . 42
Rearmount Mower:
RD990X

36 Parts
MAN0845 (1/12/2011)
RD990X MAIN FRAME ASSEMBLY
(Rev. 10/1/2013)

Parts 37
MAN0845 (1/12/2011)
RD990X MAIN FRAME ASSEMBLY
REF PART QTY DESCRIPTION
1 ----- 1 Deck (not sold separately)
2 1032786 2 Lower Hitch Arm
3 56598 2 Sleeve .885 x 1.125 x 2.62
4 19524 2 Sleeve .64 x 1.00 x 2.09 HT
5 1032795 2 A-Frame Arm
6 1032798 1 Sleeve .62 x .94 x 3.13
7 1032797 1 U-Link
8 1032796 2 Rear Offset Link
9 1032811 1 PTO Hanger
10 1032789 1 Idler Arm
11 35141 2 Retaining Ring
12 35193 2 Bearing
13 27211 1 Sleeve .63 x .88 x 1.18
14 19570 2 Flat Pulley (includes item 15)
15 6095 2 .626 x 1.85 Ball Bearing
16 28928 1 Ext. Spring .187 x 1.3 x 8.17
17 ----- 3 Spindle Assembly (see page 40)
18 1032808 1 Belt Guide
19 1032799 1 2V Powerband Belt 2W174.5
20 1032779 1 Gearbox Stand
21 1002499 1 Gearbox 1:1.92 (see page 38)
22 1032751 1 Sheave, 11.50 PD, 2B
23 1002048 1 Clutch Shield
24 ----- 1 Driveline (see page 39)
25 1032809 1 Belt Shield, Inner
26 1032810 2 Belt Shield, Outer
27 1026530 1 Manual Tube
28 1037965 4 Caster Arm (includes item 29)
29 31780 8 Bronze Bushing 1-1/4 x 1-1/2 x 1/2
30 1032782 4 Caster Yoke
31 WP20718G 4 13 x 5 x 10 Solid Tire, gray (includes
item 32) -or-
31 WP19744G 4 13 x 5 x 6 Pneumatic Tire, gray
(includes item 32)
32 2306 8 Bearing Cup
33 2304 8 Bearing Cone
34 5624 8 Seal 1.13 x 1.78 x .47
35 52744 8 Bushing .752 x 1.125 x .625 HT
36 20714 4 Sleeve .525 x .75 x 5.80 HT
37 52853 8 Sleeve 1.25 x 1.90 x .50
38 52854 8 Sleeve 1.25 x 1.90 x .75
39 52855 8 Sleeve 1.25 x 1.90 x 1.00
40 1032812 2 Skid Shoe
50 1266 * 3/16 x 1-1/2 Cotter Pin
51 64803 * 3/16 x 2 Cotter Pin
51 18270 * 3/16 Safety Pin
53 29792 * 1/4 x 1/4 x 1-1/4 Key
54 12296 * 1/4-28 Grease Fitting
55 39254 M8 x 1.25P x 16mm HHCS
56 14562 * 5/16 NC x 1 HHCS GR5
58 4378 * 5/16 SAE Flat Washer
59 14139 * 5/16 NC Flange Lock Nut
60 14350 * 3/8 NC Flange Lock Nut
61 27542 7/16 Klik Pin
62 3379 * 1/2 NC x 1-1/2 HHCS GR5
63 3699 * 1/2 NC x 2 HHCS GR5
64 10380 * 1/2 NC x 4 HHCS GR5
65 22205 * 1/2 NC x 6-1/2 HHCS GR5
66 29604 1/2 NC x 8 HHCS GR5
67 29893 * 1/2 NC x 1-1/2 Carriage Bolt
68 1093 1/2 NC Hex Nut
69 11900 * 1/2 NC Flange Lock Nut
70 19024 5/8 NC x 1-3/4 Flange HHCS GR5
71 902 * 5/8 NC x 2 HHCS GR5
72 23141 5/8 NC x 3-1/2 HHCS GR5
73 20419 5/8 NC x 3 Carriage Bolt GR5
74 1517 .625 x 1.38 x 7GA Flat Washer
75 19025 * 5/8 NC Flange Lock Nut
76 302178 5/8 NF Castle Nut
77 1032818 7/8 x 3.9 Clevis Pin
78 51946 M24 x 2 Castle Nut
79 7163 * 1-1/4 Stand Flat Washer
80 20893 25 x 44 x 4 mm Flat Washer
81 1032834 1 Complete Decal Set
82 53591 1 Safety Decal Set
83 3508 * 1/2 NC x 4-1/2 HHCS GR5
84 1037959 6 Lug
HHCS Hex Head Cap Screw
* Standard Hardware, Obtain Locally
REF PART QTY DESCRIPTION
(Rev. 10/1/2013)

38 Parts
MAN0845 (1/12/2011)
RD990X GEARBOX ASSEMBLY
REF PART QTY DESCRIPTION
A 1002499 1 Gearbox Assembly, Complete
1 57458 1 Gear, Crown 25T M5.3
2 NSS 1 Gearbox Housing
3 1005320 1 Shaft, Input 1-3/8 -6
4 1005321 1 Shaft, Output 1-1/4
5 57491 1 Pinion Gear 13T M5.3
6 57476 1 Bearing Cup & Cone
7 57462 1 Bearing Cup & Cone
8 20888 1 Washer, 1.58 x 3.13 x .04
Protective Flat
9 * 1 Pin, Cotter B4 x 50
10 57466 2 Snap Ring
11 20895 1 Snap Ring, 45 mm
12 57373 1 Spacer, 35.3 x 48 x 2.5
13 57328 2 Kit, Shim 60.3 x 71.6
14 57468 1 Nut, Castle
15 51946 1 Nut, Castle M24 x 2
16 57328 1 Kit, Shim 30.3 x 44
17 57473 1 Washer, 21 x 37 x 3 mm Flat
18 20900 1 Seal, Oil 40 x 80 x 12 mm
19 57463 1 Seal, Oil 35 x 72 x 10 mm
20 57374 1 Oil Cap
REF PART QTY DESCRIPTION
21 20897 1 Snap Ring SB 81 Int
22 57375 1 Cover, Top
23 * 6 Bolt, 8 mm x 14 mm
24 57076 1 Plug, 1/2 Breather Level
25 * 1 Pin, Cotter 5 x 50
26 57478 1 Bearing Cup & Cone
27 20890 1 Ball Bearing
* Standard Hardware, Obtain
Locally

Parts 39
MAN0845 (1/12/2011)
RD990X DRIVE SHAFT ASSEMBLY
REF PART QTY DESCRIPTION
A 1029937 1 Drive Assembly Complete
1 40574 2 Yoke, 1-3/8-6SP (complete with lock collar)
2 110 2 Cross and bearing kit
3 40464 2 Spring Pin, 10 mm x 80 mm
4 40575 1 Inboard Youk (male drive tube)
5 40587 1 Inner Profile (cut to length)
6 40588 1 Outer Profile (cut to length)
7 40576 1 Inboard Yoke (female drive tube)
8 40776 1 Bearing Ring Kit (set of 2)
9 40778 1 Screw, Guard Retainer (Pkg of 10)
10 40779 2 Grease Zerk, Drive Line (Pkg of 10)
11 40767 1 Bearing, Guard Support
12 40589 2 Slide Lock Collar Repair Kit (without yoke)
13 1029938 1 Shield, Outer Half Non-Rotating (also includes items 8 & 9)
14 1029939 1 Shield, Inner Half Non-Rotating (also includes items 8, 9 & 11)

40 Parts
MAN0845 (1/12/2011)
RD900X BLADE & SPINDLE ASSEMBLY
REF PART QTY DESCRIPTION
1 1032800 1 Blade Spindle, Complete
2 18359 1 Sleeve 1-3/8 x 1-3/4 x 5/8
3 2715 2 Seal 1.75 x 2.56 x .5
4 2717 2 Bearing Cone
5 1032806 1 Spindle Housing w/ Cups
6 2716 2 Bearing Cup
7 1032801 1 Spindle Shaft & Crossbar
8 1032815 2 Blade Lock
9 1032814 2 Blade Pin
10 13288 2 1/2 NC x 3/4 Nylock HHCS
11 29186 2 CW Standard Blade, 13"
12 1032794 1 Sheave, 5.75 PD, 2B
13 13557 1 Bushing, P1 1-3/8 Straight Bore
14 24549 1 5/16 x 5/16 x 1-3/4 Key
15 3689 * - 1 Standard Lock Washer
16 1386 - 1 NC Jam Nut
17 1972 * - 1/4-28 Tapered Grease Fitting
HHCS Hex Head Cap Screw
* Standard Hardware, Obtain Locally

Parts 41
MAN0845 (1/12/2011)
RD990X CHAIN SHIELDING ASSEMBLY
REF PART QTY DESCRIPTION
1 1032821 2 Front Chain Shield Plate
2 1032832 1 Right Corner Chain Shield Plate
3 1032833 1 Left Corner Chain Shield Plate
4 1032822 1 Right Rear Chain Shield Plate
5 1032823 1 Left Rear Chain Shield Plate
6 4763 90 1/4 Chain - 3 Link
7 4765 100 1/4 Chain - 4 Link
8 1003646 2 Pin, 28 to 30 Chains
9 1007852 2 Pin, 7 to 9 Chains
10 1007854 2 Pin, 40 to 42 Chains
11 6697 * - 3/8 NC x 1 Carriage Bolt, GR5
12 14350 * - 3/8 NC Flange Lock Nut
* Standard Hardware, Obtain Locally

42 Parts
MAN0845 (1/12/2011)
RD990X FRONT ROLLER ASSEMBLY (OPTIONAL)
QUICK HITCH KIT (OPTIONAL)
REF PART QTY DESCRIPTION
A 1032828 1 Front Roller Kit - Complete
1 1032829 1 Roller Bracket
2 1006418 1 Roller, 4 x 7.38
3 1006420 1 Spacer, .75 x 7.27
4 35193 2 Bearing
5 38107 - 1/2 NC x 9 HHCS, GR5
6 3598 * - 1/2 SAE Flat Washer
7 11900 * - 1/2 NC Flange Lock Nut
8 20973 * - 3/8 NC x 1-1/4 Carriage Bolt, GR5
9 14350 * - 3/8 NC Flange Lock Nut
* Standard Hardware, Obtain Locally
REF PART QTY DESCRIPTION
A 1032830 - Quick Hitch Kit
1 1032826 2 Offset Link
2 1002012 2 Sleeve, .94 x 1.44 x 2.75
(Cat 2 only)
3 1016517 2 Sleeve, .94 x 1.44 x 1.94
(Cat 1 only)
4 1002018 1 Sleeve, .81 x 1.25 x 2.12
5 29281 2 Sleeve, 7/8 x 1-1/8 x 19/32 HT
6 1257 * - 3/4 Flat Washer
7 29315 - 3/4 NC x 5-1/2 HHCS, GR5
8 1450 * - 3/4 NC Plated Hex Nut
9 854 * - 1/2 Flat Washer
REF PART QTY DESCRIPTION
10 13563 * - 1/2 NC x 6 HHCS GR5
11 3699 * - 1/2 NC x 2 HHCS GR5
12 1005401 2 Chain, 3/8 proof coil 38-link
HHCS Hex Head Cap Screw
* Standard Hardware, Obtain Locally
(Rev. 3/18/2011)

Appendix 43
Bolt Torque & Size Charts (Rev. 3/28/2007)
BOLT TORQUE CHART
Always tighten hardware to these values unless a different torque value or tightening procedure is listed for a specific
application.
Fasteners must always be replaced with the same grade as specified in the manual parts list.
Always use the proper tool for tightening hardware: SAE for SAE hardware and Metric for metric hardware.
Make sure fastener threads are clean and you start thread engagement properly.
All torque values are given to specifications used on hardware defined by SAE J1701 MAR 99 & J1701M JUL 96.
Diameter
(Inches)
Wrench
Size
MARKING ON HEAD
SAE 2 SAE 5 SAE 8
lbs-ft N-m lbs-ft N-m lbs-ft N-m
1/4" 7/16" 6 8 10 13 14 18
5/16"1/2"121719262737
3/8"9/16"233135474967
7/16"5/8"3648557578106
1/2" 3/4" 55 75 85 115 120 163
9/16" 13/16" 78 106 121 164 171 232
5/8" 15/16" 110 149 170 230 240 325
3/4" 1-1/8" 192 261 297 403 420 569
7/8" 1-5/16" 306 416 474 642 669 907
1" 1-1/2" 467 634 722 979 1020 1383
Diameter &
Thread Pitch
(Millimeters)
Wrench
Size
Coarse Thread Fine Thread
Diameter &
Thread Pitch
(Millimeters)
Marking on Head Marking on Head
Metric 8.8 Metric 10.9 Metric 8.8 Metric 10.9
N-m lbs-ft N-m lbs-ft N-m lbs-ft N-m lbs-ft
6 x 1.0 10 mm 8 6 11 8 8 6 11 8 6 x 1.0
8 x 1.25 13 mm 20 15 27 20 21 16 29 22 8 x 1.0
10 x 1.5 16 mm 39 29 54 40 41 30 57 42 10 x 1.25
12 x 1.75 18 mm 68 50 94 70 75 55 103 76 12 x 1.25
14 x 2.0 21 mm 109 80 151 111 118 87 163 120 14 x 1.5
16 x 2.0 24 mm 169 125 234 173 181 133 250 184 16 x 1.5
18 x 2.5 27 mm 234 172 323 239 263 194 363 268 18 x 1.5
20 x 2.5 30 mm 330 244 457 337 367 270 507 374 20 x 1.5
22 x 2.5 34 mm 451 332 623 460 495 365 684 505 22 x 1.5
24 x 3.0 36 mm 571 421 790 583 623 459 861 635 24 x 2.0
30 x 3.0 46 mm 1175 867 1626 1199 1258 928 1740 1283 30 x 2.0
A
SAE SERIES
TORQUE
CHART
SAE Bolt Head
Identification
SAE Grade 2
(No Dashes)
SAE Grade 5
(3 Radial Dashes)
SAE Grade 8
(6 Radial Dashes)
A
METRIC SERIES
TORQUE
CHART
Metric Bolt Head
Identification
8.8
Metric
Grade 10.9
10.9
Metric
Grade 8.8
A
A
A
Typical Washer
Installations
Lock Washer Flat Washer
8/9/00
Bolt

44 Appendix
Bolt Torque & Size Charts (Rev. 3/28/2007)
BOLT SIZE CHART
NOTE:
Chart shows bolt thread sizes and corresponding head (wrench) sizes for standard SAE and metric bolts.
ABBREVIATIONS
AG .............................................................. Agriculture
ASABE ....................American Society of Agricultural &
Biological Engineers (formerly ASAE)
ASAE....... American Society of Agricultural Engineers
ATF................................Automatic Transmission Fluid
BSPP............................. British Standard Pipe Parallel
BSPTM................ British Standard Pipe Tapered Male
CV ....................................................Constant Velocity
CCW.............................................. Counter-Clockwise
CW .............................................................. Clockwise
F .......................................................................Female
FT.............................................................. Full Thread
GA .....................................................................Gauge
GR (5, etc.)........................................... Grade (5, etc.)
HHCS ........................................ Hex Head Cap Screw
HT ...........................................................Heat-Treated
JIC................. Joint Industry Council 37° Degree Flare
LH................................................................. Left Hand
LT ...........................................................................Left
m ........................................................................ Meter
mm ............................................................... Millimeter
M ..........................................................................Male
MPa ........................................................ Mega Pascal
N ......................................................................Newton
NC...................................................... National Coarse
NF ...........................................................National Fine
NPSM .................... National Pipe Straight Mechanical
NPT...........................................National Pipe Tapered
NPT SWF......... National Pipe Tapered Swivel Female
ORBM ...........................................O-Ring Boss - Male
P .......................................................................... Pitch
PBY.......................................................Power-Beyond
psi ......................................... Pounds per Square Inch
PTO......................................................Power Take Off
QD ................................................... Quick Disconnect
RH.............................................................. Right Hand
ROPS........................... Roll-Over Protective Structure
RPM........................................Revolutions Per Minute
RT ........................................................................Right
SAE.......................... Society of Automotive Engineers
UNC ..................................................... Unified Coarse
UNF ..........................................................Unified Fine
UNS ..................................................... Unified Special
5/16 3/81/2 5/83/4 7/8
SAE Bolt Thread Sizes
MM 25 50 75 100 125 150 175
IN 1 7
Metric Bolt Thread Sizes
8MM 18MM14MM12MM10MM 16MM
234 56

Index 45
MAN0845 (1/12/2011)
INDEX
Assembly
Chain Shielding
32
Dealer Set-Up Instructions
29
Initial Oil Fill
31
Optional Equipment
Front Roller
32
Dealer Check Lists
Delivery (Dealer’s Responsibility)
34
Pre-Delivery (Dealer’s Responsibility)
34
Dealer Service
Blade Spindle
Assembly
23
Disassembly
22
Installation
23
Removal
22
Service
22
Blocking Method
22
Gearbox
Disassembly
26
Drive Sheave Installation
27
Horizontal Shaft Seal Replacement
25
Installation
27
Reassembly
26
Removal
25
Repair
24
Seal Installation
24
Seal Replacement
24
Vertical Shaft Seal Replacement
25
Universal Joint
Assembly
28
Disassembly
27
Repair
27
General
Abbreviations
44
Bolt Size Chart
44
Bolt Torque Chart
43
General Information
4
Introduction
2
Obtaining Replacement Manuals
2
Product Registration
2
Specifications
4
Table of Contents
3
Warranty
Product
46
Replacement Parts
47
Operation
Adjustment
Cutting Height
11
Tractor Top Link
12
Attaching Mower to Tractor
10
Front Roller (Optional)
13
Levelling Mower
11
Mower Removal & Storage
14
Mowing Speed Recommended
10
Operating
On Uneven Terrain
14
Technique
13
Tips
13
Pre-Operation Check List (Owners Responsibility)
14
Recommended Uses
10
Storage
14
Tractor Stability
10
Owner Service
Belt
Installation
17
Replacement
17
Routing
17
Service
17
Blade
Assembly
18
Service
17
Sharpening
18
Blocking Method
15
Chain Shielding
18
Cleaning
18
Lubrication
Driveshaft
15
Information
15
Lubrication Points & Chart
16
Parts
Index to Parts Lists
35
Safety
Blocking Method
15
Check Lists
Delivery (Dealer’s Responsibility)
34
Pre-Delivery (Dealer’s Responsibility)
34
Pre-Operation (Owner’s Responsibility)
14
Safety & Instructional Decals
8, 9
Safety Rules
5, 6, 7
Safety Symbols Explained
2
Trouble Shooting
Belt Conditions
20
Mowing Conditions
19

F-3079 (Rev. 5/10/2013)
Woods Equipment
A Blount International Company
2606 South Illinois Route 2
Post Office Box 1000
Oregon, Illinois 61061 USA
800-319-6637 tel
800-399-6637 fax
woodsequipment.com
WARRANTY
All Models Except Mow’n Machine
TM
Zero-Turn Mowers
Please Enter Information Below and Save for Future Reference.
Date Purchased: ____________________________ From (Dealer): __________________________________________
Model Number: ____________________________ Serial Number: __________________________________________
Woods Equipment Company (“WOODS”) warrants this product to be free from defect in material and workmanship. Except as otherwise set forth
below, the duration of this Warranty shall be for TWELVE (12) MONTHS COMMENCING ON THE DATE OF DELIVERY OF THE
PRODUCT TO THE ORIGINAL PURCHASER.
All current model loaders and backhoes are warranted for two (2) years from the date of delivery to the original purchaser.
The warranty periods for specific parts or conditions are listed below:
Under no circumstances will this Warranty apply in the event that the product, in the good faith opinion of WOODS, has been subjected to
improper operation, improper maintenance, misuse, or an accident. This Warranty does not apply in the event that the product has been materially
modified or repaired by someone other than WOODS, a WOODS authorized dealer or distributor, and/or a WOODS authorized service center.
This Warranty does not cover normal wear or tear, or normal maintenance items. This Warranty also does not cover repairs made with parts other
than those obtainable through WOODS.
This Warranty is extended solely to the original purchaser of the product. Should the original purchaser sell or otherwise transfer this product to a
third party, this Warranty does not transfer to the third party purchaser in any way. There are no third party beneficiaries of this Warranty.
WOODS makes no warranty, express or implied, with respect to engines, batteries, tires or other parts or accessories not manufactured by
WOODS. Warranties for these items, if any, are provided separately by their respective manufacturers.
WOODS’ obligation under this Warranty is limited to, at WOODS’ option, the repair or replacement, free of charge, of the product if WOODS, in
its sole discretion, deems it to be defective or in noncompliance with this Warranty. The product must be returned to WOODS with proof of
purchase within thirty (30) days after such defect or noncompliance is discovered or should have been discovered, routed through the
dealer and distributor from whom the purchase was made, transportation charges prepaid. WOODS shall complete such repair or
replacement within a reasonable time after WOODS receives the product. THERE ARE NO OTHER REMEDIES UNDER THIS WARRANTY.
THE REMEDY OF REPAIR OR REPLACEMENT IS THE SOLE AND EXCLUSIVE REMEDY UNDER THIS WARRANTY.
THERE ARE NO WARRANTIES WHICH EXTEND BEYOND THE DESCRIPTION ON THE FACE OF THIS WARRANTY. WOODS
MAKES NO OTHER WARRANTY, EXPRESS OR IMPLIED, AND WOODS SPECIFICALLY DISCLAIMS ANY IMPLIED WARRANTY
OF MERCHANTABILITY AND/OR ANY IMPLIED WARRANTY OF FITNESS FOR A PARTICULAR PURPOSE.
WOODS shall not be liable for any incidental or consequential losses, damages or expenses, arising directly or indirectly from the
product, whether such claim is based upon breach of contract, breach of warranty, negligence, strict liability in tort or any other legal
theory. Without limiting the generality of the foregoing, Woods specifically disclaims any damages relating to (i) lost profits, business, revenues
or goodwill; (ii) loss of crops; (iii) loss because of delay in harvesting; (iv) any expense or loss incurred for labor, supplies, substitute machinery
or rental; or (v) any other type of damage to property or economic loss.
This Warranty is subject to any existing conditions of supply which may directly affect WOODS’ ability to obtain materials or manufacture
replacement parts.
No agent, representative, dealer, distributor, serviceperson, salesperson, or employee of any company, including without limitation, WOODS, its
authorized dealers, distributors, and service centers, is authorized to alter, modify, or enlarge this Warranty. Answers to any questions regarding
warranty service and locations may be obtained by contacting:
Part or
Condition
Warranted
Model Number
Duration (from date of
delivery to the original
purchaser)
All units invoiced after 4/30/2012
Gearbox
components
BB48X, BB60X, BB72X, BB84X, BB600X, BB720X, BB840X, BB6000X, BB7200X, BB8400X,
DS1260, DSO1260, DS1440, TS1680,
6 years
BW15LH, BW126X, BW180X, BW126XHD, BW180XHD, BW1260X, BW1800X,
BW240X, BW240XHD, BW1620X, BW2400X
PHD25, PHD35, PHD65, PHD95, DS96, DS120, RCC42, RD990X, PRD6000, PRD7200, PRD8400,
S15CD, S20CD, S22CD, S25CD, S27CD, S30CD, TC/R74, TC/R68, TC/R60, TBW144, TBW180,
TBW204, TSG50, S12ED, S15ED, S18ED, S20ED
RDC54, RD60, RD72, TBW150C, TS/R60, TS/R52, TS/R44, HC48, HC54, HC60, HC72 3 years (1 year if used in rental or
commercial applications)
Blade
spindles RD990X, PRD6000, PRD7200, PRD8400, TBW144, TBW180, TBW204 3 years
Rust-through BB600, BB720, BB840, BB6000, BB7200, BB8400, BW126X, BW180X, BW126XHD,
BW180XHD, BW1260X, BW1800X, BW240, BW240HD, DS1260, DSO1260, DS1440, TS1680 10 years

F-8494 (Rev. 2/5/2013)
Woods Equipment
A Blount International Company
2606 South Illinois Route 2
Post Office Box 1000
Oregon, Illinois 61061
800-319-6637 tel
800-399-6637 fax
woodsequipment.com
©2013 Woods Equipment Company. All rights reserved. Woods
®
and the Woods logo are trademarks of Woods Equipment Company. All other
trademarks, trade names, or service marks not owned by Woods Equipment Company that appear in this manual are the property of their respective
companies or mark holders. Specifications subject to change without notice.
WARRANTY
(Replacement Parts For All Models Except Mow’n Machine
TM
Zero-Turn Mowers and Woods Boundary
TM
Utility Vehicles)
Woods Equipment Company (“WOODS”) warrants this product to be free from defect in material and
workmanship for a period of ninety (90) days from the date of delivery of the product to the original purchaser
with the exception of V-belts, which will be free of defect in material and workmanship for a period of 12 months.
Under no circumstances will this Warranty apply in the event that the product, in the good faith opinion of
WOODS, has been subjected to improper operation, improper maintenance, misuse, or an accident. This Warranty
does not cover normal wear or tear, or normal maintenance items.
This Warranty is extended solely to the original purchaser of the product. Should the original purchaser sell or
otherwise transfer this product to a third party, this Warranty does not transfer to the third party purchaser in any
way. There are no third party beneficiaries of this Warranty.
WOODS’ obligation under this Warranty is limited to, at WOODS’ option, the repair or replacement, free of
charge, of the product if WOODS, in its sole discretion, deems it to be defective or in noncompliance with this
Warranty. The product must be returned to WOODS with proof of purchase within thirty (30) days after
such defect or noncompliance is discovered or should have been discovered, routed through the dealer and
distributor from whom the purchase was made, transportation charges prepaid. WOODS shall complete
such repair or replacement within a reasonable time after WOODS receives the product. THERE ARE NO
OTHER REMEDIES UNDER THIS WARRANTY. THE REMEDY OF REPAIR OR REPLACEMENT IS THE
SOLE AND EXCLUSIVE REMEDY UNDER THIS WARRANTY.
THERE ARE NO WARRANTIES WHICH EXTEND BEYOND THE DESCRIPTION ON THE FACE OF THIS
WARRANTY. WOODS MAKES NO OTHER WARRANTY, EXPRESS OR IMPLIED, AND WOODS
SPECIFICALLY DISCLAIMS ANY IMPLIED WARRANTY OF MERCHANTABILITY AND/OR ANY
IMPLIED WARRANTY OF FITNESS FOR A PARTICULAR PURPOSE.
WOODS shall not be liable for any incidental or consequential losses, damages or expenses, arising directly
or indirectly from the product, whether such claim is based upon breach of contract, breach of warranty,
negligence, strict liability in tort or any other legal theory. Without limiting the generality of the foregoing,
Woods specifically disclaims any damages relating to (i) lost profits, business, revenues or goodwill; (ii) loss of
crops; (iii) loss because of delay in harvesting; (iv) any expense or loss incurred for labor, supplies, substitute
machinery or rental; or (v) any other type of damage to property or economic loss.
This Warranty is subject to any existing conditions of supply which may directly affect WOODS’ ability to obtain
materials or manufacture replacement parts.
No agent, representative, dealer, distributor, service person, salesperson, or employee of any company, including
without limitation, WOODS, its authorized dealers, distributors, and service centers, is authorized to alter, modify,
or enlarge this Warranty.
Answers to any questions regarding warranty service and locations may be obtained by contacting:

Woods Equipment
Company
2606 South Illinois Route 2
Post Office Box 1000
Oregon, Illinois 61061
815-732-2141 tel
815-732-7580 fax
www.WoodsEquipment.com
MAN0845
© 2011 Woods Equipment Company. All rights reserved. WOODS, the Woods logo, and "Tested. Proven. Unbeatable." are trademarks of Woods
Equipment Company. All other trademarks, trade names, or service marks not owned by Woods Equipment Company that appear in this manual
are the property of their respective companies or mark holders. Specifications subject to change without notice.