Liebert MM2 (5&8T) 380 415/50/3* 5T8Tmanual407C
User Manual: 380-415/50/3*
Open the PDF directly: View PDF
.
Page Count: 55
- Liebert MM2 (5&8T): R407C
- Parts Manual
- 1. Product Description
- 2. Model Number Definition
- 3. Access Panels
- 4. Blower/Motor Section
- 5. Coil Section
- 6. Compressor Section
- 7. Condenser Section
- 8. Electrical Section
- 9. Humidifier Section
- 10. Miscellaneous Section
- 11. Piping Section
- 12. Reheat Section 5T/8T
- 13. Parts Gallery
- 14. Revision Page

ii Confidential Document Revised 04/2016
Liebert MM2 (5&8T): R407C
Parts Manual
While every precaution has been taken to ensure accuracy and completeness in this manual,
Vertiv Co. assumes no responsibility, and disclaims all liability for damages resulting from
use of this information or for any errors or omissions.
© 2016 Vertiv Co. All rights reserved throughout the world. Specifications subject to change
without notice.
® Vertiv and the Vertiv logo are the registered trademarks of the Vertiv Co.

Revised 04/2016 Confidential Document iii
Table of Contents
1. Product Description ............................................................................. 4
2. Model Number Definition ..................................................................... 6
3. Access Panels ...................................................................................... 7
4. Blower/Motor Section .......................................................................... 8
4.1. 5-Ton ............................................................................................. 8
4.2. 8-Ton ............................................................................................. 9
5. Coil Section ........................................................................................ 10
5.1. 5-Ton STD DX .................................................................................10
5.2. 5-Ton STD DX HWRHT/Freecool ........................................................11
5.3. 5-Ton Chilled Water .........................................................................12
5.4. 5-Ton Chilled Water HWRHT .............................................................13
5.5. 8-Ton STD DX .................................................................................14
5.6. 8-Ton STD DX HWRH .......................................................................15
5.7. 8-Ton STD DX Freecool ....................................................................16
5.8. 8-Ton Chilled Water .........................................................................17
5.9. 8-Ton Chilled Water HWRH ...............................................................18
6. Compressor Section ........................................................................... 19
6.1. 5-Ton Air Cooled and Water/Glycol ....................................................19
6.2. 8-Ton Air Cooled and Water/Glycol ....................................................20
7. Condenser Section ............................................................................. 21
7.1. 5-Ton, 2-Way .................................................................................21
7.2. 5-Ton, 3-Way .................................................................................21
7.3. 8-Ton, 2-Way Standard Pressure .......................................................22
7.4. 8-Ton, 2-Way High Pressure .............................................................22
7.5. 8-Ton, 3-Way Standard Pressure .......................................................23
7.6. 8-Ton, 3-Way High Pressure .............................................................24
8. Electrical Section ............................................................................... 25
8.1. Standard Electrical Panel ..................................................................25
8.2. Electrical Panel with Reheat ..............................................................27
9. Humidifier Section ............................................................................. 29
9.1. Humidifier ......................................................................................29
9.2. No Humidifier .................................................................................30
9.3. Remote Contact ..............................................................................31
9.4. Humidifier Detail .............................................................................32
10. Miscellaneous Section ..................................................................... 33
10.1. Filter Clog ...................................................................................33
10.2. Fire Stat .....................................................................................33
10.3. Smoke Detector ...........................................................................34
11. Piping Section ................................................................................. 35
11.1. 2-Way Modulating ........................................................................35
11.2. 3-Way Modulating ........................................................................36
11.3. 2-Way Modulating with HWRH .......................................................38
11.4. 3-Way Modulating with HWRH .......................................................40
11.5. Split System DX ...........................................................................42
11.5.1. 5T .......................................................................................42
11.5.2. 8T .......................................................................................43
11.6. DX with HGBP ..............................................................................44
11.7. DX with Freecooling .....................................................................45
11.7.1. 5T .......................................................................................45
11.7.2. 8T .......................................................................................47
12. Reheat Section 5T/8T ..................................................................... 49
13. Parts Gallery ................................................................................... 51
14. Revision Page ................................................................................. 56

Liebert MM2 (5&8T): R407C
4 Confidential Document Revised 04/2016
1. Product Description
The Mini-Mate2 is a split system air, water/glycol cooled unit, or self contained chilled water
unit.
The Evaporator Section includes the evaporator coil, factory mounted disconnect switch,
blower assembly, and microprocessor control with wall mounted control box. The unit is
provided with supply and return air openings for field supplied ducting. Evaporator sections
are available in 208/230 Volt 1-phase or 277 Volt 1-phase models. 3-ton Evaporators are
also available in 208/230 Volt 3-phase, or 460 Volt 3-phase models. Evaporators can be
configured with canister humidifier and/or reheat. A condensing unit must be selected for
each evaporator.
The Evaporator can also be ordered as a belt-drive unit. In this configuration the blower
and direct drive motor are removed from the evaporator, and replaced by the high static
blower assembly. The high static blower assembly is ordered separately.
Microprocessor Control includes a 2 line, 16 character, wall-mounted LCD display which
provides temperature set point and sensitivity adjustment, humidity set point and sensitivity
adjustment, digital display of temperature, humidity, set points and sensitivities, and alarm
conditions. An 8-key membrane keypad for setpoint/program control, unit on/off, fan speed,
and alarm silence is located below the LCD display. The display can be located up to 300 ft
(91.4 m) from the evaporator unit, using field supplied wire. Temperature and humidity
sensors are located in the wallbox.
Air Cooled Condensing Units
MCD Centrifugal Fan Unit includes scroll compressor, factory mounted disconnect switch,
condenser coil, centrifugal blower assembly, high pressure switch, Lee-Temp head pressure
control system, and filter drier. Unit must be mounted indoors. Duct flanges are provided.
(See pricing for voltages). Hot Gas Bypass is available as an option.
Prop Fan Condensing Unit includes scroll compressor, condenser coil, prop fan, high
pressure switch, Lee-Temp head pressure control, and filter drier. Unit is designed for
outdoor location (see pricing for voltages). Condensing unit is available with optional hot gas
bypass, Quiet-line, and high ambient models (Consult the Prop Fan Condensing Unit Price
Book for optional selections).
MCD Water/Glycol Condensing Unit includes a scroll compressor, factory mounted
disconnect switch, coaxial condenser, two-way or optional three-way water regulating valve,
and filter drier. Design pressure is 150 psi (1034 kPa) or optional 300 psi (2068 kPa). (See
pricing for voltages and complete model number). Drycooler(s) and pump(s) selected
separately for applications using glycol loop.
Chilled Water Models are self-contained and include chilled water coil, slow close two-way
solenoid valve, and factory mounted disconnect switch. Design pressure is 300 psi (2068
kPa) static pressure, with 60 psi (414 kPa) close-off pressure rating.
Optional Factory Installed Equipment
Evaporator Options
Electric Reheat includes 304/304 stainless steel finned tubular reheat, with high limit safety
switch.
SCR Electric Reheat includes the controller and software to provide full cooling with
modulating reheat.

Product Description
Revised 04/2016 Confidential Document 5
Hot Water Reheat includes a hot water coil, 2-way solenoid valve, and Y-strainer.
Note: this option not available with free-cooling option or other reheat options.
Humidifier Package includes steam generating type humidifier with automatic flushing
circuit, inlet strainer, drain, and solenoid valves. Humidifier Problem alarm is annunciated to
wallbox.
Free-Cooling coil can be ordered with the evaporator section. This option contains a 3-way,
slow-close solenoid valve, thermostat, flushing circuit, and separated supply and return
piping for chilled water cooling. A 3-way regulating valve is recommended fort he
water/glycol condensing unit.
Smoke Detector is factory wired to provide an audible and visual alarm at the control
display, and shuts the unit off.
Firestat senses return air temperature and shuts down unit if temperature reaches the
125°F (51.7°C).
Filter Clog senses pressure drop across the filters and annunciates the display upon
reaching a customer set point.
Condensing Unit Options
Hot Gas Bypass includes bypass valve, solenoid valve, and necessary piping for manual
capacity modulation.
High Ambient, Quietline, and Hot Gas Bypass options are also available on Prop-Fan
Condensing Units. Consult Prop-Fan Condensing Unit Pricebook for pricing.
Ship Loose Accessories
Filter Box (for ducted applications) includes filter box with duct flange connection, 20”x
20”x 4” (508mm x 508mm x 102mm) filter, and a duct flange for use on the supply air
opening of the unit. Available with 20% or 30% filters.

Liebert MM2 (5&8T): R407C
6 Confidential Document Revised 04/2016
2. Model Number Definition

Access Panels
Revised 04/2016 Confidential Document 7
3. Access Panels
Item
Part Number
Description
Voltage
5T
8T
1
164060P1
PANEL FRONT LEFT 5T MM2
230/60/3
1
2
164034P1
PANEL TOP 5T MM2
208/60/3
1
3
164062P1
PANEL FRONT RIGHT 5T MM2
208/60/3
1
4
164434P1
PANEL TOP 5T A COND MM2
380/415/50/3
1
6
164534P1
PANEL TOP 8T MM2
575/60/3
1
7
164560P1
PNL ACCESS FRONT LEFT 8T MM2
208/60/3
1
8
164562P1
PNL ACCESS FRT RIGHT 8T MM2
208/60/3
1

Liebert MM2 (5&8T): R407C
8 Confidential Document Revised 04/2016
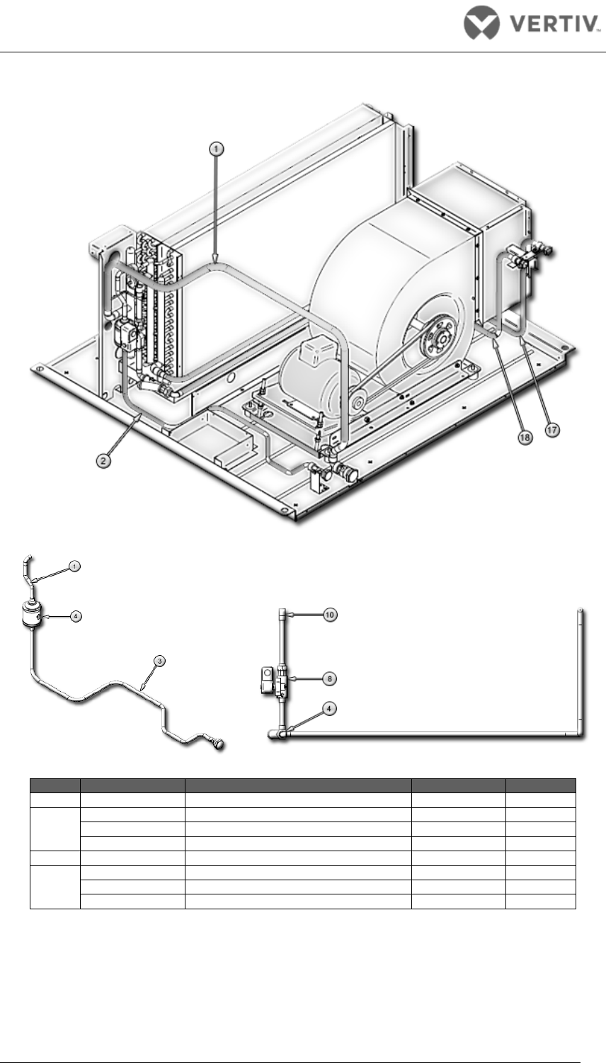
4. Blower/Motor Section
4.1. 5-Ton
Item
Part Number
Description
Voltage
Quantity
3
B-0620
BLOWER W/H A12-11A
-
1
7
B13-0150
PULLEY AK61H
-
1
8 B-022A MOTOR 2.0HP 208/230/460-3-60
208/230-3-60
1
460-3-60 MMC
1
B-0920
MOTOR 2.0HP 200/380/400-3-50
380/415-3-50
1
B-023A
MOTOR 2.0HP 575-3-60
575-3-60
1
9
B-005A
SHEAVE 1VP50X7/8
380/415-3-50
1
B13-0120 SHEAVE 1VP44X7/8
208/230-3-60
1
460-3-60 MMC
1
575-3-60
1
10 149724P1 BELT A-43
208/230-3-60
1
380/415-3-50
1
460-3-60 MMC
1
575-3-60
1
19 B-1150 SHAFT 19.25 X 1.00 C-1018
208/230-3-60
1
380/415-3-50
1
460-3-60 MMC
1
575-3-60
1
20
185861P1 BEARING ASSEMBLY 2-015 SERIES
208/230-3-60
2
380/415-3-50
2
460-3-60 MMC
2
575-3-60
2
B-0040 BEARING
208/230-3-60
2
380/415-3-50
2
460-3-60 MMC
2
575-3-60
2
27
163132G1
WH BLOWER MMC 5T
380/415-3-50
1
163132G2 WH BLOWER MMC 5T
208/230-3-60
1
460-3-60 MMC
1
575-3-60
1

Blower/Motor Section
Revised 04/2016 Confidential Document 9
4.2. 8-Ton
Item
Part Number
Description
Voltage
Quantity
1 164955P1 BLOWER SLED 8TMM2 COND
208/230-3-60
1
380/415-3-50
1
460-3-60 MMC
1
575-3-60
1
2 164956P1 BASE MOTOR MNTG 8T
MM2 COND
208/230-3-60
1
380/415-3-50
1
460-3-60 MMC
1
575-3-60
1
3 1C11154P1 BLOWER W/H A15-15AX1.00 1SS
208/230-3-60
1
380/415-3-50
1
460-3-60 MMC
1
575-3-60
1
7
B02-0050
PULLEY 2BK90H
380/415-3-50
1
B-0530 PULLEY 2BK100H
208/230-3-60
1
460-3-60 MMC
1
575-3-60
1
8 B-025A MOTOR 3.0HP 208/230/460-3-60
208/230-3-60
1
460-3-60
1
B-026A
MOTOR 3.0HP 575-3-60
2575-3-60
1
B-0930
MOTOR 3HP190/416-3-50 380-3-60
380/415-3-50
1
9 B-069B SHEAVE 2VP60X1-1/8
208/230-3-60
1
380/415-3-50
1
460-3-60 MMC
1
575-3-60
1
10 B-0720 BELT B-55
208/230-3-60
1
380/415-3-50
1
460-3-60
1
149725P1
BELT B-56
575-3-60
1
19 1C11153P1 SHAFT FAN 1.0DIA X 24.12
208/230-3-60
1
380/415-3-50
1
460-3-60 MMC
1
575-3-60
1
20
185861P1 BEARING ASSEMBLY 2-015 SERIES
208/230-3-60
2
380/415-3-50
2
460-3-60 MMC
2
575-3-60
2
B-0040 BEARING
208/230-3-60
2
380/415-3-50
2
460-3-60 MMC
2
575-3-60
2

Liebert MM2 (5&8T): R407C
10 Confidential Document Revised 04/2016
5. Coil Section
5.1. 5-Ton STD DX
Item
Part Number
Description
Voltage
Quantity
1
164160G1
COIL EVAPORATOR 5T MM2
380/415/50/3
1
2
164047G1
DRAINPAN COIL 5T MM2
380/415/50/3
1
4
1A18660P1
SW LEVEL LIQUID GEMS LS-7
380/415/50/3
1
5
1A19716P1
FREEZSTAT W/BRKT OPN31FCLS48F
380/415/50/3
1
6
176250G1
TXV+DISTRIBUTOR ASSY 5T MM2
380/415/50/3
1
176250G2
TXV+DISTRIBUTOR ASSY 8T MM2(5T)
380/415/50/3
1
176250G3
TXV+DISTRIBUTOR ASSY 8T MM2(3T
380/415/50/3
1
176250G8
TXV+DISTRIBUTOR ASSY 8T MM2-5T
380/415/50/3
1
176250G9
TXV+DISTRIBUTOR ASSY 8T MM2-3T
380/415/50/3
1

Coil Section
Revised 04/2016 Confidential Document 11
5.2. 5-Ton STD DX HWRHT/Freecool
Item
Part Number
Description
Voltage
Quantity
1
164160G1
COIL EVAPORATOR 5T MM2
380/415/50/3
1
2
164047G1
DRAINPAN COIL 5T MM2
380/415/50/3
1
4
1A18660P1
SW LEVEL LIQUID GEMS LS-7
380/415/50/3
1
5
1A19716P1
FREEZSTAT W/BRKT OPN31FCLS48F
380/415/50/3
1
6
176250G1
TXV+DISTRIBUTOR ASSY 5T MM2
380/415/50/3
1
176250G2
TXV+DISTRIBUTOR ASSY 8T MM2(5T)
380/415/50/3
1
176250G3
TXV+DISTRIBUTOR ASSY 8T MM2(3T
380/415/50/3
1
176250G8
TXV+DISTRIBUTOR ASSY 8T MM2-5T
380/415/50/3
1
176250G9
TXV+DISTRIBUTOR ASSY 8T MM2-3T
380/415/50/3
1
16
1A19716P1
COIL HOT WATER REHEAT 5T MM2
380/415/50/3
1
164041G1
COIL CW/FREECOOLING 5T MM2
380/415/50/3
1
20
168166P1
THSTAT SPST 30/50F 2.5FIXDIFF
380/415/50/3
1
27
168167G1
WH LV HW/FC COIL FREEZESTAT
380/415/50/3
1

Liebert MM2 (5&8T): R407C
12 Confidential Document Revised 04/2016
5.3. 5-Ton Chilled Water
Item
Part Number
Description
Voltage
Quantity
1
164041G1
COIL CW/FREECOOLING 5T MM2
208/60/3
1
2
164047G1
DRAINPAN COIL 5T MM2
575/60/3
1
4
1A18660P1
SW LEVEL LIQUID GEMS LS-7
575/60/3
1

Coil Section
Revised 04/2016 Confidential Document 13
5.4. 5-Ton Chilled Water HWRHT
Item
Part Number
Description
Voltage
Quantity
1
164041G1
COIL CW/FREECOOLING 5T MM2
575/60/3
1
2
164047G1
DRAINPAN COIL 5T MM2
230/60/3
1
4
1A18660P1
SW LEVEL LIQUID GEMS LS-7
208/60/3
1
16
164044G1
COIL HOT WATER REHEAT 5T MM2
575/60/3
1

Liebert MM2 (5&8T): R407C
14 Confidential Document Revised 04/2016
5.5. 8-Ton STD DX
Item
Part Number
Description
Voltage
Quantity
1
164540G1
COIL EVAPORATOR 8T MM2
208/60/3
1
196812G1
COIL EVAPORATOR 8T MM2 5/7 CKT
208/60/3
1
2
164547G1
PAN DRAIN ASSY 8T MM2
208/60/3
1
4
1A18660P1
SW LEVEL LIQUID GEMS LS-7
575/60/3
1
5
1A19716P1
FREEZSTAT W/BRKT OPN31FCLS48F
208/60/3
2
6
176250G1
TXV+DISTRIBUTOR ASSY 5T MM2
380/415/50/3
1
176250G2
TXV+DISTRIBUTOR ASSY 8T MM2(5T)
380/415/50/3
1
176250G3
TXV+DISTRIBUTOR ASSY 8T MM2(3T
380/415/50/3
1
176250G8
TXV+DISTRIBUTOR ASSY 8T MM2-5T
380/415/50/3
1
176250G9
TXV+DISTRIBUTOR ASSY 8T MM2-3T
380/415/50/3
1
18
P02-0260
ADAPTER POLY 3/4FPTX3/4HOSE
460/60/3
1

Coil Section
Revised 04/2016 Confidential Document 15
5.6. 8-Ton STD DX HWRH
Item
Part Number
Description
Voltage
Quantity
1
164540G1
COIL EVAPORATOR 8T MM2
575/60/3
1
196812G1
COIL EVAPORATOR 8T MM2 5/7 CKT
208/60/3
1
2
164547G1
PAN DRAIN ASSY 8T MM2
208/60/3
1
4
1A18660P1
SW LEVEL LIQUID GEMS LS-7
208/60/3
1
6
176250G1
TXV+DISTRIBUTOR ASSY 5T MM2
380/415/50/3
1
176250G2
TXV+DISTRIBUTOR ASSY 8T MM2(5T)
380/415/50/3
1
176250G3
TXV+DISTRIBUTOR ASSY 8T MM2(3T
380/415/50/3
1
176250G8
TXV+DISTRIBUTOR ASSY 8T MM2-5T
380/415/50/3
1
176250G9
TXV+DISTRIBUTOR ASSY 8T MM2-3T
380/415/50/3
1
16
164544G1
COIL HWRH 8T MM2
575/60/3
1
18
P02-0260
ADAPTER POLY 3/4FPTX3/4HOSE
575/60/3
1

Liebert MM2 (5&8T): R407C
16 Confidential Document Revised 04/2016
5.7. 8-Ton STD DX Freecool
Item
Part Number
Description
Voltage
Quantity
1
164540G1
COIL EVAPORATOR 8T MM2
208/60/3
1
196812G1
COIL EVAPORATOR 8T MM2 5/7 CKT
575/60/3
1
2
164547G1
PAN DRAIN ASSY 8T MM2
575/60/3
1
4
1A18660P1
SW LEVEL LIQUID GEMS LS-7
575/60/3
1
6
176250G1
TXV+DISTRIBUTOR ASSY 5T MM2
380/415/50/3
1
176250G2
TXV+DISTRIBUTOR ASSY 8T MM2(5T)
380/415/50/3
1
176250G3
TXV+DISTRIBUTOR ASSY 8T MM2(3T
380/415/50/3
1
176250G8
TXV+DISTRIBUTOR ASSY 8T MM2-5T
380/415/50/3
1
176250G9
TXV+DISTRIBUTOR ASSY 8T MM2-3T
380/415/50/3
1
16
164541G1
COIL CW/ ECON-O-COIL 8TMM2
575/60/3
1
18
P02-0260
ADAPTER POLY 3/4FPTX3/4HOSE
208/60/3
1

Coil Section
Revised 04/2016 Confidential Document 17
5.8. 8-Ton Chilled Water
Item
Part Number
Description
Voltage
Quantity
1
164541G1
COIL CW/ ECON-O-COIL 8TMM2
380/400/50/3
1
2
164547G1
PAN DRAIN ASSY 8T MM2
380/400/50/3
1
18
P02-0260
ADAPTER POLY 3/4FPTX3/4HOSE
380/400/50/3
1

Liebert MM2 (5&8T): R407C
18 Confidential Document Revised 04/2016
5.9. 8-Ton Chilled Water HWRH
Item
Part Number
Description
Voltage
Quantity
1
164541G1
COIL CW/ ECON-O-COIL 8TMM2
380/400/50/3
1
2
164547G1
PAN DRAIN ASSY 8T MM2
380/400/50/3
1
4
1A18660P1
SW LEVEL LIQUID GEMS LS-7
380/400/50/3
1
16
164544G1
COIL HWRH 8T MM2
575/60/3
1
18
P02-0260
ADAPTER POLY 3/4FPTX3/4HOSE
380/400/50/3
1

Compressor Section
Revised 04/2016 Confidential Document 19
6. Compressor Section
6.1. 5-Ton Air Cooled and Water/Glycol
Item
Part Number
Description
Voltage
Quantity
1
132101P2
COMP SCRL ZR61KC-TF5 W/O ROTA
208/230-3-60
1
132101P3
COMP SCRL ZR61KC-TFD W/O ROTA
460-3-60
1
132101P4
COMP SCRL ZR61KC-TFE W/O ROTA
575-3-60
1
138400P2
COMP SCRL ZR72KC-TFD W/O ROTA
380/415-3-50
1
166317P3
COMP SCRL ZR61KCE-TFD W/O ROTO
460-3-60
1
169237P3
COMP SCRL ZR61KCE 575V-3 SWEAT
575-3-60
1
169317P2
COMP SCRL ZR72KCE-TFD W/O ROTA
380/415-3-50
1
176774P2
COMP SCRL ZR61KCE-TF5 W/O ROTO
208/230-3-60
1
2 1A17649P1 KIT COMP MTG SPRING
208/230-3-60
1
380/415-3-50
1
460-3-60
1
575-3-60
1

Liebert MM2 (5&8T): R407C
20 Confidential Document Revised 04/2016
6.2. 8-Ton Air Cooled and Water/Glycol
Item
Part Number
Description
Voltage
Quantity
1
138430P2
COMP SCRL ZR40K3-TFD W/O ROTA
380/415-3-60
1
148325P1
COMP SCRL ZR34K3-TF5 W/O ROTO
208/230-3-60
1
148325P2
COMP SCRL ZR34K3-TFD W/O ROTO
460-3-60
1
148325P3
COMP SCRL ZR34K3-TFE W/O ROTO
575-3-60
1
168919P2
COMP SCRL ZR40K3E-TFD W/O ROTA
380/415-3-60
1
169388P1
COMP SCRL ZR34K3E-TF5 W/O ROTO
208/230-3-60
1
169388P2
COMP SCRL ZR34K3E-TFD W/O ROTO
460-3-60
1
169388P3
COMP SCRL ZR34K3E-TFE W/O ROTO
169388P3
1
2
132101P2
COMP SCRL ZR61KC-TF5 W/O ROTA
208/230-3-60
1
132101P3
COMP SCRL ZR61KC-TFD W/O ROTA
460-3-60
1
132101P4
COMP SCRL ZR61KC-TFE W/O ROTA
575-3-60
1
138400P2
COMP SCRL ZR72KC-TFD W/O ROTA
380/415-3-50
1
166317P3
COMP SCRL ZR61KCE-TFD W/O ROTO
460-3-60
1
169237P3
COMP SCRL ZR61KCE 575V-3 SWEAT
575-3-60
1
169317P2
COMP SCRL ZR72KCE-TFD W/O ROTA
380/415-3-50
1
176774P2
COMP SCRL ZR61KCE-TF5 W/O ROTO
208/230-3-60
1
3 1A17649P1 KIT COMP MTG SPRING
208/230-3-60
2
380/415-3-50
2
460-3-60
2
575-3-60
2

Condenser Section
Revised 04/2016 Confidential Document 21
7. Condenser Section
7.1. 5-Ton, 2-Way
Item
Part Number
Description
Voltage
Quantity
3
131852P1
VALVE H2O REG 2WAY 1" UB
575/60/3 (SP)
1
171819P4
VALVE H2O REG 2WAY 1" 350#
460/60/3 (HP)
1
12
128159P1
CONDENSER COAXIAL
All
1
13
187933G2
VALVE ACC BODY 1/4 EXT1" BEAD
All
1
14
P02-0290
VALVE CORE REFRIGERANT
All
1
7.2. 5-Ton, 3-Way
Item
Part Number
Description
Voltage
Quantity
1
128159P1
CONDENSER COAXIAL
All
1
5
131853P1
VALVE H2O REG 3WAY 1" UB
208/230/60/3
1
171818P4
VALVE H2O REG 3WAY 1" 350#
208/230/60/3
1
13
187933G2
VALVE ACC BODY 1/4 EXT1" BEAD
All
1
14
P02-0290
VALVE CORE REFRIGERANT
All
1

Liebert MM2 (5&8T): R407C
22 Confidential Document Revised 04/2016
7.3. 8-Ton, 2-Way Standard Pressure
Item
Part Number
Description
Voltage
Quantity
1
128159P1
CONDENSER COAXIAL
All
1
3
156400P1
VALVE H2O REG 2WAY 1/2" UB
All
2
4
131852P1
VALVE H2O REG 2WAY 1" UB
575/60/3 (SP)
1
171819P4
VALVE H2O REG 2WAY 1" 350#
460/60/3 (HP)
1
7.4. 8-Ton, 2-Way High Pressure
Item
Part Number
Description
Voltage
Quantity
1
128159P1
CONDENSER COAXIAL
All
1
3
P-026A
VALVE H2O REG 2WAY 3/4" 350#
All
1
4
P-311A
VALVE H2O REG 2WAY 1" 300#
All
1

Condenser Section
Revised 04/2016 Confidential Document 23
7.5. 8-Ton, 3-Way Standard Pressure
Item
Part Number
Description
Voltage
Quantity
1
128159P1
CONDENSER COAXIAL
All
2
5
131853P1
VALVE H2O REG 3WAY 1" UB
208/230/60/3
1
171818P4
VALVE H2O REG 3WAY 1" 350#
208/230/60/3
1
6
156401P1
VALVE H2O REG 3WAY 1/2" UB
All
1
7
187933G2
VALVE ACC BODY 1/4 EXT1" BEAD
All
1
8
P02-0290
VALVE CORE REFRIGERANT
All
1

Liebert MM2 (5&8T): R407C
24 Confidential Document Revised 04/2016
7.6. 8-Ton, 3-Way High Pressure
Item
Part Number
Description
Voltage
Quantity
1
128159P1
CONDENSER COAXIAL
All
2
5
P-4760
VALVE H2O REG 3WAY 3/4" 300#
208/230/60/3
1
6
P-311B
VALVE H2O REG 3WAY 1" 300#
208/230/60/3
1
7
187933G2
VALVE ACC BODY 1/4 EXT1" BEAD
All
1
8
P02-0290
VALVE CORE REFRIGERANT
All
1

Electrical Section
Revised 04/2016 Confidential Document 25
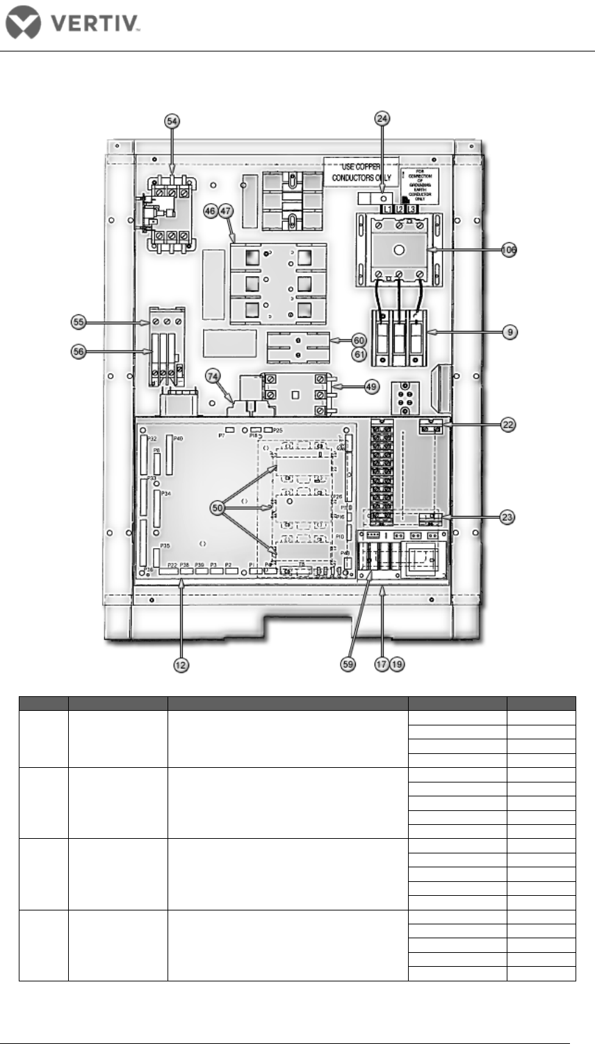
8. Electrical Section
8.1. Standard Electrical Panel
Item
Part Number
Description
Voltage
Quantity
9 E13-0040 TERMBLK 3PL 1)2/0:14 X 4)4:14
208/60/3
1
380/400/50/3
1
460/60/3
1
575/60/3
1
12 415761G1 PWA UNIVERSAL CONTROL
MM2 8T
208/60/3
1
230/60/3
1
380/400/50/3
1
460/60/3
1
575/60/3
1
17 4C14651G1 PWA ISO XFMR/FUSE INTF
208/60/3
1
230/60/3
1
380/400/50/3
1
460/60/3
1
575/60/3
1
19 135409P2 FUSE GLASS 250V 4AMP .25X1.25
208/60/3
4
230/60/3
4
380/400/50/3
4
460/60/3
4
575/60/3
4

Liebert MM2 (5&8T): R407C
26 Confidential Document Revised 04/2016
Item
Part Number
Description
Voltage
Quantity
22 132487P1 TERMLSTRIP SECTION 1 POS
208/60/3
26
230/60/3
26
380/400/50/3
26
460/60/3
26
575/60/3
26
E-0380
TERMBLK SECTION 1POS
460/60/3
26
23 132487P2 TERMLSTRIP SECTION END BARRIER
208/60/3
3
380/400/50/3
3
460/60/3
3
575/60/3
3
E-0390
TERMBLK SECTION END BARRIER
460/60/3
3
24 E-362B TERM LUG MECH #14-2/0 1/4"
208/60/3
1
380/400/50/3
1
460/60/3
1
575/60/3
1
54
124501P1 CONTACTOR 3PL 24VCOIL 15/20AMP
208/60/3
1
230/60/3
1
380/400/50/3
1
460/60/3
1
575/60/3
1
E-0110 CONTACTOR 3PL 24VCOIL 25/30AMP
208/60/3
1
230/60/3
1
380/400/50/3
1
55
124547P1
OVERLOAD RELAY W/B MNT 32A C-H
380/400/50/3
1
56
125768P8
HEATER CLASS 20 3.23-5.23A C-H
380/400/50/3
3
59 136201P1 XFMR 200VA 200-240/2450
208/60/3
1
380/400/50/3
1
460/60/3
1
575/60/3
1
136201P2
XFMR 200VA 380-415/2450
380/400/50/3
1
60 1C13244P1 FUSEBLOCK 600V 2P 030A
208/60/3
1
230/60/3
1
380/400/50/3
1
460/60/3
1
575/60/3
1
61 127977P1 FUSE FNQ-R-3/4
208/60/3
2
380/400/50/3
2
460/60/3
2
575/60/3
2
127977P5 FUSE FNQ-R-1.5
208/60/3
2
230/60/3
2
106 1C18351P2 SW DISC 600V 3PL 60A
208/60/3
1
380/400/50/3
1
460/60/3
1
575/60/3
1

Electrical Section
Revised 04/2016 Confidential Document 27
8.2. Electrical Panel with Reheat
Item
Part Number
Description
Voltage
Quantity
9 E13-0040 TERMBLK 3PL 1)2/0:14 X 4)4:14
208/60/3
1
380/400/50/3
1
460/60/3
1
575/60/3
1
12 415761G1 PWA UNIVERSAL CONTROL
MM2 8T
208/60/3
1
230/60/3
1
380/400/50/3
1
460/60/3
1
575/60/3
1
17 4C14651G1 PWA ISO XFMR/FUSE INTF
208/60/3
1
230/60/3
1
380/400/50/3
1
460/60/3
1
575/60/3
1
19 135409P2 FUSE GLASS 250V 4AMP .25X1.25
208/60/3
4
230/60/3
4
380/400/50/3
4
460/60/3
4
575/60/3
4

Liebert MM2 (5&8T): R407C
28 Confidential Document Revised 04/2016
Item
Part Number
Description
Voltage
Quantity
22 132487P1 TERMLSTRIP SECTION 1 POS
208/60/3
26
230/60/3
26
380/400/50/3
26
460/60/3
26
575/60/3
26
E-0380
TERMBLK SECTION 1POS
460/60/3
26
23 132487P2 TERMLSTRIP SECTION END BARRIER
208/60/3
3
380/400/50/3
3
460/60/3
3
575/60/3
3
E-0390
TERMBLK SECTION END BARRIER
460/60/3
3
24 E-362B TERM LUG MECH #14-2/0 1/4"
208/60/3
1
380/400/50/3
1
460/60/3
1
575/60/3
1
46
E-1200
FUSE DUAL ELMNT 250V 35.0AMP
208/60/3
3
47
E-1040
FUSEBLOCK 250V 3P 060A
208/60/3
1
49 124503P1 CONTACTOR 3PL 24V 15/20 1NO1NC
208/60/3
1
230/60/3
1
380/400/50/3
1
575/60/3
1
50 E-013A CONTACTOR 2PL 24VCOIL 10/25AMP
208/60/3
3
230/60/3
3
380/400/50/3
3
460/60/3
3
575/60/3
3
54
124501P1 CONTACTOR 3PL 24VCOIL 15/20AMP
208/60/3
1
230/60/3
1
380/400/50/3
1
460/60/3
1
575/60/3
1
E-0110 CONTACTOR 3PL 24VCOIL 25/30AMP
208/60/3
1
230/60/3
1
380/400/50/3
1
55
124547P1
OVERLOAD RELAY W/B MNT 32A C-H
380/400/50/3
1
56
125768P8
HEATER CLASS 20 3.23-5.23A C-H
380/400/50/3
3
59 136200P1 XFMR 150VA 460/615/2460
208/60/3
1
230/60/3
1
380/400/50/3
1
460/60/3
1
575/60/3
1
60 1C13244P1 FUSEBLOCK 600V 2P 030A
208/60/3
1
230/60/3
1
380/400/50/3
1
460/60/3
1
575/60/3
1
61 127977P1 FUSE FNQ-R-3/4
208/60/3
2
380/400/50/3
2
460/60/3
2
575/60/3
2
127977P5 FUSE FNQ-R-1.5
208/60/3
2
230/60/3
2
74 E-2440 RELAY 4P2T 24VAC 125V MAXLOAD
208/60/3
1
230/60/3
1
380/400/50/3
1
460/60/3
1
575/60/3
1
106 1C18351P2 SW DISC 600V 3PL 60A
208/60/3
1
380/400/50/3
1
460/60/3
1
575/60/3
1

Humidifier Section
Revised 04/2016 Confidential Document 29
9. Humidifier Section
9.1. Humidifier
Item
Part Number
Description
Voltage
Quantity
1
-
Humidifier Detail
-
-
3
-
Drain Assembly (Overflow)
-
-
6
-
Drain Assembly
-
-
7
124216P2
CLAMP HOSE WORM DRIVE .31X1.25
All
6
8
166724G1
STEAM HOSE ASSY MM2 5T
All
1
10
P-3820
CLAMP INSULATED METAL 7/8"
All
3
14
132487P2
TERMLSTRIP SECTION END BARRIER
All
3
E-0390
TERMBLK SECTION END BARRIER
All
3
15
E03-0170
RELAY 1P2T 24V 50/60HZ
All
1

Liebert MM2 (5&8T): R407C
30 Confidential Document Revised 04/2016
9.2. No Humidifier
Item
Part Number
Description
Voltage
Quantity
1
P15-0140
UNION NYLON 3/4BARBX3/4BARB
All
1
2
P02-0260
ADAPTER POLY 3/4FPTX3/4HOSE
All
1
4
124216P2
CLAMP HOSE WORM DRIVE .31X1.25
All
6
5
154229P1
HOSE DRAIN .75 ID FORMED
All
1
164224P1
HOSE DRAIN 5T MM2 W/HUM
All
1
7
164220P1
HOSE DRAIN 5T MM2 W/HUM
All
1
164224P2
HOSE DRAIN 5T MM2 W/HUM
All
1

Humidifier Section
Revised 04/2016 Confidential Document 31
9.3. Remote Contact
Item
Part Number
Description
Voltage
Quantity
37
132487P1
TERMLSTRIP SECTION 1 POS
All
2
E-0380
TERMBLK SECTION 1POS
All
2
38
132487P2
TERMLSTRIP SECTION END BARRIER
All
3
E-0390
TERMBLK SECTION END BARRIER
All
3
39
E03-0170
RELAY 1P2T 24V 50/60HZ
All
1

Liebert MM2 (5&8T): R407C
32 Confidential Document Revised 04/2016
9.4. Humidifier Detail
Item
Part Number
Description
Voltage
Quantity
1
128759P1
BOOT RUBBER SG HUM TERM COVER
All
4
2
127992P1
VALVE SOL DRAIN KIT HUM 24V
All
1
3
127853P1
XFMR TORROID HUM 5T MME
All
1
4
164161P1
CONTACTOR TRION GTU-14
All
1
6
154243P1
PCB SGH MM2
All
1
7
KIT-164659P1
KIT SG FILL VLV MM2 1-8TON *P1
All
1
8
136972P1
TERMBLK SGHC3000
All
1
9
1A19592P1
SW 2P2T ROCKER
All
1
10
136798P1
TANK HUMIDIFIER 200//230 11#
All
1
136798P2
TANK HUMIDIFIER 380//575 11#
All
1

Miscellaneous Section
Revised 04/2016 Confidential Document 33
10. Miscellaneous Section
10.1. Filter Clog
Item
Part Number
Description
Voltage
Quantity
3
154020P1
SWITCH AIR DIFFNTL/CLOGGED FILTER
All
1
10.2. Fire Stat
Item
Part Number
Description
Voltage
Quantity
1
154213P1
FIRESTAT OPEN ON RISE MM2
All
1

Liebert MM2 (5&8T): R407C
34 Confidential Document Revised 04/2016
10.3. Smoke Detector
Item
Part Number
Description
Voltage
Quantity
2
149105P1
SMOKE DETECT BASE & HEAD 731L
All
1
17
124502P2
PWA SMOKE DET CNTL 24VDC 2CONN
All
1

Piping Section
Revised 04/2016 Confidential Document 35
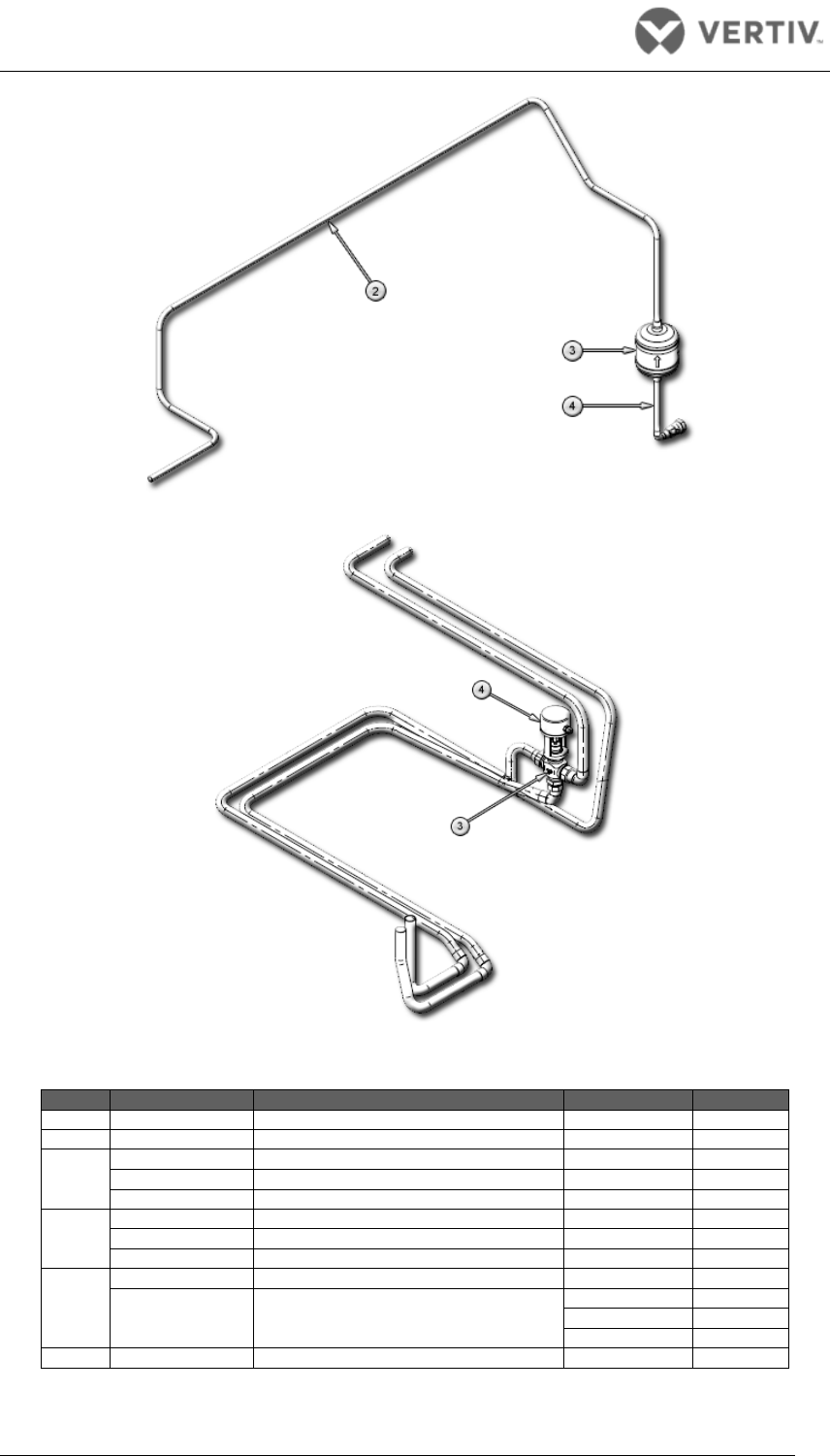
11. Piping Section
11.1. 2-Way Modulating
1. Chilled Water Piping Assembly
Item
Part Number
Description
Voltage
Quantity
6 P-0950 UNION CU CXC 1-1/8"SWT
208/60/3
2
230/60/3
2
8
159009P1
VALVE 1" 2WAY UNION BODY
575/60/3
1
9 146350P1 MOTOR MOD 24VAC 50/60HZ SML JC
208/60/3
1
380/400/50/3
1
575/60/3
1

Liebert MM2 (5&8T): R407C
36 Confidential Document Revised 04/2016
2. Chilled Water Return Assembly
Item
Part Number
Description
Voltage
Quantity
13
164215P1
TUBE FORM CU 1-1/8 WTR
230/60/3
1
14
9A20005P7
TUBE STR CU 1-1/8X.050X 3.50"
575/60/3
1
15
164216P1
TUBE FORM CU 1-1/8 WTR
575/60/3
1
199060P1
TUBE FORM CU 1-1/8 WTR
575/60/3
1
11.2. 3-Way Modulating

Piping Section
Revised 04/2016 Confidential Document 37
1. Chilled Water Supply Assembly
Item
Part Number
Description
Voltage
Quantity
5
P-1040
TEE CXCXC 1-1/8"
575/60/3
1
7 P-0950 UNION CU CXC 1-1/8"SWT
208/60/3
2
230/60/3
1
2. Chilled Water Return Assembly
Item
Part Number
Description
Voltage
Quantity
4
159010P1
VALVE 1" 3WAY UNION BODY
575/60/3
1
5 146350P1 MOTOR MOD 24VAC 50/60HZ SML JC
208/60/3
1
380/400/50/3
1
575/60/3
1
7 P-0950 UNION CU CXC 1-1/8"SWT
208/60/3
2
230/60/3
1

Liebert MM2 (5&8T): R407C
38 Confidential Document Revised 04/2016
11.3. 2-Way Modulating with HWRH
1. 2-Way Piping Supply 5T/8T
Item
Part Number
Description
Voltage
Quantity
6 P-0950 UNION CU CXC 1-1/8"SWT
208/60/3
2
230/60/3
1
8
159009P1
VALVE 1" 2WAY UNION BODY
575/60/3
1
9/4 146350P1 MOTOR MOD 24VAC 50/60HZ SML JC
208/60/3
1
380/400/50/3
1
575/60/3
1
3
159009P4
VALVE 1-1/4" 2WAY UNION BODY
380/400/50/3
1

Piping Section
Revised 04/2016 Confidential Document 39
2. 2-Way Piping Return 5T/8T
Item
Part Number
Description
Voltage
Quantity
13
164215P1
TUBE FORM CU 1-1/8 WTR
230/60/3
1
14
9A20005P7
TUBE STR CU 1-1/8X.050X 3.50"
575/60/3
1
15
164216P1
TUBE FORM CU 1-1/8 WTR
575/60/3
1
199060P1
TUBE FORM CU 1-1/8 WTR
575/60/3
1
3. 2-Way HWRH Return 5T
Item
Part Number
Description
Voltage
Quantity
2
P-1130
REDUCER CU FTGXC 7/8"X5/8"
230/60/3
1
4. 2-Way HWRH Supply 5T
Item
Part Number
Description
Voltage
Quantity
4
P-2380
UNION CU CXM 5/8"X1/2"
230/60/3
2
8
1A23985P1
VALVE SOLND 1/2" NC 24V 50/60
575/60/3
1
10
P-1130
REDUCER CU FTGXC 7/8"X5/8"
230/60/3
1

Liebert MM2 (5&8T): R407C
40 Confidential Document Revised 04/2016
11.4. 3-Way Modulating with HWRH
1. 3-Way Piping Supply 5T/8T
Item
Part Number
Description
Voltage
Quantity
5
P-1040
TEE CXCXC 1-1/8"
575/60/3
1
7 P-0950 UNION CU CXC 1-1/8"SWT
208/60/3
2
230/60/3
1
3
159009P4
VALVE 1-1/4" 2WAY UNION BODY
380/400/50/3
1
4 146350P1 MOTOR MOD 24VAC 50/60HZ SML JC
208/60/3
1
380/400/50/3
1
575/60/3
1

Piping Section
Revised 04/2016 Confidential Document 41
2. 3-Way Piping Return 5T/8T
Item
Part Number
Description
Voltage
Quantity
4
159010P1
VALVE 1" 3WAY UNION BODY
575/60/3
1
5 146350P1 MOTOR MOD 24VAC 50/60HZ SML JC
208/60/3
1
380/400/50/3
1
575/60/3
1
7 P-0950 UNION CU CXC 1-1/8"SWT
208/60/3
2
230/60/3
1
3. 2-Way HWRH Return 5T
Item
Part Number
Description
Voltage
Quantity
2
P-1130
REDUCER CU FTGXC 7/8"X5/8"
230/60/3
1
4. 2-Way HWRH Supply 5T
Item
Part Number
Description
Voltage
Quantity
4
P-2380
UNION CU CXM 5/8"X1/2"
230/60/3
2
8
1A23985P1
VALVE SOLND 1/2" NC 24V 50/60
575/60/3
1
10
P-1130
REDUCER CU FTGXC 7/8"X5/8"
230/60/3
1

Liebert MM2 (5&8T): R407C
42 Confidential Document Revised 04/2016
11.5. Split System DX
11.5.1. 5T
Item
Part Number
Description
Voltage
Quantity
1
164230P1
TUBE FORM CU 7/8
380/415/50/3
1
2
164232P1 (1)
TUBE FRM 04L 03.5X00.5
380/415/50/3
1
164233P1 (3)
TUBE FORM CU 1/2
380/415/50/3
1
128177P1 (4)
FILTER/DRIER SOLDER
380/415/50/31
1

Revised 04/2016 Confidential Document 43
11.5.2. 8T
Item
Part Number
Description
Voltage
Quantity
1
164576P1
TUBE FORM CU 7/8 SCTN 8TMM2E
208/60/3
1
3
164765P2 (2)
TUBE FORM CU 1/2 LQUD
208/60/3
1
128177P1 (3)
FILTER/DRIER SOLDER
380/415/50/3
1
9A20002P28 (4)
TUBE STR CU 1/2X.028X 8.75"
575/60/3
1
20
P02-0290
VALVE CORE REFRIGERANT
208/60/3
4

Liebert MM2 (5&8T): R407C
44 Confidential Document Revised 04/2016
11.6. DX with HGBP
Item
Part Number
Description
Voltage
Quantity
1
164230P1
TUBE FORM CU 7/8
380/415/50/3
1
2
164232P1 (1)
TUBE FRM 04L 03.5X00.5
380/415/50/3
1
164233P1 (3)
TUBE FORM CU 1/2
380/415/50/3
1
128177P1 (4)
FILTER/DRIER SOLDER
380/415/50/3
1
17
P-1130
REDUCER CU FTGXC 7/8"X5/8"
230/60/3
1
18
P-2380 (4)
UNION CU CXM 5/8"X1/2"
230/60/3
2
1A23985P1 (8)
VALVE SOLND 1/2" NC 24V 50/60
575/60/3
1
P-1130 (10)
REDUCER CU FTGXC 7/8"X5/8"
230/60/3
1

Revised 04/2016 Confidential Document 45
11.7. DX with Freecooling
11.7.1. 5T
2.

Liebert MM2 (5&8T): R407C
46 Confidential Document Revised 04/2016
3.
4.
Item
Part Number
Description
Voltage
Quantity
1
164230P1
TUBE FORM CU 7/8
380/415/50/3
1
2
164232P1 (1)
TUBE FRM 04L 03.5X00.5
380/415/50/3
1
164233P1 (3)
TUBE FORM CU 1/2
380/415/50/3
1
128177P1 (4)
FILTER/DRIER SOLDER
380/415/50/3
1
3
P-2400 (8)
UNION CU CXM 1-1/8"X1"
380/415/50/3
3
192472P2 (9)
ACTUATOR ON/OFF MM2
380/415/50/3
1
192472P3 (10)
VALVE H2O SLOW 3WAY 1"
380/415/50/3
1
4
164236P1 (8)
TUBE FORM CU 1-1/8
380/415/50/3
1
193562P1 (8)
TUBE FORM CU 1-1/8 WTR
380/415/50/3
1
164237P1 (9)
TUBE FORM CU 1-1/8
380/415/50/3
1
193564P1 (9)
TUBE FORM CU 1-1/8 WTR
380/415/50/3
1
9A20005P9 (10)
TUBE STR CU 1-1/8X.050X 4.00"
380/415/50/3
1
9A20005P13 (10)
TUBE STR CU 1-1/8X.050X 5.00"
380/415/50/3
1

Revised 04/2016 Confidential Document 47
11.7.2. 8T
3.

Liebert MM2 (5&8T): R407C
48 Confidential Document Revised 04/2016
4.
5.
Item
Part Number
Description
Voltage
Quantity
1
164576P1
TUBE FORM CU 7/8 SCTN 8TMM2E
208/60/3
1
2
164588P2
TUBE FORM CU 7/8 SCTN 8TMM2E
208/60/3
1
3
164765P2 (2)
TUBE FORM CU 1/2 LQUD
208/60/3
1
128177P1 (3)
FILTER/DRIER SOLDER
380/415/50/3
1
9A20002P28 (4)
TUBE STR CU 1/2X.028X 8.75"
575/60/3
1
4
164766P2 (2)
TUBE FORM CU 3/8 LQUD
575/60/3
1
P03-0030 (3)
FILTER/DRIER 3/8ODF SLDR
575/60/3
1
9A20002P11 (4)
TUBE STR CU 3/8X.028X 4.50"
575/60/3
1
5
159010P4 (3)
VALVE 1-1/4" 3WAY UNION BODY
575/60/3
1
146350P1 (4) MOTOR MOD 24VAC 50/60HZ SML JC
208/60/3
1
380/400/50/3
1
575/60/3
1
20
P02-0290
VALVE CORE REFRIGERANT
208/60/3
4

Reheat Section 5T/8T
Revised 04/2016 Confidential Document 49
12. Reheat Section 5T/8T

Liebert MM2 (5&8T): R407C
50 Confidential Document Revised 04/2016
Item
Part Number
Description
Voltage
5T
8T
2
148367P3
HEATER 03.3KW 400V SS 304 S/F
380/415/50/3
3
148367P4
HEATER 03.3KW 460V SS 304 S/F
460/60/3
3
148367P1
HEATER 03.3KW 208V SS 304 S/F
208/60/3
3
148367P2
HEATER 03.3KW 230V SS 304 S/F
230/60/3
3
148367P3
HEATER 03.3KW 400V SS 304 S/F
380/415/50/3
3
148367P4
HEATER 03.3KW 460V SS 304 S/F
460/60/3
3
148367P5
HEATER 03.3KW 575V SS 304 S/F
575/60/3
3
148367P6
HEATER 05.0KW 208V SS 304 S/F
208/60/3
3
148367P7
HEATER 05.0KW 230V SS 304 S/F
230/60/3
3
148367P8
HEATER 05.0KW 400V SS 304 S/F
380/400/50/3
3
148367P9
HEATER 05.0KW 460V SS 304 S/F
460/60/3
3
4
136965P1 SAFETY SWT THERM 105F
380/415/50/3
2
460/60/3
2
136965P1 SAFETY SWT THERM 105F
208/60/3
2
230/60/3
2
460/60/3
2
575/60/3
2
380/400/50/3
2
136965P2 SAFETY SWT THERM 100F
208/60/3
2
230/60/3
2
460/60/3
2
380/400/50/3
2
10 E-009F CONTACTOR 3PL 24VCOIL 30/40AMP
380/415/50/3
2
460/60/3
2

Parts Gallery
Revised 04/2016 Confidential Document 51
13. Parts Gallery
Blower Section
1C11153P1 1C11154P1 149724P1 164955P1
164956P1 185861P1 / B-0040 B02-0050 B13-0150
B-022A B-025A B-069B B-0620
B-1150

Liebert MM2 (5&8T): R407C
52 Confidential Document Revised 04/2016
Coil Section
1A18660P1 1A19716P1 1A19716P1 164047G1
164160G1 164541G1 164547G1 168166P1
P02-0260
Compressor Section
1A17649P1 132101P2
Condenser Section
128159P1 131852P1 131853P1 156400P1
156401P1 187933G2 P02-0290 P-026A
P-311A P-4760

Parts Gallery
Revised 04/2016 Confidential Document 53
Electrical Section
1C13244P1 1C18351P2 4C14651G1 124501P1
124503P1 124547P1 125768P8 127977P1
132487P1 132487P2 135409P2 136200P1
136201P1 415761G1 E13-0040 E-013A
E-362B E-1040 E-1200 E-2440

Liebert MM2 (5&8T): R407C
54 Confidential Document Revised 04/2016
Humidifier Section
1A16207P1 1A19592P1 124216P2 127853P1
127992P1 128759P1 132487P1 132487P2
136798P1 136972P1 154229P1 154243P1
164221P1 166724G1 E03-0170 KIT-164659P1
P02-0260 P15-0140
Miscellaneous Section
124502P2 149105P1 154020P1 154213P1

Parts Gallery
Revised 04/2016 Confidential Document 55
Panel Section
164034P1 164062P1 164434P1 164534P1
164560P1 164562P1
Piping Section
1A23985P1 128177P1 146350P1 148039P1
159009P1 159009P4 159010P1 159010P4
164232P1 P02-0290 P03-0030
Reheat Section
136965P1 148367P1 E-009F

Liebert MM2 (5&8T): R407C
56 Confidential Document Revised 04/2016
14. Revision Page
Revision Date
Modification
Details
11/2014
Coil Section
Added TXV Assembly