User’s Manual (Hardware) IB NA Qcpu Installation
User Manual: IB-NA
Open the PDF directly: View PDF .
Page Count: 102 [warning: Documents this large are best viewed by clicking the View PDF Link!]
- COVER
- SAFETY PRECAUTIONS
- Revisions
- CONTENTS
- About the Manuals
- 1. Overview
- 2. Specifications
- 3. EMC and Low Voltage Directive
- 4. Mounting and Installation
- 5. Specifications and Connections of I/O Modules
- 6. Error Codes
- Warranty

MELSEC System Q
Programmable Logic Controllers
User’s Manual
Q00JCPU, Q00CPU, Q01CPU
Q02CPU, Q02HCPU, Q06HCPU,
Q12HCPU, Q25HCPU,
Q12PHCPU, Q25PHCPU
INDUSTRIAL AUTOMATION
MIT
SU
BI
S
HI ELE
C
TRI
C
MIT
SU
BI
S
HI ELE
C
TRI
C
Art. no.: 139836
01 09 2002
IB (NA)-0800061-J

A-1
DANGER
CAUTION
SAFETY PRECAUTIONS
(Read these precautions before using)
When using Mitsubishi equipment, thoroughly read this manual and the related
manuals introduced in this manual. Also pay careful attention to safety and
handle the module correctly.
These SAFETY PRECAUTIONS classify the safety precautions into two
categories: "DANGER" and "CAUTION".
Procedures which may lead to a dangerous condition
and cause death or serious injury if not carried out
correctly.
Procedures which may lead to a dangerous condition
and cause superficial to medium injury, or physical
damage only, if not carried out correctly.
Depending on circumstances, procedures indicated by CAUTION may also
cause serious accidents.
In any case, it is important to follow the directions for usage.
Store this manual in a safe place so that you can take it out and read it
whenever necessary. Always forward it to the end user.

A-2
[DESIGN PRECAUTIONS]
DANGER
Install a safety circuit external to the PLC that keeps the entire system safe
even when there are problems with the external power supply or the PLC
module. Otherwise, trouble could result from erroneous output or
erroneous operation.
(1) Outside the PLC, construct mechanical damage preventing interlock
circuits such as emergency stop, protective circuits, positioning upper
and lower limits switches and interlocking forward/reverse operations.
(2) When the PLC detects the following problems, it will stop calculation and
turn off all output in the case of (a).
In the case of (b), it will stop calculation and hold or turn off all output
according to the parameter setting.
Note that the AnS series module will turn off the output in either of cases
(a) and (b).
(a) The power supply module has over currentprotection equipment and
over voltage protection equipment.
(b) The CPU module self-diagnosis functions, such as the watch dog
timer error, detect problems.
In addition, all outputs will be turned on when there are problems that
the CPU module cannot detect, such as in the I/O controller. Build a
fail-safe circuit or provide a mechanism exterior to the PLC that will
make sure the equipment operates safely at such times. For a fail-
safe circuit example, see "Loading and Installation" in this manual.
(3) Output could be left on or off when there is trouble in the outputs module
relay or transistor. So build an external monitoring circuit that will monitor
any single outputs that could cause serious trouble.
When overcurrent which exceeds the rating or caused by short-circuited
load flows in the output module for a long time, it may cause smoke or fire.
To prevent this, configure an external safety circuit, such as fuse.
Build a circuit that turns on the external power supply when the PLC main
module power is turned on. If the external power supply is turned on first, it
could result in erroneous output or erroneous operation.

A-3
[DESIGN PRECAUTIONS]
DANGER
When there are communication problems with the data link, refer to the
corresponding data link manual for the operating status of each station. Not
doing so could result in erroneous output or erroneous operation.
When connecting a peripheral device to the CPU module or connecting a
personal computer or the like to the intelligent function module to exercise
control (data change) on the running PLC, configure up an interlock circuit
in the sequence program to ensure that the whole system will always
operate safely.
Also before exercising other control (program change, operating status
change (status control)) on the running PLC, read the manual carefully and
fully confirm safety.
Especially for the above control on the remote PLC from an external
device, an immediate action may not be taken for PLC trouble due to a
data communication fault.
In addition to configuring up the interlock circuit in the sequence program,
corrective and other actions to be taken as a system for the occurrence of
a data communication fault should be predetermined between the external
device and CPU module.
CAUTION
Do not bunch the control wires or communication cables with the main
circuit or power wires, or install them close to each other. They should be
installed 100 mm (3.94 inch) or more from each other. Not doing so could
result in noise that would cause erroneous operation.
When controlling items like lamp load, heater or solenoid valve using an
output module, large current (approximately ten times greater than that
present in normal circumstances) may flow when the output is turned OFF
to ON.
Take measures such as replacing the module with one having sufficient
rated current.

A-4
[INSTALLATION PRECAUTIONS]
CAUTION
Use the PLC in an environment that meets the general specifications
contained in this manual. Using this PLC in an environment outside the
range of the general specifications could result in electric shock, fire,
erroneous operation, and damage to or deterioration of the product.
Hold down the module mounting lever at the module bottom, and securely
insert the module fixing latch into the fixing hole in the base unit. Incorrect
mounting of the module can cause a malfunction, failure or drop.
When using the PLC in the environment of much vibration, tighten the
module with a screw.
Tighten the screw in the specified torque range. Undertightening can cause
a drop, short circuit or malfunction. Overtightening can cause a drop, short
circuit or malfunction due to damage to the screw or module.
When installing extension cables, be sure that the connectors of base unit
are installed correctly. After installation, check them for looseness. Poor
connections could cause an input or output failure.
Securely mount the memory card into the memory card mounting
connector. After mounting, check for lifting. Lifting can cause a malfunction
due to a contact fault.
Completely turn off the external power supply before mounting or removing
the module. Not doing so could result in electric shock or damage to the
product.
Note that online module change can be made when the QnPHCPU is used.
Note that there are restrictions on the modules that can be changed online
and each module has a predetermined changing procedure.
For details, refer to the section of online module change in the Process
CPU User's Manual (Hardware Design,Maintenance and Inspection).
Do not directly touch the module's conductive parts or electronic
components. Touching the conductive parts could cause an operation
failure or give damage to the module.

A-5
[WIRING PRECAUTIONS]
DANGER
Completely turn off the external power supply when installing or placing
wiring. Not completely turning off all power could result in electric shock or
damage to the product.
When turning on the power supply or operating the module after installation
or wiring work, be sure that the module's terminal covers are correctly
attached. Not attaching the terminal cover could result in electric shock.
CAUTION
Be sure to ground the FG terminals and LG terminals to the protective
ground conductor. Not doing so could result in electric shock or erroneous
operation.
When wiring in the PLC, be sure that it is done correctly by checking the
product's rated voltage and the terminal layout. Connecting a power supply
that is different from the rating or incorrectly wiring the product could result
in fire or damage.
External connections shall be crimped or pressure welded with the
specified tools, or correctly soldered. Imperfect connections could result in
short circuit, fires, or erroneous operation.
Tighten the terminal screws with the specified torque. If the terminal screws
are loose, it could result in short circuits, fire, or erroneous operation.
Tightening the terminal screws too far may cause damages to the screws
and/or the module, resulting in fallout, short circuits, or malfunction.
Be sure there are no foreign substances such as sawdust or wiring debris
inside the module. Such debris could cause fires, damage, or erroneous
operation.
The module has an ingress prevention label on its top to prevent foreign
matter, such as wire offcuts, from entering the module during wiring.
Do not peel this label during wiring.
Before starting system operation, be sure to peel this label because of heat
dissipation.

A-6
[STARTUP AND MAINTENANCE PRECAUTIONS]
DANGER
Do not touch the terminals while power is on.
Doing so could cause shock or erroneous operation.
Correctly connect the battery. Also, do not charge, disassemble, heat,
place in fire, short circuit, or solder the battery. Mishandling of battery can
cause overheating or cracks which could result in injury and fires.
Switch all phases of the external power supply off when cleaning the
module or retightening the terminal or module mounting screws. Not doing
so could result in electric shock.
Undertightening of terminal screws can cause a short circuit or malfunction.
Overtightening of screws can cause damages to the screws and/or the
module, resulting in fallout, short circuits, or malfunction.
CAUTION
The online operations conducted for the CPU module being operated,
connecting the peripheral device (especially, when changing data or
operation status), shall be conducted after the manual has been carefully
read and a sufficient check of safety has been conducted.
Operation mistakes could cause damage or problems with of the module.
Do not disassemble or modify the modules.
Doing so could cause trouble, erroneous operation, injury, or fire.
Use any radio communication device such as a cellular phone or a PHS
phone more than 25cm (9.85 inch) away from the PLC.
Not doing so can cause a malfunction.
Completely turn off the external power supply before loading or unloading
the module. Not doing so could result in electric shock or damage to the
product.
Note that online module change can be made when the QnPHCPU is used.
Note that there are restrictions on the modules that can be changed online
and each module has a predetermined changing procedure.
For details, refer to the section of online module change in the Process
CPU User's Manual (Hardware Design,Maintenance and Inspection).
Be sure not make a strong impact on the battery to be mounted into the
module by dropping or similar careless action. This could break the battery,
causing an internal battery liquid leakage.
Do not use the battery which has been exposed to a strong impact, and
dispose of it.
[DISPOSAL PRECAUTIONS]
CAUTION
When disposing of this product, treat it as industrial waste.

A-7
Revisions* The manual number is described at the lower right of the front cover.
Print Date *Manual Number Revision
Nov.,1999 IB(NA)-0800061-A First printing
May.,2000 IB(NA)-0800061-B Q33B, Q63B, QX70, QX71, QX72,
QY18A, QY22, QH42P and QX48Y57
added.
Sep.,2000 IB(NA)-0800061-C QX28, QX40-S1, QI60 and Q63P added.
Addition
Section1.2, 4.5.5
Correction
Section2.2, 6.1
Nov.,2000 IB(NA)-0800061-D QY70 and QY71 added.
Correction
Section5.4.1
Jan.,2001 IB(NA)-0800061-E Q62P, QY68A added.
Correction
Section4.1.2
May.,2001 IB(NA)-0800061-F Q00JCPU, Q00CPU, Q01CPU, Q52B
and Q55B added.
Partial addition
Chapter 1, Table 4.2, Section 4.5, Section
4.5 changed to be Section 4.6.
Sep.,2001 IB(NA)-0800061-G Q64P added.
Partial addition
Section 1.1, 3.1.5, 4.1.2, 4.1.4, 4.1.5,
4.3.1, 4.5.3, 4.6.4, 5.2.1
Mar.,2002 IB(NA)-0800061-H Q12PHCPU, Q25PHCPU added
Correction
Section 1.2, 2.2, 2.3, 4.3.1, 4.5.1, 4.6.1,
5.3.1, 5.3.2, 6.1
Jul.,2002 IB(NA)-0800061-I QX41-S1, QX42-S1 added
Sep.,2002 IB(NA)-0800061-J Completely reviewed and revised.
Q32SB, Q33SB, Q35SB, Q61SP added
Japanese Manual Version IB (NA) -0800027-L
This manual confers no industrial property rights or any rights of any other kind, nor does it
confer any patent licenses. Mitsubishi electric Corporation cannot be held responsible for
any problems involving industrial property rights which may occur as a result of using the
contents noted in this manual.
1999 MITSUBISHI ELECTRIC CORPORATION

A-8
CONTENTS
1. Overview.......................................................................................................1
1.1 Included Parts .........................................................................................1
1.2 Confirming the serial number and function version..................................3
2. Specifications................................................................................................4
2.1 General Specifications ............................................................................4
2.2 Performance Specifications of CPU Modules ..........................................5
2.3 Power supply module specifications......................................................10
2.4 Specifications of Base Units..................................................................16
3. EMC and Low Voltage Directive..................................................................17
3.1 Requirements for conformance to EMC Directive..................................17
3.1.1 Standards applicable to the EMC Directive...................................18
3.1.2 Installation instructions for EMC Directive.....................................19
3.1.3 Cables ..........................................................................................20
3.1.4 Power supply module ...................................................................22
3.1.5 When using QA1S6 B type base unit ..........................................22
3.1.6 Others...........................................................................................25
3.2 Requirement to Conform to the Low Voltage Directive ..........................26
3.2.1 Standard applied for MELSEC-Q series PLC................................26
3.2.2 PLC selection ...............................................................................26
3.2.3 Power supply................................................................................27
3.2.4 Control box...................................................................................27
3.2.5 Grounding.....................................................................................28
3.2.6 External wiring..............................................................................28
4. Mounting and Installation ............................................................................29
4.1 Module Installation ................................................................................29
4.1.1 Handling instructions ....................................................................29
4.1.2 Instructions for mounting the base unit .........................................31
4.1.3 Mounting and removing of module................................................36
4.1.4 Setting the extension number of the extension base unit..............38
4.1.5 Connecting and disconnecting extension cable ............................39
4.2 General Safety Requirements ...............................................................42
4.3 Power Supply Wiring.............................................................................47
4.3.1 Precaution when connecting the uninterruptive power supply.......49
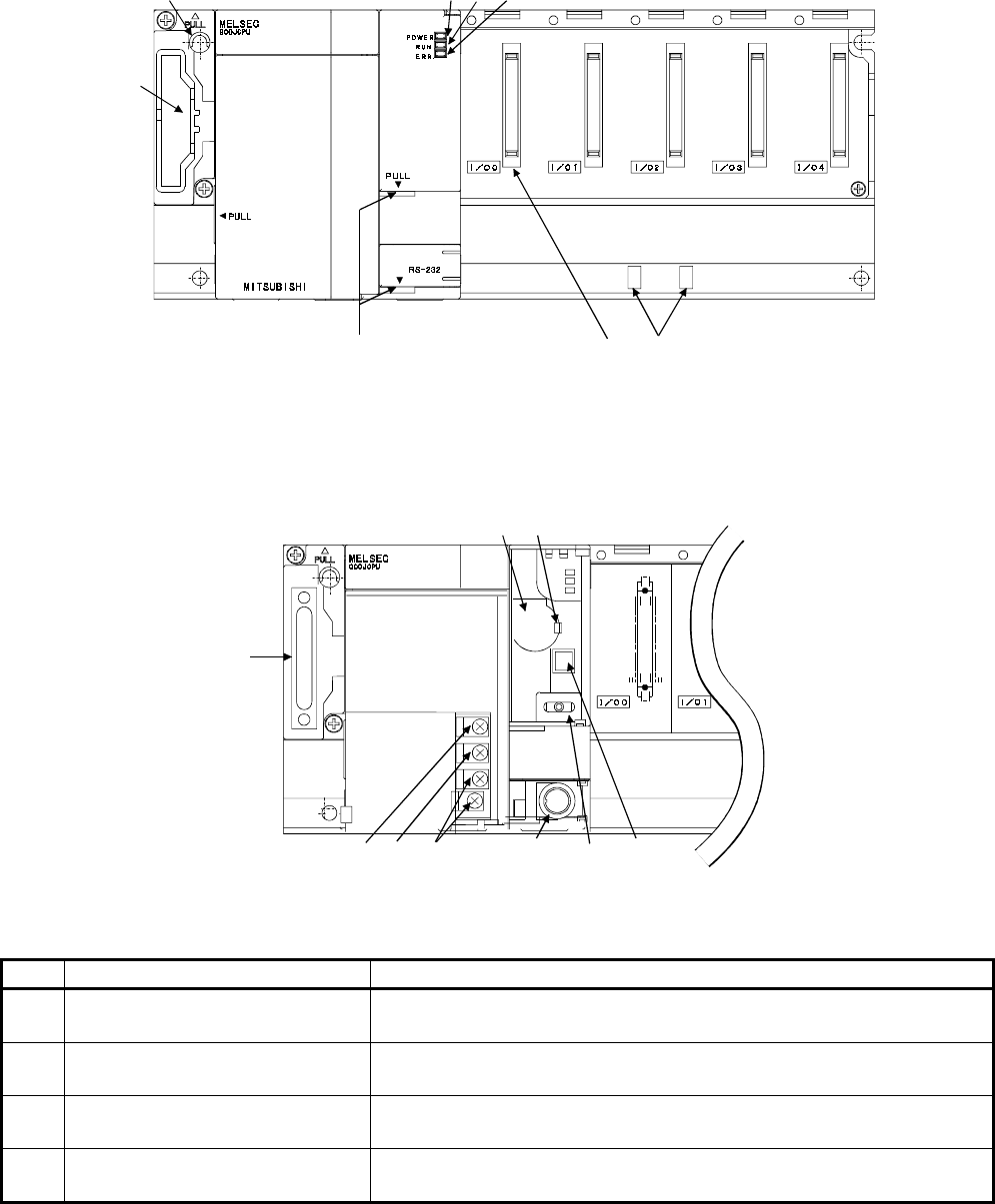
4.4 Part Names and Settings of Q00J/Q00/Q01CPU ..................................50
4.4.1 Part names and settings...............................................................50
4.4.2 Switch operation after writing program..........................................54
4.4.3 Reset operation ............................................................................55
4.4.4 Latch clear operation ....................................................................56
4.5 Part Names and Settings of
Q02 (H) /Q06H/Q12H/Q25H/Q12PH/Q25PHCPU .................................57
4.5.1 Part names and settings...............................................................57
4.5.2 Switch operation after writing program..........................................60
4.5.3 Latch clear operation ....................................................................60
4.5.4 Mounting and removing of memory card during power-on ............61
4.5.5 Executing automatic write to standard ROM.................................61
A-9
4.6 Part Names of Power Supply Modules.................................................. 63
5. Specifications and Connections of I/O Modules.......................................... 66
5.1 Input Modules ....................................................................................... 67
5.1.1 Specifications of input modules.................................................... 67
5.1.2 Connections of input modules ...................................................... 70
5.2 Output Modules .................................................................................... 74
5.2.1 Specifications of output modules.................................................. 74
5.2.2 Connections of output modules.................................................... 77
5.3 Input/output Composite Module ............................................................ 81
5.3.1 QH42P type input/output compound module................................ 81
5.3.2 QX48Y57 type input/output compound module ............................ 84
5.4 Interrupt Module.................................................................................... 86
5.4.1 QI60 type interrupt module........................................................... 86
5.5 Wiring of I/O Equipment........................................................................ 87
6. Error Codes ................................................................................................ 88
6.1 How to Read the Error Code................................................................. 88

A-10
About the Manuals
The following product manuals are available. Please use this table as a
reference to request the appropriate manual as necessary.
Basic Model QCPU (Q00JCPU, Q00CPU, Q01CPU)
Detailed Manual
Manual name Manual No.
(Model code)
Basic Model QCPU (Q Mode) User's Manual
(Hardware Design, Maintenance and Inspection)
This manual provides the specifications of the CPU
modules, power supply modules, base units, extension
cables and others. (Sold separately)
SH-080187
(13JR43)
Basic Model QCPU (Q Mode) User's Manual
(Function Explanation, Program Fundamentals)
This manual explains the functions, programming
methods, devices and so on necessary to create
programs with the Basic model QCPU (Q mode).
(Sold separately)
SH-080188
(13JR44)
Relevant Manual
Manual name Manual No.
(Model code)
QCPU (Q Mode)/QnACPU Programming Manual
(Common Instructions)
This manual explains how to use the sequence
instructions, basic instructions, application instructions
and similar instructions. (Sold separately)
SH-080039
(13JF58)
Building Block I/O Module User's Manual
This manual provides the specifications and external
wiring of I/O modules. (Sold separately)
SH-080042
(13JL99)

A-11
High Performance Model QCPU
(Q02 (H) CPU, Q06HCPU, Q12HCPU, Q25HCPU)
Detailed Manual
Manual name Manual No.
(Model code)
High Performance Model QCPU (Q Mode) User's Manual
(Hardware Design, Maintenance and Inspection)
This manual provides the specifications of the CPU
modules, power supply modules, base units, extension
cables, memory cards and others. (Sold separately)
SH-080037
(13JL97)
High Performance Model QCPU (Q Mode) User's Manual
(Function Explanation, Program Fundamentals)
This manual explains the functions, programming
methods, devices and so on necessary to create
programs with the High Performance model QCPU (Q
mode). (Sold separately)
SH-080038
(13JL98)
Relevant Manual
Manual name Manual No.
(Model code)
QCPU (Q Mode)/QnACPU Programming Manual
(Common Instructions)
This manual explains how to use the sequence
instructions, basic instructions, application instructions
and similar instructions. (Sold separately)
SH-080039
(13JF58)
QCPU (Q Mode)/QnACPU Programming Manual
(PID Control)
This manual explains the dedicated instructions used to
exercise PID control. (Sold separately)
SH-080040
(13JF59)
QCPU (Q Mode)/QnACPU Programming Manual (SFC)
This manual explains the system configuration,
performance specifications, functions, programming,
debugging, error codes and others of MELSAP3.
(Sold separately)
SH-080041
(13JF60)
QCPU (Q Mode)/QnACPU Programming Manual
(MELSAP-L)
This manual explains the programming methods,
specifications, functions, and so on that are necessary to
create the MELSAP-L type SFC programs.
(Sold separately)
SH-080076
(13JF61)
Building Block I/O Module User's Manual
This manual provides the specifications and external
wiring of I/O modules. (Sold separately)
SH-080042
(13JL99)

A-12
Process CPU (Q12PHCPU, Q25PHCPU)
Detailed Manual
Manual name Manual No.
(Model code)
Process CPU User's Manual
(Hardware Design, Maintenance and Inspection)
This manual provides the specifications of the CPU
modules, power supply modules, base units, extension
cables, memory cards and others. (Sold separately)
SH-080314E
(13JR55)
Process CPU User's Manual
(Function Explanation, Program Fundamentals)
This manual explains the functions, programming
methods, devices and so on necessary to create
programs with the Process CPU (Sold separately)
SH-080315E
(13JR56)
Relevant Manual
Manual name Manual No.
(Model code)
QCPU (Q Mode)/QnACPU Programming Manual
(Common Instructions)
This manual explains how to use the sequence
instructions, basic instructions and application
instructions. (Sold separately)
SH-080039
(13JF58)
QnPHCPU Programming Manual
(Process Control Instructions)
This manual explains the programming procedures,
device names, and other items necessary to implement
PID control using process control instructions.
(Sold separately)
SH-080316E
(13JF67)
QCPU (Q Mode)/QnACPU Programming Manual (SFC)
This manual explains the system configuration,
performance specifications, functions, programming,
debugging, error codes and others of MELSAP3.
(Sold separately)
SH-080041
(13JF60)
QCPU (Q Mode)/QnACPU Programming Manual
(MELSAP-L)
This manual explains the programming methods,
specifications, functions, and so on that are necessary to
create the MELSAP-L type SFC programs.
(Sold separately)
SH-080076
(13JF61)
Building Block I/O Module User's Manual
This manual privides the specifications and external
wiring of I/O modules. (Sold separately)
SH-080042
(13JL99)

1
1. Overview
This manual provides the performance specifications, loading and installation,
and part names and settings of the MELSEC-Q series CPU modules, the
specifications and connection of the I/O modules, and how to read error codes.
The CPU type is abbreviated to the QCPU when description is common to the
MELSEC-Q series CPU modules.
The usable extension base units and the number of extension bases vary with
the CPU module used.
The following table indicates the CPU module types described in this manual
and differences between them.
Extension Base
CPU Module
Type Main Base Q5BQ6BQA1SB
Number of
Extension
Bases
Number of
mountable
Modules
Q00JCPU Unnecessar
y
Usable Usable Unusable 2 16
Q00CPU
Q01CPU Necessary Usable
*1 Usable
*1 Unusable 4 24
Q02 (H) CPU
Q06HCPU
Q12HCPU
Q25HCPU
Necessary Usable
*1 Usable
*1 Usable *1 7 64
Q12PHCPU
Q25PHCPU Necessar
y
*2 Usable Usable Unusable 7 64
*1: Extension base unit cannot be connected when the slim type main base unit
(Q32SB, Q33SB, Q35SB) is used.
*2: Q12PHCPU and Q25PHCPU are not compatible with the slim type main
base unit (Q32SB, Q33SB, Q35SB).
1.1 Included Parts
The following tables list the parts included with the corresponding modules.
(1) CPU module
(a) Q00JCPU
Product Name Type Quantity
CPU module Q00JCPU 1
Battery Q6BAT 1
Base unit mounting screw M4 14 screw 4
This manual —— 1
(b) Other than Q00JCPU
Product Name Type Quantity
Q00CPU
Q01CPU
Q02CPU
Q02HCPU
Q06HCPU
Q12HCPU
Q25HCPU
Q12PHCPU
CPU module
Q25PHCPU
1
Battery Q6BAT 1

2
(2) Main base unit for Q series modules
Product Name Type Quantity
Q33B
Q35B
Q38B
Main base unit
Q312B
1
Base unit mounting screw M4 14 screw 4
This manual —— 1
(3) Slim type main base unit for Q series module
Product Name Type Quantity
Q32SB
Q33SBSlim type main base unit Q35SB 1
Base unit mounting screw M4 12 screw 4
This manual —— 1
(4) Extension base unit for Q series modules
Product Name Type Quantity
Q52B
Q55B
Q63B
Q65B
Q68B
Extension base unit
Q612B
1
Base unit mounting screw M4 14 screw 4
(5) Extension base unit for AnS series modules
(Only Q02CPU, Q02HCPU, Q06HCPU, Q12HCPU or Q25HCPU is usable)
Product Name Type Quantity
QA1S65B
Extension base unit QA1S68B 1
Base unit mounting screw M5 screw 4
(6) Power supply module
Product Name Type Quantity
Q61P-A1
Q61P-A2
Q62P
Q63P
Q64P
Q61SP
A1S61PN
A1S62PN
Power supply module
A1S63P
1

3
1.2 Confirming the serial number and function version
The QCPU serial No. and function version can be confirmed on the rating
nameplate and GX Developer's system monitor.
(1) Confirmation on the rating nameplate
Function version
Serial number (first five digits)
(2) Confirmation on the system monitor
The QCPU serial No. and function version can be confirmed with Product
Information List on the GX Developer's system monitor.*
The intelligent function module's serial No. and function version can also
be confirmed.
Serial number Function version
* : The version of compatible GX Developer varies depending on the CPU
module.
Type Version of Compatible GX Developer
Q00JCPU
Q00CPU
Q01CPU GX Developer Version 7 or later
Q02CPU
Q02HCPU
Q06HCPU
Q12HCPU
Q25HCPU
GX Developer Version 6 or later
Q12PHCPU
Q25PHCPU GX Developer Version 7.10L or later

4
2. Specifications
2.1 General Specifications
This section provides specifications common to various modules.
Table 2.1 General Specifications
Item Specifications
Operating ambient
temperature 0 to 55
Storage ambient
temperature -25 to 75 *3
Operating ambient
humidity 5 to 95%RH*4, non-condensing
Storage ambient
humidity 5 to 95%RH*4, non-condensing
Frequency Acceleration Amplitude Sweep
count
10 to 57Hz ——— 0.075mm
(0.003inch)
Under
intermittent
vibration 57 to 150Hz 9.8m/s2———
10 to 57Hz ——— 0.035mm
(0.001inch)
Vibration
resistance
Conforming
to
JIS B 3502,
IEC 61131-2 Under
continuous
vibration 57 to 150Hz 4.9m/s2———
10 times
each in
X, Y, Z
directions
(for 80
minch)
Shock resistance Conforming to JIS B 3502, IEC 61131-2 (147 m/s2, 3 times in each of 3
directions X, Y, Z)
Operating ambience No corrosive gases
Operating altitude 2000m (6562ft.) max.
Installation position Inside control panel
Overvoltage
category *1 II max.
Pollution level *2 2 max.
*1: This indicates the section of the power supply to which the equipment is
assumed to be connected between the public electrical power distribution
network and the machinery within premises. Category II applies to equipment
for which electrical power is supplied from fixed facilities.
The surge voltage withstand level for up to the rated voltage of 300 V is 2500
V.
*2: This index indicates the degree to which conductive material is generated in
terms of the environment in which the equipment is used.
In the environment corresponding to “Pollution level 2”, basically only non-
conductive pollution occurs, however temporary conductivity may occur due
to the occasional condensing.
*3: The storage ambient temperature is -20 to 75 if the system includes the
AnS series modules.
*4: The operating ambient humidity and storage ambient humidity are 10 to
90%RH if the system includes the AnS series modules.
*5: Do not use or store the PLC under pressure higher than the atmospheric
pressure of altitude 0m. Doing so can cause a malfunction.
When using the PLC under pressure, please contact your sales
representative.

5
2.2 Performance Specifications of CPU Modules
This section provides the performance specifications of the CPU modules.
Table 2.2 Q00JCPU, Q00CPU, Q01CPU Performance Specifications
Type
Item Q00JCPU Q00CPU Q01CPU Remarks
Control method Repeated operation using stored program ——
I/O control mode Refresh mode
Direct I/O is
available by direct
I/O specification
(DX , DY )
Programming language (Language
dedicated to sequence control) Relay symbol language, logic symbolic
languagee ——
LD X0 0.20 s0.16s0.10s
Processing speed
(sequence instruction) MOV D0 D1 0.70 s0.56s0.35s——
Total number of instructions 249 (except instructions dedicated to
intelligent function module) ——
Constant scan (Function that
uniforms scan time) 1 to 2000ms
(can be specified in 1ms increments) Parameter setting
Program capacity *1 8k steps 8k steps 14k steps ——
Program memory
(Drive 0) 58kbyte 94kbyte ——
Standard RAM
(Drive 3) None 64kbyte ——
Memory capacity
Standard ROM
(Drive 4) 58kbyte 94kbyte ——
Number of standard ROM write
times Max. 100 thousand times ——
Number of I/O device points 2048 points (X/Y0 to 7FF) Number of points
available in
programs
Number of occupied I/O points 256 points
(X/Y0 to FF) 1024 points
(X/Y0 to 3FF)
Number of points
accessible to
actual I/O
modules
Number of extension bases 2 4 ——
Number of loadable modules 16 24 ——
Clock function
Year, month, day, hour, minute, second, day
of week (Automatic leap year judgment)
Accuracy
-3.2 to +5.27s (TYP. +1.98s)/d at 0
-2.57 to +5.27s (TYP. +2.22s)/d at 25
-11.68 to +3.65s (TYP. -2.64s)/d at 55
——
Allowable momentaly power failure
period Within 20ms
(100VAC or more) depending on power
supply module ——
5VDC internal current consumption 0.22A *2 0.25A 0.27A ——
H 98mm (3.86inch) 98mm (3.86inch) ——
W245mm
(9.65inch) *2 27.4mm (1.08inch) ——
External dimensions
D98mm
(3.86inch) 89.3mm (3.52inch) ——
Weight 0.66kg *2 0.13kg ——
*1: The max. number of sequence steps that can be executed is found by the following
expression.
(Program capacity) - (file header size (default: 34 steps))
Refer to the following manual for details of the program capacity and file.
• Basic Model QCPU (Q Mode) User's Manual
(Function Explanation, Program Fundamentals)
*2: These values include those of the CPU module, base unit and power supply module.

6
Table 2.3 Q02(H)CPU, Q06HCPU, Q12HCPU, Q25HCPU Performance
Specifications
Type
Item Q02
CPU Q02H
CPU Q06H
CPU Q12H
CPU Q25H
CPU Remarks
Control method Repeated operation using stored program ——
I/O control mode Refresh mode
Direct I/O is
available by
direct I/O
specification
(DX , DY )
Programming language
(Language dedicated to sequence
control
Relay symbol language, logic symbolic
language, MELSAP3 (SFC), MELSAP-L
and function block ——
LD X0 0.079 s 0.034 s——
Processing speed
(sequence instruction) MOV D0 D1 0.237 s 0.102 s——
Total number of instructions 360 (except instructions dedicated to
intelligent function module) ——
Constant scan
(Function that uniforms scan time) 0.5 to 2000 ms
(can be specified in 0.5ms increments) Parameter
setting
Program
capacity
*2
Program memory
(Drive 0) 28k step 60k
step 124k
step 252k
step ——
Memory card (RAM)
(Drive 1) Capacity of the memory card
(max. 2Mbyte) ——
Memory card (ROM)
(Drive 2)
Capacity of the memory card loaded
(Flash card: max. 4Mbyte,
ATA card: max. 32Mbyte) ——
Standard RAM (Drive 3) 64kbyte 128kbyte *5 256kbyte *3 ——
Standard ROM (Drive 4) 112
kbyte 240
kbyte 496
kbyte 1008
kbyte ——
Memory
capacity
CPU shared memory*4 8kbyte ——
Program memory 28 60 124 252 *1 ——
Memory card (RAM) 256 ——
Flash card 288 ——
Memory card
(ROM) ATA card 512 ——
Standard RAM 2
Only one file
each for file
register and local
device
Max.
number
of files
stored
Standard ROM 28 60 124 252 ——
Number of standard ROM write
times Max. 100 thousand times ——
*1: The CPU module can execute 124 files. It cannot execute 125 or more files.
*2: The maximum number of sequence steps (for one program) for which the
parameters are stored in another drive and executed with the CPU module
can be calculated with the following expression.
(Program size) - (File header size (default : 34 steps))
Refer to the High Performance model QCPU (Q Mode) User's Manual
(Function Explanation, Program Fundamentals) for details on the program
size and file.

7
Type
Item Q02
CPU Q02H
CPU Q06H
CPU Q12H
CPU Q25H
CPU Remarks
Number of I/O device points 8192 points (X/Y0 to 1FFF) Number of points
available in
programs
Number of occupied I/O points 4096 points (X/Y0 to FFF) Number of points
accessible to actual
I/O modules
Number of extension bases 7 ——
Number of mountable modules 64 ——
Clock function
Year, month, day, hour, minute, second,
day of week (Automatic leap year judgment)
Accuracy
-3.18 to +5.25s (TYP.+2.12s)/d at 0
-3.93 to +5.25s (TYP.+1.90s)/d at 25
-14.69 to +3.53s (TYP.-3.67s)/d at 55
——
Allowable momentary power
failure period Depends on power supply module. ——
5VDC internal current
consumption 0.60A 0.64A ——
H 98mm (3.86inch) ——
W 27.4mm (1.08inch) ——
External dimensions
D 89.3mm (3.52inch) ——
Weight 0.20kg ——
*3: The memory capacity of the Q12HCPU or Q25HCPU whose serial No.'s first
five digits are "02091" or earlier is 64kbyte. (See to section 1.2 for the way to
check the serial No.)
*4: Memory added to the function version B.
The CPU shared memory is not latched.
The CPU shared memory is cleared when the PLC is powered on or the CPU
module is reset.
*5: The memory capacity of the Q02HCPU or Q06HCPU whose serial No.'s first
five digits are "04011" or earlier is 64kbyte. (See to Section 1.2 for the way to
check the serial No.)

8
Table 2.4 Q12PHCPU, Q25PHCPU Performance Specifications
Type
Item Q12PHCPU Q25PHCPU Remarks
Control method Repeated operation using stored program ——
I/O control mode Refresh mode
Direct I/O is
available by direct
I/O specification
(DX , DY )
Programming language
(Language dedicated to sequence
control)
Relay symbol language, logic symbolic
language, MELSAP3 (SFC), MELSAP-L,
and function block ——
LD X0 0.034 s——
Processing speed
(sequence instruction) MOV D0 D1 0.102 s——
Total number of instructions 415 (except instructions dedicated to
intelligent function module) ——
Constant scan
(Function that uniforms scan time) 0.5 to 2000 ms
(can be specified in 0.5ms increments) Parameter setting
Program
capacity
*2
Program memory
(Drive 0) 124k step 252k step ——
Memory card (RAM)
(Drive 1) Capacity of mounted memory card
(max. 2Mbyte) ——
Memory card (ROM)
(Drive 2)
Capacity of mounted memory card
(Flash card: max. 4Mbyte,
ATA card: max. 32Mbyte) ——
Standard RAM (Drive 3) 256kbyte ——
Standard ROM (Drive 4) 496kbyte 1008kbyte ——
Memory
capacity
CPU shared memory*3 8kbyte ——
Program memory 124 252 *1 ——
Memory card (RAM) 256 ——
Flash card 288 ——
Memory
card
(ROM) ATA card 512 ——
Standard RAM 2 Only one file each
for file register and
local device
Max.
number
of files
stored
Standard ROM 124 252 ——
Number of standard ROM write
times Max. 100 thousand times ——
*1: The CPU module can execute 124 files. It cannot execute 125 or more files.
*2: The maximum number of sequence steps (for one program) for which the
parameters are stored in another drive and executed with the CPU module
can be calculated with the following expression.
(Program size) - (File header size (default : 34 steps))
Refer to the Process CPU User's Manual (Function Explanation, Program
Fundamentals) for details on the program size and file.
*3: The CPU shared memory is not latched.
The CPU shared memory is cleared when the PLC is powered on or the CPU
module is reset.

9
Type
Item Q12PHCPU Q25PHCPU Remarks
Number of I/O device points 8192 points (X/Y0 to 1FFF) Number of points
available in
programs
Number of occupied I/O points 4096 points (X/Y0 to FFF) Number of points
accessible to actual
I/O modules
Number of extension bases 7——
Number of mountable modules 64 ——
Clock function
Year, month, day, hour, minute, second,
day of week (Automatic leap year judgment)
Accuracy
-3.18 to +5.25s (TYP.+2.12s)/d at 0
-3.93 to +5.25s (TYP.+1.90s)/d at 25
-14.69 to +3.53s (TYP.-3.67s)/d at 55
——
Allowable momentaly power
failure period Depends on power supply module. ——
5VDC internal current
consumption 0.64A ——
H 98mm (3.86inch) ——
W 27.4mm (1.08inch) ——External dimensions
D 89.3mm (3.52inch) ——
Weight 0.20kg ——

10
2.3 Power supply module specifications
This section provides the specifications of the power supply modules.
Table 2.5 Q61P-A1/A2, Q62P, Q63P Performance Specification List
Performance Specifications
Item Q61P-A1 Q61P-A2 Q62P Q63P
Base mounting position Power supply module mounting slot
Applicable base unit Q3B, Q6B
Input power supply 100 to 120VAC (-
15%/+10%)
(85V to 132VAC)
200 to 240VAC
(-15%/+10%)
(170 to 264VAC)
100 to 240VAC
(-15%/+10%)
(85V to 264VAC)
24VDC
(-35%/+30%)
(15.6 to 31.2VDC)
Input frequency 50/60Hz 5% ——
Input voltage distortion factor Within 5% (See section 4.3.1) ——
Max. input apparent power 105VA ——
Max. input power —— 45W
Inrush current 20A within 8ms 100A within 1ms
5VDC 6A 3A 6A
Rated output
current 24VDC —— 0.6A ——
External output voltage —— 24VDC
(-10%/+10%) ——
5VDC 6.6A or more 3.3A or more 6.6A or more
Overcurrent
protection*1 24VDC —— 0.66A or more ——
5VDC 5.5 to 6.5V
Overvoltage
protection*2 24VDC ——
Efficiency 70% or more 65% or more 70% or more
Allowable momentary power
failure period*3 Within 20ms Within 10ms
(at 24VDC input)
Dielectric withstand voltage Across inputs/LG and outputs/FG
2,830VAC rms/3 cycles (2,000 m (6562 ft.)) 500VAC across
primary and 5VDC
Insulation resistance
Across inputs and outputs (LG and FG separated),
across inputs and LG/FG, across outputs and
FG/LG 10M or more by insulation resistance
tester
10M or more by
insulation
resistance tester
Noise durability • By noise simulator of 1,500Vp-p noise voltage,
1s noise width and 25 to 60Hz noise frequency
• Noise voltage IEC61000-4-4, 2kV
By noise simulator
of 500Vp-p noise
voltage, 1 s noise
width and 25 to
60Hz noise
frequency
Operation display LED display (lit at 5VDC output)
Fuse Built-in (Unchangeable by user)
Application ERR contact (contact switched off (opened: normally closed contact) at
an error stop of CPU module), for CPU module operating status output
Rated switching
voltage, current 24VDC, 0.5A
Minimum switching
load 5VDC, 1mA
Response time OFF to ON: 10ms max. ON to OFF: 12ms max.
Life Mechanical: More than 2 million times
Electrical : More than 100 thousand times at rated switching voltage,
current
Surge suppressor None
Contact
output
section
Fuse None
Terminal screw size M3.5 7
Applicable wire size 0.75 to 2mm2
Applicable solderless terminal RAV1.25-3.5, RAV2-3.5
Applicable tightening torque 66 to 89N•cm
H 98mm (3.86inch)
W 55.2mm (2.17inch)
External
dimensions D 90mm (3.55inch)
Weight 0.31kg 0.39kg 0.33kg

11
Table 2.6 Q64P Performance Specifications
Performance Specifications
Item Q64P
Base mounting position Power supply module mounting slot
Applicable base unit Q3B, Q6B
Input power supply 100 to 120VAC/200 to 240VAC (-15%/+10%)
(85V to 132VAC/170 to 264VAC)
Input frequency 50/60Hz 5%
Input voltage distortion
factor Within 5% (See section 4.3.1)
Max. input apparent power 160VA
Inrush current 20A within 8ms
5VDC 8.5A
Rated output
current 24VDC ——
5VDC 9.9A or more
Overcurrent
protection*1 24VDC ——
5VDC 5.5 to 6.5V
Overvoltage
protection*2 24VDC ——
Efficiency 70% or more
Allowable momentary
power failure period*3 Within 20ms
Dielectric withstand voltage Across inputs/LG and outputs/FG
2,830VAC rms/3 cycles (2,000 m (6562 ft.))
Insulation resistance Across inputs and outputs (LG and FG separated), across inputs and
LG/FG, across outputs and FG/LG 10M or more by insulation
resistance tester
Noise durability • By noise simulator of 1,500Vp-p noise voltage, 1 s noise width and 25
to 60Hz noise frequency
• Noise voltage IEC61000-4-4, 2kV
Operation display LED display (lit at 5VDC output)
Fuse Built-in (Unchangeable by user)
Application ERR contact (contact switched off (opened: normally closed contact) at
an error stop of CPU module), for CPU module operating status output
Rated switching
voltage, current 24VDC, 0.5A
Minimum
switching load 5VDC, 1mA
Response time OFF to ON: 10ms max. ON to OFF: 12ms max.
Life Mechanical : More than 2 million times
Electrical : More than 100 thousand times at rated switching voltage,
current
Surge suppressor None
Contact
output
section
Fuse None
Terminal screw size M3.5 7
Applicable wire size 0.75 to 2mm2
Applicable solderless
terminal RAV1.25-3.5, RAV2-3.5
Applicable tightening torque 66 to 89N•cm
H 98mm (3.86inch)
W 55.2mm (2.17inch)External dimensions
D 115mm (4.53inch)
Weight 0.40kg

12
Table 2.7 Q61SP Performance/Specifications
Performance/Specifications
Item Q61SP
Base mounting position Slim type power supply module mounting slot
Applicable base unit Q3 SB
Input power supply 100 to 240V AC +10% -15% (85 to 264V AC)
Input frequency 50/60Hz +-5%
Input voltage distortion rate Within 5% (See section 4.3.1)
Maximum input apparent
power 40VA
Inrush current Within 20A for 8 sec.
5V DC 2.0A
Rated input
current 24V DC -
5V DC 2.2A or more
Overcurrent
protection *1 24V DC -
5V DC 5.5 to 6.5V
Overvoltage
protection *2 24V DC -
Efficiency 70% or more
Allowable momentary power
failure period Within 20ms
Dielectric withstand voltage Across inputs/LG and outputs/FG
2,830V AC crms/3 cycles (2,000m)
Insulation resistance *3 Across inputs and outputs (LG and FG are separated), across
inputs and LG/FG, across outputs and FG/LG, 10MΩ or more by
500V DC insulation resistance tester
Noise durability • By noise simulator of 1500Vp-p noise voltage, 1µs noise width
and 25 to 60HZ noise frequency
• Noise voltage IEC61000-4-4, 2kV
Operation display LED display (lit at 5V DC output)
Fuse Built-in (Unchangeable by user)
Application ERR contact (contact switched off (opened: B-contact) at error
stop of CPU module) for CPU module operating status output
Rated switching
voltage, current 24V DC, 0.5A
Minimum switching
load 5V DC, 1mA
Response time OFF to ON: 10ms max. ON to OFF: 12ms max.
Life Mechanic: More than 2 million times
Electrical: More than 100 thousand times at rated switching
voltage, current
Surge suppresser None
Contact
output
Fuse None
Terminal screw size M3.5 7
Applicable wire size 0.75 to 2mm2
Applicable solderless terminal RAV1.25-3.5, RAV2-3.5
Applicable tightening torque 66 to 89N•cm
H 98mm (3.86inch)
W 55.2mm (2.17inch)
External dimensions D 104mm (4.09inch)
Weight 0.18kg

13
Table 2.8 Q00JCPU (Power Supply Section) Performance Specifications
Performance Specifications
Item Q00JCPU (power supply section)
Input power supply 100 to 240VAC (-15%/+10%)
(85 to 264VAC)
Input frequency 50/60Hz 5%
Input voltage distortion factor Within 5% (See section 4.3.1)
Max. input apparent power 105VA
Inrush current 40A within 8ms
DC5V 3A
Rated output
current DC24V ——
DC5V 3.3A or more
Overcurrent
protection*1 DC24V ——
DC5V 5.5 to 6.5V
Overvoltage
protection*2 DC24V ——
Efficiency 65% or more
Allowable instantaneous
power failure time*3 Within 20ms (100VAC or more)
Dielectric withstand voltage Across inputs/LG and outputs/FG
2,830VAC rms/3 cycles (altitude 2,000 m (6,562 ft.))
Insulation resistance Across inputs and outputs (LG and FG separated),
across inputs and LG/FG, across outputs and FG/LG
10M or more by 500VDC insulation resistance tester
Noise durability • By noise simulator of 1,500Vp-p noise voltage, 1 s noise width
and 25 to 60Hz noise frequency
• Noise voltage IEC61000-4-4, 2kV
Operation display LED display (lit at 5VDC output)
Fuse Built-in (Unchangeable by user)
Contact output section None
Terminal screw size M3.5 7
Applicable wire size 0.75 to 2mm2
Applicable solderless terminal RAV1.25-3.5, RAV2-3.5
Applicable tightening torque 66 to 89N•cm
External dimensions
Weight Refer to Table 2.2

14
Table 2.9 A1S61PN, A1S62PN, A1S63P Performance Specifications
Performance Specifications
Item A1S61PN A1S62PN A1S63P
Base mounting position Power supply module mounting slot
Applicable base unit QA1S65B, QA1S68B
Input power supply 100 to 240VAC (-15%/+10%)
(85 to 264VAC)
24VDC
(-35%/+30%)
(15.6 to 31.2VDC)
Input frequency 50/60Hz 5% ——
Input voltage distortion
factor Within 5% (See section 4.3.1)
Max. input apparent power 105VA ——
Max. input power —— 41W
Inrush current 20A within 8ms 81A within 1ms
5VDC 5A 3A 5A
Rated output
current 24VDC —— 0.6A ——
External output voltage —— 24VDC (-10%/+10%) ——
5VDC 5.5A or more 3.3A or more 5.5A or more
Overcurrent
protection*1 24VDC —— 0.66A or more ——
5VDC 5.5 to 6.5V
Overvoltage
protection*2 24VDC ——
Efficiency 65% or more
Allowable momentary
power failure period*3 Within 20ms Within 10ms
(at 24VDC input)
Dielectric withstand voltage Across inputs/LG and outputs/FG
2,830VAC rms/3 cycles (2,000 m (6562 ft.)) 500VAC across
primary and 5VDC
Insulation resistance
Across inputs and outputs (LG and FG
separated), across inputs and LG/FG, across
outputs and FG/LG 10M or more by
insulation resistance tester
5M or more by
insulation resistance
tester
Noise durability
• By noise simulator of 1,500Vp-p noise
voltage, 1 s noise width and 25 to 60Hz
noise frequency
• Noise voltage IEC61000-4-4, 2kV
By noise simulator of
500Vp-p noise voltage,
1s noise width and
25 to 60Hz noise
frequency
Operation display LED display (lit at 5VDC output)
Fuse Built-in (Unchangeable by user)
Contact output section None
Terminal screw size M3.5 7
Applicable wire size 0.75 to 2mm2
Applicable solderless
terminal RAV1.25-3.5, RAV2-3.5
Applicable tightening torque 66 to 89N•cm
H130mm (5.12inch)
W55mm (2.17inch)
External
dimensions D93.6 (3.69inch)
Weight 0.60kg 0.50kg

15
POINT
*1 : Overcurrent protection
The overcurrent protection device shuts off the 5 V, 24 VDC circuit and
stops the system if the current flowing in the circuit exceeds the specified
value. If this device is activated, switch the input power supply off and
eliminate the cause such as insufficient current capacity or short. Then, a
few minutes later, switch it on to restart the system.
The initial start for the system takes place when the current value
becomes normal.
*2 : Overvoltage protection
The overvoltage protection device shuts off the 5 VDC circuit and stops
the system if a voltage of 5.5 to 6.5 VDC is applied to the circuit. When
this device is activated, the power supply module LED is switched OFF. If
this happens, switch the input power OFF, then a few minutes later ON.
This causes the initial start for the system to take place. The power
supply module must be changed if the system is not booted and the LED
remains OFF.
*3 : Allowable momentary power failure period
(1) For AC input power supply
y An instantaneous power failure lasting less than 20ms will cause
AC down to be detected, but operation will continue.
y An instantaneous power failure lasting more than 20ms may cause
the operation to continue or initial start to take place depending on
the power supply load.
Furthermore, by using the same AC power supply for the AC input
module and the power supply module, it is possible to prevent the
sensor, to which the AC input module is connected, from turning
OFF when it is ON when the power is turned OFF.
However, if only the AC input module is connected to the AC line,
which is connected to the power suppludetection of the AC down
for the power supply module may be delayed by the capacitor in
the AC input module. Thus, connect a load of approx. 30mA per
QX10 unit to the AC line.
(2) For DC input power supply
y An instantaneous power failure lasting less than 10ms (*4) will
cause 24VDC down to be detected, but operation will continue.
y An instantaneous power failure lasting more than 10ms (*4) may
cause the operation to continue or initial start to take place
depending on the power supply load.
(*4: This is for a 24VDC input. This is 10ms or less for 24VDC or less.)

16
2.4 Specifications of Base Units
(1) Main base units
Item
Type Q00JCPU Q33B Q35B Q38B Q312B
Number of mountable
I/O modules 235812
Applicable modules Q series modules
5VDC internal Current
consumption 0.220A 0.105A 0.110A 0.114A 0.121A
Weight 0.66kg 0.21kg 0.25kg 0.35kg 0.45kg
H 98mm (3.86inch)
W245mm
(9.65inch) 189mm
(7.44inch) 245mm
(9.65inch) 328mm
(12.92inch) 439mm
(17.30inch)
External
dimensions D97mm
(3.82inch) 44.1mm (1.74inch)
(2) Slim type main base units
Item
Type Q32SB Q33SB Q35SB
Number of mountable
I/O modules 235
Applicable modules Q series modules
5VDC internal Current
consumption 0.086A 0.086A 0.091A
Weight 0.12kg 0.15kg 0.21kg
H 98mm (3.86inch)
W 114mm (4.49inch) 142mm (5.59inch) 197.5mm (7.78inch)
External
dimensions D 18.5mm (0.73inch)
(3) Extension base units
Item
Type Q52B Q55B Q63B Q65B Q68B Q612B
Number of mountable
I/O modules 2535812
Applicable modules Q series modules
5VDC internal Current
consumption 0.080A 0.100A 0.105A 0.110A 0.114A 0.121A
Weight 0.14kg 0.23kg 0.23kg 0.25kg 0.35kg 0.45kg
H 98mm (3.86inch)
W106mm
(4.17inch) 189mm
(7.44inch) 189mm
(7.44inch) 245mm
(9.65inch) 328mm
(12.92inch) 439mm
(17.30inch)
External
dimensions D 44.1mm (1.74inch)
Item
Type QA1S65B QA1S68B
Number of mountable
I/O modules 58
Applicable modules AnS series modules
5VDC internal current
consumption 0.117A 0.118A
Weight 0.75kg 1.00kg
H 130mm (5.12inch)
W 315mm (12.41inch) 420mm (16.55inch)
External
dimensions D 51.2mm (2.02inch)

17
3. EMC and Low Voltage Directive
For the products sold in European countries, the conformance to the EMC
Directive, which is one of the European Directives, has been a legal obligation
since 1996. Also, conformance to the Low Voltage Directive, another European
Directives, has been a legal obligation since 1997.
Manufacturers who recognize their products must conform to the EMC and Low
Voltage Directive are required to declare that their products conform to these
Directives and put a "CE mark" on their products.
3.1 Requirements for conformance to EMC Directive
The EMC Directive specifies that products placed on the market must "be so
constructed that they do not cause excessive electromagnetic interference
(emissions) and are not unduly affected by electromagnetic interference
(immunity) ". The applicable products are requested to meet these
requirements. The sections 3.1.1 through 3.1.6 summarize the precautions on
conformance to the EMC Directive of the machinery constructed using the
MELSEC-Q series PLCs.
The details of these precautions has been prepared based on the control
requirements and the applicable standards . However, we will not assure that
the overall machinery manufactured according to these details conforms to the
above-mentioned directives. The method of conformance to the EMC Directive
and the judgment on whether or not the machinery conforms to the EMC
Directive must be determined finally by the manufacturer of the machinery.

18
3.1.1 Standards applicable to the EMC Directive
The standards applicable to the EMC Directive are listed below.
Specification Test item Test details Standard value
EN55011
Radiated noise *2
Electromagnetic
emissions from the
product are
measured.
30M-230MHz QP : 30dB V/m
(30 m in measurement range) *1
230M-1000MHz QP : 37 dB
V/m
(30 m in measurement range)
EN50081-2 :
1995
EN55011
Conducted noise
Electromagnetic
emissions from the
product to the power
line is measured.
150k-500kHz QP: 79 dB,
Mean: 66 dB *1
500k-30MHz QP: 73 dB,
Mean: 60 dB
EN61000-4-2
Electrostatic
immunity *2
Immunity test in
which static
electricity is applied
to the cabinet of the
equipment.
15kV Aerial discharge
EN61000-4-4
Fast transient burst
noise *2
Immunity test in
which burst noise is
applied to the power
line and signal lines.
Power line: 2kV
Digital I/O (24V or higher): 1kV
(Digital I/O (24V or less)) > 250V
(Analog I/O, signal lines) > 250V
EN61000-4-3
Radiated field AM
modulation *2
Immunity test in
which field is
irradiated to the
product.
10V/m, 26-1000MHz,
80%AM modulation@1kHz
EN61131-2 :
1996
EN61000-4-12
Damped oscillatory
wave immunity
Immunity test in
which a damped
oscillatory wave is
superimposed on
the power line.
Power line: 1kV
Digital I/O (24V or higher): 1kV
*1: QP : Quasi-peak value, Mean : Average value
*2: The PLC is an open type device (device installed to another device) and
must be installed in a conductive control panel.
The tests for the corresponding items were performed while the PLC was
installed inside a control panel.
19
3.1.2 Installation instructions for EMC Directive
The PLC is open equipment and must be installed within a control cabinet for
use. This not only ensures safety but also ensures effective shielding of PLC-
generated electromagnetic noise.
(1) Control cabinet
(a) Use a conductive control cabinet.
(b) When attaching the control cabinet's top plate or base plate, mask
painting and weld so that good surface contact can be made between
the cabinet and plate.
(c) To ensure good electrical contact with the control cabinet, mask the
paint on the installation bolts of the inner plate in the control cabinet so
that contact between surfaces can be ensured over the widest
possible area.
(d) Earth the control cabinet with a thick wire so that a low impedance
connection to ground can be ensured even at high frequencies.
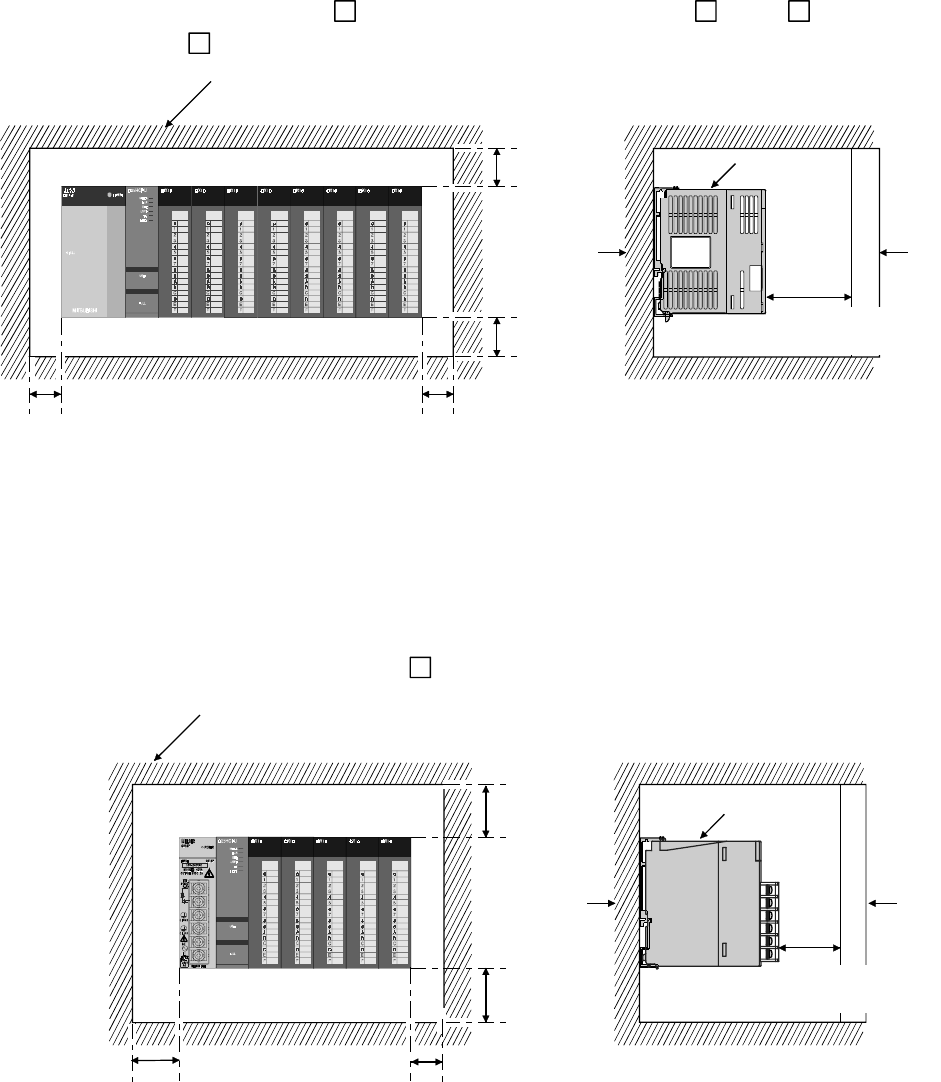
(e) Holes made in the control cabinet must be 10 cm (3.94 inch) diameter
or less. If the holes are 10 cm (3.94 inch) or larger, radio frequency
noise may be emitted.
In addition, because radio waves leak through a clearance between
the control panel door and the main unit, reduce the clearance as
much as practicable.
The leakage of radio waves can be suppressed by the direct
application of an EMI gasket on the paint surface.
Our tests have been carried out on a panel having the damping
characteristics of 37 dB max. and 30 dB mean (measured by 3 m
method with 30 to 300MHz).
(2) Connection of power and earth wires
Earthing and power supply wires for the PLC system must be connected
as described below.
(a) Provide an earthing point near the power supply module. Earth the
power supply's LG and FG terminals (LG : Line Ground, FG : Frame
Ground) with the thickest and shortest wire possible. (The wire length
must be 30 cm (11.18 inch) or shorter.) The LG and FG terminals
function is to pass the noise generated in the PLC system to the
ground, so an impedance that is as low as possible must be ensured.
As the wires are used to relieve the noise, the wire itself carries a
large noise content and thus short wiring means that the wire is
prevented from acting as an antenna.
(b) The earth wire led from the earthing point must be twisted with the
power supply wires. By twisting with the earthing wire, noise flowing
from the power supply wires can be relieved to the earthing. However,
if a filter is installed on the power supply wires, the wires and the
earthing wire may not need to be twisted.

20
3.1.3 Cables
The cables extracted from the control panel contain a high frequency noise
component. On the outside of the control panel, therefore, they serve as
antennas to emit noise. To prevent noise emission, use shielded cable for the
cables which are connected to the I/O units and intelligent function units and
may be extracted to the outside of the control panel.
The use of a shielded cable also increases noise resistance. The signal lines
connected to the PLC I/O units and intelligent function units use shielded
cables to assure noise resistance under the conditions where the shield is
earthed. If a shielded cable is not used or not earthed correctly, the noise
resistance will not meet the specified requirements.
When the shield of a shielded cable is earthed to the cabinet body, please
ensure that the shield contact with the body is over a large surface area. If the
cabinet body is painted it will be necessary to remove paint from the contact
area. All fastenings must be metallic and the shield and earthing contact must
be made over the largest available surface area. If the contact surfaces are too
uneven for optimal contact to be made either use washers to correct for surface
inconsistencies or use an abrasive to level the surfaces. The following diagrams
show examples of how to provide good surface contact of shield earthing by
use of a cable clamp.
(1) Earthing of shielded of shield cable
(a) Earth the shield of the shielded cable as near the unit as possible
taking care so that the earthed cables are not induced
electromagnetically by the cable to be earthed.
(b) Take appropriate measures so that the shield section of the shielded
cable from which the outer cover was partly removed for exposure is
earthed to the control panel on an increased contact surface. A clamp
may also be used as shown in the figure below. In this case, however,
apply a cover to the painted inner wall surface of the control panel
which comes in contact with the clamp.
Shield section
Screw
Clamp fittin
g
Shielded cable
Paint mask
Note) The method of earthing by soldering a wire onto the shield section
of the shielded cable as shown below is not recommended. The
high frequency impedance will increase and the shield will be
ineffective.
Shielded cable
Wire
Crimp terminal

21
(2) MELSECNET/H module
Always use a double-shielded coaxial cable (MITSUBISHI CABLE
INDUSTRIES, LED.: 5C-2V-CCY) for the coaxial cables MELSECNET/H
module. Radiated noise in the range of 30MHz or higher can be
suppressed by use of the double-shielded coaxial cables. Earth the
double-shielded coaxial cable by connecting its outer shield to the ground.
Earth hereShield
See to 1) for the earthing of the shield.
(3) Ethernet module, FL-net module, Web server module
Precautions for using AUI cables, twisted pair cables and coaxial cables
are described below.
(a) Always earth the AUI cables connected to the 10BASE5 connectors.
Because the AUI cable is of the shielded type, strip part of the outer
cover and earth the exposed shield section to the ground on the
widest contact surface as shown below.
AUI cable
Shield
See to 1) for the earthing of the shield.
(b) Use shielded twisted pair cables as the twisted pair cables connected
to the 10BASE-T/100BASE-TX connectors. For the shielded twisted
pair cables, strip part of the outer cover and earth the exposed shield
section to the ground on the widest contact surface as shown below.
Shielded twisted pair cables
Shield
See to 1) for the earthing of the shield.
(c) Always use double-shielded coaxial cables as the coaxial cables
connected to the 10BASE2 connectors. Earth the double-shielded
coaxial cable by connecting its outer shield to the ground.
Earth hereShield
See to 1) for the earthing of the shield.
Ethernet is the registered trademark of XEROX, Co., LTD
(4) I/O signal lines and other communication cables
For the I/O signal lines and other communication lines (RS-232, RS-422,
CC-Link, etc.), if extracted to the outside of the control panel, also ensure
to earth the shield section of these lines and cables in the same manner
as in item (1) above.

22
3.1.4 Power supply module
Always ground the LG and FG terminals after short-circuiting them.
3.1.5 When using QA1S6 B type base unit
(1) Cable
(a) Earthing of shielded cables
• Earth the shield of the shielded cable as near the unit as possible
taking care so that the earthed cables are not induced
electromagnetically by the cable to be earthed.
• Take appropriate measures so the shield that was partly removed
for exposure is earthed to the control panel over a large contact
surface area. A clamp may also be used as shown in the figure
below. In this case, however, apply a cover to the painted inner wall
surface of the control panel which comes in contact with the clamp.
Shield section
Screw
Clamp fittin
g
Shielded cable
Paint mask
Note) The method of earthing by soldering a wire onto the shield section
of the shielded cable as shown below is not recommended. The
high frequency impedance will increase and the shield will be
ineffective.
Shielded cable
Wire
Crimp terminal

23
(b) Positioning modules
Precautions to be followed when the machinery conforming to the
EMC Directive is configured using the A1SD75P1-S3/A1SD75P2-S3/
A1SD75P3-S3 (hereafter referred to as the A1SD75) are described
below.
1) When wiring with a 2 m (6.56 ft.) or less cable
• Ground the shield section of the external wiring cable with the
cable clamp. (Ground the shield at the closest location to the
A1SD75 external wiring connector.)
• Wire the external wiring cable to the drive unit and external device
with the shortest practicable length of cable.
• Install the drive unit in the same panel.
Power supply
module
A1SD75
module
Drive unit
External wiring connector
Cable clamp
External wirin
g
cable
(
within 2 m
(
6.56 ft.
))
2) When wiring with cable that exceeds 2 m (6.56 ft.), but is 10 m
(32.79 ft.) or less
• Ground the shield section of the external wiring cable with the
cable clamp. (Ground the shield at the closest location to the
A1SD75 external wiring connector.)
• Install a ferrite core.
• Wire the external wiring cable to the drive unit and external device
with the shortest practicable length of cable.
External wiring connector
Ferrite core
External wiring cable (2 m to 10 m (6.56 ft. to 32.79 ft.))
Cable clamp
Power supply
module
A1SD75
module
Drive unit
3) Ferrite core and cable clamp types and required quantities
• Cable clamp
Type : AD75CK (Mitsubishi Electric)
• Ferrite core
Type : ZCAT3035-1330 (TDK ferrite core)
• Required quantity
Required Qty
Cable length Prepared part 1 axis 2 axis 3 axis
Within 2 m (6.56 ft.) AD75CK 1 1 1
AD75CK 1 1 1
2 m (6.56 ft.) to 10m (32.79 ft.) ZCAT3035-1330 1 2 3

24
(c) CC-Link module
1) Be sure to ground the cable shield that is connected to the CC-Link
module close to the exit of control panel or to any of the CC-Link
stations within 30 cm (11.8 inch) from the module or stations.
The CC-Link dedicated cable is a shielded cable. As shown in the
illustration below, remove a portion of the outer covering and
ground as large a surface area of the exposed shield part as
possible.
CC-Link dedicated cable
Shield
2) Always use the specified CC-Link dedicated cable.
3) Do not use a ferrite core for the CC-Link module or CC-Link
stations.
4) The CC-Link module, the CC-Link stations and the FG line inside
the control panel should be connected at both the FG terminal and
the SLD terminal as shown in the diagram below.
[Simplified dia
g
ram]
Terminal
resistor
Master module Remote module Local module
Terminal
resistor
CC-Link
dedicated
cable
CC-Link
dedicated
cable
DA
DB
DG
SLD
FG
DA
DB
DG
SLD
FG
DA
DB
DG
SLD
FG
(Blue)
(White)
(Yellow)
(d) I/O signal lines and other communication cables
For the I/O signal lines extracted to the outside of the control panel,
also ensure to earth the shield section of these lines and cables in the
same manner as in item (1) above.
(2) Power supply module
The precautions required for each power supply module are described
below. Always observe the items noted as precautions.
Model Precautions
A1S61P, A1S62P Not usable
A1S63P*1 Use the 24VDC panel power equipment conforming to the
CE Directives.
A1S61PEU, A1S62PEU,
A1S61PN, A1S62PN Always ground the LG and FG terminals after short-
circuiting them.
*1: If sufficient filter circuitry is built into the 24 VDC external power supply
module, the noise generated by A1S63P will be absorbed by that filter
circuit, so a line filter may not be required.
Filtering circuitry of version F or later of A1S63P is improved so that a
external line filter is not required.

25
3.1.6 Others
(1) Ferrite core
A ferrite core has the effect of reducing radiated noise in the 30MHz to
100MHz band.
It is not required to fit ferrite cores to cables, but it is recommended to fit
ferrite cores if shield cables pulled out of the enclosure do not provide
sufficient shielding effects.
It should be noted that the ferrite cores should be fitted to the cables in the
position immediately before they are pulled out of the enclosure. If the
fitting position is improper, the ferrite will not produce any effect.
In the CC-Link system, however, ferrite cores cannot be fitted to cables.
(2) Noise filter (power supply line filter)
A noise filter is a component which has an effect on conducted noise.
It is not required to fit the noise filter to the power supply line, but fitting it
can further suppress noise.
(The noise filter has the effect of reducing conducted noise of 10MHz or
less.)
The precautions required when installing a noise filter are described
below.
1) Do not bundle the wires on the input side and output side of the noise
filter. When they are bundled, the output side noise will induct into the
input side wires.
Input side
(power supply side)
Output side
(device side)
Induction
Filter
Output side
(device side)
Filter
Input side
(power supply side)
T
he noise will induct into input side
w
hen the input and output wires are bundled.
Separate the input and output wires.
2) Earth the noise filter earthing terminal to the control cabinet with the
short wire as possible (less than approx. 10 cm (3.94 inch)).
Reference
Noise Filter Model
Name FN343-3/01 FN660-6/06 ZHC2203-11
Manufacturer SCHAFFNER SCHAFFNER TDK
Rated current 3 A 6 A 3 A
Rated voltage 250 V
26
3.2 Requirement to Conform to the Low Voltage Directive
The Low Voltage Directive requires each device that operates with the power
supply ranging from 50 to 1000VAC and 75 to 1500VDC to satisfy the safety
requirements.
In Sections 3.2.1 to 3.2.6, cautions on installation and wiring of the MELSEC-Q
series PLC to conform to the Low Voltage Directive are described.
We have put the maximum effort to develop this material based on the
requirements and standards of the regulation that we have collected. However,
compatibility of the devices which are fabricated according to the contents of
this manual to the above regulation is not guaranteed. Each manufacturer who
fabricates such device should make the final judgement about the application
method of the Low Voltage Directive and the product compatibility.
3.2.1 Standard applied for MELSEC-Q series PLC
The standard applied for MELSEC-Q series PLC is EN61010-1 safety of
devices used in measurement rooms, control rooms, or laboratories.
The MELSEC-Q series modules which operate at the rated voltage of
50VAC/75VDC or above are also developed to conform to the above standard.
The modules which operate at the rated voltage of less than 50VAC/75VDC are
out of the Low Voltage Directive application range.
3.2.2 PLC selection
(1) Power supply module
There are dangerous voltages (voltages higher than 42.4V peak) inside
the power supply modules of the 100/200VAC rated I/O voltages.
Therefore, the CE marked models are enhanced in insulation internally
between the primary and secondary.
(2) I/O module
There are dangerous voltages in the I/O modules of the 100/200VAC
rated I/O voltages. Therefore, the CE marked models are enhanced in
insulation internally between the primary and secondary.
The I/O modules of 24VDC or less rating are out of Low Voltage Directive
application range.
(3) CPU module, memory card, base unit
Using 5VDC circuits inside, the above modules are out of the Low Voltage
Directive application range.
(4) Intelligent function modules (special function modules)
The intelligent function modules (special function modules) such as the
analog, network and positioning modules are 24VDC or less in rated
voltage and are therefore out of the Low Voltage Directive application
range.
(5) Display device
Use the CE marked display device.

27
3.2.3 Power supply
The insulation specification of the power supply module was designed assuming
installation category II. Be sure to use the installation category II power supply to the PLC.
The installation category indicates the durability level against surge voltage generated
by a thunderbolt. Category I has the lowest durability; category IV has the highest
durability.
Category III Category II Category ICategory IV
Figure 1. : Installation Category
Category II indicates a power supply whose voltage has been reduced by two or
more levels of isolating transformers from the public power distribution.
3.2.4 Control panel
Because the PLC is an open device (a device designed to be stored within
another module), be sure to use it after storing in the control panel.
(1) Electrical shock prevention
In order to prevent persons who are not familiar with the electric facility such as
the operators from electric shocks, the control panel must have the following
functions :
(a) The control panel must be equipped with a lock so that only the
personnel who has studied about the electric facility and have enough
knowledge can open it.
(b) The control panel must have a structure which automatically stops the
power supply when the panel is opened.
(2) Dustproof and waterproof features
The control panel also has the dustproof and waterproof functions. Insufficient
dustproof and waterproof features lower the insulation withstand voltage, resulting
in insulation destruction. The insulation in our PLC is designed to cope with the
pollution level 2, so use in an environment with pollustion level 2 or below.
Pollution level 1: An environment where the air is dry and conductive dust
does not exist.
Pollution level 2: An environment where conductive dust does not usually
exist, but occasional temporary conductivity occurs due to
the accumulated dust. Generally, this is the level for inside
the control panel equivalent to IP54 in a control room or on
the floor of a typical factory.
Pollution level 3: An environment where conductive dust exits and conductivity
may be generated due to the accumulated dust.
An environment for a typical factory floor.
Pollution level 4: Continuous conductivity may occur due to rain, snow, etc. An
outdoor environment.
As shown above, the PLC can realize the pollution level 2 when stored in
a control panel equivalent to IP54.

28
3.2.5 Grounding
There are the following two different grounding terminals. Use either grounding
terminal in an earthed status.
Protective grounding :Maintains the safety of the PLC and improves
the noise resistance.
Functional grounding :Improves the noise resistance.
3.2.6 External wiring
(1) 24 VDC external power supply
For the MELSEC-Q series 24VDC I/O modules and the intelligent function
modules (special function modules) which require external supply power,
(2) External devices
When a device with a hazardous voltage circuit is externally connected to
the PLC, use a model whose circuit section of the interface to the PLC is
intensively insulated from the hazardous voltage circuit.
(3) Intensive insulation
Intensive insulation refers to the insulation with the dielectric withstand
voltage shown in Table 1.
Table 1 :Intensive Insulation Withstand Voltage
(Installation Category II, source : IEC664)
Rated voltage of hazardous voltage area Surge withstand voltage (1.2/50 s)
150 VAC or below 2500 V
300 VAC or below 4000 V

29
4. Mounting and Installation
4.1 Module Installation
4.1.1 Handling instructions
CAUTION z Use the PLC in an environment that meets the general
specifications contained in this manual. Using this
PLC in an environment outside the range of the
general specifications could result in electric shock,
fire, erroneous operation, and damage to or
deterioration of the product.
z Hold down the module mounting lever at the module
bottom, and securely insert the module fixing latch into
the fixing hole in the base unit. Incorrect mounting of
the module can cause a malfunction, failure or drop.
When using the PLC in the environment of much
vibration, tighten the module with a screw.
Tighten the screw in the specified torque range.
Undertightening can cause a drop, short circuit or
malfunction. Overtightening can cause a drop, short
circuit or malfunction due to damage to the screw or
module.
z When installing extension cables, be sure that the
connectors of base unit are installed correctly.
After installation, check them for looseness. Poor
connections could cause an input or output failure.
z Securely mount the memory card by pushing it into the
memory card mounting slot. Then, confirm that it has
been securely mounted. Not doing so can cause a
malfunction due to a contact fault.
z Completely turn off the external power supply before
mounting or removing the module. Not doing so could
result in electric shock or damage to the product.
Note that online module change can be made when
the QnPHCPU is used.
Note that there are restrictions on the modules that
can be changed online and each module has a
predetermined changing procedure.
For details, refer to the section of online module
change in the Process CPU User's Manual (Hardware
Design,Maintenance and Inspection).
z Do not directly touch the module's conductive parts or
electronic components. Touching the conductive parts
could cause an operation failure or give damage to the
module.

30
This section provides instructions for handling the CPU, I/O, intelligent function
and power supply modules, base units and so on.
(1) Module enclosure, memory card, terminal block connectors and pin
connectors are made of resin; do not drop them or subject them to strong
impact.
(2) Do not remove modules' printed circuit boards from the enclosure in order
to avoid changes in operation.
(3) Tighten the module mounting and fixing screws as specified below.
Screw Tightening Torque Range
Module fixing screw (M3 12 screw) 36 to 48 Nxcm
I/O module terminal block screw (M3 screw) 42 to 58 Nxcm
I/O module terminal block mounting screw (M3.5 screw) 66 to 89 Nxcm
Power supply module terminal screw (M3.5 screw) 66 to 89 Nxcm
(4) Make sure to install the power supply module on the extension base units
Q6 B, QA1S6 B. Even if the power supply module is not installed, when
the I/O modules and intelligent function module installed on the base units
are of light load type, the modules may be operated. In the case, because
a voltage becomes unstable, we cannot guarantee the operation.
(5) When using an extension cable, do not bundle it with nor run it close to
the main circuit (high voltage, large current) cables.

31
4.1.2 Instructions for mounting the base unit
When mounting the PLC to an enclosure or the like, fully consider its operability,
maintainability and environmental resistance.
(1) Mounting dimensions
Mounting dimensions of each base unit are as follows:
(a) Main base unit (Q3 B), extension base unit (Q5 B, Q6 B,
QA1S6 B)
I/11I/10I/09I/08I/07I/06I/05I/04I/03I/02I/01I/00
CPU
POWER
5V
56
F6
W
H
WL
4- mounting screw (M4 14)
Hs 0.3
Ws 0.3
Q00J
CPU Q33B Q35B Q38B Q312B Q52B Q55B Q63B Q65B Q68B Q612B QA1S
65B QA1S
68B
W245
(9.65) 189
(7.44) 245
(9.65) 328
(12.92) 439
(17.30) 106
(4.17) 189
(7.44) 189
(7.44) 245
(9.65) 328
(12.92) 439
(17.30) 315
(12.41) 420
(16.55)
Ws 224.5
(8.85) 169
(6.61) 224.5
(8.85) 308
(12.14) 419
(16.51) 83.5
(3.29) 167
(6.57) 167
(6.57) 222.5
(8.77) 306
(12.06) 417
(16.43) 295
(11.62) 400
(15.76)
WL15.5 (0.61) 10 (0.39)
H 98 (3.86) 130 (5.12)
Hs 80 (3.15) 110 (4.33)
Unit: mm (inch)
(b) Slim type main base unit (Q3 SB)
4- mountin
g
screw
(
M4 12
)
SG
5V
I/O3
I/O2 I/O4I/O0 I/O1CPU
POWER
Hs 0.3
H
Ws 0.3
W
WL
5V
56
Q32SB Q33SB Q35SB
W 114 (4.49) 142 (5.59) 197.5 (7.78)
Ws 101 (3.98) 129 (5.08) 184.5 (7.26)
WL8.5 (0.33)
H 98 (3.86)
Hs 80 (3.15)
Unit: mm (inch)

32
(2) Unit mounting position
For enhanced ventilation and ease of module replacement, leave the
following clearances between the unit top/bottom and structure/parts.
(a) Main base unit (Q3 B), extension base unit (Q5 B, Q6 B,
QA1S6 B)
5mm (0.20 inch) or more*2 5mm
(
0.20 inch
)
or more
30mm
(1.18 inch)
or more*1
30mm
(1.18 inch)
or more
Indicates the panel top, wiring
duct or any part position.
Doo
r
Panel
20mm (0.79 inch)
or more*3
PLC
*1: For wiring duct (50mm (1.97 inch) or less height).
40mm (1.58 inch) or more for other cases.
*2: 5mm (0.20 inch) or more when the adjacent module is removed and the
extension cable is connected.
*3: 80mm (3.15 inch) or more for the connector type.
(b) Slim type main base unit (Q3 SB)
5mm (0.20 inch) or more
30mm
(1.18 inch)
or more*1
30mm
(1.18 inch)
or more
Indicates the panel top, wiring
duct or any part position.
Door
Panel
20mm (0.79 inch)
or more*3
PLC
17mm (0.67 inch) or more*2
*1: For wiring duct (50mm or less) or other, 40mm or more.
*2: When wiring the slim type main base unit and power supply module, the
cable will run off the left edge of the module. Separate the system and
wall by 17mm or more to secure the installation space. If the materials,
devices or parts on right side of the module may damage the cable
coating, attach an insulating material such as spiral tube to it for
protection.
*3: For connector type, 80mm or more.

33
(3) Unit mounting orientation
(a) Since the PLC generates heat, it should be mounted on a well
ventilated location in the orientation shown below.
(b) Do not mount it in either of the orientations shown below.
Vertical Flat
(4) Mount the base unit on a flat surface. If the mounting surface is not even,
this may strain the printed circuit boards and cause malfunctions.
(5) Avoid mounting base unit in proximity to vibration sources such as large
magnetic contractors and no-fuse circuit breakers; mount these on a
separate panel or at a distance.
(6) In order to avoid the effects of radiated noise and heat, provide the
clearances indicated below between the PLC and devices that generate
noise or heat (contactors and relays).
• Required clearance in front of PLC: at least 100 mm (3.94 inch)
• Required clearance on the right and left of PLC: at least 50 mm
(1.97 inch)
At least 50mm
(1.97 inch)
At least 50mm
(1.97 inch)
At least 100mm
(3.94 inch)
Contactor, relay, etc.

34
(7) Install the main base unit/Q00JCPU (by screwing) in the following
procedure.
(a) Fit the two base unit top mounting screws into the enclosure.
Panel
(b) Place the right-hand side notch of the base unit onto the right-hand
side screw.
Panel
(c) Place the left-hand side pear-shaped hole onto the left-hand side
screw.
Panel
(d) Fit the mounting screws into the mounting screw holes in the base unit
bottom and retighten the four fixing screws.
Note1) : Install the main base unit to a panel, with no module mounted in
the rightmost slot.
Remove the base unit after removing the module from the
rightmost slot.
Note2): The mounting screws included with the slim type main base unit
differ from those included with other main base units. Please
specify “Cross-recessed binding head machine screw
M4 12(black) when ordering the mounting screws for the slim
type main base unit.
(8) Note the following points when mounting a DIN rail.
Mounting a DIN rail needs special adaptors (optional), which are to be
user-prepared.
(a) Applicable adapter types
DIN rail adapter Applicable main base unit
Q6DIN1 Q38B, Q312B, Q68B, Q612B
Q6DIN2 Q35B, Q65B, Q00JCPU
Q6DIN3 Q33B, Q52B, Q55B, Q63B, Q32SB, Q33SB, Q35SB

35
(b) Adaptor installation method
The way to install the adaptors for mounting a DIN rail to the base unit
is given below.
Base unit rear
Place the hook of the adaptor
(small) in the lower hole. Push the top of the adaptor
(small) far enough until it
"clicks".
Insert the adaptor (large) into the grooves
of the base unit from below. Push the bottom of the adaptor (large) far
enou
g
h until it "clicks".
(c) Applicable DIN rail types (JIS C 2812)
TH35-7.5Fe
TH35-7.5Al
TH35-15Fe
(d) DIN rail mounting screw intervals
When using a TH35-7.5Fe or TH35-7.5Al DIN rail, rail mounting
screws should be tightened at a pitch of 200 mm (7.88 inch) or less in
order to ensure that the rail has sufficient strength.
35mm
(
1.38 inch
)
P=200mm (7.88 inch) or less
DIN rail DIN rail mounting screw
PPP

36
4.1.3 Mounting and removing of module
This section explains how to mount and remove a power supply, CPU, I/O,
intelligent function or another module to and from the base unit.
(1) Mounting of module
Module
Module fixing latch
Module fixing hole
Module
connector
Base unit
Base unit
Module
mountin
g
leve
r
Module
fixing latch
Module fixing hole
Insert the module fixing
latch into the module
fixing hole of the base
unit.
Push the module in the
direction of arrow to
mount it into the base
unit.
Make sure that the
module is inserted in the
base unit securely.
Completion
POINT
(1) Always insert the module fixing latch of the module into the module fixing
hole. Forcing the hook into the hole will damage the module connector
and module.
(2) When using the PLC in a place where there is large vibration or impact,
screw the CPU module to the base unit.
Module fixing screw : M3 12 (user-prepared)

37
(2) Removing of module
Module
connector Module
Module fixing hole
Base unit
Pull the module based
on the supporting point
of module bottom while
pressing the module
fixing latch.
While lifting the module,
take the module fixing
latch off the module
fixing hole.
Completion
Support the module with
both hands and securely
press the module fixing
hook with your finger.
POINT
When the module fixing screw is used, always remove the module by
removing the module fixing screw and then taking the module fixing latch off
the module fixing hole of the base unit.
Forcibly removing the module will damage the module.

38
4.1.4 Setting the extension stage number of the extension base unit
When using two or more extension base units, their extension stage numbers
must be set with the extension stage number setting connectors. Extension 1
need not be set since the extension stage number is factory-set to 1.
Make this setting in the following procedure.
(1) The extension stage number setting connector of the extension base unit
is located under the IN side base cover.
First, loosen the upper and lower screws in the IN side base cover and
remove the base cover from the extension base unit.
(2) Insert the connector pin in the required extension number location of the
connector (PIN1) existing between the IN and OUT sides of the extension
cable connector.
OUT
Setting Extension Stage Number of Extension Base Units
Extension Stage Number Setting
1st stage 2nd stage 3rd stage 4th stage 5th stage 6th stage 7th stage
Extension stage No.
setting
Q00JCPU
Q00CPU, Q01CPU
Q02 (H) CPU, Q06HCPU
Q12HCPU, Q25HCPU
Q12PHCPU, Q25PHCPU
: Can be set : Cannot be set
POINT
(1) Set the extension stage number setting connector to any of numbers 1 to
7 in ascending order.
If two or more modules have the same number or any module has no
setting, for example, false input and output will occur.
(2) If there are Q5 B/Q6 B and QA1S6 B extension base units, first set the
extension stage numbers of the Q5 B/Q6 B's. (The Q00J/Q00/Q01CPU
or Q12PH/Q25PHCPU cannot use the QA1S6 B.)
Example: When there are a total of seven extension base units, four
Q68B's and three QA1S68B's, set numbers 1 to 4 to the Q68B's
and numbers 5 to 7 to the QA1S68B's.
For the extension base connection sequence, connect the
Q5 B/Q6 B's, then connect the QA1S6 B's.

39
(3) Mount the base cover to the extension base unit and tighten the base
cover screw.
(Tightening torque: 36 to 48Nxcm)
4.1.5 Connecting and disconnecting extension cable
(1) Instructions for handling an extension cable
• Do not stamp an extension cable.
• An extension cable must be connected to the base unit when the base
cover has been installed.
(After you have set the extension number to the extension base unit,
reinstall and screw the base cover.)
• When running an extension cable, the minimum bending radius of the
cable should be 55mm (2.17 inch) or more.
If it is less than 55mm (2.17 inch), a malfunction may occur due to
characteristic deterioration, open cable or the like.
• When connecting or disconnecting an extension cable, do not hold the
ferrite cores mounted at both ends of the cable.
Hold the connector part of the cable for connection or disconnection.
Holding the ferrite core may cause the cable to open within the connector.
Also, if the ferrite core is shifted, the characteristic will change. When
handling the cable, take care not to shift the ferrite core positions.

40
(2) Connecting of extension cable
POINT
When connecting an extension base unit to the main base unit with an
extension cable, always plug the OUT side connector of the main base unit
and the IN side connector of the extension base unit with an extension
cable. The system will not operate properly if the extension cable is
connected in the form of IN to IN, OUT to OUT or IN to OUT.
When connecting two or more extension base units, plug the OUT side
connector of the first extension base unit and the IN side connector of the
second extension base unit with an extension cable.
(a) To connect an extension cable to the main base unit, remove the
portion under the OUT characters on the base cover with a tool such
as a flat-blade screwdriver (5.5 75, 6 100). This also applies to a
case where an extension cable is connected to the OUT side
connector of the extension base unit.
When plugging the extension cable to the Q00JCPU, remove the
cover of the extension cable connector by hand.
Base cover
OUT
Main base unit
OUTIN
OUT side of extension
base unit
(b) To connect the extension cable to the next extension base unit,
remove the seal applied under the IN characters on the base cover.
Seal
OUTIN
IN side of extension
base unit

41
(c) When plugging the extension cable to any base unit, hold the
connector part of the extension cable.
(d) After fitting the extension cable, always tighten the extension cable
connector fixing screws.
(Tightening torque: 20Nxcm)
(3) Disconnecting extension cable
When unplugging the extension cable, hold and pull the connector part of
the extension cable after making sure that the fixing screws have been
removed completely.

42
4.2 General Safety Requirements
DANGER z Install a safety circuit external to the PLC that keeps
the entire system safe even when there are problems
with the external power supply or the PLC module.
Otherwise, trouble could result from erroneous output
or erroneous operation.
(1) Outside the PLC, construct mechanical damage
preventing interlock circuits such as emergency stop,
protective circuits, positioning upper and lower limits
switches and interlocking forward/reverse operations.
(2) When the PLC detects the following problems, it will stop
calculation and turn off all output in the case of (a).
In the case of (b), it will stop calculation and hold or turn
off all output according to the parameter setting.
Note that the AnS series module will turn off the output in
either of cases (a) and (b).
(a) The power supply module has over current protection
equipment and over voltage protection equipment.
(b) The CPU module self-diagnostic functions, such as the
watch dog timer error, detect problems.
In addition, all output will be turned on when there are
problems that the CPU module cannot detect, such as
in the I/O controller. Build a fail safe circuit exterior to
the PLC that will make sure the equipment operates
safely at such times.
(3) Output could be left on or off when there is trouble in the
outputs module relay or transistor. So build an external
monitoring circuit that will monitor any single outputs that
could cause serious trouble.
z When overcurrent which exceeds the rating or caused
by short-circuited load flows in the output module for a
long time, it may cause smoke or fire. To prevent this,
configure an external safety circuit, such as fuse.
z Build a circuit that turns on the external power supply
when the PLC main module power is turned on. If the
external power supply is turned on first, it could result
in erroneous output or erroneous operation.
z When there are communication problems with the data
link, refer to the corresponding data link manual for the
operating status of each station. Not doing so could
result in erroneous output or erroneous operation.
operating status of each station. Not doing so could
result in erroneous output or erroneous operation.

43
DANGER z When connecting a peripheral device to the CPU
module or connecting a personal computer or the like to
the special function module to exercise control (data
change) on the running PLC, configure up an interlock
circuit in the sequence program to ensure that the
whole system will always operate safely.
Also before exercising other control (program change,
operating status change (status control)) on the running
PLC, read the manual carefully and fully confirm safety.
Especially for the above control on the remote PLC
from an external device, an immediate action may not
be taken for PLC trouble due to a data communication
fault. In addition to configuring up the interlock circuit in
the sequence program, corrective and other actions to
be taken as a system for the occurrence of a data
communication fault should be predetermined between
the external device and CPU module.
CAUTION z Do not bunch the control wires or communication
cables with the main circuit or power wires, or install
them close to each other. They should be installed 100
mm (3.94 inch) or more from each other.
Not doing so could result in noise that would cause
erroneous operation.
z When controlling items like lamp load, heater or
solenoid valve using an output module, large current
(approximately ten times greater than that present in
normal circumstances) may flow when the output is
turned OFF to ON. Take measures such as replacing
the module with one having sufficient rated current.
When the PLC power supply is switched ON to OFF, proper output of the
control target may not be provided temporarily due to differences in delay time
and starting time between the PLC power supply and the external power supply
for control target (especially DC).
For example, if the external power supply for control target is switched on in a
DC output module and the PLC power supply is then switched on, the DC
output module may provide false output instantaneously at power-on of the
PLC. Therefore, it is necessary to make up a circuit that can switch on the PLC
power supply first.
Also, an abnormal operation may be performed if an external power supply fault
or PLC failure takes place.
To prevent any of these abnormal operations from leading to the abnormal
operation of the whole system and in a fail-safe viewpoint, areas which can
result in machine breakdown and accidents due to abnormal operations (e.g.
emergency stop, protective and interlock circuits) should be constructed outside
the PLC. The following page gives examples of system designing in the above
viewpoint.

44
(1) System design circuit example (when not using ERR contact of power
supply module/for Q00JCPU)
START
SW
STOP
SW
MC
RA1
RA2 XM
L
Ym
Yn
OUTPUT MODULE
OUTPUT MODULE
MC2
MC1
M10
PROGRAM
CPU module
NO
TRANSFORMER
FUSE FUSE
POWER SUPPLY
POWER
SUPPLY
TRANSFORMER
FUSE DC
POWER
SUPPLY
FUSE
MC MC
In the case of an
emergency stop or a
stop caused by a limit
switch.
Interlock circuits as
necessary.
Provide external
interlock circuits for
conflicting operations,
such as forward rotation
and reverse rotation,
and for parts that could
damage the machine or
cause accidents if no
interlock were used.
Power to output
equipment switched
OFF when the STOP
signal is given.
In the case of an
emergency stop
or a stop caused
by a limit switch.
Power to output
equipment
switched OFF
when the STOP
signal is given.
SM52
SM52
SM403 SM403
XM
MC1 NO M10
TM
OUTPUT MODULE
MC
MC2
MC1
OUTPUT MODULE
L
Ym
Yn
INPUT MODULE
START
SW
STOP SW
MC
RA1
PROGRAM
Low battery alarm
(Lamp or buzzer)
RA1 switched ON by
SM403
(run monitor relay)
RUN/STOP circuit
interlocked with RA1
(run monitor relay)
Input switched
when power
supply
established.
ON when run by
SM403
Low battery alarm
(Lamp or buzzer)
Voltage relay is
recommended
Set time for DC
power supply to
be established.
FOR AC/DCFOR AC
CPU module
Ym (-)(+)
MC
Yn
MC
RA1
MC1
MC2
MC
Ym
Yn
TM
RA2
RA1
MC1
MC2
The power-ON procedure is as follows:
For AC For AC/DC
1) Switch power ON.
2) Set CPU to RUN.
3) Turn ON the start switch.
4) When the magnetic contactor (MC) comes
on, the output equipment is powered and
may be driven by the program.
1) Switch power ON.
2) Set CPU to RUN.
3) When DC power is established, RA2 goes ON.
4) Timer (TM) times out after the DC power reaches
100%. (The TM set value should be the period of
time from when RA2 goes ON to the
establishment of 100% DC voltage. Set this value
to approximately 0.5 seconds.)
5) Turn ON the start switch.
6) When the magnetic contactor (MC) comes on,
the output equipment is powered and may be
driven by the program. (If a voltage relay is used
at RA2, no timer (TM) is required in the program.)

45
(2) System design circuit example (when using ERR contact of power supply
module)
START
SW
STOP
SW
MC
RA1
RA2 XM
L
Ym
OUTPUT MODULE
M10
PROGRAM
CPU module
NO
TRANSFORMER
FUSE FUSE
POWER SUPPLY
DC
POWER
SUPPLY
FUSE
SM52
XM
MC1 NO M10
TM
RUN/STOP circuit
interlocked with
RA1
(run monitor relay)
Input switched
when power supply
established.
Low battery alarm
(Lamp or buzzer)
Voltage relay is recommended
Set time for DC power supply
to be established.
FOR AC/DC
(-) (+)
OUTPUT MODULE
MC2
MC1
MC MC
Interlock circuits as
necessary.
Provide external
interlock circuits for
conflicting operations,
such as forward
rotation and reverse
rotation, and for parts
that could damage
the machine or cause
accidents if no
interlock were used.
In the case of an emergency
stop or a stop caused by a
limit switch.
Power to output equipment
switched OFF when ERR
contact turns OFF.
OFF at stop error from ERR
ERR
POWER SUPPLY
MODULE
SM403
RA3
Yn
Ym
Yn
TM
MC
RA2
RA1
RA3
MC1
MC2
The power-ON procedure is as follows:
For AC/DC
1) Switch power ON.
2) Set CPU to RUN.
3) When DC power is established, RA2 goes ON.
4) Timer (TM) times out after the DC power reaches 100%. (The TM set value should be the period of
time from when RA2 goes ON to the establishment of 100% DC voltage. Set this value to
approximately 0.5 seconds.)
5) Turn ON the start switch.
6) When the magnetic contactor (MC) comes on, the output equipment is powered and may be driven
by the program. (If a voltage relay is used at RA2, no timer (TM) is required in the program.)

46
(3) Fail-safe measures against failure of the PLC
Failure of a CPU module or memory can be detected by the self-diagnosis
function. However, failure of I/O control area may not be detected by the
CPU module.
In such cases, all I/O points turn ON or OFF depending on a condition of
problem, and normal operating conditions and operating safety cannot
sometimes be maintained.
Though Mitsubishi PLCs are manufactured under strict quality control,
they may cause failure or abnormal operations due to unspecific reasons.
To prevent the abnormal operation of the whole system, machine
breakdown, and accidents, fail-safe circuitry against failure of the PLC
must be constructed outside the PLC.
Examples of a system and its fail-safe circuitry are described below:
<System example>
Input
16
points
Power
supply
module
Output module for fail-safe purpose*1
CPU
module
Input
16
points
Input
16
points
Input
16
points
Output
16
points
Output
16
points
Vacant
Output
16
points
Output
16
points
Output
16
points
Y8F
Y80
Power
supply
module
*1: The output module for fail-safe purpose should be loaded in the last slot
of the system. (Y80 to Y8F in the above system.)
<Fail-safe circuit example>
Internal program
SM412
T1
ON dela
y
timer
1s
T2
OFF delay timer
1s
L
L
MC
T2T1
+-
24VDC
Y80
Y81
Y8F
24V
0V
Y80
Y80
External load
0.5s0.5s
CPU module Output module
*2
MC
*2: Y80 repeats turning ON and then OFF at 0.5 second intervals.
Use a no-contact output module (transistor in the example shown above).

47
4.3 Power Supply Wiring
This section provides instructions for wiring the power supply.
DANGER z Completely turn off the external power supply when
installing or placing wiring. Not completely turning off
all power could result in electric shock or damage to
the product.
z When turning on the power supply or operating the
module after installation or wiring work, be sure that
the module's terminal covers are correctly attached.
Not attaching the terminal cover could result in electric
shock.
CAUTION z Be sure to ground the FG terminals and LG terminals
to the protective ground conductor. Not doing so could
result in electric shock or erroneous operation.
z When wiring in the PLC, be sure that it is done
correctly by checking the product's rated voltage and
the terminal layout. Connecting a power supply that is
different from the rating or incorrectly wiring the
product could result in fire or damage.
z External connections shall be crimped or pressure
welded with the specified tools, or correctly soldered.
Imperfect connections could result in short circuit,
fires, or erroneous operation.
z Tighten the terminal screws with the specified torque.
If the terminal screws are loose, it could result in short
circuits, fire, or erroneous operation. Tightening the
terminal screws too far may cause damages to the
screws and/or the module, resulting in fallout, short
circuits, or malfunction.
z Be sure there are no foreign substances such as
sawdust or wiring debris inside the module. Such
debris could cause fires, damage, or erroneous
operation.
z The module has an ingress prevention label on its top
to prevent foreign matter, such as wire offcuts, from
entering the module during wiring.
Do not peel this label during wiring.
Before starting system operation, be sure to peel this
label because of heat dissipation.

48
(1) Separate the PLC's power supply line from the lines for I/O devices and
power devices as shown below.
When there is much noise, connect an insulation transformer.
PLC
PLC power
supply
Main power supply
I/O power supply
Main circuit supply
I/O devices
Main circuit device
Insulation
transformer
200VAC
T1
(2) Do not connect the 24VDC outputs of two or more power supply modules
in parallel and supply power to one I/O module.
Parallel connection will damage the power supply modules.
DC24V
DC24V
I/O module
DC24V
External
power supply
Power supply
module
Power supply
module
I/O module
Power supply
module
(3) 100VAC, 200VAC and 24VDC wires should be twisted as dense as
possible. Connect the modules with the shortest distance.
Also, to reduce the voltage drop to the minimum, use the thickest wires
possible (maximum 2mm2).
(4) Do not bundle the 100VAC and 24VDC wires with, or run them close to,
the main circuit (high voltage, large current) and I/O signal lines. If
possible, run them more than 100mm (3.94 inch) away.
(5) As a countermeasure to power surge due to lightening, connect a surge
absorber for lightening as shown below.
AC
E1
E2
Surge absorber for lightening
I/O devices
PLC
POINT
(1) Separate the ground of the surge absorber for lightening (E1) from that of
the PLC (E2).
(2) Select a surge absorber for lightening whose power supply voltage does
no exceed the maximum allowable circuit voltage even at the time of
maximum power supply voltage elevation.

49
(5) The following diagram shows the wiring example of power lines,
grounding lines, etc. to the main and extension base units.
AC
100/110VAC
24VDC
AC
DC
Connect to 24VDC terminals
of I/O module that requires
24VDC internall
y
.
Extension cable
Ground wire
Groundin
g
Main base unit
(Q38B)
Q61P-A1 CPU
module
Extension base unit
(Q68B)
Q61P-A1 I/O
100VAC
ERR
FG
LG
INPUT
100-120VAC
ERR
FG
LG
INPUT
100-120VAC
Fuse
*1
POINT
(1) Use the thickest possible (max. 2 mm2 (14 AWG)) wires for the 100/200
VAC and 24 VDC power cables. Be sure to twist these wires starting at
the connection terminals. To prevent a short-circuit should any screws
loosen, use solderless terminals with insulation sleeves.
(2) When the LG terminals and FG terminals are connected, be sure to
ground the wires. Do not connect the LG terminals and FG terminals to
anything other than ground. If LG terminals and FG terminals are
connected without grounding the wires, the PLC may be susceptible to
noise. In addition, since the LG terminals have potential, the operator may
receive an electric shock when touching metal parts.
(3) *1 Error output through the ERR terminal of the power supply module on
the extension base is not available. For error output, use the ERR
terminal of the power supply module on the main base.
4.3.1 Precaution when connecting the uninterruptive power supply
Be sure of the following terms when connecting the QCPU system to the
uninterruptive power supply (abbreviated as UPS hereafter):
Use a UPS which employs the constant inverter power supply method with 5 %
or less voltage fluctuation.
Do not use a UPS with the constant commercial power supply method.

50
4.4 Part Names and Settings of Q00J/Q00/Q01CPU
4.4.1 Part names and settings
(1) Q00JCPU
Front face
4) 5) 6)
1)
2)
7)
When opening the front cover, put your finger here.
OUT
8)
With front cover open
3)
OUT
RUN
RESET
STOP
BAT.
POWER
RUN
ERR
9) 10) 11) 14)16)15)
12) 13)
No. Name Application
1) Base mounting hole Pear-shaped hole for mounting the unit to a panel such
as a control box. (For M4 screw)
2) Cover Protective cover for extension cable connector. Remove
this cover when connecting an extension base.
3) Extension cable connector Connector for transfer of signals to/from the extension
base unit. Connect an extension cable.
4) POWER LED LED for indicating 5VDC power. Lit when 5VDC is
output normally.

51
No. Name Application
5) RUN LED Displays the operating status of the CPU module.
ON :During operation in "RUN" mode.
OFF :During a stop in "STOP" mode or when the errorwhose
occurrence stops operation is detected.
Flicker :When parameters/program is written during STOP and the
RUN/STOP/RESET switch is moved from "STOP" to "RUN".
To turn ON the RUN LED after writing the program, carry out the
following steps.
• Move the RUN/STOP/RESET switch from "RUN" to "STOP" to
"RUN".
• Perform reset with the RUN/STOP/RESET switch.
• Power ON the PLC again.
To turn ON the RUN LED after writing the parameters, carry out
the following steps.
• Perform reset with the RUN/STOP/RESET switch.
• Power ON the PLC again.
(If the RUN/STOP/RESET switch is moved from "STOP" to
"RUN" to "STOP" to "RUN" after changing the parameter values,
the new values are not reflected on the parameters related to the
intelligent function module, such as the network parameters.)
6) ERR. LED ON :When the self-diagnostic error that will not stop operation is
detected.
• When continuation of operation at error detection is set in the
parameter.
• When the annunciator (F) is turned ON by the SET/OUT
instruction.
OFF :Normal
Flicker :When the error whose occurrence stops operation is detected.
When reset operation is performed with the RUN/STOP/RESET
switch.
7) Module
connector Connector used for loading an I/O or intelligent function module.
To the connector of the spare space where no module is mounted, fit the
accessory connector cover or QG60 blank cover module to prevent dust
from entering.
8) DIN rail adaptor
mounting holes Holes for mounting a DIN rail adaptor.
9) FG terminal Ground terminal connected with the shield pattern of the printed circuit
board.
10) LG terminal Power filter ground having a half potential of the input voltage.
11) Power input
terminals Power input terminals for connection of a 100VAC to 200VAC power
supply.
12) Battery Backup battery for use of the program memory, standard RAM and
power failure compensation function.
13) Battery fixing
hook Hook for holding the battery.
14) Battery
connector pin For connection of the battery lead wires.
(When shipped from the factory, the lead wires are disconnected from
the connector to prevent the battery from consuming.)
15) RS-232C
connector *1 Connector for connection of a peripheral device.
Can be connected by the RS-232 connection cable (QC30R2).
16) RUN/STOP/RES
ET switch RUN :Executes sequence program operation.
STOP :Stops sequence program operation.
RESET :Performs hardware reset, operation error reset, operation
initialization or like. (Refer to Section 4.4.3 for details of reset
operation.)
*1 : When normally connecting a cable to the RS-232 connector, clamp the cable to prevent it
from coming off due to the dangling, moving or careless pulling of the cable.
Q6HLD-R2 type RS-232 Connector Disconnection Prevention Holder is available as a
clamp for RS-232 connector.

52
(2) Q00CPU, Q01CPU
Q01CPU
RS-232
RUN
ERR.
1)
2)
4)
3)
PULL
When opening the front cover, put your finger here.
RUN
RESET
STOP
BAT.
10)
11)
6)
7)
8)
5)
9)
Front face With front cover open
Side face

53
No. Name Application
1) Module fixing hook Hook used to fix the module to the base unit.
(Single-motion installation)
2) RUN LED Displays the operating status of the CPU module.
ON :During operation in "RUN" mode.
OFF :During a stop in "STOP" mode or when the errorwhose
occurrence stops operation is detected.
Flicker :When parameters/program is written during STOP and the
RUN/STOP/RESET switch is moved from "STOP" to "RUN".
To turn ON the RUN LED after writing the program, carry out
the following steps.
• Move the RUN/STOP/RESET switch from "RUN" to "STOP" to
"RUN".
• Perform reset with the RUN/STOP/RESET switch.
• Power ON the PLC again.
To turn ON the RUN LED after writing the parameters, carry out
the following steps.
• Perform reset with the RUN/STOP/RESET switch.
• Power ON the PLC again.
(If the RUN/STOP/RESET switch is moved from "STOP" to
"RUN" to "STOP" to "RUN" after changing the parameter values,
the new values are not reflected on the parameters related to
the intelligent function module, such as the network parameters.)
3) ERR. LED ON :When the self-diagnostic error that will not stop operation is
detected.
• When continuation of operation at error detection is set in the
parameter.
• When the annunciator (F) is turned ON by the SET/OUT
instruction.
OFF :Normal
Flicker :When the error whose occurrence stops operation is detected.
When reset operation is performed with the RUN/STOP/RESET
switch.
4) Module loading
lever Used to mount the module to the base unit.
5) Battery Backup battery for use of the program memory, standard RAM and
power failure compensation function.
6) Battery fixing hook Hook for holding the battery.
7) Battery connector
pin For connection of the battery lead wires.
(When shipped from the factory, the lead wires are disconnected from
the connector to prevent the battery from consuming.)
8) RUN/STOP/RESET
switch RUN :Executes sequence program operation.
STOP :Stops sequence program operation.
RESET :Performs hardware reset, operation error reset, operation
initialization or like. (Refer to Section 4.5.3 for details of reset
operation.)
9) RS-232C
connector *1 Connector for connection of a peripheral device.
Can be connected by the RS-232 connection cable (QC30R2).
10) Module fixing
screw hole Hole for the screw used to fix to the base unit. (M3 12 screw)
11) Module fixing latch Latch used to fix to the base unit.
*1 : When normally connecting a cable to the RS-232 connector, clamp the cable to prevent it
from coming off due to the dangling, moving or careless pulling of the cable.
Q6HLD-R2 type RS-232 Connector Disconnection Prevention Holder is available as a
clamp for RS-232 connector.

54
4.4.2 Switch operation after writing program
Program can be written to the CPU module during STOP or RUN.
(1) When you write a program during STOP of the CPU module
When you write a program during STOP of the CPU module, operate the
switch in the following procedure.
1) RUN/STOP/RESET switch: STOP
RUN LED: OFF CPU module STOP status to Program write
2) RUN/STOP/RESET switch: Perform reset. (Refer to Section 4.4.3)
3) RUN/STOP/RESET switch: STOP to RUN
RUN LED: ON CPU module RUN status
(2) When you write a program during RUN
When you write a program during RUN of the CPU module, you need not
operate the switch.
POINT
(1) The CPU module will not go into the RUN status if you move the
RUN/STOP/RESET switch to RUN immediately after writing a program in
the STOP status of the CPU module. After writing a program, perform
reset operation with the RUN/STOP/RESET switch, then move the
RUN/STOP/RESET switch to RUN to set the CPU module into the RUN
status.
(Refer to Section 4.4.3 for reset operation.)
(2) To place the CPU module in the RUN status without resetting, move the
RUN/STOP/RESET switch from STOP to RUN to STOP to RUN.
After the second motion of STOP to RUN, the CPU module goes into the
RUN status.
(3) The program written by online program correction during boot operation is
written to the program memory
After making online program correction, also write the program to the
standard ROM of the boot source memory. If you forget to write the
program to the standard ROM, the old program will be executed at the
next boot operation.
(For details of boot operation, refer to the Basic Model QCPU (Q Mode)
User's Manual (Function Explanation, Program Fundamentals).)

55
4.4.3 Reset operation
For the Q00J/Q00/Q01CPU, the RUN/STOP/RESET switch of the CPU module
is used to switch between the "RUN status" and "STOP status" and to perform
"RESET operation".
When using the RUN/STOP/RESET switch to reset the CPU module, moving
the RUN/STOP/RESET switch to the reset position will not reset it immediately.
POINT
Hold the RUN/STOP/RESET switch in the RESET position until reset
processing is complete (the flickering ERR. LED goes off).
If you release your hand from the RUN/STOP/RESET switch during reset
processing (while the ERR. LED is flickering), the switch will return to the
STOP position and reset processing cannot be completed.
Perform reset operation with the RUN/STOP/RESET switch in the following
procedure.
RUNRESET
STOP
RUN
RESET
STOP
START
Hold the RUN/STOP/RESET
switch in the "RESET" position.
RUN/STOP/
RESET switch
The "ERR. LED" flickers several
times. (three to four)
Flickers.
The "ERR. LED" goes off .
Goes off.
Return the RUN/STOP/RESET
switch to the "STOP" position. *
RUN/STOP/
RESET switch
END
Reset operation is started using the
RUN/STOP/RESET switch.
Reset is accepted and reset
processing is performed.
Reset is completed.
Reset is canceled.
Releasin
g
y
our hand from the RUN/STOP/RESET
switch returns it to the STOP position.

56
4.4.4 Latch clear operation
To execute latch clear, perform remote latch clear operation using GX
Developer. Latch clear cannot be executed by operating the switches of the
CPU module.
POINT
(1) The invalid range of latch clear can be set device-by-device by making
device setting in the parameter mode.
(2) For remote latch clear operation using GX Developer, refer to the
operating manual of GX Developer.

57
4.5 Part Names and Settings of Q02 (H) /Q06H/Q12H/Q25H/Q12PH/Q25PHCPU
4.5.1 Part names and settings
This section explains the names and settings of the module.
Front face With front cover open
Q02HCPU
RS-232
MODE
RUN
ERR.
USER
BAT.
BOOT
1
)
2)
8)
3)
4)
5)
6)
7)
W
hen openin
g
the front cover, put
y
our fin
g
er here.
USB
PULL
MODE
RUN
ERR.
USER
BAT.
BOOT
ON SW
1
2
3
4
5
STOP RUN
RESET L CLR
9)
10)
11) *1
12)
13)
14)
15)
Side face
16
)
17
)
19
)
18)
*1: Not provided for Q02CPU.

58
No. Name Application
1) Module fixing hook Hook used to fix the module to the base unit.
(Single-motion installation)
2) Mode LED
Displays the mode of the CPU module.
ON (green) : Q mode
ON (orange) : A mode
Flicker (green) : Mandatory ON/OFF of external input/output
registered
3) RUN LED
Displays the operating status of the CPU module.
ON : During operation in "RUN" mode.
OFF : During a stop in "STOP" mode or detection of error
whose occurrence stops operation.
Flicker: When parameter/program is written at STOP and
RUN/STOP switch is changed from "STOP" to "RUN".
To turn ON the RUN LED after writing the program,
carry out the following steps.
y Set the RUN/STOP switch from "RUN" "STOP"
"RUN".
y Reset with the RESET/L.CLR switch.
y Restart the PLC power.
To turn ON the RUN LED after writing the parameters,
carry out the following steps.
y Reset with the RESET/L.CLR switch.
y Restart the PLC power.
(If the RUN/STOP switch is set from "RUN" "STOP"
"RUN" after changing the parameters, the
parameters related to the intelligent function module,
such as the network parameters, will not be reflected.)
4) ERR. LED
ON : Self-diagnostic error (except battery error) is detected
and operation will not stop.
(When operation continued at error detection is set in
the parameter)
OFF : Normal
Flicker: Detection of error whose occurrence stops operation.
When automatic writing to standard ROM is completed
normally. (BOOT LED also flickers.)
5) USER LED ON : Error detected by CHK instruction or annunciator ON
OFF : Normal
Flicker: Execution of latch clear
6) BAT. LED ON : Battery error occurs due to reduction in battery
voltages of CPU module and memory card.
OFF : Normal
7) BOOT LED
ON : Start of boot operation
OFF : Non-execution of boot operation
Flicker: When automatic writing to standard ROM is
completed normally. (ERR. LED also flickers.)
8) Module loading
lever Used to mount the module to the base unit.
9) Memory card
EJECT button Used to eject the memory card from the CPU module.
10) Memory card
loading connector Connector used to mount the memory card to the CPU
module.

59
No. Name Application
11) USB connector*2
Connector for connection with USB-compatible peripheral
device
(Connector type B)
Can be connected by USB-dedicated cable.
Not available for Q02CPU.
12) RS-232 connector*2 Connector for connection with a peripheral device.
Can be connected by RS-232 connection cable (QC30R2).
Used to set the items for operation of the CPU module.
For system protection and parameter-valid drive functions, refer
to the User's Manual (Function Explanation, Program
Fundamentals) of the CPU module used.
SW1 : Used to set system protection. Batch-inhibits write and
control directives to the CPU module. (Shipped in OFF
position)
OFF : No protection
ON : Protection
SW2, SW3: Used to specify parameter-valid drive. (Both SW2
and SW3 are shipped in OFF position)
SW2 SW3 Parameter Drive
OFF OFF Program memory (Drive 0)
ON OFF SRAM card (Drive 1)
OFF ON Flash card/ATA card (Drive 2)
ON ON Standard ROM (Drive 4)
Note: Parameters cannot be stored in standard RAM (Drive 3).
SW4: Must not be used. Normally OFF.
(Shipped in OFF position)
13)
DIP switches
1
2
3
4
5
ON SW
SW5: Must not be used. Normally OFF.
(Shipped in OFF position)
14) RUN/STOP switch RUN : Executes sequence program operation.
STOP: Stops sequence program operation.
15) RESET/L.CLR
switch
RESET: Used to perform hardware reset, operation fault rest,
operation initialization, etc.
If this switch is left in the RESET position, the whole
system will be reset and the system will not operate
properly. After performing reset, always return this
switch to the neutral position.
L.CLR : Used to turn "OFF" or "zero" all data in the parameter-
set latch area.
Used to clear the sampling trace and status latch
registration.
16) Module fixing screw
hole Hole for the screw used to fix to the base unit. (M3 12 screw)
17) Module fixing latch Latch used to fix to the base unit.
18) Battery connector
pin
For connection of battery lead wires.
(When shipped from the factory, the lead wires are
disconnected from the connector to prevent the battery from
consuming.)
19) Battery Backup battery for use of program memory, standard RAM and
power failure compensation function.
*2 : When normally connecting a cable to the USB connector or RS-232 connector, clamp the
cable to prevent it from coming off due to the dangling, moving or carelessly pulling of the
cable.
The Q6HLD-R2 type Connector Disconnection Prevention Holder is available as a clamp
for RS232 connector.

60
4.5.2 Switch operation after writing program
(1) When you write a program during STOP of CPU module
When you write a program during STOP of the CPU module, operate the
switches in the following procedure.
(a) RUN/STOP switch: STOP
RUN LED : OFF ............... CPU module STOP status to Program write
(b) RESET/L.CLR switch: Move to RESET once and return to the original
neutral position.
RUN/STOP switch : STOP to RUN
RUN LED : ON ................. CPU module RUN status
(2) When you write a program during RUN
When you write a program during RUN of the CPU module, do not
operate the switch.
POINT
(1) The CPU module will not go into the RUN status if you move the
RUN/STOP switch to RUN immediately after writing a program in the
STOP status of the CPU module.
After writing a program, perform rest with the RESET/L.CLR switch, then
move the RUN/STOP switch to RUN to set the CPU module to the RUN
status.
(2) If you want to set the CPU module into the RUN status without resetting,
move the RUN/STOP switch from STOP to RUN to STOP to RUN.
After the second motion of STOP to RUN, the CPU module goes into the
RUN status.
4.5.3 Latch clear operation
To perform latch clear, operate the RESET/L.CLR switch in the following
procedure.
(a) RUN/STOP switch : STOP
(b) RESET/L.CLR switch : Move the switch to L.CLR several times until
the USER LED flickers.
USER LED : Flicker.......... Ready for latch clear.
(c) RESET/L.CLR switch : Move the switch to L.CLR once more.
USER LED: OFF .............. Latch clear complete.
POINT
(1) Latch clear can be set to be valid or invalid device-by-device by making
device setting in the parameter mode.
(2) In addition to the way of using the RESET/L.CLR switch for latch clear,
remote latch clear may be performed from GX Developer.
For remote latch clear, refer to the User's Manual (Function Explanation,
Program Fundamentals) of the CPU module used.

61
4.5.4 Mounting and removing memory card during power-on
(1) When removing the memory card while power is on
(a) Using the sequence program or testing of the GX Developer, turn on
the special relay "SM609".
(b) Make sure that the special relays "SM604", "SM605" turned off by
monitoring the GX Developer.
(c) Remove the memory card.
POINT
Note that if you do not follow the above procedure, the data within the
memory card may be corrupted.
If the CPU module operation at parameter error occurrence has been set to a
stop, the CPU module stops operation due to the occurrence of "ICM. OPE.
ERROR".
(2) When installing the memory card while power is on
(a) Mounting memory card
POINT
Note that after mounting the memory card, remounting processing is
performed, increasing the scan time to a maximum of several 10 ms.
4.5.5 Executing automatic write to standard ROM.
Automatic write to the standard ROM is carried out with the following
procedures.
(1) Operation with GX Developer (setting automatic write to standard ROM)
(a) Check the "Auto Download all Data from Memory card to standard
ROM" item in the PLC parameter boot file setting.
Set the "Transfer from"
to "Standard ROM".
Check "Auto Down load all
data from Memory card to
standard ROM ".
(b) Store the set parameters and programs to be booted in the memory
card.
62
(2) Operation with CPU module (automatic write to standard ROM)
(a) Turn the PLC power OFF.
(b) Mount the memory card containing the parameters and program to be
booted into the CPU module.
(c) Set the parameter valid drive to the mounted memory card using the
CPU module DIP switches.
y When SRAM card is mounted ................SW2: ON, SW3: OFF
y When Flash/ATA card is mounted ..........SW2: OFF, SW3: ON
(d) Turn the PLC power ON.
Boot the file designated in the memory card into the program memory,
and after booting is completed, write the contents of the program
memory into the standard ROM.
(e) When automatic write to standard ROM is completed, the "BOOT
LED" will flicker, and the CPU module will stop with an error.
(f) Turn the PLC power OFF.
(g) Remove the memory card, and set the parameter valid drive to the
standard ROM with the CPU module DIP switches.
y Standard ROM .......................................SW2: ON, SW3: ON
(3) When the PLC power is turned ON, the data will be booted from the
standard ROM to the program memory, and actual operation will be
possible.

63
4.6 Part Names of Power Supply Modules
(1) Q61P-A1, Q61P-A2, Q62P, Q63P, Q64P, Q61SP
(See section 4.4.1 for part names of power supply of Q00JCPU.)
POWER
100-120VAC
INPUT
50/60Hz 105VA
OUTPUT 5VDC 6A
ERR.
L
+-
24VDC 0.5A
(FG)
(LG)
N
L
100-120VAC
INPUT
13
)
1
)
12)
2)
3)
4)
5)
14
)
11)
Q61P-A1
POWER
200-240VAC
INPUT
50/60Hz 105VA
OUTPUT 5VDC 6A
ERR.
L
+-
24VDC 0.5A
(FG)
(LG)
N
L
200-240VAC
INPUT
13) 1)
12)
2)
3)
4)
6)
14
)
Q61P-A2
Q61P-A2
11)
Q61P-A2
POWER
100-240VAC
INPUT
50/60Hz 105VA
OUTPUT 5VDC 3A 24VDC 0.6A
ERR.
L
+-
24VDC 0.5A
(FG)
(LG)
N
L
100-240VAC
INPUT
13
)
1
)
12)
2)
3)
4)
7)
14) 11)
Q62P
Q62P
Q62P
+24V
24G
10)
Q63P
POWER
24VDC
INPUT
MAX 45W
OUTPUT 5VDC 6A
ERR.
L
+-
24VDC 0.5A
(FG)
(LG)
+24V
24VDC
INPUT
13) 1)
12)
2)
3)
4)
8)
14
)
11)
Q63P
24G
Q63P
Q64P
POWER
100-120/200-240VAC
INPUT
50/60Hz 160VA
OUTPUT 5VDC 8.5A
ERR.
L
+-
24VDC 0.5A
(FG)
(LG)
N
L
100-120/200-240VAC
INPUT
13) 1)
12
)
2)
3)
4)
9)
14)
Q64P
Q64P
11)
Q61SP
Q61SP
100-
240V
AC
Q61SP POWER
INPUT
50/60Hz 40VA
100-240VAC
-
(FG)
+
L
ERR.
24VDC
0.5A
INPUT
N
L
OUTPUT 5VDC 2A
(LG)
MITSUBISHI
1)
2)
3)
4)
7)
11
)
14)
13)

64
No. Name Application
1) POWER LED 5VDC power indicator LED
2) ERR terminals Turned OFF (opened) when a stop error occurs in the CPU
module. Normally off when mounted in an extension base
unit.
3) FG terminal Ground terminal connected to the shield pattern of the printed
circuit board.
4) LG terminal Grounding for the power supply filter. The potential of Q61P-
A1, Q61P-A2, Q62P, Q64P and Q61SP terminal is 1/2 of the
input voltage
5) Power input
terminals Used to connect a 100VAC power supply.
6) Power input
terminals Used to connect a 200VAC power supply.
7) Power input
terminals Used to connect a 100VAC to 200VAC power supply.
8) Power input
terminals Used to connect a 24VDC power supply.
9) Power input
terminals Used to connect a 100VAC/200VAC power supply.
10) +24V, 24G terminals Used to supply 24VDC power to inside the output module
(using external wiring).
11) Terminal screw M3.5 7
12) Terminal cover Protective cover of the terminal block
13) Module fixing screw Used to fix the module to the base unit. M3 12 screw (user-
prepared) (Tightening torque : 36 to 48Nxcm)
14) Module loading lever Used to mount the module into the base unit.
POINTS
(1) The Q61P-A1 is dedicated for inputting a voltage of 100 VAC. Do not input a voltage of
200 VAC into it or trouble may occur on the Q61P-A1.
Supply power voltage
Power
module type 100VAC 200VAC
Q61P-A1 Operates normally. Power supply module causes
trouble.
Q61P-A2
Power supply module does not
cause trouble.
CPU module cannot be
operated.
Operates normally.
(2) Q64P automatically switches the input range 100VAC/200VAC.
Therefore, it is not compatible with the intermediate voltage (133VAC to 169VAC).
The CPU module may not work normally if the above intermediate voltage is applied.
(3) Ensure that the earth terminals LG and FG are grounded.

65
(2) A1S61PN, A1S62PN, A1S63P
MELSECA1S61PN
POWER
MITSUBISHI
INPUT
100-240VAC
105VA
50 / 60Hz
OUTPUT
5VDC 5A
INPUT
100-240VAC
9
)
1)
5
)
7
)
8)
(FG)
(LG)
A1S61PN
4
)
3
)
MELSECA1S62PN
POWER
MITSUBISHI
INPUT
100-240VAC
105VA
50 / 60Hz
OUTPUT
5VDC 3A
24VDC 0.6A
+24V
24G
INPUT
100-240VAC
9
)
1)
2)
5)
7)
8)
(FG)
(LG)
A1S62PN
4)
3)
NC
NC
MELSECA1S63P
POWER
MITSUBISHI
INPUT
DC15.6 31.2V OUTPUT
DC 5V 5A
FG
LG
9)
1)
3)
4)
6)
7)
8)
INPUT
+24V
24G
NC
NC
NC
NC
A1S61PN A1S62PN
A1S63P
No. Name Application
1) POWER LED 5VDC power indicator LED
2) +24V, 24G terminals Used to supply 24VDC power to inside of the output module
(using external wiring).
3) FG terminals Ground terminal connected to the shield pattern of the printed
circuit board.
4) LG terminals Grounding for the power supply filter. The potential of
A1S61PN or A1S62PN terminal is 1/2 of the input voltage.
5) Power input terminals Used to connect a 100VAC to 200VAC power supply.
6) Power input terminals Used to connect a 24VDC power supply.
7) Terminal screw Protective cover of the terminal block
8) Terminal cover Protective cover of the terminal block
9) Module fixing screw Used to fix the module to the base unit.
(M4 screw, tightening torque : 59 to 88Nxcm)
POINT
(1) Do not wire the terminal which is printed NC on the terminal block.
(2) Be sure to ground the terminals LG and FG to the protective ground
conductor.

66
5. Specifications and Connections of I/O Modules
DANGER z Completely turn off the external power supply when
installing or placing wiring. Not completely turning off
all power could result in electric shock or damage to
the product.
z When turning on the power supply or operating the
module after installation or wiring work, be sure that
the module's terminal covers are correctly attached.
Not attaching the terminal cover could result in electric
shock.
CAUTION z Be sure to ground the FG terminals and LG terminals
to the protective ground conductor. Not doing so could
result in electric shock or erroneous operation.
z When wiring in the PLC, be sure that it is done
correctly by checking the product's rated voltage and
the terminal layout. Connecting a power supply that is
different from the rating or incorrectly wiring the
product could result in fire or damage.
z External connections shall be crimped or pressure
welded with the specified tools, or correctly soldered.
Imperfect connections could result in short circuit,
fires, or erroneous operation.
z Tighten the terminal screws with the specified torque.
If the terminal screws are loose, it could result in short
circuits, fire, or erroneous operation. Tightening the
terminal screws too far may cause damages to the
screws and/or the module, resulting in fallout, short
circuits, or malfunction.
z Be sure there are no foreign substances such as
sawdust or wiring debris inside the module. Such
debris could cause fires, damage, or erroneous
operation.
z The module has an ingress prevention label on its top
to prevent foreign matter, such as wire offcuts, from
entering the module during wiring.
Do not peel this label during wiring.
Before starting system operation, be sure to peel this
label because of heat dissipation.
This chapter provides the specifications and connection diagrams of the Q
series I/O modules.

67
5.1 Input Modules
5.1.1 Specifications of input modules
Type
Item QX10 QX28
Input form AC input
Number of input points 16 points 8 points
Rated input voltage,
frequency 100 to120V AC (+10%/-15%)
50/60Hz ( 3Hz) 100 to 240V AC (+10%/-15%)
50/60Hz ( 3Hz)
Rated input current Approx. 8mA (100V AC, 60Hz)
Approx. 7mA (100V AC, 50Hz)
Approx. 17mA (200V AC, 60Hz),
Approx. 14mA (200V AC, 50Hz),
Approx. 8mA (100V AC, 60Hz),
Approx. 7mA (100V AC, 50Hz)
ON voltage/ON current 80V AC or more/5mA or more (50Hz, 60Hz)
OFF voltage/OFF current 30V AC or less/1.7mA or less (50Hz, 60Hz)
Number of simultaneously
input points
(Simultaneous ON ratio)
100% (110V AC)
60% (132V AC) 100% (240V AC)
87.5% (264V AC)
OFF to ON 15ms or less (100V AC, 60Hz) 10ms or less (100V AC, 60Hz)
Response
time ON to OFF 20ms or less (100V AC, 60Hz)
Writing method for
common 16 points/common
(Common terminal: TB17) 8 points/common
(Common terminal: TB17)
Number of occupied I/O
points 16 points/common (Common terminal:TB17)
External connection 18-point terminal block (M3 x 6 screw)
5 V DC internal current
consumption 50mA (TYP. all points ON)
For all modules, the following is applied. Isolation method: Photocoupler isolation
Input display: LED display

68
Type
Item QX40 QX40-S1
Input form DC input (positive common type)
Number of input points 16 points
Rated input voltage 26V DC (+ 20%/-15%, ripple ratio within 5%)
Rated input current Approx. 4mA Approx. 6mA
ON voltage/ON current 19V or more/3mA or more 19V or more/4mA or more
OFF voltage/OFF current 11V or less/1.7mA or less
Number of simultaneous
input points (Simultaneous
ON ratio) 100%
OFF to ON
Response
time ON to OFF
1ms/5ms/10ms/20ms/70ms or less
(CPU module parameter setting)
Initial setting is 10ms. *1
Writing method for
common 16 points/common (Common terminal:TB17)
Number of occupied I/O
points 16 points (I/O assignment is set as
16-point input module) 16 points (I/O assignment is set as
16-point high-speed input module)
External connection 18-point terminal block (M3 6 screw)
5V DC internal current
consumption 50mA (TYP. all points ON) 60mA (TYP. all points ON)
For all modules, the following is applied. Isolation method: Photocoupler isolation
Input display: LED display
*1: The response time of QX40-S1 is shown below. (Set with parameters of the CPU module. The
initial setting is 0.2ms.)
Setting value 0.1 0.2 0.4 0.6 1
TYP. 0.05ms 0.15ms 0.30ms 0.55ms 1.05msOFF ON MAX. 0.10ms 0.20ms 0.40ms 0.60ms 1.20ms
TYP. 0.15ms 0.20ms 0.35ms 0.60ms 1.10msON OFF MAX 0.20ms 0.30ms 0.50ms 0.70ms 1.30ms

69
Type
Item QX41 QX41-S1
Input form DC input (positive common type)
Number of input points 32 points
Rated input voltage 24V DC (+ 20%/-15%, ripple ratio within 5%)
Rated input current Approx. 4mA Approx. 6mA
ON voltage/ON current 19V or more/3mA or more
OFF voltage/OFF current 11V or less/1.7mA or less 9.5V or less/1.5mA or less
Number of simultaneous
input points (Simultaneous
ON ratio) 60% (20 points/common)
OFF to ON
Response
time ON to OFF
1ms/5ms/10ms/20ms/70ms or less
(CPU module parameter setting)
Initial setting is 10ms. *1
Writing method for
common 32 points/common (Common terminal:B01, B02)
Number of occupied I/O
points 32 points (I/O assignment is set as
32-point input module) 32 points (I/O assignment is set as
32-point high-speed input module)
External connection 40-pin connector
5V DC internal current
consumption 75mA (TYP. all points ON)
For all modules, the following is applied. Isolation method: Photocoupler isolation
Input display: LED display
*1: The response time of QX41-S1 is shown below. (Set with parameters of the CPU module. The
initial setting is 0.2ms.)
Setting value 0.1 0.2 0.4 0.6 1
TYP. 0.05ms 0.15ms 0.30ms 0.55ms 1.05msOFF ON MAX. 0.12ms 0.20ms 0.40ms 0.60ms 1.20ms
TYP. 0.15ms 0.20ms 0.35ms 0.60ms 1.10msON OFF MAX. 0.20ms 0.30ms 0.50ms 0.70ms 1.30ms

70
Type
Item QX42 QX42-S1
Input form DC input (positive common type)
Number of input points 64 points
Rated input voltage 24V DC (+ 20%/-15%, ripple ratio within 5%)
Rated input current Approx. 4mA
ON voltage/ON current 19V or more/3mA or more
OFF voltage/OFF current 11V or less/1.7mA or less 9.5V or less/1.5mA or less
Number of simultaneous
input points (Simultaneous
ON ratio) 50% (16 points/common)
Response
time OFF to ON
ON to OFF 1ms/5ms/10ms/20ms/70ms or less
(CPU module parameter setting)
Initial setting is 10ms. *1
Writing method for
common 32 points/common
(Common terminal: 1B01, 1B02, 2B01, 2B02)
Number of occupied I/O
points 64 points (I/O assignment is set as
64-point input module) 64 points (I/O assignment is set as
64-point high-speed input module)
External connection 40-pin connector 2
5V DC internal current
consumption 90mA (TYP. all points ON)
For all modules, the following is applied. Isolation method: Photocoupler isolation
Input display: LED display
*1: The response time of QX42-S1 is shown below. (Set with parameters of the CPU module. The
initial setting is 0.2ms.)
Setting value 0.1 0.2 0.4 0.6 1
TYP. 0.05ms 0.15ms 0.30ms 0.55ms 1.05msOFF ON MAX. 0.12ms 0.20ms 0.40ms 0.60ms 1.20ms
TYP. 0.15ms 0.20ms 0.35ms 0.60ms 1.10msON OFF MAX. 0.20ms 0.30ms 0.50ms 0.70ms 1.30ms

71
Type
Item QX70 QX71 QX72
Input form DC input (positive/negative common type)
Number of input points 16 points 32 points 64 points
Rated input voltage
5VDC
(-15%/
+20%,
ripple ratio
within 5%)
12VDC
(-15%/
+20%,
ripple ratio
within 5%)
5VDC
(-15%/
+20%,
ripple ratio
within 5%)
12VDC
(-15%/
+20%,
ripple ratio
within 5%)
5VDC
(-15%/
+20%,
ripple ratio
within 5%)
12VDC
(-15%/
+20%,
ripple ratio
within 5%)
Rated input current Approx.
1.2mA Approx.
3.3mA Approx.
1.2mA Approx.
3.3mA Approx.
1.2mA Approx.
3.3mA
ON voltage/ON current 3.5V or more/1mA or more
OFF voltage/OFF current 1V or less/0.1mA or less
Number of simultaneous
input points
(Simultaneous ON ratio) 100%
OFF to ON
Response
time ON to OFF 1ms/5ms/10ms/20ms/70ms or less (CPU module parameter setting)
Initial setting is 10ms.
Writing method for
common
16 points/common
(Common
terminal:TB17)
32 points/common
(Common terminal:
B01, B02)
32 points/common
(Common terminal:
1B01, 1B02, 2B01,
2B02)
Number of occupied I/O
points
16 points (I/O
assignment is set as
16-point input module)
32 points (I/O
assignment is set as
32-point input module)
64 points (I/O
assignment is set as
64-point input module)
External connection 18-point terminal block
(M3 6 screw) 40-pin connector 40-pin connector 2
5V DC internal current
consumption 55mA
(TYP. all points ON) 70mA
(TYP. all points ON) 85mA
(TYP. all points ON)
For all modules, the following is applied. Isolation method: Photocoupler isolation
Input display: LED display
Type
Item QX80 QX81
Input form DC input (negative common type)
Number of input points 16 points 32 points
Rated input voltage 24V DC (+ 20%/-15%, ripple ratio within 5%)
Rated input current Approx. 4mA
ON voltage/ON current 19V or more/3mA or more
OFF voltage/OFF current 11V or less/1.7mA or less
Number of simultaneous
input points
(Simultaneous ON ratio) 100% 60% (20 points/common)
OFF to ON
Response
time ON to OFF 1ms/5ms/10ms/20ms/70ms or less (CPU module parameter setting)
Initial setting is 10ms.
Writing method for
common 16 points/common
(Common terminal:TB18) 32 points/common
(Common terminal: 17,18, 36)
Number of occupied I/O
points 16 points (I/O assignment is set as
16-point input module) 32 points (I/O assignment is set as
32-point input module)
External connection 18-point terminal block
(M3 6 screw) 37-pin D sub-connector
5V DC internal current
consumption 50mA (TYP. all points ON) 75 (TYP. all points ON)

72
5.1.2 Input module connection diagram
Type Rated input voltage Type Rated input voltage
(1) QX10 100 to 200VAC (2) QX28 100 to 240VAC
X01
X03
X05
X07
X09
X0B
X0D
X0F
X00
COM
X02
X04
X06
X0A
X0C
X0E
1
3
5
7
9
11
13
15
17
2
4
6
8
10
12
14
16
18Empty
X08
X00
COM
X01
X02
X03
X05
X06
X07
1
3
5
7
9
11
13
15
17
2
4
6
8
10
12
14
16
18
X05
Empty
Empty
Empty
Empty
Empty
Empty
Empty
Empty
Empty
DANGER
z Do not touch the
terminals during
energization.
Doing so can
cause an electric
shock or
malfunction.
DANGER
z Do not touch the
terminals during
energization.
Doing so can cause
an electric shock or
malfunction.
Type Rated input voltage Type Rated input voltage
QX40 (4) QX80 24VDC
QX40-S1 24VDC(3)
QX70 5/12VDC
X01
X03
X05
X07
X09
X0B
X0D
X0F
X00
X02
X04
X06
X0A
X0C
X0E
1
3
5
7
9
11
13
15
17
2
4
6
8
10
12
14
16
18
Empty
X08
+-
COM
*1
X01
X03
X05
X07
X09
X0B
X0D
X0F
X00
X02
X04
X06
X0A
X0C
X0E
1
3
5
7
9
11
13
15
17
2
4
6
8
10
12
14
16
18 Empty
X08
COM
*1: Negative and positive commons are both
applicable to QX70.

73
Type Rated input voltage Type Rated input voltage
QX41
QX41-S1 (6) QX81 24VDC
QX42 *1
QX42-S1
24VDC
QX71
(5)
QX72 *1 5/12VDC
X00
X08
X01
X07
X02
X04
X05
X06
X09
X03
X0A
X0B
X0C
X0D
X0E
X0F
X10
X11
X12
X13
X14
X15
X16
X17
X18
X19
X1A
X1B
X1C
X1D
X1E
X1F
B20 A20
B19 A19
B18 A18
B17 A17
B16 A16
B15 A15
B14 A14
B13 A13
B12 A12
B11 A11
B10 A10
B9 A9
B8 A8
B7 A7
B6 A6
B5 A5
B4 A4
B3 A3
B2 A2
B1 A1
Empty
Empty
Empty
Empty
Empty
Empty
COM
COM
+-
+-
*3 *2
20 1
21 2
22 3
23 4
24 5
25 6
26 7
27 8
28 9
29 10
30 11
31 12
32 13
33 14
34 15
35 16
36 17
37 18
19
X01
X03
X05
X07
X09
X0B
X0D
X0F
X11
X13
X15
X17
X19
X1B
X1D
X1F
COM
X00
X02
X04
X06
X08
X0A
X0C
X0E
X10
X12
X14
X16
X18
X1A
X1C
X1E
COM
COM
Empty
+-
Module bottom
Module top
Empty
*1: For the QX42/QX42-S1/QX72, the above
diagram shows the first half 32 points (F).
The connections of the latter half 32 points
(L) are the same as those of the first half 32
points (F).
Regard X00 to X1F as X20 to X3F.
*2: B1 and B2 are connected internally.
*3: Negative and positive commons are both
applicable to QX71 and QX72.
* 17 , 18 and 36 are connected internally.

74
5.2 Output Modules
5.2.1 Specifications of output modules
Type
Item QY10 QY18A
Output form Contact output
Number of output points 16 points 8 points
Rated switching voltage,
current
24V DC, 2A (resistance load)/point;
240V AC, 2A (COS = 1)/point;
8A/common
24V DC, 2A (resistance load)/point;
240V AC, 2A (COS = 1)/point
OFF to ON 10ms or less
Response
time ON to OFF 12ms or less
Surge suppressor None
Fuse None
Fuse blown display None
Voltage
External
power supply Current -
Writing method for
common 16 points/common
(Common terminal:TB17) -
Number of occupied I/O
points 16 points (I/O assignment is set as 16-point output module)
Protective function None
External connection 18-point terminal block (M3 6 screw)
5V DC internal current
consumption 430mA (TYP. all points ON) 240mA (TYP. all points ON)
For QY10 and QY18A, the following is applied.
Isolation method: Relay isolation
Output display: LED display
Type
Item QY22 QY40P
Output form TRIAC output Transistor output (sink type)
Number of output points 16 points
Rated load voltage 100 – 240V AC (+20%/-15%) 12/24V DC (+20%/-15%)
Max. load current 0.6A/point, 4.8A/common 0.1A/point, 1.6A/common
OFF to ON 1ms + 0.5Hz or less 1ms or less
Response
time ON to OFF 1ms + 0.5Hz or less
(rated load, resistance load) 1ms or less
(rated load, resistance load)
Surge suppressor CR absorber Zener diode
Fuse None
Fuse blown display None
Voltage 12/24V DC
(+20%/-15%, ripple ratio within 5%)
External
power supply Current -10mA
(at 24V DC, MAX all points ON)
Writing method for
common 16 points/common
(Common terminal:TB17) 16 points/common
(Common terminal:TB18)
Number of occupied I/O
points 16 points (I/O assignment is set as 16-point output module)
Protective function None Provided
External connection 18-point terminal block (M3 screw 6)
5V DC internal current
consumption 250mA (MAX. all points ON) 65mA (TYP. all points ON)
For QY22 and QY40P, the following is applied.
Isolation method: Photocoupler isolation
Output display: LED display

75
Type
Item QY41P QY42P
Output form Transistor output (sink type)
Number of output points 32 points 64 points
Rated load voltage 12/24V DC (+20%/-15%)
Max. load current 0.1A/point, 2A/common
OFF to ON 1ms or less
Response
time ON to OFF 1ms or less (rated load, resistance load)
Surge suppressor Zener diode
Fuse None
Fuse blown display None
Voltage 12/24V DC (+20%/-15%, ripple ratio within 5%)
External
power supply Current 20mA (at 24V DC) 10mA (at 24V DC)/common
Writing method for
common 32 points/common
(Common terminal:A01, A02)
1632 points/common
(Common terminal:1A01, 1A02,
2A01, 2A02)
Number of occupied I/O
points 32 points (I/O assignment is set as
32-point output module) 64 points (I/O assignment is set as
64-point output module)
Protective function Provided
External connection 40-pin connector 40-pin connector 2
5V DC internal current
consumption 105mA (TYP. all points ON) 150mA (TYP. all points ON)
For QY41P and QY42P, the following is applied.
Isolation method: Photocoupler isolation
Output display: LED display
Type
Item QY50 QY68A
Output form Transistor output (sink type) Transistor output (all points
independent, sink/source type)
Number of output points 16 points 8 points
Rated load voltage 12/24V DC (+20%/-15%) 5/12/24V DC (+20%/-15%)
Max. load current 0.5A/point, 4A/common 2A/point, 8A/module
OFF to ON 1ms or less 3ms or less
Response
time ON to OFF 1ms or less
(rated load, resistance load) 10ms or less
(resistance load)
Surge suppressor Zener diode
Fuse 6.7A (Not replaceable, blown fuse
capacity: 50A) None
Fuse blown display Provided (LED display for fuse
blown, signal output to CPU
module) None
Voltage 12/24V DC (+20%/-15%, ripple
ratio within 5%)
External
power
supply Current 20mA (at 24V DC) -
Writing method for
common 16 points/common
(Common terminal:TB18) All points independent
Number of occupied I/O
points 16 points (I/O assignment is set as 16-point output module)
Protective function None
External connection 18-point terminal block (M3 screw 6)
5V DC internal current
consumption 80mA (TYP. all points ON) 110mA (TYP. all points ON)
For QY50 and QY68A, the following is applied.
Isolation method: Photocoupler isolation
Output display: LED display

76
Type
Item QY70 QY71
Output form Transistor output (sink type)
Number of output points 16 points 32 points
Rated load voltage 5/12V DC (+20%/-10%) 5/12V DC (+25%/-10%)
Max. load current 16mA/point, 256mA/common 16mA/point, 512mA/common
OFF to ON 0.5ms or less
Response
time ON to OFF 0.5ms or less (resistance load)
Surge suppressor None
Fuse 1.6A (Not replaceable, blown fuse capacity: 50A)
Fuse blown display Provided (LED display for fuse blown, signal output to CPU module)
Voltage 5/12V DC
(+20%/-10%, ripple ratio within 5%) 5/12V DC
(+25%/-10%, ripple ratio within 5%)
External
power
supply Current 90mA
(at 24V DC, MAX all points ON) 170mA
(at 24V DC)
Writing method for
common 16 points/common
(Common terminal:TB18) 32 points/common
(Common terminal: A01, A02)
Number of occupied I/O
points 16 points (I/O assignment is set as
16-point output module) 32 points (I/O assignment is set as
32-point output module)
Protective function None
External connection 18-point terminal block
(M3 6 screw) 40-pin connector
5V DC internal current
consumption 95mA (TYP. all points ON) 150mA (TYP. all points ON)
For QY70 and QY71, the following is applied.
Isolation method: Photocoupler isolation
Output display: LED display
Type
Item QY80 QY81P
Output form Transistor output (source type)
Number of output points 16 points 32 points
Rated load voltage 12/24V DC (+20%/-15%)
Max. load current 0.5A/point, 4A/common 0.1A/point, 2A/common
OFF to ON 1ms or less
Response
time ON to OFF 1ms or less (resistance load, resistance load)
Surge suppressor Zenor diode
Fuse 6.7A (Not replaceable, blown fuse
capacity: 50A) None
Fuse blown display Provided (LED display for fuse
blown, signal output to CPU
module) None
Voltage 12/24V DC (+20%/-15%, ripple ratio within 5%)
External
power supply Current 20mA (at 24V DC) 40mA (at 24V DC)
Writing method for
common 16 points/common
(Common terminal:TB17) 32 points/common (Common
terminal: 17,18, 36)
Number of occupied I/O
points 16 points (I/O assignment is set as
16-point output module) 32 points (I/O assignment is set as
32-point output module)
Protective function None Provided
External connection 18-point terminal block
(M3 6 screw) 37-pin D sub-connector
5V DC internal current
consumption 80mA (TYP. all points ON) 95mA (TYP. all points ON)
For QY80 and QY81P, the following is applied.
Isolation method: Photocoupler isolation
Output display: LED display

77
5.2.2 Output module connection diagram
Type Rated load voltage Type Rated load voltage
(1) QY10 24VDC/240VAC (2) QY18A 24VDC/240VAC
L
L
L
L
L
L
L
L
L
L
L
L
L
L
L
1
3
5
7
9
11
13
15
17
2
4
6
8
10
12
14
16
18
Y01
Y03
Y05
Y07
Y09
Y0B
Y0D
Y0F
Y00
Y02
Y04
Y06
Y08
Y0A
Y0C
Y0E
COM
Empty
L
External load
power supply
* The following diagram shows the external load
power supply.
+-
+
-100 to 240VAC
or 24VDC
or
or
L
L
L
L
L
L
L
1
3
5
7
9
11
13
15
17
2
4
6
8
10
12
14
16
18
Y00
Y01
Y02
Y03
Y04
Y05
Y06
Y07
Y00
Y01
Y02
Y03
Y04
Y05
Y06
Y07
L
Empty Empty
External load
power supply
External load
power supply
External load
power supply
External load
power supply
External load
power supply
External load
power supply
External load
power supply
External load
power supply
* The following diagram shows the external load
power supply.
+-
+
-100 to 240VAC
or 24VDC
or
or
DANGER
z Do not touch the
terminals during
energization.
Doing so can cause
an electric shock or
malfunction.
DANGER
z Do not touch the
terminals during
energization.
Doing so can cause
an electric shock or
malfunction.
Type Rated load voltage Type Rated load voltage
(3) QY22 100-240VAC (4) QY40P 12/24VDC
L1
3
5
7
9
11
13
15
17
2
4
6
8
10
12
14
16
18
Y01
Y03
Y05
Y07
Y0B
L
L
L
L
L
L
L
L
L
L
L
L
L
Y0D
Y0F
Y00
Y02
Y04
Y06
Y08
Y0A
Y0C
Y0E
COM
L
LY09
L
L
L
L
L
L
L
L
L
L
L
L
L
L
L
1
3
5
7
9
11
13
15
17
2
4
6
8
10
12
14
16
18
Y01
Y03
Y05
Y07
Y09
Y0B
Y0D
Y0F
Y00
Y02
Y04
Y06
Y08
Y0A
Y0C
Y0E
12/24VDC
L
COM
DANGER
z Do not touch the
terminals during
energization.
Doing so can cause
an electric shock or
malfunction.

78
Type Rated load voltage Type Rated load voltage
(5) QY50 12/24VDC (6) QY68A 5/12/24VDC
L
L
L
L
L
L
L
L
L
L
L
L
L
L
L
1
3
5
7
9
11
13
15
17
2
4
6
8
10
12
14
16
18
Y01
Y03
Y05
Y07
Y09
Y0B
Y0D
Y0F
Y00
Y02
Y04
Y06
Y08
Y0A
Y0C
Y0E
12/24VDC
L
COM
L
L
L
L
1
3
5
7
9
11
13
15
17
2
4
6
8
10
12
14
16
18
Y00
Y01
Y02
Y03
Y04
Y05
Y06
Y07
Y00
Y01
Y02
Y03
Y04
Y05
Y06
Y07
Empty Empty
L
L
L
L
Sink
Source
Type Rated load voltage Type Rated load voltage
(7) QY70 5/12VDC (8) QY80 12/24VDC
L
L
L
L
L
L
L
L
L
L
L
L
L
L
L
1
3
5
7
9
11
13
15
17
2
4
6
8
10
12
14
16
18
Y01
Y03
Y05
Y07
Y09
Y0B
Y0D
Y0F
Y00
Y02
Y04
Y06
Y08
Y0A
Y0C
Y0E
5/12VDC
L
COM
L
L
L
L
L
L
L
L
L
L
L
L
L
L
L
1
3
5
7
9
11
13
15
17
2
4
6
8
10
12
14
16
18
Y01
Y03
Y05
Y07
Y09
Y0B
Y0D
Y0F
Y00
Y02
Y04
Y06
Y08
Y0A
Y0C
Y0E
COM
L
0V

79
Type Rated load voltage Type Rated load voltage
QY41P (10) QY71 5/12VDC(9) QY42P 12/24VDC
Y00
Y08
Y01
Y07
Y02
Y04
Y05
Y06
Y09
Y03
Y0A
Y0B
Y0C
Y0D
Y0E
Y0F
Y10
Y11
Y12
Y13
Y14
Y15
Y16
Y17
Y18
Y19
Y1A
Y1B
Y1C
Y1D
Y1E
Y1F
B20 A20
B19 A19
B18 A18
B17 A17
B16 A16
B15 A15
B14 A14
B13 A13
B12 A12
B11 A11
B10 A10
B9 A9
B8 A8
B7 A7
B6 A6
B5 A5
B4 A4
B3 A3
B2 A2
B1 A1
12/24VDC
Empty
Empty
Empty
Empty
+
-
12/24VDC
COM
COM
L
L
L
L
L
L
L
L
L
L
L
L
L
L
L
L
L
L
L
L
L
L
L
L
L
L
L
L
L
L
L
L
Y00
Y08
Y01
Y07
Y02
Y04
Y05
Y06
Y09
Y03
Y0A
Y0B
Y0C
Y0D
Y0E
Y0F
Y10
Y11
Y12
Y13
Y14
Y15
Y16
Y17
Y18
Y19
Y1A
Y1B
Y1C
Y1D
Y1E
Y1F
B20 A20
B19 A19
B18 A18
B17 A17
B16 A16
B15 A15
B14 A14
B13 A13
B12 A12
B11 A11
B10 A10
B9 A9
B8 A8
B7 A7
B6 A6
B5 A5
B4 A4
B3 A3
B2 A2
B1 A1
5/12VDC
Empty
Empty
Empty
Empty
+
-
5/12VDC
COM
COM
L
L
L
L
L
L
L
L
L
L
L
L
L
L
L
L
L
L
L
L
L
L
L
L
L
L
L
L
L
L
L
L
* For QY42P, the above diagram shows the first half
32 points (F).
The connections of the latter half 32 points (L) are
the same as those of the first half 32 points (F).
Regard Y00 to Y1F as Y20 to Y3F.
* B1 and B2 , and A1 and A2 are internally
connected.
* B1 and B2 , and A1 and A2 are internally
connected.

80
Type Rated load voltage
(11) QY81P 12/24VDC
20
+-
1
21 2
22 3
23 4
24 5
25 6
26 7
27 8
28 9
29 10
30 11
31 12
32 13
33 14
34 15
35 16
36 17
37 18
19
Y01
Y03
Y05
Y07
Y09
Y0B
Y0D
Y0F
Y11
Y13
Y15
Y17
Y19
Y1B
Y1D
Y1F
COM
Y00
Y02
Y04
Y06
Y08
Y0A
Y0C
Y0E
Y10
Y12
Y14
Y16
Y18
Y1A
Y1C
Y1E
COM
COM
L
L
L
L
L
L
L
L
L
L
L
L
L
L
L
L
L
L
L
L
L
L
L
L
L
L
L
L
L
L
L
L
0V
0V
Module bottom
Module top
* 17 , 18 and 36 , and 19 and 37 are
internally connected.

81
5.3 Input/output Composite Module
5.3.1 QH42P type input/output composite module
(1) Specifications
(a) Input section specifications
Type
Item DC Input (positive common)
Number of input points 32 points
Isolation method Photocoupler isolation
Rated input voltage 24V DC (+20%/-15%, ripple ratio within 5%)
Rated input current Approx. 4mA
ON voltage/ON current 19V DC or more/3mA or more
OFF voltage/OFF current 11V DC or less/1.7mA or less
Number of simultaneously input
points (Simultaneous ON ratio) 100% (50 )
75% (55 )
OFF to ON
Response
time ON to OFF
1ms/5ms/10ms/20ms/70ms or less
(CPU module parameter setting)
*1 Initial setting is 10ms.
Writing method for common 32 points/common (Common terminal:1B01, 1B02)
Number of occupied I/O points 32 points (I/O assignment is set as 32-point I/O
composite module.)
Operation display 32-point changeover indication with ON indication
(LED) switch
External wire connection
method 40-pin connector
5V DC internal current
consumption 130mA (TYP. all points ON)
*1: The response time of the input section can be changed using the following GX
developer.
CPU module GX Developer
Q00JCPU, Q00CPU, Q01CPU Version 7 or later
Q02 (H) CPU, Q06HCPU, Q12HCPU, Q25HCPU Version 5 or later
Q12PHCPU, Q25PHCPU Version 7.10L or later
Notice that the set response time of the input section becomes valid when using the
CPU module with the first 5 digits of the serial number, “01112” or later.
(To check the serial number, see Section 1.2.)

82
(b) Output section specifications
Type
Item Transistor output (sink type)
Number of output points 32 points
Isolation method Photocoupler isolation
Rated load voltage 12/24V DC (+20%/-15%)
Max. load current 0.1A/point, 2A/common
OFF to ON 1ms or lessResponse
Time ON to OFF 1ms or less (rated load, resistance load)
Surge suppressor Zenor diode
Fuse None
Fuse blown display None
Voltage 12/24V DC (+20%/-15%, ripple ratio within 5%)External
power supply Current 15mA (at 24V DC)/common (MAX. all points ON)
Writing method for common 32 points/common (Common terminal: 2A01, 2A02))
Protective function Provided

83
(2) Connection diagram
Type Rated load voltage Type Rated load voltage
QH42P
(input section) 24VDC QH42P
(output section) 12/24VDC
X00
X08
X01
X07
X02
X04
X05
X06
X09
X03
X0A
X0B
X0C
X0D
X0E
X0F
X10
X11
X12
X13
X14
X15
X16
X17
X18
X19
X1A
X1B
X1C
X1D
X1E
X1F
B20 A20
B19 A19
B18 A18
B17 A17
B16 A16
B15 A15
B14 A14
B13 A13
B12 A12
B11 A11
B10 A10
B9 A9
B8 A8
B7 A7
B6 A6
B5 A5
B4 A4
B3 A3
B2 A2
B1 A1
COM
COM
Empty
Empty
Empty
Empty
Empty
Empty
-+
Y00
Y08
Y01
Y07
Y02
Y04
Y05
Y06
Y09
Y03
Y0A
Y0B
Y0C
Y0D
Y0E
Y0F
Y10
Y11
Y12
Y13
Y14
Y15
Y16
Y17
Y18
Y19
Y1A
Y1B
Y1C
Y1D
Y1E
Y1F
B20 A20
B19 A19
B18 A18
B17 A17
B16 A16
B15 A15
B14 A14
B13 A13
B12 A12
B11 A11
B10 A10
B9 A9
B8 A8
B7 A7
B6 A6
B5 A5
B4 A4
B3 A3
B2 A2
B1 A1
DC12/24V
Empty
Empty
Empty
Empty
+-
DC12/24V
COM
COM
L
L
L
L
L
L
L
L
L
L
L
L
L
L
L
L
L
L
L
L
L
L
L
L
L
L
L
L
L
L
L
L
* B1 and B2 , and A1 and A2 are connected
internally.
* B1 and B2 , and A1 and A2 are connected
internally.

84
5.3.2 QX48Y57 type input/output composite module
(1) Specifications
(a) Input section specifications
Type
Specification DC input (positive common)
Number of input points 8 points
Isolation method Photo coupler isolation
Rated input voltage 24VDC (-15%/+20%, ripple ratio within 5%)
Rated input current Approx. 4mA
ON voltage/ON current 19VDC or more/3mA or more
OFF voltage/OFF current 11VDC or less/1.7mA or less
Number of
simultaneously input
points (Simultaneous ON
ratio)
100%
OFF ON
Response
time ON OFF 1ms/5ms/10ms/20ms/70ms or less
(CPU module parameter setting) *1 Initial setting is 10ms
Writing method for
common 8 points/common (Common terminal:TB09)
Number of occupied
input/output points 16 points (The I/O assignment is set as the 16-point
input/output composite module)
Operation indication ON indication (LED)
External wire connection
method 18-point terminal block (M3 6 screw)
5VDC internal current
consumption 80mA (TYP. all points ON)
*1: The response time of the input section can be changed with the following GX
Developer.
CPU Module GX Developer
Q00JCPU, Q00CPU, Q01CPU Version 7 or later
Q02 (H) CPU, Q06HCPU, Q12HCPU, Q25HCPU Version 5 or later
Q12PHCPU, Q25PHCPU Version 7.10L or later
Notice that the set response time of the input section becomes valid when using the
CPU module with the first 5 digits of the serial number, “01112” or later.
(To check the serial number, see Section 1.2.)

85
(b) Output section specifications
Type
Specification Transistor output (sink type)
Number of output points 7 points
Isolation method Photo coupler isolation
Rated load voltage 12/24VDC (-15%/+20%)
Max. load current 0.5A/point, 2A/common
OFF ON 0.1ms or less
Response
time ON OFF 1ms or less (rated load, resistance load)
Surge suppressor Zener diode
Fuse 4A (not replaceable) (Fuse blowing capacity: 50A)
Fuse blow indication Provided (When the fuse blows, it is indicated with the
LED and a signal is output to the CPU.)
Voltage 12/24VDC(+20%/-15%) (ripple ratio within 5%)External
supply
power Current 10mA (at 24VDC)
Writing method for
common 7 points/common (Common terminal:1B18)
Protective function None
(2) Connection diagram
Rated input voltage Rated load voltage
24VDC 12/24VDC
X01
X03
X05
X07
Y01
Y03
Y05
Y07
X00
X02
X04
X06
Y02
Y04
Y06
1
3
5
7
9
11
13
15
17
2
4
6
8
10
12
14
16
18
COM
+-
COM
L
L
L
L
L
L
L
+-

86
5.4 Interrupt Module
5.4.1 QI60 type interrupt module
Type
Item QI60
Input form DC input (positive common type)
Number of input points 16 points
Rated input voltage 24V DC (+20%/-15%, ripple ratio within 5%)
Rated input current Approx. 6mA
ON voltage/ON current 19V DC or more/4.0mA or more
OFF voltage/OFF current 11V DC or less/1.7mA or less
Number of simultaneously input
points (Simultaneous ON ratio) 100%
OFF to ON
Response
Time ON to OFF *2
Writing method for common 16 points/common (Common terminal:TB17)
Number of occupied I/O points 16 points
(I/O assignment is set as 16-point I/O composite module.)
External wire connection method 18-point terminal block (M3 6 screw)
5V DC internal current
consumption 60mA (TYP. all points ON)
For QI60, the following is applied.
Isolation method: Photocoupler isolation
Iutput display: LED display
*1: The response time of QI60 can be changed according to the following.
When using other products, the response time will not changed. (Fixed at 0.2ms)
Product name Description
CPU module Product with first 5 digits of serial number, “02092” or later.
GX Developer Version 6 or later
*2 The response time of QI60 is shown below. (Set with CPU module parameters. Initial setting is
0.2ms.)
Setting value 0.1 0.2 0.4 0.6 1
TYP. 0.05ms 0.15ms 0.30ms 0.55ms 1.05ms
OFF ON MAX. 0.12ms 0.20ms 0.40ms 0.60ms 1.20ms
TYP. 0.15ms 0.20ms 0.35ms 0.60ms 1.10ms
ON OFF MAX. 0.20ms 0.30ms 0.50ms 0.70ms 1.30ms
Type Rated load voltage
QI60 24VDC
X01
X03
X05
X07
X09
X0B
X0D
X0F
X00
X02
X04
X06
X0A
X0C
X0E
1
3
5
7
9
11
13
15
17
2
4
6
8
10
12
14
16
18
Empty
X08
+-
COM

87
5.5 Wiring of I/O Equipment
(1) The wires used for connection to the terminal block should be 0.3 to
0.75mm2 in core and 2.8mm (0.11 inch) max. in outside diameter.
(2) Insulation-sleeved crimping terminals cannot be used with the terminal
block.
It is recommended to cover the wire connections of the crimping terminals
with mark or insulation tubes.
(3) Run the input and output lines away from each other.
(4) When the wiring cannot be run away from the main circuit and power
lines, use a batch-shielded cable and ground it on the PLC side.
In some cases, ground it in the opposite side.
PLC
Input
Output
DC
Shielded cable
Shield RA
(5) Where wiring runs through piping, ground the piping without fail.
(6) Run the 24VDC input line away from the 100VAC and 200VAC lines.
(7) Wiring of 200m (686.67 ft.) or longer distance will give rise to leakage
currents due to the line capacity, resulting in a fault.
Refer to the troubleshooting chapter of the I/O Module User’s Manual.

88
6. Error Codes
If a fault occurs when the CPU module is switched from STOP to RUN or during
running (while the PLC system is ON), the CPU module will output the error
(LED indication) by the self-diagnosis function and store the error information in
the special relay (SM) and special register (SD).
REMARK
For the error code (4000H to 4FFFH) of the errors occurred on GX Developer,
intelligent function module or network system at request for general data
processing, refer to the user’s manual of the CPU module (Hardware Design,
Maintenance and Inspection).
6.1 How to Read the Error Code
If an error occurs, read the error code, error message and so on using the
following GX Developer.
CPU Module GX Developer
Q00JCPU, Q00CPU, Q01CPU Version 7 or later
Q02 (H) CPU, Q06HCPU, Q12HCPU, Q25HCPU Version 5 or later
Q12PHCPU, Q25PHCPU Version 7.10L or later
Use the following procedure to read the error code with GX Developer.
(1) Start GX Developer.
(2) Connect the PLC and peripheral device.
(3) On GX Developer, choose the [Online]-[Transfer setup] menu and specify
the port and the CPU module from which the error code will be read.
(4) Choose [Diagnostics]-[PLC diagnostics] menu.
(5) Clicking the Current error button in the PLC diagnostics dialog box
shows the error code and error message.
(6) Choose the [Help]-[PLC error] menu and confirm the definition of the
corresponding error code.
For details of how to operate GX Developer, refer to the operating manual of
your GX Developer.

HEADQUARTERS
MITSUBISHI ELECTRIC EUROPE
EUROPE B.V.
Gothaer Straße 8
D-40880 Ratingen
Phone: +49 (0) 21 02 / 486-0
Fax: +49 (0) 21 02 / 4 86-11 20
e mail: megfamail@meg.mee.com
MITSUBISHI ELECTRIC FRANCE
EUROPE B.V.
25, Boulevard des Bouvets
F-92741 Nanterre Cedex
Phone:+33155685568
Fax:+33155685685
e mail: factory.automation@fra.mee.com
MITSUBISHI ELECTRIC UK
EUROPE B.V.
Travellers Lane
GB-Hatfield Herts. AL10 8 XB
Phone:+44(0)1707/276100
Fax:+44(0)1707/278695
MITSUBISHI ELECTRIC ITALY
EUROPE B.V.
Via Paracelso 12
I-20041 Agrate Brianza (MI)
Phone: +39 039 6053 1
Fax: +39 039 6053 312
e mail: factory.automation@it.mee.com
MITSUBISHI ELECTRIC SPAIN
EUROPE B.V.
Carretera de Rubí 76-80
E-08190 Sant Cugat del Vallés
Phone:+3493/5653131
Fax:+3493/5892948
e mail: industrial@sp.mee.com
MITSUBISHI ELECTRIC JAPAN
CORPORATION
Office Tower “Z” 14 F
8-12,1 chome, Harumi Chuo-Ku
Tokyo 104-6212
Phone: +81 3 6221 6060
Fax: +81 3 6221 6075
MITSUBISHI ELECTRIC USA
AUTOMATION
500 Corporate Woods Parkway
Vernon Hills, IL 60061
Phone: +1 847 / 478 21 00
Fax: +1 847 / 478 22 83
EUROPEAN REPRESENTATIVES
GEVA AUSTRIA
Wiener Straße 89
A-2500 Baden
Phone:+43(0)2252/855520
Fax: +43 (0) 2252 / 488 60
e mail: office@geva.at
TEHNIKON BELARUS
Oktjabrskaya 16/5, Ap 704
BY-220030 Minsk
Phone:+375(0)17/2275704
Fax:+375(0)17/2276669
e mail: tehnikon@belsonet.net
Getronics b.v. BELGIUM
Control Systems
Pontbeeklaan 43
B-1731 Asse-Zellik
Phone: +32 (0) 2 / 467 17 51
Fax: +32 (0) 2 / 467 17 45
e mail: infoautomation@getronics.com
TELECON CO. BULGARIA
4, A. Ljapchev Blvd.
BG-1756 Sofia
Phone:+359(0)2/9744058
Fax:+359(0)2/9744061
e mail: —
INEA CR d.o.o. CROATIA
Drvinje 63
HR-10000 Zagreb
Phone:+385(0)1/3667140
Fax:+385(0)1/3667140
e mail: —
AutoCont CZECHIA
Control Systems s.r.o.
Nemocnicni 12
CZ-702 00 Ostrava 2
Phone: +420 59 / 6152 111
Fax: +420 59 / 6152 562
e mail: consys@autocont.cz
louis poulsen DENMARK
industri & automation
Geminivej 32
DK-2670 Greve
Phone:+45(0)43/959595
Fax:+45(0)43/959591
e mail: lpia@lpmail.com
UTU Elektrotehnika AS ESTONIA
Pärnu mnt.160i
EE-11317 Tallinn
Phone:+372(0)6/517280
Fax:+372(0)6/517288
e mail: utu@utu.ee
Beijer Electronics OY FINLAND
Ansatie 6a
FIN-01740 Vantaa
Phone: +358 (0) 9 / 886 77 500
Fax: +358 (0) 9 / 886 77 555
e mail: info@beijer.fi
PROVENDOR OY FINLAND
Teljänkatu 8 A 3
FIN-28130 Pori
Phone: +358 (0) 2 / 522 3300
Fax: +358 (0) 2 / 522 3322
e mail: —
UTECO A.B.E.E. GREECE
5, Mavrogenous Str.
GR-18542 Piraeus
Phone:+302(0)10/4210050
Fax:+302(0)10/4212033
e mail: uteco@uteco.gr
Meltrade Automatika Kft. HUNGARY
55, Harmat St.
H-1105 Budapest
Phone: +36 (0)1 / 2605 602
Fax: +36 (0)1 / 2605 602
e mail: office@meltrade.hu
EUROPEAN REPRESENTATIVES
MITSUBISHI ELECTRIC IRELAND
EUROPE B.V. – Irish Branch
Westgate Business Park
IRL-Dublin 24
Phone: +353 (0) 1 / 419 88 00
Fax: +353 (0) 1 / 419 88 90
e mail: sales.info@meir.mee.com
SIA POWEL LATVIA
Lienes iela 28
LV-1009 Riga
Phone: +371 784 / 22 80
Fax: +371 784 / 22 81
e mail: utu@utu.lv
UAB UTU POWEL LITHUANIA
Savanoriu pr. 187
LT-2053 Vilnius
Phone: +370 (0) 52323-101
Fax: +370 (0) 52322-980
e mail: powel@utu.lt
INTEHSIS SRL MOLDOVA, REPUBLIC OF
Cuza-Voda 36/1-81
MD-2061 Chisinau
Phone: +373 (0)2 / 562 263
Fax: +373 (0)2 / 562 263
e mail: intehsis@mdl.net
Getronics b.v. NETHERLANDS
Control Systems
Donauweg 2 B
NL-1043 AJ Amsterdam
Phone: +31 (0) 20 / 587 67 00
Fax: +31 (0) 20 / 587 68 39
e mail: info.gia@getronics.com
Beijer Electronics AS NORWAY
Teglverksveien 1
N-3002 Drammen
Phone:+47(0)32/243000
Fax:+47(0)32/848577
e mail: info@beijer.no
MPL Technology Sp. z o.o. POLAND
ul. Sliczna 36
PL-31-444 Kraków
Phone: +48 (0) 12 / 632 28 85
Fax: +48 (0) 12 / 632 47 82
e mail: krakow@mpl.pl
Sirius Trading & Services srl ROMANIA
Bd. Lacul Tei nr. 1 B
RO-72301 Bucuresti 2
Phone: +40 (0) 21 / 201 7147
Fax: +40 (0) 21 / 201 7148
e mail: sirius_t_s@fx.ro
ACP Autocomp a.s. SLOVAKIA
Chalupkova 7
SK-81109 Bratislava
Phone: +421 (02) / 5292-22 54, 55
Fax: +421 (02) / 5292-22 48
e mail: info@acp-autocomp.sk
INEA d.o.o. SLOVENIA
Stegne 11
SI-1000 Ljubljana
Phone: +386 (0) 1-513 8100
Fax: +386 (0) 1-513 8170
e mail: inea@inea.si
Beijer Electronics AB SWEDEN
Box 426
S-20124 Malmö
Phone:+46(0)40/358600
Fax:+46(0)40/358602
e mail: info@beijer.se
ECONOTEC AG SWITZERLAND
Postfach 282
CH-8309 Nürensdorf
Phone: +41 (0) 1 / 838 48 11
Fax: +41 (0) 1 / 838 48 12
e mail: info@econotec.ch
EUROPEAN REPRESENTATIVES
GTS TURKEY
Darülaceze Cad. No. 43 KAT: 2
TR-80270 Okmeydani-Istanbul
Phone: +90 (0) 212 / 320 1640
Fax: +90 (0) 212 / 320 1649
e mail: gts@turk.net
CSC Automation Ltd. UKRAINE
15, M. Raskova St., Fl. 10, Office 1010
UA-02002 Kiev
Phone: +380 (0) 44 / 238-83-16
Fax: +380 (0) 44 / 238-83-17
e mail: csc-a@csc-a.kiev.ua
AFRICAN REPRESENTATIVE
CBI Ltd SOUTH AFRICA
Private Bag 2016
ZA-1600 Isando
Phone: +27 (0) 11/ 928 2000
Fax: +27 (0) 11/ 392 2354
e mail: cbi@cbi.co.za
MIDDLE EAST REPRESENTATIVE
TEXEL Electronics LTD. ISRAEL
Box 6272
IL-42160 Netanya
Phone: +972 (0) 9 / 863 08 91
Fax: +972 (0) 9 / 885 24 30
e mail: texel_me@netvision.net.il
EURASIAN REPRESENTATIVE
AVTOMATIKA SEVER RUSSIA
Krapivnij Per. 5, Of. 402
RU-194044 St Petersburg
Phone: +7 812 / 1183 238
Fax: +7 812 / 3039 648
e mail: pav@avtsev.spb.ru
CONSYS RUSSIA
Promyshlennaya St. 42
RU-198099 St Petersburg
Phone: +7 812 / 325 36 53
Fax: +7 812 / 325 36 53
e mail: consys@consys.spb.ru
ELEKTROSTYLE RUSSIA
Ul Garschina 11
RU-140070 Moscowskaja Oblast
Phone: +7 095/ 261 3808
Fax: +7 095/ 261 3808
e mail: —
ICOS RUSSIA
Industrial Computer Systems Zao
Ryazanskij Prospekt 8a, Office 100
RU-109428 Moscow
Phone: +7 095 / 232 - 0207
Fax: +7 095 / 232 - 0327
e mail: mail@icos.ru
NPP Uralelektra RUSSIA
Sverdlova 11a
RU-620027 Ekaterinburg
Phone:+73432/532745
Fax:+73432/532745
e mail: elektra@etel.ru
STC Drive Technique RUSSIA
Poslannikov Per. 9, str.1
RU-107005 Moscow
Phone: +7 095 / 786 21 00
Fax: +7 095 / 786 21 01
e mail: info@privod.ru
INDUSTRIAL AUTOMATION
MIT
SU
BI
S
HI ELE
C
TRI
C
MIT
SU
BI
S
HI ELE
C
TRI
C
Gothaer Straße 8 Phone: +49 2102 486-0 Fax: +49 2102 486-7170 www.mitsubishi-automation.de
D-40880 Ratingen Hotline: +49 1805 000-765 megfa-mail@meg.mee.com www.mitsubishi-automation.com