7034 106G MTVERNON AE MBK Quadra Fire Mt Vernon Manual
User Manual: MTVERNON-AE-MBK
Open the PDF directly: View PDF
.
Page Count: 56

R
www.quadrafi re.com 7034-106G November 22, 2011
MT. VERNON PELLET STOVE
ADVANCED ENERGY (AE)
O-T L
Tested and
Listed by
Portland
Oregon USA
OMNI-Test Laboratories, Inc.
CUS
Owner’s Manual
Installation and
Operation
Models:
MTVERNON-AE-MBK
MTVERNON-AE-PMH
MTVERNON-AE-CSB
MTVERNON-AE-CWL
Tested and approved for wood pellets, shelled fi eld
corn, wheat and black oil sunfl ower seeds. Burning
of any other type of fuel voids your warranty.
CAUTION
DO NOT DISCARD THIS MANUAL
NOTICE
• Important operating and
maintenance instruc-
tions included.
• Leave this manual with
party responsible for use
and operation.
• Read, understand and
follow these instruc-
tions for safe installa-
tion and operation.
DO NOT
DISCARD
WARNING
Please read this entire manual
before installation and use of this
pellet fuel-burning room heater.
Failure to follow these instructions
could result in property damage,
bodily injury or even death.
• Do not store or use gasoline or other fl am-
mable vapors and liquids in the vicinity of this
or any other appliance.
• Do not overfi re - If any external part starts to
glow, you are overfi ring. Reduce feed rate.
Overfi ring will void your warranty.
• Comply with all minimum clearances to com-
bustibles as specifi ed. Failure to comply may
cause house fi re.
Check building codes prior to installation.
• Installation MUST comply with local, regional, state and national
codes and regulations.
• Consult local building, fi re offi cials or authorities having jurisdic-
tion about restrictions, installation inspection, and permits.
CAUTION
WARNING
Hot glass will cause burns.
• Do not touch glass until it is cooled
• NEVER allow children to touch glass
• Keep children away
• CAREFULLY SUPERVISE children in same room as
fi replace.
• Alert children and adults to hazards of high
temperatures.
High temperatures may ignite clothing or other
fl ammable materials.
• Keep clothing, furniture, draperies and other fl ammable
materials away.
HOT SURFACES!
Glass and other surfaces are
hot during operation AND
cool down.

Page 2 7034-106G November 22, 2011
R
Mt. Vernon Pellet Stove (AE)
Hearth & Home Technologies welcomes you to our tradi-
tion of excellence! In choosing a Quadra-Fire appliance,
you have our assurance of commitment to quality, durabil-
ity, and performance.
This commitment begins with our research of the market,
including ‘Voice of the Customer’ contacts, ensuring we
make products that will satisfy your needs. Our Research
and Development facility then employs the world’s most
advanced technology to achieve the optimum operation of
our stoves, inserts and fi replaces. And yet we are old-fash-
ioned when it comes to craftsmanship. Each unit is meticu-
lously fabricated and surfaces are hand-fi nished for lasting
beauty and enjoyment. Our pledge to quality is completed
as each model undergoes a quality control inspection.
We wish you and your family many years of enjoyment in
the warmth and comfort of your hearth appliance.
Thank you for choosing Quadra-Fire.
LOCATION OF SERIAL NUMBER / SAFETY LABEL: Back of Stove
Test Lab & Report No.
Mfg Date
Model NameSerial No.
SAMPLE
CAUTION
:
HOT WHILE IN
OPERATION DO NOT TOUCH,
KEEP CHILDREN, CLOTHING
AND FURNITURE AWAY.
ATTENTION:
CHAUD LORS DE L'OPÉRATION. NE PAS
TOUCHER. GARDEZ LES ENFANTS ET LES VÊTEMENTS
LOIN DE L'ESPACE DÉSIGNÉ DE L'INSTALLATION. LE
CONTACT PEUT CAUSER DES BRÛLURES À LA PEAU. VOIR
ESPACES LIBRES MINIMUM DES MATÉRIAUX COMBUSTIBLES:
INSTALLATION DE L’ALCÔVE
Une hauteur minimum de l'alcôve:
43 in.(
1092mm)
Une hauteur minimum m
ur de côté
de l'alcôve:
6 in. (152mm)
Une épaisseur
minimum m
ur de côté
de l'alcôve:
40 in. (1016mm)
La profondeur maximum de l'alcôve:
36 in. (914mm)
Note 1: Dans les installations résidentielles, lorsque les pièces
TPVNT-MV, (dessus de l'adapteur de ventilation 3 in. - 3 in.) et
812-3570 (le ressaut de l'adapteur 3 in. - 6 in.), un tuyau connecteur
de 6 in. pour mur simple de calibre 24 peut être utilisé.
Note 2: Pour l'installation dans les maisons préfabriquées, lorsque
les pièces TPVNT-MV, (dessus de l'adapteur de ventilation 3 in. - 3
in.) et 812-3570 (le ressaut de l'adapteur 3 in. - 6 in.), utilisez un
tuyau connecteur enregistré pour mur double. Un assemblage d'air
extérieur (pièce 811-0872), doit être utilisé pour l'installation dans
les maisons préfabriquées.
PROTECTION DU SOL
A
B
G
G
D
E
F
C
C
A 2 in (51mm)
B 6 in. (152mm)
C 2 in. (51mm)
D 3 in. (76mm)
E 6 in. (152mm)
F 8 in. (203mm)
G 3 in. (76mm)
I*
J
J
K
I* = 8 in. (200mm)
J = 18 in. (450mm)
K = 8 in. (200mm)
G
G
D
E
F
C
C
A
B
2011
2012
2013
JAN FEB MAR APR MAY JUN
JULY AUG SEPT OCT NOV DEC
Mt. Vernon Pellet
Stove AE
Report / Rapport
061-S-68-6
ALCOVE INSTALLATION:
Min. Alcove Height:
43 in. (
1092mm)
Min. Alcove Side Wall:
6 in. (152mm)
Min. Alcove Width:
40 in. (1016mm)
Max. Alcove Depth:
36 in. (914mm)
A 2 in (51mm)
B 6 in. (152mm)
C 2 in. (51mm)
D 3 In (76mm)
E 6 in (152mm)
F 8 in.(203mm)
G 3 in. (76mm)
MINIMUM CLEARANCES TO COMBUSTIBLE MATERIALS
FLOOR PROTECTION
Use a non-combustible floor protector, extending
beneath heater and to the front/sides/rear as indicated.
Measure front distance (K) from the surface of the
glass door.
I* = 2 in. (51mm)
J = 2 in. (51mm)
K = 6 in. (152mm)
I*
J
J
K
Note 1:
In residential
installations, when using
Parts TPVNT-MV, (3 in. - 3
in. Top Vent Adapter) and
812-3570 (3 in. - 6 in. Offset
Adapter), 24 gauge 6 in.
single wall flue connector
may be used.
*
Non-combustible floor protection must extend beneath the
flue pipe when installed with horizontal venting or under the
Top Vent Adapter with vertical installation. RECOMMENDED
IN USA
SERIAL NO.
/
NUMÉRO DU
007001
Listed Solid Fuel Room Heater/Pellet
Type Stove.
Also suitable for Mobile
Home Installation. This appliance has
been tested and listed for use in
Manufactured Homes in accordance with
OAR 814-23-9000 through 814-23-909.
Tested to: ASTM E1509-04, ULC S627-00,
ULC/ORD-C1482-M1990 Room Heating
Pellet Burning Type, (UM) 84-HUD FOR USE
ONLY WITH PELLETIZED WOOD. See Owner’s
Manual for other fuel options.
Input Rating: 60,000 Btu's/hr. Electrical
Rating:
115 VAC, 60 Hz, Start 5 Amps, Run
1.25 AMPS.
Route power cord away from unit. Do not
route cord under or in front of appliance.
DANGER:
Risk of electrical shock.
Disconnect power supply before servicing.
Replace glass only with 5mm ceramic
available from your dealer. To start, set
thermostat above room temperature, the
stove will light automatically. To shutdown,
set thermostat to below room temperature.
For further instruction refer to owner's
manual.
Keep viewing and ash removal
doors tightly closed during operation.
DO NOT REMOVE THIS LABEL
NE PAS ENLEVER L’
É
QUETTE 7034-107E
Note 2: In manufactured home
installation, when using Part
TPVNT-MV, (3 in. - 3 in. Top Vent
Adapter) and 812-3570 (3 in. - 6 in.
Offset Adapter), use listed double
wall flue connector. An Outside Air
Kit (Part 811-0872), must be used
with manufactured home installation.
1445 Highway North,
Colville, WA 99114
www.quadrafire.com
Manufactured by / Fabriqu
é
par:
Made in the USA
Fait-Aux
É
tats-Unix
O-T L
Tested and
Listed by
Portland
Oregon USA
OMNI-Test Laboratories, Inc.
CUS
NOTE: Consult insurance carrier, local building inspector, fi re
offi cials or authorities having jurisdiction over restrictions,
installation inspection and permits.

R
November 22, 2011 7034-106G Page 3
Mt. Vernon Pellet Stove (AE)
TABLE OF CONTENTS
Safety Alert Key:
• DANGER! Indicates a hazardous situation which, if not avoided will result in death or serious injury.
• WARNING! Indicates a hazardous situation which, if not avoided could result in death or serious injury.
• CAUTION! Indicates a hazardous situation which, if not avoided, could result in minor or moderate injury.
• NOTICE: Indicates practices which may cause damage to the appliance or to property.
Section 1: Listing and Code Approvals
A. Appliance Certifi cations ......................4
B. Mobile Home Approved ......................4
C. Glass Specifi cations ............................4
D. Electrical Rating ..................................4
E. Specifi cations ......................................4
Section 2: Getting Started
A. Design, Installation & Location
Considerations ....................................5
B. Thermostat Wall Control Location ......6
C. Tools & Supplies Needed ...................6
D. Inspect Appliance & Components.......6
E. Pre-Use Check List .............................6
Section 3: Dimensions & Clearances
A. Appliance Dimensions ........................7
B. Clearances to Combustibles ...............8
C. Hearth Pad Requirements ..................8
Section 4: Vent Information
A. Venting Termination Requirements ....9
B. Avoiding Smoke and Odors ................10
C. Negative Pressure ...............................11
D. Draft .....................................................11
E. Chimney & Exhaust Connection .........12
F. Equivalent Meter of Pipe .....................12
G. Pipe Selection Chart ............................13
Section 5: Venting Systems
A. Alcove .................................................14
B. Through the Wall .................................15
C. Vertical into Class A Chimney .............16
D. Through the Wall & Vertical-Exterior ...16
E. Vertical-Interior ....................................16
F. Masonry ..............................................17
G. Alternate Masonry ...............................17
Section 6: Mobile Home Installation ............18
Section 7: Appliance Set-Up
A. Leg Leveling System ..........................19
B. Outside Air Kit .....................................19
C. Top Vent Adapter ................................20
D. Rear Vent Adapter ..............................20
E. Log Set Placement ..............................21
F. Thermostat Wall Control Installation ...22
Section 8: Operating Instructions
A. Fire Safety .....................................23
B. Combustible/Non-Combustile ........23
C. Fuel Size, Material & Storage .............23-24
D. General Operation Information ...........24
E. Before Your First Fire .........................25
F. Filling the Hopper with Fuel ................25
G. Starting Your First Fire ........................25
H. Fire Characteristics & Flame Height
Adjustment ..........................................25
I. Battery Back-Up System.....................26
J. Clear Space ........................................26
K. Ignition Cycles ....................................27-28
L. Quick Start Guide ...............................29-30
M. Frequently Asked Questions...............31
Section 9: Troubleshooting ............................32
Section 10: Maintaining & Servicing Appliance
A. Proper Shutdown Procedures .............33
B. Quick Reference Maintenance Chart ..33
C. General Maintenance & Cleaning .......34-38
D. Soot or Creosote Fire ..........................38
E. High Ash Fuel Content Maintenance ..39
F. Baffl e Removal ....................................39
G. Convection Blower Replacement ........40
H. Combustion Blower Replacement .......41
I. Glass Replacement .............................41
Section 11: Reference Materials
A. Component Functions.........................42-43
B. Component Locations .........................44
C. Exploded Drawings .............................45-46
D. Service Parts & Accessories ...............47-51
E. Service & Maintenance Log ................52-53
F Warranty Policy ...................................54-55
G. Contact Information .............................56

Page 4 7034-106G November 22, 2011
R
Mt. Vernon Pellet Stove (AE)
1Listing and Code Approvals
A. Appliance Certifi cation E. BTU & Effi ciency Specifi cations
Model Mt. Vernon Pellet Stove AE
Laboratory OMNI Test Laboratories, Inc.
Report No. 061-S-68-6
Type Solid Fuel Room Heater/Pellet Fuel
BurningType
Standard ASTM E1509-04, ULC S627-00 and
ULC/ORD-C1482-M1990 Room Heater
Pellet Fuel Burning type and (UM) 84-
HUD, Mobile Home Approved.
FCC Complies with Part 15 of FCC Rules.
Operation is subject to the following
two conditions: (1) this device may not
cause harmful interference, and (2) this
device must accept any interference
received, including interference that
may cause undesired operation.
Emissions Rating: EPA Compliance
*BTU Output: 14,620 - 60,200 / hr
Effi ciency: 81.4% - 83.6%
Heating Capacity: 2,400 - 3,800 square feet depend-
ing on climate zone
Hopper Capacity: 81 lbs
Fuels: Pellets, Shelled Field Corn, Wheat
and Black Sunfl ower Seeds
Shipping Weight: 429 lbs
C. Glass Specifi cations
This appliance is equipped with 5mm ceramic glass. Replace
glass only with 5mm ceramic glass. Please contact your
dealer for replacement glass.
This appliance is approved for mobile home installations
when not installed in a sleeping room and when an outside
combustion air inlet is used.
The structural integrity of the mobile home fl oor, ceiling, and
walls must be maintained.
The appliance must be properly grounded to the frame of
the mobile home and use only Listed pellet vent Class “L”
or “PL” connector pipe.
A Quadra-Fire Outside Air Kit must be installed in a mobile
home installation. You must order the Outside Air Kit sepa-
rately.
B. Mobile Home Approved
NOTICE: This installation must conform with local codes.
In the absence of local codes you must comply with the
ASTM E1509-04, ULC S627-00, (UM) 84-HUD and
ULC/ORD-C-1482.
D. Electrical Rating
115 VAC, 60 Hz, Start 5 Amps, Run 1.25 Amps
NOTICE: Hearth & Home Technologies, manufacturer
of this appliance, reserves the right to alter its prod-
ucts, their specifi cations and/or price without notice.
Quadra-Fire is a registered trademark
of Hearth & Home Technologies.
WARNING! Risk of Fire! Hearth & Home Technologies dis-
claims any responsibility for, and the warranty and agency
listing will be voided by the above actions.
DO NOT:
• Install or operate damaged appliance
• Modify appliance
• Install other than as instructed by Hearth & Home
Technologies
• Operate the appliance without fully assembling all
components
• Overfi re
• Install any component not approved by Hearth &
Home Technologies
• Install parts or components not Listed or approved.
Improper installation, adjustment, alteration, service or
maintenance can cause injury or property damage.
For assistance or additional information, consult a qualifi ed
installer, service agency or your dealer.
Note: This appliance is also approved for installation
into a shop.
*BTU will vary, depending on the type of fuel you use in
your appliance. Consult your Quadra-Fire dealer for best
results.

R
November 22, 2011 7034-106G Page 5
Mt. Vernon Pellet Stove (AE)
2Getting Started
Marginal Location:
• Below peak
Location NOT recommended:
• Not the highest point of the roof
• Wind loading possible
Multi-level Roofs
Windward
Leeward
Recommended:
Outside Air Intake
on windward side
NOT recommended:
Outside Air Intake
on leeward side
Recommended Location:
• Above peak
Recommended:
• Insulated exterior chase
in cooler climates
Recommended Location:
• Above peak
• Inside heated space
Location NOT recommended:
• Too close to tree
• Below adjacent structure
• Lower roof line
• Avoid outside wall
Marginal Location:
• Wind loading possible
Figure 5.1
A
.
Design, Installation & Location Considerations
WARNING! Risk of Fire Damaged parts could impair safe
operation. Do NOT install damaged, incomplete or substitute
components.
1. Appliance Location
NOTICE: Check building codes prior to installation.
• Installation MUST comply with local, regional, state and
national codes and regulations.
• Consult insurance carrier, local building inspector, fi re
offi cials or authorities having jurisdiction over restrictions,
installation inspection and permits.
It is a good idea to plan your installation on paper, using exact
measurements for clearances and fl oor protection, before
actually beginning the installation. Location of the appliance
and chimney will affect performance.
Consideration must be given to:
• Safety, convenience, traffi c fl ow
• Placement of the chimney and chimney connector and to
minimize the use of chimney offsets.
• Place the appliance where there will be a clear passage
for a Listed chimney through the ceiling and roof (vertical)
or through exterior wall (horizontal).
• Installing the required outside air kit will affect the location
of the vent termination.
When locating vent and venting termination, the ideal loca-
tion is to vent above roof line when possible. This minimizes
the affects of wind loading.
CAUTION! If burning shelled fi eld corn, you must use ap-
proved venting specifi cally designed for corn to prevent
corrosion or degradation. Follow the instructions from the
venting manufacturer.
Since pellet exhaust can contain ash, soot or sparks, you
must consider the location of:
• Windows
• Air Intakes
• Air Conditioner
• Overhang, soffi ts, porch roofs, adjacent walls
• Landscaping, vegetation
• Horizontal or vertical vent termination
2. Floor Support
The supporting fl oor under the appliance must be able
to handle the weight of the appliance, fuel load and the
weight of the chimney.
Ensure that your fl oor will suport these weights prior to in-
stallation. Add suffi cient additional support to meet this
weight requirment prior to installation. The weight of the
appliance is 429 lbs.

Page 6 7034-106G November 22, 2011
R
Mt. Vernon Pellet Stove (AE)
• Installation and use of any damaged appliance.
• Modifi cation of the appliance.
• Installation other than as instructed by Hearth & Home
Technologies.
• Installation and/or use of any component part not
approved by Hearth & Home Technologies.
• Operating appliance without fully assembling all
components.
• Operating appliance without legs attached (if supplied
with unit).
• Do NOT Overfi re
Or any such action that may cause a fi re hazard.
WARNING
Hearth & Home Technologies disclaims any
responsibility for, and the warranty will be
voided by, the following actions:
Reciprocating Saw
Channel Locks
Hammer
Phillips Screwdriver
Tape Measure
Plumb Line
Level
Framing Material
Hi-temp Caulking Material
Gloves
Safety Glasses
Framing Square
Electric Drill & Bits (1/4”)
1/4” Self-Tapping Screws
May also need:
Vent Support Straps
Venting Paint
Tools and building supplies normally required
for installation, unless installing into an existing
masonry fi replace:
C. Tools And Supplies Needed
E. Pre-Use Check List
1. Place the appliance in a location near the
fi nal installation area and follow the proce-
dures below:
2. Open the appliance and remove all the parts
and articles packed inside the Component
Pack.
Inspect all the parts and glass for shipping
damage. Contact your dealer if any irregulari-
ties are noticed.
Remove rubber band from ash pan installed for
shipping purposes only.
3. All safety warnings have been read and fol-
lowed.
4. This Owner’s Manual has been read.
5. Floor protection requirements have been met.
6. Venting is properly installed.
7. The proper clearances from the appliance and
chimney to combustible materials have been
met.
8. The masonry chimney is inspected by a profes-
sional and is clean, or the factory built metal
chimney is installed according to the manufac-
turer’s instructions and clearances.
9. The chimney meets the required minimum
height.
10.
All labels have been removed from the glass
door.
11. Plated surfaces have been wiped clean, if
applicable.
12. Wall Control Thermostat has been installed.
13. A power outlet is available nearby.
14. A good quality surge protectory is highly recom-
mended to protect the electronics.
B. Thermostat Wall Control Location
The thermostat wall control’s location will have some affect
on the appliance’s operation.
• Maximum wire length from appliance is 100 feet (30.48m)
continuous unspliced wire. Recommended 20 gauge wire,
solid copper .
• When located close to the appliance, it may require a
slightly higher temperature setting to keep the rest of the
house comfortable.
• When located in an adjacent room or on a different fl oor
level, you will notice higher temperatures near the appli-
ance.
CAUTION!
The wall control is an integral part of the appli-
ance. No other wall control or thermostat can be substi-
tuted.
D. Inspect Appliance and Components
WARNING! Risk of Fire! Damaged parts could impair safe
operation. Do NOT install damaged, incomplete or substitute
components.
• Open the appliance and remove all the parts and articles
packed inside the Component Pack. Inspect all the parts
and glass for shipping damage.
• Report to your dealer any parts damaged in shipment.
•
All labels have been removed from the glass door.
•
Plated surfaces have been wiped clean with a soft cloth,
if applicable.
• Read all the instructions before starting the installation.
Follow these instructions carefully during the
installation to ensure maximum safety and benefi t.
• Follow pipe manufacturer instructions for installation
and air clearance requirments.

R
November 22, 2011 7034-106G Page 7
Mt. Vernon Pellet Stove (AE)
3Dimensions and Clearances
A. Appliance Dimensions
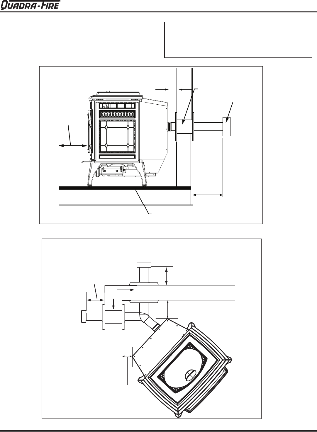
Figure 7.4 - Front View
Figure 7.1 - Top View with Top Vent Adapter
and 3 to 6 in (76-152mm) Adapter
Figure 7.5 - Side View
Figure 7.2 - Side View with Top Vent
Adapter and 3 to 6 in (76-152mm)
Offset Adapter.
29-3/6 in.
(741mm)
31-1/6 in.
(788mm)
C
L
5-13/16 in.
(147mm) 3-13/16 in.
(97mm)
14-1/16 in.
(357mm)
2-9/16 in.
(65mm)
28-7/16 in.
(722mm)
32-5/16 in.
(821mm)
28-1/8 in. (714mm)
20 in.
(508mm)
19-9/16 in.
(497mm)
29-1/16 in. (738mm)
26-7/8 in. (683mm)
18-1/2 in. (470mm)
C
L
10-3/8 in.
(264mm)
C
L
Figure 7.3 - Top View

Page 8 7034-106G November 22, 2011
R
Mt. Vernon Pellet Stove (AE)
Straight Back Against Wall Inches Millimeters
ABack Wall to Appliance 2 51
BSide Wall to Appliance 6 152
Corner Installation Inches Millimeters
CWalls to Appliance 2 51
Vertical Installation Inches Millimeters
DBack Wall to Flue Pipe 3 76
ESide Wall to Appliance 6 152
FBack Wall to Appliance 8 203
Installations with:
3 to 3 inch Top Vent Adapter and
3 to 6 inch Offset Adapter Kit
Corner Installation Inches Millimeters
GSide Wall to Flue Pipe 3 76
Alcove Installation Inches Millimeters
Minimum Alcove Height 43 1092
Minimum Alcove Side Wall 6 152
Minimum Alcove Width 40 1016
Maximum Alcove Depth 36 914
B. Clearances to Combustibles (UL and ULC)
D
E
F
A
B
*L Exception for Horizontal Installations:
USA INSTALLATIONS: A
non-combustible fl oor protec-
tion is required extending beneath the fl ue pipe when
installed with horizontal venting or under the Top Vent
Adapter with vertical installation.
CANADA INSTALLATIONS: A
non-combustible fl oor
protection extending beneath the fl ue pipe is reccom-
mended with horizontal venting or under the Top Vent
Adapter with vertical installation.
Must extend 2 inches (51mm) beyond each
side of pipe (shaded area)
Fire Risk.
Comply with all minimum clearances to
combustibles as specifi ed.
WARNING
Failure to comply may cause house fi re.
NOTE:
• Illustrations refl ect typical installations and are FOR
DESIGN PURPOSES ONLY.
• Illustrations/diagrams are not drawn to scale.
• Actual installation may vary due to individual design
preference.
C
C
G
G
C. Hearth Pad Requirements (UL and ULC)
L*
K
K
M
Use a non-combustible fl oor protector, extending beneath
appliance and to the front, sides and rear as indicated.
Measure front distance “M” from the surface of the glass
door.
Hearth Pad Requirements Inches Millimeters
KSides 2 51
L* Back 2 51
MFront 6 152

R
November 22, 2011 7034-106G Page 9
Mt. Vernon Pellet Stove (AE)
4Vent Information
A. Venting Termination Minimum Requirements
J or K
X
V
M
I
H
A
V
G
B
V
V
A
B
V
FV
C
B
B
E
L
V
D
V
Electrical
Service
V
N
VN
V
N
N
V
Inside Corner
FIXED
CLOSED
OPEN
OPEN
FIXED
CLOSED
VX
G
G
Termination Cap Air Supply Inlet Gas Meter Restricted Area
O
P
Figure 9.1
NOTICE:
Termination must exhaust above air inlet elevation.
• It is recommended that at least 60 inches (1.52m) of vertical
pipe be installed when appliance is vented directly through a
wall. This will create a natural draft, which will help prevent
the possibility of smoke or odor venting into the home during
a power outage.
• It will also keep exhaust from causing a nuisance or hazard
by exposing people or shrubs to high temperatures.
• The safest and preferred venting method is to extend the
vent vertically through the roof or above the roof.
A12 in. Above Finish Grade (the grade surface
must be a non-combustible material
B12 in.
48 in. no OAK
Open door or window: below or to the side
B12 in. Open door or window: above
C6 in. Permanently closed window: above, below
or to the side
D18 in.
36 in. no OAK
Vertical clearance to a ventilated soffi t
located above the terminal within a hori-
zontal distance of 2 ft from the center-line
of the terminal
E12 in. Clearance to unventilated soffi t
F12 in. Clearance to outside corner
G12 in. Clearance to inside corner
H36 in. Above gas meter/regulator measured from
horizontal center-line of regulator
I36 in. USA
72 in. Canada
Clearance to service regulator vent outlet
J12 in.
48 in. no OAK
Clearance to non-mechanical air supply
inlet to the building or the combustions air
inlet to any other appliance
K10 ft horizontal
3 ft vertical
Clearance to mechanical air supply
L7 ft. Above paved sidewalk, paved driveway
located on public property
M12 in. Under an open veranda, porch, deck or
balcony
NSee Note
below*
Electric service: above, below or to the
side (location must not obstruct or interfere
with access)
O24 in. Adjacent building, fences and protruding
parts of the structure
P12 in. Clearance above roof line for vertical
terminations
All minimum clearances are listed with an Outside Air Kit (OAK) installed, unless otherwise noted in table below.
24 in. Above grass, top of plants, wood or any other com-
bustible
12 in.
36 in. no OAK
Clearance from any forced air intake of other appli-
ance
12 in. Clearance horizontally from combustible wall
15 in. Vented directly through a wall, minimum length of
horizontal pipe
6 in. horizontal
12 in. vertical
Minimum horizontal or vertical terminations must
protrude from wall
*NOTE: Consult local building, fi re offi cials or authorities having jurisdic-
tion. Local codes or regulations may require different clearances.
NOTICE:
Do NOT Terminate Vent:
• In any location that will allow fl ue gases or soot from enter-
ing or staining the building
• In any location which could create a nuisance or hazard
• In any enclosed or semi-enclosed area such as a carport,
garage, attic, crawl space, under a sun deck or porch,
narrow walkway
• Closely fenced area, or any location that can build up
a concentration of fumes such as a stairwell, covered
breezeway, etc.

Page 10 7034-106G November 22, 2011
R
Mt. Vernon Pellet Stove (AE)
B. Avoiding Smoke and Odors
Negative Pressure, Shut-Down and Electrical Power
Failure
To reduce the probability of back-drafting or burn-back in
the pellet appliance during power failure or shut down con-
ditions, it must be able to draft naturally without exhaust
blower operation.
Negative pressure in the house will resist this natural draft
if not accounted for in the pellet appliance installation.
Heat rises in the house and leaks out at upper levels. This
air must be replaced with cold air from outdoors which
fl ows into lower levels of the house.
Vents and chimneys into basements and lower levels of the
house can become the conduit for air supply and reverse
under these conditions.
Outside Air
An outside air kit is recommended in all installations. The
Outside Air Kit must be ordered seperately.
Per national building codes, consideration must be given
to combustion air supply to all combustion appliances.
Failure to supply adequate combustion air for all appli-
ance demands may lead to backdrafting of those and other
appliances.
When the appliance is roof vented (strongly recommended):
The air intake is best located on the exterior wall ori-
ented towards the prevailing wind direction during the
heating season.
When the appliance is side-wall vented:
The air intake is best located on the same exterior wall
as the exhaust vent outlet and located lower on the wall
than the exhaust vent outlet.
The outside air supply kit can supply most of the demands
of the pellet appliance, but consideration must be given to
the total house demand.
House demand may consume the air needed for the appli-
ance. It may be necessary to add additional ventilation to
the space in which the pellet appliance is located.
Consult with your local HVAC professional to determine the
ventilation demands for your house.
Vent Confi gurations
To reduce probability of reverse drafting during shut-down
conditions Hearth & Home Technologies strongly recom-
mends:
• Installing the pellet vent with a minimum vertical run
of 5 feet (1.52m). Preferably terminating above the
roof line.
• Installing the outside air kit at least 4 feet (1.22m)
below the vent termination.
To prevent soot damage to exterior walls of the house and
to prevent re-entry of soot or ash into the house:
• Maintain specifi ed clearances to windows, doors and
air inlets, including air conditioners.
• Vents should not be placed below ventilated soffi ts.
Run the vent above the roof.
• Avoid venting into alcove locations.
• Vents should not terminate under overhangs, decks
or onto covered porches.
• Maintain minimum clearance of 12 inches (305mm)
from the vent termination to the exterior wall. If you
see deposits developing on the wall, you may need
to extend this distance to accommodate your installa-
tion conditions.
CAUTION
• DO NOT CONNECT THIS UNIT TO A CHIMNEY FLUE
SERVICING ANOTHER APPLIANCE.
• DO NOT CONNECT TO ANY AIR DISTRIBUTION DUCT
OR SYSTEM.
Optional Battery Back-Up
Hearth & Home Technologies supplies an optional battery
back-up system that operates the appliance during power
failure conditions to prevent smoking. In shutdown mode,
the battery back-up will not prevent smoking. See Section
8 for details.
Hearth & Home Technologies assumes no responsibility for,
nor does the warranty extend to, smoke damage caused
by reverse drafting of pellet appliances under shut down or
power failure conditions.

R
November 22, 2011 7034-106G Page 11
Mt. Vernon Pellet Stove (AE)
Negative pressure results from the imbalance of air available
for the appliance to operate properly. It can be strongest in
lower levels of the house.
Causes include:
• Exhaust fans (kitchen, bath, etc.)
• Range hoods
• Combustion air requirements for furnaces, water heaters
and other combustion appliances
• Clothes dryers
• Location of return-air vents to furnace or air conditioning
• Imbalances of the HVAC air handling system
• Upper level air leaks such as:
- Recessed lighting
- Attic hatch
- Duct leaks
To minimize the effects of negative air pressure:
• Install the outside air kit with the intake facing prevailing
winds during the heating season
• Ensure adequate outdoor air for all combustion appliances
and exhaust equipment
• Ensure furnace and air conditioning return vents are not
located in the immediate vicinity of the appliance
• Avoid installing the appliance near doors, walkways or
small isolated spaces
• Recessed lighting should be a “sealed can” design
• Attic hatches weather stripped or sealed
• Attic mounted duct work and air handler joints and seams
taped or sealed
WARNING! Risk of Asphyxiation! Negative pressure can
cause spillage of combustion fumes and soot.
C. Negative Pressure
Draft is the pressure difference needed to vent an ap-
pliance successfully. When an appliance is drafting suc-
cessfully, all combustion byproducts are exiting the home
through the chimney.
Install through the warm airspace enclosed by the building
envelope. This helps to produce more draft, especially dur-
ing lighting and die-down of the fi re.
Considerations for successful draft include:
• Preventing negative pressure
• Location of appliance and chimney
NOTICE: Hearth & Home Technologies assumes no
responsibility for the improper performance of the chimney
system caused by:
• Inadequate draft due to environmental conditions
• Downdrafts
• Tight sealing construction of the structure
• Mechanical exhausting devices
D. Draft

Page 12 7034-106G November 22, 2011
R
Mt. Vernon Pellet Stove (AE)
E. Chimney and Exhaust Connection
1. Chimney & Connector: Use 3 or 4 inch (76-102mm)
diameter type "L" or "PL" venting system. It can be vented
vertically or horizontally.
2. Mobile Home: Approved for all Listed pellet vent. If using
the 3 inch (76mm) vertical Top Vent Adapter Kit or the 3
to 6 inch (76-152mm) Top Vent Offset Adapter, use Listed
double wall fl ue connector. A Quadra-Fire Outside Air Kit
must be used with manufactured home installations.
3. Residential: The 3 inch (76mm) vertical Top Vent Adapter
Kit and the 3 to 6 inch (76-152mm) Top Vent Offset Adapter
are tested to use 24 gauge single wall fl ue connector or
Listed double wall fl ue connector to Class A Listed metal
chimneys, or masonry chimneys meeting International
Residential Code standards for solid fuel appliances.
4. INSTALL VENT AT CLEARANCES SPECIFIED BY THE
VENT MANUFACTURER.
5. Secure exhaust venting system to the appliance with at
least 3 screws. Also secure all connector pipe joints with
at least 3 screws through each joint.
6. DO NOT INSTALL A FLUE DAMPER IN THE EXHAUST
VENTING SYSTEM OF THIS UNIT.
7. DO NOT CONNECT THIS UNIT TO A CHIMNEY FLUE
SERVING ANOTHER APPLIANCE.
NOTE: All pipe must be welded seam pipe whenever
possible. Seal pipe joints with high temperature silicone
(500°F [260°C] minimum rated only).
NOTE: If burning shelled field corn, you must use
approved venting specifi cally designed for corn. Follow
the instructions from the venting manufacturer.
The table below can help you calculate the equivalent feet
of pipe which is a method used to determine pellet vent size.
Figure 12.1.
F. Equivalent Feet of Pipe
2 ft.
2 ft.
3 ft.
2 ft.
Example of 3 Elbow-Rear Vent Termination Calculation
Figure 12.1
Pellet Venting
Component
# of
Elbows
Feet of
Pipe
Multiplied
By
Equivalent
Feet
Components
Equivalent Feet
90o Elbow or Tee 3 X 515
45o Elbow X3
Horizontal Pipe 7 X 17
Vertical Pipe 2 X 0.5 1
Total Equivalent Feet 23
Note: This is a generic example and is not
intended to represent any specifi c fuel type.
• Only LISTED venting components may be used.
• NO OTHER vent components may be used.
• Substitute or damaged vent components may impair
safe operation.
WARNING! RISK OF FIRE!
WARNING! RISK OF INJURY OR PROPERTY
DAMAGE!
• Improper installation, adjustment, alteration, service or
maintenance can cause injury or property damage.
• Refer to the owner’s information manual provided with this
appliance.
• For assistance or additional information consult a qualifi ed
installer, service agency or your dealer.
Vent surfaces get HOT, can cause burns
if touched. Non-combustible shielding or
guards may be required.
WARNING

R
November 22, 2011 7034-106G Page 13
Mt. Vernon Pellet Stove (AE)
G. Pipe Selection Chart
Do NOT pack insulation or other combustibles between
fi restops.
• ALWAYS maintain specifi ed clearances around venting
and fi restop systems.
• Install fi restops as specifi ed.
Failure to keep insulation or other material away from vent
pipe may cause fi re.
Figure 13.1
3 in. or 4 in. (76mm or 102mm) Diameter Pipe
Equivalent Pipe
Length In Feet
ALTITUDE IN THOUSANDS OF FEET
0
20
30
1 2 3 4 5 6 7 8 9 10
4 in. (102mm) Diameter Pipe Only
10
Example 1
Example 2
Example 1: If the equivalent length of pipe is 23 feet (7m) with altitude
of 8,000 feet (2438m) you must use 4 inch (102mm) diameter type “L”
or “PL” vent.
Example 2: If the equivalent length of pipe is 12 feet (3.7m) with altitude
of 6,000 feet (1829m) you may use 3 or 4 inch (76 to 102mm) diameter
type “L” or “PL” vent.
The chart will help you in determining proper venting size
according to the equivalent feet of pipe calculated previously
and the altitude above sea level of this installation.
Figure 13.1.
a. Locate the calculated equivalent feet of pipe on the verti-
cal left side of the chart.
b. Move to the right horizontally on the chart until you reach
your altitude above sea level.
c. If you fall below the diagonal line, 3 or 4 inch (76 to
102mm) pipe may be used.
d. If it is anywhere above the diagonal line, a 4 inch (102mm)
diameter pipe is required.
NOTICE:
• A 90° elbow is 5 times as restrictive to the fl ow of exhaust
gases under positive pressure as 1 foot (305mm) of hori-
zontal pipe.
• A foot of horizontal pipe is twice as restrictive as a foot of
vertical pipe.
WARNING! RISK OF FIRE!

Page 14 7034-106G November 22, 2011
R
Mt. Vernon Pellet Stove (AE)
5Venting Systems
NOTE:
• Illustrations refl ect typical installations and are FOR
DESIGN PURPOSES ONLY.
• Illustrations/diagrams are not drawn to scale.
• Actual installation may vary due to individual design
preference.
A. Alcove
Figure 14.1
*All minimums listed are to a combustible surface.
Minimum* Maximum
Inches Millimeters Inches Millimeters
AHeight 43 1092 n/a n/a
BWidth 40 1016 n/a n/a
CDepth n/a n/a 36 914
DTo Side Wall 6 152 n/a n/a
A
C
B
D

R
November 22, 2011 7034-106G Page 15
Mt. Vernon Pellet Stove (AE)
6 in.
(152mm)
Minimum
Non-combustible Hearth Pad
Wall
Thimble
Horizontal
Termination
Cap
2 in.
(51mm)
Minimum
6 in.
(152mm)
Minimum
From Glass
Straight Out
B. Through The Wall
Horizontal termination cap must be a minimum of 6 inches.
(152mm) from the wall. Approved for mobile home installa-
tions. Must use 3 or 4 inch (76-102mm) “L” or “PL” Listed
pellet venting or Listed double wall pipe and a Quadra-Fire
Outside Air Kit in mobile homes.
NOTE:
In Canada, where passage through a wall or partition of
combustible construction is desired, the installation shall
conform to CAN/CSA-B365
Figure 15.1
Figure 15.2
Wall
Thimble
Illustration shows venting going in both directions.
Choose which one is best for your installation.
2 in. (51mm)
Minimum
2 in.
(51mm)
Minimum
6 in. (152mm)
Minimum
6 in. (152mm)
Minimum
45 Degree

Page 16 7034-106G November 22, 2011
R
Mt. Vernon Pellet Stove (AE)
We recommend a minimum of 60 inches
(1524mm) vertical, however above the eave
is preferred.
All three installations are approved for mobile
home installations. Must use 3 or 4 inch (76
to 102mm) “L” or “PL” Listed pellet venting or
Listed double wall pipe and Quadra-Fire Out-
side Air Kit in mobile homes. Single wall pipe
is approved for residential installations only.
*NOTE: Clearance to combustibles are for
standard pellet pipe. If pellet pipe manufac-
turer allows reduced clearances to their pipe,
reduced clearances are allowed.
C. Vertical into Existing Class A Chimney
D. Through The Wall & Vertical - Exterior
Firestop
Flashing
Rain Cap
6 in.
(152mm)
Min.
Non-combustible Hearth Pad
3 in. (76mm) Min.
Clean-out Cover
12 in. (305mm) Minimum
Ceiling Support
3 to 6 in. (76-152mm)
Offset Adapter
6 in. (152mm) Class A
Chimney Connector
Adapter
3 to 3 in.
(76-76mm)
Top Vent Kit
Non-combustible Hearth Pad
Clean-out
Cover
Tee
Wall Thimble
Support
Bracket
every 60 in.
(1524mm)
12 in.
(305mm)
minimum
Rain
Cap
Flashing
2 in. (51mm) minimum
6 in. (152mm)
minimum
Figure 16.1
Figure 16.2
E. Vertical - Interior - Typical Installation
Firestop
Flashing
Rain Cap
6 in.
(152mm)
Min.
Non-combustible Hearth Pad
3 in. (76mm) Min.
Clean-out Cover
12 in.
(305mm)
Minimum
3 in. to 3 in.
(76-76mm)
Top Vent Kit
Figure 16.3
NOTE:
A chimney connector shall not pass
through an attic or roof space, closet
or similar concealed space, or a foor or
ceiling.

R
November 22, 2011 7034-106G Page 17
Mt. Vernon Pellet Stove (AE)
Fire Risk.
Inspection of Chimney:
• Masonry chimney must be in good condition.
• Meets minimum standard of NFPA 211
• Factory-built chimney must be a minimum 6 inch (152mm)
UL103 HT.
WARNING
F. Masonry
G. Alternate Masonry
Non-combustible Hearth Pad
Airtight clean-out door
Sheathing
Flashing
1 in. (25mm) clearance
1 in. (25mm) clearance
with firestop
6 in. (152mm)
minimum
Fireclay Flue Liner
with airspace
Concrete Cap
2 in. (51mm) minimum to
combustible material
Figure 17.1
Figure 17.2
Non-combustible Hearth Pad
Airtight
Clean-out Door
Clean-out cover
Sheathing
1 in. (25mm) clearance
Flashing
Fireclay flue
liner with airspace
Concrete Cap
1 in. (25mm) clearance
with firestop
6 in. (152mm)
minimum
3 in. (76mm) minimum to
combustible material

Page 18 7034-106G November 22, 2011
R
Mt. Vernon Pellet Stove (AE)
6Mobile Home Installation
1. An outside air inlet must be provided for the combustion
air and must remain clear of leaves, debris, ice and/or
snow. It must be unrestricted while the appliance is
in use to prevent room air starvation which causes
smoke spillage. Smoke spillage can also set off smoke
alarms.
2. The combustion air duct system must be made of
metal. It must permit zero clearance to combustible
construction and prevent material from dropping into
the inlet or into the area beneath the dwelling and
contain a rodent screen.
3. The appliance must be secured to the mobile home
structure by bolting it to the fl oor (using lag bolts).
Use the same holes that secured the appliance to the
shipping pallet.
4. The appliance must be grounded with #8 solid copper
grounding wire or equivalent, terminated at each end
with an NEC approved grounding device.
5. Refer to Clearances to Combustibles and fl oor protec-
tion requirements on page 8 for listings to combustibles
and appropriate chimney systems.
6. Use silicone to create an effective vapor barrier at
the location where the chimney or other component
penetrates to the the exterior of the structure.
7. Follow the chimney manufacturer’s instructions when
installing the vent system for use in a mobile home.
8. Installation shall be in accordance with the Manufactur-
ers Home & Safety Standard (HUD) CFR 3280, Part
24.
NEVER INSTALL IN A SLEEPING ROOM.
WARNING
You must use a Quadra-Fire Outside Air Kit
for installation in a mobile home.
Spark Arrestor Cap
Roof Flashing
Storm Collar
Joist Shield/Firestop Approved Class L
or PL Pellet Vent
Figure 18.1
CAUTION
Never draw outside combustion air from:
• Wall, fl oor or ceiling cavity
• Enclosed space such as an attic or garage
CAUTION
THE STRUCTURAL INTEGRITY OF THE MOBILE HOME
FLOOR, WALL AND CEILING/ROOF MUST BE MAIN-
TAINED
Do NOT cut through:
• Floor joist, wall, studs or ceiling trusses.
• Any supporting material that would affect the structural
integrity.
This unit is to be connected to a factory-built chimney
conforming to CAN/ULC-S629, Standard for 650°C
Factory-Built Chimneys.
For removal of the chimney for mobile home transporta-
tion, contact the proper transportation offi cials.
WARNING
Products of combustion generate carbon monoxide and
different fuels generate different levels. Carbon monoxide
• Only use approved fuels in this appliance.
• Always keep door shut during operation. Operating this unit
with doors open can allow CO to leak into the home.
CO can kill you before you are aware it is in your home. At
lower levels of exposure, CO causes mild effects that are often
mistaken for the fl u. These symptoms include headaches,
dizziness, disorientation, nausea and fatigue. The effects of CO
exposure can vary greatly from person to person depending on
age, overall health and the concentration and length of exposure.
WARNING
It is critical to have a working smoke detector
installed in the home of unit operation.
• Smoke alarms that are properly installed and
maintained play a vital role in reducing fi re deaths and
injuries. Having a working smoke alarm reduces the
chance of fi re related injuries..

R
November 22, 2011 7034-106G Page 19
Mt. Vernon Pellet Stove (AE)
7Appliance Set-Up
A. Leg Leveling System
Figure 19.3 - Bolt fully extended
Figure 19.2
Figure 19.1
1. Thread Allen bolts through nuts until fl ush. Figure 19.1.
The
Allen bolts and nuts are included in the component
pack inside the appliance fi rebox.
2. Slide assembled nuts and bolts into slots on legs with
the nuts on the bottom. Figure 19.2. Use a 5/32 in.
(3.96mm) Allen wrench to adjust legs up and down to
desired level. Figure 19.3.
B. Outside Air Kit Instructions
1. Measure distance from fl oor to air vent opening in appli-
ance and mark location on wall.
Use saw to cut opening in wall. Cut a 3-1/2 to 4 inch
(89-102mm) opening on inside wall and a 4 to 4-1/2
inch (102-114mm) opening on outside of house.
2. Use wire tie to secure fl ex pipe to collar assembly.
3. Slide trim ring over fl ex pipe and run pipe through wall.
4. Attach fl ex pipe (not supplied) to outside termination
cap with second wire tie.
5. Secure termination cap to outside surface.
6. Secure trim ring to interior wall.
CAUTION
Never draw outside combustion air from:
• Wall, fl oor or ceiling cavity
• Enclosed space such as an attic or garage
Figure 19.4
Termination Cap
Wire
Tie
Trim Ring
Wire Tie
Collar
3 inch Aluminum
Flex Pipe
(not included)
Included in Kit: 2 wire ties, 1 collar assembly,
1 termination cap assembly, 1 trim ring, fasteners.
NOTE: 3 INCH ALUMINUM FLEX PIPE NOT INCLUDED.
Tools Needed: Phillips head screw driver; wire cutters;
hole saw or jig saw.

Page 20 7034-106G November 22, 2011
R
Mt. Vernon Pellet Stove (AE)
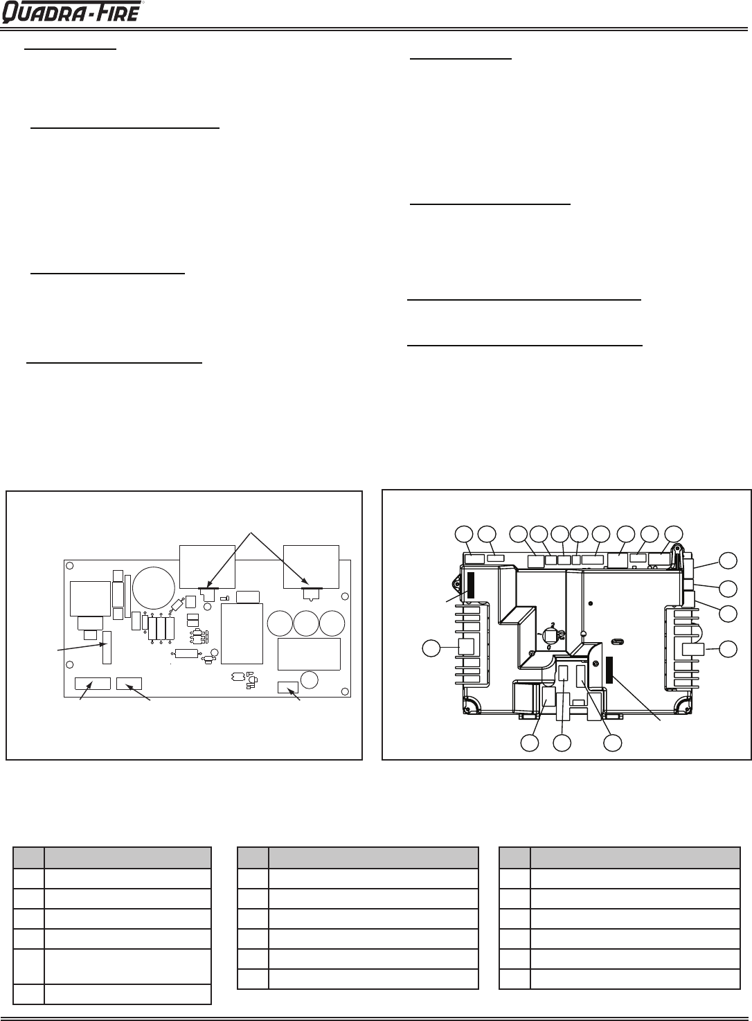
3 to 3 inch (76-76mm) Top Vent Adapter
3 to 6 inch (76-152mm) Top Vent Offset Adapter
1.
Put a layer of high temperature silicone on the 3
inch (76mm) exhaust outlet. Do not put silicone
inside of pipe. Figure 20.1.
2. Slide the top vent adapter onto the rear exhaust
outlet and adjust the assembly to a vertical position
until the top of the fl ue outlet is centered and is in
a level position. Figure 20.1.
3. Align slot on left of adapter with hole in the back of
the unit and secure with screw. You may drill out the
hole using #26 drill bit provided but only if needed.
Figure 20.2.
4. Install the 5 mounting screws, 3 on the left and 2
on the right.
5. Drill 2 holes with #26 drill bit through the rear
exhaust outlet using the 2 holes already in the short
horizontal pipe in the top vent adapter as a guide.
Install the screws. Figure 20.2.
6. Install the vent pipe into the top vent adapter (be
sure to silicone all joints). To use an existing 6
inch (152mm) vent system, install the 3 to 6 in (76-
152mm) offset adapter before installing vent pipe.
7. To clean top vent adapter, open clean-out cover
and remove any debris build-up. Figure 20.2.
C. Top Vent Adapter Installation
3 in. to 6 in.
Offset Adapter
Silicone Rear
Exhaust Outlet
3 in. to 3 in. Top
Vent Adapter
Clean-Out
Cover
Drill Hole, 1
on each side
Align slot holes on the adapter
to holes on the back of the unit
Figure 20.2
Figure 20.1
Installing the Top Vent Adapter
D. Rear Vent and Rear Vent to Top Vent
Adapter Installation
Clean-Out Cover
Clean-Out Cover
Figure 20.3 - Rear Vent Adapter
Figure 20.4 - Rear to Top Vent Adapter - 90o
1. Put a layer of high temperature silicone on the 3 inch
(76mm) exhaust outlet. Do not put silicone inside of
pipe. Figure 20.1.
2. Slide the adapter onto the rear exhaust outlet and adjust
the assembly to the appropriate position.
3. Install the vent pipe into the adapter (be sure to silicone
all joints)

R
November 22, 2011 7034-106G Page 21
Mt. Vernon Pellet Stove (AE)
E. Optional Log Set Placement Instructions
CAUTION
Logs are FRAGILE. Use extreme care when handling or
cleaning logs.
NOTICE:
Due to the abrasive nature of a pellet appliance fi re, the
logs are not covered under warranty. Any placement vari-
ation other than shown here can cause excessive heat
and shall void the appliance warranty.
Figure 21.1
Log fits over screws
Left Log
Log has indentations on the
bottom to fit over the screw heads.
Log rests in front of screws
Right Log
Figure 21.3
Figure 21.4
1. Place the left log as shown. There are 2 indentations in
the bottom of the log to fi t over the screw heads in the
fi rebox. Figures 21.1 and 21.2.
2. Place the right log in front of the 2 screw heads in the
fi rebox. Figures 21.3 & 21.4.
2 PIECE LOG SET INSTALLATION
Figure 21.2

Page 22 7034-106G November 22, 2011
R
Mt. Vernon Pellet Stove (AE)
1. When mounting the wall control thermostat on the wall,
be sure to follow your thermostat wall control’s instal-
lation instructions carefully.
NOTE: The wall control thermostat should be
mounted on an inside wall and not in direct line
with the appliance convection air.
NOTE: If the wall control thermostat is located too
close to the appliance, you may need to set the
temperature setting slightly higher to maintain the
desired temperature in your home.
2. There is a 5 screw terminal block located on the back
lower left corner of the appliance directly above the
power cord inlet.
The center 3 screws are for the wall control thermostat
wires and the 2 outer screws are mounting screw and
should not have wires attached to them.
The thermostat wires are color coded. The green wire
is on the left, the white in the middle and the red on the
right.
F. Wall Control Thermostat Installation
Figure 22.2
Shock hazard.
• Do NOT remove grounding prong from plug.
• Plug directly into properly grounded 3 prong
receptacle.
• Route cord away from appliance.
•
Do NOT route cord under or in front of appliance.
CAUTION
12 volt Power Inlet (for
optional battery back-up)
Houshold Power
Cord Inlet
Wall Control Thermostat Wires
Attach to Center 3 Screws
Green White Red
Red Wire
Top
Bottom
White Wire
Green Wire
Figure 22.1 - Back Side of Wall Control with
Cover Off

R
November 22, 2011 7034-106G Page 23
Mt. Vernon Pellet Stove (AE)
8Operating Instructions
A. Fire Safety
To provide reasonable fi re safety, the following should be
given serious consideration:
• Install at least one smoke detector and CO monitor on each
fl oor of your home.
• Locate detectors away from the heating appliance and close
to the sleeping areas.
• Follow the detector’s manufacturer’s placement and
installation instructions and maintain regularly.
• Conveniently locate a Class A fi re extinguisher to contend
with small fi res.
• In the event of a hopper fi re:
• Evacute the house immediately.
• Notify fi re department.
B. Combustible/Non-Combustible Materials
• Combustible Material
Material made of or surfaced with wood, compressed
paper, plant fi bers, plastics, or any material capable
of igniting and burning, whether fl ame-proofed or not,
plastered or unplastered.
• Non-combustible Material
Material which will not ignite and burn. Such materials are
those consisting entirely of steel, iron, brick, tile, slate,
glass or plasters, or any combination thereof.
• Non-combustible Sealant Material
Sealants which will not ignite and burn: Rutland, Inc.
Fireplace Mortar #63, Rutland 76R, Nufl ex 304, GE
RTV106 or GE RTB116 (or equivalent).
Clinkers
Minerals and other non-combustible materials such as sand
will turn into a hard, glass-like substance called a clinker when
heated in the fi repot.
Trees from different areas will vary in mineral content. That
is why some fuels produce more clinkers than others.
Moisture
Always burn dry fuel. Burning fuel with high moisture content
takes heat from the fuel and tends to cool the appliance,
robbing heat from your home. Damp pellet fuel can clog the
feed system.
C. Fuel Material and Fuel Storage
Pellet fuel quality can greatly fl uctuate. This appliance has
been designed to burn a wide variety of fuels, giving you
the choice to use the fuel that is most economical in your
region.
Hearth & Home Techonologies strongly recommends only
using Pellet Fuel Institute (PFI) certifi ed fuel.
Fuel Material
• Made from sawdust or wood by-products
• Shelled fi eld corn & other biomass fuels
• Depending on the source material it may have a high or
low ash content.
Shelled Field Corn
• Must be 15% or less moisture content.
• Must be clean and free from debris
• Never burn corn straight from the fi eld
• Stalk parts, excessive fi nes and cob remnants, etc. will
clog the auger mechanism
• Corn with excessive grain dust must be screened by sifting
with 3/16 inch (4.7mm) mesh screening
CAUTION! Do not burn fuel that contains an additive;
(such as soybean oil).
• May cause hopper fi res
• Damage to product may result
Read the ingredients list on the package. If you are buying
corn or wheat the only ingredient that should be listed is
corn or wheat.
WARNING! Risk of Chemical Poisoning!
Do NOT burn treated seed corn
• Chemical pesticides are harmful or fatal if swallowed
• Burning treated seed corn will void your warranty
Higher Ash Content Material
• Hardwoods with a high mineral content
• Fuel that contains bark
• Standard grade pellets, high ash pellets, corn and other
biomass fuels
Lower Ash Content Material
• Softwoods
• Fuels with low mineral content
• Premium grade pellets
Fire Risk.
WARNING
• Do not operate appliance before reading and
understanding operating instructions.
• Failure to operate appliance properly may cause
a house fi re.
HOT WHILE IN OPERATION. KEEP CHILDREN,
CLOTHING AND FURNITURE AWAY. CONTACT
MAY CAUSE SKIN BURNS.
CAUTION

Page 24 7034-106G November 22, 2011
R
Mt. Vernon Pellet Stove (AE)
Size
•
Pellets are either 1/4 inch or 5/16 inch (6-8mm) in diameter
• Length should be no more that 1-1/2 inches (38mm)
• Pellet lengths can vary from lot to lot from the same
manufacturer
• Due to length variations, the fl ame height (feed rate) may
need adjusting occasionally. See page 25 for instructions.
Performance
• Higher ash content requires the ash drawer to be emptied
more frequently
• Hardwoods require more air to burn properly
• Set wall control to “Utility Pellet” if the fi repot and ash pan
are fi lling quickly. This will cause the auto-clean system to
empty the fi repot more often.
• Premium wood pellets produce the highest heat output.
• Burning pellets longer than 1-1/2 inches (38mm) can cause
an inconsistent fuel feed rate and/or missed ignitions.
We recommend that you buy fuel in multi-ton lots whenever
possible. However, we do recommend trying various brands
before purchasing multi-ton lots to ensure your satisfaction.
Changing to Different Fuel Type
• Empty the hopper of the previous fuel
•
Thoroughly vacuum hopper before fi lling with the new
fuel
• Select the appropriate setting on the FUEL SELECTION
screen on the thermostat wall control
The burn rate, BTU content and heat output will all vary
depending on the fuel selected.
Storage
• Wood pellets should be left in their original sealed bag
until using to prevent moisture absorption.
• Shelled corn, wheat or sunfl ower seeds should be stored
in a tight container to prevent it from absorbing moisture
from damp or wet fl oors.
• This will also prevent rodents from becoming a problem
.
• Do not store any pellet fuel within the clearance
requirements or in an area that would hinder routine
cleaning and maintenance.
D. General Operating Information
1. Thermostat Wall Control - Automatic Setting
The appliance is like most modern furnaces; when the
thermostat wall control calls for heat, your appliance will
automatically light and deliver heat.
When the room is up to temperature and the wall control is
satisfi ed the appliance will shut down.
In the automatic setting the heat output level is controlled by
the wall control. Select “Automatic” on the AUTO/MANUAL
screen. Figure 24.1.
2. Thermostat Wall Control - Manual Setting
When you select “Manual” on the AUTO/MANUAL screen the
appliance will still automatically turn on and off according to
the temperature setting.
However, you will be able to manually control the heat output
levels. Adjust the heat output levels by using the HEAT
OUTPUT LEVEL screen. Figure 24.2.
Automatic
Manual
Off
Medium
3. Auto-Clean Firepot System
Your appliance is equipped with an automatic fi repot cleaning
system that will change the frequency of cleaning based on
the fuel being burned.
The auto-clean system will clean itself immediately on initial
plug in. If there is a power outage, as soon as power is
restored it will recycle and clean itself if there is no fi re in the
fi repot.
NOTE: User is responsible for removing the ash from the
ash drawer.
CAUTION! Tested and approved for wood pellets, shelled
fi eld corn, wheat and black oil sunfl ower seeds. Burning of
any other type of fuel voids your warranty. Figure 24.1
Figure 24.2
Read and understand the Thermostat
Wall Control manual for detailed operating
instructions. The wall control is an intregal
part of how to operate this appliance.
Tested and approved for wood pellets, shelled fi eld
corn, wheat and black oil sunfl ower seeds. Burning
of any other type of fuel voids your warranty.
CAUTION

R
November 22, 2011 7034-106G Page 25
Mt. Vernon Pellet Stove (AE)
3. Automatic or Manual Setting
The automatic setting will control the heat output based on
the comfort level selection. The manual setting allows you
to manually control the heat output settings. See page 27,
Ignition Cycles.
NOTE: See the Wall Control Thermostat manual for
detailed instructions.
E. Before Your First Fire
• First, make sure your appliance has been properly installed
and that all safety requirements have been met.
• Pay particular attention to the fi re protection, venting and
thermostat wall control installation instructions.
• Double check that the ash pan, hopper and fi rebox are
empty and then close the fi rebox door.
NOTICE:
The tip of thermocouple must be in contact with the
inside end of the thermocouple cover or missed ignitions can
occur.
F. Filling the Hopper with Fuel
G. Starting Your First Fire
1. Fuel Selection
To start your fi rst fi re, you must:
• Select the appropriate fuel on the FUEL SELECTION screen
on the thermostat wall control to match the fuel you have
chosen to burn.
• If the proper fuel is not selected your appliance will not
operate properly.
• For example, if you have selected wood pellets and you are
burning corn, the appliance may not light, it may go out or
overfeed. Figure 25.1.
NOTE: If you are lighting your appliance for the fi rst time:
• The feed tube will be empty and it can take some time to fi ll
it with fuel before you will see a fi re
• Put a handful of fuel in the fi repot (priming) to speed up the
process. You can also do this when you have run com-
pletely out of fuel.
Sunflower Seeds
Corn
Utility Pellet
Softwood Pellet
Wheat
Hardwood Pellet
DONE SELECT
FUEL SELECTION
2. Comfort Level Selection
Once your fuel is selected, select the temperature at the desired
setting on the SET COMFORT LEVEL screen. Figure 10.2.
Figure 25.2
Figure 25.1
• Check the hopper and make sure it is empty before fi lling
with fuel.
• Open the cast top hopper lid.
• Do not over fi ll the hopper. The hopper lid must be com-
pletely closed to maintain proper vacuum and for the feed
motor to operate. An error ICON will appear on the wall
control if the hopper lid is not properly closed.
• Do not leave any part of the fuel bag on the appliance after
fi lling hopper. H. Fire Characteristics and Flame Height
(Feed Rate) Adjustment
A properly adjusted fi re will have an active fl ame pattern and
the fl ame will rise and fall somewhat. This is normal.
• On HIGH setting, the fl ame will extend approximately 8
inches (203mm) out of the fi repot. If it is not 8 inches
(203mm) tall, increase the fl ame height.
• On MEDIUM or LOW setting the fl ame will be shorter.
• Reduce the fl ame height if the fi re has tall fl ames with
black tails and seems somewhat lazy. This may also
indicate that the fi repot and/or heat exchanger needs to
be cleaned. Refer to Section 10 for Maintenance and
Cleaning Instructions.
Adjusting the Flame Height (Feed Rate)
• Set your appliance to “MANUAL” mode on the wall con-
trol.
• Set the heat output level to HIGH.
• Adjust the fl ame height using the “FLAME HEIGHT AD-
JUST” screen on the wall control. Figure 25.3.
Figure 25.3

Page 26 7034-106G November 22, 2011
R
Mt. Vernon Pellet Stove (AE)
The appliance has been designed to operate on an optional
battery back-up system.
If you have frequent power outages in your region, hook
the appliance up to a 12 volt battery and it will automatically
switch to battery power in the event of a power failure. The
12 volt power cord, sold as a separate accessory, does not
charge the battery.
WARNING! Risk of Injury!
• Blowers may continue to run and would be exposed to
human contact.
CAUTION!
• Hook up to battery terminals BEFORE you plug battery
into appliance.
• Damage to internal electronic components may occur.
I. Battery Back-up System (Optional)
13 Volts 12 Volts 11 Volts Battery
Below
10 Volts
Figure 26.1
Operating on Battery Back-Up
• A battery icon appears on your wall control to let you
know you are now operating on battery power. Figure
26.2.
• The fi re must be manually lit as the appliance will no
longer automatically light. Follow the instructions in the
Wall Control Manual.
• Use only approved fi re starting gel to start the fi re.
• The high burn rate is no longer available on battery
back-up.
• Each level drops down one level, i.e the high burn be-
comes medium-high burn and so on.
• If the battery charge falls below 10 volt it can no longer
sustain the appliance operation and the appliance will
shut down. Figure 26.1. You must disconnect and re-
connect the battery to start it up again.
Recommended Battery
• 12 volt deep cycle battery, (i.e., marine or RV type).
• A 12 volt battery cable is available through your local
dealer.
WARNING! RISK OF FIRE! Keep combustible materials,
gasoline and other fl ammable vapors and liquids clear of
appliance.
• Do NOT store fl ammable materials in the appliance’s
vicinity.
DO NOT USE GASOLINE, LANTERN FUEL, KEROSENE,
CHARCOAL LIGHTER FLUID OR SIMILAR LIQUIDS TO
START OR “FRESHEN UP” A FIRE IN THIS HEATER.
• DO NOT BURN GARBAGE OR FLAMMABLE FLUIDS SUCH
AS GASOLINE, NAPHTHA OR ENGINE OIL.
• DO NOT USE CHEMICALS OF FLUIDS TO START THE
FIRE.
Keep all such liquids well away from the heater while it is in
use as combustible materials may ignite.
J. Clear Space
WARNING! RISK OF FIRE! Do NOT place combustible
objects in front of the appliance. High temperatures may
ignite clothing, furniture or draperies. Maintain a minimum
clearance of 3 feet (914mm) in front of appliance.
NOTICE: Clearances may only be reduced by means ap-
proved by the regulatory authority having jurisdiction.
Mantel:
Avoid placing candles and other heat-sensitive
objects on mantel or hearth. Heat may damage these
objects.
MAINT BURN
73 Set at: 73
12:30 PM
HEAT OUTPUT
MENU
“Maint Burn” will display when
the thermostat has reached the
set room temperature and will
run on low until it reaches its
auto-clean cycle time.
Battery icon.
Figure 26.2
Wall Control Display
The wall control will display the battery icon when operating in
the battery back-up mode. Figure 26.2

R
November 22, 2011 7034-106G Page 27
Mt. Vernon Pellet Stove (AE)
1. Start-Up Cycle
During this cycle:
• Igniter turns on for 90 seconds to heat up the air in the
fi repot
• Combustion blower starts
• Vacuum switch comes on
• Feed motor turns on adding fuel to the fi repot and the
appliance waits for the fi re to start
The duration of start-up depends on the type and quality
of fuel used. It is normal to see some smoke during the
ignition process as moisture evaporates and the fuel lights.
The smoke will stop once the fi re starts.
K. Ignition Cycles
The appliance engine is controlled by the digital thermostat
wall control. The digital display on the wall control will tell
you what your appliance is doing in the upper left corner
(System Status). Figure 27.1.
READY
73 Set at: 73
12:30 PM
HEAT OUTPUT
MENU
System Status
Every time the thermostat calls for heat, the appliance steps
through fi ve cycles:
1 Start-Up Cycle 4 Shutdown Cycle
2 Soft-Start Cycle 5 Auto-Clean Cycle
3 Heating Cycle
The duration and characteristics of these cycles may be dif-
ferent with each type of fuel selected.
Figure 27.1
WARNING! RISK OF FIRE!
Do NOT operate appliance:
• With appliance door open
• With fi repot fl oor open
• With ash pan removed
2. Soft Start Cycle (SS-Low / SS-Med)
Once the fi re is lit:
• The appliance moves into the low soft-start cycle as it
continues to build the fi re
• More fuel will be added
• As the fi re builds, the appliance will change to medium
soft-start mode
• The heating cycle begins
3. Heating Cycle ( Auto / Man - L, ML, M, MH, H)
There are two choices in the Automatic / Manual menu of
how your appliance will operate:
Automatic Mode
• The wall control will turn the heat output level up or down
depending on how far the room temperature is from the
desired temperature
• The digital display will read AUTO:M, i.e. automatic-me-
dium level
• As the room temperature approaches the desired tem-
perature, the appliance will turn down to lower settings
• When the home reaches your set temperature, the appli-
ance will go into the shutdown cycle
Manual Mode
• Set the heat output setting from the main screen
• The right bottom button will read HEAT OUTPUT
• You can operate the appliance from any of the 5 levels
• On the lowest level (MAN: L) the appliance will stay on
longer, burn less fuel per hour, and will take longer to
bring the home up to your desired temperature
• On the highest setting (MAN:H) the appliance will burn
more fuel per hour, and bring your home up to tempera-
ture more quickly
•
In Manual mode the heat output does not change but
will stay at the setting you chose until the comfort level
is reached (meaning the thermostat has been satisfi ed).
Turn to OFF to stop operation.
4. Shutdown Cycle
Once your home has reached your set temperature:
• Appliance will stop feeding fuel and allow the fi re to dimin-
ish
• Convection blower will continue to run until the appliance
cools to appropriate temperature
• Appliance will begin the auto-clean cycle

Page 28 7034-106G November 22, 2011
R
Mt. Vernon Pellet Stove (AE)
5. Auto-Clean Cycle
The fi repot auto-clean system will cycle:
• When the appliance is fi rst plugged in
• When the house reaches temperature and the appliance
shuts down
• At prescribed intervals, depending on the type of fuel se-
lected
• When starting up after an electrical interruption
If your appliance is running and the auto-clean cycle is initi-
ated, the appliance will revert to shutdown cycle.
• The fl oor of the fi repot will open and dump the ash into
the ash pan
• It takes approximately 2 minutes to complete the auto-
clean cycle
• The fl oor will then shut, and if the thermostat is still call-
ing for heat, the fi re will start again
• During this auto-clean cycle, the convection blower may
continue to run. The combustion blower will continue to
run.
Additional Screen Messages:
READY It is telling you that the home is up to temperature
and doesn’t need any heat.
- - - - - The screen will show 5 dashes when the wall
control and the control board are NOT communicating with
each other. Check that the wiring on the thermostat is prop-
erly connected.
MAINTENANCE BURN This indicates the appliance is
operating on battery backup, prior to the auto-clean. The
maintenance burn will keep the system from shutting down
as the appliance will not automatically re-light in battery
back-up mode.
OFF The AUTO/MANUAL SETTING screen has been set
to OFF. Set the appliance to OFF when performing periodic
maintenance to prevent an unexpected startup.
BLANK SCREEN The ON/OFF switch may be in OFF
position. Turn to ON position.
WARNING
Fire Risk
Do NOT operate appliance:
• With appliance door open.
• With fi repot fl oor open.
Do NOT store fuel:
• Closer than required clearances to com-
bustibles to appliance.
• Within space required for loading or ash
removal.

R
November 22, 2011 7034-106G Page 29
Mt. Vernon Pellet Stove (AE)
READY
71 Set at: 68
12:30 PM
MENU
1. At the starting screen, press “MENU”
button once or twice until “MENU”
screen appears.
2. Highlight “FUEL TYPE” using the “UP/
DOWN” buttons to the right side of the
display. Press “SELECT”.
Auto/Manual/Off
User Settings
Fuel Type
MENU
Set Comfort Level
3. Scroll down and highlight “HARD-
WOOD PELLET” or your fuel type.
Sunflower Seeds
Wheat
FUEL SELECTION
Softwood Pellet
Hardwood Pellet
5. Press “DONE” to confi rm fuel
change.
CONFIRM FUEL CHANGE
Please empty hopper
of old fuel type and
ensure firebox is clean.
Please refer to
section 8 in manual.
DONE
2. Highlight “AUTO/MANUAL/OFF”.
Press “SELECT”.
User Settings
Fuel Type
MENU
Set Comfort Level
Auto/Manual/Off
3. Highlight “MANUAL”. Press “SELECT”.
AUTO/MANUAL SETTINGS
Manual
Off
Automatic
Manual
CHOOSING FUEL TYPE
TURNING ON APPLIANCE
7. Fill the hopper with fuel. If the hop-
per was completely empty or has run
out of fuel, put approximately 1/2 cup
of pellets into the fi repot for a quick
restart.
8. Be sure the hopper lid and glass
door are both closed.
1. At the starting screen, press “MENU”.
Function Buttons
Buttons
Up
Down
READY
73 Set at: 73
12:30 PM
HEAT OUTPUT
MENU
Room
Tem p
Wall Control for Reference
6. Press “DONE” twice or wait 15 sec-
onds for starting screen to reap-
pear.
4.
Press “DONE” twice or wait 15 sec-
onds for starting screen to re-ap-
pear.
READY
71 Set at: 68
12:30 PM
MENU
4. Now press “SELECT” to choose new
fuel.
READY
71 Set at: 68
12:30 PM
MENU
1. At the starting screen, press “MENU”
button once or twice until “MENU”
screen appears.
3. Highlight “TEMP UNITS F/C” using the
“UP/DOWN” buttons to the right side of
the display. Press “SELECT”.
CHOOSING TEMP UNIT:
°F or °C
5. Press “DONE” twice again, or wait 15
seconds for starting screen to re-ap-
pear.
4. Press the “UP” or “DOWN” button
to set desired temperature unit and
press “SELECT”..
USER SETTINGS
Flame Height Adjust
Temp Differential
Temp Units F/C
Auto/Manual/Off
Fuel Type
Set Comfort Level
User Settings
MENU
2. Highlight “USER SETTINGS” using the
“UP/DOWN” buttons to the right side of
the display. Press “SELECT”.
L. Quick Start Guide
NOTICE:
Any button pressed will turn on the backlight. Wall control will automati-
cally revert back to the starting screen if there is no activity for 15 seconds; except
for the “CONFIRM FUEL CHANGE” screen.

Page 30 7034-106G November 22, 2011
R
Mt. Vernon Pellet Stove (AE)
READY
71 Set at: 74
12:30 PM
HEAT OUTPUT
MENU
Hold at:
Medium High
1. At the starting screen, press “HEAT
OUTPUT”.
2. Use the “UP” button to change “HEAT
OUTPUT LEVEL” to ”MEDIUM-HIGH”.
SETTING HEAT OUTPUT
1. Press and hold “UP” or “DOWN” but-
ton to set desired temperature.
74ºF
2. Press “HOLD TEMP”.
SETTING COMFORT LEVEL
READY
71 Set at: 68
12:30 PM
HEAT OUTPUT
MENU
NOTE: Set temperature must be 3
degrees higher than room
temperature for appliance to
start.
SET COMFORT LEVEL
ON HOLD
RESUME
DONE
74ºF
3. Press “DONE”.
3. Press “DONE” twice or wait 15 seconds
for starting screen to re-appear.
HOPPER OUT OF FUEL
SHUTDOWN
71 Set at: 74
12:30 PM
HEAT OUTPUT
MENU
Hold at:
STARTUP
71 Set at: 74
12:30 PM
HEAT OUTPUT
MENU
Hold at:
Min Firepot Temp
SERVICE
RETRY
ERROR LIST
1. If the appliance has stopped operat-
ing, check the wall control screen. If
it is showing “Min Firepot Temp” the
hopper has run out of fuel.
2. Fill the hopper with fuel and press the
“RETRY” button twice. The fi rst time
turns on the back light, the second
time starts the retry function.
3. If the wall control screen changes to
a “SHUTDOWN” screen that means
your appliance has not completed the
full shutdown cycle. Depending on
where it was in the cycle it can take
from one to ten minutes to restart.
When the shutdown cycle is complete
the wall control screen will display
“STARTUP”. Continue to Step 4.
4. If the wall control screen changes to
a “STARTUP” screen after pressing
“RETRY” that means your appliance
has already completed the shutdown
cycle. You must wait until the wall con-
trol screen displays the startup screen
and then put 1/2 cup of pellets in the
fi repot for a quick restart.
5. Be sure the hopper lid and glass door
are both closed.

R
November 22, 2011 7034-106G Page 31
Mt. Vernon Pellet Stove (AE)
M. Frequently Asked Questions
ISSUES SOLUTIONS
1. Metallic noise 1. Noise is caused by metal expanding and contracting as
it heats up and cools down, similar to the sound pro-
duced by a furnace or heating duct. This noise does not
affect the operation or longevity of your appliance.
2. Ash build-up on glass 2. This is normal. Clean the glass.
3. Glass has turned dirty 3. Excessive build up of ash. The lower burn settings will
produce more ash, the higher burn settings produce
less. The more it burns on low the more frequent clean-
ing of the glass is required.
4. Fire has tall fl ames with black tails and is lazy 4. The fl ame height adjustment needs to be reduced or
the fi repot needs cleaning. Heat exchanger or exhaust
blower needs cleaning.
5. Excessive smokey start-up 5. Either the fi repot is dirty or there is too much fuel at
start-up and not enough air.
6. Large fl ame at start-up 6. This is normal. Flame will settle down once the fi re is
established. Some smoke is normal.
7. Mechanical Noise 7. The fl oor of the fi repot in the auto-clean system may
make some noise as it scrapes the ash into the ash
pan.
Odors and vapors released during initial operation.
• Curing of high temperature paint.
• Open windows for air circulation.
Odors may be irritating to sensitive individuals.
CAUTION

Page 32 7034-106G November 22, 2011
R
Mt. Vernon Pellet Stove (AE)
9Troubleshooting
With proper installation, operation, and maintenance your appliance will provide years of
trouble-free service. If you do experience a problem, this troubleshooting guide will assist a
qualifi ed service person in the diagnosis of a problem and the corrective action to be taken.
This troubleshooting guide can only be used by a qualifi ed service technician.
Error Message Possible Cause Corrective Action
Bad wall control or control board
3 wires have loose connections or installed
wrong
Replace wall control or control board
Check connections
BAD TC DROP TUBE
(TC = Thermocouple)
Drop tube thermocouple is broken or leads are
reversed
Check connections
Replace thermocouple
BAD TC FIREPOT
(TC = Thermocouple)
Firepot thermocouple is broken or leads are
reversed
Check connections
Replace thermocouple
SNAP DISC TRIPPED Overheat sensor (snap disc) has tripped
Convection blower may need cleaning
Turn power off to appliance and manually
reset snap disc then turn power back on
Clean convection blower if needed
VACUUM SW ERROR
(SW = Switch)
Vacuum switch is bad
Vacuum hose is plugged/disconnected
Check connections. Bypass vacuum with
jumper wire, if runs, switch is bad. Replace
switch
Check vacuum hose
COMB BLOWER JAMMED Combustion blower is blocked/jammed Remove blockage
Replace blower if necessary
Must unplug appliance to clear error
AUGER JAMMED Auger jammed, feed motor bad Pull the feed system and inspect
Clear jam and Press Retry
MISSED IGNITION Igniter bad or poor harness connection
Out of fuel or fuel is bridging in hopper
Faulty fi repot thermocouple connection has
shorted.
Check connections, if OK replace igniter
Break up bridging pellets. Refi ll hopper
Replace the thermocouple
Press Retry
MIN FIREPOT TEMP Out of fuel Refi ll hopper
Add handful of pellets to fi repot to prime it
Press Retry
MAX DROP TUBE TEMP Appliance in over-heat condition
Flame height set too high
Components may need cleaning
Confi rm setting matches burning fuel
Adjust fl ame height
Clean the fi rebox, heat exchanger, convec-
tion blower, fi repot and ash pan
CONV BLOWER JAMMED Convection blower blocked/jammed Remove blockage
Replace blower if necessary
Must unplug appliance to clear error
CHECK ASHPAN Auto-clean jammed
Auto-clean switch is bad
Linkage has become disconnected
If ashpan is empty, check for a jam. Use a
screw driver and fi rmly push in the fi repot
fl oor holes and fl ex spring and push toward
home to release jam
Replace switch
Reconnect linkage
SCREEN GOES BLANK Static discharge or nearby lightning or
Electric fast transients at the input mains
Wait 25 seconds and press any key to
refresh the screen.
Hopper lid not closed all the way
Switch is out of adjustment (auger will not
function)
Close the lid. If that didn’t work replace the
switch
Adjust or replace switch
Firebox door is not latched properly Adjust or replace door switch
Out of fuel Check the fuel level, if OK the switch may be
out, replace switch

R
November 22, 2011 7034-106G Page 33
Mt. Vernon Pellet Stove (AE)
10Maintaining & Servicing Your Appliance
CAUTION! SHOCK AND SMOKE HAZARD!
• Proper Shutdown Procedure must be followed.
• Smoke spillage into room can occur if appliance is not
cool before unplugging appliance.
• Risk of shock if appliance is not turned off before servic-
ing appliance.
A. Proper Shutdown Procedure
1. Set wall control to OFF on AUTOMATIC / MANUAL SET-
TING screen. Figure 33.1.
2. Wall control screen will scroll through the following mes-
sages after setting to OFF.
• Shutdown
• Auto-Clean
• Off
Before Servicing Your Appliance
Manual
Off
Automatic
Figure 33.1
B. Quick Reference Maintenance Chart
NOTICE: These are recommendations. Clean more frequently if you encounter heavy
build-up of ash at the recommended interval or you see soot coming from the
vent. Not properly cleaning your appliance on a regular basis will void your
warranty.
3. Smoke spillage into the room can occur if the appliance
is not cool before unplugging.
4. There is a risk of shock if the appliance is not unplugged
before servicing the appliance.
After servicing, restart with the AUTO/MANUAL SETTINGS
screen. Figure 33.1.
Follow the detailed instructions found in this
section for each step listed in the chart below.
Cleaning or Inspection Frequency Daily Weekly Every 2
Weeks
Monthly Yearly
Ash Pan - Burning Wood Pellets Every 5 bags of fuel OR X
Ash Pan - Burning Alternate Fuels Every 1 bag of fuel OR X
Ash Removal from Firebox More frequently depending on the
fuel type or ash build-up
OR X
Auto-Clean Inspection More frequently depending on the
fuel type
OR X
Blower, Combustion (Exhaust) More frequently depending on the
fuel type
OR X
Blower, Convection More frequently depending on the
operating environment
OR X
Door Latch Inspection Prior to heating season OR X
Firebox - Prepare for Non-Burn Season At end of heating season OR X
Firepot - Burning Softwood Pellets Every 5 bags OR X
Firepot - Burning Hardwood Pellets Every 3 bags OR X
Firepot - Burning Alternate Fuels Every 1 bag OR X
Glass When clear view of fi repot
becomes obscured
OR X
Heat Exchanger & Drop Tube Every 1 ton of fuel OR X
Hopper Every 1 ton of fuel or when chang-
ing fuel types
OR X
Venting System More frequently depending on the
fuel type
OR X

Page 34 7034-106G November 22, 2011
R
Mt. Vernon Pellet Stove (AE)
3. Cleaning Ash Pan
• Frequency: Weekly or every 3-5 bags
• By: Homeowner
a Locate the ash pan underneath the fi repot.
b. Slide the ash pan straight out.
c. Empty into a non-combustible container and re-install ash
pan.
d. When replacing ash pan push it back until it catches on
the 2 side latches.
e. Clinkers fi lling the ash pan will have to be cleaned out
more often than ash. See Disposal of Ashes.
2. Ash Removal from Firebox
• Frequency: Weekly or more frequenctly depending on
ash build-up
• By: Homeowner
Be sure the wall control screen says OFF and the
appliance is allowed to cool.
There must not be any hot ashes in the fi rebox during
cleaning.
Frequent cleaning of the ash in the fi rebox with a vacuum
cleaner will help slow down the build-up of ash in the
exhaust blower and vent system.
1. Auto-Clean System Inspection & Cleaning
• Frequency: Monthly or every ton (aprx. 50 bags) or
more frequently depending on the type of fuel
• By: Homeowner
a. Be sure the wall control screen says OFF and the
appliance is allowed to cool.
b. Open the fi rebox door. Inspect the auto-clean springs:
(See item #59 on page 46 for the location of the
springs).
c. Inspect the holes in the fi repot fl oor for any debris.
• The holes must be kept clear.
d. How often the fi repot cleans itself depends on:
• The type of fuel you selected on the thermostat wall
control
• How long the appliance burns before satisfying set
point on wall the control.
• Burning biomass fuels may require a more thorough
cleaning during the burn season.
e. Excessive clinkers will eventually jam the auto-clean
system and generate an error message on the wall
control.
• Inspect for any degradation or deformation
• As the springs heat up and cool down they can
lose tension
• If there is a gap showing above the fi repot bottom,
approximately 1/16 inch (1.59mm) or more, it
means the springs have lost their tension
• Lost tension can not keep the fl oor in the proper
position causing ignition problems and fuel falling
into the ash pan.
• Call your dealer to replace the springs.
C. General Maintenance and Cleaning
Figure 34.1
WARNING! RISK OF FIRE! Keep combustible materi-
als, gasoline and other fl ammable vapors and liquids
clear of appliance.
• Do NOT store fl ammable materials in the appliance’s
vicinity.
• Do NOT use gasoline, lantern fuel, kerosene, charcoal
lighter fl uid or similar liquids to start or “freshen up” a
fi re in this heater.
Keep all such liquids well away from the heater while it is
in use as combustible materials may ignite.
WARNING! RISK OF FIRE!
Do NOT store fuel:
• Closer than required clearances to combustibles to ap-
pliance.
• Within space required for loading or ash removal.
4. Disposal of Ashes
• Frequency: As needed
• By: Homeowner
Ashes should be placed in a steel container with a
tight-fi tting lid. The container of ashes should be moved
outdoors immediately and placed on a non-combustible
fl oor or on the ground, well away from combustible
materials, pending fi nal disposal.
If the ashes are disposed of by burial in soil or otherwise
locally dispersed, they should be retained in the closed
container until all cinders have thoroughly cooled. Other
waste shall not be placed in this container.

R
November 22, 2011 7034-106G Page 35
Mt. Vernon Pellet Stove (AE)
Figure 35.1 - Large Clinker
5. Cleaning Firepot with Firepot Clean-Out Tool
• Frequency:
Softwood Pellets: Weekly or every 5 bags
Hardwood Pellets: Weekly or every 3 bags
Alternate Fuel: Daily or everyr 1 bag
• By: Homeowner
a. Be sure the wall control screen says OFF and the
appliance is allowed to cool.
b. It may be necessary to use your fi repot clean-out tool
to chip away material that has built up on the sides of
the fi repot and to push out any clinkers.
• Larger clinkers may have to be removed from the
top of the fi repot.
• If the clinker adheres to the sides of the fi repot, you
will need to manually clean the fi repot.
c. After power is restored, the auto-clean system will
recycle and then clean itself.
d. The firepot floor plate must be fully closed when
fi nished.
Clinker
6. Cleaning Heat Exchanger, Drop Tube & Exhaust
• Frequency: Monthly or every 1 ton of fuel (aprx. 50
bags).
• By: Homeowner
NOTE:
There are heavy duty vacuum cleaners specifi cally
designed for solid fuel appliance cleaning.
WARNING! Hopper Fire Risk!
For trouble free use of your pellet appliance you must per-
form cleaning as called for in these instructions. Not doing
so will result in:
• Poor operating performance
• Smoke spillage into the home
• Overheating of components
Not properly cleaning your appliance on a regular basis will
void your warranty.
a. It is necessary to remove the baffl e to gain access to the
heat exchanger. Follow instructions for baffl e removal
on page 39.
b. Vacuum the ash from the heat exchanger with an
upholstery brush to remove the majority of the ash. Be
sure to vacuum the back of the baffl e also. Inspect the
drop tube and remove any residue build-up in the drop
tube. Figure 35.3.
Figure 35.2 - Example of a dirty heat exchanger
Tools Needed: A Shop Vac and generic micro cleaning
kit; fl at head and Phillips screwdriver; 11/32 Nut-driver or
wrench.
* Can be purchased at your local hardware store.
Shop Vac* Example Micro Cleaning Kit*
Example
Figure 35.3

Page 36 7034-106G November 22, 2011
R
Mt. Vernon Pellet Stove (AE)
c. Assemble the crevice tool from the micro cleaning kit to
attach to a Shop Vac. Figure 36.1.
d. Use the crevice tool to fi nish cleaning the heat exchanger
fi ns. It is critical that the 2 exhaust exits at the back of the
fi rebox fl oor (left and right) be thoroughly cleaned. Figure
36.2. There are several ways this can done.
1. Use the crevice tool.
2. Attach a hose 1/2 inch (12.7mm) in diameter and
approximately 2 feet (607mm in length to your vacuum
hose.
3. Use a bottle brush and push the ash down to the
bottom. Remove the combustion (exhaust) blower
and then vacuum out the ash.
2 exhaust exits (left and right side) must
be thoroughly cleaned. Each exit is
approximately 4 inches wide, 1 inch
across and 3 inches deep.
Figure 36.2
Figure 36.1
NOTE It is normal to see a certain amount of wear of
the heat exchanger fi ns. You may notice some fl aking
and pitting on some of the pins. The heat exchanger
system will function as designed with as many as 15 of
these pins missing.
Loosen all 6 nuts, but do NOT Remove
f. Removing the Combustion (Exhaust) Blower
1. The combustion blower is mounted in the bottom right
rear of the appliance. Figure 36.3.
2. Remove side panel and then using an 11/32 nut driver to
loosen all six nuts, but do not remove. Rotate the blower
and remove from the housing. Figure 36.4.
3. Set the blower on the top of the housing. You do not need
to disconnect the wires.
4. Vacuum out the exhaust area. Figure 36.5.
Figure 36.3
Figure 36.4
Vacuum out the exhaust area.
Figure 37.2
Loosen (6) Nuts
Remove
Side
Panel

R
November 22, 2011 7034-106G Page 37
Mt. Vernon Pellet Stove (AE)
8. Cleaning the Glass
• Frequency: When clear view of fi repot becomes
obscure
• By: Homeowner
a. Be sure the wall control screen says OFF and the
appliance is allowed to cool.
b. Clean glass with a non-abrasive commercially
available cleaner. Wipe down with dry towel.
Handle glass assembly with care.
When cleaning glass door:
• Avoid striking, scratching or slamming
glass.
CAUTION
• Do NOT clean glass when hot.
• Do NOT use abrasive cleaners.
• Use a hard water deposit glass cleaner on white fi lm.
Refer to maintenance instructions.
Handle glass doors with care.
• Inspect the gasket to ensure it is
undamaged.
• Do NOT strike, slam or scratch glass.
• Do NOT operate appliance with glass door
removed, cracked, broken or scratched.
WARNING
9. Door Latch Inspection
• Frequency: Prior to heating season
• By: Homeowner
The door latch is non-adjustable but the gasketing between
the glass and fi rebox should be inspected periodically to
make sure there is a good seal. If the gasket is frayed or
damaged, replace with a new one.
7. Cleaning the Hopper
• Frequency: Monthly or after burning 1 ton of fuel,
(aprx 50 bags) or when changing fuel types
• By: Homeowner
a. Be sure the wall control screen says OFF and the
appliance is allowed to cool.
b. After burning approximately 1 ton of fuel you will need to
clean the hopper to prevent sawdust and/or fi nes build-
up.
c. A combination of sawdust/fi nes and pellets on the auger
reduces the amount of fuel supply to the fi repot.
d. This can result in nuisance shut downs and misstarts
. •. Empty the hopper of any remaining pellets.
•. Vacuum the hopper and feed tube.
Clean-Out Cover
a. Be sure the wall control screen says OFF and the appli-
ance is allowed to cool.
b. Open the clean out cover. Figure 38.1.
c. Sweep out any ash build-up.
12. Cleaning the Top Vent Adapter (if installed)
• Frequency: As Needed
• By: Homeowner
10. Cleaning Exhaust Blower - Requires No
Lubrication
• Frequency: Yearly or as needed
• By: Homeowner
a. Be sure the wall control screen says OFF and the
appliance is allowed to cool.
b. Use a soft brush and vacuum to clean the
propellers.
11. Cleaning Convection Blower - Requires No
Lubrication
• Frequency: Yearly or as needed
• By: Homeowner
a. Be sure the wall control screen says OFF and the
appliance is allowed to cool.
b. Use a soft brush and vacuum to clean the
propellers.
Figure 37.1

Page 38 7034-106G November 22, 2011
R
Mt. Vernon Pellet Stove (AE)
13. Soot and Fly Ash: Formation & Need for Removal
in Exhaust Venting System.
• Frequency: Prior to each burn season and after pro-
longed shut down.
• By: Qualifi ed Service Technician/Homeowner
The products of combustion will contain small particles
of fl yash. The fl yash will collect in the exhaust venting
system and restrict the fl ow of the fl ue gases. Incom-
plete combustion, such as occurs during startup, shut-
down, or incorrect operation of the room heater will lead
to some soot formation which will collect in the exhaust
venting system. The exhaust venting system should be
inspected at least once every year to determine if clean-
ing is necessary.
The venting system may need to be cleaned at least
once a year or more often depending upon the quality
of your fuel or if there is a lot of horizontal pipe sections.
Ash will build up more quickly in the horizontal sections.
14. Preparing Firebox for Non-Burn Season
• Frequency: Yearly at end of burn season
• By: Homeowner
a. The appliance must be in complete shutdown and
allow the appliance to completely cool down.
b. Remove all ash from fi rebox and vacuum thor-
oughly.
c. Paint all exposed steel, including cast-iron. Use
the Touch-Up paint supplied with the appliance or
purchase paint from your local dealer. You must
use a high-temperature paint made specifi cially for
heating appliances.
d. Cleaning the fl ue at the end of the burn season
will prevent corrosives to build-up and damage the
fl ue.
e. Outside temperatures should have no affect on
the performance of the appliance under freezing
conditions.
15. Creosote Formation: Guidance on minimizing
• Frequency: Periodically during heating season
• By: Qualifi ed Service Technician/Homeowner
This chimney should be inspected periodically dur-
ing the heating season to determine if a creosote
build-up has occurred. If a signifi cant layer of
creosote has accumulated (3mm or more) it should
be removed to reduce the risk of chimney fi re.
NOTE
• This unit is required to be cleaned
frequently because soot creosote and
ash may accumulate.
D. Soot or Creosote Fire
Establish a routine for the fuel, wood burner and fi ring tech-
nique. Check daily for creosote build-up until experience
shows how often you need to clean to be safe. Be aware that
the hotter the fi re the less creosote is deposited, and weekly
cleaning may be necessary in the mild weather even though
monthly cleaning may be enough in the coldest months.
Contact your local municipal or provincial fi re authority for
information on how to handle a chimney fi re.
In the event of a soot or creosote fi re, close the fi rebox
door, exit the building immediately and contact the proper
fi re authorities.
DO NOT under any circumstances re-enter the building.

R
November 22, 2011 7034-106G Page 39
Mt. Vernon Pellet Stove (AE)
F. Baffl e Removal
a. The appliance must be in complete shutdown, com-
pletely cool and the exhaust blower off.
b. Open door.
c. The baffl e is located at the top inside of fi rebox.
d. Remove baffl e by placing a fl at head screw driver into
the slot of the latches located in the upper corners and
push down. The bottom of the latch will fall forward off
of the post. Lift the baffl e up and then out toward you.
Figure 39.2.
e. To replace the baffl e, place the 2 locating ears behind
the bottom edge and tilt the baffl e up and into place.
f. The baffl e must be centered in the fi rebox before latch-
ing it in place. If it is not centered the latch is trapped
between the baffl e and side of the fi rebox instead of
latching properly.
g. The bottom of the latches will fi t over the posts. Push
the top of the latch forward to lock latch into place.
WARNING
Cast iron is a very heavy material. The baffl e is
made of cast iron and therefore is heavy and awk-
ward at times to maneuver. Clear and prepare
your work area before you begin.
Baffle
Latches
Insert flat head screw driver into “V”
section and push down and the bottom
of the latch will fall forward off of post
Locating ears - 1 on
each side. Fit behind
bottom edge.
Figure 39.2
Pellets Back-Up
in Feed Tube
Firepot Overfills
Ash Build-Up in Firebox
Figure 39.1
E. High Ash Fuel Content Maintenance
• Frequency: When the ash build-up exceeds the half
way point in the fi repot
• By: Homeowner
If the ash build-up exceeds the half way point in the fi repot
before it automatically cleans, then the fi repot is not being
cleaned often enough.
Another symptom is if clinkers are adhering to the sides of
the fi repot.
Double check the wall control to ensure the proper setting
has been selected for the fuel you are burning. If that is cor-
rect, change the setting to “Utility Pellet”.
NOTE: You will need to empty the ash pan more fre-
quently if using the “Utility Pellet” setting.
WARNING! Risk of Fire and Smoke!
• High ash fuels or lack of maintenance can cause fi repot to
overfi ll. Follow proper shutdown procedure if ash buildup
exceeds half way point in fi repot.
• Failure to do so could result in smoking, sooting and pos-
sible hopper fi res.

Page 40 7034-106G November 22, 2011
R
Mt. Vernon Pellet Stove (AE)
G. Convection Blower Replacement
Figure 40.1
Figure 40.3
Depress Tab and
Snap Out Power
Supply
Remove
Left Side
Panel
Disconnect Wire Harness
from Bottom of Blower
Remove 2
Screws
Remove
Right Side
Panel
Figure 40.2
1. Follow the proper shut down procedures as outlined on
page 33, Section 10.A.
2.
Remove the left and right side panels by removing the 4
screws using a Phillips head screw driver. Figure 40.1.
3. Depress the tab on the left side and snap out the power
supply. You do not need to disconnect any wires.
Figure 40.1.
4.
Remove the 2 screws at the bottom of the back panel so
there will be room to remove the blower. Figure 40.1
5.
Reach behind the blower and release the latch by push-
ing the top of the latch towards the blower. Figure 40.2.
6. Rock the top of the blower slightly and lift up. The
blower will pass around the control board and out the
left side of the appliance.
7. Disconnect the wire harness from the bottom of the
blower by depressing the tabs on the sides of the con-
nector and then pulling to remove. Figure 40.1.
8. Re-connect wire harness to the new blower.
9. Install replacement blower by placing the bottom fl ange
into the opening fi rst then rotate blower up into posi-
tion.
10.
When the blower is properly positioned the latch will engage
the notch to hold the blower in place. Figure 36.3.
11. Re-secure the back panel, snap the power supply back
in and re-secure the side panel(s).
Notch
Latch
Latch Engaged

R
November 22, 2011 7034-106G Page 41
Mt. Vernon Pellet Stove (AE)
I. Glass Replacement
• Glass is 5mm thick high temperature heat-re-
sistant ceramic glass.
• DO NOT REPLACE with any other material.
• Alternate material may shatter and cause
injury.
WARNING
a. Swing open the face and remove the door from the
appliance by lifting the door off of the hinge pins and
lay on a fl at surface face down.
b.
Using a Phillips head screw driver, remove 4 screws,
2 on the top and 2 on the bottom. Remove metal
bracket and then remove the glass. Figure 41.2.
c. Replace with new glass with gasket.
d. Re-attach metal bracket with 4 screws.
e. Re-install door over hinge pins and close face.
Remove 4 screws
Glass with Gasket
Metal Bracket
H. Combustion (Exhaust) Blower
Replacement
1. Follow the proper shut down procedures as outlined on
page 33, Section 10.A.
2. Remove the right side panel by removing the 4 screws
using a Phillips head screw driver. Figure 41.1.
3. It is not necessary or recommended to remove the
housing to replace or service the combustion blower.
You only need to remove the motor and impeller.
4. Disconnect the wire from the control board connection
points #1 and #8. Depress the tab on the connector to
disconnect the wire (similar to a telephone connector).
See Figure 43.2 on page 43 for the locations of #1
and #8.
5. Using an 11/32 socket or nut driver, loosen the (6)
8x32 nuts securing the motor and impeller to the hous-
ing. Rotate the blower and remove from housing.
6. Holding the black plastic body of the motor, rotate the
impeller counter-clockwise until blades line up with
opening in the housing and remove motor and impel-
ler.
7. If the gasket between housing and motor is damaged it
will have to be replaced. A gasket is included with the
replacement blower.
8. Re-install in reverse order.
Loosen (6) Nuts
Remove
Side
Panel
Figure 41.1
Figure 41.2

Page 42 7034-106G November 22, 2011
R
Mt. Vernon Pellet Stove (AE)
11 Reference Materials
9. Firepot
The fi repot is made of high quality ductile iron. The fl oor of
the fi repot automatically opens for cleaning and is operated
by the auto-clean fi repot system. The fl oor needs to return
to a completely closed position or the appliance will not
operate properly.
10. Fuses
There are three fuses. Two fuses are located on the inside
of the control board. One fuse is AC and operates the
igniter and the other fuse is DC and operates all of the
other components. The third fuse is located in the power
supply. A fuse will blow should a short occur and shut off
power to the appliance. The fuses can only be replaced by
an authorized dealer.
11. Heat Exchanger
The heat exchanger is located behind the baffl e and it
transfers heat from the exhaust system into the convection
air chamber. Remove the cast iron baffl e to access the heat
exchanger.
12. Hopper Lid Switch
The hopper lid switch is located on the right side inside the
hopper. It senses whether the hopper lid is open and displays
an icon on the wall control and will turn off the feed motor.
13. Igniter (Heating Element)
The igniter is mounted on the base of the fi repot. Combustion
air travels over the red hot igniter creating super heated air
that ignites the pellets or other fuels.
14. Low Fuel Indicator
The low fuel indicator is attached to the left side of the hopper.
It senses the amount of fuel in the hopper and will display
an icon on the wall control.
15. Optical Switch for the Auger
The optical switch is located on top of the feed system and
communicates to the wall control that the auger is spinning
or if it has stopped.
16. Power Receptacle
The power receptacle is located on the lower rear of the
appliance. Check the wall receptacle for 120 volt, 60 Hz
(standard current). Make sure the outlet is grounded and
has the correct polarity. A good quality surge protector is
hightly recommended to protect the electronics.
When describing the location of a component,
it is always AS YOU FACE THE FRONT OF
THE APPLIANCE.
6. Convection Blower
The convection blower is mounted at the bottom left rear of
the appliance. The convection blower pushes heated air
through the heat exchange system into the room.
7. Door Switch
The door switch is mounted on the right side of the fi rebox
behind the door handle. It senses when the door is open
and will display an icon on the wall control, and will turn off
the auto-clean system and feed motor for safety.
8. Feed System
The feed system is located on the right side of the appliance
and can be removed as an entire assembly. The assembly
includes the feed motor, mounting bracket, bearing and feed
spring (auger). The hollow feed spring (auger) pulls pellets
up the feed tube from the hopper area and drops them down
the feed chute into the fi repot.
1. Auto-Clean Motor
The auto-clean motor is located under and behind the
fi repot on the left side, inside the convection air chamber.
It automatically opens and closes the fi repot fl oor so ashes
can fall into the ash pan.
2. Auto-Clean Switch
The auto-clean switch is located on top of the auto-clean
motor. It communicates to the control board when the fi repot
fl oor is open and when the auto-clean system has completed
its cycle and is back in the home (closed) position.
3. 12 Volt Battery Back-Up Cable (Optional Acessory)
This is an optional accessory. It will plug into the appliance
at the rear of the appliance. An icon will display on the
wall control when the appliance has lost main power and is
running on battery back-up.
4. Combustion (Exhaust) Blower
The combustion (exhaust) blower is mounted in the bottom
right rear of appliance. The blower is designed to pull the
exhaust from the appliance and push it out through the
venting system.
5. Control Board
The control board is located on the lower left side of appliance.
It controls the functioning of the appliance and communicates
with the wall control. The control board can only be opened
by an authorized dealer.
A. Component Functions E

R
November 22, 2011 7034-106G Page 43
Mt. Vernon Pellet Stove (AE)
17. Power Supply
The power supply is located at the rear of the appliance. It
converts 120 volt AC current to 15 volt DC current to power
the appliance.
18.
Overheat Sensor (Snap Disc)
The overheat sensor is mounted on the back of the drop
tube in the center of the appliance and has a reset button.
To access it remove the right side panel. If the fi re tries to
burn back into the feed system or push exhaust up the feed
tube, this sensor will shut the appliance down, however the
wall control will still display messages. This sensor must be
manually re-set. Disconnect power before resetting.
19. Thermocouple - Firepot
This thermocouple is located on top of the fi repot inside
the thermocouple cover (ceramic protection tube). The
thermocouple sends a millivolt signal to the control board
telling the control board there is a fi re in the fi repot.
20. Thermocouple - Drop Tube
This thermocouple is located on the bottom of the drop
tube on the right side and attached with a wing nut. It turns
the convection blower on and off, varies the speed of the
convection blower and will shut down appliance if internal
heat exceeds set temperature.
21. Vacuum Switch
The vacuum switch is located on the right side of the
appliance under the feed motor behind right side panel and
connects to the drop tube with a hose. This switch turns
the feed system on when vacuum is present in the fi rebox.
The vacuum switch is a safety device to shut off the feed
motor if the exhaust or the heat exchanger system is dirty,
plugged or if the fi rebox door is open.
22. Wall Control Thermostat
The appliance is designed to run on a custom designed 3.3
volt DC thermostat wall control. It will not operate on any
other wall control. Refer to the instructions supplied with
the appliance located in the component pack.
23. Wiring Schematic for Power Supply
See Figure 43.1 below.
24. Wiring Schematic for Control Board
See Figure 43.2 below.
# Description
1 Combustion Blower
2 Auto-Clean System
3 Feed/Auger Motors
4 Hopper/Door Switches
5 Auger/Auto-Clean/Vacuum
Switches
6 Low Fuel
# Description
7 Thermostat Wall Control
8 Combustion Blower (feedback)
9 Firepot Thermocouple
10 Drop Tube Thermocouple
n/a Not Used
11 Convection Blower (feedback)
# Description
12 Igniter
13 AC Power In for Igniter
14 Convection Blower Power
15 Overheat Sensor (Snap Disc)
16 DC Power In from Power Supply
17 12 Volt Battery Back-up
Figure 43.2 - Control Board
Figure 43.1 - Power Supply
Input Line Voltage
AC out to Control
Board
15V DC out to
Control Board
Fuse
15A 250V
Power Supply shown with cover removed
Input Line
Voltage
Heat sinks are taped to cover for shipping. Slowly lift cover
and cut the tape holding them in place and then you can
remove the cover.
17
1
2
3
4
5
6
7
8
9
10
11
12
13
14
15 16
n/a
Fuse 15A 230V,
under the cover
Fuse 15A 230V,
under the cover

Page 44 7034-106G November 22, 2011
R
Mt. Vernon Pellet Stove (AE)
B. Component Locations
Baffle
Firepot
Ash Pan
Thermocouple and
Thermocouple Cover
Heat Exchanger,
Front & Back
Figure 44.1
RIGHT SIDE
Combustion
Blower
Vacuum
Switch
Feed Motor
Overheat
Sensor
Wing Nut - Securing
Overheat Sensor in
place
Power
Supply
Low Fuel
Indicator
Control Board
Convection
Blower
Drob Tube
Figure 44.3
Figure 44.2
LEFT SIDE
Figure 44.3

R
November 22, 2011 7034-106G Page 45
Mt. Vernon Pellet Stove (AE)
C. Exploded Drawings
Figure 45.1
MTVERNON-AE-CSB, MTVERNON-AE-MBK, MTVERNON-AE-PMH
MTVERNON-AE-CWL (Sept 2006 thru June 2011)
1
2
3
4
5
6
7
8
10
11
12
13
14
15
16
17
18
19
19
20
21
22 23
24 25
26
27
28
29
30
31
32
9
Part number list on following page.

Page 46 7034-106G November 22, 2011
R
Mt. Vernon Pellet Stove (AE)
IMPORTANT: THIS IS DATED INFORMATION. When requesting service or replacement
parts for your appliance please provide model number and serial number. All parts listed
in this manual may be ordered from an authorized dealer.
Stocked
at Depot
ITEM DESCRIPTION COMMENTS PART NUMBER
1 Hopper Top 7034-169
2.1 Hopper Lid
Matte Black 7034-157MBK
Sienna Bronze 7034-157CSB
Willow 7034-157CWL
Mahogany 7034-157PMH
2.2 Magnet. Round SRV7000-140 Y
2.3 Hinge Arm Right - Hopper Lid Bracket 7034-160
Hinge Arm Left - Hopper Lid Bracket 7034-161
2.4 Top
Matte Black 7034-155MBK
Sienna Bronze 7034-155CSB
Willow 7034-155CWL
Mahogany 7034-155PMH
2.5 Hinge Pin - Holds Hopper Lid to Top SRV7034-159
2.6 Hinge Retainer - Holds Hopper Lid to Top SRV7034-163
2.7 Screw, 1/4 - 20 X 5/8 Pkg of 10 7000-426/10 Y
3 Shroud Left 7034-172
4 Hinge Male 7034-138
5 Side (Interchangeable)
Matte Black 7005-107MBK
Sienna Bronze 7005-107CSB
Willow 7005-107CWL
Mahogany 7005-107PMH
6 Side Mount Left 7034-128
7 Baffl e SRV7034-263 Y
8 Latch, Baffl e 7034-149
9 Intake Shield 7034-224 Y
Additional service part numbers appear on following page.
1
2
3
4
5
6
7
#2 Hopper Lid Assembly

R
November 22, 2011 7034-106G Page 47
Mt. Vernon Pellet Stove (AE)
10/11
IMPORTANT: THIS IS DATED INFORMATION. When requesting service or replacement
parts for your appliance please provide model number and serial number. All parts listed
in this manual may be ordered from an authorized dealer.
Stocked
at Depot
ITEM DESCRIPTION COMMENTS PART NUMBER
10 Door Assembly 7034-006
10.1 Hinge, Female 450-2910
10.2 Door Air Defl ector 7034-185
10.3 Magnet Bracket Assembly 7034-008
Magnet Round SRV7000-140 Y
10.4 Door Frame Assembly 7034-026
10.5 Door Latch Assembly 7034-039
10.6 Glass Assembly - 21 in. W x 14 in. H 7034-007 Y
Gasket, Channel 3 Mm X 32 - Field Cut To Size 10 Ft 7000-377/10 Y
10.7 Glass Retainer 7034-136
11 Front, Face
Matte Black 7005-108MBK
Sienna Bronze 7005-108CSB
Willow 7005-108CWL
Mahogany 7005-108PMH
12 Door Left
Matte Black 7005-110MBK
Sienna Bronze 7005-110CSB
Willow 7005-110CWL
Mahogany 7005-110PMH
13 Ash Lip
Matte Black 7005-111MBK
Sienna Bronze 7005-111CSB
Willow 7005-111CWL
Mahogany 7005-111PMH
14 Door Right
Matte Black 7005-109MBK
Sienna Bronze 7005-109CSB
Willow 7005-109CWL
Mahogany 7005-109PMH
15 Ash Pan Door 7034-133
Additional service part numbers appear on following page.
1
2
34
5
67
#10 Door Assembly

Page 48 7034-106G November 22, 2011
R
Mt. Vernon Pellet Stove (AE)
IMPORTANT: THIS IS DATED INFORMATION. When requesting service or replacement
parts for your appliance please provide model number and serial number. All parts listed
in this manual may be ordered from an authorized dealer.
Stocked
at Depot
ITEM DESCRIPTION COMMENTS PART NUMBER
16 Ash Pan Assembly SRV7034-069
Roller Catch Pre 00700109156 SRV7000-494 Y
Twin Ball catch Post 00700109156 SRV7000-532 Y
17 Gasket, Rope, Ash Door SRV7034-178 Y
18 Gasket, Door Rope SRV7034-177 Y
19 Magnetic Switch 7000-375 Y
20 Latch Bracket Assembly 7034-049 Y
21 Vacuum Switch SRV7000-531 Y
22 Side Mount Right 7034-126
23 Shroud Right 7034-171
24 Combustion Blower Assembly 7034-033 Y
Gasket, Blower, Combustion (between…) ...Housing & Stove SRV7000-332 Y
Gasket, Motor, Blower, Combustion (between…) ...Housing & Motor SRV7000-423 Y
25 Gasket, Blower, Convection 7000-329
26 Convection Blower SRV7000-260 Y
27 Detent Pin Pre 00700103644 7000-376
Elbow Latch Post 00700103644 7000-393
28 Exhaust Transition Assembly 7034-139
29 Power Supply Assembly SRV7000-443 Y
30 Control Board Assembly SRV7000-456 Y
Fuse 15A Slow Iec Glass Pkg of 10 7000-491/10 Y
31 Snap Disc, Manual Reset SRV230-1290 Y
32 Rear Shroud 7034-170
33 Feed Assembly SRV7034-004 Y
33.1 Feed Spring Assembly (Only) SRV7001-046 Y
33.2 Bearing, Feed System, Nylon 410-0552 Y
33.3 Gasket, Feed Motor 7034-144
33.4 Bracket, Motor, Feed 7034-143
33.5 Optical Switch Assembly 7034-038 Y
33.6 Feed Motor DC SRV7000-313 Y
33.7 Collar, Set, 7/8 229-0520
Additional service part numbers appear on following page.
Ending Manufacturing Date: Active
#33 Feed Assembly
33.1
33.2
33.3
33.4
33.5
33.6
33.7

R
November 22, 2011 7034-106G Page 49
Mt. Vernon Pellet Stove (AE)
IMPORTANT: THIS IS DATED INFORMATION. When requesting service or replacement
parts for your appliance please provide model number and serial number. All parts listed
in this manual may be ordered from an authorized dealer.
Stocked
at Depot
ITEM DESCRIPTION COMMENTS PART NUMBER
34 Firepot Riser Assembly SRV7034-002
34.1 Thermocouple, K SRV7034-247 Y
34.2 Half Clip - Thermocouple Holder 7000-321
34.3 Thermocouple Protection Tube - Thermocouple Cover SRV7034-186 Y
34.4 Firepot Assembly, Upper SRV7034-072B Y
34.5 Gasket, Firepot 7034-190 Y
34.6 Auto-Clean Link Arm 7034-176 Y
34.7 Plow Weldment, Auto-Clean 7034-024 Y
34.8 Rail, Auto-Clean SRV7034-152 Y
34.9 Spring Pkg of 4 7000-513/4 Y
34.10 Hitch Pin Clip 3/32 Pkg of 10 7000-374/10 Y
34.11 Firepot Bottom 7034-153 Y
Auto-Clean Bottom Assembly 7034-021 Y
Firepot Riser Clamp Assembly 7034-012
35 Auto-Clean Motor/Arm Assembly SRV7034-020 Y
35.1 Auto-Clean Lever 7034-158 Y
35.2 Micro Switch No 7000-327 Y
35.3 Gear Motor 12V 7000-300 Y
35.4 Grommet, Motor, Auto-Clean 7034-188 Y
35.5 Cam, Switch, Auto-Clean SRV7034-187 Y
35.6 Bearing 7000-333 Y
35.7 Gasket, Auto-Clean 7034-165 Y
Additional service part numbers appear on following page.
1
2
3
4
5
6
78
9
10
11
1
2
3
4
5
6
7
35
#34 Firepot Riser Assembly #35 Auto-Clean Motor/Arm Assembly

Page 50 7034-106G November 22, 2011
R
Mt. Vernon Pellet Stove (AE)
IMPORTANT: THIS IS DATED INFORMATION. When requesting service or replacement
parts for your appliance please provide model number and serial number. All parts listed
in this manual may be ordered from an authorized dealer.
Stocked
at Depot
ITEM DESCRIPTION COMMENTS PART NUMBER
Bracket, Control Board 7034-212
Bracket, Door Switch 7034-215
Bracket, Hopper Switch 7034-216
Bracket, Snap Disc 7034-150
Bracket, Vacuum Switch 7034-211
Component Pack Assembly (Includes Owners Manual, Quick
Start Guide, Heat Exchange & Exhaust Cleaning Instructions,
Warranty Card, Dvd “How To”, Wall Control & Harness, Power
Cord, (4) Leveling Nuts & Bolts, Firepot Clean-Out Tool, Touch-
Up Paint and Label
Matte Black 7034-034
Sienna Bronze 7034-035
Willow 7034-036
Mahogany 7034-037
Cleanout Tool 414-1140 Y
Dvd Advanced Energy 7000-335
Leveling Assembly 7000-000
Paint Touch-Up
Matte Black 812-0910
Mahogany 855-1450
Sienna Bronze TOUCHUP-CSB
Willow TOUCHUP-CWL
Power Cord 812-1180 Y
Thermostat Wire 3 Cond 7000-409 Y
Wall Control SRV7000-549 Y
Face Plate - Located Behind ARS Door 7034-124
Fuel Level Sensor SRV7000-523 Y
Gasket, Exhaust 3.13” X 4.75” 7034-109
Gasket, Extruded 10 FT 7000-320/10
Gasket, Hopper, Front/Back SRV7034-236
Heating Element Assembly 18” (Loop Igniter) Pkg of 10 SRV7000-462/10 Y
Washer, 1/4 Sae Pkg of 24 28758/24 Y
Wing Thumb Screw 8-32 X 1/2 Pkg of 24 7000-223/24 Y
Hinge Pin 844-5750 Y
Hinge Pin (Rivet) Button Head Pkg of 25 25272/25 Y
Thermocouple K, Ring Mount - Drop Tube SRV7000-381 Y
Paint, 12 oz Can
Sienna Bronze/Espresso PAINT1-CSB/CES
Willow/Tuscan Olive PAINT1-CWL/CTO
Vacuum Hose - Field Cut to Size 3 Ft SRV7000-373 Y
Wire Clip Pkg of 10 7000-400/10 Y
Additional service part numbers appear on following page.

R
November 22, 2011 7034-106G Page 51
Mt. Vernon Pellet Stove (AE)
IMPORTANT: THIS IS DATED INFORMATION. When requesting service or replacement
parts for your appliance please provide model number and serial number. All parts listed
in this manual may be ordered from an authorized dealer.
Stocked
at Depot
ITEM DESCRIPTION COMMENTS PART NUMBER
Wire Harness Aug/Ac/Vac SRV7034-191 Y
Wire Harness Battery Backup 7034-202 Y
Wire Harness Convection Blower 7034-219 Y
Wire Harness Door/Hopper SRV7034-192 Y
Wire Harness Ignitor SRV7034-199 Y
Wire Harness Power Out Ac AC Current 7034-220 Y
Wire Harness Power Out Dc DC Current 7034-221 Y
Wire Harness Power Supply Receptacle SRV7034-233 Y
Wire Harness Snap Disc 7034-193 Y
Wire Harness Thermostat SRV7034-200 Y
ACCESSORIES
12 Volt Power Cord 12VCORD-AE Y
Collar, Offset, Top Vent 812-3570
Damper, 3 Inch - Tall Vertical Installs Only PEL-DAMP3 Y
Damper, 4 Inch - Tall Vertical Installs Only PEL-DAMP4
Firescreen SCR-7005
Log Set, (Sold as Set only) 2 Pc LOGS-60-AE-B Y
Outside Air Kit OAK-3
Top Vent Adapter TPVNT-3
Vent Adapter, 3-4” 811-0720
Vent Adapter, 90, Cleanout 811-0610
Vent Adapter, Rear 811-0620
Warming Shelves
Matte Black 844-9780
Sienna Bronze WSLG-CSB
Willow WSLG-CWL
Mahogany 844-9810
FASTENERS
Avk Rivnut Repair Kit - 1/4-20 & 3/8-16 Rivnut Tools RIVNUT-REPAIR Y
Button Head 1/4-20 X .5 Pkg of 20 32328/20 Y
Nut, Ser Flange Small 1/4-20 Pkg of 24 226-0130/24 Y
Screw, 1/4-20 X 3/8 Phillips Button Head Pkg of 24 7000-401/24 Y
Screw 1/4-20 X 5/8 Phillips Pan Head Pkg of 24 7000-398/24 Y
Screw, Pan Head Philips 8-32 X 3/8 Pkg of 40 225-0500/40 Y
Screw, Sheet Metal #8 X 1/2 S-Grip Pkg of 40 12460/40 Y
Wing Thumb Screw 8-32 X 1/2 Pkg of 24 7000-223/24 Y

Page 52 7034-106G November 22, 2011
R
Mt. Vernon Pellet Stove (AE)
Date of Service Performed By Description of Service
E. Service And Maintenance Log

R
November 22, 2011 7034-106G Page 53
Mt. Vernon Pellet Stove (AE)
Date of Service Performed By Description of Service
E. Service And Maintenance Log (Cont’d)

Page 54 7034-106G November 22, 2011
R
Mt. Vernon Pellet Stove (AE)

R
November 22, 2011 7034-106G Page 55
Mt. Vernon Pellet Stove (AE)

R
Hearth & Home Technologies
1445 North Highway
Colville, WA 99114
Division of HNI INDUSTRIES
7034-106G November 22, 2011
Page 56
CONTACT INFORMATION:
Please contact your Quadra-Fire dealer with any questions or concerns.
For the number of your nearest Quadra-Fire dealer
visit our web site at www.quadrafi re.com
This product may be covered by one or more of the following patents: (United States) 4593510, 4686807, 4766876, 4793322, 4811534,
5000162, 5016609, 5076254, 5113843, 5191877, 5218953, 5263471, 5328356, 5341794, 5347983, 5429495, 5452708, 5542407,
5601073, 5613487, 5647340, 5688568, 5762062, 5775408, 5890485, 5931661, 5941237, 5947112, 5996575, 6006743, 6019099,
6048195, 6053165, 6145502, 6170481, 6237588, 6296474, 6374822, 6413079, 6439226, 6484712, 6543698, 6550687, 6601579,
6672860, 6688302B2, 6715724B2, 6729551, 6736133, 6748940, 6748942, 6769426, 6774802, 6796302, 6840261, 6848441,
6863064, 6866205, 6869278, 6875012, 6880275, 6908039, 6919884, D320652, D445174, D462436; (Canada) 1297749, 2195264,
2225408, 2313972; (Australia) 780250, 780403, 1418504 or other U.S. and foreign patents pending.
Date purchased/installed:
Serial Number: Location on appliance:
Dealership purchased from: Dealer phone:
Notes:
We recommend that you record the following pertinent
information for your MT. VERNON PELLET STOVE (AE)
NOTICE
DO NOT DISCARD THIS MANUAL
• Important operating and
maintenance instruc-
tions included.
• Leave this manual with
party responsible for use
and operation.
• Read, understand and
follow these instruc-
tions for safe installa-
tion and operation.
DO NOT
DISCARD