RSX1057
User Manual: RSX1057
Open the PDF directly: View PDF
.
Page Count: 39

Technical
Manual
SURROUND SOUND RECEIVER
RSX-1057
Table of Contents
Specification......................................1
Parts List...........................................2~13
Adjustment........................................14~16
Wiring................................................17
PCB Assembly..................................18~24
Schematic Diagram ..........................25~39
SHINSEN-BLD. 4F 10-10 SHINSEN-CHO, SHIBUYA-KU,
TOKYO 150-0045, JAPAN
Serial. NO.
Beginning
®
Quality Uncompromised
Y-389A-0605/pdf
THE ROTEL CO., LTD.
Specifications
Audio
Continuous Amplifier Power
(five channels driven)
75 watts/ch (20-20k Hz, <0.05% THD, 8 ohms)
Continuous Amplifier Power
(two channels driven)
100 watts/ch (1kHz, <1.0% THD, 8 ohms, DIN)
Total Harmonic Distortion
<0.09%
Intermodulation Distortion (60 Hz :7 kHz)
<0.05%
Frequency Response
10 Hz – 120 kHz, ±3dB (analog bypass)
10 Hz – 95 kHz, ±3dB (digital input)
Signal to Noise Ratio (IHF A-weighted)
95dB (analog bypass)
92dB (Dolby Digital, dts) 0dBFs
Input Sensitivity/Impedance
Line Level: 200 mV/100K ohms
Preamp Output Level/Output Impedance
1.0 V / 1K ohms
Contour (LF/HF)
±6dB at 50 Hz/15 kHz
Decodable Digital Input Signals
Dolby Digital, Dolby Digital EX, DTS, DTS-ES,
DTS 96/24, LPCM (up to 192K), HDCD, MP3,
MPEG Multichannel
Video
Frequency Response
3 Hz – 10 MHz, ± 3dB (Digital Input)
3 Hz – 100 MHz, ± 3dB (Component Video)
Signal to Noise Ratio
45dB
Input Impedance
75 ohms
Output Impedance
75 ohms
Output Level
1.0 volt
Version 1.1
FM Tuner
Usable Sensitivity
14.2dBf
Signal to Noise Ratio (at 65dBf)
70dBf
Harmonic Distortion (at 65dBf)
0.03%
Stereo Separation (1 kHz)
45dB
Output level
1 V
Antenna Input
75 ohms unbalanced
AM Tuner
Sensitivity
500 V/m
m
Signal to Noise Ratio
40dBf
Output level
500 mV
Antenna Input
Loop Antenna
General
Power Consumption:
450 watts
78 watts (idle)
8 watts (standby)
Power Requirements (AC)
120 volts, 60Hz (USA version)
230 volts, 50Hz (CE version)
Weight
17.2 Kg/37.8 lb.
Dimensions (W x H x D)
432 x 162 x 442 mm
17.01" x 6.38" x 17.40"
Front Panel Height
(feet removed/for rack mount)
150 mm / 5.91"
HDMI Input /Output

II
RSX1057(v01) Hardware Configuration
Digital pcb Resistor setting
Serial Number Used VFD R67V2 R417
~ 6191400 HNR08MM31 OPEN 10K
6241001 ~ HNA08MM37 10K OPEN
History
2
Appearance
RSX-1057

Parts List 1/10 RSX-1057
SYMBOL PARTS NO. DESCRIPTION
501 E-1459 PCB ASSY (INPUT)
L301 021 TLAL02TB100K MICRO INDUCTOR 10uH
L302 021 TLAL02TB101K MICRO INDUCTOR 100uH
XT301 023 HC49U-001WR CRYSTAL 14.31818MHz
IC230-232 031 ADG704BRM IC SMD (4CH MPX)
IC233,235 031 ADG774BR IC SMD (MPX)
IC211,212 031 HEF4094BT IC SMD (SHIFT REGISTER)
IC236 031 KS5520-1 IC (SCREEN DISPLAY)
IC234 031 LT1397CS IC SMD (OPE AMP)
IC201-207 031 NJM5532M IC SMD (OPE AMP)
IC223 031 NJM7812FA IC (REG.+12VDC)
IC208-210,215 031 TC9163AF IC (REG. +12VDC) KIA7812API-U
IC222 031 TC9459F IC SMD (VOLUME) KIC9459F
IC213,214,216-221,224 031 TL072CD IC SMD (OPE DUAL)
Q201-205 032 KRA107S TRANSISTOR CHIP
Q206-218,224,225 032 KRC231S TRANSISTOR CHIP
Q221 032 KTA1271 TRANSISTOR
D204 037 KDS226RTK DIODE CHIP KDS226RTK
D201-203 037 KDS226RTK DIODE CHIP KDS226RTK
C349,354-361,365,369-372,390,392 041 TUTES1A101-7TF ELECTROLYTIC CAPACITOR 10V100uF
C366-368,C374,386,389 041 TUTES1A471-7TF ELECTROLYTIC CAPACITOR 10V470uF
C229,258-281,298-309,397,398 041 TUTES1E470-7TF ELECTROLYTIC CAPACITOR 25V47uF
C376,380 041 TUTES1H010-7TF ELECTROLYTIC CAPACITOR 50V1uF
C230-257,282-287,296,297,310-326 041 TUTES1H100-7TF ELECTROLYTIC CAPACITOR 50V10uF
C335-342,345,346,353,393-396 041 TUTES1H100-7TF ELECTROLYTIC CAPACITOR 50V10uF
C379,382 041 TUTES1HR47-7TF ELECTROLYTIC CAPACITOR 50V0.47uF
C387,388 043 TC50VCH220 CERAMIC CAPACITOR 22pF
C377,378 043 TC50VCH560 CERAMIC CAPACITOR 56pF
C383 047 ECJ2VB1H103K CERAMIC CAPACITOR CHIP 0.01uF
C294,295 047 ECJ2VB1H153K CERAMIC CAPACITOR CHIP 0.015uF
C288,289,290-293,351,352,399 047 ECJ2VF1H104Z CERAMIC CAPACITOR CHIP 0.1uF
C375,385 047 ECJ2VF1H224Z CERAMIC CAPACITOR CHIP 0.22uF
C201-228,327-334,347,348,384,343,344,381 047 ECJ2VG1H101J CERAMIC CAPACITOR CHIP 100pF
R395-398,399,417,444 055 ERJ6ENF10R0V RESISTOR CHIP 10
R418,419 055 ERJ6ENF1000V RESISTOR CHIP 100
R201-214,216-221,226,282-285,300,301,316-323 055 ERJ6ENF1001V RESISTOR CHIP 1K
R340-347,353,354,359,360,373,374,436,437,447 055 ERJ6ENF1001V RESISTOR CHIP 1K
R352,369,370,375,400 055 ERJ6ENF1002V RESISTOR CHIP 10K
R230-243,332-339,357,358,365,366,371,372, 055 ERJ6ENF1003V RESISTOR CHIP 100K
R392-394,439,294,295,348-351,376,411-414 055 ERJ6ENF1003V RESISTOR CHIP 100K
R446 055 ERJ6ENF1004V RESISTOR CHIP 1M
R443 055 ERJ6ENF1201V RESISTOR CHIP 1.2K
R450 055 ERJ6ENF1800V RESISTOR CHIP 180
R296,297,367,368 055 ERJ6ENF1801V RESISTOR CHIP 1.8K
R438 055 ERJ6ENF2003V RESISTOR CHIP 200K
R258-281,302-315,361,362,457,458 055 ERJ6ENF2200V RESISTOR CHIP 220
R441 055 ERJ6ENF2201V RESISTOR CHIP 2.2K
R442 055 ERJ6ENF2202V RESISTOR CHIP 22K
R405-410,415,416 055 ERJ6ENF2700V RESISTOR CHIP 270
R435 055 ERJ6ENF2R2V RESISTOR CHIP 2.2
R286-289,324-331 055 ERJ6ENF3303V RESISTOR CHIP 330K
R355,356,451,452 055 ERJ6ENF3303V RESISTOR CHIP 330K
R445 055 ERJ6ENF3901V RESISTOR CHIP 3.9K
R222-225 055 ERJ6ENF3902V RESISTOR CHIP 39K
R401-404 055 ERJ6ENF47R0V RESISTOR CHIP 47
R448,449 055 ERJ6ENF47R0V RESISTOR CHIP 47
R244-257,290-293,453,454,455,456 055 ERJ6ENF4701V RESISTOR CHIP 4.7K
R440 055 ERJ6ENF5101V RESISTOR CHIP 5.1K
016 E-1459A00 PCB ASSY
3

Parts List 2/10 RSX-1057
SYMBOL PARTS NO. DESCRIPTION
R380-391 055 ERJ6ENF75R0V RESISTOR CHIP 75
R298,299 055 ERJ6ENF8200V RESISTOR CHIP 820
RLY201 063 A12W-K RELAY A12W-K
JAK201-204 066 C-4792A01 6P PIN JACK AU (WHT/RED)
JK206,207 066 C-4833A01 6P PIN JACK AU (G/BLU/R)
CP201 068 B13B-PH-KS CONNECTOR WAFER 13P
CNT100 068 C-4867A01 FPC CONNECTOR 17P (TOP TYPE)
501 E-1401-C PCB ASSY (MULTIINPUT)
IC715-718 031 TL072CD IC SMD (OPE DUAL)
CMB707,708,CMC707,708,CMF707,708 041 TUTES1E470-7TF ELECTROLYTIC CAPACITOR 25V47uF
CMS707,708 041 TUTES1E470-7TF ELECTROLYTIC CAPACITOR 25V47uF
CMB703,704,CMC702,CMF703,704 041 TUTES1H100-7TF ELECTROLYTIC CAPACITOR 50V10uF
CMS703,704,CMW702 041 TUTES1H100-7TF ELECTROLYTIC CAPACITOR 50V10uF
C713,714 047 ECJ2VF1H104Z CERAMIC CAPACITOR CHIP 0.1uF
CMB705,706,CMC703,CMF705,706,CMS705,706 047 ECJ2VG1H100D CERAMIC CAPACITOR CHIP 10pF
CMB701,702,710,711,CMC701,710,CMF701,702, 047 ECJ2VG1H101J CERAMIC CAPACITOR CHIP 100pF
CMF710,711,CMS701,702,710,711, 047 ECJ2VG1H101J CERAMIC CAPACITOR CHIP 100pF
CMW701,703,710 047 ECJ2VG1H101J CERAMIC CAPACITOR CHIP 100pF
RMB701,702,RMC701,RMF701,702 055 ERJ6ENF1000V RESISTOR CHIP 100
RMS701,702,RMW701 055 ERJ6ENF1000V RESISTOR CHIP 100
RMB705,706,RMB711,712,RMC703,705 055 ERJ6ENF1002V RESISTOR CHIP 10K
RMF705,706,RMS705,706,711,712 055 ERJ6ENF1002V RESISTOR CHIP 10K
RMB703,704,RMC702,RMF703,704 055 ERJ6ENF1003V RESISTOR CHIP 100K
RMS703,704,RMW702 055 ERJ6ENF1003V RESISTOR CHIP 100K
RMW703,704 055 ERJ6ENF1202V RESISTOR CHIP 12K
RMB707,708,RMC707,708,RMF707,708 055 ERJ6ENF2200V RESISTOR CHIP 220
RMS707,708 055 ERJ6ENF2200V RESISTOR CHIP 220
RMF711,712 055 ERJ6ENF3001V RESISTOR CHIP 3K
RMF709,710 055 ERJ6ENF3303V RESISTOR CHIP 330K
RMB709,710,RMC704,RMS709,710 055 ERJ6ENF4301V RESISTOR CHIP 4.3K
JAK702 066 C-4764A02 2P PIN JACK (BLK/BLK)
JAK701 066 C-4861A01 6P PIN JACK (WHT/RED)
501 E-1405-B PCB ASSY (POWER 1)
L801 021 2648701170 LINE FILTER COIL
(F801) 036 5ST3.15 FUSE 250VT3.15A
(F801) 036 5ST8 FUSE 250VT8A
R801 054 MOF12-3M3 MOF RESISTOR 1/2W 3.3m
CP803 068 4428505746 CONNECTOR WAFER 5P 7.92mm
CP116,117,231,232,801,802 068 B2P3-VH CONNECTOR WAFER 2P
501 E-1406-B PCB ASSY (POWER 2)
IC901,903,904 031 NJM7805FA IC (REG. +5VDC) KIA7805API-U
IC902,905 031 NJM7806FA IC (REG. +6VDC) KIA7806API-U
IC909 031 NJM7812FA IC (REG. +12VDC) KIA7812API-U
IC907 031 NJM7818FA IC (REG. +18VDC) KIA7818API-U
IC906 031 NJM7906FA IC (REG. -6VDC) KIA7906PI-U
IC908 031 NJM7918FA IC (REG. -18VDC) KIA7918PI-U
Q901 032 TA1450-ST TRANSISTOR 2SA1450AA-ST
Q251,252,902,903 033 TC3708-ST TRANSISTOR 2SC3708AA-ST
DB951 034 KBPC2504W-F POWER DIODE 25A 400V
D901,902,905,906,912-922,925-931 034 T1N4004-TB DIODE 1N4004-F (AMMO)
D251,903,909 034 T1N4148-86 DIODE 1N4148TAP-50
D910 034 TRD27JST1 ZENER DIODE 27V
D904 034 TRD4.3EST1 ZENER DIODE 4.3V
D252 034 TRD6.8JST1 ZENER DIODE 6.8V
D911 034 TRD9.1JST1 ZENER DIODE 9.1V
016 E-1401B00 PCB ASSY
016 E-1405C00 PCB ASSY
016 E-1406E00 PCB ASSY
4

Parts List 3/10 RSX-1057
SYMBOL PARTS NO. DESCRIPTION
F903,904 036 5ST2-R FUSE 250VT2A
F901,902 036 5ST3.15-R FUSE 250VT3.15A
C956-959 041 HC80V8200UF ELECTROLYTIC CAPACITOR 80V8200uF
C251 041 TUTES1A471-7TS ELECTROLYTIC CAPACITOR 10V470uF
C904 041 TUTES1C102-7TS ELECTROLYTIC CAPACITOR 16V1000uF
C901,910,918,919 041 TUTES1C472-7TS ELECTROLYTIC CAPACITOR 16V4700uF
C902,905,909,911,920,921,931,932,938 041 TUTES1H010-7TF ELECTROLYTIC CAPACITOR 50V1uF
C907 041 TUTES1H220-7TF ELECTROLYTIC CAPACITOR 50V22uF
C906 041 TUTES1H470-7TF ELECTROLYTIC CAPACITOR 50V47uF
C929,930 041 TUTES1V332-7TS ELECTROLYTIC CAPACITOR 35V3300uF
C922,936 041 TUTES1V471-7TS ELECTROLYTIC CAPACITOR 35V470uF
C908 041 UTES1C103-7 ELECTROLYTIC CAPACITOR 16V10000uF
C903,951-955 043 TC500V103 CERAMIC CAPACITOR 500V0.01uF
C913-917,924-928 044 TBFO14D0103J M.P CAPACITOR 63V0.01uF
R905,906 053 CR14-010J-A CARBON RESISTOR 1/4W 1
R252,902,909 053 CR14-102J-A CARBON RESISTOR 1/4W 1K
R908 053 CR14-103J-A CARBON RESISTOR 1/4W 10K
R253 053 CR14-152J-A CARBON RESISTOR 1/4W 1.5K
R911,917 053 CR14-220J-A CARBON RESISTOR 1/4W 22
R910,916 053 CR14-222J-A CARBON RESISTOR 1/4W 2.2K
R907 053 CR14-470J-A CARBON RESISTOR 1/4W 47
R903 053 CR14-473J-A CARBON RESISTOR 1/4W 47K
R251 053 CR14-682J-A CARBON RESISTOR 1/4W 6.8K
R901 054 1WS10J MOF RESISTOR 1W 10
R904,914,915,920,921,922 054 2WS1JF MOF RESISTOR 2W 10
RLY901,902 063 OSA-SS-224DM5 RELAY 24V
CP403 068 B10B-PH-KS CONNECTOR WAFER 10P
CP251 068 B2B-EH CONNECTOR WAFER 2P
CP411-413 068 B2B-PH-KS CONNECTOR WAFER 2P
CP204 068 B2P3-VH CONNECTOR WAFER 2P
CP205,902 068 B3B-EH CONNECTOR WAFER 3P
CP951 068 B3P-VH CONNECTOR WAFER 3P
CP404,801 068 B5B-PH-KS CONNECTOR WAFER 5P
CP301 068 B6B-PH-KS CONNECTOR WAFER 6P
CP901 068 B7B-EH CONNECTOR WAFER 7P
CP106 068 B7B-PH-KS CONNECTOR WAFER 7P
CP202 068 B9B-PH-KS CONNECTOR WAFER 9P
501 X-1407-B PCB ASSY (SPEAKER)
C966-970 044 TBF014D0472J M.P CAPACITOR 63V4700pF
C951-955 044 TBF014D0473J M.P CAPACITOR 63V0.047uF
R951-955 054 2WS10JF MOF RESISTOR 2W 10
SW100 061 C-4172A13 PUSH SWITCH SPUN12XT131
JAK951,952 067 C-4794A00 4P SPEAKER TERMINAL (RED/BLK)
JAK953 067 C-4862A01 2P SPEAKER TERMINAL (RED/BLK)
CP101 068 B2B-PH-KS CONNECTOR WAFER 2P
CT202,910,951 068 B2P-VH CONNECTOR WAFER 2P
CT203,911 068 B3P-VH CONNECTOR WAFER 3P
501 X-1408-B PCB ASSY (FRONT, ENCODER)
X101 023 CST10.0MTW CERAMIC RESONATOR
IC100 031 CXP82832-366Q IC SMD (CPU) .
RMC101 031 SBX3010-52B IC (REMOTE EYE)
Q101,102 032 TC3708-ST TRANSISTOR 2SC3708AA-ST
D101-106 034 T1N4148-86 DIODE 1N4148TAP-50
FIP1* (use with R417) 035 HNR08MM31 FL TUBE
FIP1* (use with R67V2) 035 HNA08MM37 FL TUBE
C114 041 TUTES1H010-7TF ELECTROLYTIC CAPACITOR 50V1uF
C119 041 TUTES1H3R3-7TF ELECTROLYTIC CAPACITOR 50V3.3uF
016 X-1407C01-03 PCB ASSY
016 X-1408A01-03 PCB ASSY
5

Parts List 4/10 RSX-1057
SYMBOL PARTS NO. DESCRIPTION
C117 041 TUTES1H4R7-7TF ELECTROLYTIC CAPACITOR 50V4.7uF
C101-107 043 TC50V101 CERAMIC CAPACITOR 50V100pF
C115 043 TC50V103 CERAMIC CAPACITOR 0.01uF
C118 043 TC50V223 CERAMIC CAPACITOR 0.022uF
C100,112,113 043 TC50V473 CERAMIC CAPACITOR 0.047uF
C108-111 043 TC50V821 CERAMIC CAPACITOR 820pF
R101-104,124-126,142 054 TMF1001 METAL FILM RESISTOR 1/4W 1K
R109,114-119 054 TMF1002 METAL FILM RESISTOR 1/4W 10K
(R121) 054 TMF1800 METAL FILM RESISTOR 1/4W 180
(R121) 054 TMF4700 METAL FILM RESISTOR 1/4W 470
R122,123 054 TMF4701 METAL FILM RESISTOR 1/4W 4.7K
R105-108,110-113 054 TMF4702 METAL FILM RESISTOR 1/4W 47K
R120 054 TMF47R0 METAL FILM RESISTOR 1/4W 47
ESW101 056 C-4678A01 ROTARY ENCODER 3P (WITHOUT DETENT)
SW101-132 061 C-4679A03 TACT SWITCH 5mm GRY HV061050GS
CP105 068 B2B-PH-KS CONNECTOR WAFER 2P
CP110 068 B3B-PH-KS CONNECTOR WAFER 3P
CP102 068 B4B-PH-KS CONNECTOR WAFER 4P
501 E-1413-B PCB ASSY (POWER AMPLIFIER)
L101,201,301,401,501 021 LF167A00 SPEAKER COIL 1.0F7T
Q702 032 KRC107M TRANSISTOR KRC107M
Q109,209,309,409,509 033 A1360-OY TRANSISTOR 2SA1360-OY
Q112,212,312,412,512 033 A1859-Y TRANSISTOR 2SA1859A-Y
Q110,210,310,410,510 033 C3423-OY TRANSISTOR 2SC3423-OY
Q111,211,311,411,511 033 C4883-Y TRANSISTOR 2SC4883A-Y
Q101-105,201-205,301-305 033 KTA1268-GRBL TRANSISTOR KTA1268-GRBL
Q401-405,501-505,701 033 KTA1268-GRBL TRANSISTOR KTA1268-GRBL
Q106-108,206-208,306-308,406-408,506-508 033 KTC3200-GRBL TRANSISTOR KTC3200-GRBL
D101,102,201,202,301,302 034 2058322101 DIODE 1N4148 (5mm pitch)
D401,402,501,502 034 T1N4148-86 DIODE 1N4148
D701 034 TRD12JST1 ZENER DIODE 12V
C106,206,306,406,506 041 TUTES1A221-7TF ELECTROLYTIC CAPACITOR 10V220uF
C107,207,307,407,507,701,702 041 TUTES1H010-7TF ELECTROLYTIC CAPACITOR 50V1uF
C111,112,211,212,311,312,411,412,511,512 041 TUTES1H100-7TF ELECTROLYTIC CAPACITOR 50V10uF
C108,208,308,408,508 041 TUTES1H220-7TF ELECTROLYTIC CAPACITOR 50V22uF
C703 041 TUTES1H470-7TF ELECTROLYTIC CAPACITOR 50V47uF
C105,205,305,405,505 041 TUTES1H4R7-7FB ELECTROLYTIC CAPACITOR 50V4.7uF
C109,110,209,210,309,310,409,410,509,510 041 TUTES1J471-7TS ELECTROLYTIC CAPACITOR 63V470uF
C104,204,304,404,504 043 TC50V181 CERAMIC CAPACITOR 180pF
C102,202,302,402,502 043 TC50V271 CERAMIC CAPACITOR 270pF
C101,201,301,401,501 043 TC50V391 CERAMIC CAPACITOR 390pF
C103,203,303,403,503 043 TC50VCH5R6-A CERAMIC CAPACITOR AXIAL
VR101,201,301,401,501 051 SFR001-102 SEMI-FIXED RESISTOR VM6CKPH1S-1K
R705,706 054 2WS1KJF MOF RESISTOR 2W 1K
R141,241,341,441,541 054 MPR5W0.27RJ-T METAL PLATE RESISTOR 5W 0.27RX2
R101,102,201,202,301,302,401,402,501,502 054 TMF16-1001 METAL FILM RESISTOR 1/6W 1K
R113,213,313,413,513 054 TMF16-1002 METAL FILM RESISTOR 1/6W 10K
R702 054 TMF16-1003 METAL FILM RESISTOR 1/6W 100K
R126,127,226,227,326,327,426,427,526,527 054 TMF16-1200 METAL FILM RESISTOR 1/6W 120
R109,110,209,210,309,310,409,410,509,510 054 TMF16-1201 METAL FILM RESISTOR 1/6W 1.2K
R112,212,312,412,512 054 TMF16-1500 METAL FILM RESISTOR 1/6W 150
R704 054 TMF16-1503 METAL FILM RESISTOR 1/6W 150K
R105,106,205,206,305,306,405,406,505,506 054 TMF16-15R0 METAL FILM RESISTOR 1/6W 15
R128,228,328,428,528 054 TMF16-1801 METAL FILM RESISTOR 1/6W 1.8K
R129,229,329,429,529 054 TMF16-2001 METAL FILM RESISTOR 1/6W 2K
R116-118,216-218,316-318,416-418,516-518 054 TMF16-2202 METAL FILM RESISTOR 1/6W 22K
R703 054 TMF16-3301 METAL FILM RESISTOR 1/6W 3.3K
R103,104,203,204,303,304,403,404,503,504 054 TMF16-3302 METAL FILM RESISTOR 1/6W 33K
016 E-1413B00 PCB ASSY
6

Parts List 5/10 RSX-1057
SYMBOL PARTS NO. DESCRIPTION
R132-135,232-235,332-335,432-435,532-535 054 TMF16-39R0 METAL FILM RESISTOR 1/6W 39
R114,214,314,414,514 054 TMF16-4302 METAL FILM RESISTOR 1/6W 43K
R119-125,219-225,319-325,419-425,519-525 054 TMF16-5600 METAL FILM RESISTOR 1/6W 560
R131,231,331,431,531 054 TMF16-6801 METAL FILM RESISTOR 1/6W 6.8K
R701 054 TMF16-6802 METAL FILM RESISTOR 1/6W 68K
R111,211,311,411,511 054 TMF16-68R0 METAL FILM RESISTOR 1/6W 68
R107,108,207,208,307,308,407,408,507,508 054 TMF16-7500 METAL FILM RESISTOR 1/6W 750
R130,230,330,430,530 054 TMF16-9100 METAL FILM RESISTOR 1/6W 910
R136,137,236,237,336,337,436,437,536,537 054 TMF1000 METAL FILM RESISTOR 1/4W 100
R140,240,340,440,540 054 TMF2200 METAL FILM RESISTOR 1/4W 220
R138,139,238,239,338,339 054 TMF3R30 METAL FILM RESISTOR 1/4W 3.3
R438,439,538,539 054 TMF3R30 METAL FILM RESISTOR 1/4W 3.3
CP201 068 B10B-PH-KS CONNECTOR WAFER 10P
501 E-1419-B PCB ASSY (OUTPUT)
IC702 031 TC9162AF IC SMD (SWITCH ALLEY) KIC9162AF
IC701 031 TC9163AF IC SMD (SWITCH ALLEY) KIC9163AF
IC709,710 031 TC9482F IC SMD (VOLUME) KIC9482F
IC707,708,IC703-706,711-714 031 TL072CD IC SMD (OPE DUAL)
QC702,QCB701,QF701,QS701,QSW702 032 KRA107S TRANSISTOR CHIP
Q701-703,QBL/R701,QC701,QFL/R701 032 KRC231S TRANSISTOR CHIP
QSL/R701,QSW701 032 KRC231S TRANSISTOR CHIP
D701,702,DC701,DCB701,DF701,DS701 037 KDS184RTK DIODE CHIP
DSW701 037 KDS184RTK DIODE CHIP
C701-705,707,709,711,CB701,702, 041 TUTES1E470-7TF ELECTROLYTIC CAPACITOR 25V47uF
CCB703,704,CCW701-704,CF701-704 041 TUTES1E470-7TF ELECTROLYTIC CAPACITOR 25V47uF
CMW710,711,CS701-704 041 TUTES1E470-7TF ELECTROLYTIC CAPACITOR 25V47uF
CBL/R702,704,705,708,CCT702,704,705,708, 041 TUTES1H100-7TF ELECTROLYTIC CAPACITOR 50V10uF
CFL/R702,704,705,708,CMW705, 041 TUTES1H100-7TF ELECTROLYTIC CAPACITOR 50V10uF
CSL/R702,704,705,708,CSW702,704,705,708 041 TUTES1H100-7TF ELECTROLYTIC CAPACITOR 50V10uF
CMW707 047 ECJ2VB1H333K CERAMIC CAPACITOR CHIP 0.033uF
C706,708,710,712,713,714 047 ECJ2VF1H104Z CERAMIC CAPACITOR CHIP 0.1uF
CCB705,CCT709,CF705,CS705,CSW709 047 ECJ2VF1H104Z CERAMIC CAPACITOR CHIP 0.1uF
CMW706 047 ECJ2VF1H224Z CERAMIC CAPACITOR CHIP 0.22uF
CBL/R707,CCT707,CFL/R707,CSL/R707 047 ECJ2VG1H100D CERAMIC CAPACITOR CHIP 10pF
CBL/R701,703,706,CCT701,703,706 047 ECJ2VG1H101J CERAMIC CAPACITOR CHIP 100pF
CFL/R701,703,706,CSW701,703,706,707 047 ECJ2VG1H101J CERAMIC CAPACITOR CHIP 100pF
CSL/R701,703,706,CMW704 047 ECJ2VG1H101J CERAMIC CAPACITOR CHIP 100pF
CMW708,709 047 ECJ2VG1H222J CERAMIC CAPACITOR CHIP 0.0022uF
1056J1-1056J5,J701 055 ERJ6GEY0R00V RESISTOR CHIP 0
RBL/R705,RCT705,RFL/R705,RSL/R705, 055 ERJ6ENF1000V RESISTOR CHIP 100
RSW705 055 ERJ6ENF1000V RESISTOR CHIP 100
RBL/R701,707,RCT701,707,RFL/R701,707 055 ERJ6ENF1000V RESISTOR CHIP 100
RMW709,RSL/R701,707,RSW701,707 055 ERJ6ENF1000V RESISTOR CHIP 100
R703-705,708-710,713-715,718-720 055 ERJ6ENF1001V RESISTOR CHIP 1K
RBL/R712,RCT712,RFL/R712,RMW712,713 055 ERJ6ENF1001V RESISTOR CHIP 1K
RSL/R712,RSW710,712,R721-728 055 ERJ6ENF1001V RESISTOR CHIP 1K
RBL/R709,RCT709,RFL/R703,709 055 ERJ6ENF1002V RESISTOR CHIP 10K
RMW711,715,716,RSL/R709 055 ERJ6ENF1002V RESISTOR CHIP 10K
RBL/R706,RCB705,RCT706,713,RFL/R706 055 ERJ6ENF1003V RESISTOR CHIP 100K
RS705,RSL/R706,RSW706,713, 055 ERJ6ENF1003V RESISTOR CHIP 100K
RBL/R702,708,711,RCB706,RCT702,708,711,714 055 ERJ6ENF1003V RESISTOR CHIP 100K
RF705,706,RFL/R702,708,711,RMW710,714 055 ERJ6ENF1003V RESISTOR CHIP 100K
RS706,RSL/R702,708,711,RSW702,708,711,714 055 ERJ6ENF1003V RESISTOR CHIP 100K
RBL/R704,RCT704,RSL/R704 055 ERJ6ENF1201V RESISTOR CHIP 1.2K
RBL/R703,RCT703,RMW706,707,RSL/R703 055 ERJ6ENF1202V RESISTOR CHIP 12K
RSW709 055 ERJ6ENF1502V RESISTOR CHIP 15K
R729,730,RMW705 055 ERJ6ENF1801V RESISTOR CHIP 1.8K
RSW703 055 ERJ6ENF2002V RESISTOR CHIP 20K
016 E-1419B00 PCB ASSY
7

Parts List 6/10 RSX-1057
SYMBOL PARTS NO. DESCRIPTION
R701,702,706,707,711,712,716,717 055 ERJ6ENF2200V RESISTOR CHIP 220
RB701,702,RCB703,704,RCW701-704 055 ERJ6ENF2200V RESISTOR CHIP 220
RF701-704,RMW717,718,RS701-704 055 ERJ6ENF2200V RESISTOR CHIP 220
RBL/R710,RCT710,RFL/R710,RSL/R710 055 ERJ6ENF2201V RESISTOR CHIP 2.2K
RMW708 055 ERJ6ENF2702V RESISTOR CHIP 27K
RSW704 055 ERJ6ENF3301V RESISTOR CHIP 3.3K
RFL/R704 055 ERJ6ENF3901V RESISTOR CHIP 3.9K
RA731,733 055 ERJ6ENF4701V RESISTOR CHIP 4.7K
RA732,734 055 ERJ6ENF5601V RESISTOR CHIP 5.6K
RY701,702 063 A12W-K RELAY A12W-K
TER702 066 C-4784A02 4P PIN JACK (B/B)
TER701 066 C-4792A01 6P PIN JACK (R/W)
CP401,402,702 068 B15B-PH-KS CONNECTOR WAFER 15P
CP703 068 B2B-PH-KS CONNECTOR WAFER 2P
CP204,701 068 B3B-PH-KS CONNECTOR WAFER 3P
CP203 068 B6B-PH-KS CONNECTOR WAFER 6P
501 E-1442 PCB ASSY (VIDEO)
L301,303 021 TLAL02TB100K MICRO INDUCTOR 10uH
L302,304,LV404-406 021 TLAL02TB101K MICRO INDUCTOR 100uH
LV401-403,407-410 021 TLAL02TB270K MICRO INDUCTOR 27uH
LV411 021 TLAL02TB4R7K MICRO INDUCTOR 4.7uH
XT403 023 CSB503F2 CERAMIC RESONATOR 500KHz
XT301,302 023 HC49U-001WR CRYSTAL 14.31818MHz
XT402 023 HC49US-010 CRYSTAL HC49US3.579545MHz
XT401 023 HC49US-011 CRYSTAL HC49US4.433619MHz
ICV404 031 KIA7809AF-RTF/P IC SMD (REG.+9VDC)
IC303,309 031 KS5520-1 IC SMD (SCREEN DISPLAY)
ICV403,407 031 NJM2283M IC (VIDEO SWITCH)
ICV405 031 TA1270BF IC SMD (VIDEO)
ICV402 031 TC90A69F IC SMD (Y/C SEPARATOR)
IC301,302,307,308 031 TC9163AF IC SMD (SWITCH ALLEY) KIC9163AF
ICV406 031 TDA4665T IC SMD (1H DELAY)
IC304-306,310,313,ICV401 031 TSH94ID IC SMD (VIDEO AMP)
Q301,302,QV406 032 KRC107S TRANSISTOR CHIP
QV401-405 032 TC3708-ST TRANSISTOR 2SC3708AA-ST
DV401 034 T1N4148-86 DIODE 1N4148TAP-50
DZ402 034 TRD5.1JST1 ZENER DIODE 5.1V
D302,303 037 KDS184RTK DIODE CHIP
D301 037 KDS226RTK DIODE CHIP
C326-331,341,342,390-393,CV403-407, 041 TUTES1A101-7TF ELECTROLYTIC CAPACITOR 10V100uF
CV410,416,417,430,438,439450,467,477 041 TUTES1A101-7TF ELECTROLYTIC CAPACITOR 10V100uF
C311,320,325,346,355,360 041 TUTES1A471-7TF ELECTROLYTIC CAPACITOR 10V470uF
CV465 041 TUTES1E101-7TF ELECTROLYTIC CAPACITOR 25V100uF
CV482 041 TUTES1E220-7TF ELECTROLYTIC CAPACITOR 25V22uF
CV414 041 TUTES1E221-7TF ELECTROLYTIC CAPACITOR 25V220uF
CV425,426,448,452,487 041 TUTES1E470-7TF ELECTROLYTIC CAPACITOR 25V47uF
C314,316,349,351,CV454 041 TUTES1H010-7TF ELECTROLYTIC CAPACITOR 50V1uF
C305-309,337-340 041 TUTES1H100-7TF ELECTROLYTIC CAPACITOR 50V10uF
CV412,441,447,479,480,484,485 041 TUTES1H100-7TF ELECTROLYTIC CAPACITOR 50V10uF
CV460,462 041 TUTES1H2R2-7TF ELECTROLYTIC CAPACITOR 50V2.2uF
CV458 041 TUTES1HR22-7TF ELECTROLYTIC CAPACITOR 50V0.22uF
C315,318,350,353 041 TUTES1HR47-7TF ELECTROLYTIC CAPACITOR 50V0.47uF
C323,324,358,359 043 TC50VCH220 CERAMIC CAPACITOR 22pF
C312,313,347,348 043 TC50VCH560 CERAMIC CAPACITOR 56pF
CV461,476 044 TBF014D0104J M.P CAPACITOR 63V0.1uF
CV457 044 TBF014D0222J M.P CAPACITOR 63V0.0022uF
CV463 044 TBF014D0223J M.P CAPACITOR 63V0.022uF
CV424 044 TBF074D0474J M.P CAPACITOR 63V0.47uF
016 E-1442B00 PCB ASSY
8

Parts List 7/10 RSX-1057
SYMBOL PARTS NO. DESCRIPTION
C319,354,CV420-423,427-429,434,435,459 047 ECJ2VB1H103K CERAMIC CAPACITOR CHIP 0.01uF
C301-304,334-336,371-388,CV401,402,411,413, 047 ECJ2VF1H104Z CERAMIC CAPACITOR CHIP 0.1uF
CV415,418,419,431,440,446,449,453,464,466, 047 ECJ2VF1H104Z CERAMIC CAPACITOR CHIP 0.1uF
CV478,481,483,486,432,444,445,451,468-473 047 ECJ2VF1H104Z CERAMIC CAPACITOR CHIP 0.1uF
C321,332,356,361,310,345 047 ECJ2VF1H224Z CERAMIC CAPACITOR CHIP 0.22uF
C317,322,352,357 047 ECJ2VG1H101J CERAMIC CAPACITOR CHIP 100pF
CV437,443,455,456 047 ECJ2VG1H120J CERAMIC CAPACITOR CHIP 12pF
CV408,409,436,442 047 ECJ2VG1H220J CERAMIC CAPACITOR CHIP 22pF
CV474,475 047 ECJ2VG1H560J CERAMIC CAPACITOR CHIP 56pF
CV433 047 ECJ2VG1H681J CERAMIC CAPACITOR CHIP 680pF
R334,368-373,411,412,421,427,459,466,467, 055 ERJ6ENF10R0V RESISTOR CHIP 10
RV401,402,438,447,450,456,459,462 055 ERJ6ENF10R0V RESISTOR CHIP 10
R340-348,393-398,RV410,423,424,448,449 055 ERJ6ENF1000V RESISTOR CHIP 100
R322,323,326-329,338,349-364,367,389-392, 055 ERJ6ENF1001V RESISTOR CHIP 1K
R399-405,407,408,415,416,425,428,458 055 ERJ6ENF1001V RESISTOR CHIP 1K
RV403,439 055 ERJ6ENF1001V RESISTOR CHIP 1K
R460,461,RV404-406,416,430,436,451,457, 055 ERJ6ENF1002V RESISTOR CHIP 10K
RV458,460,461 055 ERJ6ENF1002V RESISTOR CHIP 10K
R330,417 055 ERJ6ENF1003V RESISTOR CHIP 100K
R339,426 055 ERJ6ENF1004V RESISTOR CHIP 1M
R337,406,424,RV414,428,434 055 ERJ6ENF1201V RESISTOR CHIP 1.2K
RA471,472,RV408,412 055 ERJ6ENF1500V RESISTOR CHIP 150
R333,420 055 ERJ6ENF1501V RESISTOR CHIP 1.5K
RV415,429,435 055 ERJ6ENF1502V RESISTOR CHIP 15K
R331,418 055 ERJ6ENF2003V RESISTOR CHIP 200K
R320,321,324,325,385-388 055 ERJ6ENF2200V RESISTOR CHIP 220
R335,422 055 ERJ6ENF2202V RESISTOR CHIP 22K
R429,437,RV442,443 055 ERJ6GEYJ2R2V RESISTOR CHIP 2.2
RV425,446 055 ERJ6ENF3300V RESISTOR CHIP 330
RV445 055 ERJ6ENF3301V RESISTOR CHIP 3.3K
RV444 055 ERJ6ENF3302V RESISTOR CHIP 33K
R336,365,366,409,410,423 055 ERJ6ENF3901V RESISTOR CHIP 3.9K
RV452,453 055 ERJ6ENF4701V RESISTOR CHIP 4.7K
RV418,419 055 ERJ6GEYJ4R7V RESISTOR CHIP 4.7
R332,419 055 ERJ6ENF5101V RESISTOR CHIP 5.1K
RV417,431,437 055 ERJ6ENF5600V RESISTOR CHIP 560
RV454,455 055 ERJ6ENF5601V RESISTOR CHIP 5.6K
R301-319,375-384,464,465,RV409,440,441 055 ERJ6ENF75R0V RESISTOR CHIP 75
RV413,426,427,432,433 055 ERJ6ENF8200V RESISTOR CHIP 820
SW305,306 066 4TR-2964#10 3P PIN JACK AU (YEL)
SW301-303 066 C-4604B02 4P MINI DIN JACK YKF51-5520N
SW304 066 C-4860A01 4P PIN JACK AU (YEL)
501 E-1449 PCB ASSY (DIGITAL)
IC443 019 0009-P POWER TR.BUSH
IC443 019 TO-220 MICA SHEET TBM-51W-15 #9036
T431-434 021 2888000010 PULSE TRANS FP-110
XT402 023 CXO-002 CRYSTAL 12.288MHz
XT401 023 HC49U-009 CRYSTAL HC49U24.576MHz
L431-434,LCB451,LCW451,LF451,LS451 025 BK2125HS102 BEAD COIL CHIP
L401,435,436 025 BK2125HS601 BEAD COIL CHIP
IC438 031 39VF040-V34 IC PLCC (SOFT WRITING)
IC440 031 74HC00 IC SMD (QUAD NAND GATE) 74HC00
IC436,446 031 74HC125 IC SMD (QUAD BUFFER) 74HCT125D
IC441,442 031 74HC157 IC SMD (QUAD MPX) 74VHC157-
IC445 031 74HC244 IC SMD (OCTAL BUFFER) 74VHC244-SOP
IC431 031 AK4114VQ IC SMD (D/A TRANSCEIVER)
IC447-450 031 AK4396VF IC SMD (DAC)
IC432 031 AK5383VS IC SMD (A/D CONVERTER)
016 E-1449A00 PCB ASSY
9

Parts List 8/10 RSX-1057
SYMBOL PARTS NO. DESCRIPTION
IC403 031 AM29F004BT-X57 IC PLCC (FLASH MEMORY)
IC443 031 AME1117BCBT IC (REGULATOR)
IC444 031 AME1117CCGT IC SMD (REGULATOR) ABF
IC404 031 AT24C16A10PI-2.7 IC SMD (EPROM)
IC437 031 CS49400 IC SMD (DSP) CS49400-3
IC405 031 HIN232CB IC SMD (TRANSMITTER RECEIVER)
IC402 031 IS62C256 IC SMD (SRAM)
IC439 031 K4S161622D IC SMD (MEMORY)
IC406,407 031 LTV817 IC (PHOTO COUPLER)
IC433-435,451-454 031 TL072CD IC SMD (OPE DUAL)
IC401 031 TMP95C063F IC SMD (MICON)
Q401,QCW451,QFL/R451 032 KRC107S TRANSISTOR CHIP
Q402-404 032 KRC231S TRANSISTOR CHIP
D401-407 037 KDS184RTK DIODE CHIP
C430 041 SCDA5R5104V SUPER CAPACITOR
C480,481,484,487,C406 041 TUTES1A101-7TF ELECTROLYTIC CAPACITOR 10V100uF
C454-462,512-519,CAL/R401-404 041 TUTES1E470-7TF ELECTROLYTIC CAPACITOR 25V47uF
CCB455,CCW455,CF455,CS455 041 TUTES1E470-7TF ELECTROLYTIC CAPACITOR 25V47uF
C418-421 041 TUTES1H010-7TF ELECTROLYTIC CAPACITOR 50V1uF
C414,417,438,439,441-443,453,482,483 041 TUTES1H100-7TF ELECTROLYTIC CAPACITOR 50V10uF
C485,486,CBL/R454,CCB454,456,CCT454 041 TUTES1H100-7TF ELECTROLYTIC CAPACITOR 50V10uF
CCW454,456,CF454,456,CFL/R454 041 TUTES1H100-7TF ELECTROLYTIC CAPACITOR 50V10uF
CS454,456,CSL/R454,CSW454 041 TUTES1H100-7TF ELECTROLYTIC CAPACITOR 50V10uF
C503 041 TUTES1H2R2-7TF ELECTROLYTIC CAPACITOR 50V2.2uF
C416 041 TUTES1H3R3-7TF ELECTROLYTIC CAPACITOR 50V3.3uF
C415 041 TUTES1HR22-7TF ELECTROLYTIC CAPACITOR 50V0.22uF
C440 041 TUTES1HR47-7TF ELECTROLYTIC CAPACITOR 50V0.47uF
CAL/R408,CSW452,453 047 ECJ2VB1H103K CERAMIC CAPACITOR CHIP 0.01uF
CCT455,CFL/R455 047 ECJ2VB1H223K CERAMIC CAPACITOR CHIP 0.022uF
C501 047 ECJ2VC1H122J CERAMIC CAPACITOR CHIP 1200pF
C409-411,422-428,436,437,447,450,451 047 ECJ2VF1H104Z CERAMIC CAPACITOR CHIP 0.1uF
C467-479,488-490,C493-496,498,500,504-509 047 ECJ2VF1H104Z CERAMIC CAPACITOR CHIP 0.1uF
C520-523,CCB451-453,CCW451-453, 047 ECJ2VF1H104Z CERAMIC CAPACITOR CHIP 0.1uF
CF451-453,CS451-453,C401-405,407,408, 047 ECJ2VF1H104Z CERAMIC CAPACITOR CHIP 0.1uF
C429,431-435,444-446,448,452,463-465, 047 ECJ2VF1H104Z CERAMIC CAPACITOR CHIP 0.1uF
C491,499,510,511,CAL/R405 047 ECJ2VF1H104Z CERAMIC CAPACITOR CHIP 0.1uF
C449,C5383 047 ECJ2VF1H224Z CERAMIC CAPACITOR CHIP 0.22uF
CBL/R452,453,CCT452,453,CFL/R452,453 047 ECJ2VG1H121J CERAMIC CAPACITOR CHIP 120pF
C412,413 047 ECJ2VG1H270J CERAMIC CAPACITOR CHIP 27pF
CBL/R451,CCT451,CFL/R451,CSL/R451,CSW451 047 ECJ2VG1H331J CERAMIC CAPACITOR CHIP 330pF
CAL/R406,407 047 ECJ2VG1H471J CERAMIC CAPACITOR CHIP 470pF
C502 047 ECJ2VG1H680J CERAMIC CAPACITOR CHIP 68pF
RM419,420 055 CN43-101 NETWORK RESISTOR CHIP 100
RM403-409 055 CN43-103 NETWORK RESISTOR CHIP 10K
RM410-418 055 CN43-331 NETWORK RESISTOR CHIP 330
RM401,402 055 CN43-332 NETWORK RESISTOR CHIP 3.3K
R407,408,426,444,445 055 ERJ6ENF10R0V RESISTOR CHIP 10
R405,406,409-411,458,4395 055 ERJ6ENF1000V RESISTOR CHIP 100
R427,428,448,451,459-462,476-479,418 055 ERJ6ENF1000V RESISTOR CHIP 100
RBL/R458,RCT458,RFL/R458,RSL/R458 055 ERJ6ENF1001V RESISTOR CHIP 1K
RSW458 055 ERJ6ENF1001V RESISTOR CHIP 1K
R415-416,430,R1056,R401,402,412-414,447 055 ERJ6ENF1002V RESISTOR CHIP 10K
RAL/R401,402,404,405, R417*, R67V2* 055 ERJ6ENF1002V RESISTOR CHIP 10K
RBL/R457,RCT457,RFL/R457,RSL/R457,RSW457 055 ERJ6ENF1003V RESISTOR CHIP 100K
R403 055 ERJ6ENF1004V RESISTOR CHIP 1M
R446 055 ERJ6ENF1802V RESISTOR CHIP 18K
R480,RAL/R408,411 055 ERJ6ENF22R0V RESISTOR CHIP 22
R452-457,466-473,R435-438 055 ERJ6ENF2200V RESISTOR CHIP 220
R463,RAL/R406,409 055 ERJ6ENF3001V RESISTOR CHIP 3K
R464,465 055 ERJ6ENF3301V RESISTOR CHIP 3.3K
10

Parts List 9/10 RSX-1057
SYMBOL PARTS NO. DESCRIPTION
R439-443 055 ERJ6ENF4700V RESISTOR CHIP 470
R404,420-425,419 055 ERJ6ENF4701V RESISTOR CHIP 4.7K
R429,449,450,474,475,5383,RAL/R403 055 ERJ6ENF4702V RESISTOR CHIP 47K
RBL/R451-453,455,456,RCT451-453,455,456 055 ERJ6ENF5601V RESISTOR CHIP 5.6K
RFL/R451-453,455,456,RSW451-453,455,456 055 ERJ6ENF5601V RESISTOR CHIP 5.6K
RSL/R451-453,455,456 055 ERJ6ENF5601V RESISTOR CHIP 5.6K
R431-434 055 ERJ6ENF75R0V RESISTOR CHIP 75
RAL/R407,410 055 ERJ6ENF9100V RESISTOR CHIP 910
RBL/R454,RCT454,RFL/R454,RSL/R454, 055 ERJ6ENF9101V RESISTOR CHIP 9.1K
RSW454 055 ERJ6ENF9101V RESISTOR CHIP 9.1K
RLY401-403 063 A12W-K RELAY A12W-K
JAK407-413 065 YKB21-5103A 3.5Φ MINIATURE JACK (ST)
JAK401,402 066 C-4859A01 2P PIN JACK AU (BLK)
JAK406 066 SY010-8P/K RJ45 TERMINAL
JAK404,405 066 TORX142L OPTICAL RECEIVER
JAK403 066 TOTX142L OPTICAL TRANSMITTER
CP405,408 068 B10B-PH-KS CONNECTOR WAFER 10P
CP409 068 B12B-PH-KS CONNECTOR WAFER 12P
CP451 068 B2B-PH-KS CONNECTOR WAFER 2P
CP406 068 B7B-PH-KS CONNECTOR WAFER 7P
CP410 068 B8B-PH-KS CONNECTOR WAFER 8P
(IC403,438) 068 PLCC32TS IC SOCKET 32P
501 E-1450 PCB ASSY (HDMI)
L1-8 021 ACM2012D EMC FILTER COIL ACM2012D-900-2P
L9-12 021 ACM2012H EMC FILTER COIL ACM2012H-900-2P
L13,14 025 BK2125HS101 BEAD COIL CHIP
IC6,15 031 74HC04 IC SMD
IC8,17 031 74HC123 IC SMD
IC7,11,14 031 74HC125 IC SMD (QUAD BUFFER) 74HCT125D-
IC2 031 74HC157 IC SMD (QUAD MPX) 74VHC157-
IC9,16 031 74HC74 IC SMD
IC3 031 AME1117CCGT IC SMD (REGULATOR)
IC4,13 031 AME8801SEEV IC SMD (REGULATOR)
IC5 031 SN74CB3Q3305 IC SMD
IC1 031 TMDS341 IC SMD (SWITCH)
Q1,2,6,8,Q10-13 032 2N7002 TRANSISTOR CHIP
Q4,5,7,9 032 KRC107S TRANSISTOR CHIP
Q3 032 KRC231S TRANSISTOR CHIP
C1-6 034 AVRL161 VARISTOR DIODE SMD
ZD1-6 034 KDZ6.2V ZENER DIODE CHIP
D1-6 034 RCLAMP0504M DIODE EMC
D7,8,9 037 KDS184RTK DIODE CHIP KDS184RTK
C8,12,14,16,22,32,34,38,46,51,53,C57-62 047 3535104122 CERAMIC CAPACITOR CHIP 0.1uF
CG1-3,C36,37,42,43,44 047 3535104122 CERAMIC CAPACITOR CHIP 0.1uF
C48,49 047 3535222122 CERAMIC CAPACITOR CHIP 20pF
C15,17,33,54 047 ECJ1VG1H102J CERAMIC CAPACITOR CHIP 0.001uF
C19-21,C23-31,39,56 047 ECJ1VB1H103K CERAMIC CAPACITOR CHIP 0.01uF
C10,13,14 047 ECFS1A221M ELECTROLYTIC CAPACITOR SMD 10V220uF
C7 047 ECFS1A471M ELECTROLYTIC CAPACITOR SMD 10V470uF
C35,52 047 ECFS1C101M ELECTROLYTIC CAPACITOR SMD 16V100uF
C11 047 ECFS1C100M ELECTROLYTIC CAPACITOR SMD 16V10uF
C47 047 ECFS1C220M ELECTROLYTIC CAPACITOR SMD 16V22uF
C45 047 ECFS1E4R7M ELECTROLYTIC CAPACITOR SMD 25V4.7uF
R13,52,75 055 ERJ3EKF1000V RESISTOR CHIP 100
R1,2,5,6,28,40,41,44,46,49,57,60-62,65,66,72,77 055 ERJ3EKF1001V RESISTOR CHIP 1K
R35,42,51,54,56,73,74 055 ERJ3EKF1002V RESISTOR CHIP 10K
R58 055 ERJ3EKF1003V RESISTOR CHIP 100K
R11,12 055 ERJ3EKF10R0V RESISTOR CHIP 10
016 E-1450G00 PCB ASSY
11

Parts List 10/10 RSX-1057
SYMBOL PARTS NO. DESCRIPTION
R48,71 055 ERJ3EKF1801V RESISTOR CHIP 1.8K
R31,32,36,43,63,67 055 ERJ3EKF2001V RESISTOR CHIP 2K
R59,64 055 ERJ3EKF3001V RESISTOR CHIP 3K
R33,34,45,68 055 ERJ3EKF3301V RESISTOR CHIP 3.3K
R37,38 055 ERJ3EKF3901V RESISTOR CHIP 3.9K
R29 055 ERJ3EKF4641V RESISTOR CHIP 4.64K
R14-23,27,47,50,69,70 055 ERJ3EKF4701V RESISTOR CHIP 4.7K
R30,53,55,76 055 ERJ3EKF4702V RESISTOR CHIP 47K
R39 055 ERJ3EKF6802V RESISTOR CHIP 68K
R3,4,7-10,24,26 055 ERJ3GEY0R00V RESISTOR CHIP 0
CP415 068 B2B-PH-KS CONNECTOR WAFER 2P
JACK1-3 068 YKF45-7009 HDMI SOCKET
501 E-1413-B PCB ASSY
017 UF3-08A01 HEAT SINKER BOARD
019 TO-126 MICA SHEET TBM-51W-15 #9524
019 TO-3P MICA SHEET TBM-51W-15 #9043
Q115,215,315,415,515 032 C4137-V TRANSISTOR 2SC4137-V (2008622110)
Q114,214,314,414,514 033 A1386-OPY TRANSISTOR 2SA1386A-OPY
Q113,213,313,413,513 033 C3519-OPY TRANSISTOR 2SC3519A-OPY
CP251 034 P43T7D200BW20 POSISTOR
011 UF3-01B00 H/S PANEL H150
011 FP-612-B BLACK PANEL ASSY
011 FP-612-S SILVER PANEL ASSY
012 C-4711A03 KNOB 43Φ NO MARK (BLACK)
012 C-4711A03S KNOB 43Φ NO MARK (SILVER)
012 RV4-09A00 PUSH BUTTON 14Φ (BLACK)
012 RV4-09A01 PUSH BUTTON 14Φ (SILVER)
012 TB3-18A00 TACT BUTTON 16 KEY (BLACK)
012 TB3-18A01 TACT BUTTON 16 KEY (SILVER)
014 WH3-03A00 UPPER COVER
019 4TSH-19#2 PLASTIC FOOT 50Φ (BLACK)
019 C-4714A00 POWER KNOB RING 14Φ (BLACK)
019 C-4714A01 POWER KNOB RING 14Φ (SILVER)
019 PR4-12B00 KNOB RING(RED) 46Φ
019 PR4-12B01 KNOB RING(BLU) 46Φ
021 RLA172A00 AM LOOP ANT
022 T-1097U02 POWER TRANSFORMER
(CP105)* 034 SEL1124R LED (RED) 1X5
(CP105)* 034 SEL1E24W LED (BLUE) 1X5
061C-4838A00 ROCKER SWITCH SR1N6BB
069 C-4629A01 AC 2P INLET 6102.3100 (WIRING)
072 4TR-3228 T TYPE ANTENNA (FM)
072 C-4621A03 AC CORD SET SJT for USA
072 C-4622A02 AC CORD SET for AUSTRALIA
072 C-4623A02 AC CORD SET for UK
072 C-4624A03 AC CORD SET for EUROPE
072 C-4786A01 COMPUTER I/O CABLE (6-P)
CNT100 072 C-4863A01 FLAT CABLE 17P 200mm
081 WH3-04A00 INSIDE CARTON
081 WH3-05A00 SHIPPING CARTON
081 ZE-208 ETHAFOAM MOULDING
092 RR-1060 REMOTE UNIT
082 OMRSX-1057 OWNERS MANUAL
O T H E R S
HEAT SINK ASSEMBLY
12

RSX1057
SYMBOL PARTS DESCRIPTION
011 FP-612-B BLACK PANEL ASSY
011 FP-612-S SILVER PANEL ASSY
011 UF3-01B00 H/S PANEL H150
012 C-4711A03 KNOB 43F NO MARK (BLK)
012 C-4711A03S KNOB 43F NO MARK (SLV)
012 RV4-09A00 PUSH BUTTON 14F (BLK)
012 RV4-09A01 PUSH BUTTON 14F (SLV)
012 TB3-18A00 TACT BUTTON 16 KEY (BLK)
012 TB3-18A01 TACT BUTTON 16 KEY (SLV)
034 SEL1124R LED (RED) 1X5
034 SEL1E24W LED (BLU) 1X5
Addendum List for Black and Silver
3
1
2
Panel Assy is included:
Panel Window
Side Cap
Knob Ring
Tact buttons
LED
3
1
2
13

Instruments : DC milli–voltmeter
Notes : Prior to Bias Adjustment, run about 5minutes with rated output(8ohms) and
warm up Power Transistor and Heat Sink. Set input off.
Step
ONE SIDE OF R541 E-1413 PCB VR501
1
ONE SIDE OF R141 E-1413 PCB VR101
2
ONE SIDE OF R341 E-1413 PCB VR301
3
ONE SIDE OF R441 E-1413 PCB VR401
4
ONE SIDE OF R241 E-1413 PCB VR201
5
Coupling Location Adjust forAdjust
DC milli–voltmeter reads 4mV
Adjustment
<MEMO>
1. Light-up ALL FL segments to check:
Press “2CH” and “MUTE” of front panel while turn on the rear panel master
power switch. When release the lighting, press STANDBY switch or master
power switch.
RSX-1057
14

RSX-1057 Main Software Upgrade Procedure
1. Click "Open File" -> Select Upgrade file
4. Power off the main switch of rear. And on again.
5. Click "Next" button.
Install the "Main FlashUp" program which is provided by ROTEL in the computer. And connect RS232
Cable with DB-9 to RJ45 terminations.
2. Confirm Port and Baud Rate setting. Then, click
"Next" button. (ref: RSX-1057 Baud Rate is 19200)
3. Communucation port initializing …..
Wait. Then, click "Next" button.
6. The divice's current version is displaed. Click "Next"
button.
15

7. The sector is erasing. Wait a moment.
11. Finish.
10. Completed all procedure. Power off and on again
on main switch of rear. Click "Exit" button to finish the
9. If the writing and checksum is OK, wait a next
procedure.
8. The sector is erased. The flash is writing
automatically. Wait a while.
16

E-1405
POWER
TRANS
SPKR B'D
AMP B'D
E-1413
FRONT B'D
X-1408-02
X-1408-01
X-1408-03 MAIN
VOLUME B'D
TUNER PACK
POWER 2 B'D
016E-1406
POWER 1 B'D
CENT-SPKR B'D
016X-1407-01
016X-1407-02
RMC SENSOR
B'D
Wiring Diagram
CP202(9P)
CN204(2P) CN202(2P)
CN203(3P)
CT911(3P)
CT910(2P)
CP902(3P)
CP901(7P)
CP951(3P)
CP106(7P)
CP204(2P)
CP412(2P)
CP404(5P)
CP403(10P)
CP301(6P)
CP251(2P)
CN703(2P)
CP205(3P)
CP411(2P)
CP413(2P)
ANALOG Signal CT202(2P)
CT203(3P)
CNT951(2P)
CT951(2P)
CN205(3P)
CP201(10P)
AC INLET
CP802
(2p) CP801
(2P)
CP803(9P (5P)
ROCKER SWITCH
CP110(3P)
CN106(7P) CN406(7P)
CP105(2P)
CP102(4P)
CN110(3P)
CN101(2P)
CN102(4P)
POSISTOR
LED
POWER TRANS
X-1407-03
STANDBY SW
B'D
CP101(2P)
CP801(5P)
CP703 2P
CNT911(3P) CNT910(2P)
C150A
RSX-1057
CN701
CN702 15P
3P
501 E-1401
CP701
CP203
CP402
CP702 15P
CP401 15P
CN401 15P
3P
CN411
2P
CN412
2P
CN403
10P
CN404
5P
CN301
6P
CN801
5P
CP204
3P
CN204
3P
6P
CN203
6P
CP410
CN410
CP406
7P 8P
8P
CP405
CP408
10P
CN408
10P
CP409 12P
CN409 12P CP201 13P
CN201
13P
10P
CN405
CNT100
10P
15P
CN402
15P
501 E-1419
501 E-1459
501 E-1442
501 E-1449
CN202
9P
CN201
10P
OUTPUT B'D
DIGITAL B'D
INPUT B'D
VIDEO B'D
MULTI INPUT B'D
072 C-4863A01
FLAT CABLE
17P
CP415
2P CN413
2P
501 E-1450
CN415
2P CP451
2P
CN451
2P
HDMI B'D
17

PCB Assembly 1/7
Front PCB 016 X-1408A01~03
RSX-1056/57
/57
Speaker Terminal PCB 016 X-1407C01~03
MULTI INPUT PCB 016 E-1401B00
Top View Bottom View
18

PCB Assembly 2/7 Input PCB 016 E-1459A00
Top View
Bottom View
RSX-1057
19

PCB Assembly 3/7 Digital PCB 016 E-1449A00
RSX-1057
Top View
Bottom View
20

PCB Assembly 4/7
Video PCB 016 E-1442B00
Top View
Bottom View
RSX-1057
HDMI PCB 016 E-1450G00
Top View
Bottom View
21

PCB Assembly 5/7 Output PCB 016 E-1419B00
Top View
Bottom View
RSX-1056/57/67
22

TOP VIEW
BOTTOM VIEW
PCB Assembly 6/7
Power Amplifier 016 E-1413B00
RSX-1057
23

PCB Assembly 7/7
Power-2 PCB 016 E-1406E00
Top View
Bottom View
Power-1 PCB 016 E-1405C00
Top View
Bottom View
RSX-1057
24

Block Diagram 1/2 RSX-1057
25

Block Diagram 2/2 RSX-1057
26

C167A
INPUT (1/3) 016 E-1459A00
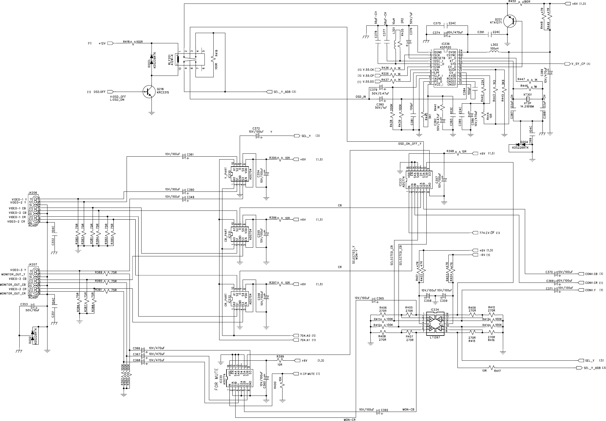
Schematic Diagram 1/13 RSX-1057
27

C168A
Schematic Diagram 2/13 INPUT (2/3) 016 E-1459A00
RSX-1057
28

C169A
Schematic Diagram 3/13 INPUT (3/3) 016 E-1459A00
RSX-1057
29

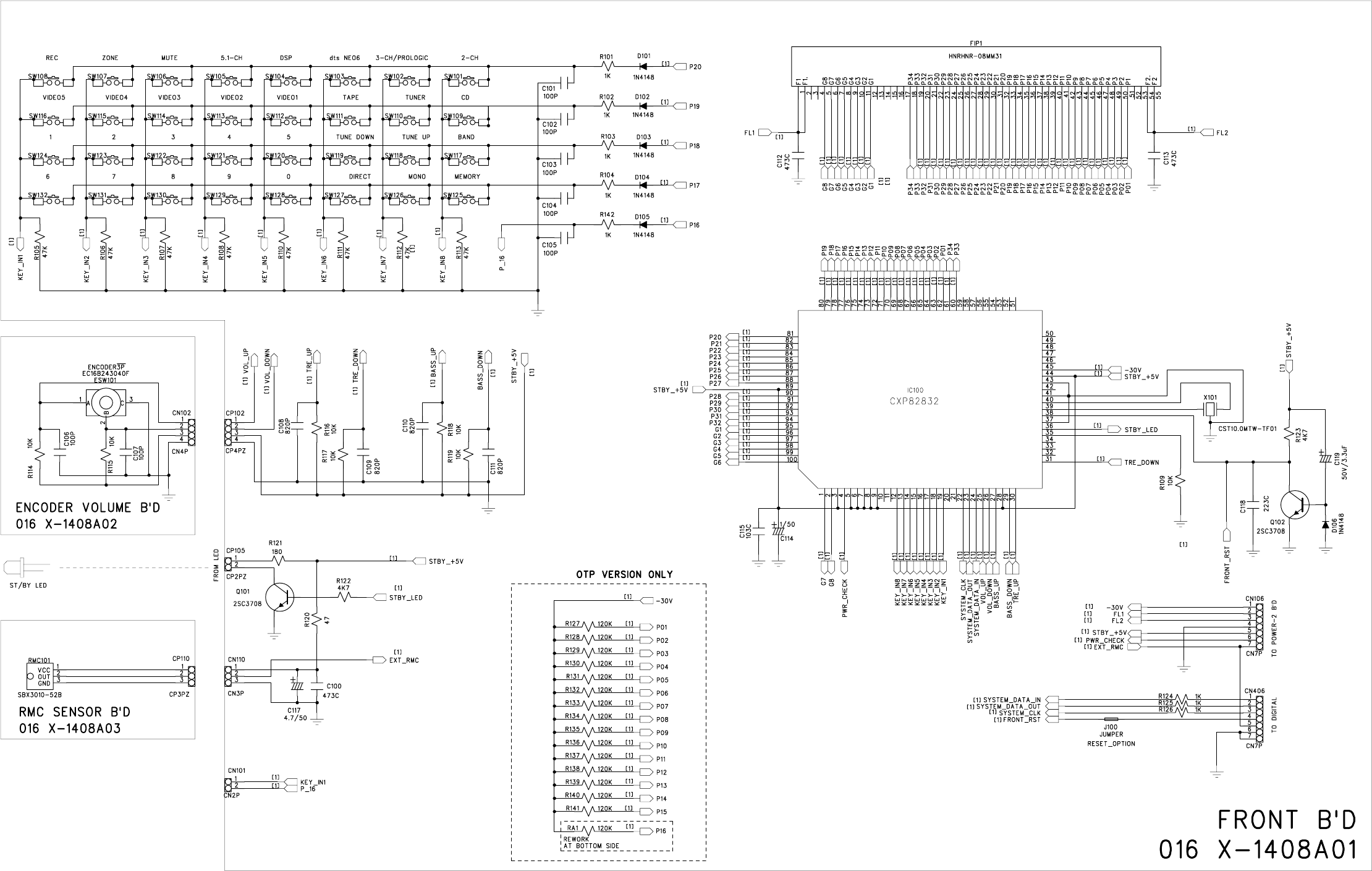
Schematic Diagram 4/13
Front PCB 016X-1408A01-03
RSX-1057
30

VIDEO-IN
COMPOSITE-VIDEO
S-VIDEO
OUT
OUT-1
OUT-1
VIDEO-1
VIDEO-2
VIDEO-3
VIDEO-4
VIDEO-5
OUT-2
OUT-2
OUT
IN
OUT-3
OUT-3
MONITOR
MONITOR
ZONE
C176
Schematic Diagram 5/13 VIDO 016 E-1442B00 RSX-1057
31

1K
1K
C172D
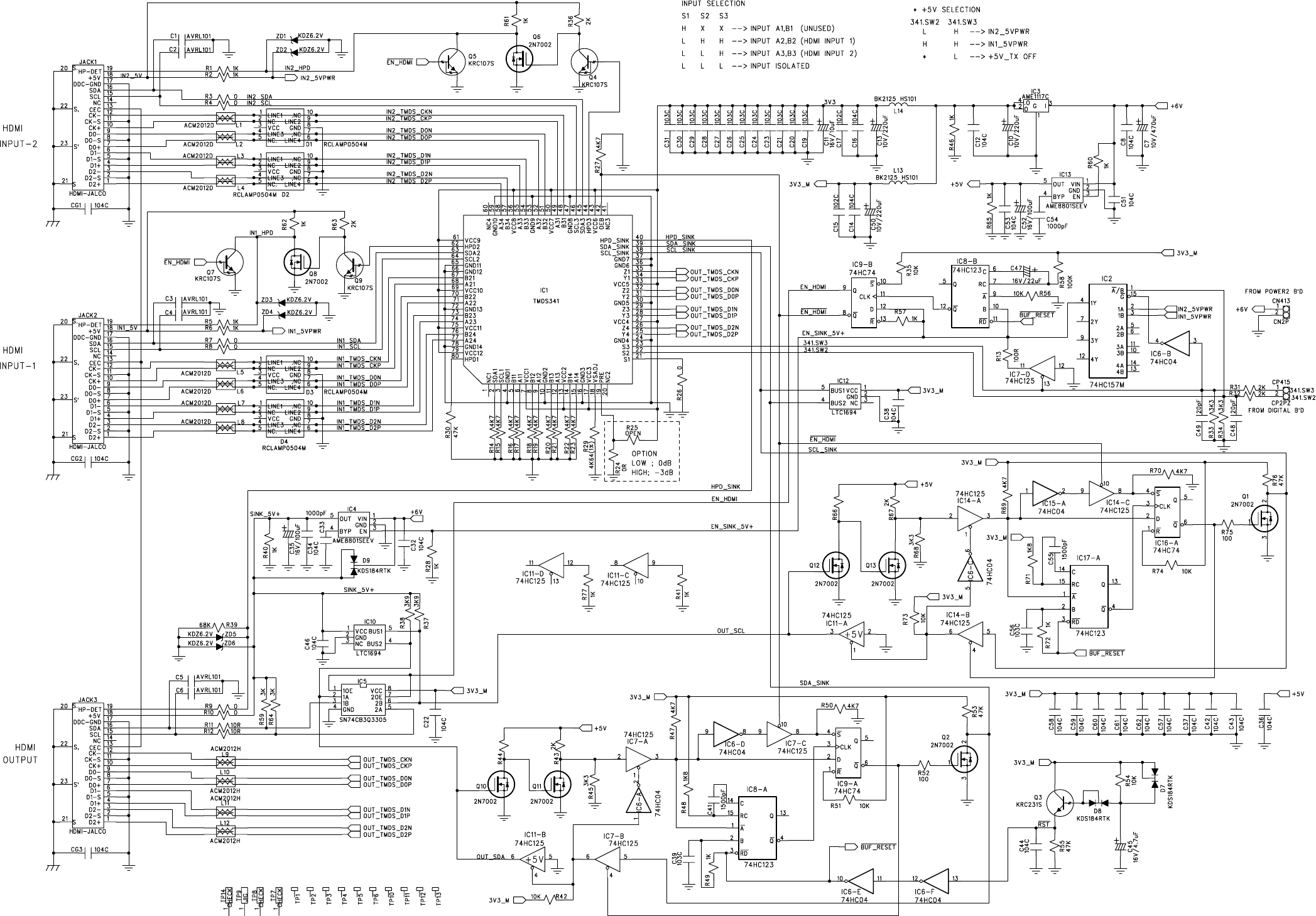
Schematic Diagram 6/13 HDMI SWITCH 016 E-1450G00 RSX-1057
32

41.RST
INPUT
INPUT
COAXIAL
OUT PUT
OUT PUT
OPTICAL
DIDITAL IN /OUT
D /A CONVERTER
ANALOG IN
A /D CONVERTER
232.TX
ZONE.RMC
TRIGGER
12V.12Z
CN 415
CN 401
C174
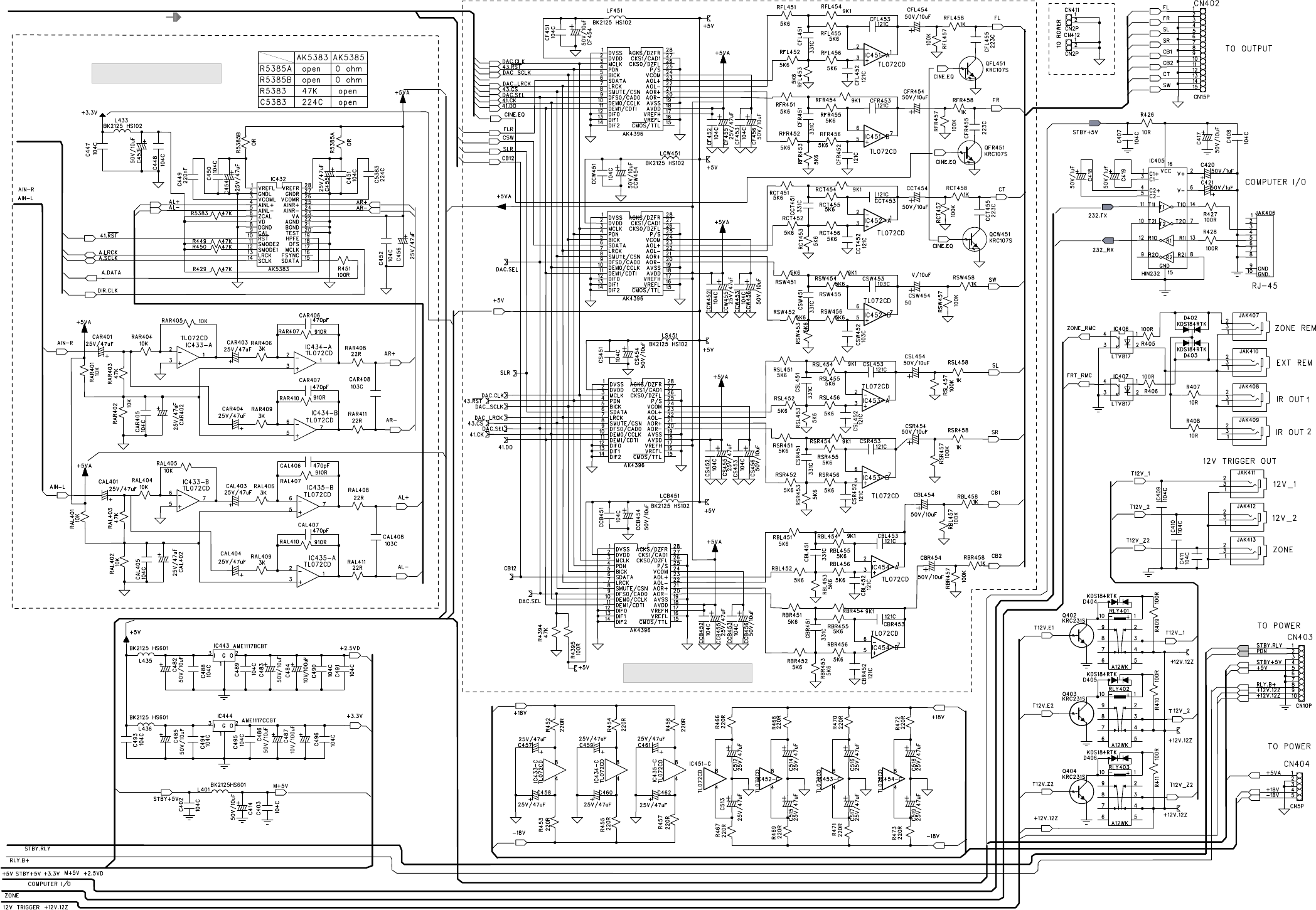
Schematic Diagram 7/13 DIGITAL (1/2) 016 E-1449A00 RSX-1057
33

D /A CONVERTER
D /A CONVERTER
A /D CONVERTER
A /D CONVERTER
PDN
232.TX
C175
RSX-1057
Schematic Diagram 8/13 DIGITAL (2/2) 016 E-1449A00
34

Gray is no use for RSX-1057
CN 701
RFOM -E-1401
RFOM -E-1401
CN 702
CN203
(MULTIINPUT)
(MULTIINPUT)
RFOM -E-1449
CN 402
(DIGITAL)
RFOM -E-1449
RFOM -E-1406
CN 401
CP 801
CN 703
(DIGITAL)
(POWER-2)
TO -E-1406
(POWER-2)
CP 201
CN 204
TO -E-1413
(AMP)
(INPUT)
FROM E-1397
(INPUT)
FROM E-1397
C179
Schematic Diagram 9/13 OUTPUT 016 E-1419B00
RSX-1057
35

C171
Schematic Diagram 10/13 AF 016 E-1413B00 RSX-1057
36

Multi-input PCB 016 E-1401B00
Terminal PCB
016 X-1407C01 - 03
016 X-1407C02
016 X-1407C01
CNT951
CT951
016 X-1407C03
016 E-1405C00
022 T-1097U02
4M7-1W
Power -1 PCB 016E-1405C00
Schematic Diagram 11/13 RSX-1056/57
37

C155A
Schematic Diagram 12/13 RSX-1057
POWER-2 016E1406E00
38

--
-
Schematic Diagram 13/13 RSX-1057
Tuner Module 092 MB114MA1-1B
39