Roland SH09 Service
Roland Corporation SH-09 Service Manual sh09servicemanual Roland Corporation - SH-09 - Service Manual
User Manual: Roland SH09 service
Open the PDF directly: View PDF
.
Page Count: 7

MAR.
27,198O
SH09
[SERVICE
NOTESI
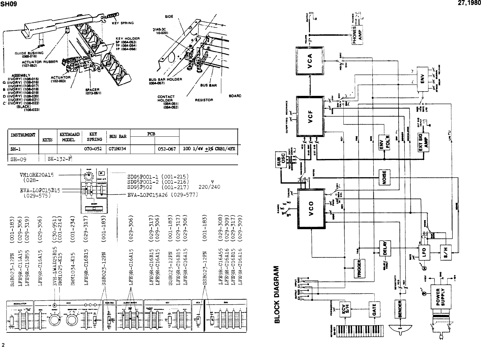
SPECIFICATIONS
Keyboard ----------
32-key,F3-C6(8')
lor+,ment;o
--------
2-5
s
Zune
range --------
+65-cent
'ICF
'Cutoff
frequency -- 10 Hz-20
;ctiz
Resonance ---------
O-cscillation
Envelope <enera;or
Attack
t,ixe
------- 1 x3-2.5
s
Decay time -------- 2
as-10
s
Sustain level ----- O-100
%
Release time ------ 2 ms-10 s
t
Kodulator
aate
-_-________---
0.2
Hz-25
Hz
Delay time -------- O-l.5 s
Jacks
Signal output --
Phones
_----__-_
cv output
------
Gate output ----
CV input -------
Gate input -----
Ext. sig.
input-
SH09
-10
dBm
Stereo &ohm
1
v/act
Off:0
v: On;+14 v
1
v/'oct
Threshold:
+7.5
v
0.5
vpp
or less
Power consumption -- 8-watt
Weight --------- 6.1 kg
Dimensions
605
(w)
x 305
Cd)
x
100
(h)
mm
Ehttc
gray
(016
m
no.8
Knob no.57 Knob no.33 Panel H44
(016-057) (0;6-033) !072HO44)
-008)
Endblock Bender unit
Keyboard X132-F Side panel
H21
H22(066H022)
PS-4
(029-022) (004-014)
R-L set
(066H21)
ES
Roland
Printed in Japan A3
1
Panel H44 removal screws:
(1).
(2)
Jack SG7713 no.4 stereo
(OOY-036)/
'Tap tight binding head
I
Self tapping binding head
~
3
x1Omm
Fe,Br
3 x 6 mm
Bl,
Fe,
Br
_~~
~~~
..--(I)-
~~~----____
,--(2)+
Jack SG7622 no.8
Chassis H74 0PH43 0PH47 OPH46 (not shown)
Holder
H73A
Endblock
H22
removal screw
Binding head
3 x 6 mm Fe,Br
,i
Tap tight binding
3
x
10
mm
Fe,Br
binding
head
3
x
10
~XIIU
Fe,Sr
Power transformer
Power
supply board
H20J
(022H020J) 100 v PSH~~
(1461-1031)
100 v
H20C-B
(022H020C-B)
117
v
PSH32
i146H032)
117 v
H20D
(022HO20D)
220/240
v
PSH33
(146HO33)
220/240
v

SH09
MAR.
27,198O
KEY
ASSSMBLY
F
IlVORYl
IIOWISI
G
IIVORYI
Ilobol6)
A
IlVORv~
l1060171
6
IlvoRY~
IlowlSJ
CONTACT LEAF
YACER
c
IIVORY)
1106-0191
1075a11
0
~IVORY)
l1060201
ion.0011
E
IIVORYI
~lOS-011)
C’
(IVORY)
110&0221
SHARP
ISLACKI
llOS4231
KEYBOARD PARTS
CHASSIS
SIDE
ANGLE
CONNECTOR
21
IO
6..71
HOilIER
/
i
.
/’
BUS
BAR
ro:7A”,
LEAF
/
PRINTED CIRCUIT
SOAR0
RESlSlOR
6P
l(18*0611
7P
l-21
INS-
MODEL
-1
SikIGp=B*R
6P
FcB
7P
KEXS
MODEL
RESISTOR
SH-1
32
SK-132-D 070-052 c7lHO34 052-066 052-067
loo
1/4w
$5
cRFn/4Fx
/SH-09
/
32
Is~-132-4
identical to SK-132D except for blind
I
VMlORK20A15
(028-
706)
EVA-LOPC15B15
(029-575)
Power switch
SDG5POOl-1
(001-215)
100 v
SDG5POOl-2
(001-216)
117
v
SDG5P502
(001-217)
220/240
v
EVA-LOPC15A26
(029-577)
!

MAR.
27,198O
PARTS LIST
372HC44
Panel
(tcp)
H44
?&x022
Endblock
(bender) H22
366HC21
Side panel
H21
a pair of R and L
561H074
C'hzssis
h?
-
4
111-021 Foot G-5 rear
111-023
Foot G-7 front
068-020
Bushing no.20
panel
004-014
029-022
c
016-057
016-033
063-012
016-008
009-012
009-036
068-005
068-018
Keyboard SKl32-F
Bender assy PB-4
Knob no.57 rotary
Knob no.33 slider
Strip no.12
lmob
no.33
Button no.8
gray,power
switch
Jack SG7622 no.8 mono
Jack SG7713 no.4 stereo
Bushing no.5
jack
Bushing no.18 red,jack
022H020J
Power transformer
H20J
100 v
022H020C-B
Power transformer
H20C-B
117 V
022H020D
Power transformer
H20D
220/240
V
SWITCH
001-215
SDG5POOl-1
power
100
v
CO1-216 SDG5POOl-2
power
117
v-
COl-217 SDG5P502 power 220/24O'V
001-234
S~l034-ill5
rotary
3p-4t
WAVEFORM
COl-214
SRM1025-Kl5
rotary
2p-5t
RANGE
iX?l-183
&B023-12PN
slide
2p-?t
CAPACITOR
C35-156 EcQ~1151sz
150
pF
polystyrene
235-188 EC&.lO2KZ
1000
pF
polystyrene
375-;91
ECQF-2334X
0.33 mfd polypropylene
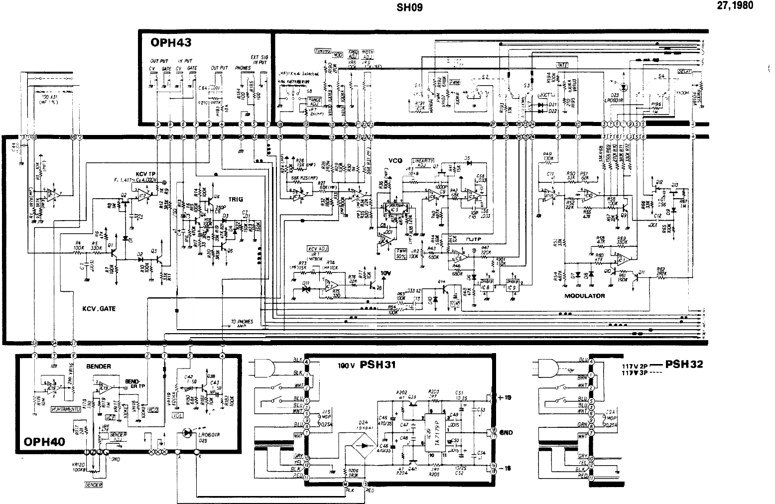
PCB ASSEMBLY
149H046C
OPH46C
(pcb
052Hl41-2-C)
149H047C
OPH47C
(pcb
052Hl41-1-C)
149H040B OPH40B
(pcb
052H140B)
149H043B OPH43B
(pcb
052H15OB)
146H031A PSH31A
(pcb
052H139A)
100 v
l46H032A PSH32A
(pcb
052H139A)
117 V
146H033A PSH33A
(pcb
052H139A)
220/24OV
SEMICONDUCTOR
IC
020-097
FLpC4558C
020-100 TL082CP
020-039 DN819
020-032
p726HC
020-160 BA662A
020-189
TA7140P
020-102 LF1374lH
020-103 TA7179P
TRANSISTOR
017-097 2SA826-Q
017-118 2SC1740-Q
017-046
2SC828
NZ
017-022 2SB434-0
017-010 2SD234-0
017-014 2SK30A-Y
017-016 2SK30A-GR
DIODE
018-014 132473
018-078 132353
018-089 lB4B41
019-009 LR0601R
(noise generator)
FET
FET
zener
rectifier stack
LED
SH09
FUSE. FUSE HOLDER
008-029
MGP 0.25 A prim.
lCO/ll7
V
008-060 SEMKO
T250
XA
prim.
220/240
V
008-059
SEMKO
T200
mA
sec.
220/240
'1
012-,303
IF758
fuse clip
P
OTENTIOMETER
029-306
LFEgRC16A15
100
KA
slide
029-317 LFEqRC16B15
100
KB
slide
029-308 LFE9RC16A55
500 KA slide
029-319 LFE9RC16B55
500
KB
slide
029-309 LFE9RC16A16
1 MA
slide
029-575
EVALOPClSB15
100
KB
slide
029-577 EVALOPC15A26
2 MA
slide
028-706 VMlORK20A15
100
KA
rotary
030-951
EVHLtiAD25B15
100 KB rotary
030-641 RJ6-202
2 KB trimmer, metal film
030-643 RJ6-103 10 KB trimmer, metal film
030-463 SR19R 4.7 KB trimmer
030-465
SR19R 10 KB trimmer
030-469 SR19R 47
KB
trimmer
030-471
SR19R 100 KB trimmer
WAFER TERMINAL. WIRING ASSEMBLY
Terminal
010-183 5045-038 010-186 5045-05A
010-218 EMCS 0750 010-220 EMCS 0950
Wiring assy
053HO34
A
0538035
B010-226
EMCB
0730851
7p-30
cm
053HO36
C
010-228 EMCB 0920851
9P-20
cm
OTHERS
064H055A
Holder
H55A(pot.VOL.bracket)
064HC73A
Holder
H73A(chassis-top
panel)
064-264
PC9
holder
DLCBY-JN
053HO30
Flat cable
H33
053HO31
Flat cable
H31
O53HO32
Flat cable
H32
048HOOl
Heat sink
Hl

MAR.
27,198O
I
I
I
I
-
-
-
PSH32
IOOV
PSH31
4

MAR.
27,198O
SH09
.
*.
-1
OPH46
;REsonuccq
ADSR
.q
ah82
iYF--
zeta1
oxide film.
1%)
PSH33
;;;i;;;::,
j
-’
NOTES --
Replacing Selected IC, Transistor --
220v
-
240V
----
3
z;:rofnr?d
iP--
picafarad)
Dime
:
152Ai?
Jr
LSlSSS
(IIll--
lS2453)
When
replacing
Q12,
ICll-14,
take tae following
procedures.
I.zl,
i-4,
1..
ICI
--Ii
:
uPCiiSdC
Q12
ICll-14
1": .T1:-'l>;
_
. .
_"
::o.
-
;
py::;:c
Choose 2SK3GA-Y
for
micimm
';'he
VCE,beicg
a set of four
3A662's
ZK"Z
leakage.
of
nuch
the
same
characteristics in
test
-"_
:
;xc-J;i
Check new Q12 for leakage
with
cransccnductance,
re+iires
a
-_.
.-..--.: I',:?;
:,
j
:‘;c;iry
=sllcYrd
VCO being
LE'C
zoa-;lateu
aider
of
BA662
A/3
ir.
stccK
as
a
replace-
the foilowing
settings:
rcent.
Solder
SA6bi
fentat
17ely
after
3.e-
-_.
-"-7
:
-I'.
_.%
_-
.i
MOD--"lo"
u;E--"G"
fective
one is
renoved.
2::
:y~~j;i";T
:
.s,e:r-4
;z-
Is;;??-4
FICDULATGR--RANDO:.:
::r:
L.,A7.j;z-Lx
:
m.sl-l,-Q
;r
..x?G.-J
Press
C2
key
:<ith
CSTOFF
set
at
“tit’
w
.-.
-T
:
.Si::d-;d
T‘2”
asd
BESOBAX-3
at
"1,"'
--
I20
inplt
;--.
1---z
I .;
VCO should not drift before
:
-aa
..1-.
Ti‘T
tne next d/H pulse
;enerates.
sisal.
Acproxinate
5GHz
;sci;lation
at
.ICF
stage proves
:he
IC adeqate.
5

MAR.
27,198O
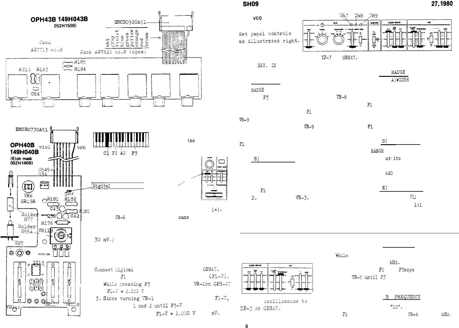
OPH43B
149H043B
(Etch mask
052H15OB)
View from the foil side
ADJUSTMENT
Fl
Ci
F;
h2
F3
KEY DESIGNATION
only for
tne
adjustments
BENDER
Panel setting and connection:,,-
/iDigital voltmeter!
at 10
_,'
1. Flip and hold Bender lever
at
the left(-). Note the reading.
L~C
2. Turn and hold the lever at the right
(+).
Adjast
VR-6
on OPH40 for the
same
reading, but
opposite polarity, as in step 1.
(Difference between two readings must be within
30
mv.j
J
KCV
Ctinniect
;igital
voltmeter to TP-2 on
OFHK.
1. Press
Fl
key and note the reading,
(Fl-7).
2.
While
,-ressi:lg
F3
key, adjust
'/R-l
0::
CFii-LiT;
for
FL--r
f
2.233
7
reading.
3.
Sir.ce
turning
X3-1
has an effect on
FL--T,
repeat steps
1
and
2
.until
F3--T
becomes
Fl-V
+
2.330
v
+ 1
m!v.
Connect an oscilloscope to
T?-3
on
OPR47.
Apply reference F note to the
scope X0.
I?1
for Lissajous figures.
A) 'WIDTH
Set
RANGE
at 8'.
1. With
F3
key held down, adjust
VR-8
for motionless figures.
2. While pressing down
Fl
key, adjust
VR-9
for motionless figures.
F3 pitch will vary as
VR-9
turned.
3. Repeat steps 1 and 2 until F3 and
Fl
figures stand still.
B)
LINEARITY
--
details follow A) WIDTH --
Set RANGE at 2'.
Adjust the pots.
1.
Fl
key --- VR-8.
2.
F3 key ---
'JR-3.
3. Repeat steps 1 and 2.
Adjustments A and B must be repeated
C)
ElllrIGE
--refer to
A)WIDTH
for details--
Set RANGE at 32'.
Obtain stable Lissajous figures.
1.
Fl
key --- VR-8.
Place RANGE at 2'.
Obtain motionless figures.
1.
Fl
key --- W-7.
Dl
FREQUENCY
Set
RANGE
at 8'.
Set TUNE
at,its
midpoint.
1. While playing A2 key,adjust
I
VR-8 for
440
Hz.
E)
DUTY CYCLE
because of cross interference between them.
Set WAVEFORM at
m
.
1. Adjust VR-2 for
1:l
mark/space.
VCF
A) WIDTH
Set Controls as shown below. 1.
While
pressing A2 key, set CUTOFF FREQ.
for approximate 1
'kHz.
2. While playing
F2
and
F3
keys
alternateiy,
turn
VR-5
until
F3
figure doubles F2 in
cycle.
5
FREQTUEMCY
Connect
2sci;lsscope
to
TP-3
3n
G1HJ7.
Slide up CUTOFF knob to
"10".
1. With
Fl
key held down, set
'JR-4
for 20
kHz.
6

MAR.
27,198O
SH09
OPH46
OPH47
0
2SK30A
2SC1740-Q
or
?
0
2X945-4
0
2SA826-Q
or
2SA733-Q
CD
152473 or
lS1555
Metal
r‘_?
CRBfFxoxide film
.)
OPH46--
Rl86-189
:
tailored for nearly
equal resistance
0
0
3
0
21
:.:
PSH3lA
lOOV,
PSH32A
WV,
PSH33A
220/24OV
ECEA
148H-a/32/33-A
(Etch mask
052H139A)
*
Mylar
5OV
K
5
6
Ceramic
5OV
K
Check point
59BS8806
SR19R
7
8
Metal film
RJ6
OPH46C(
149H046C
)
view
tram
WI
ride
2c
19
18
17
OPH47C(
149H047C
)
(PCB
052H141(1)G)
Icll-14:
BA662
selected.